|
|
|
| ¹°°ÇÁ¤º¸ Çٽɺ¸±â |
Ȩ > °æ¸ÅÁ¾ÇÕ°Ë»ö > ¹°°ÇÁ¤º¸ Çٽɺ¸±â |
|
|
| 2023Ÿ°æ72256 °æ¸Å»ç°ÇÀÇ ¿ÀÇǽºÅÚ ¹°°Ç¿¡ °üÇÑ »ó¼¼ Á¤º¸ÀÔ´Ï´Ù. |
|
| º» °æ¸Å¹°°ÇÀº ³«ÂûµÇ¾î ÀÌ¹Ì ¸ðµç °æ¸ÅÀýÂ÷°¡ ³¡³µ½À´Ï´Ù. ÀÌ ¹°°ÇÀº »ó´ãÇØ µå¸®Áö ¾Ê½À´Ï´Ù. |
|
|
| ¼ÒÀçÁö |
°æ±âµµ ÆÄÁֽà ¹®»êÀ¾ ¹®»ê·Î26¹ø±æ 20, 3Ãþ302È£ (½ºÅ¸ÆÄÅ©Èú)
±¸)°æ±âµµ ÆÄÁֽà ¹®»êÀ¾ ¹®»ê¸® 148-14
|
|
| »ç°Ç¹øÈ£ |
2023 Ÿ°æ 72256 |
¹°°Ç¹øÈ£ |
1
|
¹°°Ç¿ëµµ |
¿ÀÇǽºÅÚ |
| °¨Á¤Æò°¡¾× |
263,000,000¿ø |
°æ¸Å´ë»ó |
ÅäÁö ¹× °Ç¹°Àϰý¸Å°¢ |
ÁøÇà»óÅ |
³«Âû |
ÃÖÀúÀÔÂû°¡ ³«Âû°¡ |
(2%) 5,200,000¿ø
(64.64%) 170,000,000¿ø |
°Ç¹°¸éÀû |
72.48§³(21.92Æò) |
ÀÔÂû±âÀÏ |
2025.09.16(È) 10:00
|
| ÀÔÂûº¸Áõ±Ý |
(10%) 520,000¿ø |
ÅäÁö¸éÀû |
30.14§³(9.12Æò)
|
À¯ÂûȽ¼ö |
11ȸ |
| ÀÔÂû¹ý¿ø |
ÀÇÁ¤ºÎÁö¹æ¹ý¿ø °í¾çÁö¿ø |
°æ¸Å¹æ¹ý |
ºÎµ¿»ê°Á¦°æ¸Å |
¹°°ÇÁ¶È¸¼ö |
¿À´Ã: 1ȸ [´©Àû: 1094ȸ]
|
| ¸»¼Ò±âÁØ | ÃÖ¼±¼øÀ§ ¼³Á¤ : 2022.2.4. ¾Ð·ù ¼³Á¤
|
|
|
|
|
|
|
|
|
|
|
°æ¸Å´ë»ó ¸ñ·Ï
|
|
| ±¸ºÐ |
¸ñ·Ï |
ÁÖ¼Ò |
±¸Á¶/¿ëµµ/´ëÁö±Ç |
ºñ°í |
´ëÁö±Ç
|
1 |
¹®»ê·Î26¹ø±æ 20 |
683.0 ºÐÀÇ 30.135 |
30.135§³ (9.12Æò)
|
°Ç¹°
|
1 |
¹®»ê·Î26¹ø±æ 20 |
3Ãþ302È£ (½ºÅ¸ÆÄÅ©Èú) ö±ÙÄÜÅ©¸®Æ®±¸Á¶ |
72.476§³ (21.92Æò)
|
|
|
|
2024-07-30
À¯Âû
|
(100%)
263,000,000¿ø
|
|
|
|
2024-09-03
À¯Âû
|
(70%)
184,100,000¿ø
|
|
|
|
2024-10-15
À¯Âû
|
(49%)
128,870,000¿ø
|
|
|
|
2024-11-19
À¯Âû
|
(34%)
90,209,000¿ø
|
|
|
|
2024-12-24
À¯Âû
|
(24%)
63,146,000¿ø
|
|
|
|
2025-02-18
À¯Âû
|
(17%)
44,202,000¿ø
|
|
|
|
2025-03-25
À¯Âû
|
(12%)
30,941,000¿ø
|
|
|
|
2025-04-29
À¯Âû
|
(8%)
21,659,000¿ø
|
|
|
|
2025-06-05
À¯Âû
|
(6%)
15,161,000¿ø
|
|
|
|
2025-07-08
À¯Âû
|
(4%)
10,613,000¿ø
|
|
|
|
2025-08-12
À¯Âû
|
(3%)
7,429,000¿ø
|
|
|
|
2025-09-16
³«Âû
|
(2%)
5,200,000¿ø
|
|
|
¦±¦¬> ³«Âû°¡
 |
|
|
|
|
°¨Á¤Æò°¡¼ ¿ä¾à |
|
[À§Ä¡/ÁÖÀ§È¯°æ] °æ±âµµ ÆÄÁֽà ¹®»êÀ¾ ¹®»ê¸® ¼ÒÀç ¹®»êÁÖ°ø¾ÆÆÄÆ® ºÏ¼Ãø Àαٿ¡ À§Ä¡Çϰí, ÁÖÀ§´Â ¾ÆÆÄÆ®, »ó°¡ ¹× ¿ÀÇǽºÅÚÀÌ È¥ÀçÇÏ´Â »ó¾÷Áö¿ªÀÓ.
[±³Åë»óȲ] ±Ù°Å¸®¿¡ ¹®»ê¿ª ¹× ÅëÀϷΰ¡ ÀÖ°í, º»°Ç±îÁö Â÷·®Á¢±ÙÀÌ °¡´ÉÇÏ¿© Á¦¹Ý ±³Åë¿©°ÇÀº º¸ÅëÀÓ.
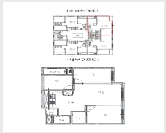
[°Ç¹°±¸Á¶] ö±ÙÄÜÅ©¸®Æ®±¸Á¶ Æò½½·¡ºêÁöºØ Áö»ó 8Ãþ °Ç¹°(2017. 12. 6. »ç¿ë½ÂÀÎ) Áß 3Ãþ 302È£ÀÓ. * º»°Ç °Ç¹°Àº 8Ãþ °Ç¹°·Î, 1ÃþÀº °è´Ü½Ç ¹× ÇÊ·ÎÆ¼ °ø°£, 2-3ÃþÀº ¿ÀÇǽºÅÚ, 4-8ÃþÀº ¾ÆÆÄÆ®·Î ÀÌ¿ë ÁßÀÓ.
[ÀÌ¿ë»óÅÂ] ¿ÀÇǽºÅÚ(¹æ3, °Å½Ç, ÁÖ¹æ, ¿å½Ç2 µî)·Î ÀÌ¿ë ÁßÀÓ.
[¼³ºñ³»¿ª] ½Â°±â(1´ë) ¹× À§»ý¼³ºñ µî ¼³Ä¡µÇ¾î ÀÖÀ½.
[ÅäÁöÇü»ó/ÀÌ¿ë»óÅÂ] Á¤¹æÇü¿¡ °¡±î¿î ºÎÁ¤ÇüÀÇ ÅäÁöÀ̰í, °øµ¿ÁÖÅà ¹× ¾÷¹«½Ã¼³ °Ç¹°ÀÇ ºÎÁö·Î ÀÌ¿ë ÁßÀÓ.
[µµ·Î»óÅÂ] ³²Ãø ¹× µ¿ÃøÀ¸·Î ¼Ò·Î¿¡ Á¢ÇÔ.
[ÅäÁöÀÌ¿ë°èȹ] ÀϹݻó¾÷Áö¿ª, °¡Ãà»çÀ°Á¦Çѱ¸¿ª, ÇÏõ ±âŸÀÓ.
[°øºÎ¿ÍÀÇ Â÷ÀÌ] ¾øÀ½.
[Âü°í»çÇ×] ÀÓ´ë°ü°è ¹Ì»óÀÓ.
|
|
|
°ÇÃ๰ÇöȲ |
|
|
|
| ¼ÒÀçÁö |
°æ±âµµ ÆÄÁֽà ¹®»êÀ¾ ¹®»ê¸® 148-14¹øÁö |
| ´ëÁö¸éÀû |
683§³(206.97Æò) |
¿¬¸éÀû |
2134.6§³(646.85Æò) |
ÁÖ¿ëµµ |
°øµ¿ÁÖÅà |
| °ÇÃà¸éÀû |
395.52§³(119.85Æò) |
¿ëÀû·ü»êÁ¤¿¬¸éÀû |
234.6§³(71.09Æò) |
Âø°øÀÏÀÚ |
2016.12.21 |
| °ÇÆóÀ² |
57.91% |
¿ëÀû·ü |
34.35% |
»ç¿ë½ÂÀÎÀÏÀÚ |
2017.12.06 |
| Áö»óÃþ¼ö |
8Ãþ |
ÁöÇÏÃþ¼ö |
|
±¸Á¶ |
ö±ÙÄÜÅ©¸®Æ®±¸Á¶ |
°ÇÃ๰Ãþº°ÇöȲ [º¸±â]| Ãþº° | ±¸Á¶ | ¿ëµµ | ¸éÀû | | 1Ãþ | ö±ÙÄÜÅ©¸®Æ®±¸Á¶ | °è´Ü½Ç | 26.31§³ (7.97Æò) | | 2Ãþ | ö±ÙÄÜÅ©¸®Æ®±¸Á¶ | ¾÷¹«½Ã¼³-¿ÀÇǽºÅÚ(4È£) | 366.63§³ (111.1Æò) | | 3Ãþ | ö±ÙÄÜÅ©¸®Æ®±¸Á¶ | ¾÷¹«½Ã¼³-¿ÀÇǽºÅÚ(4È£) | 366.63§³ (111.1Æò) | | 4Ãþ | ö±ÙÄÜÅ©¸®Æ®±¸Á¶ | °øµ¿ÁÖÅÃ-¾ÆÆÄÆ®(4¼¼´ë) | 324.73§³ (98.4Æò) | | 5Ãþ | ö±ÙÄÜÅ©¸®Æ®±¸Á¶ | °øµ¿ÁÖÅÃ-¾ÆÆÄÆ®(4¼¼´ë) | 324.73§³ (98.4Æò) | | 6Ãþ | ö±ÙÄÜÅ©¸®Æ®±¸Á¶ | °øµ¿ÁÖÅÃ-¾ÆÆÄÆ®(4¼¼´ë) | 324.73§³ (98.4Æò) | | 7Ãþ | ö±ÙÄÜÅ©¸®Æ®±¸Á¶ | °øµ¿ÁÖÅÃ-¾ÆÆÄÆ®(2¼¼´ë) | 200.42§³ (60.73Æò) | | 8Ãþ | ö±ÙÄÜÅ©¸®Æ®±¸Á¶ | °øµ¿ÁÖÅÃ-¾ÆÆÄÆ®(2¼¼´ë) | 200.42§³ (60.73Æò) | | ¿Áž1Ãþ | ö±ÙÄÜÅ©¸®Æ®±¸Á¶ | °è´Ü½Ç | 39.28§³ (11.9Æò) | | ¿Áž2Ãþ | ö±ÙÄÜÅ©¸®Æ®±¸Á¶ | °è´Ü½Ç | 10.08§³ (3.05Æò) |
|
|
|
|
|
 |
ÀÓÂ÷³»¿ª |
[¹è´ç¿ä±¸Á¾±âÀÏ : 2023/11/10] |
|
|
| ÀÓÂ÷ÀÎ |
Á¡À¯°ü°è |
ÀüÀÔÀÏÀÚ |
È®Á¤ÀÏÀÚ |
¹è´ç¿ä±¸ÀÏ |
º¸Áõ±Ý/Â÷ÀÓ |
´ëÇ׿ä°Ç |
ºñ°í |
| ÀÓOO |
302È£ÀüºÎ |
2018.02.28 |
2018.02.09. |
2023.10.20. |
175,000,000
|
O |
|
|
|
|
 |
¹ý¿ø ¹°°ÇÀÚ·á ¿ä¾à |
|
|
|
|
| ¼Ò¸êµÇÁö ¾Ê´Â µî±âºÎ±Ç¸® |
|
| ¼³Á¤µÈ °ÍÀ¸·Î º¸´Â Áö»ó±Ç |
|
| ¹ý¿øÀÚ·á Æ¯ÀÌ»çÇ× |
[ÁÖ¿ä ¹®°Ç Á¢¼ö ³»¿ª]
|
[ºÎµ¿»ê ÇöȲÁ¶»ç¼ ºñ°í¶õ]
ö±ÙÄÜÅ©¸®Æ®±¸Á¶ Æò½½¶óºêÁöºØ 8Ãþ °øµ¿ÁÖÅÃ,¾÷¹«½Ã¼³
|
|
| ¿©ÀÇÁÖ°æ¸Å Á¶¾ð ÇѸ¶µð |
ÀÌ ºÎµ¿»êÀÇ ÀÔÂû¹ý¿øÀº ÀÇÁ¤ºÎÁö¹æ¹ý¿ø °í¾çÁö¿øÀÔ´Ï´Ù.
ÀÔÂû½Ã°£Àº ~NN02ÀÔ´Ï´Ù. ÀÌ ¹ý¿ø¿¡´Â °í¾çÀÌ ÀÔÁ¡Çϰí ÀÖ½À´Ï´Ù.
|
|
|
| Åë°è±â°£ |
³«Âû¹°°Ç¼ö |
Æò±Õ°¨Á¤°¡ |
Æò±Õ³«Âû°¡ |
³«Âû°¡À² |
À¯ÂûȽ¼ö |
| 3°³¿ù |
10°Ç |
154,500,000¿ø |
75,964,079¿ø |
49% |
2.3ȸ |
| 6°³¿ù |
15°Ç |
146,933,333¿ø |
75,728,786¿ø |
52% |
2.3ȸ |
| 12°³¿ù |
20°Ç |
151,500,000¿ø |
75,836,094¿ø |
51% |
2.4ȸ |
|
|
|
|
|
|
|
 |
ÀαÙÁö¿ª ÃÖ±Ù ³«Âû»ç·Ê
|
|
|
 |
|
|
[¾È³»] Ȥ½Ã ÀÌ¿ëÀÌ ºÒÆíÇϽðųª »èÁ¦ÇÒ ³»¿ëÀÌ ÀÖ´Ù¸é ÃÖ´ëÇÑ ³ë·ÂÇØ¼ °³¼±ÇØ ³ª°¡µµ·Ï ÇϰڽÀ´Ï´Ù.
 |
|
ÀÌ »çÀÌÆ®¿¡¼ Á¦°øµÇ´Â ºÎµ¿»ê°æ¸Å ÀÚ·á´Â ¹ý¿ø °æ¸Å°è¿¡¼ ó¸®Çϰí ÀÖ´Â ½ÇÁ¦ ¹°°ÇÀÇ Á¤º¸¿Í ÀÏÄ¡ÇÏÁö ¾ÊÀ» ¼öµµ ÀÖ½À´Ï´Ù.
´ç»ç´Â º» ÀÚ·á¿¡ °üÇÏ¿© Á¤½Ä ÄÁ¼³ÆÃ ÀÇ·Ú°¡ ¾Æ´Ñ ÀÌ»ó ¾î¶°ÇÑ º¸Áõµµ ÇÏÁö ¾ÊÀ¸¸ç ¹ýÀû Ã¥ÀÓÀ» ÁöÁö ¾Ê½À´Ï´Ù.
ÀÔÂûÇϱâ Àü¿¡ ²Ä²ÄÈ÷ ¹ý¿ø¿¡ ºñÄ¡µÈ ¸Å°¢¹°°Ç¸í¼¼¼ ¹× ±âŸ °øºÎ¸¦ ÀçÈ®ÀÎÇϽðí ÀÔÂû¿¡ Âü°¡ÇÏ½Ã±æ ¹Ù¶ø´Ï´Ù. |
|
|
|
|
|