|
| º» °æ¸Å¹°°ÇÀº ³«ÂûµÇ¾î ÀÌ¹Ì ¸ðµç °æ¸ÅÀýÂ÷°¡ ³¡³µ½À´Ï´Ù. ÀÌ ¹°°ÇÀº »ó´ãÇØ µå¸®Áö ¾Ê½À´Ï´Ù. |
|
|
| ¼ÒÀçÁö |
°¿øµµ ¿øÁֽà ÅÂÀå°ø´Ü±æ 10, 301µ¿ 11Ãþ1121È£ (ÅÂÀ嵿,¹é¿î3Â÷¾ÆÆÄÆ®)
±¸)°¿øµµ ¿øÁֽà ÅÂÀ嵿 1836
|
|
| »ç°Ç¹øÈ£ |
2021 Ÿ°æ 3252 |
¹°°Ç¹øÈ£ |
1
|
¹°°Ç¿ëµµ |
¾ÆÆÄÆ® |
| °¨Á¤Æò°¡¾× |
60,000,000¿ø |
°æ¸Å´ë»ó |
ÅäÁö ¹× °Ç¹°Àϰý¸Å°¢ |
ÁøÇà»óÅ |
³«Âû |
ÃÖÀúÀÔÂû°¡ ³«Âû°¡ |
(70%) 42,000,000¿ø
(0.00%) 0¿ø |
°Ç¹°¸éÀû |
40.83§³(12.35Æò) |
ÀÔÂû±âÀÏ |
2022.09.26(¿ù) 10:00
|
| ÀÔÂûº¸Áõ±Ý |
(10%) 4,200,000¿ø |
ÅäÁö¸éÀû |
19.03§³(5.76Æò)
|
À¯ÂûȽ¼ö |
1ȸ |
| ÀÔÂû¹ý¿ø |
ÃáõÁö¹æ¹ý¿ø ¿øÁÖÁö¿ø |
°æ¸Å¹æ¹ý |
|
¹°°ÇÁ¶È¸¼ö |
¿À´Ã: 3ȸ [´©Àû: 1064ȸ]
|
| ¸»¼Ò±âÁØ | ÃÖ¼±¼øÀ§ ¼³Á¤ : 2007.11.30.±ÙÀú´ç±Ç
|
|
|
|
|
|
|
|
|
|
|
°æ¸Å´ë»ó ¸ñ·Ï
|
|
| ±¸ºÐ |
¸ñ·Ï |
ÁÖ¼Ò |
±¸Á¶/¿ëµµ/´ëÁö±Ç |
ºñ°í |
´ëÁö±Ç
|
1 |
ÅÂÀå°ø´Ü±æ 10 |
12774.0 ºÐÀÇ 19.0286 |
19.028§³ (5.76Æò)
|
°Ç¹°
|
1 |
ÅÂÀå°ø´Ü±æ 10 |
11Ãþ1121È£ (ÅÂÀ嵿,¹é¿î3Â÷¾ÆÆÄÆ®) ö±ÙÄÜÅ©¸®Æ®±¸Á¶ |
40.83§³ (12.35Æò)
|
|
|
|
2022-08-08
À¯Âû
|
(100%)
60,000,000¿ø
|
|
|
|
2022-09-26
³«Âû
|
(70%)
42,000,000¿ø
|
|
|
¦±¦¬> ³«Âû°¡
 |
|
|
|
|
°¨Á¤Æò°¡¼ ¿ä¾à |
|
[À§Ä¡/ÁÖÀ§È¯°æ] º»°ÇÀº °¿øµµ ¿øÁֽà ÅÂÀ嵿 ¼ÒÀç "¿øÁÖIC" ºÏµ¿Ãø Àαٿ¡ À§Ä¡Çϸç, ºÎ±ÙÀº ³ó°ø´ÜÁö, ¾ÆÆÄÆ®´ÜÁö, ±Ù¸°»ýȰ½Ã¼³µ¿ µîÀÌ È¥ÀçÇÏ´Â Áö¿ªÀ¸·Î Á¦¹Ý ÁÖÀ§È¯°æÀº º¸ÅëÀÓ.
[±³Åë»óȲ] º»°Ç±îÁö Â÷·®Á¢±Ù °¡´ÉÇϸç, Àα٠³ë¼±¹ö½ºÀÇ ¿îÇà»óȲ ¹× µµ·Î»óȲÀ» °í·Á½Ã Á¦¹Ý ±³Åë»óȲÀº º¸ÅëÀÓ.
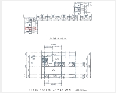
[°Ç¹°±¸Á¶] ö±ÙÄÜÅ©¸®Æ®±¸Á¶ ½½·¡ºêÁöºØ 12Ãþ °Ç¹°³» 11Ãþ 1121È£·Î¼¿Üº®: ¸ôÅ»À§ ÆäÀÎÆÃ µî ¸¶°¨³»º®: º®Áöµµ¹è ¹× ³»ÀåŸÀÏ ºÙÀÓ µîâȣ: PVC¼¦½Ã âȣ µîÀÓ.
[ÀÌ¿ë»óÅÂ] ¾ÆÆÄÆ®·Î ÀÌ¿ëÁßÀÓ.
[¼³ºñ³»¿ª] ±Þ.¹è¼ö¼³ºñ, À§»ý¼³ºñ, ³¹æ¼³ºñ, ½Â°±â¼³ºñ, ¼Ò¹æ¼³ºñ µî µÇ¾îÀÖÀ½.
[ÅäÁöÇü»ó/ÀÌ¿ë»óÅÂ] ÀÚüÁö¹Ý ´ëü·Î ÆòźÇÑ ºÎÁ¤ÇüÀÇ ÅäÁö·Î¼ ¾ÆÆÄÆ®°ÇºÎÁö·Î ÀÌ¿ëÁßÀÓ.
[µµ·Î»óÅÂ] º»°Ç ³²ÃøÀ¸·Î ¿Õº¹4Â÷¼± µµ·Î¿¡ Á¢ÇÔ.
[ÅäÁöÀÌ¿ë°èȹ] ÀÚ¿¬³ìÁöÁö¿ª, ´ë·Î3·ù(Æø 25M-30M)(Á¢ÇÕ), °¡Ãà»çÀ°Á¦Çѱ¸¿ª(ÀüºÎÁ¦ÇÑ, ¸ðµçÃàÁ¾Á¦ÇÑ)£¼°¡ÃàºÐ´¢ÀÇ °ü¸® ¹× À̿뿡 °üÇÑ ¹ý·ü£¾, ºñÇà¾ÈÀüÁ¦6±¸¿ª(Àü¼ú)£¼±º»ç±âÁö ¹× ±º»ç½Ã¼³ º¸È£¹ý£¾ÀÓ.
[°øºÎ¿ÍÀÇ Â÷ÀÌ] ¾øÀ½.
[Âü°í»çÇ×] ÀÓ´ë°ü°è´Â ¹Ì»óÀÓ.
|
|
|
°ÇÃ๰ÇöȲ |
|
|
|
| ¼ÒÀçÁö |
°¿øµµ ¿øÁֽà ÅÂÀ嵿 1836¹øÁö |
| ´ëÁö¸éÀû |
|
¿¬¸éÀû |
1417.12§³(429.43Æò) |
ÁÖ¿ëµµ |
Á¦2Á¾±Ù¸°»ýȰ½Ã¼³ |
| °ÇÃà¸éÀû |
290.12§³(87.92Æò) |
¿ëÀû·ü»êÁ¤¿¬¸éÀû |
1102.6§³(334.12Æò) |
Âø°øÀÏÀÚ |
1996.06.17 |
| °ÇÆóÀ² |
|
¿ëÀû·ü |
|
»ç¿ë½ÂÀÎÀÏÀÚ |
2000.09.08 |
| Áö»óÃþ¼ö |
4Ãþ |
ÁöÇÏÃþ¼ö |
1Ãþ |
±¸Á¶ |
ö±ÙÄÜÅ©¸®Æ®±¸Á¶ |
°ÇÃ๰Ãþº°ÇöȲ [º¸±â]| Ãþº° | ±¸Á¶ | ¿ëµµ | ¸éÀû | | 1Ãþ | ö±ÙÄÜÅ©¸®Æ®Á¶º®½Ä±¸Á¶ | ¾ÆÆÄÆ® | 1324.65§³ (401.41Æò) | | 2Ãþ | ö±ÙÄÜÅ©¸®Æ®Á¶º®½Ä±¸Á¶ | ¾ÆÆÄÆ® | 1314.81§³ (398.43Æò) | | 3Ãþ | ö±ÙÄÜÅ©¸®Æ®Á¶º®½Ä±¸Á¶ | ¾ÆÆÄÆ® | 1314.81§³ (398.43Æò) | | 4Ãþ | ö±ÙÄÜÅ©¸®Æ®Á¶º®½Ä±¸Á¶ | ¾ÆÆÄÆ® | 1314.81§³ (398.43Æò) | | 5Ãþ | ö±ÙÄÜÅ©¸®Æ®Á¶º®½Ä±¸Á¶ | ¾ÆÆÄÆ® | 1314.81§³ (398.43Æò) | | 6Ãþ | ö±ÙÄÜÅ©¸®Æ®Á¶º®½Ä±¸Á¶ | ¾ÆÆÄÆ® | 1314.81§³ (398.43Æò) | | 7Ãþ | ö±ÙÄÜÅ©¸®Æ®Á¶º®½Ä±¸Á¶ | ¾ÆÆÄÆ® | 1260.12§³ (381.85Æò) | | 8Ãþ | ö±ÙÄÜÅ©¸®Æ®Á¶º®½Ä±¸Á¶ | ¾ÆÆÄÆ® | 1260.12§³ (381.85Æò) | | 9Ãþ | ö±ÙÄÜÅ©¸®Æ®Á¶º®½Ä±¸Á¶ | ¾ÆÆÄÆ® | 1260.12§³ (381.85Æò) | | 10Ãþ | ö±ÙÄÜÅ©¸®Æ®Á¶º®½Ä±¸Á¶ | ¾ÆÆÄÆ® | 1161.9§³ (352.09Æò) | | 11Ãþ | ö±ÙÄÜÅ©¸®Æ®Á¶º®½Ä±¸Á¶ | ¾ÆÆÄÆ® | 1161.9§³ (352.09Æò) | | 12Ãþ | ö±ÙÄÜÅ©¸®Æ®Á¶º®½Ä±¸Á¶ | ¾ÆÆÄÆ® | 1111.17§³ (336.72Æò) |
|
|
|
|
¾ÆÆÄÆ® ´ÜÁöÁ¤º¸ ( ´ÜÁö¸í : ¹é¿î3Â÷¾ÆÆÄÆ® ) |
|
|
|
| ¹ýÁ¤ÁÖ¼Ò |
°¿øµµ ¿øÁֽà ÅÂÀ嵿 1836 ¹é¿î3Â÷¾ÆÆÄÆ® |
| ´ÜÁöºÐ·ù |
¾ÆÆÄÆ® |
ºÐ¾çÇüÅ |
ºÐ¾ç |
³¹æ¹æ½Ä |
°³º°³¹æ |
| ¿¬¸éÀû |
45145.25§³ (13680.38Æò) |
µ¿¼ö |
4 |
¼¼´ë¼ö |
559 |
| ½Ã°ø»ç |
(ÁÖ)¹é¿îÁÖÅà |
½ÃÇà»ç |
(ÁÖ)¹é¿îÁÖÅà |
°ü¸®»ç¹«¼Ò¿¬¶ôó |
033-747-5580 |
| °ü¸®ºñºÎ°ú¸éÀû |
26368.71§³ (7990.52Æò) |
°ü¸®¹æ½Ä |
À§Å¹°ü¸® |
º¹µµÀ¯Çü |
º¹µµ½Ä |
| »ç¿ë½ÂÀÎÀÏ |
2000³â09¿ù08ÀÏ |
È£¼ö |
559 |
¼¼´ëÇöȲ60§³ÀÌÇÏ |
559 |
| ¼¼´ëÇöȲ85§³ÀÌÇÏ |
0 |
¼¼´ëÇöȲ135§³ÀÌÇÏ |
0 |
¼¼´ëÇöȲ135§³Ãʰú |
0 |
|
|
|
 |
ÀÓÂ÷³»¿ª |
[¹è´ç¿ä±¸Á¾±âÀÏ : 2022/02/14] |
|
|
| ÀÓÂ÷ÀÎ |
Á¡À¯°ü°è |
ÀüÀÔÀÏÀÚ |
È®Á¤ÀÏÀÚ |
¹è´ç¿ä±¸ÀÏ |
º¸Áõ±Ý/Â÷ÀÓ |
´ëÇ׿ä°Ç |
ºñ°í |
| ¼OO |
°Ç¹°ÀÇ ÀüºÎ |
2018.10.26. |
2018.10.24 |
|
25,000,000
|
X |
|
| ÃÖOO |
¹Ì»ó |
2016.07.08 |
¹Ì»ó |
|
¹Ì»ó [¿ù]¹Ì»ó |
X |
|
| ¸Å°¢¹°°Ç¸í¼¼ ºñ°í |
|
|
|
|
 |
Áö¿ªºÐ¼® |
|
|
|
|
| ÁöÇÏö |
|
Çб³ |
|
| °ü°ø¼ |
|
| ¹ý¿ø |
ÃáõÁö¹æ¹ý¿ø ¿øÁÖÁö¿ø (264-78)°¿øµµ ¿øÁֽà ½Ãû·Î149 (¹«½Çµ¿) ´ëÇ¥ : 033)738-1000, ¾ß°£ : 033)738-1199 ¿øÁÖ½Ã, Ⱦ¼º±º |
| µî±â¼Ò |
ÃáõÁö¹æ¹ý¿ø ¿øÁÖÁö¿ø µî±â°ú (´ëÇ¥:1544-0773, ÆÑ½º:(033)743-5611, °¿øµµ ¿øÁֽà ½Ãû·Î 149 (¹«½Çµ¿ 1800)) |
| ¼¼¹«¼ |
¼¼¹«¼ (´ëÇ¥:, ÆÑ½º:, ) |
|
|
|
 |
¹ý¿ø ¹°°ÇÀÚ·á ¿ä¾à |
|
|
|
|
| ¼Ò¸êµÇÁö ¾Ê´Â µî±âºÎ±Ç¸® |
ÇØ´ç»çÇ× ¾øÀ½ |
| ¼³Á¤µÈ °ÍÀ¸·Î º¸´Â Áö»ó±Ç |
ÇØ´ç»çÇ× ¾øÀ½ |
| ¹ý¿øÀÚ·á Æ¯ÀÌ»çÇ× |
|
| ¿©ÀÇÁÖ°æ¸Å Á¶¾ð ÇѸ¶µð |
ÀÌ ºÎµ¿»êÀÇ ÀÔÂû¹ý¿øÀº ÃáõÁö¹æ¹ý¿ø ¿øÁÖÁö¿øÀÔ´Ï´Ù.
ÀÔÂû½Ã°£Àº ~11:20ÀÔ´Ï´Ù. ÀÌ ¹ý¿ø¿¡´Â NH³óÇùÀºÇàÀÌ ÀÔÁ¡Çϰí ÀÖ½À´Ï´Ù.
|
ÃëÇÏ ¶Ç´Â Ãë¼ÒµÉ °¡´É¼º ÀÖ½À´Ï´Ù
ÀÌ ¹°°ÇÀÇ °¨Á¤°¡°ÝÀº 60,000,000¿øÀÔ´Ï´Ù. °æ¸Å¸¦ ½ÅûÇÑ Ã¤±ÇÀÚ°¡ ¹è´ç ¹Þ¾Æ¾ß ÇÒ ±Ý¾×Àº 18,374,870¿ø À¸·Î °¨Á¤°¡°Ý ´ëºñ »ó´çÈ÷ ÀûÀº ±Ý¾×ÀÔ´Ï´Ù.
ÀÌ·± °æ¿ì, 乫°¡°¡ º¯Á¦ÇÏ¿© °æ¸Å¸¦ ÃëÇϽÃŰ°Å³ª °æ¸Å½Åûä±ÇÀÚ°¡ ¹è´ç¹ÞÀ» ±Ý¿øÀÌ ¾ø°ÔµÇ¾î À̸¥ ¹Ù "¹«À׿©¿¡ ÀÇÇÑ Ãë¼Ò"°¡ µÉ °¡´É¼ºÀÌ ÀÖ½À´Ï´Ù.
|
|
|
| Åë°è±â°£ |
³«Âû¹°°Ç¼ö |
Æò±Õ°¨Á¤°¡ |
Æò±Õ³«Âû°¡ |
³«Âû°¡À² |
À¯ÂûȽ¼ö |
| 3°³¿ù |
15°Ç |
113,800,000¿ø |
119,952,626¿ø |
95% |
0.8ȸ |
| 6°³¿ù |
34°Ç |
134,705,882¿ø |
134,019,837¿ø |
94% |
0.8ȸ |
| 12°³¿ù |
68°Ç |
146,742,647¿ø |
136,967,632¿ø |
97% |
0.7ȸ |
|
|
|
|
|
|
 |
|