|
| º» °æ¸Å¹°°ÇÀº ³«ÂûµÇ¾î ÀÌ¹Ì ¸ðµç °æ¸ÅÀýÂ÷°¡ ³¡³µ½À´Ï´Ù. ÀÌ ¹°°ÇÀº »ó´ãÇØ µå¸®Áö ¾Ê½À´Ï´Ù. |
|
|
| ¼ÒÀçÁö |
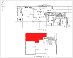
¼¿ïƯº°½Ã µ¿ÀÛ±¸ µî¿ë·Î 80, 5Ãþ503È£ (´ë¹æµ¿,¸í¼ºÇϿ콺5Â÷)
±¸)¼¿ïƯº°½Ã µ¿ÀÛ±¸ ´ë¹æµ¿ 68-35
|
|
| »ç°Ç¹øÈ£ |
2023 Ÿ°æ 111569 |
¹°°Ç¹øÈ£ |
1
|
¹°°Ç¿ëµµ |
´Ù¼¼´ë,ºô¶ó |
| °¨Á¤Æò°¡¾× |
302,000,000¿ø |
°æ¸Å´ë»ó |
ÅäÁö ¹× °Ç¹°Àϰý¸Å°¢ |
ÁøÇà»óÅ |
³«Âû |
ÃÖÀúÀÔÂû°¡ ³«Âû°¡ |
(13%) 40,534,000¿ø
(0.00%) 0¿ø |
°Ç¹°¸éÀû |
24.50§³(7.41Æò) |
ÀÔÂû±âÀÏ |
2025.07.09(¼ö) 10:00
|
| ÀÔÂûº¸Áõ±Ý |
(10%) 4,053,400¿ø |
ÅäÁö¸éÀû |
15.00§³(4.54Æò)
|
À¯ÂûȽ¼ö |
9ȸ |
| ÀÔÂû¹ý¿ø |
¼¿ïÁß¾ÓÁö¹æ¹ý¿ø |
°æ¸Å¹æ¹ý |
|
¹°°ÇÁ¶È¸¼ö |
¿À´Ã: 1ȸ [´©Àû: 57ȸ]
|
| ¸»¼Ò±âÁØ | |
|
|
|
|
|
|
|
|
|
|
°æ¸Å´ë»ó ¸ñ·Ï
|
|
| ±¸ºÐ |
¸ñ·Ï |
ÁÖ¼Ò |
±¸Á¶/¿ëµµ/´ëÁö±Ç |
ºñ°í |
´ëÁö±Ç
|
1 |
µî¿ë·Î 80 |
297.0 ºÐÀÇ 15.0 |
15.0§³ (4.54Æò)
|
°Ç¹°
|
1 |
µî¿ë·Î 80 |
5Ãþ503È£ (´ë¹æµ¿,¸í¼ºÇϿ콺5Â÷) ö±ÙÄÜÅ©¸®Æ®±¸Á¶ |
24.5§³ (7.41Æò)
|
|
|
|
2024-01-17
À¯Âû
|
(100%)
302,000,000¿ø
|
|
|
|
2024-02-14
À¯Âû
|
(80%)
241,600,000¿ø
|
|
|
|
2024-03-20
À¯Âû
|
(64%)
193,280,000¿ø
|
|
|
|
2024-05-01
À¯Âû
|
(51%)
154,624,000¿ø
|
|
|
|
2024-06-05
À¯Âû
|
(41%)
123,699,000¿ø
|
|
|
|
2024-07-03
À¯Âû
|
(33%)
98,959,000¿ø
|
|
|
|
2024-08-21
À¯Âû
|
(26%)
79,167,000¿ø
|
|
|
|
2024-09-25
À¯Âû
|
(21%)
63,334,000¿ø
|
|
|
|
2024-10-30
À¯Âû
|
(17%)
50,667,000¿ø
|
|
|
|
2024-12-04
º¯°æ
|
(13%)
40,534,000¿ø
|
|
|
|
2025-06-04
º¯°æ
|
(13%)
40,534,000¿ø
|
|
|
|
2025-07-09
³«Âû
|
(13%)
40,534,000¿ø
|
|
|
¦±¦¬> ³«Âû°¡
 |
|
|
|
|
°¨Á¤Æò°¡¼ ¿ä¾à |
|
[À§Ä¡/ÁÖÀ§È¯°æ] º»°ÇÀº ¼¿ïƯº°½Ã µ¿ÀÛ±¸ ´ë¹æµ¿ ¼ÒÀç "¿µµîÆ÷°íµîÇб³" ¼Ãø Àαٿ¡ À§Ä¡Çϸç ÁÖÀ§´Â ´Üµ¶ÁÖÅà ¹× ´Ù¼¼´ëÁÖÅÃ, ¾ÆÆÄÆ®´ÜÁö, °¢±Þ Çб³ µîÀÌ ¼ÒÀç´Â ÁÖ°ÅÁö´ë·Î¼ Á¦¹Ý ÁÖÀ§È¯°æÀº º¸ÅëÀÓ.
[±³Åë»óȲ] º»°Ç±îÁö Â÷·® Á¢±ÙÀÌ °¡´ÉÇϸç, Àα٠¹ö½ºÁ¤·ùÀåÀÌ ¼ÒÀçÇÏ´Â µî ±³Åë»óȲÀº º¸ÅëÀÓ.
[°Ç¹°±¸Á¶] ö±ÙÄÜÅ©¸®Æ®±¸Á¶ (ö±Ù)ÄÜÅ©¸®Æ®(°æ»çÁöºØ) 6Ãþ °Ç¹° ³» Á¦5Ãþ Á¦503È£·Î¼,¿Üº® : ¼®Àç ºÙÀÓ ¸¶°¨ µî,³»º® : º®Áö ¹× ÀϺΠŸÀÏ ¸¶°¨ µî,âȣ : »õ½Ã âȣ µîÀÓ.
[ÀÌ¿ë»óÅÂ] ´Ù¼¼´ëÁÖÅÃ(°ÇÃ๰ÇöȲµµ»ó ¹æ2, ¿å½Ç, °Å½Ç, ÁÖ¹æ, Çö°ü, ¹ßÄÚ´Ï µî)À¸·Î ÀÌ¿ëÁßÀÓ.
[¼³ºñ³»¿ª] ±Þ¡¤¹è¼ö¼³ºñ ¹× À§»ý¼³ºñ, °¡½º¼³ºñ, ³¹æ¼³ºñ, ½Â°±â¼³ºñ µîÀÌ µÇ¾îÀÖÀ½.
[ÅäÁöÇü»ó/ÀÌ¿ë»óÅÂ] ÀÎÁ¢ÇÊÁö¿Í µî°íÆòźÇÑ °¡ÀåÇü ÅäÁö·Î¼, °øµ¿ÁÖÅà ¹× ±Ù¸°»ýȰ½Ã¼³ °ÇºÎÁö·Î ÀÌ¿ëÁßÀÓ.
[µµ·Î»óÅÂ] º»°Ç ¼ÃøÀ¸·Î ³ëÆø ¾à 15m ³»¿Ü, ºÏÃøÀ¸·Î ³ëÆø ¾à 8m ³»¿Ü µµ·Î¿Í Á¢ÇÔ.
[ÅäÁöÀÌ¿ë°èȹ] µµ½ÃÁö¿ª, Á¦2Á¾ÀϹÝÁÖ°ÅÁö¿ª(2017-06-15)(7ÃþÀÌÇÏ), µµ·Î(Á¢ÇÕ), °¡Ãà»çÀ°Á¦Çѱ¸¿ª£¼°¡ÃàºÐ´¢ÀÇ °ü¸® ¹× À̿뿡 °üÇÑ ¹ý·ü£¾, ±³À°È¯°æº¸È£±¸¿ª(Çб³È¯°æÀ§»ýÁ¤È±¸¿ª¿¡ ´ëÇÑ ÃÖÁ¾È®ÀÎÀº °üÇÒ±³À°Ã»¿¡ ¹Ýµå½Ã È®ÀÎÀÌ ÇÊ¿äÇÑ »çÇ×ÀÓ)£¼±³À°È¯°æ º¸È£¿¡ °üÇÑ ¹ý·ü£¾, ±³À°È¯°æº¸È£±¸¿ª(Çб³È¯°æÀ§»ýÁ¤È±¸¿ª¿¡ ´ëÇÑ ÃÖÁ¾È®ÀÎÀº °üÇÒ±³À°Ã»¿¡ ¹Ýµå½Ã È®ÀÎÀÌ ÇÊ¿äÇÑ »çÇ×ÀÓ)£¼±³À°È¯°æ º¸È£¿¡ °üÇÑ ¹ý·ü£¾, ´ë°ø¹æ¾îÇùÁ¶±¸¿ª(À§Å¹°íµµ:77-257m)£¼±º»ç±âÁö ¹× ±º»ç½Ã¼³ º¸È£¹ý£¾, ÀçÁ¤ºñÃËÁøÁö±¸(2017-02-02)£¼µµ½ÃÀçÁ¤ºñÃËÁøÀ»À§ÇÑÆ¯º°¹ý£¾, °ú¹Ð¾ïÁ¦±Ç¿ª£¼¼öµµ±ÇÁ¤ºñ°èȹ¹ý£¾ÀÓ.
[°øºÎ¿ÍÀÇ Â÷ÀÌ] ¾øÀ½.
[Âü°í»çÇ×] ÀÓ´ë°ü°è ¹Ì»óÀÓ.
|
|
|
°ÇÃ๰ÇöȲ |
|
|
|
| ¼ÒÀçÁö |
¼¿ïƯº°½Ã µ¿ÀÛ±¸ ´ë¹æµ¿ 68-35¹øÁö |
| ´ëÁö¸éÀû |
297§³(90Æò) |
¿¬¸éÀû |
625.74§³(189.62Æò) |
ÁÖ¿ëµµ |
°øµ¿ÁÖÅà |
| °ÇÃà¸éÀû |
177.82§³(53.88Æò) |
¿ëÀû·ü»êÁ¤¿¬¸éÀû |
592.74§³(179.62Æò) |
Âø°øÀÏÀÚ |
2020.07.15 |
| °ÇÆóÀ² |
59.87% |
¿ëÀû·ü |
199.58% |
»ç¿ë½ÂÀÎÀÏÀÚ |
2021.01.12 |
| Áö»óÃþ¼ö |
6Ãþ |
ÁöÇÏÃþ¼ö |
1Ãþ |
±¸Á¶ |
ö±ÙÄÜÅ©¸®Æ®±¸Á¶ |
°ÇÃ๰Ãþº°ÇöȲ [º¸±â]| Ãþº° | ±¸Á¶ | ¿ëµµ | ¸éÀû | | 1Ãþ | ö±ÙÄÜÅ©¸®Æ®±¸Á¶ | ÇÊ·ÎÆ¼ ÁÖÂ÷Àå(¿¬¸éÀûÁ¦¿Ü) | 113.33§³ (34.34Æò) | | 1Ãþ | ö±ÙÄÜÅ©¸®Æ®±¸Á¶ | Á¦1Á¾±Ù¸°»ýȰ½Ã¼³(¼Ò¸ÅÁ¡(1È£)) | 50.25§³ (15.23Æò) | | 2Ãþ | ö±ÙÄÜÅ©¸®Æ®±¸Á¶ | °øµ¿ÁÖÅÃ(´Ù¼¼´ëÁÖÅÃ(4¼¼´ë)) | 132.54§³ (40.16Æò) | | 3Ãþ | ö±ÙÄÜÅ©¸®Æ®±¸Á¶ | °øµ¿ÁÖÅÃ(´Ù¼¼´ëÁÖÅÃ(4¼¼´ë)) | 132.54§³ (40.16Æò) | | 4Ãþ | ö±ÙÄÜÅ©¸®Æ®±¸Á¶ | °øµ¿ÁÖÅÃ(´Ù¼¼´ëÁÖÅÃ(3¼¼´ë)) | 105.25§³ (31.89Æò) | | 5Ãþ | ö±ÙÄÜÅ©¸®Æ®±¸Á¶ | °øµ¿ÁÖÅÃ(´Ù¼¼´ëÁÖÅÃ(3¼¼´ë)) | 99.81§³ (30.25Æò) | | 6Ãþ | ö±ÙÄÜÅ©¸®Æ®±¸Á¶ | °øµ¿ÁÖÅÃ(´Ù¼¼´ëÁÖÅÃ(2¼¼´ë)) | 72.35§³ (21.92Æò) | | ¿Áž1Ãþ | ö±ÙÄÜÅ©¸®Æ®±¸Á¶ | ´Ù¶ô(¿¬¸éÀûÁ¦¿Ü) | 75.82§³ (22.98Æò) | | ¿Áž1Ãþ | ö±ÙÄÜÅ©¸®Æ®±¸Á¶ | °è´Ü½Ç(¿¬¸éÀûÁ¦¿Ü) | 12.6§³ (3.82Æò) | | Áö1Ãþ | ö±ÙÄÜÅ©¸®Æ®±¸Á¶ | °è´Ü½Ç | 12.6§³ (3.82Æò) | | Áö1Ãþ | ö±ÙÄÜÅ©¸®Æ®±¸Á¶ | ±â°è½Ç | 20.4§³ (6.18Æò) |
|
|
|
|
|
|
|
|
|
¸éÀû(§³), ±Ý¾×(¸¸¿ø)
| °è¾àÀÏ | ±âÁØ | °Ç¹°¸íĪ | Ãþ | ¿¬¸éÀû | ´ëÁö¸éÀû | °Å·¡±Ý¾× | °ÇÃà³âµµ | | 2024.03.29 | ¸Å¸Å | żºÆÓ¸®½º | 4 | 23.45 | 15.09 | 22,300 | 2016 | | 2024.03.25 | ¸Å¸Å | »ï¼º½ÃƼºô | 5 | 73.44 | 40.36 | 46,500 | 2003 | | 2024.03.22 | ¸Å¸Å | ±×¸°ºô¶ó°¡µ¿ | -1 | 40.98 | 26.6333 | 9,000 | 1986 | | 2024.03.14 | ¸Å¸Å | ´ë¸íºô¶ó³ª | 2 | 40.59 | 28.82 | 64,800 | 1991 | | 2024.03.14 | ¸Å¸Å | ÂüÁ¸ºô¸®Áö | 3 | 25.81 | 14.3739 | 27,000 | 2013 | | 2024.03.04 | ¸Å¸Å | °³²ºô¶ó | 4 | 83.51 | 52.5178 | 41,000 | 2004 | | 2024.03.04 | ¸Å¸Å | ´ÙÀÎij½½3Â÷ | 2 | 27.83 | 17.58 | 32,700 | 2021 | | 2024.02.27 | ¸Å¸Å | Á¦ÀÌŸ¿î | 9 | 15.54 | 5.244 | 13,700 | 2016 | | 2024.02.19 | ¸Å¸Å | ´õÆÛ½ºÆ®¾ÈBµ¿ | 3 | 46.7 | 26.94 | 50,000 | 2016 | | 2024.02.19 | ¸Å¸Å | ´õÆÛ½ºÆ®¾ÈBµ¿ | 3 | 46.7 | 26.94 | 50,000 | 2016 | | 2024.02.19 | ¸Å¸Å | ´õÆÛ½ºÆ®¾ÈBµ¿ | 3 | 46.7 | 26.94 | 50,000 | 2016 | | 2024.02.06 | ¸Å¸Å | Çö´ëºô¶ó | -1 | 65.22 | 39.78 | 95,000 | 1990 | | 2024.02.03 | ¸Å¸Å | ¸®¾È | 8 | 14.9 | 4.21 | 14,900 | 2017 | | 2024.02.03 | ¸Å¸Å | ´ÙÀÎij½½3Â÷ | 4 | 27.83 | 17.58 | 38,000 | 2021 | | 2024.01.30 | ¸Å¸Å | Ƽ¿¥Å¸¿î | 3 | 27.61 | 16.6 | 28,800 | 2016 | | 2024.01.27 | ¸Å¸Å | ´ÙÀÎij½½3Â÷ | 2 | 27.83 | 17.58 | 32,700 | 2021 | | 2024.01.22 | ¸Å¸Å | ¿µÁø¸Ç¼Ç2Â÷ | 4 | 70.11 | 36.3 | 41,200 | 1997 | | 2024.01.19 | ¸Å¸Å | ÀÌ·¹¾ÆÆ®ºô | 4 | 17.48 | 12.31 | 24,500 | 2016 | | 2024.01.13 | ¸Å¸Å | Á¤¿ø½¦¸£ºô | 6 | 43.48 | 24.94 | 42,800 | 2017 | | 2024.01.12 | ¸Å¸Å | ´ë¹æÁÖ»óº¹ÇÕºôµù | 8 | 24.31 | 6.14 | 25,900 | 2016 | | 2024.01.02 | ¸Å¸Å | ´ÙÀÎij½½3Â÷ | 2 | 27.23 | 17.2 | 34,000 | 2021 |
| °è¾àÀÏ | ±âÁØ | °Ç¹°¸íĪ | Ãþ | ¿¬¸éÀû | º¸Áõ±Ý | ¿ù¼¼ | °ÇÃà³âµµ | | 2025.11.27 | Àü¼¼ | Á¤¿ø½¦¸£ºô | 4 | 37.65 | 30,000 | 0 | 2017 | | 2025.11.26 | Àü¼¼ | ·º½ººô(393-31) | 4 | 77.13 | 34,000 | 0 | 2007 | | 2025.11.25 | ¿ù¼¼ | ¿ø³ëºí·¹½º | 8 | 25 | 16,000 | 15 | 2015 | | 2025.11.22 | Àü¼¼ | Ǫ¸¥½£ | 4 | 58.75 | 45,000 | 0 | 2022 | | 2025.11.21 | ¸Å¸Å | ´ë¹æºô¸®Áö(335-26) | 1 | 29.86 | 34,500 | | 2017 | | 2025.11.21 | Àü¼¼ | À§³Ê½º | 3 | 10.36 | 13,300 | 0 | 2016 | | 2025.11.20 | Àü¼¼ | ´õÆ÷·¹ | 2 | 29.95 | 28,000 | 0 | 2021 | | 2025.11.20 | Àü¼¼ | ´õÆ÷·¹ | 2 | 29.95 | 28,000 | 0 | 2021 | | 2025.11.17 | Àü¼¼ | (402-13) | 4 | 19.72 | 15,000 | 0 | 2017 | | 2025.11.15 | ¿ù¼¼ | ½ºÄ«ÀÌij½½ | 2 | 27.07 | 24,440 | 23 | 2019 | | 2025.11.15 | ¿ù¼¼ | MAJESTY | 3 | 46 | 1,000 | 55 | 2013 | | 2025.11.15 | ¿ù¼¼ | 20-40 | 6 | 15.84 | 8,000 | 12 | 2013 | | 2025.11.14 | ¿ù¼¼ | (376-9) | 4 | 46.1 | 16,000 | 20 | 2012 | | 2025.11.13 | Àü¼¼ | ÇູŸ¿î | 4 | 70.2 | 28,000 | 0 | 2002 | | 2025.11.11 | ¿ù¼¼ | °æ¼ºÇÏÀÌÃ÷ºô¶ó2Â÷ | 1 | 72.27 | 5,000 | 160 | 1992 | | 2025.11.10 | ¿ù¼¼ | ÇØ¼Öºô | 3 | 44.49 | 16,400 | 50 | 2013 | | 2025.11.10 | ¿ù¼¼ | ¸®´õ½ººô | 4 | 53.75 | 26,000 | 21 | 2004 | | 2025.11.10 | ¿ù¼¼ | º¸¶ó¸ÅÀ̽ºÆ®ºô | 4 | 12.73 | 3,000 | 37 | 2011 | | 2025.11.08 | ¿ù¼¼ | ÆÓ¸®½ºÅ¸¿î(411-4) | 2 | 29.85 | 25,000 | 13 | 2017 | | 2025.11.08 | ¸Å¸Å | »ù¼Ú´ÂÅÍ | 5 | 29.14 | 37,800 | | 2019 | | 2025.11.08 | ¿ù¼¼ | µÎµÎºô¶ó(391-549) | 2 | 50.1 | 10,000 | 35 | 1994 | | 2025.11.08 | ¿ù¼¼ | ºÎ¸íºôµù | 3 | 12.14 | 1,000 | 44 | 2013 | | 2025.11.08 | Àü¼¼ | ´ë¿ÕŸ¿î | 3 | 45.5 | 26,000 | 0 | 2002 | | 2025.11.07 | Àü¼¼ | ´ë¹æºô¸®Áö(335-26) | 3 | 29.97 | 28,300 | 0 | 2017 | | 2025.11.07 | Àü¼¼ | ´ë¹æºô¸®Áö(335-26) | 3 | 29.97 | 28,300 | 0 | 2017 | | 2025.11.07 | ¿ù¼¼ | ¹é»ê¿ùµåºô | 2 | 60.96 | 29,800 | 6 | 2002 | | 2025.11.07 | ¿ù¼¼ | ¼®»ê | 4 | 42.3 | 15,400 | 25 | 1995 | | 2025.11.05 | Àü¼¼ | ´ë¹æºô¸®Áö(335-26) | 1 | 28.37 | 26,700 | 0 | 2017 | | 2025.11.05 | Àü¼¼ | ´ë¹æºô¸®Áö(335-26) | 1 | 28.37 | 26,700 | 0 | 2017 | | 2025.11.05 | ¿ù¼¼ | ¼ºÈºô¶ó | 4 | 53.64 | 26,460 | 19 | 2008 | | 2025.11.04 | ¿ù¼¼ | ´ë±¤ºô¸®Áö | 5 | 38.95 | 4,000 | 69 | 2014 | | 2025.11.04 | ¿ù¼¼ | ´ë±¤ºô¸®Áö | 5 | 38.95 | 4,000 | 69 | 2014 | | 2025.11.03 | ¿ù¼¼ | ¼ºÈºô¶ó | 3 | 53.64 | 26,460 | 16 | 2008 | | 2025.11.02 | ¿ù¼¼ | Á¦ÀÌŸ¿î | 8 | 15.54 | 1,000 | 60 | 2016 | | 2025.11.01 | Àü¼¼ | 411-12 | 3 | 23.77 | 20,000 | 0 | 2015 | | 2025.11.01 | ¿ù¼¼ | (337-2) | 2 | 35.36 | 5,500 | 40 | 1986 | | 2025.11.01 | ¿ù¼¼ | ¸®¾È | 8 | 15.05 | 1,000 | 61 | 2017 | | 2025.10.31 | ¿ù¼¼ | Paraous | 4 | 15.93 | 12,800 | 10 | 2016 | | 2025.10.31 | ¸Å¸Å | Ƽ¿¥Å¸¿î | 2 | 27.52 | 45,000 | | 2016 | | 2025.10.30 | ¿ù¼¼ | »ïÀϺô¶ó°¡µ¿ | 1 | 44.46 | 200 | 20 | 1987 | | 2025.10.30 | ¿ù¼¼ | Á¦ÀÌÇϿ콺 | 5 | 29.95 | 23,940 | 30 | 2018 | | 2025.10.29 | ¸Å¸Å | Á¤¿ø½¦¸£ºô | 4 | 37.65 | 36,000 | | 2017 | | 2025.10.29 | ¸Å¸Å | µðºñÇϿ콺Aµ¿ | 1 | 63.14 | 49,500 | | 2001 | | 2025.10.29 | ¿ù¼¼ | ÄŸºô·¹´ë¹æ(405-4) | 8 | 20.83 | 16,000 | 8 | 2014 | | 2025.10.29 | ¸Å¸Å | µðºñŬ¶ó½Ä | 1 | 80.28 | 61,000 | | 2002 | | 2025.10.29 | ¿ù¼¼ | ÄŸºô·¹´ë¹æ(405-4) | 11 | 21.05 | 1,000 | 80 | 2014 | | 2025.10.29 | Àü¼¼ | µðºñŬ¶ó½Ä | 1 | 80.28 | 31,700 | 0 | 2002 | | 2025.10.28 | ¿ù¼¼ | ¹é¿ìºô¶ó | -1 | 53.15 | 6,000 | 50 | 1995 | | 2025.10.28 | Àü¼¼ | ³ëºíÇϿ콺 | 2 | 42.25 | 35,000 | 0 | 2016 | | 2025.10.27 | Àü¼¼ | º¸¶ó¸ÅÆÄÅ©ºô | 2 | 45.09 | 32,000 | 0 | 2022 | | 2025.10.25 | Àü¼¼ | (402-13) | 2 | 19.16 | 15,000 | 0 | 2017 | | 2025.10.25 | ¸Å¸Å | ¼º½Éºô¶ó | 4 | 70.4 | 52,000 | | 1992 | | 2025.10.23 | ¿ù¼¼ | Ƽ¿¥Å¸¿î | 2 | 26.95 | 24,000 | 10 | 2016 | | 2025.10.22 | ¿ù¼¼ | ¼÷¿øÈ¨ | 2 | 50.93 | 25,000 | 40 | 2018 | | 2025.10.21 | ¿ù¼¼ | (375-53) | 2 | 12.4 | 1,000 | 55 | 2013 | | 2025.10.21 | ¿ù¼¼ | Á¦ÀÌŸ¿î | 9 | 21.42 | 3,000 | 70 | 2016 | | 2025.10.20 | ¸Å¸Å | Àº¼Û¾ÆÆ®ºô | 3 | 78.05 | 36,000 | | 2003 | | 2025.10.19 | ¸Å¸Å | Ƽ¿¥Å¸¿î | 2 | 27.52 | 45,000 | | 2016 | | 2025.10.18 | ¿ù¼¼ | (375-53) | 2 | 24.77 | 9,000 | 40 | 2013 | | 2025.10.18 | Àü¼¼ | ´ÙÀÎij½½3Â÷ | 3 | 27.62 | 27,000 | 0 | 2021 | | 2025.10.18 | Àü¼¼ | ´ÙÀÎij½½3Â÷ | 3 | 27.62 | 27,000 | 0 | 2021 | | 2025.10.17 | ¿ù¼¼ | ¸í¼ºÇϿ콺 | 5 | 26.87 | 15,000 | 60 | 2019 | | 2025.10.17 | Àü¼¼ | µå¸²Ä³½½ | 6 | 36.01 | 24,300 | 0 | 2013 | | 2025.10.17 | ¿ù¼¼ | ¸í¼ºÇϿ콺 | 5 | 26.87 | 15,000 | 60 | 2019 | | 2025.10.17 | Àü¼¼ | 387-7 | 2 | 33.3 | 25,000 | 0 | 2015 | | 2025.10.17 | ¸Å¸Å | 411-5 | 5 | 46.76 | 57,500 | | 2015 | | 2025.10.15 | Àü¼¼ | Á¤¿ø½¦¸£ºô | 6 | 35.9 | 27,400 | 0 | 2017 | | 2025.10.15 | ¸Å¸Å | ´ë¹æ»þÀκô(376-3) | 2 | 39.6 | 36,000 | | 2015 | | 2025.10.15 | ¸Å¸Å | ½Å¼ºÇϿ콺 | 4 | 45.83 | 47,000 | | 2022 | | 2025.10.15 | ¸Å¸Å | ·º½ººô(393-31) | 4 | 77.13 | 79,500 | | 2007 | | 2025.10.15 | ¸Å¸Å | (411-42) | 2 | 43.625 | 42,500 | | 2015 | | 2025.10.15 | ¸Å¸Å | (411-42) | 2 | 43.625 | 42,500 | | 2015 | | 2025.10.15 | Àü¼¼ | Á¤¿ø½¦¸£ºô | 3 | 34.35 | 24,000 | 0 | 2017 | | 2025.10.12 | ¿ù¼¼ | ´Ù¿Â½Åµå·Ò | 4 | 9.9 | 8,000 | 10 | 2016 | | 2025.10.11 | ¸Å¸Å | ¾ÆÆ®¸®ºùÅÚ | 5 | 76 | 47,000 | | 2002 | | 2025.10.09 | ¿ù¼¼ | º¸¶ó¸ÅÀ̽ºÆ®ºô | 4 | 12.12 | 1,500 | 42 | 2011 | | 2025.10.08 | ¸Å¸Å | ½Å¸íÅ×Å©³ëºô | 2 | 95.64 | 70,000 | | 2000 | | 2025.10.05 | ¿ù¼¼ | µÕÁö¥² | 3 | 15.84 | 2,000 | 52 | 2012 | | 2025.10.03 | Àü¼¼ | 401-18 | 6 | 17.71 | 12,000 | 0 | 2013 | | 2025.10.02 | ¿ù¼¼ | ¸®¾È | 11 | 15.05 | 1,000 | 65 | 2017 | | 2025.10.01 | ¸Å¸Å | ÇÁ¸®¹Ì¾öºô(2) | 1 | 84.13 | 70,000 | | 2003 | | 2025.10.01 | ¿ù¼¼ | º¸¶ó¸Å¿þ½ºÆ®ºô | 4 | 12.08 | 2,000 | 37 | 2011 | | 2025.10.01 | ¿ù¼¼ | ´ë¹æÂüÁ¸Å¸¿î | 4 | 24.09 | 5,000 | 87 | 2015 | | 2025.09.30 | ¸Å¸Å | Ǫ¸¥½£ | 1 | 28.45 | 43,700 | | 2022 | | 2025.09.30 | Àü¼¼ | ´ë¸²Ä³½½ºô | 5 | 77.52 | 22,000 | 0 | 2011 | | 2025.09.30 | ¿ù¼¼ | ´ë¸²Ä³½½ºô | 3 | 36.71 | 16,000 | 50 | 2011 | | 2025.09.30 | ¸Å¸Å | »ù¼Ú´ÂÅÍ | 2 | 55.34 | 53,500 | | 2019 | | 2025.09.30 | ¸Å¸Å | ¿¤¸®½Ã¾Æ(384-2) | 4 | 49.55 | 39,000 | | 2014 | | 2025.09.29 | ¿ù¼¼ | ¼ºÈºô¶ó | 4 | 53.64 | 6,500 | 80 | 2008 | | 2025.09.29 | ¸Å¸Å | ¹Ì¼ººô¶ó2 | 2 | 62.19 | 57,000 | | 2002 | | 2025.09.28 | ¿ù¼¼ | ÆÓ¸®½ºÅ¸¿î(411-4) | 4 | 25.79 | 23,850 | 18 | 2017 | | 2025.09.28 | ¿ù¼¼ | º¸¶ó¸ÅÀ̽ºÆ®ºô | 3 | 12.73 | 2,000 | 35 | 2011 | | 2025.09.28 | ¸Å¸Å | ´ë¹æºô¶ó(13-43) | 3 | 60.04 | 175,000 | | 1983 | | 2025.09.28 | ¸Å¸Å | 411-5 | 2 | 46.33 | 57,850 | | 2015 | | 2025.09.27 | ¸Å¸Å | ¾ÆÀÌij½½ | 2 | 78.22 | 59,000 | | 2002 | | 2025.09.27 | ¿ù¼¼ | ¿¤¸®½Ã¾Æºôµù(23-117) | 6 | 28.26 | 22,000 | 10 | 2015 | | 2025.09.26 | ¸Å¸Å | Ƽ¿¥Å¸¿î | 6 | 45.18 | 52,500 | | 2016 | | 2025.09.25 | ¿ù¼¼ | ÄŸºô·¹´ë¹æ(405-4) | 7 | 20.83 | 12,000 | 28 | 2014 | | 2025.09.25 | ¿ù¼¼ | °¡Àη¹Áö´ø½º | 4 | 16.79 | 2,500 | 32 | 2011 | | 2025.09.25 | ¿ù¼¼ | Paraous | 3 | 21.81 | 15,000 | 20 | 2016 | | 2025.09.25 | ¸Å¸Å | ´ÃǪ¸¥ºô¶ó | 2 | 69.11 | 65,000 | | 2008 | | 2025.09.25 | ¸Å¸Å | Á¤¿ø½¦¸£ºô | 3 | 45.9 | 47,000 | | 2017 | | 2025.09.24 | ¿ù¼¼ | ¾Æ³×½ºÆ¼ºô | 2 | 57.77 | 20,000 | 60 | 2011 | | 2025.09.23 | ¸Å¸Å | »ù¼Ú´ÂÅÍ | 5 | 55.25 | 49,000 | | 2019 | | 2025.09.23 | Àü¼¼ | ÇØ¼Öºô | 2 | 44.49 | 30,000 | 0 | 2013 | | 2025.09.22 | ¸Å¸Å | ÇØÇÇÇϿ콺 | 2 | 62.14 | 50,000 | | 2003 | | 2025.09.22 | Àü¼¼ | ûµµ¸Ç¼Ç | 4 | 77.85 | 32,600 | 0 | 1998 | | 2025.09.20 | ¿ù¼¼ | 411-29 | 2 | 20.81 | 3,000 | 40 | 2015 | | 2025.09.20 | ¿ù¼¼ | ´õÆÛ½ºÆ®¾ÈAµ¿ | 2 | 34.5 | 5,000 | 90 | 2016 | | 2025.09.20 | ¿ù¼¼ | »ù¼Ú´ÂÅÍ | 2 | 58.25 | 30,000 | 40 | 2019 | | 2025.09.18 | ¸Å¸Å | ¹Ìµµºô¶ó°¡ | 2 | 49.1 | 150,000 | | 1987 | | 2025.09.18 | Àü¼¼ | ½ºÄ«ÀÌij½½ | 2 | 38.94 | 33,100 | 0 | 2019 | | 2025.09.18 | ¿ù¼¼ | (376-9) | 2 | 25.09 | 8,000 | 20 | 2012 | | 2025.09.18 | Àü¼¼ | ¹Ì·¡ÆÓ¸®½º | 4 | 29.62 | 25,400 | 0 | 2015 | | 2025.09.18 | ¿ù¼¼ | ÈÞ¾Èä | 2 | 16.92 | 8,000 | 25 | 2016 | | 2025.09.17 | Àü¼¼ | Çö´ëÅ×Å©ºôBµ¿ | 2 | 74.64 | 40,000 | 0 | 2002 | | 2025.09.16 | Àü¼¼ | ¸®¾È | 9 | 15.05 | 12,640 | 0 | 2017 | | 2025.09.16 | ¿ù¼¼ | ´ë¹æºô¸®Áö(335-26) | 4 | 24.45 | 5,500 | 80 | 2017 | | 2025.09.13 | ¸Å¸Å | ´ë¹æÂüÁ¸Å¸¿î | 2 | 46.2 | 46,000 | | 2015 | | 2025.09.13 | ¿ù¼¼ | ¼÷¿øÈ¨ | 6 | 50.93 | 25,000 | 50 | 2018 | | 2025.09.12 | ¿ù¼¼ | ¹é»ê¿ùµåºô | 1 | 61.03 | 10,000 | 100 | 2002 | | 2025.09.12 | ¿ù¼¼ | ´ë¹æÂüÁ¸Å¸¿î | 4 | 25.02 | 20,000 | 10 | 2015 | | 2025.09.11 | Àü¼¼ | ´ÃǪ¸¥ºô¶ó | 4 | 34.6 | 20,000 | 0 | 2008 | | 2025.09.09 | ¿ù¼¼ | ´ë¹æºô¸®Áö(335-26) | 2 | 28.37 | 26,700 | 5 | 2017 | | 2025.09.09 | ¿ù¼¼ | ´ë¹æºô¸®Áö(335-26) | 2 | 28.37 | 26,700 | 5 | 2017 | | 2025.09.09 | ¿ù¼¼ | ´ë¹æºô¸®Áö(335-26) | 2 | 28.37 | 26,700 | 5 | 2017 | | 2025.09.08 | ¿ù¼¼ | ±×¸°ºô¶ó°¡µ¿ | 2 | 38.6 | 9,000 | 12 | 1986 | | 2025.09.06 | ¿ù¼¼ | ÆÓ¸®½ºÅ¸¿î(411-4) | 4 | 19.63 | 18,000 | 21 | 2017 | | 2025.09.05 | ¿ù¼¼ | (335-18) | 4 | 14.28 | 1,000 | 50 | 2018 | | 2025.09.05 | ¿ù¼¼ | Ǫ¸¥½£ | 1 | 29.6 | 27,300 | 10 | 2022 | | 2025.09.05 | ¿ù¼¼ | ¾Æ³Ê½ºÈú3Â÷(393-38) | 4 | 36.47 | 26,000 | 20 | 2014 | | 2025.09.05 | Àü¼¼ | Á¤¿ø½¦¸£ºô | 5 | 43.48 | 32,200 | 0 | 2017 | | 2025.09.05 | ¸Å¸Å | Á¾¿øºô¶ó7µ¿ | 1 | 38.61 | 45,000 | | 1986 | | 2025.09.05 | ¸Å¸Å | ȼººô¶ó | -1 | 60.59 | 28,000 | | 1993 | | 2025.09.02 | ¿ù¼¼ | û¸í¿¡¹öºô3Â÷ | 3 | 44.53 | 4,000 | 85 | 2014 | | 2025.09.01 | ¿ù¼¼ | Á¾¿øºô¶ó2µ¿ | 1 | 40.86 | 2,000 | 60 | 1986 | | 2025.08.31 | ¿ù¼¼ | ¾ÆÀ̸°ÇϿ콺 | 2 | 17.23 | 10,000 | 12 | 2013 | | 2025.08.31 | Àü¼¼ | ¾ÆÀ̸°ÇϿ콺 | 2 | 17.24 | 13,100 | 0 | 2013 | | 2025.08.31 | ¿ù¼¼ | ½Å¼ºÇϿ콺 | 3 | 44.94 | 3,000 | 130 | 2022 | | 2025.08.30 | ¿ù¼¼ | ´Ù¿Â½Åµå·Ò | 3 | 18.82 | 1,000 | 50 | 2016 | | 2025.08.30 | ¿ù¼¼ | ¿µºóºô | 4 | 25.37 | 1,000 | 115 | 2023 | | 2025.08.30 | ¿ù¼¼ | ¾Æ³Ê½ºÈú3Â÷(393-38) | 2 | 38.62 | 3,000 | 100 | 2014 | | 2025.08.29 | ¿ù¼¼ | ºô¶óÄÜü¸£Æ®1Â÷ | 3 | 33.27 | 3,000 | 110 | 2015 | | 2025.08.26 | ¿ù¼¼ | ¸®¾È | 9 | 14.59 | 1,000 | 62 | 2017 | | 2025.08.25 | Àü¼¼ | (383-7) | 4 | 46.572 | 23,500 | 0 | 2013 | | 2025.08.25 | ¿ù¼¼ | ¿ÀÆç¸®½º´ë¹æ | 5 | 29.46 | 7,869 | 7 | 2025 | | 2025.08.25 | ¿ù¼¼ | ¿ÀÆç¸®½º´ë¹æ | 5 | 29.46 | 3,177 | 33 | 2025 | | 2025.08.24 | ¸Å¸Å | ¹Ì·¡winners(344-6) | 2 | 29.44 | 33,000 | | 2015 | | 2025.08.23 | Àü¼¼ | ÂüÁÁÀº¸Ç¼ð | 3 | 82.38 | 32,500 | 0 | 2004 | | 2025.08.23 | ¿ù¼¼ | º¸¶ó¸Å¿þ½ºÆ®ºô | 5 | 12.08 | 3,000 | 16 | 2011 | | 2025.08.23 | ¿ù¼¼ | ¸í¼º | 5 | 13.44 | 1,000 | 54 | 2013 | | 2025.08.23 | ¿ù¼¼ | ¸í¼º | 5 | 13.44 | 1,000 | 54 | 2013 | | 2025.08.22 | ¿ù¼¼ | ´õÁ¶Àº | 3 | 39.43 | 15,343 | 13 | 2024 | | 2025.08.22 | ¿ù¼¼ | ¼ºÈºô¶ó | 2 | 53.64 | 15,000 | 49 | 2008 | | 2025.08.22 | ¿ù¼¼ | ´õÁ¶Àº | 3 | 39.43 | 6,195 | 64 | 2024 | | 2025.08.22 | ¸Å¸Å | Ǫ¸¥½£ | 1 | 29.6 | 43,700 | | 2022 | | 2025.08.21 | ¿ù¼¼ | ¿ÀÆç¸®½º´ë¹æ | 2 | 29.46 | 3,150 | 32 | 2025 | | 2025.08.21 | ¿ù¼¼ | ¿ÀÆç¸®½º´ë¹æ | 2 | 29.94 | 7,756 | 6 | 2025 | | 2025.08.21 | Àü¼¼ | »ù¼Ú´ÂÅÍ | 2 | 55.05 | 36,500 | 0 | 2019 | | 2025.08.21 | ¿ù¼¼ | ¿ÀÆç¸®½º´ë¹æ | 2 | 29.94 | 3,132 | 32 | 2025 | | 2025.08.20 | ¸Å¸Å | ´ë¹æºô¸®Áö(387-27) | 3 | 29.76 | 33,600 | | 2016 | | 2025.08.20 | ¿ù¼¼ | ´õÁ¶Àº | 4 | 42.75 | 16,419 | 14 | 2024 | | 2025.08.20 | ¿ù¼¼ | ´õÁ¶Àº | 5 | 43.83 | 4,068 | 42 | 2024 | | 2025.08.20 | ¿ù¼¼ | ¿ÀÆç¸®½º´ë¹æ | 5 | 29.46 | 3,177 | 33 | 2025 | | 2025.08.20 | ¿ù¼¼ | ´õÁ¶Àº | 4 | 50.91 | 7,650 | 79 | 2024 | | 2025.08.20 | ¿ù¼¼ | ¿ÀÆç¸®½º´ë¹æ | 6 | 29.5 | 7,801 | 6 | 2025 | | 2025.08.20 | ¿ù¼¼ | ´õÁ¶Àº | 4 | 42.75 | 6,630 | 68 | 2024 | | 2025.08.20 | ¿ù¼¼ | ¿ÀÆç¸®½º´ë¹æ | 6 | 29.5 | 3,150 | 32 | 2025 | | 2025.08.20 | ¿ù¼¼ | ´õÁ¶Àº | 5 | 43.83 | 7,993 | 20 | 2024 | | 2025.08.19 | Àü¼¼ | Paraous | 3 | 18.68 | 12,000 | 0 | 2016 | | 2025.08.18 | ¸Å¸Å | ´ÃǪ¸¥ºô¶ó | 4 | 34.6 | 34,000 | | 2008 | | 2025.08.18 | Àü¼¼ | ÇÁ¸®¹Ì¾öºô(2) | 1 | 84.13 | 41,000 | 0 | 2003 | | 2025.08.16 | ¿ù¼¼ | Á¦ÀÏÁÁÀºÁý | 5 | 75.35 | 20,000 | 90 | 2002 | | 2025.08.16 | Àü¼¼ | ´ÙÀÎij½½3Â÷ | 2 | 27.44 | 31,000 | 0 | 2021 | | 2025.08.16 | ¿ù¼¼ | Á¦ÀÏÁÁÀºÁý | 5 | 75.35 | 14,000 | 90 | 2002 | | 2025.08.16 | ¸Å¸Å | ´ë¹æÆÄÅ©ºô(351-10) | 2 | 28.27 | 28,800 | | 2015 | | 2025.08.15 | Àü¼¼ | ¼º³²ÇÏÀÌÃ÷ºôAµ¿ | 4 | 51.54 | 28,000 | 0 | 2002 | | 2025.08.13 | Àü¼¼ | ´õÆÛ½ºÆ®¾ÈBµ¿ | 6 | 29.12 | 30,000 | 0 | 2016 | | 2025.08.13 | Àü¼¼ | ÆÄÅ©Èú½º | 3 | 59.78 | 39,900 | 0 | 2018 | | 2025.08.12 | ¸Å¸Å | ´ë¸íºô¶ó°¡ | -1 | 39.54 | 118,000 | | 1991 | | 2025.08.12 | ¸Å¸Å | º¸¶ó¸ÅÆÄÅ©ºô | 3 | 40.79 | 57,000 | | 2022 | | 2025.08.12 | Àü¼¼ | µå¸²Ä³½½ | 7 | 25.73 | 17,850 | 0 | 2013 | | 2025.08.11 | ¸Å¸Å | »ïȺô(411-22) | 5 | 44.33 | 45,500 | | 2015 | | 2025.08.10 | ¿ù¼¼ | ÇÁ·Î¹æ½º | 4 | 19.18 | 2,800 | 57 | 2016 | | 2025.08.09 | ¸Å¸Å | ¿µÈ¾ÆÆ®ºô¶ó1 | 1 | 39.84 | 117,000 | | 1990 | | 2025.08.09 | Àü¼¼ | ÀÌ·¹¾ÆÆ®ºô | -1 | 29.41 | 21,500 | 0 | 2016 | | 2025.08.09 | ¸Å¸Å | ´ë¹æÈѹи®ºô¶ó | 2 | 66.3 | 65,500 | | 1992 | | 2025.08.08 | ¿ù¼¼ | ÄŸºô·¹´ë¹æ(405-4) | 9 | 21.05 | 10,000 | 40 | 2014 | | 2025.08.08 | ¿ù¼¼ | º¸¶ó¸ÅÀ̽ºÆ®ºô | 2 | 12.73 | 3,000 | 24 | 2011 | | 2025.08.08 | ¿ù¼¼ | ¸í¼ºÇϿ콺5Â÷ | 5 | 29.38 | 13,000 | 70 | 2021 | | 2025.08.07 | ¿ù¼¼ | ¼Öä | 3 | 23.94 | 500 | 43 | 2004 | | 2025.08.04 | ¸Å¸Å | ´ë¹æ¿î¸¶Å¸¿î | 5 | 65.99 | 44,700 | | 2001 | | 2025.08.04 | ¸Å¸Å | Á¤¿øºä | 2 | 53.25 | 44,000 | | 2018 | | 2025.08.02 | Àü¼¼ | ¸íµµ¿¡ÄÚºô(379-33) | 3 | 40.78 | 27,000 | 0 | 2015 | | 2025.08.01 | ¸Å¸Å | ¿À¼ººô¶óB | 2 | 65.79 | 46,000 | | 1979 | | 2025.08.01 | ¿ù¼¼ | ÇѰÆÓ¸®½º(387-3) | 4 | 47.71 | 20,000 | 55 | 2014 | | 2025.07.31 | Àü¼¼ | µå¸²Å¸¿ö | 4 | 47.8 | 29,900 | 0 | 2016 | | 2025.07.31 | ¸Å¸Å | Ǫ¸¥½£ | 4 | 58.75 | 59,800 | | 2022 | | 2025.07.30 | ¿ù¼¼ | (376-9) | 2 | 17.92 | 7,000 | 16 | 2012 | | 2025.07.30 | ¿ù¼¼ | º¸¶ó¸ÅÀ̽ºÆ®ºô | 3 | 12.17 | 2,000 | 21 | 2011 | | 2025.07.30 | ¿ù¼¼ | ¸®¾È | 10 | 15.05 | 1,000 | 65 | 2017 | | 2025.07.30 | Àü¼¼ | °¡Àη¹Áö´ø½º | 5 | 84.6 | 26,000 | 0 | 2011 | | 2025.07.30 | ¿ù¼¼ | ¿¤¸®½Ã¾Æºôµù(23-117) | 5 | 17.03 | 15,000 | 5 | 2015 | | 2025.07.26 | ¿ù¼¼ | ±Ý°ÇÏÀÌÃ÷ºô¶ó | 4 | 52.46 | 4,000 | 75 | 1997 | | 2025.07.26 | Àü¼¼ | ³ëºíÇϿ콺 | 4 | 25.32 | 19,425 | 0 | 2016 | | 2025.07.26 | ¿ù¼¼ | Á¦ÀÌŸ¿î | 7 | 21.42 | 3,000 | 75 | 2016 | | 2025.07.26 | ¿ù¼¼ | »ïȺô¶ó | 3 | 55.38 | 20,000 | 50 | 1997 | | 2025.07.26 | Àü¼¼ | ´ÙÀÎij½½3Â÷ | 3 | 27.44 | 26,000 | 0 | 2021 | | 2025.07.25 | Àü¼¼ | ¸®¾È | 10 | 15.05 | 10,000 | 0 | 2017 | | 2025.07.25 | ¿ù¼¼ | º¸¶ó¸Å¿þ½ºÆ®ºô | 4 | 12.02 | 3,000 | 26 | 2011 | | 2025.07.25 | ¿ù¼¼ | ´õÆ÷·¹ | 4 | 49.67 | 23,000 | 75 | 2021 | | 2025.07.25 | Àü¼¼ | ¸®¾È | 10 | 15.05 | 10,000 | 0 | 2017 | | 2025.07.24 | ¿ù¼¼ | ÆÓ¸®½ºÅ¸¿î(411-4) | 2 | 19.63 | 18,900 | 7 | 2017 | | 2025.07.24 | ¿ù¼¼ | ÆÓ¸®½ºÅ¸¿î(411-4) | 2 | 19.63 | 18,750 | 10 | 2017 | | 2025.07.23 | ¸Å¸Å | ´ë¿ÕŸ¿î | 3 | 45.49 | 37,000 | | 2002 | | 2025.07.22 | ¸Å¸Å | È¿ÁÖÆÄÅ©ºô(392-19) | 3 | 33.08 | 26,000 | | 2012 | | 2025.07.22 | ¿ù¼¼ | the¿Ï¿ìºô | 2 | 29.16 | 1,208 | 33 | 2022 | | 2025.07.22 | ¿ù¼¼ | ÆÓ¸®½ºÅ¸¿î(411-33) | 4 | 29.85 | 5,000 | 89 | 2017 | | 2025.07.21 | Àü¼¼ | ÄŸºô·¹´ë¹æ(405-4) | 10 | 20.83 | 15,000 | 0 | 2014 | | 2025.07.20 | ¿ù¼¼ | ¸®¾È | 8 | 14.59 | 10,000 | 28 | 2017 | | 2025.07.20 | Àü¼¼ | ¸íµµ¿¡ÄÚºô(379-33) | 3 | 40.78 | 27,000 | 0 | 2015 | | 2025.07.19 | ¸Å¸Å | ½Å´ë¹æ¾ÆÆ®ºô | 4 | 47.58 | 52,000 | | 2002 | | 2025.07.19 | Àü¼¼ | ÇູŸ¿î | 2 | 70.2 | 38,000 | 0 | 2002 | | 2025.07.18 | ¿ù¼¼ | ÄŸºô·¹´ë¹æ(405-4) | 7 | 21.88 | 5,000 | 65 | 2014 | | 2025.07.18 | ¸Å¸Å | ½ºÄ«ÀÌij½½ | 3 | 38.94 | 45,000 | | 2019 | | 2025.07.18 | ¿ù¼¼ | °¡Àη¹Áö´ø½º | 4 | 12.02 | 1,000 | 48 | 2011 | | 2025.07.17 | ¿ù¼¼ | Çö´ëºô | 4 | 25.37 | 1,000 | 110 | 2023 | | 2025.07.17 | ¿ù¼¼ | ¿µºóºô | 6 | 28.52 | 1,000 | 120 | 2023 | | 2025.07.17 | ¿ù¼¼ | ¿µºóºô | 6 | 28.52 | 1,000 | 120 | 2023 | | 2025.07.15 | ¿ù¼¼ | ûÀ¯ºôµù | 2 | 12.84 | 5,000 | 36 | 2013 | | 2025.07.15 | ¿ù¼¼ | ´Ù¿Â½Åµå·Ò | 3 | 21.13 | 1,000 | 58 | 2016 | | 2025.07.15 | ¸Å¸Å | Űøºô¸®Áö | 1 | 68.87 | 39,000 | | 2002 | | 2025.07.15 | Àü¼¼ | ¼öÁ¤Å¸¿î-°¡ | 4 | 63.06 | 26,500 | 0 | 2002 | | 2025.07.15 | ¸Å¸Å | ´ö¿îÁÖÅà | 3 | 79.9 | 56,000 | | 2001 | | 2025.07.15 | ¸Å¸Å | Á¤¿øºä | 4 | 51.54 | 45,000 | | 2018 | | 2025.07.15 | ¸Å¸Å | Űøºô¸®Áö | 1 | 68.87 | 39,000 | | 2002 | | 2025.07.12 | ¿ù¼¼ | º¸¶ó¸ÅÀ̽ºÆ®ºô | 3 | 12.7 | 2,000 | 45 | 2011 | | 2025.07.12 | ¿ù¼¼ | ¸®¾È | 10 | 15.05 | 1,000 | 65 | 2017 | | 2025.07.11 | ¿ù¼¼ | ¸®¾È | 9 | 15.05 | 1,000 | 65 | 2017 | | 2025.07.11 | ¿ù¼¼ | º¸¶ó¸Å¿þ½ºÆ®ºô | 2 | 12.08 | 3,000 | 14 | 2011 | | 2025.07.10 | ¿ù¼¼ | ÆÓ¸®½ºÅ¸¿î(411-4) | 3 | 29.85 | 25,000 | 13 | 2017 | | 2025.07.08 | ¿ù¼¼ | ¼öÁ¤Å¸¿î-°¡ | 2 | 63.06 | 27,850 | 20 | 2002 | | 2025.07.07 | ¸Å¸Å | ÆÄÅ©Èú½º | 2 | 29.94 | 32,000 | | 2018 | | 2025.07.05 | Àü¼¼ | Á¦ÀÌÇϿ콺 | 3 | 29.95 | 24,400 | 0 | 2018 | | 2025.07.05 | ¿ù¼¼ | ´ÙÀÎij½½3Â÷ | 4 | 27.62 | 27,900 | 10 | 2021 | | 2025.07.05 | ¿ù¼¼ | ÄÉ·»½Ã¾Æ´ë¹æ | 4 | 29.29 | 2,000 | 125 | 2022 | | 2025.07.05 | ¿ù¼¼ | Paraous | 5 | 25.07 | 7,000 | 70 | 2016 | | 2025.07.04 | ¿ù¼¼ | ´Ù¿Â½Åµå·Ò | 5 | 17.02 | 1,000 | 50 | 2016 | | 2025.07.03 | ¸Å¸Å | ±ÝȣŸ¿î(³ª) | 3 | 57.825 | 45,600 | | 2002 | | 2025.07.03 | ¸Å¸Å | ´ë°æµå¸²ºô | 5 | 50.97 | 43,000 | | 2003 | | 2025.07.02 | ¿ù¼¼ | ¿µºóºô | 2 | 25.37 | 1,000 | 120 | 2023 | | 2025.07.02 | ¿ù¼¼ | ´ë¹æÆÄÅ©ºô(351-10) | 6 | 24.6 | 20,000 | 23 | 2015 | | 2025.07.02 | ¸Å¸Å | ´ë¹æºô¸®Áö(387-27) | 2 | 29.49 | 29,000 | | 2016 | | 2025.07.02 | Àü¼¼ | ¾Æ³Ê½ºÈú3Â÷(393-38) | 3 | 38.62 | 27,500 | 0 | 2014 | | 2025.07.02 | Àü¼¼ | ¾ÆÀÌÆÄÅ©ºô | 4 | 45.5 | 31,500 | 0 | 2016 | | 2025.07.02 | ¸Å¸Å | Ǫ¸¥½£ | 2 | 29.38 | 43,500 | | 2022 | | 2025.07.01 | ¸Å¸Å | Á¦ÀÌÇϿ콺 | 3 | 29.95 | 35,000 | | 2018 | | 2025.06.30 | ¿ù¼¼ | °¡Àη¹Áö´ø½º | 2 | 15.32 | 2,500 | 42 | 2011 | | 2025.06.30 | Àü¼¼ | ´ë¹æºô¶ó | 3 | 76.67 | 33,000 | 0 | 1991 | | 2025.06.28 | Àü¼¼ | º¸¶ó¸ÅÆÄÅ©ºô | 3 | 29.1 | 27,800 | 0 | 2022 | | 2025.06.28 | ¿ù¼¼ | ¼öÁ¤Å¸¿î-³ª | 3 | 49 | 19,000 | 30 | 2002 | | 2025.06.28 | ¸Å¸Å | Ǫ¸¥½£ | 4 | 29.78 | 45,000 | | 2022 | | 2025.06.28 | ¿ù¼¼ | (402-13) | 4 | 19.16 | 1,000 | 60 | 2017 | | 2025.06.27 | ¸Å¸Å | ´ë¹æÂüÁ¸Å¸¿î | 4 | 25.02 | 37,000 | | 2015 | | 2025.06.27 | Àü¼¼ | ¾Ö½ºÅæÇϿ콺 | 6 | 43.31 | 29,800 | 0 | 2016 | | 2025.06.26 | ¿ù¼¼ | ¿ÏÈñÇö´ç | 3 | 14.7 | 400 | 53 | 2011 | | 2025.06.26 | ¿ù¼¼ | ¿ÏÈñÇö´ç | 3 | 14.7 | 400 | 53 | 2011 | | 2025.06.26 | ¿ù¼¼ | ¿ÏÈñÇö´ç | 3 | 14.7 | 2,000 | 50 | 2011 | | 2025.06.26 | ¸Å¸Å | º¸¶ó¸ÅÆÄÅ©ºô | 3 | 45.09 | 59,000 | | 2022 | | 2025.06.25 | ¿ù¼¼ | ¿ÏÈñÇö´ç | 2 | 14.28 | 1,000 | 53 | 2011 | | 2025.06.25 | ¿ù¼¼ | ¸®¾È | 11 | 14.59 | 5,000 | 44 | 2017 | | 2025.06.23 | Àü¼¼ | ±ÝÀÏÁÖÅà | 3 | 75.63 | 30,500 | 0 | 2002 | | 2025.06.23 | ¸Å¸Å | ¹Ì¸®³»¾¾Æ¼ºô | 2 | 48.69 | 32,300 | | 1995 | | 2025.06.23 | ¸Å¸Å | Á¦ÀÌŸ¿î | 9 | 15.54 | 14,500 | | 2016 | | 2025.06.22 | ¸Å¸Å | ÇØÁÖ³ëºí·¹½ººô | 4 | 74.32 | 44,700 | | 2002 | | 2025.06.21 | ¿ù¼¼ | ÇÁ·Î¹æ½º | 4 | 27.34 | 5,000 | 84 | 2016 | | 2025.06.21 | ¿ù¼¼ | Ǫ¸¥½£ | 5 | 29.11 | 1,000 | 116 | 2022 | | 2025.06.21 | ¿ù¼¼ | µÕÁö¥² | 6 | 17.36 | 1,000 | 43 | 2012 | | 2025.06.21 | Àü¼¼ | ÆÄÀκô2 | 3 | 50.99 | 28,000 | 0 | 2004 | | 2025.06.21 | ¿ù¼¼ | ºô¶óÄÜü¸£Æ®1Â÷ | 2 | 33.27 | 21,600 | 10 | 2015 | | 2025.06.19 | ¿ù¼¼ | Çö´ëºô | 6 | 24.74 | 1,000 | 100 | 2023 | | 2025.06.18 | Àü¼¼ | ¿Áµ¿±×·£µåºô | 2 | 84.69 | 40,000 | 0 | 2002 | | 2025.06.18 | ¸Å¸Å | Áß¾ÓÇÏÀÌÃ÷ºô | 4 | 39.56 | 120,000 | | 2002 | | 2025.06.17 | ¿ù¼¼ | ¸®¾È | 10 | 14.59 | 1,000 | 65 | 2017 | | 2025.06.17 | ¸Å¸Å | ´ë¹æÁÖ»óº¹ÇÕºôµù | 9 | 37.23 | 29,950 | | 2016 | | 2025.06.17 | ¿ù¼¼ | ¿¤¸®½Ã¾Æºôµù(23-117) | 7 | 14.1 | 5,000 | 32 | 2015 | | 2025.06.16 | ¸Å¸Å | ½Å¼ºÇϿ콺 | 5 | 29.98 | 40,500 | | 2022 | | 2025.06.14 | Àü¼¼ | ¸®¾È | 9 | 15.05 | 12,640 | 0 | 2017 | | 2025.06.14 | Àü¼¼ | ¸®¾È | 9 | 15.05 | 12,640 | 0 | 2017 | | 2025.06.13 | ¿ù¼¼ | ´Ù¿Â½Åµå·Ò | 4 | 18.82 | 1,000 | 50 | 2016 | | 2025.06.11 | ¿ù¼¼ | ¼º³²ÇÏÀÌÃ÷ºôBµ¿ | 4 | 59.65 | 22,000 | 40 | 2002 | | 2025.06.10 | ¿ù¼¼ | ´Ù¿Â½Åµå·Ò | 3 | 18.82 | 2,000 | 45 | 2016 | | 2025.06.09 | ¸Å¸Å | ´ë°æµå¸²ºô | 2 | 55.51 | 40,000 | | 2003 | | 2025.06.09 | ¸Å¸Å | ´ë¹æÁÖ»óº¹ÇÕºôµù | 10 | 24.31 | 30,000 | | 2016 | | 2025.06.08 | ¿ù¼¼ | ÁØ¾ÆÆ®ºô | 4 | 61 | 2,000 | 120 | 2002 | | 2025.06.07 | ¸Å¸Å | ´ë¹æºô¶ó(13-43) | 3 | 60.04 | 153,000 | | 1983 | | 2025.06.07 | ¸Å¸Å | ¾à¼öºô¶ó | 2 | 64.39 | 33,600 | | 1995 | | 2025.06.06 | ¸Å¸Å | ¾Æ³×½ºÆ¼ºô | 2 | 57.77 | 58,500 | | 2011 | | 2025.06.05 | ¿ù¼¼ | ¿µºóºô | 2 | 25.37 | 1,000 | 115 | 2023 | | 2025.06.04 | ¿ù¼¼ | ºÎ¸íºôµù | 5 | 12.14 | 1,000 | 44 | 2013 | | 2025.06.04 | ¿ù¼¼ | ´Ù¿Â½Åµå·Ò | 3 | 21.13 | 1,000 | 55 | 2016 | | 2025.06.03 | Àü¼¼ | ÇØ¼Öºô | 2 | 39.09 | 26,600 | 0 | 2013 | | 2025.06.03 | ¿ù¼¼ | ¿µºóºô | 3 | 28.52 | 1,000 | 120 | 2023 | | 2025.06.01 | ¿ù¼¼ | MAJESTY | 6 | 15.33 | 8,000 | 40 | 2013 | | 2025.06.01 | ¸Å¸Å | ¿µÈ¸Ç¼ðA | 4 | 81.75 | 140,000 | | 2002 | | 2025.05.31 | ¿ù¼¼ | ¸®¾È | 9 | 15.37 | 1,000 | 65 | 2017 | | 2025.05.31 | ¿ù¼¼ | ¸í¼ºÇϿ콺 | 3 | 29.6 | 26,700 | 5 | 2019 | | 2025.05.31 | ¿ù¼¼ | Á¦ÀÌŸ¿î | 7 | 15.54 | 1,000 | 65 | 2016 | | 2025.05.31 | ¿ù¼¼ | ¸í¼º | 5 | 13.53 | 1,000 | 54 | 2013 | | 2025.05.30 | ¿ù¼¼ | µðÇϿ콺 | 3 | 25.55 | 10,000 | 20 | 2012 | | 2025.05.30 | Àü¼¼ | ÂüÁ¸ºô¸®Áö | 2 | 25.81 | 25,000 | 0 | 2013 | | 2025.05.29 | ¿ù¼¼ | Ƽ¿¥Å¸¿î | 3 | 29.23 | 24,000 | 25 | 2016 | | 2025.05.28 | Àü¼¼ | Á¦ÀÌÇϿ콺 | 4 | 29.95 | 24,400 | 0 | 2018 | | 2025.05.28 | ¿ù¼¼ | MAJESTY | 6 | 15.33 | 8,000 | 36 | 2013 | | 2025.05.28 | Àü¼¼ | ¼Ò¸Á¾ÆÆ®ºô | 2 | 79.33 | 33,500 | 0 | 2002 | | 2025.05.27 | ¿ù¼¼ | MAJESTY | 3 | 46 | 3,000 | 110 | 2013 | | 2025.05.27 | ¿ù¼¼ | µÕÁö¥² | 5 | 17.88 | 1,000 | 59 | 2012 | | 2025.05.27 | ¿ù¼¼ | ¼º³²ÇÏÀÌÃ÷ºôBµ¿ | 5 | 52.68 | 10,000 | 55 | 2002 | | 2025.05.24 | ¸Å¸Å | »ù¼Ú´ÂÅÍ | 2 | 55.05 | 47,600 | | 2019 | | 2025.05.24 | ¸Å¸Å | ¾Æ³Ê½ºÈú3Â÷(393-38) | 2 | 38.62 | 43,000 | | 2014 | | 2025.05.24 | Àü¼¼ | ¸ÞÁ¾µåº¸¾Æ | 2 | 59.67 | 28,000 | 0 | 2002 | | 2025.05.23 | Àü¼¼ | ¹Ì¸®³»¾¾Æ¼ºô | 2 | 58.15 | 24,000 | 0 | 1995 | | 2025.05.23 | ¸Å¸Å | ¹Ì·¡ÇÏÀÌÃ÷ºô(³ª) | 4 | 66.18 | 110,000 | | 2002 | | 2025.05.23 | ¸Å¸Å | Ƽ¿¥Å¸¿î | 4 | 27.52 | 33,000 | | 2016 | | 2025.05.22 | ¸Å¸Å | ¸®¾È | 11 | 14.59 | 12,500 | | 2017 | | 2025.05.21 | ¿ù¼¼ | ÄÉ·»½Ã¾Æ´ë¹æ | 6 | 28.45 | 5,000 | 120 | 2022 | | 2025.05.21 | ¿ù¼¼ | ÄÉ·»½Ã¾Æ´ë¹æ | 5 | 24.65 | 2,000 | 115 | 2022 | | 2025.05.20 | ¸Å¸Å | Ƽ¿¥Å¸¿î | 2 | 26.95 | 34,800 | | 2016 | | 2025.05.19 | ¸Å¸Å | ÇÁ¸®¹Ì¾öºô | 2 | 72.86 | 52,500 | | 2002 | | 2025.05.19 | ¸Å¸Å | ȼººô¶ó | 3 | 145.95 | 69,000 | | 1993 | | 2025.05.19 | Àü¼¼ | ÇÏ´Ã¸í°¡(391-522) | 3 | 12 | 10,000 | 0 | 2013 | | 2025.05.18 | Àü¼¼ | ¾î¹Ý±×¸° | 3 | 14.06 | 9,000 | 0 | 2011 | | 2025.05.18 | Àü¼¼ | ±×¸°ºô¶óÆ®(11-85) | 5 | 44.91 | 26,400 | 0 | 2014 | | 2025.05.18 | Àü¼¼ | ¾î¹Ý±×¸° | 3 | 14.06 | 9,000 | 0 | 2011 | | 2025.05.18 | ¿ù¼¼ | ¸®¾È | 10 | 14.59 | 10,000 | 25 | 2017 | | 2025.05.18 | Àü¼¼ | ±×¸°ºô¶óÆ®(11-85) | 2 | 42.7 | 24,000 | 0 | 2014 | | 2025.05.18 | Àü¼¼ | ÇÏ´Ã¸í°¡(391-522) | 2 | 12 | 10,000 | 0 | 2013 | | 2025.05.17 | Àü¼¼ | û¼Ö¸Ç¼Ç | 4 | 77.2 | 36,000 | 0 | 2001 | | 2025.05.17 | ¿ù¼¼ | ¿øµ¿¹æÁÁÀºÁý | 3 | 78.69 | 27,000 | 50 | 1997 | | 2025.05.17 | Àü¼¼ | ÇÏ´Ã¸í°¡(391-522) | 2 | 12.06 | 9,500 | 0 | 2013 | | 2025.05.17 | ¿ù¼¼ | ÆÓ¸®½ºÅ¸¿î(411-13) | 5 | 28.3 | 25,000 | 11 | 2017 | | 2025.05.17 | Àü¼¼ | ÇÏ´Ã¸í°¡(391-522) | 3 | 12.06 | 10,000 | 0 | 2013 | | 2025.05.15 | Àü¼¼ | ÇÏ´Ã¸í°¡(391-522) | 3 | 12.06 | 9,400 | 0 | 2013 | | 2025.05.15 | ¿ù¼¼ | µ¿¼ÁÖÅÃB | 4 | 43.33 | 16,800 | 30 | 2002 | | 2025.05.15 | Àü¼¼ | ÇÏ´Ã¸í°¡(391-522) | 2 | 12.06 | 10,000 | 0 | 2013 | | 2025.05.15 | ¿ù¼¼ | Á¤¿øºô¶ó | 1 | 20.89 | 1,000 | 43 | 1991 | | 2025.05.15 | ¿ù¼¼ | MAJESTY | 2 | 46 | 2,000 | 45 | 2013 | | 2025.05.15 | ¸Å¸Å | µðºñÇϿ콺Aµ¿ | 4 | 58.11 | 37,700 | | 2001 | | 2025.05.15 | Àü¼¼ | ÇÏ´Ã¸í°¡(391-522) | 4 | 13.79 | 11,000 | 0 | 2013 | | 2025.05.15 | Àü¼¼ | ÇÏ´Ã¸í°¡(391-522) | 2 | 12 | 10,000 | 0 | 2013 | | 2025.05.15 | ¿ù¼¼ | µ¿¼ÁÖÅÃB | 4 | 43.33 | 16,800 | 30 | 2002 | | 2025.05.15 | Àü¼¼ | °ñµçÈú(391-319) | 2 | 50 | 36,300 | 0 | 2014 | | 2025.05.15 | Àü¼¼ | ÇÏ´Ã¸í°¡(391-522) | 4 | 13.79 | 11,000 | 0 | 2013 | | 2025.05.15 | ¸Å¸Å | »ïȺô¶ó | 1 | 64.09 | 37,900 | | 1997 | | 2025.05.14 | ¿ù¼¼ | ¹Ì¸®³»¾¾Æ¼ºô | 4 | 44.57 | 15,000 | 30 | 1995 | | 2025.05.13 | Àü¼¼ | »ï¿Àºô¶ó | 1 | 69.32 | 20,000 | 0 | 1991 | | 2025.05.11 | Àü¼¼ | ´ë¹æºô¶ó | 3 | 76.67 | 32,000 | 0 | 1991 | | 2025.05.11 | ¿ù¼¼ | º£½ºÆ®ºô | 5 | 74.9 | 6,000 | 90 | 2008 | | 2025.05.10 | ¿ù¼¼ | ÄÉ·»½Ã¾Æ´ë¹æ | 4 | 25.22 | 5,000 | 100 | 2022 | | 2025.05.10 | ¿ù¼¼ | º¸¶ó¸Å½ºÀ§Æ®(411-1¿Ü) | 3 | 17.43 | 5,000 | 45 | 2015 | | 2025.05.10 | ¿ù¼¼ | ¿ø³ëºí·¹½º | 8 | 17.11 | 3,000 | 34 | 2015 | | 2025.05.10 | ¿ù¼¼ | Ƽ¿¥Å¸¿î | 4 | 27.52 | 22,500 | 25 | 2016 | | 2025.05.10 | ¿ù¼¼ | MAJESTY | 5 | 15.33 | 8,000 | 47 | 2013 | | 2025.05.10 | ¿ù¼¼ | º¸¶ó¸Å½ºÀ§Æ®(411-1¿Ü) | 3 | 17.43 | 5,000 | 45 | 2015 | | 2025.05.10 | ¿ù¼¼ | ÆÓ¸®½ºÅ¸¿î(411-33) | 4 | 19.63 | 7,000 | 65 | 2017 | | 2025.05.10 | ¿ù¼¼ | µÎµÎºô¶ó | 3 | 68.1 | 23,000 | 20 | 1994 | | 2025.05.10 | ¿ù¼¼ | ¸®¾È | 10 | 15.05 | 2,000 | 60 | 2017 | | 2025.05.09 | ¸Å¸Å | Ƽ¿¥Å¸¿î | 2 | 29.23 | 33,000 | | 2016 | | 2025.05.08 | Àü¼¼ | ´ÙÀÎij½½3Â÷ | 2 | 52.16 | 53,500 | 0 | 2021 | | 2025.05.06 | ¿ù¼¼ | ´õÆÛ½ºÆ®È¨ | 3 | 50.27 | 15,000 | 65 | 2016 | | 2025.05.06 | ¿ù¼¼ | ÈÞ¾Èä | 2 | 13.19 | 13,000 | 6 | 2016 | | 2025.05.05 | ¸Å¸Å | ¼º³²ÇÏÀÌÃ÷ºôBµ¿ | 4 | 59.65 | 43,400 | | 2002 | | 2025.05.05 | Àü¼¼ | Á¾¿øºô¶ó11µ¿ | 2 | 41.31 | 14,000 | 0 | 1986 | | 2025.05.02 | Àü¼¼ | ÇØ³ª·ç | 6 | 27.08 | 24,800 | 0 | 2012 | | 2025.05.02 | ¿ù¼¼ | ¼ºÈºô¶ó | 5 | 52.14 | 22,000 | 3 | 2008 | | 2025.05.02 | ¿ù¼¼ | ¼ºÈºô¶ó | 5 | 52.14 | 23,000 | 3 | 2008 | | 2025.04.30 | Àü¼¼ | ´ë¸²¾ÆÆÄÆ® | 5 | 59.84 | 51,000 | 0 | 1993 | | 2025.04.30 | Àü¼¼ | Çö´ëȨŸ¿î2 | 11 | 59.89 | 48,000 | 0 | 1999 | | 2025.04.30 | Àü¼¼ | Çö´ëȨŸ¿î2 | 19 | 59.89 | 47,000 | 0 | 1999 | | 2025.04.29 | Àü¼¼ | ½ÅÀÏÇØÇÇÆ®¸® | 12 | 59.8165 | 54,000 | 0 | 2005 | | 2025.04.28 | Àü¼¼ | ¼º¿ø | 10 | 84.32 | 72,000 | 0 | 1994 | | 2025.04.28 | ¿ù¼¼ | ´ë¸²¾ÆÆÄÆ® | 13 | 84.92 | 20,000 | 190 | 1993 | | 2025.04.28 | Àü¼¼ | ¼º¿ø | 14 | 84.32 | 67,000 | 0 | 1994 | | 2025.04.27 | ¸Å¸Å | Çö´ëºô¶ó | 1 | 60.25 | 123,800 | | 1990 | | 2025.04.27 | ¿ù¼¼ | ´ë¸²¾ÆÆÄÆ® | 19 | 134.25 | 50,000 | 115 | 1993 | | 2025.04.27 | ¿ù¼¼ | ¾Æµ¥³ª339 | 3 | 15.68 | 9,400 | 17 | 2012 | | 2025.04.26 | ¿ù¼¼ | ÁÖ°ø2 | 12 | 58.65 | 40,000 | 30 | 1995 | | 2025.04.26 | Àü¼¼ | ´ë¹æµ¿Çö´ë | 14 | 84.96 | 44,100 | 0 | 1994 | | 2025.04.26 | Àü¼¼ | ´ë¸²¾ÆÆÄÆ® | 3 | 134.25 | 90,000 | 0 | 1993 | | 2025.04.26 | Àü¼¼ | ´ë¹æ1Â÷e-ÆíÇѼ¼»ó | 7 | 84.32 | 75,000 | 0 | 2003 | | 2025.04.26 | Àü¼¼ | ´ë¸²¾ÆÆÄÆ® | 8 | 59.84 | 35,100 | 0 | 1993 | | 2025.04.26 | ¿ù¼¼ | ´ë¸²¾ÆÆÄÆ® | 18 | 134.25 | 45,000 | 120 | 1993 | | 2025.04.25 | ¸Å¸Å | Ƽ¿¥Å¸¿î | 5 | 27.52 | 32,000 | | 2016 | | 2025.04.25 | Àü¼¼ | Çѱ¹°³³ª¸® | 15 | 84.9 | 60,000 | 0 | 1997 | | 2025.04.24 | Àü¼¼ | ½ÅÇÑÅäÅ» | 15 | 84.98 | 44,500 | 0 | 1997 | | 2025.04.23 | Àü¼¼ | ´ë¹æ1Â÷e-ÆíÇѼ¼»ó | 12 | 84.32 | 59,850 | 0 | 2003 | | 2025.04.21 | ¿ù¼¼ | Çö´ëȨŸ¿î2 | 2 | 84.94 | 34,000 | 120 | 1999 | | 2025.04.20 | ¿ù¼¼ | ´ë¸²¾ÆÆÄÆ® | 16 | 59.84 | 40,000 | 75 | 1993 | | 2025.04.20 | ¿ù¼¼ | ´ë¸²¾ÆÆÄÆ® | 10 | 59.84 | 3,000 | 190 | 1993 | | 2025.04.20 | ¸Å¸Å | ºê¶ó¿î½ºÅæºô | 1 | 77.95 | 64,000 | | 2005 | | 2025.04.19 | Àü¼¼ | ´ë¹æµ¿Çö´ë | 4 | 84.96 | 42,000 | 0 | 1994 | | 2025.04.19 | Àü¼¼ | ´ë¸²¾ÆÆÄÆ® | 3 | 59.84 | 55,000 | 0 | 1993 | | 2025.04.19 | Àü¼¼ | ÁÖ°ø2 | 15 | 51.66 | 31,500 | 0 | 1995 | | 2025.04.18 | ¿ù¼¼ | ÁÖ°ø2 | 11 | 59.97 | 9,000 | 115 | 1995 | | 2025.04.18 | ¿ù¼¼ | ÁÖ°ø2 | 12 | 58.65 | 11,000 | 107 | 1995 | | 2025.04.17 | ¿ù¼¼ | Çö´ëȨŸ¿î2 | 19 | 59.89 | 10,000 | 100 | 1999 | | 2025.04.17 | ¸Å¸Å | ½Å¼ºÇϿ콺 | 4 | 44.94 | 47,000 | | 2022 | | 2025.04.17 | ¸Å¸Å | ½Å¼ºÇϿ콺 | 4 | 44.94 | 47,000 | | 2022 | | 2025.04.17 | Àü¼¼ | ÁÖ°ø2 | 6 | 58.65 | 36,750 | 0 | 1995 | | 2025.04.16 | Àü¼¼ | ÁÖ°ø2 | 13 | 59.97 | 36,750 | 0 | 1995 | | 2025.04.15 | Àü¼¼ | Çϳª¸¶À» | 3 | 108.12 | 46,000 | 0 | 2003 | | 2025.04.15 | ¸Å¸Å | »ù¼Ú´ÂÅÍ | 2 | 59.8 | 52,000 | | 2019 | | 2025.04.14 | ¸Å¸Å | ±ÝÀÏÁÖÅà | 5 | 75.63 | 58,000 | | 2002 | | 2025.04.12 | Àü¼¼ | ÁÖ°ø2 | 6 | 51.66 | 40,000 | 0 | 1995 | | 2025.04.12 | Àü¼¼ | ´ë¸²¾ÆÆÄÆ® | 16 | 59.84 | 54,000 | 0 | 1993 | | 2025.04.12 | ¸Å¸Å | µ¿¼ÁÖÅÃB | 2 | 47.64 | 36,800 | | 2002 | | 2025.04.12 | Àü¼¼ | ¿ìÁ¤ | 10 | 84.6 | 56,000 | 0 | 1999 | | 2025.04.11 | Àü¼¼ | ÁÖ°ø2 | 3 | 59.97 | 48,000 | 0 | 1995 | | 2025.04.11 | ¿ù¼¼ | ÁÖ°ø2 | 11 | 58.65 | 7,000 | 78 | 1995 | | 2025.04.09 | ¿ù¼¼ | Çö´ëȨŸ¿î2 | 2 | 84.94 | 8,000 | 137 | 1999 | | 2025.04.09 | Àü¼¼ | ´ë¸²¾ÆÆÄÆ® | 9 | 59.84 | 54,000 | 0 | 1993 | | 2025.04.09 | Àü¼¼ | ÁÖ°ø2 | 4 | 51.66 | 40,000 | 0 | 1995 | | 2025.04.07 | ¸Å¸Å | ½ºÄ«ÀÌij½½ | 2 | 38.94 | 44,500 | | 2019 | | 2025.04.07 | ¿ù¼¼ | ¼º¿ø | 5 | 84.32 | 20,000 | 180 | 1994 | | 2025.04.05 | Àü¼¼ | ¿ìÁ¤ | 4 | 59.89 | 37,800 | 0 | 1999 | | 2025.04.05 | Àü¼¼ | ½ÅÀÏÇØÇÇÆ®¸® | 5 | 59.8165 | 53,000 | 0 | 2005 | | 2025.04.05 | Àü¼¼ | ¼º¿ø | 24 | 84.32 | 55,500 | 0 | 1994 | | 2025.04.04 | Àü¼¼ | ¼º¿ø | 20 | 84.32 | 60,375 | 0 | 1994 | | 2025.04.03 | Àü¼¼ | ÁÖ°ø2 | 4 | 51.66 | 33,000 | 0 | 1995 | | 2025.04.02 | Àü¼¼ | ´ë¹æ1Â÷e-ÆíÇѼ¼»ó | 20 | 84.32 | 72,450 | 0 | 2003 | | 2025.04.01 | Àü¼¼ | ÁÖ°ø2 | 13 | 58.65 | 41,000 | 0 | 1995 | | 2025.02.28 | ¸Å¸Å | ´ë¹æÂüÁ¸Å¸¿î | 3 | 46.2 | 49,000 | | 2015 | | 2025.02.27 | ¿ù¼¼ | ±Ý¼Ûºô¶ó | 1 | 38.7 | 5,000 | 53 | 2004 | | 2025.02.26 | ¸Å¸Å | ¼Ò¸Á¾ÆÆ®ºô | 3 | 79.33 | 56,000 | | 2002 | | 2025.02.26 | ¿ù¼¼ | ÄŸºô·¹´ë¹æ(405-4) | 7 | 21.05 | 5,000 | 65 | 2014 | | 2025.02.26 | ¿ù¼¼ | ½Å¼ºÇϿ콺 | 3 | 29.98 | 5,000 | 105 | 2022 | | 2025.02.25 | ¸Å¸Å | Ƽ¿¥Å¸¿î | 6 | 28.73 | 29,000 | | 2016 | | 2025.02.25 | ¿ù¼¼ | (335-18) | 4 | 14.29 | 3,000 | 44 | 2018 | | 2025.02.25 | ¸Å¸Å | ´ë¹æºô¸®Áö(387-27) | 4 | 29.49 | 29,000 | | 2016 | | 2025.02.24 | ¿ù¼¼ | ¸®´õ½ººô | 5 | 53.75 | 12,000 | 78 | 2004 | | 2025.02.24 | ¿ù¼¼ | ¸®´õ½ººô | 5 | 53.75 | 12,000 | 78 | 2004 | | 2025.02.24 | Àü¼¼ | 20-40 | 3 | 14.4 | 9,850 | 0 | 2013 | | 2025.02.23 | ¿ù¼¼ | ÈÞ¾Èä | 4 | 13.19 | 8,500 | 22 | 2016 | | 2025.02.22 | Àü¼¼ | ´ë¹æÆÓ¸®½º(A,B,Cµ¿) | 5 | 33.12 | 26,400 | 0 | 2017 | | 2025.02.22 | ¿ù¼¼ | 411-12 | 3 | 20.44 | 5,000 | 80 | 2015 | | 2025.02.22 | ¸Å¸Å | ÆÄÅ©Èú½º | 4 | 58.86 | 40,500 | | 2018 | | 2025.02.22 | ¿ù¼¼ | µÕÁö¥² | 5 | 12.18 | 1,000 | 55 | 2012 | | 2025.02.21 | Àü¼¼ | °æ¼ºÇÏÀÌÃ÷ºô¶ó2Â÷ | 3 | 72.27 | 27,500 | 0 | 1992 | | 2025.02.21 | Àü¼¼ | °æ¼ºÇÏÀÌÃ÷ºô¶ó2Â÷ | 3 | 72.27 | 27,500 | 0 | 1992 | | 2025.02.20 | Àü¼¼ | 20-40 | 3 | 14.4 | 9,850 | 0 | 2013 | | 2025.02.20 | Àü¼¼ | ÇÁ¸®¹Ì¾öºô | 2 | 72.86 | 47,700 | 0 | 2002 | | 2025.02.20 | ¿ù¼¼ | ¸®¾È | 10 | 15.37 | 1,000 | 60 | 2017 | | 2025.02.20 | Àü¼¼ | ÇÁ¸®¹Ì¾öºô | 2 | 72.86 | 47,700 | 0 | 2002 | | 2025.02.20 | Àü¼¼ | ÇÁ¸®¹Ì¾öºô | 2 | 72.86 | 47,700 | 0 | 2002 | | 2025.02.18 | Àü¼¼ | ¸í¼ºÇϿ콺5Â÷ | 2 | 29.01 | 29,000 | 0 | 2021 | | 2025.02.18 | ¿ù¼¼ | Á¾¿øºô¶ó8µ¿ | -1 | 38.79 | 8,890 | 10 | 1986 | | 2025.02.18 | Àü¼¼ | »ï¼º½ÃƼºô | 5 | 58.91 | 22,000 | 0 | 2003 | | 2025.02.17 | ¿ù¼¼ | Ƽ¿¥Å¸¿î | 5 | 27.61 | 15,000 | 40 | 2016 | | 2025.02.17 | Àü¼¼ | Ǫ¸¥½£ | 4 | 29.78 | 31,000 | 0 | 2022 | | 2025.02.17 | ¿ù¼¼ | ÈÞ¾Èä | 2 | 16.74 | 11,200 | 17 | 2016 | | 2025.02.16 | ¿ù¼¼ | Ȳ·æºô¶ó | 3 | 73.2 | 29,000 | 25 | 2002 | | 2025.02.15 | ¸Å¸Å | Ƽ¿¥Å¸¿î | 4 | 26.95 | 30,000 | | 2016 | | 2025.02.15 | Àü¼¼ | ÇÁ¶óÀÓºô¶ó | 4 | 54.77 | 23,500 | 0 | 2004 | | 2025.02.15 | ¿ù¼¼ | ¸í¼º | 4 | 13.53 | 1,000 | 53 | 2013 | | 2025.02.15 | ¿ù¼¼ | (375-53) | 4 | 12.4 | 3,000 | 50 | 2013 | | 2025.02.15 | Àü¼¼ | Ƽ¿¥Å¸¿î | 3 | 27.52 | 25,000 | 0 | 2016 | | 2025.02.15 | ¿ù¼¼ | ÆÓ¸®½ºÅ¸¿î(411-13) | 3 | 23.39 | 17,000 | 22 | 2017 | | 2025.02.15 | ¿ù¼¼ | (335-18) | 3 | 21.31 | 3,000 | 60 | 2018 | | 2025.02.15 | ¿ù¼¼ | (335-18) | 3 | 21.78 | 3,000 | 61 | 2018 | | 2025.02.14 | ¿ù¼¼ | ¸®Ä¡ºô(391-548) | 4 | 21.75 | 16,050 | 5 | 2012 | | 2025.02.13 | ¿ù¼¼ | ¸®Ä¡ºô(391-548) | 5 | 48.82 | 31,650 | 22 | 2012 | | 2025.02.13 | ¿ù¼¼ | ¸®Ä¡ºô(391-548) | 5 | 48.82 | 31,650 | 22 | 2012 | | 2025.02.12 | ¸Å¸Å | ÇÁ¸®¹Ì¾öºô | 2 | 72.86 | 53,000 | | 2002 | | 2025.02.12 | ¿ù¼¼ | 20-40 | 3 | 15.84 | 2,000 | 47 | 2013 | | 2025.02.11 | ¸Å¸Å | ¸í¼ºÇϿ콺5Â÷ | 4 | 29.94 | 37,000 | | 2021 | | 2025.02.11 | ¸Å¸Å | Á¤¿ø½¦¸£ºô | 4 | 37.65 | 34,600 | | 2017 | | 2025.02.11 | ¿ù¼¼ | »ïȺô(411-22) | 2 | 44.33 | 2,000 | 170 | 2015 | | 2025.02.10 | Àü¼¼ | 411-12 | 6 | 20.44 | 19,100 | 0 | 2015 | | 2025.02.08 | ¿ù¼¼ | ¼÷¿øÈ¨ | 3 | 50.79 | 5,000 | 112 | 2018 | | 2025.02.08 | ¿ù¼¼ | (335-18) | 4 | 14.28 | 1,000 | 57 | 2018 | | 2025.02.07 | Àü¼¼ | ¹Ì·¡winners(344-6) | 4 | 51.47 | 37,000 | 0 | 2015 | | 2025.02.06 | ¸Å¸Å | ¸®¾È | 8 | 15.05 | 13,500 | | 2017 | | 2025.02.06 | ¿ù¼¼ | È¿ÁÖÆÄÅ©ºô(392-19) | 2 | 33.08 | 16,000 | 30 | 2012 | | 2025.02.04 | ¸Å¸Å | ÇØ´ãä | 4 | 62.95 | 38,500 | | 2009 | | 2025.02.04 | ¸Å¸Å | ¹Ì·¡ÇÏÀÌÃ÷ºô(´Ù) | 5 | 70.62 | 113,000 | | 2002 | | 2025.02.03 | ¿ù¼¼ | ¼ºÈºô¶ó | 2 | 53.64 | 15,000 | 49 | 2008 | | 2025.02.03 | ¿ù¼¼ | ¼ºÈºô¶ó | 2 | 53.64 | 15,000 | 49 | 2008 | | 2025.02.03 | ¿ù¼¼ | (376-8) | 4 | 44.105 | 5,000 | 90 | 2010 | | 2025.02.03 | Àü¼¼ | Çϳªºô¶óÆ®5Â÷ | 5 | 70.94 | 35,000 | 0 | 2003 | | 2025.02.01 | Àü¼¼ | ÇÏ´Ã¸í°¡(391-522) | 2 | 12.06 | 10,000 | 0 | 2013 | | 2025.01.30 | ¿ù¼¼ | ¸®¾È | 9 | 14.59 | 1,000 | 62 | 2017 | | 2025.01.25 | ¿ù¼¼ | 20-40 | 5 | 15.12 | 2,000 | 33 | 2013 | | 2025.01.25 | Àü¼¼ | (383-7) | 2 | 46.572 | 23,000 | 0 | 2013 | | 2025.01.25 | ¿ù¼¼ | ´ë¹æºô¸®Áö(335-26) | 3 | 29.47 | 23,000 | 25 | 2017 | | 2025.01.25 | ¿ù¼¼ | ÈÞ¾Èä | 2 | 16.78 | 14,000 | 5 | 2016 | | 2025.01.25 | ¿ù¼¼ | Á¦ÀÌŸ¿î | 6 | 15.54 | 3,000 | 55 | 2016 | | 2025.01.24 | Àü¼¼ | ¾Æ³×½ºÆ¼ºô | 1 | 57.77 | 33,000 | 0 | 2011 | | 2025.01.24 | ¿ù¼¼ | ÆÓ¸®½ºÅ¸¿î(411-33) | 6 | 49.5 | 2,000 | 52 | 2017 | | 2025.01.24 | ¿ù¼¼ | µÕÁö¥² | 5 | 14.16 | 1,000 | 57 | 2012 | | 2025.01.24 | ¸Å¸Å | ´õÁ¶Àº | 2 | 39.34 | 45,750 | | 2024 | | 2025.01.24 | ¸Å¸Å | ´õÁ¶Àº | 2 | 38.37 | 44,900 | | 2024 | | 2025.01.24 | ¸Å¸Å | ´õÁ¶Àº | 2 | 39.43 | 45,650 | | 2024 | | 2025.01.24 | ¸Å¸Å | ´õÁ¶Àº | 3 | 39.34 | 46,050 | | 2024 | | 2025.01.24 | ¸Å¸Å | ´õÁ¶Àº | 3 | 39.43 | 45,950 | | 2024 | | 2025.01.24 | ¸Å¸Å | ´õÁ¶Àº | 4 | 42.75 | 50,050 | | 2024 | | 2025.01.24 | ¸Å¸Å | ´õÁ¶Àº | 4 | 50.91 | 58,950 | | 2024 | | 2025.01.24 | ¸Å¸Å | ´õÁ¶Àº | 5 | 42.27 | 49,450 | | 2024 | | 2025.01.24 | ¸Å¸Å | ´õÁ¶Àº | 3 | 38.37 | 45,150 | | 2024 | | 2025.01.24 | ¸Å¸Å | ´õÁ¶Àº | 5 | 43.83 | 51,250 | | 2024 | | 2025.01.22 | Àü¼¼ | ûÀ¯ºôµù | 3 | 12.84 | 12,000 | 0 | 2013 | | 2025.01.21 | ¿ù¼¼ | º¸¶ó¸Å¿þ½ºÆ®ºô | 4 | 12.02 | 3,000 | 26 | 2011 | | 2025.01.21 | Àü¼¼ | ¸®Ä¡ºô(391-548) | 3 | 21.22 | 12,555 | 0 | 2012 | | 2025.01.21 | ¸Å¸Å | ´ÙÀÎij½½3Â÷ | 6 | 50.31 | 70,500 | | 2021 | | 2025.01.21 | Àü¼¼ | ¸®Ä¡ºô(391-548) | 3 | 21.22 | 12,555 | 0 | 2012 | | 2025.01.20 | ¿ù¼¼ | ÆÓ¸®½ºÅ¸¿î(411-33) | 4 | 29.85 | 5,000 | 89 | 2017 | | 2025.01.20 | Àü¼¼ | ¿ø³ëºí·¹½º | 10 | 17.11 | 5,000 | 0 | 2015 | | 2025.01.18 | ¿ù¼¼ | (376-8) | 2 | 41.34 | 5,000 | 100 | 2010 | | 2025.01.18 | ¿ù¼¼ | (375-53) | 4 | 12.4 | 8,000 | 10 | 2013 | | 2025.01.18 | ¸Å¸Å | ±ÝȣŸ¿î(³ª) | 2 | 57.825 | 47,500 | | 2002 | | 2025.01.18 | ¿ù¼¼ | ´õÆÛ½ºÆ®¾ÈBµ¿ | 2 | 29.96 | 5,000 | 100 | 2016 | | 2025.01.17 | ¿ù¼¼ | ¸®¾È | 11 | 15.37 | 1,000 | 65 | 2017 | | 2025.01.17 | ¸Å¸Å | ´ë¹æÁÖ»óº¹ÇÕºôµù | 10 | 28.9 | 28,400 | | 2016 | | 2025.01.17 | ¿ù¼¼ | ¸®Ä¡ºô(391-548) | 2 | 16.98 | 12,128 | 3 | 2012 | | 2025.01.17 | ¿ù¼¼ | ÄÉ·»½Ã¾Æ´ë¹æ | 2 | 25.22 | 5,000 | 100 | 2022 | | 2025.01.16 | ¸Å¸Å | ÇØ¼º¸Ç¼Ç | 1 | 64.4 | 72,000 | | 2002 | | 2025.01.16 | ¿ù¼¼ | Paraous | 5 | 25.07 | 12,000 | 45 | 2016 | | 2025.01.16 | ¿ù¼¼ | ÇØ¼º¸Ç¼Ç | 1 | 64.4 | 26,000 | 30 | 2002 | | 2025.01.16 | ¿ù¼¼ | Á¦ÀϽ¦¸£ºô | 2 | 58.74 | 22,000 | 35 | 2002 | | 2025.01.16 | ¿ù¼¼ | µðºñŬ¶ó½Ä | -1 | 80.28 | 22,900 | 20 | 2002 | | 2025.01.16 | ¿ù¼¼ | Paraous | 5 | 25.07 | 12,000 | 45 | 2016 | | 2025.01.15 | ¸Å¸Å | µðÀÚÀÎÇϿ콺 | 2 | 72.52 | 32,000 | | 2004 | | 2025.01.15 | ¿ù¼¼ | µðÀÚÀÎÇϿ콺 | 5 | 64.34 | 10,000 | 100 | 2004 | | 2025.01.15 | ¿ù¼¼ | ÆÓ¸®½ºÅ¸¿î(411-4) | 4 | 29.85 | 25,000 | 14 | 2017 | | 2025.01.14 | ¿ù¼¼ | ÆÓ¸®½ºÅ¸¿î(411-13) | 4 | 28.3 | 22,000 | 18 | 2017 | | 2025.01.13 | ¿ù¼¼ | ³ëºô¸®Æ¼ | 3 | 42.78 | 30,000 | 38 | 2016 | | 2025.01.12 | ¿ù¼¼ | º¸¶ó¸Å½ºÀ§Æ®(411-1¿Ü) | 4 | 17.32 | 3,000 | 53 | 2015 | | 2025.01.10 | ¿ù¼¼ | ¿ø³ëºí·¹½º | 9 | 25 | 18,700 | 3 | 2015 | | 2025.01.10 | ¿ù¼¼ | ¾çÁöÁÖÅà | 4 | 35.58 | 12,000 | 70 | 2022 | | 2025.01.10 | ¿ù¼¼ | ¿ø³ëºí·¹½º | 9 | 25 | 17,300 | 9 | 2015 | | 2025.01.10 | ¿ù¼¼ | »ù¼Ú´ÂÅÍ | 5 | 29.85 | 22,900 | 15 | 2019 | | 2025.01.10 | ¿ù¼¼ | ÆÓ¸®½ºÅ¸¿î(411-33) | 3 | 19.63 | 5,000 | 70 | 2017 | | 2025.01.09 | Àü¼¼ | ´ë¹æºô¸®Áö(335-26) | 4 | 29.13 | 27,000 | 0 | 2017 | | 2025.01.04 | Àü¼¼ | µå¸²Å¸¿ö | 5 | 120.25 | 28,000 | 0 | 2016 | | 2025.01.04 | ¿ù¼¼ | ¸®¾È | 10 | 14.59 | 1,000 | 60 | 2017 | | 2025.01.04 | ¿ù¼¼ | ÄÉ·»½Ã¾Æ´ë¹æ | 4 | 25.22 | 2,000 | 115 | 2022 | | 2025.01.03 | ¿ù¼¼ | ´ÙÀÎij½½3Â÷ | 5 | 27.62 | 27,300 | 10 | 2021 | | 2025.01.03 | ¿ù¼¼ | ½Å¼ºÇϿ콺 | 2 | 29.98 | 2,000 | 100 | 2022 | | 2025.01.03 | ¿ù¼¼ | ´ÙÀÎij½½3Â÷ | 5 | 27.62 | 27,300 | 10 | 2021 | | 2025.01.01 | ¿ù¼¼ | À§³Ê½º | 3 | 10.36 | 10,000 | 18 | 2016 | | 2024.12.30 | ¿ù¼¼ | ¼÷¿øÈ¨ | 6 | 50.79 | 31,000 | 30 | 2018 | | 2024.12.28 | ¿ù¼¼ | (391-210) | 1 | 23.94 | 500 | 55 | 2002 | | 2024.12.28 | ¿ù¼¼ | ´Ù¿Â½Åµå·Ò | 4 | 21.13 | 3,000 | 43 | 2016 | | 2024.12.27 | ¸Å¸Å | ±ÃÀüÇϿ콺 | 3 | 54.58 | 35,500 | | 2002 | | 2024.12.27 | ¿ù¼¼ | °¡Àη¹Áö´ø½º | 2 | 15.55 | 2,500 | 47 | 2011 | | 2024.12.27 | ¿ù¼¼ | ¸®¾È | 10 | 15.05 | 1,000 | 60 | 2017 | | 2024.12.26 | Àü¼¼ | ±×¸°ºô¶óÆ®(11-85) | 3 | 42.7 | 26,900 | 0 | 2014 | | 2024.12.26 | Àü¼¼ | ¹Ì·¡ÇÏÀÌÃ÷ºô(³ª) | 4 | 66.18 | 25,000 | 0 | 2002 | | 2024.12.26 | ¿ù¼¼ | »ù¼Ú´ÂÅÍ | 5 | 29.85 | 22,900 | 15 | 2019 | | 2024.12.26 | Àü¼¼ | »ï¼º½ÃƼºô | 5 | 58.91 | 22,000 | 0 | 2003 | | 2024.12.26 | ¸Å¸Å | ÄýÁîºô | 4 | 71.39 | 111,000 | | 2002 | | 2024.12.25 | ¿ù¼¼ | º¸¶ó¸Å½ºÀ§Æ®(411-1¿Ü) | 3 | 20.88 | 12,000 | 13 | 2015 | | 2024.12.24 | ¿ù¼¼ | ÆÓ¸®½ºÅ¸¿î(411-4) | 5 | 29.85 | 25,000 | 17 | 2017 | | 2024.12.24 | ¿ù¼¼ | ¸®Ä¡ºô(391-548) | 2 | 20.55 | 12,800 | 5 | 2012 | | 2024.12.23 | ¿ù¼¼ | ÄÉ·»½Ã¾Æ´ë¹æ | 2 | 29.29 | 3,000 | 115 | 2022 | | 2024.12.23 | ¿ù¼¼ | ÆÓ¸®½ºÅ¸¿î(411-13) | 3 | 28.3 | 25,000 | 5 | 2017 | | 2024.12.22 | ¿ù¼¼ | ¿ÏÈñÇö´ç | 3 | 14.28 | 2,000 | 50 | 2011 | | 2024.12.21 | ¿ù¼¼ | ´ë¹æÁÖ»óº¹ÇÕºôµù | 9 | 24.31 | 2,000 | 100 | 2016 | | 2024.12.21 | ¸Å¸Å | °³²ºô¶ó | 2 | 63.62 | 38,800 | | 2004 | | 2024.12.21 | ¿ù¼¼ | °¡Àη¹Áö´ø½º | 3 | 12.02 | 2,500 | 40 | 2011 | | 2024.12.21 | ¸Å¸Å | ´õÆÛ½ºÆ®¾ÈAµ¿ | 3 | 38.73 | 35,000 | | 2016 | | 2024.12.21 | ¸Å¸Å | Á¦ÀÏÁÁÀºÁý | 4 | 76.58 | 49,500 | | 2002 | | 2024.12.21 | Àü¼¼ | Ǫ¸¥½£ | 2 | 29.38 | 29,600 | 0 | 2022 | | 2024.12.21 | ¿ù¼¼ | ´ë¹æÁÖ»óº¹ÇÕºôµù | 9 | 24.31 | 2,000 | 100 | 2016 | | 2024.12.20 | ¿ù¼¼ | ûÀ¯ºôµù | 4 | 12.61 | 2,500 | 52 | 2013 | | 2024.12.18 | Àü¼¼ | ÆÄÅ©Èú½º | 1 | 59.27 | 38,000 | 0 | 2018 | | 2024.12.18 | Àü¼¼ | ÆÄÅ©Èú½º | 1 | 59.27 | 38,000 | 0 | 2018 | | 2024.12.18 | ¸Å¸Å | ´ë¿ÕŸ¿î | 2 | 45.5 | 37,000 | | 2002 | | 2024.12.18 | ¿ù¼¼ | ¸ñȺô¶ó | 4 | 60.24 | 1,000 | 60 | 1993 | | 2024.12.17 | Àü¼¼ | °æ¼ºÇÏÀÌÃ÷ºô¶ó2Â÷ | 3 | 72.27 | 27,500 | 0 | 1992 | | 2024.12.16 | Àü¼¼ | »ïÀϺô¶ó³ªµ¿ | 2 | 36.61 | 24,000 | 0 | 1987 | | 2024.12.16 | ¿ù¼¼ | (335-18) | 4 | 17.63 | 3,000 | 49 | 2018 | | 2024.12.16 | ¿ù¼¼ | 411-12 | 4 | 15.42 | 5,000 | 55 | 2015 | | 2024.12.14 | ¿ù¼¼ | ´Ù¿Â½Åµå·Ò | 3 | 18.82 | 1,000 | 50 | 2016 | | 2024.12.14 | Àü¼¼ | º¸¶ó¸ÅÆÄÅ©ºô | 2 | 54.28 | 10,000 | 0 | 2006 | | 2024.12.14 | ¿ù¼¼ | ÄÉ·»½Ã¾Æ´ë¹æ | 5 | 25.22 | 5,000 | 100 | 2022 | | 2024.12.14 | ¿ù¼¼ | º¸¶ó¸ÅÆÄÅ©ºô | 2 | 54.28 | 10,000 | 95 | 2006 | | 2024.12.14 | ¿ù¼¼ | ¸®¾È | 8 | 15.37 | 1,000 | 65 | 2017 | | 2024.12.13 | ¿ù¼¼ | µðÇϿ콺 | 2 | 25.55 | 3,000 | 65 | 2012 | | 2024.12.13 | ¸Å¸Å | ¹Ìµµºô¶ó³ª | 1 | 41.59 | 96,500 | | 1987 | | 2024.12.12 | ¿ù¼¼ | ´ë¹æ»þÀκô(376-3) | 4 | 39.6 | 28,000 | 15 | 2015 | | 2024.12.11 | ¿ù¼¼ | Á¾¿øºô¶ó10µ¿ | 1 | 38.76 | 12,000 | 15 | 1986 | | 2024.12.11 | ¿ù¼¼ | MAJESTY | 6 | 18.55 | 10,000 | 37 | 2013 | | 2024.12.11 | ¿ù¼¼ | ÄŸºô·¹´ë¹æ(405-4) | 7 | 20.83 | 5,000 | 60 | 2014 | | 2024.12.10 | ¿ù¼¼ | MAJESTY | 4 | 12.04 | 3,000 | 37 | 2013 | | 2024.12.10 | Àü¼¼ | ¾î¹Ý±×¸° | 3 | 12.54 | 6,000 | 0 | 2011 | | 2024.12.10 | ¿ù¼¼ | ±Ý¼Ûºô¶ó | 1 | 38.7 | 13,000 | 40 | 2004 | | 2024.12.09 | ¿ù¼¼ | º¸¶ó¸Å¿þ½ºÆ®ºô | 4 | 12.02 | 1,000 | 25 | 2011 | | 2024.12.07 | ¿ù¼¼ | ´ë¹æ¾ÆÆ®ºô | 3 | 39.28 | 5,000 | 110 | 2016 | | 2024.12.07 | ¿ù¼¼ | ³ëºô¸®Æ¼ | 5 | 29.44 | 5,000 | 100 | 2016 | | 2024.12.07 | ¸Å¸Å | Áß¾ÓÇÏÀÌÃ÷ºô | 4 | 58.31 | 103,500 | | 2002 | | 2024.12.07 | ¿ù¼¼ | µÕÁö¥² | 5 | 15.84 | 1,000 | 59 | 2012 | | 2024.12.06 | Àü¼¼ | ³ëºíÇϿ콺 | 3 | 42.31 | 33,000 | 0 | 2016 | | 2024.12.05 | ¸Å¸Å | Èï¿ø¾ÆÆ®ºô | 2 | 47.52 | 38,000 | | 2002 | | 2024.12.04 | ¿ù¼¼ | ½Å´ë¹æ¾ÆÆ®ºô | 5 | 94.24 | 15,000 | 10 | 2002 | | 2024.12.03 | Àü¼¼ | ´ë¸íºô¶ó°¡ | 2 | 54.2 | 3,000 | 0 | 1991 | | 2024.12.03 | ¿ù¼¼ | ÄŸºô·¹´ë¹æ(405-4) | 11 | 21.88 | 8,000 | 50 | 2014 | | 2024.12.03 | ¿ù¼¼ | Çѽººô | 4 | 56.36 | 6,000 | 53 | 2002 | | 2024.12.01 | ¿ù¼¼ | ÄÉ·»½Ã¾Æ´ë¹æ | 5 | 23.12 | 3,000 | 150 | 2022 | | 2024.12.01 | ¿ù¼¼ | ÄÉ·»½Ã¾Æ´ë¹æ | 5 | 23.12 | 3,000 | 105 | 2022 | | 2024.11.28 | Àü¼¼ | (383-7) | 2 | 45.99 | 23,000 | 0 | 2013 | | 2024.11.27 | ¸Å¸Å | »ï¼º½ÃƼºô | 5 | 58.91 | 37,700 | | 2003 | | 2024.11.27 | ¸Å¸Å | ½Å¼ºÇϿ콺 | 4 | 29.98 | 35,500 | | 2022 | | 2024.11.27 | ¿ù¼¼ | ´õÆ÷·¹ | 5 | 38.51 | 15,000 | 100 | 2021 | | 2024.11.25 | ¿ù¼¼ | ´ë¹æ»þÀκô(376-3) | 4 | 39.6 | 28,000 | 10 | 2015 | | 2024.11.24 | ¿ù¼¼ | MAJESTY | 5 | 15.33 | 13,500 | 10 | 2013 | | 2024.11.23 | Àü¼¼ | ¸®¾È | 9 | 15.05 | 12,640 | 0 | 2017 | | 2024.11.23 | ¿ù¼¼ | ÄÉ·»½Ã¾Æ´ë¹æ | 3 | 24.65 | 5,000 | 100 | 2022 | | 2024.11.23 | Àü¼¼ | ¸®¾È | 9 | 15.05 | 12,640 | 0 | 2017 | | 2024.11.21 | ¿ù¼¼ | ÄÉ·»½Ã¾Æ´ë¹æ | 2 | 23.12 | 1,500 | 110 | 2022 | | 2024.11.18 | ¿ù¼¼ | ½ºÅ¸³ëºí·¹½º | 5 | 14.43 | 15,000 | 21 | 2022 | | 2024.11.18 | ¿ù¼¼ | ½ºÅ¸³ëºí·¹½º | 5 | 14.43 | 15,000 | 21 | 2022 | | 2024.11.18 | Àü¼¼ | Æ®¶ó¿òºô | 3 | 29.5 | 26,500 | 0 | 2018 | | 2024.11.18 | ¿ù¼¼ | ¸®´õ½ººô | 4 | 53.75 | 26,000 | 15 | 2004 | | 2024.11.18 | ¸Å¸Å | »ï¿Àºô¶ó | 2 | 69.32 | 21,000 | | 1991 | | 2024.11.18 | ¿ù¼¼ | ÄŸºô·¹´ë¹æ(405-4) | 10 | 20.83 | 12,000 | 13 | 2014 | | 2024.11.18 | Àü¼¼ | Æ®¶ó¿òºô | 3 | 29.5 | 26,500 | 0 | 2018 | | 2024.11.15 | ¿ù¼¼ | ¿µºóºô | 2 | 25.37 | 1,000 | 120 | 2023 | | 2024.11.15 | ¸Å¸Å | û¼Û½¦¸£ºô | 1 | 66.84 | 46,500 | | 2002 | | 2024.11.15 | Àü¼¼ | ¸®¾È | 8 | 15.05 | 12,640 | 0 | 2017 | | 2024.11.14 | ¿ù¼¼ | ÆÓ¸®½ºÅ¸¿î(411-4) | 3 | 19.63 | 18,000 | 17 | 2017 | | 2024.11.14 | Àü¼¼ | µå¸²Å¸¿ö | 4 | 42.4 | 28,900 | 0 | 2016 | | 2024.11.14 | ¸Å¸Å | Á¤¿øºä | 5 | 58.73 | 55,000 | | 2018 | | 2024.11.13 | ¿ù¼¼ | (376-8) | 3 | 64.175 | 4,000 | 140 | 2010 | | 2024.11.12 | Àü¼¼ | ´ë¹æÂüÁ¸Å¸¿î | 5 | 45.5 | 38,000 | 0 | 2015 | | 2024.11.11 | Àü¼¼ | ¸®¾È | 9 | 15.05 | 12,640 | 0 | 2017 | | 2024.11.11 | ¿ù¼¼ | Çູ½ºÀ§Æ®È¨ | 5 | 72.245 | 30,000 | 15 | 2002 | | 2024.11.11 | ¿ù¼¼ | Çູ½ºÀ§Æ®È¨ | 5 | 72.245 | 30,000 | 15 | 2002 | | 2024.11.09 | ¿ù¼¼ | Çö´ëºô | 5 | 25.37 | 1,000 | 115 | 2023 | | 2024.11.09 | ¿ù¼¼ | MAJESTY | 5 | 18.55 | 10,000 | 32 | 2013 | | 2024.11.09 | ¿ù¼¼ | ¸íµµ¿¡ÄÚºô(379-33) | 2 | 40.78 | 26,400 | 20 | 2015 | | 2024.11.09 | ¿ù¼¼ | ´õÆÛ½ºÆ®¾ÈAµ¿ | 3 | 38.73 | 22,400 | 25 | 2016 | | 2024.11.09 | ¸Å¸Å | »ï¼º½ÃƼºô | 4 | 77.04 | 45,000 | | 2003 | | 2024.11.08 | Àü¼¼ | ȼººô¶ó | 2 | 87.33 | 40,000 | 0 | 1993 | | 2024.11.07 | ¸Å¸Å | ´ÙÀÎij½½3Â÷ | 5 | 27.62 | 38,200 | | 2021 | | 2024.11.07 | ¿ù¼¼ | Á¦ÀÌŸ¿î | 8 | 15.54 | 1,000 | 65 | 2016 | | 2024.11.05 | ¿ù¼¼ | ¸®Ä¡ºô(391-548) | 2 | 17.35 | 13,350 | 5 | 2012 | | 2024.11.05 | ¿ù¼¼ | ÄÉ·»½Ã¾Æ´ë¹æ | 4 | 23.12 | 1,500 | 105 | 2022 | | 2024.11.02 | Àü¼¼ | ¸í¼ºÇϿ콺 | 6 | 46.65 | 44,000 | 0 | 2019 | | 2024.11.02 | ¿ù¼¼ | ¼ºÈºô¶ó | 2 | 53.64 | 25,950 | 11 | 2008 | | 2024.11.02 | Àü¼¼ | ¸í¼ºÇϿ콺 | 6 | 46.65 | 44,000 | 0 | 2019 | | 2024.11.01 | Àü¼¼ | ¸ÞÁ¾µåº¸¾Æ | 4 | 54.49 | 29,800 | 0 | 2002 | | 2024.11.01 | ¿ù¼¼ | µå¸²ºô¶óÆ®2Â÷ | 1 | 71.95 | 30,870 | 10 | 2002 | | 2024.10.31 | ¸Å¸Å | ¹Ý¼®ºô¶ó | 3 | 38.06 | 115,000 | | 1997 | | 2024.10.30 | ¿ù¼¼ | (335-18) | 5 | 14.29 | 2,000 | 45 | 2018 | | 2024.10.30 | ¿ù¼¼ | (335-18) | 5 | 14.29 | 2,000 | 45 | 2018 | | 2024.10.30 | Àü¼¼ | (335-18) | 4 | 46.04 | 30,000 | 0 | 2018 | | 2024.10.30 | ¿ù¼¼ | ¾ÆÆ®¸®ºùÅÚ | 3 | 74.76 | 500 | 20 | 2002 | | 2024.10.29 | ¿ù¼¼ | 411-29 | 4 | 20.81 | 4,000 | 35 | 2015 | | 2024.10.29 | ¸Å¸Å | º§¶óºñ½ºÅ¸69 | 3 | 60.25 | 35,700 | | 2002 | | 2024.10.28 | Àü¼¼ | ½Å»ýºô¶ó | -1 | 57.03 | 25,000 | 0 | 1995 | | 2024.10.28 | ¿ù¼¼ | ±Ý¼Ûºô¶ó | 4 | 46.2 | 14,000 | 31 | 2004 | | 2024.10.26 | ¿ù¼¼ | ¸®¾È | 11 | 14.59 | 10,000 | 30 | 2017 | | 2024.10.26 | ¿ù¼¼ | Á¦ÀÌÇϿ콺 | 3 | 29.95 | 24,000 | 8 | 2018 | | 2024.10.25 | Àü¼¼ | ¾ÆÀ̸°ÇϿ콺 | 1 | 17.04 | 11,500 | 0 | 2013 | | 2024.10.25 | Àü¼¼ | Á¾¿øºô¶ó5µ¿ | -1 | 38.19 | 8,700 | 0 | 1986 | | 2024.10.22 | Àü¼¼ | ÇØ¼Öºô | 5 | 58.97 | 26,200 | 0 | 2013 | | 2024.10.22 | ¿ù¼¼ | MAJESTY | 4 | 21.84 | 18,000 | 16 | 2013 | | 2024.10.21 | ¿ù¼¼ | Á¦ÀϽ¦¸£ºô | 3 | 58.74 | 24,300 | 50 | 2002 | | 2024.10.21 | ¿ù¼¼ | ´ë¹æÆÓ¸®½º(A,B,Cµ¿) | 5 | 32.79 | 24,000 | 10 | 2017 | | 2024.10.21 | ¿ù¼¼ | º£½ºÆ®ºô | 4 | 84.87 | 30,000 | 40 | 2008 | | 2024.10.20 | ¿ù¼¼ | ¾ÆÀÌÆÄÅ©ºô | 5 | 29.26 | 22,800 | 30 | 2016 | | 2024.10.19 | ¿ù¼¼ | ´ë¸íºô¶ó³ª | 2 | 40.59 | 500 | 47 | 1991 | | 2024.10.19 | ¸Å¸Å | ´ë¹æÂüÁ¸Å¸¿î | 5 | 45.5 | 49,000 | | 2015 | | 2024.10.18 | Àü¼¼ | ¾Ö½ºÅæÇϿ콺 | 2 | 45.41 | 22,000 | 0 | 2016 | | 2024.10.18 | ¸Å¸Å | Á¦ÀÏÁÁÀºÁý | 5 | 73.11 | 42,000 | | 2002 | | 2024.10.17 | Àü¼¼ | ½ºÄ«ÀÌij½½ | 6 | 28.97 | 28,000 | 0 | 2019 | | 2024.10.15 | ¸Å¸Å | żºÆÓ¸®½º | 2 | 31.21 | 24,600 | | 2016 | | 2024.10.15 | ¿ù¼¼ | Çö´ëºô | 3 | 28.52 | 1,000 | 115 | 2023 | | 2024.10.15 | Àü¼¼ | ¸®Ä¡ºô(391-548) | 4 | 16.98 | 12,734 | 0 | 2012 | | 2024.10.11 | Àü¼¼ | ¾ÆÀ̸°ÇϿ콺 | 2 | 17.24 | 11,800 | 0 | 2013 | | 2024.10.11 | ¸Å¸Å | È¿ÁÖÆÄÅ©ºô(392-19) | 3 | 29.76 | 19,000 | | 2012 | | 2024.10.11 | ¿ù¼¼ | ´ÙÀÎij½½3Â÷ | 5 | 27.44 | 25,704 | 48 | 2021 | | 2024.10.10 | ¸Å¸Å | ±Ý¼ººô¶óC | 1 | 36.89 | 85,000 | | 1989 | | 2024.10.10 | ¸Å¸Å | ¸í¼ºÇϿ콺 | 6 | 46.65 | 40,000 | | 2019 | | 2024.10.10 | ¿ù¼¼ | µå¸²Ä³½½ | 6 | 33.01 | 23,100 | 9 | 2013 | | 2024.10.10 | ¸Å¸Å | ¼Ò¸Á¾ÆÆ®ºô | 2 | 79.33 | 35,000 | | 2002 | | 2024.10.09 | Àü¼¼ | ÇØÇÇÇϿ콺 | 2 | 62.14 | 30,000 | 0 | 2003 | | 2024.10.09 | ¿ù¼¼ | Ǫ¸¥½£ | 5 | 29.11 | 1,000 | 116 | 2022 | | 2024.10.09 | ¿ù¼¼ | °¡Àη¹Áö´ø½º | 4 | 39.08 | 2,000 | 42 | 2011 | | 2024.10.09 | ¿ù¼¼ | ¼÷¿øÈ¨ | 2 | 50.93 | 28,000 | 29 | 2018 | | 2024.10.09 | ¿ù¼¼ | ¼÷¿øÈ¨ | 6 | 50.93 | 25,000 | 52 | 2018 | | 2024.10.08 | ¸Å¸Å | °æ¼ºÇÏÀÌÃ÷ºô¶ó2Â÷ | 1 | 72.27 | 49,000 | | 1992 | | 2024.10.08 | ¿ù¼¼ | MAJESTY | 4 | 21.84 | 18,000 | 16 | 2013 | | 2024.10.06 | ¿ù¼¼ | ¼º½Éºô¶ó | 4 | 70.4 | 22,000 | 25 | 1992 | | 2024.10.06 | ¿ù¼¼ | ûÀ¯ºôµù | 3 | 12.84 | 6,000 | 30 | 2013 | | 2024.10.05 | ¿ù¼¼ | ¸®¾È | 8 | 15.05 | 6,000 | 40 | 2017 | | 2024.10.05 | ¿ù¼¼ | ¹Ì·¡winners(344-6) | 2 | 28.7 | 26,000 | 10 | 2015 | | 2024.10.04 | Àü¼¼ | ÇѰÆÓ¸®½º(387-3) | 3 | 23.12 | 18,200 | 0 | 2014 | | 2024.10.04 | ¿ù¼¼ | ´ÙÀÎij½½3Â÷ | 5 | 27.62 | 27,300 | 10 | 2021 | | 2024.10.04 | ¿ù¼¼ | Ƽ¿¥Å¸¿î | 5 | 29.23 | 24,000 | 25 | 2016 | | 2024.10.04 | ¿ù¼¼ | µÕÁö¥² | 3 | 15.84 | 2,000 | 50 | 2012 | | 2024.10.03 | ¿ù¼¼ | ´Ù¿Â½Åµå·Ò | 4 | 18.82 | 1,000 | 50 | 2016 | | 2024.10.03 | ¿ù¼¼ | ¿øµ¿¹æÁÁÀºÁý | -1 | 83.95 | 5,000 | 60 | 1997 | | 2024.10.01 | ¿ù¼¼ | ÆÓ¸®½ºÅ¸¿î(411-4) | 3 | 19.63 | 15,000 | 31 | 2017 | | 2024.10.01 | ¿ù¼¼ | 411-29 | 6 | 16.96 | 10,000 | 65 | 2015 | | 2024.10.01 | ¿ù¼¼ | ¸®¾È | 8 | 15.05 | 1,000 | 61 | 2017 | | 2024.09.30 | ¿ù¼¼ | ´ë¹æºô¸®Áö(335-26) | 4 | 24.45 | 5,500 | 80 | 2017 | | 2024.09.30 | ¸Å¸Å | ´ë¸íºô¶ó°¡ | 2 | 54.2 | 96,000 | | 1991 | | 2024.09.30 | Àü¼¼ | ½Ã±×´Ïó | 2 | 29.43 | 30,000 | 0 | 2019 | | 2024.09.28 | ¿ù¼¼ | ¼ºÁø¸®Ä¡ºô | 4 | 26.94 | 5,000 | 90 | 2015 | | 2024.09.27 | ¿ù¼¼ | (391-210) | 2 | 27.79 | 2,000 | 30 | 2002 | | 2024.09.26 | ¿ù¼¼ | ´ë¸²Ä³½½ºô | 3 | 13.26 | 4,000 | 25 | 2011 | | 2024.09.26 | ¿ù¼¼ | Ƽ¿¥Å¸¿î | 5 | 26.95 | 22,100 | 26 | 2016 | | 2024.09.26 | ¿ù¼¼ | º¸¶ó¸ÅÀ̽ºÆ®ºô | 4 | 12.12 | 2,000 | 38 | 2011 | | 2024.09.26 | ¿ù¼¼ | ¿ÏÈñÇö´ç | 2 | 14.28 | 3,000 | 45 | 2011 | | 2024.09.24 | Àü¼¼ | ¼öÁ¤Å¸¿î-´Ù | 2 | 57.3 | 29,000 | 0 | 2002 | | 2024.09.24 | Àü¼¼ | ¼öÁ¤Å¸¿î-´Ù | 2 | 57.3 | 27,000 | 0 | 2002 | | 2024.09.23 | ¿ù¼¼ | (376-9) | 4 | 44.11 | 16,000 | 16 | 2012 | | 2024.09.23 | ¿ù¼¼ | ´ë¹æÂüÁ¸Å¸¿î | 4 | 24.09 | 8,000 | 72 | 2015 | | 2024.09.23 | ¿ù¼¼ | ¸®Ä¡ºô(391-548) | 2 | 21.75 | 16,050 | 6 | 2012 | | 2024.09.21 | Àü¼¼ | ´ë¹æºô¸®Áö(335-26) | 2 | 57.32 | 36,500 | 0 | 2017 | | 2024.09.21 | ¿ù¼¼ | ´ë¹æºô¸®Áö(387-27) | 2 | 29.49 | 22,400 | 5 | 2016 | | 2024.09.21 | ¿ù¼¼ | ´Ù¿Â½Åµå·Ò | 5 | 11.36 | 9,000 | 3 | 2016 | | 2024.09.21 | Àü¼¼ | ´ë¹æºô¸®Áö(335-26) | 3 | 29.86 | 15,000 | 0 | 2017 | | 2024.09.21 | Àü¼¼ | ´ë¹æºô¸®Áö(335-26) | 2 | 57.32 | 36,500 | 0 | 2017 | | 2024.09.20 | Àü¼¼ | ¹Ì·¡ÇÏÀÌÃ÷ºô(´Ù) | 3 | 74.49 | 28,000 | 0 | 2002 | | 2024.09.20 | Àü¼¼ | °³²ºô¶ó | 2 | 63.62 | 36,000 | 0 | 2004 | | 2024.09.20 | ¿ù¼¼ | ¸£¹Ì¿¡ºôµù | 2 | 59.09 | 30,000 | 53 | 2019 | | 2024.09.20 | ¸Å¸Å | ·Ôµ¥¾ÆÆ®ºô | 4 | 60.48 | 37,000 | | 2003 | | 2024.09.20 | Àü¼¼ | ÄýÁîºô | 3 | 71.39 | 30,000 | 0 | 2002 | | 2024.09.19 | ¸Å¸Å | ¿À¼ººô¶óA | 1 | 63.47 | 44,000 | | 1979 | | 2024.09.19 | Àü¼¼ | ¸í¼ºÇϿ콺 | 5 | 29.6 | 26,200 | 0 | 2019 | | 2024.09.19 | ¸Å¸Å | ¿µÈºô¶ó | 3 | 57.69 | 141,000 | | 1991 | | 2024.09.18 | Àü¼¼ | ±Ý¼ººô¶óA | 2 | 54.99 | 20,000 | 0 | 1989 | | 2024.09.14 | ¸Å¸Å | Á¤¿ø½¦¸£ºô | 3 | 43.48 | 42,900 | | 2017 | | 2024.09.13 | ¸Å¸Å | Áö¾ÈÇ÷¯½º | 4 | 43.95 | 63,800 | | 2023 | | 2024.09.11 | ¸Å¸Å | Ǫ¸¥½£ | 5 | 59.91 | 60,000 | | 2022 | | 2024.09.11 | Àü¼¼ | ¹Ì·¡ÇÏÀÌÃ÷ºô(³ª) | 2 | 66.18 | 30,000 | 0 | 2002 | | 2024.09.11 | Àü¼¼ | 411-29 | 5 | 22.575 | 20,500 | 0 | 2015 | | 2024.09.10 | ¿ù¼¼ | ´Ù¿Â½Åµå·Ò | 5 | 21.13 | 1,000 | 53 | 2016 | | 2024.09.10 | ¸Å¸Å | ¿¡ºñ¾Óºô¸®Áö | 3 | 67.04 | 44,500 | | 2008 | | 2024.09.09 | ¿ù¼¼ | (335-18) | 4 | 14.28 | 1,000 | 50 | 2018 | | 2024.09.08 | ¸Å¸Å | »ù¼Ú´ÂÅÍ | 2 | 55.72 | 47,500 | | 2019 | | 2024.09.08 | ¿ù¼¼ | MAJESTY | 3 | 46 | 15,000 | 20 | 2013 | | 2024.09.07 | Àü¼¼ | ÇÏ´Ã¸í°¡(391-522) | 2 | 12.06 | 9,500 | 0 | 2013 | | 2024.09.07 | ¸Å¸Å | ´ë¹æºô¸®Áö(335-26) | 4 | 24.45 | 27,000 | | 2017 | | 2024.09.07 | ¿ù¼¼ | ±×¸°ºô¶óÆ®(11-85) | 2 | 43.24 | 24,100 | 10 | 2014 | | 2024.09.07 | ¿ù¼¼ | (391-467) | 4 | 41.81 | 3,000 | 90 | 2004 | | 2024.09.07 | ¿ù¼¼ | ±×¸°ºô¶óÆ®(11-85) | 2 | 43.24 | 24,100 | 10 | 2014 | | 2024.09.05 | Àü¼¼ | µå¸²Å¸¿ö | 4 | 46.89 | 28,900 | 0 | 2016 | | 2024.09.05 | Àü¼¼ | ±Ý¼ººô¶óB | -1 | 54.99 | 10,000 | 0 | 1989 | | 2024.09.05 | Àü¼¼ | »ù¼Ú´ÂÅÍ | 2 | 55.48 | 36,500 | 0 | 2019 | | 2024.09.04 | ¿ù¼¼ | 379-41 | 5 | 51.3 | 37,500 | 10 | 2015 | | 2024.09.04 | ¿ù¼¼ | ´ë¸²Ä³½½ºô | 4 | 33.28 | 8,000 | 47 | 2011 | | 2024.09.04 | ¿ù¼¼ | 379-41 | 5 | 51.3 | 37,500 | 10 | 2015 | | 2024.09.02 | ¿ù¼¼ | ¸®¾È | 10 | 14.59 | 1,000 | 65 | 2017 | | 2024.09.02 | ¸Å¸Å | Ǫ¸¥½£ | 2 | 59.48 | 59,800 | | 2022 | | 2024.09.02 | ¸Å¸Å | Ǫ¸¥½£ | 2 | 59.48 | 59,800 | | 2022 | | 2024.08.31 | ¿ù¼¼ | 411-29 | 2 | 20.81 | 2,000 | 45 | 2015 | | 2024.08.30 | ¿ù¼¼ | ¿¤¸®½Ã¾Æºôµù(23-117) | 4 | 28.26 | 27,190 | 5 | 2015 | | 2024.08.30 | ¸Å¸Å | ¿¤¸®½Ã¾Æ(384-2) | 5 | 23.2 | 21,000 | | 2014 | | 2024.08.30 | ¿ù¼¼ | Çö´ëºô | 3 | 25.37 | 1,000 | 120 | 2023 | | 2024.08.29 | Àü¼¼ | ±Ý¼ººô¶óB | -1 | 54.99 | 40,000 | 0 | 1989 | | 2024.08.29 | Àü¼¼ | ¸ÞÁ¾µåº¸¾Æ | 2 | 52.83 | 24,500 | 0 | 2002 | | 2024.08.29 | ¿ù¼¼ | ÆÓ¸®½ºÅ¸¿î(411-13) | 2 | 23.5 | 17,000 | 22 | 2017 | | 2024.08.29 | ¿ù¼¼ | ¸í¼º | 3 | 13.86 | 1,000 | 52 | 2013 | | 2024.08.28 | ¸Å¸Å | żºÆÓ¸®½º | 2 | 36.83 | 34,000 | | 2016 | | 2024.08.28 | ¸Å¸Å | »ï¼º¾Æ¸£ºô | 4 | 34.18 | 25,000 | | 2002 | | 2024.08.28 | ¿ù¼¼ | ½ºÅ¸³ëºí·¹½º | 7 | 11.28 | 10,000 | 31 | 2022 | | 2024.08.28 | ¿ù¼¼ | º¸¶ó¸ÅÀ̽ºÆ®ºô | 5 | 12.12 | 3,000 | 21 | 2011 | | 2024.08.28 | Àü¼¼ | ´ë¹æ»þÀκô(376-3) | 2 | 39.6 | 35,300 | 0 | 2015 | | 2024.08.27 | ¿ù¼¼ | ±×¸°Èúºô¶ó | 4 | 69.93 | 16,400 | 50 | 2001 | | 2024.08.27 | ¿ù¼¼ | »ï¼º¾Æ¸£ºô | 1 | 37.83 | 14,000 | 20 | 2002 | | 2024.08.27 | Àü¼¼ | ±×¸°ºôµù | 2 | 16.06 | 7,500 | 0 | 2011 | | 2024.08.26 | ¿ù¼¼ | ¼÷¿øÈ¨ | 5 | 50.79 | 25,000 | 47 | 2018 | | 2024.08.26 | ¿ù¼¼ | ÄŸºô·¹´ë¹æ(405-4) | 10 | 20.83 | 8,000 | 44 | 2014 | | 2024.08.26 | ¿ù¼¼ | ¼÷¿øÈ¨ | 5 | 50.79 | 25,000 | 47 | 2018 | | 2024.08.26 | ¿ù¼¼ | ¼÷¿øÈ¨ | 5 | 50.79 | 25,000 | 39 | 2018 | | 2024.08.25 | Àü¼¼ | ÇÏ´Ã¸í°¡(391-522) | 2 | 12.06 | 10,000 | 0 | 2013 | | 2024.08.25 | Àü¼¼ | ÇÏ´Ã¸í°¡(391-522) | 3 | 12 | 10,000 | 0 | 2013 | | 2024.08.25 | Àü¼¼ | ÇÏ´Ã¸í°¡(391-522) | 2 | 12.06 | 9,500 | 0 | 2013 | | 2024.08.25 | Àü¼¼ | ÇÏ´Ã¸í°¡(391-522) | 4 | 13.79 | 11,000 | 0 | 2013 | | 2024.08.25 | Àü¼¼ | ÇÏ´Ã¸í°¡(391-522) | 2 | 12 | 10,000 | 0 | 2013 | | 2024.08.25 | ¿ù¼¼ | µðÇϿ콺 | 4 | 25.55 | 5,000 | 55 | 2012 | | 2024.08.25 | Àü¼¼ | ÇÏ´Ã¸í°¡(391-522) | 2 | 12 | 10,000 | 0 | 2013 | | 2024.08.25 | Àü¼¼ | ÇÏ´Ã¸í°¡(391-522) | 4 | 13.79 | 11,000 | 0 | 2013 | | 2024.08.25 | Àü¼¼ | ÇÏ´Ã¸í°¡(391-522) | 5 | 27.37 | 23,000 | 0 | 2013 | | 2024.08.25 | Àü¼¼ | ÇÏ´Ã¸í°¡(391-522) | 3 | 12.06 | 10,000 | 0 | 2013 | | 2024.08.25 | ¿ù¼¼ | ´Ù¿Â½Åµå·Ò | 4 | 18.82 | 700 | 50 | 2016 | | 2024.08.25 | Àü¼¼ | ÇÏ´Ã¸í°¡(391-522) | 3 | 12.06 | 9,400 | 0 | 2013 | | 2024.08.24 | ¸Å¸Å | ¹Ì·¡winners(344-6) | 2 | 29.44 | 32,200 | | 2015 | | 2024.08.21 | ¸Å¸Å | ´ÙÀÎij½½3Â÷ | 5 | 27.62 | 38,200 | | 2021 | | 2024.08.21 | ¿ù¼¼ | Ƽ¿¥Å¸¿î | 2 | 26.95 | 24,000 | 10 | 2016 | | 2024.08.21 | ¸Å¸Å | Á¾¿øºô¶ó6µ¿ | -1 | 39.35 | 41,000 | | 1986 | | 2024.08.21 | ¿ù¼¼ | ¸®¾È | 11 | 15.05 | 500 | 65 | 2017 | | 2024.08.21 | ¸Å¸Å | Áö¾ÈÇ÷¯½º | 5 | 43.84 | 64,000 | | 2023 | | 2024.08.20 | ¿ù¼¼ | ´ë¹æºô¶ó(13-43) | 2 | 60.04 | 5,000 | 50 | 1983 | | 2024.08.19 | ¿ù¼¼ | »ï¹Ì¾ÆÆ®ºô³ªµ¿ | -1 | 55.68 | 5,000 | 130 | 2002 | | 2024.08.19 | ¿ù¼¼ | »ï¹Ì¾ÆÆ®ºô³ªµ¿ | -1 | 55.68 | 5,000 | 130 | 2002 | | 2024.08.19 | ¿ù¼¼ | »ï¹Ì¾ÆÆ®ºô³ªµ¿ | -1 | 55.68 | 5,000 | 130 | 2002 | | 2024.08.19 | ¿ù¼¼ | Çö´ëºô | 4 | 28.52 | 1,000 | 115 | 2023 | | 2024.08.18 | ¿ù¼¼ | ¸®¾È | 11 | 14.59 | 1,000 | 63 | 2017 | | 2024.08.17 | ¸Å¸Å | ´ë¹æºô¶ó(13-43) | 2 | 60.04 | 120,000 | | 1983 | | 2024.08.17 | ¸Å¸Å | ±Ý¼ººô¶óB | -1 | 54.99 | 90,000 | | 1989 | | 2024.08.17 | ¿ù¼¼ | (335-18) | 4 | 14.28 | 1,000 | 52 | 2018 | | 2024.08.16 | Àü¼¼ | ¿¹¸°ºô¸®Áö(402-23) | 5 | 21.82 | 18,000 | 0 | 2015 | | 2024.08.15 | Àü¼¼ | 20-40 | 4 | 15.84 | 10,350 | 0 | 2013 | | 2024.08.15 | Àü¼¼ | 20-40 | 4 | 15.84 | 10,350 | 0 | 2013 | | 2024.08.14 | ¿ù¼¼ | ¿µºóºô | 2 | 25.37 | 1,000 | 115 | 2023 | | 2024.08.14 | Àü¼¼ | 411-29 | 4 | 22.575 | 20,850 | 0 | 2015 | | 2024.08.14 | ¿ù¼¼ | ½ºÅ¸³ëºí·¹½º | 7 | 11.28 | 10,000 | 31 | 2022 | | 2024.08.13 | ¸Å¸Å | °ñµçÈú(391-319) | 5 | 48.06 | 49,000 | | 2014 | | 2024.08.13 | ¿ù¼¼ | Á¦ÀÌŸ¿î | 7 | 15.54 | 700 | 67 | 2016 | | 2024.08.12 | ¸Å¸Å | »ï¼º¾Æ¸£ºô | 1 | 37.83 | 25,000 | | 2002 | | 2024.08.12 | ¸Å¸Å | ºÎ¼ººô¶ó | 1 | 39.62 | 93,000 | | 1990 | | 2024.08.10 | ¿ù¼¼ | (376-9) | 3 | 25.09 | 5,000 | 31 | 2012 | | 2024.08.10 | ¿ù¼¼ | ½ºÅ¸³ëºí·¹½º | 8 | 12.06 | 5,000 | 38 | 2022 | | 2024.08.10 | ¿ù¼¼ | ÆÓ¸®½ºÅ¸¿î(411-33) | 5 | 26.61 | 5,000 | 89 | 2017 | | 2024.08.09 | Àü¼¼ | ±Ý¼ººô¶óB | 1 | 54.99 | 20,000 | 0 | 1989 | | 2024.08.09 | ¿ù¼¼ | (402-13) | 2 | 19.16 | 1,000 | 60 | 2017 | | 2024.08.09 | Àü¼¼ | ¸®Ä¡ºô(391-548) | 5 | 25.18 | 12,728 | 0 | 2012 | | 2024.08.09 | ¸Å¸Å | ¾Ö½ºÅæÇϿ콺 | 2 | 45.42 | 39,500 | | 2016 | | 2024.08.08 | ¿ù¼¼ | ¿ø³ëºí·¹½º | 7 | 17.11 | 5,000 | 38 | 2015 | | 2024.08.08 | Àü¼¼ | »ù¼Ú´ÂÅÍ | 2 | 55.48 | 36,500 | 0 | 2019 | | 2024.08.06 | ¿ù¼¼ | Á¾¿øºô¶ó6µ¿ | 2 | 43.86 | 14,700 | 5 | 1986 | | 2024.08.06 | ¸Å¸Å | Çູ½ºÀ§Æ®È¨-³ª | 3 | 68.28 | 47,500 | | 2002 | | 2024.08.05 | ¸Å¸Å | ´õÆÛ½ºÆ®¾ÈAµ¿ | 2 | 57.07 | 49,500 | | 2016 | | 2024.08.05 | ¸Å¸Å | »ù¼Ú´ÂÅÍ | 2 | 55.48 | 45,000 | | 2019 | | 2024.08.03 | Àü¼¼ | 20-40 | 5 | 15.84 | 9,900 | 0 | 2013 | | 2024.08.03 | Àü¼¼ | 20-40 | 5 | 15.84 | 9,900 | 0 | 2013 | | 2024.08.02 | ¿ù¼¼ | Çö´ëºô | 2 | 25.37 | 1,000 | 115 | 2023 | | 2024.08.01 | ¿ù¼¼ | ¿ø³ëºí·¹½º | 10 | 36.95 | 23,550 | 8 | 2015 | | 2024.08.01 | ¸Å¸Å | ´ëÁøºô¶ó(13-29) | -1 | 36.72 | 80,000 | | 1986 | | 2024.08.01 | ¿ù¼¼ | ¿ø³ëºí·¹½º | 8 | 17.11 | 11,800 | 11 | 2015 | | 2024.07.31 | ¿ù¼¼ | ¿µºóºô | 4 | 28.52 | 1,000 | 115 | 2023 | | 2024.07.31 | ¸Å¸Å | ´ë¼ºÁÖÅà | 4 | 73.02 | 37,000 | | 2002 | | 2024.07.30 | ¿ù¼¼ | 20-40 | 4 | 14.4 | 1,000 | 49 | 2013 | | 2024.07.30 | Àü¼¼ | º¸¶ó¸ÅÆÄÅ©ºô | 5 | 48.58 | 50,000 | 0 | 2022 | | 2024.07.30 | Àü¼¼ | ¸íµµ¿¡ÄÚºô(379-43) | 3 | 42.14 | 27,000 | 0 | 2015 | | 2024.07.30 | ¿ù¼¼ | ½ºÅ¸³ëºí·¹½º | 6 | 17.28 | 14,000 | 56 | 2022 | | 2024.07.30 | Àü¼¼ | º¸¶ó¸ÅÆÄÅ©ºô | 5 | 48.58 | 55,000 | 0 | 2022 | | 2024.07.28 | Àü¼¼ | ¸®¾È | 9 | 14.59 | 12,280 | 0 | 2017 | | 2024.07.26 | Àü¼¼ | ¹Ì·¡ÇÏÀÌÃ÷ºô(³ª) | 2 | 66.18 | 30,000 | 0 | 2002 | | 2024.07.26 | ¸Å¸Å | ´ö¼öºô¶ó³ªµ¿ | 2 | 39.12 | 80,000 | | 1986 | | 2024.07.25 | ¿ù¼¼ | Ƽ¿¥Å¸¿î | 2 | 29.23 | 24,000 | 20 | 2016 | | 2024.07.25 | Àü¼¼ | ÀºÇüºô¶ó | 4 | 84.96 | 35,000 | 0 | 1993 | | 2024.07.24 | ¿ù¼¼ | ´ë¸²Ä³½½ºô | 3 | 33.28 | 6,000 | 70 | 2011 | | 2024.07.24 | ¿ù¼¼ | Çѽººô | 4 | 59.22 | 4,000 | 87 | 2002 | | 2024.07.23 | ¸Å¸Å | ¹Ì·¡ÇÏÀÌÃ÷ºô(³ª) | 3 | 66.18 | 88,000 | | 2002 | | 2024.07.22 | Àü¼¼ | ¸®Ä¡ºô(391-548) | 4 | 16.98 | 12,734 | 0 | 2012 | | 2024.07.20 | ¸Å¸Å | ¸®¾È | 8 | 15.37 | 13,900 | | 2017 | | 2024.07.20 | ¸Å¸Å | ´ë¹æÂüÁ¸Å¸¿î | 4 | 24.09 | 29,500 | | 2015 | | 2024.07.20 | ¿ù¼¼ | ÆÓ¸®½ºÅ¸¿î(411-13) | 2 | 28.3 | 25,000 | 10 | 2017 | | 2024.07.20 | Àü¼¼ | ÆÓ¸®½ºÅ¸¿î(411-4) | 5 | 19.63 | 17,800 | 0 | 2017 | | 2024.07.20 | ¿ù¼¼ | ¸®¾È | 9 | 15.37 | 1,000 | 65 | 2017 | | 2024.07.18 | ¿ù¼¼ | ½ºÅ¸³ëºí·¹½º | 8 | 17.28 | 14,500 | 53 | 2022 | | 2024.07.18 | ¿ù¼¼ | Ƽ¿¥Å¸¿î | 2 | 27.52 | 22,000 | 20 | 2016 | | 2024.07.18 | Àü¼¼ | ¾Æ³×½ºÆ¼ºô | 4 | 55.49 | 27,000 | 0 | 2011 | | 2024.07.17 | ¿ù¼¼ | (376-9) | 3 | 17.92 | 8,000 | 13 | 2012 | | 2024.07.17 | ¿ù¼¼ | ¸®Ä¡ºô(391-548) | 2 | 21.22 | 13,230 | 3 | 2012 | | 2024.07.17 | Àü¼¼ | »ï¼ºÆÄÅ©ºô | 3 | 71.68 | 32,000 | 0 | 2002 | | 2024.07.15 | ¿ù¼¼ | ¿ÏÈñÇö´ç | 3 | 15.8 | 3,000 | 45 | 2011 | | 2024.07.13 | ¿ù¼¼ | ÇѺûºô¶ó | 5 | 61.92 | 4,000 | 75 | 2003 | | 2024.07.13 | Àü¼¼ | ¼ºµµºô¶ó | 2 | 73.41 | 31,000 | 0 | 1983 | | 2024.07.13 | ¿ù¼¼ | ³ëºíÇϿ콺 | 2 | 25.32 | 5,000 | 97 | 2016 | | 2024.07.13 | ¸Å¸Å | Çö´ëºô¶ó | 1 | 60.25 | 92,000 | | 1990 | | 2024.07.13 | Àü¼¼ | û¸í¿¡¹öºô3Â÷ | 3 | 46.41 | 32,500 | 0 | 2014 | | 2024.07.13 | Àü¼¼ | ÇÁ¶óÀÓºô¶ó | 4 | 54.77 | 23,500 | 0 | 2004 | | 2024.07.12 | ¿ù¼¼ | Á¦ÀÌÇϿ콺 | 5 | 29.95 | 23,500 | 10 | 2018 | | 2024.07.12 | ¸Å¸Å | Á¾¿øºô¶ó7µ¿ | -1 | 38.61 | 40,000 | | 1986 | | 2024.07.12 | ¿ù¼¼ | ´ÙÀÎij½½3Â÷ | 3 | 27.44 | 28,800 | 19 | 2021 | | 2024.07.12 | ¿ù¼¼ | ¸®¾È | 11 | 15.05 | 2,000 | 43 | 2017 | | 2024.07.11 | Àü¼¼ | ÀÌ·¹¾ÆÆ®ºô | 1 | 28.81 | 23,600 | 0 | 2016 | | 2024.07.11 | ¸Å¸Å | 411-5 | 4 | 46.76 | 52,000 | | 2015 | | 2024.07.11 | ¸Å¸Å | ½Å»ýºô¶ó | -1 | 57.03 | 94,000 | | 1995 | | 2024.07.11 | ¸Å¸Å | ½ºÄ«ÀÌij½½ | 6 | 25.49 | 30,500 | | 2019 | | 2024.07.11 | ¸Å¸Å | ¹Ì·¡ÇÏÀÌÃ÷ºô(¶ó) | 4 | 71.85 | 100,000 | | 2002 | | 2024.07.10 | Àü¼¼ | 20-40 | 6 | 14.4 | 10,500 | 0 | 2013 | | 2024.07.10 | ¸Å¸Å | ¹Ì¼Ûºô¶óÆ® | 4 | 64.65 | 120,000 | | 1995 | | 2024.07.10 | Àü¼¼ | 20-40 | 6 | 14.4 | 10,500 | 0 | 2013 | | 2024.07.10 | ¿ù¼¼ | ¿Áµ¿±×·£µåºô | 3 | 84.69 | 30,000 | 40 | 2002 | | 2024.07.09 | ¸Å¸Å | Çö´ëºô¶ó | 2 | 60.25 | 90,000 | | 1990 | | 2024.07.09 | Àü¼¼ | ÂüÁ¸ºô¸®Áö | 3 | 25.81 | 23,000 | 0 | 2013 | | 2024.07.08 | ¿ù¼¼ | ´õÆ÷·¹ | 4 | 49.67 | 25,000 | 70 | 2021 | | 2024.07.07 | ¿ù¼¼ | µÕÁö¥² | 4 | 17.88 | 1,000 | 59 | 2012 | | 2024.07.06 | ¿ù¼¼ | ¿ÏÈñÇö´ç | 3 | 14.7 | 3,000 | 45 | 2011 | | 2024.07.06 | ¸Å¸Å | ±Ý¼ººô¶óB | -1 | 54.99 | 88,500 | | 1989 | | 2024.07.06 | ¿ù¼¼ | ¸®¾È | 8 | 14.59 | 12,000 | 18 | 2017 | | 2024.07.06 | ¸Å¸Å | Áß¾ÓÇÏÀÌÃ÷ºô | 3 | 58.31 | 102,500 | | 2002 | | 2024.07.05 | Àü¼¼ | (337-2) | 1 | 28.65 | 13,000 | 0 | 1986 | | 2024.07.05 | ¿ù¼¼ | ´õÆ÷·¹ | 4 | 25.59 | 5,000 | 55 | 2021 | | 2024.07.05 | ¸Å¸Å | ±Ý¼ººô¶óA | 2 | 54.99 | 85,000 | | 1989 | | 2024.07.05 | ¸Å¸Å | ´ë¹æºô¸®Áö(335-26) | 1 | 29.71 | 30,800 | | 2017 | | 2024.07.04 | ¿ù¼¼ | Á¦ÀÌÇϿ콺 | 4 | 29.95 | 24,000 | 10 | 2018 | | 2024.07.04 | ¿ù¼¼ | Çö´ëºô | 2 | 25.37 | 1,000 | 110 | 2023 | | 2024.07.04 | ¿ù¼¼ | ¸®¾È | 11 | 14.9 | 1,000 | 63 | 2017 | | 2024.07.03 | ¿ù¼¼ | ±×¸°ÆÄ¿öÇÊ | 4 | 20.09 | 14,990 | 20 | 2020 | | 2024.07.03 | ¸Å¸Å | ¹Ì·¡ÇÏÀÌÃ÷ºô(³ª) | 2 | 66.18 | 95,000 | | 2002 | | 2024.07.03 | Àü¼¼ | ´ë¹æÆÄÅ©ºô(351-10) | 2 | 28.27 | 23,000 | 0 | 2015 | | 2024.07.02 | ¿ù¼¼ | żºÆÓ¸®½º | 3 | 29.87 | 3,000 | 85 | 2016 | | 2024.07.02 | ¿ù¼¼ | żºÆÓ¸®½º | 3 | 29.87 | 3,000 | 85 | 2016 | | 2024.07.01 | Àü¼¼ | ¸®¾È | 9 | 15.05 | 12,640 | 0 | 2017 | | 2024.06.30 | ¿ù¼¼ | º¸¶ó¸Å¿þ½ºÆ®ºô | 5 | 13.15 | 500 | 32 | 2011 | | 2024.06.29 | ¿ù¼¼ | ¼º³²ÇÏÀÌÃ÷ºôBµ¿ | 5 | 52.68 | 9,000 | 55 | 2002 | | 2024.06.29 | ¿ù¼¼ | È¿ÁÖÆÄÅ©ºô(392-19) | 2 | 29.76 | 14,300 | 25 | 2012 | | 2024.06.29 | ¿ù¼¼ | ¸®¾È | 11 | 15.37 | 2,000 | 60 | 2017 | | 2024.06.29 | Àü¼¼ | (391-210) | 2 | 25.63 | 11,000 | 0 | 2002 | | 2024.06.28 | ¿ù¼¼ | ´ë¹æÁÖ»óº¹ÇÕºôµù | 10 | 24.31 | 1,500 | 50 | 2016 | | 2024.06.27 | ¿ù¼¼ | Á¤¿ø½¦¸£ºô | 3 | 34.35 | 13,000 | 50 | 2017 | | 2024.06.27 | ¿ù¼¼ | (376-9) | 2 | 18 | 8,000 | 13 | 2012 | | 2024.06.26 | ¸Å¸Å | Ǫ¸¥½£ | 5 | 59.91 | 59,800 | | 2022 | | 2024.06.26 | ¸Å¸Å | ´ë½Åºô¶ó | -1 | 32.85 | 21,000 | | 1992 | | 2024.06.25 | Àü¼¼ | ¸®¾È | 11 | 15.37 | 15,150 | 0 | 2017 | | 2024.06.25 | ¿ù¼¼ | ¸®¾È | 11 | 14.59 | 5,000 | 42 | 2017 | | 2024.06.24 | ¿ù¼¼ | ¿µÁø¸Ç¼Ç2Â÷ | 2 | 80.46 | 30,000 | 40 | 1997 | | 2024.06.23 | ¿ù¼¼ | 20-40 | 5 | 14.4 | 1,000 | 45 | 2013 | | 2024.06.22 | Àü¼¼ | (383-7) | 3 | 45.99 | 23,000 | 0 | 2013 | | 2024.06.22 | Àü¼¼ | (383-7) | 4 | 45.99 | 25,000 | 0 | 2013 | | 2024.06.21 | ¿ù¼¼ | ÇÁ¶óÀÓºô¶ó | 2 | 72.12 | 26,000 | 20 | 2004 | | 2024.06.20 | ¸Å¸Å | ÄýÁîºô | 3 | 71.39 | 99,000 | | 2002 | | 2024.06.20 | Àü¼¼ | Á¾¿øºô¶ó11µ¿ | 1 | 41.31 | 13,000 | 0 | 1986 | | 2024.06.19 | ¿ù¼¼ | ½ºÅ¸³ëºí·¹½º | 7 | 14.43 | 15,000 | 27 | 2022 | | 2024.06.18 | ¸Å¸Å | ³ëºíÇϿ콺 | 2 | 42.31 | 41,000 | | 2016 | | 2024.06.17 | ¿ù¼¼ | (337-2) | 1 | 28.65 | 1,000 | 60 | 1986 | | 2024.06.15 | Àü¼¼ | Á¦ÀÌÇϿ콺 | 2 | 29.82 | 27,500 | 0 | 2018 | | 2024.06.15 | ¿ù¼¼ | ´ë¹æÁÖ»óº¹ÇÕºôµù | 10 | 37.23 | 5,000 | 80 | 2016 | | 2024.06.15 | ¿ù¼¼ | °¡Àη¹Áö´ø½º | 4 | 12.02 | 5,000 | 29 | 2011 | | 2024.06.14 | ¿ù¼¼ | ºô¶óÄÜü¸£Æ®1Â÷ | 3 | 59.02 | 10,000 | 125 | 2015 | | 2024.06.14 | Àü¼¼ | 401-18 | 6 | 28.29 | 18,000 | 0 | 2013 | | 2024.06.14 | ¿ù¼¼ | »ù¼Ú´ÂÅÍ | 3 | 55.48 | 3,000 | 100 | 2019 | | 2024.06.13 | Àü¼¼ | Çö´ë¾ÆÆ®ºô(402-29) | 3 | 47.09 | 30,000 | 0 | 2006 | | 2024.06.13 | Àü¼¼ | Çö´ë¾ÆÆ®ºô(402-29) | 3 | 47.09 | 30,000 | 0 | 2006 | | 2024.06.13 | ¸Å¸Å | ¹Ì·¡ÇÏÀÌÃ÷ºô(³ª) | 2 | 66.18 | 95,000 | | 2002 | | 2024.06.12 | Àü¼¼ | ¼ºµµºô¶ó | 3 | 67.45 | 21,000 | 0 | 1983 | | 2024.06.12 | ¸Å¸Å | ´ë¹æÆÄÅ©ºô(351-10) | 4 | 28.27 | 29,000 | | 2015 | | 2024.06.11 | ¿ù¼¼ | ¿øÇϿ콺 | 4 | 25.88 | 4,696 | 9 | 2021 | | 2024.06.11 | Àü¼¼ | ¸í¼ºÇϿ콺5Â÷ | 3 | 27.7 | 28,600 | 0 | 2021 | | 2024.06.11 | ¿ù¼¼ | ûÀ¯ºôµù | 1 | 12.61 | 9,000 | 16 | 2013 | | 2024.06.11 | ¿ù¼¼ | ½ºÅ¸³ëºí·¹½º | 8 | 14.43 | 15,000 | 22 | 2022 | | 2024.06.10 | ¿ù¼¼ | MAJESTY | 4 | 21.84 | 15,000 | 15 | 2013 | | 2024.06.10 | ¿ù¼¼ | MAJESTY | 4 | 21.84 | 15,000 | 15 | 2013 | | 2024.06.09 | ¿ù¼¼ | ¿µºóºô | 5 | 25.37 | 1,000 | 120 | 2023 | | 2024.06.09 | ¿ù¼¼ | ½ºÅ¸³ëºí·¹½º | 7 | 11.28 | 12,000 | 22 | 2022 | | 2024.06.08 | ¿ù¼¼ | º¸¶ó¸Å¿þ½ºÆ®ºô | 5 | 12.13 | 3,000 | 34 | 2011 | | 2024.06.08 | Àü¼¼ | µð¾È | 5 | 23.35 | 18,900 | 0 | 2016 | | 2024.06.08 | ¿ù¼¼ | º¸¶ó¸Å¿þ½ºÆ®ºô | 2 | 12.08 | 3,000 | 13 | 2011 | | 2024.06.08 | ¿ù¼¼ | ¼÷¿øÈ¨ | 4 | 50.93 | 28,000 | 27 | 2018 | | 2024.06.07 | Àü¼¼ | ±×¸°ÆÄ¿öÇÊ | 2 | 48.69 | 30,000 | 0 | 2020 | | 2024.06.06 | ¿ù¼¼ | ¸®¾È | 8 | 14.59 | 500 | 63 | 2017 | | 2024.06.03 | Àü¼¼ | ¿À¼ººô¶óB | 1 | 52.89 | 13,500 | 0 | 1979 | | 2024.06.03 | ¸Å¸Å | ¿À¼ººô¶óA | 1 | 63.47 | 42,000 | | 1979 | | 2024.06.03 | ¸Å¸Å | ¹Ì·¡ÇÏÀÌÃ÷ºô(´Ù) | 3 | 74.49 | 100,000 | | 2002 | | 2024.06.01 | Àü¼¼ | ¿À¼ººô¶óB | 1 | 52.89 | 13,500 | 0 | 1979 | | 2024.06.01 | ¿ù¼¼ | ÄŸºô·¹´ë¹æ(405-4) | 7 | 20.83 | 5,000 | 37 | 2014 | | 2024.05.31 | ¿ù¼¼ | ½Å¼ºÇϿ콺 | 5 | 29.97 | 1,000 | 100 | 2022 | | 2024.05.30 | Àü¼¼ | ´ë±¤ºô¸®Áö | 2 | 38.95 | 23,300 | 0 | 2014 | | 2024.05.29 | Àü¼¼ | 411-29 | 3 | 22.575 | 22,000 | 0 | 2015 | | 2024.05.29 | Àü¼¼ | 411-29 | 3 | 22.575 | 22,100 | 0 | 2015 | | 2024.05.29 | ¿ù¼¼ | 411-29 | 3 | 20.81 | 3,000 | 40 | 2015 | | 2024.05.29 | Àü¼¼ | 411-29 | 3 | 22.575 | 22,000 | 0 | 2015 | | 2024.05.28 | ¿ù¼¼ | ÆÓ¸®½ºÅ¸¿î(411-7) | 3 | 43.06 | 20,000 | 40 | 2016 | | 2024.05.28 | ¿ù¼¼ | »ï¹Ì¾ÆÆ®ºô³ªµ¿ | 4 | 63.27 | 6,000 | 65 | 2002 | | 2024.05.28 | ¸Å¸Å | ¸í¼ºÇÏÀ̺ô | 5 | 62.42 | 25,000 | | 2003 | | 2024.05.27 | ¿ù¼¼ | ûÀ¯ºôµù | 3 | 12.61 | 5,000 | 36 | 2013 | | 2024.05.26 | ¿ù¼¼ | ºÎ¸íºôµù | 4 | 12.14 | 1,000 | 44 | 2013 | | 2024.05.26 | ¿ù¼¼ | ºÎ¸íºôµù | 4 | 12.14 | 1,000 | 44 | 2013 | | 2024.05.25 | ¸Å¸Å | 387-7 | 3 | 33.3 | 31,700 | | 2015 | | 2024.05.25 | ¸Å¸Å | ÇູŸ¿î(402-6) | 4 | 65.65 | 40,700 | | 2002 | | 2024.05.24 | ¿ù¼¼ | ÄÉ·»½Ã¾Æ´ë¹æ | 3 | 29.29 | 3,000 | 110 | 2022 | | 2024.05.24 | Àü¼¼ | ÇØ¼Öºô | 2 | 45.65 | 25,350 | 0 | 2013 | | 2024.05.24 | Àü¼¼ | Á¦ÀÌÇϿ콺 | 4 | 29.82 | 28,000 | 0 | 2018 | | 2024.05.23 | Àü¼¼ | ´ë¹æÂüÁ¸Å¸¿î | 2 | 45.5 | 33,000 | 0 | 2015 | | 2024.05.23 | ¿ù¼¼ | ¿µºóºô | 6 | 23.6 | 1,000 | 95 | 2023 | | 2024.05.23 | ¸Å¸Å | ±Ý¼ººô¶óB | 1 | 54.99 | 80,000 | | 1989 | | 2024.05.23 | ¸Å¸Å | ¹Ì·¡ÇÏÀÌÃ÷ºô(´Ù) | 5 | 70.62 | 93,000 | | 2002 | | 2024.05.23 | Àü¼¼ | ¹Ì·¡ÇÏÀÌÃ÷ºô(¸¶) | 2 | 77.52 | 27,000 | 0 | 2002 | | 2024.05.21 | Àü¼¼ | ´ë¹æºô¸®Áö(335-26) | 2 | 29.86 | 27,000 | 0 | 2017 | | 2024.05.20 | Àü¼¼ | ´ë¹æºô¸®Áö(335-26) | 1 | 57.32 | 36,200 | 0 | 2017 | | 2024.05.18 | ¸Å¸Å | ¹Ì·¡ÇÏÀÌÃ÷ºô(³ª) | 4 | 66.18 | 95,500 | | 2002 | | 2024.05.18 | ¿ù¼¼ | ³ëºô¸®Æ¼ | 5 | 29.44 | 5,000 | 100 | 2016 | | 2024.05.17 | Àü¼¼ | ³ëºíÇϿ콺 | 5 | 25.32 | 21,600 | 0 | 2016 | | 2024.05.17 | Àü¼¼ | 379-41 | 5 | 51.3 | 37,500 | 0 | 2015 | | 2024.05.17 | Àü¼¼ | ±Ý¼Ûºô¶ó | 4 | 46.2 | 19,600 | 0 | 2004 | | 2024.05.17 | Àü¼¼ | ¸íµµ¿¡ÄÚºô(379-43) | 5 | 43.44 | 30,400 | 0 | 2015 | | 2024.05.17 | Àü¼¼ | ³ëºíÇϿ콺 | 5 | 25.32 | 22,000 | 0 | 2016 | | 2024.05.15 | ¸Å¸Å | ·ÎÇϽººô | 4 | 81.53 | 53,000 | | 2007 | | 2024.05.14 | Àü¼¼ | ±×¸°ÆÄ¿öÇÊ | 2 | 27.37 | 18,000 | 0 | 2020 | | 2024.05.14 | ¿ù¼¼ | ½Å¼ºÇϿ콺 | 3 | 45.83 | 5,000 | 118 | 2022 | | 2024.05.14 | ¿ù¼¼ | ½Å¼ºÇϿ콺 | 3 | 45.83 | 5,000 | 118 | 2022 | | 2024.05.13 | ¿ù¼¼ | ¸®¾È | 11 | 15.05 | 1,000 | 63 | 2017 | | 2024.05.13 | ¿ù¼¼ | ¼÷¿øÈ¨ | 5 | 50.79 | 25,000 | 39 | 2018 | | 2024.05.11 | ¸Å¸Å | ¹Ì·¡ÇÏÀÌÃ÷ºô(¶ó) | 5 | 62.28 | 85,000 | | 2002 | | 2024.05.11 | Àü¼¼ | ³×¿Àºô | 5 | 44.65 | 32,000 | 0 | 2014 | | 2024.05.11 | Àü¼¼ | ¸í¼ºÇϿ콺5Â÷ | 3 | 27.7 | 28,600 | 0 | 2021 | | 2024.05.11 | ¿ù¼¼ | ¸®Ä¡ºô(391-548) | 3 | 21.22 | 12,075 | 2 | 2012 | | 2024.05.11 | ¿ù¼¼ | ¸®Ä¡ºô(391-548) | 3 | 21.22 | 12,075 | 2 | 2012 | | 2024.05.10 | ¿ù¼¼ | ¼ºµµºô¶ó | 1 | 66.81 | 10,000 | 80 | 1983 | | 2024.05.10 | ¿ù¼¼ | ºÎ¸íºôµù | 5 | 12.14 | 1,000 | 44 | 2013 | | 2024.05.10 | Àü¼¼ | ¿Áµ¿±×·£µåºô | 2 | 84.69 | 40,000 | 0 | 2002 | | 2024.05.10 | ¿ù¼¼ | ¼ºµµºô¶ó | 1 | 66.81 | 10,000 | 80 | 1983 | | 2024.05.09 | ¿ù¼¼ | »ï¹Ì¾ÆÆ®ºô³ªµ¿ | 4 | 55.68 | 18,000 | 40 | 2002 | | 2024.05.08 | ¿ù¼¼ | °¡Àη¹Áö´ø½º | 2 | 13.65 | 1,000 | 50 | 2011 | | 2024.05.08 | ¿ù¼¼ | żºÆÓ¸®½º | 2 | 29.87 | 21,000 | 20 | 2016 | | 2024.05.08 | ¿ù¼¼ | ½Å¼ºÇϿ콺 | 4 | 45.83 | 3,000 | 130 | 2022 | | 2024.05.07 | ¸Å¸Å | ÇØ¿À¸§ºô | 3 | 44.59 | 26,200 | | 2011 | | 2024.05.06 | ¿ù¼¼ | ½Å¼ºÇϿ콺 | 3 | 44.94 | 3,000 | 125 | 2022 | | 2024.05.04 | Àü¼¼ | ¿¹¸°ºô¸®Áö(402-23) | 6 | 21.82 | 17,500 | 0 | 2015 | | 2024.05.02 | Àü¼¼ | ´ÙÀÎij½½3Â÷ | 2 | 27.83 | 27,000 | 0 | 2021 | | 2024.05.02 | ¿ù¼¼ | ½ºÅ¸³ëºí·¹½º | 6 | 14.43 | 13,000 | 36 | 2022 | | 2024.05.02 | ¿ù¼¼ | ½ºÅ¸³ëºí·¹½º | 5 | 17.28 | 15,000 | 50 | 2022 | | 2024.05.02 | ¿ù¼¼ | ½ºÅ¸³ëºí·¹½º | 5 | 17.28 | 15,000 | 46 | 2022 | | 2024.05.02 | ¿ù¼¼ | º¸¶ó¸Å½ºÀ§Æ®(411-1¿Ü) | 2 | 20.36 | 15,400 | 4 | 2015 | | 2024.05.02 | ¿ù¼¼ | ½ºÅ¸³ëºí·¹½º | 5 | 17.28 | 14,900 | 46 | 2022 | | 2024.05.02 | ¿ù¼¼ | ¸£¹Ì¿¡ºôµù | 3 | 51.82 | 36,000 | 9 | 2019 | | 2024.05.02 | ¿ù¼¼ | ¸£¹Ì¿¡ºôµù | 3 | 51.82 | 36,000 | 9 | 2019 | | 2024.05.01 | ¸Å¸Å | Ǫ¸¥½£ | 1 | 59.48 | 58,500 | | 2022 | | 2024.05.01 | Àü¼¼ | ´ë¸²ºô¶ó | 4 | 118.23 | 50,000 | 0 | 1999 | | 2024.04.30 | ¿ù¼¼ | ¿ø³ëºí·¹½º | 9 | 18.1 | 2,000 | 49 | 2015 | | 2024.04.30 | ¸Å¸Å | Á¦ÀÌŸ¿î | 8 | 15.54 | 14,000 | | 2016 | | 2024.04.30 | ¿ù¼¼ | ¼Öä | 5 | 33.85 | 1,000 | 49 | 2004 | | 2024.04.29 | ¿ù¼¼ | ´õÆÛ½ºÆ®È¨ | 3 | 50.27 | 15,000 | 65 | 2016 | | 2024.04.27 | ¿ù¼¼ | »ù¼Ú´ÂÅÍ | 3 | 55.34 | 5,000 | 100 | 2019 | | 2024.04.27 | ¿ù¼¼ | ¿¤¸®½Ã¾Æºôµù(23-117) | 4 | 19.38 | 10,000 | 40 | 2015 | | 2024.04.27 | Àü¼¼ | ´ë¿ÕŸ¿î | 3 | 45.5 | 26,000 | 0 | 2002 | | 2024.04.27 | ¿ù¼¼ | Çϳªºô¶óÆ®3Â÷ | 2 | 80.16 | 33,000 | 30 | 2002 | | 2024.04.27 | ¸Å¸Å | ±Ý¼ººô¶óA | 2 | 54.99 | 80,000 | | 1989 | | 2024.04.27 | ¸Å¸Å | µðºñÇϿ콺Bµ¿ | 4 | 61.98 | 35,000 | | 2001 | | 2024.04.27 | ¿ù¼¼ | Çϳªºô¶óÆ®3Â÷ | 2 | 80.16 | 33,000 | 30 | 2002 | | 2024.04.26 | ¸Å¸Å | ´ë¹æÂüÁ¸Å¸¿î | 2 | 25.02 | 31,700 | | 2015 | | 2024.04.26 | ¸Å¸Å | ´ë¼ºº£½ºÆ®ºô | -1 | 60.44 | 20,500 | | 2002 | | 2024.04.26 | Àü¼¼ | ÂüÁÁÀº¸Ç¼ð | 4 | 46.45 | 23,000 | 0 | 2004 | | 2024.04.26 | Àü¼¼ | ±Ý¼Ûºô¶ó | 4 | 46.2 | 19,600 | 0 | 2004 | | 2024.04.25 | ¿ù¼¼ | ½Å¼ºÇϿ콺 | 4 | 29.98 | 2,000 | 100 | 2022 | | 2024.04.25 | ¿ù¼¼ | ½Å¼ºÇϿ콺 | 4 | 44.94 | 2,000 | 133 | 2022 | | 2024.04.24 | Àü¼¼ | ¸ÞÁ¾µåº¸¾Æ | 3 | 52.83 | 29,000 | 0 | 2002 | | 2024.04.24 | ¿ù¼¼ | ¸®¾È | 9 | 14.59 | 10,000 | 23 | 2017 | | 2024.04.23 | Àü¼¼ | Áö¾ÈÇ÷¯½º | 5 | 43.95 | 37,900 | 0 | 2023 | | 2024.04.23 | Àü¼¼ | 411-5 | 4 | 22.66 | 25,000 | 0 | 2015 | | 2024.04.23 | Àü¼¼ | Áö¾ÈÇ÷¯½º | 5 | 43.95 | 40,000 | 0 | 2023 | | 2024.04.23 | Àü¼¼ | µð¾È | 5 | 29.31 | 26,000 | 0 | 2016 | | 2024.04.22 | ¿ù¼¼ | (402-13) | 4 | 19.16 | 1,000 | 60 | 2017 | | 2024.04.22 | ¿ù¼¼ | (402-13) | 4 | 19.16 | 1,000 | 60 | 2017 | | 2024.04.20 | ¸Å¸Å | ´ë¹æºô¶ó | -1 | 62.21 | 40,000 | | 1991 | | 2024.04.19 | ¿ù¼¼ | º¸¶ó¸Å¿þ½ºÆ®ºô | 2 | 12.02 | 8,000 | 2 | 2011 | | 2024.04.16 | ¿ù¼¼ | (375-53) | 4 | 12.07 | 3,000 | 55 | 2013 | | 2024.04.16 | ¸Å¸Å | ȼººô¶ó | 1 | 60.41 | 40,000 | | 1993 | | 2024.04.15 | Àü¼¼ | »ïȺô¶ó | 1 | 64.09 | 19,500 | 0 | 1997 | | 2024.04.15 | ¸Å¸Å | ¿µÈ¾ÆÆ®ºô¶ó4 | -1 | 40.62 | 69,000 | | 1990 | | 2024.04.15 | Àü¼¼ | Á¾¿øºô¶ó8µ¿ | 1 | 41.04 | 18,900 | 0 | 1986 | | 2024.04.15 | ¿ù¼¼ | ¿¹¸°ºô¸®Áö(402-23) | 7 | 16.87 | 12,000 | 50 | 2015 | | 2024.04.14 | Àü¼¼ | ¾ÆÀÌÆÄÅ©ºô | 4 | 45.5 | 31,500 | 0 | 2016 | | 2024.04.14 | Àü¼¼ | ´ë¹æÂüÁ¸Å¸¿î | 3 | 46.2 | 33,000 | 0 | 2015 | | 2024.04.13 | ¸Å¸Å | Á¦ÀÌŸ¿î | 6 | 15.54 | 14,900 | | 2016 | | 2024.04.13 | ¿ù¼¼ | ¸®Ä¡ºô(391-548) | 4 | 20.55 | 9,000 | 24 | 2012 | | 2024.04.13 | ¿ù¼¼ | ºÎ¸íºôµù | 4 | 12.24 | 1,000 | 44 | 2013 | | 2024.04.13 | ¿ù¼¼ | ÇູŸ¿î(402-6) | 4 | 65.65 | 10,000 | 64 | 2002 | | 2024.04.13 | ¿ù¼¼ | ºÎ¸íºôµù | 4 | 12.24 | 1,000 | 44 | 2013 | | 2024.04.12 | Àü¼¼ | Ƽ¿¥Å¸¿î | 3 | 26.95 | 22,100 | 0 | 2016 | | 2024.04.12 | Àü¼¼ | ´ÙÀÎij½½3Â÷ | 4 | 27.83 | 27,800 | 0 | 2021 | | 2024.04.11 | ¿ù¼¼ | ÆÓ¸®½ºÅ¸¿î(411-13) | 2 | 23.39 | 18,000 | 21 | 2017 | | 2024.04.11 | ¸Å¸Å | Çϳªºô¶óÆ®2Â÷ | 1 | 61.19 | 40,000 | | 2002 | | 2024.04.11 | ¿ù¼¼ | ÆÓ¸®½ºÅ¸¿î(411-13) | 4 | 23.39 | 10,000 | 46 | 2017 | | 2024.04.10 | ¸Å¸Å | Ǫ¸¥½£ | 2 | 57.71 | 56,000 | | 2022 | | 2024.04.09 | ¿ù¼¼ | º¸¶ó¸ÅÆÄÅ©ºô | 4 | 40.79 | 29,000 | 30 | 2022 | | 2024.04.08 | ¿ù¼¼ | ¿ÏÈñÇö´ç | 2 | 13.94 | 5,000 | 30 | 2011 | | 2024.04.06 | ¸Å¸Å | Á¦ÀÌŸ¿î | 9 | 15.54 | 14,300 | | 2016 | | 2024.04.06 | Àü¼¼ | ¿¤¸®½Ã¾Æºôµù(23-117) | 5 | 19.38 | 17,800 | 0 | 2015 | | 2024.04.05 | ¿ù¼¼ | ÆÄÅ©Èú½º | 2 | 29.96 | 10,000 | 50 | 2018 | | 2024.04.05 | ¿ù¼¼ | ÆÄÅ©Èú½º | 2 | 29.96 | 10,000 | 50 | 2018 | | 2024.04.04 | ¿ù¼¼ | õ·Ïºô¶ó | 3 | 76.85 | 8,000 | 50 | 1988 | | 2024.04.04 | ¸Å¸Å | Á¦ÀϽ¦¸£ºô | 2 | 58.74 | 45,000 | | 2002 | | 2024.04.03 | ¿ù¼¼ | Á¦ÀÌŸ¿î | 6 | 15.54 | 1,000 | 65 | 2016 | | 2024.04.02 | Àü¼¼ | ¹Ì·¡winners(344-6) | 3 | 28.7 | 24,000 | 0 | 2015 | | 2024.04.02 | Àü¼¼ | ¹Ì·¡winners(344-6) | 3 | 28.7 | 24,000 | 0 | 2015 | | 2024.04.02 | Àü¼¼ | ¸ÞÁ¾µåº¸¾Æ | 3 | 59.67 | 27,500 | 0 | 2002 | | 2024.04.02 | Àü¼¼ | ½Å´ë¹æ¾ÆÆ®ºô | 4 | 47.58 | 17,000 | 0 | 2002 | | 2024.03.31 | ¿ù¼¼ | ¿ÏÈñÇö´ç | 2 | 14.7 | 1,000 | 55 | 2011 | | 2024.03.31 | ¿ù¼¼ | »ù¼Ú´ÂÅÍ | 3 | 55.05 | 2,000 | 120 | 2019 | | 2024.03.31 | ¿ù¼¼ | MAJESTY | 5 | 15.33 | 11,800 | 28 | 2013 | | 2024.03.30 | ¿ù¼¼ | ½Å¼ºÇϿ콺 | 2 | 44.94 | 3,000 | 145 | 2022 | | 2024.03.30 | Àü¼¼ | ¹Ì·¡winners(344-6) | 3 | 28.7 | 24,000 | 0 | 2015 | | 2024.03.25 | ¿ù¼¼ | È¿ÁÖÆÄÅ©ºô(414-10) | 3 | 48.5425 | 29,900 | 10 | 2013 | | 2024.03.23 | ¿ù¼¼ | (391-210) | 1 | 23.94 | 500 | 50 | 2002 | | 2024.03.23 | Àü¼¼ | ½ºÄ«ÀÌij½½ | 3 | 38.94 | 32,380 | 0 | 2019 | | 2024.03.23 | Àü¼¼ | ½ºÄ«ÀÌij½½ | 3 | 38.94 | 32,380 | 0 | 2019 | | 2024.03.22 | ¿ù¼¼ | ÄŸºô·¹´ë¹æ(405-4) | 9 | 21.88 | 8,000 | 50 | 2014 | | 2024.03.22 | ¿ù¼¼ | the¿Ï¿ìºô | 5 | 27 | 1,005 | 29 | 2022 | | 2024.03.21 | ¿ù¼¼ | ¸®´õ½ººô | 5 | 53.75 | 12,000 | 72 | 2004 | | 2024.03.19 | Àü¼¼ | ¾Æ³Ê½ºÈú3Â÷(393-38) | 3 | 48.05 | 32,000 | 0 | 2014 | | 2024.03.19 | ¿ù¼¼ | (335-18) | 3 | 14.28 | 1,000 | 52 | 2018 | | 2024.03.17 | ¿ù¼¼ | ´ë½Åºô¶ó | 3 | 50.53 | 8,000 | 75 | 1992 | | 2024.03.17 | ¿ù¼¼ | ÈÞ¾Èä | 4 | 13.19 | 5,000 | 35 | 2016 | | 2024.03.16 | ¿ù¼¼ | ¸í¼º | 4 | 12.54 | 1,000 | 52 | 2013 | | 2024.03.16 | ¿ù¼¼ | À§³Ê½º | 5 | 20.72 | 25,000 | 5 | 2016 | | 2024.03.16 | Àü¼¼ | 411-29 | 4 | 22.575 | 20,000 | 0 | 2015 | | 2024.03.15 | Àü¼¼ | ³ëºô¸®Æ¼ | 3 | 42.78 | 38,000 | 0 | 2016 | | 2024.03.15 | ¿ù¼¼ | ±×¸°ÆÄ¿öÇÊ | 1 | 48.69 | 12,000 | 35 | 2020 | | 2024.03.15 | ¿ù¼¼ | ½ºÅ¸³ëºí·¹½º | 6 | 11.28 | 1,000 | 58 | 2022 | | 2024.03.12 | ¿ù¼¼ | 401-18 | 6 | 21.21 | 1,000 | 85 | 2013 | | 2024.03.12 | ¿ù¼¼ | ¿¹¸°ºô¸®Áö(402-23) | 4 | 23.63 | 11,000 | 20 | 2015 | | 2024.03.11 | Àü¼¼ | ´ë¹æÈѹи®ºô¶ó | 2 | 66.3 | 30,000 | 0 | 1992 | | 2024.03.10 | ¿ù¼¼ | 411-29 | 5 | 20.81 | 3,000 | 40 | 2015 | | 2024.03.10 | ¿ù¼¼ | 411-29 | 5 | 20.81 | 3,000 | 40 | 2015 | | 2024.03.09 | Àü¼¼ | ¼Ò¸Á¾ÆÆ®ºô | 2 | 79.33 | 35,000 | 0 | 2002 | | 2024.03.09 | Àü¼¼ | ´ë¼ºÁÖÅà | 4 | 73.02 | 33,000 | 0 | 2002 | | 2024.03.09 | Àü¼¼ | ÀÌ·¹¾ÆÆ®ºô | 4 | 19 | 11,000 | 0 | 2016 | | 2024.03.05 | Àü¼¼ | ÇØ¿À¸§ºô | 3 | 44.59 | 25,000 | 0 | 2011 | | 2024.03.05 | Àü¼¼ | ±×¸°ºô¶óÆ®(11-85) | 3 | 43.24 | 26,000 | 0 | 2014 | | 2024.03.05 | Àü¼¼ | ±×¸°ºô¶óÆ®(11-85) | 3 | 43.24 | 26,000 | 0 | 2014 | | 2024.03.05 | ¿ù¼¼ | ûÀ¯ºôµù | 4 | 12.84 | 1,000 | 50 | 2013 | | 2024.03.04 | Àü¼¼ | µðºñÇϿ콺Bµ¿ | -1 | 65.03 | 18,000 | 0 | 2001 | | 2024.03.04 | ¿ù¼¼ | ºÎ¸íºôµù | 5 | 13.6 | 1,000 | 44 | 2013 | | 2024.03.02 | ¿ù¼¼ | Á¾¿øºô¶ó3µ¿ | 2 | 38.52 | 13,000 | 10 | 1986 | | 2024.03.02 | Àü¼¼ | »ù¼Ú´ÂÅÍ | 4 | 29.95 | 30,000 | 0 | 2019 | | 2024.03.02 | ¿ù¼¼ | Á¾¿øºô¶ó2µ¿ | 1 | 40.86 | 2,000 | 60 | 1986 | | 2024.03.01 | ¿ù¼¼ | ´ë¹æÂüÁ¸Å¸¿î | 2 | 46.2 | 3,000 | 130 | 2015 | | 2024.02.29 | Àü¼¼ | ´ÙÀÎij½½3Â÷ | 4 | 27.83 | 27,800 | 0 | 2021 | | 2024.02.28 | ¿ù¼¼ | żºÆÓ¸®½º | 3 | 29.87 | 3,000 | 85 | 2016 | | 2024.02.28 | Àü¼¼ | 401-18 | 5 | 28.29 | 18,000 | 0 | 2013 | | 2024.02.28 | Àü¼¼ | ¸®Ä¡ºô(391-548) | 5 | 16.98 | 21,500 | 0 | 2012 | | 2024.02.28 | Àü¼¼ | ¸®Ä¡ºô(391-548) | 5 | 16.98 | 21,500 | 0 | 2012 | | 2024.02.27 | Àü¼¼ | ÂüÁ¸ºô¸®Áö | 2 | 37.09 | 30,000 | 0 | 2013 | | 2024.02.27 | ¿ù¼¼ | µÎµÎºô¶ó(391-549) | 1 | 48.07 | 10,000 | 40 | 1994 | | 2024.02.26 | Àü¼¼ | ¹Ì·¡ÇÏÀÌÃ÷ºô(´Ù) | 5 | 70.62 | 13,000 | 0 | 2002 | | 2024.02.26 | ¿ù¼¼ | ¸í¼º | 3 | 12.54 | 1,000 | 52 | 2013 | | 2024.02.26 | ¿ù¼¼ | ½Å¼ºÇϿ콺 | 2 | 29.98 | 2,000 | 125 | 2022 | | 2024.02.26 | Àü¼¼ | ¹Ì·¡ÇÏÀÌÃ÷ºô(´Ù) | 5 | 70.62 | 13,000 | 0 | 2002 | | 2024.02.25 | ¿ù¼¼ | º¸¶ó¸Å¿þ½ºÆ®ºô | 2 | 13.13 | 3,000 | 32 | 2011 | | 2024.02.24 | ¿ù¼¼ | (375-53) | 2 | 24.2 | 13,000 | 10 | 2013 | | 2024.02.24 | ¿ù¼¼ | ¸®¾È | 8 | 14.59 | 1,000 | 58 | 2017 | | 2024.02.23 | ¿ù¼¼ | Çö´ëºô | 5 | 25.37 | 1,000 | 115 | 2023 | | 2024.02.22 | ¿ù¼¼ | ½Å´ë¹æ¾ÆÆ®ºô | 3 | 47.58 | 10,000 | 60 | 2002 | | 2024.02.21 | ¿ù¼¼ | ÇÁ·Î¹æ½º | 3 | 28.42 | 1,000 | 89 | 2016 | | 2024.02.20 | ¿ù¼¼ | ÆÓ¸®½ºÅ¸¿î(411-4) | 2 | 25.79 | 24,150 | 13 | 2017 | | 2024.02.19 | ¿ù¼¼ | »ù¼Ú´ÂÅÍ | 4 | 28.57 | 3,000 | 95 | 2019 | | 2024.02.18 | ¿ù¼¼ | º¸¶ó¸ÅÀ̽ºÆ®ºô | 2 | 12.73 | 7,000 | 4 | 2011 | | 2024.02.17 | ¿ù¼¼ | ¸®Ä¡ºô(391-548) | 4 | 21.22 | 15,000 | 3 | 2012 | | 2024.02.17 | ¿ù¼¼ | ¿µºóºô | 6 | 28.52 | 1,000 | 115 | 2023 | | 2024.02.17 | ¿ù¼¼ | ´Ù¿Â½Åµå·Ò | 5 | 21.13 | 1,000 | 53 | 2016 | | 2024.02.17 | ¿ù¼¼ | ¸®Ä¡ºô(391-548) | 4 | 21.22 | 15,000 | 3 | 2012 | | 2024.02.16 | ¿ù¼¼ | °¡Àη¹Áö´ø½º | 2 | 15.32 | 2,000 | 42 | 2011 | | 2024.02.15 | ¿ù¼¼ | º¸¶ó¸Å¿þ½ºÆ®ºô | 5 | 12.02 | 3,000 | 26 | 2011 | | 2024.02.14 | ¿ù¼¼ | ¸®¾È | 10 | 15.37 | 1,000 | 65 | 2017 | | 2024.02.14 | Àü¼¼ | ´ë¹æºô¸®Áö(335-26) | 3 | 55.37 | 36,500 | 0 | 2017 | | 2024.02.14 | Àü¼¼ | À§³Ê½º | 6 | 20.72 | 23,000 | 0 | 2016 | | 2024.02.14 | Àü¼¼ | Á¾¿øºô¶ó9µ¿ | 2 | 61.5 | 18,100 | 0 | 1986 | | 2024.02.14 | ¿ù¼¼ | ·ÎÇϽººô | 1 | 64.85 | 6,000 | 95 | 2007 | | 2024.02.13 | Àü¼¼ | ÇØ¼Öºô | 5 | 58.97 | 26,200 | 0 | 2013 | | 2024.02.13 | Àü¼¼ | ÇØ¼Öºô | 3 | 39.09 | 25,150 | 0 | 2013 | | 2024.02.13 | Àü¼¼ | (13-60) | 2 | 52.88 | 4,500 | 0 | 1986 | | 2024.02.07 | Àü¼¼ | ³ëºô¸®Æ¼ | 2 | 29.44 | 25,000 | 0 | 2016 | | 2024.02.07 | Àü¼¼ | ´õÆ÷·¹ | 3 | 28.99 | 25,000 | 0 | 2021 | | 2024.02.07 | Àü¼¼ | ¾ÆÀÌij½½ | 4 | 78.22 | 32,000 | 0 | 2002 | | 2024.02.07 | ¿ù¼¼ | ÇÏ´Ã¸í°¡(391-522) | 3 | 12 | 2,000 | 42 | 2013 | | 2024.02.07 | Àü¼¼ | ³ëºô¸®Æ¼ | 2 | 29.44 | 25,000 | 0 | 2016 | | 2024.02.07 | Àü¼¼ | ´õÆ÷·¹ | 3 | 28.99 | 25,000 | 0 | 2021 | | 2024.02.07 | Àü¼¼ | Á¤¿ø½¦¸£ºô | 6 | 57.07 | 43,000 | 0 | 2017 | | 2024.02.06 | Àü¼¼ | Á¾¿øºô¶ó3µ¿ | -1 | 38.52 | 10,500 | 0 | 1986 | | 2024.02.05 | Àü¼¼ | ´ÃǪ¸¥ºô¶ó | 2 | 69.11 | 45,000 | 0 | 2008 | | 2024.02.05 | Àü¼¼ | 20-40 | 4 | 15.12 | 9,900 | 0 | 2013 | | 2024.02.05 | Àü¼¼ | Á¦ÀÌÇϿ콺 | 4 | 29.82 | 26,500 | 0 | 2018 | | 2024.02.04 | ¿ù¼¼ | ´Ù¿Â½Åµå·Ò | 5 | 17.02 | 1,000 | 47 | 2016 | | 2024.02.04 | Àü¼¼ | (375-53) | 3 | 13.79 | 9,000 | 0 | 2013 | | 2024.02.03 | Àü¼¼ | »ù¼Ú´ÂÅÍ | 5 | 55.25 | 35,000 | 0 | 2019 | | 2024.02.03 | ¿ù¼¼ | ´ë¹æºô¸®Áö(387-27) | 4 | 29.85 | 8,000 | 90 | 2016 | | 2024.02.03 | ¿ù¼¼ | ½Å¼ººô¶ó | 2 | 63.6 | 10,000 | 100 | 1995 | | 2024.02.02 | ¿ù¼¼ | ´Ù¿Â½Åµå·Ò | 3 | 18.82 | 1,000 | 50 | 2016 | | 2024.02.02 | ¿ù¼¼ | ´ë¸²Ä³½½ºô | 2 | 13.26 | 4,000 | 25 | 2011 | | 2024.02.02 | Àü¼¼ | ¼º³²ÇÏÀÌÃ÷ºôAµ¿ | 3 | 64.37 | 33,000 | 0 | 2002 | | 2024.02.02 | ¿ù¼¼ | ÇѰÆÓ¸®½º(387-3) | 4 | 47.71 | 20,000 | 50 | 2014 | | 2024.02.01 | ¿ù¼¼ | ¸í¼º | 4 | 13.53 | 1,000 | 52 | 2013 | | 2024.01.31 | Àü¼¼ | ÀºÇüºô¶ó | 2 | 82.8 | 31,500 | 0 | 1993 | | 2024.01.31 | Àü¼¼ | ½ºÄ«ÀÌij½½ | 5 | 25.49 | 27,450 | 0 | 2019 | | 2024.01.30 | Àü¼¼ | º¸¶ó¸ÅÆÄÅ©ºô | 4 | 45.07 | 37,000 | 0 | 2022 | | 2024.01.30 | Àü¼¼ | ´ÙÀÎij½½3Â÷ | 2 | 27.83 | 27,000 | 0 | 2021 | | 2024.01.29 | Àü¼¼ | Ƽ¿¥Å¸¿î | 4 | 26.95 | 24,000 | 0 | 2016 | | 2024.01.29 | ¿ù¼¼ | (376-9) | 2 | 20.02 | 6,000 | 10 | 2012 | | 2024.01.27 | Àü¼¼ | (383-7) | 3 | 46.57 | 23,000 | 0 | 2013 | | 2024.01.27 | Àü¼¼ | ´ë¹æºô¸®Áö(335-26) | 1 | 29.47 | 22,900 | 0 | 2017 | | 2024.01.26 | ¿ù¼¼ | ¿øÇϿ콺 | 2 | 25.56 | 5,287 | 18 | 2021 | | 2024.01.26 | ¿ù¼¼ | ÄŸºô·¹´ë¹æ(405-4) | 11 | 20.83 | 14,500 | 13 | 2014 | | 2024.01.26 | Àü¼¼ | ÄŸºô·¹´ë¹æ(405-4) | 7 | 21.88 | 18,000 | 0 | 2014 | | 2024.01.25 | ¿ù¼¼ | ¿øÇϿ콺 | 2 | 25.56 | 2,154 | 22 | 2021 | | 2024.01.25 | ¿ù¼¼ | Çö´ëºô | 6 | 24.74 | 1,000 | 95 | 2023 | | 2024.01.24 | ¿ù¼¼ | ÄÉ·»½Ã¾Æ´ë¹æ | 3 | 23.12 | 1,000 | 110 | 2022 | | 2024.01.24 | ¿ù¼¼ | µðÇϿ콺 | 3 | 20.03 | 2,000 | 65 | 2012 | | 2024.01.24 | ¿ù¼¼ | ÄÉ·»½Ã¾Æ´ë¹æ | 3 | 23.12 | 1,000 | 110 | 2022 | | 2024.01.24 | ¿ù¼¼ | ´Ù¿Â½Åµå·Ò | 5 | 17.02 | 2,000 | 43 | 2016 | | 2024.01.24 | ¿ù¼¼ | ´Ù¿Â½Åµå·Ò | 5 | 17.02 | 2,000 | 43 | 2016 | | 2024.01.22 | Àü¼¼ | ´ÙÀÎij½½3Â÷ | 5 | 27.23 | 26,300 | 0 | 2021 | | 2024.01.22 | ¿ù¼¼ | 411-5 | 2 | 22.66 | 18,600 | 20 | 2015 | | 2024.01.21 | ¿ù¼¼ | ÇູŸ¿î(402-6) | 5 | 52.87 | 2,000 | 95 | 2002 | | 2024.01.21 | Àü¼¼ | ¾î¹Ý±×¸° | 3 | 20.33 | 15,000 | 0 | 2011 | | 2024.01.20 | ¿ù¼¼ | ÇÁ·Î¹æ½º | 2 | 28.42 | 10,000 | 68 | 2016 | | 2024.01.20 | Àü¼¼ | ´ë¹æ¿î¸¶Å¸¿î | 5 | 68.93 | 24,000 | 0 | 2001 | | 2024.01.20 | ¿ù¼¼ | ÀÌ·¹¾ÆÆ®ºô | 2 | 29.86 | 22,000 | 15 | 2016 | | 2024.01.20 | ¿ù¼¼ | ÆÓ¸®½ºÅ¸¿î(411-13) | 4 | 23.5 | 18,000 | 13 | 2017 | | 2024.01.20 | Àü¼¼ | Çö´ë¾ÆÆ®ºô(392-5) | 4 | 84.21 | 35,000 | 0 | 2002 | | 2024.01.19 | ¿ù¼¼ | ³ëºô¸®Æ¼ | 5 | 29.44 | 5,000 | 100 | 2016 | | 2024.01.19 | Àü¼¼ | ´Ù¿Â½Åµå·Ò | 3 | 11.36 | 11,400 | 0 | 2016 | | 2024.01.19 | Àü¼¼ | ´Ù¿Â½Åµå·Ò | 3 | 11.36 | 11,400 | 0 | 2016 | | 2024.01.19 | ¿ù¼¼ | ½ºÄ«ÀÌij½½ | 4 | 27.07 | 24,500 | 15 | 2019 | | 2024.01.16 | ¿ù¼¼ | ´õÆ÷·¹ | 3 | 51.88 | 25,000 | 35 | 2021 | | 2024.01.16 | ¿ù¼¼ | ´ÙÀÎij½½3Â÷ | 3 | 27.44 | 26,300 | 15 | 2021 | | 2024.01.16 | ¿ù¼¼ | ÄŸºô·¹´ë¹æ(405-4) | 8 | 21.88 | 10,000 | 38 | 2014 | | 2024.01.16 | Àü¼¼ | ÆÄÅ©Èú½º | 1 | 29.96 | 32,000 | 0 | 2018 | | 2024.01.16 | ¿ù¼¼ | ´ÙÀÎij½½3Â÷ | 3 | 27.44 | 26,300 | 15 | 2021 | | 2024.01.16 | ¿ù¼¼ | ´ÙÀÎij½½3Â÷ | 3 | 27.44 | 26,300 | 15 | 2021 | | 2024.01.16 | Àü¼¼ | ¸®Ä¡ºô(391-548) | 3 | 16.98 | 12,600 | 0 | 2012 | | 2024.01.15 | Àü¼¼ | ¾ÆÀ̸°ÇϿ콺 | 3 | 17.23 | 12,000 | 0 | 2013 | | 2024.01.15 | ¿ù¼¼ | µÎµÎºô¶ó(391-549) | 3 | 49.81 | 17,000 | 15 | 1994 | | 2024.01.15 | ¿ù¼¼ | º¸¶ó¸Å½ºÀ§Æ®(411-1¿Ü) | 4 | 41.49 | 22,500 | 15 | 2015 | | 2024.01.14 | Àü¼¼ | ¹Ì·¡ÆÓ¸®½º | 2 | 29.62 | 25,500 | 0 | 2015 | | 2024.01.13 | ¿ù¼¼ | ¼Öä | 6 | 148.84 | 4,000 | 120 | 2004 | | 2024.01.13 | Àü¼¼ | À§³Ê½º | 3 | 24.03 | 25,000 | 0 | 2016 | | 2024.01.13 | ¿ù¼¼ | ¾ÆÀÌ-ij½½ | 2 | 50.15 | 5,000 | 80 | 2002 | | 2024.01.13 | Àü¼¼ | ¸®¾È | 10 | 15.05 | 10,800 | 0 | 2017 | | 2024.01.12 | ¿ù¼¼ | ´õÆ÷·¹ | 3 | 55.66 | 32,000 | 15 | 2021 | | 2024.01.11 | Àü¼¼ | ûÀ¯ºôµù | 1 | 12.84 | 9,000 | 0 | 2013 | | 2024.01.11 | ¿ù¼¼ | Áö¾ÈÇ÷¯½º | 4 | 29.85 | 30,000 | 10 | 2023 | | 2024.01.11 | ¿ù¼¼ | Çѽººô | 2 | 59.22 | 7,000 | 62 | 2002 | | 2024.01.10 | ¿ù¼¼ | ¸®¾È | 11 | 15.37 | 1,000 | 63 | 2017 | | 2024.01.09 | Àü¼¼ | ´ë¹æºô¸®Áö(335-26) | 2 | 29.71 | 27,000 | 0 | 2017 | | 2024.01.08 | ¿ù¼¼ | ÆÓ¸®½ºÅ¸¿î(411-33) | 4 | 29.85 | 5,000 | 89 | 2017 | | 2024.01.08 | ¿ù¼¼ | ½ºÅ¸³ëºí·¹½º | 6 | 12.06 | 5,000 | 39 | 2022 | | 2024.01.08 | Àü¼¼ | ¸®¾È | 11 | 15.05 | 10,800 | 0 | 2017 | | 2024.01.07 | ¿ù¼¼ | ÈÞ¾Èä | 3 | 16.92 | 5,000 | 35 | 2016 | | 2024.01.06 | ¿ù¼¼ | ¸®¾È | 9 | 15.05 | 2,000 | 55 | 2017 | | 2024.01.06 | Àü¼¼ | ¸í¼ºÇϿ콺5Â÷ | 3 | 28.73 | 29,000 | 0 | 2021 | | 2024.01.06 | ¿ù¼¼ | ´ë¹æÁÖ»óº¹ÇÕºôµù | 9 | 37.23 | 1,000 | 50 | 2016 | | 2024.01.06 | ¿ù¼¼ | õ¿¬Èѹ̸®¿¡A | 2 | 73.62 | 30,000 | 40 | 2004 | | 2024.01.06 | ¿ù¼¼ | ¸®¾È | 11 | 14.59 | 1,000 | 60 | 2017 | | 2024.01.06 | Àü¼¼ | µå¸²Ä³½½ | 4 | 36.01 | 23,100 | 0 | 2013 | | 2024.01.05 | ¿ù¼¼ | ÄŸºô·¹´ë¹æ(405-4) | 10 | 21.05 | 8,000 | 50 | 2014 | | 2024.01.02 | ¿ù¼¼ | ¾Æ³×½ºÆ¼ºô | 4 | 36.42 | 26,400 | 19 | 2011 | | 2024.01.02 | ¿ù¼¼ | (375-53) | 3 | 13.6 | 3,500 | 43 | 2013 |
|
|
|
 |
ÀÓÂ÷³»¿ª |
[¹è´ç¿ä±¸Á¾±âÀÏ : 2023/10/27] |
|
|
| ÀÓÂ÷ÀÎ |
Á¡À¯°ü°è |
ÀüÀÔÀÏÀÚ |
È®Á¤ÀÏÀÚ |
¹è´ç¿ä±¸ÀÏ |
º¸Áõ±Ý/Â÷ÀÓ |
´ëÇ׿ä°Ç |
ºñ°í |
| ÀÌOO |
503È£ |
2021.03.30 |
2021.3.15. |
2023.09.04 |
300,000,000
|
O |
|
| ¸Å°¢¹°°Ç¸í¼¼ ºñ°í |
|
|
|
|
 |
Áö¿ªºÐ¼® |
|
|
|
|
| ÁöÇÏö |
|
Çб³ |
|
| °ü°ø¼ |
|
| ¹ý¿ø |
¼¿ïÁß¾ÓÁö¹æ¹ý¿ø (065-94)¼¿ïƯº°½Ã ¼Ãʱ¸ ¼ÃÊÁß¾Ó·Î 157 (¼Ãʵ¿) ´ëÇ¥ : 02)530-1114, ¾ß°£ : 02)530-1280/536-8003 Á¾·Î±¸, Áß±¸, °³²±¸, ¼Ãʱ¸, °ü¾Ç±¸, µ¿ÀÛ±¸ |
| µî±â¼Ò |
¼¿ïÁß¾ÓÁö¹æ¹ý¿ø º»¿ø µî±â±¹ (´ëÇ¥:1544-0773, ÆÑ½º:(02)590-1881, ¼¿ïƯº°½Ã ¼Ãʱ¸ ¹ý¿ø·Î3±æ 14 (¼Ãʵ¿ 1707-4)) |
| ¼¼¹«¼ |
µ¿ÀÛ¼¼¹«¼ (´ëÇ¥:02-840-920, ÆÑ½º:02-831-4137, ¼¿ïƯº°½Ã ¿µµîÆ÷±¸ ´ë¹æÃµ·Î 259 (½Å±æµ¿)) |
|
|
|
 |
¹ý¿ø ¹°°ÇÀÚ·á ¿ä¾à |
|
|
|
|
| ¼Ò¸êµÇÁö ¾Ê´Â µî±âºÎ±Ç¸® |
¸Å¼öÀο¡°Ô ´ëÇ×ÇÒ ¼ö ÀÖ´Â À»±¸ 3¹ø ÀÓÂ÷±Çµî±â(2023.4.21. µî±â) ÀÖÀ½. º¸Áõ±Ý Àü¾× ¹è´ç¹ÞÁö ¸øÇϸé Àܾ×Àº ¸Å¼öÀÎÀÌ ÀμöÇÔ |
| ¼³Á¤µÈ °ÍÀ¸·Î º¸´Â Áö»ó±Ç |
|
| ¹ý¿øÀÚ·á Æ¯ÀÌ»çÇ× |
|
| ¿©ÀÇÁÖ°æ¸Å Á¶¾ð ÇѸ¶µð |
ÀÌ ºÎµ¿»êÀÇ ÀÔÂû¹ý¿øÀº ¼¿ïÁß¾ÓÁö¹æ¹ý¿øÀÔ´Ï´Ù.
ÀÔÂû½Ã°£Àº ~11:00ÀÔ´Ï´Ù. ÀÌ ¹ý¿ø¿¡´Â ½ÅÇÑÀºÇàÀÌ ÀÔÁ¡Çϰí ÀÖ½À´Ï´Ù.
|
¼±¼øÀ§ ÀÓÂ÷±Çµî±â°¡ µÇ¾î ÀÖ½À´Ï´Ù ´ëÇ×·ÂÀÌ ÀÖ´Â ¼±¼øÀ§ ÀÓÂ÷±Çµî±â ±Ç¸®ÀÚ°¡ ¹è´çÀ» Àü¾× ¹ÞÁö ¸øÇÒ °æ¿ì ³«ÂûÀÚ°¡ ÀÜ¿© º¸Áõ±ÝÀ» ÀμöÇØ¾ßÇÏ´Â °æ¿ìµµ ÀÖ½À´Ï´Ù. |
|
|
| Åë°è±â°£ |
³«Âû¹°°Ç¼ö |
Æò±Õ°¨Á¤°¡ |
Æò±Õ³«Âû°¡ |
³«Âû°¡À² |
À¯ÂûȽ¼ö |
| 3°³¿ù |
37°Ç |
291,478,378¿ø |
254,135,359¿ø |
85% |
3.2ȸ |
| 6°³¿ù |
74°Ç |
300,870,541¿ø |
258,029,188¿ø |
84% |
2.8ȸ |
| 12°³¿ù |
167°Ç |
328,683,988¿ø |
276,780,338¿ø |
84% |
2.4ȸ |
|
|
|
|
|
|
 |
|