|
| º» °æ¸Å¹°°ÇÀº ³«ÂûµÇ¾î ÀÌ¹Ì ¸ðµç °æ¸ÅÀýÂ÷°¡ ³¡³µ½À´Ï´Ù. ÀÌ ¹°°ÇÀº »ó´ãÇØ µå¸®Áö ¾Ê½À´Ï´Ù. |
|
|
| ¼ÒÀçÁö |
°æ±âµµ µ¿µÎõ½Ã µ¿µÎõ·Î 63, 401µ¿ 4Ãþ404È£ (¼Û³»µ¿,¼Û³»ÁÖ°ø¾ÆÆÄÆ®)
±¸)°æ±âµµ µ¿µÎõ½Ã ¼Û³»µ¿ 665-3
|
|
| »ç°Ç¹øÈ£ |
2024 Ÿ°æ 316 |
¹°°Ç¹øÈ£ |
1
|
¹°°Ç¿ëµµ |
¾ÆÆÄÆ® |
| °¨Á¤Æò°¡¾× |
155,000,000¿ø |
°æ¸Å´ë»ó |
ÅäÁö ¹× °Ç¹°Àϰý¸Å°¢ |
ÁøÇà»óÅ |
³«Âû |
ÃÖÀúÀÔÂû°¡ ³«Âû°¡ |
(70%) 108,500,000¿ø
(0.00%) 0¿ø |
°Ç¹°¸éÀû |
59.92§³(18.13Æò) |
ÀÔÂû±âÀÏ |
2024.07.16(È) 10:30
|
| ÀÔÂûº¸Áõ±Ý |
(10%) 10,850,000¿ø |
ÅäÁö¸éÀû |
43.65§³(13.21Æò)
|
À¯ÂûȽ¼ö |
1ȸ |
| ÀÔÂû¹ý¿ø |
ÀÇÁ¤ºÎÁö¹æ¹ý¿ø |
°æ¸Å¹æ¹ý |
|
¹°°ÇÁ¶È¸¼ö |
¿À´Ã: 3ȸ [´©Àû: 1019ȸ]
|
| ¸»¼Ò±âÁØ | ÃÖ¼±¼øÀ§ ¼³Á¤ : 2021.7.23.±ÙÀú´ç±Ç
|
|
|
|
|
|
|
|
|
|
|
°æ¸Å´ë»ó ¸ñ·Ï
|
|
| ±¸ºÐ |
¸ñ·Ï |
ÁÖ¼Ò |
±¸Á¶/¿ëµµ/´ëÁö±Ç |
ºñ°í |
´ëÁö±Ç
|
1 |
µ¿µÎõ·Î 63 |
55728.4 ºÐÀÇ 43.6547 |
43.654§³ (13.21Æò)
|
°Ç¹°
|
1 |
µ¿µÎõ·Î 63 |
4Ãþ404È£ (¼Û³»µ¿,¼Û³»ÁÖ°ø¾ÆÆÄÆ®) ö±ÙÄÜÅ©¸®Æ®º®½Ä±¸Á¶ |
59.92§³ (18.13Æò)
|
|
|
|
2024-06-11
À¯Âû
|
(100%)
155,000,000¿ø
|
|
|
|
2024-07-16
³«Âû
|
(70%)
108,500,000¿ø
|
|
|
¦±¦¬> ³«Âû°¡
 |
|
| 2024-08-19 ³³ºÎ
(2024.07.31) |
|
|
|
|
|
°¨Á¤Æò°¡¼ ¿ä¾à |
|
[À§Ä¡/ÁÖÀ§È¯°æ] º»°ÇÀº °æ±âµµ µ¿µÎõ½Ã ¼Û³»µ¿ ¼ÒÀç "¼Û³»Áß¾ÓÁßÇб³" ³²µ¿Ãø Àαٿ¡ À§Ä¡Çϸç, ºÎ±ÙÀº ¾ÆÆÄÆ®´ÜÁö, °¢±Þ Çб³ ¹× ±Ù¸°»ýȰ½Ã¼³ µîÀÌ È¥ÀçÇÏ´Â Áö¿ªÀ¸·Î Á¦¹Ý ÁÖÀ§È¯°æÀº º¸ÅëÀÓ.
[±³Åë»óȲ] º»°Ç±îÁö Â÷·® ÃâÀÔÀÌ °¡´ÉÇϸç, ºÏµ¿ÃøÀ¸·Î 1È£¼±(ÁöÇ࿪) ¹× ½Ã³»¹ö½º Á¤·ùÀåÀÌ Àαٿ¡ ¼ÒÀçÇÏ¿©, Á¦¹Ý ±³Åë»çÁ¤Àº º¸ÅëÀÓ.
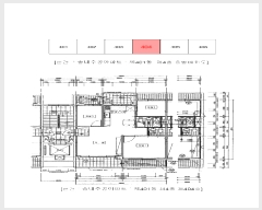
[°Ç¹°±¸Á¶] ö±ÙÄÜÅ©¸®Æ®º®½Ä±¸Á¶ ö°ñ°æ»çÁöºØ 15Ãþ°ÇÁß Á¦4Ãþ Á¦404È£·Î¼ ¿Üº®:¸ôÅ»À§ ÆäÀÎÆÃ ¸¶°¨ µî,³»º®:º®Áö ¹× ŸÀϺÙÀÓ ¸¶°¨ µî,âȣ:¼¦½Ã âȣÀÓ.
[ÀÌ¿ë»óÅÂ] ¾ÆÆÄÆ®(¹æ3, ÁÖ¹æ ¹× ½Ä´ç, °Å½Ç, ¿å½Ç2, ¹ßÄÚ´Ï µî)·Î ÀÌ¿ëÁßÀÓ.
[¼³ºñ³»¿ª] Àü±â¼³ºñ, À§»ý ¹× ±Þ¡¤¹è¼ö¼³ºñ, ³¹æ¼³ºñ ¹× ½Â°±â ¼³ºñ µîÀÌ µÇ¾îÀÖÀ½.
[ÅäÁöÇü»ó/ÀÌ¿ë»óÅÂ] ÀÎÁ¢ÅäÁö¿Í µî°íÆòźÇÑ 2ÇÊÀÏ´ÜÀÇ ºÎÁ¤Çü ÅäÁö·Î ¾ÆÆÄÆ® ºÎÁö·Î ÀÌ¿ëÁßÀÓ.
[µµ·Î»óÅÂ] ´ÜÁö³» µµ·Î¿Í ¿Ü°û°øµµ°¡ ¿¬°èµÇ¾îÀÖÀ½.
[ÅäÁöÀÌ¿ë°èȹ] ÀϷùøÈ£(1):Á¦3Á¾ÀϹÝÁÖ°ÅÁö¿ª, Áö±¸´ÜÀ§°èȹ±¸¿ª, ¼Ò·Î3·ù(Æø 8m ¹Ì¸¸)(Á¢ÇÕ), Áß·Î1·ù(Æø 20m-25m)(Á¢ÇÕ), °¡Ãà»çÀ°Á¦Çѱ¸¿ª(2016-12-01)(ÀüºÎÁ¦Çѱ¸¿ª)£¼°¡ÃàºÐ´¢ÀÇ °ü¸® ¹× À̿뿡 °üÇÑ ¹ý·ü£¾, »ó´ëº¸È£±¸¿ª£¼±³À°È¯°æ º¸È£¿¡ °üÇÑ ¹ý·ü£¾, »ó´ëº¸È£±¸¿ª(2018-09-20)£¼±³À°È¯°æ º¸È£¿¡ °üÇѹý·ü£¾, Àý´ëº¸È£±¸¿ª£¼±³À°È¯°æ º¸È£¿¡ °üÇÑ ¹ý·ü£¾, ¹èÃâ½Ã¼³¼³Ä¡Á¦ÇÑÁö¿ª£¼¹°È¯°æº¸Àü¹ý£¾, ¼ºÀå°ü¸®±Ç¿ª£¼¼öµµ±ÇÁ¤ºñ°èȹ¹ý£¾,ÀϷùøÈ£(2):Á¦3Á¾ÀϹÝÁÖ°ÅÁö¿ª, Áö±¸´ÜÀ§°èȹ±¸¿ª, ¼Ò·Î3·ù(Æø 8m ¹Ì¸¸)(Á¢ÇÕ), Áß·Î1·ù(Æø 20m-25m)(Á¢ÇÕ), Áß·Î2·ù(Æø 15m-20m)(Á¢ÇÕ), °¡Ãà»çÀ°Á¦Çѱ¸¿ª(2016-12-01)(ÀüºÎÁ¦Çѱ¸¿ª)£¼°¡ÃàºÐ´¢Àǰü¸® ¹× À̿뿡 °üÇÑ ¹ý·ü£¾, »ó´ëº¸È£±¸¿ª£¼±³À°È¯°æ º¸È£¿¡ °üÇÑ ¹ý·ü£¾, »ó´ëº¸È£±¸¿ª(2018- 09-20)£¼±³À°È¯°æ º¸È£¿¡ °üÇÑ ¹ý·ü£¾, Àý´ëº¸È£±¸¿ª£¼±³À°È¯°æ º¸È£¿¡ °üÇÑ ¹ý·ü£¾, Àý´ëº¸È£±¸¿ª(2018-09-20)£¼±³À°È¯°æ º¸È£¿¡ °üÇÑ ¹ý·ü£¾, ¹èÃâ½Ã¼³¼³Ä¡Á¦ÇÑÁö¿ª£¼¹°È¯°æº¸Àü¹ý£¾, ¼ºÀå°ü¸®±Ç¿ª£¼¼öµµ±ÇÁ¤ºñ°èȹ¹ý£¾ÀÓ.
[°øºÎ¿ÍÀÇ Â÷ÀÌ] -.
[Âü°í»çÇ×] -.
|
|
|
°ÇÃ๰ÇöȲ |
|
|
|
| ¼ÒÀçÁö |
°æ±âµµ µ¿µÎõ½Ã ¼Û³»µ¿ 665-3¹øÁö |
| ´ëÁö¸éÀû |
|
¿¬¸éÀû |
9§³(2.73Æò) |
ÁÖ¿ëµµ |
°øµ¿ÁÖÅà |
| °ÇÃà¸éÀû |
9§³(2.73Æò) |
¿ëÀû·ü»êÁ¤¿¬¸éÀû |
9§³(2.73Æò) |
Âø°øÀÏÀÚ |
|
| °ÇÆóÀ² |
|
¿ëÀû·ü |
|
»ç¿ë½ÂÀÎÀÏÀÚ |
|
| Áö»óÃþ¼ö |
1Ãþ |
ÁöÇÏÃþ¼ö |
|
±¸Á¶ |
°æ·®Ã¶°ñ±¸Á¶ |
|
|
|
¾ÆÆÄÆ® ´ÜÁöÁ¤º¸ ( ´ÜÁö¸í : ¼Û³»4´ÜÁöÁÖ°ø ) |
|
|
|
| ¹ýÁ¤ÁÖ¼Ò |
°æ±âµµ µ¿µÎõ½Ã ¼Û³»µ¿ 665-3 ¼Û³»4´ÜÁöÁÖ°ø |
| ´ÜÁöºÐ·ù |
¾ÆÆÄÆ® |
ºÐ¾çÇüÅ |
ºÐ¾ç |
³¹æ¹æ½Ä |
°³º°³¹æ |
| ¿¬¸éÀû |
111296.448§³ (33726.2Æò) |
µ¿¼ö |
17 |
¼¼´ë¼ö |
1386 |
| ½Ã°ø»ç |
±Øµ¿°Ç¼³, »ïÁ¤°Ç¼³ |
½ÃÇà»ç |
Çѱ¹ÅäÁöÁÖÅðø»ç |
°ü¸®»ç¹«¼Ò¿¬¶ôó |
031-857-4001 |
| °ü¸®ºñºÎ°ú¸éÀû |
110915.2854§³ (33610.69Æò) |
°ü¸®¹æ½Ä |
À§Å¹°ü¸® |
º¹µµÀ¯Çü |
È¥ÇÕ½Ä |
| »ç¿ë½ÂÀÎÀÏ |
2003³â05¿ù20ÀÏ |
È£¼ö |
1386 |
¼¼´ëÇöȲ60§³ÀÌÇÏ |
1386 |
| ¼¼´ëÇöȲ85§³ÀÌÇÏ |
0 |
¼¼´ëÇöȲ135§³ÀÌÇÏ |
0 |
¼¼´ëÇöȲ135§³Ãʰú |
0 |
|
|
|
|
|
|
¸éÀû(§³), ±Ý¾×(¸¸¿ø)
| °è¾àÀÏ | ±âÁØ | ¾ÆÆÄÆ®¸í | Ãþ | Àü¿ë¸éÀû | °Å·¡±Ý¾× | °ÇÃà³âµµ | | °Å·¡³»¿ªÀÌ ¾ø½À´Ï´Ù. |
| °è¾àÀÏ | ±âÁØ | ¾ÆÆÄÆ®¸í | Ãþ | Àü¿ë¸éÀû | º¸Áõ±Ý | ¿ù¼¼ | °ÇÃà³âµµ | | 2026.03.27 | Àü¼¼ | ¼Û³»ÁÖ°ø4´ÜÁö | 15 | 59.92 | 11,000 | 0 | 2003 | | 2026.03.24 | Àü¼¼ | ¼Û³»ÁÖ°ø4´ÜÁö | 14 | 59.92 | 13,490 | 0 | 2003 | | 2026.03.19 | Àü¼¼ | ¼Û³»ÁÖ°ø4´ÜÁö | 5 | 59.92 | 13,000 | 0 | 2003 | | 2026.03.17 | ¸Å¸Å | ¼Û³»ÁÖ°ø4´ÜÁö | 15 | 45.32 | 10,400 | | 2003 | | 2026.03.17 | ¸Å¸Å | ¼Û³»ÁÖ°ø4´ÜÁö | 8 | 59.92 | 16,300 | | 2003 | | 2026.03.16 | ¸Å¸Å | ¼Û³»ÁÖ°ø4´ÜÁö | 16 | 45.32 | 12,500 | | 2003 | | 2026.03.16 | Àü¼¼ | ¼Û³»ÁÖ°ø4´ÜÁö | 7 | 45.32 | 10,100 | 0 | 2003 | | 2026.03.10 | ¸Å¸Å | ¼Û³»ÁÖ°ø4´ÜÁö | 10 | 59.92 | 17,000 | | 2003 | | 2026.03.08 | ¸Å¸Å | ¼Û³»ÁÖ°ø4´ÜÁö | 3 | 59.92 | 14,800 | | 2003 | | 2026.03.07 | ¿ù¼¼ | ¼Û³»ÁÖ°ø4´ÜÁö | 13 | 59.92 | 2,000 | 55 | 2003 | | 2026.03.07 | ¿ù¼¼ | ¼Û³»ÁÖ°ø4´ÜÁö | 13 | 59.92 | 2,000 | 55 | 2003 | | 2026.03.04 | ¿ù¼¼ | ¼Û³»ÁÖ°ø4´ÜÁö | 2 | 45.32 | 1,000 | 50 | 2003 | | 2026.03.03 | Àü¼¼ | ¼Û³»ÁÖ°ø4´ÜÁö | 16 | 45.32 | 10,000 | 0 | 2003 | | 2026.03.02 | ¿ù¼¼ | ¼Û³»ÁÖ°ø4´ÜÁö | 13 | 45.32 | 1,000 | 50 | 2003 | | 2026.02.27 | ¿ù¼¼ | ¼Û³»ÁÖ°ø4´ÜÁö | 1 | 45.32 | 500 | 50 | 2003 | | 2026.02.24 | ¿ù¼¼ | ¼Û³»ÁÖ°ø4´ÜÁö | 7 | 59.92 | 1,500 | 60 | 2003 | | 2026.02.24 | ¸Å¸Å | ¼Û³»ÁÖ°ø4´ÜÁö | 2 | 59.92 | 14,500 | | 2003 | | 2026.02.20 | ¸Å¸Å | ¼Û³»ÁÖ°ø4´ÜÁö | 15 | 59.92 | 14,800 | | 2003 | | 2026.02.19 | ¿ù¼¼ | ¼Û³»ÁÖ°ø4´ÜÁö | 11 | 45.32 | 2,000 | 40 | 2003 | | 2026.02.09 | ¸Å¸Å | ¼Û³»ÁÖ°ø4´ÜÁö | 15 | 59.92 | 14,200 | | 2003 | | 2026.02.09 | ¸Å¸Å | ¼Û³»ÁÖ°ø4´ÜÁö | 14 | 59.92 | 17,100 | | 2003 | | 2026.02.08 | ¸Å¸Å | ¼Û³»ÁÖ°ø4´ÜÁö | 7 | 59.92 | 15,000 | | 2003 | | 2026.02.07 | Àü¼¼ | ¼Û³»ÁÖ°ø4´ÜÁö | 9 | 59.92 | 11,000 | 0 | 2003 | | 2026.02.02 | ¸Å¸Å | ¼Û³»ÁÖ°ø4´ÜÁö | 12 | 59.92 | 14,000 | | 2003 | | 2026.01.30 | ¸Å¸Å | ¼Û³»ÁÖ°ø4´ÜÁö | 8 | 45.32 | 11,500 | | 2003 | | 2026.01.30 | ¸Å¸Å | ¼Û³»ÁÖ°ø4´ÜÁö | 9 | 59.92 | 14,200 | | 2003 | | 2026.01.27 | ¿ù¼¼ | ¼Û³»ÁÖ°ø4´ÜÁö | 4 | 45.32 | 1,000 | 55 | 2003 | | 2026.01.26 | ¸Å¸Å | ¼Û³»ÁÖ°ø4´ÜÁö | 6 | 45.32 | 12,000 | | 2003 | | 2026.01.24 | ¸Å¸Å | ¼Û³»ÁÖ°ø4´ÜÁö | 14 | 59.92 | 17,000 | | 2003 | | 2026.01.24 | ¸Å¸Å | ¼Û³»ÁÖ°ø4´ÜÁö | 6 | 45.32 | 10,900 | | 2003 | | 2026.01.20 | Àü¼¼ | ¼Û³»ÁÖ°ø4´ÜÁö | 13 | 45.32 | 9,450 | 0 | 2003 | | 2026.01.19 | ¸Å¸Å | ¼Û³»ÁÖ°ø4´ÜÁö | 10 | 59.92 | 15,000 | | 2003 | | 2026.01.19 | ¸Å¸Å | ¼Û³»ÁÖ°ø4´ÜÁö | 12 | 45.48 | 13,400 | | 2003 | | 2026.01.19 | ¿ù¼¼ | ¼Û³»ÁÖ°ø4´ÜÁö | 4 | 45.32 | 1,000 | 50 | 2003 | | 2026.01.17 | Àü¼¼ | ¼Û³»ÁÖ°ø4´ÜÁö | 10 | 45.32 | 9,975 | 0 | 2003 | | 2026.01.15 | ¿ù¼¼ | ¼Û³»ÁÖ°ø4´ÜÁö | 13 | 45.32 | 1,000 | 50 | 2003 | | 2026.01.13 | Àü¼¼ | ¼Û³»ÁÖ°ø4´ÜÁö | 11 | 59.92 | 13,000 | 0 | 2003 | | 2026.01.12 | Àü¼¼ | ¼Û³»ÁÖ°ø4´ÜÁö | 4 | 59.92 | 13,000 | 0 | 2003 | | 2026.01.10 | ¿ù¼¼ | ¼Û³»ÁÖ°ø4´ÜÁö | 4 | 59.92 | 1,000 | 50 | 2003 | | 2026.01.05 | Àü¼¼ | ¼Û³»ÁÖ°ø4´ÜÁö | 8 | 45.32 | 9,450 | 0 | 2003 | | 2026.01.05 | Àü¼¼ | ¼Û³»ÁÖ°ø4´ÜÁö | 9 | 45.48 | 10,000 | 0 | 2003 | | 2026.01.04 | Àü¼¼ | ¼Û³»ÁÖ°ø4´ÜÁö | 14 | 59.92 | 14,000 | 0 | 2003 | | 2025.12.24 | ¸Å¸Å | ¼Û³»ÁÖ°ø4´ÜÁö | 3 | 45.32 | 11,500 | | 2003 | | 2025.12.20 | Àü¼¼ | ¼Û³»ÁÖ°ø4´ÜÁö | 8 | 45.32 | 9,000 | 0 | 2003 | | 2025.12.17 | Àü¼¼ | ¼Û³»ÁÖ°ø4´ÜÁö | 17 | 45.32 | 10,500 | 0 | 2003 | | 2025.12.16 | ¸Å¸Å | ¼Û³»ÁÖ°ø4´ÜÁö | 14 | 59.92 | 17,000 | | 2003 | | 2025.12.12 | Àü¼¼ | ¼Û³»ÁÖ°ø4´ÜÁö | 14 | 59.92 | 11,000 | 0 | 2003 | | 2025.12.12 | ¿ù¼¼ | ¼Û³»ÁÖ°ø4´ÜÁö | 13 | 45.32 | 1,000 | 50 | 2003 | | 2025.12.11 | ¸Å¸Å | ¼Û³»ÁÖ°ø4´ÜÁö | 7 | 59.92 | 13,800 | | 2003 | | 2025.12.10 | ¸Å¸Å | ¼Û³»ÁÖ°ø4´ÜÁö | 4 | 45.32 | 13,200 | | 2003 | | 2025.12.10 | Àü¼¼ | ¼Û³»ÁÖ°ø4´ÜÁö | 2 | 59.92 | 13,000 | 0 | 2003 | | 2025.12.09 | Àü¼¼ | ¼Û³»ÁÖ°ø4´ÜÁö | 4 | 45.32 | 10,000 | 0 | 2003 | | 2025.12.09 | Àü¼¼ | ¼Û³»ÁÖ°ø4´ÜÁö | 4 | 45.32 | 10,000 | 0 | 2003 | | 2025.12.06 | ¸Å¸Å | ¼Û³»ÁÖ°ø4´ÜÁö | 11 | 59.92 | 14,800 | | 2003 | | 2025.12.06 | Àü¼¼ | ¼Û³»ÁÖ°ø4´ÜÁö | 6 | 45.32 | 10,000 | 0 | 2003 | | 2025.12.05 | ¿ù¼¼ | ¼Û³»ÁÖ°ø4´ÜÁö | 8 | 59.92 | 1,000 | 65 | 2003 | | 2025.12.05 | Àü¼¼ | ¼Û³»ÁÖ°ø4´ÜÁö | 17 | 45.32 | 10,000 | 0 | 2003 | | 2025.12.01 | Àü¼¼ | ¼Û³»ÁÖ°ø4´ÜÁö | 8 | 59.92 | 8,000 | 0 | 2003 | | 2025.11.30 | Àü¼¼ | ¼Û³»ÁÖ°ø4´ÜÁö | 18 | 45.32 | 9,300 | 0 | 2003 | | 2025.11.27 | Àü¼¼ | ¼Û³»ÁÖ°ø4´ÜÁö | 4 | 45.32 | 9,450 | 0 | 2003 | | 2025.11.27 | Àü¼¼ | ¼Û³»ÁÖ°ø4´ÜÁö | 5 | 59.92 | 13,000 | 0 | 2003 | | 2025.11.26 | Àü¼¼ | ¼Û³»ÁÖ°ø4´ÜÁö | 16 | 45.32 | 10,000 | 0 | 2003 | | 2025.11.25 | Àü¼¼ | ¼Û³»ÁÖ°ø4´ÜÁö | 7 | 59.92 | 12,000 | 0 | 2003 | | 2025.11.20 | Àü¼¼ | ¼Û³»ÁÖ°ø4´ÜÁö | 2 | 59.92 | 11,550 | 0 | 2003 | | 2025.11.20 | Àü¼¼ | ¼Û³»ÁÖ°ø4´ÜÁö | 2 | 59.92 | 11,550 | 0 | 2003 | | 2025.11.20 | ¸Å¸Å | ¼Û³»ÁÖ°ø4´ÜÁö | 4 | 45.32 | 10,400 | | 2003 | | 2025.11.20 | Àü¼¼ | ¼Û³»ÁÖ°ø4´ÜÁö | 2 | 45.32 | 11,000 | 0 | 2003 | | 2025.11.20 | ¿ù¼¼ | ¼Û³»ÁÖ°ø4´ÜÁö | 9 | 59.92 | 1,000 | 60 | 2003 | | 2025.11.15 | ¿ù¼¼ | ¼Û³»ÁÖ°ø4´ÜÁö | 6 | 45.32 | 1,700 | 35 | 2003 | | 2025.11.14 | Àü¼¼ | ¼Û³»ÁÖ°ø4´ÜÁö | 3 | 59.92 | 12,600 | 0 | 2003 | | 2025.11.14 | Àü¼¼ | ¼Û³»ÁÖ°ø4´ÜÁö | 3 | 59.92 | 12,600 | 0 | 2003 | | 2025.11.12 | ¿ù¼¼ | ¼Û³»ÁÖ°ø4´ÜÁö | 1 | 59.92 | 12,100 | 5 | 2003 | | 2025.11.10 | ¿ù¼¼ | ¼Û³»ÁÖ°ø4´ÜÁö | 13 | 45.32 | 1,000 | 50 | 2003 | | 2025.11.07 | ¸Å¸Å | ¼Û³»ÁÖ°ø4´ÜÁö | 2 | 59.92 | 13,100 | | 2003 | | 2025.11.01 | ¸Å¸Å | ¼Û³»ÁÖ°ø4´ÜÁö | 17 | 45.48 | 11,800 | | 2003 | | 2025.10.31 | ¸Å¸Å | ¼Û³»ÁÖ°ø4´ÜÁö | 4 | 59.92 | 16,000 | | 2003 | | 2025.10.31 | ¿ù¼¼ | ¼Û³»ÁÖ°ø4´ÜÁö | 3 | 45.48 | 500 | 48 | 2003 | | 2025.10.29 | Àü¼¼ | ¼Û³»ÁÖ°ø4´ÜÁö | 12 | 45.32 | 10,000 | 0 | 2003 | | 2025.10.23 | ¸Å¸Å | ¼Û³»ÁÖ°ø4´ÜÁö | 9 | 59.92 | 16,100 | | 2003 | | 2025.10.18 | ¿ù¼¼ | ¼Û³»ÁÖ°ø4´ÜÁö | 3 | 45.32 | 1,000 | 50 | 2003 | | 2025.10.16 | ¸Å¸Å | ¼Û³»ÁÖ°ø4´ÜÁö | 14 | 59.92 | 17,000 | | 2003 | | 2025.10.15 | Àü¼¼ | ¼Û³»ÁÖ°ø4´ÜÁö | 4 | 45.32 | 10,000 | 0 | 2003 | | 2025.10.15 | Àü¼¼ | ¼Û³»ÁÖ°ø4´ÜÁö | 4 | 45.32 | 10,000 | 0 | 2003 | | 2025.10.14 | ¿ù¼¼ | ¼Û³»ÁÖ°ø4´ÜÁö | 18 | 45.32 | 1,000 | 50 | 2003 | | 2025.10.10 | Àü¼¼ | ¼Û³»ÁÖ°ø4´ÜÁö | 14 | 59.92 | 12,600 | 0 | 2003 | | 2025.10.10 | ¸Å¸Å | ¼Û³»ÁÖ°ø4´ÜÁö | 11 | 45.32 | 12,000 | | 2003 | | 2025.10.02 | Àü¼¼ | ¼Û³»ÁÖ°ø4´ÜÁö | 12 | 59.92 | 13,000 | 0 | 2003 | | 2025.09.30 | Àü¼¼ | ¼Û³»ÁÖ°ø4´ÜÁö | 16 | 45.32 | 9,450 | 0 | 2003 | | 2025.09.29 | Àü¼¼ | ¼Û³»ÁÖ°ø4´ÜÁö | 7 | 45.32 | 10,000 | 0 | 2003 | | 2025.09.26 | Àü¼¼ | ¼Û³»ÁÖ°ø4´ÜÁö | 10 | 59.92 | 13,000 | 0 | 2003 | | 2025.09.24 | ¸Å¸Å | ¼Û³»ÁÖ°ø4´ÜÁö | 14 | 45.32 | 12,900 | | 2003 | | 2025.09.24 | ¸Å¸Å | ¼Û³»ÁÖ°ø4´ÜÁö | 8 | 45.32 | 11,000 | | 2003 | | 2025.09.24 | ¸Å¸Å | ¼Û³»ÁÖ°ø4´ÜÁö | 4 | 59.92 | 17,200 | | 2003 | | 2025.09.23 | Àü¼¼ | ¼Û³»ÁÖ°ø4´ÜÁö | 1 | 45.32 | 9,200 | 0 | 2003 | | 2025.09.23 | Àü¼¼ | ¼Û³»ÁÖ°ø4´ÜÁö | 5 | 59.92 | 12,500 | 0 | 2003 | | 2025.09.23 | ¿ù¼¼ | ¼Û³»ÁÖ°ø4´ÜÁö | 1 | 45.32 | 9,200 | 17 | 2003 | | 2025.09.23 | Àü¼¼ | ¼Û³»ÁÖ°ø4´ÜÁö | 5 | 59.92 | 12,500 | 0 | 2003 | | 2025.09.22 | ¸Å¸Å | ¼Û³»ÁÖ°ø4´ÜÁö | 7 | 59.92 | 11,500 | | 2003 | | 2025.09.21 | ¿ù¼¼ | ¼Û³»ÁÖ°ø4´ÜÁö | 6 | 59.92 | 2,000 | 40 | 2003 | | 2025.09.19 | Àü¼¼ | ¼Û³»ÁÖ°ø4´ÜÁö | 3 | 59.92 | 10,000 | 0 | 2003 | | 2025.09.15 | ¿ù¼¼ | ¼Û³»ÁÖ°ø4´ÜÁö | 13 | 45.32 | 1,000 | 50 | 2003 | | 2025.09.15 | Àü¼¼ | ¼Û³»ÁÖ°ø4´ÜÁö | 7 | 59.92 | 10,000 | 0 | 2003 | | 2025.09.13 | ¸Å¸Å | ¼Û³»ÁÖ°ø4´ÜÁö | 5 | 59.92 | 16,000 | | 2003 | | 2025.09.13 | Àü¼¼ | ¼Û³»ÁÖ°ø4´ÜÁö | 5 | 45.32 | 10,100 | 0 | 2003 | | 2025.09.12 | Àü¼¼ | ¼Û³»ÁÖ°ø4´ÜÁö | 2 | 45.48 | 10,000 | 0 | 2003 | | 2025.09.10 | ¸Å¸Å | ¼Û³»ÁÖ°ø4´ÜÁö | 10 | 45.32 | 12,900 | | 2003 | | 2025.09.08 | ¸Å¸Å | ¼Û³»ÁÖ°ø4´ÜÁö | 1 | 59.92 | 14,300 | | 2003 | | 2025.09.05 | ¿ù¼¼ | ¼Û³»ÁÖ°ø4´ÜÁö | 15 | 45.48 | 1,000 | 50 | 2003 | | 2025.09.04 | Àü¼¼ | ¼Û³»ÁÖ°ø4´ÜÁö | 8 | 45.48 | 10,000 | 0 | 2003 | | 2025.09.02 | Àü¼¼ | ¼Û³»ÁÖ°ø4´ÜÁö | 7 | 59.92 | 12,000 | 0 | 2003 | | 2025.09.01 | ¸Å¸Å | ¼Û³»ÁÖ°ø4´ÜÁö | 2 | 59.92 | 12,700 | | 2003 | | 2025.08.30 | ¿ù¼¼ | ¼Û³»ÁÖ°ø4´ÜÁö | 9 | 59.92 | 1,000 | 50 | 2003 | | 2025.08.22 | Àü¼¼ | ¼Û³»ÁÖ°ø4´ÜÁö | 2 | 45.32 | 10,000 | 0 | 2003 | | 2025.08.20 | Àü¼¼ | ¼Û³»ÁÖ°ø4´ÜÁö | 13 | 59.92 | 13,000 | 0 | 2003 | | 2025.08.14 | ¸Å¸Å | ¼Û³»ÁÖ°ø4´ÜÁö | 2 | 59.92 | 12,800 | | 2003 | | 2025.08.13 | ¸Å¸Å | ¼Û³»ÁÖ°ø4´ÜÁö | 18 | 45.48 | 9,600 | | 2003 | | 2025.08.10 | ¸Å¸Å | ¼Û³»ÁÖ°ø4´ÜÁö | 10 | 45.48 | 11,000 | | 2003 | | 2025.08.07 | Àü¼¼ | ¼Û³»ÁÖ°ø4´ÜÁö | 13 | 45.32 | 9,500 | 0 | 2003 | | 2025.08.06 | ¸Å¸Å | ¼Û³»ÁÖ°ø4´ÜÁö | 4 | 45.32 | 11,200 | | 2003 | | 2025.08.06 | ¸Å¸Å | ¼Û³»ÁÖ°ø4´ÜÁö | 7 | 45.32 | 11,400 | | 2003 | | 2025.08.01 | Àü¼¼ | ¼Û³»ÁÖ°ø4´ÜÁö | 16 | 45.32 | 10,000 | 0 | 2003 | | 2025.07.31 | Àü¼¼ | ¼Û³»ÁÖ°ø4´ÜÁö | 15 | 45.32 | 11,000 | 0 | 2003 | | 2025.07.29 | ¸Å¸Å | ¼Û³»ÁÖ°ø4´ÜÁö | 2 | 45.48 | 11,000 | | 2003 | | 2025.07.26 | ¿ù¼¼ | ¼Û³»ÁÖ°ø4´ÜÁö | 10 | 45.32 | 1,000 | 50 | 2003 | | 2025.07.24 | Àü¼¼ | ¼Û³»ÁÖ°ø4´ÜÁö | 15 | 59.92 | 11,500 | 0 | 2003 | | 2025.07.23 | ¿ù¼¼ | ¼Û³»ÁÖ°ø4´ÜÁö | 6 | 45.32 | 1,000 | 50 | 2003 | | 2025.07.19 | Àü¼¼ | ¼Û³»ÁÖ°ø4´ÜÁö | 10 | 59.92 | 12,000 | 0 | 2003 | | 2025.07.15 | ¸Å¸Å | ¼Û³»ÁÖ°ø4´ÜÁö | 9 | 59.92 | 14,400 | | 2003 | | 2025.07.14 | Àü¼¼ | ¼Û³»ÁÖ°ø4´ÜÁö | 7 | 59.92 | 12,000 | 0 | 2003 | | 2025.07.10 | Àü¼¼ | ¼Û³»ÁÖ°ø4´ÜÁö | 7 | 59.92 | 13,000 | 0 | 2003 | | 2025.07.10 | Àü¼¼ | ¼Û³»ÁÖ°ø4´ÜÁö | 15 | 59.92 | 12,550 | 0 | 2003 | | 2025.07.08 | ¿ù¼¼ | ¼Û³»ÁÖ°ø4´ÜÁö | 2 | 59.92 | 1,000 | 55 | 2003 | | 2025.07.08 | ¸Å¸Å | ¼Û³»ÁÖ°ø4´ÜÁö | 9 | 59.92 | 14,400 | | 2003 | | 2025.07.05 | ¿ù¼¼ | ¼Û³»ÁÖ°ø4´ÜÁö | 5 | 45.32 | 1,700 | 33 | 2003 | | 2025.07.05 | ¿ù¼¼ | ¼Û³»ÁÖ°ø4´ÜÁö | 5 | 45.32 | 1,700 | 33 | 2003 | | 2025.07.05 | ¿ù¼¼ | ¼Û³»ÁÖ°ø4´ÜÁö | 5 | 45.32 | 1,700 | 33 | 2003 | | 2025.07.05 | ¿ù¼¼ | ¼Û³»ÁÖ°ø4´ÜÁö | 5 | 45.32 | 1,700 | 31 | 2003 | | 2025.07.05 | Àü¼¼ | ¼Û³»ÁÖ°ø4´ÜÁö | 14 | 59.92 | 13,000 | 0 | 2003 | | 2025.07.05 | ¸Å¸Å | ¼Û³»ÁÖ°ø4´ÜÁö | 14 | 59.92 | 15,900 | | 2003 | | 2025.07.04 | ¸Å¸Å | ¼Û³»ÁÖ°ø4´ÜÁö | 15 | 59.92 | 15,000 | | 2003 | | 2025.07.03 | ¸Å¸Å | ¼Û³»ÁÖ°ø4´ÜÁö | 15 | 45.48 | 11,450 | | 2003 | | 2025.07.02 | Àü¼¼ | ¼Û³»ÁÖ°ø4´ÜÁö | 10 | 59.92 | 13,000 | 0 | 2003 | | 2025.06.30 | ¸Å¸Å | ¼Û³»ÁÖ°ø4´ÜÁö | 10 | 45.32 | 10,000 | | 2003 | | 2025.06.29 | ¸Å¸Å | ¼Û³»ÁÖ°ø4´ÜÁö | 10 | 59.92 | 16,500 | | 2003 | | 2025.06.28 | ¿ù¼¼ | ¼Û³»ÁÖ°ø4´ÜÁö | 18 | 45.32 | 1,500 | 40 | 2003 | | 2025.06.27 | Àü¼¼ | ¼Û³»ÁÖ°ø4´ÜÁö | 14 | 45.32 | 10,000 | 0 | 2003 | | 2025.06.24 | ¸Å¸Å | ¼Û³»ÁÖ°ø4´ÜÁö | 15 | 59.92 | 14,000 | | 2003 | | 2025.06.24 | ¸Å¸Å | ¼Û³»ÁÖ°ø4´ÜÁö | 1 | 59.92 | 13,500 | | 2003 | | 2025.06.21 | ¿ù¼¼ | ¼Û³»ÁÖ°ø4´ÜÁö | 2 | 59.92 | 1,000 | 55 | 2003 | | 2025.06.20 | ¸Å¸Å | ¼Û³»ÁÖ°ø4´ÜÁö | 3 | 59.92 | 16,500 | | 2003 | | 2025.06.19 | ¸Å¸Å | ¼Û³»ÁÖ°ø4´ÜÁö | 12 | 45.32 | 12,900 | | 2003 | | 2025.06.18 | ¿ù¼¼ | ¼Û³»ÁÖ°ø4´ÜÁö | 2 | 59.92 | 1,000 | 50 | 2003 | | 2025.06.16 | ¸Å¸Å | ¼Û³»ÁÖ°ø4´ÜÁö | 7 | 45.48 | 12,000 | | 2003 | | 2025.06.14 | ¸Å¸Å | ¼Û³»ÁÖ°ø4´ÜÁö | 5 | 59.92 | 16,000 | | 2003 | | 2025.06.13 | ¸Å¸Å | ¼Û³»ÁÖ°ø4´ÜÁö | 15 | 59.92 | 15,700 | | 2003 | | 2025.06.11 | Àü¼¼ | ¼Û³»ÁÖ°ø4´ÜÁö | 18 | 45.32 | 10,000 | 0 | 2003 | | 2025.06.11 | Àü¼¼ | ¼Û³»ÁÖ°ø4´ÜÁö | 1 | 45.32 | 9,000 | 0 | 2003 | | 2025.06.07 | ¿ù¼¼ | ¼Û³»ÁÖ°ø4´ÜÁö | 13 | 45.32 | 1,000 | 50 | 2003 | | 2025.06.07 | ¿ù¼¼ | ¼Û³»ÁÖ°ø4´ÜÁö | 2 | 45.48 | 800 | 52 | 2003 | | 2025.06.07 | ¸Å¸Å | ¼Û³»ÁÖ°ø4´ÜÁö | 10 | 45.32 | 11,800 | | 2003 | | 2025.06.05 | ¿ù¼¼ | ¼Û³»ÁÖ°ø4´ÜÁö | 4 | 45.32 | 1,000 | 50 | 2003 | | 2025.06.05 | ¸Å¸Å | ¼Û³»ÁÖ°ø4´ÜÁö | 7 | 59.92 | 15,800 | | 2003 | | 2025.06.03 | ¸Å¸Å | ¼Û³»ÁÖ°ø4´ÜÁö | 9 | 59.92 | 15,400 | | 2003 | | 2025.06.03 | Àü¼¼ | ¼Û³»ÁÖ°ø4´ÜÁö | 13 | 59.92 | 13,000 | 0 | 2003 | | 2025.06.01 | ¿ù¼¼ | ¼Û³»ÁÖ°ø4´ÜÁö | 9 | 59.92 | 1,000 | 50 | 2003 | | 2025.06.01 | ¿ù¼¼ | ¼Û³»ÁÖ°ø4´ÜÁö | 9 | 59.92 | 1,000 | 50 | 2003 | | 2025.05.31 | ¸Å¸Å | ¼Û³»ÁÖ°ø4´ÜÁö | 13 | 45.32 | 10,500 | | 2003 | | 2025.05.31 | ¸Å¸Å | ¼Û³»ÁÖ°ø4´ÜÁö | 8 | 59.92 | 15,000 | | 2003 | | 2025.05.29 | ¿ù¼¼ | ¼Û³»ÁÖ°ø4´ÜÁö | 12 | 59.92 | 1,500 | 60 | 2003 | | 2025.05.29 | ¸Å¸Å | ¼Û³»ÁÖ°ø4´ÜÁö | 9 | 45.32 | 12,900 | | 2003 | | 2025.05.27 | ¸Å¸Å | ¼Û³»ÁÖ°ø4´ÜÁö | 4 | 59.92 | 15,500 | | 2003 | | 2025.05.26 | Àü¼¼ | ¼Û³»ÁÖ°ø4´ÜÁö | 7 | 59.92 | 11,500 | 0 | 2003 | | 2025.05.25 | Àü¼¼ | ¼Û³»ÁÖ°ø4´ÜÁö | 15 | 45.32 | 10,000 | 0 | 2003 | | 2025.05.24 | ¸Å¸Å | ¼Û³»ÁÖ°ø4´ÜÁö | 8 | 59.92 | 15,900 | | 2003 | | 2025.05.24 | ¿ù¼¼ | ¼Û³»ÁÖ°ø4´ÜÁö | 10 | 59.92 | 1,000 | 60 | 2003 | | 2025.05.20 | Àü¼¼ | ¼Û³»ÁÖ°ø4´ÜÁö | 3 | 59.92 | 12,000 | 0 | 2003 | | 2025.05.19 | Àü¼¼ | ¼Û³»ÁÖ°ø4´ÜÁö | 5 | 59.92 | 13,000 | 0 | 2003 | | 2025.05.14 | Àü¼¼ | ¼Û³»ÁÖ°ø4´ÜÁö | 17 | 45.48 | 10,000 | 0 | 2003 | | 2025.05.14 | Àü¼¼ | ¼Û³»ÁÖ°ø4´ÜÁö | 17 | 45.48 | 10,000 | 0 | 2003 | | 2025.05.13 | ¸Å¸Å | ¼Û³»ÁÖ°ø4´ÜÁö | 4 | 45.48 | 11,000 | | 2003 | | 2025.05.12 | ¸Å¸Å | ¼Û³»ÁÖ°ø4´ÜÁö | 2 | 59.92 | 15,000 | | 2003 | | 2025.05.08 | ¸Å¸Å | ¼Û³»ÁÖ°ø4´ÜÁö | 13 | 45.32 | 12,000 | | 2003 | | 2025.05.08 | ¸Å¸Å | ¼Û³»ÁÖ°ø4´ÜÁö | 6 | 59.92 | 14,000 | | 2003 | | 2025.05.01 | ¿ù¼¼ | ¼Û³»ÁÖ°ø4´ÜÁö | 6 | 45.32 | 1,000 | 50 | 2003 | | 2025.04.30 | Àü¼¼ | ¼Û³»ÁÖ°ø4´ÜÁö | 3 | 59.92 | 14,000 | 0 | 2003 | | 2025.04.25 | ¸Å¸Å | ¼Û³»ÁÖ°ø4´ÜÁö | 6 | 59.92 | 16,200 | | 2003 | | 2025.04.24 | Àü¼¼ | ¼Û³»ÁÖ°ø4´ÜÁö | 16 | 45.32 | 10,000 | 0 | 2003 | | 2025.04.15 | Àü¼¼ | ¼Û³»ÁÖ°ø4´ÜÁö | 12 | 45.32 | 7,500 | 0 | 2003 | | 2025.04.15 | ¸Å¸Å | ¼Û³»ÁÖ°ø4´ÜÁö | 16 | 45.32 | 11,200 | | 2003 | | 2025.04.14 | Àü¼¼ | ¼Û³»ÁÖ°ø4´ÜÁö | 5 | 45.32 | 6,000 | 0 | 2003 | | 2025.04.14 | ¿ù¼¼ | ¼Û³»ÁÖ°ø4´ÜÁö | 8 | 59.92 | 1,000 | 60 | 2003 | | 2025.04.10 | Àü¼¼ | ¼Û³»ÁÖ°ø4´ÜÁö | 14 | 45.32 | 11,000 | 0 | 2003 | | 2025.04.10 | ¿ù¼¼ | ¼Û³»ÁÖ°ø4´ÜÁö | 11 | 59.92 | 1,000 | 60 | 2003 | | 2025.04.07 | ¿ù¼¼ | ¼Û³»ÁÖ°ø4´ÜÁö | 3 | 45.32 | 1,000 | 50 | 2003 | | 2025.04.04 | ¸Å¸Å | ¼Û³»ÁÖ°ø4´ÜÁö | 1 | 59.92 | 14,100 | | 2003 | | 2025.04.04 | Àü¼¼ | ¼Û³»ÁÖ°ø4´ÜÁö | 15 | 45.32 | 10,000 | 0 | 2003 | | 2025.04.03 | ¸Å¸Å | ¼Û³»ÁÖ°ø4´ÜÁö | 4 | 45.32 | 11,300 | | 2003 | | 2025.04.02 | ¸Å¸Å | ¼Û³»ÁÖ°ø4´ÜÁö | 6 | 59.92 | 14,800 | | 2003 | | 2025.04.01 | Àü¼¼ | ¼Û³»ÁÖ°ø4´ÜÁö | 10 | 45.32 | 9,000 | 0 | 2003 | | 2025.03.31 | ¿ù¼¼ | ¼Û³»ÁÖ°ø4´ÜÁö | 10 | 59.92 | 1,000 | 60 | 2003 | | 2025.03.29 | ¿ù¼¼ | ¼Û³»ÁÖ°ø4´ÜÁö | 3 | 45.32 | 1,000 | 50 | 2003 | | 2025.03.22 | ¿ù¼¼ | ¼Û³»ÁÖ°ø4´ÜÁö | 13 | 45.32 | 1,000 | 50 | 2003 | | 2025.03.21 | ¸Å¸Å | ¼Û³»ÁÖ°ø4´ÜÁö | 3 | 59.92 | 15,500 | | 2003 | | 2025.03.18 | Àü¼¼ | ¼Û³»ÁÖ°ø4´ÜÁö | 5 | 59.92 | 12,500 | 0 | 2003 | | 2025.03.17 | Àü¼¼ | ¼Û³»ÁÖ°ø4´ÜÁö | 2 | 45.32 | 10,500 | 0 | 2003 | | 2025.03.14 | ¸Å¸Å | ¼Û³»ÁÖ°ø4´ÜÁö | 3 | 45.32 | 12,100 | | 2003 | | 2025.03.10 | ¸Å¸Å | ¼Û³»ÁÖ°ø4´ÜÁö | 8 | 45.32 | 11,400 | | 2003 | | 2025.03.10 | Àü¼¼ | ¼Û³»ÁÖ°ø4´ÜÁö | 3 | 59.92 | 12,000 | 0 | 2003 | | 2025.03.10 | ¸Å¸Å | ¼Û³»ÁÖ°ø4´ÜÁö | 8 | 45.32 | 11,500 | | 2003 | | 2025.03.08 | ¸Å¸Å | ¼Û³»ÁÖ°ø4´ÜÁö | 17 | 45.32 | 11,000 | | 2003 | | 2025.03.07 | Àü¼¼ | ¼Û³»ÁÖ°ø4´ÜÁö | 2 | 59.92 | 12,000 | 0 | 2003 | | 2025.03.07 | ¸Å¸Å | ¼Û³»ÁÖ°ø4´ÜÁö | 11 | 59.92 | 15,800 | | 2003 | | 2025.03.05 | Àü¼¼ | ¼Û³»ÁÖ°ø4´ÜÁö | 14 | 59.92 | 12,000 | 0 | 2003 | | 2025.03.04 | ¸Å¸Å | ¼Û³»ÁÖ°ø4´ÜÁö | 12 | 45.32 | 10,500 | | 2003 | | 2025.03.03 | ¸Å¸Å | ¼Û³»ÁÖ°ø4´ÜÁö | 7 | 45.32 | 12,000 | | 2003 | | 2025.03.02 | ¿ù¼¼ | ¼Û³»ÁÖ°ø4´ÜÁö | 13 | 45.32 | 500 | 55 | 2003 | | 2025.02.28 | Àü¼¼ | ¼Û³»ÁÖ°ø4´ÜÁö | 15 | 59.92 | 12,000 | 0 | 2003 | | 2025.02.28 | Àü¼¼ | ¼Û³»ÁÖ°ø4´ÜÁö | 3 | 45.32 | 10,500 | 0 | 2003 | | 2025.02.28 | Àü¼¼ | ¼Û³»ÁÖ°ø4´ÜÁö | 15 | 59.92 | 12,000 | 0 | 2003 | | 2025.02.27 | ¸Å¸Å | ¼Û³»ÁÖ°ø4´ÜÁö | 9 | 45.32 | 10,000 | | 2003 | | 2025.02.26 | ¿ù¼¼ | ¼Û³»ÁÖ°ø4´ÜÁö | 9 | 45.48 | 2,000 | 40 | 2003 | | 2025.02.26 | ¿ù¼¼ | ¼Û³»ÁÖ°ø4´ÜÁö | 9 | 45.48 | 2,000 | 40 | 2003 | | 2025.02.25 | ¸Å¸Å | ¼Û³»ÁÖ°ø4´ÜÁö | 15 | 59.92 | 14,500 | | 2003 | | 2025.02.25 | ¸Å¸Å | ¼Û³»ÁÖ°ø4´ÜÁö | 2 | 59.92 | 13,000 | | 2003 | | 2025.02.24 | ¸Å¸Å | ¼Û³»ÁÖ°ø4´ÜÁö | 6 | 45.32 | 10,800 | | 2003 | | 2025.02.22 | Àü¼¼ | ¼Û³»ÁÖ°ø4´ÜÁö | 12 | 45.32 | 10,000 | 0 | 2003 | | 2025.02.22 | ¿ù¼¼ | ¼Û³»ÁÖ°ø4´ÜÁö | 7 | 59.92 | 1,000 | 60 | 2003 | | 2025.02.22 | ¸Å¸Å | ¼Û³»ÁÖ°ø4´ÜÁö | 2 | 45.32 | 11,200 | | 2003 | | 2025.02.21 | ¸Å¸Å | ¼Û³»ÁÖ°ø4´ÜÁö | 13 | 45.32 | 11,050 | | 2003 | | 2025.02.20 | ¸Å¸Å | ¼Û³»ÁÖ°ø4´ÜÁö | 13 | 59.92 | 18,000 | | 2003 | | 2025.02.20 | ¿ù¼¼ | ¼Û³»ÁÖ°ø4´ÜÁö | 3 | 45.48 | 1,000 | 55 | 2003 | | 2025.02.11 | Àü¼¼ | ¼Û³»ÁÖ°ø4´ÜÁö | 16 | 45.32 | 9,000 | 0 | 2003 | | 2025.02.11 | Àü¼¼ | ¼Û³»ÁÖ°ø4´ÜÁö | 16 | 45.32 | 9,000 | 0 | 2003 | | 2025.02.11 | ¸Å¸Å | ¼Û³»ÁÖ°ø4´ÜÁö | 8 | 59.92 | 16,000 | | 2003 | | 2025.02.10 | Àü¼¼ | ¼Û³»ÁÖ°ø4´ÜÁö | 2 | 59.92 | 12,000 | 0 | 2003 | | 2025.02.08 | ¿ù¼¼ | ¼Û³»ÁÖ°ø4´ÜÁö | 8 | 45.32 | 1,000 | 50 | 2003 | | 2025.02.04 | Àü¼¼ | ¼Û³»ÁÖ°ø4´ÜÁö | 11 | 45.32 | 8,000 | 0 | 2003 | | 2025.02.04 | ¸Å¸Å | ¼Û³»ÁÖ°ø4´ÜÁö | 16 | 45.32 | 10,000 | | 2003 | | 2025.02.04 | Àü¼¼ | ¼Û³»ÁÖ°ø4´ÜÁö | 18 | 45.48 | 9,400 | 0 | 2003 | | 2025.02.01 | ¸Å¸Å | ¼Û³»ÁÖ°ø4´ÜÁö | 8 | 45.32 | 11,000 | | 2003 | | 2025.01.22 | ¿ù¼¼ | ¼Û³»ÁÖ°ø4´ÜÁö | 13 | 45.32 | 1,000 | 50 | 2003 | | 2025.01.15 | Àü¼¼ | ¼Û³»ÁÖ°ø4´ÜÁö | 1 | 45.48 | 9,200 | 0 | 2003 | | 2025.01.11 | ¸Å¸Å | ¼Û³»ÁÖ°ø4´ÜÁö | 12 | 59.92 | 16,000 | | 2003 | | 2025.01.10 | ¸Å¸Å | ¼Û³»ÁÖ°ø4´ÜÁö | 3 | 45.32 | 10,000 | | 2003 | | 2025.01.08 | ¿ù¼¼ | ¼Û³»ÁÖ°ø4´ÜÁö | 2 | 45.32 | 1,000 | 45 | 2003 | | 2025.01.08 | Àü¼¼ | ¼Û³»ÁÖ°ø4´ÜÁö | 2 | 59.92 | 12,000 | 0 | 2003 | | 2025.01.07 | Àü¼¼ | ¼Û³»ÁÖ°ø4´ÜÁö | 11 | 59.92 | 13,000 | 0 | 2003 |
|
|
|
 |
ÀÓÂ÷³»¿ª |
[¹è´ç¿ä±¸Á¾±âÀÏ : 2024/04/08] |
|
|
| ÀÓÂ÷ÀÎ |
Á¡À¯°ü°è |
ÀüÀÔÀÏÀÚ |
È®Á¤ÀÏÀÚ |
¹è´ç¿ä±¸ÀÏ |
º¸Áõ±Ý/Â÷ÀÓ |
´ëÇ׿ä°Ç |
ºñ°í |
| Á¶»çµÈ ÀÓÂ÷³»¿ªÀÌ ¾ø½À´Ï´Ù. |
|
|
|
 |
Áö¿ªºÐ¼® |
|
|
|
|
| ÁöÇÏö |
|
Çб³ |
|
| °ü°ø¼ |
|
| ¹ý¿ø |
ÀÇÁ¤ºÎÁö¹æ¹ý¿ø (116-16)°æ±âµµ ÀÇÁ¤ºÎ½Ã ³ì¾ç·Î34¹ø±æ 23 (°¡´Éµ¿) ´ëÇ¥ : 031)828-0114 ÀÇÁ¤ºÎ½Ã, ¾çÁÖ½Ã, ³²¾çÁÖ½Ã, ±¸¸®½Ã, ¿¬Ãµ±º, Æ÷õ½Ã, °¡Æò±º, µ¿µÎõ½Ã, ö¿ø±º |
| µî±â¼Ò |
ÀÇÁ¤ºÎÁö¹æ¹ý¿ø º»¿ø µ¿µÎõµî±â¼Ò (´ëÇ¥:1544-0773, ÆÑ½º:(031)862-2887, °æ±âµµ µ¿µÎõ½Ã ÁöÇà·Î 97 (ÁöÇൿ 284-20)) |
| ¼¼¹«¼ |
Æ÷õ¼¼¹«¼ (´ëÇ¥:031-538-72, ÆÑ½º:031-544-6090, °æ±âµµ Æ÷õ½Ã ¼ÒÈêÀ¾ ¼Û¿ì·Î 75) |
|
|
|
 |
¹ý¿ø ¹°°ÇÀÚ·á ¿ä¾à |
|
|
|
|
| ¼Ò¸êµÇÁö ¾Ê´Â µî±âºÎ±Ç¸® |
ÇØ´ç»çÇ× ¾øÀ½ |
| ¼³Á¤µÈ °ÍÀ¸·Î º¸´Â Áö»ó±Ç |
ÇØ´ç»çÇ× ¾øÀ½ |
| ¹ý¿øÀÚ·á Æ¯ÀÌ»çÇ× |
[ÁÖ¿ä ¹®°Ç Á¢¼ö ³»¿ª]
[2024.04.24] ä±ÇÀÚ ÁÖOOO OOOOO OOO OOOOOOOOOOOOOOOOOOOOOO ä±ÇÀÚº¯°æ½Å°í¼ Á¦Ãâ
|
[ºÎµ¿»ê ÇöȲÁ¶»ç¼ ºñ°í¶õ]
ÀÌ°Ç ºÎµ¿»êÀº 15Ãþ ÁÖ°Å¿ë¾ÆÆÄÆ®ÀÓ
|
|
| ¿©ÀÇÁÖ°æ¸Å Á¶¾ð ÇѸ¶µð |
ÀÌ ºÎµ¿»êÀÇ ÀÔÂû¹ý¿øÀº ÀÇÁ¤ºÎÁö¹æ¹ý¿øÀÔ´Ï´Ù.
ÀÔÂû½Ã°£Àº ~11:50ÀÔ´Ï´Ù. ÀÌ ¹ý¿ø¿¡´Â ½ÅÇÑÀºÇàÀÌ ÀÔÁ¡Çϰí ÀÖ½À´Ï´Ù.
|
|
|
| Åë°è±â°£ |
³«Âû¹°°Ç¼ö |
Æò±Õ°¨Á¤°¡ |
Æò±Õ³«Âû°¡ |
³«Âû°¡À² |
À¯ÂûȽ¼ö |
| 3°³¿ù |
22°Ç |
205,681,818¿ø |
159,269,792¿ø |
77% |
1.2ȸ |
| 6°³¿ù |
29°Ç |
195,551,724¿ø |
150,739,842¿ø |
76% |
1.2ȸ |
| 12°³¿ù |
35°Ç |
187,371,429¿ø |
143,829,580¿ø |
76% |
1.2ȸ |
|
|
|
|
|
|
 |
|