|
| º» °æ¸Å¹°°ÇÀº ³«ÂûµÇ¾î ÀÌ¹Ì ¸ðµç °æ¸ÅÀýÂ÷°¡ ³¡³µ½À´Ï´Ù. ÀÌ ¹°°ÇÀº »ó´ãÇØ µå¸®Áö ¾Ê½À´Ï´Ù. |
|
|
| ¼ÒÀçÁö |
¼¿ïƯº°½Ã °¼±¸ °¼·Î 279-49, Á¦2Ãþ Á¦201È£
±¸)¼¿ïƯº°½Ã °¼±¸ ³»¹ß»êµ¿ 718-16
|
|
| »ç°Ç¹øÈ£ |
2023 Ÿ°æ 127478 |
¹°°Ç¹øÈ£ |
1
|
¹°°Ç¿ëµµ |
´Ù¼¼´ë,ºô¶ó |
| °¨Á¤Æò°¡¾× |
203,000,000¿ø |
°æ¸Å´ë»ó |
ÅäÁö ¹× °Ç¹°Àϰý¸Å°¢ |
ÁøÇà»óÅ |
³«Âû |
ÃÖÀúÀÔÂû°¡ ³«Âû°¡ |
(80%) 162,400,000¿ø
(0.00%) 0¿ø |
°Ç¹°¸éÀû |
41.98§³(12.70Æò) |
ÀÔÂû±âÀÏ |
2024.09.10(È) 10:00
|
| ÀÔÂûº¸Áõ±Ý |
(10%) 16,240,000¿ø |
ÅäÁö¸éÀû |
20.42§³(6.18Æò)
|
À¯ÂûȽ¼ö |
1ȸ |
| ÀÔÂû¹ý¿ø |
¼¿ï³²ºÎÁö¹æ¹ý¿ø |
°æ¸Å¹æ¹ý |
|
¹°°ÇÁ¶È¸¼ö |
¿À´Ã: 4ȸ [´©Àû: 26ȸ]
|
| ¸»¼Ò±âÁØ | ÃÖ¼±¼øÀ§ ¼³Á¤ : 2018.01.18. ±ÙÀú´ç±Ç
|
|
|
|
|
|
|
|
|
|
|
°æ¸Å´ë»ó ¸ñ·Ï
|
|
| ±¸ºÐ |
¸ñ·Ï |
ÁÖ¼Ò |
±¸Á¶/¿ëµµ/´ëÁö±Ç |
ºñ°í |
´ëÁö±Ç
|
1 |
°¼·Î 279-49 |
256.3 ºÐÀÇ 20.42 |
20.42§³ (6.18Æò)
|
°Ç¹°
|
1 |
°¼·Î 279-49 |
Á¦2Ãþ Á¦201È£ ö±ÙÄÜÅ©¸®Æ®±¸Á¶ |
41.98§³ (12.70Æò)
|
|
|
|
2024-07-02
À¯Âû
|
(100%)
203,000,000¿ø
|
|
|
|
2024-09-10
³«Âû
|
(80%)
162,400,000¿ø
|
|
|
¦±¦¬> ³«Âû°¡
 |
|
|
|
|
|
|
°¨Á¤Æò°¡¼ ¿ä¾à |
|
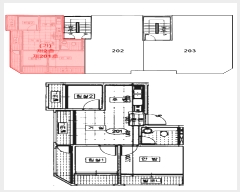
[À§Ä¡/ÁÖÀ§È¯°æ] ´ë»ó¹°°ÇÀº ¼¿ïƯº°½Ã °¼±¸ ³»¹ß»êµ¿ ¼ÒÀç "Ȱ°Ç°æ¿µ°íµîÇб³¡¯ºÏµ¿Ãø Àαٿ¡ À§Ä¡ÇÏ´Â (ÅëĪ) ½Å¿ìº£½ºÆ®ºô Á¦2Ãþ Á¦201È£(±¸ºÐ°Ç¹°)·Î¼, ÁÖÀ§´Â ¾ÆÆÄÆ®´ÜÁö, ´Ù¼¼´ëÁÖÅÃ, °¢±Þ Çб³ ¹× °¢Á¾ ±Ù¸°»ýȰ½Ã¼³ µîÀÌ È¥ÀçÇÏ´Â Áö¿ªÀ¸·Î Á¦¹Ý ÁÖÀ§ ȯ°æÀº º¸ÅëÀÔ´Ï´Ù.
[±³Åë»óȲ] º»°Ç±îÁö Â÷·®ÀÇ Áø¤ýÃâÀÔÀÌ °¡´ÉÇϸç, ³²µ¿ÃøÀ¸·Î ÁöÇÏö 5È£¼± "¿ìÀå»ê¿ª"ÀÌ À§Ä¡Çϰí, µ¿Ãø(°¼·Î)À¸·Î ´ëÁß±³Åë¼ö´ÜÀ» ÀÌ¿ëÇÒ ¼ö ÀÖ´Â ³ë¼±¹ö½º Á¤·ùÀåÀÌ ¼ÒÀçÇÕ´Ï´Ù.
[°Ç¹°±¸Á¶] ö±ÙÄÜÅ©¸®Æ®Á¶ ö±ÙÄÜÅ©¸®Æ® Æò½½·¡ºêÁöºØ Áö»ó5Ãþ °Ç¹° ³» Á¦2Ãþ Á¦201È£·Î¼,(»ç¿ë½ÂÀÎÀÏ : 2002.09.10.) ¿Üº® : µ¹ºÙÀÓ ¸¶°¨ µî. âȣ : ÇÏÀÌ»õ½Ã âȣ µîÀÔ´Ï´Ù.
[ÀÌ¿ë»óÅÂ] º»°ÇÀº °øºÎ»ó "´Ù¼¼´ëÁÖÅÃ"À¸·Î ÀÌ¿ëÁßÀÔ´Ï´Ù.
[¼³ºñ³»¿ª] À§»ý¼³ºñ(±Þ¹è¼ö, ±ÞÅÁ), ³¹æ¼³ºñ(µµ½Ã°¡½ºº¸ÀÏ·¯) µîÀÌ µÇ¾îÀÖ½À´Ï´Ù.
[ÅäÁöÇü»ó/ÀÌ¿ë»óÅÂ] ºÏÇÏÇâÀÇ ¿Ï°æ»çÁö¸¦ ÆòźÇÏ°Ô Á¶¼ºÇÑ ¼¼ÀåÇü ÅäÁö·Î¼, ´Ù¼¼´ëÁÖÅÃ((ÅëĪ) ½Å¿ìº£½ºÆ®ºô) °ÇºÎÁö·Î ÀÌ¿ëÁßÀÔ´Ï´Ù.
[µµ·Î»óÅÂ] ¼ÃøÀ¸·Î ³ëÆø ¾à 6m ³»¿ÜÀÇ ¾Æ½ºÆÈÆ® Æ÷Àåµµ·Î¿Í Á¢ÇÕ´Ï´Ù.
[ÅäÁöÀÌ¿ë°èȹ] µµ½ÃÁö¿ª, Á¦2Á¾ÀϹÝÁÖ°ÅÁö¿ª(7ÃþÀÌÇÏ), Áß¿ä½Ã¼³¹°º¸È£Áö±¸(°øÇ×), °¡Ãà»çÀ°Á¦Çѱ¸¿ª(Áö¿ª°æÁ¦°ú È®ÀÎ ¿ä¸Á)£¼°¡ÃàºÐ´¢ÀÇ °ü¸® ¹× À̿뿡 °üÇÑ ¹ý·ü£¾, ¼öÆòÇ¥¸é±¸¿ª(¼öÆòÇ¥¸é)£¼°øÇ׽ü³¹ý£¾, »ó´ëº¸È£±¸¿ª(°¼±³À°Áö¿øÃ»¿¡ ¹Ýµå½Ã È®ÀÎ ¿ä¸Á)£¼±³À°È¯°æ º¸È£¿¡ °üÇÑ ¹ý·ü£¾, »ó´ëº¸È£±¸¿ª(°¼¾çõ±³À°Áö¿øÃ»¿¡ ¹Ýµå½Ã È®ÀÎ ¿ä¸Á)£¼±³À°È¯°æ º¸È£¿¡ °üÇÑ ¹ý·ü£¾, ´ë°ø¹æ¾îÇùÁ¶±¸¿ª(À§Å¹°íµµ:77-257m)£¼±º»ç±âÁö ¹× ±º»ç½Ã¼³ º¸È£¹ý£¾, °ú¹Ð¾ïÁ¦±Ç¿ª£¼¼öµµ±ÇÁ¤ºñ°èȹ¹ý£¾.
[°øºÎ¿ÍÀÇ Â÷ÀÌ] ¾ø½À´Ï´Ù.
[Âü°í»çÇ×] ÀÓ´ë°ü°è : ¹Ì»óÀÔ´Ï´Ù. ±âŸ»çÇ× : ¾ø½À´Ï´Ù.
|
|
|
°ÇÃ๰ÇöȲ |
|
|
|
| ¼ÒÀçÁö |
¼¿ïƯº°½Ã °¼±¸ ³»¹ß»êµ¿ 718-16¹øÁö |
| ´ëÁö¸éÀû |
256.3§³(77.67Æò) |
¿¬¸éÀû |
625.98§³(189.69Æò) |
ÁÖ¿ëµµ |
°øµ¿ÁÖÅà |
| °ÇÃà¸éÀû |
153.56§³(46.53Æò) |
¿ëÀû·ü»êÁ¤¿¬¸éÀû |
625.98§³(189.69Æò) |
Âø°øÀÏÀÚ |
2002.02.06 |
| °ÇÆóÀ² |
59.91% |
¿ëÀû·ü |
244.24% |
»ç¿ë½ÂÀÎÀÏÀÚ |
2002.09.10 |
| Áö»óÃþ¼ö |
5Ãþ |
ÁöÇÏÃþ¼ö |
|
±¸Á¶ |
ö±ÙÄÜÅ©¸®Æ®±¸Á¶ |
°ÇÃ๰Ãþº°ÇöȲ [º¸±â]| Ãþº° | ±¸Á¶ | ¿ëµµ | ¸éÀû | | 1Ãþ | ö±ÙÄÜÅ©¸®Æ®Á¶ | ºÎ¼³ÁÖÂ÷Àå(¸éÀûÁ¦¿Ü) | 136.66§³ (41.41Æò) | | 1Ãþ | ö±ÙÄÜÅ©¸®Æ®Á¶ | °è»ê½Ç | 16.9§³ (5.12Æò) | | 2Ãþ | ö±ÙÄÜÅ©¸®Æ®Á¶ | ´Ù¼¼´ëÁÖÅÃ(3¼¼´ë) | 152.33§³ (46.16Æò) | | 3Ãþ | ö±ÙÄÜÅ©¸®Æ®Á¶ | ´Ù¼¼´ëÁÖÅÃ(3¼¼´ë) | 152.33§³ (46.16Æò) | | 4Ãþ | ö±ÙÄÜÅ©¸®Æ®Á¶ | ´Ù¼¼´ëÁÖÅÃ(3¼¼´ë) | 152.33§³ (46.16Æò) | | 5Ãþ | ö±ÙÄÜÅ©¸®Æ®Á¶ | ´Ù¼¼´ëÁÖÅÃ(3¼¼´ë) | 152.09§³ (46.09Æò) | | ¿ÁžÃþ | ö±ÙÄÜÅ©¸®Æ®Á¶ | °è´Ü½Ç(¿¬¸éÀûÁ¦¿Ü) | 14.3§³ (4.33Æò) |
|
|
|
|
|
|
|
|
|
¸éÀû(§³), ±Ý¾×(¸¸¿ø)
| °è¾àÀÏ | ±âÁØ | °Ç¹°¸íĪ | Ãþ | ¿¬¸éÀû | ´ëÁö¸éÀû | °Å·¡±Ý¾× | °ÇÃà³âµµ | | 2024.03.31 | ¸Å¸Å | Á¦ÀÌ¿¡½º¾ÆÀ̵ð¿ò | 6 | 55.05 | 31.04 | 41,000 | 2018 | | 2024.03.23 | ¸Å¸Å | ÄÚÁöÇϿ콺 | 3 | 37.71 | 25.24 | 29,300 | 2017 | | 2024.03.22 | ¸Å¸Å | ´ö¼öÆç¸®Ã¼(718-3) | 4 | 29.56 | 21.25 | 20,600 | 2015 | | 2024.03.21 | ¸Å¸Å | ¿ì¼º¾ÆÆ®ºô | 2 | 24.05 | 21.9938 | 13,500 | 2013 | | 2024.03.18 | ¸Å¸Å | ¹®¼ººô¶ó3Â÷ | 4 | 62.9 | 30.53 | 32,000 | 1997 | | 2024.03.15 | ¸Å¸Å | ¼ÛÈ¿ùµåºôAµ¿ | 2 | 41.37 | 20 | 17,400 | 2002 | | 2024.03.13 | ¸Å¸Å | 671-22 | 6 | 28.31 | 17.4 | 34,400 | 2024 | | 2024.03.07 | ¸Å¸Å | Á¦ÀÌµå¾ÆÆ®ºô | 3 | 76.44 | 27.83 | 35,000 | 2002 | | 2024.03.06 | ¸Å¸Å | ³²¸²ºô¶ó | 1 | 81.42 | 51.7 | 33,500 | 1993 | | 2024.03.04 | ¸Å¸Å | À¯¼ºÇÏÀÌÃ÷ | 6 | 35.41 | 20.993 | 22,600 | 2012 | | 2024.03.04 | ¸Å¸Å | »ïÈ£ºô¶ó | 2 | 36.46 | 27.65 | 16,500 | 1990 | | 2024.02.29 | ¸Å¸Å | µ¿±¤ºô¶óABµ¿ | 1 | 87.63 | 47.2421 | 45,100 | 1998 | | 2024.02.27 | ¸Å¸Å | ¼¼±¤ºô¶ó°¡³ªµ¿ | 2 | 52.28 | 27.61 | 20,000 | 1992 | | 2024.02.27 | ¸Å¸Å | ·¡ÆÄÅ© | 2 | 56.88 | 30.74 | 25,500 | 2008 | | 2024.02.26 | ¸Å¸Å | ½Å¼¼°èÇ÷¯½º | 3 | 36.58 | 24.14 | 32,500 | 2020 | | 2024.02.19 | ¸Å¸Å | ¿ìÀåºô¶ó´Ùµ¿ | -1 | 39.72 | 32.43 | 26,060 | 1991 | | 2024.02.14 | ¸Å¸Å | õ¿ìÇÏÀ̺ô | 4 | 61.93 | 29.88 | 27,300 | 2002 | | 2024.02.06 | ¸Å¸Å | Ȳ¿ëŬ·¡½Äºô | 4 | 91.67 | 39 | 34,300 | 2000 | | 2024.01.30 | ¸Å¸Å | À¯¼ºÇÏÀÌÃ÷ | 4 | 35.41 | 20.993 | 23,500 | 2012 | | 2024.01.25 | ¸Å¸Å | ¸í´öÇÏÀ̺ô | 5 | 46.04 | 23.7 | 18,000 | 2002 | | 2024.01.23 | ¸Å¸Å | ¾ÆÀ̵ðÁÖÅà | 5 | 31.43 | 24.84 | 25,800 | 2017 | | 2024.01.22 | ¸Å¸Å | Çö´ëÇÏÀÌÃ÷ºô¶ó | 2 | 45.43 | 24.47 | 16,950 | 1996 | | 2024.01.20 | ¸Å¸Å | ½Å¼¼°èÇ÷¯½º | 6 | 44.68 | 29.45 | 35,000 | 2020 | | 2024.01.19 | ¸Å¸Å | û¼ÖÆç¸®Ã¼101µ¿,102µ¿,103µ¿, | 2 | 59.18 | 35.83 | 35,000 | 2016 | | 2024.01.18 | ¸Å¸Å | ¿ì¼º¾ÆÆ®ºô5Â÷Bµ¿ | 2 | 37.18 | 28.55 | 23,500 | 2013 | | 2024.01.18 | ¸Å¸Å | Áø¼ººô¶ó | 3 | 55.66 | 24.05 | 22,900 | 2000 | | 2024.01.15 | ¸Å¸Å | ºí·çÈú(700-15) | 3 | 50.92 | 30.572 | 39,000 | 2012 | | 2024.01.10 | ¸Å¸Å | A.G.SÅ׸¶ºôABµ¿ | 4 | 61.98 | 29.34 | 24,800 | 2001 | | 2024.01.05 | ¸Å¸Å | ½Å¼¼°èÇ÷¯½º | 4 | 26.79 | 18.07 | 26,000 | 2020 | | 2024.01.04 | ¸Å¸Å | ÇÑ¿ïÀÚÀ̺ôBµ¿ | 4 | 66.77 | 36.59 | 37,000 | 2009 | | 2024.01.03 | ¸Å¸Å | Çö´ëÇÏÀÌÃ÷ºô¶ó | 1 | 45.43 | 24.47 | 16,000 | 1996 |
| °è¾àÀÏ | ±âÁØ | °Ç¹°¸íĪ | Ãþ | ¿¬¸éÀû | º¸Áõ±Ý | ¿ù¼¼ | °ÇÃà³âµµ | | 2025.12.20 | ¿ù¼¼ | ¼¼¸í´õŬ·¡½º | 3 | 27.59 | 21,000 | 19 | 2018 | | 2025.12.19 | ¿ù¼¼ | ÇѽÅÀ§³Ê½º | 3 | 28.55 | 5,000 | 82 | 2018 | | 2025.12.19 | ¿ù¼¼ | ÇÑ¿ïÀÚÀ̺ôAµ¿ | 4 | 66.89 | 15,000 | 80 | 2009 | | 2025.12.18 | Àü¼¼ | Çö´ëÇÏÀÌÃ÷ºô¶ó | -1 | 45.43 | 9,000 | 0 | 1996 | | 2025.12.16 | Àü¼¼ | ¿µ±¤ºô¶ó | 3 | 94.72 | 25,000 | 0 | 1984 | | 2025.12.16 | ¿ù¼¼ | ¸íÁø¾ÆÆ®ºô¶ó´Ùµ¿ | 2 | 37.02 | 10,000 | 20 | 1991 | | 2025.12.13 | Àü¼¼ | ½Å¼¼°èÇ÷¯½º | 5 | 26.79 | 22,000 | 0 | 2020 | | 2025.12.13 | Àü¼¼ | ´õŬ·¡½Ä | 4 | 27.96 | 27,000 | 0 | 2017 | | 2025.12.13 | Àü¼¼ | ´õŬ·¡½Ä | 4 | 27.96 | 27,000 | 0 | 2017 | | 2025.12.13 | ¿ù¼¼ | ¿ì¼º¾ÆÆ®ºô5Â÷Aµ¿ | 4 | 36.41 | 16,500 | 20 | 2013 | | 2025.12.11 | Àü¼¼ | ¾ÆÀ̵ð¿ò(101,102µ¿) | 2 | 38.82 | 23,400 | 0 | 2014 | | 2025.12.05 | ¿ù¼¼ | ÇÁ·£µå½±ºô¸®Áö | 4 | 84.17 | 23,000 | 30 | 2012 | | 2025.12.03 | Àü¼¼ | Çö´ëºô¶ó | 3 | 63.87 | 21,300 | 0 | 1994 | | 2025.12.01 | ¿ù¼¼ | »ïÀͺô¶óBµ¿ | 2 | 62.73 | 15,000 | 50 | 1994 | | 2025.12.01 | Àü¼¼ | ·ùÅ·´ý | 3 | 38.49 | 28,000 | 0 | 2019 | | 2025.11.25 | ¸Å¸Å | ¾ÆÀ̵ð¿ò103µ¿ | 4 | 36.2 | 25,000 | | 2014 | | 2025.11.24 | ¿ù¼¼ | (715-10) | 3 | 23.95 | 1,000 | 61 | 2013 | | 2025.11.19 | ¸Å¸Å | IDIEUM | 3 | 46.96 | 36,500 | | 2017 | | 2025.11.18 | ¿ù¼¼ | ÇÁ·£µå½±ºô¸®Áö | 2 | 19.78 | 1,000 | 55 | 2012 | | 2025.11.18 | Àü¼¼ | ¿ì¼º½¦¸£ºô | 4 | 37.26 | 16,100 | 0 | 2011 | | 2025.11.14 | ¿ù¼¼ | ±¤¿µ¾ÆÆ®ºô | 1 | 60.02 | 2,000 | 100 | 2002 | | 2025.11.14 | ¿ù¼¼ | ±¤¿µ¾ÆÆ®ºô | 1 | 60.02 | 2,000 | 100 | 2002 | | 2025.11.13 | ¿ù¼¼ | ¿¹¿ø¿ø·ë | 1 | 24.91 | 500 | 50 | 2003 | | 2025.11.12 | ¿ù¼¼ | ¿ùµåºô¶óABµ¿ | 3 | 49.5 | 3,000 | 80 | 2002 | | 2025.11.11 | Àü¼¼ | °¡³ª¾Æµ¨¸®¿ò(717-21) | 3 | 44.86 | 26,460 | 0 | 2015 | | 2025.11.10 | Àü¼¼ | IDIEUM | 5 | 46.96 | 25,000 | 0 | 2017 | | 2025.11.08 | ¿ù¼¼ | ½ºÆäÀ̽ººô(674-30) | 4 | 40.8 | 3,000 | 90 | 2012 | | 2025.11.07 | ¿ù¼¼ | ½îȨ¾ÆÆ®ºô | 2 | 29.97 | 2,000 | 70 | 2012 | | 2025.11.07 | ¿ù¼¼ | ¸¶°î¼ö¸í»êÆÄÅ©8´ÜÁö | 2 | 84.53 | 20,000 | 113 | 2006 | | 2025.11.06 | Àü¼¼ | IDIEUM | 5 | 46.96 | 25,000 | 0 | 2017 | | 2025.11.05 | Àü¼¼ | °Ç¿µ | 4 | 34.44 | 10,500 | 0 | 2000 | | 2025.11.04 | ¿ù¼¼ | (702-23) | 2 | 48.56 | 3,000 | 55 | 2003 | | 2025.11.04 | ¸Å¸Å | ÀϽŸǼÇ10Â÷ | 4 | 36.72 | 16,000 | | 1996 | | 2025.11.03 | Àü¼¼ | ½Ã¿ø¾ÆÆ®ºôABµ¿ | -1 | 33.45 | 4,200 | 0 | 2001 | | 2025.11.03 | ¿ù¼¼ | À¯Áø¼Ò¸£º£(670-61) | 3 | 37.66 | 15,000 | 45 | 2012 | | 2025.11.03 | Àü¼¼ | µ¿°Ç¿ìÀå»ê¼¾Æ®·¹ºô | 3 | 39.47 | 25,500 | 0 | 2015 | | 2025.11.03 | ¿ù¼¼ | û¼ÖÆç¸®Ã¼ | 4 | 24.01 | 3,000 | 85 | 2019 | | 2025.11.01 | ¿ù¼¼ | ÇѽÅÀ§³Ê½º | 2 | 28.55 | 21,500 | 15 | 2018 | | 2025.10.28 | ¿ù¼¼ | (701-19) | 4 | 63.27 | 3,000 | 71 | 2004 | | 2025.10.28 | Àü¼¼ | Áø±¤ | 3 | 39.81 | 500 | 0 | 1993 | | 2025.10.27 | ¸Å¸Å | ÇѽÅÀ§³Ê½º | 5 | 29.98 | 25,000 | | 2018 | | 2025.10.27 | ¸Å¸Å | ¸í´öÇÏÀ̺ô | 3 | 64.11 | 29,200 | | 2002 | | 2025.10.27 | ¸Å¸Å | ÇѽÅÀ§³Ê½º | 5 | 29.98 | 25,000 | | 2018 | | 2025.10.25 | ¿ù¼¼ | ¿ì¼º¾ÆÆ®ºô | 5 | 29.79 | 13,500 | 15 | 2013 | | 2025.10.23 | ¿ù¼¼ | ¿¡½º¿¥ÆÄÅ©ºä | 6 | 21.88 | 22,900 | 15 | 2019 | | 2025.10.23 | ¿ù¼¼ | ¾ÆÆ®ºô | 2 | 13.07 | 1,000 | 44 | 2013 | | 2025.10.23 | Àü¼¼ | ·ùÅ·´ý | 4 | 38.49 | 24,000 | 0 | 2019 | | 2025.10.22 | ¸Å¸Å | ½îȨ¾ÆÆ®ºô | 3 | 29.97 | 17,000 | | 2012 | | 2025.10.20 | ¿ù¼¼ | ¼º°Ã»¾Èä | 6 | 59.31 | 26,000 | 30 | 2017 | | 2025.10.20 | Àü¼¼ | (704-16) | 2 | 47.1 | 17,000 | 0 | 2003 | | 2025.10.18 | Àü¼¼ | ¸¶°î¼ö¸í»êÆÄÅ©8´ÜÁö | 4 | 84.53 | 60,000 | 0 | 2006 | | 2025.10.18 | Àü¼¼ | ¸¶°î¼ö¸í»êÆÄÅ©8´ÜÁö | 1 | 84.53 | 55,000 | 0 | 2006 | | 2025.10.18 | Àü¼¼ | ¿ì¿µÃ¤¿òºô | 3 | 20.32 | 14,400 | 0 | 2019 | | 2025.10.18 | Àü¼¼ | ¿ì¿µÃ¤¿òºô | 3 | 20.32 | 14,400 | 0 | 2019 | | 2025.10.17 | Àü¼¼ | ¼º°Ã»¾Èä | 2 | 29.76 | 21,000 | 0 | 2017 | | 2025.10.17 | ¿ù¼¼ | ¼¼±¤ºô¶ó´Ùµ¿ | 4 | 37.28 | 2,000 | 61 | 1992 | | 2025.10.17 | ¿ù¼¼ | À¯¼ºÁÖÅà | 3 | 46.98 | 6,000 | 65 | 1999 | | 2025.10.17 | Àü¼¼ | ¸¶°î¼ö¸í»êÆÄÅ©8´ÜÁö | 2 | 84.53 | 51,500 | 0 | 2006 | | 2025.10.17 | ¿ù¼¼ | ·Ôµ¥Å¸¿î | 5 | 34.97 | 12,000 | 20 | 2011 | | 2025.10.17 | ¿ù¼¼ | ·Ôµ¥Å¸¿î | 5 | 34.97 | 11,000 | 30 | 2011 | | 2025.10.16 | ¿ù¼¼ | û¼ÖÆç¸®½º | 5 | 16.34 | 3,000 | 90 | 2018 | | 2025.10.15 | Àü¼¼ | ÈÀÎÇϿ콺 | 4 | 40.78 | 14,000 | 0 | 2002 | | 2025.10.15 | ¸Å¸Å | À¯¼ºÇÏÀÌÃ÷ | 3 | 33.38 | 25,000 | | 2012 | | 2025.10.14 | ¿ù¼¼ | ¹®¼ººô¶ó | 3 | 43.88 | 2,000 | 55 | 1993 | | 2025.10.14 | ¸Å¸Å | ½Ã¿ø¾ÆÆ®ºô(708-7) | 4 | 54.33 | 22,300 | | 2001 | | 2025.10.14 | ¸Å¸Å | ÇѽÅÀ§³Ê½º | 2 | 28.55 | 28,000 | | 2018 | | 2025.10.13 | ¸Å¸Å | ¿Ã¸²Çª½º(703-29) | 4 | 34.48 | 26,500 | | 2012 | | 2025.10.11 | Àü¼¼ | Ȳ¿ëŬ·¡½Äºô | -1 | 46.28 | 9,580 | 0 | 2000 | | 2025.10.10 | ¿ù¼¼ | û¼ÖÆç¸®½º | 4 | 28.32 | 1,050 | 95 | 2018 | | 2025.10.04 | Àü¼¼ | ¿¡½º¿¥ÆÄÅ©ºä | 9 | 23.06 | 22,900 | 0 | 2019 | | 2025.10.04 | Àü¼¼ | º¸¶óÆÄÅ©ºôAµ¿ | 4 | 57.16 | 16,600 | 0 | 2003 | | 2025.10.04 | ¸Å¸Å | ¸¶°î¼ö¸í»êÆÄÅ©8´ÜÁö | 2 | 84.93 | 88,000 | | 2006 | | 2025.10.03 | ¸Å¸Å | ´ë¸²Èúž | 3 | 50.03 | 24,700 | | 2010 | | 2025.10.03 | ¸Å¸Å | ¿ì¼º¾ÆÆ®ºô | 2 | 29.79 | 16,000 | | 2013 | | 2025.10.03 | ¿ù¼¼ | ÆÄÀÎÇϿ콺 | 2 | 25.68 | 1,000 | 80 | 2012 | | 2025.10.02 | Àü¼¼ | ´Ù¼Øºô¶óÆ® | 5 | 51.58 | 23,000 | 0 | 2011 | | 2025.10.01 | ¸Å¸Å | ÇѽÅÀ§³Ê½º(710-28,29) | 2 | 44.5 | 26,700 | | 2018 | | 2025.09.30 | ¸Å¸Å | ¿ì¿µÃ¤¿òºô | 2 | 26.61 | 19,500 | | 2019 | | 2025.09.30 | ¸Å¸Å | ¸íÁø¾ÆÆ®ºô¶ó´Ùµ¿ | 2 | 37.02 | 18,800 | | 1991 | | 2025.09.29 | Àü¼¼ | e-Á¶ÀºÁý | 3 | 54.96 | 21,000 | 0 | 2001 | | 2025.09.27 | ¿ù¼¼ | Á¦´Ï½ºÅ¸¿î2Â÷ | 4 | 37.35 | 17,000 | 29 | 2017 | | 2025.09.27 | ¸Å¸Å | õ¿ìÆÄÅ©ºô | 2 | 65.29 | 40,000 | | 2006 | | 2025.09.24 | Àü¼¼ | ¸íÁø¾ÆÆ®ºô¶ó°¡µ¿ | 1 | 40.89 | 14,000 | 0 | 1991 | | 2025.09.24 | ¸Å¸Å | ¸íÁø¾ÆÆ®ºô¶ó°¡µ¿ | 1 | 40.89 | 16,000 | | 1991 | | 2025.09.23 | ¸Å¸Å | À¯¼ºÁÖÅà | 4 | 39.8 | 15,000 | | 1999 | | 2025.09.22 | ¿ù¼¼ | ½Å¼ºÆÛ½ºÆ® | 4 | 26.09 | 20,160 | 5 | 2018 | | 2025.09.20 | ¿ù¼¼ | ÇÑ¿ï¶ß¶õä | 3 | 58.66 | 24,900 | 20 | 2012 | | 2025.09.20 | ¿ù¼¼ | µÎ¸®ºôµù(677-1) | 4 | 13.76 | 500 | 42 | 2013 | | 2025.09.20 | ¸Å¸Å | ¸íÁÖºôÇϸð´Ï | 5 | 52.54 | 20,700 | | 2007 | | 2025.09.19 | Àü¼¼ | ½ÅÇѺ£½ºÆ®ºô°¡µ¿ | 2 | 41.9 | 16,200 | 0 | 2002 | | 2025.09.19 | Àü¼¼ | ŰæÇÏÀÌÃ÷Bµ¿ | 3 | 65.07 | 21,000 | 0 | 2002 | | 2025.09.19 | ¸Å¸Å | ¿ì¼º½¦¸£ºô(705-6) | 4 | 43.82 | 27,100 | | 2012 | | 2025.09.18 | ¿ù¼¼ | (687-31) | 2 | 34.84 | 9,000 | 15 | 1988 | | 2025.09.17 | Àü¼¼ | ¼º°Ã»¾Èä | 3 | 29.76 | 21,700 | 0 | 2017 | | 2025.09.15 | ¿ù¼¼ | Á¦´Ï½ºÅ¸¿î2Â÷ | 2 | 37.35 | 2,680 | 107 | 2017 | | 2025.09.15 | ¸Å¸Å | Çý¼º¿¬¸³°¡µ¿ | 1 | 62.82 | 41,500 | | 1982 | | 2025.09.13 | ¸Å¸Å | ¸¶°î¼ö¸í»êÆÄÅ©8´ÜÁö | 2 | 84.53 | 91,200 | | 2006 | | 2025.09.13 | ¿ù¼¼ | È«Àͺô¶ó | 1 | 41.02 | 10,600 | 2 | 1994 | | 2025.09.13 | ¿ù¼¼ | ¾çÁö¾ÆÆ®ºô | -1 | 48.7 | 2,000 | 50 | 2004 | | 2025.09.12 | ¸Å¸Å | ½ºÆäÀ̽ººô(674-30) | 4 | 39.67 | 27,500 | | 2012 | | 2025.09.11 | ¸Å¸Å | ¿µ±¤ºô¶ó | 3 | 94.72 | 43,500 | | 1984 | | 2025.09.10 | ¸Å¸Å | ´ö¼ö¸®´õ½ººô101µ¿ | 5 | 48.6 | 17,400 | | 2002 | | 2025.09.09 | ¿ù¼¼ | û¼ÖÆç¸®½º | 3 | 26.77 | 5,000 | 62 | 2018 | | 2025.09.09 | ¿ù¼¼ | ´öÁøºô¶ó | 2 | 37.74 | 2,000 | 85 | 1993 | | 2025.09.09 | ¿ù¼¼ | 718-18 | 5 | 29.93 | 5,000 | 65 | 2019 | | 2025.09.09 | ¿ù¼¼ | û¼ÖÆç¸®½º | 3 | 26.77 | 5,000 | 62 | 2018 | | 2025.09.06 | Àü¼¼ | À¯Áø¼Ò¸£º£(670-45) | 5 | 56.18 | 21,000 | 0 | 2012 | | 2025.09.05 | Àü¼¼ | À¯Áø¼Ò¸£º£(670-45) | 2 | 52.06 | 25,000 | 0 | 2012 | | 2025.09.04 | ¿ù¼¼ | (701-19) | 4 | 63.27 | 5,000 | 84 | 2004 | | 2025.09.04 | Àü¼¼ | ¿Ã¸²Çª½º | 5 | 50.43 | 20,000 | 0 | 2009 | | 2025.09.04 | ¸Å¸Å | ¿ì¼º¾ÆÆ®ºô5Â÷Bµ¿ | 5 | 33.32 | 23,000 | | 2013 | | 2025.09.03 | ¸Å¸Å | º¸¶óÆÄÅ©ºôAµ¿ | 2 | 57.16 | 23,000 | | 2003 | | 2025.09.02 | ¸Å¸Å | ´öÁøºô¶ó | 2 | 36.36 | 17,000 | | 1993 | | 2025.09.02 | ¿ù¼¼ | (715-10) | 4 | 13.33 | 1,000 | 44 | 2013 | | 2025.09.01 | Àü¼¼ | ¼º°Ã»¾Èä | 2 | 29.81 | 19,950 | 0 | 2017 | | 2025.09.01 | ¿ù¼¼ | ¾ÆÆ®ºô | 3 | 16.92 | 1,000 | 47 | 2013 | | 2025.09.01 | Àü¼¼ | ¸¶°î¼ö¸í»êÆÄÅ©8´ÜÁö | 1 | 84.53 | 55,000 | 0 | 2006 | | 2025.08.30 | ¸Å¸Å | õ¿ìÆÄÅ©ºô | 3 | 65.29 | 37,000 | | 2006 | | 2025.08.30 | ¸Å¸Å | õ¿ìÆÄÅ©ºô | 3 | 65.29 | 37,000 | | 2006 | | 2025.08.30 | ¸Å¸Å | ¹Ì»ê½ºÄ«À̺ô | 4 | 68.82 | 43,500 | | 2003 | | 2025.08.29 | ¸Å¸Å | ŰæÇÏÀÌÃ÷Aµ¿ | 2 | 41.16 | 23,400 | | 2002 | | 2025.08.29 | ¸Å¸Å | Á¦ÀÌ¿¡½º¾ÆÀ̵ð¿ò | 4 | 37.92 | 31,500 | | 2018 | | 2025.08.28 | Àü¼¼ | ÇϿ콺¾ÆÄ«µ¥¹Ì | 5 | 57.09 | 19,500 | 0 | 2002 | | 2025.08.28 | ¿ù¼¼ | ¹ß»êÅ·´ý | 2 | 28.96 | 20,700 | 4 | 2017 | | 2025.08.27 | ¸Å¸Å | 718-18 | 5 | 29.93 | 30,500 | | 2019 | | 2025.08.26 | ¸Å¸Å | ¼±¿ìº£½ºÆ®ºô³ªµ¿ | 5 | 41.74 | 16,800 | | 2002 | | 2025.08.26 | ¿ù¼¼ | (677-24) | 4 | 39.495 | 2,000 | 65 | 2003 | | 2025.08.25 | ¿ù¼¼ | ¾Æµ¥³ªÄ³½½102µ¿ | 6 | 38.46 | 10,000 | 105 | 2015 | | 2025.08.25 | Àü¼¼ | »ï¹ÌÁÖÅà | 4 | 47.76 | 14,000 | 0 | 1999 | | 2025.08.25 | Àü¼¼ | ¸¶°î¼ö¸í»êÆÄÅ©8´ÜÁö | 1 | 84.53 | 52,500 | 0 | 2006 | | 2025.08.25 | ¸Å¸Å | û¼ÖÆç¸®Ã¼101µ¿,102µ¿,103µ¿, | 6 | 31.76 | 16,250 | | 2016 | | 2025.08.25 | ¸Å¸Å | ¿©¿ø½ºÀ§Æ®ºô | 4 | 69.88 | 22,300 | | 2003 | | 2025.08.25 | ¿ù¼¼ | È«Àͺô¶ó | 1 | 41.02 | 1,000 | 60 | 1994 | | 2025.08.24 | ¿ù¼¼ | ¼º¿øºô | 4 | 46.04 | 3,000 | 64 | 2002 | | 2025.08.22 | Àü¼¼ | ·ùÅ·´ý | 3 | 29.44 | 23,000 | 0 | 2019 | | 2025.08.22 | Àü¼¼ | ·ùÅ·´ý | 4 | 29.44 | 20,500 | 0 | 2019 | | 2025.08.20 | ¸Å¸Å | ¿ì¿µÃ¤¿òºô | 3 | 20.32 | 16,000 | | 2019 | | 2025.08.20 | Àü¼¼ | ½ºÆäÀ̽ººô | 4 | 36.55 | 15,200 | 0 | 2011 | | 2025.08.18 | ¿ù¼¼ | ´õÀÚÇÏ | 13 | 21.43 | 5,000 | 112 | 2022 | | 2025.08.18 | ¿ù¼¼ | È£¼ºÇϿ콺 | 2 | 29.93 | 2,000 | 100 | 2016 | | 2025.08.18 | Àü¼¼ | ¿Ã¸²Çª½º | 3 | 50.43 | 21,900 | 0 | 2009 | | 2025.08.18 | ¿ù¼¼ | ¾Æµ¥³ªÆÓ¸®½º | 3 | 28.53 | 0 | 100 | 2016 | | 2025.08.18 | ¿ù¼¼ | ¾Æµ¥³ªÆÓ¸®½º | 3 | 28.53 | 0 | 100 | 2016 | | 2025.08.15 | ¿ù¼¼ | ¿ìÀå»êºô¸®Áö | 2 | 33.51 | 5,000 | 60 | 2011 | | 2025.08.14 | ¿ù¼¼ | »ó¾Æ¾ÆÆ®ºô | 3 | 91.82 | 25,000 | 30 | 2001 | | 2025.08.14 | Àü¼¼ | ÁøÁÖij½½ | 3 | 54.76 | 27,000 | 0 | 2012 | | 2025.08.13 | Àü¼¼ | ¼º°Ã»¾Èä | 5 | 29.82 | 21,000 | 0 | 2017 | | 2025.08.13 | Àü¼¼ | ¼º°Ã»¾Èä | 5 | 29.82 | 21,000 | 0 | 2017 | | 2025.08.13 | Àü¼¼ | ·ùÅ·´ý | 2 | 29.44 | 20,500 | 0 | 2019 | | 2025.08.13 | ¿ù¼¼ | ¾ÆÀ̵ð¿ò(101,102µ¿) | 2 | 39.33 | 10,000 | 40 | 2014 | | 2025.08.12 | ¿ù¼¼ | ½Å¼¼°èÇ÷¯½º | 6 | 44.68 | 27,000 | 20 | 2020 | | 2025.08.12 | ¿ù¼¼ | ½Å¼¼°èÇ÷¯½º | 6 | 44.68 | 27,000 | 20 | 2020 | | 2025.08.12 | ¿ù¼¼ | (704-16) | 3 | 47.1 | 5,000 | 54 | 2003 | | 2025.08.11 | ¸Å¸Å | ¿¡ÀÌ¿øÁÖÅà | 2 | 84.33 | 42,000 | | 1997 | | 2025.08.09 | ¸Å¸Å | ¾Æµ¥³ªÆÓ¸®½º | 3 | 31.53 | 27,800 | | 2016 | | 2025.08.09 | ¿ù¼¼ | ½ÅÇѺ£½ºÆ®ºô°¡µ¿ | 5 | 55.66 | 4,000 | 80 | 2002 | | 2025.08.09 | ¿ù¼¼ | û¼ÖÆç¸®Ã¼101µ¿,102µ¿,103µ¿, | 2 | 41.42 | 25,500 | 35 | 2016 | | 2025.08.08 | ¿ù¼¼ | µÎ¸®ºôµù(677-1) | 4 | 14.02 | 500 | 44 | 2013 | | 2025.08.07 | ¿ù¼¼ | ¾ÆÀ̵ð¿ò(704-0) | 3 | 26.4 | 2,000 | 90 | 2013 | | 2025.08.07 | ¿ù¼¼ | ¸¶°î´õ? | 3 | 29.46 | 2,000 | 87 | 2018 | | 2025.08.06 | ¿ù¼¼ | ¼øºÀ»ó°¡ | 2 | 55.88 | 3,000 | 100 | 1998 | | 2025.08.06 | ¿ù¼¼ | ¼¼±¤ºô¶ó¸¶µ¿ | 2 | 61.29 | 3,000 | 95 | 1991 | | 2025.08.05 | Àü¼¼ | °¡³ª¾Æµ¨¸®¿ò | 4 | 36.1 | 24,750 | 0 | 2016 | | 2025.08.05 | ¿ù¼¼ | ´õÀÚÇÏ | 11 | 22.82 | 2,000 | 106 | 2022 | | 2025.08.03 | ¿ù¼¼ | Çʺô¸®Áö | 3 | 61.24 | 10,000 | 36 | 2003 | | 2025.07.31 | ¸Å¸Å | ¸íÁÖÇÁ¶óÀÓºô | 2 | 55.62 | 29,000 | | 2008 | | 2025.07.30 | ¿ù¼¼ | ³«¿ø¸®´õ½ººô101µ¿ | 2 | 46.87 | 15,120 | 25 | 2002 | | 2025.07.30 | ¿ù¼¼ | ¸®Ä¡Æç¸®½º | 5 | 33.27 | 10,000 | 65 | 2015 | | 2025.07.29 | Àü¼¼ | ÇѽÅÁ־ƺô | 2 | 29.39 | 19,950 | 0 | 2018 | | 2025.07.28 | ¸Å¸Å | ¾ÆÀ̵ð¿ò103µ¿ | 2 | 36.2 | 29,300 | | 2014 | | 2025.07.25 | ¿ù¼¼ | ¾ÆÆ®ºô | 2 | 14.31 | 1,000 | 47 | 2013 | | 2025.07.25 | ¸Å¸Å | ´ë¿øÈúžBµ¿ | 5 | 50.97 | 22,700 | | 2011 | | 2025.07.25 | ¸Å¸Å | ¾Æµ¥³ªÄ³½½101µ¿ | 6 | 38.38 | 33,000 | | 2015 | | 2025.07.24 | ¸Å¸Å | ´õŬ·¡½Ä | 4 | 27.96 | 29,500 | | 2017 | | 2025.07.24 | ¿ù¼¼ | ¸¶°î´õ? | 4 | 29.46 | 3,000 | 80 | 2018 | | 2025.07.24 | ¿ù¼¼ | ¹üÁøºô¶ó | 1 | 49.26 | 500 | 50 | 1991 | | 2025.07.22 | ¸Å¸Å | µ¿Çغô¶ó(678-27) | 1 | 36.98 | 17,800 | | 1991 | | 2025.07.22 | Àü¼¼ | ¸¶°î¼ö¸í»êÆÄÅ©8´ÜÁö | 4 | 84.73 | 47,250 | 0 | 2006 | | 2025.07.21 | ¿ù¼¼ | ÇѽÅÀ§³Ê½º | 6 | 18.65 | 5,000 | 70 | 2018 | | 2025.07.21 | ¸Å¸Å | ¾ÆÀ̵ð¿ò | 3 | 56.75 | 29,500 | | 2013 | | 2025.07.21 | ¿ù¼¼ | ±Û·Î¸®¾Æºô¶óÆ® | 1 | 74.48 | 15,000 | 25 | 1994 | | 2025.07.21 | ¸Å¸Å | µµÈ¿¤¸®½Ã¾Æ | 5 | 29.02 | 29,500 | | 2019 | | 2025.07.19 | ¸Å¸Å | ÇÑ¶ó¾ÆÆ®ºô | -1 | 35.68 | 11,000 | | 2001 | | 2025.07.19 | Àü¼¼ | ³²¸²ºô¶ó | 1 | 81.42 | 26,200 | 0 | 1993 | | 2025.07.18 | ¿ù¼¼ | ¸íξøÀ½ | -1 | 39.76 | 500 | 40 | 1986 | | 2025.07.17 | ¿ù¼¼ | »õ·Òºô¸®Áö | 3 | 81.84 | 19,500 | 5 | 2002 | | 2025.07.16 | ¸Å¸Å | (708-20) | -1 | 36.27 | 14,000 | | 1990 | | 2025.07.16 | ¸Å¸Å | ·Î¿¤ | 2 | 24.38 | 28,500 | | 2023 | | 2025.07.16 | ¸Å¸Å | ·Î¿¤ | 2 | 24.38 | 28,500 | | 2023 | | 2025.07.16 | ¸Å¸Å | ·Î¿¤ | 2 | 24.38 | 28,500 | | 2023 | | 2025.07.15 | Àü¼¼ | ¼º°Ã»¾Èä | 3 | 29.77 | 21,000 | 0 | 2017 | | 2025.07.15 | ¿ù¼¼ | »ïÈ£ºô¶ó | 1 | 36.46 | 11,000 | 30 | 1990 | | 2025.07.13 | Àü¼¼ | MG333Áְź¹ÇÕºôµù | 7 | 29.97 | 28,500 | 0 | 2018 | | 2025.07.13 | ¸Å¸Å | ¸íÁÖºôÇϸð´Ï | 3 | 58.41 | 28,500 | | 2007 | | 2025.07.12 | Àü¼¼ | Çö´ëºô¶ó | 3 | 63.36 | 23,000 | 0 | 1994 | | 2025.07.12 | Àü¼¼ | ·Ôµ¥Å¸¿î | 5 | 34.97 | 13,000 | 0 | 2011 | | 2025.07.11 | Àü¼¼ | ¿ì¿µÃ¤¿òºô | 3 | 23.4 | 16,740 | 0 | 2019 | | 2025.07.11 | ¸Å¸Å | »ó¿ìº£½ºÆ®ºô | 4 | 48.3 | 15,000 | | 2003 | | 2025.07.09 | ¿ù¼¼ | (715-10) | 5 | 39.67 | 1,000 | 75 | 2013 | | 2025.07.09 | Àü¼¼ | È£¼ºÇϿ콺 | 3 | 29.93 | 18,750 | 0 | 2016 | | 2025.07.09 | ¿ù¼¼ | (715-10) | 5 | 39.67 | 1,000 | 75 | 2013 | | 2025.07.08 | ¿ù¼¼ | ´ë¿ø±×¸°ºô¶ó | 3 | 67.84 | 5,000 | 90 | 2001 | | 2025.07.08 | Àü¼¼ | Á¦ÀÌ¿¡½º¾ÆÀ̵ð¿ò | 7 | 38.42 | 26,000 | 0 | 2018 | | 2025.07.08 | Àü¼¼ | Á¦ÀÌ¿¡½º¾ÆÀ̵ð¿ò | 7 | 38.42 | 27,800 | 0 | 2018 | | 2025.07.07 | Àü¼¼ | ¿À°¡ºô¶ó | 4 | 50.55 | 15,624 | 0 | 2005 | | 2025.07.07 | ¿ù¼¼ | ÇÁ·£µå½±ºô¸®Áö | 5 | 29.24 | 2,000 | 65 | 2012 | | 2025.07.04 | ¿ù¼¼ | ¸¶°î¼ö¸í»êÆÄÅ©8´ÜÁö | 3 | 84.73 | 10,000 | 159 | 2006 | | 2025.07.04 | Àü¼¼ | ÇϿ콺¾ÆÄ«µ¥¹Ì | 3 | 63.36 | 22,900 | 0 | 2002 | | 2025.07.03 | Àü¼¼ | ¼º°Ã»¾Èä | 4 | 29.98 | 22,000 | 0 | 2017 | | 2025.07.02 | Àü¼¼ | ¾Æµ¥³ªÄ³½½101µ¿ | 4 | 36.86 | 25,500 | 0 | 2015 | | 2025.07.01 | ¸Å¸Å | ¸íÁÖºôÇϸð´Ï | 2 | 58.41 | 34,500 | | 2007 | | 2025.07.01 | Àü¼¼ | ¼º°Ã»¾Èä | 3 | 29.85 | 21,000 | 0 | 2017 | | 2025.07.01 | Àü¼¼ | ¿ì¿µÃ¤¿òºô | 2 | 28.19 | 19,710 | 0 | 2019 | | 2025.06.30 | Àü¼¼ | ¼º°Ã»¾Èä | 2 | 29.98 | 21,000 | 0 | 2017 | | 2025.06.30 | ¿ù¼¼ | »õ·Òºô¸®Áö | 3 | 55.99 | 18,750 | 4 | 2002 | | 2025.06.30 | ¿ù¼¼ | ÆÄÀÎÇϿ콺 | 2 | 25.68 | 1,000 | 80 | 2012 | | 2025.06.30 | ¸Å¸Å | ¿ìÀå»êºô¸®Áö | 2 | 33.51 | 15,850 | | 2011 | | 2025.06.29 | Àü¼¼ | MG333Áְź¹ÇÕºôµù | 6 | 48.8 | 34,000 | 0 | 2018 | | 2025.06.28 | ¸Å¸Å | ÄÚÁöÇϿ콺 | 3 | 37.71 | 32,800 | | 2017 | | 2025.06.28 | Àü¼¼ | Çö´ëŸ¿î | 3 | 55.44 | 19,000 | 0 | 2012 | | 2025.06.28 | ¸Å¸Å | ½ºÆäÀ̽ººô | 2 | 38.55 | 25,000 | | 2011 | | 2025.06.27 | ¿ù¼¼ | ´õÀÚÇÏ | 12 | 21.43 | 2,000 | 106 | 2022 | | 2025.06.27 | ¿ù¼¼ | »õ·Òºô¸®Áö | 3 | 55.99 | 18,750 | 4 | 2002 | | 2025.06.26 | Àü¼¼ | ³«¿ø¸Ç¼Ç | 3 | 63.34 | 17,000 | 0 | 1984 | | 2025.06.26 | Àü¼¼ | ¿ì¼º¾ÆÆ®ºô3Â÷ | 2 | 49.24 | 22,000 | 0 | 2012 | | 2025.06.26 | ¿ù¼¼ | (715-10) | 4 | 13.33 | 1,000 | 45 | 2013 | | 2025.06.26 | ¸Å¸Å | ¿ì¼º¾ÆÆ®ºô | 2 | 29.79 | 18,300 | | 2013 | | 2025.06.26 | ¸Å¸Å | ¸¶°î¼ö¸í»êÆÄÅ©8´ÜÁö | 1 | 84.53 | 95,500 | | 2006 | | 2025.06.26 | Àü¼¼ | ¿ì¼º¾ÆÆ®ºô3Â÷ | 2 | 49.24 | 22,000 | 0 | 2012 | | 2025.06.25 | ¿ù¼¼ | ·Îµ©±×¸°ºô | 2 | 52.91 | 16,000 | 40 | 2003 | | 2025.06.25 | Àü¼¼ | ¼¿ïÈ£¼¹®ÈŸ¿î»ýȰ°ü | 3 | 20.79 | 8,000 | 0 | 2012 | | 2025.06.25 | Àü¼¼ | ³«¿ø¸Ç¼Ç | 1 | 63.34 | 20,600 | 0 | 1984 | | 2025.06.24 | ¿ù¼¼ | À¯¼ºÁÖÅà | 1 | 57.62 | 7,000 | 80 | 1999 | | 2025.06.23 | ¸Å¸Å | ÇѽÅÀ§³Ê½º | 6 | 23.6 | 20,550 | | 2018 | | 2025.06.22 | Àü¼¼ | ¼º¸²¾ÆÆ®ºô | 4 | 56.84 | 20,000 | 0 | 2002 | | 2025.06.20 | ¸Å¸Å | ½ºÆäÀ̽ººô(674-30) | 4 | 29.99 | 20,000 | | 2012 | | 2025.06.20 | ¿ù¼¼ | û¼ÖÆç¸®Ã¼ | 3 | 24.36 | 1,000 | 90 | 2019 | | 2025.06.18 | ¸Å¸Å | À¯¼ºÇÏÀÌÃ÷ | 4 | 33.38 | 24,000 | | 2012 | | 2025.06.18 | ¸Å¸Å | Á¦ÀÌ¿¡½º¾ÆÀ̵ð¿ò | 4 | 37.92 | 31,500 | | 2018 | | 2025.06.18 | ¿ù¼¼ | ´Ù¼Øºô¶óÆ® | 3 | 51.58 | 1,500 | 120 | 2011 | | 2025.06.17 | ¸Å¸Å | ½ºÆäÀ̽ººô | 2 | 36.55 | 20,800 | | 2011 | | 2025.06.16 | ¸Å¸Å | ¾Æµ¥³ªÄ³½½101µ¿ | 3 | 36.86 | 31,000 | | 2015 | | 2025.06.14 | Àü¼¼ | ½Ã¿ø¾ÆÆ®ºôABµ¿ | 4 | 53.43 | 19,000 | 0 | 2001 | | 2025.06.14 | Àü¼¼ | ·Ôµ¥ºô¶ó | 3 | 45.39 | 18,100 | 0 | 2011 | | 2025.06.13 | ¿ù¼¼ | ¿ì¿µÃ¤¿òºô | 5 | 28 | 2,000 | 80 | 2019 | | 2025.06.12 | Àü¼¼ | ´ë¿øÈúžBµ¿ | -1 | 29.89 | 10,000 | 0 | 2011 | | 2025.06.12 | ¿ù¼¼ | ¿¹¿ø¿ø·ë | 2 | 24.12 | 500 | 50 | 2003 | | 2025.06.11 | ¿ù¼¼ | ¿¡½º¿¥ÆÄÅ©ºä | 8 | 23.06 | 22,650 | 4 | 2019 | | 2025.06.11 | Àü¼¼ | ¿Ã¸²Çª½ºABµ¿ | 3 | 46.47 | 19,600 | 0 | 2008 | | 2025.06.11 | Àü¼¼ | ·ùÅ·´ý | 2 | 39.89 | 28,000 | 0 | 2019 | | 2025.06.10 | ¸Å¸Å | ¹®¼ºÇÏÀÌÃ÷ºô¶ó | -1 | 56.34 | 9,000 | | 1995 | | 2025.06.10 | Àü¼¼ | ¸íξøÀ½ | -1 | 39.76 | 7,000 | 0 | 1986 | | 2025.06.10 | ¿ù¼¼ | »ïÀÍÇ콺Ƽ¾Æ | 4 | 27.95 | 3,000 | 100 | 2015 | | 2025.06.10 | ¿ù¼¼ | ¿¡½º¿¥ÆÄÅ©ºä | 8 | 23.06 | 22,650 | 4 | 2019 | | 2025.06.09 | ¸Å¸Å | IDIEUM | 2 | 46.96 | 32,000 | | 2017 | | 2025.06.09 | ¸Å¸Å | Á¦ÀÌµå¾ÆÆ®ºô | 4 | 76.44 | 37,000 | | 2002 | | 2025.06.08 | ¿ù¼¼ | À¯Áø¼Ò¸£º£ | 3 | 37.58 | 14,800 | 25 | 2011 | | 2025.06.06 | Àü¼¼ | ¼¼±¤ºô¶ó°¡³ªµ¿ | 2 | 52.28 | 22,000 | 0 | 1992 | | 2025.06.05 | Àü¼¼ | ¾Æµ¥³ªÄ³½½101µ¿ | 4 | 36.86 | 25,500 | 0 | 2015 | | 2025.06.05 | Àü¼¼ | ¸¶°î¼ö¸í»êÆÄÅ©8´ÜÁö | 3 | 84.53 | 47,000 | 0 | 2006 | | 2025.06.04 | ¸Å¸Å | Áö¿Àºô | 3 | 59.79 | 34,800 | | 2008 | | 2025.06.04 | Àü¼¼ | ¾ÆÀ̵ð¿ò103µ¿ | 6 | 37.24 | 20,000 | 0 | 2014 | | 2025.06.04 | ¿ù¼¼ | ´ö¼öÆç¸®Ã¼(718-3) | 2 | 29.56 | 17,000 | 3 | 2015 | | 2025.06.04 | Àü¼¼ | ±Û·Î¸®¾Æºô¶óÆ® | 2 | 55.26 | 14,700 | 0 | 1994 | | 2025.06.04 | ¿ù¼¼ | ±Û·Î¸®¾Æºô¶óÆ® | 4 | 52.88 | 9,000 | 35 | 1994 | | 2025.06.03 | Àü¼¼ | ·ÎÁîºô | 4 | 51.1 | 17,640 | 0 | 2002 | | 2025.06.03 | ¿ù¼¼ | ÇÑ¶ó¾ÆÆ®ºô | 2 | 56.07 | 5,000 | 68 | 2001 | | 2025.06.03 | ¿ù¼¼ | õ¿ì³×¿ÀÁ¨ | 5 | 27.04 | 300 | 100 | 2020 | | 2025.06.02 | ¿ù¼¼ | ¼¿ïÈ£¼¹®ÈŸ¿î»ýȰ°ü | 4 | 13.65 | 2,000 | 53 | 2012 | | 2025.05.31 | Àü¼¼ | ¼¼¸í´õŬ·¡½º | 4 | 28.41 | 22,500 | 0 | 2018 | | 2025.05.29 | ¸Å¸Å | ¾Æµ¥³ªÄ³½½102µ¿ | 4 | 37.59 | 31,700 | | 2015 | | 2025.05.28 | ¸Å¸Å | À¯Áø¼Ò¸£º£(670-62) | 4 | 40.34 | 28,000 | | 2012 | | 2025.05.28 | ¿ù¼¼ | µ¿¼ºô¶ó | 3 | 73.92 | 15,000 | 48 | 2002 | | 2025.05.28 | ¿ù¼¼ | õ¿ì³×¿ÀÁ¨ | 5 | 28.34 | 300 | 100 | 2020 | | 2025.05.27 | ¸Å¸Å | À¯¼ºÇÏÀÌÃ÷ | 4 | 33.38 | 24,000 | | 2012 | | 2025.05.27 | ¿ù¼¼ | Áø¼ººô¶ó | 3 | 55.66 | 17,600 | 20 | 2000 | | 2025.05.27 | ¿ù¼¼ | ¾Æµ¥³ªÄ³½½101µ¿ | 3 | 37.59 | 25,000 | 15 | 2015 | | 2025.05.26 | Àü¼¼ | À¯Áø¼Ò¸£º£(670-45) | 2 | 52.06 | 25,000 | 0 | 2012 | | 2025.05.26 | ¸Å¸Å | ¾ÆÀ̵ð¿ò(704-0) | 5 | 26.4 | 23,700 | | 2013 | | 2025.05.25 | ¸Å¸Å | ¾ÆÀ̵ð¿ò(101,102µ¿) | 2 | 34.27 | 17,500 | | 2014 | | 2025.05.24 | Àü¼¼ | ¸¶°î¼ö¸í»êÆÄÅ©8´ÜÁö | 4 | 84.73 | 44,000 | 0 | 2006 | | 2025.05.24 | ¿ù¼¼ | ¾ÆÀ̵ð¿ò(704-0) | 6 | 26.4 | 16,000 | 13 | 2013 | | 2025.05.24 | Àü¼¼ | ¸¶°î¼ö¸í»êÆÄÅ©8´ÜÁö | 4 | 84.73 | 44,000 | 0 | 2006 | | 2025.05.24 | ¿ù¼¼ | (677-24) | 4 | 39.495 | 2,000 | 65 | 2003 | | 2025.05.24 | ¸Å¸Å | »ïÈ£¾ÆÆ®ºô¶ó | 2 | 69.37 | 28,300 | | 1991 | | 2025.05.23 | Àü¼¼ | ÆÄÀÎÇϿ콺 | 4 | 25.68 | 13,200 | 0 | 2012 | | 2025.05.23 | Àü¼¼ | È£¼ºÇϿ콺 | 3 | 50.16 | 24,000 | 0 | 2016 | | 2025.05.22 | ¸Å¸Å | Èï¾çÈѹ̸®Bµ¿ | 2 | 78.34 | 35,000 | | 2004 | | 2025.05.22 | ¿ù¼¼ | ¸íÁ¤ÁÖÅà | 3 | 34.44 | 1,000 | 60 | 2003 | | 2025.05.22 | Àü¼¼ | µµÈ¿¤¸®½Ã¾Æ | 3 | 45.07 | 31,500 | 0 | 2019 | | 2025.05.22 | ¿ù¼¼ | ¾Æµ¥³ªÄ³½½101µ¿ | 6 | 25.23 | 19,000 | 25 | 2015 | | 2025.05.21 | ¸Å¸Å | û¼ÖÆç¸®Ã¼101µ¿,102µ¿,103µ¿, | 2 | 56.81 | 33,250 | | 2016 | | 2025.05.21 | Àü¼¼ | MG333Áְź¹ÇÕºôµù | 6 | 29.97 | 26,000 | 0 | 2018 | | 2025.05.21 | ¿ù¼¼ | Áø±¤ | 2 | 37.98 | 11,500 | 15 | 1993 | | 2025.05.21 | Àü¼¼ | MG333Áְź¹ÇÕºôµù | 6 | 29.97 | 26,000 | 0 | 2018 | | 2025.05.21 | ¿ù¼¼ | ¿ì¼º¾ÆÆ®ºô3Â÷ | 6 | 51.71 | 21,500 | 40 | 2012 | | 2025.05.20 | ¸Å¸Å | ·Î¾âÇϿ콺(703-6) | 3 | 28.77 | 27,000 | | 2015 | | 2025.05.20 | ¸Å¸Å | ¿Ã¸²Çª½º | 2 | 50.08 | 31,600 | | 2009 | | 2025.05.20 | Àü¼¼ | ¹ß»ê±×¸°ºô¶ó | 4 | 41.76 | 11,930 | 0 | 1994 | | 2025.05.20 | ¿ù¼¼ | ÆÄÅ©ºô | 2 | 59.85 | 5,000 | 120 | 2002 | | 2025.05.19 | ¿ù¼¼ | û¼ÖÆç¸®Ã¼101µ¿,102µ¿,103µ¿, | 6 | 32.37 | 3,000 | 80 | 2016 | | 2025.05.19 | Àü¼¼ | ½Å¼ºÆÛ½ºÆ® | 2 | 26.09 | 19,950 | 0 | 2018 | | 2025.05.19 | Àü¼¼ | ¿Â¼¼±×¶ûºô | 1 | 54.78 | 22,000 | 0 | 2007 | | 2025.05.17 | Àü¼¼ | ¸¶°î¼ö¸í»êÆÄÅ©8´ÜÁö | 4 | 84.53 | 56,000 | 0 | 2006 | | 2025.05.17 | Àü¼¼ | »ïÀÍÇ콺Ƽ¾Æ | 2 | 39.56 | 21,100 | 0 | 2015 | | 2025.05.16 | ¸Å¸Å | Á¦ÀÌ¿¡½º¾ÆÀ̵ð¿ò | 6 | 37.92 | 28,400 | | 2018 | | 2025.05.16 | ¿ù¼¼ | ·Î¾âÇϿ콺(703-6) | 6 | 28.25 | 3,000 | 100 | 2015 | | 2025.05.16 | ¿ù¼¼ | ÇѽÅÀ§³Ê½º(710-28,29) | 3 | 29.94 | 18,600 | 5 | 2018 | | 2025.05.15 | ¸Å¸Å | ¿ìÀåµå¸²ºô | 2 | 78.89 | 42,500 | | 2008 | | 2025.05.13 | ¿ù¼¼ | ¿¡½º¿¥ÆÄÅ©ºä | 5 | 21.88 | 3,000 | 80 | 2019 | | 2025.05.13 | ¿ù¼¼ | û¼ÖÆç¸®½º | 3 | 28.26 | 1,000 | 95 | 2018 | | 2025.05.13 | ¸Å¸Å | µ¿Çغô¶ó(678-27) | 2 | 36.98 | 17,800 | | 1991 | | 2025.05.13 | Àü¼¼ | À±½Â±×¸°ºô¶ó | 3 | 37.73 | 11,900 | 0 | 1993 | | 2025.05.12 | ¿ù¼¼ | ´ö¼öÆç¸®Ã¼(718-3) | 4 | 17.62 | 5,000 | 60 | 2015 | | 2025.05.12 | ¿ù¼¼ | ´ö¼öÆç¸®Ã¼(718-3) | 4 | 17.62 | 5,000 | 60 | 2015 | | 2025.05.11 | ¿ù¼¼ | ÇÁ·£µå½±ºô¸®Áö | 3 | 19.78 | 1,000 | 55 | 2012 | | 2025.05.10 | ¸Å¸Å | ¿ì¼º¾ÆÆ®ºô | 4 | 26.95 | 19,500 | | 2013 | | 2025.05.09 | ¸Å¸Å | û¼ÖÆç¸®½º | 4 | 28.32 | 23,600 | | 2018 | | 2025.05.07 | ¸Å¸Å | õ¿ìÇÏÀ̺ô | 4 | 62.2 | 28,000 | | 2002 | | 2025.05.05 | Àü¼¼ | ¼º°Ã»¾Èä | 3 | 29.81 | 20,947 | 0 | 2017 | | 2025.05.02 | ¸Å¸Å | À¯Áø¼Ò¸£º£(676-4) | 4 | 25.56 | 18,000 | | 2012 | | 2025.05.01 | ¿ù¼¼ | ¾ÆÆ®ºô | 2 | 15.68 | 1,000 | 47 | 2013 | | 2025.04.29 | ¿ù¼¼ | ¿ìÀå»êÈú½ºÅ×ÀÌÆ® | 7 | 59.98 | 15,000 | 180 | 2005 | | 2025.04.29 | ¿ù¼¼ | ¸¶°î¼ö¸í»êÆÄÅ©3´ÜÁö | 11 | 84.76 | 30,000 | 90 | 2007 | | 2025.04.29 | ¸Å¸Å | ½Å¼¼°èÇ÷¯½º | 5 | 36.58 | 34,800 | | 2020 | | 2025.04.28 | ¿ù¼¼ | ¸¶°î¼ö¸í»êÆÄÅ©7´ÜÁö | 4 | 49.93 | 3,036 | 26 | 2008 | | 2025.04.28 | ¿ù¼¼ | ¿ìÀå»êÈú½ºÅ×ÀÌÆ® | 16 | 59.98 | 13,000 | 80 | 2005 | | 2025.04.28 | Àü¼¼ | ¸¶°î¼ö¸í»êÆÄÅ©3´ÜÁö | 10 | 84.76 | 31,150 | 0 | 2007 | | 2025.04.28 | Àü¼¼ | ¸¶°î¼ö¸í»êÆÄÅ©3´ÜÁö | 12 | 84.96 | 56,000 | 0 | 2007 | | 2025.04.28 | Àü¼¼ | ¿ìÀå»êÈú½ºÅ×ÀÌÆ® | 16 | 126.65 | 82,950 | 0 | 2005 | | 2025.04.27 | Àü¼¼ | ¿ìÀå»êŸ¿öºô | 6 | 84.6 | 60,000 | 0 | 2002 | | 2025.04.27 | ¿ù¼¼ | ¿ìÀå»êÈú½ºÅ×ÀÌÆ® | 10 | 84.98 | 31,500 | 110 | 2005 | | 2025.04.26 | ¸Å¸Å | ¿µÁÖºô¶ó1Â÷ | 4 | 25.32 | 5,500 | | 2002 | | 2025.04.26 | Àü¼¼ | ¸¶°î¼ö¸í»êÆÄÅ©4´ÜÁö | 6 | 59.84 | 45,000 | 0 | 2008 | | 2025.04.26 | Àü¼¼ | ±æ¼º±×¶ûÇÁ¸®ÅÚ | 3 | 71.513 | 39,000 | 0 | 2003 | | 2025.04.26 | Àü¼¼ | ¸¶°î¼ö¸í»êÆÄÅ©2´ÜÁö | 9 | 84.75 | 62,000 | 0 | 2007 | | 2025.04.26 | Àü¼¼ | ¸¶°î¼ö¸í»êÆÄÅ©2´ÜÁö | 9 | 84.75 | 62,000 | 0 | 2007 | | 2025.04.26 | Àü¼¼ | ¸¶°î¼ö¸í»êÆÄÅ©1´ÜÁö | 10 | 84.82 | 59,000 | 0 | 2007 | | 2025.04.26 | Àü¼¼ | ¸¶°î¼ö¸í»êÆÄÅ©4´ÜÁö | 15 | 59.84 | 46,000 | 0 | 2008 | | 2025.04.26 | Àü¼¼ | ¸¶°î¼ö¸í»êÆÄÅ©5´ÜÁö | 2 | 59.84 | 42,000 | 0 | 2008 | | 2025.04.26 | ¸Å¸Å | ¼¼±¤ºô¶ó°¡³ªµ¿ | 1 | 57.16 | 30,000 | | 1992 | | 2025.04.26 | Àü¼¼ | ¿ìÀå»êÈú½ºÅ×ÀÌÆ® | 13 | 84.98 | 74,000 | 0 | 2005 | | 2025.04.26 | Àü¼¼ | ¿ìÀå»êÈú½ºÅ×ÀÌÆ® | 17 | 84.98 | 68,000 | 0 | 2005 | | 2025.04.26 | Àü¼¼ | ¸¶°î¼ö¸í»êÆÄÅ©4´ÜÁö | 15 | 59.84 | 46,000 | 0 | 2008 | | 2025.04.25 | Àü¼¼ | ¸¶°î¼ö¸í»êÆÄÅ©1´ÜÁö | 10 | 84.68 | 60,000 | 0 | 2007 | | 2025.04.25 | ¿ù¼¼ | ¸¶°î¼ö¸í»êÆÄÅ©7´ÜÁö | 8 | 49.83 | 6,247 | 10 | 2008 | | 2025.04.25 | Àü¼¼ | ¿ìÀå»ê½ÅÀÏÇØÇÇÆ®¸® | 5 | 43.34 | 35,000 | 0 | 2023 | | 2025.04.25 | Àü¼¼ | ¿ìÀå»êÈú½ºÅ×ÀÌÆ® | 2 | 101.87 | 48,000 | 0 | 2005 | | 2025.04.25 | ¿ù¼¼ | ¸¶°î¼ö¸í»êÆÄÅ©6´ÜÁö | 4 | 49.97 | 6,560 | 11 | 2007 | | 2025.04.25 | ¸Å¸Å | ·Î¾âÇϿ콺(703-6) | 6 | 28.25 | 14,000 | | 2015 | | 2025.04.24 | ¿ù¼¼ | ¿ìÀå»êÈú½ºÅ×ÀÌÆ® | 15 | 101.87 | 20,000 | 220 | 2005 | | 2025.04.24 | Àü¼¼ | ¸¶°î¼ö¸í»êÆÄÅ©4´ÜÁö | 3 | 59.84 | 43,000 | 0 | 2008 | | 2025.04.23 | ¿ù¼¼ | ¸¶°î¼ö¸í»êÆÄÅ©6´ÜÁö | 5 | 49.93 | 5,208 | 18 | 2007 | | 2025.04.23 | Àü¼¼ | ¿ìÀå»êÈú½ºÅ×ÀÌÆ® | 12 | 126.65 | 67,048 | 0 | 2005 | | 2025.04.23 | Àü¼¼ | ¸¶°î¼ö¸í»êÆÄÅ©7´ÜÁö | 9 | 84.68 | 42,000 | 0 | 2008 | | 2025.04.23 | Àü¼¼ | ¸¶°î¼ö¸í»êÆÄÅ©2´ÜÁö | 8 | 84.82 | 46,300 | 0 | 2007 | | 2025.04.23 | ¸Å¸Å | ¾ÆÀ̵ð¿ò | 5 | 41.08 | 31,500 | | 2013 | | 2025.04.23 | ¸Å¸Å | ¿µÁÖºô¶ó1Â÷ | 4 | 25.32 | 5,500 | | 2002 | | 2025.04.22 | Àü¼¼ | ¸¶°î¼ö¸í»êÆÄÅ©3´ÜÁö | 10 | 84.53 | 38,083 | 0 | 2007 | | 2025.04.22 | Àü¼¼ | ¸¶°î¼ö¸í»êÆÄÅ©5´ÜÁö | 9 | 49.93 | 8,695 | 0 | 2008 | | 2025.04.22 | Àü¼¼ | ¸¶°î¼ö¸í»êÆÄÅ©4´ÜÁö | 15 | 84.53 | 47,250 | 0 | 2008 | | 2025.04.22 | Àü¼¼ | ¸¶°î¼ö¸í»êÆÄÅ©4´ÜÁö | 6 | 59.87 | 15,552 | 0 | 2008 | | 2025.04.22 | ¿ù¼¼ | ¸¶°î¼ö¸í»êÆÄÅ©1´ÜÁö | 10 | 39.73 | 6,939 | 10 | 2007 | | 2025.04.22 | Àü¼¼ | ¸¶°î¼ö¸í»êÆÄÅ©3´ÜÁö | 6 | 84.76 | 26,292 | 0 | 2007 | | 2025.04.22 | ¸Å¸Å | ÇÑ¿ï¶ß¶õä | 3 | 29.92 | 21,000 | | 2012 | | 2025.04.22 | ¸Å¸Å | û¼ÖÆç¸®½º | 5 | 16.34 | 20,000 | | 2018 | | 2025.04.21 | ¿ù¼¼ | ¸¶°î¼ö¸í»êÆÄÅ©1´ÜÁö | 15 | 84.53 | 5,000 | 190 | 2007 | | 2025.04.21 | ¸Å¸Å | û¼ÖÆç¸®Ã¼101µ¿,102µ¿,103µ¿, | 4 | 30.02 | 20,800 | | 2016 | | 2025.04.21 | ¿ù¼¼ | ¸¶°î¼ö¸í»êÆÄÅ©7´ÜÁö | 3 | 49.97 | 6,118 | 11 | 2008 | | 2025.04.21 | Àü¼¼ | ¸¶°î¼ö¸í»êÆÄÅ©2´ÜÁö | 2 | 59.87 | 14,956 | 0 | 2007 | | 2025.04.19 | Àü¼¼ | ¸¶°î¼ö¸í»êÆÄÅ©5´ÜÁö | 9 | 59.84 | 36,750 | 0 | 2008 | | 2025.04.19 | ¸Å¸Å | ÇѽÅÁ־ƺô | 3 | 29.75 | 19,500 | | 2018 | | 2025.04.18 | ¸Å¸Å | Á¦ÀÌ¿¡½º¾ÆÀ̵ð¿ò | 5 | 55.05 | 35,000 | | 2018 | | 2025.04.18 | Àü¼¼ | ¸¶°î¼ö¸í»êÆÄÅ©5´ÜÁö | 7 | 59.87 | 37,000 | 0 | 2008 | | 2025.04.18 | Àü¼¼ | ¸¶°î¼ö¸í»êÆÄÅ©3´ÜÁö | 12 | 84.53 | 44,100 | 0 | 2007 | | 2025.04.18 | ¸Å¸Å | ¹Ù·Î¸Ç¼Ç | 5 | 42.08 | 15,300 | | 2003 | | 2025.04.18 | ¸Å¸Å | ÇѼ3Â÷¾ÆÆ®ºô | 1 | 63.95 | 30,500 | | 2002 | | 2025.04.17 | Àü¼¼ | ¸¶°î¼ö¸í»êÆÄÅ©7´ÜÁö | 12 | 84.82 | 42,000 | 0 | 2008 | | 2025.04.16 | Àü¼¼ | ¸¶°î¼ö¸í»êÆÄÅ©7´ÜÁö | 3 | 84.68 | 50,000 | 0 | 2008 | | 2025.04.15 | Àü¼¼ | ¿ìÀå»êÈú½ºÅ×ÀÌÆ® | 4 | 126.65 | 100,000 | 0 | 2005 | | 2025.04.15 | Àü¼¼ | ±×¸°¾¾Æ¼ | 7 | 61.52 | 34,500 | 0 | 2004 | | 2025.04.15 | Àü¼¼ | ¸¶°î¼ö¸í»êÆÄÅ©1´ÜÁö | 10 | 39.8 | 6,177 | 0 | 2007 | | 2025.04.15 | Àü¼¼ | ¸¶°î¼ö¸í»êÆÄÅ©4´ÜÁö | 2 | 59.84 | 50,000 | 0 | 2008 | | 2025.04.15 | ¿ù¼¼ | ±×¸°¾¾Æ¼ | 2 | 84.577 | 20,000 | 95 | 2004 | | 2025.04.15 | ¸Å¸Å | µ¿Çغô¶ó(678-27) | 3 | 36.98 | 17,600 | | 1991 | | 2025.04.15 | Àü¼¼ | ¸¶°î¼ö¸í»êÆÄÅ©2´ÜÁö | 9 | 59.84 | 14,956 | 0 | 2007 | | 2025.04.13 | Àü¼¼ | ¸¶°î¼ö¸í»êÆÄÅ©7´ÜÁö | 4 | 84.68 | 50,000 | 0 | 2008 | | 2025.04.13 | Àü¼¼ | ¿ìÀå»êÈú½ºÅ×ÀÌÆ® | 3 | 101.87 | 80,000 | 0 | 2005 | | 2025.04.12 | Àü¼¼ | ¸¶°î¼ö¸í»êÆÄÅ©2´ÜÁö | 13 | 84.53 | 47,000 | 0 | 2007 | | 2025.04.12 | Àü¼¼ | ¸¶°î¼ö¸í»êÆÄÅ©2´ÜÁö | 10 | 84.82 | 47,250 | 0 | 2007 | | 2025.04.12 | ¿ù¼¼ | ¸¶°î¼ö¸í»êÆÄÅ©1´ÜÁö | 1 | 84.82 | 10,000 | 200 | 2007 | | 2025.04.12 | ¿ù¼¼ | ¸¶°î¼ö¸í»êÆÄÅ©5´ÜÁö | 11 | 59.87 | 35,000 | 23 | 2008 | | 2025.04.12 | Àü¼¼ | ŽÂÈѹ̸® | 4 | 83.61 | 50,000 | 0 | 2004 | | 2025.04.12 | ¿ù¼¼ | ¿ìÀå»êÈú½ºÅ×ÀÌÆ® | 13 | 84.98 | 20,000 | 170 | 2005 | | 2025.04.12 | ¿ù¼¼ | ¸¶°î¼ö¸í»êÆÄÅ©4´ÜÁö | 9 | 59.84 | 5,000 | 153 | 2008 | | 2025.04.12 | ¸Å¸Å | MG333Áְź¹ÇÕºôµù | 5 | 48.8 | 42,000 | | 2018 | | 2025.04.12 | ¿ù¼¼ | ¸¶°î¼ö¸í»êÆÄÅ©5´ÜÁö | 2 | 59.84 | 5,500 | 180 | 2008 | | 2025.04.12 | Àü¼¼ | ¸¶°î¼ö¸í»êÆÄÅ©4´ÜÁö | 1 | 59.84 | 37,800 | 0 | 2008 | | 2025.04.12 | Àü¼¼ | ¸¶°î¼ö¸í»êÆÄÅ©4´ÜÁö | 7 | 59.87 | 15,552 | 0 | 2008 | | 2025.04.11 | ¿ù¼¼ | ¿ìÀå»ê½ÅÀÏÇØÇÇÆ®¸® | 1 | 44.04 | 33,700 | 10 | 2023 | | 2025.04.11 | Àü¼¼ | ¿ìÀå»êÈú½ºÅ×ÀÌÆ® | 12 | 84.98 | 61,950 | 0 | 2005 | | 2025.04.11 | Àü¼¼ | ¸¶°î¼ö¸í»êÆÄÅ©6´ÜÁö | 7 | 84.53 | 54,000 | 0 | 2007 | | 2025.04.11 | ¿ù¼¼ | ¸¶°î¼ö¸í»êÆÄÅ©1´ÜÁö | 6 | 39.8 | 1,010 | 24 | 2007 | | 2025.04.11 | Àü¼¼ | ¿ìÀå»êÈú½ºÅ×ÀÌÆ® | 4 | 84.98 | 71,400 | 0 | 2005 | | 2025.04.10 | ¿ù¼¼ | ¸¶°î¼ö¸í»êÆÄÅ©7´ÜÁö | 7 | 49.83 | 3,536 | 25 | 2008 | | 2025.04.10 | Àü¼¼ | ¸¶°î¼ö¸í»êÆÄÅ©1´ÜÁö | 4 | 84.82 | 46,200 | 0 | 2007 | | 2025.04.10 | Àü¼¼ | ½Å¼¼°è5Â÷ | 4 | 84.71 | 38,850 | 0 | 2005 | | 2025.04.10 | ¿ù¼¼ | ¸¶°î¼ö¸í»êÆÄÅ©1´ÜÁö | 2 | 39.92 | 4,542 | 9 | 2007 | | 2025.04.10 | Àü¼¼ | ¸¶°î¼ö¸í»êÆÄÅ©1´ÜÁö | 13 | 84.53 | 48,300 | 0 | 2007 | | 2025.04.10 | ¿ù¼¼ | ¸¶°î¼ö¸í»êÆÄÅ©4´ÜÁö | 5 | 59.87 | 4,161 | 31 | 2008 | | 2025.04.10 | ¿ù¼¼ | ¸¶°î¼ö¸í»êÆÄÅ©4´ÜÁö | 3 | 59.87 | 4,161 | 31 | 2008 | | 2025.04.10 | ¿ù¼¼ | ŽÂÈѹ̸®3Â÷ | 9 | 84.97 | 30,000 | 75 | 2004 | | 2025.04.09 | ¿ù¼¼ | ¸¶°î¼ö¸í»êÆÄÅ©6´ÜÁö | 9 | 49.97 | 6,560 | 11 | 2007 | | 2025.04.09 | ¿ù¼¼ | ¸¶°î¼ö¸í»êÆÄÅ©1´ÜÁö | 4 | 39.8 | 3,489 | 15 | 2007 | | 2025.04.09 | ¿ù¼¼ | ¸¶°î¼ö¸í»êÆÄÅ©2´ÜÁö | 2 | 59.76 | 3,852 | 28 | 2007 | | 2025.04.09 | Àü¼¼ | ¸¶°î¼ö¸í»êÆÄÅ©5´ÜÁö | 13 | 59.76 | 44,000 | 0 | 2008 | | 2025.04.09 | ¿ù¼¼ | ¸¶°î¼ö¸í»êÆÄÅ©7´ÜÁö | 7 | 49.97 | 5,010 | 17 | 2008 | | 2025.04.09 | ¿ù¼¼ | ¸¶°î¼ö¸í»êÆÄÅ©2´ÜÁö | 12 | 59.87 | 3,852 | 28 | 2007 | | 2025.04.09 | ¿ù¼¼ | ¸¶°î¼ö¸í»êÆÄÅ©2´ÜÁö | 15 | 59.84 | 3,852 | 28 | 2007 | | 2025.04.09 | ¿ù¼¼ | ¸¶°î¼ö¸í»êÆÄÅ©2´ÜÁö | 11 | 59.76 | 3,852 | 28 | 2007 | | 2025.04.09 | ¿ù¼¼ | ¸¶°î¼ö¸í»êÆÄÅ©2´ÜÁö | 14 | 59.87 | 3,852 | 28 | 2007 | | 2025.04.09 | Àü¼¼ | ¸¶°î¼ö¸í»êÆÄÅ©5´ÜÁö | 7 | 49.97 | 8,695 | 0 | 2008 | | 2025.04.09 | ¿ù¼¼ | ¸¶°î¼ö¸í»êÆÄÅ©1´ÜÁö | 1 | 39.92 | 5,996 | 1 | 2007 | | 2025.04.09 | ¿ù¼¼ | ¸¶°î¼ö¸í»êÆÄÅ©2´ÜÁö | 1 | 59.87 | 3,852 | 28 | 2007 | | 2025.04.09 | ¿ù¼¼ | ¸¶°î¼ö¸í»êÆÄÅ©2´ÜÁö | 1 | 59.87 | 1,540 | 33 | 2007 | | 2025.04.09 | ¿ù¼¼ | ¸¶°î¼ö¸í»êÆÄÅ©1´ÜÁö | 4 | 39.92 | 4,542 | 9 | 2007 | | 2025.04.09 | ¿ù¼¼ | ¸¶°î¼ö¸í»êÆÄÅ©6´ÜÁö | 3 | 49.93 | 8,253 | 1 | 2007 | | 2025.04.08 | Àü¼¼ | ¸¶°î¼ö¸í»êÆÄÅ©3´ÜÁö | 14 | 84.96 | 38,083 | 0 | 2007 | | 2025.04.08 | ¿ù¼¼ | ¸¶°î¼ö¸í»êÆÄÅ©7´ÜÁö | 3 | 49.97 | 5,153 | 16 | 2008 | | 2025.04.08 | Àü¼¼ | ¸¶°î¼ö¸í»êÆÄÅ©3´ÜÁö | 8 | 84.53 | 38,083 | 0 | 2007 | | 2025.04.08 | ¸Å¸Å | ¸®Ä¡Æç¸®½º | 5 | 33.27 | 24,600 | | 2015 | | 2025.04.08 | Àü¼¼ | ¿ìÀå»ê½ÅÀÏÇØÇÇÆ®¸® | 6 | 43.34 | 28,770 | 0 | 2023 | | 2025.04.08 | ¿ù¼¼ | ¸¶°î¼ö¸í»êÆÄÅ©1´ÜÁö | 7 | 39.92 | 7,120 | 9 | 2007 | | 2025.04.08 | ¿ù¼¼ | ¸¶°î¼ö¸í»êÆÄÅ©2´ÜÁö | 10 | 59.84 | 6,740 | 12 | 2007 | | 2025.04.08 | ¿ù¼¼ | ¸¶°î¼ö¸í»êÆÄÅ©5´ÜÁö | 13 | 49.97 | 8,460 | 1 | 2008 | | 2025.04.08 | Àü¼¼ | ¸¶°î¼ö¸í»êÆÄÅ©3´ÜÁö | 6 | 84.96 | 26,292 | 0 | 2007 | | 2025.04.08 | Àü¼¼ | ¸¶°î¼ö¸í»êÆÄÅ©5´ÜÁö | 3 | 49.93 | 8,695 | 0 | 2008 | | 2025.04.08 | ¿ù¼¼ | ¸¶°î¼ö¸í»êÆÄÅ©7´ÜÁö | 3 | 49.97 | 4,651 | 19 | 2008 | | 2025.04.08 | Àü¼¼ | ¸¶°î¼ö¸í»êÆÄÅ©1´ÜÁö | 8 | 39.73 | 6,177 | 0 | 2007 | | 2025.04.08 | ¿ù¼¼ | ¸¶°î¼ö¸í»êÆÄÅ©7´ÜÁö | 6 | 49.97 | 3,536 | 25 | 2008 | | 2025.04.07 | ¿ù¼¼ | ¸¶°î¼ö¸í»êÆÄÅ©4´ÜÁö | 13 | 59.76 | 4,161 | 31 | 2008 | | 2025.04.07 | Àü¼¼ | ¸¶°î¼ö¸í»êÆÄÅ©1´ÜÁö | 4 | 39.8 | 6,177 | 0 | 2007 | | 2025.04.07 | Àü¼¼ | ¸¶°î¼ö¸í»êÆÄÅ©1´ÜÁö | 6 | 39.92 | 6,177 | 0 | 2007 | | 2025.04.07 | Àü¼¼ | ¸¶°î¼ö¸í»êÆÄÅ©7´ÜÁö | 1 | 49.93 | 8,054 | 0 | 2008 | | 2025.04.07 | Àü¼¼ | ¸¶°î¼ö¸í»êÆÄÅ©7´ÜÁö | 5 | 49.97 | 8,054 | 0 | 2008 | | 2025.04.07 | Àü¼¼ | ¸¶°î¼ö¸í»êÆÄÅ©1´ÜÁö | 11 | 39.8 | 6,177 | 0 | 2007 | | 2025.04.07 | Àü¼¼ | ¸¶°î¼ö¸í»êÆÄÅ©1´ÜÁö | 13 | 39.8 | 6,177 | 0 | 2007 | | 2025.04.07 | ¿ù¼¼ | ¸¶°î¼ö¸í»êÆÄÅ©1´ÜÁö | 5 | 39.92 | 2,359 | 21 | 2007 | | 2025.04.07 | ¸Å¸Å | û¼ÖÆç¸®Ã¼101µ¿,102µ¿,103µ¿, | 2 | 38.45 | 31,000 | | 2016 | | 2025.04.07 | Àü¼¼ | ¸¶°î¼ö¸í»êÆÄÅ©4´ÜÁö | 11 | 59.84 | 13,495 | 0 | 2008 | | 2025.04.07 | Àü¼¼ | ¿ìÀå»êÈú½ºÅ×ÀÌÆ® | 11 | 101.87 | 85,000 | 0 | 2005 | | 2025.04.07 | ¿ù¼¼ | ¸¶°î¼ö¸í»êÆÄÅ©1´ÜÁö | 4 | 39.8 | 3,489 | 15 | 2007 | | 2025.04.07 | Àü¼¼ | ¸¶°î¼ö¸í»êÆÄÅ©7´ÜÁö | 10 | 49.93 | 8,054 | 0 | 2008 | | 2025.04.07 | Àü¼¼ | ¸¶°î¼ö¸í»êÆÄÅ©2´ÜÁö | 13 | 84.68 | 52,500 | 0 | 2007 | | 2025.04.07 | Àü¼¼ | ¸¶°î¼ö¸í»êÆÄÅ©7´ÜÁö | 9 | 49.97 | 8,054 | 0 | 2008 | | 2025.04.05 | Àü¼¼ | ¿ìÀå»êÈú½ºÅ×ÀÌÆ® | 7 | 59.98 | 64,000 | 0 | 2005 | | 2025.04.05 | Àü¼¼ | ¸¶°î¼ö¸í»êÆÄÅ©1´ÜÁö | 10 | 84.68 | 60,000 | 0 | 2007 | | 2025.04.05 | Àü¼¼ | ¸¶°î¼ö¸í»êÆÄÅ©5´ÜÁö | 12 | 59.76 | 52,000 | 0 | 2008 | | 2025.04.05 | ¿ù¼¼ | ¸¶°î¼ö¸í»êÆÄÅ©7´ÜÁö | 4 | 49.93 | 1,515 | 29 | 2008 | | 2025.04.05 | Àü¼¼ | ¿ìÀå»êÈú½ºÅ×ÀÌÆ® | 9 | 84.98 | 67,000 | 0 | 2005 | | 2025.04.05 | Àü¼¼ | ¿ìÀå»êÈú½ºÅ×ÀÌÆ® | 9 | 84.98 | 67,000 | 0 | 2005 | | 2025.04.04 | Àü¼¼ | ¸¶°î¼ö¸í»êÆÄÅ©2´ÜÁö | 12 | 84.53 | 10,000 | 0 | 2007 | | 2025.04.04 | Àü¼¼ | ¸¶°î¼ö¸í»êÆÄÅ©4´ÜÁö | 11 | 84.96 | 54,000 | 0 | 2008 | | 2025.04.04 | Àü¼¼ | ³»Ãò·²¾ÆÆÄÆ®3Â÷ | 5 | 84.99 | 39,500 | 0 | 2006 | | 2025.04.03 | Àü¼¼ | ¿ìÀå»ê½ÅÀÏÇØÇÇÆ®¸® | 4 | 42.66 | 28,350 | 0 | 2023 | | 2025.04.03 | Àü¼¼ | ¸¶°î¼ö¸í»êÆÄÅ©1´ÜÁö | 10 | 84.82 | 62,000 | 0 | 2007 | | 2025.04.02 | Àü¼¼ | ¸¶°î¼ö¸í»êÆÄÅ©2´ÜÁö | 15 | 84.82 | 64,000 | 0 | 2007 | | 2025.04.02 | Àü¼¼ | û¼Ö½£¼Ó¸¶À»102µ¿ | 4 | 61.68 | 48,000 | 0 | 2007 | | 2025.04.01 | ¿ù¼¼ | ¿ìÀå»êÈú½ºÅ×ÀÌÆ® | 4 | 84.98 | 60,000 | 40 | 2005 | | 2025.04.01 | Àü¼¼ | ¸¶°î¼ö¸í»êÆÄÅ©2´ÜÁö | 10 | 84.82 | 62,000 | 0 | 2007 | | 2025.02.28 | ¸Å¸Å | e-Á¶ÀºÁý | 3 | 54.96 | 23,500 | | 2001 | | 2025.02.28 | ¿ù¼¼ | ¼¼¸íÆÄÅ©ºô | 6 | 44.1 | 22,000 | 20 | 2012 | | 2025.02.27 | Àü¼¼ | »ïÀÍŸ¿îºô | 3 | 65.58 | 33,000 | 0 | 2011 | | 2025.02.27 | ¿ù¼¼ | (716-38) | 4 | 13.95 | 1,000 | 49 | 2018 | | 2025.02.27 | ¸Å¸Å | ÇϿ콺¾ÆÄ«µ¥¹Ì | 4 | 63.36 | 33,800 | | 2002 | | 2025.02.26 | ¿ù¼¼ | »ê¿ï¸² | 2 | 20.88 | 500 | 50 | 2010 | | 2025.02.26 | Àü¼¼ | ÇѽÅÀ§³Ê½º(710-28,29) | 3 | 29.31 | 18,500 | 0 | 2018 | | 2025.02.25 | ¿ù¼¼ | (697-11) | 4 | 34.6 | 800 | 75 | 2013 | | 2025.02.22 | ¸Å¸Å | Çö´ëÇÏÀÌÃ÷ºô¶ó | 3 | 38.35 | 16,000 | | 1996 | | 2025.02.22 | Àü¼¼ | ½Å¼ºÆÛ½ºÆ® | 3 | 26.13 | 20,100 | 0 | 2018 | | 2025.02.22 | Àü¼¼ | ´ëÈïºô¶ó | 2 | 97.59 | 27,000 | 0 | 2001 | | 2025.02.22 | Àü¼¼ | ·ÎÁîºô | 2 | 59.42 | 22,050 | 0 | 2002 | | 2025.02.22 | Àü¼¼ | ¼¼¸íÆÄÅ©ºô | 2 | 27.13 | 14,990 | 0 | 2012 | | 2025.02.21 | ¸Å¸Å | ¼¼±¤ºô¶ó°¡³ªµ¿ | 1 | 57.16 | 27,900 | | 1992 | | 2025.02.20 | ¿ù¼¼ | Á¦ÀÌ¿¡½ºÇؽ½¸® | 6 | 21.96 | 19,700 | 15 | 2024 | | 2025.02.20 | ¿ù¼¼ | µÎ¸®ºôµù(677-1) | 5 | 13.76 | 500 | 42 | 2013 | | 2025.02.20 | ¿ù¼¼ | Á¦ÀÌ¿¡½ºÇؽ½¸® | 6 | 21.96 | 19,700 | 15 | 2024 | | 2025.02.20 | ¿ù¼¼ | ¼º°Ã»¾Èä | 5 | 29.68 | 5,000 | 85 | 2017 | | 2025.02.20 | ¿ù¼¼ | (715-10) | 2 | 23.95 | 1,000 | 63 | 2013 | | 2025.02.19 | ¸Å¸Å | À¯¼ºÇÏÀÌÃ÷ | 3 | 33.22 | 23,000 | | 2012 | | 2025.02.19 | ¸Å¸Å | ¾Æµ¥³ªÄ³½½102µ¿ | 6 | 38.38 | 33,000 | | 2015 | | 2025.02.18 | ¸Å¸Å | ´ö¼ö¸®´õ½ººô102µ¿ | 2 | 51.3 | 19,000 | | 2002 | | 2025.02.18 | ¿ù¼¼ | ÇѽÅÀ§³Ê½º | 2 | 28.55 | 21,200 | 15 | 2018 | | 2025.02.17 | ¿ù¼¼ | ½Å¼ºÆÛ½ºÆ® | 2 | 26.13 | 20,100 | 8 | 2018 | | 2025.02.17 | Àü¼¼ | ½Å¼¼°èÇ÷¯½º | 5 | 26.79 | 22,000 | 0 | 2020 | | 2025.02.16 | ¿ù¼¼ | µµÈ¿¤¸®½Ã¾Æ | 3 | 29.09 | 23,000 | 6 | 2019 | | 2025.02.15 | ¿ù¼¼ | ½Å¼¼°èÇ÷¯½º | 5 | 26.79 | 4,000 | 75 | 2020 | | 2025.02.15 | ¿ù¼¼ | ½ºÆäÀ̽ººô(706-7) | 5 | 36.65 | 3,000 | 89 | 2016 | | 2025.02.15 | ¸Å¸Å | ¾Æµ¥³ªÆÓ¸®½º | 5 | 31.53 | 26,800 | | 2016 | | 2025.02.14 | ¸Å¸Å | A.G.SÅ׸¶ºôABµ¿ | 2 | 61.98 | 27,400 | | 2001 | | 2025.02.14 | ¸Å¸Å | ¹®È·°½ººô | 1 | 44.64 | 17,500 | | 2002 | | 2025.02.14 | ¿ù¼¼ | ¾ÆÀ̵ð¿ò(704-0) | 3 | 26.4 | 3,000 | 80 | 2013 | | 2025.02.13 | Àü¼¼ | ¼¼±¤ºô¶ó¸¶µ¿ | 1 | 61.29 | 17,300 | 0 | 1991 | | 2025.02.12 | ¸Å¸Å | Å·½ºÅ¸¿î | 5 | 34.48 | 27,200 | | 2015 | | 2025.02.11 | ¸Å¸Å | º¸¶÷Ÿ¿î | 1 | 76.05 | 39,000 | | 2000 | | 2025.02.10 | ¿ù¼¼ | ¿ì¼º½¦¸£ºô | 2 | 40.59 | 2,000 | 90 | 2011 | | 2025.02.10 | ¿ù¼¼ | ¼ºÁøºô¶ó | 1 | 49.68 | 13,400 | 25 | 2003 | | 2025.02.10 | ¿ù¼¼ | ¼ºÁøºô¶ó | 1 | 49.68 | 13,400 | 25 | 2003 | | 2025.02.10 | Àü¼¼ | MG333Áְź¹ÇÕºôµù | 6 | 29.97 | 30,000 | 0 | 2018 | | 2025.02.10 | ¿ù¼¼ | õ¿ì³×¿ÀÁ¨ | 4 | 27.04 | 23,000 | 20 | 2020 | | 2025.02.10 | ¸Å¸Å | e-Á¶ÀºÁý | 3 | 54.96 | 23,500 | | 2001 | | 2025.02.10 | Àü¼¼ | ÇѽÅÀ§³Ê½º | 4 | 29.98 | 24,150 | 0 | 2018 | | 2025.02.08 | ¸Å¸Å | û¼Ö¸®´õ½ººô | 3 | 47.53 | 22,800 | | 2002 | | 2025.02.08 | ¿ù¼¼ | ÆÄÅ©ºô | 1 | 59.55 | 5,000 | 110 | 2002 | | 2025.02.08 | ¿ù¼¼ | ¼¿ïÈ£¼¹®ÈŸ¿î»ýȰ°ü | 3 | 14.91 | 2,000 | 52 | 2012 | | 2025.02.08 | ¿ù¼¼ | ÇÁ·Îºô | 1 | 55.68 | 4,500 | 53 | 2000 | | 2025.02.07 | Àü¼¼ | ³²¸²ºô¶ó | 3 | 68.1 | 22,800 | 0 | 1993 | | 2025.02.07 | ¿ù¼¼ | ¿¡½º¿¥ÆÄÅ©ºä | 6 | 21.88 | 22,680 | 20 | 2019 | | 2025.02.06 | ¸Å¸Å | °¡³ª¾Æµ¨¸®¿ò | 3 | 35.7 | 27,000 | | 2016 | | 2025.02.05 | ¿ù¼¼ | ÇÁ·£µå½±ºô¸®Áö | 3 | 44.16 | 2,000 | 80 | 2012 | | 2025.02.04 | Àü¼¼ | (702-23) | 1 | 69.49 | 19,000 | 0 | 2003 | | 2025.02.04 | Àü¼¼ | (702-23) | 4 | 65.43 | 20,000 | 0 | 2003 | | 2025.02.03 | ¸Å¸Å | ¸íÁÖÇÁ¶óÀÓºô | 4 | 40.71 | 15,800 | | 2008 | | 2025.02.03 | ¿ù¼¼ | »õ·Òºô¸®Áö | 2 | 71.76 | 20,700 | 28 | 2002 | | 2025.02.03 | ¿ù¼¼ | »õ·Òºô¸®Áö | 2 | 71.76 | 20,700 | 28 | 2002 | | 2025.02.03 | ¿ù¼¼ | »õ·Òºô¸®Áö | 2 | 71.76 | 24,750 | 12 | 2002 | | 2025.02.01 | ¿ù¼¼ | ±Û·Î¸®¾Æºô¶óÆ® | 1 | 74.48 | 18,000 | 12 | 1994 | | 2025.01.31 | ¸Å¸Å | È£¼ö·¹ÀÌÅ©ºô | 5 | 61.74 | 26,700 | | 2002 | | 2025.01.31 | Àü¼¼ | ¿¡½º¿¥ÆÄÅ©ºä | 8 | 25.23 | 26,700 | 0 | 2019 | | 2025.01.31 | Àü¼¼ | ¿À°¡ºô¶ó | 5 | 28.92 | 8,600 | 0 | 2005 | | 2025.01.31 | Àü¼¼ | ¿À°¡ºô¶ó | 5 | 28.92 | 8,600 | 0 | 2005 | | 2025.01.31 | ¸Å¸Å | ¸í´öÇÏÀ̺ô | 2 | 64.11 | 27,000 | | 2002 | | 2025.01.30 | Àü¼¼ | ½Å¼¼°èÇ÷¯½º | 4 | 26.79 | 25,000 | 0 | 2020 | | 2025.01.25 | ¸Å¸Å | ¾ÆÀ̵ð¿ò(704-0) | 3 | 26.4 | 20,400 | | 2013 | | 2025.01.23 | ¸Å¸Å | °¡³ª¾Æµ¨¸®¿ò | 3 | 39.18 | 27,000 | | 2016 | | 2025.01.23 | ¸Å¸Å | ºÎ¿µ½¦¸£ºô | 4 | 35.28 | 26,000 | | 2016 | | 2025.01.22 | ¸Å¸Å | ¿ì¼º¾ÆÆ®ºô3Â÷ | 4 | 49.24 | 29,000 | | 2012 | | 2025.01.22 | Àü¼¼ | È£¼ºÇϿ콺 | 1 | 29.36 | 15,200 | 0 | 2016 | | 2025.01.22 | ¸Å¸Å | ¿ì¼º¾ÆÆ®ºô | 3 | 24.05 | 14,000 | | 2013 | | 2025.01.22 | ¿ù¼¼ | ¼£·ÒŸ¿ö | 4 | 50.57 | 13,480 | 15 | 1997 | | 2025.01.22 | ¿ù¼¼ | ¸¶°î´õ? | 7 | 21.3 | 5,000 | 50 | 2018 | | 2025.01.21 | ¿ù¼¼ | ¼±¿ìº£½ºÆ®ºô³ªµ¿ | 4 | 40.96 | 14,000 | 25 | 2002 | | 2025.01.20 | ¸Å¸Å | ¿ì¼º¾ÆÆ®ºô | 2 | 24.05 | 14,800 | | 2013 | | 2025.01.20 | ¸Å¸Å | µÎ¶õ³ëºô¶ó³ªµ¿ | 3 | 56.09 | 22,000 | | 1990 | | 2025.01.17 | ¿ù¼¼ | ·Î¿¤ | 2 | 29.3 | 5,000 | 90 | 2023 | | 2025.01.17 | ¿ù¼¼ | ¼¿ïÈ£¼¹®ÈŸ¿î»ýȰ°ü | 3 | 14.7 | 2,000 | 53 | 2012 | | 2025.01.17 | ¸Å¸Å | ¿©¿ø½ºÀ§Æ®ºô | 3 | 56.68 | 31,500 | | 2003 | | 2025.01.16 | Àü¼¼ | ÀϽŸǼÇ10Â÷ | 4 | 45.54 | 14,000 | 0 | 1996 | | 2025.01.16 | ¸Å¸Å | ·Î¾âºô¸®Áö | 3 | 43.74 | 19,500 | | 2004 | | 2025.01.16 | ¸Å¸Å | ¿Ã¸²Çª½º(704-20) | 3 | 54.07 | 33,900 | | 2008 | | 2025.01.15 | ¿ù¼¼ | ½ºÆäÀ̽ººô | 6 | 37.29 | 25,400 | 25 | 2018 | | 2025.01.15 | ¸Å¸Å | Çϴý¦¸£ºô | 2 | 34.17 | 24,800 | | 2015 | | 2025.01.14 | ¿ù¼¼ | ¼±¿ìº£½ºÆ®ºô³ªµ¿ | 2 | 41.98 | 14,000 | 20 | 2002 | | 2025.01.14 | ¿ù¼¼ | Á¦ÀÌ¿¡½º¾ÆÀ̵ð¿ò | 3 | 51.66 | 28,000 | 20 | 2018 | | 2025.01.13 | ¿ù¼¼ | ¼¿ïÈ£¼¹®ÈŸ¿î»ýȰ°ü | 4 | 13.65 | 1,000 | 58 | 2012 | | 2025.01.11 | ¸Å¸Å | ÇѽÅÀ§³Ê½º | 3 | 29.98 | 26,000 | | 2018 | | 2025.01.11 | ¿ù¼¼ | µÎ¸®ºôµù(677-1) | 5 | 14.02 | 500 | 42 | 2013 | | 2025.01.11 | Àü¼¼ | ½ºÀ§Æ®ÇϿ콺2µ¿ | 2 | 42.74 | 16,000 | 0 | 2002 | | 2025.01.10 | Àü¼¼ | MG333Áְź¹ÇÕºôµù | 5 | 29.97 | 26,000 | 0 | 2018 | | 2025.01.10 | ¸Å¸Å | ½ºÆäÀ̽ººô(706-7) | 3 | 40.05 | 31,800 | | 2016 | | 2025.01.09 | Àü¼¼ | ·Î¾âÆÄÅ©ºô | 3 | 43.71 | 17,000 | 0 | 2002 | | 2025.01.09 | ¿ù¼¼ | ´ëÈ£°¡³ªµ¿ | 2 | 36.5 | 11,800 | 20 | 1989 | | 2025.01.08 | ¿ù¼¼ | ´ë°ÇÁÖÅà | 4 | 52.5 | 15,000 | 70 | 2003 | | 2025.01.08 | ¿ù¼¼ | û¼ÖÆç¸®Ã¼101µ¿,102µ¿,103µ¿, | 3 | 41.49 | 4,000 | 105 | 2016 | | 2025.01.08 | Àü¼¼ | õ¿ìÇÏÀ̺ô | 4 | 62.2 | 19,500 | 0 | 2002 | | 2025.01.07 | ¿ù¼¼ | û¼ÖÆç¸®Ã¼101µ¿,102µ¿,103µ¿, | 3 | 57.54 | 23,000 | 30 | 2016 | | 2025.01.07 | ¿ù¼¼ | û¼Ö»þ¸£ºô | 2 | 52.97 | 22,400 | 10 | 2008 | | 2025.01.07 | ¿ù¼¼ | ±Ý¼ººô¶ó | 1 | 36.77 | 2,000 | 37 | 2003 | | 2025.01.07 | ¿ù¼¼ | ±Ý¼ººô¶ó | 1 | 36.77 | 2,000 | 37 | 2003 | | 2025.01.06 | Àü¼¼ | Çö´ëºô¶ó | 1 | 67.7 | 17,000 | 0 | 1993 | | 2025.01.06 | ¿ù¼¼ | µ¿¼ºô¶ó | 4 | 65.76 | 11,200 | 55 | 2002 | | 2025.01.04 | ¿ù¼¼ | ¾ÆÆ®ºô | 2 | 13.07 | 1,000 | 44 | 2013 | | 2025.01.04 | Àü¼¼ | ¸¶°î´õ? | 7 | 21.3 | 16,800 | 0 | 2018 | | 2025.01.02 | Àü¼¼ | ¼º°Ã»¾Èä | 2 | 29.77 | 21,800 | 0 | 2017 | | 2024.12.31 | ¿ù¼¼ | °¡³ª¾Æµ¨¸®¿ò | 5 | 27.97 | 17,500 | 20 | 2016 | | 2024.12.31 | Àü¼¼ | MG333Áְź¹ÇÕºôµù | 6 | 29.97 | 31,000 | 0 | 2018 | | 2024.12.30 | ¿ù¼¼ | ¹ß»êÅ·´ý | 2 | 28.07 | 20,700 | 4 | 2017 | | 2024.12.30 | Àü¼¼ | ¹ß»êÅ·´ý | 2 | 28.07 | 20,700 | 0 | 2017 | | 2024.12.30 | ¿ù¼¼ | (697-11) | 2 | 34.6 | 500 | 57 | 2013 | | 2024.12.30 | ¿ù¼¼ | ÇÁ·£µå½±ºô¸®Áö | 3 | 19.78 | 1,000 | 55 | 2012 | | 2024.12.30 | ¸Å¸Å | µ¿°Ç¿ìÀå»ê¼¾Æ®·¹ºô | 2 | 42.37 | 29,000 | | 2015 | | 2024.12.29 | ¿ù¼¼ | À¯Áø¼Ò¸£º£(676-4) | 4 | 25.56 | 2,000 | 67 | 2012 | | 2024.12.29 | Àü¼¼ | ¸¶°î¼ö¸í»êÆÄÅ©8´ÜÁö | 1 | 84.53 | 45,858 | 0 | 2006 | | 2024.12.28 | ¿ù¼¼ | ·Î¾âºô¸®Áö | 2 | 43.74 | 1,000 | 70 | 2004 | | 2024.12.26 | Àü¼¼ | ¼º°Ã»¾Èä | 4 | 29.69 | 22,000 | 0 | 2017 | | 2024.12.26 | Àü¼¼ | (716-38) | 3 | 45.33 | 25,000 | 0 | 2018 | | 2024.12.23 | Àü¼¼ | ¸¶°î¼ö¸í»êÆÄÅ©8´ÜÁö | 3 | 84.53 | 57,000 | 0 | 2006 | | 2024.12.23 | ¸Å¸Å | ´ë°ÇÁÖÅà | 2 | 52.5 | 27,900 | | 2003 | | 2024.12.22 | ¿ù¼¼ | ½Å¼ºÆÛ½ºÆ® | 4 | 26.09 | 20,160 | 5 | 2018 | | 2024.12.21 | ¿ù¼¼ | ¸¶°î´õ? | 6 | 29.46 | 18,700 | 10 | 2018 | | 2024.12.21 | ¿ù¼¼ | ÇѽÅÁ־ƺô | 5 | 27.07 | 3,000 | 90 | 2018 | | 2024.12.20 | Àü¼¼ | À¯Áø¼Ò¸£º£ | 6 | 28 | 10,000 | 0 | 2011 | | 2024.12.20 | ¸Å¸Å | Á¦ÀÌµå¾ÆÆ®ºô | 5 | 76.44 | 29,300 | | 2002 | | 2024.12.19 | ¸Å¸Å | û¼Ö¸®´õ½º | 5 | 26.46 | 17,000 | | 2017 | | 2024.12.19 | ¿ù¼¼ | ¿¹¿ø¿ø·ë | 1 | 24.91 | 500 | 50 | 2003 | | 2024.12.19 | ¸Å¸Å | ¿ìÀå»êºô¸®Áö | 5 | 31.43 | 12,200 | | 2011 | | 2024.12.18 | ¿ù¼¼ | ¹®¼ºÇÏÀÌÃ÷ºô¶ó | 3 | 47.88 | 14,500 | 22 | 1995 | | 2024.12.18 | Àü¼¼ | ¿ùµåºô¶óABµ¿ | 5 | 40.86 | 12,850 | 0 | 2002 | | 2024.12.17 | ¸Å¸Å | õ¿ì³×¿ÀÁ¨ | 4 | 27.04 | 29,000 | | 2020 | | 2024.12.16 | Àü¼¼ | µ¿°Ç¿ìÀå»ê¼¾Æ®·¹ºô | 3 | 39.47 | 24,000 | 0 | 2015 | | 2024.12.16 | ¿ù¼¼ | ÇѽÅÀ§³Ê½º | 4 | 29.98 | 25,000 | 3 | 2018 | | 2024.12.15 | Àü¼¼ | ½ºÆäÀ̽ººô | 5 | 34.45 | 26,500 | 0 | 2018 | | 2024.12.14 | Àü¼¼ | ¿ì¼º½¦¸£ºô | 2 | 37.26 | 16,000 | 0 | 2011 | | 2024.12.14 | ¸Å¸Å | ¼¸²ºô¶ó7Â÷ | 1 | 51.48 | 18,000 | | 1994 | | 2024.12.13 | Àü¼¼ | MG333Áְź¹ÇÕºôµù | 5 | 48.8 | 34,000 | 0 | 2018 | | 2024.12.13 | ¸Å¸Å | ¼±¿ìº£½ºÆ®ºô°¡µ¿ | 3 | 48.4 | 22,500 | | 2002 | | 2024.12.12 | ¸Å¸Å | ¿ì¼º¾ÆÆ®ºô(688-6) | 3 | 76.02 | 37,000 | | 2002 | | 2024.12.12 | ¸Å¸Å | À¯Áø¼Ò¸£º£(676-4) | 3 | 25.56 | 17,400 | | 2012 | | 2024.12.12 | ¸Å¸Å | ¸íÁÖÇÁ¶óÀÓºô | 3 | 56.16 | 28,900 | | 2008 | | 2024.12.12 | ¿ù¼¼ | ¹üÁøºô¶ó | 2 | 53.9 | 1,000 | 50 | 1991 | | 2024.12.11 | ¿ù¼¼ | ´õÀÚÇÏ | 12 | 23.05 | 1,000 | 135 | 2022 | | 2024.12.11 | Àü¼¼ | ÈÀÎÇϿ콺 | 1 | 38.1 | 10,500 | 0 | 2002 | | 2024.12.10 | Àü¼¼ | À¯Áø¼Ò¸£º£(670-45) | 4 | 29.26 | 19,500 | 0 | 2012 | | 2024.12.10 | ¸Å¸Å | ¼¼±¤ºô¶ó´Ùµ¿ | 3 | 42.97 | 21,000 | | 1992 | | 2024.12.10 | ¿ù¼¼ | À¯Áø¼Ò¸£º£(670-45) | 4 | 29.26 | 18,300 | 5 | 2012 | | 2024.12.09 | ¿ù¼¼ | (702-22) | 2 | 48.21 | 15,000 | 20 | 2003 | | 2024.12.07 | ¿ù¼¼ | ½ºÆäÀ̽ººô | 2 | 41.69 | 26,000 | 30 | 2018 | | 2024.12.07 | ¸Å¸Å | ½ºÆäÀ̽ººô(674-30) | 3 | 38.07 | 25,500 | | 2012 | | 2024.12.06 | ¿ù¼¼ | À¯¼ºÁÖÅà | 3 | 46.98 | 6,000 | 70 | 1999 | | 2024.12.06 | ¸Å¸Å | °Ç¿µ | 2 | 54.06 | 24,400 | | 2000 | | 2024.12.06 | Àü¼¼ | ´ö¼ö¸®´õ½ººô102µ¿ | 5 | 54.78 | 16,000 | 0 | 2002 | | 2024.12.05 | Àü¼¼ | MG333Áְź¹ÇÕºôµù | 4 | 48.8 | 35,000 | 0 | 2018 | | 2024.12.04 | Àü¼¼ | õ¿ì³×¿ÀÁ¨ | 7 | 25.17 | 19,152 | 0 | 2020 | | 2024.12.04 | Àü¼¼ | ±î»çÁö¿Àcasagio | 3 | 29.82 | 22,200 | 0 | 2018 | | 2024.12.04 | Àü¼¼ | õ¿ì³×¿ÀÁ¨ | 7 | 25.17 | 19,152 | 0 | 2020 | | 2024.12.04 | ¿ù¼¼ | ÇÁ·Îºô | 2 | 82.91 | 2,000 | 31 | 2000 | | 2024.12.04 | Àü¼¼ | õ¿ì³×¿ÀÁ¨ | 7 | 25.17 | 19,152 | 0 | 2020 | | 2024.12.03 | Àü¼¼ | ·ÎÁîºô | 3 | 59.42 | 22,050 | 0 | 2002 | | 2024.11.30 | ¿ù¼¼ | žçºô¶ó | -1 | 38.76 | 7,000 | 5 | 1996 | | 2024.11.29 | ¸Å¸Å | ½ÃÅ©¸´ÇϿ콺 | 3 | 37.66 | 14,000 | | 2011 | | 2024.11.28 | ¸Å¸Å | ÄýÁîÇϿ콺 | 5 | 29.87 | 31,500 | | 2019 | | 2024.11.27 | ¿ù¼¼ | û¿ìÁÖÅà | 5 | 59 | 20,700 | 20 | 2012 | | 2024.11.27 | ¸Å¸Å | ´ë¸²Èúž | 5 | 52.09 | 21,900 | | 2010 | | 2024.11.27 | ¸Å¸Å | ¸¶°î¼ö¸í»êÆÄÅ©8´ÜÁö | 3 | 84.73 | 86,000 | | 2006 | | 2024.11.27 | ¿ù¼¼ | ¼¼±¤ºô¶ó´Ùµ¿ | 4 | 37.28 | 3,900 | 51 | 1992 | | 2024.11.27 | ¸Å¸Å | ·Ôµ¥ºô¶ó | 4 | 37.72 | 17,300 | | 2011 | | 2024.11.25 | ¸Å¸Å | ·Î¾âÇϿ콺(703-6) | 4 | 28.77 | 22,500 | | 2015 | | 2024.11.22 | ¸Å¸Å | Çö´ëÇÏÀÌÃ÷ºô¶ó | -1 | 50.4 | 13,000 | | 1996 | | 2024.11.22 | ¿ù¼¼ | °¡³ª¾Æµ¨¸®¿ò | 4 | 39.3 | 22,400 | 15 | 2016 | | 2024.11.21 | Àü¼¼ | ¾Æµ¥³ªÆÓ¸®½º | 4 | 31.53 | 19,900 | 0 | 2016 | | 2024.11.19 | ¿ù¼¼ | ÇѽÅÀ§³Ê½º(710-28,29) | 4 | 29.46 | 18,500 | 20 | 2018 | | 2024.11.19 | ¸Å¸Å | À¯¼ºÇÏÀÌÃ÷ | 5 | 36.89 | 24,420 | | 2012 | | 2024.11.19 | Àü¼¼ | È£¼ºÇϿ콺 | 2 | 50.16 | 25,350 | 0 | 2016 | | 2024.11.18 | ¸Å¸Å | ´õŬ·¡½Ä | 2 | 53.33 | 34,500 | | 2017 | | 2024.11.18 | ¿ù¼¼ | (717-8) | 2 | 31.145 | 339 | 14 | 2010 | | 2024.11.18 | ¿ù¼¼ | ³«¿ø¸Ç¼Ç | 1 | 66.1 | 21,000 | 10 | 1984 | | 2024.11.15 | ¸Å¸Å | õ¿ìÆÄÅ©ºô | 4 | 64.39 | 36,000 | | 2006 | | 2024.11.15 | ¿ù¼¼ | ·Î¿¤ | 3 | 26.22 | 3,000 | 110 | 2023 | | 2024.11.14 | ¿ù¼¼ | µµÈ¿¤¸®½Ã¾Æ | 4 | 29.76 | 3,000 | 110 | 2019 | | 2024.11.08 | ¸Å¸Å | ¿Ã¸²Çª½º(704-20) | 4 | 54.07 | 38,200 | | 2008 | | 2024.11.08 | ¿ù¼¼ | µÎ¸®ºôµù(677-1) | 4 | 17.02 | 500 | 47 | 2013 | | 2024.11.07 | ¸Å¸Å | ¹üÁøºô¶ó | 3 | 53.9 | 35,000 | | 1991 | | 2024.11.07 | ¸Å¸Å | ¸¶°î´õ? | 7 | 21.3 | 17,000 | | 2018 | | 2024.11.07 | ¿ù¼¼ | ·Î¾âÇϿ콺(703-6) | 4 | 28.77 | 17,000 | 15 | 2015 | | 2024.11.07 | ¿ù¼¼ | ÇѽÅÀ§³Ê½º | 4 | 28.55 | 21,000 | 30 | 2018 | | 2024.11.06 | ¸Å¸Å | ÇÑ¿ï¶ß¶õä | 2 | 45.68 | 26,900 | | 2012 | | 2024.11.05 | ¿ù¼¼ | ±Û·Î¸®¾Æºô¶óÆ® | 1 | 74.48 | 18,000 | 12 | 1994 | | 2024.11.05 | ¿ù¼¼ | ¿Ã¸²Çª½º(703-29) | 5 | 34.48 | 18,700 | 20 | 2012 | | 2024.11.04 | ¿ù¼¼ | ¼º¿øºô | 4 | 46.04 | 3,000 | 63 | 2002 | | 2024.11.02 | Àü¼¼ | ¿µ±¤ºô¶ó | 2 | 94.72 | 16,800 | 0 | 1984 | | 2024.11.02 | ¸Å¸Å | û¼Ö¸®´õ½º | 2 | 29.84 | 23,400 | | 2017 | | 2024.11.01 | ¿ù¼¼ | ´õÁ¦´Ï½ºÅ¸¿î | 4 | 36.94 | 1,000 | 90 | 2016 | | 2024.11.01 | Àü¼¼ | µµÈ¿¤¸®½Ã¾Æ | 5 | 29.02 | 27,900 | 0 | 2019 | | 2024.11.01 | ¿ù¼¼ | »ïÈ£¾ÆÆ®ºô¶ó | 4 | 69.37 | 17,700 | 10 | 1991 | | 2024.10.31 | Àü¼¼ | ÇѽÅÀ§³Ê½º(710-28,29) | 5 | 29.88 | 22,200 | 0 | 2018 | | 2024.10.29 | Àü¼¼ | õ¿ì³×¿ÀÁ¨ | 5 | 27.04 | 27,450 | 0 | 2020 | | 2024.10.29 | ¸Å¸Å | ¸íÁø¾ÆÆ®ºô¶ó´Ùµ¿ | 3 | 37.02 | 15,200 | | 1991 | | 2024.10.28 | ¿ù¼¼ | ¸¶°î¼ö¸í»êÆÄÅ©8´ÜÁö | 2 | 84.53 | 20,000 | 104 | 2006 | | 2024.10.26 | Àü¼¼ | Çö´ëÇÏÀÌÃ÷ºô¶ó | -1 | 50.4 | 10,000 | 0 | 1996 | | 2024.10.26 | Àü¼¼ | µ¿°Ç¿ìÀå»ê¼¾Æ®·¹ºô | 4 | 45.27 | 28,300 | 0 | 2015 | | 2024.10.26 | ¸Å¸Å | ½Å¼¼°èÇ÷¯½º | 4 | 36.58 | 34,000 | | 2020 | | 2024.10.25 | ¸Å¸Å | ½ºÆäÀ̽ººô | 3 | 36.55 | 19,550 | | 2011 | | 2024.10.25 | Àü¼¼ | ±ÝÈ£ºô¶ó | 3 | 71.39 | 22,680 | 0 | 1995 | | 2024.10.25 | ¿ù¼¼ | ½ºÆäÀ̽ººô | 3 | 40.1 | 26,000 | 30 | 2018 | | 2024.10.24 | ¸Å¸Å | µ¿±¤ºô¶óABµ¿ | 3 | 90.03 | 48,000 | | 1998 | | 2024.10.24 | Àü¼¼ | ·ÎÁîºô | 3 | 59.42 | 22,100 | 0 | 2002 | | 2024.10.24 | ¿ù¼¼ | (716-38) | 2 | 17.36 | 1,000 | 55 | 2018 | | 2024.10.22 | Àü¼¼ | À¯Áø¼Ò¸£º£(670-45) | 4 | 34.54 | 17,700 | 0 | 2012 | | 2024.10.22 | Àü¼¼ | ÇѽÅÀ§³Ê½º | 3 | 29.98 | 21,920 | 0 | 2018 | | 2024.10.21 | ¿ù¼¼ | Åä¿ìÀκô¶ó | 3 | 84.64 | 25,700 | 35 | 2001 | | 2024.10.21 | Àü¼¼ | Á¦ÀÌ¿¡½ºÇؽ½¸® | 3 | 40.05 | 35,780 | 0 | 2024 | | 2024.10.21 | ¿ù¼¼ | Åä¿ìÀκô¶ó | 3 | 84.64 | 25,700 | 35 | 2001 | | 2024.10.20 | ¿ù¼¼ | (687-31) | 2 | 34.84 | 8,500 | 20 | 1988 | | 2024.10.20 | ¿ù¼¼ | (674-1) | 2 | 49.51 | 6,000 | 58 | 2002 | | 2024.10.19 | Àü¼¼ | ¸¶°î¼ö¸í»êÆÄÅ©8´ÜÁö | 2 | 84.53 | 53,000 | 0 | 2006 | | 2024.10.18 | ¸Å¸Å | µÎ¶õ³ëºô¶ó³ªµ¿ | -1 | 56.09 | 18,000 | | 1990 | | 2024.10.18 | ¿ù¼¼ | ½Å¼¼°èÇ÷¯½º | 4 | 26.79 | 22,000 | 20 | 2020 | | 2024.10.18 | Àü¼¼ | ´ÙÀκô | 3 | 51.34 | 17,000 | 0 | 2003 | | 2024.10.17 | ¿ù¼¼ | ¼øºÀ»ó°¡ | 2 | 50.16 | 3,000 | 70 | 1998 | | 2024.10.17 | Àü¼¼ | ½ºÀ§Æ®ÇϿ콺1µ¿ | 2 | 78.66 | 27,000 | 0 | 2002 | | 2024.10.17 | ¸Å¸Å | ŰæÇÏÀÌÃ÷Aµ¿ | 2 | 41.16 | 17,800 | | 2002 | | 2024.10.17 | ¸Å¸Å | ŰæÇÏÀÌÃ÷Aµ¿ | 2 | 41.16 | 17,800 | | 2002 | | 2024.10.17 | ¸Å¸Å | ´ö¼ö¸®´õ½ººô102µ¿ | 2 | 54.78 | 21,000 | | 2002 | | 2024.10.16 | ¸Å¸Å | ¿Ã¸²Çª½ºABµ¿ | 2 | 46.47 | 24,450 | | 2008 | | 2024.10.16 | Àü¼¼ | ´õŬ·¡½Ä | 4 | 46.8 | 30,600 | 0 | 2017 | | 2024.10.14 | ¸Å¸Å | Áø±¤ | 1 | 37.98 | 15,900 | | 1993 | | 2024.10.14 | ¸Å¸Å | ¿ì¼º¾ÆÆ®ºô5Â÷Aµ¿ | 2 | 36.45 | 22,000 | | 2013 | | 2024.10.14 | ¸Å¸Å | ·Î¾âºô¸®Áö | 2 | 43.74 | 15,000 | | 2004 | | 2024.10.14 | ¿ù¼¼ | ¸í´ö¾ÆÆ®ºô¶ó | 4 | 40.76 | 10,000 | 15 | 1992 | | 2024.10.12 | ¿ù¼¼ | ·Ôµ¥Å¸¿î | 3 | 36.51 | 10,000 | 40 | 2011 | | 2024.10.12 | ¸Å¸Å | ÈúÇϿ콺 | 3 | 54.41 | 33,500 | | 2012 | | 2024.10.12 | ¿ù¼¼ | ´õÀÚÇÏ | 11 | 21.43 | 1,000 | 130 | 2022 | | 2024.10.12 | ¸Å¸Å | ½ºÆäÀ̽ººô(674-30) | 6 | 39.68 | 26,300 | | 2012 | | 2024.10.12 | ¸Å¸Å | ÈúÇϿ콺 | 3 | 54.41 | 33,500 | | 2012 | | 2024.10.10 | ¿ù¼¼ | ¿¡½º¿¥ÆÄÅ©ºä | 5 | 23.06 | 22,680 | 12 | 2019 | | 2024.10.10 | ¿ù¼¼ | ¾ÆÀ̵ð¿ò(101,102µ¿) | 2 | 39.33 | 8,000 | 40 | 2014 | | 2024.10.09 | ¿ù¼¼ | ÇѽÅÀ§³Ê½º(710-28,29) | 4 | 28.03 | 2,000 | 105 | 2018 | | 2024.10.09 | ¿ù¼¼ | ÇѽÅÁ־ƺô | 5 | 27.07 | 3,000 | 90 | 2018 | | 2024.10.09 | ¿ù¼¼ | ½Â¼®ÇÏÀÌÃ÷ºô¶ó | 2 | 72.79 | 18,000 | 30 | 1996 | | 2024.10.09 | ¿ù¼¼ | ´ë¿ø±×¸°ºô¶ó | 3 | 67.84 | 20,000 | 30 | 2001 | | 2024.10.09 | ¸Å¸Å | ¿ì¼º½¦¸£ºô | 4 | 40.59 | 25,000 | | 2011 | | 2024.10.08 | ¿ù¼¼ | (674-1) | 2 | 49.51 | 10,000 | 44 | 2002 | | 2024.10.04 | Àü¼¼ | ½Å¼¼°èÇ÷¯½º | 6 | 44.68 | 21,600 | 0 | 2020 | | 2024.10.04 | ¿ù¼¼ | ¼¼¸í´õŬ·¡½º | 3 | 28.41 | 20,900 | 14 | 2018 | | 2024.10.04 | ¿ù¼¼ | µ¿±¤ºô¶óABµ¿ | 3 | 109.06 | 31,000 | 30 | 1997 | | 2024.10.03 | Àü¼¼ | ÇѽÅÀ§³Ê½º(710-28,29) | 5 | 29.79 | 16,470 | 0 | 2018 | | 2024.10.02 | ¿ù¼¼ | ¾ÆÆ®ºô | 2 | 15.94 | 1,000 | 40 | 2013 | | 2024.10.01 | Àü¼¼ | ¼¼¸íÆÄÅ©ºô | 3 | 27.13 | 16,000 | 0 | 2012 | | 2024.09.28 | ¿ù¼¼ | (701-19) | 3 | 73.24 | 5,000 | 78 | 2004 | | 2024.09.28 | Àü¼¼ | ¼¼¸íÆÄÅ©ºô | 5 | 29.34 | 16,200 | 0 | 2012 | | 2024.09.27 | ¿ù¼¼ | ¿¡ÀÌ¿øÁÖÅà | 2 | 84.3 | 26,000 | 30 | 1997 | | 2024.09.27 | ¿ù¼¼ | ¿¡ÀÌ¿øÁÖÅà | 2 | 84.3 | 26,000 | 30 | 1997 | | 2024.09.25 | ¿ù¼¼ | ´õÀÚÇÏ | 12 | 21.43 | 1,000 | 130 | 2022 | | 2024.09.25 | Àü¼¼ | È£¼ºÇϿ콺 | 1 | 44.18 | 20,475 | 0 | 2016 | | 2024.09.25 | ¿ù¼¼ | Çö´ëÇÏÀÌÃ÷ºô¶ó | 4 | 50.4 | 2,500 | 70 | 1996 | | 2024.09.24 | Àü¼¼ | Á¦ÀÌ¿¡½º¾ÆÀ̵ð¿ò | 6 | 64.35 | 35,000 | 0 | 2018 | | 2024.09.24 | ¸Å¸Å | ¿Ã¸²Çª½º(704-20) | 3 | 54.07 | 34,500 | | 2008 | | 2024.09.24 | Àü¼¼ | Á¦ÀÌ¿¡½º¾ÆÀ̵ð¿ò | 6 | 64.35 | 35,000 | 0 | 2018 | | 2024.09.23 | ¿ù¼¼ | µÎ¸®ºôµù(677-1) | 5 | 14.02 | 500 | 42 | 2013 | | 2024.09.23 | ¿ù¼¼ | ±Ý°¸Ç¼Ç | 4 | 50.21 | 4,000 | 80 | 2003 | | 2024.09.21 | ¸Å¸Å | ½ºÆäÀ̽ººô | 6 | 39.73 | 36,500 | | 2018 | | 2024.09.21 | ¸Å¸Å | ºÎ¿µ½¦¸£ºô | 5 | 51.9 | 28,000 | | 2016 | | 2024.09.21 | ¸Å¸Å | ´ö¼ö¸®´õ½ººô101µ¿ | 2 | 50.58 | 17,500 | | 2002 | | 2024.09.21 | ¿ù¼¼ | ÇÑ¿ï¶ß¶õä | 3 | 58.66 | 24,800 | 12 | 2012 | | 2024.09.20 | ¸Å¸Å | 718-18 | 3 | 27.51 | 26,700 | | 2019 | | 2024.09.20 | Àü¼¼ | ¿ì¿µÃ¤¿òºô | 4 | 28.01 | 20,500 | 0 | 2019 | | 2024.09.19 | ¸Å¸Å | ¼¼¸íÆÄÅ©ºô | 3 | 27.13 | 20,000 | | 2012 | | 2024.09.19 | ¸Å¸Å | Åä¿ìÀκô¶ó | 2 | 84.64 | 39,000 | | 2001 | | 2024.09.19 | ¸Å¸Å | ¿Â¼¼±×¶ûºô | 3 | 53.16 | 26,400 | | 2007 | | 2024.09.19 | ¿ù¼¼ | ÁøÁÖij½½ | 2 | 55.75 | 28,000 | 15 | 2012 | | 2024.09.18 | ¿ù¼¼ | Á¦´Ï½ºÅ¸¿î2Â÷ | 2 | 37.35 | 2,553 | 102 | 2017 | | 2024.09.14 | ¿ù¼¼ | ·Ôµ¥ºô¶ó | 3 | 45.39 | 18,000 | 20 | 2011 | | 2024.09.13 | Àü¼¼ | Á¦ÀÌµå¾ÆÆ®ºô | 4 | 76.44 | 27,000 | 0 | 2002 | | 2024.09.13 | ¿ù¼¼ | ¿¡½º¿¥ÆÄÅ©ºä | 5 | 23.06 | 22,680 | 10 | 2019 | | 2024.09.13 | ¸Å¸Å | ¼±¿ìº£½ºÆ®ºô°¡µ¿ | 3 | 62.91 | 32,200 | | 2002 | | 2024.09.12 | ¸Å¸Å | µå¸®¹ÌŸ¿î(712-1) | 2 | 45.66 | 34,000 | | 2013 | | 2024.09.12 | Àü¼¼ | û¼ÖÆç¸®Ã¼101µ¿,102µ¿,103µ¿, | 3 | 41.28 | 20,000 | 0 | 2016 | | 2024.09.12 | ¿ù¼¼ | ¾ÆÆ®ºô | 2 | 12.74 | 1,000 | 45 | 2013 | | 2024.09.12 | ¿ù¼¼ | »ê¿ï¸² | 3 | 18.45 | 1,000 | 45 | 2010 | | 2024.09.12 | Àü¼¼ | ±Û·Î¸®¾Æºô¶óÆ® | 3 | 64.88 | 18,900 | 0 | 1994 | | 2024.09.12 | ¿ù¼¼ | ÇѽÅÁ־ƺô | 2 | 29.75 | 18,000 | 10 | 2018 | | 2024.09.12 | Àü¼¼ | ·ÎÁîºô | 3 | 59.42 | 22,050 | 0 | 2002 | | 2024.09.12 | ¿ù¼¼ | (677-24) | 4 | 39.495 | 2,000 | 60 | 2003 | | 2024.09.11 | ¸Å¸Å | û¼ÖÆç¸®Ã¼101µ¿,102µ¿,103µ¿, | 5 | 38.45 | 32,000 | | 2016 | | 2024.09.11 | Àü¼¼ | IDIEUM | 6 | 40.98 | 10,000 | 0 | 2017 | | 2024.09.09 | Àü¼¼ | ¸¶°î¼ö¸í»êÆÄÅ©8´ÜÁö | 1 | 84.53 | 54,000 | 0 | 2006 | | 2024.09.09 | ¸Å¸Å | Ȳ¿ëŬ·¡½Äºô | 1 | 91.67 | 29,600 | | 2000 | | 2024.09.09 | ¿ù¼¼ | ½ºÆäÀ̽ººô | 7 | 34.45 | 22,000 | 30 | 2018 | | 2024.09.09 | Àü¼¼ | ¸¶°î¼ö¸í»êÆÄÅ©8´ÜÁö | 4 | 84.53 | 60,000 | 0 | 2006 | | 2024.09.08 | Àü¼¼ | Á¦ÀÌ¿¡½º¾ÆÀ̵ð¿ò | 6 | 51.66 | 34,000 | 0 | 2018 | | 2024.09.06 | ¸Å¸Å | ¼¼¸í±×¸°ºô | 2 | 53.69 | 28,200 | | 2011 | | 2024.09.06 | ¿ù¼¼ | ¸¶°î¼ö¸í»êÆÄÅ©8´ÜÁö | 2 | 84.53 | 30,000 | 70 | 2006 | | 2024.09.06 | ¿ù¼¼ | ¸¶°î¼ö¸í»êÆÄÅ©8´ÜÁö | 2 | 84.53 | 30,000 | 70 | 2006 | | 2024.09.06 | ¿ù¼¼ | ¼ºÁøºô¶ó | 1 | 49.68 | 13,400 | 25 | 2003 | | 2024.09.06 | ¿ù¼¼ | ¼ºÁøºô¶ó | 1 | 49.68 | 13,400 | 25 | 2003 | | 2024.09.05 | Àü¼¼ | ¸¶°î¼ö¸í»êÆÄÅ©8´ÜÁö | 3 | 84.53 | 53,000 | 0 | 2006 | | 2024.09.04 | Àü¼¼ | ¼¼±¤ºô¶ó¸¶µ¿ | 3 | 61.29 | 23,000 | 0 | 1991 | | 2024.09.03 | Àü¼¼ | À¯¼ºÁÖÅà | 4 | 39.8 | 12,500 | 0 | 1999 | | 2024.09.02 | ¿ù¼¼ | Á¦ÀÌ¿¡½ºÇؽ½¸® | 4 | 29.83 | 28,476 | 15 | 2024 | | 2024.09.02 | ¸Å¸Å | ¾ÆÀ̵ð¿ò(101,102µ¿) | 4 | 41.14 | 29,250 | | 2014 | | 2024.09.02 | ¿ù¼¼ | ÇѽÅÀ§³Ê½º(710-28,29) | 6 | 29.84 | 2,500 | 80 | 2018 | | 2024.09.01 | Àü¼¼ | ½Å¼¼°èÇ÷¯½º | 2 | 36.58 | 25,800 | 0 | 2020 | | 2024.09.01 | Àü¼¼ | ½Å¼¼°èÇ÷¯½º | 2 | 36.58 | 25,800 | 0 | 2020 | | 2024.08.31 | ¸Å¸Å | ¾Æµ¥³ªÆÓ¸®½º | 5 | 28.53 | 24,400 | | 2016 | | 2024.08.31 | ¸Å¸Å | ½ºÆäÀ̽ººô(674-30) | 6 | 29.99 | 22,000 | | 2012 | | 2024.08.30 | Àü¼¼ | ¼¼¸í´õŬ·¡½º | 2 | 27.59 | 24,000 | 0 | 2018 | | 2024.08.29 | ¿ù¼¼ | (697-11) | 3 | 34.6 | 1,000 | 75 | 2013 | | 2024.08.29 | ¿ù¼¼ | (697-11) | 3 | 34.6 | 1,000 | 75 | 2013 | | 2024.08.28 | ¿ù¼¼ | ÆÄÀÎÇϿ콺 | 3 | 25.68 | 12,000 | 20 | 2012 | | 2024.08.26 | ¸Å¸Å | ¿Ã¸²Çª½º(698-2) | 3 | 44.18 | 23,800 | | 2011 | | 2024.08.26 | ¿ù¼¼ | µÎ¸®ºôµù(677-1) | 4 | 14.02 | 500 | 42 | 2013 | | 2024.08.25 | Àü¼¼ | ´ë¿øÈúžAµ¿ | 4 | 47.61 | 18,390 | 0 | 2011 | | 2024.08.24 | Àü¼¼ | û¼Ö¸®´õ½ººô | 4 | 43.36 | 13,000 | 0 | 2002 | | 2024.08.24 | ¿ù¼¼ | û¼ÖÆç¸®Ã¼101µ¿,102µ¿,103µ¿, | 2 | 30.02 | 15,000 | 15 | 2016 | | 2024.08.24 | ¿ù¼¼ | ¿µÁÖºô¶ó3Â÷ | 2 | 51.42 | 16,200 | 20 | 2002 | | 2024.08.23 | Àü¼¼ | ¸íÁø¾ÆÆ®ºô¶ó°¡µ¿ | 2 | 40.89 | 15,000 | 0 | 1991 | | 2024.08.23 | ¿ù¼¼ | ÁøÁÖij½½ | 2 | 55.75 | 28,000 | 15 | 2012 | | 2024.08.21 | ¿ù¼¼ | È£¼öºô¶ó | 3 | 58.32 | 17,000 | 30 | 2000 | | 2024.08.19 | ¿ù¼¼ | û¼Ö¼ö¾ÆÆ®ºôAµ¿ | 2 | 41.3 | 6,000 | 40 | 2008 | | 2024.08.19 | ¿ù¼¼ | û¼Ö¼ö¾ÆÆ®ºôAµ¿ | 2 | 41.3 | 6,000 | 40 | 2008 | | 2024.08.19 | ¿ù¼¼ | »ïÈ£¾ÆÆ®ºô¶ó | -1 | 57.01 | 1,000 | 70 | 1991 | | 2024.08.19 | ¿ù¼¼ | (697-11) | 4 | 34.56 | 1,000 | 75 | 2013 | | 2024.08.16 | ¸Å¸Å | À¯Áø¼Ò¸£º£ | 4 | 37.58 | 27,000 | | 2011 | | 2024.08.14 | ¿ù¼¼ | µÎ¶õ³ëºô¶ó³ªµ¿ | 2 | 56.09 | 5,000 | 30 | 1990 | | 2024.08.14 | ¿ù¼¼ | µ¿¼ºô¶ó | 3 | 73.92 | 25,200 | 3 | 2002 | | 2024.08.13 | Àü¼¼ | À¯Áø¼Ò¸£º£(670-62) | 5 | 43.66 | 20,000 | 0 | 2012 | | 2024.08.12 | ¸Å¸Å | ¿ì¼º¾ÆÆ®ºô(688-6) | 2 | 76.02 | 37,000 | | 2002 | | 2024.08.12 | ¸Å¸Å | ½Ã¿ø¾ÆÆ®ºôABµ¿ | 3 | 46.68 | 19,000 | | 2001 | | 2024.08.10 | ¸Å¸Å | ¸¶°î¼ö¸í»êÆÄÅ©8´ÜÁö | 1 | 84.73 | 89,000 | | 2006 | | 2024.08.10 | ¿ù¼¼ | Á¦ÀÌ¿¡½ºÇؽ½¸® | 2 | 28.31 | 27,600 | 15 | 2024 | | 2024.08.09 | ¿ù¼¼ | ·ÎÁîºô(694-17) | 5 | 74.32 | 2,000 | 85 | 2004 | | 2024.08.08 | Àü¼¼ | ¼¼±¤ºô¶ó°¡³ªµ¿ | 3 | 52.28 | 23,000 | 0 | 1992 | | 2024.08.08 | Àü¼¼ | ¸¶°î¼ö¸í»êÆÄÅ©8´ÜÁö | 2 | 84.53 | 52,000 | 0 | 2006 | | 2024.08.08 | ¿ù¼¼ | ¿ì¼º¾ÆÆ®ºô5Â÷Aµ¿ | 3 | 36.45 | 16,000 | 15 | 2013 | | 2024.08.08 | ¸Å¸Å | ±î»çÁö¿Àcasagio | 5 | 54.88 | 35,000 | | 2018 | | 2024.08.06 | Àü¼¼ | DH647 | 7 | 45.76 | 70,000 | 0 | 2023 | | 2024.08.06 | ¿ù¼¼ | û¼ÖÆç¸®Ã¼ | 2 | 24.36 | 1,000 | 90 | 2019 | | 2024.08.06 | ¿ù¼¼ | Á¦ÀÌ¿¡½ºÇؽ½¸® | 2 | 29.87 | 29,880 | 10 | 2024 | | 2024.08.05 | ¿ù¼¼ | ¼øºÀ»ó°¡ | 3 | 55.88 | 3,000 | 80 | 1998 | | 2024.08.04 | ¸Å¸Å | ¾Æµ¥³ªÄ³½½102µ¿ | 3 | 36.86 | 31,500 | | 2015 | | 2024.08.01 | ¸Å¸Å | ¿ì¼º¾ÆÆ®ºô(688-6) | 2 | 76.02 | 37,000 | | 2002 | | 2024.07.29 | ¿ù¼¼ | ½Å¼¼°èÇ÷¯½º | 6 | 44.68 | 27,000 | 20 | 2020 | | 2024.07.29 | ¿ù¼¼ | ¼øºÀ»ó°¡ | 2 | 59.68 | 3,000 | 80 | 1998 | | 2024.07.27 | ¿ù¼¼ | û¼Ö¸®´õ½º | 3 | 29.89 | 12,000 | 40 | 2017 | | 2024.07.27 | ¸Å¸Å | ÇѽÅÀ§³Ê½º | 2 | 29.98 | 26,500 | | 2018 | | 2024.07.26 | ¿ù¼¼ | Çϴý¦¸£ºô | 2 | 29.62 | 10,000 | 60 | 2015 | | 2024.07.25 | ¿ù¼¼ | ÇѽÅÁ־ƺô | 5 | 40.53 | 26,700 | 15 | 2018 | | 2024.07.25 | ¸Å¸Å | ¹üÁøºô¶ó | 2 | 53.9 | 38,630 | | 1991 | | 2024.07.23 | Àü¼¼ | µå¸²ºô¶ó | 2 | 71.09 | 20,790 | 0 | 2001 | | 2024.07.22 | ¸Å¸Å | ³²¸²ºô¶ó | 2 | 84.75 | 36,000 | | 1993 | | 2024.07.20 | ¿ù¼¼ | (715-10) | 4 | 13.33 | 1,000 | 43 | 2013 | | 2024.07.19 | ¿ù¼¼ | (704-16) | 1 | 56.15 | 5,000 | 68 | 2003 | | 2024.07.19 | ¸Å¸Å | ±î»çÁö¿Àcasagio | 2 | 58.68 | 38,500 | | 2018 | | 2024.07.17 | ¸Å¸Å | ÇѽÅÀ§³Ê½º | 3 | 29.98 | 26,500 | | 2018 | | 2024.07.16 | ¸Å¸Å | ´ëÈ£°¡³ªµ¿ | 2 | 36.21 | 16,000 | | 1989 | | 2024.07.15 | Àü¼¼ | ¸¶°î¼ö¸í»êÆÄÅ©8´ÜÁö | 3 | 84.93 | 52,000 | 0 | 2006 | | 2024.07.15 | ¿ù¼¼ | ÇÑÀüÁÖÅà | 2 | 80.77 | 10,000 | 120 | 1995 | | 2024.07.13 | ¿ù¼¼ | Á¦ÀÌ¿¡½ºÇؽ½¸® | 2 | 27.96 | 25,920 | 20 | 2024 | | 2024.07.13 | ¸Å¸Å | ¿ì¼º¾ÆÆ®ºô5Â÷Aµ¿ | 5 | 37.53 | 21,800 | | 2013 | | 2024.07.13 | Àü¼¼ | Çö´ëºô¶ó | -1 | 67.7 | 10,000 | 0 | 1993 | | 2024.07.13 | Àü¼¼ | Çö´ëºô¶ó | -1 | 67.7 | 10,000 | 0 | 1993 | | 2024.07.13 | ¿ù¼¼ | ·Î¿¤ | 4 | 25.88 | 3,000 | 125 | 2023 | | 2024.07.13 | ¿ù¼¼ | Á¦ÀÌ¿¡½ºÇؽ½¸® | 2 | 27.96 | 25,920 | 20 | 2024 | | 2024.07.13 | ¿ù¼¼ | Á¦ÀÌ¿¡½ºÇؽ½¸® | 2 | 27.96 | 25,920 | 20 | 2024 | | 2024.07.12 | ¸Å¸Å | ¿ì¼º¾ÆÆ®ºô(684-2) | 2 | 65.58 | 27,800 | | 2003 | | 2024.07.12 | Àü¼¼ | ½Å¼ºÆÛ½ºÆ® | 4 | 26.13 | 20,160 | 0 | 2018 | | 2024.07.11 | Àü¼¼ | (677-24) | 2 | 59.745 | 19,700 | 0 | 2003 | | 2024.07.11 | Àü¼¼ | ¾Æµ¥³ªÆÓ¸®½º | 5 | 28.13 | 18,000 | 0 | 2016 | | 2024.07.11 | ¿ù¼¼ | ¾ÆÀ̵ð¿ò(101,102µ¿) | 6 | 35.33 | 2,000 | 95 | 2014 | | 2024.07.10 | ¿ù¼¼ | µ¿±¤ºô¶óABµ¿ | 1 | 109.06 | 28,350 | 50 | 1997 | | 2024.07.10 | ¿ù¼¼ | (716-38) | 3 | 13.95 | 9,000 | 10 | 2018 | | 2024.07.09 | Àü¼¼ | DH647 | 7 | 45.76 | 70,000 | 0 | 2023 | | 2024.07.08 | Àü¼¼ | ´ë¿øÈúžBµ¿ | -1 | 29.89 | 10,000 | 0 | 2011 | | 2024.07.08 | ¿ù¼¼ | (716-38) | 2 | 18.33 | 1,000 | 49 | 2018 | | 2024.07.08 | ¸Å¸Å | ½Å¼¼°èÇ÷¯½º | 6 | 44.68 | 42,500 | | 2020 | | 2024.07.06 | ¸Å¸Å | ÁøÁÖij½½ | 2 | 55.75 | 35,500 | | 2012 | | 2024.07.05 | Àü¼¼ | ±î»çÁö¿Àcasagio | 5 | 27.55 | 24,600 | 0 | 2018 | | 2024.07.04 | Àü¼¼ | DH647 | 8 | 45.76 | 70,000 | 0 | 2023 | | 2024.07.04 | ¿ù¼¼ | µ¿¼ºô¶ó | 4 | 65.76 | 13,000 | 61 | 2002 | | 2024.07.04 | Àü¼¼ | DH647 | 8 | 45.76 | 70,000 | 0 | 2023 | | 2024.07.04 | Àü¼¼ | Á¦ÀÌ¿¡½ºÇؽ½¸® | 4 | 55.47 | 36,400 | 0 | 2024 | | 2024.07.04 | Àü¼¼ | Á¦ÀÌ¿¡½ºÇؽ½¸® | 4 | 55.47 | 36,400 | 0 | 2024 | | 2024.07.04 | Àü¼¼ | º¸¶óÆÄÅ©ºôBµ¿ | 3 | 38.39 | 14,000 | 0 | 2003 | | 2024.07.04 | Àü¼¼ | Á¦ÀÌ¿¡½ºÇؽ½¸® | 4 | 55.47 | 36,400 | 0 | 2024 | | 2024.07.03 | ¸Å¸Å | À¯¼ºÇÏÀÌÃ÷ | 6 | 33.38 | 22,500 | | 2012 | | 2024.07.02 | ¿ù¼¼ | ¸íÁÖºôÇϸð´Ï | 3 | 57.51 | 18,000 | 10 | 2007 | | 2024.07.02 | ¿ù¼¼ | ¸íÁÖºôÇϸð´Ï | 3 | 57.51 | 18,000 | 10 | 2007 | | 2024.07.01 | Àü¼¼ | DH647 | 7 | 45.76 | 68,000 | 0 | 2023 | | 2024.07.01 | ¿ù¼¼ | (701-19) | 4 | 63.27 | 5,000 | 80 | 2004 | | 2024.06.29 | ¿ù¼¼ | ¼¼¸í´õŬ·¡½º | 4 | 28.41 | 20,780 | 24 | 2018 | | 2024.06.28 | ¿ù¼¼ | ·¡ÆÄÅ© | 1 | 56.97 | 10,000 | 59 | 2008 | | 2024.06.28 | ¿ù¼¼ | (697-11) | 3 | 34.56 | 2,000 | 67 | 2013 | | 2024.06.27 | Àü¼¼ | DH647 | 11 | 45.76 | 70,000 | 0 | 2023 | | 2024.06.27 | ¿ù¼¼ | ¹ß»êÅ·´ý | 1 | 28.07 | 19,000 | 7 | 2017 | | 2024.06.27 | ¸Å¸Å | À¯Áø¼Ò¸£º£ | 4 | 37.58 | 26,000 | | 2011 | | 2024.06.27 | Àü¼¼ | ±Û·Î¸®¾Æºô¶óÆ® | 2 | 74.48 | 23,000 | 0 | 1994 | | 2024.06.26 | ¸Å¸Å | µ¿±¤ºô¶óABµ¿ | 3 | 109.06 | 47,000 | | 1997 | | 2024.06.26 | ¿ù¼¼ | ½ºÆäÀ̽ººô | 5 | 31.69 | 2,000 | 105 | 2011 | | 2024.06.26 | ¸Å¸Å | ±î»çÁö¿Àcasagio | 2 | 29.82 | 24,000 | | 2018 | | 2024.06.26 | Àü¼¼ | È«Àͺô¶ó | 3 | 54.92 | 15,600 | 0 | 1994 | | 2024.06.25 | Àü¼¼ | ¿µÁÖºô¶ó1Â÷ | 2 | 55 | 22,000 | 0 | 2002 | | 2024.06.22 | Àü¼¼ | Çö´ëÇÏÀÌÃ÷ºô¶ó | 2 | 45.43 | 14,000 | 0 | 1996 | | 2024.06.22 | ¸Å¸Å | ºÎ¿µ½¦¸£ºô | 2 | 38.51 | 28,500 | | 2016 | | 2024.06.22 | Àü¼¼ | ¼¼¸í´õŬ·¡½º | 5 | 28.41 | 24,300 | 0 | 2018 | | 2024.06.21 | ¿ù¼¼ | ¸®Ä¡Æç¸®½º | 2 | 37.23 | 22,000 | 5 | 2015 | | 2024.06.20 | Àü¼¼ | ·ÎÁîºô | 4 | 51.1 | 16,800 | 0 | 2002 | | 2024.06.20 | ¿ù¼¼ | Å·½ºÅ¸¿î | 3 | 34.48 | 3,000 | 70 | 2015 | | 2024.06.20 | Àü¼¼ | DH647 | 9 | 45.76 | 70,000 | 0 | 2023 | | 2024.06.19 | Àü¼¼ | û¼Ö¸®´õ½º | 3 | 29.84 | 20,200 | 0 | 2017 | | 2024.06.19 | Àü¼¼ | »ïÀÍÇ콺Ƽ¾Æ | 5 | 21.51 | 17,800 | 0 | 2015 | | 2024.06.18 | ¿ù¼¼ | û±â¿ÍÁÖÅà | 2 | 40.24 | 2,000 | 65 | 1986 | | 2024.06.18 | ¿ù¼¼ | ¸¶°î´õ? | 4 | 29.46 | 10,000 | 55 | 2018 | | 2024.06.18 | ¸Å¸Å | ½îȨ¾ÆÆ®ºô | 3 | 29.97 | 15,700 | | 2012 | | 2024.06.17 | ¸Å¸Å | ½Â¼®ÇÏÀÌÃ÷ºô¶ó | 3 | 35.99 | 15,000 | | 1999 | | 2024.06.17 | Àü¼¼ | 671-22 | 3 | 40.05 | 36,900 | 0 | 2024 | | 2024.06.17 | ¿ù¼¼ | ÇÁ·£µå½±ºô¸®Áö | 5 | 53.28 | 5,000 | 83 | 2012 | | 2024.06.17 | Àü¼¼ | 671-22 | 3 | 40.05 | 36,900 | 0 | 2024 | | 2024.06.17 | ¸Å¸Å | °Å»êºô¸®Áö | 3 | 53.46 | 24,600 | | 2010 | | 2024.06.15 | Àü¼¼ | ¼£·ÒŸ¿ö | 1 | 58.36 | 12,500 | 0 | 1997 | | 2024.06.15 | ¿ù¼¼ | ¿¡½º¿¥ÆÄÅ©ºä | 8 | 21.88 | 22,650 | 10 | 2019 | | 2024.06.15 | ¿ù¼¼ | ¿¡½º¿¥ÆÄÅ©ºä | 8 | 21.88 | 22,650 | 10 | 2019 | | 2024.06.14 | ¸Å¸Å | À¯Áø¼Ò¸£º£(681-29) | 5 | 24.32 | 14,800 | | 2012 | | 2024.06.14 | ¿ù¼¼ | ¾ÆÀ̵ð¿ò | 6 | 56.75 | 28,700 | 40 | 2013 | | 2024.06.14 | ¿ù¼¼ | ³«¿ø¸®´õ½ººô102µ¿ | 3 | 46.14 | 14,700 | 15 | 2002 | | 2024.06.14 | ¿ù¼¼ | Çູºô¸®Áö | 4 | 38.38 | 9,000 | 28 | 2003 | | 2024.06.13 | ¿ù¼¼ | 671-22 | 3 | 27.96 | 25,900 | 20 | 2024 | | 2024.06.13 | ¿ù¼¼ | Á¦´Ï½ºÅ¸¿î2Â÷ | 6 | 26.26 | 2,500 | 65 | 2017 | | 2024.06.12 | ¸Å¸Å | ¿ì¼º¾ÆÆ®ºô5Â÷Aµ¿ | 3 | 36.41 | 21,000 | | 2013 | | 2024.06.12 | Àü¼¼ | A.G.S.µå¸²Å¸¿î | 2 | 71.445 | 25,000 | 0 | 2002 | | 2024.06.12 | ¿ù¼¼ | 671-22 | 2 | 29.87 | 30,330 | 10 | 2024 | | 2024.06.12 | Àü¼¼ | DH647 | 7 | 45.76 | 68,000 | 0 | 2023 | | 2024.06.10 | ¸Å¸Å | À¯¼ºÇÏÀÌÃ÷ | 5 | 33.38 | 25,000 | | 2012 | | 2024.06.10 | ¿ù¼¼ | ·Îµ©±×¸°ºô | 3 | 51.14 | 15,800 | 40 | 2003 | | 2024.06.07 | Àü¼¼ | ´ë¿ø±×¸°ºô¶ó | -1 | 67.84 | 14,000 | 0 | 2001 | | 2024.06.07 | ¸Å¸Å | À¯Áø¼Ò¸£º£(670-62) | 3 | 37.66 | 29,000 | | 2012 | | 2024.06.06 | ¿ù¼¼ | À¯Áø¼Ò¸£º£ | 6 | 28.26 | 4,000 | 90 | 2011 | | 2024.06.06 | Àü¼¼ | ¼º°Ã»¾Èä | 4 | 34.79 | 26,000 | 0 | 2017 | | 2024.06.06 | Àü¼¼ | 671-22 | 2 | 40.05 | 36,900 | 0 | 2024 | | 2024.06.05 | ¿ù¼¼ | 671-22 | 4 | 25.9 | 24,300 | 30 | 2024 | | 2024.06.05 | ¿ù¼¼ | ½îȨ¾ÆÆ®ºô | 2 | 29.97 | 2,000 | 65 | 2012 | | 2024.06.05 | ¿ù¼¼ | 671-22 | 4 | 25.9 | 24,300 | 30 | 2024 | | 2024.06.04 | ¿ù¼¼ | 671-22 | 3 | 26.46 | 24,840 | 30 | 2024 | | 2024.06.04 | ¿ù¼¼ | 671-22 | 3 | 26.46 | 24,750 | 30 | 2024 | | 2024.06.04 | ¿ù¼¼ | ¹®¼ººô¶ó | 1 | 43.88 | 1,000 | 70 | 1993 | | 2024.06.02 | ¿ù¼¼ | À¯Áø¼Ò¸£º£(670-61) | 5 | 29.12 | 14,990 | 14 | 2012 | | 2024.06.02 | Àü¼¼ | ÈÀÎÇϿ콺 | 2 | 71.91 | 23,000 | 0 | 2002 | | 2024.06.02 | ¸Å¸Å | ½ºÆäÀ̽ººô | 5 | 31.69 | 20,000 | | 2011 | | 2024.06.01 | Àü¼¼ | A.G.S.µå¸²Å¸¿î | 5 | 59.9 | 18,018 | 0 | 2002 | | 2024.06.01 | ¸Å¸Å | A.G.S.ÈÀÌÆ®ºô2Â÷ | 2 | 54.18 | 26,800 | | 2003 | | 2024.06.01 | Àü¼¼ | 671-22 | 4 | 55.47 | 36,400 | 0 | 2024 | | 2024.05.31 | Àü¼¼ | ¸¶°î¼ö¸í»êÆÄÅ©8´ÜÁö | 1 | 84.53 | 50,000 | 0 | 2006 | | 2024.05.31 | ¿ù¼¼ | ±Û·Î¸®¾Æºô¶óÆ® | 3 | 52.14 | 7,000 | 57 | 1994 | | 2024.05.30 | ¿ù¼¼ | ¼¼¸í´õŬ·¡½º | 6 | 28.41 | 3,000 | 80 | 2018 | | 2024.05.30 | ¿ù¼¼ | ´õÀÚÇÏ | 11 | 23.05 | 1,000 | 135 | 2022 | | 2024.05.29 | ¸Å¸Å | ½ÃÅ©¸´ÇϿ콺 | 2 | 37.66 | 20,500 | | 2011 | | 2024.05.28 | ¿ù¼¼ | ¼¼¸í´õŬ·¡½º | 2 | 28.41 | 20,900 | 15 | 2018 | | 2024.05.27 | ¸Å¸Å | ¸íÁø¾ÆÆ®ºô¶ó´Ùµ¿ | 1 | 37.02 | 17,200 | | 1991 | | 2024.05.27 | ¿ù¼¼ | ´õÀÚÇÏ | 11 | 22.82 | 1,000 | 135 | 2022 | | 2024.05.27 | ¸Å¸Å | È£¼öºô¶ó | 3 | 58.32 | 24,000 | | 2000 | | 2024.05.25 | ¿ù¼¼ | ¼¼¸í´õŬ·¡½º | 5 | 28.41 | 21,000 | 13 | 2018 | | 2024.05.25 | Àü¼¼ | ¸¶°î¼ö¸í»êÆÄÅ©8´ÜÁö | 3 | 84.53 | 51,818 | 0 | 2006 | | 2024.05.24 | ¿ù¼¼ | 671-22 | 2 | 26.46 | 24,840 | 30 | 2024 | | 2024.05.24 | ¿ù¼¼ | Á¦´Ï½ºÅ¸¿î2Â÷ | 5 | 37.35 | 23,814 | 13 | 2017 | | 2024.05.24 | ¿ù¼¼ | ¿¡½º¿¥ÆÄÅ©ºä | 5 | 25.23 | 22,000 | 10 | 2019 | | 2024.05.24 | ¿ù¼¼ | ÇÁ·£µå½±ºô¸®Áö | 3 | 45.33 | 10,000 | 50 | 2012 | | 2024.05.24 | Àü¼¼ | ·ùÅ·´ý | 2 | 38.49 | 27,000 | 0 | 2019 | | 2024.05.23 | Àü¼¼ | ¿Ã¸²Çª½º(698-2) | 3 | 44.18 | 20,400 | 0 | 2011 | | 2024.05.23 | Àü¼¼ | Çý¼º¿¬¸³°¡µ¿ | 1 | 62.82 | 16,000 | 0 | 1982 | | 2024.05.22 | ¸Å¸Å | ÁøÁÖij½½ | 4 | 55.75 | 36,000 | | 2012 | | 2024.05.22 | ¿ù¼¼ | µÎ¸®ºôµù(677-1) | 4 | 17.39 | 500 | 47 | 2013 | | 2024.05.21 | ¿ù¼¼ | ÇØÇÇÇϿ콺 | 3 | 27.3 | 1,000 | 60 | 2015 | | 2024.05.20 | Àü¼¼ | ÇÕ´öºô¶ó | 4 | 54.75 | 17,800 | 0 | 1992 | | 2024.05.20 | ¸Å¸Å | Á¦ÀÌ¿¡½º¾ÆÀ̵ð¿ò | 7 | 38.42 | 30,500 | | 2018 | | 2024.05.20 | ¸Å¸Å | ´õŬ·¡½Ä | 2 | 59.92 | 35,700 | | 2017 | | 2024.05.18 | Àü¼¼ | ¸¶°î¼ö¸í»êÆÄÅ©8´ÜÁö | 2 | 84.53 | 50,000 | 0 | 2006 | | 2024.05.18 | ¿ù¼¼ | 671-22 | 2 | 28.31 | 27,540 | 15 | 2024 | | 2024.05.18 | ¿ù¼¼ | 671-22 | 2 | 29.91 | 28,080 | 10 | 2024 | | 2024.05.17 | ¿ù¼¼ | ÇÁ·£µå½±ºô¸®Áö | 2 | 44.16 | 2,000 | 70 | 2012 | | 2024.05.16 | ¿ù¼¼ | Á¦´Ï½ºÅ¸¿î2Â÷ | 6 | 37.35 | 23,814 | 25 | 2017 | | 2024.05.16 | Àü¼¼ | ¼±¿ìº£½ºÆ®ºô³ªµ¿ | 2 | 41.36 | 15,500 | 0 | 2002 | | 2024.05.16 | Àü¼¼ | ¿ì¼º¾ÆÆ®ºô | 3 | 24.05 | 11,900 | 0 | 2013 | | 2024.05.16 | Àü¼¼ | ¼¼¸í´õŬ·¡½º | 4 | 27.59 | 20,750 | 0 | 2018 | | 2024.05.15 | ¿ù¼¼ | (697-11) | 2 | 34.56 | 500 | 77 | 2013 | | 2024.05.15 | ¿ù¼¼ | 671-22 | 3 | 29.91 | 28,080 | 10 | 2024 | | 2024.05.15 | ¿ù¼¼ | (697-11) | 3 | 34.6 | 1,000 | 70 | 2013 | | 2024.05.15 | Àü¼¼ | ¿¡½º¿¥ÆÄÅ©ºä | 7 | 25.23 | 24,800 | 0 | 2019 | | 2024.05.14 | ¿ù¼¼ | 671-22 | 3 | 28.31 | 27,540 | 15 | 2024 | | 2024.05.12 | ¿ù¼¼ | 671-22 | 3 | 27.96 | 26,200 | 20 | 2024 | | 2024.05.12 | ¿ù¼¼ | 671-22 | 3 | 27.96 | 26,200 | 20 | 2024 | | 2024.05.12 | ¿ù¼¼ | 671-22 | 3 | 27.96 | 26,200 | 20 | 2024 | | 2024.05.12 | ¿ù¼¼ | 671-22 | 3 | 27.96 | 26,100 | 20 | 2024 | | 2024.05.10 | Àü¼¼ | ÇѽÅÁ־ƺô | 3 | 40.25 | 22,000 | 0 | 2018 | | 2024.05.10 | ¿ù¼¼ | ¼¼¸í´õŬ·¡½º | 3 | 27.59 | 20,790 | 15 | 2018 | | 2024.05.10 | ¿ù¼¼ | ¸¶°î¼ö¸í»êÆÄÅ©8´ÜÁö | 1 | 84.73 | 40,000 | 40 | 2006 | | 2024.05.09 | ¿ù¼¼ | ³²¸²ºô¶ó | 3 | 81.42 | 27,300 | 10 | 1993 | | 2024.05.09 | Àü¼¼ | ·Ôµ¥ºô¶ó | 3 | 45.39 | 18,000 | 0 | 2011 | | 2024.05.08 | ¿ù¼¼ | 671-22 | 4 | 27.92 | 26,280 | 10 | 2024 | | 2024.05.08 | Àü¼¼ | ¹ß»êÅ·´ý | 3 | 28.07 | 20,475 | 0 | 2017 | | 2024.05.08 | Àü¼¼ | 671-22 | 3 | 29.87 | 31,680 | 0 | 2024 | | 2024.05.08 | ¿ù¼¼ | 671-22 | 4 | 27.92 | 26,190 | 10 | 2024 | | 2024.05.08 | Àü¼¼ | ¼¼±¤ºô¶ó°¡³ªµ¿ | 4 | 52.28 | 15,000 | 0 | 1992 | | 2024.05.08 | ¿ù¼¼ | 671-22 | 4 | 27.92 | 26,190 | 10 | 2024 | | 2024.05.08 | ¸Å¸Å | ÈúÇϿ콺 | 2 | 53.98 | 31,500 | | 2012 | | 2024.05.08 | Àü¼¼ | 671-22 | 3 | 29.87 | 31,680 | 0 | 2024 | | 2024.05.07 | Àü¼¼ | GFÇÏÀÌÃ÷Aµ¿ | 1 | 78.09 | 29,000 | 0 | 2001 | | 2024.05.07 | ¿ù¼¼ | 671-22 | 5 | 29.51 | 30,420 | 5 | 2024 | | 2024.05.07 | Àü¼¼ | ·Ôµ¥Å¸¿î | 2 | 36.51 | 17,850 | 0 | 2011 | | 2024.05.07 | Àü¼¼ | ·Ôµ¥Å¸¿î | 2 | 36.51 | 14,230 | 0 | 2011 | | 2024.05.07 | ¿ù¼¼ | 671-22 | 5 | 29.51 | 30,420 | 5 | 2024 | | 2024.05.07 | ¿ù¼¼ | 671-22 | 5 | 29.51 | 29,970 | 5 | 2024 | | 2024.05.06 | ¿ù¼¼ | û¼Ö¸®´õ½ººô103 | 2 | 59.19 | 22,500 | 13 | 2002 | | 2024.05.06 | ¿ù¼¼ | ·Îµ©±×¸°ºô | 2 | 51.14 | 15,800 | 42 | 2003 | | 2024.05.06 | ¿ù¼¼ | 671-22 | 5 | 27.49 | 25,800 | 10 | 2024 | | 2024.05.04 | ¸Å¸Å | ¸®Ä¡Æç¸®½º | 6 | 33.27 | 25,500 | | 2015 | | 2024.05.04 | ¸Å¸Å | ¸®Ä¡Æç¸®½º | 6 | 33.27 | 25,500 | | 2015 | | 2024.05.04 | ¿ù¼¼ | Á¦À̾ØÇϿ콺 | 2 | 27.07 | 500 | 48 | 2020 | | 2024.05.04 | ¿ù¼¼ | ¼¼±¤ºô¶ó°¡³ªµ¿ | -1 | 57.16 | 1,000 | 45 | 1992 | | 2024.05.03 | Àü¼¼ | DH647 | 10 | 45.76 | 70,000 | 0 | 2023 | | 2024.05.03 | ¿ù¼¼ | ½ºÆäÀ̽ººô | 4 | 40.2 | 26,200 | 30 | 2018 | | 2024.05.03 | ¿ù¼¼ | ¾ÆÀ̵ð¿ò(101,102µ¿) | 6 | 35.54 | 3,000 | 80 | 2014 | | 2024.05.03 | ¿ù¼¼ | ¾ÆÀ̵ð¿ò(101,102µ¿) | 2 | 38.82 | 3,000 | 80 | 2014 | | 2024.05.02 | Àü¼¼ | ½ºÆäÀ̽ººô | 4 | 34.45 | 26,500 | 0 | 2018 | | 2024.05.01 | ¿ù¼¼ | ¿ì¼º¾ÆÆ®ºô(688-6) | 3 | 79.5 | 5,000 | 90 | 2002 | | 2024.04.30 | ¸Å¸Å | »ïÀÍÇ콺Ƽ¾Æ | 3 | 46.05 | 22,500 | | 2015 | | 2024.04.30 | Àü¼¼ | ¼¼±¤ºô¶ó¸¶µ¿ | 1 | 61.29 | 20,000 | 0 | 1991 | | 2024.04.30 | Àü¼¼ | û¼Ö¸®´õ½º | 2 | 29.89 | 20,000 | 0 | 2017 | | 2024.04.30 | Àü¼¼ | Çý¼º¿¬¸³°¡µ¿ | 3 | 63.15 | 25,000 | 0 | 1982 | | 2024.04.29 | ¿ù¼¼ | ¼ÛÈ¿ùµåºôAµ¿ | 2 | 41.37 | 13,200 | 20 | 2002 | | 2024.04.29 | ¿ù¼¼ | ÇÑ¿ï¶ß¶õä | 3 | 29.92 | 3,000 | 60 | 2012 | | 2024.04.29 | ¿ù¼¼ | ¿Ã¸²Çª½º(703-29) | 6 | 23.71 | 13,400 | 45 | 2012 | | 2024.04.28 | ¿ù¼¼ | ´ö¼öÆç¸®Ã¼(718-3) | 2 | 17.62 | 11,900 | 10 | 2015 | | 2024.04.27 | ¿ù¼¼ | 671-22 | 5 | 24.83 | 23,310 | 15 | 2024 | | 2024.04.27 | Àü¼¼ | 671-22 | 5 | 24.83 | 27,200 | 0 | 2024 | | 2024.04.27 | Àü¼¼ | û¼ÖÆç¸®Ã¼101µ¿,102µ¿,103µ¿, | 6 | 31.76 | 16,250 | 0 | 2016 | | 2024.04.27 | ¿ù¼¼ | û¼ÖÆç¸®Ã¼101µ¿,102µ¿,103µ¿, | 6 | 32.44 | 11,000 | 50 | 2016 | | 2024.04.27 | Àü¼¼ | û¼ÖÆç¸®Ã¼101µ¿,102µ¿,103µ¿, | 6 | 31.76 | 16,250 | 0 | 2016 | | 2024.04.27 | Àü¼¼ | ¿ì¼º½¦¸£ºô(705-6) | 3 | 42.36 | 19,600 | 0 | 2012 | | 2024.04.26 | Àü¼¼ | 671-22 | 4 | 28.31 | 29,100 | 0 | 2024 | | 2024.04.26 | Àü¼¼ | (704-16) | 1 | 47.1 | 15,040 | 0 | 2003 | | 2024.04.25 | ¿ù¼¼ | ÇÁ·£µå½±ºô¸®Áö | 2 | 44.16 | 2,000 | 70 | 2012 | | 2024.04.25 | Àü¼¼ | 671-22 | 3 | 41.26 | 38,500 | 0 | 2024 | | 2024.04.25 | Àü¼¼ | ·Ôµ¥Å¸¿î | 3 | 36.51 | 16,000 | 0 | 2011 | | 2024.04.25 | ¸Å¸Å | ½ºÆäÀ̽ººô(674-30) | 3 | 38.07 | 25,000 | | 2012 | | 2024.04.25 | ¸Å¸Å | ÁøÁÖij½½ | 4 | 55.75 | 34,800 | | 2012 | | 2024.04.25 | Àü¼¼ | »ï¹ÌÁÖÅà | 3 | 47.76 | 18,000 | 0 | 1999 | | 2024.04.24 | ¿ù¼¼ | ½ºÆäÀ̽ººô | 5 | 35.65 | 13,800 | 15 | 2011 | | 2024.04.24 | ¿ù¼¼ | ´õÁ¦´Ï½ºÅ¸¿î | 7 | 29.11 | 16,600 | 10 | 2016 | | 2024.04.24 | Àü¼¼ | ÇÑÀüÁÖÅà | 3 | 80.77 | 35,000 | 0 | 1995 | | 2024.04.24 | Àü¼¼ | ÀÌÈÇÏÀÌÃ÷ºô | 5 | 70.16 | 26,500 | 0 | 2008 | | 2024.04.23 | Àü¼¼ | 671-22 | 6 | 27.49 | 28,300 | 0 | 2024 | | 2024.04.22 | Àü¼¼ | 671-22 | 2 | 41.26 | 38,500 | 0 | 2024 | | 2024.04.22 | Àü¼¼ | 671-22 | 2 | 41.26 | 38,500 | 0 | 2024 | | 2024.04.22 | ¸Å¸Å | ¹üÁøºô¶ó | 2 | 53.9 | 38,630 | | 1991 | | 2024.04.22 | ¸Å¸Å | ¹üÁøºô¶ó | 3 | 53.9 | 38,245 | | 1991 | | 2024.04.20 | ¿ù¼¼ | ¿ì¼º½¦¸£ºô | 3 | 40.59 | 8,000 | 67 | 2011 | | 2024.04.20 | Àü¼¼ | 671-22 | 6 | 29.3 | 30,960 | 0 | 2024 | | 2024.04.20 | Àü¼¼ | 671-22 | 6 | 29.3 | 31,200 | 0 | 2024 | | 2024.04.20 | Àü¼¼ | 671-22 | 6 | 29.3 | 30,960 | 0 | 2024 | | 2024.04.19 | Àü¼¼ | 671-22 | 4 | 29.87 | 31,680 | 0 | 2024 | | 2024.04.19 | Àü¼¼ | DH647 | 11 | 45.76 | 69,000 | 0 | 2023 | | 2024.04.19 | Àü¼¼ | 671-22 | 4 | 29.87 | 32,000 | 0 | 2024 | | 2024.04.19 | Àü¼¼ | 671-22 | 4 | 29.87 | 32,000 | 0 | 2024 | | 2024.04.18 | Àü¼¼ | õ¿ìºô¸®Áö | -1 | 54.36 | 11,000 | 0 | 2000 | | 2024.04.18 | ¸Å¸Å | A.G.SÅ׸¶ºôABµ¿ | 4 | 61.98 | 25,300 | | 2001 | | 2024.04.18 | ¿ù¼¼ | ´õÀÚÇÏ | 12 | 21.43 | 1,000 | 135 | 2022 | | 2024.04.16 | ¿ù¼¼ | û¼Ö»þ¸£ºô | 3 | 52.97 | 22,400 | 15 | 2008 | | 2024.04.16 | Àü¼¼ | ·ùÅ·´ý | 3 | 38.49 | 28,000 | 0 | 2019 | | 2024.04.16 | ¿ù¼¼ | µ¿±¤ºô¶óABµ¿ | 1 | 109.06 | 28,600 | 50 | 1997 | | 2024.04.16 | ¿ù¼¼ | »êÈ£¸Ç¼Ç | 4 | 43.55 | 13,000 | 10 | 2002 | | 2024.04.16 | Àü¼¼ | û±â¿ÍÁÖÅà | 2 | 40.25 | 11,500 | 0 | 1986 | | 2024.04.15 | Àü¼¼ | µå¸²ºô¶ó | 2 | 71.09 | 21,000 | 0 | 2001 | | 2024.04.13 | Àü¼¼ | ¸¶°î¼ö¸í»êÆÄÅ©8´ÜÁö | 2 | 84.53 | 50,000 | 0 | 2006 | | 2024.04.13 | Àü¼¼ | ÇѽÅÁ־ƺô | 3 | 29.75 | 16,700 | 0 | 2018 | | 2024.04.13 | ¸Å¸Å | ¾ÆÀ̵ð¿ò(101,102µ¿) | 4 | 42.1 | 27,000 | | 2014 | | 2024.04.12 | ¸Å¸Å | ·ÎÁîºô(694-17) | 4 | 29.7 | 14,000 | | 2004 | | 2024.04.12 | ¿ù¼¼ | ´õÀÚÇÏ | 13 | 28.87 | 2,000 | 155 | 2022 | | 2024.04.11 | Àü¼¼ | 671-22 | 5 | 28.31 | 29,100 | 0 | 2024 | | 2024.04.11 | Àü¼¼ | 671-22 | 5 | 28.31 | 29,100 | 0 | 2024 | | 2024.04.11 | Àü¼¼ | A.G.SÅ׸¶ºôABµ¿ | 2 | 61.98 | 19,200 | 0 | 2001 | | 2024.04.10 | Àü¼¼ | ¼¼¸í´õŬ·¡½º | 5 | 27.59 | 20,750 | 0 | 2018 | | 2024.04.08 | ¸Å¸Å | ¹®¼ººô¶ó3Â÷ | 5 | 62.9 | 27,000 | | 1997 | | 2024.04.06 | Àü¼¼ | ¿ì¼º½¦¸£ºô | 3 | 37.26 | 17,850 | 0 | 2011 | | 2024.04.05 | ¸Å¸Å | ¾ÆÀ̵ð¿ò103µ¿ | 4 | 36.2 | 24,900 | | 2014 | | 2024.04.05 | ¿ù¼¼ | ÇÑ¿ïÀÚÀ̺ôBµ¿ | 3 | 66.77 | 26,000 | 15 | 2009 | | 2024.04.04 | Àü¼¼ | ¼º°Ã»¾Èä | 2 | 29.69 | 19,500 | 0 | 2017 | | 2024.04.04 | ¸Å¸Å | ¹Ì»ê½ºÄ«À̺ô | 5 | 68.82 | 40,000 | | 2003 | | 2024.04.04 | Àü¼¼ | ¼º°Ã»¾Èä | 2 | 29.69 | 19,500 | 0 | 2017 | | 2024.04.03 | Àü¼¼ | ¿µ±¤ºô¶ó | 1 | 99.48 | 25,000 | 0 | 1984 | | 2024.04.03 | Àü¼¼ | ¿µ±¤ºô¶ó | 1 | 99.48 | 25,000 | 0 | 1984 | | 2024.04.02 | Àü¼¼ | ¿Ã¸²Çª½º | 3 | 50.43 | 21,790 | 0 | 2009 | | 2024.04.01 | ¸Å¸Å | ½ºÆäÀ̽ººô | 2 | 36.55 | 19,300 | | 2011 | | 2024.04.01 | ¿ù¼¼ | ¿ì¿µÃ¤¿òºô | 4 | 28.01 | 500 | 80 | 2019 | | 2024.03.29 | ¿ù¼¼ | ¼±¿ìº£½ºÆ®ºô³ªµ¿ | 5 | 41.74 | 3,000 | 67 | 2002 | | 2024.03.27 | ¿ù¼¼ | Áø¼ººô¶ó | -1 | 41.61 | 1,000 | 55 | 2000 | | 2024.03.26 | Àü¼¼ | ´ÙÀκô | 2 | 51.34 | 20,000 | 0 | 2003 | | 2024.03.26 | ¿ù¼¼ | û¼ÖÆç¸®Ã¼101µ¿,102µ¿,103µ¿, | 2 | 41.42 | 25,700 | 20 | 2016 | | 2024.03.26 | ¿ù¼¼ | û¼ÖÆç¸®Ã¼101µ¿,102µ¿,103µ¿, | 2 | 41.42 | 25,700 | 20 | 2016 | | 2024.03.26 | ¿ù¼¼ | û¼ÖÆç¸®Ã¼101µ¿,102µ¿,103µ¿, | 2 | 41.42 | 25,300 | 20 | 2016 | | 2024.03.25 | Àü¼¼ | ½îȨ¾ÆÆ®ºô | 4 | 29.97 | 17,000 | 0 | 2012 | | 2024.03.23 | ¿ù¼¼ | ¾Æµ¥³ªÄ³½½101µ¿ | 5 | 28.09 | 500 | 85 | 2015 | | 2024.03.23 | Àü¼¼ | ¸¶°î¼ö¸í»êÆÄÅ©8´ÜÁö | 2 | 84.73 | 50,000 | 0 | 2006 | | 2024.03.23 | Àü¼¼ | ¸¶°î¼ö¸í»êÆÄÅ©8´ÜÁö | 2 | 84.53 | 50,000 | 0 | 2006 | | 2024.03.23 | Àü¼¼ | û¼ÖÆç¸®Ã¼101µ¿,102µ¿,103µ¿, | 5 | 30.02 | 16,470 | 0 | 2016 | | 2024.03.22 | ¿ù¼¼ | ±î»çÁö¿Àcasagio | 4 | 29.75 | 3,000 | 100 | 2018 | | 2024.03.21 | ¿ù¼¼ | û¼ÖÆç¸®Ã¼ | 4 | 24.01 | 1,000 | 95 | 2019 | | 2024.03.21 | ¿ù¼¼ | Á¦´Ï½ºÅ¸¿î2Â÷ | 4 | 37.35 | 23,814 | 13 | 2017 | | 2024.03.21 | Àü¼¼ | û¼Ö¸®´õ½ººô103 | 4 | 38.57 | 12,000 | 0 | 2002 | | 2024.03.19 | ¿ù¼¼ | ÀϽŸǼÇ10Â÷ | 1 | 63.18 | 18,000 | 30 | 1996 | | 2024.03.19 | ¿ù¼¼ | ¾¾Æ¼ÇϿ콺 | 2 | 32.92 | 19,000 | 16 | 2015 | | 2024.03.19 | Àü¼¼ | ±¤¿µ¾ÆÆ®ºô | -1 | 60.02 | 8,400 | 0 | 2002 | | 2024.03.18 | ¿ù¼¼ | ·Î¿¤ | 5 | 28.88 | 5,000 | 150 | 2023 | | 2024.03.18 | ¿ù¼¼ | È¿¼ººô¶ó | 1 | 76.77 | 7,000 | 30 | 1994 | | 2024.03.18 | Àü¼¼ | ¼º°Ã»¾Èä | 4 | 29.85 | 21,000 | 0 | 2017 | | 2024.03.18 | Àü¼¼ | ¼º°Ã»¾Èä | 3 | 29.69 | 21,000 | 0 | 2017 | | 2024.03.18 | ¿ù¼¼ | ·Î¿¤ | 5 | 28.88 | 5,000 | 150 | 2023 | | 2024.03.18 | ¿ù¼¼ | ·Î¿¤ | 5 | 28.88 | 5,000 | 150 | 2023 | | 2024.03.16 | Àü¼¼ | ¾Æµ¥³ªÄ³½½101µ¿ | 3 | 37.59 | 26,000 | 0 | 2015 | | 2024.03.15 | ¿ù¼¼ | ¼±¿ìº£½ºÆ®ºô°¡µ¿ | 2 | 48.4 | 9,000 | 30 | 2002 | | 2024.03.15 | ¿ù¼¼ | ÇѼ3Â÷¾ÆÆ®ºô | 2 | 63.95 | 19,650 | 10 | 2002 | | 2024.03.14 | Àü¼¼ | ÇÕ´öºô¶ó | -1 | 54.23 | 9,300 | 0 | 1992 | | 2024.03.14 | ¿ù¼¼ | ¼º¿øºô | 2 | 46.04 | 2,000 | 63 | 2002 | | 2024.03.13 | ¿ù¼¼ | È«Àͺô¶ó | 1 | 41.02 | 500 | 53 | 1994 | | 2024.03.13 | ¿ù¼¼ | ¼¼±¤ºô¶ó´Ùµ¿ | 3 | 42.97 | 10,000 | 40 | 1992 | | 2024.03.12 | ¿ù¼¼ | ±Ý°¸Ç¼Ç | 2 | 91.86 | 10,000 | 100 | 2003 | | 2024.03.11 | Àü¼¼ | ¿¡½º¿¥ÆÄÅ©ºä | 9 | 25.23 | 22,800 | 0 | 2019 | | 2024.03.11 | ¿ù¼¼ | û¼ÖÆç¸®Ã¼101µ¿,102µ¿,103µ¿, | 3 | 38.45 | 25,000 | 10 | 2016 | | 2024.03.10 | ¿ù¼¼ | ´õÁ¦´Ï½ºÅ¸¿î | 4 | 38.62 | 21,000 | 20 | 2016 | | 2024.03.09 | ¿ù¼¼ | ·Î¿¤ | 3 | 26.22 | 3,000 | 100 | 2023 | | 2024.03.08 | Àü¼¼ | ÇÑ¶ó¾ÆÆ®ºô | 4 | 50.26 | 14,490 | 0 | 2001 | | 2024.03.07 | ¿ù¼¼ | ½Ã¿ø¾ÆÆ®ºôABµ¿ | 2 | 66.63 | 21,700 | 10 | 2001 | | 2024.03.07 | ¿ù¼¼ | ·¡ÆÄÅ© | 3 | 56.88 | 1,000 | 95 | 2008 | | 2024.03.07 | ¿ù¼¼ | ½Ã¿ø¾ÆÆ®ºôABµ¿ | 2 | 66.63 | 21,700 | 10 | 2001 | | 2024.03.07 | Àü¼¼ | ¹Ù·Î¸Ç¼Ç | 2 | 96.4 | 32,500 | 0 | 2003 | | 2024.03.06 | Àü¼¼ | 671-22 | 5 | 26.57 | 23,000 | 0 | 2024 | | 2024.03.06 | ¿ù¼¼ | µ¿¼ºô¶ó | 2 | 73.92 | 3,000 | 98 | 2002 | | 2024.03.05 | ¿ù¼¼ | (687-14) | 1 | 34.84 | 1,000 | 65 | 1988 | | 2024.03.05 | ¿ù¼¼ | ·Î¿¤ | 4 | 26.14 | 3,000 | 100 | 2023 | | 2024.03.05 | ¿ù¼¼ | Çູºô¸®Áö | 3 | 38.38 | 12,900 | 15 | 2003 | | 2024.03.05 | ¿ù¼¼ | Çູºô¸®Áö | 3 | 38.38 | 12,800 | 15 | 2003 | | 2024.03.05 | ¿ù¼¼ | ·Î¿¤ | 2 | 29.48 | 3,000 | 100 | 2023 | | 2024.03.04 | ¿ù¼¼ | Çö´ëºô¶ó | -1 | 63.36 | 2,000 | 55 | 1994 | | 2024.03.04 | ¿ù¼¼ | ±Ý°¸Ç¼Ç | 3 | 91.86 | 15,000 | 75 | 2003 | | 2024.03.04 | ¿ù¼¼ | ±Û·Î¸®¾Æºô¶óÆ® | 3 | 53.18 | 14,200 | 12 | 1994 | | 2024.03.04 | ¿ù¼¼ | ¼±¿ìº£½ºÆ®ºô³ªµ¿ | 4 | 48.85 | 15,000 | 7 | 2002 | | 2024.03.04 | ¿ù¼¼ | ±Û·Î¸®¾Æºô¶óÆ® | 4 | 45.39 | 11,600 | 6 | 1994 | | 2024.03.01 | ¿ù¼¼ | ½Å¼ºÆÛ½ºÆ® | 5 | 15.01 | 5,500 | 70 | 2018 | | 2024.03.01 | ¿ù¼¼ | ¼ºÁøÇÏÀ̺ô | 2 | 54.66 | 17,000 | 35 | 2003 | | 2024.03.01 | ¿ù¼¼ | ·Î¿¤ | 2 | 24.38 | 25,800 | 15 | 2023 | | 2024.03.01 | ¿ù¼¼ | ½ºÆäÀ̽ººô | 6 | 34.45 | 22,500 | 20 | 2018 | | 2024.02.29 | ¿ù¼¼ | ·Î¿¤ | 5 | 29.93 | 3,000 | 135 | 2023 | | 2024.02.29 | Àü¼¼ | ·Î¿¤ | 2 | 26.22 | 26,800 | 0 | 2023 | | 2024.02.27 | ¿ù¼¼ | ¼º°Ã»¾Èä | 5 | 29.68 | 5,000 | 78 | 2017 | | 2024.02.27 | Àü¼¼ | ½ºÆäÀ̽ººô | 2 | 38.55 | 15,700 | 0 | 2011 | | 2024.02.27 | Àü¼¼ | ¼¼¸í´õŬ·¡½º | 6 | 27.36 | 20,900 | 0 | 2018 | | 2024.02.26 | ¿ù¼¼ | ¼±¿ìº£½ºÆ®ºô°¡µ¿ | 3 | 62.91 | 14,800 | 20 | 2002 | | 2024.02.26 | ¿ù¼¼ | û±¸ | -1 | 46.44 | 7,900 | 10 | 1990 | | 2024.02.26 | ¿ù¼¼ | (695-19) | 2 | 36.94 | 10,100 | 10 | 1987 | | 2024.02.26 | ¿ù¼¼ | ¼¼¸í´õŬ·¡½º | 3 | 27.59 | 21,000 | 14 | 2018 | | 2024.02.26 | ¿ù¼¼ | ¼±¿ìº£½ºÆ®ºô°¡µ¿ | 3 | 62.91 | 14,800 | 20 | 2002 | | 2024.02.25 | ¿ù¼¼ | ÇÁ·£µå½±ºô¸®Áö | 2 | 45.33 | 1,500 | 47 | 2012 | | 2024.02.24 | Àü¼¼ | ±¤¿µ¾ÆÆ®ºô | 4 | 58.68 | 16,600 | 0 | 2002 | | 2024.02.24 | Àü¼¼ | ¼º°Ã»¾Èä | 2 | 29.85 | 19,000 | 0 | 2017 | | 2024.02.24 | Àü¼¼ | µµÈ¿¤¸®½Ã¾Æ | 3 | 41.08 | 33,000 | 0 | 2019 | | 2024.02.24 | ¿ù¼¼ | ´Ù¿ï³×¹öºô | 4 | 78.56 | 27,000 | 30 | 2000 | | 2024.02.23 | Àü¼¼ | Èï¾çÈѹ̸®Bµ¿ | 3 | 78.43 | 27,000 | 0 | 2004 | | 2024.02.23 | Àü¼¼ | ±Û·Î¸®¾Æºô¶óÆ® | 2 | 55.26 | 17,500 | 0 | 1994 | | 2024.02.22 | Àü¼¼ | ·Ôµ¥Å¸¿î | 4 | 36.51 | 14,300 | 0 | 2011 | | 2024.02.21 | ¿ù¼¼ | õ¿ìÇÏÀ̺ô | 4 | 61.93 | 20,000 | 30 | 2002 | | 2024.02.21 | Àü¼¼ | ³«¿ø¸Ç¼Ç | 3 | 66.1 | 22,400 | 0 | 1984 | | 2024.02.20 | ¿ù¼¼ | ÇØÇÇÇϿ콺 | 2 | 52.87 | 1,000 | 60 | 2015 | | 2024.02.20 | Àü¼¼ | ¹ß»êÅ·´ý | 2 | 28.07 | 20,700 | 0 | 2017 | | 2024.02.20 | ¿ù¼¼ | ±Ý¼ººô¶ó | 3 | 44.96 | 10,500 | 30 | 2003 | | 2024.02.19 | Àü¼¼ | ¿ì¿µÃ¤¿òºô | 4 | 23.86 | 19,000 | 0 | 2019 | | 2024.02.19 | ¿ù¼¼ | ÇѽÅÀ§³Ê½º | 3 | 28.55 | 5,000 | 77 | 2018 | | 2024.02.18 | ¿ù¼¼ | ·Î¿¤ | 3 | 29.3 | 3,000 | 100 | 2023 | | 2024.02.17 | Àü¼¼ | ½ºÆäÀ̽ººô | 3 | 34.45 | 26,850 | 0 | 2018 | | 2024.02.17 | ¿ù¼¼ | ¸í´ö¾ÆÆ®ºô¶ó | 4 | 36.3 | 9,000 | 30 | 1992 | | 2024.02.16 | ¿ù¼¼ | Á¦ÀÌ¿¡½º¾ÆÀ̵ð¿ò | 6 | 37.92 | 5,000 | 90 | 2018 | | 2024.02.16 | Àü¼¼ | ·Î¿¤ | 3 | 29.48 | 27,500 | 0 | 2023 | | 2024.02.16 | ¿ù¼¼ | ¼¼¸í´õŬ·¡½º | 2 | 28.41 | 21,000 | 5 | 2018 | | 2024.02.16 | ¿ù¼¼ | ¼±¿ìº£½ºÆ®ºô°¡µ¿ | 4 | 42.38 | 14,800 | 20 | 2002 | | 2024.02.16 | Àü¼¼ | ·Î¿¤ | 3 | 29.48 | 27,500 | 0 | 2023 | | 2024.02.15 | ¿ù¼¼ | ·Î¿¤ | 4 | 26.36 | 28,250 | 10 | 2023 | | 2024.02.15 | Àü¼¼ | À¯Áø¼Ò¸£º£(670-61) | 2 | 37.66 | 19,500 | 0 | 2012 | | 2024.02.14 | ¿ù¼¼ | ±Û·Î¸®¾Æºô¶óÆ® | 4 | 40.89 | 11,000 | 8 | 1994 | | 2024.02.13 | Àü¼¼ | ¸¶°î¼ö¸í»êÆÄÅ©8´ÜÁö | 1 | 84.53 | 43,675 | 0 | 2006 | | 2024.02.13 | ¿ù¼¼ | ¿ì¼º¾ÆÆ®ºô(688-6) | 2 | 79.5 | 5,000 | 100 | 2002 | | 2024.02.12 | Àü¼¼ | ¸¶°î¼ö¸í»êÆÄÅ©8´ÜÁö | 1 | 84.53 | 45,000 | 0 | 2006 | | 2024.02.08 | ¿ù¼¼ | ¼º¿øºô | 2 | 46.04 | 3,000 | 68 | 2002 | | 2024.02.07 | Àü¼¼ | DH647 | 9 | 45.76 | 70,000 | 0 | 2023 | | 2024.02.07 | ¿ù¼¼ | ·Î¿¤ | 2 | 22.66 | 23,950 | 10 | 2023 | | 2024.02.07 | ¿ù¼¼ | ·Î¿¤ | 2 | 22.66 | 23,950 | 10 | 2023 | | 2024.02.04 | Àü¼¼ | DH647 | 10 | 45.76 | 69,000 | 0 | 2023 | | 2024.02.03 | Àü¼¼ | ´õŬ·¡½Ä | 5 | 39.72 | 29,000 | 0 | 2017 | | 2024.02.02 | ¿ù¼¼ | ¿Ã¸²Çª½º(703-29) | 6 | 23.71 | 12,000 | 55 | 2012 | | 2024.02.02 | Àü¼¼ | °æ³²¿¬¸³6Â÷ | 2 | 81.4 | 29,000 | 0 | 1984 | | 2024.02.02 | Àü¼¼ | ³«¿ø¸Ç¼Ç | 3 | 66.1 | 22,400 | 0 | 1984 | | 2024.02.02 | ¿ù¼¼ | ¿ì¿µÃ¤¿òºô | 2 | 26.61 | 1,000 | 90 | 2019 | | 2024.02.01 | ¿ù¼¼ | ÆÄÀÎÇϿ콺 | 4 | 25.68 | 12,800 | 17 | 2012 | | 2024.02.01 | Àü¼¼ | ¿¡½º¿¥ÆÄÅ©ºä | 9 | 21.88 | 27,000 | 0 | 2019 | | 2024.01.31 | ¿ù¼¼ | (704-16) | 3 | 56.15 | 3,000 | 73 | 2003 | | 2024.01.31 | ¿ù¼¼ | ·Î¿¤ | 4 | 29.9 | 28,500 | 10 | 2023 | | 2024.01.30 | ¿ù¼¼ | ·Î¿¤ | 5 | 29.99 | 3,000 | 130 | 2023 | | 2024.01.30 | ¿ù¼¼ | ¼¼¸íÆÄÅ©ºô | 4 | 27.13 | 15,100 | 15 | 2012 | | 2024.01.30 | Àü¼¼ | ¿ì¼º¾ÆÆ®ºô5Â÷Aµ¿ | 2 | 37.53 | 17,380 | 0 | 2013 | | 2024.01.30 | ¿ù¼¼ | À¯Áø¼Ò¸£º£(670-61) | 4 | 29.89 | 15,400 | 12 | 2012 | | 2024.01.30 | ¿ù¼¼ | ¿¡½º¿¥ÆÄÅ©ºä | 6 | 23.06 | 22,680 | 15 | 2019 | | 2024.01.29 | ¿ù¼¼ | e-Á¶ÀºÁý | 1 | 66.66 | 17,600 | 8 | 2001 | | 2024.01.29 | Àü¼¼ | µ¿¼ºô¶ó | 2 | 73.92 | 24,250 | 0 | 2002 | | 2024.01.27 | ¿ù¼¼ | (716-38) | 4 | 45.37 | 22,000 | 15 | 2018 | | 2024.01.27 | ¿ù¼¼ | À¯Áø¼Ò¸£º£(676-4) | 3 | 31.76 | 3,000 | 80 | 2012 | | 2024.01.27 | Àü¼¼ | IDIEUM | 3 | 46.96 | 24,400 | 0 | 2017 | | 2024.01.27 | ¿ù¼¼ | û¼Ö¸®´õ½º | 3 | 29.89 | 10,000 | 50 | 2017 | | 2024.01.27 | Àü¼¼ | ·Î¿¤ | 3 | 22.66 | 24,000 | 0 | 2023 | | 2024.01.27 | Àü¼¼ | ¹ß»êÅ·´ý | 3 | 28.07 | 20,475 | 0 | 2017 | | 2024.01.27 | Àü¼¼ | û¼Ö¸®´õ½º | 3 | 29.89 | 16,500 | 0 | 2017 | | 2024.01.26 | ¿ù¼¼ | Çʺô¸®Áö | 2 | 61.24 | 5,000 | 57 | 2003 | | 2024.01.26 | ¿ù¼¼ | Çʺô¸®Áö | 2 | 61.24 | 5,000 | 57 | 2003 | | 2024.01.26 | Àü¼¼ | ¿¡½º¿¥ÆÄÅ©ºä | 7 | 21.88 | 22,680 | 0 | 2019 | | 2024.01.26 | Àü¼¼ | ¿¡½º¿¥ÆÄÅ©ºä | 7 | 21.88 | 22,680 | 0 | 2019 | | 2024.01.26 | Àü¼¼ | ½îȨ¾ÆÆ®ºô | 3 | 29.97 | 14,900 | 0 | 2012 | | 2024.01.25 | Àü¼¼ | ·Î¿¤ | 3 | 24.38 | 27,000 | 0 | 2023 | | 2024.01.25 | Àü¼¼ | ·Î¿¤ | 3 | 24.38 | 25,800 | 0 | 2023 | | 2024.01.25 | Àü¼¼ | ·Ôµ¥Å¸¿î | 4 | 36.51 | 14,300 | 0 | 2011 | | 2024.01.24 | Àü¼¼ | (687-31) | 2 | 34.84 | 9,600 | 0 | 1988 | | 2024.01.24 | ¿ù¼¼ | û¼ÖÆç¸®Ã¼ | 6 | 17.58 | 1,000 | 70 | 2019 | | 2024.01.23 | Àü¼¼ | ·Î¿¤ | 6 | 24.88 | 26,500 | 0 | 2023 | | 2024.01.22 | ¿ù¼¼ | û¼ÖÆç¸®Ã¼ | 5 | 19.38 | 1,000 | 70 | 2019 | | 2024.01.20 | ¿ù¼¼ | ´öÇöºô¶ó | 2 | 79.17 | 19,000 | 30 | 1995 | | 2024.01.19 | ¿ù¼¼ | (687-31) | 2 | 34.84 | 8,900 | 10 | 1988 | | 2024.01.17 | ¿ù¼¼ | À¯Áø¼Ò¸£º£(681-29) | 4 | 29.3 | 2,000 | 60 | 2012 | | 2024.01.16 | Àü¼¼ | ¼ÛÈ¿ùµåºôAµ¿ | 5 | 42.68 | 12,000 | 0 | 2002 | | 2024.01.15 | ¿ù¼¼ | ´õŬ·¡½Ä | 2 | 34.2 | 5,000 | 80 | 2017 | | 2024.01.14 | ¿ù¼¼ | ½îȨ¾ÆÆ®ºô | 5 | 29.97 | 14,490 | 15 | 2012 | | 2024.01.14 | ¿ù¼¼ | ¸¶°î¼ö¸í»êÆÄÅ©8´ÜÁö | 4 | 84.53 | 25,000 | 105 | 2006 | | 2024.01.13 | ¿ù¼¼ | û¼ÖÆç¸®Ã¼101µ¿,102µ¿,103µ¿, | 3 | 39.5 | 5,000 | 100 | 2016 | | 2024.01.13 | Àü¼¼ | IDIEUM | 3 | 46.96 | 26,000 | 0 | 2017 | | 2024.01.13 | ¿ù¼¼ | ¼¿ïÈ£¼¹®ÈŸ¿î»ýȰ°ü | 3 | 13.65 | 1,000 | 60 | 2012 | | 2024.01.13 | Àü¼¼ | ¿ì¼º¾ÆÆ®ºô5Â÷Aµ¿ | 3 | 37.53 | 17,000 | 0 | 2013 | | 2024.01.13 | ¿ù¼¼ | ·Î¾âºô¸®Áö | 2 | 43.74 | 4,000 | 70 | 2004 | | 2024.01.13 | Àü¼¼ | º¸¶óÆÄÅ©ºôAµ¿ | 2 | 57.16 | 20,000 | 0 | 2003 | | 2024.01.12 | ¿ù¼¼ | ´ë¼º¾ÆÆ®ºô | 5 | 45.22 | 3,000 | 80 | 2002 | | 2024.01.12 | ¿ù¼¼ | À¯Áø¼Ò¸£º£(670-61) | 5 | 36.3 | 18,700 | 20 | 2012 | | 2024.01.12 | Àü¼¼ | ´ö¼öÆç¸®Ã¼(718-3) | 2 | 24.53 | 17,000 | 0 | 2015 | | 2024.01.12 | ¿ù¼¼ | ½ºÆäÀ̽ººô | 6 | 34.45 | 24,160 | 24 | 2018 | | 2024.01.11 | ¿ù¼¼ | ¿¹¿ø¿ø·ë | 4 | 37.1 | 500 | 60 | 2003 | | 2024.01.09 | Àü¼¼ | Çý¼º¿¬¸³°¡µ¿ | 2 | 62.85 | 22,000 | 0 | 1982 | | 2024.01.08 | Àü¼¼ | ¹ß»ê±×¸°ºô¶ó | 2 | 41.76 | 12,600 | 0 | 1994 | | 2024.01.05 | ¿ù¼¼ | ½Å¼¼°èÇ÷¯½º | 5 | 26.79 | 4,000 | 70 | 2020 | | 2024.01.05 | ¿ù¼¼ | ´ö¼öÆç¸®Ã¼(718-3) | 3 | 29.56 | 5,000 | 70 | 2015 | | 2024.01.04 | Àü¼¼ | À¯Áø¼Ò¸£º£(670-61) | 2 | 52.41 | 25,000 | 0 | 2012 | | 2024.01.02 | Àü¼¼ | ¿Ã¸²Çª½º(698-2) | 2 | 44.18 | 19,950 | 0 | 2011 | | 2024.01.02 | ¿ù¼¼ | ±¤¿µ¾ÆÆ®ºô | 2 | 60.02 | 2,000 | 89 | 2002 |
|
|
|
 |
ÀÓÂ÷³»¿ª |
[¹è´ç¿ä±¸Á¾±âÀÏ : 2024/03/28] |
|
|
| ÀÓÂ÷ÀÎ |
Á¡À¯°ü°è |
ÀüÀÔÀÏÀÚ |
È®Á¤ÀÏÀÚ |
¹è´ç¿ä±¸ÀÏ |
º¸Áõ±Ý/Â÷ÀÓ |
´ëÇ׿ä°Ç |
ºñ°í |
| ÀåOO |
ÀüºÎ |
2017.09.28. |
2017.08.22. |
2024.01.12 |
180,000,000¿ø
|
O |
|
| ¸Å°¢¹°°Ç¸í¼¼ ºñ°í |
|
|
|
|
 |
Áö¿ªºÐ¼® |
|
|
|
|
| ÁöÇÏö |
|
Çб³ |
|
| °ü°ø¼ |
|
| ¹ý¿ø |
¼¿ï³²ºÎÁö¹æ¹ý¿ø (080-88)¼¿ïƯº°½Ã ¾çõ±¸ ½Å¿ù·Î 386(½ÅÁ¤µ¿) ´ëÇ¥ : 02)2192-1114 ¿µµîÆ÷±¸, °¼±¸, ¾çõ±¸, ±¸·Î±¸, ±Ýõ±¸ |
| µî±â¼Ò |
¼¿ï³²ºÎÁö¹æ¹ý¿ø º»¿ø µî±â±¹ (´ëÇ¥:1544-0773, ÆÑ½º:(02)2629-7307, ¼¿ïƯº°½Ã ¿µµîÆ÷±¸ °æÀηΠ772 (¹®·¡µ¿ 1°¡)) |
| ¼¼¹«¼ |
°¼¼¼¹«¼ (´ëÇ¥:02-2630-42, ÆÑ½º:02-2679-8777, ¼¿ïƯº°½Ã °¼±¸ ¸¶°î¼1·Î 60 (¸¶°îµ¿)) |
|
|
|
 |
¹ý¿ø ¹°°ÇÀÚ·á ¿ä¾à |
|
|
|
|
| ¼Ò¸êµÇÁö ¾Ê´Â µî±âºÎ±Ç¸® |
À»±¸ 13¹ø ÁÖÅÃÀÓÂ÷±Çµî±â¿Í °ü·ÃÇÏ¿© ¸Å¼öÀο¡°Ô ´ëÇ×ÇÒ ¼ö ÀÖ´Â ÀÓÂ÷ÀÎÀÌ ÀÖÀ½(ÀÓÂ÷º¸Áõ±Ý 180,000,000¿ø, ÀüÀÔÀÏÀÚ 2017.09.28. È®Á¤ÀÏÀÚ 2017.08.22.)
¹è´ç¿¡¼ º¸Áõ±ÝÀÌ Àü¾× º¯Á¦µÇÁö ¾ÊÀ¸¸é Àܾ×À» ¸Å¼öÀÎÀÌ ÀμöÇÔ |
| ¼³Á¤µÈ °ÍÀ¸·Î º¸´Â Áö»ó±Ç |
ÇØ´ç»çÇ× ¾øÀ½ |
| ¹ý¿øÀÚ·á Æ¯ÀÌ»çÇ× |
[ÁÖ¿ä ¹®°Ç Á¢¼ö ³»¿ª]
|
[ºÎµ¿»ê ÇöȲÁ¶»ç¼ ºñ°í¶õ]
ÀÌ°Ç ºÎµ¿»ê ¸ñ·ÏÀº °¡µ¿ ³ªµ¿ Áß ³ªµ¿ÀÓ.
|
|
| ¿©ÀÇÁÖ°æ¸Å Á¶¾ð ÇѸ¶µð |
ÀÌ ºÎµ¿»êÀÇ ÀÔÂû¹ý¿øÀº ¼¿ï³²ºÎÁö¹æ¹ý¿øÀÔ´Ï´Ù.
ÀÔÂû½Ã°£Àº ~11:20ÀÔ´Ï´Ù. ÀÌ ¹ý¿ø¿¡´Â ½ÅÇÑÀºÇàÀÌ ÀÔÁ¡Çϰí ÀÖ½À´Ï´Ù.
|
¼±¼øÀ§ ÀÓÂ÷±Çµî±â°¡ µÇ¾î ÀÖ½À´Ï´Ù ´ëÇ×·ÂÀÌ ÀÖ´Â ¼±¼øÀ§ ÀÓÂ÷±Çµî±â ±Ç¸®ÀÚ°¡ ¹è´çÀ» Àü¾× ¹ÞÁö ¸øÇÒ °æ¿ì ³«ÂûÀÚ°¡ ÀÜ¿© º¸Áõ±ÝÀ» ÀμöÇØ¾ßÇÏ´Â °æ¿ìµµ ÀÖ½À´Ï´Ù. |
|
|
| Åë°è±â°£ |
³«Âû¹°°Ç¼ö |
Æò±Õ°¨Á¤°¡ |
Æò±Õ³«Âû°¡ |
³«Âû°¡À² |
À¯ÂûȽ¼ö |
| 3°³¿ù |
409°Ç |
255,026,454¿ø |
194,016,882¿ø |
76% |
5.4ȸ |
| 6°³¿ù |
598°Ç |
251,100,311¿ø |
193,166,307¿ø |
77% |
5.4ȸ |
| 12°³¿ù |
865°Ç |
250,347,178¿ø |
186,584,241¿ø |
75% |
5.6ȸ |
|
|
|
|
|
|
 |
|