|
| º» °æ¸Å¹°°ÇÀº ³«ÂûµÇ¾î ÀÌ¹Ì ¸ðµç °æ¸ÅÀýÂ÷°¡ ³¡³µ½À´Ï´Ù. ÀÌ ¹°°ÇÀº »ó´ãÇØ µå¸®Áö ¾Ê½À´Ï´Ù. |
|
|
| ¼ÒÀçÁö |
±¤ÁÖ±¤¿ª½Ã ¼±¸ ±ÝºÎ·Î 100, 104µ¿ 5Ãþ506È£ (±ÝÈ£µ¿,±ÝÈ£µ¿¶óÀÎ¾ÆÆÄÆ®)
±¸)±¤ÁÖ±¤¿ª½Ã ¼±¸ ±ÝÈ£µ¿ 739-1
|
|
| »ç°Ç¹øÈ£ |
2024 Ÿ°æ 434 |
¹°°Ç¹øÈ£ |
1
|
¹°°Ç¿ëµµ |
¾ÆÆÄÆ® |
| °¨Á¤Æò°¡¾× |
200,000,000¿ø |
°æ¸Å´ë»ó |
ÅäÁö ¹× °Ç¹°Àϰý¸Å°¢ |
ÁøÇà»óÅ |
³«Âû |
ÃÖÀúÀÔÂû°¡ ³«Âû°¡ |
(100%) 200,000,000¿ø
(0.00%) 0¿ø |
°Ç¹°¸éÀû |
84.73§³(25.63Æò) |
ÀÔÂû±âÀÏ |
2024.07.16(È) 10:00
|
| ÀÔÂûº¸Áõ±Ý |
(10%) 20,000,000¿ø |
ÅäÁö¸éÀû |
36.48§³(11.03Æò)
|
À¯ÂûȽ¼ö |
0ȸ |
| ÀÔÂû¹ý¿ø |
±¤ÁÖÁö¹æ¹ý¿ø |
°æ¸Å¹æ¹ý |
|
¹°°ÇÁ¶È¸¼ö |
¿À´Ã: 3ȸ [´©Àû: 20393ȸ]
|
| ¸»¼Ò±âÁØ | ÃÖ¼±¼øÀ§ ¼³Á¤ : 2016.06.23.±ÙÀú´ç±Ç
|
|
|
|
|
|
|
|
|
|
|
°æ¸Å´ë»ó ¸ñ·Ï
|
|
| ±¸ºÐ |
¸ñ·Ï |
ÁÖ¼Ò |
±¸Á¶/¿ëµµ/´ëÁö±Ç |
ºñ°í |
´ëÁö±Ç
|
1 |
±ÝºÎ·Î 100 |
20676.9 ºÐÀÇ 36.476 |
36.476§³ (11.03Æò)
|
°Ç¹°
|
1 |
±ÝºÎ·Î 100 |
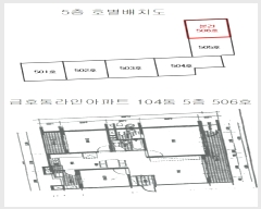
5Ãþ506È£ (±ÝÈ£µ¿,±ÝÈ£µ¿¶óÀÎ¾ÆÆÄÆ®) ö±ÙÄÜÅ©¸®Æ®±¸Á¶ |
84.728§³ (25.63Æò)
|
|
|
|
2024-07-16
³«Âû
|
(100%)
200,000,000¿ø
|
|
|
¦±¦¬> ³«Âû°¡
 |
|
|
|
|
|
|
°¨Á¤Æò°¡¼ ¿ä¾à |
|
[À§Ä¡/ÁÖÀ§È¯°æ] ±¤ÁÖ±¤¿ª½Ã ¼±¸ ±ÝÈ£µ¿ ¼ÒÀç "±ÝÈ£ÁßÇб³" ¼Ãø Àαٿ¡ À§Ä¡Çϸç, ÁÖÀ§´Â ¾ÆÆÄÆ®, ´Üµ¶ ¹× ´Ù¼¼´ëÁÖÅÃ, ±Ù¸°»ó°¡, Çб³ µîÀÌ È¥ÀçÇÔ.
[±³Åë»óȲ] Á¦¹Ý Â÷·®ÃâÀÔ °¡´ÉÇϸç, Àαٿ¡ ¹ö½ºÁ¤·ùÀåÀÌ ¼ÒÀçÇÏ´Â µî ´ëÁß±³Åë ¹× Á¦¹Ý±³Åë »çÁ¤Àº º¸Åë½ÃµÊ.
[°Ç¹°±¸Á¶] ö±ÙÄÜÅ©¸®Æ®Á¶ ½½·¡ºêÁöºØ ÁöÇÏ1Ãþ Áö»ó 17Ãþ ¾ÆÆÄÆ® ³» 5Ãþ 506È£·Î¼ ¿Üº® : ¸ôÅ»À§ ÆäÀÎÆ® ¸¶°¨ µî. ³»º® : - âȣ : »õ½Ã âȣÀÓ.
[ÀÌ¿ë»óÅÂ] ¾ÆÆÄÆ®·Î ÀÌ¿ëÁßÀÓ.
[¼³ºñ³»¿ª] À§»ý ¹× ±Þ¹è¼ö¼³ºñ, µµ½Ã°¡½º¼³ºñ, °³º°³¹æ¼³ºñ, ½Â°±â¼³ºñ µî µÇ¾îÀÖÀ½.
[ÅäÁöÇü»ó/ÀÌ¿ë»óÅÂ] Á¤¹æÇü ÆòÁö·Î¼ "ÁÖ°Å¿ë(¾ÆÆÄÆ®)" °ÇºÎÁö·Î ÀÌ¿ëÁßÀÓ.
[µµ·Î»óÅÂ] ºÏÃøÀ¸·Î ÁøÀÔ·Î °³¼³µÇ¾î ÀÖÀ¸¸ç ¿Ü°û°øµµ¿Í ¿¬°áµÊ.
[ÅäÁöÀÌ¿ë°èȹ] µµ½ÃÁö¿ª, Á¦3Á¾ÀϹÝÁÖ°ÅÁö¿ª, Á¦1Á¾Áö±¸´ÜÀ§°èȹ±¸¿ª(±ÝÈ£.ÈÁ¤), µµ·Î(Á¢ÇÕ), Áß·Î 1·ù(Æø 20m-25m)(Á¢ÇÕ) »ó´ëº¸È£±¸¿ª£¼±³À°È¯°æ º¸È£¿¡ °üÇÑ ¹ý·ü£¾, Àý´ëº¸È£±¸¿ª£¼±³À°È¯°æ º¸È£¿¡ °üÇÑ ¹ý·ü£¾, ºñÇà¾ÈÀüÁ¦6±¸¿ª(Àü¼ú)£¼±º»ç±âÁö ¹× ±º»ç½Ã¼³ º¸È£¹ý£¾, ¿ª»ç¹®Èȯ°æº¸Á¸Áö¿ª(2016-07 -01)(º´Ãµ»ç)£¼¹®ÈÀ纸ȣ¹ý£¾
[°øºÎ¿ÍÀÇ Â÷ÀÌ] ÇØ´ç»çÇ× ¾øÀ½.
[Âü°í»çÇ×] ¹Ì»ó ¹× ÇØ´ç»çÇ× ¾øÀ½.
|
|
|
°ÇÃ๰ÇöȲ |
|
|
|
| ¼ÒÀçÁö |
±¤ÁÖ±¤¿ª½Ã ¼±¸ ±ÝÈ£µ¿ 739-1¹øÁö |
| ´ëÁö¸éÀû |
20676.9§³(6265.73Æò) |
¿¬¸éÀû |
8377.56§³(2538.65Æò) |
ÁÖ¿ëµµ |
°øµ¿ÁÖÅà |
| °ÇÃà¸éÀû |
592.2§³(179.45Æò) |
¿ëÀû·ü»êÁ¤¿¬¸éÀû |
7926.36§³(2401.93Æò) |
Âø°øÀÏÀÚ |
1992.07.02 |
| °ÇÆóÀ² |
26.76% |
¿ëÀû·ü |
270% |
»ç¿ë½ÂÀÎÀÏÀÚ |
1993.12.31 |
| Áö»óÃþ¼ö |
17Ãþ |
ÁöÇÏÃþ¼ö |
1Ãþ |
±¸Á¶ |
ö±ÙÄÜÅ©¸®Æ®±¸Á¶ |
|
|
|
|
|
|
|
|
¸éÀû(§³), ±Ý¾×(¸¸¿ø)
| °è¾àÀÏ | ±âÁØ | ¾ÆÆÄÆ®¸í | Ãþ | Àü¿ë¸éÀû | °Å·¡±Ý¾× | °ÇÃà³âµµ | | 2024.02.23 | ¸Å¸Å | ¶óÀÎ | 4 | 114.368 | 33,000 | 1993 | | 2024.02.22 | ¸Å¸Å | ¶óÀÎ | 4 | 84.728 | 20,800 | 1993 | | 2024.01.06 | ¸Å¸Å | ¶óÀÎ | 7 | 102 | 27,300 | 1993 |
| °è¾àÀÏ | ±âÁØ | ¾ÆÆÄÆ®¸í | Ãþ | Àü¿ë¸éÀû | º¸Áõ±Ý | ¿ù¼¼ | °ÇÃà³âµµ | | 2025.09.22 | Àü¼¼ | ¶óÀÎ | 16 | 84.728 | 21,000 | 0 | 1993 | | 2025.07.02 | ¸Å¸Å | ¶óÀÎ | 17 | 102 | 28,600 | | 1993 | | 2025.04.17 | ¿ù¼¼ | ¶óÀÎ | 1 | 114.368 | 10,000 | 75 | 1993 | | 2025.03.15 | ¸Å¸Å | ¶óÀÎ | 19 | 84.728 | 23,700 | | 1993 | | 2025.03.07 | ¸Å¸Å | ¶óÀÎ | 16 | 84.728 | 22,800 | | 1993 | | 2025.01.04 | ¸Å¸Å | ¶óÀÎ | 13 | 84.728 | 23,500 | | 1993 | | 2024.12.31 | Àü¼¼ | ¶óÀÎ | 5 | 84.728 | 17,000 | 0 | 1993 | | 2024.12.31 | Àü¼¼ | ¶óÀÎ | 5 | 84.728 | 17,000 | 0 | 1993 | | 2024.12.27 | ¸Å¸Å | ¶óÀÎ | 13 | 164.91 | 47,500 | | 1993 | | 2024.12.26 | ¸Å¸Å | ¶óÀÎ | 12 | 84.728 | 25,000 | | 1993 | | 2024.12.20 | ¸Å¸Å | ¶óÀÎ | 4 | 84.728 | 24,500 | | 1993 | | 2024.11.28 | ¸Å¸Å | ¶óÀÎ | 12 | 84.728 | 25,000 | | 1993 | | 2024.11.11 | ¸Å¸Å | ¶óÀÎ | 12 | 84.728 | 21,000 | | 1993 | | 2024.11.11 | ¸Å¸Å | ¶óÀÎ | 12 | 84.728 | 21,000 | | 1993 | | 2024.10.27 | ¸Å¸Å | ¶óÀÎ | 12 | 84.728 | 22,000 | | 1993 | | 2024.08.29 | ¸Å¸Å | ¶óÀÎ | 9 | 84.728 | 22,900 | | 1993 | | 2024.08.26 | ¸Å¸Å | ¶óÀÎ | 8 | 102 | 29,000 | | 1993 | | 2024.07.20 | ¸Å¸Å | ¶óÀÎ | 7 | 102 | 30,000 | | 1993 | | 2024.07.17 | ¸Å¸Å | ¶óÀÎ | 2 | 102 | 24,500 | | 1993 | | 2024.06.06 | ¸Å¸Å | ¶óÀÎ | 8 | 84.728 | 24,500 | | 1993 | | 2024.05.29 | ¸Å¸Å | ¶óÀÎ | 2 | 102 | 25,000 | | 1993 | | 2024.05.23 | ¸Å¸Å | ¶óÀÎ | 14 | 114.368 | 33,000 | | 1993 | | 2024.04.15 | ¸Å¸Å | ¶óÀÎ | 1 | 102 | 25,100 | | 1993 | | 2024.03.13 | Àü¼¼ | ¶óÀÎ | 18 | 84.728 | 15,000 | 0 | 1993 | | 2024.03.11 | ¿ù¼¼ | ¶óÀÎ | 1 | 84.728 | 2,000 | 80 | 1993 | | 2024.01.20 | Àü¼¼ | ¶óÀÎ | 15 | 102 | 18,000 | 0 | 1993 | | 2024.01.04 | ¿ù¼¼ | ¶óÀÎ | 10 | 102 | 5,000 | 70 | 1993 | | 2024.01.04 | ¿ù¼¼ | ¶óÀÎ | 10 | 102 | 5,000 | 70 | 1993 |
|
|
|
 |
ÀÓÂ÷³»¿ª |
[¹è´ç¿ä±¸Á¾±âÀÏ : 2024/04/15] |
|
|
| ÀÓÂ÷ÀÎ |
Á¡À¯°ü°è |
ÀüÀÔÀÏÀÚ |
È®Á¤ÀÏÀÚ |
¹è´ç¿ä±¸ÀÏ |
º¸Áõ±Ý/Â÷ÀÓ |
´ëÇ׿ä°Ç |
ºñ°í |
| Á¶»çµÈ ÀÓÂ÷³»¿ªÀÌ ¾ø½À´Ï´Ù. |
|
|
|
 |
Áö¿ªºÐ¼® |
|
|
|
|
| ÁöÇÏö |
|
Çб³ |
|
| °ü°ø¼ |
|
| ¹ý¿ø |
±¤ÁÖÁö¹æ¹ý¿ø (614-41)±¤ÁÖ±¤¿ª½Ã µ¿±¸ Áعý·Î 7-12(Áö»ê2µ¿) ´ëÇ¥ : 062)239-1114 ±¤ÁÖ±¤¿ª½Ã, ³ªÁÖ½Ã, ȼø±º, À强±º, ´ã¾ç±º, °î¼º±º, ¿µ±¤±º |
| µî±â¼Ò |
±¤ÁÖÁö¹æ¹ý¿ø º»¿ø µî±â±¹ (´ëÇ¥:1544-0773, ÆÑ½º:(062)381-0856, 381-0876, ±¤ÁÖ±¤¿ª½Ã ¼±¸ ½Ãû·Î 106 (Ä¡Æòµ¿ 1205)) |
| ¼¼¹«¼ |
¼±¤ÁÖ¼¼¹«¼ (´ëÇ¥:062-380-52, ÆÑ½º:062-716-7260, ±¤ÁÖ±¤¿ª½Ã ¼±¸ »ó¹«¹ÎÁÖ·Î 6¹ø±æ 31(½ÖÃ̵¿)) |
|
|
|
 |
¹ý¿ø ¹°°ÇÀÚ·á ¿ä¾à |
|
|
|
|
| ¼Ò¸êµÇÁö ¾Ê´Â µî±âºÎ±Ç¸® |
ÇØ´ç»çÇ× ¾øÀ½ |
| ¼³Á¤µÈ °ÍÀ¸·Î º¸´Â Áö»ó±Ç |
ÇØ´ç»çÇ× ¾øÀ½ |
| ¹ý¿øÀÚ·á Æ¯ÀÌ»çÇ× |
|
| ¿©ÀÇÁÖ°æ¸Å Á¶¾ð ÇѸ¶µð |
ÀÌ ºÎµ¿»êÀÇ ÀÔÂû¹ý¿øÀº ±¤ÁÖÁö¹æ¹ý¿øÀÔ´Ï´Ù.
ÀÔÂû½Ã°£Àº ~11:10ÀÔ´Ï´Ù. ÀÌ ¹ý¿ø¿¡´Â ±¤ÁÖÀºÇà,½ÅÇÑÀºÇàÀÌ ÀÔÁ¡Çϰí ÀÖ½À´Ï´Ù.
|
|
|
| Åë°è±â°£ |
³«Âû¹°°Ç¼ö |
Æò±Õ°¨Á¤°¡ |
Æò±Õ³«Âû°¡ |
³«Âû°¡À² |
À¯ÂûȽ¼ö |
| 3°³¿ù |
25°Ç |
193,556,000¿ø |
155,987,725¿ø |
80% |
1.2ȸ |
| 6°³¿ù |
51°Ç |
299,272,549¿ø |
240,256,294¿ø |
80% |
1.3ȸ |
| 12°³¿ù |
80°Ç |
303,500,000¿ø |
241,439,869¿ø |
80% |
1.3ȸ |
|
|
|
|
|
|
 |
|