|
|
| ¼ÒÀçÁö |
¼¿ïƯº°½Ã °¼±¸ µîÃÌ·Î13³ª±æ 16-27, Á¦¿¡À̵¿ Á¦2Ãþ Á¦202È£ (µîÃ̵¿, ÆòÈ¾ÆÆ®ºô)
±¸)¼¿ïƯº°½Ã °¼±¸ µîÃ̵¿ 574-3
|
|
| »ç°Ç¹øÈ£ |
2024 Ÿ°æ 109279 |
¹°°Ç¹øÈ£ |
1
|
¹°°Ç¿ëµµ |
µµ½ÃÇü»ýȰÁÖÅà |
| °¨Á¤Æò°¡¾× |
207,000,000¿ø |
°æ¸Å´ë»ó |
ÅäÁö ¹× °Ç¹°Àϰý¸Å°¢ |
ÁøÇà»óÅ |
ÀçÁøÇà |
| ÃÖÀúÀÔÂû°¡ |
(51%) 105,984,000¿ø
|
°Ç¹°¸éÀû |
29.97§³(9.07Æò) |
ÀÔÂû±âÀÏ |
2026.01.15(¸ñ) 10:00
(ÀÔÂû 51ÀÏÀü)
|
| ÀÔÂûº¸Áõ±Ý |
(10%) 10,598,400¿ø |
ÅäÁö¸éÀû |
19.85§³(6.00Æò)
|
À¯ÂûȽ¼ö |
3ȸ |
| ÀÔÂû¹ý¿ø |
¼¿ï³²ºÎÁö¹æ¹ý¿ø |
°æ¸Å¹æ¹ý |
|
¹°°ÇÁ¶È¸¼ö |
¿À´Ã: 4ȸ [´©Àû: 31ȸ]
|
| ¸»¼Ò±âÁØ | |
|
|
|
|
|
|
|
|
|
|
°æ¸Å´ë»ó ¸ñ·Ï
|
|
| ±¸ºÐ |
¸ñ·Ï |
ÁÖ¼Ò |
±¸Á¶/¿ëµµ/´ëÁö±Ç |
ºñ°í |
´ëÁö±Ç
|
1 |
µîÃÌ·Î13³ª±æ 16-27 |
421.0 ºÐÀÇ 19.85 |
19.85§³ (6.00Æò)
|
°Ç¹°
|
1 |
µîÃÌ·Î13³ª±æ 16-27 |
Á¦2Ãþ Á¦202È£ (µîÃ̵¿, ÆòÈ¾ÆÆ®ºô) ö±ÙÄÜÅ©¸®Æ®±¸Á¶ |
29.97§³ (9.07Æò)
|
|
|
|
2024-12-12
À¯Âû
|
(100%)
207,000,000¿ø
|
|
|
|
2025-01-23
À¯Âû
|
(80%)
165,600,000¿ø
|
|
|
|
2025-03-06
À¯Âû
|
(64%)
132,480,000¿ø
|
|
|
|
2025-04-17
º¯°æ
|
(51%)
105,984,000¿ø
|
|
|
|
2026-01-15
ÁøÇà
|
(51%)
105,984,000¿ø
|
|
|
|
|
|
°¨Á¤Æò°¡¼ ¿ä¾à |
|
[À§Ä¡/ÁÖÀ§È¯°æ] º»°ÇÀº ¼¿ïƯº°½Ã °¼±¸ µîÃ̵¿ ¼ÒÀç "´ëÀϰíµîÇб³" ³²¼Ãø Àαٿ¡ À§Ä¡Çϸç, ÁÖÀ§´Â ´Üµ¶ÁÖÅà ¹× ´Ù¼¼´ëÁÖÅÃ, ±Ù¸°»ýȰ½Ã¼³ µîÀÌ ¼ÒÀçÇÏ¿© Á¦¹Ý ÁÖÀ§È¯°æÀº º¸ÅëÀÓ.
[±³Åë»óȲ] º»°Ç±îÁö Â÷·®Á¢±ÙÀÌ °¡´ÉÇϸç, Àαٿ¡ ¹ö½ºÁ¤·ùÀåÀÌ ¼ÒÀçÇÏ¿© ´ëÁß±³Åë»çÁ¤Àº º¸ÅëÀÓ.
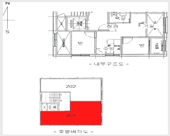
[°Ç¹°±¸Á¶] ö±ÙÄÜÅ©¸®Æ®±¸Á¶ Æò½º¶óºêÁöºØ 6Ãþ °Ç¹° ³» Á¦2Ãþ Á¦202È£·Î¼,¿Üº® : º®µ¹ ºÙÀÓ ¸¶°¨ µî,³»º® : º®Áö ¹× ÀϺΠŸÀÏ ¸¶°¨ µî,âȣ : »õ½Ã âȣ µîÀÓ.
[ÀÌ¿ë»óÅÂ] µµ½ÃÇü»ýȰÁÖÅÃ(´ÜÁöÇü)(¹æ, ¿å½Ç, °Å½Ç, ÁÖ¹æ, Çö°ü, ¹ßÄÚ´Ï µî)À¸·Î ÀÌ¿ëÁßÀÓ.
[¼³ºñ³»¿ª] ±Þ¡¤¹è¼ö¼³ºñ ¹× À§»ý¼³ºñ, ³¹æ¼³ºñ, ½Â°±â¼³ºñ µîÀÌ µÇ¾îÀÖÀ½.
[ÅäÁöÇü»ó/ÀÌ¿ë»óÅÂ] µ¿ ÇÏÇ⠿ϰæ»çÁö¸¦ ÆòźÇÏ°Ô Á¶¼ºÇÑ °¡ÀåÇü ÅäÁö·Î¼, µµ½ÃÇü»ýȰÁÖÅÃ(´ÜÁöÇü´Ù¼¼´ë) °ÇºÎÁö·Î ÀÌ¿ëÁßÀÓ.
[µµ·Î»óÅÂ] º»°Ç µ¿ÃøÀ¸·Î ³ëÆø ¾à 4m ³»¿Ü µµ·Î¿Í Á¢ÇÔ.
[ÅäÁöÀÌ¿ë°èȹ] µµ½ÃÁö¿ª, Á¦2Á¾ÀϹÝÁÖ°ÅÁö¿ª(7ÃþÀÌÇÏ), Áß¿ä½Ã¼³¹°º¸È£Áö±¸(°øÇ×), °¡Ãà»çÀ°Á¦Çѱ¸¿ª(Áö¿ª°æÁ¦°ú È®ÀÎ ¿ä¸Á)£¼°¡ÃàºÐ´¢ÀÇ °ü¸® ¹× À̿뿡 °üÇÑ ¹ý·ü£¾, ¿øÃßÇ¥¸é±¸¿ª(¿øÃßÇ¥¸é)£¼°øÇ׽ü³¹ý£¾, »ó´ëº¸È£±¸¿ª(2015-03-24)(°¼±³À°Áö¿øÃ» ¹Ýµå½Ã È®Àοä¸Á)£¼±³À°È¯°æ º¸È£¿¡ °üÇÑ ¹ý·ü£¾, ´ë°ø¹æ¾îÇùÁ¶±¸¿ª(À§Å¹°íµµ:77-257m)£¼±º»ç±âÁö ¹× ±º»ç½Ã¼³ º¸È£¹ý£¾, °ú¹Ð¾ïÁ¦±Ç¿ª£¼¼öµµ±ÇÁ¤ºñ°èȹ¹ý£¾ÀÓ.
[°øºÎ¿ÍÀÇ Â÷ÀÌ] ¾øÀ½.
[Âü°í»çÇ×] ÀÓ´ë°ü°è ¹Ì»óÀÓ.
|
|
|
°ÇÃ๰ÇöȲ |
|
|
|
| ¼ÒÀçÁö |
¼¿ïƯº°½Ã °¼±¸ µîÃ̵¿ 574-3¹øÁö |
| ´ëÁö¸éÀû |
416.78§³(126.3Æò) |
¿¬¸éÀû |
417.06§³(126.38Æò) |
ÁÖ¿ëµµ |
°øµ¿ÁÖÅà |
| °ÇÃà¸éÀû |
106.02§³(32.13Æò) |
¿ëÀû·ü»êÁ¤¿¬¸éÀû |
417.06§³(126.38Æò) |
Âø°øÀÏÀÚ |
2016.10.13 |
| °ÇÆóÀ² |
25.44% |
¿ëÀû·ü |
100.07% |
»ç¿ë½ÂÀÎÀÏÀÚ |
2017.03.03 |
| Áö»óÃþ¼ö |
6Ãþ |
ÁöÇÏÃþ¼ö |
|
±¸Á¶ |
ö±ÙÄÜÅ©¸®Æ®±¸Á¶ |
|
|
|
|
|
 |
ÀÓÂ÷³»¿ª |
[¹è´ç¿ä±¸Á¾±âÀÏ : 2024/06/25] |
|
|
| ÀÓÂ÷ÀÎ |
Á¡À¯°ü°è |
ÀüÀÔÀÏÀÚ |
È®Á¤ÀÏÀÚ |
¹è´ç¿ä±¸ÀÏ |
º¸Áõ±Ý/Â÷ÀÓ |
´ëÇ׿ä°Ç |
ºñ°í |
| ÇÏOO |
202È£. |
2020.02.28. |
2020.03.30. |
2024.03.18 |
198,000,000
|
O |
2020.02.28.~2022.02.27. |
|
|
|
 |
Áö¿ªºÐ¼® |
|
|
|
|
| ÁöÇÏö |
|
Çб³ |
|
| °ü°ø¼ |
|
| ¹ý¿ø |
¼¿ï³²ºÎÁö¹æ¹ý¿ø (080-88)¼¿ïƯº°½Ã ¾çõ±¸ ½Å¿ù·Î 386(½ÅÁ¤µ¿) ´ëÇ¥ : 02)2192-1114 ¿µµîÆ÷±¸, °¼±¸, ¾çõ±¸, ±¸·Î±¸, ±Ýõ±¸ |
| µî±â¼Ò |
¼¿ï³²ºÎÁö¹æ¹ý¿ø º»¿ø µî±â±¹ (´ëÇ¥:1544-0773, ÆÑ½º:(02)2629-7307, ¼¿ïƯº°½Ã ¿µµîÆ÷±¸ °æÀηΠ772 (¹®·¡µ¿ 1°¡)) |
| ¼¼¹«¼ |
°¼¼¼¹«¼ (´ëÇ¥:02-2630-42, ÆÑ½º:02-2679-8777, ¼¿ïƯº°½Ã °¼±¸ ¸¶°î¼1·Î 60 (¸¶°îµ¿)) |
|
|
|
 |
¹ý¿ø ¹°°ÇÀÚ·á ¿ä¾à |
|
|
|
|
| ¼Ò¸êµÇÁö ¾Ê´Â µî±âºÎ±Ç¸® |
¸Å¼öÀο¡°Ô ´ëÇ×ÇÒ ¼ö ÀÖ´Â ÀÓÂ÷ÀÎÀÌ ÀÖÀ½(ÀÓ´ëÂ÷º¸Áõ±Ý 198,000,000¿ø, ÀüÀÔÀÏÀÚ 2020.02.28., È®Á¤ÀÏÀÚ 2020.03.30.).
¹è´ç¿¡¼ º¸Áõ±ÝÀÌ Àü¾× º¯Á¦µÇÁö ¾Æ´ÏÇÏ¸é ¸Å¼öÀÎÀÌ ÀμöÇÔ |
| ¼³Á¤µÈ °ÍÀ¸·Î º¸´Â Áö»ó±Ç |
|
| ¹ý¿øÀÚ·á Æ¯ÀÌ»çÇ× |
|
| ¿©ÀÇÁÖ°æ¸Å Á¶¾ð ÇѸ¶µð |
ÀÌ ºÎµ¿»êÀÇ ÀÔÂû¹ý¿øÀº ¼¿ï³²ºÎÁö¹æ¹ý¿øÀÔ´Ï´Ù.
ÀÔÂûÀÏÀº 2026-01-15ÀÔ´Ï´Ù.
ÀÔÂû½Ã°£Àº ~11:20ÀÔ´Ï´Ù. ÀÌ ¹ý¿ø¿¡´Â ½ÅÇÑÀºÇàÀÌ ÀÔÁ¡Çϰí ÀÖ½À´Ï´Ù.
|
|
|
| Åë°è±â°£ |
³«Âû¹°°Ç¼ö |
Æò±Õ°¨Á¤°¡ |
Æò±Õ³«Âû°¡ |
³«Âû°¡À² |
À¯ÂûȽ¼ö |
| 3°³¿ù |
284 |
78 |
200952728 |
|
2.5 |
| 6°³¿ù |
533 |
78 |
197680641 |
|
3 |
| 12°³¿ù |
1107 |
77 |
195750176 |
|
4.2 |
|
|
|
|
|
|
 |
|