|
| º» °æ¸Å¹°°ÇÀº ±â°¢µÇ¾î ÀÌ¹Ì ¸ðµç °æ¸ÅÀýÂ÷°¡ ³¡³µ½À´Ï´Ù. ÀÌ ¹°°ÇÀº »ó´ãÇØ µå¸®Áö ¾Ê½À´Ï´Ù. |
|
|
| ¼ÒÀçÁö |
°æ±âµµ ȼº½Ã ³ëÀÛ·Î 175, 12Ãþ1203È£ (¹Ý¼Ûµ¿,¼¾Æ®·²½ÃƼ¿ÀÇǽºÅÚ)
±¸)°æ±âµµ ȼº½Ã ¹Ý¼Ûµ¿ 92-3
|
|
| »ç°Ç¹øÈ£ |
2024 Ÿ°æ 65494 |
¹°°Ç¹øÈ£ |
1
|
¹°°Ç¿ëµµ |
¿ÀÇǽºÅÚ |
| °¨Á¤Æò°¡¾× |
220,000,000¿ø |
°æ¸Å´ë»ó |
ÅäÁö ¹× °Ç¹°Àϰý¸Å°¢ |
ÁøÇà»óÅ |
±â°¢ |
| ÃÖÀúÀÔÂû°¡ |
(34%) 75,460,000¿ø
|
°Ç¹°¸éÀû |
42.68§³(12.91Æò) |
ÀÔÂû±âÀÏ |
2025.04.30(¼ö) 10:00
|
| ÀÔÂûº¸Áõ±Ý |
(10%) 7,546,000¿ø |
ÅäÁö¸éÀû |
6.86§³(2.08Æò)
|
À¯ÂûȽ¼ö |
4ȸ |
| ÀÔÂû¹ý¿ø |
¼ö¿øÁö¹æ¹ý¿ø |
°æ¸Å¹æ¹ý |
|
¹°°ÇÁ¶È¸¼ö |
¿À´Ã: 2ȸ [´©Àû: 1044ȸ]
|
| ¸»¼Ò±âÁØ | |
|
|
|
|
|
|
|
|
|
|
°æ¸Å´ë»ó ¸ñ·Ï
|
|
| ±¸ºÐ |
¸ñ·Ï |
ÁÖ¼Ò |
±¸Á¶/¿ëµµ/´ëÁö±Ç |
ºñ°í |
´ëÁö±Ç
|
1 |
³ëÀÛ·Î 175 |
2053.1 ºÐÀÇ 6.863 |
6.863§³ (2.08Æò)
|
°Ç¹°
|
1 |
³ëÀÛ·Î 175 |
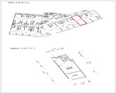
12Ãþ1203È£ (¹Ý¼Ûµ¿,¼¾Æ®·²½ÃƼ¿ÀÇǽºÅÚ) ö±ÙÄÜÅ©¸®Æ®±¸Á¶ |
42.684§³ (12.91Æò)
|
|
|
|
2025-01-20
À¯Âû
|
(100%)
220,000,000¿ø
|
|
|
|
2025-02-26
À¯Âû
|
(70%)
154,000,000¿ø
|
|
|
|
2025-03-31
À¯Âû
|
(49%)
107,800,000¿ø
|
|
|
|
2025-04-30
À¯Âû
|
(34%)
75,460,000¿ø
|
|
|
|
|
|
°¨Á¤Æò°¡¼ ¿ä¾à |
|
[À§Ä¡/ÁÖÀ§È¯°æ] º»°ÇÀº °æ±âµµ ȼº¼ ¹Ý¼Ûµ¿ ¼ÒÀç "µ¿Åº1µ¿ ÇàÁ¤º¹Áö¼¾ÅÍ" ³²µ¿Ãø Àαٿ¡ À§Ä¡Çϸç ,ÁÖÀ§´Â ¿ÀÇǽºÅÚ, ±Ù¸°»ýȰ½Ã¼³, ¾ÆÆÄÆ®´ÜÁö, ´Ù¼¼´ëÁÖÅà µîÀÌ È¥ÀçÇÏ¿© ÀÖ´Â Áö¿ªÀÓ.
[±³Åë»óȲ] º»°Ç±îÁö Â÷·®ÃâÀÔ ÀÚÀ¯·Î¿ì¸ç, ÀαÙÀÇ ³ë¼±¹ö½ºÁ¤·ùÀåÀÇ À§Ä¡ ¹× ¿îÇàÁ¤µµ µî Á¦¹Ý´ëÁß±³Åë»çÁ¤Àº ¹«³ÇÑ ÆíÀÓ.
[°Ç¹°±¸Á¶] ö±ÙÄÜÅ©¸®Æ®±¸Á¶ (ö±Ù)ÄÜÅ©¸®Æ®ÁöºØ 24Ãþ °Ç¹° Áß 12Ãþ 1203È£·Î¼,¿Üº® : ¼®ÀçºÙÀÓ ¹× ¸ôÅ»À§ ÆäÀÎÆÃ µî ¸¶°¨. ³»º® : º®Áöµµ¹è ¹× ÀϺΠŸÀϺÙÀÓ µî ¸¶°¨. âȣ : ¼¦½ÃâȣÀÓ.
[ÀÌ¿ë»óÅÂ] ¿ÀÇǽºÅÚ·Î ÀÌ¿ëÁßÀÓ.
[¼³ºñ³»¿ª] À§»ý¼³ºñ ¹× ±Þ¹è¼ö¼³ºñ, ¿Á³»¼ÒÈÀü, ÈÀç°æº¸, ½Â°±â¼³ºñ µî °®Ãß¾úÀ½.
[ÅäÁöÇü»ó/ÀÌ¿ë»óÅÂ] µî°íÆòźÇÑ Áö¼¼¿¡ À§Ä¡ÇÑ »ç´Ù¸®ÇüÀÇ ÅäÁö·Î¼ ¾÷¹«½Ã¼³(¾÷¹«½Ã¼³), Á¦1.2Á¾±Ù¸°»ýȰ½Ã¼³°ÇºÎÁö·Î ÀÌ¿ëÁßÀÓ.
[µµ·Î»óÅÂ] º»°Ç µ¿ÃøÀ¸·Î ¿Õº¹ 6Â÷¼±ÀÇ Æ÷Àåµµ·Î¿Í ¼ÃøÀ¸·Î ¿Õº¹ 2Â÷¼±ÀÇ Æ÷Àåµµ·Î¿¡ °¢°¢ Á¢ÇϰíÀÖÀ½.
[ÅäÁöÀÌ¿ë°èȹ] Á߽ɻó¾÷Áö¿ª, Áö±¸´ÜÀ§°èȹ±¸¿ª(µ¿Åº(1)Áö±¸), ´ë·Î1·ù(Æø 35m-40m)(Á¢ÇÕ), Áß·Î1·ù(Æø 20m-25m)(Á¢ÇÕ) °¡Ãà»çÀ°Á¦Çѱ¸¿ª(ÀüºÎÁ¦ÇÑ)£¼°¡ÃàºÐ´¢ÀÇ °ü¸® ¹× À̿뿡 °üÇÑ ¹ý·ü£¾, ¼ºÀå°ü¸®±Ç¿ª£¼¼öµµ±ÇÁ¤ºñ°èȹ¹ý£¾
[°øºÎ¿ÍÀÇ Â÷ÀÌ] ÇØ´ç¾øÀ½.
[Âü°í»çÇ×] µî±â»çÇ×ÀüºÎÁõ¸í¼»ó ÀÓÂ÷±Ç¼³Á¤(2023.7.19) ±Ý220,000,000¿øÀÌ ÀÖÀ¸¸ç ±×¿Ü ÀÓ´ë°ü°è´Â ¹Ì»óÀÓ.
|
|
|
°ÇÃ๰ÇöȲ |
|
|
|
| ¼ÒÀçÁö |
°æ±âµµ ȼº½Ã ¹Ý¼Ûµ¿ 92-3¹øÁö |
| ´ëÁö¸éÀû |
2053.1§³(622.15Æò) |
¿¬¸éÀû |
27962.143§³(8473.38Æò) |
ÁÖ¿ëµµ |
¾÷¹«½Ã¼³ |
| °ÇÃà¸éÀû |
1638.38§³(496.48Æò) |
¿ëÀû·ü»êÁ¤¿¬¸éÀû |
16299.798§³(4939.33Æò) |
Âø°øÀÏÀÚ |
2009.09.16 |
| °ÇÆóÀ² |
79.8% |
¿ëÀû·ü |
793.91% |
»ç¿ë½ÂÀÎÀÏÀÚ |
2011.09.30 |
| Áö»óÃþ¼ö |
24Ãþ |
ÁöÇÏÃþ¼ö |
1Ãþ |
±¸Á¶ |
ö±ÙÄÜÅ©¸®Æ®±¸Á¶ |
°ÇÃ๰Ãþº°ÇöȲ [º¸±â]| Ãþº° | ±¸Á¶ | ¿ëµµ | ¸éÀû | | 1Ãþ | ö±ÙÄÜÅ©¸®Æ®±¸Á¶ | Á¦1,2Á¾±Ù¸°»ýȰ½Ã¼³,ÁÖÂ÷Àå | 1211.637§³ (367.16Æò) | | 2Ãþ | ö±ÙÄÜÅ©¸®Æ®±¸Á¶ | ¾÷¹«½Ã¼³(¿ÀÇǽºÅÚ/ÁÖÂ÷Àå) | 1263.274§³ (382.81Æò) | | 3Ãþ | ö±ÙÄÜÅ©¸®Æ®±¸Á¶ | ¾÷¹«½Ã¼³(¿ÀÇǽºÅÚ/ÁÖÂ÷Àå) | 1585§³ (480.3Æò) | | 4Ãþ | ö±ÙÄÜÅ©¸®Æ®±¸Á¶ | ¾÷¹«½Ã¼³(¿ÀÇǽºÅÚ/ÁÖÂ÷Àå) | 1585§³ (480.3Æò) | | 5Ãþ | ö±ÙÄÜÅ©¸®Æ®±¸Á¶ | ¾÷¹«½Ã¼³(¿ÀÇǽºÅÚ/ÁÖÂ÷Àå) | 1585§³ (480.3Æò) | | 6Ãþ | ö±ÙÄÜÅ©¸®Æ®±¸Á¶ | ¾÷¹«½Ã¼³(¿ÀÇǽºÅÚ/ÁÖÂ÷Àå) | 1585§³ (480.3Æò) | | 7Ãþ | ö±ÙÄÜÅ©¸®Æ®±¸Á¶ | ¾÷¹«½Ã¼³(¿ÀÇǽºÅÚ/ÁÖÂ÷Àå) | 1585§³ (480.3Æò) | | 8Ãþ | ö±ÙÄÜÅ©¸®Æ®±¸Á¶ | ¾÷¹«½Ã¼³(¿ÀÇǽºÅÚ/ÁÖÂ÷Àå) | 1388.585§³ (420.78Æò) | | 9Ãþ | ö±ÙÄÜÅ©¸®Æ®±¸Á¶ | ¾÷¹«½Ã¼³(¿ÀÇǽºÅÚ) | 911.623§³ (276.25Æò) | | 10Ãþ | ö±ÙÄÜÅ©¸®Æ®±¸Á¶ | ¾÷¹«½Ã¼³(¿ÀÇǽºÅÚ) | 911.623§³ (276.25Æò) | | 11Ãþ | ö±ÙÄÜÅ©¸®Æ®±¸Á¶ | ¾÷¹«½Ã¼³(¿ÀÇǽºÅÚ) | 911.623§³ (276.25Æò) | | 12Ãþ | ö±ÙÄÜÅ©¸®Æ®±¸Á¶ | ¾÷¹«½Ã¼³(¿ÀÇǽºÅÚ) | 911.623§³ (276.25Æò) | | 13Ãþ | ö±ÙÄÜÅ©¸®Æ®±¸Á¶ | ¾÷¹«½Ã¼³(¿ÀÇǽºÅÚ) | 911.623§³ (276.25Æò) | | 14Ãþ | ö±ÙÄÜÅ©¸®Æ®±¸Á¶ | ¾÷¹«½Ã¼³(¿ÀÇǽºÅÚ) | 911.623§³ (276.25Æò) | | 15Ãþ | ö±ÙÄÜÅ©¸®Æ®±¸Á¶ | ¾÷¹«½Ã¼³(¿ÀÇǽºÅÚ) | 911.623§³ (276.25Æò) | | 16Ãþ | ö±ÙÄÜÅ©¸®Æ®±¸Á¶ | ¾÷¹«½Ã¼³(¿ÀÇǽºÅÚ) | 911.623§³ (276.25Æò) | | 17Ãþ | ö±ÙÄÜÅ©¸®Æ®±¸Á¶ | ¾÷¹«½Ã¼³(¿ÀÇǽºÅÚ) | 911.623§³ (276.25Æò) | | 18Ãþ | ö±ÙÄÜÅ©¸®Æ®±¸Á¶ | ¾÷¹«½Ã¼³(¿ÀÇǽºÅÚ) | 911.623§³ (276.25Æò) | | 19Ãþ | ö±ÙÄÜÅ©¸®Æ®±¸Á¶ | ¾÷¹«½Ã¼³(¿ÀÇǽºÅÚ) | 911.623§³ (276.25Æò) | | 20Ãþ | ö±ÙÄÜÅ©¸®Æ®±¸Á¶ | ¾÷¹«½Ã¼³(¿ÀÇǽºÅÚ) | 911.623§³ (276.25Æò) | | 21Ãþ | ö±ÙÄÜÅ©¸®Æ®±¸Á¶ | ¾÷¹«½Ã¼³(¿ÀÇǽºÅÚ) | 911.623§³ (276.25Æò) | | 22Ãþ | ö±ÙÄÜÅ©¸®Æ®±¸Á¶ | ¾÷¹«½Ã¼³(¿ÀÇǽºÅÚ) | 911.623§³ (276.25Æò) | | 23Ãþ | ö±ÙÄÜÅ©¸®Æ®±¸Á¶ | ¾÷¹«½Ã¼³(¿ÀÇǽºÅÚ) | 911.623§³ (276.25Æò) | | 24Ãþ | ö±ÙÄÜÅ©¸®Æ®±¸Á¶ | ¾÷¹«½Ã¼³(¿ÀÇǽºÅÚ) | 873.376§³ (264.66Æò) | | Áö1Ãþ | ö±ÙÄÜÅ©¸®Æ®±¸Á¶ | Á¦1,2Á¾±Ù¸°»ýȰ½Ã¼³ | 1625.926§³ (492.7Æò) |
|
|
|
|
|
|
|
|
|
¸éÀû(§³), ±Ý¾×(¸¸¿ø)
| °è¾àÀÏ | ±âÁØ | °Ç¹°¸íĪ | Ãþ | Àü¿ë¸éÀû | °Å·¡±Ý¾× | °ÇÃà³âµµ | | °Å·¡³»¿ªÀÌ ¾ø½À´Ï´Ù. |
| °è¾àÀÏ | ±âÁØ | °Ç¹°¸íĪ | Ãþ | Àü¿ë¸éÀû | º¸Áõ±Ý | ¿ù¼¼ | °ÇÃà³âµµ | | 2025.10.27 | ¿ù¼¼ | ¼¾Æ®·²½ÃƼ ¿ÀÇǽºÅÚ | 17 | 48.64 | 21,150 | 7 | 2011 | | 2025.10.24 | Àü¼¼ | ¼¾Æ®·²½ÃƼ ¿ÀÇǽºÅÚ | 24 | 42.75 | 20,500 | 0 | 2011 | | 2025.10.22 | Àü¼¼ | ¼¾Æ®·²½ÃƼ ¿ÀÇǽºÅÚ | 23 | 42.75 | 20,500 | 0 | 2011 | | 2025.10.22 | Àü¼¼ | ¼¾Æ®·²½ÃƼ ¿ÀÇǽºÅÚ | 23 | 42.75 | 18,450 | 0 | 2011 | | 2025.10.10 | Àü¼¼ | ¼¾Æ®·²½ÃƼ ¿ÀÇǽºÅÚ | 19 | 41.91 | 20,000 | 0 | 2011 | | 2025.10.01 | ¿ù¼¼ | ¼¾Æ®·²½ÃƼ ¿ÀÇǽºÅÚ | 20 | 48.64 | 21,150 | 12 | 2011 | | 2025.10.01 | ¿ù¼¼ | ¼¾Æ®·²½ÃƼ ¿ÀÇǽºÅÚ | 10 | 42.75 | 18,450 | 10 | 2011 | | 2025.09.30 | ¿ù¼¼ | ¼¾Æ®·²½ÃƼ ¿ÀÇǽºÅÚ | 10 | 38.25 | 1,000 | 78 | 2011 | | 2025.09.23 | ¿ù¼¼ | ¼¾Æ®·²½ÃƼ ¿ÀÇǽºÅÚ | 23 | 42.75 | 2,000 | 80 | 2011 | | 2025.09.04 | Àü¼¼ | ¼¾Æ®·²½ÃƼ ¿ÀÇǽºÅÚ | 24 | 42.75 | 20,500 | 0 | 2011 | | 2025.08.31 | ¿ù¼¼ | ¼¾Æ®·²½ÃƼ ¿ÀÇǽºÅÚ | 19 | 48.64 | 21,150 | 11 | 2011 | | 2025.08.30 | Àü¼¼ | ¼¾Æ®·²½ÃƼ ¿ÀÇǽºÅÚ | 20 | 39.85 | 19,000 | 0 | 2011 | | 2025.08.28 | ¿ù¼¼ | ¼¾Æ®·²½ÃƼ ¿ÀÇǽºÅÚ | 19 | 38.25 | 17,100 | 13 | 2011 | | 2025.08.28 | Àü¼¼ | ¼¾Æ®·²½ÃƼ ¿ÀÇǽºÅÚ | 18 | 38.44 | 17,100 | 0 | 2011 | | 2025.08.22 | Àü¼¼ | ¼¾Æ®·²½ÃƼ ¿ÀÇǽºÅÚ | 9 | 41.91 | 20,000 | 0 | 2011 | | 2025.08.22 | Àü¼¼ | ¼¾Æ®·²½ÃƼ ¿ÀÇǽºÅÚ | 24 | 38.25 | 19,000 | 0 | 2011 | | 2025.08.19 | Àü¼¼ | ¼¾Æ®·²½ÃƼ ¿ÀÇǽºÅÚ | 18 | 42.75 | 19,500 | 0 | 2011 | | 2025.08.19 | Àü¼¼ | ¼¾Æ®·²½ÃƼ ¿ÀÇǽºÅÚ | 19 | 42.75 | 20,500 | 0 | 2011 | | 2025.08.14 | Àü¼¼ | ¼¾Æ®·²½ÃƼ ¿ÀÇǽºÅÚ | 10 | 48.64 | 21,150 | 0 | 2011 | | 2025.08.06 | Àü¼¼ | ¼¾Æ®·²½ÃƼ ¿ÀÇǽºÅÚ | 16 | 38.25 | 19,000 | 0 | 2011 | | 2025.08.06 | Àü¼¼ | ¼¾Æ®·²½ÃƼ ¿ÀÇǽºÅÚ | 16 | 42.75 | 20,500 | 0 | 2011 | | 2025.07.24 | ¿ù¼¼ | ¼¾Æ®·²½ÃƼ ¿ÀÇǽºÅÚ | 15 | 39.85 | 2,000 | 80 | 2011 | | 2025.07.23 | ¸Å¸Å | ¼¾Æ®·²½ÃƼ ¿ÀÇǽºÅÚ | 14 | 38.252 | 20,500 | | 2011 | | 2025.07.23 | Àü¼¼ | ¼¾Æ®·²½ÃƼ ¿ÀÇǽºÅÚ | 16 | 38.25 | 17,100 | 0 | 2011 | | 2025.07.21 | Àü¼¼ | ¼¾Æ®·²½ÃƼ ¿ÀÇǽºÅÚ | 11 | 39.85 | 19,000 | 0 | 2011 | | 2025.07.21 | Àü¼¼ | ¼¾Æ®·²½ÃƼ ¿ÀÇǽºÅÚ | 9 | 42.75 | 20,500 | 0 | 2011 | | 2025.07.08 | Àü¼¼ | ¼¾Æ®·²½ÃƼ ¿ÀÇǽºÅÚ | 13 | 48.64 | 23,000 | 0 | 2011 | | 2025.07.06 | ¿ù¼¼ | ¼¾Æ®·²½ÃƼ ¿ÀÇǽºÅÚ | 9 | 38.19 | 19,000 | 5 | 2011 | | 2025.07.05 | ¿ù¼¼ | ¼¾Æ®·²½ÃƼ ¿ÀÇǽºÅÚ | 10 | 39.85 | 17,100 | 15 | 2011 | | 2025.06.30 | Àü¼¼ | ¼¾Æ®·²½ÃƼ ¿ÀÇǽºÅÚ | 13 | 42.75 | 20,500 | 0 | 2011 | | 2025.06.26 | ¸Å¸Å | ¼¾Æ®·²½ÃƼ ¿ÀÇǽºÅÚ | 20 | 42.746 | 20,500 | | 2011 | | 2025.06.25 | ¿ù¼¼ | ¼¾Æ®·²½ÃƼ ¿ÀÇǽºÅÚ | 13 | 42.75 | 18,450 | 15 | 2011 | | 2025.06.24 | ¿ù¼¼ | ¼¾Æ®·²½ÃƼ ¿ÀÇǽºÅÚ | 16 | 42.68 | 18,450 | 15 | 2011 | | 2025.06.21 | Àü¼¼ | ¼¾Æ®·²½ÃƼ ¿ÀÇǽºÅÚ | 10 | 42.75 | 20,500 | 0 | 2011 | | 2025.06.18 | ¿ù¼¼ | ¼¾Æ®·²½ÃƼ ¿ÀÇǽºÅÚ | 18 | 38.19 | 3,000 | 70 | 2011 | | 2025.06.13 | Àü¼¼ | ¼¾Æ®·²½ÃƼ ¿ÀÇǽºÅÚ | 23 | 42.75 | 19,900 | 0 | 2011 | | 2025.06.06 | Àü¼¼ | ¼¾Æ®·²½ÃƼ ¿ÀÇǽºÅÚ | 13 | 42.68 | 20,500 | 0 | 2011 | | 2025.06.05 | ¿ù¼¼ | ¼¾Æ®·²½ÃƼ ¿ÀÇǽºÅÚ | 22 | 42.75 | 18,450 | 10 | 2011 | | 2025.06.05 | Àü¼¼ | ¼¾Æ®·²½ÃƼ ¿ÀÇǽºÅÚ | 22 | 42.75 | 20,000 | 0 | 2011 | | 2025.06.04 | ¿ù¼¼ | ¼¾Æ®·²½ÃƼ ¿ÀÇǽºÅÚ | 17 | 59.46 | 25,500 | 10 | 2011 | | 2025.06.03 | Àü¼¼ | ¼¾Æ®·²½ÃƼ ¿ÀÇǽºÅÚ | 20 | 38.19 | 19,000 | 0 | 2011 | | 2025.05.30 | ¿ù¼¼ | ¼¾Æ®·²½ÃƼ ¿ÀÇǽºÅÚ | 11 | 42.75 | 1,000 | 85 | 2011 | | 2025.05.28 | ¸Å¸Å | ¼¾Æ®·²½ÃƼ ¿ÀÇǽºÅÚ | 10 | 42.746 | 18,450 | | 2011 | | 2025.05.26 | ¿ù¼¼ | ¼¾Æ®·²½ÃƼ ¿ÀÇǽºÅÚ | 16 | 41.91 | 17,000 | 20 | 2011 | | 2025.05.21 | ¿ù¼¼ | ¼¾Æ®·²½ÃƼ ¿ÀÇǽºÅÚ | 17 | 38.25 | 10,000 | 45 | 2011 | | 2025.05.14 | Àü¼¼ | ¼¾Æ®·²½ÃƼ ¿ÀÇǽºÅÚ | 11 | 39.85 | 19,000 | 0 | 2011 | | 2025.05.12 | Àü¼¼ | ¼¾Æ®·²½ÃƼ ¿ÀÇǽºÅÚ | 16 | 42.75 | 20,200 | 0 | 2011 | | 2025.05.12 | Àü¼¼ | ¼¾Æ®·²½ÃƼ ¿ÀÇǽºÅÚ | 12 | 38.25 | 19,000 | 0 | 2011 | | 2025.05.02 | Àü¼¼ | ¼¾Æ®·²½ÃƼ ¿ÀÇǽºÅÚ | 16 | 59.46 | 25,200 | 0 | 2011 | | 2025.04.30 | Àü¼¼ | ¼¾Æ®·²½ÃƼ ¿ÀÇǽºÅÚ | 22 | 39.85 | 19,000 | 0 | 2011 | | 2025.04.29 | Àü¼¼ | ¼¾Æ®·²½ÃƼ ¿ÀÇǽºÅÚ | 16 | 42.75 | 18,400 | 0 | 2011 | | 2025.04.25 | Àü¼¼ | ¼¾Æ®·²½ÃƼ ¿ÀÇǽºÅÚ | 22 | 38.19 | 19,000 | 0 | 2011 | | 2025.04.25 | Àü¼¼ | ¼¾Æ®·²½ÃƼ ¿ÀÇǽºÅÚ | 12 | 38.44 | 19,600 | 0 | 2011 | | 2025.04.21 | Àü¼¼ | ¼¾Æ®·²½ÃƼ ¿ÀÇǽºÅÚ | 10 | 42.75 | 19,700 | 0 | 2011 | | 2025.04.18 | Àü¼¼ | ¼¾Æ®·²½ÃƼ ¿ÀÇǽºÅÚ | 10 | 38.32 | 17,100 | 0 | 2011 | | 2025.04.12 | Àü¼¼ | ¼¾Æ®·²½ÃƼ ¿ÀÇǽºÅÚ | 11 | 42.75 | 20,500 | 0 | 2011 | | 2025.04.10 | Àü¼¼ | ¼¾Æ®·²½ÃƼ ¿ÀÇǽºÅÚ | 11 | 42.75 | 20,000 | 0 | 2011 | | 2025.04.07 | Àü¼¼ | ¼¾Æ®·²½ÃƼ ¿ÀÇǽºÅÚ | 15 | 38.25 | 19,000 | 0 | 2011 | | 2025.04.04 | ¿ù¼¼ | ¼¾Æ®·²½ÃƼ ¿ÀÇǽºÅÚ | 20 | 38.25 | 1,500 | 82 | 2011 | | 2025.02.25 | Àü¼¼ | ¼¾Æ®·²½ÃƼ ¿ÀÇǽºÅÚ | 24 | 39.85 | 19,800 | 0 | 2011 | | 2025.02.24 | Àü¼¼ | ¼¾Æ®·²½ÃƼ ¿ÀÇǽºÅÚ | 19 | 38.19 | 19,200 | 0 | 2011 | | 2025.02.22 | ¿ù¼¼ | ¼¾Æ®·²½ÃƼ ¿ÀÇǽºÅÚ | 16 | 38.32 | 17,100 | 15 | 2011 | | 2025.02.21 | Àü¼¼ | ¼¾Æ®·²½ÃƼ ¿ÀÇǽºÅÚ | 21 | 42.75 | 20,500 | 0 | 2011 | | 2025.02.21 | ¿ù¼¼ | ¼¾Æ®·²½ÃƼ ¿ÀÇǽºÅÚ | 20 | 38.32 | 19,000 | 10 | 2011 | | 2025.02.15 | Àü¼¼ | ¼¾Æ®·²½ÃƼ ¿ÀÇǽºÅÚ | 23 | 42.75 | 20,000 | 0 | 2011 | | 2025.02.13 | Àü¼¼ | ¼¾Æ®·²½ÃƼ ¿ÀÇǽºÅÚ | 23 | 39.85 | 19,000 | 0 | 2011 | | 2025.02.11 | ¸Å¸Å | ¼¾Æ®·²½ÃƼ ¿ÀÇǽºÅÚ | 11 | 42.746 | 19,000 | | 2011 | | 2025.02.10 | Àü¼¼ | ¼¾Æ®·²½ÃƼ ¿ÀÇǽºÅÚ | 15 | 38.32 | 19,000 | 0 | 2011 | | 2025.02.10 | Àü¼¼ | ¼¾Æ®·²½ÃƼ ¿ÀÇǽºÅÚ | 13 | 42.75 | 20,500 | 0 | 2011 | | 2025.02.10 | Àü¼¼ | ¼¾Æ®·²½ÃƼ ¿ÀÇǽºÅÚ | 16 | 42.75 | 20,500 | 0 | 2011 | | 2025.02.04 | Àü¼¼ | ¼¾Æ®·²½ÃƼ ¿ÀÇǽºÅÚ | 11 | 42.75 | 18,450 | 0 | 2011 | | 2025.01.25 | ¿ù¼¼ | ¼¾Æ®·²½ÃƼ ¿ÀÇǽºÅÚ | 17 | 42.75 | 1,000 | 85 | 2011 | | 2025.01.23 | Àü¼¼ | ¼¾Æ®·²½ÃƼ ¿ÀÇǽºÅÚ | 13 | 38.32 | 19,000 | 0 | 2011 | | 2025.01.18 | Àü¼¼ | ¼¾Æ®·²½ÃƼ ¿ÀÇǽºÅÚ | 23 | 38.62 | 19,000 | 0 | 2011 | | 2025.01.14 | Àü¼¼ | ¼¾Æ®·²½ÃƼ ¿ÀÇǽºÅÚ | 22 | 38.62 | 19,000 | 0 | 2011 | | 2025.01.09 | Àü¼¼ | ¼¾Æ®·²½ÃƼ ¿ÀÇǽºÅÚ | 12 | 38.32 | 17,100 | 0 | 2011 | | 2025.01.09 | ¿ù¼¼ | ¼¾Æ®·²½ÃƼ ¿ÀÇǽºÅÚ | 17 | 38.19 | 19,000 | 8 | 2011 | | 2025.01.06 | ¿ù¼¼ | ¼¾Æ®·²½ÃƼ ¿ÀÇǽºÅÚ | 15 | 42.75 | 18,450 | 15 | 2011 | | 2025.01.04 | ¿ù¼¼ | ¼¾Æ®·²½ÃƼ ¿ÀÇǽºÅÚ | 16 | 42.75 | 18,400 | 15 | 2011 |
|
|
|
 |
ÀÓÂ÷³»¿ª |
[¹è´ç¿ä±¸Á¾±âÀÏ : 2024/07/01] |
|
|
| ÀÓÂ÷ÀÎ |
Á¡À¯°ü°è |
ÀüÀÔÀÏÀÚ |
È®Á¤ÀÏÀÚ |
¹è´ç¿ä±¸ÀÏ |
º¸Áõ±Ý/Â÷ÀÓ |
´ëÇ׿ä°Ç |
ºñ°í |
| ±ÇOO |
1203È£ÀüºÎ |
2021.10.25 |
2021.10.10 |
|
220,000,000
|
O |
|
|
|
|
 |
Áö¿ªºÐ¼® |
|
|
|
|
| ÁöÇÏö |
|
Çб³ |
|
| °ü°ø¼ |
|
| ¹ý¿ø |
¼ö¿øÁö¹æ¹ý¿ø (165-12)°æ±âµµ ¼ö¿ø½Ã ¿µÅ뱸 ¹ýÁ¶·Î 105, Çϵ¿, ¼ö¿ø¹ý¿øÁ¾ÇÕû»ç ´ëÇ¥ : 031)210-1114, ¾ß°£ : 031)210-1111 ¼ö¿ø½Ã, ¿À»ê½Ã, ȼº½Ã, ¿ëÀνà |
| µî±â¼Ò |
¼ö¿øÁö¹æ¹ý¿ø º»¿ø ȼºµî±â¼Ò (´ëÇ¥:1544-0773, ÆÑ½º:(031)375-3964, °æ±âµµ ¿À»ê½Ã ¹ý¿ø·Î 65 (±Èµ¿ 662)) |
| ¼¼¹«¼ |
µ¿¼ö¿ø¼¼¹«¼ (´ëÇ¥:031-695-42, ÆÑ½º:031-273-2416, °æ±âµµ ¼ö¿ø½Ã ¿µÅ뱸 û¸í³²·Î 13 (¿µÅ뵿)) |
|
|
|
 |
¹ý¿ø ¹°°ÇÀÚ·á ¿ä¾à |
|
|
|
|
| ¼Ò¸êµÇÁö ¾Ê´Â µî±âºÎ±Ç¸® |
|
| ¼³Á¤µÈ °ÍÀ¸·Î º¸´Â Áö»ó±Ç |
|
| ¹ý¿øÀÚ·á Æ¯ÀÌ»çÇ× |
[ÁÖ¿ä ¹®°Ç Á¢¼ö ³»¿ª]
|
[¸Å°¢¹°°Ç¸í¼¼¼ ºñ°í¶õ]
½Åûä±ÇÀÚ °â ´ëÇ×·Â ÀÖ´Â ÀÓÂ÷ÀÎÀÇ º¸Áõ±Ý 220,000,000¿øÀÌ ¹è´ç¿¡¼ Àü¾× º¯Á¦µÇÁö ¾ÊÀ» °æ¿ì Àܾ×À» ¸Å¼öÀÎÀÌ ÀμöÇϹǷÎ
ÀÔÂû½Ã ÁÖÀÇ¿ä¸Á. |
[ºÎµ¿»ê ÇöȲÁ¶»ç¼ ºñ°í¶õ]
ÇØ´ç ºÎµ¿»êÀÇ ÇöȲÀº ¿Ü°ü»ó °øºÎÀÇ ³»¿ë°ú ÀÏÄ¡ÇÏ´Â °ÍÀ¸·Î º¸ÀÓ.
|
|
| ¿©ÀÇÁÖ°æ¸Å Á¶¾ð ÇѸ¶µð |
ÀÌ ºÎµ¿»êÀÇ ÀÔÂû¹ý¿øÀº ¼ö¿øÁö¹æ¹ý¿øÀÔ´Ï´Ù.
ÀÔÂû½Ã°£Àº ~11:10ÀÔ´Ï´Ù. ÀÌ ¹ý¿ø¿¡´Â KB±¹¹ÎÀºÇàÀÌ ÀÔÁ¡Çϰí ÀÖ½À´Ï´Ù.
|
|
|
| Åë°è±â°£ |
³«Âû¹°°Ç¼ö |
Æò±Õ°¨Á¤°¡ |
Æò±Õ³«Âû°¡ |
³«Âû°¡À² |
À¯ÂûȽ¼ö |
| 3°³¿ù |
18°Ç |
149,250,000¿ø |
99,066,099¿ø |
66% |
2.4ȸ |
| 6°³¿ù |
35°Ç |
150,757,143¿ø |
112,076,308¿ø |
75% |
2ȸ |
| 12°³¿ù |
59°Ç |
132,527,119¿ø |
96,647,705¿ø |
74% |
2.3ȸ |
|
|
|
|
|
|
 |
|