|
| º» °æ¸Å¹°°ÇÀº ³«ÂûµÇ¾î ÀÌ¹Ì ¸ðµç °æ¸ÅÀýÂ÷°¡ ³¡³µ½À´Ï´Ù. ÀÌ ¹°°ÇÀº »ó´ãÇØ µå¸®Áö ¾Ê½À´Ï´Ù. |
|
|
| ¼ÒÀçÁö |
°æ±âµµ ¾È»ê½Ã ´Ü¿ø±¸ ÈÁ¤·Î¾È±æ 76-3, 1Ãþ101È£
±¸)°æ±âµµ ¾È»ê½Ã ´Ü¿ø±¸ ¿Íµ¿ 841-4
|
|
| »ç°Ç¹øÈ£ |
2024 Ÿ°æ 2213 |
¹°°Ç¹øÈ£ |
1
|
¹°°Ç¿ëµµ |
´Ù¼¼´ë,ºô¶ó |
| °¨Á¤Æò°¡¾× |
174,000,000¿ø |
°æ¸Å´ë»ó |
ÅäÁö ¹× °Ç¹°Àϰý ¸Å°¢ |
ÁøÇà»óÅ |
³«Âû |
ÃÖÀúÀÔÂû°¡ ³«Âû°¡ |
(70%) 121,800,000¿ø
(0.00%) 0¿ø |
°Ç¹°¸éÀû |
69.50§³(21.02Æò) |
ÀÔÂû±âÀÏ |
2025.05.20(È) 10:30
|
| ÀÔÂûº¸Áõ±Ý |
(10%) 12,180,000¿ø |
ÅäÁö¸éÀû |
35.18§³(10.64Æò)
|
À¯ÂûȽ¼ö |
1ȸ |
| ÀÔÂû¹ý¿ø |
¼ö¿øÁö¹æ¹ý¿ø ¾È»êÁö¿ø |
°æ¸Å¹æ¹ý |
|
¹°°ÇÁ¶È¸¼ö |
¿À´Ã: 5ȸ [´©Àû: 1061ȸ]
|
| ¸»¼Ò±âÁØ | ÃÖ¼±¼øÀ§ ¼³Á¤ : 2017. 9. 18. ±ÙÀú´ç±Ç ¼³Á¤
|
|
|
|
|
|
|
|
|
|
|
°æ¸Å´ë»ó ¸ñ·Ï
|
|
| ±¸ºÐ |
¸ñ·Ï |
ÁÖ¼Ò |
±¸Á¶/¿ëµµ/´ëÁö±Ç |
ºñ°í |
´ëÁö±Ç
|
1 |
¿Íµ¿ 841-4 |
271.2ºÐÀÇ 35.18 |
35.18§³ (10.64Æò)
|
°Ç¹°
|
1 |
¿Íµ¿ 841-4 |
1Ãþ101È£ ö±ÙÄÜÅ©¸®Æ®Á¶ |
69.50§³ (21.02Æò)
|
|
|
|
2025-04-01
À¯Âû
|
(100%)
174,000,000¿ø
|
|
|
|
2025-05-20
³«Âû
|
(70%)
121,800,000¿ø
|
|
|
¦±¦¬> ³«Âû°¡
 |
|
|
|
|
°¨Á¤Æò°¡¼ ¿ä¾à |
|
[À§Ä¡/ÁÖÀ§È¯°æ]
º»°ÇÀº °æ±âµµ ¾È»ê½Ã ´Ü¿ø±¸ ¿Íµ¿ ¼ÒÀç "ȶûÃʵîÇб³" ºÏÃø Àαٿ¡ ¼ÒÀçÇÏ´Â ºÎµ¿»êÀ¸·Î,
ÁÖÀ§´Â ´Ù¼¼´ëÁÖÅÃ, ¾ÆÆÄÆ®, ±Ù¸°»ýȰ½Ã¼³ µîÀÌ È¥ÀçÇÏ´Â ÁÖÅÃÁö´ë·Î¼ Á¦¹Ý ÁÖÀ§ ȯ°æÀº º¸
ÅëÀÎ ÆíÀÓ.
[±³Åë»óȲ]
º»°Ç±îÁö Â÷·®ÁøÀÔÀÌ °¡´ÉÇϸç, Àα٠¹× ±Ù°Å¸®¿¡ ³ë¼±¹ö½ºÁ¤·ùÀå, ¼±ºÎ¿ª(¼Çؼ±)ÀÌ À§Ä¡ÇÏ
´Â ¹Ù Á¤·ùÀå±îÁöÀÇ °Å¸® ¹× ¿îÇà»óÅ µîÀ¸·Î º¸¾Æ Á¦¹Ý ´ëÁß±³Åë»çÁ¤Àº º¸ÅëÀÎ ÆíÀÓ.
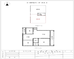
[°Ç¹°±¸Á¶]
ö±ÙÄÜÅ©¸®Æ®Á¶ Æò½º¶óºêÁöºØ 4Ãþ °Ç¹°³» 1Ãþ 101È£·Î¼,
¿Ü º® : µå¶óÀ̺ñÆ® ¸¶°¨ µî,
³» º® : º®Áö ¹× ÀϺΠŸÀÏ ¸¶°¨,
â È£ : ÇÏÀ̼¦½Ã âȣÀÓ.
[ÀÌ¿ë»óÅÂ]
´Ù¼¼´ëÁÖÅÃÀ¸·Î ÀÌ¿ëÁßÀ̸ç, »ó¼¼ÀÌ¿ë»óÅ´ ÈÄ÷ "°Ç¹°ÀÌ¿ë ¹× ÀÓ´ëÇöȲµµ" ÂüÁ¶¹Ù¶÷.
[¼³ºñ³»¿ª]
À§»ý¼³ºñ ¹× ±Þ¹è¼ö¼³ºñ, ³¹æ¼³ºñ µîÀÌ µÇ¾îÀÖÀ½.
[ÅäÁöÇü»ó/ÀÌ¿ë»óÅÂ]
ÀÎÁ¢Áö ´ëºñ µî°íÆòźÇÑ °¡ÀåÇü ÅäÁö·Î¼, ÁÖ°Å¿ë °ÇºÎÁö·Î ÀÌ¿ëÁßÀÓ.
7)ÀÎÁ¢ µµ·Î»óŵî
º»°ÇÀº µ¿ÃøÀ¸·Î ³ëÆø ¾à 7m Æ÷Àåµµ·Î¿Í °¢°¢ Á¢ÇÔ.
[ÅäÁöÀÌ¿ë°èȹ]
Á¦1Á¾ÀϹÝÁÖ°ÅÁö¿ª, ½Ã°¡Áö°æ°üÁö±¸(ÀϹÝ), ¼Ò·Î3·ù(Æø 8m ¹Ì¸¸)(Á¢ÇÕ), °¡Ãà»çÀ°Á¦Çѱ¸¿ª
, »ó´ëº¸È£±¸¿ª(2013-10-21)(¾È»ê°¼°í), »ó´ëº¸È£±¸¿ª(¼º¹ÎÀ¯Ä¡¿ø), »ó´ëº¸È£±¸¿ª(ȶûÃÊ
µîÇб³), ´ë±â°ü¸®±Ç¿ª, µµ½Ã±³ÅëÁ¤ºñÁö¿ª, »ýȰ¼ÒÀ½Áøµ¿°ü¸®Áö¿ª, ¼ºÀå°ü¸®±Ç¿ªÀÓ.
[°øºÎ¿ÍÀÇ Â÷ÀÌ]
¾øÀ½.
[Âü°í»çÇ×]
¾øÀ½. |
|
|
°ÇÃ๰ÇöȲ |
|
|
|
| ¼ÒÀçÁö |
°æ±âµµ ¾È»ê½Ã ´Ü¿ø±¸ ¿Íµ¿ 841-4¹øÁö |
| ´ëÁö¸éÀû |
271.2§³(82.18Æò) |
¿¬¸éÀû |
590.71§³(179Æò) |
ÁÖ¿ëµµ |
°øµ¿ÁÖÅà |
| °ÇÃà¸éÀû |
160.35§³(48.59Æò) |
¿ëÀû·ü»êÁ¤¿¬¸éÀû |
590.71§³(179Æò) |
Âø°øÀÏÀÚ |
2002.08.23 |
| °ÇÆóÀ² |
59.13% |
¿ëÀû·ü |
217.81% |
»ç¿ë½ÂÀÎÀÏÀÚ |
2003.02.26 |
| Áö»óÃþ¼ö |
4Ãþ |
ÁöÇÏÃþ¼ö |
|
±¸Á¶ |
ö±ÙÄÜÅ©¸®Æ®±¸Á¶ |
°ÇÃ๰Ãþº°ÇöȲ [º¸±â]| Ãþº° | ±¸Á¶ | ¿ëµµ | ¸éÀû | | 1Ãþ | ö±ÙÄÜÅ©¸®Æ®±¸Á¶ | ´Ù¼¼´ëÁÖÅÃ(2¼¼´ë) | 152.75§³ (46.29Æò) | | 2Ãþ | ö±ÙÄÜÅ©¸®Æ®±¸Á¶ | ´Ù¼¼´ëÁÖÅÃ(2¼¼´ë) | 152.75§³ (46.29Æò) | | 3Ãþ | ö±ÙÄÜÅ©¸®Æ®±¸Á¶ | ´Ù¼¼´ëÁÖÅÃ(2¼¼´ë) | 152.75§³ (46.29Æò) | | 4Ãþ | ö±ÙÄÜÅ©¸®Æ®±¸Á¶ | ´Ù¼¼´ëÁÖÅÃ(2¼¼´ë) | 132.46§³ (40.14Æò) |
|
|
|
|
|
|
 |
ÀÓÂ÷³»¿ª |
[¹è´ç¿ä±¸Á¾±âÀÏ : 2025/01/24] |
|
|
| ÀÓÂ÷ÀÎ |
Á¡À¯°ü°è |
ÀüÀÔÀÏÀÚ |
È®Á¤ÀÏÀÚ |
¹è´ç¿ä±¸ÀÏ |
º¸Áõ±Ý/Â÷ÀÓ |
´ëÇ׿ä°Ç |
ºñ°í |
| ȲOO |
¹Ì»ó |
2022.07.25 |
¹Ì»ó |
|
¹Ì»ó [¿ù]¹Ì»ó |
X |
|
|
|
|
 |
Áö¿ªºÐ¼® |
|
|
|
|
| ÁöÇÏö |
|
Çб³ |
|
| °ü°ø¼ |
|
| ¹ý¿ø |
¼ö¿øÁö¹æ¹ý¿ø ¾È»êÁö¿ø (140-54)°æ±âµµ ¾È»ê½Ã ´Ü¿ø±¸ ±¤´ö¼·Î 75 (°íÀܵ¿) ´ëÇ¥ : 031)481-1114, ¹Î¿ø : 031)481-1238, ¾ß°£ : 031)481-1112 ¾È»ê½Ã, ±¤¸í½Ã, ½ÃÈï½Ã |
| µî±â¼Ò |
¼ö¿øÁö¹æ¹ý¿ø ¾È»êÁö¿ø µî±â°ú (´ëÇ¥:1544-0773, ÆÑ½º:(031)481-1290~1292, °æ±âµµ ¾È»ê½Ã ´Ü¿ø±¸ ±¤´ö¼·Î 75 (°íÀܵ¿ 711)) |
| ¼¼¹«¼ |
¾È»ê¼¼¹«¼ (´ëÇ¥:031-412-32, ÆÑ½º:031-412-3268, °æ±âµµ ¾È»ê½Ã ´Ü¿ø±¸ ȶû·Î 350 (°íÀܵ¿ 517)) |
|
|
|
 |
¹ý¿ø ¹°°ÇÀÚ·á ¿ä¾à |
|
|
|
|
| ¼Ò¸êµÇÁö ¾Ê´Â µî±âºÎ±Ç¸® |
|
| ¼³Á¤µÈ °ÍÀ¸·Î º¸´Â Áö»ó±Ç |
|
| ¹ý¿øÀÚ·á Æ¯ÀÌ»çÇ× |
[ÁÖ¿ä ¹®°Ç Á¢¼ö ³»¿ª]
|
[ºÎµ¿»ê ÇöȲÁ¶»ç¼ ºñ°í¶õ]
- Æó¹®ºÎÀç·Î ¼ÒÀ¯ÀÚ³ª Á¡À¯ÀÚ¸¦ ¸¸³ªÁö ¸øÇÏ¿© ¼¼´ë Çö°ü¹®¿¡ ¾È³»¹®À» ºÎÂøÇÔ.
- °Ç¹° ¿Üº®¿¡ `´ëÈïºô¶ó` Ç¥½Ã°¡ µÇ¾î ÀÖÀ¸¸ç, 1Ãþ¿¡ °ÅÁÖÇÏ´Â 2¼¼´ë Áß ÁÂÃø¿¡ À§Ä¡ÇÔ. |
|
| ¿©ÀÇÁÖ°æ¸Å Á¶¾ð ÇѸ¶µð |
ÀÌ ºÎµ¿»êÀÇ ÀÔÂû¹ý¿øÀº ¼ö¿øÁö¹æ¹ý¿ø ¾È»êÁö¿øÀÔ´Ï´Ù.
ÀÔÂû½Ã°£Àº ~11:00ÀÔ´Ï´Ù. ÀÌ ¹ý¿ø¿¡´Â ½ÅÇÑÀºÇàÀÌ ÀÔÁ¡Çϰí ÀÖ½À´Ï´Ù.
|
ÃëÇÏ ¶Ç´Â Ãë¼ÒµÉ °¡´É¼º ÀÖ½À´Ï´Ù
ÀÌ ¹°°ÇÀÇ °¨Á¤°¡°ÝÀº 174,000,000¿øÀÔ´Ï´Ù. °æ¸Å¸¦ ½ÅûÇÑ Ã¤±ÇÀÚ°¡ ¹è´ç ¹Þ¾Æ¾ß ÇÒ ±Ý¾×Àº 29,400,270¿ø À¸·Î °¨Á¤°¡°Ý ´ëºñ »ó´çÈ÷ ÀûÀº ±Ý¾×ÀÔ´Ï´Ù.
ÀÌ·± °æ¿ì, 乫°¡°¡ º¯Á¦ÇÏ¿© °æ¸Å¸¦ ÃëÇϽÃŰ°Å³ª °æ¸Å½Åûä±ÇÀÚ°¡ ¹è´ç¹ÞÀ» ±Ý¿øÀÌ ¾ø°ÔµÇ¾î À̸¥ ¹Ù "¹«À׿©¿¡ ÀÇÇÑ Ãë¼Ò"°¡ µÉ °¡´É¼ºÀÌ ÀÖ½À´Ï´Ù.
|
|
|
| Åë°è±â°£ |
³«Âû¹°°Ç¼ö |
Æò±Õ°¨Á¤°¡ |
Æò±Õ³«Âû°¡ |
³«Âû°¡À² |
À¯ÂûȽ¼ö |
| 3°³¿ù |
22°Ç |
226,272,727¿ø |
155,291,027¿ø |
73% |
1.9ȸ |
| 6°³¿ù |
40°Ç |
195,055,000¿ø |
130,977,965¿ø |
69% |
2.2ȸ |
| 12°³¿ù |
71°Ç |
176,411,268¿ø |
125,111,872¿ø |
72% |
2.1ȸ |
|
|
|
|
|
|
 |
|