|
|
| ¼ÒÀçÁö |
¼¿ïƯº°½Ã ¸¶Æ÷±¸ ¼º¹Ì»ê·Î13±æ 11-3, 5Ãþ503È£ (¼º»êµ¿,´ë¸íÆÄÅ©ºä)
±¸)¼¿ïƯº°½Ã ¸¶Æ÷±¸ ¼º»êµ¿ 210-4
|
|
| »ç°Ç¹øÈ£ |
2024 Ÿ°æ 60076 |
¹°°Ç¹øÈ£ |
1
|
¹°°Ç¿ëµµ |
´Ù¼¼´ë,ºô¶ó |
| °¨Á¤Æò°¡¾× |
234,000,000¿ø |
°æ¸Å´ë»ó |
ÅäÁö ¹× °Ç¹°Àϰý ¸Å°¢ |
ÁøÇà»óÅ |
À¯Âû |
| ÃÖÀúÀÔÂû°¡ |
(51%) 119,808,000¿ø
|
°Ç¹°¸éÀû |
29.89§³(9.04Æò) |
ÀÔÂû±âÀÏ |
2025.12.23(È) 10:00
(ÀÔÂû 30ÀÏÀü)
|
| ÀÔÂûº¸Áõ±Ý |
(20%) 23,961,600¿ø |
ÅäÁö¸éÀû |
22.50§³(6.81Æò)
|
À¯ÂûȽ¼ö |
3ȸ |
| ÀÔÂû¹ý¿ø |
¼¿ï¼ºÎÁö¹æ¹ý¿ø |
°æ¸Å¹æ¹ý |
|
¹°°ÇÁ¶È¸¼ö |
¿À´Ã: 2ȸ [´©Àû: 45ȸ]
|
| ¸»¼Ò±âÁØ | ÃÖ¼±¼øÀ§ ¼³Á¤ : 2024.8.26.°Á¦°æ¸Å°³½Ã°á ¼³Á¤ Á¤
|
|
|
|
|
|
|
|
|
|
|
°æ¸Å´ë»ó ¸ñ·Ï
|
|
| ±¸ºÐ |
¸ñ·Ï |
ÁÖ¼Ò |
±¸Á¶/¿ëµµ/´ëÁö±Ç |
ºñ°í |
´ëÁö±Ç
|
1 |
¼º»êµ¿ 210-4 |
327.6ºÐÀÇ 22.5 |
22.5§³ (6.81Æò)
|
°Ç¹°
|
1 |
¼º»êµ¿ 210-4 |
5Ãþ503È£ ö±ÙÄÜÅ©¸®Æ®±¸Á¶ |
29.89§³ (9.04Æò)
|
|
|
|
2025-04-15
À¯Âû
|
(100%)
234,000,000¿ø
|
|
|
|
2025-05-20
³«Âû
|
(80%)
187,200,000¿ø
|
|
|
¦±¦¬> ³«Âû°¡
 |
|
|
|
|
2025-09-02
º¯°æ
|
(80%)
187,200,000¿ø
|
|
|
|
2025-10-14
À¯Âû
|
(80%)
187,200,000¿ø
|
|
|
|
2025-11-18
À¯Âû
|
(64%)
149,760,000¿ø
|
|
|
|
2025-12-23
ÁøÇà
|
(51%)
119,808,000¿ø
|
|
|
|
|
|
°¨Á¤Æò°¡¼ ¿ä¾à |
|
[À§Ä¡/ÁÖÀ§È¯°æ]
º»°ÇÀº ¼¿ïƯº°½Ã ¸¶Æ÷±¸ ¼º»êµ¿ 210-4 ¼ÒÀç "¸Á¿ø·Î"ºÏÃø ÀαÙ,"°æ¼ºÁß,°íµîÇб³" ¼³²Ãø
Àαٿ¡ À§Ä¡ÇÏ´Â ´ë¸íÆÄÅ©ºä 5Ãþ503È£·Î¼ ÁÖÀ§È¯°æÀº Çб³,,°¢Á¾ºô¶ó,±Ù¸°»ýȰ½Ã¼³,¾ÆÆÄÆ®,
°ø¿ø µîÀ¸·Î Çü¼ºµÇ¾îÀÖ°í °¢Á¾»ýȰÆíÀǽü³°úÀÇ Á¢±Ù¼º ¹× Æí¸®¼ºÀº º¸ÅëÀÎ ÆíÀÓ.
[±³Åë»óȲ]
º»°Ç ³²Ãø Àαٿ¡ ¸Á¿ø·Î,Àαٿ¡ ¹ö½ºÁ¤·ùÀåÀÌ ¼ÒÀçÇÏ¿© ´ëÁß±³Åë ¹× ÀÚµ¿Â÷ ÁøÃâÀÔÀÌ
º¸ÅëÀÎ ÆíÀÓ.
[°Ç¹°±¸Á¶]
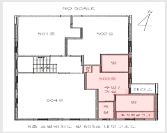
ö±ÙÄÜÅ©¸®Æ®±¸Á¶ Æò½½¶óºêÁöºØ 5Ãþ ´Ù¼¼´ëÁÖÅà 5Ãþ503È£·Î¼
¿Ü º® : ¼®Àç,Ä¡ÀåŸÀÏ ¸¶°¨ µî, ³» º® : º®Áö,ŸÀÏ,ÆäÀÎÆ® ¸¶°¨ µî,
¹Ù ´Ú : ¼®Àç,¸ñÀç°È¸¶·ç ¸¶°¨ µî, â È£ : Ä®¶ó¼¦½Ã ¹× ÀÌÁßâ µî.
[ÀÌ¿ë»óÅÂ]
´Ù¼¼´ëÁÖÅà 5Ãþ503È£(³»ºÎ±¸Á¶µµ Âü°í).
¹æ2,ÁÖ¹æ °â °Å½Ç,¿å½Ç,È®ÀåÇü¹ßÄÚ´Ï,Å×¶ó½º(¼¼Å¹½Ç·ÎÀÌ¿ë),Çö°ü µî.
[¼³ºñ³»¿ª]
À§»ý ¹× ±Þ¹è¼ö¼³ºñ,µµ½Ã°¡½º¿¡ ÀÇÇÑ °³º° ³¹æ¼³ºñ µî.
[ÅäÁöÇü»ó/ÀÌ¿ë»óÅÂ]
º»°ÇÀº ÀÚ·çÇüÀÇ ´Ù¼¼´ëÁÖÅà °ÇºÎÁö·Î ÀÌ¿ëÁßÀÓ.
7)ÀÎÁ¢ µµ·Î»óŵî
º»°Ç µ¿ÃøÀÌ Æ÷Àåµµ·Î¿¡ Á¢ÇØ ÀÖÀ½.
[ÅäÁöÀÌ¿ë°èȹ]
Á¦2Á¾ÀϹÝÁÖ°ÅÁö¿ª(2023-10-12),°¡Ãà»çÀ°Á¦Çѱ¸¿ª{°¡ÃàºÐ´¢ÀÇ °ü¸® ¹× À̿뿡 °üÇÑ ¹ý·ü},
»ó´ëº¸È£±¸¿ª£¼±³À°È¯°æ º¸È£¿¡ °üÇÑ ¹ý·ü£¾,»ó´ëº¸È£±¸¿ª(2019-05-28)£¼±³À°È¯°æ º¸È£¿¡
°üÇÑ ¹ý·ü£¾,´ë°ø¹æ¾îÇùÁ¶±¸¿ª£¼±º»ç±âÁö ¹× ±º»ç½Ã¼³ º¸È£¹ý£¾,°ú¹Ð¾ïÁ¦±Ç¿ª£¼¼öµµ±Ç
Á¤ºñ°èȹ¹ý£¾
[°øºÎ¿ÍÀÇ Â÷ÀÌ]
--
[Âü°í»çÇ×]
º»°ÇÀº ÀÓ´ëÁßÀ¸·Î ޹®µÇ¸ç,ÇöÀåÁ¶»ç½Ã ³»ºÎ±¸Á¶¸¦ À°¾ÈÀ¸·Î Á÷Á¢ È®ÀÎÇÏ¿´À½. |
|
|
°ÇÃ๰ÇöȲ |
|
|
|
| ¼ÒÀçÁö |
¼¿ïƯº°½Ã ¸¶Æ÷±¸ ¼º»êµ¿ 210-4¹øÁö |
| ´ëÁö¸éÀû |
327.6§³(99.27Æò) |
¿¬¸éÀû |
523.36§³(158.59Æò) |
ÁÖ¿ëµµ |
°øµ¿ÁÖÅà |
| °ÇÃà¸éÀû |
182.71§³(55.37Æò) |
¿ëÀû·ü»êÁ¤¿¬¸éÀû |
523.36§³(158.59Æò) |
Âø°øÀÏÀÚ |
2012.04.09 |
| °ÇÆóÀ² |
55.77% |
¿ëÀû·ü |
159.76% |
»ç¿ë½ÂÀÎÀÏÀÚ |
2014.03.18 |
| Áö»óÃþ¼ö |
5Ãþ |
ÁöÇÏÃþ¼ö |
|
±¸Á¶ |
ö±ÙÄÜÅ©¸®Æ®±¸Á¶ |
°ÇÃ๰Ãþº°ÇöȲ [º¸±â]| Ãþº° | ±¸Á¶ | ¿ëµµ | ¸éÀû | | 1Ãþ | ö±ÙÄÜÅ©¸®Æ®±¸Á¶ | °è´Ü½Ç | 9.99§³ (3.03Æò) | | 2Ãþ | ö±ÙÄÜÅ©¸®Æ®±¸Á¶ | ´Ù¼¼´ëÁÖÅÃ(4¼¼´ë) | 135.06§³ (40.93Æò) | | 3Ãþ | ö±ÙÄÜÅ©¸®Æ®±¸Á¶ | ´Ù¼¼´ëÁÖÅÃ(4¼¼´ë) | 135.06§³ (40.93Æò) | | 4Ãþ | ö±ÙÄÜÅ©¸®Æ®±¸Á¶ | ´Ù¼¼´ëÁÖÅÃ(4¼¼´ë) | 124.56§³ (37.75Æò) | | 5Ãþ | ö±ÙÄÜÅ©¸®Æ®±¸Á¶ | ´Ù¼¼´ëÁÖÅÃ(4¼¼´ë) | 118.69§³ (35.97Æò) | | ¿Áž1Ãþ | ö±ÙÄÜÅ©¸®Æ®±¸Á¶ | °è´Ü½Ç(¿¬¸éÀûÁ¦¿Ü) | 12.15§³ (3.68Æò) |
|
|
|
|
|
|
|
|
|
¸éÀû(§³), ±Ý¾×(¸¸¿ø)
| °è¾àÀÏ | ±âÁØ | °Ç¹°¸íĪ | Ãþ | ¿¬¸éÀû | ´ëÁö¸éÀû | °Å·¡±Ý¾× | °ÇÃà³âµµ | | 2024.03.29 | ¸Å¸Å | ¼ººÎÁÖÅà | 3 | 50.94 | 29.62 | 28,000 | 1996 | | 2024.03.29 | ¸Å¸Å | ¸¸¿¬¼¾ÅÒ½ÃÆ¼ | 3 | 29.98 | 18.66 | 27,500 | 2013 | | 2024.03.29 | ¸Å¸Å | ¼Ò³ëÇϿ콺¼º»ê2Â÷ | 2 | 43.47 | 27.16 | 41,500 | 2017 | | 2024.03.28 | ¸Å¸Å | Çö´ëºô¶ó | 2 | 51.99 | 40.5625 | 22,000 | 1990 | | 2024.03.28 | ¸Å¸Å | ¹Ì·¡ÇÏÀÓ | 2 | 53.05 | 30.74 | 35,000 | 2012 | | 2024.03.27 | ¸Å¸Å | »ï¼º·º½ººô¶óBµ¿ | 2 | 36.96 | 30.42 | 36,000 | 1992 | | 2024.03.26 | ¸Å¸Å | ¼°æÆÓ¸®½º(102µ¿) | 3 | 29.76 | 19.73 | 42,000 | 2019 | | 2024.03.26 | ¸Å¸Å | ´Ùº¹ÇÏÀÌÃ÷ºô¶óBµ¿ | 1 | 59.93 | 35.38 | 36,000 | 1996 | | 2024.03.26 | ¸Å¸Å | ¶óºñ¾Ó·ÎÁî | 2 | 29.96 | 19.22 | 29,000 | 2019 | | 2024.03.24 | ¸Å¸Å | °ñµå¸®Ä¡ | 3 | 28.89 | 24.14 | 42,900 | 2018 | | 2024.03.22 | ¸Å¸Å | ¼¾ÅÒ½ÃÆ¼ | -1 | 70.83 | 47.51 | 46,500 | 2018 | | 2024.03.22 | ¸Å¸Å | µ¿¾çÇÏ¿ì¡ | 6 | 37.77 | 24.13 | 35,800 | 2018 | | 2024.03.20 | ¸Å¸Å | (4-10) | 2 | 47.69 | 24.08 | 28,500 | 1995 | | 2024.03.20 | ¸Å¸Å | ÀÚ½½¸°ÇϿ콺 | 3 | 50.86 | 30.79 | 47,000 | 2017 | | 2024.03.19 | ¸Å¸Å | Ç츮ƼÁö | 3 | 37.31 | 24.96 | 45,000 | 2017 | | 2024.03.19 | ¸Å¸Å | ¼º¿î | 5 | 59.79 | 32.863 | 37,000 | 2011 | | 2024.03.18 | ¸Å¸Å | µ¿»ïºô¶ó | 2 | 53.28 | 28 | 35,000 | 1991 | | 2024.03.17 | ¸Å¸Å | Áغô¸®Áö | 5 | 33.51 | 22 | 37,500 | 2014 | | 2024.03.16 | ¸Å¸Å | (140-31) | 2 | 35.34 | 27 | 26,000 | 1986 | | 2024.03.16 | ¸Å¸Å | »ïÁ¤ºô¸®Áö | 3 | 61.2 | 25.965 | 31,500 | 1992 | | 2024.03.16 | ¸Å¸Å | ´õÇ÷¹À̽º | 4 | 20.06 | 15.357 | 31,900 | 2019 | | 2024.03.16 | ¸Å¸Å | ÇѼֺô¶ó | 1 | 60.5 | 31.1 | 35,000 | 1996 | | 2024.03.14 | ¸Å¸Å | ¿¡µ§ºô¶ó | -1 | 38.94 | 16.6 | 17,500 | 1995 | | 2024.03.12 | ¸Å¸Å | ´Ùº£·Î | 5 | 29.34 | 22.19 | 35,000 | 2016 | | 2024.03.09 | ¸Å¸Å | ¸í»óºô¶ó | 1 | 37.02 | 33.78 | 37,000 | 1990 | | 2024.03.09 | ¸Å¸Å | µ¿¾çÇÏ¿ì¡ | 5 | 32.7 | 18.18 | 37,000 | 2018 | | 2024.03.09 | ¸Å¸Å | Æç¸®Ã¼ | 4 | 50.75 | 30.75 | 38,000 | 2011 | | 2024.03.06 | ¸Å¸Å | ´ÙÀ̾ÆÄ³½½ | 1 | 45.95 | 35.5 | 45,000 | 2017 | | 2024.03.05 | ¸Å¸Å | ½ëÅͺô | 2 | 42.21 | 23.45 | 20,500 | 2010 | | 2024.03.05 | ¸Å¸Å | »ïÁ¤ºô¸®Áö³ªµ¿ | 1 | 51.54 | 30.125 | 25,000 | 1992 | | 2024.02.29 | ¸Å¸Å | ±ÃÀüÆÄÅ©ºô | 5 | 61.88 | 34.75 | 29,500 | 2003 | | 2024.02.28 | ¸Å¸Å | ±¤¸íÇÏ¿ì¡ | 2 | 60 | 26.4 | 26,800 | 1994 | | 2024.02.25 | ¸Å¸Å | µé±¹ÈŸ¿î | 3 | 73.44 | 40.35 | 60,000 | 2004 | | 2024.02.24 | ¸Å¸Å | ¹Ù¿ò»þÀκô | 2 | 29.87 | 18.719 | 45,500 | 2020 | | 2024.02.22 | ¸Å¸Å | ±Ý°ºô¶ó | -1 | 51.32 | 26.68 | 18,500 | 1993 | | 2024.02.20 | ¸Å¸Å | Áö¿Àºô | 5 | 35.6 | 24.79 | 34,700 | 2012 | | 2024.02.09 | ¸Å¸Å | ¾Æ¼º¶ß¶õä | 3 | 45.17 | 26.1271 | 44,500 | 2018 | | 2024.02.07 | ¸Å¸Å | µ¿¾çÇÏ¿ì¡ | 3 | 40.43 | 24.79 | 44,500 | 2017 | | 2024.02.01 | ¸Å¸Å | ÀÚ½½¸°ÇϿ콺(21-29) | 5 | 59.18 | 37.702 | 65,000 | 2021 | | 2024.02.01 | ¸Å¸Å | Çý¿øºô¸®Áö | -1 | 61.74 | 36.88 | 25,000 | 1993 | | 2024.01.26 | ¸Å¸Å | Á¤¿øºô¶ó | -1 | 38.39 | 17.82 | 25,000 | 1996 | | 2024.01.25 | ¸Å¸Å | ¼º»êÁö¿À | 3 | 23.27 | 15.84 | 32,500 | 2021 | | 2024.01.23 | ¸Å¸Å | »ó¸íºô¶ó | -1 | 39.76 | 18.8 | 20,000 | 1993 | | 2024.01.21 | ¸Å¸Å | ¹Ù¿ò»þÀκô | 3 | 34.5 | 21.6205 | 45,700 | 2020 | | 2024.01.20 | ¸Å¸Å | ¼¼¹ÎÇÏÀÌÆÄÅ© | 3 | 30.09 | 17.22 | 33,000 | 2016 | | 2024.01.20 | ¸Å¸Å | Ç츮ƼÁö | 6 | 36.09 | 30.15 | 47,000 | 2017 | | 2024.01.20 | ¸Å¸Å | (258-12) | 5 | 34.44 | 21.65 | 35,500 | 2017 | | 2024.01.10 | ¸Å¸Å | (161-4) | 1 | 72.9 | 56.67 | 57,200 | 1990 | | 2024.01.10 | ¸Å¸Å | (256-5) | 3 | 47.02 | 29.34 | 43,500 | 2014 | | 2024.01.08 | ¸Å¸Å | Çö´ëÇÏÀÌÃ÷ºô¶ó | 2 | 69.42 | 33.49 | 34,000 | 1995 | | 2024.01.08 | ¸Å¸Å | ¾î¹Ýij½½ | 4 | 26.14 | 16.55 | 30,700 | 2022 | | 2024.01.06 | ¸Å¸Å | (240-24) | 5 | 29.98 | 17.95 | 25,000 | 2012 | | 2024.01.04 | ¸Å¸Å | °¶·¯¸®ÇϿ콺 | 5 | 59.74 | 36.76 | 53,000 | 2014 | | 2024.01.03 | ¸Å¸Å | (200-89)Çѽźô¶ó | 3 | 26.62 | 11.02 | 19,750 | 1994 |
| °è¾àÀÏ | ±âÁØ | °Ç¹°¸íĪ | Ãþ | ¿¬¸éÀû | º¸Áõ±Ý | ¿ù¼¼ | °ÇÃà³âµµ | | 2025.11.20 | Àü¼¼ | ¸¶Æ÷¼º»êÈÞ¸ÕŸ¿î2Â÷ | 3 | 29.76 | 25,000 | 0 | 2023 | | 2025.11.19 | Àü¼¼ | Ȳ±Ýºô¸®Áö | 2 | 37.55 | 22,000 | 0 | 2015 | | 2025.11.19 | Àü¼¼ | Ȳ±Ýºô¸®Áö | 2 | 37.55 | 22,000 | 0 | 2015 | | 2025.11.19 | ¸Å¸Å | ´ë¿ìºô¶ó | 2 | 84.28 | 51,500 | | 1995 | | 2025.11.18 | Àü¼¼ | ¶óºñ¾Ó·ÎÁî | 2 | 29.96 | 24,000 | 0 | 2019 | | 2025.11.18 | Àü¼¼ | (140-12) | 2 | 38.75 | 9,200 | 0 | 1988 | | 2025.11.17 | Àü¼¼ | µ¿È£½¦¸£ºô | 3 | 65.94 | 26,500 | 0 | 2002 | | 2025.11.17 | ¿ù¼¼ | ¾Æ¼º¶ß¶õä | 2 | 45.17 | 37,500 | 13 | 2018 | | 2025.11.17 | Àü¼¼ | ¸¶ÇϺô | 3 | 27.92 | 16,700 | 0 | 2019 | | 2025.11.17 | ¿ù¼¼ | ¼Ò³ëÇϿ콺¼º»ê1Â÷ | 5 | 28.99 | 23,000 | 10 | 2017 | | 2025.11.17 | Àü¼¼ | (200-300) | -1 | 21.42 | 5,000 | 0 | 1995 | | 2025.11.17 | ¸Å¸Å | (200-300) | -1 | 21.42 | 11,000 | | 1995 | | 2025.11.15 | ¸Å¸Å | »ó¸íºô¶ó | -1 | 39.76 | 29,500 | | 1993 | | 2025.11.15 | ¿ù¼¼ | ¼º»êÿ½Ã | 6 | 29.42 | 22,000 | 20 | 2016 | | 2025.11.15 | ¸Å¸Å | ű¤ºô¶ó | 2 | 47.78 | 45,100 | | 2002 | | 2025.11.14 | Àü¼¼ | ¼Ò³ëÇϿ콺 | 5 | 30.56 | 25,200 | 0 | 2017 | | 2025.11.14 | ¿ù¼¼ | ¼Ò´ã¾ÆÆ®ºô | 2 | 50.15 | 2,000 | 78 | 2019 | | 2025.11.13 | Àü¼¼ | (147-2) | -1 | 36.45 | 10,000 | 0 | 1990 | | 2025.11.13 | ¿ù¼¼ | Çö´ëºô¶ó | 1 | 39.27 | 13,000 | 40 | 1992 | | 2025.11.13 | ¿ù¼¼ | º¸¾Æ½ººô¶ó | 3 | 57.31 | 10,000 | 49 | 2002 | | 2025.11.12 | Àü¼¼ | ¼°æÆÓ¸®½º(102µ¿) | 3 | 29.76 | 27,000 | 0 | 2019 | | 2025.11.12 | ¿ù¼¼ | À¯¼ººô¶ó | 2 | 51.02 | 20,000 | 10 | 1996 | | 2025.11.12 | ¿ù¼¼ | Äý | 4 | 13.53 | 500 | 53 | 2011 | | 2025.11.12 | Àü¼¼ | À¯ÀϺô¸®Áö2´ÜÁö | 4 | 29.79 | 20,000 | 0 | 2016 | | 2025.11.10 | ¿ù¼¼ | ÀÚ½½¸°ÇϿ콺 | 5 | 31.77 | 22,800 | 25 | 2017 | | 2025.11.08 | Àü¼¼ | ¸ÞÁ¾µå¿¥ | 2 | 23.96 | 21,400 | 0 | 2019 | | 2025.11.08 | Àü¼¼ | ¼º»êÁö±¸¿¬¸³ÁÖÅÃÁ¦31µ¿ | 2 | 19.83 | 15,000 | 0 | 1976 | | 2025.11.08 | ¿ù¼¼ | ÇѸƾÆÀÌȨ(47-16) | 3 | 79.17 | 32,000 | 20 | 2004 | | 2025.11.08 | Àü¼¼ | °Å¼ºÇÏÀÌÃ÷ºô¶ó | -1 | 40.32 | 4,000 | 0 | 1992 | | 2025.11.07 | Àü¼¼ | °¶·¯¸®ÇϿ콺 | 5 | 45.46 | 29,300 | 0 | 2014 | | 2025.11.07 | ¿ù¼¼ | ´Ùº£·Î | 3 | 29.92 | 26,700 | 21 | 2017 | | 2025.11.07 | Àü¼¼ | (212-2) | 2 | 37.2 | 10,000 | 0 | 1990 | | 2025.11.06 | Àü¼¼ | ¼º»êÀÌÆ°Ä³½½ | 3 | 42.77 | 47,000 | 0 | 2023 | | 2025.11.06 | Àü¼¼ | ¼ÛÇкòŸ¿î | 2 | 139.98 | 47,000 | 0 | 1996 | | 2025.11.04 | ¿ù¼¼ | Ç츮ƼÁö | 6 | 37.19 | 25,000 | 60 | 2017 | | 2025.11.03 | Àü¼¼ | (200-89)Çѽźô¶ó | 1 | 26.62 | 11,500 | 0 | 1994 | | 2025.11.03 | ¿ù¼¼ | ¿¡À̽ºÅ¸¿î | 5 | 28.55 | 5,000 | 100 | 2016 | | 2025.11.03 | ¸Å¸Å | ¿ÁÁøºô¶ó | -1 | 26.55 | 21,000 | | 1991 | | 2025.11.03 | ¿ù¼¼ | sweetseoulresidence | 5 | 34.51 | 18,000 | 15 | 2013 | | 2025.11.03 | Àü¼¼ | (278-44) | 1 | 41.66 | 15,000 | 0 | 1978 | | 2025.11.01 | Àü¼¼ | ÇØ¿À¸§ | 4 | 54.06 | 33,600 | 0 | 2016 | | 2025.11.01 | Àü¼¼ | ÀÌÁ¶°ñµçºô¶óAµ¿ | 2 | 37.34 | 19,700 | 0 | 1989 | | 2025.11.01 | Àü¼¼ | ´ÙÀ̾ÆÄ³½½ | 3 | 45.95 | 31,000 | 0 | 2017 | | 2025.10.31 | ¿ù¼¼ | ¼Ò´ã¾ÆÆ®ºô | 2 | 50.15 | 2,000 | 78 | 2019 | | 2025.10.30 | ¸Å¸Å | ¼Ò»ïÆÈ°¡ | 3 | 40.85 | 28,500 | | 2013 | | 2025.10.30 | ¿ù¼¼ | (214-65) | 1 | 57.51 | 11,000 | 80 | 1990 | | 2025.10.28 | ¿ù¼¼ | ¼º»êµ¿´Ù¼¼´ëÁÖÅà | 2 | 22.13 | 1,000 | 55 | 2001 | | 2025.10.28 | ¿ù¼¼ | ÇѸƾÆÀÌȨ(47-14) | 5 | 68.64 | 3,000 | 140 | 2005 | | 2025.10.27 | ¸Å¸Å | ´ë¿ìºô¶ó | 2 | 80.33 | 46,900 | | 1995 | | 2025.10.25 | ¿ù¼¼ | »ïÁ¤ºô¸®Áö | 2 | 61.2 | 23,900 | 30 | 1992 | | 2025.10.24 | ¿ù¼¼ | Çѿ츮ºô¶ó | 4 | 23.73 | 3,000 | 35 | 2001 | | 2025.10.24 | ¿ù¼¼ | ´ë¿øÆÄÅ©ºô¶ó | 2 | 45.71 | 2,000 | 90 | 1995 | | 2025.10.23 | ¿ù¼¼ | ´ÙÀ̾ÆÄ³½½ | 3 | 48.51 | 27,000 | 5 | 2017 | | 2025.10.22 | ¿ù¼¼ | (644-9) | 1 | 68.49 | 3,000 | 110 | 2000 | | 2025.10.22 | Àü¼¼ | (165-85) | 3 | 17.16 | 10,000 | 0 | 2023 | | 2025.10.20 | Àü¼¼ | (200-169) | 1 | 42.69 | 18,000 | 0 | 1986 | | 2025.10.18 | ¿ù¼¼ | ¼±Áøºô¶ó | 3 | 59.25 | 22,000 | 10 | 1996 | | 2025.10.18 | Àü¼¼ | µ¿¾çÇÏ¿ì¡ | 2 | 32.7 | 27,600 | 0 | 2018 | | 2025.10.17 | ¿ù¼¼ | (64-15) | 1 | 48.52 | 18,500 | 20 | 2004 | | 2025.10.17 | ¿ù¼¼ | ¼º»êÄ«¿îƼ | 2 | 33.1 | 1,000 | 65 | 2004 | | 2025.10.17 | ¿ù¼¼ | µ¿¾çÇÏ¿ì¡ | 5 | 29.95 | 25,450 | 10 | 2017 | | 2025.10.17 | Àü¼¼ | ¸ÞÁ¾µå¿¥ | 2 | 28.06 | 23,100 | 0 | 2019 | | 2025.10.16 | ¿ù¼¼ | Áø¿¤¸£ºô | 2 | 39.58 | 9,000 | 50 | 2016 | | 2025.10.15 | ¸Å¸Å | û¿îºô¶ó | -1 | 40.26 | 33,000 | | 1988 | | 2025.10.15 | ¸Å¸Å | µ¿È£½¦¸£ºô | 4 | 41.89 | 31,500 | | 2008 | | 2025.10.15 | ¸Å¸Å | ¾Æ¼º¶ß¶õä | 6 | 47.29 | 51,000 | | 2018 | | 2025.10.15 | ¸Å¸Å | ±Ý°ºô¶ó³ªµ¿ | -1 | 49.59 | 39,000 | | 1986 | | 2025.10.15 | ¸Å¸Å | °íÀº°í±Þºô¶ó | -1 | 36.32 | 40,000 | | 1990 | | 2025.10.15 | ¸Å¸Å | ÈÞ¸Õºô | 2 | 96.27 | 59,000 | | 2011 | | 2025.10.15 | ¸Å¸Å | º¸¿µÁÖÅà | 4 | 76.785 | 46,000 | | 2000 | | 2025.10.15 | ¸Å¸Å | ¾Æ¼º¶ß¶õä | 3 | 29.97 | 42,700 | | 2018 | | 2025.10.15 | ¸Å¸Å | ¾Æ¼º¶ß¶õä | 2 | 45.21 | 45,000 | | 2018 | | 2025.10.15 | ¸Å¸Å | ÇѸÆÈúÇϿ콺(200-270) | 2 | 75.9 | 60,000 | | 2002 | | 2025.10.15 | ¸Å¸Å | ÈÞ¸Õºô | -1 | 111.93 | 60,000 | | 2011 | | 2025.10.15 | ¸Å¸Å | ´Ù¿Â½£ | 5 | 29.99 | 49,500 | | 2023 | | 2025.10.15 | Àü¼¼ | ¼Ò³ëÇϿ콺¼º»ê3Â÷ | 3 | 29.51 | 24,000 | 0 | 2018 | | 2025.10.15 | Àü¼¼ | (223-2) | 3 | 14.82 | 8,500 | 0 | 2012 | | 2025.10.14 | ¸Å¸Å | À§µåÇϿ콺 | 3 | 16.51 | 29,000 | | 2025 | | 2025.10.14 | ¸Å¸Å | ¸ÞÁ¾µå¿¥ | 2 | 23.96 | 45,000 | | 2019 | | 2025.10.14 | ¸Å¸Å | ¸ÞÁ¾µå¿¥ | 2 | 28.06 | 46,000 | | 2019 | | 2025.10.14 | ¸Å¸Å | ¼º»êÈÞ¸ÕŸ¿î | 3 | 28.13 | 49,500 | | 2017 | | 2025.10.14 | ¿ù¼¼ | À¯´ÏÇϿ콺 | 2 | 29.18 | 23,970 | 5 | 2016 | | 2025.10.14 | ¿ù¼¼ | À¯´ÏÇϿ콺 | 2 | 29.18 | 23,980 | 5 | 2016 | | 2025.10.14 | ¿ù¼¼ | »ïÁ¤ºô¸®Áö | -1 | 61.2 | 13,800 | 30 | 1992 | | 2025.10.14 | ¿ù¼¼ | ¸¶ÀÌ¿ò¼º»ê | 2 | 13.44 | 6,000 | 21 | 2014 | | 2025.10.14 | ¿ù¼¼ | µµ¿øºô¶ó2µ¿ | -1 | 36.81 | 9,200 | 10 | 1990 | | 2025.10.14 | ¸Å¸Å | ¼º»êÁö±¸¿¬¸³ÁÖÅÃÁ¦31µ¿ | 1 | 22.68 | 25,000 | | 1976 | | 2025.10.14 | ¸Å¸Å | ¾î¹Ýij½½ | 5 | 19.53 | 28,000 | | 2022 | | 2025.10.13 | ¿ù¼¼ | ½ºÀ§Æ®ºô | 2 | 41.3 | 6,000 | 67 | 2016 | | 2025.10.13 | ¸Å¸Å | ¼¼Á¾ºô¶ó | 3 | 74.74 | 57,000 | | 2003 | | 2025.10.13 | ¸Å¸Å | ±Ý°ºô¶ó¶óµ¿ | 1 | 48.42 | 49,000 | | 1986 | | 2025.10.13 | Àü¼¼ | ÇØ¿À¸§ | 2 | 29.45 | 23,600 | 0 | 2016 | | 2025.10.13 | Àü¼¼ | ´õÇ÷¹À̽º | 4 | 29.75 | 27,000 | 0 | 2019 | | 2025.10.13 | ¿ù¼¼ | (254-17) | 4 | 28.73 | 18,200 | 19 | 2011 | | 2025.10.12 | Àü¼¼ | ¸®½Ãº»ÇϿ콺 | 4 | 36.91 | 29,000 | 0 | 2016 | | 2025.10.11 | ¿ù¼¼ | (223-2) | 3 | 18.32 | 5,000 | 32 | 2012 | | 2025.10.10 | Àü¼¼ | µ¿¾çÇÏ¿ì¡ | 5 | 43.53 | 40,000 | 0 | 2018 | | 2025.10.10 | ¿ù¼¼ | û¿îºô¶ó | 1 | 43.46 | 100 | 20 | 1992 | | 2025.10.10 | Àü¼¼ | ¶óºñ¾Ó·ÎÁî | 5 | 39.77 | 30,000 | 0 | 2017 | | 2025.10.09 | ¸Å¸Å | (200-327) | 1 | 52.62 | 37,700 | | 1992 | | 2025.10.09 | ¸Å¸Å | ½´ÆæÇÏÀÓ¼º»ê | 1 | 23.35 | 40,000 | | 2017 | | 2025.10.03 | ¸Å¸Å | »ï¼ºÇÏÀÌÃ÷ºô¶ó | 1 | 49.61 | 49,500 | | 1994 | | 2025.10.02 | ¸Å¸Å | ´Ù¿Â½£ | 5 | 26.16 | 38,000 | | 2023 | | 2025.10.02 | ¸Å¸Å | û¿îºô¶ó | 1 | 40.62 | 30,000 | | 1988 | | 2025.10.02 | ¿ù¼¼ | ´õŬ·¡½º | 6 | 28.3 | 24,500 | 20 | 2019 | | 2025.10.02 | ¿ù¼¼ | ½Å¼ººô¶ó | 2 | 81.24 | 5,000 | 160 | 1994 | | 2025.10.02 | ¸Å¸Å | û¿îºô¶ó | 4 | 76.59 | 51,500 | | 1993 | | 2025.10.02 | ¸Å¸Å | ¿¡µ§ºô¶ó | 3 | 38.94 | 26,000 | | 1995 | | 2025.10.02 | ¸Å¸Å | ÇØÇǺô | 3 | 49.66 | 48,000 | | 2006 | | 2025.10.01 | Àü¼¼ | ½ÃƼÇÏÀÓ¥±Bµ¿ | 4 | 24.59 | 29,000 | 0 | 2019 | | 2025.10.01 | ¿ù¼¼ | (200-327) | 3 | 52.29 | 21,000 | 20 | 1992 | | 2025.10.01 | ¿ù¼¼ | sweetseoulresidence | 4 | 49 | 15,000 | 100 | 2013 | | 2025.10.01 | ¿ù¼¼ | ûdz¼·¡ | 2 | 20.13 | 1,000 | 75 | 2018 | | 2025.10.01 | Àü¼¼ | Á¤¿îºô¶ó | 4 | 43.65 | 20,000 | 0 | 2012 | | 2025.10.01 | ¸Å¸Å | µ¿¾çÇÏ¿ì¡ | 5 | 30.14 | 42,000 | | 2017 | | 2025.10.01 | ¿ù¼¼ | ¿ô´ã | 3 | 20.23 | 1,000 | 65 | 2013 | | 2025.09.30 | ¿ù¼¼ | ¸®Ä¡ºô | 3 | 60.45 | 500 | 55 | 2002 | | 2025.09.29 | Àü¼¼ | ¼º»êÀÌÆ°Ä³½½ | 5 | 47.22 | 47,000 | 0 | 2023 | | 2025.09.29 | Àü¼¼ | ÈÀÌÆ®ºô | 4 | 66.66 | 17,000 | 0 | 2010 | | 2025.09.29 | ¸Å¸Å | À§µåÇϿ콺 | 5 | 13.62 | 24,000 | | 2025 | | 2025.09.28 | ¸Å¸Å | ¾î¹Ýij½½ | 2 | 18.11 | 28,000 | | 2022 | | 2025.09.27 | ¸Å¸Å | ¼º¿øÇÏÀÌÃ÷2µ¿ | -1 | 38.38 | 40,000 | | 1988 | | 2025.09.27 | Àü¼¼ | ¼º»êÁö¿À | 4 | 23.27 | 27,500 | 0 | 2021 | | 2025.09.27 | ¿ù¼¼ | ¿ùµåÄÅŸ¿ö(586-4) | 2 | 31.02 | 12,800 | 30 | 2004 | | 2025.09.27 | ¸Å¸Å | ±Û·Î¸®È¨Áî | 2 | 25.41 | 39,500 | | 2020 | | 2025.09.27 | ¸Å¸Å | ¸¶ÀÌ¿ò¼º»ê | 2 | 16.56 | 25,300 | | 2014 | | 2025.09.27 | ¿ù¼¼ | ¼º»êÇý½Âºô | 2 | 20.73 | 1,000 | 63 | 2009 | | 2025.09.26 | ¸Å¸Å | (165-102) | 2 | 31.86 | 37,000 | | 1987 | | 2025.09.26 | ¸Å¸Å | (165-31) | 3 | 56.88 | 46,500 | | 1987 | | 2025.09.26 | ¿ù¼¼ | ¼º»êÈÞ¸ÕŸ¿î(277-41) | 5 | 25.86 | 27,700 | 10 | 2021 | | 2025.09.26 | Àü¼¼ | ¼°æÆÓ¸®½º(101µ¿) | 3 | 29.76 | 27,780 | 0 | 2019 | | 2025.09.26 | ¿ù¼¼ | ¼º»êÈÞ¸ÕŸ¿î(277-41) | 5 | 25.86 | 27,700 | 10 | 2021 | | 2025.09.26 | ¿ù¼¼ | žçºô¶ó | 1 | 35.16 | 13,000 | 10 | 1993 | | 2025.09.26 | ¸Å¸Å | ¸¶ÀÌ¿ò¼º»ê | 2 | 15.9 | 24,800 | | 2014 | | 2025.09.25 | Àü¼¼ | ÈÀÌÆ®ºô | 4 | 41.19 | 20,000 | 0 | 2012 | | 2025.09.25 | ¿ù¼¼ | ¿ùµåÇϿ콺 | 4 | 26.45 | 2,000 | 80 | 2014 | | 2025.09.24 | ¸Å¸Å | ±Ý°ºí·ç | 5 | 47.65 | 73,000 | | 2021 | | 2025.09.23 | ¸Å¸Å | ½ÅÀÏÇÏÀÌÃ÷ºô¶ó | 2 | 55.98 | 37,000 | | 1991 | | 2025.09.23 | ¸Å¸Å | À§µåÇϿ콺 | 3 | 19.05 | 29,000 | | 2025 | | 2025.09.23 | ¸Å¸Å | ±×·¹À̽ººô(271-34) | 5 | 29.46 | 36,500 | | 2014 | | 2025.09.22 | ¸Å¸Å | ¸¶ÀÌ¿ò¼º»ê | 3 | 15.9 | 23,500 | | 2014 | | 2025.09.22 | ¸Å¸Å | ´Ù¿Â½£ | 2 | 25.5 | 38,000 | | 2023 | | 2025.09.22 | ¸Å¸Å | Áö¿ÀºôB | 2 | 71.1 | 47,000 | | 2008 | | 2025.09.21 | ¸Å¸Å | ¼Ò³ëÇϿ콺 | 2 | 32.49 | 31,000 | | 2017 | | 2025.09.21 | ¿ù¼¼ | (21-4) | 2 | 12.96 | 5,000 | 27 | 2012 | | 2025.09.20 | ¿ù¼¼ | ³ëºí·¹½ººô | 5 | 80.42 | 3,000 | 204 | 2002 | | 2025.09.20 | ¸Å¸Å | ±Û·Î¸®¾Æºô | 1 | 75.69 | 59,500 | | 2002 | | 2025.09.20 | ¿ù¼¼ | ¾Æ¼º¶ß¶õä | 3 | 45.17 | 25,000 | 75 | 2018 | | 2025.09.20 | ¿ù¼¼ | ³ëºí·¹½ººô | 5 | 80.42 | 3,000 | 204 | 2002 | | 2025.09.20 | ¸Å¸Å | À§µåÇϿ콺 | 3 | 17.58 | 29,000 | | 2025 | | 2025.09.19 | Àü¼¼ | ¸¶Æ÷¼º»êÈÞ¸ÕŸ¿î2Â÷ | 5 | 29.12 | 26,000 | 0 | 2023 | | 2025.09.18 | Àü¼¼ | ¸ñȺô¶ó | 2 | 51.12 | 22,000 | 0 | 1991 | | 2025.09.18 | ¸Å¸Å | À§µåÇϿ콺 | 3 | 16.73 | 29,000 | | 2025 | | 2025.09.18 | ¸Å¸Å | À§µåÇϿ콺 | 2 | 17.58 | 29,000 | | 2025 | | 2025.09.18 | ¸Å¸Å | À§µåÇϿ콺 | 2 | 16.73 | 29,000 | | 2025 | | 2025.09.17 | ¿ù¼¼ | º¸¾Æ½ººô¶ó | 2 | 57.31 | 25,000 | 10 | 2002 | | 2025.09.17 | ¿ù¼¼ | ½ÅÀϺô¶ó | -1 | 52.37 | 11,700 | 40 | 1992 | | 2025.09.17 | ¿ù¼¼ | º¸¾Æ½ººô¶ó | 4 | 38.94 | 15,000 | 19 | 2002 | | 2025.09.16 | Àü¼¼ | ¼º»êÀÌÆ°Ä³½½ | 4 | 42.52 | 47,000 | 0 | 2023 | | 2025.09.16 | ¿ù¼¼ | ¼º»êÄ«¿îƼ | 3 | 33.22 | 2,000 | 51 | 2004 | | 2025.09.16 | ¸Å¸Å | ¸¶Æ÷¼º»êÈÞ¸ÕŸ¿î2Â÷ | 3 | 29.76 | 53,700 | | 2023 | | 2025.09.16 | ¿ù¼¼ | ¸¸¿¬¼¾ÅÒ½ÃÆ¼ | 3 | 29.89 | 18,500 | 10 | 2013 | | 2025.09.15 | ¸Å¸Å | ¾î½æ½ÃƼ | 5 | 27.6 | 37,500 | | 2019 | | 2025.09.15 | ¸Å¸Å | ¸¶Æ÷¼º»êÈÞ¸ÕŸ¿î2Â÷ | 3 | 28.38 | 52,500 | | 2023 | | 2025.09.15 | ¿ù¼¼ | ´Ùº£·Î | 5 | 59 | 10,000 | 100 | 2021 | | 2025.09.15 | Àü¼¼ | ¼°æÆÓ¸®½º(101µ¿) | 5 | 41.75 | 40,700 | 0 | 2019 | | 2025.09.15 | Àü¼¼ | ¼º¿øÇÏÀÌÃ÷1µ¿ | 1 | 37.14 | 12,000 | 0 | 1988 | | 2025.09.14 | ¿ù¼¼ | Á¦À̺ô | 4 | 57.97 | 15,000 | 39 | 2014 | | 2025.09.14 | ¸Å¸Å | ¶óºñ¾Ó·ÎÁî | 5 | 39.77 | 55,000 | | 2017 | | 2025.09.13 | ¸Å¸Å | ¼º¿øÇÏÀÌÃ÷6µ¿ | 2 | 38.1 | 47,400 | | 1988 | | 2025.09.13 | ¸Å¸Å | Ç츮ƼÁö | 5 | 36.09 | 48,500 | | 2017 | | 2025.09.13 | ¿ù¼¼ | ¼ÛÁ¤ºô¶ó | 2 | 48.8 | 5,000 | 80 | 1991 | | 2025.09.13 | ¿ù¼¼ | µ¿¿ø°¡µçºô | 3 | 39.39 | 3,000 | 100 | 2011 | | 2025.09.13 | ¿ù¼¼ | ½´ÆæÇÏÀÓ¼º»ê | 4 | 29.98 | 28,600 | 10 | 2017 | | 2025.09.13 | Àü¼¼ | ¿ùµåÄÅŸ¿ö(586-7) | 5 | 60.9 | 23,100 | 0 | 2003 | | 2025.09.13 | ¿ù¼¼ | ½´ÆæÇÏÀÓ¼º»ê | 4 | 29.98 | 28,600 | 10 | 2017 | | 2025.09.13 | ¿ù¼¼ | ½ÃƼÇÏÀÓ¥±Aµ¿ | 5 | 25.88 | 20,000 | 55 | 2019 | | 2025.09.13 | ¿ù¼¼ | ¼ÛÁ¤ºô¶ó | 2 | 48.8 | 5,000 | 80 | 1991 | | 2025.09.12 | ¸Å¸Å | (160-1) | 3 | 39.96 | 30,000 | | 1992 | | 2025.09.12 | ¿ù¼¼ | ÇÔ²²ÁÖÅÃ3È£ | 5 | 14 | 2,300 | 32 | 2020 | | 2025.09.12 | ¸Å¸Å | À¯ÀϺô¸®Áö1´ÜÁö | 2 | 40.45 | 36,000 | | 2016 | | 2025.09.11 | ¿ù¼¼ | µ¿»êÁÖÅà | 1 | 42.24 | 10,000 | 20 | 1995 | | 2025.09.11 | ¸Å¸Å | Áø¼±ºô¶ó | 3 | 59.84 | 30,000 | | 1991 | | 2025.09.11 | ¿ù¼¼ | ¼º»êºô¶ó | 4 | 32.91 | 7,000 | 64 | 2002 | | 2025.09.11 | Àü¼¼ | ¾çÁöºô¶óBµ¿ | 2 | 49.95 | 18,000 | 0 | 1991 | | 2025.09.11 | Àü¼¼ | ÇÑÁÖÆÓ¸®½º | 3 | 26.49 | 31,815 | 0 | 2019 | | 2025.09.11 | ¿ù¼¼ | Á¤¿øºô¶ó | 3 | 39.53 | 12,200 | 35 | 1996 | | 2025.09.10 | ¿ù¼¼ | (255-14) | 1 | 53.07 | 7,000 | 60 | 1991 | | 2025.09.10 | ¸Å¸Å | ¿©¹Îºô¶ó | 2 | 55.5 | 48,000 | | 2003 | | 2025.09.10 | ¸Å¸Å | ¿µ¼ººô¶ó | -1 | 32.76 | 23,800 | | 1991 | | 2025.09.10 | ¸Å¸Å | (200-327) | 3 | 52.29 | 41,000 | | 1992 | | 2025.09.10 | ¿ù¼¼ | (30-47) | 3 | 29.61 | 16,000 | 25 | 2012 | | 2025.09.10 | ¿ù¼¼ | ±Ý°ºô¶ó¶óµ¿ | 1 | 48.42 | 15,000 | 45 | 1986 | | 2025.09.09 | ¸Å¸Å | ¹Ù¿ò»þÀκô | 3 | 34.5 | 43,500 | | 2020 | | 2025.09.09 | Àü¼¼ | À̰¡¿¡½ºÅä | 3 | 38.47 | 33,000 | 0 | 2023 | | 2025.09.09 | ¸Å¸Å | À§µåÇϿ콺 | 2 | 16.51 | 29,000 | | 2025 | | 2025.09.09 | Àü¼¼ | ¼°æÆÓ¸®½º(101µ¿) | 4 | 29.45 | 26,300 | 0 | 2019 | | 2025.09.09 | ¸Å¸Å | À§µåÇϿ콺 | 5 | 15.21 | 27,500 | | 2025 | | 2025.09.09 | Àü¼¼ | ÈÀÌÆ®ºô | 3 | 27.34 | 18,500 | 0 | 2013 | | 2025.09.09 | ¿ù¼¼ | (58-10) | 2 | 13.82 | 500 | 57 | 2013 | | 2025.09.09 | ¿ù¼¼ | ÀÌÁöºô¶ó | 3 | 56.25 | 10,000 | 53 | 2002 | | 2025.09.09 | ¸Å¸Å | ÆÓ¸®½ººä | 6 | 39.22 | 41,500 | | 2018 | | 2025.09.09 | Àü¼¼ | ÈÀÌÆ®ºô | 3 | 27.34 | 18,500 | 0 | 2013 | | 2025.09.08 | ¿ù¼¼ | (137-8) | 1 | 48.51 | 3,000 | 70 | 1987 | | 2025.09.08 | ¿ù¼¼ | ¾î½æ½ÃƼ | 3 | 27.96 | 30,700 | 5 | 2019 | | 2025.09.08 | ¿ù¼¼ | ÇÊÇϿ콺 | 2 | 65.44 | 27,000 | 40 | 2003 | | 2025.09.08 | ¿ù¼¼ | ¿¡¹ö±×¸°2 | 3 | 20.47 | 12,000 | 20 | 2013 | | 2025.09.08 | ¿ù¼¼ | (160-1) | -1 | 79.92 | 3,500 | 35 | 1992 | | 2025.09.07 | Àü¼¼ | ÀÌ·¹ºô¶óÆ® | 4 | 51.63 | 21,900 | 0 | 2012 | | 2025.09.06 | ¿ù¼¼ | ÀÌ·¹ºô¶óÆ® | 2 | 15.11 | 1,000 | 44 | 2012 | | 2025.09.06 | ¿ù¼¼ | (140-31) | -1 | 35.34 | 1,000 | 50 | 1986 | | 2025.09.06 | ¸Å¸Å | ¹Ì·¡ºô¶ó | 2 | 77.85 | 54,700 | | 2002 | | 2025.09.06 | ¿ù¼¼ | ÀÌÁ¶°ñµçºô¶óBµ¿ | 2 | 35.17 | 15,000 | 30 | 1989 | | 2025.09.05 | ¸Å¸Å | À§µåÇϿ콺 | 2 | 19.05 | 29,000 | | 2025 | | 2025.09.05 | ¸Å¸Å | ¸¶ÀÌ¿ò¼º»ê | 3 | 13.44 | 22,400 | | 2014 | | 2025.09.05 | ¿ù¼¼ | ¸¸¿¬¼¾ÅÒ½ÃÆ¼ | 4 | 28.83 | 3,000 | 60 | 2013 | | 2025.09.05 | ¿ù¼¼ | ÁÖ¿¬ÇϿ콺 | 4 | 26.09 | 20,000 | 30 | 2020 | | 2025.09.04 | ¿ù¼¼ | ¸®½Ãº»ÇϿ콺 | 2 | 29.84 | 3,000 | 99 | 2016 | | 2025.09.04 | Àü¼¼ | ¸¶Æ÷¼º»êÈÞ¸ÕŸ¿î2Â÷ | 3 | 29.76 | 25,000 | 0 | 2023 | | 2025.09.04 | Àü¼¼ | ÇÑÁÖÆÓ¸®½º | 4 | 27.36 | 32,700 | 0 | 2019 | | 2025.09.04 | Àü¼¼ | ¸¶Æ÷¼º»êÈÞ¸ÕŸ¿î2Â÷ | 3 | 29.76 | 25,000 | 0 | 2023 | | 2025.09.03 | ¸Å¸Å | (258-12) | 5 | 27.22 | 42,000 | | 2017 | | 2025.09.03 | Àü¼¼ | ¹é¼Û¾ÆÆ®ºô | 3 | 32.22 | 27,600 | 0 | 2017 | | 2025.09.03 | ¿ù¼¼ | (58-10) | 4 | 11.45 | 500 | 51 | 2013 | | 2025.09.02 | Àü¼¼ | ÁÖ¿¬ÇϿ콺 | 2 | 26.09 | 22,800 | 0 | 2020 | | 2025.09.02 | ¸Å¸Å | (79-2) | 2 | 36.69 | 23,300 | | 1989 | | 2025.09.01 | ¸Å¸Å | ±Ý¾Æ¾ÆÆ®ºô | 6 | 29.85 | 31,500 | | 2015 | | 2025.09.01 | ¿ù¼¼ | ÁÖ¿µ¾ÆÆ®ºô¶óBµ¿ | 2 | 65.14 | 3,000 | 120 | 1998 | | 2025.09.01 | Àü¼¼ | û¿îºô¶ó | 1 | 76.59 | 23,000 | 0 | 1993 | | 2025.09.01 | Àü¼¼ | ¼°æÆÓ¸®½º(102µ¿) | 2 | 29.45 | 26,000 | 0 | 2019 | | 2025.08.31 | Àü¼¼ | µ¿¾çÇÏ¿ì¡ | 3 | 29.86 | 27,000 | 0 | 2018 | | 2025.08.30 | ¸Å¸Å | (212-2) | 2 | 37.2 | 49,000 | | 1990 | | 2025.08.30 | ¸Å¸Å | ¼ºÇöÇÏÀ̺ô | 5 | 22.32 | 20,000 | | 2017 | | 2025.08.30 | Àü¼¼ | ´õÇ÷¹À̽º | 2 | 29.95 | 33,600 | 0 | 2019 | | 2025.08.30 | ¿ù¼¼ | (13-17) | 1 | 31.47 | 1,000 | 60 | 1987 | | 2025.08.30 | ¿ù¼¼ | ´ë¿øÇÏÀÌÃ÷ | 4 | 45.69 | 14,500 | 45 | 1991 | | 2025.08.30 | ¿ù¼¼ | ¿µµ¿ºô¸®Áö | 3 | 36.91 | 1,000 | 55 | 1993 | | 2025.08.29 | ¿ù¼¼ | ´õŬ·¡½Ä | 3 | 54.99 | 10,000 | 117 | 2017 | | 2025.08.29 | ¸Å¸Å | ÇØÇǺô | 4 | 51.91 | 49,000 | | 2006 | | 2025.08.29 | ¿ù¼¼ | ÁÖ¿¬ÇϿ콺 | 4 | 27.95 | 24,000 | 5 | 2020 | | 2025.08.29 | Àü¼¼ | ¾î½æ½ÃƼ | 4 | 29.24 | 32,149 | 0 | 2019 | | 2025.08.29 | ¿ù¼¼ | ±Ý°ºí·ç | 2 | 29.87 | 25,000 | 20 | 2021 | | 2025.08.28 | Àü¼¼ | ÇѰÇÏÀ̺ô | 1 | 72.98 | 35,000 | 0 | 2008 | | 2025.08.28 | ¸Å¸Å | ¸¶ÀÌ¿ò¼º»ê | 3 | 15.9 | 23,500 | | 2014 | | 2025.08.27 | Àü¼¼ | ½Å¼ººô¶ó°¡µ¿ | 2 | 41.16 | 14,100 | 0 | 1992 | | 2025.08.27 | ¸Å¸Å | ÈÀÌÆ®ºô | 4 | 27.34 | 33,000 | | 2013 | | 2025.08.27 | ¸Å¸Å | ¸¶Æ÷¼º»êÈÞ¸ÕŸ¿î2Â÷ | 5 | 29.12 | 53,500 | | 2023 | | 2025.08.26 | ¸Å¸Å | (212-2) | -1 | 37.2 | 36,500 | | 1990 | | 2025.08.26 | ¸Å¸Å | ¸¸¿¬¼¾ÅÒ½ÃÆ¼ | 3 | 29.89 | 36,200 | | 2013 | | 2025.08.26 | ¸Å¸Å | ´Ù¿Â½£ | 4 | 26.16 | 42,500 | | 2023 | | 2025.08.26 | ¸Å¸Å | ´Ù¿Â½£ | 3 | 26.16 | 42,500 | | 2023 | | 2025.08.26 | ¸Å¸Å | ¸í½Éºô¶ó | -1 | 36.77 | 40,900 | | 1991 | | 2025.08.26 | ¿ù¼¼ | (200-341) | -1 | 36.48 | 3,000 | 60 | 1990 | | 2025.08.26 | Àü¼¼ | (258-12) | 5 | 34.44 | 26,000 | 0 | 2017 | | 2025.08.26 | ¿ù¼¼ | µ¿½Åºô¶ó³ªµ¿ | 2 | 39.15 | 1,000 | 10 | 1989 | | 2025.08.25 | Àü¼¼ | ¸¶ÇϺô | 5 | 18.82 | 15,000 | 0 | 2019 | | 2025.08.25 | Àü¼¼ | (223-2) | 4 | 16.37 | 9,000 | 0 | 2012 | | 2025.08.25 | Àü¼¼ | (239-20) | 5 | 53.51 | 11,025 | 0 | 2004 | | 2025.08.25 | Àü¼¼ | ½ºÅ¸Ä³½½ | 4 | 34.88 | 17,850 | 0 | 2013 | | 2025.08.25 | ¸Å¸Å | ÆÓ¸®½ººä | 5 | 43.37 | 49,000 | | 2018 | | 2025.08.24 | ¿ù¼¼ | º°Àåºô¶ó(³ªµ¿) | 2 | 62.92 | 3,000 | 120 | 2002 | | 2025.08.23 | Àü¼¼ | ¸¶ÇϺô | 2 | 21.93 | 16,800 | 0 | 2019 | | 2025.08.23 | Àü¼¼ | ¸¶ÇϺô | 2 | 21.93 | 16,800 | 0 | 2019 | | 2025.08.23 | Àü¼¼ | ¿µÀÏÇÏÀÌÃ÷ºô¶ó | 4 | 53.31 | 13,000 | 0 | 1991 | | 2025.08.23 | ¿ù¼¼ | ±Ý¾Æ¾ÆÆ®ºô | 4 | 24.38 | 2,000 | 75 | 2015 | | 2025.08.23 | ¿ù¼¼ | ¹«Áö°³ºô¶ó | 1 | 59.4 | 500 | 30 | 1977 | | 2025.08.22 | Àü¼¼ | ¿¹°¡Å©·¹½Ã¾Æ | 4 | 41.5 | 28,000 | 0 | 2016 | | 2025.08.22 | ¸Å¸Å | ±ÙÈ£ºô¶ó | 4 | 54.71 | 34,000 | | 1993 | | 2025.08.21 | Àü¼¼ | ½Å¼ººô¶ó°¡µ¿ | 1 | 41.16 | 11,000 | 0 | 1992 | | 2025.08.21 | ¿ù¼¼ | ´ë¸íÆÄÅ©ºä | 2 | 29.81 | 5,000 | 105 | 2014 | | 2025.08.21 | ¿ù¼¼ | ¼º»ê¿¡½ºÇÏÀÓ2 | 2 | 54.58 | 7,070 | 73 | 2021 | | 2025.08.21 | ¿ù¼¼ | »ê.³».µé | 2 | 14.58 | 1,000 | 60 | 2013 | | 2025.08.21 | ¿ù¼¼ | ´ë¼ººô¶óBµ¿ | -1 | 36.9 | 1,000 | 72 | 1989 | | 2025.08.21 | ¸Å¸Å | ÀÌÁ¶°ñµçºô¶óBµ¿ | 2 | 35.17 | 40,000 | | 1989 | | 2025.08.20 | ¸Å¸Å | À¯´ÏÇϿ콺 | 2 | 29.18 | 45,000 | | 2016 | | 2025.08.20 | ¸Å¸Å | ¼ºÇöÇÏÀ̺ô | 3 | 54.18 | 47,700 | | 2017 | | 2025.08.20 | ¸Å¸Å | ¼ÛÁ¤ºô¶ó | 2 | 48.8 | 27,000 | | 1991 | | 2025.08.20 | ¿ù¼¼ | µ¿»ïºô¶ó | 1 | 52.8 | 17,000 | 30 | 1991 | | 2025.08.19 | ¿ù¼¼ | ¿¡¹ö±×¸°2 | 2 | 23 | 12,000 | 20 | 2013 | | 2025.08.19 | ¿ù¼¼ | ¿¡¹ö±×¸°2 | 2 | 23 | 12,000 | 20 | 2013 | | 2025.08.19 | ¿ù¼¼ | ¿¡¹ö±×¸°2 | 2 | 23 | 12,000 | 20 | 2013 | | 2025.08.19 | ¸Å¸Å | Áغô¸®Áö | 4 | 35.4 | 49,500 | | 2014 | | 2025.08.18 | Àü¼¼ | À̰¡¿¡½ºÅä | 3 | 34.38 | 27,300 | 0 | 2023 | | 2025.08.18 | ¿ù¼¼ | ÇѺûÀ§³Ê½ººô | 5 | 27.53 | 5,000 | 70 | 2013 | | 2025.08.18 | Àü¼¼ | ÇѸƾÆÀÌȨAµ¿ | 5 | 74.13 | 39,000 | 0 | 2003 | | 2025.08.18 | ¸Å¸Å | ¹Ù¿ò»þÀκô | 2 | 34.5 | 54,000 | | 2020 | | 2025.08.16 | ¿ù¼¼ | ¿ùµåÄźô¸®Áö | 4 | 48.81 | 2,500 | 80 | 2006 | | 2025.08.15 | ¸Å¸Å | µ¿¾çÇÏ¿ì¡ | 2 | 42.08 | 56,000 | | 2018 | | 2025.08.15 | Àü¼¼ | ¼±È£ºô | 5 | 72 | 29,400 | 0 | 2015 | | 2025.08.15 | Àü¼¼ | Ç츮ƼÁö | 5 | 37.31 | 30,000 | 0 | 2017 | | 2025.08.15 | Àü¼¼ | ¼ºÀÏ¾ÆÆ®ºô | 3 | 47.54 | 23,000 | 0 | 2008 | | 2025.08.14 | ¿ù¼¼ | ¸®Ä¡ºô | 5 | 28.12 | 7,500 | 18 | 2003 | | 2025.08.14 | ¿ù¼¼ | ¸®Ä¡ºô | 5 | 28.12 | 7,500 | 18 | 2003 | | 2025.08.14 | Àü¼¼ | ´ÙÀ̾ÆÄ³½½ | 2 | 29.64 | 24,000 | 0 | 2017 | | 2025.08.14 | Àü¼¼ | Ç츮ƼÁö | 3 | 37.51 | 30,000 | 0 | 2017 | | 2025.08.14 | Àü¼¼ | ´ÙÀ̾ÆÄ³½½ | 2 | 29.64 | 24,000 | 0 | 2017 | | 2025.08.14 | ¸Å¸Å | ÇѰÇÏÀ̺ô | 1 | 72.98 | 56,000 | | 2008 | | 2025.08.14 | ¸Å¸Å | »ïÁ¤ºô¸®Áö³ªµ¿ | 3 | 51.54 | 26,600 | | 1992 | | 2025.08.13 | Àü¼¼ | SK-VIEW | 3 | 41.9 | 23,100 | 0 | 1995 | | 2025.08.13 | ¿ù¼¼ | ¼º»êÀÌÆ°Ä³½½ | 2 | 19.24 | 23,000 | 20 | 2023 | | 2025.08.13 | ¸Å¸Å | ´Ù¿Â½£ | 6 | 25.5 | 38,000 | | 2023 | | 2025.08.13 | ¸Å¸Å | ½ºÄ«À̺ô | 1 | 53.91 | 31,500 | | 2003 | | 2025.08.12 | ¿ù¼¼ | (58-10) | 2 | 13.82 | 500 | 52 | 2013 | | 2025.08.12 | Àü¼¼ | °ñµå¸®Ä¡ | 2 | 28.89 | 28,660 | 0 | 2018 | | 2025.08.12 | Àü¼¼ | ³ª´®ºô | 2 | 54.22 | 20,400 | 0 | 2011 | | 2025.08.12 | ¿ù¼¼ | ¿ô´ã | 2 | 21.75 | 1,000 | 65 | 2013 | | 2025.08.12 | ¸Å¸Å | ´Ù¿Â½£ | 6 | 23.22 | 42,000 | | 2023 | | 2025.08.11 | Àü¼¼ | ÈÀÌÆ®ºô | 5 | 27.34 | 17,000 | 0 | 2013 | | 2025.08.11 | Àü¼¼ | ¾Æ¼º¶ß¶õä | 5 | 33.82 | 25,000 | 0 | 2018 | | 2025.08.11 | ¸Å¸Å | »ï¼ººô¶ó | 3 | 60.76 | 75,000 | | 1994 | | 2025.08.11 | ¸Å¸Å | »ï¼ººô¶ó | 3 | 60.76 | 75,000 | | 1994 | | 2025.08.11 | ¸Å¸Å | ¼º»êÁö±¸¿¬¸³ÁÖÅÃÁ¦31µ¿ | 1 | 25.06 | 29,000 | | 1976 | | 2025.08.10 | ¸Å¸Å | (140-31) | 1 | 35.34 | 29,200 | | 1986 | | 2025.08.10 | ¸Å¸Å | »ï¼ººô¶ó | 2 | 60.76 | 75,000 | | 1994 | | 2025.08.09 | ¸Å¸Å | »ï¼ººô¶ó | 1 | 60.76 | 75,000 | | 1994 | | 2025.08.09 | ¸Å¸Å | ¹Ù¿ò»þÀκô | 5 | 29.94 | 44,000 | | 2020 | | 2025.08.09 | ¸Å¸Å | ¸¶Æ÷¼º»êÈÞ¸ÕŸ¿î2Â÷ | 4 | 29.12 | 55,500 | | 2023 | | 2025.08.09 | ¸Å¸Å | »ï¼ººô¶ó | 4 | 60.76 | 75,000 | | 1994 | | 2025.08.09 | ¿ù¼¼ | ÇÑ»ùÇÏÀÌÃ÷ºô¶ó | 3 | 54.84 | 6,000 | 135 | 1993 | | 2025.08.09 | ¸Å¸Å | »ï¼ººô¶ó | -1 | 60.76 | 75,000 | | 1994 | | 2025.08.09 | ¸Å¸Å | »ï¼ººô¶ó | 2 | 60.76 | 75,000 | | 1994 | | 2025.08.08 | ¸Å¸Å | »ï¼ººô¶ó | 1 | 60.76 | 75,000 | | 1994 | | 2025.08.08 | Àü¼¼ | ÅäõGreenZone | 3 | 64.78 | 26,460 | 0 | 2009 | | 2025.08.08 | Àü¼¼ | ÅäõGreenZone | 3 | 64.78 | 26,460 | 0 | 2009 | | 2025.08.08 | ¿ù¼¼ | (243-8) | 3 | 23.45 | 3,000 | 50 | 2011 | | 2025.08.08 | Àü¼¼ | Å䯼ºô | 1 | 59.3 | 22,000 | 0 | 2008 | | 2025.08.08 | Àü¼¼ | µ¿¾çÇÏ¿ì¡ | 2 | 43.53 | 31,500 | 0 | 2018 | | 2025.08.07 | ¸Å¸Å | »ï¼ººô¶ó | 4 | 60.76 | 75,000 | | 1994 | | 2025.08.07 | ¸Å¸Å | »ï¼ººô¶ó | -1 | 60.76 | 75,000 | | 1994 | | 2025.08.07 | ¸Å¸Å | ¾çÁöºô¶óBµ¿ | 2 | 49.95 | 25,000 | | 1991 | | 2025.08.07 | Àü¼¼ | ÇØ¿À¸§ | 3 | 29.29 | 23,100 | 0 | 2016 | | 2025.08.07 | ¿ù¼¼ | °ñµçÆÓ¸®½º | 5 | 33.97 | 27,000 | 20 | 2017 | | 2025.08.07 | Àü¼¼ | ¿ùµåÇϿ콺 | 4 | 36.39 | 28,500 | 0 | 2017 | | 2025.08.06 | Àü¼¼ | (140-31) | 1 | 35.34 | 14,200 | 0 | 1986 | | 2025.08.06 | ¸Å¸Å | ¼º»êÈÞ¸ÕŸ¿î(277-41) | 4 | 26.78 | 49,000 | | 2021 | | 2025.08.06 | Àü¼¼ | À̰¡¿¡½ºÅä | 2 | 36.07 | 26,250 | 0 | 2023 | | 2025.08.06 | ¸Å¸Å | ÈÀÌÆ®ºô | 5 | 27.34 | 34,000 | | 2013 | | 2025.08.06 | ¸Å¸Å | ¾î¹Ýij½½ | 2 | 13.64 | 25,000 | | 2022 | | 2025.08.05 | Àü¼¼ | ¼º»êÁö¿À | 6 | 26.82 | 26,145 | 0 | 2021 | | 2025.08.05 | Àü¼¼ | ¼º»êÁö¿À | 6 | 26.82 | 26,145 | 0 | 2021 | | 2025.08.05 | ¿ù¼¼ | ¼º»çºô¶ó | 2 | 73.52 | 27,000 | 7 | 1982 | | 2025.08.05 | ¿ù¼¼ | ¿¡¹ö±×¸° | 4 | 14.68 | 1,000 | 60 | 2012 | | 2025.08.04 | Àü¼¼ | Áß¾Óºô¶ó | 2 | 49.8 | 16,400 | 0 | 2001 | | 2025.08.04 | ¸Å¸Å | ´Ù¿Â½£ | 5 | 29.99 | 43,000 | | 2023 | | 2025.08.04 | ¿ù¼¼ | ¼Ò´ã¾ÆÆ®ºô | 3 | 29.29 | 2,000 | 76 | 2019 | | 2025.08.04 | Àü¼¼ | ¼ºÇöÇÏÀ̺ô | 2 | 59.18 | 28,000 | 0 | 2017 | | 2025.08.04 | Àü¼¼ | ÇÑÁÖÆÓ¸®½º | 2 | 29.95 | 33,000 | 0 | 2019 | | 2025.08.03 | ¸Å¸Å | Çà¿îºô¸®Áö | 4 | 52.58 | 44,200 | | 2003 | | 2025.08.02 | ¸Å¸Å | Áß¾Óºô¶ó | 1 | 35.67 | 33,000 | | 2001 | | 2025.08.02 | ¿ù¼¼ | ¼°æÆÓ¸®½º(101µ¿) | 4 | 18.01 | 5,000 | 90 | 2019 | | 2025.08.02 | ¸Å¸Å | À¯´ÏÇϿ콺 | 5 | 24.54 | 40,000 | | 2016 | | 2025.08.02 | Àü¼¼ | ´õÇ÷¹À̽º | 4 | 29.91 | 31,100 | 0 | 2019 | | 2025.08.01 | ¿ù¼¼ | (92-13) | 4 | 39.2 | 3,500 | 58 | 2002 | | 2025.08.01 | ¿ù¼¼ | ¾Æºñ´¨ºô¶ó | 4 | 36.9 | 13,700 | 15 | 2002 | | 2025.07.31 | ¸Å¸Å | ´Ù¿Â½£ | 2 | 29.99 | 45,000 | | 2023 | | 2025.07.31 | ¿ù¼¼ | ±Ý°ºí·ç | 4 | 29.87 | 500 | 150 | 2021 | | 2025.07.31 | Àü¼¼ | ¼ºÀ缾Ʈ¸®¿ò | 2 | 35.88 | 30,970 | 0 | 2018 | | 2025.07.31 | Àü¼¼ | ´õÇ÷¹À̽º | 2 | 29.68 | 27,000 | 0 | 2019 | | 2025.07.30 | ¿ù¼¼ | (607-7) | 1 | 46.91 | 4,000 | 60 | 1994 | | 2025.07.30 | ¿ù¼¼ | ÇØ·æºô¶ó | -1 | 54.9 | 12,000 | 10 | 1992 | | 2025.07.29 | ¿ù¼¼ | À¯´Ï¿Âºô | 4 | 19.7 | 1,000 | 53 | 2014 | | 2025.07.29 | ¸Å¸Å | À¯ÀϺô¸®Áö | 2 | 49.02 | 43,500 | | 2016 | | 2025.07.29 | ¸Å¸Å | ¸¶ÀÌ¿ò¼º»ê | 3 | 12.22 | 19,500 | | 2014 | | 2025.07.29 | ¸Å¸Å | (140-31) | 1 | 35.34 | 11,300 | | 1986 | | 2025.07.29 | ¸Å¸Å | ´Ù¿Â½£ | 4 | 29.99 | 45,000 | | 2023 | | 2025.07.29 | Àü¼¼ | ¿ùµåÇϿ콺 | 5 | 26.29 | 22,000 | 0 | 2017 | | 2025.07.27 | Àü¼¼ | ¼±È£ºô | 5 | 72 | 29,400 | 0 | 2015 | | 2025.07.26 | Àü¼¼ | Çö´ëºô¶ó | -1 | 78.54 | 8,000 | 0 | 1992 | | 2025.07.26 | Àü¼¼ | Çö´ëºô¶ó | -1 | 78.54 | 8,000 | 0 | 1992 | | 2025.07.26 | ¿ù¼¼ | À¯´Ï¿Âºô | 4 | 18.78 | 1,000 | 53 | 2014 | | 2025.07.26 | ¿ù¼¼ | ±ÃÀüºô | 4 | 29.85 | 2,000 | 135 | 2010 | | 2025.07.26 | ¸Å¸Å | ¼±³ºô¶ó | 3 | 64.32 | 34,000 | | 1991 | | 2025.07.26 | ¸Å¸Å | ¾Æ¼º¶ß¶õä | 5 | 33.82 | 43,000 | | 2018 | | 2025.07.26 | ¸Å¸Å | û¿îºô¶ó | 1 | 76.59 | 50,000 | | 1993 | | 2025.07.25 | ¿ù¼¼ | ±Û·Î¸®È¨Áî | 2 | 29.9 | 5,000 | 114 | 2020 | | 2025.07.25 | Àü¼¼ | ¼±³ºô¶ó | 3 | 64.32 | 33,000 | 0 | 1991 | | 2025.07.25 | Àü¼¼ | µ¿¾çÇÏ¿ì¡ | 3 | 29.77 | 24,600 | 0 | 2017 | | 2025.07.25 | Àü¼¼ | µ¿¾çÇÏ¿ì¡ | 2 | 42.08 | 34,650 | 0 | 2018 | | 2025.07.25 | ¿ù¼¼ | ¼º»ê¼¿µ½ºÀȨ | 6 | 22.25 | 300 | 35 | 2024 | | 2025.07.25 | Àü¼¼ | ±Ý°ºí·ç | 3 | 29.8 | 32,800 | 0 | 2021 | | 2025.07.25 | Àü¼¼ | µ¿¾çÇÏ¿ì¡ | 5 | 39.06 | 32,500 | 0 | 2017 | | 2025.07.25 | ¸Å¸Å | ÈÀÌÆ®ºô | 4 | 41.19 | 32,500 | | 2012 | | 2025.07.24 | ¿ù¼¼ | Äý | 3 | 18.9 | 10,500 | 2 | 2011 | | 2025.07.24 | Àü¼¼ | (223-2) | 6 | 14.88 | 8,400 | 0 | 2012 | | 2025.07.24 | ¿ù¼¼ | ¾î½æ½ÃƼ | 5 | 27.96 | 30,000 | 10 | 2019 | | 2025.07.24 | ¿ù¼¼ | ÀÚ½½¸°ÇϿ콺(21-29) | 2 | 59.79 | 20,000 | 150 | 2021 | | 2025.07.24 | ¸Å¸Å | (81-30) | 2 | 34.29 | 19,000 | | 1988 | | 2025.07.23 | ¸Å¸Å | À¯ÀϺô¸®Áö2´ÜÁö | 5 | 29.09 | 31,700 | | 2016 | | 2025.07.23 | ¿ù¼¼ | (200-323) | 2 | 77.29 | 15,000 | 55 | 1998 | | 2025.07.23 | Àü¼¼ | ½ÃƼÇÏÀÓ¥±Aµ¿ | 4 | 28.15 | 29,900 | 0 | 2019 | | 2025.07.22 | Àü¼¼ | À§µåÇϿ콺 | 5 | 15.21 | 14,500 | 0 | 2025 | | 2025.07.22 | ¿ù¼¼ | µ¿»ïºô¶ó | 3 | 42.32 | 12,050 | 32 | 1991 | | 2025.07.22 | Àü¼¼ | À̰¡¿¡½ºÅä | 3 | 36.07 | 33,000 | 0 | 2023 | | 2025.07.22 | ¿ù¼¼ | ÇÑÀϺô¸®Áö³ªµ¿ | 2 | 77.46 | 15,000 | 70 | 1990 | | 2025.07.21 | Àü¼¼ | ÅäõGreenZone | 3 | 70.32 | 25,350 | 0 | 2009 | | 2025.07.21 | ¸Å¸Å | ÁøÁÖºô¶ó | 4 | 80.96 | 54,000 | | 1994 | | 2025.07.21 | Àü¼¼ | °¡³ª¾È | 3 | 90.31 | 24,885 | 0 | 1980 | | 2025.07.21 | ¿ù¼¼ | ¿ùµåÇϿ콺 | 3 | 17.57 | 1,000 | 60 | 2014 | | 2025.07.21 | Àü¼¼ | ¾î½æ½ÃƼ | 4 | 28.18 | 32,300 | 0 | 2019 | | 2025.07.21 | ¿ù¼¼ | ¾î½æ½ÃƼ | 5 | 27.96 | 30,000 | 10 | 2019 | | 2025.07.21 | ¿ù¼¼ | ±èõÇÏÀÌÃ÷ºô | 3 | 17.08 | 1,000 | 65 | 2013 | | 2025.07.20 | Àü¼¼ | ¼Ò³ëÇϿ콺 | 6 | 46.24 | 31,500 | 0 | 2017 | | 2025.07.19 | ¸Å¸Å | (258-12) | 2 | 26.63 | 42,200 | | 2017 | | 2025.07.19 | ¸Å¸Å | À¯ÀϺô¸®Áö2´ÜÁö | 4 | 39.37 | 37,500 | | 2016 | | 2025.07.19 | ¿ù¼¼ | ³ª´®ºô | 3 | 56.09 | 20,300 | 10 | 2011 | | 2025.07.19 | Àü¼¼ | (92-1) | 2 | 112.02 | 37,000 | 0 | 2004 | | 2025.07.19 | Àü¼¼ | (200-169) | 2 | 42.69 | 13,000 | 0 | 1986 | | 2025.07.18 | ¸Å¸Å | ½´Ææ´õ°¶·¯¸® | 4 | 33.09 | 44,000 | | 2017 | | 2025.07.18 | ¸Å¸Å | µ¿»ïºô¶ó | 3 | 42.32 | 35,000 | | 1991 | | 2025.07.18 | ¿ù¼¼ | ¼°æÆÓ¸®½º(102µ¿) | 4 | 18.01 | 6,000 | 60 | 2019 | | 2025.07.18 | Àü¼¼ | Ç츮ƼÁö | 3 | 37.31 | 29,400 | 0 | 2017 | | 2025.07.18 | ¿ù¼¼ | µ¿»ïºô¶óŸ¿î7µ¿ | 1 | 33.4 | 3,000 | 65 | 1988 | | 2025.07.18 | ¸Å¸Å | ½´Ææ´õ°¶·¯¸® | 4 | 33.09 | 44,000 | | 2017 | | 2025.07.17 | ¿ù¼¼ | Á¶Àººô¶ó | 1 | 42.42 | 2,000 | 82 | 1996 | | 2025.07.16 | ¸Å¸Å | ±Û·Î¸®È¨Áî | 5 | 25.41 | 38,900 | | 2020 | | 2025.07.16 | ¸Å¸Å | ½ºÄ«À̺ô | 2 | 46.59 | 32,300 | | 2003 | | 2025.07.16 | ¿ù¼¼ | ´ö»êºô¶ó | 1 | 35.7 | 1,000 | 70 | 1994 | | 2025.07.16 | ¿ù¼¼ | ´Ù¿Â½£ | 5 | 24.13 | 4,000 | 135 | 2016 | | 2025.07.16 | Àü¼¼ | Ç츮ƼÁö | 2 | 36.09 | 31,000 | 0 | 2017 | | 2025.07.16 | ¸Å¸Å | ½ºÄ«À̺ô | 2 | 46.59 | 32,300 | | 2003 | | 2025.07.16 | Àü¼¼ | Ç츮ƼÁö | 2 | 36.09 | 31,000 | 0 | 2017 | | 2025.07.15 | ¸Å¸Å | ¼ºÀ缾Ʈ¸®¿ò | 3 | 35.88 | 34,700 | | 2018 | | 2025.07.15 | ¿ù¼¼ | ±ÃÀüºô¶ó | -1 | 48.85 | 11,600 | 15 | 1996 | | 2025.07.14 | Àü¼¼ | ¼º»êÁö¿À | 3 | 28.68 | 29,500 | 0 | 2021 | | 2025.07.14 | ¸Å¸Å | ½´Ææ´õ°¶·¯¸® | 1 | 32.38 | 46,000 | | 2017 | | 2025.07.14 | Àü¼¼ | (223-2) | 4 | 16.37 | 8,900 | 0 | 2012 | | 2025.07.12 | Àü¼¼ | Ç츮ƼÁö | 6 | 38.21 | 28,000 | 0 | 2017 | | 2025.07.12 | ¿ù¼¼ | ¹Ì·¡ºô¶ó | 5 | 50.68 | 5,500 | 100 | 2002 | | 2025.07.12 | ¸Å¸Å | ´Ù´Ùºô¸®Áö | 5 | 27.93 | 42,500 | | 2016 | | 2025.07.12 | ¿ù¼¼ | ½ÃƼÇÏÀÓ¥±Bµ¿ | 2 | 24.59 | 26,500 | 5 | 2019 | | 2025.07.12 | ¿ù¼¼ | ¹Ì·¡ºô¶ó | 5 | 50.68 | 5,500 | 100 | 2002 | | 2025.07.11 | ¿ù¼¼ | (58-10) | 4 | 11.45 | 500 | 53 | 2013 | | 2025.07.11 | ¸Å¸Å | ½ÃƼÇÏÀÓ¥±Aµ¿ | 2 | 18.75 | 23,500 | | 2019 | | 2025.07.11 | ¿ù¼¼ | ½ÃƼÇÏÀÓ¥±Bµ¿ | 2 | 26.62 | 5,000 | 80 | 2019 | | 2025.07.11 | ¿ù¼¼ | (262-10) | 3 | 78.27 | 33,000 | 20 | 2002 | | 2025.07.11 | Àü¼¼ | ÆÓ¸®½ººä | 1 | 40.15 | 32,000 | 0 | 2018 | | 2025.07.10 | ¿ù¼¼ | (137-8) | 2 | 48.51 | 10,000 | 30 | 1987 | | 2025.07.10 | Àü¼¼ | ¿ùµå½¦¸£ºô | 2 | 72.75 | 16,500 | 0 | 2001 | | 2025.07.10 | Àü¼¼ | (223-2) | 4 | 14.88 | 8,400 | 0 | 2012 | | 2025.07.10 | ¿ù¼¼ | ¹é¼Û¾ÆÆ®ºô | 2 | 65.37 | 20,000 | 50 | 2002 | | 2025.07.10 | ¿ù¼¼ | Äý | 2 | 13.53 | 500 | 53 | 2011 | | 2025.07.09 | ¿ù¼¼ | (611-1) | 2 | 57.62 | 16,000 | 50 | 1992 | | 2025.07.09 | ¿ù¼¼ | ÇÑÁÖÆÓ¸®½º | 2 | 27.36 | 5,000 | 126 | 2019 | | 2025.07.09 | Àü¼¼ | (223-2) | 5 | 16.37 | 8,900 | 0 | 2012 | | 2025.07.09 | Àü¼¼ | ´ë¼ººô¶óAµ¿ | 2 | 33.36 | 15,400 | 0 | 1989 | | 2025.07.09 | ¿ù¼¼ | ÈÀθ®ºùÅÚ | 3 | 24.21 | 1,000 | 62 | 2003 | | 2025.07.09 | Àü¼¼ | Ç츮ƼÁö | 2 | 36.09 | 31,000 | 0 | 2017 | | 2025.07.08 | Àü¼¼ | ¸®½Ãº»ÇϿ콺 | 3 | 29.8 | 28,500 | 0 | 2016 | | 2025.07.08 | ¿ù¼¼ | ¼º¸²ºô¶ó | 1 | 41.04 | 8,000 | 42 | 1995 | | 2025.07.08 | ¿ù¼¼ | ´õŬ·¡½º | 5 | 28.77 | 29,700 | 9 | 2019 | | 2025.07.08 | ¸Å¸Å | ÁøÈïÅ×Å©ºô | 3 | 76.53 | 55,000 | | 2002 | | 2025.07.07 | ¸Å¸Å | ÇѸƾÆÀÌȨ(47-14) | 4 | 68.73 | 51,500 | | 2005 | | 2025.07.07 | ¿ù¼¼ | ÁÖ¿¬ºô¶óÆ® | 4 | 59.16 | 2,000 | 105 | 2003 | | 2025.07.07 | ¿ù¼¼ | ¹é¼Û¾ÆÆ®ºô | 4 | 47.255 | 19,500 | 20 | 2003 | | 2025.07.07 | ¸Å¸Å | ¸í¹®ÁÖÅà | -1 | 32.55 | 22,000 | | 1991 | | 2025.07.05 | Àü¼¼ | ½ÃƼÇÏÀÓ¥±Aµ¿ | 2 | 18.75 | 22,000 | 0 | 2019 | | 2025.07.05 | Àü¼¼ | ½ÃƼÇÏÀÓ¥±Aµ¿ | 3 | 25.88 | 17,500 | 0 | 2019 | | 2025.07.05 | ¸Å¸Å | ÆÓ¸®½ººä | 1 | 40.15 | 45,700 | | 2018 | | 2025.07.05 | ¸Å¸Å | ¾î¹Ýij½½ | 3 | 13.64 | 25,000 | | 2022 | | 2025.07.04 | Àü¼¼ | ¿¡À̽ºÅ¸¿î | 4 | 28.58 | 24,300 | 0 | 2016 | | 2025.07.04 | ¸Å¸Å | ´Ù¿Â½£ | 3 | 49.78 | 50,000 | | 2016 | | 2025.07.04 | ¿ù¼¼ | »ï¼ººô¶ó | 5 | 48.67 | 2,500 | 150 | 2010 | | 2025.07.04 | Àü¼¼ | ¶óºñ¾Ó·ÎÁî | 4 | 45.42 | 35,000 | 0 | 2017 | | 2025.07.04 | ¿ù¼¼ | »ï¼ººô¶ó | 5 | 48.67 | 2,500 | 150 | 2010 | | 2025.07.03 | ¸Å¸Å | ¼º»êÁö±¸¿¬¸³ÁÖÅÃÁ¦31µ¿ | 1 | 22.68 | 30,000 | | 1976 | | 2025.07.03 | ¸Å¸Å | ¼Ò³ëÇϿ콺 | 5 | 46.9 | 40,900 | | 2017 | | 2025.07.03 | ¿ù¼¼ | ÀÌ·¹ºô¶óÆ® | 2 | 15.81 | 1,000 | 43 | 2012 | | 2025.07.03 | ¸Å¸Å | ¼º»êÁö±¸¿¬¸³ÁÖÅÃÁ¦31µ¿ | 1 | 25.06 | 29,000 | | 1976 | | 2025.07.03 | ¸Å¸Å | ¼Ò³ëÇϿ콺 | 5 | 46.9 | 40,900 | | 2017 | | 2025.07.03 | ¿ù¼¼ | ÈÀθ®ºùÅÚ | 4 | 25.2 | 2,000 | 56 | 2003 | | 2025.07.03 | Àü¼¼ | ´ë¸íÇ®ÇϿ콺2 | 3 | 13.08 | 9,300 | 0 | 2012 | | 2025.07.02 | ¿ù¼¼ | ¼º»ê¼¿µ½ºÀȨ | 6 | 22.25 | 100 | 37 | 2024 | | 2025.07.02 | ¿ù¼¼ | ¼º»ê¼¿µ½ºÀȨ | 5 | 22.25 | 100 | 36 | 2024 | | 2025.07.02 | ¿ù¼¼ | ¼º»ê¼¿µ½ºÀȨ | 6 | 19.2 | 100 | 33 | 2024 | | 2025.07.02 | ¿ù¼¼ | ¼º»ê¼¿µ½ºÀȨ | 5 | 19.2 | 100 | 33 | 2024 | | 2025.07.02 | ¿ù¼¼ | ¼º»ê¼¿µ½ºÀȨ | 7 | 22.25 | 100 | 37 | 2024 | | 2025.07.02 | ¿ù¼¼ | ¼º»ê¼¿µ½ºÀȨ | 6 | 19.2 | 100 | 33 | 2024 | | 2025.07.02 | ¿ù¼¼ | ¼º»ê¼¿µ½ºÀȨ | 7 | 22.25 | 100 | 37 | 2024 | | 2025.07.02 | ¿ù¼¼ | ¼º»ê¼¿µ½ºÀȨ | 5 | 22.25 | 100 | 36 | 2024 | | 2025.07.02 | ¿ù¼¼ | ¼º»ê¼¿µ½ºÀȨ | 7 | 19.2 | 100 | 33 | 2024 | | 2025.07.02 | ¿ù¼¼ | ¼º»ê¼¿µ½ºÀȨ | 7 | 22.25 | 100 | 37 | 2024 | | 2025.07.02 | ¿ù¼¼ | ¼º»ê¼¿µ½ºÀȨ | 5 | 19.2 | 100 | 32 | 2024 | | 2025.07.02 | ¿ù¼¼ | ¼º»ê¼¿µ½ºÀȨ | 5 | 22.25 | 100 | 36 | 2024 | | 2025.07.02 | ¿ù¼¼ | ¼º»ê¼¿µ½ºÀȨ | 7 | 19.2 | 100 | 33 | 2024 | | 2025.07.01 | ¸Å¸Å | ÀÚ½½¸°ÇϿ콺(21-29) | 2 | 59.79 | 69,800 | | 2021 | | 2025.07.01 | ¿ù¼¼ | ¸¶ÀÌ¿ò¼º»ê | 2 | 15.9 | 10,500 | 8 | 2014 | | 2025.07.01 | ¿ù¼¼ | ÈÀÌÆ®ºô | 5 | 27.34 | 6,000 | 60 | 2013 | | 2025.06.30 | ¿ù¼¼ | ½´ÆæÇÏÀÓ | 4 | 28.05 | 5,000 | 100 | 2016 | | 2025.06.30 | ¸Å¸Å | ¼º»êÈÞ¸ÕŸ¿î(277-41) | 6 | 26.78 | 49,250 | | 2021 | | 2025.06.30 | Àü¼¼ | ÇÏÁ¤¾ÆÆ®ºô | 2 | 59.79 | 48,000 | 0 | 2023 | | 2025.06.30 | ¿ù¼¼ | ¼ºÀ缾Ʈ¸®¿ò | 2 | 37.49 | 5,000 | 100 | 2018 | | 2025.06.30 | ¸Å¸Å | (278-44) | 2 | 38.74 | 37,500 | | 1978 | | 2025.06.30 | ¿ù¼¼ | ½ÃƼÇÏÀÓ¥±Bµ¿ | 2 | 24.3 | 2,500 | 105 | 2019 | | 2025.06.30 | ¿ù¼¼ | Äý | 4 | 15.3 | 500 | 53 | 2011 | | 2025.06.29 | Àü¼¼ | Áß¾ÓÁÖÅà | 3 | 45.66 | 16,000 | 0 | 2003 | | 2025.06.29 | ¿ù¼¼ | Áß¾ÓÁÖÅà | 3 | 45.66 | 16,000 | 20 | 2003 | | 2025.06.28 | ¿ù¼¼ | ´ë¿øÆÄÅ©ºô¶ó | 3 | 62.3 | 3,000 | 80 | 1993 | | 2025.06.28 | ¿ù¼¼ | ¼º»êÁö±¸¿¬¸³ÁÖÅÃÁ¦31µ¿ | 1 | 22.68 | 11,900 | 20 | 1976 | | 2025.06.28 | ¿ù¼¼ | ¿¤Áö±×¸°ºô | 2 | 63.26 | 26,000 | 40 | 2008 | | 2025.06.27 | ¸Å¸Å | Ç츮ƼÁö | 4 | 37.51 | 45,000 | | 2017 | | 2025.06.27 | ¿ù¼¼ | °ñµå¸®Ä¡ | 4 | 23.74 | 23,000 | 12 | 2018 | | 2025.06.27 | Àü¼¼ | ÆÓ¸®½ººä | 4 | 59.8 | 39,000 | 0 | 2017 | | 2025.06.27 | Àü¼¼ | ÆÓ¸®½ººä | 4 | 59.8 | 39,000 | 0 | 2017 | | 2025.06.27 | Àü¼¼ | µ¿¿ìºô¶ó | 1 | 49.41 | 18,900 | 0 | 1992 | | 2025.06.27 | Àü¼¼ | µ¿¾çÇÏ¿ì¡ | 2 | 28.89 | 26,460 | 0 | 2018 | | 2025.06.27 | ¿ù¼¼ | ¶óºñ¾Ó·ÎÁî | 4 | 31.38 | 100 | 90 | 2019 | | 2025.06.27 | ¸Å¸Å | Ç츮ƼÁö | 4 | 37.51 | 45,000 | | 2017 | | 2025.06.27 | ¸Å¸Å | ÇѸƾÆÀÌȨ(47-14) | 5 | 68.64 | 48,000 | | 2005 | | 2025.06.27 | ¸Å¸Å | ÇѸƾÆÀÌȨ(47-14) | 5 | 68.64 | 48,000 | | 2005 | | 2025.06.27 | ¸Å¸Å | ¼ºÀ缾Ʈ¸®¿ò | 2 | 37.49 | 38,000 | | 2018 | | 2025.06.27 | ¸Å¸Å | ÈÀÌÆ®ºô | 4 | 27.55 | 47,000 | | 2015 | | 2025.06.26 | Àü¼¼ | ¼º»êÇÏÀÌÃ÷ºô | 1 | 50.92 | 22,270 | 0 | 2002 | | 2025.06.26 | ¿ù¼¼ | (271-24) | 3 | 28.37 | 1,000 | 82 | 2013 | | 2025.06.26 | ¿ù¼¼ | ¾î½æ½ÃƼ | 5 | 27.6 | 30,000 | 10 | 2019 | | 2025.06.26 | Àü¼¼ | ¼º»êÇÏÀÌÃ÷ºô | 1 | 50.92 | 22,270 | 0 | 2002 | | 2025.06.26 | Àü¼¼ | ÈÀÌÆ®ºô | 4 | 27.34 | 17,300 | 0 | 2013 | | 2025.06.26 | ¸Å¸Å | ¼º¿øÇÏÀÌÃ÷1µ¿ | -1 | 37.14 | 39,000 | | 1988 | | 2025.06.26 | ¸Å¸Å | ±Û·Î¸®È¨Áî | 2 | 29.9 | 44,000 | | 2020 | | 2025.06.24 | ¿ù¼¼ | (210-25) | 5 | 51.1 | 200 | 38 | 2008 | | 2025.06.24 | ¿ù¼¼ | °íÀº°í±Þºô¶ó | 2 | 36.32 | 1,000 | 45 | 1990 | | 2025.06.23 | Àü¼¼ | º§ºä¼º»ê | 3 | 39.01 | 39,500 | 0 | 2022 | | 2025.06.23 | Àü¼¼ | ½ÅÀÏÇÏÀÌÃ÷ºô¶ó | 2 | 55.98 | 18,000 | 0 | 1991 | | 2025.06.23 | Àü¼¼ | ¼ºÀ缾Ʈ¸®¿ò | 2 | 37.49 | 32,800 | 0 | 2018 | | 2025.06.21 | ¿ù¼¼ | »õÅͺô | 2 | 29.97 | 10,000 | 55 | 2015 | | 2025.06.21 | Àü¼¼ | ¼ÒÇàÁÖ | 4 | 16.53 | 14,300 | 0 | 2017 | | 2025.06.21 | Àü¼¼ | µÎ·¹È¨(³ª) | 4 | 73.44 | 30,000 | 0 | 2004 | | 2025.06.21 | Àü¼¼ | ¾Æ¼º¶ß¶õä | 2 | 29.97 | 25,000 | 0 | 2018 | | 2025.06.21 | Àü¼¼ | ½ÃƼÇÏÀÓ¥±Bµ¿ | 3 | 24.3 | 29,295 | 0 | 2019 | | 2025.06.21 | Àü¼¼ | ¼ÒÇàÁÖ | 4 | 16.53 | 14,300 | 0 | 2017 | | 2025.06.21 | ¿ù¼¼ | ´õÅ´½ººô¶ó | 2 | 26.64 | 1,500 | 85 | 2021 | | 2025.06.20 | Àü¼¼ | ½´Ææ´õ°¶·¯¸® | 1 | 32.38 | 30,000 | 0 | 2017 | | 2025.06.20 | Àü¼¼ | ½´Ææ´õ°¶·¯¸® | 1 | 32.38 | 30,000 | 0 | 2017 | | 2025.06.20 | ¿ù¼¼ | ÀÌ·¹ºô¶óÆ®Bµ¿ | 4 | 14.83 | 1,000 | 54 | 2011 | | 2025.06.20 | ¸Å¸Å | ¸í¹®ÁÖÅà | -1 | 32.55 | 21,800 | | 1991 | | 2025.06.19 | Àü¼¼ | ´ÙÀ̾ÆÄ³½½ | 2 | 54.29 | 35,000 | 0 | 2017 | | 2025.06.19 | Àü¼¼ | ±Û·Î¸®È¨Áî | 4 | 29.365 | 30,000 | 0 | 2020 | | 2025.06.19 | ¿ù¼¼ | ¼º»çºô¶ó | 1 | 73.33 | 19,000 | 30 | 1982 | | 2025.06.19 | ¸Å¸Å | ¼ºÀ缾Ʈ¸®¿ò | 5 | 38.89 | 38,000 | | 2018 | | 2025.06.19 | Àü¼¼ | ±Û·Î¸®È¨Áî | 4 | 29.365 | 30,000 | 0 | 2020 | | 2025.06.18 | ¿ù¼¼ | ÇÑÁÖÆÓ¸®½º | 3 | 27.36 | 5,000 | 132 | 2019 | | 2025.06.18 | Àü¼¼ | À̰¡¿¡½ºÅä | 3 | 34.38 | 27,300 | 0 | 2023 | | 2025.06.18 | ¸Å¸Å | ±Û·Î¸®È¨Áî | 5 | 50.385 | 49,000 | | 2020 | | 2025.06.18 | ¸Å¸Å | Ç츮ƼÁö | 2 | 36.09 | 48,000 | | 2017 | | 2025.06.18 | ¿ù¼¼ | ´ë¿øÆÄÅ©ºô¶ó | 1 | 62.3 | 15,300 | 3 | 1993 | | 2025.06.17 | ¸Å¸Å | À¯´ÏÇϿ콺 | 3 | 42.67 | 51,000 | | 2016 | | 2025.06.17 | ¿ù¼¼ | (160-1) | 1 | 39.96 | 15,000 | 10 | 1992 | | 2025.06.16 | ¿ù¼¼ | The¹Î¼º | 3 | 17.19 | 1,000 | 61 | 2020 | | 2025.06.16 | ¿ù¼¼ | ´ÙÀ̾ÆÄ³½½ | 2 | 54.29 | 100 | 160 | 2017 | | 2025.06.16 | ¿ù¼¼ | ¿©¹Îºô¶ó | 3 | 55.5 | 22,000 | 10 | 2003 | | 2025.06.16 | Àü¼¼ | ¹«Áö°³ºô¶ó | 1 | 50.37 | 1,500 | 0 | 1977 | | 2025.06.16 | ¿ù¼¼ | ³ì»öÄ£±¸µé | 2 | 14.82 | 5,114 | 14 | 2017 | | 2025.06.16 | ¸Å¸Å | (278-44) | 2 | 38.74 | 35,000 | | 1978 | | 2025.06.16 | ¿ù¼¼ | À¯ÁøÇÏÀÌÃ÷ | 1 | 51.57 | 1,000 | 20 | 1993 | | 2025.06.15 | ¿ù¼¼ | ½´ÆæÇÏÀÓ¼º»ê | 1 | 23.35 | 10,000 | 55 | 2017 | | 2025.06.14 | ¸Å¸Å | ¼¼ÀϺô¶ó | 3 | 51 | 44,000 | | 1992 | | 2025.06.14 | ¿ù¼¼ | ¼º»êÁö¿À | 5 | 26.82 | 25,000 | 4 | 2021 | | 2025.06.14 | ¿ù¼¼ | û±â¿Íºô¶óDµ¿ | 1 | 51.78 | 13,000 | 50 | 1986 | | 2025.06.14 | ¿ù¼¼ | ¸ÞÁ¶Æ®·Ð¥± | 2 | 162.01 | 0 | 300 | 2007 | | 2025.06.14 | ¿ù¼¼ | ÇѰÇÏÀ̺ô | 1 | 73.22 | 3,000 | 160 | 2008 | | 2025.06.13 | ¿ù¼¼ | ±×·¹À̽ººô(271-34) | 3 | 46.31 | 4,000 | 100 | 2014 | | 2025.06.13 | Àü¼¼ | ¼º»êÈÞ¸ÕŸ¿î(277-41) | 3 | 25.86 | 27,000 | 0 | 2021 | | 2025.06.13 | Àü¼¼ | À§µåÇϿ콺 | 2 | 19.05 | 15,500 | 0 | 2025 | | 2025.06.13 | ¿ù¼¼ | ±×·¹À̽ººô(271-34) | 3 | 46.31 | 4,000 | 100 | 2014 | | 2025.06.13 | Àü¼¼ | ¼ººÎÁÖÅà | 4 | 50.4 | 24,000 | 0 | 1996 | | 2025.06.13 | Àü¼¼ | Ç츮ƼÁö | 5 | 36.09 | 30,000 | 0 | 2017 | | 2025.06.13 | Àü¼¼ | ¼º»êÈÞ¸ÕŸ¿î(277-41) | 3 | 25.86 | 27,000 | 0 | 2021 | | 2025.06.13 | ¸Å¸Å | ¼º»êÈÞ¸ÕŸ¿î(277-41) | 5 | 27.46 | 47,000 | | 2021 | | 2025.06.13 | ¸Å¸Å | ¼ºÀ缾Ʈ¸®¿ò | 3 | 37.49 | 39,000 | | 2018 | | 2025.06.13 | ¸Å¸Å | µ¿¾çÇÏ¿ì¡ | 6 | 49.15 | 58,000 | | 2017 | | 2025.06.12 | ¸Å¸Å | ¼º»ê½ÃƼºô¶ó | 3 | 71.83 | 48,000 | | 1996 | | 2025.06.12 | ¿ù¼¼ | dz¸²ÁÖÅà | 3 | 26.46 | 1,500 | 45 | 1995 | | 2025.06.12 | Àü¼¼ | ´ÙÀ̾ÆÄ³½½ | 5 | 49.17 | 35,000 | 0 | 2017 | | 2025.06.12 | Àü¼¼ | ¼º»ê½ÃƼºô¶ó | 3 | 71.83 | 40,000 | 0 | 1996 | | 2025.06.11 | ¿ù¼¼ | ¸®Ä¡ºô | 5 | 23.85 | 500 | 50 | 2002 | | 2025.06.11 | ¿ù¼¼ | ÇØºñÄ¡ÇϿ콺 | 4 | 22.97 | 5,000 | 100 | 2017 | | 2025.06.10 | ¿ù¼¼ | ¼Ò´ã¾ÆÆ®ºô | 2 | 29.29 | 2,000 | 76 | 2019 | | 2025.06.10 | ¿ù¼¼ | °ñµå½¦¸£ºô(165-53) | 2 | 84.56 | 13,000 | 40 | 2002 | | 2025.06.10 | Àü¼¼ | ½Å¼ººô¶ó | 2 | 72.53 | 26,000 | 0 | 1996 | | 2025.06.10 | ¸Å¸Å | ±ÃÀüºô¶ó | -1 | 48.85 | 26,500 | | 1996 | | 2025.06.10 | ¿ù¼¼ | ÀÌÁöºô¶ó | 1 | 90.98 | 9,000 | 110 | 2002 | | 2025.06.10 | ¿ù¼¼ | ´õŬ·¡½º | 2 | 20 | 18,000 | 19 | 2019 | | 2025.06.09 | ¿ù¼¼ | û±â¿Íºô¶óBµ¿ | 1 | 53.34 | 8,000 | 65 | 1986 | | 2025.06.09 | ¿ù¼¼ | ±¤¼ººô¶ó | 1 | 47.6 | 3,000 | 68 | 1991 | | 2025.06.09 | ¸Å¸Å | ÈúÇϿ콺(200-413) | 2 | 34.45 | 28,000 | | 2019 | | 2025.06.07 | ¿ù¼¼ | ½ºÅ¸Ä³½½ | 4 | 28.85 | 13,770 | 10 | 2013 | | 2025.06.07 | Àü¼¼ | (612-9) | 5 | 56.8 | 18,000 | 0 | 2008 | | 2025.06.07 | ¿ù¼¼ | ´ÙÀ̾ÆÄ³½½ | 5 | 53.9 | 30,000 | 20 | 2017 | | 2025.06.07 | Àü¼¼ | ¿ùµåÇϿ콺 | 2 | 38.49 | 32,400 | 0 | 2017 | | 2025.06.07 | Àü¼¼ | ¼º»ïÁÖÅà | 3 | 46.27 | 27,000 | 0 | 1995 | | 2025.06.07 | Àü¼¼ | ½ºÅ¸Ä³½½ | 3 | 36.36 | 17,850 | 0 | 2013 | | 2025.06.07 | ¿ù¼¼ | ½ºÅ¸Ä³½½ | 3 | 28.85 | 14,000 | 10 | 2013 | | 2025.06.07 | ¸Å¸Å | µ¿¿ìºô¶ó | 1 | 49.41 | 29,950 | | 1992 | | 2025.06.06 | ¿ù¼¼ | ±Ýµ¿ÆÄÀκô | 3 | 43.8 | 2,000 | 95 | 2012 | | 2025.06.06 | ¿ù¼¼ | (212-3) | 1 | 35.95 | 2,000 | 70 | 1990 | | 2025.06.06 | Àü¼¼ | À§µåÇϿ콺 | 3 | 19.05 | 15,500 | 0 | 2025 | | 2025.06.05 | ¸Å¸Å | ¹Ì·¡ÇÏÀÓ | 5 | 40.68 | 40,000 | | 2013 | | 2025.06.05 | ¸Å¸Å | ¹Ì·¡ÇÏÀÓ | 5 | 40.68 | 40,000 | | 2013 | | 2025.06.04 | Àü¼¼ | ÇѺûÀ§³Ê½ººô | 5 | 29.93 | 25,000 | 0 | 2013 | | 2025.06.04 | ¿ù¼¼ | ·ç½ººô¸®Áö | 2 | 29.45 | 2,000 | 90 | 2011 | | 2025.06.03 | ¸Å¸Å | °ñµçÆÓ¸®½º | 4 | 35.45 | 45,500 | | 2017 | | 2025.06.03 | ¿ù¼¼ | ÀÚ½½¸°ÇϿ콺 | 5 | 31.77 | 15,000 | 70 | 2017 | | 2025.06.03 | ¸Å¸Å | °íÀº°í±Þºô¶ó | 2 | 36.32 | 43,000 | | 1990 | | 2025.06.03 | Àü¼¼ | À§µåÇϿ콺 | 2 | 16.51 | 15,500 | 0 | 2025 | | 2025.06.03 | ¸Å¸Å | ¼Ò³ëÇϿ콺 | 5 | 46.9 | 39,000 | | 2017 | | 2025.06.03 | ¸Å¸Å | ¼Ò³ëÇϿ콺 | 5 | 46.9 | 39,000 | | 2017 | | 2025.06.03 | ¸Å¸Å | ´Ùº£·Î | 5 | 29.97 | 40,700 | | 2017 | | 2025.06.02 | ¿ù¼¼ | »ï¼º·º½ººô¶óAµ¿ | 2 | 36.96 | 10,000 | 70 | 1992 | | 2025.06.02 | Àü¼¼ | »ï¼º·º½ººô¶óBµ¿ | 1 | 36.96 | 18,000 | 0 | 1992 | | 2025.06.02 | Àü¼¼ | ¼¾ÅÒ½ÃÆ¼ | 1 | 44.17 | 36,500 | 0 | 2018 | | 2025.06.02 | ¿ù¼¼ | (58-10) | 4 | 13.82 | 500 | 57 | 2013 | | 2025.06.02 | ¿ù¼¼ | ¿¡À̽ºÅ¸¿î | 5 | 28.55 | 5,000 | 100 | 2016 | | 2025.06.01 | ¿ù¼¼ | ´õŬ·¡½º | 4 | 20 | 15,000 | 58 | 2019 | | 2025.05.31 | ¸Å¸Å | ¹é¼Û¾ÆÆ®ºô | 1 | 28.89 | 28,000 | | 2017 | | 2025.05.31 | ¿ù¼¼ | ´ÙÀ̾ÆÄ³½½ | 4 | 49.62 | 30,000 | 15 | 2017 | | 2025.05.31 | ¿ù¼¼ | ´ÙÀ̾ÆÄ³½½ | 4 | 49.62 | 30,000 | 15 | 2017 | | 2025.05.31 | Àü¼¼ | ´Ù´Ùºô¸®Áö | 5 | 27.93 | 25,300 | 0 | 2016 | | 2025.05.31 | ¿ù¼¼ | ±Û·Î¸®È¨Áî | 4 | 29.9 | 30,000 | 7 | 2020 | | 2025.05.31 | ¿ù¼¼ | Äý | 2 | 18.9 | 500 | 53 | 2011 | | 2025.05.31 | ¸Å¸Å | ¼±Áøºô¶ó | 3 | 59.25 | 35,000 | | 1996 | | 2025.05.30 | ¿ù¼¼ | (147-2) | 1 | 36.45 | 12,700 | 30 | 1990 | | 2025.05.30 | Àü¼¼ | ½ÃƼÇÏÀÓ¥±Bµ¿ | 3 | 26.62 | 30,000 | 0 | 2019 | | 2025.05.30 | ¿ù¼¼ | ½ÃƼÇÏÀÓ¥±Bµ¿ | 3 | 26.62 | 29,800 | 10 | 2019 | | 2025.05.30 | ¿ù¼¼ | (147-2) | 1 | 36.45 | 12,700 | 30 | 1990 | | 2025.05.30 | ¿ù¼¼ | ž翬¸³ | 2 | 83.87 | 3,000 | 30 | 1978 | | 2025.05.30 | Àü¼¼ | ¸í»óºô¶ó | 2 | 37.02 | 14,280 | 0 | 1990 | | 2025.05.30 | Àü¼¼ | (64-15) | 4 | 48.52 | 22,500 | 0 | 2004 | | 2025.05.30 | ¿ù¼¼ | ¼º»ê¿¡½ºÇÏÀÓ | 5 | 33.49 | 5,821 | 6 | 2021 | | 2025.05.30 | ¿ù¼¼ | ½ÃƼÇÏÀÓ¥±Bµ¿ | 3 | 26.62 | 29,800 | 10 | 2019 | | 2025.05.30 | Àü¼¼ | (64-15) | 4 | 48.52 | 22,500 | 0 | 2004 | | 2025.05.30 | Àü¼¼ | ¸í»óºô¶ó | 2 | 37.02 | 14,280 | 0 | 1990 | | 2025.05.30 | ¿ù¼¼ | ¼º»ê¿¡½ºÇÏÀÓ | 5 | 33.49 | 5,821 | 6 | 2021 | | 2025.05.30 | Àü¼¼ | (147-2) | 1 | 36.45 | 17,000 | 0 | 1990 | | 2025.05.29 | Àü¼¼ | (217-13) | 2 | 59.95 | 23,000 | 0 | 2009 | | 2025.05.29 | ¸Å¸Å | ¾Æ¼º¶ß¶õä | 5 | 29.36 | 39,000 | | 2018 | | 2025.05.29 | ¿ù¼¼ | ¼º»êij½½ºô | 2 | 65.52 | 3,000 | 95 | 2006 | | 2025.05.29 | Àü¼¼ | ´ëÈ£¾ÆÆ®ºô | 5 | 36.94 | 20,980 | 0 | 2013 | | 2025.05.29 | Àü¼¼ | ¼º»êÈÞ¸ÕŸ¿î | 3 | 28.13 | 23,800 | 0 | 2017 | | 2025.05.29 | Àü¼¼ | ´ëÈ£¾ÆÆ®ºô | 5 | 36.94 | 20,980 | 0 | 2013 | | 2025.05.29 | Àü¼¼ | ¼°æÆÓ¸®½º(102µ¿) | 4 | 29.45 | 26,000 | 0 | 2019 | | 2025.05.29 | ¿ù¼¼ | ¸í½Éºô¶ó | -1 | 36.77 | 1,000 | 43 | 1991 | | 2025.05.29 | ¿ù¼¼ | ¿¡¹ö±×¸°2 | 2 | 20.06 | 11,800 | 20 | 2013 | | 2025.05.29 | ¿ù¼¼ | (223-2) | 5 | 14.82 | 7,000 | 8 | 2012 | | 2025.05.28 | ¿ù¼¼ | (58-10) | 4 | 13.82 | 500 | 55 | 2013 | | 2025.05.28 | ¸Å¸Å | (165-84) | -1 | 47.07 | 40,000 | | 1986 | | 2025.05.28 | Àü¼¼ | »õ·Óºô¶ó | 2 | 60.27 | 26,000 | 0 | 2008 | | 2025.05.28 | Àü¼¼ | ÅäõGreenZone | 4 | 70.7 | 26,460 | 0 | 2009 | | 2025.05.28 | ¿ù¼¼ | ´ë¸íÇ®ÇϿ콺 | 3 | 14.31 | 5,000 | 23 | 2012 | | 2025.05.28 | Àü¼¼ | ÅäõGreenZone | 4 | 70.7 | 27,400 | 0 | 2009 | | 2025.05.28 | ¿ù¼¼ | ¸®½Ãº»ÇϿ콺 | 2 | 29.94 | 6,000 | 85 | 2016 | | 2025.05.27 | ¸Å¸Å | û±¸ÇÏÀÌÃ÷ºô¶ó | 1 | 59.43 | 36,000 | | 1994 | | 2025.05.27 | ¿ù¼¼ | °ñµå¸®Ä¡ | 3 | 29.81 | 29,860 | 4 | 2018 | | 2025.05.27 | Àü¼¼ | ¼º»çºô¶ó | 3 | 79.37 | 25,000 | 0 | 1982 | | 2025.05.27 | Àü¼¼ | (258-12) | 3 | 29.92 | 24,300 | 0 | 2017 | | 2025.05.26 | ¿ù¼¼ | ´õŬ·¡½º | 4 | 29.94 | 30,970 | 6 | 2019 | | 2025.05.26 | Àü¼¼ | ÁÖ¿¬ÇϿ콺 | 2 | 27.97 | 24,000 | 0 | 2020 | | 2025.05.26 | ¿ù¼¼ | (21-20) | 2 | 58.25 | 5,000 | 79 | 2003 | | 2025.05.26 | ¿ù¼¼ | ¸í¼ºÄ«¿îƼ | 3 | 15.36 | 3,000 | 45 | 2013 | | 2025.05.25 | Àü¼¼ | ÇѺûÀ§³Ê½ººô | 5 | 29.93 | 25,000 | 0 | 2013 | | 2025.05.25 | Àü¼¼ | Ç츮ƼÁö | 5 | 37.51 | 30,800 | 0 | 2017 | | 2025.05.24 | ¿ù¼¼ | ¶óºñ¾Ó·ÎÁî | 5 | 29.99 | 6,000 | 75 | 2017 | | 2025.05.24 | Àü¼¼ | À¯´ÏÇϿ콺 | 2 | 42.67 | 35,500 | 0 | 2016 | | 2025.05.24 | ¸Å¸Å | ´Ù´Ùºô¸®Áö | 2 | 27.93 | 38,500 | | 2016 | | 2025.05.24 | Àü¼¼ | ±×·¹À̽ººô(271-34) | 3 | 46.31 | 30,000 | 0 | 2014 | | 2025.05.23 | Àü¼¼ | ´ë¸íÇ®ÇϿ콺 | 3 | 23.2 | 15,800 | 0 | 2012 | | 2025.05.23 | Àü¼¼ | ´ë¸íÇ®ÇϿ콺 | 2 | 23.2 | 15,300 | 0 | 2012 | | 2025.05.23 | ¸Å¸Å | ÇÏÁ¤¾ÆÆ®ºô | 5 | 58.46 | 65,000 | | 2023 | | 2025.05.22 | Àü¼¼ | ¼ººÎÁÖÅà | 4 | 50.4 | 24,000 | 0 | 1996 | | 2025.05.22 | ¿ù¼¼ | ¿¡À̽ºÅ¸¿î | 5 | 39.15 | 3,000 | 170 | 2016 | | 2025.05.22 | ¿ù¼¼ | ½Å¼ººô¶ó°¡µ¿ | 2 | 40.11 | 5,000 | 32 | 1992 | | 2025.05.22 | ¿ù¼¼ | ´ëÇÑÁÖÅà | 3 | 42.7 | 13,000 | 40 | 1994 | | 2025.05.21 | ¸Å¸Å | ±×·¹À̽ººôAµ¿ | 5 | 81 | 58,000 | | 2006 | | 2025.05.20 | ¸Å¸Å | ¾î¹Ýij½½ | 3 | 18.11 | 28,000 | | 2022 | | 2025.05.20 | ¿ù¼¼ | ´Ùº£·Î | 3 | 29.22 | 26,000 | 10 | 2017 | | 2025.05.20 | ¿ù¼¼ | ½ÅÈïºô¶ó | 4 | 38.27 | 15,000 | 15 | 1993 | | 2025.05.20 | ¸Å¸Å | ¼º»êÀÌÆ°Ä³½½ | 4 | 29.87 | 54,500 | | 2023 | | 2025.05.20 | ¿ù¼¼ | ´Ùº£·Î | 3 | 29.22 | 26,000 | 10 | 2017 | | 2025.05.20 | ¿ù¼¼ | ¼º»êÿ½Ã | 6 | 29.42 | 22,000 | 20 | 2016 | | 2025.05.19 | Àü¼¼ | À§µåÇϿ콺 | 4 | 21.78 | 22,000 | 0 | 2025 | | 2025.05.19 | ¸Å¸Å | ´ÙÀ̾ÆÄ³½½ | 5 | 49.17 | 45,000 | | 2017 | | 2025.05.19 | ¸Å¸Å | (200-287) | 2 | 40.14 | 26,750 | | 1993 | | 2025.05.18 | ¸Å¸Å | ÀÚ½½¸°ÇϿ콺(21-29) | 2 | 59.67 | 70,000 | | 2021 | | 2025.05.18 | ¸Å¸Å | ¾Æ¼º¶ß¶õä | 5 | 34.83 | 44,800 | | 2018 | | 2025.05.18 | ¸Å¸Å | Mt.Parkvill | 4 | 49.68 | 23,500 | | 2001 | | 2025.05.18 | Àü¼¼ | Ç츮ƼÁö | 4 | 37.31 | 31,300 | 0 | 2017 | | 2025.05.18 | Àü¼¼ | Ç츮ƼÁö | 4 | 37.31 | 31,300 | 0 | 2017 | | 2025.05.17 | ¿ù¼¼ | ÀÌ·¹ºô¶óÆ® | 2 | 15.11 | 1,000 | 42 | 2012 | | 2025.05.17 | ¸Å¸Å | ´ÙÀ̾ÆÄ³½½ | 4 | 53.9 | 48,000 | | 2017 | | 2025.05.17 | ¿ù¼¼ | ´õŬ·¡½Ä | 2 | 54.99 | 24,000 | 70 | 2017 | | 2025.05.17 | ¸Å¸Å | ¼º¿î | 4 | 47.86 | 37,000 | | 2010 | | 2025.05.16 | Àü¼¼ | ´õŬ·¡½º | 5 | 23.8 | 21,100 | 0 | 2019 | | 2025.05.16 | ¸Å¸Å | À¯ÀϺô¸®Áö1´ÜÁö | 4 | 55.45 | 45,000 | | 2016 | | 2025.05.16 | Àü¼¼ | ¹«Áö°³ºô¶ó | 1 | 59.4 | 14,000 | 0 | 1977 | | 2025.05.16 | ¸Å¸Å | °¶·¯¸®ÇϿ콺 | 2 | 59.78 | 51,500 | | 2014 | | 2025.05.16 | ¿ù¼¼ | ¿ùµåÄźô¸®Áö | 5 | 48.81 | 2,000 | 90 | 2006 | | 2025.05.15 | Àü¼¼ | ¼°æÆÓ¸®½º(102µ¿) | 5 | 41.75 | 49,000 | 0 | 2019 | | 2025.05.14 | Àü¼¼ | (32-14) | 2 | 42.17 | 25,000 | 0 | 2012 | | 2025.05.14 | Àü¼¼ | ±ÙÈ£¾ÆÆ® | 3 | 48.1 | 18,000 | 0 | 1995 | | 2025.05.14 | Àü¼¼ | ´ÙÀ̾ÆÄ³½½ | 3 | 29.07 | 24,000 | 0 | 2017 | | 2025.05.14 | Àü¼¼ | Ç츮ƼÁö | 2 | 37.31 | 29,900 | 0 | 2017 | | 2025.05.14 | ¸Å¸Å | (240-24) | 5 | 29.99 | 20,200 | | 2012 | | 2025.05.14 | ¸Å¸Å | ¸ð´øÁÖÅà | 1 | 80.91 | 56,000 | | 2005 | | 2025.05.13 | ¿ù¼¼ | ÇѼֺô¶ó | -1 | 60.5 | 2,000 | 75 | 1996 | | 2025.05.13 | ¿ù¼¼ | ½´ÆæÇÏÀÓ¼º»ê | 3 | 28.43 | 24,600 | 13 | 2017 | | 2025.05.13 | ¿ù¼¼ | ½ºÀ§Æ®ºô | 3 | 29.4 | 1,500 | 75 | 2016 | | 2025.05.13 | ¿ù¼¼ | ´ë¼ººô¶óCµ¿ | 1 | 36.36 | 4,000 | 80 | 1989 | | 2025.05.13 | ¿ù¼¼ | ¼ºÀ缾Ʈ¸®¿ò | 4 | 35.88 | 1,000 | 130 | 2018 | | 2025.05.13 | Àü¼¼ | ÅäõGreenZone | 2 | 70.32 | 26,460 | 0 | 2009 | | 2025.05.13 | ¿ù¼¼ | º¸¾Æ½ººô¶ó | 3 | 57.31 | 13,500 | 16 | 2002 | | 2025.05.13 | ¿ù¼¼ | (140-14) | 2 | 55.19 | 5,000 | 70 | 1986 | | 2025.05.13 | Àü¼¼ | ÅäõGreenZone | 2 | 70.32 | 27,100 | 0 | 2009 | | 2025.05.12 | ¿ù¼¼ | ¿µÀÏÇÏÀÌÃ÷ºô¶ó | 2 | 53.31 | 15,000 | 40 | 1991 | | 2025.05.12 | ¿ù¼¼ | ¿µÀÏÇÏÀÌÃ÷ºô¶ó | 2 | 53.31 | 15,000 | 40 | 1991 | | 2025.05.12 | ¿ù¼¼ | À¯´ÏÇϿ콺 | 3 | 29.18 | 25,000 | 10 | 2016 | | 2025.05.11 | ¸Å¸Å | »ï¼º¾¾Æ¼ºô(257-13) | 2 | 57.86 | 54,000 | | 2005 | | 2025.05.10 | Àü¼¼ | ÆÓ¸®½ººä | 3 | 48.89 | 33,600 | 0 | 2018 | | 2025.05.10 | Àü¼¼ | ÆÓ¸®½ººä | 3 | 48.89 | 33,600 | 0 | 2018 | | 2025.05.10 | ¸Å¸Å | (24-4) | 2 | 44.07 | 44,000 | | 1987 | | 2025.05.10 | ¸Å¸Å | ´ÙÀ̾ÆÄ³½½ | 2 | 29.64 | 39,000 | | 2017 | | 2025.05.09 | ¿ù¼¼ | Ç츮ƼÁö | 3 | 37.51 | 29,000 | 35 | 2017 | | 2025.05.09 | ¿ù¼¼ | ¼Ò³ëÇϿ콺¼º»ê2Â÷ | 6 | 50.96 | 5,000 | 140 | 2017 | | 2025.05.09 | Àü¼¼ | ¾Æ¼º¶ß¶õä | 3 | 28.51 | 24,500 | 0 | 2018 | | 2025.05.09 | Àü¼¼ | ´ë¼ººô¶ó(Eµ¿) | 1 | 36.98 | 16,800 | 0 | 1990 | | 2025.05.09 | Àü¼¼ | ¾Æ¼º¶ß¶õä | 3 | 28.51 | 24,500 | 0 | 2018 | | 2025.05.08 | Àü¼¼ | ¿¡¹ö±×¸°ºô¶ó | 2 | 73.62 | 24,000 | 0 | 2002 | | 2025.05.08 | ¸Å¸Å | µ¿¾çÇÏ¿ì¡ | 2 | 40.43 | 50,000 | | 2017 | | 2025.05.08 | Àü¼¼ | ÈÀÌÆ®ºô(30-26) | 2 | 189.84 | 65,000 | 0 | 1996 | | 2025.05.08 | ¸Å¸Å | ¼¾ÅÒ½ÃÆ¼ | 2 | 44.17 | 49,000 | | 2018 | | 2025.05.08 | ¸Å¸Å | µ¿¾çÇÏ¿ì¡ | 2 | 40.43 | 50,000 | | 2017 | | 2025.05.07 | ¿ù¼¼ | ÀÌ·¹ºô¶óÆ® | 3 | 15.81 | 1,000 | 44 | 2012 | | 2025.05.07 | Àü¼¼ | °ñµå¸®Ä¡ | 5 | 34.52 | 36,000 | 0 | 2018 | | 2025.05.07 | Àü¼¼ | ½´ÆæÇÏÀÓ | 3 | 29.83 | 26,000 | 0 | 2016 | | 2025.05.07 | ¸Å¸Å | ÇѼֺô¶ó | 4 | 60.5 | 40,000 | | 1996 | | 2025.05.07 | Àü¼¼ | À§µåÇϿ콺 | 2 | 16.51 | 15,500 | 0 | 2025 | | 2025.05.07 | ¸Å¸Å | ¼º¸²ºô¶ó | 1 | 41.04 | 26,000 | | 1995 | | 2025.05.05 | Àü¼¼ | ¾î½æ½ÃƼ | 3 | 29.38 | 31,370 | 0 | 2019 | | 2025.05.03 | Àü¼¼ | º§ºä¼º»ê | 5 | 37.8 | 39,300 | 0 | 2022 | | 2025.05.03 | ¸Å¸Å | ±×·¹À̽ººô(271-34) | 3 | 46.31 | 50,000 | | 2014 | | 2025.05.02 | ¸Å¸Å | ¼º»êÁö±¸¿¬¸³ÁÖÅÃÁ¦31µ¿ | 2 | 19.83 | 30,000 | | 1976 | | 2025.05.02 | Àü¼¼ | ÁøÁÖºô¶ó | 1 | 61.38 | 25,000 | 0 | 1994 | | 2025.05.01 | ¿ù¼¼ | (614-8) | 1 | 31.8 | 1,000 | 80 | 1988 | | 2025.05.01 | Àü¼¼ | ¹Ù¿ò»þÀκô | 3 | 29.87 | 30,380 | 0 | 2020 | | 2025.05.01 | ¿ù¼¼ | µ¿¼ººô¶ó | 1 | 61.28 | 50 | 35 | 1992 | | 2025.05.01 | Àü¼¼ | ½Å¼ººô¶ó°¡µ¿ | 2 | 41.16 | 16,000 | 0 | 1992 | | 2025.05.01 | ¸Å¸Å | ¼º»êÁö±¸¿¬¸³ÁÖÅÃÁ¦31µ¿ | 1 | 22.68 | 30,000 | | 1976 | | 2025.04.30 | ¿ù¼¼ | °¡ÁÂÇູÁÖÅà | 6 | 16.19 | 3,706 | 16 | 2016 | | 2025.04.30 | Àü¼¼ | ¼º»ê½Ã¿µ(À¯¿ø) | 3 | 59.43 | 40,000 | 0 | 1986 | | 2025.04.30 | Àü¼¼ | ¼º»ê½Ã¿µ(´ë¿ì) | 2 | 50.03 | 30,000 | 0 | 1986 | | 2025.04.30 | Àü¼¼ | ¼º»ê½Ã¿µ(¼±°æ) | 13 | 50.54 | 34,000 | 0 | 1986 | | 2025.04.30 | ¸Å¸Å | ÁøÈïºô¶ó | 1 | 36.25 | 34,000 | | 1990 | | 2025.04.30 | ¸Å¸Å | ´ë¿õºô¶ó | 2 | 56.32 | 41,500 | | 2002 | | 2025.04.30 | Àü¼¼ | ¼º»ê½Ã¿µ(¼±°æ) | 13 | 50.54 | 34,000 | 0 | 1986 | | 2025.04.30 | ¿ù¼¼ | °¡ÁÂÇູÁÖÅà | 16 | 36.39 | 9,480 | 40 | 2016 | | 2025.04.30 | ¿ù¼¼ | °¡ÁÂÇູÁÖÅà | 7 | 16.19 | 3,706 | 16 | 2016 | | 2025.04.30 | ¿ù¼¼ | °¡ÁÂÇູÁÖÅà | 5 | 16.19 | 3,706 | 16 | 2016 | | 2025.04.30 | Àü¼¼ | ¼º»ê½Ã¿µ(À¯¿ø) | 4 | 59.43 | 31,500 | 0 | 1986 | | 2025.04.30 | ¿ù¼¼ | °¡ÁÂÇູÁÖÅà | 7 | 16.19 | 3,706 | 16 | 2016 | | 2025.04.29 | Àü¼¼ | ¼º»ê½Ã¿µ(À¯¿ø) | 12 | 59.43 | 37,000 | 0 | 1986 | | 2025.04.28 | Àü¼¼ | »ï¿ìij½½ | 5 | 84.24 | 42,000 | 0 | 2008 | | 2025.04.28 | Àü¼¼ | ¼º»ê½Ã¿µ(À¯¿ø) | 4 | 59.43 | 29,700 | 0 | 1986 | | 2025.04.28 | Àü¼¼ | ¼º»ê½Ã¿µ(¼±°æ) | 2 | 50.54 | 28,350 | 0 | 1986 | | 2025.04.28 | ¿ù¼¼ | ¼º»ê½Ã¿µ(¼±°æ) | 1 | 50.54 | 2,000 | 84 | 1986 | | 2025.04.28 | ¿ù¼¼ | ¼º»ê½Ã¿µ(¼±°æ) | 2 | 50.54 | 3,000 | 84 | 1986 | | 2025.04.27 | ¿ù¼¼ | ¼º»êµ¿ÀÚ´ãÀÌ¿ò¾ÆÆÄÆ® | 9 | 84.14 | 4,000 | 80 | 2006 | | 2025.04.26 | ¿ù¼¼ | ¼º»ê½Ã¿µ(´ë¿ì) | 7 | 50.03 | 3,000 | 100 | 1986 | | 2025.04.26 | ¸Å¸Å | µ¿»ïºô¶óŸ¿î6µ¿ | 1 | 36.2 | 42,000 | | 1988 | | 2025.04.26 | ¿ù¼¼ | ¼º»ê½Ã¿µ(´ë¿ì) | 11 | 50.03 | 5,000 | 90 | 1986 | | 2025.04.26 | ¸Å¸Å | ÁøÁÖºô¶ó | 1 | 61.38 | 40,000 | | 1994 | | 2025.04.26 | Àü¼¼ | ¼º»ê½Ã¿µ(´ë¿ì) | 3 | 50.03 | 32,000 | 0 | 1986 | | 2025.04.25 | ¿ù¼¼ | °¡ÁÂÇູÁÖÅà | 13 | 36.39 | 13,320 | 16 | 2016 | | 2025.04.25 | Àü¼¼ | ¼º»ê½Ã¿µ(¼±°æ) | 5 | 50.54 | 28,300 | 0 | 1986 | | 2025.04.25 | Àü¼¼ | ¼º»ê½Ã¿µ(À¯¿ø) | 1 | 59.43 | 35,000 | 0 | 1986 | | 2025.04.24 | ¸Å¸Å | ´ö»êºô¶ó | 1 | 58.1 | 33,000 | | 1994 | | 2025.04.24 | ¸Å¸Å | °ñµçÆÓ¸®½º | 3 | 36.21 | 47,000 | | 2017 | | 2025.04.24 | Àü¼¼ | ¼º»ê½Ã¿µ(¼±°æ) | 7 | 50.54 | 30,000 | 0 | 1986 | | 2025.04.24 | Àü¼¼ | ¼º»ê½Ã¿µ(´ë¿ì) | 3 | 50.03 | 27,000 | 0 | 1986 | | 2025.04.24 | Àü¼¼ | ¼º»ê½Ã¿µ(À¯¿ø) | 6 | 59.43 | 35,000 | 0 | 1986 | | 2025.04.23 | ¸Å¸Å | Ç츮ƼÁö | 5 | 36.09 | 46,000 | | 2017 | | 2025.04.23 | ¸Å¸Å | Ç츮ƼÁö | 5 | 36.09 | 46,000 | | 2017 | | 2025.04.23 | Àü¼¼ | ¼º»ê½Ã¿µ(´ë¿ì) | 12 | 50.03 | 28,000 | 0 | 1986 | | 2025.04.22 | Àü¼¼ | ¼º»ç1Â÷dz¸²¾ÆÆÄÆ®101µ¿ | 11 | 59.85 | 42,000 | 0 | 2000 | | 2025.04.21 | ¿ù¼¼ | ¿ùµåÄžÆÀÌÆÄÅ©(667) | 13 | 59.73 | 10,000 | 138 | 2009 | | 2025.04.21 | ¿ù¼¼ | °¡ÁÂÇູÁÖÅà | 5 | 16.19 | 5,306 | 6 | 2016 | | 2025.04.21 | ¸Å¸Å | µ¿¾çÇÏ¿ì¡ | 5 | 42.8 | 45,000 | | 2016 | | 2025.04.20 | Àü¼¼ | ¼º»ê½Ã¿µ(À¯¿ø) | 13 | 59.43 | 36,600 | 0 | 1986 | | 2025.04.19 | ¸Å¸Å | ´õÇ÷¹À̽º | 4 | 29.91 | 47,500 | | 2019 | | 2025.04.19 | Àü¼¼ | ¼º»ê½Ã¿µ(¼±°æ) | 3 | 50.54 | 33,000 | 0 | 1986 | | 2025.04.19 | Àü¼¼ | ¼º»ê½Ã¿µ(¼±°æ) | 3 | 50.54 | 33,000 | 0 | 1986 | | 2025.04.19 | Àü¼¼ | ¼º»ê½Ã¿µ(À¯¿ø) | 2 | 59.43 | 28,000 | 0 | 1986 | | 2025.04.19 | Àü¼¼ | ¼º»ê½Ã¿µ(´ë¿ì) | 6 | 50.03 | 27,000 | 0 | 1986 | | 2025.04.18 | ¿ù¼¼ | ¼º»ê½Ã¿µ(´ë¿ì) | 1 | 50.03 | 5,000 | 90 | 1986 | | 2025.04.18 | Àü¼¼ | ¼º»ê½Ã¿µ(´ë¿ì) | 5 | 50.03 | 34,000 | 0 | 1986 | | 2025.04.18 | Àü¼¼ | ¼º»ê½Ã¿µ(¼±°æ) | 7 | 50.54 | 33,000 | 0 | 1986 | | 2025.04.18 | ¿ù¼¼ | ¼º»ê½Ã¿µ(À¯¿ø) | 5 | 59.43 | 10,000 | 120 | 1986 | | 2025.04.18 | ¿ù¼¼ | ¼º»ê½Ã¿µ(´ë¿ì) | 12 | 50.03 | 15,000 | 38 | 1986 | | 2025.04.17 | ¸Å¸Å | ´ÙÀ̾ÆÄ³½½ | 2 | 54.29 | 45,000 | | 2017 | | 2025.04.17 | Àü¼¼ | ¼º»ç1Â÷dz¸²¾ÆÆÄÆ®101µ¿ | 18 | 59.85 | 37,000 | 0 | 2000 | | 2025.04.17 | ¿ù¼¼ | ¼º»êµ¿¼º | 11 | 60 | 5,000 | 140 | 1999 | | 2025.04.16 | ¸Å¸Å | ´ö»ê³ëºíÇϿ콺 | 2 | 61.08 | 40,000 | | 2003 | | 2025.04.16 | ¿ù¼¼ | ¿ùµåÄžÆÀÌÆÄÅ©(667) | 25 | 59.73 | 20,000 | 100 | 2009 | | 2025.04.16 | Àü¼¼ | ¼º»ê½Ã¿µ(¼±°æ) | 12 | 50.54 | 24,000 | 0 | 1986 | | 2025.04.16 | Àü¼¼ | ´ë¿ø | 2 | 84.88 | 50,000 | 0 | 1999 | | 2025.04.16 | ¸Å¸Å | (200-89)Çѽźô¶ó | 1 | 26.62 | 24,000 | | 1994 | | 2025.04.15 | ¸Å¸Å | ´ÙÀ̾ÆÄ³½½ | 5 | 53.9 | 45,000 | | 2017 | | 2025.04.15 | Àü¼¼ | ¼º»ê½Ã¿µ(À¯¿ø) | 5 | 59.43 | 30,000 | 0 | 1986 | | 2025.04.15 | ¿ù¼¼ | ¼º»ê½Ã¿µ(À¯¿ø) | 9 | 59.43 | 1,158 | 104 | 1986 | | 2025.04.14 | Àü¼¼ | ¼º»ê½Ã¿µ(¼±°æ) | 10 | 50.54 | 32,000 | 0 | 1986 | | 2025.04.12 | ¿ù¼¼ | ¼º»ê½Ã¿µ(¼±°æ) | 3 | 50.54 | 5,000 | 100 | 1986 | | 2025.04.12 | ¿ù¼¼ | ¼º»ê½Ã¿µ(À¯¿ø) | 5 | 59.43 | 10,000 | 110 | 1986 | | 2025.04.12 | Àü¼¼ | ¼º»ê½Ã¿µ(´ë¿ì) | 1 | 50.03 | 27,000 | 0 | 1986 | | 2025.04.12 | Àü¼¼ | ¼º»ê½Ã¿µ(À¯¿ø) | 10 | 59.43 | 40,000 | 0 | 1986 | | 2025.04.12 | Àü¼¼ | ¼º»ê½Ã¿µ(¼±°æ) | 12 | 50.54 | 26,250 | 0 | 1986 | | 2025.04.12 | Àü¼¼ | ¼º»ê½Ã¿µ(¼±°æ) | 3 | 50.54 | 28,000 | 0 | 1986 | | 2025.04.12 | Àü¼¼ | ¼º»ê½Ã¿µ(´ë¿ì) | 11 | 50.03 | 34,000 | 0 | 1986 | | 2025.04.12 | Àü¼¼ | ¿ùµåÄžÆÀÌÆÄÅ©(667) | 18 | 84.7 | 60,900 | 0 | 2009 | | 2025.04.12 | ¸Å¸Å | ¼º»êÁö¿À | 3 | 27.06 | 32,000 | | 2021 | | 2025.04.12 | Àü¼¼ | ¼º»ê½Ã¿µ(´ë¿ì) | 9 | 50.03 | 26,250 | 0 | 1986 | | 2025.04.11 | Àü¼¼ | ¼º»êµ¿¼º | 4 | 60 | 36,250 | 0 | 1999 | | 2025.04.11 | Àü¼¼ | ¼º»ê½Ã¿µ(À¯¿ø) | 9 | 59.43 | 30,870 | 0 | 1986 | | 2025.04.11 | ¿ù¼¼ | ¼º»ê½Ã¿µ(¼±°æ) | 3 | 50.54 | 5,000 | 95 | 1986 | | 2025.04.11 | ¿ù¼¼ | ¼º»ê½Ã¿µ(´ë¿ì) | 2 | 50.03 | 4,000 | 100 | 1986 | | 2025.04.11 | ¸Å¸Å | ¹é¼Û¾ÆÆ®ºô | 2 | 32.22 | 30,000 | | 2017 | | 2025.04.11 | Àü¼¼ | ¼º»ê½Ã¿µ(´ë¿ì) | 5 | 50.03 | 32,000 | 0 | 1986 | | 2025.04.11 | Àü¼¼ | ¼º»ê½Ã¿µ(´ë¿ì) | 5 | 50.03 | 26,250 | 0 | 1986 | | 2025.04.10 | ¿ù¼¼ | °¡ÁÂÇູÁÖÅà | 3 | 16.32 | 1,004 | 26 | 2016 | | 2025.04.09 | Àü¼¼ | ¼º»ê½Ã¿µ(À¯¿ø) | 8 | 59.43 | 36,000 | 0 | 1986 | | 2025.04.09 | Àü¼¼ | ¼º»ê¿ùµåŸ¿î´ë¸² | 11 | 84.689 | 60,000 | 0 | 2004 | | 2025.04.09 | ¿ù¼¼ | ¼º»ê¿ùµåŸ¿î´ë¸² | 21 | 84.689 | 25,000 | 110 | 2004 | | 2025.04.09 | ¿ù¼¼ | ¼º»ê½Ã¿µ(¼±°æ) | 11 | 50.54 | 3,000 | 100 | 1986 | | 2025.04.08 | ¸Å¸Å | ³ë½ººô | 3 | 70.54 | 34,000 | | 2002 | | 2025.04.08 | ¿ù¼¼ | ¼º»ê½Ã¿µ(¼±°æ) | 1 | 50.54 | 1,000 | 120 | 1986 | | 2025.04.07 | ¸Å¸Å | SK-VIEW | 4 | 41.9 | 20,500 | | 1995 | | 2025.04.07 | Àü¼¼ | ¼º»ê½Ã¿µ(´ë¿ì) | 13 | 50.03 | 31,000 | 0 | 1986 | | 2025.04.07 | ¿ù¼¼ | ¼º»ê¿ùµåŸ¿î´ë¸² | 23 | 84.689 | 36,750 | 58 | 2004 | | 2025.04.07 | Àü¼¼ | ¿ùµåÄžÆÀÌÆÄÅ©(667) | 9 | 84.7 | 53,000 | 0 | 2009 | | 2025.04.07 | ¿ù¼¼ | °¡ÁÂÇູÁÖÅà | 7 | 16.19 | 3,011 | 15 | 2016 | | 2025.04.06 | Àü¼¼ | ¼º»ê2Â÷e-ÆíÇѼ¼»ó | 1 | 59.78 | 41,000 | 0 | 2005 | | 2025.04.05 | Àü¼¼ | ¿ùµåÄžÆÀÌÆÄÅ©(667) | 14 | 84.7 | 64,000 | 0 | 2009 | | 2025.04.05 | Àü¼¼ | ¿ùµåÄžÆÀÌÆÄÅ©(667) | 14 | 84.7 | 64,000 | 0 | 2009 | | 2025.04.05 | ¸Å¸Å | ¾Æ¼º¶ß¶õä | 2 | 45.17 | 43,000 | | 2018 | | 2025.04.05 | ¸Å¸Å | ÈÀÌÆ®ºô | 4 | 43.97 | 46,000 | | 2015 | | 2025.04.05 | ¸Å¸Å | ½´ÆæÇÏÀÓ¼º»ê | 2 | 28.43 | 40,000 | | 2017 | | 2025.04.05 | ¸Å¸Å | ¼º¿øÇÏÀÌÃ÷2µ¿ | 1 | 32.04 | 36,000 | | 1988 | | 2025.04.04 | Àü¼¼ | ¼º»ê½Ã¿µ(¼±°æ) | 10 | 50.54 | 29,400 | 0 | 1986 | | 2025.04.04 | Àü¼¼ | ¼º»ê½Ã¿µ(¼±°æ) | 8 | 50.54 | 30,000 | 0 | 1986 | | 2025.04.04 | Àü¼¼ | ¼º»ê½Ã¿µ(´ë¿ì) | 7 | 50.03 | 30,000 | 0 | 1986 | | 2025.04.04 | Àü¼¼ | ¼º»ê¿ùµåŸ¿î´ë¸² | 5 | 59.888 | 48,000 | 0 | 2004 | | 2025.04.03 | Àü¼¼ | ¼º»ê½Ã¿µ(´ë¿ì) | 8 | 50.03 | 29,000 | 0 | 1986 | | 2025.04.03 | Àü¼¼ | ¼º»ê½Ã¿µ(À¯¿ø) | 3 | 59.43 | 29,300 | 0 | 1986 | | 2025.04.03 | Àü¼¼ | ¼º»ê½Ã¿µ(´ë¿ì) | 8 | 50.03 | 29,000 | 0 | 1986 | | 2025.04.03 | Àü¼¼ | ¼º»ê½Ã¿µ(´ë¿ì) | 8 | 50.03 | 30,000 | 0 | 1986 | | 2025.04.02 | ¿ù¼¼ | °¡ÁÂÇູÁÖÅà | 7 | 16.19 | 2,006 | 21 | 2016 | | 2025.04.02 | ¿ù¼¼ | °¡ÁÂÇູÁÖÅà | 11 | 16.19 | 724 | 26 | 2016 | | 2025.04.01 | ¿ù¼¼ | °¡ÁÂÇູÁÖÅà | 6 | 16.19 | 3,924 | 17 | 2016 | | 2025.04.01 | ¿ù¼¼ | °¡ÁÂÇູÁÖÅà | 11 | 16.19 | 3,924 | 17 | 2016 | | 2025.04.01 | ¿ù¼¼ | °¡ÁÂÇູÁÖÅà | 5 | 16.19 | 3,706 | 16 | 2016 | | 2025.04.01 | ¿ù¼¼ | °¡ÁÂÇູÁÖÅà | 7 | 16.19 | 3,706 | 16 | 2016 | | 2025.04.01 | ¿ù¼¼ | °¡ÁÂÇູÁÖÅà | 5 | 16.19 | 3,706 | 16 | 2016 | | 2025.04.01 | ¿ù¼¼ | °¡ÁÂÇູÁÖÅà | 16 | 16.19 | 706 | 25 | 2016 | | 2025.04.01 | ¿ù¼¼ | °¡ÁÂÇູÁÖÅà | 3 | 16.32 | 4,104 | 17 | 2016 | | 2025.04.01 | ¿ù¼¼ | °¡ÁÂÇູÁÖÅà | 16 | 16.19 | 3,706 | 16 | 2016 | | 2025.04.01 | ¿ù¼¼ | °¡ÁÂÇູÁÖÅà | 7 | 16.19 | 3,706 | 16 | 2016 | | 2025.04.01 | ¿ù¼¼ | °¡ÁÂÇູÁÖÅà | 9 | 16.19 | 3,706 | 16 | 2016 | | 2025.04.01 | ¿ù¼¼ | °¡ÁÂÇູÁÖÅà | 15 | 16.19 | 3,706 | 16 | 2016 | | 2025.04.01 | ¿ù¼¼ | °¡ÁÂÇູÁÖÅà | 18 | 16.19 | 3,706 | 16 | 2016 | | 2025.04.01 | ¿ù¼¼ | °¡ÁÂÇູÁÖÅà | 9 | 16.19 | 3,706 | 16 | 2016 | | 2025.04.01 | ¿ù¼¼ | °¡ÁÂÇູÁÖÅà | 16 | 16.19 | 3,706 | 16 | 2016 | | 2025.02.28 | Àü¼¼ | ´ë¿ìºô¶ó | 2 | 80.33 | 29,000 | 0 | 1995 | | 2025.02.28 | Àü¼¼ | À̰ºôµù | 2 | 27.39 | 22,000 | 0 | 2014 | | 2025.02.28 | ¸Å¸Å | ´õ¿øÆÓ¸®½º | 3 | 51.23 | 58,900 | | 2023 | | 2025.02.27 | Àü¼¼ | (262-10) | 1 | 45.15 | 17,000 | 0 | 2002 | | 2025.02.27 | ¸Å¸Å | ¼¼¹ÎÇÏÀÌÆÄÅ© | 2 | 30.09 | 29,500 | | 2016 | | 2025.02.26 | ¸Å¸Å | ±ÃÀüºô¶ó | 2 | 136.16 | 75,000 | | 1998 | | 2025.02.26 | ¸Å¸Å | ½ÅÀϺô¶ó | 1 | 47.43 | 27,500 | | 1992 | | 2025.02.26 | Àü¼¼ | µÎ¸®ÇÏÀÌÆ®ºô | 1 | 43.32 | 21,000 | 0 | 2003 | | 2025.02.26 | Àü¼¼ | ¾Æºñ´¨ºô¶ó | 3 | 52.47 | 21,000 | 0 | 2002 | | 2025.02.26 | Àü¼¼ | ¾Æºñ´¨ºô¶ó | 3 | 52.47 | 21,000 | 0 | 2002 | | 2025.02.26 | ¸Å¸Å | ¶óºñ¾Ó·ÎÁî | 4 | 26.09 | 31,800 | | 2019 | | 2025.02.26 | ¿ù¼¼ | ½´ÆæÇÏÀÓ | 3 | 29.76 | 24,000 | 20 | 2016 | | 2025.02.26 | Àü¼¼ | (30-47) | 1 | 46.64 | 28,000 | 0 | 2012 | | 2025.02.25 | ¿ù¼¼ | ±×¸°ºô | 2 | 28.35 | 12,000 | 10 | 1998 | | 2025.02.25 | Àü¼¼ | ¼¼¸íŸ¿î | 5 | 18.97 | 15,500 | 0 | 2021 | | 2025.02.25 | ¿ù¼¼ | (58-10) | 4 | 13.82 | 500 | 48 | 2013 | | 2025.02.25 | ¿ù¼¼ | º£³×½º´Ù | 4 | 14.94 | 500 | 62 | 2013 | | 2025.02.25 | ¿ù¼¼ | ´ë¸íÇ®ÇϿ콺 | 4 | 14.97 | 9,400 | 7 | 2012 | | 2025.02.24 | ¿ù¼¼ | The¹Î¼º | 2 | 17.19 | 1,000 | 66 | 2020 | | 2025.02.24 | ¿ù¼¼ | ¼º»êºô¶ó | 3 | 40.11 | 7,000 | 56 | 2002 | | 2025.02.24 | Àü¼¼ | °ñµå¸®Ä¡ | 3 | 36.18 | 31,000 | 0 | 2018 | | 2025.02.22 | ¸Å¸Å | ¿ì¼º±×¸°¸Ç¼Ç | 4 | 68.42 | 34,000 | | 1997 | | 2025.02.22 | ¸Å¸Å | ¼Ò³ëÇϿ콺 | 4 | 46.9 | 40,000 | | 2017 | | 2025.02.22 | ¿ù¼¼ | Ç츮ƼÁö | 6 | 37.19 | 25,000 | 50 | 2017 | | 2025.02.22 | ¿ù¼¼ | º£³×½º´Ù | 4 | 14.62 | 500 | 60 | 2013 | | 2025.02.22 | ¿ù¼¼ | ´ö»êºô¶ó | 2 | 58.1 | 22,500 | 9 | 1994 | | 2025.02.22 | ¿ù¼¼ | ´ö»êºô¶ó | 2 | 58.1 | 20,900 | 16 | 1994 | | 2025.02.22 | ¿ù¼¼ | ´ö»êºô¶ó | 2 | 58.1 | 22,500 | 9 | 1994 | | 2025.02.21 | ¿ù¼¼ | ¼º»ê¿Â¼¼ºô | 2 | 75.8 | 35,000 | 20 | 2008 | | 2025.02.21 | ¿ù¼¼ | ¼º»êÈÞ¸ÕŸ¿î | 3 | 29.62 | 25,000 | 5 | 2017 | | 2025.02.21 | ¿ù¼¼ | ´Ùº£·Î | 2 | 29.05 | 18,000 | 20 | 2016 | | 2025.02.21 | ¸Å¸Å | ÇѰŸ¿îAµ¿ | 4 | 58.56 | 37,500 | | 2008 | | 2025.02.21 | ¿ù¼¼ | ¼ºÇöÇÏÀ̺ô | 5 | 22.32 | 2,000 | 57 | 2017 | | 2025.02.21 | ¿ù¼¼ | (58-10) | 4 | 11.45 | 500 | 55 | 2013 | | 2025.02.21 | ¿ù¼¼ | (58-10) | 2 | 13.82 | 500 | 56 | 2013 | | 2025.02.20 | Àü¼¼ | À¯ÀϺô¸®Áö1´ÜÁö | 5 | 50.48 | 35,000 | 0 | 2016 | | 2025.02.20 | Àü¼¼ | Áø¼±ºô¶ó | 2 | 59.84 | 25,000 | 0 | 1991 | | 2025.02.19 | ¸Å¸Å | (165-84) | -1 | 28.46 | 11,000 | | 1986 | | 2025.02.19 | ¸Å¸Å | ´õ¿øÆÓ¸®½º | 2 | 51.23 | 58,900 | | 2023 | | 2025.02.19 | ¿ù¼¼ | sweetseoulresidence | 2 | 15.3 | 9,000 | 10 | 2013 | | 2025.02.19 | Àü¼¼ | žçºô¶ó | 1 | 35.16 | 13,000 | 0 | 1993 | | 2025.02.18 | ¿ù¼¼ | Áß¾ÓÁÖÅà | 1 | 49.08 | 17,000 | 4 | 2003 | | 2025.02.18 | ¿ù¼¼ | Çö´ëºô¶ó | -1 | 17.74 | 500 | 35 | 1997 | | 2025.02.17 | ¸Å¸Å | ¼º»çºô¶ó | 2 | 79.17 | 43,000 | | 1982 | | 2025.02.17 | ¸Å¸Å | ¿ùµåÇϿ콺 | 3 | 38.49 | 38,000 | | 2017 | | 2025.02.17 | ¿ù¼¼ | ¼Ò³ëÇϿ콺¼º»ê3Â÷ | 3 | 44.06 | 3,000 | 100 | 2018 | | 2025.02.17 | Àü¼¼ | ´Ùº£·Î | 2 | 29.92 | 29,100 | 0 | 2017 | | 2025.02.17 | Àü¼¼ | ¼ºÀººô¶ó | 3 | 51.72 | 11,000 | 0 | 1995 | | 2025.02.17 | ¿ù¼¼ | ¼±³ºô¶ó | 2 | 64.32 | 16,000 | 80 | 1991 | | 2025.02.16 | Àü¼¼ | ´õ¿øÆÓ¸®½º | 2 | 43.27 | 39,000 | 0 | 2023 | | 2025.02.15 | ¸Å¸Å | À¯ÁøÇÏÀÌÃ÷ | 4 | 85.86 | 48,000 | | 1993 | | 2025.02.15 | ¸Å¸Å | ¼º»ê¿Â¼¼ºô | 4 | 80.12 | 48,000 | | 2008 | | 2025.02.15 | ¿ù¼¼ | »ï¿ìÇÏÀÌÃ÷ºô¶ó | 2 | 84.14 | 10,000 | 140 | 1999 | | 2025.02.14 | Àü¼¼ | ´õŬ·¡½Ä | 1 | 29.77 | 27,000 | 0 | 2017 | | 2025.02.14 | ¿ù¼¼ | ³ì»öÄ£±¸µé | 2 | 30.38 | 10,689 | 30 | 2017 | | 2025.02.14 | ¸Å¸Å | ¿µµ¿ºô¸®Áö | -1 | 28.1 | 16,800 | | 1993 | | 2025.02.14 | ¿ù¼¼ | ³ì»öÄ£±¸µé | 3 | 15.39 | 5,370 | 15 | 2017 | | 2025.02.14 | ¿ù¼¼ | À¯µ¿ºô¸®Áö | -1 | 39.57 | 3,000 | 70 | 1996 | | 2025.02.14 | Àü¼¼ | °íÀº°í±Þºô¶ó | 1 | 36.32 | 12,000 | 0 | 1990 | | 2025.02.14 | Àü¼¼ | °íÀº°í±Þºô¶ó | 1 | 36.32 | 12,000 | 0 | 1990 | | 2025.02.14 | ¿ù¼¼ | (160-1) | 1 | 39.96 | 4,500 | 65 | 1992 | | 2025.02.14 | ¿ù¼¼ | ÈÀÌÆ®ºô | 4 | 36 | 16,500 | 10 | 2003 | | 2025.02.13 | ¿ù¼¼ | ¼º¿îºô¶ó | 4 | 45.05 | 2,000 | 90 | 2007 | | 2025.02.13 | ¸Å¸Å | ¾Æºñ´¨ºô¶ó | 4 | 27.24 | 22,000 | | 2002 | | 2025.02.13 | ¿ù¼¼ | (623-7) | 1 | 36.84 | 2,000 | 75 | 1989 | | 2025.02.13 | Àü¼¼ | ¾Æ¼º¶ß¶õä | 3 | 29.97 | 25,500 | 0 | 2018 | | 2025.02.12 | ¿ù¼¼ | ´õŬ·¡½º | 4 | 28.98 | 25,000 | 5 | 2019 | | 2025.02.11 | Àü¼¼ | û±¸ÇÏÀÌÃ÷ºô¶ó | 3 | 59.43 | 30,000 | 0 | 1994 | | 2025.02.11 | ¿ù¼¼ | º£³×½º´Ù | 3 | 14.62 | 500 | 52 | 2013 | | 2025.02.10 | ¿ù¼¼ | (58-10) | 3 | 13.82 | 500 | 55 | 2013 | | 2025.02.08 | ¿ù¼¼ | ¼ºÈ£ºô¶ó | 1 | 36.4 | 1,000 | 45 | 1989 | | 2025.02.08 | ¸Å¸Å | ¼Ò³ëÇϿ콺¼º»ê3Â÷ | 5 | 43.03 | 41,000 | | 2018 | | 2025.02.07 | ¿ù¼¼ | ÇÑÁÖÆÓ¸®½º | 3 | 29.98 | 5,000 | 127 | 2019 | | 2025.02.06 | Àü¼¼ | ¿ì¼º±×¸°¸Ç¼Ç | 4 | 68.42 | 24,000 | 0 | 1997 | | 2025.02.06 | ¿ù¼¼ | Çö´ëºô¶ó | -1 | 19.31 | 5,000 | 35 | 1997 | | 2025.02.06 | ¿ù¼¼ | ÈÀθ®ºùÅÚ | 2 | 24.9 | 1,000 | 58 | 2003 | | 2025.02.06 | Àü¼¼ | Ç츮ƼÁö | 2 | 37.51 | 20,000 | 0 | 2017 | | 2025.02.05 | Àü¼¼ | ÇØºñÄ¡ÇϿ콺 | 1 | 29.86 | 24,000 | 0 | 2017 | | 2025.02.05 | ¿ù¼¼ | ÇѼֺô¶ó | 4 | 60.5 | 5,500 | 80 | 1996 | | 2025.02.05 | ¿ù¼¼ | À§³Ê½º¿ø | 3 | 19.08 | 12,000 | 8 | 2013 | | 2025.02.05 | Àü¼¼ | ÈÀÌÆ®ºô | 2 | 27.55 | 20,000 | 0 | 2015 | | 2025.02.05 | ¸Å¸Å | ¼Ò³ëÇϿ콺¼º»ê3Â÷ | 6 | 34.65 | 33,200 | | 2018 | | 2025.02.04 | ¸Å¸Å | »ï¼ºÇÏÀÌÃ÷ºô¶ó | 1 | 49.61 | 49,000 | | 1994 | | 2025.02.04 | ¿ù¼¼ | ±×¸°ºô | 4 | 55.64 | 1,000 | 70 | 1998 | | 2025.02.04 | ¿ù¼¼ | ¼¾Åͺô | 4 | 36.4 | 3,000 | 80 | 2014 | | 2025.02.03 | ¸Å¸Å | ¼º»çºô¶ó | 3 | 79.37 | 44,500 | | 1982 | | 2025.02.03 | ¿ù¼¼ | (212-3) | 2 | 37.3 | 2,000 | 70 | 1990 | | 2025.02.03 | ¿ù¼¼ | ¼º»ê¾ÆÆ®ºô | 4 | 21.83 | 2,000 | 51 | 2012 | | 2025.02.03 | ¿ù¼¼ | ³ì»öÄ£±¸µé | 4 | 33.82 | 12,179 | 34 | 2017 | | 2025.02.02 | ¿ù¼¼ | ÈÀÌÆ®ºô(30-26) | 3 | 122.18 | 48,000 | 50 | 1996 | | 2025.02.01 | ¿ù¼¼ | ȲÁ¦ºô¶ó | 1 | 40.8 | 500 | 55 | 1990 | | 2025.02.01 | ¿ù¼¼ | Á¤¼ººô¶ó | 1 | 52.11 | 28,220 | 22 | 1993 | | 2025.02.01 | ¿ù¼¼ | Á¤¼ººô¶ó | 1 | 52.11 | 22,820 | 22 | 1993 | | 2025.02.01 | Àü¼¼ | »ï¼ºÈ¨Å¸¿î(271-14) | 3 | 53.8 | 20,000 | 0 | 2003 | | 2025.02.01 | Àü¼¼ | ´ëÇöÇÏÀ̺ô | 4 | 71.53 | 30,000 | 0 | 2005 | | 2025.02.01 | Àü¼¼ | Ȳ±Ýºô¸®Áö | 2 | 35.34 | 24,000 | 0 | 2015 | | 2025.01.31 | ¿ù¼¼ | ÇÔ²²ÁÖÅÃ3È£ | 2 | 30.77 | 12,200 | 26 | 2020 | | 2025.01.31 | Àü¼¼ | û¿îºô¶óAµ¿ | -1 | 49.52 | 13,000 | 0 | 1988 | | 2025.01.31 | ¿ù¼¼ | ÇÔ²²ÁÖÅÃ3È£ | 2 | 30.77 | 12,200 | 26 | 2020 | | 2025.01.30 | ¿ù¼¼ | ûdz¼·¡ | 2 | 16.35 | 1,000 | 66 | 2018 | | 2025.01.27 | Àü¼¼ | ¾î½æ½ÃƼ | 4 | 27.96 | 30,600 | 0 | 2019 | | 2025.01.27 | Àü¼¼ | ¾î½æ½ÃƼ | 4 | 27.96 | 30,600 | 0 | 2019 | | 2025.01.25 | Àü¼¼ | Áø¿¤¸£ºô | 6 | 39.58 | 29,300 | 0 | 2016 | | 2025.01.25 | ¿ù¼¼ | ±×¸°ºô | 3 | 28.35 | 2,000 | 75 | 1998 | | 2025.01.25 | ¿ù¼¼ | ´ë¼ººô¶ó | 2 | 61.99 | 4,000 | 140 | 1996 | | 2025.01.25 | ¿ù¼¼ | ½Å¼ººô¶ó°¡µ¿ | 2 | 37.6 | 7,000 | 80 | 1992 | | 2025.01.25 | Àü¼¼ | ¸¶Æ÷¼º»êÈÞ¸ÕŸ¿î2Â÷ | 3 | 21.65 | 18,900 | 0 | 2023 | | 2025.01.24 | ¿ù¼¼ | (58-10) | 3 | 13.82 | 500 | 53 | 2013 | | 2025.01.23 | Àü¼¼ | È£¼º±×¸°ÆÄÅ©Aµ¿ | 2 | 55.86 | 29,000 | 0 | 2002 | | 2025.01.22 | Àü¼¼ | ³ª´®ºô | 2 | 53.27 | 21,600 | 0 | 2011 | | 2025.01.22 | Àü¼¼ | ÇÑÁÖÆÓ¸®½º | 5 | 29.95 | 34,230 | 0 | 2019 | | 2025.01.22 | Àü¼¼ | Ǫ¸¥ºô¶ó | 4 | 76.52 | 27,000 | 0 | 2007 | | 2025.01.22 | Àü¼¼ | ¼º»êÇÏÀÌÃ÷ºô | 1 | 62.65 | 34,000 | 0 | 2013 | | 2025.01.21 | Àü¼¼ | (223-2) | 3 | 16.37 | 8,900 | 0 | 2012 | | 2025.01.21 | ¸Å¸Å | SK-VIEW | 2 | 41.9 | 30,200 | | 1995 | | 2025.01.21 | ¿ù¼¼ | û±¸ºô¶ó | 4 | 61.2 | 24,000 | 10 | 1991 | | 2025.01.21 | Àü¼¼ | ¹Ù¿ò»þÀκô | 2 | 29.87 | 32,500 | 0 | 2020 | | 2025.01.21 | ¿ù¼¼ | ¿¡¹ö±×¸° | 2 | 15.26 | 1,000 | 55 | 2012 | | 2025.01.20 | ¿ù¼¼ | Äý | 3 | 13.53 | 500 | 53 | 2011 | | 2025.01.20 | Àü¼¼ | ÁÖ¿¬ºô¶óÆ® | 5 | 39.93 | 16,000 | 0 | 2003 | | 2025.01.19 | Àü¼¼ | Çູºô¶ó | 3 | 47.91 | 17,000 | 0 | 1995 | | 2025.01.19 | Àü¼¼ | Áø¼ºÆÄÅ©ºô | 2 | 55.17 | 28,000 | 0 | 2009 | | 2025.01.18 | Àü¼¼ | ¸í¼ºÄ«¿îƼ | 3 | 17.37 | 13,650 | 0 | 2013 | | 2025.01.18 | ¸Å¸Å | µ¿¾çÇÏ¿ì¡ | 5 | 28.89 | 40,800 | | 2018 | | 2025.01.18 | ¸Å¸Å | ¼º¿î | 2 | 47.86 | 38,200 | | 2010 | | 2025.01.17 | Àü¼¼ | ½Å¼º¸Ç¼Ç | 1 | 65.09 | 16,000 | 0 | 1990 | | 2025.01.17 | ¿ù¼¼ | ½Å¼º¸Ç¼Ç | -1 | 68.79 | 16,000 | 22 | 1990 | | 2025.01.17 | Àü¼¼ | (223-2) | 4 | 16.37 | 9,400 | 0 | 2012 | | 2025.01.17 | Àü¼¼ | ¼º»çºô¶ó | 2 | 73.52 | 21,000 | 0 | 1982 | | 2025.01.17 | ¸Å¸Å | ½Å¼ººô¶ó°¡µ¿ | 2 | 37.6 | 25,000 | | 1992 | | 2025.01.17 | ¸Å¸Å | ¼º»ê½ÃƼºô¶ó | 4 | 55.31 | 49,000 | | 1996 | | 2025.01.16 | Àü¼¼ | (144-2) | 1 | 40.2 | 12,000 | 0 | 1986 | | 2025.01.16 | Àü¼¼ | ÇØ¿À¸§ | 3 | 29.45 | 23,150 | 0 | 2016 | | 2025.01.16 | ¸Å¸Å | ¶óºñ¾Ó·ÎÁî | 6 | 37.6 | 36,200 | | 2019 | | 2025.01.15 | Àü¼¼ | (611-12) | 2 | 24.56 | 18,900 | 0 | 2016 | | 2025.01.15 | Àü¼¼ | µµ¿øºô¶ó2µ¿ | 1 | 36.81 | 14,300 | 0 | 1990 | | 2025.01.14 | ¿ù¼¼ | ´ë¸íÇ®ÇϿ콺 | 2 | 14.31 | 9,000 | 6 | 2012 | | 2025.01.14 | ¿ù¼¼ | À§³Ê½º¿ø | 2 | 17.02 | 10,000 | 9 | 2013 | | 2025.01.14 | Àü¼¼ | ´ë¸íÇ®ÇϿ콺2 | 5 | 12.81 | 9,300 | 0 | 2012 | | 2025.01.14 | Àü¼¼ | ´ë¸íÇ®ÇϿ콺2 | 3 | 21.38 | 14,900 | 0 | 2012 | | 2025.01.14 | Àü¼¼ | ÈÀÌÆ®ºô | 2 | 42.89 | 19,000 | 0 | 2003 | | 2025.01.13 | ¸Å¸Å | ÀÚ½½¸°ÇϿ콺 | 3 | 52.56 | 46,700 | | 2017 | | 2025.01.13 | ¸Å¸Å | º¸¿µºô¶ó | 3 | 67.62 | 43,500 | | 1999 | | 2025.01.13 | ¸Å¸Å | ¼º¸²ºô¶ó | -1 | 41.04 | 12,500 | | 1995 | | 2025.01.13 | ¿ù¼¼ | DMC¸ÞÆ®·Îºô | 2 | 21.87 | 2,000 | 59 | 2019 | | 2025.01.13 | ¿ù¼¼ | Ç츮ƼÁö | 2 | 37.51 | 12,000 | 80 | 2017 | | 2025.01.13 | ¿ù¼¼ | ±×¸°ºô | 4 | 55.64 | 1,000 | 65 | 1998 | | 2025.01.12 | Àü¼¼ | ´Ùº¹ÇÏÀÌÃ÷ºô¶óBµ¿ | 3 | 56.87 | 24,800 | 0 | 1996 | | 2025.01.12 | ¸Å¸Å | ´Ùº¹ÇÏÀÌÃ÷ºô¶óBµ¿ | 3 | 56.87 | 35,500 | | 1996 | | 2025.01.12 | ¸Å¸Å | µ¿Çöºô¶ó | 4 | 46.2 | 30,500 | | 1992 | | 2025.01.12 | ¸Å¸Å | ´õ¿øÆÓ¸®½º | 3 | 43.27 | 48,000 | | 2023 | | 2025.01.12 | Àü¼¼ | ´Ùº¹ÇÏÀÌÃ÷ºô¶óBµ¿ | 3 | 56.87 | 24,800 | 0 | 1996 | | 2025.01.11 | ¿ù¼¼ | ÀÌ·¹½¦¸£ºô | 2 | 51.45 | 25,700 | 20 | 2008 | | 2025.01.11 | ¿ù¼¼ | (212-3) | 2 | 35.95 | 3,000 | 88 | 1990 | | 2025.01.11 | Àü¼¼ | ÇູÀÇÁý | -1 | 64.61 | 17,500 | 0 | 2000 | | 2025.01.11 | Àü¼¼ | ÇູÀÇÁý | -1 | 64.61 | 16,500 | 0 | 2000 | | 2025.01.11 | ¿ù¼¼ | SELECTED2È£Á¡ | 2 | 15.12 | 1,000 | 60 | 2020 | | 2025.01.11 | ¿ù¼¼ | °ñµå¸®Ä¡ | 4 | 21.24 | 2,500 | 110 | 2018 | | 2025.01.10 | Àü¼¼ | (254-17) | 3 | 33.45 | 25,000 | 0 | 2011 | | 2025.01.10 | ¿ù¼¼ | ¼±ÁøÇÏÀ̺ô | 4 | 58.59 | 20,000 | 50 | 2001 | | 2025.01.10 | Àü¼¼ | ¿¡¹ö±×¸°ºô¶ó | 1 | 82.47 | 24,000 | 0 | 2002 | | 2025.01.10 | ¿ù¼¼ | ¼ºÀ缾Ʈ¸®¿ò | 3 | 37.49 | 30,000 | 10 | 2018 | | 2025.01.10 | ¿ù¼¼ | ¶óºñ¾Ó·ÎÁî | 6 | 29.64 | 5,000 | 95 | 2019 | | 2025.01.10 | ¿ù¼¼ | ¼Ò´ã¾ÆÆ®ºô | 2 | 50.15 | 2,000 | 78 | 2019 | | 2025.01.10 | ¿ù¼¼ | ¼Ò´ã¾ÆÆ®ºô | 4 | 70.92 | 3,150 | 125 | 2019 | | 2025.01.09 | ¸Å¸Å | ÇÑÈï½ÃƼºô | 3 | 50.88 | 32,000 | | 2003 | | 2025.01.09 | ¿ù¼¼ | ¿¡¹ö±×¸°ºô¶ó | 2 | 69.64 | 24,000 | 5 | 2002 | | 2025.01.09 | Àü¼¼ | ¿ùµåÇϿ콺 | 4 | 29.91 | 29,100 | 0 | 2017 | | 2025.01.08 | Àü¼¼ | Á¤¼ººô¶ó | 3 | 49.44 | 19,600 | 0 | 1993 | | 2025.01.08 | ¸Å¸Å | º¸¿µÁÖÅà | 1 | 76.785 | 52,000 | | 2000 | | 2025.01.07 | ¿ù¼¼ | ¼º»êÇý½Âºô | 4 | 93.14 | 1,000 | 65 | 2009 | | 2025.01.07 | ¿ù¼¼ | °ñµçÆÓ¸®½º | 5 | 36.21 | 10,000 | 90 | 2017 | | 2025.01.07 | Àü¼¼ | (223-2) | 3 | 16.37 | 8,900 | 0 | 2012 | | 2025.01.06 | ¿ù¼¼ | »ê.³».µé | 5 | 13.38 | 1,000 | 60 | 2013 | | 2025.01.06 | ¿ù¼¼ | ÈÀÌÆ®ºô | 4 | 29.93 | 23,900 | 20 | 2015 | | 2025.01.06 | Àü¼¼ | ÆÓ¸®½ººä | 2 | 31.97 | 26,000 | 0 | 2018 | | 2025.01.06 | Àü¼¼ | ½´ÆæÇÏÀÓ¼º»ê | 3 | 28.43 | 23,500 | 0 | 2017 | | 2025.01.04 | ¿ù¼¼ | û±¸ºô¶ó | 1 | 36.3 | 500 | 75 | 1991 | | 2025.01.04 | Àü¼¼ | ¹Ù¿ò»þÀκô | 6 | 29.94 | 26,500 | 0 | 2020 | | 2025.01.04 | ¸Å¸Å | ¼Ò³ëÇϿ콺¼º»ê3Â÷ | 6 | 51.86 | 44,000 | | 2018 | | 2025.01.03 | ¿ù¼¼ | Á¶Àººô¶ó | 3 | 30.96 | 14,325 | 9 | 1996 | | 2025.01.03 | Àü¼¼ | ÇѼº | 3 | 19.42 | 13,000 | 0 | 2019 | | 2025.01.02 | Àü¼¼ | º¸¿µºô¶ó | 1 | 67.62 | 28,000 | 0 | 1999 | | 2025.01.02 | ¿ù¼¼ | °¡³ª¾È | 2 | 90.31 | 2,000 | 93 | 1980 | | 2025.01.01 | ¿ù¼¼ | ¼º¹Ìºô¶ó | 1 | 48.97 | 12,500 | 20 | 2002 | | 2025.01.01 | ¿ù¼¼ | ¿À¸¶ÁÖ | 3 | 77.8 | 80 | 40 | 2014 | | 2024.12.31 | ¿ù¼¼ | ÈÀÌÆ®ºô | 4 | 29.96 | 30 | 85 | 2013 | | 2024.12.31 | ¿ù¼¼ | Á¶Àººô¶ó | 1 | 39.06 | 17,000 | 19 | 1996 | | 2024.12.31 | ¿ù¼¼ | ´ë¸íÇ®ÇϿ콺 | 2 | 14.31 | 5,000 | 20 | 2012 | | 2024.12.31 | ¿ù¼¼ | The¹Î¼º | 2 | 29.49 | 30,000 | 2 | 2020 | | 2024.12.30 | Àü¼¼ | ´ë¼ººô¶ó | -1 | 63.25 | 15,000 | 0 | 1996 | | 2024.12.30 | Àü¼¼ | º§ºä¼º»ê | 6 | 37.8 | 39,300 | 0 | 2022 | | 2024.12.29 | ¿ù¼¼ | ¸ñȺô¶ó | 1 | 50.73 | 18,000 | 10 | 1991 | | 2024.12.28 | Àü¼¼ | ±Û·Î¸®È¨Áî | 3 | 25.41 | 26,500 | 0 | 2020 | | 2024.12.28 | ¿ù¼¼ | »ï¿µÇÏÀÌÃ÷ºô | 3 | 74.78 | 10,000 | 100 | 2001 | | 2024.12.28 | Àü¼¼ | µ¿¾çÇÏ¿ì¡ | 3 | 32.7 | 26,000 | 0 | 2018 | | 2024.12.28 | ¿ù¼¼ | (631-2) | 2 | 21.33 | 2,000 | 60 | 2012 | | 2024.12.28 | ¿ù¼¼ | ¿ùµåÄźô¸®Áö | 6 | 54.45 | 4,000 | 59 | 2006 | | 2024.12.27 | ¸Å¸Å | ÈúÇϿ콺(200-413) | 5 | 22.11 | 20,000 | | 2019 | | 2024.12.27 | ¿ù¼¼ | ¹Ù¿ò»þÀκô | 5 | 52.27 | 10,000 | 145 | 2020 | | 2024.12.26 | ¸Å¸Å | ´Ùº¹ÇÏÀÌÃ÷ºô¶óBµ¿ | -1 | 59.93 | 22,050 | | 1996 | | 2024.12.26 | ¿ù¼¼ | ÀÌ·¹ºô¶óÆ®Aµ¿ | 2 | 13.29 | 1,000 | 50 | 2011 | | 2024.12.26 | Àü¼¼ | ±Û·Î¸®È¨Áî | 3 | 25.41 | 21,000 | 0 | 2020 | | 2024.12.25 | Àü¼¼ | (240-24) | 5 | 29.99 | 16,500 | 0 | 2012 | | 2024.12.24 | ¿ù¼¼ | ¿¡¹ö±×¸°2 | 2 | 20.06 | 11,800 | 20 | 2013 | | 2024.12.24 | ¿ù¼¼ | µ¿»ïºô¶óŸ¿î4µ¿ | 2 | 36.57 | 1,000 | 74 | 1989 | | 2024.12.24 | ¿ù¼¼ | º¸¾Æ½ººô¶ó | 4 | 33.56 | 12,000 | 67 | 2002 | | 2024.12.24 | ¿ù¼¼ | (144-1) | 2 | 42.63 | 13,000 | 10 | 1986 | | 2024.12.23 | ¿ù¼¼ | ¼º»êµ¿251-21´Ù¼¼´ëÁÖÅà | 1 | 29.16 | 2,000 | 36 | 2002 | | 2024.12.23 | ¿ù¼¼ | ½Åº¸±ÃÀüºô¶ó | 1 | 51.15 | 19,900 | 12 | 1992 | | 2024.12.23 | ¿ù¼¼ | ¼º»ê¾ÆÆ®ºô | 4 | 17.55 | 1,000 | 50 | 2012 | | 2024.12.21 | ¿ù¼¼ | ¼º¿î | 3 | 41.53 | 4,000 | 85 | 2010 | | 2024.12.21 | ¸Å¸Å | ¾î½æ½ÃƼ | 4 | 27.6 | 35,000 | | 2019 | | 2024.12.21 | ¿ù¼¼ | ±Ýµ¿ÆÄÀκô | 2 | 21.02 | 1,000 | 50 | 2012 | | 2024.12.21 | ¿ù¼¼ | TheGenesis | 4 | 29.15 | 2,000 | 99 | 2014 | | 2024.12.20 | ¿ù¼¼ | ÇÔ²²ÁÖÅÃ4È£ | 3 | 30.76 | 11,600 | 39 | 2021 | | 2024.12.20 | ¿ù¼¼ | ¿¡µ§ºô¶ó | 4 | 37.16 | 14,800 | 28 | 1995 | | 2024.12.19 | Àü¼¼ | µ¿¾çÇÏ¿ì¡ | 2 | 46.19 | 34,900 | 0 | 2015 | | 2024.12.19 | Àü¼¼ | ´Ùº£·Î | 2 | 29.22 | 26,500 | 0 | 2017 | | 2024.12.18 | Àü¼¼ | ÇÑÁÖÆÓ¸®½º | 4 | 29.98 | 33,100 | 0 | 2019 | | 2024.12.18 | Àü¼¼ | ¸ÞÁ¶Æ®·Ð¥± | 2 | 162.01 | 70,000 | 0 | 2007 | | 2024.12.18 | ¿ù¼¼ | ÆÓ¸®½ººä | 4 | 12.86 | 6,000 | 80 | 2018 | | 2024.12.17 | Àü¼¼ | ¼Ò³ëÇϿ콺¼º»ê2Â÷ | 2 | 40.63 | 32,500 | 0 | 2017 | | 2024.12.17 | Àü¼¼ | ½ºÄ«À̺ô | 1 | 53.91 | 28,000 | 0 | 2003 | | 2024.12.16 | ¿ù¼¼ | ÀÌÁ¶ºô¶ó | 3 | 61.09 | 22,000 | 20 | 1994 | | 2024.12.16 | ¿ù¼¼ | (21-4) | 2 | 15.12 | 1,000 | 43 | 2012 | | 2024.12.16 | ¿ù¼¼ | ¼º»êÀÌÆ°Ä³½½ | 3 | 19.24 | 22,000 | 40 | 2023 | | 2024.12.16 | ¸Å¸Å | ¼º»ê½ÃƼºô¶ó | 1 | 77.68 | 50,000 | | 1996 | | 2024.12.16 | ¸Å¸Å | ¼º»êÁö±¸¿¬¸³ÁÖÅÃÁ¦31µ¿ | 2 | 26.22 | 31,000 | | 1976 | | 2024.12.14 | ¿ù¼¼ | ¸ÞÁ¾µå¿¥ | 4 | 28.06 | 22,900 | 5 | 2019 | | 2024.12.14 | Àü¼¼ | µ¿¾çÇÏ¿ì¡ | 2 | 42.3 | 27,000 | 0 | 2016 | | 2024.12.14 | Àü¼¼ | ¸¶ÇϺô | 2 | 28.48 | 19,600 | 0 | 2019 | | 2024.12.12 | ¿ù¼¼ | ÇöÀÏÁÖÅà | 2 | 50.03 | 21,000 | 9 | 2002 | | 2024.12.12 | Àü¼¼ | ¼ºÈ£ºô¶ó | -1 | 36.4 | 8,500 | 0 | 1989 | | 2024.12.12 | ¿ù¼¼ | ¼±°æ½ÃƼºô | 4 | 32.45 | 12,500 | 30 | 1995 | | 2024.12.12 | ¸Å¸Å | À¯ÁøÇÏÀÌÃ÷ | 1 | 51.57 | 27,000 | | 1993 | | 2024.12.11 | Àü¼¼ | ½ºÀ§Æ®ºô | 1 | 29.4 | 18,900 | 0 | 2016 | | 2024.12.10 | ¿ù¼¼ | (111-9) | 5 | 47.1 | 1,000 | 60 | 2014 | | 2024.12.10 | ¿ù¼¼ | ¿¡À̽ºÅ¸¿î | 3 | 28.55 | 1,000 | 110 | 2016 | | 2024.12.10 | ¿ù¼¼ | (221-4) | -1 | 44.08 | 10,000 | 15 | 1994 | | 2024.12.09 | ¿ù¼¼ | ½Å¼ººô¶ó³ªµ¿ | 3 | 37.8 | 3,000 | 45 | 1992 | | 2024.12.09 | Àü¼¼ | ¾î¹Ýij½½ | 5 | 19.53 | 13,500 | 0 | 2022 | | 2024.12.09 | Àü¼¼ | ¼º»çºô¶ó | 2 | 73.52 | 21,000 | 0 | 1982 | | 2024.12.09 | ¸Å¸Å | ¼Ò³ëÇϿ콺¼º»ê1Â÷ | 5 | 40.36 | 33,000 | | 2017 | | 2024.12.09 | Àü¼¼ | ¼º»çºô¶ó | 2 | 73.52 | 21,000 | 0 | 1982 | | 2024.12.09 | ¸Å¸Å | ´õ¿øÆÓ¸®½º | 6 | 45.25 | 56,000 | | 2023 | | 2024.12.08 | Àü¼¼ | ±Û·Î¸®È¨Áî | 3 | 29.9 | 35,000 | 0 | 2020 | | 2024.12.07 | Àü¼¼ | ¿©¹Îºô¶ó | 2 | 55.5 | 22,000 | 0 | 2003 | | 2024.12.07 | ¿ù¼¼ | ¿µ±¤ºô | 3 | 29.12 | 10,000 | 34 | 2010 | | 2024.12.07 | Àü¼¼ | µ¿»êÁÖÅà | 3 | 39.93 | 16,350 | 0 | 1995 | | 2024.12.07 | ¿ù¼¼ | ¿µ±¤ºô | 3 | 29.12 | 10,000 | 33 | 2010 | | 2024.12.07 | ¸Å¸Å | Áø¼±ºô¶ó | 2 | 59.84 | 31,500 | | 1991 | | 2024.12.07 | ¸Å¸Å | µ¿»ïºô¶óŸ¿î5µ¿ | -1 | 36.24 | 28,000 | | 1988 | | 2024.12.07 | Àü¼¼ | °ñµçÆÓ¸®½º | 3 | 33.97 | 28,000 | 0 | 2017 | | 2024.12.07 | Àü¼¼ | °ñµçÆÓ¸®½º | 3 | 33.97 | 28,000 | 0 | 2017 | | 2024.12.06 | ¿ù¼¼ | ÇØ¶ß´ÂÁý | 2 | 34.6 | 5,000 | 63 | 2013 | | 2024.12.06 | ¿ù¼¼ | DMC¸ÞÆ®·Îºô | 2 | 22.88 | 1,000 | 63 | 2019 | | 2024.12.06 | ¿ù¼¼ | ÀÌ·¹ºô¶óÆ®Bµ¿ | 2 | 15.93 | 1,000 | 47 | 2011 | | 2024.12.06 | ¿ù¼¼ | ÀÌÁ¶°ñµçºô¶óCµ¿ | 1 | 36.84 | 10,000 | 25 | 1989 | | 2024.12.05 | ¿ù¼¼ | ¸í½Éºô¶ó | 1 | 36.77 | 120 | 60 | 1991 | | 2024.12.05 | ¿ù¼¼ | À¯´ÏÇϿ콺ºí·ç | 2 | 23.24 | 20,000 | 8 | 2017 | | 2024.12.05 | ¿ù¼¼ | À¯´ÏÇϿ콺ºí·ç | 2 | 23.24 | 20,000 | 3 | 2017 | | 2024.12.05 | ¿ù¼¼ | À¯´ÏÇϿ콺ºí·ç | 2 | 23.24 | 20,000 | 8 | 2017 | | 2024.12.05 | ¸Å¸Å | ½Å¼ººô¶ó°¡µ¿ | 3 | 41.16 | 23,500 | | 1992 | | 2024.12.05 | ¿ù¼¼ | ´Ù´Ùºô¸®Áö | 3 | 27.93 | 23,600 | 10 | 2016 | | 2024.12.03 | ¿ù¼¼ | ÀÌ·¹ºô¶óÆ®Aµ¿ | 3 | 14.32 | 1,000 | 50 | 2011 | | 2024.12.02 | ¸Å¸Å | (30-1) | 3 | 44.71 | 29,900 | | 2012 | | 2024.12.02 | ¿ù¼¼ | (200-89)Çѽźô¶ó | 4 | 26.62 | 10,000 | 30 | 1994 | | 2024.12.02 | Àü¼¼ | (200-92) | 2 | 45.48 | 20,500 | 0 | 1992 | | 2024.12.02 | Àü¼¼ | ´ëÈ£¾ÆÆ®ºô | 4 | 54.17 | 30,000 | 0 | 2012 | | 2024.12.01 | ¸Å¸Å | µ¿¾çÇÏ¿ì¡(257-7) | 6 | 34.02 | 40,000 | | 2015 | | 2024.11.30 | Àü¼¼ | (611-12) | 2 | 23.39 | 12,000 | 0 | 2016 | | 2024.11.30 | Àü¼¼ | º§ºä¼º»ê | 2 | 37.8 | 39,300 | 0 | 2022 | | 2024.11.29 | Àü¼¼ | »ïÈ£ºô¶ó | 2 | 34.09 | 12,000 | 0 | 1991 | | 2024.11.29 | Àü¼¼ | (223-2) | 5 | 16.37 | 9,300 | 0 | 2012 | | 2024.11.29 | ¿ù¼¼ | ½Å¼ººô¶ó°¡µ¿ | 3 | 37.05 | 7,000 | 30 | 1992 | | 2024.11.27 | ¿ù¼¼ | (638-8) | -1 | 41.43 | 3,000 | 60 | 1997 | | 2024.11.27 | ¿ù¼¼ | (623-7) | -1 | 36.84 | 9,000 | 15 | 1989 | | 2024.11.26 | ¿ù¼¼ | ÈÀθ®ºùÅÚ | 3 | 24.9 | 1,000 | 64 | 2003 | | 2024.11.26 | ¿ù¼¼ | ÇѽÅÇÏÀÌÃ÷ºô¶ó | 2 | 58.97 | 13,000 | 60 | 1993 | | 2024.11.26 | ¿ù¼¼ | µ¿»êÁÖÅà | 3 | 39.93 | 13,000 | 19 | 1995 | | 2024.11.26 | ¿ù¼¼ | ÇѽÅÇÏÀÌÃ÷ºô¶ó | 2 | 58.97 | 13,000 | 60 | 1993 | | 2024.11.26 | Àü¼¼ | Á¦ÀÌ,¿¥ºô¶ó(2Â÷) | 4 | 40.44 | 15,000 | 0 | 2002 | | 2024.11.25 | Àü¼¼ | ´Ùº£·Î | 2 | 29.79 | 27,600 | 0 | 2017 | | 2024.11.25 | ¿ù¼¼ | ¼º»ê½ºÅ×ÀÌ | 2 | 16.86 | 5,000 | 33 | 2018 | | 2024.11.25 | Àü¼¼ | ´Ùº£·Î | 2 | 29.79 | 27,600 | 0 | 2017 | | 2024.11.24 | ¿ù¼¼ | ´õŬ·¡½º | 6 | 29.79 | 30,300 | 7 | 2019 | | 2024.11.23 | ¿ù¼¼ | DMC¸ÞÆ®·Îºô | 3 | 19.86 | 9,900 | 27 | 2019 | | 2024.11.23 | ¿ù¼¼ | ¼¼ÀϺô¶ó | 1 | 51 | 19,000 | 35 | 1992 | | 2024.11.23 | Àü¼¼ | ¸¶ÇϺô | 3 | 21.93 | 16,170 | 0 | 2019 | | 2024.11.23 | Àü¼¼ | (240-24) | 5 | 29.99 | 17,200 | 0 | 2012 | | 2024.11.23 | ¿ù¼¼ | ÀÌ·¹ºô¶óÆ®Aµ¿ | 4 | 12.23 | 3,000 | 40 | 2011 | | 2024.11.23 | ¿ù¼¼ | DMC¸ÞÆ®·Îºô | 3 | 19.86 | 9,900 | 27 | 2019 | | 2024.11.22 | Àü¼¼ | sweetseoulresidence | 2 | 19.44 | 11,000 | 0 | 2013 | | 2024.11.21 | ¿ù¼¼ | (58-10) | 3 | 13.82 | 500 | 55 | 2013 | | 2024.11.21 | ¿ù¼¼ | ¼±³ºô¶ó | 1 | 64.32 | 5,000 | 200 | 1991 | | 2024.11.21 | ¿ù¼¼ | ¼º»êÀÌÆ°Ä³½½ | 2 | 42.77 | 10,000 | 250 | 2023 | | 2024.11.21 | ¿ù¼¼ | ¼º»êÀÌÆ°Ä³½½ | 2 | 46.02 | 10,000 | 250 | 2023 | | 2024.11.21 | ¸Å¸Å | Á¦ÀϺô¶ó | -1 | 32.09 | 29,700 | | 1991 | | 2024.11.21 | ¸Å¸Å | ÇØºñÄ¡ÇϿ콺 | 3 | 29.95 | 41,000 | | 2017 | | 2024.11.21 | ¸Å¸Å | À¯µ¿ºô¸®Áö | 2 | 34.08 | 24,000 | | 1996 | | 2024.11.20 | ¿ù¼¼ | ¿µ±¤ºô | 2 | 29.12 | 11,000 | 34 | 2010 | | 2024.11.20 | Àü¼¼ | ÇØ¿À¸§ | 4 | 29.45 | 23,150 | 0 | 2016 | | 2024.11.20 | Àü¼¼ | ÇØ¿À¸§ | 4 | 29.45 | 23,150 | 0 | 2016 | | 2024.11.19 | ¿ù¼¼ | ¾î¹Ýij½½ | 3 | 18.11 | 13,000 | 22 | 2022 | | 2024.11.19 | ¿ù¼¼ | ¼º»ê¿¡½ºÇÏÀÓ2 | 3 | 54.58 | 13,980 | 30 | 2021 | | 2024.11.19 | Àü¼¼ | ¾î¹Ýij½½ | 3 | 18.11 | 13,000 | 0 | 2022 | | 2024.11.18 | ¸Å¸Å | ¼º¿øÇÏÀÌÃ÷2µ¿ | -1 | 38.39 | 21,000 | | 1988 | | 2024.11.18 | Àü¼¼ | ¸¶Æ÷¼º»êÈÞ¸ÕŸ¿î2Â÷ | 3 | 28.38 | 24,000 | 0 | 2023 | | 2024.11.18 | ¿ù¼¼ | º£³×½º´Ù | 3 | 15.78 | 5,000 | 61 | 2013 | | 2024.11.17 | ¿ù¼¼ | ÇÑÈï½ÃƼºô | 1 | 67.59 | 27,500 | 35 | 2003 | | 2024.11.16 | Àü¼¼ | À̰ºôµù | 2 | 14.51 | 11,550 | 0 | 2014 | | 2024.11.16 | Àü¼¼ | (254-17) | 2 | 33.45 | 25,000 | 0 | 2011 | | 2024.11.16 | Àü¼¼ | (258-12) | 5 | 27.22 | 21,000 | 0 | 2017 | | 2024.11.15 | Àü¼¼ | ¸®Ä¡º£½ºÆ®ºô | 4 | 71.62 | 35,000 | 0 | 2008 | | 2024.11.15 | ¸Å¸Å | ÇÑÈï½ÃƼºô | 1 | 67.59 | 43,500 | | 2003 | | 2024.11.15 | ¸Å¸Å | ½Å¼º¸Ç¼Ç | -1 | 68.79 | 35,000 | | 1990 | | 2024.11.14 | ¿ù¼¼ | °è¸²È¨Å¸¿î | 4 | 44.59 | 3,439 | 35 | 2022 | | 2024.11.14 | ¸Å¸Å | »ï¼º·º½ººô¶óBµ¿ | -1 | 36.96 | 32,000 | | 1992 | | 2024.11.14 | ¸Å¸Å | ¼º»êÁö±¸¿¬¸³ÁÖÅÃÁ¦31µ¿ | 2 | 19.83 | 30,000 | | 1976 | | 2024.11.13 | Àü¼¼ | ÇØÇǺô | 3 | 38.86 | 17,500 | 0 | 2006 | | 2024.11.13 | ¸Å¸Å | Ç츮ƼÁö | 3 | 37.51 | 48,500 | | 2017 | | 2024.11.13 | ¸Å¸Å | ¼º»êÇÏÀÌÃ÷ºô | 1 | 62.65 | 50,500 | | 2013 | | 2024.11.13 | Àü¼¼ | ÇØÇǺô | 3 | 38.86 | 17,500 | 0 | 2006 | | 2024.11.12 | Àü¼¼ | ¹Ù¿ò»þÀκô | 5 | 29.97 | 31,900 | 0 | 2020 | | 2024.11.11 | ¸Å¸Å | Çö´ëÇÏÀÌÃ÷ºô¶ó | 3 | 69.42 | 44,000 | | 1995 | | 2024.11.10 | Àü¼¼ | Ç츮ƼÁö | 2 | 37.51 | 30,500 | 0 | 2017 | | 2024.11.09 | ¸Å¸Å | µ¿¾çÇÏ¿ì¡ | 2 | 42.3 | 42,600 | | 2016 | | 2024.11.09 | Àü¼¼ | Ç츮ƼÁö | 2 | 37.51 | 30,500 | 0 | 2017 | | 2024.11.09 | ¸Å¸Å | ½´ÆæÇÏÀÓ¼º»ê | 3 | 28.43 | 42,000 | | 2017 | | 2024.11.09 | ¿ù¼¼ | ¼º»êÀÌÆ°Ä³½½ | 6 | 29.53 | 34,000 | 35 | 2023 | | 2024.11.09 | ¿ù¼¼ | À§³Ê½º¿ø | 5 | 16.99 | 9,675 | 3 | 2013 | | 2024.11.09 | ¿ù¼¼ | ¼º»êÀÌÆ°Ä³½½ | 2 | 26.63 | 30,000 | 20 | 2023 | | 2024.11.09 | ¿ù¼¼ | ¼º»êÀÌÆ°Ä³½½ | 6 | 29.53 | 34,000 | 35 | 2023 | | 2024.11.09 | Àü¼¼ | ¸¸¿¬¼¾ÅÒ½ÃÆ¼ | 3 | 29.98 | 17,500 | 0 | 2013 | | 2024.11.09 | Àü¼¼ | ±Û·Î¸®È¨Áî | 4 | 25.41 | 26,000 | 0 | 2020 | | 2024.11.08 | Àü¼¼ | Mt.Parkvill | 2 | 51.34 | 20,000 | 0 | 2001 | | 2024.11.08 | ¿ù¼¼ | ÇѰÇÏÀ̺ô | 1 | 73.22 | 1,000 | 160 | 2008 | | 2024.11.07 | ¿ù¼¼ | ¼º»êÀÌÆ°Ä³½½ | 3 | 26.65 | 30,000 | 20 | 2023 | | 2024.11.07 | Àü¼¼ | ÀÌÁ¶°ñµçºô¶óBµ¿ | 1 | 35.17 | 19,000 | 0 | 1989 | | 2024.11.07 | ¿ù¼¼ | ¼º»êµ¿251-21´Ù¼¼´ëÁÖÅà | 3 | 46.68 | 7,000 | 54 | 2002 | | 2024.11.07 | Àü¼¼ | ½ÃƼÇÏÀÓ¥±Aµ¿ | 3 | 28.15 | 29,800 | 0 | 2019 | | 2024.11.07 | Àü¼¼ | ÄÚ·¥ºô | 3 | 55.31 | 20,900 | 0 | 2002 | | 2024.11.07 | ¸Å¸Å | ¼¾ÅÒ½ÃÆ¼ | 3 | 46.62 | 44,500 | | 2018 | | 2024.11.07 | Àü¼¼ | À¯´ÏÇϿ콺 | 3 | 42.67 | 30,000 | 0 | 2016 | | 2024.11.07 | ¿ù¼¼ | ¿¡À̽ºÅ¸¿î | 2 | 28.55 | 2,000 | 110 | 2016 | | 2024.11.06 | ¸Å¸Å | µ¿»ïºô¶óŸ¿î5µ¿ | -1 | 36.24 | 28,000 | | 1988 | | 2024.11.06 | ¸Å¸Å | µ¿»ïºô¶óŸ¿î5µ¿ | -1 | 36.24 | 28,000 | | 1988 | | 2024.11.06 | ¸Å¸Å | ÇѸƾÆÀÌȨAµ¿ | 4 | 74.13 | 43,000 | | 2003 | | 2024.11.06 | ¸Å¸Å | ¹é¼Û¾ÆÆ®ºô | 3 | 60.87 | 44,000 | | 2002 | | 2024.11.06 | ¿ù¼¼ | ÇÑÁÖÆÓ¸®½º | 3 | 29.95 | 5,000 | 142 | 2019 | | 2024.11.06 | ¿ù¼¼ | ¾Æºñ´¨ºô¶ó | 1 | 58.83 | 21,400 | 15 | 2002 | | 2024.11.06 | ¿ù¼¼ | (144-5) | -1 | 37.32 | 3,000 | 20 | 1986 | | 2024.11.06 | Àü¼¼ | ÅäõGreenZone | 5 | 43.1 | 18,500 | 0 | 2009 | | 2024.11.06 | Àü¼¼ | ¼°æÆÓ¸®½º(101µ¿) | 2 | 29.45 | 26,000 | 0 | 2019 | | 2024.11.05 | ¿ù¼¼ | Çѽ£ºô¶ó | 4 | 36.61 | 3,000 | 60 | 2011 | | 2024.11.05 | Àü¼¼ | »ï¼ººô¶ó | 4 | 46.72 | 30,000 | 0 | 2010 | | 2024.11.05 | ¿ù¼¼ | ¼Ò´ã¾ÆÆ®ºô | 3 | 50.15 | 2,000 | 78 | 2019 | | 2024.11.04 | ¿ù¼¼ | ¸¶ÀÌ¿ò¼º»ê | 2 | 12.22 | 8,200 | 15 | 2014 | | 2024.11.04 | Àü¼¼ | ½ºÀ§Æ®ºô | 2 | 29.4 | 19,845 | 0 | 2016 | | 2024.11.03 | ¿ù¼¼ | SELECTED2È£Á¡ | 2 | 15.12 | 1,000 | 60 | 2020 | | 2024.11.02 | ¿ù¼¼ | µ¿»ïºô¶óŸ¿î7µ¿ | 1 | 29.06 | 13,700 | 18 | 1988 | | 2024.11.02 | ¿ù¼¼ | (144-1) | 1 | 41.01 | 13,000 | 10 | 1986 | | 2024.11.02 | ¿ù¼¼ | Çѿ츮ºô¶ó | 4 | 23.73 | 2,000 | 40 | 2001 | | 2024.11.02 | ¿ù¼¼ | ¼º»êÇý½Âºô | 2 | 51.63 | 2,000 | 97 | 2009 | | 2024.11.01 | Àü¼¼ | °ñµå½¦¸£ºô(165-53) | 1 | 84.56 | 13,000 | 0 | 2002 | | 2024.11.01 | ¿ù¼¼ | ¿¤¸²ÇϿ콺 | 4 | 57.66 | 3,565 | 12 | 2015 | | 2024.11.01 | ¸Å¸Å | À¯µ¿ºô¸®Áö | 3 | 34.83 | 20,030 | | 1996 | | 2024.11.01 | ¿ù¼¼ | Çö´ëºô¶ó | 1 | 39.27 | 13,000 | 40 | 1992 | | 2024.11.01 | ¿ù¼¼ | ¼º»ê¾ÆÆ®ºô | 2 | 17.2 | 1,000 | 49 | 2012 | | 2024.11.01 | Àü¼¼ | °ñµå½¦¸£ºô(165-53) | 1 | 84.56 | 13,000 | 0 | 2002 | | 2024.10.31 | ¸Å¸Å | ±Ý°ºô¶ó³ªµ¿ | -1 | 49.59 | 36,000 | | 1986 | | 2024.10.30 | ¸Å¸Å | ¾Æ¼º¶ß¶õä | 4 | 40.66 | 47,000 | | 2018 | | 2024.10.30 | Àü¼¼ | Á¦ÀÌ,¿¥ºô¶ó(2Â÷) | 4 | 40.44 | 15,000 | 0 | 2002 | | 2024.10.30 | Àü¼¼ | ¾Æ¼º¶ß¶õä | 5 | 37.73 | 28,000 | 0 | 2018 | | 2024.10.30 | Àü¼¼ | ¾Æ¼º¶ß¶õä | 5 | 37.73 | 28,000 | 0 | 2018 | | 2024.10.30 | Àü¼¼ | Á¦ÀÌ,¿¥ºô¶ó(2Â÷) | 4 | 40.44 | 15,000 | 0 | 2002 | | 2024.10.30 | Àü¼¼ | ¾Æ¼º¶ß¶õä | 5 | 37.73 | 28,000 | 0 | 2018 | | 2024.10.30 | ¿ù¼¼ | ÀÌ·¹ºô¶óÆ®Bµ¿ | 3 | 16.11 | 1,000 | 52 | 2011 | | 2024.10.29 | Àü¼¼ | ¼¼¸íŸ¿î | 3 | 17.55 | 15,500 | 0 | 2021 | | 2024.10.29 | ¿ù¼¼ | û¿îºô¶ó | 1 | 38.89 | 14,000 | 15 | 1992 | | 2024.10.29 | ¿ù¼¼ | ¼º»êÈÞ¸ÕŸ¿î(277-41) | 3 | 26.78 | 30,000 | 12 | 2021 | | 2024.10.29 | Àü¼¼ | ¸í½Éºô¶ó | -1 | 36.77 | 10,000 | 0 | 1991 | | 2024.10.29 | ¿ù¼¼ | º¸¾Æ½º¸ÞÁÕ | 3 | 65.38 | 28,000 | 20 | 2002 | | 2024.10.28 | ¿ù¼¼ | ¿¤Áö±×¸°ºô | 1 | 63.26 | 6,000 | 80 | 2008 | | 2024.10.28 | Àü¼¼ | (200-257) | 1 | 59.47 | 24,150 | 0 | 2012 | | 2024.10.27 | Àü¼¼ | ¼ºÀººô¶ó | 2 | 65.46 | 17,000 | 0 | 1995 | | 2024.10.26 | Àü¼¼ | ¼ºÀ缾Ʈ¸®¿ò | 5 | 29.08 | 25,000 | 0 | 2018 | | 2024.10.26 | Àü¼¼ | ¼ºÀ缾Ʈ¸®¿ò | 5 | 29.08 | 25,000 | 0 | 2018 | | 2024.10.26 | Àü¼¼ | ¼Ò³ëÇϿ콺¼º»ê2Â÷ | 2 | 29.79 | 25,000 | 0 | 2017 | | 2024.10.25 | ¸Å¸Å | À¯ÀϺô¸®Áö2´ÜÁö | 2 | 39.37 | 36,800 | | 2016 | | 2024.10.25 | ¿ù¼¼ | ¸®º¸¾ÆÆ®ºôAµ¿ | 5 | 37.9 | 6,000 | 55 | 2004 | | 2024.10.24 | Àü¼¼ | ¼°æÆÓ¸®½º(101µ¿) | 2 | 29.45 | 29,100 | 0 | 2019 | | 2024.10.24 | Àü¼¼ | ¼°æÆÓ¸®½º(101µ¿) | 2 | 29.45 | 29,100 | 0 | 2019 | | 2024.10.24 | ¸Å¸Å | À¯ÀϺô¸®Áö2´ÜÁö | 2 | 41.86 | 37,500 | | 2016 | | 2024.10.24 | ¸Å¸Å | À¯ÀϺô¸®Áö2´ÜÁö | 2 | 41.86 | 37,500 | | 2016 | | 2024.10.23 | ¸Å¸Å | °ñµçÆÓ¸®½º | 3 | 33.97 | 41,500 | | 2017 | | 2024.10.23 | ¿ù¼¼ | ¼º»êµ¿»ó°¡ÁÖÅà | 3 | 65.32 | 15,000 | 27 | 2003 | | 2024.10.23 | Àü¼¼ | ¾Æ¼º¶ß¶õä | 3 | 50.52 | 35,000 | 0 | 2018 | | 2024.10.23 | Àü¼¼ | ¾Æ¼º¶ß¶õä | 3 | 50.52 | 35,000 | 0 | 2018 | | 2024.10.23 | ¸Å¸Å | ¼°æÆÓ¸®½º(102µ¿) | 3 | 29.76 | 42,000 | | 2019 | | 2024.10.22 | ¿ù¼¼ | ÀÌ·¹ºô¶óÆ®Bµ¿ | 2 | 15.93 | 1,000 | 47 | 2011 | | 2024.10.22 | ¿ù¼¼ | ´ëµ¿ | 4 | 31.56 | 1,500 | 80 | 2012 | | 2024.10.22 | Àü¼¼ | Çý¿øºô¸®Áö | -1 | 44.85 | 9,950 | 0 | 1993 | | 2024.10.22 | Àü¼¼ | ¼Ò³ëÇϿ콺¼º»ê2Â÷ | 4 | 43.47 | 34,000 | 0 | 2017 | | 2024.10.21 | ¿ù¼¼ | À¯ÁøÇÏÀÌÃ÷ | -1 | 51.57 | 1,000 | 65 | 1993 | | 2024.10.21 | Àü¼¼ | ¿ùµå±×¶ûºôBµ¿ | 3 | 61.65 | 26,000 | 0 | 2009 | | 2024.10.21 | ¿ù¼¼ | ÁÖ¿¬ºô¶óÆ® | 5 | 50.27 | 10,000 | 60 | 2003 | | 2024.10.21 | Àü¼¼ | (144-1) | 2 | 41.01 | 13,500 | 0 | 1986 | | 2024.10.21 | ¿ù¼¼ | (64-13) | -1 | 70.39 | 16,000 | 20 | 2003 | | 2024.10.21 | Àü¼¼ | (200-141) | 3 | 40.57 | 15,000 | 0 | 2002 | | 2024.10.21 | Àü¼¼ | µ¿¾çÇÏ¿ì¡ | 4 | 32.7 | 27,700 | 0 | 2018 | | 2024.10.21 | ¿ù¼¼ | ÁÖ¿¬ÇϿ콺 | 5 | 29.91 | 300 | 65 | 2020 | | 2024.10.21 | ¿ù¼¼ | À¯ÁøÇÏÀÌÃ÷ | -1 | 51.57 | 1,000 | 65 | 1993 | | 2024.10.19 | ¿ù¼¼ | »ïÈ£ºô¶óAµ¿ | 1 | 36.85 | 16,500 | 50 | 1989 | | 2024.10.19 | Àü¼¼ | ½ÅÈïºô¶ó | 3 | 36.58 | 23,000 | 0 | 1993 | | 2024.10.19 | ¸Å¸Å | À¯´ÏÇϿ콺ºí·ç | 5 | 16.74 | 35,700 | | 2017 | | 2024.10.18 | Àü¼¼ | ¸ÞÁ¾µå¿¥ | 2 | 23.96 | 20,500 | 0 | 2019 | | 2024.10.18 | Àü¼¼ | ¼ºÀ缾Ʈ¸®¿ò | 2 | 35.88 | 30,970 | 0 | 2018 | | 2024.10.17 | Àü¼¼ | ´ÙÀ̾ÆÄ³½½ | 3 | 53.9 | 30,000 | 0 | 2017 | | 2024.10.17 | Àü¼¼ | ´ÙÀ̾ÆÄ³½½ | 3 | 53.9 | 30,000 | 0 | 2017 | | 2024.10.17 | Àü¼¼ | ¸í¼ºÄ«¿îƼ | 3 | 15.34 | 9,800 | 0 | 2013 | | 2024.10.17 | Àü¼¼ | ¸í¼ºÄ«¿îƼ | 3 | 15.34 | 9,800 | 0 | 2013 | | 2024.10.16 | ¸Å¸Å | »ïÁ¤ºô¶óBµ¿ | 2 | 36.73 | 25,000 | | 1990 | | 2024.10.16 | Àü¼¼ | ¿ùµåÇϿ콺 | 5 | 19.67 | 13,200 | 0 | 2014 | | 2024.10.15 | ¸Å¸Å | ±ÃÀüÆÄÅ©ºô | 3 | 81.94 | 30,900 | | 2003 | | 2024.10.15 | ¿ù¼¼ | (21-20) | 2 | 58.25 | 5,000 | 75 | 2003 | | 2024.10.14 | Àü¼¼ | ±×¸°ºô | 3 | 28.35 | 12,900 | 0 | 1998 | | 2024.10.14 | ¸Å¸Å | Mt.Parkvill | 2 | 51.34 | 25,800 | | 2001 | | 2024.10.14 | Àü¼¼ | (32-14) | 3 | 45.02 | 26,000 | 0 | 2012 | | 2024.10.14 | Àü¼¼ | ´ë¿îºô¶ó | 1 | 35.45 | 9,900 | 0 | 1989 | | 2024.10.14 | ¿ù¼¼ | ÇÔ²²ÁÖÅÃ4È£ | 4 | 55.92 | 2,500 | 35 | 2021 | | 2024.10.14 | ¿ù¼¼ | µ¿»ïºô¶óŸ¿î3µ¿ | 1 | 35.79 | 16,000 | 20 | 1988 | | 2024.10.13 | ¸Å¸Å | ±ÃÀüºô¶ó | 1 | 136.16 | 69,000 | | 1998 | | 2024.10.12 | ¿ù¼¼ | º£³×½º´Ù | 2 | 14.62 | 500 | 61 | 2013 | | 2024.10.12 | ¿ù¼¼ | (144-1) | -1 | 40.02 | 9,000 | 5 | 1986 | | 2024.10.12 | ¿ù¼¼ | (144-1) | -1 | 40.02 | 9,000 | 5 | 1986 | | 2024.10.12 | ¿ù¼¼ | (58-10) | 2 | 13.82 | 500 | 57 | 2013 | | 2024.10.10 | Àü¼¼ | Á¤ÈÁÖÅà | 4 | 46.17 | 18,000 | 0 | 1992 | | 2024.10.10 | Àü¼¼ | ´ë¿îºô¶ó | 2 | 35.45 | 12,500 | 0 | 1989 | | 2024.10.10 | ¿ù¼¼ | ¹Ù¿ò»þÀκô | 6 | 29.7 | 26,000 | 15 | 2020 | | 2024.10.10 | ¿ù¼¼ | ½´ÆæÇÏÀÓ | 1 | 29.76 | 3,000 | 110 | 2016 | | 2024.10.09 | ¿ù¼¼ | ¿µ±¤ºô | 3 | 29.55 | 15,000 | 5 | 2010 | | 2024.10.09 | ¿ù¼¼ | (638-8) | -1 | 41.43 | 2,000 | 70 | 1997 | | 2024.10.09 | ¿ù¼¼ | (200-89)Çѽźô¶ó | 4 | 26.62 | 2,000 | 50 | 1994 | | 2024.10.09 | ¸Å¸Å | ¹Ù¿ò»þÀκô | 6 | 29.7 | 41,500 | | 2020 | | 2024.10.09 | Àü¼¼ | ´õÇ÷¹À̽º | 4 | 26.09 | 29,000 | 0 | 2019 | | 2024.10.08 | Àü¼¼ | ¿¡¹ö±×¸°2 | 3 | 23 | 16,000 | 0 | 2013 | | 2024.10.08 | ¿ù¼¼ | ¿¡¹ö±×¸°2 | 3 | 23 | 14,175 | 14 | 2013 | | 2024.10.08 | Àü¼¼ | À¯ÀϺô¸®Áö1´ÜÁö | 3 | 44.05 | 31,500 | 0 | 2016 | | 2024.10.08 | ¿ù¼¼ | ¸®½Ãº»ÇϿ콺 | 2 | 29.94 | 7,000 | 75 | 2016 | | 2024.10.08 | ¸Å¸Å | µµ¿øºô¶ó3µ¿ | 1 | 36.36 | 25,000 | | 1990 | | 2024.10.08 | ¿ù¼¼ | ÀÌ·¹ºô¶óÆ®Aµ¿ | 3 | 13.29 | 500 | 53 | 2011 | | 2024.10.06 | ¿ù¼¼ | ÁÖ¿¬ÇϿ콺 | 6 | 25.71 | 21,500 | 20 | 2020 | | 2024.10.05 | ¿ù¼¼ | ÀÌÁöºô¶ó | 2 | 66.61 | 11,000 | 53 | 2002 | | 2024.10.05 | Àü¼¼ | ÈúÇϿ콺(200-413) | 5 | 22.11 | 16,000 | 0 | 2019 | | 2024.10.05 | ¿ù¼¼ | ¼º»ê½ºÅ×ÀÌ | 3 | 18.15 | 1,000 | 57 | 2018 | | 2024.10.04 | ¿ù¼¼ | (111-9) | 4 | 29.25 | 1,500 | 60 | 2014 | | 2024.10.04 | Àü¼¼ | °¡³ª¾È | 3 | 90.28 | 24,000 | 0 | 1980 | | 2024.10.04 | ¿ù¼¼ | µ¿»êÁÖÅà | 1 | 39.84 | 12,000 | 50 | 1995 | | 2024.10.03 | ¿ù¼¼ | ÇѼº | 2 | 20.52 | 5,000 | 40 | 2019 | | 2024.10.03 | ¿ù¼¼ | ÇѼº | 2 | 20.52 | 5,000 | 40 | 2019 | | 2024.10.03 | ¿ù¼¼ | ¼º¸²ºô¶ó | 3 | 41.04 | 2,000 | 70 | 1995 | | 2024.10.02 | ¸Å¸Å | ¾Æ¼º¶ß¶õä | 3 | 50.52 | 48,000 | | 2018 | | 2024.10.02 | ¿ù¼¼ | ´Ùº¹ÇÏÀÌÃ÷ºô¶óBµ¿ | -1 | 56.87 | 13,000 | 20 | 1996 | | 2024.10.02 | ¿ù¼¼ | The¹Î¼º | 2 | 17.19 | 1,000 | 62 | 2020 | | 2024.10.02 | ¸Å¸Å | ¾î½æ½ÃƼ | 6 | 27.96 | 44,000 | | 2019 | | 2024.10.02 | Àü¼¼ | ¿ì¼ººô¶ó | 3 | 46.53 | 19,000 | 0 | 1991 | | 2024.10.02 | ¿ù¼¼ | ÁÖ¿¬ºô¶óÆ® | 4 | 59.16 | 3,000 | 95 | 2003 | | 2024.10.02 | ¿ù¼¼ | ´Ùº¹ÇÏÀÌÃ÷ºô¶óBµ¿ | -1 | 56.87 | 13,000 | 20 | 1996 | | 2024.10.02 | ¿ù¼¼ | À̰ºôµù | 3 | 26.43 | 19,000 | 13 | 2014 | | 2024.10.02 | ¿ù¼¼ | (212-2) | 1 | 37.2 | 16,800 | 20 | 1990 | | 2024.10.02 | ¿ù¼¼ | (21-4) | 4 | 14.58 | 5,000 | 14 | 2012 | | 2024.10.01 | ¿ù¼¼ | (160-1) | 2 | 39.96 | 6,500 | 50 | 1992 | | 2024.10.01 | ¿ù¼¼ | û±â¿Íºô¶óFµ¿ | -1 | 51.78 | 3,000 | 90 | 1986 | | 2024.10.01 | ¿ù¼¼ | Á¦À̺ô | 2 | 39.93 | 16,000 | 17 | 2014 | | 2024.10.01 | Àü¼¼ | ÁøÈïÅ×Å©ºô | 4 | 76.53 | 23,500 | 0 | 2002 | | 2024.10.01 | ¿ù¼¼ | ±Ý°ºí·ç | 4 | 29.87 | 500 | 150 | 2021 | | 2024.09.30 | ¸Å¸Å | ´õ¿øÆÓ¸®½º | 3 | 41.81 | 49,900 | | 2023 | | 2024.09.30 | Àü¼¼ | ±Û·Î¸®È¨Áî | 5 | 25.41 | 26,500 | 0 | 2020 | | 2024.09.30 | ¿ù¼¼ | ¼Ò³ëÇϿ콺¼º»ê3Â÷ | 4 | 29.51 | 24,400 | 15 | 2018 | | 2024.09.30 | Àü¼¼ | µ¿»ïºô¶óŸ¿î5µ¿ | -1 | 36.24 | 10,000 | 0 | 1988 | | 2024.09.30 | ¿ù¼¼ | (21-4) | 2 | 15.12 | 500 | 45 | 2012 | | 2024.09.30 | ¿ù¼¼ | À¯ÀϺô¸®Áö | 2 | 29.67 | 11,000 | 60 | 2016 | | 2024.09.28 | ¸Å¸Å | Á¦ÀÌ,¿¥ºô¶ó(2Â÷) | 4 | 40.44 | 28,000 | | 2002 | | 2024.09.28 | ¿ù¼¼ | ÈÀÌÆ®ºô(7-5) | 2 | 75.95 | 10,000 | 150 | 2008 | | 2024.09.28 | ¸Å¸Å | Ç츮ƼÁö | 3 | 37.31 | 49,000 | | 2017 | | 2024.09.28 | ¿ù¼¼ | ¿ùµåÇϿ콺 | 3 | 37.86 | 3,000 | 135 | 2017 | | 2024.09.27 | Àü¼¼ | ¹Ù¿ò»þÀκô | 6 | 29.97 | 27,680 | 0 | 2020 | | 2024.09.27 | Àü¼¼ | ¹Ù¿ò»þÀκô | 6 | 29.97 | 31,900 | 0 | 2020 | | 2024.09.27 | ¿ù¼¼ | (140-31) | -1 | 35.34 | 1,000 | 50 | 1986 | | 2024.09.27 | ¿ù¼¼ | û¿îºô¶ó | 3 | 38.89 | 1,000 | 75 | 1992 | | 2024.09.26 | Àü¼¼ | ¸í¹®ÁÖÅà | 1 | 32.55 | 10,474 | 0 | 1991 | | 2024.09.26 | ¿ù¼¼ | Çö´ëºô¶ó | 2 | 42.72 | 1,000 | 58 | 1992 | | 2024.09.26 | ¿ù¼¼ | ½´Ææ´õ°¶·¯¸® | 1 | 32.32 | 26,500 | 10 | 2017 | | 2024.09.26 | Àü¼¼ | ¼¼¸íŸ¿î | 4 | 18.97 | 15,000 | 0 | 2021 | | 2024.09.25 | ¸Å¸Å | ¼ºÀ缾Ʈ¸®¿ò | 2 | 38.89 | 36,800 | | 2018 | | 2024.09.24 | Àü¼¼ | µ¿»êÁÖÅà | 3 | 39.93 | 16,350 | 0 | 1995 | | 2024.09.24 | ¿ù¼¼ | °è¸²È¨Å¸¿î | 4 | 43.58 | 1,453 | 39 | 2022 | | 2024.09.24 | ¸Å¸Å | ¼±°æ½ÃƼºô | 1 | 108.36 | 70,000 | | 1995 | | 2024.09.23 | Àü¼¼ | º§ºä¼º»ê | 4 | 37.8 | 39,300 | 0 | 2022 | | 2024.09.23 | ¿ù¼¼ | ¿ùµåÄÅŸ¿ö(586-0) | 3 | 68.97 | 27,000 | 20 | 2003 | | 2024.09.23 | ¿ù¼¼ | ´Ù´Ùºô¸®Áö | 4 | 27.93 | 23,600 | 10 | 2016 | | 2024.09.23 | ¸Å¸Å | µ¿»êºô¶ó | 4 | 58.19 | 48,000 | | 1998 | | 2024.09.21 | ¸Å¸Å | ¾Æºñ´¨ºô¶ó | 1 | 51.64 | 36,920 | | 2002 | | 2024.09.21 | ¸Å¸Å | ¼º»êµ¿ÀÌ¿¡½ºÇÏÀÓ | 5 | 29.87 | 41,400 | | 2019 | | 2024.09.21 | Àü¼¼ | ¸í¼ºÄ«¿îƼ | 2 | 15.57 | 8,400 | 0 | 2013 | | 2024.09.20 | ¿ù¼¼ | Çý¿øºô¸®Áö | 3 | 76.74 | 5,000 | 60 | 1993 | | 2024.09.19 | ¿ù¼¼ | (200-300) | 1 | 35.76 | 1,000 | 45 | 1995 | | 2024.09.15 | ¸Å¸Å | ´õ¿øÆÓ¸®½º | 2 | 41.81 | 48,000 | | 2023 | | 2024.09.15 | Àü¼¼ | µ¿»êÁÖÅà | -1 | 42.48 | 9,450 | 0 | 1995 | | 2024.09.14 | Àü¼¼ | ¼°æÆÓ¸®½º(102µ¿) | 2 | 29.45 | 29,100 | 0 | 2019 | | 2024.09.13 | Àü¼¼ | ¼Ò³ëÇϿ콺¼º»ê2Â÷ | 4 | 43.47 | 34,000 | 0 | 2017 | | 2024.09.13 | Àü¼¼ | (223-2) | 5 | 14.88 | 8,800 | 0 | 2012 | | 2024.09.13 | ¸Å¸Å | ¼Ò³ëÇϿ콺¼º»ê2Â÷ | 4 | 43.47 | 40,000 | | 2017 | | 2024.09.13 | ¿ù¼¼ | Áß¾ÓÁÖÅà | 1 | 49.34 | 17,700 | 20 | 2003 | | 2024.09.13 | ¸Å¸Å | (92-4) | 5 | 44.8 | 38,800 | | 2012 | | 2024.09.13 | ¿ù¼¼ | »óÀ±ºôµù | 6 | 50.88 | 5,000 | 67 | 2010 | | 2024.09.12 | ¿ù¼¼ | ¼ºÀÏ¾ÆÆ®ºô | 4 | 47.54 | 16,000 | 45 | 2008 | | 2024.09.12 | ¿ù¼¼ | ´ÙÀºÁÖÅà | 3 | 29.94 | 15,000 | 25 | 2016 | | 2024.09.12 | ¿ù¼¼ | °ñµå¸®Ä¡ | 4 | 23.51 | 5,000 | 126 | 2018 | | 2024.09.12 | ¸Å¸Å | ´õ¿øÆÓ¸®½º | 5 | 45.25 | 58,000 | | 2023 | | 2024.09.11 | ¿ù¼¼ | À¯ÀϺô¸®Áö2´ÜÁö | 3 | 41.86 | 30,900 | 10 | 2016 | | 2024.09.11 | Àü¼¼ | (223-2) | 5 | 14.88 | 8,800 | 0 | 2012 | | 2024.09.11 | Àü¼¼ | (223-2) | 3 | 14.88 | 8,800 | 0 | 2012 | | 2024.09.11 | ¿ù¼¼ | ¼º»ê¾ÆÆ®ºô | 2 | 14.66 | 1,000 | 50 | 2012 | | 2024.09.11 | ¿ù¼¼ | Á¤ÈÁÖÅà | 4 | 53.25 | 19,600 | 20 | 1992 | | 2024.09.11 | ¿ù¼¼ | ´ë¿øÆÄÅ©ºô¶ó | 2 | 45.71 | 2,000 | 90 | 1995 | | 2024.09.10 | ¿ù¼¼ | Äý | 2 | 13.53 | 5,000 | 53 | 2011 | | 2024.09.10 | ¿ù¼¼ | ÇѸƾÆÀÌȨBµ¿ | 4 | 55.71 | 20,000 | 30 | 2003 | | 2024.09.09 | ¸Å¸Å | °ñµå½¦¸£ºô(165-53) | 1 | 84.56 | 57,800 | | 2002 | | 2024.09.09 | Àü¼¼ | ±Ý¼ººô¶ó | 4 | 36.54 | 17,000 | 0 | 1995 | | 2024.09.08 | ¿ù¼¼ | ÇÑÀϺô¸®Áö³ªµ¿ | 1 | 75.6 | 6,000 | 100 | 1990 | | 2024.09.07 | ¸Å¸Å | À¯ÀϺô¸®Áö | 4 | 29.88 | 29,200 | | 2016 | | 2024.09.07 | ¸Å¸Å | ´ëÈ£¾ÆÆ®ºô | 4 | 54.17 | 41,400 | | 2012 | | 2024.09.07 | ¿ù¼¼ | µ¿Çöºô¶ó | 4 | 42.63 | 5,000 | 85 | 1992 | | 2024.09.07 | ¿ù¼¼ | ¼º¹Ìºô¶ó | 3 | 73.71 | 14,000 | 70 | 2002 | | 2024.09.07 | ¿ù¼¼ | ¹é¼Û¾ÆÆ®ºô | 5 | 60.95 | 2,000 | 130 | 2002 | | 2024.09.07 | ¿ù¼¼ | ÀÌ·¹ºô¶óÆ® | 3 | 15.81 | 1,000 | 49 | 2012 | | 2024.09.07 | ¸Å¸Å | Çö´ëºô¶ó | 2 | 39.27 | 22,300 | | 1992 | | 2024.09.06 | ¸Å¸Å | ½ºÄ«À̺ô | 3 | 53.91 | 26,800 | | 2003 | | 2024.09.06 | ¿ù¼¼ | ¼º»êÁö±¸¿¬¸³ÁÖÅÃÁ¦31µ¿ | 1 | 25.06 | 13,000 | 8 | 1976 | | 2024.09.06 | ¿ù¼¼ | ¼º»êÈÞ¸ÕŸ¿î | 5 | 25.57 | 3,000 | 80 | 2017 | | 2024.09.05 | Àü¼¼ | ÆÓ¸®½ººä | 3 | 43.37 | 33,000 | 0 | 2018 | | 2024.09.05 | ¸Å¸Å | ¼º»êÀÌÆ°Ä³½½ | 4 | 29.87 | 54,500 | | 2023 | | 2024.09.05 | ¸Å¸Å | ¿¹°¡Å©·¹½Ã¾Æ | 3 | 28.8 | 35,000 | | 2016 | | 2024.09.05 | Àü¼¼ | (140-24) | 3 | 41.58 | 16,500 | 0 | 1999 | | 2024.09.04 | ¸Å¸Å | ¼°æÆÓ¸®½º(102µ¿) | 3 | 29.45 | 42,000 | | 2019 | | 2024.09.04 | ¿ù¼¼ | ÈúÇϿ콺(200-413) | 4 | 29.9 | 2,000 | 125 | 2019 | | 2024.09.04 | Àü¼¼ | ¾î½æ½ÃƼ | 5 | 28.18 | 34,000 | 0 | 2019 | | 2024.09.04 | ¿ù¼¼ | ±èõÇÏÀÌÃ÷ºô | 2 | 17.08 | 2,000 | 65 | 2013 | | 2024.09.04 | Àü¼¼ | (160-10) | 2 | 39.16 | 10,000 | 0 | 1990 | | 2024.09.04 | ¿ù¼¼ | ¾ç¸²ÆÓ¸®½º | 5 | 36.42 | 7,000 | 70 | 2008 | | 2024.09.04 | ¿ù¼¼ | ½ÃƼÇÏÀÓ¥±Aµ¿ | 4 | 18.75 | 22,400 | 15 | 2019 | | 2024.09.03 | Àü¼¼ | ½Å¿ì·Î¾âºô¶ó | 2 | 49.56 | 21,600 | 0 | 1990 | | 2024.09.03 | Àü¼¼ | (223-2) | 3 | 16.37 | 9,300 | 0 | 2012 | | 2024.09.03 | ¿ù¼¼ | ¼º¿øÇÏÀÌÃ÷4µ¿ | 2 | 37.68 | 500 | 40 | 1988 | | 2024.09.03 | Àü¼¼ | ´ë¸íÇ®ÇϿ콺 | 4 | 14.97 | 11,000 | 0 | 2012 | | 2024.09.03 | Àü¼¼ | ÇѺûÀ§³Ê½ººô | 5 | 27.53 | 17,000 | 0 | 2013 | | 2024.09.03 | ¿ù¼¼ | °¶·¯¸®ÇϿ콺 | 2 | 36.76 | 23,000 | 25 | 2014 | | 2024.09.03 | ¿ù¼¼ | °¶·¯¸®ÇϿ콺 | 2 | 36.76 | 23,000 | 25 | 2014 | | 2024.09.02 | ¿ù¼¼ | ÇÔ²²ÁÖÅÃ3È£ | 3 | 34.79 | 16,200 | 34 | 2020 | | 2024.09.02 | Àü¼¼ | µ¿¾çÇÏ¿ì¡ | 5 | 29.95 | 27,000 | 0 | 2017 | | 2024.09.02 | ¿ù¼¼ | ¼º»êÄ«¿îƼ | 3 | 33.22 | 1,000 | 52 | 2004 | | 2024.09.02 | Àü¼¼ | ¼±ÁøÇÏÀ̺ô | -1 | 50.82 | 9,700 | 0 | 2001 | | 2024.09.02 | ¿ù¼¼ | µÎ·¹È¨(³ª) | 4 | 73.44 | 100 | 50 | 2004 | | 2024.08.31 | Àü¼¼ | º§ºä¼º»ê | 2 | 37.8 | 39,300 | 0 | 2022 | | 2024.08.30 | ¸Å¸Å | ´ë¼ººô¶ó | 3 | 61.99 | 45,000 | | 1996 | | 2024.08.30 | Àü¼¼ | ÇÏÁ¤¾ÆÆ®ºô | 4 | 46.95 | 36,900 | 0 | 2023 | | 2024.08.30 | Àü¼¼ | ±×·¹À̽ººô(271-34) | 2 | 46.31 | 27,195 | 0 | 2014 | | 2024.08.30 | ¸Å¸Å | ±Ý¼ººô¶ó | 4 | 36.54 | 32,000 | | 1995 | | 2024.08.30 | Àü¼¼ | º¸¿µÁÖÅà | 3 | 76.785 | 25,000 | 0 | 2000 | | 2024.08.29 | ¸Å¸Å | ½´ÆæÇÏÀÓ¼º»ê | 2 | 29.78 | 40,000 | | 2017 | | 2024.08.29 | Àü¼¼ | ÆÓ¸®½ººä | 6 | 39.22 | 30,000 | 0 | 2018 | | 2024.08.29 | Àü¼¼ | ÆÓ¸®½ººä | 6 | 39.22 | 30,000 | 0 | 2018 | | 2024.08.29 | Àü¼¼ | ÆÓ¸®½ººä | 6 | 39.22 | 30,000 | 0 | 2018 | | 2024.08.29 | ¸Å¸Å | È£¼º±×¸°ÆÄÅ©Bµ¿ | 4 | 55.54 | 38,000 | | 2002 | | 2024.08.28 | Àü¼¼ | (611-12) | 4 | 50.96 | 25,000 | 0 | 2016 | | 2024.08.28 | ¿ù¼¼ | »ïÈ£ºô¶óAµ¿ | -1 | 36.85 | 10,800 | 16 | 1989 | | 2024.08.27 | ¸Å¸Å | ÈúÇϿ콺(200-413) | 4 | 41.6 | 45,000 | | 2019 | | 2024.08.27 | ¸Å¸Å | ÈúÇϿ콺(200-413) | 4 | 41.6 | 45,000 | | 2019 | | 2024.08.27 | Àü¼¼ | µ¿¾çÇÏ¿ì¡ | 4 | 46.87 | 35,000 | 0 | 2016 | | 2024.08.27 | Àü¼¼ | ¸ÞÁ¾µå¿¥ | 2 | 28.06 | 22,000 | 0 | 2019 | | 2024.08.27 | ¸Å¸Å | ÀÚ½½¸°ÇϿ콺(21-29) | 6 | 58.14 | 72,500 | | 2021 | | 2024.08.27 | Àü¼¼ | µ¿¾çÇÏ¿ì¡ | 4 | 46.87 | 35,000 | 0 | 2016 | | 2024.08.26 | ¿ù¼¼ | (160-1) | 3 | 39.96 | 15,000 | 50 | 1992 | | 2024.08.24 | ¸Å¸Å | ½´Ææ´õ°¶·¯¸® | 1 | 32.32 | 43,000 | | 2017 | | 2024.08.24 | Àü¼¼ | ¼¼¿øÁÖÅà | 2 | 55.9 | 30,000 | 0 | 2011 | | 2024.08.24 | ¿ù¼¼ | °ñµå¸®Ä¡ | 3 | 28.89 | 28,200 | 10 | 2018 | | 2024.08.24 | Àü¼¼ | ½ÃƼÇÏÀÓ¥±Aµ¿ | 2 | 25.88 | 27,500 | 0 | 2019 | | 2024.08.24 | Àü¼¼ | ¸í¼ºÄ«¿îƼ | 2 | 15.34 | 9,500 | 0 | 2013 | | 2024.08.24 | ¿ù¼¼ | ű¤ºô¶ó | 3 | 47.78 | 18,000 | 10 | 2002 | | 2024.08.24 | Àü¼¼ | Ç츮ƼÁö | 6 | 38.21 | 35,000 | 0 | 2017 | | 2024.08.24 | Àü¼¼ | µ¿¾çÇÏ¿ì¡ | 5 | 42.48 | 35,000 | 0 | 2018 | | 2024.08.24 | Àü¼¼ | Ç츮ƼÁö | 6 | 38.21 | 35,000 | 0 | 2017 | | 2024.08.23 | ¸Å¸Å | Çö´ëÇÏÀÌÃ÷ºô¶ó | 2 | 41.68 | 24,000 | | 1993 | | 2024.08.23 | Àü¼¼ | ÇÏÁ¤¾ÆÆ®ºô | 2 | 50.25 | 38,500 | 0 | 2023 | | 2024.08.23 | Àü¼¼ | ÇÏÁ¤¾ÆÆ®ºô | 3 | 59.79 | 46,900 | 0 | 2023 | | 2024.08.23 | ¿ù¼¼ | ¿¤¸²ÇϿ콺 | 4 | 57.66 | 300 | 30 | 2015 | | 2024.08.22 | ¸Å¸Å | ¸í½Éºô¶ó | -1 | 36.77 | 30,000 | | 1991 | | 2024.08.22 | ¸Å¸Å | ¹é¼Û¾ÆÆ®ºô | 4 | 32.92 | 38,000 | | 2017 | | 2024.08.22 | ¿ù¼¼ | ¹«Áö°³ºô¶ó | 1 | 89.07 | 500 | 35 | 1977 | | 2024.08.22 | ¿ù¼¼ | (165-65) | 3 | 52.52 | 1,000 | 39 | 2002 | | 2024.08.21 | ¿ù¼¼ | ¿µµ¿ºô¸®Áö | -1 | 35.69 | 1,000 | 60 | 1993 | | 2024.08.21 | ¸Å¸Å | ´ë¿øÆÄÅ©ºô¶ó | 2 | 62.3 | 32,000 | | 1993 | | 2024.08.21 | Àü¼¼ | ä¿òºô | 3 | 44.75 | 25,500 | 0 | 2017 | | 2024.08.20 | ¸Å¸Å | Çѽ£ºô¶ó | 4 | 36.61 | 31,000 | | 2011 | | 2024.08.20 | Àü¼¼ | ½ÃƼÇÏÀÓ¥±Aµ¿ | 4 | 25.88 | 28,700 | 0 | 2019 | | 2024.08.20 | ¿ù¼¼ | ±Ý°ºí·ç | 4 | 29.8 | 1,000 | 150 | 2021 | | 2024.08.20 | Àü¼¼ | ½ÃƼÇÏÀÓ¥±Aµ¿ | 4 | 25.88 | 28,700 | 0 | 2019 | | 2024.08.20 | ¿ù¼¼ | ¼º»ê¿¡½ºÇÏÀÓ | 3 | 52.78 | 4,914 | 30 | 2021 | | 2024.08.19 | ¿ù¼¼ | µ¿Çöºô¶ó | 3 | 46.2 | 1,000 | 90 | 1992 | | 2024.08.19 | ¿ù¼¼ | º¸¾Æ½ººô¶ó | 2 | 57.31 | 9,000 | 48 | 2002 | | 2024.08.17 | ¿ù¼¼ | (160-1) | 2 | 39.96 | 3,000 | 50 | 1992 | | 2024.08.17 | ¸Å¸Å | ÇѶóºô¸®Áö | 4 | 63.96 | 39,000 | | 1991 | | 2024.08.17 | ¸Å¸Å | »ï¼º·º½ººô¶óAµ¿ | 2 | 36.96 | 39,000 | | 1992 | | 2024.08.17 | ¿ù¼¼ | ´õŬ·¡½Ä | 3 | 47.72 | 30,000 | 10 | 2017 | | 2024.08.17 | ¿ù¼¼ | (160-1) | 2 | 39.96 | 3,000 | 50 | 1992 | | 2024.08.16 | ¿ù¼¼ | ¼º»ïÁÖÅà | 2 | 46.27 | 18,000 | 10 | 1995 | | 2024.08.16 | Àü¼¼ | ÈúÇϿ콺(200-413) | 2 | 34.45 | 25,000 | 0 | 2019 | | 2024.08.16 | ¿ù¼¼ | ¼º»çºô¶ó | 3 | 73.48 | 14,000 | 40 | 1982 | | 2024.08.15 | ¿ù¼¼ | (252-3) | 2 | 15.64 | 300 | 26 | 1976 | | 2024.08.15 | ¿ù¼¼ | ÀÌ·¹ºô¶óÆ® | 5 | 18.33 | 2,000 | 39 | 2012 | | 2024.08.15 | Àü¼¼ | ¸í»óºô¶ó | -1 | 37.08 | 13,000 | 0 | 1990 | | 2024.08.15 | Àü¼¼ | ¿ì¸®Áýºô¶ó | 2 | 42.49 | 22,000 | 0 | 2002 | | 2024.08.14 | ¿ù¼¼ | ÇѽÅÇÏÀÌÃ÷ºô¶ó | 1 | 52.44 | 2,000 | 90 | 1993 | | 2024.08.14 | ¸Å¸Å | ¾Æºñ´¨ºô¶ó | 1 | 58.83 | 37,900 | | 2002 | | 2024.08.14 | ¸Å¸Å | ´Ù´Ùºô¸®Áö | 4 | 27.93 | 38,800 | | 2016 | | 2024.08.14 | Àü¼¼ | °ñµå½¦¸£ºô(17-9) | 3 | 60.27 | 16,000 | 0 | 2001 | | 2024.08.14 | ¿ù¼¼ | ·ç½ººô¸®Áö | 3 | 50.26 | 2,000 | 113 | 2011 | | 2024.08.13 | Àü¼¼ | °ñµå¸®Ä¡ | 3 | 36.18 | 31,000 | 0 | 2018 | | 2024.08.13 | ¸Å¸Å | ¿¹°¡Å©·¹½Ã¾Æ | 3 | 28.8 | 35,000 | | 2016 | | 2024.08.13 | Àü¼¼ | ¼º¿îºô¶ó | 3 | 57.24 | 28,350 | 0 | 2007 | | 2024.08.13 | ¿ù¼¼ | ¼º»êºô¶ó | 2 | 40.11 | 16,000 | 14 | 2002 | | 2024.08.13 | ¸Å¸Å | Ç츮ƼÁö | 2 | 37.31 | 45,000 | | 2017 | | 2024.08.12 | Àü¼¼ | ÇÏÁ¤¾ÆÆ®ºô | 4 | 59.89 | 49,000 | 0 | 2023 | | 2024.08.12 | Àü¼¼ | ¿ùµåÇϿ콺 | 3 | 28.62 | 18,900 | 0 | 2014 | | 2024.08.12 | ¸Å¸Å | ¿µ¼ººô¶ó | 2 | 32.76 | 28,500 | | 1991 | | 2024.08.11 | ¿ù¼¼ | ´ë¿øÆÄÅ©ºô¶ó | -1 | 40.81 | 9,000 | 40 | 1995 | | 2024.08.10 | Àü¼¼ | À̰ºôµù | 3 | 14.51 | 10,500 | 0 | 2014 | | 2024.08.10 | Àü¼¼ | À̰ºôµù | 3 | 14.27 | 10,300 | 0 | 2014 | | 2024.08.10 | Àü¼¼ | ¹Ì·¡ÇÏÀÓ(81-93) | 2 | 59.96 | 32,000 | 0 | 2012 | | 2024.08.10 | ¸Å¸Å | Çý¿øºô¸®Áö | -1 | 44.85 | 29,000 | | 1993 | | 2024.08.10 | ¸Å¸Å | ¹Ù¿ò»þÀκô | 6 | 29.94 | 44,500 | | 2020 | | 2024.08.10 | Àü¼¼ | (254-17) | 5 | 55.79 | 31,300 | 0 | 2011 | | 2024.08.09 | ¿ù¼¼ | (81-102) | 4 | 47.46 | 16,485 | 2 | 1992 | | 2024.08.09 | ¿ù¼¼ | Ç츮ƼÁö | 5 | 37.51 | 30,000 | 20 | 2017 | | 2024.08.09 | ¿ù¼¼ | ¼º»êºô¶ó | 2 | 68.32 | 300 | 25 | 1994 | | 2024.08.08 | ¿ù¼¼ | ¼°æÆÓ¸®½º(102µ¿) | 4 | 18.01 | 5,000 | 80 | 2019 | | 2024.08.08 | Àü¼¼ | °ñµå¸®Ä¡ | 2 | 36.18 | 35,000 | 0 | 2018 | | 2024.08.08 | Àü¼¼ | û¿îºô¸®Áö | 2 | 64.69 | 27,000 | 0 | 2008 | | 2024.08.08 | Àü¼¼ | û¿îºô¶ó | 4 | 76.59 | 23,000 | 0 | 1993 | | 2024.08.08 | ¿ù¼¼ | ¿¡À̽ºÅ¸¿î | 2 | 28.55 | 2,000 | 110 | 2016 | | 2024.08.07 | ¸Å¸Å | ¼±ÁøÇÏÀ̺ô | -1 | 50.82 | 27,500 | | 2001 | | 2024.08.07 | ¸Å¸Å | À¯¼ºÁÖÅà | -1 | 66.43 | 22,000 | | 1993 | | 2024.08.07 | Àü¼¼ | Äý | 3 | 18.9 | 12,000 | 0 | 2011 | | 2024.08.07 | ¿ù¼¼ | (278-44) | 2 | 38.74 | 15,000 | 15 | 1978 | | 2024.08.06 | ¿ù¼¼ | ¼¼¸íŸ¿î | 2 | 17.16 | 1,000 | 60 | 2021 | | 2024.08.05 | Àü¼¼ | ¸¶ÇϺô | 3 | 28.48 | 23,150 | 0 | 2019 | | 2024.08.05 | Àü¼¼ | ºí·çºô¶ó | 2 | 49.28 | 28,000 | 0 | 2014 | | 2024.08.05 | Àü¼¼ | ¼º»ê±×¸°ºô¶ó | -1 | 45.5 | 10,000 | 0 | 1991 | | 2024.08.05 | Àü¼¼ | º§ºä¼º»ê | 3 | 37.8 | 39,300 | 0 | 2022 | | 2024.08.05 | Àü¼¼ | ºí·çºô¶ó | 2 | 49.28 | 28,000 | 0 | 2014 | | 2024.08.05 | ¸Å¸Å | ÈúÇϿ콺(200-413) | 2 | 34.45 | 28,000 | | 2019 | | 2024.08.05 | Àü¼¼ | ´ÙÀ̾ÆÄ³½½ | 2 | 48.51 | 33,000 | 0 | 2017 | | 2024.08.04 | ¸Å¸Å | ´õ¿øÆÓ¸®½º | 2 | 41.81 | 47,400 | | 2023 | | 2024.08.02 | Àü¼¼ | ½ëÅͺô | 2 | 40.87 | 20,000 | 0 | 2010 | | 2024.08.01 | Àü¼¼ | ¼Ò³ëÇϿ콺¼º»ê2Â÷ | 5 | 37.68 | 30,900 | 0 | 2017 | | 2024.08.01 | Àü¼¼ | ¼Ò³ëÇϿ콺¼º»ê2Â÷ | 5 | 37.68 | 30,900 | 0 | 2017 | | 2024.08.01 | ¿ù¼¼ | ¼º»êÄ«¿îƼ | 2 | 33.1 | 1,000 | 60 | 2004 | | 2024.07.31 | ¸Å¸Å | ¼Ò³ëÇϿ콺¼º»ê3Â÷ | 4 | 40.16 | 34,000 | | 2018 | | 2024.07.31 | Àü¼¼ | »ó¸íºô¶ó | 2 | 50.88 | 17,500 | 0 | 1993 | | 2024.07.31 | Àü¼¼ | ÆÓ¸®½ººä | 2 | 39.22 | 33,000 | 0 | 2018 | | 2024.07.30 | Àü¼¼ | ¼ºÀ缾Ʈ¸®¿ò | 5 | 35.88 | 30,000 | 0 | 2018 | | 2024.07.30 | Àü¼¼ | ¾Æºñ´¨ºô¶ó | 2 | 52.47 | 21,000 | 0 | 2002 | | 2024.07.30 | ¿ù¼¼ | ¿¡¹ö±×¸° | 3 | 15.26 | 5,000 | 40 | 2012 | | 2024.07.30 | Àü¼¼ | ´Ùº£·Î | 3 | 29.05 | 20,000 | 0 | 2016 | | 2024.07.29 | ¿ù¼¼ | ÀÌÁöºô¶ó | 4 | 43.19 | 18,450 | 6 | 2002 | | 2024.07.29 | ¸Å¸Å | ´õ¿øÆÓ¸®½º | 5 | 47.16 | 57,900 | | 2023 | | 2024.07.29 | ¸Å¸Å | ¸í½Éºô¶ó | -1 | 36.77 | 30,000 | | 1991 | | 2024.07.29 | ¿ù¼¼ | ÇÔ²²ÁÖÅÃ3È£ | 5 | 14 | 2,300 | 32 | 2020 | | 2024.07.29 | ¿ù¼¼ | ÇÔ²²ÁÖÅÃ3È£ | 5 | 14 | 2,300 | 32 | 2020 | | 2024.07.29 | ¿ù¼¼ | ÀÌÁöºô¶ó | 4 | 43.19 | 18,450 | 6 | 2002 | | 2024.07.29 | ¿ù¼¼ | ¸íÁø½¦¸£ºô2Â÷ | 2 | 51.77 | 3,000 | 123 | 2012 | | 2024.07.29 | ¿ù¼¼ | ¼º¿øÇÏÀÌÃ÷11µ¿ | 2 | 34.29 | 6,000 | 25 | 1989 | | 2024.07.27 | Àü¼¼ | ¾î½æ½ÃƼ | 6 | 27.96 | 38,900 | 0 | 2019 | | 2024.07.27 | ¸Å¸Å | ±Ý°ºô¶ó°¡µ¿ | 2 | 47.28 | 40,000 | | 1986 | | 2024.07.26 | Àü¼¼ | ¼¼ÀϺô¶ó | 3 | 51 | 21,000 | 0 | 1992 | | 2024.07.26 | Àü¼¼ | º§ºä¼º»ê | 4 | 34.5 | 35,500 | 0 | 2022 | | 2024.07.26 | ¸Å¸Å | Çö´ëÇÏÀÌÃ÷ºô¶ó | 2 | 41.68 | 26,000 | | 1993 | | 2024.07.25 | ¸Å¸Å | ¼ºÈ£ºô¶ó | -1 | 36.4 | 29,700 | | 1989 | | 2024.07.25 | ¸Å¸Å | ÇѸƾÆÀÌȨ(47-16) | 4 | 79.17 | 51,500 | | 2004 | | 2024.07.25 | ¿ù¼¼ | ÇØÇǺô | 4 | 51.91 | 22,800 | 10 | 2006 | | 2024.07.25 | ¿ù¼¼ | ±Ý¾Æ¾ÆÆ®ºô | 3 | 25.25 | 19,000 | 10 | 2015 | | 2024.07.24 | ¸Å¸Å | ¸í½Éºô¶ó | -1 | 29.88 | 15,000 | | 1990 | | 2024.07.24 | Àü¼¼ | û±â¿Íºô¶óFµ¿ | 1 | 51.78 | 22,000 | 0 | 1986 | | 2024.07.24 | Àü¼¼ | û±â¿Íºô¶óFµ¿ | 1 | 51.78 | 22,000 | 0 | 1986 | | 2024.07.24 | ¿ù¼¼ | ¼º»êµ¿ÀÌ¿¡½ºÇÏÀÓ | 6 | 57 | 38,000 | 10 | 2019 | | 2024.07.23 | Àü¼¼ | (223-2) | 6 | 16.37 | 8,900 | 0 | 2012 | | 2024.07.23 | ¿ù¼¼ | ´ë¼ººô¶óAµ¿ | 2 | 33.36 | 2,000 | 70 | 1989 | | 2024.07.22 | Àü¼¼ | °ñµå½¦¸£ºô(37-10) | 3 | 76.22 | 23,000 | 0 | 2002 | | 2024.07.22 | Àü¼¼ | µµ¿øºô¶ó3µ¿ | 2 | 36.36 | 14,650 | 0 | 1990 | | 2024.07.22 | ¿ù¼¼ | (140-11) | 1 | 41.6 | 15,000 | 25 | 1988 | | 2024.07.22 | Àü¼¼ | (200-257) | 2 | 59.99 | 27,700 | 0 | 2012 | | 2024.07.22 | ¿ù¼¼ | ¹é»óºô¶óÆ® | 2 | 41.01 | 5,000 | 60 | 1994 | | 2024.07.22 | Àü¼¼ | (200-257) | 2 | 59.99 | 27,700 | 0 | 2012 | | 2024.07.22 | ¿ù¼¼ | ´õÇ÷¹À̽º | 1 | 29.43 | 27,400 | 30 | 2019 | | 2024.07.22 | ¿ù¼¼ | ¸¸¿¬¼¾ÅÒ½ÃÆ¼ | 5 | 21.96 | 12,000 | 30 | 2013 | | 2024.07.21 | Àü¼¼ | ½Å¼º¸Ç¼Ç | 3 | 57.13 | 13,000 | 0 | 1990 | | 2024.07.20 | ¸Å¸Å | ¼Ò³ëÇϿ콺¼º»ê1Â÷ | 5 | 48.96 | 38,400 | | 2017 | | 2024.07.20 | ¸Å¸Å | ¼¼¶ó³ëºô | 4 | 84.56 | 53,500 | | 2008 | | 2024.07.20 | ¸Å¸Å | µ¿»êÁÖÅà | 3 | 39.93 | 22,700 | | 1995 | | 2024.07.20 | Àü¼¼ | µ¿¾çÇÏ¿ì¡ | 3 | 29.87 | 21,000 | 0 | 2016 | | 2024.07.20 | ¿ù¼¼ | ÇØ¶ß´ÂÁý | 2 | 18.76 | 1,000 | 52 | 2013 | | 2024.07.20 | Àü¼¼ | »ïÁ¤ºô¸®Áö°¡µ¿ | 1 | 43.56 | 16,000 | 0 | 1992 | | 2024.07.19 | ¿ù¼¼ | (36-6) | 2 | 24.61 | 12,000 | 28 | 1986 | | 2024.07.18 | ¿ù¼¼ | DMC¸ÞÆ®·Îºô | 3 | 21.84 | 1,000 | 63 | 2019 | | 2024.07.18 | Àü¼¼ | °¡³ª¾È | 1 | 90.31 | 24,000 | 0 | 1980 | | 2024.07.18 | ¿ù¼¼ | ¸®Ä¡ºô | 3 | 60.45 | 500 | 55 | 2002 | | 2024.07.18 | ¿ù¼¼ | ¸®Ä¡ºô | 3 | 60.45 | 5,000 | 55 | 2002 | | 2024.07.17 | Àü¼¼ | ¼ºÀ缾Ʈ¸®¿ò | 3 | 38.89 | 30,000 | 0 | 2018 | | 2024.07.17 | ¿ù¼¼ | SELECTED2È£Á¡ | 4 | 19.45 | 1,000 | 75 | 2020 | | 2024.07.17 | Àü¼¼ | ¼ºÀ缾Ʈ¸®¿ò | 3 | 38.89 | 30,000 | 0 | 2018 | | 2024.07.17 | ¿ù¼¼ | À¯´Ï¿Âºô | 4 | 18.78 | 1,000 | 53 | 2014 | | 2024.07.17 | ¿ù¼¼ | ¿µ±¤ºô | 4 | 24.16 | 12,000 | 10 | 2010 | | 2024.07.17 | ¿ù¼¼ | »ïÈ£ºô¶óAµ¿ | 2 | 36.85 | 3,000 | 95 | 1989 | | 2024.07.17 | Àü¼¼ | º¸¿µºô¶ó | 2 | 89.3 | 32,500 | 0 | 1997 | | 2024.07.16 | Àü¼¼ | ¾î¹ÝÇϿ콺 | 4 | 42.17 | 25,000 | 0 | 2017 | | 2024.07.16 | ¿ù¼¼ | ·ç½ººô¸®Áö | 4 | 75.76 | 8,000 | 118 | 2011 | | 2024.07.16 | ¿ù¼¼ | µµ¿øºô¶ó1µ¿ | -1 | 36.9 | 9,000 | 15 | 1990 | | 2024.07.16 | Àü¼¼ | SK-VIEW | 2 | 41.9 | 18,000 | 0 | 1995 | | 2024.07.16 | ¿ù¼¼ | µµ¿øºô¶ó1µ¿ | -1 | 36.9 | 9,000 | 14 | 1990 | | 2024.07.16 | ¿ù¼¼ | ´ë±¤±×¸°ºô¶ó | 1 | 28.11 | 10,000 | 20 | 1994 | | 2024.07.16 | ¿ù¼¼ | µ¿»ïºô¶óŸ¿î7µ¿ | 2 | 33.4 | 16,500 | 25 | 1988 | | 2024.07.15 | Àü¼¼ | ÇѸƾÆÀÌȨBµ¿ | 5 | 43.76 | 19,845 | 0 | 2003 | | 2024.07.13 | ¸Å¸Å | º§ºä¼º»ê | 2 | 39.01 | 49,200 | | 2022 | | 2024.07.13 | ¸Å¸Å | ÇÑ»ùÇÏÀÌÃ÷ºô¶ó | 4 | 70.59 | 38,000 | | 1993 | | 2024.07.13 | Àü¼¼ | µµ¿øºô¶ó1µ¿ | 1 | 36.9 | 15,000 | 0 | 1990 | | 2024.07.12 | ¸Å¸Å | ¼°æÆÓ¸®½º(101µ¿) | 2 | 29.76 | 42,000 | | 2019 | | 2024.07.12 | ¸Å¸Å | (165-85) | 2 | 17.16 | 29,500 | | 2023 | | 2024.07.12 | Àü¼¼ | ¿¬Èñ¸Ç¼ð³ªµ¿ | 1 | 75.36 | 9,870 | 0 | 1984 | | 2024.07.11 | ¿ù¼¼ | û¿îºô¶ó | -1 | 43.89 | 4,000 | 40 | 1988 | | 2024.07.11 | ¿ù¼¼ | TheGenesis | 5 | 29.15 | 2,000 | 97 | 2014 | | 2024.07.11 | Àü¼¼ | ¼Ò³ëÇϿ콺¼º»ê1Â÷ | 5 | 40.36 | 30,000 | 0 | 2017 | | 2024.07.11 | Àü¼¼ | ¾î¹Ýij½½ | 2 | 13.64 | 10,000 | 0 | 2022 | | 2024.07.10 | Àü¼¼ | ´Ù¿ÀÇϿ콺 | 2 | 27.45 | 25,500 | 0 | 2019 | | 2024.07.10 | Àü¼¼ | ¼º»êµ¿ÀÌ¿¡½ºÇÏÀÓ | 3 | 58.75 | 39,500 | 0 | 2019 | | 2024.07.10 | Àü¼¼ | ¼º»êµ¿ÀÌ¿¡½ºÇÏÀÓ | 3 | 58.75 | 40,000 | 0 | 2019 | | 2024.07.10 | Àü¼¼ | °ñµå¸®Ä¡ | 3 | 28.89 | 29,500 | 0 | 2018 | | 2024.07.10 | ¿ù¼¼ | ³ì»öÄ£±¸µé | 4 | 37.92 | 12,973 | 36 | 2017 | | 2024.07.10 | ¿ù¼¼ | ±Ýµ¿ÆÄÀκô | 2 | 20.64 | 1,000 | 50 | 2012 | | 2024.07.10 | Àü¼¼ | ¼º»êµ¿ÀÌ¿¡½ºÇÏÀÓ | 3 | 58.75 | 40,000 | 0 | 2019 | | 2024.07.10 | ¸Å¸Å | ¼ºÀ缾Ʈ¸®¿ò | 6 | 37.49 | 37,500 | | 2018 | | 2024.07.10 | ¿ù¼¼ | ÀÌ·¹ºô¶óÆ®Aµ¿ | 2 | 14.29 | 1,000 | 50 | 2011 | | 2024.07.09 | ¿ù¼¼ | ³ëºí·¹½ººô | 4 | 43.74 | 2,000 | 110 | 2002 | | 2024.07.09 | Àü¼¼ | ¿¹°¡Å©·¹½Ã¾Æ | 3 | 28.8 | 23,000 | 0 | 2016 | | 2024.07.09 | ¸Å¸Å | ¼°æÆÓ¸®½º(101µ¿) | 2 | 29.76 | 42,000 | | 2019 | | 2024.07.09 | ¸Å¸Å | À¯ÀϺô¸®Áö2´ÜÁö | 5 | 41.86 | 37,000 | | 2016 | | 2024.07.08 | Àü¼¼ | À̰ºôµù | 3 | 27.39 | 22,000 | 0 | 2014 | | 2024.07.08 | Àü¼¼ | À̰ºôµù | 3 | 27.39 | 22,000 | 0 | 2014 | | 2024.07.08 | ¿ù¼¼ | Å䯼ºô | 4 | 51.97 | 13,500 | 60 | 2008 | | 2024.07.07 | ¸Å¸Å | ´ë¼ººô¶ó | -1 | 63.25 | 28,000 | | 1996 | | 2024.07.06 | ¸Å¸Å | ¼Ò³ëÇϿ콺¼º»ê2Â÷ | 5 | 40.87 | 36,000 | | 2017 | | 2024.07.06 | ¸Å¸Å | µ¿¾çÇÏ¿ì¡ | 5 | 40.87 | 51,000 | | 2018 | | 2024.07.06 | Àü¼¼ | Á¦ÀϺô¶ó | 3 | 124.34 | 35,000 | 0 | 1983 | | 2024.07.06 | Àü¼¼ | ¼º»êµ¿»ó°¡ÁÖÅà | 5 | 74.51 | 25,000 | 0 | 2003 | | 2024.07.06 | Àü¼¼ | ¼Ò³ëÇϿ콺¼º»ê3Â÷ | 2 | 29.28 | 24,300 | 0 | 2018 | | 2024.07.06 | Àü¼¼ | º§ºä¼º»ê | 5 | 37.8 | 39,300 | 0 | 2022 | | 2024.07.06 | ¿ù¼¼ | À§³Ê½º¿ø | 3 | 17.02 | 11,470 | 5 | 2013 | | 2024.07.06 | ¸Å¸Å | ÀÚ½½¸°ÇϿ콺 | 4 | 53.5 | 49,000 | | 2017 | | 2024.07.05 | ¿ù¼¼ | °ñµå¸®Ä¡ | 3 | 29.81 | 29,000 | 20 | 2018 | | 2024.07.05 | ¿ù¼¼ | (13-17) | -1 | 31.47 | 1,000 | 40 | 1987 | | 2024.07.04 | Àü¼¼ | ¼º»êÀÌÆ°Ä³½½ | 6 | 29.82 | 40,000 | 0 | 2023 | | 2024.07.04 | ¸Å¸Å | Á¶Àººô¶ó | 2 | 39.06 | 21,700 | | 1996 | | 2024.07.04 | ¿ù¼¼ | ¹é¼Û¾ÆÆ®ºô | 4 | 31.73 | 12,000 | 101 | 2017 | | 2024.07.03 | ¿ù¼¼ | ¸®Ä¡ºô | 3 | 60.45 | 500 | 55 | 2002 | | 2024.07.03 | ¿ù¼¼ | ´õÅ´½ººô¶ó | 2 | 25.86 | 2,000 | 100 | 2021 | | 2024.07.02 | ¸Å¸Å | ÇѺûÀ§³Ê½ººô | 3 | 43.82 | 32,800 | | 2013 | | 2024.07.02 | Àü¼¼ | ½Å¿ì·Î¾âºô¶ó | -1 | 49.56 | 12,000 | 0 | 1990 | | 2024.07.02 | ¿ù¼¼ | ´ëÈ£¾ÆÆ®ºô | 2 | 54.17 | 3,000 | 100 | 2012 | | 2024.07.02 | ¿ù¼¼ | À̰ºôµù | 3 | 29.97 | 20,000 | 10 | 2014 | | 2024.07.02 | ¿ù¼¼ | À̰ºôµù | 3 | 29.97 | 20,000 | 10 | 2014 | | 2024.07.02 | ¸Å¸Å | ½ÃƼÇÏÀÓ¥±Aµ¿ | 5 | 25.88 | 25,000 | | 2019 | | 2024.07.02 | ¸Å¸Å | ½ÃƼÇÏÀÓ¥±Aµ¿ | 5 | 25.88 | 25,000 | | 2019 | | 2024.07.01 | ¸Å¸Å | ´ëÈ£¾ÆÆ®ºô | 2 | 54.17 | 32,000 | | 2012 | | 2024.06.30 | ¿ù¼¼ | ¼Ò´ã¾ÆÆ®ºô | 2 | 29.29 | 2,000 | 76 | 2019 | | 2024.06.29 | ¿ù¼¼ | Äý | 3 | 13.53 | 500 | 53 | 2011 | | 2024.06.29 | ¿ù¼¼ | ÇÑÁÖÆÓ¸®½º | 2 | 27.36 | 5,000 | 120 | 2019 | | 2024.06.29 | ¸Å¸Å | ¼º»êµ¿ÀÌ¿¡½ºÇÏÀÓ | 6 | 57 | 56,000 | | 2019 | | 2024.06.28 | ¿ù¼¼ | ¿¬Èñ¸Ç¼ð³ªµ¿ | 2 | 101.28 | 11,000 | 60 | 1984 | | 2024.06.28 | ¸Å¸Å | ´ë¼ººô¶ó | 2 | 61.99 | 36,000 | | 1996 | | 2024.06.28 | Àü¼¼ | ÄÚ·¥ºô | 1 | 44.6 | 15,800 | 0 | 2002 | | 2024.06.28 | ¿ù¼¼ | ¹é¼Û¾ÆÆ®ºô | 5 | 60.95 | 2,000 | 130 | 2002 | | 2024.06.28 | ¿ù¼¼ | ¼¼¶ó³ëºô | 2 | 73.525 | 35,000 | 10 | 2008 | | 2024.06.27 | ¸Å¸Å | ¹Ì·¡ÇÏÀÓ | 2 | 41.03 | 39,400 | | 2013 | | 2024.06.27 | ¿ù¼¼ | (274-22) | -1 | 47.55 | 3,000 | 50 | 1994 | | 2024.06.27 | ¿ù¼¼ | Á¦ÀÌ,¿¥ºô¶ó(2Â÷) | 3 | 63.82 | 19,000 | 34 | 2002 | | 2024.06.26 | Àü¼¼ | ¼º»êµ¿´Ù¼¼´ëÁÖÅà | 2 | 22.13 | 8,682 | 0 | 2001 | | 2024.06.26 | ¿ù¼¼ | (221-4) | 1 | 52.2 | 10,000 | 70 | 1994 | | 2024.06.26 | ¸Å¸Å | µ¿¼ÆÄÅ©ºô¶ó | 3 | 60.22 | 40,000 | | 2002 | | 2024.06.26 | ¸Å¸Å | À¯Áøºô¶ó | 2 | 36.18 | 32,500 | | 1989 | | 2024.06.25 | Àü¼¼ | Çö´ëºô¶ó | -1 | 51.99 | 9,450 | 0 | 1990 | | 2024.06.25 | Àü¼¼ | µ¿»êÁÖÅà | 2 | 42.24 | 17,850 | 0 | 1995 | | 2024.06.25 | Àü¼¼ | º§ºä¼º»ê | 5 | 31.28 | 32,500 | 0 | 2022 | | 2024.06.25 | ¿ù¼¼ | ÇÑÁÖÆÓ¸®½º | 3 | 27.36 | 5,000 | 127 | 2019 | | 2024.06.25 | Àü¼¼ | Çö´ëºô¶ó | -1 | 51.99 | 9,923 | 0 | 1990 | | 2024.06.25 | ¸Å¸Å | (147-2) | -1 | 36.45 | 14,500 | | 1990 | | 2024.06.24 | Àü¼¼ | ¾Æ¼º¶ß¶õä | 5 | 36.76 | 27,000 | 0 | 2018 | | 2024.06.24 | Àü¼¼ | ´ë¼ººô¶óBµ¿ | 2 | 36.9 | 15,000 | 0 | 1989 | | 2024.06.24 | ¿ù¼¼ | ´õÆ®¸®´ÏƼ | 6 | 25.08 | 3,000 | 130 | 2023 | | 2024.06.23 | ¿ù¼¼ | (262-10) | 2 | 78.27 | 23,000 | 55 | 2002 | | 2024.06.23 | ¿ù¼¼ | ´õÅ´½ººô¶ó | 5 | 25.5 | 2,000 | 92 | 2021 | | 2024.06.22 | ¸Å¸Å | ½Å¼ººô¶ó°¡µ¿ | 1 | 41.16 | 22,600 | | 1992 | | 2024.06.22 | ¸Å¸Å | ½Å¼ººô¶ó°¡µ¿ | 1 | 40.11 | 23,000 | | 1992 | | 2024.06.22 | ¿ù¼¼ | ½ÅÀϺô¶ó | 1 | 52.37 | 3,000 | 65 | 1992 | | 2024.06.22 | Àü¼¼ | Áß¾Óºô¶ó | 3 | 48.6 | 16,500 | 0 | 2001 | | 2024.06.20 | ¿ù¼¼ | ¿ì¼ºÇÏÀÌÃ÷ºô¶ó3Â÷ | 3 | 42.42 | 5,000 | 80 | 1994 | | 2024.06.20 | Àü¼¼ | µ¿¾çÇÏ¿ì¡ | 3 | 37.77 | 35,800 | 0 | 2018 | | 2024.06.20 | ¿ù¼¼ | ¿ì¼ºÇÏÀÌÃ÷ºô¶ó3Â÷ | 3 | 42.42 | 5,000 | 80 | 1994 | | 2024.06.19 | ¿ù¼¼ | sweetseoulresidence | 3 | 14.04 | 8,000 | 10 | 2013 | | 2024.06.19 | ¿ù¼¼ | À¯ÀϺô¸®Áö | 5 | 29.88 | 24,000 | 10 | 2016 | | 2024.06.19 | Àü¼¼ | µ¿¿ø°¡µçºô | 2 | 39.39 | 22,000 | 0 | 2011 | | 2024.06.19 | ¿ù¼¼ | ¿¹ÁÖºô¶ó | 1 | 63.36 | 22,000 | 10 | 1991 | | 2024.06.19 | Àü¼¼ | ±Ý°ºí·ç | 5 | 47.65 | 44,000 | 0 | 2021 | | 2024.06.19 | ¿ù¼¼ | sweetseoulresidence | 3 | 15.3 | 1,000 | 45 | 2013 | | 2024.06.19 | ¸Å¸Å | ¾Æ¼º¶ß¶õä | 3 | 49.05 | 35,000 | | 2018 | | 2024.06.18 | ¿ù¼¼ | ½´Ææ´õ°¶·¯¸® | 2 | 32.32 | 26,000 | 10 | 2017 | | 2024.06.18 | Àü¼¼ | º§ºä¼º»ê | 2 | 39.01 | 40,000 | 0 | 2022 | | 2024.06.18 | ¿ù¼¼ | SELECTED2È£Á¡ | 3 | 15.12 | 4,500 | 40 | 2020 | | 2024.06.18 | Àü¼¼ | ¼º¿î | 5 | 59.79 | 28,000 | 0 | 2011 | | 2024.06.17 | ¿ù¼¼ | ¿¡À̽ºÅ¸¿î | 5 | 28.55 | 10,000 | 70 | 2016 | | 2024.06.17 | Àü¼¼ | ÅäõGreenZone | 2 | 64.78 | 28,110 | 0 | 2009 | | 2024.06.17 | ¿ù¼¼ | ÇÔ²²ÁÖÅÃ3È£ | 5 | 15 | 2,300 | 35 | 2020 | | 2024.06.17 | ¿ù¼¼ | ¼º¹Ìºô¶ó | 2 | 73.71 | 10,000 | 115 | 2002 | | 2024.06.17 | ¿ù¼¼ | ¼ºÀ缾Ʈ¸®¿ò | 5 | 38.89 | 30,450 | 7 | 2018 | | 2024.06.17 | ¸Å¸Å | µ¿¾çÇÏ¿ì¡ | 5 | 29.77 | 38,500 | | 2017 | | 2024.06.17 | ¸Å¸Å | ÀÌÁ¶ºô¶ó | 3 | 61.09 | 31,000 | | 1994 | | 2024.06.17 | Àü¼¼ | ´ë¸íÇ®ÇϿ콺 | 5 | 20.93 | 11,500 | 0 | 2012 | | 2024.06.16 | Àü¼¼ | À¯ÀϺô¸®Áö | 3 | 29.67 | 24,300 | 0 | 2016 | | 2024.06.16 | ¿ù¼¼ | ´ë¿ìºô¶ó | 4 | 84.69 | 28,000 | 35 | 1995 | | 2024.06.15 | ¿ù¼¼ | °¶·¯¸®ÇϿ콺 | 4 | 38.84 | 24,500 | 20 | 2014 | | 2024.06.14 | ¿ù¼¼ | ¼¼Á¾ºô¶ó | 3 | 74.74 | 32,000 | 20 | 2003 | | 2024.06.14 | ¿ù¼¼ | ½ÃƼÇÏÀÓ¥±Bµ¿ | 5 | 26.62 | 29,600 | 5 | 2019 | | 2024.06.14 | Àü¼¼ | (254-17) | 4 | 28.73 | 23,000 | 0 | 2011 | | 2024.06.14 | ¿ù¼¼ | ½ÃƼÇÏÀÓ¥±Bµ¿ | 5 | 26.62 | 29,600 | 5 | 2019 | | 2024.06.14 | ¿ù¼¼ | ¿¬Èñ¸Ç¼ð³ªµ¿ | 2 | 64.2 | 1,500 | 80 | 1984 | | 2024.06.14 | ¿ù¼¼ | (258-12) | 2 | 26.63 | 22,300 | 10 | 2017 | | 2024.06.14 | ¸Å¸Å | ÆÓ¸®½ººä | 2 | 31.97 | 36,000 | | 2018 | | 2024.06.13 | ¿ù¼¼ | ¼º»ê¾ÆÆ®ºô | 2 | 17.42 | 1,000 | 46 | 2012 | | 2024.06.13 | ¿ù¼¼ | À¯¸²ºô¶ó | -1 | 36.77 | 1,000 | 60 | 1987 | | 2024.06.13 | Àü¼¼ | ÈÀÌÆ®ºô | 2 | 43.97 | 30,000 | 0 | 2015 | | 2024.06.13 | ¸Å¸Å | (165-85) | 3 | 17.16 | 27,500 | | 2023 | | 2024.06.13 | ¸Å¸Å | ³ª¿À½ººô | 3 | 76.28 | 37,000 | | 2001 | | 2024.06.12 | ¿ù¼¼ | ¸®½Ãº»ÇϿ콺 | 5 | 28.39 | 3,000 | 105 | 2016 | | 2024.06.12 | ¿ù¼¼ | ¿ùµåÇϿ콺 | 3 | 14.04 | 1,000 | 50 | 2014 | | 2024.06.12 | ¿ù¼¼ | ¼º»ïÁÖÅà | -1 | 42.67 | 2,000 | 56 | 1995 | | 2024.06.12 | ¿ù¼¼ | À¯ÀϺô¸®Áö2´ÜÁö | 6 | 28.92 | 22,000 | 20 | 2016 | | 2024.06.12 | ¿ù¼¼ | Á¦»ïºô¶ó | -1 | 50.85 | 12,000 | 25 | 1989 | | 2024.06.11 | ¿ù¼¼ | ÇÔ²²ÁÖÅÃ3È£ | 2 | 33.3 | 13,100 | 28 | 2020 | | 2024.06.11 | Àü¼¼ | µ¿¾çÇÏ¿ì¡ | 3 | 43.87 | 36,288 | 0 | 2018 | | 2024.06.11 | ¿ù¼¼ | (243-8) | 2 | 23.45 | 9,700 | 19 | 2011 | | 2024.06.11 | ¿ù¼¼ | ´ë¿øÆÄÅ©ºô | 2 | 37.68 | 100 | 40 | 2023 | | 2024.06.10 | Àü¼¼ | (81-102) | 4 | 47.46 | 20,000 | 0 | 1992 | | 2024.06.10 | ¿ù¼¼ | ´ë¿øÆÄÅ©ºô | 4 | 34.67 | 3,159 | 33 | 2023 | | 2024.06.10 | ¸Å¸Å | ±Û·Î¸®È¨Áî | 4 | 29.365 | 39,000 | | 2020 | | 2024.06.10 | Àü¼¼ | ¹Ìµµ¿¬¸³ | 2 | 47.61 | 21,000 | 0 | 1991 | | 2024.06.10 | ¿ù¼¼ | ¼º»êÄ«¿îƼ | 4 | 46.32 | 2,000 | 66 | 2004 | | 2024.06.10 | ¿ù¼¼ | ±×·¹À̽ººô | 1 | 45.25 | 3,000 | 75 | 2016 | | 2024.06.09 | ¸Å¸Å | µ¿¾çÇÏ¿ì¡ | 3 | 46.87 | 47,500 | | 2016 | | 2024.06.09 | Àü¼¼ | ¼Ò³ëÇϿ콺¼º»ê2Â÷ | 4 | 29.99 | 27,000 | 0 | 2017 | | 2024.06.09 | Àü¼¼ | À¯´ÏÇϿ콺 | 4 | 39.38 | 20,000 | 0 | 2016 | | 2024.06.09 | ¿ù¼¼ | Äý | 2 | 18.9 | 500 | 53 | 2011 | | 2024.06.09 | Àü¼¼ | À¯´ÏÇϿ콺 | 4 | 39.38 | 20,000 | 0 | 2016 | | 2024.06.09 | ¿ù¼¼ | ½´ÆæÇÏÀÓ | 2 | 29.76 | 24,000 | 20 | 2016 | | 2024.06.08 | Àü¼¼ | SK-VIEW | 4 | 84.97 | 36,000 | 0 | 1995 | | 2024.06.08 | Àü¼¼ | À̰ºôµù | 2 | 26.43 | 21,000 | 0 | 2014 | | 2024.06.07 | ¿ù¼¼ | ¼º»êÈÞ¸ÕŸ¿î(277-41) | 4 | 26.78 | 28,000 | 20 | 2021 | | 2024.06.06 | ¿ù¼¼ | ÇÑÀϺô¸®Áö°¡µ¿ | 2 | 79.5 | 1,000 | 50 | 1990 | | 2024.06.06 | Àü¼¼ | À¯´ÏÇϿ콺ºí·ç | 5 | 16.74 | 24,500 | 0 | 2017 | | 2024.06.05 | ¿ù¼¼ | ÇØºñÄ¡ÇϿ콺 | 4 | 22.97 | 5,000 | 85 | 2017 | | 2024.06.05 | ¿ù¼¼ | ¼º»êÈÞ¸ÕŸ¿î(277-41) | 6 | 26.78 | 28,000 | 20 | 2021 | | 2024.06.05 | ¿ù¼¼ | ÇÔ²²ÁÖÅÃ3È£ | 5 | 14 | 2,300 | 32 | 2020 | | 2024.06.05 | ¿ù¼¼ | SELECTED2È£Á¡ | 3 | 15.12 | 1,000 | 55 | 2020 | | 2024.06.04 | ¿ù¼¼ | ÇÔ²²ÁÖÅÃ3È£ | 2 | 34.79 | 16,200 | 34 | 2020 | | 2024.06.04 | ¸Å¸Å | µ¿¾çÇÏ¿ì¡ | 2 | 29.77 | 40,500 | | 2017 | | 2024.06.04 | ¸Å¸Å | µ¿¾çÇÏ¿ì¡ | 2 | 29.77 | 40,500 | | 2017 | | 2024.06.04 | Àü¼¼ | °ñµçÆÓ¸®½º | 5 | 36.21 | 30,000 | 0 | 2017 | | 2024.06.04 | Àü¼¼ | µ¿¾çÇÏ¿ì¡ | 2 | 29.77 | 24,600 | 0 | 2017 | | 2024.06.04 | Àü¼¼ | ½´ÆæÇÏÀÓ¼º»ê | 3 | 28.43 | 27,450 | 0 | 2017 | | 2024.06.04 | ¿ù¼¼ | ÇѺûÀ§³Ê½ººô | 4 | 29.93 | 12,000 | 55 | 2013 | | 2024.06.04 | ¿ù¼¼ | ÇÔ²²ÁÖÅÃ3È£ | 3 | 48.45 | 19,100 | 42 | 2020 | | 2024.06.04 | ¿ù¼¼ | ž翬¸³ | 2 | 83.87 | 1,000 | 40 | 1978 | | 2024.06.04 | Àü¼¼ | µ¿¾çÇÏ¿ì¡ | 2 | 29.77 | 24,600 | 0 | 2017 | | 2024.06.03 | ¿ù¼¼ | ´ëÈ£¾ÆÆ®ºô | 5 | 46.44 | 24,500 | 15 | 2012 | | 2024.06.03 | ¸Å¸Å | (258-12) | 2 | 29.92 | 39,750 | | 2017 | | 2024.06.03 | Àü¼¼ | ¼¼¿øÁÖÅà | 3 | 55.9 | 30,000 | 0 | 2011 | | 2024.06.03 | ¿ù¼¼ | ÇÔ²²ÁÖÅÃ3È£ | 4 | 47.25 | 20,800 | 45 | 2020 | | 2024.06.03 | Àü¼¼ | ´ë¸íÇ®ÇϿ콺2 | 4 | 18.19 | 15,400 | 0 | 2012 | | 2024.06.03 | Àü¼¼ | ÇØ¿À¸§ | 2 | 29.29 | 22,050 | 0 | 2016 | | 2024.06.03 | ¿ù¼¼ | ÇÔ²²ÁÖÅÃ3È£ | 2 | 30.77 | 12,200 | 26 | 2020 | | 2024.06.03 | ¿ù¼¼ | ¿ùµåÇϿ콺 | 2 | 14.04 | 1,000 | 47 | 2014 | | 2024.06.03 | Àü¼¼ | °ñµå¸®Ä¡ | 5 | 28.94 | 25,000 | 0 | 2018 | | 2024.06.03 | ¿ù¼¼ | ¸ÞÁ¶Æ®·Ð¥± | 2 | 162.01 | 50,000 | 110 | 2007 | | 2024.06.03 | ¿ù¼¼ | ±èõÇÏÀÌÃ÷ºô | 2 | 14.89 | 1,000 | 60 | 2013 | | 2024.06.01 | ¸Å¸Å | ´õ¿øÆÓ¸®½º | 2 | 43.27 | 53,000 | | 2023 | | 2024.06.01 | ¸Å¸Å | ÀÚ½½¸°ÇϿ콺(21-29) | 6 | 48.75 | 54,500 | | 2021 | | 2024.06.01 | ¿ù¼¼ | µ¿»ïºô¶óŸ¿î1µ¿ | 2 | 36.52 | 2,500 | 60 | 1988 | | 2024.06.01 | Àü¼¼ | °ñµçÆÓ¸®½º | 5 | 36.21 | 30,000 | 0 | 2017 | | 2024.06.01 | ¿ù¼¼ | ¼ººÎÁÖÅà | 4 | 50.94 | 15,000 | 20 | 1996 | | 2024.06.01 | Àü¼¼ | À̰ºôµù | 2 | 27.39 | 16,800 | 0 | 2014 | | 2024.06.01 | Àü¼¼ | ÈúÇϿ콺(200-413) | 5 | 28.79 | 20,000 | 0 | 2019 | | 2024.06.01 | ¿ù¼¼ | ÇÑÀϺô¸®Áö³ªµ¿ | 2 | 77.7 | 5,000 | 117 | 1990 | | 2024.06.01 | Àü¼¼ | À̰ºôµù | 2 | 27.39 | 16,800 | 0 | 2014 | | 2024.05.30 | ¸Å¸Å | º£¾ÆÆ®¸®½º¥² | 3 | 80.76 | 43,000 | | 2009 | | 2024.05.29 | ¿ù¼¼ | ¿µÁøºô¶ó | 2 | 46.92 | 5,000 | 56 | 1991 | | 2024.05.29 | Àü¼¼ | µ¿¾çÇÏ¿ì¡ | 3 | 28.89 | 27,825 | 0 | 2018 | | 2024.05.29 | Àü¼¼ | Ç츮ƼÁö | 4 | 37.51 | 33,000 | 0 | 2017 | | 2024.05.29 | Àü¼¼ | È«Àͺô¶ó | 1 | 35.64 | 12,000 | 0 | 1990 | | 2024.05.28 | ¿ù¼¼ | ¸®½Ãº»ÇϿ콺 | 2 | 29.8 | 5,000 | 104 | 2016 | | 2024.05.28 | Àü¼¼ | ±×¸°ºô | 3 | 28.35 | 12,900 | 0 | 1998 | | 2024.05.27 | Àü¼¼ | ½ÅÀÏÇÏÀÌÃ÷ºô¶ó | 1 | 55.98 | 17,500 | 0 | 1991 | | 2024.05.27 | Àü¼¼ | ¿¹±×¸®³ª | 2 | 18.9 | 12,600 | 0 | 2011 | | 2024.05.27 | ¿ù¼¼ | ´ë¸íÇ®ÇϿ콺 | 2 | 23.2 | 14,000 | 4 | 2012 | | 2024.05.27 | ¿ù¼¼ | ±èõÇÏÀÌÃ÷ºô | 2 | 35.29 | 5,000 | 85 | 2013 | | 2024.05.27 | ¿ù¼¼ | ÈÀθ®ºùÅÚ | 3 | 25.64 | 1,000 | 55 | 2003 | | 2024.05.26 | Àü¼¼ | (165-85) | 2 | 17.16 | 10,000 | 0 | 2023 | | 2024.05.25 | ¸Å¸Å | À¯ÀϺô¸®Áö1´ÜÁö | 5 | 49.65 | 40,000 | | 2016 | | 2024.05.25 | ¿ù¼¼ | ¹«Áö°³ºô¶ó | 1 | 89.1 | 3,000 | 20 | 1977 | | 2024.05.25 | Àü¼¼ | ÇѾçÇÏÀÌÃ÷ºô¶ó | 4 | 60.6 | 28,000 | 0 | 1994 | | 2024.05.25 | ¿ù¼¼ | µµ¿øºô¶ó | 1 | 49.92 | 17,000 | 45 | 1991 | | 2024.05.25 | Àü¼¼ | ¼º»ê´Ùº¸ºô | 4 | 72.12 | 32,000 | 0 | 2008 | | 2024.05.25 | Àü¼¼ | ´ë¿ìºô¶ó | 4 | 84.47 | 31,500 | 0 | 1995 | | 2024.05.24 | ¿ù¼¼ | ´Ù¿ÀÇϿ콺 | 3 | 25.92 | 7,000 | 70 | 2019 | | 2024.05.23 | Àü¼¼ | µ¿È | 2 | 52.54 | 31,500 | 0 | 2017 | | 2024.05.23 | Àü¼¼ | (32-14) | 3 | 42.17 | 24,000 | 0 | 2012 | | 2024.05.23 | ¿ù¼¼ | ÇÑÁÖÆÓ¸®½º | 4 | 27.36 | 30,000 | 10 | 2019 | | 2024.05.23 | Àü¼¼ | ¼¼Á¾ºô¶ó | 2 | 79.3 | 34,900 | 0 | 2003 | | 2024.05.22 | ¿ù¼¼ | Áغô¸®Áö | 2 | 40.63 | 26,000 | 10 | 2014 | | 2024.05.21 | ¿ù¼¼ | µµ¿øºô¶ó3µ¿ | -1 | 36.36 | 3,000 | 25 | 1990 | | 2024.05.21 | ¿ù¼¼ | °ñµçÆÓ¸®½º | 5 | 36.21 | 3,000 | 120 | 2017 | | 2024.05.21 | ¿ù¼¼ | ¼¼¹ÎÇÏÀÌÆÄÅ© | 5 | 30.09 | 24,000 | 35 | 2016 | | 2024.05.21 | Àü¼¼ | µ¿¾çÇÏ¿ì¡ | 5 | 29.77 | 24,600 | 0 | 2017 | | 2024.05.21 | ¿ù¼¼ | °ñµçÆÓ¸®½º | 5 | 36.21 | 3,000 | 120 | 2017 | | 2024.05.21 | Àü¼¼ | µ¿¾çÇÏ¿ì¡ | 2 | 29.86 | 27,300 | 0 | 2018 | | 2024.05.21 | ¿ù¼¼ | ¼º¿øÇÏÀÌÃ÷1µ¿ | -1 | 37.14 | 500 | 45 | 1988 | | 2024.05.20 | Àü¼¼ | ´ë¸íÇ®ÇϿ콺 | 4 | 14.01 | 9,800 | 0 | 2012 | | 2024.05.20 | Àü¼¼ | º°Àåºô¶ó(°¡µ¿) | 2 | 64.52 | 24,000 | 0 | 2002 | | 2024.05.20 | Àü¼¼ | ´Ù¿ÀÇϿ콺 | 2 | 27.45 | 25,500 | 0 | 2019 | | 2024.05.20 | ¸Å¸Å | (261-2) | 1 | 81 | 54,500 | | 1986 | | 2024.05.19 | ¿ù¼¼ | ȲÁ¦ºô¶ó | 4 | 40.8 | 13,000 | 25 | 1990 | | 2024.05.19 | ¿ù¼¼ | (21-4) | 4 | 15.09 | 7,000 | 20 | 2012 | | 2024.05.18 | ¸Å¸Å | µ¿»êÁÖÅà | 2 | 39.84 | 23,000 | | 1995 | | 2024.05.18 | ¿ù¼¼ | ´ë¼ººô¶óCµ¿ | 2 | 36.36 | 16,000 | 20 | 1989 | | 2024.05.18 | Àü¼¼ | º°ºûÇϿ콺(250-30) | 2 | 64.755 | 28,600 | 0 | 2004 | | 2024.05.18 | Àü¼¼ | ¾î½æ½ÃƼ | 3 | 29.24 | 29,000 | 0 | 2019 | | 2024.05.18 | ¸Å¸Å | µ¿»êÁÖÅà | 2 | 39.84 | 23,000 | | 1995 | | 2024.05.18 | ¿ù¼¼ | º£¾ÆÆ®¸®½º¥² | 3 | 70.47 | 29,000 | 35 | 2009 | | 2024.05.17 | Àü¼¼ | ¼±³ºô¶ó | 4 | 56.72 | 19,000 | 0 | 1991 | | 2024.05.16 | ¸Å¸Å | ¼ºÀ缾Ʈ¸®¿ò | 5 | 29.08 | 31,500 | | 2018 | | 2024.05.16 | Àü¼¼ | ¼º¿î | 5 | 59.79 | 28,000 | 0 | 2011 | | 2024.05.16 | Àü¼¼ | ¼Ò³ëÇϿ콺¼º»ê2Â÷ | 6 | 47.18 | 31,000 | 0 | 2017 | | 2024.05.16 | Àü¼¼ | (623-1) | 2 | 43.56 | 19,200 | 0 | 1987 | | 2024.05.16 | Àü¼¼ | ¼Ò³ëÇϿ콺¼º»ê2Â÷ | 6 | 47.18 | 31,000 | 0 | 2017 | | 2024.05.16 | Àü¼¼ | ¼Ò³ëÇϿ콺¼º»ê2Â÷ | 6 | 47.18 | 31,000 | 0 | 2017 | | 2024.05.15 | Àü¼¼ | ÆÓ¸®½ººä | 4 | 43.37 | 33,000 | 0 | 2018 | | 2024.05.14 | Àü¼¼ | ¹Ù¿ò»þÀκô | 5 | 29.94 | 28,000 | 0 | 2020 | | 2024.05.14 | Àü¼¼ | ¼°æÆÓ¸®½º(102µ¿) | 5 | 41.75 | 49,000 | 0 | 2019 | | 2024.05.14 | Àü¼¼ | ÆÓ¸®½ººä | 1 | 40.15 | 32,000 | 0 | 2018 | | 2024.05.14 | Àü¼¼ | (223-2) | 5 | 16.37 | 9,300 | 0 | 2012 | | 2024.05.14 | Àü¼¼ | ÇѾçÇÏÀÌÃ÷ºô¶ó | -1 | 59.25 | 13,800 | 0 | 1994 | | 2024.05.14 | Àü¼¼ | ´õÇ÷¹À̽º | 1 | 29.95 | 27,000 | 0 | 2019 | | 2024.05.14 | ¿ù¼¼ | ½´ÆæÇÏÀÓ | 3 | 29.76 | 24,000 | 20 | 2016 | | 2024.05.13 | Àü¼¼ | ¹Ù¿ò»þÀκô | 4 | 29.94 | 25,000 | 0 | 2020 | | 2024.05.13 | ¸Å¸Å | ¼º¿øÇÏÀÌÃ÷1µ¿ | 2 | 37.14 | 25,000 | | 1988 | | 2024.05.13 | ¸Å¸Å | À¯¼ººô¶ó | 2 | 51.29 | 40,300 | | 1996 | | 2024.05.13 | Àü¼¼ | ÇѼº | 2 | 20.52 | 10,000 | 0 | 2019 | | 2024.05.13 | Àü¼¼ | ÇѼº | 2 | 20.52 | 10,000 | 0 | 2019 | | 2024.05.13 | Àü¼¼ | ÇѼº | 2 | 20.52 | 1,000 | 0 | 2019 | | 2024.05.13 | Àü¼¼ | ÇѼº | 2 | 20.52 | 1,000 | 0 | 2019 | | 2024.05.13 | ¿ù¼¼ | ¼º»ê¿¡½ºÇÏÀÓ2 | 4 | 43.81 | 13,152 | 13 | 2021 | | 2024.05.13 | ¿ù¼¼ | ¿µ±¤ºô | 4 | 29.55 | 12,000 | 28 | 2010 | | 2024.05.12 | Àü¼¼ | ¿ùµå±×¶ûºôBµ¿ | 5 | 60.73 | 28,500 | 0 | 2009 | | 2024.05.11 | ¿ù¼¼ | (614-8) | -1 | 32.31 | 3,500 | 35 | 1988 | | 2024.05.11 | Àü¼¼ | ÇØºñÄ¡ÇϿ콺 | 1 | 29.95 | 26,000 | 0 | 2017 | | 2024.05.11 | ¸Å¸Å | º°Àåºô¶ó(³ªµ¿) | 4 | 62.92 | 41,000 | | 2002 | | 2024.05.11 | ¸Å¸Å | ¹Ì¶õä(620-6) | 4 | 75.09 | 43,000 | | 2003 | | 2024.05.11 | Àü¼¼ | ÈÀÌÆ®ºô(30-26) | 4 | 122.18 | 41,890 | 0 | 1996 | | 2024.05.10 | ¿ù¼¼ | »ïÁ¤ºô¸®Áö³ªµ¿ | 2 | 51.54 | 15,000 | 40 | 1992 | | 2024.05.10 | ¿ù¼¼ | À̰ºôµù | 2 | 29.97 | 21,000 | 9 | 2014 | | 2024.05.10 | ¿ù¼¼ | ÇÔ²²ÁÖÅÃ4È£ | 4 | 55.92 | 2,000 | 35 | 2021 | | 2024.05.10 | ¿ù¼¼ | »ïÁ¤ºô¸®Áö³ªµ¿ | 2 | 51.54 | 15,000 | 40 | 1992 | | 2024.05.09 | ¿ù¼¼ | ¿¬Èñ¸Ç¼ð³ªµ¿ | 2 | 106.08 | 32,200 | 16 | 1984 | | 2024.05.09 | ¿ù¼¼ | (271-24) | 3 | 28.37 | 1,000 | 81 | 2013 | | 2024.05.09 | ¿ù¼¼ | »ïÁ¤ºô¸®Áö³ªµ¿ | 3 | 51.54 | 11,000 | 75 | 1992 | | 2024.05.09 | Àü¼¼ | Âü»ç¶û½¦¸£ºô | 4 | 65 | 17,500 | 0 | 2003 | | 2024.05.09 | ¿ù¼¼ | ûdz¼·¡ | 2 | 15.81 | 1,000 | 70 | 2018 | | 2024.05.09 | ¿ù¼¼ | ¿ëÁÖÇÏÀÌÃ÷¸Ç¼Ç³ªµ¿ | 3 | 75.64 | 29,000 | 30 | 2003 | | 2024.05.08 | ¸Å¸Å | (165-102) | 1 | 31.86 | 25,000 | | 1987 | | 2024.05.08 | ¿ù¼¼ | ÇÔ²²ÁÖÅÃ4È£ | 4 | 55.92 | 2,500 | 36 | 2021 | | 2024.05.08 | ¿ù¼¼ | (81-30) | 1 | 34.28 | 3,500 | 35 | 1988 | | 2024.05.08 | ¿ù¼¼ | The¹Î¼º | 2 | 17.19 | 1,000 | 66 | 2020 | | 2024.05.08 | ¸Å¸Å | ÇØÇǺô | 4 | 51.91 | 33,000 | | 2006 | | 2024.05.08 | Àü¼¼ | (223-2) | 6 | 14.82 | 8,000 | 0 | 2012 | | 2024.05.07 | ¿ù¼¼ | µ¿¾çÇÏ¿ì¡ | 2 | 29.87 | 21,000 | 10 | 2016 | | 2024.05.06 | ¸Å¸Å | º°Àåºô¶ó(°¡µ¿) | 2 | 64.52 | 35,500 | | 2002 | | 2024.05.06 | Àü¼¼ | ¼ºÀ缾Ʈ¸®¿ò | 3 | 38.89 | 31,000 | 0 | 2018 | | 2024.05.04 | Àü¼¼ | ´ÙÀ̾ÆÄ³½½ | 2 | 29.07 | 23,000 | 0 | 2017 | | 2024.05.04 | ¿ù¼¼ | À̰ºôµù | 2 | 26.43 | 19,000 | 9 | 2014 | | 2024.05.04 | ¿ù¼¼ | ¿¡¹ö±×¸°ºô¶ó | 3 | 69.64 | 23,800 | 6 | 2002 | | 2024.05.03 | Àü¼¼ | ÇѰÁö¿Àºô | 5 | 52.57 | 14,840 | 0 | 2015 | | 2024.05.03 | Àü¼¼ | ÇØºñÄ¡ÇϿ콺 | 2 | 29.13 | 25,100 | 0 | 2017 | | 2024.05.02 | ¿ù¼¼ | µ¿¾çÇÏ¿ì¡ | 5 | 42.8 | 32,000 | 20 | 2016 | | 2024.05.02 | ¿ù¼¼ | ¿¡µ§ºô¶ó | -1 | 38.94 | 9,000 | 20 | 1995 | | 2024.05.02 | ¿ù¼¼ | ¿µ±¤ºô | 3 | 28.92 | 11,000 | 30 | 2010 | | 2024.05.02 | Àü¼¼ | Ç츮ƼÁö | 3 | 37.51 | 30,000 | 0 | 2017 | | 2024.05.02 | ¿ù¼¼ | ¼º»êÈÞ¸ÕŸ¿î | 4 | 28.13 | 23,000 | 10 | 2017 | | 2024.05.02 | Àü¼¼ | (165-45) | -1 | 34.92 | 9,000 | 0 | 1989 | | 2024.05.02 | Àü¼¼ | (165-45) | -1 | 34.92 | 8,490 | 0 | 1989 | | 2024.05.01 | ¸Å¸Å | ¶óºñ¾Ó·ÎÁî | 4 | 45.42 | 47,000 | | 2017 | | 2024.05.01 | ¿ù¼¼ | (271-24) | 5 | 51.2 | 3,000 | 111 | 2013 | | 2024.05.01 | Àü¼¼ | ´ë¿îºô¶ó | 2 | 35.13 | 10,000 | 0 | 1989 | | 2024.05.01 | Àü¼¼ | ¼Ò³ëÇϿ콺¼º»ê2Â÷ | 3 | 29.99 | 25,200 | 0 | 2017 | | 2024.05.01 | ¿ù¼¼ | ¼º»ê½ÃƼºô¶ó | 2 | 77.68 | 16,000 | 79 | 1996 | | 2024.05.01 | ¿ù¼¼ | À¯Áøºô¶ó | 2 | 36.18 | 15,800 | 20 | 1989 | | 2024.05.01 | ¿ù¼¼ | ÈÀÌÆ®ºô | 4 | 29.93 | 23,900 | 10 | 2015 | | 2024.04.30 | ¿ù¼¼ | sweetseoulresidence | 3 | 14.04 | 8,000 | 10 | 2013 | | 2024.04.29 | ¿ù¼¼ | ³ëºí·¹½ººô | 5 | 80.42 | 3,000 | 194 | 2002 | | 2024.04.29 | ¿ù¼¼ | ±×·¹À̽ººôBµ¿ | 4 | 82.91 | 10,000 | 170 | 2006 | | 2024.04.28 | Àü¼¼ | ³ª´®ºô | 2 | 56.09 | 20,700 | 0 | 2011 | | 2024.04.28 | ¿ù¼¼ | ¼º»êºô¶ó | 2 | 25.92 | 1,000 | 64 | 2002 | | 2024.04.28 | Àü¼¼ | ÇÑÀϺô¸®Áö³ªµ¿ | 2 | 77.46 | 33,000 | 0 | 1990 | | 2024.04.28 | ¸Å¸Å | ½´Ææ´õ°¶·¯¸® | 4 | 33.09 | 44,000 | | 2017 | | 2024.04.27 | ¸Å¸Å | ¼°æÆÓ¸®½º(102µ¿) | 2 | 29.76 | 41,000 | | 2019 | | 2024.04.27 | ¸Å¸Å | ¼°æÆÓ¸®½º(102µ¿) | 2 | 29.76 | 41,000 | | 2019 | | 2024.04.27 | ¿ù¼¼ | SELECTED2È£Á¡ | 3 | 15.12 | 1,000 | 57 | 2020 | | 2024.04.27 | ¿ù¼¼ | µ¿Çöºô¶ó | 4 | 42.63 | 5,000 | 85 | 1992 | | 2024.04.26 | ¿ù¼¼ | ÀÌ·¹ºô¶óÆ®Bµ¿ | 2 | 17.28 | 1,000 | 52 | 2011 | | 2024.04.26 | Àü¼¼ | ±Ý°ºô¶ó´Ùµ¿ | 1 | 46.8 | 19,000 | 0 | 1986 | | 2024.04.26 | Àü¼¼ | ÆÓ¸®½ººä | 5 | 43.37 | 34,500 | 0 | 2018 | | 2024.04.26 | ¸Å¸Å | ¼º»êµ¿ÀÌ¿¡½ºÇÏÀÓ | 5 | 57.66 | 56,400 | | 2019 | | 2024.04.24 | Àü¼¼ | ±×·¹À̽ººô(271-34) | 5 | 29.46 | 15,000 | 0 | 2014 | | 2024.04.24 | ¿ù¼¼ | ¼º»êÁö±¸¿¬¸³ÁÖÅÃÁ¦31µ¿ | 1 | 25.06 | 12,700 | 10 | 1976 | | 2024.04.24 | Àü¼¼ | ´õÇ÷¹À̽º | 3 | 22.76 | 25,000 | 0 | 2019 | | 2024.04.24 | ¿ù¼¼ | À¯ÀϺô¸®Áö2´ÜÁö | 3 | 29.09 | 22,000 | 10 | 2016 | | 2024.04.24 | ¸Å¸Å | ´Ù¿Â½£ | 4 | 34.94 | 43,500 | | 2016 | | 2024.04.24 | ¿ù¼¼ | À¯ÀϺô¸®Áö2´ÜÁö | 3 | 29.09 | 22,000 | 10 | 2016 | | 2024.04.23 | ¿ù¼¼ | »ï¼º·º½ººô¶óAµ¿ | 2 | 36.96 | 20,000 | 10 | 1992 | | 2024.04.23 | Àü¼¼ | ¼º»êÈÞ¸ÕŸ¿î(277-41) | 6 | 26.47 | 30,000 | 0 | 2021 | | 2024.04.23 | ¿ù¼¼ | À¯¾Èºô¶ó | 1 | 64.89 | 3,000 | 90 | 2001 | | 2024.04.23 | Àü¼¼ | û±â¿Íºô¶óCµ¿ | 3 | 53.34 | 19,000 | 0 | 1986 | | 2024.04.23 | ¸Å¸Å | (210-25) | 2 | 76.69 | 46,500 | | 2008 | | 2024.04.22 | ¿ù¼¼ | ÆÓ¸®½ººä | 1 | 31.97 | 8,000 | 55 | 2018 | | 2024.04.22 | ¿ù¼¼ | ¿¤Áöºô | 2 | 50.49 | 2,000 | 100 | 2002 | | 2024.04.21 | Àü¼¼ | (251-27) | 2 | 60.89 | 23,000 | 0 | 2004 | | 2024.04.20 | Àü¼¼ | (81-102) | 2 | 51.54 | 17,000 | 0 | 1992 | | 2024.04.20 | ¿ù¼¼ | ¼±È£ºô | 4 | 72.58 | 10,000 | 90 | 2015 | | 2024.04.20 | ¸Å¸Å | Áö¿Àºô | 4 | 35.6 | 33,500 | | 2012 | | 2024.04.20 | Àü¼¼ | ±ÙÈ£¾ÆÆ® | 4 | 80.44 | 26,000 | 0 | 1995 | | 2024.04.19 | Àü¼¼ | ¼º¿î | 2 | 52.24 | 23,000 | 0 | 2011 | | 2024.04.19 | ¿ù¼¼ | ¿ô´ã | 2 | 15.64 | 1,000 | 55 | 2013 | | 2024.04.19 | Àü¼¼ | ¼Ò³ëÇϿ콺 | 4 | 39.67 | 31,600 | 0 | 2017 | | 2024.04.19 | ¸Å¸Å | ¼¾ÅÒ½ÃÆ¼ | 3 | 46.62 | 47,300 | | 2018 | | 2024.04.18 | ¿ù¼¼ | ¼º»êÁö±¸¿¬¸³ÁÖÅÃÁ¦31µ¿ | 1 | 22.68 | 11,900 | 20 | 1976 | | 2024.04.18 | ¿ù¼¼ | (58-10) | 3 | 13.82 | 1,000 | 52 | 2013 | | 2024.04.18 | ¸Å¸Å | ¼°æÆÓ¸®½º(102µ¿) | 3 | 29.76 | 41,000 | | 2019 | | 2024.04.18 | Àü¼¼ | ¼°æÆÓ¸®½º(102µ¿) | 3 | 29.76 | 26,775 | 0 | 2019 | | 2024.04.18 | Àü¼¼ | ·üÇϸ°ºô¸®Áö | 2 | 37.02 | 20,000 | 0 | 2012 | | 2024.04.18 | Àü¼¼ | ÈÀÌÆ®ºô | 2 | 29.93 | 25,000 | 0 | 2015 | | 2024.04.17 | Àü¼¼ | (165-85) | 3 | 17.16 | 10,000 | 0 | 2023 | | 2024.04.16 | Àü¼¼ | ¿ùµå±×¶ûºôBµ¿ | 2 | 61.65 | 27,000 | 0 | 2009 | | 2024.04.16 | Àü¼¼ | À̰ºôµù | 3 | 27.39 | 22,000 | 0 | 2014 | | 2024.04.16 | Àü¼¼ | ´Ùº£·Î | 4 | 29.05 | 17,000 | 0 | 2016 | | 2024.04.16 | ¸Å¸Å | Ç츮ƼÁö | 2 | 37.31 | 45,000 | | 2017 | | 2024.04.16 | ¸Å¸Å | ´õ¿øÆÓ¸®½º | 4 | 55.1 | 67,000 | | 2023 | | 2024.04.15 | ¿ù¼¼ | dz¸²ÁÖÅà | 4 | 46.02 | 1,000 | 70 | 1995 | | 2024.04.15 | Àü¼¼ | ÁÖ¿¬ÇϿ콺 | 3 | 27.97 | 22,500 | 0 | 2020 | | 2024.04.15 | Àü¼¼ | (200-327) | 4 | 41.85 | 20,000 | 0 | 1992 | | 2024.04.15 | Àü¼¼ | ·üÇϸ°ºô¸®Áö | 3 | 37.02 | 20,000 | 0 | 2012 | | 2024.04.15 | Àü¼¼ | ¼Ò³ëÇϿ콺¼º»ê2Â÷ | 3 | 29.79 | 25,500 | 0 | 2017 | | 2024.04.15 | Àü¼¼ | (200-327) | 4 | 41.85 | 20,000 | 0 | 1992 | | 2024.04.15 | ¸Å¸Å | º°Àåºô¶ó(°¡µ¿) | 2 | 64.52 | 37,700 | | 2002 | | 2024.04.15 | ¸Å¸Å | ¿µÀκô¶ó | 1 | 35.64 | 35,000 | | 1992 | | 2024.04.13 | Àü¼¼ | (614-8) | -1 | 32.31 | 8,500 | 0 | 1988 | | 2024.04.13 | Àü¼¼ | ´Ùº£·Î | 3 | 29.98 | 26,700 | 0 | 2017 | | 2024.04.13 | Àü¼¼ | ¼Ò³ëÇϿ콺¼º»ê2Â÷ | 3 | 43.47 | 30,000 | 0 | 2017 | | 2024.04.13 | Àü¼¼ | ¼Ò³ëÇϿ콺¼º»ê2Â÷ | 3 | 43.47 | 30,000 | 0 | 2017 | | 2024.04.13 | ¿ù¼¼ | ¿µ±¤ºô | 4 | 25.54 | 10,000 | 28 | 2010 | | 2024.04.12 | ¿ù¼¼ | (160-1) | 1 | 39.96 | 5,000 | 62 | 1992 | | 2024.04.12 | ¸Å¸Å | ¿µÀκô¶ó | 1 | 35.52 | 37,000 | | 1992 | | 2024.04.12 | ¿ù¼¼ | ºÎ¼ººô¶ó(2Â÷) | -1 | 39.01 | 8,500 | 10 | 1993 | | 2024.04.12 | ¿ù¼¼ | Äý | 4 | 15.3 | 500 | 53 | 2011 | | 2024.04.12 | Àü¼¼ | µ¿¾çÇÏ¿ì¡ | 6 | 37.77 | 30,000 | 0 | 2018 | | 2024.04.11 | ¿ù¼¼ | TheGenesis | 4 | 29.95 | 2,000 | 105 | 2014 | | 2024.04.11 | ¿ù¼¼ | ´õÆ®¸®´ÏƼ | 2 | 27.86 | 1,000 | 160 | 2023 | | 2024.04.11 | Àü¼¼ | ´Ù¿ÀÇϿ콺 | 2 | 27.45 | 25,500 | 0 | 2019 | | 2024.04.10 | ¿ù¼¼ | ½´Ææ´õ°¶·¯¸® | 1 | 32.32 | 26,500 | 20 | 2017 | | 2024.04.10 | Àü¼¼ | ´ë¸íÇ®ÇϿ콺 | 2 | 18.06 | 11,000 | 0 | 2012 | | 2024.04.10 | Àü¼¼ | °¡¿Â´©¸® | 5 | 27.61 | 16,000 | 0 | 2011 | | 2024.04.09 | ¿ù¼¼ | º¸¾Æ½ººô¶ó | 5 | 48.18 | 22,000 | 14 | 2002 | | 2024.04.08 | ¸Å¸Å | ¸ÞÁ¶Æ®·Ð¥± | 2 | 149.63 | 115,500 | | 2007 | | 2024.04.08 | ¸Å¸Å | ±ÙÈ£¾ÆÆ® | 1 | 43.04 | 23,600 | | 1995 | | 2024.04.08 | Àü¼¼ | ±ÙÈ£¾ÆÆ® | 3 | 48.1 | 18,000 | 0 | 1995 | | 2024.04.08 | ¿ù¼¼ | (141-37) | 1 | 26.16 | 11,900 | 20 | 1990 | | 2024.04.08 | ¿ù¼¼ | (141-37) | 1 | 26.16 | 11,900 | 18 | 1990 | | 2024.04.08 | ¸Å¸Å | Æç¸®Ã¼ | 4 | 50.75 | 38,000 | | 2011 | | 2024.04.08 | Àü¼¼ | ¼º»êµ¿ÀÌ¿¡½ºÇÏÀÓ | 2 | 29.95 | 33,000 | 0 | 2019 | | 2024.04.08 | ¸Å¸Å | (621-8) | 3 | 48.69 | 25,000 | | 2002 | | 2024.04.07 | Àü¼¼ | ¿¡¹ö±×¸°ºô¶ó | 3 | 73.62 | 25,200 | 0 | 2002 | | 2024.04.07 | Àü¼¼ | (200-369) | 2 | 72.66 | 32,000 | 0 | 2012 | | 2024.04.06 | ¿ù¼¼ | ÈÀÌÆ®ºô | 3 | 42.89 | 19,000 | 6 | 2003 | | 2024.04.06 | ¿ù¼¼ | Ç츮ƼÁö | 5 | 37.31 | 29,000 | 20 | 2017 | | 2024.04.06 | Àü¼¼ | ´ÙÀ̾ÆÄ³½½ | 3 | 29.03 | 24,000 | 0 | 2017 | | 2024.04.06 | Àü¼¼ | ¼Ò³ëÇϿ콺¼º»ê3Â÷ | 5 | 40.4 | 30,990 | 0 | 2018 | | 2024.04.06 | Àü¼¼ | µ¿¾çÇÏ¿ì¡ | 2 | 43.87 | 37,100 | 0 | 2018 | | 2024.04.06 | Àü¼¼ | ´ÙÀ̾ÆÄ³½½ | 3 | 29.03 | 24,000 | 0 | 2017 | | 2024.04.06 | ¿ù¼¼ | ¾Æºñ´¨ºô¶ó | 4 | 27.24 | 9,800 | 20 | 2002 | | 2024.04.06 | Àü¼¼ | Çà¿îºô¶ó | 4 | 77.67 | 26,800 | 0 | 2001 | | 2024.04.06 | ¿ù¼¼ | Çý¿øºô¸®Áö | -1 | 61.74 | 12,000 | 25 | 1993 | | 2024.04.05 | ¸Å¸Å | (165-85) | 2 | 17.16 | 28,800 | | 2023 | | 2024.04.05 | Àü¼¼ | ¼Ò³ëÇϿ콺 | 4 | 32.49 | 25,000 | 0 | 2017 | | 2024.04.05 | ¿ù¼¼ | ·°Å°ºô¶ó | 3 | 36.6 | 5,000 | 75 | 1990 | | 2024.04.04 | ¿ù¼¼ | ÈÀÌÆ®ºô | 3 | 42.89 | 17,850 | 4 | 2003 | | 2024.04.04 | ¸Å¸Å | ÈÀÌÆ®ºô | 2 | 43.97 | 42,000 | | 2015 | | 2024.04.03 | Àü¼¼ | ¿¤Áöºô | 2 | 49.12 | 23,900 | 0 | 2002 | | 2024.04.03 | Àü¼¼ | ÈÞ¸Õºô | -1 | 96.27 | 37,000 | 0 | 2011 | | 2024.04.03 | ¸Å¸Å | (165-85) | 3 | 17.16 | 27,000 | | 2023 | | 2024.04.03 | ¸Å¸Å | ´ë¼ººô¶óBµ¿ | 1 | 36.9 | 32,500 | | 1989 | | 2024.04.02 | Àü¼¼ | ÀåÀº°ñµåºô¶ó | 1 | 72.66 | 28,000 | 0 | 1997 | | 2024.04.02 | ¸Å¸Å | (165-85) | 3 | 17.16 | 30,000 | | 2023 | | 2024.04.02 | Àü¼¼ | û±â¿Íºô¶óCµ¿ | 1 | 53.34 | 21,000 | 0 | 1986 | | 2024.04.02 | Àü¼¼ | ¿Â¼¼ÆÄÀκô | 2 | 42.57 | 25,000 | 0 | 2014 | | 2024.04.02 | Àü¼¼ | Ç츮ƼÁö | 4 | 37.31 | 30,000 | 0 | 2017 | | 2024.04.01 | Àü¼¼ | (144-5) | -1 | 37.32 | 7,000 | 0 | 1986 | | 2024.04.01 | ¿ù¼¼ | (140-31) | 2 | 35.34 | 14,600 | 20 | 1986 | | 2024.04.01 | ¿ù¼¼ | À̰ºôµù | 3 | 14.27 | 7,000 | 18 | 2014 | | 2024.04.01 | ¿ù¼¼ | Äý | 5 | 22.11 | 11,800 | 6 | 2011 | | 2024.04.01 | Àü¼¼ | Çö´ëºô¶ó | 2 | 51.99 | 19,500 | 0 | 1990 | | 2024.03.31 | ¿ù¼¼ | º°Àå±×¸°¸Ç¼Ç | 1 | 63.74 | 24,000 | 40 | 2002 | | 2024.03.30 | ¿ù¼¼ | µ¿¿ìºô¶ó | -1 | 35.1 | 8,000 | 20 | 1992 | | 2024.03.30 | Àü¼¼ | ¼ºÇöÇÏÀ̺ô | 3 | 54.18 | 32,000 | 0 | 2017 | | 2024.03.30 | ¿ù¼¼ | (165-102) | 1 | 31.86 | 1,000 | 45 | 1987 | | 2024.03.30 | ¿ù¼¼ | Çý¼ºÆÄÅ©ºô | 2 | 66.63 | 27,000 | 20 | 2002 | | 2024.03.29 | ¿ù¼¼ | ¿¡µ§ºô¶ó | 3 | 43.18 | 1,000 | 70 | 1995 | | 2024.03.29 | Àü¼¼ | (200-141) | 2 | 43.12 | 12,000 | 0 | 2002 | | 2024.03.29 | ¿ù¼¼ | ´ÙÀºÁÖÅà | 2 | 29.41 | 3,000 | 65 | 2016 | | 2024.03.29 | ¿ù¼¼ | ¹Ù¿ò»þÀκô | 4 | 29.97 | 2,000 | 130 | 2020 | | 2024.03.28 | Àü¼¼ | (165-85) | 4 | 23.13 | 15,000 | 0 | 2023 | | 2024.03.28 | Àü¼¼ | Ȳ±Ýºô¸®Áö | 2 | 37.55 | 22,010 | 0 | 2015 | | 2024.03.28 | ¿ù¼¼ | ÇÔ²²ÁÖÅÃ3È£ | 3 | 46.6 | 18,200 | 40 | 2020 | | 2024.03.28 | ¿ù¼¼ | ¿µ±¤ºô | 5 | 55.79 | 15,000 | 46 | 2010 | | 2024.03.27 | ¿ù¼¼ | »ê.³».µé | 2 | 13.96 | 1,000 | 60 | 2013 | | 2024.03.27 | Àü¼¼ | ¸¸¿¬¼¾ÅÒ½ÃÆ¼ | 4 | 29.35 | 17,000 | 0 | 2013 | | 2024.03.27 | ¿ù¼¼ | »ê.³».µé | 2 | 13.96 | 1,000 | 60 | 2013 | | 2024.03.27 | ¿ù¼¼ | ½´ÆæÇÏÀÓ¼º»ê | 4 | 29.99 | 20,000 | 68 | 2017 | | 2024.03.27 | Àü¼¼ | ´õŬ·¡½º | 3 | 23.09 | 26,770 | 0 | 2019 | | 2024.03.26 | ¿ù¼¼ | ÇѼֺô¶ó | 2 | 60.5 | 5,000 | 100 | 1996 | | 2024.03.26 | ¿ù¼¼ | ÇѼֺô¶ó | 2 | 60.5 | 5,000 | 100 | 1996 | | 2024.03.25 | Àü¼¼ | µ¿¾çÇÏ¿ì¡ | 2 | 50.16 | 35,000 | 0 | 2015 | | 2024.03.25 | Àü¼¼ | ¼º»êÁö¿À | 3 | 22.91 | 25,000 | 0 | 2021 | | 2024.03.25 | ¿ù¼¼ | ÁÖ¿µ¾ÆÆ®ºô¶óAµ¿ | 4 | 58.06 | 12,000 | 60 | 1998 | | 2024.03.25 | ¿ù¼¼ | ¼º»êÁö±¸¿¬¸³ÁÖÅÃÁ¦31µ¿ | 1 | 22.68 | 11,900 | 10 | 1976 | | 2024.03.25 | ¿ù¼¼ | °¶·¯¸®ÇϿ콺 | 4 | 34.9 | 22,000 | 20 | 2014 | | 2024.03.25 | ¿ù¼¼ | ¼º»êÁö±¸¿¬¸³ÁÖÅÃÁ¦31µ¿ | 1 | 22.68 | 11,600 | 10 | 1976 | | 2024.03.24 | Àü¼¼ | ÇØºñÄ¡ÇϿ콺 | 1 | 41.18 | 25,800 | 0 | 2017 | | 2024.03.23 | ¿ù¼¼ | µ¿»ïºô¶óŸ¿î2µ¿ | 1 | 37.08 | 16,000 | 40 | 1988 | | 2024.03.23 | Àü¼¼ | (214-44)ÈÀÌÆ®ºô | 5 | 47.84 | 18,900 | 0 | 2005 | | 2024.03.22 | Àü¼¼ | ¼º»ê±×¸°ºô¶ó | 2 | 60.5 | 21,500 | 0 | 1991 | | 2024.03.22 | ¿ù¼¼ | ½´ÆæÇÏÀÓ¼º»ê | 1 | 29.78 | 24,000 | 15 | 2017 | | 2024.03.22 | ¿ù¼¼ | ½´ÆæÇÏÀÓ¼º»ê | 1 | 29.78 | 24,000 | 15 | 2017 | | 2024.03.22 | Àü¼¼ | À¯¼ººô¶ó | -1 | 52.44 | 13,500 | 0 | 1996 | | 2024.03.22 | ¿ù¼¼ | ÈÁ¤ºôµù | 4 | 81.74 | 6,000 | 120 | 2003 | | 2024.03.22 | ¿ù¼¼ | (21-4) | 2 | 14.58 | 2,000 | 43 | 2012 | | 2024.03.21 | ¿ù¼¼ | µµ¿øºô¶ó7µ¿ | -1 | 36.9 | 1,000 | 40 | 1990 | | 2024.03.21 | ¿ù¼¼ | ¼º¿ìºô¶ó | -1 | 30.03 | 4,000 | 40 | 1992 | | 2024.03.20 | Àü¼¼ | ÁÖ¿¬ÇϿ콺 | 2 | 27.97 | 24,000 | 0 | 2020 | | 2024.03.20 | ¿ù¼¼ | Çö´ëÇÏÀÌÃ÷ºô¶ó | 1 | 40.03 | 13,000 | 30 | 1993 | | 2024.03.20 | ¿ù¼¼ | Çö´ëÇÏÀÌÃ÷ºô¶ó | 1 | 40.03 | 13,000 | 30 | 1993 | | 2024.03.19 | Àü¼¼ | ¼Ò³ëÇϿ콺¼º»ê1Â÷ | 5 | 28.99 | 25,950 | 0 | 2017 | | 2024.03.19 | ¿ù¼¼ | ¼º»êÁö±¸¿¬¸³ÁÖÅÃÁ¦31µ¿ | 2 | 26.22 | 14,700 | 13 | 1976 | | 2024.03.19 | Àü¼¼ | ´ë¸íÇ®ÇϿ콺2 | 2 | 20.34 | 15,000 | 0 | 2012 | | 2024.03.18 | Àü¼¼ | ´ë¼ººô¶ó | 3 | 61.99 | 26,000 | 0 | 1996 | | 2024.03.17 | ¿ù¼¼ | ¼º»êÈÞ¸ÕŸ¿î(277-41) | 2 | 26.78 | 27,000 | 17 | 2021 | | 2024.03.17 | Àü¼¼ | ´õÇ÷¹À̽º | 3 | 29.95 | 27,000 | 0 | 2019 | | 2024.03.17 | ¿ù¼¼ | °Ådzºô¶ó | 1 | 74.54 | 20,000 | 10 | 2002 | | 2024.03.16 | Àü¼¼ | (262-10) | 1 | 45.15 | 17,000 | 0 | 2002 | | 2024.03.16 | ¿ù¼¼ | ¼º»êµ¿251-21´Ù¼¼´ëÁÖÅà | 1 | 29.9 | 1,000 | 39 | 2002 | | 2024.03.16 | Àü¼¼ | À¯ÀϺô¸®Áö1´ÜÁö | 3 | 40.45 | 27,000 | 0 | 2016 | | 2024.03.16 | Àü¼¼ | (200-89)Çѽźô¶ó | 3 | 26.62 | 15,000 | 0 | 1994 | | 2024.03.16 | Àü¼¼ | ´õÇ÷¹À̽º | 4 | 20.06 | 20,400 | 0 | 2019 | | 2024.03.16 | ¿ù¼¼ | µ¿¼ººô¶ó | 4 | 61.28 | 20,000 | 20 | 1992 | | 2024.03.16 | Àü¼¼ | È£¼º±×¸°ÆÄÅ©Aµ¿ | 3 | 55.86 | 19,000 | 0 | 2002 | | 2024.03.15 | ¿ù¼¼ | ¼º¿î | 3 | 47.86 | 3,000 | 100 | 2010 | | 2024.03.15 | Àü¼¼ | °¡³ª¾È | 3 | 90.31 | 23,703 | 0 | 1980 | | 2024.03.15 | Àü¼¼ | (254-17) | 2 | 33.45 | 24,000 | 0 | 2011 | | 2024.03.15 | ¿ù¼¼ | ½ÅÀϺô¶ó | 3 | 47.43 | 5,000 | 70 | 1992 | | 2024.03.14 | Àü¼¼ | ¼Ò³ëÇϿ콺¼º»ê1Â÷ | 3 | 32.97 | 25,000 | 0 | 2017 | | 2024.03.14 | Àü¼¼ | (261-2) | -1 | 40.26 | 8,000 | 0 | 1986 | | 2024.03.14 | Àü¼¼ | °ñµçÆÓ¸®½º | 4 | 36.21 | 29,300 | 0 | 2017 | | 2024.03.14 | ¿ù¼¼ | ¼º»ê¾ÆÆ®ºô | 2 | 21.83 | 1,000 | 47 | 2012 | | 2024.03.14 | Àü¼¼ | ÆÓ¸®½ººä | 4 | 43.37 | 33,000 | 0 | 2018 | | 2024.03.13 | Àü¼¼ | ´ë¿ìºô¶ó | 4 | 84.47 | 30,000 | 0 | 1995 | | 2024.03.13 | Àü¼¼ | ´ë¼ººô¶ó | -1 | 61.99 | 19,900 | 0 | 1996 | | 2024.03.12 | Àü¼¼ | (147-2) | 3 | 36.45 | 11,000 | 0 | 1990 | | 2024.03.12 | ¿ù¼¼ | ÇÑÁÖÆÓ¸®½º | 2 | 27.36 | 25,800 | 25 | 2019 | | 2024.03.12 | ¿ù¼¼ | ¼º»êÈÞ¸ÕŸ¿î | 2 | 28.13 | 23,000 | 10 | 2017 | | 2024.03.12 | ¿ù¼¼ | ¼º»êµ¿»ó°¡ÁÖÅà | 4 | 74.51 | 15,000 | 50 | 2003 | | 2024.03.12 | ¿ù¼¼ | ÇÔ²²ÁÖÅÃ4È£ | 3 | 28.21 | 9,500 | 33 | 2021 | | 2024.03.12 | ¿ù¼¼ | (614-6) | -1 | 39.18 | 2,000 | 45 | 1986 | | 2024.03.10 | Àü¼¼ | À¯ÀϺô¸®Áö | 3 | 29.88 | 26,000 | 0 | 2016 | | 2024.03.09 | Àü¼¼ | (219-3) | -1 | 37.02 | 9,000 | 0 | 1990 | | 2024.03.09 | Àü¼¼ | ¶óºñ¾Ó·ÎÁî | 6 | 29.96 | 23,940 | 0 | 2019 | | 2024.03.09 | Àü¼¼ | Ç츮ƼÁö | 6 | 36.09 | 29,800 | 0 | 2017 | | 2024.03.09 | ¿ù¼¼ | ûdz¼·¡ | 4 | 13.42 | 3,000 | 58 | 2018 | | 2024.03.09 | Àü¼¼ | ¼º»êÁö¿À | 4 | 26.45 | 25,800 | 0 | 2021 | | 2024.03.09 | ¿ù¼¼ | (621-8) | 4 | 76.95 | 2,000 | 80 | 2002 | | 2024.03.08 | ¿ù¼¼ | (200-135) | -1 | 36.36 | 5,000 | 35 | 1990 | | 2024.03.08 | ¿ù¼¼ | (278-48) | 1 | 13.77 | 1,000 | 40 | 2013 | | 2024.03.08 | Àü¼¼ | (64-13) | 3 | 63.56 | 23,900 | 0 | 2003 | | 2024.03.08 | ¿ù¼¼ | ¸®½Ãº»ÇϿ콺 | 2 | 29.08 | 2,000 | 90 | 2016 | | 2024.03.07 | Àü¼¼ | ¸í»óºô¶ó | 1 | 37.02 | 18,000 | 0 | 1990 | | 2024.03.07 | ¿ù¼¼ | ÇÑÁÖÆÓ¸®½º | 5 | 26.49 | 5,000 | 122 | 2019 | | 2024.03.06 | Àü¼¼ | (240-24) | 2 | 49.29 | 26,460 | 0 | 2012 | | 2024.03.06 | Àü¼¼ | ¼Ò³ëÇϿ콺 | 2 | 39.67 | 31,600 | 0 | 2017 | | 2024.03.06 | ¿ù¼¼ | »ïÁ¤ºô¶óAµ¿ | 3 | 36.73 | 13,000 | 30 | 1990 | | 2024.03.06 | Àü¼¼ | °æÀϺô¶ó | 3 | 47.95 | 13,600 | 0 | 1994 | | 2024.03.06 | Àü¼¼ | (240-24) | 2 | 49.29 | 26,460 | 0 | 2012 | | 2024.03.06 | ¿ù¼¼ | û¿îºô¸®Áö | 3 | 64.8 | 5,000 | 100 | 2008 | | 2024.03.06 | Àü¼¼ | ´õŬ·¡½º | 3 | 20 | 25,000 | 0 | 2019 | | 2024.03.06 | Àü¼¼ | ½´ÆæÇÏÀÓ¼º»ê | 2 | 28.43 | 25,000 | 0 | 2017 | | 2024.03.06 | Àü¼¼ | ¿©¹Îºô¶ó | 2 | 55.5 | 21,000 | 0 | 2003 | | 2024.03.06 | Àü¼¼ | »ïÁ¤ºô¶óAµ¿ | 3 | 36.73 | 13,000 | 0 | 1990 | | 2024.03.05 | Àü¼¼ | û¿îºô¶ó | 3 | 38.89 | 14,500 | 0 | 1992 | | 2024.03.05 | Àü¼¼ | ¿ì¸®Áýºô¶ó | 3 | 53.65 | 22,500 | 0 | 2002 | | 2024.03.05 | ¿ù¼¼ | ¿ô´ã | 3 | 17.49 | 1,000 | 60 | 2013 | | 2024.03.05 | ¿ù¼¼ | (13-23) | 2 | 14.43 | 2,000 | 42 | 2013 | | 2024.03.05 | Àü¼¼ | Çѽ£ºô¶ó | 5 | 51.84 | 26,500 | 0 | 2011 | | 2024.03.05 | ¿ù¼¼ | ¼º»êºô¶ó | 2 | 42.02 | 17,000 | 6 | 2002 | | 2024.03.05 | ¿ù¼¼ | µ¿»ïºô¶óŸ¿î1µ¿ | -1 | 36.52 | 9,700 | 15 | 1988 | | 2024.03.04 | ¿ù¼¼ | ´ë¼ººô¶ó | 2 | 61.99 | 0 | 30 | 1996 | | 2024.03.04 | ¿ù¼¼ | (92-13) | 4 | 21.68 | 1,000 | 55 | 2002 | | 2024.03.04 | Àü¼¼ | µ¿¾çÇÏ¿ì¡ | 3 | 29.95 | 27,000 | 0 | 2017 | | 2024.03.04 | ¿ù¼¼ | (137-19) | 4 | 21.32 | 500 | 45 | 1996 | | 2024.03.04 | ¿ù¼¼ | (621-8) | 4 | 76.95 | 5,000 | 145 | 2002 | | 2024.03.04 | ¿ù¼¼ | ÈÀθ®ºùÅÚ | 2 | 24.21 | 2,000 | 57 | 2003 | | 2024.03.04 | Àü¼¼ | µ¿¼ººô¶ó | 1 | 61.28 | 19,000 | 0 | 1992 | | 2024.03.04 | Àü¼¼ | ¼º¿î | 3 | 52.24 | 26,500 | 0 | 2011 | | 2024.03.03 | ¿ù¼¼ | Çý¿øºô¸®Áö | 3 | 75.75 | 3,000 | 135 | 1993 | | 2024.03.02 | ¿ù¼¼ | žçºô¶ó | -1 | 35.16 | 2,000 | 40 | 1993 | | 2024.03.02 | Àü¼¼ | ¼º»êÁö¿À | 3 | 23.27 | 25,000 | 0 | 2021 | | 2024.03.02 | Àü¼¼ | (200-257) | 3 | 59.98 | 27,700 | 0 | 2012 | | 2024.03.02 | Àü¼¼ | µ¿¾çÇÏ¿ì¡(257-7) | 4 | 42.69 | 33,000 | 0 | 2015 | | 2024.03.02 | ¿ù¼¼ | ¼º¹Ì | 3 | 69.51 | 10,000 | 40 | 1998 | | 2024.03.02 | ¿ù¼¼ | û±¸ºô¶ó | 1 | 36.3 | 500 | 70 | 1991 | | 2024.03.02 | ¿ù¼¼ | ´ëÇöÇÏÀ̺ô | 5 | 65.43 | 12,000 | 50 | 2004 | | 2024.03.02 | ¿ù¼¼ | ¼º¹Ì | 3 | 69.51 | 10,000 | 40 | 1998 | | 2024.03.02 | Àü¼¼ | ¼º»êÁö¿À | 3 | 23.27 | 25,000 | 0 | 2021 | | 2024.03.02 | ¿ù¼¼ | ¹«Áö°³ºô¶ó | 1 | 59.37 | 1,000 | 40 | 1977 | | 2024.03.01 | ¿ù¼¼ | Á¦À̺ô | 4 | 57.97 | 15,000 | 40 | 2014 | | 2024.03.01 | ¿ù¼¼ | ¼º¿øÇÏÀÌÃ÷6µ¿ | 1 | 38.1 | 1,000 | 50 | 1988 | | 2024.03.01 | ¿ù¼¼ | Á¦À̺ô | 4 | 57.97 | 15,000 | 35 | 2014 | | 2024.02.29 | ¿ù¼¼ | À§³Ê½º¿ø | 2 | 19.08 | 12,200 | 7 | 2013 | | 2024.02.29 | Àü¼¼ | °¶·¯¸®ÇϿ콺 | 4 | 53.86 | 30,000 | 0 | 2014 | | 2024.02.29 | ¿ù¼¼ | ¼º»êÈÞ¸ÕŸ¿î(277-41) | 6 | 25.86 | 29,000 | 10 | 2021 | | 2024.02.29 | ¿ù¼¼ | À¯¼ººô¶ó | 3 | 48.36 | 5,000 | 78 | 1996 | | 2024.02.29 | ¿ù¼¼ | ¼º»ïÁÖÅà | 2 | 46.27 | 18,000 | 10 | 1995 | | 2024.02.29 | Àü¼¼ | ±ÝdzÇÏÀ̺ô | 4 | 24.09 | 13,900 | 0 | 2011 | | 2024.02.29 | Àü¼¼ | ½Å¼ººô¶ó | -1 | 72.53 | 14,000 | 0 | 1996 | | 2024.02.29 | ¿ù¼¼ | The¹Î¼º | 3 | 17.19 | 2,000 | 58 | 2020 | | 2024.02.29 | Àü¼¼ | ¼º»ê±×¸°ºô¶ó | 2 | 60.5 | 10,000 | 0 | 1991 | | 2024.02.29 | ¿ù¼¼ | ¿ùµåÄźô¸®Áö | 5 | 48.81 | 2,000 | 90 | 2006 | | 2024.02.28 | Àü¼¼ | À̰¡¿¡½ºÅä | 4 | 31.16 | 25,000 | 0 | 2023 | | 2024.02.27 | Àü¼¼ | (36-6) | 1 | 24.61 | 10,000 | 0 | 1986 | | 2024.02.27 | Àü¼¼ | ´Ùº£·Î | 4 | 29.05 | 23,000 | 0 | 2016 | | 2024.02.27 | ¿ù¼¼ | dz¸²ÁÖÅà | 4 | 33.57 | 1,000 | 60 | 1995 | | 2024.02.26 | Àü¼¼ | ±Û·Î¸®È¨Áî | 3 | 29.9 | 30,000 | 0 | 2020 | | 2024.02.26 | Àü¼¼ | ½ÅÀϺô¶ó | 1 | 47.43 | 18,000 | 0 | 1992 | | 2024.02.26 | ¿ù¼¼ | ¿µ±¤ºô | 2 | 29.55 | 10,000 | 36 | 2010 | | 2024.02.26 | ¿ù¼¼ | ¿µ±¤ºô | 2 | 28.92 | 10,000 | 50 | 2010 | | 2024.02.26 | ¿ù¼¼ | ¿µ±¤ºô | 2 | 29.55 | 10,000 | 36 | 2010 | | 2024.02.26 | Àü¼¼ | ¼º»êÁ¦ÀϺô¶ó | -1 | 78.37 | 22,500 | 0 | 1991 | | 2024.02.25 | ¿ù¼¼ | °ñµå¸®Ä¡ | 4 | 21.24 | 15,200 | 8 | 2018 | | 2024.02.25 | Àü¼¼ | °ñµå¸®Ä¡ | 4 | 21.24 | 16,000 | 0 | 2018 | | 2024.02.24 | ¿ù¼¼ | ÀÌ·¹¼º»ê | 3 | 15.4 | 500 | 53 | 2013 | | 2024.02.24 | ¿ù¼¼ | ¼º»êÄ«¿îƼ | 4 | 33.22 | 1,000 | 53 | 2004 | | 2024.02.24 | ¿ù¼¼ | ½ºÀ§Æ®ºô | 3 | 41.3 | 7,000 | 58 | 2016 | | 2024.02.24 | ¿ù¼¼ | µ¿¾çÇÏ¿ì¡ | 5 | 28.8 | 25,000 | 15 | 2018 | | 2024.02.24 | ¿ù¼¼ | ½ºÀ§Æ®ºô | 1 | 41.3 | 2,000 | 79 | 2016 | | 2024.02.23 | Àü¼¼ | (165-85) | 3 | 17.16 | 10,000 | 0 | 2023 | | 2024.02.23 | Àü¼¼ | (165-85) | 3 | 17.16 | 10,000 | 0 | 2023 | | 2024.02.23 | Àü¼¼ | µµ¿øºô¶ó6µ¿ | 1 | 36.9 | 14,000 | 0 | 1990 | | 2024.02.23 | Àü¼¼ | ±×¸°ºô | 3 | 28.35 | 14,000 | 0 | 1998 | | 2024.02.23 | ¿ù¼¼ | ¸¶ÀÌ¿ò¼º»ê | 3 | 12.22 | 7,800 | 21 | 2014 | | 2024.02.23 | ¿ù¼¼ | °¡³ª¾È | 2 | 95.47 | 15,000 | 45 | 1980 | | 2024.02.22 | ¿ù¼¼ | ´ë¸íÆÄÅ©ºä | 2 | 29.86 | 5,000 | 70 | 2014 | | 2024.02.22 | ¿ù¼¼ | (252-3) | 2 | 15.64 | 200 | 20 | 1976 | | 2024.02.22 | ¿ù¼¼ | ´ë¸íÆÄÅ©ºä | 2 | 29.86 | 17,000 | 0 | 2014 | | 2024.02.22 | ¿ù¼¼ | ´õÆ®¸®´ÏƼ | 4 | 29.94 | 3,000 | 170 | 2023 | | 2024.02.21 | ¿ù¼¼ | ¸®Ä¡ºô | 5 | 22.96 | 500 | 50 | 2002 | | 2024.02.21 | Àü¼¼ | ÇູÀÇÁý | 2 | 67.52 | 29,000 | 0 | 2000 | | 2024.02.21 | Àü¼¼ | ´ë¸íÇ®ÇϿ콺2 | 5 | 19.87 | 14,200 | 0 | 2012 | | 2024.02.21 | ¿ù¼¼ | º£³×½º´Ù | 4 | 15.78 | 500 | 54 | 2013 | | 2024.02.20 | ¿ù¼¼ | (200-300) | -1 | 21.42 | 300 | 20 | 1995 | | 2024.02.20 | ¿ù¼¼ | ÈÀÌÆ®ºô | 2 | 42.89 | 16,000 | 18 | 2003 | | 2024.02.20 | Àü¼¼ | ÈÀÌÆ®ºô | 2 | 42.89 | 19,000 | 0 | 2003 | | 2024.02.20 | ¿ù¼¼ | °ñµçÆÓ¸®½º | 5 | 36.21 | 3,000 | 120 | 2017 | | 2024.02.20 | ¿ù¼¼ | ûdz¼·¡ | 2 | 16.35 | 1,000 | 63 | 2018 | | 2024.02.20 | ¿ù¼¼ | ÀÌ·¹ºô¶óÆ®Aµ¿ | 3 | 14.29 | 1,000 | 45 | 2011 | | 2024.02.19 | Àü¼¼ | À§³Ê½º¿ø | 3 | 21.28 | 13,600 | 0 | 2013 | | 2024.02.19 | Àü¼¼ | ¼Ò³ëÇϿ콺¼º»ê2Â÷ | 5 | 29.79 | 24,000 | 0 | 2017 | | 2024.02.19 | ¿ù¼¼ | (13-23) | 2 | 13.84 | 1,000 | 42 | 2013 | | 2024.02.19 | ¿ù¼¼ | ¿ùµåÇϿ콺 | 4 | 21.02 | 10,000 | 50 | 2014 | | 2024.02.19 | Àü¼¼ | ÇÑÈï½ÃƼºô | 3 | 50.88 | 22,000 | 0 | 2003 | | 2024.02.18 | Àü¼¼ | û¿îºô¶ó | 2 | 38.89 | 15,000 | 0 | 1992 | | 2024.02.18 | Àü¼¼ | û¿îºô¶ó | 2 | 38.89 | 15,000 | 0 | 1992 | | 2024.02.18 | Àü¼¼ | ±Ý°ºô¶ó³ªµ¿ | 2 | 46.89 | 18,000 | 0 | 1986 | | 2024.02.17 | Àü¼¼ | ÁÖ¿¬ÇϿ콺 | 2 | 27.95 | 22,400 | 0 | 2020 | | 2024.02.17 | Àü¼¼ | ´ÙÀºÁÖÅà | 2 | 26.23 | 13,000 | 0 | 2016 | | 2024.02.17 | ¿ù¼¼ | »ê.³».µé | 3 | 14.58 | 1,000 | 60 | 2013 | | 2024.02.16 | ¿ù¼¼ | (13-23) | 2 | 14.86 | 5,000 | 25 | 2013 | | 2024.02.16 | ¿ù¼¼ | ¼º¿øÇÏÀÌÃ÷8µ¿ | 2 | 36.72 | 300 | 25 | 1989 | | 2024.02.16 | ¿ù¼¼ | (13-23) | 2 | 14.88 | 2,000 | 43 | 2013 | | 2024.02.16 | Àü¼¼ | ´ë¸íÇ®ÇϿ콺 | 3 | 18.06 | 11,500 | 0 | 2012 | | 2024.02.16 | Àü¼¼ | žçºô¶ó | 2 | 35.16 | 13,000 | 0 | 1993 | | 2024.02.15 | ¿ù¼¼ | (13-23) | 3 | 14.43 | 3,000 | 35 | 2013 | | 2024.02.15 | ¿ù¼¼ | (58-10) | 4 | 11.45 | 500 | 54 | 2013 | | 2024.02.15 | ¿ù¼¼ | º£³×½º´Ù | 4 | 14.94 | 500 | 59 | 2013 | | 2024.02.15 | ¿ù¼¼ | (36-19) | 2 | 36.27 | 15,000 | 20 | 1987 | | 2024.02.15 | Àü¼¼ | ´ÙÀ̾ÆÄ³½½ | 2 | 29.03 | 23,000 | 0 | 2017 | | 2024.02.15 | Àü¼¼ | ¼º»êÇÏÀÌÃ÷ºô | 3 | 50.92 | 18,900 | 0 | 2002 | | 2024.02.15 | ¿ù¼¼ | ¼º»ê¾ÆÆ®ºô | 4 | 17.55 | 1,000 | 46 | 2012 | | 2024.02.14 | Àü¼¼ | À¯¸²ºô¶ó | -1 | 36.77 | 12,000 | 0 | 1987 | | 2024.02.14 | ¿ù¼¼ | ¸¶ÀÌ¿ò¼º»ê | 2 | 13.44 | 2,000 | 42 | 2014 | | 2024.02.14 | Àü¼¼ | Ç츮ƼÁö | 4 | 37.51 | 29,700 | 0 | 2017 | | 2024.02.14 | Àü¼¼ | ¼º»êÀÌÆ°Ä³½½ | 4 | 29.87 | 38,000 | 0 | 2023 | | 2024.02.14 | Àü¼¼ | ¼ºÀ缾Ʈ¸®¿ò | 2 | 37.49 | 32,800 | 0 | 2018 | | 2024.02.13 | Àü¼¼ | À¯µ¿ºô¸®Áö | 1 | 34.8 | 14,000 | 0 | 1996 | | 2024.02.13 | ¿ù¼¼ | (32-14) | 4 | 70.74 | 25,000 | 11 | 2012 | | 2024.02.13 | ¿ù¼¼ | À¯µ¿ºô¸®Áö | 1 | 35.52 | 1,000 | 60 | 1996 | | 2024.02.13 | ¿ù¼¼ | ´ë¸íÇ®ÇϿ콺 | 5 | 22.49 | 13,000 | 14 | 2012 | | 2024.02.13 | Àü¼¼ | ¼¼±Ùºô¶ó | 3 | 108.39 | 33,000 | 0 | 1993 | | 2024.02.13 | Àü¼¼ | ¼¼±Ùºô¶ó | 3 | 108.39 | 33,000 | 0 | 1993 | | 2024.02.13 | ¿ù¼¼ | (32-14) | 4 | 70.74 | 25,000 | 11 | 2012 | | 2024.02.13 | Àü¼¼ | ´ë¸íÇ®ÇϿ콺 | 3 | 23.2 | 15,000 | 0 | 2012 | | 2024.02.13 | ¿ù¼¼ | À̰ºôµù | 3 | 26.43 | 14,000 | 40 | 2014 | | 2024.02.12 | ¿ù¼¼ | (258-12) | 2 | 27.95 | 22,600 | 3 | 2017 | | 2024.02.12 | ¿ù¼¼ | (258-12) | 2 | 27.95 | 22,650 | 3 | 2017 | | 2024.02.12 | ¿ù¼¼ | (258-12) | 2 | 27.95 | 22,600 | 3 | 2017 | | 2024.02.08 | ¿ù¼¼ | ¿£Æ®¶ó¿ò¸¶Æ÷ | 11 | 26.94 | 25,000 | 50 | 2023 | | 2024.02.07 | Àü¼¼ | ¹Ù¿ò»þÀκô | 3 | 34.5 | 29,000 | 0 | 2020 | | 2024.02.07 | Àü¼¼ | ½ÃƼÇÏÀÓ¥±Bµ¿ | 5 | 24.59 | 30,400 | 0 | 2019 | | 2024.02.07 | Àü¼¼ | ´ë¿ìºô¶ó | 1 | 36.86 | 22,000 | 0 | 1990 | | 2024.02.06 | ¿ù¼¼ | ¼º»ê½ºÅ×ÀÌ | 5 | 15.51 | 500 | 63 | 2018 | | 2024.02.06 | Àü¼¼ | (4-10) | 2 | 47.69 | 15,400 | 0 | 1995 | | 2024.02.06 | Àü¼¼ | ¼ºÀ缾Ʈ¸®¿ò | 2 | 37.49 | 32,800 | 0 | 2018 | | 2024.02.06 | ¿ù¼¼ | ¿ùµåÇϿ콺 | 3 | 14.22 | 1,000 | 47 | 2014 | | 2024.02.06 | Àü¼¼ | ¿©¹Îºô¶ó | 3 | 55.5 | 22,000 | 0 | 2003 | | 2024.02.06 | ¿ù¼¼ | ¿©¹Îºô¶ó | 4 | 73.25 | 28,000 | 20 | 2003 | | 2024.02.05 | Àü¼¼ | ¼ºÀ缾Ʈ¸®¿ò | 4 | 35.88 | 30,400 | 0 | 2018 | | 2024.02.05 | Àü¼¼ | (200-369) | 3 | 72.66 | 32,000 | 0 | 2012 | | 2024.02.03 | ¿ù¼¼ | ¹Ù¿ò»þÀκô | 2 | 29.7 | 24,500 | 15 | 2020 | | 2024.02.03 | Àü¼¼ | ¿ùµåÄÅŸ¿ö(586-7) | 5 | 60.9 | 24,255 | 0 | 2003 | | 2024.02.03 | Àü¼¼ | ¼¼¹ÎÇÏÀÌÆÄÅ© | 4 | 30.09 | 28,000 | 0 | 2016 | | 2024.02.03 | ¿ù¼¼ | ¿¡À̽ºÅ¸¿î | 4 | 28.55 | 2,000 | 110 | 2016 | | 2024.02.03 | ¿ù¼¼ | ¼ºÀ缾Ʈ¸®¿ò | 6 | 29.82 | 24,690 | 19 | 2018 | | 2024.02.03 | ¿ù¼¼ | ¼¼ÀϺô¶ó | -1 | 51 | 1,000 | 60 | 1992 | | 2024.02.02 | Àü¼¼ | (200-369) | 3 | 72.66 | 32,000 | 0 | 2012 | | 2024.02.02 | ¿ù¼¼ | ¼º¿îºô¶ó | 4 | 45.05 | 2,000 | 90 | 2007 | | 2024.02.01 | Àü¼¼ | ¹é¼Û¾ÆÆ®ºô | 2 | 31.85 | 26,800 | 0 | 2017 | | 2024.01.31 | Àü¼¼ | À¯ÀϺô¸®Áö | 4 | 29.88 | 23,000 | 0 | 2016 | | 2024.01.31 | Àü¼¼ | µ¿È£½¦¸£ºô | 4 | 59.88 | 20,000 | 0 | 2002 | | 2024.01.31 | Àü¼¼ | Çö´ëÇÏÀÌÃ÷ºô¶ó | 4 | 39.54 | 22,000 | 0 | 1995 | | 2024.01.31 | Àü¼¼ | Çö´ëÇÏÀÌÃ÷ºô¶ó | 1 | 38.97 | 13,800 | 0 | 1993 | | 2024.01.31 | ¿ù¼¼ | À̰ºôµù | 2 | 14.27 | 9,500 | 7 | 2014 | | 2024.01.30 | Àü¼¼ | ¼º»êµ¿ÀÌ¿¡½ºÇÏÀÓ | 3 | 29.97 | 33,000 | 0 | 2019 | | 2024.01.30 | ¿ù¼¼ | ´ë±¤±×¸°ºô¶ó | 2 | 28.11 | 10,500 | 20 | 1994 | | 2024.01.29 | Àü¼¼ | (258-12) | 3 | 27.95 | 22,500 | 0 | 2017 | | 2024.01.27 | Àü¼¼ | ¾Æ¼º¶ß¶õä | 2 | 45.21 | 33,000 | 0 | 2018 | | 2024.01.27 | Àü¼¼ | ´õŬ·¡½º | 4 | 28.98 | 25,000 | 0 | 2019 | | 2024.01.26 | ¿ù¼¼ | ¸í¹®ÁÖÅà | 2 | 32.55 | 1,000 | 65 | 1991 | | 2024.01.26 | ¿ù¼¼ | ¼¼¸íŸ¿î | 3 | 18.97 | 1,000 | 70 | 2021 | | 2024.01.26 | Àü¼¼ | ÈÀÌÆ®ºô | 4 | 29.95 | 24,000 | 0 | 2015 | | 2024.01.26 | Àü¼¼ | ¿¡À̽ºÅ¸¿î | 2 | 39.18 | 29,000 | 0 | 2016 | | 2024.01.26 | Àü¼¼ | ´ÙÀ̾ÆÄ³½½ | 5 | 49.22 | 30,000 | 0 | 2017 | | 2024.01.26 | Àü¼¼ | µ¿¾çÇÏ¿ì¡ | 5 | 28.89 | 24,500 | 0 | 2018 | | 2024.01.26 | Àü¼¼ | Á¦»ïºô¶ó | -1 | 50.85 | 18,000 | 0 | 1989 | | 2024.01.26 | ¿ù¼¼ | ¿ìÁø¿¬¸³ | 1 | 49.74 | 0 | 35 | 1986 | | 2024.01.26 | Àü¼¼ | ´ÙÀ̾ÆÄ³½½ | 5 | 49.22 | 30,000 | 0 | 2017 | | 2024.01.25 | Àü¼¼ | ¿ì¸®Áýºô¶ó | 2 | 53.65 | 24,000 | 0 | 2002 | | 2024.01.25 | ¿ù¼¼ | û±¸ºô¶ó | 2 | 36.3 | 500 | 70 | 1991 | | 2024.01.25 | Àü¼¼ | ¾Æ¼º¶ß¶õä | 4 | 40.66 | 32,000 | 0 | 2018 | | 2024.01.25 | Àü¼¼ | (614-8) | 1 | 32.31 | 11,000 | 0 | 1988 | | 2024.01.25 | Àü¼¼ | ¶óºñ¾Ó·ÎÁî | 5 | 37.4 | 28,000 | 0 | 2019 | | 2024.01.24 | Àü¼¼ | ä¿òºô | 3 | 48.9 | 29,000 | 0 | 2017 | | 2024.01.24 | Àü¼¼ | ¼¼¸íŸ¿î | 3 | 17.16 | 15,000 | 0 | 2021 | | 2024.01.24 | ¿ù¼¼ | ¼º»êÇý½Âºô | 4 | 93.14 | 1,000 | 65 | 2009 | | 2024.01.23 | Àü¼¼ | ÁÖ¿µ¾ÆÆ®ºô¶óBµ¿ | 1 | 65.14 | 25,000 | 0 | 1998 | | 2024.01.23 | ¿ù¼¼ | SELECTED2È£Á¡ | 2 | 15.12 | 4,500 | 40 | 2020 | | 2024.01.22 | Àü¼¼ | À§³Ê½º¿ø | 5 | 17.4 | 10,500 | 0 | 2013 | | 2024.01.22 | ¿ù¼¼ | (36-28) | 2 | 38.32 | 16,000 | 10 | 1987 | | 2024.01.22 | ¿ù¼¼ | ÇöÀÏÁÖÅà | 1 | 50.03 | 19,000 | 19 | 2002 | | 2024.01.22 | Àü¼¼ | ¼º»êÈÞ¸ÕŸ¿î(277-41) | 4 | 27.46 | 31,000 | 0 | 2021 | | 2024.01.22 | Àü¼¼ | ÇÑÀϺô¸®Áö³ªµ¿ | 1 | 77.46 | 35,000 | 0 | 1990 | | 2024.01.21 | Àü¼¼ | °ñµçÆÓ¸®½º | 4 | 33.97 | 27,400 | 0 | 2017 | | 2024.01.21 | Àü¼¼ | °ñµçÆÓ¸®½º | 4 | 33.97 | 27,400 | 0 | 2017 | | 2024.01.20 | ¿ù¼¼ | ¼¼¸íŸ¿î | 3 | 17.16 | 500 | 50 | 2021 | | 2024.01.20 | ¿ù¼¼ | µ¿»ïºô¶óŸ¿î6µ¿ | 2 | 38 | 9,000 | 30 | 1988 | | 2024.01.20 | ¿ù¼¼ | µ¿È£½¦¸£ºô | 4 | 41.89 | 18,000 | 25 | 2008 | | 2024.01.20 | ¿ù¼¼ | ±×¸°ºô | 4 | 55.64 | 1,000 | 65 | 1998 | | 2024.01.19 | ¿ù¼¼ | ¸®½Ãº»ÇϿ콺 | 4 | 29.84 | 4,000 | 96 | 2016 | | 2024.01.19 | Àü¼¼ | µ¿¾çÇÏ¿ì¡ | 3 | 43.53 | 32,000 | 0 | 2018 | | 2024.01.19 | Àü¼¼ | Äý | 5 | 22.11 | 12,600 | 0 | 2011 | | 2024.01.19 | ¿ù¼¼ | (271-24) | 5 | 26.77 | 1,000 | 78 | 2013 | | 2024.01.19 | ¿ù¼¼ | ¸®½Ãº»ÇϿ콺 | 4 | 29.84 | 4,000 | 96 | 2016 | | 2024.01.18 | ¿ù¼¼ | SELECTED2È£Á¡ | 2 | 15.12 | 1,000 | 55 | 2020 | | 2024.01.18 | ¿ù¼¼ | ÀÌ·¹ºô¶óÆ®Bµ¿ | 3 | 17.38 | 100 | 54 | 2011 | | 2024.01.18 | ¿ù¼¼ | ¿ùµå±×¶ûºôAµ¿ | 2 | 73.23 | 3,000 | 100 | 2009 | | 2024.01.18 | ¿ù¼¼ | ±Ýµ¿ÆÄÀκô | 2 | 20.64 | 1,000 | 50 | 2012 | | 2024.01.17 | Àü¼¼ | À̰¡¿¡½ºÅä | 4 | 38.47 | 34,000 | 0 | 2023 | | 2024.01.17 | Àü¼¼ | ¸ÞÁ¾µå¿¥ | 3 | 23.96 | 19,000 | 0 | 2019 | | 2024.01.17 | ¿ù¼¼ | (140-31) | 2 | 35.34 | 14,000 | 25 | 1986 | | 2024.01.17 | ¿ù¼¼ | ¹é¼Û¾ÆÆ®ºô | 2 | 56.47 | 21,000 | 45 | 2003 | | 2024.01.17 | Àü¼¼ | µ¿¾çÇÏ¿ì¡ | 4 | 29.95 | 27,000 | 0 | 2017 | | 2024.01.17 | Àü¼¼ | ±ÝdzÇÏÀ̺ô | 3 | 24.09 | 12,000 | 0 | 2011 | | 2024.01.17 | ¿ù¼¼ | ´ëÇÑÁÖÅà | -1 | 42.7 | 9,300 | 10 | 1994 | | 2024.01.17 | ¿ù¼¼ | ´ëÇÑÁÖÅà | -1 | 42.7 | 9,300 | 10 | 1994 | | 2024.01.17 | ¿ù¼¼ | (140-31) | 2 | 35.34 | 14,000 | 20 | 1986 | | 2024.01.17 | ¿ù¼¼ | Áغô¸®Áö | 5 | 33.51 | 21,000 | 10 | 2014 | | 2024.01.17 | ¿ù¼¼ | ´ëÇÑÁÖÅà | -1 | 42.7 | 10,000 | 10 | 1994 | | 2024.01.16 | ¿ù¼¼ | ¼º»êµ¿ÀÌ¿¡½ºÇÏÀÓ | 4 | 29.95 | 25,000 | 25 | 2019 | | 2024.01.16 | Àü¼¼ | ´ë¸íÇ®ÇϿ콺2 | 4 | 12.61 | 8,800 | 0 | 2012 | | 2024.01.16 | ¿ù¼¼ | ¼º»êºô¶ó | 3 | 25.92 | 5,000 | 46 | 2002 | | 2024.01.15 | ¿ù¼¼ | »ê.³».µé | 5 | 14.58 | 1,000 | 60 | 2013 | | 2024.01.15 | Àü¼¼ | À̰¡¿¡½ºÅä | 4 | 40.26 | 33,000 | 0 | 2023 | | 2024.01.14 | Àü¼¼ | ¼º»êµ¿ÀÌ¿¡½ºÇÏÀÓ | 3 | 29.97 | 33,000 | 0 | 2019 | | 2024.01.14 | ¿ù¼¼ | ±îÄ¡ÆÄÅ©ºô¶ó | 4 | 87.78 | 3,000 | 65 | 1991 | | 2024.01.13 | Àü¼¼ | (239-20) | 4 | 53.79 | 22,300 | 0 | 2004 | | 2024.01.12 | Àü¼¼ | (200-75) | 3 | 32.14 | 21,000 | 0 | 2019 | | 2024.01.12 | Àü¼¼ | Çö´ëºô¶ó | 3 | 38.02 | 14,883 | 0 | 1997 | | 2024.01.12 | Àü¼¼ | µ¿¾çÇÏ¿ì¡ | 5 | 29.72 | 27,500 | 0 | 2018 | | 2024.01.12 | Àü¼¼ | The¹Î¼º | 3 | 29.49 | 29,000 | 0 | 2020 | | 2024.01.11 | Àü¼¼ | À¯ÀϺô¸®Áö | 4 | 29.88 | 24,000 | 0 | 2016 | | 2024.01.11 | Àü¼¼ | À̰¡¿¡½ºÅä | 2 | 38.47 | 32,000 | 0 | 2023 | | 2024.01.10 | ¿ù¼¼ | ÁÖ¿µ¾ÆÆ®ºô¶óBµ¿ | -1 | 63.63 | 3,000 | 85 | 1998 | | 2024.01.10 | ¿ù¼¼ | ¿ùµåÄźô¸®Áö | 4 | 54.75 | 14,000 | 45 | 2006 | | 2024.01.09 | Àü¼¼ | ´õŬ·¡½º | 2 | 23.09 | 23,000 | 0 | 2019 | | 2024.01.09 | Àü¼¼ | »ï¼º¾¾Æ¼ºô(242-22) | 2 | 54.34 | 26,500 | 0 | 2005 | | 2024.01.08 | ¿ù¼¼ | ¼Ò´ã¾ÆÆ®ºô | 4 | 70.38 | 4,000 | 125 | 2019 | | 2024.01.08 | ¿ù¼¼ | ¼Ò´ã¾ÆÆ®ºô | 3 | 29.29 | 2,000 | 76 | 2019 | | 2024.01.08 | Àü¼¼ | ´ë¸íÇ®ÇϿ콺 | 4 | 17.4 | 12,000 | 0 | 2012 | | 2024.01.08 | Àü¼¼ | À¯´ÏÇϿ콺ºí·ç | 3 | 23.24 | 21,000 | 0 | 2017 | | 2024.01.08 | ¿ù¼¼ | (13-17) | 1 | 31.47 | 10,000 | 25 | 1987 | | 2024.01.07 | Àü¼¼ | °ñµçÆÓ¸®½º | 4 | 33.97 | 27,400 | 0 | 2017 | | 2024.01.06 | ¿ù¼¼ | ¼¼¸íŸ¿î | 2 | 17.16 | 2,000 | 60 | 2021 | | 2024.01.06 | ¿ù¼¼ | µ¿¾çÇÏ¿ì¡ | 6 | 29.5 | 3,000 | 95 | 2017 | | 2024.01.06 | Àü¼¼ | ´õŬ·¡½º | 2 | 20 | 22,000 | 0 | 2019 | | 2024.01.05 | ¿ù¼¼ | ¶óºñ¾Ó·ÎÁî | 3 | 29.96 | 15,000 | 40 | 2019 | | 2024.01.05 | Àü¼¼ | »ï¿ìÇÏÀÌÃ÷ºô¶ó | 2 | 84.39 | 33,000 | 0 | 1999 | | 2024.01.05 | ¿ù¼¼ | ±×·¹À̽ººô(271-34) | 5 | 29.96 | 15,000 | 16 | 2014 | | 2024.01.03 | ¿ù¼¼ | (200-287) | 2 | 40.14 | 7,000 | 27 | 1993 | | 2024.01.03 | Àü¼¼ | À̰¡¿¡½ºÅä | 3 | 36.07 | 30,000 | 0 | 2023 | | 2024.01.03 | Àü¼¼ | À̰ºôµù | 2 | 26.43 | 21,000 | 0 | 2014 | | 2024.01.02 | ¿ù¼¼ | (611-1) | -1 | 30.06 | 500 | 50 | 1992 | | 2024.01.02 | ¿ù¼¼ | ¼¼¸íŸ¿î | 2 | 17.55 | 1,000 | 70 | 2021 | | 2024.01.01 | Àü¼¼ | µ¿¾çÇÏ¿ì¡ | 3 | 39.06 | 30,000 | 0 | 2017 | | 2024.01.01 | Àü¼¼ | ¼¼¹ÎÇÏÀÌÆÄÅ© | 3 | 30.09 | 29,000 | 0 | 2016 |
|
|
|
 |
ÀÓÂ÷³»¿ª |
[¹è´ç¿ä±¸Á¾±âÀÏ : 2024/11/06] |
|
|
| ÀÓÂ÷ÀÎ |
Á¡À¯°ü°è |
ÀüÀÔÀÏÀÚ |
È®Á¤ÀÏÀÚ |
¹è´ç¿ä±¸ÀÏ |
º¸Áõ±Ý/Â÷ÀÓ |
´ëÇ׿ä°Ç |
ºñ°í |
| ±èOO |
ÀüºÎ |
2019.5.3. |
2021.6.7. |
|
220,000,000
|
O |
2021.5.3.~ |
| ¸Å°¢¹°°Ç¸í¼¼ ºñ°í |
±è½ÂÇÑ : °Á¦°æ¸Å ½Åûä±ÇÀÚ¿Í µ¿ÀÏÀÎÀÓ. ÀÌ »ç°Ç °Á¦°æ¸Å´Â ÀÌ »ç°Ç ¸Å°¢ºÎµ¿»ê¿¡ ´ëÇÑ ÀÓÂ÷º¸Áõ±Ý¹ÝȯÀ» ¸íÇÑ ÁýÇà±Ç¿ø
¿¡ ±âÇÑ °ÍÀÓ |
|
|
|
 |
Áö¿ªºÐ¼® |
|
|
|
|
| ÁöÇÏö |
|
Çб³ |
|
| °ü°ø¼ |
|
| ¹ý¿ø |
¼¿ï¼ºÎÁö¹æ¹ý¿ø (042-07)¼¿ïƯº°½Ã ¸¶Æ÷±¸ ¸¶Æ÷´ë·Î 174 (°ø´öµ¿) ´ëÇ¥ : 02)3271-1114, ¹Î¿ø : 02)3271-1704/1881, ¾ß°£ : 02)3271-1700~1 ¿ë»ê±¸, ¼´ë¹®±¸, ¸¶Æ÷±¸, ÀºÆò±¸ |
| µî±â¼Ò |
¼¿ï¼ºÎÁö¹æ¹ý¿ø º»¿ø µî±â±¹ (´ëÇ¥:1544-0773, ÆÑ½º:(02)3271-9130, ¼¿ïƯº°½Ã ¸¶Æ÷±¸ ¸¶Æ÷´ë·Î 199 (¾ÆÇöµ¿ 783)) |
| ¼¼¹«¼ |
¸¶Æ÷¼¼¹«¼ (´ëÇ¥:02-705-720, ÆÑ½º:02-717-7255, ¼¿ïƯº°½Ã ¸¶Æ÷±¸ µ¶¸··Î 234(½Å¼öµ¿)) |
|
|
|
 |
¹ý¿ø ¹°°ÇÀÚ·á ¿ä¾à |
|
|
|
|
| ¼Ò¸êµÇÁö ¾Ê´Â µî±âºÎ±Ç¸® |
¸Å¼öÀο¡°Ô ´ëÇ×ÇÒ ¼ö ÀÖ´Â À»±¸ ¼øÀ§ 3¹ø ÀÓÂ÷±Çµî±â(2023. 10. 10. µî±â) ÀÖÀ½(ÀÓ´ëÂ÷º¸Áõ±Ý 220,000,000¿ø, ÀüÀÔÀÏ 2019. 5.
3., È®Á¤ÀÏÀÚ 2021. 6. 7.). ¹è´ç¿¡¼ º¸Áõ±ÝÀÌ Àü¾× º¯Á¦µÇÁö ¾Æ´ÏÇϸé Àܾ×À» ¸Å¼öÀÎÀÌ ÀμöÇÔ |
| ¼³Á¤µÈ °ÍÀ¸·Î º¸´Â Áö»ó±Ç |
|
| ¹ý¿øÀÚ·á Æ¯ÀÌ»çÇ× |
[ÁÖ¿ä ¹®°Ç Á¢¼ö ³»¿ª]
|
[¸Å°¢¹°°Ç¸í¼¼¼ ºñ°í¶õ]
Àç¸Å°¢ÀÓ ¸Å¼ö½Åûº¸Áõ±Ý 20% |
[ºÎµ¿»ê ÇöȲÁ¶»ç¼ ºñ°í¶õ]
ÀϹÝÁÖ°ÅÁö¿¡ À§Ä¡ÇÑ ´Ù¼¼´ë ÁÖÅÃÀÓ |
|
| ¿©ÀÇÁÖ°æ¸Å Á¶¾ð ÇѸ¶µð |
ÀÌ ºÎµ¿»êÀÇ ÀÔÂû¹ý¿øÀº ¼¿ï¼ºÎÁö¹æ¹ý¿øÀÔ´Ï´Ù.
ÀÔÂûÀÏÀº 2025-12-23ÀÔ´Ï´Ù.
ÀÔÂû½Ã°£Àº ~11:10ÀÔ´Ï´Ù. ÀÌ ¹ý¿ø¿¡´Â ½ÅÇÑÀºÇàÀÌ ÀÔÁ¡Çϰí ÀÖ½À´Ï´Ù.
|
¼±¼øÀ§ ÀÓÂ÷±Çµî±â°¡ µÇ¾î ÀÖ½À´Ï´Ù ´ëÇ×·ÂÀÌ ÀÖ´Â ¼±¼øÀ§ ÀÓÂ÷±Çµî±â ±Ç¸®ÀÚ°¡ ¹è´çÀ» Àü¾× ¹ÞÁö ¸øÇÒ °æ¿ì ³«ÂûÀÚ°¡ ÀÜ¿© º¸Áõ±ÝÀ» ÀμöÇØ¾ßÇÏ´Â °æ¿ìµµ ÀÖ½À´Ï´Ù. |
|
|
| Åë°è±â°£ |
³«Âû¹°°Ç¼ö |
Æò±Õ°¨Á¤°¡ |
Æò±Õ³«Âû°¡ |
³«Âû°¡À² |
À¯ÂûȽ¼ö |
| 3°³¿ù |
8°Ç |
327,551,250¿ø |
292,277,263¿ø |
87% |
1.5ȸ |
| 6°³¿ù |
29°Ç |
350,547,389¿ø |
321,731,452¿ø |
89% |
1.9ȸ |
| 12°³¿ù |
55°Ç |
361,601,169¿ø |
317,192,276¿ø |
87% |
1.7ȸ |
|
|
|
|
|
|
 |
|