|
|
| ¼ÒÀçÁö |
¼¿ïƯº°½Ã ¸¶Æ÷±¸ ¼º¾Ï·Î 15, 9Ãþ901È£ (¼º»êµ¿,±Ý⟿ö)
±¸)¼¿ïƯº°½Ã ¸¶Æ÷±¸ ¼º»êµ¿ 123-8
|
|
| »ç°Ç¹øÈ£ |
2024 Ÿ°æ 60984 |
¹°°Ç¹øÈ£ |
1
|
¹°°Ç¿ëµµ |
¿ÀÇǽºÅÚ |
| °¨Á¤Æò°¡¾× |
160,000,000¿ø |
°æ¸Å´ë»ó |
ÅäÁö ¹× °Ç¹°Àϰý ¸Å°¢ |
ÁøÇà»óÅ |
À¯Âû |
| ÃÖÀúÀÔÂû°¡ |
(64%) 102,400,000¿ø
|
°Ç¹°¸éÀû |
17.91§³(5.42Æò) |
ÀÔÂû±âÀÏ |
2026.03.03(È) 10:00
(ÀÔÂû 46ÀÏÀü)
|
| ÀÔÂûº¸Áõ±Ý |
(10%) 10,240,000¿ø |
ÅäÁö¸éÀû |
9.76§³(2.95Æò)
|
À¯ÂûȽ¼ö |
2ȸ |
| ÀÔÂû¹ý¿ø |
¼¿ï¼ºÎÁö¹æ¹ý¿ø |
°æ¸Å¹æ¹ý |
|
¹°°ÇÁ¶È¸¼ö |
¿À´Ã: 2ȸ [´©Àû: 169ȸ]
|
| ¸»¼Ò±âÁØ | ÃÖ¼±¼øÀ§ ¼³Á¤ : 2005.5.18. ±ÙÀú´ç ¼³Á¤
|
|
|
|
|
|
|
|
|
|
|
°æ¸Å´ë»ó ¸ñ·Ï
|
|
| ±¸ºÐ |
¸ñ·Ï |
ÁÖ¼Ò |
±¸Á¶/¿ëµµ/´ëÁö±Ç |
ºñ°í |
´ëÁö±Ç
|
1 |
¼º»êµ¿ 123-8 |
66 ºÐÀÇ 9.76 |
9.76§³ (2.95Æò)
|
°Ç¹°
|
1 |
¼º»êµ¿ 123-8 |
9Ãþ901È£ ö±ÙÄÜÅ©¸®Æ®Á¶ |
17.91§³ (5.42Æò)
|
|
|
|
2025-05-07
º¯°æ
|
(100%)
160,000,000¿ø
|
|
|
|
2025-12-09
À¯Âû
|
(100%)
160,000,000¿ø
|
|
|
|
2026-01-13
À¯Âû
|
(80%)
128,000,000¿ø
|
|
|
|
2026-03-03
ÁøÇà
|
(64%)
102,400,000¿ø
|
|
|
|
|
|
°¨Á¤Æò°¡¼ ¿ä¾à |
|
[À§Ä¡/ÁÖÀ§È¯°æ]
º»°ÇÀº ¼¿ïƯº°½Ã ¸¶Æ÷±¸ ¼º»êµ¿ "°¡Á¿ª" ³²Ãø Àαٿ¡ À§Ä¡Çϸç ÁÖÀ§´Â ¾ÆÆÄÆ®, ¿ÀÇǽºÅÚ, Çб³ ¹× ±Ù¸°»ýȰ½Ã¼³ µîÀÌ ¼ÒÀçÇÕ´Ï´Ù.
[±³Åë»óȲ]
º»°Ç±îÁö Â÷·®Á¢±ÙÀÌ °¡´ÉÇϸç Àαٿ¡ ¹ö½ºÁ¤·ùÀå°ú ÁöÇÏö¿ª µîÀÌ ¼ÒÀçÇÕ´Ï´Ù.
[°Ç¹°±¸Á¶]
ö±ÙÄÜÅ©¸®Æ®Á¶ (ö±Ù)ÄÜÅ©¸®Æ® Æò½º¶óºêÁöºØ 10Ãþ °Ç ³» 9Ãþ 901È£·Î¼,
¿Üº®: µå¶óÀ̺ñÆ® ¹× ¼®ÀçºÙÀÓ µî ¸¶°¨
âȣ: ÇÏÀÌ»þ½Ã âȣ µîÀÔ´Ï´Ù.
[ÀÌ¿ë»óÅÂ]
°øºÎ»ó ¿ÀÇǽºÅÚÀÔ´Ï´Ù.
[¼³ºñ³»¿ª]
³¹æ¼³ºñ, À§»ý¼³ºñ, ±Þ¹è¼ö¼³ºñ, ¼ÒÈÀü¼³ºñ, ½Â°±â¼³ºñ µîÀÌ µÇ¾îÀÖ½À´Ï´Ù.
[ÅäÁöÇü»ó/ÀÌ¿ë»óÅÂ]
2ÇÊ ÀÏ´ÜÀÇ ´ëü·Î »ç´Ù¸®ÇüÀÇ ÅäÁö·Î¼, ¾÷¹«½Ã¼³(¿ÀÇǽºÅÚ) °ÇºÎÁö µîÀ¸·Î ÀÌ¿ë ÁßÀÔ´Ï´Ù.
7)ÀÎÁ¢ µµ·Î»óŵî
º»°Ç ºÏÃø,µ¿ÃøÀ¸·Î µµ·Î°¡ ¼ÒÀçÇÕ´Ï´Ù.
[ÅäÁöÀÌ¿ë°èȹ]
123-8 : Á¦2Á¾ÀϹÝÁÖ°ÅÁö¿ª(2003-10-01)(7ÃþÀÌÇÏ), Áß·Î1·ù(Æø 20m-25m)(2020-07-05)(Á¢ÇÕ), °¡Ãà»çÀ°Á¦Çѱ¸¿ª£¼°¡ÃàºÐ´¢ÀÇ °ü¸® ¹× À̿뿡 °üÇÑ ¹ý·ü£¾, »ó´ëº¸È£±¸¿ª£¼±³À°È¯°æ º¸È£¿¡ °üÇÑ ¹ý·ü£¾, ´ë°ø¹æ¾îÇùÁ¶±¸¿ª£¼±º»ç±âÁö ¹× ±º»ç½Ã¼³ º¸È£¹ý£¾, °ú¹Ð¾ïÁ¦±Ç¿ª£¼¼öµµ±ÇÁ¤ºñ°èȹ¹ý£¾, (ÇѰ)Æó±â¹°¸Å¸³½Ã¼³ ¼³Ä¡Á¦ÇÑÁö¿ª£¼ÇѰ¼ö°è »ó¼ö¿ø¼öÁú°³¼± ¹× ÁÖ¹ÎÁö¿ø µî¿¡ °üÇÑ ¹ý·ü£¾
128-14 : Á¦2Á¾ÀϹÝÁÖ°ÅÁö¿ª(2003-10-01)(7ÃþÀÌÇÏ), °¡Ãà»çÀ°Á¦Çѱ¸¿ª£¼°¡ÃàºÐ´¢ÀÇ °ü¸® ¹× À̿뿡 °üÇÑ ¹ý·ü£¾, »ó´ëº¸È£±¸¿ª£¼±³À°È¯°æ º¸È£¿¡ °üÇÑ ¹ý·ü£¾, ´ë°ø¹æ¾îÇùÁ¶±¸¿ª£¼±º»ç±âÁö ¹× ±º»ç½Ã¼³ º¸È£¹ý£¾, °ú¹Ð¾ïÁ¦±Ç¿ª£¼¼öµµ±ÇÁ¤ºñ°èȹ¹ý£¾, (ÇѰ)Æó±â¹°¸Å¸³½Ã¼³ ¼³Ä¡Á¦ÇÑÁö¿ª£¼ÇѰ¼ö°è »ó¼ö¿ø¼öÁú°³¼± ¹× ÁÖ¹ÎÁö¿ø µî¿¡ °üÇÑ ¹ý·ü£¾
[°øºÎ¿ÍÀÇ Â÷ÀÌ]
¾ø½À´Ï´Ù.
[Âü°í»çÇ×]
ÀÓ´ë°ü°è ¹Ì»óÀÔ´Ï´Ù. |
|
|
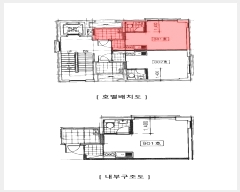
°ÇÃ๰ÇöȲ |
|
|
|
| ¼ÒÀçÁö |
¼¿ïƯº°½Ã ¸¶Æ÷±¸ ¼º»êµ¿ 123-8¹øÁö |
| ´ëÁö¸éÀû |
156.8§³(47.52Æò) |
¿¬¸éÀû |
529.22§³(160.37Æò) |
ÁÖ¿ëµµ |
¾÷¹«½Ã¼³ |
| °ÇÃà¸éÀû |
67.34§³(20.41Æò) |
¿ëÀû·ü»êÁ¤¿¬¸éÀû |
470.34§³(142.53Æò) |
Âø°øÀÏÀÚ |
2003.11.10 |
| °ÇÆóÀ² |
42.95% |
¿ëÀû·ü |
299.96% |
»ç¿ë½ÂÀÎÀÏÀÚ |
2004.10.01 |
| Áö»óÃþ¼ö |
9Ãþ |
ÁöÇÏÃþ¼ö |
1Ãþ |
±¸Á¶ |
ö±ÙÄÜÅ©¸®Æ®±¸Á¶ |
°ÇÃ๰Ãþº°ÇöȲ [º¸±â]| Ãþº° | ±¸Á¶ | ¿ëµµ | ¸éÀû | | 1Ãþ | ö±ÙÄÜÅ©¸®Æ®±¸Á¶ | °è´Ü½Ç | 18.34§³ (5.56Æò) | | 2Ãþ | ö±ÙÄÜÅ©¸®Æ®±¸Á¶ | ¿ÀÇǽºÅÚ(2È£) | 56.5§³ (17.12Æò) | | 3Ãþ | ö±ÙÄÜÅ©¸®Æ®±¸Á¶ | ¿ÀÇǽºÅÚ(2È£) | 56.5§³ (17.12Æò) | | 4Ãþ | ö±ÙÄÜÅ©¸®Æ®±¸Á¶ | ¿ÀÇǽºÅÚ(2È£) | 56.5§³ (17.12Æò) | | 5Ãþ | ö±ÙÄÜÅ©¸®Æ®±¸Á¶ | ¿ÀÇǽºÅÚ(2È£) | 56.5§³ (17.12Æò) | | 6Ãþ | ö±ÙÄÜÅ©¸®Æ®±¸Á¶ | ¿ÀÇǽºÅÚ(2È£) | 56.5§³ (17.12Æò) | | 7Ãþ | ö±ÙÄÜÅ©¸®Æ®±¸Á¶ | ¿ÀÇǽºÅÚ(2È£) | 56.5§³ (17.12Æò) | | 8Ãþ | ö±ÙÄÜÅ©¸®Æ®±¸Á¶ | ¿ÀÇǽºÅÚ(2È£) | 56.5§³ (17.12Æò) | | 9Ãþ | ö±ÙÄÜÅ©¸®Æ®±¸Á¶ | ¿ÀÇǽºÅÚ(2È£) | 56.5§³ (17.12Æò) | | ¿ÁžÃþ | ö±ÙÄÜÅ©¸®Æ®±¸Á¶ | °è´Ü½Ç,¹°ÅÊÅ©½Ç,ELEV±â°è½Ç(¿¬¸éÀû | 17.76§³ (5.38Æò) | | Áö1Ãþ | ö±ÙÄÜÅ©¸®Æ®±¸Á¶ | ¿ÀÇǽºÅÚ(1È£) | 58.88§³ (17.84Æò) |
|
|
|
|
|
|
 |
ÀÓÂ÷³»¿ª |
[¹è´ç¿ä±¸Á¾±âÀÏ : 2024/12/09] |
|
|
| ÀÓÂ÷ÀÎ |
Á¡À¯°ü°è |
ÀüÀÔÀÏÀÚ |
È®Á¤ÀÏÀÚ |
¹è´ç¿ä±¸ÀÏ |
º¸Áõ±Ý/Â÷ÀÓ |
´ëÇ׿ä°Ç |
ºñ°í |
| ¹®OO |
ÁÖÅÃÀüºÎ |
2021.09.24. |
2021.09.06. |
|
170,000,000
|
X |
2021.09.18.- |
| ¸Å°¢¹°°Ç¸í¼¼ ºñ°í |
¹®ÁØÇö: °æ¸Å½Åûä±ÇÀÚÀ̸ç, ÁÖÅÃÀÓÂ÷±Çµî±â±ÇÀÚ·Î ÁÖÅÃÀÓÂ÷±Çµî±âÀÏÀº 2023. 9. 26.ÀÓ. |
|
|
|
 |
Áö¿ªºÐ¼® |
|
|
|
|
| ÁöÇÏö |
|
Çб³ |
|
| °ü°ø¼ |
|
| ¹ý¿ø |
¼¿ï¼ºÎÁö¹æ¹ý¿ø (042-07)¼¿ïƯº°½Ã ¸¶Æ÷±¸ ¸¶Æ÷´ë·Î 174 (°ø´öµ¿) ´ëÇ¥ : 02)3271-1114, ¹Î¿ø : 02)3271-1704/1881, ¾ß°£ : 02)3271-1700~1 ¿ë»ê±¸, ¼´ë¹®±¸, ¸¶Æ÷±¸, ÀºÆò±¸ |
| µî±â¼Ò |
¼¿ï¼ºÎÁö¹æ¹ý¿ø º»¿ø µî±â±¹ (´ëÇ¥:1544-0773, ÆÑ½º:(02)3271-9130, ¼¿ïƯº°½Ã ¸¶Æ÷±¸ ¸¶Æ÷´ë·Î 199 (¾ÆÇöµ¿ 783)) |
| ¼¼¹«¼ |
¸¶Æ÷¼¼¹«¼ (´ëÇ¥:02-705-720, ÆÑ½º:02-717-7255, ¼¿ïƯº°½Ã ¸¶Æ÷±¸ µ¶¸··Î 234(½Å¼öµ¿)) |
|
|
|
 |
¹ý¿ø ¹°°ÇÀÚ·á ¿ä¾à |
|
|
|
|
| ¼Ò¸êµÇÁö ¾Ê´Â µî±âºÎ±Ç¸® |
|
| ¼³Á¤µÈ °ÍÀ¸·Î º¸´Â Áö»ó±Ç |
|
| ¹ý¿øÀÚ·á Æ¯ÀÌ»çÇ× |
[ÁÖ¿ä ¹®°Ç Á¢¼ö ³»¿ª]
[2025.10.16] ±âŸ ÇÑOOOOOOO °æ¸Å¼ÓÇà ½Åû¼ Á¦Ãâ
[2025.04.23] ä±ÇÀÚ ¹®OO ±âÀϺ¯°æ½Åû¼ Á¦Ãâ
[2025.11.10] ±âŸ ÇÑOOOOOOO Àü¼¼»ç±â ÇÇÇØÁÖÅà °ü·Ã°æ¸Å¼ÓÇà ½Åû¼ Á¦Ãâ
|
|
| ¿©ÀÇÁÖ°æ¸Å Á¶¾ð ÇѸ¶µð |
ÀÌ ºÎµ¿»êÀÇ ÀÔÂû¹ý¿øÀº ¼¿ï¼ºÎÁö¹æ¹ý¿øÀÔ´Ï´Ù.
ÀÔÂûÀÏÀº 2026-03-03ÀÔ´Ï´Ù.
ÀÔÂû½Ã°£Àº ~11:10ÀÔ´Ï´Ù. ÀÌ ¹ý¿ø¿¡´Â ½ÅÇÑÀºÇàÀÌ ÀÔÁ¡Çϰí ÀÖ½À´Ï´Ù.
|
|
|
| Åë°è±â°£ |
³«Âû¹°°Ç¼ö |
Æò±Õ°¨Á¤°¡ |
Æò±Õ³«Âû°¡ |
³«Âû°¡À² |
À¯ÂûȽ¼ö |
| 3°³¿ù |
2°Ç |
113,500,000¿ø |
111,900,000¿ø |
99% |
0.5ȸ |
| 6°³¿ù |
10°Ç |
214,000,000¿ø |
167,686,052¿ø |
78% |
3ȸ |
| 12°³¿ù |
23°Ç |
203,521,739¿ø |
173,330,251¿ø |
84% |
2.2ȸ |
|
|
|
|
|
|
 |
|