|
|
| ¼ÒÀçÁö |
°æ±âµµ ¼º³²½Ã ¼öÁ¤±¸ À§·Ê±¤Àå·Î 45, 1Ãþ102È£
±¸)°æ±âµµ ¼º³²½Ã ¼öÁ¤±¸ â°îµ¿ 546
|
|
| »ç°Ç¹øÈ£ |
2024 Ÿ°æ 5112 |
¹°°Ç¹øÈ£ |
1
|
¹°°Ç¿ëµµ |
»ó°¡,»ç¹«½Ç |
| °¨Á¤Æò°¡¾× |
520,000,000¿ø |
°æ¸Å´ë»ó |
ÅäÁö ¹× °Ç¹°Àϰý ¸Å°¢ |
ÁøÇà»óÅ |
ÀçÁøÇà |
| ÃÖÀúÀÔÂû°¡ |
(108%) 560,000,000¿ø
|
°Ç¹°¸éÀû |
40.88§³(12.37Æò) |
ÀÔÂû±âÀÏ |
2025.12.15(¿ù) 10:00
(ÀÔÂû 11ÀÏÀü)
|
| ÀÔÂûº¸Áõ±Ý |
(10%) 56,000,000¿ø |
ÅäÁö¸éÀû |
17.33§³(5.24Æò)
|
À¯ÂûȽ¼ö |
0ȸ |
| ÀÔÂû¹ý¿ø |
¼ö¿øÁö¹æ¹ý¿ø ¼º³²Áö¿ø |
°æ¸Å¹æ¹ý |
|
¹°°ÇÁ¶È¸¼ö |
¿À´Ã: 3ȸ [´©Àû: 20ȸ]
|
| ¸»¼Ò±âÁØ | ÃÖ¼±¼øÀ§ ¼³Á¤ : 2018.04.11.±ÙÀú´ç±Ç ¼³Á¤
|
|
|
|
|
|
|
|
|
|
|
°æ¸Å´ë»ó ¸ñ·Ï
|
|
| ±¸ºÐ |
¸ñ·Ï |
ÁÖ¼Ò |
±¸Á¶/¿ëµµ/´ëÁö±Ç |
ºñ°í |
´ëÁö±Ç
|
1 |
â°îµ¿ 546 |
1197.1ºÐÀÇ 17.33 |
17.33§³ (5.24Æò)
|
°Ç¹°
|
1 |
â°îµ¿ 546 |
1Ãþ102È£ ö±ÙÄÜÅ©¸®Æ®±¸Á¶ |
40.88§³ (12.37Æò)
|
|
|
|
2025-05-19
º¯°æ
|
(100%)
520,000,000¿ø
|
|
|
|
2025-12-15
ÁøÇà
|
(108%)
560,000,000¿ø
|
|
|
|
|
|
°¨Á¤Æò°¡¼ ¿ä¾à |
|
[À§Ä¡/ÁÖÀ§È¯°æ]
º»°ÇÀº °æ±âµµ ¼º³²½Ã ¼öÁ¤±¸ â°îµ¿ ¼ÒÀç "À§·ÊǪ¸£Áö¿À 4´ÜÁö¾ÆÆÄÆ®" ¼Ãø Àαٿ¡ À§Ä¡Çϸç, ÁÖÀ§´Â ±Ù¸°»ýȰ½Ã¼³, ¾ÆÆÄÆ®´ÜÁö, ÁÖ»ó¿ë µîÀÌ ¼ÒÀçÇϴ¹٠Á¦¹Ý ÁÖÀ§È¯°æÀº º¸ÅëÀÓ.
[±³Åë»óȲ]
º»°Ç±îÁö Â÷·®ÃâÀÔ °¡´ÉÇϰí Àαٿ¡ ¹ö½ºÁ¤·ùÀåÀÌ ¼ÒÀçÇÏ´Â µî Á¦¹Ý ±³Åë»óȲÀº º¸ÅëÀÓ.
[°Ç¹°±¸Á¶]
ö±ÙÄÜÅ©¸®Æ®±¸Á¶ (ö±ÙÄÜÅ©¸®Æ®)Æò½½¶óºêÁöºØ ÁöÇÏ2Ãþ Áö»ó5Ãþ°Ç³» 1Ãþ 102È£·Î¼,
¿Üº® : ¼®ÀçºÙÀÓ ¹× Æä¾î±Û¶ó½º ¸¶°¨ µî,
³»º® : ÀÎÅ׸®¾î ¸¶°¨ µî,
âȣ : ¼¦½Ã âȣÀÓ.
[ÀÌ¿ë»óÅÂ]
±Ù¸°»ýȰ½Ã¼³·Î ÀÌ¿ëÁßÀÓ.
[¼³ºñ³»¿ª]
±Þ¹è¼ö¼³ºñ, µµ½Ã°¡½º¼³ºñ, °ø¿ë À§»ý¼³ºñ, ½Â°±â¼³ºñ µî ±¸ºñµÇ¾î ÀÖÀ½.
[ÅäÁöÇü»ó/ÀÌ¿ë»óÅÂ]
ÀÎÁ¢Áö¿Í ´ëü·Î µî°íÆòźÇÑ 2ÇÊÀÏ´ÜÀÇ °¡ÀåÇü ÅäÁö·Î¼, ±Ù¸°»ýȰ½Ã¼³ °ÇºÎÁö·Î ÀÌ¿ëÁßÀÓ.
7)ÀÎÁ¢ µµ·Î»óŵî
º»°Ç µ¿ÃøÀ¸·Î ³ëÆø ¾à 25¹ÌÅͳ»¿Ü, ¼ÃøÀ¸·Î ³ëÆø ¾à 10¹ÌÅÍ ³»¿ÜÀÇ Æ÷Àåµµ·Î¿¡ °¢°¢ Á¢ÇÔ.
[ÅäÁöÀÌ¿ë°èȹ]
â°îµ¿ 546 : µµ½ÃÁö¿ª, ÁØÁÖ°ÅÁö¿ª, Áö±¸´ÜÀ§°èȹ±¸¿ª(À§·Ê), ¼Ò·Î1·ù(Æø 10m-12m)(Á¢ÇÕ), °¡Ãà»çÀ°Á¦Çѱ¸¿ª£¼°¡ÃàºÐ´¢ÀÇ °ü¸® ¹× À̿뿡 °üÇÑ ¹ý·ü£¾, »ó´ëº¸È£±¸¿ª£¼±³À°È¯°æ º¸È£¿¡ °üÇÑ ¹ý·ü£¾, ºñÇà¾ÈÀüÁ¦6±¸¿ª(Àü¼ú)£¼±º»ç±âÁö ¹× ±º»ç½Ã¼³ º¸È£¹ý£¾, ´ë±âȯ°æ±ÔÁ¦Áö¿ª£¼´ë±âȯ°æº¸Àü¹ý£¾, µµ½Ã±³ÅëÁ¤ºñÁö¿ª£¼µµ½Ã±³ÅëÁ¤ºñÃËÁø¹ý£¾, °ú¹Ð¾ïÁ¦±Ç¿ª£¼¼öµµ±ÇÁ¤ºñ°èȹ¹ý£¾.
â°îµ¿ 546-1 : µµ½ÃÁö¿ª, ÁØÁÖ°ÅÁö¿ª, Áö±¸´ÜÀ§°èȹ±¸¿ª(À§·Ê), ¼Ò·Î1·ù(Æø 10m-12m)(Á¢ÇÕ) °¡Ãà»çÀ°Á¦Çѱ¸¿ª£¼°¡ÃàºÐ´¢ÀÇ °ü¸® ¹× À̿뿡 °üÇÑ ¹ý·ü£¾, »ó´ëº¸È£±¸¿ª£¼±³À°È¯°æ º¸È£¿¡ °üÇÑ ¹ý·ü£¾, ºñÇà¾ÈÀüÁ¦6±¸¿ª(Àü¼ú)£¼±º»ç±âÁö ¹× ±º»ç½Ã¼³ º¸È£¹ý£¾, ´ë±âȯ°æ±ÔÁ¦Áö¿ª£¼´ë±âȯ°æº¸Àü¹ý£¾, µµ½Ã±³ÅëÁ¤ºñÁö¿ª£¼µµ½Ã±³ÅëÁ¤ºñÃËÁø¹ý£¾, °ú¹Ð¾ïÁ¦±Ç¿ª£¼¼öµµ±ÇÁ¤ºñ°èȹ¹ý£¾.
[°øºÎ¿ÍÀÇ Â÷ÀÌ]
¾ø À½.
[Âü°í»çÇ×]
ÀÓ´ë°ü°è´Â ¹Ì»óÀÓ. |
|
|
°ÇÃ๰ÇöȲ |
|
|
|
| ¼ÒÀçÁö |
°æ±âµµ ¼º³²½Ã ¼öÁ¤±¸ â°îµ¿ 546¹øÁö |
| ´ëÁö¸éÀû |
1197.1§³(362.76Æò) |
¿¬¸éÀû |
5530.72§³(1675.98Æò) |
ÁÖ¿ëµµ |
Á¦2Á¾±Ù¸°»ýȰ½Ã¼³ |
| °ÇÃà¸éÀû |
717.91§³(217.55Æò) |
¿ëÀû·ü»êÁ¤¿¬¸éÀû |
3549.11§³(1075.49Æò) |
Âø°øÀÏÀÚ |
2015.04.03 |
| °ÇÆóÀ² |
59.970762% |
¿ëÀû·ü |
296.47564% |
»ç¿ë½ÂÀÎÀÏÀÚ |
2016.02.02 |
| Áö»óÃþ¼ö |
5Ãþ |
ÁöÇÏÃþ¼ö |
2Ãþ |
±¸Á¶ |
ö±ÙÄÜÅ©¸®Æ®±¸Á¶ |
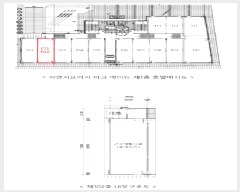
°ÇÃ๰Ãþº°ÇöȲ [º¸±â]| Ãþº° | ±¸Á¶ | ¿ëµµ | ¸éÀû | | 1Ãþ | ö±ÙÄÜÅ©¸®Æ®±¸Á¶ | Á¦1Á¾±Ù¸°»ýȰ½Ã¼³(¼Ò¸ÅÁ¡) ¹× 2Á¾±Ù | 708.19§³ (214.6Æò) | | 2Ãþ | ö±ÙÄÜÅ©¸®Æ®±¸Á¶ | Á¦2Á¾±Ù¸°»ýȰ½Ã¼³(ÀϹÝÀ½½ÄÁ¡, ³îÀÌÇü | 710.23§³ (215.22Æò) | | 3Ãþ | ö±ÙÄÜÅ©¸®Æ®±¸Á¶ | Á¦1Á¾±Ù¸°»ýȰ½Ã¼³(ÀÇ¿ø) | 710.23§³ (215.22Æò) | | 4Ãþ | ö±ÙÄÜÅ©¸®Æ®±¸Á¶ | Á¦2Á¾±Ù¸°»ýȰ½Ã¼³(»ç¹«¼Ò,±âŸ¿îµ¿½Ã¼³ | 710.23§³ (215.22Æò) | | 5Ãþ | ö±ÙÄÜÅ©¸®Æ®±¸Á¶ | Á¦1Á¾±Ù¸°»ýȰ½Ã¼³(ÀÇ¿ø) ¹× 2Á¾±Ù¸° | 710.23§³ (215.22Æò) | | Áö1Ãþ | ö±ÙÄÜÅ©¸®Æ®±¸Á¶ | ÁöÇÏÁÖÂ÷Àå | 966.39§³ (292.85Æò) | | Áö2Ãþ | ö±ÙÄÜÅ©¸®Æ®±¸Á¶ | ÁöÇÏÁÖÂ÷Àå | 1015.22§³ (307.64Æò) |
|
|
|
|
|
|
 |
ÀÓÂ÷³»¿ª |
[¹è´ç¿ä±¸Á¾±âÀÏ : 2024/10/22] |
|
|
| ÀÓÂ÷ÀÎ |
Á¡À¯°ü°è |
ÀüÀÔÀÏÀÚ |
È®Á¤ÀÏÀÚ |
¹è´ç¿ä±¸ÀÏ |
º¸Áõ±Ý/Â÷ÀÓ |
´ëÇ׿ä°Ç |
ºñ°í |
| À¯OO |
°Ç¹°ÀüºÎ |
2019.11.05. |
|
2024.9.6. |
10,000,000 [¿ù]800,000(Àç°è¾à)2023.10.16.950,000 |
X |
2019.10.16.~2025.10.15. |
| ¸Å°¢¹°°Ç¸í¼¼ ºñ°í |
À¯Àº¿Á: ÇöȲÁ¶»ç¼¿¡ ÷ºÎµÈ »ó°¡°Ç¹° ÀÓ´ëÂ÷ÇöȲ¼»ó »ç¾÷ÀÚµî·Ï½ÅûÀÏÀº 2019.11.05.À̹ǷΠÀ̸¦ ±âÁØÀ¸·Î ÇÔ |
|
|
|
 |
Áö¿ªºÐ¼® |
|
|
|
|
| ÁöÇÏö |
|
Çб³ |
|
| °ü°ø¼ |
|
| ¹ý¿ø |
¼ö¿øÁö¹æ¹ý¿ø ¼º³²Áö¿ø (131-43)°æ±âµµ ¼º³²½Ã ¼öÁ¤±¸ »ê¼º´ë·Î 451 (´Ü´ëµ¿) ´ëÇ¥ : 031)737-1558, ¾ß°£ : 031)737-1120 ¼º³²½Ã, ±¤ÁÖ½Ã, Çϳ²½Ã |
| µî±â¼Ò |
¼ö¿øÁö¹æ¹ý¿ø ¼º³²Áö¿ø µî±â°ú (´ëÇ¥:1544-0773, ÆÑ½º:(031)741-2913, °æ±âµµ ¼º³²½Ã ¼öÁ¤±¸ »ê¼º´ë·Î 451 (´Ü´ëµ¿ 75)) |
| ¼¼¹«¼ |
¼º³²¼¼¹«¼ (´ëÇ¥:031-730-62, ÆÑ½º:031-736-1904, °æ±âµµ ¼º³²½Ã ¼öÁ¤±¸ Èñ¸Á·Î 480 (´Ü´ëµ¿)) |
|
|
|
 |
¹ý¿ø ¹°°ÇÀÚ·á ¿ä¾à |
|
|
|
|
| ¼Ò¸êµÇÁö ¾Ê´Â µî±âºÎ±Ç¸® |
|
| ¼³Á¤µÈ °ÍÀ¸·Î º¸´Â Áö»ó±Ç |
|
| ¹ý¿øÀÚ·á Æ¯ÀÌ»çÇ× |
|
| ¿©ÀÇÁÖ°æ¸Å Á¶¾ð ÇѸ¶µð |
ÀÌ ºÎµ¿»êÀÇ ÀÔÂû¹ý¿øÀº ¼ö¿øÁö¹æ¹ý¿ø ¼º³²Áö¿øÀÔ´Ï´Ù.
ÀÔÂûÀÏÀº 2025-12-15ÀÔ´Ï´Ù.
ÀÔÂû½Ã°£Àº ~11:10ÀÔ´Ï´Ù. ÀÌ ¹ý¿ø¿¡´Â ¿ì¸®ÀºÇàÀÌ ÀÔÁ¡Çϰí ÀÖ½À´Ï´Ù.
|
|
|
| Åë°è±â°£ |
³«Âû¹°°Ç¼ö |
Æò±Õ°¨Á¤°¡ |
Æò±Õ³«Âû°¡ |
³«Âû°¡À² |
À¯ÂûȽ¼ö |
| 3°³¿ù |
2°Ç |
704,000,000¿ø |
409,555,556¿ø |
57% |
2ȸ |
| 6°³¿ù |
6°Ç |
1,199,250,000¿ø |
594,351,852¿ø |
50% |
2.5ȸ |
| 12°³¿ù |
12°Ç |
1,375,229,667¿ø |
704,953,426¿ø |
51% |
2.6ȸ |
|
|
|
|
|
|
 |
|