|
| º» °æ¸Å¹°°ÇÀº ³«ÂûµÇ¾î ÀÌ¹Ì ¸ðµç °æ¸ÅÀýÂ÷°¡ ³¡³µ½À´Ï´Ù. ÀÌ ¹°°ÇÀº »ó´ãÇØ µå¸®Áö ¾Ê½À´Ï´Ù. |
|
|
| ¼ÒÀçÁö |
¼¿ïƯº°½Ã °¼±¸ °¼·Î18¹Ù±æ 19, Á¦3Ãþ Á¦302È£ (Ȱ, µ¿¿ø¶óÅ×¶ó½º)
±¸)¼¿ïƯº°½Ã °¼±¸ Ȱ 396-10
|
|
| »ç°Ç¹øÈ£ |
2024 Ÿ°æ 133234 |
¹°°Ç¹øÈ£ |
1
|
¹°°Ç¿ëµµ |
´Ù¼¼´ë,ºô¶ó |
| °¨Á¤Æò°¡¾× |
225,000,000¿ø |
°æ¸Å´ë»ó |
ÅäÁö ¹× °Ç¹°Àϰý ¸Å°¢ |
ÁøÇà»óÅ |
³«Âû |
ÃÖÀúÀÔÂû°¡ ³«Âû°¡ |
(80%) 180,000,000¿ø
(0.00%) 0¿ø |
°Ç¹°¸éÀû |
28.52§³(8.63Æò) |
ÀÔÂû±âÀÏ |
2025.06.26(¸ñ) 10:00
|
| ÀÔÂûº¸Áõ±Ý |
(10%) 18,000,000¿ø |
ÅäÁö¸éÀû |
17.04§³(5.15Æò)
|
À¯ÂûȽ¼ö |
1ȸ |
| ÀÔÂû¹ý¿ø |
¼¿ï³²ºÎÁö¹æ¹ý¿ø |
°æ¸Å¹æ¹ý |
|
¹°°ÇÁ¶È¸¼ö |
¿À´Ã: 4ȸ [´©Àû: 4ȸ]
|
| ¸»¼Ò±âÁØ | ÃÖ¼±¼øÀ§ ¼³Á¤ : 2020.4.8. ¾Ð·ù ¼³Á¤
|
|
|
|
|
|
|
|
|
|
|
°æ¸Å´ë»ó ¸ñ·Ï
|
|
| ±¸ºÐ |
¸ñ·Ï |
ÁÖ¼Ò |
±¸Á¶/¿ëµµ/´ëÁö±Ç |
ºñ°í |
´ëÁö±Ç
|
1 |
Ȱ 396-10 |
361.2ºÐÀÇ 17.04 |
17.04§³ (5.15Æò)
|
°Ç¹°
|
1 |
Ȱ 396-10 |
Á¦3Ãþ Á¦302È£ ö±ÙÄÜÅ©¸®Æ®±¸Á¶ |
28.52§³ (8.63Æò)
|
|
|
|
2025-05-22
À¯Âû
|
(100%)
225,000,000¿ø
|
|
|
|
2025-06-26
³«Âû
|
(80%)
180,000,000¿ø
|
|
|
¦±¦¬> ³«Âû°¡
 |
|
|
|
|
|
|
°¨Á¤Æò°¡¼ ¿ä¾à |
|
[À§Ä¡/ÁÖÀ§È¯°æ]
º»°ÇÀº ¼¿ïƯº°½Ã °¼±¸ Ȱ ¼ÒÀç " ÈÀÏÃʵîÇб³ " ³²µ¿Ãø Àαٿ¡ ¼ÒÀçÇϸç ÁÖÀ§´Â ¾ÆÆÄÆ®, ´Ù¼¼´ëÁÖÅÃ, ¿¬¸³ÁÖÅÃ,±Ù¸°»ýȰ½Ã¼³ µîÀÌ ¼ÒÀçÇϹǷΠÁÖÀ§È¯°æÀº º¸ÅëÀÓ.
[±³Åë»óȲ]
º»°Ç±îÁö Â÷·® Á¢±ÙÀÌ °¡´ÉÇϸç, Àα٠¹ö½ºÁ¤·ùÀå µîÀÌ ¼ÒÀçÇϹǷΠ±³Åë»óȲÀº º¸ÅëÀÓ.
[°Ç¹°±¸Á¶]
ö±ÙÄÜÅ©¸®Æ®±¸Á¶ Æò½º¶óºê ÁöºØ 7Ãþ °Ç¹° ³» Á¦3Ãþ Á¦302È£
(»ç¿ë½ÂÀÎÀÏ : 2018.08.14)
¿Üº® : ¸ôÅ»À§ ÆäÀÎÆ® ¸¶°¨ µîÀÓ.
³»º® : -
âȣ : »õ½Ã âȣ µîÀÓ.
[ÀÌ¿ë»óÅÂ]
µµ½ÃÇü»ýȰÁÖÅÃ(´ÜÁöÇü´Ù¼¼´ë) (¹æ2, °Å½Ç, ¿å½Ç, ¹ßÄÚ´Ï µî)À¸·Î ÀÌ¿ë ÁßÀÓ.
[¼³ºñ³»¿ª]
±Þ¡¤¹è¼ö¼³ºñ ¹× À§»ý¼³ºñ, µµ½Ã°¡½º¼³ºñ, ½Â°±â¼³ºñ, ³¹æ¼³ºñ , cctv¼³ºñ µîÀÌ µÇ¾îÀÖÀ½.
[ÅäÁöÇü»ó/ÀÌ¿ë»óÅÂ]
ÀÎÁ¢ ÇÊÁö ´ëºñ ¿Ï°æ»ç ¼¼ÀåÇü ÅäÁö·Î¼ µµ½ÃÇü»ýȰÁÖÅÃ(´ÜÁöÇü´Ù¼¼´ë) °ÇºÎÁö·Î ÀÌ¿ë ÁßÀÓ.
7)ÀÎÁ¢ µµ·Î»óŵî
º»°ÇÀº ºÏ¼ÃøÀ¸·Î ³ëÆø ¾à 6¹ÌÅÍ ³»¿ÜÀÇ Æ÷Àåµµ·Î¿¡ Á¢ÇÔ.
[ÅäÁöÀÌ¿ë°èȹ]
396-10 : µµ½ÃÁö¿ª , Á¦2Á¾ÀϹÝÁÖ°ÅÁö¿ª(7ÃþÀÌÇÏ) , Áß¿ä½Ã¼³¹°º¸È£Áö±¸(°øÇ×), °¡Ãà»çÀ°Á¦Çѱ¸¿ª(Áö¿ª°æÁ¦°ú È®ÀÎ ¿ä¸Á)£¼°¡ÃàºÐ´¢ÀÇ °ü¸® ¹× À̿뿡 °üÇÑ ¹ý·ü£¾, ¼öÆòÇ¥¸é±¸¿ª(¼öÆòÇ¥¸é)£¼°øÇ׽ü³¹ý£¾, ´ë°ø¹æ¾îÇùÁ¶±¸¿ª(À§Å¹°íµµ:77-257m)£¼±º»ç±âÁö ¹× ±º»ç½Ã¼³ º¸È£¹ý£¾, °ú¹Ð¾ïÁ¦±Ç¿ª£¼¼öµµ±ÇÁ¤ºñ°èȹ¹ý£¾ÀÓ.
396-35 : µµ½ÃÁö¿ª , Á¦2Á¾ÀϹÝÁÖ°ÅÁö¿ª(7ÃþÀÌÇÏ) , Áß¿ä½Ã¼³¹°º¸È£Áö±¸(°øÇ×), °¡Ãà»çÀ°Á¦Çѱ¸¿ª(Áö¿ª°æÁ¦°ú È®ÀÎ ¿ä¸Á)£¼°¡ÃàºÐ´¢ÀÇ °ü¸® ¹× À̿뿡 °üÇÑ ¹ý·ü£¾, ¼öÆòÇ¥¸é±¸¿ª(¼öÆòÇ¥¸é)£¼°øÇ׽ü³¹ý£¾, ´ë°ø¹æ¾îÇùÁ¶±¸¿ª(À§Å¹°íµµ:77-257m)£¼±º»ç±âÁö ¹× ±º»ç½Ã¼³ º¸È£¹ý£¾, °ú¹Ð¾ïÁ¦±Ç¿ª£¼¼öµµ±ÇÁ¤ºñ°èȹ¹ý£¾ÀÓ.
396-39 : µµ½ÃÁö¿ª , Á¦2Á¾ÀϹÝÁÖ°ÅÁö¿ª(7ÃþÀÌÇÏ) , Áß¿ä½Ã¼³¹°º¸È£Áö±¸(°øÇ×), °¡Ãà»çÀ°Á¦Çѱ¸¿ª(Áö¿ª°æÁ¦°ú È®ÀÎ ¿ä¸Á)£¼°¡ÃàºÐ´¢ÀÇ °ü¸® ¹× À̿뿡 °üÇÑ ¹ý·ü£¾, ¼öÆòÇ¥¸é±¸¿ª(¼öÆòÇ¥¸é)£¼°øÇ׽ü³¹ý£¾, ´ë°ø¹æ¾îÇùÁ¶±¸¿ª(À§Å¹°íµµ:77-257m)£¼±º»ç±âÁö ¹× ±º»ç½Ã¼³ º¸È£¹ý£¾, °ú¹Ð¾ïÁ¦±Ç¿ª£¼¼öµµ±ÇÁ¤ºñ°èȹ¹ý£¾ÀÓ.
[°øºÎ¿ÍÀÇ Â÷ÀÌ]
ÇØ´ç»çÇ×¾øÀ½.
[Âü°í»çÇ×]
-ÀÓ´ë°ü°è ¹Ì»óÀÓ.
-º»°Ç ÇöÀåÁ¶»ç ½Ã ÀÌÇØ°ü°èÀÎÀÇ ºÎÀç·Î ³»ºÎ±¸Á¶µµ´Â ÁýÇÕ°ÇÃ๰´ëÀå»ó µµ¸é°ú ޹® ¹× ¿ÜºÎ°üÂûµîÀ» Åä´ë·Î ÀÛ¼ºÇÏ¿´À½À» ÂüÁ¶ÇϽñ⠹ٶ÷. |
|
|
°ÇÃ๰ÇöȲ |
|
|
|
| ¼ÒÀçÁö |
¼¿ïƯº°½Ã °¼±¸ Ȱ 396-10¹øÁö |
| ´ëÁö¸éÀû |
361.2§³(109.45Æò) |
¿¬¸éÀû |
721.71§³(218.7Æò) |
ÁÖ¿ëµµ |
°øµ¿ÁÖÅà |
| °ÇÃà¸éÀû |
196.48§³(59.54Æò) |
¿ëÀû·ü»êÁ¤¿¬¸éÀû |
721.71§³(218.7Æò) |
Âø°øÀÏÀÚ |
2018.03.08 |
| °ÇÆóÀ² |
54.4% |
¿ëÀû·ü |
199.81% |
»ç¿ë½ÂÀÎÀÏÀÚ |
2018.08.14 |
| Áö»óÃþ¼ö |
7Ãþ |
ÁöÇÏÃþ¼ö |
|
±¸Á¶ |
ö±ÙÄÜÅ©¸®Æ®±¸Á¶ |
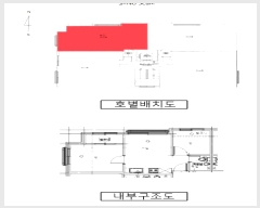
°ÇÃ๰Ãþº°ÇöȲ [º¸±â]| Ãþº° | ±¸Á¶ | ¿ëµµ | ¸éÀû | | 1Ãþ | ö±ÙÄÜÅ©¸®Æ®±¸Á¶ | °è´Ü½Ç/ELEV | 12.88§³ (3.9Æò) | | 2Ãþ | ö±ÙÄÜÅ©¸®Æ®±¸Á¶ | µµ½ÃÇü»ýȰÁÖÅà ´ÜÁöÇü´Ù¼¼´ë(4¼¼´ë) | 132.8§³ (40.24Æò) | | 3Ãþ | ö±ÙÄÜÅ©¸®Æ®±¸Á¶ | µµ½ÃÇü»ýȰÁÖÅà ´ÜÁöÇü´Ù¼¼´ë(4¼¼´ë) | 132.8§³ (40.24Æò) | | 4Ãþ | ö±ÙÄÜÅ©¸®Æ®±¸Á¶ | µµ½ÃÇü»ýȰÁÖÅà ´ÜÁöÇü´Ù¼¼´ë(4¼¼´ë) | 132.8§³ (40.24Æò) | | 5Ãþ | ö±ÙÄÜÅ©¸®Æ®±¸Á¶ | µµ½ÃÇü»ýȰÁÖÅà ´ÜÁöÇü´Ù¼¼´ë(4¼¼´ë) | 130.71§³ (39.61Æò) | | 6Ãþ | ö±ÙÄÜÅ©¸®Æ®±¸Á¶ | µµ½ÃÇü»ýȰÁÖÅà ´ÜÁöÇü´Ù¼¼´ë(3¼¼´ë) | 113.99§³ (34.54Æò) | | 7Ãþ | ö±ÙÄÜÅ©¸®Æ®±¸Á¶ | Á¦2Á¾±Ù¸°»ýȰ½Ã¼³(»ç¹«¼Ò) | 65.73§³ (19.92Æò) | | ¿Áž1Ãþ | ö±ÙÄÜÅ©¸®Æ®±¸Á¶ | °è´Ü½Ç/ELEV(¿¬¸éÀûÁ¦¿Ü) | 12.88§³ (3.9Æò) |
|
|
|
|
|
|
|
|
|
¸éÀû(§³), ±Ý¾×(¸¸¿ø)
| °è¾àÀÏ | ±âÁØ | °Ç¹°¸íĪ | Ãþ | ¿¬¸éÀû | ´ëÁö¸éÀû | °Å·¡±Ý¾× | °ÇÃà³âµµ | | 2024.03.30 | ¸Å¸Å | ÇÏÀÌÆ®¸Ç¼Ç | 1 | 59.31 | 27.89 | 23,000 | 2000 | | 2024.03.30 | ¸Å¸Å | ´õŬ·¡½Ä(857-19) | 6 | 28.52 | 18.2 | 21,500 | 2018 | | 2024.03.30 | ¸Å¸Å | ÇØºñÄ¡ºô | 2 | 26.23 | 15.37 | 22,200 | 2019 | | 2024.03.30 | ¸Å¸Å | µ¿µµÇÏÀÌÃ÷ºô¶ó(56-335) | 1 | 58.56 | 29.4 | 15,000 | 2000 | | 2024.03.30 | ¸Å¸Å | ¸®´õ½ºÅ¸¿î | 5 | 29.88 | 19.3 | 21,900 | 2016 | | 2024.03.30 | ¸Å¸Å | »ï¼º·Î¾âºô¸®Áö | 1 | 61.86 | 29.89 | 27,700 | 2001 | | 2024.03.30 | ¸Å¸Å | ÇѺûÀ§³Ê½ººô(966-20) | 3 | 50.85 | 29.95 | 24,000 | 2008 | | 2024.03.30 | ¸Å¸Å | ¿¡½º¿¥ÆÄÅ©ºô101µ¿102µ¿ | 6 | 28.97 | 15.94 | 19,500 | 2016 | | 2024.03.30 | ¸Å¸Å | °øÁÖºô¶ó | 1 | 57.99 | 24.86 | 19,500 | 2002 | | 2024.03.29 | ¸Å¸Å | Çö´ëºô¶ó³ªµ¿ | -1 | 33.26 | 31.875 | 13,500 | 1991 | | 2024.03.29 | ¸Å¸Å | ´Ù¾Èºô¶óÆ® | 7 | 33.13 | 20.265 | 40,000 | 2017 | | 2024.03.29 | ¸Å¸Å | (504-198) | -1 | 79.26 | 52.248 | 15,500 | 1986 | | 2024.03.29 | ¸Å¸Å | ȲÁ¦±×·£µåÆÄÅ©(105-483) | 2 | 50.61 | 28.9 | 23,500 | 2008 | | 2024.03.29 | ¸Å¸Å | ³²¼º¾ÆÆ®ºô(410-265) | 3 | 43.17 | 24.26 | 18,000 | 2009 | | 2024.03.29 | ¸Å¸Å | °¡¿Âºô(163-19) | 2 | 27.39 | 17.79 | 16,200 | 2015 | | 2024.03.29 | ¸Å¸Å | ÇØ¼ºÆÓ¸®½ººô2Â÷ | 4 | 35.1 | 16.34 | 11,000 | 2001 | | 2024.03.29 | ¸Å¸Å | ¶óÅ׶󽺺ô(380-6) | 4 | 38.59 | 23.97 | 27,000 | 2016 | | 2024.03.29 | ¸Å¸Å | ±Ù»óÇÁ¸®Áò¾ÆÆ®ºô | 5 | 55.3 | 27.785 | 26,700 | 2010 | | 2024.03.29 | ¸Å¸Å | (504-198) | -1 | 79.26 | 52.248 | 15,500 | 1986 | | 2024.03.28 | ¸Å¸Å | ÇØ¶ß´ÂÁý | 4 | 35.12 | 13.72 | 16,800 | 2001 | | 2024.03.28 | ¸Å¸Å | ´Ù¿Â½£ | 2 | 25.2 | 18.17 | 32,000 | 2024 | | 2024.03.28 | ¸Å¸Å | ´Ù¿Â½£ | 4 | 25.38 | 18.3 | 33,000 | 2024 | | 2024.03.28 | ¸Å¸Å | ´Ù¿Â½£ | 4 | 25.2 | 18.17 | 30,000 | 2024 | | 2024.03.28 | ¸Å¸Å | ½Å¿µº£¸£µð¿ò | 2 | 29.45 | 17.36 | 21,300 | 2017 | | 2024.03.28 | ¸Å¸Å | Àº¾Æºô¶óºñµ¿ | 2 | 84.54 | 39.26 | 34,000 | 2002 | | 2024.03.28 | ¸Å¸Å | ´õ¶ó¿Â | 3 | 35.77 | 20.48 | 20,000 | 2016 | | 2024.03.28 | ¸Å¸Å | ÇØ¶ß´ÂÁý | 4 | 35.12 | 13.72 | 16,800 | 2001 | | 2024.03.28 | ¸Å¸Å | ¾¾Æ¼ÇϿ콺Aµ¿ | 5 | 37.07 | 20.19 | 26,000 | 2017 | | 2024.03.28 | ¸Å¸Å | ¿ì¼ººô¶óBµ¿ | 3 | 34.56 | 26.37 | 13,600 | 2002 | | 2024.03.27 | ¸Å¸Å | ±Ý¹Ý¼®ºô¶óBµ¿ | 4 | 55.81 | 34 | 16,000 | 1992 | | 2024.03.27 | ¸Å¸Å | ¿¡ÀÌ¿£Ä³½½ | 5 | 26.23 | 16.22 | 20,720 | 2018 | | 2024.03.27 | ¸Å¸Å | È«¼º±×¸°ÆÄÅ© | 3 | 46.38 | 32.12 | 20,000 | 2010 | | 2024.03.27 | ¸Å¸Å | °æ³²ºô¶ó¶óµ¿ | -1 | 43.59 | 31.97 | 11,000 | 1986 | | 2024.03.27 | ¸Å¸Å | ¿µ±¤ºô¶ó | -1 | 45.45 | 23.43 | 11,000 | 1991 | | 2024.03.27 | ¸Å¸Å | ³²¼º¾ÆÆ®ºô1 | 3 | 24.79 | 14.64 | 19,000 | 2015 | | 2024.03.26 | ¸Å¸Å | È¿µ¿Å¸¿î | 2 | 56.64 | 24.566 | 19,000 | 2000 | | 2024.03.26 | ¸Å¸Å | (954-14) | 4 | 35.03 | 19.2 | 12,000 | 2003 | | 2024.03.26 | ¸Å¸Å | »ï¼º´ºÄ³½½(56-363) | 2 | 68.28 | 33.72 | 21,500 | 2003 | | 2024.03.26 | ¸Å¸Å | Àº¼ºÄ³½½ | 2 | 28.14 | 17.7 | 25,190 | 2022 | | 2024.03.25 | ¸Å¸Å | ´Ù¿øºô¶ó | -1 | 45.18 | 20.625 | 12,000 | 1993 | | 2024.03.25 | ¸Å¸Å | ¸ñµ¿½¦¸£ºô | 2 | 54.83 | 29.26 | 20,000 | 2002 | | 2024.03.25 | ¸Å¸Å | ¶óºñ¾ÓÇϿ콺 | 3 | 26.85 | 18.38 | 22,000 | 2014 | | 2024.03.25 | ¸Å¸Å | ´Ù¿øºô¶ó | -1 | 45.18 | 20.625 | 12,000 | 1993 | | 2024.03.25 | ¸Å¸Å | ±×·¹À̽ººô | 2 | 26.83 | 20.5916 | 36,900 | 2022 | | 2024.03.25 | ¸Å¸Å | ÇѶóÁÖÅà | 5 | 49.58 | 29.81 | 7,500 | 2002 | | 2024.03.25 | ¸Å¸Å | ÇØ¹èÄ¡ºô | 2 | 29.91 | 19.08 | 19,300 | 2015 | | 2024.03.25 | ¸Å¸Å | û¼º½ºÄ«ÀÌ(100-22) | 2 | 79.93 | 44.93 | 29,400 | 2009 | | 2024.03.25 | ¸Å¸Å | (42-65) | 4 | 26.21 | 21.0367 | 18,400 | 2018 | | 2024.03.25 | ¸Å¸Å | ¶óºñ¾ÓÇϿ콺 | 3 | 26.85 | 18.38 | 20,500 | 2014 | | 2024.03.25 | ¸Å¸Å | ¿µÁøÁÖÅà | 3 | 28.33 | 17.88 | 20,000 | 2023 | | 2024.03.25 | ¸Å¸Å | ³²°æ¸®¹öºôBµ¿ | 4 | 39.89 | 20.41 | 16,500 | 2001 | | 2024.03.25 | ¸Å¸Å | ½Å¿µºô¶óBµ¿(55-104) | 4 | 58.48 | 29.44 | 16,400 | 2001 | | 2024.03.25 | ¸Å¸Å | ¾¾Æ¼ÇϿ콺Aµ¿ | 3 | 36.27 | 20.19 | 23,800 | 2017 | | 2024.03.24 | ¸Å¸Å | ȰîÅ¥6 | 3 | 28.12 | 17.49 | 28,000 | 2022 | | 2024.03.24 | ¸Å¸Å | ¿ì¼ººô¶ó | 4 | 50.4 | 24.97 | 18,500 | 2000 | | 2024.03.23 | ¸Å¸Å | ¸ð´øºô(805-17) | 5 | 61.68 | 34.07 | 21,800 | 2003 | | 2024.03.23 | ¸Å¸Å | ȰîÅ¥6 | 6 | 27.28 | 16.97 | 28,300 | 2022 | | 2024.03.23 | ¸Å¸Å | ³²¼º¾ÆÆ®ºô(367-65) | 6 | 35.85 | 17.66 | 27,000 | 2017 | | 2024.03.23 | ¸Å¸Å | ¸þºñ¿ì½º(156-12) | 5 | 34.63 | 21.78 | 23,000 | 2012 | | 2024.03.23 | ¸Å¸Å | ¿µÀÏ¾ÆÆ®ºô | -1 | 62.52 | 32.18 | 17,300 | 2003 | | 2024.03.23 | ¸Å¸Å | ¿ìÀåÈÀκô(995-27) | 3 | 46.93 | 26.13 | 22,300 | 2011 | | 2024.03.23 | ¸Å¸Å | ¸í¼º¾ÆÆ®¸Ç¼Ç | 3 | 37.62 | 26.07 | 14,200 | 1991 | | 2024.03.22 | ¸Å¸Å | µð¾ÆÀνº(1075-27) | 9 | 14.4 | 4.35 | 11,000 | 2015 | | 2024.03.22 | ¸Å¸Å | µð¾ÆÀνº(1075-27) | 9 | 14.58 | 6.21 | 9,500 | 2015 | | 2024.03.22 | ¸Å¸Å | µð¾ÆÀνº(1075-27) | 7 | 14.58 | 6.2 | 9,500 | 2015 | | 2024.03.22 | ¸Å¸Å | µð¾ÆÀνº(1075-27) | 9 | 14.4 | 4.35 | 12,000 | 2015 | | 2024.03.22 | ¸Å¸Å | µð¾ÆÀνº(1075-27) | 6 | 22.97 | 6.94 | 14,000 | 2015 | | 2024.03.22 | ¸Å¸Å | µð¾ÆÀνº(1075-27) | 6 | 22.97 | 6.94 | 14,000 | 2015 | | 2024.03.22 | ¸Å¸Å | µð¾ÆÀνº(1075-27) | 9 | 15.61 | 6.64 | 9,500 | 2015 | | 2024.03.22 | ¸Å¸Å | µð¾ÆÀνº(1075-27) | 6 | 14.4 | 4.34 | 10,700 | 2015 | | 2024.03.22 | ¸Å¸Å | µð¾ÆÀνº(1075-27) | 7 | 15.61 | 6.64 | 9,500 | 2015 | | 2024.03.22 | ¸Å¸Å | ´õÇ÷¹À̽º | 6 | 43.7 | 30.112 | 26,900 | 2017 | | 2024.03.22 | ¸Å¸Å | ¸¶ÀÌÇϿ콺 | 5 | 25.3 | 17.64 | 18,000 | 2016 | | 2024.03.22 | ¸Å¸Å | µð¾ÆÀνº(1075-27) | 7 | 14.4 | 4.34 | 11,000 | 2015 | | 2024.03.22 | ¸Å¸Å | µð¾ÆÀνº(1075-27) | 7 | 14.4 | 4.34 | 11,000 | 2015 | | 2024.03.22 | ¸Å¸Å | µð¾ÆÀνº(1075-27) | 8 | 14.4 | 4.35 | 9,500 | 2015 | | 2024.03.22 | ¸Å¸Å | µð¾ÆÀνº(1075-27) | 8 | 14.4 | 4.35 | 11,000 | 2015 | | 2024.03.22 | ¸Å¸Å | µð¾ÆÀνº(1075-27) | 7 | 22.97 | 6.94 | 14,000 | 2015 | | 2024.03.22 | ¸Å¸Å | µð¾ÆÀνº(1075-27) | 7 | 22.97 | 6.94 | 14,000 | 2015 | | 2024.03.22 | ¸Å¸Å | µð¾ÆÀνº(1075-27) | 8 | 22.97 | 6.94 | 14,000 | 2015 | | 2024.03.22 | ¸Å¸Å | µð¾ÆÀνº(1075-27) | 8 | 14.58 | 6.2 | 9,500 | 2015 | | 2024.03.22 | ¸Å¸Å | µð¾ÆÀνº(1075-27) | 8 | 12.78 | 5.45 | 9,500 | 2015 | | 2024.03.22 | ¸Å¸Å | µð¾ÆÀνº(1075-27) | 8 | 12.41 | 5.29 | 9,500 | 2015 | | 2024.03.22 | ¸Å¸Å | µð¾ÆÀνº(1075-27) | 9 | 12.78 | 5.45 | 9,500 | 2015 | | 2024.03.22 | ¸Å¸Å | µð¾ÆÀνº(1075-27) | 9 | 12.41 | 5.29 | 9,500 | 2015 | | 2024.03.22 | ¸Å¸Å | µð¾ÆÀνº(1075-27) | 6 | 14.4 | 4.34 | 11,000 | 2015 | | 2024.03.22 | ¸Å¸Å | µð¾ÆÀνº(1075-27) | 10 | 12.78 | 5.45 | 14,000 | 2015 | | 2024.03.22 | ¸Å¸Å | µð¾ÆÀνº(1075-27) | 7 | 12.41 | 5.29 | 9,500 | 2015 | | 2024.03.22 | ¸Å¸Å | µð¾ÆÀνº(1075-27) | 8 | 22.97 | 6.94 | 14,000 | 2015 | | 2024.03.22 | ¸Å¸Å | µð¾ÆÀνº(1075-27) | 9 | 22.97 | 6.94 | 12,000 | 2015 | | 2024.03.22 | ¸Å¸Å | µð¾ÆÀνº(1075-27) | 9 | 22.97 | 6.94 | 14,000 | 2015 | | 2024.03.22 | ¸Å¸Å | µ¿¾çÇÏ¿ì¡ | 4 | 42.98 | 24.79 | 35,000 | 2016 | | 2024.03.22 | ¸Å¸Å | µð¾ÆÀνº(1075-27) | 7 | 12.78 | 5.45 | 9,500 | 2015 | | 2024.03.22 | ¸Å¸Å | µð¾ÆÀνº(1075-27) | 8 | 15.61 | 6.64 | 9,500 | 2015 | | 2024.03.21 | ¸Å¸Å | Ǫ¸¥ºô¸®Áö | 5 | 83.46 | 39.18 | 26,500 | 2001 | | 2024.03.21 | ¸Å¸Å | ¿ÍÀ̾غñ(370-16) | 3 | 27.65 | 17.419 | 16,300 | 2015 | | 2024.03.21 | ¸Å¸Å | ºí·çÈú(391-14) | 2 | 69.05 | 35.407 | 30,000 | 2006 | | 2024.03.21 | ¸Å¸Å | »ïÀκô¶ó(59-43) | 1 | 59.45 | 37.82 | 20,000 | 2002 | | 2024.03.21 | ¸Å¸Å | ¸®´õ½ºÅ¸¿î | 4 | 29.37 | 18.7 | 22,300 | 2017 | | 2024.03.21 | ¸Å¸Å | ·°½ºÅ¸¿îÈú | 3 | 58.08 | 34.31 | 27,100 | 2007 | | 2024.03.20 | ¸Å¸Å | ¿µÀÏ¾ÆÆ®ºô(Aµ¿) | 1 | 71.18 | 35.87 | 24,000 | 2002 | | 2024.03.20 | ¸Å¸Å | ¿ì¼ºÅ׸¶ºôBµ¿(407-3) | 2 | 48.33 | 31.87 | 18,600 | 2005 | | 2024.03.20 | ¸Å¸Å | ¼ºÁøºô¶óÆ® | -1 | 66.57 | 42.93 | 15,900 | 2002 | | 2024.03.20 | ¸Å¸Å | ³²¼º¾ÆÆ®ºô | 2 | 27.2 | 15.86 | 26,400 | 2017 | | 2024.03.20 | ¸Å¸Å | ±×·¹À̽º¾ÆÆ®ºô | -1 | 67.2 | 39.37 | 13,000 | 2002 | | 2024.03.20 | ¸Å¸Å | »ï¼ºÈ¨Å¸¿î3Â÷ | 3 | 45.99 | 21.03 | 12,900 | 2001 | | 2024.03.19 | ¸Å¸Å | ¿µÁøÁÖÅà | 2 | 27.38 | 17.28 | 21,500 | 2023 | | 2024.03.19 | ¸Å¸Å | ±¤Áø¿¡¹öºô | 3 | 59.53 | 33.66 | 25,800 | 2013 | | 2024.03.19 | ¸Å¸Å | ½ºÄ«À̺ô | 3 | 28.64 | 20.7 | 19,300 | 2017 | | 2024.03.19 | ¸Å¸Å | ¿ìÀå»êÆÄÅ©ºô | 4 | 37.19 | 20.35 | 24,500 | 2013 | | 2024.03.19 | ¸Å¸Å | ±¤¸²¾ÆÆ®ºô¶ó(111-51) | -1 | 53.46 | 34.13 | 10,500 | 1993 | | 2024.03.18 | ¸Å¸Å | ½Â¼®ÈúŸ¿î | 3 | 63.18 | 32.719 | 17,000 | 2003 | | 2024.03.18 | ¸Å¸Å | È«¼ºÆÄÅ©¸Ç¼Ç°¡µ¿ | 4 | 43.56 | 21.2 | 17,100 | 2001 | | 2024.03.18 | ¸Å¸Å | õ¿ìºô¸®Áö | -1 | 63.87 | 29.88 | 14,500 | 1999 | | 2024.03.18 | ¸Å¸Å | ¼ºÈÆ¿¡À̽ººô | 3 | 51.43 | 26.6 | 19,000 | 2002 | | 2024.03.18 | ¸Å¸Å | ¿µÅ¸¿îºô¶ó | 3 | 54.96 | 24.781 | 24,350 | 2003 | | 2024.03.16 | ¸Å¸Å | Çö´ëÄھƺô(Bµ¿) | 4 | 44.96 | 21.075 | 19,800 | 2002 | | 2024.03.16 | ¸Å¸Å | ¼Ò´ã¹ë¸® | 4 | 29.14 | 16.7063 | 24,800 | 2012 | | 2024.03.16 | ¸Å¸Å | ¿ìȱ׸°(969-13) | 2 | 29.78 | 20.427 | 18,000 | 2012 | | 2024.03.16 | ¸Å¸Å | ¸®Á¨Æ®¶ó¿ò-Ȱî | 6 | 29.21 | 7.8971 | 18,550 | 2015 | | 2024.03.15 | ¸Å¸Å | À̵µÆ®¶ó¿ò2 | 3 | 33.29 | 19.761 | 27,820 | 2018 | | 2024.03.15 | ¸Å¸Å | °æ¿ø¾ÆÆ®ºôBµ¿ | 1 | 28.8 | 14.34 | 19,300 | 2001 | | 2024.03.15 | ¸Å¸Å | ÇູŸ¿î5Â÷ | 4 | 59.5 | 33.14 | 23,500 | 2008 | | 2024.03.15 | ¸Å¸Å | À̽ºÆ®Èú | 2 | 62.31 | 29 | 20,000 | 2003 | | 2024.03.15 | ¸Å¸Å | È«¼ºÆÄÅ©ºô(808-16) | 3 | 49.6 | 27.33 | 20,000 | 2010 | | 2024.03.15 | ¸Å¸Å | ¹Ì·¡ÇÏÀÌÃ÷Aµ¿(352-7) | 1 | 59.23 | 28.7 | 21,000 | 2001 | | 2024.03.15 | ¸Å¸Å | ´ö¿ëÆÓ¸®Ã¼ | 5 | 25.23 | 15.16 | 24,100 | 2019 | | 2024.03.14 | ¸Å¸Å | »ó¿ìºô¶óB | 3 | 52.77 | 25.66 | 26,700 | 2002 | | 2024.03.14 | ¸Å¸Å | ÇѼº±×¸°Å¸¿î7µ¿ | 4 | 60.82 | 27.97 | 22,900 | 2003 | | 2024.03.14 | ¸Å¸Å | Çý¼ºÆÓ¸®½ººô(392-31) | 6 | 18.4 | 11.5 | 18,500 | 2014 | | 2024.03.14 | ¸Å¸Å | ¿ùÁ¤ÆÄÅ©ºô(372-54) | 4 | 49.93 | 24.73 | 26,000 | 2012 | | 2024.03.14 | ¸Å¸Å | ³×¿ÀÆÄÅ©ºô(160-17) | 2 | 59.66 | 43.35 | 29,500 | 2008 | | 2024.03.14 | ¸Å¸Å | ´Ù¾Èºô¶óÆ® | 5 | 32.91 | 20.31 | 23,000 | 2016 | | 2024.03.14 | ¸Å¸Å | µÎ¸®ºô¶ó | 1 | 45.54 | 24.88 | 13,400 | 1991 | | 2024.03.14 | ¸Å¸Å | À̰¡Ã¤(400-95) | 6 | 29.11 | 15.472 | 27,500 | 2012 | | 2024.03.14 | ¸Å¸Å | ¿¥Æç¸®Ã¼ºñµ¿ | 2 | 29.95 | 19.2248 | 22,000 | 2017 | | 2024.03.14 | ¸Å¸Å | ¾¾Æ¼ÇϿ콺(871-39) | 5 | 41.13 | 25.36 | 28,100 | 2013 | | 2024.03.14 | ¸Å¸Å | SK±×¶ûºô | 2 | 31.2 | 18.45 | 16,100 | 2011 | | 2024.03.13 | ¸Å¸Å | ´ë¿øºô¶ó | 3 | 57.61 | 24.148 | 26,000 | 1994 | | 2024.03.13 | ¸Å¸Å | ¾ÆÁÙ¸®¿ò(451-8) | 5 | 27.31 | 15.94 | 19,300 | 2013 | | 2024.03.13 | ¸Å¸Å | ½ãÇÏÀÌÃ÷ºô | -1 | 42.95 | 21.91 | 10,650 | 1991 | | 2024.03.13 | ¸Å¸Å | °æ¿ø¿¤¸£ºô | 4 | 58.6 | 26.13 | 26,000 | 2000 | | 2024.03.12 | ¸Å¸Å | ·°Å°ºô¶ó¿¡À̵¿ | 1 | 62.1 | 69.07 | 20,000 | 1983 | | 2024.03.12 | ¸Å¸Å | ¿¤¸®½Ã¾Æ | 4 | 28.71 | 17.46 | 22,000 | 2013 | | 2024.03.12 | ¸Å¸Å | ¿ìÇöÆç¸®½º | 2 | 28.7 | 18.263 | 21,300 | 2016 | | 2024.03.12 | ¸Å¸Å | °æ¹Î¾ÆÆ®ºô(393-21) | 4 | 23.97 | 14.084 | 21,300 | 2017 | | 2024.03.12 | ¸Å¸Å | °ñµçºô(102-55) | 3 | 61.82 | 28.048 | 24,500 | 2001 | | 2024.03.12 | ¸Å¸Å | ³ª·¡ÆÛ½ºÆ®ºô | 1 | 60.06 | 26.13 | 22,250 | 2002 | | 2024.03.11 | ¸Å¸Å | ±¤´öÇÏÀ̺ô | 2 | 79.65 | 44.48 | 21,000 | 2002 | | 2024.03.11 | ¸Å¸Å | °ÇÇüºô¶ó(341-43) | 2 | 67.86 | 33.1 | 30,000 | 2000 | | 2024.03.11 | ¸Å¸Å | °æ³²ÇÏÀÌÃ÷A | 1 | 50.48 | 44.5 | 25,000 | 1989 | | 2024.03.11 | ¸Å¸Å | ¸ð´×ºô | 5 | 36.18 | 19.07 | 12,400 | 2002 | | 2024.03.11 | ¸Å¸Å | È£¾Ï·ÎÁîºô | 3 | 59.58 | 29.153 | 28,500 | 2001 | | 2024.03.10 | ¸Å¸Å | OKºô¶ó | 2 | 51.2 | 34.44 | 24,500 | 2008 | | 2024.03.10 | ¸Å¸Å | µ¿¸í³ëºí·¹½º(³ªµ¿) | 4 | 29.25 | 16.548 | 16,500 | 2011 | | 2024.03.09 | ¸Å¸Å | ´ë¼º¾ÆÆ®ºô(466-15) | 3 | 52.19 | 35.01 | 20,500 | 2003 | | 2024.03.09 | ¸Å¸Å | ·Î¾âÇÏÀÌÃ÷(806-2) | 4 | 34.6 | 20.25 | 17,000 | 2010 | | 2024.03.09 | ¸Å¸Å | ÀÎÅÍ½ÃÆ¼ºô¶ó(152-5) | 3 | 29.25 | 17.59 | 12,500 | 2001 | | 2024.03.09 | ¸Å¸Å | ÁÖ¿µÇϿ콺 | 5 | 26.95 | 17.75 | 15,500 | 2016 | | 2024.03.09 | ¸Å¸Å | ¸¶ÀÌÇϿ콺 | 4 | 45.73 | 31.89 | 28,000 | 2016 | | 2024.03.09 | ¸Å¸Å | »ïÀͺô¶ó(353-24) | 1 | 68.27 | 34.52 | 24,800 | 1997 | | 2024.03.09 | ¸Å¸Å | ·°½ºÅ¸¿îÈú | 3 | 60.58 | 35.79 | 25,300 | 2007 | | 2024.03.08 | ¸Å¸Å | È¿µ¿Å¸¿î | 2 | 59.61 | 25.856 | 22,500 | 2000 | | 2024.03.08 | ¸Å¸Å | º¸¾È¾ÆÆ®ºô¶ó | 5 | 40.88 | 20.24 | 15,000 | 2002 | | 2024.03.08 | ¸Å¸Å | ûÇÐÁÖÅà | -1 | 56.43 | 26.849 | 10,900 | 1991 | | 2024.03.08 | ¸Å¸Å | È£¼º±×¸°ºô12Â÷ | 2 | 68.42 | 23.86 | 28,500 | 2000 | | 2024.03.08 | ¸Å¸Å | ¼ºµµº£½ºÆ®È¨ | 2 | 65.54 | 36.33 | 26,000 | 2007 | | 2024.03.08 | ¸Å¸Å | Çö´ëºô¶ó´Ùµ¿(748-24) | -1 | 59.85 | 34.09 | 13,500 | 2000 | | 2024.03.07 | ¸Å¸Å | ´Ù¿ï³×¹öºôC | 4 | 68.78 | 36.34 | 31,500 | 2001 | | 2024.03.07 | ¸Å¸Å | »ï¿øÇÏÀÌÃ÷ºô¶ó(56-406) | 4 | 33 | 16.24 | 13,000 | 1994 | | 2024.03.07 | ¸Å¸Å | µ¿µµÇÏÀÌÃ÷ºô¶ó´Ùµ¿ | 2 | 43.23 | 21.25 | 15,500 | 2001 | | 2024.03.06 | ¸Å¸Å | ½Å¶óÇÏÀÌÃ÷ºô¶ó3Â÷ | 2 | 41.04 | 19.47 | 14,000 | 1994 | | 2024.03.06 | ¸Å¸Å | ÇѽžÆÀ̸£ºô13Â÷Aµ¿,Bµ¿ | 3 | 62.89 | 34.935 | 29,000 | 2009 | | 2024.03.06 | ¸Å¸Å | (105-20) | 3 | 62.64 | 36.69 | 25,300 | 2011 | | 2024.03.06 | ¸Å¸Å | ¿ìÁøÇÏÀÌÃ÷ºô¶ó | 3 | 59.9 | 30.667 | 27,800 | 1999 | | 2024.03.06 | ¸Å¸Å | ¿ì¿µÈ¨Å¸¿î | 4 | 45.14 | 21.89 | 16,300 | 2003 | | 2024.03.06 | ¸Å¸Å | ¹Ì¿¬º£½ºÆ®ºô | 2 | 63.75 | 34.37 | 29,800 | 2003 | | 2024.03.06 | ¸Å¸Å | ´ëµ¿ºô | 2 | 24.11 | 15.59 | 23,000 | 2020 | | 2024.03.05 | ¸Å¸Å | ÁøÁÖºô¶ó | -1 | 61.01 | 35.97 | 15,000 | 1993 | | 2024.03.05 | ¸Å¸Å | À¯¿øÈ¨Å¸¿î | 2 | 46.23 | 30.31 | 29,000 | 2015 | | 2024.03.05 | ¸Å¸Å | °ñµçºô(102-55) | -1 | 62.37 | 28.297 | 14,000 | 2001 | | 2024.03.05 | ¸Å¸Å | ¿ì¼ºÃ¢´ëºô | 2 | 64.805 | 37.2 | 32,000 | 2007 | | 2024.03.05 | ¸Å¸Å | È«¼ºÁÖÅÃBµ¿ | -1 | 28.05 | 13.37 | 6,000 | 2002 | | 2024.03.05 | ¸Å¸Å | Áß¾ÓÇÏÀÌÃ÷ºô(1018-14) | 4 | 50.29 | 27.714 | 20,200 | 2008 | | 2024.03.04 | ¸Å¸Å | »ï¼º½¦¸£ºô(346-62) | 5 | 40.83 | 25.19 | 27,000 | 2017 | | 2024.03.04 | ¸Å¸Å | ¿ì¼ºÅ׸¶ºô(1044-20) | 4 | 69.2 | 40.15 | 18,000 | 2006 | | 2024.03.04 | ¸Å¸Å | °¡»êÁÖÅà | 2 | 60.22 | 27.82 | 28,000 | 2004 | | 2024.03.04 | ¸Å¸Å | ³²¼º¾ÆÆ®ºô(59-62) | 4 | 48.12 | 28.186 | 21,000 | 2009 | | 2024.03.04 | ¸Å¸Å | ÃÊ¿øºô¶ó | 1 | 33.3 | 17.13 | 16,000 | 1994 | | 2024.03.04 | ¸Å¸Å | »ï¼º¼¾Æ®·¹ºô(55-48) | 2 | 51.54 | 29.686 | 18,000 | 2008 | | 2024.03.02 | ¸Å¸Å | ¹«µîºô¶ó | 1 | 36.88 | 28.4 | 13,800 | 1990 | | 2024.03.02 | ¸Å¸Å | Çý¼ºÆç¸®½ººô | 3 | 29.36 | 18.49 | 20,000 | 2018 | | 2024.03.01 | ¸Å¸Å | µµ¿ø¼ÖºñÄ¡ | 6 | 33.12 | 20.4811 | 19,500 | 2015 | | 2024.03.01 | ¸Å¸Å | °¡¼º¾ÆÆ®Èú | 4 | 41.58 | 23.48 | 16,000 | 2002 | | 2024.03.01 | ¸Å¸Å | Å©¸®½ºÅ»ºô(354-21) | 2 | 29.1 | 22.0158 | 21,000 | 2014 | | 2024.03.01 | ¸Å¸Å | ±¹¹Î½¦¸£ºô2 | 2 | 58.72 | 42.66 | 22,000 | 2016 | | 2024.03.01 | ¸Å¸Å | ÃÊ¿øºô¶ó(347-10) | 4 | 56.7 | 31.15 | 23,200 | 1994 | | 2024.02.29 | ¸Å¸Å | Á¦À̽ººô(969-5) | 4 | 29.86 | 22.74 | 29,910 | 2022 | | 2024.02.29 | ¸Å¸Å | °¡¿Âºô(163-19) | 4 | 26.08 | 16.94 | 15,500 | 2015 | | 2024.02.29 | ¸Å¸Å | ¹ÌÁÖºô¶ó | -1 | 68.34 | 31.56 | 13,800 | 2000 | | 2024.02.29 | ¸Å¸Å | À§ÇϿ콺(111-10) | 2 | 27.73 | 18.01 | 18,500 | 2016 | | 2024.02.29 | ¸Å¸Å | Á¤°¡¿ïºô | 1 | 33.63 | 19.3 | 13,000 | 2008 | | 2024.02.29 | ¸Å¸Å | ºô¶ó¾Ø(424-55) | 3 | 27.02 | 16.868 | 20,000 | 2014 | | 2024.02.28 | ¸Å¸Å | ¹Ì·¡½ºÅ¸ºô2Â÷ | 2 | 45.61 | 29.77 | 20,500 | 2008 | | 2024.02.28 | ¸Å¸Å | °¼·º½ººô | 3 | 39.79 | 25.8 | 16,500 | 2008 | | 2024.02.28 | ¸Å¸Å | ¿¡À̽ººô | 1 | 57.34 | 24.53 | 21,000 | 2003 | | 2024.02.27 | ¸Å¸Å | Åä¼®¾Æ³×½ººô(102-291) | 3 | 62.28 | 32.859 | 25,500 | 2008 | | 2024.02.27 | ¸Å¸Å | µå¸®¿ò | 4 | 29.97 | 18.63 | 40,800 | 2022 | | 2024.02.27 | ¸Å¸Å | È«¼º±×¸°ÆÄÅ© | 1 | 46.38 | 32.12 | 20,000 | 2010 | | 2024.02.27 | ¸Å¸Å | ÅÂ½Â¾ÆÆ®ºô | 3 | 53.61 | 31.43 | 21,500 | 2003 | | 2024.02.27 | ¸Å¸Å | ¿ùµåÆÄÅ©ºä³ªµ¿ | 2 | 60.86 | 34.631 | 25,000 | 2002 | | 2024.02.26 | ¸Å¸Å | Æ÷·¹½ºÆ®Èú | 5 | 87.15 | 48.55 | 25,000 | 2008 | | 2024.02.26 | ¸Å¸Å | ¿ì¼º¼ºÁøºô¶ó | 3 | 47.49 | 26.23 | 16,750 | 1996 | | 2024.02.26 | ¸Å¸Å | ¼º¿øÇÁ¶ó¿ìµå | 5 | 28.55 | 20.3256 | 23,500 | 2018 | | 2024.02.26 | ¸Å¸Å | ´ö¼ö±Ã(961-14) | 4 | 31.65 | 17.96 | 15,000 | 2007 | | 2024.02.26 | ¸Å¸Å | ´ë±Ùºô¶ó | 2 | 46.44 | 53.79 | 24,800 | 1990 | | 2024.02.26 | ¸Å¸Å | ½Å¾Èºô¶ó°¡µ¿ | -1 | 50.76 | 33.83 | 13,000 | 1991 | | 2024.02.26 | ¸Å¸Å | ±×¸°³ª·¡ºô(994-10) | 5 | 44.04 | 24.631 | 18,000 | 2011 | | 2024.02.25 | ¸Å¸Å | ·Î¿¤ | 2 | 27.98 | 17.4 | 25,500 | 2022 | | 2024.02.24 | ¸Å¸Å | °ñµçºô | 4 | 50.49 | 26.44 | 26,000 | 2009 | | 2024.02.24 | ¸Å¸Å | ¿£¿¡½ººô(381-5) | 2 | 63.06 | 35.287 | 29,000 | 2010 | | 2024.02.24 | ¸Å¸Å | ·Î¿¤ | 2 | 29.28 | 18.2 | 24,000 | 2022 | | 2024.02.24 | ¸Å¸Å | Çý¼ºÆç¸®½ººô | 4 | 45.69 | 28.78 | 24,300 | 2018 | | 2024.02.24 | ¸Å¸Å | °æ¿ø±×¸°ºô³ªµ¿ | 3 | 49.87 | 23.47 | 17,000 | 2001 | | 2024.02.24 | ¸Å¸Å | ¼ºº¸¸Ç¼Çºô¶ó | 2 | 68.95 | 26.52 | 23,700 | 1996 | | 2024.02.23 | ¸Å¸Å | ÁÖ¿µÇϿ콺 | 4 | 27.09 | 17.84 | 16,500 | 2016 | | 2024.02.23 | ¸Å¸Å | NK½¦¸£ºô | 3 | 56.16 | 31.2 | 28,000 | 2009 | | 2024.02.23 | ¸Å¸Å | Á¦¼±±×·£µåºô | 1 | 36.81 | 26.9 | 17,800 | 2009 | | 2024.02.23 | ¸Å¸Å | ´ºÆ®¸®Èú | -1 | 52.46 | 24.77 | 27,000 | 2015 | | 2024.02.22 | ¸Å¸Å | ¸®Á¨Æ®¶ó¿ò-Ȱî | 7 | 27.83 | 7.5241 | 19,200 | 2015 | | 2024.02.22 | ¸Å¸Å | º§¶óÇϿ콺(83-15) | 5 | 29.54 | 18.291 | 18,300 | 2015 | | 2024.02.22 | ¸Å¸Å | ½ºÄ«À̺ô | 3 | 25.12 | 18.16 | 17,800 | 2017 | | 2024.02.22 | ¸Å¸Å | ¼¾Æ®ºô | 2 | 29.74 | 20.391 | 17,000 | 2012 | | 2024.02.22 | ¸Å¸Å | ¹«µîºô¶ó | 1 | 36.88 | 28.4 | 11,250 | 1990 | | 2024.02.21 | ¸Å¸Å | ¿ìȱ׸° | 4 | 26.98 | 15.6336 | 17,000 | 2012 | | 2024.02.21 | ¸Å¸Å | ¿¡ÄÚºô¸®Áö(392-16) | 2 | 29.94 | 17.76 | 19,800 | 2014 | | 2024.02.21 | ¸Å¸Å | ³²±¤¾ÆÆ®ºôBµ¿ | 3 | 35.54 | 24.15 | 27,200 | 2018 | | 2024.02.21 | ¸Å¸Å | ¿ìȱ׸° | 4 | 26.98 | 15.6336 | 17,000 | 2012 | | 2024.02.21 | ¸Å¸Å | À̳뼿 | 5 | 50.9 | 30.92 | 26,000 | 2014 | | 2024.02.21 | ¸Å¸Å | À¯Çöºô¸®Áö | 2 | 36.79 | 23.442 | 21,500 | 2016 | | 2024.02.21 | ¸Å¸Å | ³²¼º¾ÆÆ®ºô | 3 | 53.26 | 29.545 | 24,000 | 2010 | | 2024.02.20 | ¸Å¸Å | żººí·çºô | 2 | 81.1 | 41.8 | 26,800 | 2002 | | 2024.02.20 | ¸Å¸Å | À̳뼿(831-5¿Ü) | 3 | 36.24 | 21.31 | 22,450 | 2014 | | 2024.02.20 | ¸Å¸Å | ÇѼֺô¸®Áö | 4 | 22.49 | 12.26 | 8,500 | 2002 | | 2024.02.20 | ¸Å¸Å | ÇѼººô¶ó(56-655) | 3 | 58.77 | 27.83 | 18,000 | 1994 | | 2024.02.19 | ¸Å¸Å | »õÇÑÇÏÀÌÃ÷ºô¶ó | 3 | 57.7 | 31.9 | 23,000 | 1996 | | 2024.02.19 | ¸Å¸Å | ´ºÆÄÀκô | 4 | 43.66 | 24.09 | 23,300 | 2010 | | 2024.02.19 | ¸Å¸Å | MAROO | 5 | 23.09 | 18.46 | 24,500 | 2019 | | 2024.02.19 | ¸Å¸Å | µ¿¾çÁÖÅà | -1 | 49.17 | 28.881 | 14,500 | 1995 | | 2024.02.19 | ¸Å¸Å | û¿ìÇÏÀÌÃ÷ºô | 2 | 62.75 | 34.76 | 24,000 | 2004 | | 2024.02.19 | ¸Å¸Å | ÇϳªÅ¸¿îAµ¿ | 2 | 29.32 | 20.551 | 18,700 | 2015 | | 2024.02.19 | ¸Å¸Å | ¶ó¶ã¸®¿¡ | 5 | 29.91 | 19.79 | 27,000 | 2019 | | 2024.02.17 | ¸Å¸Å | ¿ì¼ºÅ׸¶ºô(393-3) | 2 | 59.88 | 33.13 | 28,000 | 2006 | | 2024.02.17 | ¸Å¸Å | Á¶Àººô¶óBµ¿ | -1 | 34.06 | 23.4 | 6,500 | 1991 | | 2024.02.17 | ¸Å¸Å | ´Ù¼ØBµ¿(381-4) | 2 | 40.1 | 25.86 | 27,850 | 2015 | | 2024.02.16 | ¸Å¸Å | ¼¼Áöºô | 5 | 31.68 | 18.2 | 9,000 | 2002 | | 2024.02.16 | ¸Å¸Å | ÇÏÀ̺ô(346-111) | 3 | 54.63 | 28.87 | 18,000 | 2004 | | 2024.02.16 | ¸Å¸Å | ¸®ºùÇϿ콺 | 2 | 27.75 | 18 | 21,000 | 2016 | | 2024.02.16 | ¸Å¸Å | ¿¹Àκô¶ó(350-9) | 1 | 59.16 | 31.85 | 25,700 | 2001 | | 2024.02.16 | ¸Å¸Å | °Å¼º | 3 | 34.29 | 43.3276 | 13,800 | 1987 | | 2024.02.15 | ¸Å¸Å | ÁÖ¿µÇϿ콺 | 3 | 26.82 | 17.66 | 16,400 | 2016 | | 2024.02.15 | ¸Å¸Å | À屺ºô¶ó | 3 | 54.67 | 38.81 | 15,000 | 1991 | | 2024.02.15 | ¸Å¸Å | º£½ºÆ®ÈúŸ¿î | 3 | 76.58 | 33.19 | 28,700 | 2002 | | 2024.02.15 | ¸Å¸Å | ½ÅÇÑÁÖÅÃ(839-26) | 3 | 43.48 | 24.735 | 22,000 | 2010 | | 2024.02.15 | ¸Å¸Å | ´õ¿ø | 2 | 28.97 | 17.04 | 25,000 | 2019 | | 2024.02.15 | ¸Å¸Å | ¼ºÈÆ¿¡À̽ººô | 3 | 51.43 | 26.6 | 19,000 | 2002 | | 2024.02.15 | ¸Å¸Å | ¾¾Æ¼ÇϿ콺ºñµ¿ | 5 | 21.91 | 13.5 | 20,000 | 2017 | | 2024.02.15 | ¸Å¸Å | °ñµçºô(367-51) | 6 | 21.8 | 11.36 | 23,500 | 2018 | | 2024.02.15 | ¸Å¸Å | »ï¼ººô¶óÆ®Bµ¿(156-14) | 4 | 44.7 | 19.83 | 16,000 | 2001 | | 2024.02.14 | ¸Å¸Å | Á¦À̽ººô(969-5) | 2 | 19.23 | 14.64 | 18,881 | 2022 | | 2024.02.14 | ¸Å¸Å | À¯Çöºô | 5 | 29.79 | 19.08 | 14,850 | 2016 | | 2024.02.14 | ¸Å¸Å | »ó¾Æºô¶ó | 2 | 66.66 | 38.14 | 33,000 | 2002 | | 2024.02.14 | ¸Å¸Å | ´ë¼º¾ÆÆ®ºô(466-15) | 2 | 52.19 | 35.01 | 18,000 | 2003 | | 2024.02.12 | ¸Å¸Å | ÀÌ·¹ºô¶ó(56-507) | 1 | 45 | 26.43 | 14,000 | 1991 | | 2024.02.12 | ¸Å¸Å | ¿¹ÁöÆÓ¸®½º89Â÷ | 5 | 46.08 | 32.12 | 27,500 | 2016 | | 2024.02.12 | ¸Å¸Å | ¿¹ÁöÆÓ¸®½º89Â÷ | 5 | 46.08 | 32.12 | 27,500 | 2016 | | 2024.02.09 | ¸Å¸Å | À¯¸²¸®Ä¡ºô | 5 | 55.44 | 33.3 | 19,100 | 2007 | | 2024.02.08 | ¸Å¸Å | ¸ð¾ÆÈ¨Å¸¿î(1104-1) | 4 | 49.08 | 31.1085 | 21,500 | 2011 | | 2024.02.08 | ¸Å¸Å | ¹ÌÁÖ | 1 | 41.22 | 28.7 | 14,000 | 1986 | | 2024.02.08 | ¸Å¸Å | ÇѺû½ºÄ«À̺ô | 2 | 29.72 | 19.83 | 14,500 | 2008 | | 2024.02.08 | ¸Å¸Å | ¿¡½ºÄÉÀÌÆÄÅ©¸®¿ò101µ¿102µ¿ | 5 | 46.87 | 28.6 | 45,000 | 2022 | | 2024.02.08 | ¸Å¸Å | ÇѺû½ºÄ«À̺ô | 2 | 29.72 | 19.83 | 14,500 | 2008 | | 2024.02.07 | ¸Å¸Å | ³²±¤¾ÆÆ®ºô | 6 | 39.83 | 24.18 | 26,000 | 2012 | | 2024.02.07 | ¸Å¸Å | ¸®Ä¡ÇϿ콺 | 4 | 37.99 | 21.9 | 32,000 | 2016 | | 2024.02.07 | ¸Å¸Å | ½Ã¿ø¾ÆÆ®ºô°¡µ¿ | 4 | 59.97 | 27.25 | 28,000 | 2002 | | 2024.02.07 | ¸Å¸Å | ±îÄ¡ºô¶ó(56-74) | 3 | 36.54 | 23.14 | 13,800 | 1991 | | 2024.02.07 | ¸Å¸Å | DHÆÓ¸®½º102µ¿ | 6 | 27.9 | 15.01 | 21,100 | 2018 | | 2024.02.06 | ¸Å¸Å | Çö´ëºí·ç¹Ö | 6 | 31.75 | 18.8129 | 25,000 | 2015 | | 2024.02.06 | ¸Å¸Å | ¼ºÀçÆÄÅ©ºô(151-9) | 3 | 64.44 | 30.83 | 22,500 | 2001 | | 2024.02.06 | ¸Å¸Å | ÀÎÅÍ½ÃÆ¼ºô¶ó(392-11) | 4 | 45.72 | 23.43 | 16,800 | 2000 | | 2024.02.05 | ¸Å¸Å | ¿¡½ºÄÉÀÌÆÄÅ©¸®¿ò101µ¿102µ¿ | 2 | 46.87 | 28.6 | 45,000 | 2022 | | 2024.02.05 | ¸Å¸Å | µ¿¾çÇÏ¿ì¡Bµ¿ | 4 | 29.52 | 19.83 | 25,000 | 2017 | | 2024.02.05 | ¸Å¸Å | ¿¡½ºÄÉÀÌÆÄÅ©¸®¿ò(157-21) | 3 | 29.39 | 18.12 | 27,500 | 2020 | | 2024.02.05 | ¸Å¸Å | ¸®Ä¡ÇϿ콺6Â÷ | 4 | 29.93 | 19.85 | 20,800 | 2016 | | 2024.02.05 | ¸Å¸Å | ³×¿ÀÆÄÅ©ºô(340-66) | 3 | 29.54 | 23.1 | 19,000 | 2013 | | 2024.02.05 | ¸Å¸Å | Ǫ¸¥Ç³°æÃ¤ | 4 | 35.35 | 22.24 | 26,500 | 2018 | | 2024.02.05 | ¸Å¸Å | °¨¼ººô | 4 | 25.22 | 15.21 | 22,000 | 2016 | | 2024.02.03 | ¸Å¸Å | µðÀÚÀÎÇϿ콺(793-5) | 6 | 44.87 | 28.1972 | 29,500 | 2012 | | 2024.02.03 | ¸Å¸Å | »ó¿ìºô¶ó | 3 | 38.86 | 29.4 | 18,400 | 2001 | | 2024.02.03 | ¸Å¸Å | ÄÉÀ̾¾Å¸¿î | 2 | 26.54 | 18.52 | 25,000 | 2022 | | 2024.02.03 | ¸Å¸Å | ÄÉÀ̾¾Å¸¿î | 2 | 26.54 | 18.52 | 25,000 | 2022 | | 2024.02.02 | ¸Å¸Å | ½Å¿µÈ¨Å¸¿î(1044-6) | 2 | 39.38 | 23.87 | 13,600 | 2003 | | 2024.02.02 | ¸Å¸Å | ³²±¤¾ÆÆ®ºô | 3 | 50.19 | 30.45 | 30,000 | 2012 | | 2024.02.01 | ¸Å¸Å | ¿¡½º¿¥ÆÄÅ©ºô(101µ¿102µ¿) | 3 | 36.14 | 22.609 | 22,400 | 2014 | | 2024.02.01 | ¸Å¸Å | ÇØÇ³ºô¶ó | -1 | 46.56 | 24.23 | 14,000 | 1994 | | 2024.02.01 | ¸Å¸Å | ¿£¿¡½ºÅ¸¿î | 9 | 25.16 | 10.14 | 22,000 | 2019 | | 2024.02.01 | ¸Å¸Å | µ¿¿ìºô¶ó | 2 | 37.24 | 25.24 | 15,500 | 1990 | | 2024.02.01 | ¸Å¸Å | ÄÉÀ̾¾Å¸¿î | 2 | 29.76 | 20.77 | 25,000 | 2022 | | 2024.02.01 | ¸Å¸Å | ÄÉÀ̾¾Å¸¿î | 2 | 26.54 | 18.52 | 23,900 | 2022 | | 2024.01.31 | ¸Å¸Å | ÅÂȺô¶ó | 3 | 60.64 | 26.72 | 26,000 | 2001 | | 2024.01.31 | ¸Å¸Å | µµ¿ø¼ÖºñÄ¡ | 4 | 40.77 | 25.2118 | 25,000 | 2015 | | 2024.01.31 | ¸Å¸Å | ´ë½Å¸¶À̺ô | 2 | 76.52 | 41.34 | 30,250 | 2002 | | 2024.01.30 | ¸Å¸Å | ´õÇϿ콺 | 5 | 29.86 | 27.817 | 18,700 | 2017 | | 2024.01.30 | ¸Å¸Å | ¼°æÆÓ¸®½º(391-29) | 3 | 63 | 33.057 | 26,400 | 2010 | | 2024.01.30 | ¸Å¸Å | °æ¹Î¾ÆÆ®ºô(105-21¹øÁö) | 3 | 34.19 | 25.02 | 25,500 | 2016 | | 2024.01.30 | ¸Å¸Å | ¿ÀÄÉÀÌÆÄÅ©ºô | 6 | 35.93 | 20.93 | 26,000 | 2017 | | 2024.01.30 | ¸Å¸Å | ¼¼Á¾ÆÄÅ©ºô | 5 | 59.03 | 33.878 | 51,800 | 2023 | | 2024.01.30 | ¸Å¸Å | ¼¼Á¾ÆÄÅ©ºô | 6 | 47.86 | 27.467 | 44,600 | 2023 | | 2024.01.30 | ¸Å¸Å | ¼¼Á¾ÆÄÅ©ºô | 2 | 78.24 | 44.906 | 69,500 | 2023 | | 2024.01.30 | ¸Å¸Å | ¼¼Á¾ÆÄÅ©ºô | 2 | 71.7 | 41.149 | 62,900 | 2023 | | 2024.01.30 | ¸Å¸Å | ¼¼Á¾ÆÄÅ©ºô | 2 | 69.69 | 39.996 | 58,650 | 2023 | | 2024.01.30 | ¸Å¸Å | ¼¼Á¾ÆÄÅ©ºô | 3 | 78.24 | 44.906 | 69,900 | 2023 | | 2024.01.30 | ¸Å¸Å | ¼¼Á¾ÆÄÅ©ºô | 5 | 71.43 | 40.994 | 63,550 | 2023 | | 2024.01.30 | ¸Å¸Å | ¼¼Á¾ÆÄÅ©ºô | 4 | 71.43 | 40.994 | 68,200 | 2023 | | 2024.01.30 | ¸Å¸Å | ¼¼Á¾ÆÄÅ©ºô | 4 | 59.03 | 33.878 | 53,200 | 2023 | | 2024.01.30 | ¸Å¸Å | ¼¼Á¾ÆÄÅ©ºô | 3 | 71.7 | 41.149 | 63,850 | 2023 | | 2024.01.30 | ¸Å¸Å | ¼¼Á¾ÆÄÅ©ºô | 6 | 52.25 | 29.987 | 47,150 | 2023 | | 2024.01.30 | ¸Å¸Å | ¼¼Á¾ÆÄÅ©ºô | 3 | 69.69 | 39.996 | 59,950 | 2023 | | 2024.01.29 | ¸Å¸Å | Çö´ëȨŸ¿î(46-195) | 4 | 28.96 | 24.23 | 14,000 | 2010 | | 2024.01.29 | ¸Å¸Å | ȼººô¶óAµ¿(56-323) | 4 | 28.53 | 13.35 | 8,000 | 2001 | | 2024.01.29 | ¸Å¸Å | ȼººô¶ó(56-347) | 4 | 42 | 20.24 | 16,850 | 2002 | | 2024.01.28 | ¸Å¸Å | ÇѼº¾ÆÆ®ºô³ªµ¿ | 3 | 55.9 | 24.57 | 19,600 | 2002 | | 2024.01.28 | ¸Å¸Å | ¹«Áö°³ºô¶ó2Â÷ | 3 | 32.88 | 22 | 16,500 | 1991 | | 2024.01.27 | ¸Å¸Å | °æÀκô¶óBµ¿ | 5 | 54.09 | 30 | 18,000 | 2001 | | 2024.01.27 | ¸Å¸Å | ´ë¿ì¿¬¸³ | 3 | 51.09 | 28.57 | 19,500 | 1995 | | 2024.01.27 | ¸Å¸Å | º£½ºÆ®Èú | 3 | 81.06 | 31.42 | 32,000 | 2001 | | 2024.01.27 | ¸Å¸Å | ÄÉÀ̾¾Å¸¿î | 3 | 29.65 | 20.69 | 25,000 | 2022 | | 2024.01.27 | ¸Å¸Å | ½ÅÈï¾Æ³Ê½ººô(410-237) | 4 | 59.76 | 34.44 | 22,500 | 2010 | | 2024.01.27 | ¸Å¸Å | Çö´ëȨŸ¿î(46-195) | 2 | 29.86 | 21.49 | 15,500 | 2010 | | 2024.01.27 | ¸Å¸Å | ÄÉÀ̾¾Å¸¿î | 3 | 26.96 | 18.82 | 24,000 | 2022 | | 2024.01.26 | ¸Å¸Å | ¶óÅ׶󽺺ô(380-6) | 4 | 29.77 | 18.49 | 22,400 | 2016 | | 2024.01.26 | ¸Å¸Å | °¡¿Âºô | 5 | 26.96 | 17.07 | 19,000 | 2014 | | 2024.01.26 | ¸Å¸Å | ¼º¿øÆÄÅ©ºô | 1 | 32.84 | 16.2 | 10,200 | 2008 | | 2024.01.26 | ¸Å¸Å | Çѿî | 3 | 64.79 | 28.77 | 27,000 | 2003 | | 2024.01.26 | ¸Å¸Å | º¸¶÷°ñµçºô | 2 | 38.88 | 22.14 | 14,900 | 2003 | | 2024.01.26 | ¸Å¸Å | casagio | 3 | 29.93 | 18.31 | 26,800 | 2019 | | 2024.01.25 | ¸Å¸Å | µ¿¸í¾Æ¸§ºô | 2 | 67.8 | 35.02 | 27,400 | 2002 | | 2024.01.25 | ¸Å¸Å | µ¿¾çÇÏ¿ì¡ | 3 | 44.63 | 24.79 | 31,700 | 2016 | | 2024.01.25 | ¸Å¸Å | ¼·Î¾ÆÆ®ºô | 3 | 55.24 | 34.49 | 18,600 | 2002 | | 2024.01.24 | ¸Å¸Å | µ¿¿ìÇÏÀ̺ô | 3 | 25.11 | 15.91 | 27,900 | 2021 | | 2024.01.24 | ¸Å¸Å | ÇѾç¸Ç¼ð(56-66) | 3 | 54.08 | 30.39 | 20,000 | 2000 | | 2024.01.23 | ¸Å¸Å | ¼ºÁÖºô¶óCµ¿ | 4 | 48.52 | 24.76 | 15,500 | 1995 | | 2024.01.23 | ¸Å¸Å | º¸³ëÇϿ콺(857-8) | 4 | 32.14 | 21.41 | 23,000 | 2015 | | 2024.01.23 | ¸Å¸Å | ½Å¿µÈ¨Å¸¿î(1038-6) | 3 | 61.62 | 34.37 | 24,000 | 2002 | | 2024.01.23 | ¸Å¸Å | ¼Ç¹ë¸® | 3 | 35.83 | 21.04 | 27,500 | 2015 | | 2024.01.23 | ¸Å¸Å | ¿¡½ºÄÉÀÌÆÄÅ©¸®¿ò101µ¿102µ¿ | 5 | 46.87 | 28.6 | 45,000 | 2022 | | 2024.01.23 | ¸Å¸Å | ¿¡½ºÄÉÀÌÆÄÅ©¸®¿ò101µ¿102µ¿ | 3 | 46.87 | 28.6 | 45,000 | 2022 | | 2024.01.23 | ¸Å¸Å | ¼ºÁÖºô¶óCµ¿ | 4 | 48.52 | 24.76 | 15,500 | 1995 | | 2024.01.23 | ¸Å¸Å | µµ¿øºô¸®Áö | 1 | 67.84 | 34.35 | 22,000 | 2002 | | 2024.01.22 | ¸Å¸Å | Á¤°¨Å¸¿îA(346-92) | 4 | 24.97 | 15.043 | 17,900 | 2015 | | 2024.01.22 | ¸Å¸Å | ȼººô¶ó42Â÷Aµ¿ | 4 | 29.79 | 13.47 | 12,900 | 2002 | | 2024.01.22 | ¸Å¸Å | ¼°æºô¶ó(56-188) | 2 | 45.4 | 24.99 | 13,700 | 1993 | | 2024.01.22 | ¸Å¸Å | °Å¼º | 1 | 49.5 | 62.5441 | 24,000 | 1986 | | 2024.01.21 | ¸Å¸Å | °Å¼ººô¶ó | 3 | 54.56 | 25.82 | 22,800 | 1991 | | 2024.01.20 | ¸Å¸Å | ¹Ì¼Òºô | 2 | 25.96 | 15.629 | 26,000 | 2018 | | 2024.01.20 | ¸Å¸Å | ¿¹ÀÎ¾ÆÆ®ºô¶ó(352-15) | 3 | 59.52 | 29.15 | 22,000 | 1999 | | 2024.01.20 | ¸Å¸Å | ¿ì¼ºÅ׸¶ºô | 5 | 26.07 | 15.04 | 9,500 | 2006 | | 2024.01.19 | ¸Å¸Å | Å¿µ¾ÆÆ®ºô | 4 | 38.72 | 22.29 | 22,000 | 2011 | | 2024.01.19 | ¸Å¸Å | °æ¹Î¾ÆÆ®ºô(393-21) | 3 | 37.19 | 21.85 | 27,000 | 2017 | | 2024.01.19 | ¸Å¸Å | ´Ù¿ø½´½´ºô | 3 | 56.75 | 31.57 | 23,900 | 2010 | | 2024.01.19 | ¸Å¸Å | È«Àͺô¶ó | -2 | 41.94 | 22.5 | 9,100 | 1995 | | 2024.01.19 | ¸Å¸Å | µÎ¼ººô¶ó | -1 | 44.09 | 19.21 | 12,200 | 1993 | | 2024.01.18 | ¸Å¸Å | È°îÆ®À©½ººôB | 2 | 71.22 | 34.54 | 30,900 | 2001 | | 2024.01.18 | ¸Å¸Å | ¼º¸²ÆÄÅ©ºôBµ¿ | 4 | 49.77 | 23.97 | 17,500 | 2002 | | 2024.01.18 | ¸Å¸Å | Á¤¿ìºô¶ó | 1 | 46.82 | 26.1 | 12,200 | 1997 | | 2024.01.18 | ¸Å¸Å | LGŸ¿î8Â÷ | 4 | 60.41 | 30.122 | 20,000 | 2002 | | 2024.01.17 | ¸Å¸Å | ´õ½ºÀ§Æ®(TheSuite) | 3 | 16.29 | 10.23 | 26,900 | 2021 | | 2024.01.17 | ¸Å¸Å | ´õ½ºÀ§Æ®(TheSuite) | 4 | 15.74 | 9.94 | 26,900 | 2021 | | 2024.01.17 | ¸Å¸Å | ÈúÇϿ콺 | 6 | 45.86 | 22.713 | 21,700 | 2011 | | 2024.01.17 | ¸Å¸Å | ¿¥Æç¸®Ã¼ | 4 | 35.76 | 23.5745 | 27,000 | 2017 | | 2024.01.17 | ¸Å¸Å | º¸½Å½¦¸£ºôAµ¿ | 2 | 43.05 | 20.69 | 23,000 | 2002 | | 2024.01.17 | ¸Å¸Å | ¹Ì¼Òºô | 3 | 25.96 | 15.629 | 25,500 | 2018 | | 2024.01.17 | ¸Å¸Å | ¿¡½ºÄÉÀÌÆÄÅ©¸®¿ò101µ¿102µ¿ | 3 | 29.95 | 18.27 | 38,500 | 2022 | | 2024.01.17 | ¸Å¸Å | ¿¡½ºÄÉÀÌÆÄÅ©¸®¿ò101µ¿102µ¿ | 2 | 29.99 | 18.29 | 36,000 | 2022 | | 2024.01.17 | ¸Å¸Å | OKÆÄÅ©ºô5Â÷(370-25) | 6 | 36.6 | 23.37 | 23,500 | 2017 | | 2024.01.17 | ¸Å¸Å | â´ë | 2 | 36.65 | 23.82 | 19,500 | 2012 | | 2024.01.17 | ¸Å¸Å | µÎ¾Ï¸®¹öºôBµ¿ | 3 | 63.73 | 25.08 | 36,500 | 2001 | | 2024.01.17 | ¸Å¸Å | µ¿¿ìÇÏÀ̺ô(996-19) | 6 | 33.81 | 23.36 | 38,500 | 2022 | | 2024.01.16 | ¸Å¸Å | ¿ì¼ººô¶óAµ¿(56-318) | 1 | 61.17 | 27.65 | 22,000 | 2000 | | 2024.01.16 | ¸Å¸Å | µ¿Èºô¶ó7Â÷ | -1 | 29.4 | 15.79 | 4,700 | 1991 | | 2024.01.16 | ¸Å¸Å | Á¤°¨Å¸¿îB | 4 | 24.71 | 14.84 | 19,500 | 2016 | | 2024.01.16 | ¸Å¸Å | ´õ¶ó¿Â | 4 | 28 | 18.52 | 22,500 | 2019 | | 2024.01.15 | ¸Å¸Å | ´ÙÀÎȨŸ¿î | 4 | 27.51 | 15.665 | 19,000 | 2016 | | 2024.01.15 | ¸Å¸Å | ÇϳªÅ¸¿îAµ¿ | 4 | 29.32 | 20.551 | 21,000 | 2015 | | 2024.01.15 | ¸Å¸Å | ½¦¶óÅæºô¶ó(56-273) | 3 | 46.08 | 22.27 | 15,300 | 1991 | | 2024.01.15 | ¸Å¸Å | ȼººô¶ó(55-40) | 1 | 35.68 | 18.02 | 12,000 | 2001 | | 2024.01.15 | ¸Å¸Å | ¼ºÀç¼¼ÀÎÆ®(342-84) | 5 | 30.96 | 10.14 | 22,800 | 2012 | | 2024.01.15 | ¸Å¸Å | Á¤¾ÈÇÏÀÌÃ÷ | 5 | 38.83 | 18.4509 | 15,000 | 2012 | | 2024.01.15 | ¸Å¸Å | ¿µÁøºô¶ó | 4 | 60.08 | 25.05 | 20,000 | 2000 | | 2024.01.14 | ¸Å¸Å | Çý¼ººô¶óA | 2 | 37.62 | 17.7625 | 14,500 | 2005 | | 2024.01.14 | ¸Å¸Å | ¿µ¾Ïºô¶ó | 4 | 52.29 | 27.07 | 20,000 | 1998 | | 2024.01.13 | ¸Å¸Å | Çö´ëºí·ç¹Ö | 5 | 31.75 | 18.8129 | 23,500 | 2015 | | 2024.01.13 | ¸Å¸Å | ½ºÀ§Æ®ºô¥° | 1 | 56.845 | 34.99 | 25,500 | 2001 | | 2024.01.13 | ¸Å¸Å | Çý¼ºÆÓ¸®½ººô(392-56) | 4 | 29.99 | 19.24 | 18,000 | 2014 | | 2024.01.13 | ¸Å¸Å | Å¿µ¾ÆÆ®ºô | 4 | 50.32 | 31.988 | 23,000 | 2014 | | 2024.01.13 | ¸Å¸Å | ÇѽžÆÀ̸£ºô(966-12) | 2 | 52.945 | 28.703 | 23,300 | 2009 | | 2024.01.12 | ¸Å¸Å | °è¸íÁÖÅÃ(61-155) | 1 | 55.44 | 23.46 | 20,000 | 1999 | | 2024.01.12 | ¸Å¸Å | Çö´ë°ñµçºô¶ó | -1 | 27.23 | 15.57 | 6,000 | 1991 | | 2024.01.12 | ¸Å¸Å | Ÿ¿îij½½Aµ¿ | 5 | 17.66 | 11.57 | 10,350 | 2018 | | 2024.01.11 | ¸Å¸Å | »ï¼ºÀ§ºêºô | 4 | 29.78 | 19.2 | 20,000 | 2012 | | 2024.01.11 | ¸Å¸Å | µ¿Èºô¶ó(29-221) | 3 | 40.4 | 22.84 | 12,000 | 1992 | | 2024.01.11 | ¸Å¸Å | °æ¿¬Å¸¿î | 3 | 46.44 | 30.74 | 16,700 | 2008 | | 2024.01.11 | ¸Å¸Å | ¿¡½ºÄÉÀÌÆÄÅ©¸®¿ò101µ¿102µ¿ | 3 | 46.87 | 28.6 | 45,000 | 2022 | | 2024.01.11 | ¸Å¸Å | ¿¡½ºÄÉÀÌÆÄÅ©¸®¿ò101µ¿102µ¿ | 4 | 29.99 | 18.29 | 36,000 | 2022 | | 2024.01.10 | ¸Å¸Å | ¹Ì·¡ÇÏÀÌÃ÷(409-47) | 2 | 42.25 | 26.21 | 14,650 | 2001 | | 2024.01.10 | ¸Å¸Å | µå¸²ÆÄÅ©ºô | 2 | 50.19 | 28.6698 | 22,500 | 2011 | | 2024.01.10 | ¸Å¸Å | ·°½ºÅ¸¿îÈú | 3 | 60.58 | 35.79 | 24,000 | 2007 | | 2024.01.10 | ¸Å¸Å | ¼Ò´ã¹ë¸® | 2 | 26.22 | 16.58 | 27,800 | 2021 | | 2024.01.10 | ¸Å¸Å | µ¿¿ìÇÏÀ̺ô | 5 | 29.84 | 18.91 | 29,500 | 2021 | | 2024.01.09 | ¸Å¸Å | ¼¼¸í¾ÆÅ©·Îºô | 4 | 29.94 | 17.13 | 22,500 | 2017 | | 2024.01.09 | ¸Å¸Å | µ¿¿ì¸Ç¼Ç³ªµ¿ | 4 | 48.48 | 24.356 | 15,500 | 2001 | | 2024.01.09 | ¸Å¸Å | µ¿µµÇÏÀÌÃ÷ºô¶ó(°¡µ¿) | 5 | 38.8 | 20.602 | 14,000 | 2001 | | 2024.01.09 | ¸Å¸Å | ±×¸°Ä³½½ | 4 | 43.8 | 33.8 | 17,000 | 2007 | | 2024.01.08 | ¸Å¸Å | ·Ôµ¥Å¸¿î | 4 | 48.32 | 27.34 | 20,900 | 2011 | | 2024.01.06 | ¸Å¸Å | ¿¡À̽ºÅ¸¿î | 5 | 34.05 | 19.12 | 17,000 | 2007 | | 2024.01.06 | ¸Å¸Å | °è¸íÀ§³Ê½º(56-163) | 5 | 39.36 | 22.33 | 16,000 | 2009 | | 2024.01.05 | ¸Å¸Å | ȰîÅ¥6 | 4 | 22.87 | 14.22 | 29,900 | 2022 | | 2024.01.05 | ¸Å¸Å | ¿¡½ºÄÉÀÌÆÄÅ©¸®¿ò101µ¿102µ¿ | 3 | 29.99 | 18.29 | 36,000 | 2022 | | 2024.01.05 | ¸Å¸Å | LKµå¸²ºô | 3 | 53.14 | 32.05 | 32,500 | 2019 | | 2024.01.05 | ¸Å¸Å | ¸®Á¨½Ã¾Æ | 4 | 36.16 | 22.09 | 24,400 | 2014 | | 2024.01.05 | ¸Å¸Å | ´ë°Çºô¶ó(102-251) | 1 | 35.04 | 19.673 | 15,400 | 1995 | | 2024.01.05 | ¸Å¸Å | ¿¡½ºÄÉÀÌÆÄÅ©¸®¿ò101µ¿102µ¿ | 4 | 51.5 | 31.41 | 42,000 | 2022 | | 2024.01.04 | ¸Å¸Å | µ¿¾çÁÖÅà | -1 | 49.17 | 28.881 | 14,000 | 1995 | | 2024.01.04 | ¸Å¸Å | ¿¤¾¾ºô | 5 | 51.96 | 29.11 | 21,600 | 2008 | | 2024.01.04 | ¸Å¸Å | µð¾ÆÀνº(1075-27) | 9 | 22.97 | 6.94 | 16,000 | 2015 | | 2024.01.04 | ¸Å¸Å | »ïÀÍTheSky | 2 | 29.91 | 18.51 | 22,300 | 2016 | | 2024.01.04 | ¸Å¸Å | À̼ö¾ÆÆ®ºô | 2 | 44.11 | 27.22 | 26,400 | 2014 | | 2024.01.03 | ¸Å¸Å | °æ³²ºô¶ó¸¶µ¿ | -1 | 40.2 | 29.05 | 6,950 | 1986 | | 2024.01.03 | ¸Å¸Å | ÇÑ¿ïÀÚÀ̺ô°¡µ¿ | 2 | 54.29 | 30.34 | 31,000 | 2006 | | 2024.01.03 | ¸Å¸Å | ¿¡½ºÄÉÀÌÆÄÅ©¸®¿ò101µ¿102µ¿ | 2 | 29.95 | 18.27 | 38,500 | 2022 | | 2024.01.03 | ¸Å¸Å | ¿¡½ºÄÉÀÌÆÄÅ©¸®¿ò101µ¿102µ¿ | 6 | 29.91 | 18.25 | 40,000 | 2022 | | 2024.01.03 | ¸Å¸Å | ¿¡½ºÄÉÀÌÆÄÅ©¸®¿ò101µ¿102µ¿ | 6 | 29.99 | 18.29 | 36,000 | 2022 | | 2024.01.03 | ¸Å¸Å | ¿¡½ºÄÉÀÌÆÄÅ©¸®¿ò101µ¿102µ¿ | 5 | 29.95 | 18.27 | 36,500 | 2022 | | 2024.01.03 | ¸Å¸Å | ¿¡½ºÄÉÀÌÆÄÅ©¸®¿ò101µ¿102µ¿ | 6 | 46.87 | 28.6 | 45,000 | 2022 | | 2024.01.03 | ¸Å¸Å | casagio | 3 | 29.93 | 18.31 | 26,800 | 2019 | | 2024.01.03 | ¸Å¸Å | Áø¼Öºô¶óÆ® | 6 | 43.665 | 26.96 | 26,000 | 2015 | | 2024.01.03 | ¸Å¸Å | ȼººô¶ó(56-316) | 3 | 40.35 | 20.36 | 15,500 | 2001 | | 2024.01.03 | ¸Å¸Å | ȼººô¶ó(408-119) | 3 | 46.42 | 21.02 | 15,000 | 2000 | | 2024.01.02 | ¸Å¸Å | Àνººô | 2 | 41.375 | 26.02 | 22,000 | 2017 | | 2024.01.02 | ¸Å¸Å | ¿ìÁø¸Ç¼Ç(105-47) | -1 | 58.76 | 28.06 | 16,200 | 2001 | | 2024.01.02 | ¸Å¸Å | ÃÊ·Õºô¶ó | 1 | 63.77 | 46.2 | 26,500 | 1995 | | 2024.01.02 | ¸Å¸Å | ¿¡½ºÄÉÀÌÆÄÅ©¸®¿ò101µ¿102µ¿ | 5 | 29.95 | 18.27 | 33,900 | 2022 | | 2024.01.02 | ¸Å¸Å | ¿¡½ºÄÉÀÌÆÄÅ©¸®¿ò101µ¿102µ¿ | 2 | 29.95 | 18.27 | 38,500 | 2022 | | 2024.01.02 | ¸Å¸Å | ¿¡½ºÄÉÀÌÆÄÅ©¸®¿ò101µ¿102µ¿ | 4 | 29.97 | 18.28 | 32,900 | 2022 | | 2024.01.02 | ¸Å¸Å | ·°½ºÅ¸¿îÈú | 3 | 60.58 | 35.79 | 24,000 | 2007 | | 2024.01.02 | ¸Å¸Å | ¿¡½ºÄÉÀÌÆÄÅ©¸®¿ò101µ¿102µ¿ | 5 | 29.99 | 18.29 | 36,000 | 2022 |
| °è¾àÀÏ | ±âÁØ | °Ç¹°¸íĪ | Ãþ | ¿¬¸éÀû | º¸Áõ±Ý | ¿ù¼¼ | °ÇÃà³âµµ | | 2025.10.31 | ¿ù¼¼ | ½ÅÈï·¡¹Ì¾È | 3 | 43.37 | 15,800 | 9 | 2011 | | 2025.10.31 | Àü¼¼ | º°Àåºô¶ó | 3 | 57.61 | 8,000 | 0 | 1993 | | 2025.10.31 | ¿ù¼¼ | Áß¾ÓÆÄÅ©¸Ç¼Ç | 2 | 66.9 | 17,130 | 16 | 1999 | | 2025.10.31 | ¿ù¼¼ | ´ë±Ùºô¶ó | 2 | 46.44 | 3,000 | 55 | 1990 | | 2025.10.31 | Àü¼¼ | ÇÑ¿ï¶ß¶õä(995-20) | 5 | 40.44 | 16,000 | 0 | 2011 | | 2025.10.31 | Àü¼¼ | ºí¸®½ººô101µ¿102µ¿ | 3 | 51.79 | 32,000 | 0 | 2022 | | 2025.10.30 | Àü¼¼ | Ȱ·°½Ã¿ÀÇǽºÅÚ | 4 | 24.86 | 18,900 | 0 | 2018 | | 2025.10.30 | ¸Å¸Å | À£½ºÆÄÅ©ºô | 5 | 29.99 | 16,290 | | 2018 | | 2025.10.30 | ¸Å¸Å | Y&B | 3 | 29.82 | 20,650 | | 2020 | | 2025.10.30 | Àü¼¼ | ¼º´ëºô¶ó | 2 | 59.95 | 15,400 | 0 | 2001 | | 2025.10.30 | ¿ù¼¼ | »ïȺ£½ºÆ®ºô | 3 | 62.58 | 19,200 | 25 | 2002 | | 2025.10.30 | Àü¼¼ | µ¿ÈÆÓ¸®½º | 2 | 29.99 | 18,720 | 0 | 2020 | | 2025.10.30 | ¿ù¼¼ | ¼¾Æ®ºô3Â÷ | 3 | 37.25 | 15,000 | 13 | 2011 | | 2025.10.29 | ¿ù¼¼ | µ¿¹æÈ÷ÁîÈú | 2 | 29.83 | 14,900 | 30 | 2016 | | 2025.10.29 | Àü¼¼ | »ó¾Æ¸¶À̺ô | 3 | 46.5 | 13,700 | 0 | 2005 | | 2025.10.29 | Àü¼¼ | ¹Ì¸®³»ºô¶ó(56-270) | 2 | 37.26 | 9,900 | 0 | 1992 | | 2025.10.29 | ¿ù¼¼ | ¿ìÁø¸Ç¼Ç(105-47) | -1 | 58.76 | 10,600 | 20 | 2001 | | 2025.10.29 | ¸Å¸Å | Bluehill | 3 | 24.78 | 19,000 | | 2019 | | 2025.10.29 | ¿ù¼¼ | ¹Ì¼ººô¶ó(354-25) | 3 | 58.93 | 11,000 | 33 | 2002 | | 2025.10.28 | ¿ù¼¼ | ¼º¿øºô¶ó(341-44) | 5 | 40.72 | 14,400 | 19 | 2009 | | 2025.10.28 | ¿ù¼¼ | À£ÇǾÆ(796-13) | 2 | 29.88 | 13,000 | 30 | 2014 | | 2025.10.28 | ¿ù¼¼ | û±¸Å¸¿î | 3 | 34.23 | 11,200 | 10 | 1993 | | 2025.10.28 | ¿ù¼¼ | ¿¥Æç¸®Ã¼ | 5 | 31.98 | 19,900 | 10 | 2017 | | 2025.10.28 | ¿ù¼¼ | ¹Ì·¡½ºÅ¸ºô5Â÷(464-10) | 2 | 40.11 | 12,700 | 25 | 2008 | | 2025.10.28 | ¿ù¼¼ | Àº¾Æºô¶ó¿¡À̵¿ | 3 | 50.16 | 14,700 | 20 | 2002 | | 2025.10.28 | ¿ù¼¼ | Á¤¿øºô¶ó(504-32) | 5 | 54.27 | 15,240 | 14 | 2012 | | 2025.10.28 | ¿ù¼¼ | º¹Áö±×¸°ºô5Â÷ | 2 | 30.36 | 1,000 | 35 | 2002 | | 2025.10.28 | ¿ù¼¼ | DS¿¡ÄÚŸ¿î | 3 | 38.19 | 6,000 | 60 | 2014 | | 2025.10.28 | Àü¼¼ | ¿ìÁøÁÖÅÃ(371-17) | 5 | 69.78 | 17,700 | 0 | 2008 | | 2025.10.28 | ¿ù¼¼ | Áß¾ÓÇÏÀÌÃ÷ | 3 | 36.83 | 12,000 | 5 | 1990 | | 2025.10.28 | ¿ù¼¼ | ½´ÇÁ¸²´õÇÏÀÌ¿ò | 3 | 60.47 | 2,876 | 27 | 2023 | | 2025.10.28 | ¿ù¼¼ | ½´ÇÁ¸²´õÇÏÀÌ¿ò | 2 | 60.47 | 2,794 | 26 | 2023 | | 2025.10.28 | ¿ù¼¼ | ½´ÇÁ¸²´õÇÏÀÌ¿ò | 4 | 60.47 | 2,893 | 28 | 2023 | | 2025.10.28 | ¿ù¼¼ | ½´ÇÁ¸²´õÇÏÀÌ¿ò | 2 | 60.47 | 2,794 | 26 | 2023 | | 2025.10.28 | ¿ù¼¼ | ¸íÈŸ¿î(56-447) | 5 | 36.93 | 10,000 | 10 | 2005 | | 2025.10.28 | ¿ù¼¼ | ½´ÇÁ¸²´õÇÏÀÌ¿ò | 2 | 60.47 | 2,794 | 26 | 2023 | | 2025.10.28 | ¿ù¼¼ | ½´ÇÁ¸²´õÇÏÀÌ¿ò | 3 | 60.47 | 2,876 | 27 | 2023 | | 2025.10.28 | Àü¼¼ | ´ëÁøºô¶ó(1040-8) | 2 | 41.93 | 16,400 | 0 | 2010 | | 2025.10.28 | ¿ù¼¼ | (924-31) | 4 | 13.175 | 300 | 29 | 2011 | | 2025.10.28 | ¿ù¼¼ | °¡³ª¾Æµ¨¸®¿ò(333-22) | 2 | 40.19 | 3,000 | 100 | 2014 | | 2025.10.27 | ¿ù¼¼ | ¸®Ä¡108µ¿ | 8 | 22.95 | 18,640 | 14 | 2023 | | 2025.10.27 | Àü¼¼ | ´ë·úŸ¿î | 8 | 19.94 | 12,000 | 0 | 2017 | | 2025.10.27 | ¿ù¼¼ | â´ëºô¶ó(371-42) | 2 | 59.12 | 20,000 | 15 | 2009 | | 2025.10.27 | ¿ù¼¼ | °¼¹Ì¸®³× | 1 | 53.5 | 3,000 | 150 | 2001 | | 2025.10.27 | Àü¼¼ | Çϳª¾ÆÀÌÆÄÅ©ºô | 3 | 29.51 | 17,910 | 0 | 2019 | | 2025.10.27 | ¿ù¼¼ | LAHOME(¶óȨ)B | 2 | 29.9 | 5,000 | 105 | 2022 | | 2025.10.27 | ¿ù¼¼ | ¸þºñ¿ì½º | 3 | 29.77 | 15,700 | 10 | 2016 | | 2025.10.27 | ¿ù¼¼ | ½Å¼º³×¿Àºô | 6 | 29.28 | 15,870 | 25 | 2017 | | 2025.10.27 | ¿ù¼¼ | ÇѰ¡¶÷ºô(153-10) | 5 | 39.85 | 16,000 | 20 | 2012 | | 2025.10.27 | Àü¼¼ | ´Ù´Ï¿¤È¨Å¸¿î | 4 | 39.38 | 9,200 | 0 | 2001 | | 2025.10.27 | Àü¼¼ | ·Ôµ¥½ºÄ«À̺ô | 4 | 43.57 | 14,850 | 0 | 2012 | | 2025.10.27 | ¸Å¸Å | ¶óÀÌÇÁŸ¿î | 4 | 50.76 | 19,500 | | 2008 | | 2025.10.26 | ¿ù¼¼ | º§¶óÇϿ콺(807-15) | 3 | 28.28 | 17,200 | 5 | 2015 | | 2025.10.26 | ¿ù¼¼ | ¿¥Æç¸®Ã¼(346-75) | 3 | 25.96 | 13,800 | 10 | 2015 | | 2025.10.25 | ¿ù¼¼ | ¿¡½º¿¥·¹¹öºô(346-7) | 4 | 36.53 | 4,000 | 90 | 2014 | | 2025.10.25 | ¿ù¼¼ | ¹Ì·¡ÇÏÀÌÃ÷Bµ¿(370-27) | 1 | 59.88 | 14,700 | 40 | 2001 | | 2025.10.25 | ¿ù¼¼ | ÇÑ¿ï´Ù½ºÇÏÀÓ | 3 | 29.23 | 12,000 | 25 | 2012 | | 2025.10.25 | ¿ù¼¼ | ÇÁ¸®¸Þ¶ó | 5 | 24.57 | 5,500 | 40 | 2018 | | 2025.10.25 | ¿ù¼¼ | ±¤Áøºô¶óÆ® | 4 | 37.55 | 11,350 | 20 | 2003 | | 2025.10.25 | ¿ù¼¼ | ȲÁ¦±×·£µåÆÄÅ©(105-480) | 4 | 40.29 | 13,000 | 7 | 2008 | | 2025.10.25 | ¿ù¼¼ | Çý¼ºÆç¸®½º29Â÷(163-8) | 5 | 28.96 | 0 | 62 | 2014 | | 2025.10.25 | ¿ù¼¼ | ´õ½ºÀ§Æ®(457-20) | 5 | 21.97 | 5,000 | 60 | 2022 | | 2025.10.25 | Àü¼¼ | (42-65) | 4 | 26.9 | 15,600 | 0 | 2018 | | 2025.10.25 | ¿ù¼¼ | ´ë½ÅÇÏÀÌÃ÷ºô¶ó | 1 | 64.93 | 19,200 | 2 | 2001 | | 2025.10.25 | ¿ù¼¼ | È£¼öŸ¿î(957-14) | 4 | 48 | 11,000 | 20 | 2002 | | 2025.10.25 | Àü¼¼ | µµ¹«½ºÈú¸£ | 4 | 56.32 | 25,500 | 0 | 2019 | | 2025.10.25 | Àü¼¼ | ´ëµ¿ºô¶ó´Ùµ¿ | 4 | 49.88 | 13,600 | 0 | 2002 | | 2025.10.25 | ¸Å¸Å | ½Ã¿Âºô¸®Áö | 5 | 33.78 | 31,500 | | 2016 | | 2025.10.25 | Àü¼¼ | °æ¿ìÇÏÀÌÃ÷¸Ç¼Ç(398-16) | 4 | 44.04 | 12,000 | 0 | 2001 | | 2025.10.25 | ¿ù¼¼ | ºí·çÆÄÅ©ºô2Â÷ | 4 | 43.7 | 12,400 | 13 | 2002 | | 2025.10.25 | ¿ù¼¼ | ½ÂÀ±³ëºí¸®¾È½ÃƼ | 5 | 12.32 | 1,000 | 45 | 2013 | | 2025.10.25 | ¿ù¼¼ | ÇÑ¹é¾ÆÆ®ºôAµ¿ | 4 | 60.24 | 5,000 | 95 | 2002 | | 2025.10.25 | Àü¼¼ | Çö´ëºô¶ó(391-54) | 1 | 53.04 | 12,900 | 0 | 1994 | | 2025.10.25 | Àü¼¼ | ´ë¼º¾ÆÆ®ºô | 6 | 38.8 | 25,000 | 0 | 2018 | | 2025.10.24 | ¸Å¸Å | ÁøÁÖºô¶ó(95-27) | 2 | 59.82 | 22,750 | | 1991 | | 2025.10.24 | ¸Å¸Å | »þ·Ðºô¸®Áö | 6 | 27.61 | 30,850 | | 2025 | | 2025.10.24 | Àü¼¼ | Á¶Àººô¸®Áö(56-302) | 3 | 38.86 | 10,400 | 0 | 2002 | | 2025.10.24 | ¸Å¸Å | »þ·Ðºô¸®Áö | 4 | 27.61 | 31,000 | | 2025 | | 2025.10.24 | Àü¼¼ | ¹Ì¼Òºô | 3 | 27.79 | 17,890 | 0 | 2018 | | 2025.10.24 | Àü¼¼ | ´õŬ·¡½Ä | 3 | 40.95 | 25,300 | 0 | 2018 | | 2025.10.24 | ¸Å¸Å | »þ·Ðºô¸®Áö | 6 | 27.32 | 30,350 | | 2025 | | 2025.10.24 | ¸Å¸Å | »þ·Ðºô¸®Áö | 6 | 22.94 | 26,250 | | 2025 | | 2025.10.24 | ¸Å¸Å | »þ·Ðºô¸®Áö | 5 | 27.61 | 31,150 | | 2025 | | 2025.10.24 | ¸Å¸Å | »þ·Ðºô¸®Áö | 2 | 22.94 | 25,900 | | 2025 | | 2025.10.24 | ¸Å¸Å | »þ·Ðºô¸®Áö | 2 | 27.61 | 30,350 | | 2025 | | 2025.10.24 | ¸Å¸Å | »þ·Ðºô¸®Áö | 3 | 22.94 | 26,250 | | 2025 | | 2025.10.24 | ¸Å¸Å | »þ·Ðºô¸®Áö | 3 | 27.32 | 30,350 | | 2025 | | 2025.10.24 | ¸Å¸Å | »þ·Ðºô¸®Áö | 3 | 27.61 | 30,800 | | 2025 | | 2025.10.24 | ¸Å¸Å | »þ·Ðºô¸®Áö | 4 | 22.94 | 26,400 | | 2025 | | 2025.10.24 | ¸Å¸Å | »þ·Ðºô¸®Áö | 4 | 27.32 | 30,500 | | 2025 | | 2025.10.24 | ¸Å¸Å | »þ·Ðºô¸®Áö | 2 | 27.32 | 30,850 | | 2025 | | 2025.10.24 | ¸Å¸Å | »þ·Ðºô¸®Áö | 5 | 22.94 | 26,550 | | 2025 | | 2025.10.24 | ¸Å¸Å | »þ·Ðºô¸®Áö | 5 | 27.32 | 30,650 | | 2025 | | 2025.10.23 | Àü¼¼ | ¶óÀÎÆÄÅ© | 4 | 28.61 | 15,570 | 0 | 2019 | | 2025.10.23 | Àü¼¼ | ·ç³ªºô¸®Áö | 2 | 29.83 | 16,380 | 0 | 2020 | | 2025.10.23 | Àü¼¼ | ½Å¿µº£¸£µð¿òA | 2 | 21.66 | 18,000 | 0 | 2020 | | 2025.10.23 | ¿ù¼¼ | ±îÄ¡ºô | 4 | 49.06 | 2,000 | 65 | 1991 | | 2025.10.23 | ¿ù¼¼ | »óÀç¾ÆÆ®ºô | 4 | 47.33 | 2,500 | 67 | 2003 | | 2025.10.23 | ¿ù¼¼ | Å¿ø¿¬¸³ | 3 | 40.53 | 1,000 | 45 | 1981 | | 2025.10.23 | ¿ù¼¼ | ÀÚ¶óÇϿ콺(366-19) | 5 | 31.83 | 5,000 | 90 | 2014 | | 2025.10.23 | ¿ù¼¼ | ¿¤Æç¸®½º | 5 | 22.13 | 3,000 | 75 | 2022 | | 2025.10.23 | ¸Å¸Å | ´Ù¼Øºô¶óÆ®(789-12) | 4 | 64.5 | 35,000 | | 2001 | | 2025.10.23 | ¸Å¸Å | À¯¸²¸®Ä¡ºô | 2 | 52.02 | 22,000 | | 2007 | | 2025.10.23 | ¸Å¸Å | ¿¤¸®¾ßºô | 3 | 73.75 | 17,500 | | 2004 | | 2025.10.23 | ¸Å¸Å | µ¿µµÇÏÀÌÃ÷ºô¶ó7Â÷(346-96) | -1 | 60.21 | 12,000 | | 1996 | | 2025.10.23 | ¸Å¸Å | ¾Æµ¨¸®¾Æ¥´(105-370) | 7 | 12.84 | 11,500 | | 2013 | | 2025.10.22 | ¿ù¼¼ | ÀÎÅÍ½ÃÆ¼ºô¶ó | 4 | 48.85 | 5,000 | 46 | 2000 | | 2025.10.22 | ¿ù¼¼ | ÇѰ淺½ºÇ÷¹À̽º | 6 | 26.65 | 24,000 | 10 | 2023 | | 2025.10.22 | ¿ù¼¼ | ¶ó¿Âºô(341-21) | 4 | 24.84 | 16,470 | 11 | 2017 | | 2025.10.22 | ¿ù¼¼ | ¿¹ÁöÆÓ¸®½º89Â÷ | 3 | 33.54 | 1,000 | 90 | 2016 | | 2025.10.22 | Àü¼¼ | ±×¸°ÇÏÀ̺ô | 1 | 61.41 | 13,000 | 0 | 2003 | | 2025.10.22 | ¿ù¼¼ | °¨¼º¸®Áîºô | 5 | 24.56 | 15,240 | 15 | 2017 | | 2025.10.22 | Àü¼¼ | ´õ¿ø¼¥5 | 5 | 29.94 | 24,500 | 0 | 2021 | | 2025.10.22 | Àü¼¼ | °è¸íÀ§³Ê½º(872-4) | 2 | 33.42 | 13,400 | 0 | 2011 | | 2025.10.22 | ¸Å¸Å | Y&B | 3 | 29.82 | 20,650 | | 2020 | | 2025.10.22 | ¸Å¸Å | °Ç¿µWith | 3 | 62.53 | 35,500 | | 2022 | | 2025.10.21 | ¸Å¸Å | ÿ½ÃÇϿ콺(851-17) | 4 | 39.69 | 29,500 | | 2012 | | 2025.10.21 | ¿ù¼¼ | ÇØ¼ºÆç¸®½ººôA | 1 | 60.42 | 3,000 | 85 | 2002 | | 2025.10.21 | ¿ù¼¼ | ½ÅÇϿ콺 | 8 | 29.88 | 14,500 | 30 | 2016 | | 2025.10.21 | ¿ù¼¼ | ³²Á¤ÇÏÀÌÃ÷ | 2 | 53.36 | 14,600 | 25 | 2002 | | 2025.10.21 | ¿ù¼¼ | û¼ÛÆòÈÇÏÀ̸ǼÇ(55-15) | 5 | 41.12 | 12,270 | 5 | 2009 | | 2025.10.21 | ¿ù¼¼ | ¹Ì·¡¿ø·ëÅÚ | 4 | 25.96 | 4,000 | 50 | 2012 | | 2025.10.21 | ¿ù¼¼ | »ï¼ºÈÀÌÆ®ºô | 4 | 51.84 | 13,800 | 30 | 2002 | | 2025.10.21 | Àü¼¼ | Ȱ±Ù»ý | 3 | 86.55 | 20,000 | 0 | 2004 | | 2025.10.21 | ¿ù¼¼ | ¿¬Èñºô¶ó³ªµ¿(985-18) | 1 | 52.95 | 500 | 40 | 1992 | | 2025.10.21 | Àü¼¼ | ²Þ°°Àº¼¼»ó | 4 | 49.42 | 11,000 | 0 | 2002 | | 2025.10.21 | ¿ù¼¼ | ÇÁ¶óÀÓÁÖÅÃ(393-22) | 3 | 22.71 | 13,600 | 4 | 2014 | | 2025.10.21 | ¿ù¼¼ | ÇØµå´ÂÅÍ | 3 | 57.95 | 15,500 | 10 | 2003 | | 2025.10.21 | ¿ù¼¼ | Àº°¡¶÷ÆÓ¸®½º | 4 | 31.29 | 3,000 | 105 | 2022 | | 2025.10.21 | ¿ù¼¼ | ±îġŸ¿î³ªµ¿ | 4 | 40.68 | 11,200 | 15 | 1991 | | 2025.10.21 | Àü¼¼ | À±ÇϿ콺(1102-4) | 5 | 44.47 | 20,000 | 0 | 2012 | | 2025.10.21 | ¸Å¸Å | º¹Áö¾ÆÆ®ºô¶ó2µ¿ | 3 | 47.57 | 12,000 | | 2003 | | 2025.10.21 | ¸Å¸Å | â´ëºô¶ó(353-33) | 3 | 54.55 | 20,000 | | 2007 | | 2025.10.21 | ¿ù¼¼ | ÇØµå´ÂÅÍ | 3 | 57.95 | 15,500 | 10 | 2003 | | 2025.10.21 | Àü¼¼ | Á¶Àººô¸®Áö(56-659) | 3 | 37.7 | 13,400 | 0 | 2002 | | 2025.10.21 | ¿ù¼¼ | ºí·çÈúAµ¿ | 3 | 58.57 | 20,900 | 10 | 2007 | | 2025.10.20 | ¿ù¼¼ | â´ëºô¶ó(362-56) | 2 | 35.81 | 17,000 | 10 | 2014 | | 2025.10.20 | ¿ù¼¼ | ½Å¿µ¼¾Æ®·¹ºô | 3 | 39.76 | 18,300 | 6 | 2011 | | 2025.10.20 | ¿ù¼¼ | µ¿Çöºô¶ó | 3 | 58.13 | 8,000 | 50 | 1993 | | 2025.10.20 | Àü¼¼ | ¼¿ìºô¶ó | 2 | 62.76 | 17,000 | 0 | 1994 | | 2025.10.20 | ¿ù¼¼ | ÁØÀÌÇϿ콺 | 2 | 48.07 | 18,000 | 10 | 2016 | | 2025.10.20 | ¿ù¼¼ | ¸¶ÀÌÇϿ콺 | 4 | 45.73 | 22,400 | 10 | 2016 | | 2025.10.20 | ¿ù¼¼ | LAHOME(¶óȨ)A | 3 | 29.91 | 24,500 | 5 | 2022 | | 2025.10.20 | ¿ù¼¼ | (1164-0) | 3 | 18.36 | 11,960 | 5 | 2014 | | 2025.10.20 | ¿ù¼¼ | 1STHOUSE | 6 | 27.65 | 19,200 | 10 | 2019 | | 2025.10.20 | ¿ù¼¼ | Ȳ»êºô¶ó | 3 | 44.95 | 11,000 | 10 | 2001 | | 2025.10.20 | ¿ù¼¼ | ¶ó¿Âºô¸®Áö(397-3) | 3 | 26.02 | 13,700 | 11 | 2016 | | 2025.10.20 | ¸Å¸Å | ½Å¼º³×¿Àºô | 4 | 42.43 | 31,000 | | 2018 | | 2025.10.20 | ¸Å¸Å | ¿µ¶ôºô¶ó | 1 | 39.12 | 10,600 | | 1992 | | 2025.10.20 | ¸Å¸Å | ÇÏÀºÇÏÀÌÃ÷ | 1 | 44.22 | 15,800 | | 2008 | | 2025.10.19 | ¿ù¼¼ | ÅÂÇÑÇÏÀ̺ô | 5 | 29.97 | 15,000 | 22 | 2016 | | 2025.10.19 | ¸Å¸Å | ¾¾Æ¼ÇϿ콺(376-21) | 2 | 47.54 | 25,000 | | 2011 | | 2025.10.18 | ¿ù¼¼ | ÀÎÅÍ½ÃÆ¼ºô¶óA | -1 | 73.05 | 13,000 | 20 | 2001 | | 2025.10.18 | ¿ù¼¼ | °ÇÇü½¦¸£ºô(343-27) | 1 | 76.96 | 22,800 | 30 | 2007 | | 2025.10.18 | ¸Å¸Å | ȲÁ¦±×·£µåÆÄÅ©(105-480) | 4 | 44.55 | 17,400 | | 2008 | | 2025.10.18 | Àü¼¼ | MÆç¸®Ã¼ | 2 | 36.49 | 25,074 | 0 | 2018 | | 2025.10.18 | ¿ù¼¼ | û¼ÛÆòÈÇコÇϿ콺(341-5) | 2 | 32.26 | 19,100 | 9 | 2018 | | 2025.10.18 | ¸Å¸Å | Ȳº¸¾ÆÆ®ºô(333-27) | 6 | 22.53 | 21,500 | | 2018 | | 2025.10.18 | ¿ù¼¼ | ´ë¸²È¨Å¸¿î | 4 | 50.76 | 5,000 | 70 | 2003 | | 2025.10.17 | ¸Å¸Å | ÀÎÅÍ½ÃÆ¼ºô | 3 | 47.31 | 16,000 | | 2007 | | 2025.10.17 | ¸Å¸Å | ¿ìÀå»êÆÄÅ©ºô | 5 | 38.59 | 24,500 | | 2013 | | 2025.10.17 | Àü¼¼ | ¹Ì¸²ÁÖÅà | 1 | 48.75 | 12,540 | 0 | 1991 | | 2025.10.17 | ¿ù¼¼ | ½Ã¿Âºô¶ó | 2 | 65.73 | 16,700 | 4 | 1995 | | 2025.10.17 | ¿ù¼¼ | Á־󸮸ǼÇ(823-3) | 4 | 59.54 | 2,000 | 100 | 2001 | | 2025.10.17 | ¿ù¼¼ | ´ö¼ö±Ã(961-14) | 4 | 31.65 | 7,000 | 15 | 2007 | | 2025.10.17 | ¿ù¼¼ | ¿¡º¥¿¡¼¿ | 4 | 15.08 | 500 | 50 | 2009 | | 2025.10.17 | Àü¼¼ | ½ºÆäÀ̽ººô(468-4) | 3 | 46.83 | 13,410 | 0 | 2010 | | 2025.10.17 | ¿ù¼¼ | ÇѰ淺½ºÇ÷¹À̽º | 4 | 25.89 | 23,300 | 9 | 2023 | | 2025.10.17 | ¿ù¼¼ | ÁÖ½Å¾ÆÆ®ºôAµ¿ | 4 | 28.75 | 3,000 | 60 | 2003 | | 2025.10.17 | ¿ù¼¼ | º¹ÁöȨŸ¿î(100-21) | 2 | 47.86 | 13,000 | 25 | 2002 | | 2025.10.17 | ¿ù¼¼ | 29-76 | 5 | 25.64 | 2,000 | 60 | 2021 | | 2025.10.16 | ¿ù¼¼ | ¿¡½ºÄÉÀÌÁöÀ½ | 2 | 25.98 | 33 | 224 | 2021 | | 2025.10.16 | ¿ù¼¼ | ½ÅÈï¾Æ³Ê½ººô | 5 | 40.95 | 11,000 | 49 | 2008 | | 2025.10.16 | ¿ù¼¼ | ¿ì¼º¿¬¸³(1134-7) | 3 | 51.3 | 2,000 | 75 | 1985 | | 2025.10.16 | ¿ù¼¼ | ¿¹ÁöÆÓ¸®½º89Â÷ | 3 | 54.54 | 26,800 | 10 | 2016 | | 2025.10.16 | Àü¼¼ | µ¿¾çÁÖÅÃ(409-74) | 3 | 51.6 | 14,000 | 0 | 2002 | | 2025.10.16 | ¸Å¸Å | ½Ã¿ø¾ÆÆ®ºô°¡µ¿ | 4 | 59.97 | 24,000 | | 2002 | | 2025.10.16 | ¿ù¼¼ | µµ¿øÈú¶óÀÌÇÁ2 | 2 | 28.03 | 1,300 | 66 | 2016 | | 2025.10.16 | ¿ù¼¼ | ¿¡½ºÄÉÀÌÁöÀ½ | 5 | 29.95 | 33 | 130 | 2021 | | 2025.10.16 | ¿ù¼¼ | ¹®È±×¸°Å¸¿î | 4 | 39.57 | 2,000 | 65 | 1994 | | 2025.10.16 | ¸Å¸Å | Á¦ÀÌÅõ¸®´õ½º | 6 | 28.01 | 29,900 | | 2023 | | 2025.10.16 | ¿ù¼¼ | ½ºÀ§Æ®ºô(102-82) | 3 | 46.98 | 3,000 | 70 | 2008 | | 2025.10.16 | ¿ù¼¼ | µ¿³²ÁÖÅÃ(869-63) | 5 | 36.05 | 10,000 | 15 | 2002 | | 2025.10.16 | ¿ù¼¼ | ÇѼº | 2 | 48.93 | 1,000 | 60 | 1982 | | 2025.10.16 | ¿ù¼¼ | casagio | 4 | 27.31 | 33 | 98 | 2019 | | 2025.10.15 | ¸Å¸Å | ´õŬ·¡½Ä | 4 | 40.78 | 23,500 | | 2018 | | 2025.10.15 | ¸Å¸Å | ¹Ì¸²ÁÖÅà | -1 | 48.75 | 25,500 | | 1991 | | 2025.10.15 | ¸Å¸Å | ºí·çÈú(391-14) | 2 | 69.05 | 33,500 | | 2006 | | 2025.10.15 | ¸Å¸Å | ¼öÁ¤ºô¶ó°¡µ¿ | 4 | 33.42 | 14,000 | | 1992 | | 2025.10.15 | ¸Å¸Å | ¸®ºùÇϿ콺5Â÷ | 3 | 34.71 | 19,000 | | 2015 | | 2025.10.15 | Àü¼¼ | ´Ù´Ï¿¤È¨Å¸¿î | 3 | 39.38 | 9,200 | 0 | 2001 | | 2025.10.15 | ¸Å¸Å | ¼Ò´ã¹ë¸® | 5 | 29.14 | 28,800 | | 2012 | | 2025.10.15 | ¸Å¸Å | »ï¼º½¦¸£ºô(61-82) | 2 | 63.08 | 25,000 | | 2008 | | 2025.10.15 | ¸Å¸Å | ¼£·Òºô¶ó | 4 | 37.13 | 23,000 | | 2001 | | 2025.10.15 | ¸Å¸Å | °Ç¿µWith | 3 | 62.53 | 35,500 | | 2022 | | 2025.10.15 | ¸Å¸Å | ¿ì¼ºÅ¸¿î | 2 | 43.56 | 10,000 | | 1994 | | 2025.10.15 | ¸Å¸Å | ¹Ð·¹´Ï¾ö(102-26) | 2 | 56.56 | 27,000 | | 2008 | | 2025.10.15 | ¸Å¸Å | ¹Ì¼ººô¶ó | -1 | 41.76 | 9,000 | | 1993 | | 2025.10.15 | ¸Å¸Å | ¼ºÁغô¶ó | 3 | 50.4 | 16,500 | | 1996 | | 2025.10.15 | ¿ù¼¼ | ÇѺû½ºÄ«À̺ô | 3 | 30.08 | 10,000 | 20 | 2008 | | 2025.10.15 | ¿ù¼¼ | ȲÁ¦ÆÄÅ©ºô | 3 | 66.06 | 3,000 | 90 | 2007 | | 2025.10.15 | Àü¼¼ | ºí·çÈúAµ¿ | 3 | 58.57 | 20,900 | 0 | 2007 | | 2025.10.15 | Àü¼¼ | ¼¿ïºô¸®Áö(868-19) | 3 | 56.88 | 17,000 | 0 | 2008 | | 2025.10.15 | Àü¼¼ | °è¸íÀ§³Ê½º | 5 | 42.16 | 14,000 | 0 | 2008 | | 2025.10.15 | Àü¼¼ | ²Þ°°Àº¼¼»ó | 4 | 49.42 | 12,500 | 0 | 2002 | | 2025.10.15 | Àü¼¼ | ±×¸°³ª·¡ºô¶óÆ® | 2 | 43.95 | 15,100 | 0 | 2008 | | 2025.10.15 | Àü¼¼ | ȼºÈ¨Å¸¿î103µ¿ | 4 | 67.47 | 19,900 | 0 | 2002 | | 2025.10.15 | ¿ù¼¼ | º¸¼ººô¶ó | 3 | 59.87 | 16,100 | 15 | 2002 | | 2025.10.15 | ¿ù¼¼ | Çö´ëºô¶ó°¡µ¿(748-25) | 4 | 62.86 | 12,000 | 40 | 2000 | | 2025.10.15 | ¿ù¼¼ | Á¦ÀϺô¶óÆ® | 4 | 49.03 | 14,600 | 14 | 2002 | | 2025.10.15 | Àü¼¼ | ȲÁ¦±×·£µåÆÄÅ© | 4 | 40.92 | 13,900 | 0 | 2008 | | 2025.10.15 | ¿ù¼¼ | ´ëÈ£ÇÏÀÌÃ÷ºô¶ó³ªµ¿ | 3 | 54.96 | 13,600 | 12 | 1991 | | 2025.10.15 | ¿ù¼¼ | À£¸®Ä¡ÆÄÅ©(1078-24) | 3 | 49.06 | 5,000 | 110 | 2015 | | 2025.10.15 | ¿ù¼¼ | û¼ÛÆòÈÇコÇϿ콺(457-3) | 3 | 27.68 | 12,726 | 4 | 2015 | | 2025.10.15 | ¿ù¼¼ | µ¿¸í³»Ãß·²ºô | 2 | 38.7 | 3,000 | 80 | 2012 | | 2025.10.15 | ¿ù¼¼ | ¾ÆÁÙ¸®¿ò(451-8) | 3 | 37.96 | 17,000 | 10 | 2013 | | 2025.10.15 | Àü¼¼ | ºñ¿¡½ºÇÏ¿ì¡2 | 6 | 24.03 | 13,950 | 0 | 2018 | | 2025.10.15 | Àü¼¼ | ¾¾Æ¼ÇϿ콺ºñµ¿ | 3 | 22.9 | 13,860 | 0 | 2017 | | 2025.10.14 | ¸Å¸Å | ÈÞ¸Õ½ÃÆ¼ | 6 | 29.83 | 25,700 | | 2020 | | 2025.10.14 | ¸Å¸Å | ³²¼º¾ÆÆ®ºô(353-13) | 6 | 28.69 | 19,500 | | 2016 | | 2025.10.14 | ¸Å¸Å | ³²¼º¾ÆÆ®ºô(353-13) | 6 | 28.69 | 19,500 | | 2016 | | 2025.10.14 | ¸Å¸Å | Çö´ëºô¶ó | 1 | 36.27 | 7,000 | | 1991 | | 2025.10.14 | ¿ù¼¼ | (333-29) | 1 | 36.85 | 9,400 | 4 | 1986 | | 2025.10.14 | ¿ù¼¼ | µ¿µµÇÏÀÌÃ÷ºô¶ó(Aµ¿) | 2 | 46.38 | 12,500 | 6 | 2001 | | 2025.10.14 | ¿ù¼¼ | ȼººô¶ó(56-181) | 3 | 47.88 | 13,000 | 25 | 2001 | | 2025.10.14 | ¿ù¼¼ | µÎ¼º°ñµçºô¶ó | 3 | 61.01 | 15,870 | 20 | 1994 | | 2025.10.14 | Àü¼¼ | ½Â¿Âºô¸®Áö | 3 | 68.345 | 20,000 | 0 | 2003 | | 2025.10.14 | ¿ù¼¼ | ¿¹Áöºô¶óÆ®(410-105) | 3 | 60.05 | 12,000 | 55 | 2008 | | 2025.10.14 | ¿ù¼¼ | µÎ¼º°ñµçºô¶ó | 3 | 61.01 | 16,000 | 20 | 1994 | | 2025.10.14 | ¿ù¼¼ | ¿¹Áöºô¶óÆ® | 1 | 34.68 | 9,600 | 12 | 2007 | | 2025.10.14 | Àü¼¼ | °¡¼º¾ÆÆ®Èú5Â÷Bµ¿(966-15) | 2 | 56.56 | 15,000 | 0 | 2002 | | 2025.10.14 | ¸Å¸Å | À̳뼿(INNOCELL) | 6 | 40.78 | 24,000 | | 2017 | | 2025.10.14 | ¸Å¸Å | ´ë½Åºô¶ó | 1 | 64.17 | 26,000 | | 1996 | | 2025.10.14 | ¸Å¸Å | »ï¼º½¦¸£ºô(346-62) | 2 | 27.41 | 21,950 | | 2017 | | 2025.10.14 | ¿ù¼¼ | µ¿¾ç³ëºí·¹½º | 2 | 61.78 | 19,100 | 5 | 2008 | | 2025.10.14 | ¿ù¼¼ | ½Å¿µ¸®Ä¡ºô(330-14) | 5 | 29.14 | 2,000 | 80 | 2017 | | 2025.10.14 | ¿ù¼¼ | ±î»çÁö¿À(355-4) | 3 | 23.45 | 18,500 | 7 | 2021 | | 2025.10.14 | Àü¼¼ | ³²¼º¾ÆÆ®ºô | 2 | 60.04 | 22,000 | 0 | 2008 | | 2025.10.13 | ¸Å¸Å | ¿µ±¤ºô¸®Áö | 2 | 55.28 | 23,000 | | 2002 | | 2025.10.13 | ¸Å¸Å | ºñ¿ø±×¸°ºô¶ó | 1 | 43.92 | 28,000 | | 1986 | | 2025.10.13 | ¸Å¸Å | ½îȨ¾ÆÆ®ºô | 2 | 38.51 | 28,230 | | 2013 | | 2025.10.13 | ¿ù¼¼ | ¼º¸²ÆÄÅ©ºôAµ¿ | 2 | 66.66 | 16,500 | 10 | 2002 | | 2025.10.13 | Àü¼¼ | ¿¡½º¿¥ÆÄÅ©ºô(332-42) | 7 | 29.66 | 16,500 | 0 | 2015 | | 2025.10.13 | Àü¼¼ | ¿¡½º¿¥ÆÄÅ©ºô(332-42) | 7 | 29.66 | 16,500 | 0 | 2015 | | 2025.10.13 | ¿ù¼¼ | (789-4) | -1 | 38.515 | 500 | 40 | 1986 | | 2025.10.13 | Àü¼¼ | Å׸¶366(366-50) | 4 | 29.94 | 27,000 | 0 | 2020 | | 2025.10.13 | ¿ù¼¼ | ³²°æº£½ºÆ®ºô(Bµ¿) | 3 | 64.18 | 17,640 | 30 | 2001 | | 2025.10.13 | ¿ù¼¼ | ¼¿¬ºí·çÈú | 2 | 29.37 | 15,000 | 5 | 2016 | | 2025.10.13 | ¿ù¼¼ | »ï¿øºô¶ó(341-27) | 4 | 56.54 | 15,800 | 40 | 2001 | | 2025.10.13 | Àü¼¼ | ³²°æº£½ºÆ®ºô(Bµ¿) | 3 | 64.18 | 17,640 | 0 | 2001 | | 2025.10.13 | ¿ù¼¼ | ´ë¼Ûºô¶ó | 4 | 40.8 | 14,790 | 3 | 2001 | | 2025.10.13 | Àü¼¼ | ¼£·Òºô¶ó | 4 | 37.13 | 10,680 | 0 | 2001 | | 2025.10.13 | Àü¼¼ | Çϳª¾ÆÀÌÆÄÅ©ºô | 5 | 26.73 | 17,100 | 0 | 2017 | | 2025.10.13 | Àü¼¼ | ¿¡½º¿¥ÆÄÅ©ºô(332-42) | 7 | 29.66 | 16,500 | 0 | 2015 | | 2025.10.13 | Àü¼¼ | »ï¼º½¦¸£ºô(881-36) | 4 | 39.62 | 21,000 | 0 | 2014 | | 2025.10.13 | ¿ù¼¼ | ´Ù¿Â½£ | 5 | 25.47 | 500 | 85 | 2021 | | 2025.10.13 | ¿ù¼¼ | (400-100) | 1 | 40.718 | 1,000 | 55 | 2001 | | 2025.10.13 | ¿ù¼¼ | ±î»çÁö¿À(355-4) | 3 | 23.45 | 18,500 | 7 | 2021 | | 2025.10.13 | ¿ù¼¼ | »þÀδõÈúȰî | 3 | 29.96 | 1,000 | 110 | 2023 | | 2025.10.13 | ¿ù¼¼ | ÇѺûÀ§³Ê½ººô(966-20) | 2 | 50.85 | 1,000 | 90 | 2008 | | 2025.10.12 | ¸Å¸Å | ´õ¶ó¿Â | 5 | 26.49 | 21,950 | | 2016 | | 2025.10.12 | Àü¼¼ | Çý¼ºÆÓ¸®½ººô(392-56) | 5 | 39.27 | 22,000 | 0 | 2014 | | 2025.10.12 | ¸Å¸Å | ÀºÇϼö½¦¸£ºô | 2 | 69.53 | 30,500 | | 2003 | | 2025.10.11 | ¸Å¸Å | °¶·°½ÃÇÏÀ̺ô | 5 | 65.49 | 47,000 | | 2011 | | 2025.10.11 | ¸Å¸Å | µ¿µµÇÏÀÌÃ÷ºô¶ó | 1 | 60.11 | 24,500 | | 1998 | | 2025.10.11 | ¸Å¸Å | °ñµåij½½ | 3 | 39.53 | 31,500 | | 2016 | | 2025.10.11 | ¿ù¼¼ | ÇѰŸ¿î | 3 | 29.64 | 5,500 | 80 | 2021 | | 2025.10.11 | ¸Å¸Å | Å©¸®½ºÅ»ºô(354-21) | 2 | 28.91 | 24,500 | | 2014 | | 2025.10.11 | ¿ù¼¼ | Àº°¡¶÷ÆÓ¸®½º | 5 | 37.345 | 1,000 | 120 | 2022 | | 2025.10.11 | ¿ù¼¼ | MARNI | 4 | 19.99 | 3,000 | 75 | 2023 | | 2025.10.11 | Àü¼¼ | Å©¸®½ºÅ»ºô(354-21) | 2 | 28.91 | 13,900 | 0 | 2014 | | 2025.10.11 | ¿ù¼¼ | ¸®Ä¡108µ¿ | 11 | 22.95 | 18,640 | 15 | 2023 | | 2025.10.11 | ¿ù¼¼ | ¿¹¼ÖÇÏÀÌÃ÷ | 4 | 41.27 | 7,700 | 22 | 2008 | | 2025.10.11 | ¿ù¼¼ | ¼Ò¸Áºô¶ó(98-103) | 5 | 50.07 | 13,100 | 13 | 2002 | | 2025.10.11 | Àü¼¼ | ¿ìȱ׸° | 4 | 39.2 | 15,000 | 0 | 2012 | | 2025.10.11 | ¿ù¼¼ | ȼººô¶ó(56-181) | 2 | 46.9 | 12,700 | 25 | 2001 | | 2025.10.11 | Àü¼¼ | ÇÑ¿ïÀÚÀ̺ô(1016-11) | 4 | 33.89 | 11,280 | 0 | 2009 | | 2025.10.11 | ¿ù¼¼ | ¸®Ä¡7 | 13 | 24.59 | 21,042 | 8 | 2022 | | 2025.10.11 | Àü¼¼ | Çý¼ºÆç¸®½º(811-8) | 3 | 41.36 | 18,300 | 0 | 2011 | | 2025.10.11 | ¿ù¼¼ | ÿ½ÃÇϿ콺(424-35¿Ü1) | 4 | 28.73 | 2,000 | 75 | 2015 | | 2025.10.11 | ¿ù¼¼ | ´ëÁÖ½¦¸£ºô(338-9) | 3 | 45.02 | 13,200 | 5 | 2002 | | 2025.10.11 | Àü¼¼ | ¿µÁøºô¶ó(102-143) | 4 | 58.37 | 15,000 | 0 | 2001 | | 2025.10.11 | Àü¼¼ | °Å¼º | 2 | 49.5 | 12,000 | 0 | 1986 | | 2025.10.11 | Àü¼¼ | ºñ¿£ÄÉÀÌÇϿ콺 | 6 | 29.68 | 22,600 | 0 | 2023 | | 2025.10.11 | Àü¼¼ | ¶óÀÎÆÄÅ© | 2 | 29.65 | 21,100 | 0 | 2020 | | 2025.10.11 | ¿ù¼¼ | µ¿½Å¿ùµåºô | 1 | 57.9 | 15,600 | 10 | 2002 | | 2025.10.10 | ¸Å¸Å | ´ë¿ì | -1 | 37.5 | 7,900 | | 1986 | | 2025.10.10 | ¸Å¸Å | À̳뼿 | 5 | 29.63 | 20,000 | | 2016 | | 2025.10.10 | ¸Å¸Å | ·¹À̳ª | 6 | 35.9 | 23,500 | | 2013 | | 2025.10.10 | ¸Å¸Å | ÇÁ¸®¸Þ¶ó | 3 | 39.64 | 24,800 | | 2016 | | 2025.10.10 | ¸Å¸Å | ÈÀÎÇϿ콺(963-23) | 3 | 22.44 | 11,000 | | 1993 | | 2025.10.10 | ¸Å¸Å | Çϳª¾ÆÀÌÆÄÅ©ºô | 4 | 23.57 | 18,400 | | 2019 | | 2025.10.10 | ¸Å¸Å | ±îÄ¡»êÆÈ¶óÀ̽º | 3 | 29.91 | 18,000 | | 2015 | | 2025.10.10 | ¸Å¸Å | ¶ó¿òÇÏ¿ì¡ | 2 | 28.84 | 21,600 | | 2019 | | 2025.10.10 | ¸Å¸Å | ¶ó¿òÇÏ¿ì¡ | 3 | 28.84 | 21,600 | | 2019 | | 2025.10.10 | ¸Å¸Å | Bluehill | 4 | 29.42 | 24,000 | | 2019 | | 2025.10.10 | ¸Å¸Å | Bluehill | 2 | 29.42 | 24,000 | | 2019 | | 2025.10.10 | ¸Å¸Å | Á¦À̽ººô | 2 | 26.94 | 20,000 | | 2019 | | 2025.10.10 | ¸Å¸Å | Bluehill | 3 | 29.42 | 24,000 | | 2019 | | 2025.10.10 | ¸Å¸Å | ´õŬ·¡½Ä | 5 | 44.85 | 41,500 | | 2018 | | 2025.10.10 | ¿ù¼¼ | ´õ¸Þ¸£¾¾¿¤ | 6 | 28.16 | 20,160 | 10 | 2020 | | 2025.10.10 | ¿ù¼¼ | ¼ºÀººô¸®ÁöAµ¿ | 4 | 57.73 | 14,000 | 20 | 2003 | | 2025.10.10 | ¿ù¼¼ | ȼººô¶ó°¡µ¿ | 5 | 37.69 | 10,690 | 20 | 2003 | | 2025.10.10 | ¿ù¼¼ | »ïÀͶ߶õä | 3 | 36.7 | 2,500 | 60 | 2017 | | 2025.10.10 | ¿ù¼¼ | µ¿¿µºô¶ó(°¡) | 4 | 69.92 | 19,600 | 20 | 2003 | | 2025.10.10 | Àü¼¼ | Ȱ´Ù¼¼´ëÁÖÅà | 2 | 26.68 | 7,500 | 0 | 2002 | | 2025.10.10 | ¿ù¼¼ | »ï¿ø½ºÄ«ÀÌij½½ | 5 | 64.31 | 13,000 | 45 | 2010 | | 2025.10.10 | Àü¼¼ | (817-18) | 5 | 24.7 | 9,000 | 0 | 2013 | | 2025.10.10 | Àü¼¼ | º¸¼ºÈ¨Å¸¿î | 5 | 69.3 | 17,100 | 0 | 2002 | | 2025.10.10 | ¿ù¼¼ | ÀÌÈ¾ÆÆ®ºô(338-39) | 1 | 44.7 | 1,000 | 80 | 2002 | | 2025.10.10 | ¿ù¼¼ | º§¶óÇϿ콺(807-15) | 3 | 28.28 | 17,200 | 5 | 2015 | | 2025.10.10 | ¿ù¼¼ | ÇÏÀÌÃ÷ºô¶ó(382-23) | 1 | 41.1 | 9,500 | 13 | 1991 | | 2025.10.10 | ¿ù¼¼ | ³²¼º¾ÆÆ®ºô(423-6) | 5 | 25.55 | 15,246 | 26 | 2015 | | 2025.10.10 | ¿ù¼¼ | Áß¾ÓÇÏÀÌÃ÷ | 3 | 36.83 | 12,000 | 5 | 1990 | | 2025.10.10 | Àü¼¼ | µ¿±¤ºô¶ó³ªµ¿(24-562) | 2 | 46.47 | 14,000 | 0 | 2001 | | 2025.10.10 | ¿ù¼¼ | ÀÎÅÍ½ÃÆ¼ºô¶ó(410-171) | 4 | 52.34 | 3,000 | 85 | 2010 | | 2025.10.10 | Àü¼¼ | µå¸²È¨ºô¸®Áö | 5 | 47.73 | 13,480 | 0 | 2001 | | 2025.10.10 | ¿ù¼¼ | Áß¾ÓÆÄÅ©ºô(394-33) | 1 | 41.09 | 15,400 | 15 | 2011 | | 2025.10.10 | ¿ù¼¼ | ÇѺû½ºÄ«À̺ô | 5 | 33.26 | 1,000 | 70 | 2008 | | 2025.10.09 | ¸Å¸Å | jehouse | 6 | 19.56 | 16,100 | | 2021 | | 2025.10.09 | Àü¼¼ | »ï¼º±×¸°Å¸¿îBµ¿ | 4 | 59.64 | 12,500 | 0 | 2001 | | 2025.10.09 | ¸Å¸Å | Ȩ·£µå¸Ç¼Ç13Â÷ | 2 | 66.82 | 24,000 | | 1996 | | 2025.10.09 | Àü¼¼ | ȰîÇÁ¶óÀÓ | 7 | 20.73 | 11,600 | 0 | 2012 | | 2025.10.07 | Àü¼¼ | µÎ°æ½á´Ïºô | 3 | 45.03 | 20,000 | 0 | 2012 | | 2025.10.07 | Àü¼¼ | ±Ý°ºô¸®Áö | 4 | 38.9 | 9,700 | 0 | 2001 | | 2025.10.07 | Àü¼¼ | ¿ìÁøÁÖÅÃ(371-17) | 5 | 69.78 | 17,700 | 0 | 2008 | | 2025.10.07 | ¿ù¼¼ | È°î¾ÆÆ®ºô | 6 | 29.39 | 200 | 70 | 2022 | | 2025.10.05 | Àü¼¼ | º£¸£µ¥ÇÇ¾Æ | 6 | 27.95 | 17,300 | 0 | 2016 | | 2025.10.05 | Àü¼¼ | Ȩ·£µå¸Ç¼Ç15Â÷ | 2 | 84.47 | 22,400 | 0 | 1997 | | 2025.10.04 | ¿ù¼¼ | ÄÚÇÏÀÓ772 | 5 | 23.71 | 2,000 | 70 | 2022 | | 2025.10.04 | ¿ù¼¼ | ±î»çÁö¿À(355-4) | 4 | 23.48 | 18,500 | 8 | 2021 | | 2025.10.04 | ¸Å¸Å | ¼øÈ¯½¦¸£ºô(24-222) | 3 | 39.12 | 15,300 | | 2002 | | 2025.10.04 | ¸Å¸Å | ÈúÇϿ콺(377-12) | 5 | 37.01 | 25,700 | | 2013 | | 2025.10.03 | ¿ù¼¼ | ¿¡ÀÌ¿£Äɽ½ | 3 | 27.86 | 16,000 | 15 | 2016 | | 2025.10.03 | ¿ù¼¼ | ´º¿å·¹Áö´ø½º¥±(858-23) | 4 | 14.95 | 500 | 40 | 2012 | | 2025.10.03 | ¿ù¼¼ | ¸¶ÀÌÇϿ콺 | 4 | 36.91 | 2,000 | 100 | 2016 | | 2025.10.03 | ¿ù¼¼ | SKÆÄÅ©¸®¿ò | 4 | 24.14 | 18,000 | 30 | 2019 | | 2025.10.03 | ¿ù¼¼ | ½Å¿µ¸®Ä¡ºô | 5 | 29.6 | 18,000 | 8 | 2016 | | 2025.10.03 | ¸Å¸Å | °æ¿ìÇÏÀÌÃ÷¸Ç¼Ç(835-22) | 2 | 58.65 | 26,700 | | 2001 | | 2025.10.03 | ¸Å¸Å | °ÇÇü¼¾½ººô | 5 | 47.62 | 20,000 | | 2011 | | 2025.10.02 | ¸Å¸Å | »ïÀͺô¶ó | 1 | 46.41 | 17,000 | | 1992 | | 2025.10.02 | ¸Å¸Å | (24-523) | 2 | 34.32 | 29,400 | | 1990 | | 2025.10.02 | ¸Å¸Å | ¸¸¼±ºôµù | 3 | 74.57 | 42,000 | | 2009 | | 2025.10.02 | ¿ù¼¼ | È£¼º±×¸°ºôAµ¿ | 2 | 36.42 | 2,000 | 85 | 2001 | | 2025.10.02 | ¿ù¼¼ | ¼öÁ¤ºô¶ó³ªµ¿ | 3 | 36.33 | 9,800 | 3 | 1992 | | 2025.10.02 | ¿ù¼¼ | Ÿ¿îij½½Aµ¿ | 3 | 27.48 | 3,000 | 80 | 2018 | | 2025.10.02 | Àü¼¼ | ±ÃÀüºô¶ó | 2 | 76.62 | 24,000 | 0 | 1998 | | 2025.10.02 | ¿ù¼¼ | ¼ÁÖºôµù(401-22) | 3 | 17.44 | 1,000 | 47 | 1996 | | 2025.10.02 | Àü¼¼ | ¶ó¿Âºô¸®Áö(397-3) | 2 | 23.49 | 11,430 | 0 | 2016 | | 2025.10.02 | ¿ù¼¼ | °Å¼º | 3 | 43.92 | 13,500 | 20 | 1987 | | 2025.10.02 | Àü¼¼ | ¿¹Àκô¶ó(350-9) | 2 | 59.16 | 20,250 | 0 | 2001 | | 2025.10.02 | ¿ù¼¼ | ÀÎÅÍ½ÃÆ¼ºô¶ó(340-92) | 2 | 39.58 | 12,600 | 10 | 2002 | | 2025.10.02 | Àü¼¼ | º¸³ëÇϿ콺 | 6 | 25.44 | 17,100 | 0 | 2018 | | 2025.10.02 | Àü¼¼ | ¼¸²±×¶ûºô | 2 | 28.94 | 18,630 | 0 | 2019 | | 2025.10.02 | ¸Å¸Å | ÁÖ¿µ·º½ººôAµ¿ | 3 | 56.96 | 25,500 | | 2003 | | 2025.10.02 | ¸Å¸Å | ÀÌÈ¾ÆÆ®ºô(343-24) | 3 | 62.07 | 31,000 | | 2002 | | 2025.10.02 | ¸Å¸Å | ¼ºÀçij½½ºô(839-18) | 2 | 48.21 | 21,100 | | 2008 | | 2025.10.02 | ¿ù¼¼ | ¹é°¿ø·ë | 4 | 12.8 | 500 | 41 | 2011 | | 2025.10.02 | ¸Å¸Å | ´õŬ·¡½Ä(857-19) | 6 | 28.52 | 17,000 | | 2018 | | 2025.10.02 | ¸Å¸Å | »ï¼º½¦¸£ºô(1081-30) | 4 | 30.12 | 17,000 | | 2014 | | 2025.10.02 | ¸Å¸Å | SKºô¸®Áö | 3 | 29.935 | 22,500 | | 2015 | | 2025.10.01 | ¿ù¼¼ | (995-10) | 2 | 45.37 | 2,000 | 57 | 2003 | | 2025.10.01 | ¿ù¼¼ | ½ºÄ«À̺ô(163-21¿Ü) | 5 | 29.82 | 14,200 | 20 | 2015 | | 2025.10.01 | ¿ù¼¼ | D.S¿¡ÄÚºô | 2 | 37.88 | 18,500 | 20 | 2013 | | 2025.10.01 | ¿ù¼¼ | ¼°æÆÓ¸®½º | 6 | 29.29 | 18,648 | 5 | 2019 | | 2025.10.01 | ¿ù¼¼ | ¸ðÀüÇ÷¯½ººôBµ¿ | 4 | 46.67 | 1,000 | 60 | 2002 | | 2025.10.01 | Àü¼¼ | ´õ½ºÅ¸ÀÏ | 5 | 66.2 | 36,100 | 0 | 2017 | | 2025.10.01 | ¿ù¼¼ | À¯ÀÏÇÏÀÌÃ÷ | -1 | 61.85 | 1,000 | 50 | 2002 | | 2025.10.01 | Àü¼¼ | ¼±°æÇÏÀÌÃ÷(393-26) | 3 | 59.09 | 21,500 | 0 | 2010 | | 2025.10.01 | ¿ù¼¼ | ´õȨ | 3 | 29.86 | 2,000 | 57 | 2015 | | 2025.10.01 | Àü¼¼ | ½ÃƼ¿ùºô¶ó | 3 | 81.11 | 13,500 | 0 | 2003 | | 2025.10.01 | ¿ù¼¼ | ¼£·ÒÇϿ콺 | 2 | 18.72 | 1,000 | 60 | 2010 | | 2025.10.01 | ¿ù¼¼ | »ïÀÍÇ콺Ƽ¾Æ(1130-15) | 2 | 22.13 | 11,000 | 20 | 2015 | | 2025.10.01 | ¸Å¸Å | ´Ù¿ï³×¹öºô(1038-11) | 4 | 58.3 | 13,300 | | 2000 | | 2025.10.01 | ¸Å¸Å | Àº¼Û¿ùµåºô(996-10) | 3 | 58.93 | 28,000 | | 2002 | | 2025.10.01 | ¸Å¸Å | ¿¡½º¿¥ÆÄÅ©ºô101µ¿102µ¿ | 7 | 28.15 | 21,500 | | 2016 | | 2025.10.01 | Àü¼¼ | ¿ìÀå»êºô¶ó | 2 | 29.08 | 16,500 | 0 | 2013 | | 2025.10.01 | ¸Å¸Å | ½ºÆäÀ̽ººôºñµ¿ | 6 | 37 | 27,800 | | 2016 | | 2025.10.01 | ¸Å¸Å | Çý¼ºÆÓ¸®½ººô(392-31) | 5 | 37.2 | 23,700 | | 2014 | | 2025.10.01 | ¸Å¸Å | ÀϺÀºô¶ó | 1 | 52.19 | 21,000 | | 1991 | | 2025.10.01 | ¸Å¸Å | ¼ºÀçÆÄÅ©ºôAµ¿ | 1 | 61.38 | 22,500 | | 2002 | | 2025.10.01 | ¸Å¸Å | °¼ººô¶ó5Â÷ | 3 | 24.78 | 16,550 | | 1991 | | 2025.10.01 | ¸Å¸Å | ´ëÇѺô¶ó8Â÷ | 3 | 41 | 14,950 | | 1993 | | 2025.10.01 | ¸Å¸Å | ÈÀκô(822-11) | 4 | 53.93 | 20,800 | | 2008 | | 2025.10.01 | ¸Å¸Å | »ïÈ£ºô¶ó(396-13) | 1 | 62.52 | 26,200 | | 2002 | | 2025.09.30 | ¸Å¸Å | ±¤»ê¸Ç¼ÇAµ¿ | 2 | 60.96 | 31,500 | | 2002 | | 2025.09.30 | ¸Å¸Å | ´Ù¼Ø(773-3) | 4 | 34.55 | 16,254 | | 2012 | | 2025.09.30 | ¸Å¸Å | ±â¸°¾ÆÆ®ºô¶ó | 1 | 41.32 | 16,380 | | 1995 | | 2025.09.30 | ¸Å¸Å | µ¿¿ìºô¶ó | 3 | 47.93 | 16,250 | | 1993 | | 2025.09.30 | ¸Å¸Å | ¼ºÁÖºô¶óBµ¿(46-105) | 1 | 62.04 | 23,300 | | 1995 | | 2025.09.30 | ¸Å¸Å | Ȩ·£µå¸Ç¼Ç13Â÷ | 1 | 67.96 | 24,500 | | 1996 | | 2025.09.30 | ¸Å¸Å | µ¿¾çÁÖÅà | 3 | 51.87 | 16,500 | | 1995 | | 2025.09.30 | Àü¼¼ | (42-65) | 4 | 26.21 | 15,000 | 0 | 2018 | | 2025.09.30 | ¿ù¼¼ | ÇÏÀÌ63 | 4 | 35.03 | 1,500 | 50 | 2018 | | 2025.09.30 | Àü¼¼ | ÀºÇϵ帲ºô | 2 | 64.65 | 20,000 | 0 | 2007 | | 2025.09.30 | ¿ù¼¼ | Çϳª½¦¸£ºô | 5 | 29.93 | 3,000 | 65 | 2013 | | 2025.09.30 | ¿ù¼¼ | ¿ìȱ׸°(969-13) | 3 | 29.71 | 1,000 | 65 | 2012 | | 2025.09.30 | ¿ù¼¼ | ¿ì¼ººô¶óAµ¿ | 3 | 34.2 | 10,000 | 14 | 2001 | | 2025.09.30 | ¿ù¼¼ | ¿ì¼ºÃ¢´ëºô | 4 | 64.805 | 5,000 | 100 | 2007 | | 2025.09.30 | ¿ù¼¼ | ¼Çö | 3 | 12.96 | 500 | 40 | 2011 | | 2025.09.30 | ¿ù¼¼ | µ¿¿ìÇÏÀ̺ô | 3 | 29.06 | 500 | 50 | 2018 | | 2025.09.30 | ¿ù¼¼ | ½´ÇÁ¸²´õÇÏÀÌ¿ò | 4 | 60.47 | 2,893 | 28 | 2023 | | 2025.09.30 | ¸Å¸Å | ±¤»ê±×¸°ºô(1043-5) | 5 | 70.48 | 25,500 | | 2002 | | 2025.09.30 | Àü¼¼ | ¼¸ðÆÓ¸®½º(42-120) | 5 | 58.92 | 13,000 | 0 | 2004 | | 2025.09.30 | ¿ù¼¼ | ½´ÇÁ¸²´õÇÏÀÌ¿ò | 2 | 60.47 | 2,794 | 26 | 2023 | | 2025.09.30 | ¿ù¼¼ | ½´ÇÁ¸²´õÇÏÀÌ¿ò | 4 | 60.47 | 2,893 | 28 | 2023 | | 2025.09.30 | ¿ù¼¼ | ½´ÇÁ¸²´õÇÏÀÌ¿ò | 5 | 60.47 | 2,906 | 28 | 2023 | | 2025.09.30 | ¿ù¼¼ | ½´ÇÁ¸²´õÇÏÀÌ¿ò | 4 | 60.47 | 2,893 | 28 | 2023 | | 2025.09.30 | ¿ù¼¼ | ½´ÇÁ¸²´õÇÏÀÌ¿ò | 5 | 60.47 | 2,906 | 28 | 2023 | | 2025.09.30 | ¿ù¼¼ | ½´ÇÁ¸²´õÇÏÀÌ¿ò | 6 | 60.47 | 2,911 | 29 | 2023 | | 2025.09.30 | ¿ù¼¼ | ½´ÇÁ¸²´õÇÏÀÌ¿ò | 3 | 60.47 | 2,876 | 27 | 2023 | | 2025.09.30 | ¿ù¼¼ | ½Ã±×´Ï¿¤6 | 4 | 29.36 | 33 | 169 | 2020 | | 2025.09.30 | Àü¼¼ | ÈúÇϿ콺A,Bµ¿ | 2 | 51.2 | 18,360 | 0 | 2011 | | 2025.09.30 | ¿ù¼¼ | ¼ºÁöºôµù(1121-14) | 2 | 70.77 | 12,000 | 52 | 2003 | | 2025.09.30 | ¿ù¼¼ | ÀÌ·¹ÇìºìÇϿ콺 | 5 | 19.36 | 1,000 | 65 | 2012 | | 2025.09.30 | ¿ù¼¼ | ¸®Ã¼ºô | 5 | 24.8 | 9,600 | 25 | 2013 | | 2025.09.30 | ¿ù¼¼ | ¼ºµµºô¶ó(892-4) | -1 | 58.72 | 10,580 | 10 | 2002 | | 2025.09.30 | ¿ù¼¼ | ºñ¹öÇϿ콺(42-57) | 3 | 36.45 | 3,000 | 70 | 2012 | | 2025.09.30 | ¿ù¼¼ | (400-2) | 2 | 36.12 | 11,900 | 25 | 1986 | | 2025.09.30 | Àü¼¼ | ¿£¿¡½ººô(381-5) | 4 | 59.51 | 20,200 | 0 | 2010 | | 2025.09.30 | Àü¼¼ | ´õÁ¦ÀÌij½½ | 2 | 28.8 | 18,180 | 0 | 2020 | | 2025.09.29 | ¿ù¼¼ | û¼ÛÆòÈÇコÇϿ콺 | 5 | 26.04 | 3,000 | 75 | 2022 | | 2025.09.29 | Àü¼¼ | ÇØ¼ºÆÓ¸®½º3Â÷ | 1 | 61.12 | 12,500 | 0 | 2001 | | 2025.09.29 | Àü¼¼ | ÇØ¼ºÆÓ¸®½º3Â÷ | 1 | 61.12 | 12,500 | 0 | 2001 | | 2025.09.29 | Àü¼¼ | ¿ì¼ºº£³×Ä¡¾Æ | 4 | 55.8 | 19,000 | 0 | 2011 | | 2025.09.29 | Àü¼¼ | ¼¿ïºô¸®Áö(868-19) | 3 | 57.03 | 16,000 | 0 | 2008 | | 2025.09.29 | Àü¼¼ | È£¹Ýµð¿Àºô(975-1) | 4 | 29.9 | 15,930 | 0 | 2014 | | 2025.09.29 | ¿ù¼¼ | Y&B | 4 | 29.64 | 2,000 | 85 | 2020 | | 2025.09.29 | ¿ù¼¼ | µ¿¼º¾ÆÆ®ºô | 3 | 68.62 | 14,000 | 65 | 2002 | | 2025.09.29 | ¸Å¸Å | »ï°æ±×¸°ºô¶ó(159-6) | 2 | 62.42 | 25,000 | | 2002 | | 2025.09.29 | ¸Å¸Å | Á¤°¨Å¸¿îB | 3 | 33.1 | 21,000 | | 2016 | | 2025.09.29 | ¸Å¸Å | º£¾ÆÆ®¸®½º | 4 | 42.11 | 31,400 | | 2017 | | 2025.09.29 | Àü¼¼ | È£¼öºô¶ó(338-34) | 4 | 76.93 | 26,000 | 0 | 2000 | | 2025.09.29 | ¿ù¼¼ | µ¿µµÇÏÀÌÃ÷ºô¶ó(Bµ¿) | 3 | 46.38 | 4,000 | 65 | 2001 | | 2025.09.29 | ¿ù¼¼ | ´ë½Å¸Ç¼Ç | 4 | 101.48 | 5,000 | 100 | 2002 | | 2025.09.29 | ¸Å¸Å | ÀÚ¶óÇϿ콺Bµ¿ | 5 | 44.41 | 36,000 | | 2013 | | 2025.09.29 | ¸Å¸Å | ÀÌȰñµåºô | 2 | 55.84 | 15,000 | | 2002 | | 2025.09.29 | ¸Å¸Å | ´ë¿øºô¶ó | 3 | 57.62 | 26,500 | | 1994 | | 2025.09.29 | Àü¼¼ | ¿ì³²ºô¶ó(95-76) | 5 | 54.6 | 16,500 | 0 | 2002 | | 2025.09.29 | Àü¼¼ | ¿ì¼ºº£³×Ä¡¾Æ | 4 | 55.8 | 20,500 | 0 | 2011 | | 2025.09.29 | Àü¼¼ | À£ºù¶óÀÌÇÁ(155-6) | 3 | 29.91 | 11,400 | 0 | 2011 | | 2025.09.29 | Àü¼¼ | ½Å½Å¾ÆÆ® | 5 | 30.36 | 10,500 | 0 | 2001 | | 2025.09.29 | Àü¼¼ | ³ª»ê¸Ç¼Ç(871-72) | 3 | 62.63 | 16,700 | 0 | 2003 | | 2025.09.29 | Àü¼¼ | Çý¼ºÆÓ¸®½º¡¡ | 3 | 44.47 | 22,500 | 0 | 2019 | | 2025.09.29 | ¸Å¸Å | ¿¹°¡Ã¤l | 7 | 45.17 | 27,200 | | 2013 | | 2025.09.29 | ¿ù¼¼ | °è¸íÀ§³Ê½º(46-37) | 4 | 45.78 | 14,990 | 10 | 2008 | | 2025.09.28 | ¿ù¼¼ | ´ö¿øÇÏÀÌÃ÷ | -1 | 61.05 | 2,000 | 53 | 1991 | | 2025.09.28 | Àü¼¼ | ȲÁ¦¾ÆÀÌÆÄÅ© | 4 | 56.88 | 12,600 | 0 | 2008 | | 2025.09.28 | ¿ù¼¼ | ÁÖ¿µÇϿ콺 | 6 | 20.44 | 5,000 | 70 | 2016 | | 2025.09.28 | ¿ù¼¼ | Çϳª¾ÆÀÌÆÄÅ©ºô | 5 | 52.9 | 1,000 | 80 | 2019 | | 2025.09.27 | ¿ù¼¼ | Àå¿øÅ¸¿î³ªµ¿ | 4 | 51.55 | 4,500 | 55 | 2000 | | 2025.09.27 | Àü¼¼ | ¸®ºùÇϿ콺5Â÷ | 3 | 34.71 | 17,500 | 0 | 2015 | | 2025.09.27 | Àü¼¼ | Å©¶ó¿îÆÓ¸®½º | 12 | 29.94 | 22,000 | 0 | 2020 | | 2025.09.27 | Àü¼¼ | ¹Ì·¡ÁÖÅà | 1 | 33.62 | 8,870 | 0 | 2004 | | 2025.09.27 | ¿ù¼¼ | ¾ÆÁÙ¸®¿ò(1038-13) | 4 | 27.84 | 1,500 | 85 | 2016 | | 2025.09.27 | Àü¼¼ | ÃÊ¿øºô¶ó | 2 | 40.77 | 11,400 | 0 | 1994 | | 2025.09.27 | ¿ù¼¼ | »ï¼º°ñµçºô | 4 | 34.72 | 3,000 | 80 | 2014 | | 2025.09.27 | ¿ù¼¼ | º§¶óÇϿ콺(83-15) | 4 | 26.71 | 3,000 | 80 | 2015 | | 2025.09.27 | ¿ù¼¼ | ¸®Ä¡108µ¿ | 9 | 22.95 | 18,640 | 17 | 2023 | | 2025.09.27 | ¿ù¼¼ | ´ë´öºô¶ó | 4 | 29.16 | 1,000 | 60 | 2001 | | 2025.09.27 | Àü¼¼ | »ïÀκô¶ó(59-43) | 2 | 65.27 | 17,100 | 0 | 2002 | | 2025.09.27 | ¿ù¼¼ | À¸¶äij½½2Â÷ | 6 | 29.98 | 50 | 95 | 2021 | | 2025.09.27 | ¿ù¼¼ | ´Ù¿Âºô | 4 | 27.81 | 16,100 | 16 | 2018 | | 2025.09.27 | ¿ù¼¼ | ·ÎÁîÆÓ¸®½ºÅõ(346-38) | 4 | 69.29 | 500 | 52 | 2009 | | 2025.09.27 | Àü¼¼ | Àκ£½ºÆ®¾ÆÆ®ºô | 3 | 64.22 | 18,000 | 0 | 2007 | | 2025.09.27 | ¿ù¼¼ | ¼±°æºôŸ¿î | 4 | 57.1 | 15,600 | 30 | 2001 | | 2025.09.27 | ¿ù¼¼ | ÇѰ¡¶÷ºô(856-18) | 5 | 54.19 | 19,900 | 6 | 2012 | | 2025.09.27 | ¸Å¸Å | ¿ÀÈÁÖÅà | 4 | 59.8 | 25,000 | | 2001 | | 2025.09.27 | ¿ù¼¼ | SKºô¸®Áö | 3 | 29.935 | 2,000 | 85 | 2015 | | 2025.09.27 | ¸Å¸Å | ³²¼º¾ÆÆ®ºô | 3 | 39.66 | 17,400 | | 2010 | | 2025.09.27 | ¸Å¸Å | ´õŬ·¡½Ä(857-19) | 4 | 27.47 | 26,500 | | 2018 | | 2025.09.27 | ¸Å¸Å | °í¼¾¾ÆÆ®ºô | 3 | 28.89 | 18,500 | | 2016 | | 2025.09.27 | ¸Å¸Å | Á¦ÀÌÁ¦ÀÌij½½ | 2 | 24.7 | 21,800 | | 2016 | | 2025.09.27 | Àü¼¼ | (772-22) | 2 | 36.57 | 16,485 | 0 | 2021 | | 2025.09.26 | ¸Å¸Å | ¿¥Æç¸®Ã¼ºñµ¿ | 6 | 21.41 | 22,500 | | 2017 | | 2025.09.26 | ¸Å¸Å | È£¼öŸ¿î(957-14) | 4 | 48 | 23,500 | | 2002 | | 2025.09.26 | ¸Å¸Å | ¾Æ¶÷ºô¶ó | 2 | 56.82 | 19,900 | | 2002 | | 2025.09.26 | ¸Å¸Å | ÇѼººô¶ó | -1 | 28.47 | 5,700 | | 1987 | | 2025.09.26 | Àü¼¼ | µ¿µµÇÏÀÌÃ÷9Â÷ | 1 | 62.08 | 18,630 | 0 | 1997 | | 2025.09.26 | ¿ù¼¼ | ´ëÈÆÄÅ©ºô | 2 | 31.09 | 2,000 | 70 | 2011 | | 2025.09.26 | ¿ù¼¼ | DHÆÓ¸®½º101µ¿ | 3 | 29.84 | 3,000 | 80 | 2018 | | 2025.09.26 | ¿ù¼¼ | ´Ù¼ØÅ¸¿î°¡µ¿(1037-15) | 3 | 35.67 | 18,500 | 20 | 2015 | | 2025.09.26 | Àü¼¼ | Àº¼Û¿ùµåºô(996-10) | 4 | 54.16 | 15,400 | 0 | 2002 | | 2025.09.26 | ¿ù¼¼ | Çý¼ºÆç¸®½º | 3 | 36.32 | 2,000 | 80 | 2011 | | 2025.09.26 | ¿ù¼¼ | Å·´ý | 6 | 18.3 | 2,000 | 70 | 2016 | | 2025.09.26 | ¿ù¼¼ | ·ÎºóÇϿ콺 | 4 | 28.15 | 3,000 | 73 | 2018 | | 2025.09.26 | Àü¼¼ | ½Â½ÂÀ屸 | 4 | 13.6 | 9,000 | 0 | 2015 | | 2025.09.26 | Àü¼¼ | º¹Áö±×¸°ºô5Â÷ | 3 | 30.36 | 8,200 | 0 | 2002 | | 2025.09.26 | ¿ù¼¼ | Áß¾ÓÇÏÀÌÃ÷ | 3 | 44.39 | 12,000 | 20 | 2002 | | 2025.09.26 | Àü¼¼ | ±îÄ¡ºô¶ó | 1 | 36.66 | 10,460 | 0 | 1991 | | 2025.09.26 | ¿ù¼¼ | ÇÁ¶óÀÓÇϿ콺(397-36) | 2 | 45.24 | 3,000 | 90 | 2011 | | 2025.09.26 | Àü¼¼ | ¼ö¿¬ºô¶ó | 4 | 56.34 | 16,000 | 0 | 2000 | | 2025.09.26 | ¿ù¼¼ | ¹Ù·ÎÅ©ºô | 4 | 29.9 | 12,700 | 35 | 2014 | | 2025.09.26 | ¿ù¼¼ | ÇѺû½ºÄ«À̺ô | 3 | 29.92 | 11,200 | 10 | 2008 | | 2025.09.26 | ¿ù¼¼ | »ïÀÍÇ콺Ƽ¾Æ(50-1) | 5 | 23.35 | 8,700 | 11 | 2011 | | 2025.09.26 | ¿ù¼¼ | Çý°¾ÆÆ®ºô | 2 | 52.62 | 11,000 | 14 | 2008 | | 2025.09.26 | Àü¼¼ | ÇÏÀºµ¥ÄÚºô | -1 | 48.13 | 8,500 | 0 | 2003 | | 2025.09.26 | ¿ù¼¼ | ½Ã¿Âºô¶ó | 4 | 50.87 | 12,500 | 17 | 1995 | | 2025.09.26 | Àü¼¼ | ¼ö¿¬ºô¶ó | 4 | 56.34 | 13,480 | 0 | 2000 | | 2025.09.26 | ¿ù¼¼ | ¹ÌÈïÁÖÅà | 1 | 52.22 | 1,500 | 70 | 2009 | | 2025.09.26 | ¿ù¼¼ | ¿¬¿ì³Ø½ºÆ®ºä | 15 | 13.16 | 1,000 | 65 | 2018 | | 2025.09.26 | Àü¼¼ | ¼ö¿¬ºô¶ó | 4 | 56.34 | 13,480 | 0 | 2000 | | 2025.09.26 | Àü¼¼ | ¿ìȱ׸° | 3 | 53.01 | 19,500 | 0 | 2011 | | 2025.09.26 | Àü¼¼ | ¿ìȱ׸° | 3 | 53.01 | 19,500 | 0 | 2011 | | 2025.09.26 | Àü¼¼ | ¼ö¿¬ºô¶ó | 4 | 56.34 | 13,480 | 0 | 2000 | | 2025.09.26 | ¿ù¼¼ | ÆòȺô¶ó | 2 | 53.08 | 13,000 | 23 | 1994 | | 2025.09.25 | ¿ù¼¼ | ´ë¼Ûºô¶ó | 3 | 51.66 | 14,800 | 10 | 2001 | | 2025.09.25 | Àü¼¼ | ÁÖ½Å¾ÆÆ®ºôBµ¿ | 1 | 42.75 | 9,000 | 0 | 2003 | | 2025.09.25 | ¿ù¼¼ | ´õ¿ø | 2 | 26.57 | 21,790 | 10 | 2022 | | 2025.09.25 | ¿ù¼¼ | ¶ó¿Âºô | 3 | 29.64 | 18,270 | 5 | 2018 | | 2025.09.25 | Àü¼¼ | MÆç¸®Ã¼(830-5) | 6 | 37.7 | 23,670 | 0 | 2018 | | 2025.09.25 | Àü¼¼ | ¹Ì·¡ÇÏÀÌÃ÷Bµ¿(352-8) | 1 | 57.96 | 14,990 | 0 | 2001 | | 2025.09.25 | ¿ù¼¼ | ¿ÍÀ̾غñ | 2 | 27.24 | 19,400 | 20 | 2019 | | 2025.09.25 | ¿ù¼¼ | »ï¼º±×¸°ºô | -1 | 57.33 | 10,700 | 3 | 2001 | | 2025.09.25 | ¿ù¼¼ | 424-205 | 5 | 18.88 | 1,000 | 67 | 2016 | | 2025.09.25 | ¿ù¼¼ | ¼øÈ¯¾ÆÆ®ºôAµ¿ | 4 | 63.48 | 2,500 | 90 | 2002 | | 2025.09.25 | ¿ù¼¼ | À§´õ½ººô | 9 | 20.1 | 5,000 | 32 | 2013 | | 2025.09.25 | ¿ù¼¼ | ½ÅÇѺô¶óÆ® | 3 | 39.96 | 10,000 | 20 | 1999 | | 2025.09.25 | ¿ù¼¼ | µð¾Æ¸Á(102-233) | 5 | 24.94 | 1,000 | 55 | 2013 | | 2025.09.25 | ¿ù¼¼ | À̰¡Ã¤(400-95) | 4 | 29.55 | 14,200 | 5 | 2012 | | 2025.09.25 | Àü¼¼ | ¿¡½ºÄÉÀÌÆÄÅ©¸®¿ò | 5 | 25.48 | 20,000 | 0 | 2021 | | 2025.09.25 | Àü¼¼ | (56-463) | -1 | 46.59 | 7,600 | 0 | 1990 | | 2025.09.25 | Àü¼¼ | ´ë¸²ºô¶ó(348-6) | 2 | 39.9 | 13,000 | 0 | 1987 | | 2025.09.25 | ¸Å¸Å | À̵µÆÓ¸®½º(1049-29) | 6 | 26.64 | 32,000 | | 2022 | | 2025.09.25 | ¿ù¼¼ | ¾çÁö»þÀκô(392-63) | 2 | 35.59 | 2,000 | 110 | 2016 | | 2025.09.25 | ¸Å¸Å | ÀÎÅÍ½ÃÆ¼ | 5 | 40.14 | 23,500 | | 2011 | | 2025.09.25 | ¸Å¸Å | °¨¼º¸®Áîºô | 5 | 24.56 | 18,400 | | 2017 | | 2025.09.24 | ¸Å¸Å | ¾ÆÀνººôHANAGREEN | 5 | 26.35 | 20,000 | | 2013 | | 2025.09.24 | ¸Å¸Å | µÎ»êºô¶ó | 4 | 56.79 | 20,000 | | 2001 | | 2025.09.24 | ¸Å¸Å | ¾¾Æ¼ÇϿ콺(332-16) | 6 | 24.79 | 26,500 | | 2016 | | 2025.09.24 | ¸Å¸Å | ´Ù¿ìºô¶ó | -1 | 45.48 | 6,850 | | 1993 | | 2025.09.24 | Àü¼¼ | ³×¿ÀÆÄÅ©ºô(340-66) | 3 | 29.54 | 14,360 | 0 | 2013 | | 2025.09.24 | ¿ù¼¼ | û¿ìÆÄÅ©ºô | 5 | 55.87 | 2,000 | 100 | 2008 | | 2025.09.24 | Àü¼¼ | ÀÌÁö¿Àºô | 3 | 46.5 | 14,000 | 0 | 2008 | | 2025.09.24 | ¸Å¸Å | ³×½ºÆ®ºô2Â÷ | 1 | 52.51 | 18,300 | | 2008 | | 2025.09.24 | ¸Å¸Å | û¼ÛÆòÈÇÏÀ̸ǼÇAµ¿ | 3 | 69.44 | 33,500 | | 2001 | | 2025.09.24 | ¿ù¼¼ | ÇÑ¿ï¶ß¶õä(995-20) | 4 | 47.84 | 17,000 | 15 | 2011 | | 2025.09.24 | Àü¼¼ | À¯°æºô¸®Áö | 5 | 60.79 | 17,000 | 0 | 2009 | | 2025.09.24 | Àü¼¼ | ¿¹¼º±×¸°Ä³½½2Â÷ | 4 | 45.2 | 12,240 | 0 | 2003 | | 2025.09.24 | ¿ù¼¼ | µ¿µµÇÏÀÌÃ÷(³ªµ¿) | 4 | 33.54 | 11,000 | 20 | 2001 | | 2025.09.24 | Àü¼¼ | ¿¹°¡Ã¤(968-3) | 2 | 42.03 | 19,000 | 0 | 2015 | | 2025.09.24 | ¿ù¼¼ | RobinHouse | 2 | 50.16 | 3,000 | 100 | 2018 | | 2025.09.24 | Àü¼¼ | ȼºÈ¨Å¸¿î103µ¿ | 3 | 43.26 | 12,600 | 0 | 2002 | | 2025.09.24 | ¿ù¼¼ | LUCE¥±(·çüby¿¹¿ì) | 8 | 14.2 | 3,500 | 16 | 2012 | | 2025.09.24 | Àü¼¼ | ¼ºÀçij½½ºô(102-139) | 2 | 58.27 | 18,000 | 0 | 2008 | | 2025.09.24 | ¸Å¸Å | ½ÅÇϿ콺 | 8 | 29.88 | 18,600 | | 2016 | | 2025.09.24 | ¿ù¼¼ | ´ë°ÇÁÖÅÃ(46-341) | 2 | 44.01 | 12,900 | 20 | 2003 | | 2025.09.24 | ¿ù¼¼ | ¼±Á¤ÇÏ¿ì¡(51-2) | 5 | 61.89 | 15,000 | 8 | 2009 | | 2025.09.24 | Àü¼¼ | ¼ºÇöÇÏÀÌÃ÷ºô¶ó | 2 | 63.04 | 16,700 | 0 | 2001 | | 2025.09.24 | Àü¼¼ | µ¿¿ì¸Ç¼Ç¶óµ¿ | 4 | 42.48 | 12,500 | 0 | 2001 | | 2025.09.24 | ¿ù¼¼ | ¹é°¿ø·ë | 5 | 12.02 | 1,000 | 42 | 2011 | | 2025.09.23 | ¿ù¼¼ | ¶ó¿òÇÏ¿ì¡ | 6 | 40.43 | 5,500 | 100 | 2019 | | 2025.09.23 | ¿ù¼¼ | (879-1) | 5 | 59.15 | 2,000 | 90 | 2010 | | 2025.09.23 | ¸Å¸Å | À¯Áø | 5 | 68.94 | 25,000 | | 2011 | | 2025.09.23 | ¿ù¼¼ | Àº°¡¶÷ÆÓ¸®½º | 4 | 37.345 | 1,000 | 120 | 2022 | | 2025.09.23 | Àü¼¼ | û¼ÛÆòÈÇÏÀ̸ǼÇ(832-42) | 5 | 45.7 | 16,600 | 0 | 2012 | | 2025.09.23 | ¸Å¸Å | ±Ù»óÇÁ¸®Áò¾ÆÆ®ºô | 2 | 55.16 | 31,400 | | 2010 | | 2025.09.23 | ¿ù¼¼ | ´õ¿¡½º¿¡½ºÅ¸¿î | 10 | 20.04 | 60 | 41 | 2020 | | 2025.09.23 | ¿ù¼¼ | ´õ¿¡½º¿¡½ºÅ¸¿î | 8 | 17.91 | 60 | 38 | 2020 | | 2025.09.23 | Àü¼¼ | ¿¹ÁöÆÓ¸®½º89Â÷ | 2 | 55.51 | 27,000 | 0 | 2016 | | 2025.09.23 | Àü¼¼ | »ï¼º½¦¸£ºô | 4 | 29.47 | 15,000 | 0 | 2016 | | 2025.09.23 | Àü¼¼ | ¿¹ÁöÆÓ¸®½º89Â÷ | 2 | 55.51 | 27,000 | 0 | 2016 | | 2025.09.23 | ¿ù¼¼ | °ø°£ºô¶ó | 1 | 41.73 | 1,500 | 50 | 1993 | | 2025.09.23 | ¿ù¼¼ | (965-19) | 1 | 33.6 | 8,000 | 20 | 1986 | | 2025.09.23 | ¿ù¼¼ | ÀºÇýºô¶ó(828-5) | -1 | 38.63 | 500 | 42 | 1994 | | 2025.09.23 | ¸Å¸Å | (910-19) | 2 | 68.04 | 26,800 | | 2001 | | 2025.09.23 | ¿ù¼¼ | µð¿¡ÀÌÄ¡ÆÓ¸®½º | 4 | 28.3 | 500 | 100 | 2016 | | 2025.09.23 | ¸Å¸Å | »ïÀÍÇ콺Ƽ¾Æ(1130-15) | 3 | 22.13 | 18,700 | | 2015 | | 2025.09.22 | ¸Å¸Å | °æ¹Î¾ÆÆ®ºô(368-23) | 7 | 28.12 | 24,000 | | 2018 | | 2025.09.22 | ¸Å¸Å | ¿ìÁø¸Ç¼Ç(98-33) | 1 | 50.06 | 16,500 | | 1997 | | 2025.09.22 | ¸Å¸Å | À£ºù¶óÀÌÇÁ | 1 | 62.79 | 31,000 | | 2010 | | 2025.09.22 | ¸Å¸Å | ½¦¶óÅæºô¶ó(56-273) | 4 | 37.28 | 11,500 | | 1991 | | 2025.09.22 | ¸Å¸Å | õ¿ìºô¶ó | 2 | 55.2 | 17,000 | | 1998 | | 2025.09.22 | ¸Å¸Å | À£½ºÆÄÅ©ºô(352-38) | 4 | 46.05 | 30,000 | | 2015 | | 2025.09.22 | ¸Å¸Å | Áø¼ºÇÏÀÌÃ÷ºô¶ó | 1 | 38.29 | 11,000 | | 1991 | | 2025.09.22 | ¸Å¸Å | ´Ù¼ØÅ¸¿î³ªµ¿(1037-14) | 3 | 34.05 | 30,700 | | 2015 | | 2025.09.22 | Àü¼¼ | ·ÎÁîºô | 1 | 106.27 | 23,500 | 0 | 2004 | | 2025.09.22 | Àü¼¼ | Á¤°¨Å¸¿îC | 2 | 29.97 | 15,600 | 0 | 2016 | | 2025.09.22 | ¿ù¼¼ | µµ¿ø¼ÖºñÄ¡ | 3 | 29.91 | 14,360 | 8 | 2015 | | 2025.09.22 | ¿ù¼¼ | ´ëÈ£¾ÆÆ®Å¸¿î´Ùµ¿ | 4 | 39.94 | 11,176 | 20 | 1992 | | 2025.09.22 | ¿ù¼¼ | (362-109)°¼ººô¶ó3Â÷ | 2 | 33.28 | 10,200 | 10 | 1991 | | 2025.09.22 | ¿ù¼¼ | ÃÊÀ̽ººô | 2 | 36.85 | 14,200 | 10 | 2010 | | 2025.09.22 | ¿ù¼¼ | ¿ì¼º¿¬¸³ | 3 | 59.4 | 10,000 | 25 | 1985 | | 2025.09.22 | ¿ù¼¼ | Ŭ·¡½Ãºä | 2 | 24.15 | 1,000 | 105 | 2022 | | 2025.09.22 | ¿ù¼¼ | û¼º½ºÄ«ÀÌ | 4 | 49.21 | 4,000 | 60 | 2008 | | 2025.09.22 | ¿ù¼¼ | ¹Ì°¡Ã¤(1100-5) | 5 | 35.77 | 0 | 50 | 2014 | | 2025.09.21 | ¸Å¸Å | ¼º¿øÇÁ¶ó¿ìµå | 2 | 28.55 | 25,000 | | 2018 | | 2025.09.21 | ¿ù¼¼ | (871-78) | 3 | 40.33 | 5,500 | 94 | 2024 | | 2025.09.21 | ¿ù¼¼ | ¿¡½º¿¥ÆÄÅ©ºô | 4 | 26.77 | 5,000 | 80 | 2016 | | 2025.09.21 | ¿ù¼¼ | ÆÄÅ©ºô | 4 | 43.19 | 1,000 | 75 | 2011 | | 2025.09.20 | ¿ù¼¼ | Á¦ÀÌ¿¡½ººô | 3 | 29.99 | 3,000 | 95 | 2023 | | 2025.09.20 | Àü¼¼ | Á¤¾Èºô¶ó | 4 | 40.56 | 10,000 | 0 | 1992 | | 2025.09.20 | Àü¼¼ | Áß¾ÓÇÏÀÌÃ÷ºô | 2 | 60.38 | 18,300 | 0 | 2008 | | 2025.09.20 | ¿ù¼¼ | ´º¿å·¹Áö´ø½º¥±(858-23) | 3 | 12.24 | 500 | 38 | 2012 | | 2025.09.20 | ¿ù¼¼ | ¼Ò´ã¹ë¸®½ºBµ¿ | 2 | 29.75 | 10,000 | 50 | 2013 | | 2025.09.20 | ¿ù¼¼ | ¼öÁ¤ºô¶ó°¡µ¿ | -1 | 36.39 | 5,000 | 10 | 1992 | | 2025.09.20 | ¿ù¼¼ | ±¤»ê¸Ç¼ð(396-7) | 2 | 62.44 | 3,000 | 80 | 2001 | | 2025.09.20 | ¿ù¼¼ | ¸®´õ½ºÅ¸¿î | 2 | 29.37 | 3,000 | 80 | 2017 | | 2025.09.20 | ¿ù¼¼ | µ¿¾çÇÏ¿ì¡Bµ¿ | 3 | 29.52 | 1,200 | 103 | 2017 | | 2025.09.20 | ¸Å¸Å | ³²¼º¾ÆÆ®ºô(59-62) | 2 | 52.68 | 19,500 | | 2009 | | 2025.09.20 | ¸Å¸Å | ÇѼº¾ÆÆ® | 3 | 55.4 | 17,000 | | 2003 | | 2025.09.20 | ¸Å¸Å | ±×¸°ºô¸®Áö | 5 | 49.32 | 16,200 | | 2008 | | 2025.09.20 | ¸Å¸Å | ¾¾Æ¼ÇϿ콺(376-21) | 4 | 47.54 | 20,600 | | 2011 | | 2025.09.20 | ¸Å¸Å | ¸®´õ½ºÅ¸¿î | 3 | 18.15 | 15,000 | | 2016 | | 2025.09.19 | ¿ù¼¼ | ȼº½ºÀ§Æ®ºô¶ó9Â÷ | 4 | 32.73 | 1,000 | 70 | 1995 | | 2025.09.19 | ¿ù¼¼ | »ï¼ººô¶óÆ®Aµ¿ | 1 | 51.78 | 12,700 | 20 | 2001 | | 2025.09.19 | Àü¼¼ | Å©¸®½ºÅ»ºô(24-490) | 6 | 29.56 | 23,000 | 0 | 2014 | | 2025.09.19 | Àü¼¼ | Å©¸®½ºÅ»ºô(24-490) | 6 | 29.56 | 23,000 | 0 | 2014 | | 2025.09.19 | ¿ù¼¼ | µ¿¾çÇÏ¿ì¡Aµ¿ | 3 | 36.48 | 21,000 | 15 | 2017 | | 2025.09.19 | ¿ù¼¼ | ±Ý°ÆÄÅ©ºôAµ¿ | 1 | 52.83 | 13,000 | 10 | 2008 | | 2025.09.19 | ¸Å¸Å | ½ºÄ«À̺ô | 6 | 29.1 | 16,650 | | 2017 | | 2025.09.19 | ¸Å¸Å | ´Ù´Ï¿¤È¨Å¸¿î | 3 | 39.38 | 9,500 | | 2001 | | 2025.09.19 | ¿ù¼¼ | ÈľϺô¶óÆ® | 5 | 50.31 | 15,800 | 15 | 2007 | | 2025.09.19 | ¿ù¼¼ | ´ëµ¿ºô | 2 | 24.11 | 20,000 | 4 | 2020 | | 2025.09.19 | ¿ù¼¼ | ¿ì¼Û±×·£µåºô | 2 | 31.24 | 13,000 | 30 | 2012 | | 2025.09.19 | ¸Å¸Å | »ï¼º°ñµçºô | 2 | 33.85 | 23,500 | | 2014 | | 2025.09.19 | ¸Å¸Å | ȲÁ¦±×·£µåÆÄÅ©(105-480) | 4 | 44.55 | 17,400 | | 2008 | | 2025.09.19 | ¸Å¸Å | ÇØ¼ººô¶ó13Â÷ | 3 | 61.87 | 32,000 | | 2005 | | 2025.09.19 | ¸Å¸Å | ½Å¿ì¼ººô¶ó | 3 | 54.245 | 20,000 | | 2001 | | 2025.09.19 | ¸Å¸Å | ºñ¿ø±×¸°ºô¶ó | 1 | 43.92 | 28,000 | | 1986 | | 2025.09.18 | ¿ù¼¼ | û¼Öºô¶ó | 2 | 61.59 | 13,000 | 30 | 2001 | | 2025.09.18 | ¿ù¼¼ | µ¿Èºô¶ó(56-339) | 4 | 40.39 | 10,700 | 10 | 2001 | | 2025.09.18 | ¿ù¼¼ | ¼±°æÇÏÀÌÃ÷ | 4 | 44.59 | 12,850 | 5 | 2012 | | 2025.09.18 | Àü¼¼ | ÇØºñÄ¡ºô | 2 | 31.95 | 25,900 | 0 | 2019 | | 2025.09.18 | Àü¼¼ | Çý¼ººô¶ó | 4 | 49.52 | 17,100 | 0 | 2008 | | 2025.09.18 | ¿ù¼¼ | ¿¤ÄÉÀ̵帲ºô | 5 | 44.33 | 2,000 | 140 | 2017 | | 2025.09.18 | ¿ù¼¼ | Èѹ̸®ÇÏÀÌÃ÷(56-187) | 1 | 38.52 | 300 | 55 | 1994 | | 2025.09.18 | ¿ù¼¼ | (155-15) | 2 | 33.12 | 1,000 | 50 | 1986 | | 2025.09.18 | ¿ù¼¼ | Çѹ響îBµ¿(98-140) | 3 | 53.98 | 2,000 | 70 | 2002 | | 2025.09.18 | ¿ù¼¼ | ÇÏÀÌÃ÷ºô¶ó(1053-3) | 3 | 26.66 | 7,720 | 20 | 2002 | | 2025.09.18 | Àü¼¼ | ÇÑ¹é¾ÆÆ®ºôAµ¿ | 4 | 29.43 | 10,000 | 0 | 2002 | | 2025.09.18 | ¿ù¼¼ | ȼººô¶ó(56-164) | 1 | 46.11 | 1,000 | 65 | 1993 | | 2025.09.18 | ¿ù¼¼ | Çö´ëºô¶ó | 4 | 46.5 | 3,000 | 65 | 2001 | | 2025.09.18 | ¿ù¼¼ | ⵿ºô¶ó | 4 | 46.79 | 15,500 | 20 | 2008 | | 2025.09.18 | ¸Å¸Å | ºí·çÈúAµ¿ | 3 | 58.57 | 33,000 | | 2007 | | 2025.09.18 | ¸Å¸Å | °Ç¿µWith | 2 | 49.5 | 26,000 | | 2022 | | 2025.09.18 | ¸Å¸Å | »ó¿ìºô¶ó | -1 | 60.08 | 14,000 | | 2000 | | 2025.09.18 | ¸Å¸Å | ¾¾Æ¼ÆÄÅ©(102-301) | 5 | 61.39 | 20,000 | | 2008 | | 2025.09.18 | ¿ù¼¼ | ¸®¿ÀÆÄÅ©ºô(881-22) | 4 | 45.32 | 20,790 | 20 | 2014 | | 2025.09.18 | ¸Å¸Å | ÇѰ¡¶÷ºô(153-10) | 2 | 39.91 | 18,500 | | 2012 | | 2025.09.18 | ¿ù¼¼ | (155-15) | 2 | 33.12 | 1,000 | 50 | 1986 | | 2025.09.18 | ¿ù¼¼ | µð¿£¾¾³ëºí·¹½º | 4 | 15.37 | 400 | 37 | 2011 | | 2025.09.17 | ¸Å¸Å | º¹Áöºô¶ó | 2 | 51.17 | 19,000 | | 2002 | | 2025.09.17 | ¸Å¸Å | °è¸íÀ§³Ê½º | 5 | 42.16 | 13,000 | | 2008 | | 2025.09.17 | ¸Å¸Å | ÇÏÀ̺ô(346-111) | 3 | 54.63 | 17,500 | | 2004 | | 2025.09.17 | ¸Å¸Å | dz¼º¾Ö¶ã¾È(349-4) | 4 | 29.92 | 17,500 | | 2014 | | 2025.09.17 | ¸Å¸Å | û´ã¾ÆÆ®ºô | 3 | 69.51 | 28,400 | | 2002 | | 2025.09.17 | ¿ù¼¼ | ´õ±×¸² | 4 | 29.25 | 3,000 | 74 | 2023 | | 2025.09.17 | ¿ù¼¼ | ¸®Ä¡108µ¿ | 7 | 22.95 | 18,640 | 18 | 2023 | | 2025.09.17 | Àü¼¼ | µ¿¾çÁÖÅà | 3 | 51.87 | 13,000 | 0 | 1995 | | 2025.09.17 | Àü¼¼ | ½Å¿µÆÄÅ©Aµ¿Bµ¿ | 3 | 84.99 | 20,600 | 0 | 2001 | | 2025.09.17 | ¿ù¼¼ | ½Å¿ì¼ººô¶ó | 2 | 54.245 | 1,000 | 75 | 2001 | | 2025.09.17 | ¿ù¼¼ | ³²±¤B | 4 | 71.36 | 21,500 | 20 | 2002 | | 2025.09.17 | ¿ù¼¼ | ºí·çÈú(846-14) | 3 | 22.03 | 3,000 | 102 | 2021 | | 2025.09.17 | ¿ù¼¼ | Èľϸ®Ä¡ºô | 5 | 61.08 | 50 | 55 | 2008 | | 2025.09.17 | ¸Å¸Å | ¿ì¿µÆÄũŸ¿îA | 3 | 56.88 | 24,500 | | 2002 | | 2025.09.17 | ¿ù¼¼ | ³ëºí·¹½ººô | 3 | 40.36 | 13,000 | 3 | 2008 | | 2025.09.17 | ¿ù¼¼ | »ïÈïÇÏÀÌÃ÷ºô¶ó | 1 | 43.47 | 10,440 | 10 | 1992 | | 2025.09.17 | ¿ù¼¼ | Á¤°¨Å¸¿îC | 5 | 33.81 | 50 | 65 | 2016 | | 2025.09.17 | ¿ù¼¼ | ÇѰ淺½ºÇ÷¹À̽º | 4 | 26.65 | 24,000 | 10 | 2023 | | 2025.09.16 | ¸Å¸Å | ±×¸°³ª·¡ºô(994-10) | 2 | 43.44 | 17,500 | | 2011 | | 2025.09.16 | ¸Å¸Å | ÀÌ·¹½¦¸£ºô(1046-5) | 5 | 29.9 | 19,600 | | 2014 | | 2025.09.16 | ¸Å¸Å | ¼ºÁر׸°ºô | 3 | 43.32 | 16,500 | | 2001 | | 2025.09.16 | ¿ù¼¼ | À§´õ½ººô | 7 | 20.1 | 11,200 | 13 | 2013 | | 2025.09.16 | ¸Å¸Å | Á¤°¨Å¸¿îA(346-92) | 4 | 24.97 | 18,800 | | 2015 | | 2025.09.16 | ¿ù¼¼ | ÀÚ¶óÇϿ콺Bµ¿ | 2 | 29.84 | 12,900 | 20 | 2013 | | 2025.09.16 | Àü¼¼ | ºí·çÈú | 5 | 29.94 | 22,350 | 0 | 2017 | | 2025.09.16 | ¿ù¼¼ | °æ¹Î¾ÆÆ®ºô(882-32) | 2 | 26.56 | 16,400 | 20 | 2017 | | 2025.09.16 | Àü¼¼ | °ÇÇüºô | 5 | 50.71 | 17,500 | 0 | 2011 | | 2025.09.16 | Àü¼¼ | ºí·çÈú | 4 | 29.94 | 22,350 | 0 | 2017 | | 2025.09.16 | ¿ù¼¼ | ±×¸®¹Ì¾ßºô¶ó2 | 1 | 19.66 | 5,000 | 5 | 2003 | | 2025.09.16 | Àü¼¼ | ¿¤Æç¸®½º | 3 | 20.51 | 19,200 | 0 | 2022 | | 2025.09.16 | ¿ù¼¼ | È«¼ºÇØ´©¸® | 4 | 26.1 | 15,400 | 25 | 2016 | | 2025.09.16 | ¿ù¼¼ | Çý¼ºÆÓ¸®½ººô(392-31) | 2 | 27.68 | 14,100 | 18 | 2014 | | 2025.09.16 | ¿ù¼¼ | Æ®¶ó¿òºô | 4 | 34.99 | 20,520 | 15 | 2012 | | 2025.09.16 | ¿ù¼¼ | ÇູŸ¿î | 5 | 61.59 | 2,000 | 90 | 2001 | | 2025.09.16 | ¿ù¼¼ | Æ÷¿¥ºô | 11 | 27.18 | 20,000 | 35 | 2020 | | 2025.09.16 | Àü¼¼ | ¿¤Æç¸®½º | 3 | 20.51 | 19,200 | 0 | 2022 | | 2025.09.16 | Àü¼¼ | °æ³²ºô¶ó¸¶µ¿ | 2 | 40.5 | 10,000 | 0 | 1986 | | 2025.09.16 | Àü¼¼ | °æ³²ºô¶ó¸¶µ¿ | 2 | 40.5 | 10,000 | 0 | 1986 | | 2025.09.16 | Àü¼¼ | ºí·çÈú | 4 | 29.94 | 22,350 | 0 | 2017 | | 2025.09.16 | Àü¼¼ | ¿¹ÁöÆÓ¸®½º89Â÷ | 2 | 54.54 | 26,000 | 0 | 2016 | | 2025.09.16 | ¿ù¼¼ | ¼¼¸í¾ÆÅ©·Îºô | 2 | 26.04 | 13,400 | 13 | 2017 | | 2025.09.16 | Àü¼¼ | Á¦ÀÌÅõ¸®´õ½º | 3 | 27.96 | 23,400 | 0 | 2023 | | 2025.09.16 | ¿ù¼¼ | ½Å¼ºÁÖÅÃ(359-29) | 3 | 68.24 | 20,000 | 20 | 2002 | | 2025.09.16 | ¿ù¼¼ | °í¿î¿¬¸³ | -1 | 59.64 | 1,000 | 50 | 1996 | | 2025.09.16 | ¿ù¼¼ | ¼±¤¾ÆÆ®ºô | 2 | 41.325 | 5,000 | 50 | 2007 | | 2025.09.16 | ¿ù¼¼ | µ¿µµÇÏÀÌÃ÷(³ªµ¿) | 2 | 33.54 | 1,000 | 80 | 2001 | | 2025.09.16 | ¿ù¼¼ | ºê¸´Áö½ºÅæ(815-19) | 5 | 36.71 | 500 | 60 | 2012 | | 2025.09.16 | Àü¼¼ | °æ³²ºô¶ó¸¶µ¿ | 2 | 40.5 | 10,000 | 0 | 1986 | | 2025.09.15 | ¸Å¸Å | ¿µ¶ôºô¶ó | 1 | 39.12 | 10,600 | | 1992 | | 2025.09.15 | ¸Å¸Å | ÇØ¼Öº§¸® | 4 | 27.54 | 23,800 | | 2021 | | 2025.09.15 | ¸Å¸Å | º°Àå±×¸°ºô¶ó | 1 | 45.56 | 20,000 | | 2002 | | 2025.09.15 | ¸Å¸Å | dz¼º¾Ö¶ã¾È(346-49) | 2 | 29.84 | 20,000 | | 2014 | | 2025.09.15 | ¸Å¸Å | Áؽ¦¸£ºô | 3 | 64.02 | 29,700 | | 2008 | | 2025.09.15 | ¿ù¼¼ | ÇÑ¿ï¶ß¶õä(159-10) | 2 | 29.88 | 13,700 | 19 | 2011 | | 2025.09.15 | ¿ù¼¼ | Çѽººôµù | 3 | 38.65 | 2,000 | 46 | 2004 | | 2025.09.15 | Àü¼¼ | ÀºÇÏ¸Ç¼Ç | 3 | 46.14 | 21,000 | 0 | 2012 | | 2025.09.15 | ¿ù¼¼ | Á¦ÀÌÅõ¸®´õ½º | 2 | 29.94 | 16,000 | 3 | 2020 | | 2025.09.15 | ¿ù¼¼ | ¾¾Æ¼ÇϿ콺 | 5 | 51.64 | 4,000 | 70 | 2008 | | 2025.09.15 | ¿ù¼¼ | Áö¿Â¾ÆÆ®ºô | 4 | 24.06 | 1,000 | 80 | 2016 | | 2025.09.15 | ¿ù¼¼ | ±¤¸²¾ÆÆ®ºô¶ó(111-51) | 2 | 50.22 | 11,990 | 12 | 1993 | | 2025.09.15 | Àü¼¼ | ·ÎÁîºô(24-113) | 5 | 29.175 | 15,570 | 0 | 2018 | | 2025.09.15 | Àü¼¼ | ¿î¾ÏÇÏÀÌÃ÷ºô | -1 | 63.7 | 11,000 | 0 | 2002 | | 2025.09.15 | ¿ù¼¼ | °Ç¿ì¿¬¸³ | -1 | 46.95 | 1,000 | 40 | 1994 | | 2025.09.15 | ¿ù¼¼ | °æ¿ìÇÏÀÌÃ÷¸Ç¼Ç(811-2) | 4 | 59.94 | 4,000 | 35 | 2001 | | 2025.09.15 | ¿ù¼¼ | ÇÁ¶óÀÓÇϿ콺(393-23) | 3 | 27.16 | 13,000 | 10 | 2016 | | 2025.09.15 | ¿ù¼¼ | À¯ÁøºôII | 4 | 28.56 | 500 | 55 | 2003 | | 2025.09.15 | ¿ù¼¼ | Èѹ̸®ºô(993-15) | 2 | 39.84 | 5,000 | 53 | 2010 | | 2025.09.15 | ¿ù¼¼ | µð¿¡½ºÇÁ¶ó´Ù | 2 | 36.78 | 15,200 | 13 | 2012 | | 2025.09.15 | ¿ù¼¼ | Ȱ´Ù¼¼´ëÁÖÅà | 3 | 30.21 | 1,000 | 60 | 2003 | | 2025.09.15 | ¿ù¼¼ | »þÀδõÈúȰî | 4 | 22.68 | 1,000 | 85 | 2023 | | 2025.09.15 | ¿ù¼¼ | µð¾ÆÀνº(956-2) | 3 | 41.78 | 18,300 | 14 | 2014 | | 2025.09.15 | ¿ù¼¼ | ÇѼº¾ÆÆ®ºô(462-12) | 3 | 54.54 | 3,000 | 55 | 2002 | | 2025.09.15 | ¿ù¼¼ | ¿¡ºñ¾ÓÇϿ콺 | 5 | 18.05 | 1,000 | 75 | 2017 | | 2025.09.15 | ¿ù¼¼ | µð¿¡½ºÇÁ¶ó´Ù | 2 | 36.78 | 15,200 | 13 | 2012 | | 2025.09.15 | Àü¼¼ | ȼººô¶ó(56-473) | 3 | 61.21 | 14,800 | 0 | 2002 | | 2025.09.15 | Àü¼¼ | ÆÄ¶û»õºô¶óÆ® | 4 | 47.19 | 12,500 | 0 | 2001 | | 2025.09.15 | ¿ù¼¼ | ¿¹¼º±×¸°Ä³½½2Â÷ | 3 | 50.97 | 2,000 | 60 | 2003 | | 2025.09.14 | ¸Å¸Å | ¸¶Å©ÇϿ콺 | 4 | 29.86 | 29,000 | | 2020 | | 2025.09.14 | ¿ù¼¼ | À̵µÅ¸¿î | 4 | 29.95 | 29,200 | 7 | 2022 | | 2025.09.14 | ¿ù¼¼ | õ¿ì¾ÆÆ®ºô(166-23) | 1 | 59.85 | 3,000 | 75 | 2002 | | 2025.09.14 | ¿ù¼¼ | ¼Ò´ã¹ë¸®(807-3) | 4 | 41.47 | 14,700 | 25 | 2013 | | 2025.09.14 | ¿ù¼¼ | ¶ó¿òÇϿ콺 | 5 | 24.93 | 1,000 | 71 | 2017 | | 2025.09.14 | ¸Å¸Å | Á¤µµ±×¸°ºô¸®Áö | 4 | 73.28 | 36,500 | | 2000 | | 2025.09.13 | ¿ù¼¼ | ¹ÎÆÓ¸®½º | 2 | 41.28 | 13,000 | 25 | 2008 | | 2025.09.13 | ¿ù¼¼ | °øÁÖºô¶ó | 3 | 46.68 | 1,000 | 70 | 2002 | | 2025.09.13 | ¿ù¼¼ | ½Ö¿ëºô¶óÆ®(362-21)Aµ¿ | 4 | 29.5 | 9,000 | 20 | 2001 | | 2025.09.13 | ¿ù¼¼ | ´ë¸²ºô¶ó(348-57) | 2 | 42.03 | 14,700 | 5 | 1986 | | 2025.09.13 | ¿ù¼¼ | Å·´ý±×·¹À̽º | 5 | 27.53 | 5,000 | 70 | 2018 | | 2025.09.13 | Àü¼¼ | °è¸íÀ§³Ê½º(46-170) | 4 | 57.16 | 18,250 | 0 | 2010 | | 2025.09.13 | ¿ù¼¼ | È«¿µ¹«Áö°³ºô¶ó(346-70) | 3 | 62.55 | 17,700 | 20 | 1997 | | 2025.09.13 | ¿ù¼¼ | ¹®ÆÓ¸®½º | 4 | 41.87 | 3,000 | 77 | 2016 | | 2025.09.13 | ¸Å¸Å | º¸°æºô¶ó | 1 | 62.59 | 23,000 | | 2001 | | 2025.09.13 | ¸Å¸Å | ¸íÁÖºôÇϸð´Ï | 2 | 62.35 | 25,000 | | 2002 | | 2025.09.13 | ¸Å¸Å | ȲÁ¦±×·£µåÆÄÅ© | 2 | 48.89 | 22,500 | | 2008 | | 2025.09.13 | ¸Å¸Å | ¾Æ¸£¶¼ºô | 4 | 29.09 | 17,000 | | 2017 | | 2025.09.13 | ¿ù¼¼ | ¹ÎÆÓ¸®½º | 2 | 41.28 | 13,000 | 25 | 2008 | | 2025.09.13 | Àü¼¼ | ´õ¿ø·¹¿Àºô | 3 | 29.04 | 22,930 | 0 | 2021 | | 2025.09.13 | ¿ù¼¼ | ÇØÇÇÇϿ콺B | 4 | 40.43 | 9,200 | 20 | 2003 | | 2025.09.13 | ¿ù¼¼ | ´õÇ÷¹À̽º | 2 | 29.94 | 100 | 40 | 2017 | | 2025.09.13 | ¿ù¼¼ | ´õÇ÷¹À̽º | 2 | 29.94 | 2,000 | 40 | 2017 | | 2025.09.13 | Àü¼¼ | ´õ¿ø·¹¿Àºô | 2 | 19.59 | 19,000 | 0 | 2021 | | 2025.09.13 | ¿ù¼¼ | °æ¹Î¾ÆÆ®ºô(393-21) | 7 | 23.97 | 3,000 | 75 | 2017 | | 2025.09.13 | ¿ù¼¼ | ÇÏÆ®ºô | 4 | 14.57 | 2,000 | 69 | 2016 | | 2025.09.13 | ¿ù¼¼ | ¼ºµµºô¶ó(471-8) | 4 | 33.84 | 8,000 | 10 | 2002 | | 2025.09.13 | ¿ù¼¼ | ¼º¿ÁÇÏÀÌÃ÷ºô¶ó°¡µ¿ | 4 | 48.9 | 2,000 | 65 | 1992 | | 2025.09.13 | ¿ù¼¼ | ¼±°æºô¶ó | 2 | 50.1 | 3,000 | 80 | 1993 | | 2025.09.13 | ¿ù¼¼ | ½Å¿µº£¸£µð¿ò | 4 | 27.97 | 4,000 | 110 | 2017 | | 2025.09.13 | Àü¼¼ | ÀÚ¶óÇϿ콺Bµ¿ | 3 | 29.28 | 14,800 | 0 | 2013 | | 2025.09.13 | ¿ù¼¼ | ANA7 | 3 | 30 | 1,500 | 100 | 2022 | | 2025.09.13 | ¿ù¼¼ | ¿ìÁøÅ¸¿î´Ùµ¿(381-14) | 3 | 41.46 | 2,000 | 67 | 2008 | | 2025.09.13 | ¿ù¼¼ | (430-8) | 4 | 31.21 | 5,000 | 60 | 2013 | | 2025.09.13 | ¿ù¼¼ | ÇØ¿À¸§ºô(504-184) | 3 | 35.61 | 12,500 | 25 | 2011 | | 2025.09.12 | ¿ù¼¼ | ¸ð´×ºô(102-21) | 1 | 69.405 | 3,000 | 80 | 2001 | | 2025.09.12 | ¸Å¸Å | ¿ì¼ÛÇÏÀ̺ô(996-4) | 4 | 48.96 | 21,050 | | 2010 | | 2025.09.12 | ¸Å¸Å | À¯´ÏÅ©ºô | 1 | 77.84 | 27,000 | | 2001 | | 2025.09.12 | ¸Å¸Å | Ǫ¸¥Ç³°æÃ¤ | 3 | 39.07 | 27,500 | | 2017 | | 2025.09.12 | ¸Å¸Å | °æ¹Î¾ÆÆ®ºô(393-21) | 7 | 23.97 | 18,500 | | 2017 | | 2025.09.12 | ¸Å¸Å | ´Ù¾Èºô¶óÆ®(867-7) | 3 | 39.96 | 25,500 | | 2014 | | 2025.09.12 | Àü¼¼ | ´Ù¼ØÅ¸¿îC | 3 | 48.83 | 23,600 | 0 | 2013 | | 2025.09.12 | Àü¼¼ | ½ÅÈï¾Æ³Ê½ººô³ªµ¿ | 2 | 63.49 | 20,500 | 0 | 2007 | | 2025.09.12 | ¿ù¼¼ | Á¦À̽ººô(969-5) | 5 | 16.59 | 2,000 | 80 | 2022 | | 2025.09.12 | ¿ù¼¼ | żººô¶ó | 3 | 57.1 | 14,000 | 50 | 2002 | | 2025.09.12 | ¿ù¼¼ | °è¸íÀ§³Ê½º(105-55) | 4 | 53.52 | 3,000 | 90 | 2011 | | 2025.09.12 | ¿ù¼¼ | »õ·Ò½ºÅ¸Áî | 5 | 24.32 | 3,000 | 74 | 2016 | | 2025.09.12 | ¿ù¼¼ | (879-1) | 3 | 56.96 | 2,000 | 48 | 2010 | | 2025.09.12 | ¿ù¼¼ | DHÆÓ¸®½º101µ¿ | 3 | 29.84 | 3,000 | 80 | 2018 | | 2025.09.12 | Àü¼¼ | SK±×¶ûºô | 2 | 30.44 | 13,410 | 0 | 2011 | | 2025.09.12 | Àü¼¼ | Áöµð·Îºä | 2 | 27.21 | 17,280 | 0 | 2020 | | 2025.09.12 | Àü¼¼ | ÇѼֺô¶ó | 3 | 51.48 | 14,000 | 0 | 2002 | | 2025.09.12 | ¿ù¼¼ | °è¸íÀ§³Ê½º(105-55) | 4 | 53.52 | 3,000 | 90 | 2011 | | 2025.09.11 | ¸Å¸Å | ½ÅÈï¾Æ³Ê½ººô³ªµ¿ | 2 | 63.49 | 37,500 | | 2007 | | 2025.09.11 | ¸Å¸Å | (153-17) | 2 | 64.72 | 22,500 | | 2009 | | 2025.09.11 | ¸Å¸Å | ´ë¼ºÅ¾½ººô(55-28) | 2 | 47.97 | 16,500 | | 2011 | | 2025.09.11 | ¸Å¸Å | º¸³ëÇϿ콺Bµ¿ | 5 | 46.24 | 33,000 | | 2016 | | 2025.09.11 | Àü¼¼ | ³ë¾Æ½º | 4 | 44.4 | 24,000 | 0 | 2020 | | 2025.09.11 | ¿ù¼¼ | (842-21) | 1 | 39.4 | 7,000 | 15 | 1986 | | 2025.09.11 | ¿ù¼¼ | ½Å¼º³×¿Àºô | 3 | 27.86 | 19,000 | 4 | 2019 | | 2025.09.11 | ¿ù¼¼ | º§¶óÇϿ콺(807-15) | 4 | 29.47 | 17,600 | 5 | 2015 | | 2025.09.11 | ¿ù¼¼ | ¿äÇѺô | 2 | 37.64 | 5,000 | 58 | 2016 | | 2025.09.11 | Àü¼¼ | ³²¼º¾ÆÆ®ºô | 3 | 30.63 | 19,000 | 0 | 2017 | | 2025.09.11 | ¿ù¼¼ | ½Â¼®ÈÙŸ¿î(1050-0) | -1 | 38.21 | 1,000 | 50 | 2001 | | 2025.09.11 | Àü¼¼ | ´õ¶ó¿Â(369-37) | 3 | 38.25 | 19,400 | 0 | 2017 | | 2025.09.11 | ¿ù¼¼ | (29-171) | 2 | 29.55 | 2,000 | 75 | 2020 | | 2025.09.11 | ¿ù¼¼ | ¿¬È¾ÆÆ® | 1 | 65.32 | 3,000 | 100 | 2002 | | 2025.09.11 | Àü¼¼ | ¼º¿øÆÄÅ©ºô(56-382) | 2 | 47.87 | 14,900 | 0 | 2008 | | 2025.09.11 | ¿ù¼¼ | ¿¬È¾ÆÆ® | 1 | 65.32 | 3,000 | 100 | 2002 | | 2025.09.10 | ¸Å¸Å | º¸¾È¾ÆÆ®ºô¶ó | 3 | 51.52 | 21,500 | | 2002 | | 2025.09.10 | ¸Å¸Å | ¾ÆÀνººô(980-23) | 3 | 36.28 | 29,000 | | 2012 | | 2025.09.10 | Àü¼¼ | ºí·çÈú | 2 | 29.92 | 25,700 | 0 | 2020 | | 2025.09.10 | ¸Å¸Å | Á¦À̽ººô | 4 | 29.52 | 23,000 | | 2020 | | 2025.09.10 | ¸Å¸Å | ´Ù¿ø½´½´ºô12Â÷ | 5 | 23.98 | 13,500 | | 2011 | | 2025.09.10 | ¸Å¸Å | º§¶óÇϿ콺¥± | 3 | 27.47 | 29,000 | | 2012 | | 2025.09.10 | ¸Å¸Å | ÀÎÅÍ½ÃÆ¼Aµ¿ | 2 | 58.66 | 25,400 | | 2001 | | 2025.09.10 | ¿ù¼¼ | (400-149) | 1 | 35.05 | 10,200 | 4 | 1986 | | 2025.09.10 | ¸Å¸Å | ¿ìÀå»êºê¶ó¿î½ºÅæ3Â÷ | 2 | 80.1 | 37,500 | | 2008 | | 2025.09.10 | ¸Å¸Å | Ä¥¼ººô¶ó(56-431) | -1 | 37.33 | 10,000 | | 1993 | | 2025.09.10 | ¸Å¸Å | ¾Æ¼ºÀ§³Ê½ººô | 4 | 35.82 | 19,500 | | 2008 | | 2025.09.10 | Àü¼¼ | (102-130) | 2 | 75.84 | 19,000 | 0 | 1997 | | 2025.09.10 | Àü¼¼ | ºí·çÈú | 2 | 29.92 | 25,700 | 0 | 2020 | | 2025.09.10 | ¿ù¼¼ | µå¸²È¨ºô¸®Áö | 5 | 37.83 | 11,000 | 5 | 2001 | | 2025.09.10 | ¿ù¼¼ | ¼º¿øÆÄÅ©ºô(56-382) | 2 | 42.82 | 12,000 | 5 | 2008 | | 2025.09.10 | ¿ù¼¼ | JYÆç¸®½º | 3 | 29.92 | 16,700 | 20 | 2016 | | 2025.09.10 | ¿ù¼¼ | ¼°æÆÓ¸®½º | 6 | 26.95 | 18,500 | 20 | 2019 | | 2025.09.10 | Àü¼¼ | (102-130) | 2 | 75.84 | 19,000 | 0 | 1997 | | 2025.09.10 | ¿ù¼¼ | ½Å¼ºÁÖÅÃ(359-29) | 3 | 68.24 | 20,000 | 20 | 2002 | | 2025.09.10 | ¿ù¼¼ | ½ÅÈïÇÏÀÌÃ÷¸Ç¼Ç | 2 | 84.59 | 3,000 | 130 | 1998 | | 2025.09.10 | Àü¼¼ | ¸®Ä¡ÇϿ콺 | 5 | 40.9 | 23,500 | 0 | 2016 | | 2025.09.10 | ¿ù¼¼ | ÇÁ¸®Áòºô¶ó | 2 | 37.88 | 3,500 | 55 | 2001 | | 2025.09.10 | ¿ù¼¼ | (400-149) | 1 | 35.05 | 10,200 | 4 | 1986 | | 2025.09.10 | Àü¼¼ | ½Ö¿ëºô¸®Áö | -1 | 35.44 | 6,700 | 0 | 2001 | | 2025.09.10 | ¿ù¼¼ | ¿Ã¶ó·çÁî | 2 | 29.98 | 5,000 | 120 | 2022 | | 2025.09.10 | Àü¼¼ | Á¶¾ç¶ß¶õä | 4 | 45.46 | 17,600 | 0 | 2011 | | 2025.09.10 | ¿ù¼¼ | ´Ù³ª³×½ºÆ®ºô(102-275) | 1 | 38.43 | 1,000 | 60 | 2008 | | 2025.09.10 | Àü¼¼ | ½Ö¿ëºô¸®Áö | -1 | 35.44 | 6,700 | 0 | 2001 | | 2025.09.09 | Àü¼¼ | ´õ¿ø·¹¿Àºô | 5 | 19.08 | 20,580 | 0 | 2021 | | 2025.09.09 | ¸Å¸Å | ÿ½ÃÇϿ콺(424-35¿Ü1) | 6 | 28.73 | 20,500 | | 2015 | | 2025.09.09 | ¸Å¸Å | ´ëÈ↓¸³ | 1 | 65.65 | 27,500 | | 1996 | | 2025.09.09 | ¸Å¸Å | dzÀηÎÁîºô | -1 | 62.07 | 16,000 | | 2003 | | 2025.09.09 | ¸Å¸Å | ½Ã±×´ÏÃÄ-S | 4 | 29.92 | 26,500 | | 2023 | | 2025.09.09 | ¿ù¼¼ | ¿ìÇöž½ººô | 4 | 69.42 | 21,000 | 20 | 2012 | | 2025.09.09 | ¿ù¼¼ | ¹Ì¸®³»ºô¶ó(56-270) | -1 | 37.26 | 700 | 35 | 1992 | | 2025.09.09 | Àü¼¼ | µ¿¼ºô¶ó(24-143) | 4 | 62.44 | 15,300 | 0 | 1993 | | 2025.09.09 | ¿ù¼¼ | ¿µÇ³ºô¶ó(53-29) | 2 | 35.8 | 1,000 | 50 | 1986 | | 2025.09.09 | Àü¼¼ | ±¤Áøºô¶óÆ®3µ¿ | 3 | 38 | 11,600 | 0 | 2003 | | 2025.09.09 | Àü¼¼ | ´ëÈÆÄÅ©ºô | 5 | 29.95 | 11,400 | 0 | 2011 | | 2025.09.09 | ¿ù¼¼ | ¼ö¸í±×¸°ºô | 2 | 39.67 | 3,000 | 95 | 2016 | | 2025.09.09 | ¿ù¼¼ | û´ãÇϿ콺 | 3 | 26.4 | 3,000 | 55 | 2017 | | 2025.09.09 | ¿ù¼¼ | ¼Ò´ã¹ë¸®½ºBµ¿ | 2 | 29.75 | 2,000 | 70 | 2013 | | 2025.09.09 | Àü¼¼ | ÀÌÈ£ºô | 3 | 33.16 | 16,000 | 0 | 2012 | | 2025.09.09 | ¿ù¼¼ | ÀÎÅÍ½ÃÆ¼ºô¶ó | 3 | 77.66 | 19,100 | 5 | 2000 | | 2025.09.09 | ¿ù¼¼ | (24-545) | 7 | 14.4 | 500 | 45 | 2015 | | 2025.09.09 | ¿ù¼¼ | ¿ì¼ºAµ¿Bµ¿(346-86) | 4 | 34.29 | 3,000 | 90 | 2014 | | 2025.09.09 | ¿ù¼¼ | ±ÙȾÆÀ̸®½º | 4 | 28.22 | 0 | 40 | 2021 | | 2025.09.09 | ¿ù¼¼ | ¶ó¿òÇÏ¿ì¡Bµ¿ | 5 | 27.7 | 2,000 | 80 | 2020 | | 2025.09.09 | ¿ù¼¼ | żºÇÏÀÌÃ÷ºô¶ó | 2 | 56.13 | 13,000 | 24 | 1995 | | 2025.09.09 | ¿ù¼¼ | ´õ¿ø#8 | 4 | 28.79 | 23,940 | 10 | 2022 | | 2025.09.08 | ¸Å¸Å | »ï¼º±×¸°ºô | 1 | 54.3 | 11,000 | | 2001 | | 2025.09.08 | ¿ù¼¼ | ¿¤Æç¸®½º | 4 | 29.17 | 3,000 | 85 | 2022 | | 2025.09.08 | ¿ù¼¼ | ¿ì¼ÛŸ¿î | 1 | 62.13 | 4,000 | 85 | 2001 | | 2025.09.08 | ¿ù¼¼ | ¿¡½º¿¥ÆÄÅ©ºô | 3 | 29.29 | 20,000 | 6 | 2018 | | 2025.09.08 | ¸Å¸Å | ÇÑ¹é¾ÆÆ®ºôBµ¿ | 3 | 64.17 | 32,000 | | 2002 | | 2025.09.08 | Àü¼¼ | (1036-25) | 3 | 69.45 | 21,000 | 0 | 2001 | | 2025.09.08 | Àü¼¼ | »ï¼ºÀ§ºêºô | 3 | 29.85 | 16,650 | 0 | 2012 | | 2025.09.08 | Àü¼¼ | ´ë¿ø¾ÆÆ®ºô(423-7) | 1 | 59.22 | 16,000 | 0 | 2002 | | 2025.09.08 | Àü¼¼ | ¿¡½º¿¥ÆÄÅ©ºô(³ªµ¿´Ùµ¿) | 3 | 41.73 | 23,800 | 0 | 2017 | | 2025.09.08 | ¿ù¼¼ | »ó½Âºô¶ó | 1 | 40.44 | 1,000 | 75 | 1991 | | 2025.09.08 | Àü¼¼ | ¹Ù¶óȨ | 2 | 29.9 | 23,600 | 0 | 2023 | | 2025.09.08 | ¿ù¼¼ | ¿¤Æç¸®½º | 5 | 29.98 | 2,000 | 105 | 2022 | | 2025.09.08 | ¿ù¼¼ | »ï¼ººí·ç¹Ö(101µ¿102µ¿) | 6 | 29.2 | 2,000 | 80 | 2015 | | 2025.09.08 | ¿ù¼¼ | ¸ð´øÇÏÀÌÃ÷ | 3 | 28.43 | 1,000 | 66 | 2012 | | 2025.09.08 | ¿ù¼¼ | ¿ì¼ºÅ׸¶ºô(410-100) | 5 | 60.48 | 1,000 | 60 | 2005 | | 2025.09.08 | ¿ù¼¼ | ¸¶À̹ٿò | 4 | 15.47 | 1,500 | 41 | 2011 | | 2025.09.08 | ¿ù¼¼ | °æµ¿ÁÖÅà | 3 | 35.5 | 1,000 | 69 | 2002 | | 2025.09.07 | ¿ù¼¼ | ¾çÁö»þÀκô | 5 | 29.46 | 5,000 | 100 | 2019 | | 2025.09.07 | ¿ù¼¼ | ¸®Ä¡ºô | 5 | 50.6 | 14,700 | 60 | 2009 | | 2025.09.07 | ¿ù¼¼ | ³²¼º¾ÆÆ®ºô(423-6) | 7 | 23.46 | 5,000 | 80 | 2015 | | 2025.09.07 | ¸Å¸Å | ±Ý³²°ñµçºô | 3 | 59.99 | 25,900 | | 2002 | | 2025.09.07 | ¿ù¼¼ | ¾çÁö»þÀκô | 5 | 29.46 | 5,000 | 100 | 2019 | | 2025.09.07 | ¿ù¼¼ | ¸®Ä¡ºô | 5 | 50.6 | 17,500 | 15 | 2009 | | 2025.09.07 | ¿ù¼¼ | ¼º¿øºô¶ó(102-147) | 3 | 55.26 | 14,860 | 10 | 2000 | | 2025.09.07 | ¸Å¸Å | µ¿µµÇÏÀÌÃ÷ºô¶ó(Aµ¿) | 4 | 46.38 | 17,000 | | 2001 | | 2025.09.06 | Àü¼¼ | 1µ¿2µ¿ | 3 | 51.12 | 11,000 | 0 | 1985 | | 2025.09.06 | ¿ù¼¼ | ¸ð¾Æºô(870-47) | 3 | 39.13 | 12,600 | 4 | 2007 | | 2025.09.06 | ¿ù¼¼ | ³ª·¡º£½ºÆ®ºô | 4 | 59.98 | 13,000 | 30 | 2003 | | 2025.09.06 | Àü¼¼ | ´õ¿ø·¹¿Àºô | 4 | 27.04 | 21,160 | 0 | 2021 | | 2025.09.06 | Àü¼¼ | ¼ÀϺô¸®Áö101µ¿ | 5 | 69 | 17,000 | 0 | 2004 | | 2025.09.06 | Àü¼¼ | ¼ºÀººô¸®ÁöBµ¿ | 3 | 62.83 | 18,000 | 0 | 2003 | | 2025.09.06 | Àü¼¼ | ´Ù¿ÂÆÄÅ©ºô | 5 | 29 | 23,400 | 0 | 2017 | | 2025.09.06 | Àü¼¼ | ´Ù¿ÂÆÄÅ©ºô | 5 | 29 | 23,400 | 0 | 2017 | | 2025.09.06 | ¸Å¸Å | û¼ÛÆòÈÇコÇϿ콺(341-5) | 3 | 32.26 | 25,300 | | 2018 | | 2025.09.06 | ¸Å¸Å | µ¿¿ì¸Ç¼Ç´Ùµ¿ | 4 | 50.4 | 20,000 | | 2001 | | 2025.09.06 | ¿ù¼¼ | ½¦¶óÅæºô¸®Áö | 2 | 39.51 | 11,000 | 10 | 1994 | | 2025.09.06 | Àü¼¼ | ´Ù¿Âä | 5 | 28.38 | 17,800 | 0 | 2018 | | 2025.09.06 | ¿ù¼¼ | ¼öÁ¤ºô¶ó°¡µ¿ | -1 | 40.87 | 500 | 30 | 1986 | | 2025.09.06 | Àü¼¼ | ´õ¿ø | 2 | 27.05 | 22,300 | 0 | 2022 | | 2025.09.06 | ¿ù¼¼ | ½ºÀ§Æ®ºô(398-10) | 2 | 59.9 | 20,600 | 30 | 2008 | | 2025.09.06 | Àü¼¼ | ´ë½Å¸Ç¼Ç | 2 | 53.24 | 13,400 | 0 | 2002 | | 2025.09.05 | ¸Å¸Å | ¿¡½º¿¥ÆÄÅ©ºô101µ¿102µ¿ | 7 | 27.27 | 21,250 | | 2016 | | 2025.09.05 | Àü¼¼ | ¸®ºùÇϿ콺5Â÷ | 6 | 29.95 | 16,500 | 0 | 2015 | | 2025.09.05 | ¸Å¸Å | µ¿µµÇÏÀÌÃ÷ºô¶ó7Â÷(346-96) | -1 | 60.21 | 16,500 | | 1996 | | 2025.09.05 | Àü¼¼ | û¸²¾ÆÆ®ºôBµ¿(1084-14) | 4 | 59.54 | 21,000 | 0 | 2002 | | 2025.09.05 | ¿ù¼¼ | ȼºÇÏÀÌÃ÷ºôBµ¿ | 1 | 44.46 | 1,000 | 60 | 2002 | | 2025.09.05 | Àü¼¼ | ´ë¼Ûºô¶ó(102-170) | 2 | 46.44 | 13,480 | 0 | 2001 | | 2025.09.05 | ¿ù¼¼ | ¿À¸®¿ÂÇϿ콺 | 5 | 48.01 | 17,600 | 1 | 2011 | | 2025.09.05 | ¿ù¼¼ | ¸®Ä¡108µ¿ | 11 | 22.99 | 19,000 | 23 | 2023 | | 2025.09.05 | Àü¼¼ | ´õ¿ø·¹¿Àºô | 3 | 27.91 | 21,920 | 0 | 2021 | | 2025.09.05 | ¿ù¼¼ | ºÀ½ººô | 3 | 10.63 | 500 | 50 | 2011 | | 2025.09.05 | ¿ù¼¼ | ±Ù»óÇÁ¸®Áò¾ÆÆ®ºô | 3 | 55.3 | 3,000 | 110 | 2010 | | 2025.09.05 | Àü¼¼ | NKÆÄÅ©ºô | 2 | 63.86 | 21,500 | 0 | 2008 | | 2025.09.05 | ¿ù¼¼ | ¶ó¿Âºô(341-21) | 3 | 25.13 | 15,600 | 19 | 2017 | | 2025.09.05 | ¿ù¼¼ | ½ºÅ丮ÇϿ콺(1014-23) | 3 | 15.7 | 2,000 | 48 | 2012 | | 2025.09.05 | ¿ù¼¼ | ´Ù¿ø½´½´ºô(470-8) | 3 | 39.69 | 2,000 | 70 | 2010 | | 2025.09.05 | ¿ù¼¼ | ½Å¾È¸Ç¼Ç | 3 | 50.61 | 12,000 | 30 | 2002 | | 2025.09.05 | Àü¼¼ | ´õ±×¸°È°î | 3 | 39.98 | 18,000 | 0 | 2015 | | 2025.09.05 | ¿ù¼¼ | (1047-4) | 3 | 48.3 | 13,000 | 30 | 2000 | | 2025.09.04 | ¿ù¼¼ | À¯´Ï¿Â½¦¸£ºô(Aµ¿) | 3 | 48.9 | 2,000 | 85 | 2002 | | 2025.09.04 | ¿ù¼¼ | ¼ºÀººô¶ó(56-122) | 1 | 42.78 | 10,609 | 20 | 2000 | | 2025.09.04 | ¿ù¼¼ | °Å¼º | 2 | 49.5 | 10,900 | 25 | 1986 | | 2025.09.04 | Àü¼¼ | ¿ì¼ºAµ¿Bµ¿(346-86) | 3 | 32.61 | 16,800 | 0 | 2014 | | 2025.09.04 | Àü¼¼ | ¼¼ÀÎÆ®ºô(55-38) | 2 | 29.5 | 12,460 | 0 | 2012 | | 2025.09.04 | ¿ù¼¼ | ÇϳªÅ¸¿îAµ¿ | 5 | 29.93 | 2,000 | 73 | 2015 | | 2025.09.04 | ¿ù¼¼ | µ¿¹æÈ÷ÁîÈú | 6 | 35.87 | 17,000 | 20 | 2016 | | 2025.09.04 | Àü¼¼ | (367-79) | 3 | 26.25 | 8,200 | 0 | 1994 | | 2025.09.04 | ¿ù¼¼ | À§ÇϿ콺(111-10) | 4 | 29.71 | 2,000 | 80 | 2016 | | 2025.09.04 | ¿ù¼¼ | ´Ù¿ø½´½´ºô(470-8) | 3 | 39.69 | 2,000 | 70 | 2010 | | 2025.09.04 | ¸Å¸Å | °æ¹ÎÆÄºô¸®¿Â | 4 | 33.62 | 23,000 | | 2015 | | 2025.09.04 | ¸Å¸Å | ÅÂȺô¶ó(333-11) | 3 | 48.11 | 19,400 | | 2002 | | 2025.09.04 | ¸Å¸Å | ·Ôµ¥Å¸¿î(1010-8) | 2 | 28.12 | 17,800 | | 2012 | | 2025.09.04 | ¿ù¼¼ | ¼ºÀººô¶ó(56-122) | 1 | 42.78 | 10,609 | 20 | 2000 | | 2025.09.04 | ¿ù¼¼ | ¿ÀÄÉÀÌÆÄÅ©ºô(932-8) | 6 | 28.71 | 4,000 | 70 | 2015 | | 2025.09.04 | ¿ù¼¼ | ¿ì¼º | 5 | 37.15 | 3,000 | 90 | 2016 | | 2025.09.04 | ¿ù¼¼ | ¾ÆÁÙÆ÷·¹ | 5 | 38.08 | 24,940 | 12 | 2023 | | 2025.09.04 | ¿ù¼¼ | µ¿¾ÆÁÖÅÃ(349-5) | 1 | 29.96 | 2,500 | 29 | 1986 | | 2025.09.04 | ¿ù¼¼ | MAROO | 3 | 29.32 | 1,000 | 80 | 2019 | | 2025.09.03 | ¸Å¸Å | ¿µÁøºô¶ó | 2 | 59.43 | 26,400 | | 2000 | | 2025.09.03 | ¸Å¸Å | ÇÏÀÌÆ®¸Ç¼Ç | 3 | 59.88 | 26,800 | | 2001 | | 2025.09.03 | ¸Å¸Å | ´ë½Å±×¸°ºô¶ó | 3 | 61.15 | 22,500 | | 1997 | | 2025.09.03 | ¸Å¸Å | À̽ºÅϺô(24-584) | 3 | 47.61 | 26,900 | | 2014 | | 2025.09.03 | ¸Å¸Å | (362-109)°¼ººô¶ó3Â÷ | 2 | 33.28 | 19,900 | | 1991 | | 2025.09.03 | ¸Å¸Å | ¿ÍÀÌ¿£ºñ | 4 | 29.22 | 19,800 | | 2017 | | 2025.09.03 | ¿ù¼¼ | (813-17) | 2 | 46.92 | 5,000 | 60 | 1986 | | 2025.09.03 | ¿ù¼¼ | ÇÏÀÌ63 | 5 | 29.56 | 300 | 50 | 2018 | | 2025.09.03 | ¿ù¼¼ | ½ÅÈïÇÏÀ̺ô | 4 | 52.73 | 30 | 60 | 2010 | | 2025.09.03 | ¿ù¼¼ | Çö´ëÇÏ¿ì¡ | 3 | 39.16 | 14,700 | 20 | 2010 | | 2025.09.03 | Àü¼¼ | ´ë¸í½ºÄ«ÀÌ | 3 | 46.92 | 25,300 | 0 | 2015 | | 2025.09.03 | ¿ù¼¼ | ±ÃÀüºô¶ó(111-72) | 1 | 53.46 | 3,000 | 60 | 1991 | | 2025.09.03 | ¿ù¼¼ | ¼ºÁöºôµù(1121-14) | 2 | 50.4 | 8,500 | 35 | 2003 | | 2025.09.03 | ¿ù¼¼ | ±ÃÀüºô¶ó(111-72) | 1 | 53.46 | 3,000 | 60 | 1991 | | 2025.09.02 | ¸Å¸Å | ´ë¿ìºô¶ó°¡µ¿ | 2 | 36.65 | 12,500 | | 1990 | | 2025.09.02 | ¿ù¼¼ | »ó¾Æºô¶ó | 4 | 30.39 | 8,440 | 23 | 2001 | | 2025.09.02 | ¿ù¼¼ | ½Ã¿ø±×¸°ºô(1014-40) | 5 | 46.05 | 1,500 | 75 | 2002 | | 2025.09.02 | ¿ù¼¼ | Çý¼ºÆç¸®½º(156-21) | 2 | 29.28 | 12,000 | 30 | 2013 | | 2025.09.02 | ¸Å¸Å | Á¤Àκô¶ó³ªµ¿ | 1 | 52.08 | 17,000 | | 1994 | | 2025.09.02 | ¸Å¸Å | ¼ºÁÖºô¶ó | 3 | 66.46 | 20,000 | | 1995 | | 2025.09.02 | ¸Å¸Å | õ¿ìºô¶ó | -1 | 54.17 | 13,000 | | 1998 | | 2025.09.02 | ¸Å¸Å | ´Ù¼ØÅ¸¿î³ªµ¿(1037-14) | 3 | 35.31 | 37,800 | | 2015 | | 2025.09.02 | ¸Å¸Å | ¿ì¼º(408-86) | 4 | 35.46 | 18,000 | | 2017 | | 2025.09.02 | Àü¼¼ | Á¤ÀϺô¶ó | 3 | 55.78 | 13,900 | 0 | 1993 | | 2025.09.02 | Àü¼¼ | ¾çȺô¶ó | 2 | 53.71 | 11,500 | 0 | 1992 | | 2025.09.02 | ¿ù¼¼ | º¸¼º | 3 | 45.48 | 1,000 | 50 | 1982 | | 2025.09.02 | ¿ù¼¼ | ´ë¸í½ºÄ«ÀÌ | 5 | 68.69 | 5,000 | 105 | 2015 | | 2025.09.02 | ¿ù¼¼ | ÀÌ·¹ÇìºìÇϿ콺 | 4 | 30.69 | 5,000 | 60 | 2012 | | 2025.09.02 | ¿ù¼¼ | ¹ÌÁÖºô¶óºñµ¿ | 5 | 48.21 | 2,000 | 100 | 2002 | | 2025.09.02 | Àü¼¼ | ¼øÈ¯½¦¸£ºô(59-8) | 2 | 39.19 | 11,500 | 0 | 2002 | | 2025.09.02 | ¿ù¼¼ | ¹«Áö°³ºô¶ó2Â÷ | -1 | 32.88 | 4,000 | 25 | 1991 | | 2025.09.02 | ¿ù¼¼ | Èľϸ®Ä¡ºô | 5 | 60.88 | 3,000 | 91 | 2008 | | 2025.09.02 | ¿ù¼¼ | µ¿¾ç³ëºí·¹½ººô | 2 | 42.38 | 2,000 | 50 | 2008 | | 2025.09.02 | ¿ù¼¼ | ¿ìȱ׸° | 3 | 26.98 | 10,900 | 30 | 2012 | | 2025.09.02 | ¿ù¼¼ | ½Â½ÂÀ屸 | 4 | 29.36 | 13,600 | 30 | 2015 | | 2025.09.02 | ¿ù¼¼ | ¿¹°¡Ã¤(968-3) | 5 | 28.04 | 2,000 | 77 | 2015 | | 2025.09.02 | ¿ù¼¼ | ¹«Áö°³ºô¶ó2Â÷ | -1 | 32.88 | 4,000 | 25 | 1991 | | 2025.09.02 | Àü¼¼ | ȲÁ¦ºô¸®Áö | -1 | 80.55 | 27,000 | 0 | 1998 | | 2025.09.01 | ¸Å¸Å | ¿ì¼º(408-86) | 4 | 35.46 | 18,000 | | 2017 | | 2025.09.01 | ¸Å¸Å | ºñÀü½¦¸£ºô | 2 | 41.18 | 13,100 | | 2002 | | 2025.09.01 | ¸Å¸Å | ¸¶Å©ÇϿ콺 | 3 | 26.79 | 23,500 | | 2020 | | 2025.09.01 | ¸Å¸Å | »ïÀÍÇ콺Ƽ¾Æ(50-1) | 4 | 35.19 | 13,750 | | 2011 | | 2025.09.01 | Àü¼¼ | ¼º¿øºô¶ó(1114-15) | 4 | 26.91 | 6,600 | 0 | 2002 | | 2025.09.01 | ¿ù¼¼ | ÀÚ¶óÇϿ콺(353-32) | 5 | 38.545 | 19,000 | 11 | 2015 | | 2025.09.01 | ¿ù¼¼ | ȰîÅõ¿þ´ÏÆÛ½ºÆ® | 11 | 24.45 | 1,000 | 100 | 2018 | | 2025.09.01 | ¿ù¼¼ | µ¿¾çÇÏ¿ì¡Bµ¿ | 2 | 29.52 | 1,000 | 100 | 2017 | | 2025.09.01 | ¿ù¼¼ | ¿À¼ºÆÄÅ©ºô | 4 | 52.77 | 3,300 | 59 | 2009 | | 2025.09.01 | Àü¼¼ | ·°Å°ºô¶ó¿¡À̵¿ | 3 | 62.1 | 13,600 | 0 | 1983 | | 2025.09.01 | Àü¼¼ | µµÈÀ§³Ê½ººô(1083-7) | 4 | 40.69 | 14,700 | 0 | 2008 | | 2025.09.01 | ¿ù¼¼ | (995-10) | 3 | 44.91 | 13,000 | 7 | 2003 | | 2025.09.01 | ¿ù¼¼ | ´Ù¼Ø | 5 | 42.94 | 1,000 | 30 | 2012 | | 2025.09.01 | ¸Å¸Å | °¡³ª¾Æµ¨¸®¿ò(102-120) | 4 | 32.48 | 23,000 | | 2014 | | 2025.08.31 | ¸Å¸Å | º¸°æºô¶ó | 3 | 55.83 | 19,400 | | 2001 | | 2025.08.31 | ¿ù¼¼ | ¿¡½º¿¥ÆÄÅ©ºô | 2 | 29.29 | 20,000 | 16 | 2018 | | 2025.08.31 | ¿ù¼¼ | ANPȰî | 7 | 24.05 | 1,000 | 105 | 2022 | | 2025.08.31 | Àü¼¼ | ¼º¸²ÆÄÅ©ºôBµ¿ | 1 | 66.6 | 18,700 | 0 | 2002 | | 2025.08.31 | Àü¼¼ | ¼ÀϺô¸®Áö101µ¿ | 5 | 69 | 17,000 | 0 | 2004 | | 2025.08.31 | Àü¼¼ | ´õ¿ø#8 | 2 | 29.73 | 23,810 | 0 | 2022 | | 2025.08.31 | ¿ù¼¼ | ÁÖ¼±¸Ç¼Ç | 2 | 70.32 | 16,250 | 30 | 2002 | | 2025.08.30 | ¿ù¼¼ | ¸®Ä¡ºô | 5 | 19.32 | 500 | 45 | 2010 | | 2025.08.30 | ¿ù¼¼ | À̵µÅ¸¿î | 3 | 29.47 | 25,450 | 5 | 2022 | | 2025.08.30 | ¿ù¼¼ | °æ¿øÁÖÅ󪵿 | 3 | 41.62 | 2,000 | 52 | 2001 | | 2025.08.30 | Àü¼¼ | ´õŬ·¡½Ä | 4 | 40.78 | 23,000 | 0 | 2018 | | 2025.08.30 | Àü¼¼ | ´õŬ·¡½Ä | 4 | 40.78 | 23,000 | 0 | 2018 | | 2025.08.30 | ¸Å¸Å | ÿ½ÃÇϿ콺(424-35¿Ü1) | 5 | 28.73 | 20,000 | | 2015 | | 2025.08.30 | ¿ù¼¼ | ȼº±×¸°ºô¶ó | 3 | 58.41 | 5,000 | 85 | 1997 | | 2025.08.30 | Àü¼¼ | Çö´ëºí·ç¹Ö | 5 | 37.49 | 20,700 | 0 | 2015 | | 2025.08.30 | ¸Å¸Å | »ïÁ¤ÆÄÅ©ºä | 3 | 29.98 | 28,000 | | 2012 | | 2025.08.30 | ¸Å¸Å | ÇÁ¸®¸Þ¶óCµ¿ | 3 | 43.39 | 24,500 | | 2014 | | 2025.08.30 | ¿ù¼¼ | casagio | 3 | 27.98 | 3,000 | 80 | 2019 | | 2025.08.30 | Àü¼¼ | Á¤¾Èºô¶ó | 4 | 40.56 | 10,000 | 0 | 1992 | | 2025.08.30 | Àü¼¼ | ¿ìÇöÆç¸®½º | 2 | 29.64 | 16,500 | 0 | 2016 | | 2025.08.30 | ¿ù¼¼ | »ó½Âºô¶ó | 3 | 40.44 | 9,000 | 20 | 1991 | | 2025.08.30 | ¿ù¼¼ | ¸í´öºô¶ó | 4 | 37.66 | 1,000 | 55 | 2001 | | 2025.08.30 | ¿ù¼¼ | ¼¾Æ®¸®¿ò | 5 | 22.67 | 14,300 | 15 | 2015 | | 2025.08.30 | ¿ù¼¼ | »ó½Âºô¶ó | 3 | 40.44 | 9,000 | 20 | 1991 | | 2025.08.30 | Àü¼¼ | Çö´ëºí·ç¹Ö | 5 | 37.49 | 20,700 | 0 | 2015 | | 2025.08.30 | Àü¼¼ | ±¤¸íºô¶ó(398-7) | 1 | 56.64 | 17,540 | 0 | 2001 | | 2025.08.30 | ¿ù¼¼ | À̵µÅ¸¿î | 2 | 29.47 | 25,450 | 4 | 2022 | | 2025.08.30 | Àü¼¼ | »ï°æ±×¸°ºô¶ó(159-6) | 2 | 62.42 | 19,200 | 0 | 2002 | | 2025.08.30 | Àü¼¼ | »ïÀͺô¶ó(346-25) | 3 | 59.84 | 17,500 | 0 | 1993 | | 2025.08.29 | ¸Å¸Å | µ¿¹æÈ÷ÁîÈú | 3 | 29.32 | 17,900 | | 2016 | | 2025.08.29 | ¸Å¸Å | È¿»êij½½ | 6 | 51.12 | 26,500 | | 2014 | | 2025.08.29 | ¸Å¸Å | µ¿¹æÈ÷ÁîÈú | 3 | 29.32 | 17,900 | | 2016 | | 2025.08.29 | ¸Å¸Å | »ïÈ£ºô¶ó | 3 | 48.87 | 12,400 | | 1991 | | 2025.08.29 | ¸Å¸Å | °æ½Åºô¶ó | -1 | 52.74 | 9,500 | | 1992 | | 2025.08.29 | Àü¼¼ | ¼Ò´ã¹ë¸® | 4 | 29.14 | 17,000 | 0 | 2012 | | 2025.08.29 | Àü¼¼ | ±î»çÁö¿À(355-4) | 2 | 29.99 | 23,000 | 0 | 2021 | | 2025.08.29 | Àü¼¼ | µ¿¾çÇÏ¿ì¡(870-1) | 5 | 29.87 | 18,900 | 0 | 2017 | | 2025.08.29 | ¿ù¼¼ | ¿¡ÀÌ¿£Ä³½½(1086-24) | 3 | 26.14 | 21,500 | 5 | 2023 | | 2025.08.29 | ¿ù¼¼ | ¼¼¸íº£¸£µð¿ò | 4 | 37.53 | 22,300 | 10 | 2016 | | 2025.08.29 | ¿ù¼¼ | ¿¤Æç¸®½º | 6 | 29.13 | 3,000 | 100 | 2022 | | 2025.08.29 | Àü¼¼ | ±×¸°³ª·¡ºô¶óÆ® | 2 | 43.95 | 15,100 | 0 | 2008 | | 2025.08.29 | ¸Å¸Å | (475-27) | -1 | 42.22 | 9,500 | | 1990 | | 2025.08.29 | ¿ù¼¼ | ³²±¤ÆÄÅ©ºô | 3 | 39.79 | 10,000 | 30 | 2008 | | 2025.08.29 | Àü¼¼ | µ¿¾ç³ëºí·¹½ººô | 3 | 48.56 | 14,700 | 0 | 2008 | | 2025.08.29 | Àü¼¼ | ±î»çÁö¿À(355-4) | 2 | 29.99 | 22,900 | 0 | 2021 | | 2025.08.29 | Àü¼¼ | ¹Ì¼Òºô | 2 | 25.96 | 17,500 | 0 | 2018 | | 2025.08.29 | ¿ù¼¼ | ½ºÅ丮ÇϿ콺(1014-23) | 2 | 13.44 | 3,000 | 40 | 2012 | | 2025.08.29 | ¿ù¼¼ | ¸ð¾Æºô(870-47) | 3 | 82.89 | 16,275 | 3 | 2007 | | 2025.08.29 | ¿ù¼¼ | º¸¿øºô¶óÆ® | 4 | 49.4 | 12,370 | 14 | 1998 | | 2025.08.29 | Àü¼¼ | »ó·Ï¼öÁÖÅà | 1 | 47.6 | 10,000 | 0 | 2001 | | 2025.08.29 | ¿ù¼¼ | ÇÑ¿ï¶ß¶õä(1079-23) | 5 | 25.83 | 4,500 | 10 | 2012 | | 2025.08.29 | Àü¼¼ | ÇѼº¾ÆÆ®ºô | 4 | 39.68 | 9,200 | 0 | 2002 | | 2025.08.29 | Àü¼¼ | jehouse | 6 | 21.41 | 19,200 | 0 | 2021 | | 2025.08.29 | ¿ù¼¼ | µå¸²ÇϿ콺 | 4 | 29.67 | 12,000 | 10 | 2012 | | 2025.08.29 | Àü¼¼ | Æ÷¸£Å×ÇÏÀÓ(358-1) | 3 | 28.76 | 26,000 | 0 | 2023 | | 2025.08.29 | Àü¼¼ | Á¦ÀÌÅõ¸®´õ½º | 5 | 26.34 | 25,500 | 0 | 2023 | | 2025.08.29 | ¿ù¼¼ | Çϳª¾ÆÀÌÆÄÅ©ºô | 5 | 22.43 | 4,000 | 70 | 2017 | | 2025.08.28 | ¿ù¼¼ | ´ëÈ↓¸³ | 1 | 65.65 | 14,000 | 40 | 1996 | | 2025.08.28 | ¿ù¼¼ | ¿¹Àκô¶ó(379-40) | 4 | 38.59 | 2,000 | 90 | 2003 | | 2025.08.28 | Àü¼¼ | È£¸²¸®½´¸®¾È | 5 | 42.96 | 20,800 | 0 | 2016 | | 2025.08.28 | Àü¼¼ | È£¸²¸®½´¸®¾È | 6 | 36.81 | 19,150 | 0 | 2016 | | 2025.08.28 | Àü¼¼ | ¼Ç¹ë¸®(808-5) | 4 | 32.13 | 16,000 | 0 | 2016 | | 2025.08.28 | Àü¼¼ | ÁøÁÖ | 2 | 55.57 | 20,700 | 0 | 2010 | | 2025.08.28 | ¿ù¼¼ | ÁøÁÖºô¶ó(960-3) | -1 | 70.58 | 300 | 10 | 1991 | | 2025.08.28 | ¿ù¼¼ | VILL73 | 3 | 20.36 | 6,000 | 65 | 2021 | | 2025.08.28 | Àü¼¼ | ´ëµ¿ºô¶ó(59-32) | 4 | 26.68 | 13,000 | 0 | 2018 | | 2025.08.28 | ¿ù¼¼ | µ¿Áø¾ÆÆ®ºô | 3 | 28.82 | 12,000 | 38 | 2018 | | 2025.08.28 | ¿ù¼¼ | º¹ÁöÇÏÀÌÃ÷ºô¶óA | 1 | 59.83 | 13,000 | 35 | 1991 | | 2025.08.28 | ¸Å¸Å | Çູºô¶ó | 3 | 45.99 | 16,300 | | 2000 | | 2025.08.28 | ¸Å¸Å | ´ºÆ®¸®Èú | 2 | 52.46 | 27,800 | | 2015 | | 2025.08.28 | ¸Å¸Å | (965-19) | 1 | 33.6 | 12,500 | | 1986 | | 2025.08.28 | ¿ù¼¼ | º§¶óÇϿ콺(351-16) | 6 | 22.86 | 2,000 | 90 | 2016 | | 2025.08.28 | ¸Å¸Å | Àü¿øºô¶ó(56-266) | 2 | 41.44 | 12,000 | | 1986 | | 2025.08.28 | ¸Å¸Å | ´ö¼öºô¶ó(341-33) | 3 | 64.34 | 31,000 | | 2000 | | 2025.08.28 | ¸Å¸Å | ºí·ç½ºÄ«À̺ô(860-20) | 2 | 28.63 | 20,000 | | 2014 | | 2025.08.28 | ¿ù¼¼ | ÿ½ÃÇϿ콺(870-6) | 5 | 46.12 | 2,000 | 60 | 2013 | | 2025.08.27 | ¿ù¼¼ | SKÆÄÅ©ºô(353-15) | 2 | 40.05 | 19,500 | 20 | 2014 | | 2025.08.27 | Àü¼¼ | ³ëºíÇϿ콺¿¡À̵¿ | 1 | 55.77 | 14,700 | 0 | 2002 | | 2025.08.27 | ¿ù¼¼ | ½Å¿µº£¸£µð¿òB | 6 | 28.8 | 100 | 80 | 2020 | | 2025.08.27 | ¿ù¼¼ | ½Å¿µ¼¾Æ®·¹ºô | 5 | 39.76 | 15,370 | 17 | 2011 | | 2025.08.27 | ¿ù¼¼ | ¿ì¼ººô¶ó(346-72) | 3 | 29.86 | 1,000 | 82 | 2013 | | 2025.08.27 | ¿ù¼¼ | ¿¬¼öȨŸ¿î | -1 | 23.76 | 100 | 70 | 2001 | | 2025.08.27 | Àü¼¼ | Àκ£½ºÆ®ºô(460-11) | 3 | 39.19 | 10,500 | 0 | 2008 | | 2025.08.27 | ¿ù¼¼ | ±¤Áøºô¶ó | -1 | 61.82 | 2,000 | 60 | 1993 | | 2025.08.27 | ¸Å¸Å | (56-250) | -1 | 40.32 | 8,000 | | 1992 | | 2025.08.27 | ¸Å¸Å | µ¿¾çÇÏ¿ì¡(46-295) | 6 | 39.74 | 24,700 | | 2014 | | 2025.08.27 | ¸Å¸Å | »ì·½ÇϿ콺6Â÷(56-536) | 5 | 36.96 | 9,760 | | 2001 | | 2025.08.27 | ¸Å¸Å | µ¿¾çÇÏ¿ì¡(46-295) | 6 | 39.74 | 24,700 | | 2014 | | 2025.08.27 | ¸Å¸Å | ¾¾Æ¼ÇϿ콺(1085-12) | 4 | 23.64 | 16,000 | | 2012 | | 2025.08.27 | ¸Å¸Å | ½îȨ¾ÆÆ®ºô | 5 | 40.25 | 28,000 | | 2013 | | 2025.08.27 | ¿ù¼¼ | °©Áø°ñµåºô | 5 | 35.08 | 3,000 | 95 | 2013 | | 2025.08.26 | Àü¼¼ | ³×½ºÆ®ºô2Â÷ | 1 | 52.51 | 17,200 | 0 | 2008 | | 2025.08.26 | ¿ù¼¼ | ¿µ±¤ºô¶ó | -1 | 45.45 | 1,000 | 60 | 1991 | | 2025.08.26 | Àü¼¼ | ½Ö¿ëºô¶óÆ® | 5 | 46.13 | 12,500 | 0 | 2002 | | 2025.08.26 | ¿ù¼¼ | û¿î¸Ç¼ÇÁÖÅÃ1µ¿ | 1 | 64.52 | 16,000 | 30 | 2001 | | 2025.08.26 | ¿ù¼¼ | ¾ÆÀνººô(997-15) | 4 | 37.4 | 3,000 | 80 | 2011 | | 2025.08.26 | ¿ù¼¼ | °æ¿øºô¶ó | 1 | 56.82 | 5,000 | 80 | 1992 | | 2025.08.26 | Àü¼¼ | µÎ¾Ï¸®¹öºôBµ¿ | 4 | 55.77 | 11,500 | 0 | 2001 | | 2025.08.26 | ¿ù¼¼ | »ó¾Æºô¶ó | 5 | 44.04 | 11,900 | 20 | 2002 | | 2025.08.26 | ¿ù¼¼ | û¿î¸Ç¼ÇÁÖÅÃ1µ¿ | 1 | 64.52 | 16,000 | 30 | 2001 | | 2025.08.26 | Àü¼¼ | ´õ¿ø·¹¿Àºô | 2 | 27.91 | 24,360 | 0 | 2021 | | 2025.08.26 | ¿ù¼¼ | Å¿µÆÓ¸®½º | 3 | 29.48 | 2,000 | 80 | 2016 | | 2025.08.26 | Àü¼¼ | ´õ¶ó¿Â(369-37) | 3 | 29.38 | 16,100 | 0 | 2017 | | 2025.08.26 | ¸Å¸Å | ±¤Áøºô¶óÆ®5µ¿ | 4 | 38.53 | 15,400 | | 2003 | | 2025.08.26 | ¸Å¸Å | ¿¹Àκô¶ó(379-40) | 3 | 44.35 | 19,000 | | 2003 | | 2025.08.26 | ¸Å¸Å | ¸®Ä¡ÇϿ콺 | 4 | 39.73 | 33,000 | | 2016 | | 2025.08.26 | ¸Å¸Å | °æ¹Î¾ÆÆ®ºô(882-32) | 6 | 26.56 | 25,800 | | 2017 | | 2025.08.26 | ¸Å¸Å | µ¿¿ø¶óÅ׶󽺺ô | 4 | 23.17 | 20,500 | | 2016 | | 2025.08.26 | ¿ù¼¼ | µ¿¼ÆÄÅ©ºô | 2 | 45.42 | 13,000 | 15 | 2002 | | 2025.08.26 | ¿ù¼¼ | żºÇÏÀÌÃ÷ºô¶ó(100-25) | 1 | 56.28 | 12,280 | 44 | 1995 | | 2025.08.26 | ¿ù¼¼ | ¿µ±¤ºô¶ó | -1 | 45.45 | 1,000 | 60 | 1991 | | 2025.08.26 | ¿ù¼¼ | ºñ¿¡½ºÇÏ¿ì¡ | 5 | 28.98 | 30 | 70 | 2018 | | 2025.08.26 | ¸Å¸Å | (914-39) | 3 | 125.51 | 30,000 | | 1992 | | 2025.08.25 | Àü¼¼ | ¿ÍÀÌ¿£ºñ | 4 | 29.22 | 16,200 | 0 | 2017 | | 2025.08.25 | ¿ù¼¼ | º¹ÁöÇÏÀÌÃ÷ºô¶óA | 4 | 59.83 | 13,000 | 40 | 1991 | | 2025.08.25 | ¸Å¸Å | ´ëÀº¿¬¸³ | 2 | 59.9 | 23,300 | | 1998 | | 2025.08.25 | ¸Å¸Å | ÇØÇÇÇϿ콺B | 4 | 40.43 | 10,800 | | 2003 | | 2025.08.25 | ¸Å¸Å | ¿ìÀå»êÆÄÅ©ºô | 4 | 38.59 | 25,300 | | 2013 | | 2025.08.25 | ¸Å¸Å | »ï¿ø·¢½ººô¶óDµ¿ | -1 | 68.96 | 15,000 | | 1989 | | 2025.08.25 | ¸Å¸Å | µ¿¸í³ëºí·¹½º(³ªµ¿) | 3 | 59.2 | 32,300 | | 2011 | | 2025.08.25 | ¿ù¼¼ | â´ë | 2 | 29.96 | 13,700 | 14 | 2012 | | 2025.08.25 | Àü¼¼ | ´Ù¿ÂÆÄÅ©ºô | 5 | 21.01 | 18,750 | 0 | 2017 | | 2025.08.25 | ¿ù¼¼ | ¹ÌÇϿ콺 | 4 | 41.21 | 15,000 | 35 | 2016 | | 2025.08.25 | ¿ù¼¼ | ¹ÌÇϿ콺 | 4 | 41.21 | 15,000 | 35 | 2016 | | 2025.08.25 | Àü¼¼ | û¼ÛÆòÈÇÏÀ̸ǼÇ(102-309) | 3 | 39.35 | 17,300 | 0 | 2014 | | 2025.08.25 | ¿ù¼¼ | (1016-31)À̵çºô¸®Áö | 4 | 16.1 | 1,000 | 50 | 2011 | | 2025.08.25 | Àü¼¼ | ·¹Àκ¸¿ìŸ¿ö | 4 | 61.74 | 20,000 | 0 | 2009 | | 2025.08.25 | Àü¼¼ | ÇѺûÀ§³Ê½ººô(966-20) | 3 | 50.85 | 18,000 | 0 | 2008 | | 2025.08.25 | ¿ù¼¼ | ¿î¾ÏÇÏÀÌÃ÷ºô | 2 | 63.65 | 5,000 | 80 | 2002 | | 2025.08.24 | ¿ù¼¼ | û¸²ÇÏ¿ì¡ | 4 | 40.56 | 23,600 | 20 | 2017 | | 2025.08.24 | ¸Å¸Å | ¾Æ¸£¶¼ºô | 6 | 48.94 | 29,700 | | 2017 | | 2025.08.24 | Àü¼¼ | ±×·¹À̽º¾ÆÆ®ºô | 4 | 52.56 | 15,000 | 0 | 2002 | | 2025.08.24 | ¿ù¼¼ | casagio | 3 | 29.98 | 3,000 | 120 | 2019 | | 2025.08.24 | ¸Å¸Å | ÇÁ¶óÀÓºô | 5 | 46 | 19,500 | | 2010 | | 2025.08.24 | ¸Å¸Å | ´Ùºñ¸Ç¼ð | 2 | 74.58 | 20,000 | | 2000 | | 2025.08.24 | ¸Å¸Å | ¿¡½º¿¥ÆÄÅ©ºô(409-2) | 5 | 32.65 | 25,000 | | 2016 | | 2025.08.23 | ¿ù¼¼ | ºô¶ó¿£Bµ¿ | 2 | 29.48 | 18,700 | 3 | 2017 | | 2025.08.23 | ¿ù¼¼ | ¾ÆÁÙÆ÷·¹ | 2 | 29.78 | 22,800 | 10 | 2023 | | 2025.08.23 | ¿ù¼¼ | ±×¸°Èú | 4 | 34.18 | 2,000 | 75 | 2014 | | 2025.08.23 | ¿ù¼¼ | ¹Ì¼ÒȨŸ¿î2Â÷ | 2 | 78.66 | 11,645 | 120 | 2022 | | 2025.08.23 | ¿ù¼¼ | ´Ù¼Ø(773-3) | 3 | 34.55 | 1,000 | 100 | 2012 | | 2025.08.23 | ¿ù¼¼ | ¾ÆÁÙÆ÷·¹ | 3 | 29.92 | 22,930 | 12 | 2023 | | 2025.08.23 | ¿ù¼¼ | ¾ÆÁÙÆ÷·¹ | 3 | 29.92 | 22,930 | 12 | 2023 | | 2025.08.23 | ¿ù¼¼ | ´ë½Å½¦¸£ºô | -1 | 28.77 | 1,000 | 40 | 2002 | | 2025.08.23 | ¿ù¼¼ | ¿ìÁøÅ¸¿î´Ùµ¿(381-14) | 2 | 41.46 | 2,000 | 69 | 2008 | | 2025.08.23 | ¿ù¼¼ | À¯´Ï¿Â½¦¸£ºô(Eµ¿) | 4 | 30.47 | 8,200 | 28 | 2002 | | 2025.08.23 | ¿ù¼¼ | ´Ù³ª³×½ºÆ®ºô(410-217) | 3 | 38.88 | 12,500 | 10 | 2008 | | 2025.08.23 | Àü¼¼ | °ñµå¸®¿ò | 3 | 59.68 | 25,500 | 0 | 2017 | | 2025.08.23 | ¿ù¼¼ | Àå¼öÇϿ콺 | 2 | 40.77 | 2,000 | 75 | 2002 | | 2025.08.23 | ¿ù¼¼ | LAHOME(¶óȨ)B | 4 | 29.91 | 24,500 | 5 | 2022 | | 2025.08.23 | ¿ù¼¼ | ´º¿å·¹Áö´ø½º¥±(858-23) | 3 | 12.3 | 500 | 38 | 2012 | | 2025.08.23 | ¿ù¼¼ | µÎ¸®ºô¶ó | 1 | 45.54 | 500 | 55 | 1991 | | 2025.08.23 | ¿ù¼¼ | ¿ìÁøÅ¸¿î´Ùµ¿(381-14) | 2 | 41.46 | 2,000 | 69 | 2008 | | 2025.08.23 | ¸Å¸Å | ¸í½ÅŸ¿î8Â÷Bµ¿ | 2 | 63.15 | 31,000 | | 2002 | | 2025.08.23 | ¿ù¼¼ | ÀÎÅͺùÇϿ콺 | 4 | 39.69 | 20,000 | 10 | 2017 | | 2025.08.23 | ¿ù¼¼ | ¾¾Æ¼ÇϿ콺(1085-12) | 3 | 23.51 | 12,000 | 25 | 2012 | | 2025.08.23 | ¸Å¸Å | ±¤¸íÇÏÀÌÃ÷6Â÷ | 1 | 36.86 | 12,000 | | 1993 | | 2025.08.23 | ¿ù¼¼ | »ï¼ºÇÏÀ̺ô(1084-37) | 3 | 35.44 | 18,200 | 14 | 2013 | | 2025.08.23 | ¿ù¼¼ | ÇÏÀÓºô | 1 | 48.09 | 22,400 | 15 | 2017 | | 2025.08.23 | ¿ù¼¼ | ÀÎÅͺùÇϿ콺 | 4 | 39.69 | 20,000 | 10 | 2017 | | 2025.08.23 | ¿ù¼¼ | ¿¡ÀÌ¿£Äɽ½ | 3 | 29.76 | 10,000 | 35 | 2016 | | 2025.08.23 | ¿ù¼¼ | »þ·ÐÀÎÅÚ¸®¾È | 3 | 44.76 | 14,100 | 10 | 2007 | | 2025.08.23 | ¿ù¼¼ | LGŸ¿î9Â÷ | 3 | 59.22 | 1,000 | 95 | 2002 | | 2025.08.23 | ¿ù¼¼ | ÀÎÅͺùÇϿ콺 | 4 | 39.69 | 20,000 | 10 | 2017 | | 2025.08.23 | ¿ù¼¼ | È£¼öŸ¿î(957-14) | 2 | 41.76 | 2,000 | 73 | 2002 | | 2025.08.23 | ¸Å¸Å | ´ë¼Ûºô¶ó(354-92) | 3 | 49.88 | 25,500 | | 2001 | | 2025.08.23 | ¸Å¸Å | ½Å¿µ¸Ç¼Ç | 4 | 57.62 | 19,500 | | 1995 | | 2025.08.23 | ¸Å¸Å | ½ÅÈï¶ß¶õä | 4 | 50.71 | 36,800 | | 2017 | | 2025.08.23 | ¸Å¸Å | (1123-28) | 3 | 48.53 | 17,000 | | 1986 | | 2025.08.23 | ¿ù¼¼ | LAHOME(¶óȨ)B | 5 | 29.91 | 24,500 | 5 | 2022 | | 2025.08.23 | ¿ù¼¼ | ¿Ã¶ó·çÁî | 6 | 25.46 | 5,000 | 90 | 2022 | | 2025.08.23 | Àü¼¼ | û¼Ûºô¶ó | 4 | 40.35 | 8,500 | 0 | 1997 | | 2025.08.23 | ¿ù¼¼ | °ñµçÆÓ¸®½º | 2 | 19.1 | 1,000 | 64 | 2019 | | 2025.08.23 | ¿ù¼¼ | ANPȰî | 5 | 24.05 | 1,000 | 110 | 2022 | | 2025.08.23 | ¿ù¼¼ | °è¸íÀ§³Ê½º(105-55) | 3 | 41.58 | 12,000 | 15 | 2011 | | 2025.08.23 | ¿ù¼¼ | À¯´Ï¿Â½¦¸£ºô(Bµ¿) | 4 | 33.46 | 8,800 | 20 | 2002 | | 2025.08.23 | ¿ù¼¼ | °¡¼º¾ÆÆ®Èú | 4 | 41.58 | 11,800 | 18 | 2002 | | 2025.08.23 | ¿ù¼¼ | ¿¡ÀÌ¿£Äɽ½ | 3 | 29.76 | 10,000 | 35 | 2016 | | 2025.08.23 | ¿ù¼¼ | ¾¾Æ¼ÇϿ콺(1085-12) | 3 | 23.51 | 12,000 | 25 | 2012 | | 2025.08.23 | ¿ù¼¼ | ½Å¿µ¼¾Æ®·¹ºô | 2 | 39.76 | 18,300 | 6 | 2011 | | 2025.08.22 | Àü¼¼ | »ï¼º½¦¸£ºô | 3 | 61.5 | 20,200 | 0 | 2002 | | 2025.08.22 | ¿ù¼¼ | ¿ùµåÇϿ콺 | 2 | 71.54 | 10,000 | 80 | 2003 | | 2025.08.22 | ¿ù¼¼ | ³²±¤ºô¶ó(353-53) | 2 | 67.86 | 13,000 | 50 | 2004 | | 2025.08.22 | ¿ù¼¼ | »ïÀͺô¶ó(346-25) | -1 | 69.21 | 10,000 | 15 | 1993 | | 2025.08.22 | ¿ù¼¼ | ¸ð¾Æºô¥³ | 3 | 49.26 | 13,650 | 6 | 2008 | | 2025.08.22 | ¿ù¼¼ | Á¤¿øºô¶ó(504-32) | 3 | 47.09 | 17,300 | 6 | 2012 | | 2025.08.22 | ¿ù¼¼ | ¼±°æº£½ºÆ®ºô(98-119) | 5 | 40.24 | 12,600 | 18 | 2008 | | 2025.08.22 | ¸Å¸Å | Çö´ëÄھƺô(Bµ¿) | 5 | 54.42 | 19,700 | | 2002 | | 2025.08.22 | ¿ù¼¼ | ¹Ì¼ÒȨŸ¿î | 3 | 80.99 | 28,840 | 24 | 2022 | | 2025.08.22 | ¿ù¼¼ | »ïÀÍÇ콺Ƽ¾Æ(55-41) | 5 | 34.56 | 2,500 | 70 | 2011 | | 2025.08.22 | ¿ù¼¼ | ¹Ì¼ÒȨŸ¿î | 3 | 80.99 | 11,645 | 120 | 2022 | | 2025.08.22 | ¿ù¼¼ | õ¿ìºô¶ó | -1 | 54.17 | 9,400 | 11 | 1998 | | 2025.08.22 | Àü¼¼ | µð¾ÆÀνº(1075-27) | 8 | 14.4 | 9,850 | 0 | 2015 | | 2025.08.22 | ¿ù¼¼ | ÇØÇÇÇϿ콺(1128-4) | 3 | 12.7 | 1,000 | 42 | 2012 | | 2025.08.22 | ¿ù¼¼ | ¿À¼ºÆÄÅ©ºô | 2 | 52.77 | 2,000 | 81 | 2009 | | 2025.08.22 | Àü¼¼ | ¸¶ÀÌÇϿ콺 | 2 | 38.13 | 17,000 | 0 | 2016 | | 2025.08.22 | Àü¼¼ | ´Ù´Ï¿¤ºôµù | 5 | 19.22 | 6,000 | 0 | 2006 | | 2025.08.22 | ¿ù¼¼ | ¹Ì¼ÒȨŸ¿î | 5 | 60.17 | 9,268 | 96 | 2022 | | 2025.08.22 | Àü¼¼ | ¿ÍÀ̾غñ | 3 | 29.84 | 17,500 | 0 | 2018 | | 2025.08.22 | ¿ù¼¼ | ±¤¸íºô¶ó7Â÷(56-162) | 3 | 45.81 | 2,000 | 70 | 1994 | | 2025.08.22 | ¿ù¼¼ | È«¼ºÁÖÅÃBµ¿ | -1 | 57.82 | 9,600 | 16 | 2002 | | 2025.08.22 | ¿ù¼¼ | ¿ÍÀÌ¿£ºñ | 2 | 48.44 | 30 | 90 | 2017 | | 2025.08.22 | ¿ù¼¼ | °¨¼º¸®Áîºô | 4 | 33.61 | 30 | 70 | 2017 | | 2025.08.22 | ¿ù¼¼ | °ñµçÆÓ¸®½º | 4 | 15.66 | 1,000 | 78 | 2019 | | 2025.08.22 | Àü¼¼ | (1164-0) | 2 | 21.16 | 12,000 | 0 | 2014 | | 2025.08.22 | ¸Å¸Å | Àü¿øºô¶ó | 2 | 32.72 | 14,800 | | 1991 | | 2025.08.21 | ¸Å¸Å | ³²¼º¾ÆÆ®ºô | 6 | 27.58 | 21,500 | | 2017 | | 2025.08.21 | ¿ù¼¼ | ¹Ì¼ÒȨŸ¿î | 4 | 74.48 | 26,506 | 22 | 2022 | | 2025.08.21 | ¿ù¼¼ | À¯ÁøÆÄÅ©ºô | 3 | 52.41 | 8,180 | 84 | 2023 | | 2025.08.21 | ¿ù¼¼ | À¯ÁøÆÄÅ©ºô | 2 | 52.41 | 19,767 | 16 | 2023 | | 2025.08.21 | ¿ù¼¼ | ÀÚ¶óÇϿ콺(353-32) | 5 | 28.61 | 5,000 | 110 | 2015 | | 2025.08.21 | ¿ù¼¼ | µ¿¾çÁÖÅÃ(452-27) | 3 | 37.2 | 2,000 | 80 | 2001 | | 2025.08.21 | ¿ù¼¼ | ·°Å°ºô¶ó¾¾µ¿ | 3 | 65.1 | 3,000 | 55 | 1984 | | 2025.08.21 | ¿ù¼¼ | °æ¿ø±×¸°ºô°¡µ¿ | 2 | 56.46 | 3,000 | 110 | 2001 | | 2025.08.21 | Àü¼¼ | ¹Ù¶óȨ | 3 | 29.9 | 23,600 | 0 | 2023 | | 2025.08.21 | Àü¼¼ | Àç·æºôµù | 3 | 29.97 | 21,500 | 0 | 2021 | | 2025.08.21 | ¿ù¼¼ | »ï¼º½¦¸£ºô(400-16) | 2 | 36.6 | 18,500 | 6 | 2015 | | 2025.08.21 | ¿ù¼¼ | ȼººô¶ó(56-92) | 1 | 35.1 | 1,000 | 55 | 2002 | | 2025.08.21 | ¿ù¼¼ | ¹Ì¼ÒȨŸ¿î | 2 | 74.48 | 10,388 | 107 | 2022 | | 2025.08.21 | ¿ù¼¼ | ¿ì¿øºô¶ó | 4 | 59.88 | 14,400 | 30 | 1991 | | 2025.08.21 | ¸Å¸Å | °ÇÇüŸ¿î°¡µ¿ | 3 | 40.5 | 20,000 | | 2002 | | 2025.08.21 | ¸Å¸Å | ³²¼º¾ÆÆ®ºô | 3 | 33.2 | 27,000 | | 2017 | | 2025.08.21 | ¿ù¼¼ | ¹Ì¼ÒȨŸ¿î | 4 | 74.51 | 22,732 | 45 | 2022 | | 2025.08.21 | ¿ù¼¼ | ¾ÆÀÌÀ¯ÇÏÀÓ72 | 5 | 69.15 | 27,574 | 23 | 2022 | | 2025.08.21 | ¿ù¼¼ | »ï¼º½¦¸£ºô(400-16) | 2 | 36.6 | 18,500 | 6 | 2015 | | 2025.08.21 | ¿ù¼¼ | ºñ¿¡½ºÇÏ¿ì¡ | 5 | 23.14 | 30 | 75 | 2018 | | 2025.08.21 | ¿ù¼¼ | ¹Ì¼ÒȨŸ¿î | 2 | 74.63 | 12,142 | 125 | 2022 | | 2025.08.21 | ¿ù¼¼ | ¹Ì¼ÒȨŸ¿î | 4 | 74.48 | 10,702 | 110 | 2022 | | 2025.08.21 | ¿ù¼¼ | Àº°¡¶÷ÆÓ¸®½º | 6 | 37.345 | 1,000 | 120 | 2022 | | 2025.08.21 | ¿ù¼¼ | ¹Ì¼ÒȨŸ¿î2Â÷ | 4 | 84.26 | 12,997 | 134 | 2022 | | 2025.08.21 | ¿ù¼¼ | ¾ÆÀÌÀ¯ÇÏÀÓ72 | 5 | 69.15 | 11,134 | 115 | 2022 | | 2025.08.21 | ¿ù¼¼ | žçºô¶ó | 1 | 46.3 | 2,500 | 60 | 2001 | | 2025.08.21 | ¿ù¼¼ | ¾ÆÀÌÀ¯ÇÏÀÓ72 | 3 | 84.93 | 11,802 | 122 | 2022 | | 2025.08.21 | ¿ù¼¼ | ¹Ì¼ÒȨŸ¿î | 5 | 78.98 | 11,252 | 116 | 2022 | | 2025.08.21 | ¿ù¼¼ | ¿ì¼º¼ºÁøºô¶ó | 2 | 41.28 | 11,700 | 30 | 1996 | | 2025.08.21 | ¿ù¼¼ | ¹Ì¼ÒȨŸ¿î | 2 | 74.48 | 25,726 | 21 | 2022 | | 2025.08.21 | ¿ù¼¼ | ¿ì¼º¼ºÁøºô¶ó | 2 | 41.28 | 11,700 | 30 | 1996 | | 2025.08.20 | Àü¼¼ | â´ëºô¶ó(362-58) | 5 | 80.02 | 21,000 | 0 | 2007 | | 2025.08.20 | ¿ù¼¼ | ÀÎÅÍ½ÃÆ¼ºô¶ó(152-5) | 2 | 37.32 | 900 | 20 | 2001 | | 2025.08.20 | Àü¼¼ | ¼Ò¸Áºô¶ó³ªµ¿ | 3 | 40.17 | 9,970 | 0 | 1991 | | 2025.08.20 | ¿ù¼¼ | ¹Ì¼ÒȨŸ¿î | 3 | 74.48 | 26,506 | 22 | 2022 | | 2025.08.20 | ¿ù¼¼ | ºí·ç¹ÖÇϿ콺 | 2 | 60.99 | 20,150 | 17 | 2023 | | 2025.08.20 | ¿ù¼¼ | ¹Ì¼ÒȨŸ¿î2Â÷ | 2 | 82.1 | 10,421 | 107 | 2022 | | 2025.08.20 | ¿ù¼¼ | ¹Ì¼ÒȨŸ¿î | 3 | 80.05 | 28,790 | 24 | 2022 | | 2025.08.20 | ¿ù¼¼ | µ¿¾çÁÖÅÃAµ¿ | 2 | 58.2 | 14,500 | 7 | 2002 | | 2025.08.20 | ¿ù¼¼ | ⵿ºô¶ó | 5 | 45.32 | 14,480 | 15 | 2008 | | 2025.08.20 | ¿ù¼¼ | ¹Ì¼ÒȨŸ¿î | 2 | 80.05 | 13,013 | 134 | 2022 | | 2025.08.20 | ¿ù¼¼ | ¹Ì¼ÒȨŸ¿î | 2 | 80.99 | 27,673 | 23 | 2022 | | 2025.08.20 | ¿ù¼¼ | ¼ºÁøºô¶óAµ¿ | 4 | 52.53 | 13,900 | 16 | 1997 | | 2025.08.20 | ¿ù¼¼ | ¹Ì¼ÒȨŸ¿î | 3 | 74.48 | 10,702 | 110 | 2022 | | 2025.08.20 | ¿ù¼¼ | ºí·ç¹ÖÇϿ콺 | 2 | 60.99 | 8,136 | 84 | 2023 | | 2025.08.20 | ¿ù¼¼ | ¹Ì¼ÒȨŸ¿î | 3 | 74.63 | 10,839 | 112 | 2022 | | 2025.08.20 | ¿ù¼¼ | »ó½Âºô¶ó | -1 | 40.44 | 1,000 | 25 | 1991 | | 2025.08.20 | ¿ù¼¼ | ¹Ì¼ÒȨŸ¿î | 3 | 80.05 | 11,625 | 120 | 2022 | | 2025.08.20 | ¿ù¼¼ | ¹Ì¼ÒȨŸ¿î | 2 | 80.99 | 11,174 | 115 | 2022 | | 2025.08.20 | ¿ù¼¼ | À¯ÁøÆÄÅ©ºô | 2 | 52.41 | 7,982 | 82 | 2023 | | 2025.08.20 | ¿ù¼¼ | ¹Ì·¡½ºÅ¸ºô3Â÷ | 4 | 52.61 | 12,000 | 25 | 2008 | | 2025.08.20 | ¿ù¼¼ | ¹Ì¼ÒȨŸ¿î | 5 | 78.98 | 13,242 | 136 | 2022 | | 2025.08.20 | Àü¼¼ | ´õ¿ø·¹¿Àºô | 2 | 27.91 | 21,920 | 0 | 2021 | | 2025.08.20 | Àü¼¼ | ¼øÈ¯ºô¶ó(46-47) | 3 | 46.84 | 12,100 | 0 | 2001 | | 2025.08.20 | ¿ù¼¼ | À¯ÁøÆÄÅ©ºô | 2 | 50.48 | 7,585 | 78 | 2023 | | 2025.08.20 | ¿ù¼¼ | (959-22) | 1 | 22.59 | 500 | 38 | 2003 | | 2025.08.20 | ¿ù¼¼ | MARNI | 3 | 25.76 | 3,000 | 85 | 2023 | | 2025.08.20 | ¸Å¸Å | ³²±¤ÆÄÅ©ºô | 5 | 29.34 | 26,000 | | 2014 | | 2025.08.20 | ¿ù¼¼ | µµÇÏ | 3 | 16.2 | 500 | 55 | 2023 | | 2025.08.20 | ¸Å¸Å | ŸÀÓ¾ÆÆ®ºô(996-18) | 3 | 37 | 27,000 | | 2014 | | 2025.08.20 | ¸Å¸Å | ´Ù¾Èºô¶óÆ®201µ¿202µ¿ | 5 | 38.62 | 24,500 | | 2016 | | 2025.08.20 | ¸Å¸Å | ¸ñ·ÃÇϿ콺 | 2 | 51.98 | 20,000 | | 2003 | | 2025.08.20 | ¿ù¼¼ | ¼¿ì¿¡ÄÚºô | 5 | 40.02 | 13,800 | 15 | 2010 | | 2025.08.20 | ¸Å¸Å | ´ëÁÖ½¦¸£ºô(338-9) | 4 | 41.62 | 19,000 | | 2002 | | 2025.08.20 | ¿ù¼¼ | »þÀδõÈúȰî | 5 | 21.65 | 1,000 | 90 | 2023 | | 2025.08.20 | ¸Å¸Å | °æ¿øÈ¨Å¸¿î | 3 | 61.25 | 27,500 | | 2007 | | 2025.08.20 | ¸Å¸Å | ÈúÇϿ콺A,Bµ¿ | 4 | 28.28 | 16,800 | | 2011 | | 2025.08.20 | ¸Å¸Å | ¿ì¼Û±×·£µåºô | 2 | 31.24 | 26,000 | | 2012 | | 2025.08.20 | ¿ù¼¼ | µµÇÏ | 3 | 16.2 | 500 | 55 | 2023 | | 2025.08.20 | ¿ù¼¼ | ¹Ì¼ÒȨŸ¿î | 3 | 74.63 | 26,843 | 22 | 2022 | | 2025.08.20 | Àü¼¼ | ¼øÈ¯ºô¶ó(46-47) | 3 | 46.84 | 12,100 | 0 | 2001 | | 2025.08.20 | ¿ù¼¼ | ¿£¿¡½ºÆÄÅ©ºô | 5 | 28.85 | 18,770 | 10 | 2019 | | 2025.08.20 | ¿ù¼¼ | À̺ìÇϿ콺 | 3 | 28.21 | 1,000 | 100 | 2021 | | 2025.08.20 | ¿ù¼¼ | µå¸®¹ÌŸ¿î(851-21) | 3 | 29.94 | 1,000 | 60 | 2014 | | 2025.08.19 | ¸Å¸Å | Çö´ëºô¶ó | 2 | 58.49 | 19,800 | | 1994 | | 2025.08.19 | ¸Å¸Å | °æµ¿ºô¶óÆ® | 4 | 43.02 | 16,000 | | 2001 | | 2025.08.19 | ¸Å¸Å | ¾ÆÀ̵ð¿ò | 2 | 26.42 | 17,300 | | 2016 | | 2025.08.19 | ¸Å¸Å | µ¿³²ÁÖÅÃ(163-25) | 5 | 43.59 | 15,200 | | 2003 | | 2025.08.19 | ¸Å¸Å | ¿ì¼ºÁø°æºô¶ó | 1 | 49.14 | 12,000 | | 1995 | | 2025.08.19 | ¿ù¼¼ | ½ºÆäÀ̽ººô | 2 | 39.98 | 2,000 | 70 | 2009 | | 2025.08.19 | Àü¼¼ | (1164-0) | 3 | 21.16 | 12,300 | 0 | 2014 | | 2025.08.19 | Àü¼¼ | ¸íǰÁؽ¦¸£ºô | 5 | 48.2 | 16,750 | 0 | 2012 | | 2025.08.19 | ¿ù¼¼ | ¶óÀÌÇÁÁÖÅà | 2 | 40.825 | 10,000 | 10 | 1986 | | 2025.08.19 | ¿ù¼¼ | ÆÄÅ©½ºÅ×ÀÌ | 4 | 20.72 | 500 | 70 | 2024 | | 2025.08.19 | ¿ù¼¼ | ±¤¸íÇÏÀÌÃ÷6Â÷ | 2 | 41.08 | 6,000 | 35 | 1993 | | 2025.08.19 | ¿ù¼¼ | Ŭ·¡½Ãºä | 2 | 26.74 | 1,000 | 105 | 2022 | | 2025.08.19 | Àü¼¼ | (1164-0) | 3 | 21.16 | 12,300 | 0 | 2014 | | 2025.08.19 | Àü¼¼ | »ï¼º¸ð´×ºô | 2 | 46.98 | 16,000 | 0 | 2004 | | 2025.08.19 | Àü¼¼ | ºñÁ¯(459-23) | 3 | 50.83 | 14,870 | 0 | 2012 | | 2025.08.19 | ¿ù¼¼ | ÀÎÅÍ½ÃÆ¼ºô¶ó(410-171) | 2 | 54.32 | 13,000 | 25 | 2010 | | 2025.08.19 | Àü¼¼ | ¿ì¼º¿¬¸³(1134-7) | 2 | 51.48 | 13,000 | 0 | 1985 | | 2025.08.19 | ¿ù¼¼ | À̵µÆ®¶ó¿ò2 | 4 | 28.85 | 5,000 | 80 | 2018 | | 2025.08.19 | Àü¼¼ | ¸íǰÁؽ¦¸£ºô | 5 | 48.2 | 16,750 | 0 | 2012 | | 2025.08.19 | Àü¼¼ | ¼¿øÅ¸¿î | 2 | 69.31 | 19,845 | 0 | 2001 | | 2025.08.19 | ¿ù¼¼ | Å׸¶366(366-50) | 6 | 29.7 | 23,000 | 30 | 2020 | | 2025.08.19 | ¿ù¼¼ | ¿þ½ºÆ®Èúºô¶óÆ® | 4 | 50.6 | 14,200 | 10 | 2002 | | 2025.08.18 | ¿ù¼¼ | ½Å¿µ¼¾Æ®·¹ºô | 2 | 26.4 | 10,836 | 9 | 2011 | | 2025.08.18 | Àü¼¼ | (56-463) | 1 | 44.25 | 10,000 | 0 | 1990 | | 2025.08.18 | ¿ù¼¼ | û¿îºô¶ó | 4 | 43.61 | 2,000 | 70 | 2001 | | 2025.08.18 | ¸Å¸Å | ¼ºÁÖºô¶ó | 1 | 62.88 | 20,000 | | 1995 | | 2025.08.18 | ¸Å¸Å | µå¸®¹ÌŸ¿î | 3 | 44.15 | 25,500 | | 2015 | | 2025.08.18 | ¸Å¸Å | ÇÑ¿ïÆÓ¸®½º | 6 | 25.31 | 17,000 | | 2017 | | 2025.08.18 | ¸Å¸Å | ¸®¿ÀÆÄÅ©ºô(881-22) | 4 | 45.32 | 23,200 | | 2014 | | 2025.08.18 | ¸Å¸Å | ȼººô¶ó(56-473) | 4 | 34 | 10,700 | | 2002 | | 2025.08.18 | ¸Å¸Å | µ¿µµÇÏÀÌÃ÷ºô¶ó | 2 | 59.64 | 21,000 | | 2000 | | 2025.08.18 | Àü¼¼ | ¼Ò´ã¹ë¸®½ºBµ¿ | 4 | 29.75 | 16,200 | 0 | 2013 | | 2025.08.18 | ¿ù¼¼ | ¿¡ÀÌ¿£Ä³½½(1086-24) | 6 | 28.47 | 22,600 | 5 | 2023 | | 2025.08.18 | Àü¼¼ | ·Î¾âÇÏÀÌÃ÷(353-75)Aµ¿ | 4 | 42.22 | 18,000 | 0 | 2014 | | 2025.08.18 | ¿ù¼¼ | À̵µÆÓ¸®½º(51-4) | 3 | 29.98 | 2,000 | 60 | 2020 | | 2025.08.18 | ¿ù¼¼ | ¿¤ÄÉÀ̵帲ºô | 3 | 46.66 | 30 | 70 | 2017 | | 2025.08.18 | ¿ù¼¼ | ¾ÆÀνººô(997-15) | 4 | 37.4 | 2,000 | 80 | 2011 | | 2025.08.18 | ¿ù¼¼ | »ïȺô¸®Áö | 5 | 47.43 | 500 | 47 | 2017 | | 2025.08.18 | ¿ù¼¼ | °¼´õÈú(962-4) | 1 | 30.38 | 12,100 | 2 | 2013 | | 2025.08.18 | ¿ù¼¼ | ´ëÇѺô¶ó7Â÷ | 1 | 54.3 | 1,000 | 70 | 1992 | | 2025.08.18 | ¿ù¼¼ | ´ë¸²È¨Å¸¿îAµ¿ | 5 | 57.6 | 5,000 | 65 | 2008 | | 2025.08.18 | ¿ù¼¼ | ½Å¾Èºô¶ó°¡µ¿ | 1 | 50.4 | 1,000 | 65 | 1991 | | 2025.08.17 | ¿ù¼¼ | ¿¤Æç¸®½º | 2 | 20.07 | 18,770 | 6 | 2022 | | 2025.08.17 | ¸Å¸Å | À̵µÆÓ¸®½º(51-4) | 2 | 29.98 | 21,800 | | 2020 | | 2025.08.17 | ¿ù¼¼ | ÇѼº | 3 | 57.96 | 1,000 | 60 | 1982 | | 2025.08.17 | ¿ù¼¼ | ±Ý°ÇÏÀÓºô | 2 | 29.15 | 16,100 | 8 | 2015 | | 2025.08.16 | ¿ù¼¼ | µ¿¿¬ÇϿ콺 | 2 | 54.21 | 2,000 | 82 | 2017 | | 2025.08.16 | Àü¼¼ | À̵µÅ¸¿î | 3 | 27.11 | 23,800 | 0 | 2022 | | 2025.08.16 | Àü¼¼ | µ¿¿ìÇÏÀ̺ô | 4 | 29.78 | 27,600 | 0 | 2021 | | 2025.08.16 | ¸Å¸Å | ¼ºÁøºô¶ó(400-80) | -1 | 42.7 | 9,600 | | 2001 | | 2025.08.16 | ¿ù¼¼ | È£¸²ºô¶ó | -1 | 59.82 | 1,000 | 55 | 1991 | | 2025.08.16 | ¿ù¼¼ | ¸¶À̹ٿò | 3 | 15.47 | 1,500 | 47 | 2011 | | 2025.08.16 | ¿ù¼¼ | LAHOME(¶óȨ)A | 2 | 29.91 | 2,000 | 100 | 2022 | | 2025.08.16 | ¸Å¸Å | ¹ÌÁÖºô¶óºñµ¿ | 5 | 48.21 | 23,000 | | 2002 | | 2025.08.16 | ¸Å¸Å | µ¿¼ºô¶ó(56-524) | 3 | 41.22 | 14,000 | | 1992 | | 2025.08.15 | ¿ù¼¼ | ¿¡½º¿¥·¹¹öºô(346-7) | 4 | 23.45 | 2,000 | 100 | 2014 | | 2025.08.15 | Àü¼¼ | °Å¼º | 1 | 43.56 | 12,000 | 0 | 1986 | | 2025.08.15 | ¿ù¼¼ | ´ö¼öºô¶óAµ¿ | 1 | 67.32 | 3,000 | 80 | 2003 | | 2025.08.15 | ¿ù¼¼ | µ¿¾ç³ëºí·¹½ººô | 5 | 70.64 | 18,000 | 3 | 2008 | | 2025.08.15 | ¿ù¼¼ | °íÀº¾ÆÆ®ºô | 4 | 51.51 | 13,000 | 55 | 2002 | | 2025.08.15 | ¿ù¼¼ | µ¿¾çÁÖÅÃ(409-74) | 3 | 51.6 | 3,000 | 70 | 2002 | | 2025.08.15 | Àü¼¼ | ´ëµ¿ºô | 5 | 26.86 | 17,000 | 0 | 2020 | | 2025.08.15 | ¿ù¼¼ | Á¶¾ç¶ß¶õä | 3 | 59.84 | 100 | 60 | 2011 | | 2025.08.15 | ¿ù¼¼ | ¼¼¿øºôµù | 7 | 44.97 | 8,090 | 60 | 2001 | | 2025.08.15 | ¿ù¼¼ | °æ¹Î¾ÆÆ®ºô(393-21) | 3 | 23.97 | 2,000 | 85 | 2017 | | 2025.08.15 | ¿ù¼¼ | Å×¶ó½ºÇϿ콺 | 3 | 41.7 | 2,000 | 55 | 2002 | | 2025.08.15 | ¿ù¼¼ | Áö¾Èºô | 5 | 25.04 | 3,000 | 60 | 2015 | | 2025.08.15 | ¿ù¼¼ | ¸¶Å©Èú½º74 | 2 | 27.06 | 100 | 70 | 2019 | | 2025.08.15 | ¿ù¼¼ | µ¿¾ç³ëºí·¹½ººô | 4 | 49.62 | 12,600 | 2 | 2008 | | 2025.08.15 | ¸Å¸Å | º¹Áö±×¸°ºô(98-77) | 1 | 60.03 | 29,500 | | 2001 | | 2025.08.15 | Àü¼¼ | ÇØÁÖ¸®Ä¡ºô | 2 | 73.26 | 20,000 | 0 | 2002 | | 2025.08.14 | ¿ù¼¼ | ¼¾Æ®ºô | 5 | 23.78 | 10,000 | 3 | 2012 | | 2025.08.14 | Àü¼¼ | ¿ÍÀ̾غñ869-35 | 3 | 15.29 | 12,690 | 0 | 2019 | | 2025.08.14 | ¿ù¼¼ | »ï¼º¾ÆÆ®ºôAµ¿ | 2 | 53.46 | 2,000 | 75 | 2002 | | 2025.08.14 | Àü¼¼ | ¶ó¿òÇÏ¿ì¡ | 4 | 32.12 | 20,340 | 0 | 2019 | | 2025.08.14 | ¿ù¼¼ | µ¿¾ç³ëºí·¹½ººô | 3 | 60.87 | 15,200 | 3 | 2008 | | 2025.08.14 | Àü¼¼ | µ¿¾çÇÏ¿ì¡(870-1) | 2 | 29.97 | 16,110 | 0 | 2017 | | 2025.08.14 | ¿ù¼¼ | Æ÷¿¥ºô | 11 | 29.83 | 21,500 | 30 | 2020 | | 2025.08.14 | Àü¼¼ | Ǫ¸¥Ç³°æÃ¤ | 3 | 38.03 | 20,070 | 0 | 2018 | | 2025.08.14 | ¿ù¼¼ | ·çü¾²¸® | 6 | 12 | 2,600 | 29 | 2015 | | 2025.08.14 | Àü¼¼ | Æ÷¸£Å×ÇÏÀÓ(358-1) | 3 | 28.76 | 26,000 | 0 | 2023 | | 2025.08.14 | ¿ù¼¼ | ½Å¿µ¼¾Æ®·¹ºô | 4 | 39.76 | 15,370 | 22 | 2011 | | 2025.08.14 | Àü¼¼ | ¿ìÀå»êºê¶ó¿î½ºÅæ(1100-9) | 4 | 81.69 | 28,000 | 0 | 2007 | | 2025.08.14 | Àü¼¼ | ¿ìÀå»êºê¶ó¿î½ºÅæ(1100-9) | 4 | 81.69 | 28,000 | 0 | 2007 | | 2025.08.14 | ¸Å¸Å | ⵿ºô¶ó | 4 | 46.79 | 19,500 | | 2008 | | 2025.08.14 | ¸Å¸Å | Y&B | 4 | 29.64 | 23,625 | | 2020 | | 2025.08.14 | ¸Å¸Å | ¹Ì¸²ÁÖÅà | -1 | 48.75 | 15,400 | | 1991 | | 2025.08.14 | ¸Å¸Å | µ¿¾çÇÏ¿ì¡(46-295) | 2 | 44.66 | 25,700 | | 2014 | | 2025.08.14 | ¸Å¸Å | ´ë½Å¾ÆÆ®ºô | 3 | 48.61 | 19,500 | | 2002 | | 2025.08.14 | Àü¼¼ | Æ÷¸£Å×ÇÏÀÓ(358-1) | 3 | 28.76 | 25,000 | 0 | 2023 | | 2025.08.13 | Àü¼¼ | JYÆç¸®½º | 5 | 28.615 | 16,500 | 0 | 2016 | | 2025.08.13 | ¿ù¼¼ | ÀÚÇÏŬ·¡½Ä | 16 | 13.77 | 11,640 | 10 | 2018 | | 2025.08.13 | ¿ù¼¼ | ¼ÀϺô¸®Áö102µ¿ | 5 | 69 | 18,500 | 15 | 2004 | | 2025.08.13 | Àü¼¼ | (1164-0) | 4 | 21.16 | 12,500 | 0 | 2014 | | 2025.08.13 | Àü¼¼ | û¼ÛÆòÈÇÏÀ̸ǼÇ(832-42) | 2 | 29.38 | 13,872 | 0 | 2012 | | 2025.08.13 | Àü¼¼ | ½ÅÈï¶ß¶õä | 4 | 40.99 | 22,500 | 0 | 2017 | | 2025.08.13 | Àü¼¼ | ¿ì¼º | 3 | 29.73 | 14,700 | 0 | 2016 | | 2025.08.13 | Àü¼¼ | ¿ì¼º | 3 | 29.73 | 14,700 | 0 | 2016 | | 2025.08.13 | ¿ù¼¼ | »ó¿ìºô¶ó | 5 | 32.16 | 10,000 | 25 | 2001 | | 2025.08.13 | ¿ù¼¼ | ÀºÇϺô¶ó(46-69) | 3 | 41.48 | 11,800 | 10 | 2004 | | 2025.08.13 | ¸Å¸Å | ½Å¼º³×¿Àºô | 6 | 39.06 | 30,000 | | 2017 | | 2025.08.13 | ¸Å¸Å | °æ¿ø³×¹öºô³ªµ¿(111-44) | 4 | 48.2 | 14,500 | | 2002 | | 2025.08.13 | ¸Å¸Å | »ï¼º½¦¸£ºô(351-17¹øÁö) | 2 | 40.06 | 23,000 | | 2016 | | 2025.08.13 | ¿ù¼¼ | OKºô¶ó | 3 | 51.2 | 19,900 | 20 | 2008 | | 2025.08.13 | Àü¼¼ | û¼ÛÆòÈÇÏÀ̸ǼÇ(832-42) | 2 | 29.38 | 13,872 | 0 | 2012 | | 2025.08.13 | ¿ù¼¼ | ¸¶ÀÌȨ | 2 | 23.84 | 1,000 | 71 | 2017 | | 2025.08.13 | ¿ù¼¼ | LAHOME(¶óȨ)B | 2 | 29.96 | 12,000 | 59 | 2022 | | 2025.08.12 | ¿ù¼¼ | ½Ö¿ë±×¸°¸Ç¼Ç | 4 | 35.7 | 1,000 | 62 | 1995 | | 2025.08.12 | ¿ù¼¼ | ´º¿å·¹Áö´ø½º¥±(858-23) | 5 | 12.24 | 500 | 35 | 2012 | | 2025.08.12 | ¿ù¼¼ | Çý¼ºÆç¸®½º(156-21) | 4 | 31.92 | 2,000 | 70 | 2013 | | 2025.08.12 | ¸Å¸Å | ´Ù´Ùºô¸®Áö | 3 | 34.09 | 25,000 | | 2015 | | 2025.08.12 | Àü¼¼ | ¿ùµåŸ¿î | 3 | 57.24 | 14,600 | 0 | 2000 | | 2025.08.12 | ¿ù¼¼ | ´Ù³ª³×½ºÆ®ºô(410-276) | 4 | 47.7 | 12,000 | 15 | 2008 | | 2025.08.12 | Àü¼¼ | (817-18) | 5 | 24.7 | 9,000 | 0 | 2013 | | 2025.08.12 | Àü¼¼ | ¸í°¡ | 2 | 29.43 | 18,270 | 0 | 2019 | | 2025.08.12 | ¿ù¼¼ | ³²°æ½¦¸£ºô(362-135) | 1 | 68.74 | 17,000 | 30 | 2001 | | 2025.08.12 | ¿ù¼¼ | ÄÉÀ̾¾Å¸¿î | 6 | 23.82 | 100 | 80 | 2022 | | 2025.08.12 | ¸Å¸Å | È«Àͺô¶ó | -2 | 41.04 | 9,200 | | 1995 | | 2025.08.12 | ¸Å¸Å | °ñµåij½½ | 4 | 41.39 | 29,500 | | 2016 | | 2025.08.12 | ¸Å¸Å | ÀÎÅÍ½ÃÆ¼ºô¶ó(392-11) | 2 | 66.26 | 31,600 | | 2000 | | 2025.08.12 | ¸Å¸Å | ¹Ì¸²ÁÖÅà | -1 | 48.75 | 15,400 | | 1991 | | 2025.08.12 | ¸Å¸Å | »ï¼º½¦¸£ºô(61-82) | 2 | 63.08 | 25,000 | | 2008 | | 2025.08.12 | ¸Å¸Å | µ¿µµÁÖÅà | 1 | 57.42 | 20,800 | | 1996 | | 2025.08.12 | ¸Å¸Å | ¼±¤ºô | 5 | 42.33 | 18,000 | | 2002 | | 2025.08.12 | Àü¼¼ | ¿¡ÄÚij½½(504-24) | 3 | 30.88 | 16,500 | 0 | 2015 | | 2025.08.12 | ¿ù¼¼ | µð¾Æ¸Á2(105-82) | 5 | 57.22 | 1,000 | 55 | 2014 | | 2025.08.12 | Àü¼¼ | ¼±°æÇÏÀÌÃ÷(367-67) | 6 | 25.48 | 16,000 | 0 | 2012 | | 2025.08.12 | ¸Å¸Å | À£½ºÆÄÅ©ºô | 6 | 27.52 | 19,000 | | 2013 | | 2025.08.12 | ¸Å¸Å | µ¿µµÇÏÀÌÃ÷ | 5 | 45.65 | 15,500 | | 2002 | | 2025.08.12 | Àü¼¼ | ºñ¿¤ºô¸®Áö | 4 | 29.99 | 21,000 | 0 | 2019 | | 2025.08.12 | ¿ù¼¼ | ¼±´öºô¶ó | 4 | 42.74 | 1,000 | 68 | 2008 | | 2025.08.12 | ¿ù¼¼ | ´º¿å·¹Áö´ø½º¥±(858-23) | 3 | 12.24 | 500 | 38 | 2012 | | 2025.08.12 | Àü¼¼ | ÇÑ¿ï¶ß¶õä(1079-23) | 5 | 29.83 | 13,000 | 0 | 2012 | | 2025.08.12 | ¿ù¼¼ | ±Ý¼±ºô¶ó | 2 | 67.57 | 4,000 | 80 | 2001 | | 2025.08.12 | Àü¼¼ | ³²±¤B | 2 | 71.36 | 21,500 | 0 | 2002 | | 2025.08.12 | Àü¼¼ | »ïÁ¤ÆÄÅ©ºä | 2 | 28.7 | 10,530 | 0 | 2012 | | 2025.08.12 | ¿ù¼¼ | ·Î¾âÇÏÀÌÃ÷ºô¶ó | 2 | 59.91 | 3,500 | 80 | 1994 | | 2025.08.12 | Àü¼¼ | ¿¡ÄÚÇϿ콺 | 2 | 26.91 | 20,070 | 0 | 2021 | | 2025.08.12 | Àü¼¼ | ¿¡½º-Ÿ¿öºô | 6 | 29.96 | 16,740 | 0 | 2018 | | 2025.08.12 | ¿ù¼¼ | ³²°æ½¦¸£ºô(362-135) | 1 | 68.74 | 17,000 | 30 | 2001 | | 2025.08.12 | ¿ù¼¼ | ¼°æÆÓ¸®½º | 8 | 28.4 | 18,640 | 3 | 2019 | | 2025.08.11 | Àü¼¼ | ¾ÖÇÃÇϿ콺 | 6 | 38.82 | 22,200 | 0 | 2014 | | 2025.08.11 | ¿ù¼¼ | casagio | 2 | 29.93 | 19,900 | 5 | 2019 | | 2025.08.11 | Àü¼¼ | ÀÎÅ;¾Æ¼ºô¶ó | 3 | 66.36 | 20,550 | 0 | 2007 | | 2025.08.11 | Àü¼¼ | ¿£¿¡½ºÆÄÅ©ºô | 3 | 28.85 | 17,010 | 0 | 2019 | | 2025.08.11 | Àü¼¼ | Å¥ºê¿ø | 6 | 23.63 | 17,380 | 0 | 2020 | | 2025.08.11 | ¸Å¸Å | »ó¿ìºô¶óB | 5 | 49.16 | 19,500 | | 2002 | | 2025.08.11 | ¸Å¸Å | °ÇÇü¼¾½ººô | 5 | 47.62 | 20,000 | | 2011 | | 2025.08.11 | ¸Å¸Å | Àνººô | 6 | 27.92 | 21,400 | | 2017 | | 2025.08.11 | ¸Å¸Å | û¼ÖÇÏÀÌÃ÷ | 1 | 64.91 | 23,300 | | 2002 | | 2025.08.11 | ¿ù¼¼ | µ¿±¤ºô¶ó(988-11) | 5 | 23.97 | 6,600 | 10 | 2002 | | 2025.08.11 | Àü¼¼ | ȼººô¶ó(56-409) | 3 | 39.72 | 10,600 | 0 | 1993 | | 2025.08.11 | ¿ù¼¼ | ´ë¼ºÄÉÀÌÁ¦ÀÌ | 11 | 29.98 | 3,000 | 100 | 2020 | | 2025.08.11 | ¿ù¼¼ | °æ¹ÎÆÄºô¸®¿Â | 5 | 41.46 | 3,000 | 90 | 2015 | | 2025.08.11 | Àü¼¼ | Bluehill | 6 | 24.78 | 16,200 | 0 | 2019 | | 2025.08.11 | ¿ù¼¼ | (791-38) | 1 | 40.92 | 2,000 | 40 | 1992 | | 2025.08.11 | ¿ù¼¼ | ¿¹°¡Ã¤(968-3) | 3 | 28.4 | 3,000 | 70 | 2015 | | 2025.08.11 | Àü¼¼ | ¼±¤ºô¶ó(352-59) | 2 | 51.06 | 14,364 | 0 | 2001 | | 2025.08.11 | ¿ù¼¼ | ½Ã±×´ÏÃÄ-S | 2 | 29.64 | 3,000 | 90 | 2023 | | 2025.08.11 | ¿ù¼¼ | È«¼ºÆÄÅ©ºô(808-16) | 3 | 49.6 | 17,800 | 10 | 2010 | | 2025.08.11 | Àü¼¼ | ÀÎÅ;¾Æ¼ºô¶ó | 3 | 66.36 | 20,550 | 0 | 2007 | | 2025.08.11 | Àü¼¼ | ȼººô¶ó(56-409) | 3 | 39.72 | 10,600 | 0 | 1993 | | 2025.08.11 | ¿ù¼¼ | À̼ö¾ÆÆ®ºô2Â÷ | 7 | 29.64 | 1,000 | 78 | 2016 | | 2025.08.11 | ¿ù¼¼ | ¿¹Æòºô¶ó(1121-15) | -1 | 58.4 | 500 | 60 | 1996 | | 2025.08.11 | Àü¼¼ | ÇϾáÁý2020 | 2 | 39.412 | 20,000 | 0 | 2020 | | 2025.08.11 | ¿ù¼¼ | »ï¼ºÆÄÅ©ºô°¡µ¿(111-125) | 4 | 45.13 | 3,000 | 150 | 2001 | | 2025.08.11 | ¿ù¼¼ | µ¿¿øÈúÇϿ콺 | 5 | 12.6 | 1,000 | 49 | 2011 | | 2025.08.10 | ¸Å¸Å | À̵µÆÓ¸®½º(1049-29) | 2 | 20.41 | 28,000 | | 2022 | | 2025.08.10 | ¸Å¸Å | »ó¾ÆÁÖÅÃC¸Ç¼Ç | 3 | 59.08 | 28,500 | | 2002 | | 2025.08.10 | ¸Å¸Å | ´ëÈïºô¶ó | 2 | 46.71 | 19,300 | | 2002 | | 2025.08.10 | Àü¼¼ | È£°æÁÖÅà | 3 | 37.98 | 11,340 | 0 | 2002 | | 2025.08.10 | Àü¼¼ | ¹Ù¶óȨ | 3 | 22.11 | 18,770 | 0 | 2023 | | 2025.08.09 | ¿ù¼¼ | (98-23) | 4 | 40.94 | 19,530 | 8 | 2018 | | 2025.08.09 | ¿ù¼¼ | ¶ó¿òÇϿ콺 | 2 | 26.4 | 850 | 76 | 2017 | | 2025.08.09 | ¿ù¼¼ | µ¿¼±º§¸®Ã¼ | 3 | 29.24 | 16,000 | 20 | 2020 | | 2025.08.09 | ¿ù¼¼ | ¿¹¿øºô¶ó5µ¿ | 2 | 36.98 | 2,000 | 70 | 1987 | | 2025.08.09 | Àü¼¼ | ¹Ù¿ìÇϿ콺(895-10) | 2 | 12.16 | 5,775 | 0 | 2011 | | 2025.08.09 | Àü¼¼ | °¡¼º¾ÆÆ®Èú5Â÷Bµ¿(966-15) | 3 | 56.56 | 16,000 | 0 | 2002 | | 2025.08.09 | ¸Å¸Å | ¸®´õ½ºÅ¸¿î | 5 | 29.88 | 21,000 | | 2016 | | 2025.08.09 | Àü¼¼ | ½Ã¿Âºô¸®Áö101 | 6 | 37.61 | 27,000 | 0 | 2022 | | 2025.08.09 | ¿ù¼¼ | ¸ÖƼÇϿ콺 | 5 | 17.02 | 1,000 | 47 | 2004 | | 2025.08.09 | ¿ù¼¼ | ¿ì¼ººô¶ó | 3 | 47.84 | 2,000 | 70 | 2001 | | 2025.08.09 | ¿ù¼¼ | ÇϳªÅ¸¿îAµ¿ | 2 | 29.93 | 2,000 | 74 | 2015 | | 2025.08.09 | ¿ù¼¼ | ´ÙÀÎȨŸ¿î | 7 | 27.51 | 1,000 | 55 | 2016 | | 2025.08.09 | ¿ù¼¼ | ¿ì¼ºÅ׸¶ºôBµ¿(362-8) | 3 | 52.37 | 2,000 | 85 | 2006 | | 2025.08.09 | ¿ù¼¼ | ¿ì¼ÛÇÏÀ̺ô(996-4) | 4 | 48.96 | 3,000 | 70 | 2010 | | 2025.08.09 | ¿ù¼¼ | ½Å¼ºº£½ºÆ®ºô | 4 | 51.61 | 2,000 | 90 | 2002 | | 2025.08.09 | ¿ù¼¼ | ÇϳªÅ¸¿îAµ¿ | 2 | 29.93 | 2,000 | 74 | 2015 | | 2025.08.09 | ¿ù¼¼ | ´Ù¼ØÅ¸¿î³ªµ¿(1037-14) | 3 | 36.05 | 3,000 | 120 | 2015 | | 2025.08.09 | Àü¼¼ | µ¿³²ÁÖÅÃ(163-25) | 5 | 48.28 | 13,635 | 0 | 2003 | | 2025.08.09 | Àü¼¼ | ÇÑ¿µºô¶ó(56-322) | 3 | 36.72 | 10,000 | 0 | 1991 | | 2025.08.09 | ¿ù¼¼ | ´Ù¼ØÅ¸¿î³ªµ¿(1037-14) | 3 | 36.05 | 3,000 | 120 | 2015 | | 2025.08.09 | ¿ù¼¼ | ¼±°á¾ÆÆ®ºô | 3 | 46.54 | 10,700 | 15 | 2003 | | 2025.08.09 | Àü¼¼ | ¹Ù¿ìÇϿ콺(895-10) | 2 | 12.16 | 5,775 | 0 | 2011 | | 2025.08.09 | Àü¼¼ | û¼Ö¸Ç¼ÇAµ¿(8Â÷) | 5 | 49.46 | 13,300 | 0 | 2002 | | 2025.08.09 | ¿ù¼¼ | »ïÀͺô¶ó(354-149) | 2 | 39.08 | 1,500 | 60 | 1987 | | 2025.08.09 | ¿ù¼¼ | µ¿¼±º§¸®Ã¼(366-57) | 5 | 25.65 | 5,500 | 70 | 2021 | | 2025.08.09 | ¿ù¼¼ | (98-23) | 4 | 40.94 | 19,530 | 8 | 2018 | | 2025.08.09 | ¿ù¼¼ | ´Ù¼ØÅ¸¿î³ªµ¿(1037-14) | 3 | 36.05 | 3,000 | 120 | 2015 | | 2025.08.09 | Àü¼¼ | µ¿À̺ô¶ó(362-120) | 3 | 55.67 | 15,600 | 0 | 2002 | | 2025.08.09 | ¿ù¼¼ | ´Ù¿Âºô | 2 | 28.03 | 1,000 | 79 | 2018 | | 2025.08.09 | Àü¼¼ | °æÀκô¶ó(409-197) | 4 | 59.875 | 15,400 | 0 | 2000 | | 2025.08.09 | ¿ù¼¼ | ¿¤¸²¾ÆÆ®ºô | 1 | 40.12 | 1,000 | 70 | 2008 | | 2025.08.09 | ¿ù¼¼ | ÇѼº¾ÆÆ®ºô(158-18) | 4 | 61.65 | 3,000 | 90 | 2000 | | 2025.08.08 | ¸Å¸Å | Ǫ¸¥Ç³°æÃ¤(351-24) | 2 | 41.95 | 28,500 | | 2017 | | 2025.08.08 | ¸Å¸Å | Áؽ¦¸£ºô | 2 | 64.02 | 25,000 | | 2008 | | 2025.08.08 | ¸Å¸Å | °ñµçºô | 5 | 50.81 | 27,400 | | 2009 | | 2025.08.08 | ¸Å¸Å | ÀÎÅÍ½ÃÆ¼ºô¶óB | 3 | 61.26 | 24,400 | | 2001 | | 2025.08.08 | ¿ù¼¼ | Çѹ響î(Aµ¿) | 4 | 54.66 | 16,000 | 10 | 2002 | | 2025.08.08 | ¸Å¸Å | DS¿¡ÄÚŸ¿î(471-18) | 3 | 35.76 | 22,000 | | 2014 | | 2025.08.08 | Àü¼¼ | ÇÁ¶óÀÓÇϿ콺 | 4 | 29.2 | 16,740 | 0 | 2019 | | 2025.08.08 | Àü¼¼ | ´ë´öºô¶ó(340-23) | -1 | 46.48 | 8,980 | 0 | 1993 | | 2025.08.08 | ¿ù¼¼ | ¼º¿ìÇÏÀÌÃ÷B | 1 | 53.06 | 13,000 | 20 | 2001 | | 2025.08.08 | ¿ù¼¼ | ±Ù»óÇÁ¸®Áò¾ÆÆ®ºô | 3 | 55.16 | 5,000 | 110 | 2010 | | 2025.08.08 | ¿ù¼¼ | ºí·ç½ºÄ«À̺ô | 5 | 28.41 | 5,500 | 90 | 2016 | | 2025.08.08 | ¿ù¼¼ | Ç®ÇϿ콺(342-85) | 5 | 21.87 | 8,130 | 10 | 2007 | | 2025.08.08 | ¿ù¼¼ | ¾ÆÁÙ¸®¿ò(970-33) | 5 | 25.18 | 1,000 | 66 | 2015 | | 2025.08.08 | ¿ù¼¼ | ´ë¸²ÁÖÅà | 2 | 47.06 | 1,000 | 60 | 1986 | | 2025.08.08 | Àü¼¼ | dz¸²ºô¶ó3Â÷ | 4 | 107.52 | 24,200 | 0 | 2002 | | 2025.08.08 | Àü¼¼ | Á¤¾Èºô¶ó(362-50)°¡µ¿ | 4 | 57.22 | 14,000 | 0 | 2001 | | 2025.08.08 | ¿ù¼¼ | ½ºÆäÀ̽ººô(1018-21) | 3 | 36.48 | 6,000 | 60 | 2012 | | 2025.08.08 | ¿ù¼¼ | Ÿ¿îºô(784-1) | 4 | 38.44 | 1,000 | 60 | 1993 | | 2025.08.08 | ¿ù¼¼ | ¿ì¼ººô¶ó | 5 | 58.73 | 2,000 | 80 | 2002 | | 2025.08.08 | ¿ù¼¼ | ½ºÆäÀ̽ººô(1018-21) | 3 | 36.48 | 6,000 | 60 | 2012 | | 2025.08.08 | Àü¼¼ | ¿ì¼ººô¶ó13Â÷ | 3 | 40.5 | 11,000 | 0 | 1992 | | 2025.08.08 | Àü¼¼ | °Ç¼ÛÁÖÅÃBµ¿ | 4 | 52.83 | 12,850 | 0 | 2002 | | 2025.08.07 | ¿ù¼¼ | (879-1) | 2 | 56.96 | 500 | 57 | 2010 | | 2025.08.07 | ¸Å¸Å | ¿ìÁøÁÖÅÃ(371-17) | 4 | 58.04 | 21,000 | | 2008 | | 2025.08.07 | ¸Å¸Å | ¸¶·çÇϿ콺2Â÷ | 2 | 29.87 | 13,590 | | 2011 | | 2025.08.07 | ¸Å¸Å | »óÀº½¦¸£ºô | 3 | 60.99 | 25,400 | | 2002 | | 2025.08.07 | Àü¼¼ | Á¦ÀÌ¿ÍÀÌÆç¸®½º(849-16¹øÁö) | 5 | 29.9 | 17,600 | 0 | 2016 | | 2025.08.07 | ¿ù¼¼ | ÈÞ¸Õºô | 3 | 54.845 | 15,500 | 15 | 2003 | | 2025.08.07 | ¿ù¼¼ | »ï¼ººô¶óÆ®Bµ¿(156-14) | 4 | 32.73 | 8,980 | 10 | 2001 | | 2025.08.07 | ¿ù¼¼ | »ï¼ºÈÀÌÆ®ºô | 2 | 58.45 | 13,000 | 14 | 2002 | | 2025.08.07 | Àü¼¼ | ´Ù¼ØÅ¸¿î³ªµ¿(1037-14) | 5 | 35.31 | 18,500 | 0 | 2015 | | 2025.08.07 | Àü¼¼ | ÇÁ·¹½ºÆ¼Áö¿ø(814-19) | 6 | 29.2 | 18,990 | 0 | 2020 | | 2025.08.07 | Àü¼¼ | ´õ¶ó¿Â(369-37) | 2 | 38.52 | 21,000 | 0 | 2017 | | 2025.08.07 | Àü¼¼ | ±¤¸²¾ÆÆ®ºô¶ó(111-51) | 2 | 50.22 | 14,500 | 0 | 1993 | | 2025.08.07 | Àü¼¼ | (379-63) | 2 | 47 | 14,900 | 0 | 2006 | | 2025.08.07 | Àü¼¼ | ±¤¸²¾ÆÆ®ºô¶ó(111-51) | 2 | 50.22 | 14,000 | 0 | 1993 | | 2025.08.07 | Àü¼¼ | ³ª¸®ºô¶ó | 2 | 49.52 | 13,000 | 0 | 1990 | | 2025.08.07 | ¿ù¼¼ | û¸²¾ÆÆ®ºôBµ¿(105-556) | 4 | 42.04 | 1,000 | 90 | 2001 | | 2025.08.07 | ¿ù¼¼ | ´õ¿ø#8 | 3 | 29.24 | 23,560 | 10 | 2022 | | 2025.08.07 | Àü¼¼ | »ì·½ÇϿ콺(105-242) | 2 | 44.96 | 12,900 | 0 | 2002 | | 2025.08.07 | Àü¼¼ | ¿ì¸²ÁÖÅÃ(29-40) | 4 | 47.07 | 16,300 | 0 | 2007 | | 2025.08.07 | Àü¼¼ | ¿ì¼º¿¬¸³(1134-7) | 3 | 51.3 | 16,500 | 0 | 1985 | | 2025.08.07 | ¿ù¼¼ | °Ç¾ç½º¸¶Æ®ºô | 4 | 31.72 | 3,000 | 75 | 2011 | | 2025.08.07 | Àü¼¼ | D.S¿¡ÄÚºô | 3 | 37.88 | 16,290 | 0 | 2013 | | 2025.08.06 | Àü¼¼ | ¶óºñ¾ÓÇϿ콺 | 5 | 26.85 | 13,950 | 0 | 2014 | | 2025.08.06 | ¿ù¼¼ | ´Ù¼ØÅ¸¿îA,B | 3 | 35.1 | 17,000 | 17 | 2013 | | 2025.08.06 | Àü¼¼ | µå¸²ÇϿ콺3Â÷ | 4 | 29.9 | 13,500 | 0 | 2013 | | 2025.08.06 | Àü¼¼ | ¾ÆÁÙ¸®¿ò | 2 | 32.75 | 20,600 | 0 | 2017 | | 2025.08.06 | ¿ù¼¼ | ¿î»êÇÏÀÌÃ÷(409-133) | 4 | 44.17 | 12,000 | 35 | 2014 | | 2025.08.06 | ¿ù¼¼ | û¼ÛÁÖÅÃ(400-25) | 2 | 58.83 | 12,000 | 34 | 1994 | | 2025.08.06 | ¿ù¼¼ | ÀÌ·¹½¦¸£ºô(56-342) | 3 | 39.01 | 500 | 90 | 2015 | | 2025.08.06 | Àü¼¼ | Ÿ¿îij½½Aµ¿ | 2 | 27.48 | 15,300 | 0 | 2018 | | 2025.08.06 | ¿ù¼¼ | Çý¼ºÆÓ¸®½ººô(392-31) | 6 | 34.99 | 17,000 | 5 | 2014 | | 2025.08.06 | ¿ù¼¼ | ´Ù¼ØÅ¸¿îA,B | 3 | 35.1 | 17,000 | 17 | 2013 | | 2025.08.06 | ¿ù¼¼ | ¿ì¸²ºô¶ó | -1 | 27.95 | 1,000 | 25 | 1997 | | 2025.08.06 | ¿ù¼¼ | Çö´ëÇÏÀÌÃ÷ºô¶ó | 1 | 64.87 | 5,000 | 80 | 2000 | | 2025.08.06 | ¸Å¸Å | ¿ì¼ºÇÏÀÌÃ÷ºô¶óB | 4 | 68.58 | 18,000 | | 2000 | | 2025.08.06 | ¿ù¼¼ | ºô¶óµå´ÙÀÎ | 3 | 23.02 | 5,000 | 75 | 2023 | | 2025.08.06 | Àü¼¼ | ½Ã¿Âºô¸®Áö101 | 3 | 28.12 | 21,500 | 0 | 2022 | | 2025.08.06 | ¿ù¼¼ | ÄÉÀ̵ðºô | 3 | 50.7 | 3,000 | 40 | 2008 | | 2025.08.06 | Àü¼¼ | Ÿ¿îij½½Aµ¿ | 2 | 27.48 | 15,300 | 0 | 2018 | | 2025.08.05 | ¸Å¸Å | Çý¼ºÆÓ¸®½ººô(392-31) | 5 | 37.2 | 23,700 | | 2014 | | 2025.08.05 | ¸Å¸Å | ¼øÈ¯º£½ºÆ®ºô1(46-340) | 5 | 55.69 | 24,000 | | 2003 | | 2025.08.05 | ¸Å¸Å | ´ë¼ºÅ¾½ººô | -1 | 51.52 | 12,000 | | 2002 | | 2025.08.05 | ¸Å¸Å | À̵µÆÓ¸®½º(1049-29) | 5 | 17.88 | 24,000 | | 2022 | | 2025.08.05 | ¸Å¸Å | ¸í¼º¾ÆÆ®¸Ç¼Ç | 1 | 34.98 | 8,500 | | 1991 | | 2025.08.05 | ¸Å¸Å | »ï¼ºÁÖÅ󪵿 | 3 | 37.74 | 22,700 | | 1991 | | 2025.08.05 | ¸Å¸Å | ¸®Ä¡ÇϿ콺 | 5 | 40.9 | 35,000 | | 2016 | | 2025.08.05 | Àü¼¼ | żºÆÓ¸®½º | 7 | 19.35 | 6,600 | 0 | 2010 | | 2025.08.05 | ¿ù¼¼ | ½Å¼º¸®Ä¡ºô¥² | 4 | 38.12 | 17,700 | 20 | 2015 | | 2025.08.05 | Àü¼¼ | ¹Ì¸²ºô¶ó(362-59) | -1 | 47.88 | 9,450 | 0 | 1991 | | 2025.08.05 | ¿ù¼¼ | ºÀ½ººô | 2 | 11.22 | 500 | 50 | 2011 | | 2025.08.05 | ¿ù¼¼ | ºäƼ½¦¸£ºô | 3 | 45.24 | 28,800 | 5 | 2018 | | 2025.08.05 | ¿ù¼¼ | ³²¼º¾ÆÆ®ºô | 5 | 29.31 | 3,000 | 100 | 2016 | | 2025.08.05 | Àü¼¼ | ¼Û¿øºô¶ó | 2 | 62.04 | 15,370 | 0 | 1995 | | 2025.08.05 | ¿ù¼¼ | Á¶Àººô¸®Áö(367-59) | 1 | 68.59 | 15,000 | 35 | 2002 | | 2025.08.05 | Àü¼¼ | ÇϳªÇÏÀÌÃ÷ | 3 | 68.34 | 22,000 | 0 | 2008 | | 2025.08.05 | Àü¼¼ | ½Å¼º¸®Ä¡ºô¥² | 4 | 38.12 | 17,700 | 0 | 2015 | | 2025.08.05 | Àü¼¼ | ÀÎÅÍ½ÃÆ¼ºô¶ó°¡µ¿ | 2 | 64.99 | 17,800 | 0 | 2002 | | 2025.08.05 | Àü¼¼ | ¹Ì¸²ºô¶ó(362-59) | -1 | 47.88 | 9,450 | 0 | 1991 | | 2025.08.05 | ¿ù¼¼ | J.SŸ¿î | 3 | 36.4 | 1,000 | 45 | 2002 | | 2025.08.05 | ¿ù¼¼ | »ï¼ºÆÄÅ©ºô(464-1) | 5 | 49.89 | 2,000 | 65 | 2012 | | 2025.08.04 | ¿ù¼¼ | µ¿¿ø¶óÅ×¶ó½º | 6 | 41.25 | 50 | 60 | 2018 | | 2025.08.04 | ¿ù¼¼ | ³ª»êºô¶ó | -1 | 36.56 | 1,500 | 30 | 1991 | | 2025.08.04 | Àü¼¼ | ·°Å°ºô¶ó¾¾µ¿ | 1 | 65.1 | 18,500 | 0 | 1984 | | 2025.08.04 | ¸Å¸Å | ºÎ±¤Å¾½ººô | 2 | 64.92 | 31,850 | | 2001 | | 2025.08.04 | Àü¼¼ | ¼¸í´õÆÛ½ºÆ® | 5 | 29.39 | 28,000 | 0 | 2019 | | 2025.08.04 | Àü¼¼ | ´ë¼ºÄÉÀÌÁ¦ÀÌ | 8 | 26.72 | 17,730 | 0 | 2020 | | 2025.08.04 | ¿ù¼¼ | Æ÷¸£Å×ÇÏÀÓ(358-1) | 5 | 28.76 | 26,000 | 5 | 2023 | | 2025.08.04 | Àü¼¼ | ´õ-¶ó¿Â | 3 | 28.93 | 16,000 | 0 | 2018 | | 2025.08.04 | Àü¼¼ | ³²¼¿ïÆÄÅ©ºô | 3 | 51 | 19,700 | 0 | 2011 | | 2025.08.04 | ¸Å¸Å | ´Ù¼ØÅ¸¿î°¡µ¿(1037-15) | 3 | 35.67 | 30,800 | | 2015 | | 2025.08.04 | ¿ù¼¼ | »ïÀÍÇ콺Ƽ¾Æ(1129-29) | 3 | 39.65 | 2,000 | 100 | 2011 | | 2025.08.04 | ¿ù¼¼ | ½Å¿ìº£½ºÆ®ºô | 4 | 55.51 | 3,000 | 90 | 2001 | | 2025.08.04 | ¸Å¸Å | ºÎ±¤Å¾½ººô | 2 | 64.92 | 31,850 | | 2001 | | 2025.08.04 | ¸Å¸Å | ÀºÇÏÀ§³Êºô | 3 | 44.24 | 23,900 | | 2008 | | 2025.08.04 | ¿ù¼¼ | û¼ÛÆòÈÇコÇϿ콺(457-3) | 6 | 22.79 | 10,690 | 15 | 2015 | | 2025.08.04 | Àü¼¼ | Á¶Àººô¸®Áö(56-659) | 2 | 44.66 | 12,000 | 0 | 2002 | | 2025.08.04 | ¿ù¼¼ | ³²¼º¾ÆÆ®ºô | 2 | 27.2 | 17,700 | 8 | 2017 | | 2025.08.04 | ¸Å¸Å | »ï¼º½¦¸£ºô(881-36) | 4 | 29.81 | 33,000 | | 2014 | | 2025.08.04 | ¿ù¼¼ | ¼ºÀººô¸®ÁöAµ¿ | 2 | 61.71 | 16,250 | 10 | 2003 | | 2025.08.04 | Àü¼¼ | ´õ¾î¿ï¸² | 2 | 20.04 | 17,500 | 0 | 2019 | | 2025.08.04 | ¿ù¼¼ | ŸíÆÄÅ©ºô | 4 | 48.01 | 19,000 | 3 | 2011 | | 2025.08.04 | ¿ù¼¼ | û¼ÛÆòÈÇコÇϿ콺(457-3) | 6 | 22.79 | 10,690 | 13 | 2015 | | 2025.08.04 | Àü¼¼ | ¸¶¸®ºô¸®Áö(1121-13) | 5 | 84.94 | 28,000 | 0 | 2011 | | 2025.08.04 | Àü¼¼ | ³²¼¿ïÆÄÅ©ºô | 3 | 51 | 19,700 | 0 | 2011 | | 2025.08.04 | Àü¼¼ | µ¿µµÇÏÀÌÃ÷ºô¶ó(Aµ¿) | 2 | 46.38 | 13,500 | 0 | 2001 | | 2025.08.04 | ¿ù¼¼ | Ǫ¸¥Ç³°æÃ¤ | 6 | 34.94 | 30 | 80 | 2018 | | 2025.08.03 | ¿ù¼¼ | ¿µ¿ø | 3 | 41.31 | 1,000 | 52 | 2007 | | 2025.08.03 | ¿ù¼¼ | ½Ã¿Âºô¶ó | 4 | 50.87 | 15,300 | 4 | 1995 | | 2025.08.03 | ¿ù¼¼ | ½Ã¿Âºô¶ó | 4 | 50.87 | 13,400 | 4 | 1995 | | 2025.08.03 | ¸Å¸Å | ÇÁ¸®¸Þ¶ó(379-82) | 5 | 41.7 | 24,500 | | 2015 | | 2025.08.03 | ¸Å¸Å | ´ë´öºô¶ó(164-26) | -1 | 59.97 | 14,500 | | 2000 | | 2025.08.02 | ¿ù¼¼ | ¼º¿ìÇÏÀÌÃ÷ºô¶ó2Â÷ | 4 | 46.89 | 1,000 | 70 | 2002 | | 2025.08.02 | ¸Å¸Å | ±×¸°ÆÄÅ©(460-8) | 2 | 46.14 | 15,000 | | 2007 | | 2025.08.02 | ¿ù¼¼ | ½ÅÇѺ£½ºÆ®ºô | 1 | 64.96 | 5,000 | 100 | 2001 | | 2025.08.02 | ¿ù¼¼ | ´Ù¿ï³×¹öºôBµ¿(98-121) | 3 | 62.99 | 15,000 | 15 | 2001 | | 2025.08.02 | Àü¼¼ | Ȳº¸¾ÆÆ®ºô(333-27) | 2 | 22.53 | 15,370 | 0 | 2018 | | 2025.08.02 | ¿ù¼¼ | Çѽꣳ׽ºÆ®ºô(915-25) | 8 | 29.64 | 1,000 | 85 | 2011 | | 2025.08.02 | ¿ù¼¼ | ´õ¶ó¿Â | 1 | 29.72 | 200 | 100 | 2019 | | 2025.08.02 | ¿ù¼¼ | ¼öÇÇ¾Æ | 8 | 35.2 | 3,000 | 40 | 2019 | | 2025.08.02 | Àü¼¼ | 29-97 | 3 | 56.42 | 16,500 | 0 | 2016 | | 2025.08.02 | ¿ù¼¼ | ºÀ½ººô | 2 | 9.24 | 500 | 50 | 2011 | | 2025.08.02 | Àü¼¼ | ÄÉÀ̵ðºô | 3 | 48.52 | 17,000 | 0 | 2008 | | 2025.08.01 | Àü¼¼ | ¾Æµ¥³ªÆÓ¸®½º | 6 | 34.68 | 20,000 | 0 | 2016 | | 2025.08.01 | ¿ù¼¼ | ¼öÁ¤¸Ç¼Ç(455-11) | 5 | 48.295 | 200 | 30 | 2001 | | 2025.08.01 | Àü¼¼ | ±î»çÁö¿À(355-4) | 6 | 26.93 | 21,294 | 0 | 2021 | | 2025.08.01 | ¿ù¼¼ | µ¿³²ÁÖÅÃ(869-63) | 2 | 36.05 | 10,400 | 19 | 2002 | | 2025.08.01 | Àü¼¼ | »ï¼º¾ÆÆ®ºôAµ¿ | 2 | 53.64 | 15,000 | 0 | 2002 | | 2025.08.01 | ¿ù¼¼ | ´ë¸²¾ÆÆ®ºô | 3 | 59.94 | 3,000 | 60 | 2002 | | 2025.08.01 | ¿ù¼¼ | °æ¹Î¾ÆÆ®ºô(368-23) | 5 | 38.47 | 21,600 | 7 | 2018 | | 2025.08.01 | ¿ù¼¼ | È£¼º±×¸°ºä(424-23) | 5 | 26.43 | 3,000 | 90 | 2016 | | 2025.08.01 | ¿ù¼¼ | ´õÇ÷¹À̽º | 2 | 29.94 | 2,000 | 40 | 2017 | | 2025.08.01 | Àü¼¼ | »ï¼ºÆÄÅ©ºô(464-1) | 3 | 54.38 | 19,900 | 0 | 2012 | | 2025.08.01 | ¸Å¸Å | È¿¼ººô¶ó | 2 | 43.47 | 26,000 | | 1991 | | 2025.08.01 | Àü¼¼ | µ¿¿ø¶óÅ׶󽺺ô | 2 | 23.17 | 13,770 | 0 | 2016 | | 2025.08.01 | ¸Å¸Å | ÀÌ¿¤ÇϿ콺 | 4 | 29.59 | 28,000 | | 2022 | | 2025.08.01 | ¸Å¸Å | ÇÁ¶óÀÓºô(868-2) | 2 | 68.39 | 29,500 | | 2008 | | 2025.08.01 | ¸Å¸Å | û¿ìÇÏÀÌÃ÷ºô | 2 | 62.75 | 27,000 | | 2004 | | 2025.08.01 | ¸Å¸Å | È¿¼ººô¶ó | 1 | 43.47 | 26,000 | | 1991 | | 2025.08.01 | ¸Å¸Å | È¿¼ººô¶ó | 1 | 43.47 | 26,000 | | 1991 | | 2025.08.01 | ¸Å¸Å | È¿¼ººô¶ó | 2 | 43.47 | 26,000 | | 1991 | | 2025.08.01 | ¸Å¸Å | È¿¼ººô¶ó | 3 | 43.47 | 26,000 | | 1991 | | 2025.08.01 | ¸Å¸Å | È¿¼ººô¶ó | 3 | 43.47 | 26,000 | | 1991 | | 2025.07.31 | ¸Å¸Å | »ï¼º¾ÆÆ®ºô | 1 | 57.31 | 18,000 | | 2002 | | 2025.07.31 | Àü¼¼ | ÇÑ¿ï¶ß¶õä(51-80) | 5 | 29.84 | 9,450 | 0 | 2011 | | 2025.07.31 | Àü¼¼ | Bluehill | 4 | 29.42 | 20,400 | 0 | 2019 | | 2025.07.31 | ¿ù¼¼ | ÆÄÀÎÇϿ콺(1056-10) | 6 | 29.91 | 5,000 | 80 | 2014 | | 2025.07.31 | ¿ù¼¼ | ¸®Ä¡108µ¿ | 8 | 22.99 | 19,020 | 23 | 2023 | | 2025.07.31 | ¿ù¼¼ | µ¿µµÇÏÀÌÃ÷ | 5 | 45.65 | 11,000 | 35 | 2002 | | 2025.07.31 | ¿ù¼¼ | ¹æÁÖºô¶ó | -1 | 59.91 | 1,000 | 53 | 1993 | | 2025.07.31 | ¿ù¼¼ | LAHOME(¶óȨ)B | 5 | 29.96 | 5,000 | 95 | 2022 | | 2025.07.31 | Àü¼¼ | MÆç¸®Ã¼ | 4 | 36.49 | 25,074 | 0 | 2018 | | 2025.07.31 | ¸Å¸Å | âõ±×¸°ºô | 2 | 42.53 | 16,900 | | 2002 | | 2025.07.31 | ¿ù¼¼ | ¼º¿øºô¶ó | 3 | 41.28 | 9,000 | 25 | 1991 | | 2025.07.31 | ¸Å¸Å | º¹ÁöÇÏÀÌÃ÷ºô¶óA | 1 | 59.83 | 20,500 | | 1991 | | 2025.07.30 | ¿ù¼¼ | ÀÌ·¹½¦¸£ºô(1046-5) | 4 | 32.23 | 16,800 | 10 | 2014 | | 2025.07.30 | Àü¼¼ | Àü¿øºô¶ó(56-266) | 2 | 41.44 | 11,900 | 0 | 1986 | | 2025.07.30 | ¿ù¼¼ | Æ÷¿¥ºô | 11 | 36.73 | 26,000 | 30 | 2020 | | 2025.07.30 | ¿ù¼¼ | Çý¼ºÆÓ¸®½ººô(392-31) | 2 | 29.1 | 14,600 | 15 | 2014 | | 2025.07.30 | ¿ù¼¼ | »ï¼ººô¶ó | 3 | 40.89 | 10,600 | 25 | 1995 | | 2025.07.30 | Àü¼¼ | ºê¶ó¿î½ºÅæ(472-20) | 2 | 48 | 19,000 | 0 | 2010 | | 2025.07.30 | ¿ù¼¼ | Æ÷¸£Å×ÇÏÀÓ(358-1) | 4 | 28.76 | 25,500 | 5 | 2023 | | 2025.07.30 | ¿ù¼¼ | Æ÷¿¥ºô | 11 | 35.27 | 25,800 | 30 | 2020 | | 2025.07.30 | Àü¼¼ | ÀÎÅÍ½ÃÆ¼ºô¶ó(56-705) | 3 | 60.12 | 19,600 | 0 | 2008 | | 2025.07.30 | ¿ù¼¼ | Æ÷¿¥ºô | 11 | 36.73 | 25,000 | 35 | 2020 | | 2025.07.30 | ¿ù¼¼ | Á¦ÀÌ¿¡½ººô | 6 | 29.99 | 1,000 | 110 | 2023 | | 2025.07.30 | Àü¼¼ | ³²¼º¾ÆÆ®ºô(59-62) | 5 | 62.92 | 18,144 | 0 | 2009 | | 2025.07.30 | ¿ù¼¼ | ¿¡ÄÚºô¸®Áö(392-16) | 3 | 41.82 | 16,000 | 30 | 2014 | | 2025.07.30 | ¿ù¼¼ | Æ÷¿¥ºô | 11 | 35.27 | 24,948 | 30 | 2020 | | 2025.07.30 | Àü¼¼ | º¸Àººô¶ó(46-124) | 4 | 60.3 | 19,000 | 0 | 2000 | | 2025.07.30 | ¸Å¸Å | ¾Æ¸£´©º¸392 | 1 | 61.19 | 29,500 | | 2002 | | 2025.07.30 | ¸Å¸Å | ¸þºñ¿ì½º(156-12) | 4 | 34.45 | 26,100 | | 2012 | | 2025.07.30 | ¸Å¸Å | ¿ì¼ºÃ¢´ëºô | 4 | 64.805 | 33,800 | | 2007 | | 2025.07.30 | ¸Å¸Å | ¿ì¼ºÅ׸¶ºôBµ¿ | 5 | 65.44 | 21,500 | | 2004 | | 2025.07.30 | ¿ù¼¼ | Çѹ鸮Ã÷ºô(56-547) | 2 | 45.13 | 3,000 | 55 | 2008 | | 2025.07.30 | ¿ù¼¼ | ±¤Áøºô¶óÆ®5µ¿ | 5 | 38.35 | 1,000 | 50 | 2003 | | 2025.07.30 | ¿ù¼¼ | ¿ì¼ººô¶ó(1087-37) | 6 | 19.43 | 1,000 | 55 | 2011 | | 2025.07.30 | Àü¼¼ | È«ÁÖ·º½ººô | 3 | 66.61 | 19,900 | 0 | 2009 | | 2025.07.30 | ¿ù¼¼ | À§ÇϿ콺(111-10) | 5 | 28.4 | 2,000 | 80 | 2016 | | 2025.07.30 | ¿ù¼¼ | Á¶Àººô¸®Áö(56-302) | 2 | 37.64 | 10,400 | 5 | 2002 | | 2025.07.29 | ¿ù¼¼ | À̵µÅ¸¿î | 3 | 28.89 | 24,940 | 6 | 2022 | | 2025.07.29 | ¿ù¼¼ | ¿µÁøºô¶ó | 2 | 64.75 | 15,000 | 40 | 2000 | | 2025.07.29 | ¿ù¼¼ | »ïÈ£ÆÄÅ©ºô¥±(1050-8) | 4 | 46.32 | 1,000 | 97 | 2016 | | 2025.07.29 | ¿ù¼¼ | û¼ÛÆòÈÇÏÀ̸ǼÇ(832-42) | 2 | 29.8 | 14,640 | 8 | 2012 | | 2025.07.29 | ¿ù¼¼ | Á¦ÀÌ¿¡½ººô | 6 | 28.07 | 2,000 | 115 | 2023 | | 2025.07.29 | ¿ù¼¼ | ´õºíÀ¯ÇϿ콺 | 5 | 46.91 | 3,000 | 150 | 2021 | | 2025.07.29 | ¿ù¼¼ | µð¾Æ¸Á(102-233) | 3 | 29.86 | 13,400 | 20 | 2013 | | 2025.07.29 | ¸Å¸Å | ½Å¿ì¶ß·¡¾È(827-13) | 2 | 26.37 | 18,000 | | 2014 | | 2025.07.29 | ¸Å¸Å | ³²¼º¾ÆÆ®ºô | 5 | 29.31 | 24,000 | | 2016 | | 2025.07.29 | ¸Å¸Å | Àº¼ºÄ³½½ | 5 | 24.97 | 20,500 | | 2017 | | 2025.07.29 | ¸Å¸Å | ÇÑ¿ï¾î¿ï¸²(°¡µ¿) | 3 | 59.9 | 23,000 | | 2011 | | 2025.07.29 | ¸Å¸Å | ¿ì¼º¿¬¸³(1134-7) | 3 | 51.3 | 21,300 | | 1985 | | 2025.07.29 | ¸Å¸Å | ¿ÀÈÁÖÅà | 5 | 63.67 | 26,900 | | 2003 | | 2025.07.29 | Àü¼¼ | Á¤¿ìºô¶ó | 5 | 59.57 | 15,000 | 0 | 2002 | | 2025.07.29 | ¿ù¼¼ | µµ¿ø¼ÖºñÄ¡ | 2 | 29.91 | 15,390 | 8 | 2015 | | 2025.07.29 | ¿ù¼¼ | ¼º¿øºô | 3 | 37.5 | 4,000 | 60 | 2003 | | 2025.07.29 | Àü¼¼ | ¹Ù¶óȨ | 2 | 29.97 | 23,800 | 0 | 2023 | | 2025.07.29 | ¿ù¼¼ | À̵µÅ¸¿î | 2 | 27.11 | 23,810 | 5 | 2022 | | 2025.07.29 | ¿ù¼¼ | ´Ù¿ø½´½´ºô13Â÷ | 2 | 41.57 | 11,500 | 39 | 2011 | | 2025.07.29 | Àü¼¼ | ¿ì¼º¿¬¸³(1134-7) | 3 | 52.2 | 13,000 | 0 | 1985 | | 2025.07.29 | ¿ù¼¼ | Çý¼ºÆç¸®½º(772-92) | 6 | 36.41 | 2,000 | 90 | 2011 | | 2025.07.29 | ¿ù¼¼ | ¼Çö | 5 | 12.24 | 500 | 40 | 2011 | | 2025.07.28 | Àü¼¼ | ÀÌȺô¶ó | 2 | 44.36 | 10,000 | 0 | 1991 | | 2025.07.28 | Àü¼¼ | Á¤¼öºô¶ó | 1 | 60.92 | 20,400 | 0 | 2003 | | 2025.07.28 | ¸Å¸Å | Ǫ¸¥Ç³°æÃ¤(351-24) | 3 | 55.21 | 34,000 | | 2017 | | 2025.07.28 | ¿ù¼¼ | À§´õ½ººô | 7 | 20.1 | 4,000 | 40 | 2013 | | 2025.07.28 | ¿ù¼¼ | LAHOME(¶óȨ)A | 4 | 29.9 | 14,000 | 60 | 2022 | | 2025.07.28 | Àü¼¼ | ºí·ç½ºÄ«À̺ô | 3 | 35.71 | 20,000 | 0 | 2016 | | 2025.07.28 | ¿ù¼¼ | ¿ÀÄÉÀÌÆÄÅ©ºô(932-8) | 3 | 38.88 | 20,200 | 20 | 2015 | | 2025.07.28 | ¿ù¼¼ | Å©¸®½ºÅ»ºô(354-21) | 2 | 29.1 | 3,000 | 75 | 2014 | | 2025.07.28 | Àü¼¼ | ´ºÅ¸¿î¸Ç¼Ç | 3 | 73.8 | 21,500 | 0 | 2006 | | 2025.07.28 | ¿ù¼¼ | ÇÁ¸®¸Þ¶ó | 4 | 29.76 | 1,000 | 110 | 2018 | | 2025.07.28 | ¿ù¼¼ | Ŭ·¡½Ãºä | 3 | 26.74 | 1,000 | 105 | 2022 | | 2025.07.28 | ¿ù¼¼ | º®»êȨŸ¿î(991-2) | 2 | 41.57 | 10,000 | 20 | 2008 | | 2025.07.28 | Àü¼¼ | Æ÷¸£Å×ÇÏÀÓ(358-1) | 4 | 28.76 | 26,000 | 0 | 2023 | | 2025.07.28 | Àü¼¼ | ÀÌȺô¶ó | 2 | 44.36 | 10,000 | 0 | 1991 | | 2025.07.28 | ¿ù¼¼ | Æ÷¸£Å×ÇÏÀÓ | 3 | 29.83 | 20,000 | 35 | 2023 | | 2025.07.28 | ¿ù¼¼ | ¼ºÁر׸°ºô | 4 | 40.5 | 11,200 | 30 | 2001 | | 2025.07.27 | ¿ù¼¼ | ¿¡½º¿¥ÆÄÅ©ºô | 2 | 36.08 | 5,000 | 100 | 2016 | | 2025.07.27 | ¸Å¸Å | Çö´ëȨŸ¿î(46-195) | 2 | 29.86 | 14,000 | | 2010 | | 2025.07.27 | ¸Å¸Å | õ¿ìÇÏÀ̺ô | 4 | 61.88 | 22,500 | | 2001 | | 2025.07.26 | Àü¼¼ | µ¿¿ìºô¶ó | 3 | 31.48 | 8,200 | 0 | 1990 | | 2025.07.26 | ¿ù¼¼ | (1016-31)À̵çºô¸®Áö | 4 | 16 | 1,000 | 40 | 2011 | | 2025.07.26 | ¿ù¼¼ | ´Ù³ª³×½ºÆ®ºô(410-261) | 1 | 41.04 | 1,500 | 75 | 2008 | | 2025.07.26 | Àü¼¼ | ¼¼ÀÎÆ®ºô | 4 | 43.46 | 12,500 | 0 | 2011 | | 2025.07.26 | ¿ù¼¼ | ¾Æ¸§½Ç¶óAµ¿ | 3 | 59.98 | 4,000 | 72 | 2003 | | 2025.07.26 | ¿ù¼¼ | ¿¥ÄÉÀÌÇÏÀ̺ô | 2 | 54.39 | 4,000 | 70 | 2011 | | 2025.07.26 | Àü¼¼ | ¶óÀÎÆÄÅ© | 2 | 29.67 | 22,150 | 0 | 2020 | | 2025.07.26 | Àü¼¼ | ¹Ì¸®³»ºô¶ó(56-270) | 1 | 37.26 | 8,000 | 0 | 1992 | | 2025.07.26 | ¿ù¼¼ | LAHOME(¶óȨ)B | 3 | 29.96 | 5,000 | 97 | 2022 | | 2025.07.26 | ¿ù¼¼ | ¿ìÇö½ºÄ«À̺ô(787-20) | 3 | 29.93 | 10,000 | 40 | 2014 | | 2025.07.26 | ¿ù¼¼ | ÇÏÀÌÆÄÅ©ºô | 5 | 32.26 | 4,500 | 65 | 2007 | | 2025.07.26 | ¿ù¼¼ | ±ÝÈ£ÁÖÅà | 2 | 77.35 | 13,000 | 45 | 1996 | | 2025.07.26 | ¿ù¼¼ | °æµ¿ºô¶óÆ® | 3 | 55.77 | 3,000 | 90 | 2001 | | 2025.07.26 | Àü¼¼ | ¹Ì¸®³»ºô¶ó(56-270) | 1 | 37.26 | 8,000 | 0 | 1992 | | 2025.07.26 | ¿ù¼¼ | ¿ì¼º¿¬¸³(1134-7) | 2 | 52.2 | 13,000 | 20 | 1985 | | 2025.07.26 | ¸Å¸Å | µ¿µµÇÏÀÌÃ÷ºô¶ó´Ùµ¿ | 3 | 43.23 | 16,400 | | 2001 | | 2025.07.26 | ¸Å¸Å | ¿¹°¡ºô(398-12) | 3 | 42.99 | 23,000 | | 2013 | | 2025.07.26 | ¸Å¸Å | Á¤°¨Å¸¿îA(346-92) | 2 | 32.95 | 19,200 | | 2015 | | 2025.07.26 | ¸Å¸Å | ¿ë¹®Aµ¿ | 2 | 65.24 | 23,950 | | 2000 | | 2025.07.26 | ¸Å¸Å | ¿µÀÏ¾ÆÆ®ºô(Aµ¿) | 3 | 71.18 | 26,100 | | 2002 | | 2025.07.26 | ¿ù¼¼ | Ǫ¸¥Ç³°æÃ¤ | 5 | 26.29 | 3,000 | 100 | 2022 | | 2025.07.26 | ¿ù¼¼ | ¾¾Æ¼ÇϿ콺(773-10) | 1 | 29.98 | 3,000 | 70 | 2014 | | 2025.07.26 | ¿ù¼¼ | Å·´ý±×·¹À̽º | 7 | 28.77 | 5,000 | 69 | 2018 | | 2025.07.26 | ¿ù¼¼ | ºÎ°Çºô(1085-14) | 4 | 34.33 | 3,000 | 70 | 2015 | | 2025.07.26 | ¿ù¼¼ | (56-250) | 2 | 40.32 | 1,000 | 50 | 1992 | | 2025.07.25 | ¿ù¼¼ | ÇѺûÀ§³Ê½ººô | 5 | 48.63 | 3,000 | 65 | 2008 | | 2025.07.25 | ¿ù¼¼ | ȲÁ¦±×·£µåÆÄÅ©(105-480) | 2 | 44.55 | 15,400 | 14 | 2008 | | 2025.07.25 | ¿ù¼¼ | Á¤¿ìºô¶ó | 5 | 59.57 | 2,000 | 90 | 2002 | | 2025.07.25 | Àü¼¼ | ¿ì¼ººô¶ó | 3 | 40.65 | 12,600 | 0 | 1993 | | 2025.07.25 | ¿ù¼¼ | (155-45) | 2 | 36.75 | 8,340 | 3 | 1986 | | 2025.07.25 | Àü¼¼ | µ¿¾ç³ëºí·¹½º | 2 | 48.46 | 16,100 | 0 | 2008 | | 2025.07.25 | ¿ù¼¼ | Ȳ»êºô¶ó | 1 | 51 | 12,000 | 17 | 2001 | | 2025.07.25 | ¿ù¼¼ | ´õ´©¸² | 2 | 29.01 | 3,000 | 80 | 2018 | | 2025.07.25 | Àü¼¼ | µ¿¾ç³ëºí·¹½º | 2 | 48.46 | 16,100 | 0 | 2008 | | 2025.07.25 | ¿ù¼¼ | Ǫ¸£Áö¿Àºô | 4 | 29.16 | 8,000 | 4 | 2008 | | 2025.07.25 | ¸Å¸Å | ¼ºÀººô¶ó | 4 | 56.41 | 16,200 | | 2000 | | 2025.07.25 | ¸Å¸Å | Çý¼ºÆç¸®½º(396-12) | 5 | 38.35 | 23,200 | | 2014 | | 2025.07.25 | ¿ù¼¼ | 29-76 | 5 | 29.97 | 2,000 | 78 | 2021 | | 2025.07.25 | ¿ù¼¼ | °è¸íÀ§³Ê½º(46-37) | 4 | 45.78 | 14,990 | 7 | 2008 | | 2025.07.25 | Àü¼¼ | ¿ì¿¬¸®Ä¡ºô | 5 | 23.67 | 11,800 | 0 | 2011 | | 2025.07.25 | ¸Å¸Å | ¿¡½º¿¥ÆÄÅ©ºô | 4 | 29.72 | 20,000 | | 2015 | | 2025.07.25 | ¸Å¸Å | ³²±¤ºô¶ó(353-53) | 2 | 67.86 | 28,000 | | 2004 | | 2025.07.25 | ¸Å¸Å | ¸ñȺô¶ó¶óµ¿ | -1 | 41.54 | 9,800 | | 1988 | | 2025.07.25 | ¿ù¼¼ | ±æ¼ºÀÌ¿£ÀÌ(367-62) | 4 | 29.82 | 1,000 | 75 | 2015 | | 2025.07.25 | ¿ù¼¼ | ¼¿¬ºí·çÈúºñ | 5 | 25.84 | 2,000 | 90 | 2016 | | 2025.07.25 | Àü¼¼ | ¾ÆÀνººô(980-23) | 5 | 34.51 | 16,600 | 0 | 2012 | | 2025.07.25 | ¿ù¼¼ | ¾¾Æ¼ÇϿ콺 | 3 | 59.7 | 5,000 | 100 | 2007 | | 2025.07.25 | ¿ù¼¼ | ´õÇϿ콺 | 2 | 26.94 | 2,000 | 60 | 2018 | | 2025.07.25 | ¿ù¼¼ | ¾¾Æ¼ÇϿ콺 | 3 | 59.7 | 3,000 | 110 | 2007 | | 2025.07.25 | ¿ù¼¼ | È£°æÁÖÅà | 5 | 42.71 | 11,370 | 10 | 2002 | | 2025.07.25 | ¿ù¼¼ | ´ëµ¿ºô¶ó³ªµ¿ | -1 | 53.39 | 10,180 | 10 | 2002 | | 2025.07.25 | Àü¼¼ | ¾ÆÅ©·Îºä | 3 | 29.81 | 15,309 | 0 | 2019 | | 2025.07.24 | Àü¼¼ | û¼ÛÆòÈÇコÇϿ콺(457-3) | 2 | 27.68 | 13,100 | 0 | 2015 | | 2025.07.24 | ¿ù¼¼ | SKºô¸®Áö | 6 | 39.985 | 21,000 | 20 | 2015 | | 2025.07.24 | Àü¼¼ | û¼ÛÆòÈÇコÇϿ콺(457-3) | 2 | 27.68 | 12,700 | 0 | 2015 | | 2025.07.24 | Àü¼¼ | ³²¼º¾ÆÆ®ºô | 3 | 48.08 | 15,300 | 0 | 2010 | | 2025.07.24 | ¸Å¸Å | °ñµåij½½ | 4 | 41.39 | 29,500 | | 2016 | | 2025.07.24 | ¸Å¸Å | ·¹À̳ª | 3 | 45.29 | 30,000 | | 2013 | | 2025.07.24 | ¸Å¸Å | »ï¼º½¦¸£ºô(351-17¹øÁö) | 5 | 32.13 | 19,920 | | 2016 | | 2025.07.24 | ¸Å¸Å | ¿ì¿µÆÄũŸ¿îA | 3 | 56.88 | 24,000 | | 2002 | | 2025.07.24 | Àü¼¼ | ¿ì¿µÆÄũŸ¿îA | 3 | 56.88 | 19,000 | 0 | 2002 | | 2025.07.24 | ¿ù¼¼ | ¸ð¾Æºô¥² | 3 | 67.98 | 2,000 | 85 | 2007 | | 2025.07.24 | ¿ù¼¼ | °Ç¿ìÆÄÅ©ºô | 3 | 60.7 | 20,500 | 5 | 2009 | | 2025.07.24 | Àü¼¼ | À§µåij½½ | 5 | 35.03 | 20,430 | 0 | 2019 | | 2025.07.24 | Àü¼¼ | Àç·æºôµù | 6 | 26.34 | 18,700 | 0 | 2021 | | 2025.07.24 | ¿ù¼¼ | ȰÁÖÅÃ(1118-5) | 2 | 44.1 | 1,000 | 65 | 2002 | | 2025.07.24 | ¿ù¼¼ | (914-39) | 2 | 36.33 | 2,000 | 70 | 1992 | | 2025.07.24 | ¿ù¼¼ | ½ãÇÏÀÌÃ÷ºô | 1 | 58.4 | 2,000 | 50 | 1991 | | 2025.07.24 | ¸Å¸Å | dz¼º¾Ö¶ã¾È | 3 | 56.62 | 45,000 | | 2016 | | 2025.07.23 | Àü¼¼ | ¿Ã¶ó·çÁî(HOLALUZ) | 4 | 23.99 | 24,000 | 0 | 2022 | | 2025.07.23 | ¿ù¼¼ | ½ÅÈï¾Æ³Ê½ººô | 4 | 48.19 | 11,900 | 50 | 2008 | | 2025.07.23 | Àü¼¼ | (921-14) | 1 | 36.54 | 11,000 | 0 | 1987 | | 2025.07.23 | ¿ù¼¼ | Ȳº¸¾ÆÆ®ºô(333-27) | 5 | 22.53 | 15,370 | 13 | 2018 | | 2025.07.23 | ¿ù¼¼ | »ïÈ£ÆÄÅ©ºô¥±(1050-8) | 3 | 46.32 | 3,000 | 100 | 2016 | | 2025.07.23 | Àü¼¼ | ¶ó¿òÇÏ¿ì¡ | 5 | 49.08 | 31,140 | 0 | 2019 | | 2025.07.23 | Àü¼¼ | À̳뼿(867-21) | 4 | 44.7 | 20,400 | 0 | 2015 | | 2025.07.23 | ¿ù¼¼ | Çö´ëÇÏÀÌÃ÷ºô¶ó | 2 | 65.5 | 16,000 | 40 | 2000 | | 2025.07.23 | ¿ù¼¼ | ÇØ¿Âij½½ | 2 | 26.61 | 17,000 | 20 | 2019 | | 2025.07.23 | ¿ù¼¼ | Á¦ÀÌÅõ¸®´õ½º | 6 | 28.01 | 23,400 | 20 | 2023 | | 2025.07.23 | ¿ù¼¼ | »ï¼ººô¸®Áö(56-134) | 1 | 76.14 | 17,000 | 40 | 1994 | | 2025.07.23 | Àü¼¼ | ½Å¿ì¼ººô¶ó | 2 | 54.245 | 15,000 | 0 | 2001 | | 2025.07.23 | Àü¼¼ | (975-11) | 2 | 54.24 | 13,700 | 0 | 1991 | | 2025.07.23 | ¿ù¼¼ | ºô¶ó¿£Bµ¿ | 4 | 25.09 | 3,000 | 90 | 2017 | | 2025.07.23 | ¿ù¼¼ | Çѽº¾ÆÀ̺ô2 | 5 | 26.74 | 1,200 | 45 | 2019 | | 2025.07.23 | ¿ù¼¼ | ¿¹°Ç¾ÆÆ®ºô¶ó | 1 | 52.56 | 12,800 | 25 | 2003 | | 2025.07.23 | ¿ù¼¼ | ´Ù¾Èºô¶óÆ® | 5 | 32.91 | 3,000 | 90 | 2016 | | 2025.07.23 | ¿ù¼¼ | â´ëºô¶óBµ¿ | 4 | 22.58 | 2,000 | 70 | 2013 | | 2025.07.23 | ¿ù¼¼ | »ï¼ººô¶ó | -1 | 42.97 | 1,000 | 45 | 1993 | | 2025.07.23 | ¿ù¼¼ | ¼ºÁöºôµù(1121-14) | 3 | 50.4 | 9,800 | 23 | 2003 | | 2025.07.23 | ¿ù¼¼ | ´Ù¾Èºô¶óÆ® | 5 | 32.91 | 3,000 | 90 | 2016 | | 2025.07.23 | Àü¼¼ | »ï¼ºÈ¨Å¸¿î7Â÷ | 4 | 59.8 | 16,500 | 0 | 2002 | | 2025.07.23 | ¿ù¼¼ | »ïÈ£ÆÄÅ©ºô¥±(1050-8) | 3 | 46.32 | 3,000 | 100 | 2016 | | 2025.07.23 | Àü¼¼ | Ȳº¸¾ÆÆ®ºô(333-27) | 3 | 25.58 | 14,400 | 0 | 2018 | | 2025.07.23 | ¸Å¸Å | ³×¿ÀÆÄÅ©ºô | 7 | 48.35 | 19,000 | | 2011 | | 2025.07.23 | ¸Å¸Å | ÿ½ÃÇϿ콺(870-6) | 5 | 46.12 | 20,500 | | 2013 | | 2025.07.23 | ¸Å¸Å | ÈÀÎÇϿ콺(963-23) | 1 | 23.09 | 12,000 | | 1993 | | 2025.07.23 | ¸Å¸Å | ÇູŸ¿î5Â÷ | 4 | 59.5 | 20,000 | | 2008 | | 2025.07.23 | ¸Å¸Å | ½Å¿µº£¸£µð¿ò | 6 | 28.07 | 25,000 | | 2019 | | 2025.07.23 | ¸Å¸Å | µå¸®¹ÌŸ¿î | 4 | 44.15 | 21,420 | | 2015 | | 2025.07.22 | Àü¼¼ | Bluehill | 4 | 29.42 | 20,400 | 0 | 2019 | | 2025.07.22 | ¿ù¼¼ | MARNI | 2 | 25.76 | 4,000 | 85 | 2023 | | 2025.07.22 | ¿ù¼¼ | ¿¡º¥¿¡¼¿ | 5 | 15.66 | 500 | 50 | 2009 | | 2025.07.22 | ¿ù¼¼ | ¾î¹ÝÇϿ콺 | 4 | 15.59 | 750 | 64 | 2018 | | 2025.07.22 | ¿ù¼¼ | Àμººô¶ó | 1 | 66.82 | 12,500 | 30 | 1993 | | 2025.07.22 | ¿ù¼¼ | ¼¼Á¾ÆÄÅ©ºô | 4 | 59.03 | 18,627 | 21 | 2023 | | 2025.07.22 | ¿ù¼¼ | ·°Å°ºô¶ó¿¡À̵¿ | 2 | 58.8 | 7,000 | 30 | 1983 | | 2025.07.22 | ¿ù¼¼ | ´õ-¶ó¿Â | 3 | 28.93 | 16,000 | 15 | 2018 | | 2025.07.22 | ¿ù¼¼ | DS¿¡ÄÚŸ¿î | 3 | 32.81 | 14,900 | 10 | 2014 | | 2025.07.22 | ¿ù¼¼ | Ǫ¸¥Ç³°æÃ¤ | 4 | 29.09 | 100 | 80 | 2019 | | 2025.07.22 | Àü¼¼ | ¿µÇ³ºô¶ó(53-30) | 2 | 32.6 | 9,820 | 0 | 1986 | | 2025.07.22 | ¸Å¸Å | ¿©¿øºô¶ó(396-25) | 4 | 60.6 | 24,000 | | 2002 | | 2025.07.22 | ¸Å¸Å | Àκ£½ºÆ®¾ÆÆ®ºô | 1 | 47.36 | 14,300 | | 2007 | | 2025.07.22 | ¸Å¸Å | ¹Ì·¡Aºô¶óÆ® | 2 | 59.7 | 18,500 | | 2000 | | 2025.07.22 | ¸Å¸Å | ¿¡½º¿¥ÆÄÅ©ºô101µ¿102µ¿ | 4 | 27.27 | 20,000 | | 2016 | | 2025.07.22 | ¿ù¼¼ | Çѽº¾ÆÀ̺ô2 | 5 | 26.74 | 11,910 | 13 | 2019 | | 2025.07.22 | ¿ù¼¼ | Àμººô¶ó | 1 | 66.82 | 12,500 | 30 | 1993 | | 2025.07.22 | ¸Å¸Å | º¹ÁöȨŸ¿î3µ¿ | 2 | 46.73 | 22,750 | | 2002 | | 2025.07.22 | ¿ù¼¼ | ¸¶Å©Èú½º74 | 1 | 27.06 | 300 | 70 | 2019 | | 2025.07.22 | Àü¼¼ | º£¸£µ¥ÇÇ¾Æ | 2 | 59.36 | 26,000 | 0 | 2016 | | 2025.07.21 | ¿ù¼¼ | ¼º¿ìºô¶ó | 4 | 43.42 | 1,000 | 70 | 1993 | | 2025.07.21 | ¿ù¼¼ | ¼£·ÒÇϿ콺 | 3 | 18.72 | 1,000 | 58 | 2010 | | 2025.07.21 | ¿ù¼¼ | À̰¡Ã¤(400-95) | 5 | 41.73 | 18,000 | 10 | 2012 | | 2025.07.21 | Àü¼¼ | »ï¼ººô¶óÆ®Bµ¿ | 4 | 58.39 | 14,800 | 0 | 2000 | | 2025.07.21 | ¿ù¼¼ | »ï¼º½¦¸£ºô(881-36) | 5 | 39.62 | 22,400 | 7 | 2014 | | 2025.07.21 | ¿ù¼¼ | ¿ìÀå»êºô¶ó | 5 | 34.08 | 5,000 | 80 | 2013 | | 2025.07.21 | ¿ù¼¼ | ¾ÆÀ̺ñŸ¿î(105-189) | 4 | 64.85 | 13,000 | 30 | 2007 | | 2025.07.21 | ¿ù¼¼ | ¸®Ä¡ÆÓ¸®½º | 2 | 59.18 | 1,754 | 35 | 2012 | | 2025.07.21 | ¿ù¼¼ | µå¸²ºô | 5 | 65.8 | 5,000 | 80 | 2002 | | 2025.07.21 | ¸Å¸Å | À̵µÆÓ¸®½º(51-4) | 5 | 27.81 | 26,100 | | 2020 | | 2025.07.21 | ¸Å¸Å | À¯¸²ÆÄÅ©ºô(372-60) | 2 | 59.82 | 24,500 | | 2010 | | 2025.07.21 | ¸Å¸Å | ¸ñȰ¡µ¿ | 1 | 38.12 | 14,000 | | 1986 | | 2025.07.21 | ¸Å¸Å | º¸¶÷Ÿ¿î(105-527) | -1 | 58.37 | 23,300 | | 1998 | | 2025.07.21 | Àü¼¼ | ºí¸®½ººô101µ¿102µ¿ | 4 | 51.79 | 32,000 | 0 | 2022 | | 2025.07.21 | ¿ù¼¼ | °øÀ۸ǼÇ6Â÷Aµ¿ | 3 | 54.72 | 5,000 | 39 | 2001 | | 2025.07.21 | Àü¼¼ | MÆç¸®Ã¼ | 5 | 38.52 | 26,300 | 0 | 2018 | | 2025.07.21 | ¿ù¼¼ | ¿ÍÀ̾غñ(370-16) | 4 | 35.69 | 2,000 | 95 | 2015 | | 2025.07.21 | ¿ù¼¼ | Æ÷¸£Å×ÇÏÀÓ(358-1) | 2 | 28.76 | 25,500 | 5 | 2023 | | 2025.07.21 | Àü¼¼ | ´ÙÀÎȨŸ¿î | 7 | 27.51 | 14,670 | 0 | 2016 | | 2025.07.21 | ¸Å¸Å | û¿ìÆÄÅ©ºô | 1 | 57.36 | 22,500 | | 2001 | | 2025.07.21 | ¿ù¼¼ | ´õ½ºÀ§Æ®(73-78) | 3 | 28.73 | 100 | 100 | 2022 | | 2025.07.20 | Àü¼¼ | ´ëµ¿ºô | 6 | 43.39 | 30,000 | 0 | 2020 | | 2025.07.20 | ¸Å¸Å | µ¿¿ìÇÏÀ̺ô | 4 | 26.01 | 23,500 | | 2018 | | 2025.07.20 | Àü¼¼ | »ï¿øÇÇ¾ÆÆ®Aµ¿ | 4 | 39.72 | 10,900 | 0 | 2001 | | 2025.07.20 | ¿ù¼¼ | ÇϳªÅ¸¿îAµ¿ | 6 | 27.24 | 1,000 | 71 | 2015 | | 2025.07.20 | Àü¼¼ | ¼øÈ¯º£½ºÆ®ºô1(46-340) | 5 | 55.69 | 15,000 | 0 | 2003 | | 2025.07.19 | Àü¼¼ | ÇØÂùºô(24-550) | 4 | 16.49 | 7,500 | 0 | 2012 | | 2025.07.19 | ¿ù¼¼ | 338-10 | 5 | 31.14 | 2,000 | 59 | 2015 | | 2025.07.19 | Àü¼¼ | »ïÀÍTheSky | 2 | 29.82 | 16,200 | 0 | 2016 | | 2025.07.19 | ¿ù¼¼ | ÆÄÅ©½ºÅ×ÀÌ | 3 | 20.54 | 1,000 | 75 | 2024 | | 2025.07.19 | Àü¼¼ | ¾¾Æ¼ÇϿ콺(332-16) | 4 | 38.7 | 20,790 | 0 | 2016 | | 2025.07.19 | ¿ù¼¼ | ¶óÅ׶󽺺ô(380-6) | 4 | 27.7 | 2,000 | 84 | 2016 | | 2025.07.19 | ¿ù¼¼ | ÆÄÅ©½ºÅ×ÀÌ | 3 | 25.87 | 1,000 | 90 | 2024 | | 2025.07.19 | ¿ù¼¼ | ¿¡ÀÌ¿£Ä³½½(1086-24) | 5 | 28.47 | 22,600 | 20 | 2023 | | 2025.07.19 | ¿ù¼¼ | ´Ù¾Èºô¶óÆ® | 3 | 33.12 | 20,000 | 15 | 2016 | | 2025.07.19 | Àü¼¼ | ´õŬ·¡½Ä | 2 | 29.38 | 18,900 | 0 | 2018 | | 2025.07.19 | Àü¼¼ | â´ëºô¶ó(369-67) | 3 | 41.44 | 16,500 | 0 | 2007 | | 2025.07.19 | Àü¼¼ | Ȳº¸¾ÆÆ®ºô(333-27) | 4 | 27.53 | 17,000 | 0 | 2018 | | 2025.07.19 | ¸Å¸Å | µµ¿ø¼ÖºñÄ¡ | 5 | 37.13 | 16,500 | | 2015 | | 2025.07.19 | ¿ù¼¼ | ÆÄÅ©½ºÅ×ÀÌ | 2 | 20.54 | 500 | 80 | 2024 | | 2025.07.19 | ¿ù¼¼ | ÆÄÅ©½ºÅ×ÀÌ | 5 | 25.96 | 1,000 | 90 | 2024 | | 2025.07.19 | ¿ù¼¼ | LAHOME(¶óȨ)B | 4 | 29.9 | 25,300 | 5 | 2022 | | 2025.07.19 | ¸Å¸Å | ¿ìÇöÆç¸®½º | 3 | 28.7 | 25,500 | | 2016 | | 2025.07.19 | ¸Å¸Å | ´Ùºñ¸Ç¼ð | 2 | 74.58 | 24,000 | | 2000 | | 2025.07.19 | ¸Å¸Å | ¿ÍÀ̾غñ(370-16) | 2 | 35.69 | 22,700 | | 2015 | | 2025.07.19 | ¿ù¼¼ | ·ÎÁîÆÓ¸®½ºÅõ(346-38) | 3 | 78.57 | 500 | 52 | 2009 | | 2025.07.18 | Àü¼¼ | µ¿¿ø¶óÅ׶󽺺ô | 5 | 38.89 | 22,900 | 0 | 2016 | | 2025.07.18 | ¿ù¼¼ | ÁÖ¿¬ÇϿ콺 | 5 | 27.72 | 5,000 | 85 | 2022 | | 2025.07.18 | ¿ù¼¼ | ³ª»ê¸Ç¼Ç3Â÷ | 4 | 56.67 | 13,000 | 35 | 2002 | | 2025.07.18 | ¿ù¼¼ | (167-4) | 2 | 51.75 | 12,590 | 15 | 1999 | | 2025.07.18 | ¿ù¼¼ | ´ëÁøºô¶ó(1040-8) | 2 | 49.16 | 1,500 | 80 | 2010 | | 2025.07.18 | ¿ù¼¼ | °Å¼º | 1 | 43.56 | 10,000 | 25 | 1986 | | 2025.07.18 | ¿ù¼¼ | MARNI | 6 | 21.78 | 4,000 | 60 | 2023 | | 2025.07.18 | Àü¼¼ | ´ë½Å¸Ç¼Ç(340-94) | 4 | 54.69 | 15,620 | 0 | 2001 | | 2025.07.18 | Àü¼¼ | ¾¾Æ¼ÇϿ콺 | 3 | 59.7 | 20,000 | 0 | 2007 | | 2025.07.18 | ¿ù¼¼ | »ï¼ººô¶ó | 4 | 37.74 | 3,700 | 45 | 1996 | | 2025.07.18 | Àü¼¼ | ±Ý°ÇÏÀÓºô | 4 | 29.04 | 16,000 | 0 | 2015 | | 2025.07.18 | ¸Å¸Å | ¾ÖÇÃÇϿ콺 | 6 | 28.91 | 30,000 | | 2014 | | 2025.07.18 | ¸Å¸Å | ÈÞ¸Õºô | 3 | 54.845 | 26,300 | | 2003 | | 2025.07.18 | ¸Å¸Å | ÆòȺô¶ó | 1 | 53.08 | 31,900 | | 1994 | | 2025.07.18 | ¸Å¸Å | ¿ÀÈÁÖÅà | 5 | 63.67 | 26,900 | | 2003 | | 2025.07.18 | ¸Å¸Å | °æ¹ÎÆÄºô¸®¿Â | 5 | 36.22 | 21,800 | | 2015 | | 2025.07.18 | Àü¼¼ | »ïÀͶ߶õä | 3 | 28.47 | 19,000 | 0 | 2017 | | 2025.07.18 | ¿ù¼¼ | ´õ±×¸² | 4 | 28.44 | 3,000 | 87 | 2023 | | 2025.07.18 | Àü¼¼ | ¾¾Æ¼ÇϿ콺 | 3 | 59.7 | 20,000 | 0 | 2007 | | 2025.07.18 | ¿ù¼¼ | ȼººô¶ó(56-34) | 3 | 51.54 | 3,000 | 60 | 2001 | | 2025.07.17 | ¿ù¼¼ | Çູµå¸² | 3 | 13.21 | 500 | 45 | 2012 | | 2025.07.17 | ¿ù¼¼ | ¹Ù¶óȨ | 4 | 22.11 | 18,770 | 10 | 2023 | | 2025.07.17 | ¿ù¼¼ | ½ºÆäÀ̽ººô¿¡À̵¿ | 3 | 28.44 | 200 | 60 | 2016 | | 2025.07.17 | ¿ù¼¼ | ¶ó¿Âºô(341-21) | 5 | 25.14 | 5,500 | 100 | 2017 | | 2025.07.17 | ¿ù¼¼ | ¶ó¿Âºô(341-21) | 5 | 25.14 | 5,500 | 100 | 2017 | | 2025.07.17 | ¿ù¼¼ | ¹Ù¶óȨ | 4 | 22.11 | 18,770 | 10 | 2023 | | 2025.07.17 | ¿ù¼¼ | â´ëºô¶ó(369-25) | 5 | 56.86 | 12,000 | 45 | 2007 | | 2025.07.17 | Àü¼¼ | Çý¼ºÆç¸®½º(811-8) | 4 | 41.86 | 18,500 | 0 | 2011 | | 2025.07.17 | Àü¼¼ | ¹Ù¶óȨ | 5 | 29.67 | 24,690 | 0 | 2023 | | 2025.07.17 | ¿ù¼¼ | ½Å¿ø¼¾½ººô(392-75) | 4 | 38.35 | 14,238 | 4 | 2010 | | 2025.07.17 | Àü¼¼ | ÇѼº | 2 | 48.93 | 11,000 | 0 | 1982 | | 2025.07.17 | Àü¼¼ | ´õ¿ø·¹¿Àºô | 2 | 29.04 | 22,050 | 0 | 2021 | | 2025.07.17 | Àü¼¼ | Äھƺô | 2 | 55.62 | 16,000 | 0 | 2007 | | 2025.07.17 | ¿ù¼¼ | ºí·çÈú(391-14) | -1 | 66 | 3,000 | 100 | 2006 | | 2025.07.17 | Àü¼¼ | ºí¸®½ººô101µ¿102µ¿ | 5 | 51.79 | 32,000 | 0 | 2022 | | 2025.07.17 | ¿ù¼¼ | ÇÑ¿ï¶ß¶õä(159-10) | 3 | 29.8 | 1,000 | 70 | 2011 | | 2025.07.17 | Àü¼¼ | µ¿¾çÇÏ¿ì¡(870-1) | 3 | 43.57 | 26,200 | 0 | 2017 | | 2025.07.17 | ¸Å¸Å | DS¿¡ÄÚŸ¿î | 5 | 31.12 | 20,000 | | 2014 | | 2025.07.17 | ¸Å¸Å | ŰæÇÏÀÌÃ÷(870-53) | 3 | 46.23 | 14,000 | | 2001 | | 2025.07.17 | ¸Å¸Å | ÇѰ¡¶÷ºô(153-10) | 6 | 29.2 | 16,000 | | 2012 | | 2025.07.17 | ¸Å¸Å | ±×·¹À̽ººô | 3 | 29.02 | 21,800 | | 2016 | | 2025.07.16 | ¿ù¼¼ | Ŭ·¡½Ãºä | 6 | 26.74 | 1,000 | 110 | 2022 | | 2025.07.16 | Àü¼¼ | ´ë¼º¾ÆÆ®ºô | 5 | 34.07 | 24,900 | 0 | 2018 | | 2025.07.16 | ¸Å¸Å | ´õŬ·¡½Ä(857-19) | 3 | 34.91 | 28,500 | | 2018 | | 2025.07.16 | ¿ù¼¼ | ´ë¼º¾ÆÆ®ºô | 5 | 34.07 | 23,200 | 10 | 2018 | | 2025.07.16 | ¸Å¸Å | ¼±´öºô¶ó | 2 | 42.69 | 16,700 | | 2008 | | 2025.07.16 | ¸Å¸Å | ¹Ì·¡ºô¸®Áö-Bµ¿ | 2 | 58.49 | 29,000 | | 2003 | | 2025.07.16 | ¸Å¸Å | ±¤´öÇÏÀ̺ô | 3 | 76.92 | 24,000 | | 2002 | | 2025.07.16 | Àü¼¼ | ÆÄ¶û»õºô¶óÆ®(Bµ¿) | 4 | 48.97 | 12,500 | 0 | 2000 | | 2025.07.16 | ¿ù¼¼ | °æÀκô¶ó(56-360) | 1 | 47.84 | 9,700 | 12 | 1990 | | 2025.07.16 | ¿ù¼¼ | ½ÅÈï¾Æ³Ê½ººô(´Ùµ¿) | 5 | 36.22 | 3,000 | 65 | 2010 | | 2025.07.16 | ¸Å¸Å | ³ª¾Ö¶ã(Aµ¿) | 3 | 39.26 | 22,300 | | 2010 | | 2025.07.16 | Àü¼¼ | »ï¼º´ºÄ³½½(56-600) | 3 | 54.14 | 14,460 | 0 | 2003 | | 2025.07.16 | Àü¼¼ | »ï¼º´ºÄ³½½(56-600) | 3 | 54.14 | 14,460 | 0 | 2003 | | 2025.07.16 | Àü¼¼ | ÀÚ¾ÖÈú½º | 4 | 50.46 | 18,900 | 0 | 2010 | | 2025.07.16 | ¿ù¼¼ | ·ÎÁîÆÓ¸®½ºÅõ(346-38) | 5 | 74.4 | 1,000 | 50 | 2009 | | 2025.07.16 | ¿ù¼¼ | ¸®Ä¡108µ¿ | 9 | 22.99 | 19,020 | 11 | 2023 | | 2025.07.16 | ¿ù¼¼ | ¸®Ä¡108µ¿ | 9 | 22.99 | 19,020 | 11 | 2023 | | 2025.07.16 | ¿ù¼¼ | ³²±¤¾ÆÆ®ºô | 5 | 47.99 | 20,000 | 30 | 2012 | | 2025.07.15 | ¿ù¼¼ | ¹Ù¶óȨ | 4 | 27.99 | 23,180 | 5 | 2023 | | 2025.07.15 | ¸Å¸Å | ¿ì¼º¿¬¸³ | 3 | 59.4 | 30,000 | | 1985 | | 2025.07.15 | ¸Å¸Å | À£ÇǾÆ(796-13) | 2 | 29.88 | 29,000 | | 2014 | | 2025.07.15 | ¸Å¸Å | ¼Ò´ã¹ë¸® | 5 | 29.14 | 24,600 | | 2012 | | 2025.07.15 | ¸Å¸Å | º§¶óÇϿ콺(351-16) | 5 | 26.25 | 20,000 | | 2016 | | 2025.07.15 | ¸Å¸Å | ¶óÀÎÆÄÅ© | 3 | 26.72 | 21,619 | | 2019 | | 2025.07.15 | ¿ù¼¼ | °í¼¾¾ÆÆ®ºô | 2 | 28.89 | 5,000 | 60 | 2016 | | 2025.07.15 | ¿ù¼¼ | ½Å½Åºô | 3 | 29.26 | 1,000 | 55 | 2002 | | 2025.07.15 | ¸Å¸Å | Å¿µ¾ÆÆ®ºô(370-107) | 2 | 29.9 | 17,800 | | 2011 | | 2025.07.15 | Àü¼¼ | º£¸£µ¥ÇÇ¾Æ | 4 | 46.08 | 22,500 | 0 | 2016 | | 2025.07.15 | Àü¼¼ | º£¸£µ¥ÇÇ¾Æ | 4 | 46.08 | 22,500 | 0 | 2016 | | 2025.07.15 | Àü¼¼ | ½Ã¿Âºô¸®Áö101 | 3 | 25.84 | 21,500 | 0 | 2022 | | 2025.07.15 | ¿ù¼¼ | (424-25) | 1 | 36.12 | 3,000 | 50 | 1991 | | 2025.07.14 | ¿ù¼¼ | ¸®´õ½ºÅ¸¿î | 4 | 18.15 | 13,000 | 9 | 2016 | | 2025.07.14 | ¿ù¼¼ | ¿¤¸²ºô¶óAµ¿ | 4 | 59.49 | 16,800 | 15 | 2003 | | 2025.07.14 | Àü¼¼ | û¼Ö¸Ç¼ÇAµ¿(8Â÷) | 2 | 59.6 | 16,380 | 0 | 2002 | | 2025.07.14 | ¿ù¼¼ | µ¿¼ÆÄÅ©ºô(³ªµ¿) | 4 | 33.21 | 3,000 | 60 | 2003 | | 2025.07.14 | ¸Å¸Å | ÁÖ¾ó¸®¸Ç¼Ç | 1 | 75.48 | 24,000 | | 2002 | | 2025.07.14 | ¿ù¼¼ | ´õ±×¸°È°î | 4 | 38.19 | 3,000 | 90 | 2015 | | 2025.07.14 | ¿ù¼¼ | ¿¬Èñºô¶ó | 2 | 65.65 | 18,900 | 18 | 2000 | | 2025.07.14 | Àü¼¼ | ¸®¿ÀÆÄÅ©ºô(881-22) | 5 | 45.32 | 20,770 | 0 | 2014 | | 2025.07.14 | Àü¼¼ | û¼Ö¸Ç¼ÇAµ¿(8Â÷) | 2 | 59.6 | 16,500 | 0 | 2002 | | 2025.07.14 | ¿ù¼¼ | µ¿¼ÆÄÅ©ºô(³ªµ¿) | 4 | 33.21 | 3,000 | 60 | 2003 | | 2025.07.14 | ¿ù¼¼ | ÇØÇÇÇϿ콺(1128-4) | 2 | 12.7 | 1,000 | 40 | 2012 | | 2025.07.14 | ¿ù¼¼ | µ¿¼ÆÄÅ©ºô(³ªµ¿) | 4 | 33.21 | 3,000 | 60 | 2003 | | 2025.07.14 | ¿ù¼¼ | Á¤¿ìºô¶ó | 1 | 39.97 | 500 | 65 | 1997 | | 2025.07.14 | Àü¼¼ | û¿ìÆÄÅ©ºô | 3 | 55.04 | 17,700 | 0 | 2008 | | 2025.07.13 | Àü¼¼ | ±¤¼ººô¶ó | 1 | 38.61 | 8,800 | 0 | 1993 | | 2025.07.13 | Àü¼¼ | ¸®´õ½ºÅ¸¿î | 4 | 22.05 | 15,000 | 0 | 2017 | | 2025.07.12 | ¿ù¼¼ | ÄÉÀÌÇϿ콺 | 4 | 16.89 | 1,000 | 73 | 2017 | | 2025.07.12 | ¿ù¼¼ | ³²¼º¾ÆÆ®ºô(367-77) | 4 | 35.02 | 5,500 | 75 | 2012 | | 2025.07.12 | Àü¼¼ | ÇØÇÇÇϿ콺A | 2 | 56.94 | 15,500 | 0 | 2003 | | 2025.07.12 | ¿ù¼¼ | ¼ö¾ÆÆ®ºô | 4 | 29.9 | 16,250 | 10 | 2015 | | 2025.07.12 | ¸Å¸Å | È£¹Ý¾ÆÆ®ºô¶ó | 4 | 64.91 | 28,500 | | 2001 | | 2025.07.12 | ¸Å¸Å | dzÀüºô¶ó(98-53) | 3 | 45.52 | 17,000 | | 2001 | | 2025.07.12 | ¸Å¸Å | º£¾ÆÆ®¸®½º | 2 | 29.35 | 20,500 | | 2017 | | 2025.07.12 | ¸Å¸Å | »êÀÏ¿¥¹ö½ººô | 4 | 66.12 | 18,000 | | 2008 | | 2025.07.12 | ¿ù¼¼ | ´õ¼û153 | 2 | 15.52 | 33 | 95 | 2021 | | 2025.07.12 | ¿ù¼¼ | ¸®Á¨Æ®¶ó¿ò | 5 | 20.28 | 3,000 | 80 | 2014 | | 2025.07.12 | ¿ù¼¼ | ¼ºÁøºô¶óBµ¿ | 2 | 62.13 | 2,000 | 80 | 1997 | | 2025.07.12 | Àü¼¼ | ¿¡ÄÚ | 3 | 44.53 | 21,600 | 0 | 2013 | | 2025.07.12 | ¿ù¼¼ | ¼¼Áøºô¶ó | 4 | 61.84 | 15,870 | 10 | 1996 | | 2025.07.12 | ¿ù¼¼ | °Å¼º | 2 | 43.56 | 3,000 | 70 | 1986 | | 2025.07.12 | ¿ù¼¼ | ¸ñ¿øÁÖÅÃ(105-104) | 3 | 56.97 | 15,300 | 15 | 2001 | | 2025.07.12 | ¿ù¼¼ | À̽ºÆ®Èú | 5 | 64.87 | 15,000 | 20 | 2003 | | 2025.07.12 | Àü¼¼ | ´õŬ·¡½Ä | 6 | 42.28 | 25,000 | 0 | 2018 | | 2025.07.12 | ¿ù¼¼ | »ï¼º½¦¸£ºô(346-62) | 3 | 27.41 | 16,000 | 15 | 2017 | | 2025.07.12 | ¿ù¼¼ | ¸í´öºô¶ó | 4 | 30.26 | 7,290 | 25 | 2001 | | 2025.07.12 | Àü¼¼ | Àκ£½ºÆ®¾ÆÆ®ºô | 1 | 47.36 | 13,400 | 0 | 2007 | | 2025.07.12 | ¿ù¼¼ | (424-186) | 2 | 42.045 | 2,000 | 80 | 2002 | | 2025.07.12 | ¿ù¼¼ | »ï¼ººô¶óÆ® | 2 | 55.83 | 4,000 | 60 | 2001 | | 2025.07.12 | ¿ù¼¼ | DHÆÓ¸®½º102µ¿ | 5 | 29.4 | 3,000 | 84 | 2018 | | 2025.07.11 | Àü¼¼ | Çý¼ºÆç¸®½ººô | 2 | 27.32 | 13,770 | 0 | 2018 | | 2025.07.11 | ¸Å¸Å | ¹ü¿ìµ¥½Ã¾Ó | 3 | 22.77 | 27,800 | | 2025 | | 2025.07.11 | ¸Å¸Å | ¹ü¿ìµ¥½Ã¾Ó | 6 | 23.04 | 28,900 | | 2025 | | 2025.07.11 | ¸Å¸Å | ¹ü¿ìµ¥½Ã¾Ó | 6 | 23.16 | 29,450 | | 2025 | | 2025.07.11 | ¸Å¸Å | º¸¼ººô¶ó | 2 | 62.36 | 23,000 | | 2002 | | 2025.07.11 | ¸Å¸Å | Á¤Çöºô¶ó | 3 | 50.07 | 23,000 | | 2000 | | 2025.07.11 | ¿ù¼¼ | (362-109)°¼ººô¶ó3Â÷ | -1 | 33.28 | 300 | 35 | 1991 | | 2025.07.11 | ¿ù¼¼ | ±Ù»óÇÁ¸®Áò¾ÆÆ®ºô | 5 | 55.3 | 2,000 | 110 | 2010 | | 2025.07.11 | ¿ù¼¼ | ±Ý°´©¸®ºô(998-10) | 4 | 16.02 | 5,000 | 8 | 2012 | | 2025.07.11 | ¿ù¼¼ | ´õ½ºÀ§Æ®(73-78) | 5 | 27.43 | 95 | 95 | 2022 | | 2025.07.11 | Àü¼¼ | ±¤¸íÇÏÀÌÃ÷29Â÷³ªµ¿ | 4 | 42.33 | 12,000 | 0 | 2002 | | 2025.07.11 | ¿ù¼¼ | Àº¾Æºô¶ó | 4 | 59.94 | 3,000 | 80 | 2002 | | 2025.07.11 | Àü¼¼ | µ¿¿ìÇÏÀ̺ô | 6 | 26.01 | 19,600 | 0 | 2018 | | 2025.07.11 | ¿ù¼¼ | ³²¼º¾ÆÆ®ºô(381-1) | 5 | 23.88 | 14,900 | 25 | 2015 | | 2025.07.11 | ¸Å¸Å | ¹ü¿ìµ¥½Ã¾Ó | 6 | 22.77 | 28,550 | | 2025 | | 2025.07.11 | ¸Å¸Å | ¹ü¿ìµ¥½Ã¾Ó | 5 | 23.16 | 29,200 | | 2025 | | 2025.07.11 | ¸Å¸Å | ¹ü¿ìµ¥½Ã¾Ó | 5 | 23.04 | 28,500 | | 2025 | | 2025.07.11 | ¸Å¸Å | ¹ü¿ìµ¥½Ã¾Ó | 3 | 22.94 | 28,650 | | 2025 | | 2025.07.11 | ¸Å¸Å | ¹ü¿ìµ¥½Ã¾Ó | 2 | 22.57 | 27,800 | | 2025 | | 2025.07.11 | ¸Å¸Å | ¹ü¿ìµ¥½Ã¾Ó | 2 | 22.77 | 27,400 | | 2025 | | 2025.07.11 | ¸Å¸Å | ¹ü¿ìµ¥½Ã¾Ó | 6 | 22.94 | 29,400 | | 2025 | | 2025.07.11 | ¸Å¸Å | ¹ü¿ìµ¥½Ã¾Ó | 4 | 22.77 | 28,000 | | 2025 | | 2025.07.11 | ¸Å¸Å | ¹ü¿ìµ¥½Ã¾Ó | 3 | 23.04 | 28,100 | | 2025 | | 2025.07.11 | ¸Å¸Å | ¹ü¿ìµ¥½Ã¾Ó | 3 | 23.16 | 28,750 | | 2025 | | 2025.07.11 | ¸Å¸Å | ¹ü¿ìµ¥½Ã¾Ó | 4 | 22.94 | 28,850 | | 2025 | | 2025.07.11 | ¸Å¸Å | ¹ü¿ìµ¥½Ã¾Ó | 4 | 23.04 | 28,350 | | 2025 | | 2025.07.11 | ¸Å¸Å | ¹ü¿ìµ¥½Ã¾Ó | 4 | 23.16 | 29,050 | | 2025 | | 2025.07.11 | ¸Å¸Å | ¹ü¿ìµ¥½Ã¾Ó | 5 | 22.94 | 29,000 | | 2025 | | 2025.07.11 | ¸Å¸Å | ¹ü¿ìµ¥½Ã¾Ó | 5 | 22.77 | 28,150 | | 2025 | | 2025.07.11 | ¿ù¼¼ | ´ë¸²¶ó¿ÂÁ¦³ª | 3 | 25.84 | 13,700 | 30 | 2014 | | 2025.07.11 | ¿ù¼¼ | ¸í½ÅŸ¿î2Â÷ | 3 | 59.97 | 2,000 | 150 | 1999 | | 2025.07.11 | ¿ù¼¼ | ¿ì¼ºÁø°æºô¶ó | 4 | 50.04 | 8,000 | 45 | 1995 | | 2025.07.11 | ¸Å¸Å | ¹ü¿ìµ¥½Ã¾Ó | 2 | 23.04 | 27,750 | | 2025 | | 2025.07.11 | Àü¼¼ | µ¿¿ìÇÏÀ̺ô | 6 | 26.01 | 19,000 | 0 | 2018 | | 2025.07.11 | ¿ù¼¼ | Àº¾Æºô¶ó | 4 | 59.94 | 3,000 | 80 | 2002 | | 2025.07.11 | ¿ù¼¼ | ºÒ·çºô | -1 | 30.4 | 5,700 | 3 | 1997 | | 2025.07.11 | ¿ù¼¼ | ´ë¸²¶ó¿ÂÁ¦³ª | 3 | 25.84 | 13,700 | 30 | 2014 | | 2025.07.11 | Àü¼¼ | Ȱ·°½Ã¿ÀÇǽºÅÚ | 5 | 24.3 | 21,500 | 0 | 2018 | | 2025.07.10 | ¿ù¼¼ | Á¦ÀÌ¿¡½ººô | 2 | 26.53 | 1,000 | 105 | 2023 | | 2025.07.10 | ¿ù¼¼ | »ï¼º½¦¸£ºô | 4 | 29.26 | 3,000 | 80 | 2020 | | 2025.07.10 | Àü¼¼ | ¼ºÈÆ¿¡À̽ººô | 1 | 53.39 | 13,860 | 0 | 2002 | | 2025.07.10 | Àü¼¼ | À£¸®Ä¡ÆÄÅ©(1078-24) | 2 | 49.06 | 29,000 | 0 | 2015 | | 2025.07.10 | ¿ù¼¼ | SKºô¸®Áö | 3 | 29.935 | 2,000 | 90 | 2015 | | 2025.07.10 | ¿ù¼¼ | ¿µ¿ø | 3 | 36.72 | 1,000 | 52 | 2007 | | 2025.07.10 | ¿ù¼¼ | °ø°£ºô¶ó | 2 | 36.78 | 10,000 | 25 | 1993 | | 2025.07.10 | ¿ù¼¼ | Á¤ÀºÆÄÅ©ºô | 5 | 41.92 | 1,000 | 90 | 2016 | | 2025.07.10 | ¿ù¼¼ | ÇØÇ³¸Ç¼Ç | 2 | 53.16 | 5,000 | 90 | 1997 | | 2025.07.10 | ¿ù¼¼ | ÇØÇ³¸Ç¼Ç | 2 | 53.16 | 5,000 | 90 | 1997 | | 2025.07.10 | ¿ù¼¼ | ÇÏÀºÇÏÀÌÃ÷ | 4 | 69.15 | 3,000 | 65 | 2008 | | 2025.07.10 | ¿ù¼¼ | ³²±¤¼¼¸£ºô | 3 | 43.07 | 2,200 | 40 | 2010 | | 2025.07.10 | Àü¼¼ | SMHouse(475-7) | 4 | 67.33 | 18,000 | 0 | 2013 | | 2025.07.10 | ¿ù¼¼ | ¼¼¸í¾ÆÅ©·Îºô | 3 | 26.43 | 13,600 | 6 | 2017 | | 2025.07.10 | ¿ù¼¼ | »ï¼ºÈÀÌÆ®ºô | 3 | 61.97 | 16,600 | 20 | 2002 | | 2025.07.10 | ¿ù¼¼ | ÇѼº¾ÆÆ®ºô(111-128) | 5 | 34.98 | 10,000 | 30 | 2004 | | 2025.07.10 | ¿ù¼¼ | ÇØÇ³¸Ç¼Ç | 2 | 53.16 | 5,000 | 90 | 1997 | | 2025.07.10 | Àü¼¼ | ¹Ì¼ÒÁö¿ò | 4 | 29.86 | 17,300 | 0 | 2021 | | 2025.07.10 | ¿ù¼¼ | °ñµç¸®Ä¡ºô(56-217) | 4 | 67.16 | 2,800 | 58 | 2008 | | 2025.07.10 | Àü¼¼ | »ó¾Æºô¶ó | 2 | 66.66 | 19,000 | 0 | 2002 | | 2025.07.10 | ¿ù¼¼ | ½ÅÇϿ콺 | 7 | 29.88 | 2,000 | 80 | 2016 | | 2025.07.10 | ¿ù¼¼ | º£¾ÆÆ®¸®½º(341-3) | 4 | 27.36 | 19,700 | 10 | 2017 | | 2025.07.10 | Àü¼¼ | À£¸®Ä¡ÆÄÅ©(1078-24) | 2 | 49.06 | 29,000 | 0 | 2015 | | 2025.07.10 | Àü¼¼ | µ¿Èºô¶ó(56-339) | 1 | 59.92 | 14,900 | 0 | 2001 | | 2025.07.10 | ¿ù¼¼ | ¿ì¼Ö¾ÆÆ®ºô | 6 | 28.39 | 0 | 80 | 2020 | | 2025.07.10 | Àü¼¼ | ¼ºÈÆ¿¡À̽ººô | 1 | 53.39 | 14,850 | 0 | 2002 | | 2025.07.10 | ¿ù¼¼ | ¿ì¼º(408-86) | 2 | 48.27 | 5,000 | 90 | 2017 | | 2025.07.10 | Àü¼¼ | µ¿¿ìÇÏÀ̺ô | 6 | 26.61 | 16,920 | 0 | 2019 | | 2025.07.10 | ¸Å¸Å | ½ÂÀ±¸Ç¼Ç | 1 | 64.86 | 23,000 | | 2002 | | 2025.07.10 | ¸Å¸Å | ¼¼ÀÎÆ®ºô | 4 | 43.46 | 14,500 | | 2011 | | 2025.07.10 | ¸Å¸Å | »ïÀÍÇ콺Ƽ¾Æ(1129-29) | 2 | 34.26 | 24,000 | | 2011 | | 2025.07.10 | ¸Å¸Å | ³²±¤¼¼¸£ºô | 3 | 43.07 | 22,000 | | 2010 | | 2025.07.10 | Àü¼¼ | ºí·çÈú | 5 | 29.77 | 18,500 | 0 | 2017 | | 2025.07.10 | ¿ù¼¼ | ÇØÇ³¸Ç¼Ç | 2 | 53.16 | 5,000 | 90 | 1997 | | 2025.07.09 | ¿ù¼¼ | ´Ù¼ØÇϿ콺 | 3 | 39.38 | 2,500 | 61 | 2012 | | 2025.07.09 | ¿ù¼¼ | ±¹¹Î½¦¸£ºô | 3 | 50.1 | 13,000 | 20 | 2010 | | 2025.07.09 | Àü¼¼ | ½Ö¿ëÇÏÀ̺ô | 1 | 55.04 | 16,500 | 0 | 2001 | | 2025.07.09 | ¸Å¸Å | ÇÑ¿ï¶ß¶õä(995-20) | 5 | 27.72 | 13,000 | | 2011 | | 2025.07.09 | ¿ù¼¼ | Á¦ÀÌ¿¡½ººô | 6 | 26.4 | 1,000 | 115 | 2023 | | 2025.07.09 | ¸Å¸Å | ¼º¿øºô¶ó(102-147) | 3 | 55.26 | 18,000 | | 2000 | | 2025.07.09 | ¸Å¸Å | ½Å¿ø¼¾½ººô(392-75) | 3 | 50.79 | 24,500 | | 2010 | | 2025.07.09 | ¸Å¸Å | (77-26) | 3 | 54.87 | 16,700 | | 1995 | | 2025.07.09 | ¸Å¸Å | °ÇÇüºô¶ó(400-64) | 3 | 46.81 | 21,500 | | 2002 | | 2025.07.09 | ¸Å¸Å | °øÁÖºô¶ó | 1 | 57.99 | 21,000 | | 2002 | | 2025.07.09 | ¿ù¼¼ | ÁÖ¿¬ÇϿ콺 | 2 | 40.95 | 5,000 | 105 | 2022 | | 2025.07.09 | ¸Å¸Å | ¸ð¾ÆÈ¨Å¸¿î(1104-1) | 4 | 50.12 | 21,000 | | 2011 | | 2025.07.09 | Àü¼¼ | ´Ù¿ÂÆÄÅ©ºô | 3 | 24.34 | 13,335 | 0 | 2017 | | 2025.07.09 | ¿ù¼¼ | ÁÖ¿¬ÇϿ콺 | 2 | 37.21 | 5,000 | 105 | 2022 | | 2025.07.09 | ¿ù¼¼ | ±¹¹Î½¦¸£ºô | 3 | 52.74 | 13,000 | 30 | 2010 | | 2025.07.09 | Àü¼¼ | °æ¿øÁÖÅôٵ¿ | 1 | 42.45 | 11,000 | 0 | 2001 | | 2025.07.09 | ¿ù¼¼ | ´Ù¼ØÇϿ콺 | 3 | 39.38 | 2,500 | 61 | 2012 | | 2025.07.09 | ¿ù¼¼ | »ïȺô¸®Áö(403-8) | 2 | 16.28 | 500 | 44 | 2012 | | 2025.07.09 | ¿ù¼¼ | µ¿±¤½¦¸£ºô°¡µ¿ | 4 | 56.17 | 0 | 35 | 2002 | | 2025.07.09 | ¿ù¼¼ | ÀÌÁöÇϿ콺 | 2 | 19.09 | 500 | 55 | 2024 | | 2025.07.09 | ¿ù¼¼ | ÁÖ¿¬ÇϿ콺 | 3 | 40.95 | 5,000 | 113 | 2022 | | 2025.07.09 | ¿ù¼¼ | ÁÖ¿¬ÇϿ콺 | 2 | 40.95 | 5,000 | 105 | 2022 | | 2025.07.09 | ¿ù¼¼ | ³²¼º¾ÆÆ®ºô(353-13) | 3 | 27.99 | 13,600 | 20 | 2016 | | 2025.07.09 | ¿ù¼¼ | ´õ¿ø | 4 | 29.81 | 24,570 | 5 | 2022 | | 2025.07.09 | ¿ù¼¼ | ÁÖ¿¬ÇϿ콺 | 3 | 40.95 | 5,000 | 113 | 2022 | | 2025.07.09 | ¿ù¼¼ | »ïȺô¸®Áö(403-8) | 2 | 16.28 | 500 | 44 | 2012 | | 2025.07.09 | ¿ù¼¼ | ¼º¿øºô¶ó(341-44) | 2 | 67.22 | 18,000 | 30 | 2009 | | 2025.07.09 | ¿ù¼¼ | ÁÖ¿¬ÇϿ콺 | 4 | 24.78 | 3,000 | 90 | 2022 | | 2025.07.08 | ¿ù¼¼ | Çѹéºô¶ó | 2 | 41 | 11,800 | 14 | 2001 | | 2025.07.08 | ¿ù¼¼ | ¿¹Àκô¶ó(366-12) | -1 | 65.69 | 12,440 | 30 | 2001 | | 2025.07.08 | Àü¼¼ | ¸®¿ÀÆÄÅ©ºô | 2 | 29.59 | 19,950 | 0 | 2020 | | 2025.07.08 | Àü¼¼ | ºí¸®½ººô101µ¿102µ¿ | 5 | 49.67 | 33,000 | 0 | 2022 | | 2025.07.08 | Àü¼¼ | ´ë¸íÆÄÅ©ºô¶ó | 1 | 36.78 | 11,100 | 0 | 1990 | | 2025.07.08 | Àü¼¼ | ¼¿ì802 | 2 | 27.09 | 20,034 | 0 | 2019 | | 2025.07.08 | ¿ù¼¼ | Å¿µÇÁ¸®¹Ì¾ö | 5 | 44.89 | 21,100 | 10 | 2014 | | 2025.07.08 | Àü¼¼ | õȣºô¶ó | 2 | 66.78 | 18,000 | 0 | 1996 | | 2025.07.08 | ¸Å¸Å | µ¿³²ÁÖÅÃ(868-48) | 4 | 42.24 | 15,300 | | 2002 | | 2025.07.08 | ¿ù¼¼ | ¼±°æº£½ºÆ®ºô(98-119) | 3 | 54.48 | 17,760 | 20 | 2008 | | 2025.07.08 | ¿ù¼¼ | È£¼öŸ¿î5Â÷ | 2 | 47.97 | 12,300 | 25 | 2002 | | 2025.07.08 | ¸Å¸Å | ¸®¿ÀÆÄÅ©ºô(881-22) | 4 | 45.32 | 23,200 | | 2014 | | 2025.07.08 | ¸Å¸Å | Ȳº¸¾ÆÆ®ºô | 3 | 30.3 | 20,500 | | 2016 | | 2025.07.08 | ¸Å¸Å | ¿ì¼ºÆÄÅ©¸Ç¼Ç(29-230) | 2 | 64.3 | 21,000 | | 1983 | | 2025.07.08 | ¸Å¸Å | ½ºÄ«À̺ô | 4 | 25.12 | 18,000 | | 2017 | | 2025.07.08 | ¸Å¸Å | â´ë(366-34) | 3 | 28.91 | 23,000 | | 2013 | | 2025.07.08 | ¸Å¸Å | ȼººô¶ó(379-47) | 2 | 63.36 | 29,500 | | 2009 | | 2025.07.08 | ¸Å¸Å | â´ëºô¶ó(372-12) | 4 | 29.95 | 21,800 | | 2014 | | 2025.07.08 | ¿ù¼¼ | °ÇÇüºô¶ó(783-21) | 3 | 39.32 | 3,000 | 35 | 2002 | | 2025.07.08 | Àü¼¼ | µ¿¾çÁÖÅà | 3 | 51.87 | 13,000 | 0 | 1995 | | 2025.07.08 | ¿ù¼¼ | »õ·Òºô¸®Áö | 3 | 43 | 13,000 | 20 | 2002 | | 2025.07.07 | ¿ù¼¼ | ¹Ù¶óȨ | 6 | 22.11 | 18,770 | 5 | 2023 | | 2025.07.07 | Àü¼¼ | µ¿¿ìÇÏÀ̺ô(996-19) | 3 | 24.66 | 23,000 | 0 | 2022 | | 2025.07.07 | ¿ù¼¼ | »ó¾Æ¿¡ÄÚ¶óÀÌÇÁ | 3 | 39.78 | 3,000 | 60 | 2011 | | 2025.07.07 | ¿ù¼¼ | ¾È¼ºÁÖÅà | 2 | 61.62 | 17,500 | 15 | 2002 | | 2025.07.07 | Àü¼¼ | ¾È¼ºÁÖÅà | 2 | 61.62 | 17,700 | 0 | 2002 | | 2025.07.07 | ¿ù¼¼ | »þÀδõÈúȰî | 6 | 29.53 | 1,000 | 105 | 2023 | | 2025.07.07 | Àü¼¼ | µ¿±¤¾ÆÆ®ºô(111-179) | 2 | 70.59 | 19,150 | 0 | 2002 | | 2025.07.07 | ¿ù¼¼ | ¸ð´×Èú | 2 | 46.92 | 3,000 | 105 | 2012 | | 2025.07.07 | Àü¼¼ | ´õ¿ø·¹¿Àºô | 6 | 25.96 | 25,300 | 0 | 2021 | | 2025.07.07 | Àü¼¼ | ½ºÄ«À̱ٸ°Å¸¿î | 5 | 43.31 | 15,400 | 0 | 2014 | | 2025.07.07 | ¿ù¼¼ | ¸¶ÀÌȨ | 3 | 19.74 | 1,000 | 56 | 2017 | | 2025.07.07 | ¿ù¼¼ | ·£µåÇϿ콺 | 3 | 29.92 | 600 | 40 | 2016 | | 2025.07.07 | Àü¼¼ | ½ÅÁøÇÏÀÌÃ÷Bµ¿ | 2 | 65.1 | 17,700 | 0 | 2003 | | 2025.07.07 | Àü¼¼ | ´õŬ·¡½Ä | 5 | 45.69 | 26,300 | 0 | 2018 | | 2025.07.07 | Àü¼¼ | µ¿Àϳ׿Àºô | 3 | 28.66 | 16,920 | 0 | 2020 | | 2025.07.07 | ¿ù¼¼ | ÇÑ¹é¾ÆÆ®ºôBµ¿ | 2 | 31.06 | 2,000 | 80 | 2002 | | 2025.07.07 | ¿ù¼¼ | ÇÑ¿ïÀÚÀ̺ô(58-14) | 5 | 50.92 | 2,000 | 80 | 2006 | | 2025.07.07 | ¿ù¼¼ | ½Ã±×´ÏÃÄ-S | 3 | 29.39 | 3,000 | 90 | 2023 | | 2025.07.07 | ¿ù¼¼ | (98-23) | 4 | 46.93 | 21,700 | 16 | 2018 | | 2025.07.07 | ¸Å¸Å | À̵µÆÓ¸®½º(1049-29) | 3 | 20.41 | 26,000 | | 2022 | | 2025.07.07 | ¸Å¸Å | dz¼ºµå¸²ºô | 1 | 61.12 | 17,000 | | 2004 | | 2025.07.07 | ¸Å¸Å | ´ë¿ìºô¶ó³ªµ¿ | -1 | 45.73 | 8,500 | | 1990 | | 2025.07.07 | ¸Å¸Å | Áß¾ÓÆÄÅ©ºô(394-33) | 3 | 41.09 | 20,500 | | 2011 | | 2025.07.06 | ¸Å¸Å | ±î»çÁö¿À(354-76) | 5 | 37.28 | 32,000 | | 2017 | | 2025.07.06 | ¿ù¼¼ | °¼ÆÄÅ©ºäÅõ¿þ´ÏÆÛ½ºÆ® | 17 | 19.18 | 0 | 60 | 2020 | | 2025.07.06 | ¸Å¸Å | ½Å¼¼°èºô¶óÆ®(59-18) | 4 | 35.63 | 25,500 | | 2015 | | 2025.07.05 | ¿ù¼¼ | ÀÌÁöÇϿ콺 | 2 | 17.77 | 500 | 53 | 2024 | | 2025.07.05 | Àü¼¼ | ½Ã¿Âºô¸®Áö101 | 2 | 25.84 | 21,000 | 0 | 2022 | | 2025.07.05 | Àü¼¼ | ºô¶ó¿£Aµ¿ | 3 | 44.4 | 23,000 | 0 | 2017 | | 2025.07.05 | Àü¼¼ | ´õ¿ø·¹¿Àºô | 5 | 16.99 | 20,280 | 0 | 2021 | | 2025.07.05 | ¿ù¼¼ | ÀÎÅͺùÇϿ콺 | 3 | 17.95 | 1,000 | 52 | 2017 | | 2025.07.05 | ¿ù¼¼ | ÀÎÅÍ½ÃÆ¼ºô¶ó(341-42) | 2 | 59.75 | 17,600 | 30 | 2000 | | 2025.07.05 | ¿ù¼¼ | Ŭ·¡½Ãºä | 3 | 29.85 | 1,000 | 105 | 2022 | | 2025.07.05 | ¿ù¼¼ | Ȩ·£µåºô¶ó11Â÷ | 4 | 50.42 | 3,000 | 60 | 1995 | | 2025.07.05 | Àü¼¼ | È«¼ººô¶ó | 2 | 59.85 | 16,400 | 0 | 2001 | | 2025.07.05 | Àü¼¼ | ¿µÁøÁÖÅà | 3 | 28.33 | 21,000 | 0 | 2023 | | 2025.07.05 | ¿ù¼¼ | ÀÎÅÍ½ÃÆ¼ºô¶ó(341-42) | 2 | 59.75 | 17,600 | 30 | 2000 | | 2025.07.05 | ¿ù¼¼ | ÀÌ·¹ÇìºìÇϿ콺 | 7 | 19.36 | 1,000 | 60 | 2012 | | 2025.07.05 | Àü¼¼ | ¼¼¾ç2Â÷°¡µ¿ | 2 | 38.53 | 8,500 | 0 | 1987 | | 2025.07.05 | Àü¼¼ | ¿ìÁÖºô¶óÆ® | 3 | 60.42 | 16,700 | 0 | 2001 | | 2025.07.05 | Àü¼¼ | ¿ìÁÖºô¶óÆ® | 3 | 60.42 | 16,700 | 0 | 2001 | | 2025.07.05 | ¸Å¸Å | ´ö¿ëÆÓ¸®Ã¼ | 6 | 23.41 | 19,700 | | 2019 | | 2025.07.05 | ¸Å¸Å | °è¸íÁÖÅÃ(24-308) | 2 | 59.87 | 19,700 | | 2001 | | 2025.07.05 | ¸Å¸Å | Ȳº¸¾ÆÆ®ºô | 4 | 41.505 | 29,500 | | 2016 | | 2025.07.05 | ¿ù¼¼ | ȲÁ¦±×·£µåÆÄÅ© | 4 | 40.92 | 1,000 | 85 | 2008 | | 2025.07.05 | ¸Å¸Å | À̵µÆÓ¸®½º(1049-29) | 4 | 29.93 | 37,500 | | 2022 | | 2025.07.04 | ¸Å¸Å | ½Å½Å¾ÆÆ® | 4 | 38.55 | 26,700 | | 2001 | | 2025.07.04 | ¸Å¸Å | ÀÌ·¹½¦¸£ºô(1046-5) | 4 | 32.23 | 29,000 | | 2014 | | 2025.07.04 | ¸Å¸Å | ÀÌ·¹½¦¸£ºô(1046-5) | 4 | 32.23 | 29,000 | | 2014 | | 2025.07.04 | ¸Å¸Å | ¿ì¼º¿¬¸³(1134-7) | 2 | 51.48 | 21,000 | | 1985 | | 2025.07.04 | ¸Å¸Å | ½ÅÈï¶ß¶õä | 6 | 35.27 | 19,000 | | 2015 | | 2025.07.04 | Àü¼¼ | µµÇöºí¶ûºô | 1 | 43.95 | 11,390 | 0 | 2002 | | 2025.07.04 | ¿ù¼¼ | (333-41) | 1 | 40.155 | 1,000 | 70 | 1986 | | 2025.07.04 | ¸Å¸Å | À̵µÆÓ¸®½º(1049-29) | 2 | 25.61 | 29,600 | | 2022 | | 2025.07.04 | Àü¼¼ | °Å¼º | 2 | 43.56 | 13,000 | 0 | 1986 | | 2025.07.04 | ¸Å¸Å | ½ÅÈï¶ß¶õä | 6 | 35.27 | 19,000 | | 2015 | | 2025.07.04 | ¿ù¼¼ | ¹Ì¿¬º£½ºÆ®ºô | 2 | 63.76 | 4,000 | 90 | 2003 | | 2025.07.04 | ¿ù¼¼ | ÇϳªÅ¸¿îAµ¿ | 5 | 29.31 | 5,000 | 55 | 2015 | | 2025.07.04 | Àü¼¼ | ´ö¿ëÆÓ¸®Ã¼ | 5 | 25.29 | 17,640 | 0 | 2019 | | 2025.07.04 | Àü¼¼ | (1164-0) | 4 | 21.39 | 13,110 | 0 | 2014 | | 2025.07.04 | ¿ù¼¼ | ¼ºÁÖºô¶ó(350-73) | 2 | 59.73 | 5,000 | 65 | 1998 | | 2025.07.04 | Àü¼¼ | ¸ð³ëÇϿ콺2Â÷(1016-17) | 2 | 47.29 | 1,980 | 0 | 2014 | | 2025.07.04 | Àü¼¼ | ȰîÅ¥6 | 3 | 22.87 | 28,900 | 0 | 2022 | | 2025.07.04 | Àü¼¼ | ÇÁ¸®Áòºô¶óAµ¿ | 2 | 41.24 | 11,700 | 0 | 2002 | | 2025.07.04 | ¿ù¼¼ | ±Ý°´©¸®ºô(998-10) | 4 | 16.02 | 3,000 | 19 | 2012 | | 2025.07.04 | ¿ù¼¼ | ¹Ì¸®³»ºô¶ó(56-270) | 1 | 37.26 | 8,900 | 10 | 1992 | | 2025.07.04 | Àü¼¼ | ´ë½Åºô¶ó(156-9) | 3 | 63.6 | 16,127 | 0 | 2000 | | 2025.07.04 | Àü¼¼ | À̵µÅ¸¿î | 6 | 36.31 | 30,500 | 0 | 2022 | | 2025.07.04 | ¿ù¼¼ | ½Å¿ì¶ß·¡¾È(827-13) | 4 | 31.85 | 3,000 | 55 | 2014 | | 2025.07.04 | Àü¼¼ | µ¿Èºô | 1 | 28.6 | 14,310 | 0 | 2019 | | 2025.07.04 | Àü¼¼ | »ïÁ¤ÆÄÅ©ºä | 2 | 28.7 | 10,530 | 0 | 2012 | | 2025.07.04 | Àü¼¼ | Çý¼ºÆç¸®½ººô | 5 | 27.32 | 13,860 | 0 | 2018 | | 2025.07.03 | Àü¼¼ | ½Ã¸ó½¦¸£ºô(802-16) | 4 | 74.82 | 26,000 | 0 | 2008 | | 2025.07.03 | ¿ù¼¼ | MARNI | 4 | 28.63 | 3,000 | 85 | 2023 | | 2025.07.03 | ¿ù¼¼ | ´õ¼û153 | 3 | 16.06 | 0 | 65 | 2021 | | 2025.07.03 | ¸Å¸Å | µ¿±¤ºô¶ó | 2 | 38.88 | 13,000 | | 1993 | | 2025.07.03 | ¿ù¼¼ | ¸¶ÀÌȨ | 2 | 23.84 | 1,000 | 71 | 2017 | | 2025.07.03 | ¿ù¼¼ | ¾ÆÀ̺ñ¸Ç¼ð | 3 | 57.59 | 3,000 | 93 | 2008 | | 2025.07.03 | ¿ù¼¼ | À̾ÈÇϿ콺 | 6 | 29.64 | 2,000 | 80 | 2022 | | 2025.07.03 | ¿ù¼¼ | º°Àå±×¸°ºô¶ó | 4 | 39.16 | 9,500 | 15 | 2002 | | 2025.07.03 | Àü¼¼ | NSŸ¿î | 5 | 27.33 | 16,740 | 0 | 2019 | | 2025.07.03 | ¿ù¼¼ | Ǫ¸¥Ç³°æÃ¤ | 3 | 28.01 | 1,129 | 22 | 2020 | | 2025.07.03 | ¿ù¼¼ | ¼¼Á¾ÆÄÅ©ºô | 6 | 52.25 | 5,145 | 52 | 2023 | | 2025.07.03 | ¿ù¼¼ | °©Áø°ñµåºô | 3 | 35.59 | 3,000 | 79 | 2013 | | 2025.07.03 | ¸Å¸Å | Áß¾ÓÇÏÀÌÃ÷(379-4) | 4 | 56.22 | 25,500 | | 2009 | | 2025.07.03 | ¸Å¸Å | ÃÊÀ̽ººô | 3 | 36.85 | 18,500 | | 2010 | | 2025.07.03 | ¸Å¸Å | ´õŬ·¡½Ä | 2 | 29.38 | 19,500 | | 2018 | | 2025.07.03 | ¿ù¼¼ | ¼ºÀººô¶ó(871-27) | -1 | 64.55 | 2,000 | 85 | 2001 | | 2025.07.03 | ¿ù¼¼ | µ¿¿ìÇÏÀ̺ô(996-19) | 5 | 20.26 | 500 | 60 | 2022 | | 2025.07.03 | ¿ù¼¼ | Èѹ̸®ºô(993-15) | 2 | 49.64 | 5,000 | 80 | 2010 | | 2025.07.03 | ¿ù¼¼ | ¼¼Á¾ÆÄÅ©ºô | 6 | 52.25 | 16,645 | 19 | 2023 | | 2025.07.02 | ¸Å¸Å | ¼ºÈÆ¿¡À̽ººô | 3 | 51.43 | 18,000 | | 2002 | | 2025.07.02 | ¸Å¸Å | û¿ìÆÄÅ©ºô | -1 | 55.68 | 15,000 | | 2001 | | 2025.07.02 | ¸Å¸Å | ´ëÈÆÄÅ©ºô(371-13) | 3 | 45.52 | 26,000 | | 2014 | | 2025.07.02 | ¸Å¸Å | Á¤°¨Å¸¿îC | 3 | 29.97 | 17,400 | | 2016 | | 2025.07.02 | ¸Å¸Å | À̵µÆÓ¸®½º(1049-29) | 2 | 25.89 | 29,900 | | 2022 | | 2025.07.02 | ¸Å¸Å | Àνººô | 3 | 41.375 | 24,000 | | 2017 | | 2025.07.02 | ¸Å¸Å | Çѿî(¶óµ¿) | 3 | 47.42 | 26,500 | | 2012 | | 2025.07.02 | ¸Å¸Å | ¾Æµ¥³ªÆÓ¸®½º | 7 | 23.56 | 28,700 | | 2016 | | 2025.07.02 | ¸Å¸Å | À̵µÆÓ¸®½º(1049-29) | 6 | 26.64 | 30,600 | | 2022 | | 2025.07.02 | ¸Å¸Å | DS¿¡ÄÚŸ¿î(471-18) | 2 | 36.7 | 22,000 | | 2014 | | 2025.07.02 | ¸Å¸Å | »ï¼º°ñµçºô(793-6) | 5 | 39.96 | 30,000 | | 2015 | | 2025.07.02 | ¸Å¸Å | Ÿ¿îij½½Aµ¿ | 5 | 31.16 | 20,200 | | 2018 | | 2025.07.02 | ¿ù¼¼ | Ç®Çâ±âºô¶ó2µ¿ | 2 | 23.42 | 7,300 | 10 | 1997 | | 2025.07.02 | ¿ù¼¼ | (832-7) | 2 | 52.662 | 5,000 | 96 | 2020 | | 2025.07.02 | ¿ù¼¼ | »ï¼º°¡¿ì½ººô(61-52) | 3 | 47.04 | 17,100 | 10 | 2010 | | 2025.07.02 | ¿ù¼¼ | º¹Áö±×¸°ºô6Â÷ | 5 | 32.82 | 1,000 | 65 | 2002 | | 2025.07.01 | ¿ù¼¼ | ´ë½Å¸Ç¼Ç | 4 | 101.48 | 3,000 | 100 | 2002 | | 2025.07.01 | ¸Å¸Å | »ï¼ºÆÓ¸®½º | 4 | 32.11 | 36,000 | | 2022 | | 2025.07.01 | ¿ù¼¼ | Ǫ¸£Áö¿Àºô | 4 | 29.16 | 7,000 | 10 | 2008 | | 2025.07.01 | ¿ù¼¼ | ÇÑ¿ïÀÚÀ̺ô | 1 | 46.28 | 5,000 | 37 | 2007 | | 2025.07.01 | ¿ù¼¼ | ÅÂÈȨŸ¿î | 3 | 59.88 | 19,600 | 15 | 2003 | | 2025.07.01 | Àü¼¼ | ¸®Ä¡108µ¿ | 10 | 22.99 | 19,200 | 0 | 2023 | | 2025.07.01 | Àü¼¼ | ¼º¿îºô¶ó3Â÷ | 2 | 41.54 | 10,000 | 0 | 2001 | | 2025.07.01 | Àü¼¼ | ´ëÁøºô¶ó | 4 | 32.89 | 13,100 | 0 | 2012 | | 2025.07.01 | Àü¼¼ | LKµå¸²ºô | 2 | 27.5 | 13,860 | 0 | 2019 | | 2025.07.01 | ¿ù¼¼ | ÇØºñÄ¡ºô | 2 | 29.85 | 12,370 | 20 | 2011 | | 2025.07.01 | ¿ù¼¼ | ¸®Ä¡108µ¿ | 10 | 22.99 | 19,200 | 38 | 2023 | | 2025.07.01 | ¿ù¼¼ | °ÇÇü¼¾½ººô | 3 | 42.75 | 16,500 | 25 | 2011 | | 2025.07.01 | ¸Å¸Å | °½Åºô¶ó³ªµ¿ | 2 | 34.77 | 20,500 | | 1987 | | 2025.07.01 | ¿ù¼¼ | »ï¼ººô¶óÆ®Aµ¿ | -1 | 38.38 | 7,000 | 25 | 2001 | | 2025.07.01 | Àü¼¼ | MÆç¸®Ã¼(830-5) | 4 | 37.7 | 22,770 | 0 | 2018 | | 2025.07.01 | Àü¼¼ | ¸ñ¿øÁÖÅÃ6Â÷ | 4 | 52.06 | 15,000 | 0 | 2002 | | 2025.07.01 | ¿ù¼¼ | â´ëºô¶ó | 3 | 52.86 | 10,000 | 35 | 2008 | | 2025.07.01 | ¿ù¼¼ | Æ÷¸£Å×ÇÏÀÓ(358-1) | 2 | 28.76 | 26,000 | 10 | 2023 | | 2025.07.01 | ¿ù¼¼ | µå¸®¹ÌŸ¿î | 3 | 44.15 | 3,000 | 95 | 2015 | | 2025.07.01 | ¿ù¼¼ | EH470 | 4 | 26.13 | 500 | 85 | 2021 | | 2025.07.01 | ¿ù¼¼ | ÇѰ¡¶÷ºô(856-18) | 4 | 50.48 | 4,000 | 90 | 2012 | | 2025.07.01 | ¿ù¼¼ | ´ë°Çºô¶ó(102-251) | -1 | 35.04 | 1,000 | 40 | 1995 | | 2025.07.01 | ¿ù¼¼ | ÀÚ¶óÇϿ콺Bµ¿ | 4 | 29.28 | 2,000 | 75 | 2013 | | 2025.07.01 | ¿ù¼¼ | Å¥ºêÆ÷(CubeFour) | 2 | 29.89 | 1,000 | 120 | 2022 | | 2025.06.30 | ¸Å¸Å | ´õÇϿ콺5Â÷ | 3 | 26.57 | 30,000 | | 2023 | | 2025.06.30 | ¿ù¼¼ | Àå¼ö2 | 4 | 16.9 | 1,000 | 28 | 2010 | | 2025.06.30 | ¸Å¸Å | ¾ÆÀκô | 4 | 28.98 | 20,500 | | 2016 | | 2025.06.30 | ¸Å¸Å | ºí·çÈú | 6 | 25.59 | 28,000 | | 2020 | | 2025.06.30 | ¿ù¼¼ | Åä¼®¾Æ³×½ººô(24-217) | 2 | 60.09 | 3,000 | 100 | 2010 | | 2025.06.30 | ¿ù¼¼ | ºô¶ó¿£ | 3 | 47.97 | 3,000 | 110 | 2016 | | 2025.06.30 | Àü¼¼ | È«¼º½¦¸£ºô(410-180) | 3 | 50.12 | 18,000 | 0 | 2011 | | 2025.06.30 | ¿ù¼¼ | ¹éÁ¦ºô¶ó | 2 | 39.11 | 1,000 | 60 | 1991 | | 2025.06.30 | ¿ù¼¼ | ¾ÆÁÖ¾ÆÆ®ºô¶ó | 3 | 43.92 | 11,900 | 3 | 1992 | | 2025.06.30 | ¿ù¼¼ | ¿¥Æç¸®Ã¼ | 3 | 29.81 | 18,000 | 5 | 2017 | | 2025.06.30 | Àü¼¼ | ¿µÁø¾ÆÆ®ºô | 1 | 61.28 | 6,000 | 0 | 2004 | | 2025.06.30 | ¿ù¼¼ | ¿ÍÀ̾غñ | 3 | 27.36 | 1,000 | 100 | 2015 | | 2025.06.30 | ¿ù¼¼ | (964-1) | 2 | 45.25 | 13,000 | 15 | 2007 | | 2025.06.30 | ¿ù¼¼ | ¿¡½º¿¥ÆÄÅ©ºô | 3 | 29.89 | 16,500 | 20 | 2015 | | 2025.06.30 | Àü¼¼ | ¼¼¸íº£¸£µð¿ò | 5 | 28.42 | 22,600 | 0 | 2016 | | 2025.06.30 | ¿ù¼¼ | ½Ã¿Âºô¸®Áö | 5 | 33.78 | 20,000 | 20 | 2016 | | 2025.06.30 | Àü¼¼ | ½ºÄ«À̺ô | 5 | 28.64 | 15,100 | 0 | 2017 | | 2025.06.30 | Àü¼¼ | È¿»êij½½ | 6 | 51.12 | 23,890 | 0 | 2014 | | 2025.06.30 | ¸Å¸Å | ÇÑ¿ï¶ß¶õä(1079-23) | 4 | 45.49 | 17,000 | | 2012 | | 2025.06.30 | ¿ù¼¼ | ´Ù¿Â½£ | 6 | 25.47 | 500 | 85 | 2021 | | 2025.06.30 | ¿ù¼¼ | ¿ìȱ׸°(969-13) | 3 | 29.71 | 500 | 70 | 2012 | | 2025.06.30 | ¿ù¼¼ | »ï¼ºÈ¨Å¸¿î | 2 | 53.28 | 5,500 | 50 | 2001 | | 2025.06.30 | Àü¼¼ | È«¼º½¦¸£ºô(410-180) | 3 | 50.12 | 18,000 | 0 | 2011 | | 2025.06.30 | ¸Å¸Å | ¿ìȱ׸°(969-13) | 4 | 36.41 | 20,000 | | 2012 | | 2025.06.30 | ¿ù¼¼ | ÇϳªÅ¸¿î(158-38) | 4 | 46.39 | 13,300 | 15 | 2002 | | 2025.06.30 | ¸Å¸Å | ´ëâ¾ÆÀ̺ô | 3 | 62.64 | 28,000 | | 2002 | | 2025.06.30 | ¸Å¸Å | ¼ºÀçÇÏÀ̺ôAµ¿ | 2 | 38.09 | 14,000 | | 2003 | | 2025.06.30 | ¸Å¸Å | Á¦ÀÌÅõ¸®´õ½º | 6 | 28.01 | 29,900 | | 2023 | | 2025.06.30 | ¿ù¼¼ | ³×½ºÆ®ºô | 1 | 52.895 | 14,100 | 23 | 2007 | | 2025.06.29 | ¸Å¸Å | ÃÊÀ̽ººô | 3 | 36.96 | 19,800 | | 2010 | | 2025.06.29 | ¿ù¼¼ | (997-13) | 5 | 32.03 | 500 | 44 | 2002 | | 2025.06.29 | ¿ù¼¼ | ½Ã¿ø±×¸°ºô(1014-11) | 2 | 37.56 | 9,000 | 23 | 2002 | | 2025.06.29 | ¿ù¼¼ | Æú¶óºñ¿¤(1038-4) | 4 | 29.24 | 22,800 | 5 | 2018 | | 2025.06.28 | Àü¼¼ | ´ö¿ë¸Ç¼Ç | 3 | 57.15 | 16,400 | 0 | 1996 | | 2025.06.28 | ¸Å¸Å | ÇØ¼ºÆç¸®½ººôB | 1 | 53.82 | 18,700 | | 2002 | | 2025.06.28 | ¸Å¸Å | ȼº¸Ç¼Ç15Â÷ | 2 | 75.06 | 27,000 | | 1998 | | 2025.06.28 | ¸Å¸Å | ¿ì¼º(408-86) | 3 | 46.24 | 26,000 | | 2017 | | 2025.06.28 | ¸Å¸Å | ÇÑ¿ïij½ººô | 5 | 60.8 | 31,000 | | 2010 | | 2025.06.28 | ¿ù¼¼ | Çö´ëºô¶óÆ®6Â÷(°¡µ¿) | 4 | 62.88 | 17,700 | 5 | 2004 | | 2025.06.28 | Àü¼¼ | ±Ý¼º¸Ç¼Ç | 3 | 70.31 | 22,500 | 0 | 2007 | | 2025.06.28 | ¿ù¼¼ | ¿ì¼ººô¶ó(352-47) | 4 | 59.9 | 15,100 | 20 | 1996 | | 2025.06.28 | Àü¼¼ | »ï¼º±×¸°Å¸¿îBµ¿ | 2 | 64.185 | 18,000 | 0 | 2001 | | 2025.06.28 | ¸Å¸Å | ´õÇϿ콺5Â÷ | 4 | 26.57 | 30,000 | | 2023 | | 2025.06.28 | ¿ù¼¼ | ±¤¸íºô¶ó(394-41) | 4 | 43.38 | 11,470 | 30 | 2001 | | 2025.06.28 | ¿ù¼¼ | °è¸íÁÖÅÃ¶óµ¿ | 3 | 60.48 | 19,100 | 5 | 2000 | | 2025.06.28 | ¿ù¼¼ | Ÿ¿îij½½Aµ¿ | 6 | 23.77 | 1,000 | 105 | 2018 | | 2025.06.28 | ¿ù¼¼ | û¼ÛÆòÈÇÏÀ̸ǼÇ(452-14) | 2 | 39.82 | 3,000 | 85 | 2013 | | 2025.06.28 | Àü¼¼ | ½Ã¿Âºô¸®Áö101 | 4 | 25.84 | 21,000 | 0 | 2022 | | 2025.06.28 | ¿ù¼¼ | ¶ó¿òÇϿ콺 | 6 | 17.91 | 3,000 | 85 | 2019 | | 2025.06.28 | Àü¼¼ | Áß¾ÓÇÏÀÌÃ÷ºô | 5 | 60.38 | 17,500 | 0 | 2008 | | 2025.06.28 | ¿ù¼¼ | ´Ù¿Â½£ | 3 | 29.99 | 500 | 110 | 2021 | | 2025.06.28 | ¿ù¼¼ | ÇÏÀººô¸®Áö | 3 | 34.64 | 5,000 | 100 | 2016 | | 2025.06.28 | Àü¼¼ | ÀÎÅÍ½ÃÆ¼ºô¶ó(159-22) | 1 | 65.17 | 16,600 | 0 | 2000 | | 2025.06.28 | ¿ù¼¼ | ½ÅÇϿ콺 | 3 | 37.07 | 200 | 48 | 2017 | | 2025.06.28 | ¿ù¼¼ | ÀÌÁöÇϿ콺 | 5 | 15.29 | 300 | 42 | 2024 | | 2025.06.28 | ¿ù¼¼ | ¿ì¼ººô¶ó(352-47) | 4 | 59.9 | 15,100 | 20 | 1996 | | 2025.06.28 | ¿ù¼¼ | ¸¶À̹ٿò | 2 | 15.47 | 1,500 | 48 | 2011 | | 2025.06.28 | Àü¼¼ | ´Ù¼ØAµ¿(381-2¿Ü) | 3 | 37.28 | 18,000 | 0 | 2015 | | 2025.06.27 | ¿ù¼¼ | ¸ÖƼÇϿ콺 | 5 | 17.02 | 1,000 | 47 | 2004 | | 2025.06.27 | ¿ù¼¼ | Å·½ººôBµ¿(56-688) | 3 | 60 | 16,600 | 30 | 2001 | | 2025.06.27 | Àü¼¼ | ¼ºÈ¸®Ä¡ºô | 5 | 59.88 | 18,100 | 0 | 2009 | | 2025.06.27 | Àü¼¼ | ´õ¿ø·¹¿Àºô | 6 | 25.96 | 25,340 | 0 | 2021 | | 2025.06.27 | ¿ù¼¼ | ºô¶ó¾Ø(424-55) | 3 | 27.02 | 14,300 | 20 | 2014 | | 2025.06.27 | ¿ù¼¼ | ¸®Ä¡ÇϿ콺(346-18) | 5 | 21.2 | 15,300 | 10 | 2017 | | 2025.06.27 | ¸Å¸Å | µ¿¸í³»Ãß·²ºô | 2 | 38.7 | 19,800 | | 2012 | | 2025.06.27 | ¿ù¼¼ | ´ºÆÄÀκô | 4 | 43.66 | 15,600 | 15 | 2010 | | 2025.06.27 | ¿ù¼¼ | LUCE¥±(·çüby¿¹¿ì) | 6 | 15.62 | 2,500 | 29 | 2012 | | 2025.06.27 | ¿ù¼¼ | LAHOME(¶óȨ)A | 5 | 29.96 | 25,400 | 5 | 2022 | | 2025.06.27 | ¿ù¼¼ | Çö´ëºô¶ó°¡µ¿ | 1 | 33.26 | 10,880 | 15 | 1991 | | 2025.06.27 | Àü¼¼ | ÀÚÇÏŬ·¡½Ä | 16 | 13.77 | 11,640 | 0 | 2018 | | 2025.06.27 | ¿ù¼¼ | ºô¶ó¾Ø(424-55) | 3 | 27.02 | 14,300 | 20 | 2014 | | 2025.06.27 | ¿ù¼¼ | ¹é°¿ø·ë | 3 | 12.02 | 1,000 | 41 | 2011 | | 2025.06.27 | ¿ù¼¼ | (475-26) | 2 | 49.08 | 2,000 | 70 | 1989 | | 2025.06.27 | ¿ù¼¼ | ÄÚÇÏÀÓ772 | 5 | 32.59 | 7,000 | 60 | 2022 | | 2025.06.27 | ¿ù¼¼ | µ¿µµÇÏÀÌÃ÷(°¡µ¿) | 2 | 34.05 | 5,000 | 55 | 2001 | | 2025.06.27 | ¿ù¼¼ | ½Å¸ñºô¶ó(102-148) | 5 | 41.7 | 11,270 | 15 | 2002 | | 2025.06.27 | Àü¼¼ | ÀÌ·¹ºô¶ó(56-507) | 2 | 45 | 11,280 | 0 | 1991 | | 2025.06.27 | Àü¼¼ | ±¤Áøºô¶ó2µ¿ | 5 | 37.83 | 9,838 | 0 | 2003 | | 2025.06.27 | ¿ù¼¼ | »ï¼º±×¸°ºô(810-5) | 3 | 47.4 | 19,000 | 5 | 2011 | | 2025.06.27 | ¿ù¼¼ | Áê¾ó¸®¸Ç¼Ç(346-8)Aµ¿ | 3 | 59.98 | 21,400 | 35 | 2003 | | 2025.06.27 | ¸Å¸Å | ȼº±×·£µåºô¶ó8Â÷ | 1 | 43.86 | 16,800 | | 1995 | | 2025.06.27 | ¸Å¸Å | È£¾Ï·ÎÁîºô | 5 | 49.59 | 17,200 | | 2001 | | 2025.06.27 | ¸Å¸Å | â´ëºô¶ó | 3 | 52.86 | 26,000 | | 2008 | | 2025.06.27 | ¸Å¸Å | Å©¸®½ºÅ»ºô(354-21) | 2 | 23.01 | 18,800 | | 2014 | | 2025.06.27 | ¸Å¸Å | ¿¤ÄÉÀ̵帲ºô | 5 | 37.43 | 28,900 | | 2016 | | 2025.06.27 | ¸Å¸Å | ¼±ÁøÇÁ¸®ÅÚ | 4 | 27.14 | 11,500 | | 2002 | | 2025.06.27 | ¸Å¸Å | ³²±¤ÆÄÅ©ºô | 5 | 29.34 | 26,000 | | 2014 | | 2025.06.27 | ¿ù¼¼ | ¾Æµ¨¸®¾Æ¥´(105-370) | 8 | 12.84 | 1,000 | 65 | 2013 | | 2025.06.27 | ¸Å¸Å | ¼ºÁøÆÄÅ©¸Ç¼Ç | 3 | 64.61 | 21,000 | | 1997 | | 2025.06.27 | ¸Å¸Å | ¸í°¡ÇϿ콺 | 2 | 37 | 27,800 | | 2016 | | 2025.06.27 | Àü¼¼ | À¯Ç³ºô¶óÆÄÅ© | 2 | 84.69 | 32,000 | 0 | 1990 | | 2025.06.27 | ¸Å¸Å | µ¿¼ºô¶ó(24-143) | 1 | 63.29 | 21,000 | | 1993 | | 2025.06.26 | ¿ù¼¼ | À̵µÆÓ¸®½º(1049-29) | 2 | 25.61 | 22,600 | 4 | 2022 | | 2025.06.26 | ¸Å¸Å | È¿Àڱ׸°ºô¶ó | -1 | 50.95 | 18,000 | | 1998 | | 2025.06.26 | ¸Å¸Å | ÀÌȺô¶ó(73-81) | 4 | 65.2 | 14,000 | | 1992 | | 2025.06.26 | ¿ù¼¼ | ¸®¿ÀÆÄÅ©ºô | 4 | 29.59 | 20,900 | 20 | 2020 | | 2025.06.26 | ¿ù¼¼ | µ¿¾ç³ëºí·¹½ººô | 2 | 60.87 | 15,750 | 3 | 2008 | | 2025.06.26 | ¿ù¼¼ | ÀÌȺô¶ó(73-81) | 2 | 42.16 | 2,000 | 75 | 1992 | | 2025.06.26 | ¿ù¼¼ | ½Å¿Àºô¶ó | 4 | 63.57 | 16,000 | 25 | 2003 | | 2025.06.26 | ¿ù¼¼ | ¿¹°¡Ã¤(968-3) | 5 | 32.23 | 15,800 | 5 | 2015 | | 2025.06.26 | Àü¼¼ | ±ÃÀüºô¶ó(56-145) | 1 | 37.96 | 11,000 | 0 | 1991 | | 2025.06.26 | ¿ù¼¼ | ¹Ù¶óȨ | 3 | 25.2 | 21,420 | 15 | 2023 | | 2025.06.26 | ¿ù¼¼ | À¯´Ï¿Â½¦¸£ºô(Dµ¿) | 4 | 29.95 | 2,000 | 60 | 2002 | | 2025.06.26 | Àü¼¼ | ȰîÅ¥6 | 6 | 29.09 | 24,800 | 0 | 2022 | | 2025.06.26 | ¿ù¼¼ | 1µ¿2µ¿ | 3 | 51.12 | 13,000 | 25 | 1985 | | 2025.06.26 | ¿ù¼¼ | À̵µÆÓ¸®½º(1049-29) | 4 | 29.93 | 26,800 | 4 | 2022 | | 2025.06.26 | ¿ù¼¼ | 61-134 | 3 | 22.43 | 1,000 | 60 | 2015 | | 2025.06.26 | ¿ù¼¼ | À̵µÆÓ¸®½º(1049-29) | 2 | 20.41 | 19,600 | 3 | 2022 | | 2025.06.26 | ¿ù¼¼ | ½Å¿µº£¸£µð¿ò | 3 | 29.45 | 2,000 | 90 | 2017 | | 2025.06.26 | Àü¼¼ | ¼ºÈ£ÇÏÀ̺ô(400-26) | 3 | 57.54 | 20,000 | 0 | 2007 | | 2025.06.26 | ¸Å¸Å | ¼ºÀçij½½ºô(408-19) | -1 | 41.84 | 13,000 | | 2010 | | 2025.06.26 | ¸Å¸Å | À̵µÆÓ¸®½º(1049-29) | 2 | 26.85 | 30,800 | | 2022 | | 2025.06.26 | ¿ù¼¼ | Áê¾ó¸®¸Ç¼Ç(346-8)Aµ¿ | 4 | 56.04 | 16,000 | 25 | 2003 | | 2025.06.26 | Àü¼¼ | ½Å¼¼°è¸Ç¼Ç | 4 | 58.89 | 20,500 | 0 | 1999 | | 2025.06.26 | Àü¼¼ | Ƽ¿¥Å¸¿î(872-40) | 2 | 34.2 | 19,300 | 0 | 2014 | | 2025.06.26 | ¸Å¸Å | À̵µÆÓ¸®½º(1049-29) | 3 | 25.89 | 29,900 | | 2022 | | 2025.06.26 | ¸Å¸Å | ¿ìÇöÆç¸®½º | 2 | 25.72 | 23,500 | | 2016 | | 2025.06.26 | ¸Å¸Å | ¹Ì°¡Ã¤´Ùº¹µ¿,¶ó¿Âµ¿ | 6 | 59.91 | 33,000 | | 2016 | | 2025.06.26 | ¸Å¸Å | µ¿¿ø¶óÅ׶󽺺ô | 4 | 23.17 | 20,500 | | 2016 | | 2025.06.26 | ¸Å¸Å | ÀÌ·¹¾ÆÆ®ºô | 1 | 52.93 | 17,000 | | 2004 | | 2025.06.25 | Àü¼¼ | ±îÄ¡ºô | 1 | 71.74 | 15,800 | 0 | 1991 | | 2025.06.25 | ¿ù¼¼ | Á¤°¨Æ®À©ºôAµ¿(424-50) | 2 | 51.93 | 2,000 | 125 | 2015 | | 2025.06.25 | Àü¼¼ | ¼ºÈ¸®Ä¡ºô | 5 | 59.88 | 18,100 | 0 | 2009 | | 2025.06.25 | ¿ù¼¼ | ´ë´öºô¶ó(353-46) | 3 | 57.5 | 3,000 | 100 | 2001 | | 2025.06.25 | ¿ù¼¼ | ÇÁ¸®¸Þ¶ó | 3 | 29.76 | 18,774 | 4 | 2018 | | 2025.06.25 | ¿ù¼¼ | ¿¬ÈñÆÄÅ©ºô(371-86) | 3 | 28.74 | 12,900 | 30 | 2015 | | 2025.06.25 | Àü¼¼ | LAHOME(¶óȨ)A | 4 | 29.96 | 25,400 | 0 | 2022 | | 2025.06.25 | ¿ù¼¼ | ¿¬ÈñÆÄÅ©ºô(371-86) | 3 | 28.74 | 12,900 | 30 | 2015 | | 2025.06.25 | ¿ù¼¼ | LAHOME(¶óȨ)A | 4 | 29.96 | 25,400 | 5 | 2022 | | 2025.06.25 | ¿ù¼¼ | LAHOME(¶óȨ)B | 5 | 29.9 | 25,300 | 5 | 2022 | | 2025.06.25 | ¿ù¼¼ | ÇູÇÑÁý | 1 | 35.6 | 315 | 8 | 2000 | | 2025.06.25 | ¿ù¼¼ | ÇÁ¸®¸Þ¶ó | 3 | 29.76 | 19,100 | 5 | 2018 | | 2025.06.25 | ¿ù¼¼ | ¸®Ä¡108µ¿ | 7 | 22.99 | 19,000 | 15 | 2023 | | 2025.06.25 | ¿ù¼¼ | µ¿³²ÁÖÅÃ(869-63) | 2 | 36.05 | 10,800 | 17 | 2002 | | 2025.06.25 | ¿ù¼¼ | ¿¹ÀÎ¾ÆÆ®ºô | 3 | 36.57 | 9,600 | 3 | 2003 | | 2025.06.25 | ¿ù¼¼ | ¸íÁø¸Ç¼Ç | 3 | 59.21 | 17,550 | 8 | 2001 | | 2025.06.25 | ¿ù¼¼ | ÇϳªÅ¸¿îAµ¿ | 4 | 29.93 | 2,000 | 78 | 2015 | | 2025.06.25 | ¿ù¼¼ | ÇÁ¸®¸Þ¶ó | 3 | 29.76 | 19,100 | 4 | 2018 | | 2025.06.25 | ¸Å¸Å | °æ¹ÎÆÄºô¸®¿Â | 5 | 41.46 | 21,000 | | 2015 | | 2025.06.25 | ¸Å¸Å | ¿¡ÀÌ¿øºô | 5 | 44.19 | 23,000 | | 2012 | | 2025.06.25 | ¸Å¸Å | »ó¾Æ¿¡ÄÚ¶óÀÌÇÁ | 3 | 50.31 | 20,250 | | 2011 | | 2025.06.25 | ¸Å¸Å | ¼º¿øºô¶ó(785-9) | 2 | 60.66 | 32,500 | | 2001 | | 2025.06.25 | ¸Å¸Å | ½ºÅ¸ºô¶ó | 2 | 50.73 | 9,900 | | 1991 | | 2025.06.25 | ¸Å¸Å | ½ºÅ¸ºô¶ó | 2 | 50.73 | 9,900 | | 1991 | | 2025.06.25 | ¸Å¸Å | ÇÁ¶óÀÓÇϿ콺 | 5 | 29.2 | 22,500 | | 2019 | | 2025.06.25 | ¸Å¸Å | ³²¼º¾ÆÆ®ºô(397-24) | 3 | 28.39 | 21,000 | | 2013 | | 2025.06.24 | Àü¼¼ | ½Ö¿ëÇÏÀ̺ô | 4 | 38.24 | 12,100 | 0 | 2001 | | 2025.06.24 | Àü¼¼ | ¼¿ì¿¡ÄÚºô | 3 | 40.86 | 10,500 | 0 | 2010 | | 2025.06.24 | ¿ù¼¼ | »ïÈ£ºô¶ó³ªµ¿ | 1 | 35.64 | 1,000 | 58 | 1991 | | 2025.06.24 | ¿ù¼¼ | ¼ºÀçÆÄÅ©ºôAµ¿ | 1 | 61.38 | 11,000 | 40 | 2002 | | 2025.06.24 | ¿ù¼¼ | ÇÏÀÌÆ®¸Ç¼Ç | 4 | 57.5 | 15,490 | 10 | 2001 | | 2025.06.24 | ¿ù¼¼ | ·ç¹ÌÈú½º | 3 | 29 | 500 | 85 | 2021 | | 2025.06.24 | ¿ù¼¼ | (424-186) | 2 | 42.045 | 2,000 | 70 | 2002 | | 2025.06.24 | Àü¼¼ | ´õ-¶ó¿Â | 4 | 28.47 | 15,750 | 0 | 2018 | | 2025.06.24 | ¿ù¼¼ | ±×¸°Èú(105-384) | 3 | 61.72 | 19,000 | 38 | 2010 | | 2025.06.24 | ¿ù¼¼ | È£¼º±×¸°ºä(409-163) | 3 | 43.48 | 12,000 | 39 | 2015 | | 2025.06.24 | ¿ù¼¼ | ¿ùµåºô | 3 | 26.46 | 500 | 45 | 2002 | | 2025.06.24 | ¸Å¸Å | ¼ºÀçij½½ºô | 4 | 40.17 | 27,000 | | 2009 | | 2025.06.24 | ¸Å¸Å | ¼ºÀçij½½ºô | 4 | 40.17 | 27,000 | | 2009 | | 2025.06.24 | ¸Å¸Å | ¹Ì¼ººô¶ó(354-25) | 3 | 46.47 | 13,000 | | 2002 | | 2025.06.24 | ¿ù¼¼ | Bluehill | 6 | 29.42 | 20,400 | 8 | 2019 | | 2025.06.24 | ¸Å¸Å | ÆÄÀÎÇϿ콺(1056-10) | 4 | 43.41 | 31,500 | | 2014 | | 2025.06.24 | ¸Å¸Å | ¿ì¼º(408-86) | 6 | 38.55 | 29,800 | | 2017 | | 2025.06.24 | ¸Å¸Å | µå¸²ºô¸®Áö | 1 | 54.28 | 22,500 | | 2000 | | 2025.06.24 | ¸Å¸Å | ´ë¼±ÇÏÀ̺ô | 3 | 29.66 | 22,000 | | 2019 | | 2025.06.23 | ¿ù¼¼ | û¼ÛÆòÈÇコÇϿ콺(341-5) | 5 | 48 | 5,000 | 95 | 2018 | | 2025.06.23 | ¿ù¼¼ | Á¤Àººô¶ó | 2 | 44.82 | 2,000 | 70 | 1993 | | 2025.06.23 | ¿ù¼¼ | ¸ð´×Èú | 2 | 46.92 | 5,000 | 100 | 2012 | | 2025.06.23 | ¿ù¼¼ | ȰîÇÁ¶óÀÓ | 10 | 20.73 | 11,000 | 10 | 2012 | | 2025.06.23 | Àü¼¼ | Æ÷¸£Å×ÇÏÀÓ(358-1) | 6 | 26.69 | 22,500 | 0 | 2023 | | 2025.06.23 | ¿ù¼¼ | ¿£¿¡½ºÆÄÅ©ºô | 4 | 28.36 | 18,390 | 10 | 2019 | | 2025.06.23 | ¿ù¼¼ | LAHOME(¶óȨ)B | 2 | 29.9 | 5,000 | 105 | 2022 | | 2025.06.23 | Àü¼¼ | »ï¼º½¦¸£ºô(881-34) | 4 | 46.06 | 25,000 | 0 | 2014 | | 2025.06.23 | ¿ù¼¼ | ¹Ù¿ìÇϿ콺(895-10) | 5 | 26.28 | 8,590 | 3 | 2011 | | 2025.06.23 | ¿ù¼¼ | ȰîÇÁ¶óÀÓ | 10 | 20.73 | 11,000 | 10 | 2012 | | 2025.06.23 | ¿ù¼¼ | µµÇÏ | 3 | 16.71 | 500 | 55 | 2023 | | 2025.06.23 | ¿ù¼¼ | °Å¼º | 1 | 49.5 | 14,000 | 10 | 1986 | | 2025.06.23 | ¿ù¼¼ | û¼ÛÆòÈÇコÇϿ콺(341-5) | 5 | 48 | 5,000 | 95 | 2018 | | 2025.06.23 | ¿ù¼¼ | ´Ù¿ø½´½´ºô13Â÷ | 3 | 37.69 | 13,000 | 30 | 2011 | | 2025.06.23 | Àü¼¼ | ÇØºñÄ¡ºô | 4 | 26.23 | 22,000 | 0 | 2019 | | 2025.06.23 | Àü¼¼ | ÇØºñÄ¡ºô | 4 | 26.23 | 22,000 | 0 | 2019 | | 2025.06.23 | ¸Å¸Å | ´ë±Ùºô¶ó | 3 | 46.44 | 24,000 | | 1990 | | 2025.06.23 | ¸Å¸Å | Àμººô¶ó | 1 | 66.82 | 27,000 | | 1993 | | 2025.06.23 | ¸Å¸Å | °æ¹Î¾ÆÆ®ºô101µ¿102µ¿ | 3 | 30.06 | 19,300 | | 2016 | | 2025.06.23 | ¸Å¸Å | °æ¹Î¾ÆÆ®ºô101µ¿102µ¿ | 3 | 30.06 | 19,300 | | 2016 | | 2025.06.23 | ¸Å¸Å | °æ¹Î¾ÆÆ®ºô(882-32) | 2 | 26.56 | 25,000 | | 2017 | | 2025.06.23 | ¸Å¸Å | °è¸íÁÖÅ𡵿 | 2 | 61.2 | 31,700 | | 2000 | | 2025.06.23 | ¿ù¼¼ | ¿µÈºô¶ó | 1 | 39.2 | 7,000 | 20 | 1986 | | 2025.06.23 | Àü¼¼ | ´õÇ÷¹À̽º | 2 | 53.5 | 26,500 | 0 | 2017 | | 2025.06.23 | Àü¼¼ | ÇØºñÄ¡ºô | 4 | 26.23 | 22,000 | 0 | 2019 | | 2025.06.23 | ¿ù¼¼ | ¼º¿øÇÏÀ̺ô | 2 | 59.94 | 2,000 | 120 | 2001 | | 2025.06.23 | ¿ù¼¼ | ´ë±Ùºô¶ó | 3 | 46.44 | 5,000 | 30 | 1990 | | 2025.06.23 | ¿ù¼¼ | Áöµð·Îºä | 6 | 27.57 | 33 | 104 | 2020 | | 2025.06.23 | ¿ù¼¼ | ´ë±Ùºô¶ó | 3 | 46.44 | 5,000 | 30 | 1990 | | 2025.06.23 | Àü¼¼ | ºÀȲÁÖ»óº¹ÇÕ¾ÆÆ®ºô | 2 | 54.88 | 20,000 | 0 | 2003 | | 2025.06.22 | ¸Å¸Å | ³²±¤¾ÆÆ®ºôAµ¿ | 5 | 35.54 | 26,500 | | 2018 | | 2025.06.22 | Àü¼¼ | ½Å¼¼°è¸Ç¼Ç | 4 | 58.89 | 17,900 | 0 | 1999 | | 2025.06.22 | Àü¼¼ | Á¤°¨ÇϿ콺 | 2 | 35.61 | 15,600 | 0 | 2016 | | 2025.06.22 | Àü¼¼ | ¼¼¿øºôµù | 5 | 49.35 | 15,300 | 0 | 2001 | | 2025.06.22 | Àü¼¼ | ¹«µîÆÄÅ© | 2 | 51.35 | 13,100 | 0 | 1991 | | 2025.06.22 | Àü¼¼ | µ¿¿ìÇÏÀ̺ô | 6 | 29.66 | 26,900 | 0 | 2021 | | 2025.06.22 | ¿ù¼¼ | ´ë´öºô¶ó(164-26) | 1 | 59.97 | 5,000 | 65 | 2000 | | 2025.06.21 | ¸Å¸Å | ȼººô¶ó(56-151) | 2 | 41.59 | 13,700 | | 1995 | | 2025.06.21 | ¸Å¸Å | µ¿¾çÁÖÅà | 3 | 51.87 | 16,500 | | 1995 | | 2025.06.21 | ¸Å¸Å | Çѹéºô¶ó | -1 | 26.16 | 2,000 | | 2001 | | 2025.06.21 | ¸Å¸Å | ¼öÁ¤ÇÏÀ̺ô(869-39) | 3 | 70.18 | 30,000 | | 2007 | | 2025.06.21 | ¸Å¸Å | ¼º¿î4Â÷ | 5 | 36.9 | 17,300 | | 2002 | | 2025.06.21 | ¿ù¼¼ | ¿¤Æç¸®½º | 2 | 29.51 | 3,000 | 89 | 2022 | | 2025.06.21 | ¸Å¸Å | Ƽ¿¥Å¸¿î(872-40) | 2 | 34.2 | 25,000 | | 2014 | | 2025.06.21 | ¿ù¼¼ | ±Ý°´©¸®ºô(998-10) | 8 | 15.72 | 3,000 | 16 | 2012 | | 2025.06.21 | Àü¼¼ | °¼ÆÄÅ©ºäÅõ¿þ´ÏÆÛ½ºÆ® | 18 | 19.64 | 18,520 | 0 | 2020 | | 2025.06.21 | Àü¼¼ | ´õ¿ø·¹¿Àºô | 4 | 25.17 | 24,500 | 0 | 2021 | | 2025.06.21 | Àü¼¼ | µ¿¿ø¶óÅ׶󽺺ô | 3 | 29.48 | 18,390 | 0 | 2016 | | 2025.06.21 | ¿ù¼¼ | ºñ¿¡½ºÇÏ¿ì¡2 | 7 | 28.24 | 5,000 | 93 | 2018 | | 2025.06.21 | ¿ù¼¼ | ´õÁ¸ÆÛ½ºÆ®ºô | 2 | 29.72 | 17,800 | 10 | 2017 | | 2025.06.21 | Àü¼¼ | ³ª»ê¸Ç¼Ç(840-10) | 2 | 68.8 | 22,000 | 0 | 2007 | | 2025.06.21 | Àü¼¼ | ´õ¿ø·¹¿Àºô | 4 | 25.17 | 25,300 | 0 | 2021 | | 2025.06.21 | ¿ù¼¼ | ¿ì¼ÖÇϿ졿¡ÀÌ | 6 | 28.83 | 3,000 | 100 | 2023 | | 2025.06.20 | ¿ù¼¼ | Àå¿ø¾ÆÆ®ºô¶ó(341-22) | 3 | 59.85 | 3,000 | 75 | 1999 | | 2025.06.20 | ¿ù¼¼ | ÇÏ¿ìÀç995 | 6 | 24.74 | 5,000 | 57 | 2022 | | 2025.06.20 | ¿ù¼¼ | ´õÇ÷¹À̽º | 3 | 26.05 | 10,000 | 30 | 2017 | | 2025.06.20 | ¿ù¼¼ | °¡³ª¾Æµ¨¸®¿ò(102-120) | 2 | 33.76 | 16,500 | 16 | 2014 | | 2025.06.20 | ¸Å¸Å | Á¦À̽ººô(969-5) | 6 | 22.73 | 25,500 | | 2022 | | 2025.06.20 | ¸Å¸Å | ³²¼º¾ÆÆ®ºô | 3 | 53.26 | 24,800 | | 2010 | | 2025.06.20 | ¸Å¸Å | ÁÖ¿µÇϿ콺 | 2 | 26.82 | 17,000 | | 2016 | | 2025.06.20 | ¿ù¼¼ | ¿¡ÄÚ | 5 | 19.9 | 1,000 | 72 | 2013 | | 2025.06.20 | Àü¼¼ | ´õ¿ø#8 | 3 | 29.19 | 23,430 | 0 | 2022 | | 2025.06.20 | Àü¼¼ | ½Ã¿Âºô¸®Áö101 | 5 | 28.12 | 21,000 | 0 | 2022 | | 2025.06.20 | Àü¼¼ | ÇÑÀÏ¾ÆÆ®ºô¶ó | 3 | 36.09 | 12,500 | 0 | 1990 | | 2025.06.20 | ¿ù¼¼ | SKÆÄÅ©¸®¿ò | 4 | 23.61 | 2,000 | 50 | 2019 | | 2025.06.20 | ¿ù¼¼ | »ï¼º¾ÆÆ®ÅÚ | 5 | 60.6 | 5,000 | 100 | 2002 | | 2025.06.20 | ¿ù¼¼ | ¸®Ä¡ºô | 5 | 19.32 | 500 | 45 | 2010 | | 2025.06.20 | ¿ù¼¼ | ¸¶¸¶½ººô | 4 | 29.9 | 3,000 | 105 | 2017 | | 2025.06.20 | ¿ù¼¼ | À̼ö¾ÆÆ®ºô | 5 | 36.92 | 2,500 | 110 | 2014 | | 2025.06.20 | ¿ù¼¼ | ½Å¿ø¼¾½ººô(392-75) | 4 | 38.35 | 14,238 | 4 | 2010 | | 2025.06.20 | ¿ù¼¼ | ´Ù³ª³×½ºÆ®ºô(56-379) | 4 | 31.25 | 1,000 | 60 | 2008 | | 2025.06.20 | ¿ù¼¼ | ¸ð¾Æºô¥³ | 3 | 45.48 | 8,800 | 6 | 2008 | | 2025.06.20 | Àü¼¼ | ¼¸í´õÆÛ½ºÆ® | 5 | 29.39 | 24,948 | 0 | 2019 | | 2025.06.20 | ¿ù¼¼ | ⿵ºô¶ó | 4 | 59.96 | 13,000 | 30 | 1994 | | 2025.06.20 | ¿ù¼¼ | ºô¶ó¿£Bµ¿ | 3 | 29.48 | 18,000 | 7 | 2017 | | 2025.06.20 | ¿ù¼¼ | û¼ÛÆòÈÇÏÀ̸ǼÇ(408-72) | 2 | 49.22 | 12,000 | 15 | 1996 | | 2025.06.20 | ¿ù¼¼ | ±¤¸íºô¶ó(394-41) | 4 | 55.24 | 14,200 | 10 | 2001 | | 2025.06.20 | ¿ù¼¼ | (792-13) | 1 | 36.7 | 1,000 | 50 | 1987 | | 2025.06.19 | ¸Å¸Å | ¿ÀÄÉÀÌÆÄÅ©ºô | 4 | 35.93 | 25,900 | | 2017 | | 2025.06.19 | ¸Å¸Å | ¸¶Å©ÇϿ콺 | 2 | 26.79 | 22,300 | | 2020 | | 2025.06.19 | ¸Å¸Å | ÇѼº¾ÆÆ®ºô | 4 | 39.68 | 9,200 | | 2002 | | 2025.06.19 | ¸Å¸Å | ´ë¸²¶ó¿ÂÁ¦³ª | 3 | 36.97 | 24,000 | | 2014 | | 2025.06.19 | ¸Å¸Å | ±Ù»óÇÁ¸®Áò¾ÆÆ®ºô | 3 | 55.3 | 32,000 | | 2010 | | 2025.06.19 | ¸Å¸Å | ±Ù»óÇÁ¸®Áò¾ÆÆ®ºô | 3 | 55.3 | 32,000 | | 2010 | | 2025.06.19 | ¸Å¸Å | ¼±°æº£½ºÆ®ºô(98-119) | 3 | 54.48 | 27,700 | | 2008 | | 2025.06.19 | ¸Å¸Å | û¼ÛÆòÈÇÏÀ̸ǼÇDµ¿ | 4 | 84.6 | 32,500 | | 2005 | | 2025.06.19 | ¸Å¸Å | ¼±°æº£½ºÆ®ºô(98-119) | 3 | 54.48 | 25,500 | | 2008 | | 2025.06.19 | ¸Å¸Å | ÇÑÀÏ¸Ç¼Ç | 4 | 59.19 | 18,000 | | 1998 | | 2025.06.19 | Àü¼¼ | ±îÄ¡»êÆÈ¶óÀ̽º | 4 | 29.91 | 18,900 | 0 | 2015 | | 2025.06.19 | ¿ù¼¼ | »ïÀͺô¶ó | 4 | 47.7 | 12,000 | 20 | 1994 | | 2025.06.19 | ¿ù¼¼ | ÇØÇÇÇϿ콺(1128-4) | 5 | 26.08 | 2,000 | 64 | 2012 | | 2025.06.19 | ¿ù¼¼ | µµ±³ÁÖÅà | 4 | 81.32 | 3,000 | 100 | 1996 | | 2025.06.19 | ¿ù¼¼ | µµ±³ÁÖÅà | 4 | 81.32 | 3,000 | 100 | 1996 | | 2025.06.19 | ¿ù¼¼ | µ¿¾ç³ëºí·¹½ººô | 2 | 60.87 | 13,000 | 2 | 2008 | | 2025.06.19 | Àü¼¼ | ¼±°æºô¶ó(95-19) | 3 | 54.33 | 14,850 | 0 | 1994 | | 2025.06.19 | ¿ù¼¼ | ¹Ù¶óȨ | 3 | 22.11 | 18,770 | 15 | 2023 | | 2025.06.19 | Àü¼¼ | Çϳª¾ÆÀÌÆÄÅ©ºô | 6 | 47.81 | 24,400 | 0 | 2017 | | 2025.06.19 | ¿ù¼¼ | ¼¼±¤ºô¶ó¶óµ¿ | 1 | 37.96 | 2,000 | 50 | 1988 | | 2025.06.19 | ¿ù¼¼ | ¾Æ³×½ºÇϿ콺 | 3 | 65.82 | 16,000 | 30 | 2002 | | 2025.06.19 | ¿ù¼¼ | »ïÀͺô¶ó | 4 | 47.7 | 12,000 | 20 | 1994 | | 2025.06.19 | ¿ù¼¼ | »þÀδõÈúȰî | 5 | 23.15 | 1,000 | 90 | 2023 | | 2025.06.19 | ¿ù¼¼ | ¾Ëº£·Î | 3 | 13.6 | 1,000 | 47 | 2011 | | 2025.06.19 | Àü¼¼ | Á¤°¨Å¸¿îA(346-92) | 2 | 32.95 | 18,200 | 0 | 2015 | | 2025.06.19 | ¿ù¼¼ | ´Ù¿Â½£ | 4 | 25.47 | 500 | 85 | 2021 | | 2025.06.19 | ¿ù¼¼ | »ï¼ººí·ç¹Ö(101µ¿102µ¿) | 2 | 29.2 | 2,000 | 60 | 2015 | | 2025.06.18 | ¸Å¸Å | À̵µÆÓ¸®½º(1049-29) | 4 | 25.89 | 29,900 | | 2022 | | 2025.06.18 | ¸Å¸Å | ÇÑ¿ï¶ß¶õä(51-80) | 3 | 53.79 | 23,850 | | 2011 | | 2025.06.18 | ¸Å¸Å | µ¿¼ºô¶ó(24-143) | 1 | 63.29 | 21,000 | | 1993 | | 2025.06.18 | ¸Å¸Å | SKºô¸®Áö | 3 | 29.935 | 22,200 | | 2015 | | 2025.06.18 | ¸Å¸Å | ¼øÈ¯½¦¸£ºô(24-222) | 3 | 39.12 | 14,000 | | 2002 | | 2025.06.18 | ¸Å¸Å | À£ÇǾÆ(796-13) | 5 | 29.85 | 21,000 | | 2014 | | 2025.06.18 | ¸Å¸Å | À¯Áø | 3 | 54.12 | 24,000 | | 2011 | | 2025.06.18 | Àü¼¼ | ±Ý°ÇÏÀÓºô | 4 | 29.04 | 16,000 | 0 | 2015 | | 2025.06.18 | ¿ù¼¼ | ¿ÍÀ̾غñ | 4 | 37.84 | 5,000 | 85 | 2016 | | 2025.06.18 | Àü¼¼ | ½Å¼º¸®Ä¡ºô(342-25) | 3 | 29.69 | 14,900 | 0 | 2012 | | 2025.06.18 | Àü¼¼ | ¹ÌÁ¤Å¸¿î | 1 | 60.39 | 14,300 | 0 | 1991 | | 2025.06.18 | ¿ù¼¼ | ¹Ì·¡ºô¶ó | 5 | 45.76 | 2,000 | 70 | 2003 | | 2025.06.18 | Àü¼¼ | °ü¿ìŸ¿îBµ¿ | 4 | 47.19 | 14,900 | 0 | 2002 | | 2025.06.18 | ¿ù¼¼ | ±×·¹À̽ººô°¡µ¿ | 4 | 45.86 | 12,000 | 35 | 2002 | | 2025.06.18 | ¿ù¼¼ | ³²¼º¾ÆÆ®ºô(59-62) | 4 | 48.12 | 14,600 | 5 | 2009 | | 2025.06.18 | Àü¼¼ | °Å¼º | 3 | 34.29 | 13,000 | 0 | 1987 | | 2025.06.18 | ¿ù¼¼ | ¼¾ÈÆÄÅ©ºä | 5 | 18.91 | 1,500 | 117 | 2024 | | 2025.06.18 | ¿ù¼¼ | ÄÚÇÏÀÓ772 | 4 | 26.17 | 500 | 55 | 2022 | | 2025.06.18 | ¿ù¼¼ | ´ëÈÆÄÅ©ºô | 4 | 29.95 | 1,000 | 70 | 2011 | | 2025.06.18 | ¿ù¼¼ | °æ¿øºô¶ó | -1 | 56.82 | 500 | 65 | 1992 | | 2025.06.18 | ¿ù¼¼ | ºí·çÆÄÅ©ºô2Â÷ | 4 | 51.67 | 12,000 | 33 | 2002 | | 2025.06.18 | Àü¼¼ | ¼ºÁغô¶ó | -1 | 59.46 | 4,000 | 0 | 1998 | | 2025.06.17 | ¸Å¸Å | ½ºÆäÀ̽ººô | 5 | 66.72 | 24,470 | | 2009 | | 2025.06.17 | ¸Å¸Å | ÄÉÀ̾ؿÍÀ̺ô¸®Áö | 7 | 37.94 | 25,600 | | 2015 | | 2025.06.17 | ¸Å¸Å | (167-4) | 2 | 51.75 | 16,500 | | 1999 | | 2025.06.17 | ¸Å¸Å | ¿ì¼ººô¶ó(346-72) | 4 | 33.45 | 21,500 | | 2013 | | 2025.06.17 | ¸Å¸Å | ¼Û´öºô¶ó | 1 | 42.48 | 12,500 | | 1991 | | 2025.06.17 | ¸Å¸Å | µ¿¾çÇÏ¿ì¡(366-87) | 4 | 41.77 | 32,000 | | 2016 | | 2025.06.17 | ¸Å¸Å | »ïÀÍÇ콺Ƽ¾Æ(50-1) | 4 | 38.98 | 16,000 | | 2011 | | 2025.06.17 | ¸Å¸Å | ÁÖ¾ó¸®¸Ç¼Ç | 4 | 73.18 | 23,000 | | 2002 | | 2025.06.17 | ¿ù¼¼ | ³²¼º¾ÆÆ®ºô(385-18) | 2 | 47.98 | 23,000 | 10 | 2011 | | 2025.06.17 | Àü¼¼ | ´ëÈ£¾ÆÆ®ºô¶óBµ¿ | -1 | 66.32 | 12,000 | 0 | 2001 | | 2025.06.17 | ¿ù¼¼ | ´ë¼Ûºô¶ó(155-26) | 4 | 60.21 | 14,800 | 5 | 2000 | | 2025.06.17 | Àü¼¼ | ½Å¾ç±×¸°ºô(56-46) | 2 | 44.76 | 13,860 | 0 | 2008 | | 2025.06.17 | ¿ù¼¼ | ½ÅÇϿ콺 | 6 | 29.88 | 15,600 | 13 | 2016 | | 2025.06.17 | ¿ù¼¼ | ½Å¿µº£¸£µð¿òB | 4 | 29.75 | 100 | 80 | 2020 | | 2025.06.17 | ¿ù¼¼ | ÇѼº¾ÆÆ®ºô(111-128) | 2 | 42.72 | 2,000 | 65 | 2004 | | 2025.06.17 | ¿ù¼¼ | ¼°æÆÓ¸®½º | 7 | 26.95 | 18,500 | 9 | 2019 | | 2025.06.17 | ¿ù¼¼ | ¼°æÆÓ¸®½º | 7 | 29.29 | 18,600 | 6 | 2019 | | 2025.06.17 | ¿ù¼¼ | ¸®Ã¼ºô | 2 | 27.21 | 11,000 | 23 | 2013 | | 2025.06.17 | ¿ù¼¼ | ½ÃƼÇϿ콺 | 5 | 28.19 | 10,600 | 20 | 2011 | | 2025.06.17 | ¿ù¼¼ | µ¿µµÇÏÀÌÃ÷(°¡µ¿) | 2 | 49.16 | 13,000 | 30 | 2001 | | 2025.06.17 | ¿ù¼¼ | casagio(350-17) | 3 | 27.61 | 33 | 105 | 2020 | | 2025.06.17 | ¿ù¼¼ | Áß¾ÓÇÏÀÌÃ÷ºô(785-7) | 2 | 15.1 | 300 | 35 | 2002 | | 2025.06.17 | ¿ù¼¼ | ½Ã±×´ÏÃÄ-S | 3 | 29.9 | 3,000 | 95 | 2023 | | 2025.06.17 | ¿ù¼¼ | ³²¼º¾ÆÆ®ºô(385-18) | 2 | 47.98 | 23,000 | 10 | 2011 | | 2025.06.17 | ¿ù¼¼ | ´õ½ºÀ§Æ®(73-78) | 2 | 27.73 | 2,000 | 90 | 2022 | | 2025.06.17 | ¿ù¼¼ | °Å¼º | 1 | 43.92 | 13,000 | 18 | 1987 | | 2025.06.16 | ¿ù¼¼ | ¿¡ÀÌ¿£Å¸¿ö | 5 | 29.72 | 70 | 85 | 2021 | | 2025.06.16 | Àü¼¼ | ¼±°æºô¶ó(95-19) | 2 | 62.14 | 16,000 | 0 | 1994 | | 2025.06.16 | ¿ù¼¼ | (29-197)ÇѺûÀ§³Ê½ººô | 2 | 46.77 | 15,300 | 10 | 2008 | | 2025.06.16 | ¿ù¼¼ | (409-185) | -1 | 40.83 | 500 | 40 | 1995 | | 2025.06.16 | ¿ù¼¼ | ¾¾Æ¼ÇϿ콺 | 3 | 59.7 | 5,000 | 100 | 2007 | | 2025.06.16 | ¿ù¼¼ | NS¿ÀÇǽº | 6 | 12.41 | 6,700 | 2 | 2013 | | 2025.06.16 | ¿ù¼¼ | Çϳª¾ÆÀÌÆÄÅ©ºô | 5 | 25.03 | 3,000 | 80 | 2017 | | 2025.06.16 | Àü¼¼ | ¼ÛµµÄ«¿îƼ | 5 | 37.5 | 13,500 | 0 | 2012 | | 2025.06.16 | ¿ù¼¼ | ¹Ù¶óȨ | 6 | 29.43 | 24,440 | 5 | 2023 | | 2025.06.16 | Àü¼¼ | (1041-1) | 1 | 62.17 | 24,500 | 0 | 1983 | | 2025.06.16 | Àü¼¼ | ·ÎºóÇϿ콺 | 2 | 35.41 | 19,400 | 0 | 2018 | | 2025.06.16 | ¿ù¼¼ | ¼º¿î4Â÷ | 3 | 33.89 | 3,000 | 60 | 2002 | | 2025.06.16 | ¿ù¼¼ | ´º¿å·¹Áö´ø½º¥±(858-23) | 5 | 12.24 | 500 | 35 | 2012 | | 2025.06.16 | ¿ù¼¼ | (409-185) | -1 | 40.83 | 500 | 40 | 1995 | | 2025.06.16 | ¿ù¼¼ | ȯÈñŸ¿î°¡µ¿ | 1 | 48 | 15,700 | 10 | 2002 | | 2025.06.16 | ¿ù¼¼ | ȰîÅõ¿þ´ÏÆÛ½ºÆ® | 12 | 24.45 | 2,000 | 95 | 2018 | | 2025.06.16 | Àü¼¼ | ±¤¸íÇÏÀÌÃ÷25Â÷ | 2 | 59.67 | 1,500 | 0 | 2002 | | 2025.06.16 | Àü¼¼ | ¼ºÁøºô¶ó(56-461) | 1 | 49.74 | 13,900 | 0 | 2001 | | 2025.06.16 | ¸Å¸Å | ÀºÇϺô¶ó(46-69) | 3 | 41.48 | 13,300 | | 2004 | | 2025.06.16 | ¸Å¸Å | ¿ì¼ºº£³×Ä¡¾Æ | 2 | 56.38 | 30,000 | | 2011 | | 2025.06.16 | ¸Å¸Å | ´Ù¿ø½´½´ºô(821-1) | 3 | 38.45 | 24,000 | | 2012 | | 2025.06.16 | ¸Å¸Å | ¿ì¼ºÅ׸¶ºôAµ¿(379-66) | 3 | 75.47 | 33,700 | | 2002 | | 2025.06.16 | Àü¼¼ | ¹Ì¹®1Â÷ | 4 | 40.44 | 8,400 | 0 | 1993 | | 2025.06.16 | ¿ù¼¼ | ¸®Ä¡7 | 11 | 25.48 | 20,880 | 13 | 2022 | | 2025.06.16 | ¿ù¼¼ | ´ë¸í½ÃƼºô | 3 | 40.08 | 2,000 | 50 | 2007 | | 2025.06.16 | Àü¼¼ | ±×·£µåºôAµ¿(24-341) | 5 | 72.72 | 19,400 | 0 | 2003 | | 2025.06.15 | ¿ù¼¼ | Çý¼ºÆÓ¸®½º24Â÷(397-33) | 3 | 29.37 | 5,000 | 50 | 2013 | | 2025.06.15 | ¿ù¼¼ | ´õ¿ø | 4 | 28.86 | 23,800 | 15 | 2022 | | 2025.06.15 | ¿ù¼¼ | ´õ¿ø | 3 | 27.05 | 22,300 | 10 | 2022 | | 2025.06.15 | ¸Å¸Å | ¸íǰÁؽ¦¸£ºô | 3 | 40.94 | 21,000 | | 2012 | | 2025.06.14 | ¿ù¼¼ | °ÇÇüŸ¿î³ªµ¿ | 3 | 39.47 | 11,700 | 15 | 2002 | | 2025.06.14 | Àü¼¼ | ¸íǰÁؽ¦¸£ºô | 2 | 36.2 | 14,100 | 0 | 2012 | | 2025.06.14 | Àü¼¼ | û¼Ûºô¶ó | 4 | 43.03 | 12,285 | 0 | 1996 | | 2025.06.14 | ¿ù¼¼ | »ïÈ£¾ÆÆ®ºô | 4 | 71.69 | 20,000 | 10 | 2003 | | 2025.06.14 | ¿ù¼¼ | Ŭ·¡½Ãºä | 2 | 29.85 | 1,000 | 105 | 2022 | | 2025.06.14 | ¿ù¼¼ | »ïÈ£¾ÆÆ®ºô | 4 | 71.69 | 19,500 | 12 | 2003 | | 2025.06.14 | Àü¼¼ | Á¦ÀÌÅõ¸®´õ½º | 3 | 27.6 | 21,790 | 0 | 2019 | | 2025.06.14 | ¿ù¼¼ | ¼ºÁغô¶ó(353-37) | 5 | 60.94 | 13,000 | 45 | 2001 | | 2025.06.14 | ¿ù¼¼ | ¿¹°¡Ã¤(968-3) | 5 | 36.18 | 3,000 | 90 | 2015 | | 2025.06.14 | ¸Å¸Å | (338-41) | 1 | 36.86 | 16,800 | | 1986 | | 2025.06.14 | ¿ù¼¼ | ºñºÀ¸Ç¼Ç | 5 | 31.86 | 2,000 | 60 | 2002 | | 2025.06.14 | ¿ù¼¼ | ¾Æµ¨¸®¾Æ¥´(105-370) | 5 | 12.84 | 1,000 | 50 | 2013 | | 2025.06.14 | ¿ù¼¼ | º£¾ÆÆ®¸®½º(341-3) | 5 | 28.94 | 18,500 | 30 | 2017 | | 2025.06.14 | Àü¼¼ | Çʸ³ÇϿ콺 | 5 | 29.88 | 13,400 | 0 | 2012 | | 2025.06.14 | Àü¼¼ | ´õ±×¸° | 5 | 40.11 | 17,000 | 0 | 2013 | | 2025.06.14 | Àü¼¼ | ¼ºÁøÅ¸¿î | 3 | 34.21 | 15,500 | 0 | 2012 | | 2025.06.14 | ¿ù¼¼ | ¸®´õ½ºÅ¸¿î | 4 | 18.15 | 13,000 | 15 | 2016 | | 2025.06.14 | ¿ù¼¼ | ±¤»êºô¶ó(163-27) | 4 | 50.77 | 12,800 | 4 | 2001 | | 2025.06.14 | ¿ù¼¼ | ¼ºÁÖ¸Ç¼Ç | 1 | 61.8 | 15,800 | 15 | 2002 | | 2025.06.14 | ¿ù¼¼ | Àº¼º | -1 | 59.97 | 10,000 | 15 | 2002 | | 2025.06.14 | ¿ù¼¼ | ³ª¸°ÇÏÀÓBµ¿(976-4) | 4 | 24.73 | 5,000 | 50 | 2017 | | 2025.06.14 | ¿ù¼¼ | ¿ÍÀ̾غñ869-35 | 5 | 22.27 | 1,000 | 60 | 2019 | | 2025.06.14 | ¿ù¼¼ | õȣºô¶ó | -1 | 66.06 | 1,000 | 60 | 1996 | | 2025.06.14 | ¸Å¸Å | Ȱ·°½Ã¿ÀÇǽºÅÚ | 4 | 24.3 | 23,300 | | 2018 | | 2025.06.14 | ¸Å¸Å | ¿¹µµÇÏÀÓ | 2 | 29.99 | 24,300 | | 2016 | | 2025.06.14 | ¸Å¸Å | º®»êȨŸ¿î(1061-3) | 5 | 59.03 | 26,500 | | 2008 | | 2025.06.14 | ¸Å¸Å | »ï¼ºÇÏÀ̺ô | 3 | 54.12 | 20,000 | | 2008 | | 2025.06.14 | ¸Å¸Å | ¼±³ºô¶ó | 3 | 59.28 | 17,500 | | 1992 | | 2025.06.14 | ¸Å¸Å | ´Ù¿ÂÆÄÅ©ºô(1083-11) | 2 | 23.85 | 18,500 | | 2017 | | 2025.06.14 | ¸Å¸Å | À̵µÆÓ¸®½º(1049-29) | 3 | 25.61 | 29,600 | | 2022 | | 2025.06.14 | ¸Å¸Å | ¿¹Áö½¦¸£ºô61Â÷ | 3 | 29.67 | 20,000 | | 2013 | | 2025.06.14 | ¸Å¸Å | ´õŬ·¡½Ä(857-19) | 4 | 26.95 | 21,000 | | 2018 | | 2025.06.14 | ¸Å¸Å | ´Ù¾Èºô¶óÆ®(867-7) | 3 | 39.96 | 26,500 | | 2014 | | 2025.06.14 | ¸Å¸Å | À̵µÆÓ¸®½º(1049-29) | 5 | 25.61 | 29,600 | | 2022 | | 2025.06.14 | ¿ù¼¼ | ä¿øºô | 3 | 29.09 | 4,000 | 40 | 2012 | | 2025.06.14 | ¿ù¼¼ | ´õ¼û153 | 2 | 18.89 | 33 | 105 | 2021 | | 2025.06.14 | ¿ù¼¼ | õ¿ìÇÏÀ̺ô | 2 | 58.72 | 5,000 | 70 | 2001 | | 2025.06.14 | ¿ù¼¼ | Áöµð·Îºä | 4 | 27.57 | 33 | 95 | 2020 | | 2025.06.14 | ¸Å¸Å | ¿þ½ºÆ®Èúºô¶óÆ® | -1 | 24.57 | 7,450 | | 2002 | | 2025.06.14 | ¸Å¸Å | Çѹ響îBµ¿(98-140) | 5 | 51.2 | 18,000 | | 2002 | | 2025.06.13 | ¿ù¼¼ | Çö´ëºô¶óÆ®6Â÷(³ªµ¿) | 5 | 47.04 | 12,500 | 15 | 2004 | | 2025.06.13 | ¿ù¼¼ | MARNI | 2 | 25.76 | 3,000 | 90 | 2023 | | 2025.06.13 | Àü¼¼ | ä¿øºô | 3 | 29.84 | 13,000 | 0 | 2012 | | 2025.06.13 | ¿ù¼¼ | ¿À¼ºµå¸²ºô | 2 | 41.45 | 100 | 100 | 2018 | | 2025.06.13 | Àü¼¼ | û¼ÛÆòÈÇコÇϿ콺 | 6 | 31.36 | 23,000 | 0 | 2016 | | 2025.06.13 | Àü¼¼ | Á¤Çöºô¶ó(105-426) | 2 | 41.95 | 10,965 | 0 | 1986 | | 2025.06.13 | ¿ù¼¼ | ¹Ù¶óȨ | 4 | 27.2 | 22,550 | 15 | 2023 | | 2025.06.13 | ¿ù¼¼ | È«¼ºÁÖÅà | 2 | 45.97 | 13,000 | 20 | 2005 | | 2025.06.13 | ¿ù¼¼ | ¿ì¼ººô¶ó | 4 | 49.44 | 13,000 | 14 | 1994 | | 2025.06.13 | ¿ù¼¼ | ¹Ì·¡½ºÅ¸ºô(56-264) | 2 | 49.35 | 12,000 | 25 | 2010 | | 2025.06.13 | ¿ù¼¼ | ¼¼´ãÆÄÅ©ºä | 4 | 27.96 | 2,000 | 100 | 2020 | | 2025.06.13 | Àü¼¼ | ´ë¸²Ä³½½(95-124) | 2 | 47.22 | 18,000 | 0 | 2012 | | 2025.06.13 | ¿ù¼¼ | ANA7 | 5 | 28.5 | 500 | 80 | 2022 | | 2025.06.13 | ¸Å¸Å | ½ºÆäÀ̽ººô | 4 | 53.2 | 25,500 | | 2010 | | 2025.06.13 | ¸Å¸Å | ÇÁ¸®¸Þ¶ó(379-82) | 6 | 29.91 | 22,800 | | 2015 | | 2025.06.13 | ¸Å¸Å | °¨¼ººô | 3 | 26.77 | 19,500 | | 2016 | | 2025.06.13 | Àü¼¼ | ¼¿ì802 | 3 | 28.88 | 20,200 | 0 | 2019 | | 2025.06.13 | ¿ù¼¼ | °ÅÆòºô¶ó | 1 | 54.6 | 2,000 | 80 | 2001 | | 2025.06.12 | ¿ù¼¼ | ºÎÀϽ¦¸£ºôAµ¿ | 5 | 28.2 | 8,390 | 25 | 2002 | | 2025.06.12 | ¿ù¼¼ | ´Ù´Ùºô¸®Áö | 5 | 33.81 | 17,900 | 15 | 2015 | | 2025.06.12 | ¸Å¸Å | ¼¼ÀÎÆ®ºô(55-38) | 3 | 29.98 | 13,680 | | 2012 | | 2025.06.12 | ¸Å¸Å | µ¿¾ç³ëºí·¹½ººô | 5 | 41.27 | 11,000 | | 2008 | | 2025.06.12 | ¸Å¸Å | ºí·çÈú(788-4) | 4 | 29.55 | 28,500 | | 2016 | | 2025.06.12 | ¸Å¸Å | Áß¾ÓÇÏÀÌÃ÷ºô(785-7) | 3 | 15.1 | 7,800 | | 2002 | | 2025.06.12 | ¸Å¸Å | ´ë½ÅÇÏÀÌÃ÷ºô¶ó | -1 | 64.93 | 13,000 | | 2001 | | 2025.06.12 | ¸Å¸Å | ¿¥Æç¸®Ã¼¿¡À̵¿ | 5 | 27.87 | 28,000 | | 2016 | | 2025.06.12 | ¸Å¸Å | (153-19) | 1 | 41.13 | 13,500 | | 1991 | | 2025.06.12 | ¸Å¸Å | ´ë±Ùºô¶ó | 2 | 51.16 | 23,000 | | 1990 | | 2025.06.12 | Àü¼¼ | ´ëÈ£ÇÏÀÌÃ÷ºô¶ó³ªµ¿ | 2 | 54.96 | 14,200 | 0 | 1991 | | 2025.06.12 | ¿ù¼¼ | ºí·çÈú(789-36) | 4 | 25.96 | 200 | 80 | 2020 | | 2025.06.12 | ¿ù¼¼ | ±Ý°ÇÏÀÓºô | 3 | 29.84 | 3,000 | 85 | 2015 | | 2025.06.12 | ¿ù¼¼ | ¿ÍÀ̾غñ869-35 | 3 | 20.65 | 5,000 | 50 | 2019 | | 2025.06.12 | ¿ù¼¼ | ½Å¿µº£¸£µð¿ò | 2 | 32.71 | 1,000 | 95 | 2019 | | 2025.06.12 | ¿ù¼¼ | ¹Ù¿ìÇϿ콺(895-10) | 3 | 12.16 | 1,000 | 44 | 2011 | | 2025.06.12 | ¿ù¼¼ | ½ÂÀÏÁÖÅà | 1 | 36.36 | 2,000 | 75 | 1990 | | 2025.06.12 | Àü¼¼ | ¸¶´çºô¶ó | 1 | 61.2 | 17,000 | 0 | 1991 | | 2025.06.12 | Àü¼¼ | ´ë¸²Å¸¿î(818-14) | 3 | 53.94 | 19,900 | 0 | 2010 | | 2025.06.12 | ¿ù¼¼ | DSÇÏ¿ì¡ | 3 | 29.43 | 12,000 | 60 | 2022 | | 2025.06.12 | ¿ù¼¼ | ÀºÇýºô¶ó(828-5) | 3 | 43.71 | 1,000 | 27 | 1994 | | 2025.06.12 | ¿ù¼¼ | »ï¹ÌÁÖÅà | 4 | 59.97 | 3,000 | 100 | 2001 | | 2025.06.11 | ¸Å¸Å | û¸²¾ÆÆ®ºôBµ¿(105-556) | 5 | 29.52 | 11,500 | | 2001 | | 2025.06.11 | ¸Å¸Å | ½´ÇÁ¸²´õÇÏÀÌ¿ò | 2 | 47.13 | 47,950 | | 2023 | | 2025.06.11 | ¸Å¸Å | ½´ÇÁ¸²´õÇÏÀÌ¿ò | 3 | 47.13 | 48,200 | | 2023 | | 2025.06.11 | ¸Å¸Å | ½´ÇÁ¸²´õÇÏÀÌ¿ò | 3 | 47.13 | 48,200 | | 2023 | | 2025.06.11 | ¸Å¸Å | ½´ÇÁ¸²´õÇÏÀÌ¿ò | 4 | 47.13 | 48,450 | | 2023 | | 2025.06.11 | ¸Å¸Å | ½´ÇÁ¸²´õÇÏÀÌ¿ò | 2 | 47.13 | 47,950 | | 2023 | | 2025.06.11 | ¸Å¸Å | ÇØÇǸ®¿ò | 3 | 36.7 | 23,300 | | 2012 | | 2025.06.11 | ¸Å¸Å | ³ª»ê¸Ç¼Ç(840-10) | 2 | 68.8 | 29,500 | | 2007 | | 2025.06.11 | ¸Å¸Å | ½´ÇÁ¸²´õÇÏÀÌ¿ò | 2 | 47.13 | 47,950 | | 2023 | | 2025.06.11 | ¸Å¸Å | ½´ÇÁ¸²´õÇÏÀÌ¿ò | 2 | 47.13 | 47,950 | | 2023 | | 2025.06.11 | ¸Å¸Å | ½´ÇÁ¸²´õÇÏÀÌ¿ò | 3 | 47.13 | 48,200 | | 2023 | | 2025.06.11 | ¸Å¸Å | ½´ÇÁ¸²´õÇÏÀÌ¿ò | 3 | 47.13 | 48,200 | | 2023 | | 2025.06.11 | ¸Å¸Å | ½´ÇÁ¸²´õÇÏÀÌ¿ò | 4 | 47.13 | 48,450 | | 2023 | | 2025.06.11 | ¸Å¸Å | ½´ÇÁ¸²´õÇÏÀÌ¿ò | 4 | 47.13 | 48,450 | | 2023 | | 2025.06.11 | ¸Å¸Å | ½´ÇÁ¸²´õÇÏÀÌ¿ò | 4 | 47.13 | 48,450 | | 2023 | | 2025.06.11 | ¸Å¸Å | ¸ñ¿øÁÖÅÃ6Â÷ | 4 | 52.06 | 18,700 | | 2002 | | 2025.06.11 | ¿ù¼¼ | Ŭ·¡½Ãºä | 5 | 28.91 | 1,000 | 110 | 2022 | | 2025.06.11 | Àü¼¼ | ÇÏÀºµ¥ÄÚºô | 3 | 49.92 | 13,300 | 0 | 2003 | | 2025.06.11 | ¿ù¼¼ | ÀÚÇÏŬ·¡½Ä | 17 | 13.77 | 11,600 | 8 | 2018 | | 2025.06.11 | ¿ù¼¼ | µ¿¾çÇÏ¿ì¡Aµ¿ | 3 | 36.48 | 21,000 | 15 | 2017 | | 2025.06.11 | ¿ù¼¼ | µÎ»êºô¶ó | 4 | 56.79 | 14,000 | 30 | 2001 | | 2025.06.11 | ¿ù¼¼ | ÀÚÇÏŬ·¡½Ä | 17 | 13.77 | 11,600 | 15 | 2018 | | 2025.06.11 | Àü¼¼ | ¿ÍÀ̾غñ | 4 | 25.38 | 16,700 | 0 | 2017 | | 2025.06.11 | ¿ù¼¼ | ´Ù¼ØÅ¸¿îA,B | 5 | 35.1 | 17,000 | 13 | 2013 | | 2025.06.11 | ¿ù¼¼ | È°î¾ÆÆ®ºô | 6 | 29.39 | 200 | 70 | 2022 | | 2025.06.11 | Àü¼¼ | û¿î¾ÆÆ®ºô | 4 | 72.74 | 24,400 | 0 | 2009 | | 2025.06.11 | ¿ù¼¼ | ´õ¼û153 | 2 | 14.6 | 33 | 95 | 2021 | | 2025.06.11 | ¿ù¼¼ | ¿¡½ºÄÉÀÌÁöÀ½ | 5 | 29.93 | 33 | 117 | 2021 | | 2025.06.11 | ¿ù¼¼ | ÇÏÀ̺ô¶ó | 2 | 52.95 | 14,000 | 24 | 1993 | | 2025.06.11 | ¿ù¼¼ | ¼ÀϺô¸®Áö101µ¿ | 5 | 69 | 18,600 | 4 | 2004 | | 2025.06.11 | ¿ù¼¼ | Æ÷¸£Å×ÇÏÀÓ(358-1) | 6 | 28.76 | 26,000 | 5 | 2023 | | 2025.06.11 | Àü¼¼ | ¹Ì¼ÒÁö¿ò | 6 | 29.95 | 20,200 | 0 | 2021 | | 2025.06.11 | Àü¼¼ | °è¸íÁÖÅà | 4 | 65.79 | 18,000 | 0 | 2000 | | 2025.06.11 | ¿ù¼¼ | ¿¤¸²ÆÄÅ©ºôBµ¿ | 4 | 41.07 | 500 | 50 | 2003 | | 2025.06.11 | Àü¼¼ | (343-9)»ó¾Æºô¶ó | 2 | 55.62 | 17,700 | 0 | 1992 | | 2025.06.11 | Àü¼¼ | ¸íÁöºô¶ó | 1 | 36.81 | 10,500 | 0 | 1991 | | 2025.06.10 | ¸Å¸Å | ´õ¿ø | 5 | 28.11 | 29,100 | | 2019 | | 2025.06.10 | ¸Å¸Å | ¼±°æÇÏÀÌÃ÷ | 4 | 50.88 | 22,500 | | 2012 | | 2025.06.10 | ¿ù¼¼ | ÇØ¿Âij½½ | 5 | 32.6 | 4,100 | 90 | 2019 | | 2025.06.10 | ¸Å¸Å | º¸½Å½¦¸£ºôBµ¿ | 4 | 27.62 | 21,000 | | 2002 | | 2025.06.10 | ¸Å¸Å | ¼¼¿øºô¶ó | 2 | 62.77 | 25,900 | | 2001 | | 2025.06.10 | ¸Å¸Å | µ¿±¤½¦¸£ºô°¡µ¿ | 1 | 61.29 | 27,000 | | 2002 | | 2025.06.10 | ¸Å¸Å | »ïÀͺô¶ó | 4 | 47.7 | 18,000 | | 1994 | | 2025.06.10 | ¿ù¼¼ | ¶ó¿Âºô(341-21) | 2 | 25.13 | 15,600 | 23 | 2017 | | 2025.06.10 | ¿ù¼¼ | ÇѤýÅͺô | 2 | 60.19 | 12,000 | 23 | 2008 | | 2025.06.10 | ¿ù¼¼ | žçºô¶ó(346-28) | 2 | 59.46 | 17,000 | 25 | 1993 | | 2025.06.10 | Àü¼¼ | Áß¾ÓÇÏÀÌÃ÷ | 2 | 36.83 | 12,800 | 0 | 1990 | | 2025.06.10 | Àü¼¼ | ¿¡½º¿¥ÆÄÅ©ºô°¡µ¿ | 4 | 26.11 | 17,300 | 0 | 2017 | | 2025.06.10 | ¿ù¼¼ | Bluehill | 5 | 29.42 | 19,800 | 15 | 2019 | | 2025.06.10 | ¿ù¼¼ | ޳ªºô¶ó | 1 | 62.48 | 3,000 | 57 | 1995 | | 2025.06.10 | ¿ù¼¼ | ¿À¸Þ°¡Å¸¿î | 4 | 57.84 | 4,000 | 82 | 2009 | | 2025.06.10 | ¿ù¼¼ | ¿£¿¡½ººô(381-5) | 5 | 61.23 | 5,000 | 70 | 2010 | | 2025.06.10 | ¿ù¼¼ | MAROO | 5 | 27.29 | 1,000 | 120 | 2019 | | 2025.06.10 | ¿ù¼¼ | ÇÑ¿ï¶ß¶õä(995-20) | 4 | 47.35 | 1,500 | 50 | 2011 | | 2025.06.10 | ¿ù¼¼ | ½Å¼ººô¶ó | 2 | 37.32 | 1,000 | 60 | 1989 | | 2025.06.10 | ¿ù¼¼ | ¾ÆÁÙ¸®¿ò(1049-24) | 4 | 26.24 | 2,000 | 90 | 2018 | | 2025.06.10 | ¿ù¼¼ | ¹Ì°¡Ã¤ | 3 | 52.58 | 25,400 | 20 | 2015 | | 2025.06.10 | ¿ù¼¼ | ¿ì¼ººô¶ó | 2 | 64.07 | 3,000 | 80 | 2000 | | 2025.06.10 | Àü¼¼ | ¼º¿îÇÏÀÌÃ÷5Â÷ | 1 | 68.58 | 17,000 | 0 | 1997 | | 2025.06.10 | Àü¼¼ | ¿¬¿ì³Ø½ºÆ®ºä | 13 | 13.16 | 12,700 | 0 | 2018 | | 2025.06.10 | Àü¼¼ | À£ºù¶óÀÌÇÁ(155-6) | 4 | 40.16 | 14,200 | 0 | 2011 | | 2025.06.10 | ¿ù¼¼ | žçºô¶ó(346-28) | 2 | 59.46 | 17,000 | 25 | 1993 | | 2025.06.10 | Àü¼¼ | ¿¡½º¿¥ÆÄÅ©ºô°¡µ¿ | 4 | 26.11 | 17,300 | 0 | 2017 | | 2025.06.10 | Àü¼¼ | µ¿¿ìºô¶ó | 4 | 35.92 | 9,000 | 0 | 1993 | | 2025.06.10 | Àü¼¼ | Áø¿µÇÏÀ̺ô(24-243) | 3 | 52.5 | 18,375 | 0 | 2000 | | 2025.06.10 | Àü¼¼ | ȼººô¶ó°¡µ¿ | 4 | 31.9 | 10,000 | 0 | 2003 | | 2025.06.10 | ¿ù¼¼ | ÇÏÀÌÃ÷ºô¶ó(1053-3) | 2 | 28.5 | 1,000 | 60 | 2002 | | 2025.06.09 | ¿ù¼¼ | »ïÁ¤ÆÄÅ©ºä | 2 | 29.98 | 3,000 | 75 | 2012 | | 2025.06.09 | Àü¼¼ | µ¿¿ø±×¸°ºô | 1 | 57.04 | 16,380 | 0 | 2002 | | 2025.06.09 | ¿ù¼¼ | ±îÄ¡»êÆÈ¶óÀ̽º | 1 | 28.455 | 14,490 | 3 | 2015 | | 2025.06.09 | Àü¼¼ | µ¿¿ø±×¸°ºô | 1 | 57.04 | 16,380 | 0 | 2002 | | 2025.06.09 | Àü¼¼ | ¶óÀÎÆÄÅ© | 3 | 29.65 | 22,150 | 0 | 2020 | | 2025.06.09 | ¿ù¼¼ | ¶ó¿ò(RAUM) | 2 | 43.96 | 3,000 | 50 | 2016 | | 2025.06.09 | ¿ù¼¼ | »ïÁ¤ÆÄÅ©ºä | 2 | 29.98 | 3,000 | 75 | 2012 | | 2025.06.09 | Àü¼¼ | ´Ù¿ÂÆÄÅ©ºô | 3 | 24.34 | 16,350 | 0 | 2017 | | 2025.06.09 | ¿ù¼¼ | ÇϳªÅ¸¿îAµ¿ | 3 | 29.93 | 3,000 | 70 | 2015 | | 2025.06.09 | ¿ù¼¼ | ¿ì³²ºô¶ó(95-76) | 2 | 54.6 | 14,000 | 65 | 2002 | | 2025.06.09 | Àü¼¼ | µÎ»êijºó | 3 | 27.78 | 9,660 | 0 | 2002 | | 2025.06.09 | Àü¼¼ | »ïÈ£ºô¶ó(50-112) | 1 | 32.46 | 6,500 | 0 | 1996 | | 2025.06.09 | ¿ù¼¼ | ¿ì³²ºô¶ó(95-76) | 2 | 54.6 | 15,000 | 60 | 2002 | | 2025.06.09 | Àü¼¼ | µ¿¿ì¸Ç¼Ç´Ùµ¿ | 3 | 50.4 | 13,600 | 0 | 2001 | | 2025.06.09 | ¿ù¼¼ | Çѽº¾ÆÀ̺ô2 | 2 | 27.45 | 11,539 | 8 | 2019 | | 2025.06.09 | ¿ù¼¼ | ¼ºÈ£°ñµç¸Ç¼Ç | 3 | 45.91 | 500 | 60 | 1996 | | 2025.06.09 | Àü¼¼ | µ¿¿øºô¶ó(77-28) | 3 | 39.91 | 8,500 | 0 | 1991 | | 2025.06.09 | ¿ù¼¼ | ÇÞºû¾Ö | 5 | 26.69 | 12,000 | 15 | 2017 | | 2025.06.09 | Àü¼¼ | (29-197)ÇѺûÀ§³Ê½ººô | 2 | 46.77 | 17,000 | 0 | 2008 | | 2025.06.09 | ¿ù¼¼ | û´ãÇϿ콺 | 3 | 29.83 | 3,000 | 80 | 2017 | | 2025.06.09 | ¸Å¸Å | ´ë¼Û±×¸°ºô | 5 | 53.29 | 19,000 | | 2002 | | 2025.06.09 | ¸Å¸Å | û¿ìÆÄÅ©ºô(867-37) | 2 | 57.33 | 27,850 | | 2010 | | 2025.06.09 | ¸Å¸Å | ÇÏÀÌÆ®¸Ç¼Ç | 1 | 58.1 | 26,800 | | 2000 | | 2025.06.09 | ¸Å¸Å | ¼ºÀϺô¶óA | 5 | 22.24 | 7,000 | | 2002 | | 2025.06.09 | ¸Å¸Å | ¾ÆÀ̺ñŸ¿î(105-189) | 3 | 66.98 | 29,800 | | 2007 | | 2025.06.09 | ¸Å¸Å | ¼±°æÇÏÀÌÃ÷ºô¶ó | 4 | 39.95 | 14,500 | | 1997 | | 2025.06.09 | ¸Å¸Å | ¼º¿øºô¶ó | 2 | 59.8 | 30,000 | | 2001 | | 2025.06.09 | ¸Å¸Å | °¡¶÷ºô | 5 | 29.82 | 17,700 | | 2011 | | 2025.06.09 | Àü¼¼ | ¼±¤¾ÆÆ®ºô(61-50) | 1 | 57.13 | 20,000 | 0 | 2008 | | 2025.06.09 | Àü¼¼ | º¸½Å½¦¸£ºôBµ¿ | 2 | 50.27 | 16,500 | 0 | 2002 | | 2025.06.09 | Àü¼¼ | µÎ»êijºó | 3 | 27.78 | 9,338 | 0 | 2002 | | 2025.06.09 | Àü¼¼ | µÎ»êijºó | 3 | 27.78 | 9,660 | 0 | 2002 | | 2025.06.09 | ¸Å¸Å | ÁÖ¾ó¸®ÇϿ콺Bµ¿ | 4 | 65.45 | 27,000 | | 2001 | | 2025.06.09 | Àü¼¼ | º¸½Å½¦¸£ºôBµ¿ | 2 | 50.27 | 16,000 | 0 | 2002 | | 2025.06.08 | ¿ù¼¼ | »ï¼º½¦¸£ºô(400-16) | 3 | 34.39 | 18,200 | 10 | 2015 | | 2025.06.08 | ¿ù¼¼ | õ¿ì±×¸°ºô | 2 | 62.31 | 6,000 | 70 | 2001 | | 2025.06.08 | ¿ù¼¼ | »ï¼º½¦¸£ºô(400-16) | 3 | 34.39 | 18,200 | 10 | 2015 | | 2025.06.08 | ¿ù¼¼ | »ï¼º½¦¸£ºô(400-16) | 3 | 34.39 | 17,500 | 12 | 2015 | | 2025.06.08 | Àü¼¼ | »ï¼º½¦¸£ºô(400-16) | 3 | 34.39 | 19,950 | 0 | 2015 | | 2025.06.07 | ¸Å¸Å | ´ºÆÄÀκô(46-200) | 3 | 42.53 | 15,400 | | 2008 | | 2025.06.07 | ¿ù¼¼ | ¹Ù¶óȨ | 2 | 22.11 | 18,770 | 15 | 2023 | | 2025.06.07 | Àü¼¼ | Å©¸®½ºÅ»ºô(24-490) | 4 | 37.78 | 21,350 | 0 | 2014 | | 2025.06.07 | ¿ù¼¼ | ¹Ù¶óȨ | 4 | 22.68 | 19,400 | 15 | 2023 | | 2025.06.07 | ¿ù¼¼ | Àå¿øÇÏÀ̺ô¶ó³ªµ¿ | 3 | 46.565 | 13,000 | 25 | 2002 | | 2025.06.07 | Àü¼¼ | ½Å¼ºÁÖÅÃ(46-17) | 2 | 44.21 | 18,000 | 0 | 2011 | | 2025.06.07 | ¿ù¼¼ | ¼ºÀçÆÄÅ©ºôBµ¿ | -1 | 38.93 | 7,963 | 2 | 2002 | | 2025.06.07 | ¸Å¸Å | ³²±¤¾ÆÆ®ºôBµ¿ | 5 | 35.54 | 27,800 | | 2018 | | 2025.06.06 | ¿ù¼¼ | ¼Ç¹ë¸® | 5 | 33.12 | 3,000 | 90 | 2015 | | 2025.06.06 | ¿ù¼¼ | ½Å¿ìºô¶ó | 2 | 54.12 | 10,000 | 30 | 1994 | | 2025.06.06 | ¿ù¼¼ | ±×·£µåºô¸®Áö | 2 | 59.82 | 3,000 | 100 | 1996 | | 2025.06.06 | ¿ù¼¼ | ½ÅÇϿ콺 | 4 | 26.3 | 200 | 50 | 2017 | | 2025.06.06 | ¿ù¼¼ | ÇѾç¸Ç¼ð | 1 | 57.44 | 2,000 | 64 | 2001 | | 2025.06.06 | ¿ù¼¼ | ¼ö¾ÆÆ®ºô | 2 | 31.68 | 17,260 | 10 | 2015 | | 2025.06.06 | Àü¼¼ | ÇØºñÄ¡ºô | 2 | 31.95 | 25,900 | 0 | 2019 | | 2025.06.06 | ¿ù¼¼ | ¶ó¿Âºô | 4 | 23.65 | 5,000 | 60 | 2018 | | 2025.06.06 | ¿ù¼¼ | µ¿¾çÇÏ¿ì¡(46-295) | 2 | 29.77 | 5,000 | 90 | 2014 | | 2025.06.06 | ¿ù¼¼ | »ï¼ººô¸®Áö(357-3) | 2 | 60.63 | 18,000 | 20 | 2001 | | 2025.06.06 | Àü¼¼ | À¯¾Ø¹Ì | 3 | 40.76 | 18,270 | 0 | 2016 | | 2025.06.06 | ¿ù¼¼ | ¾ÆÁÙ¸®¿ò(451-8) | 4 | 29.91 | 3,000 | 73 | 2013 | | 2025.06.06 | ¸Å¸Å | ±Ý°ÇÏÀÓºô | 3 | 29.84 | 21,500 | | 2015 | | 2025.06.06 | ¸Å¸Å | ¿ìÇö½ºÄ«À̺ô(787-20) | 4 | 29.93 | 18,600 | | 2014 | | 2025.06.05 | ¿ù¼¼ | È£¼º±×¸°ºô11Â÷ | 2 | 66.36 | 18,000 | 20 | 2000 | | 2025.06.05 | ¿ù¼¼ | LKµå¸²ºô | 3 | 29.9 | 33 | 130 | 2022 | | 2025.06.05 | Àü¼¼ | ¼±°æºô¶ó(95-19) | 3 | 54.33 | 14,850 | 0 | 1994 | | 2025.06.05 | ¿ù¼¼ | ¾Ëº£·Î | 4 | 13.59 | 4,000 | 32 | 2011 | | 2025.06.05 | Àü¼¼ | û¼ÛÆòÈÇÏÀ̸ǼÇ(459-15) | 4 | 68.14 | 17,600 | 0 | 2010 | | 2025.06.05 | ¿ù¼¼ | ¿À¼ÖÁÖÅà | 4 | 24.08 | 6,000 | 28 | 2002 | | 2025.06.05 | Àü¼¼ | Á¤¿øºô¶ó(504-32) | 5 | 54.27 | 18,000 | 0 | 2012 | | 2025.06.05 | ¸Å¸Å | žºô¸®Áö | -1 | 55.75 | 15,000 | | 2001 | | 2025.06.05 | ¸Å¸Å | ¿ì¼ºAµ¿Bµ¿(346-86) | 3 | 39.81 | 29,500 | | 2014 | | 2025.06.05 | Àü¼¼ | ´õ¿ø·¹¿Àºô | 3 | 27.91 | 21,920 | 0 | 2021 | | 2025.06.05 | ¸Å¸Å | È£¼öŸ¿î5Â÷ | 2 | 47.97 | 17,000 | | 2002 | | 2025.06.05 | ¸Å¸Å | À̵µÆ®¶ó¿ò2 | 6 | 33.29 | 26,500 | | 2018 | | 2025.06.05 | ¸Å¸Å | 102-119 | 4 | 36.1 | 25,100 | | 2015 | | 2025.06.05 | Àü¼¼ | Å·´ý | 4 | 27.27 | 15,300 | 0 | 2016 | | 2025.06.04 | ¿ù¼¼ | ÀÌȺô¶ó2µ¿ | 1 | 36.69 | 13,000 | 15 | 1987 | | 2025.06.04 | ¿ù¼¼ | µÎ¾Ï¸®¹öºôCµ¿ | 3 | 48.86 | 17,000 | 20 | 2001 | | 2025.06.04 | Àü¼¼ | ½ã¶óÀÎ | 6 | 29.91 | 20,830 | 0 | 2016 | | 2025.06.04 | ¿ù¼¼ | »ï¼ººô¶ó(56-47) | 4 | 40.96 | 11,640 | 20 | 2002 | | 2025.06.04 | ¿ù¼¼ | ÇѺûÀ§³Ê½ººô | 3 | 53.18 | 12,000 | 29 | 2008 | | 2025.06.04 | ¿ù¼¼ | »ï¼º¾ÆÆ®ºôCµ¿ | 3 | 54.6 | 0 | 35 | 2002 | | 2025.06.04 | ¿ù¼¼ | ºÎÀϽ¦¸£ºôBµ¿ | 2 | 59.12 | 18,100 | 7 | 2002 | | 2025.06.04 | Àü¼¼ | ¿ì¼ºÅ׸¶ºô(1044-20) | 2 | 69.2 | 22,000 | 0 | 2006 | | 2025.06.04 | ¿ù¼¼ | ½ºÀ§Æ®ºô(410-183) | 3 | 36.39 | 1,000 | 53 | 2008 | | 2025.06.04 | Àü¼¼ | ¸®Á¨Æ®¶ó¿ò(344-11) | 3 | 41.99 | 20,400 | 0 | 2014 | | 2025.06.04 | Àü¼¼ | ´õ¶ó¿Â | 3 | 29.63 | 19,900 | 0 | 2019 | | 2025.06.04 | ¿ù¼¼ | ¹Ù¶óȨ | 5 | 29.15 | 24,060 | 15 | 2023 | | 2025.06.04 | ¿ù¼¼ | ´ë´öÇÏÀÌÃ÷ºô¶ó | 2 | 57.91 | 4,000 | 80 | 1993 | | 2025.06.04 | ¸Å¸Å | °æ¹Î¾ÆÆ®ºô(882-32) | 4 | 26.56 | 24,300 | | 2017 | | 2025.06.04 | ¸Å¸Å | ´ëÁÖ½¦¸£ºô(338-9) | 1 | 45.02 | 21,000 | | 2002 | | 2025.06.04 | ¸Å¸Å | õ¿ìºô¶ó | 1 | 59.89 | 22,300 | | 1999 | | 2025.06.04 | ¸Å¸Å | µÎ»êºô¶ó(56-407) | 2 | 59.81 | 17,900 | | 2000 | | 2025.06.04 | ¸Å¸Å | Ȳ±Ýºô¶ó(61-104) | -1 | 42.66 | 11,250 | | 1993 | | 2025.06.04 | ¿ù¼¼ | ¿ì¼ººô¶ó(1087-37) | 5 | 34.38 | 2,000 | 70 | 2011 | | 2025.06.04 | Àü¼¼ | ´ö¿ë¸Ç¼Ç | 2 | 57.15 | 15,300 | 0 | 1996 | | 2025.06.04 | ¿ù¼¼ | ¿ì¼ºÅ׸¶ºô(1044-20) | 2 | 69.2 | 20,000 | 10 | 2006 | | 2025.06.04 | ¿ù¼¼ | DSÇÏ¿ì¡ | 2 | 29.43 | 12,000 | 70 | 2022 | | 2025.06.04 | ¿ù¼¼ | ZION | 2 | 23.44 | 1,000 | 55 | 2003 | | 2025.06.04 | ¿ù¼¼ | Á¦ÀÌ¿¥ÆÓ¸®½º | 1 | 26.855 | 0 | 95 | 2021 | | 2025.06.03 | Àü¼¼ | Àå¿øºô¶ó | 4 | 54.96 | 14,300 | 0 | 2000 | | 2025.06.03 | ¿ù¼¼ | ½Ã¸ó½¦¸£ºô(802-16) | 3 | 74.82 | 3,000 | 95 | 2008 | | 2025.06.03 | ¿ù¼¼ | ´õ¿ø#8 | 2 | 29.19 | 23,400 | 10 | 2022 | | 2025.06.03 | Àü¼¼ | LAHOME(¶óȨ)A | 5 | 29.9 | 25,400 | 0 | 2022 | | 2025.06.03 | ¿ù¼¼ | ¹éÁ¦ºô¶ó | 2 | 44.92 | 13,800 | 15 | 1991 | | 2025.06.03 | Àü¼¼ | âõ±×¸°ºô | 2 | 48.64 | 16,200 | 0 | 2002 | | 2025.06.03 | Àü¼¼ | ¸¶ÀÌÇϿ콺 | 6 | 26.31 | 17,300 | 0 | 2016 | | 2025.06.03 | ¿ù¼¼ | Áöµð·Îºä | 5 | 27.93 | 33 | 101 | 2020 | | 2025.06.03 | ¿ù¼¼ | ¹éÁ¦ºô¶ó | 2 | 44.92 | 13,800 | 15 | 1991 | | 2025.06.03 | Àü¼¼ | Å©¶ó¿îÆÓ¸®½º | 13 | 29.98 | 27,590 | 0 | 2020 | | 2025.06.03 | ¿ù¼¼ | ´Ù³ª³×½ºÆ®ºô(102-275) | 2 | 40.33 | 1,000 | 58 | 2008 | | 2025.06.03 | Àü¼¼ | ¼¿ì802 | 5 | 27.09 | 20,034 | 0 | 2019 | | 2025.06.03 | Àü¼¼ | ´õ¿ø·¹¿Àºô | 5 | 19.08 | 19,100 | 0 | 2021 | | 2025.06.03 | ¿ù¼¼ | ´õ¿ø·¹¿Àºô | 5 | 19.08 | 18,520 | 5 | 2021 | | 2025.06.03 | ¸Å¸Å | ³²¼º¾ÆÆ®ºô(367-77) | 4 | 35.02 | 21,200 | | 2012 | | 2025.06.03 | ¸Å¸Å | Çö´ë¾ÆÆ®Å¸¿î | 1 | 61.92 | 17,600 | | 1996 | | 2025.06.03 | ¸Å¸Å | ¼º¸²ÆÄÅ©ºôBµ¿ | 4 | 49.36 | 17,500 | | 2002 | | 2025.06.03 | ¸Å¸Å | Ȩ·£µå¸Ç¼Ç13Â÷ | 1 | 67.96 | 24,000 | | 1996 | | 2025.06.03 | ¸Å¸Å | È£¼öŸ¿î5Â÷ | 2 | 47.97 | 17,000 | | 2002 | | 2025.06.03 | ¸Å¸Å | °ÇÇüŸ¿î³ªµ¿ | 2 | 39.47 | 17,800 | | 2002 | | 2025.06.03 | ¸Å¸Å | ¾¾Æ¼ÆÄÅ©3Â÷ | 4 | 52.74 | 21,000 | | 2008 | | 2025.06.03 | ¸Å¸Å | ¼º¿øºô¶ó(341-44) | 2 | 67.22 | 34,000 | | 2009 | | 2025.06.02 | ¸Å¸Å | ¾ÆÀ̵ð¿ò | 2 | 28.07 | 20,000 | | 2016 | | 2025.06.02 | ¸Å¸Å | (105-20) | 5 | 25.45 | 8,700 | | 2011 | | 2025.06.02 | ¸Å¸Å | Ÿ¿îºô¸®Áö³ªµ¿ | 1 | 59.46 | 21,000 | | 1991 | | 2025.06.02 | ¸Å¸Å | Àνººô | 4 | 42.67 | 24,500 | | 2017 | | 2025.06.02 | ¸Å¸Å | ÁÖ¼±¸Ç¼Ç | 3 | 63.57 | 22,300 | | 2002 | | 2025.06.02 | ¸Å¸Å | ÿ½ÃÇϿ콺 | 4 | 39.62 | 23,500 | | 2012 | | 2025.06.02 | ¿ù¼¼ | ½Å¼º¸®Ä¡ºô¥² | 2 | 24.53 | 2,000 | 80 | 2015 | | 2025.06.02 | ¿ù¼¼ | ½ÅÈ£º£½ºÆ®ºô | 4 | 39.26 | 3,000 | 75 | 2002 | | 2025.06.02 | ¿ù¼¼ | Æ÷¸£ÅÛÇÏÀÓ | 5 | 29.19 | 300 | 80 | 2022 | | 2025.06.02 | ¿ù¼¼ | ÀÌÁöÇϿ콺 | 3 | 18.7 | 1,000 | 570 | 2024 | | 2025.06.02 | Àü¼¼ | ´õŬ·¡½Ä | 2 | 29.43 | 18,900 | 0 | 2018 | | 2025.06.02 | ¸Å¸Å | ´ëÁøºô¶ó | 3 | 56.01 | 19,700 | | 2008 | | 2025.06.02 | ¸Å¸Å | ºí·çÈú | 5 | 29.77 | 23,000 | | 2017 | | 2025.06.02 | Àü¼¼ | ÇѺûŸ¿î | 5 | 67.89 | 18,770 | 0 | 2002 | | 2025.06.02 | Àü¼¼ | ¹Ù·ÎÅ©ºô | 2 | 29.9 | 15,150 | 0 | 2014 | | 2025.06.02 | ¿ù¼¼ | °æ¿ø¾ÆÆ®ºôBµ¿ | 2 | 30.96 | 2,000 | 60 | 2001 | | 2025.06.02 | ¿ù¼¼ | À¯ÁøºôII | 3 | 56.2 | 400 | 50 | 2003 | | 2025.06.02 | ¿ù¼¼ | ´õ¼û153 | 2 | 14.66 | 33 | 149 | 2021 | | 2025.06.02 | ¸Å¸Å | À̽ºÆ®Èú | 5 | 64.87 | 17,000 | | 2003 | | 2025.06.02 | ¿ù¼¼ | ºÎÀϽ¦¸£ºôCµ¿ | 4 | 65.64 | 6,000 | 90 | 2002 | | 2025.06.01 | ¿ù¼¼ | ¸¶Å©Èú½º74 | 3 | 27.06 | 15 | 60 | 2019 | | 2025.06.01 | ¿ù¼¼ | õµ¿±×¸°ºô¶ó | 4 | 70.35 | 3,000 | 58 | 2000 | | 2025.06.01 | ¿ù¼¼ | °æ¾Ï±×·£µåij½½ | 3 | 116.05 | 10,000 | 125 | 2002 | | 2025.06.01 | ¸Å¸Å | ¹ü¿ìÁÖÅÃ(353-86) | 1 | 43.25 | 10,000 | | 1991 | | 2025.06.01 | ¸Å¸Å | ´ë´öÆÄÅ©ºô | 3 | 69.95 | 25,300 | | 2001 | | 2025.05.31 | Àü¼¼ | ½ÅÇÑÇÏÀÌÃ÷ºô¶ó | 2 | 66.82 | 19,700 | 0 | 2001 | | 2025.05.31 | ¿ù¼¼ | È¿ÁøÇÏÀÌÃ÷(59-45) | 2 | 40.04 | 12,000 | 10 | 2011 | | 2025.05.31 | ¿ù¼¼ | ¸®¹öij½½ | 2 | 29.9 | 6,000 | 60 | 2019 | | 2025.05.31 | ¿ù¼¼ | ¼¼ÀÎÆ®ºô(55-38) | 5 | 45.93 | 3,000 | 50 | 2012 | | 2025.05.31 | ¿ù¼¼ | °è¸íÁÖÅÃ(24-308) | 5 | 47.16 | 13,900 | 10 | 2001 | | 2025.05.31 | ¿ù¼¼ | żººô¶ó(56-215) | -1 | 35.34 | 1,000 | 18 | 1993 | | 2025.05.31 | ¿ù¼¼ | »ï±¤¾ÆÆ®ºô(46-78) | -1 | 48.83 | 4,000 | 30 | 2001 | | 2025.05.31 | ¿ù¼¼ | ANPȰî | 5 | 23.44 | 1,000 | 105 | 2022 | | 2025.05.31 | ¿ù¼¼ | ½Ã±×´ÏÃÄ-S | 4 | 33.78 | 3,000 | 105 | 2023 | | 2025.05.31 | ¿ù¼¼ | Á¦ÀÌ¿¥ÆÓ¸®½º | 5 | 26.855 | 0 | 95 | 2021 | | 2025.05.31 | ¿ù¼¼ | Å©¸®½ºÅ»ºô(354-21) | 4 | 29.46 | 2,000 | 70 | 2014 | | 2025.05.31 | ¿ù¼¼ | ŰæÇÏÀÌÃ÷(354-29) | 4 | 46.83 | 3,000 | 80 | 2001 | | 2025.05.31 | ¿ù¼¼ | ºí·çÈúAµ¿ | 4 | 52.34 | 4,000 | 69 | 2007 | | 2025.05.31 | Àü¼¼ | ´õ¿ø·¹¿Àºô | 4 | 25.17 | 23,500 | 0 | 2021 | | 2025.05.31 | ¿ù¼¼ | Æ÷¸£Å×ÇÏÀÓ(358-1) | 3 | 26.69 | 15,000 | 55 | 2023 | | 2025.05.31 | Àü¼¼ | ⵿ºô¶ó | 5 | 45.32 | 14,490 | 0 | 2008 | | 2025.05.31 | ¿ù¼¼ | À̳뼿(INNOCELL) | 6 | 40.78 | 20,200 | 20 | 2017 | | 2025.05.31 | ¿ù¼¼ | ³ª»ê½¦¸£ºôA | 2 | 40.55 | 10,000 | 30 | 2001 | | 2025.05.31 | ¿ù¼¼ | ½Å½Åºô | 3 | 33.83 | 1,000 | 70 | 2002 | | 2025.05.31 | ¿ù¼¼ | À§ÇϿ콺(111-10) | 4 | 27.73 | 400 | 50 | 2016 | | 2025.05.31 | ¿ù¼¼ | ½Ã±×´ÏÃÄ-S | 2 | 29.9 | 3,000 | 95 | 2023 | | 2025.05.31 | ¿ù¼¼ | µ¿¿ì¾ÆÆ®ºô | 2 | 46.01 | 1,000 | 90 | 2009 | | 2025.05.31 | ¸Å¸Å | »ïÇùÇÊÇϿ콺 | 3 | 46.66 | 23,000 | | 2016 | | 2025.05.31 | ¿ù¼¼ | ´Ù¿ï¸Ç¼Ç(819-8) | 5 | 41.22 | 10,500 | 33 | 2005 | | 2025.05.31 | ¿ù¼¼ | ±Ý°´©¸®ºô(998-10) | 4 | 16.02 | 6,820 | 5 | 2012 | | 2025.05.31 | ¸Å¸Å | Çѹ鸮Ã÷ºô(346-56) | 5 | 50.44 | 21,800 | | 2008 | | 2025.05.31 | ¸Å¸Å | ÿ½ÃÇϿ콺(870-6) | 2 | 41.01 | 23,500 | | 2013 | | 2025.05.31 | ¸Å¸Å | ÇÁ¸®¸Þ¶óCµ¿ | 5 | 34.9 | 29,900 | | 2014 | | 2025.05.31 | ¸Å¸Å | ¶ó¿Âºô¶ó | 3 | 50.17 | 27,500 | | 2011 | | 2025.05.30 | ¸Å¸Å | ³²±¤¾ÆÆ®ºôBµ¿ | 5 | 35.54 | 27,800 | | 2018 | | 2025.05.30 | ¸Å¸Å | ½ÅÇϿ콺 | 8 | 29.88 | 18,000 | | 2016 | | 2025.05.30 | ¸Å¸Å | ÇÑ¿ï¶ß¶õä(995-20) | 2 | 58.52 | 29,200 | | 2011 | | 2025.05.30 | ¸Å¸Å | ¿ì¼º¼öÇöºô¶ó | 4 | 56.79 | 18,500 | | 1997 | | 2025.05.30 | ¸Å¸Å | ³²¼º¾ÆÆ®ºô | 5 | 24.92 | 29,370 | | 2017 | | 2025.05.30 | ¸Å¸Å | Çý¼ºÆÓ¸®½ººô(392-31) | 6 | 35.76 | 22,600 | | 2014 | | 2025.05.30 | ¸Å¸Å | ¿¡½ºÄÉÀ̹ٿòÇϿ콺(1073-28) | 3 | 28.14 | 22,900 | | 2016 | | 2025.05.30 | ¿ù¼¼ | ÇÑ¿ï¶ß¶õä(1079-23) | 2 | 42.52 | 500 | 50 | 2012 | | 2025.05.30 | ¿ù¼¼ | ´ëÈ£¾ÆÆ®Å¸¿î³ªµ¿ | 1 | 39.94 | 4,000 | 60 | 1992 | | 2025.05.30 | ¿ù¼¼ | À̾ÈÇϿ콺 | 6 | 29.64 | 2,000 | 80 | 2022 | | 2025.05.30 | ¿ù¼¼ | ´Ù¼¼´ëÁÖÅÃ(111-30) | 1 | 54.25 | 1,135 | 75 | 2002 | | 2025.05.30 | Àü¼¼ | Àç·æºôµù | 6 | 26.34 | 20,010 | 0 | 2021 | | 2025.05.30 | Àü¼¼ | À¯µðÄÚÆÄÅ©¸®¿ò | 4 | 18.78 | 8,800 | 0 | 2011 | | 2025.05.30 | ¿ù¼¼ | ±Ý°´©¸®ºô(998-10) | 7 | 15.72 | 6,800 | 3 | 2012 | | 2025.05.30 | ¿ù¼¼ | °Å¼º | 1 | 49.5 | 1,000 | 70 | 1986 | | 2025.05.30 | ¿ù¼¼ | ´õ±×¶ó½Ã¾Æ | 3 | 23.37 | 19,900 | 10 | 2022 | | 2025.05.30 | ¿ù¼¼ | ¿¹¼ÖÇÏÀÌÃ÷ | 3 | 61.8 | 5,000 | 50 | 2008 | | 2025.05.30 | ¿ù¼¼ | ¶ó¿Âºô(341-21) | 6 | 29.58 | 1,000 | 85 | 2017 | | 2025.05.30 | ¿ù¼¼ | ´ëÈ£¾ÆÆ®Å¸¿î³ªµ¿ | 1 | 39.94 | 4,000 | 60 | 1992 | | 2025.05.30 | ¿ù¼¼ | ¹®È±×¸°Å¸¿î | 4 | 41.87 | 12,000 | 20 | 1994 | | 2025.05.30 | Àü¼¼ | ºñ¿ø±×¸°ºô¶ó | 1 | 41.49 | 11,000 | 0 | 1986 | | 2025.05.30 | ¿ù¼¼ | ¾Æ¸£´©º¸392 | 4 | 61.19 | 18,200 | 20 | 2002 | | 2025.05.30 | Àü¼¼ | º£¶óÆ®À©ºô(101µ¿102µ¿) | 5 | 38 | 22,000 | 0 | 2015 | | 2025.05.30 | ¿ù¼¼ | »ïÀÍÇ콺Ƽ¾Æ(1129-29) | 3 | 34.26 | 10,000 | 30 | 2011 | | 2025.05.30 | ¿ù¼¼ | ´õÁ¸ÆÛ½ºÆ®ºô | 5 | 28.05 | 5,000 | 79 | 2017 | | 2025.05.29 | ¸Å¸Å | ³²±¤ÆÄÅ©ºô | 5 | 29.34 | 21,500 | | 2014 | | 2025.05.29 | ¸Å¸Å | ´Ù¿ï¸Ç¼Ç(100-32) | 3 | 84.72 | 57,800 | | 2000 | | 2025.05.29 | ¸Å¸Å | ±×¸°ÆÄÅ©ºô | 3 | 51.96 | 21,700 | | 2007 | | 2025.05.29 | ¿ù¼¼ | ¸ðÀüÇ÷¯½ººôBµ¿ | 4 | 41.55 | 5,000 | 25 | 2002 | | 2025.05.29 | ¿ù¼¼ | ÅÂÈȨŸ¿î | -1 | 39.39 | 1,000 | 45 | 2004 | | 2025.05.29 | ¿ù¼¼ | ÅÂÇÑÇÏÀ̺ô(382-25) | 4 | 26.62 | 5,000 | 65 | 2017 | | 2025.05.29 | Àü¼¼ | ÇϳªÇÏÀÌÃ÷ | 3 | 68.34 | 22,000 | 0 | 2008 | | 2025.05.29 | Àü¼¼ | ·Ôµ¥ºô¶ó | 2 | 44.29 | 9,300 | 0 | 1993 | | 2025.05.29 | ¿ù¼¼ | º§¶óÇϿ콺(351-16) | 6 | 17.12 | 0 | 130 | 2016 | | 2025.05.29 | ¿ù¼¼ | »þÀδõÈúȰî | 6 | 29.81 | 1,000 | 105 | 2023 | | 2025.05.29 | ¿ù¼¼ | ÇѰ淺½ºÇ÷¹À̽º | 5 | 26.18 | 23,680 | 22 | 2023 | | 2025.05.29 | ¿ù¼¼ | »ï¼º°ñµçºô | 4 | 33.85 | 5,000 | 70 | 2014 | | 2025.05.29 | ¸Å¸Å | À̵µÆÓ¸®½º | 5 | 22.56 | 25,250 | | 2021 | | 2025.05.29 | ¸Å¸Å | ÇϳªÅ¸¿î | -1 | 35.16 | 9,600 | | 2001 | | 2025.05.28 | ¿ù¼¼ | (430-6) | -1 | 33.2 | 5,950 | 35 | 1986 | | 2025.05.28 | Àü¼¼ | ȰÇö´ëŸ¿ö | 5 | 57.52 | 16,200 | 0 | 2008 | | 2025.05.28 | Àü¼¼ | ȰÇö´ëŸ¿ö | 5 | 57.52 | 16,200 | 0 | 2008 | | 2025.05.28 | ¿ù¼¼ | »ï¿øÇÇ¾ÆÆ®Dµ¿ | 4 | 41.18 | 1,000 | 80 | 2001 | | 2025.05.28 | ¿ù¼¼ | ½Å¾ç±×¸°ºô(102-84) | 4 | 41.25 | 2,000 | 55 | 2008 | | 2025.05.28 | Àü¼¼ | ±¤¸íºô¶ó9Â÷ | 3 | 48.84 | 10,500 | 0 | 1995 | | 2025.05.28 | Àü¼¼ | ±Ý¼º½¦¸£ºô | 3 | 38 | 10,470 | 0 | 2002 | | 2025.05.28 | ¿ù¼¼ | À̵µÆÓ¸®½º(1049-29) | 3 | 26.85 | 23,800 | 10 | 2022 | | 2025.05.28 | ¿ù¼¼ | ´Ù¿ø½´½´ºô11Â÷ | 5 | 33.43 | 11,900 | 30 | 2011 | | 2025.05.28 | Àü¼¼ | ŰæÁÖÅà | 2 | 65.36 | 15,650 | 0 | 2000 | | 2025.05.28 | ¿ù¼¼ | ¿Ã¶ó·çÁî(HOLALUZ) | 2 | 29.81 | 2,000 | 125 | 2022 | | 2025.05.28 | ¿ù¼¼ | ÀÌÈ¾ÆÆ®ºô(338-39) | -1 | 20.16 | 3,000 | 38 | 2002 | | 2025.05.28 | ¿ù¼¼ | û¼ÛÆòÈÇコÇϿ콺 | 1 | 29.97 | 5,000 | 98 | 2022 | | 2025.05.28 | ¿ù¼¼ | »õ·Ò½ºÅ¸Áî | 3 | 29.98 | 15,450 | 10 | 2016 | | 2025.05.28 | ¿ù¼¼ | ³²¼º¾ÆÆ®ºô(381-1) | 4 | 23.88 | 0 | 70 | 2015 | | 2025.05.28 | ¿ù¼¼ | ¶óÅ׶󽺺ô(380-6) | 2 | 27.7 | 2,000 | 80 | 2016 | | 2025.05.28 | ¿ù¼¼ | ¹Ù¶óȨ | 2 | 25.2 | 21,420 | 15 | 2023 | | 2025.05.28 | ¿ù¼¼ | ´Ù´ãºô(105-100) | 3 | 34.48 | 15,870 | 3 | 2012 | | 2025.05.28 | ¿ù¼¼ | »ï¼ºÇÏÀ̺ô(1084-37) | 2 | 35.44 | 18,200 | 25 | 2013 | | 2025.05.28 | Àü¼¼ | (969-15) | 2 | 51.09 | 23,500 | 0 | 2015 | | 2025.05.28 | ¸Å¸Å | ¼¾Æ®ºô3Â÷ | 2 | 49.97 | 23,950 | | 2011 | | 2025.05.28 | ¸Å¸Å | À±ÇϿ콺(155-27) | 4 | 39.34 | 23,500 | | 2012 | | 2025.05.28 | ¸Å¸Å | ½Å¼ºô¶óAµ¿ | -1 | 52.23 | 15,600 | | 1994 | | 2025.05.28 | ¸Å¸Å | Æ®¶ó¿òºô | 5 | 36.89 | 26,800 | | 2012 | | 2025.05.28 | ¸Å¸Å | ½ÂÇö½ºÀ§Æ®ºô | -1 | 65.08 | 26,000 | | 2002 | | 2025.05.28 | ¿ù¼¼ | Á¤¾Èºô | 2 | 26.19 | 2,000 | 70 | 2018 | | 2025.05.28 | ¸Å¸Å | ½ÅÈ£º£½ºÆ®ºô | 4 | 39.26 | 16,000 | | 2002 | | 2025.05.28 | ¸Å¸Å | û±¸ºô¶ó(42-47) | 3 | 52.92 | 14,700 | | 1992 | | 2025.05.28 | ¸Å¸Å | ¼¼±âºô¶ó | 3 | 46.04 | 20,000 | | 2002 | | 2025.05.27 | ¸Å¸Å | â´ëºô¶ó(369-25) | 4 | 67.78 | 25,500 | | 2007 | | 2025.05.27 | ¸Å¸Å | ´Ù¿ø½´½´ºô13Â÷ | 3 | 41.57 | 21,300 | | 2011 | | 2025.05.27 | ¸Å¸Å | ½ºÀ§Æ®ÇϿ콺(1008-21) | 3 | 45.74 | 25,000 | | 2012 | | 2025.05.27 | ¸Å¸Å | ¿ÀÈÁÖÅà | 3 | 60.39 | 27,900 | | 2000 | | 2025.05.27 | ¸Å¸Å | ´ö¿ëÆÓ¸®Ã¼ | 6 | 23.41 | 19,800 | | 2019 | | 2025.05.27 | ¸Å¸Å | ¼¼¸í¾ÆÅ©·Îºô | 4 | 29.94 | 23,500 | | 2017 | | 2025.05.27 | ¸Å¸Å | ¿ì¿øºô¶ó | 4 | 59.88 | 20,700 | | 1991 | | 2025.05.27 | ¸Å¸Å | ¹Ì·¡ÇÏÀÌÃ÷(409-47) | 2 | 42.25 | 15,000 | | 2001 | | 2025.05.27 | Àü¼¼ | Æú¶óºñ¿¤(1038-4) | 2 | 29.24 | 22,900 | 0 | 2018 | | 2025.05.27 | Àü¼¼ | ·£µåÇϿ콺 | 2 | 29.92 | 16,250 | 0 | 2016 | | 2025.05.27 | ¿ù¼¼ | °ø°£ÈÞ(864-10) | 5 | 26.29 | 20,000 | 11 | 2021 | | 2025.05.27 | Àü¼¼ | °¼´õÈú(962-4) | 1 | 13.95 | 5,985 | 0 | 2013 | | 2025.05.27 | Àü¼¼ | 1µ¿2µ¿ | 2 | 51.12 | 13,000 | 0 | 1985 | | 2025.05.27 | ¿ù¼¼ | ÇѰ淺½ºÇ÷¹À̽º | 6 | 25.89 | 5,000 | 100 | 2023 | | 2025.05.27 | ¿ù¼¼ | ¸®Ä¡ÇϿ콺(1114-20) | 5 | 58.1 | 7,500 | 62 | 2014 | | 2025.05.27 | ¿ù¼¼ | Æú¶óºñ¿¤(1038-4) | 5 | 27.4 | 3,000 | 70 | 2018 | | 2025.05.27 | ¿ù¼¼ | ¼øÈ¯½¦¸£ºô | 5 | 46.6 | 4,000 | 60 | 2002 | | 2025.05.26 | Àü¼¼ | (105-20) | 5 | 25.45 | 8,700 | 0 | 2011 | | 2025.05.26 | ¿ù¼¼ | »ïÀÍÇ콺Ƽ¾Æ(55-41) | 3 | 24.99 | 1,000 | 65 | 2011 | | 2025.05.26 | Àü¼¼ | ¿ì¼º | 3 | 46.66 | 22,000 | 0 | 2015 | | 2025.05.26 | ¿ù¼¼ | ³²¼º¾ÆÆ®ºô(369-6) | 2 | 26.42 | 15,900 | 9 | 2013 | | 2025.05.26 | Àü¼¼ | °ø°£ÈÞ(864-10) | 3 | 26.29 | 24,000 | 0 | 2021 | | 2025.05.26 | ¸Å¸Å | â´ëºô¶ó(371-42) | 5 | 61.64 | 25,000 | | 2009 | | 2025.05.26 | Àü¼¼ | ¼ºÁøºô¶ó(56-461) | 1 | 49.74 | 14,900 | 0 | 2001 | | 2025.05.26 | ¿ù¼¼ | °Å¼º | 1 | 34.29 | 500 | 35 | 1987 | | 2025.05.26 | ¸Å¸Å | ´Ù¼ØÅ¸¿î°¡µ¿(1037-15) | 3 | 34.92 | 25,000 | | 2015 | | 2025.05.26 | ¸Å¸Å | û±¸ÁÖÅÃ(29-190) | 2 | 54.25 | 14,800 | | 1991 | | 2025.05.26 | Àü¼¼ | ¿À¸Þ°¡Å¸¿î | 3 | 65.12 | 21,050 | 0 | 2009 | | 2025.05.26 | Àü¼¼ | ¿¡½º¿¥·¹¹öºô(346-7) | 6 | 35.99 | 23,600 | 0 | 2014 | | 2025.05.26 | ¿ù¼¼ | ¹Ì¸²ºô¶ó | 1 | 34.08 | 9,800 | 30 | 1991 | | 2025.05.25 | ¿ù¼¼ | û¼ÛÆòÈÇÏÀÌ¸Ç¼Ç | 4 | 52.06 | 4,000 | 70 | 1999 | | 2025.05.25 | ¿ù¼¼ | ·ÎºóÇϿ콺 | 4 | 28.15 | 3,000 | 80 | 2018 | | 2025.05.25 | ¿ù¼¼ | Çý¼ºÆç¸®½º(772-92) | 3 | 48.08 | 19,000 | 7 | 2011 | | 2025.05.25 | ¿ù¼¼ | Çý¼ºÆç¸®½º(772-92) | 3 | 48.08 | 18,900 | 7 | 2011 | | 2025.05.25 | Àü¼¼ | ´ö¿ëÆÓ¸®Ã¼ | 3 | 25.29 | 17,600 | 0 | 2019 | | 2025.05.25 | ¸Å¸Å | ¼öÁ¤¸Ç¼Ç(455-11) | 2 | 44.73 | 16,300 | | 2001 | | 2025.05.24 | ¸Å¸Å | ¼ºÁÖ¸Ç¼Ç | 1 | 61.8 | 25,800 | | 2002 | | 2025.05.24 | ¿ù¼¼ | Æ÷¸£Å×ÇÏÀÓ(358-1) | 2 | 26.69 | 16,000 | 45 | 2023 | | 2025.05.24 | ¿ù¼¼ | ¸®Á¨Æ®¶ó¿ò-Ȱî | 6 | 29.21 | 16,250 | 13 | 2015 | | 2025.05.24 | ¿ù¼¼ | ¼¿ì¿¡ÄÚºô | 4 | 40.02 | 14,400 | 10 | 2010 | | 2025.05.24 | ¿ù¼¼ | ½Ã±×´ÏÃÄ-S | 6 | 29.6 | 5,000 | 80 | 2023 | | 2025.05.24 | Àü¼¼ | ¿ì¼ºÅ׸¶ºô(1044-29) | 4 | 52.61 | 20,450 | 0 | 2008 | | 2025.05.24 | ¿ù¼¼ | °ø°£ÈÞ(864-10) | 5 | 25.49 | 20,000 | 22 | 2021 | | 2025.05.24 | ¿ù¼¼ | ¶ó¿ò¸®Ã÷ºô | 6 | 28.65 | 3,000 | 100 | 2016 | | 2025.05.24 | ¸Å¸Å | ȼº½ºÀ§Æ®ºô¶ó9Â÷ | -1 | 46.87 | 11,700 | | 1995 | | 2025.05.24 | ¿ù¼¼ | ½Å¾Èºô¶ó°¡µ¿ | 3 | 50.4 | 1,000 | 60 | 1991 | | 2025.05.24 | ¿ù¼¼ | Çູºô¸®Áö | 5 | 69.72 | 5,000 | 65 | 2002 | | 2025.05.24 | ¸Å¸Å | ¼ºµµº£½ºÆ®È¨ | 3 | 65.54 | 28,000 | | 2007 | | 2025.05.24 | ¸Å¸Å | È¿½Åºô¶ó°¡µ¿ | 1 | 64.92 | 26,000 | | 1993 | | 2025.05.24 | ¸Å¸Å | ¿¡½º¿¥ÆÄÅ©ºô101µ¿102µ¿ | 6 | 28.15 | 22,000 | | 2016 | | 2025.05.24 | ¸Å¸Å | ¿¹Àκô¶ó5Â÷ | 3 | 53.82 | 21,800 | | 1999 | | 2025.05.24 | Àü¼¼ | ÇѰº£½ºÆ®ºô | 1 | 43.14 | 16,300 | 0 | 2010 | | 2025.05.24 | ¿ù¼¼ | ÇÁ¶óÀÓºô(783-15) | 5 | 60.53 | 5,000 | 80 | 2008 | | 2025.05.24 | ¿ù¼¼ | ½ÅÈï¶ß¶õä(157-17) | 2 | 49.61 | 17,700 | 20 | 2014 | | 2025.05.24 | Àü¼¼ | Çö´ëºô¶ó³ªµ¿(57-23) | 3 | 61.07 | 15,000 | 0 | 2000 | | 2025.05.24 | ¸Å¸Å | È«¼ººô¶ó | 3 | 49.6 | 17,500 | | 2001 | | 2025.05.24 | ¿ù¼¼ | ¿ìȱ׸° | 2 | 26.98 | 2,000 | 85 | 2012 | | 2025.05.24 | Àü¼¼ | ¼±°æÀÚÀ̺ô(46-352) | 2 | 45.36 | 15,000 | 0 | 2008 | | 2025.05.24 | ¿ù¼¼ | ´ë¼Ûºô¶ó2Â÷ | 1 | 58.74 | 14,100 | 5 | 2000 | | 2025.05.24 | Àü¼¼ | »ó¿ìºô¶óA | 5 | 52.05 | 17,260 | 0 | 2002 | | 2025.05.24 | ¿ù¼¼ | Á¤°¨¸®Áîºô(162-3) | 4 | 28.84 | 10,000 | 18 | 2015 | | 2025.05.24 | Àü¼¼ | ¿ë¹®Aµ¿ | 4 | 49.86 | 13,600 | 0 | 2000 | | 2025.05.24 | ¿ù¼¼ | µ¿¼ÁÖÅà | 3 | 45.94 | 500 | 30 | 2002 | | 2025.05.24 | ¿ù¼¼ | µð¾ÆÀνº(956-2) | 4 | 38.74 | 17,000 | 30 | 2014 | | 2025.05.24 | ¿ù¼¼ | Æ÷¸£Å×ÇÏÀÓ(358-1) | 6 | 28.76 | 25,000 | 25 | 2023 | | 2025.05.24 | Àü¼¼ | ´ë¼Ûºô¶ó2Â÷ | 1 | 58.74 | 15,000 | 0 | 2000 | | 2025.05.24 | ¿ù¼¼ | DHÆÓ¸®½º102µ¿ | 6 | 28.39 | 2,000 | 90 | 2018 | | 2025.05.24 | ¿ù¼¼ | ±¤¸íÁÖÅà | 1 | 44.31 | 4,000 | 50 | 1996 | | 2025.05.24 | ¿ù¼¼ | ¶ó¿òÇϿ콺 | 4 | 26.9 | 0 | 160 | 2019 | | 2025.05.24 | ¿ù¼¼ | ¿ì¼ºÅ׸¶ºôBµ¿(362-8) | 3 | 52.37 | 2,000 | 85 | 2006 | | 2025.05.24 | ¿ù¼¼ | µå¸²ÇϿ콺3Â÷ | 5 | 29.82 | 1,000 | 80 | 2013 | | 2025.05.24 | Àü¼¼ | Äھƺô | 2 | 55.62 | 16,000 | 0 | 2007 | | 2025.05.24 | ¿ù¼¼ | ¶ó¿ò(RAUM) | 3 | 47.17 | 3,000 | 100 | 2016 | | 2025.05.24 | ¿ù¼¼ | û¼ÛÆòÈÇÏÀ̸ǼÇ(452-14) | 3 | 28.3 | 1,500 | 67 | 2013 | | 2025.05.23 | Àü¼¼ | ÇýÀζ߶õä | 8 | 43.04 | 21,700 | 0 | 2017 | | 2025.05.23 | ¿ù¼¼ | ¶ó¿òÇϿ콺 | 2 | 29.96 | 0 | 150 | 2019 | | 2025.05.23 | ¿ù¼¼ | °æ¿øÁÖÅôٵ¿ | 4 | 42.45 | 11,600 | 9 | 2001 | | 2025.05.23 | Àü¼¼ | (56-52) | 4 | 50.73 | 16,600 | 0 | 2008 | | 2025.05.23 | Àü¼¼ | Á¦ÀÌÅõ¸®´õ½º | 4 | 54.48 | 36,280 | 0 | 2023 | | 2025.05.23 | ¸Å¸Å | µ¿¸íÁÖÅôٵ¿ | 2 | 64.22 | 31,500 | | 2001 | | 2025.05.23 | ¿ù¼¼ | »ì·½ÇϿ콺(105-242) | 5 | 67.19 | 3,000 | 90 | 2002 | | 2025.05.23 | ¿ù¼¼ | ¼öÁ¤¸Ç¼Ç(167-9) | 1 | 62.29 | 2,000 | 80 | 2002 | | 2025.05.23 | Àü¼¼ | Á¤°¨Å¸¿îC | 2 | 27 | 15,800 | 0 | 2016 | | 2025.05.23 | ¿ù¼¼ | ¸®Ä¡ÇϿ콺(1114-20) | 2 | 50.28 | 1,050 | 73 | 2014 | | 2025.05.23 | ¿ù¼¼ | Æ÷¸£Å×ÇÏÀÓ | 5 | 29.85 | 21,900 | 26 | 2021 | | 2025.05.23 | Àü¼¼ | Æú¶óºñ¿¤ | 2 | 46.8 | 24,600 | 0 | 2017 | | 2025.05.23 | ¿ù¼¼ | żºÇÏÀÌÃ÷¸Ç¼Ç6Â÷ | 1 | 62.75 | 5,000 | 50 | 1996 | | 2025.05.23 | Àü¼¼ | Å·½ººôAµ¿(56-665) | 1 | 56.36 | 15,000 | 0 | 2001 | | 2025.05.23 | Àü¼¼ | À£½ºÇÏÀ̺ô(1099-2) | 5 | 55.34 | 17,000 | 0 | 2011 | | 2025.05.23 | Àü¼¼ | »ïÀͺô¶ó | 2 | 38.04 | 11,100 | 0 | 1991 | | 2025.05.23 | ¿ù¼¼ | ¼öÁ¤¸Ç¼Ç | 3 | 45.89 | 13,000 | 30 | 2002 | | 2025.05.23 | ¸Å¸Å | ¼ºÁÖºô¶óBµ¿(46-105) | 2 | 62.04 | 19,300 | | 1995 | | 2025.05.23 | ¸Å¸Å | ÇѼº | 1 | 57.96 | 10,700 | | 1982 | | 2025.05.23 | ¸Å¸Å | »ï¼º¼¾Æ®·¹ºô(56-387) | 5 | 41.27 | 13,000 | | 2008 | | 2025.05.23 | ¸Å¸Å | Á¤°¨Æ®À©ºôAµ¿(424-50) | 4 | 27.64 | 18,000 | | 2015 | | 2025.05.23 | ¿ù¼¼ | ±¤¸íºô¶ó(394-26) | 3 | 42.46 | 11,000 | 15 | 2001 | | 2025.05.23 | ¿ù¼¼ | ¼¼¸í¾ÆÅ©·Îºô | 6 | 29.28 | 2,000 | 66 | 2017 | | 2025.05.23 | ¿ù¼¼ | Æ÷¸£Å×ÇÏÀÓ | 5 | 29.85 | 21,500 | 26 | 2021 | | 2025.05.23 | ¿ù¼¼ | ¸®Ä¡ÇϿ콺(1114-20) | 2 | 50.28 | 1,050 | 73 | 2014 | | 2025.05.23 | Àü¼¼ | (56-52) | 4 | 50.73 | 16,600 | 0 | 2008 | | 2025.05.23 | ¸Å¸Å | ÇÁ¸®Áòºô¶óBµ¿ | 2 | 74.06 | 28,500 | | 2002 | | 2025.05.22 | ¿ù¼¼ | ÇØÇÇÇϿ콺(1128-4) | 2 | 14.89 | 2,000 | 40 | 2012 | | 2025.05.22 | ¿ù¼¼ | Áö¾Èºô | 3 | 29.41 | 15,400 | 16 | 2015 | | 2025.05.22 | ¿ù¼¼ | ¿¡ÄÚºô | 6 | 23.05 | 4,000 | 70 | 2022 | | 2025.05.22 | ¿ù¼¼ | ´ö¿ëÆÓ¸®Ã¼ | 6 | 23.41 | 3,000 | 110 | 2019 | | 2025.05.22 | ¿ù¼¼ | û¼ÛÆòÈÇコÇϿ콺 | 5 | 21.89 | 3,000 | 70 | 2018 | | 2025.05.22 | Àü¼¼ | ½Å¼ººô¶ó | 2 | 37.32 | 10,500 | 0 | 1989 | | 2025.05.22 | ¿ù¼¼ | ÁÖ¿¬ÇϿ콺 | 4 | 27.56 | 4,000 | 95 | 2022 | | 2025.05.22 | Àü¼¼ | ⵿ºô¶ó | 5 | 45.32 | 14,490 | 0 | 2008 | | 2025.05.22 | ¿ù¼¼ | û¼ÛÆòÈÇコÇϿ콺 | 5 | 21.89 | 3,000 | 70 | 2018 | | 2025.05.22 | Àü¼¼ | Á¤¾Èºô¶ó | 3 | 60.73 | 18,000 | 0 | 2001 | | 2025.05.22 | ¿ù¼¼ | ´ë¸²Ä³½½ | 2 | 44.04 | 19,600 | 20 | 2017 | | 2025.05.22 | ¸Å¸Å | ´õŬ·¡½Ä | 4 | 40.78 | 23,500 | | 2018 | | 2025.05.22 | ¸Å¸Å | ½ÅÈï¶ß¶õä | 6 | 35.27 | 19,000 | | 2015 | | 2025.05.22 | ¸Å¸Å | ¼¾Æ®¸®¿ò | 5 | 22.67 | 17,500 | | 2015 | | 2025.05.22 | ¸Å¸Å | µ¿¼º¸®ºñ¾Ó | 4 | 17.55 | 13,000 | | 2015 | | 2025.05.22 | ¸Å¸Å | ½Å¼¼±â±×¸°ºô(1081-25) | 3 | 55.2 | 26,500 | | 2002 | | 2025.05.22 | ¿ù¼¼ | ANPȰî | 4 | 22.85 | 2,000 | 90 | 2022 | | 2025.05.22 | ¿ù¼¼ | ³²¼º¾ÆÆ®ºô | 6 | 24.76 | 15,100 | 10 | 2017 | | 2025.05.22 | ¿ù¼¼ | ÁÖ¿¬ÇϿ콺 | 4 | 27.56 | 4,000 | 95 | 2022 | | 2025.05.22 | Àü¼¼ | ¿ì¼ººô¶ó(98-41) | 4 | 52.24 | 14,100 | 0 | 2001 | | 2025.05.22 | ¿ù¼¼ | ±Ý°´©¸®ºô(998-10) | 7 | 16.02 | 2,000 | 38 | 2012 | | 2025.05.21 | Àü¼¼ | ÇÑ¿ïÆÓ¸®½º | 5 | 26.76 | 16,800 | 0 | 2017 | | 2025.05.21 | Àü¼¼ | ÇÑ¿ïÆÓ¸®½º | 6 | 26.76 | 16,800 | 0 | 2017 | | 2025.05.21 | ¿ù¼¼ | ¸®Ã¼ºô | 5 | 27.21 | 10,000 | 22 | 2013 | | 2025.05.21 | ¿ù¼¼ | ¼ºÀçºô¶ó°¡µ¿ | 2 | 59.8 | 14,390 | 10 | 2001 | | 2025.05.21 | ¸Å¸Å | û¼ÛÆòÈÇÏÀÌ¸Ç¼Ç | 3 | 55.23 | 19,900 | | 1999 | | 2025.05.21 | ¿ù¼¼ | °¡ÀÌ¾ÆÆÓ¸®½º | 2 | 29.77 | 1,000 | 90 | 2019 | | 2025.05.21 | ¿ù¼¼ | Ŭ·¡½Ãºä | 4 | 29.85 | 1,000 | 110 | 2022 | | 2025.05.21 | ¿ù¼¼ | Å׸¶366(366-50) | 2 | 29.82 | 3,000 | 80 | 2020 | | 2025.05.21 | Àü¼¼ | ³ª¸°ÇÏÀÓAµ¿ | 3 | 26.04 | 14,990 | 0 | 2017 | | 2025.05.21 | ¿ù¼¼ | ½ºÄ«À̺ô | 4 | 43.73 | 13,000 | 20 | 2008 | | 2025.05.21 | Àü¼¼ | µ¿µµÇÏÀÌÃ÷ºô¶ó´Ùµ¿ | 2 | 43.23 | 11,980 | 0 | 2001 | | 2025.05.21 | ¸Å¸Å | ÇÑÀϱ׸°¸Ç¼Ç | 2 | 50.73 | 16,500 | | 1995 | | 2025.05.21 | ¸Å¸Å | À̵µÆÓ¸®½º(1049-29) | 4 | 25.61 | 29,600 | | 2022 | | 2025.05.21 | ¸Å¸Å | ȼººô¶ó(56-377) | 3 | 44.76 | 20,000 | | 2002 | | 2025.05.21 | ¸Å¸Å | ¼Ò´ã¹ë¸®101µ¿,102µ¿ | 4 | 37.67 | 27,750 | | 2016 | | 2025.05.21 | ¸Å¸Å | ¼ÀϺô¸®Áö101µ¿ | 3 | 69 | 21,000 | | 2004 | | 2025.05.21 | ¸Å¸Å | ÇѽÅÀ§³Ê½º | 2 | 42.31 | 27,000 | | 2016 | | 2025.05.21 | ¸Å¸Å | °¡³ª¾Æµ¨¸®¿ò(102-120) | 2 | 36.41 | 23,000 | | 2014 | | 2025.05.21 | ¸Å¸Å | µ¿±¤½¦¸£ºô°¡µ¿ | 4 | 56.17 | 16,500 | | 2002 | | 2025.05.21 | ¿ù¼¼ | ¹Ì¸²ÁÖÅà | 1 | 48.75 | 13,944 | 10 | 1991 | | 2025.05.21 | Àü¼¼ | ¼¿¬ºí·çÈúºñ | 2 | 29.93 | 17,640 | 0 | 2016 | | 2025.05.21 | ¿ù¼¼ | Á¦À̽ººô(969-5) | 2 | 25.02 | 1,000 | 50 | 2022 | | 2025.05.21 | Àü¼¼ | Ȱ´Ù¼¼´ëÁÖÅà | 2 | 38.25 | 11,500 | 0 | 2002 | | 2025.05.21 | Àü¼¼ | żºÆÓ¸®½º | 8 | 19.35 | 7,700 | 0 | 2010 | | 2025.05.21 | Àü¼¼ | º£½ºÆ®ÈúŸ¿î | 4 | 76.58 | 20,000 | 0 | 2002 | | 2025.05.21 | Àü¼¼ | ±×·¹À̽ººô¶ó | 1 | 59.71 | 18,000 | 0 | 2000 | | 2025.05.21 | Àü¼¼ | ½Å¿µº£¸£µð¿ò | 2 | 39.88 | 21,420 | 0 | 2017 | | 2025.05.20 | ¿ù¼¼ | Áß¿ø¸®Ã÷ºô | 3 | 29.88 | 2,046 | 0 | 2012 | | 2025.05.20 | ¿ù¼¼ | ¿¹Áöºô¶óÆ®(410-105) | 3 | 60.13 | 9,000 | 63 | 2008 | | 2025.05.20 | Àü¼¼ | ¿¥ÄÉÀÌÇÏÀ̺ô | 2 | 54.39 | 21,400 | 0 | 2011 | | 2025.05.20 | ¿ù¼¼ | ¸®Ä¡ÇϿ콺(346-18) | 2 | 29.99 | 17,890 | 20 | 2017 | | 2025.05.20 | Àü¼¼ | ¿¥ÄÉÀÌÇÏÀ̺ô | 2 | 54.39 | 21,400 | 0 | 2011 | | 2025.05.20 | ¿ù¼¼ | Å·´ý±×·¹À̽º | 3 | 27.31 | 17,260 | 20 | 2018 | | 2025.05.20 | ¿ù¼¼ | Á¤°¨Å¸¿îA(346-92) | 5 | 27.69 | 18,600 | 5 | 2015 | | 2025.05.20 | ¿ù¼¼ | ·ÎÁîºô(24-113) | 4 | 29.175 | 2,000 | 90 | 2018 | | 2025.05.20 | ¿ù¼¼ | ´õÁ¸ÆÛ½ºÆ®ºô | 4 | 29.72 | 1,000 | 81 | 2017 | | 2025.05.20 | ¿ù¼¼ | ¿ÍÀ̾غñ´õ½ºÅ丮 | 2 | 20.77 | 100 | 70 | 2022 | | 2025.05.20 | Àü¼¼ | Çϳª¾ÆÀÌÆÄÅ©ºô(338-4¿Ü) | 2 | 24.57 | 20,000 | 0 | 2017 | | 2025.05.20 | ¿ù¼¼ | ¶ó¿òÇϿ콺 | 4 | 29.59 | 0 | 120 | 2019 | | 2025.05.20 | ¿ù¼¼ | ¿¤Æç¸®½º | 2 | 29.48 | 3,000 | 89 | 2022 | | 2025.05.20 | ¿ù¼¼ | Á¤°¨Å¸¿îA(346-92) | 5 | 27.69 | 18,600 | 5 | 2015 | | 2025.05.20 | ¸Å¸Å | ±¤¼ºÇÏÀÌÃ÷ | 4 | 36.9 | 13,000 | | 2003 | | 2025.05.20 | ¸Å¸Å | Èѹ̸®ºô | 3 | 50.7 | 25,000 | | 2010 | | 2025.05.20 | ¸Å¸Å | ±Ý°ÆÄÅ©ºôBµ¿ | 1 | 53.78 | 18,900 | | 2008 | | 2025.05.20 | ¸Å¸Å | ¿µÁø¾ÆÆ®ºô | 1 | 66.56 | 28,300 | | 2004 | | 2025.05.20 | ¸Å¸Å | ºô¶ó¿£Bµ¿ | 2 | 40.67 | 29,000 | | 2017 | | 2025.05.20 | ¸Å¸Å | ¼ºÀººô¶ó | 1 | 64.96 | 22,500 | | 2000 | | 2025.05.20 | ¸Å¸Å | ¼ºÈ£ÇÏÀ̺ô(400-26) | 4 | 57.54 | 25,800 | | 2007 | | 2025.05.19 | ¿ù¼¼ | ±×¸°ÆÄÅ©(460-8) | 4 | 45.48 | 1,000 | 55 | 2007 | | 2025.05.19 | ¿ù¼¼ | ´õ¿ø | 5 | 22.63 | 19,100 | 10 | 2022 | | 2025.05.19 | ¿ù¼¼ | ³ª»ê¸Ç¼ÇB | 1 | 68.31 | 17,760 | 20 | 2001 | | 2025.05.19 | Àü¼¼ | ½Ã¿Âºô¸®Áö | 4 | 33.78 | 21,600 | 0 | 2016 | | 2025.05.19 | ¿ù¼¼ | ½Å¿µ¼¾Æ®·¹ºô | 2 | 39.76 | 18,300 | 6 | 2011 | | 2025.05.19 | ¿ù¼¼ | ÇÁ¶óÀÓÇϿ콺(393-23) | 4 | 40.37 | 1,000 | 68 | 2016 | | 2025.05.19 | Àü¼¼ | ½Å¶óÇÏÀÌÃ÷(Bµ¿) | 3 | 56.44 | 15,000 | 0 | 2002 | | 2025.05.19 | Àü¼¼ | Á¦ÀÌÁ¦ÀÌij½½ | 2 | 35.23 | 23,000 | 0 | 2016 | | 2025.05.19 | ¿ù¼¼ | ³ª»ê¸Ç¼ÇB | 1 | 68.31 | 17,760 | 20 | 2001 | | 2025.05.19 | Àü¼¼ | ¿¥Æç¸®Ã¼ | 5 | 40.44 | 19,000 | 0 | 2015 | | 2025.05.19 | Àü¼¼ | ¿ÀÄÉÀÌÆÄÅ©ºô(932-8) | 5 | 38.92 | 20,000 | 0 | 2015 | | 2025.05.19 | ¿ù¼¼ | ¿¤Æç¸®½º | 3 | 29.48 | 3,000 | 85 | 2022 | | 2025.05.19 | ¿ù¼¼ | ¸¶ÀÌȨ | 2 | 19.51 | 1,000 | 58 | 2017 | | 2025.05.19 | ¿ù¼¼ | (504-196) | 1 | 62.84 | 10,470 | 17 | 1986 | | 2025.05.19 | ¿ù¼¼ | ´Ù³ª³×½ºÆ®ºô(410-261) | 4 | 41.43 | 3,000 | 51 | 2008 | | 2025.05.19 | ¿ù¼¼ | ¼¼¸®ÇÏÀÌÃ÷ºô¶ó | 4 | 36.01 | 2,000 | 55 | 2002 | | 2025.05.19 | ¿ù¼¼ | ¿¬ÈñÆÄÅ© | -1 | 39.8 | 500 | 50 | 1991 | | 2025.05.19 | ¿ù¼¼ | À̵µÆÓ¸®½º(1049-29) | 2 | 25.89 | 22,900 | 4 | 2022 | | 2025.05.19 | ¸Å¸Å | ±¤Áøºô¶óÆ®6µ¿ | 2 | 63.37 | 15,600 | | 2003 | | 2025.05.19 | ¸Å¸Å | »ïÈ£ºô¶ó(50-112) | 3 | 46.86 | 9,900 | | 1996 | | 2025.05.19 | ¸Å¸Å | ¹Ð·¹´Ï¾ö(46-391) | 3 | 49.23 | 19,500 | | 2008 | | 2025.05.19 | ¸Å¸Å | ¿ì¼ºÅ׸¶ºô(410-100) | 5 | 60.48 | 22,500 | | 2005 | | 2025.05.19 | ¸Å¸Å | Ȩ·£µåºô¶ó11Â÷ | 1 | 52.48 | 13,000 | | 1995 | | 2025.05.19 | ¸Å¸Å | ´ë±Ùºô¶ó | 3 | 41.76 | 21,300 | | 1990 | | 2025.05.19 | ¸Å¸Å | Á¤ÀºÆÄÅ©ºô | 5 | 41.92 | 20,000 | | 2016 | | 2025.05.19 | ¿ù¼¼ | À̵µÆÓ¸®½º(1049-29) | 3 | 25.61 | 22,600 | 4 | 2022 | | 2025.05.18 | ¿ù¼¼ | ±×·¹À̽ººô | 5 | 27.73 | 100 | 80 | 2022 | | 2025.05.18 | ¿ù¼¼ | µ¿¿ìÇÏÀ̺ô(996-19) | 5 | 20.26 | 500 | 60 | 2022 | | 2025.05.18 | Àü¼¼ | ±Ý»ê | 2 | 36.17 | 15,000 | 0 | 2007 | | 2025.05.18 | ¸Å¸Å | ¾¾Æ¼ºô¸®Áö | -1 | 46.25 | 11,700 | | 1996 | | 2025.05.18 | Àü¼¼ | ÅÂ°æ¾ÆÆ®ºô | 2 | 60.4 | 23,000 | 0 | 2002 | | 2025.05.17 | Àü¼¼ | Çϳªºô¶ó(56-493) | 4 | 68.56 | 15,000 | 0 | 2003 | | 2025.05.17 | ¸Å¸Å | ¿ìÀåºô¸®Áö(992-5) | 2 | 69.09 | 30,000 | | 1991 | | 2025.05.17 | ¿ù¼¼ | LAHOME(¶óȨ)B | 3 | 29.9 | 25,300 | 5 | 2022 | | 2025.05.17 | ¸Å¸Å | ¿¡ÀÌ¿øºô | 6 | 33.5 | 16,700 | | 2012 | | 2025.05.17 | ¸Å¸Å | ¿ìÀåºô¸®Áö(992-5) | 2 | 69.09 | 30,000 | | 1991 | | 2025.05.17 | ¸Å¸Å | È£¹Ýµð¿Àºô(813-8) | 2 | 29.96 | 18,500 | | 2014 | | 2025.05.17 | ¸Å¸Å | »ï¿øÇÏÀÌÃ÷ºô¶ó(56-406) | 2 | 43.07 | 16,000 | | 1994 | | 2025.05.17 | ¸Å¸Å | ¿¡½º¿¥·¹¹öºô(346-7) | 3 | 28.94 | 23,000 | | 2014 | | 2025.05.17 | ¸Å¸Å | ½ºÆäÀ̽ººô¿¡À̵¿ | 6 | 36.8 | 26,000 | | 2016 | | 2025.05.17 | ¸Å¸Å | µ¿µµÇÏÀÌÃ÷ºô¶ó | 3 | 59.98 | 25,400 | | 2000 | | 2025.05.17 | Àü¼¼ | ¿ì¼ÖÇÏ¿ì¡ | 6 | 50.87 | 54,400 | 0 | 2022 | | 2025.05.17 | Àü¼¼ | ¿ì¼ÖÇÏ¿ì¡ | 6 | 50.87 | 54,400 | 0 | 2022 | | 2025.05.17 | Àü¼¼ | â´ëºô¶ó(371-42) | 3 | 57.5 | 19,500 | 0 | 2009 | | 2025.05.17 | ¿ù¼¼ | ¶óºô¶óÆ® | 4 | 26.55 | 14,350 | 10 | 2016 | | 2025.05.17 | ¿ù¼¼ | À̼ö¾ÆÆ®ºô2Â÷ | 8 | 36.12 | 16,600 | 10 | 2016 | | 2025.05.17 | ¿ù¼¼ | ¿¹°¡Ã¼¥±(1105-10) | 6 | 39.65 | 2,000 | 83 | 2014 | | 2025.05.17 | ¸Å¸Å | Çý¼ºÆÓ¸®½ººô(392-31) | 5 | 33.21 | 24,000 | | 2014 | | 2025.05.17 | ¿ù¼¼ | ½Ã±×´ÏÃÄ-S | 6 | 40.53 | 3,000 | 135 | 2023 | | 2025.05.17 | ¿ù¼¼ | ¸®¿ÀÆÄÅ©ºô | 4 | 27.71 | 20,000 | 9 | 2020 | | 2025.05.17 | Àü¼¼ | °ø°£ÈÞ(864-10) | 3 | 25.49 | 22,000 | 0 | 2021 | | 2025.05.17 | ¿ù¼¼ | ¸®Á¨Æ®¶ó¿ò(344-11) | 5 | 20.45 | 2,000 | 85 | 2014 | | 2025.05.17 | ¿ù¼¼ | ´ë¿ìºô¶ó(348-13) | 2 | 38.22 | 3,000 | 70 | 1986 | | 2025.05.17 | ¿ù¼¼ | Çູµå¸² | 4 | 18.48 | 1,686 | 50 | 2012 | | 2025.05.17 | ¿ù¼¼ | ¼¾ÈÆÄÅ©ºä | 6 | 22.61 | 20,000 | 25 | 2024 | | 2025.05.17 | ¿ù¼¼ | À§³Ê½ººô(504-22) | 3 | 77.31 | 16,740 | 30 | 2007 | | 2025.05.17 | Àü¼¼ | °æÀκô¶óAµ¿ | 3 | 43.29 | 11,990 | 0 | 2001 | | 2025.05.16 | ¿ù¼¼ | ¿ÍÀ̾غñ | 5 | 25.57 | 100 | 80 | 2021 | | 2025.05.16 | Àü¼¼ | ¾¾Æ¼ÆÄÅ©(102-301) | 4 | 60.34 | 20,750 | 0 | 2008 | | 2025.05.16 | ¿ù¼¼ | º¸³ëÇϿ콺 | 5 | 29.23 | 19,900 | 10 | 2018 | | 2025.05.16 | ¿ù¼¼ | ½Å¼º¸®Ä¡ºô(425-18) | 4 | 29.94 | 16,600 | 10 | 2014 | | 2025.05.16 | ¿ù¼¼ | ¼±ÁøÇÁ¸®ÅÚ | 1 | 23.85 | 6,300 | 20 | 2002 | | 2025.05.16 | ¿ù¼¼ | ½£Á¤È£¸¶À»(818-8) | 4 | 54.57 | 1,000 | 73 | 2008 | | 2025.05.16 | ¿ù¼¼ | Àº°¡¶÷ÆÓ¸®½º | 3 | 37.345 | 1,000 | 120 | 2022 | | 2025.05.16 | Àü¼¼ | ÀÎÅÍ½ÃÆ¼ | 1 | 60.67 | 17,750 | 0 | 2001 | | 2025.05.16 | Àü¼¼ | µ¿¹æÈ÷ÁîÈú | 3 | 29.32 | 13,734 | 0 | 2016 | | 2025.05.16 | Àü¼¼ | ÀÎÅÍ½ÃÆ¼ | 1 | 60.67 | 17,750 | 0 | 2001 | | 2025.05.16 | Àü¼¼ | µ¿¹æÈ÷ÁîÈú | 3 | 29.32 | 13,734 | 0 | 2016 | | 2025.05.16 | ¿ù¼¼ | Áö¾Èºô | 2 | 29.41 | 15,400 | 9 | 2015 | | 2025.05.16 | ¿ù¼¼ | ¹Ì±¤½ºÅæºô | 5 | 60.39 | 3,000 | 70 | 2008 | | 2025.05.16 | ¿ù¼¼ | ´ë´öºô¶ó | 3 | 39.03 | 12,500 | 15 | 2001 | | 2025.05.16 | ¸Å¸Å | ¿¹°¡Ã¤(968-3) | 5 | 32.23 | 24,100 | | 2015 | | 2025.05.16 | ¸Å¸Å | µ¿¼ºô¶óB | -1 | 58.92 | 12,500 | | 1992 | | 2025.05.16 | ¸Å¸Å | µµÆ¼ÇϿ콺 | 3 | 43.52 | 28,000 | | 2018 | | 2025.05.16 | ¿ù¼¼ | º¸¾È¾ÆÆ®ºô¶ó | 3 | 51.52 | 8,000 | 50 | 2002 | | 2025.05.16 | Àü¼¼ | °ø°£ÈÞ(864-10) | 2 | 26.29 | 24,000 | 0 | 2021 | | 2025.05.16 | Àü¼¼ | ¿¡½º¿¥ÆÄÅ©ºô | 4 | 26.67 | 19,300 | 0 | 2016 | | 2025.05.16 | ¿ù¼¼ | ¿¡ÀÌ¿£Ä³½½ | 3 | 26.23 | 4,000 | 50 | 2018 | | 2025.05.16 | ¿ù¼¼ | Áö¾Èºô | 2 | 29.41 | 15,400 | 9 | 2015 | | 2025.05.16 | Àü¼¼ | ¾çÁøºô¶ó(1082-13) | 2 | 57.99 | 15,700 | 0 | 1996 | | 2025.05.15 | ¿ù¼¼ | Çö´ëÈúŸ¿î | 1 | 61.88 | 7,000 | 100 | 2000 | | 2025.05.15 | Àü¼¼ | ¿¤¸®½Ã¾Æ | 6 | 25.33 | 16,650 | 0 | 2013 | | 2025.05.15 | ¿ù¼¼ | SK¹Ù¿òºô | 4 | 29.87 | 1,000 | 50 | 2016 | | 2025.05.15 | ¿ù¼¼ | ±¤Áøºô¶ó2µ¿ | 4 | 28.32 | 2,000 | 45 | 2003 | | 2025.05.15 | Àü¼¼ | ´ëÈ£°ñµçºô¶ó(105-438) | 3 | 50.85 | 12,000 | 0 | 1990 | | 2025.05.15 | ¿ù¼¼ | µð¿£¾¾³ëºí·¹½º | 4 | 12.77 | 500 | 40 | 2011 | | 2025.05.15 | Àü¼¼ | µÎ»êijºó | 5 | 60.52 | 17,000 | 0 | 2002 | | 2025.05.15 | Àü¼¼ | ÅÂÁøÇϿ콺 | 3 | 24.82 | 18,600 | 0 | 2019 | | 2025.05.15 | Àü¼¼ | ¼¿øÅ¸¿î | 2 | 69.31 | 16,800 | 0 | 2001 | | 2025.05.15 | ¿ù¼¼ | Çì½êµå | 5 | 28.11 | 2,000 | 130 | 2022 | | 2025.05.15 | ¿ù¼¼ | ¼öÁ¤ºô¶ó³ªµ¿ | 1 | 31.86 | 10,000 | 10 | 1986 | | 2025.05.15 | Àü¼¼ | ´Ù¿Âºô | 6 | 29.04 | 16,500 | 0 | 2018 | | 2025.05.15 | ¿ù¼¼ | Á¤Çöºô¶ó | -1 | 62.65 | 4,000 | 60 | 1999 | | 2025.05.15 | Àü¼¼ | ÇÁ¶óÀÓÁÖÅÃ(393-22) | 3 | 27.59 | 11,550 | 0 | 2014 | | 2025.05.15 | Àü¼¼ | ¿ì¼ººô¶ó(98-40) | 4 | 54.36 | 13,500 | 0 | 2001 | | 2025.05.15 | ¿ù¼¼ | °è¸íÁÖÅ𡵿 | 2 | 61.2 | 19,500 | 40 | 2000 | | 2025.05.15 | ¿ù¼¼ | û¼ÛÆòÈÇÏÀÌ¸Ç¼Ç | 1 | 54.27 | 12,800 | 30 | 1995 | | 2025.05.15 | Àü¼¼ | ½ºÅ丮ÇϿ콺(1014-23) | 2 | 12.64 | 7,000 | 0 | 2012 | | 2025.05.15 | Àü¼¼ | »ó¾ÆÈ¨Å¸¿î | 4 | 59.72 | 18,000 | 0 | 2003 | | 2025.05.15 | ¿ù¼¼ | È«¼ºÁÖÅÃ3Â÷ | 4 | 47.52 | 5,000 | 65 | 2000 | | 2025.05.15 | ¿ù¼¼ | Á¤¿¬Ã¤ | 5 | 21.42 | 3,000 | 44 | 2018 | | 2025.05.15 | ¸Å¸Å | ÇØµ¿ºô¶ó | 3 | 51.57 | 21,500 | | 1998 | | 2025.05.15 | ¸Å¸Å | û¼ÛÆòÈÇÏÀ̸ǼÇ(392-18) | 4 | 62.4 | 25,000 | | 2007 | | 2025.05.14 | Àü¼¼ | ³²±¤¾ÆÆ®ºôBµ¿ | 2 | 29.85 | 18,390 | 0 | 2018 | | 2025.05.14 | Àü¼¼ | ¿¥Æç¸®Ã¼ | 2 | 43.29 | 25,200 | 0 | 2017 | | 2025.05.14 | ¿ù¼¼ | Áø¿µ½ÃƼÆÄÅ©ºô | 3 | 48.57 | 13,860 | 31 | 2010 | | 2025.05.14 | ¿ù¼¼ | SK±×¶ûºô | 4 | 46.54 | 20,250 | 15 | 2011 | | 2025.05.14 | ¿ù¼¼ | û¼ÛÆòÈÇÏÀ̸ǼÇCµ¿(867-54) | 2 | 59.92 | 10,000 | 60 | 2005 | | 2025.05.14 | ¸Å¸Å | »ï¼º½¦¸£ºô(61-72) | 3 | 60.48 | 26,000 | | 2008 | | 2025.05.14 | ¸Å¸Å | Æ®¶ó¿òºô | 4 | 34.99 | 26,000 | | 2012 | | 2025.05.14 | ¸Å¸Å | ±×¸°Èú | 5 | 34.18 | 24,500 | | 2014 | | 2025.05.14 | ¿ù¼¼ | Á¤ÀϺô¶ó | 2 | 55.78 | 300 | 50 | 1993 | | 2025.05.14 | Àü¼¼ | º¹ÁöȨŸ¿î2µ¿ | 5 | 30.72 | 9,100 | 0 | 2002 | | 2025.05.14 | ¿ù¼¼ | ±¤¸íÇÏÀÌÃ÷18Â÷ | 4 | 59.88 | 2,000 | 80 | 2000 | | 2025.05.14 | ¿ù¼¼ | ȼºÈ¨Å¸¿î103µ¿ | 5 | 59.12 | 1,000 | 95 | 2002 | | 2025.05.14 | Àü¼¼ | ÇÑ¿ïÀÚÀ̺ô(346-21) | 3 | 72.57 | 23,500 | 0 | 2007 | | 2025.05.14 | Àü¼¼ | °Å¼º | 3 | 43.92 | 15,500 | 0 | 1987 | | 2025.05.14 | ¿ù¼¼ | Áø¿µ½ÃƼÆÄÅ©ºô | 3 | 48.57 | 13,900 | 31 | 2010 | | 2025.05.14 | ¿ù¼¼ | ½ÅÈïÇÏÀ̺ô | 2 | 56.28 | 18,100 | 15 | 2010 | | 2025.05.14 | Àü¼¼ | ½ÅÈïÇÏÀ̺ô | 2 | 56.28 | 18,100 | 0 | 2010 | | 2025.05.14 | Àü¼¼ | ´ë¿øÀÚÀ̺ô | 2 | 43.26 | 14,500 | 0 | 2008 | | 2025.05.14 | ¸Å¸Å | »ï¼ººí·ç¹Ö(101µ¿102µ¿) | 4 | 29.98 | 22,900 | | 2015 | | 2025.05.14 | ¸Å¸Å | º£¶óÆ®À©ºô(101µ¿102µ¿) | 8 | 27.01 | 31,500 | | 2015 | | 2025.05.14 | ¸Å¸Å | ½ºÅ¸ºô¶ó | 3 | 40.86 | 10,000 | | 1991 | | 2025.05.14 | Àü¼¼ | ÇÁ·¹½ºÆ¼Áö(814-18) | 4 | 29.85 | 23,800 | 0 | 2020 | | 2025.05.14 | ¿ù¼¼ | Ÿ¿îij½½Aµ¿ | 5 | 17.66 | 3,000 | 70 | 2018 | | 2025.05.14 | Àü¼¼ | MÆç¸®Ã¼ | 3 | 36.49 | 25,000 | 0 | 2018 | | 2025.05.14 | ¸Å¸Å | (957-12) | 4 | 38.6 | 13,000 | | 2003 | | 2025.05.14 | ¸Å¸Å | ´Ù¾Èºô¶óÆ®201µ¿202µ¿ | 4 | 38.62 | 22,427 | | 2016 | | 2025.05.14 | ¸Å¸Å | ÁøÁÖÇÏÀÌÃ÷ºô¶ó | 1 | 43.8 | 17,400 | | 1994 | | 2025.05.14 | ¸Å¸Å | ºñ¿¡½ºÇÏ¿ì¡2 | 3 | 35.4 | 27,500 | | 2018 | | 2025.05.13 | Àü¼¼ | ¾ÆÁÙ¸®¿ò(1049-24) | 3 | 34.73 | 25,600 | 0 | 2018 | | 2025.05.13 | ¿ù¼¼ | ¿¡½º¿¥ÆÄÅ©ºô(101µ¿102µ¿) | 3 | 29.97 | 1,000 | 80 | 2014 | | 2025.05.13 | Àü¼¼ | °¼ÆÄÅ©ºäÅõ¿þ´ÏÆÛ½ºÆ® | 19 | 19.64 | 19,950 | 0 | 2020 | | 2025.05.13 | Àü¼¼ | MÆç¸®Ã¼ | 3 | 36.49 | 25,000 | 0 | 2018 | | 2025.05.13 | ¿ù¼¼ | ¹Ì°¡Ã¤ | 4 | 43.88 | 23,600 | 30 | 2015 | | 2025.05.13 | Àü¼¼ | ±×·£µåÆÄÅ©ºô | 2 | 43.75 | 14,990 | 0 | 2010 | | 2025.05.13 | ¿ù¼¼ | ´ëµ¿ºô¶ó¶óµ¿ | 2 | 59.76 | 14,000 | 30 | 2002 | | 2025.05.13 | Àü¼¼ | À¯¸²ºô | 3 | 35.52 | 13,600 | 0 | 2008 | | 2025.05.13 | Àü¼¼ | ´õ¿ø·¹¿Àºô | 4 | 27.04 | 21,000 | 0 | 2021 | | 2025.05.13 | ¿ù¼¼ | ´º¿å·¹Áö´ø½º¥±(858-23) | 2 | 12.24 | 500 | 35 | 2012 | | 2025.05.13 | ¿ù¼¼ | Á¤ÆÄÅ©ºô | 3 | 47.64 | 12,000 | 35 | 2008 | | 2025.05.13 | Àü¼¼ | ´ë¾ßºô¶ó | 4 | 56.12 | 15,200 | 0 | 1998 | | 2025.05.13 | Àü¼¼ | Çѹéºô¶ó | 3 | 39.62 | 11,500 | 0 | 2001 | | 2025.05.13 | ¿ù¼¼ | ZION | 2 | 60.22 | 2,000 | 85 | 2003 | | 2025.05.13 | Àü¼¼ | Á¤Çöºô¶ó(105-426) | -1 | 40.8 | 8,000 | 0 | 1986 | | 2025.05.13 | ¿ù¼¼ | ¸®Ä¡ÇϿ콺 | 7 | 22.45 | 14,480 | 20 | 2016 | | 2025.05.13 | ¿ù¼¼ | ´ë¸í½ºÄ«ÀÌ | 5 | 68.69 | 2,000 | 80 | 2015 | | 2025.05.13 | ¿ù¼¼ | û¼ÛÆòÈÇコÇϿ콺 | 1 | 29.97 | 5,000 | 90 | 2022 | | 2025.05.13 | Àü¼¼ | ´õ¿ø | 4 | 28.05 | 19,400 | 0 | 2019 | | 2025.05.13 | Àü¼¼ | °ÇÇüŸ¿î°¡µ¿ | 2 | 41.96 | 12,800 | 0 | 2002 | | 2025.05.13 | Àü¼¼ | ´ëÈ£¾ÆÆ®Å¸¿î³ªµ¿ | -1 | 39.7 | 7,000 | 0 | 1992 | | 2025.05.13 | ¿ù¼¼ | ÁÖ¿¬ÇϿ콺 | 3 | 27.16 | 5,000 | 80 | 2022 | | 2025.05.13 | ¸Å¸Å | ÇϳªÇÏÀÌÃ÷ | 3 | 68.34 | 32,000 | | 2008 | | 2025.05.13 | ¸Å¸Å | ´ö¼öºô¶ó(341-33) | 1 | 66.99 | 28,500 | | 2000 | | 2025.05.13 | ¸Å¸Å | ±Ù»óÇÁ¸®Áò¾ÆÆ®ºô | 3 | 55.3 | 32,800 | | 2010 | | 2025.05.13 | ¸Å¸Å | »ï¼º¸Þ¸£µð¾Ó | 3 | 62.19 | 23,300 | | 2004 | | 2025.05.13 | ¸Å¸Å | ¿ìÀå»ê¾ÆÀνººô | 6 | 45.38 | 32,000 | | 2011 | | 2025.05.13 | ¿ù¼¼ | µ¿¿ìÇÏÀ̺ô | 3 | 25.61 | 18,648 | 5 | 2018 | | 2025.05.13 | ¿ù¼¼ | ±î»çÁö¿À(355-4) | 4 | 26.69 | 21,600 | 5 | 2021 | | 2025.05.13 | ¿ù¼¼ | ÀÌÁö¿Àºô | 2 | 45.75 | 13,000 | 15 | 2008 | | 2025.05.13 | Àü¼¼ | °æ³²ºô¶ó(56-72) | 1 | 37.08 | 9,200 | 0 | 1990 | | 2025.05.13 | ¿ù¼¼ | µ¿Àϳ׿Àºô | 6 | 24.87 | 800 | 60 | 2020 | | 2025.05.12 | ¿ù¼¼ | ´Ù¼Ø | 4 | 28.32 | 20,000 | 20 | 2012 | | 2025.05.12 | ¿ù¼¼ | ¸ð¾Æºô¥³ | 2 | 45.48 | 5,000 | 43 | 2008 | | 2025.05.12 | ¿ù¼¼ | ÇѰŸ¿î | 6 | 41.8 | 2,000 | 110 | 2021 | | 2025.05.12 | ¸Å¸Å | ¿ì¼ÛÇÁ¶óÀÓºô(995-18) | 2 | 39.76 | 25,000 | | 2011 | | 2025.05.12 | ¿ù¼¼ | (832-7) | 3 | 52.662 | 5,000 | 100 | 2020 | | 2025.05.12 | ¿ù¼¼ | ¿©¸íºô¶ó(362-37) | 3 | 59.99 | 17,300 | 20 | 2000 | | 2025.05.12 | ¿ù¼¼ | °¨¼º¸®Áîºô | 4 | 23.54 | 14,300 | 5 | 2017 | | 2025.05.12 | ¿ù¼¼ | È¿½Åºô¶ó°¡µ¿ | 4 | 54.24 | 10,000 | 23 | 1993 | | 2025.05.12 | ¿ù¼¼ | °ø°£ÈÞ(864-10) | 2 | 25.49 | 5,000 | 76 | 2021 | | 2025.05.12 | ¿ù¼¼ | ½ÅÇѺ£½ºÆ®ºô | -1 | 87.82 | 1,000 | 50 | 2001 | | 2025.05.12 | Àü¼¼ | ¿ì¼º¿¬¸³(1134-7) | 3 | 51.3 | 16,500 | 0 | 1985 | | 2025.05.12 | Àü¼¼ | ÇÑ¿ï¾î¿ï¸²°¡µ¿ | 2 | 47.92 | 15,000 | 0 | 2011 | | 2025.05.12 | ¸Å¸Å | ½ºÆäÀ̽ººô¿¡À̵¿ | 4 | 40.27 | 29,100 | | 2016 | | 2025.05.12 | ¸Å¸Å | ½Ö¿ëºô¶ó(504-46) | 4 | 33.7 | 19,000 | | 2012 | | 2025.05.12 | ¸Å¸Å | Àº°¡¶÷ÆÓ¸®½º | 4 | 37.345 | 43,000 | | 2022 | | 2025.05.12 | ¸Å¸Å | ¿¹ÁöÆÓ¸®½º89Â÷ | 4 | 33.54 | 25,500 | | 2016 | | 2025.05.12 | ¸Å¸Å | ÈÄ¾Ï¾ÆÆ®ºô | 4 | 53.79 | 23,000 | | 2004 | | 2025.05.12 | ¸Å¸Å | È£¼ºÅ¾½ººô(409-119) | 3 | 37.86 | 12,000 | | 2002 | | 2025.05.12 | ¸Å¸Å | ÇÁ¶óÀÓºô(868-2) | 3 | 68.39 | 32,200 | | 2008 | | 2025.05.12 | ¸Å¸Å | ½ºÆäÀ̽ººô¿¡À̵¿ | 4 | 40.27 | 29,100 | | 2016 | | 2025.05.11 | ¸Å¸Å | ÂüÁ¶ÀºÅÍ(24-46) | 5 | 52.84 | 18,300 | | 2008 | | 2025.05.11 | ¿ù¼¼ | À̵µÆÓ¸®½º(1049-29) | 6 | 26.64 | 23,600 | 4 | 2022 | | 2025.05.11 | ¿ù¼¼ | ´©¸®S.H.T | 2 | 51.39 | 100 | 75 | 2021 | | 2025.05.11 | Àü¼¼ | ÀÎÅÍ½ÃÆ¼Aµ¿(391-17) | 4 | 58.68 | 17,000 | 0 | 2001 | | 2025.05.11 | ¿ù¼¼ | ´©¸®S.H.T | 2 | 46.6 | 100 | 70 | 2021 | | 2025.05.11 | ¸Å¸Å | Çý¼º½¦¸£ºô | 4 | 38.44 | 15,000 | | 2003 | | 2025.05.11 | ¸Å¸Å | µ¿¾çÁÖÅÃ(355-21) | -1 | 38.96 | 12,500 | | 1994 | | 2025.05.10 | Àü¼¼ | »ï¼º½¦¸£ºô(881-36) | 5 | 39.62 | 23,000 | 0 | 2014 | | 2025.05.10 | Àü¼¼ | ¿¥Æç¸®Ã¼ºñµ¿ | 4 | 26.13 | 13,000 | 0 | 2017 | | 2025.05.10 | Àü¼¼ | ¾¾Æ¼ÇϿ콺(1088-6) | 5 | 29.8 | 25,000 | 0 | 2021 | | 2025.05.10 | Àü¼¼ | ³²¼º¾ÆÆ®ºô(381-1) | 6 | 23.88 | 16,900 | 0 | 2015 | | 2025.05.10 | ¸Å¸Å | È«¿µ¹«Áö°³ºô¶ó(346-70) | 3 | 62.55 | 20,500 | | 1997 | | 2025.05.10 | ¸Å¸Å | ¿¬ÈñÆÄÅ©ºô(371-86) | 3 | 35.86 | 17,200 | | 2015 | | 2025.05.10 | ¸Å¸Å | Á¤ÀºÆÄÅ©ºô | 3 | 41.92 | 20,000 | | 2016 | | 2025.05.10 | ¸Å¸Å | ¹Ì·¡ÇÏÀÌÃ÷(410-40) | 2 | 37.02 | 14,500 | | 2002 | | 2025.05.10 | ¸Å¸Å | ÀºÇϺô¶ó(46-69) | 4 | 39.88 | 15,900 | | 2004 | | 2025.05.10 | ¸Å¸Å | »þÀο¡¹öºô°¡µ¿ | 2 | 63.26 | 26,500 | | 2002 | | 2025.05.10 | ¸Å¸Å | °¡¿Âºô | 4 | 27.25 | 20,000 | | 2014 | | 2025.05.10 | ¿ù¼¼ | ºÎÀϽ¦¸£ºôAµ¿ | 2 | 44.11 | 2,000 | 70 | 2002 | | 2025.05.10 | Àü¼¼ | ¿¡ÀÌ¿£Ä³½½ | 5 | 26.23 | 16,884 | 0 | 2018 | | 2025.05.10 | Àü¼¼ | ÇØÁÖ½ºÄ«À̺ô¶ó | 2 | 62.4 | 17,000 | 0 | 2002 | | 2025.05.10 | ¿ù¼¼ | (95-103) | 1 | 50.3 | 11,900 | 20 | 1986 | | 2025.05.10 | Àü¼¼ | Çö´ëºô¶ó¶óµ¿ | 2 | 33.26 | 11,000 | 0 | 1991 | | 2025.05.10 | ¿ù¼¼ | °Å¼ººô¶ó | 3 | 54.56 | 13,000 | 35 | 1991 | | 2025.05.10 | ¿ù¼¼ | ¿ìÇöÆç¸®½º | 6 | 36.02 | 3,000 | 74 | 2018 | | 2025.05.10 | ¿ù¼¼ | Çý¼ºÆç¸®½º29Â÷(163-8) | 2 | 29.5 | 13,480 | 10 | 2014 | | 2025.05.10 | ¿ù¼¼ | ¾ÆÁÙ¸®¿ò | 5 | 26.5 | 15,200 | 20 | 2013 | | 2025.05.10 | ¿ù¼¼ | ³ª»ê¸Ç¼Ç(840-10) | 5 | 49.83 | 14,300 | 4 | 2007 | | 2025.05.10 | Àü¼¼ | Áß¾ÓÇÏÀ̺ô | 2 | 63.06 | 17,388 | 0 | 2001 | | 2025.05.10 | ¿ù¼¼ | ¿¥Æç¸®Ã¼ºñµ¿ | 4 | 26.13 | 13,000 | 30 | 2017 | | 2025.05.10 | ¿ù¼¼ | ¿¥Æç¸®Ã¼ºñµ¿ | 4 | 26.13 | 13,000 | 30 | 2017 | | 2025.05.10 | ¿ù¼¼ | °Å¼º | 2 | 34.29 | 1,000 | 60 | 1987 | | 2025.05.10 | Àü¼¼ | ¾¾Æ¼ÇϿ콺(1088-6) | 5 | 29.8 | 24,900 | 0 | 2021 | | 2025.05.10 | ¿ù¼¼ | ÇÑ¿ï¶ß¶õä(159-10) | 2 | 29.8 | 1,000 | 60 | 2011 | | 2025.05.09 | Àü¼¼ | ÀÎÁ¤Å¾½ººô | 4 | 55.01 | 13,900 | 0 | 2002 | | 2025.05.09 | ¿ù¼¼ | È°î¾ÆÆ®ºô | 4 | 22.12 | 200 | 50 | 2022 | | 2025.05.09 | ¸Å¸Å | û¸²¾ÆÆ®ºôBµ¿(105-556) | 4 | 44.68 | 21,000 | | 2001 | | 2025.05.09 | ¸Å¸Å | ¼º¿î4Â÷ | 3 | 33.89 | 17,500 | | 2002 | | 2025.05.09 | ¸Å¸Å | ¼öÁ¤ºô¶ó°¡µ¿ | 2 | 33 | 14,000 | | 1986 | | 2025.05.09 | ¸Å¸Å | ¼Ò³ëºô¸®Áö | 6 | 29.9 | 25,500 | | 2020 | | 2025.05.09 | ¸Å¸Å | ÇØÇ³¸Ç¼Ç | 4 | 47.83 | 19,800 | | 1997 | | 2025.05.09 | ¿ù¼¼ | ±Ý°ÇÏÀÓºô | 2 | 29.84 | 16,500 | 30 | 2015 | | 2025.05.09 | Àü¼¼ | ȼººô¶ó30Â÷(55-26) | 4 | 44.3 | 11,200 | 0 | 2001 | | 2025.05.09 | ¿ù¼¼ | ÁøÁÖÇÏÀÌÃ÷ºô¶ó | 1 | 43.8 | 10,000 | 30 | 1994 | | 2025.05.09 | ¿ù¼¼ | ¼øÈ¯ºô¶óAµ¿ | 4 | 44.76 | 5,000 | 65 | 2001 | | 2025.05.09 | ¿ù¼¼ | ¿¡ÀÌ¿£Äɽ½ | 5 | 27.86 | 1,500 | 81 | 2016 | | 2025.05.09 | ¿ù¼¼ | ´º¿å·¹Áö´ø½º¥±(858-23) | 2 | 12.3 | 500 | 35 | 2012 | | 2025.05.09 | Àü¼¼ | ÇѸ¶À½ºô¶ó | 4 | 55.44 | 14,100 | 0 | 2002 | | 2025.05.09 | ¿ù¼¼ | ±¤¸íÇÏÀÌÃ÷19Â÷ | 4 | 48.52 | 1,000 | 75 | 2000 | | 2025.05.09 | ¿ù¼¼ | õ¿ì±×¸°ºô | 4 | 83.55 | 2,000 | 90 | 2001 | | 2025.05.09 | Àü¼¼ | °Å¼º | 2 | 34.29 | 13,000 | 0 | 1987 | | 2025.05.09 | ¿ù¼¼ | ½Å¾Æºô¶ó(56-663) | 2 | 45.75 | 12,400 | 10 | 2001 | | 2025.05.09 | ¿ù¼¼ | Çѽººô | 1 | 63.74 | 17,000 | 10 | 2002 | | 2025.05.09 | ¿ù¼¼ | µ¿¼ÆÄÅ©ºô | 4 | 59.46 | 11,230 | 5 | 2002 | | 2025.05.09 | Àü¼¼ | Ȱ·°½Ã¿ÀÇǽºÅÚ | 4 | 24.86 | 19,600 | 0 | 2018 | | 2025.05.09 | Àü¼¼ | µ¿±¤ºô¶ó(988-11) | 5 | 23.97 | 7,166 | 0 | 2002 | | 2025.05.09 | ¿ù¼¼ | µ¿µµÇÏÀÌÃ÷ºô¶ó | 4 | 56.94 | 1,000 | 72 | 2000 | | 2025.05.09 | ¿ù¼¼ | ´Ù¾Èºô¶óÆ®201µ¿202µ¿ | 3 | 37.97 | 3,000 | 100 | 2016 | | 2025.05.09 | Àü¼¼ | »ï¼ººô¶óBµ¿ | 2 | 50.91 | 15,000 | 0 | 2002 | | 2025.05.09 | Àü¼¼ | ´ë°ÇÁÖÅà | 2 | 51.52 | 13,000 | 0 | 1993 | | 2025.05.09 | Àü¼¼ | µ¿¿ø¾¾Æ¼ºô(457-12) | 2 | 53.52 | 2,599 | 0 | 2010 | | 2025.05.08 | ¸Å¸Å | ±¤Áøºô¶óÆ® | 4 | 42.03 | 13,400 | | 2003 | | 2025.05.08 | ¸Å¸Å | °æ¹Î¾ÆÆ®ºô(105-21¹øÁö) | 6 | 37.22 | 27,800 | | 2016 | | 2025.05.08 | ¸Å¸Å | »ï¿ì | 5 | 56.74 | 46,550 | | 2025 | | 2025.05.08 | ¸Å¸Å | »ï¿ì | 4 | 59.65 | 55,550 | | 2025 | | 2025.05.08 | ¸Å¸Å | »ï¿ì | 6 | 59.13 | 49,300 | | 2025 | | 2025.05.08 | ¸Å¸Å | »ï¿ì | 6 | 74.98 | 56,800 | | 2025 | | 2025.05.08 | ¸Å¸Å | »ï¿ì | 5 | 53.36 | 44,900 | | 2025 | | 2025.05.08 | ¸Å¸Å | ±ÃÀüºô¶ó | 3 | 76.62 | 40,700 | | 1998 | | 2025.05.08 | ¸Å¸Å | »ï¿ì | 2 | 47.26 | 44,250 | | 2025 | | 2025.05.08 | ¸Å¸Å | »ï¿ì | 5 | 53.66 | 45,950 | | 2025 | | 2025.05.08 | ¸Å¸Å | »ï¿ì | 4 | 47.26 | 45,150 | | 2025 | | 2025.05.08 | ¸Å¸Å | »ï¿ì | 3 | 59.94 | 53,700 | | 2025 | | 2025.05.08 | ¸Å¸Å | »ï¿ì | 3 | 59.65 | 55,000 | | 2025 | | 2025.05.08 | ¸Å¸Å | ÇÑÁøÅ¾½ººô | 4 | 68.97 | 38,500 | | 2000 | | 2025.05.08 | ¸Å¸Å | »ï¿ì | 2 | 55.82 | 45,250 | | 2025 | | 2025.05.08 | ¸Å¸Å | »ï¿ì | 2 | 59.94 | 53,200 | | 2025 | | 2025.05.08 | ¸Å¸Å | »ï¿ì | 2 | 59.65 | 54,400 | | 2025 | | 2025.05.08 | ¸Å¸Å | µð¿¡½ºÇÁ¶ó´Ù | 4 | 36.78 | 22,700 | | 2012 | | 2025.05.08 | ¸Å¸Å | ȼººô¶óAµ¿(56-323) | 3 | 44.05 | 14,700 | | 2001 | | 2025.05.08 | ¸Å¸Å | ½Å¼¼°èµå¸²ºô | -1 | 57.62 | 15,500 | | 2002 | | 2025.05.08 | ¸Å¸Å | ÀºÇϵ帲ºô | 3 | 64.65 | 28,000 | | 2007 | | 2025.05.08 | ¿ù¼¼ | ¹Ì¸®³»ºô¶ó(56-270) | 1 | 37.26 | 1,000 | 55 | 1992 | | 2025.05.08 | Àü¼¼ | µÎ»êijºó | 5 | 60.52 | 17,000 | 0 | 2002 | | 2025.05.08 | Àü¼¼ | ´Ù¾Èºô¶óÆ®201µ¿202µ¿ | 4 | 38.62 | 19,500 | 0 | 2016 | | 2025.05.08 | ¿ù¼¼ | ¼ºÁøºô¶ó(382-24) | 4 | 35.64 | 3,000 | 55 | 2001 | | 2025.05.08 | Àü¼¼ | ÁøÇϿ콺 | 2 | 60.87 | 18,140 | 0 | 2004 | | 2025.05.08 | ¿ù¼¼ | ¿ìÇö½ºÄ«À̺ô(787-20) | 2 | 29.93 | 1,000 | 80 | 2014 | | 2025.05.08 | ¿ù¼¼ | ±Ý°´©¸®ºô(998-10) | 8 | 16.02 | 6,000 | 23 | 2012 | | 2025.05.08 | Àü¼¼ | Åä¼®¾Æ³×½ººô(46-176) | 3 | 46.28 | 17,100 | 0 | 2011 | | 2025.05.08 | Àü¼¼ | ´Ù¿Â½£ | 3 | 25.3 | 17,000 | 0 | 2020 | | 2025.05.08 | ¿ù¼¼ | â´ëºô¶óAµ¿ | 4 | 29.28 | 1,000 | 75 | 2013 | | 2025.05.08 | ¿ù¼¼ | ´ë¿õÇÏÀÌÃ÷ºô¶ó(56-441) | 3 | 66.27 | 3,000 | 70 | 1994 | | 2025.05.08 | Àü¼¼ | ÁøÇϿ콺 | 2 | 60.87 | 18,140 | 0 | 2004 | | 2025.05.08 | ¿ù¼¼ | »þÀο¡¹öºô°¡µ¿ | 3 | 55.14 | 16,500 | 10 | 2002 | | 2025.05.08 | ¿ù¼¼ | ¼ºÁøÅ¸¿îCµ¿ | 1 | 39.615 | 10,000 | 10 | 2002 | | 2025.05.08 | ¸Å¸Å | »ï¿ì | 5 | 48.18 | 41,750 | | 2025 | | 2025.05.08 | ¸Å¸Å | »ï¿ì | 3 | 47.26 | 44,700 | | 2025 | | 2025.05.07 | Àü¼¼ | ±â¸°¾ÆÆ®ºô¶ó | 4 | 23.22 | 5,400 | 0 | 1995 | | 2025.05.07 | ¸Å¸Å | ´õŬ·¡½Ä | 6 | 33.89 | 27,500 | | 2018 | | 2025.05.07 | ¸Å¸Å | ½Å¿ø¼¾½ººô(392-75) | 3 | 35.59 | 19,000 | | 2010 | | 2025.05.07 | ¸Å¸Å | ¾Æ¸£¶¼ºô | 5 | 50.81 | 30,300 | | 2017 | | 2025.05.07 | ¸Å¸Å | ´ëµ¿ºô¶ó(59-32) | 3 | 39.37 | 22,500 | | 2018 | | 2025.05.07 | ¸Å¸Å | »õÇÑÇÏÀÌÃ÷ºô¶ó | -1 | 57.7 | 17,600 | | 1996 | | 2025.05.07 | ¸Å¸Å | ¾Æ¸£¶¼ºô | 5 | 50.81 | 30,300 | | 2017 | | 2025.05.07 | ¸Å¸Å | ´õ¿ø | 4 | 26.3 | 28,000 | | 2022 | | 2025.05.07 | ¸Å¸Å | ¼º¿ìÇÏÀÌÃ÷ºô¶ó | 3 | 53.15 | 18,600 | | 2002 | | 2025.05.07 | ¸Å¸Å | ÇѼֺô¸®ÁöC | 5 | 56.88 | 20,300 | | 2003 | | 2025.05.07 | ¸Å¸Å | ´õŬ·¡½Ä | 4 | 27.88 | 20,500 | | 2018 | | 2025.05.07 | Àü¼¼ | ±Ý°ÆÄÅ©ºô(475-6) | 4 | 40.14 | 13,860 | 0 | 2008 | | 2025.05.07 | Àü¼¼ | ÇѸ¶À½ºô¶ó | 4 | 55.44 | 14,000 | 0 | 2002 | | 2025.05.07 | Àü¼¼ | ¸®Á¨Æ®¶ó¿ò | 4 | 27.52 | 12,000 | 0 | 2014 | | 2025.05.07 | Àü¼¼ | ±Ý°ÆÄÅ©ºô | 4 | 48.48 | 18,900 | 0 | 2011 | | 2025.05.07 | ¿ù¼¼ | À§´õ½ººô | 9 | 20.1 | 5,000 | 32 | 2013 | | 2025.05.07 | Àü¼¼ | °Å¼º | 3 | 43.92 | 12,500 | 0 | 1987 | | 2025.05.07 | ¿ù¼¼ | ¹Ì¸²ÁÖÅà | 1 | 48.75 | 12,549 | 10 | 1991 | | 2025.05.07 | Àü¼¼ | ³ª»ê±×¸°ºô¶óAµ¿ | 2 | 59.97 | 16,000 | 0 | 1997 | | 2025.05.07 | ¿ù¼¼ | µ¿³²ÁÖÅÃ(163-26) | 3 | 54.54 | 1,000 | 80 | 2003 | | 2025.05.07 | ¿ù¼¼ | ´Ù¼ºÀÌÁîºô | 2 | 49.8 | 16,700 | 10 | 2008 | | 2025.05.07 | ¿ù¼¼ | µå¸²Å¸¿î | 6 | 24.46 | 2,000 | 68 | 2013 | | 2025.05.07 | ¿ù¼¼ | µ¿¿øÈúÇϿ콺 | 6 | 13.6 | 1,000 | 50 | 2011 | | 2025.05.07 | Àü¼¼ | ÃÊ¿øºô¶ó(347-10) | 4 | 56.7 | 15,000 | 0 | 1994 | | 2025.05.07 | ¿ù¼¼ | ¼¼Á¾ÆÄÅ©ºô | 2 | 71.7 | 21,524 | 37 | 2023 | | 2025.05.07 | ¿ù¼¼ | À§´õ½ººô | 9 | 20.1 | 5,000 | 35 | 2013 | | 2025.05.07 | ¿ù¼¼ | À¯Áø¼Ò¸£º£ | 6 | 32.93 | 1,000 | 85 | 2011 | | 2025.05.07 | ¿ù¼¼ | À§´õ½ººô | 6 | 20.1 | 2,000 | 52 | 2013 | | 2025.05.07 | ¿ù¼¼ | ºÀ½ººô | 4 | 15.68 | 500 | 55 | 2011 | | 2025.05.07 | ¿ù¼¼ | ¿¡½º¿¥ÆÄÅ©ºô°¡µ¿ | 3 | 26.11 | 12,000 | 35 | 2017 | | 2025.05.07 | ¿ù¼¼ | ¸¶À̹ٿò | 5 | 15.47 | 1,500 | 47 | 2011 | | 2025.05.07 | ¿ù¼¼ | ȼººô¶ó(408-119) | 1 | 41.8 | 10,400 | 21 | 2000 | | 2025.05.07 | ¿ù¼¼ | À§´õ½ººô | 6 | 20.1 | 2,000 | 52 | 2013 | | 2025.05.07 | ¿ù¼¼ | ȲÁ¦±×·£µåÆÄÅ© | 5 | 28.7 | 7,100 | 20 | 2008 | | 2025.05.07 | ¿ù¼¼ | DSÇÏ¿ì¡ | 2 | 29.51 | 12,000 | 60 | 2022 | | 2025.05.07 | ¿ù¼¼ | ÇѼº | 1 | 48.93 | 2,000 | 60 | 1982 | | 2025.05.06 | ¿ù¼¼ | ´ë¾Èºô¶ó(341-51) | 2 | 62.24 | 19,000 | 20 | 2002 | | 2025.05.06 | ¿ù¼¼ | ¹é°¿ø·ë | 5 | 12.02 | 1,000 | 40 | 2011 | | 2025.05.06 | Àü¼¼ | ÇØ¿À¸§ºô | 3 | 51.09 | 16,600 | 0 | 2008 | | 2025.05.06 | Àü¼¼ | °¡»ê½¦¸£ºô | 5 | 54.05 | 16,250 | 0 | 2009 | | 2025.05.06 | Àü¼¼ | ÇØ¿À¸§ºô | 3 | 51.09 | 16,600 | 0 | 2008 | | 2025.05.06 | ¿ù¼¼ | ¿¹Áöºô¶óÆ® | 2 | 62.64 | 17,890 | 15 | 2007 | | 2025.05.06 | Àü¼¼ | »ï±¤¾ÆÆ®ºô | 4 | 73.96 | 32,000 | 0 | 2001 | | 2025.05.06 | Àü¼¼ | ÇÑ¿ï¾î¿ï¸²³ªµ¿ | 3 | 49.58 | 19,200 | 0 | 2011 | | 2025.05.06 | ¸Å¸Å | ¿¤¸®½Ã¾Æ | 3 | 35.95 | 28,000 | | 2013 | | 2025.05.06 | ¸Å¸Å | ¸í½ÅŸ¿î7Â÷(Bµ¿) | 2 | 48.96 | 17,000 | | 2001 | | 2025.05.05 | ¿ù¼¼ | ANPȰî | 6 | 24.05 | 1,000 | 110 | 2022 | | 2025.05.05 | Àü¼¼ | °¼ÆÄÅ©ºäÅõ¿þ´ÏÆÛ½ºÆ® | 19 | 19.64 | 22,050 | 0 | 2020 | | 2025.05.05 | ¸Å¸Å | ¿¡½º¿¥ÆÄÅ©ºô101µ¿102µ¿ | 7 | 28.97 | 19,450 | | 2016 | | 2025.05.05 | ¸Å¸Å | ´ë¿µÁÖÅà | 1 | 44.34 | 16,000 | | 1986 | | 2025.05.05 | ¸Å¸Å | ´ë¿µÁÖÅà | 1 | 44.34 | 16,000 | | 1986 | | 2025.05.05 | ¸Å¸Å | û¿î¸Ç¼Ç | -1 | 67.42 | 20,000 | | 2002 | | 2025.05.05 | ¿ù¼¼ | µ¿¿ø¿¡À̽ººä | 7 | 26.98 | 80 | 80 | 2020 | | 2025.05.04 | ¸Å¸Å | »ïÇüºô¶ó | 3 | 53.24 | 13,000 | | 1991 | | 2025.05.04 | Àü¼¼ | ½ÅÈïÇÏÀ̺ô | 2 | 56.28 | 18,100 | 0 | 2010 | | 2025.05.04 | Àü¼¼ | ¿ì½Å·Î¾âºô¶ó(997-14) | 1 | 49.92 | 16,350 | 0 | 1991 | | 2025.05.03 | ¿ù¼¼ | ½Å¼ººô¶ó | 1 | 50.13 | 12,400 | 25 | 1993 | | 2025.05.03 | ¿ù¼¼ | ¼¼¸í¾ÆÅ©·Îºô | 3 | 26.43 | 1,000 | 70 | 2017 | | 2025.05.03 | Àü¼¼ | LGŸ¿î8Â÷ | 4 | 60.41 | 16,000 | 0 | 2002 | | 2025.05.03 | ¿ù¼¼ | ¼°æÆÓ¸®½º | 8 | 26.95 | 18,522 | 15 | 2019 | | 2025.05.03 | Àü¼¼ | ¸®´õ½ºÅ¸¿î | 5 | 18.15 | 16,000 | 0 | 2016 | | 2025.05.03 | ¿ù¼¼ | ÀÌ·¹½¦¸£ºô(56-342) | 5 | 42.2 | 2,000 | 70 | 2015 | | 2025.05.03 | ¿ù¼¼ | »þÀδõÈúȰî | 2 | 29.25 | 1,000 | 105 | 2023 | | 2025.05.03 | ¸Å¸Å | ¾È¼ºÁÖÅà | 1 | 61.62 | 21,000 | | 2002 | | 2025.05.03 | ¿ù¼¼ | Àº°¡¶÷ÆÓ¸®½º | 6 | 30.167 | 1,000 | 110 | 2022 | | 2025.05.03 | ¿ù¼¼ | ³ª»êÁÖÅÃ(409-76) | 2 | 41.07 | 2,000 | 75 | 2010 | | 2025.05.03 | ¸Å¸Å | ´ë¸²Èúž(1016-3) | 1 | 44.63 | 20,000 | | 2012 | | 2025.05.03 | ¸Å¸Å | ½ÅÈï¶ß¶õä | 4 | 29.58 | 19,000 | | 2017 | | 2025.05.02 | ¿ù¼¼ | »ïȺô¸®Áö | 5 | 47.43 | 500 | 48 | 2017 | | 2025.05.02 | Àü¼¼ | ¾ÆÀκô | 4 | 43.69 | 20,000 | 0 | 2016 | | 2025.05.02 | Àü¼¼ | ¿ùµå½ºÄ«À̺ô | 4 | 52.91 | 22,500 | 0 | 2012 | | 2025.05.02 | ¿ù¼¼ | ¿ì¼ºÃ¢´ëºô | 5 | 59.56 | 18,900 | 8 | 2007 | | 2025.05.02 | ¿ù¼¼ | ´õ¿ø | 2 | 20.58 | 17,360 | 15 | 2022 | | 2025.05.02 | ¿ù¼¼ | À¯´Ï¿Â½¦¸£ºôB | 1 | 41.88 | 5,000 | 45 | 2002 | | 2025.05.02 | ¿ù¼¼ | ¼¾ÈÆÄÅ©ºä | 3 | 15.69 | 5,000 | 87 | 2024 | | 2025.05.02 | Àü¼¼ | ¼¼ÁøÆÄÅ©ºô | 2 | 60.93 | 20,000 | 0 | 2002 | | 2025.05.02 | ¿ù¼¼ | ¿¤¸²ºô¶óAµ¿ | 2 | 64.29 | 3,000 | 80 | 2003 | | 2025.05.02 | ¿ù¼¼ | ¿¡½º¿¥ÆÄÅ©ºô°¡µ¿ | 2 | 26.11 | 16,000 | 3 | 2017 | | 2025.05.02 | Àü¼¼ | ½Å¿µÅ¾½ººô | 3 | 69.29 | 10,000 | 0 | 2002 | | 2025.05.02 | ¿ù¼¼ | ´ë¼º¾ÆÆ®ºô(152-3) | 5 | 40.89 | 1,000 | 60 | 2003 | | 2025.05.02 | Àü¼¼ | ÀÚ¿¬ºô¸®Áö | 4 | 57.33 | 13,900 | 0 | 1997 | | 2025.05.02 | ¿ù¼¼ | »ï¼º°ñµçºô | 5 | 29.97 | 5,000 | 75 | 2014 | | 2025.05.02 | Àü¼¼ | ½¦¶óÅæºô¶ó(56-273) | 4 | 46.08 | 10,000 | 0 | 1991 | | 2025.05.02 | ¿ù¼¼ | ¿¡½º¿¥ÆÄÅ©ºô°¡µ¿ | 2 | 46.06 | 4,000 | 100 | 2017 | | 2025.05.02 | Àü¼¼ | Çѿî(¶óµ¿) | 2 | 45.37 | 19,400 | 0 | 2012 | | 2025.05.02 | ¿ù¼¼ | ½¦¶óÅæºô¶ó(56-508) | 3 | 39.08 | 10,000 | 20 | 1991 | | 2025.05.02 | ¸Å¸Å | °è¸íÁÖÅ𡵿 | 2 | 61.2 | 31,700 | | 2000 | | 2025.05.02 | ¸Å¸Å | Å¿µ¾ÆÆ®ºô(24-193) | 3 | 62.52 | 24,500 | | 2001 | | 2025.05.02 | ¸Å¸Å | »ï¼º¿¬¸³(56-575) | 1 | 66.51 | 15,500 | | 1977 | | 2025.05.02 | ¸Å¸Å | È«¼ºÁÖÅÃBµ¿ | 3 | 57.96 | 17,000 | | 2002 | | 2025.05.02 | ¸Å¸Å | ´õ¿ø | 4 | 19.98 | 22,600 | | 2019 | | 2025.05.02 | ¸Å¸Å | Áø¼ººô¶ó(98-132) | 2 | 67.72 | 28,200 | | 1995 | | 2025.05.02 | ¸Å¸Å | Àκ£½ºÆ®¾ÆÆ®ºô | 3 | 67.64 | 27,000 | | 2007 | | 2025.05.02 | ¿ù¼¼ | ´õ¿ø | 3 | 20.58 | 17,360 | 15 | 2022 | | 2025.05.02 | ¸Å¸Å | µ¿¾çÇÏ¿ì¡ | 3 | 44.86 | 33,300 | | 2016 | | 2025.05.02 | ¿ù¼¼ | »ï¾Æºô¸®Áö | 4 | 34.08 | 800 | 72 | 2000 | | 2025.05.02 | ¸Å¸Å | ¹Ì¸²ºô¶ó(362-59) | -1 | 47.88 | 12,000 | | 1991 | | 2025.05.01 | ¿ù¼¼ | ¿ì¼ººô¶ó(98-40) | -1 | 64.81 | 2,500 | 85 | 2001 | | 2025.05.01 | ¿ù¼¼ | Å©¸®½ºÅ»ºô(354-21) | 3 | 28.91 | 3,000 | 75 | 2014 | | 2025.05.01 | Àü¼¼ | Ç®ÇϿ콺(791-5) | 2 | 47.8 | 13,500 | 0 | 2008 | | 2025.05.01 | ¿ù¼¼ | ±×¸°ºô369-5 | 3 | 46.08 | 12,000 | 29 | 2014 | | 2025.05.01 | ¿ù¼¼ | ¸®´õ½ºÅ¸¿î | 2 | 29.88 | 15,800 | 15 | 2016 | | 2025.05.01 | ¿ù¼¼ | Åä¼®¾Æ³×½ººô(24-217) | 5 | 30.17 | 4,000 | 50 | 2010 | | 2025.05.01 | ¿ù¼¼ | »ïÈ£ÆÄÅ©ºô¥±(1050-8) | 2 | 29.94 | 3,000 | 65 | 2016 | | 2025.05.01 | ¿ù¼¼ | MONO(1044-11) | 2 | 43.16 | 5,000 | 100 | 2012 | | 2025.05.01 | ¿ù¼¼ | ¼ºÈ£ÁÖÅà | 2 | 63.6 | 5,000 | 90 | 2002 | | 2025.05.01 | ¿ù¼¼ | »ï¼º¾ÆÀÌ¸Ç¼Ç | -1 | 33.35 | 6,312 | 10 | 2002 | | 2025.05.01 | ¿ù¼¼ | ¾ÆÀÌij½½ | 2 | 52.08 | 2,000 | 80 | 2008 | | 2025.05.01 | ¿ù¼¼ | °è¸íÀ§³Ê½º(56-163) | 5 | 39.69 | 11,300 | 15 | 2009 | | 2025.05.01 | ¿ù¼¼ | ÇÁ¶óÀÓÁÖÅÃ(392-15) | 2 | 28.56 | 12,000 | 18 | 2014 | | 2025.05.01 | ¿ù¼¼ | Çູµå¸² | 2 | 13.21 | 500 | 41 | 2012 | | 2025.05.01 | Àü¼¼ | ȼººô¶ó(56-473) | 3 | 61.21 | 14,860 | 0 | 2002 | | 2025.05.01 | ¸Å¸Å | ÇÑÀÏ¾ÆÆ®ºô¶ó | 1 | 36.36 | 15,000 | | 1992 | | 2025.05.01 | ¸Å¸Å | ¸í¼ººô¶ó | 4 | 61.55 | 31,700 | | 2000 | | 2025.05.01 | ¸Å¸Å | ´ë¿ì¿¬¸³ | 2 | 51.09 | 21,000 | | 1995 | | 2025.05.01 | ¸Å¸Å | À£½ºÆÄÅ©ºô(379-2) | 5 | 42.01 | 28,500 | | 2013 | | 2025.05.01 | ¸Å¸Å | ´ë»ê¾ÆÆ®ºô | 2 | 59.88 | 20,000 | | 2002 | | 2025.05.01 | ¿ù¼¼ | ÀÌ·¹½¦¸£ºô(56-342) | 3 | 41.52 | 14,600 | 7 | 2015 | | 2025.05.01 | ¿ù¼¼ | ±¤¸íºô¶ó(394-26) | 1 | 43.64 | 12,300 | 12 | 2001 | | 2025.05.01 | ¿ù¼¼ | ÇÏÀÓºô | 2 | 48.09 | 22,400 | 13 | 2017 | | 2025.05.01 | ¿ù¼¼ | °¼ÇÏÀÌÃ÷ºô¶ó | 1 | 43.2 | 3,000 | 45 | 1991 | | 2025.05.01 | ¿ù¼¼ | ¼ÁÖºôµù(401-22) | 3 | 18.5 | 500 | 50 | 1996 | | 2025.05.01 | Àü¼¼ | »ïÀÍTheSky | 1 | 29.82 | 16,500 | 0 | 2016 | | 2025.05.01 | ¿ù¼¼ | ¿¡½ºÄÉÀÌÆÄÅ©¸®¿ò(157-21) | 2 | 18.74 | 1,000 | 55 | 2020 | | 2025.04.30 | ¿ù¼¼ | ÆÈ¶óÀ̽ºÅ¸¿ö | 8 | 16.48 | 1,000 | 41 | 2012 | | 2025.04.30 | Àü¼¼ | ÇÁ¶óÀÓÇϿ콺(916-9) | 11 | 34.32 | 15,430 | 0 | 2013 | | 2025.04.30 | ¸Å¸Å | ¸®Ä¡ÇϿ콺 | 7 | 21.98 | 17,000 | | 2016 | | 2025.04.30 | ¸Å¸Å | Çý¼ºÆç¸®½º | 2 | 38.49 | 22,900 | | 2011 | | 2025.04.30 | ¸Å¸Å | ½Å¿µÅ¾¸Ç¼Ç | 2 | 76.86 | 25,000 | | 2002 | | 2025.04.30 | Àü¼¼ | ¿ìÀå»ê¾ÆÀÌÆÄÅ©,ÀÌÆíÇѼ¼»ó | 2 | 84.97 | 55,500 | 0 | 2008 | | 2025.04.30 | ¿ù¼¼ | »ï¼º´ÙºóÄ¡(917-14) | 9 | 14.35 | 9,600 | 10 | 2015 | | 2025.04.30 | ¿ù¼¼ | º¸´®ÇϿ콺Ȱî | 10 | 14.35 | 4,500 | 34 | 2021 | | 2025.04.30 | ¿ù¼¼ | µð¾ÆÀνº(899-19) | 5 | 20.685 | 1,000 | 80 | 2019 | | 2025.04.30 | Àü¼¼ | ÇÑ¿ï¾ÆÆÄÆ® | 4 | 29.1 | 19,780 | 0 | 2018 | | 2025.04.29 | ¸Å¸Å | ´ë¿øÁÖÅà | 1 | 62.51 | 28,300 | | 2002 | | 2025.04.29 | ¸Å¸Å | ±îÄ¡ºô¶ó | 3 | 49.59 | 16,300 | | 1993 | | 2025.04.29 | ¸Å¸Å | ½ºÅ¸ºô¶ó | 2 | 50.73 | 9,900 | | 1991 | | 2025.04.29 | ¸Å¸Å | ¼ºÁر׸°ºô | 1 | 55.2 | 21,000 | | 2001 | | 2025.04.29 | ¸Å¸Å | µ¿ÁøÇÏÀÓºô(370-33) | 2 | 56.23 | 25,300 | | 2009 | | 2025.04.29 | ¸Å¸Å | ÇØ¼ºÆÓ¸®½º3Â÷ | 3 | 61.12 | 19,700 | | 2001 | | 2025.04.29 | ¸Å¸Å | ¼º´ëºô¶ó | 4 | 59.95 | 17,000 | | 2001 | | 2025.04.29 | ¸Å¸Å | ÇØ¼ºÆÓ¸®½º3Â÷ | 3 | 61.12 | 19,700 | | 2001 | | 2025.04.29 | ¿ù¼¼ | ¿ìÀå»ê¿ªÇظµÅÏŸ¿ö | 8 | 23.68 | 4,544 | 30 | 2021 | | 2025.04.29 | Àü¼¼ | ȰîǪ¸£Áö¿À | 12 | 144.123 | 81,000 | 0 | 2002 | | 2025.04.29 | Àü¼¼ | ȰîǪ¸£Áö¿À | 7 | 84.94 | 60,000 | 0 | 2002 | | 2025.04.29 | Àü¼¼ | ÃÊ·Ï | 12 | 59.34 | 31,500 | 0 | 1998 | | 2025.04.29 | Àü¼¼ | ÃÊ·Ï | 10 | 59.34 | 32,000 | 0 | 1998 | | 2025.04.29 | Àü¼¼ | ¹Ì¼º¾ÆÆÄÆ®(¿¬¸³) | 5 | 81.89 | 36,000 | 0 | 1987 | | 2025.04.28 | ¿ù¼¼ | ¶óÀξ¾Æ¼ | 12 | 14.91 | 7,870 | 4 | 2014 | | 2025.04.28 | ¿ù¼¼ | ¶óÀξ¾Æ¼ | 12 | 14.91 | 7,800 | 4 | 2014 | | 2025.04.28 | Àü¼¼ | ¼ºÀ缾Ʈ¸®¿ò¾ÆÆÄÆ® | 6 | 20.3 | 12,800 | 0 | 2016 | | 2025.04.28 | ¿ù¼¼ | Å©·Î½ºÄ³½½ | 9 | 79.92 | 10,000 | 100 | 2003 | | 2025.04.28 | ¿ù¼¼ | °¼Èú½ºÅ×ÀÌÆ® | 11 | 59.99 | 15,000 | 94 | 2015 | | 2025.04.28 | ¿ù¼¼ | ¶óÀξ¾Æ¼ | 12 | 14.91 | 7,800 | 4 | 2014 | | 2025.04.28 | Àü¼¼ | ¿ìÀå»ê¾ÆÀÌÆÄÅ©,ÀÌÆíÇѼ¼»ó | 8 | 84.97 | 75,000 | 0 | 2008 | | 2025.04.28 | ¿ù¼¼ | Å¿µ¹æ¼ÛÀÎ | 7 | 59.94 | 5,000 | 60 | 2000 | | 2025.04.28 | ¸Å¸Å | ÇϳªÅ¸¿îAµ¿ | 5 | 29.31 | 21,000 | | 2015 | | 2025.04.28 | ¸Å¸Å | ¼ö¾ÆÆ®ºô | 3 | 36.44 | 25,000 | | 2015 | | 2025.04.28 | ¸Å¸Å | ¿¡À̽ººô¶óCµ¿ | 1 | 61.1 | 28,000 | | 2002 | | 2025.04.28 | ¸Å¸Å | ½ºÀ§Æ®ÇϿ콺(1008-21) | 5 | 26.86 | 20,700 | | 2012 | | 2025.04.28 | Àü¼¼ | µð¾ÆÀνº | 13 | 23.93 | 23,600 | 0 | 2018 | | 2025.04.27 | Àü¼¼ | Ȱ¶÷ | 8 | 84.94 | 55,000 | 0 | 2004 | | 2025.04.27 | ¿ù¼¼ | ¼ºÀ缾Ʈ¸®¿ò¾ÆÆÄÆ®(343-35) | 7 | 25.52 | 500 | 70 | 2015 | | 2025.04.27 | ¸Å¸Å | ¸®¿ÀÆÄÅ©ºô | 5 | 29.59 | 23,500 | | 2020 | | 2025.04.27 | ¸Å¸Å | ½ÅÇϿ콺 | 5 | 29.88 | 18,000 | | 2016 | | 2025.04.26 | ¿ù¼¼ | ¿ìÀå»ê¾ÆÀÌÆÄÅ©,ÀÌÆíÇѼ¼»ó | 15 | 84.97 | 50,000 | 90 | 2008 | | 2025.04.26 | ¿ù¼¼ | ¿ìÀå»ê¾ÆÀÌÆÄÅ©,ÀÌÆíÇѼ¼»ó | 7 | 59.98 | 5,000 | 200 | 2008 | | 2025.04.26 | Àü¼¼ | ¿ìÀå»ê¾ÆÀÌÆÄÅ©,ÀÌÆíÇѼ¼»ó | 7 | 114.98 | 85,000 | 0 | 2008 | | 2025.04.26 | ¿ù¼¼ | ¼ºÀ缾Ʈ¸®¿ò¾ÆÆÄÆ® | 5 | 23.54 | 1,000 | 72 | 2016 | | 2025.04.26 | ¸Å¸Å | Å¿µ¾ÆÆ®ºô(370-107) | 4 | 59.99 | 26,500 | | 2011 | | 2025.04.26 | ¸Å¸Å | µå¸®¹ÌŸ¿î | 2 | 44.15 | 25,500 | | 2015 | | 2025.04.26 | ¸Å¸Å | ·¹À̵ðºô¶ó | 3 | 63.24 | 23,500 | | 2000 | | 2025.04.26 | ¸Å¸Å | Æç¸®Ã¼ÇϿ콺 | 4 | 45 | 27,700 | | 2012 | | 2025.04.26 | ¸Å¸Å | À̵µÆÓ¸®½º(1049-29) | 5 | 25.89 | 29,900 | | 2022 | | 2025.04.26 | ¿ù¼¼ | ¿ìÀå»ê½£¾ÆÀÌÆÄÅ© | 7 | 84.9854 | 30,000 | 116 | 2022 | | 2025.04.26 | Àü¼¼ | ¿ìÀå»ê·Ôµ¥Ä³½½ | 13 | 85 | 53,000 | 0 | 2003 | | 2025.04.26 | ¿ù¼¼ | ¼ºÀ缾Ʈ¸®¿ò¾ÆÆÄÆ® | 9 | 21.74 | 3,000 | 58 | 2016 | | 2025.04.25 | Àü¼¼ | ȰîǪ¸£Áö¿À | 6 | 144.123 | 85,000 | 0 | 2002 | | 2025.04.25 | Àü¼¼ | °¼Èú½ºÅ×ÀÌÆ® | 3 | 152.1 | 105,000 | 0 | 2015 | | 2025.04.25 | Àü¼¼ | °¼Èú½ºÅ×ÀÌÆ® | 1 | 84.99 | 70,000 | 0 | 2015 | | 2025.04.25 | ¿ù¼¼ | û´ã¶óÀξ¾Æ¼ | 12 | 28.8 | 12,000 | 20 | 2018 | | 2025.04.25 | Àü¼¼ | Çѿ£ÀÌÄ¡¹ë¸®¿òBµ¿ | 8 | 20.92 | 19,780 | 0 | 2019 | | 2025.04.25 | ¸Å¸Å | ½Å¼º¸®Ä¡ºô¥² | 5 | 24.53 | 15,000 | | 2015 | | 2025.04.25 | ¸Å¸Å | Å©¸®½ºÅ»ºô(354-21) | 4 | 23.01 | 16,300 | | 2014 | | 2025.04.25 | ¸Å¸Å | ±Ý¼º½¦¸£ºô | 3 | 38 | 12,500 | | 2002 | | 2025.04.25 | ¸Å¸Å | º¸¸íºô¶ó | 4 | 73 | 28,000 | | 1994 | | 2025.04.25 | ¸Å¸Å | ¼Áøº£½ºÆ®ºô | 5 | 62.28 | 20,300 | | 2002 | | 2025.04.25 | ¸Å¸Å | ÀÎÅÍ½ÃÆ¼ | 6 | 50.24 | 27,500 | | 2011 | | 2025.04.25 | ¸Å¸Å | ½Å¶óÇÏÀÌÃ÷(59-26) | 4 | 60.33 | 18,500 | | 2002 | | 2025.04.25 | ¸Å¸Å | ÇѾƸ§ÁÖÅà | 4 | 44.82 | 13,800 | | 1993 | | 2025.04.25 | ¸Å¸Å | 102-119 | 3 | 36.1 | 25,500 | | 2015 | | 2025.04.24 | ¿ù¼¼ | ´ë¸²eÆíÇѼ¼»ó | 5 | 84.84 | 29,570 | 14 | 1992 | | 2025.04.24 | Àü¼¼ | »ïµµ | 6 | 70.84 | 20,000 | 0 | 1999 | | 2025.04.24 | Àü¼¼ | ȰîǪ¸£Áö¿À | 1 | 144.123 | 60,375 | 0 | 2002 | | 2025.04.24 | ¿ù¼¼ | ¿ìÀå»ê¾ÆÀÌÆÄÅ©,ÀÌÆíÇѼ¼»ó | 11 | 84.97 | 10,000 | 230 | 2008 | | 2025.04.24 | Àü¼¼ | ¿ìÀå»ê¾ÆÀÌÆÄÅ©,ÀÌÆíÇѼ¼»ó | 9 | 114.98 | 73,500 | 0 | 2008 | | 2025.04.24 | ¿ù¼¼ | °¼µ¿µµ¼¾Æ®¸®¿ò | 2 | 14.677 | 130 | 68 | 2012 | | 2025.04.24 | ¿ù¼¼ | ¼¼±³¿¹Áö¾È2Â÷ | 8 | 18.83 | 1,000 | 58 | 2013 | | 2025.04.24 | ¿ù¼¼ | ¿ìÀå»ê¿ªÇظµÅÏŸ¿ö | 15 | 43.04 | 8,584 | 56 | 2021 | | 2025.04.24 | ¸Å¸Å | ¹Ì¼ººô¶ó(366-56) | 4 | 61.73 | 26,000 | | 2001 | | 2025.04.24 | ¿ù¼¼ | ¿ìÀå»êÇÑȲ޿¡±×¸° | 5 | 84.98 | 5,000 | 165 | 2004 | | 2025.04.24 | ¸Å¸Å | À̵µÆÓ¸®½º(1049-29) | 6 | 29.89 | 34,000 | | 2022 | | 2025.04.24 | ¸Å¸Å | ´õŬ·¡½Ä | 4 | 29.46 | 26,000 | | 2018 | | 2025.04.24 | ¸Å¸Å | Çϳªºô¶ó | 4 | 50.17 | 21,800 | | 2008 | | 2025.04.23 | ¿ù¼¼ | ÇູŸ¿î(926-10) | 8 | 12.24 | 3,000 | 14 | 2012 | | 2025.04.23 | ¿ù¼¼ | ÇÑ¾ç¾ÆÀÌŬ·¡½º | 10 | 13.79 | 500 | 45 | 2013 | | 2025.04.23 | Àü¼¼ | °¼Èú½ºÅ×ÀÌÆ® | 14 | 59.99 | 65,000 | 0 | 2015 | | 2025.04.23 | Àü¼¼ | µð¾ÆÀνº | 3 | 23.93 | 23,000 | 0 | 2018 | | 2025.04.23 | ¿ù¼¼ | ¿ìÀå»ê¿ªÇظµÅÏŸ¿ö | 12 | 43.04 | 10,730 | 69 | 2021 | | 2025.04.23 | ¿ù¼¼ | ¿ìÀå»ê¿ªÇظµÅÏŸ¿ö | 14 | 23.68 | 5,680 | 39 | 2021 | | 2025.04.23 | Àü¼¼ | °¼Èú½ºÅ×ÀÌÆ® | 16 | 84.99 | 75,000 | 0 | 2015 | | 2025.04.23 | ¿ù¼¼ | ¿ìÀå»ê¾ÆÀÌÆÄÅ©,ÀÌÆíÇѼ¼»ó | 5 | 84.97 | 60,000 | 32 | 2008 | | 2025.04.23 | ¸Å¸Å | ·Ôµ¥ÆÓ¸®½º | 2 | 42.46 | 26,300 | | 2016 | | 2025.04.23 | ¸Å¸Å | (954-6) | 1 | 30.94 | 16,700 | | 1987 | | 2025.04.23 | ¸Å¸Å | Æ÷¿¥ºô | 10 | 27.18 | 27,700 | | 2020 | | 2025.04.23 | ¸Å¸Å | ´Ù¿ø½´½´ºô11Â÷ | 5 | 33.43 | 14,500 | | 2011 | | 2025.04.23 | ¸Å¸Å | ³ª¾Ö¶ã(Aµ¿) | 3 | 38.7 | 19,900 | | 2010 | | 2025.04.23 | ¸Å¸Å | ´ëÈ£¾ÆÆ®Å¸¿î³ªµ¿ | 2 | 39.94 | 19,500 | | 1992 | | 2025.04.23 | ¸Å¸Å | À̳뼿(INNOCELL) | 3 | 29.41 | 23,500 | | 2017 | | 2025.04.23 | ¸Å¸Å | Çö´ë¸Ç¼Ç | 2 | 58.47 | 20,300 | | 1996 | | 2025.04.22 | ¿ù¼¼ | ÃÊ·Ï | 4 | 49.77 | 10,000 | 80 | 1998 | | 2025.04.22 | ¿ù¼¼ | ¿ìÀå»ê¿ªÇظµÅÏŸ¿ö | 15 | 43.24 | 8,586 | 56 | 2021 | | 2025.04.22 | ¿ù¼¼ | ¾Æµ¨¸®¾Æ¥³ | 8 | 17.73 | 13,000 | 8 | 2012 | | 2025.04.22 | ¿ù¼¼ | ºí·çÈú(343-56) | 7 | 27.52 | 1,000 | 52 | 2011 | | 2025.04.22 | Àü¼¼ | Åõ¿ø¾¾Bµ¿ | 6 | 59.9 | 15,600 | 0 | 2002 | | 2025.04.22 | Àü¼¼ | ¿ìÀå»ê¾ÆÀÌÆÄÅ©,ÀÌÆíÇѼ¼»ó | 1 | 84.97 | 65,000 | 0 | 2008 | | 2025.04.22 | ¸Å¸Å | ÇÏÀÌÆ®¸Ç¼Ç | -1 | 66.99 | 16,200 | | 1999 | | 2025.04.21 | Àü¼¼ | °¼Èú½ºÅ×ÀÌÆ® | 12 | 152.1 | 110,000 | 0 | 2015 | | 2025.04.21 | Àü¼¼ | °¼Èú½ºÅ×ÀÌÆ® | 16 | 128.81 | 78,700 | 0 | 2015 | | 2025.04.21 | ¿ù¼¼ | »ï¼º´ÙºóÄ¡(917-14) | 9 | 14.35 | 9,600 | 10 | 2015 | | 2025.04.21 | ¿ù¼¼ | û´ã¶óÀξ¾Æ¼ | 11 | 25.74 | 8,200 | 45 | 2018 | | 2025.04.21 | Àü¼¼ | ¿ìÀå»ê·Ôµ¥Ä³½½ | 14 | 85 | 55,650 | 0 | 2003 | | 2025.04.21 | Àü¼¼ | ¿ìÀå»ê·Ôµ¥Ä³½½ | 8 | 134.99 | 78,000 | 0 | 2003 | | 2025.04.21 | ¸Å¸Å | ÀÌ¿¤ÇϿ콺 | 6 | 27.31 | 24,000 | | 2022 | | 2025.04.21 | ¸Å¸Å | »ì·½ÇϿ콺 | 4 | 76.38 | 30,000 | | 2000 | | 2025.04.21 | ¸Å¸Å | ´ëÈ£ºô¶ó(504-173) | 1 | 63.69 | 19,000 | | 2003 | | 2025.04.21 | ¸Å¸Å | Ÿ¿îij½½Aµ¿ | 4 | 40.98 | 28,500 | | 2018 | | 2025.04.21 | ¿ù¼¼ | ȰîǪ¸£Áö¿À | 1 | 144.123 | 50,000 | 80 | 2002 | | 2025.04.21 | ¸Å¸Å | ¿¡½º¿¥ÆÄÅ©ºô | 5 | 26.67 | 21,200 | | 2016 | | 2025.04.20 | Àü¼¼ | ±æ¼º±×¶ûÇÁ¸®ÅÚ | 8 | 73.84 | 38,800 | 0 | 2005 | | 2025.04.20 | ¿ù¼¼ | º¸´®ÇϿ콺Ȱî | 10 | 14.35 | 4,500 | 34 | 2021 | | 2025.04.19 | Àü¼¼ | ¿ìÀå»ê½£¾ÆÀÌÆÄÅ© | 14 | 74.9982 | 74,000 | 0 | 2022 | | 2025.04.19 | ¿ù¼¼ | °¼µ¿µµ¼¾Æ®¸®¿ò | 6 | 14.677 | 1,000 | 50 | 2012 | | 2025.04.19 | Àü¼¼ | °¼Èú½ºÅ×ÀÌÆ® | 1 | 128.81 | 88,000 | 0 | 2015 | | 2025.04.19 | Àü¼¼ | °¼Èú½ºÅ×ÀÌÆ® | 2 | 59.99 | 52,500 | 0 | 2015 | | 2025.04.19 | ¿ù¼¼ | µð¾ÆÀνº | 15 | 23.93 | 1,000 | 100 | 2018 | | 2025.04.19 | ¿ù¼¼ | ¸®Ä¡¾ÆÆÄÆ® | 11 | 19.81 | 16,000 | 17 | 2018 | | 2025.04.18 | Àü¼¼ | ¸®Ä¡¾ÆÆÄÆ®102µ¿(924-24) | 5 | 21.42 | 19,950 | 0 | 2020 | | 2025.04.18 | ¸Å¸Å | È¿ø¿ùµåºô | 2 | 34.32 | 15,000 | | 2002 | | 2025.04.18 | ¸Å¸Å | Å©¶ó¿îÆÓ¸®½º | 14 | 29.94 | 26,000 | | 2020 | | 2025.04.18 | ¸Å¸Å | ¼±°æÇÏÀÌÃ÷2Â÷ | 3 | 52.29 | 20,000 | | 2010 | | 2025.04.18 | ¸Å¸Å | µ¿ÁøÇÏÀÓºô(370-33) | 2 | 59.52 | 26,400 | | 2009 | | 2025.04.18 | ¸Å¸Å | Á¤°¨¸®Áîºô(162-3) | 3 | 40.28 | 24,500 | | 2015 | | 2025.04.18 | ¸Å¸Å | ¿ÀÈÁÖÅà | 2 | 57.1 | 25,000 | | 2002 | | 2025.04.18 | ¿ù¼¼ | ¼ÛÀÌ | 3 | 78.3 | 10,000 | 70 | 1999 | | 2025.04.18 | ¸Å¸Å | Å©¶ó¿îÆÓ¸®½º | 14 | 29.94 | 26,000 | | 2020 | | 2025.04.18 | ¿ù¼¼ | Áß¾Ó(931-9) | 3 | 58.62 | 17,500 | 20 | 2004 | | 2025.04.18 | ¿ù¼¼ | ¿ì°ø¾ÆÆÄÆ® | 3 | 27 | 80 | 80 | 2018 | | 2025.04.18 | ¿ù¼¼ | Æ÷¸£Åõ³ªºí·ç | 3 | 20.03 | 9,900 | 33 | 2022 | | 2025.04.18 | Àü¼¼ | ¸®Ä¡¾ÆÆÄÆ®102µ¿(924-24) | 5 | 21.42 | 19,000 | 0 | 2020 | | 2025.04.18 | Àü¼¼ | ½ÂÀ±³ëºí¸®¾È | 10 | 80.06 | 36,000 | 0 | 2012 | | 2025.04.18 | Àü¼¼ | ¿ìÀå»ê¿¡½ºÄÉÀ̺ä | 6 | 116.92 | 65,000 | 0 | 2006 | | 2025.04.18 | Àü¼¼ | »ïµµ | 8 | 70.84 | 26,000 | 0 | 1999 | | 2025.04.17 | ¿ù¼¼ | ½ºÀ§Æ®132µå¸²ÇϿ콺 | 9 | 13.67 | 12,128 | 5 | 2013 | | 2025.04.17 | Àü¼¼ | ȰîǪ¸£Áö¿À | 2 | 192.22 | 73,500 | 0 | 2002 | | 2025.04.17 | ¸Å¸Å | ¾ÆÁÙ¸®¿ò(1049-24) | 4 | 26.24 | 27,500 | | 2018 | | 2025.04.17 | ¸Å¸Å | ÇÏÀ̺ô(346-100) | 3 | 54.95 | 20,200 | | 2004 | | 2025.04.17 | Àü¼¼ | À£¶óÀ̺ô | 7 | 79.87 | 30,000 | 0 | 2000 | | 2025.04.17 | ¸Å¸Å | °Å¼º | 2 | 49.5 | 30,000 | | 1986 | | 2025.04.17 | ¸Å¸Å | Å·´ý±×·¹À̽º | 4 | 29.26 | 22,000 | | 2018 | | 2025.04.17 | ¸Å¸Å | ¿ì¼ººô¶ó(98-41) | -1 | 61.96 | 14,850 | | 2001 | | 2025.04.17 | ¸Å¸Å | Çö´ëºô¶ó | -1 | 55.76 | 10,500 | | 1991 | | 2025.04.17 | Àü¼¼ | ¿ìÀå»ê·Ôµ¥Ä³½½ | 14 | 85 | 60,000 | 0 | 2003 | | 2025.04.17 | ¿ù¼¼ | ¿ìÀå»êÇÑȲ޿¡±×¸° | 12 | 84.98 | 30,000 | 95 | 2004 | | 2025.04.17 | ¿ù¼¼ | ¼¼±³¿¹Áö¾È6Â÷ | 5 | 25.7 | 13,200 | 20 | 2016 | | 2025.04.17 | Àü¼¼ | °¼Èú½ºÅ×ÀÌÆ® | 18 | 128.81 | 100,000 | 0 | 2015 | | 2025.04.17 | ¸Å¸Å | °¼·º½ººô | 3 | 47.12 | 23,900 | | 2008 | | 2025.04.17 | ¸Å¸Å | »õÇÑÇÏÀÌÃ÷ºô¶ó | 4 | 59.57 | 28,000 | | 1996 | | 2025.04.17 | ¸Å¸Å | È£¼º±×¸°ºôBµ¿(1083-13) | 4 | 20.23 | 9,000 | | 2001 | | 2025.04.17 | ¸Å¸Å | Æ®¶ó¿òºô | 3 | 34.99 | 27,900 | | 2012 | | 2025.04.17 | ¸Å¸Å | µ¿ÁøÇÏÀÓºô(370-33) | 2 | 59.52 | 27,500 | | 2009 | | 2025.04.16 | ¿ù¼¼ | ¾Æµ¨¸®¾Æll | 8 | 15.53 | 7,000 | 13 | 2012 | | 2025.04.16 | ¸Å¸Å | »ïÀÍTheSky | 1 | 29.82 | 22,000 | | 2016 | | 2025.04.16 | ¸Å¸Å | û¼ÖÁÖÅà | 1 | 62.29 | 22,000 | | 2000 | | 2025.04.16 | ¿ù¼¼ | °¼´ºÅ¸¿ö | 13 | 78.93 | 20,000 | 140 | 2013 | | 2025.04.16 | Àü¼¼ | °¼´ºÅ¸¿ö | 3 | 83.13 | 44,000 | 0 | 2013 | | 2025.04.16 | ¸Å¸Å | ¸í¼ººô¸®Áö | 4 | 50.57 | 23,500 | | 2001 | | 2025.04.15 | ¿ù¼¼ | °¼Èú½ºÅ×ÀÌÆ® | 10 | 59.99 | 20,000 | 140 | 2015 | | 2025.04.15 | Àü¼¼ | ¿ìÀå»ê·Ôµ¥Ä³½½ | 4 | 85 | 55,000 | 0 | 2003 | | 2025.04.15 | ¿ù¼¼ | ¿ìÀå»ê¿ªÇظµÅÏŸ¿ö | 8 | 43.04 | 9,940 | 68 | 2021 | | 2025.04.15 | Àü¼¼ | ¿ìÀå»ê¾ÆÀÌÆÄÅ©,ÀÌÆíÇѼ¼»ó | 16 | 59.98 | 60,000 | 0 | 2008 | | 2025.04.15 | ¿ù¼¼ | »ï¼º´ÙºóÄ¡(917-14) | 5 | 14.35 | 1,000 | 51 | 2015 | | 2025.04.15 | ¸Å¸Å | °¡Áø±×¸°ºô | 3 | 44.1 | 13,500 | | 2001 | | 2025.04.15 | ¸Å¸Å | ½ÅÈïÇÏÀÌÃ÷¸Ç¼Ç | 2 | 84.92 | 40,000 | | 1998 | | 2025.04.15 | ¸Å¸Å | ¿ì¼º¿¬¸³ | 1 | 56.64 | 29,000 | | 1985 | | 2025.04.14 | ¸Å¸Å | »ï¼ººô¶ó(56-47) | 3 | 51.915 | 14,000 | | 2002 | | 2025.04.14 | Àü¼¼ | ¿ìÀå»ê·Ôµ¥Ä³½½ | 11 | 85 | 63,000 | 0 | 2003 | | 2025.04.14 | ¿ù¼¼ | °¼±ÝÈ£¾î¿ï¸²ÆÛ½ºÆ¼¾î(980-19) | 14 | 59.74 | 20,000 | 130 | 2023 | | 2025.04.14 | ¿ù¼¼ | õ¿ì³×¿ÀÁ¨9Â÷ | 4 | 55.93 | 22,600 | 20 | 2009 | | 2025.04.14 | ¸Å¸Å | ½Â¼®ÈúŸ¿î | 2 | 63.18 | 25,500 | | 2003 | | 2025.04.14 | ¸Å¸Å | ¾Æµ¥³ªÆÓ¸®½º | 5 | 34.68 | 26,500 | | 2016 | | 2025.04.14 | ¸Å¸Å | µ¿±¤½¦¸£ºô°¡µ¿ | 1 | 61.29 | 22,300 | | 2002 | | 2025.04.14 | ¸Å¸Å | ¿¤¸²¾ÆÆ®ºô | 2 | 62.65 | 27,300 | | 2008 | | 2025.04.13 | ¿ù¼¼ | Áß¾ÓȰîÇÏÀÌÃ÷ | 5 | 56.88 | 5,000 | 80 | 1988 | | 2025.04.12 | Àü¼¼ | ¿ìÀå»ê¾ÆÀÌÆÄÅ©,ÀÌÆíÇѼ¼»ó | 11 | 114.98 | 78,750 | 0 | 2008 | | 2025.04.12 | ¸Å¸Å | °¡³ª¾Æµ¨¸®¿ò(102-120) | 4 | 33.76 | 23,500 | | 2014 | | 2025.04.12 | Àü¼¼ | ȰîǪ¸£Áö¿À | 14 | 104.75 | 58,800 | 0 | 2002 | | 2025.04.12 | Àü¼¼ | Áß¾ÓȰîÇÏÀÌÃ÷ | 9 | 56.88 | 30,000 | 0 | 1988 | | 2025.04.12 | Àü¼¼ | Áß¾ÓȰîÇÏÀÌÃ÷ | 9 | 56.88 | 30,000 | 0 | 1988 | | 2025.04.12 | Àü¼¼ | ´ë¸²eÆíÇѼ¼»ó | 8 | 110.26 | 45,000 | 0 | 1992 | | 2025.04.12 | Àü¼¼ | ´ë¸²eÆíÇѼ¼»ó | 8 | 110.26 | 45,000 | 0 | 1992 | | 2025.04.12 | ¸Å¸Å | ¼ºÀçºô¶ó°¡µ¿ | 2 | 59.8 | 16,000 | | 2001 | | 2025.04.12 | ¸Å¸Å | ȰîÆÄÅ©ºô | 2 | 72.69 | 29,500 | | 2002 | | 2025.04.12 | ¸Å¸Å | ³²¼º¾ÆÆ®ºô | 2 | 53.26 | 24,400 | | 2010 | | 2025.04.12 | Àü¼¼ | ¿ìÀå»ê¾ÆÀÌÆÄÅ©,ÀÌÆíÇѼ¼»ó | 10 | 59.98 | 48,300 | 0 | 2008 | | 2025.04.12 | ¿ù¼¼ | ÆÈ¶óÀ̽ºÅ¸¿ö | 11 | 16.48 | 1,000 | 50 | 2012 | | 2025.04.12 | ¿ù¼¼ | µð¾ÆÀνº | 6 | 23.93 | 23,000 | 5 | 2018 | | 2025.04.12 | ¸Å¸Å | ÇϳªÇÏÀÌÃ÷(996-9) | 2 | 42.88 | 21,500 | | 2012 | | 2025.04.12 | ¸Å¸Å | S-vill(423-1) | 2 | 41.755 | 24,500 | | 2012 | | 2025.04.12 | ¸Å¸Å | 102-119 | 4 | 36.1 | 25,100 | | 2015 | | 2025.04.11 | Àü¼¼ | NSÆÄÅ©APT | 4 | 28.91 | 22,000 | 0 | 2018 | | 2025.04.11 | ¸Å¸Å | »ó¾Æ¸¶À̺ô(1085-5) | 4 | 49.86 | 22,300 | | 2007 | | 2025.04.11 | ¸Å¸Å | ´ë¸²Ä³½½ | 2 | 39.01 | 26,500 | | 2017 | | 2025.04.11 | ¸Å¸Å | ´õ¶ó¿Â | 3 | 29.63 | 23,900 | | 2019 | | 2025.04.11 | ¸Å¸Å | ±â¸°¾ÆÆ®ºô¶ó | 1 | 41.32 | 16,100 | | 1995 | | 2025.04.11 | ¸Å¸Å | °è¸íÁÖÅÃ(849-23) | 2 | 40.64 | 21,500 | | 2002 | | 2025.04.11 | ¸Å¸Å | ³²°æ½¦¸£ºô(362-135) | 4 | 47.72 | 18,500 | | 2001 | | 2025.04.11 | Àü¼¼ | °¼Èú½ºÅ×ÀÌÆ® | 8 | 84.99 | 70,000 | 0 | 2015 | | 2025.04.11 | ¿ù¼¼ | °¼Èú½ºÅ×ÀÌÆ® | 2 | 84.99 | 10,000 | 260 | 2015 | | 2025.04.11 | ¿ù¼¼ | °¼Èú½ºÅ×ÀÌÆ® | 3 | 84.99 | 58,000 | 7 | 2015 | | 2025.04.11 | Àü¼¼ | °¼Èú½ºÅ×ÀÌÆ® | 10 | 84.99 | 63,000 | 0 | 2015 | | 2025.04.11 | ¿ù¼¼ | ¿ìÀå»ê¾ÆÀÌÆÄÅ©,ÀÌÆíÇѼ¼»ó | 7 | 84.97 | 51,000 | 16 | 2008 | | 2025.04.11 | Àü¼¼ | ÁøÈï | 4 | 62.89 | 24,000 | 0 | 1992 | | 2025.04.11 | Àü¼¼ | NSÆÄÅ©APT | 4 | 28.91 | 18,000 | 0 | 2018 | | 2025.04.10 | ¸Å¸Å | ¾¾Æ¼ÇϿ콺 | 3 | 59.7 | 28,500 | | 2007 | | 2025.04.10 | ¸Å¸Å | Á¦ÀÌ¿ÍÀÌÆç¸®½º(849-16¹øÁö) | 5 | 29.9 | 27,000 | | 2016 | | 2025.04.10 | Àü¼¼ | °¼Èú½ºÅ×ÀÌÆ® | 8 | 84.99 | 82,000 | 0 | 2015 | | 2025.04.10 | ¸Å¸Å | À£½ºÇÏÀ̺ô(362-66) | 3 | 29.88 | 22,500 | | 2013 | | 2025.04.10 | ¸Å¸Å | µµ¿ø¼ÖºñÄ¡ | 2 | 29.97 | 18,500 | | 2015 | | 2025.04.10 | Àü¼¼ | Á¦ÀÌ¿ùµå | 4 | 60.6683 | 28,600 | 0 | 2001 | | 2025.04.10 | Àü¼¼ | ¿ìÀå»ê½£¾ÆÀÌÆÄÅ© | 4 | 59.9983 | 51,450 | 0 | 2022 | | 2025.04.10 | ¿ù¼¼ | Ȱî´ëÁø | 6 | 53.79 | 2,000 | 85 | 2006 | | 2025.04.10 | ¿ù¼¼ | AndPra·¹Áö´ø½º | 15 | 15.26 | 30 | 52 | 2013 | | 2025.04.10 | Àü¼¼ | Á¦ÀÌ¿ùµå | 4 | 60.6683 | 28,600 | 0 | 2001 | | 2025.04.10 | Àü¼¼ | ¿ìÀå»êÇÑȲ޿¡±×¸° | 10 | 120.11 | 70,000 | 0 | 2004 | | 2025.04.10 | Àü¼¼ | Å¿µ¹æ¼ÛÀÎ | 10 | 59.94 | 30,000 | 0 | 2000 | | 2025.04.10 | Àü¼¼ | Áß¾ÓȰîÇÏÀÌÃ÷ | 12 | 56.88 | 30,000 | 0 | 1988 | | 2025.04.09 | ¸Å¸Å | ½Å¿ì¶ß·¡¾È(827-13) | 3 | 31.85 | 19,500 | | 2014 | | 2025.04.09 | ¸Å¸Å | ºñºÀ¸Ç¼Ç | 5 | 64.08 | 19,700 | | 2002 | | 2025.04.09 | ¸Å¸Å | ¸®´õ½ºÅ¸¿î | 2 | 21.25 | 16,350 | | 2017 | | 2025.04.09 | ¸Å¸Å | żººô¶ó | 1 | 55.36 | 19,200 | | 1995 | | 2025.04.09 | ¸Å¸Å | ¿¹ÀÎ¾ÆÆ®ºô | 4 | 70.21 | 24,500 | | 2003 | | 2025.04.09 | Àü¼¼ | ¿ìÀå»ê½£¾ÆÀÌÆÄÅ© | 5 | 74.9982 | 52,500 | 0 | 2022 | | 2025.04.09 | Àü¼¼ | °¼Å©¶ó¿îÆÓ¸®½º | 17 | 29.85 | 24,000 | 0 | 2019 | | 2025.04.09 | ¸Å¸Å | ½Ö¿ëÇÏÀ̺ô | -1 | 55.04 | 19,000 | | 2001 | | 2025.04.09 | ¿ù¼¼ | Áß¾ÓȰîÇÏÀÌÃ÷ | 12 | 56.88 | 21,000 | 4 | 1988 | | 2025.04.09 | ¸Å¸Å | º£½ºÆ®ÈúŸ¿î | 2 | 76.58 | 33,000 | | 2002 | | 2025.04.09 | ¸Å¸Å | ¿¡ÀÌ¿øºô¸®Áö(42-91) | 1 | 37.75 | 17,400 | | 2012 | | 2025.04.09 | ¸Å¸Å | °¡¶÷ºô | 5 | 29.82 | 15,000 | | 2011 | | 2025.04.08 | ¿ù¼¼ | µ¿¼1,2È£(381-11) | 1 | 23.82 | 500 | 35 | 2003 | | 2025.04.08 | ¿ù¼¼ | ¿ìÀå»ê¿ªÇظµÅÏŸ¿ö | 14 | 43.04 | 8,320 | 57 | 2021 | | 2025.04.08 | ¿ù¼¼ | µå¸²½Ãµå¾ÆÆÄÆ®1Â÷ | 5 | 30.28 | 16,000 | 35 | 2017 | | 2025.04.08 | ¿ù¼¼ | µå¸²½Ãµå¾ÆÆÄÆ®1Â÷ | 5 | 30.28 | 16,000 | 35 | 2017 | | 2025.04.08 | Àü¼¼ | ¿ìÀå»ê¾ÆÀÌÆÄÅ©,ÀÌÆíÇѼ¼»ó | 1 | 84.97 | 55,075 | 0 | 2008 | | 2025.04.08 | Àü¼¼ | ¿ìÀå»ê¾ÆÀÌÆÄÅ©,ÀÌÆíÇѼ¼»ó | 1 | 84.97 | 55,073 | 0 | 2008 | | 2025.04.08 | ¸Å¸Å | ±×·£µåºôAµ¿(24-341) | 5 | 72.72 | 22,700 | | 2003 | | 2025.04.08 | ¸Å¸Å | È«¼ºÁÖÅÃ(56-596) | -1 | 55.86 | 14,500 | | 2002 | | 2025.04.08 | ¸Å¸Å | ¶ó¿Âºô¸®Áö(397-3) | 2 | 26.02 | 18,500 | | 2016 | | 2025.04.08 | ¸Å¸Å | ¹é¿îÀκ£½ºÆ®ºô4Â÷ | 2 | 60.09 | 28,500 | | 2008 | | 2025.04.08 | ¸Å¸Å | ÇѺûŸ¿î | 2 | 67.89 | 28,300 | | 2002 | | 2025.04.08 | ¸Å¸Å | ¹é¿îÀκ£½ºÆ®ºô4Â÷ | 2 | 60.09 | 28,500 | | 2008 | | 2025.04.08 | ¸Å¸Å | Ȳ±Ýºô | 3 | 59.98 | 19,000 | | 2003 | | 2025.04.08 | ¸Å¸Å | ½ºÆäÀ̽ººô | 4 | 27.02 | 22,500 | | 2015 | | 2025.04.08 | ¸Å¸Å | µ¿¾çÄý½ººô(425-46) | 4 | 44.82 | 24,500 | | 2003 | | 2025.04.07 | ¿ù¼¼ | ¾Æµ¨¸®¾Æll | 7 | 17.28 | 10,000 | 15 | 2012 | | 2025.04.07 | ¿ù¼¼ | ºí·çÈú(343-56) | 4 | 16.03 | 10,090 | 10 | 2011 | | 2025.04.07 | ¿ù¼¼ | ¿ìÀå»ê·Ôµ¥Ä³½½ | 3 | 85 | 20,000 | 180 | 2003 | | 2025.04.07 | Àü¼¼ | ¿ìÀå»ê·Ôµ¥Ä³½½ | 8 | 85 | 60,000 | 0 | 2003 | | 2025.04.07 | ¿ù¼¼ | ¼¼¾ç(453-5) | 1 | 55.32 | 2,000 | 60 | 2001 | | 2025.04.07 | Àü¼¼ | ¼¾Æ®·²ÆÄÅ©¾ÆÆÄÆ® | 7 | 48.15 | 37,500 | 0 | 2021 | | 2025.04.07 | ¿ù¼¼ | û¿ì(391-2) | 5 | 41.92 | 3,000 | 59 | 2007 | | 2025.04.07 | ¿ù¼¼ | ¾Æ³é½ºÅ¸¿ö4 | 13 | 12.13 | 8,600 | 15 | 2012 | | 2025.04.07 | Àü¼¼ | ¿ìÀå»ê¾ÆÀÌÆÄÅ©,ÀÌÆíÇѼ¼»ó | 1 | 84.97 | 68,000 | 0 | 2008 | | 2025.04.07 | ¸Å¸Å | Ȱî·Î¾â°¡µ¿ | 2 | 36.18 | 13,000 | | 1991 | | 2025.04.07 | ¸Å¸Å | ¼±°æÇÏÀÌÃ÷2Â÷ | 3 | 52.29 | 20,000 | | 2010 | | 2025.04.07 | ¸Å¸Å | Àå¿øÇÏÀ̺ô | 4 | 63.65 | 25,200 | | 2001 | | 2025.04.07 | ¸Å¸Å | 6Â÷ŰǺô¶ó | 2 | 36.12 | 10,900 | | 1990 | | 2025.04.07 | ¸Å¸Å | ¾ÆÀνººô(980-23) | 4 | 38.35 | 29,000 | | 2012 | | 2025.04.07 | ¸Å¸Å | ¹Ì°¡Ã¤´Ùº¹µ¿,¶ó¿Âµ¿ | 4 | 59.91 | 33,000 | | 2016 | | 2025.04.07 | ¸Å¸Å | º§¶óÇϿ콺(351-16) | 5 | 26.25 | 20,000 | | 2016 | | 2025.04.07 | ¸Å¸Å | ´õ¿ø | 4 | 28.05 | 25,600 | | 2019 | | 2025.04.07 | ¸Å¸Å | ¿ì¼ººô¶ó(1087-37) | 5 | 34.38 | 18,000 | | 2011 | | 2025.04.06 | Àü¼¼ | Çý¼º¾ÆÆÄÆ®(343-50) | 4 | 28.24 | 22,000 | 0 | 2019 | | 2025.04.05 | Àü¼¼ | ¿ìÀå»ê¾ÆÀÌÆÄÅ©,ÀÌÆíÇѼ¼»ó | 15 | 101.65 | 85,000 | 0 | 2008 | | 2025.04.05 | Àü¼¼ | ¿ìÀå»ê½£¾ÆÀÌÆÄÅ© | 10 | 84.9771 | 67,000 | 0 | 2022 | | 2025.04.05 | ¿ù¼¼ | °¼Èú½ºÅ×ÀÌÆ® | 12 | 84.99 | 45,000 | 50 | 2015 | | 2025.04.05 | ¿ù¼¼ | ¿ìÇö½ºÄ«À̺ô(926-9) | 5 | 14.03 | 1,000 | 36 | 2013 | | 2025.04.04 | ¸Å¸Å | ¼Ò´ã¹ë¸®(807-3) | 3 | 44.47 | 21,500 | | 2013 | | 2025.04.04 | ¸Å¸Å | »ï¹ÌÁÖÅà | 2 | 59.97 | 25,900 | | 2001 | | 2025.04.04 | ¸Å¸Å | ¹Ì°¡Ã¤(1100-5) | 3 | 56.7 | 32,800 | | 2014 | | 2025.04.04 | ¿ù¼¼ | ÆÈ¶óÀ̽ºÅ¸¿ö | 9 | 16.48 | 9,000 | 6 | 2012 | | 2025.04.04 | ¸Å¸Å | °è¸íÀ§³Ê½º(105-55) | 3 | 42.81 | 20,900 | | 2011 | | 2025.04.04 | ¸Å¸Å | »ïÀÍŸ¿îºô | 3 | 46.38 | 24,000 | | 2012 | | 2025.04.04 | ¸Å¸Å | °è¸íÀ§³Ê½º(105-55) | 3 | 42.81 | 20,900 | | 2011 | | 2025.04.04 | Àü¼¼ | ¿ìÀå»ê¾ÆÀÌÆÄÅ©,ÀÌÆíÇѼ¼»ó | 17 | 84.97 | 66,150 | 0 | 2008 | | 2025.04.04 | ¸Å¸Å | ¹Ì¼Ò¶÷ºô | 2 | 62.1 | 18,000 | | 2001 | | 2025.04.04 | ¸Å¸Å | µ¿¾çÇÏ¿ì¡Aµ¿ | 3 | 36.48 | 23,000 | | 2017 | | 2025.04.03 | ¸Å¸Å | »ïÈ£ÆÄÅ©ºô¥±(1050-8) | 4 | 43.52 | 26,500 | | 2016 | | 2025.04.03 | Àü¼¼ | ´ë¸²eÆíÇѼ¼»ó | 13 | 84.84 | 35,700 | 0 | 1992 | | 2025.04.03 | ¿ù¼¼ | µð¾ÆÀνº | 7 | 23.93 | 20,600 | 10 | 2018 | | 2025.04.03 | ¿ù¼¼ | ¿ìÀå»ê¿ªÇظµÅÏŸ¿ö | 11 | 23.68 | 5,860 | 38 | 2021 | | 2025.04.03 | Àü¼¼ | ´Ù¿ï | 6 | 69.13 | 22,400 | 0 | 2002 | | 2025.04.03 | ¸Å¸Å | ¿ì¼º(362-26)ºô¶óB | 3 | 46.17 | 21,000 | | 2002 | | 2025.04.03 | ¸Å¸Å | ÇØ¿À¸§(24-59) | 5 | 13.44 | 6,270 | | 2011 | | 2025.04.03 | ¸Å¸Å | ÇÁ¶óÀÓºô(488-18) | 2 | 22.8 | 16,400 | | 2019 | | 2025.04.03 | ¸Å¸Å | °¨¼ººô | 7 | 17.03 | 17,000 | | 2016 | | 2025.04.03 | ¸Å¸Å | ½Å¼º³×¿Àºô | 6 | 42.43 | 27,300 | | 2018 | | 2025.04.02 | Àü¼¼ | ¿ì°ø¾ÆÆÄÆ® | 7 | 27 | 17,300 | 0 | 2018 | | 2025.04.02 | ¿ù¼¼ | ¼¼±³¿¹Áö¾È6Â÷ | 7 | 25.7 | 2,500 | 63 | 2016 | | 2025.04.02 | ¿ù¼¼ | ¿ìÀå»ê¿ªÇظµÅÏŸ¿ö | 5 | 43.04 | 8,320 | 57 | 2021 | | 2025.04.02 | ¸Å¸Å | ¿ìÇöÆç¸®½º | 3 | 29.5 | 23,000 | | 2016 | | 2025.04.02 | ¸Å¸Å | ¿ÀÄÉÀÌÆÄÅ©ºô(932-8) | 5 | 38.88 | 25,500 | | 2015 | | 2025.04.02 | ¸Å¸Å | ¿ì¼ºµå¸²ºôA | 2 | 58.02 | 26,000 | | 2002 | | 2025.04.02 | ¸Å¸Å | ¸®Á¨Æ®¶ó¿ò(344-11) | 3 | 29.94 | 22,000 | | 2014 | | 2025.04.02 | ¸Å¸Å | ¸ðÀüÇ÷¯½ººôBµ¿ | 3 | 34.38 | 15,400 | | 2002 | | 2025.04.02 | ¸Å¸Å | ´ëµ¿ºô¶ó³ªµ¿ | 2 | 59.76 | 22,000 | | 2002 | | 2025.04.02 | ¸Å¸Å | ¸®Á¨½Ã¾Æ | 6 | 33.37 | 31,000 | | 2014 | | 2025.04.02 | ¸Å¸Å | ´Ù¼Ø | 4 | 43.06 | 24,500 | | 2012 | | 2025.04.01 | ¿ù¼¼ | °¼Èú½ºÅ×ÀÌÆ® | 15 | 59.99 | 7,000 | 175 | 2015 | | 2025.04.01 | ¿ù¼¼ | °è¸í³ªµ¿(56-29) | 2 | 57.38 | 3,000 | 76 | 2002 | | 2025.04.01 | ¿ù¼¼ | ¹Ì¼º¾ÆÆÄÆ®(¿¬¸³) | 1 | 81.89 | 10,000 | 90 | 1987 | | 2025.04.01 | ¸Å¸Å | ´Ù¼ØÅ¸¿îA,B | 5 | 37.98 | 31,000 | | 2013 | | 2025.04.01 | ¸Å¸Å | ¿ìÀå»êÆÄÅ©ºô | 5 | 44.36 | 27,500 | | 2013 | | 2025.04.01 | ¸Å¸Å | ȼººô¶ó(56-588) | 4 | 45.86 | 14,800 | | 2001 | | 2025.04.01 | ¸Å¸Å | ´ëÁÖ½¦¸£ºô(338-9) | 1 | 45.02 | 21,000 | | 2002 | | 2025.04.01 | ¸Å¸Å | µ¿¼±º§¸®Ã¼ | 6 | 36.19 | 28,000 | | 2020 | | 2025.04.01 | ¸Å¸Å | »ó¿ìºô¶ó | -1 | 60.08 | 14,000 | | 2000 | | 2025.04.01 | ¸Å¸Å | À̼ö¾ÆÆ®ºô | 2 | 39.7 | 27,000 | | 2014 | | 2025.02.28 | ¿ù¼¼ | È¿Àڱ׸°ºô¶ó | 3 | 78.19 | 50 | 35 | 1998 | | 2025.02.28 | Àü¼¼ | ½Å¶óÇÏÀÌÃ÷ºô¶ó | 1 | 48.32 | 11,000 | 0 | 1992 | | 2025.02.28 | ¿ù¼¼ | ¿ì°æ¸Ç¼Ç | 3 | 51.67 | 2,000 | 70 | 2002 | | 2025.02.28 | Àü¼¼ | ÅÂûºô¶ó(55-67) | 3 | 45.82 | 10,500 | 0 | 1993 | | 2025.02.28 | Àü¼¼ | Á¦ÀÌÅõ¸®´õ½º | 2 | 29.94 | 22,000 | 0 | 2020 | | 2025.02.28 | ¿ù¼¼ | ´ë¿õÇÏÀÌÃ÷9Â÷ | 4 | 41.73 | 10,600 | 15 | 1997 | | 2025.02.28 | Àü¼¼ | ½ÅÈï¾Æ³Ê½ººô | 3 | 55.56 | 16,500 | 0 | 2008 | | 2025.02.28 | ¿ù¼¼ | ÀÎÅÍ½ÃÆ¼ºô¶ó(409-92) | 4 | 43.72 | 1,000 | 63 | 2002 | | 2025.02.28 | ¿ù¼¼ | ¶ó¿òÇϿ콺 | 5 | 24.32 | 2,000 | 90 | 2019 | | 2025.02.28 | ¿ù¼¼ | µ¿³²ÁÖÅà | 4 | 51.63 | 13,000 | 20 | 2002 | | 2025.02.28 | ¿ù¼¼ | ¸®Ä¡ÇϿ콺(346-18) | 2 | 25.34 | 4,000 | 85 | 2017 | | 2025.02.28 | Àü¼¼ | ±Ý°ÇÏÀÓºô | 2 | 29.04 | 18,450 | 0 | 2015 | | 2025.02.28 | ¿ù¼¼ | À̳뼿(867-21) | 5 | 34.37 | 3,000 | 70 | 2015 | | 2025.02.28 | Àü¼¼ | ±Ý°ÇÏÀÓºô | 2 | 29.04 | 18,450 | 0 | 2015 | | 2025.02.28 | ¿ù¼¼ | ÇÁ¶óÀÓÁÖÅÃ(393-22) | 2 | 21.87 | 13,500 | 6 | 2014 | | 2025.02.28 | Àü¼¼ | ¸®Á¨Æ®¶ó¿ò | 2 | 27.52 | 15,800 | 0 | 2014 | | 2025.02.28 | Àü¼¼ | ¼Ò´ã¹ë¸®½ºBµ¿ | 3 | 29.75 | 15,800 | 0 | 2013 | | 2025.02.28 | ¿ù¼¼ | »ï¼ºÆÄÅ©ºô(464-1) | 4 | 54.38 | 3,000 | 85 | 2012 | | 2025.02.28 | ¿ù¼¼ | û¼ÛÆòÈÇÏÀ̸ǼÇ(459-15) | 3 | 59.19 | 200 | 100 | 2010 | | 2025.02.28 | ¸Å¸Å | ¼ºÀçij½½ºô(408-42) | 3 | 59.98 | 24,500 | | 2010 | | 2025.02.28 | ¿ù¼¼ | ¿¡µ§ÇϿ콺(153-8) | 5 | 65.94 | 2,000 | 100 | 2008 | | 2025.02.28 | ¸Å¸Å | ±â¸°¾ÆÆ®ºô¶ó | -1 | 39 | 7,500 | | 1994 | | 2025.02.28 | ¸Å¸Å | »õÇÑ¾ÆÆ®ºôB(1039-8) | 5 | 59.08 | 26,000 | | 2002 | | 2025.02.28 | ¸Å¸Å | (362-67) | 1 | 41.1 | 18,500 | | 1986 | | 2025.02.28 | ¸Å¸Å | ¿ÍÀ̾غñ(370-16) | 3 | 35.69 | 19,500 | | 2015 | | 2025.02.27 | Àü¼¼ | º£¸£µ¥ÇÇ¾Æ | 2 | 59.36 | 25,900 | 0 | 2016 | | 2025.02.27 | Àü¼¼ | º£¸£µ¥ÇÇ¾Æ | 5 | 53.01 | 23,000 | 0 | 2016 | | 2025.02.27 | ¸Å¸Å | ·ÎÁîºôAµ¿(871-48) | 4 | 29.85 | 18,800 | | 2017 | | 2025.02.27 | ¿ù¼¼ | ³²¼º¾ÆÆ®ºô | 6 | 36.18 | 20,000 | 20 | 2017 | | 2025.02.27 | ¸Å¸Å | ¿¡½º¿¥ÆÄÅ©ºô°¡µ¿ | 2 | 46.06 | 40,000 | | 2017 | | 2025.02.27 | ¸Å¸Å | ¿ÍÀ̾غñ(370-16) | 2 | 35.69 | 19,700 | | 2015 | | 2025.02.27 | ¸Å¸Å | »þÀο¡¹öºô³ªµ¿ | 2 | 59.95 | 27,500 | | 2002 | | 2025.02.27 | ¸Å¸Å | ¼º¿øÇÁ¶ó¿ìµå | 5 | 28.44 | 25,000 | | 2018 | | 2025.02.27 | ¸Å¸Å | (842-20) | 2 | 34.67 | 13,500 | | 1986 | | 2025.02.27 | Àü¼¼ | ¿ÀÄÉÀÌÆÄÅ©ºô | 3 | 29.37 | 16,380 | 0 | 2016 | | 2025.02.27 | ¿ù¼¼ | ½Â½ÂÀ屸 | 5 | 34.91 | 1,000 | 42 | 2015 | | 2025.02.27 | Àü¼¼ | ¹é¿îÀκ£½ºÆ®ºô | 4 | 44.34 | 16,000 | 0 | 2008 | | 2025.02.27 | ¿ù¼¼ | ¿¡½ºÄÉÀÌÆÄÅ©¸®¿ò101µ¿102µ¿ | 6 | 29.91 | 500 | 50 | 2022 | | 2025.02.27 | ¿ù¼¼ | ÆÄũƮ¶ó¿ò | 4 | 49.39 | 18,300 | 20 | 2008 | | 2025.02.27 | ¿ù¼¼ | »õÇÑÇÏÀÌÃ÷ºô¶ó | 4 | 57.7 | 16,800 | 7 | 1996 | | 2025.02.27 | Àü¼¼ | »õÇÑÇÏÀÌÃ÷ºô¶ó | 4 | 57.7 | 17,800 | 0 | 1996 | | 2025.02.27 | ¿ù¼¼ | »õÇÑÇÏÀÌÃ÷ºô¶ó | 3 | 62.58 | 100 | 30 | 1996 | | 2025.02.27 | ¿ù¼¼ | »êÀåÇÏÀÌÃ÷ | 3 | 38.16 | 9,400 | 20 | 1991 | | 2025.02.27 | Àü¼¼ | ´ë¿ìºô¶ó³ªµ¿ | -1 | 45.73 | 7,000 | 0 | 1990 | | 2025.02.27 | Àü¼¼ | Å¿µ¾ÆÆ®ºô(371-2) | 5 | 62.56 | 21,400 | 0 | 2010 | | 2025.02.27 | ¿ù¼¼ | (24-545) | 5 | 13.5 | 500 | 45 | 2015 | | 2025.02.27 | Àü¼¼ | ÆÄÅ©¾Æ¸®¿Â101µ¿102µ¿ | 11 | 25.18 | 25,200 | 0 | 2021 | | 2025.02.27 | ¿ù¼¼ | ÀÚ¶óÇϿ콺(366-19) | 3 | 42.36 | 5,000 | 90 | 2014 | | 2025.02.27 | ¿ù¼¼ | ¶ó¿Âºô¸®Áö | 3 | 27.97 | 16,100 | 25 | 2016 | | 2025.02.27 | ¿ù¼¼ | ÇÁ¶óÀÓÇϿ콺(397-36) | 5 | 29.98 | 12,950 | 10 | 2011 | | 2025.02.27 | Àü¼¼ | ¿¹ÁöÆÓ¸®½º89Â÷ | 5 | 33.54 | 19,000 | 0 | 2016 | | 2025.02.26 | ¿ù¼¼ | ¹Ð·¹´Ï¾ö¸Ç¼Ç(Bµ¿) | 2 | 41.6 | 13,000 | 10 | 2002 | | 2025.02.26 | ¿ù¼¼ | â´ëºô¶ó(1087-3) | 6 | 54.36 | 23,300 | 25 | 2012 | | 2025.02.26 | Àü¼¼ | ¿£¿¡½º¿ùµåŸ¿ö | 5 | 42.82 | 30,000 | 0 | 2024 | | 2025.02.26 | Àü¼¼ | ¿£¿¡½º¿ùµåŸ¿ö | 5 | 42.82 | 30,000 | 0 | 2024 | | 2025.02.26 | Àü¼¼ | ¿£¿¡½º¿ùµåŸ¿ö | 5 | 42.82 | 30,000 | 0 | 2024 | | 2025.02.26 | ¿ù¼¼ | ¼±¤ºô¶ó(352-59) | 3 | 51.06 | 14,300 | 15 | 2001 | | 2025.02.26 | ¿ù¼¼ | ½ºÄ«ÀÌij½½ | 4 | 27.01 | 10,000 | 25 | 2012 | | 2025.02.26 | ¿ù¼¼ | â´ëºô¶ó(1087-3) | 6 | 54.36 | 23,300 | 25 | 2012 | | 2025.02.26 | ¿ù¼¼ | ÇØÁÖ½ºÄ«À̺ô¶ó | -1 | 42.8 | 8,200 | 17 | 2002 | | 2025.02.26 | ¿ù¼¼ | ½Ö¿ëºô¶óÆ®(362-21)Aµ¿ | 4 | 41.06 | 11,600 | 10 | 2001 | | 2025.02.26 | ¿ù¼¼ | ½Å¼ººô¶ó | 2 | 50.13 | 12,000 | 45 | 1993 | | 2025.02.26 | ¿ù¼¼ | ÇѿコīÀ̺ô | 2 | 24.51 | 500 | 50 | 2002 | | 2025.02.26 | Àü¼¼ | ¼¼ÀÎÆ®ºô(409-75) | 5 | 33.15 | 10,060 | 0 | 2012 | | 2025.02.26 | ¿ù¼¼ | ¹Ù¿ìÇϿ콺(895-10) | 3 | 13.64 | 500 | 48 | 2011 | | 2025.02.26 | ¿ù¼¼ | ±¤¸íºô¶ó10Â÷ | 2 | 48.16 | 1,000 | 60 | 1995 | | 2025.02.26 | ¿ù¼¼ | °Ç¾ç½º¸¶Æ®ºô | 5 | 36.12 | 12,000 | 15 | 2011 | | 2025.02.26 | ¿ù¼¼ | ¿¹¼Û¿¡¹öºô | 3 | 39.73 | 2,000 | 48 | 2004 | | 2025.02.26 | Àü¼¼ | ¿µ¼±ºô | 4 | 49.26 | 13,500 | 0 | 2002 | | 2025.02.26 | ¿ù¼¼ | ¼±¤ºô¶ó(352-59) | 3 | 51.06 | 14,400 | 15 | 2001 | | 2025.02.26 | ¿ù¼¼ | ½ºÅ丮ÇϿ콺(1014-23) | 3 | 12.64 | 1,000 | 52 | 2012 | | 2025.02.26 | ¸Å¸Å | ½Ö¿ëÇÁ¶óÀÓ | 4 | 80.45 | 33,000 | | 2011 | | 2025.02.26 | ¸Å¸Å | À¯ÇѺô | 4 | 38.19 | 22,900 | | 2016 | | 2025.02.26 | ¿ù¼¼ | ÆÄÅ©ÀÚÀ̺ô | 3 | 29.2 | 100 | 65 | 2020 | | 2025.02.26 | ¸Å¸Å | ½ºÆäÀ̽ººô(362-118) | 4 | 41.01 | 22,000 | | 2011 | | 2025.02.26 | ¸Å¸Å | (921-14) | 1 | 36.54 | 15,000 | | 1987 | | 2025.02.26 | ¸Å¸Å | ¹Ì¼Òºô | 6 | 25.96 | 29,000 | | 2018 | | 2025.02.25 | ¿ù¼¼ | ȼº¾ÆÆ®ºô | 3 | 47.5 | 10,000 | 25 | 2002 | | 2025.02.25 | Àü¼¼ | ÇÏÀÌÆ®¸Ç¼Ç | 2 | 58.53 | 19,000 | 0 | 2000 | | 2025.02.25 | ¸Å¸Å | ¾ÆÀνººô(997-15) | 5 | 37.67 | 21,300 | | 2011 | | 2025.02.25 | Àü¼¼ | LGŸ¿î6Â÷ | 3 | 59.57 | 20,100 | 0 | 2001 | | 2025.02.25 | Àü¼¼ | ¿ùµå¾ÆÆ®ºô | 5 | 65.37 | 17,500 | 0 | 2004 | | 2025.02.25 | ¿ù¼¼ | (1016-31)À̵çºô¸®Áö | 4 | 16 | 1,000 | 40 | 2011 | | 2025.02.25 | ¿ù¼¼ | °ÇÀÏ¾ÆÆ®ºô(°¡) | -1 | 62.37 | 11,000 | 30 | 2002 | | 2025.02.25 | ¿ù¼¼ | ÈÀϺô¶ó(57-24) | 3 | 43.04 | 11,700 | 35 | 2003 | | 2025.02.25 | ¿ù¼¼ | µ¿µµÇÏÀÌÃ÷ºô¶ó°¡µ¿ | 3 | 43.23 | 11,900 | 12 | 2001 | | 2025.02.25 | ¿ù¼¼ | ¼øÈ¯º£½ºÆ®ºô1(46-340) | 2 | 39.77 | 11,700 | 20 | 2003 | | 2025.02.25 | ¿ù¼¼ | TheÆ®¶ó¿ò2nd | 3 | 24.69 | 5,000 | 65 | 2022 | | 2025.02.25 | ¸Å¸Å | ´õ½ºÅ¸ÀÏ(458-42) | 3 | 49.99 | 23,300 | | 2015 | | 2025.02.25 | ¸Å¸Å | ³ª¿ìºô | 4 | 54.96 | 20,000 | | 2011 | | 2025.02.25 | ¸Å¸Å | »ó¿ìÁÖÅÃB | 2 | 50.61 | 21,900 | | 2003 | | 2025.02.25 | ¸Å¸Å | ȯÈñŸ¿î³ªµ¿ | 1 | 49.83 | 15,750 | | 2002 | | 2025.02.25 | Àü¼¼ | Çý¼ºÆÓ¸®½ººô(392-31) | 5 | 27.25 | 16,300 | 0 | 2014 | | 2025.02.25 | Àü¼¼ | ºÒ·çºô | 1 | 24.36 | 6,430 | 0 | 1997 | | 2025.02.25 | ¸Å¸Å | Çϳª¾ÆÀÌÆÄÅ©ºô(338-4¿Ü) | 3 | 47.25 | 31,500 | | 2017 | | 2025.02.25 | ¿ù¼¼ | ȰÁÖÅÃ(1118-5) | 4 | 43.75 | 3,000 | 50 | 2002 | | 2025.02.25 | Àü¼¼ | ¼öÁ¤ºô¶ó³ªµ¿ | 2 | 36.93 | 9,800 | 0 | 1992 | | 2025.02.25 | ¿ù¼¼ | ¼°æÆÓ¸®½º | 7 | 18.57 | 12,850 | 15 | 2019 | | 2025.02.25 | ¿ù¼¼ | ¼Çö | 5 | 12.24 | 500 | 40 | 2011 | | 2025.02.25 | Àü¼¼ | Å©¶ó¿îÆÓ¸®½º | 14 | 29.94 | 22,800 | 0 | 2020 | | 2025.02.25 | ¿ù¼¼ | ¹Ì¼ºÇϸ£µò(1102-5) | 3 | 29.19 | 10,000 | 60 | 2018 | | 2025.02.25 | ¿ù¼¼ | ·Ôµ¥ÆÓ¸®½º | 3 | 29.43 | 16,880 | 8 | 2016 | | 2025.02.25 | Àü¼¼ | ºÒ·çºô | 1 | 24.36 | 6,430 | 0 | 1997 | | 2025.02.25 | Àü¼¼ | ½Å¼º³×¿Àºô | 5 | 29.78 | 25,000 | 0 | 2019 | | 2025.02.25 | ¿ù¼¼ | SKÆÄÅ©¸®¿ò(851-33) | 3 | 25.92 | 300 | 75 | 2022 | | 2025.02.25 | ¿ù¼¼ | ´õ¼û153 | 5 | 14.69 | 0 | 60 | 2021 | | 2025.02.25 | ¿ù¼¼ | (959-22) | 3 | 28.42 | 500 | 45 | 2003 | | 2025.02.25 | ¿ù¼¼ | ´õ¼û153 | 5 | 14.69 | 0 | 60 | 2021 | | 2025.02.25 | ¿ù¼¼ | ±î»çÁö¿À | 3 | 27.38 | 3,000 | 100 | 2021 | | 2025.02.24 | Àü¼¼ | À£½ºÆÄÅ©ºô | 3 | 28.04 | 21,000 | 0 | 2018 | | 2025.02.24 | ¿ù¼¼ | ºñ¿¡½ºÇÏ¿ì¡2 | 5 | 23.31 | 5,500 | 60 | 2018 | | 2025.02.24 | ¿ù¼¼ | ºí·çÈú(846-14) | 2 | 22.03 | 3,000 | 101 | 2021 | | 2025.02.24 | ¿ù¼¼ | ´õ¿ø(966-3) | 4 | 27.53 | 100 | 70 | 2022 | | 2025.02.24 | ¿ù¼¼ | À§ÇϿ콺 | 5 | 27.54 | 100 | 80 | 2022 | | 2025.02.24 | ¿ù¼¼ | °Å¼º | 1 | 43.56 | 12,000 | 25 | 1986 | | 2025.02.24 | ¿ù¼¼ | ¸®´õ½ºÅ¸¿î(397-6) | 4 | 25.21 | 13,000 | 23 | 2016 | | 2025.02.24 | Àü¼¼ | À£½ºÆÄÅ©ºô | 4 | 28.11 | 20,000 | 0 | 2018 | | 2025.02.24 | ¸Å¸Å | ½ÂÀ±¸Ç¼Ç | 4 | 63.33 | 23,000 | | 2002 | | 2025.02.24 | ¸Å¸Å | Çö´ëÇÏÀÌŬ·¡½º | 4 | 39.98 | 18,000 | | 2010 | | 2025.02.24 | ¿ù¼¼ | ½Â¼®ÈúŸ¿î | 1 | 59.76 | 1,000 | 68 | 2003 | | 2025.02.24 | ¿ù¼¼ | ½¦¶óÅæºô¶ó(46-305) | 3 | 49.71 | 2,000 | 75 | 1995 | | 2025.02.24 | Àü¼¼ | °æ³²ºô¶ó(56-84) | 2 | 36.9 | 10,100 | 0 | 1990 | | 2025.02.24 | ¿ù¼¼ | ȼººô¶óDµ¿ | 2 | 50.15 | 20 | 40 | 2002 | | 2025.02.24 | ¿ù¼¼ | ÇѹéeŸ¿î(105-108) | 4 | 64.49 | 11,800 | 40 | 2002 | | 2025.02.24 | ¿ù¼¼ | Å»êºô(1114-17) | 5 | 51.04 | 12,000 | 27 | 2008 | | 2025.02.24 | ¿ù¼¼ | ÇѺû½ºÄ«À̺ô | 2 | 29.72 | 11,250 | 8 | 2008 | | 2025.02.24 | ¸Å¸Å | µÎ»êºô¶ó(959-26) | 3 | 59.85 | 28,000 | | 2002 | | 2025.02.24 | Àü¼¼ | µ¿±¤ºô¶ó | 1 | 29.88 | 7,980 | 0 | 1993 | | 2025.02.24 | ¿ù¼¼ | (879-1) | 2 | 56.96 | 500 | 58 | 2010 | | 2025.02.24 | Àü¼¼ | (817-18) | 2 | 29.55 | 10,500 | 0 | 2013 | | 2025.02.24 | ¸Å¸Å | ´ë¾Èºô¶ó(341-51) | 2 | 62.24 | 29,500 | | 2002 | | 2025.02.23 | Àü¼¼ | ¶óÀÎÆÄÅ© | 3 | 29.67 | 23,850 | 0 | 2020 | | 2025.02.22 | Àü¼¼ | ¼¿ï¸Ç¼Ç | 4 | 63.18 | 22,050 | 0 | 2000 | | 2025.02.22 | Àü¼¼ | ¾ÖÇÃÇϿ콺 | 5 | 36.2 | 18,770 | 0 | 2014 | | 2025.02.22 | Àü¼¼ | ¾ÖÇÃÇϿ콺 | 5 | 36.2 | 18,770 | 0 | 2014 | | 2025.02.22 | Àü¼¼ | ´Ù¼Ø(831-11) | 3 | 37.55 | 17,000 | 0 | 2012 | | 2025.02.22 | ¿ù¼¼ | ÇØÂùºô(24-550) | 8 | 16.49 | 7,500 | 6 | 2012 | | 2025.02.22 | ¿ù¼¼ | µå¸²ºô(TheDreamVill) | 4 | 26.42 | 12,200 | 10 | 2012 | | 2025.02.22 | ¿ù¼¼ | Çѿî(105-414) | 5 | 27.24 | 11,700 | 20 | 2012 | | 2025.02.22 | Àü¼¼ | ´ëÁøºô¶ó(1040-8) | 4 | 56.57 | 21,250 | 0 | 2010 | | 2025.02.22 | Àü¼¼ | (153-17) | 2 | 64.72 | 22,500 | 0 | 2009 | | 2025.02.22 | ¿ù¼¼ | ½Å¿µÈ¨Å¸¿î | 6 | 46.65 | 2,000 | 100 | 2014 | | 2025.02.22 | Àü¼¼ | Á¦ÀÌÁ¦ÀÌij½½ | 4 | 35.23 | 22,900 | 0 | 2016 | | 2025.02.22 | Àü¼¼ | Á¦ÀÌÁ¦ÀÌij½½ | 4 | 35.23 | 22,900 | 0 | 2016 | | 2025.02.22 | Àü¼¼ | Á¦À̽ººô(969-5) | 2 | 19.23 | 17,000 | 0 | 2022 | | 2025.02.22 | ¿ù¼¼ | ´õÇϿ콺5Â÷ | 3 | 38.21 | 5,000 | 120 | 2023 | | 2025.02.22 | ¿ù¼¼ | (504-114) | 2 | 37.44 | 9,400 | 10 | 1986 | | 2025.02.22 | ¿ù¼¼ | °æ³²ºô¶ó(56-84) | 1 | 36.9 | 9,160 | 10 | 1990 | | 2025.02.22 | Àü¼¼ | ±¤¸íÇÏÀÌÃ÷6Â÷ | 3 | 41.08 | 11,970 | 0 | 1993 | | 2025.02.22 | Àü¼¼ | ±¸»êÇØÇǹ븮Aµ¿ | 5 | 48.89 | 13,000 | 0 | 2002 | | 2025.02.22 | Àü¼¼ | ±â¿õº£½ºÆ®ºô | 2 | 54.27 | 14,000 | 0 | 2002 | | 2025.02.22 | Àü¼¼ | ½ÅÈï¾Æ³Ê½ººô³ªµ¿ | 5 | 57.11 | 17,850 | 0 | 2007 | | 2025.02.22 | ¿ù¼¼ | DSÇÏ¿ì¡ | 2 | 29.21 | 12,000 | 60 | 2022 | | 2025.02.22 | ¿ù¼¼ | TheÆ®¶ó¿ò2nd | 6 | 22.9 | 4,000 | 70 | 2022 | | 2025.02.22 | Àü¼¼ | À̵µÆ®¶ó¿ò | 4 | 29.58 | 16,800 | 0 | 2016 | | 2025.02.22 | Àü¼¼ | ·ÎºóÇϿ콺 | 4 | 29.81 | 17,100 | 0 | 2016 | | 2025.02.22 | ¿ù¼¼ | ¼Û¿øÄ³½½ | 3 | 26.7 | 16,800 | 15 | 2017 | | 2025.02.22 | ¿ù¼¼ | (98-23) | 3 | 40.94 | 19,530 | 8 | 2018 | | 2025.02.22 | ¿ù¼¼ | ¸ÞÁ¾µåÁª¸¶ | 4 | 23.19 | 15,000 | 25 | 2018 | | 2025.02.22 | ¿ù¼¼ | ·ÎºóÇϿ콺 | 5 | 29.3 | 2,000 | 75 | 2018 | | 2025.02.22 | ¿ù¼¼ | ¼¸í´õÆÛ½ºÆ® | 4 | 26.36 | 22,400 | 19 | 2019 | | 2025.02.22 | ¿ù¼¼ | À¸¶äij½½2Â÷ | 2 | 21.61 | 50 | 90 | 2021 | | 2025.02.22 | Àü¼¼ | Èѹ̸®ºô(993-15) | 5 | 29.81 | 11,130 | 0 | 2010 | | 2025.02.22 | ¸Å¸Å | õ¿ì¾ÆÆ®ºô(397-2) | 4 | 33.53 | 11,500 | | 2003 | | 2025.02.22 | ¸Å¸Å | ¿¡µ§ÇϿ콺 | 3 | 58.75 | 25,000 | | 2002 | | 2025.02.22 | ¸Å¸Å | ·Ôµ¥ÆÓ¸®½º | 5 | 41.66 | 27,500 | | 2016 | | 2025.02.22 | ¿ù¼¼ | ¾¾Æ¼ÇϿ콺(773-10) | 1 | 29.99 | 16,000 | 5 | 2014 | | 2025.02.22 | ¸Å¸Å | ´ë¾ßºô¶ó | 4 | 56.12 | 18,200 | | 1998 | | 2025.02.22 | ¸Å¸Å | ¼Ò´ã¹ë¸® | 2 | 29.14 | 27,000 | | 2012 | | 2025.02.22 | ¸Å¸Å | ¾ÆÀ̺ñŸ¿î(105-189) | 2 | 66.98 | 27,000 | | 2007 | | 2025.02.22 | ¸Å¸Å | ÀÎÅÍ½ÃÆ¼ºô | 3 | 47.34 | 19,500 | | 2007 | | 2025.02.22 | ¸Å¸Å | ¿¡½º¿¥ÆÄÅ©ºô101µ¿102µ¿ | 4 | 38.31 | 26,500 | | 2016 | | 2025.02.22 | ¸Å¸Å | ÆÄÅ©¾Æ¸®¿Â101µ¿102µ¿ | 11 | 25.44 | 28,500 | | 2021 | | 2025.02.21 | Àü¼¼ | ¹Ì·¡ÇϿ콺 | 3 | 24.24 | 19,448 | 0 | 2018 | | 2025.02.21 | Àü¼¼ | ¼ºÀϺô¶óB | 3 | 42.33 | 12,300 | 0 | 2003 | | 2025.02.21 | ¿ù¼¼ | ºô¶óµå´ÙÀÎ | 3 | 23.18 | 1,000 | 85 | 2023 | | 2025.02.21 | ¿ù¼¼ | ¼°æÆÓ¸®½º | 7 | 18.57 | 12,850 | 15 | 2019 | | 2025.02.21 | ¿ù¼¼ | ´õ½ºÀ§Æ®(73-78) | 6 | 23.74 | 3,000 | 70 | 2022 | | 2025.02.21 | ¿ù¼¼ | â´ëºô¶óAµ¿ | 3 | 28.35 | 2,000 | 60 | 2013 | | 2025.02.21 | Àü¼¼ | ·¹Àκ¸¿ìŸ¿ö | 3 | 62.62 | 21,000 | 0 | 2009 | | 2025.02.21 | Àü¼¼ | À¯Ç³ºô¶óÇÏÀÌ | 2 | 84.69 | 41,000 | 0 | 1990 | | 2025.02.21 | ¿ù¼¼ | ±¤¼ººô¶ó | 3 | 38.61 | 2,000 | 80 | 1993 | | 2025.02.21 | ¿ù¼¼ | ÇѼºÁÖÅà | -1 | 72.73 | 1,000 | 60 | 2000 | | 2025.02.21 | ¿ù¼¼ | ¼ÀÈú | 4 | 68.31 | 17,000 | 27 | 2003 | | 2025.02.21 | Àü¼¼ | µ¿¾Æºô¶ó(111-63) | 2 | 37.36 | 12,500 | 0 | 1990 | | 2025.02.21 | ¿ù¼¼ | µµ¿ìÁÖÅà | 2 | 53.28 | 14,600 | 15 | 1992 | | 2025.02.21 | ¿ù¼¼ | ¸ðÀüÇ÷¯½ººôBµ¿ | 5 | 33.49 | 10,000 | 20 | 2002 | | 2025.02.21 | ¿ù¼¼ | Ȱ´Ù¼¼´ëÁÖÅà | 1 | 42.17 | 1,000 | 60 | 2008 | | 2025.02.21 | Àü¼¼ | ´õÁ¸ÆÛ½ºÆ® | 3 | 29.97 | 29,800 | 0 | 2022 | | 2025.02.21 | ¸Å¸Å | µ¿Çö¸Ç¼Ç | 1 | 60.19 | 27,700 | | 2001 | | 2025.02.21 | ¸Å¸Å | ¸þºñ¿ì½º(350-10) | 4 | 33.93 | 25,000 | | 2017 | | 2025.02.21 | ¸Å¸Å | ÇÑÀϱ׸°¸Ç¼Ç | 2 | 50.73 | 17,500 | | 1995 | | 2025.02.21 | ¸Å¸Å | ÀÌÈ¾ÆÆ®ºô | 4 | 68.1 | 21,000 | | 2002 | | 2025.02.20 | ¿ù¼¼ | ¿¹¼º±×¸°Ä³½½2Â÷ | 1 | 49.42 | 2,000 | 85 | 2003 | | 2025.02.20 | Àü¼¼ | Á¤Àº±×¸°ÈÙ | 2 | 43.04 | 12,100 | 0 | 2002 | | 2025.02.20 | Àü¼¼ | ÃÊ¿øºô¶ó | 1 | 34.66 | 8,000 | 0 | 1994 | | 2025.02.20 | ¿ù¼¼ | Á¦ÀÌ¿¥ÆÓ¸®½º | 1 | 27.975 | 0 | 95 | 2021 | | 2025.02.20 | Àü¼¼ | ¿¹¿øºô¶ó6µ¿ | 2 | 36.98 | 10,000 | 0 | 1987 | | 2025.02.20 | Àü¼¼ | µ¿Áøºô¶ó | 2 | 63.2 | 16,880 | 0 | 1999 | | 2025.02.20 | ¿ù¼¼ | °øÀ۸ǼÇ2Â÷ | 4 | 45.84 | 12,000 | 10 | 2001 | | 2025.02.20 | Àü¼¼ | ¼ÀϺô¸®Áö103µ¿ | 5 | 47.69 | 15,000 | 0 | 2004 | | 2025.02.20 | ¿ù¼¼ | ±Ý°´©¸®ºô(998-10) | 5 | 15.72 | 1,500 | 34 | 2012 | | 2025.02.20 | Àü¼¼ | Çö´ëºô¶ó | 2 | 36.27 | 7,000 | 0 | 1991 | | 2025.02.20 | Àü¼¼ | Çö´ëºô¶ó | 2 | 36.27 | 7,000 | 0 | 1991 | | 2025.02.20 | Àü¼¼ | ´ë¼ºÄÉÀÌÁ¦ÀÌ | 11 | 29.92 | 21,200 | 0 | 2020 | | 2025.02.20 | Àü¼¼ | SKÆÄÅ©¸®¿ò | 5 | 28.96 | 21,600 | 0 | 2019 | | 2025.02.20 | ¿ù¼¼ | µ¿Àϳ׿Àºô | 4 | 39.34 | 1,300 | 70 | 2020 | | 2025.02.20 | ¿ù¼¼ | ´Ù³ª³×½ºÆ®ºô(56-379) | 4 | 27.27 | 9,437 | 45 | 2008 | | 2025.02.20 | ¿ù¼¼ | ½Å¼ººôµù(1096-2) | 2 | 13.35 | 1,000 | 40 | 2011 | | 2025.02.20 | Àü¼¼ | »ï¼º½¦¸£ºô(161-13) | 2 | 41.17 | 16,000 | 0 | 2011 | | 2025.02.20 | Àü¼¼ | »ï¼º½¦¸£ºô(161-13) | 2 | 41.17 | 16,000 | 0 | 2011 | | 2025.02.20 | Àü¼¼ | ³ª»ê¸Ç¼Ç(154-13) | 2 | 59.88 | 17,700 | 0 | 2007 | | 2025.02.20 | ¿ù¼¼ | ¶óºô¶óÆ® | 2 | 29.72 | 15,100 | 13 | 2016 | | 2025.02.20 | ¿ù¼¼ | Å·´ý | 6 | 18.73 | 3,000 | 75 | 2016 | | 2025.02.20 | Àü¼¼ | ÇÏÀÌÆÄÅ©ºô | 4 | 54.5 | 19,010 | 0 | 2007 | | 2025.02.20 | ¿ù¼¼ | °æ¹Î¾ÆÆ®ºô(882-32) | 3 | 26.56 | 2,000 | 100 | 2017 | | 2025.02.20 | ¿ù¼¼ | ´Ù¿Âä | 3 | 39.15 | 22,900 | 15 | 2018 | | 2025.02.20 | ¿ù¼¼ | ´Ù¿Âä | 3 | 39.15 | 22,900 | 15 | 2018 | | 2025.02.20 | Àü¼¼ | ¿¬¿ì³Ø½ºÆ®ºä | 13 | 13.16 | 13,500 | 0 | 2018 | | 2025.02.20 | Àü¼¼ | ¿¬¿ì³Ø½ºÆ®ºä | 13 | 13.16 | 15,200 | 0 | 2018 | | 2025.02.20 | Àü¼¼ | ¹Ì·¡ÇϿ콺 | 5 | 24.24 | 20,470 | 0 | 2018 | | 2025.02.20 | Àü¼¼ | ¹Ì·¡ÇϿ콺 | 5 | 24.24 | 20,470 | 0 | 2018 | | 2025.02.20 | Àü¼¼ | ³ª»ê¸Ç¼Ç(154-13) | 2 | 59.88 | 17,700 | 0 | 2007 | | 2025.02.20 | ¿ù¼¼ | ÆÄÅ©½ºÅ×ÀÌ | 5 | 16.11 | 500 | 40 | 2024 | | 2025.02.20 | Àü¼¼ | »ï¼ºÁÖÅà | 2 | 63.3 | 20,400 | 0 | 2001 | | 2025.02.20 | ¸Å¸Å | Á¶Àººô¶óAµ¿ | 2 | 44.52 | 11,000 | | 1991 | | 2025.02.20 | ¸Å¸Å | µå¸²ºô(TheDreamVill) | 5 | 22.98 | 11,500 | | 2012 | | 2025.02.20 | ¸Å¸Å | Å·´ý | 5 | 29.57 | 16,600 | | 2016 | | 2025.02.20 | ¸Å¸Å | ·Î¾âÇÏÀÌÃ÷(58-13) | 2 | 58.22 | 26,500 | | 2011 | | 2025.02.20 | ¸Å¸Å | Á¦À̽ººô | 5 | 18.38 | 16,700 | | 2019 | | 2025.02.20 | ¸Å¸Å | ³²°æº£½ºÆ®ºô(Cµ¿) | 2 | 64.02 | 25,000 | | 2001 | | 2025.02.20 | ¸Å¸Å | È¿¼ººô¶ó | 2 | 44.4 | 28,000 | | 1991 | | 2025.02.20 | ¸Å¸Å | Æ®¸®ºô¸®Áö | 4 | 25.94 | 29,000 | | 2021 | | 2025.02.20 | ¸Å¸Å | ´ë´öºô¶ó(353-46) | 3 | 57.5 | 22,700 | | 2001 | | 2025.02.20 | ¸Å¸Å | µ¿½Å¿ùµåºô | 3 | 55.2 | 18,300 | | 2002 | | 2025.02.20 | ¸Å¸Å | ¿ì¼º(353-2) | 4 | 37.45 | 29,300 | | 2019 | | 2025.02.19 | Àü¼¼ | Á¤Àº±×¸°ÈÙ | 2 | 43.04 | 12,100 | 0 | 2002 | | 2025.02.19 | ¿ù¼¼ | ÀºÇϼö±×¸°ºô | 3 | 51.09 | 5,000 | 60 | 2002 | | 2025.02.19 | ¿ù¼¼ | ³ª°æ¸Ç¼Ç2Â÷ | 2 | 49.02 | 2,000 | 55 | 2002 | | 2025.02.19 | ¿ù¼¼ | ³ª¸°ÇÏÀÓAµ¿ | 4 | 26.04 | 3,000 | 70 | 2017 | | 2025.02.19 | Àü¼¼ | ¹Ì·¡ÇϿ콺 | 2 | 24.24 | 19,420 | 0 | 2018 | | 2025.02.19 | ¿ù¼¼ | ¶óÇǾƳë | 5 | 27 | 300 | 80 | 2022 | | 2025.02.19 | ¿ù¼¼ | ´õÇϿ콺5Â÷ | 2 | 23.25 | 22,400 | 10 | 2023 | | 2025.02.19 | ¿ù¼¼ | °¡Àα׸°ºôB | 3 | 53.82 | 10,800 | 13 | 2001 | | 2025.02.19 | ¿ù¼¼ | ±ÝÈÇÏÀ̺ô | 5 | 44.72 | 4,000 | 85 | 2010 | | 2025.02.19 | ¿ù¼¼ | ¿µÁÖÁÖÅà | 2 | 48.6 | 1,000 | 63 | 2002 | | 2025.02.19 | ¿ù¼¼ | ´ºÇö´ëºô¶ó | 4 | 90.15 | 18,000 | 50 | 1997 | | 2025.02.19 | ¿ù¼¼ | ¿¹¼Û¿¡¹öºô | 3 | 39.73 | 2,000 | 48 | 2004 | | 2025.02.19 | ¿ù¼¼ | ·ÎÁîºôAµ¿(871-48) | 2 | 29.82 | 15,490 | 20 | 2017 | | 2025.02.19 | Àü¼¼ | µµ¿ø¼ÖºñÄ¡ | 4 | 29.97 | 16,800 | 0 | 2015 | | 2025.02.19 | ¿ù¼¼ | ·Ôµ¥À§³Êºô(102-368) | 5 | 31.42 | 2,000 | 60 | 2008 | | 2025.02.19 | ¿ù¼¼ | °è¸íÀ§³Ê½º | 2 | 51.4 | 3,000 | 90 | 2010 | | 2025.02.19 | ¿ù¼¼ | ¼ºÀç¼¼ÀÎÆ®(342-84) | 9 | 30.96 | 16,300 | 17 | 2012 | | 2025.02.19 | Àü¼¼ | ÆÄÅ©ºô(1081-20) | 4 | 41.94 | 12,000 | 0 | 2012 | | 2025.02.19 | Àü¼¼ | Çý¼ºÆÓ¸®½ººô(392-31) | 5 | 25.81 | 16,300 | 0 | 2014 | | 2025.02.19 | ¿ù¼¼ | ´õÇϿ콺5Â÷ | 2 | 23.25 | 22,400 | 10 | 2023 | | 2025.02.19 | ¿ù¼¼ | »ï¼º¸Þ¸£µð¾Ó | 5 | 50.54 | 14,700 | 6 | 2004 | | 2025.02.19 | ¸Å¸Å | °æÇѺô¶ó(56-644) | 4 | 42.18 | 11,500 | | 1991 | | 2025.02.19 | ¸Å¸Å | ¼ºÁøºô¶ó(61-75) | 2 | 62.21 | 26,800 | | 2000 | | 2025.02.19 | ¸Å¸Å | ½Å¿ëÇÏÀ̺ô | -1 | 50.72 | 14,700 | | 2001 | | 2025.02.19 | ¿ù¼¼ | °µ¿ÁÖÅà | 5 | 38.88 | 12,900 | 6 | 2003 | | 2025.02.19 | Àü¼¼ | ³²°æ¸®¹öºôBµ¿ | 2 | 67.9 | 23,000 | 0 | 2001 | | 2025.02.19 | ¿ù¼¼ | °µ¿ÁÖÅà | 5 | 38.88 | 12,900 | 6 | 2003 | | 2025.02.18 | ¿ù¼¼ | ¾ËÆæ½Ã¾Æºô | 2 | 47.48 | 17,500 | 20 | 2011 | | 2025.02.18 | ¿ù¼¼ | ±Ý°´©¸®ºô(998-10) | 8 | 15.72 | 6,400 | 2 | 2012 | | 2025.02.18 | ¿ù¼¼ | µð¾Æ¸Á2(105-82) | 3 | 29.94 | 13,000 | 30 | 2014 | | 2025.02.18 | Àü¼¼ | ¿ÍÀ̾غñ | 3 | 29.53 | 18,225 | 0 | 2016 | | 2025.02.18 | ¿ù¼¼ | °æ¹Î¾ÆÆ®ºô(882-32) | 6 | 29.9 | 22,200 | 1 | 2017 | | 2025.02.18 | ¿ù¼¼ | ¸®Ä¡ÇϿ콺(346-18) | 2 | 29.99 | 3,000 | 60 | 2017 | | 2025.02.18 | Àü¼¼ | ȼººô¶ó´Ùµ¿ | 5 | 18.53 | 5,600 | 0 | 2003 | | 2025.02.18 | Àü¼¼ | »ì·½ÇϿ콺6Â÷(56-536) | 4 | 43.17 | 11,000 | 0 | 2001 | | 2025.02.18 | ¿ù¼¼ | ÀÌȺô¶ó¸¶µ¿ | 1 | 35.94 | 1,000 | 60 | 1987 | | 2025.02.18 | ¿ù¼¼ | µ¿µµÇÏÀÌÃ÷ºô¶ó | -1 | 38.9 | 300 | 35 | 1996 | | 2025.02.18 | ¿ù¼¼ | Çö´ëȨŸ¿î(46-195) | 2 | 29.86 | 10,800 | 9 | 2010 | | 2025.02.18 | ¿ù¼¼ | ±Â¸ð´×ºô(1115-17) | 4 | 49.67 | 2,000 | 75 | 2010 | | 2025.02.18 | Àü¼¼ | ¼¼Áøºô¶ó | 1 | 61.84 | 15,000 | 0 | 1996 | | 2025.02.18 | ¸Å¸Å | µ¿±¤ºô¶ó | 2 | 38.88 | 8,000 | | 1993 | | 2025.02.18 | ¸Å¸Å | ³ª»êÁÖÅÃ(°¡µ¿) | 2 | 59.46 | 21,500 | | 1991 | | 2025.02.18 | ¸Å¸Å | ½Å¼¼°èµå¸²ºô | -1 | 57.62 | 15,000 | | 2002 | | 2025.02.17 | ¿ù¼¼ | ¸þºñ¿ì½º | 2 | 29.77 | 15,600 | 10 | 2016 | | 2025.02.17 | Àü¼¼ | »ï¼ººô¶óÆ®Bµ¿ | 1 | 58.39 | 16,000 | 0 | 2000 | | 2025.02.17 | Àü¼¼ | »ï¼ºÆÄÅ©ºô | 5 | 42.42 | 15,624 | 0 | 2001 | | 2025.02.17 | Àü¼¼ | ´ë»ê±×¸°ºô | 5 | 62.96 | 16,000 | 0 | 2002 | | 2025.02.17 | ¿ù¼¼ | ¹«Áö°³ºô¶ó2Â÷ | 3 | 32.88 | 8,500 | 30 | 1991 | | 2025.02.17 | ¿ù¼¼ | ¸í°¡ÇϿ콺 | 3 | 29.49 | 15,200 | 20 | 2016 | | 2025.02.17 | Àü¼¼ | ´ë»óÈúž | 4 | 41.88 | 17,800 | 0 | 2011 | | 2025.02.17 | ¿ù¼¼ | ¹Ù¿ìÇϿ콺(895-10) | 3 | 12.16 | 500 | 45 | 2011 | | 2025.02.17 | Àü¼¼ | ´º½ºÅ丮ȰîÁ¡(916-1) | 10 | 19.32 | 7,500 | 0 | 2013 | | 2025.02.17 | ¿ù¼¼ | ¾Æµ¨¸®¾Æ¥´(105-370) | 5 | 12.84 | 6,900 | 12 | 2013 | | 2025.02.17 | Àü¼¼ | »ç¶ûºô¶ó | 3 | 55.9 | 13,650 | 0 | 1991 | | 2025.02.17 | ¸Å¸Å | ½ãºô¶óÆ® | 5 | 69.84 | 22,000 | | 2002 | | 2025.02.17 | ¿ù¼¼ | ½Å¾Æºô¶ó(56-663) | 2 | 45.75 | 1,000 | 77 | 2001 | | 2025.02.17 | ¿ù¼¼ | ¿ì¼ºÅ׸¶ºôA | 4 | 30.575 | 500 | 60 | 2006 | | 2025.02.17 | Àü¼¼ | À̵µÆÓ¸®½º | 2 | 24.36 | 22,000 | 0 | 2021 | | 2025.02.17 | ¿ù¼¼ | Bluehill | 4 | 24.78 | 1,000 | 60 | 2019 | | 2025.02.17 | ¿ù¼¼ | ¿¡ÄÚºô | 5 | 28.08 | 5,000 | 67 | 2022 | | 2025.02.17 | Àü¼¼ | Çϳª¾ÆÀÌÆÄÅ©ºô | 2 | 27.78 | 17,200 | 0 | 2017 | | 2025.02.17 | Àü¼¼ | ¾¾Æ¼ÇϿ콺Aµ¿ | 4 | 36.27 | 19,900 | 0 | 2017 | | 2025.02.17 | ¸Å¸Å | ´ëÀººñÀüºô | 3 | 63.92 | 35,800 | | 2007 | | 2025.02.17 | ¸Å¸Å | °¡È¸Ç¼Ç°¡µ¿ | 4 | 60.45 | 20,000 | | 2000 | | 2025.02.17 | ¿ù¼¼ | ¸í°¡ÇϿ콺 | 3 | 29.49 | 15,200 | 20 | 2016 | | 2025.02.16 | ¿ù¼¼ | °³²ºô¶ó | -1 | 58.68 | 3,000 | 50 | 1987 | | 2025.02.16 | Àü¼¼ | ¿ìÁøºô¶ó | 1 | 49.44 | 6,600 | 0 | 2000 | | 2025.02.16 | ¸Å¸Å | ÇÁ¸®¸Þ¶ó | 4 | 42.08 | 27,600 | | 2016 | | 2025.02.15 | ¿ù¼¼ | û¼ÛÆòÈÇコÇϿ콺 | 5 | 26.04 | 3,000 | 80 | 2022 | | 2025.02.15 | Àü¼¼ | Çý¼ºÆÓ¸®½º(155-17) | 2 | 27.08 | 16,000 | 0 | 2018 | | 2025.02.15 | Àü¼¼ | ¹Ì·¡ÇϿ콺 | 6 | 22.38 | 18,900 | 0 | 2018 | | 2025.02.15 | Àü¼¼ | ¹Ì·¡ÇϿ콺 | 6 | 23.07 | 18,390 | 0 | 2018 | | 2025.02.15 | Àü¼¼ | ´ö¿ëÆÓ¸®Ã¼ | 3 | 25.23 | 17,890 | 0 | 2019 | | 2025.02.15 | Àü¼¼ | ÇÁ¶óÀÓºô(410-23) | 5 | 24.21 | 18,000 | 0 | 2019 | | 2025.02.15 | ¿ù¼¼ | ¸ÖƼÇϿ콺 | 3 | 17.02 | 1,000 | 47 | 2004 | | 2025.02.15 | ¿ù¼¼ | ±Ý°´©¸®ºô(998-10) | 6 | 15.72 | 6,615 | 1 | 2012 | | 2025.02.15 | ¿ù¼¼ | ȼºÈ¨Å¸¿î101µ¿ | 3 | 40.65 | 3,200 | 42 | 2002 | | 2025.02.15 | Àü¼¼ | (772-22) | 3 | 29.54 | 16,800 | 0 | 2021 | | 2025.02.15 | ¿ù¼¼ | ÇѼº±×¸°Å¸¿î8µ¿ | 4 | 61.71 | 3,400 | 80 | 2003 | | 2025.02.15 | ¿ù¼¼ | ȨÇǾƸǼÇ(996-12) | -1 | 56.1 | 2,000 | 70 | 1994 | | 2025.02.15 | ¿ù¼¼ | ´õ½ºÀ§Æ®(457-20) | 3 | 29.36 | 2,000 | 90 | 2022 | | 2025.02.15 | ¿ù¼¼ | ¼öÁ¤ÇÏÀ̺ô(56-483) | 4 | 49.94 | 3,000 | 50 | 2002 | | 2025.02.15 | Àü¼¼ | ¼¿¬ºí·çÈúºñ | 2 | 29.93 | 16,800 | 0 | 2016 | | 2025.02.15 | Àü¼¼ | ¼¿¬ºí·çÈú | 3 | 29.22 | 16,100 | 0 | 2016 | | 2025.02.15 | Àü¼¼ | ¼¿¬ºí·çÈú | 3 | 29.22 | 16,100 | 0 | 2016 | | 2025.02.15 | ¸Å¸Å | ¹Ì·¡ÇÏÀÌÃ÷Aµ¿(370-26) | -1 | 66.54 | 18,000 | | 2001 | | 2025.02.15 | ¸Å¸Å | ¿ìȱ׸° | 2 | 26.98 | 15,300 | | 2012 | | 2025.02.15 | ¸Å¸Å | ¼ºº¸¸Ç¼Çºô¶ó | 3 | 76.02 | 28,000 | | 1996 | | 2025.02.15 | ¸Å¸Å | ¾¾Æ¼ÇϿ콺Aµ¿ | 4 | 36.27 | 25,000 | | 2017 | | 2025.02.15 | ¸Å¸Å | Çý¼ºÆÓ¸®½ººô(392-31) | 6 | 20.68 | 19,000 | | 2014 | | 2025.02.15 | ¸Å¸Å | °è¸íÁÖÅÃ(24-308) | 5 | 47.16 | 16,000 | | 2001 | | 2025.02.15 | Àü¼¼ | ¿ì³²ºô¶ó(95-159) | 1 | 54.6 | 17,500 | 0 | 2002 | | 2025.02.15 | ¸Å¸Å | °ñµç¸®Ä¡ºô(396-21) | 2 | 54.48 | 22,000 | | 2008 | | 2025.02.15 | ¿ù¼¼ | ¼±ÇϿ콺 | 3 | 37.47 | 500 | 49 | 2002 | | 2025.02.15 | ¿ù¼¼ | À¯´Ï¿Â½¦¸£ºô(Dµ¿) | 2 | 34.62 | 2,000 | 75 | 2002 | | 2025.02.15 | ¿ù¼¼ | ¼öÁ¤ºô¶ó°¡µ¿ | 2 | 33 | 3,000 | 50 | 1986 | | 2025.02.15 | ¿ù¼¼ | áæõ½(988-22) | 3 | 19.61 | 500 | 33 | 2013 | | 2025.02.14 | ¿ù¼¼ | º¸±¤¾ÆÆ®ºô | 3 | 39.87 | 1,000 | 65 | 2004 | | 2025.02.14 | ¿ù¼¼ | û¼ÛÆòÈÇコÇϿ콺 | 2 | 39.84 | 7,000 | 70 | 2016 | | 2025.02.14 | ¿ù¼¼ | Æ÷¸£Å×ÇÏÀÓ | 4 | 27.03 | 15,000 | 20 | 2021 | | 2025.02.14 | ¿ù¼¼ | »ï¿ø·¢½ººô¶óBµ¿ | 2 | 41.34 | 8,500 | 5 | 1989 | | 2025.02.14 | Àü¼¼ | ¼¾ÈÆÄÅ©ºä | 4 | 18.43 | 25,500 | 0 | 2024 | | 2025.02.14 | Àü¼¼ | µ¿¼ºô¶ó(56-524) | 1 | 42.78 | 11,200 | 0 | 1992 | | 2025.02.14 | ¿ù¼¼ | Æ÷¸£Å×ÇÏÀÓ | 2 | 25.32 | 14,000 | 34 | 2023 | | 2025.02.14 | ¿ù¼¼ | Çö´ëºô¸®Áö | 5 | 78.83 | 18,500 | 28 | 1997 | | 2025.02.14 | ¿ù¼¼ | ½Å¼º³×¿Àºô | 7 | 21.58 | 18,900 | 20 | 2019 | | 2025.02.14 | ¿ù¼¼ | ÇÁ¶óÀÓÇϿ콺 | 2 | 27.3 | 200 | 70 | 2019 | | 2025.02.14 | ¸Å¸Å | ´õ¶ó¿Â(369-37) | 4 | 38.25 | 26,500 | | 2017 | | 2025.02.14 | ¸Å¸Å | ¿ì¼º(105-9¿Ü) | 6 | 39.3 | 33,000 | | 2015 | | 2025.02.14 | ¸Å¸Å | µ¿³²ÁÖÅà | 3 | 51.63 | 17,800 | | 2002 | | 2025.02.14 | ¿ù¼¼ | Àå¿ø¾ÆÆ®ºô¶ó(341-22) | 1 | 59.85 | 5,000 | 100 | 1999 | | 2025.02.14 | ¿ù¼¼ | ´ë¿øºô¶ó(392-42) | 2 | 54.01 | 15,200 | 25 | 1999 | | 2025.02.14 | Àü¼¼ | ´ë¿ì¿¬¸³ | 3 | 51.09 | 16,300 | 0 | 1995 | | 2025.02.14 | ¿ù¼¼ | ¿ìÀå»ê¾ÆÀνººô | 7 | 31.57 | 13,800 | 20 | 2011 | | 2025.02.14 | ¿ù¼¼ | ¿¹ÁöÆÓ¸®½º89Â÷ | 2 | 33.54 | 1,000 | 90 | 2016 | | 2025.02.14 | Àü¼¼ | ¶óÀÎÆÄÅ© | 4 | 29.19 | 23,850 | 0 | 2020 | | 2025.02.14 | ¸Å¸Å | ¿¹¼ÖÇϳªºô3Â÷ | 3 | 37.51 | 19,000 | | 2013 | | 2025.02.13 | ¿ù¼¼ | µ¿¿ì¾ÆÆ®ºô | 5 | 48.77 | 3,000 | 70 | 2009 | | 2025.02.13 | Àü¼¼ | µ¿ÁøÇÏÀÓºô(370-33) | 3 | 56.23 | 22,000 | 0 | 2009 | | 2025.02.13 | ¿ù¼¼ | ½ºÅ丮ÇϿ콺(1014-23) | 5 | 12.64 | 3,000 | 37 | 2012 | | 2025.02.13 | Àü¼¼ | µå¸®¹ÌŸ¿î(858-1) | 2 | 38.22 | 21,790 | 0 | 2015 | | 2025.02.13 | Àü¼¼ | µ¿ÁøÇÏÀÓºô(370-33) | 3 | 56.23 | 22,000 | 0 | 2009 | | 2025.02.13 | ¸Å¸Å | ¹Ì·¡ÇÏÀÌÃ÷Bµ¿(370-27) | 1 | 59.88 | 24,500 | | 2001 | | 2025.02.13 | ¸Å¸Å | Çѽꣳ׽ºÆ®ºô(915-25) | 6 | 29.94 | 18,000 | | 2011 | | 2025.02.13 | ¸Å¸Å | ¸®´õ½ºÅ¸¿î(397-6) | 3 | 29.79 | 18,000 | | 2016 | | 2025.02.13 | ¸Å¸Å | °æ³²ºô¶ó´Ùµ¿ | 1 | 37.35 | 15,000 | | 1986 | | 2025.02.13 | ¿ù¼¼ | ´ëÁøºô¶ó | 5 | 20.42 | 8,270 | 5 | 2012 | | 2025.02.13 | ¿ù¼¼ | »ó¿ìºô¶ó | 4 | 32.16 | 1,500 | 60 | 2001 | | 2025.02.13 | ¿ù¼¼ | żºÇÏÀÌÃ÷ºô¶ó5Â÷ | 4 | 38.09 | 1,000 | 60 | 1995 | | 2025.02.13 | ¸Å¸Å | ¼Ò´ã¸¶À» | 4 | 33.8 | 18,900 | | 2011 | | 2025.02.13 | Àü¼¼ | ¿¥Æç¸®Ã¼ | 4 | 40.44 | 19,000 | 0 | 2015 | | 2025.02.13 | ¿ù¼¼ | ¿¥Æç¸®Ã¼(346-82) | 2 | 37.12 | 19,000 | 40 | 2015 | | 2025.02.13 | ¿ù¼¼ | ÇÁ¶óÀÓÇϿ콺(393-23) | 5 | 71.51 | 4,000 | 111 | 2016 | | 2025.02.13 | ¿ù¼¼ | ¿ì¼º | 4 | 56.09 | 5,500 | 80 | 2016 | | 2025.02.13 | ¿ù¼¼ | »ï¼º½¦¸£ºô(61-82) | 5 | 39 | 1,000 | 69 | 2008 | | 2025.02.13 | ¿ù¼¼ | ¾î¹ÝÇϿ콺 | 3 | 26.34 | 1,000 | 65 | 2018 | | 2025.02.13 | Àü¼¼ | ´õŬ·¡½Ä | 2 | 48.49 | 29,000 | 0 | 2018 | | 2025.02.13 | ¿ù¼¼ | »õÇÑ¾ÆÆ®ºôB(1039-8) | 4 | 56.33 | 2,000 | 85 | 2002 | | 2025.02.13 | ¿ù¼¼ | ±×¸°¸ð´×ºô | 1 | 55.7 | 0 | 38 | 2002 | | 2025.02.13 | ¿ù¼¼ | ±×¸°¸ð´×ºô | 1 | 55.7 | 0 | 45 | 2002 | | 2025.02.13 | ¿ù¼¼ | ´ëÀϺô¶ó | 1 | 61.8 | 3,000 | 80 | 1992 | | 2025.02.12 | ¿ù¼¼ | Æú¶óºñ¿¤(1038-4) | 6 | 25.77 | 18,000 | 20 | 2018 | | 2025.02.12 | ¿ù¼¼ | ÀÎÅÍ½ÃÆ¼ºô¶ó(342-43) | 4 | 61.01 | 18,000 | 10 | 2001 | | 2025.02.12 | ¸Å¸Å | ¾ÆÁÙ¸®¿ò(1049-24) | 5 | 48.25 | 34,500 | | 2018 | | 2025.02.12 | ¸Å¸Å | »ï¼ºÆÄÅ©ºô | 1 | 59.78 | 23,500 | | 2001 | | 2025.02.12 | ¸Å¸Å | º¹ÁöȨŸ¿î(100-21) | 4 | 46.19 | 17,000 | | 2002 | | 2025.02.12 | ¸Å¸Å | â´ëºô¶ó(371-10) | 6 | 17.01 | 7,500 | | 2011 | | 2025.02.12 | ¸Å¸Å | ¿¡½º¿¥ÆÄÅ©ºô(409-2) | 6 | 24.34 | 18,000 | | 2016 | | 2025.02.12 | ¿ù¼¼ | ¾ÆÀ̺ô | 2 | 28.31 | 3,000 | 80 | 2017 | | 2025.02.12 | ¿ù¼¼ | ¼¼¸í¾ÆÅ©·Îºô | 6 | 29.28 | 2,000 | 66 | 2017 | | 2025.02.12 | ¿ù¼¼ | ¸®Ä¡ÇϿ콺(346-18) | 6 | 43.79 | 3,500 | 110 | 2017 | | 2025.02.12 | ¿ù¼¼ | ÇϳªÅ¸¿îAµ¿ | 5 | 29.93 | 2,000 | 75 | 2015 | | 2025.02.12 | Àü¼¼ | µð¾ÆÀνº(1075-27) | 9 | 22.97 | 11,500 | 0 | 2015 | | 2025.02.12 | ¿ù¼¼ | ¹ÎÆÓ¸®½º | 4 | 39.48 | 12,000 | 10 | 2008 | | 2025.02.12 | ¿ù¼¼ | Áø¿ìºô¶ó | 2 | 41.37 | 1,000 | 100 | 2001 | | 2025.02.12 | ¿ù¼¼ | ±â¸°¾ÆÆ®ºô¶ó | -1 | 39 | 500 | 45 | 1994 | | 2025.02.12 | ¿ù¼¼ | Çö´ë¾ÆÆ®ºô¶ó(962-16) | 3 | 55.27 | 5,000 | 37 | 1990 | | 2025.02.12 | ¿ù¼¼ | ´ë¿øºô¶ó(392-42) | -1 | 58.56 | 13,200 | 11 | 1999 | | 2025.02.12 | ¿ù¼¼ | »ó¿ì½¦¸£ºô | 3 | 35.77 | 11,700 | 8 | 2002 | | 2025.02.12 | ¿ù¼¼ | ¿ÍÀÌ¿¥ºô | 3 | 54.52 | 3,000 | 74 | 2015 | | 2025.02.12 | ¿ù¼¼ | ¿µ¾Ïºô¶ó | 1 | 59.98 | 16,600 | 5 | 1998 | | 2025.02.12 | ¿ù¼¼ | ½ºÄ«À̺ä | 1 | 59.81 | 19,800 | 13 | 2003 | | 2025.02.12 | ¿ù¼¼ | ±îġŸ¿î´Ùµ¿ | 4 | 34.56 | 9,500 | 15 | 1991 | | 2025.02.12 | ¿ù¼¼ | ÀÌ·¹¾ÆÆ®ºô | 1 | 50.03 | 2,000 | 80 | 2004 | | 2025.02.12 | ¿ù¼¼ | ½Å¿µ¸®Ä¡ºô | 4 | 39.58 | 3,150 | 105 | 2016 | | 2025.02.11 | ¸Å¸Å | ¼º¿øºô¶ó(1114-15) | 4 | 48.75 | 16,500 | | 2002 | | 2025.02.11 | ¸Å¸Å | È¿¼º¾ÆÆ®ºô(56-427) | 2 | 42.09 | 15,000 | | 2002 | | 2025.02.11 | ¸Å¸Å | ÀÎÅÍ½ÃÆ¼ºô | 6 | 38.11 | 24,800 | | 2012 | | 2025.02.11 | ¿ù¼¼ | µ¿»êÁÖÅÃAµ¿ | -1 | 64.53 | 11,000 | 20 | 2000 | | 2025.02.11 | Àü¼¼ | ºí¸®½ººô101µ¿102µ¿ | 2 | 59.72 | 38,000 | 0 | 2022 | | 2025.02.11 | Àü¼¼ | ºí¸®½ººô101µ¿102µ¿ | 2 | 59.72 | 38,000 | 0 | 2022 | | 2025.02.11 | Àü¼¼ | ´Ù¾Èºô¶óÆ®201µ¿202µ¿ | 4 | 37.97 | 20,400 | 0 | 2016 | | 2025.02.11 | ¿ù¼¼ | SKÆÄÅ©¸®¿ò(851-33) | 2 | 26.12 | 1,000 | 60 | 2022 | | 2025.02.11 | ¿ù¼¼ | ȼººô¶ó(56-377) | 3 | 44.76 | 13,000 | 10 | 2002 | | 2025.02.11 | Àü¼¼ | ÈúŸ¿î(151-8) | 2 | 46.25 | 12,900 | 0 | 2002 | | 2025.02.11 | ¿ù¼¼ | »ïÀͺô¶ó(354-149) | 2 | 39.08 | 1,500 | 60 | 1987 | | 2025.02.11 | Àü¼¼ | µ¿À̺ô¶ó(362-120) | 2 | 55.67 | 17,000 | 0 | 2002 | | 2025.02.11 | Àü¼¼ | ¼º¿îÇÏÀÌÃ÷ | 4 | 59.64 | 15,100 | 0 | 1994 | | 2025.02.11 | ¿ù¼¼ | °æµ¿ÁÖÅà | 1 | 36.6 | 1,000 | 55 | 2002 | | 2025.02.11 | ¿ù¼¼ | ½ÅÈï¾Æ³Ê½ººô³ªµ¿ | 4 | 63.49 | 3,000 | 100 | 2007 | | 2025.02.11 | Àü¼¼ | À¯µðÄÚÆÄÅ©¸®¿ò | 4 | 16.51 | 7,930 | 0 | 2011 | | 2025.02.11 | ¿ù¼¼ | µ¿¸í³»Ãß·²ºô | 5 | 30.26 | 2,000 | 70 | 2012 | | 2025.02.11 | Àü¼¼ | ½ã¶óÀÎ | 6 | 29.14 | 20,422 | 0 | 2016 | | 2025.02.11 | ¿ù¼¼ | ¿µÁøÁÖÅà | 3 | 27.34 | 12,000 | 40 | 2023 | | 2025.02.11 | ¿ù¼¼ | ¿¬¿ì³Ø½ºÆ®ºä | 15 | 13.16 | 12,000 | 15 | 2018 | | 2025.02.11 | ¿ù¼¼ | ¿¡½º¿¥ÆÄÅ©ºô | 2 | 29.29 | 20,000 | 16 | 2018 | | 2025.02.11 | ¿ù¼¼ | À̼ö¾ÆÆ®ºô2Â÷ | 8 | 29.64 | 16,000 | 3 | 2016 | | 2025.02.11 | ¿ù¼¼ | À¯ÇѺô | 4 | 42.02 | 500 | 80 | 2016 | | 2025.02.10 | ¸Å¸Å | Á¤°¨Å¸¿îB | 4 | 29.6 | 17,000 | | 2016 | | 2025.02.10 | ¸Å¸Å | °è¸íÀ§³Ê½º(98-111) | 5 | 43.68 | 18,800 | | 2008 | | 2025.02.10 | ¸Å¸Å | ÃÊ¿øºô¶ó(347-10) | 4 | 56.7 | 21,000 | | 1994 | | 2025.02.10 | ¸Å¸Å | ÇѼººô¶ó | -1 | 28.47 | 14,300 | | 1987 | | 2025.02.10 | ¿ù¼¼ | ¼¾ÈÆÄÅ©ºä | 6 | 18.91 | 25,000 | 3 | 2024 | | 2025.02.10 | ¿ù¼¼ | ½ºÅ丮ÇϿ콺(1014-23) | 3 | 13.44 | 3,000 | 40 | 2012 | | 2025.02.10 | ¿ù¼¼ | Çѽº¾ÆÀ̺ô2 | 4 | 27.45 | 1,181 | 44 | 2019 | | 2025.02.10 | Àü¼¼ | ¶óÀÎÆÄÅ© | 6 | 29.41 | 23,850 | 0 | 2020 | | 2025.02.10 | Àü¼¼ | ´ëÈ£¼¾½ººô8Â÷ | 4 | 59.66 | 18,900 | 0 | 2004 | | 2025.02.10 | ¿ù¼¼ | ¿¡ÄÚÇϿ콺 | 3 | 24.48 | 300 | 80 | 2021 | | 2025.02.10 | Àü¼¼ | ºí¸®½ººô101µ¿102µ¿ | 5 | 57.13 | 34,000 | 0 | 2022 | | 2025.02.10 | ¿ù¼¼ | ´õ¿¡½º¿¡½ºÅ¸¿î | 4 | 19.91 | 100 | 70 | 2022 | | 2025.02.10 | ¿ù¼¼ | ¸®Ä¡7 | 13 | 29.57 | 24,000 | 8 | 2022 | | 2025.02.10 | Àü¼¼ | ¿µÁøÁÖÅà | 2 | 23.74 | 16,000 | 0 | 2023 | | 2025.02.10 | Àü¼¼ | ¿µÁøÁÖÅà | 2 | 23.74 | 16,000 | 0 | 2023 | | 2025.02.10 | ¿ù¼¼ | ½ºÅ丮ÇϿ콺(1014-23) | 2 | 13.44 | 1,000 | 57 | 2012 | | 2025.02.10 | ¿ù¼¼ | ½ºÅ丮ÇϿ콺(1014-23) | 2 | 13.44 | 3,000 | 40 | 2012 | | 2025.02.10 | Àü¼¼ | È¿ÁøÇÏÀÌÃ÷(59-45) | 3 | 40.04 | 15,627 | 0 | 2011 | | 2025.02.10 | ¿ù¼¼ | ·Î¾âÇϿ콺 | 3 | 24.18 | 1,000 | 50 | 2010 | | 2025.02.10 | ¿ù¼¼ | ¼¿ïºô¸®Áö(868-19) | 4 | 58.04 | 3,000 | 95 | 2008 | | 2025.02.10 | Àü¼¼ | ÆÄũƮ¶ó¿ò | 2 | 49.39 | 21,000 | 0 | 2008 | | 2025.02.10 | ¿ù¼¼ | ´ë¼Ûºô¶ó(354-92) | 5 | 39.5 | 11,300 | 20 | 2001 | | 2025.02.09 | ¿ù¼¼ | ¿¤¸²ÆÄÅ©ºôAµ¿ | 4 | 23.18 | 1,000 | 40 | 2002 | | 2025.02.09 | Àü¼¼ | À¯Ç³ºô¶óÇÏÀÌ | 3 | 84.69 | 7,000 | 0 | 1990 | | 2025.02.08 | ¸Å¸Å | °Ç¾ç½º¸¶Æ®ºô | 5 | 36.12 | 13,100 | | 2011 | | 2025.02.08 | ¸Å¸Å | ÇϳªÅ¸¿î | 4 | 49.38 | 20,500 | | 2001 | | 2025.02.08 | ¸Å¸Å | ¼º¿ìÇÏÀÌÃ÷ºô¶ó2Â÷ | 4 | 46.89 | 12,000 | | 2002 | | 2025.02.08 | ¿ù¼¼ | JYÆç¸®½º | 3 | 29.92 | 16,700 | 20 | 2016 | | 2025.02.08 | ¸Å¸Å | ¼öÁ¤ºô¶ó°¡µ¿ | 2 | 33 | 14,000 | | 1986 | | 2025.02.08 | Àü¼¼ | Áö¿Â¾ÆÆ®ºô | 4 | 26.71 | 15,876 | 0 | 2016 | | 2025.02.08 | ¿ù¼¼ | ¾ÆÀ̵ð¿ò | 6 | 27.2 | 3,000 | 85 | 2016 | | 2025.02.08 | Àü¼¼ | »ï¼º½¦¸£ºô | 6 | 45.62 | 22,400 | 0 | 2016 | | 2025.02.08 | ¸Å¸Å | Á¶Àººô¶ó | 2 | 43.62 | 17,000 | | 2001 | | 2025.02.08 | ¿ù¼¼ | ¶ó¿ò(RAUM) | 2 | 37.99 | 1,500 | 60 | 2016 | | 2025.02.08 | ¿ù¼¼ | À¯Çöºô | 5 | 29.79 | 2,000 | 80 | 2016 | | 2025.02.08 | ¿ù¼¼ | ¾çÁöŸ¿î | 2 | 59.79 | 3,000 | 100 | 2000 | | 2025.02.08 | Àü¼¼ | ´ë¿õÇÏÀÌÃ÷ºô¶ó7Â÷ | 3 | 33.17 | 8,790 | 0 | 1993 | | 2025.02.08 | ¿ù¼¼ | Ȱ±Ù»ý¹×´Ù¼¼´ëÁÖÅà | 4 | 73.03 | 10,000 | 60 | 2004 | | 2025.02.08 | ¿ù¼¼ | ¾ÆÀ̺ñŸ¿î(105-189) | 4 | 52.55 | 5,000 | 64 | 2007 | | 2025.02.08 | ¿ù¼¼ | ¹Ì»ê¼¾Æ®ºô | 4 | 27.06 | 8,000 | 5 | 2008 | | 2025.02.08 | ¿ù¼¼ | Åä¼®¾Æ³×½ººô(102-291) | 3 | 62.28 | 2,000 | 110 | 2008 | | 2025.02.08 | ¿ù¼¼ | ³²¼º¾ÆÆ®ºô(59-62) | 2 | 55.57 | 16,800 | 15 | 2009 | | 2025.02.08 | ¿ù¼¼ | ¿£¾¾ºô(24-67) | 8 | 19.07 | 500 | 46 | 2012 | | 2025.02.08 | ¿ù¼¼ | µ¿È£±×¸°ºô | -1 | 29.72 | 1,000 | 45 | 2002 | | 2025.02.08 | Àü¼¼ | ´ë½Åºô¶ó(156-9) | 3 | 63.6 | 16,200 | 0 | 2000 | | 2025.02.08 | ¿ù¼¼ | ¸®´õ½ºÅ¸¿î | 2 | 29.37 | 3,000 | 80 | 2017 | | 2025.02.08 | Àü¼¼ | °ñµçºô(367-51) | 7 | 22.11 | 22,500 | 0 | 2018 | | 2025.02.08 | ¿ù¼¼ | »þÀδõÈúȰî | 2 | 29.64 | 1,000 | 105 | 2023 | | 2025.02.08 | ¿ù¼¼ | »þÀδõÈúȰî | 3 | 29.3 | 1,000 | 120 | 2023 | | 2025.02.08 | ¿ù¼¼ | »ï¼º¾ÆÀÌ¸Ç¼Ç | -1 | 33.35 | 2,000 | 65 | 2002 | | 2025.02.08 | Àü¼¼ | ´Ù¿øºô¶ó(98-29) | 2 | 53.88 | 14,000 | 0 | 1991 | | 2025.02.08 | Àü¼¼ | ÈúŸ¿î(151-8) | 1 | 57.33 | 14,400 | 0 | 2002 | | 2025.02.08 | Àü¼¼ | ´ë½Åºô¶ó(156-9) | 3 | 63.6 | 16,200 | 0 | 2000 | | 2025.02.08 | ¿ù¼¼ | ÀºÇÏÇÁ¸®¸Þ¶ó | 4 | 41.67 | 3,000 | 85 | 2013 | | 2025.02.08 | Àü¼¼ | ·Ôµ¥Å¸¿î(352-2) | 2 | 33.4 | 19,500 | 0 | 2014 | | 2025.02.08 | Àü¼¼ | ·Ôµ¥Å¸¿î(352-2) | 2 | 33.4 | 20,500 | 0 | 2014 | | 2025.02.08 | Àü¼¼ | Ǫ¸¥Ç³°æÃ¤ | 6 | 29.98 | 2,000 | 0 | 2022 | | 2025.02.08 | ¿ù¼¼ | µð¾ÆÀνº(1075-27) | 10 | 12.78 | 9,000 | 35 | 2015 | | 2025.02.08 | ¿ù¼¼ | ´Ù¼ØÅ¸¿î³ªµ¿(1037-14) | 3 | 36.05 | 2,000 | 125 | 2015 | | 2025.02.08 | ¿ù¼¼ | ´Ù¼ØÅ¸¿î³ªµ¿(1037-14) | 3 | 36.05 | 2,000 | 125 | 2015 | | 2025.02.08 | ¿ù¼¼ | ¿¹ÀÎ¾ÆÆ®ºô | 2 | 43.49 | 11,600 | 20 | 2003 | | 2025.02.08 | ¿ù¼¼ | ¼ö¾ÆÆ®ºô | 3 | 31.68 | 17,260 | 23 | 2015 | | 2025.02.07 | ¸Å¸Å | ´õ¿ø | 4 | 19.98 | 21,600 | | 2019 | | 2025.02.07 | ¸Å¸Å | µ¿¼º¾ÆÆ®ºô | 1 | 68.62 | 27,000 | | 2002 | | 2025.02.07 | Àü¼¼ | (819-11) | 1 | 32.01 | 7,000 | 0 | 1986 | | 2025.02.07 | ¿ù¼¼ | (56-52) | 4 | 48.84 | 3,000 | 63 | 2008 | | 2025.02.07 | ¿ù¼¼ | ¸íÁøºô¶ó | 2 | 36.54 | 1,000 | 60 | 1991 | | 2025.02.07 | ¸Å¸Å | ±Ý°ÆÄÅ©ºôAµ¿ | -1 | 52.83 | 13,300 | | 2008 | | 2025.02.07 | Àü¼¼ | »ïÈïÇÏÀÌÃ÷ºô¶ó | -1 | 45.81 | 8,600 | 0 | 1992 | | 2025.02.07 | ¿ù¼¼ | ¿¹¼Û¿¡¹öºô | 5 | 39.81 | 1,000 | 64 | 2004 | | 2025.02.07 | ¿ù¼¼ | µ¿½Å¸Ç¼Ç(56-62) | 4 | 58.94 | 13,000 | 20 | 2003 | | 2025.02.07 | ¿ù¼¼ | ±Ý°ÆÄÅ©ºô | 4 | 37.53 | 3,000 | 80 | 2011 | | 2025.02.07 | Àü¼¼ | »êÀåºô¶ó | 2 | 44.37 | 12,900 | 0 | 1989 | | 2025.02.07 | ¿ù¼¼ | ¿µ»êºô¶ó | 1 | 28.96 | 12,000 | 10 | 2015 | | 2025.02.07 | ¿ù¼¼ | (1164-0) | 2 | 18.36 | 11,960 | 5 | 2014 | | 2025.02.07 | Àü¼¼ | À̵µÆ®¶ó¿ò | 2 | 29.77 | 17,260 | 0 | 2016 | | 2025.02.07 | Àü¼¼ | Çϳª¾ÆÀÌÆÄÅ©ºô(338-4¿Ü) | 5 | 36.88 | 24,500 | 0 | 2017 | | 2025.02.07 | Àü¼¼ | Çϳª¾ÆÀÌÆÄÅ©ºô(338-4¿Ü) | 5 | 36.88 | 24,500 | 0 | 2017 | | 2025.02.07 | Àü¼¼ | ¿¡ÀÌ¿£Ä³½½ | 5 | 25.78 | 16,700 | 0 | 2018 | | 2025.02.07 | Àü¼¼ | ºäƼ½¦¸£ºô | 2 | 45.24 | 29,800 | 0 | 2018 | | 2025.02.07 | Àü¼¼ | ¸¶·ç | 2 | 29.41 | 18,000 | 0 | 2017 | | 2025.02.07 | ¿ù¼¼ | ¾ÆÁÙ¸®¿ò(1038-13) | 5 | 27 | 3,000 | 70 | 2016 | | 2025.02.07 | ¿ù¼¼ | ¸®¿ÀÆÄÅ©ºô | 2 | 27.71 | 19,500 | 20 | 2020 | | 2025.02.07 | ¿ù¼¼ | Å¥ºêÆ÷(CubeFour) | 2 | 29.89 | 1,000 | 120 | 2022 | | 2025.02.07 | ¿ù¼¼ | À¯´Ï¿Â½¦¸£ºô(Eµ¿) | 4 | 30.47 | 8,200 | 28 | 2002 | | 2025.02.06 | ¿ù¼¼ | SK¹Ù¿òºô | 3 | 42.07 | 21,000 | 17 | 2016 | | 2025.02.06 | Àü¼¼ | ¸®¹öij½½ | 5 | 29.9 | 18,640 | 0 | 2019 | | 2025.02.06 | ¿ù¼¼ | ¶óÅ׶󽺺ô | 6 | 37.29 | 2,000 | 75 | 2015 | | 2025.02.06 | ¿ù¼¼ | µ¿¿Ï¼¼ÀÎÆ®ºô | 3 | 29.45 | 12,000 | 23 | 2012 | | 2025.02.06 | ¿ù¼¼ | Ÿ¿îºô(784-1) | 4 | 22.63 | 470 | 43 | 1993 | | 2025.02.06 | Àü¼¼ | Ȱ»þ·Ôµ¥ | 5 | 47.58 | 14,700 | 0 | 2008 | | 2025.02.06 | Àü¼¼ | µ¿µµÆÄÅ©ºä(1088-4) | 2 | 33.14 | 12,000 | 0 | 2011 | | 2025.02.06 | ¿ù¼¼ | µå¸²ÆÄÅ©ºô | 2 | 50.19 | 2,000 | 95 | 2011 | | 2025.02.06 | Àü¼¼ | µ¿ÁøÇÏÀ̺ô | 2 | 64.82 | 15,600 | 0 | 2008 | | 2025.02.06 | ¿ù¼¼ | â´ëºô¶ó(353-33) | 3 | 54.55 | 17,000 | 10 | 2007 | | 2025.02.06 | Àü¼¼ | ºñ¿ø±×¸°ºô¶ó | 1 | 41.49 | 11,000 | 0 | 1986 | | 2025.02.06 | Àü¼¼ | ¿¹ÀÎ¾ÆÆ®ºô | 3 | 40.68 | 11,800 | 0 | 2002 | | 2025.02.06 | ¿ù¼¼ | (869-33) | 2 | 36.57 | 10,500 | 19 | 1991 | | 2025.02.06 | ¸Å¸Å | »õ³¯ÁÖÅà | 2 | 58.36 | 27,000 | | 2002 | | 2025.02.06 | ¿ù¼¼ | ¿£¾¾ºô(24-67) | 6 | 19.07 | 500 | 42 | 2012 | | 2025.02.06 | ¸Å¸Å | ÇÑ»ç¶ûºô¶ó(354-67) | 2 | 87.99 | 21,000 | | 2002 | | 2025.02.06 | ¸Å¸Å | ÆÓ¶óÀ̽ºÅ¸¿î | 2 | 28.88 | 20,000 | | 2016 | | 2025.02.05 | ¿ù¼¼ | ¸®ºùÇϿ콺 | 2 | 26.32 | 1,000 | 75 | 2016 | | 2025.02.05 | ¿ù¼¼ | ¸¶¸¶½ººô | 2 | 19.69 | 11,900 | 10 | 2017 | | 2025.02.05 | ¿ù¼¼ | ±×¸°Èú(105-384) | 2 | 61.72 | 14,500 | 50 | 2010 | | 2025.02.05 | ¿ù¼¼ | ±Ý°´©¸®ºô(998-10) | 5 | 16.02 | 500 | 44 | 2012 | | 2025.02.05 | Àü¼¼ | ±Ý°´©¸®ºô(998-10) | 7 | 16.02 | 5,780 | 0 | 2012 | | 2025.02.05 | ¿ù¼¼ | ¼º¿øºô¶ó(785-9) | 5 | 54.57 | 15,000 | 20 | 2001 | | 2025.02.05 | ¸Å¸Å | ¾Æµ¥³ªÆÓ¸®½º | 7 | 20.34 | 24,300 | | 2016 | | 2025.02.05 | Àü¼¼ | µ¿µµÇÏÀÌÃ÷³ªµ¿ | 4 | 48.24 | 12,900 | 0 | 2001 | | 2025.02.05 | Àü¼¼ | ¸¶¸®ºô¸®Áö(1121-13) | 4 | 48.8 | 19,100 | 0 | 2011 | | 2025.02.05 | ¿ù¼¼ | ¿¥Æç¸®Ã¼ | 5 | 35.97 | 20,600 | 25 | 2017 | | 2025.02.05 | ¿ù¼¼ | ºí·çÈú(789-36) | 6 | 25.96 | 200 | 75 | 2020 | | 2025.02.05 | ¿ù¼¼ | ¾ÆÀ̺ñŸ¿î(105-189) | 3 | 70.08 | 16,000 | 30 | 2007 | | 2025.02.05 | ¿ù¼¼ | TheÆ®¶ó¿ò2nd | 2 | 28.05 | 5,000 | 85 | 2022 | | 2025.02.05 | ¿ù¼¼ | ¾ÆÀ̺ñŸ¿î(105-189) | 3 | 70.08 | 16,000 | 30 | 2007 | | 2025.02.05 | ¸Å¸Å | µ¿±¤ºô¶ó | 3 | 38.48 | 11,000 | | 1993 | | 2025.02.05 | ¸Å¸Å | (975-11) | -1 | 54.24 | 12,500 | | 1991 | | 2025.02.05 | ¿ù¼¼ | ´ö¿ë¸Ç¼Ç | 4 | 57.15 | 14,700 | 12 | 1996 | | 2025.02.05 | ¿ù¼¼ | »ï¿øÇÇ¾ÆÆ®Dµ¿ | 1 | 63.45 | 15,620 | 18 | 2001 | | 2025.02.05 | ¿ù¼¼ | ´ëÈ£ÇÏÀÌÃ÷¸Ç¼ð | 4 | 53.16 | 13,000 | 8 | 1991 | | 2025.02.05 | ¿ù¼¼ | ANPȰî | 4 | 24.05 | 1,000 | 100 | 2022 | | 2025.02.05 | Àü¼¼ | ¹«Áö°³ºô¶ó2Â÷ | 3 | 32.88 | 15,225 | 0 | 1991 | | 2025.02.05 | ¿ù¼¼ | ¹Ì·¡½ºÅ¸ºô5Â÷(464-10) | 3 | 42.98 | 11,000 | 34 | 2008 | | 2025.02.05 | ¿ù¼¼ | û¼ÛÆòÈÇÏÀ̸ǼÇ(452-14) | 5 | 28.3 | 2,000 | 58 | 2013 | | 2025.02.04 | ¿ù¼¼ | ȲÁ¦±×·£µåÆÄÅ©(105-480) | 5 | 40.11 | 8,650 | 32 | 2008 | | 2025.02.04 | ¿ù¼¼ | »ï¿ø½ºÄ«ÀÌij½½ | 3 | 67.42 | 4,000 | 70 | 2010 | | 2025.02.04 | ¸Å¸Å | ÇÁ¸®¸Þ¶ó(369-31) | 4 | 44.07 | 25,000 | | 2014 | | 2025.02.04 | ¸Å¸Å | ÀÎÅÍ½ÃÆ¼ºô¶óA | 1 | 59.88 | 24,600 | | 2001 | | 2025.02.04 | ¿ù¼¼ | Àå¿øÅ¸¿î°¡µ¿ | 4 | 50.46 | 2,000 | 70 | 2000 | | 2025.02.04 | ¿ù¼¼ | ¿äÇѺô | 3 | 29.13 | 16,750 | 3 | 2016 | | 2025.02.04 | Àü¼¼ | Çö´ëºí·ç¹Ö | 6 | 19.9 | 12,800 | 0 | 2015 | | 2025.02.04 | Àü¼¼ | ´Ù´Ùºô¸®Áö | 3 | 33.81 | 19,000 | 0 | 2015 | | 2025.02.04 | ¿ù¼¼ | »ï¿ø½ºÄ«ÀÌij½½ | 3 | 67.42 | 4,400 | 75 | 2010 | | 2025.02.04 | ¿ù¼¼ | ¼£·ÒÇϿ콺 | 3 | 18.72 | 1,000 | 58 | 2010 | | 2025.02.04 | ¿ù¼¼ | ±¹¹Î½¦¸£ºô | 2 | 52.74 | 13,000 | 25 | 2010 | | 2025.02.04 | ¿ù¼¼ | (964-1) | 3 | 45.25 | 13,000 | 15 | 2007 | | 2025.02.04 | ¿ù¼¼ | »õÇѱ׸°ºôAµ¿ | 5 | 51.01 | 13,650 | 20 | 2002 | | 2025.02.04 | Àü¼¼ | ¿µÁÖÁÖÅà | -1 | 23.64 | 5,000 | 0 | 2002 | | 2025.02.04 | ¿ù¼¼ | ûdz¸Ç¼Ç | 3 | 60.75 | 3,000 | 70 | 1997 | | 2025.02.04 | Àü¼¼ | À¯´Ï¿Âºô¸®Áö°¡µ¿ | 3 | 44.29 | 12,600 | 0 | 2001 | | 2025.02.04 | ¿ù¼¼ | ¿äÇѺô | 3 | 29.13 | 16,750 | 3 | 2016 | | 2025.02.04 | Àü¼¼ | ¶óÀÎÆÄÅ© | 6 | 29.93 | 23,850 | 0 | 2020 | | 2025.02.04 | Àü¼¼ | ÄÉ·»½Ã¾Æ | 4 | 37.52 | 30,000 | 0 | 2022 | | 2025.02.04 | ¿ù¼¼ | ¹«µîÆÄÅ© | -1 | 51.35 | 1,000 | 60 | 1991 | | 2025.02.04 | ¿ù¼¼ | È¿½Åºô¶ó°¡µ¿ | 3 | 64.92 | 17,000 | 25 | 1993 | | 2025.02.04 | ¿ù¼¼ | »ïÁ¤ºô¶ó(61-88) | 1 | 62.38 | 14,700 | 25 | 1997 | | 2025.02.04 | ¿ù¼¼ | ¼ÀϺô¸®Áö101µ¿ | 2 | 69 | 3,000 | 85 | 2004 | | 2025.02.04 | ¿ù¼¼ | »ï¿µºô¶ó(46-349) | 2 | 36.71 | 1,000 | 60 | 1992 | | 2025.02.04 | Àü¼¼ | (24-23) | 3 | 48.21 | 13,400 | 0 | 2002 | | 2025.02.04 | Àü¼¼ | ¼¾ÈÆÄÅ©ºä | 4 | 20.41 | 24,000 | 0 | 2024 | | 2025.02.04 | ¿ù¼¼ | TheÆ®¶ó¿ò2nd | 4 | 27.62 | 5,000 | 85 | 2022 | | 2025.02.03 | ¸Å¸Å | ·ÎºóÇϿ콺 | 2 | 29.25 | 19,000 | | 2018 | | 2025.02.03 | ¿ù¼¼ | Á¤°¨ÇϿ콺 | 5 | 26.33 | 16,100 | 5 | 2016 | | 2025.02.03 | ¸Å¸Å | ½ºÄ«À̺ô(163-21¿Ü) | 2 | 40.44 | 23,300 | | 2015 | | 2025.02.03 | ¸Å¸Å | ¼¼¿µÇÏÀÌÃ÷ | -1 | 68.4 | 23,000 | | 2002 | | 2025.02.03 | ¿ù¼¼ | ±¤Áøºô¶ó2µ¿ | 3 | 43.64 | 12,900 | 20 | 2003 | | 2025.02.03 | ¿ù¼¼ | º¹Áö¾ÆÆ®ºô¶ó1µ¿ | 4 | 28.35 | 3,000 | 40 | 2003 | | 2025.02.03 | Àü¼¼ | ÇØ¼ºÆÓ¸®½ººô6Â÷ | 1 | 53.19 | 13,000 | 0 | 2002 | | 2025.02.03 | ¿ù¼¼ | ¼ºÁøºô¶óAµ¿ | 3 | 60.21 | 5,000 | 85 | 1997 | | 2025.02.03 | ¿ù¼¼ | µå¸²ÇϿ콺(778-14) | 3 | 15.08 | 1,000 | 44 | 2012 | | 2025.02.03 | Àü¼¼ | ¿µÁøÁÖÅà | 3 | 23.74 | 16,000 | 0 | 2023 | | 2025.02.03 | Àü¼¼ | Èѹ̸®ÇÏÀÌÃ÷(56-187) | 1 | 39.51 | 7,100 | 0 | 1994 | | 2025.02.03 | ¿ù¼¼ | ´õÆ®¶óÀÌ¾Þ±Û | 3 | 33.3 | 2,000 | 105 | 2021 | | 2025.02.03 | Àü¼¼ | ¸®¿ÀÆÄÅ©ºô | 2 | 29.59 | 20,900 | 0 | 2020 | | 2025.02.03 | ¿ù¼¼ | ¸®¹öij½½ | 3 | 25.91 | 17,000 | 18 | 2019 | | 2025.02.03 | ¿ù¼¼ | ¸®¹öij½½ | 3 | 25.91 | 17,000 | 18 | 2019 | | 2025.02.03 | Àü¼¼ | Á¤°¨ÇϿ콺 | 5 | 26.33 | 16,100 | 0 | 2016 | | 2025.02.03 | Àü¼¼ | ½Å¿µ¸Ç¼Ç | 4 | 67.68 | 17,500 | 0 | 1995 | | 2025.02.03 | ¿ù¼¼ | ´õ´º¸®ºù | 5 | 23.61 | 500 | 70 | 2018 | | 2025.02.03 | ¿ù¼¼ | ÇѼº¾ÆÆ®ºô(462-12) | 3 | 50.04 | 5,000 | 64 | 2002 | | 2025.02.03 | ¿ù¼¼ | ÇØ¿À¸§(24-59) | 2 | 13.44 | 500 | 40 | 2011 | | 2025.02.03 | Àü¼¼ | ´ëµ¿ºô | 4 | 29.95 | 23,400 | 0 | 2020 | | 2025.02.03 | Àü¼¼ | À̵µÆ®¶ó¿ò | 2 | 29.77 | 17,260 | 0 | 2016 | | 2025.02.02 | Àü¼¼ | »ó¾Æ¿¡¹ö±×¸° | 5 | 52.93 | 22,000 | 0 | 2012 | | 2025.02.02 | Àü¼¼ | JYÆç¸®½º | 4 | 29.92 | 16,700 | 0 | 2016 | | 2025.02.02 | ¸Å¸Å | ÇÊÇϿ콺 | 4 | 55.2 | 27,000 | | 2010 | | 2025.02.01 | Àü¼¼ | ¼º¸²ÇÏÀÌÃ÷ºô¶ó | 2 | 53.52 | 14,610 | 0 | 2001 | | 2025.02.01 | ¿ù¼¼ | ´ë´öÇÏÀÌÃ÷ºô¶ó(330-27) | 3 | 48.44 | 1,000 | 60 | 1995 | | 2025.02.01 | ¿ù¼¼ | °Ç¼ÛÁÖÅÃAµ¿ | 4 | 61.8 | 5,000 | 75 | 2002 | | 2025.02.01 | ¿ù¼¼ | ´ë´öÇÏÀÌÃ÷ºô¶ó(330-27) | 3 | 48.44 | 1,000 | 60 | 1995 | | 2025.02.01 | ¿ù¼¼ | ½ºÆäÀ̽ººô | 4 | 27.02 | 15,200 | 20 | 2015 | | 2025.02.01 | ¿ù¼¼ | ANA6 | 3 | 27.66 | 1,000 | 65 | 2022 | | 2025.02.01 | ¿ù¼¼ | Æ÷¸£Å×ÇÏÀÓ¥±(FORTEHEIM¥±) | 3 | 20.81 | 600 | 50 | 2022 | | 2025.02.01 | ¿ù¼¼ | º£½ºÆ®ºô | 2 | 28.28 | 2,000 | 65 | 2019 | | 2025.02.01 | Àü¼¼ | ·ÎºóÇϿ콺 | 4 | 28.15 | 23,300 | 0 | 2018 | | 2025.02.01 | ¿ù¼¼ | ´Ù¼¼´ë(986-24) | 2 | 16.74 | 10,300 | 17 | 2017 | | 2025.02.01 | ¿ù¼¼ | û¼ÛÆòÈÇÏÀ̸ǼÇ(452-14) | 2 | 39.82 | 3,000 | 85 | 2013 | | 2025.02.01 | Àü¼¼ | ·Î¾âÇÏÀÌÃ÷(369-33) | 6 | 17.94 | 8,300 | 0 | 2011 | | 2025.02.01 | ¿ù¼¼ | Çý¸²ÁÖÅà | 4 | 62.98 | 1,940 | 72 | 2009 | | 2025.02.01 | ¸Å¸Å | ¼±°æºô¶ó(408-107) | 1 | 54.75 | 20,800 | | 2001 | | 2025.01.31 | Àü¼¼ | ´õ¸Þ¸£¾¾¿¤ | 6 | 27.8 | 20,500 | 0 | 2020 | | 2025.01.31 | Àü¼¼ | È«¼º¾ÆÆ®ºô | 1 | 63.79 | 17,766 | 0 | 2003 | | 2025.01.31 | ¿ù¼¼ | °æ¹Î¾ÆÆ®ºô(368-23) | 7 | 29.14 | 16,630 | 21 | 2018 | | 2025.01.31 | ¿ù¼¼ | Èѹ̸®ÇÏÀÌÃ÷(56-187) | -1 | 39.51 | 500 | 32 | 1994 | | 2025.01.31 | Àü¼¼ | ½ÅÇϿ콺 | 2 | 37.07 | 19,100 | 0 | 2017 | | 2025.01.31 | ¿ù¼¼ | »ïÀÍÇ콺Ƽ¾Æ(1130-15) | 4 | 25.94 | 4,000 | 60 | 2015 | | 2025.01.31 | ¿ù¼¼ | Á¦ÀÌ¿¡½ººô | 5 | 28.07 | 2,000 | 120 | 2023 | | 2025.01.31 | Àü¼¼ | ÃÊ¿øºô¶ó | 2 | 33.3 | 6,000 | 0 | 1994 | | 2025.01.31 | Àü¼¼ | µ¿½Å¿ùµåºô | 1 | 57.9 | 15,600 | 0 | 2002 | | 2025.01.31 | ¿ù¼¼ | ¿¹°¡Ã¤(968-3) | 4 | 50.45 | 2,000 | 85 | 2015 | | 2025.01.31 | Àü¼¼ | Á¤°¨Å¸¿îA(346-92) | 3 | 27.2 | 15,000 | 0 | 2015 | | 2025.01.31 | ¿ù¼¼ | ¿¹ÁöÆÓ¸®½º89Â÷ | 4 | 34.74 | 4,250 | 110 | 2016 | | 2025.01.31 | ¸Å¸Å | °ñµå½ºÄ«ÀÌ | 3 | 48.8 | 25,300 | | 2019 | | 2025.01.31 | ¸Å¸Å | ¿¬Èñºô¶ó | 4 | 61.77 | 18,000 | | 2000 | | 2025.01.31 | ¸Å¸Å | °æ¿ìÇÏÀÌÃ÷¸Ç¼Ç(811-2) | 3 | 59.94 | 22,000 | | 2001 | | 2025.01.31 | ¸Å¸Å | ºñ¿¡½ºÇÏ¿ì¡ | 4 | 33.27 | 24,000 | | 2018 | | 2025.01.31 | ¸Å¸Å | ºñ¿¡½ºÇÏ¿ì¡ | 4 | 33.27 | 24,000 | | 2018 | | 2025.01.31 | ¸Å¸Å | µ¿¼±º§¸®Ã¼(366-57) | 3 | 24.34 | 25,000 | | 2021 | | 2025.01.30 | ¿ù¼¼ | ´Ù¿ï³×¹öºô(1038-11) | 4 | 58.3 | 5,500 | 60 | 2000 | | 2025.01.30 | ¿ù¼¼ | ȼººô¶ó°¡µ¿ | 3 | 44.34 | 2,000 | 60 | 2003 | | 2025.01.29 | ¿ù¼¼ | ¿¡½ºÄÉÀÌÆÄÅ©¸®¿ò(157-21) | 2 | 18.74 | 700 | 50 | 2020 | | 2025.01.26 | Àü¼¼ | ¸®Á¨½Ã¾Æ | 5 | 37.95 | 18,144 | 0 | 2014 | | 2025.01.26 | ¿ù¼¼ | MARNI | 2 | 25.76 | 3,000 | 85 | 2023 | | 2025.01.25 | ¿ù¼¼ | ÇÏÀÌÃ÷ºô¶ó(1053-3) | 3 | 28.5 | 5,000 | 45 | 2002 | | 2025.01.25 | ¿ù¼¼ | ÿ½ÃÇϿ콺 | 6 | 44.94 | 17,000 | 30 | 2012 | | 2025.01.25 | Àü¼¼ | ¶óÀÎÆÄÅ© | 2 | 26.62 | 19,080 | 0 | 2018 | | 2025.01.25 | ¿ù¼¼ | ¸ð¾Æºô(870-47) | 1 | 43.4 | 11,025 | 2 | 2007 | | 2025.01.25 | ¿ù¼¼ | ´ëÈﺣ½ºÆ®ºô | 4 | 79.44 | 20,000 | 15 | 2004 | | 2025.01.25 | ¿ù¼¼ | żºÇÏÀÌÃ÷ºô¶ó(102-66) | 4 | 43.2 | 11,400 | 33 | 1994 | | 2025.01.25 | ¿ù¼¼ | ½Å¶óÇÏÀÌÃ÷(162-6) | 4 | 40.98 | 2,000 | 68 | 2011 | | 2025.01.25 | Àü¼¼ | ÇÁ¶óÀÓºô(410-23) | 4 | 24.21 | 18,000 | 0 | 2019 | | 2025.01.25 | ¿ù¼¼ | ANA7 | 3 | 27.66 | 1,000 | 60 | 2022 | | 2025.01.25 | ¿ù¼¼ | ¸í¼ººô¸®Áö | 4 | 54.26 | 300 | 42 | 2000 | | 2025.01.25 | ¿ù¼¼ | ´ë½Åºô¶ó | -1 | 45.42 | 1,000 | 63 | 1991 | | 2025.01.25 | ¿ù¼¼ | ¿©¸íºô¶ó | 3 | 59.7 | 1,000 | 95 | 1999 | | 2025.01.25 | Àü¼¼ | ½Ã¿ø±×¸°ºô(1014-11) | 3 | 37.56 | 16,000 | 0 | 2002 | | 2025.01.25 | Àü¼¼ | ³²¼º¾ÆÆ®ºô(354-22) | 6 | 32.56 | 17,000 | 0 | 2015 | | 2025.01.25 | ¿ù¼¼ | À̳뼿(INNOCELL) | 5 | 40.38 | 3,000 | 100 | 2017 | | 2025.01.25 | ¿ù¼¼ | MARNI | 4 | 18.86 | 3,000 | 75 | 2023 | | 2025.01.25 | ¿ù¼¼ | (346-89) | 2 | 38.34 | 10,000 | 20 | 1987 | | 2025.01.25 | Àü¼¼ | ÇýÀζ߶õä | 5 | 43.04 | 20,500 | 0 | 2017 | | 2025.01.25 | Àü¼¼ | ¿µÁøÁÖÅà | 2 | 28.33 | 20,000 | 0 | 2023 | | 2025.01.25 | ¸Å¸Å | ¿¥ÄÉÀÌÇÏÀ̺ô | 2 | 54.39 | 26,200 | | 2011 | | 2025.01.25 | ¸Å¸Å | ½ÅÈïÇÏÀÌÃ÷¸Ç¼Ç | -1 | 79.95 | 29,500 | | 1998 | | 2025.01.25 | ¸Å¸Å | õȣºô¶ó | 2 | 66.78 | 25,000 | | 1996 | | 2025.01.25 | ¸Å¸Å | ¸®ºùÇϿ콺5Â÷ | 3 | 37.26 | 20,000 | | 2015 | | 2025.01.25 | ¸Å¸Å | ±Ý°ºô¶ó | 1 | 65.38 | 26,000 | | 1994 | | 2025.01.25 | ¿ù¼¼ | ´Ù³ª³×½ºÆ®ºô(56-587) | 4 | 39.19 | 11,700 | 10 | 2008 | | 2025.01.25 | Àü¼¼ | ½Ö¿ëÇÏÀ̺ô | 2 | 55.04 | 17,600 | 0 | 2001 | | 2025.01.25 | ¿ù¼¼ | µµ¿ø¼ÖºñÄ¡ | 4 | 29.91 | 14,200 | 13 | 2015 | | 2025.01.25 | ¿ù¼¼ | ÇÁ¶óÀÓÁÖÅÃ(393-22) | 4 | 17.05 | 10,000 | 20 | 2014 | | 2025.01.25 | ¿ù¼¼ | Á¤Çöºô¶ó | 2 | 66.02 | 13,000 | 40 | 2000 | | 2025.01.24 | ¸Å¸Å | °æ³²ºô¶ó¹Ùµ¿ | 1 | 40.5 | 14,500 | | 1986 | | 2025.01.24 | ¸Å¸Å | ºñ¿¡½ºÇÏ¿ì¡ | 6 | 29.96 | 23,200 | | 2018 | | 2025.01.24 | Àü¼¼ | ¿ì¼ººô¶ó(346-72) | 3 | 43.23 | 21,000 | 0 | 2013 | | 2025.01.24 | ¿ù¼¼ | ³ª¸®ºô¶ó(61-35) | -1 | 56.64 | 1,600 | 30 | 1991 | | 2025.01.24 | ¿ù¼¼ | ¼ö¸íºô | 2 | 28.54 | 2,000 | 72 | 2020 | | 2025.01.24 | ¿ù¼¼ | ½ÅÇϿ콺 | 2 | 35.92 | 3,000 | 90 | 2017 | | 2025.01.24 | ¿ù¼¼ | ¹Ì·¡½ºÅ¸ºô(1104-13) | 3 | 29.96 | 2,000 | 80 | 2014 | | 2025.01.24 | ¿ù¼¼ | È¿ø¿ùµåºô | 3 | 34.32 | 1,000 | 50 | 2002 | | 2025.01.24 | ¿ù¼¼ | ¿Ã¸²Çª½º(788-18) | 5 | 35.11 | 5,000 | 95 | 2014 | | 2025.01.24 | Àü¼¼ | ÄÉ·»½Ã¾Æ | 3 | 42.37 | 31,500 | 0 | 2022 | | 2025.01.23 | Àü¼¼ | Çý¼ºÆÓ¸®½ººô(392-31) | 3 | 29.1 | 14,740 | 0 | 2014 | | 2025.01.23 | ¿ù¼¼ | ¸®ºùÇϿ콺 | 2 | 25.97 | 15,490 | 10 | 2016 | | 2025.01.23 | Àü¼¼ | MÆç¸®Ã¼ | 4 | 38.52 | 25,700 | 0 | 2018 | | 2025.01.23 | ¿ù¼¼ | MARNI | 2 | 26.05 | 4,000 | 80 | 2023 | | 2025.01.23 | ¿ù¼¼ | °æ¿¬Å¸¿î | 3 | 57.6 | 5,000 | 70 | 2008 | | 2025.01.23 | Àü¼¼ | µð¾ÆÀνº(1075-27) | 9 | 22.97 | 14,700 | 0 | 2015 | | 2025.01.23 | ¿ù¼¼ | (430-8) | 3 | 24 | 500 | 65 | 2013 | | 2025.01.23 | Àü¼¼ | ÆÄũī¿îƼ | 2 | 72.74 | 22,500 | 0 | 2007 | | 2025.01.23 | ¿ù¼¼ | ·ÎÁîÆÓ¸®½ºÅõ(346-38) | 3 | 78.57 | 500 | 52 | 2009 | | 2025.01.23 | ¿ù¼¼ | ÇÑ¿ïºô¸®Áö | 3 | 62.27 | 15,000 | 60 | 2001 | | 2025.01.23 | ¿ù¼¼ | º§¶óÇϿ콺(83-15) | 6 | 24.48 | 5,000 | 60 | 2015 | | 2025.01.23 | ¿ù¼¼ | (342-20) | 2 | 40.75 | 12,000 | 5 | 1986 | | 2025.01.23 | ¸Å¸Å | ´ë¼º¾ÆÆ®ºô | 6 | 28.59 | 26,500 | | 2019 | | 2025.01.23 | ¸Å¸Å | ¼º¿øÆÄÅ©ºô | 3 | 72.06 | 22,000 | | 2008 | | 2025.01.23 | ¸Å¸Å | ºÎ¸²ÆÓ¸®½º | 5 | 43.72 | 17,000 | | 2011 | | 2025.01.23 | ¸Å¸Å | ¼¿¬ºí·çÈúºñ | 2 | 29.93 | 22,800 | | 2016 | | 2025.01.22 | Àü¼¼ | ¾ÆÁÙ¸®¿ò(970-33) | 3 | 33.47 | 18,000 | 0 | 2015 | | 2025.01.22 | ¿ù¼¼ | ¼¾ÈÆÄÅ©ºä | 4 | 18.91 | 5,000 | 95 | 2024 | | 2025.01.22 | ¿ù¼¼ | (1079-2) | 1 | 26.25 | 500 | 35 | 2000 | | 2025.01.22 | Àü¼¼ | ´õ¿ø(852-31) | 2 | 28.62 | 19,650 | 0 | 2021 | | 2025.01.22 | Àü¼¼ | Å׸¶366(366-50) | 2 | 29.38 | 23,500 | 0 | 2020 | | 2025.01.22 | ¿ù¼¼ | ¹Ì·¡ºô¸®Áö-Aµ¿ | 3 | 58.49 | 2,000 | 80 | 2003 | | 2025.01.22 | ¸Å¸Å | ¹Î¼ººô¶ó | 3 | 59.9 | 24,000 | | 2000 | | 2025.01.22 | ¸Å¸Å | ¸®¹öij½½ | 2 | 29.9 | 20,500 | | 2019 | | 2025.01.22 | ¿ù¼¼ | ȲÁ¦±×·£µåÆÄÅ© | 4 | 38.78 | 30 | 45 | 2008 | | 2025.01.22 | ¿ù¼¼ | º§¶óÇϿ콺 | 2 | 44.53 | 2,000 | 85 | 2012 | | 2025.01.22 | Àü¼¼ | ´õ¿ø(852-31) | 2 | 28.62 | 19,650 | 0 | 2021 | | 2025.01.22 | ¿ù¼¼ | Å¥ºêÆ÷(CubeFour) | 3 | 29.89 | 1,000 | 120 | 2022 | | 2025.01.22 | ¿ù¼¼ | JYÆç¸®½º | 4 | 28.615 | 16,500 | 20 | 2016 | | 2025.01.22 | Àü¼¼ | ¼¾ÈÆÄÅ©ºä | 5 | 18.43 | 25,500 | 0 | 2024 | | 2025.01.22 | ¿ù¼¼ | ¹é°¿ø·ë | 2 | 12.8 | 500 | 43 | 2011 | | 2025.01.22 | ¿ù¼¼ | °¡¿øÈ¨Å¸¿î | 3 | 40.32 | 5,000 | 29 | 2021 | | 2025.01.22 | ¿ù¼¼ | ´ë¼ºÅ¾½ººô(472-17) | -1 | 45.11 | 5,500 | 40 | 2002 | | 2025.01.22 | ¿ù¼¼ | ´õ¿ø(852-31) | 5 | 29.39 | 22,680 | 6 | 2021 | | 2025.01.21 | ¿ù¼¼ | ´ºÆÄÀκô | 5 | 50.33 | 17,000 | 10 | 2010 | | 2025.01.21 | ¿ù¼¼ | Ǫ¸¥Ç³°æÃ¤ | 4 | 29.75 | 1,233 | 24 | 2020 | | 2025.01.21 | Àü¼¼ | ÇѸ²ºô¸®Áö | -1 | 66.02 | 11,000 | 0 | 1993 | | 2025.01.21 | ¿ù¼¼ | Çöó¿öÈú | 2 | 48.14 | 1,000 | 62 | 2008 | | 2025.01.21 | Àü¼¼ | Çý¼ºÆÓ¸®½º¡¡ | 5 | 29.79 | 21,500 | 0 | 2019 | | 2025.01.21 | Àü¼¼ | ´ë¿ì¿¬¸³ | 3 | 51.09 | 16,800 | 0 | 1995 | | 2025.01.21 | Àü¼¼ | Çý¼ºÆÓ¸®½ººô(392-31) | 5 | 26.87 | 16,900 | 0 | 2014 | | 2025.01.21 | ¿ù¼¼ | ¼¼¸í¾ÆÅ©·Îºô | 6 | 29.09 | 17,600 | 5 | 2017 | | 2025.01.21 | Àü¼¼ | Çý¼ºÆÓ¸®½ººô(392-31) | 5 | 26.87 | 16,800 | 0 | 2014 | | 2025.01.21 | ¿ù¼¼ | ¿¡À̽ººô¶óCµ¿ | 1 | 59.5 | 14,500 | 30 | 2002 | | 2025.01.21 | Àü¼¼ | ¼ÀÈú | 3 | 45.46 | 13,100 | 0 | 2003 | | 2025.01.21 | ¿ù¼¼ | Ǫ¸¥Ç³°æÃ¤ | 5 | 29.87 | 1,192 | 32 | 2020 | | 2025.01.21 | ¿ù¼¼ | ¼¼Á¾ÆÄÅ©ºô | 6 | 52.25 | 16,464 | 18 | 2023 | | 2025.01.21 | ¿ù¼¼ | ¼¼Á¾ÆÄÅ©ºô | 6 | 47.86 | 15,400 | 17 | 2023 | | 2025.01.21 | Àü¼¼ | (343-9)»ó¾Æºô¶ó | 3 | 50.4 | 17,000 | 0 | 1992 | | 2025.01.21 | Àü¼¼ | º¹Áöºô¶ó | 3 | 48.94 | 11,000 | 0 | 2000 | | 2025.01.21 | Àü¼¼ | °µ¿ÁÖÅà | 5 | 61.54 | 16,000 | 0 | 2003 | | 2025.01.21 | ¿ù¼¼ | Çѽº¾ÆÀ̺ô2 | 3 | 27.45 | 11,781 | 13 | 2019 | | 2025.01.21 | ¿ù¼¼ | ¼º¿ì¿ïŸ¸® | 5 | 47.94 | 507 | 45 | 2019 | | 2025.01.21 | Àü¼¼ | ¿¡½º¿¥ÆÄÅ©ºô(332-42) | 3 | 29.66 | 16,700 | 0 | 2015 | | 2025.01.21 | ¿ù¼¼ | DSÇÏ¿ì¡ | 5 | 29.25 | 12,000 | 60 | 2022 | | 2025.01.21 | ¿ù¼¼ | µ¿¿ì¸Ç¼Ç¶óµ¿ | 5 | 29.2 | 8,215 | 12 | 2001 | | 2025.01.21 | ¿ù¼¼ | ¼øÈ¯½¦¸£ºô | 5 | 50.04 | 3,000 | 65 | 2002 | | 2025.01.21 | Àü¼¼ | ¾ÆÀνººô¥°(1128-15) | 2 | 41.5 | 22,000 | 0 | 2012 | | 2025.01.21 | ¿ù¼¼ | ¸¶Å©ÇϿ콺 | 2 | 29.07 | 5,000 | 85 | 2018 | | 2025.01.21 | ¿ù¼¼ | (367-83) | 1 | 29.54 | 1,000 | 65 | 1986 | | 2025.01.21 | ¿ù¼¼ | ¼¼Áøºô¶óÆ® | 4 | 28.36 | 9,000 | 10 | 1996 | | 2025.01.21 | ¿ù¼¼ | ¼¼¸í¾ÆÅ©·Îºô | 6 | 29.09 | 17,600 | 5 | 2017 | | 2025.01.21 | ¿ù¼¼ | ¸¶Å©ÇϿ콺 | 2 | 29.07 | 5,000 | 85 | 2018 | | 2025.01.21 | Àü¼¼ | ¼¼¸í¾ÆÅ©·Îºô | 6 | 29.09 | 18,700 | 0 | 2017 | | 2025.01.21 | ¿ù¼¼ | Àå¿ø¼¾½ººô°¡µ¿ | 2 | 59.64 | 14,500 | 34 | 2002 | | 2025.01.21 | ¿ù¼¼ | ´ºÆÄÀκô | 5 | 50.33 | 17,000 | 10 | 2010 | | 2025.01.21 | Àü¼¼ | »ïÈïÁÖÅà | 2 | 45.1 | 13,000 | 0 | 1986 | | 2025.01.21 | Àü¼¼ | ¼¼ÀÎÆ®ºô(55-38) | 3 | 29.98 | 12,580 | 0 | 2012 | | 2025.01.21 | ¿ù¼¼ | ¸¶À̹ٿò | 3 | 38.6 | 5,000 | 64 | 2011 | | 2025.01.21 | Àü¼¼ | ´Ù¼ØÅ¸¿î°¡µ¿(1037-15) | 4 | 34.92 | 18,000 | 0 | 2015 | | 2025.01.21 | ¸Å¸Å | µ¿¿ìÇÏÀ̺ô | 3 | 29.06 | 22,800 | | 2018 | | 2025.01.21 | ¸Å¸Å | º¸¼ºÈ¨Å¸¿î | 4 | 74.13 | 20,500 | | 2002 | | 2025.01.21 | ¸Å¸Å | µ¿¿ìÇÏÀ̺ô | 3 | 29.06 | 22,800 | | 2018 | | 2025.01.21 | ¸Å¸Å | º¹Áöºô¶ó | 3 | 48.94 | 14,000 | | 2000 | | 2025.01.21 | ¸Å¸Å | ´ë±Ùºô¶ó | 2 | 36.36 | 18,000 | | 1990 | | 2025.01.21 | ¸Å¸Å | ´ë±Ùºô¶ó | 2 | 36.36 | 17,000 | | 1990 | | 2025.01.21 | Àü¼¼ | ±Ý°ºô¸®Áö | 2 | 58 | 16,275 | 0 | 2001 | | 2025.01.20 | ¿ù¼¼ | û¼ÛÆòÈÇコÇϿ콺 | 3 | 29.81 | 5,000 | 100 | 2022 | | 2025.01.20 | ¿ù¼¼ | µ¿¿ø¶óÅ×¶ó½º | 3 | 28.31 | 19,000 | 15 | 2018 | | 2025.01.20 | ¿ù¼¼ | ÈÀκô¶ó(954-7) | 3 | 79.74 | 2,000 | 87 | 2003 | | 2025.01.20 | Àü¼¼ | Çö´ë¾ÆÆ®ºô¶ó(962-16) | 3 | 55.27 | 13,000 | 0 | 1990 | | 2025.01.20 | ¿ù¼¼ | °è¸íÀ§³Ê½º(99-11) | 3 | 73.95 | 24,000 | 30 | 2008 | | 2025.01.20 | ¿ù¼¼ | ÇѼֺô¶óÆ® | -1 | 61.37 | 5,000 | 90 | 2000 | | 2025.01.20 | ¿ù¼¼ | ½Ã¿Âºô¸®Áö | 6 | 29.53 | 5,000 | 80 | 2016 | | 2025.01.20 | ¿ù¼¼ | ¸íÁøÈÀÌÆ®ºô | 4 | 22.68 | 2,500 | 55 | 2008 | | 2025.01.20 | ¿ù¼¼ | ¿ÀÈÁÖÅà | 3 | 60.39 | 5,000 | 80 | 2000 | | 2025.01.20 | ¿ù¼¼ | È«¼ºÇØ´©¸® | 6 | 23.04 | 5,000 | 60 | 2016 | | 2025.01.20 | ¿ù¼¼ | °¡¿øÈ¨Å¸¿î | 3 | 36.63 | 200 | 25 | 2021 | | 2025.01.20 | Àü¼¼ | Å¿µ¾ÆÆ®ºô | 5 | 28.55 | 14,200 | 0 | 2014 | | 2025.01.20 | ¿ù¼¼ | ¸ð´øÇÏÀÌÃ÷ | 4 | 41.17 | 1,000 | 71 | 2012 | | 2025.01.20 | ¿ù¼¼ | °æÀκô¶óAµ¿ | 2 | 42.3 | 11,750 | 15 | 2001 | | 2025.01.20 | ¿ù¼¼ | ºí·çÈú(846-14) | 2 | 25.78 | 3,000 | 104 | 2021 | | 2025.01.20 | ¸Å¸Å | Å»êºô(1114-17) | 5 | 51.04 | 15,100 | | 2008 | | 2025.01.20 | ¸Å¸Å | ½Å¿µº£¸£µð¿òB | 4 | 23.86 | 21,000 | | 2020 | | 2025.01.20 | ¸Å¸Å | ¿ìÀå»êÆÄÅ©ºô | 7 | 38.59 | 24,900 | | 2013 | | 2025.01.20 | ¸Å¸Å | È£¼öŸ¿î(957-14) | 5 | 36.36 | 16,500 | | 2002 | | 2025.01.20 | ¸Å¸Å | ´Ù¼Ø(422-3) | 5 | 27.64 | 15,000 | | 2014 | | 2025.01.20 | ¸Å¸Å | ´ö»êÇÏÀ̺ô | 3 | 39.61 | 27,800 | | 2007 | | 2025.01.20 | ¸Å¸Å | ±¤»êºô¶ó(163-27) | 3 | 57.53 | 17,500 | | 2001 | | 2025.01.20 | Àü¼¼ | Å¿µ¾ÆÆ®ºô | 5 | 28.55 | 14,200 | 0 | 2014 | | 2025.01.20 | ¿ù¼¼ | (56-544) | 3 | 69.49 | 15,000 | 23 | 2009 | | 2025.01.20 | ¿ù¼¼ | º§¶óÇϿ콺(351-16) | 6 | 22.86 | 2,000 | 90 | 2016 | | 2025.01.20 | ¿ù¼¼ | û¼ÛÆòÈÇコÇϿ콺(457-3) | 5 | 28.13 | 15,450 | 7 | 2015 | | 2025.01.20 | ¿ù¼¼ | ÃÊ·Ï¿ø·ë(109-9) | 4 | 16.65 | 500 | 50 | 2012 | | 2025.01.19 | Àü¼¼ | ¿ÍÀ̾غñ | 3 | 29.53 | 18,225 | 0 | 2016 | | 2025.01.19 | ¿ù¼¼ | ³²¼º¾ÆÆ®ºô(423-14) | 5 | 40.72 | 19,000 | 15 | 2014 | | 2025.01.19 | ¸Å¸Å | ´ëÇѺô¶ó9Â÷ | 1 | 52.92 | 21,000 | | 1993 | | 2025.01.19 | ¸Å¸Å | ȼººô¶ó(56-588) | 2 | 49.64 | 17,200 | | 2001 | | 2025.01.19 | ¸Å¸Å | ȼººô¶ó(56-588) | 2 | 49.64 | 17,200 | | 2001 | | 2025.01.18 | ¿ù¼¼ | ¼Ç¹ë¸® | 1 | 33.71 | 1,000 | 50 | 2024 | | 2025.01.18 | ¿ù¼¼ | ¸¶¸¶½ººô | 5 | 26.92 | 3,000 | 95 | 2017 | | 2025.01.18 | Àü¼¼ | ·ÎºóÇϿ콺 | 4 | 28.15 | 21,600 | 0 | 2018 | | 2025.01.18 | ¿ù¼¼ | ¼¼Áøºô¶ó | 3 | 61.84 | 2,000 | 85 | 1996 | | 2025.01.18 | Àü¼¼ | ÇѰ¡¶÷ºô(153-10) | 5 | 41.42 | 13,600 | 0 | 2012 | | 2025.01.18 | ¿ù¼¼ | ÅÂÈȨŸ¿î | 1 | 59.93 | 15,600 | 20 | 2004 | | 2025.01.18 | ¿ù¼¼ | À̳뼿(INNOCELL) | 4 | 25.14 | 5,000 | 90 | 2017 | | 2025.01.18 | Àü¼¼ | »ï¼º½¦¸£ºô | 3 | 77.37 | 21,000 | 0 | 2002 | | 2025.01.18 | ¿ù¼¼ | ¿¤Æç¸®½º | 6 | 29.3 | 5,000 | 90 | 2022 | | 2025.01.18 | ¿ù¼¼ | °í¼¾¾ÆÆ®ºô | 4 | 28.89 | 16,300 | 17 | 2016 | | 2025.01.18 | Àü¼¼ | ´ëÈ£¾ÆÆ®ºôAµ¿ | 1 | 60.46 | 15,400 | 0 | 2002 | | 2025.01.18 | Àü¼¼ | À§´õ½ººô | 9 | 20.1 | 11,200 | 0 | 2013 | | 2025.01.18 | ¿ù¼¼ | »ï¹ÌÁÖÅà | 2 | 59.97 | 3,000 | 75 | 2001 | | 2025.01.18 | ¿ù¼¼ | ÅÂÈȨŸ¿î | 1 | 59.93 | 15,600 | 20 | 2004 | | 2025.01.18 | Àü¼¼ | ±×¸®¹Ì¾ßºô¶ó | 1 | 33.6 | 9,450 | 0 | 2002 | | 2025.01.18 | ¿ù¼¼ | ÆÄ¶û»õºô¶óÆ®(Bµ¿) | 1 | 57.51 | 3,000 | 45 | 2000 | | 2025.01.18 | Àü¼¼ | ÇØÁÖ¸®Ä¡ºô | 4 | 48.87 | 14,600 | 0 | 2002 | | 2025.01.18 | ¿ù¼¼ | À¯¾Ø¹Ì | 6 | 40.48 | 3,000 | 85 | 2016 | | 2025.01.18 | ¿ù¼¼ | ¿¤Æç¸®½º | 4 | 29.46 | 5,000 | 100 | 2022 | | 2025.01.18 | ¿ù¼¼ | »ï¹ÌÁÖÅà | 2 | 59.97 | 3,000 | 75 | 2001 | | 2025.01.18 | ¿ù¼¼ | ÅÂÈȨŸ¿î | 1 | 59.93 | 15,600 | 20 | 2004 | | 2025.01.18 | ¸Å¸Å | È«¼ºÆÄÅ©ºô | 5 | 71.95 | 27,500 | | 2008 | | 2025.01.18 | ¸Å¸Å | »ï¿øºô¶ó | 4 | 57.885 | 20,000 | | 2000 | | 2025.01.18 | ¸Å¸Å | Áß¾Ó | 2 | 39.76 | 17,350 | | 2001 | | 2025.01.18 | ¸Å¸Å | ÇϳªÄ³½½ | 9 | 30.3 | 19,000 | | 2013 | | 2025.01.18 | ¸Å¸Å | ³ª»êÁÖÅÃ(455-17) | 5 | 28.77 | 18,000 | | 2010 | | 2025.01.18 | ¸Å¸Å | ´ë½ÅŸ¿î(339-17) | 3 | 45.37 | 16,800 | | 2000 | | 2025.01.18 | ¿ù¼¼ | 61-134 | 2 | 15.72 | 9,700 | 6 | 2015 | | 2025.01.17 | ¿ù¼¼ | Çѹéºô¶ó | -1 | 26.16 | 550 | 40 | 2001 | | 2025.01.17 | ¿ù¼¼ | Á¦À̽ººô(969-5) | 3 | 19.23 | 3,000 | 60 | 2022 | | 2025.01.17 | ¿ù¼¼ | û¸²ÇÏ¿ì¡ | 6 | 40.56 | 300 | 100 | 2017 | | 2025.01.17 | Àü¼¼ | Çϳªºô¶ó | 2 | 40.01 | 14,900 | 0 | 2008 | | 2025.01.17 | ¿ù¼¼ | 1STHOUSE | 3 | 27.65 | 19,600 | 5 | 2019 | | 2025.01.17 | Àü¼¼ | µ¿µµÇÏÀÌÃ÷ | 5 | 53.44 | 13,400 | 0 | 2002 | | 2025.01.17 | ¿ù¼¼ | ´Ù³ª³×½ºÆ®ºô(102-275) | 3 | 40.19 | 12,800 | 10 | 2008 | | 2025.01.17 | ¿ù¼¼ | ¼øÈ¯½¦¸£ºô(24-222) | 5 | 41.52 | 12,270 | 10 | 2002 | | 2025.01.17 | Àü¼¼ | ¾È¼ºÁÖÅà | 2 | 61.62 | 17,700 | 0 | 2002 | | 2025.01.17 | Àü¼¼ | ½Å¾Æ¿ÍÀ̵åºôAµ¿ | 1 | 58.09 | 14,800 | 0 | 2002 | | 2025.01.17 | ¿ù¼¼ | ´õ±×¶ó½Ã¾Æ | 4 | 24.76 | 23,800 | 10 | 2022 | | 2025.01.17 | ¿ù¼¼ | ÀÌÈ¾ÆÆ®ºô(338-39) | 2 | 40.8 | 12,500 | 12 | 2002 | | 2025.01.17 | Àü¼¼ | ÇѰ¡¶÷ºô | 3 | 46.3 | 14,760 | 0 | 2011 | | 2025.01.17 | Àü¼¼ | ÇѰ¡¶÷ºô | 3 | 46.3 | 14,760 | 0 | 2011 | | 2025.01.17 | ¸Å¸Å | Àå¹ÌÁÖÅÃ8Â÷ | 2 | 42.72 | 12,600 | | 1991 | | 2025.01.17 | ¿ù¼¼ | ´º¿å·¹Áö´ø½º¥±(858-23) | 2 | 12.3 | 500 | 35 | 2012 | | 2025.01.17 | ¿ù¼¼ | ³ª»ê½¦¸£ºôA | 4 | 42.51 | 2,000 | 65 | 2001 | | 2025.01.17 | Àü¼¼ | Ç®Çâ±âºô¶ó2µ¿ | 3 | 42.69 | 7,000 | 0 | 1997 | | 2025.01.17 | ¿ù¼¼ | »ï¿øÇÏÀÌÃ÷7Â÷ | 2 | 67.2 | 18,000 | 20 | 1994 | | 2025.01.17 | ¸Å¸Å | ´Ù¿ï¸Ç¼Ç | 2 | 79.05 | 28,000 | | 1996 | | 2025.01.17 | ¸Å¸Å | ½ÅÀåºô¶ó(56-148) | 4 | 52.54 | 15,100 | | 1997 | | 2025.01.16 | Àü¼¼ | ´õÁ¸ÆÛ½ºÆ® | 2 | 29.97 | 29,800 | 0 | 2022 | | 2025.01.16 | Àü¼¼ | Ǫ¸¥Ç³°æÃ¤ | 3 | 26.29 | 21,000 | 0 | 2022 | | 2025.01.16 | ¿ù¼¼ | ¿ìÇö½ºÄ«À̺ô(787-20) | 3 | 29.93 | 16,380 | 15 | 2014 | | 2025.01.16 | ¿ù¼¼ | ¼£·ÒÇϿ콺 | 4 | 22.97 | 1,000 | 58 | 2010 | | 2025.01.16 | ¿ù¼¼ | º¸¹èÇÏÀÌÃ÷ºô¶ó | 2 | 61.15 | 3,000 | 80 | 1997 | | 2025.01.16 | ¿ù¼¼ | ¼£·ÒÇϿ콺 | 4 | 22.97 | 1,000 | 58 | 2010 | | 2025.01.16 | ¿ù¼¼ | ´õ½ºÀ§Æ®(73-78) | 2 | 28.73 | 3,000 | 90 | 2022 | | 2025.01.16 | ¿ù¼¼ | Á¦À̽ººô | 6 | 29.77 | 3,000 | 85 | 2020 | | 2025.01.16 | Àü¼¼ | ´õ±×·¹À̽º | 4 | 29.92 | 18,900 | 0 | 2020 | | 2025.01.16 | ¿ù¼¼ | ÁÖ°ÇÃ๰Á¦1µ¿ | 1 | 31.48 | 10,000 | 20 | 2008 | | 2025.01.16 | Àü¼¼ | º¸³ëÇϿ콺Bµ¿ | 4 | 44.52 | 20,340 | 0 | 2016 | | 2025.01.16 | Àü¼¼ | ´ëµ¿ºô | 6 | 44.15 | 27,900 | 0 | 2020 | | 2025.01.16 | ¸Å¸Å | ¿ÍÀ̾غñ | 3 | 29.53 | 22,000 | | 2016 | | 2025.01.16 | ¸Å¸Å | ³ª»êÁÖÅÃ(°¡µ¿) | 3 | 59.46 | 19,000 | | 1991 | | 2025.01.16 | ¸Å¸Å | ¼ºÈ£-ÇÏÀ̺ô | 3 | 42.12 | 21,000 | | 2007 | | 2025.01.16 | ¸Å¸Å | µ¿¾çÇÏ¿ì¡ | 5 | 28.2 | 24,500 | | 2016 | | 2025.01.16 | Àü¼¼ | µ¿ÈÆÓ¸®½º | 1 | 29.99 | 18,450 | 0 | 2020 | | 2025.01.15 | ¸Å¸Å | Èѹ̸®ºô | 3 | 50.7 | 20,000 | | 2010 | | 2025.01.15 | ¸Å¸Å | ½Å¾Èºô¶ó³ªµ¿ | 2 | 50.4 | 20,000 | | 1991 | | 2025.01.15 | ¿ù¼¼ | ¿ì¼º¿¬¸³(1134-7) | 1 | 51.3 | 13,000 | 15 | 1985 | | 2025.01.15 | ¸Å¸Å | °¡¼º¾ÆÆ®Èú | 3 | 51.48 | 18,000 | | 2002 | | 2025.01.15 | Àü¼¼ | µ¿¿ø¶óÅ×¶ó½º | 2 | 28.52 | 20,385 | 0 | 2018 | | 2025.01.15 | ¿ù¼¼ | ¹Ì·¡½ºÅ¸ºô(1104-13) | 3 | 44.08 | 4,000 | 80 | 2014 | | 2025.01.15 | ¿ù¼¼ | µµÆ¼ÇϿ콺 | 2 | 43.52 | 22,000 | 20 | 2018 | | 2025.01.15 | Àü¼¼ | È«¼ºÇ³°æÃ¤ | 2 | 50.11 | 19,700 | 0 | 2016 | | 2025.01.15 | ¿ù¼¼ | Á¤°¨Å¸¿îA(346-92) | 3 | 27.2 | 15,498 | 10 | 2015 | | 2025.01.15 | Àü¼¼ | ÀÌȰñµåºô | 4 | 73.47 | 16,500 | 0 | 2002 | | 2025.01.15 | Àü¼¼ | ´õÁ¸ÆÛ½ºÆ® | 2 | 28.98 | 14,760 | 0 | 2018 | | 2025.01.15 | Àü¼¼ | ÀÎÅÍ½ÃÆ¼Aµ¿(391-17) | 2 | 58.68 | 18,000 | 0 | 2001 | | 2025.01.15 | Àü¼¼ | Å¿µÆÓ¸®½º | 2 | 29.48 | 16,750 | 0 | 2016 | | 2025.01.15 | ¿ù¼¼ | ¼¾ÈÆÄÅ©ºä | 4 | 15.69 | 5,000 | 95 | 2024 | | 2025.01.15 | Àü¼¼ | µ¿±¤ºô¶ó | 4 | 39.22 | 12,500 | 0 | 2001 | | 2025.01.15 | Àü¼¼ | ½Å¿µ¸®Ä¡ºô(330-14) | 6 | 41.18 | 28,000 | 0 | 2017 | | 2025.01.15 | Àü¼¼ | ´ë¿ì | 2 | 44.1 | 12,600 | 0 | 1986 | | 2025.01.15 | ¿ù¼¼ | °¼´õÈú(962-4) | 2 | 30.38 | 10,641 | 12 | 2013 | | 2025.01.15 | Àü¼¼ | È£¼º±×¸°ºä | 6 | 56.04 | 1,935 | 0 | 2016 | | 2025.01.15 | ¿ù¼¼ | ¿¬¿ì³Ø½ºÆ®ºä | 14 | 13.16 | 1,000 | 65 | 2018 | | 2025.01.15 | ¿ù¼¼ | ±×·£µåÆÄÅ©ºô | 4 | 29.59 | 500 | 75 | 2010 | | 2025.01.15 | ¿ù¼¼ | ¸¶ÀÌȨ | 2 | 23.84 | 1,000 | 71 | 2017 | | 2025.01.15 | ¿ù¼¼ | ¸®´õ½ºÅ¸¿î | 5 | 29.85 | 5,500 | 66 | 2017 | | 2025.01.15 | Àü¼¼ | ½Å¿Àºô¶ó | 5 | 63.57 | 20,000 | 0 | 2003 | | 2025.01.15 | ¿ù¼¼ | DSÇÏ¿ì¡ | 3 | 29.51 | 12,000 | 60 | 2022 | | 2025.01.15 | Àü¼¼ | ¼º¿øÆÄÅ©ºô(102-232) | 3 | 44.46 | 13,000 | 0 | 2008 | | 2025.01.15 | ¿ù¼¼ | ¿ùµåÆÄÅ©ºä°¡µ¿ | 2 | 61.04 | 5,000 | 70 | 2002 | | 2025.01.15 | ¿ù¼¼ | (410-65) | 1 | 49 | 12,720 | 17 | 1988 | | 2025.01.14 | ¸Å¸Å | µ¿¿ø±×¸°ºô | 1 | 57.04 | 31,800 | | 2002 | | 2025.01.14 | Àü¼¼ | ¶óÀÎÆÄÅ© | 5 | 29.96 | 23,850 | 0 | 2020 | | 2025.01.14 | Àü¼¼ | ÇູÀ̰¡µæÇÑÁýA | 4 | 60.84 | 16,700 | 0 | 2002 | | 2025.01.14 | ¿ù¼¼ | ½ÅÇÑÇÏÀÌÃ÷ºô¶ó | 4 | 61.66 | 14,200 | 20 | 2001 | | 2025.01.14 | ¿ù¼¼ | Ȱîºô¶ó1µ¿(362-190) | 2 | 36.3 | 1,000 | 50 | 1986 | | 2025.01.14 | Àü¼¼ | ¸®Ä¡ÇϿ콺(346-18) | 2 | 29.99 | 18,000 | 0 | 2017 | | 2025.01.14 | ¸Å¸Å | ´õ¿ø | 3 | 28.97 | 25,400 | | 2019 | | 2025.01.14 | ¸Å¸Å | ¿¹°¡Ã¤l | 7 | 45.17 | 24,900 | | 2013 | | 2025.01.14 | ¸Å¸Å | »ï¹Ìºô¶ó | 4 | 50.22 | 18,250 | | 2000 | | 2025.01.14 | ¸Å¸Å | ¿ì¼ÛÇÁ¶óÀÓºô(995-18) | 5 | 33.33 | 16,300 | | 2011 | | 2025.01.14 | ¸Å¸Å | ¸í½ÅŸ¿î8Â÷Bµ¿ | 3 | 63.15 | 27,000 | | 2002 | | 2025.01.14 | ¸Å¸Å | ÈľÏÇÏÀÌÃ÷ºô¶ó | 3 | 45.64 | 16,500 | | 2002 | | 2025.01.14 | Àü¼¼ | ȰîÅ¥6 | 4 | 22.96 | 21,000 | 0 | 2022 | | 2025.01.14 | Àü¼¼ | »þ·ÐÀÎÅÚ¸®¾È | 1 | 45.66 | 15,200 | 0 | 2007 | | 2025.01.14 | ¿ù¼¼ | Á¦ÀÌ¿¥ÆÓ¸®½º | 1 | 26.855 | 200 | 90 | 2021 | | 2025.01.14 | ¿ù¼¼ | ¸ÖƼÇϿ콺 | 6 | 17.02 | 1,000 | 47 | 2004 | | 2025.01.14 | ¿ù¼¼ | Á¦ÀϺô¶ó(1122-7) | 1 | 40.36 | 2,000 | 60 | 1995 | | 2025.01.14 | ¿ù¼¼ | µ¿¿ìÇÏÀ̺ô | 4 | 26.61 | 2,000 | 70 | 2019 | | 2025.01.14 | ¿ù¼¼ | ´Ù¼ØÇϿ콺 | 2 | 29 | 2,000 | 66 | 2012 | | 2025.01.14 | ¿ù¼¼ | ´Ù¼ØÇϿ콺 | 4 | 56.18 | 2,500 | 79 | 2012 | | 2025.01.14 | ¿ù¼¼ | ÇØÇ³½ºÀ§Æ®ºô | -1 | 39.14 | 500 | 45 | 2002 | | 2025.01.14 | Àü¼¼ | MÆç¸®Ã¼ | 6 | 38.52 | 25,700 | 0 | 2018 | | 2025.01.14 | ¿ù¼¼ | º¸¶÷°ñµçºô | 2 | 38.88 | 15,650 | 16 | 2003 | | 2025.01.14 | Àü¼¼ | °¼ÆÄÅ©ºäÅõ¿þ´ÏÆÛ½ºÆ® | 19 | 19.6 | 21,000 | 0 | 2020 | | 2025.01.14 | ¿ù¼¼ | ¿ìÇöÆç¸®½º | 5 | 28.23 | 1,000 | 90 | 2016 | | 2025.01.13 | ¸Å¸Å | ȼººô¶ó(379-47) | 5 | 60.12 | 21,800 | | 2009 | | 2025.01.13 | ¸Å¸Å | Á¤Çöºô¶ó(351-28) | 4 | 49.98 | 19,000 | | 1998 | | 2025.01.13 | Àü¼¼ | ½ÂÇöº£½ºÆ®ºô | 5 | 55.2 | 17,400 | 0 | 2002 | | 2025.01.13 | ¿ù¼¼ | Å׸¶366(366-50) | 2 | 29.82 | 3,000 | 80 | 2020 | | 2025.01.13 | ¿ù¼¼ | ¸®¹öij½½ | 5 | 24.56 | 16,000 | 20 | 2019 | | 2025.01.13 | Àü¼¼ | Çý¼ºÆÓ¸®½º¡¡ | 4 | 29.79 | 21,500 | 0 | 2019 | | 2025.01.13 | ¿ù¼¼ | ±¤Áøºô¶ó | -1 | 56.96 | 1,000 | 60 | 1993 | | 2025.01.13 | Àü¼¼ | µ¿¿ìÇÏÀ̺ô | 5 | 28.07 | 20,000 | 0 | 2019 | | 2025.01.13 | Àü¼¼ | ½Ã¿Â½¦¸£ºô | 1 | 59.88 | 15,498 | 0 | 2002 | | 2025.01.13 | ¿ù¼¼ | ½º¸¶ÀϺô | 3 | 15.79 | 1,000 | 50 | 2013 | | 2025.01.13 | ¿ù¼¼ | ½Å¿ø¼¾Æ®·¹ºô | 2 | 51.6 | 2,500 | 75 | 2008 | | 2025.01.13 | Àü¼¼ | ´õ¸Þ¸£¾¾¿¤ | 2 | 27.42 | 19,950 | 0 | 2020 | | 2025.01.13 | ¿ù¼¼ | ´õ½ºÀ§Æ®(73-78) | 5 | 28.73 | 3,000 | 90 | 2022 | | 2025.01.13 | ¿ù¼¼ | ¿ì¼ÛÇÁ¶óÀÓºô | 2 | 59.59 | 22,000 | 30 | 2010 | | 2025.01.13 | ¿ù¼¼ | ¼Çö | 2 | 12.96 | 500 | 40 | 2011 | | 2025.01.13 | ¿ù¼¼ | ¿ì¼ÛÇÁ¶óÀÓºô | 2 | 59.59 | 22,000 | 30 | 2010 | | 2025.01.13 | Àü¼¼ | ºñÁ¯ºô¶ó | 3 | 56.07 | 14,360 | 0 | 1991 | | 2025.01.13 | Àü¼¼ | ¼º¾Èºô¶ó(379-61) | 4 | 38.7 | 10,800 | 0 | 1994 | | 2025.01.12 | ¸Å¸Å | »õÇÑÁÖÅà | 2 | 62.5 | 24,000 | | 1999 | | 2025.01.12 | ¿ù¼¼ | »ïÀͶ߶õä | 4 | 27.55 | 17,300 | 20 | 2017 | | 2025.01.12 | ¿ù¼¼ | ÀÚÇÏŬ·¡½Ä | 17 | 13.77 | 1,000 | 67 | 2018 | | 2025.01.12 | ¿ù¼¼ | »ïÀͶ߶õä | 4 | 27.55 | 17,300 | 20 | 2017 | | 2025.01.12 | Àü¼¼ | ¼º¸²ÆÄÅ©ºôBµ¿ | 2 | 56.43 | 15,750 | 0 | 2002 | | 2025.01.12 | ¿ù¼¼ | ÃÊ·Ï¿ø·ë(109-9) | 5 | 18 | 500 | 50 | 2012 | | 2025.01.12 | Àü¼¼ | MÆç¸®Ã¼ | 2 | 36.49 | 25,326 | 0 | 2018 | | 2025.01.12 | Àü¼¼ | ±¤Áøºô¶óÆ®4µ¿(56-486) | 4 | 36.58 | 11,500 | 0 | 2003 | | 2025.01.12 | ¿ù¼¼ | ´õ½ºÀ§Æ®(73-78) | 4 | 29.5 | 3,000 | 87 | 2022 | | 2025.01.11 | Àü¼¼ | ¼¿¬ºí·çÈú | 5 | 45.77 | 20,900 | 0 | 2016 | | 2025.01.11 | Àü¼¼ | ¿¡½º¿¥ÆÄÅ©ºô | 2 | 29.89 | 17,000 | 0 | 2015 | | 2025.01.11 | ¿ù¼¼ | ¿ÀȺô¶ó | 5 | 59.74 | 17,500 | 5 | 2002 | | 2025.01.11 | Àü¼¼ | ¶óÀÎÆÄÅ© | 5 | 29.48 | 22,000 | 0 | 2020 | | 2025.01.11 | ¿ù¼¼ | ÇϳªÅ¸¿îAµ¿ | 6 | 27.34 | 2,000 | 67 | 2015 | | 2025.01.11 | ¿ù¼¼ | ¾ÆÀ̵ð¿ò | 4 | 26.42 | 2,000 | 70 | 2016 | | 2025.01.11 | ¸Å¸Å | ³ª»êºô¶ó | 3 | 59.99 | 19,300 | | 1999 | | 2025.01.11 | ¸Å¸Å | ºñ¿ø±×¸°ºô¶ó | 1 | 41.49 | 25,250 | | 1986 | | 2025.01.11 | ¸Å¸Å | Çö´ëºô¶ó³ªµ¿(57-23) | 1 | 62.1 | 23,800 | | 2000 | | 2025.01.11 | ¿ù¼¼ | ¹Ì¼ºÇϸ£µò(1102-5) | 2 | 29.79 | 2,000 | 90 | 2018 | | 2025.01.11 | ¸Å¸Å | ¸ð¾ÆÇϿ콺 | 4 | 34.02 | 15,500 | | 1994 | | 2025.01.11 | ¿ù¼¼ | ¼ºÈ£ºô¶ó2Â÷Bµ¿(57),¼ºÈ£2Â÷¸Ç¼ÇA | 4 | 48.4 | 16,100 | 10 | 2002 | | 2025.01.11 | ¿ù¼¼ | â¿øºô¸®Áö | 5 | 39.24 | 16,000 | 10 | 2013 | | 2025.01.11 | Àü¼¼ | ´Ù¼ºÀÌÁîºô | 4 | 61.64 | 18,000 | 0 | 2008 | | 2025.01.11 | ¿ù¼¼ | °æ¹Î¾ÆÆ®ºô101µ¿102µ¿ | 5 | 35.23 | 2,000 | 100 | 2016 | | 2025.01.11 | ¿ù¼¼ | »ïȺô¸®Áö(403-8) | 5 | 12.95 | 500 | 45 | 2012 | | 2025.01.11 | Àü¼¼ | JYÆÓ¸®½º(111-27) | 3 | 29.67 | 15,900 | 0 | 2015 | | 2025.01.11 | ¿ù¼¼ | ÁØÇϿ콺 | 3 | 43.19 | 5,000 | 75 | 2017 | | 2025.01.11 | Àü¼¼ | µ¿Èºô¶ó(29-221) | 1 | 44.72 | 9,750 | 0 | 1992 | | 2025.01.11 | ¿ù¼¼ | ÇÁ¶óÀÓÇϿ콺 | 6 | 20.43 | 3,000 | 90 | 2019 | | 2025.01.11 | ¿ù¼¼ | ´ÙÀÎȨŸ¿î | 4 | 27.91 | 14,868 | 20 | 2016 | | 2025.01.11 | Àü¼¼ | ¸¶Å©ÇϿ콺 | 3 | 28.98 | 20,890 | 0 | 2018 | | 2025.01.11 | ¿ù¼¼ | ÇÑ¿ï¶ß¶õä(1079-23) | 3 | 42.52 | 2,000 | 80 | 2012 | | 2025.01.11 | ¿ù¼¼ | õÁöºô | 3 | 31.68 | 1,000 | 46 | 2001 | | 2025.01.11 | Àü¼¼ | Áö¿Àºô¶óÆ® | 4 | 52.76 | 13,100 | 0 | 2002 | | 2025.01.11 | Àü¼¼ | Áö¿Àºô¶óÆ® | 4 | 52.76 | 13,100 | 0 | 2002 | | 2025.01.11 | ¿ù¼¼ | °æ½Å¾ÆÆ®ºô | 2 | 57.5 | 5,000 | 65 | 2002 | | 2025.01.11 | Àü¼¼ | À¯¸²ºô | 3 | 35.52 | 13,600 | 0 | 2008 | | 2025.01.11 | Àü¼¼ | DHÆÓ¸®½º102µ¿ | 6 | 28.39 | 18,900 | 0 | 2018 | | 2025.01.11 | Àü¼¼ | ȲÁ¦ÆÄÅ©ºô | 5 | 37.56 | 9,600 | 0 | 2007 | | 2025.01.11 | Àü¼¼ | ÈÁ¾ºô¶ó | 4 | 50.19 | 12,700 | 0 | 1997 | | 2025.01.11 | Àü¼¼ | ¼øÈ¯½¦¸£ºôA | 2 | 51.95 | 13,900 | 0 | 2002 | | 2025.01.11 | Àü¼¼ | ÁÖ¾ó¸®ÇϿ콺Aµ¿ | 2 | 67.88 | 19,000 | 0 | 2001 | | 2025.01.11 | ¿ù¼¼ | â´ëºô¶ó(338-37) | 4 | 72.18 | 24,400 | 5 | 2008 | | 2025.01.10 | ¸Å¸Å | ½ãÇÏÀÌÃ÷ºô | -1 | 47.86 | 12,100 | | 1991 | | 2025.01.10 | ¿ù¼¼ | ¿ìÀå»êºô¶ó | 5 | 34.08 | 5,000 | 80 | 2013 | | 2025.01.10 | ¿ù¼¼ | ³²¼º¾ÆÆ®ºô(353-13) | 5 | 32.13 | 18,000 | 25 | 2016 | | 2025.01.10 | ¿ù¼¼ | ¼¾ÈÆÄÅ©ºä | 5 | 20.41 | 15,000 | 30 | 2024 | | 2025.01.10 | ¿ù¼¼ | ±Ý°ÆÄÅ© | 2 | 54.835 | 1,000 | 74 | 2008 | | 2025.01.10 | Àü¼¼ | ´õŬ·¡½Ä | 2 | 29.34 | 21,000 | 0 | 2018 | | 2025.01.10 | ¿ù¼¼ | ´ë¿õÇÏÀÌÃ÷ºô¶ó8Â÷(56-37) | 4 | 67.65 | 12,000 | 20 | 1993 | | 2025.01.10 | ¿ù¼¼ | ȰîÅõ¿þ´ÏÆÛ½ºÆ® | 11 | 24.45 | 2,000 | 93 | 2018 | | 2025.01.10 | Àü¼¼ | û¼ÛÆòÈÇコÇϿ콺 | 5 | 39.84 | 20,800 | 0 | 2016 | | 2025.01.10 | ¿ù¼¼ | ȼººô¶ó25Â÷ | 2 | 44.1 | 1,000 | 70 | 2001 | | 2025.01.10 | ¿ù¼¼ | ±Ý°ÆÄÅ© | 2 | 54.835 | 1,000 | 75 | 2008 | | 2025.01.10 | ¿ù¼¼ | »ó¿ìºô¶ó | 4 | 54.9 | 5,000 | 55 | 2001 | | 2025.01.10 | ¿ù¼¼ | û¼ÛÆòÈÇコÇϿ콺 | 2 | 29.97 | 5,000 | 100 | 2022 | | 2025.01.10 | ¿ù¼¼ | ¿¤Æç¸®½º | 5 | 28.08 | 5,000 | 78 | 2022 | | 2025.01.10 | Àü¼¼ | Á¦ÀÌÅõ¸®´õ½º | 4 | 48.02 | 33,390 | 0 | 2023 | | 2025.01.10 | ¿ù¼¼ | ÀÚÇÏŬ·¡½Ä | 16 | 13.77 | 3,000 | 55 | 2018 | | 2025.01.10 | ¿ù¼¼ | ±×·¹À̽ººô | 2 | 27.73 | 300 | 60 | 2022 | | 2025.01.09 | ¸Å¸Å | ¹Ì¼ººô¶ó(354-25) | 3 | 47.7 | 21,800 | | 2002 | | 2025.01.09 | ¸Å¸Å | Çѿî(105-414) | 5 | 33.39 | 10,650 | | 2012 | | 2025.01.09 | Àü¼¼ | ´Ù¼ØAµ¿(381-2¿Ü) | 5 | 37.12 | 19,650 | 0 | 2015 | | 2025.01.09 | Àü¼¼ | ¿ìÇöž½ººô | 3 | 51.15 | 22,900 | 0 | 2012 | | 2025.01.09 | ¿ù¼¼ | Áö¸í¾ÆÆ®ºô | 1 | 64.51 | 16,000 | 30 | 1994 | | 2025.01.09 | Àü¼¼ | »ï¿øÇÏÀÌÃ÷ºô¶ó(56-189) | 1 | 38.08 | 9,000 | 0 | 1993 | | 2025.01.09 | Àü¼¼ | ¼º¿î4Â÷ | 5 | 36.9 | 11,100 | 0 | 2002 | | 2025.01.09 | Àü¼¼ | Ȱîºô¶ó | 4 | 60.41 | 15,700 | 0 | 2000 | | 2025.01.09 | ¿ù¼¼ | Çý¼ºÆÓ¸®½ººô(392-31) | 2 | 29.1 | 14,700 | 12 | 2014 | | 2025.01.09 | ¿ù¼¼ | °æ¹Î¾ÆÆ®ºô(393-21) | 5 | 23.97 | 1,000 | 78 | 2017 | | 2025.01.08 | ¸Å¸Å | »ï¼º°ñµçºô | 3 | 29.97 | 22,000 | | 2014 | | 2025.01.08 | ¸Å¸Å | ½Ö¿ëºô¶ó(56-83) | 4 | 47.4 | 14,000 | | 2001 | | 2025.01.08 | ¸Å¸Å | °ÇÇüºô¶ó(341-43) | 4 | 39.9 | 14,000 | | 2000 | | 2025.01.08 | ¸Å¸Å | ¼±°æº£½ºÆ®ºô(98-119) | 3 | 54.48 | 24,000 | | 2008 | | 2025.01.08 | ¸Å¸Å | À¯Á¤ºô¶ó | -1 | 67.32 | 16,000 | | 1998 | | 2025.01.08 | ¸Å¸Å | °Å¼º¸Ç¼Ç(158-39) | 4 | 83.21 | 47,500 | | 1997 | | 2025.01.08 | ¸Å¸Å | ¿¡ÄÚij½½(504-24) | 4 | 44.55 | 26,000 | | 2015 | | 2025.01.08 | ¿ù¼¼ | DSÇÏ¿ì¡ | 2 | 28.95 | 12,000 | 55 | 2022 | | 2025.01.08 | ¿ù¼¼ | LUCE¥±(·çüby¿¹¿ì) | 6 | 14.2 | 2,500 | 25 | 2012 | | 2025.01.08 | Àü¼¼ | ¼ºÁöºô¶ó(29-91) | 4 | 72.73 | 15,750 | 0 | 1997 | | 2025.01.08 | Àü¼¼ | ½Ö¿ëºô¶ó(56-83) | 2 | 47.4 | 12,900 | 0 | 2001 | | 2025.01.08 | ¿ù¼¼ | Á¤°¨ÇϿ콺 | 2 | 28.43 | 15,450 | 20 | 2016 | | 2025.01.08 | ¿ù¼¼ | µÎ»êºô¶ó(959-26) | 1 | 59.85 | 15,000 | 30 | 2002 | | 2025.01.08 | Àü¼¼ | »ï¼ºÁÖÅÃ(159-1) | 1 | 73.74 | 17,200 | 0 | 1999 | | 2025.01.08 | Àü¼¼ | ¼ºÁöºô¶ó(29-91) | 4 | 72.73 | 15,750 | 0 | 1997 | | 2025.01.08 | Àü¼¼ | ´ë´öºô¶ó(353-46) | 4 | 49.5 | 14,800 | 0 | 2001 | | 2025.01.08 | Àü¼¼ | À£ÇϿ콺 | 3 | 80.9 | 21,168 | 0 | 2008 | | 2025.01.08 | ¿ù¼¼ | ÇÑÀÏ¾ÆÆ®ºô¶ó | -1 | 36.1 | 6,000 | 15 | 1990 | | 2025.01.08 | ¿ù¼¼ | ¿ì¼ºÁß¾Óºô¶ó | 2 | 42.51 | 11,680 | 8 | 1995 | | 2025.01.08 | ¿ù¼¼ | ³ª»êºô¶ó | 2 | 36.56 | 2,000 | 60 | 1991 | | 2025.01.08 | ¿ù¼¼ | ÇÏ¿ìÀç995 | 3 | 28.85 | 5,000 | 70 | 2022 | | 2025.01.08 | Àü¼¼ | ¿¡ÀÌ¿£Ä³½½ | 5 | 26.23 | 16,884 | 0 | 2018 | | 2025.01.08 | Àü¼¼ | ¹Ý¼®ÇϿ콺 | 2 | 33.69 | 10,230 | 0 | 2012 | | 2025.01.07 | ¿ù¼¼ | »ï¼º½¦¸£ºô(351-17¹øÁö) | 5 | 40.62 | 19,400 | 25 | 2016 | | 2025.01.07 | ¿ù¼¼ | ¿¬¿ì³Ø½ºÆ®ºä | 13 | 13.16 | 3,000 | 50 | 2018 | | 2025.01.07 | Àü¼¼ | µ¿¸íÁÖÅôٵ¿ | 3 | 64.22 | 21,600 | 0 | 2001 | | 2025.01.07 | ¸Å¸Å | °¼ºô¶ó | 1 | 70.09 | 22,000 | | 1991 | | 2025.01.07 | ¸Å¸Å | â´ë(372-22) | 5 | 27.95 | 17,800 | | 2012 | | 2025.01.07 | ¸Å¸Å | ¿ÍÀ̾غñ | 2 | 29.53 | 20,700 | | 2016 | | 2025.01.07 | ¸Å¸Å | (869-33) | 1 | 36.57 | 12,400 | | 1991 | | 2025.01.07 | Àü¼¼ | ÇѾç¸Ç¼ð(56-66) | 2 | 38.88 | 11,700 | 0 | 2000 | | 2025.01.07 | ¸Å¸Å | ±îÄ¡»êÆÈ¶óÀ̽º | 4 | 24.52 | 13,750 | | 2015 | | 2025.01.07 | ¿ù¼¼ | ½Åµ¿¾Æºô¶ó | 3 | 37.2 | 10,700 | 5 | 1993 | | 2025.01.07 | ¿ù¼¼ | ¼±¤ÆÄ½ºÅÚ | 1 | 61.1 | 5,000 | 70 | 2001 | | 2025.01.07 | Àü¼¼ | µ¿Áøºô¶ó | 1 | 63.2 | 16,200 | 0 | 1999 | | 2025.01.07 | ¿ù¼¼ | ź¹ºô¸®Áö | -1 | 63.62 | 11,000 | 10 | 1998 | | 2025.01.07 | Àü¼¼ | ´ë±¤ºô¶ó(102-154) | 2 | 49.51 | 15,800 | 0 | 2002 | | 2025.01.07 | ¸Å¸Å | ´Ù¼ØAµ¿(381-2¿Ü) | 4 | 33.28 | 27,300 | | 2015 | | 2025.01.07 | ¸Å¸Å | µ¿¸í³ëºí·¹½º(³ªµ¿) | 4 | 38.12 | 17,500 | | 2011 | | 2025.01.07 | ¸Å¸Å | ¿¹¿øºô¶ó6µ¿ | 2 | 36.98 | 23,000 | | 1987 | | 2025.01.07 | Àü¼¼ | ¿¬¿ì³Ø½ºÆ®ºä | 13 | 13.16 | 12,000 | 0 | 2018 | | 2025.01.07 | Àü¼¼ | »ï¼º½¦¸£ºô(351-17¹øÁö) | 5 | 40.62 | 19,400 | 0 | 2016 | | 2025.01.07 | ¿ù¼¼ | ½Ã±×´ÏÃÄ-S | 4 | 33.12 | 3,000 | 100 | 2023 | | 2025.01.07 | Àü¼¼ | ´õ½ºÅ¸ÀÏ | 2 | 74.55 | 38,000 | 0 | 2017 | | 2025.01.06 | ¿ù¼¼ | ´ë»óÈúž | 2 | 41.76 | 16,000 | 20 | 2011 | | 2025.01.06 | ¸Å¸Å | ¼ºÀçºô¶ó°¡µ¿ | 1 | 59.8 | 17,000 | | 2001 | | 2025.01.06 | Àü¼¼ | À§ÇϿ콺 | 3 | 39.97 | 22,170 | 0 | 2015 | | 2025.01.06 | Àü¼¼ | Áø¼ººô¶ó(1102-11) | -1 | 41.31 | 8,200 | 0 | 1986 | | 2025.01.06 | ¿ù¼¼ | ±Ù»óÇÁ¸®Áò¾ÆÆ®ºô | 4 | 55.16 | 19,600 | 19 | 2010 | | 2025.01.06 | ¿ù¼¼ | ¿ì¼ºÅ׸¶ºô(393-3) | 4 | 59.88 | 19,500 | 20 | 2006 | | 2025.01.06 | ¿ù¼¼ | ¿ì¼ººô¶ó12Â÷ | 2 | 39.36 | 10,000 | 15 | 1991 | | 2025.01.06 | ¿ù¼¼ | ÇϳªÅ¸¿îAµ¿ | 6 | 29.31 | 15,200 | 28 | 2015 | | 2025.01.06 | ¿ù¼¼ | ÇϳªÅ¸¿îAµ¿ | 6 | 29.31 | 15,200 | 28 | 2015 | | 2025.01.06 | Àü¼¼ | ³ª¸°ÇÏÀÓBµ¿(976-4) | 4 | 26.78 | 15,000 | 0 | 2017 | | 2025.01.06 | ¿ù¼¼ | ÅÂȺô¶ó(333-11) | 2 | 41.98 | 12,600 | 15 | 2002 | | 2025.01.06 | ¿ù¼¼ | ÆÄ¶û»õºô¶óÆ® | 3 | 43.38 | 2,000 | 54 | 2000 | | 2025.01.06 | Àü¼¼ | »ï¼ºÆÄÅ©ºô(464-1) | 2 | 55.06 | 19,900 | 0 | 2012 | | 2025.01.06 | Àü¼¼ | À̵µÆ®¶ó¿ò | 5 | 29.58 | 18,480 | 0 | 2016 | | 2025.01.06 | Àü¼¼ | Áø¼ººô¶ó(1102-11) | -1 | 41.31 | 8,200 | 0 | 1986 | | 2025.01.06 | ¿ù¼¼ | Ÿ¿ö¼¾½ººô | 2 | 33.63 | 2,000 | 60 | 2008 | | 2025.01.06 | ¿ù¼¼ | ÀºÇϼö±×¸°ºô | 5 | 41.115 | 1,000 | 80 | 2002 | | 2025.01.06 | Àü¼¼ | ¸¶Å©ÇϿ콺 | 4 | 29.43 | 21,500 | 0 | 2018 | | 2025.01.06 | Àü¼¼ | ¸¶Å©ÇϿ콺 | 4 | 29.06 | 20,890 | 0 | 2018 | | 2025.01.06 | Àü¼¼ | ¸¶Å©ÇϿ콺 | 2 | 41.09 | 22,800 | 0 | 2017 | | 2025.01.06 | ¿ù¼¼ | ¿ì¼ºÅ׸¶ºô(393-3) | 4 | 59.88 | 19,500 | 20 | 2006 | | 2025.01.06 | Àü¼¼ | À̵µÆ®¶ó¿ò | 5 | 29.58 | 16,880 | 0 | 2016 | | 2025.01.05 | Àü¼¼ | º¹Áö¾ÆÆ®ºô¶ó2µ¿ | 4 | 35.08 | 9,000 | 0 | 2003 | | 2025.01.05 | Àü¼¼ | È«¼º±×¸°ÆÄÅ© | 3 | 46.38 | 16,000 | 0 | 2010 | | 2025.01.04 | ¿ù¼¼ | ¼Çö | 3 | 12.24 | 500 | 40 | 2011 | | 2025.01.04 | Àü¼¼ | ¼ºÁÖºô¶óAµ¿(46-108) | 3 | 60.7 | 18,600 | 0 | 1995 | | 2025.01.04 | ¿ù¼¼ | ´õ±×¸°È°î | 2 | 44.24 | 2,000 | 85 | 2015 | | 2025.01.04 | Àü¼¼ | °Å¼º | 3 | 49.5 | 15,000 | 0 | 1986 | | 2025.01.04 | ¿ù¼¼ | ºäƼ½¦¸£ºô353 | 4 | 45.93 | 21,920 | 30 | 2017 | | 2025.01.04 | Àü¼¼ | °Å¼º | 3 | 49.5 | 15,000 | 0 | 1986 | | 2025.01.04 | Àü¼¼ | ·Ôµ¥Å¸¿î(1085-25) | 5 | 29.21 | 15,300 | 0 | 2012 | | 2025.01.04 | ¿ù¼¼ | ÀÎÅÍ½ÃÆ¼ºô¶ó(152-5) | 4 | 29.25 | 8,000 | 20 | 2001 | | 2025.01.04 | Àü¼¼ | ¶óÀÎÆÄÅ© | 3 | 26.49 | 20,550 | 0 | 2018 | | 2025.01.04 | ¿ù¼¼ | ºäƼ½¦¸£ºô353 | 4 | 45.93 | 21,920 | 30 | 2017 | | 2025.01.04 | ¿ù¼¼ | ´õÇϿ콺 | 4 | 26.48 | 5,000 | 90 | 2018 | | 2025.01.04 | ¿ù¼¼ | ·ÎÁîÆÓ¸®½ºÅõ(346-38) | 5 | 74.4 | 500 | 29 | 2009 | | 2025.01.04 | ¿ù¼¼ | Á¤¾Èºô¶ó | 2 | 60.65 | 3,000 | 100 | 2001 | | 2025.01.04 | Àü¼¼ | °Å¼º | 3 | 49.5 | 15,000 | 0 | 1986 | | 2025.01.04 | ¸Å¸Å | ½Å¼¼°èµå¸²ºô(77-33) | 1 | 57.06 | 18,000 | | 2001 | | 2025.01.04 | ¿ù¼¼ | ÇØÂùºô(24-550) | 8 | 16.49 | 7,500 | 6 | 2012 | | 2025.01.04 | ¿ù¼¼ | ·ÎÁîÆÓ¸®½ºÅõ(346-38) | 5 | 59.81 | 500 | 29 | 2009 | | 2025.01.04 | ¸Å¸Å | »ï¼º½¦¸£ºô(346-62) | 6 | 41.13 | 23,600 | | 2017 | | 2025.01.03 | Àü¼¼ | ºñ¿¤ºô¸®Áö | 5 | 29.68 | 17,500 | 0 | 2019 | | 2025.01.03 | ¿ù¼¼ | ¿ì¼º(408-86) | 2 | 42.45 | 20,000 | 22 | 2017 | | 2025.01.03 | Àü¼¼ | À£¸®Ä¡ÆÄÅ©(1078-24) | 4 | 49.06 | 29,400 | 0 | 2015 | | 2025.01.03 | ¿ù¼¼ | ±ÝÈ£½¦¸£ºô | -1 | 17.85 | 300 | 26 | 2002 | | 2025.01.03 | Àü¼¼ | ÇØ¿Âij½½ | 3 | 24.11 | 15,800 | 0 | 2019 | | 2025.01.03 | Àü¼¼ | ºñ¿¤ºô¸®Áö | 5 | 29.68 | 17,500 | 0 | 2019 | | 2025.01.03 | ¿ù¼¼ | ³ª¸°ÇÏÀÓBµ¿(976-4) | 3 | 26.78 | 3,000 | 80 | 2017 | | 2025.01.03 | ¿ù¼¼ | ¼Çö | 4 | 12.24 | 500 | 40 | 2011 | | 2025.01.03 | Àü¼¼ | ´ë¸²ºô¶ó(348-6) | -1 | 32.7 | 7,000 | 0 | 1987 | | 2025.01.03 | Àü¼¼ | ´ëÇѺô¶óBµ¿ | 1 | 36.72 | 9,733 | 0 | 1990 | | 2025.01.03 | ¿ù¼¼ | ÇØÇÇÇÏÀÌÃ÷ | 2 | 46.55 | 3,000 | 90 | 2008 | | 2025.01.03 | Àü¼¼ | ·Î¾âºô | 3 | 28.56 | 9,000 | 0 | 2009 | | 2025.01.03 | Àü¼¼ | JÆÓ¸®½º4Â÷ | 5 | 40.37 | 16,000 | 0 | 2012 | | 2025.01.03 | ¿ù¼¼ | ´õ¶ó¿Â | 2 | 29.72 | 0 | 80 | 2019 | | 2025.01.03 | Àü¼¼ | Á¤µµ±×¸°ºô¸®Áö | 4 | 73.28 | 20,500 | 0 | 2000 | | 2025.01.03 | ¸Å¸Å | º¹ÁöȨŸ¿î2µ¿ | 4 | 39.81 | 20,000 | | 2002 | | 2025.01.03 | ¸Å¸Å | ⿵ºô¶ó | 2 | 59.96 | 15,500 | | 1994 | | 2025.01.03 | Àü¼¼ | ºê¸´Áö½ºÅæ(815-19) | 4 | 37.55 | 16,000 | 0 | 2012 | | 2025.01.03 | ¿ù¼¼ | ¿ìÁøÅ¸¿î´Ùµ¿(381-14) | 3 | 40.5 | 2,000 | 66 | 2008 | | 2025.01.03 | Àü¼¼ | °¼ÆÄÅ©ºäÅõ¿þ´ÏÆÛ½ºÆ® | 17 | 19.64 | 18,900 | 0 | 2020 | | 2025.01.03 | ¿ù¼¼ | ±×·¹À̽ººô | 4 | 28.61 | 5,000 | 50 | 2016 | | 2025.01.03 | ¿ù¼¼ | ºÎ°Çºô(1085-14) | 2 | 17.07 | 500 | 55 | 2015 | | 2025.01.03 | ¿ù¼¼ | º½ºûŸ¿î | 3 | 62.49 | 8,000 | 45 | 2003 | | 2025.01.02 | ¿ù¼¼ | (914-39) | 1 | 38.43 | 2,000 | 70 | 1992 | | 2025.01.02 | Àü¼¼ | ½ÅÁøÇÏÀÌÃ÷Aµ¿ | 3 | 45.95 | 12,000 | 0 | 2003 | | 2025.01.02 | Àü¼¼ | SKÆÄÅ©ºô(353-15) | 4 | 40.05 | 19,656 | 0 | 2014 | | 2025.01.02 | ¿ù¼¼ | ¿ÍÀ̾غñ | 2 | 27.9 | 17,600 | 10 | 2017 | | 2025.01.02 | Àü¼¼ | SKÆÄÅ©ºô(353-15) | 4 | 40.05 | 1,444 | 0 | 2014 | | 2025.01.02 | Àü¼¼ | ½Å¼ºÁÖÅÃ(359-30) | 4 | 48.39 | 14,000 | 0 | 2002 | | 2025.01.02 | ¿ù¼¼ | ¸ÞÁ¾µåÁª¸¶ | 5 | 19.74 | 17,200 | 30 | 2018 | | 2025.01.02 | ¿ù¼¼ | ÇÁ¸®¸Þ¶ó(791-10) | 4 | 38.77 | 1,500 | 30 | 2014 | | 2025.01.02 | Àü¼¼ | µð¾ÆÀνº(1075-27) | 6 | 22.97 | 14,500 | 0 | 2015 | | 2025.01.02 | ¿ù¼¼ | ¼±¿ì±×¸°ºô | 2 | 50.91 | 0 | 20 | 2002 | | 2025.01.02 | ¸Å¸Å | ºäƼ½¦¸£ºô353 | 2 | 26.9 | 22,300 | | 2017 | | 2025.01.02 | ¸Å¸Å | ¹®¼ººô¶ó | 2 | 72.08 | 24,500 | | 2000 | | 2025.01.02 | ¸Å¸Å | º¹ÁöȨŸ¿î3µ¿ | 2 | 46.73 | 20,000 | | 2002 | | 2025.01.02 | ¸Å¸Å | ¹ÌÇϿ콺 | 3 | 41.21 | 27,000 | | 2016 | | 2025.01.02 | ¸Å¸Å | 102-119 | 4 | 36.1 | 25,000 | | 2015 | | 2025.01.02 | ¿ù¼¼ | ´õŬ·¡½Ä | 3 | 29.34 | 17,640 | 10 | 2018 | | 2025.01.02 | ¿ù¼¼ | ¸í¼ººô¸®Áö | 2 | 46 | 3,500 | 58 | 2002 | | 2025.01.02 | ¿ù¼¼ | ½Å¿µº£¸£µð¿ò | 6 | 17.58 | 2,000 | 100 | 2019 | | 2025.01.02 | ¿ù¼¼ | ±×¸°³ª·¡ºô¶óÆ® | 4 | 41.02 | 13,980 | 10 | 2008 | | 2025.01.01 | Àü¼¼ | ¿ì¼ºÅ׸¶ºô(368-59) | 4 | 38.49 | 12,400 | 0 | 2005 | | 2024.12.31 | ¿ù¼¼ | ¶óÇǾƳë | 2 | 28.05 | 5,000 | 80 | 2022 | | 2024.12.31 | Àü¼¼ | ½Å¾ç±×¸°ºô(102-84) | 3 | 49.98 | 13,000 | 0 | 2008 | | 2024.12.31 | ¸Å¸Å | ¸í½ÅŸ¿î7Â÷(Aµ¿) | 4 | 53.76 | 18,500 | | 2001 | | 2024.12.31 | ¸Å¸Å | ¸®ºùÇϿ콺 | 2 | 25.97 | 14,580 | | 2016 | | 2024.12.31 | ¸Å¸Å | ¸®´õ½ºÅ¸¿î | 5 | 29.88 | 21,000 | | 2016 | | 2024.12.31 | ¸Å¸Å | º£¾ÆÆ®¸®½º | 2 | 29.97 | 23,000 | | 2017 | | 2024.12.31 | Àü¼¼ | µ¿ÁøÇÏÀ̺ô | 4 | 68.04 | 21,000 | 0 | 2008 | | 2024.12.31 | ¿ù¼¼ | LUCE¥±(·çüby¿¹¿ì) | 4 | 14.2 | 3,000 | 22 | 2012 | | 2024.12.31 | ¸Å¸Å | ¼±°æÇÏÀÌÃ÷(367-67) | 4 | 23.55 | 17,800 | | 2012 | | 2024.12.31 | ¿ù¼¼ | ºñ¿ø±×¸°ºô¶ó | 2 | 56.07 | 13,000 | 30 | 1986 | | 2024.12.31 | Àü¼¼ | ´ë¼±ÇÏÀ̺ô | 5 | 29.77 | 18,000 | 0 | 2019 | | 2024.12.31 | ¿ù¼¼ | (367-79) | 4 | 46.5 | 3,000 | 70 | 1994 | | 2024.12.31 | ¿ù¼¼ | ´Ù¼¼´ë(986-24) | 2 | 15.19 | 9,400 | 15 | 2017 | | 2024.12.31 | ¿ù¼¼ | µ¿±¤½¦¸£ºô³ªµ¿ | 4 | 59.53 | 14,100 | 15 | 2002 | | 2024.12.31 | ¿ù¼¼ | ¿¹°¡Ã¤(968-3) | 6 | 43.04 | 20,000 | 30 | 2015 | | 2024.12.31 | Àü¼¼ | ½Å¾ç±×¸°ºô(102-84) | 3 | 49.98 | 13,000 | 0 | 2008 | | 2024.12.30 | ¸Å¸Å | »ó¾Æ¿¡ÄÚ¶óÀÌÇÁ | 3 | 50.31 | 18,500 | | 2011 | | 2024.12.30 | ¸Å¸Å | ¸®´õ½ºÅ¸¿î | 5 | 29.88 | 20,000 | | 2016 | | 2024.12.30 | Àü¼¼ | ´ëÈﺣ½ºÆ®ºô | 4 | 79.44 | 22,300 | 0 | 2004 | | 2024.12.30 | ¿ù¼¼ | ´ë¸í½ÃƼºô | 2 | 40.8 | 3,000 | 36 | 2007 | | 2024.12.30 | ¿ù¼¼ | ±¤Áøºô¶óÆ® | 2 | 47.19 | 300 | 40 | 2003 | | 2024.12.30 | ¿ù¼¼ | ½Â¹Î | 4 | 34.98 | 1,000 | 70 | 2013 | | 2024.12.30 | ¿ù¼¼ | ÇÁ¸®¸Þ¶ó(379-82) | 3 | 29.91 | 3,000 | 80 | 2015 | | 2024.12.30 | ¿ù¼¼ | ¼øÈ¯¾ÆÆ®ºôBµ¿ | 1 | 57.18 | 12,200 | 26 | 2002 | | 2024.12.30 | Àü¼¼ | ¶óÀÎÆÄÅ© | 6 | 29.3 | 21,900 | 0 | 2018 | | 2024.12.30 | ¿ù¼¼ | ½¦¶óÅæºô¸®Áö | 1 | 39.51 | 2,000 | 50 | 1994 | | 2024.12.30 | ¿ù¼¼ | (914-39) | 2 | 38.43 | 2,000 | 70 | 1992 | | 2024.12.30 | Àü¼¼ | ¿ì¼ººô¶ó(366-10) | 4 | 50.01 | 13,400 | 0 | 1994 | | 2024.12.30 | ¸Å¸Å | ºäƼ½¦¸£ºô353 | 2 | 26.9 | 22,300 | | 2017 | | 2024.12.29 | ¿ù¼¼ | ³²¼º¾ÆÆ®ºô | 6 | 36.31 | 21,500 | 20 | 2017 | | 2024.12.28 | ¿ù¼¼ | µ¿Èºô¶ó8Â÷ | 3 | 30.4 | 1,000 | 50 | 1992 | | 2024.12.28 | Àü¼¼ | ¶óÀÌÇÁÁÖÅà | 2 | 40.825 | 10,900 | 0 | 1986 | | 2024.12.28 | ¿ù¼¼ | ºí·çÈú | 6 | 23.06 | 3,000 | 130 | 2017 | | 2024.12.28 | ¿ù¼¼ | ÇູŸ¿î(409-78) | 5 | 71.13 | 24,600 | 15 | 2009 | | 2024.12.28 | ¿ù¼¼ | THEONE(820-7) | 4 | 29.07 | 3,000 | 90 | 2020 | | 2024.12.28 | Àü¼¼ | Çö´ëºí·ç¹Ö | 3 | 36.93 | 20,500 | 0 | 2015 | | 2024.12.28 | Àü¼¼ | ¼¾Æ®¸®¿ò | 2 | 35.83 | 18,200 | 0 | 2016 | | 2024.12.28 | Àü¼¼ | ¶ó¿òÇÏ¿ì¡ | 6 | 30.61 | 26,000 | 0 | 2019 | | 2024.12.28 | ¿ù¼¼ | ¿µÈÁÖÅà | 2 | 47.07 | 1,000 | 80 | 1993 | | 2024.12.28 | Àü¼¼ | ½Å¿µº£¸£µð¿ò | 2 | 39.88 | 21,670 | 0 | 2017 | | 2024.12.28 | ¿ù¼¼ | ¿¬¿ì³Ø½ºÆ®ºä | 15 | 13.16 | 1,000 | 63 | 2018 | | 2024.12.28 | Àü¼¼ | »ï¼º¸Þ¸£µð¾Ó | 3 | 57.88 | 17,700 | 0 | 2004 | | 2024.12.28 | Àü¼¼ | ´ë¾ßºô¶ó | -1 | 47.18 | 8,500 | 0 | 1998 | | 2024.12.28 | ¿ù¼¼ | º¹Áö±×¸°ºô(98-77) | 4 | 60.03 | 11,000 | 50 | 2001 | | 2024.12.28 | ¿ù¼¼ | µð¾ÆÀνº(1075-27) | 10 | 12.78 | 9,000 | 35 | 2015 | | 2024.12.28 | ¿ù¼¼ | µð¾ÆÀνº(1075-27) | 10 | 12.78 | 9,000 | 35 | 2015 | | 2024.12.28 | Àü¼¼ | û¿ìÇÏÀ̺ô | 2 | 55.21 | 16,500 | 0 | 2008 | | 2024.12.28 | ¸Å¸Å | °Å¸ñºô¶ó | 1 | 29.7 | 12,800 | | 1986 | | 2024.12.28 | ¿ù¼¼ | ȼºÈ¨Å¸¿î103µ¿ | 3 | 43.01 | 1,000 | 60 | 2002 | | 2024.12.28 | ¿ù¼¼ | ¸ñȺô¶ó°¡µ¿ | 1 | 54.99 | 12,850 | 10 | 1988 | | 2024.12.27 | Àü¼¼ | Á¦ÀÌÅõ¸®´õ½º | 3 | 29.92 | 22,500 | 0 | 2020 | | 2024.12.27 | ¿ù¼¼ | ÀÎÅÍ½ÃÆ¼ºô¶óAµ¿ | 6 | 69.17 | 20,900 | 50 | 2001 | | 2024.12.27 | ¿ù¼¼ | »ï¼ºÆÄÅ©ºô°¡µ¿(111-125) | 4 | 45.13 | 3,000 | 150 | 2001 | | 2024.12.27 | ¿ù¼¼ | SKÆÄÅ©¸®¿ò(851-33) | 5 | 25.92 | 300 | 80 | 2022 | | 2024.12.27 | Àü¼¼ | Ȱ·°½Ã¿ÀÇǽºÅÚ | 5 | 24.86 | 19,100 | 0 | 2018 | | 2024.12.27 | ¿ù¼¼ | »ï¼º½¦¸£ºô(61-82) | 5 | 54.6 | 12,000 | 10 | 2008 | | 2024.12.27 | ¿ù¼¼ | Ǫ¸¥Ç³°æÃ¤ | 3 | 40.72 | 778 | 32 | 2020 | | 2024.12.27 | ¿ù¼¼ | ÀºÇÏÇÁ¸®¸Þ¶ó | 5 | 28.61 | 15,000 | 15 | 2013 | | 2024.12.27 | ¸Å¸Å | È£¼öºô¶ó(56-398) | 3 | 45.32 | 15,000 | | 2001 | | 2024.12.27 | ¸Å¸Å | ½Å¿ì½¬¶óºô | 5 | 29.76 | 12,400 | | 2012 | | 2024.12.27 | ¸Å¸Å | ÇÏÀººô¸®Áö | 5 | 35.7 | 26,600 | | 2016 | | 2024.12.27 | ¸Å¸Å | ³ª»êÁÖÅÃ(°¡µ¿) | 2 | 59.46 | 19,500 | | 1991 | | 2024.12.27 | ¸Å¸Å | ±Øµ¿ºô¶ó | 1 | 67.98 | 20,000 | | 1994 | | 2024.12.27 | Àü¼¼ | °æµ¿ÆÓ¸®½º(847-18) | 5 | 35.3 | 13,300 | 0 | 2008 | | 2024.12.27 | Àü¼¼ | ¸ÞÁ¾µåÁª¸¶ | 2 | 32.24 | 20,500 | 0 | 2018 | | 2024.12.27 | Àü¼¼ | ÇØÇǸ®¿ò | 5 | 31.41 | 13,500 | 0 | 2012 | | 2024.12.27 | Àü¼¼ | ´ëµ¿ºô | 2 | 24.11 | 20,160 | 0 | 2020 | | 2024.12.27 | ¿ù¼¼ | ´õ½ºÀ§Æ®(73-78) | 5 | 28.73 | 3,000 | 90 | 2022 | | 2024.12.27 | Àü¼¼ | ºí¸®½ººô101µ¿102µ¿ | 3 | 59.72 | 36,000 | 0 | 2022 | | 2024.12.27 | ¿ù¼¼ | º¸¼º | 1 | 45.48 | 2,500 | 45 | 1982 | | 2024.12.27 | ¿ù¼¼ | ±¤¸íÇÏÀÌÃ÷25Â÷ | 1 | 59.54 | 14,700 | 30 | 2002 | | 2024.12.27 | Àü¼¼ | °í¿î¿¬¸³ | 2 | 59.64 | 17,600 | 0 | 1996 | | 2024.12.27 | Àü¼¼ | Á¦À̽ººô(969-5) | 3 | 23.6 | 34,900 | 0 | 2022 | | 2024.12.27 | Àü¼¼ | DHÆÓ¸®½º102µ¿ | 5 | 29.56 | 19,500 | 0 | 2018 | | 2024.12.27 | ¿ù¼¼ | ÇÑ¿ïÀÚÀ̺ô(24-246) | 4 | 40.31 | 14,600 | 7 | 2008 | | 2024.12.27 | Àü¼¼ | ¸ÞÁ¾µåÁª¸¶ | 2 | 32.24 | 24,400 | 0 | 2018 | | 2024.12.27 | ¿ù¼¼ | ¿ì¼ºÅ׸¶ºô(1044-20) | 3 | 66.22 | 21,100 | 20 | 2006 | | 2024.12.26 | ¿ù¼¼ | ¿ÍÀ̾غñ | 3 | 29.53 | 17,000 | 15 | 2016 | | 2024.12.26 | Àü¼¼ | µ¿±Ã¾ÆÆ®ºô | 4 | 52.8 | 12,000 | 0 | 2002 | | 2024.12.26 | ¸Å¸Å | Ÿ¿îºô¸®Áö°¡µ¿ | 3 | 59.46 | 20,000 | | 1991 | | 2024.12.26 | ¸Å¸Å | ±Ý»êºô(965-18) | 5 | 30.28 | 13,000 | | 2007 | | 2024.12.26 | ¸Å¸Å | ÀÎÅÍ½ÃÆ¼ºô¶ó(410-171) | 3 | 54.32 | 23,000 | | 2010 | | 2024.12.26 | ¸Å¸Å | º®»êȨŸ¿î(969-14) | 4 | 38.56 | 16,900 | | 2002 | | 2024.12.26 | Àü¼¼ | ¼¼¾ç2Â÷³ªµ¿ | 2 | 38.53 | 10,000 | 0 | 1987 | | 2024.12.26 | ¿ù¼¼ | ÀÚ¶óÇϿ콺(399-15) | 4 | 30 | 13,980 | 20 | 2014 | | 2024.12.26 | Àü¼¼ | Å׸¶366(366-50) | 3 | 29.38 | 23,500 | 0 | 2020 | | 2024.12.26 | Àü¼¼ | ´õÁ¦ÀÌij½½ | 2 | 27.06 | 19,000 | 0 | 2020 | | 2024.12.26 | Àü¼¼ | µ¿±Ã¾ÆÆ®ºô | 4 | 52.8 | 12,000 | 0 | 2002 | | 2024.12.26 | Àü¼¼ | ¿¡½º¿¥ÆÄÅ©ºô(³ªµ¿´Ùµ¿) | 6 | 52.35 | 29,600 | 0 | 2017 | | 2024.12.26 | ¿ù¼¼ | ´Ù¿ï³×¹öºôA | 4 | 67.34 | 22,900 | 10 | 2001 | | 2024.12.26 | Àü¼¼ | ºäƼ½¦¸£ºô | 5 | 45.24 | 29,800 | 0 | 2018 | | 2024.12.25 | ¿ù¼¼ | ¿µµ¿ºô¶ó | 2 | 67.53 | 5,000 | 80 | 2002 | | 2024.12.25 | Àü¼¼ | Ç®Çâ±âºô¶ó2µ¿ | 1 | 31.26 | 9,450 | 0 | 1997 | | 2024.12.25 | Àü¼¼ | (995-10) | 3 | 45.37 | 11,500 | 0 | 2003 | | 2024.12.25 | ¸Å¸Å | ´õÁ¸ÆÛ½ºÆ®ºô | 4 | 29.87 | 28,000 | | 2017 | | 2024.12.25 | ¿ù¼¼ | ¾¾Æ¼ÇϿ콺(425-19) | 7 | 29.38 | 16,300 | 15 | 2014 | | 2024.12.24 | ¿ù¼¼ | ȼººô¶ó29Â÷ | 1 | 32.8 | 9,700 | 10 | 2001 | | 2024.12.24 | Àü¼¼ | ¼Ç¹ë¸® | 4 | 25.3 | 27,000 | 0 | 2024 | | 2024.12.24 | ¸Å¸Å | ±Ù»óÇÁ¸®Áò¾ÆÆ®ºô | 4 | 55.16 | 31,000 | | 2010 | | 2024.12.24 | ¸Å¸Å | ÇØ¿À¸§ºô(354-78) | 3 | 26.43 | 22,750 | | 2015 | | 2024.12.24 | ¿ù¼¼ | Çѽº¾ÆÀ̺ô2 | 4 | 27.45 | 11,781 | 13 | 2019 | | 2024.12.24 | ¿ù¼¼ | ¼º¿îºô¶ó(56-348) | 4 | 61.38 | 15,000 | 20 | 2001 | | 2024.12.24 | ¿ù¼¼ | Çϳªºô¶ó(56-493) | 3 | 50.66 | 1,000 | 80 | 2003 | | 2024.12.24 | ¿ù¼¼ | ´ëÈ£°ñµçºô¶ó(105-438) | 2 | 72.98 | 10,000 | 70 | 1990 | | 2024.12.24 | Àü¼¼ | Èï¾çÈѹ̸®6Â÷ | 5 | 52.28 | 15,000 | 0 | 2002 | | 2024.12.24 | ¿ù¼¼ | ¿ì¼ººô¶ó | 2 | 51.87 | 2,000 | 65 | 1995 | | 2024.12.24 | ¿ù¼¼ | ¿¡µ§ºô¶ó | 3 | 67.54 | 19,400 | 5 | 1998 | | 2024.12.24 | ¿ù¼¼ | ºñ¿ø±×¸°ºô¶ó | 3 | 43.92 | 11,000 | 25 | 1986 | | 2024.12.24 | ¿ù¼¼ | »ïȺô¸®Áö | 3 | 47.43 | 1,000 | 45 | 2017 | | 2024.12.24 | Àü¼¼ | ÇѼººô¶ó(56-655) | 2 | 65.31 | 17,000 | 0 | 1994 | | 2024.12.24 | ¿ù¼¼ | Ǫ¸¥Ç³°æÃ¤ | 3 | 40.72 | 1,508 | 30 | 2020 | | 2024.12.23 | Àü¼¼ | Á¤¹ÎÁÖÅà | 4 | 61.02 | 16,500 | 0 | 1993 | | 2024.12.23 | ¿ù¼¼ | ¹æ¿ì¸Ç¼ÇŸ¿î | 1 | 62.12 | 14,400 | 20 | 1998 | | 2024.12.23 | ¿ù¼¼ | ¹Ì¼ººô¶ó | 5 | 75 | 17,136 | 20 | 2000 | | 2024.12.23 | Àü¼¼ | °¼ÆÄÅ©ºäÅõ¿þ´ÏÆÛ½ºÆ® | 18 | 19.64 | 21,200 | 0 | 2020 | | 2024.12.23 | Àü¼¼ | º£¸£µ¥ÇÇ¾Æ | 3 | 59.36 | 25,900 | 0 | 2016 | | 2024.12.23 | ¿ù¼¼ | ÈÞ¸Õ½ÃÆ¼ | 2 | 29.43 | 0 | 55 | 2020 | | 2024.12.23 | Àü¼¼ | ´ëÇÑ¸Ç¼Ç | 3 | 59.81 | 15,000 | 0 | 1997 | | 2024.12.23 | ¿ù¼¼ | ¿¡º¥¿¡¼¿ | 4 | 15.08 | 500 | 48 | 2009 | | 2024.12.23 | ¿ù¼¼ | ¹Ì±¤½ºÅæºô | 2 | 60.03 | 3,000 | 80 | 2008 | | 2024.12.23 | ¿ù¼¼ | »ï¼ºÈ¨Å¸¿î5Â÷ | 4 | 47.16 | 4,000 | 50 | 2002 | | 2024.12.23 | Àü¼¼ | (379-63) | 3 | 47 | 16,000 | 0 | 2006 | | 2024.12.23 | Àü¼¼ | ¶óÀÎÆÄÅ© | 4 | 25.31 | 22,500 | 0 | 2020 | | 2024.12.23 | ¿ù¼¼ | °Å¼º | 3 | 49.5 | 1,000 | 10 | 1986 | | 2024.12.23 | ¿ù¼¼ | Ÿ¿öÆÄÅ©ºô(56-386) | 3 | 42.38 | 13,000 | 15 | 2008 | | 2024.12.23 | ¿ù¼¼ | °è¸íÆÄÅ©ºô(70-24) | 5 | 45.26 | 12,000 | 26 | 2007 | | 2024.12.23 | Àü¼¼ | ·Î¾âÇÏÀÌÃ÷(353-17) | 5 | 44 | 21,900 | 0 | 2014 | | 2024.12.23 | ¿ù¼¼ | Çì½êµå | 5 | 26.14 | 2,000 | 110 | 2022 | | 2024.12.23 | Àü¼¼ | ¸íÁø¾ÆÆ®ºô | 4 | 65.16 | 19,950 | 0 | 2001 | | 2024.12.23 | ¸Å¸Å | ¼Û¸²¸Ç¼Ç | 2 | 37.12 | 15,500 | | 2002 | | 2024.12.23 | ¸Å¸Å | DHÆÓ¸®½º102µ¿ | 4 | 29.89 | 26,000 | | 2018 | | 2024.12.23 | ¸Å¸Å | ¿µÁøºô¶ó | 3 | 63.85 | 27,000 | | 2000 | | 2024.12.23 | ¿ù¼¼ | ¹Ì¼ººô¶ó | 5 | 75 | 17,136 | 20 | 2000 | | 2024.12.23 | Àü¼¼ | ĪÂùºô | 2 | 29.77 | 12,300 | 0 | 2011 | | 2024.12.23 | ¿ù¼¼ | ÇູŸ¿î(409-78) | 5 | 71.13 | 24,600 | 15 | 2009 | | 2024.12.23 | Àü¼¼ | ´ÙÀÎÇϿ콺 | 2 | 22.72 | 23,000 | 0 | 2022 | | 2024.12.22 | ¸Å¸Å | µ¿¾ç½ºÀ§Æ®È¨ | 2 | 60.42 | 29,000 | | 2008 | | 2024.12.22 | ¸Å¸Å | ºñÁ¯ºô¶ó | 4 | 33.08 | 11,500 | | 2002 | | 2024.12.22 | ¿ù¼¼ | ¹é¿îÀκ£½ºÆ®ºô°¡µ¿³ªµ¿ | 3 | 62.58 | 500 | 60 | 2009 | | 2024.12.22 | Àü¼¼ | ´ÙÀÎÇϿ콺 | 3 | 27.21 | 26,300 | 0 | 2022 | | 2024.12.22 | ¿ù¼¼ | ¿¡ÀÌ¿£Å¸¿ö | 4 | 28.51 | 1,000 | 60 | 2021 | | 2024.12.22 | ¸Å¸Å | »ï¼º°ñµçºô | 3 | 34.72 | 23,800 | | 2014 | | 2024.12.21 | Àü¼¼ | ¿¡½º¿¥ÆÄÅ©ºô | 2 | 36.24 | 21,300 | 0 | 2015 | | 2024.12.21 | ¸Å¸Å | Àº¼ºÄ³½½ | 5 | 23.1 | 16,600 | | 2017 | | 2024.12.21 | ¸Å¸Å | È£¹Ý¾ÆÆ®ºô¶ó | 2 | 47.72 | 17,000 | | 2001 | | 2024.12.21 | ¸Å¸Å | ´ë½Å¸Ç¼Ç | 1 | 53.24 | 15,250 | | 2002 | | 2024.12.21 | ¿ù¼¼ | ³²°æ¸®¹öºô | 4 | 59.845 | 3,000 | 100 | 2000 | | 2024.12.21 | Àü¼¼ | µ¿³²ÁÖÅÃ(163-25) | 2 | 53.73 | 15,900 | 0 | 2003 | | 2024.12.21 | Àü¼¼ | ¼¿¬ºí·çÈúºñ | 2 | 29.76 | 16,750 | 0 | 2016 | | 2024.12.21 | ¿ù¼¼ | â´ëºô¶ó(362-56) | 4 | 29.32 | 14,800 | 15 | 2014 | | 2024.12.21 | ¿ù¼¼ | Çϳª¾ÆÀÌÆÄÅ©ºô | 5 | 22.43 | 4,000 | 70 | 2017 | | 2024.12.21 | ¿ù¼¼ | ½ÅÇϿ콺 | 5 | 53.6 | 5,000 | 130 | 2017 | | 2024.12.21 | Àü¼¼ | SKÆÄÅ©¸®¿ò | 5 | 28.96 | 21,000 | 0 | 2019 | | 2024.12.20 | ¿ù¼¼ | ±×·¹À̽ººô | 5 | 27.73 | 75 | 75 | 2022 | | 2024.12.20 | ¿ù¼¼ | »ïÇùÇÊÇϿ콺 | 5 | 29.91 | 15,700 | 18 | 2016 | | 2024.12.20 | ¿ù¼¼ | ¼Çöºô¶ó(56-103) | 2 | 41.14 | 10,600 | 25 | 2002 | | 2024.12.20 | ¸Å¸Å | ´õ±×¸°È°î | 2 | 44.24 | 25,500 | | 2015 | | 2024.12.20 | ¸Å¸Å | º£¾ÆÆ®¸®½º(341-3) | 5 | 27.36 | 23,900 | | 2017 | | 2024.12.20 | ¸Å¸Å | ¿¹°¡ºô | 2 | 43.08 | 20,000 | | 2012 | | 2024.12.20 | ¸Å¸Å | ¸ðÀüÇ÷¯½ººôBµ¿ | 2 | 33.17 | 14,400 | | 2002 | | 2024.12.20 | ¸Å¸Å | ¿ìÀå»êÆÄÅ©ºô | 5 | 38.59 | 25,000 | | 2013 | | 2024.12.20 | ¸Å¸Å | À̳뼿(867-21) | 6 | 28.18 | 15,900 | | 2015 | | 2024.12.20 | ¸Å¸Å | º£¾ÆÆ®¸®½º(341-3) | 5 | 27.36 | 23,900 | | 2017 | | 2024.12.20 | ¸Å¸Å | º£¾ÆÆ®¸®½º(341-3) | 5 | 27.36 | 23,900 | | 2017 | | 2024.12.20 | ¿ù¼¼ | ¿¡ÄÚºô | 3 | 26.76 | 5,000 | 55 | 2022 | | 2024.12.20 | Àü¼¼ | µµ¿øºô¸®Áö | 1 | 67.84 | 18,000 | 0 | 2002 | | 2024.12.20 | ¿ù¼¼ | Á¤°¨Å¸¿îB | 4 | 29.6 | 16,900 | 20 | 2016 | | 2024.12.20 | ¿ù¼¼ | ÁøÈïºô¶ó | 4 | 40.46 | 13,200 | 15 | 1992 | | 2024.12.20 | ¿ù¼¼ | »ïÁø´Ù¼¼´ë | 1 | 54.72 | 13,000 | 10 | 1986 | | 2024.12.20 | Àü¼¼ | À¯¿øºô¶ó(56-209) | 2 | 49.32 | 12,000 | 0 | 1991 | | 2024.12.20 | ¿ù¼¼ | Àº°¡¶÷ÆÓ¸®½º | 5 | 37.345 | 1,000 | 110 | 2022 | | 2024.12.20 | ¿ù¼¼ | ¼¾ÈÆÄÅ©ºä | 6 | 18.43 | 2,000 | 110 | 2024 | | 2024.12.20 | ¿ù¼¼ | Á¦ÀÌ¿¥ÆÓ¸®½º | 2 | 26.855 | 0 | 90 | 2021 | | 2024.12.20 | ¿ù¼¼ | û¼ÛÆòÈÇコÇϿ콺 | 5 | 29.77 | 5,000 | 85 | 2022 | | 2024.12.20 | ¿ù¼¼ | (340-98) | 2 | 47.94 | 2,000 | 75 | 2003 | | 2024.12.20 | ¿ù¼¼ | (340-98) | 2 | 47.94 | 2,000 | 75 | 2003 | | 2024.12.20 | Àü¼¼ | (1053-1) | 1 | 60.54 | 18,500 | 0 | 2002 | | 2024.12.20 | ¿ù¼¼ | (340-98) | 2 | 47.94 | 2,000 | 75 | 2003 | | 2024.12.20 | ¿ù¼¼ | ¿¹¼ÖÇÏÀÌÃ÷ | 2 | 61.8 | 2,000 | 90 | 2008 | | 2024.12.20 | ¿ù¼¼ | µ¿¿øÈúÇϿ콺 | 6 | 13.6 | 1,000 | 49 | 2011 | | 2024.12.20 | ¿ù¼¼ | ¿¬¿ì³Ø½ºÆ®ºä | 15 | 13.16 | 12,700 | 10 | 2018 | | 2024.12.20 | ¿ù¼¼ | µ¿¿¬ÇϿ콺 | 3 | 54.21 | 0 | 68 | 2017 | | 2024.12.19 | ¸Å¸Å | ¾ÆÁÙ¸®¿ò(1038-13) | 3 | 35.07 | 28,000 | | 2016 | | 2024.12.19 | ¸Å¸Å | ½´ÇÁ¸²´õÇÏÀÌ¿ò | 4 | 60.47 | 57,853 | | 2023 | | 2024.12.19 | ¿ù¼¼ | ¿ì¼ººô¶ó13Â÷ | 1 | 40.5 | 1,000 | 50 | 1992 | | 2024.12.19 | ¸Å¸Å | °æ¹Î¾ÆÆ®ºô101µ¿102µ¿ | 6 | 34.57 | 18,000 | | 2016 | | 2024.12.19 | ¿ù¼¼ | żºÇÏÀÌÃ÷ºô¶ó5Â÷ | -1 | 49.12 | 1,000 | 50 | 1995 | | 2024.12.19 | ¸Å¸Å | ½´ÇÁ¸²´õÇÏÀÌ¿ò | 3 | 60.47 | 57,512 | | 2023 | | 2024.12.19 | ¿ù¼¼ | ¿ìÀå»êºê¶ó¿î½ºÅæ(1100-9) | 2 | 78.25 | 10,000 | 80 | 2007 | | 2024.12.19 | ¿ù¼¼ | Ȳ±Ý°¡µ¿ | 1 | 34.77 | 1,000 | 58 | 1991 | | 2024.12.19 | Àü¼¼ | (504-133) | 1 | 64.78 | 12,000 | 0 | 1986 | | 2024.12.19 | ¿ù¼¼ | ¿ìÀå»êºê¶ó¿î½ºÅæ(1100-9) | 2 | 78.25 | 10,000 | 80 | 2007 | | 2024.12.19 | ¿ù¼¼ | ¹Ì»ê¼¾Æ®ºô | 1 | 30.12 | 10,000 | 10 | 2008 | | 2024.12.19 | Àü¼¼ | °¡Áø±×¸°ºô | 3 | 44.1 | 17,400 | 0 | 2001 | | 2024.12.19 | ¿ù¼¼ | ¹Ì·¡ÇÏÀÌÃ÷(410-40) | 4 | 37.02 | 11,500 | 20 | 2002 | | 2024.12.19 | Àü¼¼ | ºí·ç½ºÄ«À̺ô(366) | 4 | 27.23 | 17,100 | 0 | 2015 | | 2024.12.19 | Àü¼¼ | Á¦ÀÌÁ¦ÀÌij½½ | 2 | 24.7 | 16,700 | 0 | 2016 | | 2024.12.19 | Àü¼¼ | ´Ù¿ï³×¹öºô(991-19) | 3 | 55.84 | 17,000 | 0 | 2002 | | 2024.12.19 | ¿ù¼¼ | ¾Æ³×½ºÇϿ콺 | 1 | 65.72 | 13,500 | 40 | 2002 | | 2024.12.19 | ¿ù¼¼ | ¼ºÁøºô¶ó | 4 | 59.92 | 2,000 | 80 | 1999 | | 2024.12.19 | Àü¼¼ | À¯Áø | 4 | 39.04 | 16,200 | 0 | 2011 | | 2024.12.19 | ¸Å¸Å | ŸÀÓ¾ÆÆ®ºô(996-18) | 3 | 37 | 27,000 | | 2014 | | 2024.12.19 | ¸Å¸Å | ½´ÇÁ¸²´õÇÏÀÌ¿ò | 6 | 60.47 | 58,212 | | 2023 | | 2024.12.19 | ¸Å¸Å | ½´ÇÁ¸²´õÇÏÀÌ¿ò | 6 | 60.47 | 58,211 | | 2023 | | 2024.12.19 | ¸Å¸Å | ½´ÇÁ¸²´õÇÏÀÌ¿ò | 2 | 60.47 | 55,886 | | 2023 | | 2024.12.19 | ¸Å¸Å | ¶óÅ׶󽺺ô(380-6) | 3 | 27.7 | 20,500 | | 2016 | | 2024.12.19 | ¸Å¸Å | ½´ÇÁ¸²´õÇÏÀÌ¿ò | 2 | 60.47 | 55,886 | | 2023 | | 2024.12.19 | ¸Å¸Å | ½´ÇÁ¸²´õÇÏÀÌ¿ò | 2 | 60.47 | 55,886 | | 2023 | | 2024.12.19 | ¸Å¸Å | ½´ÇÁ¸²´õÇÏÀÌ¿ò | 2 | 60.47 | 55,886 | | 2023 | | 2024.12.19 | ¸Å¸Å | ½´ÇÁ¸²´õÇÏÀÌ¿ò | 3 | 60.47 | 57,512 | | 2023 | | 2024.12.19 | ¸Å¸Å | ½´ÇÁ¸²´õÇÏÀÌ¿ò | 3 | 60.47 | 57,512 | | 2023 | | 2024.12.19 | ¸Å¸Å | ½´ÇÁ¸²´õÇÏÀÌ¿ò | 5 | 60.47 | 58,129 | | 2023 | | 2024.12.19 | ¸Å¸Å | ½´ÇÁ¸²´õÇÏÀÌ¿ò | 5 | 60.47 | 58,129 | | 2023 | | 2024.12.19 | ¸Å¸Å | ½´ÇÁ¸²´õÇÏÀÌ¿ò | 4 | 60.47 | 57,853 | | 2023 | | 2024.12.19 | ¸Å¸Å | ½´ÇÁ¸²´õÇÏÀÌ¿ò | 4 | 60.47 | 57,853 | | 2023 | | 2024.12.19 | ¸Å¸Å | ½´ÇÁ¸²´õÇÏÀÌ¿ò | 4 | 60.47 | 57,853 | | 2023 | | 2024.12.18 | ¿ù¼¼ | ½Ö¿ëºô¸®Áö | 3 | 62.96 | 3,000 | 100 | 2001 | | 2024.12.18 | ¿ù¼¼ | LGŸ¿î9Â÷ | 3 | 59.22 | 1,000 | 85 | 2002 | | 2024.12.18 | ¿ù¼¼ | ¶óºô¶óÆ® | 4 | 26.55 | 14,450 | 12 | 2016 | | 2024.12.18 | ¸Å¸Å | ±×¸°ÆÄÅ©(460-8) | 3 | 47.76 | 15,500 | | 2007 | | 2024.12.18 | ¸Å¸Å | MAROO | 5 | 27.29 | 18,700 | | 2019 | | 2024.12.18 | ¸Å¸Å | ¿ì¼º(353-2) | 5 | 37.45 | 29,500 | | 2019 | | 2024.12.18 | ¸Å¸Å | À¯¿øÈ¨Å¸¿î | 3 | 46.23 | 28,000 | | 2015 | | 2024.12.18 | ¸Å¸Å | ¿ì¼º(353-2) | 5 | 37.45 | 29,500 | | 2019 | | 2024.12.18 | ¿ù¼¼ | û¼ÛÆòÈÇコÇϿ콺(341-5) | 2 | 28.64 | 20,900 | 10 | 2018 | | 2024.12.18 | ¿ù¼¼ | LGŸ¿î9Â÷ | 3 | 59.22 | 1,000 | 85 | 2002 | | 2024.12.18 | Àü¼¼ | º¸°æºô¶ó | 3 | 48.45 | 13,850 | 0 | 2001 | | 2024.12.18 | ¿ù¼¼ | À¯¸²¾ÆÆ®¹Ð | 2 | 45.61 | 1,000 | 60 | 2003 | | 2024.12.18 | ¿ù¼¼ | ¿ì¼º±×¸°ºô¶ó | 4 | 36.15 | 11,070 | 10 | 1993 | | 2024.12.18 | ¿ù¼¼ | ¼±¿ì½ºÀ§Æ®ºô°¡µ¿(56-661) | 2 | 59.96 | 12,000 | 30 | 2001 | | 2024.12.18 | ¿ù¼¼ | ¿£¿¡½ººô(381-5) | 5 | 52.2 | 1,000 | 80 | 2010 | | 2024.12.18 | ¿ù¼¼ | Çý¼ºÆç¸®½º(811-8) | 2 | 42.45 | 16,000 | 12 | 2011 | | 2024.12.18 | ¿ù¼¼ | »ï¼ºÀ§ºêºô | 3 | 29.78 | 13,980 | 22 | 2012 | | 2024.12.18 | ¿ù¼¼ | Çý¼ºÆç¸®½º(811-8) | 2 | 42.45 | 16,000 | 13 | 2011 | | 2024.12.18 | ¿ù¼¼ | ½Ã¿ø¾ÆÆ®ºô´Ùµ¿ | 2 | 47.52 | 12,000 | 6 | 2002 | | 2024.12.18 | ¿ù¼¼ | ºÎ¸²ÆÓ¸®½º | 5 | 43.72 | 2,000 | 75 | 2011 | | 2024.12.18 | ¸Å¸Å | ½Å¼ººô¶ó | 2 | 50.13 | 15,500 | | 1993 | | 2024.12.18 | ¿ù¼¼ | DSÇÏ¿ì¡ | 3 | 29.21 | 12,000 | 60 | 2022 | | 2024.12.18 | ¿ù¼¼ | ¶óºô¶óÆ® | 4 | 26.55 | 14,450 | 12 | 2016 | | 2024.12.17 | ¿ù¼¼ | ¼±°æºô¶ó(163-24) | 4 | 58.26 | 18,900 | 8 | 1999 | | 2024.12.17 | ¿ù¼¼ | µ¿¿ìºô¶ó | 1 | 37.24 | 1,000 | 60 | 1990 | | 2024.12.17 | Àü¼¼ | È£¼º±×¸°ºô | -1 | 50.02 | 8,500 | 0 | 2001 | | 2024.12.17 | ¿ù¼¼ | ½Å¼º¸®Ä¡ºô¥² | 2 | 24.53 | 2,000 | 80 | 2015 | | 2024.12.17 | ¿ù¼¼ | À̼ö¾ÆÆ®ºô2Â÷ | 6 | 29.64 | 14,994 | 2 | 2016 | | 2024.12.17 | ¿ù¼¼ | À̼ö¾ÆÆ®ºô2Â÷ | 6 | 29.64 | 14,994 | 2 | 2016 | | 2024.12.17 | ¿ù¼¼ | ÇÏ¿ìÀç995 | 5 | 28.93 | 5,000 | 70 | 2022 | | 2024.12.17 | ¸Å¸Å | ºñÁ¯ºô¶ó | 4 | 56.07 | 13,000 | | 1991 | | 2024.12.17 | ¸Å¸Å | ÀÎÅÍ½ÃÆ¼ºô¶ó(152-5) | 4 | 29.25 | 13,500 | | 2001 | | 2024.12.17 | ¿ù¼¼ | ´ë¼Ûºô¶ó | 3 | 44.74 | 2,000 | 80 | 2001 | | 2024.12.17 | ¿ù¼¼ | ½Å¿ø¼¾Æ®·¹ºô | 5 | 51 | 12,000 | 25 | 2008 | | 2024.12.17 | ¿ù¼¼ | D.S¿¡ÄÚºô | 3 | 37.88 | 18,400 | 10 | 2013 | | 2024.12.17 | ¿ù¼¼ | ¼ºÀçij½ººô | 4 | 65.09 | 22,000 | 10 | 2008 | | 2024.12.17 | Àü¼¼ | ºí¸®½ººô101µ¿102µ¿ | 4 | 43.55 | 30,000 | 0 | 2022 | | 2024.12.17 | ¿ù¼¼ | À̼ö¾ÆÆ®ºô2Â÷ | 6 | 29.64 | 14,994 | 5 | 2016 | | 2024.12.17 | Àü¼¼ | »ó¾Æ¸¶À̺ô(1085-5) | 4 | 49.86 | 18,900 | 0 | 2007 | | 2024.12.17 | Àü¼¼ | ¿¡À̽ººô¶ó¿¡À̵¿ | 3 | 59.94 | 19,000 | 0 | 2002 | | 2024.12.17 | Àü¼¼ | ´ë´öÇÏÀÌÃ÷ºô¶ó(102-191) | 2 | 56.92 | 18,500 | 0 | 1995 | | 2024.12.17 | ¿ù¼¼ | ÇÁ¶óÀÓÁÖÅÃ(393-22) | 3 | 23.67 | 13,995 | 4 | 2014 | | 2024.12.17 | ¿ù¼¼ | ·Î¾âÇÏÀÌÃ÷ | 6 | 34.66 | 60 | 58 | 2010 | | 2024.12.16 | ¿ù¼¼ | º£½ºÆ®Èú | 1 | 65.1 | 3,000 | 70 | 2001 | | 2024.12.16 | ¿ù¼¼ | âõ±×¸°ºô | 1 | 42.53 | 12,700 | 25 | 2002 | | 2024.12.16 | ¿ù¼¼ | ¼ö¾ÆÆ®ºô | 2 | 40.05 | 19,650 | 15 | 2015 | | 2024.12.16 | Àü¼¼ | ¿ì¼º | 4 | 37.15 | 18,270 | 0 | 2016 | | 2024.12.16 | ¿ù¼¼ | ź¹ºô¸®Áö | 4 | 81.62 | 19,900 | 15 | 1998 | | 2024.12.16 | Àü¼¼ | ¼Û¿øÄ³½½ | 5 | 34.43 | 20,000 | 0 | 2017 | | 2024.12.16 | ¿ù¼¼ | À¯´Ï¿Â½¦¸£ºô(Eµ¿) | 4 | 30.47 | 1,000 | 70 | 2002 | | 2024.12.16 | Àü¼¼ | ½ã¶óÀÎ | 5 | 29.91 | 18,210 | 0 | 2016 | | 2024.12.16 | ¿ù¼¼ | ¼ºÁøºô¶ó(105-496) | 4 | 30.24 | 9,400 | 20 | 2000 | | 2024.12.16 | Àü¼¼ | ¼¼¾ç2Â÷³ªµ¿ | 2 | 38.53 | 13,000 | 0 | 1987 | | 2024.12.16 | ¿ù¼¼ | ·ÎÁîÆÓ¸®½ºÅõ(346-38) | 2 | 78.57 | 500 | 29 | 2009 | | 2024.12.16 | ¿ù¼¼ | ź¹ºô¸®Áö | 4 | 81.62 | 19,900 | 15 | 1998 | | 2024.12.16 | ¿ù¼¼ | °æµ¿ÁÖÅà | 1 | 36.6 | 1,000 | 55 | 2002 | | 2024.12.16 | ¿ù¼¼ | Ȱîºô¶ó3µ¿(362-188) | 2 | 36.3 | 1,000 | 38 | 1986 | | 2024.12.16 | Àü¼¼ | ¿ÀÄÉÀÌÆÄÅ©ºô | 3 | 29.37 | 18,000 | 0 | 2016 | | 2024.12.16 | ¿ù¼¼ | °¼¹Ì¸®³× | 1 | 53.5 | 3,000 | 150 | 2001 | | 2024.12.16 | Àü¼¼ | ȲÁ¦±×·£µåÆÄÅ©(105-480) | 5 | 40.93 | 14,000 | 0 | 2008 | | 2024.12.16 | Àü¼¼ | ȲÁ¦±×·£µåÆÄÅ©(105-480) | 5 | 40.93 | 14,300 | 0 | 2008 | | 2024.12.16 | ¿ù¼¼ | ±æ¼ºÀÌ¿£ÀÌ(367-62) | 7 | 29.2 | 1,000 | 73 | 2015 | | 2024.12.16 | ¿ù¼¼ | ¸ÖƼÇϿ콺 | 4 | 17.02 | 1,000 | 44 | 2004 | | 2024.12.16 | ¿ù¼¼ | ÇϳªÅ¸¿î(158-38) | -1 | 40.52 | 4,000 | 45 | 2002 | | 2024.12.16 | Àü¼¼ | µµ¹«½ºÈú¸£ | 4 | 55.47 | 25,400 | 0 | 2019 | | 2024.12.16 | Àü¼¼ | ¿ì¼º | 4 | 37.15 | 18,270 | 0 | 2016 | | 2024.12.16 | ¿ù¼¼ | ¸¶ÀÌȨ | 5 | 20.73 | 2,000 | 64 | 2017 | | 2024.12.16 | ¸Å¸Å | ½Ö¿ëºô¶ó(504-46) | 2 | 33.7 | 17,000 | | 2012 | | 2024.12.16 | ¸Å¸Å | ¹Ì°Ç¾ÆÆ®¸Ç¼Ç | -1 | 84.95 | 20,000 | | 1996 | | 2024.12.16 | ¸Å¸Å | ½Ã¿ø¾ÆÆ®ºô³ªµ¿ | 2 | 59.97 | 29,400 | | 2002 | | 2024.12.16 | ¸Å¸Å | ¿¹°¡Ã¼¥±(1105-10) | 6 | 38.76 | 27,900 | | 2014 | | 2024.12.15 | ¿ù¼¼ | ¶óÇǾƳë | 2 | 28.95 | 500 | 75 | 2022 | | 2024.12.15 | ¿ù¼¼ | ¸¶À̹ٿò | 5 | 15.47 | 1,000 | 51 | 2011 | | 2024.12.15 | ¿ù¼¼ | ¶ó¶ã¸®¿¡ | 5 | 23.74 | 2,000 | 75 | 2019 | | 2024.12.15 | ¿ù¼¼ | ³ª¸°ÇÏÀÓAµ¿ | 5 | 27.81 | 300 | 30 | 2017 | | 2024.12.15 | ¿ù¼¼ | õ¿ì¾ÆÆ®ºô(397-2) | 4 | 33.53 | 6,000 | 42 | 2003 | | 2024.12.15 | Àü¼¼ | ¿¹°¡Ã¤(968-3) | 6 | 43.04 | 20,000 | 0 | 2015 | | 2024.12.15 | Àü¼¼ | Èï¾çÈѹ̸®6Â÷ | 5 | 52.28 | 15,000 | 0 | 2002 | | 2024.12.15 | ¸Å¸Å | ¼ºÀººô¶ó(861-30) | 1 | 50.38 | 20,000 | | 2000 | | 2024.12.14 | ¿ù¼¼ | ¹Ì·¡¼¾½ººô(56-621) | 5 | 40.08 | 11,600 | 10 | 2008 | | 2024.12.14 | Àü¼¼ | ½Å¿µº£¸£µð¿ò | 2 | 28.07 | 18,522 | 0 | 2019 | | 2024.12.14 | ¿ù¼¼ | ¿ì³²ºô¶ó(95-159) | 2 | 54.6 | 15,000 | 10 | 2002 | | 2024.12.14 | ¿ù¼¼ | Á¶Àººô¸®Áö(56-302) | 3 | 38.86 | 10,700 | 20 | 2002 | | 2024.12.14 | ¿ù¼¼ | ¿¹¼º±×¸°Ä³½½1Â÷ | 3 | 48.02 | 12,800 | 10 | 2003 | | 2024.12.14 | Àü¼¼ | Çý¼ºÆç¸®½ººô | 2 | 45.69 | 20,500 | 0 | 2018 | | 2024.12.14 | ¿ù¼¼ | ¿ìÀå»ê¾ÆÀνººô | 6 | 32.77 | 14,990 | 20 | 2011 | | 2024.12.14 | ¿ù¼¼ | º¸°æºô¶ó | 1 | 62.59 | 15,800 | 30 | 2001 | | 2024.12.14 | Àü¼¼ | Å׸¶366(366-50) | 2 | 29.93 | 20,000 | 0 | 2020 | | 2024.12.14 | ¿ù¼¼ | (362-109)°¼ººô¶ó3Â÷ | 3 | 33.28 | 9,800 | 10 | 1991 | | 2024.12.14 | Àü¼¼ | ¿¡½º¿¥ÆÄÅ©ºô(³ªµ¿´Ùµ¿) | 3 | 40.55 | 25,300 | 0 | 2017 | | 2024.12.14 | ¿ù¼¼ | ÀÌ¿¤ÇϿ콺 | 5 | 27.9 | 24,690 | 10 | 2022 | | 2024.12.14 | ¿ù¼¼ | °¡ÀÌ¾ÆÆÓ¸®½º | 4 | 29.85 | 5,500 | 110 | 2019 | | 2024.12.14 | Àü¼¼ | Çý¼ºÆç¸®½ººô | 2 | 45.69 | 20,500 | 0 | 2018 | | 2024.12.14 | ¿ù¼¼ | º¸³ëÇϿ콺 | 5 | 22.7 | 2,000 | 80 | 2018 | | 2024.12.14 | ¿ù¼¼ | ¹Ì·¡¼¾½ººô(56-621) | 5 | 40.08 | 11,600 | 10 | 2008 | | 2024.12.14 | ¿ù¼¼ | ±Ý°ÆÄÅ©ºôBµ¿ | -1 | 53.78 | 1,000 | 80 | 2008 | | 2024.12.14 | ¿ù¼¼ | DSÇÏ¿ì¡ | 3 | 28.95 | 9,000 | 70 | 2022 | | 2024.12.14 | ¿ù¼¼ | ´ö¿ëÆÓ¸®Ã¼ | 6 | 24.25 | 3,000 | 90 | 2019 | | 2024.12.14 | ¿ù¼¼ | Å¿µ¾ÆÆ®ºô | 2 | 43.62 | 2,000 | 100 | 2011 | | 2024.12.14 | ¿ù¼¼ | µ¿±¤ºô¶ó5Â÷ | 1 | 46.8 | 11,000 | 30 | 1996 | | 2024.12.13 | ¿ù¼¼ | »ï¼º½¦¸£ºô(111-25) | 3 | 34.46 | 2,000 | 65 | 2014 | | 2024.12.13 | ¿ù¼¼ | JYÆÓ¸®½º(111-27) | 2 | 49.75 | 5,000 | 80 | 2015 | | 2024.12.13 | ¿ù¼¼ | µ¿µµÇÏÀÌÃ÷ºô¶ó | 2 | 59.17 | 14,500 | 40 | 2001 | | 2024.12.13 | ¿ù¼¼ | DSÇÏ¿ì¡ | 6 | 28.77 | 12,000 | 60 | 2022 | | 2024.12.13 | ¿ù¼¼ | DSÇÏ¿ì¡ | 6 | 23.29 | 12,000 | 45 | 2022 | | 2024.12.13 | Àü¼¼ | ±×¸°³ª·¡ºô¶óÆ® | 2 | 43.95 | 15,200 | 0 | 2008 | | 2024.12.13 | Àü¼¼ | ÇÁ¸®Áòºô¶óAµ¿ | 4 | 41.24 | 11,300 | 0 | 2002 | | 2024.12.13 | ¿ù¼¼ | º¸³ëÇϿ콺 | 5 | 23.58 | 1,000 | 85 | 2018 | | 2024.12.13 | ¿ù¼¼ | °©Áø°ñµåºô | 2 | 35.59 | 17,000 | 20 | 2013 | | 2024.12.13 | ¿ù¼¼ | °©Áø°ñµåºô | 2 | 35.59 | 17,000 | 20 | 2013 | | 2024.12.13 | ¸Å¸Å | ³²¼º¾ÆÆ®ºô(102-217) | 3 | 56.55 | 25,500 | | 2011 | | 2024.12.13 | ¸Å¸Å | ´Ù¿ÂÆÄÅ©ºô(1083-11) | 4 | 23.85 | 17,100 | | 2017 | | 2024.12.13 | ¸Å¸Å | ±îġŸ¿î´Ùµ¿ | 2 | 40.68 | 15,700 | | 1991 | | 2024.12.13 | ¿ù¼¼ | ³²¼¿ï¾ÆÆ®ºô | 4 | 37.94 | 16,000 | 20 | 2012 | | 2024.12.13 | Àü¼¼ | ±×¸°³ª·¡ºô¶óÆ® | 2 | 43.95 | 15,200 | 0 | 2008 | | 2024.12.13 | ¿ù¼¼ | ÇÁ¸®Áòºô¶óAµ¿ | 4 | 41.24 | 11,300 | 10 | 2002 | | 2024.12.13 | Àü¼¼ | ±Ý¼ºÁÖÅà | 2 | 79.14 | 22,050 | 0 | 1997 | | 2024.12.13 | Àü¼¼ | À̳뼿(1) | 4 | 41.37 | 18,900 | 0 | 2015 | | 2024.12.13 | Àü¼¼ | À̵µÆ®¶ó¿ò | 5 | 24.38 | 14,800 | 0 | 2016 | | 2024.12.13 | ¿ù¼¼ | ¸®Ä¡ÇϿ콺6Â÷ | 6 | 29.93 | 3,000 | 70 | 2016 | | 2024.12.12 | ¸Å¸Å | û±¸ºô¶ó(51-49) | 2 | 60.64 | 22,000 | | 1995 | | 2024.12.12 | Àü¼¼ | µð¾Æ¸Á(102-233) | 3 | 29.86 | 16,000 | 0 | 2013 | | 2024.12.12 | ¸Å¸Å | ¹Ì·¡½ºÅ¸ºô2Â÷ | 3 | 38.28 | 18,000 | | 2008 | | 2024.12.12 | ¿ù¼¼ | °ø°£ÈÞ(864-10) | 5 | 25.03 | 5,000 | 85 | 2021 | | 2024.12.12 | Àü¼¼ | »ï¿øºô¶ó | 4 | 57.885 | 15,600 | 0 | 2000 | | 2024.12.12 | Àü¼¼ | ÇÑ¿ï¶ß¶õä(995-20) | 5 | 23.97 | 14,000 | 0 | 2011 | | 2024.12.12 | ¸Å¸Å | »ï¼ººô¶óAµ¿(423-26) | 4 | 51.29 | 19,300 | | 2002 | | 2024.12.12 | ¿ù¼¼ | (1047-4) | 2 | 48.3 | 10,000 | 30 | 2000 | | 2024.12.12 | Àü¼¼ | »ï¼ººô¶ó | 1 | 42.97 | 13,000 | 0 | 1993 | | 2024.12.12 | ¿ù¼¼ | ½Å¶óÇÏÀÌÃ÷Aµ¿(829-15) | 2 | 52.18 | 4,000 | 70 | 1991 | | 2024.12.12 | ¿ù¼¼ | µ¿±¤ºô¶óÆ®(98-34) | 2 | 62.845 | 2,000 | 90 | 1997 | | 2024.12.12 | ¸Å¸Å | µµ¹«½ºÈú¸£ | 3 | 56.32 | 29,500 | | 2019 | | 2024.12.12 | ¿ù¼¼ | ¿¬¿ì³Ø½ºÆ®ºä | 14 | 13.16 | 12,700 | 10 | 2018 | | 2024.12.12 | ¿ù¼¼ | ÇѰ¡¶÷ºô(153-10) | 4 | 39.84 | 2,000 | 90 | 2012 | | 2024.12.12 | Àü¼¼ | È«¼ºÆÄÅ©ºô(808-16) | 5 | 44.12 | 16,500 | 0 | 2010 | | 2024.12.11 | ¸Å¸Å | ³ª¸®ºô¶ó(61-35) | 1 | 56.64 | 21,700 | | 1991 | | 2024.12.11 | ¸Å¸Å | ¿¡À̽ººô¶óCµ¿ | 1 | 59.5 | 26,000 | | 2002 | | 2024.12.11 | ¸Å¸Å | 1µ¿2µ¿ | 2 | 51.12 | 25,000 | | 1985 | | 2024.12.11 | Àü¼¼ | ´õ¸Þ¸£¾¾¿¤ | 3 | 27.42 | 20,400 | 0 | 2020 | | 2024.12.11 | Àü¼¼ | ±Ý°ÆÄÅ© | 3 | 61.975 | 16,535 | 0 | 2008 | | 2024.12.11 | ¿ù¼¼ | ÇÑÀÏÀü¿ø¸Ç¼Ç(158-13) | 2 | 62.85 | 17,640 | 20 | 1997 | | 2024.12.11 | Àü¼¼ | ¿¤Æç¸®½º | 5 | 24.54 | 21,400 | 0 | 2022 | | 2024.12.11 | Àü¼¼ | ±Ý°ÆÄÅ© | 3 | 61.975 | 16,535 | 0 | 2008 | | 2024.12.11 | ¿ù¼¼ | ½ºÆäÀ̽ººô | 4 | 46.53 | 17,600 | 20 | 2010 | | 2024.12.11 | Àü¼¼ | ¾È°îºô¶ó(56-70) | -1 | 32.89 | 6,700 | 0 | 1990 | | 2024.12.11 | ¿ù¼¼ | »êÀåºô¶ó(105-466) | 2 | 45.6 | 12,000 | 3 | 1991 | | 2024.12.11 | Àü¼¼ | ±Ý°ÆÄÅ© | 2 | 61.975 | 15,750 | 0 | 2008 | | 2024.12.11 | ¿ù¼¼ | ¼¼¸²ÆÓ¸®Ã¼ | 1 | 28.71 | 13,000 | 25 | 2016 | | 2024.12.11 | Àü¼¼ | ±Ý°ÆÄÅ© | 2 | 61.975 | 15,750 | 0 | 2008 | | 2024.12.11 | ¿ù¼¼ | º½ºûŸ¿î | 4 | 47.16 | 2,000 | 70 | 2003 | | 2024.12.11 | ¿ù¼¼ | ÇÁ¶óÀÓºô | 2 | 44.7 | 300 | 25 | 2010 | | 2024.12.11 | ¿ù¼¼ | ·°Å°ºô¶ó | 2 | 34.38 | 1,000 | 85 | 1991 | | 2024.12.11 | ¿ù¼¼ | ¶ó¿òÇÏ¿ì¡Bµ¿ | 5 | 27.7 | 1,000 | 85 | 2020 | | 2024.12.11 | ¿ù¼¼ | ¼°æÆÓ¸®½º(391-29) | 2 | 63 | 2,000 | 80 | 2010 | | 2024.12.11 | Àü¼¼ | ±Ý°ÆÄÅ© | 2 | 61.975 | 15,750 | 0 | 2008 | | 2024.12.11 | ¿ù¼¼ | ¾ÆÀÌij½½ | 2 | 52.08 | 2,000 | 95 | 2008 | | 2024.12.11 | Àü¼¼ | ´Ù¿ÂÆÄÅ©ºô | 2 | 24.34 | 15,150 | 0 | 2017 | | 2024.12.10 | Àü¼¼ | ´Þõºô¶ó | 3 | 52.72 | 13,600 | 0 | 1995 | | 2024.12.10 | ¿ù¼¼ | ¹®ÆÓ¸®½º | 2 | 34.1 | 1,000 | 80 | 2016 | | 2024.12.10 | ¿ù¼¼ | ¹®ÆÓ¸®½º | 2 | 34.1 | 1,000 | 80 | 2016 | | 2024.12.10 | ¿ù¼¼ | µ¿¿ø¶óÅ×¶ó½º | 5 | 26.83 | 4,500 | 70 | 2018 | | 2024.12.10 | ¿ù¼¼ | Ȱ´Ù¼¼´ë | 4 | 129.29 | 500 | 35 | 2004 | | 2024.12.10 | ¿ù¼¼ | Ç®Çâ±âºô¶ó2µ¿ | 3 | 27.93 | 7,500 | 10 | 1997 | | 2024.12.10 | ¿ù¼¼ | Ç®Çâ±âºô¶ó2µ¿ | 3 | 27.93 | 7,500 | 10 | 1997 | | 2024.12.10 | Àü¼¼ | °ñµç¸®Ä¡ºô(56-217) | 2 | 55.39 | 15,000 | 0 | 2008 | | 2024.12.10 | ¿ù¼¼ | À¯µðÄÚÆÄÅ©¸®¿ò | 4 | 14.71 | 7,090 | 20 | 2011 | | 2024.12.10 | Àü¼¼ | Á¤°¨Å¸¿îC | 2 | 27 | 14,300 | 0 | 2016 | | 2024.12.10 | ¿ù¼¼ | ±Ý¼º½¦¸£ºô | 4 | 43.04 | 11,280 | 6 | 2002 | | 2024.12.10 | ¿ù¼¼ | À̾ÈÁÖÅÃ(457-23) | 2 | 54.41 | 17,500 | 20 | 2008 | | 2024.12.10 | ¸Å¸Å | °è¸í(897-9) | 5 | 62.91 | 25,300 | | 2001 | | 2024.12.10 | Àü¼¼ | ¿À¼ººô¶ó | 2 | 31.34 | 10,000 | 0 | 1987 | | 2024.12.10 | Àü¼¼ | ´ë¼º¾ÆÆ®ºô | 7 | 24.79 | 21,900 | 0 | 2018 | | 2024.12.10 | ¿ù¼¼ | µµÈÀ§³Ê½ººô(1082-7) | 3 | 53 | 19,000 | 25 | 2007 | | 2024.12.10 | Àü¼¼ | ³ª¸°ÇÏÀÓBµ¿(976-4) | 6 | 19.7 | 12,200 | 0 | 2017 | | 2024.12.10 | ¿ù¼¼ | ÇÑ¿ïÀÚÀ̺ô(1129-32) | 4 | 67.65 | 16,750 | 17 | 2008 | | 2024.12.10 | Àü¼¼ | ´Ù¿Â½£ | 6 | 15.72 | 21,500 | 0 | 2024 | | 2024.12.10 | ¿ù¼¼ | ¹«Áö°³ºô¶ó2Â÷ | 3 | 32.88 | 8,500 | 30 | 1991 | | 2024.12.10 | ¿ù¼¼ | ÀºÇÏ¸Ç¼Ç | 6 | 36.65 | 3,000 | 90 | 2012 | | 2024.12.10 | Àü¼¼ | À̼³±×¶ûºô(469-20) | 3 | 58.32 | 15,100 | 0 | 2002 | | 2024.12.10 | ¸Å¸Å | ¿¡½º¿¥ÆÄÅ©ºô(346-94¿Ü) | 2 | 34.96 | 21,000 | | 2015 | | 2024.12.10 | ¸Å¸Å | Áß¾ÓÇÏÀÌÃ÷ºô¶ó(974-8) | 4 | 47.12 | 18,000 | | 2002 | | 2024.12.09 | ¸Å¸Å | ´õÅ×¶ó½º | 6 | 36.11 | 29,000 | | 2019 | | 2024.12.09 | ¸Å¸Å | ³²¼º¾ÆÆ®ºô(166-35) | 5 | 40.7 | 26,300 | | 2013 | | 2024.12.09 | ¸Å¸Å | °æ¹Î¾ÆÆ®ºô101µ¿102µ¿ | 5 | 39.59 | 27,750 | | 2016 | | 2024.12.09 | Àü¼¼ | MÆç¸®Ã¼ | 5 | 36.49 | 25,320 | 0 | 2018 | | 2024.12.09 | Àü¼¼ | MÆç¸®Ã¼ | 6 | 36.49 | 25,326 | 0 | 2018 | | 2024.12.09 | ¿ù¼¼ | Á¤¿¬Ã¤ | 2 | 43.1 | 7,000 | 52 | 2018 | | 2024.12.09 | ¿ù¼¼ | Á¤¿¬Ã¤ | 2 | 43.1 | 7,000 | 52 | 2018 | | 2024.12.09 | Àü¼¼ | ÇØÆòij½½ | 11 | 20.4 | 27,000 | 0 | 2024 | | 2024.12.09 | Àü¼¼ | ÇÑ¿ï¾î¿ï¸²°¡µ¿ | 4 | 47.92 | 18,700 | 0 | 2011 | | 2024.12.09 | ¿ù¼¼ | ÀÎÅÍ½ÃÆ¼ºô¶ó(394-10) | -1 | 63.04 | 11,000 | 20 | 2002 | | 2024.12.09 | ¿ù¼¼ | ´ëÈ£¾ÆÆ®Å¸¿î´Ùµ¿ | 1 | 39.7 | 13,570 | 4 | 1992 | | 2024.12.09 | Àü¼¼ | Çý¼ºÆç¸®½º29Â÷(163-8) | 6 | 40.76 | 21,000 | 0 | 2014 | | 2024.12.09 | ¿ù¼¼ | Çѽº¾ÆÀ̺ô2 | 3 | 27.45 | 11,781 | 13 | 2019 | | 2024.12.09 | ¿ù¼¼ | ¼¼¸²ÆÓ¸®Ã¼ | 4 | 27 | 7,000 | 60 | 2016 | | 2024.12.09 | ¿ù¼¼ | ¾ÆÀ̵ð¿ò | 3 | 28.07 | 2,000 | 80 | 2016 | | 2024.12.09 | Àü¼¼ | ºí¸®½ººô101µ¿102µ¿ | 2 | 43.55 | 30,000 | 0 | 2022 | | 2024.12.09 | ¿ù¼¼ | ½ºÀ§Æ®ºô3 | -1 | 61.23 | 2,100 | 66 | 2002 | | 2024.12.09 | ¸Å¸Å | ±¤»ê±×¸°ºô(1043-5) | 3 | 80.54 | 30,000 | | 2002 | | 2024.12.09 | Àü¼¼ | ÇÁ¸°½ººô | 1 | 57.77 | 19,950 | 0 | 2015 | | 2024.12.09 | Àü¼¼ | Å¿µ¾ÆÆ®ºô | 4 | 38.72 | 16,100 | 0 | 2011 | | 2024.12.09 | ¿ù¼¼ | ¸®´õ½ºÅ¸¿î(397-6) | 2 | 29.79 | 2,000 | 85 | 2016 | | 2024.12.08 | ¿ù¼¼ | ÇØºñÄ¡ºô | 2 | 26.23 | 3,000 | 80 | 2019 | | 2024.12.08 | ¿ù¼¼ | µð¿¡ÀÌÄ¡ÆÓ¸®½º | 3 | 28.3 | 2,000 | 80 | 2016 | | 2024.12.07 | ¸Å¸Å | µ¿±¤ºô¶ó | 1 | 38.88 | 11,300 | | 1993 | | 2024.12.07 | ¸Å¸Å | Á¦ÀÌ¿ÍÀÌÆç¸®½º(849-16¹øÁö) | 3 | 29.89 | 17,900 | | 2016 | | 2024.12.07 | Àü¼¼ | »ï¼º¾ÆÆ®ºôAµ¿ | 5 | 53.46 | 14,300 | 0 | 2002 | | 2024.12.07 | ¸Å¸Å | Á¦ÀÌÅõ¸®´õ½º | 6 | 28.01 | 29,900 | | 2023 | | 2024.12.07 | ¿ù¼¼ | DS¿¡ÄÚŸ¿î | 6 | 29.98 | 3,000 | 60 | 2014 | | 2024.12.07 | Àü¼¼ | ¼¿¬ºí·çÈúºñ | 3 | 29.76 | 16,750 | 0 | 2016 | | 2024.12.07 | ¿ù¼¼ | ´Ù¿Â½£ | 2 | 25.47 | 500 | 85 | 2021 | | 2024.12.07 | ¿ù¼¼ | ¼ö¾Æºô¶ó | 1 | 45.28 | 5,000 | 60 | 2002 | | 2024.12.07 | ¿ù¼¼ | ±Ù»óÇÁ¸®Áò¾ÆÆ®ºô | 2 | 55.3 | 3,000 | 100 | 2010 | | 2024.12.07 | ¿ù¼¼ | (859-6) | 3 | 27.75 | 500 | 59 | 2003 | | 2024.12.07 | ¿ù¼¼ | ½Å½Åºô | 4 | 66.57 | 19,600 | 25 | 2002 | | 2024.12.07 | ¿ù¼¼ | DHÆÓ¸®½º102µ¿ | 2 | 29.89 | 19,700 | 10 | 2018 | | 2024.12.07 | ¸Å¸Å | ³²±¤ÆÄÅ©ºô | 3 | 39.79 | 19,700 | | 2008 | | 2024.12.07 | ¿ù¼¼ | »ï¼º | 2 | 29.81 | 2,000 | 70 | 2010 | | 2024.12.06 | Àü¼¼ | ȼººô¶ó(56-287) | 3 | 42.23 | 11,000 | 0 | 2001 | | 2024.12.06 | ¿ù¼¼ | ¿¥Æç¸®Ã¼ºñµ¿ | 6 | 29.95 | 17,500 | 15 | 2017 | | 2024.12.06 | ¿ù¼¼ | À¯Áø¼Ò¸£º£ | 6 | 27.56 | 11,900 | 15 | 2011 | | 2024.12.06 | ¸Å¸Å | ³²¼º¾ÆÆ®ºô | 5 | 24.92 | 29,500 | | 2017 | | 2024.12.06 | ¿ù¼¼ | µ¿¿ìÇÏÀ̺ô | 2 | 29.5 | 2,000 | 85 | 2021 | | 2024.12.06 | ¿ù¼¼ | ¼º¿ìÇÏÀÌÃ÷ºô¶ó | 3 | 61.79 | 15,000 | 30 | 2000 | | 2024.12.06 | ¿ù¼¼ | ±Ý°´©¸®ºô(998-10) | 5 | 15.72 | 6,700 | 6 | 2012 | | 2024.12.06 | ¿ù¼¼ | ±Â¸ð´×ºô(1115-17) | 3 | 49.93 | 2,000 | 75 | 2010 | | 2024.12.06 | Àü¼¼ | ½¦¶óÅæºô¶ó(56-273) | 4 | 37.28 | 8,900 | 0 | 1991 | | 2024.12.06 | ¿ù¼¼ | ´º¿å·¹Áö´ø½º¥±(858-23) | 3 | 12.24 | 500 | 35 | 2012 | | 2024.12.06 | Àü¼¼ | ³ª¾Ö¶ã(Aµ¿) | 2 | 39.26 | 15,800 | 0 | 2010 | | 2024.12.06 | ¿ù¼¼ | (824-8) | -1 | 27.72 | 1,000 | 30 | 1986 | | 2024.12.06 | ¿ù¼¼ | µ¿¼±º§¸®Ã¼(366-57) | 6 | 23.24 | 20,000 | 10 | 2021 | | 2024.12.06 | ¿ù¼¼ | ÇѰ淺½ºÇ÷¹À̽º | 3 | 25.86 | 23,940 | 7 | 2023 | | 2024.12.06 | ¿ù¼¼ | ¿ìÁø¸Ç¼Ç(773-22) | 5 | 52.5 | 12,000 | 20 | 2006 | | 2024.12.06 | Àü¼¼ | °Å¼º | 1 | 43.56 | 14,000 | 0 | 1986 | | 2024.12.06 | ¿ù¼¼ | Ȱ½ºÆ®ºô | 5 | 42.03 | 11,560 | 5 | 2002 | | 2024.12.06 | Àü¼¼ | ±¤Áø¿¡¹öºô | 6 | 51.3 | 29,162 | 0 | 2021 | | 2024.12.06 | ¿ù¼¼ | ÈÀÌÆ®ÇϿ콺 | 2 | 53.59 | 12,000 | 3 | 2003 | | 2024.12.06 | ¿ù¼¼ | Çѿ\ºìºô(409-51) | 4 | 33.2 | 11,360 | 10 | 2010 | | 2024.12.06 | ¿ù¼¼ | ´º¿å·¹Áö´ø½º¥±(858-23) | 3 | 12.24 | 500 | 35 | 2012 | | 2024.12.06 | ¿ù¼¼ | ±×·£µåºôAµ¿(24-341) | 4 | 73.44 | 20,700 | 30 | 2003 | | 2024.12.06 | Àü¼¼ | ¹Ì·¡¼¾½ººô(56-621) | 5 | 40.08 | 12,500 | 0 | 2008 | | 2024.12.06 | ¿ù¼¼ | ½Å¿øÁÖÅà | 1 | 27.25 | 3,000 | 45 | 1987 | | 2024.12.06 | ¿ù¼¼ | ¿¥Æç¸®Ã¼ºñµ¿ | 6 | 29.95 | 17,500 | 15 | 2017 | | 2024.12.06 | ¿ù¼¼ | ´ë°Çºô¶ó(102-251) | -1 | 35.04 | 500 | 40 | 1995 | | 2024.12.06 | Àü¼¼ | µ¿¾ÆÁÖÅÃCµ¿ | 2 | 35.78 | 13,400 | 0 | 1986 | | 2024.12.06 | ¿ù¼¼ | ÇÏÀººô¸®Áö | 3 | 34.64 | 5,000 | 90 | 2016 | | 2024.12.06 | ¿ù¼¼ | ¿¬¿ì³Ø½ºÆ®ºä | 13 | 13.16 | 12,700 | 10 | 2018 | | 2024.12.05 | ¸Å¸Å | ÇູÀ̰¡µæÇÑÁýA | 4 | 60.84 | 19,800 | | 2002 | | 2024.12.05 | Àü¼¼ | (807-11) | 1 | 43.35 | 10,000 | 0 | 1991 | | 2024.12.05 | ¿ù¼¼ | ¸®Ä¡7 | 12 | 24.59 | 21,000 | 18 | 2022 | | 2024.12.05 | Àü¼¼ | Ȳ±Ýºô¶ó(61-104) | 2 | 43.29 | 11,800 | 0 | 1993 | | 2024.12.05 | ¿ù¼¼ | ¿ì¼ºÃ¢´ëºô | 4 | 64.805 | 3,000 | 80 | 2007 | | 2024.12.05 | ¿ù¼¼ | »ï¼ºÆÄÅ©ºô³ªµ¿(111-126) | 1 | 48.1 | 4,000 | 145 | 2001 | | 2024.12.05 | ¿ù¼¼ | ´ö¿ëÆÓ¸®Ã¼ | 4 | 25.52 | 500 | 80 | 2019 | | 2024.12.05 | Àü¼¼ | µ¿µµÇÏÀÌÃ÷(°¡µ¿) | 5 | 34.05 | 10,500 | 0 | 2001 | | 2024.12.05 | Àü¼¼ | Å©¸®½ºÅ»ºô(24-490) | 4 | 28.09 | 18,300 | 0 | 2014 | | 2024.12.05 | ¿ù¼¼ | ¹Ì¸²ÁÖÅà | -1 | 48.75 | 1,000 | 47 | 1991 | | 2024.12.04 | Àü¼¼ | ȼººô¶ó(379-47) | 5 | 60.12 | 18,400 | 0 | 2009 | | 2024.12.04 | Àü¼¼ | À¯Çöºô¸®Áö | 3 | 28.05 | 15,490 | 0 | 2016 | | 2024.12.04 | Àü¼¼ | µ¿ÀÎ¸Ç¼Ç | 4 | 65.57 | 17,000 | 0 | 2002 | | 2024.12.04 | ¿ù¼¼ | ¹ÌÁÖ¾ÆÆ®ºô | 3 | 57.09 | 3,000 | 80 | 2003 | | 2024.12.04 | Àü¼¼ | ½Åµ¿¾Æºô¶ó | 1 | 37.2 | 10,400 | 0 | 1993 | | 2024.12.04 | ¸Å¸Å | À¯´Ï¿Â½¦¸£ºôB | 2 | 41.88 | 18,400 | | 2002 | | 2024.12.04 | ¿ù¼¼ | ¿¬È¾ÆÆ® | -1 | 48.73 | 3,000 | 65 | 2002 | | 2024.12.04 | ¿ù¼¼ | ´ëÈ£ÇÏÀÌÃ÷¸Ç¼ð | 4 | 53.16 | 30 | 55 | 1991 | | 2024.12.04 | ¿ù¼¼ | »ï¿øÇÇ¾ÆÆ®Cµ¿ | 3 | 63.45 | 2,500 | 80 | 2001 | | 2024.12.04 | Àü¼¼ | ´ë¼º¾ÆÆ®ºô | 5 | 25.31 | 19,800 | 0 | 2018 | | 2024.12.04 | Àü¼¼ | Ǫ¸¥ºô¸®Áö | 4 | 45.42 | 12,000 | 0 | 2001 | | 2024.12.04 | Àü¼¼ | Á¦À̽ººô(969-5) | 4 | 32.79 | 25,074 | 0 | 2022 | | 2024.12.04 | ¿ù¼¼ | LGµå¸²ºô(851-11) | 2 | 51.03 | 15,000 | 10 | 2002 | | 2024.12.04 | Àü¼¼ | ½Åµ¿¾Æºô¶ó | 1 | 37.2 | 10,400 | 0 | 1993 | | 2024.12.04 | ¿ù¼¼ | ÇÑ¿ï¶ß¶õä(1079-23) | 3 | 42.79 | 18,600 | 20 | 2012 | | 2024.12.04 | ¿ù¼¼ | ÇϳªÇÏÀÌÃ÷(1098-14) | 4 | 59.64 | 20,634 | 3 | 2012 | | 2024.12.04 | ¿ù¼¼ | DSÇÁ¶ó´Ù(1084-59) | 5 | 27.91 | 30 | 35 | 2011 | | 2024.12.04 | Àü¼¼ | µ¿ÀÎ¸Ç¼Ç | 4 | 65.57 | 17,000 | 0 | 2002 | | 2024.12.04 | ¸Å¸Å | À£½ºÆÄÅ©ºô(379-2) | 6 | 42.01 | 26,500 | | 2013 | | 2024.12.04 | ¸Å¸Å | ÇѾç¸Ç¼ð(56-66) | 2 | 38.88 | 11,000 | | 2000 | | 2024.12.04 | Àü¼¼ | ÇÁ·¹½ºÆ¼Áö(814-18) | 5 | 29.94 | 22,300 | 0 | 2020 | | 2024.12.04 | ¿ù¼¼ | Á¤¸íÇϿ콺 | 3 | 29.98 | 1,500 | 75 | 2013 | | 2024.12.04 | ¿ù¼¼ | ½Å¼º¸®Ä¡ºô | 5 | 45.5 | 4,000 | 45 | 2008 | | 2024.12.04 | ¿ù¼¼ | µ¿¿ìÇÏÀ̺ô | 6 | 25.86 | 4,000 | 75 | 2019 | | 2024.12.04 | ¸Å¸Å | casagio | 3 | 29.93 | 26,800 | | 2019 | | 2024.12.03 | ¿ù¼¼ | DSÇÏ¿ì¡ | 5 | 29.75 | 12,000 | 80 | 2022 | | 2024.12.03 | Àü¼¼ | ¼¼ÀÎÆ®ºô(55-38) | 2 | 29.5 | 13,000 | 0 | 2012 | | 2024.12.03 | Àü¼¼ | ¿¬¿ì³Ø½ºÆ®ºä | 13 | 13.16 | 12,000 | 0 | 2018 | | 2024.12.03 | ¿ù¼¼ | ¿µÁøÁÖÅà | 4 | 27.36 | 1,200 | 105 | 2023 | | 2024.12.03 | Àü¼¼ | º£¸£µ¥ÇÇ¾Æ | 6 | 43.34 | 21,000 | 0 | 2016 | | 2024.12.03 | ¿ù¼¼ | ½Å¼º³×¿Àºô | 5 | 27.86 | 20,600 | 13 | 2019 | | 2024.12.03 | Àü¼¼ | Á¦À̽ººô(969-5) | 4 | 26.75 | 22,000 | 0 | 2022 | | 2024.12.03 | Àü¼¼ | ÆÓ¶óÀ̽ºÅ¸¿î | 2 | 23.65 | 18,300 | 0 | 2016 | | 2024.12.03 | ¿ù¼¼ | »êÀåºô¶ó(105-466) | 3 | 45.6 | 10,000 | 20 | 1991 | | 2024.12.03 | ¿ù¼¼ | DSÇÏ¿ì¡ | 5 | 29.75 | 9,000 | 95 | 2022 | | 2024.12.03 | ¿ù¼¼ | ¿ì¼ººô¶ó12Â÷ | 3 | 39.36 | 1,000 | 60 | 1991 | | 2024.12.03 | ¿ù¼¼ | ´õ½ºÀ§Æ®(73-78) | 4 | 27.43 | 3,000 | 90 | 2022 | | 2024.12.03 | Àü¼¼ | (333-29) | 1 | 36.85 | 10,500 | 0 | 1986 | | 2024.12.03 | ¿ù¼¼ | »ïÀͺô¶ó(991-23) | 1 | 61.2 | 13,000 | 35 | 1993 | | 2024.12.03 | Àü¼¼ | ÀÌ¿¤ÇϿ콺 | 4 | 29.88 | 25,500 | 0 | 2022 | | 2024.12.03 | ¸Å¸Å | ¿¬Èñ¸Ç¼Ç(³ªµ¿) | 1 | 59.88 | 19,500 | | 2001 | | 2024.12.03 | ¸Å¸Å | 102-119 | 2 | 36.1 | 24,000 | | 2015 | | 2024.12.02 | Àü¼¼ | ÇÁ¶óÀÓºô(410-23) | 3 | 28.77 | 18,000 | 0 | 2019 | | 2024.12.02 | Àü¼¼ | º¹ÁöȨŸ¿î(100-21) | 4 | 46.19 | 13,000 | 0 | 2002 | | 2024.12.02 | ¿ù¼¼ | ÇÁ¶óÀÓºô(488-18) | 2 | 23.31 | 300 | 50 | 2019 | | 2024.12.02 | ¿ù¼¼ | Áö¼ºÇϿ콺 | 2 | 34.73 | 5,000 | 50 | 2012 | | 2024.12.02 | Àü¼¼ | À£½ºÆÄÅ©ºô(392-28) | 3 | 59.67 | 23,000 | 0 | 2012 | | 2024.12.02 | ¿ù¼¼ | ¼¾ÈÆÄÅ©ºä | 5 | 15.69 | 3,000 | 105 | 2024 | | 2024.12.02 | ¿ù¼¼ | ´ë¸²È¨Å¸¿îBµ¿ | 2 | 64.86 | 3,000 | 100 | 2008 | | 2024.12.02 | ¿ù¼¼ | ȼººô¶ó³ªµ¿ | 3 | 45.84 | 2,000 | 70 | 2003 | | 2024.12.02 | Àü¼¼ | MÆç¸®Ã¼ | 3 | 38.52 | 25,725 | 0 | 2018 | | 2024.12.02 | ¸Å¸Å | RobinHouse | 3 | 53.02 | 28,500 | | 2018 | | 2024.12.02 | ¸Å¸Å | ÇÑ¿ïÆÄÅ©ºô | 2 | 41.14 | 18,600 | | 2002 | | 2024.12.02 | Àü¼¼ | ¼°æÆÓ¸®½º(391-29) | 4 | 48.09 | 17,300 | 0 | 2010 | | 2024.12.02 | Àü¼¼ | ¼ºÁÖºô¶ó | 3 | 66.46 | 17,200 | 0 | 1995 | | 2024.12.02 | ¿ù¼¼ | ÇÁ¶óÀÓºô(488-18) | 3 | 22.8 | 300 | 45 | 2019 | | 2024.12.02 | ¿ù¼¼ | ¹Ì·¡ÇϿ콺 | 3 | 24.24 | 17,500 | 20 | 2018 | | 2024.12.02 | Àü¼¼ | ¿ìÀå»êºê¶ó¿î½ºÅæ3Â÷ | 5 | 60.07 | 18,000 | 0 | 2008 | | 2024.12.02 | Àü¼¼ | MÆç¸®Ã¼ | 3 | 38.52 | 25,725 | 0 | 2018 | | 2024.12.01 | ¿ù¼¼ | »ïÁ¤ÆÄÅ©ºä | 3 | 29.98 | 5,000 | 65 | 2012 | | 2024.12.01 | ¸Å¸Å | û¼Ûºô¶ó | -1 | 60.18 | 15,800 | | 1996 | | 2024.12.01 | ¿ù¼¼ | ¹Ì·¡¿ø·ëÅÚ | 4 | 40.1 | 2,000 | 75 | 2012 | | 2024.11.30 | ¿ù¼¼ | Áؽ¦¸£ºô | 4 | 60.44 | 5,000 | 80 | 2008 | | 2024.11.30 | ¸Å¸Å | ¹®¼±ºô¶ó | 1 | 60.22 | 26,000 | | 2002 | | 2024.11.30 | ¿ù¼¼ | °øÀÛ¸Ç¼Ç | -1 | 38.98 | 1,000 | 70 | 2000 | | 2024.11.30 | ¿ù¼¼ | °øÀÛ¸Ç¼Ç | -1 | 38.98 | 1,000 | 70 | 2000 | | 2024.11.30 | ¿ù¼¼ | (879-1) | 4 | 56.96 | 1,000 | 48 | 2010 | | 2024.11.30 | Àü¼¼ | ¹®¼±ºô¶ó | 1 | 60.22 | 16,000 | 0 | 2002 | | 2024.11.30 | ¿ù¼¼ | µ¿µµÇÏÀÌÃ÷ºô¶ó | 1 | 59.9 | 3,000 | 70 | 1999 | | 2024.11.30 | ¿ù¼¼ | ¿ì¼ººô¶ó(56-395) | -1 | 58.97 | 10,500 | 15 | 1996 | | 2024.11.30 | ¿ù¼¼ | żººô¶ó | 2 | 47.68 | 500 | 75 | 1995 | | 2024.11.30 | ¸Å¸Å | ³²¼º¾ÆÆ®ºô(367-65) | 7 | 25.28 | 20,000 | | 2017 | | 2024.11.30 | ¸Å¸Å | żº¾ÆÆ®ºô | 2 | 46.28 | 18,300 | | 2002 | | 2024.11.30 | ¸Å¸Å | Èľϸ®Ä¡ºô(871-25¹øÁö) | 2 | 41.48 | 27,500 | | 2016 | | 2024.11.30 | ¸Å¸Å | dz¼º¾Ö¶ã¾È(349-4) | 5 | 37.4 | 27,700 | | 2014 | | 2024.11.30 | ¿ù¼¼ | ¸ñ¿øÁÖÅÃ6Â÷ | 2 | 58.07 | 17,600 | 20 | 2002 | | 2024.11.30 | ¿ù¼¼ | À̳뼿 | 4 | 29.63 | 14,800 | 15 | 2016 | | 2024.11.30 | ¿ù¼¼ | Ȩ·£µåºô¶ó11Â÷ | 4 | 50.42 | 3,000 | 60 | 1995 | | 2024.11.30 | ¿ù¼¼ | ÇÏÀÌ63 | 5 | 21.96 | 300 | 30 | 2018 | | 2024.11.30 | ¿ù¼¼ | ´Ù¼¼´ë(986-24) | 2 | 17.21 | 10,500 | 17 | 2017 | | 2024.11.30 | Àü¼¼ | Çѿî(105-414) | 2 | 33.39 | 14,700 | 0 | 2012 | | 2024.11.30 | ¿ù¼¼ | Å·´ý±×·¹À̽º | 6 | 28.13 | 13,500 | 22 | 2018 | | 2024.11.30 | ¿ù¼¼ | ³ª¾Ö¶ã(Aµ¿) | 5 | 39.26 | 4,000 | 50 | 2010 | | 2024.11.30 | ¿ù¼¼ | ¼ºÀº¾ÆÆ®¸Ç¼Ç | 3 | 47.13 | 3,000 | 95 | 1997 | | 2024.11.30 | ¿ù¼¼ | Çѿî(105-414) | 2 | 33.39 | 14,700 | 8 | 2012 | | 2024.11.30 | ¿ù¼¼ | ½Å¼º³×¿Àºô | 6 | 27.86 | 20,660 | 15 | 2019 | | 2024.11.29 | ¿ù¼¼ | ¼¼¸²ÆÓ¸®Ã¼ | 3 | 29.9 | 14,000 | 25 | 2016 | | 2024.11.29 | ¿ù¼¼ | µÎ»êºô¶ó(56-407) | -1 | 65.75 | 1,000 | 45 | 2000 | | 2024.11.29 | ¸Å¸Å | ºñÁîºô(798-14) | 3 | 36.41 | 24,500 | | 2014 | | 2024.11.29 | ¿ù¼¼ | Á¦ÀÌÅõ¸®´õ½º | 6 | 29.54 | 1,000 | 120 | 2019 | | 2024.11.29 | ¸Å¸Å | ´Ù¿Âä | 3 | 28.38 | 22,500 | | 2018 | | 2024.11.29 | ¿ù¼¼ | dz¼ºÇÏÀÌÃ÷ºô¶ó | -1 | 62.29 | 10,400 | 25 | 1998 | | 2024.11.29 | ¿ù¼¼ | ¹Ù·ÎÅ©ºô | 4 | 29.9 | 12,700 | 16 | 2014 | | 2024.11.29 | Àü¼¼ | °æµ¿ÆÓ¸®½º(842-22) | 4 | 73.29 | 22,000 | 0 | 2008 | | 2024.11.29 | Àü¼¼ | CM±×·£µåºô | 5 | 38.1 | 13,900 | 0 | 2011 | | 2024.11.29 | Àü¼¼ | µ¿Èºô | 3 | 25.54 | 13,230 | 0 | 2019 | | 2024.11.29 | Àü¼¼ | ÀÌ¿¤ÇϿ콺 | 4 | 29.88 | 25,500 | 0 | 2022 | | 2024.11.29 | ¿ù¼¼ | ´ëµ¿ºô | 4 | 24.11 | 20,600 | 10 | 2020 | | 2024.11.29 | Àü¼¼ | À¯Çöºô¸®Áö | 2 | 28.91 | 15,300 | 0 | 2016 | | 2024.11.29 | ¸Å¸Å | Àº¼Û¿ùµåºô(996-10) | 1 | 58.93 | 27,900 | | 2002 | | 2024.11.29 | ¿ù¼¼ | Æ÷¸£Å×ÇÏÀÓ | 3 | 25.32 | 20,000 | 10 | 2023 | | 2024.11.29 | ¿ù¼¼ | ¾çÁøºô¶ó | 4 | 39.67 | 3,000 | 65 | 1997 | | 2024.11.29 | Àü¼¼ | (61-42) | 5 | 63.41 | 22,900 | 0 | 2011 | | 2024.11.29 | Àü¼¼ | »ï¼ºÁÖÅ󪵿(333-12) | 2 | 57.75 | 16,500 | 0 | 2001 | | 2024.11.28 | ¸Å¸Å | ±Ý°ÁÖÅà | 3 | 40.57 | 14,300 | | 1988 | | 2024.11.28 | ¿ù¼¼ | ´º¿å·¹Áö´ø½º¥±(858-23) | 3 | 12.24 | 500 | 35 | 2012 | | 2024.11.28 | Àü¼¼ | Æç¸®½Ã¾Æ | 4 | 27.44 | 17,190 | 0 | 2019 | | 2024.11.28 | Àü¼¼ | NSŸ¿î | 3 | 27.92 | 17,010 | 0 | 2019 | | 2024.11.28 | Àü¼¼ | (1120-11) | -1 | 36.08 | 6,900 | 0 | 1986 | | 2024.11.28 | ¿ù¼¼ | ¼öÁ¤¸Ç¼Ç5Â÷ | 4 | 49.13 | 12,000 | 26 | 2002 | | 2024.11.28 | Àü¼¼ | ³×½ºÆ®ºô | 4 | 48.37 | 16,700 | 0 | 2007 | | 2024.11.28 | ¿ù¼¼ | ´ë¿õÇÏÀÌÃ÷ºô¶ó8Â÷(56-37) | 3 | 39.72 | 10,430 | 30 | 1993 | | 2024.11.28 | ¿ù¼¼ | À£ÇǾÆ(796-13) | 2 | 29.85 | 2,000 | 70 | 2014 | | 2024.11.28 | ¿ù¼¼ | ¸ÖƼÇϿ콺 | 6 | 17.02 | 1,000 | 32 | 2004 | | 2024.11.28 | Àü¼¼ | ³²¿µ1µ¿ | 2 | 36.1 | 11,800 | 0 | 1989 | | 2024.11.28 | ¿ù¼¼ | û»êºô¶ó | 1 | 45.93 | 1,000 | 50 | 1993 | | 2024.11.28 | Àü¼¼ | ±¤Áø¿¡¹öºô | 3 | 51.3 | 29,162 | 0 | 2021 | | 2024.11.28 | ¿ù¼¼ | ¸ÖƼÇϿ콺 | 6 | 17.02 | 1,000 | 30 | 2004 | | 2024.11.28 | Àü¼¼ | µµÆ¼ÇϿ콺 | 2 | 43.52 | 22,630 | 0 | 2018 | | 2024.11.28 | ¸Å¸Å | (409-185) | -1 | 34.86 | 8,800 | | 1995 | | 2024.11.28 | Àü¼¼ | ¼¸²±×¶ûºô | 2 | 28.94 | 18,630 | 0 | 2019 | | 2024.11.28 | Àü¼¼ | ¿£¿¡½º¿ùµåŸ¿ö | 5 | 42.82 | 30,000 | 0 | 2024 | | 2024.11.28 | ¿ù¼¼ | °¡³ª¾Æµ¨¸®¿ò(333-22) | 3 | 29.63 | 16,250 | 10 | 2014 | | 2024.11.28 | ¸Å¸Å | ´õÇ÷¹À̽º | 2 | 26.05 | 18,000 | | 2017 | | 2024.11.28 | ¸Å¸Å | ´ë±¤ºô¶ó(102-154) | 2 | 49.51 | 19,000 | | 2002 | | 2024.11.28 | ¸Å¸Å | ³ªÇöºô¶ó | 2 | 36.72 | 14,000 | | 2010 | | 2024.11.27 | ¸Å¸Å | MAROO | 4 | 19.5 | 11,100 | | 2019 | | 2024.11.27 | Àü¼¼ | ´õÇ÷¹À̽º | 3 | 29.94 | 14,760 | 0 | 2017 | | 2024.11.27 | Àü¼¼ | ÅÂÇÑÇÏÀ̺ô | 5 | 29.72 | 18,400 | 0 | 2016 | | 2024.11.27 | Àü¼¼ | ¼¸²±×¶ûºô | 2 | 26.92 | 17,280 | 0 | 2019 | | 2024.11.27 | ¿ù¼¼ | ÇÏ¿ìÀç995 | 6 | 24.74 | 5,000 | 57 | 2022 | | 2024.11.27 | ¿ù¼¼ | ÇÏÀ̺ô¶ó | 3 | 52.95 | 5,000 | 50 | 1993 | | 2024.11.27 | Àü¼¼ | ¶óÀÎÆÄÅ© | 2 | 26.49 | 20,550 | 0 | 2018 | | 2024.11.27 | Àü¼¼ | ÇѼֺô¸®Áö | 4 | 22.49 | 7,500 | 0 | 2002 | | 2024.11.27 | Àü¼¼ | ¶óÀÎÆÄÅ© | 4 | 26.68 | 20,700 | 0 | 2018 | | 2024.11.27 | Àü¼¼ | Á¤ÀºÆÄÅ©ºô | 2 | 41.92 | 18,600 | 0 | 2016 | | 2024.11.27 | ¿ù¼¼ | ¿¹Àκô¶ó(379-40) | 4 | 38.59 | 2,000 | 90 | 2003 | | 2024.11.27 | Àü¼¼ | °è¸í(897-9) | 5 | 62.91 | 19,500 | 0 | 2001 | | 2024.11.27 | ¿ù¼¼ | ·ÎÁîÆÓ¸®½ºÅõ(346-38) | 5 | 74.4 | 500 | 29 | 2009 | | 2024.11.27 | Àü¼¼ | ¶óÀÎÆÄÅ© | 3 | 26.62 | 20,700 | 0 | 2018 | | 2024.11.27 | Àü¼¼ | ¼ºÈ£ºô¶ó(102-76) | 3 | 53.99 | 15,000 | 0 | 2002 | | 2024.11.27 | ¿ù¼¼ | (914-39) | 1 | 36.33 | 9,000 | 20 | 1992 | | 2024.11.27 | Àü¼¼ | °æ¹Î¾ÆÆ®ºô | 5 | 25.81 | 12,600 | 0 | 2016 | | 2024.11.27 | Àü¼¼ | ´ëµ¿ºô | 2 | 24.11 | 20,160 | 0 | 2020 | | 2024.11.27 | ¿ù¼¼ | »ïÇüºô¶ó | 3 | 53.24 | 1,000 | 75 | 1991 | | 2024.11.27 | ¿ù¼¼ | ¼þ´öÇÏÀÌÃ÷ºô¶ó | 2 | 61.8 | 14,900 | 20 | 1995 | | 2024.11.27 | ¿ù¼¼ | ¼Ç¹ë¸® | 4 | 25.3 | 26,000 | 10 | 2024 | | 2024.11.27 | Àü¼¼ | ÀÌ¿¤ÇϿ콺 | 2 | 27.7 | 24,300 | 0 | 2022 | | 2024.11.27 | Àü¼¼ | ¼¸²±×¶ûºô | 2 | 26.92 | 17,280 | 0 | 2019 | | 2024.11.27 | ¿ù¼¼ | ¾ÆÀ̺ñŸ¿î(105-189) | 5 | 31.05 | 10,740 | 20 | 2007 | | 2024.11.27 | Àü¼¼ | »ó¿ìºô¶ó | 2 | 38.86 | 12,800 | 0 | 2001 | | 2024.11.26 | ¿ù¼¼ | À̳뼿 | 2 | 29.63 | 14,800 | 15 | 2016 | | 2024.11.26 | ¿ù¼¼ | µ¿µµÇÏÀÌÃ÷³ªµ¿ | 5 | 48.24 | 1,000 | 70 | 2001 | | 2024.11.26 | ¿ù¼¼ | û¼ÛÆòÈÇÏÀ̸ǼÇ(452-14) | 3 | 30 | 2,000 | 75 | 2013 | | 2024.11.26 | ¿ù¼¼ | µ¿¼º¸®ºñ¾Ó | 5 | 26.37 | 2,000 | 70 | 2015 | | 2024.11.26 | Àü¼¼ | ½Å¿µºô¶óBµ¿(55-104) | 1 | 61.68 | 11,000 | 0 | 2001 | | 2024.11.26 | ¿ù¼¼ | ´õÆ®¶óÀÌ¾Þ±Û | 3 | 33.3 | 24,000 | 10 | 2021 | | 2024.11.26 | ¿ù¼¼ | ±¹¹Î½¦¸£ºô | 6 | 29.83 | 25,300 | 12 | 2020 | | 2024.11.26 | ¸Å¸Å | À¯Çöºô¸®Áö | 2 | 28.91 | 17,000 | | 2016 | | 2024.11.26 | ¸Å¸Å | ¸¶Å©ÇϿ콺 | 5 | 45.7 | 35,500 | | 2017 | | 2024.11.26 | ¸Å¸Å | º¹Áö±×¸°ºô(98-77) | 4 | 60.03 | 25,200 | | 2001 | | 2024.11.26 | ¸Å¸Å | DHÆÓ¸®½º102µ¿ | 6 | 28.39 | 21,000 | | 2018 | | 2024.11.25 | Àü¼¼ | ÇѺûÀ§³Ê½ººô(966-20) | 4 | 44.55 | 16,000 | 0 | 2008 | | 2024.11.25 | ¿ù¼¼ | ÇÁ¶óÀÓÇϿ콺 | 2 | 50.52 | 18,000 | 10 | 2010 | | 2024.11.25 | ¿ù¼¼ | (1049-33) | 1 | 29.76 | 500 | 50 | 2002 | | 2024.11.25 | Àü¼¼ | ¿¹Àººô | 5 | 26.52 | 12,600 | 0 | 2014 | | 2024.11.25 | Àü¼¼ | ¿£¿¡½º¿ùµåŸ¿ö | 7 | 42.82 | 30,000 | 0 | 2024 | | 2024.11.25 | ¸Å¸Å | ÇÑ¿ï¶ß¶õä(995-20) | 4 | 40.44 | 22,000 | | 2011 | | 2024.11.25 | ¿ù¼¼ | ¼º½ÉÇÏÀÌÃ÷ | 3 | 51.18 | 11,000 | 50 | 2002 | | 2024.11.25 | ¿ù¼¼ | ÇØ¿À¸§ºô(354-78) | 2 | 26.43 | 15,400 | 15 | 2015 | | 2024.11.24 | ¿ù¼¼ | À̼öºô¶ó | 4 | 37.08 | 1,000 | 40 | 1992 | | 2024.11.24 | ¸Å¸Å | »ï¼ººô¶ó(56-47) | 1 | 46.215 | 18,000 | | 2002 | | 2024.11.24 | Àü¼¼ | Á¤ÀºÆÄÅ©ºô | 6 | 31.34 | 14,000 | 0 | 2016 | | 2024.11.24 | ¿ù¼¼ | Çì½êµå | 2 | 29.84 | 1,000 | 90 | 2022 | | 2024.11.24 | Àü¼¼ | Á¦À̽ººô(969-5) | 5 | 23.25 | 20,000 | 0 | 2022 | | 2024.11.24 | ¿ù¼¼ | ÇÏÀÌ63 | 4 | 32.36 | 2,000 | 70 | 2018 | | 2024.11.23 | ¿ù¼¼ | ¸í½ÅŸ¿î7Â÷(Aµ¿) | 5 | 45.36 | 13,980 | 20 | 2001 | | 2024.11.23 | Àü¼¼ | ¿¡ÀÌ¿£Äɽ½ | 2 | 29.76 | 16,500 | 0 | 2016 | | 2024.11.23 | ¿ù¼¼ | Á¦À̽ººô | 3 | 28.4 | 2,000 | 75 | 2020 | | 2024.11.23 | ¿ù¼¼ | ½Ö¿ë¸Ç¼Ç | 4 | 59.56 | 16,100 | 20 | 2001 | | 2024.11.23 | Àü¼¼ | ¹é¹®ÇϿ콺 | 6 | 26.12 | 20,800 | 0 | 2018 | | 2024.11.23 | ¿ù¼¼ | ¿¡½º¿¥·¹¹öºô(346-7) | 4 | 36.53 | 3,000 | 85 | 2014 | | 2024.11.23 | ¿ù¼¼ | ¿¡½º¿¥ÆÄÅ©ºô | 4 | 29.29 | 20,000 | 11 | 2018 | | 2024.11.23 | Àü¼¼ | ½Ã±×´Ïó6 | 2 | 25.23 | 21,600 | 0 | 2022 | | 2024.11.23 | ¿ù¼¼ | û¼ÛÆòÈÇコÇϿ콺(341-5) | 2 | 27.98 | 21,900 | 6 | 2018 | | 2024.11.23 | ¿ù¼¼ | ¿öµå¶÷ÇÏÀÌÃ÷ºô¶ó | 2 | 55.43 | 1,000 | 50 | 1991 | | 2024.11.23 | Àü¼¼ | ¿µ³²ºô¶óÆ® | 3 | 43.2 | 11,000 | 0 | 2002 | | 2024.11.23 | ¿ù¼¼ | ½ÅÈ£º£½ºÆ®ºô | 4 | 39.26 | 12,900 | 15 | 2002 | | 2024.11.23 | ¿ù¼¼ | ÇÑ¿ïÆÄÅ©ºô | 4 | 50.33 | 11,000 | 50 | 2002 | | 2024.11.23 | ¿ù¼¼ | ¿¡½º¿¥ÆÄÅ©ºô(³ªµ¿´Ùµ¿) | 6 | 52.35 | 29,600 | 10 | 2017 | | 2024.11.23 | ¿ù¼¼ | ´õ¿ø#8 | 2 | 29.19 | 23,400 | 10 | 2022 | | 2024.11.23 | ¿ù¼¼ | µ¿¾ÆÁÖÅÃ(349-5) | 2 | 29.96 | 11,000 | 15 | 1986 | | 2024.11.23 | ¿ù¼¼ | ÁøÆÄÅ©ºô | 2 | 41.68 | 1,000 | 65 | 2008 | | 2024.11.23 | ¿ù¼¼ | (819-11) | 2 | 34.4 | 8,000 | 20 | 1986 | | 2024.11.23 | ¸Å¸Å | ´ë½ÅÁÖÅà | 5 | 62.77 | 23,000 | | 2001 | | 2024.11.23 | ¸Å¸Å | µ¿¼ºô¶ó(24-143) | -1 | 58.64 | 14,000 | | 1993 | | 2024.11.23 | ¸Å¸Å | Èѹ̸®ºô | 4 | 40.08 | 16,400 | | 2010 | | 2024.11.23 | ¸Å¸Å | ¿ì¼ººô¶ó(56-395) | 3 | 59.23 | 17,500 | | 1996 | | 2024.11.23 | ¸Å¸Å | »ï¼º½¦¸£ºô(351-17¹øÁö) | 4 | 40.62 | 24,600 | | 2016 | | 2024.11.23 | ¸Å¸Å | ÇѶóÁÖÅà | 3 | 45.72 | 16,500 | | 2002 | | 2024.11.23 | ¿ù¼¼ | ¸ÖƼÇϿ콺 | 3 | 17.02 | 1,000 | 47 | 2004 | | 2024.11.23 | ¿ù¼¼ | À¯´Ï¿Âºô¸®Áö°¡µ¿ | 1 | 44.29 | 11,400 | 15 | 2001 | | 2024.11.22 | ¿ù¼¼ | ÇÑ¿ïºô¸®Áö | 1 | 48.18 | 12,500 | 10 | 2001 | | 2024.11.22 | ¿ù¼¼ | ±î»çÁö¿À | 5 | 24.37 | 14,700 | 30 | 2015 | | 2024.11.22 | Àü¼¼ | (1164-0) | 4 | 18.36 | 11,970 | 0 | 2014 | | 2024.11.22 | ¿ù¼¼ | ³²¼º¾ÆÆ®ºô(424-3) | 3 | 25.93 | 17,000 | 20 | 2014 | | 2024.11.22 | ¿ù¼¼ | ¼º¿ìÇÏÀÌÃ÷ | 4 | 59.67 | 18,600 | 20 | 2001 | | 2024.11.22 | ¿ù¼¼ | Æ÷¸£ÅÛÇÏÀÓ | 2 | 29.7 | 200 | 70 | 2022 | | 2024.11.22 | ¿ù¼¼ | (787-49) | 3 | 52.02 | 3,000 | 70 | 2002 | | 2024.11.22 | ¿ù¼¼ | ´ë¸í½ÃƼºô | 4 | 31.21 | 10,500 | 7 | 2007 | | 2024.11.22 | Àü¼¼ | (878-15) | -1 | 35.55 | 6,500 | 0 | 1987 | | 2024.11.22 | ¿ù¼¼ | ¿¡º¥¿¡¼¿ | 6 | 15.08 | 500 | 48 | 2009 | | 2024.11.22 | ¿ù¼¼ | ÇÑ¿ï¶ß¶õä | 3 | 34.54 | 3,000 | 80 | 2011 | | 2024.11.22 | ¿ù¼¼ | µð¾ÆÀνº(956-2) | 6 | 31.15 | 14,500 | 38 | 2014 | | 2024.11.22 | ¿ù¼¼ | ´ë¿õÇÏÀÌÃ÷5Â÷ | -1 | 37.57 | 500 | 70 | 1992 | | 2024.11.22 | Àü¼¼ | (377-64) | 1 | 35.91 | 9,500 | 0 | 1986 | | 2024.11.22 | Àü¼¼ | ȼººô¶ó(56-409) | 3 | 39.72 | 8,000 | 0 | 1993 | | 2024.11.22 | ¿ù¼¼ | À̰¡Ã¤(400-95) | 5 | 29.85 | 14,230 | 20 | 2012 | | 2024.11.22 | ¸Å¸Å | ÇÑ¿ïºô¸®Áö | 1 | 48.18 | 17,300 | | 2001 | | 2024.11.22 | ¸Å¸Å | ½ºÄ«À̱ٸ°Å¸¿î | 2 | 41 | 14,500 | | 2014 | | 2024.11.22 | ¸Å¸Å | ³ª¾Ö¶ã(Aµ¿) | 2 | 39.26 | 19,500 | | 2010 | | 2024.11.22 | ¸Å¸Å | ³²¼º¾ÆÆ®ºô | 5 | 24.92 | 19,500 | | 2017 | | 2024.11.22 | ¸Å¸Å | ±¹¹Î½¦¸£ºô2 | 3 | 29.21 | 16,500 | | 2016 | | 2024.11.22 | ¸Å¸Å | µ¿µµÇÏÀÌÃ÷ºô¶ó | 2 | 59.17 | 20,000 | | 2001 | | 2024.11.21 | ¿ù¼¼ | ½îȨ¾ÆÆ®ºô | 6 | 27.48 | 2,000 | 75 | 2013 | | 2024.11.21 | Àü¼¼ | Çý¼ºÅ¸¿î | 2 | 61.07 | 17,300 | 0 | 2000 | | 2024.11.21 | ¿ù¼¼ | ¸í¼ººô¸®Áö | 3 | 46.96 | 3,000 | 80 | 2002 | | 2024.11.21 | ¿ù¼¼ | ½ÂÀ±¸Ç¼Ç | 1 | 65.1 | 3,000 | 75 | 2002 | | 2024.11.21 | Àü¼¼ | ¶óÀÎÆÄÅ© | 4 | 29.65 | 22,400 | 0 | 2020 | | 2024.11.21 | Àü¼¼ | ¶óÀÎÆÄÅ© | 2 | 28.34 | 21,900 | 0 | 2018 | | 2024.11.21 | ¿ù¼¼ | Çý¼ºÆç¸®½º(811-8) | 4 | 40.86 | 2,000 | 85 | 2011 | | 2024.11.21 | ¸Å¸Å | ½Ö¿ëºô¸®Áö | 3 | 62.96 | 24,200 | | 2001 | | 2024.11.21 | ¿ù¼¼ | ´ºÇö´ëºô¶ó | 2 | 71.07 | 25,000 | 5 | 1997 | | 2024.11.21 | ¿ù¼¼ | Å©¶ó¿îÆÓ¸®½º | 12 | 29.94 | 3,000 | 95 | 2020 | | 2024.11.21 | ¿ù¼¼ | ´õŬ·¡½Ä | 2 | 39.85 | 17,000 | 30 | 2018 | | 2024.11.21 | ¿ù¼¼ | Á¦ÀÌÅõ¸®´õ½º | 3 | 29.94 | 20,500 | 10 | 2020 | | 2024.11.21 | Àü¼¼ | ¶óÀÎÆÄÅ© | 3 | 28.34 | 21,900 | 0 | 2018 | | 2024.11.21 | ¿ù¼¼ | ÀÎÅÍ½ÃÆ¼ | 4 | 29.94 | 12,500 | 20 | 2011 | | 2024.11.21 | ¿ù¼¼ | °æÀκô¶ó(409-197) | -1 | 60.28 | 11,620 | 20 | 2000 | | 2024.11.21 | ¿ù¼¼ | ¸ð´øºô(410-36) | 3 | 70.74 | 17,600 | 5 | 2002 | | 2024.11.21 | ¿ù¼¼ | ¼º¾Èºô¶ó(379-61) | 4 | 38.7 | 10,800 | 15 | 1994 | | 2024.11.20 | ¿ù¼¼ | ¼ºÈ£ÇÏÀ̺ô(841-30) | 2 | 40.03 | 1,000 | 75 | 2008 | | 2024.11.20 | ¿ù¼¼ | °©Áø°ñµåºô | 2 | 35.08 | 3,000 | 85 | 2013 | | 2024.11.20 | ¿ù¼¼ | â´ëºô¶ó(369-67) | 4 | 21.66 | 7,590 | 5 | 2007 | | 2024.11.20 | ¿ù¼¼ | ¿¬¿ì³Ø½ºÆ®ºä | 13 | 13.16 | 12,700 | 12 | 2018 | | 2024.11.20 | ¿ù¼¼ | µ¿¸²ÁÖÅÃ101µ¿ | 2 | 57.36 | 3,000 | 73 | 2003 | | 2024.11.20 | ¿ù¼¼ | ±æ¼ºÀÌ¿£ÀÌ(367-62) | 4 | 29.9 | 1,000 | 72 | 2015 | | 2024.11.20 | ¿ù¼¼ | ±î»ç¹Ð¶ó | 5 | 25.43 | 2,000 | 85 | 2015 | | 2024.11.20 | ¸Å¸Å | (24-551)Åä¼®¾Æ³×½ººô | 4 | 29.7 | 15,800 | | 2010 | | 2024.11.20 | ¿ù¼¼ | »ó¾ÆÇÏÀÌÃ÷ºô¶ó | 2 | 82.17 | 3,000 | 60 | 1993 | | 2024.11.20 | ¿ù¼¼ | ¿ì¼ºµ¥ÆÄÆ® | 4 | 67.41 | 16,350 | 30 | 1995 | | 2024.11.20 | Àü¼¼ | È£°æÁÖÅà | 3 | 78.71 | 23,000 | 0 | 2008 | | 2024.11.20 | Àü¼¼ | ¹ÌÁÖºô¶óºñµ¿ | 5 | 48.52 | 14,700 | 0 | 2002 | | 2024.11.20 | ¿ù¼¼ | ±î»ç¹Ð¶ó | 5 | 25.43 | 2,000 | 85 | 2015 | | 2024.11.20 | Àü¼¼ | Å©¶ó¿îÆÓ¸®½º | 14 | 29.94 | 22,800 | 0 | 2020 | | 2024.11.20 | Àü¼¼ | Å©¶ó¿îÆÓ¸®½º | 14 | 29.94 | 22,800 | 0 | 2020 | | 2024.11.20 | Àü¼¼ | ¿¡ÀÌ¿£Ä³½½ | 6 | 29.22 | 21,400 | 0 | 2018 | | 2024.11.20 | ¿ù¼¼ | º¹ÁöȨŸ¿î(100-21) | 5 | 47.86 | 12,000 | 20 | 2002 | | 2024.11.20 | ¸Å¸Å | ¼ºÀººô¸®ÁöBµ¿ | 1 | 62.51 | 23,700 | | 2003 | | 2024.11.20 | Àü¼¼ | ºí·ç½ºÄ«À̺ô(366) | 2 | 29.72 | 17,760 | 0 | 2015 | | 2024.11.20 | ¸Å¸Å | ¿¡À̽ººô¶ó | -1 | 64.11 | 15,900 | | 2002 | | 2024.11.20 | ¸Å¸Å | ³ª»ê½¦¸£ºôBµ¿ | 3 | 72.24 | 29,500 | | 2001 | | 2024.11.20 | ¿ù¼¼ | ¾Æµ¥³ªÆÓ¸®½º | 5 | 34.68 | 5,000 | 100 | 2016 | | 2024.11.20 | Àü¼¼ | ¹ÌÁÖºô¶óºñµ¿ | 5 | 48.52 | 14,700 | 0 | 2002 | | 2024.11.20 | Àü¼¼ | °¼º±×¸°ºô¶ó | -1 | 39.96 | 7,400 | 0 | 1994 | | 2024.11.20 | ¿ù¼¼ | ½Å¿µ¸Ç¼Ç | 3 | 57.62 | 14,990 | 15 | 1995 | | 2024.11.20 | Àü¼¼ | ½ÅÇϿ콺 | 6 | 29.88 | 14,800 | 0 | 2016 | | 2024.11.20 | ¿ù¼¼ | º¸³ëÇϿ콺(857-8) | 4 | 32.14 | 18,100 | 24 | 2015 | | 2024.11.20 | ¿ù¼¼ | ¿¬¿ì³Ø½ºÆ®ºä | 15 | 13.16 | 12,700 | 15 | 2018 | | 2024.11.19 | ¸Å¸Å | ¸í½ÅŸ¿î7Â÷(Aµ¿) | 5 | 45.36 | 17,500 | | 2001 | | 2024.11.19 | ¿ù¼¼ | ¶óÇǾƳë | 4 | 29.79 | 5,000 | 80 | 2022 | | 2024.11.19 | ¸Å¸Å | µ¿¹æÈ÷ÁîÈú | 5 | 29.34 | 17,000 | | 2016 | | 2024.11.19 | ¸Å¸Å | Çູºô¶ó(988-13) | 4 | 50.12 | 23,000 | | 2010 | | 2024.11.19 | ¿ù¼¼ | ´Ù¿Â½£ | 4 | 25.47 | 500 | 85 | 2021 | | 2024.11.19 | ¿ù¼¼ | »ï°æ±×¸°ºô¶ó | 3 | 63.58 | 19,100 | 7 | 2001 | | 2024.11.19 | Àü¼¼ | Å¥ºê¿ø | 2 | 23.66 | 17,600 | 0 | 2020 | | 2024.11.19 | Àü¼¼ | ±îġŸ¿î°¡µ¿ | 4 | 34.56 | 9,500 | 0 | 1991 | | 2024.11.19 | Àü¼¼ | ¿¹¸²ÇÏÀÌÃ÷ºô¶ó(992-9) | -1 | 40.95 | 6,700 | 0 | 1995 | | 2024.11.19 | ¿ù¼¼ | ¸ðÀüÇ÷¯½ººôAµ¿ | 4 | 51.56 | 1,000 | 80 | 2002 | | 2024.11.19 | ¿ù¼¼ | JEhouse | 6 | 29.88 | 5,500 | 80 | 2022 | | 2024.11.19 | ¿ù¼¼ | ¿¹¼Û¿¡¹öºô | 5 | 39.81 | 700 | 65 | 2004 | | 2024.11.19 | ¿ù¼¼ | °³²ºô¶ó | 2 | 56.6 | 1,000 | 80 | 1987 | | 2024.11.19 | Àü¼¼ | ºí¸®½ººô101µ¿102µ¿ | 2 | 51.79 | 34,600 | 0 | 2022 | | 2024.11.19 | ¿ù¼¼ | ¿¤Æç¸®½º | 3 | 40.93 | 5,500 | 115 | 2022 | | 2024.11.19 | ¿ù¼¼ | ¼ºÁÖºô¶óBµ¿(46-105) | 3 | 62.04 | 2,000 | 95 | 1995 | | 2024.11.19 | Àü¼¼ | ¿µÁøºô¶ó | -1 | 66.51 | 11,000 | 0 | 2000 | | 2024.11.19 | ¿ù¼¼ | À̽ºÆ®Èú | 3 | 62.31 | 3,000 | 95 | 2003 | | 2024.11.18 | Àü¼¼ | °æÀνºÀ§Æ®È¨(352-13) | 3 | 45.345 | 17,400 | 0 | 2008 | | 2024.11.18 | ¸Å¸Å | µð¿¡½ºÇÁ¶ó´Ù | 3 | 39.78 | 21,800 | | 2012 | | 2024.11.18 | ¸Å¸Å | JYÆÓ¸®½º(111-27) | 2 | 49.75 | 28,000 | | 2015 | | 2024.11.18 | ¿ù¼¼ | ÀÚ¶óÇϿ콺(366-19) | 4 | 42.36 | 3,000 | 90 | 2014 | | 2024.11.18 | ¿ù¼¼ | Àº¼ºÄ³½½ | 3 | 19.54 | 100 | 55 | 2022 | | 2024.11.18 | Àü¼¼ | ¹Ì»ê¼¾Æ®ºô | 3 | 40.55 | 13,500 | 0 | 2008 | | 2024.11.18 | ¿ù¼¼ | ¹Ì·¡ÇϿ콺 | 6 | 24.24 | 17,514 | 20 | 2018 | | 2024.11.18 | ¿ù¼¼ | Á¤°¨Å¸¿î | 3 | 23.39 | 3,000 | 65 | 2016 | | 2024.11.18 | ¿ù¼¼ | µ¿µµÇÏÀÌÃ÷ºô¶ó(Bµ¿) | 3 | 46.38 | 12,580 | 19 | 2001 | | 2024.11.18 | Àü¼¼ | ´Ù¼Øºô | 4 | 64.15 | 19,150 | 0 | 2010 | | 2024.11.18 | Àü¼¼ | È£°æÁÖÅà | 1 | 67.86 | 19,500 | 0 | 2008 | | 2024.11.18 | Àü¼¼ | ȼººô¶óAµ¿(56-412) | -1 | 38.16 | 7,000 | 0 | 2002 | | 2024.11.18 | ¿ù¼¼ | µð¿¡½ºÇÁ¶ó´Ù | 3 | 36.78 | 2,000 | 70 | 2012 | | 2024.11.18 | ¿ù¼¼ | ¼øÈ¯¾ÆÆ®ºôBµ¿ | 2 | 52.66 | 2,000 | 80 | 2002 | | 2024.11.18 | ¿ù¼¼ | ´º¿å·¹Áö´ø½º¥±(858-23) | 4 | 23.74 | 1,000 | 53 | 2012 | | 2024.11.18 | ¿ù¼¼ | µ¿¾ç³ëºí·¹½ººô | 5 | 41.27 | 11,180 | 10 | 2008 | | 2024.11.17 | ¸Å¸Å | (824-8) | -1 | 27.72 | 6,000 | | 1986 | | 2024.11.17 | ¿ù¼¼ | ¿ì¼º | 6 | 29 | 3,000 | 65 | 2015 | | 2024.11.17 | ¿ù¼¼ | ·ÎÁîÆÓ¸®½ºÅõ(346-38) | 2 | 78.57 | 500 | 29 | 2009 | | 2024.11.16 | ¿ù¼¼ | ÇѿᄒƼºô | 3 | 60.61 | 19,900 | 20 | 2009 | | 2024.11.16 | ¿ù¼¼ | º¸¾È¾ÆÆ®ºô¶ó | 5 | 40.88 | 11,200 | 10 | 2002 | | 2024.11.16 | ¿ù¼¼ | DHÆÓ¸®½º102µ¿ | 4 | 29.4 | 19,500 | 10 | 2018 | | 2024.11.16 | ¿ù¼¼ | È«¼ºÇØ´©¸® | 5 | 26.1 | 15,490 | 22 | 2016 | | 2024.11.16 | ¿ù¼¼ | º¸¾È¾ÆÆ®ºô¶ó | 5 | 40.88 | 11,200 | 10 | 2002 | | 2024.11.16 | Àü¼¼ | »ï¼ººô¶óÆ® | 4 | 51.43 | 12,900 | 0 | 2001 | | 2024.11.16 | ¿ù¼¼ | ANA6 | 2 | 26.7 | 2,000 | 80 | 2022 | | 2024.11.16 | Àü¼¼ | ºí·çÈú | 5 | 29.92 | 30,000 | 0 | 2020 | | 2024.11.16 | ¸Å¸Å | ¼±°æºô¶ó(95-19) | 3 | 52.98 | 16,000 | | 1994 | | 2024.11.16 | ¸Å¸Å | Ãæ¹«ºô¶ó | 5 | 58.15 | 17,000 | | 2002 | | 2024.11.16 | ¸Å¸Å | ÀÌÈ£ºô | 3 | 36.76 | 23,600 | | 2012 | | 2024.11.15 | ¿ù¼¼ | ºÎ±¤ºô¶ó | 1 | 37.65 | 1,000 | 70 | 2000 | | 2024.11.15 | ¿ù¼¼ | ¾Ëº£·Î | 3 | 13.59 | 500 | 45 | 2011 | | 2024.11.15 | ¿ù¼¼ | ¿ìÁø¸Ç¼Ç(98-33) | 2 | 65.25 | 19,800 | 5 | 1997 | | 2024.11.15 | ¿ù¼¼ | Æú¶óºñ¿¤ | 2 | 46.84 | 500 | 130 | 2017 | | 2024.11.15 | Àü¼¼ | »ï¼º½¦¸£ºô(111-25) | 2 | 34.46 | 15,700 | 0 | 2014 | | 2024.11.15 | Àü¼¼ | ¿¹¸²ÇÏÀÌÃ÷ºô¶ó(992-9) | -1 | 40.95 | 6,000 | 0 | 1995 | | 2024.11.15 | Àü¼¼ | ½ÂÀ±¸Ç¼Ç | -1 | 64.86 | 12,800 | 0 | 2002 | | 2024.11.15 | Àü¼¼ | ±î»çÁö¿À(355-4) | 3 | 29.94 | 22,570 | 0 | 2021 | | 2024.11.15 | ¿ù¼¼ | ºñ¿ø±×¸°ºô¶ó | 1 | 43.92 | 12,000 | 20 | 1986 | | 2024.11.15 | ¸Å¸Å | Á¤°¨Å¸¿î | 5 | 27.8 | 20,100 | | 2016 | | 2024.11.15 | ¸Å¸Å | ±î»çÁö¿À(354-76) | 3 | 29.34 | 23,000 | | 2017 | | 2024.11.15 | Àü¼¼ | ¶ó¿Âºô¸®Áö(397-3) | 3 | 23.49 | 17,400 | 0 | 2016 | | 2024.11.15 | Àü¼¼ | ¾¾Æ¼ÆÄÅ©2 | 5 | 41.64 | 13,100 | 0 | 2008 | | 2024.11.15 | ¿ù¼¼ | ´õ¿¡½º¿¡½ºÅ¸¿î | 9 | 22.1 | 4,620 | 18 | 2020 | | 2024.11.15 | ¿ù¼¼ | ÇѿᄒƼºô | 3 | 60.61 | 19,900 | 20 | 2009 | | 2024.11.15 | ¿ù¼¼ | ¼¾Æ®·Îºô | 2 | 59.84 | 11,000 | 50 | 2007 | | 2024.11.15 | ¿ù¼¼ | ´õ´©¸² | 4 | 29.01 | 18,200 | 15 | 2018 | | 2024.11.15 | ¿ù¼¼ | Ǫ¸¥Ç³°æÃ¤ | 4 | 34.94 | 3,000 | 60 | 2018 | | 2024.11.15 | ¿ù¼¼ | ¿¡ÀÌ¿£Ä³½½(1086-24) | 5 | 28.73 | 23,900 | 10 | 2023 | | 2024.11.15 | ¿ù¼¼ | »ïÀͶ߶õä | 4 | 26.17 | 3,000 | 70 | 2017 | | 2024.11.15 | ¿ù¼¼ | ½Ç¹öºô¶ó°¡µ¿ | 3 | 51.06 | 1,000 | 70 | 1991 | | 2024.11.15 | Àü¼¼ | Ƚºô¶ó | 3 | 51.3 | 12,200 | 0 | 1991 | | 2024.11.15 | ¿ù¼¼ | ±¤¸íºô¶ó(56-98) | 1 | 43.2 | 500 | 54 | 1991 | | 2024.11.15 | Àü¼¼ | ±î»çÁö¿À(355-4) | 3 | 29.94 | 22,570 | 0 | 2021 | | 2024.11.14 | ¸Å¸Å | ±ÝÈ£ºô¶óÆ®Aµ¿ | 2 | 72.36 | 31,150 | | 2003 | | 2024.11.14 | ¸Å¸Å | ¼¼±¤ÁÖÅà | 1 | 59.52 | 28,000 | | 2000 | | 2024.11.14 | ¸Å¸Å | ¿¤ÄÉÀ̵帲ºô | 6 | 36.71 | 28,500 | | 2016 | | 2024.11.14 | ¸Å¸Å | ¿ìÀåÈÀκô(995-27) | 4 | 48.99 | 27,000 | | 2011 | | 2024.11.14 | Àü¼¼ | ÇÑÅͺô | 1 | 46.41 | 12,850 | 0 | 2002 | | 2024.11.14 | ¿ù¼¼ | ´õÇ÷¹À̽º | 5 | 39.14 | 5,000 | 100 | 2017 | | 2024.11.14 | Àü¼¼ | À̰æ¼÷´Ù¼¼´ë | 4 | 53.5 | 13,700 | 0 | 2003 | | 2024.11.14 | ¿ù¼¼ | ȰîÅõ¿þ´ÏÆÛ½ºÆ® | 11 | 24.45 | 2,000 | 93 | 2018 | | 2024.11.14 | ¿ù¼¼ | ¿À¼ºµå¸²ºô | 5 | 35.55 | 2,000 | 80 | 2016 | | 2024.11.14 | ¿ù¼¼ | º£¾ÆÆ®¸®½º(341-3) | 4 | 28.94 | 3,000 | 90 | 2017 | | 2024.11.14 | ¿ù¼¼ | ¶óÇǾƳë | 4 | 27.75 | 5,000 | 80 | 2022 | | 2024.11.14 | Àü¼¼ | ´õÇϿ콺 | 5 | 39.91 | 21,900 | 0 | 2018 | | 2024.11.14 | ¿ù¼¼ | »ïÀÍÇ콺Ƽ¾Æ(50-1) | 5 | 20.31 | 7,600 | 30 | 2011 | | 2024.11.14 | Àü¼¼ | ÀÌ¿¤ÇϿ콺 | 3 | 27.7 | 24,300 | 0 | 2022 | | 2024.11.14 | Àü¼¼ | »ï¼º½¦¸£ºô(351-17¹øÁö) | 3 | 40.62 | 22,500 | 0 | 2016 | | 2024.11.14 | ¿ù¼¼ | È«¼ºÆÄÅ©ºô(808-16) | 3 | 50.22 | 18,300 | 10 | 2010 | | 2024.11.14 | ¿ù¼¼ | û»êºô¶ó(352-50) | 4 | 44.76 | 11,680 | 15 | 1996 | | 2024.11.14 | Àü¼¼ | û»êºô¶ó(352-50) | 4 | 44.76 | 11,680 | 0 | 1996 | | 2024.11.14 | ¿ù¼¼ | û»êºô¶ó(352-50) | 4 | 44.76 | 11,680 | 15 | 1996 | | 2024.11.14 | ¿ù¼¼ | ·Î¾âÇÏÀÌÃ÷ | 2 | 53.12 | 2,000 | 80 | 2010 | | 2024.11.14 | ¿ù¼¼ | Á¤¿ìºô¶ó | -1 | 39.97 | 5,000 | 40 | 1997 | | 2024.11.14 | Àü¼¼ | Çý¼ºÆÓ¸®½º | 5 | 35.69 | 23,490 | 0 | 2016 | | 2024.11.13 | Àü¼¼ | ⿵ºô¶ó | 2 | 59.96 | 14,000 | 0 | 1994 | | 2024.11.13 | Àü¼¼ | ¼¼±âºô¶ó | 2 | 46.04 | 13,200 | 0 | 2002 | | 2024.11.13 | Àü¼¼ | ´ëÀººô¸®ÁöBµ¿ | 2 | 65.4 | 16,000 | 0 | 2000 | | 2024.11.13 | ¿ù¼¼ | ¼ºÁغô¶ó(353-37) | 4 | 39.23 | 11,500 | 25 | 2001 | | 2024.11.13 | ¿ù¼¼ | ¼Çö | 2 | 12.96 | 500 | 40 | 2011 | | 2024.11.13 | ¿ù¼¼ | ¼Ò´ã¹ë¸®(807-3) | 2 | 44.47 | 2,000 | 60 | 2013 | | 2024.11.13 | ¿ù¼¼ | ´ëÈ£¾ÆÆ®Å¸¿î³ªµ¿ | 4 | 69.5 | 5,000 | 80 | 1992 | | 2024.11.13 | Àü¼¼ | ¼Ò´ã¹ë¸® | 5 | 29.14 | 16,600 | 0 | 2012 | | 2024.11.13 | ¸Å¸Å | ¾¾Æ¼ÇϿ콺(871-39) | 2 | 41.13 | 26,000 | | 2013 | | 2024.11.13 | ¸Å¸Å | ¿ì¼º | 4 | 37.15 | 26,000 | | 2016 | | 2024.11.13 | ¸Å¸Å | ¿ì¼º¿¬¸³(1134-7) | 3 | 51.48 | 27,500 | | 1985 | | 2024.11.13 | ¸Å¸Å | ¿ì¼º | 2 | 51.29 | 31,000 | | 2017 | | 2024.11.13 | ¿ù¼¼ | »õÇÑÇÏÀÌÃ÷ºô¶ó(350-39) | -1 | 61.13 | 10,800 | 15 | 1995 | | 2024.11.13 | ¿ù¼¼ | µ¿Èºô | 5 | 28.6 | 2,000 | 80 | 2019 | | 2024.11.13 | Àü¼¼ | ºí¸®½ººô101µ¿102µ¿ | 3 | 59.72 | 38,000 | 0 | 2022 | | 2024.11.13 | ¿ù¼¼ | ¿µÈÁÖÅà | 2 | 37.08 | 11,000 | 15 | 1991 | | 2024.11.13 | Àü¼¼ | »ó¾Æ¸Ç¼Ç | 4 | 68.92 | 20,000 | 0 | 2001 | | 2024.11.13 | ¿ù¼¼ | ºñºÀ¸Ç¼Ç | 2 | 62.83 | 16,600 | 15 | 2002 | | 2024.11.13 | ¿ù¼¼ | ⿵ºô¶ó | -1 | 59.96 | 1,000 | 68 | 1994 | | 2024.11.13 | Àü¼¼ | ½¦¶óÅæºô¸®Áö(340-26) | 3 | 41.13 | 12,600 | 0 | 1994 | | 2024.11.13 | ¿ù¼¼ | ´Ù³ª³×½ºÆ®ºô(410-217) | 1 | 42.28 | 2,500 | 55 | 2008 | | 2024.11.13 | Àü¼¼ | »ó¾Æ¸Ç¼Ç | 4 | 68.92 | 20,000 | 0 | 2001 | | 2024.11.13 | ¿ù¼¼ | ´Ù¼ØBµ¿(381-4) | 6 | 23.22 | 2,000 | 80 | 2015 | | 2024.11.13 | ¿ù¼¼ | °è¸íÁÖÅôٵ¿ | 1 | 56.15 | 16,700 | 20 | 2000 | | 2024.11.13 | Àü¼¼ | ½Ö¿ëÇÏÀ̺ô | 2 | 55.04 | 18,743 | 0 | 2001 | | 2024.11.13 | ¿ù¼¼ | ºí·çÈúAµ¿ | 2 | 58.57 | 2,000 | 104 | 2007 | | 2024.11.13 | ¿ù¼¼ | ·Î¾âÇÏÀÌÃ÷(1045-13) | 2 | 49.68 | 4,000 | 75 | 2008 | | 2024.11.13 | ¿ù¼¼ | ¿¥ÄÉÀÌÇÏÀ̺ô | 5 | 42.64 | 2,000 | 80 | 2011 | | 2024.11.13 | ¿ù¼¼ | Çѽººôµù | 4 | 36.71 | 2,000 | 56 | 2004 | | 2024.11.13 | Àü¼¼ | ºí·çÈú | 4 | 29.92 | 29,800 | 0 | 2020 | | 2024.11.13 | ¿ù¼¼ | ´ëÈ£¾ÆÆ®Å¸¿î³ªµ¿ | 4 | 69.5 | 5,000 | 80 | 1992 | | 2024.11.13 | ¿ù¼¼ | µ¿¼ÆÄÅ©ºô(³ªµ¿) | 4 | 33.21 | 3,000 | 60 | 2003 | | 2024.11.13 | ¿ù¼¼ | ¿¥ÄÉÀÌÇÏÀ̺ô | 5 | 42.64 | 2,000 | 80 | 2011 | | 2024.11.12 | ¸Å¸Å | ÇØÇÇÇϿ콺B | 4 | 40.43 | 9,250 | | 2003 | | 2024.11.12 | ¸Å¸Å | ÀºÇÏÈúÇϿ콺 | -1 | 29.91 | 14,500 | | 2010 | | 2024.11.12 | ¸Å¸Å | »ï¼ºÁÖÅÃ(159-1) | 3 | 65.79 | 25,400 | | 1999 | | 2024.11.12 | ¸Å¸Å | ÀÎÅÍ½ÃÆ¼ºô | 5 | 47.18 | 16,500 | | 2007 | | 2024.11.12 | ¿ù¼¼ | Çì½êµå | 3 | 29.84 | 3,000 | 85 | 2022 | | 2024.11.12 | ¸Å¸Å | °æ¹Î¾ÆÆ®ºô | 3 | 29.97 | 21,500 | | 2016 | | 2024.11.12 | ¸Å¸Å | ½ÂÇöº£½ºÆ®ºô | 2 | 42.01 | 17,700 | | 2002 | | 2024.11.12 | ¸Å¸Å | ½Å¼ºÁÖÅÃ(458-24) | 3 | 64.8 | 23,000 | | 2007 | | 2024.11.12 | ¸Å¸Å | ´ë¿ìºô | 3 | 58.21 | 24,500 | | 2003 | | 2024.11.12 | Àü¼¼ | (24-551)Åä¼®¾Æ³×½ººô | 6 | 29.7 | 12,500 | 0 | 2010 | | 2024.11.12 | Àü¼¼ | Ǫ¸¥Ç³°æÃ¤(351-24) | 6 | 36.98 | 20,600 | 0 | 2017 | | 2024.11.12 | Àü¼¼ | ¿£¿¡½º¿ùµåŸ¿ö | 5 | 42.82 | 30,000 | 0 | 2024 | | 2024.11.12 | Àü¼¼ | Ǫ¸¥Ç³°æÃ¤(351-24) | 6 | 36.98 | 20,600 | 0 | 2017 | | 2024.11.12 | ¿ù¼¼ | È«¼ºÇØ´©¸® | 6 | 23.04 | 5,000 | 60 | 2016 | | 2024.11.12 | Àü¼¼ | ¿ì¼ººô¶óAµ¿ | 3 | 34.2 | 13,000 | 0 | 2001 | | 2024.11.12 | Àü¼¼ | ¸þºñ¿ì½º | 2 | 29.21 | 14,700 | 0 | 2016 | | 2024.11.12 | Àü¼¼ | ¿£¿¡½º¿ùµåŸ¿ö | 5 | 42.82 | 30,000 | 0 | 2024 | | 2024.11.12 | ¿ù¼¼ | ¸®Ä¡ºô | 3 | 38.37 | 13,900 | 10 | 2009 | | 2024.11.12 | ¿ù¼¼ | ¼¾ÈÆÄÅ©ºä | 6 | 20.41 | 2,000 | 90 | 2024 | | 2024.11.12 | ¿ù¼¼ | ÇÏÀ̺ô¶ó | 1 | 52.95 | 11,900 | 10 | 1993 | | 2024.11.12 | ¿ù¼¼ | ´Ù¼Ø(422-3) | 3 | 29.81 | 3,000 | 75 | 2014 | | 2024.11.12 | Àü¼¼ | ½Å¾ç±×¸°ºô(102-84) | 2 | 54.06 | 17,800 | 0 | 2008 | | 2024.11.12 | ¿ù¼¼ | È«¼ºÇØ´©¸® | 6 | 23.04 | 5,000 | 60 | 2016 | | 2024.11.12 | Àü¼¼ | Çѽººô | 2 | 63.74 | 17,000 | 0 | 2002 | | 2024.11.12 | ¿ù¼¼ | Çϳª¾ÆÀÌÆÄÅ©ºô | 4 | 23.57 | 15,000 | 20 | 2019 | | 2024.11.12 | Àü¼¼ | ¿¡½º¿¥ÆÄÅ©ºô101µ¿102µ¿ | 4 | 28.15 | 16,600 | 0 | 2016 | | 2024.11.12 | ¿ù¼¼ | ¿¹Áöºô¶óÆ® | 1 | 34.68 | 9,700 | 12 | 2007 | | 2024.11.12 | Àü¼¼ | ¿£¿¡½º¿ùµåŸ¿ö | 4 | 42.82 | 30,000 | 0 | 2024 | | 2024.11.12 | ¿ù¼¼ | ÁøÁÖ¸Ç¼Ç | -1 | 62.1 | 3,000 | 65 | 2002 | | 2024.11.12 | ¿ù¼¼ | ¼¾ÈÆÄÅ©ºä | 5 | 18.91 | 1,000 | 119 | 2024 | | 2024.11.12 | ¿ù¼¼ | ÇüÁö¾¾Æ¼ºô(816-6) | 4 | 13.03 | 1,000 | 55 | 2012 | | 2024.11.12 | Àü¼¼ | ±¤Áø¿¡¹öºô | 2 | 51.3 | 29,345 | 0 | 2021 | | 2024.11.12 | Àü¼¼ | ½Å¾ç±×¸°ºô(102-84) | 2 | 54.06 | 17,800 | 0 | 2008 | | 2024.11.12 | Àü¼¼ | ¾Ëº£·Î | 3 | 13.59 | 6,500 | 0 | 2011 | | 2024.11.11 | Àü¼¼ | ºí¸®½ººô101µ¿102µ¿ | 5 | 38.46 | 24,800 | 0 | 2022 | | 2024.11.11 | Àü¼¼ | ¿£¿¡½º¿ùµåŸ¿ö | 3 | 29.18 | 23,940 | 0 | 2024 | | 2024.11.11 | ¿ù¼¼ | »ï¼ººô¶ó | 1 | 49.05 | 1,000 | 65 | 1991 | | 2024.11.11 | ¿ù¼¼ | ´õȨ | 2 | 28.92 | 1,000 | 63 | 2015 | | 2024.11.11 | Àü¼¼ | Á¦À̽ººô(969-5) | 6 | 22.73 | 19,000 | 0 | 2022 | | 2024.11.11 | ¿ù¼¼ | ·ÎÁîºôBµ¿(871-46) | 4 | 29.22 | 2,000 | 80 | 2017 | | 2024.11.11 | ¿ù¼¼ | ¿ìÀÏ¾ÆÆ®ºô | 2 | 43.33 | 1,000 | 63 | 2008 | | 2024.11.11 | ¿ù¼¼ | ÇÁ¸®¸Þ¶ó | 4 | 26.22 | 3,000 | 70 | 2018 | | 2024.11.11 | ¿ù¼¼ | ȼººô¶ó(379-47) | 3 | 63.36 | 3,000 | 90 | 2009 | | 2024.11.11 | ¿ù¼¼ | º¹Áö¾ÆÆ®ºô¶ó1µ¿ | 3 | 41.58 | 2,000 | 70 | 2003 | | 2024.11.11 | ¿ù¼¼ | Á¶Àººô¶óBµ¿ | -1 | 34.06 | 500 | 50 | 1991 | | 2024.11.11 | ¿ù¼¼ | Áؽ¦¸£ºô(346-12) | 2 | 29.92 | 1,000 | 85 | 2013 | | 2024.11.11 | ¿ù¼¼ | ÇØ¿À¸§ºô(354-78) | 6 | 22.05 | 3,000 | 90 | 2015 | | 2024.11.11 | ¿ù¼¼ | 6Â÷ŰǺô¶ó | 2 | 36.12 | 10,700 | 10 | 1990 | | 2024.11.11 | Àü¼¼ | ±î»çÁö¿À(355-4) | 3 | 23 | 19,200 | 0 | 2021 | | 2024.11.11 | Àü¼¼ | Çý¼ºÆÓ¸®½º24Â÷(397-33) | 2 | 29.37 | 15,000 | 0 | 2013 | | 2024.11.11 | ¸Å¸Å | ±ÝÈ£ÆÄÅ©ºô(Bµ¿) | 1 | 45.69 | 19,700 | | 2001 | | 2024.11.11 | ¸Å¸Å | ¿¬Èñ¸Ç¼Ç(°¡) | 1 | 59.88 | 19,000 | | 2001 | | 2024.11.11 | ¸Å¸Å | ·Î¾âÇÏÀÌÃ÷(98-137) | 5 | 54.67 | 20,600 | | 2008 | | 2024.11.11 | ¿ù¼¼ | ¼ºÀçºô¶ó°¡µ¿ | 1 | 59.8 | 14,600 | 10 | 2001 | | 2024.11.11 | ¸Å¸Å | ¼ºÈ£ÇÏÀ̺ô(1045-65) | 3 | 52.86 | 28,600 | | 2007 | | 2024.11.11 | ¿ù¼¼ | ¿¹ÁöÆÓ¸®½º89Â÷ | 3 | 33.54 | 1,000 | 87 | 2016 | | 2024.11.11 | ¿ù¼¼ | °è¸íÁÖÅÃ(155-23) | 2 | 59.87 | 15,000 | 20 | 2000 | | 2024.11.11 | Àü¼¼ | Çý¼ºÆÓ¸®½º24Â÷(397-33) | 2 | 29.37 | 15,000 | 0 | 2013 | | 2024.11.11 | ¿ù¼¼ | ´ë¼ºÅ¾½ººô | 1 | 58.12 | 14,500 | 30 | 2002 | | 2024.11.11 | ¿ù¼¼ | À§´õ½ººô | 8 | 20.1 | 4,000 | 32 | 2013 | | 2024.11.11 | Àü¼¼ | ¾ÆÀνººô(29-41) | 6 | 35.61 | 13,750 | 0 | 2012 | | 2024.11.11 | ¿ù¼¼ | ¾ÆÀνººô(29-41) | 6 | 35.61 | 13,750 | 8 | 2012 | | 2024.11.11 | ¸Å¸Å | µ¿µµÇÏÀÌÃ÷ºô¶ó | 1 | 59.9 | 23,000 | | 1999 | | 2024.11.10 | Àü¼¼ | ¼ºÁÖ¸Ç¼Ç | 2 | 61.8 | 21,000 | 0 | 2002 | | 2024.11.10 | Àü¼¼ | ¼ºÁÖ¸Ç¼Ç | 2 | 61.8 | 21,000 | 0 | 2002 | | 2024.11.09 | ¿ù¼¼ | »ì·½ÇϿ콺(100-26) | 4 | 64.65 | 5,000 | 80 | 2000 | | 2024.11.09 | ¿ù¼¼ | »ì·½ÇϿ콺6Â÷(56-536) | 5 | 36.96 | 2,000 | 45 | 2001 | | 2024.11.09 | Àü¼¼ | ÇÁ¸®Áòºô¶ó | 2 | 32.13 | 10,740 | 0 | 2001 | | 2024.11.09 | Àü¼¼ | ÇÑÀÏ¸Ç¼Ç | 4 | 49.97 | 14,490 | 0 | 1998 | | 2024.11.09 | ¿ù¼¼ | ¿¹ÀÎ¾ÆÆ®ºô | 3 | 43.49 | 5,500 | 55 | 2003 | | 2024.11.09 | Àü¼¼ | ¿£¿¡½º¿ùµåŸ¿ö | 3 | 29.18 | 24,570 | 0 | 2024 | | 2024.11.09 | ¿ù¼¼ | ½ãÇÏÀÌÃ÷ºô | 3 | 40.65 | 10,400 | 10 | 1991 | | 2024.11.09 | ¿ù¼¼ | ¸í°¡ | 4 | 29.49 | 5,000 | 90 | 2019 | | 2024.11.09 | ¿ù¼¼ | ¼±°æºôŸ¿î | 2 | 59.52 | 3,000 | 100 | 2001 | | 2024.11.09 | ¿ù¼¼ | ´ë¿õºô¶ó(56-146) | 3 | 30.09 | 7,600 | 5 | 1991 | | 2024.11.09 | ¿ù¼¼ | ÇѰ¡¶÷ºô¶ó | 2 | 44.16 | 2,000 | 60 | 1987 | | 2024.11.09 | ¿ù¼¼ | µ¿±¤ºô¶ó | 1 | 38.88 | 8,780 | 30 | 1993 | | 2024.11.09 | ¿ù¼¼ | (46-110)Åä¼®¾Æ³×½Ã½º | 5 | 22.98 | 2,500 | 45 | 2010 | | 2024.11.09 | Àü¼¼ | °ñµçºô(367-51) | 6 | 18.33 | 20,500 | 0 | 2018 | | 2024.11.09 | ¿ù¼¼ | ±Ý°ÆÄÅ©ºô | 4 | 41.13 | 1,400 | 67 | 2011 | | 2024.11.09 | ¿ù¼¼ | ´Ù¾Èºô¶óÆ®(867-7) | 3 | 39.96 | 20,100 | 10 | 2014 | | 2024.11.09 | ¿ù¼¼ | ¸í°¡ | 4 | 29.49 | 5,000 | 90 | 2019 | | 2024.11.09 | ¿ù¼¼ | (61-42) | 2 | 23.22 | 2,000 | 60 | 2011 | | 2024.11.09 | ¿ù¼¼ | µ¿¹®ºô¶ó | 3 | 54.51 | 2,000 | 90 | 2001 | | 2024.11.09 | ¿ù¼¼ | ·Ôµ¥Å¸¿î | 5 | 34.74 | 12,600 | 5 | 2011 | | 2024.11.09 | ¸Å¸Å | ³ª»êÁÖÅà | 4 | 44.18 | 23,000 | | 2010 | | 2024.11.09 | ¸Å¸Å | ÀÎâºô¶ó°¡µ¿ | 1 | 33.27 | 15,000 | | 1991 | | 2024.11.09 | ¸Å¸Å | ½Å¿µÅ¾½ººô | 3 | 69.29 | 30,400 | | 2002 | | 2024.11.09 | Àü¼¼ | ´ë¿õÇÏÀÌÃ÷ºô¶ó7Â÷ | 3 | 33.17 | 9,400 | 0 | 1993 | | 2024.11.09 | ¿ù¼¼ | Á¦ÀÌ¿ÍÀÌÆç¸®½º(849-16¹øÁö) | 3 | 29.89 | 17,100 | 20 | 2016 | | 2024.11.09 | Àü¼¼ | Á¤ÀºÆÄÅ©ºô | 6 | 31.34 | 14,000 | 0 | 2016 | | 2024.11.09 | ¿ù¼¼ | ¿ì¼º¼ºÁøºô¶ó | 4 | 47.49 | 11,500 | 15 | 1996 | | 2024.11.09 | ¿ù¼¼ | ¹Ì¹®3Â÷ | 3 | 37.32 | 10,000 | 10 | 1994 | | 2024.11.09 | ¿ù¼¼ | ¿ì¼º¼ºÁøºô¶ó | 4 | 47.49 | 11,500 | 15 | 1996 | | 2024.11.09 | ¿ù¼¼ | ´ëÀººñÀüºô | 4 | 63.92 | 15,000 | 20 | 2007 | | 2024.11.09 | ¿ù¼¼ | ÀºÇýºô¶ó(828-5) | -1 | 38.63 | 500 | 42 | 1994 | | 2024.11.09 | Àü¼¼ | Æ÷¿¥ºô | 8 | 36.73 | 25,452 | 0 | 2020 | | 2024.11.09 | ¿ù¼¼ | Á¦ÀÌÅõ¸®´õ½º | 2 | 29.48 | 20,500 | 10 | 2020 | | 2024.11.09 | ¿ù¼¼ | Á¦ÀÌ¿ÍÀÌÆç¸®½º(849-16¹øÁö) | 3 | 29.89 | 17,100 | 20 | 2016 | | 2024.11.08 | Àü¼¼ | ´ÙÀÎÇϿ콺 | 5 | 27.46 | 26,000 | 0 | 2022 | | 2024.11.08 | ¿ù¼¼ | ¿µÆç¸®½º | 4 | 44.53 | 1,000 | 75 | 2008 | | 2024.11.08 | ¿ù¼¼ | ±îÄ¡ºô¶ó(56-74) | 2 | 36.54 | 10,570 | 8 | 1991 | | 2024.11.08 | Àü¼¼ | ´ÙÀÎÇϿ콺 | 5 | 27.46 | 26,000 | 0 | 2022 | | 2024.11.08 | ¿ù¼¼ | µ¿¿øÈúÇϿ콺 | 4 | 13.6 | 1,000 | 49 | 2011 | | 2024.11.08 | ¿ù¼¼ | ´õ±×·¹À̽º | 5 | 29.96 | 7,000 | 120 | 2020 | | 2024.11.08 | ¿ù¼¼ | ºí·çÈú | 5 | 25.93 | 1,000 | 70 | 2017 | | 2024.11.08 | ¿ù¼¼ | VILL73 | 3 | 20.36 | 6,000 | 65 | 2021 | | 2024.11.08 | ¿ù¼¼ | ½ÃƼÇϿ콺(1085-20) | 5 | 49.53 | 19,900 | 10 | 2012 | | 2024.11.08 | ¸Å¸Å | ÁÖ¿µ³Ø½ººô | 2 | 64.8 | 29,500 | | 2003 | | 2024.11.08 | ¸Å¸Å | ¹Ì·¡½ºÅ¸ºô(1104-13) | 4 | 44.08 | 25,250 | | 2014 | | 2024.11.08 | Àü¼¼ | µ¿¾çÇÏ¿ì¡ | 6 | 38.74 | 23,600 | 0 | 2016 | | 2024.11.08 | ¿ù¼¼ | ºí·çÈú(788-4) | 4 | 29.55 | 18,390 | 15 | 2016 | | 2024.11.08 | ¿ù¼¼ | Áß¾Óºô¶ó | 1 | 38.69 | 1,000 | 60 | 1993 | | 2024.11.08 | ¿ù¼¼ | ½ÃƼÇϿ콺(1085-20) | 5 | 49.53 | 19,900 | 10 | 2012 | | 2024.11.08 | ¿ù¼¼ | È£¸²ºô¶ó | 3 | 59.82 | 12,000 | 13 | 1991 | | 2024.11.08 | Àü¼¼ | ´õÁ¸ÆÛ½ºÆ® | 4 | 28.8 | 16,000 | 0 | 2018 | | 2024.11.08 | Àü¼¼ | º¸°ÇÏÀ̼¾½º¸Ç¼Ç | 3 | 39.93 | 11,600 | 0 | 1993 | | 2024.11.08 | ¿ù¼¼ | ¼±°æÇÏÀÌÃ÷ºô¶ó | -1 | 46.95 | 9,260 | 20 | 1997 | | 2024.11.07 | Àü¼¼ | À̼ö¾ÆÆ®ºô2Â÷ | 7 | 36.12 | 17,000 | 0 | 2016 | | 2024.11.07 | Àü¼¼ | ·ÎÁîºôBµ¿(871-46) | 4 | 29.22 | 15,000 | 0 | 2017 | | 2024.11.07 | ¿ù¼¼ | ±Ý¼º¾ÆÆ®ºô(400-53) | 3 | 46.51 | 13,400 | 15 | 2001 | | 2024.11.07 | ¿ù¼¼ | ·¹Àκ¸¿ìŸ¿ö | 5 | 61.44 | 13,000 | 30 | 2009 | | 2024.11.07 | ¿ù¼¼ | ³²±¤ÆÄÅ©ºô | 5 | 29.34 | 13,860 | 15 | 2014 | | 2024.11.07 | ¿ù¼¼ | ÀϺÀºô¶ó | 3 | 41.36 | 3,000 | 74 | 1991 | | 2024.11.07 | ¿ù¼¼ | °æÀκô¶ó | 4 | 58.41 | 15,800 | 30 | 1999 | | 2024.11.07 | Àü¼¼ | ÇÏÀÌ¿øºô¸®Áö | 2 | 53.33 | 19,400 | 0 | 2011 | | 2024.11.07 | ¿ù¼¼ | ´õ±×¸² | 4 | 25.64 | 3,000 | 70 | 2023 | | 2024.11.07 | ¿ù¼¼ | ¸í¼ººô¸®Áö | 4 | 39.74 | 2,000 | 65 | 2000 | | 2024.11.07 | ¿ù¼¼ | ¸í¼ººô¸®Áö | 4 | 39.74 | 2,000 | 65 | 2000 | | 2024.11.07 | ¸Å¸Å | ¿¡½ºÄÉÀ̹ٿòÇϿ콺(1073-28) | 5 | 22.52 | 18,700 | | 2016 | | 2024.11.07 | ¸Å¸Å | ÈÀκô¶ó(1042-25) | 2 | 59.04 | 25,800 | | 2001 | | 2024.11.07 | ¸Å¸Å | ÇÏÀÌ63 | 4 | 32.36 | 17,000 | | 2018 | | 2024.11.07 | ¿ù¼¼ | µ¿¼º¾ÆÆ®ºô | 3 | 68.62 | 14,000 | 60 | 2002 | | 2024.11.07 | ¿ù¼¼ | ºí·ç½ºÄ«À̺ô(366) | 2 | 29.93 | 3,000 | 70 | 2015 | | 2024.11.06 | Àü¼¼ | À¯¸²ºô | 3 | 35.52 | 13,600 | 0 | 2008 | | 2024.11.06 | Àü¼¼ | ½Å¶óÇÏÀÌÃ÷(59-26) | 4 | 51.93 | 9,450 | 0 | 2002 | | 2024.11.06 | ¿ù¼¼ | À¯´Ï¿Â½¦¸£ºôB | 2 | 41.88 | 12,460 | 30 | 2002 | | 2024.11.06 | ¿ù¼¼ | ¾Æµ¥³ªÆÓ¸®½º | 6 | 34.68 | 19,000 | 10 | 2016 | | 2024.11.06 | ¿ù¼¼ | ¾Æµ¥³ªÆÓ¸®½º | 7 | 20.34 | 3,000 | 100 | 2016 | | 2024.11.06 | ¿ù¼¼ | ¼ºÈ£ÇÏÀ̺ô(1045-65) | 4 | 52.86 | 13,000 | 35 | 2007 | | 2024.11.06 | ¿ù¼¼ | ÇØÇÇÇϿ콺(1128-4) | 2 | 14.89 | 3,000 | 34 | 2012 | | 2024.11.06 | ¿ù¼¼ | ³²¼¿ïÆÄÅ©ºô(855-27) | 6 | 28.81 | 11,000 | 15 | 2011 | | 2024.11.06 | ¿ù¼¼ | ÀÎÅÍ½ÃÆ¼ºô¶ó(³ª) | 4 | 46.38 | 12,000 | 15 | 2002 | | 2024.11.06 | ¿ù¼¼ | ±¤¸íÇÏÀÌÃ÷29Â÷°¡µ¿ | 3 | 37.64 | 4,000 | 50 | 2002 | | 2024.11.06 | ¿ù¼¼ | ÆÄÅ©±×¸°ºô¶ó | 3 | 53.69 | 15,240 | 10 | 2001 | | 2024.11.06 | Àü¼¼ | ¼öÁ¤ÁÖÅà | -1 | 66.9 | 10,500 | 0 | 1997 | | 2024.11.06 | ¸Å¸Å | ½ÅÁ¤ºô¶óÆ® | 5 | 88.5 | 27,500 | | 2001 | | 2024.11.06 | Àü¼¼ | ³×¿ÀÆÄÅ©ºô(160-17) | 2 | 59.66 | 23,500 | 0 | 2008 | | 2024.11.06 | ¿ù¼¼ | ¹Ù·ÎÅ©ºô | 2 | 29.9 | 2,000 | 70 | 2014 | | 2024.11.06 | Àü¼¼ | Á¦¼±ÁÖÅÃ17Â÷ | 3 | 59.84 | 20,000 | 0 | 2008 | | 2024.11.06 | ¿ù¼¼ | ´Ù¿Èµµ·¡ | 4 | 26.43 | 1,000 | 70 | 2016 | | 2024.11.06 | Àü¼¼ | ÇØ¿À¸§ºô(410-48) | 4 | 57.68 | 21,700 | 0 | 2011 | | 2024.11.06 | ¿ù¼¼ | ¸®ºùÇϿ콺 | 6 | 25.49 | 5,000 | 60 | 2016 | | 2024.11.06 | Àü¼¼ | ¿ÍÀ̾غñ | 6 | 29.11 | 24,100 | 0 | 2017 | | 2024.11.06 | Àü¼¼ | ±ÝÈ£ÆÄÅ©ºô(Bµ¿) | 1 | 45.69 | 11,600 | 0 | 2001 | | 2024.11.06 | Àü¼¼ | ÀÏÁÖÇϿ콺 | 2 | 32.93 | 21,700 | 0 | 2020 | | 2024.11.05 | Àü¼¼ | ÇѼº¾ÆÆ®ºô(158-18) | 2 | 68.7 | 20,890 | 0 | 2000 | | 2024.11.05 | ¿ù¼¼ | ÇູÀ̰¡µæÇÑÁýB | -1 | 60.84 | 1,000 | 75 | 2002 | | 2024.11.05 | ¿ù¼¼ | û¼ÛÆòÈÇÏÀ̸ǼÇ(102-309) | 5 | 28.27 | 2,000 | 65 | 2014 | | 2024.11.05 | ¿ù¼¼ | À̽ºÆ®Èú | 4 | 62.31 | 15,000 | 30 | 2003 | | 2024.11.05 | ¿ù¼¼ | ¼ºÁøºô¶ó | 4 | 59.92 | 17,200 | 7 | 1999 | | 2024.11.05 | ¿ù¼¼ | ¼°ºô¶ó³ªµ¿ | 5 | 50.49 | 3,000 | 30 | 2003 | | 2024.11.05 | Àü¼¼ | ¿ì¼º¿¬¸³(1134-7) | 1 | 51.48 | 11,025 | 0 | 1985 | | 2024.11.05 | ¿ù¼¼ | LKµå¸²ºô(Ȱî504-12) | 6 | 25.71 | 2,000 | 95 | 2015 | | 2024.11.05 | Àü¼¼ | MÆç¸®Ã¼ | 4 | 38.52 | 26,000 | 0 | 2018 | | 2024.11.05 | Àü¼¼ | ¹«Áö°³ºô¶ó2Â÷ | 3 | 32.88 | 15,225 | 0 | 1991 | | 2024.11.05 | ¿ù¼¼ | ¿¤¸®½Ã¾Æ | 5 | 28.71 | 3,000 | 70 | 2013 | | 2024.11.05 | ¸Å¸Å | żº¾ÆÆ®ºô | 3 | 46.28 | 18,500 | | 2002 | | 2024.11.05 | Àü¼¼ | ¼ºÈ£-ÇÏÀ̺ô | 4 | 36.97 | 12,800 | 0 | 2007 | | 2024.11.05 | ¸Å¸Å | µð¾ÆÀνº(956-2) | 6 | 31.15 | 26,000 | | 2014 | | 2024.11.05 | ¸Å¸Å | À¯Áø¼Ò¸£º£ | 7 | 51.38 | 24,700 | | 2011 | | 2024.11.05 | ¿ù¼¼ | ½ÂÀ±³ëºí¸®¾È½ÃƼ | 6 | 12.73 | 1,000 | 42 | 2013 | | 2024.11.05 | ¸Å¸Å | ±Ý¼Û¾ÆÆ®ºô(1073-27) | 2 | 56.11 | 24,000 | | 2003 | | 2024.11.05 | ¸Å¸Å | ´ë¼±ÇÏÀ̺ô | 3 | 29.94 | 21,600 | | 2019 | | 2024.11.05 | Àü¼¼ | °¼ºô¶ó(56-171) | 2 | 36.44 | 11,300 | 0 | 1988 | | 2024.11.05 | Àü¼¼ | ¿ì¼º¿¬¸³(1134-7) | 1 | 51.48 | 11,025 | 0 | 1985 | | 2024.11.05 | Àü¼¼ | ÇѼº¾ÆÆ®ºô(158-18) | 2 | 68.7 | 20,890 | 0 | 2000 | | 2024.11.05 | ¿ù¼¼ | (95-103) | 1 | 50.3 | 12,000 | 15 | 1986 | | 2024.11.05 | Àü¼¼ | ºí¸®½ººô101µ¿102µ¿ | 5 | 38.46 | 24,800 | 0 | 2022 | | 2024.11.05 | ¸Å¸Å | È£¾ÏÆÄÅ©ºô | 2 | 68.46 | 35,000 | | 2009 | | 2024.11.05 | ¸Å¸Å | ·ÎºóÇϿ콺(354-86) | 6 | 24.39 | 25,000 | | 2016 | | 2024.11.05 | ¸Å¸Å | ¶óÅ׶󽺺ô(380-6) | 3 | 25.45 | 21,000 | | 2016 | | 2024.11.05 | ¸Å¸Å | ¾¾Æ¼ÆÄÅ©2 | 5 | 41.64 | 14,500 | | 2008 | | 2024.11.05 | Àü¼¼ | »ï¼ºÇÏÀ̺ô(371-11) | 3 | 51.32 | 19,400 | 0 | 2008 | | 2024.11.04 | ¿ù¼¼ | ´ö¿ëÆÓ¸®Ã¼ | 3 | 24.89 | 1,000 | 70 | 2019 | | 2024.11.04 | Àü¼¼ | ¶óºô¶óÆ® | 3 | 21.53 | 13,980 | 0 | 2016 | | 2024.11.04 | ¿ù¼¼ | Á¤Çöºô¶ó | 4 | 40.77 | 12,000 | 30 | 2000 | | 2024.11.04 | ¿ù¼¼ | ¼¿¬ºí·çÈú | 2 | 29.22 | 10,000 | 40 | 2016 | | 2024.11.04 | ¿ù¼¼ | ½Å¿µº£¸£µð¿ò | 4 | 32.71 | 21,670 | 15 | 2019 | | 2024.11.04 | ¿ù¼¼ | dz¼º¾Ö¶ã¾È | 3 | 50.23 | 15,000 | 80 | 2016 | | 2024.11.04 | ¿ù¼¼ | ´Ù¿ÂÇϿ콺 | 2 | 43.59 | 19,500 | 20 | 2016 | | 2024.11.04 | ¿ù¼¼ | ´õ±×¸² | 2 | 28.8 | 3,000 | 70 | 2023 | | 2024.11.04 | ¿ù¼¼ | ¿ì³²ºô¶ó(95-159) | 4 | 63.72 | 3,000 | 90 | 2002 | | 2024.11.04 | ¸Å¸Å | ¶ó¿òÇϿ콺 | 4 | 29.88 | 26,000 | | 2019 | | 2024.11.04 | ¸Å¸Å | º£½ºÆ®ÈúŸ¿î | 4 | 76.58 | 26,000 | | 2002 | | 2024.11.04 | ¸Å¸Å | ÇØ¼ºÆÓ¸®½º3Â÷ | -1 | 61.12 | 15,500 | | 2001 | | 2024.11.04 | ¸Å¸Å | µµÆ¼ÇϿ콺 | 3 | 43.52 | 27,000 | | 2018 | | 2024.11.04 | ¸Å¸Å | °Å¼º | 2 | 43.56 | 25,500 | | 1986 | | 2024.11.04 | Àü¼¼ | ¶óºô¶óÆ® | 3 | 21.53 | 13,980 | 0 | 2016 | | 2024.11.04 | ¿ù¼¼ | LUCE¥±(·çüby¿¹¿ì) | 4 | 14.2 | 2,000 | 31 | 2012 | | 2024.11.04 | ¿ù¼¼ | Àº°¡¶÷ÆÓ¸®½º | 6 | 36.805 | 1,000 | 110 | 2022 | | 2024.11.04 | ¿ù¼¼ | »ï¼º°ñµçºô(793-6) | 4 | 39.96 | 4,000 | 90 | 2015 | | 2024.11.04 | Àü¼¼ | ¶óºô¶óÆ® | 3 | 21.53 | 14,400 | 0 | 2016 | | 2024.11.04 | Àü¼¼ | ¿ì¼º(362-24)ºô¶óA | 4 | 53.76 | 14,900 | 0 | 2002 | | 2024.11.04 | ¿ù¼¼ | ¹®¼±ºô¶ó | 2 | 60.22 | 5,500 | 60 | 2002 | | 2024.11.04 | Àü¼¼ | ÇÁ¶óÀÓij½½ | 5 | 29.16 | 19,000 | 0 | 2020 | | 2024.11.04 | Àü¼¼ | ÇÁ¶óÀÓij½½ | 5 | 29.16 | 19,000 | 0 | 2020 | | 2024.11.04 | ¿ù¼¼ | ¸¶À̹ٿò | 3 | 15.47 | 1,500 | 46 | 2011 | | 2024.11.04 | ¿ù¼¼ | casagio | 5 | 29.02 | 200 | 85 | 2019 | | 2024.11.04 | ¿ù¼¼ | ¶óºô¶óÆ® | 2 | 29.95 | 15,300 | 10 | 2016 | | 2024.11.04 | ¸Å¸Å | ´ë½ÅÁÖÅà | 3 | 62.77 | 28,000 | | 2001 | | 2024.11.04 | ¿ù¼¼ | dz¼º¾Ö¶ã¾È | 3 | 50.23 | 15,000 | 80 | 2016 | | 2024.11.04 | ¿ù¼¼ | LUCE¥±(·çüby¿¹¿ì) | 5 | 15.62 | 5,000 | 1 | 2012 | | 2024.11.04 | Àü¼¼ | À¯Ç³ºô¶ó¾ÆÆ®Aµ¿ | 3 | 84.43 | 31,000 | 0 | 1990 | | 2024.11.03 | ¿ù¼¼ | ´õ±×¸² | 5 | 29.25 | 3,000 | 79 | 2023 | | 2024.11.03 | Àü¼¼ | ¿¡½º¿¥ÆÄÅ©ºô | 4 | 29.72 | 16,800 | 0 | 2015 | | 2024.11.03 | ¸Å¸Å | ÅÂÇÑÇÏÀ̺ô(382-25) | 3 | 29.59 | 20,000 | | 2017 | | 2024.11.03 | ¸Å¸Å | »õ³¯ÁÖÅà | 2 | 58.36 | 26,300 | | 2002 | | 2024.11.03 | ¸Å¸Å | ¶ó¿Âºô¸®Áö | 4 | 24.25 | 20,500 | | 2016 | | 2024.11.03 | ¸Å¸Å | ·Ôµ¥ÆÓ¸®½º | 4 | 42.46 | 26,000 | | 2016 | | 2024.11.02 | ¿ù¼¼ | ȰîÇÏÀÌÃ÷ºô¶ó | 2 | 40 | 1,000 | 60 | 1991 | | 2024.11.02 | ¿ù¼¼ | »ïÀÍÇ콺Ƽ¾Æ(55-41) | 3 | 24.99 | 9,560 | 10 | 2011 | | 2024.11.02 | Àü¼¼ | ¿¹°¡Ã¤(968-3) | 4 | 28.04 | 13,986 | 0 | 2015 | | 2024.11.02 | ¿ù¼¼ | ¾ÆÀÌij½½ | 5 | 30.36 | 10,000 | 10 | 2008 | | 2024.11.02 | ¿ù¼¼ | ¸®Ä¡7 | 12 | 25.48 | 21,960 | 13 | 2022 | | 2024.11.02 | ¸Å¸Å | Çö´ëÇÏ¿ì¡(51-37) | 3 | 33.51 | 16,800 | | 2011 | | 2024.11.02 | ¸Å¸Å | ÇѼººô¶ó(56-655) | 4 | 51.45 | 15,300 | | 1994 | | 2024.11.02 | ¿ù¼¼ | (972-14) | 5 | 55.4 | 1,000 | 95 | 2019 | | 2024.11.02 | ¿ù¼¼ | ¸¶À̹ٿò | 4 | 15.47 | 1,000 | 49 | 2011 | | 2024.11.02 | ¿ù¼¼ | ¿¬Èñºô¶ó³ªµ¿ | 3 | 81.92 | 22,800 | 10 | 1983 | | 2024.11.02 | ¿ù¼¼ | ÄÚ½º¸ð½ººô¶ó | 2 | 62.56 | 12,000 | 55 | 1997 | | 2024.11.02 | Àü¼¼ | ¿£¿¡½º¿ùµåŸ¿ö | 6 | 29.18 | 24,570 | 0 | 2024 | | 2024.11.02 | ¿ù¼¼ | ¹Ì·¡º£½ºÆ®ºô | 4 | 59 | 5,000 | 85 | 2002 | | 2024.11.02 | ¿ù¼¼ | ±ÝÈ£ÆÄÅ©ºô(Bµ¿) | 4 | 34.94 | 10,190 | 10 | 2001 | | 2024.11.02 | ¿ù¼¼ | »ïÇùÇÊÇϿ콺 | 3 | 29.58 | 500 | 30 | 2016 | | 2024.11.02 | ¿ù¼¼ | SKÀÚÀ̺ô(421-29) | 5 | 33.16 | 5,000 | 67 | 2014 | | 2024.11.02 | ¿ù¼¼ | À̵µÆÓ¸®½º(51-4) | 4 | 26.73 | 1,500 | 55 | 2020 | | 2024.11.01 | ¸Å¸Å | ¶ó¿Âºô¸®Áö | 4 | 26.5 | 20,800 | | 2016 | | 2024.11.01 | ¸Å¸Å | À¯¾Ø¹Ì | 4 | 40.36 | 25,000 | | 2016 | | 2024.11.01 | ¸Å¸Å | º¸°æºô¶ó | 2 | 59.6 | 23,800 | | 2001 | | 2024.11.01 | ¸Å¸Å | »ó¿ìºô¶ó | 4 | 54.9 | 16,000 | | 2001 | | 2024.11.01 | ¸Å¸Å | È£¼º±×¸°ºä | 2 | 28.06 | 16,000 | | 2016 | | 2024.11.01 | ¸Å¸Å | ½¦¶óÅæºô¸®Áö(55-12) | 2 | 37.44 | 15,200 | | 1993 | | 2024.11.01 | ¸Å¸Å | »ó¿ìºô¶ó | 4 | 54.9 | 16,000 | | 2001 | | 2024.11.01 | Àü¼¼ | ¼ÛÇöºô¸®Áö | 3 | 63.44 | 20,800 | 0 | 2002 | | 2024.11.01 | Àü¼¼ | ½Å¿µº£¸£µð¿ò | 2 | 32.71 | 21,600 | 0 | 2019 | | 2024.11.01 | ¿ù¼¼ | â´ëºô¶ó(369-25) | 5 | 56.86 | 12,000 | 45 | 2007 | | 2024.11.01 | ¿ù¼¼ | ´Ù¿ø½´½´ºô(470-8) | 5 | 27.38 | 9,390 | 20 | 2010 | | 2024.11.01 | Àü¼¼ | ½Å¾È¸Ç¼Ç(56-191) | 2 | 53.72 | 16,000 | 0 | 2003 | | 2024.11.01 | Àü¼¼ | ½Å¿ìºô¶ó | 3 | 57.11 | 13,100 | 0 | 1994 | | 2024.11.01 | Àü¼¼ | ½Å¾È¸Ç¼Ç(56-191) | 2 | 53.72 | 14,400 | 0 | 2003 | | 2024.11.01 | Àü¼¼ | Ç®Çâ±âºô¶ó2µ¿ | 1 | 30 | 9,100 | 0 | 1997 | | 2024.11.01 | ¿ù¼¼ | ºí·¹½ºÅ¸¿î | 3 | 55.2 | 4,000 | 56 | 2002 | | 2024.11.01 | ¿ù¼¼ | »ïȺô¸®Áö(403-8) | 4 | 16.28 | 500 | 45 | 2012 | | 2024.11.01 | ¿ù¼¼ | ÄÞÆ÷Æ®ºô¶ó | 3 | 49.32 | 2,000 | 60 | 1997 | | 2024.11.01 | Àü¼¼ | ¹ÙÀÌ¿Àij½½(480-17) | 4 | 61.92 | 18,000 | 0 | 2008 | | 2024.11.01 | ¿ù¼¼ | ±¤¸íÇÏÀÌÃ÷5Â÷ | 2 | 41.36 | 500 | 45 | 1994 | | 2024.11.01 | ¸Å¸Å | »ï¼º¾ÆÀÌ¸Ç¼Ç | 3 | 67.44 | 25,000 | | 2002 | | 2024.11.01 | Àü¼¼ | ¼¿¬ºí·çÈúºñ | 4 | 29.68 | 18,690 | 0 | 2016 | | 2024.10.31 | Àü¼¼ | Àç·æºôµù | 4 | 26.34 | 18,770 | 0 | 2021 | | 2024.10.31 | Àü¼¼ | ³×½ºÆ®ºô2Â÷ | 3 | 54.2 | 17,800 | 0 | 2008 | | 2024.10.31 | ¿ù¼¼ | Å·´ý | 3 | 27.6 | 3,000 | 80 | 2016 | | 2024.10.31 | Àü¼¼ | Á¤ÀºÆÄÅ©ºô | 6 | 31.34 | 14,000 | 0 | 2016 | | 2024.10.31 | ¿ù¼¼ | ±Ý°ÁÖÅà | 3 | 40.57 | 10,200 | 10 | 1988 | | 2024.10.31 | ¿ù¼¼ | Àº°¡¶÷ÆÓ¸®½º | 2 | 37.345 | 1,000 | 110 | 2022 | | 2024.10.31 | ¿ù¼¼ | ÀÎÅÍ½ÃÆ¼Aµ¿ | 4 | 56.94 | 4,000 | 55 | 2001 | | 2024.10.31 | ¿ù¼¼ | ¿¥Æç¸®Ã¼ | 2 | 29.81 | 19,200 | 6 | 2017 | | 2024.10.31 | ¿ù¼¼ | (367-79) | 3 | 35.64 | 3,000 | 60 | 1994 | | 2024.10.31 | Àü¼¼ | Á¦ÀÌÅõ¸®´õ½º | 4 | 27.81 | 22,000 | 0 | 2019 | | 2024.10.31 | ¿ù¼¼ | »ï¼º½¦¸£ºô(881-36) | 3 | 39.67 | 15,000 | 40 | 2014 | | 2024.10.31 | ¿ù¼¼ | ¸®´õ½ºÅ¸¿î | 6 | 29.88 | 16,100 | 30 | 2016 | | 2024.10.31 | ¿ù¼¼ | ³²¼¿ïÆÄÅ©ºô(855-27) | 3 | 29.75 | 12,100 | 12 | 2011 | | 2024.10.31 | Àü¼¼ | ³²±¤½¦¸£ºô | 4 | 43.41 | 15,800 | 0 | 2008 | | 2024.10.31 | Àü¼¼ | ¿¬¾Èºô¶ó | 1 | 39.9 | 9,630 | 0 | 1991 | | 2024.10.31 | ¿ù¼¼ | ¸®´õ½ºÅ¸¿î | 5 | 28.71 | 5,500 | 50 | 2017 | | 2024.10.31 | Àü¼¼ | ¿£¿¡½º¿ùµåŸ¿ö | 3 | 29.18 | 24,570 | 0 | 2024 | | 2024.10.31 | ¿ù¼¼ | »ï¼º | 3 | 29.81 | 1,000 | 57 | 2010 | | 2024.10.31 | ¸Å¸Å | ¹Ù·ÎÅ©ºô | 2 | 29.9 | 21,000 | | 2014 | | 2024.10.31 | ¸Å¸Å | µå¸²ÇϿ콺3Â÷ | 5 | 29.82 | 15,880 | | 2013 | | 2024.10.31 | ¸Å¸Å | »ó¿ìÇÏÀÌÃ÷ºô¶ó | 3 | 58.81 | 23,000 | | 2001 | | 2024.10.31 | ¸Å¸Å | ¼ºÁøºô¶óAµ¿ | 3 | 60.21 | 19,250 | | 1997 | | 2024.10.31 | ¸Å¸Å | ¹ÌÁÖºô¶ó¿¡À̵¿ | 3 | 46.9 | 15,000 | | 2002 | | 2024.10.31 | Àü¼¼ | (354-118) | 2 | 38.22 | 11,900 | 0 | 1986 | | 2024.10.30 | Àü¼¼ | µ¿µµÆÄÅ©ºä(1088-4) | 5 | 29.78 | 12,400 | 0 | 2011 | | 2024.10.30 | ¿ù¼¼ | ´Ù¿ï³×¹öºôBµ¿(98-121) | -1 | 63.67 | 3,000 | 60 | 2001 | | 2024.10.30 | Àü¼¼ | ÈÀϺô¶ó(57-24) | 2 | 45.15 | 12,300 | 0 | 2003 | | 2024.10.30 | ¿ù¼¼ | »ó¾ÆÈúŸ¿î | 5 | 40.26 | 12,700 | 30 | 2008 | | 2024.10.30 | ¿ù¼¼ | û¼ÛÆòÈÇÏÀ̸ǼÇ(452-14) | 4 | 39.82 | 2,000 | 90 | 2013 | | 2024.10.30 | ¿ù¼¼ | ÅÂÁøÇϿ콺 | 4 | 28.64 | 5,000 | 85 | 2019 | | 2024.10.30 | ¿ù¼¼ | ȼººô¶ó42Â÷Bµ¿(56-410) | 1 | 45.09 | 12,200 | 19 | 2002 | | 2024.10.30 | Àü¼¼ | 424-205 | 3 | 45.91 | 19,900 | 0 | 2016 | | 2024.10.30 | Àü¼¼ | ¿£¿¡½º¿ùµåŸ¿ö | 7 | 20.54 | 19,260 | 0 | 2024 | | 2024.10.30 | Àü¼¼ | ¿ìÇöÆç¸®½º | 3 | 38.2 | 23,000 | 0 | 2016 | | 2024.10.30 | Àü¼¼ | ¿ì³²ºô¶ó(95-76) | 5 | 54.6 | 14,000 | 0 | 2002 | | 2024.10.30 | Àü¼¼ | ¶óÀÎÆÄÅ© | 4 | 26.49 | 20,550 | 0 | 2018 | | 2024.10.30 | Àü¼¼ | ÈÀϺô¶ó(57-24) | 2 | 45.15 | 12,300 | 0 | 2003 | | 2024.10.30 | ¿ù¼¼ | ½Å¿µº£¸£µð¿ò | 5 | 28.07 | 3,000 | 60 | 2019 | | 2024.10.30 | Àü¼¼ | ¿£¿¡½º¿ùµåŸ¿ö | 7 | 20.54 | 19,260 | 0 | 2024 | | 2024.10.30 | Àü¼¼ | µ¿¾çž½ººô | 2 | 65.68 | 17,700 | 0 | 2001 | | 2024.10.30 | Àü¼¼ | ¿£¿¡½º¿ùµåŸ¿ö | 4 | 29.18 | 24,570 | 0 | 2024 | | 2024.10.30 | ¿ù¼¼ | ÇÑ¿ï¶ß¶õü | 6 | 29.32 | 1,000 | 90 | 2011 | | 2024.10.30 | ¿ù¼¼ | ÇÏÀººô¸®Áö(105-449) | 4 | 46.37 | 3,000 | 70 | 2000 | | 2024.10.30 | Àü¼¼ | ¿¡À̽ººô | 3 | 59.85 | 23,500 | 0 | 2003 | | 2024.10.30 | Àü¼¼ | È¿ø¿ùµåºô | 4 | 34.32 | 10,000 | 0 | 2002 | | 2024.10.30 | ¿ù¼¼ | ´õȨ | 5 | 17.77 | 1,000 | 47 | 2015 | | 2024.10.30 | ¿ù¼¼ | ºí·çÈú(846-14) | 2 | 17.93 | 3,000 | 89 | 2021 | | 2024.10.30 | ¸Å¸Å | ÄÉÀ̾ؿÍÀ̺ô¸®Áö | 7 | 37.97 | 24,600 | | 2015 | | 2024.10.30 | ¸Å¸Å | Àü¿øºô¶ó(56-266) | 2 | 41.44 | 9,800 | | 1986 | | 2024.10.30 | ¸Å¸Å | ÅÂÇÑÇÏÀ̺ô(382-25) | 6 | 37.73 | 30,000 | | 2017 | | 2024.10.30 | ¸Å¸Å | ¿¹Àκô¶ó(379-40) | 4 | 38.59 | 15,500 | | 2003 | | 2024.10.30 | ¸Å¸Å | ´ÙÀÎÇϿ콺 | 5 | 27.46 | 29,000 | | 2022 | | 2024.10.30 | ¸Å¸Å | ¿£¿¡½ºÆÄÅ©ºô | 4 | 28.36 | 23,750 | | 2019 | | 2024.10.30 | Àü¼¼ | ¿£¿¡½º¿ùµåŸ¿ö | 6 | 20.54 | 18,810 | 0 | 2024 | | 2024.10.29 | Àü¼¼ | °Å¼º | 3 | 43.56 | 14,000 | 0 | 1986 | | 2024.10.29 | ¿ù¼¼ | µ¿¾çÇÏ¿ì¡ | 5 | 41.98 | 4,000 | 105 | 2016 | | 2024.10.29 | Àü¼¼ | ³²¼º¾ÆÆ®ºô(410-265) | 3 | 43.17 | 15,000 | 0 | 2009 | | 2024.10.29 | ¿ù¼¼ | ´ëÈÆÄÅ©ºô | 4 | 29.95 | 1,000 | 70 | 2011 | | 2024.10.29 | Àü¼¼ | ÆÄũƮ¶ó¿ò | 5 | 49.39 | 18,700 | 0 | 2008 | | 2024.10.29 | Àü¼¼ | (105-20) | 5 | 25.45 | 10,000 | 0 | 2011 | | 2024.10.29 | ¿ù¼¼ | ´ë¼±ÇÏÀ̺ô | 4 | 29.94 | 2,000 | 40 | 2019 | | 2024.10.29 | ¿ù¼¼ | ÀÎÅÍ½ÃÆ¼Bµ¿ | 3 | 58.68 | 11,400 | 30 | 2001 | | 2024.10.29 | Àü¼¼ | Áßµ¿¾ÆÆ®ºô | 2 | 45.15 | 21,000 | 0 | 2002 | | 2024.10.29 | ¿ù¼¼ | ¼°æÆÓ¸®½º | 5 | 29.29 | 18,900 | 20 | 2019 | | 2024.10.29 | ¿ù¼¼ | ¼°æÆÓ¸®½º | 5 | 29.29 | 18,400 | 20 | 2019 | | 2024.10.29 | Àü¼¼ | ¸í½ÅŸ¿î8Â÷Aµ¿ | 5 | 51.19 | 14,700 | 0 | 2002 | | 2024.10.29 | ¿ù¼¼ | µ¿¿ì¸Ç¼Ç¶óµ¿ | 4 | 37.74 | 11,000 | 20 | 2001 | | 2024.10.29 | Àü¼¼ | ¸í½ÅŸ¿î8Â÷Aµ¿ | 5 | 51.19 | 14,700 | 0 | 2002 | | 2024.10.29 | Àü¼¼ | Á¦À̽ººô(969-5) | 6 | 24.08 | 20,000 | 0 | 2022 | | 2024.10.29 | ¸Å¸Å | ³²¼º¾ÆÆ®ºô1 | 6 | 34.58 | 26,500 | | 2015 | | 2024.10.29 | ¸Å¸Å | ¸í½ÅŸ¿î(340-87) | 2 | 59.86 | 28,800 | | 1998 | | 2024.10.29 | ¸Å¸Å | ¾ÆÁÙ¸®¿ò(1049-24) | 6 | 26.24 | 26,900 | | 2018 | | 2024.10.29 | ¸Å¸Å | JYÆÓ¸®½º(111-27) | 4 | 49 | 23,000 | | 2015 | | 2024.10.29 | ¸Å¸Å | À¯´ÏÅ©¸Ç¼Ç³ªµ¿ | 3 | 40.61 | 17,000 | | 2002 | | 2024.10.29 | ¸Å¸Å | Çѽº¾ÆÀ̺ô | 3 | 29.94 | 24,500 | | 2018 | | 2024.10.28 | ¿ù¼¼ | ³²°æ¸®¹öºôBµ¿ | 4 | 39.89 | 12,700 | 12 | 2001 | | 2024.10.28 | ¿ù¼¼ | ·¹À̳ª | 2 | 33.62 | 15,100 | 15 | 2013 | | 2024.10.28 | ¿ù¼¼ | ¿¥Æç¸®Ã¼ | 2 | 29.98 | 1,000 | 85 | 2015 | | 2024.10.28 | Àü¼¼ | À¯°æºô¸®Áö | 4 | 60.51 | 19,000 | 0 | 2009 | | 2024.10.28 | ¿ù¼¼ | ¹Ì·¡½ºÅ¸ºô(56-264) | 3 | 37.44 | 12,000 | 10 | 2010 | | 2024.10.28 | Àü¼¼ | ½ÅÁøÇÏÀÌÃ÷Bµ¿ | 2 | 65.1 | 18,000 | 0 | 2003 | | 2024.10.28 | Àü¼¼ | ±¹µµµå¸²ºô | 3 | 28.02 | 22,300 | 0 | 2018 | | 2024.10.28 | Àü¼¼ | (102-287) | 1 | 45.2 | 10,500 | 0 | 1995 | | 2024.10.28 | Àü¼¼ | Ç®Çâ±âºô¶ó2µ¿ | 1 | 31.26 | 9,350 | 0 | 1997 | | 2024.10.28 | Àü¼¼ | Ȳ±Ýºô¶ó | 1 | 36.64 | 8,900 | 0 | 1991 | | 2024.10.28 | Àü¼¼ | ¿ì¼ºÆÄÅ©¸Ç¼Ç(29-230) | 1 | 64.3 | 16,500 | 0 | 1983 | | 2024.10.28 | Àü¼¼ | °ÇÇüºô¶ó(1050-30) | 6 | 54.42 | 15,200 | 0 | 2002 | | 2024.10.28 | ¿ù¼¼ | ¸®ºùÇϿ콺 | 6 | 25.08 | 5,000 | 60 | 2016 | | 2024.10.28 | Àü¼¼ | ¿ì¼ºÁß¾Óºô¶ó | 4 | 42.51 | 11,900 | 0 | 1995 | | 2024.10.28 | ¿ù¼¼ | ÇØÇ³±×·£µåŸ¿î | 5 | 74.38 | 12,000 | 40 | 2001 | | 2024.10.28 | Àü¼¼ | ÇÑ¿ïÀÚÀ̺ô(1016-11) | 2 | 50.14 | 19,000 | 0 | 2009 | | 2024.10.28 | Àü¼¼ | »ï¼º°ñµçºô(793-6) | 6 | 35.69 | 22,680 | 0 | 2015 | | 2024.10.28 | ¿ù¼¼ | ³ëºí·¹½ººô(56-506) | 4 | 35.52 | 13,000 | 35 | 2012 | | 2024.10.28 | ¿ù¼¼ | ¸®ºùÇϿ콺 | 6 | 25.08 | 5,000 | 60 | 2016 | | 2024.10.28 | Àü¼¼ | µ¿¿ìºô¶ó | 3 | 47.93 | 13,000 | 0 | 1993 | | 2024.10.28 | Àü¼¼ | ´ëÈ£¾ÆÆ®Å¸¿î³ªµ¿ | -1 | 39.94 | 7,600 | 0 | 1992 | | 2024.10.28 | Àü¼¼ | ¿¡µ§ºô¶ó | 2 | 67.54 | 19,000 | 0 | 1998 | | 2024.10.28 | ¿ù¼¼ | ÀÎÅÍ½ÃÆ¼ºô¶ó(98-237) | 1 | 60.42 | 15,400 | 22 | 2000 | | 2024.10.28 | Àü¼¼ | ¿ì¼ºÁß¾Óºô¶ó | 4 | 42.51 | 11,900 | 0 | 1995 | | 2024.10.28 | Àü¼¼ | ¿ì¼ºÁß¾Óºô¶ó | 4 | 42.51 | 12,100 | 0 | 1995 | | 2024.10.28 | Àü¼¼ | ·¹À̳ª | 2 | 33.62 | 18,100 | 0 | 2013 | | 2024.10.28 | Àü¼¼ | ½ºÀ§Æ®ÇϿ콺(1008-21) | 3 | 44.35 | 25,500 | 0 | 2012 | | 2024.10.28 | Àü¼¼ | µ¿¼ÆÄÅ©ºô(°¡µ¿) | 3 | 33.21 | 12,000 | 0 | 2003 | | 2024.10.28 | Àü¼¼ | Á¦À̽ººô(969-5) | 4 | 29.86 | 23,300 | 0 | 2022 | | 2024.10.28 | Àü¼¼ | ¸®Ä¡ÇϿ콺 | 7 | 23.38 | 14,800 | 0 | 2016 | | 2024.10.28 | Àü¼¼ | º®»êȨŸ¿î(466-4) | 3 | 48.61 | 14,000 | 0 | 2002 | | 2024.10.28 | ¿ù¼¼ | LUCE¥±(·çüby¿¹¿ì) | 8 | 14.2 | 1,800 | 33 | 2012 | | 2024.10.28 | ¿ù¼¼ | ´õ±×·¹À̽º | 4 | 29.82 | 3,000 | 80 | 2020 | | 2024.10.28 | ¿ù¼¼ | ¶óÇǾƳë | 6 | 22.25 | 500 | 50 | 2022 | | 2024.10.28 | ¿ù¼¼ | ¶óÇǾƳë | 5 | 29.89 | 500 | 60 | 2022 | | 2024.10.28 | Àü¼¼ | ¿ì¼ºÆÄÅ©¸Ç¼Ç(29-230) | 1 | 64.3 | 16,500 | 0 | 1983 | | 2024.10.28 | Àü¼¼ | ´ë¼ºÅ¾½ººô(155-5) | 5 | 59.02 | 18,000 | 0 | 2010 | | 2024.10.28 | Àü¼¼ | ¿ì¼ºÁß¾Óºô¶ó | 4 | 42.51 | 11,900 | 0 | 1995 | | 2024.10.28 | ¸Å¸Å | ºñ¿¤ºô¸®Áö | 4 | 29.99 | 23,000 | | 2019 | | 2024.10.28 | ¸Å¸Å | ¼ºÀϺô¶óA | 2 | 56.105 | 21,200 | | 2002 | | 2024.10.28 | ¸Å¸Å | Àå¿ø¾ÆÆ®ºô¶ó(341-22) | 1 | 59.88 | 28,500 | | 1999 | | 2024.10.28 | ¸Å¸Å | ¼ºÁøÁÖÅà | 3 | 59.97 | 21,000 | | 2000 | | 2024.10.28 | ¿ù¼¼ | °µ¿ÁÖÅà | 3 | 51.6 | 14,800 | 20 | 2003 | | 2024.10.27 | Àü¼¼ | Çʸ³ÇϿ콺 | 4 | 29.84 | 17,100 | 0 | 2012 | | 2024.10.27 | Àü¼¼ | Ç®Çâ±âºô¶ó2µ¿ | 3 | 26.05 | 8,300 | 0 | 1997 | | 2024.10.27 | ¿ù¼¼ | ÀÌȺô¶ó2µ¿ | -1 | 36.69 | 1,000 | 37 | 1987 | | 2024.10.27 | Àü¼¼ | °¼ÆÄÅ©ºäÅõ¿þ´ÏÆÛ½ºÆ® | 19 | 19.64 | 21,000 | 0 | 2020 | | 2024.10.26 | ¿ù¼¼ | ¸®´õ½ºÅ¸¿î | 3 | 29.88 | 17,200 | 15 | 2016 | | 2024.10.26 | ¿ù¼¼ | ÇØÆòij½½ | 13 | 20.4 | 5,500 | 103 | 2024 | | 2024.10.26 | ¿ù¼¼ | ³×¿ÀÆÄÅ©ºô(160-17) | 3 | 59.66 | 19,900 | 15 | 2008 | | 2024.10.26 | Àü¼¼ | ȼº½ºÀ§Æ®ºô¶ó9Â÷ | 3 | 42.4 | 13,300 | 0 | 1995 | | 2024.10.26 | ¿ù¼¼ | ´Ù¼ØÅ¸¿îBµ¿ | 3 | 36.01 | 3,000 | 70 | 2014 | | 2024.10.26 | Àü¼¼ | ¿¹ÁöÆÓ¸®½º89Â÷ | 2 | 57.84 | 28,000 | 0 | 2016 | | 2024.10.26 | Àü¼¼ | µ¿¼±º§¸®Ã¼(366-57) | 3 | 29.58 | 21,900 | 0 | 2021 | | 2024.10.26 | ¿ù¼¼ | ´ë¿µºô¶óÆ® | 4 | 63.15 | 5,000 | 80 | 2000 | | 2024.10.26 | Àü¼¼ | ÄÉ·»½Ã¾Æ | 2 | 42.37 | 25,000 | 0 | 2022 | | 2024.10.26 | ¿ù¼¼ | ¿ì¼ººô¶ó(346-69) | 4 | 62.07 | 2,000 | 70 | 1999 | | 2024.10.26 | ¿ù¼¼ | µµ¿ø¼ÖºñÄ¡ | 3 | 29.97 | 15,250 | 9 | 2015 | | 2024.10.26 | ¿ù¼¼ | µµÇöºí¶ûºô | 4 | 32.74 | 8,900 | 20 | 2002 | | 2024.10.26 | Àü¼¼ | º£½ºÆ®Èú2 | 3 | 75.99 | 21,700 | 0 | 2001 | | 2024.10.26 | ¿ù¼¼ | ±Ù»óÇÁ¸®Áò¾ÆÆ®ºô | 2 | 55.3 | 19,600 | 20 | 2010 | | 2024.10.26 | Àü¼¼ | ÇÑ¿ï¶ß¶õä(995-20) | 2 | 40.44 | 16,000 | 0 | 2011 | | 2024.10.26 | ¿ù¼¼ | ¹Ð·¹´Ï¾ö | 2 | 45 | 12,000 | 19 | 2010 | | 2024.10.26 | Àü¼¼ | ÅÂÇÑÇÏÀ̺ô | 6 | 24.05 | 12,500 | 0 | 2016 | | 2024.10.26 | Àü¼¼ | Æ®¸®Çÿ¡½ººô(966-22) | 5 | 29.23 | 11,500 | 0 | 2012 | | 2024.10.26 | Àü¼¼ | º£¾ÆÆ®¸®½º(341-3) | 3 | 27.36 | 18,600 | 0 | 2017 | | 2024.10.26 | ¸Å¸Å | ·ÎÁîºôBµ¿(871-46) | 2 | 29.22 | 18,800 | | 2017 | | 2024.10.26 | Àü¼¼ | ¿ì¼º | 5 | 46.63 | 33,700 | 0 | 2017 | | 2024.10.26 | ¿ù¼¼ | È£¼ºÅ¾½ººô(56-658) | 5 | 35.28 | 9,500 | 30 | 2003 | | 2024.10.26 | ¿ù¼¼ | ¾÷Ÿ¿îºô¸®Áö | 5 | 28.64 | 2,000 | 70 | 2017 | | 2024.10.26 | Àü¼¼ | Æ®¸®Çÿ¡½ººô(966-22) | 5 | 29.23 | 11,500 | 0 | 2012 | | 2024.10.26 | ¿ù¼¼ | ·ÎÁîºôBµ¿(871-46) | 3 | 29.22 | 15,300 | 15 | 2017 | | 2024.10.25 | ¿ù¼¼ | ±îÄ¡¸Ç¼Ç | 4 | 56.41 | 12,000 | 50 | 1993 | | 2024.10.25 | Àü¼¼ | °¼ºô¾ÆÆ® | 2 | 60.54 | 19,600 | 0 | 2002 | | 2024.10.25 | Àü¼¼ | ÇÁ¶óÀÓÇϿ콺(393-23) | 2 | 21.17 | 10,500 | 0 | 2016 | | 2024.10.25 | Àü¼¼ | ¸þºñ¿ì½º | 4 | 29.21 | 1,560 | 0 | 2016 | | 2024.10.25 | ¿ù¼¼ | Áö¿Àºô¶óÆ® | 3 | 54.23 | 3,000 | 80 | 2002 | | 2024.10.25 | ¿ù¼¼ | ´ëÈ£ºô¶ó(504-173) | 2 | 63.69 | 10,000 | 55 | 2003 | | 2024.10.25 | Àü¼¼ | Á¤¿¬Ã¤ | 3 | 22.265 | 13,420 | 0 | 2018 | | 2024.10.25 | Àü¼¼ | Ç®Çâ±âºô¶ó2µ¿ | 1 | 23.42 | 7,000 | 0 | 1997 | | 2024.10.25 | Àü¼¼ | ½Ö¿ëºô¶óÆ®(362-18) | 1 | 61.69 | 17,500 | 0 | 2001 | | 2024.10.25 | Àü¼¼ | µ¿µµÇÏÀÌÃ÷(°¡µ¿) | 5 | 34.05 | 11,200 | 0 | 2001 | | 2024.10.25 | ¿ù¼¼ | ´ë¸²ºô¶ó(348-57) | 1 | 42.03 | 1,000 | 85 | 1986 | | 2024.10.25 | ¿ù¼¼ | ´Ù¿Â½£ | 5 | 29.99 | 500 | 100 | 2021 | | 2024.10.25 | ¿ù¼¼ | ¼º¿øÆÄÅ©ºô(102-232) | 3 | 44.46 | 2,000 | 65 | 2008 | | 2024.10.25 | ¿ù¼¼ | ¼ºÈ¸®Ä¡ºô | 7 | 59.88 | 18,000 | 30 | 2009 | | 2024.10.25 | Àü¼¼ | ¼øÈ¯ºô¶óAµ¿ | 2 | 44.76 | 12,850 | 0 | 2001 | | 2024.10.25 | Àü¼¼ | ¸þºñ¿ì½º | 4 | 29.21 | 15,600 | 0 | 2016 | | 2024.10.25 | Àü¼¼ | ÇÑ¿ï¶ß¶õä(995-20) | 2 | 40.44 | 16,000 | 0 | 2011 | | 2024.10.25 | ¸Å¸Å | ¼±°æÇÏÀÌÃ÷(367-67) | 7 | 28.86 | 20,100 | | 2012 | | 2024.10.25 | ¸Å¸Å | ÁøÁÖºô¶ó(95-27) | 3 | 59.82 | 20,000 | | 1991 | | 2024.10.25 | ¸Å¸Å | ¿¡½º¿¥ÆÄÅ©ºô(332-42) | 7 | 29.66 | 20,600 | | 2015 | | 2024.10.25 | ¸Å¸Å | ¼±°æÇÏÀÌÃ÷(367-67) | 7 | 28.86 | 20,500 | | 2012 | | 2024.10.24 | ¸Å¸Å | Ǫ¸¥Ç³°æÃ¤ | 2 | 39.07 | 28,800 | | 2017 | | 2024.10.24 | ¿ù¼¼ | ¼ºÀçÆÄÅ©ºô(151-9) | 1 | 64.44 | 14,000 | 20 | 2001 | | 2024.10.24 | Àü¼¼ | ¿¥Æç¸®Ã¼(346-82) | 5 | 37.12 | 21,870 | 0 | 2015 | | 2024.10.24 | Àü¼¼ | Áö¿Â¾ÆÆ®ºô | 2 | 29.92 | 17,200 | 0 | 2016 | | 2024.10.24 | Àü¼¼ | µ¿¾çÇÏ¿ì¡(813-6) | 3 | 29.7 | 19,800 | 0 | 2014 | | 2024.10.24 | Àü¼¼ | »ï¹Ìºô¶ó | 4 | 50.22 | 15,000 | 0 | 2000 | | 2024.10.24 | ¸Å¸Å | ±îÄ¡¸Ç¼Ç | 2 | 56.41 | 24,000 | | 1993 | | 2024.10.24 | ¸Å¸Å | Ȱî¸Ç¼Ç | 2 | 61.92 | 40,000 | | 2001 | | 2024.10.24 | ¸Å¸Å | ´Ù¿ï¸Ç¼Ç(991-21) | 1 | 81.86 | 35,000 | | 1999 | | 2024.10.24 | ¸Å¸Å | ½Ã¿ø¾ÆÆ®ºô¸¶µ¿ | 3 | 63.06 | 28,700 | | 2002 | | 2024.10.24 | ¿ù¼¼ | ¿¹°¡Ã¤l | 8 | 45.17 | 16,500 | 20 | 2013 | | 2024.10.24 | ¿ù¼¼ | ¸ÞÅ׸£ºô | 2 | 41.98 | 16,000 | 20 | 2011 | | 2024.10.24 | ¿ù¼¼ | ´Ù¿ï³×¹öºô(111-62) | 1 | 72.58 | 17,500 | 30 | 2001 | | 2024.10.24 | ¿ù¼¼ | ºô¶óµå´ÙÀÎ | 5 | 22.91 | 5,000 | 80 | 2023 | | 2024.10.24 | ¿ù¼¼ | ¼¼¸í¾ÆÅ©·Îºô | 2 | 26.43 | 13,850 | 4 | 2017 | | 2024.10.24 | ¿ù¼¼ | (167-4) | 2 | 51.75 | 1,000 | 53 | 1999 | | 2024.10.24 | Àü¼¼ | Áö¿Â¾ÆÆ®ºô | 2 | 29.92 | 17,200 | 0 | 2016 | | 2024.10.24 | ¿ù¼¼ | (56-463) | 1 | 44.25 | 1,000 | 50 | 1990 | | 2024.10.24 | Àü¼¼ | ½Å¿µº£¸£µð¿ò | 4 | 32.71 | 21,600 | 0 | 2019 | | 2024.10.24 | ¿ù¼¼ | ¿¹°¡Ã¤l | 8 | 45.17 | 16,500 | 20 | 2013 | | 2024.10.24 | Àü¼¼ | ´ëµ¿ºô¶ó(59-32) | 5 | 26.16 | 15,120 | 0 | 2018 | | 2024.10.24 | ¿ù¼¼ | µð¾Æ¸Á2(105-82) | 3 | 41.82 | 16,250 | 25 | 2014 | | 2024.10.24 | Àü¼¼ | Áö¿Â¾ÆÆ®ºô | 2 | 29.92 | 17,200 | 0 | 2016 | | 2024.10.23 | ¿ù¼¼ | ȼººô¶óBµ¿ | 3 | 47.46 | 3,000 | 50 | 2002 | | 2024.10.23 | Àü¼¼ | ¿£¿¡½º¿ùµåŸ¿ö | 6 | 42.82 | 30,000 | 0 | 2024 | | 2024.10.23 | Àü¼¼ | ¿£¿¡½º¿ùµåŸ¿ö | 6 | 42.82 | 30,000 | 0 | 2024 | | 2024.10.23 | ¿ù¼¼ | ´ë¼Ûºô¶ó2Â÷ | 1 | 58.74 | 14,000 | 20 | 2000 | | 2024.10.23 | Àü¼¼ | (966-8) | 1 | 37.4 | 10,400 | 0 | 1987 | | 2024.10.23 | ¿ù¼¼ | ¼º¿ì¾ÆÆ®ºô(346-78) | 4 | 59.76 | 17,800 | 30 | 2002 | | 2024.10.23 | ¿ù¼¼ | Ç®Çâ±âºô¶ó2µ¿ | 1 | 31.26 | 7,900 | 15 | 1997 | | 2024.10.23 | ¿ù¼¼ | µð¿¡½ºÅ×¶ó½º | 4 | 28.68 | 1,000 | 105 | 2022 | | 2024.10.23 | ¿ù¼¼ | ´Ù¿Â½£ | 5 | 25.47 | 500 | 85 | 2021 | | 2024.10.23 | ¿ù¼¼ | ¶óÇǾƳë | 3 | 29.94 | 5,000 | 90 | 2022 | | 2024.10.23 | Àü¼¼ | ¸ÞÁ¾µåÁª¸¶ | 5 | 12.32 | 12,000 | 0 | 2018 | | 2024.10.23 | ¸Å¸Å | µ¿¾çÇÏ¿ì¡ | 5 | 41.98 | 27,500 | | 2016 | | 2024.10.23 | Àü¼¼ | °æÀκô¶óAµ¿ | 3 | 43.29 | 12,700 | 0 | 2001 | | 2024.10.23 | ¿ù¼¼ | ÄÉÀ̾¾Å¸¿î | 7 | 23.65 | 300 | 80 | 2022 | | 2024.10.23 | Àü¼¼ | ¿£¿¡½º¿ùµåŸ¿ö | 6 | 42.82 | 30,000 | 0 | 2024 | | 2024.10.23 | Àü¼¼ | ¿£¿¡½º¿ùµåŸ¿ö | 3 | 29.18 | 23,940 | 0 | 2024 | | 2024.10.23 | ¿ù¼¼ | ¼º¿øºô¶ó(785-9) | 2 | 60.66 | 18,000 | 10 | 2001 | | 2024.10.23 | ¿ù¼¼ | (98-23) | 5 | 49.83 | 22,800 | 23 | 2018 | | 2024.10.23 | Àü¼¼ | ¼¼¸íº£¸£µð¿ò | 4 | 41.95 | 23,600 | 0 | 2016 | | 2024.10.23 | ¿ù¼¼ | ¼º¸²ÆÄÅ©ºôAµ¿ | 1 | 37.14 | 1,000 | 68 | 2002 | | 2024.10.23 | ¿ù¼¼ | º¦¿¤ÁÖÅà | 2 | 37.46 | 11,000 | 15 | 1987 | | 2024.10.23 | ¿ù¼¼ | Å·´ý±×·¹À̽º | 4 | 27.39 | 17,600 | 20 | 2018 | | 2024.10.23 | Àü¼¼ | µ¿¿ì¸Ç¼Ç°¡µ¿ | 5 | 46.64 | 12,700 | 0 | 2001 | | 2024.10.23 | ¸Å¸Å | (1071-37)Çѿ\ºìºô | 5 | 27.65 | 15,100 | | 2009 | | 2024.10.23 | ¸Å¸Å | ±×·¹À̽ººô | 4 | 26.83 | 34,000 | | 2022 | | 2024.10.22 | Àü¼¼ | ´õ¿ø¼¥5 | 2 | 29.73 | 24,300 | 0 | 2021 | | 2024.10.22 | Àü¼¼ | ÄÉ·»½Ã¾Æ | 2 | 42.37 | 40,650 | 0 | 2022 | | 2024.10.22 | ¿ù¼¼ | (24-545) | 5 | 14.87 | 500 | 45 | 2015 | | 2024.10.22 | ¿ù¼¼ | º£¾ÆÆ®¸®½º(341-3) | 5 | 27.36 | 20,000 | 13 | 2017 | | 2024.10.22 | ¿ù¼¼ | ³ª»ê±×¸°ºô¶óBµ¿ | 1 | 64.26 | 2,000 | 70 | 1997 | | 2024.10.22 | ¿ù¼¼ | żººô¶ó(46-40) | 3 | 40.56 | 1,000 | 65 | 2003 | | 2024.10.22 | ¿ù¼¼ | ¼öÁ¤¸Ç¼Ç5Â÷ | 4 | 47.6 | 2,000 | 63 | 2002 | | 2024.10.22 | Àü¼¼ | ¸®Ä¡ÇϿ콺(1114-20) | 3 | 50.28 | 20,000 | 0 | 2014 | | 2024.10.22 | ¿ù¼¼ | ´õ±×¸² | 3 | 28.8 | 3,000 | 74 | 2023 | | 2024.10.22 | Àü¼¼ | (964-1) | 2 | 51.12 | 15,600 | 0 | 2007 | | 2024.10.22 | ¿ù¼¼ | ´õ¿ø¼¥5 | 3 | 29.73 | 24,300 | 10 | 2021 | | 2024.10.22 | ¸Å¸Å | ´ë¸²Ä³½½(95-124) | 4 | 55.45 | 24,400 | | 2012 | | 2024.10.22 | ¸Å¸Å | ¸¶Å©Èú½º74 | 4 | 51.48 | 19,500 | | 2019 | | 2024.10.22 | ¸Å¸Å | ¼º¿øÇÁ¶ó¿ìµå | 5 | 28.55 | 23,500 | | 2018 | | 2024.10.22 | ¸Å¸Å | Çϳªºô¶ó | 3 | 40.01 | 15,000 | | 2008 | | 2024.10.22 | ¸Å¸Å | ¿£¿¡½ººô(381-5) | 4 | 66.61 | 26,500 | | 2010 | | 2024.10.21 | Àü¼¼ | ÀÎÅÍ½ÃÆ¼ºô¶óBµ¿ | 4 | 40.84 | 12,550 | 0 | 2008 | | 2024.10.21 | ¿ù¼¼ | Å¿µ¾ÆÆ®ºô | 5 | 38.35 | 16,000 | 5 | 2011 | | 2024.10.21 | Àü¼¼ | µå¸²ÇϿ콺 | 4 | 29.67 | 12,000 | 0 | 2012 | | 2024.10.21 | ¿ù¼¼ | ȼºÇÏÀÌÃ÷ºôBµ¿ | 3 | 42.9 | 1,000 | 60 | 2002 | | 2024.10.21 | ¿ù¼¼ | ½Å¿ø¼¾½ººô(823-23) | 3 | 37.99 | 16,000 | 15 | 2011 | | 2024.10.21 | ¿ù¼¼ | À±ÇϿ콺(1102-4) | 3 | 29.79 | 3,000 | 70 | 2012 | | 2024.10.21 | ¿ù¼¼ | °Å¼º | 2 | 43.56 | 1,000 | 60 | 1986 | | 2024.10.21 | ¿ù¼¼ | ÀÎÅÍ½ÃÆ¼Bµ¿ | 4 | 58.8 | 16,600 | 7 | 2001 | | 2024.10.21 | ¿ù¼¼ | ¼º¿øÆÄÅ©ºô | 4 | 32.16 | 1,000 | 49 | 2008 | | 2024.10.21 | ¿ù¼¼ | ¿ÀÄÉÀÌÆÄÅ©ºô | 4 | 35.6 | 3,000 | 95 | 2016 | | 2024.10.21 | ¿ù¼¼ | Ȳ±Ý°¡µ¿ | 1 | 34.77 | 1,000 | 60 | 1991 | | 2024.10.21 | ¿ù¼¼ | ¿µ³²ºô¶óÆ® | 2 | 43.2 | 3,000 | 50 | 2002 | | 2024.10.21 | ¿ù¼¼ | ´Ù´Ùºô¸®Áö | 5 | 36.31 | 5,000 | 90 | 2015 | | 2024.10.21 | ¿ù¼¼ | THEJIA | 6 | 29.6 | 3,000 | 50 | 2022 | | 2024.10.21 | Àü¼¼ | ¼Ò¸Áºô¶ó°¡µ¿ | -1 | 52.05 | 9,000 | 0 | 1991 | | 2024.10.21 | ¸Å¸Å | ·ÎÄÉÆ®ºô¶ó | 3 | 47.48 | 23,600 | | 1994 | | 2024.10.21 | ¸Å¸Å | ¿¹ÁöÆÓ¸®½º89Â÷ | 4 | 34.74 | 21,000 | | 2016 | | 2024.10.21 | ¿ù¼¼ | Ȳ±Ý°¡µ¿ | 1 | 34.77 | 1,000 | 60 | 1991 | | 2024.10.21 | ¿ù¼¼ | ½ÅÈï¾Æ³Ê½ººô | 4 | 44.24 | 12,000 | 48 | 2008 | | 2024.10.21 | ¿ù¼¼ | ¼º¿øÇÏÀ̺ô | 2 | 59.94 | 500 | 50 | 2001 | | 2024.10.21 | ¸Å¸Å | ·ÎÄÉÆ®ºô¶ó | -1 | 63.56 | 18,750 | | 1994 | | 2024.10.21 | ¸Å¸Å | ·ÎÄÉÆ®ºô¶ó | -1 | 64.03 | 18,850 | | 1994 | | 2024.10.21 | ¸Å¸Å | ·ÎÄÉÆ®ºô¶ó | 1 | 60.59 | 29,300 | | 1994 | | 2024.10.21 | ¸Å¸Å | ·ÎÄÉÆ®ºô¶ó | 1 | 61.06 | 29,550 | | 1994 | | 2024.10.21 | ¸Å¸Å | ·ÎÄÉÆ®ºô¶ó | 2 | 61.06 | 30,500 | | 1994 | | 2024.10.21 | ¸Å¸Å | ·ÎÄÉÆ®ºô¶ó | 2 | 68.33 | 34,100 | | 1994 | | 2024.10.21 | ¸Å¸Å | ·ÎÄÉÆ®ºô¶ó | 3 | 53.78 | 26,700 | | 1994 | | 2024.10.20 | ¿ù¼¼ | û¼ÛÆòÈÇコÇϿ콺 | 4 | 39.82 | 5,000 | 100 | 2022 | | 2024.10.20 | ¿ù¼¼ | û¼ÛÆòÈÇコÇϿ콺 | 4 | 39.82 | 5,000 | 100 | 2022 | | 2024.10.20 | Àü¼¼ | (56-90) | 2 | 58.85 | 16,300 | 0 | 2009 | | 2024.10.20 | ¿ù¼¼ | ±×·¹À̽ººô | 2 | 27.73 | 180 | 60 | 2022 | | 2024.10.20 | ¿ù¼¼ | ´ë¸²¶ó¿ÂÁ¦³ª | 6 | 24.3 | 3,000 | 90 | 2014 | | 2024.10.20 | ¸Å¸Å | ´ë¸²¶ó¿ÂÁ¦³ª | 6 | 24.3 | 16,700 | | 2014 | | 2024.10.19 | ¿ù¼¼ | ¿¡½º¿¥ÆÄÅ©ºô(346-94¿Ü) | 4 | 29.42 | 5,000 | 75 | 2015 | | 2024.10.19 | ¿ù¼¼ | ¿¡ÄÚ | 3 | 29.82 | 2,000 | 75 | 2013 | | 2024.10.19 | ¿ù¼¼ | Á¤Çöºô¶ó(98-39) | 2 | 58.95 | 5,000 | 63 | 2001 | | 2024.10.19 | Àü¼¼ | ´Ù¼ºÀÌÁîºô | 3 | 47.9 | 16,000 | 0 | 2008 | | 2024.10.19 | Àü¼¼ | ÇÑ½Å¾ÆÆ®ºô | 1 | 67.47 | 21,600 | 0 | 2002 | | 2024.10.19 | Àü¼¼ | ½ºÆäÀ̽ººô(1018-21) | 5 | 35.17 | 16,000 | 0 | 2012 | | 2024.10.19 | ¿ù¼¼ | ¸¶¸¶½ººô | 2 | 37.56 | 2,000 | 95 | 2017 | | 2024.10.19 | Àü¼¼ | °ñµçºô(367-51) | 7 | 18.33 | 20,800 | 0 | 2018 | | 2024.10.19 | Àü¼¼ | ´õ¿ø | 3 | 28.05 | 19,600 | 0 | 2019 | | 2024.10.19 | ¿ù¼¼ | ´ë¿õÇÏÀÌÃ÷ºô¶ó | 3 | 40.06 | 100 | 33 | 1992 | | 2024.10.19 | Àü¼¼ | °ñµçºô(367-51) | 7 | 18.33 | 20,800 | 0 | 2018 | | 2024.10.19 | ¸Å¸Å | °æ¹Î¾ÆÆ®ºô(368-23) | 4 | 32.98 | 23,300 | | 2018 | | 2024.10.19 | ¿ù¼¼ | ¹Ì»ê¼¾Æ®ºô(504-49) | 3 | 40.54 | 3,000 | 70 | 2008 | | 2024.10.19 | ¿ù¼¼ | ¿¡½º¿¥ÆÄÅ©ºô(346-94¿Ü) | 4 | 29.42 | 5,000 | 75 | 2015 | | 2024.10.19 | ¿ù¼¼ | ÇØÆòij½½ | 11 | 19.73 | 2,000 | 120 | 2024 | | 2024.10.19 | ¸Å¸Å | µ¿¼ºô¶ó(24-143) | -1 | 58.64 | 14,000 | | 1993 | | 2024.10.18 | Àü¼¼ | °Å¼º | 3 | 43.92 | 12,500 | 0 | 1987 | | 2024.10.18 | ¿ù¼¼ | ¸¶¸¶½ººô | 5 | 26.92 | 1,000 | 90 | 2017 | | 2024.10.18 | ¿ù¼¼ | °ü¿ìŸ¿îBµ¿ | 2 | 47.19 | 2,000 | 65 | 2002 | | 2024.10.18 | Àü¼¼ | ´õ½ºÅ¸ÀÏ | 4 | 74.55 | 38,000 | 0 | 2017 | | 2024.10.18 | ¿ù¼¼ | ´Ù¿Âä | 2 | 28.38 | 18,000 | 20 | 2018 | | 2024.10.18 | Àü¼¼ | ¼Çغô¶ó(56-73) | 2 | 32.37 | 9,470 | 0 | 1991 | | 2024.10.18 | ¿ù¼¼ | Á¤ÆÄÅ©ºô | 3 | 47.59 | 12,000 | 30 | 2008 | | 2024.10.18 | Àü¼¼ | Ǫ¸¥Ç³°æÃ¤ | 3 | 26.29 | 21,000 | 0 | 2022 | | 2024.10.18 | ¿ù¼¼ | dz¼º¾Ö¶ã¾È(349-4) | 5 | 38.64 | 2,700 | 80 | 2014 | | 2024.10.18 | Àü¼¼ | ¼Çغô¶ó(56-73) | 2 | 32.37 | 9,470 | 0 | 1991 | | 2024.10.18 | ¿ù¼¼ | Ȱîºô¶ó3µ¿(362-188) | 2 | 36.3 | 500 | 40 | 1986 | | 2024.10.18 | ¿ù¼¼ | µ¿¾çÇÏ¿ì¡Bµ¿ | 3 | 29.52 | 1,000 | 100 | 2017 | | 2024.10.18 | ¸Å¸Å | ÇÑ¿ï¶ß¶õä(995-20) | 2 | 40.44 | 24,500 | | 2011 | | 2024.10.18 | ¸Å¸Å | »ï¼º½¦¸£ºô(400-16) | 6 | 29.31 | 22,250 | | 2015 | | 2024.10.18 | ¸Å¸Å | »ïÇùÇÊÇϿ콺 | 1 | 29.54 | 18,000 | | 2017 | | 2024.10.18 | ¸Å¸Å | ½Ö¿ëºô¸®Áö | 2 | 62.96 | 25,500 | | 2001 | | 2024.10.18 | ¸Å¸Å | ¼º¿ì¾ÆÆ®ºô(931-8) | 4 | 59.94 | 28,000 | | 2003 | | 2024.10.18 | Àü¼¼ | ¿¹Áöºô¶óÆ®(410-105) | 2 | 60.05 | 18,800 | 0 | 2008 | | 2024.10.18 | ¿ù¼¼ | dz¼º¾Ö¶ã¾È(349-4) | 5 | 38.64 | 2,700 | 80 | 2014 | | 2024.10.18 | ¿ù¼¼ | °æ¿ø±×¸°ºô³ªµ¿ | 1 | 47.43 | 12,500 | 10 | 2001 | | 2024.10.18 | ¿ù¼¼ | ¿ÍÀ̺ñÇϿ콺 | 2 | 52.78 | 2,000 | 72 | 2017 | | 2024.10.18 | ¿ù¼¼ | ÇöÁøºô¶ó | 4 | 62.07 | 4,500 | 60 | 1994 | | 2024.10.17 | ¿ù¼¼ | ³×¿ÀÆÄÅ©ºô(160-17) | 1 | 45 | 12,000 | 15 | 2008 | | 2024.10.17 | Àü¼¼ | »ï¼ººô¶ó(56-47) | 4 | 40.96 | 11,700 | 0 | 2002 | | 2024.10.17 | Àü¼¼ | À£ºù¶óÀÌÇÁ(155-6) | 1 | 30 | 8,400 | 0 | 2011 | | 2024.10.17 | ¿ù¼¼ | µ¿¸í³ëºí·¹½º(°¡µ¿) | 2 | 48.81 | 2,000 | 90 | 2011 | | 2024.10.17 | Àü¼¼ | ¸®Ä¡108µ¿ | 10 | 22.95 | 19,780 | 0 | 2023 | | 2024.10.17 | ¿ù¼¼ | TheÆ®¶ó¿ò2nd | 6 | 29.88 | 6,000 | 95 | 2022 | | 2024.10.17 | ¿ù¼¼ | ÄÉÀ̾ؿÍÀ̺ô¸®Áö | 6 | 40.76 | 3,000 | 100 | 2015 | | 2024.10.17 | Àü¼¼ | ¸¶Å©ÇϿ콺 | 5 | 31.07 | 22,800 | 0 | 2018 | | 2024.10.17 | ¿ù¼¼ | ±×¸°Èú(105-384) | 5 | 60.11 | 20,000 | 23 | 2010 | | 2024.10.17 | Àü¼¼ | ½Å¼º³×¿Àºô | 4 | 29.78 | 24,500 | 0 | 2019 | | 2024.10.17 | ¸Å¸Å | ½Ã¿Âºô¸®Áö102 | 3 | 28.9 | 24,500 | | 2022 | | 2024.10.17 | ¸Å¸Å | µ¿¿ø¶óÅ׶󽺺ô | 3 | 40.31 | 27,500 | | 2016 | | 2024.10.17 | ¸Å¸Å | º§¶óÇϿ콺 | 2 | 44.53 | 18,100 | | 2012 | | 2024.10.17 | ¸Å¸Å | ³²¼º¾ÆÆ®ºô | 6 | 36.31 | 34,500 | | 2017 | | 2024.10.17 | ¸Å¸Å | ³²±¤¾ÆÆ®ºôAµ¿ | 2 | 35.54 | 26,000 | | 2018 | | 2024.10.17 | ¸Å¸Å | ´ë¼ºÅ¾½ººô | 4 | 60.33 | 26,700 | | 2008 | | 2024.10.17 | ¿ù¼¼ | Çѽº¾ÆÀ̺ô | 7 | 22.62 | 2,000 | 80 | 2018 | | 2024.10.17 | Àü¼¼ | ȼº¾ÆÆ®ºô | 2 | 47.5 | 11,600 | 0 | 2002 | | 2024.10.17 | Àü¼¼ | ȼº¾ÆÆ®ºô | 2 | 47.5 | 900 | 0 | 2002 | | 2024.10.17 | ¿ù¼¼ | ¸®Ä¡7 | 14 | 29.57 | 24,000 | 7 | 2022 | | 2024.10.17 | ¿ù¼¼ | ½Å¿ì¿¡Äڹ븮 | 4 | 27.01 | 3,000 | 80 | 2011 | | 2024.10.17 | ¿ù¼¼ | ¿¤Áöºô¶óÆ® | 3 | 61.42 | 16,000 | 40 | 2003 | | 2024.10.17 | ¿ù¼¼ | ÇÑ¿ïÀÚÀ̺ô(46-71) | 4 | 51.71 | 2,000 | 75 | 2008 | | 2024.10.16 | ¸Å¸Å | DHÆÓ¸®½º102µ¿ | 2 | 29.89 | 28,300 | | 2018 | | 2024.10.16 | Àü¼¼ | MÆç¸®Ã¼ | 5 | 36.49 | 25,326 | 0 | 2018 | | 2024.10.16 | ¿ù¼¼ | ·Î¾âÇÏÀÌÃ÷(369-33) | 3 | 28.04 | 2,000 | 70 | 2011 | | 2024.10.16 | ¿ù¼¼ | ÈÀκô¶ó(954-7) | 3 | 76.5 | 5,000 | 79 | 2003 | | 2024.10.16 | ¿ù¼¼ | ÇÑ¿ï¾î¿ï¸²°¡µ¿ | 5 | 29.66 | 11,250 | 32 | 2011 | | 2024.10.16 | Àü¼¼ | µ¿³²ÁÖÅÃ(868-48) | 3 | 42.24 | 13,600 | 0 | 2002 | | 2024.10.16 | ¿ù¼¼ | ºí·çÈú(391-14) | 1 | 66 | 1,700 | 100 | 2006 | | 2024.10.16 | ¿ù¼¼ | ´õȨ | 3 | 28.92 | 1,000 | 65 | 2015 | | 2024.10.16 | ¿ù¼¼ | µå¸²ÇϿ콺3Â÷ | 4 | 29.15 | 2,000 | 65 | 2013 | | 2024.10.15 | Àü¼¼ | ¿¹µµÇÏÀÓ | 2 | 29.99 | 17,700 | 0 | 2016 | | 2024.10.15 | Àü¼¼ | »ï¼ººô¶óAµ¿ | 1 | 76.9 | 21,000 | 0 | 2006 | | 2024.10.15 | ¿ù¼¼ | Çý¼ºÆç¸®½º(811-8) | 2 | 42.45 | 16,000 | 12 | 2011 | | 2024.10.15 | ¿ù¼¼ | ¼±°æÇÏÀÌÃ÷(393-26) | -1 | 59.72 | 7,000 | 60 | 2010 | | 2024.10.15 | ¿ù¼¼ | Çý¼ºÆç¸®½º(811-8) | 2 | 42.45 | 16,000 | 12 | 2011 | | 2024.10.15 | ¿ù¼¼ | »ï¼ºÆÄÅ©ºô³ªµ¿(111-126) | 3 | 45.13 | 12,000 | 55 | 2001 | | 2024.10.15 | ¸Å¸Å | ¹®¼±ºô¶ó | 2 | 60.22 | 27,500 | | 2002 | | 2024.10.15 | ¸Å¸Å | ´öÇöÇØ¹Ð | 6 | 52.18 | 27,000 | | 2014 | | 2024.10.15 | ¸Å¸Å | ¶ó¿ò¸®Ã÷ºô | 3 | 39.25 | 25,500 | | 2016 | | 2024.10.15 | ¿ù¼¼ | µ¿µµÇÏÀÌÃ÷ºô¶ó(Bµ¿) | 4 | 46.38 | 12,500 | 20 | 2001 | | 2024.10.15 | Àü¼¼ | ¼ºÁøºô¶ó(105-496) | 1 | 53.28 | 12,000 | 0 | 2000 | | 2024.10.15 | ¿ù¼¼ | û¼ÛÆòÈÇÏÀÌ¸Ç¼Ç | 2 | 32.16 | 11,500 | 15 | 2010 | | 2024.10.15 | ¿ù¼¼ | ÀºÇϼö½¦¸£ºô | 4 | 63.4 | 17,100 | 2 | 2003 | | 2024.10.15 | ¿ù¼¼ | ´õ±×¸² | 3 | 25.32 | 2,000 | 74 | 2023 | | 2024.10.15 | Àü¼¼ | Çö´ëºô¶ó | 4 | 60.09 | 14,000 | 0 | 1993 | | 2024.10.15 | Àü¼¼ | ·°Å°ºô¶ó | -1 | 30.96 | 5,480 | 0 | 1991 | | 2024.10.15 | ¿ù¼¼ | »ï¿ø½ºÀ§Æ®ºô | 5 | 38.71 | 12,700 | 20 | 2011 | | 2024.10.15 | Àü¼¼ | ¹ÌÇϿ콺 | 4 | 41.46 | 19,200 | 0 | 2016 | | 2024.10.15 | ¿ù¼¼ | µ¿µµÇÏÀÌÃ÷ºô¶ó(Bµ¿) | 4 | 46.38 | 12,500 | 20 | 2001 | | 2024.10.15 | ¿ù¼¼ | ¿¬Èñºô¶ó³ªµ¿ | 3 | 81.92 | 23,000 | 10 | 1983 | | 2024.10.15 | ¿ù¼¼ | Çý¼ºÆç¸®½º(811-8) | 2 | 42.45 | 16,000 | 13 | 2011 | | 2024.10.15 | ¿ù¼¼ | ¾¾Æ¼ÇϿ콺(773-10) | 3 | 29.96 | 2,000 | 70 | 2014 | | 2024.10.15 | Àü¼¼ | ¿¡½º¿¥ÆÄÅ©ºô(101µ¿102µ¿) | 2 | 37 | 18,500 | 0 | 2014 | | 2024.10.15 | ¿ù¼¼ | ÀÎÅÍ½ÃÆ¼ºô | 4 | 47.31 | 17,200 | 15 | 2007 | | 2024.10.15 | Àü¼¼ | ´ëÇѺô¶ó | 2 | 54.37 | 14,990 | 0 | 2000 | | 2024.10.15 | ¿ù¼¼ | µ¿µµÇÏÀÌÃ÷ºô¶ó(Bµ¿) | 4 | 46.38 | 12,500 | 20 | 2001 | | 2024.10.15 | ¿ù¼¼ | ¿ì¼ººô¶óBµ¿(56-414) | 2 | 61.32 | 2,000 | 70 | 2001 | | 2024.10.15 | Àü¼¼ | ¿¡½º¿¥ÆÄÅ©ºô(101µ¿102µ¿) | 2 | 37 | 18,500 | 0 | 2014 | | 2024.10.14 | Àü¼¼ | ¼¼±¤ÁÖÅà | 2 | 59.52 | 17,000 | 0 | 2000 | | 2024.10.14 | ¿ù¼¼ | ±Û·Î¸®¾ÆÇϿ콺 | 4 | 27.52 | 3,000 | 80 | 2021 | | 2024.10.14 | ¿ù¼¼ | ±Û·Î¸®¾ÆÇϿ콺 | 4 | 27.52 | 3,000 | 80 | 2021 | | 2024.10.14 | ¸Å¸Å | ÆÈÆÈºô¶ó | 2 | 39.24 | 35,000 | | 1986 | | 2024.10.14 | ¸Å¸Å | ¶óºñ¾ÓÇϿ콺(460-10) | 2 | 26.68 | 12,500 | | 2011 | | 2024.10.14 | ¸Å¸Å | ÇÑ¿ï¾ÆÆ®ºô°¡ | 4 | 60.04 | 27,000 | | 2002 | | 2024.10.14 | ¸Å¸Å | ÇÏÀºÇÏÀÌÃ÷ | 3 | 46.48 | 17,600 | | 2008 | | 2024.10.14 | ¸Å¸Å | ¿µÁøºô¶ó | -1 | 66.51 | 12,000 | | 2000 | | 2024.10.14 | ¸Å¸Å | ´õÇϿ콺 | 5 | 29.99 | 16,700 | | 2018 | | 2024.10.14 | ¿ù¼¼ | ¿äÇѺô | 2 | 29.13 | 3,000 | 67 | 2016 | | 2024.10.14 | ¿ù¼¼ | ´õ¾î¿ï¸² | 2 | 21.98 | 2,000 | 70 | 2019 | | 2024.10.14 | Àü¼¼ | ±¹µµµå¸²ºô | 3 | 28.02 | 22,300 | 0 | 2018 | | 2024.10.14 | Àü¼¼ | Á¦¼±±×·£µåºô | 3 | 36.81 | 14,490 | 0 | 2009 | | 2024.10.14 | Àü¼¼ | ¿£¿¡½º¿ùµåŸ¿ö | 3 | 42.82 | 30,000 | 0 | 2024 | | 2024.10.14 | Àü¼¼ | ÀÎÅÍ½ÃÆ¼ºô¶óBµ¿ | 5 | 40.84 | 12,000 | 0 | 2008 | | 2024.10.14 | ¿ù¼¼ | ·Ôµ¥Å¸¿î(1010-8) | 2 | 28.12 | 17,300 | 15 | 2012 | | 2024.10.14 | Àü¼¼ | ³²¼º¾ÆÆ®ºô(354-41) | 3 | 35.02 | 20,850 | 0 | 2014 | | 2024.10.14 | ¿ù¼¼ | ¶óÇǾƳë | 5 | 24.81 | 5,000 | 70 | 2022 | | 2024.10.14 | ¿ù¼¼ | ´õ±×¸² | 4 | 29.25 | 3,000 | 74 | 2023 | | 2024.10.14 | Àü¼¼ | ¿£¿¡½º¿ùµåŸ¿ö | 3 | 42.82 | 30,000 | 0 | 2024 | | 2024.10.14 | Àü¼¼ | ź¹ºô¸®Áö | 4 | 81.62 | 21,000 | 0 | 1998 | | 2024.10.14 | Àü¼¼ | ½Å¿µ¼¾Æ®·¹ºô | 2 | 26.4 | 12,128 | 0 | 2011 | | 2024.10.14 | Àü¼¼ | ¿ùµåÆÄÅ©ºä°¡µ¿ | 4 | 59.52 | 17,400 | 0 | 2002 | | 2024.10.14 | Àü¼¼ | ¸®Ä¡7 | 14 | 24.59 | 18,900 | 0 | 2022 | | 2024.10.14 | ¿ù¼¼ | Ãæ¹«ºô¶ó | 5 | 56.79 | 16,100 | 10 | 2002 | | 2024.10.14 | ¿ù¼¼ | ¼¼±¤ºô¶ó°¡µ¿ | -1 | 37.96 | 8,000 | 5 | 1988 | | 2024.10.14 | ¿ù¼¼ | °ÇÇü½¦¸£ºô(400-15) | 2 | 83.32 | 26,000 | 28 | 2007 | | 2024.10.14 | ¿ù¼¼ | °æ¼ºô¶ó(955-6) | 3 | 55.23 | 2,000 | 65 | 1993 | | 2024.10.14 | Àü¼¼ | ȼººô¶ó41Â÷ | 3 | 52.555 | 13,500 | 0 | 2001 | | 2024.10.13 | ¿ù¼¼ | ¸í¼º±×·£µåºô¶ó | -1 | 59.78 | 10,647 | 20 | 1999 | | 2024.10.13 | Àü¼¼ | ¿¹¼ÖÇϳªºô3Â÷ | 2 | 37.51 | 14,500 | 0 | 2013 | | 2024.10.13 | Àü¼¼ | ÀÎÅÍ½ÃÆ¼Aµ¿(391-17) | 4 | 58.68 | 18,000 | 0 | 2001 | | 2024.10.13 | ¿ù¼¼ | ¿¥Æç¸®Ã¼(346-82) | 2 | 41.87 | 21,294 | 30 | 2015 | | 2024.10.13 | Àü¼¼ | ¿£¿¡½º¿ùµåŸ¿ö | 6 | 42.82 | 30,000 | 0 | 2024 | | 2024.10.13 | Àü¼¼ | ³²±¤½¦¸£ºô(424-165) | 4 | 36.16 | 17,500 | 0 | 2013 | | 2024.10.13 | ¿ù¼¼ | ±ÝÈ£ºô¶óÆ®Aµ¿ | 5 | 31.97 | 9,500 | 5 | 2003 | | 2024.10.13 | ¸Å¸Å | »ï¼ººô¶óAµ¿ | 2 | 76.9 | 28,500 | | 2006 | | 2024.10.13 | ¸Å¸Å | »ï¼ººí·ç¹Ö(101µ¿102µ¿) | 5 | 29.2 | 23,000 | | 2015 | | 2024.10.13 | Àü¼¼ | ·Ôµ¥À§³Êºô(102-368) | 2 | 41.14 | 13,600 | 0 | 2008 | | 2024.10.12 | Àü¼¼ | ¿ìÇöÆç¸®½º | 4 | 28.7 | 16,800 | 0 | 2016 | | 2024.10.12 | Àü¼¼ | ½ã¶óÀÎ | 5 | 29.14 | 20,800 | 0 | 2016 | | 2024.10.12 | Àü¼¼ | Çູµå¸²ºôBµ¿ | 4 | 48.4 | 12,300 | 0 | 2002 | | 2024.10.12 | Àü¼¼ | ±×·£µåÆÄÅ©ºô | 5 | 29.4 | 12,300 | 0 | 2010 | | 2024.10.12 | Àü¼¼ | Á¤Àκô | 2 | 54.4 | 19,000 | 0 | 2013 | | 2024.10.12 | ¿ù¼¼ | ´õ´©¸² | 5 | 29.39 | 19,570 | 15 | 2018 | | 2024.10.12 | ¿ù¼¼ | ±â°æºô¶ó | 3 | 55.26 | 3,000 | 75 | 1997 | | 2024.10.12 | Àü¼¼ | ÄÉ·»½Ã¾Æ | 6 | 41.44 | 28,000 | 0 | 2022 | | 2024.10.12 | Àü¼¼ | µµ±³ÁÖÅà | 1 | 99.8 | 22,600 | 0 | 1996 | | 2024.10.12 | Àü¼¼ | ºñ¹öÇϿ콺(42-57) | 5 | 41.94 | 12,550 | 0 | 2012 | | 2024.10.12 | ¿ù¼¼ | ¿ì¼º(362-26)ºô¶óB | 3 | 46.17 | 13,000 | 30 | 2002 | | 2024.10.12 | ¿ù¼¼ | ¸®ºùÇϿ콺 | 4 | 26.32 | 3,000 | 80 | 2016 | | 2024.10.12 | Àü¼¼ | ´õ¸Þ¸£¾¾¿¤ | 4 | 27.38 | 22,000 | 0 | 2020 | | 2024.10.12 | ¸Å¸Å | ±Ý°ÆÄÅ©ºô | 4 | 37.53 | 17,200 | | 2011 | | 2024.10.12 | ¸Å¸Å | µ¿¾çÇÏ¿ì¡(870-1) | 2 | 43.03 | 29,400 | | 2017 | | 2024.10.12 | ¸Å¸Å | ÆÄÅ©ºô(1081-20) | 5 | 35.4 | 17,000 | | 2012 | | 2024.10.12 | ¿ù¼¼ | ´ë¸²Å¸¿î(330-30) | 5 | 50.31 | 2,000 | 80 | 2007 | | 2024.10.12 | ¿ù¼¼ | ±×¸°¸ð´×ºô°¡µ¿ | 5 | 25.41 | 3,200 | 35 | 2002 | | 2024.10.12 | Àü¼¼ | Á¤Àκô | 2 | 54.4 | 19,000 | 0 | 2013 | | 2024.10.12 | ¿ù¼¼ | ½º¸¶ÀϺô | 2 | 15.79 | 1,000 | 47 | 2013 | | 2024.10.12 | ¿ù¼¼ | ¹Ð·¹´Ï¾öºô | 3 | 43.12 | 10,000 | 30 | 2007 | | 2024.10.12 | Àü¼¼ | ¿£¿¡½º¿ùµåŸ¿ö | 6 | 29.18 | 25,000 | 0 | 2024 | | 2024.10.12 | Àü¼¼ | ¿£¿¡½º¿ùµåŸ¿ö | 6 | 42.82 | 30,000 | 0 | 2024 | | 2024.10.12 | Àü¼¼ | ¿£¿¡½º¿ùµåŸ¿ö | 6 | 29.18 | 25,000 | 0 | 2024 | | 2024.10.12 | Àü¼¼ | ¿£¿¡½º¿ùµåŸ¿ö | 6 | 29.18 | 25,000 | 0 | 2024 | | 2024.10.11 | ¿ù¼¼ | DHÆÓ¸®½º102µ¿ | 2 | 29.4 | 19,500 | 5 | 2018 | | 2024.10.11 | ¿ù¼¼ | À̼ö°ñµåŸ¿î | 1 | 39.24 | 9,900 | 10 | 1993 | | 2024.10.11 | Àü¼¼ | ¿£¿¡½º¿ùµåŸ¿ö | 4 | 42.82 | 30,000 | 0 | 2024 | | 2024.10.11 | Àü¼¼ | ¿£¿¡½º¿ùµåŸ¿ö | 4 | 29.18 | 25,000 | 0 | 2024 | | 2024.10.11 | ¿ù¼¼ | ¼ÁÖºôµù(401-22) | 3 | 20.68 | 500 | 47 | 1996 | | 2024.10.11 | Àü¼¼ | Çö´ëȨŸ¿î | 5 | 25.8 | 13,000 | 0 | 2011 | | 2024.10.11 | ¿ù¼¼ | µð¾Æ¸Á2(105-82) | 4 | 29.84 | 13,860 | 20 | 2014 | | 2024.10.11 | Àü¼¼ | ¿¡½º¿¥·¹¹öºô(346-7) | 2 | 28.94 | 17,300 | 0 | 2014 | | 2024.10.11 | ¿ù¼¼ | Ȳ±Ýºô¶ó(61-104) | 3 | 31.32 | 8,800 | 20 | 1993 | | 2024.10.11 | ¿ù¼¼ | ¿µÅ¸¿îºô¶ó | -1 | 83.11 | 14,600 | 10 | 2003 | | 2024.10.11 | ¿ù¼¼ | ¹ü¿ìÁÖÅà | 2 | 37.7 | 11,500 | 25 | 1991 | | 2024.10.11 | ¿ù¼¼ | DHÆÓ¸®½º102µ¿ | 2 | 29.4 | 19,500 | 5 | 2018 | | 2024.10.11 | Àü¼¼ | ¿£¿¡½º¿ùµåŸ¿ö | 4 | 29.18 | 24,570 | 0 | 2024 | | 2024.10.11 | Àü¼¼ | ³²±¤ºô¶ó(353-53) | 2 | 67.86 | 20,160 | 0 | 2004 | | 2024.10.11 | ¿ù¼¼ | DHÆÓ¸®½º102µ¿ | 2 | 29.4 | 19,500 | 5 | 2018 | | 2024.10.11 | ¿ù¼¼ | ¿¡½º¿¥ÆÄÅ©ºô(³ªµ¿´Ùµ¿) | 5 | 28.7 | 2,000 | 85 | 2017 | | 2024.10.11 | ¸Å¸Å | ¿¬Èñºô¶ó°¡µ¿(985-44) | 1 | 62.64 | 21,850 | | 1992 | | 2024.10.11 | ¸Å¸Å | ¶óÅ׶󽺺ô(380-6) | 5 | 38.41 | 28,100 | | 2016 | | 2024.10.11 | Àü¼¼ | »ï¼ºÆç¸®Ã¼(864-52) | 5 | 31.91 | 17,600 | 0 | 2014 | | 2024.10.11 | ¸Å¸Å | ·ÎºóÇϿ콺 | 3 | 29.58 | 22,830 | | 2018 | | 2024.10.11 | ¸Å¸Å | TGºô¶ó | 1 | 59.52 | 18,500 | | 2002 | | 2024.10.11 | Àü¼¼ | ´õ¶ó¿Â | 5 | 27.92 | 19,000 | 0 | 2016 | | 2024.10.10 | Àü¼¼ | Àå¼öÇϿ콺 | 3 | 31.26 | 8,000 | 0 | 2002 | | 2024.10.10 | Àü¼¼ | º¸³ëÇϿ콺Aµ¿ | 5 | 34.83 | 19,500 | 0 | 2016 | | 2024.10.10 | ¿ù¼¼ | ¿ì¼º¿¬¸³ | 1 | 56.64 | 13,000 | 21 | 1985 | | 2024.10.10 | ¿ù¼¼ | ÇØÆòij½½ | 10 | 19.73 | 18,000 | 35 | 2024 | | 2024.10.10 | Àü¼¼ | Á¤ÀºÆÄÅ©ºô | 4 | 41.92 | 17,190 | 0 | 2016 | | 2024.10.10 | Àü¼¼ | ¿£¿¡½º¿ùµåŸ¿ö | 4 | 29.18 | 25,000 | 0 | 2024 | | 2024.10.10 | ¿ù¼¼ | ´ë¼Ûºô¶ó(354-92) | 5 | 39.5 | 13,500 | 15 | 2001 | | 2024.10.10 | ¿ù¼¼ | °¡ÀÌ¾ÆÆÓ¸®½º | 6 | 29.8 | 1,000 | 135 | 2019 | | 2024.10.10 | ¿ù¼¼ | ÇÑÀÏÀü¿ø¸Ç¼Ç(158-13) | 4 | 44.39 | 2,000 | 70 | 1997 | | 2024.10.10 | ¿ù¼¼ | ÇÁ¸®Áòºô¶óBµ¿ | 2 | 68.84 | 17,300 | 10 | 2002 | | 2024.10.10 | ¿ù¼¼ | SHÃÊÇàÁöºØ-Ȱî | 3 | 30 | 1,289 | 13 | 2023 | | 2024.10.10 | ¿ù¼¼ | ¿¡º¥¿¡¼¿ | 4 | 15.08 | 2,000 | 40 | 2009 | | 2024.10.10 | ¿ù¼¼ | ±¤»ê¸Ç¼ð(396-8) | 4 | 33.48 | 12,500 | 19 | 2001 | | 2024.10.10 | Àü¼¼ | ´ë¸²Ä³½½ | 3 | 51.18 | 17,000 | 0 | 2012 | | 2024.10.10 | ¸Å¸Å | (56-90) | 2 | 58.85 | 17,000 | | 2009 | | 2024.10.10 | ¸Å¸Å | µå¸®¹ÌŸ¿î(851-21) | 3 | 31.7 | 19,000 | | 2014 | | 2024.10.10 | ¸Å¸Å | ¿ìÇöÆç¸®½º | 4 | 28.7 | 21,500 | | 2016 | | 2024.10.10 | ¸Å¸Å | µ¿¹æÈ÷ÁîÈú | 3 | 29.83 | 18,450 | | 2016 | | 2024.10.10 | ¸Å¸Å | Á¦ÀϽºÄ«À̺ô(161-11) | 4 | 47.96 | 20,000 | | 2012 | | 2024.10.10 | ¸Å¸Å | ¼¿¬ºí·çÈú | 2 | 29.22 | 21,900 | | 2016 | | 2024.10.10 | ¸Å¸Å | ¿ì¼ººô¶ó | 2 | 51.87 | 16,000 | | 1995 | | 2024.10.10 | ¸Å¸Å | ¼ºÀϺô¶óA | 3 | 56.105 | 21,000 | | 2002 | | 2024.10.10 | ¿ù¼¼ | Ȱîºô¶ó4µ¿(362-74) | 2 | 36.3 | 2,000 | 45 | 1986 | | 2024.10.10 | Àü¼¼ | ¿£¿¡½º¿ùµåŸ¿ö | 4 | 29.18 | 23,940 | 0 | 2024 | | 2024.10.09 | ¸Å¸Å | ¿¤¸®½Ã¾Æ | 3 | 28.71 | 19,500 | | 2013 | | 2024.10.09 | ¿ù¼¼ | »ï¼º¸Þ¸£µð¾Ó | 5 | 47.13 | 2,500 | 80 | 2004 | | 2024.10.09 | Àü¼¼ | ÇØÇ³¸Ç¼Ç | 4 | 65.29 | 16,000 | 0 | 1997 | | 2024.10.09 | ¸Å¸Å | È£¸²¸®½´¸®¾È | 4 | 49.52 | 39,300 | | 2016 | | 2024.10.09 | Àü¼¼ | ¾È°îºô¶ó(56-70) | -1 | 32.89 | 4,000 | 0 | 1990 | | 2024.10.09 | ¿ù¼¼ | À¯´Ï¿Âºô¸®Áö³ªµ¿ | 2 | 42.56 | 1,000 | 80 | 2001 | | 2024.10.09 | Àü¼¼ | ¾È°îºô¶ó(56-70) | -1 | 32.89 | 4,000 | 0 | 1990 | | 2024.10.09 | ¿ù¼¼ | ÇÑÀÏÀü¿ø¸Ç¼Ç(158-13) | 1 | 62.85 | 15,800 | 30 | 1997 | | 2024.10.09 | ¿ù¼¼ | JKVILL | 2 | 39.24 | 20,400 | 15 | 2015 | | 2024.10.09 | ¿ù¼¼ | ¼Ò´ã¹ë¸®101µ¿,102µ¿ | 5 | 32.83 | 2,000 | 100 | 2016 | | 2024.10.09 | ¿ù¼¼ | ¹Ì¼ºÇϸ£µò | 3 | 29.9 | 3,000 | 75 | 2016 | | 2024.10.09 | ¿ù¼¼ | ÇÁ¶óÀÓÁÖÅÃ(393-22) | 2 | 23.67 | 13,995 | 4 | 2014 | | 2024.10.09 | ¸Å¸Å | ¿¤¸®½Ã¾Æ | 3 | 28.71 | 19,500 | | 2013 | | 2024.10.09 | ¸Å¸Å | ºÎ±¤ºô¶ó | 1 | 37.65 | 10,900 | | 2000 | | 2024.10.09 | ¸Å¸Å | ȼººô¶ó(56-473) | 3 | 61.21 | 19,500 | | 2002 | | 2024.10.09 | ¸Å¸Å | ½Å¿ì¿¡À̽ººô(50-68) | 5 | 29.99 | 20,000 | | 2018 | | 2024.10.09 | ¸Å¸Å | ÆÄ¶û»õºô¶óÆ®(Bµ¿) | 3 | 57.51 | 18,800 | | 2000 | | 2024.10.09 | Àü¼¼ | Áßµ¿¾ÆÆ®ºô | 2 | 45.15 | 19,000 | 0 | 2002 | | 2024.10.09 | ¸Å¸Å | ÆÄ¶û»õºô¶óÆ®(Bµ¿) | 3 | 57.51 | 18,800 | | 2000 | | 2024.10.09 | ¿ù¼¼ | ÇØÆòij½½ | 10 | 16.19 | 3,000 | 93 | 2024 | | 2024.10.09 | ¿ù¼¼ | »ï¼ºÇÏÀ̺ô(371-11) | 4 | 31.66 | 12,000 | 10 | 2008 | | 2024.10.09 | ¿ù¼¼ | Å¿µÆÓ¸®½º | 4 | 29.48 | 16,750 | 25 | 2016 | | 2024.10.09 | Àü¼¼ | µµ±³ÁÖÅà | 3 | 90.56 | 23,000 | 0 | 1996 | | 2024.10.09 | ¸Å¸Å | dzÀηÎÁîºô | -1 | 58.6 | 12,000 | | 2003 | | 2024.10.09 | ¿ù¼¼ | »þÀδõÈúȰî | 3 | 29.96 | 1,000 | 110 | 2023 | | 2024.10.09 | Àü¼¼ | ¿¡½º¿¥ÆÄÅ©ºô101µ¿102µ¿ | 8 | 42.99 | 24,300 | 0 | 2016 | | 2024.10.09 | Àü¼¼ | µð¾ÆÀνº(1075-27) | 9 | 12.78 | 9,300 | 0 | 2015 | | 2024.10.09 | Àü¼¼ | ÈÞ&À¯ºô | 5 | 25.63 | 22,000 | 0 | 2020 | | 2024.10.09 | ¿ù¼¼ | µå¸²ÇϿ콺3Â÷ | 3 | 29.88 | 14,000 | 20 | 2013 | | 2024.10.09 | Àü¼¼ | µ¿³²ÁÖÅà | 2 | 51.63 | 15,000 | 0 | 2002 | | 2024.10.09 | ¿ù¼¼ | ¼º½Å¸Ç¼Ç | 3 | 78.14 | 20,500 | 20 | 2002 | | 2024.10.09 | ¿ù¼¼ | ¼º¿ÁÇÏÀÌÃ÷ºô¶ó°¡µ¿ | 3 | 67.17 | 8,000 | 65 | 1992 | | 2024.10.09 | Àü¼¼ | ÇØÇ³¸Ç¼Ç | 4 | 65.29 | 16,000 | 0 | 1997 | | 2024.10.09 | ¿ù¼¼ | ¾çÁö»þÀκô(392-63) | 4 | 35.53 | 3,000 | 90 | 2016 | | 2024.10.09 | ¿ù¼¼ | DHÆÓ¸®½º102µ¿ | 5 | 29.4 | 3,000 | 80 | 2018 | | 2024.10.09 | ¿ù¼¼ | ¿¥Æç¸®Ã¼ | 2 | 43.29 | 24,000 | 13 | 2017 | | 2024.10.08 | ¸Å¸Å | µ¿±¤ºô¶ó(988-11) | 3 | 39.64 | 16,800 | | 2002 | | 2024.10.08 | ¿ù¼¼ | Áø¿µÇÏÀÌÅÚ | 2 | 71.15 | 5,000 | 100 | 2002 | | 2024.10.08 | ¿ù¼¼ | ´ë½Å¾ÆÆ®ºô | 2 | 48.17 | 2,000 | 90 | 2002 | | 2024.10.08 | Àü¼¼ | µå¸®¹ÌŸ¿î(851-21) | 6 | 38.08 | 14,500 | 0 | 2014 | | 2024.10.08 | ¸Å¸Å | ½Å¿µº£¸£µð¿ò | 4 | 32.71 | 28,000 | | 2019 | | 2024.10.08 | Àü¼¼ | ȼººô¶ó42Â÷Bµ¿(56-410) | -1 | 37.04 | 7,100 | 0 | 2002 | | 2024.10.08 | ¸Å¸Å | µ¿±¤ºô¶ó(988-11) | 3 | 39.64 | 16,800 | | 2002 | | 2024.10.08 | ¿ù¼¼ | ´ëÇÑ¿¬¸³ | 3 | 62.07 | 16,700 | 10 | 1996 | | 2024.10.08 | ¸Å¸Å | µ¿³²ºô¶ó(330-32) | -1 | 54.95 | 13,000 | | 1994 | | 2024.10.08 | Àü¼¼ | ÀÎÅÍ½ÃÆ¼Aµ¿(391-17) | 3 | 58.68 | 19,400 | 0 | 2001 | | 2024.10.08 | ¿ù¼¼ | û¼ÛÆòÈÇコÇϿ콺(457-3) | 4 | 29.95 | 16,000 | 9 | 2015 | | 2024.10.08 | Àü¼¼ | µ¿³²ÁÖÅÃ(163-25) | 5 | 43.59 | 11,900 | 0 | 2003 | | 2024.10.08 | ¿ù¼¼ | Çö´ë¾ÆÆ®ºô¶ó | 1 | 35.73 | 1,000 | 60 | 1991 | | 2024.10.08 | Àü¼¼ | µ¿»êÁÖÅÃAµ¿ | 4 | 49.64 | 12,700 | 0 | 2000 | | 2024.10.08 | ¿ù¼¼ | ´õ¿¡½º¿¡½ºÅ¸¿î | 9 | 22.1 | 60 | 44 | 2020 | | 2024.10.08 | Àü¼¼ | ȯÈñŸ¿î°¡µ¿ | 3 | 48 | 15,100 | 0 | 2002 | | 2024.10.08 | ¿ù¼¼ | ½Å¶óÇÏÀÌÃ÷Aµ¿ | 2 | 58.41 | 13,500 | 35 | 2001 | | 2024.10.08 | Àü¼¼ | »þ·ÐÀÎÅÚ¸®¾ÈII | 4 | 46.98 | 16,880 | 0 | 2008 | | 2024.10.08 | ¿ù¼¼ | (1016-2) | 2 | 37.32 | 500 | 53 | 2002 | | 2024.10.07 | ¸Å¸Å | ±¹Á¦¾ÆÆ®ºô | 2 | 42.33 | 15,700 | | 2002 | | 2024.10.07 | ¸Å¸Å | »ó¾Æºô¶ó | 5 | 44.04 | 18,000 | | 2002 | | 2024.10.07 | ¸Å¸Å | ÇѼֺô¶ó | 2 | 48.24 | 18,000 | | 2002 | | 2024.10.07 | ¿ù¼¼ | ´ë±Ùºô¶ó | 2 | 46.44 | 3,000 | 50 | 1990 | | 2024.10.07 | Àü¼¼ | DHÆÓ¸®½º102µ¿ | 4 | 29.56 | 19,500 | 0 | 2018 | | 2024.10.07 | Àü¼¼ | ´ë°ÇÁÖÅà | 4 | 37.25 | 7,000 | 0 | 1993 | | 2024.10.07 | ¸Å¸Å | ´ëÈ£ÇÏÀÌÃ÷¸Ç¼ð | 2 | 53.16 | 20,000 | | 1991 | | 2024.10.07 | ¸Å¸Å | ÇØÇÇŸ¿ö | 2 | 67.8 | 28,500 | | 2008 | | 2024.10.07 | ¸Å¸Å | ½Â¼®ÈÙŸ¿î(1038-7) | 2 | 59.02 | 23,300 | | 2001 | | 2024.10.07 | ¸Å¸Å | °æ¿ø±×¸°ºô³ªµ¿ | 1 | 47.43 | 16,500 | | 2001 | | 2024.10.07 | ¸Å¸Å | µ¿¾ç½ºÀ§Æ®È¨ | 4 | 60.36 | 23,500 | | 2008 | | 2024.10.07 | ¸Å¸Å | È£¼º±×¸°ºô12Â÷ | 5 | 68.42 | 23,300 | | 2000 | | 2024.10.07 | ¸Å¸Å | Àå¿ø¾ÆÆ®ºô¶ó(341-22) | 1 | 59.88 | 28,500 | | 1999 | | 2024.10.07 | ¸Å¸Å | ´ë¼±ÇÏÀ̺ô | 4 | 29.94 | 19,700 | | 2019 | | 2024.10.07 | ¸Å¸Å | ¼ºÀººô¶ó(861-30) | 1 | 50.38 | 15,000 | | 2000 | | 2024.10.07 | ¸Å¸Å | SKºô¸®Áö | 6 | 39.985 | 25,000 | | 2015 | | 2024.10.07 | Àü¼¼ | ȼºÇÏÀÌÃ÷ºôBµ¿ | 1 | 47.64 | 12,000 | 0 | 2002 | | 2024.10.07 | ¿ù¼¼ | µµ¿øÈú¶óÀÌÇÁ2 | 2 | 39.33 | 18,100 | 25 | 2016 | | 2024.10.07 | Àü¼¼ | ȼºÈ¨Å¸¿î101µ¿ | 2 | 40.65 | 9,000 | 0 | 2002 | | 2024.10.07 | Àü¼¼ | ´ë¸²Å¸¿î(818-14) | 5 | 45.68 | 15,000 | 0 | 2010 | | 2024.10.07 | Àü¼¼ | ¿£¿¡½º¿ùµåŸ¿ö | 5 | 29.18 | 25,000 | 0 | 2024 | | 2024.10.07 | Àü¼¼ | ¼ºÈ£ÇÏÀ̺ô(1045-65) | 3 | 52.86 | 22,900 | 0 | 2007 | | 2024.10.07 | ¿ù¼¼ | ÅÂÁøÇϿ콺 | 5 | 24.52 | 3,000 | 80 | 2019 | | 2024.10.07 | ¿ù¼¼ | ´ë¼Û±×¸°ºô | 5 | 31.54 | 1,000 | 42 | 2002 | | 2024.10.07 | ¿ù¼¼ | ¶óÇǾƳë | 3 | 28.05 | 5,000 | 85 | 2022 | | 2024.10.07 | Àü¼¼ | ¿£¿¡½º¿ùµåŸ¿ö | 5 | 29.18 | 24,570 | 0 | 2024 | | 2024.10.07 | ¿ù¼¼ | »ï¼º½¦¸£ºô(1081-30) | 3 | 29.82 | 14,000 | 20 | 2014 | | 2024.10.07 | Àü¼¼ | ¿£¿¡½º¿ùµåŸ¿ö | 5 | 29.18 | 24,570 | 0 | 2024 | | 2024.10.07 | ¿ù¼¼ | Àç·æºôµù | 4 | 29.37 | 5,000 | 90 | 2021 | | 2024.10.07 | Àü¼¼ | È£°æÁÖÅà | 2 | 81.97 | 29,000 | 0 | 2008 | | 2024.10.07 | Àü¼¼ | ´ëÁÖ½¦¸£ºô(338-9) | 4 | 41.62 | 12,700 | 0 | 2002 | | 2024.10.07 | Àü¼¼ | (377-23) | 1 | 29.97 | 8,200 | 0 | 1986 | | 2024.10.07 | Àü¼¼ | ´ÙÀÎÇϿ콺 | 5 | 20.46 | 20,500 | 0 | 2022 | | 2024.10.07 | Àü¼¼ | ³²¼º¾ÆÆ®ºô(385-18) | 5 | 39.5 | 16,700 | 0 | 2011 | | 2024.10.07 | ¿ù¼¼ | °æ¹Î¾ÆÆ®ºô(393-21) | 5 | 29.45 | 18,000 | 15 | 2017 | | 2024.10.07 | ¿ù¼¼ | »ï¼º½¦¸£ºô(1081-30) | 3 | 29.82 | 14,000 | 20 | 2014 | | 2024.10.07 | Àü¼¼ | ´Ù¼ØÅ¸¿îA,B | 5 | 37.98 | 18,500 | 0 | 2013 | | 2024.10.07 | Àü¼¼ | ȼºÈ¨Å¸¿î102µ¿ | 3 | 41.58 | 12,300 | 0 | 2002 | | 2024.10.07 | ¿ù¼¼ | °ñµç¸®Ä¡ºô(474-10) | 4 | 39.05 | 12,000 | 25 | 2007 | | 2024.10.06 | ¸Å¸Å | ¼¸²±×¶ûºô | 6 | 29.09 | 19,000 | | 2019 | | 2024.10.06 | ¸Å¸Å | Æú¶óºñ¿¤ | 5 | 28.87 | 24,500 | | 2017 | | 2024.10.06 | ¸Å¸Å | ¹é¿îÀκ£½ºÆ®ºô | 4 | 55.01 | 30,000 | | 2008 | | 2024.10.06 | ¸Å¸Å | ¹é¿îÀκ£½ºÆ®ºô | 4 | 55.01 | 30,000 | | 2008 | | 2024.10.06 | ¿ù¼¼ | ´ëÀººñÀüºô | 3 | 63.92 | 20,000 | 23 | 2007 | | 2024.10.06 | ¸Å¸Å | °ñµå¸®¿ò | 3 | 59.68 | 34,500 | | 2017 | | 2024.10.06 | Àü¼¼ | °õ´Þ·¡¸¶À» | 4 | 75.38 | 19,000 | 0 | 1998 | | 2024.10.06 | ¿ù¼¼ | °øÀ۸ǼÇ2Â÷ | 5 | 45.84 | 1,000 | 70 | 2001 | | 2024.10.06 | ¿ù¼¼ | ½ºÅ¸ºô¶ó | -1 | 50.73 | 1,000 | 50 | 1991 | | 2024.10.06 | ¿ù¼¼ | ´ö¿ë¸Ç¼Ç | -1 | 69.24 | 4,000 | 50 | 1997 | | 2024.10.06 | ¿ù¼¼ | ´ëÀººñÀüºô | 3 | 63.92 | 20,000 | 23 | 2007 | | 2024.10.05 | ¿ù¼¼ | ¿ì¼ÛÇÁ¶óÀÓºô(995-18) | 3 | 39.76 | 3,000 | 72 | 2011 | | 2024.10.05 | Àü¼¼ | ¼±°æºô¶ó | 2 | 63.66 | 20,790 | 0 | 1997 | | 2024.10.05 | ¿ù¼¼ | ¿ì¼º(408-86) | 5 | 44.73 | 2,000 | 95 | 2017 | | 2024.10.05 | ¸Å¸Å | ¿ì¼ºÅ׸¶ºô(1044-20) | 3 | 66.22 | 33,900 | | 2006 | | 2024.10.05 | ¸Å¸Å | (346-89) | 2 | 38.34 | 15,000 | | 1987 | | 2024.10.05 | Àü¼¼ | ½Ã¿Âºô¸®Áö | 5 | 34.02 | 25,000 | 0 | 2016 | | 2024.10.05 | ¿ù¼¼ | Àç·æºôµù | 5 | 27.95 | 2,000 | 84 | 2021 | | 2024.10.05 | Àü¼¼ | °¨¼ººô | 4 | 26.77 | 18,480 | 0 | 2016 | | 2024.10.05 | Àü¼¼ | ·ÎÇϽººô | 3 | 65.18 | 20,900 | 0 | 2009 | | 2024.10.04 | Àü¼¼ | ¹Ù·ÎÅ©ºô | 3 | 29.9 | 16,800 | 0 | 2014 | | 2024.10.04 | Àü¼¼ | ½ºÆäÀ̽ººô | 3 | 53.7 | 20,400 | 0 | 2010 | | 2024.10.04 | ¿ù¼¼ | (400-149) | 1 | 35.05 | 10,200 | 4 | 1986 | | 2024.10.04 | ¿ù¼¼ | ¹Ì·¡¿ø·ëÅÚ | 2 | 22.82 | 5,000 | 25 | 2012 | | 2024.10.04 | Àü¼¼ | ½ºÆäÀ̽ººô | 3 | 53.7 | 20,400 | 0 | 2010 | | 2024.10.04 | ¿ù¼¼ | À¯´Ï¿Â½¦¸£ºô(Eµ¿) | 2 | 46.12 | 12,900 | 20 | 2002 | | 2024.10.04 | ¿ù¼¼ | ½Åµ¿¾Æºô¶ó | 3 | 37.2 | 10,700 | 5 | 1993 | | 2024.10.04 | ¿ù¼¼ | (814-17) | 3 | 53.53 | 3,000 | 85 | 2013 | | 2024.10.04 | ¿ù¼¼ | ±¤¸íºô¶ó(394-26) | 1 | 42.88 | 12,300 | 15 | 2001 | | 2024.10.04 | ¿ù¼¼ | (400-149) | 1 | 35.05 | 10,200 | 4 | 1986 | | 2024.10.04 | ¿ù¼¼ | ¼Ò´ã¹ë¸® | 3 | 29.14 | 17,500 | 10 | 2012 | | 2024.10.04 | ¿ù¼¼ | µ¿¿µºô¶ó | 5 | 43.12 | 13,100 | 30 | 2002 | | 2024.10.04 | Àü¼¼ | ½Å¾ç±×¸°ºô(56-46) | 3 | 44.76 | 14,800 | 0 | 2008 | | 2024.10.04 | ¿ù¼¼ | ¿ì¼ºµå¸²ºôA | -1 | 56.49 | 10,700 | 5 | 2002 | | 2024.10.04 | Àü¼¼ | Çý¸²ÁÖÅÃ(1050-25) | 3 | 59.73 | 22,500 | 0 | 2010 | | 2024.10.04 | ¿ù¼¼ | À̳뼿(831-5¿Ü) | 4 | 36.24 | 5,000 | 80 | 2014 | | 2024.10.04 | ¿ù¼¼ | ÇÏÀÌÃ÷ºô¶ó(1053-3) | 2 | 28.5 | 8,000 | 20 | 2002 | | 2024.10.04 | ¸Å¸Å | µµ¿ø¼ÖºñÄ¡ | 5 | 29.97 | 20,200 | | 2015 | | 2024.10.04 | ¸Å¸Å | ´ë¸²È¨Å¸¿îCµ¿ | 3 | 56.1 | 23,000 | | 2008 | | 2024.10.04 | ¸Å¸Å | »ïÈïÇÏÀÌÃ÷ºô¶ó | 3 | 45.81 | 15,800 | | 1992 | | 2024.10.04 | ¸Å¸Å | »ï¹Ìºô¶ó | 4 | 50.22 | 15,500 | | 2000 | | 2024.10.04 | ¸Å¸Å | ÁøÁÖ | 2 | 55.57 | 28,900 | | 2010 | | 2024.10.04 | ¸Å¸Å | À§µåij½½ | 4 | 37.59 | 28,500 | | 2019 | | 2024.10.04 | ¸Å¸Å | Á¤°¡¿ïºô | 4 | 40.78 | 15,500 | | 2008 | | 2024.10.04 | ¿ù¼¼ | ¹Ù·ÎÅ©ºô | 3 | 29.9 | 12,700 | 15 | 2014 | | 2024.10.04 | ¸Å¸Å | ÇÑ¿ïºô | 3 | 29.26 | 16,500 | | 2010 | | 2024.10.04 | ¿ù¼¼ | È£¼º±×¸°ºä(424-23) | 2 | 40.62 | 21,400 | 12 | 2016 | | 2024.10.04 | Àü¼¼ | Áßµ¿¾ÆÆ®ºô | 2 | 45.15 | 21,000 | 0 | 2002 | | 2024.10.04 | Àü¼¼ | ±Ý°´©¸®ºô(998-10) | 6 | 16.02 | 7,390 | 0 | 2012 | | 2024.10.04 | ¸Å¸Å | ºñÁîºô(798-14) | 5 | 36.41 | 28,300 | | 2014 | | 2024.10.04 | Àü¼¼ | ¿ìÁø¸Ç¼Ç(990-11) | 1 | 59.74 | 18,500 | 0 | 2001 | | 2024.10.04 | ¸Å¸Å | ½Å¾È¸Ç¼Ç(56-191) | 2 | 53.72 | 18,000 | | 2003 | | 2024.10.03 | Àü¼¼ | ½¦¶óÅæºô¶ó(56-508) | 2 | 39.08 | 10,900 | 0 | 1991 | | 2024.10.03 | ¿ù¼¼ | Á¦ÀÌ¿¥ÆÓ¸®½º | 1 | 26.855 | 1,000 | 95 | 2021 | | 2024.10.03 | ¿ù¼¼ | °¨¼ººô | 4 | 25.22 | 17,000 | 10 | 2016 | | 2024.10.03 | Àü¼¼ | ¿£¿¡½º¿ùµåŸ¿ö | 5 | 29.18 | 24,570 | 0 | 2024 | | 2024.10.03 | ¿ù¼¼ | ¸¶À̹ٿò | 5 | 38.6 | 2,000 | 81 | 2011 | | 2024.10.03 | Àü¼¼ | ¿£¿¡½º¿ùµåŸ¿ö | 5 | 29.18 | 25,000 | 0 | 2024 | | 2024.10.03 | Àü¼¼ | ¼º¿ìÇÏÀÌÃ÷ºô | 3 | 48.82 | 19,500 | 0 | 2002 | | 2024.10.03 | Àü¼¼ | ·ÎºóÇϿ콺 | 3 | 29.98 | 21,400 | 0 | 2019 | | 2024.10.03 | ¸Å¸Å | ÇýÀζ߶õä | 8 | 50.57 | 27,500 | | 2017 | | 2024.10.03 | ¸Å¸Å | ¸ð³ë5Â÷ | 2 | 44.92 | 28,000 | | 2017 | | 2024.10.03 | ¸Å¸Å | ³²¼º¾ÆÆ®ºô | 3 | 50.33 | 26,800 | | 2008 | | 2024.10.03 | ¸Å¸Å | ¾Æµ¥³ªÆÓ¸®½º | 6 | 34.68 | 28,000 | | 2016 | | 2024.10.03 | ¿ù¼¼ | ºÎ°Çºô(1085-14) | 2 | 17.07 | 500 | 50 | 2015 | | 2024.10.03 | ¿ù¼¼ | ÁøÁÖ¸®Ä¡ºô(56-608) | 3 | 29.77 | 2,500 | 60 | 2011 | | 2024.10.03 | ¿ù¼¼ | ȼºÆÄÅ©ºô¸®Áö7Â÷ | 1 | 43.72 | 11,180 | 16 | 1994 | | 2024.10.03 | ¿ù¼¼ | ºÎÀϽ¦¸£ºôAµ¿ | 4 | 50.74 | 3,000 | 80 | 2002 | | 2024.10.03 | Àü¼¼ | ¿£¿¡½º¿ùµåŸ¿ö | 5 | 29.18 | 24,570 | 0 | 2024 | | 2024.10.03 | ¿ù¼¼ | (788-28) | 1 | 37.92 | 3,000 | 70 | 1986 | | 2024.10.03 | Àü¼¼ | ¿£¿¡½º¿ùµåŸ¿ö | 5 | 29.18 | 24,570 | 0 | 2024 | | 2024.10.03 | Àü¼¼ | ½Ã¿Âºô¶ó | 3 | 56.36 | 14,490 | 0 | 1995 | | 2024.10.03 | ¿ù¼¼ | ½Å¿ì¿¡Äڹ븮 | 3 | 40.67 | 2,000 | 80 | 2011 | | 2024.10.03 | Àü¼¼ | ·ÎºóÇϿ콺 | 3 | 43.31 | 28,300 | 0 | 2019 | | 2024.10.03 | Àü¼¼ | ºí·çÈú | 5 | 29.94 | 22,350 | 0 | 2017 | | 2024.10.03 | ¸Å¸Å | ±Ý»êÆÄÅ©ºô | 3 | 58.35 | 21,000 | | 2008 | | 2024.10.02 | Àü¼¼ | »ó¾ÆÈ¨Å¸¿î | 5 | 51.08 | 14,000 | 0 | 2003 | | 2024.10.02 | Àü¼¼ | (1032-10) | 1 | 36.3 | 10,000 | 0 | 1990 | | 2024.10.02 | Àü¼¼ | ¸¶¿îƾºô¸®Áö | 1 | 67.81 | 17,200 | 0 | 2000 | | 2024.10.02 | ¿ù¼¼ | µ¿¾çÇÏ¿ì¡Bµ¿ | 4 | 38.01 | 21,000 | 15 | 2017 | | 2024.10.02 | Àü¼¼ | żº¾ÆÆ®¸Ç¼Ç | 4 | 35.29 | 14,000 | 0 | 2001 | | 2024.10.02 | Àü¼¼ | (1032-10) | 1 | 36.3 | 10,000 | 0 | 1990 | | 2024.10.02 | ¿ù¼¼ | DHÆÓ¸®½º102µ¿ | 4 | 29.89 | 19,700 | 5 | 2018 | | 2024.10.02 | ¿ù¼¼ | µ¿±¤ºô¶óÆ® | 4 | 57.05 | 12,000 | 10 | 1999 | | 2024.10.02 | ¿ù¼¼ | ´Ù¿Â½£ | 6 | 23.74 | 500 | 85 | 2021 | | 2024.10.02 | Àü¼¼ | »ó¾ÆÈ¨Å¸¿î | 5 | 51.08 | 14,000 | 0 | 2003 | | 2024.10.02 | Àü¼¼ | Á¤¿ìºô¶ó | 1 | 46.82 | 6,800 | 0 | 1997 | | 2024.10.02 | ¸Å¸Å | ºäƼ½¦¸£ºô | 5 | 45.24 | 34,000 | | 2018 | | 2024.10.02 | ¸Å¸Å | ¿ì¼º(373-32) | 2 | 43.65 | 27,000 | | 2017 | | 2024.10.02 | ¸Å¸Å | »ó¾Æºô¶ó | 5 | 44.04 | 14,500 | | 2002 | | 2024.10.02 | ¸Å¸Å | ´ëÈ£¾ÆÆ®Å¸¿î°¡µ¿ | 2 | 39.94 | 16,300 | | 1992 | | 2024.10.02 | ¸Å¸Å | ±Ý°ÁÖÅà | 3 | 40.57 | 14,300 | | 1988 | | 2024.10.02 | ¿ù¼¼ | µ¿¼º¸®ºñ¾Ó | 4 | 17.55 | 5,500 | 47 | 2015 | | 2024.10.02 | Àü¼¼ | ¿ìÇöž½ººô | 3 | 51.15 | 22,950 | 0 | 2012 | | 2024.10.02 | ¿ù¼¼ | µ¿±¤ºô¶ó(102-378) | 2 | 53.96 | 1,000 | 20 | 2000 | | 2024.10.01 | ¸Å¸Å | ȯÈñŸ¿î°¡µ¿ | 2 | 48 | 19,000 | | 2002 | | 2024.10.01 | ¿ù¼¼ | ȰîÅõ¿þ´ÏÆÛ½ºÆ® | 10 | 24.45 | 2,000 | 95 | 2018 | | 2024.10.01 | ¿ù¼¼ | °Å¼º | 1 | 43.56 | 12,000 | 25 | 1986 | | 2024.10.01 | Àü¼¼ | û¿î¸Ç¼Ç | 4 | 65.68 | 17,000 | 0 | 2002 | | 2024.10.01 | Àü¼¼ | ¿£¿¡½º¿ùµåŸ¿ö | 7 | 20.54 | 18,810 | 0 | 2024 | | 2024.10.01 | Àü¼¼ | ¿£¿¡½º¿ùµåŸ¿ö | 7 | 20.54 | 18,810 | 0 | 2024 | | 2024.10.01 | Àü¼¼ | ´ë½ÅŸ¿îAµ¿ | 1 | 68.16 | 19,800 | 0 | 2001 | | 2024.10.01 | ¿ù¼¼ | ¿ì¸®ÇÏÀÌÃ÷ºô | 3 | 49.65 | 15,700 | 25 | 2003 | | 2024.10.01 | ¿ù¼¼ | Å©·Î¹ÙŸ¿î1,2 | 3 | 54.74 | 100 | 20 | 2001 | | 2024.10.01 | Àü¼¼ | Áø¿µÇÏÀ̺ô°¡µ¿ | 1 | 51.07 | 16,000 | 0 | 2001 | | 2024.10.01 | ¿ù¼¼ | È¿ø¿ùµåºô | 2 | 34.32 | 10,000 | 10 | 2002 | | 2024.10.01 | ¿ù¼¼ | (860-23) | 2 | 41.32 | 13,000 | 20 | 2007 | | 2024.10.01 | ¿ù¼¼ | Á¦ÀÌ¿ÍÀÌÆç¸®½º(849-16¹øÁö) | 4 | 29.9 | 12,000 | 55 | 2016 | | 2024.10.01 | ¿ù¼¼ | DS¿¡ÄÚŸ¿î(471-18) | 3 | 37.05 | 4,000 | 100 | 2014 | | 2024.10.01 | ¿ù¼¼ | ´ë½Å¸Ç¼Ç | 1 | 53.24 | 12,390 | 10 | 2002 | | 2024.10.01 | ¿ù¼¼ | ¿¡½º¿¥ÆÄÅ©ºô(101µ¿102µ¿) | 4 | 39.98 | 19,900 | 20 | 2014 | | 2024.10.01 | ¿ù¼¼ | ¸¶Å©ÇϿ콺 | 3 | 41.09 | 22,800 | 15 | 2017 | | 2024.10.01 | ¿ù¼¼ | ¼ºÁøºô¶ó(105-496) | 1 | 40.56 | 11,790 | 14 | 2000 | | 2024.10.01 | Àü¼¼ | °ÇÇü½¦¸£ºô(343-27) | 4 | 53.18 | 17,600 | 0 | 2007 | | 2024.10.01 | ¿ù¼¼ | ÀÚ¶óÇϿ콺(399-15) | 3 | 30 | 14,985 | 15 | 2014 | | 2024.10.01 | ¿ù¼¼ | û¸²¾ÆÆ®ºôBµ¿(105-556) | 2 | 44.68 | 5,000 | 50 | 2001 | | 2024.10.01 | Àü¼¼ | ¿£¿¡½º¿ùµåŸ¿ö | 7 | 20.54 | 22,000 | 0 | 2024 | | 2024.10.01 | ¸Å¸Å | °æ¹Î¾ÆÆ®ºô | 5 | 29.97 | 22,100 | | 2016 | | 2024.10.01 | ¸Å¸Å | ´ë½ÅŸ¿îBµ¿ | 1 | 68.16 | 32,800 | | 2001 | | 2024.10.01 | ¸Å¸Å | Á¦ÀÌ¿ÍÀÌÆç¸®½º(849-16¹øÁö) | 2 | 29.9 | 19,800 | | 2016 | | 2024.10.01 | ¸Å¸Å | ½ÃƼÇϿ콺 | 5 | 32.41 | 16,500 | | 2011 | | 2024.10.01 | ¸Å¸Å | ´ë½ÅŸ¿îBµ¿ | 1 | 68.16 | 32,800 | | 2001 | | 2024.10.01 | ¸Å¸Å | ¼ºÁøºô¶óAµ¿ | 3 | 60.21 | 19,250 | | 1997 | | 2024.10.01 | ¸Å¸Å | ÈľÏÇÏÀÌÃ÷ºô¶ó | 3 | 53.24 | 17,000 | | 2002 | | 2024.10.01 | ¸Å¸Å | »ï¿øÇÏÀÌÃ÷3Â÷ | 3 | 45.3 | 14,000 | | 1993 | | 2024.10.01 | ¸Å¸Å | ´ë½ÅŸ¿îBµ¿ | 1 | 68.16 | 32,800 | | 2001 | | 2024.10.01 | ¿ù¼¼ | ¼Çö | 3 | 12.96 | 500 | 40 | 2011 | | 2024.10.01 | ¿ù¼¼ | ÇØÇÇÇϿ콺(1128-4) | 3 | 12.7 | 1,000 | 45 | 2012 | | 2024.10.01 | ¿ù¼¼ | DS¿¡ÄÚŸ¿î(471-18) | 3 | 37.05 | 4,000 | 100 | 2014 | | 2024.10.01 | ¿ù¼¼ | ŰæÇÏÀÌÃ÷(870-53) | 1 | 53.43 | 100 | 70 | 2001 | | 2024.09.30 | Àü¼¼ | ´õŬ·¡½Ä | 4 | 29.43 | 19,000 | 0 | 2018 | | 2024.09.30 | Àü¼¼ | ³²¼º¾ÆÆ®ºô(354-41) | 2 | 34.01 | 16,800 | 0 | 2014 | | 2024.09.30 | ¿ù¼¼ | º¸¾È¾ÆÆ®ºô¶ó | 4 | 50.4 | 600 | 50 | 2002 | | 2024.09.30 | Àü¼¼ | ¾ÆÀνººôHANAGREEN | 2 | 35.59 | 18,000 | 0 | 2013 | | 2024.09.30 | ¿ù¼¼ | ¼ºÁغô¶ó(353-37) | 2 | 39.23 | 8,000 | 35 | 2001 | | 2024.09.30 | Àü¼¼ | ¿©¸íÆÄÅ©ºô¶ó | 3 | 67.43 | 18,000 | 0 | 2000 | | 2024.09.30 | Àü¼¼ | ¿¹¼º±×¸°Ä³½½1Â÷ | 2 | 48.02 | 12,800 | 0 | 2003 | | 2024.09.30 | ¿ù¼¼ | ¼¿îºô¸®Áö | 2 | 64.4 | 20,000 | 20 | 2002 | | 2024.09.30 | ¿ù¼¼ | ¿ì¿µÆÄũŸ¿îBµ¿ | 1 | 59.67 | 13,000 | 35 | 2002 | | 2024.09.30 | ¿ù¼¼ | Å¿µ¾ÆÆ®ºô(102-118) | 2 | 47.74 | 16,700 | 20 | 2008 | | 2024.09.30 | ¿ù¼¼ | ÇÁ¶óÀÓºô | 5 | 44.7 | 13,000 | 20 | 2010 | | 2024.09.30 | ¿ù¼¼ | »ï¿ø½ºÀ§Æ®ºô | 2 | 34.08 | 12,100 | 10 | 2011 | | 2024.09.30 | ¿ù¼¼ | »ï¿ø½ºÀ§Æ®ºô | 2 | 34.08 | 12,100 | 10 | 2011 | | 2024.09.30 | ¿ù¼¼ | MONO(1044-11) | 2 | 43.16 | 5,000 | 80 | 2012 | | 2024.09.30 | Àü¼¼ | ÀÚÇÏŬ·¡½Ä | 17 | 13.77 | 13,200 | 0 | 2018 | | 2024.09.30 | ¿ù¼¼ | Á¤°¨Å¸¿îA(346-92) | 2 | 27.2 | 15,400 | 17 | 2015 | | 2024.09.30 | ¸Å¸Å | °ø¿øÇÏÀÌÃ÷ºô | 4 | 57.68 | 28,000 | | 2008 | | 2024.09.30 | ¸Å¸Å | ´ºÆÄÀκô | 2 | 43.66 | 22,500 | | 2010 | | 2024.09.30 | ¸Å¸Å | ÇÑ¿ïÆÓ¸®½º | 4 | 26.76 | 20,600 | | 2017 | | 2024.09.30 | ¸Å¸Å | ±Ý¼º¾ÆÆ®ºô(400-53) | 2 | 46.51 | 21,000 | | 2001 | | 2024.09.30 | ¸Å¸Å | ¿ÍÀ̾غñ | 3 | 29.53 | 18,300 | | 2016 | | 2024.09.30 | ¸Å¸Å | ³²±¤½¦¸£ºô(424-165) | 3 | 36.81 | 19,000 | | 2013 | | 2024.09.30 | ¿ù¼¼ | Áؽ¦¸£ºô(346-12) | 5 | 29.98 | 5,000 | 50 | 2013 | | 2024.09.30 | ¿ù¼¼ | ºô¶ó¿£Bµ¿ | 2 | 29.48 | 19,000 | 14 | 2017 | | 2024.09.30 | Àü¼¼ | Áø¼Öºô¶óÆ® | 3 | 43.665 | 22,500 | 0 | 2015 | | 2024.09.30 | ¿ù¼¼ | Á¤°¨Å¸¿îA(346-92) | 2 | 27.2 | 15,000 | 20 | 2015 | | 2024.09.29 | Àü¼¼ | Æú¶óºñ¿¤(1038-4) | 4 | 25.77 | 18,000 | 0 | 2018 | | 2024.09.29 | ¿ù¼¼ | ¶ó¿òÇϿ콺 | 6 | 15.29 | 5,000 | 70 | 2019 | | 2024.09.29 | Àü¼¼ | °æ³²ºô¶óAµ¿(56-679) | 2 | 34.35 | 8,970 | 0 | 1989 | | 2024.09.29 | ¸Å¸Å | ±Ý°ÇÏÀÓºô | 3 | 29.84 | 18,500 | | 2015 | | 2024.09.29 | ¸Å¸Å | Å¿µÆÓ¸®½º | 4 | 42.04 | 28,000 | | 2016 | | 2024.09.28 | ¿ù¼¼ | ´õÇϿ콺 | 3 | 43.03 | 2,500 | 80 | 2018 | | 2024.09.28 | ¸Å¸Å | µ¿³²ÁÖÅÃ(163-25) | 4 | 47.3 | 16,300 | | 2003 | | 2024.09.28 | ¸Å¸Å | »ï¼ºÁÖÅ󪵿(333-12) | 3 | 50.73 | 19,700 | | 2001 | | 2024.09.28 | ¸Å¸Å | ȰîÇÏÀÌÃ÷ºô¶ó | -1 | 40.8 | 20,700 | | 1991 | | 2024.09.28 | ¿ù¼¼ | À£½ºÆÄÅ©ºô | 4 | 28.14 | 2,000 | 85 | 2018 | | 2024.09.28 | ¿ù¼¼ | ½ÅÇϿ콺 | 3 | 35.92 | 3,000 | 80 | 2017 | | 2024.09.28 | ¿ù¼¼ | ±ÝÈ£ºô¶óÆ®Aµ¿ | 5 | 31.97 | 9,500 | 5 | 2003 | | 2024.09.28 | ¿ù¼¼ | Ã»ÇØºô¶óC | -1 | 41.64 | 1,000 | 45 | 1992 | | 2024.09.28 | ¿ù¼¼ | Ä¥¼º | 2 | 43.56 | 12,000 | 60 | 2002 | | 2024.09.28 | ¿ù¼¼ | û¸í½¦¸£ºô | 1 | 54.57 | 4,000 | 70 | 2001 | | 2024.09.28 | Àü¼¼ | °æ³²ºô¶ó°¡µ¿ | 2 | 37.84 | 10,200 | 0 | 1986 | | 2024.09.28 | ¿ù¼¼ | »ï¿øÇÇ¾ÆÆ®Aµ¿ | 4 | 38.52 | 9,950 | 7 | 2001 | | 2024.09.28 | ¿ù¼¼ | ÇØ¼ºÆç¸®½ººô | 1 | 64.67 | 3,000 | 70 | 2000 | | 2024.09.28 | ¿ù¼¼ | Áø¾Èºô¶ó | 4 | 49.84 | 11,900 | 27 | 1991 | | 2024.09.28 | Àü¼¼ | ¿ì¼ºµ¥ÆÄÆ® | 2 | 67.41 | 17,300 | 0 | 1995 | | 2024.09.28 | Àü¼¼ | ÇѾçºô¶ó(56-65) | 2 | 33.18 | 9,000 | 0 | 2000 | | 2024.09.28 | ¿ù¼¼ | ³²°ºô¶óBµ¿(55-60) | -1 | 36.44 | 6,460 | 13 | 1986 | | 2024.09.28 | ¿ù¼¼ | ¿ì¼º¿¬¸³(1134-7) | 3 | 51.48 | 13,000 | 15 | 1985 | | 2024.09.28 | Àü¼¼ | µ¿ÁøÇÏÀ̺ô | 3 | 64.82 | 18,650 | 0 | 2008 | | 2024.09.28 | ¿ù¼¼ | ¿ì¼º | 3 | 29.73 | 2,000 | 70 | 2016 | | 2024.09.28 | ¿ù¼¼ | ÀÚ¶óÇϿ콺(366-19) | 3 | 42.36 | 5,000 | 85 | 2014 | | 2024.09.28 | ¿ù¼¼ | ¶ó¿Âºô | 4 | 29.79 | 4,000 | 75 | 2013 | | 2024.09.28 | ¿ù¼¼ | Æç¸®Ã¼ÇϿ콺 | 4 | 50.04 | 21,400 | 20 | 2012 | | 2024.09.28 | ¿ù¼¼ | Æç¸®Ã¼ÇϿ콺 | 4 | 50.04 | 21,400 | 20 | 2012 | | 2024.09.28 | ¿ù¼¼ | Çʸ³ÇϿ콺 | 2 | 29.88 | 2,000 | 80 | 2012 | | 2024.09.28 | ¿ù¼¼ | ÿ½ÃÇϿ콺 | 6 | 39.15 | 15,000 | 15 | 2012 | | 2024.09.28 | Àü¼¼ | ¿ì¼ºÅ׸¶ºô(1044-29) | 3 | 52.61 | 19,530 | 0 | 2008 | | 2024.09.28 | ¿ù¼¼ | ÇѤýÅͺô | 3 | 60.08 | 12,000 | 25 | 2008 | | 2024.09.28 | ¿ù¼¼ | °¡Àκô(1081-22) | 5 | 39.99 | 2,000 | 65 | 2009 | | 2024.09.28 | ¿ù¼¼ | °¡Àκô(1081-22) | 5 | 39.99 | 2,000 | 65 | 2009 | | 2024.09.27 | ¿ù¼¼ | ¼Û´öºô¶ó | 3 | 42.48 | 3,000 | 60 | 1991 | | 2024.09.27 | Àü¼¼ | LGµå¸²ºô(851-11) | 3 | 51.03 | 11,000 | 0 | 2002 | | 2024.09.27 | ¿ù¼¼ | ºñ¿ø±×¸°ºô¶ó | 3 | 43.92 | 7,000 | 12 | 1986 | | 2024.09.27 | ¿ù¼¼ | ¿ìȱ׸° | 3 | 45.18 | 6,000 | 50 | 2011 | | 2024.09.27 | ¿ù¼¼ | ¿ìÀå»êºô¶ó | 5 | 34.08 | 5,000 | 80 | 2013 | | 2024.09.27 | ¸Å¸Å | È£¼ºÆÄÅ©¸Ç¼Ç | 4 | 36.31 | 13,000 | | 1999 | | 2024.09.27 | ¸Å¸Å | ¿Ã¸²Çª½ºA | 5 | 46.26 | 17,000 | | 2010 | | 2024.09.27 | ¸Å¸Å | ¾Æµ¥³ªÆÓ¸®½º | 5 | 34.68 | 30,300 | | 2016 | | 2024.09.27 | ¸Å¸Å | Çý¼ºÆç¸®½º(156-21) | 2 | 41.8 | 22,800 | | 2013 | | 2024.09.27 | ¸Å¸Å | ¸¶Å©ÇϿ콺 | 5 | 31.07 | 22,800 | | 2018 | | 2024.09.27 | ¸Å¸Å | ±ÝÈ£ÆÄÅ©ºô(Bµ¿) | 1 | 45.69 | 14,000 | | 2001 | | 2024.09.27 | ¿ù¼¼ | ´ë¿ì°ñµå¸Ç¼ÇBµ¿ | 3 | 56.32 | 2,000 | 70 | 2000 | | 2024.09.27 | Àü¼¼ | ¿ì¼º±×¸°ºô¶ó | 3 | 40.65 | 12,590 | 0 | 1993 | | 2024.09.27 | ¿ù¼¼ | ÀÌ·¹ÇìºìÇϿ콺 | 7 | 19.36 | 1,000 | 60 | 2012 | | 2024.09.27 | Àü¼¼ | °¼´õÈú(962-4) | 3 | 13.95 | 6,615 | 0 | 2013 | | 2024.09.27 | Àü¼¼ | ½ã¶óÀÎ | 8 | 29.14 | 20,800 | 0 | 2016 | | 2024.09.27 | Àü¼¼ | ¿ìÇöÆç¸®½º | 2 | 25.72 | 15,750 | 0 | 2016 | | 2024.09.27 | ¿ù¼¼ | ½Ã¿Âºô¸®Áö | 5 | 33.78 | 20,000 | 20 | 2016 | | 2024.09.27 | ¿ù¼¼ | »ïÇùÇÊÇϿ콺 | 5 | 27.83 | 4,000 | 80 | 2017 | | 2024.09.27 | ¿ù¼¼ | ¿¥Æç¸®Ã¼¿¡À̵¿ | 6 | 24.55 | 2,000 | 70 | 2016 | | 2024.09.27 | ¿ù¼¼ | Ǫ¸¥Ç³°æÃ¤ | 5 | 33.77 | 2,000 | 85 | 2019 | | 2024.09.27 | Àü¼¼ | ¿£¿¡½º¿ùµåŸ¿ö | 4 | 29.18 | 23,940 | 0 | 2024 | | 2024.09.27 | Àü¼¼ | ¸¶¸¶½ººô | 3 | 19.69 | 11,950 | 0 | 2017 | | 2024.09.27 | Àü¼¼ | ¿£¿¡½º¿ùµåŸ¿ö | 4 | 29.18 | 25,000 | 0 | 2024 | | 2024.09.27 | Àü¼¼ | Çö´ëºô¶ó | -1 | 36.27 | 5,500 | 0 | 1991 | | 2024.09.26 | ¿ù¼¼ | ½Ö¿ëºô¶ó | 1 | 62.03 | 5,500 | 100 | 2001 | | 2024.09.26 | ¸Å¸Å | ¿ùµåŸ¿î(56-443) | -1 | 62.13 | 12,700 | | 2000 | | 2024.09.26 | Àü¼¼ | °øÀ۸ǼÇ6Â÷Aµ¿ | 3 | 54.72 | 15,700 | 0 | 2001 | | 2024.09.26 | Àü¼¼ | °øÀ۸ǼÇ6Â÷Aµ¿ | 3 | 54.72 | 15,700 | 0 | 2001 | | 2024.09.26 | Àü¼¼ | °æ¿øÅ¾½ººô | 4 | 62.25 | 20,000 | 0 | 2002 | | 2024.09.26 | ¿ù¼¼ | ¼±°á¾ÆÆ®ºô | 2 | 46.54 | 1,000 | 58 | 2003 | | 2024.09.26 | ¿ù¼¼ | ÆäÆ®¶óÇϿ콺 | 3 | 83.95 | 24,400 | 40 | 2004 | | 2024.09.26 | ¿ù¼¼ | °æ¹Î¾ÆÆ®ºô(105-21¹øÁö) | 3 | 28.05 | 13,000 | 25 | 2016 | | 2024.09.26 | ¿ù¼¼ | ÀÌ·¹¾ÆÆ®ºô | 1 | 52.93 | 5,000 | 50 | 2004 | | 2024.09.26 | ¿ù¼¼ | Ä¥¼ººô¶ó(56-431) | 1 | 44.91 | 12,000 | 10 | 1993 | | 2024.09.26 | ¿ù¼¼ | ¸í¼ººô¶ó(73-47) | 4 | 46.335 | 11,600 | 10 | 2001 | | 2024.09.26 | Àü¼¼ | ÁøÁÖºô¶ó(95-27) | 3 | 59.82 | 16,700 | 0 | 1991 | | 2024.09.26 | ¿ù¼¼ | ´Ù¿Â½£ | 6 | 25.47 | 500 | 85 | 2021 | | 2024.09.26 | ¸Å¸Å | ´Ù¾Èºô¶óÆ® | 6 | 53.62 | 35,100 | | 2016 | | 2024.09.26 | ¸Å¸Å | °Ç¿ì¾ÆÆ®¸Ç¼Ç | 5 | 137.94 | 48,500 | | 2002 | | 2024.09.26 | Àü¼¼ | º¦¿¤ÁÖÅà | -1 | 37.46 | 7,800 | 0 | 1987 | | 2024.09.26 | Àü¼¼ | µ¿³²ÁÖÅÃ(163-26) | 2 | 48.72 | 14,580 | 0 | 2003 | | 2024.09.26 | ¿ù¼¼ | ·ÎºóÇϿ콺 | 6 | 29.22 | 18,270 | 10 | 2016 | | 2024.09.26 | ¿ù¼¼ | (424-25) | 1 | 36.12 | 1,000 | 60 | 1991 | | 2024.09.26 | Àü¼¼ | Àº¼ºÄ³½½ | 5 | 23.1 | 12,900 | 0 | 2017 | | 2024.09.26 | Àü¼¼ | ´õ¿ø | 5 | 28.11 | 23,000 | 0 | 2019 | | 2024.09.26 | ¿ù¼¼ | ÇѰŸ¿î | 3 | 29.64 | 5,000 | 80 | 2021 | | 2024.09.26 | Àü¼¼ | ȼº¸Ç¼Ç15Â÷ | 2 | 75.06 | 21,400 | 0 | 1998 | | 2024.09.26 | Àü¼¼ | Ǫ¸¥Ç³°æÃ¤ | 4 | 26.29 | 21,000 | 0 | 2022 | | 2024.09.26 | ¿ù¼¼ | »ï¼ºÆÓ¸®½º | 3 | 39.3 | 5,000 | 130 | 2022 | | 2024.09.26 | Àü¼¼ | ´ë¿õÇÏÀÌÃ÷ºô¶ó | 4 | 40.06 | 9,500 | 0 | 1992 | | 2024.09.26 | Àü¼¼ | °øÀ۸ǼÇ6Â÷Aµ¿ | 3 | 54.72 | 14,700 | 0 | 2001 | | 2024.09.26 | ¸Å¸Å | ¼ºÈ£ÇÏÀ̺ô(1045-65) | 4 | 52.86 | 30,500 | | 2007 | | 2024.09.26 | ¸Å¸Å | ³²¼º¾ÆÆ®ºô | 5 | 24.92 | 29,500 | | 2017 | | 2024.09.26 | ¸Å¸Å | ½ÂÀ±¸Ç¼Ç | 4 | 63.33 | 24,000 | | 2002 | | 2024.09.25 | ¸Å¸Å | ·£µåÇϿ콺 | 5 | 17.73 | 24,000 | | 2016 | | 2024.09.25 | ¿ù¼¼ | ¿¥Æç¸®Ã¼(346-75) | 4 | 22.68 | 2,000 | 85 | 2015 | | 2024.09.25 | Àü¼¼ | ¼öÁ¤¸Ç¼Ç | 3 | 45.91 | 13,000 | 0 | 2002 | | 2024.09.25 | ¿ù¼¼ | ÆòȺô¶ó | 1 | 53.08 | 12,000 | 30 | 1994 | | 2024.09.25 | Àü¼¼ | (29-219) | 2 | 21.76 | 8,890 | 0 | 2008 | | 2024.09.25 | Àü¼¼ | ÇÑÀϱ׸°ºô | 4 | 40.14 | 12,000 | 0 | 2008 | | 2024.09.25 | ¿ù¼¼ | ¹ÎÆÓ¸®½º | 5 | 38.12 | 12,000 | 10 | 2008 | | 2024.09.25 | ¿ù¼¼ | Åä¼®¾Æ³×½ººô(102-291) | 5 | 44.51 | 8,000 | 35 | 2008 | | 2024.09.25 | Àü¼¼ | ¼±Á¤ÇÏ¿ì¡(51-2) | 5 | 60.36 | 16,800 | 0 | 2009 | | 2024.09.25 | Àü¼¼ | ¼¼ÀÎÆ®ºô(55-38) | 2 | 29.98 | 12,580 | 0 | 2012 | | 2024.09.25 | Àü¼¼ | µ¿Èºô¶ó(56-339) | 1 | 59.92 | 15,100 | 0 | 2001 | | 2024.09.25 | ¿ù¼¼ | ¸ÖƼÇϿ콺 | 4 | 17.02 | 500 | 47 | 2004 | | 2024.09.25 | ¿ù¼¼ | ´Ù¼Ø(864-49) | 3 | 35.77 | 5,000 | 70 | 2013 | | 2024.09.25 | Àü¼¼ | ÇϳªÅ¸¿îAµ¿ | 6 | 29.32 | 16,300 | 0 | 2015 | | 2024.09.25 | Àü¼¼ | ¼Ò¸Áºô¶ó³ªµ¿ | -1 | 49.98 | 8,800 | 0 | 1991 | | 2024.09.25 | ¸Å¸Å | ±¤¸íºô¶ó(56-98) | 1 | 43.2 | 13,000 | | 1991 | | 2024.09.25 | ¸Å¸Å | ¹Ð·¹´Ï¾ö¸Ç¼ÇBµ¿ | 3 | 43.54 | 17,700 | | 2001 | | 2024.09.25 | ¸Å¸Å | Çö´ëȨŸ¿î | 4 | 29.52 | 15,000 | | 2011 | | 2024.09.25 | ¸Å¸Å | ¹Ù·ÎÅ©ºô | 3 | 29.9 | 18,500 | | 2014 | | 2024.09.25 | ¿ù¼¼ | ¿µ¾Ïºô¶ó | -1 | 44.21 | 2,000 | 35 | 1998 | | 2024.09.25 | Àü¼¼ | Ǫ¸¥Ç³°æÃ¤ | 3 | 26.29 | 21,000 | 0 | 2022 | | 2024.09.25 | Àü¼¼ | ¿ÍÀ̾غñ | 2 | 29.84 | 17,500 | 0 | 2018 | | 2024.09.25 | Àü¼¼ | º£¾ÆÆ®¸®½º | 5 | 35.56 | 20,500 | 0 | 2017 | | 2024.09.25 | Àü¼¼ | º£¾ÆÆ®¸®½º | 5 | 35.56 | 20,500 | 0 | 2017 | | 2024.09.25 | Àü¼¼ | ¿¤ÄÉÀ̵帲ºô | 2 | 29.99 | 18,450 | 0 | 2017 | | 2024.09.25 | Àü¼¼ | ¼Ò¸Áºô¶ó³ªµ¿ | -1 | 49.98 | 8,800 | 0 | 1991 | | 2024.09.25 | ¿ù¼¼ | ¶ó¿ò¸®Ã÷ºô | 4 | 29.9 | 2,000 | 100 | 2016 | | 2024.09.25 | ¿ù¼¼ | ºí·ç½ºÄ«À̺ô | 2 | 29.92 | 5,000 | 70 | 2016 | | 2024.09.25 | Àü¼¼ | Á¤Àκô¶ó³ªµ¿ | 2 | 52.08 | 16,000 | 0 | 1994 | | 2024.09.24 | ¿ù¼¼ | ¹é°¿ø·ë | 4 | 12.8 | 1,000 | 40 | 2011 | | 2024.09.24 | Àü¼¼ | µå¸²ÇϿ콺 | 3 | 38.04 | 13,600 | 0 | 2012 | | 2024.09.24 | ¿ù¼¼ | ¼Ò´ã¹ë¸® | 4 | 29.14 | 17,500 | 8 | 2012 | | 2024.09.24 | Àü¼¼ | ¼±°æÇÏÀÌÃ÷(367-67) | 7 | 28.86 | 19,550 | 0 | 2012 | | 2024.09.24 | Àü¼¼ | ¼±°æÇÏÀÌÃ÷(367-67) | 7 | 28.86 | 19,550 | 0 | 2012 | | 2024.09.24 | ¿ù¼¼ | ³×¿ÀÆÄÅ©ºô | 3 | 38.95 | 13,000 | 20 | 2013 | | 2024.09.24 | Àü¼¼ | Á¤ÀºÆÄÅ©ºô | 2 | 41.92 | 17,850 | 0 | 2016 | | 2024.09.24 | ¿ù¼¼ | ½Å¼ººôµù(1096-2) | 2 | 13.6 | 1,000 | 38 | 2011 | | 2024.09.24 | ¿ù¼¼ | ¼¿ì¿¡ÄÚºô | 5 | 40.4 | 14,100 | 10 | 2010 | | 2024.09.24 | Àü¼¼ | ³ª»ê¸Ç¼Ç(430-7) | 2 | 52.28 | 18,390 | 0 | 2008 | | 2024.09.24 | Àü¼¼ | ¿¡À̽ºÅ¸¿î | 4 | 52.57 | 17,000 | 0 | 2007 | | 2024.09.24 | ¿ù¼¼ | Ȱ1016-36,37È£ | 2 | 59.73 | 17,000 | 10 | 2004 | | 2024.09.24 | ¿ù¼¼ | ¼±°æºôŸ¿î | 1 | 57.1 | 3,000 | 80 | 2001 | | 2024.09.24 | ¿ù¼¼ | È¿øºô¶ó | 2 | 49.42 | 13,100 | 10 | 1992 | | 2024.09.24 | ¿ù¼¼ | ȼººô¶ó(56-347) | 4 | 42 | 11,500 | 20 | 2002 | | 2024.09.24 | Àü¼¼ | ¸þºñ¿ì½º | 5 | 29.21 | 17,360 | 0 | 2016 | | 2024.09.24 | ¿ù¼¼ | »õ·Ò½ºÅ¸Áî | 3 | 28.62 | 15,000 | 17 | 2016 | | 2024.09.24 | ¿ù¼¼ | ¿¤Æç¸®½º | 5 | 29.98 | 3,000 | 100 | 2022 | | 2024.09.24 | Àü¼¼ | ¶óÀÎÆÄÅ© | 6 | 29 | 22,000 | 0 | 2018 | | 2024.09.24 | ¿ù¼¼ | ÇÁ¸®¸Þ¶ó | 4 | 29.76 | 1,000 | 110 | 2018 | | 2024.09.24 | ¸Å¸Å | ¾¾Æ¼ÇϿ콺Aµ¿ | 6 | 24.8 | 23,500 | | 2017 | | 2024.09.24 | Àü¼¼ | ¿¡À̽ºÅ¸¿î | 4 | 52.57 | 17,000 | 0 | 2007 | | 2024.09.24 | ¿ù¼¼ | ¼Çö | 2 | 12.24 | 500 | 40 | 2011 | | 2024.09.24 | ¸Å¸Å | Á¦ÀÌ¿ÍÀÌÆç¸®½º(849-16¹øÁö) | 3 | 29.9 | 19,800 | | 2016 | | 2024.09.24 | ¸Å¸Å | Á¦ÀÌ¿ÍÀÌÆç¸®½º(849-16¹øÁö) | 2 | 29.9 | 19,800 | | 2016 | | 2024.09.24 | ¸Å¸Å | ¼ºµµºô¶ó(458-22) | 4 | 42.03 | 12,350 | | 2002 | | 2024.09.23 | ¸Å¸Å | ½Å¿øÁÖÅà | 1 | 27.25 | 14,400 | | 1987 | | 2024.09.23 | ¸Å¸Å | ÇØ¿À¸§(24-59) | 4 | 13.44 | 7,000 | | 2011 | | 2024.09.23 | Àü¼¼ | Á¤°¨Å¸¿îB | 3 | 27.2 | 15,700 | 0 | 2016 | | 2024.09.23 | ¿ù¼¼ | ÇÑ¿ïij½ººô | 3 | 60.7 | 27,900 | 10 | 2010 | | 2024.09.23 | ¸Å¸Å | ´õŬ·¡½Ä | 4 | 29.43 | 21,000 | | 2018 | | 2024.09.23 | ¿ù¼¼ | 29-76 | 6 | 74.97 | 5,000 | 100 | 2021 | | 2024.09.23 | ¸Å¸Å | µð¿£¾¾³ëºí·¹½º | 4 | 13.82 | 8,500 | | 2011 | | 2024.09.23 | ¸Å¸Å | ¿¤ºñºô¶óÆ® | 3 | 62.52 | 29,700 | | 2000 | | 2024.09.23 | ¸Å¸Å | û¼º½ºÄ«ÀÌ | 3 | 29.78 | 8,500 | | 2008 | | 2024.09.23 | ¸Å¸Å | ÀÚ¾ÖÈú½º | 6 | 50 | 22,500 | | 2010 | | 2024.09.23 | ¸Å¸Å | ÇØ¿À¸§(24-59) | 4 | 13.44 | 7,000 | | 2011 | | 2024.09.23 | ¸Å¸Å | µð¿£¾¾³ëºí·¹½º | 3 | 13.82 | 8,500 | | 2011 | | 2024.09.23 | Àü¼¼ | ¿¬Èñºô¶ó | 3 | 65.65 | 19,100 | 0 | 2000 | | 2024.09.23 | Àü¼¼ | ¿¬Èñºô¶ó | 3 | 65.65 | 19,100 | 0 | 2000 | | 2024.09.23 | Àü¼¼ | ³²¼º¾ÆÆ®ºô(369-6) | 6 | 36.85 | 22,410 | 0 | 2013 | | 2024.09.23 | Àü¼¼ | ÁÖ¿¬ÇϿ콺 | 5 | 27.28 | 26,000 | 0 | 2022 | | 2024.09.23 | Àü¼¼ | ´ë¼ºÄÉÀÌÁ¦ÀÌ | 11 | 29.92 | 25,350 | 0 | 2020 | | 2024.09.23 | ¿ù¼¼ | ¶ó¿òÇϿ콺 | 5 | 20.14 | 1,000 | 100 | 2019 | | 2024.09.23 | Àü¼¼ | ½ºÅ丮ÇϿ콺(1014-23) | 2 | 12.64 | 7,000 | 0 | 2012 | | 2024.09.23 | ¿ù¼¼ | ¿¥Æç¸®Ã¼ºñµ¿ | 5 | 26.13 | 10,000 | 50 | 2017 | | 2024.09.23 | ¿ù¼¼ | ANPȰî | 3 | 22.85 | 2,000 | 90 | 2022 | | 2024.09.23 | Àü¼¼ | Æ®¸®Çÿ¡½ººô(966-22) | 3 | 58.77 | 17,000 | 0 | 2012 | | 2024.09.23 | Àü¼¼ | Æ®¸®Çÿ¡½ººô(966-22) | 3 | 58.77 | 17,000 | 0 | 2012 | | 2024.09.23 | ¿ù¼¼ | ³ª·¡ÈÀÌÆ®ºô | 4 | 62.34 | 2,000 | 75 | 2004 | | 2024.09.23 | Àü¼¼ | ¿À¼ººô¶ó | 2 | 46.89 | 10,000 | 0 | 1986 | | 2024.09.23 | Àü¼¼ | ¿¤ºñºô¶óÆ® | 3 | 62.52 | 20,250 | 0 | 2000 | | 2024.09.23 | Àü¼¼ | È«ÁÖ·º½ººô | 5 | 80.64 | 24,000 | 0 | 2009 | | 2024.09.23 | ¿ù¼¼ | ÇÑ¿ïij½ººô | 3 | 60.7 | 25,110 | 10 | 2010 | | 2024.09.23 | Àü¼¼ | À£ºù¶óÀÌÇÁ | 3 | 62.79 | 22,800 | 0 | 2010 | | 2024.09.23 | ¿ù¼¼ | ½Å¿µÈ¨Å¸¿î | 5 | 46.65 | 3,000 | 85 | 2014 | | 2024.09.22 | ¸Å¸Å | ¿¤ÄÉÀ̵帲ºô | 6 | 36.71 | 27,000 | | 2016 | | 2024.09.22 | ¿ù¼¼ | ¾ÆÀ̵ð¿ò | 4 | 26.42 | 12,000 | 40 | 2016 | | 2024.09.21 | ¸Å¸Å | ½ÅÈï¶ß¶õä | 6 | 34.78 | 30,500 | | 2017 | | 2024.09.21 | Àü¼¼ | Àå¹ÌÁÖÅÃ8Â÷ | 3 | 35.76 | 10,000 | 0 | 1991 | | 2024.09.21 | ¿ù¼¼ | ¼±°æºô¶ó(95-19) | 1 | 62.14 | 500 | 28 | 1994 | | 2024.09.21 | Àü¼¼ | È«¼ºÆÄÅ©¸Ç¼Ç³ªµ¿ | 3 | 41.52 | 13,700 | 0 | 2001 | | 2024.09.21 | ¿ù¼¼ | ¼º¿ìÇÏÀÌÃ÷ºô¶ó2Â÷ | 2 | 51.61 | 5,500 | 55 | 2002 | | 2024.09.21 | Àü¼¼ | Àå¼öÇϿ콺 | 3 | 31.26 | 8,000 | 0 | 2002 | | 2024.09.21 | ¿ù¼¼ | È¿ø¿ùµåºô | 2 | 34.32 | 10,000 | 20 | 2002 | | 2024.09.21 | ¿ù¼¼ | °ÇÇüºô¶ó³ªµ¿ | 3 | 65.52 | 19,200 | 20 | 2001 | | 2024.09.21 | ¿ù¼¼ | Èľϸ®Ä¡ºô | 5 | 60.88 | 5,000 | 80 | 2008 | | 2024.09.21 | ¿ù¼¼ | ´Ù¼Ø(422-3) | 5 | 27.64 | 3,000 | 60 | 2014 | | 2024.09.21 | ¿ù¼¼ | µ¿¾çÇÏ¿ì¡(46-295) | 2 | 29.77 | 5,000 | 70 | 2014 | | 2024.09.21 | ¿ù¼¼ | ´Ù¿Èµµ·¡ | 3 | 26.43 | 10,000 | 48 | 2016 | | 2024.09.21 | ¿ù¼¼ | ¸¶·ç | 3 | 29.41 | 15,700 | 24 | 2017 | | 2024.09.21 | Àü¼¼ | °ø°£ÈÞ(864-10) | 2 | 26.29 | 20,790 | 0 | 2021 | | 2024.09.21 | ¸Å¸Å | Çý°¾ÆÆ®ºô | 4 | 46.96 | 20,800 | | 2008 | | 2024.09.21 | ¿ù¼¼ | ³×¿ÀÆÄÅ©ºô(340-66) | 2 | 36.79 | 2,000 | 70 | 2013 | | 2024.09.21 | ¸Å¸Å | ¿ùµåÆÄÅ©ºä°¡µ¿ | -1 | 61.04 | 15,000 | | 2002 | | 2024.09.21 | ¸Å¸Å | ¶ó¿òÇϿ콺 | 2 | 29.88 | 25,500 | | 2019 | | 2024.09.20 | ¿ù¼¼ | ´ë½Å±×¸°ºô¶ó | 3 | 52.35 | 2,000 | 72 | 1997 | | 2024.09.20 | ¿ù¼¼ | 61-134 | 4 | 22.43 | 13,000 | 17 | 2015 | | 2024.09.20 | Àü¼¼ | ½Å¸ñºô¶ó(102-148) | 5 | 40.7 | 14,800 | 0 | 2002 | | 2024.09.20 | Àü¼¼ | ÇÁ¶óÀÓÇϿ콺(393-23) | 2 | 27.16 | 14,500 | 0 | 2016 | | 2024.09.20 | ¿ù¼¼ | ¾ÆÀ̵ð¿ò | 3 | 26.42 | 0 | 160 | 2016 | | 2024.09.20 | ¸Å¸Å | ȲÁ¦ºô¸®Áö | -1 | 84.35 | 18,000 | | 1998 | | 2024.09.20 | ¸Å¸Å | ´ë±Ùºô¶ó | 3 | 46.44 | 23,500 | | 1990 | | 2024.09.20 | ¸Å¸Å | È¿¼ººô¶ó | 2 | 44.4 | 27,500 | | 1991 | | 2024.09.20 | ¸Å¸Å | µ¿ÀϺô¶ó | 2 | 33.72 | 15,000 | | 1991 | | 2024.09.20 | ¿ù¼¼ | ÀÎÅÍ½ÃÆ¼ | 6 | 29.93 | 2,000 | 70 | 2011 | | 2024.09.20 | ¿ù¼¼ | NK½¦¸£ºô | 3 | 56.16 | 17,600 | 30 | 2009 | | 2024.09.20 | ¿ù¼¼ | Çѹ鸮Ã÷ºô(56-547) | 2 | 45.13 | 3,000 | 55 | 2008 | | 2024.09.20 | ¿ù¼¼ | ȼººô¶óAµ¿(56-323) | 4 | 42.87 | 11,100 | 25 | 2001 | | 2024.09.20 | ¿ù¼¼ | ±îÄ¡¸Ç¼Ç | 1 | 58.59 | 4,000 | 75 | 1993 | | 2024.09.20 | Àü¼¼ | ¼¼±¤ºô¶ó°¡µ¿ | 2 | 37.96 | 10,500 | 0 | 1988 | | 2024.09.20 | ¿ù¼¼ | ¿¹Àκô¶ó(379-40) | 2 | 44.35 | 3,000 | 70 | 2003 | | 2024.09.20 | Àü¼¼ | ±¤¸²¾ÆÆ®ºô¶ó(111-51) | 2 | 50.22 | 10,200 | 0 | 1993 | | 2024.09.20 | ¿ù¼¼ | È«Àͺô¶ó | 1 | 78 | 14,500 | 30 | 1995 | | 2024.09.20 | Àü¼¼ | »ïÈ£ºô¶ó(396-13) | 1 | 62.52 | 17,640 | 0 | 2002 | | 2024.09.20 | Àü¼¼ | ÁøÁÖºô¶ó | 4 | 56.82 | 14,600 | 0 | 1991 | | 2024.09.20 | ¿ù¼¼ | (820-30) | 1 | 27.98 | 1,000 | 40 | 1986 | | 2024.09.20 | ¿ù¼¼ | »ï±¤¸ð´×ºô | 2 | 61.86 | 17,000 | 10 | 2003 | | 2024.09.19 | ¿ù¼¼ | ½Å¼ººôµù(1096-2) | 4 | 12.8 | 500 | 37 | 2011 | | 2024.09.19 | ¿ù¼¼ | ÇØÇÇÇϿ콺(1128-4) | 4 | 12.7 | 1,000 | 45 | 2012 | | 2024.09.19 | Àü¼¼ | ¿¹°¡Ã¤l | 8 | 52.73 | 20,000 | 0 | 2013 | | 2024.09.19 | ¿ù¼¼ | ºí·ç½ºÄ«À̺ô(860-20) | 5 | 30.13 | 18,700 | 15 | 2014 | | 2024.09.19 | ¿ù¼¼ | ¼öÇǾƺô | 3 | 29.34 | 13,000 | 15 | 2015 | | 2024.09.19 | ¿ù¼¼ | ´õ½ºÀ§Æ®(457-20) | 5 | 21.97 | 5,000 | 60 | 2022 | | 2024.09.19 | ¿ù¼¼ | ´õ±×¶ó½Ã¾Æ | 4 | 23.73 | 22,800 | 5 | 2022 | | 2024.09.19 | Àü¼¼ | ³²±¤¾ÆÆ®ºôAµ¿ | 3 | 35.54 | 10,000 | 0 | 2018 | | 2024.09.19 | ¿ù¼¼ | Ȱ·°½Ã¿ÀÇǽºÅÚ | 3 | 24.86 | 19,000 | 15 | 2018 | | 2024.09.19 | ¿ù¼¼ | ºí·ç½ºÄ«À̺ô(366) | 6 | 24.41 | 16,100 | 15 | 2015 | | 2024.09.19 | ¸Å¸Å | ´ë¿ìºô¶ó°¡µ¿ | 1 | 36.65 | 12,600 | | 1990 | | 2024.09.19 | ¸Å¸Å | ÇÑ¿ï¶ß¶õä(995-20) | 3 | 58.52 | 28,500 | | 2011 | | 2024.09.19 | ¸Å¸Å | »ï¼ººô¶ó(56-47) | 4 | 40.96 | 13,500 | | 2002 | | 2024.09.19 | ¿ù¼¼ | °æ¿¬Å¸¿î | 2 | 46.44 | 2,000 | 59 | 2008 | | 2024.09.19 | Àü¼¼ | Á¤Çöºô¶ó | 2 | 66.02 | 19,400 | 0 | 2000 | | 2024.09.19 | ¿ù¼¼ | ÇÏÀººô¸®Áö(105-449) | 3 | 59.41 | 2,000 | 80 | 2000 | | 2024.09.18 | ¸Å¸Å | ÇÏÀÌÆ®¸Ç¼Ç | 4 | 38.52 | 12,000 | | 2000 | | 2024.09.18 | Àü¼¼ | Çý¼ºÆÓ¸®½ººô(392-56) | 5 | 39.27 | 22,000 | 0 | 2014 | | 2024.09.15 | Àü¼¼ | ´õ½ºÅ¸ÀÏ | 3 | 74.55 | 38,000 | 0 | 2017 | | 2024.09.14 | Àü¼¼ | °ÇÇü½¦¸£ºô(343-27) | 4 | 53.18 | 17,890 | 0 | 2007 | | 2024.09.14 | ¿ù¼¼ | µ¿µµÇÏÀÌÃ÷ºô¶ó | 1 | 60.11 | 16,000 | 10 | 1998 | | 2024.09.14 | Àü¼¼ | ¸¶Å©ÇϿ콺 | 5 | 28.59 | 20,900 | 0 | 2020 | | 2024.09.14 | Àü¼¼ | Àå¿øÇÏÀ̺ô | 4 | 63.65 | 18,390 | 0 | 2001 | | 2024.09.14 | Àü¼¼ | ½ºÄ«À̺ô(400-72) | 3 | 29.6 | 16,000 | 0 | 2016 | | 2024.09.14 | ¸Å¸Å | µ¿µµÇÏÀÌÃ÷8Â÷ | 2 | 66.24 | 26,500 | | 1997 | | 2024.09.14 | ¸Å¸Å | ¼ö¸íºô¶ó | 3 | 84.39 | 44,000 | | 1997 | | 2024.09.13 | ¿ù¼¼ | ³×½ºÆ®ºô | 2 | 52.895 | 17,500 | 6 | 2007 | | 2024.09.13 | Àü¼¼ | °Å¼º | 2 | 43.92 | 16,500 | 0 | 1987 | | 2024.09.13 | Àü¼¼ | ¿ì¼º¿¬¸³ | 1 | 56.64 | 13,000 | 0 | 1985 | | 2024.09.13 | ¿ù¼¼ | ¼¿¸®º£ÀÌ1 | 2 | 31.59 | 1,000 | 42 | 2001 | | 2024.09.13 | ¿ù¼¼ | »ï¿øÇÇ¾ÆÆ®Dµ¿ | 3 | 52.95 | 14,200 | 15 | 2001 | | 2024.09.13 | ¿ù¼¼ | µ¿¼ÁÖÅà | 3 | 44.51 | 500 | 32 | 2002 | | 2024.09.13 | Àü¼¼ | µ¿¿ì¸Ç¼Ç°¡µ¿ | 5 | 46.64 | 12,700 | 0 | 2001 | | 2024.09.13 | Àü¼¼ | µ¿¿ì¸Ç¼Ç°¡µ¿ | 5 | 46.64 | 12,700 | 0 | 2001 | | 2024.09.13 | ¿ù¼¼ | ´Ù³ª³×½ºÆ®ºô(56-587) | 4 | 39.19 | 2,500 | 70 | 2008 | | 2024.09.13 | ¿ù¼¼ | ÇÑ¿ï¶ß¶õä(995-20) | 4 | 33.94 | 13,000 | 20 | 2011 | | 2024.09.13 | ¿ù¼¼ | ¿¤¸®½Ã¾Æ | 3 | 25.33 | 2,000 | 80 | 2013 | | 2024.09.13 | Àü¼¼ | °æ¹Î¾ÆÆ®ºô | 7 | 44.06 | 19,000 | 0 | 2016 | | 2024.09.13 | Àü¼¼ | ´õ-¶ó¿Â | 2 | 28.93 | 19,000 | 0 | 2018 | | 2024.09.13 | ¿ù¼¼ | ´õ¾î¿ï¸² | 3 | 26.72 | 12,000 | 20 | 2019 | | 2024.09.13 | Àü¼¼ | ¼ºÈ£°ñµç¸Ç¼Ç | 1 | 60.21 | 14,300 | 0 | 1996 | | 2024.09.13 | ¸Å¸Å | ½Åµ¿¾Æºô¶ó | 3 | 37.2 | 15,200 | | 1993 | | 2024.09.13 | ¸Å¸Å | ½Å¿µº£¸£µð¿ò | 5 | 28.07 | 16,000 | | 2019 | | 2024.09.13 | ¿ù¼¼ | º¦¿¤ºô¶ó(80-39) | 1 | 60.265 | 12,000 | 70 | 2002 | | 2024.09.13 | Àü¼¼ | (56-250) | -1 | 40.32 | 6,860 | 0 | 1992 | | 2024.09.13 | ¿ù¼¼ | ¿ùµåŸ¿î(56-443) | 2 | 60.37 | 17,000 | 10 | 2000 | | 2024.09.13 | ¿ù¼¼ | ¼ºÀººô¶ó(56-122) | 1 | 42.78 | 10,690 | 17 | 2000 | | 2024.09.13 | Àü¼¼ | ¼øÈ¯ºô¶óBµ¿(46-199) | 2 | 42.12 | 12,300 | 0 | 2001 | | 2024.09.12 | ¿ù¼¼ | ÇÑȺ£½ºÆ®ºô | 3 | 38.31 | 11,900 | 17 | 2002 | | 2024.09.12 | Àü¼¼ | ÁøÇüºô¶ó(353-112)°¡µ¿ | 1 | 65.73 | 16,800 | 0 | 2001 | | 2024.09.12 | Àü¼¼ | »ï¿øÇÏÀÌÃ÷3Â÷ | 4 | 31.35 | 8,060 | 0 | 1993 | | 2024.09.12 | Àü¼¼ | ¿ì¿µÆÄũŸ¿îBµ¿ | 4 | 52.84 | 13,000 | 0 | 2002 | | 2024.09.12 | Àü¼¼ | °è¸íÁÖÅà | 2 | 65.79 | 19,000 | 0 | 2000 | | 2024.09.12 | ¿ù¼¼ | û¿ìÆÄÅ©ºô | 4 | 52.22 | 2,000 | 70 | 2001 | | 2024.09.12 | ¿ù¼¼ | ¼ºÈ£ºô¶ó2Â÷Bµ¿(57),¼ºÈ£2Â÷¸Ç¼ÇA | 4 | 47.42 | 13,000 | 20 | 2002 | | 2024.09.12 | ¿ù¼¼ | ¸ð¾Æºô(870-47) | 2 | 39.43 | 11,025 | 3 | 2007 | | 2024.09.12 | ¸Å¸Å | µµ¾ç¶óºñ¾Óºô | 6 | 55.79 | 30,500 | | 2010 | | 2024.09.12 | ¸Å¸Å | ŰæÇÏÀÌÃ÷(343-29) | 1 | 64.22 | 30,000 | | 2000 | | 2024.09.12 | Àü¼¼ | ¸í½ÅŸ¿î6Â÷(341-20) | 1 | 64.6 | 19,500 | 0 | 2001 | | 2024.09.12 | ¿ù¼¼ | °Å»êºô¸®Áö(1121-12) | 3 | 49.86 | 18,500 | 27 | 2010 | | 2024.09.12 | ¿ù¼¼ | ´õÁ¸ÆÛ½ºÆ® | 2 | 29.67 | 24,000 | 10 | 2022 | | 2024.09.12 | Àü¼¼ | ¼º¿øÆÄÅ©ºô(102-232) | 5 | 40.28 | 12,600 | 0 | 2008 | | 2024.09.12 | ¿ù¼¼ | ¿¤¸®½Ã¾Æ | 2 | 25.33 | 14,000 | 10 | 2013 | | 2024.09.12 | Àü¼¼ | ÀÌ·¹½¦¸£ºô(1046-5) | 2 | 40.79 | 17,000 | 0 | 2014 | | 2024.09.12 | Àü¼¼ | ½Â½ÂÀ屸 | 4 | 13.6 | 9,000 | 0 | 2015 | | 2024.09.12 | ¸Å¸Å | û¼º½ºÄ«ÀÌ | 3 | 29.78 | 13,400 | | 2008 | | 2024.09.12 | Àü¼¼ | °ñµåij½½ | 4 | 41.39 | 19,000 | 0 | 2016 | | 2024.09.12 | Àü¼¼ | ¼¾Æ®¸®¿ò | 5 | 40.37 | 19,000 | 0 | 2016 | | 2024.09.12 | ¿ù¼¼ | ½Å¿µº£¸£µð¿ò | 5 | 28.07 | 3,000 | 50 | 2019 | | 2024.09.12 | Àü¼¼ | ÇÁ¶óÀÓij½½ | 5 | 29.16 | 19,000 | 0 | 2020 | | 2024.09.12 | ¿ù¼¼ | ¸ð¾Æºô(870-47) | 2 | 39.43 | 11,025 | 3 | 2007 | | 2024.09.11 | ¸Å¸Å | ÈúÇϿ콺(377-12) | 4 | 29.96 | 20,500 | | 2013 | | 2024.09.11 | ¸Å¸Å | ½ÅÈï¶ß¶õä | 5 | 39.63 | 31,500 | | 2017 | | 2024.09.11 | ¸Å¸Å | ¿ì¼ººô¶ó | 1 | 67.3 | 20,000 | | 2000 | | 2024.09.11 | ¸Å¸Å | D.S¿¡ÄÚºô | 4 | 26.21 | 15,500 | | 2013 | | 2024.09.11 | Àü¼¼ | ÇØÆòij½½ | 12 | 19.73 | 27,000 | 0 | 2024 | | 2024.09.11 | Àü¼¼ | À̳뼿(831-5¿Ü) | 5 | 35.73 | 19,500 | 0 | 2014 | | 2024.09.11 | ¿ù¼¼ | ·çü¾²¸® | 6 | 12 | 2,200 | 29 | 2015 | | 2024.09.11 | ¿ù¼¼ | ·çü¾²¸® | 7 | 12 | 3,000 | 22 | 2015 | | 2024.09.11 | ¿ù¼¼ | È«¼ºÇ³°æÃ¤ | 6 | 37.15 | 2,000 | 78 | 2016 | | 2024.09.11 | ¿ù¼¼ | À̼ö¾ÆÆ®ºô2Â÷ | 9 | 36.12 | 1,000 | 70 | 2016 | | 2024.09.11 | ¿ù¼¼ | °æ¹Î¾ÆÆ®ºô(393-21) | 4 | 37.19 | 23,490 | 5 | 2017 | | 2024.09.11 | ¿ù¼¼ | DHÆÓ¸®½º102µ¿ | 6 | 29.56 | 19,500 | 10 | 2018 | | 2024.09.11 | ¿ù¼¼ | DHÆÓ¸®½º102µ¿ | 6 | 29.56 | 19,500 | 10 | 2018 | | 2024.09.11 | Àü¼¼ | ¼Ç¹ë¸® | 3 | 29.47 | 26,800 | 0 | 2024 | | 2024.09.11 | ¿ù¼¼ | ÇØÆòij½½ | 12 | 20.4 | 20,000 | 35 | 2024 | | 2024.09.11 | ¿ù¼¼ | À̼ö¾ÆÆ®ºô2Â÷ | 9 | 36.12 | 1,000 | 63 | 2016 | | 2024.09.11 | ¸Å¸Å | ȲÁ¦±×·£µåÆÄÅ© | 3 | 48.89 | 22,000 | | 2008 | | 2024.09.11 | ¿ù¼¼ | ´Ù¼Ø(773-3) | 5 | 40.53 | 12,000 | 36 | 2012 | | 2024.09.11 | ¿ù¼¼ | (1016-31)À̵çºô¸®Áö | 4 | 22.39 | 1,000 | 55 | 2011 | | 2024.09.11 | ¿ù¼¼ | ½Å¾ç±×¸°ºô(56-46) | 3 | 53.97 | 12,000 | 27 | 2008 | | 2024.09.11 | ¿ù¼¼ | È£¼º±×¸°ºôAµ¿ | 2 | 36.42 | 2,000 | 70 | 2001 | | 2024.09.11 | Àü¼¼ | Áß¾ÓÆÄÅ©¸Ç¼Ç5Â÷ | 4 | 54.02 | 12,000 | 0 | 1999 | | 2024.09.11 | ¿ù¼¼ | °ü¿ìŸ¿îBµ¿ | 5 | 42.51 | 12,100 | 10 | 2002 | | 2024.09.11 | ¿ù¼¼ | (56-463) | -1 | 46.59 | 150 | 75 | 1990 | | 2024.09.11 | Àü¼¼ | ȼººô¶óAµ¿(56-323) | 1 | 41.7 | 10,800 | 0 | 2001 | | 2024.09.11 | ¿ù¼¼ | ¿µ³²ºô¶óÆ® | 1 | 43.2 | 9,990 | 15 | 2002 | | 2024.09.11 | Àü¼¼ | »êÈ£¸Ç¼Ç³ªµ¿ | 3 | 64.63 | 18,000 | 0 | 2002 | | 2024.09.10 | Àü¼¼ | ±¤¸íºô¶ó9Â÷ | 3 | 48.84 | 10,000 | 0 | 1995 | | 2024.09.10 | ¿ù¼¼ | ÇØÇÇÇϿ콺(1128-4) | 2 | 14.89 | 2,000 | 40 | 2012 | | 2024.09.10 | Àü¼¼ | µð¿¡½ºÇÁ¶ó´Ù | 2 | 36.78 | 17,850 | 0 | 2012 | | 2024.09.10 | ¿ù¼¼ | ¿ì¸®ÇÏÀÌÃ÷ºô | 2 | 49.65 | 3,000 | 100 | 2003 | | 2024.09.10 | ¿ù¼¼ | ·°Å°ºô¶ó | 4 | 30.96 | 1,000 | 60 | 1991 | | 2024.09.10 | ¿ù¼¼ | ¼º¾Èºô¶ó(379-61) | 4 | 38.7 | 10,800 | 18 | 1994 | | 2024.09.10 | ¸Å¸Å | SKÆÄÅ©¸®¿ò | 2 | 23.61 | 18,600 | | 2019 | | 2024.09.10 | ¿ù¼¼ | ȼººô¶ó30Â÷(55-26) | 1 | 47.6 | 11,400 | 40 | 2001 | | 2024.09.10 | ¸Å¸Å | ¸®Á¨Æ®¶ó¿ò(344-11) | 2 | 41.99 | 25,500 | | 2014 | | 2024.09.10 | ¸Å¸Å | ´Ùºñ¸Ç¼ð | 2 | 74.58 | 18,500 | | 2000 | | 2024.09.10 | ¿ù¼¼ | ÇØÆòij½½ | 12 | 16.19 | 23,500 | 14 | 2024 | | 2024.09.10 | ¿ù¼¼ | ¼°æÆÓ¸®½º | 6 | 28.53 | 18,900 | 20 | 2019 | | 2024.09.10 | Àü¼¼ | ¿ÍÀ̾غñ | 4 | 27.94 | 16,000 | 0 | 2016 | | 2024.09.10 | Àü¼¼ | ÆÓ¶óÀ̽ºÅ¸¿î | 4 | 23.65 | 14,740 | 0 | 2016 | | 2024.09.10 | Àü¼¼ | Çý¼ºÆÓ¸®½ººô(392-56) | 6 | 28.78 | 17,200 | 0 | 2014 | | 2024.09.10 | ¿ù¼¼ | ¸ÖƼÇϿ콺 | 4 | 17.02 | 500 | 47 | 2004 | | 2024.09.09 | ¸Å¸Å | ¸®Á¨Æ®¶ó¿ò-Ȱî | 6 | 27.83 | 20,000 | | 2015 | | 2024.09.09 | ¿ù¼¼ | ¶óÀÎÆÄÅ© | 3 | 28.35 | 2,000 | 95 | 2019 | | 2024.09.09 | Àü¼¼ | ´õÁ¸ÆÛ½ºÆ® | 2 | 29.97 | 27,700 | 0 | 2022 | | 2024.09.09 | ¿ù¼¼ | °æ¹Î¾ÆÆ®ºô | 4 | 26.4 | 4,000 | 70 | 2016 | | 2024.09.09 | ¿ù¼¼ | ´Ù¼ØÅ¸¿îA,B | 5 | 37.95 | 18,500 | 25 | 2013 | | 2024.09.09 | ¿ù¼¼ | ¼Ò´ã¹ë¸®½ºBµ¿ | 5 | 29.75 | 500 | 60 | 2013 | | 2024.09.09 | ¿ù¼¼ | LUCE¥±(·çüby¿¹¿ì) | 8 | 14.2 | 4,500 | 6 | 2012 | | 2024.09.09 | ¿ù¼¼ | ÇØÆòij½½ | 10 | 20.4 | 22,800 | 20 | 2024 | | 2024.09.09 | ¿ù¼¼ | ANPȰî | 4 | 23.44 | 1,000 | 100 | 2022 | | 2024.09.09 | Àü¼¼ | ´õÁ¸ÆÛ½ºÆ® | 2 | 29.97 | 30,800 | 0 | 2022 | | 2024.09.09 | ¿ù¼¼ | ¶óÇǾƳë | 5 | 27 | 5,000 | 70 | 2022 | | 2024.09.09 | ¿ù¼¼ | ¿ì¼ººô¶ó(98-40) | -1 | 64.81 | 1,000 | 100 | 2001 | | 2024.09.09 | ¸Å¸Å | µ¿¾çÄý½ººô(425-46) | 3 | 44.64 | 21,000 | | 2003 | | 2024.09.09 | ¸Å¸Å | º®»êȨŸ¿î(1061-3) | 5 | 59.03 | 29,500 | | 2008 | | 2024.09.09 | ¿ù¼¼ | ¿ìȱ׸° | 2 | 46.6 | 21,000 | 5 | 2011 | | 2024.09.09 | ¸Å¸Å | À¯³ëÀÌ¾Æ | 5 | 67.89 | 55,000 | | 2023 | | 2024.09.09 | ¸Å¸Å | ´ë¼º¸Ç¼Ç | 3 | 59.77 | 23,500 | | 1983 | | 2024.09.09 | ¸Å¸Å | »ì·½ÇϿ콺5Â÷ | 5 | 47.1 | 15,000 | | 2001 | | 2024.09.09 | ¿ù¼¼ | ÀÎÅÍ½ÃÆ¼ºô¶ó(392-13) | -1 | 56.51 | 4,000 | 55 | 2000 | | 2024.09.09 | ¿ù¼¼ | ¿ì¼ººô¶ó12Â÷ | -1 | 39.36 | 500 | 40 | 1991 | | 2024.09.09 | ¿ù¼¼ | ¿À¼ºÁÖÅà | 4 | 59.91 | 3,000 | 75 | 2002 | | 2024.09.08 | Àü¼¼ | û¼ÛÆòÈÇÏÀ̸ǼÇ(459-15) | 3 | 59.19 | 20,200 | 0 | 2010 | | 2024.09.08 | Àü¼¼ | 102-119 | 6 | 29.6 | 15,600 | 0 | 2015 | | 2024.09.08 | ¿ù¼¼ | Á¤°¨Å¸¿îB | 4 | 24.71 | 14,900 | 20 | 2016 | | 2024.09.07 | ¿ù¼¼ | ³ª»êºô¶ó | 1 | 59.99 | 2,000 | 70 | 1999 | | 2024.09.07 | ¸Å¸Å | MÆç¸®Ã¼(1083-9) | 5 | 47.66 | 26,000 | | 2014 | | 2024.09.07 | Àü¼¼ | ¿¤ºñºô¶óÆ® | 3 | 62.52 | 20,250 | 0 | 2000 | | 2024.09.07 | ¸Å¸Å | ¾ÆÀκô | 4 | 43.69 | 24,900 | | 2016 | | 2024.09.07 | ¸Å¸Å | ÇѺûŸ¿î5Â÷ | 1 | 59.82 | 22,000 | | 2001 | | 2024.09.07 | ¸Å¸Å | ½ÃƼÇϿ콺 | 5 | 32.41 | 16,500 | | 2011 | | 2024.09.07 | ¸Å¸Å | ¸¶ÀÌÇϿ콺 | 2 | 29.99 | 19,300 | | 2016 | | 2024.09.07 | ¿ù¼¼ | µå¸²ÇϿ콺(778-14) | 4 | 13.69 | 1,000 | 45 | 2012 | | 2024.09.07 | Àü¼¼ | ¼¼±âºô¶ó | 2 | 47 | 15,000 | 0 | 2002 | | 2024.09.07 | ¿ù¼¼ | µ¿Çà¾ÆÆ®ºô¶ó | 2 | 48.22 | 2,000 | 66 | 1991 | | 2024.09.07 | Àü¼¼ | ÄÉ·»½Ã¾Æ | 3 | 39.01 | 28,000 | 0 | 2022 | | 2024.09.07 | ¿ù¼¼ | Á¦ÀÌÅõ¸®´õ½º | 3 | 29.48 | 0 | 70 | 2020 | | 2024.09.07 | Àü¼¼ | ¹®ÆÓ¸®½º | 2 | 38.86 | 18,600 | 0 | 2016 | | 2024.09.07 | Àü¼¼ | ¹®ÆÓ¸®½º | 2 | 38.86 | 18,600 | 0 | 2016 | | 2024.09.07 | Àü¼¼ | Çѿî(105-414) | 2 | 55.17 | 23,700 | 0 | 2012 | | 2024.09.07 | ¿ù¼¼ | ¼¼ÀÎÆ®ºô | 5 | 36.71 | 3,500 | 40 | 2011 | | 2024.09.07 | ¿ù¼¼ | À£ÇϿ콺 | 4 | 80.12 | 2,000 | 80 | 2008 | | 2024.09.07 | Àü¼¼ | ¿¤ºñºô¶óÆ® | 3 | 62.52 | 22,500 | 0 | 2000 | | 2024.09.07 | ¿ù¼¼ | ¿ì¼º¿¬¸³ | 3 | 59.4 | 4,000 | 55 | 1985 | | 2024.09.07 | ¸Å¸Å | â´ëºô¶ó(346-39) | 2 | 47.13 | 21,900 | | 2010 | | 2024.09.06 | ¸Å¸Å | ¿¤ÄÉÀ̵帲ºô | 5 | 36.71 | 27,400 | | 2016 | | 2024.09.06 | ¿ù¼¼ | ³²¼º¾ÆÆ®ºô(353-13) | 6 | 28.69 | 3,000 | 65 | 2016 | | 2024.09.06 | ¸Å¸Å | À¯´Ï¿Â½¦¸£ºô(Aµ¿) | 2 | 48.9 | 18,000 | | 2002 | | 2024.09.06 | ¿ù¼¼ | ¸®Ä¡ÇϿ콺(346-18) | 4 | 21.43 | 16,000 | 15 | 2017 | | 2024.09.06 | ¿ù¼¼ | ´õ¿ø7Â÷ | 6 | 24.24 | 100 | 80 | 2022 | | 2024.09.06 | ¿ù¼¼ | ÇØÆòij½½ | 12 | 20.4 | 22,000 | 30 | 2024 | | 2024.09.06 | ¿ù¼¼ | ³²¼º¾ÆÆ®ºô(381-1) | 3 | 23.88 | 15,100 | 20 | 2015 | | 2024.09.06 | Àü¼¼ | ´ë¿õÇÏÀÌÃ÷5Â÷ | 1 | 38.41 | 9,700 | 0 | 1992 | | 2024.09.06 | ¿ù¼¼ | ¾Æ¸£´©º¸392 | 4 | 61.19 | 18,200 | 10 | 2002 | | 2024.09.06 | ¿ù¼¼ | ½Ö¿ëÇÏÀ̺ô | 3 | 46.53 | 2,000 | 85 | 2001 | | 2024.09.06 | Àü¼¼ | ¼±¤ºô¶ó | 3 | 44.08 | 13,860 | 0 | 2002 | | 2024.09.06 | ¿ù¼¼ | Ȱ´Ù¼¼´ëÁÖÅà | 5 | 63.51 | 13,000 | 15 | 2003 | | 2024.09.06 | ¿ù¼¼ | ½ÅÈï¾Æ³Ê½ººô | 2 | 50.41 | 12,000 | 32 | 2008 | | 2024.09.06 | Àü¼¼ | ¾Æ¸§½Ç¶ó(Bµ¿) | 3 | 59.98 | 20,000 | 0 | 2003 | | 2024.09.06 | ¸Å¸Å | ¹ÎÆÓ¸®½º | 3 | 41.28 | 17,000 | | 2008 | | 2024.09.06 | ¿ù¼¼ | ¸¶¸®ºô¸®Áö(1121-13) | 3 | 48.8 | 5,000 | 65 | 2011 | | 2024.09.05 | Àü¼¼ | ´õŬ·¡½Ä | 4 | 39.85 | 23,000 | 0 | 2018 | | 2024.09.05 | ¸Å¸Å | ȼººô¶ó(56-181) | -1 | 27.81 | 6,200 | | 2001 | | 2024.09.05 | ¸Å¸Å | ¿¡½ºÄÉÀÌÆÄÅ©¸®¿ò(157-21) | 3 | 18.74 | 19,900 | | 2020 | | 2024.09.05 | ¸Å¸Å | »ó¾ÆÇÏÀÌÃ÷ºô¶ó | 2 | 82.17 | 30,000 | | 1993 | | 2024.09.05 | ¸Å¸Å | Á־󸮸ǼÇAµ¿ | 2 | 53.16 | 23,000 | | 2002 | | 2024.09.05 | ¿ù¼¼ | ½Å¿ì¿¡Äڹ븮 | 4 | 40.67 | 7,000 | 70 | 2011 | | 2024.09.05 | Àü¼¼ | ¹é¿îÀκ£½ºÆ®ºô°¡µ¿³ªµ¿ | 2 | 64.58 | 20,000 | 0 | 2009 | | 2024.09.05 | ¿ù¼¼ | ´ë¼ºÅ¾½ººô¿¡À̵¿(997-20) | 4 | 60.33 | 14,300 | 25 | 2004 | | 2024.09.05 | ¿ù¼¼ | (1079-2) | 1 | 26.25 | 500 | 35 | 2000 | | 2024.09.05 | Àü¼¼ | ¹é¿îÀκ£½ºÆ®ºô°¡µ¿³ªµ¿ | 2 | 64.58 | 18,700 | 0 | 2009 | | 2024.09.05 | ¿ù¼¼ | °¡¿Âºô | 4 | 29.91 | 2,000 | 70 | 2014 | | 2024.09.05 | ¿ù¼¼ | µµ¿ø¼ÖºñÄ¡ | 5 | 29.97 | 14,000 | 20 | 2015 | | 2024.09.05 | ¿ù¼¼ | »ïÈ£¾ÆÆ®ºô | 2 | 61.95 | 12,000 | 36 | 2003 | | 2024.09.05 | Àü¼¼ | ´ë¼º¾ÆÆ®ºô | 3 | 34.07 | 25,200 | 0 | 2018 | | 2024.09.05 | Àü¼¼ | ´ë¼º¾ÆÆ®ºô | 5 | 28.56 | 19,800 | 0 | 2018 | | 2024.09.05 | ¿ù¼¼ | ¿¡ÀÌ¿£Ä³½½ | 7 | 29.48 | 5,000 | 75 | 2018 | | 2024.09.05 | Àü¼¼ | ÇѾç(343-28) | 2 | 66.08 | 22,600 | 0 | 2000 | | 2024.09.05 | ¿ù¼¼ | ÁÖ¿µÇϿ콺 | 6 | 20.37 | 2,000 | 85 | 2016 | | 2024.09.05 | ¿ù¼¼ | û¼ÛÆòÈÇÏÀ̸ǼÇ(408-72) | 1 | 49.22 | 11,000 | 15 | 1996 | | 2024.09.04 | ¿ù¼¼ | ¿ù¼ººô¶ó(57-0) | 1 | 36.03 | 500 | 60 | 1991 | | 2024.09.04 | Àü¼¼ | ´õÁ¸ÆÛ½ºÆ® | 6 | 33.56 | 30,000 | 0 | 2022 | | 2024.09.04 | ¸Å¸Å | Á¦ÀÌÆÓ¸®½º | 6 | 59.88 | 38,000 | | 2020 | | 2024.09.04 | ¸Å¸Å | °ÇÇâÇÏÀÌÃ÷ºô(504-47) | 5 | 52.73 | 23,000 | | 2014 | | 2024.09.04 | Àü¼¼ | Å¿ø¿¬¸³ | 1 | 40.53 | 13,000 | 0 | 1981 | | 2024.09.04 | ¿ù¼¼ | µ¿¿ø¿¡À̽ººä(159-24) | 4 | 29.18 | 21,150 | 10 | 2020 | | 2024.09.04 | ¿ù¼¼ | ¿¹´ç¾ÆÆ®ºô | 3 | 54.84 | 16,700 | 20 | 2004 | | 2024.09.04 | Àü¼¼ | ½Ç¹öºô¶ó³ªµ¿ | 2 | 47.28 | 13,000 | 0 | 1992 | | 2024.09.04 | ¿ù¼¼ | ½ÂÇöº£½ºÆ®ºô | 2 | 40.35 | 12,200 | 20 | 2002 | | 2024.09.04 | ¿ù¼¼ | ¿¤ÁöŸ¿î | 2 | 67.2 | 18,200 | 10 | 2000 | | 2024.09.04 | ¿ù¼¼ | ÇÁ¸®¸Þ¶ó | 2 | 29.76 | 19,150 | 10 | 2018 | | 2024.09.04 | Àü¼¼ | ±ÃÀü¾ÆÆ®ºô¶ó2Â÷ | -1 | 68.88 | 6,300 | 0 | 1996 | | 2024.09.04 | ¿ù¼¼ | µ¿¸íÁÖÅ𡵿 | 1 | 57.95 | 17,500 | 20 | 2001 | | 2024.09.04 | ¿ù¼¼ | ¸ð¾Æºô1 | 5 | 56.55 | 12,600 | 3 | 2007 | | 2024.09.04 | Àü¼¼ | »ï¼º½¦¸£ºô(161-13) | 5 | 51.64 | 18,000 | 0 | 2011 | | 2024.09.04 | ¿ù¼¼ | ¿¹µµÇÏÀÓ | 6 | 20.09 | 5,000 | 80 | 2016 | | 2024.09.04 | ¿ù¼¼ | ¿©¿øºô¶ó(984-1) | 3 | 40.88 | 14,600 | 20 | 2008 | | 2024.09.04 | ¿ù¼¼ | »õ·Ò½ºÅ¸Áî | 3 | 28.22 | 2,000 | 80 | 2016 | | 2024.09.04 | Àü¼¼ | »õÇÑ¾ÆÆÄÆ®ºô | 2 | 76.96 | 21,670 | 0 | 2001 | | 2024.09.03 | Àü¼¼ | ¾çÁö»þÀκô(392-63) | 5 | 32.52 | 22,500 | 0 | 2016 | | 2024.09.03 | Àü¼¼ | ¾çÁö»þÀκô(392-63) | 5 | 32.52 | 19,800 | 0 | 2016 | | 2024.09.03 | Àü¼¼ | ¾çÁö»þÀκô(392-63) | 5 | 32.52 | 22,500 | 0 | 2016 | | 2024.09.03 | Àü¼¼ | ¹®ÆÓ¸®½º | 3 | 45.3 | 21,670 | 0 | 2016 | | 2024.09.03 | Àü¼¼ | ¹®ÆÓ¸®½º | 3 | 45.3 | 21,670 | 0 | 2016 | | 2024.09.03 | Àü¼¼ | Á¦À̽ººô | 5 | 18.38 | 16,700 | 0 | 2019 | | 2024.09.03 | ¿ù¼¼ | ¼°æÆÓ¸®½º | 5 | 28.4 | 18,900 | 20 | 2019 | | 2024.09.03 | Àü¼¼ | Á¦À̽ººô | 5 | 18.38 | 16,700 | 0 | 2019 | | 2024.09.03 | ¿ù¼¼ | ¿¹¼Û¿¡¹öºô | 2 | 77.29 | 12,600 | 20 | 2004 | | 2024.09.03 | ¿ù¼¼ | »ç¶ûºô¶ó | 2 | 55.9 | 1,000 | 51 | 1991 | | 2024.09.03 | Àü¼¼ | Çý¼ºÆç¸®½º(156-21) | 2 | 41.8 | 21,300 | 0 | 2013 | | 2024.09.03 | ¿ù¼¼ | ÇØÇÇÇϿ콺(1128-4) | 3 | 14.89 | 1,000 | 45 | 2012 | | 2024.09.03 | Àü¼¼ | ´ëÈ£°ñµçºô¶ó | -1 | 59.19 | 10,000 | 0 | 1991 | | 2024.09.03 | ¿ù¼¼ | È£¼ºÆÄÅ©¸Ç¼Ç3Â÷ | 4 | 42.66 | 11,000 | 30 | 1996 | | 2024.09.03 | ¿ù¼¼ | ½ÅÈï·¹¹Ì¾Èºô | 3 | 50.35 | 1,000 | 90 | 2002 | | 2024.09.03 | ¿ù¼¼ | ´ë¼º¾ÆÆ®ºô(152-3) | 2 | 40.89 | 10,000 | 10 | 2003 | | 2024.09.03 | ¸Å¸Å | ³²¼º¾ÆÆ®ºô(423-6) | 7 | 25.19 | 21,500 | | 2015 | | 2024.09.03 | ¸Å¸Å | ¿¹ÁöÆÓ¸®½º89Â÷ | 2 | 41.91 | 23,500 | | 2016 | | 2024.09.03 | ¸Å¸Å | ±Øµ¿ºô¶ó(151-39) | 1 | 57.09 | 16,300 | | 1998 | | 2024.09.03 | ¿ù¼¼ | º¸¶÷Ÿ¿î(105-527) | 3 | 59.75 | 15,000 | 10 | 1998 | | 2024.09.03 | ¿ù¼¼ | ¸¶À̹ٿò | 5 | 31.22 | 2,000 | 68 | 2011 | | 2024.09.03 | ¿ù¼¼ | DSÇÁ¶ó´Ù(1084-59) | 3 | 27.18 | 13,200 | 20 | 2011 | | 2024.09.03 | ¿ù¼¼ | ¹é°¿ø·ë | 2 | 12.8 | 500 | 43 | 2011 | | 2024.09.03 | Àü¼¼ | ´ë¼ºÅ¾½ººô | 3 | 60.33 | 19,500 | 0 | 2008 | | 2024.09.03 | Àü¼¼ | ´ë¿ø¸Ç¼ð(933-50) | 5 | 60.27 | 15,300 | 0 | 2002 | | 2024.09.03 | ¿ù¼¼ | »ó¿ìºô¶ó | 4 | 32.16 | 2,000 | 55 | 2001 | | 2024.09.02 | ¸Å¸Å | ºô¶ó¿£ | 4 | 32 | 34,800 | | 2016 | | 2024.09.02 | ¸Å¸Å | º£¾ÆÆ®¸®½º | 2 | 29.97 | 23,000 | | 2017 | | 2024.09.02 | ¸Å¸Å | ¿¹°¡ºô(156-3) | 2 | 54.32 | 28,000 | | 2012 | | 2024.09.02 | ¿ù¼¼ | Àå¼öÇϿ콺 | 5 | 23.99 | 2,000 | 40 | 2004 | | 2024.09.02 | ¿ù¼¼ | DS¿¡ÄÚŸ¿î | 5 | 31.12 | 13,000 | 45 | 2014 | | 2024.09.02 | ¿ù¼¼ | ¹Ì¹®3Â÷ | 3 | 37.32 | 10,000 | 10 | 1994 | | 2024.09.02 | ¿ù¼¼ | ¼°æÆÓ¸®½º | 6 | 28.4 | 18,900 | 20 | 2019 | | 2024.09.02 | Àü¼¼ | ÀÎÅÍ½ÃÆ¼ | 4 | 40.4 | 20,100 | 0 | 2011 | | 2024.09.02 | Àü¼¼ | ¼¿¬ºí·çÈú | 4 | 28.1 | 16,600 | 0 | 2016 | | 2024.09.02 | ¿ù¼¼ | ´õ¶ó¿Â(369-37) | 5 | 35.13 | 2,000 | 40 | 2017 | | 2024.09.02 | Àü¼¼ | ÀÎÅÍ½ÃÆ¼ | 4 | 40.4 | 16,600 | 0 | 2011 | | 2024.09.02 | Àü¼¼ | TheÆ®¶ó¿ò2nd | 2 | 28.05 | 23,400 | 0 | 2022 | | 2024.09.02 | Àü¼¼ | ´Ù¿Â½£ | 3 | 25.2 | 25,900 | 0 | 2024 | | 2024.09.02 | Àü¼¼ | ¼Ç¹ë¸® | 3 | 27.2 | 23,800 | 0 | 2024 | | 2024.09.02 | Àü¼¼ | ¼Ç¹ë¸® | 3 | 29.47 | 26,800 | 0 | 2024 | | 2024.09.01 | ¸Å¸Å | À¯Ç³ºô¶ó¾ÆÆ®Aµ¿ | 3 | 84.43 | 66,000 | | 1990 | | 2024.09.01 | ¿ù¼¼ | ¿µÁøÁÖÅà | 4 | 27.36 | 1,200 | 105 | 2023 | | 2024.08.31 | ¿ù¼¼ | »ïÈ£ÇÏÀÌÃ÷ºô¶ó | 3 | 83.57 | 21,160 | 15 | 1997 | | 2024.08.31 | Àü¼¼ | ´Ù¼ºÀÌÁîºô | 4 | 84.37 | 18,900 | 0 | 2008 | | 2024.08.31 | ¿ù¼¼ | ÇØÆòij½½ | 11 | 20.4 | 22,800 | 15 | 2024 | | 2024.08.31 | Àü¼¼ | ¿ùµå¾ÆÆ®ºô | 5 | 65.37 | 17,500 | 0 | 2004 | | 2024.08.31 | ¸Å¸Å | µ¿¿µºô¶ó(³ª) | 4 | 65.88 | 27,500 | | 2003 | | 2024.08.31 | ¸Å¸Å | ¹Ì¼ºÇϸ£µò(1102-5) | 3 | 29.79 | 22,500 | | 2018 | | 2024.08.31 | ¸Å¸Å | À̳뼿(INNOCELL) | 2 | 29.7 | 22,000 | | 2017 | | 2024.08.31 | ¸Å¸Å | ´ëÁøºô¶ó | 2 | 44.41 | 18,000 | | 2008 | | 2024.08.31 | ¸Å¸Å | À̼ö¾ÆÆ®ºô2Â÷ | 7 | 36.12 | 19,800 | | 2016 | | 2024.08.31 | ¸Å¸Å | ÅÂÈȨŸ¿î | 2 | 59.88 | 29,000 | | 2003 | | 2024.08.31 | ¸Å¸Å | ¿ì¼ººô¶ó | 1 | 59.85 | 24,000 | | 1997 | | 2024.08.31 | ¿ù¼¼ | ÁøÁÖºô¶ó(960-3) | 2 | 49.67 | 13,800 | 10 | 1991 | | 2024.08.31 | Àü¼¼ | ¿ùµå¾ÆÆ®ºô | 5 | 65.37 | 17,500 | 0 | 2004 | | 2024.08.31 | Àü¼¼ | ¸íÁöºô¶ó | 1 | 36.81 | 10,600 | 0 | 1991 | | 2024.08.31 | Àü¼¼ | »ï¿øºô¶ó(348-8) | 1 | 45.56 | 16,000 | 0 | 1997 | | 2024.08.31 | ¿ù¼¼ | ³²°æº£½ºÆ®ºô(Bµ¿) | 2 | 64.18 | 17,600 | 15 | 2001 | | 2024.08.31 | ¿ù¼¼ | ANPȰî | 7 | 22.85 | 1,000 | 105 | 2022 | | 2024.08.31 | Àü¼¼ | ¿ÍÀ̾غñ | 3 | 25.38 | 16,750 | 0 | 2017 | | 2024.08.31 | Àü¼¼ | °Å¼º | 2 | 34.29 | 11,000 | 0 | 1987 | | 2024.08.31 | ¿ù¼¼ | ¸®´õ½ººô(50-15) | 4 | 42.28 | 14,900 | 15 | 2011 | | 2024.08.31 | ¿ù¼¼ | ¹Ì·¡ºô¶óÆ® | 1 | 61.23 | 5,000 | 80 | 2000 | | 2024.08.31 | Àü¼¼ | ´Ù¿øºô¶ó | 2 | 52.56 | 16,000 | 0 | 1993 | | 2024.08.31 | Àü¼¼ | ´Ù¿øºô¶ó | 2 | 52.56 | 16,000 | 0 | 1993 | | 2024.08.31 | ¿ù¼¼ | ÇØºñÄ¡ºô | 4 | 26.23 | 3,000 | 80 | 2019 | | 2024.08.31 | Àü¼¼ | ¶óÀÌÇÁŸ¿î | 3 | 57.16 | 21,300 | 0 | 2008 | | 2024.08.31 | Àü¼¼ | ÃæÁ¤±×¸°ºô | 4 | 56.45 | 16,800 | 0 | 2002 | | 2024.08.31 | Àü¼¼ | ¹Ð·¹´Ï¾öA | -1 | 67.82 | 14,100 | 0 | 2002 | | 2024.08.31 | ¿ù¼¼ | ´Ù¼Ø(864-49) | 5 | 35.77 | 16,000 | 25 | 2013 | | 2024.08.31 | ¿ù¼¼ | »óÀç¾ÆÆ®ºô | 3 | 63.92 | 3,500 | 69 | 2003 | | 2024.08.31 | ¿ù¼¼ | (787-49) | 1 | 66.45 | 1,500 | 70 | 2002 | | 2024.08.31 | ¿ù¼¼ | ¿µÁøºô¶ó | 2 | 41.92 | 1,000 | 52 | 2003 | | 2024.08.31 | ¿ù¼¼ | ´Ù¿ÂÇϿ콺 | 3 | 49.86 | 21,900 | 30 | 2016 | | 2024.08.30 | ¿ù¼¼ | ¿¹µµÇÏÀÓ | 2 | 44.43 | 300 | 45 | 2016 | | 2024.08.30 | ¸Å¸Å | ¹Ì¿¬º£½ºÆ®ºô | 4 | 70.72 | 25,200 | | 2003 | | 2024.08.30 | ¿ù¼¼ | ´º¿å·¹Áö´ø½º¥±(858-23) | 3 | 12.3 | 500 | 38 | 2012 | | 2024.08.30 | ¿ù¼¼ | ÇØÇÇÇϿ콺(1128-4) | 2 | 12.7 | 1,000 | 43 | 2012 | | 2024.08.30 | ¿ù¼¼ | Çö¿¡ºñ¾Ó(1128-10) | 4 | 42.42 | 2,000 | 80 | 2012 | | 2024.08.30 | Àü¼¼ | DS¿¡ÄÚŸ¿î | 5 | 36.18 | 17,800 | 0 | 2014 | | 2024.08.30 | Àü¼¼ | ÇØºñÄ¡ºô | 6 | 25.61 | 21,900 | 0 | 2019 | | 2024.08.30 | ¿ù¼¼ | Ä¥¼º | 3 | 43.56 | 0 | 20 | 2002 | | 2024.08.30 | ¿ù¼¼ | ºñ¿¡½ºÇÏ¿ì¡2 | 5 | 23.31 | 200 | 70 | 2018 | | 2024.08.30 | ¸Å¸Å | Èѹ̸®ºô | 4 | 64.19 | 27,500 | | 2009 | | 2024.08.30 | ¿ù¼¼ | ¿ì¼Û±×·£µåºô | 4 | 24 | 10,000 | 27 | 2012 | | 2024.08.30 | Àü¼¼ | ´ë´öÇÏÀÌÃ÷ºô¶ó | 3 | 57.91 | 14,300 | 0 | 1993 | | 2024.08.30 | ¸Å¸Å | ȼººô¶ó(51-18) | -1 | 57.47 | 8,400 | | 2000 | | 2024.08.30 | ¸Å¸Å | JEhouse | 3 | 29.7 | 38,500 | | 2022 | | 2024.08.30 | ¿ù¼¼ | º¸¸®¼öŸ¿î | 5 | 12.58 | 500 | 50 | 2013 | | 2024.08.30 | ¸Å¸Å | 6Â÷ŰǺô¶ó | 2 | 36.12 | 10,500 | | 1990 | | 2024.08.30 | ¿ù¼¼ | ¼¼±¤ºô¶ó¶óµ¿ | -1 | 35.05 | 1,000 | 33 | 1988 | | 2024.08.30 | Àü¼¼ | °æ¹æ±×¸°ºô | 4 | 33.94 | 9,200 | 0 | 2002 | | 2024.08.30 | ¿ù¼¼ | ±×¸°³ª·¡ºô¶óÆ® | 2 | 43.95 | 11,880 | 14 | 2008 | | 2024.08.30 | Àü¼¼ | ÇÑ¿ï¶ß¶õä(51-80) | 2 | 53.79 | 21,500 | 0 | 2011 | | 2024.08.30 | Àü¼¼ | ¿¡À̽ººô | -1 | 65.49 | 10,400 | 0 | 2003 | | 2024.08.30 | ¿ù¼¼ | ¿ì¼ºÁø°æºô¶ó | 3 | 50.04 | 13,000 | 30 | 1995 | | 2024.08.30 | Àü¼¼ | (377-64) | -1 | 37.17 | 7,060 | 0 | 1986 | | 2024.08.29 | ¿ù¼¼ | ANA7 | 3 | 26.7 | 2,000 | 77 | 2022 | | 2024.08.29 | ¿ù¼¼ | ½ÅÇѺô¶óÆ® | 2 | 45.18 | 2,000 | 50 | 1999 | | 2024.08.29 | ¿ù¼¼ | ¾Æ¸§ÈÞ¸Õºô | 5 | 49.19 | 3,000 | 70 | 2010 | | 2024.08.29 | ¿ù¼¼ | ¿ì¼º(408-86) | 5 | 39.75 | 5,000 | 80 | 2017 | | 2024.08.29 | Àü¼¼ | ÆÄ¶û»õºô¶óÆ® | 1 | 70.47 | 20,000 | 0 | 2000 | | 2024.08.29 | Àü¼¼ | ¹Ì¼ºÇϸ£µò(1102-5) | 2 | 29.19 | 21,600 | 0 | 2018 | | 2024.08.29 | ¿ù¼¼ | »ï¼º½¦¸£ºô(351-17¹øÁö) | 4 | 40.62 | 19,400 | 20 | 2016 | | 2024.08.29 | ¸Å¸Å | ³²¼º¾ÆÆ®ºô | 5 | 27.4 | 23,900 | | 2016 | | 2024.08.29 | ¸Å¸Å | ³²¼º¾ÆÆ®ºô(367-77) | 2 | 29.76 | 21,000 | | 2012 | | 2024.08.29 | ¸Å¸Å | Àå¿øÅ¸¿î³ªµ¿ | 3 | 61.38 | 21,000 | | 2000 | | 2024.08.29 | ¿ù¼¼ | ȰîÅõ¿þ´ÏÆÛ½ºÆ® | 13 | 24.45 | 1,000 | 99 | 2018 | | 2024.08.29 | ¿ù¼¼ | µ¿¼ÁÖÅà | 3 | 45.94 | 500 | 30 | 2002 | | 2024.08.28 | ¸Å¸Å | µµ¿øºô¶ó | -1 | 48.2 | 13,500 | | 2002 | | 2024.08.28 | ¿ù¼¼ | Å·´ý±×·¹À̽º | 4 | 28.71 | 3,000 | 90 | 2018 | | 2024.08.28 | ¿ù¼¼ | Å·´ý±×·¹À̽º | 4 | 28.71 | 3,000 | 90 | 2018 | | 2024.08.28 | Àü¼¼ | ÀÌ¿¤ÇϿ콺 | 6 | 28.42 | 23,000 | 0 | 2022 | | 2024.08.28 | Àü¼¼ | µ¿Èºô¶ó(29-221) | 2 | 43.16 | 7,000 | 0 | 1992 | | 2024.08.28 | Àü¼¼ | (77-35) | 3 | 15.05 | 5,000 | 0 | 2003 | | 2024.08.28 | ¸Å¸Å | ½Ç¹öºô¶ó³ªµ¿ | -1 | 51 | 12,000 | | 1992 | | 2024.08.28 | ¸Å¸Å | ¾ÆÀκô | 2 | 43.69 | 28,500 | | 2016 | | 2024.08.28 | ¿ù¼¼ | ¼ºÇö¾ÆÆ®ºô | 3 | 69.08 | 21,600 | 13 | 2005 | | 2024.08.28 | ¿ù¼¼ | Çö´ëÇÏÀÌÃ÷ºô¶ó(456-20) | 3 | 53.88 | 300 | 60 | 1997 | | 2024.08.28 | Àü¼¼ | »ïÈ£ÇÏÀÌÃ÷ºô¶ó | 2 | 84.51 | 21,000 | 0 | 1997 | | 2024.08.28 | Àü¼¼ | »ïÈ£ÇÏÀÌÃ÷ºô¶ó | 2 | 84.51 | 21,000 | 0 | 1997 | | 2024.08.28 | ¿ù¼¼ | Àç·æºôµù | 4 | 29.97 | 5,000 | 80 | 2021 | | 2024.08.28 | ¿ù¼¼ | ÇÑÀϱ׸°¸Ç¼Ç | 2 | 47.17 | 12,000 | 29 | 1995 | | 2024.08.28 | ¿ù¼¼ | Ãæ¹«ºô¶ó | 3 | 58.15 | 3,000 | 100 | 2002 | | 2024.08.28 | Àü¼¼ | ÀÌ¿¤ÇϿ콺 | 3 | 27.7 | 28,950 | 0 | 2022 | | 2024.08.28 | Àü¼¼ | Á¤°¨ÇϿ콺 | 4 | 28.35 | 15,000 | 0 | 2016 | | 2024.08.28 | ¿ù¼¼ | casagio | 4 | 29.74 | 200 | 85 | 2019 | | 2024.08.28 | ¿ù¼¼ | ¿ì¼ºµ¥ÆÄÆ® | -1 | 67.41 | 11,300 | 20 | 1995 | | 2024.08.28 | ¿ù¼¼ | µ¿¿ø±×¸°ºô | 3 | 50.8 | 16,000 | 40 | 2002 | | 2024.08.28 | Àü¼¼ | È£½ÂŸ¿î | 4 | 39.18 | 13,000 | 0 | 2002 | | 2024.08.28 | ¸Å¸Å | ±×·¹À̽ººô | 6 | 24.74 | 35,200 | | 2022 | | 2024.08.27 | ¸Å¸Å | û¿î¸Ç¼ÇÁÖÅÃ2µ¿ | 3 | 63.58 | 25,500 | | 2001 | | 2024.08.27 | ¸Å¸Å | À±ÇϿ콺(1102-4) | 6 | 49.83 | 35,500 | | 2012 | | 2024.08.27 | ¸Å¸Å | ¿ìÀå»ê¾ÆÀνººô | 5 | 45.38 | 28,500 | | 2011 | | 2024.08.27 | ¸Å¸Å | ¿¹¸²±×¸°ºô¶ó | 3 | 59.94 | 26,500 | | 1993 | | 2024.08.27 | ¸Å¸Å | Ǫ¸¥Ç³°æÃ¤ | 3 | 29.98 | 29,230 | | 2022 | | 2024.08.27 | Àü¼¼ | ±¹µµµå¸²ºô | 3 | 28.02 | 22,300 | 0 | 2018 | | 2024.08.27 | ¿ù¼¼ | µ¿¼±º§¸®Ã¼ | 3 | 29.24 | 16,000 | 20 | 2020 | | 2024.08.27 | Àü¼¼ | ±Ý¼Û¾ÆÆ®ºô(1073-27) | 4 | 36.22 | 11,500 | 0 | 2003 | | 2024.08.27 | Àü¼¼ | ±Ý¼Û¾ÆÆ®ºô(1073-27) | 4 | 36.22 | 11,500 | 0 | 2003 | | 2024.08.27 | ¿ù¼¼ | ¿¡½ºÄÉÀ̹ٿòÇϿ콺(1073-28) | 5 | 23.13 | 3,000 | 85 | 2016 | | 2024.08.27 | ¿ù¼¼ | ºô¶óµå´ÙÀÎ | 4 | 26.3 | 5,000 | 90 | 2023 | | 2024.08.27 | Àü¼¼ | (29-219) | 4 | 17.6 | 6,800 | 0 | 2008 | | 2024.08.27 | Àü¼¼ | ½ÅÈï¾Æ³Ê½ººô | 4 | 55.56 | 16,000 | 0 | 2008 | | 2024.08.27 | ¿ù¼¼ | ÈÀϺô¶ó(57-24) | 3 | 45.15 | 12,000 | 10 | 2003 | | 2024.08.27 | ¿ù¼¼ | ¼±¤¾ÆÆ®ºô | 4 | 65.81 | 22,000 | 10 | 2007 | | 2024.08.27 | Àü¼¼ | Áß¾Óºô¶ó | 3 | 56.12 | 17,600 | 0 | 2003 | | 2024.08.27 | ¿ù¼¼ | µ¿µµÇÏÀÌÃ÷ºô¶ó(Bµ¿) | 5 | 46.38 | 12,000 | 18 | 2001 | | 2024.08.27 | Àü¼¼ | FAMILYŸ¿î | 3 | 70.005 | 17,850 | 0 | 2000 | | 2024.08.27 | ¿ù¼¼ | ¼±¤ºô¶ó(352-59) | 4 | 25.54 | 7,000 | 15 | 2001 | | 2024.08.27 | ¿ù¼¼ | ´ë¼ººô¶ó | 2 | 68.49 | 3,000 | 85 | 2001 | | 2024.08.27 | ¿ù¼¼ | ¼¼¸í¾ÆÅ©·Îºô | 4 | 29.94 | 17,000 | 30 | 2017 | | 2024.08.27 | Àü¼¼ | µå¸²Èѹ̸®ºô¶ó | 3 | 51.49 | 14,300 | 0 | 2002 | | 2024.08.27 | ¿ù¼¼ | ÀÎÅÍ½ÃÆ¼ºô¶ó(³ª) | 4 | 46.38 | 13,000 | 6 | 2002 | | 2024.08.27 | Àü¼¼ | û¼ÛÆòÈÇコÇϿ콺 | 3 | 38.84 | 22,000 | 0 | 2016 | | 2024.08.27 | ¿ù¼¼ | (61-42) | 4 | 52.62 | 5,000 | 60 | 2011 | | 2024.08.27 | Àü¼¼ | ´ãºñ¾ÆÆ®ºô56-340 | 4 | 48.57 | 15,400 | 0 | 2003 | | 2024.08.27 | Àü¼¼ | (367-83) | 1 | 29.54 | 7,900 | 0 | 1986 | | 2024.08.27 | ¿ù¼¼ | ÇØÇÇÇϿ콺(1128-4) | 4 | 12.7 | 1,000 | 45 | 2012 | | 2024.08.26 | ¸Å¸Å | µ¿»êÁÖÅÃAµ¿ | 2 | 64.53 | 28,200 | | 2000 | | 2024.08.26 | ¿ù¼¼ | »ïÀͶ߶õä | 2 | 27.55 | 17,300 | 10 | 2017 | | 2024.08.26 | Àü¼¼ | ¿¡ÄÚºô(391-45) | 3 | 54.12 | 19,900 | 0 | 2014 | | 2024.08.26 | Àü¼¼ | ¹ÌÁÖºô¶óBµ¿ | 3 | 62.06 | 18,500 | 0 | 2001 | | 2024.08.26 | ¿ù¼¼ | Ȳ±Ý¾ÆÆ®ºô¶ó | 3 | 42.29 | 11,200 | 10 | 1994 | | 2024.08.26 | ¿ù¼¼ | (46-110)Åä¼®¾Æ³×½Ã½º | 5 | 22.98 | 2,500 | 45 | 2010 | | 2024.08.26 | Àü¼¼ | ´ë¼º¾ÆÆ®ºô | 2 | 29.78 | 18,900 | 0 | 2019 | | 2024.08.26 | ¿ù¼¼ | żººô¶ó | 5 | 57.1 | 16,000 | 15 | 2002 | | 2024.08.26 | Àü¼¼ | µ¿½Å¿ùµåºô | 2 | 57.9 | 10,500 | 0 | 2002 | | 2024.08.26 | ¿ù¼¼ | ³²¼º¾ÆÆ®ºô(772-78) | 2 | 55.43 | 5,000 | 70 | 2011 | | 2024.08.26 | Àü¼¼ | Àå¹Ì¸Ç¼Ç | 2 | 81.56 | 12,000 | 0 | 2001 | | 2024.08.26 | ¸Å¸Å | ºÎ¾Èºô¶ó | 2 | 43.53 | 19,500 | | 1992 | | 2024.08.26 | ¿ù¼¼ | »ó¿ìÇÏÀÌÃ÷ºô¶ó | 2 | 58.81 | 3,000 | 80 | 2001 | | 2024.08.26 | ¸Å¸Å | ÇѼº±×¸°Å¸¿î8µ¿ | 3 | 61.71 | 20,000 | | 2003 | | 2024.08.26 | ¿ù¼¼ | ÀÌÁöÇϿ콺 | 2 | 18.7 | 2,000 | 52 | 2024 | | 2024.08.26 | ¸Å¸Å | ¿ÀÄÉÀÌÆÄÅ©ºô | 7 | 35.93 | 25,000 | | 2017 | | 2024.08.25 | ¿ù¼¼ | ÀÎÅͺùÇϿ콺 | 3 | 37.94 | 18,000 | 6 | 2017 | | 2024.08.25 | ¿ù¼¼ | ´Ù¿ï³×¹öºô(1038-11) | 4 | 58.3 | 7,000 | 40 | 2000 | | 2024.08.25 | ¿ù¼¼ | ÇѼº | 2 | 48.93 | 3,000 | 50 | 1982 | | 2024.08.25 | ¿ù¼¼ | ½Å¿µÆÄÅ©Aµ¿Bµ¿ | 3 | 57.91 | 3,000 | 80 | 2001 | | 2024.08.25 | ¸Å¸Å | ´Ù´Ùºô¸®Áö | 3 | 35.15 | 23,000 | | 2015 | | 2024.08.25 | ¸Å¸Å | ½Ã¿Âºô¸®Áö102 | 2 | 28.9 | 24,500 | | 2022 | | 2024.08.25 | Àü¼¼ | ȼººô¶óCµ¿(56-325) | 4 | 30.87 | 8,000 | 0 | 2001 | | 2024.08.24 | ¿ù¼¼ | µå¸®¹ÌŸ¿î | 3 | 44.15 | 0 | 80 | 2015 | | 2024.08.24 | Àü¼¼ | ¸®´õ½ºÅ¸¿î | 4 | 29.37 | 17,300 | 0 | 2017 | | 2024.08.24 | ¿ù¼¼ | °è¸íÀ§³Ê½º(105-55) | 3 | 42.81 | 15,000 | 15 | 2011 | | 2024.08.24 | ¿ù¼¼ | ÇÁ¸®¸Þ¶ó | 2 | 29.76 | 2,000 | 75 | 2018 | | 2024.08.24 | ¸Å¸Å | ¿ë¹®Aµ¿ | 3 | 65.24 | 23,700 | | 2000 | | 2024.08.24 | ¸Å¸Å | ¿ë¹®Aµ¿ | 3 | 65.24 | 23,700 | | 2000 | | 2024.08.24 | ¸Å¸Å | ³²¼º¾ÆÆ®ºô(381-1) | 7 | 31.54 | 26,300 | | 2015 | | 2024.08.24 | ¸Å¸Å | ¿¡½ºÄÉÀ̹ٿòÇϿ콺(1073-28) | 3 | 28.14 | 21,900 | | 2016 | | 2024.08.24 | ¸Å¸Å | »ï¼º½¦¸£ºô(351-17¹øÁö) | 4 | 32.13 | 20,000 | | 2016 | | 2024.08.24 | Àü¼¼ | Á¤Çöºô¶ó(98-39) | 3 | 58.2 | 18,000 | 0 | 2001 | | 2024.08.24 | Àü¼¼ | ½Å¼ºÁÖÅÃ(46-17) | 4 | 37.49 | 15,000 | 0 | 2011 | | 2024.08.24 | Àü¼¼ | À̰¡Ã¤(400-95) | 5 | 29.85 | 17,200 | 0 | 2012 | | 2024.08.24 | ¿ù¼¼ | ºí¸®½º´ÙÀÓºô | 4 | 29.12 | 5,000 | 90 | 2023 | | 2024.08.24 | ¸Å¸Å | Çö´ëÈúŸ¿î | 1 | 61.88 | 28,500 | | 2000 | | 2024.08.24 | ¿ù¼¼ | (1047-4) | 2 | 49.91 | 14,000 | 10 | 2000 | | 2024.08.24 | Àü¼¼ | º£¾ÆÆ®¸®½º | 2 | 29.97 | 19,200 | 0 | 2017 | | 2024.08.24 | ¿ù¼¼ | ¿¡½º¿¥·¹¹öºô(346-7) | 3 | 36.52 | 2,000 | 100 | 2014 | | 2024.08.24 | ¿ù¼¼ | ÄÉÀ̾ؿÍÀ̺ô¸®Áö | 5 | 37.97 | 16,700 | 20 | 2015 | | 2024.08.24 | ¿ù¼¼ | ¹ÌÇϿ콺(24-29) | 2 | 26.14 | 14,200 | 20 | 2015 | | 2024.08.24 | ¸Å¸Å | ¼ºÀººô¸®ÁöBµ¿ | 1 | 58.82 | 24,300 | | 2003 | | 2024.08.24 | ¿ù¼¼ | ¶ó¿Âºô(341-21) | 4 | 18.13 | 5,000 | 64 | 2017 | | 2024.08.24 | Àü¼¼ | º£¾ÆÆ®¸®½º | 2 | 29.97 | 19,200 | 0 | 2017 | | 2024.08.24 | ¿ù¼¼ | ¼£·ÒÇϿ콺 | 2 | 16.38 | 1,000 | 53 | 2010 | | 2024.08.24 | ¿ù¼¼ | Ȱ´Ù¼¼´ëÁÖÅà | 2 | 32.36 | 10,000 | 30 | 2003 | | 2024.08.24 | Àü¼¼ | Á¤¿¬Ã¤ | 3 | 28.28 | 16,560 | 0 | 2018 | | 2024.08.24 | ¿ù¼¼ | Çý¼ºÆÓ¸®½º24Â÷(397-33) | 4 | 27.15 | 13,500 | 20 | 2013 | | 2024.08.24 | ¿ù¼¼ | ÇØÆòij½½ | 13 | 19.73 | 22,500 | 20 | 2024 | | 2024.08.24 | ¿ù¼¼ | ÇØÆòij½½ | 13 | 19.73 | 22,500 | 20 | 2024 | | 2024.08.24 | Àü¼¼ | ¼ºÀººô¶ó(871-27) | -1 | 56.5 | 10,920 | 0 | 2001 | | 2024.08.24 | Àü¼¼ | È£¼öŸ¿î(957-14) | 2 | 41.76 | 13,000 | 0 | 2002 | | 2024.08.24 | Àü¼¼ | ¿¬¿ì³Ø½ºÆ®ºä | 14 | 13.16 | 15,150 | 0 | 2018 | | 2024.08.24 | ¿ù¼¼ | ÇϳªÇÏÀÌÃ÷(1098-14) | 4 | 43.16 | 10,000 | 40 | 2012 | | 2024.08.24 | Àü¼¼ | ´Ù¿Â½£ | 5 | 21.31 | 24,900 | 0 | 2024 | | 2024.08.24 | Àü¼¼ | ÇÑ¿ïÀÚÀ̺ô(1129-32) | 4 | 51.75 | 19,800 | 0 | 2008 | | 2024.08.24 | Àü¼¼ | â´ë(366-34) | 6 | 32.02 | 15,100 | 0 | 2013 | | 2024.08.24 | Àü¼¼ | (787-50) | 4 | 45.54 | 16,200 | 0 | 2008 | | 2024.08.24 | ¿ù¼¼ | ´Ù¼Ø(773-3) | 4 | 34.55 | 16,200 | 20 | 2012 | | 2024.08.24 | ¿ù¼¼ | ½Å¿ì¼ººô¶ó(408-15) | 5 | 55.14 | 2,000 | 65 | 2012 | | 2024.08.24 | ¿ù¼¼ | ´ë¿ø¾ÆÆ®ºô(367-112) | 3 | 54.52 | 5,000 | 80 | 2003 | | 2024.08.23 | ¿ù¼¼ | ³ª¸®ºô | 2 | 47.64 | 5,000 | 50 | 2009 | | 2024.08.23 | ¿ù¼¼ | LGŸ¿î7Â÷ | 5 | 43.68 | 12,500 | 20 | 2001 | | 2024.08.23 | Àü¼¼ | µ¿¿µºô¶ó(³ª) | 5 | 44.04 | 12,400 | 0 | 2003 | | 2024.08.23 | ¿ù¼¼ | ¼¿¬ºí·çÈú | 6 | 26.73 | 5,000 | 60 | 2016 | | 2024.08.23 | ¸Å¸Å | ±Ý¹Ý¼®ºô¶óAµ¿ | 1 | 61.63 | 20,000 | | 1992 | | 2024.08.23 | Àü¼¼ | û¸²ÇÏ¿ì¡ | 6 | 29.99 | 19,500 | 0 | 2017 | | 2024.08.23 | ¿ù¼¼ | ¹Ì¼ºÁÖÅà | 1 | 38.43 | 9,000 | 25 | 1991 | | 2024.08.23 | ¿ù¼¼ | °í¼¾¾ÆÆ®ºô | 2 | 29.24 | 16,750 | 10 | 2016 | | 2024.08.23 | Àü¼¼ | û¼ÛÆòÈÇコÇϿ콺 | 2 | 29.86 | 18,900 | 0 | 2018 | | 2024.08.23 | ¸Å¸Å | ÁøÁÖ¸Ç¼Ç | -1 | 62.1 | 14,500 | | 2002 | | 2024.08.23 | ¸Å¸Å | »þÀο¡¹öºô | 1 | 59.72 | 21,800 | | 2001 | | 2024.08.23 | ¸Å¸Å | ¿ùµåÆÄÅ©ºä°¡µ¿ | 1 | 61.04 | 21,000 | | 2002 | | 2024.08.23 | ¸Å¸Å | µ¿È£±×¸°ºô | 1 | 62 | 32,000 | | 2002 | | 2024.08.23 | Àü¼¼ | û¼ÛÆòÈÇコÇϿ콺 | 2 | 29.86 | 18,500 | 0 | 2018 | | 2024.08.23 | Àü¼¼ | »ï¼º½¦¸£ºô | 5 | 71.61 | 20,000 | 0 | 2002 | | 2024.08.23 | ¿ù¼¼ | ¿¹¸²±×¸°ºô¶ó | 4 | 59.94 | 1,500 | 77 | 1993 | | 2024.08.23 | ¿ù¼¼ | ´ë»óÈúž | 5 | 36.17 | 5,000 | 56 | 2011 | | 2024.08.23 | ¿ù¼¼ | µ¿µµÇÏÀÌÃ÷ºô¶ó7Â÷(346-96) | -1 | 60.21 | 11,900 | 20 | 1996 | | 2024.08.23 | Àü¼¼ | CM±×·£µåºô | 2 | 50 | 18,000 | 0 | 2011 | | 2024.08.23 | Àü¼¼ | ÇູŸ¿î5Â÷ | 4 | 59.5 | 18,900 | 0 | 2008 | | 2024.08.23 | ¸Å¸Å | ȼº¾ÆÆ®ºô | 3 | 47.5 | 11,500 | | 2002 | | 2024.08.23 | ¿ù¼¼ | û¼ÛÆòÈÇコÇϿ콺 | 2 | 29.61 | 5,000 | 90 | 2022 | | 2024.08.23 | ¿ù¼¼ | ±Ý°ºô¶ó(95-51) | 5 | 41.46 | 10,450 | 7 | 2001 | | 2024.08.23 | Àü¼¼ | Å·´ý±×·¹À̽º | 6 | 27.13 | 28,000 | 0 | 2018 | | 2024.08.23 | ¿ù¼¼ | ÇØ¿À¸§(24-59) | 4 | 13.44 | 4,850 | 20 | 2011 | | 2024.08.23 | ¿ù¼¼ | ¸í½ÅŸ¿î7Â÷(Bµ¿) | 5 | 48.96 | 14,200 | 20 | 2001 | | 2024.08.23 | ¿ù¼¼ | »ç¶ûºô¶ó | 1 | 55.9 | 13,400 | 15 | 1991 | | 2024.08.23 | Àü¼¼ | Æ®¸®Çÿ¡½ººô(966-22) | 2 | 58.77 | 18,000 | 0 | 2012 | | 2024.08.23 | ¿ù¼¼ | ¼øÈ¯ºô¶ó(24-568) | 2 | 46.59 | 5,000 | 50 | 2001 | | 2024.08.23 | ¸Å¸Å | Á־󸮸ǼÇ(476-46) | 4 | 50.38 | 15,300 | | 2002 | | 2024.08.23 | ¸Å¸Å | ¾ÆÁÙ¸®¿ò(1049-24) | 5 | 26.24 | 26,700 | | 2018 | | 2024.08.22 | ¿ù¼¼ | ·Ôµ¥¾ÆÆ®ºô¶ó | 5 | 69.84 | 3,000 | 78 | 2002 | | 2024.08.22 | Àü¼¼ | (407-8) | -1 | 38.7 | 7,000 | 0 | 1986 | | 2024.08.22 | Àü¼¼ | »þ·ÐÀÎÅÚ¸®¾È(408-29) | 4 | 57.8 | 19,000 | 0 | 2010 | | 2024.08.22 | ¿ù¼¼ | µ¿Èºô | 1 | 23.95 | 1,000 | 80 | 2019 | | 2024.08.22 | ¿ù¼¼ | ÁøÁÖºô¶ó(960-3) | 3 | 49.67 | 3,000 | 70 | 1991 | | 2024.08.22 | ¿ù¼¼ | µ¿¾çÇÏ¿ì¡Bµ¿ | 3 | 38.01 | 21,000 | 10 | 2017 | | 2024.08.22 | ¿ù¼¼ | Ȱ´Ù¼¼´ëÁÖÅà | 1 | 26.68 | 1,000 | 50 | 2002 | | 2024.08.22 | Àü¼¼ | Ȱ´Ù¼¼´ëÁÖÅà | 3 | 30.21 | 9,450 | 0 | 2003 | | 2024.08.22 | Àü¼¼ | ´õÁ¸ÆÛ½ºÆ® | 4 | 27.44 | 30,900 | 0 | 2022 | | 2024.08.22 | ¿ù¼¼ | SKÆÄÅ©ºô(353-15) | 3 | 38.67 | 19,500 | 13 | 2014 | | 2024.08.22 | ¿ù¼¼ | ´Ù´ãºô(105-100) | 5 | 41.9 | 17,000 | 15 | 2012 | | 2024.08.22 | ¸Å¸Å | ·Ôµ¥Å¸¿î | 2 | 59.94 | 27,800 | | 2011 | | 2024.08.22 | ¸Å¸Å | ´õŬ·¡½Ä | 4 | 39.85 | 36,000 | | 2018 | | 2024.08.22 | ¸Å¸Å | ¼±ÁøÇÏÀÌÃ÷ºô¶ó | 4 | 90.34 | 32,500 | | 1997 | | 2024.08.22 | ¸Å¸Å | ´õŬ·¡½Ä | 4 | 39.85 | 36,000 | | 2018 | | 2024.08.22 | ¸Å¸Å | ¿µÁøºô¶ó(102-143) | 3 | 58.37 | 20,800 | | 2001 | | 2024.08.22 | ¸Å¸Å | ¼Ò¸ÁÇÏÀÌÃ÷ºô¶ó3Â÷ | 2 | 59.85 | 14,700 | | 1992 | | 2024.08.22 | ¿ù¼¼ | »ïÁ¤ºô¶ó(61-88) | 1 | 62.29 | 14,700 | 40 | 1997 | | 2024.08.22 | ¿ù¼¼ | ¼Û¸²¸Ç¼Ç | 5 | 33.41 | 9,900 | 30 | 2002 | | 2024.08.22 | Àü¼¼ | »ïÀͺô¶ó | 1 | 51.48 | 15,000 | 0 | 1994 | | 2024.08.22 | ¿ù¼¼ | ¾Æ¸§½Ç¶óAµ¿ | -1 | 62.4 | 14,000 | 20 | 2003 | | 2024.08.22 | Àü¼¼ | ³×½ºÆ®ºô | 2 | 52.895 | 17,500 | 0 | 2007 | | 2024.08.22 | ¿ù¼¼ | ÈÀκô¶ó(954-7) | 2 | 79.74 | 2,000 | 79 | 2003 | | 2024.08.22 | ¿ù¼¼ | °æ³²ºô¶ó(56-72) | -1 | 37.08 | 500 | 37 | 1990 | | 2024.08.22 | ¿ù¼¼ | À¯Ç³ºô¶ó¾ÆÆ®Aµ¿ | 1 | 84.43 | 5,000 | 100 | 1990 | | 2024.08.22 | ¿ù¼¼ | ´Ù¿ÂÇϿ콺 | 3 | 43.59 | 19,500 | 20 | 2016 | | 2024.08.22 | Àü¼¼ | ¹Ý¼®village | 4 | 50.74 | 22,000 | 0 | 2019 | | 2024.08.22 | ¿ù¼¼ | ¼ºµµ±×¸°ºô¶ó | 2 | 59.1 | 13,000 | 35 | 2001 | | 2024.08.22 | Àü¼¼ | ´õÁ¸ÆÛ½ºÆ® | 4 | 27.44 | 21,000 | 0 | 2022 | | 2024.08.22 | ¿ù¼¼ | Å¿µ¸Ç¼Ç | -1 | 60.32 | 3,000 | 65 | 2001 | | 2024.08.22 | ¸Å¸Å | ´ö¼ºÀÚÀ̺ô | 5 | 45.72 | 13,000 | | 2012 | | 2024.08.22 | ¿ù¼¼ | ´ëµ¿ºô¶ó°¡µ¿ | 4 | 49.88 | 2,000 | 70 | 2002 | | 2024.08.21 | ¿ù¼¼ | µå¸²ºô(TheDreamVill) | 5 | 22.98 | 10,200 | 15 | 2012 | | 2024.08.21 | Àü¼¼ | (24-23) | 2 | 32 | 10,900 | 0 | 2002 | | 2024.08.21 | ¿ù¼¼ | ȼºÆÄÅ©ºô¸®Áö7Â÷ | 2 | 51.47 | 12,000 | 27 | 1994 | | 2024.08.21 | ¿ù¼¼ | ¸®Ä¡ºô | 2 | 25.08 | 500 | 60 | 2010 | | 2024.08.21 | Àü¼¼ | ½Å¾ç±×¸°ºô(56-46) | 2 | 44.76 | 13,200 | 0 | 2008 | | 2024.08.21 | Àü¼¼ | ±×·¹À̽ººô | 4 | 26.83 | 30,600 | 0 | 2022 | | 2024.08.21 | ¿ù¼¼ | ¿ì¼º | 5 | 44.65 | 0 | 30 | 2015 | | 2024.08.21 | ¿ù¼¼ | Ȱî»ç¶ûºô | 3 | 17.36 | 500 | 29 | 2011 | | 2024.08.21 | Àü¼¼ | ¿¹´ç¾ÆÆ®ºô | 3 | 54.84 | 16,700 | 0 | 2004 | | 2024.08.21 | ¿ù¼¼ | ȲÁ¦ºô¶ó(46-312) | 1 | 49.81 | 1,000 | 60 | 1991 | | 2024.08.21 | Àü¼¼ | ¹Ù¿ìÇϿ콺(895-10) | 2 | 12.16 | 5,775 | 0 | 2011 | | 2024.08.21 | ¿ù¼¼ | Å·´ý | 6 | 18.3 | 2,000 | 70 | 2016 | | 2024.08.21 | ¸Å¸Å | º¹Áöºô¶ó | 2 | 51.17 | 18,500 | | 2002 | | 2024.08.21 | ¸Å¸Å | »ï¼ºÈ¨Å¸¿î3Â÷ | 3 | 45.99 | 12,900 | | 2001 | | 2024.08.21 | ¸Å¸Å | °è¸íÁÖÅÃ(155-23) | 3 | 59.87 | 24,500 | | 2000 | | 2024.08.21 | ¸Å¸Å | ·ÎÁîºô | 3 | 106.27 | 40,000 | | 2004 | | 2024.08.21 | ¸Å¸Å | È£¼ºÆÄÅ©¸Ç¼Ç3Â÷ | 4 | 42.66 | 19,500 | | 1996 | | 2024.08.21 | Àü¼¼ | È£¼ºÆÄÅ©¸Ç¼Ç3Â÷ | -1 | 59.7 | 11,700 | 0 | 1996 | | 2024.08.21 | ¿ù¼¼ | ¿¹´ãä | 5 | 21.09 | 1,000 | 35 | 2018 | | 2024.08.21 | ¿ù¼¼ | ¾Æµ¥³ªÆÓ¸®½º | 5 | 34.68 | 19,700 | 17 | 2016 | | 2024.08.21 | ¿ù¼¼ | ¿¹¼Û¿¡¹öºô | 4 | 39.73 | 2,000 | 59 | 2004 | | 2024.08.21 | Àü¼¼ | ÀÌ¿¤ÇϿ콺 | 6 | 27.31 | 23,000 | 0 | 2022 | | 2024.08.20 | ¸Å¸Å | ´õÇϿ콺 | 5 | 39.91 | 17,400 | | 2018 | | 2024.08.20 | ¸Å¸Å | ÇѼº¾ÆÆ®ºôBµ¿ | 1 | 61.36 | 15,000 | | 2001 | | 2024.08.20 | ¸Å¸Å | ¿¹¼ÖÇÏÀÌÃ÷ | 2 | 61.8 | 25,000 | | 2008 | | 2024.08.20 | ¸Å¸Å | ½Ö¿ëºô¶ó(56-105) | 2 | 47.31 | 20,000 | | 2011 | | 2024.08.20 | ¿ù¼¼ | ¿ì¼º´ë·Îºô¶ó | 1 | 46.8 | 11,500 | 25 | 1995 | | 2024.08.20 | Àü¼¼ | ¼ºÁøÅ¸¿îBµ¿(56-640) | 3 | 49.94 | 14,200 | 0 | 2001 | | 2024.08.20 | Àü¼¼ | Æ®¸®Çÿ¡½ººô(966-22) | 5 | 29.8 | 11,500 | 0 | 2012 | | 2024.08.20 | Àü¼¼ | ¿¬Èñºô¶ó°¡µ¿ | 2 | 102.17 | 25,000 | 0 | 1983 | | 2024.08.20 | Àü¼¼ | Ǫ¸¥Ç³°æÃ¤ | 3 | 26.29 | 21,000 | 0 | 2022 | | 2024.08.20 | ¿ù¼¼ | ÇØÇÇÇϿ콺(1128-4) | 3 | 14.89 | 500 | 36 | 2012 | | 2024.08.20 | ¿ù¼¼ | ´ëÀº¿¬¸³ | 4 | 52.64 | 3,000 | 70 | 1998 | | 2024.08.20 | ¿ù¼¼ | ÇÑ¿ïºô¸®Áö | -1 | 64.67 | 5,000 | 50 | 2001 | | 2024.08.20 | Àü¼¼ | ¸ð¾ÆÈ¨Å¸¿î(1104-1) | 4 | 39 | 15,000 | 0 | 2011 | | 2024.08.20 | Àü¼¼ | »ï¼º¾ÆÀÌ¸Ç¼Ç | 3 | 67.44 | 19,500 | 0 | 2002 | | 2024.08.20 | Àü¼¼ | ±îÄ¡»êºô¶ó | 1 | 63.79 | 18,000 | 0 | 1998 | | 2024.08.20 | ¿ù¼¼ | Çູºô¶ó | 1 | 45.99 | 1,000 | 70 | 2000 | | 2024.08.20 | Àü¼¼ | »ï¼ººí·ç¹Ö(101µ¿102µ¿) | 4 | 29.98 | 15,200 | 0 | 2015 | | 2024.08.20 | ¿ù¼¼ | ÇüÁ¦ºô¶ó | 4 | 38.04 | 1,000 | 45 | 1993 | | 2024.08.20 | ¿ù¼¼ | ¼ºµµºô¶ó(471-8) | -1 | 51.51 | 2,000 | 40 | 2002 | | 2024.08.20 | Àü¼¼ | ¼¼¸íº£¸£µð¿ò | 3 | 41.95 | 25,000 | 0 | 2016 | | 2024.08.20 | ¿ù¼¼ | À¸¶äij½½2Â÷ | 4 | 27.09 | 600 | 35 | 2021 | | 2024.08.20 | ¿ù¼¼ | °è¸íÀ§³Ê½º | 3 | 38.58 | 12,000 | 30 | 2010 | | 2024.08.20 | ¿ù¼¼ | ¾ÆÀ̵ð¿ò | 3 | 28.07 | 13,800 | 20 | 2016 | | 2024.08.20 | Àü¼¼ | ¿Ã¶ó·çÁî(HOLALUZ) | 3 | 23.99 | 24,400 | 0 | 2022 | | 2024.08.20 | Àü¼¼ | »ï¼º¾ÆÀÌ¸Ç¼Ç | 3 | 67.44 | 19,500 | 0 | 2002 | | 2024.08.20 | Àü¼¼ | 111-110 | 2 | 62.79 | 25,000 | 0 | 2015 | | 2024.08.20 | Àü¼¼ | ±îÄ¡»êºô¶ó | 1 | 63.79 | 18,000 | 0 | 1998 | | 2024.08.20 | Àü¼¼ | º¹Áö±×¸°ºô6Â÷ | 2 | 39.17 | 10,000 | 0 | 2002 | | 2024.08.20 | Àü¼¼ | ´ë·úºô¶ó | 3 | 45.56 | 8,750 | 0 | 1993 | | 2024.08.20 | Àü¼¼ | »ï¼ººí·ç¹Ö(101µ¿102µ¿) | 4 | 29.98 | 15,200 | 0 | 2015 | | 2024.08.19 | Àü¼¼ | ¼±¤ºô¶ó | 3 | 44.08 | 13,860 | 0 | 2002 | | 2024.08.19 | ¿ù¼¼ | ÇØÇÇÇÏÀÌÃ÷ | 4 | 45.02 | 3,000 | 65 | 2008 | | 2024.08.19 | Àü¼¼ | ¶óÀÎÆÄÅ© | 3 | 29.67 | 23,800 | 0 | 2020 | | 2024.08.19 | ¿ù¼¼ | ·£µåÇϿ콺 | 3 | 29.92 | 16,500 | 15 | 2016 | | 2024.08.19 | Àü¼¼ | ½Å¿ì¼ººô¶ó(408-15) | 2 | 56.12 | 16,000 | 0 | 2012 | | 2024.08.19 | ¸Å¸Å | ½Å¿µº£¸£µð¿ò | 4 | 27.97 | 25,900 | | 2017 | | 2024.08.19 | ¸Å¸Å | ¿ÀÄÉÀÌÆÄÅ©ºô | 4 | 35.6 | 25,000 | | 2016 | | 2024.08.19 | ¿ù¼¼ | Ǫ¸¥¾Ó¶ßºô | 3 | 42.62 | 1,000 | 40 | 2002 | | 2024.08.19 | Àü¼¼ | Áø¼ººô¶ó | 2 | 62.01 | 17,800 | 0 | 2000 | | 2024.08.19 | ¿ù¼¼ | Áø¼ººô¶ó | 2 | 62.01 | 16,600 | 7 | 2000 | | 2024.08.19 | Àü¼¼ | ±×¸°¹ë¸®(876-17) | 5 | 22.9 | 15,750 | 0 | 2014 | | 2024.08.19 | ¿ù¼¼ | »õ·Ò½ºÅ¸Áî | 6 | 24.72 | 2,000 | 80 | 2016 | | 2024.08.19 | ¿ù¼¼ | ¼øÈ¯º£½ºÆ®ºô1(46-340) | 3 | 45.6 | 2,000 | 65 | 2003 | | 2024.08.19 | ¿ù¼¼ | µ¿¼ºº£½ºÆ®ºô | 3 | 43.63 | 12,500 | 20 | 2002 | | 2024.08.19 | ¿ù¼¼ | ´õÁ¸ÆÛ½ºÆ® | 4 | 29.15 | 25,000 | 6 | 2022 | | 2024.08.19 | ¿ù¼¼ | ¿ìÁø¸Ç¼Ç(105-47) | 4 | 41.8 | 2,000 | 62 | 2001 | | 2024.08.19 | ¿ù¼¼ | ÇÏÀÌÆ®¸Ç¼Ç | 4 | 38.67 | 1,000 | 70 | 2000 | | 2024.08.19 | Àü¼¼ | À¯·Îºô(368-20) | 3 | 47.12 | 11,500 | 0 | 2002 | | 2024.08.19 | Àü¼¼ | ¼ºÀçÆÄÅ©ºô | 3 | 53.6 | 15,870 | 0 | 2002 | | 2024.08.19 | Àü¼¼ | (77-35) | 5 | 55.4 | 16,000 | 0 | 2003 | | 2024.08.19 | ¸Å¸Å | DHÆÓ¸®½º102µ¿ | 4 | 29.4 | 26,700 | | 2018 | | 2024.08.19 | ¿ù¼¼ | ¶ó¿Âºô | 5 | 17.49 | 11,000 | 20 | 2018 | | 2024.08.18 | Àü¼¼ | Çѹ鸮Ã÷ºô(346-56) | 3 | 60.12 | 24,500 | 0 | 2008 | | 2024.08.18 | ¿ù¼¼ | Ÿ¿îij½½Aµ¿ | 4 | 40.98 | 22,500 | 30 | 2018 | | 2024.08.18 | ¿ù¼¼ | Ÿ¿îij½½Aµ¿ | 4 | 40.98 | 22,500 | 30 | 2018 | | 2024.08.18 | ¿ù¼¼ | ½Å¶óÇÏÀÌÃ÷ºô¶ó3Â÷ | 4 | 40.5 | 3,000 | 55 | 1994 | | 2024.08.17 | Àü¼¼ | »ïÀͺô¶ó | 3 | 71.1 | 22,000 | 0 | 1985 | | 2024.08.17 | ¿ù¼¼ | ¿ì¼ºAµ¿ | 6 | 75.19 | 20,000 | 25 | 2001 | | 2024.08.17 | ¿ù¼¼ | ¼º¿îºô¶ó3Â÷ | 3 | 41.54 | 2,000 | 65 | 2001 | | 2024.08.17 | Àü¼¼ | ½ºÇÁ¸µºô | 5 | 68.52 | 17,600 | 0 | 2003 | | 2024.08.17 | ¿ù¼¼ | ÇØÆòij½½ | 13 | 20.4 | 27,000 | 10 | 2024 | | 2024.08.17 | ¿ù¼¼ | ºÀ½ººô | 3 | 10.63 | 500 | 45 | 2011 | | 2024.08.17 | Àü¼¼ | ÀÏÁÖÇϿ콺 | 5 | 29.99 | 26,800 | 0 | 2020 | | 2024.08.17 | ¸Å¸Å | ½Ã¿Âºô¸®Áö102 | 2 | 27.13 | 26,500 | | 2022 | | 2024.08.17 | ¿ù¼¼ | ½ÅÇѱ׸°ºô¶ó | 4 | 41.52 | 11,700 | 10 | 1997 | | 2024.08.17 | Àü¼¼ | ·ÎºóÇϿ콺(354-86) | 6 | 29.62 | 18,900 | 0 | 2016 | | 2024.08.17 | ¿ù¼¼ | »ï¼ººí·ç¹Ö(101µ¿102µ¿) | 2 | 29.97 | 15,240 | 20 | 2015 | | 2024.08.17 | Àü¼¼ | ¸®Ä¡7 | 12 | 29.57 | 25,200 | 0 | 2022 | | 2024.08.16 | ¿ù¼¼ | ´ºÇö´ëºô¶ó | 1 | 71.07 | 3,000 | 90 | 1997 | | 2024.08.16 | Àü¼¼ | ¶óÀÌÇÁÁÖÅà | 2 | 40.825 | 10,900 | 0 | 1986 | | 2024.08.16 | Àü¼¼ | ¿¬Èñºô¶ó(353-3) | -1 | 64.14 | 8,000 | 0 | 1996 | | 2024.08.16 | ¿ù¼¼ | ´Ù¼ØÅ¸¿îA,B | 6 | 37.36 | 3,000 | 80 | 2013 | | 2024.08.16 | ¿ù¼¼ | ÇѼººô¶ó(56-655) | 2 | 65.31 | 13,000 | 30 | 1994 | | 2024.08.16 | ¿ù¼¼ | (24-551)Åä¼®¾Æ³×½ººô | 6 | 29.7 | 500 | 35 | 2010 | | 2024.08.16 | ¿ù¼¼ | ·ç¹ÌÈú½º | 5 | 29 | 0 | 80 | 2021 | | 2024.08.16 | ¸Å¸Å | ÇØÇÇÇϿ콺 | 5 | 46.9 | 14,193 | | 2003 | | 2024.08.16 | ¸Å¸Å | ¶óÅ׶󽺺ô(380-6) | 3 | 38.59 | 28,800 | | 2016 | | 2024.08.16 | ¸Å¸Å | MAROO | 4 | 16.1 | 8,850 | | 2019 | | 2024.08.16 | ¸Å¸Å | ÇØÇÇÇϿ콺 | 5 | 41.61 | 12,591 | | 2003 | | 2024.08.16 | ¸Å¸Å | ÇØÇÇÇϿ콺 | 4 | 70.79 | 21,431 | | 2003 | | 2024.08.16 | ¿ù¼¼ | ¿¡º¥¿¡¼¿ | 6 | 15.08 | 500 | 48 | 2009 | | 2024.08.16 | ¸Å¸Å | ÇØÇÇÇϿ콺 | 4 | 28.42 | 8,600 | | 2003 | | 2024.08.16 | ¸Å¸Å | ÇØÇÇÇϿ콺 | 4 | 32.45 | 9,821 | | 2003 | | 2024.08.16 | ¸Å¸Å | SKÀÚÀ̺ô(421-29) | 5 | 33.16 | 20,800 | | 2014 | | 2024.08.16 | ¸Å¸Å | ±×¸°Èú | 4 | 34.32 | 23,600 | | 2014 | | 2024.08.16 | ¸Å¸Å | (354-118) | 2 | 38.22 | 13,700 | | 1986 | | 2024.08.15 | ¿ù¼¼ | ·¹À̳ª | 4 | 33.62 | 1,000 | 80 | 2013 | | 2024.08.15 | ¸Å¸Å | ÀÌ·¹½¦¸£ºô(1046-5) | 2 | 40.79 | 34,700 | | 2014 | | 2024.08.15 | ¸Å¸Å | ¼º¿ìÇÏÀÌÃ÷ºô¶ó | 1 | 61.79 | 28,700 | | 2000 | | 2024.08.15 | ¸Å¸Å | Çູµå¸²ºô | 1 | 64.03 | 29,800 | | 2003 | | 2024.08.15 | ¸Å¸Å | ´ë±¤¾ÆÆ®ºô¶ó | 2 | 64.36 | 23,500 | | 1996 | | 2024.08.15 | ¸Å¸Å | »ï¼ºÀ§ºêºô | 2 | 29.85 | 19,900 | | 2012 | | 2024.08.15 | ¿ù¼¼ | °¡Àα׸°ºôB | 1 | 51.28 | 12,978 | 10 | 2001 | | 2024.08.15 | ¿ù¼¼ | ¸®Ä¡ÇϿ콺 | 4 | 38.15 | 2,000 | 100 | 2016 | | 2024.08.15 | ¿ù¼¼ | ¼º¿ìÁÖÅà | 4 | 39.02 | 11,940 | 12 | 2001 | | 2024.08.15 | Àü¼¼ | ±Û·Î¸®¾ÆÇϿ콺 | 3 | 27.06 | 25,000 | 0 | 2021 | | 2024.08.15 | Àü¼¼ | ¿¬ÁÖºô¶ó | 2 | 42.69 | 10,500 | 0 | 2003 | | 2024.08.15 | ¿ù¼¼ | »ïÀÍÇ콺Ƽ¾Æ(55-41) | 4 | 24.99 | 500 | 60 | 2011 | | 2024.08.15 | ¿ù¼¼ | ¿ùµåÇϿ콺 | 3 | 72.84 | 3,000 | 100 | 2003 | | 2024.08.15 | ¿ù¼¼ | ¿¥Æç¸®Ã¼(346-75) | 5 | 24.62 | 2,000 | 80 | 2015 | | 2024.08.15 | Àü¼¼ | ºÎ±¤Å¾½ººô | -1 | 64.92 | 11,000 | 0 | 2001 | | 2024.08.15 | ¿ù¼¼ | À¯´Ï¿Â½¦¸£ºôA | 2 | 54.54 | 3,500 | 63 | 2002 | | 2024.08.15 | ¿ù¼¼ | THEJIA | 2 | 29.89 | 5,500 | 55 | 2022 | | 2024.08.15 | Àü¼¼ | »ï¼ººô¶ó(46-193) | 1 | 39.84 | 10,500 | 0 | 1990 | | 2024.08.15 | Àü¼¼ | º°Àåºô¶ó(952-7) | 2 | 80.33 | 17,000 | 0 | 1982 | | 2024.08.15 | Àü¼¼ | ´Ù¿ìºô¸®Áö | 1 | 73.83 | 19,780 | 0 | 2003 | | 2024.08.15 | ¿ù¼¼ | ½Å¼¼±â±×¸°ºô¶óAµ¿ | 3 | 47.73 | 4,000 | 60 | 2003 | | 2024.08.15 | Àü¼¼ | ¶óÀÎÆÄÅ© | 2 | 29.47 | 23,700 | 0 | 2020 | | 2024.08.15 | Àü¼¼ | ¾Æ¸§¾ÆÆ®ºô | 2 | 49.6 | 13,300 | 0 | 2004 | | 2024.08.14 | ¸Å¸Å | °æÇѺô¶ó(56-644) | 2 | 42.18 | 13,500 | | 1991 | | 2024.08.14 | ¸Å¸Å | ¾ÆÀνººôHANAGREEN | 4 | 35.59 | 24,700 | | 2013 | | 2024.08.14 | Àü¼¼ | ¹®ÆÓ¸®½º | 2 | 45.3 | 21,670 | 0 | 2016 | | 2024.08.14 | ¿ù¼¼ | Çѽº¾ÆÀ̺ô2 | 3 | 27.45 | 1,181 | 44 | 2019 | | 2024.08.14 | ¿ù¼¼ | ¿¡½º¿¥ÆÄÅ©ºô(409-2) | 3 | 32.65 | 17,570 | 10 | 2016 | | 2024.08.14 | ¸Å¸Å | ¿¡ÄÚºô(391-45) | 5 | 31.72 | 21,700 | | 2014 | | 2024.08.14 | ¿ù¼¼ | SHÃÊÇàÁöºØ-Ȱî | 4 | 26.27 | 1,138 | 12 | 2023 | | 2024.08.14 | ¸Å¸Å | ¼Ò´ã¸¶À» | 3 | 33.8 | 18,500 | | 2011 | | 2024.08.14 | ¸Å¸Å | ºí·ç½ºÄ«À̺ô | 2 | 29.23 | 15,500 | | 2013 | | 2024.08.14 | ¸Å¸Å | ¾ÆÁÙÆ÷·¹ | 2 | 29.91 | 29,000 | | 2023 | | 2024.08.14 | Àü¼¼ | ºñ¿ø±×¸°ºô¶ó | 3 | 43.92 | 12,000 | 0 | 1986 | | 2024.08.14 | Àü¼¼ | ½Å¿ì½¬¶óºô | 2 | 38.655 | 16,600 | 0 | 2012 | | 2024.08.14 | ¿ù¼¼ | ÀÚÇÏŬ·¡½Ä | 17 | 13.77 | 1,000 | 63 | 2018 | | 2024.08.14 | ¿ù¼¼ | ÇØÇÇÇϿ콺(1128-4) | 4 | 12.7 | 1,000 | 33 | 2012 | | 2024.08.14 | ¿ù¼¼ | ±¤»êºô¶ó(163-27) | -1 | 58.66 | 8,700 | 50 | 2001 | | 2024.08.14 | ¿ù¼¼ | µ¿¿ìÇÏÀ̺ô(996-19) | 4 | 26.15 | 300 | 45 | 2022 | | 2024.08.14 | ¿ù¼¼ | ÀÚ¶óÇϿ콺(366-19) | 4 | 34.57 | 3,000 | 85 | 2014 | | 2024.08.14 | Àü¼¼ | Å·´ý±×·¹À̽º | 3 | 27.31 | 19,500 | 0 | 2018 | | 2024.08.14 | Àü¼¼ | ½ÅÈï¾Æ³Ê½ººô | 5 | 49.96 | 16,000 | 0 | 2008 | | 2024.08.14 | ¿ù¼¼ | ¿¡½º¿¥ÆÄÅ©ºô(409-2) | 3 | 32.65 | 18,500 | 10 | 2016 | | 2024.08.14 | ¿ù¼¼ | SHÃÊÇàÁöºØ-Ȱî | 4 | 26.27 | 2,819 | 2 | 2023 | | 2024.08.14 | ¿ù¼¼ | Ŭ·¡½Ãºä | 3 | 24.15 | 1,000 | 100 | 2022 | | 2024.08.14 | ¿ù¼¼ | À̵µÆ®¶ó¿ò | 2 | 29.77 | 3,000 | 100 | 2016 | | 2024.08.14 | ¿ù¼¼ | ÈÀκô¶ó(954-7) | 5 | 70.11 | 1,500 | 83 | 2003 | | 2024.08.14 | ¿ù¼¼ | È¿¼º¾ÆÆ®ºô(56-427) | 4 | 52.44 | 1,500 | 55 | 2002 | | 2024.08.14 | ¿ù¼¼ | Ǫ¸¥Ç³°æÃ¤ | 5 | 29.98 | 16,750 | 15 | 2016 | | 2024.08.14 | ¿ù¼¼ | ´ëÈ£¼¾½ººô5Â÷ | 4 | 38.87 | 11,000 | 30 | 2002 | | 2024.08.14 | ¿ù¼¼ | ÀÎÅÍ½ÃÆ¼ºô¶ó(392-13) | -1 | 56.51 | 9,500 | 35 | 2000 | | 2024.08.13 | ¸Å¸Å | ÀÌÈ¾ÆÆ®ºô(343-24) | 3 | 62.07 | 29,000 | | 2002 | | 2024.08.13 | ¿ù¼¼ | ¹Ì·¡¿ø·ëÅÚ | 3 | 17.47 | 5,000 | 5 | 2012 | | 2024.08.13 | Àü¼¼ | ¼±¤¾ÆÆ®ºô | 4 | 65.81 | 22,500 | 0 | 2007 | | 2024.08.13 | Àü¼¼ | Áø¼Öºô¶óÆ® | 4 | 43.665 | 22,000 | 0 | 2015 | | 2024.08.13 | ¿ù¼¼ | ´ëÈ£ÇÏÀÌÃ÷¸Ç¼ð | 1 | 53.16 | 12,000 | 20 | 1991 | | 2024.08.13 | ¿ù¼¼ | ÈÞ¸Õ½ÃÆ¼ | 3 | 29.43 | 0 | 70 | 2020 | | 2024.08.13 | ¿ù¼¼ | Á¤¿øºô¶ó(504-32) | 5 | 26.57 | 9,680 | 30 | 2012 | | 2024.08.13 | ¿ù¼¼ | ÇØ¶ß´ÂÁý(29-207) | 1 | 30.3 | 2,000 | 50 | 2007 | | 2024.08.13 | ¿ù¼¼ | ¹Ì·¡¿ø·ëÅÚ | 2 | 17.47 | 5,500 | 8 | 2012 | | 2024.08.13 | Àü¼¼ | ¶ó¿Âºô(341-21) | 5 | 29.88 | 17,600 | 0 | 2017 | | 2024.08.13 | ¿ù¼¼ | ´õÇ÷¹À̽º | 4 | 29.89 | 4,000 | 75 | 2017 | | 2024.08.13 | Àü¼¼ | ÇØºñÄ¡ºô | 2 | 31.95 | 25,900 | 0 | 2019 | | 2024.08.13 | Àü¼¼ | ¿ì¼º | 3 | 55.64 | 23,800 | 0 | 2016 | | 2024.08.13 | Àü¼¼ | »êÈ£¸Ç¼Ç´Ùµ¿ | 2 | 41.53 | 12,400 | 0 | 2001 | | 2024.08.13 | Àü¼¼ | ¹Ì¼ºÇϸ£µò(1102-5) | 2 | 29.19 | 21,600 | 0 | 2018 | | 2024.08.13 | ¿ù¼¼ | ´ëÈ£¼¾½ººô | 2 | 61.68 | 19,600 | 20 | 2002 | | 2024.08.13 | Àü¼¼ | ¿ì¼ºAµ¿Bµ¿(346-86) | 2 | 32.61 | 18,800 | 0 | 2014 | | 2024.08.13 | Àü¼¼ | ´õÇ÷¯½º | 3 | 37.78 | 21,400 | 0 | 2019 | | 2024.08.13 | Àü¼¼ | °ø°£ºô¶ó | 2 | 41.73 | 12,000 | 0 | 1993 | | 2024.08.13 | Àü¼¼ | ±îÄ¡»êÆÈ¶óÀ̽º | 1 | 29.91 | 18,000 | 0 | 2015 | | 2024.08.13 | Àü¼¼ | µ¿¼ÆÄÅ©ºô(³ªµ¿) | 5 | 33.21 | 9,000 | 0 | 2003 | | 2024.08.12 | ¿ù¼¼ | ½Å¿µ¸®Ä¡ºô | 4 | 29.76 | 18,700 | 10 | 2016 | | 2024.08.12 | ¿ù¼¼ | ¾ÆÀνººô¥°(1128-15) | 4 | 41.5 | 20,500 | 20 | 2012 | | 2024.08.12 | ¿ù¼¼ | ½ºÄ«À̺ô | 6 | 28.64 | 500 | 60 | 2017 | | 2024.08.12 | ¿ù¼¼ | ȰÁÖÅÃ(1118-5) | 2 | 44.1 | 1,000 | 62 | 2002 | | 2024.08.12 | Àü¼¼ | ÀÌ¿¤ÇϿ콺 | 3 | 29.81 | 30,000 | 0 | 2022 | | 2024.08.12 | Àü¼¼ | ³²¼º¾ÆÆ®ºô | 2 | 52.18 | 20,900 | 0 | 2008 | | 2024.08.12 | Àü¼¼ | ¿À¼ººô¶ó | 2 | 31.34 | 10,000 | 0 | 1987 | | 2024.08.12 | ¿ù¼¼ | ·°Å°ºô¶ó | 4 | 34.38 | 8,800 | 10 | 1991 | | 2024.08.12 | Àü¼¼ | »ïÁ¤ÆÄÅ©ºä | 4 | 29.98 | 15,300 | 0 | 2012 | | 2024.08.12 | ¿ù¼¼ | ÀÌ·¹½¦¸£ºô(1046-5) | 5 | 40.45 | 2,000 | 85 | 2014 | | 2024.08.12 | Àü¼¼ | Áß¾Óºô¶ó | 1 | 30.31 | 8,300 | 0 | 1993 | | 2024.08.12 | Àü¼¼ | ÇØÇǸ®¿ò | 4 | 36.7 | 15,800 | 0 | 2012 | | 2024.08.12 | Àü¼¼ | ±ÃÀü¾ÆÆ®ºô¶ó | -1 | 54.6 | 8,700 | 0 | 1996 | | 2024.08.12 | Àü¼¼ | ³²¼º¾ÆÆ®ºô(424-3) | 4 | 25.56 | 14,300 | 0 | 2014 | | 2024.08.12 | Àü¼¼ | ÀÎÅÍ½ÃÆ¼ºô¶ó(392-11) | 4 | 45.72 | 12,700 | 0 | 2000 | | 2024.08.12 | ¿ù¼¼ | û¼ÛÆòÈÇÏÀÌ¸Ç¼Ç | -1 | 54.27 | 10,200 | 27 | 1995 | | 2024.08.12 | ¿ù¼¼ | ¿ÍÀ̺ñÇϿ콺 | 2 | 29.79 | 2,000 | 64 | 2017 | | 2024.08.12 | ¿ù¼¼ | À¯¼ººô¶ó | 2 | 45.54 | 12,000 | 35 | 2002 | | 2024.08.12 | Àü¼¼ | ³²¼º¾ÆÆ®ºô | 2 | 52.18 | 20,900 | 0 | 2008 | | 2024.08.12 | ¿ù¼¼ | ÆòȺô¶ó(46-372) | 3 | 46.91 | 2,000 | 60 | 1992 | | 2024.08.12 | Àü¼¼ | ÀÏÁÖÇϿ콺 | 2 | 32.99 | 21,700 | 0 | 2020 | | 2024.08.12 | ¿ù¼¼ | Àå¹Ì¸Ç¼Ç7Â÷ | 1 | 54.46 | 9,000 | 30 | 1990 | | 2024.08.12 | ¿ù¼¼ | dzÀüºô¶ó | 2 | 41.08 | 1,000 | 60 | 2002 | | 2024.08.12 | ¿ù¼¼ | ÀÎâºô¶ó°¡µ¿ | 1 | 33.45 | 9,350 | 20 | 1991 | | 2024.08.12 | ¸Å¸Å | È£ºøÇϿ콺(155-36¿Ü) | 2 | 29.7 | 15,500 | | 2014 | | 2024.08.12 | ¸Å¸Å | ´Ù¼ØBµ¿(381-4) | 6 | 34.07 | 21,500 | | 2015 | | 2024.08.12 | ¸Å¸Å | À£½ºÆÄÅ©ºô(379-2) | 6 | 42.01 | 27,200 | | 2013 | | 2024.08.11 | ¿ù¼¼ | ¹Ì·¡ÇÏÀÌÃ÷Bµ¿(352-8) | -1 | 61.15 | 1,000 | 80 | 2001 | | 2024.08.11 | Àü¼¼ | ¼Ç¹ë¸® | 3 | 29.47 | 26,800 | 0 | 2024 | | 2024.08.11 | Àü¼¼ | º£¾ÆÆ®¸®½º(341-3) | 5 | 28.94 | 23,500 | 0 | 2017 | | 2024.08.11 | Àü¼¼ | º£¾ÆÆ®¸®½º(341-3) | 5 | 28.94 | 23,500 | 0 | 2017 | | 2024.08.11 | ¿ù¼¼ | ¿¹°¡Ã¤(968-3) | 6 | 26.76 | 6,000 | 50 | 2015 | | 2024.08.11 | Àü¼¼ | ´ëÈ£ºô¶ó(807-25) | 3 | 75.72 | 19,400 | 0 | 2002 | | 2024.08.11 | ¸Å¸Å | ¾ÆÁÙ¸®¿ò(1049-24) | 5 | 34.73 | 36,000 | | 2018 | | 2024.08.10 | ¿ù¼¼ | °¡¿Âºô | 4 | 28.74 | 3,000 | 61 | 2014 | | 2024.08.10 | ¿ù¼¼ | ¶óÀÎÆÄÅ© | 2 | 27.6 | 1,000 | 80 | 2019 | | 2024.08.10 | Àü¼¼ | ´ë´öÇÏÀÌÃ÷ºô¶ó(337-18) | -1 | 36.42 | 6,550 | 0 | 1994 | | 2024.08.10 | Àü¼¼ | µ¿µµÇÏÀÌÃ÷8Â÷ | 1 | 54.96 | 15,500 | 0 | 1997 | | 2024.08.10 | Àü¼¼ | ´õÁ¸ÆÛ½ºÆ® | 6 | 23.31 | 21,500 | 0 | 2022 | | 2024.08.10 | ¿ù¼¼ | À¯´Ï¿Â½¦¸£ºô(Dµ¿) | 2 | 34.62 | 2,000 | 75 | 2002 | | 2024.08.10 | ¿ù¼¼ | °¨¼ººô | 7 | 20.79 | 3,000 | 70 | 2016 | | 2024.08.10 | Àü¼¼ | Å׸¶366(366-50) | 3 | 29.93 | 22,800 | 0 | 2020 | | 2024.08.10 | Àü¼¼ | FAMILYŸ¿î | 4 | 70.005 | 17,000 | 0 | 2000 | | 2024.08.10 | ¿ù¼¼ | ÇϳªÅ¸¿î | 3 | 61.47 | 18,000 | 20 | 2001 | | 2024.08.10 | ¿ù¼¼ | À£½ºÆÄÅ©ºô | 2 | 28.14 | 5,000 | 80 | 2018 | | 2024.08.10 | ¿ù¼¼ | ¾ÆÀνººôHANAGREEN | 2 | 26.35 | 2,000 | 75 | 2013 | | 2024.08.10 | ¿ù¼¼ | ÆÓ¶óÀ̽ºÅ¸¿î | 4 | 29.46 | 16,800 | 30 | 2016 | | 2024.08.10 | ¿ù¼¼ | ¼º¿ì¾ÆÆ®ºô(931-8) | 5 | 53.78 | 16,700 | 20 | 2003 | | 2024.08.10 | ¿ù¼¼ | ÆÄÅ©±×¸°ºô¶ó | 4 | 44.76 | 11,000 | 15 | 2001 | | 2024.08.10 | ¿ù¼¼ | ³ª»êÁÖÅÃ(°¡µ¿) | 3 | 50.79 | 12,700 | 20 | 1991 | | 2024.08.10 | Àü¼¼ | »ï¼º°ñµçºô(793-6) | 3 | 33.12 | 20,000 | 0 | 2015 | | 2024.08.10 | Àü¼¼ | Á¦ÀÌÅõ¸®´õ½º | 2 | 25.19 | 22,050 | 0 | 2023 | | 2024.08.10 | Àü¼¼ | ½Ã¿ø¾ÆÆ®ºô³ªµ¿ | 4 | 59.97 | 23,000 | 0 | 2002 | | 2024.08.10 | ¿ù¼¼ | Çý¼ºÆÓ¸®½º24Â÷(397-33) | 4 | 29.37 | 3,000 | 70 | 2013 | | 2024.08.10 | ¿ù¼¼ | À¯´Ï¿Â½¦¸£ºô(Dµ¿) | 2 | 34.62 | 2,000 | 75 | 2002 | | 2024.08.10 | Àü¼¼ | º¸¼º | 2 | 45.48 | 13,000 | 0 | 1982 | | 2024.08.10 | ¿ù¼¼ | ÆÄÅ©½ºÅ×ÀÌ | 3 | 25.87 | 1,000 | 85 | 2024 | | 2024.08.10 | ¿ù¼¼ | Ǫ¸¥Ç³°æÃ¤(351-24) | 6 | 39.16 | 21,000 | 20 | 2017 | | 2024.08.10 | Àü¼¼ | ÀÌ·¹½¦¸£ºô(56-342) | 2 | 41.52 | 14,500 | 0 | 2015 | | 2024.08.10 | ¸Å¸Å | ½îȨ¾ÆÆ®ºô | 2 | 40.25 | 24,700 | | 2013 | | 2024.08.10 | ¿ù¼¼ | ¿¹°¡Ã¤(968-3) | 3 | 28.4 | 14,000 | 15 | 2015 | | 2024.08.10 | ¸Å¸Å | ¾¾Æ¼ÇϿ콺(332-16) | 3 | 38.3 | 27,750 | | 2016 | | 2024.08.10 | ¸Å¸Å | ½Ö¿ëºô¸®Áö | 2 | 66.2 | 25,000 | | 2001 | | 2024.08.09 | Àü¼¼ | (379-63) | 5 | 72.88 | 17,300 | 0 | 2006 | | 2024.08.09 | ¿ù¼¼ | »ï¼ººô¶ó | -1 | 37.74 | 412 | 13 | 1996 | | 2024.08.09 | Àü¼¼ | ÀÌ¿¤ÇϿ콺 | 5 | 36.23 | 29,500 | 0 | 2022 | | 2024.08.09 | Àü¼¼ | È£¹Ý¾ÆÆ®ºô¶ó | 5 | 48.73 | 13,500 | 0 | 2001 | | 2024.08.09 | ¿ù¼¼ | ¹é°¿ø·ë | 2 | 12.02 | 1,000 | 43 | 2011 | | 2024.08.09 | Àü¼¼ | Çʸ³ÇϿ콺 | 4 | 29.88 | 14,300 | 0 | 2012 | | 2024.08.09 | Àü¼¼ | Çö´ëºô¶ó°¡µ¿(748-25) | 4 | 62.86 | 17,700 | 0 | 2000 | | 2024.08.09 | ¿ù¼¼ | (954-10) | 1 | 53.28 | 11,500 | 5 | 1986 | | 2024.08.09 | Àü¼¼ | Á¦ÀÌÅõ¸®´õ½º | 2 | 24.49 | 21,290 | 0 | 2023 | | 2024.08.09 | Àü¼¼ | Çö´ëºô¶ó°¡µ¿(748-25) | 4 | 62.86 | 17,700 | 0 | 2000 | | 2024.08.09 | ¿ù¼¼ | ÇÁ¶óÀÓÇϿ콺 | 5 | 46.8 | 3,000 | 75 | 2010 | | 2024.08.09 | ¿ù¼¼ | ¿ì¼ººô¶ó(346-72) | 3 | 29.86 | 1,000 | 79 | 2013 | | 2024.08.09 | ¿ù¼¼ | żººô¶ó(102-344) | 2 | 42.8 | 10,000 | 30 | 1993 | | 2024.08.09 | ¿ù¼¼ | ÇѰ¡¶÷ºô(153-10) | 3 | 39.87 | 3,000 | 70 | 2012 | | 2024.08.09 | ¸Å¸Å | Çѿî(105-414) | 6 | 54.29 | 32,500 | | 2012 | | 2024.08.09 | ¸Å¸Å | ½¦¶óÅæºô¶ó(56-273) | 4 | 37.28 | 11,000 | | 1991 | | 2024.08.09 | ¸Å¸Å | û¸í½¦¸£ºô | 1 | 54.57 | 16,000 | | 2001 | | 2024.08.09 | ¸Å¸Å | Ǫ¸¥Ç³°æÃ¤ | 4 | 29.98 | 28,600 | | 2022 | | 2024.08.09 | ¿ù¼¼ | È£¼º±×¸°ºä | 2 | 56.04 | 3,000 | 90 | 2016 | | 2024.08.09 | Àü¼¼ | È£¹Ý¾ÆÆ®ºô¶ó | 5 | 48.73 | 15,000 | 0 | 2001 | | 2024.08.09 | ¸Å¸Å | Ǫ¸¥Ç³°æÃ¤ | 2 | 29.98 | 28,600 | | 2022 | | 2024.08.09 | ¿ù¼¼ | »ï¼ººô¶ó | -1 | 37.74 | 8,000 | 4 | 1996 | | 2024.08.08 | ¿ù¼¼ | °¡ÀÌ¾ÆÆÓ¸®½º | 6 | 29.84 | 5,500 | 100 | 2019 | | 2024.08.08 | ¿ù¼¼ | ¹Ð·¹´Ï¾ö¸Ç¼ÇAµ¿ | 1 | 45.73 | 12,090 | 7 | 2001 | | 2024.08.08 | Àü¼¼ | Àå¹Ìºô¶ó | -1 | 36.56 | 7,000 | 0 | 1989 | | 2024.08.08 | ¿ù¼¼ | µ¿¾çÁÖÅÃ(355-21) | -1 | 38.96 | 3,000 | 30 | 1994 | | 2024.08.08 | ¿ù¼¼ | °ÅÆòºô¶ó | 1 | 54.6 | 2,500 | 75 | 2001 | | 2024.08.08 | ¿ù¼¼ | ³×¿ÀÆÄÅ©ºô | 2 | 38.95 | 1,000 | 75 | 2013 | | 2024.08.08 | Àü¼¼ | °í¸íºô¶ó | 2 | 58.53 | 14,800 | 0 | 2002 | | 2024.08.08 | Àü¼¼ | ·£µåÇϿ콺 | 2 | 29.92 | 16,500 | 0 | 2016 | | 2024.08.08 | Àü¼¼ | µ¿¾çÇÏ¿ì¡Bµ¿ | 4 | 29.52 | 17,100 | 0 | 2017 | | 2024.08.08 | Àü¼¼ | »ï¼ººô¶óÆ®Bµ¿ | 4 | 58.39 | 14,999 | 0 | 2000 | | 2024.08.08 | ¿ù¼¼ | ¿ì¼º(408-86) | 5 | 46.17 | 3,000 | 115 | 2017 | | 2024.08.08 | Àü¼¼ | ¼Ç¹ë¸® | 2 | 29.47 | 26,800 | 0 | 2024 | | 2024.08.08 | ¿ù¼¼ | º§¶óÇϿ콺(354-23¹øÁö) | 4 | 29.9 | 15,000 | 20 | 2016 | | 2024.08.07 | Àü¼¼ | ¸®Ä¡7 | 14 | 25.48 | 23,050 | 0 | 2022 | | 2024.08.07 | Àü¼¼ | (155-45) | 2 | 37.615 | 9,200 | 0 | 1986 | | 2024.08.07 | Àü¼¼ | ¼£·Òºô¶ó | 2 | 63.5 | 21,500 | 0 | 2001 | | 2024.08.07 | Àü¼¼ | (105-20) | 4 | 51.12 | 16,600 | 0 | 2011 | | 2024.08.07 | ¿ù¼¼ | ¼ºÀçij½½ºô(408-19) | -1 | 47.77 | 12,000 | 40 | 2010 | | 2024.08.07 | ¿ù¼¼ | THEJIA | 4 | 29.6 | 5,500 | 60 | 2022 | | 2024.08.07 | Àü¼¼ | º¹Áöºô¶ó | 3 | 51.17 | 13,500 | 0 | 2002 | | 2024.08.07 | ¸Å¸Å | ¹Ì·¡¼¾½ººô(56-621) | 3 | 56.4 | 24,900 | | 2008 | | 2024.08.07 | ¸Å¸Å | ºäƼ½¦¸£ºô | 5 | 45.24 | 34,000 | | 2018 | | 2024.08.07 | ¸Å¸Å | ¼±°æºô¶ó(870-54) | 1 | 61.32 | 26,400 | | 2001 | | 2024.08.07 | ¸Å¸Å | ºÎ±¤Å¾½ººô | -1 | 64.92 | 14,500 | | 2001 | | 2024.08.07 | ¸Å¸Å | ½ºÄ«À̱ٸ°Å¸¿î | 5 | 43.31 | 17,500 | | 2014 | | 2024.08.07 | Àü¼¼ | °¡Áøºô¶ó | 3 | 43.71 | 13,700 | 0 | 2008 | | 2024.08.07 | Àü¼¼ | ¿ì¼º¿¬¸³ | 1 | 56.64 | 13,000 | 0 | 1985 | | 2024.08.07 | Àü¼¼ | ¸®Ä¡7 | 14 | 25.48 | 23,050 | 0 | 2022 | | 2024.08.07 | Àü¼¼ | ¼ºÁøÅ¸¿î | 4 | 43.02 | 15,000 | 0 | 2012 | | 2024.08.07 | Àü¼¼ | ¿¹°¡ºô(398-12) | 3 | 42.99 | 20,475 | 0 | 2013 | | 2024.08.07 | Àü¼¼ | ¿¥Æç¸®Ã¼(346-82) | 2 | 41.87 | 21,294 | 0 | 2015 | | 2024.08.07 | Àü¼¼ | û¼ÛÆòÈÇコŸ¿ö | 10 | 33.5 | 22,650 | 0 | 2017 | | 2024.08.07 | Àü¼¼ | ¼ºÁøÅ¸¿î | 4 | 43.02 | 15,000 | 0 | 2012 | | 2024.08.07 | ¿ù¼¼ | Ȱî´ëÁøºô¶ó101µ¿ | 1 | 43.11 | 3,000 | 30 | 2001 | | 2024.08.07 | Àü¼¼ | ¿¥Æç¸®Ã¼(346-82) | 2 | 41.87 | 21,294 | 0 | 2015 | | 2024.08.07 | ¿ù¼¼ | ¿¥Æç¸®Ã¼ºñµ¿ | 2 | 26.13 | 15,700 | 20 | 2017 | | 2024.08.07 | Àü¼¼ | °¨¼º¸®Áîºô | 5 | 33.61 | 19,400 | 0 | 2017 | | 2024.08.07 | Àü¼¼ | µ¿¿ø±×¸°ºô | 2 | 57.04 | 18,000 | 0 | 2002 | | 2024.08.07 | Àü¼¼ | °¨¼º¸®Áîºô | 5 | 33.61 | 19,400 | 0 | 2017 | | 2024.08.07 | Àü¼¼ | µð¾ÆÀνº(1075-27) | 7 | 22.97 | 14,700 | 0 | 2015 | | 2024.08.06 | ¿ù¼¼ | ´ºÅ¸¿î¸Ç¼Ç | 4 | 64.89 | 3,000 | 70 | 2006 | | 2024.08.06 | ¿ù¼¼ | »ï¼ººí·ç¹Ö(101µ¿102µ¿) | 2 | 29.98 | 15,200 | 15 | 2015 | | 2024.08.06 | Àü¼¼ | ÇÑ¿ïÀÚÀ̺ô(46-64) | 4 | 46.89 | 14,800 | 0 | 2008 | | 2024.08.06 | Àü¼¼ | ÁøÇüºô¶ó(353-112)°¡µ¿ | 1 | 65.73 | 16,800 | 0 | 2001 | | 2024.08.06 | Àü¼¼ | ¿µÆç¸®½º | 2 | 42.91 | 14,000 | 0 | 2008 | | 2024.08.06 | Àü¼¼ | â´ëºô¶ó(367-87) | 4 | 84.52 | 29,000 | 0 | 2007 | | 2024.08.06 | ¿ù¼¼ | È£°æºô¶ó(55-13) | 2 | 40.53 | 10,000 | 5 | 2002 | | 2024.08.06 | ¿ù¼¼ | »ï¼ººí·ç¹Ö(101µ¿102µ¿) | 2 | 29.98 | 15,200 | 15 | 2015 | | 2024.08.06 | ¿ù¼¼ | °¼´õÈú(962-4) | 2 | 30.57 | 10,000 | 5 | 2013 | | 2024.08.06 | ¿ù¼¼ | º¹Áö±×¸°ºô4Â÷(42-78) | 2 | 29.14 | 7,800 | 31 | 2002 | | 2024.08.06 | Àü¼¼ | ¸â¹ö½ººô(827-32) | 6 | 26.49 | 13,600 | 0 | 2014 | | 2024.08.06 | Àü¼¼ | È«Àͺô¶ó | 2 | 78 | 19,400 | 0 | 1995 | | 2024.08.06 | ¿ù¼¼ | ¼¼Á¾ÆÄÅ©ºô | 2 | 71.7 | 5,524 | 84 | 2023 | | 2024.08.06 | ¸Å¸Å | ¿µ¼ö¸®¹öºô | 1 | 66 | 25,500 | | 2003 | | 2024.08.06 | ¸Å¸Å | ´ë¼º¾ÆÆ®ºô(152-3) | 5 | 40.89 | 12,000 | | 2003 | | 2024.08.06 | ¸Å¸Å | Á־󸮸ǼÇ(823-3) | -1 | 59.54 | 15,500 | | 2001 | | 2024.08.06 | ¸Å¸Å | ¼º¾Èºô¶ó(379-61) | 1 | 38.7 | 11,500 | | 1994 | | 2024.08.06 | ¸Å¸Å | ÁÖ¿µÇϿ콺 | 3 | 26.82 | 17,500 | | 2016 | | 2024.08.06 | ¸Å¸Å | °æ¹Î¾ÆÆ®ºô(882-32) | 6 | 29.9 | 22,200 | | 2017 | | 2024.08.06 | ¿ù¼¼ | ±î»ç¹Ð¶ó | 5 | 22.83 | 3,000 | 80 | 2015 | | 2024.08.06 | ¿ù¼¼ | ¿µÆç¸®½º | 3 | 40.32 | 2,000 | 50 | 2008 | | 2024.08.05 | ¿ù¼¼ | º¸°ÇÏÀ̼¾½º¸Ç¼Ç | -1 | 38.22 | 1,000 | 65 | 1993 | | 2024.08.05 | ¿ù¼¼ | À¯´Ï¿Â½¦¸£ºôB | 2 | 41.88 | 12,460 | 30 | 2002 | | 2024.08.05 | ¸Å¸Å | ȼº°ñµåºô¶ó | 2 | 62.17 | 26,300 | | 1996 | | 2024.08.05 | ¿ù¼¼ | ¿ì¼º¿¬¸³(1134-7) | 2 | 51.3 | 9,000 | 30 | 1985 | | 2024.08.05 | Àü¼¼ | (789-3) | 2 | 27.84 | 9,000 | 0 | 1987 | | 2024.08.05 | ¸Å¸Å | ´Ù¿ìºô¸®Áö | 1 | 70.98 | 31,000 | | 2003 | | 2024.08.05 | ¿ù¼¼ | ½Ã±×´ÏÃÄ-S | 4 | 29.46 | 5,000 | 85 | 2023 | | 2024.08.05 | Àü¼¼ | ½ÅÈï¶ß¶õä | 5 | 34.78 | 23,000 | 0 | 2017 | | 2024.08.05 | ¿ù¼¼ | »ïÇùÇÊÇϿ콺 | 2 | 29.58 | 14,000 | 20 | 2016 | | 2024.08.05 | Àü¼¼ | ´Ù¹°ºô¶ó | 5 | 25.82 | 7,000 | 0 | 2008 | | 2024.08.05 | ¿ù¼¼ | ¸¶À̹ٿò | 2 | 15.47 | 1,000 | 51 | 2011 | | 2024.08.05 | Àü¼¼ | µ¿¿ø¶óÅ×¶ó½º | 4 | 28.31 | 21,100 | 0 | 2018 | | 2024.08.05 | Àü¼¼ | 111-110 | 2 | 62.79 | 25,000 | 0 | 2015 | | 2024.08.05 | ¿ù¼¼ | THEJIA | 4 | 23.44 | 5,500 | 55 | 2022 | | 2024.08.05 | Àü¼¼ | µ¿¿ø¶óÅ×¶ó½º | 4 | 28.31 | 21,100 | 0 | 2018 | | 2024.08.05 | Àü¼¼ | ¸®ºùÇϿ콺5Â÷ | 6 | 29.95 | 16,500 | 0 | 2015 | | 2024.08.05 | Àü¼¼ | ´õÁ¸ÆÛ½ºÆ® | 3 | 29.67 | 27,000 | 0 | 2022 | | 2024.08.05 | Àü¼¼ | °Å¸ñºô¶ó | 2 | 29.7 | 8,400 | 0 | 1986 | | 2024.08.05 | ¿ù¼¼ | ANPȰî | 7 | 23.44 | 2,000 | 90 | 2022 | | 2024.08.05 | ¿ù¼¼ | ÇѼº¾ÆÆ®ºô(362-16) | 5 | 67.54 | 4,000 | 70 | 2002 | | 2024.08.05 | ¿ù¼¼ | À̼ö¾ÆÆ®ºô2Â÷ | 7 | 29.64 | 2,000 | 70 | 2016 | | 2024.08.05 | Àü¼¼ | À¯´Ï¿Â½¦¸£ºô(Cµ¿) | 2 | 47.72 | 13,000 | 0 | 2002 | | 2024.08.05 | Àü¼¼ | »ï¼ºÇÏÀ̺ô(371-11) | 4 | 49.28 | 15,120 | 0 | 2008 | | 2024.08.05 | Àü¼¼ | ȼººô¶ó36Â÷ | 4 | 42.55 | 11,000 | 0 | 2001 | | 2024.08.05 | Àü¼¼ | JÆÓ¸®½º4Â÷ | 6 | 41.26 | 16,380 | 0 | 2012 | | 2024.08.05 | ¿ù¼¼ | Ÿ¿ö¼¾½ººô | 5 | 38.73 | 12,300 | 10 | 2008 | | 2024.08.05 | Àü¼¼ | °Å¸ñºô¶ó | 2 | 29.7 | 8,400 | 0 | 1986 | | 2024.08.05 | Àü¼¼ | ´ë¼º¾ÆÆ®ºô | 5 | 34.07 | 25,200 | 0 | 2018 | | 2024.08.05 | ¿ù¼¼ | ÇѼº¾ÆÆ®ºô(362-16) | 5 | 67.54 | 4,000 | 70 | 2002 | | 2024.08.05 | ¿ù¼¼ | Ŭ·¡½Ãºä | 6 | 28.91 | 1,000 | 110 | 2022 | | 2024.08.04 | ¸Å¸Å | ´ë»ê±×¸°ºô | 5 | 62.96 | 27,000 | | 2002 | | 2024.08.04 | ¸Å¸Å | ¿¤¸²ºô¶óBµ¿ | 3 | 59.04 | 25,700 | | 2002 | | 2024.08.04 | ¸Å¸Å | ºÎ¼ºÆÄÅ©ºô¶ó | 4 | 53.55 | 12,000 | | 1992 | | 2024.08.04 | ¸Å¸Å | ÅÂÇÑÇÏÀ̺ô(382-25) | 5 | 31.76 | 23,500 | | 2017 | | 2024.08.04 | Àü¼¼ | ¼Ç¹ë¸® | 2 | 27.2 | 23,800 | 0 | 2024 | | 2024.08.04 | ¸Å¸Å | ¿¤¸²ºô¶óBµ¿ | 3 | 59.04 | 25,700 | | 2002 | | 2024.08.03 | ¸Å¸Å | °ñµçºô(367-51) | 8 | 21.9 | 30,000 | | 2018 | | 2024.08.03 | Àü¼¼ | ¾ÆÁÙ¸®¿ò(1049-24) | 5 | 34.73 | 26,700 | 0 | 2018 | | 2024.08.03 | ¿ù¼¼ | ´õ±×¸² | 3 | 25.64 | 5,000 | 56 | 2023 | | 2024.08.03 | Àü¼¼ | Àå¹Ì¸Ç¼Ç | 4 | 66.52 | 20,900 | 0 | 2001 | | 2024.08.03 | Àü¼¼ | ´ë¸²È¨Å¸¿î | 4 | 23.22 | 6,600 | 0 | 2003 | | 2024.08.03 | Àü¼¼ | ¿¹´ãä | 3 | 44.54 | 25,200 | 0 | 2018 | | 2024.08.03 | Àü¼¼ | ´Ù¾Èºô¶óÆ® | 5 | 33.75 | 19,700 | 0 | 2016 | | 2024.08.03 | ¿ù¼¼ | ¿ì¼ººô¶ó(346-72) | 2 | 33.45 | 16,700 | 20 | 2013 | | 2024.08.03 | ¿ù¼¼ | ÆÄÅ©½ºÅ×ÀÌ | 2 | 20.54 | 500 | 75 | 2024 | | 2024.08.03 | ¸Å¸Å | °ñµçºô(367-51) | 8 | 21.9 | 30,000 | | 2018 | | 2024.08.03 | ¸Å¸Å | ÇØ¿À¸§ºô(354-78) | 2 | 26.43 | 22,500 | | 2015 | | 2024.08.03 | Àü¼¼ | ¹Ì¼Òºô | 5 | 27.79 | 19,300 | 0 | 2018 | | 2024.08.03 | ¿ù¼¼ | ÆÄÅ©½ºÅ×ÀÌ | 5 | 25.96 | 1,000 | 85 | 2024 | | 2024.08.03 | ¿ù¼¼ | ÀÎÅÍ½ÃÆ¼ | 3 | 62.48 | 2,000 | 105 | 2001 | | 2024.08.03 | ¿ù¼¼ | Ŭ·¡½Ãºä | 6 | 26.74 | 1,000 | 105 | 2022 | | 2024.08.03 | ¿ù¼¼ | Ŭ·¡½Ãºä | 2 | 24.15 | 1,000 | 100 | 2022 | | 2024.08.03 | Àü¼¼ | ´Ù¾Èºô¶óÆ® | 5 | 33.75 | 19,700 | 0 | 2016 | | 2024.08.03 | Àü¼¼ | ´Ù¾Èºô¶óÆ® | 5 | 33.75 | 19,700 | 0 | 2016 | | 2024.08.03 | Àü¼¼ | ¾ÆÁÙ¸®¿ò(1049-24) | 5 | 34.73 | 26,700 | 0 | 2018 | | 2024.08.03 | Àü¼¼ | Çý¼ºÆç¸®½º29Â÷(163-8) | 5 | 27.03 | 12,600 | 0 | 2014 | | 2024.08.03 | ¿ù¼¼ | ÀÌ·¹ÇìºìÇϿ콺 | 4 | 19.35 | 1,000 | 60 | 2012 | | 2024.08.03 | ¿ù¼¼ | ¸®Ä¡ÇϿ콺6Â÷ | 3 | 29.93 | 18,000 | 10 | 2016 | | 2024.08.03 | ¿ù¼¼ | ÆÄÅ©½ºÅ×ÀÌ | 2 | 25.87 | 1,000 | 80 | 2024 | | 2024.08.03 | ¿ù¼¼ | ÆÄÅ©½ºÅ×ÀÌ | 2 | 25.87 | 1,000 | 80 | 2024 | | 2024.08.03 | Àü¼¼ | ´ë·úŸ¿î | 5 | 29.94 | 17,100 | 0 | 2017 | | 2024.08.02 | Àü¼¼ | ¼Ç¹ë¸® | 2 | 29.47 | 26,800 | 0 | 2024 | | 2024.08.02 | Àü¼¼ | ºí¸®½ººô101µ¿102µ¿ | 2 | 28.71 | 22,900 | 0 | 2022 | | 2024.08.02 | ¿ù¼¼ | ÇѼº±×¸°Å¸¿î8µ¿ | 3 | 61.71 | 16,300 | 5 | 2003 | | 2024.08.02 | ¿ù¼¼ | Çö´ëºô¶óÆ®(155-42) | 3 | 58.58 | 13,000 | 32 | 2001 | | 2024.08.02 | Àü¼¼ | ¿þ½ºÆ®Èú(396-26) | 2 | 58.56 | 18,270 | 0 | 2007 | | 2024.08.02 | ¿ù¼¼ | ºäƼ½¦¸£ºô | 6 | 37.51 | 5,000 | 110 | 2018 | | 2024.08.02 | ¿ù¼¼ | »ï±¤¾ÆÆ®ºô | 2 | 72.79 | 21,790 | 40 | 2001 | | 2024.08.02 | ¿ù¼¼ | ºäƼ½¦¸£ºô | 6 | 37.51 | 5,000 | 120 | 2018 | | 2024.08.02 | ¸Å¸Å | MONO(1044-11) | 2 | 43.16 | 28,500 | | 2012 | | 2024.08.02 | ¿ù¼¼ | ºäƼ½¦¸£ºô | 6 | 37.51 | 5,000 | 120 | 2018 | | 2024.08.02 | ¸Å¸Å | żºÇÏÀÌÃ÷ºô¶ó(102-66) | 2 | 45.36 | 13,000 | | 1994 | | 2024.08.02 | Àü¼¼ | Çö´ë°ñµçºô¶ó | 3 | 49.5 | 9,345 | 0 | 1991 | | 2024.08.02 | Àü¼¼ | ÄÉ·»½Ã¾Æ | 2 | 42.37 | 40,650 | 0 | 2022 | | 2024.08.02 | Àü¼¼ | Çѹ鸮Ã÷ºô(56-547) | 2 | 45 | 14,700 | 0 | 2008 | | 2024.08.02 | Àü¼¼ | ÄÉ·»½Ã¾Æ | 2 | 42.37 | 40,650 | 0 | 2022 | | 2024.08.02 | ¿ù¼¼ | µµ¿ø¼ÖºñÄ¡ | 5 | 29.97 | 14,000 | 20 | 2015 | | 2024.08.02 | ¿ù¼¼ | ¼±¤ºô¶ó(352-59) | 4 | 29.54 | 700 | 50 | 2001 | | 2024.08.02 | Àü¼¼ | Çѹ鸮Ã÷ºô(56-547) | 2 | 45 | 14,700 | 0 | 2008 | | 2024.08.02 | ¿ù¼¼ | ±¹µµµå¸²ºô | 2 | 28.02 | 17,300 | 20 | 2018 | | 2024.08.01 | Àü¼¼ | µ¿·æÁÖÅà | 4 | 38.09 | 8,600 | 0 | 1997 | | 2024.08.01 | ¸Å¸Å | ´ëÁÖ½¦¸£ºô | 4 | 51.55 | 8,550 | | 2002 | | 2024.08.01 | ¿ù¼¼ | ÇϳªÄ³½½ | 7 | 30.33 | 13,300 | 5 | 2013 | | 2024.08.01 | ¿ù¼¼ | »ï¼ºÆÓ¸®½º | 3 | 32.11 | 4,000 | 120 | 2022 | | 2024.08.01 | ¿ù¼¼ | º§¶óÇϿ콺(83-15) | 2 | 28.46 | 12,800 | 10 | 2015 | | 2024.08.01 | ¿ù¼¼ | Æ÷¸£Å×ÇÏÀÓ | 4 | 28.28 | 18,000 | 45 | 2023 | | 2024.08.01 | Àü¼¼ | ¼ºÀçÆÄÅ©ºô | 3 | 53.6 | 17,000 | 0 | 2002 | | 2024.08.01 | ¿ù¼¼ | ¿Ã¶ó·çÁî | 3 | 29.98 | 3,000 | 130 | 2022 | | 2024.08.01 | Àü¼¼ | µ¿Èºô¶ó7Â÷ | 1 | 29.4 | 6,000 | 0 | 1991 | | 2024.08.01 | Àü¼¼ | ´º±×¸°ºô | 3 | 68.22 | 19,600 | 0 | 2004 | | 2024.08.01 | ¿ù¼¼ | ÇÏÀÌÆÄÅ©ºô | 4 | 52.48 | 17,800 | 20 | 2007 | | 2024.08.01 | ¸Å¸Å | ÇÑ¿ïÀÚÀ̺ô(46-64) | 2 | 56.88 | 23,300 | | 2008 | | 2024.08.01 | ¸Å¸Å | ŰæÇÏÀÌÃ÷(354-29) | 5 | 47.74 | 17,500 | | 2001 | | 2024.08.01 | ¸Å¸Å | ±¤Áøºô¶ó2µ¿ | 4 | 28.32 | 8,950 | | 2003 | | 2024.08.01 | ¸Å¸Å | °æ¹Î¾ÆÆ®ºô(882-32) | 6 | 29.9 | 22,200 | | 2017 | | 2024.08.01 | ¸Å¸Å | µ¿¿ìÇÏÀ̺ô | 2 | 29.5 | 29,500 | | 2021 | | 2024.08.01 | ¸Å¸Å | Èѹи®Å¸¿î | 4 | 34.65 | 14,500 | | 1994 | | 2024.08.01 | ¸Å¸Å | º§¶óÇϿ콺(354-23¹øÁö) | 2 | 29.9 | 21,350 | | 2016 | | 2024.07.31 | ¿ù¼¼ | ´ÙÀÎÇϿ콺 | 2 | 21.36 | 16,000 | 30 | 2022 | | 2024.07.31 | ¸Å¸Å | ÀºÇÏŸ¿îºñµ¿ | 5 | 37.1 | 17,500 | | 2004 | | 2024.07.31 | ¿ù¼¼ | ¼Ö»ùÇÏÀÌÃ÷ºô | 2 | 60.08 | 1,000 | 45 | 2009 | | 2024.07.31 | ¿ù¼¼ | Çö´ëºô¶ó³ªµ¿ | 3 | 33.26 | 11,600 | 10 | 1991 | | 2024.07.31 | ¿ù¼¼ | °è¸íÀ§³Ê½º(46-109) | 4 | 45.47 | 14,000 | 20 | 2007 | | 2024.07.31 | Àü¼¼ | ¹é¿îÀκ£½ºÆ®ºô | 2 | 49.83 | 18,000 | 0 | 2008 | | 2024.07.31 | ¸Å¸Å | ±×·¹À̽ººô | 3 | 26.83 | 38,000 | | 2022 | | 2024.07.31 | ¸Å¸Å | Å׸¶366(366-50) | 3 | 29.93 | 26,000 | | 2020 | | 2024.07.31 | ¸Å¸Å | ¾ÆÁÙÆ÷·¹ | 3 | 29.91 | 29,000 | | 2023 | | 2024.07.31 | Àü¼¼ | À¯Ç³±×¸°¸Ç¼Ç | 1 | 71.37 | 28,000 | 0 | 1983 | | 2024.07.31 | Àü¼¼ | Ȳº¸¾ÆÆ®ºô(333-27) | 4 | 25.58 | 17,900 | 0 | 2018 | | 2024.07.31 | ¿ù¼¼ | ANPȰî | 7 | 24.05 | 1,000 | 105 | 2022 | | 2024.07.31 | ¿ù¼¼ | ºí·çÈú | 4 | 27.42 | 75 | 75 | 2021 | | 2024.07.31 | Àü¼¼ | ¹Ì¼Òºô¶ó | 3 | 48.18 | 15,750 | 0 | 2002 | | 2024.07.31 | Àü¼¼ | ÇÁ¶óÀÓij½½ | 3 | 27.86 | 19,000 | 0 | 2020 | | 2024.07.31 | Àü¼¼ | ÀÏÁÖÇϿ콺 | 4 | 29.99 | 21,000 | 0 | 2020 | | 2024.07.31 | ¿ù¼¼ | ¹éÁ¦ºô¶ó | 4 | 33.12 | 9,800 | 20 | 1991 | | 2024.07.31 | ¿ù¼¼ | È£¼º±×¸°ºôBµ¿(1083-13) | 3 | 48.04 | 12,000 | 26 | 2001 | | 2024.07.31 | ¿ù¼¼ | ´ö¿ëÆÓ¸®Ã¼ | 2 | 31.89 | 22,800 | 25 | 2018 | | 2024.07.31 | Àü¼¼ | ¼ºÁøºô¶ó | 2 | 60.12 | 14,700 | 0 | 1993 | | 2024.07.30 | ¸Å¸Å | ´ëµ¿ºô¶ó°¡µ¿ | 4 | 49.88 | 15,500 | | 2002 | | 2024.07.30 | ¸Å¸Å | »ïÀͺô¶ó°¡µ¿ | 3 | 69.87 | 29,800 | | 1991 | | 2024.07.30 | ¸Å¸Å | º¹Áö¿¬¸³(º¹ÁöÁÖÅÃ) | 2 | 46.9 | 12,000 | | 1986 | | 2024.07.30 | ¸Å¸Å | Àº¼Û¿ùµåºô(996-10) | 3 | 59.99 | 27,000 | | 2002 | | 2024.07.30 | ¸Å¸Å | °æµ¿ÆÓ¸®½º3Â÷ | 2 | 52.46 | 26,500 | | 2008 | | 2024.07.30 | ¸Å¸Å | ¼±¤¾ÆÆ®ºô | 4 | 65.81 | 33,500 | | 2007 | | 2024.07.30 | ¸Å¸Å | ½Å¶óÇÏÀÌÃ÷(59-26) | 1 | 60.33 | 17,000 | | 2002 | | 2024.07.30 | ¸Å¸Å | û¿ìÆÄÅ©ºô(867-37) | 4 | 57.33 | 26,700 | | 2010 | | 2024.07.30 | ¸Å¸Å | ¼ö¸í±×¸°ºô | 3 | 34.58 | 23,400 | | 2016 | | 2024.07.30 | ¸Å¸Å | ÅÂ°æ¾ÆÆ®ºô | 3 | 60.4 | 27,500 | | 2002 | | 2024.07.30 | ¸Å¸Å | ¾Æµ¥³ªÆÓ¸®½º | 7 | 20.34 | 22,000 | | 2016 | | 2024.07.30 | ¿ù¼¼ | ANA7 | 2 | 28.26 | 2,000 | 105 | 2022 | | 2024.07.30 | Àü¼¼ | Á¦ÀÌÅõ¸®´õ½º | 4 | 54.48 | 36,790 | 0 | 2023 | | 2024.07.30 | Àü¼¼ | ³²¼º¾ÆÆ®ºô | 3 | 34.93 | 18,000 | 0 | 2020 | | 2024.07.30 | Àü¼¼ | »ï¼º½¦¸£ºô(400-16) | 3 | 36.6 | 18,600 | 0 | 2015 | | 2024.07.30 | ¿ù¼¼ | (430-8) | 2 | 29.01 | 500 | 63 | 2013 | | 2024.07.30 | ¿ù¼¼ | û¼ÛÆòÈÇÏÀ̸ǼÇ(452-14) | 2 | 30 | 2,000 | 51 | 2013 | | 2024.07.30 | Àü¼¼ | ´ö¼ºÀÚÀ̺ô | 5 | 45.72 | 10,700 | 0 | 2012 | | 2024.07.30 | ¿ù¼¼ | ±Ù»óÇÁ¸®Áò¾ÆÆ®ºô | 6 | 55.3 | 20,000 | 30 | 2010 | | 2024.07.30 | ¿ù¼¼ | Àå¹ÌÁÖÅÃ(55-24) | 1 | 56.06 | 5,000 | 46 | 2002 | | 2024.07.30 | ¿ù¼¼ | µ¿¾Æºô¶ó(111-97) | -1 | 44.52 | 1,500 | 55 | 1990 | | 2024.07.30 | Àü¼¼ | Ƚºô¶ó | 1 | 36.84 | 8,590 | 0 | 1991 | | 2024.07.30 | ¿ù¼¼ | ½Ã¿Â°ñµåºô¶ó | 2 | 59.61 | 15,000 | 8 | 1994 | | 2024.07.30 | ¿ù¼¼ | °æ¿ø¾ÆÆ®ºôBµ¿ | 1 | 28.8 | 9,700 | 25 | 2001 | | 2024.07.29 | ¿ù¼¼ | ³ª»ê¸Ç¼ÇAµ¿ | 1 | 70.2 | 18,000 | 30 | 2000 | | 2024.07.29 | ¿ù¼¼ | ÃÊ·Õºô¶ó | -1 | 95.25 | 500 | 30 | 1995 | | 2024.07.29 | ¿ù¼¼ | ´ëÁÖ½¦¸£ºô(338-9) | 1 | 41.62 | 11,200 | 10 | 2002 | | 2024.07.29 | Àü¼¼ | µ¿±¤½¦¸£ºô°¡µ¿ | 4 | 49.62 | 12,000 | 0 | 2002 | | 2024.07.29 | Àü¼¼ | ´ëµ¿ºô¶ó(61-74) | 1 | 46.235 | 15,000 | 0 | 2001 | | 2024.07.29 | ¸Å¸Å | û¸²¾ÆÆ®ºôAµ¿(1084-11) | 3 | 62.24 | 25,400 | | 2002 | | 2024.07.29 | ¸Å¸Å | À¯¸²ÆÄÅ©ºô(372-60) | 5 | 58.02 | 20,700 | | 2010 | | 2024.07.29 | ¸Å¸Å | ±×¸°¹ë¸®(876-17) | 6 | 19.95 | 10,000 | | 2014 | | 2024.07.29 | ¿ù¼¼ | ³ª»ê¸Ç¼ÇAµ¿ | 1 | 70.2 | 18,000 | 30 | 2000 | | 2024.07.29 | ¿ù¼¼ | ¼ºÈÆ¿¡À̽ººô | 1 | 53.39 | 5,000 | 60 | 2002 | | 2024.07.29 | Àü¼¼ | HIGH-END480 | 4 | 29.76 | 18,900 | 0 | 2023 | | 2024.07.29 | Àü¼¼ | Çѽº¾ÆÀ̺ô | 4 | 29.94 | 21,500 | 0 | 2018 | | 2024.07.29 | Àü¼¼ | ÇÑ¿ïÆÓ¸®½º | 4 | 25.25 | 15,800 | 0 | 2017 | | 2024.07.29 | ¿ù¼¼ | »ïÀͶ߶õä | 4 | 27.55 | 17,300 | 15 | 2017 | | 2024.07.29 | ¿ù¼¼ | ¹é°¿ø·ë | 2 | 12.02 | 1,000 | 41 | 2011 | | 2024.07.29 | Àü¼¼ | µÎ»êºô¶ó | 4 | 59.28 | 11,800 | 0 | 2001 | | 2024.07.29 | ¿ù¼¼ | ½Å¾ç±×¸°ºô(56-46) | 4 | 47.86 | 2,000 | 60 | 2008 | | 2024.07.29 | Àü¼¼ | Àå¼ö2 | 5 | 14.92 | 5,430 | 0 | 2010 | | 2024.07.28 | ¿ù¼¼ | »ïÀÍTheSky | 4 | 29.63 | 3,000 | 127 | 2016 | | 2024.07.28 | ¿ù¼¼ | ¿ì¼ºÆÄÅ©ºô | 5 | 70.5 | 5,632 | 70 | 2002 | | 2024.07.28 | ¿ù¼¼ | ¹Ì¼ºÇϸ£µò | 4 | 29.19 | 4,000 | 55 | 2016 | | 2024.07.27 | ¿ù¼¼ | °¼ºô¾ÆÆ® | -1 | 58.23 | 12,500 | 20 | 2002 | | 2024.07.27 | ¿ù¼¼ | ³²°æº£½ºÆ®ºô(Bµ¿) | 2 | 64.18 | 17,640 | 20 | 2001 | | 2024.07.27 | ¸Å¸Å | ÄÚ¸®¾ÆºôÇϿ콺 | 2 | 62.02 | 23,500 | | 2002 | | 2024.07.27 | ¿ù¼¼ | ´ëµ¿ºô¶ó(61-74) | 2 | 48.745 | 14,000 | 20 | 2001 | | 2024.07.27 | ¿ù¼¼ | ±¤Áøºô¶óÆ® | 2 | 47.19 | 300 | 40 | 2003 | | 2024.07.27 | ¿ù¼¼ | ÆÄÅ©½ºÅ×ÀÌ | 3 | 20.54 | 1,000 | 70 | 2024 | | 2024.07.27 | ¿ù¼¼ | ÆÄÅ©½ºÅ×ÀÌ | 4 | 20.72 | 500 | 60 | 2024 | | 2024.07.27 | Àü¼¼ | Á¦ÀÌÅõ¸®´õ½º | 3 | 25.19 | 22,000 | 0 | 2023 | | 2024.07.27 | Àü¼¼ | Á¤¾Èºô¶ó | 3 | 44.26 | 11,500 | 0 | 1991 | | 2024.07.27 | Àü¼¼ | ½Å¿µÅ¾½ººôB | 5 | 45.9 | 14,800 | 0 | 2002 | | 2024.07.27 | ¸Å¸Å | Çý¼ºÆç¸®½º29Â÷(163-8) | 4 | 40.76 | 22,000 | | 2014 | | 2024.07.27 | Àü¼¼ | ÁøÇϿ콺 | 2 | 60.87 | 18,300 | 0 | 2004 | | 2024.07.27 | ¸Å¸Å | Çý¼ºÅ¸¿î | 4 | 55.34 | 17,000 | | 2000 | | 2024.07.27 | ¸Å¸Å | Çý¼ºÆç¸®½º29Â÷(163-8) | 2 | 29.92 | 16,500 | | 2014 | | 2024.07.27 | ¸Å¸Å | ´ë¸²¶ó¿ÂÁ¦³ª | 6 | 24.3 | 16,700 | | 2014 | | 2024.07.27 | ¸Å¸Å | ¿ì¼º¿¬¸³(1134-7) | 2 | 51.3 | 24,500 | | 1985 | | 2024.07.27 | ¸Å¸Å | ¾ÆÁÙÆ÷·¹ | 4 | 44.37 | 38,000 | | 2023 | | 2024.07.27 | Àü¼¼ | ÄÉ·»½Ã¾Æ | 2 | 29.73 | 23,000 | 0 | 2022 | | 2024.07.27 | Àü¼¼ | ÀÌ¿¤ÇϿ콺 | 3 | 29.79 | 24,000 | 0 | 2022 | | 2024.07.27 | ¿ù¼¼ | (1032-10) | 2 | 33.15 | 1,000 | 55 | 1990 | | 2024.07.27 | ¿ù¼¼ | °ñµç¸®Ä¡ºô(850-16) | 2 | 40.19 | 3,000 | 80 | 2008 | | 2024.07.27 | ¿ù¼¼ | ÇÏÀÌÆ®¸Ç¼Ç(917-2) | 5 | 50.79 | 16,500 | 13 | 2001 | | 2024.07.27 | Àü¼¼ | À¯·Îºô(970-13) | 1 | 39.9 | 10,500 | 0 | 2002 | | 2024.07.27 | Àü¼¼ | ¹Ð·¹´Ï¾ö(102-26) | 2 | 57.66 | 19,650 | 0 | 2008 | | 2024.07.27 | Àü¼¼ | °æ¿øÈ¨Å¸¿î | 3 | 45.37 | 13,980 | 0 | 2007 | | 2024.07.27 | ¿ù¼¼ | »óÀ±±×¸°ºô¶ó | 1 | 60.42 | 13,000 | 40 | 2000 | | 2024.07.27 | ¿ù¼¼ | ¿ì¼º¼ºÁøºô¶ó(1085-18) | 2 | 50.84 | 4,000 | 55 | 1996 | | 2024.07.27 | Àü¼¼ | ½Å¿µÇÏÀ̺ô | 5 | 56.26 | 17,700 | 0 | 2000 | | 2024.07.27 | ¿ù¼¼ | ¼£·ÒÇϿ콺 | 3 | 18.72 | 1,000 | 55 | 2010 | | 2024.07.27 | Àü¼¼ | ¾ÖÇÃÇϿ콺 | 6 | 38.82 | 22,200 | 0 | 2014 | | 2024.07.27 | Àü¼¼ | Å׸¶366(366-50) | 3 | 29.93 | 22,800 | 0 | 2020 | | 2024.07.27 | Àü¼¼ | ÀÏÁÖÇϿ콺 | 4 | 29.93 | 21,400 | 0 | 2020 | | 2024.07.27 | ¿ù¼¼ | ¿ÍÀ̾غñ869-35 | 5 | 22.27 | 1,000 | 60 | 2019 | | 2024.07.27 | ¿ù¼¼ | ¿ÍÀ̾غñ869-35 | 5 | 22.27 | 1,000 | 60 | 2019 | | 2024.07.27 | Àü¼¼ | NSŸ¿î | 4 | 28.84 | 19,800 | 0 | 2019 | | 2024.07.27 | Àü¼¼ | ¼ö¾ÆÆ®ºô | 3 | 31.68 | 18,400 | 0 | 2015 | | 2024.07.27 | Àü¼¼ | ÀÚÇÏŬ·¡½Ä | 17 | 13.77 | 11,800 | 0 | 2018 | | 2024.07.27 | Àü¼¼ | ½ºÆäÀ̽ººôºñµ¿ | 3 | 37.76 | 19,000 | 0 | 2016 | | 2024.07.26 | ¸Å¸Å | ¼¼±¤ÁÖÅà | 1 | 59.52 | 26,000 | | 2000 | | 2024.07.26 | ¸Å¸Å | Æ÷·¹½ºÆ®Èú | 5 | 87.15 | 25,700 | | 2008 | | 2024.07.26 | ¸Å¸Å | ¿ì¼ºÁø°æºô¶ó | 4 | 49.14 | 16,000 | | 1995 | | 2024.07.26 | ¸Å¸Å | »õ·Ò½ºÅ¸Áî | 3 | 28.22 | 22,000 | | 2016 | | 2024.07.26 | ¸Å¸Å | ÇÁ¸®¸Þ¶ó(369-31) | 3 | 47.17 | 25,800 | | 2014 | | 2024.07.26 | ¸Å¸Å | Çö´ëºí·ç¹Ö | 5 | 29.82 | 21,200 | | 2015 | | 2024.07.26 | ¸Å¸Å | Æ÷·¹½ºÆ®Èú | 5 | 87.15 | 25,700 | | 2008 | | 2024.07.26 | ¸Å¸Å | ÄÉÀÌ¿¥¾ÆÆ®ºô | 6 | 28.26 | 23,900 | | 2020 | | 2024.07.26 | ¸Å¸Å | ´Ù¼ØBµ¿(381-4) | 3 | 39.05 | 24,900 | | 2015 | | 2024.07.26 | ¿ù¼¼ | Á¤¿¬Ã¤ | 3 | 27.44 | 5,000 | 52 | 2018 | | 2024.07.26 | ¸Å¸Å | ÇѺû½ºÄ«À̺ô | 2 | 29.72 | 14,900 | | 2008 | | 2024.07.26 | ¸Å¸Å | Á¤¿ø¸Ç¼Ç | -1 | 59.95 | 20,000 | | 2002 | | 2024.07.26 | ¸Å¸Å | ¾ÆÁÙ¸®¿ò | 8 | 26.5 | 22,000 | | 2013 | | 2024.07.26 | ¸Å¸Å | Ǫ¸¥Ç³°æÃ¤(351-24) | 3 | 41.95 | 29,800 | | 2017 | | 2024.07.26 | Àü¼¼ | (964-1) | 5 | 52.1 | 13,100 | 0 | 2007 | | 2024.07.26 | ¿ù¼¼ | ½Å¼º¸®Ä¡ºô(342-25) | 3 | 29.89 | 3,000 | 70 | 2012 | | 2024.07.26 | ¿ù¼¼ | ÇÁ¸®¸Þ¶ó(369-31) | 4 | 47.71 | 20,200 | 35 | 2014 | | 2024.07.26 | ¿ù¼¼ | »ïÀÍÇ콺Ƽ¾Æ(1130-15) | 3 | 22.13 | 11,100 | 16 | 2015 | | 2024.07.26 | ¿ù¼¼ | ¼¿ï°¡µç | 1 | 54.58 | 12,000 | 30 | 1991 | | 2024.07.26 | ¿ù¼¼ | ¹ÌÁÖºô¶óºñµ¿ | 3 | 46.59 | 6,000 | 53 | 2002 | | 2024.07.26 | ¿ù¼¼ | ÀÎÅÍ½ÃÆ¼ºô¶ó(392-10) | 4 | 43.78 | 12,000 | 20 | 2002 | | 2024.07.26 | Àü¼¼ | ±¤Áøºô¶óÆ®5µ¿ | 4 | 38.53 | 11,470 | 0 | 2003 | | 2024.07.26 | Àü¼¼ | ½Å¼º³×¿Àºô | 5 | 29.45 | 22,170 | 0 | 2019 | | 2024.07.26 | ¿ù¼¼ | ½Å¿µ¼¾Æ®·¹ºô | 3 | 26.4 | 10,836 | 3 | 2011 | | 2024.07.26 | ¿ù¼¼ | ±×¸°Èú(105-384) | 5 | 33.94 | 9,000 | 25 | 2010 | | 2024.07.26 | ¿ù¼¼ | È¿ÁøÇÏÀÌÃ÷(59-45) | 5 | 83.38 | 2,000 | 61 | 2011 | | 2024.07.25 | ¿ù¼¼ | ¹Ì·¡½ºÅ¸ºô1Â÷ | 3 | 27.96 | 10,700 | 25 | 2008 | | 2024.07.25 | Àü¼¼ | ¿¤Áöµå¸²ºô7Â÷ | 2 | 73.71 | 21,000 | 0 | 2004 | | 2024.07.25 | Àü¼¼ | ¼ºÀçÇÏÀ̺ôAµ¿ | 4 | 40.96 | 15,700 | 0 | 2003 | | 2024.07.25 | ¿ù¼¼ | ¹Ì·¡½ºÅ¸ºô4Â÷ | 3 | 41.7 | 2,000 | 60 | 2008 | | 2024.07.25 | ¿ù¼¼ | ´Ù¿øºô¶ó | -1 | 50.04 | 1,000 | 60 | 1993 | | 2024.07.25 | ¿ù¼¼ | ÆÄÅ©½ºÅ×ÀÌ | 4 | 25.73 | 3,000 | 75 | 2024 | | 2024.07.25 | Àü¼¼ | ÄÉ·»½Ã¾Æ | 2 | 29.3 | 25,500 | 0 | 2022 | | 2024.07.25 | ¿ù¼¼ | ÄÉÀÌ¿¥¾ÆÆ®ºô | 3 | 16.19 | 3,000 | 45 | 2023 | | 2024.07.25 | Àü¼¼ | ³²¼º¾ÆÆ®ºô | 2 | 25.77 | 17,640 | 0 | 2020 | | 2024.07.25 | Àü¼¼ | ´õ¿ø | 6 | 29.61 | 21,900 | 0 | 2019 | | 2024.07.25 | ¿ù¼¼ | ºô¶ó¿£Bµ¿ | 3 | 29.48 | 19,000 | 15 | 2017 | | 2024.07.25 | Àü¼¼ | ±Ý¼º¸Ç¼Ç | 2 | 69.8 | 24,000 | 0 | 2007 | | 2024.07.25 | Àü¼¼ | Ƽ¿¥Å¸¿î(872-1) | 4 | 34.2 | 18,774 | 0 | 2014 | | 2024.07.25 | Àü¼¼ | ¼Ç¹ë¸® | 3 | 40.04 | 19,780 | 0 | 2015 | | 2024.07.25 | Àü¼¼ | ¾ÖÇþ¾Æ¼ | 4 | 61 | 19,845 | 0 | 2008 | | 2024.07.25 | ¿ù¼¼ | ¾ÆÀνººôHANAGREEN | 2 | 40.44 | 19,900 | 20 | 2013 | | 2024.07.25 | Àü¼¼ | ÁÖ¿µÇϿ콺 | 2 | 27.09 | 15,500 | 0 | 2016 | | 2024.07.25 | ¿ù¼¼ | ÇÁ¶óÀÓÇϿ콺(393-23) | 2 | 56.85 | 5,000 | 41 | 2016 | | 2024.07.25 | ¿ù¼¼ | ¾ÆÁÙ¸®¿ò(1038-13) | 3 | 31.74 | 16,100 | 20 | 2016 | | 2024.07.25 | ¸Å¸Å | »õÇѸ®Ä¡ºô | 2 | 69.05 | 28,400 | | 2002 | | 2024.07.25 | ¸Å¸Å | °è¸íÀ§³Ê½º(46-109) | 3 | 57.2 | 24,500 | | 2007 | | 2024.07.25 | ¸Å¸Å | ÁøÇüºô¶ó(353-112)°¡µ¿ | 1 | 65.73 | 23,900 | | 2001 | | 2024.07.25 | ¸Å¸Å | ¿ùµåŸ¿î(56-443) | -1 | 62.13 | 16,700 | | 2000 | | 2024.07.25 | ¸Å¸Å | ´ÙÀÎÇϿ콺 | 4 | 23.29 | 26,000 | | 2022 | | 2024.07.24 | ¿ù¼¼ | ÀºÇϼö±×¸°ºô | 3 | 47.64 | 13,000 | 10 | 2002 | | 2024.07.24 | Àü¼¼ | ¾ç¿øºô¶ó | 4 | 44.91 | 11,025 | 0 | 1992 | | 2024.07.24 | ¿ù¼¼ | °æ³²ºô¶ó¹Ùµ¿ | 1 | 40.5 | 9,700 | 15 | 1986 | | 2024.07.24 | Àü¼¼ | (153-19) | 1 | 41.13 | 9,680 | 0 | 1991 | | 2024.07.24 | ¿ù¼¼ | ÇÏÀ̺ô(346-100) | 3 | 54.95 | 16,200 | 5 | 2004 | | 2024.07.24 | ¿ù¼¼ | dz¼ºµå¸²ºô | 4 | 61.12 | 15,800 | 15 | 2004 | | 2024.07.24 | Àü¼¼ | (869-33) | -1 | 36.57 | 6,860 | 0 | 1991 | | 2024.07.24 | ¿ù¼¼ | °æ¿ø¾ÆÆ®ºôAµ¿ | 1 | 46.56 | 5,000 | 70 | 2001 | | 2024.07.24 | Àü¼¼ | ¹é¿îÀκ£½ºÆ®ºô | 3 | 44.34 | 16,000 | 0 | 2008 | | 2024.07.24 | Àü¼¼ | °Å¼º | 1 | 43.56 | 13,000 | 0 | 1986 | | 2024.07.24 | Àü¼¼ | ¼±Á¤ÇÏ¿ì¡(51-2) | 4 | 75.97 | 22,000 | 0 | 2009 | | 2024.07.24 | ¿ù¼¼ | µð¿£¾¾³ëºí·¹½º | 4 | 15.37 | 400 | 37 | 2011 | | 2024.07.24 | ¿ù¼¼ | ÇØÇÇÇϿ콺(1128-4) | 5 | 12.7 | 1,000 | 42 | 2012 | | 2024.07.24 | ¸Å¸Å | (343-9)»ó¾Æºô¶ó | 3 | 55.62 | 20,000 | | 1992 | | 2024.07.24 | ¿ù¼¼ | È£¼ºÆÄÅ©¸Ç¼Ç(1070-16) | 4 | 61.04 | 16,000 | 20 | 1996 | | 2024.07.24 | ¿ù¼¼ | ÀÌÁöÇϿ콺 | 3 | 18.7 | 1,000 | 57 | 2024 | | 2024.07.24 | ¸Å¸Å | ÇѾç¸Ç¼ð(56-66) | 5 | 27.57 | 8,700 | | 2000 | | 2024.07.24 | Àü¼¼ | S-vill(423-1) | 5 | 43.75 | 18,390 | 0 | 2012 | | 2024.07.24 | Àü¼¼ | ¾ÆÁÙ¸®¿ò(451-8) | 3 | 43.04 | 18,400 | 0 | 2013 | | 2024.07.24 | ¿ù¼¼ | ÇÁ¶óÀÓÁÖÅÃ(393-22) | 4 | 26.37 | 5,000 | 37 | 2014 | | 2024.07.24 | Àü¼¼ | ¿ÍÀ̾غñ | 4 | 34.35 | 21,500 | 0 | 2015 | | 2024.07.24 | ¿ù¼¼ | ¼¼¸²ÆÓ¸®Ã¼ | 2 | 29.9 | 17,500 | 15 | 2016 | | 2024.07.24 | Àü¼¼ | À£ºù¶óÀÌÇÁ(155-6) | 3 | 39.68 | 14,350 | 0 | 2011 | | 2024.07.24 | ¿ù¼¼ | À̵µÆÓ¸®½º(51-4) | 3 | 29.98 | 2,000 | 60 | 2020 | | 2024.07.24 | Àü¼¼ | ºí·çÈú | 6 | 25.59 | 25,000 | 0 | 2020 | | 2024.07.24 | ¿ù¼¼ | ¿ÍÀ̾غñ´õ½ºÅ丮 | 4 | 29.72 | 5,000 | 120 | 2022 | | 2024.07.23 | Àü¼¼ | ÇØÂùºô(24-550) | 4 | 16.49 | 7,500 | 0 | 2012 | | 2024.07.23 | Àü¼¼ | ³²¼º¾ÆÆ®ºô(423-14) | 6 | 24.7 | 16,500 | 0 | 2014 | | 2024.07.23 | Àü¼¼ | ¼±´öºô¶ó | 3 | 42.69 | 12,000 | 0 | 2008 | | 2024.07.23 | ¸Å¸Å | ¿ì¼º¿¬¸³(1134-7) | 2 | 51.3 | 23,000 | | 1985 | | 2024.07.23 | Àü¼¼ | µ¿µµÆÄÅ©ºä(813-13) | 4 | 46.44 | 19,900 | 0 | 2013 | | 2024.07.23 | ¸Å¸Å | ´Ù¼Ø(864-49) | 3 | 35.33 | 22,600 | | 2013 | | 2024.07.23 | ¸Å¸Å | ¼ºÇö¸®´õºô | 2 | 59.47 | 26,800 | | 2002 | | 2024.07.23 | ¸Å¸Å | ¿¹´ç¾ÆÆ®ºô | 3 | 54.84 | 23,300 | | 2004 | | 2024.07.23 | ¿ù¼¼ | ¿ìÇöÇ÷¹À̽º(794-7) | 3 | 49.04 | 22,000 | 20 | 2015 | | 2024.07.23 | Àü¼¼ | (61-42) | 3 | 23.22 | 8,500 | 0 | 2011 | | 2024.07.23 | ¿ù¼¼ | ¿ì¿¬¸®Ä¡ºô | 4 | 29.6 | 12,000 | 30 | 2011 | | 2024.07.23 | ¿ù¼¼ | ¼Çö | 2 | 12.24 | 500 | 40 | 2011 | | 2024.07.23 | Àü¼¼ | ±Ý¼º¸Ç¼Ç | 2 | 70.31 | 24,000 | 0 | 2007 | | 2024.07.23 | ¿ù¼¼ | ¼øÈ¯ºô¶óBµ¿(46-199) | 2 | 41.26 | 1,000 | 70 | 2001 | | 2024.07.23 | ¿ù¼¼ | ±¤Ãµ½¦¸£ºô | 4 | 51.18 | 13,600 | 30 | 2002 | | 2024.07.23 | Àü¼¼ | Àº¾Æºô¶óºñµ¿ | 2 | 84.54 | 23,600 | 0 | 2002 | | 2024.07.23 | ¸Å¸Å | ¿¹°¡Ã¤(968-3) | 6 | 37.55 | 25,000 | | 2015 | | 2024.07.23 | Àü¼¼ | ÀÌȺô¶ó2µ¿ | 2 | 36.69 | 14,500 | 0 | 1987 | | 2024.07.23 | ¿ù¼¼ | ûdz¸Ç¼Ç | 4 | 63.21 | 3,000 | 52 | 1997 | | 2024.07.23 | Àü¼¼ | ¿ì¼º¿¬¸³ | 1 | 56.64 | 14,000 | 0 | 1985 | | 2024.07.23 | Àü¼¼ | ¿ì¼ºÅ׸¶ºô(1044-29) | 2 | 52.46 | 23,250 | 0 | 2008 | | 2024.07.23 | ¿ù¼¼ | ´õ¿ø | 2 | 19.4 | 16,380 | 10 | 2022 | | 2024.07.23 | Àü¼¼ | ¿ÍÀ̾غñ | 6 | 29.79 | 20,000 | 0 | 2019 | | 2024.07.22 | Àü¼¼ | ·Î¾âºô | 5 | 45.66 | 11,600 | 0 | 2009 | | 2024.07.22 | Àü¼¼ | µ¿µµÁÖÅà | -1 | 57.42 | 9,800 | 0 | 1996 | | 2024.07.22 | ¿ù¼¼ | µå¸²ºô(369-28) | 3 | 61.32 | 17,000 | 10 | 2002 | | 2024.07.22 | Àü¼¼ | û¸²¾ÆÆ®ºôBµ¿(1084-14) | 3 | 61.49 | 24,000 | 0 | 2002 | | 2024.07.22 | ¿ù¼¼ | ÇѺûÀ§³Ê½ººô | 4 | 48.15 | 1,000 | 50 | 2008 | | 2024.07.22 | ¿ù¼¼ | ¸í¼ººô¸®Áö | 4 | 42.35 | 2,000 | 60 | 2002 | | 2024.07.22 | Àü¼¼ | ¼ºÀçij½½ºô | 3 | 58.19 | 27,460 | 0 | 2009 | | 2024.07.22 | Àü¼¼ | ¿¡ºñ¾ÓÇϿ콺 | 2 | 29.85 | 18,700 | 0 | 2017 | | 2024.07.22 | ¿ù¼¼ | ºí·çÈú | 5 | 29.15 | 3,000 | 80 | 2017 | | 2024.07.22 | Àü¼¼ | »ï¼º½¦¸£ºô | 5 | 29.93 | 15,800 | 0 | 2016 | | 2024.07.22 | Àü¼¼ | »ï¼º½¦¸£ºô | 5 | 29.93 | 18,300 | 0 | 2016 | | 2024.07.22 | ¿ù¼¼ | ¼¼¸²ÆÓ¸®Ã¼ | 3 | 28.71 | 16,750 | 20 | 2016 | | 2024.07.22 | ¿ù¼¼ | ³²¼º¾ÆÆ®ºô(397-24) | 5 | 25.9 | 5,000 | 70 | 2013 | | 2024.07.22 | Àü¼¼ | ÇÑ¿ï¶ß¶õä(995-20) | 4 | 37.1 | 2,000 | 0 | 2011 | | 2024.07.22 | Àü¼¼ | Çѹ鸮Ã÷ºô(803-1) | 4 | 36.72 | 14,200 | 0 | 2010 | | 2024.07.22 | Àü¼¼ | ½Å¿ø¼¾½ººô(392-75) | 2 | 50.79 | 18,000 | 0 | 2010 | | 2024.07.22 | Àü¼¼ | ½Å¿ø¼¾½ººô(392-75) | 2 | 50.79 | 18,000 | 0 | 2010 | | 2024.07.22 | ¿ù¼¼ | ¶ó¿ÂÁ¦³ª | 4 | 29.81 | 15,000 | 50 | 2018 | | 2024.07.22 | Àü¼¼ | ±¤Áøºô¶óÆ® | 5 | 54.74 | 10,000 | 0 | 2003 | | 2024.07.22 | ¸Å¸Å | ¸íÁöºô¶ó | 1 | 36.81 | 14,900 | | 1991 | | 2024.07.22 | ¸Å¸Å | µ¿½Å¸Ç¼ÇAµ¿ | 4 | 46.44 | 13,000 | | 2002 | | 2024.07.22 | ¸Å¸Å | GraceVill±×·¹À̽ººô | 5 | 33.695 | 19,000 | | 2018 | | 2024.07.22 | ¸Å¸Å | °æ¿øºô¶ó | 2 | 56.82 | 20,700 | | 1992 | | 2024.07.22 | ¸Å¸Å | »ï¼ººô¶ó | 2 | 33.51 | 15,600 | | 1991 | | 2024.07.22 | ¸Å¸Å | MAROO | 4 | 23.13 | 12,128 | | 2019 | | 2024.07.22 | Àü¼¼ | ÇѾçºô¶ó(56-65) | 2 | 33.18 | 9,200 | 0 | 2000 | | 2024.07.21 | ¸Å¸Å | ´ºÆÄÀκô(1084-50) | 5 | 49.52 | 26,700 | | 2011 | | 2024.07.21 | ¿ù¼¼ | »ï¼ºÆÄÅ©ºô³ªµ¿(111-126) | 4 | 43.32 | 1,000 | 92 | 2001 | | 2024.07.21 | Àü¼¼ | ¹Ì·¡ÇÏÀÌÃ÷Aµ¿(352-7) | 1 | 63.63 | 19,800 | 0 | 2001 | | 2024.07.20 | ¿ù¼¼ | ½Å¿ì¿¡À̽ººô(50-68) | 3 | 29.99 | 16,500 | 20 | 2018 | | 2024.07.20 | Àü¼¼ | (772-58) | 1 | 29.2 | 15,870 | 0 | 2018 | | 2024.07.20 | ¿ù¼¼ | »ï¼ºÀ§ºêºô | 4 | 29.78 | 13,900 | 18 | 2012 | | 2024.07.20 | Àü¼¼ | ºí·çÈú(788-4) | 6 | 26.47 | 21,450 | 0 | 2016 | | 2024.07.20 | Àü¼¼ | ȼº¸Ç¼Ç15Â÷ | 2 | 75.06 | 21,400 | 0 | 1998 | | 2024.07.20 | Àü¼¼ | ³²°æ½¦¸£ºô(362-135) | 2 | 68.74 | 20,200 | 0 | 2001 | | 2024.07.20 | ¿ù¼¼ | ½ÅÈï¾Æ³Ê½ººô | 5 | 48.19 | 12,000 | 41 | 2008 | | 2024.07.20 | Àü¼¼ | ¿¹°¡Ã¤l | 7 | 45.17 | 19,100 | 0 | 2013 | | 2024.07.20 | Àü¼¼ | À̳뼿 | 2 | 29.99 | 16,300 | 0 | 2014 | | 2024.07.20 | Àü¼¼ | ±Ý°ÇÏÀÓºô | 2 | 29.84 | 19,350 | 0 | 2015 | | 2024.07.20 | ¿ù¼¼ | °æ¹Î¾ÆÆ®ºô(105-21¹øÁö) | 3 | 29.99 | 15,700 | 10 | 2016 | | 2024.07.20 | Àü¼¼ | ´ë¿õÇÏÀÌÃ÷5Â÷ | 3 | 43.97 | 13,300 | 0 | 1992 | | 2024.07.20 | ¿ù¼¼ | ³ë¾Æ½º | 6 | 35.1 | 100 | 65 | 2020 | | 2024.07.20 | ¿ù¼¼ | NSŸ¿î | 3 | 28.84 | 2,500 | 100 | 2019 | | 2024.07.20 | ¸Å¸Å | (861-11) | -1 | 53.24 | 9,500 | | 1993 | | 2024.07.20 | ¸Å¸Å | ¸®Ä¡ºô | 5 | 50.6 | 18,600 | | 2009 | | 2024.07.20 | ¸Å¸Å | Çý¼ºÆÓ¸®½ººô(392-31) | 3 | 27.68 | 18,400 | | 2014 | | 2024.07.20 | ¸Å¸Å | ´ë¿ø¸Ç¼ð(933-13) | 4 | 62.85 | 24,000 | | 2002 | | 2024.07.20 | ¿ù¼¼ | MARNI | 3 | 25.76 | 5,000 | 70 | 2023 | | 2024.07.20 | Àü¼¼ | ÀÌ¿¤ÇϿ콺 | 4 | 27.32 | 19,000 | 0 | 2022 | | 2024.07.20 | ¿ù¼¼ | ´õº½333 | 6 | 23.7 | 100 | 70 | 2022 | | 2024.07.19 | ¿ù¼¼ | ´Ù¼Ø | 2 | 42.94 | 18,100 | 10 | 2012 | | 2024.07.19 | ¿ù¼¼ | ¼ºÁöºô¶ó(29-91) | 1 | 36.9 | 8,900 | 20 | 1997 | | 2024.07.19 | Àü¼¼ | ³²±¤¾ÆÆ®ºô | 3 | 44.78 | 19,000 | 0 | 2012 | | 2024.07.19 | Àü¼¼ | »ïÁ¤ÆÄÅ©ºä | 3 | 29.98 | 15,300 | 0 | 2012 | | 2024.07.19 | Àü¼¼ | À¯¸²¸®Ä¡ºô | 5 | 55.44 | 17,100 | 0 | 2007 | | 2024.07.19 | Àü¼¼ | °Å¼º | 3 | 43.56 | 14,000 | 0 | 1986 | | 2024.07.19 | Àü¼¼ | ¿ì¼ºÅ׸¶ºô | 3 | 53.42 | 14,900 | 0 | 2006 | | 2024.07.19 | Àü¼¼ | ¹Ì¼Òºô | 3 | 27.79 | 17,380 | 0 | 2018 | | 2024.07.19 | ¿ù¼¼ | Çѽº¾ÆÀ̺ô2 | 6 | 27.23 | 1,169 | 44 | 2019 | | 2024.07.19 | ¿ù¼¼ | ¼¼´ãÆÄÅ©ºä | 5 | 27.96 | 3,700 | 65 | 2020 | | 2024.07.19 | ¿ù¼¼ | ¼¼´ãÆÄÅ©ºä | 5 | 27.96 | 3,700 | 65 | 2020 | | 2024.07.19 | ¿ù¼¼ | Á¦ÀÌ¿¥ÆÓ¸®½º | 1 | 26.855 | 500 | 100 | 2021 | | 2024.07.19 | ¿ù¼¼ | Á¦ÀÌ¿¥ÆÓ¸®½º | 1 | 26.855 | 500 | 97 | 2021 | | 2024.07.19 | ¿ù¼¼ | ±Û·Î¸®¾ÆÇϿ콺 | 7 | 27.52 | 1,000 | 94 | 2021 | | 2024.07.19 | ¿ù¼¼ | Ŭ·¡½Ãºä | 2 | 26.74 | 1,000 | 100 | 2022 | | 2024.07.19 | ¿ù¼¼ | ´õ¿øÇϿ콺 | 3 | 27.48 | 20,660 | 2 | 2023 | | 2024.07.19 | Àü¼¼ | °Å¼º | 3 | 43.56 | 14,000 | 0 | 1986 | | 2024.07.19 | Àü¼¼ | °Å¼º | 3 | 43.56 | 14,000 | 0 | 1986 | | 2024.07.19 | ¿ù¼¼ | Å©·Î¹ÙŸ¿î1,2 | 3 | 54.74 | 200 | 15 | 2001 | | 2024.07.19 | ¸Å¸Å | ¹Ð·¹´Ï¾ö(56-460) | 3 | 45.56 | 18,300 | | 2008 | | 2024.07.19 | ¸Å¸Å | ¿ì¼ºÅ׸¶ºô(1044-20) | 2 | 66.22 | 32,000 | | 2006 | | 2024.07.19 | ¸Å¸Å | ·£µåÇϿ콺 | 2 | 29.92 | 23,500 | | 2016 | | 2024.07.19 | ¸Å¸Å | â´ëºô¶ó(353-33) | 2 | 71.96 | 32,000 | | 2007 | | 2024.07.19 | ¿ù¼¼ | ÇüÁ¦ÁÖÅÃBµ¿(56-248) | 1 | 35.4 | 5,000 | 35 | 1990 | | 2024.07.19 | Àü¼¼ | ¼º¿øÇÏÀÌÃ÷ | 2 | 58.02 | 9,900 | 0 | 1994 | | 2024.07.19 | Àü¼¼ | ȼººô¶ó(56-588) | 3 | 49.64 | 12,000 | 0 | 2001 | | 2024.07.19 | ¿ù¼¼ | âõ±×¸°ºô | 3 | 71.23 | 23,000 | 5 | 2002 | | 2024.07.19 | ¿ù¼¼ | ¿¡µ§±×¸° | 2 | 48.98 | 1,000 | 70 | 2002 | | 2024.07.19 | ¿ù¼¼ | µ¿¿µºô¶ó | 5 | 43.12 | 3,000 | 58 | 2002 | | 2024.07.19 | ¿ù¼¼ | ±ÃÀü¾ÆÆ®ºô¶ó2Â÷ | 2 | 68.07 | 5,000 | 60 | 1996 | | 2024.07.19 | Àü¼¼ | ´ë¼ººô¶ó | 1 | 44.61 | 10,000 | 0 | 2001 | | 2024.07.19 | Àü¼¼ | ´ë¼ººô¶ó | 1 | 44.61 | 10,000 | 0 | 2001 | | 2024.07.19 | ¿ù¼¼ | ¼±°æ¸Ç¼Ç | 4 | 50.52 | 14,000 | 10 | 2000 | | 2024.07.18 | Àü¼¼ | ¿¥Æç¸®Ã¼(346-75) | 2 | 25.96 | 14,300 | 0 | 2015 | | 2024.07.18 | Àü¼¼ | ¼¿¬ºí·çÈú | 2 | 29.37 | 17,400 | 0 | 2016 | | 2024.07.18 | Àü¼¼ | ÇÁ¶óÀÓÇϿ콺(393-23) | 3 | 21.17 | 9,450 | 0 | 2016 | | 2024.07.18 | Àü¼¼ | ¹Ý¼®village | 3 | 51.02 | 22,000 | 0 | 2019 | | 2024.07.18 | Àü¼¼ | ¶óÀÎÆÄÅ© | 3 | 26.68 | 20,700 | 0 | 2018 | | 2024.07.18 | Àü¼¼ | ÇØºñÄ¡ºô | 3 | 31.95 | 25,900 | 0 | 2019 | | 2024.07.18 | ¿ù¼¼ | Å©¶ó¿îÆÓ¸®½º | 14 | 29.98 | 28,200 | 10 | 2020 | | 2024.07.18 | ¿ù¼¼ | ºí¸®½ººô | 6 | 40.12 | 1,000 | 60 | 2021 | | 2024.07.18 | ¿ù¼¼ | µð¿¡½ºÅ×¶ó½º | 5 | 28.68 | 3,000 | 89 | 2022 | | 2024.07.18 | ¿ù¼¼ | ´õ½ºÀ§Æ®(457-20) | 5 | 23.95 | 5,000 | 48 | 2022 | | 2024.07.18 | Àü¼¼ | »ï¼ºÆç¸®Ã¼(864-52) | 3 | 31.91 | 17,700 | 0 | 2014 | | 2024.07.18 | Àü¼¼ | ¿¥Æç¸®Ã¼(346-75) | 2 | 25.96 | 14,300 | 0 | 2015 | | 2024.07.18 | ¸Å¸Å | MÆç¸®Ã¼(830-5) | 2 | 35.98 | 31,300 | | 2018 | | 2024.07.18 | ¿ù¼¼ | ³ª°æ¸Ç¼Ç2Â÷ | 2 | 49.02 | 2,000 | 55 | 2002 | | 2024.07.18 | Àü¼¼ | ÇѶóŸ¿î | 3 | 60.71 | 17,550 | 0 | 2001 | | 2024.07.18 | ¿ù¼¼ | À¯´Ï¿Â½¦¸£ºôA | 2 | 54.54 | 4,000 | 63 | 2002 | | 2024.07.18 | Àü¼¼ | °í¿î¿¬¸³ | 2 | 59.64 | 17,600 | 0 | 1996 | | 2024.07.18 | Àü¼¼ | (102-130) | 1 | 65.67 | 13,000 | 0 | 1997 | | 2024.07.18 | Àü¼¼ | ÃÊ¿øºô¶ó | 1 | 32.89 | 8,200 | 0 | 1994 | | 2024.07.18 | Àü¼¼ | À¯Áø | 2 | 54.12 | 21,040 | 0 | 2011 | | 2024.07.18 | Àü¼¼ | ºê¸´Áö½ºÅæ(815-19) | 3 | 36.68 | 16,800 | 0 | 2012 | | 2024.07.17 | ¿ù¼¼ | ¼¸ðÆÓ¸®½º(42-120) | 4 | 56.76 | 100 | 40 | 2004 | | 2024.07.17 | Àü¼¼ | ½ÅÈïÇÏÀ̺ô | 5 | 25.08 | 9,080 | 0 | 2010 | | 2024.07.17 | ¿ù¼¼ | û¼º½ºÄ«ÀÌ | 3 | 29.78 | 10,600 | 10 | 2008 | | 2024.07.17 | Àü¼¼ | À¯´Ï¿Â½¦¸£ºô(Eµ¿) | 3 | 41.72 | 11,800 | 0 | 2002 | | 2024.07.17 | Àü¼¼ | û¿ì¾ÆÆ®ºô | 2 | 49.76 | 13,200 | 0 | 2002 | | 2024.07.17 | Àü¼¼ | ¿¬ÁÖºô¶ó | 4 | 45.21 | 12,000 | 0 | 2003 | | 2024.07.17 | Àü¼¼ | ½Å¶óÇÏÀÌÃ÷ºô¶ó7Â÷ | 4 | 62.32 | 16,000 | 0 | 2000 | | 2024.07.17 | ¿ù¼¼ | ȼººô¶óAµ¿(56-323) | 3 | 44.05 | 3,000 | 60 | 2001 | | 2024.07.17 | Àü¼¼ | ȰîÆÄÅ©ºô | 3 | 71.36 | 18,900 | 0 | 2002 | | 2024.07.17 | Àü¼¼ | (61-42) | 4 | 15.05 | 6,000 | 0 | 2011 | | 2024.07.17 | Àü¼¼ | â´ë | 5 | 29.9 | 13,800 | 0 | 2012 | | 2024.07.17 | ¸Å¸Å | º¹Áöºô¸®Áö | 2 | 35.99 | 11,000 | | 1994 | | 2024.07.17 | Àü¼¼ | Á¦ÀÌÅõ¸®´õ½º | 2 | 24.49 | 21,290 | 0 | 2023 | | 2024.07.17 | Àü¼¼ | ºñ¿£ÄÉÀÌÇϿ콺 | 5 | 29.9 | 23,100 | 0 | 2023 | | 2024.07.17 | ¿ù¼¼ | Á¦À̽ººô(969-5) | 2 | 23.6 | 18,300 | 5 | 2022 | | 2024.07.17 | ¿ù¼¼ | Ŭ·¡½Ãºä | 4 | 24.15 | 1,000 | 100 | 2022 | | 2024.07.17 | Àü¼¼ | ÀÌ¿¤ÇϿ콺 | 4 | 29.59 | 34,800 | 0 | 2022 | | 2024.07.17 | ¿ù¼¼ | (42-65) | 4 | 26.9 | 16,000 | 20 | 2018 | | 2024.07.17 | ¿ù¼¼ | Æ÷¿¥ºô | 8 | 27.18 | 2,000 | 90 | 2020 | | 2024.07.17 | ¿ù¼¼ | (42-65) | 4 | 26.9 | 16,000 | 20 | 2018 | | 2024.07.17 | ¿ù¼¼ | ½ÅÈïºô¶ó | -1 | 59.36 | 2,000 | 65 | 1996 | | 2024.07.16 | Àü¼¼ | û¼º½ºÄ«ÀÌ | 3 | 29.78 | 6,000 | 0 | 2008 | | 2024.07.16 | ¿ù¼¼ | ¶ó¶ã¸®¿¡ | 4 | 29.91 | 3,000 | 80 | 2019 | | 2024.07.16 | Àü¼¼ | Á¦ÀÌÅõ¸®´õ½º | 2 | 27.6 | 25,000 | 0 | 2019 | | 2024.07.16 | ¿ù¼¼ | Çѽº¾ÆÀ̺ô2 | 3 | 27.23 | 11,659 | 13 | 2019 | | 2024.07.16 | ¿ù¼¼ | Çѽº¾ÆÀ̺ô2 | 4 | 27.23 | 11,659 | 13 | 2019 | | 2024.07.16 | Àü¼¼ | ¸¶Å©ÇϿ콺 | 4 | 29.59 | 21,400 | 0 | 2020 | | 2024.07.16 | ¿ù¼¼ | ¿¡½ºÄÉÀÌÆÄÅ©¸®¿ò | 2 | 25.93 | 50 | 50 | 2021 | | 2024.07.16 | ¿ù¼¼ | ¼¼Á¾ÆÄÅ©ºô | 5 | 71.43 | 22,064 | 25 | 2023 | | 2024.07.16 | ¿ù¼¼ | ¿¡ÄÚºô | 4 | 27.84 | 5,000 | 70 | 2022 | | 2024.07.16 | Àü¼¼ | À̼öºô¶ó | 1 | 42.45 | 9,900 | 0 | 1992 | | 2024.07.16 | Àü¼¼ | ¿©¸íºô¶ó | 2 | 59.7 | 18,900 | 0 | 1999 | | 2024.07.16 | Àü¼¼ | (409-185) | -1 | 34.86 | 5,900 | 0 | 1995 | | 2024.07.16 | ¿ù¼¼ | ¿ì¼ººô¶ó12Â÷ | 4 | 39.36 | 1,500 | 58 | 1991 | | 2024.07.16 | ¿ù¼¼ | ¼¼Á¾ÆÄÅ©ºô | 3 | 71.7 | 22,176 | 25 | 2023 | | 2024.07.16 | ¿ù¼¼ | ¼¼Á¾ÆÄÅ©ºô | 3 | 69.69 | 20,832 | 23 | 2023 | | 2024.07.16 | ¿ù¼¼ | ¼¼Á¾ÆÄÅ©ºô | 2 | 69.69 | 23,552 | 25 | 2023 | | 2024.07.16 | ¿ù¼¼ | ¼¼Á¾ÆÄÅ©ºô | 2 | 71.7 | 25,024 | 27 | 2023 | | 2024.07.16 | ¿ù¼¼ | THEJIA | 3 | 29.89 | 5,500 | 60 | 2022 | | 2024.07.16 | ¿ù¼¼ | ½Å¿µº£¸£µð¿ò | 6 | 20.95 | 2,000 | 80 | 2019 | | 2024.07.16 | ¿ù¼¼ | ´õ-¶ó¿Â | 3 | 29.87 | 16,000 | 20 | 2018 | | 2024.07.16 | ¸Å¸Å | ¾ÆÀνººô(980-23) | 6 | 38.73 | 29,800 | | 2012 | | 2024.07.16 | ¸Å¸Å | ½Å¶óÇÏÀÌÃ÷ºô¶ó3Â÷ | 2 | 32.64 | 15,500 | | 1994 | | 2024.07.16 | ¸Å¸Å | °æ³²ºô¶ó¹Ùµ¿ | 1 | 40.5 | 12,300 | | 1986 | | 2024.07.16 | ¸Å¸Å | µµ¿ø¼ÖºñÄ¡ | 3 | 40.77 | 25,200 | | 2015 | | 2024.07.16 | ¸Å¸Å | ¿¥Æç¸®Ã¼ | 5 | 40.44 | 24,000 | | 2015 | | 2024.07.16 | ¸Å¸Å | ·Î¾âÇÏÀÌÃ÷(98-137) | 5 | 43.62 | 19,000 | | 2008 | | 2024.07.16 | ¿ù¼¼ | ¸¶¸®½ºÅõ¿£ | 3 | 66.12 | 17,500 | 5 | 2002 | | 2024.07.16 | Àü¼¼ | Á¦ÀÌ¿ÍÀÌÆç¸®½º(849-16¹øÁö) | 3 | 29.9 | 17,100 | 0 | 2016 | | 2024.07.16 | Àü¼¼ | ½Å¼ººô¶ó | 3 | 73.01 | 18,000 | 0 | 1990 | | 2024.07.16 | ¿ù¼¼ | ½Å¼º¿¬¸³ | 4 | 30.27 | 8,000 | 10 | 1994 | | 2024.07.16 | ¿ù¼¼ | »ï¼º½¦¸£ºô | 2 | 38.52 | 1,000 | 80 | 2016 | | 2024.07.16 | ¿ù¼¼ | ³²¼º¾ÆÆ®ºô(354-41) | 5 | 35.02 | 2,000 | 80 | 2014 | | 2024.07.16 | ¿ù¼¼ | À̰¡Ã¤(400-95) | 5 | 29.55 | 14,200 | 10 | 2012 | | 2024.07.16 | Àü¼¼ | »ï¼º¼¾Æ®·¹ºô(55-48) | 2 | 49.98 | 15,000 | 0 | 2008 | | 2024.07.16 | ¿ù¼¼ | ±×·¹À̽ººô | 2 | 51.56 | 6,000 | 70 | 2007 | | 2024.07.16 | ¿ù¼¼ | ¿¡ÄÚºô | 6 | 24.88 | 4,000 | 45 | 2022 | | 2024.07.15 | Àü¼¼ | û¼ÛÆòÈÇコŸ¿ö | 9 | 30.01 | 17,800 | 0 | 2017 | | 2024.07.15 | Àü¼¼ | Å¥ºêÆ÷(CubeFour) | 5 | 26.92 | 26,200 | 0 | 2022 | | 2024.07.15 | ¸Å¸Å | °æÈïºô¶óÆ® | 4 | 71.47 | 25,500 | | 2002 | | 2024.07.15 | ¿ù¼¼ | ÇØ¼ºÆç¸®½ººô | 3 | 63.02 | 17,300 | 25 | 2000 | | 2024.07.15 | ¸Å¸Å | (876-18) | -1 | 37.22 | 12,500 | | 1986 | | 2024.07.15 | ¿ù¼¼ | LUCE¥±(·çüby¿¹¿ì) | 6 | 14.2 | 1,000 | 38 | 2012 | | 2024.07.15 | ¸Å¸Å | ¸®Á¨Æ®¶ó¿ò-Ȱî | 9 | 27.83 | 19,000 | | 2015 | | 2024.07.15 | ¿ù¼¼ | Ŭ·¡½Ãºä | 3 | 26.74 | 1,000 | 100 | 2022 | | 2024.07.15 | ¿ù¼¼ | Á¦ÀÌÅõ¸®´õ½º | 4 | 26.73 | 100 | 60 | 2020 | | 2024.07.15 | Àü¼¼ | Å©¶ó¿îÆÓ¸®½º | 12 | 29.94 | 22,800 | 0 | 2020 | | 2024.07.15 | Àü¼¼ | NSŸ¿î | 3 | 28 | 19,000 | 0 | 2019 | | 2024.07.15 | ¿ù¼¼ | ¸¶Å©ÇϿ콺 | 6 | 43.94 | 3,000 | 120 | 2018 | | 2024.07.15 | Àü¼¼ | ´ë¼º¾ÆÆ®ºô | 2 | 29.78 | 18,900 | 0 | 2019 | | 2024.07.15 | Àü¼¼ | MÆç¸®Ã¼ | 2 | 38.52 | 26,000 | 0 | 2018 | | 2024.07.15 | ¿ù¼¼ | ÈľϺô¶óÆ® | 2 | 64.77 | 20,000 | 20 | 2007 | | 2024.07.15 | ¿ù¼¼ | ±×¸°ºô369-5 | 3 | 46.08 | 3,000 | 74 | 2014 | | 2024.07.15 | Àü¼¼ | ¼Çöºô¶ó(337-15) | 4 | 58.51 | 22,000 | 0 | 2008 | | 2024.07.15 | Àü¼¼ | ÀÎÅÍ½ÃÆ¼ºô¶ó(56-705) | 3 | 60.12 | 19,900 | 0 | 2008 | | 2024.07.14 | Àü¼¼ | (772-58) | 3 | 37.88 | 18,900 | 0 | 2018 | | 2024.07.14 | ¿ù¼¼ | À̺ìÇϿ콺 | 3 | 29.87 | 100 | 70 | 2021 | | 2024.07.14 | Àü¼¼ | ¾ÆÁÙ¸®¿ò(1049-24) | 6 | 30.55 | 24,000 | 0 | 2018 | | 2024.07.14 | ¿ù¼¼ | ¿¥Æç¸®Ã¼¿¡À̵¿ | 2 | 28.4 | 17,100 | 18 | 2016 | | 2024.07.13 | Àü¼¼ | ³²°æ±×¸°ºô¶ó | 1 | 60 | 15,000 | 0 | 1999 | | 2024.07.13 | Àü¼¼ | »ï¼ººô¶óAµ¿(423-26) | 2 | 51.29 | 14,400 | 0 | 2002 | | 2024.07.13 | Àü¼¼ | ´º¿ùµåºô¶ó | 4 | 48.2 | 12,000 | 0 | 1998 | | 2024.07.13 | ¿ù¼¼ | ÇѺû½ºÄ«À̺ô | 4 | 31.15 | 1,000 | 60 | 2008 | | 2024.07.13 | Àü¼¼ | ¼ºµµºô¶ó(458-22) | 2 | 51.9 | 16,800 | 0 | 2002 | | 2024.07.13 | ¿ù¼¼ | ¼ºÁÖºô¶ó(350-73) | 1 | 59.73 | 15,000 | 15 | 1998 | | 2024.07.13 | Àü¼¼ | »ï¼ººô¶óAµ¿(423-26) | 2 | 51.29 | 14,400 | 0 | 2002 | | 2024.07.13 | ¿ù¼¼ | ¿µÀÏ¾ÆÆ®ºô | 3 | 62.52 | 3,000 | 80 | 2003 | | 2024.07.13 | Àü¼¼ | µ¿¾çÁÖÅÃ5Â÷ | 3 | 59.67 | 13,860 | 0 | 1996 | | 2024.07.13 | Àü¼¼ | ´ë±Ùºô¶ó | 1 | 46.44 | 13,100 | 0 | 1990 | | 2024.07.13 | Àü¼¼ | µ¿¾çÁÖÅÃ5Â÷ | 3 | 59.67 | 13,860 | 0 | 1996 | | 2024.07.13 | Àü¼¼ | ¼ºµµºô¶ó(458-22) | 2 | 51.9 | 15,100 | 0 | 2002 | | 2024.07.13 | Àü¼¼ | »ï¼ºÆÓ¸®Ã¼Aµ¿ | 4 | 35.91 | 14,990 | 0 | 2013 | | 2024.07.13 | ¿ù¼¼ | ¼Ò´ã¹ë¸®½ºBµ¿ | 3 | 29.75 | 1,000 | 85 | 2013 | | 2024.07.13 | ¿ù¼¼ | ÇØ¿À¸§(24-59) | 3 | 13.44 | 4,800 | 10 | 2011 | | 2024.07.13 | ¿ù¼¼ | ¸®Ä¡ºô | 3 | 25.08 | 500 | 60 | 2010 | | 2024.07.13 | ¿ù¼¼ | ´Ù¿ø½´½´ºô(470-8) | 3 | 39.69 | 2,000 | 70 | 2010 | | 2024.07.13 | Àü¼¼ | Çý¸²ÁÖÅÃ(1050-25) | 3 | 59.73 | 22,500 | 0 | 2010 | | 2024.07.13 | ¿ù¼¼ | ·ÎÁîÆÓ¸®½ºÅõ(346-38) | 5 | 74.4 | 500 | 29 | 2009 | | 2024.07.13 | ¿ù¼¼ | ȲÁ¦±×·£µåÆÄÅ©(105-480) | 5 | 42.87 | 13,900 | 15 | 2008 | | 2024.07.13 | ¿ù¼¼ | Ŭ·¡½Ãºä | 5 | 26.74 | 1,000 | 100 | 2022 | | 2024.07.13 | Àü¼¼ | »ï¼ºÆÓ¸®Ã¼Aµ¿ | 4 | 35.91 | 14,990 | 0 | 2013 | | 2024.07.13 | Àü¼¼ | ±î»çÁö¿À | 4 | 26.81 | 15,750 | 0 | 2015 | | 2024.07.13 | ¿ù¼¼ | ³²¼º¾ÆÆ®ºô | 4 | 33.49 | 3,000 | 80 | 2016 | | 2024.07.13 | ¸Å¸Å | ¾¾Æ¼ÇϿ콺 | 7 | 70.32 | 32,800 | | 2009 | | 2024.07.13 | ¿ù¼¼ | ÆÄÅ©½ºÅ×ÀÌ | 5 | 16.11 | 300 | 40 | 2024 | | 2024.07.13 | Àü¼¼ | ÄÉ·»½Ã¾Æ | 3 | 29.73 | 25,800 | 0 | 2022 | | 2024.07.13 | ¿ù¼¼ | THEJIA | 5 | 29.6 | 5,500 | 65 | 2022 | | 2024.07.13 | ¸Å¸Å | õ¿ìºô¶ó(353-48) | 1 | 59.75 | 24,550 | | 2000 | | 2024.07.13 | ¿ù¼¼ | ´õÁ¸ÆÛ½ºÆ® | 2 | 29.67 | 24,000 | 10 | 2022 | | 2024.07.13 | ¸Å¸Å | ¸®Ä¡ÇϿ콺6Â÷ | 6 | 29.93 | 19,800 | | 2016 | | 2024.07.13 | ¿ù¼¼ | ¿äÇѺô | 4 | 34.3 | 18,300 | 10 | 2016 | | 2024.07.13 | ¿ù¼¼ | À̳뼿 | 2 | 29.08 | 14,800 | 17 | 2016 | | 2024.07.12 | ¿ù¼¼ | ¿ìÀÏ¾ÆÆ®ºô | 2 | 43.33 | 1,000 | 63 | 2008 | | 2024.07.12 | ¿ù¼¼ | ¹Ì·¡½ºÅ¸ºô2Â÷ | 5 | 22.05 | 7,570 | 30 | 2008 | | 2024.07.12 | ¿ù¼¼ | µ¿¿ø±×¸°ºô | 2 | 50.8 | 5,000 | 65 | 2002 | | 2024.07.12 | ¿ù¼¼ | µ¿¿ø±×¸°ºô | 2 | 50.8 | 5,000 | 65 | 2002 | | 2024.07.12 | Àü¼¼ | ½Ö¿ëºô¶óÆ® | 4 | 41.63 | 15,800 | 0 | 2002 | | 2024.07.12 | ¿ù¼¼ | µ¿±Ã¾ÆÆ®ºô | 5 | 38.22 | 10,400 | 20 | 2002 | | 2024.07.12 | ¿ù¼¼ | ³ª»ê¸Ç¼Ç(871-72) | 4 | 62.63 | 16,700 | 5 | 2003 | | 2024.07.12 | ¿ù¼¼ | Çý¼ºÆÓ¸®½ººô(392-31) | 3 | 27.68 | 13,860 | 15 | 2014 | | 2024.07.12 | Àü¼¼ | Çý¼ºÆç¸®½º29Â÷(163-8) | 3 | 29.5 | 13,600 | 0 | 2014 | | 2024.07.12 | ¿ù¼¼ | ¶óºô¶óÆ® | 4 | 29.28 | 4,000 | 68 | 2016 | | 2024.07.12 | Àü¼¼ | ¸ð³ë5Â÷ | 3 | 44.92 | 23,490 | 0 | 2017 | | 2024.07.12 | ¿ù¼¼ | Á¤¿¬Ã¤ | 2 | 22.265 | 2,000 | 50 | 2018 | | 2024.07.12 | ¿ù¼¼ | ÇÏÀÌ63 | 4 | 32.36 | 2,000 | 70 | 2018 | | 2024.07.12 | ¿ù¼¼ | À̵µÆÓ¸®½º(51-4) | 2 | 38.19 | 2,000 | 65 | 2020 | | 2024.07.12 | ¿ù¼¼ | THEJIA | 4 | 29.88 | 5,500 | 55 | 2022 | | 2024.07.12 | ¸Å¸Å | OKÆÄÅ©ºô5Â÷(370-25) | 3 | 27.67 | 20,000 | | 2017 | | 2024.07.12 | ¿ù¼¼ | ÇѼºÁÖÅà | -1 | 72.73 | 500 | 65 | 2000 | | 2024.07.12 | ¸Å¸Å | ¼ºÁøÆÄÅ©¸Ç¼Ç | 1 | 64.61 | 24,000 | | 1997 | | 2024.07.12 | ¸Å¸Å | º¹Áö±×¸°ºô | 2 | 61.69 | 24,700 | | 2001 | | 2024.07.12 | ¸Å¸Å | ¼ºÁøÆÄÅ©¸Ç¼Ç | 1 | 64.61 | 24,000 | | 1997 | | 2024.07.12 | Àü¼¼ | È£¼öºô¶ó(56-398) | 2 | 45.32 | 12,500 | 0 | 2001 | | 2024.07.12 | Àü¼¼ | ´ëµ¿ºô¶ó°¡µ¿ | 2 | 59.92 | 17,640 | 0 | 2002 | | 2024.07.12 | ¿ù¼¼ | µ¿±Ã¾ÆÆ®ºô | 5 | 38.22 | 10,400 | 20 | 2002 | | 2024.07.12 | ¿ù¼¼ | ¿¡½º¿¥ÆÄÅ©ºô101µ¿102µ¿ | 6 | 27.27 | 16,600 | 30 | 2016 | | 2024.07.11 | Àü¼¼ | ¸íÁÖºôÇϸð´Ï | 5 | 60.14 | 19,400 | 0 | 2008 | | 2024.07.11 | Àü¼¼ | ÇÑ¿ï¶ß¶õä(995-20) | 4 | 33.94 | 14,000 | 0 | 2011 | | 2024.07.11 | Àü¼¼ | ÇÑ¿ï¶ß¶õä(995-20) | 4 | 33.94 | 14,000 | 0 | 2011 | | 2024.07.11 | ¿ù¼¼ | ¸®Á¨Æ®¶ó¿ò-Ȱî | 9 | 29.21 | 16,250 | 10 | 2015 | | 2024.07.11 | ¿ù¼¼ | ´Ù¼ºÀÌÁîºô | 2 | 47.9 | 16,000 | 10 | 2008 | | 2024.07.11 | Àü¼¼ | ¿¡º¥¿¡¼¿ºô¶ó | 3 | 61.43 | 20,790 | 0 | 2000 | | 2024.07.11 | Àü¼¼ | ¼øÈ¯½¦¸£ºôB | 4 | 34.54 | 10,000 | 0 | 2002 | | 2024.07.11 | Àü¼¼ | Çý¼ºÆÓ¸®½ººô12Â÷ | -1 | 120.12 | 20,000 | 0 | 2004 | | 2024.07.11 | Àü¼¼ | Çö´ë¸Ç¼Ç | 4 | 50.87 | 11,600 | 0 | 1996 | | 2024.07.11 | Àü¼¼ | Çö´ë¸Ç¼Ç | 4 | 50.87 | 11,600 | 0 | 1996 | | 2024.07.11 | ¿ù¼¼ | ¹Ì·¡ºô¸®Áö-Aµ¿ | 4 | 42.71 | 11,700 | 20 | 2003 | | 2024.07.11 | Àü¼¼ | ÇÏÀÌÆ®¸Ç¼Ç | 1 | 61.68 | 16,000 | 0 | 1999 | | 2024.07.11 | ¸Å¸Å | ¾ÆÀκô | 3 | 43.69 | 25,000 | | 2016 | | 2024.07.11 | ¿ù¼¼ | ÇØ¹èÄ¡ºô | 2 | 29.91 | 3,000 | 62 | 2015 | | 2024.07.11 | ¿ù¼¼ | ¼¼¸²ÆÓ¸®Ã¼ | 1 | 29.9 | 15,600 | 10 | 2016 | | 2024.07.11 | ¿ù¼¼ | ¾Æ¸£¶¼ºô | 3 | 29.9 | 3,000 | 70 | 2017 | | 2024.07.11 | ¸Å¸Å | DS¿¡ÄÚŸ¿î(471-16) | 4 | 36.61 | 22,800 | | 2014 | | 2024.07.11 | ¸Å¸Å | µµ¿ø¼ÖºñÄ¡ | 5 | 29.91 | 19,500 | | 2015 | | 2024.07.11 | ¸Å¸Å | ¸®ºùÇϿ콺5Â÷ | 6 | 29.95 | 17,000 | | 2015 | | 2024.07.11 | ¸Å¸Å | ±×·¹À̽ººô | 2 | 26.83 | 36,900 | | 2022 | | 2024.07.11 | ¸Å¸Å | ¶ó¿Âºô¸®Áö | 3 | 26.5 | 19,800 | | 2016 | | 2024.07.11 | Àü¼¼ | ÀÌ¿¤ÇϿ콺 | 6 | 27.31 | 24,000 | 0 | 2022 | | 2024.07.11 | Àü¼¼ | ±×·¹À̽ººô | 2 | 26.83 | 30,600 | 0 | 2022 | | 2024.07.11 | ¿ù¼¼ | À¯³ëÀÌ¾Æ | 4 | 51.98 | 5,000 | 145 | 2023 | | 2024.07.11 | ¿ù¼¼ | Ŭ·¡½Ãºä | 5 | 51.95 | 1,800 | 140 | 2022 | | 2024.07.10 | ¿ù¼¼ | ¹Ù¿ìÇϿ콺(895-10) | 4 | 15.96 | 1,000 | 40 | 2011 | | 2024.07.10 | Àü¼¼ | ¸â¹ö½ººô(827-32) | 4 | 31.86 | 18,400 | 0 | 2014 | | 2024.07.10 | Àü¼¼ | ¸®´õ½ºÅ¸¿î(397-6) | 3 | 25.21 | 13,100 | 0 | 2016 | | 2024.07.10 | ¿ù¼¼ | ´ÙÀÎȨŸ¿î | 6 | 27.91 | 17,700 | 5 | 2016 | | 2024.07.10 | Àü¼¼ | ¸®´õ½ºÅ¸¿î(397-6) | 3 | 24.55 | 13,200 | 0 | 2016 | | 2024.07.10 | Àü¼¼ | À̼ö¾ÆÆ®ºô2Â÷ | 9 | 29.64 | 14,994 | 0 | 2016 | | 2024.07.10 | ¿ù¼¼ | ÀÌÁöÇϿ콺 | 4 | 23.33 | 500 | 78 | 2024 | | 2024.07.10 | Àü¼¼ | ÀÚÇÏŬ·¡½Ä | 16 | 13.77 | 11,800 | 0 | 2018 | | 2024.07.10 | Àü¼¼ | À̵µÆ®¶ó¿ò2 | 4 | 30.84 | 21,798 | 0 | 2018 | | 2024.07.10 | Àü¼¼ | Bluehill | 4 | 29.42 | 21,100 | 0 | 2019 | | 2024.07.10 | Àü¼¼ | Bluehill | 4 | 29.42 | 21,100 | 0 | 2019 | | 2024.07.10 | ¿ù¼¼ | Ŭ·¡½Ãºä | 2 | 29.85 | 1,000 | 100 | 2022 | | 2024.07.10 | ¿ù¼¼ | ¹Ì·¡½ºÅ¸ºô4Â÷ | 4 | 40.43 | 200 | 55 | 2008 | | 2024.07.10 | Àü¼¼ | ¸ñȺô¶ó¸¶µ¿ | 1 | 41.54 | 8,000 | 0 | 1988 | | 2024.07.10 | Àü¼¼ | ÄÚ¸®¾ÆºôÇϿ콺 | 2 | 62.02 | 16,500 | 0 | 2002 | | 2024.07.10 | ¸Å¸Å | À£½ºÆÄÅ©ºô(379-2) | 6 | 42.01 | 25,500 | | 2013 | | 2024.07.10 | ¸Å¸Å | »ï¿øÇÏÀÌÃ÷7Â÷ | -1 | 59.49 | 17,700 | | 1994 | | 2024.07.10 | ¸Å¸Å | ½Ã¿Âºô¸®Áö102 | 6 | 21 | 20,000 | | 2022 | | 2024.07.10 | ¸Å¸Å | ¸¶Å©ÇϿ콺 | 6 | 44.02 | 33,500 | | 2018 | | 2024.07.10 | Àü¼¼ | ¼±°æ¸Ç¼Ç | 1 | 67.56 | 17,300 | 0 | 2000 | | 2024.07.10 | Àü¼¼ | °¼º±×¸°ºô¶ó | 3 | 39.96 | 11,400 | 0 | 1994 | | 2024.07.10 | Àü¼¼ | ¼ÀÏ¸Ç¼Ç | 3 | 92.63 | 19,000 | 0 | 1981 | | 2024.07.10 | Àü¼¼ | Çѳ²Å¸¿î | 3 | 51.39 | 12,400 | 0 | 1993 | | 2024.07.10 | ¿ù¼¼ | µÕÁöºô¶ó | 2 | 72.81 | 19,700 | 25 | 2000 | | 2024.07.10 | Àü¼¼ | °æ¿ø¾ÆÆ®ºô | -1 | 69.94 | 14,700 | 0 | 2002 | | 2024.07.10 | ¿ù¼¼ | ¿ì¼ººô¶ó19Â÷ | -1 | 53.34 | 9,470 | 10 | 1992 | | 2024.07.09 | ¿ù¼¼ | °Å»êºô¶ó | 2 | 37.35 | 9,000 | 15 | 1992 | | 2024.07.09 | ¿ù¼¼ | °æ¹Î¾ÆÆ®ºô(368-23) | 4 | 28.12 | 18,100 | 15 | 2018 | | 2024.07.09 | Àü¼¼ | ´Ù³ª³×½ºÆ®ºô(504-66) | 2 | 60.84 | 16,060 | 0 | 2002 | | 2024.07.09 | Àü¼¼ | ½Ã±×´Ïó6 | 4 | 42 | 36,500 | 0 | 2022 | | 2024.07.09 | ¿ù¼¼ | ¿ùµåºô | 3 | 26.46 | 500 | 45 | 2002 | | 2024.07.09 | ¿ù¼¼ | À¯¸²ºô | 4 | 70.56 | 14,100 | 10 | 2008 | | 2024.07.09 | ¿ù¼¼ | ¸í¼º¾ÆÆ®¸Ç¼Ç | 1 | 34.98 | 9,300 | 20 | 1991 | | 2024.07.09 | ¿ù¼¼ | ¼Û´öºô¶ó | 2 | 44.07 | 11,000 | 20 | 1991 | | 2024.07.09 | ¿ù¼¼ | ¼Û´öºô¶ó | 2 | 44.07 | 11,000 | 20 | 1991 | | 2024.07.09 | ¸Å¸Å | ´öÇöÇØ¹Ð | 4 | 52.18 | 27,500 | | 2014 | | 2024.07.09 | ¸Å¸Å | ´ë±¤¾ÆÆ®ºô¶ó | 1 | 64.36 | 22,000 | | 1996 | | 2024.07.09 | ¸Å¸Å | ÿ½ÃÇϿ콺 | 3 | 33.65 | 18,500 | | 2012 | | 2024.07.09 | ¸Å¸Å | ´Ù¼Ø(864-49) | 3 | 35.77 | 22,000 | | 2013 | | 2024.07.09 | ¿ù¼¼ | º¹Áö±×¸°ºô3Â÷ | 2 | 28.61 | 2,000 | 59 | 2002 | | 2024.07.09 | Àü¼¼ | º¹Áö¾ÆÆ®ºô¶ó1µ¿ | 1 | 47.14 | 12,500 | 0 | 2003 | | 2024.07.09 | ¸Å¸Å | È£¼º±×¸°ºä | 2 | 56.04 | 26,250 | | 2016 | | 2024.07.09 | ¿ù¼¼ | »ï¼ºÅ¾½ººô(99-17) | 4 | 43.7 | 14,700 | 10 | 2008 | | 2024.07.09 | ¿ù¼¼ | ¿ìÀåÈÀκô(995-27) | 3 | 49.65 | 21,000 | 15 | 2011 | | 2024.07.09 | ¿ù¼¼ | ¿ìÀåÈÀκô(995-27) | 3 | 49.65 | 19,780 | 15 | 2011 | | 2024.07.09 | ¿ù¼¼ | ¼Ò´ã¹ë¸® | 2 | 29.14 | 0 | 35 | 2012 | | 2024.07.09 | Àü¼¼ | ¼¼ÀÎÆ®ºô(50-45) | 2 | 29.22 | 14,500 | 0 | 2012 | | 2024.07.09 | ¿ù¼¼ | Å©¸®½ºÅ»ºô(24-490) | 3 | 29.13 | 5,000 | 50 | 2014 | | 2024.07.09 | ¿ù¼¼ | û¶óº£¶óü(46-298) | 4 | 29.91 | 3,000 | 55 | 2015 | | 2024.07.09 | Àü¼¼ | »ïÀÍÇ콺Ƽ¾Æ(1130-15) | 5 | 13.17 | 19,000 | 0 | 2015 | | 2024.07.08 | ¿ù¼¼ | ±î»çÁö¿À | 2 | 26.81 | 15,750 | 20 | 2015 | | 2024.07.08 | Àü¼¼ | ÿ½ÃÇϿ콺 | 4 | 46.44 | 18,600 | 0 | 2011 | | 2024.07.08 | ¸Å¸Å | Ȱ´Ù¼¼´ëÁÖÅà | 1 | 26.68 | 15,000 | | 2002 | | 2024.07.08 | ¸Å¸Å | ´ë¼ººô¶ó | 2 | 68.49 | 21,000 | | 2001 | | 2024.07.08 | ¿ù¼¼ | ±î»çÁö¿À | 2 | 26.81 | 15,750 | 20 | 2015 | | 2024.07.08 | ¸Å¸Å | â´ë | 5 | 29.9 | 19,000 | | 2012 | | 2024.07.08 | ¸Å¸Å | Ȱ´Ù¼¼´ëÁÖÅà | 3 | 120.89 | 60,000 | | 2002 | | 2024.07.08 | ¸Å¸Å | Ȱ´Ù¼¼´ëÁÖÅà | 2 | 38.25 | 20,000 | | 2002 | | 2024.07.08 | ¸Å¸Å | Ȱ´Ù¼¼´ëÁÖÅà | 2 | 26.68 | 15,000 | | 2002 | | 2024.07.08 | ¸Å¸Å | ³²¼º¾ÆÆ®ºô | 2 | 52.18 | 26,400 | | 2008 | | 2024.07.08 | ¸Å¸Å | (105-20) | 3 | 62.64 | 30,000 | | 2011 | | 2024.07.08 | ¸Å¸Å | ÀÌÈ£ºô | 5 | 36.76 | 22,600 | | 2012 | | 2024.07.08 | Àü¼¼ | ¼¾Æ®¸®¿ò | 2 | 35.83 | 18,700 | 0 | 2016 | | 2024.07.08 | ¿ù¼¼ | ¿¡½º¿¥ÆÄÅ©ºô | 2 | 36.08 | 5,000 | 120 | 2016 | | 2024.07.08 | Àü¼¼ | ±¤¼ººô¶ó | 2 | 38.61 | 10,000 | 0 | 1993 | | 2024.07.08 | ¿ù¼¼ | ¾çȺô¶ó | -1 | 49.26 | 2,000 | 20 | 1992 | | 2024.07.08 | Àü¼¼ | °ÇÀÏ¾ÆÆ®ºô(³ª) | 2 | 61.35 | 18,140 | 0 | 2002 | | 2024.07.08 | Àü¼¼ | ±¤»êºô¶ó(398-6) | 1 | 58.61 | 15,300 | 0 | 2001 | | 2024.07.08 | ¿ù¼¼ | Áø¼ºÇÏÀÌÃ÷ºô¶ó | 1 | 31.04 | 500 | 50 | 1991 | | 2024.07.08 | ¿ù¼¼ | ´ë¼Û±×¸°ºô | 1 | 46.87 | 1,500 | 63 | 2002 | | 2024.07.08 | Àü¼¼ | ´Ù¿øºô¶ó | 3 | 52.56 | 16,000 | 0 | 1993 | | 2024.07.08 | Àü¼¼ | »ï°æ±×¸°ºô¶ó(159-6) | 4 | 56.03 | 16,600 | 0 | 2002 | | 2024.07.08 | ¿ù¼¼ | ¼öÁ¤ÇÏÀ̺ô(56-483) | 3 | 51.37 | 13,000 | 28 | 2002 | | 2024.07.08 | Àü¼¼ | ¿ì¼ºÃ¢´ëºô | 2 | 64.805 | 28,000 | 0 | 2007 | | 2024.07.08 | Àü¼¼ | ÁøÁÖ | 4 | 46.35 | 18,200 | 0 | 2010 | | 2024.07.08 | ¿ù¼¼ | ¼±¤¾ÆÆ®ºô | 3 | 42.595 | 13,000 | 15 | 2007 | | 2024.07.08 | ¿ù¼¼ | ¿À¸£ºô | 5 | 64.16 | 2,000 | 70 | 2011 | | 2024.07.08 | ¿ù¼¼ | Çູµå¸² | 2 | 15.26 | 1,000 | 46 | 2012 | | 2024.07.08 | Àü¼¼ | ±Û·Î¸®¾ÆÇϿ콺 | 6 | 27.52 | 25,000 | 0 | 2021 | | 2024.07.08 | ¿ù¼¼ | Àº°¡¶÷ÆÓ¸®½º | 6 | 31.29 | 1,000 | 110 | 2022 | | 2024.07.08 | Àü¼¼ | ´ë¿õÇÏÀÌÃ÷ºô¶ó8Â÷(56-37) | 3 | 39.72 | 10,430 | 0 | 1993 | | 2024.07.07 | ¸Å¸Å | DS¿¡ÄÚŸ¿î | 3 | 37.83 | 22,700 | | 2014 | | 2024.07.07 | ¸Å¸Å | ¿©¸íÇÏÀÌÃ÷ | 3 | 67.86 | 24,500 | | 2000 | | 2024.07.07 | ¸Å¸Å | °æ¿ø¾ÆÆ®ºôAµ¿ | 1 | 46.56 | 18,000 | | 2001 | | 2024.07.07 | Àü¼¼ | Æú¶óºñ¿¤(1038-4) | 3 | 25.77 | 21,000 | 0 | 2018 | | 2024.07.07 | Àü¼¼ | DHÆÓ¸®½º101µ¿ | 2 | 29.84 | 21,000 | 0 | 2018 | | 2024.07.07 | Àü¼¼ | Æú¶óºñ¿¤(1038-4) | 3 | 25.77 | 21,000 | 0 | 2018 | | 2024.07.07 | ¿ù¼¼ | ´ë¼ºÄÉÀÌÁ¦ÀÌ | 10 | 29.98 | 1,000 | 100 | 2020 | | 2024.07.06 | ¿ù¼¼ | (1120-11) | 2 | 36.08 | 10,600 | 10 | 1986 | | 2024.07.06 | Àü¼¼ | ¿ìÇöÆç¸®½º | 2 | 29.64 | 16,500 | 0 | 2016 | | 2024.07.06 | ¿ù¼¼ | ÅÂÇÑÇÏÀ̺ô | 3 | 39.3 | 17,300 | 20 | 2016 | | 2024.07.06 | Àü¼¼ | º¸³ëÇϿ콺Aµ¿ | 6 | 34.83 | 28,000 | 0 | 2016 | | 2024.07.06 | ¿ù¼¼ | °ñµçºô¸®Áö | 2 | 38.42 | 18,000 | 10 | 2016 | | 2024.07.06 | ¿ù¼¼ | ´Ù¿Âºô | 3 | 27.81 | 16,200 | 15 | 2018 | | 2024.07.06 | Àü¼¼ | ¿¡½º¿¥ÆÄÅ©ºô | 4 | 26.77 | 18,100 | 0 | 2016 | | 2024.07.06 | Àü¼¼ | ºí·çÈú | 5 | 29.77 | 23,510 | 0 | 2017 | | 2024.07.06 | Àü¼¼ | ¿©¸íºô¶ó | 2 | 59.7 | 18,900 | 0 | 1999 | | 2024.07.06 | Àü¼¼ | Á¦ÀÌÅõ¸®´õ½º | 3 | 24.49 | 21,290 | 0 | 2023 | | 2024.07.06 | Àü¼¼ | Á¦ÀÌÅõ¸®´õ½º | 4 | 26.57 | 22,930 | 0 | 2023 | | 2024.07.06 | ¿ù¼¼ | ³²¼º¾ÆÆ®ºô(381-1) | 6 | 23.88 | 15,000 | 10 | 2015 | | 2024.07.06 | ¸Å¸Å | Èľϸ®Ä¡ºô(871-25¹øÁö) | 2 | 51.98 | 30,000 | | 2016 | | 2024.07.06 | ¿ù¼¼ | º®»êȨŸ¿î(969-14) | 4 | 38.56 | 10,700 | 15 | 2002 | | 2024.07.06 | ¿ù¼¼ | ÇØ¼ºÆÓ¸®½ººôB | 3 | 31.02 | 8,980 | 5 | 2002 | | 2024.07.06 | ¿ù¼¼ | ÇØ¼ºÆÓ¸®½ººôB | 3 | 31.02 | 8,980 | 5 | 2002 | | 2024.07.06 | Àü¼¼ | Àκ£½ºÆ®ºô(460-11) | 3 | 39.19 | 11,300 | 0 | 2008 | | 2024.07.06 | ¿ù¼¼ | È£¼º±×¸°ºô11Â÷ | 2 | 66.36 | 18,000 | 20 | 2000 | | 2024.07.06 | Àü¼¼ | ÈúŸ¿î(151-8) | 3 | 57.33 | 16,100 | 0 | 2002 | | 2024.07.06 | Àü¼¼ | ÈúŸ¿î(151-8) | 3 | 57.33 | 16,100 | 0 | 2002 | | 2024.07.06 | Àü¼¼ | ÇØºñÄ¡ºô | 2 | 29.85 | 12,400 | 0 | 2011 | | 2024.07.06 | ¿ù¼¼ | Çý¼ºÆÓ¸®½ººô(392-56) | 2 | 25.16 | 13,100 | 15 | 2014 | | 2024.07.06 | Àü¼¼ | Àκ£½ºÆ®ºô(460-11) | 3 | 39.19 | 11,300 | 0 | 2008 | | 2024.07.06 | ¸Å¸Å | »ïÀͺô¶ó(353-24) | 1 | 51.16 | 16,800 | | 1997 | | 2024.07.05 | Àü¼¼ | ÁÖ¿¬ÇϿ콺(151-5) | 4 | 33.7 | 22,500 | 0 | 2019 | | 2024.07.05 | ¸Å¸Å | ¸¶Å©ÇϿ콺 | 5 | 39.87 | 27,500 | | 2018 | | 2024.07.05 | ¸Å¸Å | ¹Ð·¹´Ï¾ö(102-26) | 4 | 46.94 | 17,000 | | 2008 | | 2024.07.05 | ¸Å¸Å | Çý¼ºÆÓ¸®½ººô(392-31) | 5 | 27.41 | 17,600 | | 2014 | | 2024.07.05 | ¿ù¼¼ | ºô¶óµå´ÙÀÎ | 2 | 27.18 | 2,000 | 90 | 2023 | | 2024.07.05 | ¿ù¼¼ | ȰîÅõ¿þ´ÏÆÛ½ºÆ® | 13 | 24.45 | 1,000 | 100 | 2018 | | 2024.07.05 | ¿ù¼¼ | ´Ù¿Âºô | 4 | 22.95 | 3,000 | 52 | 2018 | | 2024.07.05 | Àü¼¼ | ½Å¼º³×¿Àºô | 4 | 29.45 | 25,000 | 0 | 2019 | | 2024.07.05 | Àü¼¼ | ½Å¼º³×¿Àºô | 4 | 29.45 | 23,700 | 0 | 2019 | | 2024.07.05 | Àü¼¼ | ½Å¼º³×¿Àºô | 4 | 29.45 | 23,700 | 0 | 2019 | | 2024.07.05 | Àü¼¼ | ½Å¼º³×¿Àºô | 4 | 29.45 | 25,000 | 0 | 2019 | | 2024.07.05 | Àü¼¼ | ÁÖ¿¬ÇϿ콺(151-5) | 4 | 33.7 | 22,500 | 0 | 2019 | | 2024.07.05 | Àü¼¼ | ÁÖ¿¬ÇϿ콺(151-5) | 4 | 33.7 | 22,500 | 0 | 2019 | | 2024.07.05 | Àü¼¼ | Æ÷¿¥ºô | 8 | 36.73 | 25,452 | 0 | 2020 | | 2024.07.05 | Àü¼¼ | µ¿¿ø¿¡À̽ººä(159-24) | 4 | 29.61 | 21,400 | 0 | 2020 | | 2024.07.05 | ¿ù¼¼ | ¶óÇǾƳë | 3 | 27.25 | 5,000 | 80 | 2022 | | 2024.07.05 | Àü¼¼ | ÁøÁ̴ֹãä | 2 | 23.18 | 13,600 | 0 | 2016 | | 2024.07.05 | ¿ù¼¼ | ½Å¼º¸®Ä¡ºô¥°(357-16) | 3 | 36.62 | 5,000 | 80 | 2013 | | 2024.07.05 | Àü¼¼ | »ï¼ºÆÓ¸®Ã¼Aµ¿ | 4 | 35.91 | 16,000 | 0 | 2013 | | 2024.07.05 | ¿ù¼¼ | ¼ºÁÖºô¶óAµ¿(46-108) | 1 | 60.7 | 4,000 | 40 | 1995 | | 2024.07.05 | ¿ù¼¼ | ȼººô¶ó´Ùµ¿ | 3 | 46.8 | 13,800 | 15 | 2003 | | 2024.07.05 | Àü¼¼ | ¿ìÁ¤ºô¶óB | 3 | 54.81 | 14,900 | 0 | 1991 | | 2024.07.05 | Àü¼¼ | ûȱ׸°ºô¶ó | 4 | 74.39 | 16,000 | 0 | 1995 | | 2024.07.05 | Àü¼¼ | (964-1) | 3 | 51.12 | 15,300 | 0 | 2007 | | 2024.07.05 | Àü¼¼ | (964-1) | 3 | 51.12 | 15,300 | 0 | 2007 | | 2024.07.05 | ¿ù¼¼ | ¾¾Æ¼ÆÄÅ© | 5 | 57.76 | 2,000 | 100 | 2008 | | 2024.07.05 | Àü¼¼ | ¹Ì·¡½ºÅ¸ºô3Â÷ | 3 | 51.4 | 16,500 | 0 | 2008 | | 2024.07.05 | ¿ù¼¼ | ¹Ì»ê¼¾Æ®ºô(504-49) | 3 | 40.22 | 12,000 | 58 | 2008 | | 2024.07.05 | ¿ù¼¼ | ¹é°¿ø·ë | 5 | 12.02 | 500 | 44 | 2011 | | 2024.07.05 | Àü¼¼ | »ïÀÍÇ콺Ƽ¾Æ(1129-29) | 2 | 39.65 | 17,000 | 0 | 2011 | | 2024.07.04 | ¿ù¼¼ | ¼¼¸íº£¸£µð¿ò | 4 | 28.42 | 20,650 | 4 | 2016 | | 2024.07.04 | ¿ù¼¼ | Æú¶óºñ¿¤(1038-4) | 4 | 29.24 | 20,000 | 25 | 2018 | | 2024.07.04 | ¿ù¼¼ | ¼¿¬ºí·çÈú | 4 | 29.72 | 16,300 | 6 | 2016 | | 2024.07.04 | Àü¼¼ | ³²¼º¾ÆÆ®ºô(423-6) | 3 | 29.91 | 15,490 | 0 | 2015 | | 2024.07.04 | Àü¼¼ | À£½ºÇÏÀ̺ô(362-66) | 2 | 29.88 | 14,700 | 0 | 2013 | | 2024.07.04 | Àü¼¼ | ´Ù´ãºô(105-100) | 3 | 33.67 | 14,900 | 0 | 2012 | | 2024.07.04 | ¿ù¼¼ | ¿¡½º¿¥ÆÄÅ©ºô | 6 | 34.44 | 23,400 | 20 | 2018 | | 2024.07.04 | Àü¼¼ | µðÀÚÀÎÇϿ콺(58-2¿Ü) | 3 | 59.43 | 34,020 | 0 | 2020 | | 2024.07.04 | ¿ù¼¼ | (832-7) | 2 | 52.662 | 5,000 | 91 | 2020 | | 2024.07.04 | Àü¼¼ | ¿¡½ºÄÉÀÌÆÄÅ©¸®¿ò(157-21) | 3 | 18.74 | 18,000 | 0 | 2020 | | 2024.07.04 | Àü¼¼ | ´ÙÀÎÇϿ콺 | 3 | 22.72 | 23,000 | 0 | 2022 | | 2024.07.04 | Àü¼¼ | ´ÙÀÎÇϿ콺 | 3 | 22.72 | 21,400 | 0 | 2022 | | 2024.07.04 | ¿ù¼¼ | Àº°¡¶÷ÆÓ¸®½º | 6 | 37.345 | 1,000 | 110 | 2022 | | 2024.07.04 | ¸Å¸Å | È¿½Åºô¶ó | 4 | 50.58 | 16,000 | | 1993 | | 2024.07.04 | Àü¼¼ | Çö´ëȨŸ¿î | 2 | 29.6 | 12,100 | 0 | 2011 | | 2024.07.04 | ¿ù¼¼ | »ïÀÍÇ콺Ƽ¾Æ(55-41) | 4 | 21.82 | 1,000 | 65 | 2011 | | 2024.07.04 | Àü¼¼ | µ¿¿øÈ¨Å¸¿î | 3 | 56.64 | 18,100 | 0 | 2008 | | 2024.07.04 | Àü¼¼ | ´ÙÀÎÇϿ콺 | 3 | 22.72 | 21,400 | 0 | 2022 | | 2024.07.04 | Àü¼¼ | ´ë´öºô¶ó(340-23) | 2 | 46.48 | 13,700 | 0 | 1993 | | 2024.07.04 | Àü¼¼ | »ï¿øºô¶ó(341-27) | 2 | 65.09 | 19,600 | 0 | 2001 | | 2024.07.04 | ¿ù¼¼ | ±îġŸ¿î³ªµ¿ | 3 | 40.68 | 11,000 | 5 | 1991 | | 2024.07.04 | ¿ù¼¼ | ±îġŸ¿î³ªµ¿ | 3 | 40.68 | 11,000 | 5 | 1991 | | 2024.07.04 | Àü¼¼ | °æ¿ø¾ÆÆ®ºô | -1 | 69.94 | 14,700 | 0 | 2002 | | 2024.07.04 | ¿ù¼¼ | °æ¿ø¾ÆÆ®ºô | -1 | 69.94 | 14,700 | 20 | 2002 | | 2024.07.04 | Àü¼¼ | °æ¿ø¾ÆÆ®ºô | -1 | 69.94 | 14,700 | 0 | 2002 | | 2024.07.04 | Àü¼¼ | ÁøÁÖºô¶ó | -1 | 51.22 | 9,100 | 0 | 1991 | | 2024.07.04 | Àü¼¼ | µå¸²Èѹ̸®ºô¶ó | 3 | 51.49 | 14,300 | 0 | 2002 | | 2024.07.04 | ¿ù¼¼ | Á¤¾Èºô¶ó(811-15) | 1 | 54.06 | 10,450 | 20 | 1993 | | 2024.07.04 | ¿ù¼¼ | ¿¡µ§±×¸° | 4 | 49.63 | 2,000 | 65 | 2002 | | 2024.07.04 | ¿ù¼¼ | À¯¸²ÁÖÅà | 2 | 39.9 | 5,000 | 50 | 1991 | | 2024.07.04 | ¿ù¼¼ | ´ë¿ëÈÀÌÆ®ºô | 3 | 33.65 | 10,000 | 20 | 2003 | | 2024.07.03 | ¿ù¼¼ | ´ë¿øÇÏÀÌÃ÷ | -1 | 36.63 | 8,000 | 15 | 1995 | | 2024.07.03 | Àü¼¼ | È£¼öŸ¿î(399-10) | -1 | 59.78 | 11,000 | 0 | 2002 | | 2024.07.03 | ¿ù¼¼ | ÇѼֺô¶ó | 3 | 51.48 | 5,000 | 41 | 2002 | | 2024.07.03 | Àü¼¼ | µ¿³²ºô¶ó(330-32) | 3 | 54.95 | 14,000 | 0 | 1994 | | 2024.07.03 | Àü¼¼ | º¸°ÇÏÀ̼¾½º¸Ç¼Ç | 1 | 38.22 | 9,900 | 0 | 1993 | | 2024.07.03 | ¿ù¼¼ | µ¿¸²ÁÖÅÃ101µ¿ | 3 | 63.64 | 1,600 | 89 | 2003 | | 2024.07.03 | ¿ù¼¼ | ÀÌ·¹ºô¶ó(56-507) | 1 | 45 | 10,000 | 5 | 1991 | | 2024.07.03 | ¸Å¸Å | żººô¶ó(102-344) | 2 | 42.8 | 13,300 | | 1993 | | 2024.07.03 | Àü¼¼ | ¼º¿øÆÄÅ©ºô | 3 | 45.33 | 15,000 | 0 | 2008 | | 2024.07.03 | Àü¼¼ | À¯¸²ºô | 3 | 35.52 | 12,300 | 0 | 2008 | | 2024.07.03 | ¿ù¼¼ | MARNI | 5 | 18.7 | 3,000 | 70 | 2023 | | 2024.07.03 | ¿ù¼¼ | ÈÞ&À¯ºô | 3 | 36.42 | 26,300 | 10 | 2020 | | 2024.07.03 | Àü¼¼ | ¿¡½º¿¥ÆÄÅ©ºô(³ªµ¿´Ùµ¿) | 4 | 28.98 | 17,800 | 0 | 2017 | | 2024.07.03 | ¿ù¼¼ | Çϳª¾ÆÀÌÆÄÅ©ºô(392-30) | 4 | 38.84 | 5,000 | 75 | 2016 | | 2024.07.03 | ¿ù¼¼ | ¶ó¿Âºô | 5 | 29.71 | 13,000 | 26 | 2013 | | 2024.07.03 | ¿ù¼¼ | »ï¼ºÀ§ºêºô | 5 | 29.78 | 15,750 | 5 | 2012 | | 2024.07.03 | ¿ù¼¼ | »ï¼ºÀ§ºêºô | 5 | 29.78 | 15,750 | 5 | 2012 | | 2024.07.03 | ¿ù¼¼ | ³²±¤¼¼¸£ºô | 3 | 43.07 | 16,380 | 20 | 2010 | | 2024.07.03 | ¿ù¼¼ | ³²±¤¼¼¸£ºô | 3 | 43.07 | 17,550 | 15 | 2010 | | 2024.07.03 | ¸Å¸Å | ´Ù¾Èºô¶óÆ®201µ¿202µ¿ | 5 | 38.62 | 24,600 | | 2016 | | 2024.07.03 | ¸Å¸Å | ¿¹ÁöÆÓ¸®½º89Â÷ | 3 | 41.91 | 26,750 | | 2016 | | 2024.07.03 | ¸Å¸Å | ûdz¸Ç¼Ç | 2 | 61.41 | 15,700 | | 1997 | | 2024.07.03 | ¿ù¼¼ | ¼º¸²ÆÄÅ©ºôBµ¿ | 4 | 49.77 | 13,300 | 30 | 2002 | | 2024.07.03 | ¿ù¼¼ | ȼººô¶óBµ¿(56-324) | 3 | 44.76 | 12,000 | 15 | 2001 | | 2024.07.03 | ¸Å¸Å | ½ºÆäÀ̽ººô | 5 | 27.02 | 19,500 | | 2015 | | 2024.07.02 | ¸Å¸Å | °è¸íÀ§³Ê½º | 3 | 38.58 | 19,500 | | 2010 | | 2024.07.02 | Àü¼¼ | (¾ÆÁÙ¸®¿ò) | 2 | 29.91 | 22,800 | 0 | 2020 | | 2024.07.02 | Àü¼¼ | ÇÑ¿ïÆÓ¸®½º | 6 | 26.61 | 16,700 | 0 | 2017 | | 2024.07.02 | ¿ù¼¼ | ¸¶ÀÌȨ | 2 | 19.74 | 1,000 | 58 | 2017 | | 2024.07.02 | Àü¼¼ | ¼ºÁøÅ¸¿î | 2 | 33.39 | 14,000 | 0 | 2012 | | 2024.07.02 | Àü¼¼ | ¿ì¼Û±×·£µåºô | 5 | 45.45 | 17,300 | 0 | 2012 | | 2024.07.02 | ¿ù¼¼ | »ïÀÍÇ콺Ƽ¾Æ(55-41) | 5 | 34.56 | 2,500 | 50 | 2011 | | 2024.07.02 | ¿ù¼¼ | (879-1) | 2 | 56.96 | 500 | 57 | 2010 | | 2024.07.02 | Àü¼¼ | ´Ù¿ø½´½´ºô(470-8) | 2 | 39.69 | 13,700 | 0 | 2010 | | 2024.07.02 | ¿ù¼¼ | ÀÎÅÍ½ÃÆ¼ºô¶ó | 4 | 48.85 | 5,000 | 43 | 2000 | | 2024.07.02 | ¿ù¼¼ | ½ºÀ§Æ®ºô(410-183) | 2 | 36.39 | 12,000 | 25 | 2008 | | 2024.07.02 | ¿ù¼¼ | º¦¿¤ºô¶ó(80-39) | 3 | 53.885 | 13,500 | 55 | 2002 | | 2024.07.02 | ¸Å¸Å | ±Ý°ÁÖÅà | 3 | 40.57 | 14,000 | | 1988 | | 2024.07.02 | ¸Å¸Å | »ï°æ±×¸°ºô¶ó(159-6) | 4 | 56.03 | 22,600 | | 2002 | | 2024.07.02 | ¸Å¸Å | °ü¿ìŸ¿îBµ¿ | 2 | 47.19 | 19,700 | | 2002 | | 2024.07.02 | ¸Å¸Å | ´ë»ê±×¸°ºô | 5 | 62.96 | 27,000 | | 2002 | | 2024.07.02 | ¸Å¸Å | ¿ì¼Û±×·£µåºô | 4 | 24 | 18,300 | | 2012 | | 2024.07.02 | ¸Å¸Å | µ¿¾çÇÏ¿ì¡ | 4 | 44.86 | 33,700 | | 2016 | | 2024.07.01 | ¿ù¼¼ | ȼººô¶ó42Â÷Bµ¿(56-410) | 2 | 46.62 | 2,000 | 60 | 2002 | | 2024.07.01 | ¿ù¼¼ | ÇϳªÅ¸¿îAµ¿ | 4 | 29.93 | 2,000 | 75 | 2015 | | 2024.07.01 | Àü¼¼ | DS¿¡ÄÚŸ¿î(471-16) | 4 | 34.75 | 17,000 | 0 | 2014 | | 2024.07.01 | ¿ù¼¼ | Áö¼ºÇϿ콺 | 3 | 34.35 | 1,500 | 70 | 2012 | | 2024.07.01 | Àü¼¼ | ÈÖÆÄÅ©(876-21) | 3 | 40.06 | 15,400 | 0 | 2008 | | 2024.07.01 | ¿ù¼¼ | ºñ¿ø±×¸°ºô¶ó | 3 | 43.92 | 1,000 | 50 | 1986 | | 2024.07.01 | Àü¼¼ | Çö´ëÇÏÀÌÃ÷ºô¶ó(456-20) | -1 | 55.04 | 9,000 | 0 | 1997 | | 2024.07.01 | Àü¼¼ | Á¤Çöºô¶ó(346-112) | 2 | 38.06 | 13,000 | 0 | 2000 | | 2024.07.01 | Àü¼¼ | »ï¿øºô¶ó(341-27) | 2 | 65.09 | 19,600 | 0 | 2001 | | 2024.07.01 | Àü¼¼ | Á¤Çöºô¶ó(346-112) | 2 | 38.06 | 13,000 | 0 | 2000 | | 2024.07.01 | ¿ù¼¼ | Å·½ººôAµ¿(56-665) | 3 | 63.38 | 15,000 | 20 | 2001 | | 2024.07.01 | Àü¼¼ | Çö´ë¾ÆÆ®ºô¶ó | 2 | 35.73 | 10,500 | 0 | 1991 | | 2024.07.01 | ¿ù¼¼ | ¸ðÀüÇ÷¯½ººôBµ¿ | 3 | 34.27 | 11,100 | 15 | 2002 | | 2024.07.01 | Àü¼¼ | °æ¹Î¾ÆÆ®ºô(105-21¹øÁö) | 4 | 29.01 | 15,300 | 0 | 2016 | | 2024.07.01 | ¿ù¼¼ | û¼ÛÆòÈÇコÇϿ콺(341-5) | 4 | 53.5 | 5,000 | 98 | 2018 | | 2024.07.01 | ¿ù¼¼ | ¶ó¿òÇÏ¿ì¡ | 6 | 40.43 | 0 | 77 | 2019 | | 2024.07.01 | ¿ù¼¼ | ´ë¿õÇÏÀÌÃ÷ºô¶ó8Â÷(56-37) | 2 | 37.92 | 9,966 | 1 | 1993 | | 2024.07.01 | ¸Å¸Å | ÀÌȺô¶ó2µ¿ | 2 | 36.69 | 15,000 | | 1987 | | 2024.07.01 | ¸Å¸Å | µ¿¾çÇÏ¿ì¡Bµ¿ | 4 | 38.01 | 30,000 | | 2017 | | 2024.07.01 | ¸Å¸Å | »ì·½ÇϿ콺(166-24) | 4 | 59.73 | 22,100 | | 2001 | | 2024.07.01 | ¸Å¸Å | µµ¾ç¶óºñ¾Óºô | 5 | 56.55 | 28,000 | | 2010 | | 2024.07.01 | ¸Å¸Å | »õ·Ò½ºÅ¸Áî | 6 | 27.9 | 14,500 | | 2016 | | 2024.07.01 | ¸Å¸Å | ³ªÇöºô¶ó | 2 | 36.72 | 18,000 | | 2010 | | 2024.07.01 | ¸Å¸Å | Å¿µpalace | 4 | 38.46 | 29,000 | | 2018 | | 2024.07.01 | Àü¼¼ | ºí·çÈú(789-36) | 3 | 25.96 | 22,000 | 0 | 2020 | | 2024.07.01 | Àü¼¼ | µ¿¼±º§¸®Ã¼(366-57) | 3 | 24.34 | 20,160 | 0 | 2021 | | 2024.07.01 | Àü¼¼ | ½Ã±×´Ïó6 | 3 | 28.48 | 22,500 | 0 | 2022 | | 2024.07.01 | ¸Å¸Å | Å¿µpalace | 4 | 38.46 | 29,000 | | 2018 | | 2024.07.01 | ¸Å¸Å | »ì·½ÇϿ콺(166-24) | 4 | 59.73 | 22,100 | | 2001 | | 2024.06.30 | ¿ù¼¼ | ±ÝÁ¤ºô¸®Áö | 3 | 59.33 | 2,000 | 70 | 2004 | | 2024.06.30 | ¿ù¼¼ | ANPȰî | 4 | 23.44 | 1,000 | 100 | 2022 | | 2024.06.30 | ¿ù¼¼ | ´ëÁøºô¶ó | 4 | 74.64 | 22,500 | 10 | 2008 | | 2024.06.30 | Àü¼¼ | ¼ºÁøºô¶óAµ¿ | 3 | 60.21 | 17,600 | 0 | 1997 | | 2024.06.30 | ¿ù¼¼ | ±ÝÁ¤ºô¸®Áö | 3 | 59.33 | 2,000 | 70 | 2004 | | 2024.06.30 | ¸Å¸Å | ¿ì¼ºB | 3 | 75.6 | 27,800 | | 2001 | | 2024.06.30 | ¸Å¸Å | ·ÎºóÇϿ콺(354-86) | 5 | 26.78 | 29,800 | | 2016 | | 2024.06.29 | Àü¼¼ | ½ÅÈïÇÏÀ̺ô | 3 | 43.89 | 14,740 | 0 | 2010 | | 2024.06.29 | Àü¼¼ | û¼Û´Ùµ¿ | 2 | 67.5 | 12,000 | 0 | 1991 | | 2024.06.29 | ¿ù¼¼ | ½ÅÇϿ콺 | 7 | 29.88 | 1,000 | 77 | 2016 | | 2024.06.29 | Àü¼¼ | °Å¼º | 3 | 43.56 | 14,000 | 0 | 1986 | | 2024.06.29 | Àü¼¼ | ¹ÎÆÓ¸®½º | 3 | 41.28 | 13,700 | 0 | 2008 | | 2024.06.29 | ¿ù¼¼ | ´Ù¾Èºô¶óÆ® | 6 | 38.83 | 5,000 | 90 | 2017 | | 2024.06.29 | ¿ù¼¼ | º¸¸®¼öŸ¿î | 5 | 12.09 | 500 | 50 | 2013 | | 2024.06.29 | Àü¼¼ | Ȱîºô¶ó | 3 | 63.18 | 16,800 | 0 | 2000 | | 2024.06.29 | Àü¼¼ | ½ÅÈïÇÏÀ̺ô | 3 | 43.89 | 14,740 | 0 | 2010 | | 2024.06.29 | ¿ù¼¼ | ÇÏÀºÇÏÀÌÃ÷ | 4 | 69.15 | 3,000 | 60 | 2008 | | 2024.06.29 | Àü¼¼ | °Å¼º | 3 | 43.56 | 14,000 | 0 | 1986 | | 2024.06.29 | ¿ù¼¼ | ¿¡À̽ººô¶ó¿¡À̵¿ | 2 | 59.94 | 2,000 | 90 | 2002 | | 2024.06.29 | ¿ù¼¼ | ¼º¿ìÁÖÅà | 2 | 39.02 | 1,500 | 70 | 2001 | | 2024.06.29 | ¿ù¼¼ | ȼººô¶ó(56-377) | 3 | 44.76 | 13,000 | 5 | 2002 | | 2024.06.29 | Àü¼¼ | Áß¾ÓÁÖÅà | 1 | 43.44 | 14,000 | 0 | 2002 | | 2024.06.29 | ¸Å¸Å | û¼ÛÆòÈÇÏÀ̸ǼÇ(158-45) | 2 | 41.85 | 23,000 | | 2013 | | 2024.06.29 | ¸Å¸Å | ¾çȺô¶ó | -1 | 49.26 | 8,000 | | 1992 | | 2024.06.29 | ¸Å¸Å | Á¤°¨Å¸¿îC | 3 | 27 | 20,000 | | 2016 | | 2024.06.29 | ¸Å¸Å | »ó¿ì½¦¸£ºô | 3 | 35.77 | 17,900 | | 2002 | | 2024.06.29 | ¸Å¸Å | Á¤°¨Å¸¿îB | 4 | 29.6 | 18,300 | | 2016 | | 2024.06.29 | Àü¼¼ | û¼Û´Ùµ¿ | 2 | 67.5 | 12,000 | 0 | 1991 | | 2024.06.28 | Àü¼¼ | (167-4) | 3 | 51.75 | 12,200 | 0 | 1999 | | 2024.06.28 | ¿ù¼¼ | »ó¿ì½¦¸£ºô | 2 | 35.77 | 11,700 | 10 | 2002 | | 2024.06.28 | ¿ù¼¼ | µ¿µµÆÄÅ©ºä(813-13) | 5 | 25.43 | 1,000 | 70 | 2013 | | 2024.06.28 | ¿ù¼¼ | ºí·¹½ºÅ¸¿î | 3 | 56.1 | 5,000 | 50 | 2002 | | 2024.06.28 | ¿ù¼¼ | Çö´ëȨŸ¿î | 4 | 29.6 | 12,000 | 23 | 2011 | | 2024.06.28 | ¿ù¼¼ | ¼ö¸íºô | 2 | 29.77 | 2,000 | 78 | 2020 | | 2024.06.28 | Àü¼¼ | ÆÈÆÈºô¶ó | -1 | 39.24 | 6,000 | 0 | 1986 | | 2024.06.28 | ¿ù¼¼ | ¹Ì·¡ºô¶óÆ® | 4 | 46 | 13,000 | 13 | 2000 | | 2024.06.28 | Àü¼¼ | »þÀκô | 4 | 59.99 | 16,800 | 0 | 2001 | | 2024.06.28 | Àü¼¼ | µ¿³²ºô¶ó(330-32) | 3 | 54.95 | 14,000 | 0 | 1994 | | 2024.06.28 | ¿ù¼¼ | ¿ÀÄÉÀÌÆÄÅ©ºô(932-8) | 4 | 38.88 | 1,000 | 30 | 2015 | | 2024.06.28 | Àü¼¼ | »õÇÑ¾ÆÆ®ºôA(1039-7) | 4 | 63.1 | 18,900 | 0 | 2002 | | 2024.06.28 | ¿ù¼¼ | ÀÎÅͺùÇϿ콺 | 4 | 17.95 | 1,000 | 50 | 2017 | | 2024.06.28 | Àü¼¼ | ´õ-¶ó¿Â | 5 | 25.64 | 14,200 | 0 | 2018 | | 2024.06.28 | ¿ù¼¼ | ¼º¾Èºô¶ó(379-61) | 4 | 42.84 | 11,200 | 15 | 1994 | | 2024.06.28 | Àü¼¼ | ÇÑ¿µºô¶ó(56-322) | 3 | 36.72 | 10,000 | 0 | 1991 | | 2024.06.28 | Àü¼¼ | żºÇÏÀÌÃ÷¸Ç¼Ç6Â÷ | 1 | 62.75 | 16,000 | 0 | 1996 | | 2024.06.28 | ¸Å¸Å | »ï¼ººô¶ó(46-193) | 1 | 39.84 | 14,300 | | 1990 | | 2024.06.28 | ¸Å¸Å | Á¤°¨Å¸¿îC | 3 | 27 | 20,800 | | 2016 | | 2024.06.28 | ¸Å¸Å | ÈÀϺô¶ó(57-24) | 3 | 43.04 | 16,000 | | 2003 | | 2024.06.28 | ¸Å¸Å | Áø¿µÇÏÀ̺ô³ªµ¿ | 2 | 44.48 | 20,000 | | 2001 | | 2024.06.28 | ¸Å¸Å | ¿ÍÀÌ¿¡ÀÌÄ¡ºô¸®Áö | 4 | 52.15 | 30,000 | | 2016 | | 2024.06.28 | ¸Å¸Å | °©Áø°ñµåºô | 5 | 35.08 | 23,000 | | 2013 | | 2024.06.28 | ¸Å¸Å | »ï¼º½¦¸£ºô | 4 | 29.47 | 17,000 | | 2016 | | 2024.06.28 | ¿ù¼¼ | ¹Ì¸®³»ºô¸®Áö | 2 | 30.7 | 9,200 | 15 | 2001 | | 2024.06.28 | ¸Å¸Å | ´ë¸²È¨Å¸¿î | 1 | 54.56 | 22,000 | | 2003 | | 2024.06.28 | ¿ù¼¼ | ¿ÍÀ̾غñ´õ½ºÅ丮 | 6 | 25.25 | 3,000 | 90 | 2022 | | 2024.06.28 | Àü¼¼ | żººô¶ó | 5 | 57.1 | 17,100 | 0 | 2002 | | 2024.06.28 | ¿ù¼¼ | µµ¿ø¼ÖºñÄ¡ | 5 | 29.91 | 14,000 | 20 | 2015 | | 2024.06.27 | Àü¼¼ | ¿¡½ºÄÉÀÌÆÄÅ©¸®¿ò(157-21) | 5 | 19.43 | 20,900 | 0 | 2020 | | 2024.06.27 | ¿ù¼¼ | È°î¾ÆÆ®ºô | 5 | 34.2 | 300 | 90 | 2022 | | 2024.06.27 | Àü¼¼ | Çѹ鸮Ã÷ºô(56-547) | 3 | 43.81 | 14,300 | 0 | 2008 | | 2024.06.27 | Àü¼¼ | ¹é¿îÀκ£½ºÆ®ºô6Â÷ | 4 | 65.76 | 20,000 | 0 | 2010 | | 2024.06.27 | Àü¼¼ | °¨¼ººô | 4 | 33.67 | 22,050 | 0 | 2016 | | 2024.06.27 | ¿ù¼¼ | ¼øÈ¯½¦¸£ºô | 3 | 50.04 | 14,100 | 20 | 2002 | | 2024.06.27 | ¿ù¼¼ | È£¼ºÆÄÅ©¸Ç¼Ç | 3 | 59.15 | 13,000 | 20 | 1999 | | 2024.06.27 | ¿ù¼¼ | (997-13) | 5 | 27.9 | 1,000 | 42 | 2002 | | 2024.06.27 | ¿ù¼¼ | LUCE¥±(·çüby¿¹¿ì) | 8 | 14.2 | 3,500 | 16 | 2012 | | 2024.06.27 | Àü¼¼ | ¿ì¼º¾ÆÆ®ºô | 6 | 62.08 | 18,765 | 0 | 2002 | | 2024.06.27 | Àü¼¼ | ¿ì¼Û±×·£µåºô | 5 | 38.13 | 15,600 | 0 | 2012 | | 2024.06.27 | ¿ù¼¼ | ´ë¸²Å¸¿î(330-30) | 2 | 63.72 | 12,000 | 20 | 2007 | | 2024.06.27 | ¿ù¼¼ | ÈÞ&À¯ºô | 6 | 40.4 | 27,970 | 10 | 2020 | | 2024.06.27 | Àü¼¼ | ¼Çöºô¶ó(337-15) | 4 | 58.51 | 22,000 | 0 | 2008 | | 2024.06.27 | Àü¼¼ | ´õÆ®¶óÀÌ¾Þ±Û | 2 | 29.39 | 23,400 | 0 | 2021 | | 2024.06.27 | Àü¼¼ | ¿¹Èºô¶óÆ® | 4 | 84.345 | 22,100 | 0 | 2000 | | 2024.06.27 | ¿ù¼¼ | û¼Ö¸Ç¼ÇBµ¿ | 5 | 31.93 | 10,900 | 10 | 2002 | | 2024.06.27 | ¸Å¸Å | õ¹®ºô¸®Áö | 4 | 29.85 | 22,000 | | 2023 | | 2024.06.27 | ¸Å¸Å | õ¹®ºô¸®Áö | 1 | 29.49 | 20,000 | | 2023 | | 2024.06.27 | ¸Å¸Å | õ¹®ºô¸®Áö | 3 | 74.4 | 50,000 | | 2023 | | 2024.06.27 | ¿ù¼¼ | Á¤°¨Å¸¿îA(346-92) | 2 | 27.2 | 15,490 | 10 | 2015 | | 2024.06.27 | ¿ù¼¼ | ¿ì¼ººô¶ó(1087-37) | 6 | 29.78 | 500 | 30 | 2011 | | 2024.06.27 | ¿ù¼¼ | ´õÁ¸ÆÛ½ºÆ® | 5 | 25.3 | 22,500 | 10 | 2022 | | 2024.06.27 | Àü¼¼ | õ¹®ºô¸®Áö | 3 | 74.4 | 15,000 | 0 | 2023 | | 2024.06.27 | Àü¼¼ | µð¿¡½ºÇÁ¶ó´Ù | 3 | 39.78 | 16,500 | 0 | 2012 | | 2024.06.27 | Àü¼¼ | dz¸²ºô¶ó3Â÷ | 2 | 42.8 | 12,600 | 0 | 2002 | | 2024.06.27 | ¿ù¼¼ | ¸®ºùÇϿ콺 | 5 | 26.32 | 10,000 | 50 | 2016 | | 2024.06.27 | Àü¼¼ | ´Ù¾Èºô¶óÆ®201µ¿202µ¿ | 4 | 37.97 | 20,400 | 0 | 2016 | | 2024.06.27 | ¿ù¼¼ | ¸®ºùÇϿ콺 | 5 | 26.32 | 10,000 | 50 | 2016 | | 2024.06.27 | ¿ù¼¼ | ÇÑ¿ïºô¸®Áö | 3 | 48.18 | 13,900 | 20 | 2001 | | 2024.06.27 | Àü¼¼ | Çö´ëȨŸ¿î(46-195) | 2 | 29.86 | 12,000 | 0 | 2010 | | 2024.06.27 | ¿ù¼¼ | Èľϸ®Ä¡ºô | 2 | 29.73 | 12,000 | 20 | 2010 | | 2024.06.27 | Àü¼¼ | À̳뼿 | 5 | 59.61 | 20,000 | 0 | 2014 | | 2024.06.26 | ¿ù¼¼ | ¼Ò´ã¹ë¸®½º | 4 | 29.02 | 15,200 | 15 | 2012 | | 2024.06.26 | Àü¼¼ | ÇÏÀ̵¥ÄÚºô | 3 | 55.72 | 15,000 | 0 | 2003 | | 2024.06.26 | ¿ù¼¼ | Á¤¾Èºô¶ó | 4 | 44.26 | 11,000 | 10 | 1991 | | 2024.06.26 | Àü¼¼ | Ç®ÇϿ콺(791-5) | 3 | 47.8 | 20,000 | 0 | 2008 | | 2024.06.26 | Àü¼¼ | ´ëÇѺô¶ó7Â÷ | 1 | 54.3 | 13,500 | 0 | 1992 | | 2024.06.26 | Àü¼¼ | ´ëÇѺô¶ó7Â÷ | 1 | 54.3 | 13,500 | 0 | 1992 | | 2024.06.26 | Àü¼¼ | °½Åºô¶ó°¡µ¿ | -1 | 32.959 | 5,500 | 0 | 1987 | | 2024.06.26 | Àü¼¼ | ¸®Ä¡7 | 11 | 24.59 | 22,170 | 0 | 2022 | | 2024.06.26 | Àü¼¼ | ¿ìÇöÇ÷¹À̽º(794-7) | 2 | 45.24 | 17,000 | 0 | 2015 | | 2024.06.26 | Àü¼¼ | (56-463) | 2 | 44.25 | 11,000 | 0 | 1990 | | 2024.06.26 | Àü¼¼ | (24-523) | 2 | 34.32 | 10,400 | 0 | 1990 | | 2024.06.26 | ¿ù¼¼ | ½Â¼®ÈÙŸ¿îAµ¿ | 4 | 50.18 | 5,000 | 70 | 2002 | | 2024.06.26 | Àü¼¼ | ¿¹¸²±×¸°ºô¶ó | 1 | 59.94 | 3,100 | 0 | 1993 | | 2024.06.26 | Àü¼¼ | À¯´Ï¿Â½¦¸£ºôB | 4 | 43.62 | 13,100 | 0 | 2002 | | 2024.06.26 | Àü¼¼ | ¿¡½ºÄÉÀÌÆÄÅ©¸®¿ò(157-21) | 5 | 19.43 | 20,090 | 0 | 2020 | | 2024.06.26 | Àü¼¼ | (409-185) | 2 | 40.83 | 10,750 | 0 | 1995 | | 2024.06.26 | ¿ù¼¼ | ¿ì¼ººô¶ó(98-40) | 2 | 57.61 | 16,300 | 20 | 2001 | | 2024.06.26 | ¿ù¼¼ | ´Ù¼ØÅ¸¿î°¡µ¿(1037-15) | 6 | 33.66 | 5,000 | 70 | 2015 | | 2024.06.26 | ¿ù¼¼ | È£¹Ý¾ÆÆ®ºô¶ó | 3 | 47.72 | 13,000 | 20 | 2001 | | 2024.06.26 | Àü¼¼ | ¿¹¸²±×¸°ºô¶ó | 1 | 59.94 | 14,900 | 0 | 1993 | | 2024.06.26 | ¿ù¼¼ | ÀºÇýºô¶ó | 4 | 42.67 | 10,000 | 36 | 2017 | | 2024.06.26 | ¸Å¸Å | ¼Ò´ã¹ë¸® | 4 | 26.22 | 27,800 | | 2021 | | 2024.06.26 | ¸Å¸Å | ¿µÁøºô¶ó(102-143) | 2 | 58.37 | 20,500 | | 2001 | | 2024.06.26 | ¿ù¼¼ | °ø¿øºô¶ó | -1 | 34.3 | 500 | 30 | 1986 | | 2024.06.26 | ¸Å¸Å | ÇѺû½ºÄ«À̺ô | 2 | 29.72 | 14,000 | | 2008 | | 2024.06.26 | ¸Å¸Å | ³²¼º¾ÆÆ®ºô | 5 | 36.49 | 32,500 | | 2017 | | 2024.06.26 | ¸Å¸Å | ¼º¸²ÆÄÅ©ºôBµ¿ | 1 | 66.6 | 24,000 | | 2002 | | 2024.06.26 | ¸Å¸Å | °è¸íÁÖÅôٵ¿ | -1 | 56.15 | 18,000 | | 2000 | | 2024.06.26 | ¸Å¸Å | ¿ìÁøºô¶ó(24-142) | -1 | 73 | 23,500 | | 1996 | | 2024.06.25 | ¿ù¼¼ | »ï¿øºô¶ó | 2 | 65.73 | 18,400 | 10 | 2000 | | 2024.06.25 | Àü¼¼ | Á¤¾ÈÇÏÀÌÃ÷ | 4 | 50.21 | 15,498 | 0 | 2012 | | 2024.06.25 | Àü¼¼ | ¹Ì·¡ÁÖÅà | 1 | 33.62 | 8,870 | 0 | 2004 | | 2024.06.25 | Àü¼¼ | µ¿Áø¾ÆÆ®ºô | 5 | 25.32 | 16,400 | 0 | 2018 | | 2024.06.25 | ¿ù¼¼ | 1µ¿2µ¿ | 2 | 51.12 | 13,000 | 5 | 1985 | | 2024.06.25 | ¿ù¼¼ | ¿ìÀåÈÀκô(995-27) | 2 | 49.65 | 19,700 | 10 | 2011 | | 2024.06.25 | ¿ù¼¼ | »ì·½ÇϿ콺5Â÷ | 5 | 43.86 | 11,300 | 20 | 2001 | | 2024.06.25 | ¿ù¼¼ | ÇϳªÄ³½½ | 8 | 27.22 | 1,000 | 70 | 2013 | | 2024.06.25 | Àü¼¼ | ¸®Ä¡7 | 13 | 24.59 | 22,176 | 0 | 2022 | | 2024.06.25 | ¿ù¼¼ | Çѽº¾ÆÀ̺ô2 | 3 | 27.45 | 11,781 | 13 | 2019 | | 2024.06.25 | ¿ù¼¼ | Çѽº¾ÆÀ̺ô2 | 6 | 27.23 | 11,659 | 13 | 2019 | | 2024.06.25 | Àü¼¼ | ¿¡º¥¿¡¼¿ºô¶ó | 3 | 61.43 | 21,000 | 0 | 2000 | | 2024.06.25 | ¿ù¼¼ | ¼¼Á¾ÆÄÅ©ºô | 4 | 71.43 | 23,464 | 26 | 2023 | | 2024.06.25 | ¿ù¼¼ | ¼¼Á¾ÆÄÅ©ºô | 3 | 78.24 | 24,416 | 27 | 2023 | | 2024.06.25 | ¿ù¼¼ | ¼¼Á¾ÆÄÅ©ºô | 2 | 78.24 | 24,192 | 27 | 2023 | | 2024.06.25 | Àü¼¼ | ¿¡º¥¿¡¼¿ºô¶ó | 3 | 61.43 | 20,790 | 0 | 2000 | | 2024.06.25 | Àü¼¼ | ½Å¶óÇÏÀÌÃ÷6Â÷ | -1 | 66.11 | 10,000 | 0 | 1997 | | 2024.06.25 | ¸Å¸Å | ºÎ±¤Å¾½ººô | -1 | 64.92 | 14,500 | | 2001 | | 2024.06.25 | ¸Å¸Å | »ï±¤¾ÆÆ®ºô | 3 | 73.45 | 35,000 | | 2001 | | 2024.06.25 | ¸Å¸Å | ±Ý¼º½¦¸£ºô | 2 | 38 | 12,750 | | 2002 | | 2024.06.25 | ¸Å¸Å | ¼°ºô¶ó³ªµ¿ | 5 | 50.49 | 15,900 | | 2003 | | 2024.06.25 | ¸Å¸Å | »ïÀÍÇ콺Ƽ¾Æ(1130-15) | 3 | 22.13 | 18,700 | | 2015 | | 2024.06.25 | ¸Å¸Å | ¼ºÁøºô¶ó(400-79) | 4 | 30.98 | 11,900 | | 2001 | | 2024.06.25 | ¿ù¼¼ | À±ÇϿ콺(1102-4) | 4 | 29.79 | 3,000 | 60 | 2012 | | 2024.06.25 | Àü¼¼ | ´ë¼ºÁÖÅÃ(155-46) | 1 | 35.52 | 8,000 | 0 | 1987 | | 2024.06.25 | Àü¼¼ | »ï¼ººô¶ó | 2 | 33.51 | 11,360 | 0 | 1991 | | 2024.06.25 | ¿ù¼¼ | ŰæÇÏÀÌÃ÷(354-29) | 3 | 53.49 | 16,300 | 15 | 2001 | | 2024.06.24 | ¿ù¼¼ | dz¼º¾Ö¶ã¾È | 3 | 50.23 | 20,000 | 72 | 2016 | | 2024.06.24 | ¸Å¸Å | ¿ì¼ºº£³×Ä¡¾Æ | 5 | 55.8 | 22,500 | | 2011 | | 2024.06.24 | ¿ù¼¼ | ¼°æÆÓ¸®½º | 8 | 29.29 | 18,900 | 10 | 2019 | | 2024.06.24 | ¿ù¼¼ | ±Ý°´©¸®ºô(998-10) | 6 | 15.72 | 5,000 | 14 | 2012 | | 2024.06.24 | ¿ù¼¼ | À̰æ¼÷´Ù¼¼´ë | 1 | 44.99 | 12,850 | 20 | 2003 | | 2024.06.24 | ¿ù¼¼ | (1079-2) | 1 | 26.25 | 500 | 35 | 2000 | | 2024.06.24 | ¿ù¼¼ | ¼º¿ìÇÏÀÌÃ÷ºô¶ó2Â÷ | 3 | 48.46 | 1,000 | 90 | 2002 | | 2024.06.24 | ¿ù¼¼ | Á¤Çöºô¶ó(98-39) | 3 | 58.2 | 19,700 | 10 | 2001 | | 2024.06.24 | Àü¼¼ | ³ª¸°ÇÏÀÓBµ¿(976-4) | 2 | 26.78 | 15,750 | 0 | 2017 | | 2024.06.24 | ¿ù¼¼ | °ø°¨ÁöÀ½410 | 4 | 29.98 | 1,000 | 60 | 2021 | | 2024.06.24 | ¸Å¸Å | ´ëÈ£ºô¶ó(807-24) | 3 | 61.02 | 22,700 | | 2002 | | 2024.06.24 | ¸Å¸Å | ¿µÇ³ºô¶ó | 1 | 33.48 | 14,000 | | 1986 | | 2024.06.24 | ¸Å¸Å | ¿ì¼ººô¶ó(366-24) | 2 | 64.41 | 26,500 | | 1997 | | 2024.06.24 | ¸Å¸Å | µ¿¾çÁÖÅÃ(409-74) | 2 | 51.6 | 19,800 | | 2002 | | 2024.06.24 | Àü¼¼ | ÆÄÅ©ºô | 2 | 59.72 | 18,600 | 0 | 2011 | | 2024.06.24 | ¿ù¼¼ | ¼Ò´ã¹ë¸®½ºBµ¿ | 2 | 29.75 | 2,000 | 65 | 2013 | | 2024.06.24 | ¿ù¼¼ | ¼º¿ìÇÏÀÌÃ÷ºô¶ó2Â÷ | 3 | 48.46 | 1,000 | 90 | 2002 | | 2024.06.24 | ¿ù¼¼ | ´ë¼º¾ÆÆ®ºô | 4 | 34.07 | 3,000 | 95 | 2018 | | 2024.06.24 | ¿ù¼¼ | Á¤Çöºô¶ó(98-39) | 3 | 58.2 | 20,000 | 10 | 2001 | | 2024.06.24 | ¿ù¼¼ | Á¤Çöºô¶ó(98-39) | 3 | 58.2 | 20,000 | 10 | 2001 | | 2024.06.24 | Àü¼¼ | ±Ý°ÆÄÅ©ºô(102-20) | 5 | 51.02 | 18,500 | 0 | 2009 | | 2024.06.24 | Àü¼¼ | ¼ö¾ÆÆ®ºô | 5 | 39.58 | 19,000 | 0 | 2015 | | 2024.06.24 | Àü¼¼ | µ¿¼ººô¶ó(46-310) | 2 | 58.14 | 16,500 | 0 | 1991 | | 2024.06.24 | ¿ù¼¼ | (1079-28) | 5 | 18.06 | 500 | 45 | 2013 | | 2024.06.24 | Àü¼¼ | ´ë¸²Ä³½½(95-124) | 3 | 47.22 | 19,000 | 0 | 2012 | | 2024.06.24 | ¿ù¼¼ | ¿ìÁøÇÁ¸£¹Ì | 4 | 37.38 | 1,000 | 70 | 2011 | | 2024.06.23 | Àü¼¼ | »ï¼ºÆç¸®Ã¼(864-52) | 5 | 31.91 | 17,600 | 0 | 2014 | | 2024.06.23 | ¿ù¼¼ | ÁÖ¿¬ÇϿ콺 | 4 | 23.44 | 5,000 | 70 | 2022 | | 2024.06.23 | Àü¼¼ | ÈúŸ¿î(151-8) | 4 | 46.25 | 10,000 | 0 | 2002 | | 2024.06.23 | ¿ù¼¼ | ¿ìȱ׸°(969-13) | 3 | 29.71 | 500 | 65 | 2012 | | 2024.06.22 | Àü¼¼ | ¿ÍÀ̾غñ | 3 | 29.53 | 15,000 | 0 | 2016 | | 2024.06.22 | ¿ù¼¼ | ±îġŸ¿î°¡µ¿ | 1 | 36.64 | 9,570 | 13 | 1991 | | 2024.06.22 | ¿ù¼¼ | °ÇÇüŸ¿î°¡µ¿ | 3 | 40.5 | 12,000 | 20 | 2002 | | 2024.06.22 | ¿ù¼¼ | ¾ÆÀνººôHANAGREEN | 3 | 26.35 | 3,000 | 65 | 2013 | | 2024.06.22 | Àü¼¼ | ºñ¿¡½ºÇÏ¿ì¡2 | 5 | 24.03 | 19,400 | 0 | 2018 | | 2024.06.22 | Àü¼¼ | (354-147) | 2 | 37.98 | 10,000 | 0 | 1986 | | 2024.06.22 | Àü¼¼ | û¼ÛÆòÈÇコÇϿ콺(341-5) | 3 | 28.64 | 18,770 | 0 | 2018 | | 2024.06.22 | ¿ù¼¼ | ´Ù¿Âºô | 3 | 28.03 | 16,500 | 14 | 2018 | | 2024.06.22 | ¸Å¸Å | ¸þºñ¿ì½º(156-12) | 6 | 34.45 | 22,000 | | 2012 | | 2024.06.22 | ¿ù¼¼ | ¿ì¼ººô¶ó(1087-37) | 4 | 29.77 | 13,000 | 20 | 2011 | | 2024.06.22 | ¸Å¸Å | ¿¡º¥¿¡¼¿ºô¶ó | 3 | 61.43 | 34,500 | | 2000 | | 2024.06.22 | Àü¼¼ | ´Ù¿øºô¶ó(98-29) | 4 | 45.68 | 11,600 | 0 | 1991 | | 2024.06.22 | ¿ù¼¼ | LKµå¸²ºô | 2 | 29.44 | 5,000 | 75 | 2017 | | 2024.06.22 | ¿ù¼¼ | ÇØ¼ºÆç¸®½ººôA | 1 | 60.42 | 15,000 | 20 | 2002 | | 2024.06.22 | ¿ù¼¼ | ±ÃÀüºô¶ó(783-13) | 1 | 45.28 | 10,000 | 20 | 1991 | | 2024.06.22 | Àü¼¼ | ÿ½ÃÇϿ콺(870-6) | 2 | 38.47 | 15,750 | 0 | 2013 | | 2024.06.22 | ¿ù¼¼ | ´ë½Åºô¶ó | 4 | 35.49 | 1,000 | 70 | 1996 | | 2024.06.22 | ¿ù¼¼ | (430-8) | 3 | 29.01 | 500 | 62 | 2013 | | 2024.06.22 | ¿ù¼¼ | ¿À¼ÖÁÖÅà | 3 | 52.92 | 10,000 | 40 | 2002 | | 2024.06.22 | Àü¼¼ | ÇÏÆ®ºô | 4 | 16.565 | 5,500 | 0 | 2016 | | 2024.06.22 | ¿ù¼¼ | ÇѾçºô¶ó | -1 | 60.85 | 2,000 | 45 | 1992 | | 2024.06.22 | Àü¼¼ | °è¸í(897-9) | 6 | 62.91 | 25,500 | 0 | 2001 | | 2024.06.22 | ¿ù¼¼ | È£¼öŸ¿î5Â÷ | 2 | 53.38 | 2,000 | 68 | 2002 | | 2024.06.22 | ¿ù¼¼ | Çö´ëȨŸ¿î | 3 | 29.6 | 12,000 | 10 | 2011 | | 2024.06.22 | Àü¼¼ | ³ª»ê½¦¸£ºôA | 5 | 39.47 | 18,500 | 0 | 2001 | | 2024.06.22 | ¿ù¼¼ | ´ë¼º¸Ç¼Ç | 2 | 59.77 | 12,500 | 21 | 1983 | | 2024.06.21 | ¿ù¼¼ | ¿Ã¶ó·çÁî | 2 | 29.98 | 5,000 | 110 | 2022 | | 2024.06.21 | Àü¼¼ | ´Ù¼ØÅ¸¿îA,B | 4 | 39.82 | 19,000 | 0 | 2013 | | 2024.06.21 | ¸Å¸Å | ±Ý°ºô¶ó(95-51) | 4 | 41.85 | 14,300 | | 2001 | | 2024.06.21 | ¿ù¼¼ | °¡ÀÌ¾ÆÆÓ¸®½º | 5 | 25.74 | 3,000 | 80 | 2019 | | 2024.06.21 | ¸Å¸Å | ³²°æ½¦¸£ºô(362-135) | 2 | 68.74 | 28,000 | | 2001 | | 2024.06.21 | ¸Å¸Å | ÇØºñÄ¡ºô | 2 | 29.85 | 17,300 | | 2011 | | 2024.06.21 | ¸Å¸Å | (914-39) | 1 | 36.33 | 12,000 | | 1992 | | 2024.06.21 | ¸Å¸Å | »þÀο¡¹öºô°¡µ¿ | 1 | 63.26 | 24,000 | | 2002 | | 2024.06.21 | ¸Å¸Å | Á¤¿ø¾ÆÆ®ºô | 2 | 60.99 | 23,700 | | 2001 | | 2024.06.21 | ¸Å¸Å | ÇØ¿Âij½½ | 4 | 26.93 | 19,500 | | 2019 | | 2024.06.21 | ¿ù¼¼ | ¿ì¼ºAµ¿Bµ¿(346-86) | 3 | 39.05 | 3,000 | 90 | 2014 | | 2024.06.21 | ¿ù¼¼ | ½Ã¿ø¾ÆÆ®ºô¶óµ¿ | 4 | 42.99 | 5,000 | 55 | 2002 | | 2024.06.21 | Àü¼¼ | ÇѾƸ§ÁÖÅà | 2 | 40.82 | 12,852 | 0 | 1993 | | 2024.06.21 | ¿ù¼¼ | (860-23) | 3 | 62.53 | 4,000 | 65 | 2007 | | 2024.06.21 | ¿ù¼¼ | ȼººô¶ó29Â÷ | 4 | 25.86 | 1,000 | 45 | 2001 | | 2024.06.21 | Àü¼¼ | °¨¼ºÇÏÀÌÃ÷ | 5 | 29.34 | 19,900 | 0 | 2017 | | 2024.06.21 | Àü¼¼ | ´Ù¿ï³×¹öºôBµ¿ | 4 | 61.11 | 20,000 | 0 | 2000 | | 2024.06.21 | ¿ù¼¼ | (997-13) | 2 | 41.82 | 1,000 | 60 | 2002 | | 2024.06.21 | Àü¼¼ | °æ¿øÁÖÅ𡵿 | 3 | 33.96 | 10,600 | 0 | 2001 | | 2024.06.21 | Àü¼¼ | °æ¹Î¾ÆÆ®ºô | 5 | 29.95 | 20,900 | 0 | 2019 | | 2024.06.21 | ¿ù¼¼ | ¿ì¼ººô¶óAµ¿(56-318) | 3 | 70.12 | 2,000 | 80 | 2000 | | 2024.06.21 | ¿ù¼¼ | ÈÀÎ¾ÆÆ®ºô2Â÷ | 2 | 43.14 | 1,535 | 13 | 2011 | | 2024.06.21 | ¿ù¼¼ | ±¤¸íÇÏÀÌÃ÷29Â÷³ªµ¿ | 2 | 42.33 | 12,000 | 28 | 2002 | | 2024.06.21 | ¿ù¼¼ | â´ë(366-34) | 4 | 35.7 | 16,880 | 20 | 2013 | | 2024.06.21 | ¿ù¼¼ | ½Å¼º¸®Ä¡ºô¥² | 4 | 24.53 | 13,300 | 15 | 2015 | | 2024.06.21 | Àü¼¼ | µ¿µµÇÏÀÌÃ÷ºô¶ó7Â÷(346-96) | 4 | 60.51 | 19,980 | 0 | 1996 | | 2024.06.20 | ¸Å¸Å | DHÆÓ¸®½º101µ¿ | 2 | 29.84 | 26,000 | | 2018 | | 2024.06.20 | ¸Å¸Å | Çý¼ºÆÓ¸®½ººô12Â÷ | -1 | 120.12 | 35,000 | | 2004 | | 2024.06.20 | ¸Å¸Å | ¿ìȱ׸° | 2 | 46.6 | 25,500 | | 2011 | | 2024.06.20 | ¸Å¸Å | ÇÁ¶óÀÓÇϿ콺(397-36) | 4 | 29.98 | 17,000 | | 2011 | | 2024.06.20 | ¸Å¸Å | Æç¸®Ã¼ÇϿ콺 | 6 | 51.77 | 29,900 | | 2012 | | 2024.06.20 | Àü¼¼ | ¿¹°¡Ã¤(968-3) | 3 | 44.08 | 22,000 | 0 | 2015 | | 2024.06.20 | Àü¼¼ | ¸ñȰ¡µ¿ | 1 | 38.12 | 11,000 | 0 | 1986 | | 2024.06.20 | ¿ù¼¼ | ´Ù¼¼´ë(986-24) | 3 | 17.21 | 10,500 | 10 | 2017 | | 2024.06.20 | ¿ù¼¼ | Ǫ¸¥Ç³°æÃ¤ | 2 | 29.98 | 8,000 | 80 | 2022 | | 2024.06.20 | Àü¼¼ | ¿ìÁ¤ºô¶óA | 1 | 60 | 13,980 | 0 | 1991 | | 2024.06.20 | Àü¼¼ | Çö´ëºô¸®Áö(911-13) | 2 | 74.07 | 22,500 | 0 | 2003 | | 2024.06.20 | Àü¼¼ | ³×½ºÆ®ºô | 3 | 51.07 | 17,600 | 0 | 2007 | | 2024.06.20 | ¿ù¼¼ | ½Å¿µ¼¾Æ®·¹ºô | 3 | 26.4 | 10,800 | 6 | 2011 | | 2024.06.20 | Àü¼¼ | Æú¶óºñ¿¤(1038-4) | 2 | 25.77 | 18,000 | 0 | 2018 | | 2024.06.20 | Àü¼¼ | ³²°æº£½ºÆ®ºô(Cµ¿) | 4 | 50.49 | 13,900 | 0 | 2001 | | 2024.06.20 | Àü¼¼ | ¹Ì¼ºÇϸ£µò(1102-5) | 4 | 29.79 | 22,000 | 0 | 2018 | | 2024.06.20 | Àü¼¼ | ´ë¿õÇÏÀÌÃ÷ºô¶ó8Â÷(56-37) | -1 | 37.92 | 5,000 | 0 | 1993 | | 2024.06.20 | ¿ù¼¼ | ȰîÅõ¿þ´ÏÆÛ½ºÆ® | 13 | 24.45 | 1,000 | 100 | 2018 | | 2024.06.20 | Àü¼¼ | Á¦ÀÌ¿ÍÀÌÆç¸®½º(849-16¹øÁö) | 2 | 29.9 | 17,100 | 0 | 2016 | | 2024.06.20 | Àü¼¼ | ±Û·Î¸®¾ÆÇϿ콺 | 5 | 27.06 | 33,900 | 0 | 2021 | | 2024.06.20 | ¿ù¼¼ | °¼´õÈú(962-4) | 1 | 30.57 | 5,000 | 41 | 2013 | | 2024.06.20 | ¿ù¼¼ | ¼øÈ¯·¹¹Ì¾ÈA | 2 | 38.79 | 12,000 | 8 | 2002 | | 2024.06.19 | Àü¼¼ | º£¸£µ¥ÇÇ¾Æ | 3 | 59.36 | 25,900 | 0 | 2016 | | 2024.06.19 | ¿ù¼¼ | ½Ö¿ëºô¶ó(56-490) | 3 | 43.59 | 12,000 | 10 | 2001 | | 2024.06.19 | Àü¼¼ | ¼Ò´ã¸¶À» | 2 | 33.8 | 13,350 | 0 | 2011 | | 2024.06.19 | Àü¼¼ | ½Å¿µÇÏÀ̺ô | 5 | 56.26 | 17,700 | 0 | 2000 | | 2024.06.19 | ¿ù¼¼ | ¹Ì·¡ÇÏÀÌÃ÷(410-40) | 2 | 36.12 | 11,300 | 10 | 2002 | | 2024.06.19 | ¿ù¼¼ | ¿ìȱ׸°(969-13) | 4 | 36.41 | 10,000 | 20 | 2012 | | 2024.06.19 | Àü¼¼ | ´õÁ¸ÆÛ½ºÆ® | 5 | 28.9 | 25,000 | 0 | 2022 | | 2024.06.19 | ¿ù¼¼ | ½Å¼ºÁÖÅÃ(46-17) | 2 | 44.21 | 500 | 40 | 2011 | | 2024.06.19 | Àü¼¼ | ³²°æ¸®¹öºô°¡µ¿ | 4 | 61.41 | 19,400 | 0 | 2000 | | 2024.06.19 | Àü¼¼ | Ȳ¿ëºô¶ó(77-38) | 1 | 47.9 | 16,200 | 0 | 2001 | | 2024.06.19 | ¸Å¸Å | ¾çÁøºô¶ó | 2 | 59.91 | 22,800 | | 1997 | | 2024.06.19 | ¿ù¼¼ | EH470 | 6 | 28.97 | 500 | 85 | 2021 | | 2024.06.19 | ¸Å¸Å | ´ÙÀÎÇϿ콺 | 3 | 22.72 | 28,500 | | 2022 | | 2024.06.19 | ¸Å¸Å | ¿¡½ºÄÉÀÌÆÄÅ©¸®¿ò(157-21) | 6 | 28.85 | 29,900 | | 2020 | | 2024.06.19 | ¸Å¸Å | ¿¡½ºÄÉÀÌÆÄÅ©¸®¿ò(157-21) | 6 | 28.85 | 24,600 | | 2020 | | 2024.06.19 | ¸Å¸Å | Å¿µ¾ÆÆ®ºô(362-131) | 4 | 60.81 | 30,000 | | 2002 | | 2024.06.19 | Àü¼¼ | ¸í½ÅŸ¿î8Â÷Bµ¿ | 5 | 61.2 | 17,000 | 0 | 2002 | | 2024.06.19 | Àü¼¼ | ´ë¼ºÅ¾½ººô(55-28) | 5 | 34.84 | 11,300 | 0 | 2011 | | 2024.06.19 | Àü¼¼ | ºí·çÈú(788-4) | 3 | 29.55 | 18,000 | 0 | 2016 | | 2024.06.19 | ¿ù¼¼ | µµ¿øÈú¶óÀÌÇÁ1 | 3 | 29.1 | 14,100 | 10 | 2016 | | 2024.06.19 | ¿ù¼¼ | »ï¼º½¦¸£ºô(351-17¹øÁö) | 6 | 33.2 | 4,000 | 69 | 2016 | | 2024.06.19 | Àü¼¼ | ÄÉ·»½Ã¾Æ | 3 | 29.3 | 22,000 | 0 | 2022 | | 2024.06.19 | ¿ù¼¼ | ¶óÇǾƳë | 3 | 27.25 | 5,000 | 80 | 2022 | | 2024.06.19 | Àü¼¼ | ³²°æ¸®¹öºô°¡µ¿ | 4 | 61.41 | 19,400 | 0 | 2000 | | 2024.06.19 | ¿ù¼¼ | ¸®Ä¡7 | 12 | 22.36 | 20,790 | 9 | 2022 | | 2024.06.19 | ¸Å¸Å | ´ë¸²³×½ºÆ®ºô | 2 | 60.36 | 25,500 | | 2007 | | 2024.06.19 | Àü¼¼ | żººô¶ó(102-344) | 4 | 42.8 | 12,375 | 0 | 1993 | | 2024.06.19 | Àü¼¼ | ´ë´öºô¶ó(455-23) | 2 | 43.02 | 9,950 | 0 | 2000 | | 2024.06.19 | ¿ù¼¼ | ºí¸®½º´ÙÀÓºô | 4 | 29.12 | 5,000 | 85 | 2023 | | 2024.06.19 | Àü¼¼ | ºí·çÈú(788-4) | 3 | 29.55 | 18,000 | 0 | 2016 | | 2024.06.19 | ¿ù¼¼ | ´ë¼ººô¶ó | 4 | 33.33 | 2,000 | 50 | 2001 | | 2024.06.18 | ¿ù¼¼ | ±Ù»óÇÁ¸®Áò¾ÆÆ®ºô | 3 | 55.3 | 3,000 | 100 | 2010 | | 2024.06.18 | ¸Å¸Å | Ȳº¸¾ÆÆ®ºô | 6 | 41.505 | 30,500 | | 2016 | | 2024.06.18 | ¸Å¸Å | °í¸íºô¶ó | 1 | 58.28 | 15,000 | | 2002 | | 2024.06.18 | ¿ù¼¼ | ¶ó¿Âºô | 5 | 17.49 | 11,000 | 20 | 2018 | | 2024.06.18 | ¸Å¸Å | ´ë½ÅŸ¿îAµ¿ | -1 | 68.17 | 20,150 | | 2001 | | 2024.06.18 | ¸Å¸Å | ½Å¿µºô¶óBµ¿(55-104) | 4 | 58.48 | 16,400 | | 2001 | | 2024.06.18 | ¿ù¼¼ | ¾Ëº£·Î | 4 | 13.53 | 500 | 47 | 2011 | | 2024.06.18 | ¿ù¼¼ | »ïÈ£ÆÄÅ©ºô¥±(1050-8) | 5 | 36.89 | 2,000 | 90 | 2016 | | 2024.06.18 | Àü¼¼ | À̳뼿(INNOCELL) | 4 | 29.96 | 17,000 | 0 | 2017 | | 2024.06.18 | ¿ù¼¼ | ¹Ì¼Òºô | 4 | 25.96 | 3,000 | 80 | 2018 | | 2024.06.18 | Àü¼¼ | ´ë¼ºÄÉÀÌÁ¦ÀÌ | 10 | 29.06 | 21,100 | 0 | 2020 | | 2024.06.18 | ¿ù¼¼ | º®»êȨŸ¿î(991-2) | 2 | 41.57 | 15,000 | 4 | 2008 | | 2024.06.18 | Àü¼¼ | ½Å¼º¸®Ä¡ºô¥°(357-16) | 3 | 32.81 | 17,600 | 0 | 2013 | | 2024.06.18 | ¿ù¼¼ | µµ¿ìÁÖÅà | -1 | 53.28 | 9,600 | 15 | 1992 | | 2024.06.18 | Àü¼¼ | ¿£¿¡½ºÆÄÅ©ºô | 6 | 28.85 | 19,000 | 0 | 2019 | | 2024.06.18 | Àü¼¼ | ȼºÈ¨Å¸¿î103µ¿ | 2 | 43.26 | 10,400 | 0 | 2002 | | 2024.06.18 | Àü¼¼ | ÀÌ¿¤ÇϿ콺 | 2 | 29.79 | 25,500 | 0 | 2022 | | 2024.06.18 | Àü¼¼ | ȲÁ¦±×·£µåÆÄÅ©(105-480) | 4 | 51.84 | 16,000 | 0 | 2008 | | 2024.06.18 | ¿ù¼¼ | ¼º¿øÇÏÀ̺ô | 4 | 59.94 | 12,000 | 35 | 2001 | | 2024.06.18 | Àü¼¼ | ºñ¿¡½ºÇÏ¿ì¡2 | 4 | 29.82 | 21,500 | 0 | 2018 | | 2024.06.18 | Àü¼¼ | ȲÁ¦±×·£µåÆÄÅ©(105-480) | 4 | 51.84 | 16,000 | 0 | 2008 | | 2024.06.18 | ¿ù¼¼ | »êÀåºô¶ó(105-466) | 2 | 45.6 | 12,300 | 5 | 1991 | | 2024.06.18 | ¿ù¼¼ | ¼¿ì802 | 4 | 27.09 | 3,000 | 80 | 2019 | | 2024.06.18 | ¿ù¼¼ | ÇØ¶ß´ÂÁý | 4 | 35.12 | 8,900 | 12 | 2001 | | 2024.06.18 | ¿ù¼¼ | º¸¹èºô¶ó | 3 | 59.92 | 16,500 | 18 | 2000 | | 2024.06.18 | Àü¼¼ | ¿ÍÀ̾غñ | 3 | 29.53 | 15,000 | 0 | 2016 | | 2024.06.17 | ¸Å¸Å | Çѳ²Å¸¿î | 3 | 51.39 | 18,000 | | 1993 | | 2024.06.17 | ¸Å¸Å | ´ë¼ºÅ¾½ººôºñµ¿(997-31) | 4 | 42.52 | 19,700 | | 2004 | | 2024.06.17 | ¸Å¸Å | ºñÁîºô(798-14) | 3 | 36.15 | 27,000 | | 2014 | | 2024.06.17 | ¸Å¸Å | ÇÑ¿ïÆÓ¸®½º | 5 | 26.29 | 19,500 | | 2017 | | 2024.06.17 | ¸Å¸Å | ÇѰS-Ŭ·¡½º(1084-30) | 2 | 34.84 | 16,500 | | 2012 | | 2024.06.17 | ¸Å¸Å | LKµå¸²ºô | 3 | 29.95 | 23,550 | | 2019 | | 2024.06.17 | Àü¼¼ | ´õ½ºÅ¸ÀÏ | 6 | 49.49 | 28,000 | 0 | 2017 | | 2024.06.17 | Àü¼¼ | Àκ£½ºÆ®¾ÆÆ®ºô | 1 | 55.98 | 15,000 | 0 | 2007 | | 2024.06.17 | Àü¼¼ | ´õ½ºÅ¸ÀÏ | 6 | 49.49 | 28,000 | 0 | 2017 | | 2024.06.17 | Àü¼¼ | ¹Ì·¡ÇϿ콺 | 6 | 24.24 | 20,850 | 0 | 2018 | | 2024.06.17 | ¿ù¼¼ | À̼ö°ñµçºô¸®Áö | 2 | 41.46 | 12,000 | 30 | 1992 | | 2024.06.17 | ¿ù¼¼ | ¼öÁ¤¸Ç¼Ç2Â÷ | 4 | 48.2 | 12,600 | 17 | 2002 | | 2024.06.17 | Àü¼¼ | ¼øÈ¯ºô¶ó(24-260) | 2 | 43.32 | 12,600 | 0 | 2000 | | 2024.06.17 | Àü¼¼ | ´ëÇѺô¶ó7Â÷ | 3 | 54.3 | 15,000 | 0 | 1992 | | 2024.06.17 | ¿ù¼¼ | ´Ù¿Âºô | 3 | 28.03 | 16,500 | 11 | 2018 | | 2024.06.17 | Àü¼¼ | ¼øÈ¯ºô¶ó(24-260) | 2 | 43.32 | 12,600 | 0 | 2000 | | 2024.06.17 | ¿ù¼¼ | ¸®Ä¡ºô | 2 | 38.37 | 3,000 | 65 | 2009 | | 2024.06.17 | Àü¼¼ | °æ½Å¾ÆÆ®ºô | 1 | 57.5 | 18,000 | 0 | 2002 | | 2024.06.17 | ¿ù¼¼ | ÇÁ¶óÀÓÁÖÅÃ(393-22) | 2 | 23.67 | 13,995 | 4 | 2014 | | 2024.06.17 | ¿ù¼¼ | ³²¼º¾ÆÆ®ºô1 | 3 | 24.79 | 15,600 | 15 | 2015 | | 2024.06.17 | Àü¼¼ | ½Ã¿ÂÁÖÅà | 4 | 45.22 | 13,230 | 0 | 1998 | | 2024.06.17 | ¿ù¼¼ | ´ëÈ↓¸³ | 1 | 65.58 | 3,000 | 75 | 1996 | | 2024.06.17 | ¿ù¼¼ | ÇϳªÄ³½½ | 7 | 31.44 | 500 | 60 | 2013 | | 2024.06.17 | ¿ù¼¼ | ´ë¸²Èúž | 2 | 43.5 | 15,000 | 10 | 2010 | | 2024.06.17 | ¿ù¼¼ | ¸®ºùÇϿ콺 | 6 | 25.97 | 15,490 | 10 | 2016 | | 2024.06.17 | Àü¼¼ | Àκ£½ºÆ®¾ÆÆ®ºô | 1 | 55.98 | 15,000 | 0 | 2007 | | 2024.06.17 | ¿ù¼¼ | ÇѶóȨŸ¿î | 1 | 59.87 | 15,800 | 23 | 2001 | | 2024.06.17 | ¿ù¼¼ | ÇѰŸ¿î | 6 | 41.8 | 2,000 | 110 | 2021 | | 2024.06.16 | ¸Å¸Å | µ¿¿ìºô¶ó | 1 | 37.24 | 13,800 | | 1990 | | 2024.06.15 | ¿ù¼¼ | ¼øÈ¯½¦¸£ºô(24-222) | 4 | 39.12 | 5,000 | 35 | 2002 | | 2024.06.15 | Àü¼¼ | ´õÁ¸ÆÛ½ºÆ® | 2 | 29.87 | 24,300 | 0 | 2022 | | 2024.06.15 | ¿ù¼¼ | ´Ù¿Âºô | 4 | 27.81 | 16,200 | 15 | 2018 | | 2024.06.15 | ¿ù¼¼ | ¼ÀÈú | 2 | 45.46 | 12,000 | 30 | 2003 | | 2024.06.15 | Àü¼¼ | ÆÄÅ©±×¸°ºô¶ó | 3 | 44.76 | 13,380 | 0 | 2001 | | 2024.06.15 | ¿ù¼¼ | ½Å¼º¸®Ä¡ºô¥² | 3 | 38.12 | 19,900 | 15 | 2015 | | 2024.06.15 | ¿ù¼¼ | µ¿¿øÈúÇϿ콺 | 7 | 13.6 | 1,000 | 47 | 2011 | | 2024.06.15 | Àü¼¼ | (831-18) | 2 | 59.84 | 16,000 | 0 | 2003 | | 2024.06.15 | ¿ù¼¼ | ¿£¿¡½ººô(381-5) | 5 | 52.2 | 17,000 | 10 | 2010 | | 2024.06.15 | ¿ù¼¼ | Ã»ÇØºô¶ó | 3 | 45.3 | 1,000 | 80 | 1993 | | 2024.06.15 | Àü¼¼ | ±îÄ¡ºô¶ó(56-74) | 1 | 36.54 | 10,000 | 0 | 1991 | | 2024.06.15 | ¿ù¼¼ | Á¦ÀÌ¿¡½ººô | 5 | 28.07 | 2,000 | 120 | 2023 | | 2024.06.15 | Àü¼¼ | (969-17) | 2 | 58.24 | 12,000 | 0 | 1991 | | 2024.06.15 | ¿ù¼¼ | ¼ö¸íºô | 5 | 29.75 | 2,000 | 78 | 2020 | | 2024.06.15 | ¿ù¼¼ | ½º¸¶ÀϺô | 3 | 15.79 | 1,000 | 50 | 2013 | | 2024.06.15 | ¿ù¼¼ | ÇØ¹èÄ¡ºô | 4 | 23.16 | 5,000 | 70 | 2015 | | 2024.06.15 | Àü¼¼ | ·°Å°ºô¶óºñµ¿ | 2 | 56.65 | 18,000 | 0 | 1984 | | 2024.06.15 | ¸Å¸Å | ºí¸®½ººô101µ¿102µ¿ | 4 | 59.72 | 49,000 | | 2022 | | 2024.06.15 | ¿ù¼¼ | ¿ì¼º¿¬¸³(1134-7) | 3 | 52.2 | 3,000 | 50 | 1985 | | 2024.06.15 | Àü¼¼ | ¼¿ì¿¡ÄÚºô | 3 | 40.02 | 14,700 | 0 | 2010 | | 2024.06.15 | Àü¼¼ | ¿ì¼ººô¶ó(366-10) | 3 | 57.89 | 15,800 | 0 | 1994 | | 2024.06.15 | ¸Å¸Å | »ï¼ººô¶óÆ® | 1 | 54.05 | 21,000 | | 2001 | | 2024.06.15 | ¸Å¸Å | Á¤¾Èºô¶ó(811-15) | 2 | 56.34 | 17,000 | | 1993 | | 2024.06.15 | ¸Å¸Å | Ÿ¿îºô¸®Áö³ªµ¿ | -1 | 63.06 | 12,500 | | 1991 | | 2024.06.15 | ¸Å¸Å | ȼººô¶óCµ¿ | 3 | 59.76 | 15,000 | | 2002 | | 2024.06.15 | ¸Å¸Å | ½ÅÁøºô¶ó | 2 | 60.26 | 22,500 | | 1998 | | 2024.06.14 | ¸Å¸Å | ½Å¼ººô¶ó | 1 | 50.13 | 17,000 | | 1993 | | 2024.06.14 | ¸Å¸Å | Ǫ¸¥Ç³°æÃ¤ | 3 | 29.98 | 28,600 | | 2022 | | 2024.06.14 | ¸Å¸Å | ¿ì¼ººô¶ó | 4 | 66.9 | 25,700 | | 2001 | | 2024.06.14 | ¸Å¸Å | ¿¡½ºÄÉÀÌÆÄÅ©¸®¿ò(157-21) | 5 | 19.3 | 22,000 | | 2020 | | 2024.06.14 | ¸Å¸Å | â´ëºô¶ó(371-42) | 3 | 54.91 | 21,200 | | 2009 | | 2024.06.14 | ¸Å¸Å | ¿¡½ºÄÉÀÌÆÄÅ©¸®¿ò(157-21) | 5 | 19.43 | 22,000 | | 2020 | | 2024.06.14 | ¸Å¸Å | ¿¡½ºÄÉÀÌÆÄÅ©¸®¿ò(157-21) | 5 | 19.43 | 22,000 | | 2020 | | 2024.06.14 | ¸Å¸Å | ³ª»ê½¦¸£ºôBµ¿ | 3 | 72.24 | 29,500 | | 2001 | | 2024.06.14 | ¸Å¸Å | ŰæÇÏÀÌÃ÷(167-47) | 1 | 59.93 | 20,700 | | 2001 | | 2024.06.14 | ¸Å¸Å | Ǫ¸¥Ç³°æÃ¤ | 4 | 29.98 | 28,600 | | 2022 | | 2024.06.14 | ¸Å¸Å | ³ª»ê½¦¸£ºôBµ¿ | 3 | 72.24 | 29,500 | | 2001 | | 2024.06.14 | Àü¼¼ | Áø¼ººô¶ó1µ¿ | 2 | 41.31 | 12,500 | 0 | 1986 | | 2024.06.14 | ¿ù¼¼ | ¹Ì¹®2Â÷ | 4 | 40.44 | 9,990 | 20 | 1994 | | 2024.06.14 | ¿ù¼¼ | ´Ù¼Ø(422-3) | 3 | 29.81 | 1,500 | 78 | 2014 | | 2024.06.14 | Àü¼¼ | ¿¡½ºÄÉÀÌÆÄÅ©¸®¿ò(157-21) | 2 | 29.79 | 23,400 | 0 | 2020 | | 2024.06.14 | ¿ù¼¼ | ´Ù¿Âºô | 6 | 26.63 | 15,600 | 20 | 2018 | | 2024.06.14 | Àü¼¼ | ¿¡½ºÄÉÀÌÆÄÅ©¸®¿ò(157-21) | 2 | 18.74 | 20,400 | 0 | 2020 | | 2024.06.14 | Àü¼¼ | µ¿¿øÈ¨Å¸¿î | 4 | 61.81 | 19,700 | 0 | 2008 | | 2024.06.14 | Àü¼¼ | ¼º¿øÆÄÅ©ºô(56-382) | 3 | 47.87 | 15,100 | 0 | 2008 | | 2024.06.14 | ¿ù¼¼ | ±îÄ¡¸Ç¼Ç | -1 | 58.59 | 10,240 | 15 | 1993 | | 2024.06.14 | Àü¼¼ | µ¿±¤ºô¶ó | 2 | 36.66 | 12,000 | 0 | 2002 | | 2024.06.14 | ¿ù¼¼ | (409-97) | 2 | 45.87 | 12,000 | 20 | 1987 | | 2024.06.14 | ¿ù¼¼ | ¹é¿îºô¶ó | 1 | 60.66 | 2,000 | 80 | 2002 | | 2024.06.14 | ¿ù¼¼ | (1049-33) | 4 | 20.55 | 500 | 40 | 2002 | | 2024.06.14 | ¿ù¼¼ | Àº°¡¶÷ÆÓ¸®½º | 2 | 32.79 | 2,000 | 115 | 2022 | | 2024.06.14 | Àü¼¼ | ¿ìȱ׸° | 2 | 53.73 | 18,000 | 0 | 2011 | | 2024.06.14 | ¿ù¼¼ | ÀÎÅÍ½ÃÆ¼ºô¶ó(´Ù) | 4 | 46.38 | 12,300 | 25 | 2002 | | 2024.06.14 | ¿ù¼¼ | ´õ¼û153 | 6 | 15.31 | 0 | 55 | 2021 | | 2024.06.14 | Àü¼¼ | ÁøÈïºô¶ó | 2 | 40.46 | 12,950 | 0 | 1992 | | 2024.06.13 | Àü¼¼ | ´ëÇѺô¶ó7Â÷ | 3 | 54.3 | 15,000 | 0 | 1992 | | 2024.06.13 | ¿ù¼¼ | ´ë¿øºô¶ó(868-23) | 5 | 32.52 | 9,000 | 14 | 2003 | | 2024.06.13 | Àü¼¼ | ½Å¾È¸Ç¼Ç(56-191) | 2 | 53.72 | 15,500 | 0 | 2003 | | 2024.06.13 | ¿ù¼¼ | ¿¡½º¿¥·¹¹öºô(346-7) | 2 | 36.52 | 20,000 | 25 | 2014 | | 2024.06.13 | ¿ù¼¼ | ÇÁ¶óÀÓÁÖÅÃ(393-22) | 4 | 27.59 | 1,000 | 31 | 2014 | | 2024.06.13 | ¿ù¼¼ | È£¼º±×¸°ºô12Â÷ | 2 | 68.42 | 8,000 | 45 | 2000 | | 2024.06.13 | ¿ù¼¼ | È£¼º±×¸°ºô12Â÷ | 2 | 68.42 | 8,000 | 45 | 2000 | | 2024.06.13 | ¿ù¼¼ | ¿ì¼º | 6 | 29.85 | 3,000 | 65 | 2016 | | 2024.06.13 | Àü¼¼ | °¼ºô¶ó(56-171) | 2 | 36.44 | 8,500 | 0 | 1988 | | 2024.06.13 | Àü¼¼ | ´ë¼º¾ÆÆ®ºô | 3 | 29.78 | 18,900 | 0 | 2019 | | 2024.06.13 | Àü¼¼ | û¼ÛÆòÈÇコÇϿ콺(457-3) | 2 | 18.5 | 10,620 | 0 | 2015 | | 2024.06.13 | Àü¼¼ | ³×¿ÀÆÄÅ©ºô(160-17) | 3 | 59.66 | 24,500 | 0 | 2008 | | 2024.06.13 | ¿ù¼¼ | Çö´ëȨŸ¿î | 2 | 29.52 | 12,000 | 8 | 2011 | | 2024.06.13 | ¿ù¼¼ | ÇູŸ¿î(105-123) | 5 | 29.67 | 10,000 | 30 | 2010 | | 2024.06.13 | Àü¼¼ | ¿ì¼º | 3 | 29.95 | 17,640 | 0 | 2016 | | 2024.06.13 | Àü¼¼ | ¼ºµµºô¶ó(458-22) | 2 | 51.9 | 17,000 | 0 | 2002 | | 2024.06.13 | Àü¼¼ | û¼ÛÆòÈÇコÇϿ콺(457-3) | 2 | 18.5 | 10,620 | 0 | 2015 | | 2024.06.13 | Àü¼¼ | û¼ÛÆòÈÇコÇϿ콺(457-3) | 2 | 18.5 | 10,620 | 0 | 2015 | | 2024.06.13 | ¿ù¼¼ | ¼£·ÒÇϿ콺 | 4 | 23.04 | 1,000 | 58 | 2010 | | 2024.06.13 | ¿ù¼¼ | (24-545) | 5 | 14.4 | 500 | 45 | 2015 | | 2024.06.13 | Àü¼¼ | ³×¿ÀÆÄÅ©ºô(160-17) | 3 | 59.66 | 21,300 | 0 | 2008 | | 2024.06.13 | ¿ù¼¼ | ·ÎÁîºô(24-113) | 2 | 29.275 | 17,000 | 5 | 2018 | | 2024.06.13 | ¸Å¸Å | ¸®´õ½ººô(50-15) | 4 | 42.28 | 16,300 | | 2011 | | 2024.06.13 | ¿ù¼¼ | Ÿ¿öÆÄÅ©ºô(56-280) | 4 | 67.75 | 14,500 | 40 | 2008 | | 2024.06.13 | ¿ù¼¼ | È£¼º±×¸°ºô12Â÷ | 2 | 68.42 | 8,000 | 45 | 2000 | | 2024.06.13 | ¸Å¸Å | ÇູŸ¿î(105-123) | 3 | 56.02 | 25,100 | | 2010 | | 2024.06.13 | ¸Å¸Å | ¿¡½º¿¥ÆÄÅ©ºô101µ¿102µ¿ | 6 | 27.27 | 21,000 | | 2016 | | 2024.06.13 | ¸Å¸Å | À£¸®Ä¡ÆÄÅ©(1078-24) | 4 | 49.06 | 35,200 | | 2015 | | 2024.06.12 | ¸Å¸Å | ½Å¾È±×¸°ºô¶ó | 3 | 49.13 | 13,900 | | 1996 | | 2024.06.12 | ¿ù¼¼ | ÇѰŸ¿î | 4 | 29.64 | 2,000 | 95 | 2021 | | 2024.06.12 | ¸Å¸Å | »ï¼º¼¾Æ®·¹ºô(55-48) | 2 | 51.54 | 18,500 | | 2008 | | 2024.06.12 | ¸Å¸Å | ±ÝÈ | 4 | 79.15 | 40,000 | | 1996 | | 2024.06.12 | ¸Å¸Å | ¿µ¶ôºô¶ó | 1 | 38.9 | 13,600 | | 1992 | | 2024.06.12 | ¸Å¸Å | ¼º¿ÁÇÏÀÌÃ÷ºô¶ó´Ùµ¿ | 2 | 66.72 | 33,000 | | 1992 | | 2024.06.12 | ¸Å¸Å | ÇѿᄒƼºô | 2 | 60.61 | 29,300 | | 2009 | | 2024.06.12 | ¸Å¸Å | ŸÀÓ¾ÆÆ®ºô(996-18) | 6 | 27.49 | 20,000 | | 2014 | | 2024.06.12 | ¸Å¸Å | ½ºÀ§Æ®ºô(410-183) | 2 | 36.39 | 14,500 | | 2008 | | 2024.06.12 | ¸Å¸Å | ¿ì¼º(353-2) | 2 | 39.84 | 34,000 | | 2019 | | 2024.06.12 | ¸Å¸Å | ÇѿᄒƼºô | 2 | 60.61 | 29,300 | | 2009 | | 2024.06.12 | ¿ù¼¼ | ´Ù¿Âºô | 2 | 28.03 | 16,500 | 10 | 2018 | | 2024.06.12 | Àü¼¼ | °æÀκô¶óBµ¿(369-14) | 3 | 59.55 | 10,000 | 0 | 2001 | | 2024.06.12 | ¸Å¸Å | »ï¼º½¦¸£ºô(400-16) | 2 | 34.39 | 23,000 | | 2015 | | 2024.06.12 | ¿ù¼¼ | ÇØ¼ºÆÓ¸®½ººô9Â÷ | 4 | 39.98 | 11,700 | 11 | 2002 | | 2024.06.12 | Àü¼¼ | ÇÑ¿ïÆÓ¸®½º | 5 | 25.31 | 15,800 | 0 | 2017 | | 2024.06.12 | ¿ù¼¼ | »ï¼º½¦¸£ºô | 5 | 25.78 | 13,500 | 20 | 2016 | | 2024.06.12 | Àü¼¼ | Çý¼ºÆç¸®½º(811-8) | 4 | 29.17 | 11,000 | 0 | 2011 | | 2024.06.12 | ¿ù¼¼ | ½Å¼º¸®Ä¡ºô¥°(357-16) | 6 | 34.55 | 19,845 | 3 | 2013 | | 2024.06.12 | ¿ù¼¼ | Ǫ¸¥Ç³°æÃ¤ | 5 | 26.29 | 3,000 | 100 | 2022 | | 2024.06.11 | Àü¼¼ | ¿ì¼º¿¬¸³(1134-7) | 2 | 51.3 | 13,000 | 0 | 1985 | | 2024.06.11 | ¸Å¸Å | ¿¡½ºÄÉÀÌÆÄÅ©¸®¿ò(157-21) | 4 | 18.74 | 21,500 | | 2020 | | 2024.06.11 | ¸Å¸Å | ±Ù»óÇÁ¸®Áò¾ÆÆ®ºô | 5 | 55.3 | 32,000 | | 2010 | | 2024.06.11 | ¿ù¼¼ | ANA7 | 2 | 29.97 | 1,000 | 110 | 2022 | | 2024.06.11 | Àü¼¼ | À¯¸²ÆÄÅ©ºô(372-60) | 2 | 59.82 | 19,500 | 0 | 2010 | | 2024.06.11 | Àü¼¼ | ÀÚÇÏŬ·¡½Ä | 16 | 13.77 | 11,800 | 0 | 2018 | | 2024.06.11 | Àü¼¼ | °©Áø°ñµåºô | 5 | 35.59 | 21,000 | 0 | 2013 | | 2024.06.11 | ¿ù¼¼ | ÇѼº¾ÆÆ®ºô(462-12) | 2 | 54.54 | 6,000 | 45 | 2002 | | 2024.06.11 | Àü¼¼ | ¹Ð·¹´Ï¾ö(46-392) | 2 | 49.44 | 15,800 | 0 | 2008 | | 2024.06.11 | Àü¼¼ | ¿¡½º¿¥º§¸®Ã¼11Â÷ | 5 | 52.71 | 20,900 | 0 | 2012 | | 2024.06.11 | Àü¼¼ | ¹Ì·¡½ºÅ¸ºô4Â÷ | 3 | 42.23 | 16,000 | 0 | 2008 | | 2024.06.11 | Àü¼¼ | Bluehill | 3 | 24.78 | 17,800 | 0 | 2019 | | 2024.06.11 | ¿ù¼¼ | ÈÆºóÇϿ콺(342-19) | 4 | 22.04 | 1,000 | 58 | 2015 | | 2024.06.11 | Àü¼¼ | Çö´ë¾ÆÆ®ºô¶ó(962-16) | 3 | 55.27 | 15,200 | 0 | 1990 | | 2024.06.11 | ¿ù¼¼ | ÇѼººô¶ó | 2 | 28.47 | 1,000 | 48 | 1987 | | 2024.06.11 | Àü¼¼ | À¯´Ï¿Âºô¸®Áö´Ùµ¿ | 4 | 27.89 | 7,648 | 0 | 2001 | | 2024.06.11 | Àü¼¼ | ¿¡½º¿¥ÆÄÅ©ºô(³ªµ¿´Ùµ¿) | 6 | 41.73 | 23,900 | 0 | 2017 | | 2024.06.11 | ¿ù¼¼ | ·ÎºóÇϿ콺 | 4 | 25.69 | 5,000 | 60 | 2018 | | 2024.06.11 | Àü¼¼ | HIGH-END480 | 4 | 29.86 | 19,400 | 0 | 2023 | | 2024.06.11 | ¸Å¸Å | ÿ½ÃÇϿ콺(424-35¿Ü1) | 2 | 28.73 | 19,200 | | 2015 | | 2024.06.11 | ¸Å¸Å | »ï¼º°ñµçºô(793-6) | 3 | 33.12 | 24,900 | | 2015 | | 2024.06.11 | Àü¼¼ | ¿¡µ§ÇϿ콺 | 2 | 62.48 | 15,700 | 0 | 2002 | | 2024.06.11 | Àü¼¼ | DS¿¡ÄÚŸ¿î | 4 | 31.86 | 16,000 | 0 | 2014 | | 2024.06.11 | Àü¼¼ | ÈÞ&À¯ºô | 3 | 27.7 | 20,000 | 0 | 2020 | | 2024.06.11 | Àü¼¼ | HIGH-END480 | 4 | 29.86 | 19,400 | 0 | 2023 | | 2024.06.11 | Àü¼¼ | º¹Áö¾ÆÆ®ºô¶ó2µ¿ | 3 | 51.83 | 14,800 | 0 | 2003 | | 2024.06.11 | ¿ù¼¼ | ¸íÁøºô¶ó(971-7) | 2 | 59.55 | 7,000 | 50 | 2008 | | 2024.06.11 | Àü¼¼ | Çö´ëºô¶ó³ªµ¿ | 3 | 33.26 | 11,600 | 0 | 1991 | | 2024.06.11 | Àü¼¼ | ´ë¼ºÁÖÅÃ(155-46) | 1 | 35.52 | 8,000 | 0 | 1987 | | 2024.06.11 | ¿ù¼¼ | ¸ð¾Æºô1 | 2 | 52.17 | 13,125 | 3 | 2007 | | 2024.06.11 | Àü¼¼ | ºí¸®½ººô101µ¿102µ¿ | 4 | 28.71 | 22,900 | 0 | 2022 | | 2024.06.11 | ¿ù¼¼ | ÇѼº¾ÆÆ®ºô(462-12) | 2 | 54.54 | 6,000 | 45 | 2002 | | 2024.06.11 | ¸Å¸Å | ¿¡½ºÄÉÀÌÆÄÅ©¸®¿ò(157-21) | 4 | 29.79 | 24,500 | | 2020 | | 2024.06.11 | ¸Å¸Å | (1041-1) | 1 | 62.17 | 40,000 | | 1983 | | 2024.06.11 | ¸Å¸Å | À¯´Ï¿Âºô¸®Áö´Ùµ¿ | 4 | 27.89 | 8,000 | | 2001 | | 2024.06.11 | ¿ù¼¼ | ¾ÆÁÙ¸®¿ò | 7 | 26.5 | 15,300 | 20 | 2013 | | 2024.06.11 | ¸Å¸Å | Ǫ¸¥Ç³°æÃ¤ | 2 | 26.29 | 25,570 | | 2022 | | 2024.06.11 | ¸Å¸Å | ¿¡½ºÄÉÀÌÆÄÅ©¸®¿ò(157-21) | 4 | 18.74 | 22,000 | | 2020 | | 2024.06.11 | ¸Å¸Å | Ǫ¸¥Ç³°æÃ¤ | 2 | 26.29 | 25,570 | | 2022 | | 2024.06.11 | ¸Å¸Å | ¿ì¼ºÆÄÅ©¸Ç¼Ç(29-230) | 3 | 64.3 | 22,200 | | 1983 | | 2024.06.10 | ¿ù¼¼ | µå¸®¹ÌŸ¿î | 5 | 44.15 | 20,000 | 10 | 2015 | | 2024.06.10 | ¿ù¼¼ | Çö´ëºí·ç¹Ö | 4 | 36.93 | 20,500 | 15 | 2015 | | 2024.06.10 | ¿ù¼¼ | ´Ù¿Âºô | 5 | 26.63 | 15,600 | 20 | 2018 | | 2024.06.10 | Àü¼¼ | »ï¼ºÈ¨Å¸¿î | -1 | 52.02 | 9,600 | 0 | 2001 | | 2024.06.10 | ¿ù¼¼ | ¿ì´çºô¶ó(355-18) | 2 | 56.21 | 3,000 | 60 | 1994 | | 2024.06.10 | ¿ù¼¼ | (832-7) | 4 | 35.181 | 2,000 | 70 | 2020 | | 2024.06.10 | Àü¼¼ | ºí¸®½ººô101µ¿102µ¿ | 3 | 28.71 | 22,900 | 0 | 2022 | | 2024.06.10 | ¿ù¼¼ | Áß¾ÓÆÄÅ©¸Ç¼Ç | -1 | 66.9 | 2,000 | 30 | 1999 | | 2024.06.10 | ¿ù¼¼ | û¼Ö¸Ç¼ÇBµ¿ | 5 | 30.16 | 500 | 50 | 2002 | | 2024.06.10 | Àü¼¼ | ½Ö¿ëÇÁ¶óÀÓ | 1 | 29.68 | 13,230 | 0 | 2011 | | 2024.06.10 | ¸Å¸Å | ÀÎÅÍ½ÃÆ¼ | 6 | 29.93 | 15,700 | | 2011 | | 2024.06.10 | ¸Å¸Å | ±×·¹À̽ººô | 3 | 27.73 | 38,000 | | 2022 | | 2024.06.10 | ¸Å¸Å | È£¼ºÆÄÅ©¸Ç¼Ç | 1 | 65 | 27,500 | | 1999 | | 2024.06.10 | ¸Å¸Å | ³²¼º¾ÆÆ®ºô(381-1) | 6 | 23.88 | 22,000 | | 2015 | | 2024.06.10 | ¸Å¸Å | ÀºÇϵ帲ºô | 5 | 38.61 | 15,800 | | 2007 | | 2024.06.10 | ¸Å¸Å | (1120-11) | -1 | 38.71 | 9,000 | | 1986 | | 2024.06.10 | ¸Å¸Å | D.S¿¡ÄÚºô | 4 | 26.21 | 13,000 | | 2013 | | 2024.06.10 | ¸Å¸Å | Ǫ¸¥Ç³°æÃ¤ | 6 | 26.29 | 25,570 | | 2022 | | 2024.06.10 | ¸Å¸Å | ½Ã¿Âºô¸®Áö102 | 6 | 21 | 20,000 | | 2022 | | 2024.06.10 | ¸Å¸Å | ³²¼º¾ÆÆ®ºô(397-24) | 5 | 28.41 | 20,000 | | 2013 | | 2024.06.10 | Àü¼¼ | »ï¼ºÈ¨Å¸¿î | -1 | 52.02 | 9,600 | 0 | 2001 | | 2024.06.10 | Àü¼¼ | ½Ö¿ëÇÁ¶óÀÓ | 1 | 29.68 | 13,230 | 0 | 2011 | | 2024.06.10 | Àü¼¼ | ·ç¹ÌÈú½º | 2 | 29 | 20,000 | 0 | 2021 | | 2024.06.10 | ¿ù¼¼ | ³²¼º¾ÆÆ®ºô | 6 | 38.3 | 4,000 | 115 | 2016 | | 2024.06.10 | ¿ù¼¼ | °Å¼º | 1 | 43.56 | 4,000 | 10 | 1986 | | 2024.06.10 | Àü¼¼ | ´ö¿ë¸Ç¼Ç | 4 | 56.13 | 16,750 | 0 | 1997 | | 2024.06.10 | Àü¼¼ | »ï¹ÌÁÖÅà | 2 | 61.95 | 18,000 | 0 | 2001 | | 2024.06.10 | ¿ù¼¼ | »ïÀͺô¶ó | 2 | 47.7 | 12,700 | 12 | 1994 | | 2024.06.10 | ¿ù¼¼ | ȰîÅõ¿þ´ÏÆÛ½ºÆ® | 10 | 24.45 | 1,000 | 100 | 2018 | | 2024.06.10 | ¿ù¼¼ | ½Å¼¼°èºô¶óÆ®(59-18) | 2 | 38.26 | 2,000 | 75 | 2015 | | 2024.06.10 | Àü¼¼ | ÈúÇϿ콺 | 6 | 45.45 | 13,000 | 0 | 2011 | | 2024.06.09 | ¿ù¼¼ | Å©¸®½ºÅ»ºô | 2 | 41.97 | 4,000 | 85 | 2014 | | 2024.06.08 | Àü¼¼ | DHÆÓ¸®½º101µ¿ | 2 | 29.86 | 21,000 | 0 | 2018 | | 2024.06.08 | ¿ù¼¼ | µð¾Æ¸Á2(105-82) | 2 | 41.82 | 12,000 | 50 | 2014 | | 2024.06.08 | ¿ù¼¼ | Ȳº¸¾ÆÆ®ºô(333-27) | 5 | 25.58 | 16,758 | 20 | 2018 | | 2024.06.08 | ¿ù¼¼ | ¿¹Àκô¶ó(366-12) | -1 | 65.69 | 12,330 | 20 | 2001 | | 2024.06.08 | Àü¼¼ | »êÀåºô¶ó(105-466) | -1 | 45.6 | 8,770 | 0 | 1991 | | 2024.06.08 | ¿ù¼¼ | ±Ý°ÇÏÀÓºô | 4 | 29.15 | 15,600 | 20 | 2015 | | 2024.06.08 | ¿ù¼¼ | µ¿¼ºº£½ºÆ®ºô | 4 | 43.24 | 2,000 | 70 | 2002 | | 2024.06.08 | ¿ù¼¼ | »óÀ±±×¸°ºô¶ó | 2 | 60.42 | 16,700 | 15 | 2000 | | 2024.06.08 | Àü¼¼ | ÇýÀζ߶õä | 8 | 52.42 | 22,900 | 0 | 2017 | | 2024.06.08 | ¿ù¼¼ | ¼ºÁøºô¶ó(400-79) | 2 | 58.93 | 3,000 | 80 | 2001 | | 2024.06.08 | Àü¼¼ | ³²°æ½¦¸£ºô(362-135) | 4 | 36.49 | 10,700 | 0 | 2001 | | 2024.06.08 | Àü¼¼ | °Å¼º | 2 | 49.5 | 16,000 | 0 | 1986 | | 2024.06.08 | ¿ù¼¼ | µ¿¼ºº£½ºÆ®ºô | 4 | 43.24 | 2,000 | 70 | 2002 | | 2024.06.08 | ¿ù¼¼ | Ȳº¸¾ÆÆ®ºô(333-27) | 5 | 25.58 | 16,758 | 20 | 2018 | | 2024.06.08 | Àü¼¼ | ¸íÁøÁÖÅà | 3 | 60.12 | 18,500 | 0 | 2001 | | 2024.06.08 | Àü¼¼ | Å©¶ó¿îÆÓ¸®½º | 13 | 29.94 | 22,800 | 0 | 2020 | | 2024.06.08 | ¿ù¼¼ | ANPȰî | 5 | 23.44 | 1,000 | 100 | 2022 | | 2024.06.08 | Àü¼¼ | »ï¿øºô¶ó(348-8) | 2 | 45.56 | 16,800 | 0 | 1997 | | 2024.06.08 | Àü¼¼ | Ȳº¸¾ÆÆ®ºô(333-27) | 3 | 22.53 | 18,450 | 0 | 2018 | | 2024.06.08 | ¿ù¼¼ | ¿ì¼ºÅ׸¶ºôBµ¿ | 3 | 65.44 | 2,500 | 93 | 2004 | | 2024.06.08 | Àü¼¼ | ¿ì¼ºÅ׸¶ºô | 3 | 53.42 | 14,900 | 0 | 2006 | | 2024.06.08 | Àü¼¼ | °¡ÀÌ¾ÆÆÓ¸®½º | 2 | 29.99 | 20,600 | 0 | 2019 | | 2024.06.08 | ¿ù¼¼ | È£¹Ýµð¿Àºô(975-1) | 2 | 28.16 | 14,000 | 25 | 2014 | | 2024.06.08 | Àü¼¼ | ¿¥Æç¸®Ã¼¿¡À̵¿ | 3 | 27.87 | 16,800 | 0 | 2016 | | 2024.06.08 | ¿ù¼¼ | ¼ºÀçij½ººô(408-22) | 4 | 47.39 | 16,000 | 20 | 2011 | | 2024.06.08 | ¿ù¼¼ | ¶ó¿Âºô(1043-20) | 1 | 18.81 | 500 | 45 | 2013 | | 2024.06.08 | Àü¼¼ | DHÆÓ¸®½º101µ¿ | 2 | 29.86 | 21,000 | 0 | 2018 | | 2024.06.08 | Àü¼¼ | °¡Áøºô¶ó | 3 | 43.71 | 14,700 | 0 | 2008 | | 2024.06.08 | Àü¼¼ | °¡ÀÌ¾ÆÆÓ¸®½º | 2 | 29.99 | 20,600 | 0 | 2019 | | 2024.06.08 | ¸Å¸Å | °è¸íÀ§³Ê½º | 3 | 38.58 | 18,000 | | 2010 | | 2024.06.08 | ¸Å¸Å | ûȱ׸°ºô¶ó | 2 | 67.05 | 22,300 | | 1995 | | 2024.06.08 | ¸Å¸Å | ¹Ì°¡Ã¤(1100-5) | 5 | 39.48 | 24,000 | | 2014 | | 2024.06.07 | Àü¼¼ | ³ª¾Ö¶ã(Aµ¿) | 2 | 39.26 | 15,800 | 0 | 2010 | | 2024.06.07 | ¿ù¼¼ | ÇѼֺô¸®ÁöC | 3 | 56.88 | 4,000 | 80 | 2003 | | 2024.06.07 | Àü¼¼ | À̳뼿(INNOCELL) | 3 | 29.7 | 16,500 | 0 | 2017 | | 2024.06.07 | ¿ù¼¼ | Çý¼ºÆç¸®½ººô | 3 | 26.22 | 15,000 | 20 | 2018 | | 2024.06.07 | ¿ù¼¼ | Ǫ¸¥Ç³°æÃ¤ | 4 | 38.03 | 3,000 | 80 | 2018 | | 2024.06.07 | ¸Å¸Å | ¼º¿ì¾ÆÆ®ºô(346-77) | 3 | 60 | 27,500 | | 2003 | | 2024.06.07 | ¸Å¸Å | µ¿µµÇÏÀÌÃ÷ºô¶ó³ªµ¿ | 2 | 43.23 | 13,700 | | 2001 | | 2024.06.07 | ¸Å¸Å | ³ª¸°ÇÏÀÓBµ¿(976-4) | 6 | 26.14 | 21,500 | | 2017 | | 2024.06.07 | ¸Å¸Å | ¿ì¼ººô¶ó(1087-37) | 4 | 29.77 | 16,800 | | 2011 | | 2024.06.07 | Àü¼¼ | ¸¶Å©ÇϿ콺 | 2 | 49.6 | 26,460 | 0 | 2017 | | 2024.06.07 | Àü¼¼ | ½ºÆäÀ̽ººô | 5 | 27.02 | 15,200 | 0 | 2015 | | 2024.06.07 | ¿ù¼¼ | Ǫ¸¥Ç³°æÃ¤ | 4 | 38.03 | 3,000 | 80 | 2018 | | 2024.06.07 | ¿ù¼¼ | ½Å¿ø¾ÆÆ®ºô¶ó | 4 | 64.98 | 3,000 | 70 | 2001 | | 2024.06.07 | Àü¼¼ | ÈÞ&À¯ºô | 3 | 27.7 | 20,000 | 0 | 2020 | | 2024.06.07 | Àü¼¼ | (1041-1) | 2 | 62.17 | 27,270 | 0 | 1983 | | 2024.06.07 | ¿ù¼¼ | ¿ùµåȨŸ¿î(772-10) | 2 | 46.82 | 7,000 | 60 | 2014 | | 2024.06.07 | Àü¼¼ | ÁøÁ̴ֹãä | 4 | 23.18 | 13,600 | 0 | 2016 | | 2024.06.07 | ¿ù¼¼ | ¼ºÁÖºô¶óCµ¿ | 4 | 51.37 | 11,000 | 20 | 1995 | | 2024.06.07 | Àü¼¼ | ÇÁ¸®Áòºô¶óBµ¿ | 1 | 68.84 | 17,000 | 0 | 2002 | | 2024.06.07 | Àü¼¼ | ³ª¾Ö¶ã(Aµ¿) | 2 | 39.26 | 15,800 | 0 | 2010 | | 2024.06.07 | Àü¼¼ | (1041-1) | 2 | 62.17 | 27,270 | 0 | 1983 | | 2024.06.06 | Àü¼¼ | (167-4) | 1 | 51.75 | 14,000 | 0 | 1999 | | 2024.06.06 | ¿ù¼¼ | ¼öÇÇ¾Æ | 6 | 32.33 | 4,000 | 43 | 2019 | | 2024.06.06 | ¿ù¼¼ | ½Ã±×´ÏÃÄ-S | 3 | 29.64 | 4,000 | 85 | 2023 | | 2024.06.06 | ¿ù¼¼ | »ïȺô¸®Áö(403-8) | 5 | 16.28 | 500 | 45 | 2012 | | 2024.06.06 | ¿ù¼¼ | µ¿ÈÁÖÅÃ(56-429) | 1 | 32.66 | 9,300 | 30 | 1990 | | 2024.06.06 | ¿ù¼¼ | µ¿ÈÁÖÅÃ(56-429) | 1 | 32.66 | 9,300 | 30 | 1990 | | 2024.06.06 | Àü¼¼ | ±¤Áøºô¶óÆ® | 3 | 48.22 | 14,000 | 0 | 2003 | | 2024.06.06 | Àü¼¼ | Æú¶óºñ¿¤ | 2 | 46.8 | 25,000 | 0 | 2017 | | 2024.06.06 | Àü¼¼ | ¼ºÁøÅ¸¿î | 2 | 45.78 | 15,000 | 0 | 2012 | | 2024.06.06 | Àü¼¼ | ºñ¿¡½ºÇÏ¿ì¡2 | 3 | 39.32 | 25,000 | 0 | 2018 | | 2024.06.06 | Àü¼¼ | ÇÑÅͺô | 3 | 63.96 | 18,500 | 0 | 2002 | | 2024.06.06 | Àü¼¼ | ÀÌȺô¶ó³ªµ¿ | 1 | 35.94 | 14,000 | 0 | 1987 | | 2024.06.06 | Àü¼¼ | ÇØ¼ºÆç¸®½ººôB | 2 | 53.82 | 16,000 | 0 | 2002 | | 2024.06.06 | Àü¼¼ | NS¿ÀÇǽº | 6 | 13.75 | 7,400 | 0 | 2013 | | 2024.06.06 | ¿ù¼¼ | ³ëºí·¹½ººô(56-506) | 2 | 29.76 | 11,000 | 10 | 2012 | | 2024.06.06 | Àü¼¼ | ÇѼººô¶ó(56-655) | 4 | 51.45 | 13,000 | 0 | 1994 | | 2024.06.06 | Àü¼¼ | DS¿¡ÄÚŸ¿î(471-18) | 2 | 29.98 | 15,100 | 0 | 2014 | | 2024.06.06 | Àü¼¼ | ´õ¿ø(852-31) | 2 | 28.62 | 19,650 | 0 | 2021 | | 2024.06.06 | ¿ù¼¼ | ÇѸ¶À½ºô¶ó | 5 | 41.76 | 10,500 | 15 | 2002 | | 2024.06.06 | ¿ù¼¼ | ¼ÛµµÄ«¿îƼ | 3 | 27.95 | 12,100 | 10 | 2012 | | 2024.06.06 | ¿ù¼¼ | ´õ¼û153 | 3 | 16.06 | 0 | 55 | 2021 | | 2024.06.06 | Àü¼¼ | ´Ù¼Øºô | 4 | 64.15 | 19,152 | 0 | 2010 | | 2024.06.06 | ¿ù¼¼ | ÇØ¿Âij½½ | 3 | 26.93 | 17,260 | 10 | 2019 | | 2024.06.06 | ¸Å¸Å | ¿ì¼ºÅ׸¶ºô(391-33) | 1 | 62.74 | 30,200 | | 2005 | | 2024.06.06 | ¸Å¸Å | ¿À¼ºµå¸²ºô | 4 | 35.55 | 21,000 | | 2016 | | 2024.06.06 | ¸Å¸Å | ¹éÁ¦ºô¶ó | 3 | 44.92 | 18,500 | | 1991 | | 2024.06.05 | ¸Å¸Å | ³²¼º¾ÆÆ®ºô(424-3) | 3 | 25.56 | 19,000 | | 2014 | | 2024.06.05 | ¿ù¼¼ | ´ë°Çºô¶ó(102-251) | 1 | 35.04 | 9,270 | 15 | 1995 | | 2024.06.05 | ¿ù¼¼ | Á¤°¨ÇϿ콺 | 2 | 37.09 | 500 | 30 | 2016 | | 2024.06.05 | ¿ù¼¼ | °¡³ª¾Æµ¨¸®¿ò(102-120) | 4 | 33.76 | 17,800 | 15 | 2014 | | 2024.06.05 | ¿ù¼¼ | ·ç¹ÌÈú½º | 4 | 29.82 | 0 | 90 | 2021 | | 2024.06.05 | ¿ù¼¼ | À¯¸²¾ÆÆ®¹Ð | 3 | 45.61 | 2,000 | 50 | 2003 | | 2024.06.05 | ¿ù¼¼ | µ¿¼ÁÖÅà | 5 | 65.97 | 1,000 | 70 | 2002 | | 2024.06.05 | ¿ù¼¼ | °¡³ª¾Æµ¨¸®¿ò(102-120) | 4 | 33.76 | 17,800 | 15 | 2014 | | 2024.06.05 | ¿ù¼¼ | ¼º¿îÇÏÀÌÃ÷ | 2 | 61.44 | 5,000 | 60 | 1995 | | 2024.06.05 | ¿ù¼¼ | ¿ì¼ºÅ׸¶ºô(368-59) | 2 | 58.76 | 2,000 | 70 | 2005 | | 2024.06.05 | ¸Å¸Å | Çý¸²ÁÖÅÃ(1050-25) | 3 | 59.73 | 26,500 | | 2010 | | 2024.06.05 | ¸Å¸Å | °©Áø°ñµåºô | 2 | 35.08 | 25,000 | | 2013 | | 2024.06.05 | ¸Å¸Å | Ǫ¸¥Ç³°æÃ¤ | 4 | 26.29 | 25,570 | | 2022 | | 2024.06.05 | ¸Å¸Å | Ǫ¸¥Ç³°æÃ¤ | 3 | 26.29 | 25,570 | | 2022 | | 2024.06.05 | ¸Å¸Å | ´ëÀº¿¬¸³ | -1 | 59.9 | 5,600 | | 1998 | | 2024.06.05 | ¸Å¸Å | ÀÎÅÍ½ÃÆ¼ºô¶ó(340-92) | 3 | 39.58 | 18,000 | | 2002 | | 2024.06.05 | ¸Å¸Å | À̼ö¾ÆÆ®ºô | 3 | 39.7 | 25,900 | | 2014 | | 2024.06.05 | ¸Å¸Å | ¿ìÁÖºô¶óÆ® | 1 | 62.22 | 21,000 | | 2001 | | 2024.06.05 | ¸Å¸Å | »ï¿øÇÇ¾ÆÆ®Dµ¿ | 3 | 63.45 | 16,200 | | 2001 | | 2024.06.05 | ¸Å¸Å | Ǫ¸¥Ç³°æÃ¤ | 5 | 26.29 | 25,570 | | 2022 | | 2024.06.05 | ¸Å¸Å | °æ¿ø±×¸°ºô°¡µ¿ | 3 | 59.73 | 29,900 | | 2001 | | 2024.06.05 | ¸Å¸Å | Ǫ¸¥Ç³°æÃ¤ | 6 | 26.29 | 25,570 | | 2022 | | 2024.06.04 | ¿ù¼¼ | ¿¡½º¿¥ÆÄÅ©ºô(101µ¿102µ¿) | 3 | 32.52 | 5,000 | 70 | 2014 | | 2024.06.04 | ¿ù¼¼ | Çö´ë¾ÆÆ®ºô¶ó | 1 | 49.32 | 12,800 | 15 | 1996 | | 2024.06.04 | Àü¼¼ | ³ª»ê¸Ç¼Ç(154-13) | 5 | 50.78 | 14,700 | 0 | 2007 | | 2024.06.04 | ¿ù¼¼ | °ø°¨ÁöÀ½410 | 1 | 26.2 | 1,000 | 60 | 2021 | | 2024.06.04 | ¿ù¼¼ | ½ÅÈï·¹¹Ì¾Èºô | 4 | 50.15 | 3,000 | 40 | 2002 | | 2024.06.04 | ¿ù¼¼ | ¿¹ÀÎ¾ÆÆ®ºô | 3 | 36.57 | 1,000 | 70 | 2003 | | 2024.06.04 | Àü¼¼ | (969-15) | 3 | 51.09 | 20,000 | 0 | 2015 | | 2024.06.04 | ¿ù¼¼ | ¶óÇǾƳë | 6 | 34.82 | 5,000 | 100 | 2022 | | 2024.06.04 | Àü¼¼ | ¸ðÀüÇ÷¯½ººôBµ¿ | 2 | 33.05 | 12,000 | 0 | 2002 | | 2024.06.04 | ¿ù¼¼ | µ¿¼º¸®ºñ¾Ó | 3 | 38.25 | 195,700 | 2 | 2015 | | 2024.06.04 | ¿ù¼¼ | ½ºÀ§Æ®ºô3 | 2 | 61.23 | 17,000 | 50 | 2002 | | 2024.06.04 | Àü¼¼ | ÇѼº±×¸°Å¸¿î6µ¿ | 3 | 60.82 | 17,200 | 0 | 2003 | | 2024.06.04 | Àü¼¼ | ´ºÀÌȺô¶ó | 3 | 60.04 | 17,000 | 0 | 2000 | | 2024.06.04 | Àü¼¼ | ½´ÇÁ¸²´õÇÏÀÌ¿ò | 6 | 60.47 | 30,000 | 0 | 2023 | | 2024.06.04 | ¿ù¼¼ | ¼¿¬ºí·çÈúºñ | 4 | 29.68 | 16,600 | 11 | 2016 | | 2024.06.04 | Àü¼¼ | â´ëºô¶ó(371-10) | 2 | 38.3 | 15,200 | 0 | 2011 | | 2024.06.04 | Àü¼¼ | ½ÅÈï·¡¹Ì¾È | 3 | 43.37 | 15,800 | 0 | 2011 | | 2024.06.04 | ¿ù¼¼ | ¹Ì·¡ÇÏÀÌÃ÷(409-47) | 2 | 42.25 | 12,000 | 20 | 2001 | | 2024.06.04 | ¿ù¼¼ | ´ë¼º¾ÆÆ®ºô(152-3) | 2 | 40.89 | 12,200 | 17 | 2003 | | 2024.06.04 | Àü¼¼ | ´Ù³ª³×½ºÆ®ºô(56-445) | 2 | 42.71 | 13,000 | 0 | 2008 | | 2024.06.04 | Àü¼¼ | ½´ÇÁ¸²´õÇÏÀÌ¿ò | 6 | 60.47 | 30,000 | 0 | 2023 | | 2024.06.04 | Àü¼¼ | °¡¼º¾ÆÆ®Èú5Â÷Bµ¿(966-15) | 3 | 56.56 | 16,000 | 0 | 2002 | | 2024.06.04 | ¿ù¼¼ | °¼ºô¶ó | -1 | 70.09 | 2,000 | 60 | 1991 | | 2024.06.04 | ¸Å¸Å | ±îÄ¡¸Ç¼Ç | 3 | 56.41 | 16,800 | | 1993 | | 2024.06.04 | ¸Å¸Å | À£½ºÆÄÅ©ºô | 2 | 28.14 | 22,000 | | 2018 | | 2024.06.04 | ¸Å¸Å | û¼ÛÆòÈÇÏÀ̸ǼÇBµ¿(504-117) | 2 | 59.98 | 20,000 | | 2002 | | 2024.06.04 | ¸Å¸Å | Áß¾ÓÁÖÅà | 1 | 43.44 | 17,700 | | 2002 | | 2024.06.04 | ¿ù¼¼ | °Å¼º | 3 | 43.56 | 12,000 | 15 | 1986 | | 2024.06.03 | Àü¼¼ | ¾çÁöŸ¿î | 2 | 59.79 | 17,300 | 0 | 2000 | | 2024.06.03 | Àü¼¼ | ¿ìº¸½¦¸£ºô | 2 | 55.02 | 17,600 | 0 | 2002 | | 2024.06.03 | ¿ù¼¼ | ÈÄ¾Ï¾ÆÆ®ºô | 2 | 63.23 | 19,000 | 10 | 2004 | | 2024.06.03 | ¸Å¸Å | ¿¬Èñºô¶ó(353-3) | 2 | 66.57 | 24,000 | | 1996 | | 2024.06.03 | Àü¼¼ | Çö´ëÇÏÀÌÃ÷ºô¶ó(456-20) | -1 | 55.04 | 9,000 | 0 | 1997 | | 2024.06.03 | ¿ù¼¼ | ȼººô¶ó42Â÷Bµ¿(56-410) | 3 | 46.62 | 1,000 | 75 | 2002 | | 2024.06.03 | ¿ù¼¼ | °æµ¿ÁÖÅà | 2 | 35.5 | 1,000 | 62 | 2002 | | 2024.06.03 | ¿ù¼¼ | º¹Áö¾ÆÆ®ºô¶ó2µ¿ | 1 | 56.1 | 2,000 | 65 | 2003 | | 2024.06.03 | ¿ù¼¼ | ´õ±×¶ó½Ã¾Æ | 5 | 23.73 | 20,400 | 10 | 2022 | | 2024.06.03 | Àü¼¼ | ¿¡ºñ¾ÓÇϿ콺 | 2 | 29.53 | 18,396 | 0 | 2017 | | 2024.06.03 | ¿ù¼¼ | ÇѼֺô¸®Áö | 2 | 38.94 | 11,200 | 10 | 2002 | | 2024.06.03 | ¿ù¼¼ | ¼±°æº£½ºÆ®ºô(98-119) | 5 | 41.2 | 14,400 | 6 | 2008 | | 2024.06.03 | ¸Å¸Å | ÀºÇϼö±×¸°ºô | 4 | 44.04 | 16,500 | | 2002 | | 2024.06.03 | Àü¼¼ | ³²¼º¾ÆÆ®ºô(423-14) | 4 | 32 | 17,700 | 0 | 2014 | | 2024.06.03 | Àü¼¼ | ½Å¿µº£¸£µð¿ò | 4 | 28.07 | 18,500 | 0 | 2019 | | 2024.06.03 | Àü¼¼ | °æµ¿ÆÓ¸®½º(842-22) | 3 | 73.29 | 26,000 | 0 | 2008 | | 2024.06.03 | ¸Å¸Å | ·Î¾âÇÏÀÌÃ÷Bµ¿ | 1 | 54.44 | 20,700 | | 2000 | | 2024.06.03 | ¸Å¸Å | ½Å¿ø¼¾½ººô(392-75) | 2 | 50.79 | 22,300 | | 2010 | | 2024.06.03 | ¸Å¸Å | ´ë¼Ûºô¶ó(102-170) | 2 | 53.34 | 19,000 | | 2001 | | 2024.06.03 | ¿ù¼¼ | ¿ì¼ººô¶ó13Â÷ | 2 | 40.5 | 12,500 | 10 | 1992 | | 2024.06.03 | ¸Å¸Å | ½Ç¹öºô¶ó³ªµ¿ | 2 | 47.28 | 19,000 | | 1992 | | 2024.06.03 | ¸Å¸Å | Àå¿øÅ¸¿î³ªµ¿ | 1 | 61.2 | 25,000 | | 2000 | | 2024.06.03 | ¸Å¸Å | ¿¬Èñºô¶ó°¡µ¿ | 3 | 102.18 | 40,000 | | 1983 | | 2024.06.02 | Àü¼¼ | ½Å¶óÇÏÀÌÃ÷(162-6) | 3 | 29.36 | 12,500 | 0 | 2011 | | 2024.06.02 | Àü¼¼ | ÇÑ¿ï¾ÆÆ®ºô³ªµ¿ | 5 | 60.78 | 17,900 | 0 | 2002 | | 2024.06.02 | Àü¼¼ | ¹Ì¼Òºô | 6 | 27.79 | 20,700 | 0 | 2018 | | 2024.06.02 | ¿ù¼¼ | ¸¶·çÇϿ콺2Â÷ | 2 | 29.87 | 17,500 | 20 | 2011 | | 2024.06.02 | ¿ù¼¼ | Bluehill | 3 | 29.42 | 100 | 50 | 2019 | | 2024.06.02 | ¸Å¸Å | ´ë¸²Èúž | 2 | 43.5 | 23,800 | | 2010 | | 2024.06.01 | Àü¼¼ | ´Ù¿ÂÆÄÅ©ºô | 3 | 16.71 | 10,390 | 0 | 2017 | | 2024.06.01 | Àü¼¼ | ÈÀÎÇϿ콺(963-23) | 3 | 22.44 | 4,400 | 0 | 1993 | | 2024.06.01 | Àü¼¼ | ´ëÇѺô¶ó9Â÷ | 2 | 52.92 | 13,000 | 0 | 1993 | | 2024.06.01 | Àü¼¼ | ½ã¶óÀÎ | 8 | 29.91 | 21,000 | 0 | 2016 | | 2024.06.01 | ¿ù¼¼ | ÇØ¼ºÆÓ¸®½ººô2Â÷ | 4 | 35.1 | 10,000 | 28 | 2001 | | 2024.06.01 | Àü¼¼ | º£¾ÆÆ®¸®½º(341-3) | 6 | 28.94 | 23,100 | 0 | 2017 | | 2024.06.01 | Àü¼¼ | º¸³ëÇϿ콺Bµ¿ | 4 | 46.24 | 23,500 | 0 | 2016 | | 2024.06.01 | ¿ù¼¼ | ÇØ¼ºÆÓ¸®½ººô2Â÷ | 4 | 35.1 | 10,000 | 28 | 2001 | | 2024.06.01 | Àü¼¼ | MÆç¸®Ã¼ | 4 | 36.49 | 25,000 | 0 | 2018 | | 2024.06.01 | Àü¼¼ | ´Ù¿ÂÆÄÅ©ºô | 4 | 24.34 | 17,600 | 0 | 2017 | | 2024.06.01 | Àü¼¼ | dz¼º¾Ö¶ã¾È | 5 | 56.62 | 29,850 | 0 | 2016 | | 2024.06.01 | Àü¼¼ | Áß¾Óºô¶ó | 4 | 54.39 | 16,500 | 0 | 2003 | | 2024.06.01 | ¿ù¼¼ | µ¿¾çÁÖÅà | 1 | 51.87 | 14,400 | 9 | 1995 | | 2024.06.01 | ¿ù¼¼ | ½Â¹Î | 3 | 34.98 | 1,000 | 70 | 2013 | | 2024.06.01 | Àü¼¼ | Áß¾Óºô¶ó | 4 | 54.39 | 16,200 | 0 | 2003 | | 2024.06.01 | ¿ù¼¼ | (400-149) | 1 | 35.05 | 10,200 | 4 | 1986 | | 2024.06.01 | Àü¼¼ | ³×½ºÆ®ºô | 3 | 51.07 | 17,600 | 0 | 2007 | | 2024.06.01 | ¸Å¸Å | ÄÉÀ̾¾ÇÏ¿ì¡ | 4 | 29.77 | 28,000 | | 2021 | | 2024.06.01 | ¸Å¸Å | »ï¼º½¦¸£ºô(351-17¹øÁö) | 4 | 40.06 | 23,000 | | 2016 | | 2024.06.01 | ¸Å¸Å | ´ö¿ëÆÓ¸®Ã¼ | 5 | 31.89 | 26,600 | | 2018 | | 2024.06.01 | ¸Å¸Å | º¹Áöºô¸®Áö | 1 | 34.41 | 11,500 | | 1994 | | 2024.06.01 | ¸Å¸Å | Á¤°¨Å¸¿îC | 6 | 25.27 | 25,500 | | 2016 | | 2024.06.01 | ¸Å¸Å | ÅÂÇÑÇÏÀ̺ô(382-25) | 3 | 26.62 | 19,700 | | 2017 | | 2024.06.01 | ¸Å¸Å | ´Ù¼ØBµ¿(381-4) | 6 | 34.07 | 21,500 | | 2015 | | 2024.06.01 | ¿ù¼¼ | °æÇѺô¶ó(56-644) | 1 | 61.34 | 5,000 | 60 | 1991 | | 2024.06.01 | Àü¼¼ | ³²¼º¾ÆÆ®ºô(423-14) | 4 | 32 | 17,700 | 0 | 2014 | | 2024.06.01 | ¿ù¼¼ | È«¼ºÁÖÅÃBµ¿ | -1 | 28.05 | 500 | 45 | 2002 | | 2024.06.01 | ¿ù¼¼ | ±×·£µå¿Õ½Çºô¶ó | 3 | 57.41 | 3,000 | 80 | 1995 | | 2024.06.01 | Àü¼¼ | ¿µÀÏ¾ÆÆ®ºô(Aµ¿) | -1 | 57.8 | 11,400 | 0 | 2002 | | 2024.06.01 | ¿ù¼¼ | (871-78) | 4 | 53.46 | 5,500 | 95 | 2024 | | 2024.06.01 | Àü¼¼ | ¼º¿øÆÄÅ©ºô | 2 | 42.04 | 13,600 | 0 | 2008 | | 2024.05.31 | ¿ù¼¼ | Á¤Çöºô¶ó(98-39) | 3 | 58.2 | 20,000 | 10 | 2001 | | 2024.05.31 | Àü¼¼ | DHÆÓ¸®½º101µ¿ | 3 | 29.86 | 20,000 | 0 | 2018 | | 2024.05.31 | ¿ù¼¼ | ¿î¾ÏÇÏÀÌÃ÷ºô | 1 | 63.7 | 15,800 | 18 | 2002 | | 2024.05.31 | Àü¼¼ | °¡ÈÁÖÅ𡵿 | 1 | 59.89 | 16,250 | 0 | 1999 | | 2024.05.31 | Àü¼¼ | ÀÚÇÏŬ·¡½Ä | 16 | 13.77 | 11,800 | 0 | 2018 | | 2024.05.31 | ¿ù¼¼ | Çѿî(105-414) | 4 | 27.24 | 10,000 | 35 | 2012 | | 2024.05.31 | Àü¼¼ | Á¤¾Èºô¶ó | 4 | 44.26 | 5,000 | 0 | 1991 | | 2024.05.31 | ¿ù¼¼ | ´ë±¤¾ÆÆ®ºô¶ó | 3 | 60.4 | 14,500 | 5 | 1996 | | 2024.05.31 | Àü¼¼ | °¡ÈÁÖÅ𡵿 | 1 | 59.89 | 19,800 | 0 | 1999 | | 2024.05.31 | Àü¼¼ | ¼¼¸íÆÄÅ©ºô(996-16) | 3 | 39.12 | 16,060 | 0 | 2011 | | 2024.05.31 | ¿ù¼¼ | ³²¼º¾ÆÆ®ºô(354-41) | 5 | 35.02 | 3,000 | 80 | 2014 | | 2024.05.31 | Àü¼¼ | µ¿¾çÇÏ¿ì¡ | 2 | 28.73 | 17,500 | 0 | 2016 | | 2024.05.31 | ¿ù¼¼ | ¿©¿øºô¶ó(396-25) | 5 | 49.68 | 13,800 | 15 | 2002 | | 2024.05.31 | ¿ù¼¼ | ¹Ì·¡½ºÅ¸ºô5Â÷(464-10) | 4 | 40.36 | 12,800 | 30 | 2008 | | 2024.05.31 | ¸Å¸Å | ½ÃƼ¿ùºô¶ó | 4 | 45.4 | 13,800 | | 2003 | | 2024.05.31 | ¸Å¸Å | È£¼ºÆÄÅ©¸Ç¼Ç(1070-16) | 4 | 61.04 | 26,500 | | 1996 | | 2024.05.31 | ¸Å¸Å | ·Ôµ¥ºô¶ó | 3 | 34.07 | 11,000 | | 1993 | | 2024.05.31 | ¸Å¸Å | ¿¡½ºÄÉÀÌÆÄÅ©¸®¿ò(157-21) | 3 | 18.74 | 21,500 | | 2020 | | 2024.05.31 | ¸Å¸Å | ¿¡½ºÄÉÀÌÆÄÅ©¸®¿ò(157-21) | 3 | 29.79 | 24,500 | | 2020 | | 2024.05.31 | ¸Å¸Å | ¿¡½ºÄÉÀÌÆÄÅ©¸®¿ò(157-21) | 2 | 18.74 | 21,500 | | 2020 | | 2024.05.31 | ¸Å¸Å | ¿¡½ºÄÉÀÌÆÄÅ©¸®¿ò(157-21) | 2 | 29.79 | 24,500 | | 2020 | | 2024.05.31 | ¸Å¸Å | Ǫ¸¥Ç³°æÃ¤ | 5 | 29.98 | 29,230 | | 2022 | | 2024.05.31 | ¸Å¸Å | Ǫ¸¥Ç³°æÃ¤ | 6 | 29.98 | 29,230 | | 2022 | | 2024.05.30 | Àü¼¼ | Çö´ëºí·ç¹Ö | 4 | 31.75 | 18,520 | 0 | 2015 | | 2024.05.30 | Àü¼¼ | (1053-1) | 1 | 55.35 | 16,900 | 0 | 2002 | | 2024.05.30 | ¿ù¼¼ | µð¿¡½ºÇÁ¶ó´Ù | 4 | 36.78 | 16,000 | 20 | 2012 | | 2024.05.30 | Àü¼¼ | Æú¶óºñ¿¤ | 3 | 46.84 | 28,000 | 0 | 2017 | | 2024.05.30 | ¿ù¼¼ | º¹ÁöÇÏÀÌÃ÷ºô¶óB | 3 | 59.98 | 12,000 | 40 | 1991 | | 2024.05.30 | Àü¼¼ | ¸®´õ½ººô | 3 | 42.86 | 17,850 | 0 | 2008 | | 2024.05.30 | Àü¼¼ | ¿©¿øºô¶ó(396-25) | 3 | 60.6 | 20,000 | 0 | 2002 | | 2024.05.30 | Àü¼¼ | ¿ì¼º´ë·Îºô¶ó | 2 | 46.8 | 12,800 | 0 | 1995 | | 2024.05.30 | Àü¼¼ | ¼Û¿øºô¶ó | 1 | 62.04 | 13,980 | 0 | 1995 | | 2024.05.30 | ¿ù¼¼ | »ï¼ºÁÖÅÃ(46-112) | 2 | 60.52 | 13,000 | 30 | 2000 | | 2024.05.30 | ¿ù¼¼ | ÇØºñÄ¡ºô | 3 | 29.85 | 12,400 | 17 | 2011 | | 2024.05.30 | Àü¼¼ | ÇѾƸ§ÁÖÅà | -1 | 39.29 | 8,300 | 0 | 1993 | | 2024.05.30 | ¿ù¼¼ | À¯ÇѺô | 5 | 37.56 | 200 | 62 | 2016 | | 2024.05.30 | Àü¼¼ | º¹ÁöÇÏÀÌÃ÷ºô¶óB | 3 | 59.98 | 16,000 | 0 | 1991 | | 2024.05.30 | Àü¼¼ | ¼Û¿øºô¶ó | 1 | 62.04 | 13,980 | 0 | 1995 | | 2024.05.30 | ¿ù¼¼ | À§ÇϿ콺 | 4 | 39.97 | 10,500 | 80 | 2015 | | 2024.05.30 | Àü¼¼ | ¼Ò´ã¹ë¸® | 4 | 29.14 | 17,500 | 0 | 2012 | | 2024.05.30 | ¸Å¸Å | Ȱî·Î¾â°¡µ¿ | 2 | 36.18 | 17,000 | | 1991 | | 2024.05.30 | ¸Å¸Å | µå¸²ºô(369-28) | 4 | 39.87 | 13,400 | | 2002 | | 2024.05.30 | ¸Å¸Å | ¿ì¼ºÁß¾Óºô¶ó | -1 | 47.79 | 10,000 | | 1995 | | 2024.05.30 | ¸Å¸Å | (346-89) | 1 | 38.34 | 13,000 | | 1987 | | 2024.05.30 | ¸Å¸Å | Á¤¿ø¸Ç¼Ç | -1 | 59.95 | 20,000 | | 2002 | | 2024.05.30 | ¸Å¸Å | â´ë(372-22) | 6 | 34.49 | 21,000 | | 2012 | | 2024.05.30 | ¸Å¸Å | ¿¥Æç¸®Ã¼ºñµ¿ | 3 | 29.95 | 24,500 | | 2017 | | 2024.05.30 | ¸Å¸Å | DS¿¡ÄÚŸ¿î(471-18) | 2 | 29.98 | 16,900 | | 2014 | | 2024.05.30 | ¸Å¸Å | ¿µµ¿ºô¶ó | 2 | 67.53 | 25,500 | | 2002 | | 2024.05.30 | Àü¼¼ | (1053-1) | 1 | 60.54 | 18,500 | 0 | 2002 | | 2024.05.30 | Àü¼¼ | (1053-1) | 2 | 55.35 | 18,400 | 0 | 2002 | | 2024.05.30 | Àü¼¼ | ¼Ò´ã¹ë¸® | 4 | 29.14 | 17,500 | 0 | 2012 | | 2024.05.30 | ¿ù¼¼ | µµÇÏ | 2 | 16.71 | 300 | 55 | 2023 | | 2024.05.30 | Àü¼¼ | ¼¼¸²ÆÓ¸®Ã¼ | 2 | 28.71 | 15,000 | 0 | 2016 | | 2024.05.30 | ¿ù¼¼ | °è¸íÀ§³Ê½º | 2 | 54.54 | 18,000 | 25 | 2008 | | 2024.05.30 | Àü¼¼ | ÇѾƸ§ÁÖÅà | -1 | 39.29 | 8,300 | 0 | 1993 | | 2024.05.29 | ¿ù¼¼ | µÎ¸®ºô¶ó | 1 | 45.54 | 1,000 | 50 | 1991 | | 2024.05.29 | Àü¼¼ | û¼ÛÆòÈÇコÇϿ콺(457-3) | 4 | 29.85 | 16,200 | 0 | 2015 | | 2024.05.29 | ¿ù¼¼ | Åä¼®¾Æ³×½ººô(102-291) | 3 | 62.28 | 2,000 | 110 | 2008 | | 2024.05.29 | ¿ù¼¼ | (430-8) | 3 | 26.55 | 500 | 62 | 2013 | | 2024.05.29 | ¿ù¼¼ | (430-8) | 3 | 26.55 | 500 | 62 | 2013 | | 2024.05.29 | ¿ù¼¼ | ÀÚ¶óÇϿ콺(353-32) | 6 | 23.24 | 12,800 | 20 | 2015 | | 2024.05.29 | ¿ù¼¼ | ÇѼº¾ÆÆ®ºô³ªµ¿ | 4 | 55.9 | 13,200 | 20 | 2002 | | 2024.05.29 | ¸Å¸Å | Å¿µpalace | 5 | 38.3 | 29,000 | | 2018 | | 2024.05.29 | ¸Å¸Å | ÇѹéeŸ¿î(112-32) | 2 | 64.04 | 27,000 | | 2002 | | 2024.05.29 | ¸Å¸Å | ´Ù¼Ö´©¸®(871-77) | 2 | 51.78 | 24,000 | | 2014 | | 2024.05.29 | ¸Å¸Å | ¼ºÀçij½ººô(408-22) | 4 | 47.39 | 25,000 | | 2011 | | 2024.05.29 | ¸Å¸Å | (102-332) | 2 | 64.41 | 23,000 | | 1998 | | 2024.05.29 | ¸Å¸Å | À§ÇϿ콺(111-10) | 5 | 28.88 | 17,450 | | 2016 | | 2024.05.29 | Àü¼¼ | º®»êȨŸ¿î(969-14) | 4 | 38.56 | 14,800 | 0 | 2002 | | 2024.05.29 | ¿ù¼¼ | ´ë¼ºÄÉÀÌÁ¦ÀÌ | 9 | 26.72 | 1,000 | 100 | 2020 | | 2024.05.29 | Àü¼¼ | °æÀκô¶ó(56-360) | -1 | 47.84 | 8,900 | 0 | 1990 | | 2024.05.29 | Àü¼¼ | ±ÃÀü¾ÆÆ®ºô¶ó | 4 | 61.03 | 14,000 | 0 | 1996 | | 2024.05.29 | ¿ù¼¼ | ´ë¸²¾ÆÆ®ºô(77-54) | 3 | 49.595 | 12,000 | 10 | 2002 | | 2024.05.29 | Àü¼¼ | ´º±×¸°ºô | 3 | 68.22 | 19,600 | 0 | 2004 | | 2024.05.29 | ¿ù¼¼ | ¿¥Æç¸®Ã¼(346-75) | 2 | 25.96 | 5,500 | 50 | 2015 | | 2024.05.29 | Àü¼¼ | û±¸ºô¶ó(51-49) | 4 | 58.39 | 15,000 | 0 | 1995 | | 2024.05.29 | ¿ù¼¼ | ¼º¸²ÆÄÅ©ºôAµ¿ | 4 | 43.57 | 1,000 | 75 | 2002 | | 2024.05.28 | Àü¼¼ | ȼº¸Ç¼Ç15Â÷ | 4 | 59.22 | 16,000 | 0 | 1998 | | 2024.05.28 | ¿ù¼¼ | ¿ìÀåÈÀκô(995-27) | 4 | 48.99 | 19,500 | 10 | 2011 | | 2024.05.28 | Àü¼¼ | º§¶óÇϿ콺¥± | 4 | 42.94 | 15,000 | 0 | 2012 | | 2024.05.28 | ¿ù¼¼ | Á¦À̽ººô(969-5) | 6 | 22.73 | 1,000 | 90 | 2022 | | 2024.05.28 | Àü¼¼ | ±Û·Î¸®¾ÆÇϿ콺 | 4 | 26.79 | 24,800 | 0 | 2021 | | 2024.05.28 | Àü¼¼ | ´Ù¿Âºô | 6 | 29.04 | 16,600 | 0 | 2018 | | 2024.05.28 | ¿ù¼¼ | ½Å¼º¸®Ä¡ºô¥°(357-16) | 3 | 36.62 | 5,000 | 50 | 2013 | | 2024.05.28 | Àü¼¼ | (362-109)°¼ººô¶ó3Â÷ | 2 | 33.28 | 9,500 | 0 | 1991 | | 2024.05.28 | ¿ù¼¼ | Ŭ·¡½Ãºä | 2 | 28.91 | 1,000 | 100 | 2022 | | 2024.05.28 | ¿ù¼¼ | ¿ì¼ºAµ¿Bµ¿(346-86) | 4 | 32.61 | 16,000 | 20 | 2014 | | 2024.05.28 | ¿ù¼¼ | ¹Ð·¹´Ï¾ö | 5 | 22.68 | 8,130 | 38 | 2010 | | 2024.05.28 | Àü¼¼ | (77-35) | 2 | 62.76 | 16,800 | 0 | 2003 | | 2024.05.28 | ¿ù¼¼ | ¾ÆÀνººô(46-221) | 8 | 35.2 | 13,700 | 20 | 2013 | | 2024.05.28 | ¿ù¼¼ | µµÇÏ | 3 | 15.11 | 500 | 55 | 2023 | | 2024.05.28 | ¿ù¼¼ | (1164-0) | 4 | 18.36 | 11,960 | 3 | 2014 | | 2024.05.28 | Àü¼¼ | °ÇÀÏ¾ÆÆ®ºô(³ª) | 1 | 60.48 | 16,002 | 0 | 2002 | | 2024.05.28 | ¿ù¼¼ | ´õ¼û153 | 3 | 14.55 | 0 | 60 | 2021 | | 2024.05.28 | Àü¼¼ | (408-93) | 2 | 43.88 | 12,000 | 0 | 1986 | | 2024.05.28 | Àü¼¼ | ½Å¼ºô¶óBµ¿ | -1 | 58.71 | 9,000 | 0 | 1994 | | 2024.05.28 | Àü¼¼ | ºí·çÈú | 5 | 29.63 | 21,900 | 0 | 2017 | | 2024.05.28 | ¿ù¼¼ | (859-6) | 1 | 18.36 | 300 | 45 | 2003 | | 2024.05.28 | ¿ù¼¼ | ±¹µµµå¸²ºô | 6 | 28.02 | 17,388 | 15 | 2018 | | 2024.05.28 | ¿ù¼¼ | Á¤ÆÄÅ©ºô | 3 | 47.64 | 12,000 | 35 | 2008 | | 2024.05.28 | Àü¼¼ | ´ë°ÇÁÖÅà | -1 | 51.52 | 5,500 | 0 | 1993 | | 2024.05.28 | ¿ù¼¼ | Á¦À̽ººô(969-5) | 6 | 22.73 | 1,000 | 90 | 2022 | | 2024.05.28 | ¸Å¸Å | (155-43) | -1 | 70.26 | 30,000 | | 1990 | | 2024.05.28 | ¸Å¸Å | (155-43) | 1 | 70.08 | 50,000 | | 1990 | | 2024.05.28 | ¸Å¸Å | (155-43) | -1 | 70.26 | 30,000 | | 1990 | | 2024.05.28 | ¸Å¸Å | (155-43) | 2 | 84.12 | 45,000 | | 1990 | | 2024.05.28 | ¸Å¸Å | Àå¿ø¼¾½ººô°¡µ¿ | 3 | 55.71 | 21,500 | | 2002 | | 2024.05.28 | ¸Å¸Å | (155-43) | -1 | 70.26 | 30,000 | | 1990 | | 2024.05.28 | ¸Å¸Å | ȼºÇÏÀÌÃ÷ºôBµ¿ | 3 | 42.9 | 11,000 | | 2002 | | 2024.05.28 | ¸Å¸Å | Çѹ響î(Aµ¿) | 3 | 55.29 | 25,800 | | 2002 | | 2024.05.28 | ¸Å¸Å | »ï¼ººô¶óÆ®Aµ¿ | 3 | 43.54 | 16,500 | | 2001 | | 2024.05.28 | ¸Å¸Å | Çö´ëÄھƺô(Bµ¿) | 5 | 44.96 | 16,800 | | 2002 | | 2024.05.27 | ¿ù¼¼ | ´ë¿õºô¶ó(56-146) | 2 | 35.22 | 10,900 | 8 | 1991 | | 2024.05.27 | Àü¼¼ | ¹Ì·¡ÇÏÀÌÃ÷Aµ¿(352-7) | 4 | 51.52 | 14,100 | 0 | 2001 | | 2024.05.27 | ¿ù¼¼ | ÀÎâºô¶ó³ªµ¿ | 3 | 37.06 | 2,000 | 60 | 1991 | | 2024.05.27 | ¿ù¼¼ | ¿ìÀå»êÆÄÅ©ºô | 6 | 37.19 | 18,300 | 15 | 2013 | | 2024.05.27 | Àü¼¼ | ´Ù¿Â½£ | 3 | 25.38 | 26,700 | 0 | 2024 | | 2024.05.27 | ¿ù¼¼ | º¹Áöºô¸®Áö | 3 | 35.99 | 3,100 | 20 | 1994 | | 2024.05.27 | ¿ù¼¼ | ÇÁ¶óÀÓÇϿ콺(393-23) | 3 | 56.85 | 8,000 | 25 | 2016 | | 2024.05.27 | ¿ù¼¼ | ±Ý¼ºÁÖÅà | 3 | 73.61 | 3,700 | 75 | 1997 | | 2024.05.27 | Àü¼¼ | ¹Ì¼ººô¶ó(396-30) | 5 | 64.31 | 20,000 | 0 | 2002 | | 2024.05.27 | ¿ù¼¼ | Çϳª¾ÆÀÌÆÄÅ©ºô(392-30) | 4 | 29.96 | 2,500 | 90 | 2016 | | 2024.05.27 | Àü¼¼ | ´õ¿ø | 2 | 28.05 | 19,500 | 0 | 2019 | | 2024.05.27 | Àü¼¼ | ±Ý¼º½¦¸£ºô | 2 | 38 | 10,470 | 0 | 2002 | | 2024.05.27 | Àü¼¼ | ¿µÁøÁÖÅà | 3 | 27.38 | 20,000 | 0 | 2023 | | 2024.05.27 | ¿ù¼¼ | ¸ð´øÇÏÀÌÃ÷ | 3 | 29.76 | 1,000 | 72 | 2012 | | 2024.05.27 | ¸Å¸Å | ȼººô¶ó41Â÷ | 4 | 31.02 | 11,000 | | 2001 | | 2024.05.27 | ¸Å¸Å | º§¶óÇϿ콺(351-16) | 5 | 26.25 | 19,000 | | 2016 | | 2024.05.27 | ¸Å¸Å | DHÆÓ¸®½º102µ¿ | 6 | 27.9 | 22,000 | | 2018 | | 2024.05.27 | ¸Å¸Å | È£¼öŸ¿î(957-14) | 2 | 41.76 | 20,000 | | 2002 | | 2024.05.27 | ¸Å¸Å | ºñ¿ø±×¸°ºô¶ó | 2 | 43.92 | 29,000 | | 1986 | | 2024.05.27 | ¸Å¸Å | ´ë±¤¾ÆÆ®ºô¶ó | 1 | 64.36 | 22,000 | | 1996 | | 2024.05.27 | ¿ù¼¼ | Å©¸®½ºÅ»ºô | 5 | 11.18 | 1,000 | 55 | 2014 | | 2024.05.27 | ¿ù¼¼ | Ǫ¸¥ºô¸®Áö | 3 | 45.42 | 12,000 | 10 | 2001 | | 2024.05.27 | ¿ù¼¼ | ¼º¼öºô¶ó | 3 | 74.325 | 3,000 | 120 | 2001 | | 2024.05.26 | Àü¼¼ | ´õÇ÷¹À̽º | 4 | 24.12 | 13,850 | 0 | 2017 | | 2024.05.26 | ¿ù¼¼ | ¿¤Æç¸®½º | 3 | 35.61 | 5,000 | 100 | 2022 | | 2024.05.26 | ¿ù¼¼ | Æ÷¸£ÅÛÇÏÀÓ | 2 | 29.88 | 100 | 70 | 2022 | | 2024.05.26 | Àü¼¼ | ¿ì¼ÖÇÏ¿ì¡ | 6 | 50.87 | 55,900 | 0 | 2022 | | 2024.05.25 | ¿ù¼¼ | ´ë´öÇÏÀÌÃ÷ºô¶ó(337-18) | -1 | 42.85 | 500 | 53 | 1994 | | 2024.05.25 | ¿ù¼¼ | ½ºÀ§Æ®ÇϿ콺(1008-21) | 3 | 45.74 | 10,000 | 50 | 2012 | | 2024.05.25 | ¿ù¼¼ | µð¿¡½ºÅ×¶ó½º | 3 | 29.25 | 1,000 | 99 | 2022 | | 2024.05.25 | Àü¼¼ | MÆç¸®Ã¼ | 4 | 36.49 | 25,300 | 0 | 2018 | | 2024.05.25 | ¿ù¼¼ | ´ë°Çºô¶ó(348-26) | 3 | 32.58 | 4,000 | 50 | 1991 | | 2024.05.25 | ¿ù¼¼ | ȼººô¶ó42Â÷Bµ¿(56-410) | 4 | 45.42 | 13,500 | 10 | 2002 | | 2024.05.25 | Àü¼¼ | MÆç¸®Ã¼ | 4 | 36.49 | 25,300 | 0 | 2018 | | 2024.05.25 | Àü¼¼ | ¼öÁ¤ºô¶ó³ªµ¿ | -1 | 34.83 | 6,000 | 0 | 1986 | | 2024.05.25 | ¿ù¼¼ | ´ë°Çºô¶ó(348-26) | 3 | 32.58 | 4,000 | 50 | 1991 | | 2024.05.25 | ¸Å¸Å | ¿ìÀå»êÆÄÅ©ºô | 4 | 44.36 | 28,000 | | 2013 | | 2024.05.25 | ¿ù¼¼ | ¸ÖƼÇϿ콺 | 4 | 17.02 | 500 | 47 | 2004 | | 2024.05.25 | ¿ù¼¼ | µµÇÏ | 4 | 28.13 | 500 | 80 | 2023 | | 2024.05.25 | ¸Å¸Å | Çѽººô | -1 | 63.74 | 19,900 | | 2002 | | 2024.05.25 | ¿ù¼¼ | ´õÁ¸ÆÛ½ºÆ®ºô | 5 | 29.42 | 17,800 | 5 | 2017 | | 2024.05.25 | Àü¼¼ | ¸¶¸®ºô¸®Áö(1121-13) | 3 | 48.8 | 19,100 | 0 | 2011 | | 2024.05.25 | Àü¼¼ | È£¼öºô¶ó | 4 | 58.14 | 17,600 | 0 | 2000 | | 2024.05.25 | ¿ù¼¼ | ȼºÈ¨Å¸¿î103µ¿ | 2 | 43.01 | 12,600 | 15 | 2002 | | 2024.05.25 | Àü¼¼ | Åä¼®¾Æ³×½ººô(102-291) | 5 | 40.62 | 13,100 | 0 | 2008 | | 2024.05.25 | Àü¼¼ | µ¿¾ç½ºÀ§Æ®È¨ | 4 | 60.36 | 16,000 | 0 | 2008 | | 2024.05.25 | Àü¼¼ | À̵µÆÓ¸®½º | 4 | 25.13 | 22,680 | 0 | 2021 | | 2024.05.25 | ¿ù¼¼ | Á¦À̽ººô | 6 | 29.77 | 2,000 | 90 | 2020 | | 2024.05.25 | Àü¼¼ | ´ö¸²ÆÄÅ©ºô | 3 | 55.58 | 15,200 | 0 | 2008 | | 2024.05.25 | ¿ù¼¼ | °ø°¨ÁöÀ½410 | 3 | 26.2 | 1,000 | 60 | 2021 | | 2024.05.25 | ¿ù¼¼ | °æÀνºÀ§Æ®È¨(352-13) | 3 | 45.345 | 12,000 | 45 | 2008 | | 2024.05.25 | Àü¼¼ | °ñµçºô(367-51) | 6 | 20.32 | 21,300 | 0 | 2018 | | 2024.05.25 | Àü¼¼ | Á¶¾ç¶ß¶õä | 5 | 29.02 | 14,000 | 0 | 2011 | | 2024.05.25 | ¿ù¼¼ | ¿ÍÀ̾غñ | 4 | 37.84 | 1,000 | 50 | 2016 | | 2024.05.25 | Àü¼¼ | ¿µÁøÁÖÅà | 3 | 28.33 | 20,000 | 0 | 2023 | | 2024.05.25 | ¿ù¼¼ | ¼Çö | 4 | 12.96 | 500 | 40 | 2011 | | 2024.05.25 | ¿ù¼¼ | ¼öÇÇ¾Æ | 7 | 32.33 | 2,000 | 52 | 2019 | | 2024.05.25 | Àü¼¼ | ±¤¸íºô¶ó(56-98) | 2 | 43.2 | 10,700 | 0 | 1991 | | 2024.05.25 | ¿ù¼¼ | µµÇÏ | 3 | 16.2 | 500 | 55 | 2023 | | 2024.05.25 | ¿ù¼¼ | ¸®Á¨Æ®¶ó¿ò | 5 | 27.52 | 13,000 | 13 | 2014 | | 2024.05.25 | ¿ù¼¼ | ¼Ò´ã¹ë¸®½º | 3 | 29.02 | 4,000 | 73 | 2012 | | 2024.05.25 | ¿ù¼¼ | ¸ÖƼÇϿ콺 | 4 | 17.02 | 500 | 47 | 2004 | | 2024.05.24 | Àü¼¼ | ½Å¿ëÇÏÀ̺ô | 1 | 56.06 | 13,600 | 0 | 2001 | | 2024.05.24 | Àü¼¼ | ¿ìÇöÆç¸®½º | 2 | 29.64 | 16,500 | 0 | 2016 | | 2024.05.24 | ¿ù¼¼ | ž½ººô¸®Áö | 2 | 62.19 | 2,000 | 70 | 1994 | | 2024.05.24 | ¿ù¼¼ | ¿¤¸²ºô¶óAµ¿ | 3 | 64.29 | 18,000 | 10 | 2003 | | 2024.05.24 | Àü¼¼ | ¼º¿ÁÇÏÀÌÃ÷ºô¶ó´Ùµ¿ | 4 | 50.85 | 11,500 | 0 | 1992 | | 2024.05.24 | Àü¼¼ | °æÇѺô¶ó(56-644) | 2 | 42.18 | 11,000 | 0 | 1991 | | 2024.05.24 | ¿ù¼¼ | ÀºÇýºô¶ó(828-5) | 1 | 38.63 | 1,000 | 31 | 1994 | | 2024.05.24 | ¿ù¼¼ | Åä¼®¾Æ³×½ººô(46-176) | 4 | 29.85 | 1,000 | 60 | 2011 | | 2024.05.24 | Àü¼¼ | ´õŬ·¡½Ä | 4 | 40.78 | 23,000 | 0 | 2018 | | 2024.05.24 | ¸Å¸Å | ÇÑ¿ï´Ù½ºÇÏÀÓ | 2 | 29.84 | 17,200 | | 2012 | | 2024.05.24 | ¿ù¼¼ | µ¿È£ºô¶ó(972-8) | 2 | 51.33 | 1,000 | 65 | 1994 | | 2024.05.24 | ¸Å¸Å | µ¿¾çÇÏ¿ì¡ | 2 | 28.2 | 23,000 | | 2016 | | 2024.05.24 | ¸Å¸Å | ºí·ç½ºÄ«À̺ô | 6 | 33.49 | 16,500 | | 2016 | | 2024.05.24 | ¸Å¸Å | ȼººô¶ó(56-377) | 3 | 44.76 | 20,000 | | 2002 | | 2024.05.24 | ¿ù¼¼ | »ï¼ºÆÄÅ©ºô°¡µ¿(111-125) | 2 | 45.13 | 12,000 | 10 | 2001 | | 2024.05.24 | ¿ù¼¼ | ºñ¿¤ºô¸®Áö | 3 | 29.63 | 15,000 | 20 | 2019 | | 2024.05.24 | ¿ù¼¼ | ÇÑ¹é¾ÆÆ®ºôBµ¿ | 2 | 31.06 | 2,000 | 70 | 2002 | | 2024.05.24 | ¿ù¼¼ | Á¶Àººô¶ó | 4 | 23.37 | 6,510 | 25 | 2001 | | 2024.05.24 | ¿ù¼¼ | (430-8) | 2 | 27 | 500 | 63 | 2013 | | 2024.05.24 | ¿ù¼¼ | µµÇÏ | 2 | 15.57 | 500 | 55 | 2023 | | 2024.05.24 | ¿ù¼¼ | µµÇÏ | 2 | 16.2 | 300 | 55 | 2023 | | 2024.05.24 | Àü¼¼ | ±¹µµµå¸²ºô | 3 | 28.81 | 19,170 | 0 | 2018 | | 2024.05.24 | ¿ù¼¼ | »ï¼ºÀ§ºêºô | 3 | 29.78 | 14,980 | 10 | 2012 | | 2024.05.24 | Àü¼¼ | (876-19) | 1 | 43.67 | 11,400 | 0 | 1986 | | 2024.05.24 | ¿ù¼¼ | ´ë½Åºô¶ó(156-9) | -1 | 70.56 | 11,600 | 9 | 2000 | | 2024.05.24 | Àü¼¼ | ´õ¿ø·¹¿Àºô | 5 | 16.99 | 20,200 | 0 | 2021 | | 2024.05.23 | ¿ù¼¼ | ¿ì¼ººô¶ó | -1 | 59.77 | 2,500 | 47 | 1999 | | 2024.05.23 | Àü¼¼ | ¿¬Èñºô¶ó°¡µ¿(985-44) | 4 | 62.64 | 19,500 | 0 | 1992 | | 2024.05.23 | Àü¼¼ | Ÿ¿îij½½Aµ¿ | 5 | 31.16 | 22,170 | 0 | 2018 | | 2024.05.23 | Àü¼¼ | ¿¬Èñºô¶ó°¡µ¿(985-44) | 4 | 62.64 | 19,500 | 0 | 1992 | | 2024.05.23 | ¿ù¼¼ | µ¿¿µºô¶ó | 2 | 43.12 | 3,000 | 70 | 2002 | | 2024.05.23 | ¿ù¼¼ | ¼º¼öºô¶ó | 5 | 71.575 | 4,000 | 98 | 2001 | | 2024.05.23 | ¿ù¼¼ | ´ë¼Ûºô¶ó(354-92) | 3 | 49.88 | 14,800 | 20 | 2001 | | 2024.05.23 | Àü¼¼ | µµ¿ø¼ÖºñÄ¡ | 2 | 29.97 | 14,230 | 0 | 2015 | | 2024.05.23 | Àü¼¼ | µµ¿ø¼ÖºñÄ¡ | 2 | 29.97 | 15,750 | 0 | 2015 | | 2024.05.23 | ¿ù¼¼ | SKÀÚÀ̺ô(421-29) | 4 | 38.25 | 5,000 | 80 | 2014 | | 2024.05.23 | ¸Å¸Å | ¹®¼±ºô¶ó | 1 | 60.22 | 27,000 | | 2002 | | 2024.05.23 | ¸Å¸Å | LKµå¸²ºô | 6 | 53.14 | 32,200 | | 2019 | | 2024.05.23 | Àü¼¼ | ¹Ð·¹´Ï¾ö(98-71) | 2 | 40.74 | 16,500 | 0 | 2012 | | 2024.05.23 | ¿ù¼¼ | ¾ÆÁÙ¸®¿ò(1038-13) | 4 | 31.74 | 16,000 | 30 | 2016 | | 2024.05.23 | Àü¼¼ | »õÇÑÇÏÀÌÃ÷ºô¶ó(350-39) | 2 | 60.54 | 16,300 | 0 | 1995 | | 2024.05.23 | Àü¼¼ | ³ª»ê½¦¸£ºôA | 3 | 42.51 | 12,000 | 0 | 2001 | | 2024.05.23 | ¿ù¼¼ | (1057-8) | 2 | 70.1 | 9,000 | 53 | 2003 | | 2024.05.23 | ¸Å¸Å | Á¤¾Èºô¶ó | 4 | 44.26 | 14,000 | | 1991 | | 2024.05.23 | ¸Å¸Å | µ¿¾çÇÏ¿ì¡ | 4 | 28.73 | 21,000 | | 2016 | | 2024.05.23 | ¸Å¸Å | Å¿µ¾ÆÆ®ºô | 5 | 38.35 | 18,500 | | 2011 | | 2024.05.23 | ¸Å¸Å | Ǫ¸¥Ç³°æÃ¤ | 2 | 29.98 | 28,600 | | 2022 | | 2024.05.23 | ¸Å¸Å | °ÇÇüºô¶ó3Â÷ | 1 | 57.43 | 25,000 | | 2000 | | 2024.05.23 | ¸Å¸Å | ÁøÁÖ | 2 | 54.89 | 28,000 | | 2010 | | 2024.05.23 | ¸Å¸Å | ¹Ì¼Òºô | 5 | 25.96 | 26,000 | | 2018 | | 2024.05.23 | Àü¼¼ | Çý¼ºÆÓ¸®½ººô(392-31) | 4 | 29.1 | 14,700 | 0 | 2014 | | 2024.05.22 | Àü¼¼ | ¿¥Æç¸®Ã¼ºñµ¿ | 2 | 29.95 | 17,300 | 0 | 2017 | | 2024.05.22 | Àü¼¼ | ȰîÇÁ¶óÀÓ | 10 | 20.73 | 13,100 | 0 | 2012 | | 2024.05.22 | Àü¼¼ | ȰîÇÁ¶óÀÓ | 9 | 19.87 | 13,100 | 0 | 2012 | | 2024.05.22 | ¿ù¼¼ | ÇÏÆ®ºô | 4 | 14.57 | 2,000 | 80 | 2016 | | 2024.05.22 | Àü¼¼ | À£ºù¶óÀÌÇÁ(155-6) | 5 | 61.66 | 17,000 | 0 | 2011 | | 2024.05.22 | ¿ù¼¼ | ¼ºÀçºô¶ó°¡µ¿ | 4 | 58.72 | 15,100 | 15 | 2001 | | 2024.05.22 | ¿ù¼¼ | ³ª»êÁÖÅÃ(455-17) | 2 | 29.67 | 12,700 | 23 | 2010 | | 2024.05.22 | ¿ù¼¼ | ÄÉÀÌ¿¥¾ÆÆ®ºô(370-31) | 2 | 29.89 | 1,000 | 85 | 2021 | | 2024.05.22 | Àü¼¼ | ȰîÇÁ¶óÀÓ | 10 | 20.73 | 13,200 | 0 | 2012 | | 2024.05.22 | Àü¼¼ | ȰîÇÁ¶óÀÓ | 9 | 19.87 | 13,400 | 0 | 2012 | | 2024.05.22 | ¿ù¼¼ | »ï¼ººí·ç¹Ö(101µ¿102µ¿) | 5 | 29.2 | 15,372 | 10 | 2015 | | 2024.05.22 | ¿ù¼¼ | ¼Ò´ã¹ë¸®½ºBµ¿ | 5 | 29.75 | 1,000 | 70 | 2013 | | 2024.05.22 | ¿ù¼¼ | ·Ôµ¥½ºÄ«À̺ô | 2 | 47.62 | 10,000 | 50 | 2012 | | 2024.05.22 | Àü¼¼ | ³²±¤¾ÆÆ®ºô | 3 | 44.78 | 19,000 | 0 | 2012 | | 2024.05.22 | ¿ù¼¼ | ´ëÈ£ÇÏÀÌÃ÷ºô¶ó³ªµ¿ | 2 | 54.96 | 14,000 | 18 | 1991 | | 2024.05.22 | ¿ù¼¼ | ·Ôµ¥½ºÄ«À̺ô | 2 | 47.62 | 10,000 | 50 | 2012 | | 2024.05.22 | ¿ù¼¼ | Ȱî·Î¾â´Ùµ¿ | 2 | 33.42 | 8,000 | 20 | 1990 | | 2024.05.22 | ¿ù¼¼ | µ¿µµÇÏÀÌÃ÷ºô¶ó(Bµ¿) | 3 | 46.38 | 12,580 | 19 | 2001 | | 2024.05.22 | ¿ù¼¼ | ANA6 | 2 | 28.26 | 1,000 | 110 | 2022 | | 2024.05.22 | Àü¼¼ | ¹Ì¸²ºô¶ó(362-59) | 2 | 47.88 | 9,000 | 0 | 1991 | | 2024.05.22 | Àü¼¼ | ȰîÈúÇϿ콺 | 4 | 63.26 | 16,000 | 0 | 2008 | | 2024.05.22 | ¿ù¼¼ | ´õ¿¡½º¿¡½ºÅ¸¿î | 7 | 15.35 | 3,823 | 14 | 2020 | | 2024.05.22 | ¿ù¼¼ | ÁØ-½¦¸£ºô | 4 | 29.62 | 3,000 | 60 | 2012 | | 2024.05.22 | ¸Å¸Å | ÃÊ¿øºô¶ó | 1 | 32.89 | 13,500 | | 1994 | | 2024.05.22 | ¸Å¸Å | µ¿¼ºô¶óB | -1 | 58.92 | 12,300 | | 1992 | | 2024.05.22 | ¸Å¸Å | °æÈñÇϿ콺 | 6 | 39 | 27,000 | | 2017 | | 2024.05.22 | ¸Å¸Å | »ï¼º½¦¸£ºô(400-16) | 4 | 40.17 | 32,800 | | 2015 | | 2024.05.21 | ¿ù¼¼ | ¼øÈ¯½¦¸£ºô(24-222) | 2 | 42.01 | 13,000 | 40 | 2002 | | 2024.05.21 | Àü¼¼ | HIGH-END480 | 2 | 29.95 | 21,200 | 0 | 2023 | | 2024.05.21 | ¿ù¼¼ | ´ë¼ºÅ¾½ººô(472-17) | -1 | 45.11 | 5,500 | 40 | 2002 | | 2024.05.21 | Àü¼¼ | ¹Ð·¹´Ï¾ö¸Ç¼ÇBµ¿ | 2 | 40.36 | 12,000 | 0 | 2001 | | 2024.05.21 | ¿ù¼¼ | û¼ÛÆòÈÇÏÀ̸ǼÇ(452-14) | 5 | 39.82 | 2,000 | 63 | 2013 | | 2024.05.21 | Àü¼¼ | À£½ºÆÄÅ©ºô(392-28) | 3 | 29.88 | 16,050 | 0 | 2012 | | 2024.05.21 | Àü¼¼ | HIGH-END480 | 4 | 29.8 | 19,200 | 0 | 2023 | | 2024.05.21 | Àü¼¼ | ´õÁ¸ÆÛ½ºÆ® | 5 | 28.9 | 25,000 | 0 | 2022 | | 2024.05.21 | Àü¼¼ | Æ®¸®Çÿ¡½ººô(966-22) | 4 | 34.11 | 13,000 | 0 | 2012 | | 2024.05.21 | ¿ù¼¼ | µ¿±¤ºô¶ó(988-11) | 2 | 39.93 | 11,800 | 20 | 2002 | | 2024.05.21 | Àü¼¼ | ³²±¤ÆÄÅ©ºô | 5 | 49.25 | 15,000 | 0 | 2010 | | 2024.05.21 | ¿ù¼¼ | ¹Ì·¡¼¾½ººô(56-621) | 4 | 55.72 | 16,300 | 15 | 2008 | | 2024.05.21 | Àü¼¼ | ¿¥ÄÉÀÌÇÏÀ̺ô | 4 | 49.01 | 18,500 | 0 | 2011 | | 2024.05.21 | Àü¼¼ | HIGH-END480 | 2 | 29.95 | 21,200 | 0 | 2023 | | 2024.05.21 | ¿ù¼¼ | ¹é°¿ø·ë | 5 | 12.8 | 1,000 | 42 | 2011 | | 2024.05.21 | Àü¼¼ | ¿¹Èºô¶óÆ® | 6 | 52.445 | 16,000 | 0 | 2000 | | 2024.05.21 | Àü¼¼ | ³ªÇöºô¶ó | 2 | 36.72 | 11,550 | 0 | 2010 | | 2024.05.21 | ¸Å¸Å | Ǫ¸¥Ç³°æÃ¤ | 3 | 26.29 | 25,570 | | 2022 | | 2024.05.21 | ¸Å¸Å | ¿¡½ºÄÉÀÌÆÄÅ©¸®¿ò(157-21) | 2 | 29.39 | 24,500 | | 2020 | | 2024.05.21 | ¸Å¸Å | ¿¡½ºÄÉÀÌÆÄÅ©¸®¿ò(157-21) | 2 | 18.74 | 21,500 | | 2020 | | 2024.05.21 | ¸Å¸Å | Ǫ¸¥Ç³°æÃ¤ | 4 | 26.29 | 25,570 | | 2022 | | 2024.05.21 | Àü¼¼ | ¼ºÁøÅ¸¿î | 3 | 34.21 | 15,000 | 0 | 2012 | | 2024.05.21 | Àü¼¼ | ¿¹Èºô¶óÆ® | 6 | 52.445 | 15,900 | 0 | 2000 | | 2024.05.21 | ¿ù¼¼ | ÇØÂùºô(24-550) | 8 | 18.65 | 7,500 | 5 | 2012 | | 2024.05.20 | Àü¼¼ | ¼°æÆÓ¸®½º(391-29) | 4 | 60.63 | 22,500 | 0 | 2010 | | 2024.05.20 | ¿ù¼¼ | ¹«µîºô¶ó | 1 | 36.88 | 8,900 | 5 | 1990 | | 2024.05.20 | Àü¼¼ | °ÇÇüºô¶ó(783-21) | 2 | 39.32 | 12,600 | 0 | 2002 | | 2024.05.20 | ¿ù¼¼ | °ø°¨ÁöÀ½410 | 3 | 26.2 | 1,000 | 60 | 2021 | | 2024.05.20 | Àü¼¼ | È«¼ºÁÖÅÃ(56-596) | 1 | 55.86 | 14,000 | 0 | 2002 | | 2024.05.20 | ¿ù¼¼ | À̳뼿(INNOCELL) | 4 | 23.89 | 8,000 | 36 | 2017 | | 2024.05.20 | Àü¼¼ | ¿ì¼º¿¬¸³ | 2 | 56.64 | 16,000 | 0 | 1985 | | 2024.05.20 | Àü¼¼ | ¼Ò´ã¹ë¸®½º | 3 | 29.02 | 15,246 | 0 | 2012 | | 2024.05.20 | Àü¼¼ | â´ëºô¶ó(1087-3) | 6 | 54.36 | 23,300 | 0 | 2012 | | 2024.05.20 | Àü¼¼ | ÇѼº±×¸°Å¸¿î6µ¿ | 3 | 60.82 | 17,600 | 0 | 2003 | | 2024.05.20 | Àü¼¼ | HIGH-END480 | 2 | 29.73 | 21,000 | 0 | 2023 | | 2024.05.20 | Àü¼¼ | µ¿¿Ï¼¼ÀÎÆ®ºô | 4 | 53.71 | 19,000 | 0 | 2012 | | 2024.05.20 | ¿ù¼¼ | ·ÎÁîºôBµ¿(871-46) | 5 | 29.94 | 210 | 70 | 2017 | | 2024.05.20 | ¿ù¼¼ | ½Ç¹öºô¶ó³ªµ¿ | -1 | 43.6 | 500 | 50 | 1992 | | 2024.05.20 | ¿ù¼¼ | ¸®´õ½ºÅ¸¿î | 5 | 27.6 | 14,700 | 10 | 2016 | | 2024.05.20 | ¸Å¸Å | Ǫ¸¥Ç³°æÃ¤ | 4 | 26.29 | 25,570 | | 2022 | | 2024.05.20 | ¸Å¸Å | Ǫ¸¥Ç³°æÃ¤ | 3 | 26.29 | 25,570 | | 2022 | | 2024.05.20 | ¸Å¸Å | ¾¾Æ¼ÇϿ콺Aµ¿ | 5 | 36.27 | 26,500 | | 2017 | | 2024.05.20 | ¸Å¸Å | ¿ÀÄÉÀÌÆÄÅ©ºô(932-8) | 3 | 28.71 | 17,600 | | 2015 | | 2024.05.20 | ¸Å¸Å | ÁøÁÖ¸®Ä¡ºô(56-608) | 3 | 29.77 | 14,800 | | 2011 | | 2024.05.20 | ¸Å¸Å | ºñ¿ø±×¸°ºô¶ó | 3 | 41.49 | 22,500 | | 1986 | | 2024.05.20 | ¸Å¸Å | ¿ì¼º(105-9¿Ü) | 4 | 35.03 | 24,000 | | 2015 | | 2024.05.20 | Àü¼¼ | ¼Ò´ã¹ë¸®½º | 3 | 29.02 | 15,246 | 0 | 2012 | | 2024.05.20 | ¿ù¼¼ | ÁöÀν¦¸£ºô | -1 | 56.35 | 4,500 | 60 | 2002 | | 2024.05.20 | Àü¼¼ | ¾ÆÁÙ¸®¾Æ | 7 | 26.6 | 16,200 | 0 | 2015 | | 2024.05.20 | ¿ù¼¼ | È°î¾ÆÆ®ºô | 6 | 29.39 | 300 | 70 | 2022 | | 2024.05.20 | ¿ù¼¼ | ·¡¾Èºô | 2 | 35.55 | 0 | 80 | 2020 | | 2024.05.20 | Àü¼¼ | ¿¥Æç¸®Ã¼ | 3 | 35.97 | 20,664 | 0 | 2017 | | 2024.05.19 | Àü¼¼ | °ÇÇüºô¶ó(783-21) | 2 | 39.32 | 12,600 | 0 | 2002 | | 2024.05.19 | ¿ù¼¼ | ÀºÇϼö±×¸°ºô | 5 | 41.115 | 100 | 80 | 2002 | | 2024.05.18 | Àü¼¼ | °è¸íÀ§³Ê½º(46-170) | 2 | 38.52 | 12,700 | 0 | 2010 | | 2024.05.18 | Àü¼¼ | HIGH-END480 | 3 | 29.73 | 21,000 | 0 | 2023 | | 2024.05.18 | Àü¼¼ | ¹Ì¼Òºô | 2 | 25.96 | 17,100 | 0 | 2018 | | 2024.05.18 | Àü¼¼ | ¿ì¼ººô¶ó(379-29) | 4 | 51.48 | 13,000 | 0 | 1993 | | 2024.05.18 | ¿ù¼¼ | Çý¼ºÆÓ¸®½ººô(392-31) | 3 | 27.68 | 2,000 | 65 | 2014 | | 2024.05.18 | Àü¼¼ | DHÆÓ¸®½º101µ¿ | 4 | 29.84 | 21,000 | 0 | 2018 | | 2024.05.18 | Àü¼¼ | º¸³ëÇϿ콺Aµ¿ | 2 | 40.92 | 22,900 | 0 | 2016 | | 2024.05.18 | ¿ù¼¼ | ºí·çÈú(846-14) | 6 | 21.19 | 2,000 | 100 | 2021 | | 2024.05.18 | Àü¼¼ | °è¸íÁÖÅôٵ¿ | 3 | 56.15 | 18,500 | 0 | 2000 | | 2024.05.18 | ¿ù¼¼ | ÇØ¹èÄ¡ºô | 3 | 43.97 | 19,440 | 15 | 2015 | | 2024.05.18 | Àü¼¼ | ½ºÄ«À̱ٸ°Å¸¿î | 3 | 39.73 | 13,000 | 0 | 2014 | | 2024.05.18 | ¿ù¼¼ | ¼ÁÖºôµù(401-22) | 4 | 14.28 | 6,600 | 3 | 1996 | | 2024.05.18 | ¸Å¸Å | °æ¹æ±×¸°ºô | 3 | 45.04 | 17,000 | | 2002 | | 2024.05.18 | ¸Å¸Å | ÇÑ¿µºô¶ó(56-322) | 3 | 36.72 | 12,000 | | 1991 | | 2024.05.18 | ¸Å¸Å | À̼ö°ñµçºô¸®Áö | 1 | 41.46 | 17,000 | | 1992 | | 2024.05.18 | ¸Å¸Å | õ¿ìºô¶ó | -1 | 25.98 | 5,900 | | 1999 | | 2024.05.18 | ¸Å¸Å | ºñ¿ø±×¸°ºô¶ó | 2 | 43.92 | 25,700 | | 1986 | | 2024.05.18 | ¸Å¸Å | ÆÄÅ©ºô(1081-20) | 3 | 59.93 | 30,800 | | 2012 | | 2024.05.17 | ¿ù¼¼ | NSŸ¿î | 2 | 28 | 19,000 | 20 | 2019 | | 2024.05.17 | ¿ù¼¼ | ³×¿ÀÆÄÅ©ºô(870-23) | 2 | 47.86 | 2,000 | 100 | 2008 | | 2024.05.17 | Àü¼¼ | Áø¿µÇÏÀ̺ô°¡µ¿ | 3 | 47.86 | 14,860 | 0 | 2001 | | 2024.05.17 | ¿ù¼¼ | ¹Ð·¹´Ï¾ö(98-71) | 3 | 38.11 | 14,490 | 10 | 2012 | | 2024.05.17 | ¿ù¼¼ | ´õÇ÷¹À̽º | 4 | 29.89 | 4,000 | 75 | 2017 | | 2024.05.17 | ¿ù¼¼ | ȰîÅõ¿þ´ÏÆÛ½ºÆ® | 12 | 24.45 | 3,000 | 83 | 2018 | | 2024.05.17 | Àü¼¼ | â´ëºô¶ó(371-10) | 6 | 17.01 | 6,260 | 0 | 2011 | | 2024.05.17 | ¿ù¼¼ | ¾ÆÀ̵ð¿ò | 2 | 26.42 | 13,700 | 30 | 2016 | | 2024.05.17 | ¿ù¼¼ | Çѹéºô¶ó | 2 | 39.62 | 11,790 | 35 | 2001 | | 2024.05.17 | ¿ù¼¼ | âõ±×¸°ºô | 2 | 42.53 | 14,200 | 12 | 2002 | | 2024.05.17 | Àü¼¼ | ½ºÆäÀ̽ººô(468-4) | 5 | 59.75 | 18,000 | 0 | 2010 | | 2024.05.17 | Àü¼¼ | ¿ìÁøÇÏÀ̺ô | 2 | 60.75 | 20,000 | 0 | 2008 | | 2024.05.17 | ¿ù¼¼ | û¼ÛÆòÈÇコÇϿ콺 | 2 | 29.97 | 3,000 | 100 | 2022 | | 2024.05.17 | Àü¼¼ | ¿ìÁøÇÏÀ̺ô | 2 | 60.75 | 20,000 | 0 | 2008 | | 2024.05.17 | ¸Å¸Å | õ¿ìºô¸®Áö | -1 | 63.87 | 14,500 | | 1999 | | 2024.05.17 | ¸Å¸Å | °¼ÇÏÀÌÃ÷ºô¶ó | -1 | 55.05 | 13,400 | | 1991 | | 2024.05.17 | ¸Å¸Å | °è¸íÀ§³Ê½º(46-170) | 2 | 38.52 | 17,000 | | 2010 | | 2024.05.17 | ¸Å¸Å | Ȳ±Ý³ªµ¿ | -1 | 29.97 | 17,000 | | 1991 | | 2024.05.17 | ¸Å¸Å | ÇѰS-Ŭ·¡½º(1084-30) | 4 | 35.88 | 12,300 | | 2012 | | 2024.05.16 | Àü¼¼ | ´õ´©¸² | 3 | 29.39 | 18,200 | 0 | 2018 | | 2024.05.16 | Àü¼¼ | µ¿±¤ºô¶ó5Â÷ | 1 | 46.8 | 16,800 | 0 | 1996 | | 2024.05.16 | Àü¼¼ | Ǫ¸¥Ç³°æÃ¤ | 2 | 29.98 | 28,600 | 0 | 2022 | | 2024.05.16 | Àü¼¼ | ¿ì¼º(373-32) | 2 | 39.37 | 20,150 | 0 | 2017 | | 2024.05.16 | ¿ù¼¼ | ÆÓ¶óÀ̽ºÅ¸¿î | 6 | 29.34 | 4,500 | 130 | 2016 | | 2024.05.16 | ¿ù¼¼ | ¿ì¼ºÆÄÅ©¸Ç¼Ç(29-230) | 2 | 64.3 | 18,000 | 30 | 1983 | | 2024.05.16 | ¿ù¼¼ | ÀÌÈ¾ÆÆ®ºô(343-24) | 2 | 64.22 | 300 | 25 | 2002 | | 2024.05.16 | ¿ù¼¼ | »ï¼ºÅ¾½ººô(99-17) | 4 | 43.7 | 14,700 | 10 | 2008 | | 2024.05.16 | Àü¼¼ | ¶óÀÓÇϿ콺 | 5 | 29.02 | 22,100 | 0 | 2019 | | 2024.05.16 | Àü¼¼ | ÀÚÇÏŬ·¡½Ä | 16 | 13.77 | 11,800 | 0 | 2018 | | 2024.05.16 | Àü¼¼ | ±îÄ¡¸Ç¼Ç | 2 | 56.41 | 15,000 | 0 | 1993 | | 2024.05.16 | Àü¼¼ | ´ëÈ↓¸³ | 3 | 63.78 | 16,000 | 0 | 1996 | | 2024.05.16 | Àü¼¼ | ¸í¼ºÁÖÅÃ(978-20) | 3 | 62.895 | 20,000 | 0 | 2001 | | 2024.05.16 | ¿ù¼¼ | ÇÁ¶óÀÓÇϿ콺(397-36) | 5 | 35.39 | 1,000 | 70 | 2011 | | 2024.05.16 | Àü¼¼ | ±îÄ¡¸Ç¼Ç | 2 | 56.41 | 15,000 | 0 | 1993 | | 2024.05.16 | ¿ù¼¼ | ¿¥Æç¸®Ã¼ | 2 | 29.81 | 19,200 | 5 | 2017 | | 2024.05.16 | ¿ù¼¼ | ÀÌ·¹ÇìºìÇϿ콺 | 5 | 19.35 | 5,000 | 15 | 2012 | | 2024.05.16 | ¿ù¼¼ | (954-14) | 4 | 35.03 | 5,000 | 40 | 2003 | | 2024.05.16 | Àü¼¼ | ´ëÈ↓¸³ | 3 | 63.78 | 16,000 | 0 | 1996 | | 2024.05.16 | ¿ù¼¼ | Á¤¾Èºô | 3 | 29.96 | 1,500 | 66 | 2018 | | 2024.05.16 | ¿ù¼¼ | °ÇÇüºô¶ó(376-10) | 2 | 41.54 | 3,000 | 70 | 2002 | | 2024.05.16 | Àü¼¼ | ±Ý³²°ñµçºô | -1 | 59.99 | 11,000 | 0 | 2002 | | 2024.05.16 | Àü¼¼ | Ǫ¸¥Ç³°æÃ¤ | 2 | 29.98 | 28,600 | 0 | 2022 | | 2024.05.16 | Àü¼¼ | ±¤Áøºô¶óÆ®3µ¿ | 4 | 37.32 | 11,800 | 0 | 2003 | | 2024.05.16 | ¸Å¸Å | »ï¼ºÅ¾½ººô(99-17) | 4 | 43.7 | 22,000 | | 2008 | | 2024.05.16 | ¸Å¸Å | VILL73 | 3 | 20.36 | 20,000 | | 2021 | | 2024.05.16 | ¸Å¸Å | (29-219) | 2 | 21.76 | 9,700 | | 2008 | | 2024.05.15 | Àü¼¼ | ¿ìÇöž½ººô | 2 | 46.55 | 17,500 | 0 | 2012 | | 2024.05.15 | ¸Å¸Å | ½Å¼¼°èºô¶óÆ®(59-18) | 3 | 38.26 | 23,800 | | 2015 | | 2024.05.15 | ¸Å¸Å | ÆÄÀÎÇϿ콺(1056-10) | 6 | 42.93 | 25,500 | | 2014 | | 2024.05.15 | ¿ù¼¼ | º¦¿¤ºô¶ó(80-39) | -1 | 63.53 | 4,000 | 60 | 2002 | | 2024.05.15 | ¿ù¼¼ | È°î¾ÆÆ®ºô | 2 | 44.81 | 300 | 60 | 2022 | | 2024.05.15 | ¿ù¼¼ | ¼±°æºô¶ó | 4 | 53.31 | 3,000 | 60 | 1997 | | 2024.05.15 | Àü¼¼ | È«¿µ¹«Áö°³ºô¶ó(346-70) | 3 | 62.55 | 17,700 | 0 | 1997 | | 2024.05.15 | ¿ù¼¼ | Ȱ´Ù¼¼´ëÁÖÅà | 3 | 57.25 | 2,000 | 70 | 2008 | | 2024.05.15 | ¿ù¼¼ | ±ÝÈ£ÆÄÅ©ºô(Aµ¿) | 4 | 28.28 | 4,000 | 60 | 2001 | | 2024.05.15 | ¿ù¼¼ | µ¿µµÆÄÅ©ºä | 4 | 34.625 | 17,000 | 1 | 2012 | | 2024.05.15 | Àü¼¼ | NKÆÄÅ©ºô | 5 | 47.62 | 15,000 | 0 | 2008 | | 2024.05.15 | ¿ù¼¼ | ¾¾Æ¼ÇϿ콺Aµ¿ | 3 | 37.07 | 3,000 | 80 | 2017 | | 2024.05.15 | ¸Å¸Å | º§¶óÇϿ콺(807-15) | 4 | 29.47 | 19,100 | | 2015 | | 2024.05.15 | ¸Å¸Å | ÇѰS-Ŭ·¡½º(1084-30) | 2 | 34.84 | 16,500 | | 2012 | | 2024.05.15 | ¸Å¸Å | °¡»êÁÖÅà | 3 | 60.22 | 25,500 | | 2004 | | 2024.05.15 | ¸Å¸Å | »ï¼ºÆÓ¸®½º | 4 | 29.17 | 30,000 | | 2022 | | 2024.05.15 | Àü¼¼ | ºñ¿£ÄÉÀÌÇϿ콺 | 4 | 26 | 20,900 | 0 | 2023 | | 2024.05.15 | ¿ù¼¼ | Àº¼ºÄ³½½ | 3 | 22.35 | 500 | 50 | 2017 | | 2024.05.15 | ¿ù¼¼ | casagio | 6 | 39.45 | 22,400 | 10 | 2019 | | 2024.05.15 | ¿ù¼¼ | ÁÖ¿¬ÇϿ콺 | 3 | 37.21 | 3,000 | 110 | 2022 | | 2024.05.15 | ¸Å¸Å | ¸®Á¨Æ®¶ó¿ò(344-11) | 4 | 41.99 | 25,900 | | 2014 | | 2024.05.15 | ¸Å¸Å | ¸ñ¿øÁÖÅÃ6Â÷ | 3 | 60.94 | 26,400 | | 2002 | | 2024.05.15 | ¸Å¸Å | º¸¶÷±×¸°ºô | 1 | 54.76 | 21,400 | | 2001 | | 2024.05.15 | ¸Å¸Å | Çý¼ºÆç¸®½º(772-92) | 4 | 46.77 | 25,500 | | 2011 | | 2024.05.14 | ¿ù¼¼ | »ï¼º½¦¸£ºô(111-25) | 5 | 27.72 | 3,000 | 42 | 2014 | | 2024.05.14 | ¿ù¼¼ | û¼ÛÆòÈÇコÇϿ콺 | 5 | 21.9 | 3,000 | 60 | 2018 | | 2024.05.14 | Àü¼¼ | °ÇÀÏ¾ÆÆ®ºô(°¡) | 2 | 62.37 | 17,600 | 0 | 2002 | | 2024.05.14 | ¿ù¼¼ | ·ÎÁîÆÓ¸®½ºÅõ(346-38) | 2 | 78.57 | 500 | 29 | 2009 | | 2024.05.14 | ¸Å¸Å | »ó¿ì½¦¸£ºô | 2 | 35.77 | 16,500 | | 2002 | | 2024.05.14 | ¸Å¸Å | Çö´ëºô¶ó¶óµ¿ | 3 | 33.26 | 17,000 | | 1991 | | 2024.05.14 | ¸Å¸Å | ½Å¿µº£¸£µð¿ò | 5 | 40.27 | 24,500 | | 2017 | | 2024.05.14 | ¸Å¸Å | ³«¿øºô¶ó(352-39) | 1 | 61.75 | 24,000 | | 1994 | | 2024.05.14 | ¸Å¸Å | Çý¼ºÆç¸®½º29Â÷(163-8) | 3 | 29.92 | 16,400 | | 2014 | | 2024.05.14 | ¸Å¸Å | °æ³²ÇÏÀÌÃ÷B | -1 | 33.48 | 8,500 | | 1989 | | 2024.05.14 | ¿ù¼¼ | Çѽººôµù | 3 | 36.9 | 2,000 | 47 | 2004 | | 2024.05.14 | ¿ù¼¼ | ÁÖ½Å¾ÆÆ®ºôAµ¿ | 4 | 28.75 | 2,000 | 60 | 2003 | | 2024.05.14 | Àü¼¼ | Ǫ¸¥Ç³°æÃ¤ | 4 | 29.98 | 28,600 | 0 | 2022 | | 2024.05.14 | Àü¼¼ | casagio | 4 | 27.31 | 18,648 | 0 | 2019 | | 2024.05.14 | Àü¼¼ | Ǫ¸¥Ç³°æÃ¤ | 4 | 29.98 | 28,600 | 0 | 2022 | | 2024.05.14 | Àü¼¼ | ÇѰS-Ŭ·¡½º(1084-30) | 2 | 29.92 | 14,100 | 0 | 2012 | | 2024.05.14 | Àü¼¼ | ÇѰS-Ŭ·¡½º(1084-30) | 2 | 29.92 | 14,100 | 0 | 2012 | | 2024.05.14 | ¿ù¼¼ | ¹Ì±¤½ºÅæºô | 3 | 60.03 | 5,000 | 70 | 2008 | | 2024.05.14 | Àü¼¼ | À£ºù¶óÀÌÇÁ | 2 | 62.79 | 22,800 | 0 | 2010 | | 2024.05.14 | Àü¼¼ | °¡¼º¾ÆÆ®Èú5Â÷Aµ¿(966-16) | 5 | 49.61 | 13,000 | 0 | 2002 | | 2024.05.14 | ¿ù¼¼ | µÎ»êºô¶ó | 4 | 56.8 | 5,500 | 70 | 2001 | | 2024.05.14 | Àü¼¼ | ¼±¿ì½ºÀ§Æ®ºô°¡µ¿(56-661) | 4 | 59.96 | 16,000 | 0 | 2001 | | 2024.05.14 | Àü¼¼ | °ÇÀÏ¾ÆÆ®ºô(°¡) | 2 | 62.37 | 17,600 | 0 | 2002 | | 2024.05.14 | Àü¼¼ | ¼Ò´ã¹ë¸® | 3 | 29.14 | 17,500 | 0 | 2012 | | 2024.05.14 | ¿ù¼¼ | »ï¼º½¦¸£ºô(111-25) | 5 | 27.72 | 3,000 | 42 | 2014 | | 2024.05.14 | ¿ù¼¼ | ·ÎÁîÆÓ¸®½ºÅõ(346-38) | 2 | 78.57 | 1,000 | 47 | 2009 | | 2024.05.14 | Àü¼¼ | Å©¶ó¿îÆÓ¸®½º | 13 | 29.94 | 22,800 | 0 | 2020 | | 2024.05.14 | ¿ù¼¼ | ¾¾Æ¼ÇϿ콺ºñµ¿ | 5 | 18.51 | 14,860 | 15 | 2017 | | 2024.05.14 | ¿ù¼¼ | ´Ù¾Èºô¶óÆ® | 5 | 32.91 | 3,000 | 90 | 2016 | | 2024.05.14 | Àü¼¼ | ´õŬ·¡½Ä | 5 | 48.78 | 32,000 | 0 | 2018 | | 2024.05.14 | ¿ù¼¼ | ¸®Ä¡ÇϿ콺(346-18) | 5 | 21.2 | 16,100 | 5 | 2017 | | 2024.05.14 | ¿ù¼¼ | ÁÖ¿¬ÇϿ콺 | 2 | 43.67 | 4,000 | 110 | 2022 | | 2024.05.13 | ¿ù¼¼ | ¿¡½º¿¥ÆÄÅ©ºô(332-42) | 4 | 42.14 | 22,000 | 22 | 2015 | | 2024.05.13 | ¿ù¼¼ | ½Å¶óÇÏÀÌÃ÷ºô¶ó3Â÷ | 2 | 41.04 | 11,900 | 6 | 1994 | | 2024.05.13 | Àü¼¼ | ¹Ì¼ººô¶ó | 1 | 56.04 | 13,000 | 0 | 1994 | | 2024.05.13 | ¿ù¼¼ | ¿ìÁøÇÁ¸£¹Ì | 4 | 29.46 | 12,400 | 14 | 2011 | | 2024.05.13 | Àü¼¼ | żººô¶ó | 4 | 57.1 | 17,200 | 0 | 2002 | | 2024.05.13 | ¿ù¼¼ | »õÇѱ׸°ºôAµ¿ | 5 | 51.01 | 13,600 | 20 | 2002 | | 2024.05.13 | ¿ù¼¼ | ±îÄ¡»êÆÈ¶óÀ̽º | 2 | 29.91 | 16,128 | 5 | 2015 | | 2024.05.13 | Àü¼¼ | ½Å¼º³×¿Àºô | 4 | 29.45 | 25,000 | 0 | 2019 | | 2024.05.13 | ¿ù¼¼ | ¿¤Æç¸®½º | 5 | 25.59 | 5,000 | 70 | 2022 | | 2024.05.13 | ¿ù¼¼ | (1164-0) | 3 | 18.36 | 1,000 | 55 | 2014 | | 2024.05.13 | Àü¼¼ | ¿¡½ºÄÉÀ̺ô¸®Áö | 2 | 29.25 | 15,490 | 0 | 2016 | | 2024.05.13 | ¿ù¼¼ | áæõ½(988-22) | 4 | 17.76 | 500 | 30 | 2013 | | 2024.05.13 | ¿ù¼¼ | °ø¿øºô¶ó | 2 | 44.02 | 1,000 | 65 | 1986 | | 2024.05.13 | ¿ù¼¼ | ½Å¿µºô¶óBµ¿(55-104) | 4 | 58.48 | 13,000 | 30 | 2001 | | 2024.05.13 | ¿ù¼¼ | û¼ÛÆòÈÇコÇϿ콺 | 4 | 28.72 | 3,400 | 100 | 2018 | | 2024.05.13 | ¿ù¼¼ | ´ö¿ë¸Ç¼Ç | 3 | 62.25 | 5,000 | 55 | 1997 | | 2024.05.13 | ¿ù¼¼ | °¡¿øÈ¨Å¸¿î | 4 | 40.32 | 1,000 | 25 | 2021 | | 2024.05.13 | Àü¼¼ | ·Î¾âÇÏÀÌÃ÷Aµ¿ | 1 | 53.215 | 12,000 | 0 | 2000 | | 2024.05.13 | ¿ù¼¼ | À̸²ºô¶ó | 3 | 56.87 | 4,000 | 60 | 2002 | | 2024.05.13 | ¿ù¼¼ | Àº°¡¶÷ÆÓ¸®½º | 2 | 37.345 | 1,000 | 110 | 2022 | | 2024.05.13 | ¿ù¼¼ | ŸíÆÄÅ©ºô¶ó | 3 | 42.09 | 2,000 | 55 | 1992 | | 2024.05.13 | ¸Å¸Å | Èѹ̸®ÇÏÀÌÃ÷(56-187) | 2 | 39.51 | 12,500 | | 1994 | | 2024.05.13 | ¸Å¸Å | ±¤¸íºô¶ó(56-98) | 2 | 43.2 | 12,700 | | 1991 | | 2024.05.13 | ¸Å¸Å | ¼±°æºô¶ó | 1 | 63.66 | 26,800 | | 1997 | | 2024.05.13 | ¸Å¸Å | ÆÄÀÎÇϿ콺(1056-10) | 4 | 42.93 | 27,800 | | 2014 | | 2024.05.13 | ¸Å¸Å | ¼ºÁÖ¸Ç¼Ç | 4 | 61.8 | 20,900 | | 2002 | | 2024.05.13 | ¸Å¸Å | ¼ºÁøºô¶ó | 4 | 49.05 | 19,500 | | 2000 | | 2024.05.13 | ¸Å¸Å | (1071-37)Çѿ\ºìºô | 5 | 24.78 | 12,000 | | 2009 | | 2024.05.13 | ¸Å¸Å | »ï¼ººô¶ó | 2 | 33.51 | 15,000 | | 1991 | | 2024.05.13 | ¸Å¸Å | ¿¹¸²ÇÏÀÌÃ÷ºô¶ó(992-9) | -1 | 40.95 | 9,000 | | 1995 | | 2024.05.13 | ¸Å¸Å | µ¿¿ø¶óÅ׶󽺺ô | 4 | 29.94 | 25,000 | | 2016 | | 2024.05.12 | Àü¼¼ | ºí·çÈú(789-36) | 5 | 24.65 | 21,790 | 0 | 2020 | | 2024.05.12 | Àü¼¼ | ¿¡½º¿¥ÆÄÅ©ºô | 5 | 26.77 | 19,440 | 0 | 2016 | | 2024.05.11 | ¿ù¼¼ | ÇÏÀºµ¥ÄÚºô | 1 | 49.92 | 2,000 | 65 | 2003 | | 2024.05.11 | ¸Å¸Å | ÇÁ¸®¸Þ¶ó(369-31) | 3 | 45.21 | 24,300 | | 2014 | | 2024.05.11 | Àü¼¼ | ȼººô¶ó(56-34) | 1 | 51.54 | 13,000 | 0 | 2001 | | 2024.05.11 | ¸Å¸Å | Çý¼ºÆç¸®½ººô | 4 | 26.22 | 20,000 | | 2018 | | 2024.05.11 | ¸Å¸Å | ¿ÍÀ̾غñ | 5 | 25.38 | 22,000 | | 2017 | | 2024.05.11 | ¸Å¸Å | ¹Ð·¹´Ï¾ö¸Ç¼ÇAµ¿ | 1 | 40.36 | 16,100 | | 2001 | | 2024.05.11 | ¸Å¸Å | ÁÖ¿µÇϿ콺 | 2 | 27.09 | 17,600 | | 2016 | | 2024.05.11 | ¸Å¸Å | ¸®Ä¡ÇϿ콺 | 4 | 38.15 | 25,900 | | 2016 | | 2024.05.11 | ¸Å¸Å | ¿ì¼ÖÇϿ졿¡ÀÌ | 6 | 18.96 | 19,000 | | 2023 | | 2024.05.11 | Àü¼¼ | ¿Ã¶ó·çÁî | 5 | 29.98 | 25,500 | 0 | 2022 | | 2024.05.11 | ¿ù¼¼ | »õÇÑ¾ÆÆ®ºôA(1039-7) | 2 | 45.12 | 12,600 | 10 | 2002 | | 2024.05.11 | ¿ù¼¼ | 424-205 | 5 | 18.88 | 1,000 | 65 | 2016 | | 2024.05.11 | ¿ù¼¼ | ½ÂÀ±³ëºí¸®¾È½ÃƼ | 4 | 12.73 | 1,000 | 40 | 2013 | | 2024.05.11 | ¿ù¼¼ | Á¤°¨Å¸¿îA(346-92) | 2 | 38.32 | 5,000 | 69 | 2015 | | 2024.05.11 | ¿ù¼¼ | °ÇÇüºô¶ó°¡µ¿ | 1 | 65.52 | 3,000 | 90 | 2001 | | 2024.05.11 | ¿ù¼¼ | ¿¤¸®½Ã¾Æ | 5 | 36.29 | 3,000 | 85 | 2013 | | 2024.05.11 | ¿ù¼¼ | ¿¡µ§ÇϿ콺(153-8) | 2 | 60.49 | 2,000 | 75 | 2008 | | 2024.05.11 | ¿ù¼¼ | ³²¼º¾ÆÆ®ºô(772-78) | 5 | 41.54 | 13,000 | 20 | 2011 | | 2024.05.11 | ¿ù¼¼ | û¼ÛÆòÈÇÏÀ̸ǼÇAµ¿(466-1) | 5 | 59.88 | 2,000 | 90 | 2002 | | 2024.05.11 | Àü¼¼ | »ó¾Æ¸¶À̺ô(1085-5) | 5 | 40.02 | 13,300 | 0 | 2007 | | 2024.05.11 | ¿ù¼¼ | 424-205 | 5 | 18.88 | 1,000 | 65 | 2016 | | 2024.05.11 | Àü¼¼ | ¿Ã¶ó·çÁî | 5 | 29.98 | 25,500 | 0 | 2022 | | 2024.05.11 | Àü¼¼ | Áö¿Â¾ÆÆ®ºô | 3 | 29.92 | 17,200 | 0 | 2016 | | 2024.05.11 | ¿ù¼¼ | ±æ¼ºÀÌ¿£ÀÌ(367-62) | 5 | 29.9 | 1,000 | 72 | 2015 | | 2024.05.11 | Àü¼¼ | ¿Ã¶ó·çÁî | 4 | 29.98 | 25,500 | 0 | 2022 | | 2024.05.11 | ¸Å¸Å | °¡¿øÈ¨Å¸¿î | 3 | 40.32 | 35,000 | | 2021 | | 2024.05.11 | Àü¼¼ | ¿¥Æç¸®Ã¼(346-82) | 6 | 37.12 | 20,400 | 0 | 2015 | | 2024.05.11 | Àü¼¼ | ·Î¾âÇÏÀÌÃ÷Aµ¿ | 1 | 53.215 | 12,000 | 0 | 2000 | | 2024.05.11 | ¿ù¼¼ | dz¼º»õ·Òºô | 5 | 41.7 | 13,100 | 10 | 2009 | | 2024.05.11 | Àü¼¼ | ¿¥Æç¸®Ã¼(346-82) | 6 | 37.12 | 20,400 | 0 | 2015 | | 2024.05.11 | Àü¼¼ | ¿¹¿ø¾ÆÆ®ºô¶ó³ªµ¿ | 2 | 35.78 | 10,000 | 0 | 1991 | | 2024.05.11 | Àü¼¼ | ¿µÈÁÖÅà | 3 | 37.08 | 10,970 | 0 | 1991 | | 2024.05.11 | Àü¼¼ | »ó¾Æ¸¶À̺ô(1085-5) | 5 | 40.02 | 13,300 | 0 | 2007 | | 2024.05.11 | ¿ù¼¼ | ºÎ±¤ºô¶ó | 1 | 66.69 | 12,000 | 55 | 2000 | | 2024.05.11 | ¿ù¼¼ | ÇѶóÁÖÅà | 5 | 49.58 | 12,000 | 25 | 2002 | | 2024.05.11 | ¿ù¼¼ | ¼Ò¸Áºô¶ó | 4 | 56.79 | 15,000 | 30 | 2002 | | 2024.05.11 | Àü¼¼ | ´Ù¿ÂÆÄÅ©ºô | 3 | 24.34 | 12,700 | 0 | 2017 | | 2024.05.10 | Àü¼¼ | ȼººô¶ó29Â÷ | 2 | 38.16 | 10,000 | 0 | 2001 | | 2024.05.10 | Àü¼¼ | µ¿¾çÁÖÅà | 1 | 49.17 | 11,000 | 0 | 1995 | | 2024.05.10 | Àü¼¼ | ´Ù¿Â½£ | 6 | 21.04 | 23,700 | 0 | 2024 | | 2024.05.10 | ¿ù¼¼ | ´Ù´Ï¿¤ºôµù | 3 | 19.07 | 6,200 | 8 | 2006 | | 2024.05.10 | Àü¼¼ | â¿øºô¸®Áö | 4 | 41.82 | 17,640 | 0 | 2013 | | 2024.05.10 | Àü¼¼ | ¼·Î¾ÆÆ®ºô | 2 | 61.58 | 17,200 | 0 | 2002 | | 2024.05.10 | Àü¼¼ | ÇÁ¶óÀÓÇϿ콺(397-36) | 5 | 45.24 | 19,000 | 0 | 2011 | | 2024.05.10 | ¿ù¼¼ | ±¹µµµå¸²ºô | 5 | 29.47 | 17,800 | 25 | 2018 | | 2024.05.10 | Àü¼¼ | ´ëµ¿ºô | 4 | 29.27 | 23,000 | 0 | 2020 | | 2024.05.10 | Àü¼¼ | ±Ý°ÆÄÅ©ºô(475-6) | 4 | 40.14 | 14,985 | 0 | 2008 | | 2024.05.10 | ¿ù¼¼ | µ¿Áø¾ÆÆ®ºô | 5 | 27.31 | 11,400 | 36 | 2018 | | 2024.05.10 | Àü¼¼ | ¾ÆÁÙ¸®¿ò(451-8) | 3 | 43.04 | 21,900 | 0 | 2013 | | 2024.05.10 | Àü¼¼ | ´ºÆÄÀκô(46-200) | 3 | 42.53 | 13,800 | 0 | 2008 | | 2024.05.10 | ¿ù¼¼ | û½Ç¸Ç¼Ç | 1 | 72.8 | 3,000 | 110 | 1998 | | 2024.05.10 | Àü¼¼ | ¼º¿øºô¶ó | 2 | 59.83 | 18,000 | 0 | 2002 | | 2024.05.10 | Àü¼¼ | ¿©¸íºô¶ó | 3 | 59.7 | 18,700 | 0 | 1999 | | 2024.05.10 | ¿ù¼¼ | ´ëÈ£¾ÆÆ®Å¸¿î´Ùµ¿ | 1 | 39.94 | 11,000 | 25 | 1992 | | 2024.05.10 | Àü¼¼ | Çö´ë¾ÆÆ®ºô¶ó(962-16) | 1 | 55.27 | 12,200 | 0 | 1990 | | 2024.05.10 | ¿ù¼¼ | ±¹µµµå¸²ºô | 5 | 29.47 | 17,800 | 25 | 2018 | | 2024.05.10 | Àü¼¼ | ¼º±¤ºô¶ó | 2 | 35.97 | 9,600 | 0 | 1987 | | 2024.05.10 | Àü¼¼ | (56-193) | 2 | 40.32 | 13,000 | 0 | 2008 | | 2024.05.10 | Àü¼¼ | ¿ÍÀ̾غñ | 3 | 28.91 | 16,750 | 0 | 2016 | | 2024.05.10 | ¸Å¸Å | ¹Ì¸²ºô¶ó(362-59) | -1 | 47.88 | 12,000 | | 1991 | | 2024.05.10 | ¸Å¸Å | ¹Ì¸²ºô¶ó(362-59) | -1 | 47.88 | 12,000 | | 1991 | | 2024.05.10 | ¸Å¸Å | ¹Ì·¡ÇÏÀÌÃ÷Aµ¿(370-26) | 3 | 64.54 | 26,000 | | 2001 | | 2024.05.10 | ¸Å¸Å | ±×·¹À̽ººô | 3 | 26.83 | 38,000 | | 2022 | | 2024.05.10 | ¸Å¸Å | »ïÀÍÇ콺Ƽ¾Æ | 4 | 36.48 | 26,000 | | 2010 | | 2024.05.09 | Àü¼¼ | ÇÑ¿ïÆÓ¸®½º | 7 | 26.1 | 16,500 | 0 | 2017 | | 2024.05.09 | Àü¼¼ | Çö´ëÇÏÀÌÃ÷ºô¶ó | 2 | 65.5 | 18,000 | 0 | 2000 | | 2024.05.09 | Àü¼¼ | À§´õ½ººô | 8 | 20.1 | 13,300 | 0 | 2013 | | 2024.05.09 | ¿ù¼¼ | ÇѾçºô¶ó | 2 | 60.85 | 5,000 | 50 | 1992 | | 2024.05.09 | Àü¼¼ | (1053-1) | 1 | 60.54 | 18,500 | 0 | 2002 | | 2024.05.09 | Àü¼¼ | È£¸²¸®½´¸®¾È | 4 | 49.08 | 25,000 | 0 | 2016 | | 2024.05.09 | ¿ù¼¼ | »ïÀÍÇ콺Ƽ¾Æ | 4 | 36.48 | 13,400 | 20 | 2010 | | 2024.05.09 | Àü¼¼ | ½Ã¿Âºô¸®Áö101 | 5 | 25.84 | 26,200 | 0 | 2022 | | 2024.05.09 | Àü¼¼ | Å¿µÁÖÅÃ2 | 2 | 39.24 | 9,700 | 0 | 1991 | | 2024.05.09 | Àü¼¼ | Çö´ëÇÏÀÌÃ÷ºô¶ó | 2 | 65.5 | 18,000 | 0 | 2000 | | 2024.05.09 | ¿ù¼¼ | ÿ½ÃÇϿ콺(424-35¿Ü1) | 2 | 42 | 500 | 100 | 2015 | | 2024.05.09 | ¿ù¼¼ | ´ëÈ£°ñµçºô¶ó | 3 | 59.19 | 2,000 | 60 | 1991 | | 2024.05.09 | ¸Å¸Å | ¹Ð·¹´Ï¾ö(98-71) | 2 | 40.74 | 21,300 | | 2012 | | 2024.05.09 | ¸Å¸Å | Çö´ëÇÏÀÌÃ÷ºô¶ó | 2 | 65.5 | 26,000 | | 2000 | | 2024.05.09 | Àü¼¼ | (1053-1) | 1 | 55.35 | 16,900 | 0 | 2002 | | 2024.05.09 | Àü¼¼ | »ïÁø´Ù¼¼´ë | 1 | 54.72 | 10,000 | 0 | 1986 | | 2024.05.09 | ¿ù¼¼ | ÇѾçºô¶ó | 2 | 60.85 | 4,000 | 57 | 1992 | | 2024.05.09 | ¿ù¼¼ | (814-17) | 2 | 29.94 | 1,000 | 68 | 2013 | | 2024.05.09 | ¿ù¼¼ | ÆÄÅ©ÀÚÀ̺ô | 4 | 25.68 | 2,000 | 100 | 2020 | | 2024.05.09 | Àü¼¼ | ½Ã¿Âºô¸®Áö101 | 5 | 25.84 | 26,200 | 0 | 2022 | | 2024.05.09 | ¿ù¼¼ | ÆÄÅ©ÀÚÀ̺ô | 4 | 25.68 | 2,000 | 100 | 2020 | | 2024.05.08 | Àü¼¼ | ½ÅÈïÇÏÀ̺ô | 3 | 54.39 | 17,640 | 0 | 2010 | | 2024.05.08 | Àü¼¼ | ¿äÇѺô | 3 | 29.98 | 17,350 | 0 | 2016 | | 2024.05.08 | ¿ù¼¼ | Á¤Àººô¶ó | 1 | 42.02 | 2,500 | 65 | 1993 | | 2024.05.08 | Àü¼¼ | LG5Ÿ¿î | 3 | 76.56 | 22,400 | 0 | 2000 | | 2024.05.08 | ¿ù¼¼ | ¶óÇǾƳë | 2 | 29.94 | 5,000 | 80 | 2022 | | 2024.05.08 | Àü¼¼ | û¼º½ºÄ«ÀÌ(100-22) | 2 | 75.1 | 21,400 | 0 | 2009 | | 2024.05.08 | Àü¼¼ | ¿äÇѺô | 3 | 29.98 | 17,350 | 0 | 2016 | | 2024.05.08 | ¿ù¼¼ | ¿ì¼º(105-9¿Ü) | 2 | 29.39 | 14,000 | 20 | 2015 | | 2024.05.08 | Àü¼¼ | ·ÎºóÇϿ콺 | 5 | 22.88 | 16,700 | 0 | 2018 | | 2024.05.08 | Àü¼¼ | ·ÎºóÇϿ콺 | 5 | 22.88 | 17,000 | 0 | 2018 | | 2024.05.08 | ¿ù¼¼ | ±Ý°ÆÄÅ©ºô(475-6) | 5 | 40.56 | 13,356 | 20 | 2008 | | 2024.05.08 | Àü¼¼ | º®»êȨŸ¿î(969-14) | 4 | 38.56 | 13,700 | 0 | 2002 | | 2024.05.08 | ¿ù¼¼ | ´Ù¼Ø(422-3) | 4 | 29.81 | 12,850 | 10 | 2014 | | 2024.05.08 | ¿ù¼¼ | ¾¾Æ¼ÇϿ콺(425-19) | 5 | 58.22 | 23,300 | 19 | 2014 | | 2024.05.08 | ¿ù¼¼ | Y&B | 6 | 29.81 | 3,500 | 100 | 2020 | | 2024.05.08 | ¿ù¼¼ | ³ª»ê¸Ç¼Ç(154-13) | 3 | 59.88 | 17,300 | 23 | 2007 | | 2024.05.08 | Àü¼¼ | °æ³²ÇÏÀÌÃ÷A | 1 | 50.48 | 12,000 | 0 | 1989 | | 2024.05.08 | ¿ù¼¼ | ÀºÇÏÀ§³Êºô | 2 | 56.15 | 20,000 | 10 | 2008 | | 2024.05.08 | Àü¼¼ | ·ÎºóÇϿ콺 | 5 | 22.88 | 17,000 | 0 | 2018 | | 2024.05.08 | ¿ù¼¼ | ¼ºÁÖ¸Ç¼Ç | 4 | 61.8 | 14,500 | 30 | 2002 | | 2024.05.08 | ¸Å¸Å | À¯¸²½¦¸£ºô | 7 | 54.77 | 24,000 | | 2011 | | 2024.05.08 | ¸Å¸Å | ¿¹°¡Ã¤(968-3) | 3 | 44.08 | 28,000 | | 2015 | | 2024.05.08 | ¸Å¸Å | ¹é¹®ÇϿ콺 | 6 | 29.28 | 27,000 | | 2018 | | 2024.05.08 | ¸Å¸Å | ÇѽÅÀ§³Ê½º | 6 | 31.93 | 24,500 | | 2016 | | 2024.05.08 | ¸Å¸Å | ½ÅÈï¶ß¶õä | 4 | 39.63 | 32,000 | | 2017 | | 2024.05.08 | Àü¼¼ | ¿¡½º¿¥ÆÄÅ©ºô | 4 | 26.67 | 17,700 | 0 | 2016 | | 2024.05.08 | ¿ù¼¼ | ´Ù¼Ø(422-3) | 4 | 29.81 | 12,850 | 10 | 2014 | | 2024.05.08 | Àü¼¼ | SKºô¸®Áö | 2 | 29.935 | 16,500 | 0 | 2015 | | 2024.05.07 | ¿ù¼¼ | ºí·çÈú(846-14) | 2 | 22.03 | 2,000 | 105 | 2021 | | 2024.05.07 | ¿ù¼¼ | ¿ì¼º(408-86) | 3 | 48.27 | 22,900 | 20 | 2017 | | 2024.05.07 | Àü¼¼ | ¿©¸íÇÏÀÌÃ÷ºô¶ó | 2 | 63.5 | 16,700 | 0 | 1998 | | 2024.05.07 | ¿ù¼¼ | ´Ù¿Âºô | 6 | 26.63 | 15,620 | 20 | 2018 | | 2024.05.07 | Àü¼¼ | ¿©¸íÇÏÀÌÃ÷ºô¶ó | 2 | 63.5 | 16,700 | 0 | 1998 | | 2024.05.07 | Àü¼¼ | Ǫ¸¥Ç³°æÃ¤ | 4 | 29.98 | 28,600 | 0 | 2022 | | 2024.05.07 | Àü¼¼ | Á¦¼±±×·£µåºô | 2 | 36.81 | 14,400 | 0 | 2009 | | 2024.05.07 | ¿ù¼¼ | ½Ö¿ëºô¶óBµ¿ | 4 | 46.63 | 3,000 | 75 | 2002 | | 2024.05.07 | ¿ù¼¼ | ¿ì¼º(408-86) | 3 | 48.27 | 22,900 | 20 | 2017 | | 2024.05.07 | Àü¼¼ | û¼ÛÆòÈÇコÇϿ콺(457-3) | 2 | 29.85 | 15,750 | 0 | 2015 | | 2024.05.07 | ¿ù¼¼ | È«¼ºÁÖÅà | 4 | 45.07 | 1,800 | 60 | 2005 | | 2024.05.07 | ¿ù¼¼ | Çູµå¸² | 3 | 13.21 | 2,300 | 32 | 2012 | | 2024.05.07 | ¿ù¼¼ | Á¦ÀÌÁ¦ÀÌij½½ | 3 | 24.7 | 16,700 | 5 | 2016 | | 2024.05.07 | ¿ù¼¼ | S-vill(423-1) | 5 | 43.75 | 3,000 | 100 | 2012 | | 2024.05.07 | ¿ù¼¼ | ´ë·úŸ¿î | 6 | 29.07 | 2,000 | 77 | 2017 | | 2024.05.07 | Àü¼¼ | ¹Ì·¡½ºÅ¸ºô(1104-13) | 3 | 47.28 | 24,000 | 0 | 2014 | | 2024.05.07 | Àü¼¼ | °ñµç¸®Ä¡ºô(850-16) | 3 | 40.19 | 15,500 | 0 | 2008 | | 2024.05.07 | Àü¼¼ | ¾¾Æ¼ÇϿ콺(425-19) | 4 | 29.91 | 16,600 | 0 | 2014 | | 2024.05.07 | Àü¼¼ | Á¦¼±±×·£µåºô(160-33) | 2 | 48.01 | 17,136 | 0 | 2009 | | 2024.05.07 | Àü¼¼ | ³²°æ | 4 | 53.22 | 19,500 | 0 | 2000 | | 2024.05.07 | Àü¼¼ | Çö´ëºí·ç¹Ö | 5 | 31.75 | 18,270 | 0 | 2015 | | 2024.05.07 | ¸Å¸Å | ¼Ò´ã¹ë¸®(807-3) | 2 | 44.47 | 20,000 | | 2013 | | 2024.05.07 | ¸Å¸Å | °©Áø°ñµåºô | 5 | 35.59 | 22,500 | | 2013 | | 2024.05.07 | ¸Å¸Å | ¿¡À̽ºÅ¸¿î | 4 | 52.57 | 24,000 | | 2007 | | 2024.05.07 | ¸Å¸Å | °©Áø°ñµåºô | 5 | 35.59 | 22,500 | | 2013 | | 2024.05.07 | ¸Å¸Å | »ì·½ÇϿ콺(100-26) | 3 | 64.65 | 25,900 | | 2000 | | 2024.05.06 | Àü¼¼ | ½Å¿µ¸®Ä¡ºô(330-14) | 4 | 41.69 | 23,000 | 0 | 2017 | | 2024.05.06 | ¸Å¸Å | ¼ºÁøºô¶ó | 4 | 49.05 | 19,500 | | 2000 | | 2024.05.06 | ¿ù¼¼ | ºí·çÈú(846-14) | 4 | 17.93 | 4,000 | 77 | 2021 | | 2024.05.06 | ¿ù¼¼ | Áß¾ÓÇÏÀ̺ô | 4 | 49.26 | 1,500 | 50 | 2001 | | 2024.05.06 | ¿ù¼¼ | ¼¼´ãÆÄÅ©ºä | 6 | 29.44 | 3,000 | 85 | 2020 | | 2024.05.06 | Àü¼¼ | ³²¼º¾ÆÆ®ºô(381-1) | 6 | 28.55 | 16,800 | 0 | 2015 | | 2024.05.06 | ¿ù¼¼ | »ïÈ£¾ÆÆ®ºô | 2 | 61.32 | 20,000 | 12 | 2003 | | 2024.05.06 | Àü¼¼ | ³²°æ | 4 | 53.22 | 18,090 | 0 | 2000 | | 2024.05.06 | Àü¼¼ | ½Å¿µ¸®Ä¡ºô(330-14) | 4 | 41.69 | 23,000 | 0 | 2017 | | 2024.05.06 | ¿ù¼¼ | ¸ð´øºô(111-73) | 4 | 35.16 | 1,000 | 50 | 2003 | | 2024.05.06 | Àü¼¼ | ¶óºñ¾ÓÇϿ콺 | 2 | 26.14 | 14,900 | 0 | 2014 | | 2024.05.06 | Àü¼¼ | ¹Ì¼Òºô | 6 | 27.79 | 19,300 | 0 | 2018 | | 2024.05.06 | Àü¼¼ | µ¿¾ç³ëºí·¹½º | 3 | 48.46 | 16,200 | 0 | 2008 | | 2024.05.06 | ¿ù¼¼ | Á¦ÀÌÆÓ¸®½º6Â÷ | 5 | 28.76 | 14,480 | 20 | 2013 | | 2024.05.06 | ¿ù¼¼ | ºí·çÈú(846-14) | 4 | 17.93 | 4,000 | 77 | 2021 | | 2024.05.06 | ¿ù¼¼ | ´õ¿ø¼¥5 | 4 | 29.2 | 20,160 | 15 | 2021 | | 2024.05.04 | ¿ù¼¼ | ¸®¿ÀÆÄÅ©ºô | 3 | 29.59 | 20,900 | 13 | 2020 | | 2024.05.04 | Àü¼¼ | Çѹ鸮Ã÷ºô(56-547) | 3 | 43.81 | 14,700 | 0 | 2008 | | 2024.05.04 | Àü¼¼ | »ï¼º¼¾Æ®·¹ºô(55-48) | 2 | 51.54 | 15,000 | 0 | 2008 | | 2024.05.04 | ¿ù¼¼ | ´Ù¿ø½´½´ºô12Â÷ | 4 | 29.67 | 1,000 | 70 | 2011 | | 2024.05.04 | ¿ù¼¼ | »ï¼ºÅ¾½ººô | 4 | 34.06 | 13,500 | 17 | 2011 | | 2024.05.04 | ¿ù¼¼ | Á¦ÀÌ¿¡½ººô | 6 | 28.07 | 1,000 | 120 | 2023 | | 2024.05.04 | ¿ù¼¼ | ¹ÌÇϿ콺 | 5 | 36.52 | 2,000 | 120 | 2016 | | 2024.05.04 | ¿ù¼¼ | (166-26) | 2 | 66.59 | 17,000 | 20 | 2004 | | 2024.05.04 | Àü¼¼ | µ¿¿µºô¶ó | 3 | 43.12 | 15,200 | 0 | 2002 | | 2024.05.04 | Àü¼¼ | ³²¼º¾ÆÆ®ºô | 5 | 29.08 | 20,000 | 0 | 2016 | | 2024.05.04 | ¿ù¼¼ | ºÀ½ººô | 3 | 9.24 | 500 | 45 | 2011 | | 2024.05.04 | Àü¼¼ | ½Å¼º¸®Ä¡ºô(425-18) | 4 | 40.63 | 19,190 | 0 | 2014 | | 2024.05.04 | ¿ù¼¼ | ±¹µµµå¸²ºô | 3 | 28.81 | 17,800 | 20 | 2018 | | 2024.05.04 | Àü¼¼ | ½ÂÇö½ºÀ§Æ®ºô | 4 | 65.98 | 19,656 | 0 | 2002 | | 2024.05.04 | ¿ù¼¼ | Áö¾Èºô | 5 | 25.04 | 3,000 | 60 | 2015 | | 2024.05.04 | ¸Å¸Å | ¹Ì¼Òºô | 4 | 27.79 | 25,600 | | 2018 | | 2024.05.03 | ¿ù¼¼ | ¿ÍÀ̾غñ´õ½ºÅ丮 | 4 | 29.72 | 22,000 | 30 | 2022 | | 2024.05.03 | ¿ù¼¼ | µ¿¾çÄý½ººô(425-46) | 4 | 44.82 | 15,000 | 15 | 2003 | | 2024.05.03 | ¿ù¼¼ | µ¿¾çÄý½ººô(425-46) | 4 | 44.82 | 15,000 | 15 | 2003 | | 2024.05.03 | ¿ù¼¼ | ¿µÁøºô¶ó | 2 | 64.75 | 17,000 | 20 | 2000 | | 2024.05.03 | ¿ù¼¼ | ÈÀÌÆ®ÇϿ콺 | 4 | 46.81 | 2,000 | 60 | 2003 | | 2024.05.03 | ¿ù¼¼ | µ¿¿ìºô¶ó | 2 | 37.24 | 2,000 | 70 | 1990 | | 2024.05.03 | Àü¼¼ | ±îÄ¡ºô¶ó | 2 | 49.59 | 14,700 | 0 | 1993 | | 2024.05.03 | ¿ù¼¼ | Çì½êµå | 5 | 29.53 | 2,000 | 130 | 2022 | | 2024.05.03 | Àü¼¼ | ÇÑÁøÅ¾½ººô | 2 | 75.78 | 21,400 | 0 | 2000 | | 2024.05.03 | Àü¼¼ | Ȱ¸³ | 2 | 54.88 | 10,000 | 0 | 1981 | | 2024.05.03 | Àü¼¼ | ºñ¿ø±×¸°ºô¶ó | 2 | 41.49 | 13,000 | 0 | 1986 | | 2024.05.03 | ¿ù¼¼ | ÀÎÅÍ½ÃÆ¼ | 3 | 29.97 | 12,800 | 17 | 2011 | | 2024.05.03 | Àü¼¼ | JKVILL | 5 | 37.76 | 18,500 | 0 | 2015 | | 2024.05.03 | Àü¼¼ | µ¿¾çÄý½ººô(425-46) | 4 | 44.64 | 15,000 | 0 | 2003 | | 2024.05.03 | Àü¼¼ | ¿ÍÀ̾غñ | 3 | 28.91 | 16,000 | 0 | 2016 | | 2024.05.03 | Àü¼¼ | »ï¼ººô¶óCµ¿ | 3 | 61.49 | 16,000 | 0 | 2003 | | 2024.05.03 | Àü¼¼ | ¿ÍÀ̾غñ | 2 | 28.14 | 19,650 | 0 | 2019 | | 2024.05.03 | Àü¼¼ | ±îÄ¡ºô¶ó | 2 | 49.59 | 14,300 | 0 | 1993 | | 2024.05.03 | ¿ù¼¼ | Çϳªºô | 3 | 41.49 | 12,000 | 20 | 2008 | | 2024.05.03 | ¸Å¸Å | °è¸íÀ§³Ê½º(98-111) | 2 | 50.22 | 20,000 | | 2008 | | 2024.05.03 | ¸Å¸Å | ¼·Î¾ÆÆ®ºô | 2 | 55.24 | 18,000 | | 2002 | | 2024.05.03 | ¸Å¸Å | ·Î¾âȨŸ¿î(928-23)101µ¿ | 10 | 39.18 | 18,900 | | 2012 | | 2024.05.03 | ¸Å¸Å | (366-42) | 2 | 28.44 | 13,500 | | 1996 | | 2024.05.03 | ¸Å¸Å | °¡¿Âºô | 5 | 28.25 | 16,400 | | 2014 | | 2024.05.03 | ¸Å¸Å | ¹ÎÆÓ¸®½º | 3 | 41.28 | 17,000 | | 2008 | | 2024.05.03 | ¸Å¸Å | µ¿¾çÄý½ººô(425-46) | 4 | 44.64 | 20,000 | | 2003 | | 2024.05.03 | ¸Å¸Å | ÀºÇϵ帲ºô | 5 | 38.61 | 15,800 | | 2007 | | 2024.05.03 | ¸Å¸Å | À̼³±×¶ûºô(469-20) | 4 | 54.12 | 17,000 | | 2002 | | 2024.05.02 | Àü¼¼ | Çý¼ºÆç¸®½ººô | 2 | 26.22 | 16,200 | 0 | 2018 | | 2024.05.02 | Àü¼¼ | D.S¿¡ÄÚºô | 2 | 44.85 | 20,900 | 0 | 2013 | | 2024.05.02 | ¿ù¼¼ | ¾ÆÆ®ºô(105-134) | 4 | 31.135 | 7,300 | 24 | 2002 | | 2024.05.02 | Àü¼¼ | µÎ¾Ï¸®¹öºôCµ¿ | 4 | 39.2 | 16,350 | 0 | 2001 | | 2024.05.02 | Àü¼¼ | ÇѸ²ºô¸®Áö | 2 | 65.46 | 18,225 | 0 | 1993 | | 2024.05.02 | Àü¼¼ | ÅÂÇö¸Ç¼Ç(102-244) | -1 | 58.59 | 11,500 | 0 | 2000 | | 2024.05.02 | Àü¼¼ | Çѽº¾ÆÀ̺ô | 4 | 29.94 | 21,500 | 0 | 2018 | | 2024.05.02 | Àü¼¼ | Á¶¾ç¶ß¶õä | 3 | 47.28 | 18,300 | 0 | 2011 | | 2024.05.02 | Àü¼¼ | È¿Àڱ׸°ºô¶ó | 1 | 49.42 | 11,700 | 0 | 1998 | | 2024.05.02 | Àü¼¼ | ¿¹Èºô¶óÆ® | 4 | 52.445 | 16,500 | 0 | 2000 | | 2024.05.02 | ¿ù¼¼ | ¼¼¿µÇÏÀÌÃ÷°¡µ¿ | 3 | 49.68 | 7,000 | 15 | 2001 | | 2024.05.02 | Àü¼¼ | ±â°æºô¶ó | 1 | 64.26 | 18,350 | 0 | 1997 | | 2024.05.02 | Àü¼¼ | À¯Ç³ºô¶ó¾ÆÆ®Bµ¿ | 1 | 84.96 | 24,100 | 0 | 1990 | | 2024.05.02 | Àü¼¼ | »ï¼º½¦¸£ºô | 5 | 58.36 | 26,190 | 0 | 2015 | | 2024.05.02 | ¿ù¼¼ | ÁøÁÖ¸®Ä¡ºô(56-608) | 4 | 27.8 | 8,000 | 29 | 2011 | | 2024.05.02 | Àü¼¼ | Çý¼ºÆç¸®½ººô | 2 | 26.22 | 16,200 | 0 | 2018 | | 2024.05.02 | ¿ù¼¼ | ¿¬¿ì³Ø½ºÆ®ºä | 14 | 13.16 | 13,100 | 10 | 2018 | | 2024.05.02 | ¸Å¸Å | ¿ÍÀ̾غñ | 4 | 24.72 | 21,500 | | 2017 | | 2024.05.02 | ¸Å¸Å | ¿ùµå¾ÆÆ®ºô | 4 | 75.14 | 28,000 | | 2004 | | 2024.05.02 | ¸Å¸Å | ´ë¼Ûºô¶ó(155-26) | -1 | 28.2 | 8,250 | | 2000 | | 2024.05.02 | ¸Å¸Å | Áß¾Óºô¶ó | 1 | 38.69 | 15,500 | | 1993 | | 2024.05.02 | ¸Å¸Å | ¼º¿îºô¶ó(354-4)5Â÷ | 5 | 44.34 | 8,000 | | 2002 | | 2024.05.02 | ¸Å¸Å | µ¿¿ì¾ÆÆ®ºô | 2 | 46.01 | 19,500 | | 2009 | | 2024.05.02 | ¿ù¼¼ | ºí·ç½ºÄ«À̺ô(860-20) | 3 | 28.63 | 2,000 | 75 | 2014 | | 2024.05.02 | Àü¼¼ | »ï¼º½¦¸£ºô | 5 | 58.36 | 26,190 | 0 | 2015 | | 2024.05.02 | ¿ù¼¼ | ÇÑ¹é¾ÆÆ®ºôBµ¿ | 4 | 31.06 | 5,000 | 50 | 2002 | | 2024.05.02 | ¿ù¼¼ | ±¤»ê¸Ç¼ð(396-8) | 3 | 45.14 | 5,000 | 50 | 2001 | | 2024.05.02 | Àü¼¼ | ÀÎÅÍ½ÃÆ¼ºô¶ó(409-92) | 3 | 46.15 | 13,500 | 0 | 2002 | | 2024.05.01 | ¿ù¼¼ | ÅÂû±×¸°ºô¶ó | 2 | 41.1 | 10,590 | 10 | 1993 | | 2024.05.01 | ¿ù¼¼ | È¿øºô¶ó | 1 | 49.42 | 11,000 | 20 | 1992 | | 2024.05.01 | ¿ù¼¼ | Çý¼ºÆÓ¸®½ººô(392-31) | 4 | 29.1 | 14,700 | 17 | 2014 | | 2024.05.01 | ¿ù¼¼ | ÇÑ¿ïÆÓ¸®½º | 4 | 26.29 | 3,500 | 72 | 2017 | | 2024.05.01 | Àü¼¼ | »ï¼ºÁÖÅ󪵿 | 1 | 36.81 | 8,000 | 0 | 1991 | | 2024.05.01 | ¿ù¼¼ | Àå¹ÌÁÖÅÃ8Â÷ | 1 | 42.72 | 10,000 | 10 | 1991 | | 2024.05.01 | ¿ù¼¼ | ½ºÀ§Æ®ºô(410-183) | 5 | 40.18 | 65 | 65 | 2008 | | 2024.05.01 | ¿ù¼¼ | ´õ¼û153 | 4 | 14.71 | 500 | 50 | 2021 | | 2024.05.01 | ¿ù¼¼ | ¸ðÀüÇ÷¯½ººôBµ¿ | 3 | 34.27 | 11,280 | 15 | 2002 | | 2024.05.01 | ¿ù¼¼ | ¿¡µ§±×¸° | 4 | 48.98 | 3,000 | 65 | 2002 | | 2024.05.01 | Àü¼¼ | ÁÖ¿¬ÇϿ콺 | 5 | 35.91 | 26,200 | 0 | 2022 | | 2024.05.01 | Àü¼¼ | ³²¼º¾ÆÆ®ºô(353-13) | 3 | 26.19 | 13,860 | 0 | 2016 | | 2024.05.01 | ¿ù¼¼ | Àå¹ÌÁÖÅÃ(55-24) | 3 | 56.06 | 5,000 | 48 | 2002 | | 2024.05.01 | ¿ù¼¼ | Çʸ³ÇϿ콺 | 3 | 29.88 | 500 | 30 | 2012 | | 2024.05.01 | Àü¼¼ | ¼¼¾ç2Â÷°¡µ¿ | 1 | 38.53 | 11,000 | 0 | 1987 | | 2024.05.01 | ¿ù¼¼ | (105-20) | 5 | 32.67 | 4,000 | 50 | 2011 | | 2024.05.01 | Àü¼¼ | À¯·Îºô(970-13) | 2 | 47.45 | 13,900 | 0 | 2002 | | 2024.05.01 | ¿ù¼¼ | ¿¡ÄÚij½½(504-24) | 2 | 45.64 | 5,500 | 75 | 2015 | | 2024.05.01 | ¿ù¼¼ | ÇÁ¸®Áòºô¶ó | 2 | 31.59 | 10,800 | 5 | 2001 | | 2024.05.01 | ¸Å¸Å | û¿îºô¶ó | 1 | 62.22 | 21,000 | | 2001 | | 2024.05.01 | ¸Å¸Å | ¿¡½º¿¥ÆÄÅ©ºô | 6 | 26.67 | 22,430 | | 2016 | | 2024.05.01 | ¸Å¸Å | ÀÌ¿¤ÇϿ콺 | 3 | 27.35 | 30,000 | | 2022 | | 2024.05.01 | Àü¼¼ | ¼ºÀººô¶ó(871-27) | 3 | 59.98 | 17,700 | 0 | 2001 | | 2024.05.01 | ¿ù¼¼ | Àº°¡¶÷ÆÓ¸®½º | 4 | 37.345 | 1,000 | 110 | 2022 | | 2024.05.01 | ¿ù¼¼ | Åä¼®¾Æ³×½ººô(24-217) | 2 | 60.09 | 3,000 | 100 | 2010 | | 2024.05.01 | ¿ù¼¼ | Àº°¡¶÷ÆÓ¸®½º | 4 | 32.79 | 1,000 | 110 | 2022 | | 2024.05.01 | ¿ù¼¼ | ³²¼º¾ÆÆ®ºô(367-28) | 4 | 24.3 | 3,000 | 65 | 2012 | | 2024.05.01 | Àü¼¼ | ¸íÁÖºôÇϸð´Ï | 5 | 55.18 | 16,000 | 0 | 2008 | | 2024.05.01 | ¿ù¼¼ | ±ÝÈÇÏÀ̺ô | 3 | 67.11 | 300 | 35 | 2010 | | 2024.05.01 | ¿ù¼¼ | ´õ¼û153 | 2 | 14.71 | 200 | 40 | 2021 | | 2024.05.01 | ¿ù¼¼ | ÇÁ¸®Áòºô¶ó | 2 | 31.59 | 10,800 | 5 | 2001 | | 2024.05.01 | ¿ù¼¼ | ȼººô¶ó29Â÷ | 2 | 38.16 | 11,900 | 10 | 2001 | | 2024.05.01 | ¿ù¼¼ | À¯·Îºô(970-13) | 1 | 47.45 | 12,300 | 10 | 2002 | | 2024.05.01 | ¿ù¼¼ | ´Ù¾Èºô¶óÆ® | 3 | 33.12 | 1,000 | 85 | 2016 | | 2024.05.01 | Àü¼¼ | ÇÑÁøÅ¾½ººô | 4 | 68.97 | 18,390 | 0 | 2000 | | 2024.04.30 | Àü¼¼ | ¿¡ºñ¾ÓÇϿ콺 | 1 | 29.53 | 21,000 | 0 | 2017 | | 2024.04.30 | Àü¼¼ | ¿¡ºñ¾ÓÇϿ콺 | 1 | 29.53 | 21,000 | 0 | 2017 | | 2024.04.30 | Àü¼¼ | ¼¾Æ®ºô | 5 | 23.78 | 10,200 | 0 | 2012 | | 2024.04.30 | ¿ù¼¼ | ÁøÇüºô¶ó(353-112)°¡µ¿ | 2 | 50.58 | 2,000 | 70 | 2001 | | 2024.04.30 | Àü¼¼ | µ¿µµÆÄÅ©ºä | 6 | 31.725 | 13,000 | 0 | 2012 | | 2024.04.30 | ¿ù¼¼ | ¾Æ¸£´©º¸392 | 4 | 56.73 | 3,000 | 85 | 2002 | | 2024.04.30 | Àü¼¼ | (1053-1) | 1 | 55.35 | 18,000 | 0 | 2002 | | 2024.04.30 | ¸Å¸Å | ¿ì¼ººô¶óBµ¿ | 1 | 33.69 | 11,700 | | 2002 | | 2024.04.30 | ¿ù¼¼ | µð¾ÆÀνº(1075-27) | 8 | 22.97 | 14,400 | 13 | 2015 | | 2024.04.30 | ¿ù¼¼ | È°î¾ÆÆ®ºô | 5 | 29.91 | 300 | 70 | 2022 | | 2024.04.30 | Àü¼¼ | ¿Ã¶ó·çÁî(HOLALUZ) | 5 | 29.81 | 38,000 | 0 | 2022 | | 2024.04.30 | Àü¼¼ | (1053-1) | 2 | 60.54 | 17,000 | 0 | 2002 | | 2024.04.30 | ¿ù¼¼ | Ȱ´Ù¼¼´ëÁÖÅà | 2 | 40.73 | 1,000 | 75 | 2008 | | 2024.04.30 | ¸Å¸Å | ¾Æ¸£¶¼ºô | 3 | 29.9 | 18,600 | | 2017 | | 2024.04.30 | ¿ù¼¼ | ¿µÁÖÁÖÅà | 4 | 44.64 | 2,000 | 60 | 2002 | | 2024.04.30 | ¸Å¸Å | ÀÎÅÍ½ÃÆ¼Aµ¿ | -1 | 58.67 | 17,000 | | 2001 | | 2024.04.30 | Àü¼¼ | (1053-1) | 2 | 60.54 | 17,000 | 0 | 2002 | | 2024.04.30 | ¿ù¼¼ | ÅÂÇÑÇÏÀ̺ô(382-25) | 4 | 26.62 | 5,000 | 55 | 2017 | | 2024.04.30 | ¿ù¼¼ | Å©¸®½ºÅ»ºô(24-490) | 3 | 29.89 | 4,500 | 70 | 2014 | | 2024.04.30 | Àü¼¼ | JÆÓ¸®½º4Â÷ | 2 | 40.37 | 16,300 | 0 | 2012 | | 2024.04.30 | ¿ù¼¼ | ¼¿¸®º£ÀÌ1 | 2 | 32.79 | 1,000 | 42 | 2001 | | 2024.04.30 | ¸Å¸Å | µ¿Èºô¶ó | 2 | 59.92 | 23,400 | | 2001 | | 2024.04.30 | ¸Å¸Å | ´ö¼ºÀÚÀ̺ô | 5 | 45.72 | 13,000 | | 2012 | | 2024.04.30 | ¸Å¸Å | »ï¼º¾ÆÆ®ÅÚ | 7 | 60.6 | 30,000 | | 2002 | | 2024.04.30 | ¸Å¸Å | ´ë½Å¸¶À̺ô | 4 | 76.52 | 31,800 | | 2002 | | 2024.04.30 | ¸Å¸Å | ½Å¿ì¿¡Äڹ븮 | 5 | 19.56 | 14,500 | | 2011 | | 2024.04.30 | Àü¼¼ | (1053-1) | 1 | 55.35 | 16,900 | 0 | 2002 | | 2024.04.30 | Àü¼¼ | ÈÀÌÆ®ºô | 1 | 55.44 | 13,900 | 0 | 2002 | | 2024.04.30 | Àü¼¼ | (1053-1) | 2 | 55.35 | 18,400 | 0 | 2002 | | 2024.04.30 | ¿ù¼¼ | dzÀηÎÁîºô(98-144) | 1 | 48.76 | 12,000 | 20 | 2003 | | 2024.04.30 | ¸Å¸Å | ³²¼º¾ÆÆ®ºô(354-41) | 5 | 35.02 | 23,000 | | 2014 | | 2024.04.30 | ¿ù¼¼ | µ¿±¤½¦¸£ºô°¡µ¿ | 3 | 61.29 | 3,000 | 100 | 2002 | | 2024.04.30 | ¿ù¼¼ | ¼¼Áöºô | 5 | 31.68 | 8,999 | 33 | 2002 | | 2024.04.30 | ¿ù¼¼ | ¼º¿øÆÄÅ©ºô(56-382) | 3 | 42.82 | 2,000 | 50 | 2008 | | 2024.04.30 | ¸Å¸Å | ½Â¼®ÈÙŸ¿îAµ¿ | 4 | 50.18 | 19,700 | | 2002 | | 2024.04.30 | ¿ù¼¼ | ±îÄ¡»êÆÈ¶óÀ̽º | 2 | 29.91 | 16,128 | 5 | 2015 | | 2024.04.29 | Àü¼¼ | Á¤°¡¿ïºô | 4 | 40.78 | 15,200 | 0 | 2008 | | 2024.04.29 | Àü¼¼ | ³²±¤¾ÆÆ®ºô | 3 | 44.78 | 19,000 | 0 | 2012 | | 2024.04.29 | Àü¼¼ | ÇÑȺ£½ºÆ®ºô | 5 | 56.56 | 18,500 | 0 | 2002 | | 2024.04.29 | ¸Å¸Å | ¿ì¼ººô¶ó(366-10) | 3 | 57.89 | 20,750 | | 1994 | | 2024.04.29 | ¿ù¼¼ | µ¿¿øÈúÇϿ콺 | 6 | 13.6 | 1,000 | 48 | 2011 | | 2024.04.29 | Àü¼¼ | ¿¤¸®½Ã¾Æ | 4 | 25.33 | 14,100 | 0 | 2013 | | 2024.04.29 | ¿ù¼¼ | ³×½ºÆ®ºô2Â÷ | 3 | 54.2 | 2,000 | 71 | 2008 | | 2024.04.29 | ¸Å¸Å | À̼ö°ñµåŸ¿î | 2 | 38.7 | 11,000 | | 1993 | | 2024.04.29 | ¸Å¸Å | À¯Ç³ºô¶óÇÏÀÌ | 2 | 84.69 | 66,000 | | 1990 | | 2024.04.29 | ¸Å¸Å | ¾Æ»êºí·çºô | -1 | 61.07 | 15,000 | | 2002 | | 2024.04.29 | ¸Å¸Å | ´ë¸²ºô¶ó(348-57) | -1 | 49.03 | 14,800 | | 1986 | | 2024.04.29 | ¿ù¼¼ | º£¶óÈú | 5 | 29.93 | 1,500 | 65 | 2022 | | 2024.04.29 | Àü¼¼ | ±¤¸íºô¶ó(479-6) | 3 | 45.48 | 12,700 | 0 | 2002 | | 2024.04.29 | Àü¼¼ | ±¤¸íºô¶ó(479-6) | 3 | 45.48 | 12,700 | 0 | 2002 | | 2024.04.29 | ¿ù¼¼ | Èѹ̸®ÇÏÀÌÃ÷(56-187) | 2 | 39.51 | 10,600 | 27 | 1994 | | 2024.04.29 | ¸Å¸Å | °ñµå¸Ç¼Ç | 3 | 59.8 | 23,200 | | 2000 | | 2024.04.29 | ¿ù¼¼ | »ï¼ºÀ§ºêºô | 4 | 29.78 | 13,900 | 25 | 2012 | | 2024.04.29 | ¸Å¸Å | º£½ºÆ®ºô | 5 | 27.84 | 26,145 | | 2019 | | 2024.04.29 | Àü¼¼ | »õÇѱ׸°ºô¸®Áö | 3 | 69.64 | 18,000 | 0 | 1998 | | 2024.04.29 | ¿ù¼¼ | áæõ½(988-22) | 3 | 18.72 | 500 | 30 | 2013 | | 2024.04.29 | Àü¼¼ | ¹Ù¶óȨ | 6 | 29.23 | 22,000 | 0 | 2023 | | 2024.04.29 | Àü¼¼ | ½Å¼º¸®Ä¡ºô¥°(357-16) | 6 | 35.63 | 19,000 | 0 | 2013 | | 2024.04.29 | Àü¼¼ | ¿ÀÄÉÀÌÆÄÅ©ºô | 5 | 29.37 | 19,500 | 0 | 2016 | | 2024.04.29 | Àü¼¼ | ³ª»ê±×¸°ºô¶óAµ¿ | 3 | 59.97 | 16,800 | 0 | 1997 | | 2024.04.29 | Àü¼¼ | À£ÇǾÆ(796-13) | 5 | 29.88 | 19,300 | 0 | 2014 | | 2024.04.29 | ¿ù¼¼ | ¿ì¼º¿¬¸³(1134-7) | 1 | 51.3 | 15,000 | 10 | 1985 | | 2024.04.29 | ¿ù¼¼ | ¿Ã¶ó·çÁî | 3 | 25.19 | 5,000 | 85 | 2022 | | 2024.04.29 | ¸Å¸Å | ¾ÆÀ̵ð¿ò | 2 | 26.42 | 17,300 | | 2016 | | 2024.04.29 | Àü¼¼ | ¿¤¸®½Ã¾Æ | 4 | 25.33 | 14,300 | 0 | 2013 | | 2024.04.29 | Àü¼¼ | ¿¤ºñºô¶óÆ® | 3 | 56.46 | 17,000 | 0 | 2000 | | 2024.04.29 | Àü¼¼ | »ïÀͺô¶ó | -1 | 47.7 | 7,000 | 0 | 1994 | | 2024.04.28 | Àü¼¼ | JÆÓ¸®½º4Â÷ | 5 | 40.37 | 16,000 | 0 | 2012 | | 2024.04.28 | ¿ù¼¼ | ¼Çö | 5 | 12.24 | 500 | 40 | 2011 | | 2024.04.27 | Àü¼¼ | °¡Áø±×¸°ºô | 5 | 55.66 | 14,600 | 0 | 2001 | | 2024.04.27 | ¿ù¼¼ | ȼºÈ¨Å¸¿î101µ¿ | 4 | 66.62 | 13,000 | 45 | 2002 | | 2024.04.27 | Àü¼¼ | Ȳº¸¾ÆÆ®ºô(333-27) | 2 | 22.53 | 15,490 | 0 | 2018 | | 2024.04.27 | Àü¼¼ | ºäƼ½¦¸£ºô353 | 5 | 41.2 | 21,400 | 0 | 2017 | | 2024.04.27 | Àü¼¼ | ºí·çÈú(789-36) | 5 | 25.96 | 22,500 | 0 | 2020 | | 2024.04.27 | Àü¼¼ | ½Å¿ì¿¡Äڹ븮 | 5 | 19.56 | 13,000 | 0 | 2011 | | 2024.04.27 | Àü¼¼ | ±â°æºô¶ó | 1 | 64.26 | 20,000 | 0 | 1997 | | 2024.04.27 | Àü¼¼ | ºí·çÈú(789-36) | 5 | 25.96 | 22,500 | 0 | 2020 | | 2024.04.27 | ¿ù¼¼ | ³²¼º¾ÆÆ®ºô(353-13) | 6 | 32.09 | 3,000 | 90 | 2016 | | 2024.04.27 | Àü¼¼ | ¿¡½º¿¥ÆÄÅ©ºô | 6 | 26.77 | 18,100 | 0 | 2016 | | 2024.04.27 | ¸Å¸Å | ·Î¾âÇÏÀÌÃ÷(1045-13) | 2 | 49.68 | 29,500 | | 2008 | | 2024.04.27 | ¸Å¸Å | ¼ºÁøºô¶ó | 2 | 60.12 | 19,500 | | 1993 | | 2024.04.27 | ¸Å¸Å | ´Þõºô¶ó | 3 | 33.04 | 15,000 | | 1995 | | 2024.04.27 | Àü¼¼ | °è¸íÆÄÅ©ºô(70-24) | 4 | 45.33 | 17,000 | 0 | 2007 | | 2024.04.27 | ¿ù¼¼ | ¾ÆÀ̵ð¿ò | 5 | 26.42 | 13,700 | 30 | 2016 | | 2024.04.27 | Àü¼¼ | ŰæÇÏÀÌÃ÷(870-53) | 2 | 54.5 | 14,900 | 0 | 2001 | | 2024.04.27 | ¿ù¼¼ | °¡³ª¾Æµ¨¸®¿ò(102-120) | 3 | 33.76 | 16,600 | 17 | 2014 | | 2024.04.27 | Àü¼¼ | ¿ùµå¾ÆÆ®ºô | 4 | 79.22 | 22,000 | 0 | 2004 | | 2024.04.27 | ¿ù¼¼ | ¹Ð·¹´Ï¾ö¸Ç¼Ç | 2 | 47.19 | 16,600 | 10 | 2003 | | 2024.04.27 | Àü¼¼ | ¶ó¿òÇÏ¿ì¡ | 3 | 28.84 | 20,160 | 0 | 2019 | | 2024.04.27 | ¿ù¼¼ | ÀÎÅÍ½ÃÆ¼ºô¶ó(394-10) | 1 | 70.34 | 16,750 | 10 | 2002 | | 2024.04.27 | ¿ù¼¼ | ¿£¾¾ºô(24-67) | 8 | 19.28 | 6,800 | 8 | 2012 | | 2024.04.27 | ¿ù¼¼ | ÃÊÀ̽ººô | 4 | 36.96 | 2,500 | 85 | 2010 | | 2024.04.27 | ¿ù¼¼ | ¹é°¿ø·ë | 3 | 12.02 | 500 | 42 | 2011 | | 2024.04.27 | ¿ù¼¼ | SKÆÄÅ©ºô(353-15) | 2 | 40.05 | 19,600 | 15 | 2014 | | 2024.04.27 | Àü¼¼ | Á¶Àººô¸®Áö(56-659) | 2 | 44.66 | 12,000 | 0 | 2002 | | 2024.04.27 | Àü¼¼ | (1053-1) | 2 | 55.35 | 18,400 | 0 | 2002 | | 2024.04.27 | ¿ù¼¼ | ÇØÂùºô(24-550) | 7 | 18.65 | 7,500 | 3 | 2012 | | 2024.04.27 | Àü¼¼ | (1053-1) | 2 | 55.35 | 20,000 | 0 | 2002 | | 2024.04.27 | Àü¼¼ | ¶ó¿òÇÏ¿ì¡ | 3 | 28.84 | 20,660 | 0 | 2019 | | 2024.04.27 | Àü¼¼ | ¹é¿îÀκ£½ºÆ®ºô | 4 | 43.57 | 16,000 | 0 | 2008 | | 2024.04.27 | ¿ù¼¼ | °¡³ª¾Æµ¨¸®¿ò(102-120) | 3 | 33.76 | 16,600 | 17 | 2014 | | 2024.04.27 | ¸Å¸Å | ´ö¼ö±Ã(961-14) | 2 | 68.65 | 24,000 | | 2007 | | 2024.04.27 | Àü¼¼ | µå¸®¹ÌŸ¿î(858-1) | 4 | 38.22 | 21,750 | 0 | 2015 | | 2024.04.26 | Àü¼¼ | ¼¼¸íº£¸£µð¿ò | 2 | 28.42 | 19,200 | 0 | 2016 | | 2024.04.26 | ¿ù¼¼ | ´Ù³ª³×½ºÆ®ºô(410-217) | 2 | 42.28 | 12,000 | 30 | 2008 | | 2024.04.26 | ¸Å¸Å | °è¸íÆÄÅ©ºô(70-24) | 2 | 53.94 | 28,000 | | 2007 | | 2024.04.26 | ¿ù¼¼ | È°î¾ÆÆ®ºô | 4 | 22.12 | 300 | 50 | 2022 | | 2024.04.26 | Àü¼¼ | ¿¹¿øºô¶ó6µ¿ | 2 | 36.98 | 12,000 | 0 | 1987 | | 2024.04.26 | Àü¼¼ | ´õ¶ó¿Â | 4 | 35.77 | 19,400 | 0 | 2016 | | 2024.04.26 | ¿ù¼¼ | ÇÁ¶óÀÓÇϿ콺(393-23) | 2 | 56.85 | 2,000 | 68 | 2016 | | 2024.04.26 | ¿ù¼¼ | ÅÂ°æ¾ÆÆ®ºô | 2 | 60.4 | 3,000 | 110 | 2002 | | 2024.04.26 | Àü¼¼ | â´ë(366-34) | 4 | 31.11 | 15,300 | 0 | 2013 | | 2024.04.26 | Àü¼¼ | ÀÎÅÍ½ÃÆ¼ºô¶ó(56-418) | 2 | 60 | 19,200 | 0 | 2008 | | 2024.04.26 | ¿ù¼¼ | »ï¼º½¦¸£ºô(346-62) | 3 | 29.52 | 16,380 | 15 | 2017 | | 2024.04.26 | Àü¼¼ | °æÀκô¶ó | 1 | 58.41 | 15,300 | 0 | 1999 | | 2024.04.26 | ¿ù¼¼ | (29-197)ÇѺûÀ§³Ê½ººô | 5 | 21.42 | 7,000 | 20 | 2008 | | 2024.04.26 | Àü¼¼ | ¼¼¸íº£¸£µð¿ò | 2 | 28.42 | 19,650 | 0 | 2016 | | 2024.04.26 | ¸Å¸Å | ´õº£³×Ä¡¾Æ½ºÀ§Æ® | 4 | 28.88 | 20,500 | | 2021 | | 2024.04.26 | ¸Å¸Å | ¿¡½ºÄÉÀÌÆÄÅ©¸®¿ò101µ¿102µ¿ | 4 | 29.92 | 37,500 | | 2022 | | 2024.04.26 | ¿ù¼¼ | ÅÂ°æ¾ÆÆ®ºô | 2 | 60.4 | 3,000 | 110 | 2002 | | 2024.04.26 | ¸Å¸Å | °æÀκô¶óAµ¿ | 2 | 42.3 | 17,500 | | 2001 | | 2024.04.26 | ¿ù¼¼ | ´õ¼û153 | 5 | 15.31 | 0 | 55 | 2021 | | 2024.04.26 | ¿ù¼¼ | ¿µÀÏ¾ÆÆ®ºô | 1 | 62.52 | 3,000 | 95 | 2003 | | 2024.04.26 | Àü¼¼ | ¼ºÁøºô¶ó(400-79) | 4 | 55.55 | 15,750 | 0 | 2001 | | 2024.04.26 | Àü¼¼ | ¸í¹®ºô(824-27) | 2 | 45.41 | 13,800 | 0 | 2008 | | 2024.04.26 | ¿ù¼¼ | Ŭ·¡½Ãºä | 4 | 29.85 | 1,000 | 90 | 2022 | | 2024.04.26 | Àü¼¼ | ÁÖ¿µ³Ø½ººô | -1 | 66.42 | 12,000 | 0 | 2003 | | 2024.04.25 | ¸Å¸Å | ½ºÄ«À̱ٸ°Å¸¿î | 3 | 39.73 | 14,500 | | 2014 | | 2024.04.25 | ¿ù¼¼ | Å·½ººôBµ¿(56-688) | 2 | 65.94 | 3,000 | 70 | 2001 | | 2024.04.25 | Àü¼¼ | ȼººô¶ó³ªµ¿ | 2 | 45.84 | 17,000 | 0 | 2003 | | 2024.04.25 | ¿ù¼¼ | ȼººô¶ó°¡µ¿ | 4 | 41.95 | 12,700 | 30 | 2003 | | 2024.04.25 | Àü¼¼ | (425-39)û±¸ÇÏÀÌÃ÷ºô¶ó | -1 | 36.42 | 7,500 | 0 | 1993 | | 2024.04.25 | Àü¼¼ | ¶óÅ׶󽺺ô | 2 | 29.86 | 14,800 | 0 | 2015 | | 2024.04.25 | ¸Å¸Å | ¿ì¼ÖÇϿ졿¡ÀÌ | 4 | 27.93 | 29,900 | | 2023 | | 2024.04.25 | Àü¼¼ | (362-100) | -1 | 46.5 | 6,000 | 0 | 1992 | | 2024.04.25 | ¿ù¼¼ | Çöó¿öÈú | 2 | 48.48 | 1,000 | 68 | 2008 | | 2024.04.25 | ¿ù¼¼ | ¿¤¸®¾ßºô | 4 | 74.64 | 3,000 | 70 | 2004 | | 2024.04.25 | Àü¼¼ | Ȱîºô¶ó | 4 | 53.51 | 12,540 | 0 | 2000 | | 2024.04.25 | Àü¼¼ | ¼ºµµº£½ºÆ®È¨ | 2 | 65.54 | 20,000 | 0 | 2007 | | 2024.04.25 | Àü¼¼ | À¯·Îºô(970-13) | 3 | 47.45 | 14,175 | 0 | 2002 | | 2024.04.25 | ¿ù¼¼ | ´õ¼û153 | 5 | 15.05 | 100 | 65 | 2021 | | 2024.04.25 | ¸Å¸Å | µ¿¿ìºô¶ó | 2 | 37.24 | 16,000 | | 1990 | | 2024.04.25 | Àü¼¼ | ´Ù¿Â½£ | 6 | 15.72 | 21,500 | 0 | 2024 | | 2024.04.25 | ¿ù¼¼ | »ï¿øÇÇ¾ÆÆ®Cµ¿ | 3 | 63.45 | 2,500 | 80 | 2001 | | 2024.04.25 | ¸Å¸Å | ±¤¼ºÇÏÀÌÃ÷Bµ¿ | 5 | 52.4 | 15,800 | | 2002 | | 2024.04.25 | Àü¼¼ | ³²¼º¾ÆÆ®ºô(353-13) | 3 | 26.19 | 14,700 | 0 | 2016 | | 2024.04.24 | ¿ù¼¼ | È°î¾ÆÆ®ºô | 6 | 29.39 | 200 | 70 | 2022 | | 2024.04.24 | ¿ù¼¼ | ºí·ç½ºÄ«À̺ô | 5 | 29.92 | 3,000 | 80 | 2016 | | 2024.04.24 | Àü¼¼ | Æ®¶ó¿òºô | 3 | 36.89 | 20,000 | 0 | 2012 | | 2024.04.24 | ¿ù¼¼ | ·Î¾âÇÏÀÌÃ÷ | 2 | 53.12 | 1,000 | 100 | 2010 | | 2024.04.24 | ¿ù¼¼ | ´Ù¼ØAµ¿(381-2¿Ü) | 6 | 31.39 | 5,000 | 85 | 2015 | | 2024.04.24 | ¿ù¼¼ | °ø°¨ÁöÀ½410 | 4 | 26.84 | 1,000 | 55 | 2021 | | 2024.04.24 | Àü¼¼ | õµ¿½¦¸£ºô | 3 | 62.25 | 17,500 | 0 | 2001 | | 2024.04.24 | Àü¼¼ | »ï¼ºÆÓ¸®½º | 4 | 29.17 | 23,000 | 0 | 2022 | | 2024.04.24 | ¿ù¼¼ | ȰÁÖÅÃ(1118-5) | 3 | 60.9 | 3,000 | 72 | 2002 | | 2024.04.24 | Àü¼¼ | »ç¿ìºô | 5 | 47.5 | 12,500 | 0 | 2002 | | 2024.04.24 | ¿ù¼¼ | ·Î¾âÇÏÀÌÃ÷ | 2 | 53.12 | 1,000 | 100 | 2010 | | 2024.04.24 | ¸Å¸Å | ºí·çÆÄÅ©ºô3Â÷ | 2 | 64.09 | 28,000 | | 2002 | | 2024.04.24 | Àü¼¼ | ¿Ã¶ó·çÁî(HOLALUZ) | 2 | 29.81 | 20,500 | 0 | 2022 | | 2024.04.24 | ¸Å¸Å | ´ëÀº¿¬¸³ | 3 | 59.9 | 20,200 | | 1998 | | 2024.04.24 | Àü¼¼ | ¿Ã¶ó·çÁî(HOLALUZ) | 2 | 29.81 | 20,500 | 0 | 2022 | | 2024.04.24 | ¿ù¼¼ | ½Å¿ø¾ÆÆ®ºô¶ó | 4 | 64.98 | 2,000 | 80 | 2001 | | 2024.04.24 | Àü¼¼ | ¹Ù¿ìÇϿ콺(895-10) | 3 | 13.64 | 6,200 | 0 | 2011 | | 2024.04.24 | Àü¼¼ | »ï¼ºÆÓ¸®½º | 4 | 29.17 | 23,000 | 0 | 2022 | | 2024.04.24 | ¿ù¼¼ | ¹«µîºô¶ó | 1 | 36.88 | 8,900 | 5 | 1990 | | 2024.04.24 | Àü¼¼ | ÇÑ¿ï´Ù½ºÇÏÀÓ | 5 | 38.71 | 16,100 | 0 | 2012 | | 2024.04.24 | ¸Å¸Å | Çѽº¾ÆÀ̺ô | 4 | 29.94 | 24,400 | | 2018 | | 2024.04.24 | Àü¼¼ | ¼ºÁöºô¶ó(29-91) | -1 | 36.9 | 6,400 | 0 | 1997 | | 2024.04.24 | ¿ù¼¼ | ½ÂÁöºô¶ó | 1 | 66.11 | 16,200 | 20 | 1997 | | 2024.04.24 | Àü¼¼ | ½ãºô¶óÆ® | 5 | 69.84 | 17,000 | 0 | 2002 | | 2024.04.24 | Àü¼¼ | ±îÄ¡¸Ç¼Ç | 3 | 56.41 | 15,000 | 0 | 1993 | | 2024.04.24 | Àü¼¼ | ±¤¸íÇÏÀÌÃ÷3Â÷ | 3 | 50.22 | 16,200 | 0 | 1993 | | 2024.04.24 | ¸Å¸Å | Áø¼ºÇÏÀÌÃ÷ºô¶ó | -1 | 31.04 | 6,500 | | 1991 | | 2024.04.24 | Àü¼¼ | °æ³²ºô¶ó³ªµ¿ | 2 | 42.24 | 11,200 | 0 | 1986 | | 2024.04.24 | ¿ù¼¼ | µ¿¿ø¶óÅ×¶ó½º | 5 | 28.13 | 5,500 | 40 | 2018 | | 2024.04.24 | ¸Å¸Å | ¿ìȱ׸°(969-13) | 2 | 29.78 | 18,000 | | 2012 | | 2024.04.24 | ¸Å¸Å | °æ¹Îºô | 3 | 64.4 | 21,000 | | 2002 | | 2024.04.24 | Àü¼¼ | ÇÏÀÌÆ®¸Ç¼Ç(105-400) | -1 | 51.3 | 9,200 | 0 | 2001 | | 2024.04.23 | Àü¼¼ | żººô¶ó(56-215) | 1 | 35.34 | 6,000 | 0 | 1993 | | 2024.04.23 | ¿ù¼¼ | ´ö¿ìºô¶ó | 4 | 48.21 | 12,600 | 30 | 1994 | | 2024.04.23 | Àü¼¼ | ÁÖ¿¬ÇϿ콺 | 4 | 29.93 | 24,900 | 0 | 2022 | | 2024.04.23 | ¿ù¼¼ | ÁøÇϿ콺 | 2 | 58.85 | 3,000 | 80 | 2004 | | 2024.04.23 | Àü¼¼ | ½ºÅ¸ºô¶ó | 3 | 40.86 | 9,000 | 0 | 1991 | | 2024.04.23 | ¿ù¼¼ | º£¾ÆÆ®¸®½º(341-3) | 3 | 27.36 | 3,000 | 90 | 2017 | | 2024.04.23 | ¿ù¼¼ | ¼Û¸²ÁÖÅÃ(55-18) | 1 | 32.72 | 7,900 | 15 | 2002 | | 2024.04.23 | Àü¼¼ | Ȳº¸¾ÆÆ®ºô | 2 | 37.739 | 19,278 | 0 | 2016 | | 2024.04.23 | ¿ù¼¼ | ½ÅÁøÇÏÀÌÃ÷Aµ¿ | 4 | 35.03 | 1,500 | 60 | 2003 | | 2024.04.23 | ¿ù¼¼ | ¸®¿ÀÆÄÅ©ºô | 2 | 27.71 | 8,000 | 45 | 2020 | | 2024.04.23 | Àü¼¼ | ȼººô¶ó(56-181) | 1 | 47.88 | 12,000 | 0 | 2001 | | 2024.04.23 | Àü¼¼ | Ȳº¸¾ÆÆ®ºô | 2 | 37.739 | 19,500 | 0 | 2016 | | 2024.04.23 | ¸Å¸Å | ³²¼º¾ÆÆ®ºô | 4 | 29.78 | 25,600 | | 2016 | | 2024.04.23 | ¸Å¸Å | ³²¼º¾ÆÆ®ºô | 6 | 24.25 | 28,000 | | 2017 | | 2024.04.23 | ¸Å¸Å | (871-56) | 3 | 52.96 | 17,800 | | 2000 | | 2024.04.23 | Àü¼¼ | ´ë¿õÇÏÀÌÃ÷ºô¶ó7Â÷ | 2 | 34.33 | 9,700 | 0 | 1993 | | 2024.04.23 | Àü¼¼ | ´ºÆÄÀκô(1078-16) | 5 | 59.65 | 20,000 | 0 | 2008 | | 2024.04.23 | ¿ù¼¼ | ÀºÇýºô¶ó | 2 | 54.83 | 3,000 | 44 | 2017 | | 2024.04.23 | ¿ù¼¼ | ¸®Ã¼ºô | 4 | 27.21 | 11,300 | 20 | 2013 | | 2024.04.23 | Àü¼¼ | »ï¿øÇÇ¾ÆÆ®Bµ¿ | 4 | 39.72 | 10,000 | 0 | 2001 | | 2024.04.23 | ¿ù¼¼ | °ø°¨ÁöÀ½410 | 4 | 32.9 | 1,000 | 60 | 2021 | | 2024.04.23 | Àü¼¼ | ȼººô¶óAµ¿(56-412) | 1 | 46.11 | 12,000 | 0 | 2002 | | 2024.04.23 | ¸Å¸Å | °½Åºô¶ó°¡µ¿ | -1 | 32.959 | 10,400 | | 1987 | | 2024.04.23 | ¿ù¼¼ | ºÀ½ººô | 2 | 9.24 | 500 | 45 | 2011 | | 2024.04.23 | ¿ù¼¼ | ½ÅÁøÇÏÀÌÃ÷Aµ¿ | 4 | 35.03 | 1,500 | 60 | 2003 | | 2024.04.23 | ¸Å¸Å | ºô¶ó¿£ | 6 | 42.7 | 35,000 | | 2016 | | 2024.04.23 | ¸Å¸Å | ÇÏÀÌÆ®¸Ç¼Ç | 2 | 58.37 | 25,000 | | 2000 | | 2024.04.23 | ¿ù¼¼ | °ø°¨ÁöÀ½410 | 4 | 32.9 | 1,000 | 60 | 2021 | | 2024.04.23 | Àü¼¼ | ¼ºÈ£ºô¶ó2Â÷Bµ¿(57),¼ºÈ£2Â÷¸Ç¼ÇA | 3 | 58.23 | 20,000 | 0 | 2002 | | 2024.04.23 | Àü¼¼ | ½Ã¿ø¾ÆÆ®ºô°¡µ¿ | 5 | 59.97 | 17,500 | 0 | 2002 | | 2024.04.22 | ¿ù¼¼ | µ¿¹æÈ÷ÁîÈú | 2 | 29.32 | 14,000 | 10 | 2016 | | 2024.04.22 | ¿ù¼¼ | ´Ù¿ï³×¹öºôB | 1 | 67.75 | 17,000 | 30 | 2001 | | 2024.04.22 | Àü¼¼ | Ǫ¸¥Ç³°æÃ¤ | 3 | 34.94 | 20,900 | 0 | 2018 | | 2024.04.22 | Àü¼¼ | żººí·çºô | 2 | 81.1 | 22,000 | 0 | 2002 | | 2024.04.22 | Àü¼¼ | °Å¼º | 3 | 49.5 | 16,500 | 0 | 1986 | | 2024.04.22 | Àü¼¼ | »ó¿ì½¦¸£ºô(46-162) | 5 | 39.46 | 1,000 | 0 | 2002 | | 2024.04.22 | Àü¼¼ | Ǫ¸¥Ç³°æÃ¤ | 3 | 34.94 | 20,900 | 0 | 2018 | | 2024.04.22 | ¿ù¼¼ | ¿¤Æç¸®½º | 2 | 40.93 | 5,000 | 120 | 2022 | | 2024.04.22 | ¿ù¼¼ | ³×¿ÀÆÄÅ©ºô | 6 | 48.35 | 3,000 | 80 | 2011 | | 2024.04.22 | Àü¼¼ | Ç®Çâ±âºô¶ó2µ¿ | 1 | 23.42 | 8,300 | 0 | 1997 | | 2024.04.22 | ¿ù¼¼ | ´Ù¿ï³×¹öºôB | 1 | 67.75 | 16,758 | 30 | 2001 | | 2024.04.22 | ¿ù¼¼ | È°î¾ÆÆ®ºô | 3 | 44.81 | 300 | 75 | 2022 | | 2024.04.22 | Àü¼¼ | Ǫ¸¥Ç³°æÃ¤ | 3 | 34.94 | 20,900 | 0 | 2018 | | 2024.04.22 | Àü¼¼ | »êÈ£¸Ç¼Ç´Ùµ¿ | 4 | 39.2 | 11,000 | 0 | 2001 | | 2024.04.22 | ¿ù¼¼ | ÈÀθâ¹ö½ººô | 3 | 63.46 | 18,000 | 40 | 2002 | | 2024.04.22 | Àü¼¼ | ¿µÁøºô¶ó | 3 | 59.43 | 21,000 | 0 | 2000 | | 2024.04.22 | ¿ù¼¼ | ÀºÇϼö±×¸°ºô | 5 | 41.115 | 2,000 | 65 | 2002 | | 2024.04.22 | Àü¼¼ | È£ºøÇϿ콺(155-36¿Ü) | 6 | 39.31 | 22,400 | 0 | 2014 | | 2024.04.22 | Àü¼¼ | È¿ÁøÇÏÀÌÃ÷(59-45) | 2 | 38.33 | 13,200 | 0 | 2011 | | 2024.04.22 | ¿ù¼¼ | È°î¾ÆÆ®ºô | 4 | 24.02 | 200 | 60 | 2022 | | 2024.04.22 | ¸Å¸Å | »ï¼ºÅ¾½ººô(102-73) | 4 | 76.08 | 27,700 | | 2008 | | 2024.04.22 | ¸Å¸Å | ¼ö¾ÆÆ®ºô | 6 | 29.35 | 24,000 | | 2015 | | 2024.04.22 | ¸Å¸Å | ÃÊ¿øºô¶ó | -1 | 32.89 | 10,500 | | 1994 | | 2024.04.21 | ¿ù¼¼ | °ø°£ÈÞ(864-10) | 4 | 25.49 | 6,000 | 67 | 2021 | | 2024.04.21 | ¸Å¸Å | »ïÁø´Ù¼¼´ë | 1 | 54.72 | 19,000 | | 1986 | | 2024.04.21 | Àü¼¼ | ½Ã±×´Ïó6 | 5 | 29.7 | 36,500 | 0 | 2022 | | 2024.04.21 | Àü¼¼ | ¸®´õ½ºÅ¸¿î(397-6) | 2 | 25.21 | 14,400 | 0 | 2016 | | 2024.04.21 | ¿ù¼¼ | ºô¶óµå´ÙÀÎ | 2 | 23.18 | 3,000 | 85 | 2023 | | 2024.04.21 | ¿ù¼¼ | °ø°£ÈÞ(864-10) | 4 | 25.49 | 6,000 | 67 | 2021 | | 2024.04.20 | ¿ù¼¼ | ÇØºñÄ¡ºô | 2 | 50.97 | 4,000 | 80 | 2011 | | 2024.04.20 | ¿ù¼¼ | ÇѤýÅͺô | 4 | 63.89 | 3,000 | 75 | 2008 | | 2024.04.20 | Àü¼¼ | ÀÚ¶óÇϿ콺 | 5 | 37.69 | 18,900 | 0 | 2013 | | 2024.04.20 | Àü¼¼ | ¿ì¼ºÅ׸¶ºôBµ¿ | 5 | 65.44 | 16,380 | 0 | 2004 | | 2024.04.20 | ¿ù¼¼ | Çý¼ºÆÓ¸®½º24Â÷(397-33) | 4 | 27.15 | 13,500 | 20 | 2013 | | 2024.04.20 | Àü¼¼ | ¿ì¼ºÅ׸¶ºôBµ¿ | 5 | 65.44 | 16,380 | 0 | 2004 | | 2024.04.20 | ¿ù¼¼ | Äھƺô | 5 | 29.07 | 3,000 | 30 | 2007 | | 2024.04.20 | ¿ù¼¼ | (972-14) | 5 | 55.4 | 1,500 | 95 | 2019 | | 2024.04.20 | ¿ù¼¼ | µð¿¡½ºÇÁ¶ó´Ù | 3 | 36.78 | 2,000 | 70 | 2012 | | 2024.04.20 | ¿ù¼¼ | ±ÝÈ£ºô¶ó | -1 | 70.14 | 3,000 | 60 | 2002 | | 2024.04.20 | Àü¼¼ | ½Å¼ºÁÖÅÃ(828-22) | 1 | 39.58 | 12,500 | 0 | 2008 | | 2024.04.20 | ¿ù¼¼ | ´Ù¼ØÅ¸¿î³ªµ¿(1037-14) | 3 | 35.31 | 500 | 20 | 2015 | | 2024.04.20 | ¿ù¼¼ | ÿ½ÃÇϿ콺(424-35¿Ü1) | 3 | 28.73 | 2,000 | 80 | 2015 | | 2024.04.20 | Àü¼¼ | ¼¸ðÆÓ¸®½º(42-120) | 3 | 58.92 | 14,000 | 0 | 2004 | | 2024.04.20 | ¿ù¼¼ | Çý¼ºÆÓ¸®½º24Â÷(397-33) | 4 | 27.15 | 13,500 | 20 | 2013 | | 2024.04.20 | ¿ù¼¼ | ¿À¼ÖÁÖÅà | 4 | 26.52 | 6,500 | 16 | 2002 | | 2024.04.20 | Àü¼¼ | ºí·ç½ºÄ«À̺ô | 3 | 29.23 | 11,500 | 0 | 2013 | | 2024.04.20 | Àü¼¼ | ¼ºÈ¯´ÃǪ¸§ | 4 | 45.08 | 12,700 | 0 | 2005 | | 2024.04.20 | ¿ù¼¼ | °¨¼ººô | 5 | 33.67 | 21,780 | 10 | 2016 | | 2024.04.20 | Àü¼¼ | ÀÚ¶óÇϿ콺 | 5 | 37.69 | 18,900 | 0 | 2013 | | 2024.04.20 | Àü¼¼ | ¿ì¼ºÅ׸¶ºô(1044-29) | 2 | 52.61 | 23,250 | 0 | 2008 | | 2024.04.20 | ¿ù¼¼ | ûÇÐÁÖÅà | 1 | 56.43 | 3,000 | 70 | 1991 | | 2024.04.20 | Àü¼¼ | °¡¿øÈ¨Å¸¿î | 4 | 36.63 | 30,000 | 0 | 2021 | | 2024.04.20 | ¸Å¸Å | ÁöÀν¦¸£ºô | 2 | 63.2 | 29,500 | | 2002 | | 2024.04.20 | ¸Å¸Å | ¸â¹ö½ººô(827-32) | 5 | 37.44 | 25,000 | | 2014 | | 2024.04.20 | ¸Å¸Å | ³²¼º¾ÆÆ®ºô(353-13) | 3 | 28.96 | 18,700 | | 2016 | | 2024.04.20 | ¿ù¼¼ | ÃÊÀ̽ººô | 3 | 36.96 | 14,700 | 10 | 2010 | | 2024.04.20 | Àü¼¼ | ¿ì¼ºÅ׸¶ºô(1044-29) | 2 | 52.61 | 23,250 | 0 | 2008 | | 2024.04.19 | ¿ù¼¼ | ½Å¼º¸®Ä¡ºô¥°(357-16) | 6 | 34.55 | 19,845 | 3 | 2013 | | 2024.04.19 | Àü¼¼ | ÇѶóȨŸ¿î | 3 | 59.78 | 18,400 | 0 | 2001 | | 2024.04.19 | Àü¼¼ | ´ºÆÄÀκô(1084-50) | 2 | 49.52 | 21,000 | 0 | 2011 | | 2024.04.19 | Àü¼¼ | ¶óºô¶óÆ® | 2 | 21.53 | 12,500 | 0 | 2016 | | 2024.04.19 | Àü¼¼ | ´ë±Ùºô¶ó | 2 | 46.44 | 12,000 | 0 | 1990 | | 2024.04.19 | ¿ù¼¼ | µµ¿øÈú¶óÀÌÇÁ2 | 3 | 28.03 | 1,500 | 63 | 2016 | | 2024.04.19 | Àü¼¼ | Á¦¼±±×·£µåºô | 2 | 36.81 | 14,400 | 0 | 2009 | | 2024.04.19 | ¿ù¼¼ | ¿ìÀÏ¾ÆÆ®ºô | 2 | 47.97 | 1,500 | 72 | 2008 | | 2024.04.19 | Àü¼¼ | µÎ»êºô¶ó(959-26) | 3 | 59.85 | 15,500 | 0 | 2002 | | 2024.04.19 | Àü¼¼ | Çѹ響î(Cµ¿) | 4 | 60.69 | 19,950 | 0 | 2002 | | 2024.04.19 | ¿ù¼¼ | ÄÉ·»½Ã¾Æ | 2 | 22.51 | 300 | 45 | 2021 | | 2024.04.19 | ¿ù¼¼ | Çö´ë¸Ç¼Ç(77-5) | 3 | 39.21 | 10,000 | 18 | 1993 | | 2024.04.19 | ¿ù¼¼ | ³ªÇöºô¶ó | 2 | 36.57 | 11,700 | 16 | 2010 | | 2024.04.19 | ¿ù¼¼ | ´ëÀººô¸®ÁöAµ¿ | 4 | 59.89 | 15,500 | 15 | 1999 | | 2024.04.19 | ¿ù¼¼ | Áø¿µÇÏÀ̺ô(24-243) | 1 | 39.58 | 10,800 | 14 | 2000 | | 2024.04.19 | Àü¼¼ | ȼººô¶ó(56-151) | -1 | 39.82 | 7,000 | 0 | 1995 | | 2024.04.19 | Àü¼¼ | ½Å¼º¸®Ä¡ºô¥°(357-16) | 6 | 34.55 | 20,475 | 0 | 2013 | | 2024.04.19 | ¿ù¼¼ | ±Ý°´©¸®ºô(998-10) | 8 | 20.16 | 8,000 | 17 | 2012 | | 2024.04.18 | ¿ù¼¼ | ÁÖ¾ó¸®¸Ç¼Ç | 3 | 33.77 | 3,000 | 52 | 2002 | | 2024.04.18 | ¿ù¼¼ | ºí¸®½º´ÙÀÓºô | 3 | 29.97 | 3,000 | 110 | 2023 | | 2024.04.18 | Àü¼¼ | ½Å¼º³×¿Àºô | 6 | 42.43 | 22,400 | 0 | 2018 | | 2024.04.18 | Àü¼¼ | (995-10) | 2 | 44.91 | 13,650 | 0 | 2003 | | 2024.04.18 | ¿ù¼¼ | ¿ì¼ºÅ׸¶ºôA | 4 | 37.535 | 4,000 | 40 | 2006 | | 2024.04.18 | Àü¼¼ | ±¤¸íÇÏÀÌÃ÷29Â÷´Ùµ¿ | 5 | 31.44 | 8,640 | 0 | 2002 | | 2024.04.18 | ¿ù¼¼ | Àå¹Ì¸Ç¼Ç7Â÷ | 2 | 59.72 | 15,050 | 50 | 1990 | | 2024.04.18 | Àü¼¼ | ½Å¿ì½¬¶óºô | 5 | 38.34 | 17,300 | 0 | 2012 | | 2024.04.18 | ¿ù¼¼ | È«¼ºÁÖÅÃ3Â÷ | 3 | 47.52 | 2,000 | 85 | 2000 | | 2024.04.18 | ¿ù¼¼ | ¿ì¼ººô¶ó | 2 | 35.07 | 1,000 | 55 | 1993 | | 2024.04.18 | Àü¼¼ | ¿£¿¡½ºÅ¸¿î | 7 | 25.16 | 21,100 | 0 | 2019 | | 2024.04.18 | Àü¼¼ | ºÎ¸²ÆÓ¸®½º | 3 | 58.91 | 20,100 | 0 | 2011 | | 2024.04.18 | ¿ù¼¼ | µ¿¼º¸®ºñ¾Ó | 2 | 38.25 | 17,200 | 5 | 2015 | | 2024.04.18 | ¿ù¼¼ | ±î»çÁö¿À(354-76) | 3 | 29.34 | 16,600 | 25 | 2017 | | 2024.04.18 | Àü¼¼ | ±¤¸íÇÏÀÌÃ÷29Â÷´Ùµ¿ | 5 | 31.44 | 8,640 | 0 | 2002 | | 2024.04.18 | ¿ù¼¼ | À§ÇϿ콺(111-10) | 4 | 29.71 | 4,000 | 70 | 2016 | | 2024.04.18 | ¿ù¼¼ | MARIGOLDvill | 2 | 29.97 | 17,000 | 15 | 2019 | | 2024.04.18 | Àü¼¼ | ¾ÆÁÙÆ÷·¹ | 6 | 23.36 | 19,000 | 0 | 2023 | | 2024.04.18 | ¸Å¸Å | ³²°æ¸®¹öºôBµ¿ | 4 | 39.89 | 16,500 | | 2001 | | 2024.04.18 | ¸Å¸Å | º¹Áöºô¶ó | 4 | 47.08 | 13,250 | | 2002 | | 2024.04.18 | ¸Å¸Å | »ïÀͺô¶ó(353-24) | -1 | 36.39 | 5,230 | | 1997 | | 2024.04.18 | ¸Å¸Å | ±ÝÈ£¸Þ¸£µð¾Ó(971-8) | 3 | 52.53 | 25,500 | | 2012 | | 2024.04.18 | ¸Å¸Å | ¿µÀÏ¾ÆÆ®ºô | 3 | 62.52 | 27,500 | | 2003 | | 2024.04.18 | ¿ù¼¼ | µ¿Èºô | 3 | 23.95 | 16,000 | 10 | 2019 | | 2024.04.18 | ¸Å¸Å | ½Ç¹öºô¶ó³ªµ¿ | -1 | 43.6 | 11,000 | | 1992 | | 2024.04.18 | ¸Å¸Å | DHÆÓ¸®½º101µ¿ | 4 | 29.84 | 25,500 | | 2018 | | 2024.04.18 | ¿ù¼¼ | À̵µÆ®¶ó¿ò2 | 4 | 37.33 | 3,000 | 95 | 2018 | | 2024.04.18 | Àü¼¼ | Ȳº¸¾ÆÆ®ºô(333-27) | 5 | 22.53 | 15,876 | 0 | 2018 | | 2024.04.18 | ¿ù¼¼ | ¼¿¬ºí·çÈú | 4 | 29.72 | 15,200 | 16 | 2016 | | 2024.04.17 | Àü¼¼ | Àνººô | 3 | 29.74 | 15,000 | 0 | 2017 | | 2024.04.17 | ¿ù¼¼ | È£¼ººô¶ó | 2 | 74.72 | 20,100 | 15 | 2000 | | 2024.04.17 | ¿ù¼¼ | »ï¼º½¦¸£ºô(346-62) | 4 | 27.56 | 16,100 | 20 | 2017 | | 2024.04.17 | ¿ù¼¼ | Ȳ±Ýºô¶ó(61-104) | -1 | 41.4 | 3,000 | 40 | 1993 | | 2024.04.17 | Àü¼¼ | SKÆÄÅ©¸®¿ò(851-33) | 5 | 25.92 | 22,500 | 0 | 2022 | | 2024.04.17 | ¿ù¼¼ | Ȳ±Ýºô¶ó(61-104) | -1 | 41.4 | 3,000 | 40 | 1993 | | 2024.04.17 | ¿ù¼¼ | ¿ìÁøº£½ºÆ® | 3 | 43.37 | 16,000 | 10 | 2012 | | 2024.04.17 | Àü¼¼ | ÁøÁÖÇÏÀÌÃ÷ºô¶ó | 4 | 43.8 | 12,000 | 0 | 1994 | | 2024.04.17 | ¿ù¼¼ | »ï¼º½¦¸£ºô(1081-30) | 2 | 29.82 | 14,200 | 10 | 2014 | | 2024.04.17 | Àü¼¼ | ¼ºÁÖ¸Ç¼Ç | 2 | 61.8 | 17,700 | 0 | 2002 | | 2024.04.17 | ¿ù¼¼ | û¸²ÇÏ¿ì¡ | 5 | 29.99 | 18,200 | 10 | 2017 | | 2024.04.17 | Àü¼¼ | ¿ìÁøÇÁ¸£¹Ì | 2 | 52.35 | 21,100 | 0 | 2011 | | 2024.04.17 | Àü¼¼ | SKÆÄÅ©¸®¿ò(851-33) | 5 | 26.12 | 22,500 | 0 | 2022 | | 2024.04.17 | ¿ù¼¼ | »ï¼º½¦¸£ºô(1081-30) | 2 | 29.82 | 14,600 | 10 | 2014 | | 2024.04.17 | ¿ù¼¼ | Á¦ÀϺô¶óÆ® | 2 | 49.03 | 12,000 | 30 | 2002 | | 2024.04.17 | ¿ù¼¼ | °æÀκô¶óAµ¿ | 2 | 42.3 | 400 | 25 | 2001 | | 2024.04.17 | ¿ù¼¼ | ÈÀθâ¹ö½ººô | 3 | 63.46 | 18,000 | 40 | 2002 | | 2024.04.17 | Àü¼¼ | ½ÅÇÑÁÖÅÃ(839-26) | 3 | 43.48 | 16,500 | 0 | 2010 | | 2024.04.17 | Àü¼¼ | ¼ºÈÆ¿¡À̽ººô | 3 | 51.43 | 15,600 | 0 | 2002 | | 2024.04.17 | ¿ù¼¼ | ³²°æ¸®¹öºô(46-194) | 2 | 62.585 | 13,000 | 15 | 2000 | | 2024.04.17 | ¿ù¼¼ | µð¿¡½ºÅ×¶ó½º | 4 | 29.69 | 1,000 | 99 | 2022 | | 2024.04.17 | ¸Å¸Å | ¿ì¼ººô¶ó(379-29) | -1 | 52.02 | 9,700 | | 1993 | | 2024.04.17 | ¸Å¸Å | Çý¼ºÆÓ¸®½ººô(392-31) | 5 | 26.87 | 17,500 | | 2014 | | 2024.04.17 | ¸Å¸Å | ¿ì³²ºô¶ó(95-76) | 5 | 54.6 | 18,000 | | 2002 | | 2024.04.17 | ¸Å¸Å | ÇѶóȨŸ¿î | 3 | 59.78 | 26,000 | | 2001 | | 2024.04.17 | ¸Å¸Å | ȼººô¶ó36Â÷ | 2 | 53.61 | 23,700 | | 2001 | | 2024.04.17 | ¸Å¸Å | ¹Ì¼ººô¶ó | 4 | 78.24 | 26,000 | | 2000 | | 2024.04.17 | ¿ù¼¼ | ¸¶Å©ÇϿ콺 | 5 | 48.61 | 26,080 | 20 | 2017 | | 2024.04.17 | Àü¼¼ | ¼ºÁÖ¸Ç¼Ç | 2 | 61.8 | 17,700 | 0 | 2002 | | 2024.04.17 | ¿ù¼¼ | ¼öÁ¤ºô¶ó°¡µ¿ | 3 | 36.63 | 10,500 | 10 | 1992 | | 2024.04.17 | Àü¼¼ | ¸í¼ºÇÏÀ̺ô | 3 | 40.2 | 13,600 | 0 | 2008 | | 2024.04.16 | ¿ù¼¼ | »ó·Ïºô¶ó3Â÷ | -1 | 59.52 | 300 | 35 | 1991 | | 2024.04.16 | Àü¼¼ | Å©¸®½ºÅ»ºô(24-490) | 2 | 28.39 | 13,500 | 0 | 2014 | | 2024.04.16 | ¿ù¼¼ | ½Å¼º¿¬¸³ | 4 | 26.67 | 1,000 | 55 | 1994 | | 2024.04.16 | ¿ù¼¼ | ½¦¶óÅæºô¸®Áö(55-12) | 1 | 41.4 | 11,600 | 25 | 1993 | | 2024.04.16 | ¿ù¼¼ | °æ³²ºô¶ó°¡µ¿ | 2 | 37.84 | 500 | 42 | 1986 | | 2024.04.16 | Àü¼¼ | µ¿¼º¸®ºñ¾Ó | 3 | 38.25 | 19,840 | 0 | 2015 | | 2024.04.16 | ¿ù¼¼ | °ñµå¸®¿ò | 2 | 27.85 | 16,300 | 8 | 2017 | | 2024.04.16 | Àü¼¼ | ¿ì¼ºÆÄÅ©¸Ç¼Ç(29-230) | 3 | 64.3 | 14,000 | 0 | 1983 | | 2024.04.16 | Àü¼¼ | (362-130) | 1 | 40.05 | 7,500 | 0 | 1986 | | 2024.04.16 | ¿ù¼¼ | ÇØ¼ºÆÓ¸®½ººô(Aµ¿) | 2 | 35.75 | 1,500 | 75 | 2002 | | 2024.04.16 | Àü¼¼ | µ¿¼º¸®ºñ¾Ó | 3 | 38.25 | 19,840 | 0 | 2015 | | 2024.04.16 | ¿ù¼¼ | ÅÂÁøÇϿ콺 | 4 | 24.92 | 300 | 40 | 2019 | | 2024.04.16 | Àü¼¼ | »ïÈ£¾ÆÆ®ºô | 3 | 61.32 | 22,400 | 0 | 2003 | | 2024.04.16 | Àü¼¼ | °ÇÇüŸ¿î³ªµ¿ | 2 | 39.47 | 13,000 | 0 | 2002 | | 2024.04.16 | ¿ù¼¼ | µ¿¼º¸®ºñ¾Ó | 3 | 38.25 | 19,570 | 2 | 2015 | | 2024.04.16 | ¿ù¼¼ | ¼ºÁøºô¶ó(382-24) | 4 | 35.64 | 4,000 | 50 | 2001 | | 2024.04.16 | Àü¼¼ | ÇØ¿Âij½½ | 2 | 26.52 | 17,200 | 0 | 2019 | | 2024.04.16 | ¸Å¸Å | À̳뼿 | 2 | 29.99 | 15,500 | | 2014 | | 2024.04.16 | ¸Å¸Å | ÇÊÇϿ콺 | 3 | 51.42 | 24,700 | | 2010 | | 2024.04.16 | ¸Å¸Å | ¿¡½º¿¥ÆÄÅ©ºô101µ¿102µ¿ | 5 | 28.97 | 20,000 | | 2016 | | 2024.04.16 | ¸Å¸Å | ¹Ì·¡½ºÅ¸ºô(1104-13) | 6 | 29.04 | 18,000 | | 2014 | | 2024.04.16 | ¸Å¸Å | ±Ù»óÇÁ¸®Áò¾ÆÆ®ºô | 2 | 55.3 | 22,500 | | 2010 | | 2024.04.15 | ¿ù¼¼ | żººí·çºô | 2 | 81.1 | 4,400 | 60 | 2002 | | 2024.04.15 | Àü¼¼ | ¹é¹®ÇϿ콺 | 4 | 29.72 | 20,600 | 0 | 2018 | | 2024.04.15 | ¿ù¼¼ | »ïÀÍÇ콺Ƽ¾Æ(50-1) | 4 | 35.19 | 12,000 | 19 | 2011 | | 2024.04.15 | ¿ù¼¼ | ¸í¼º¾ÆÆ®¸Ç¼Ç | 3 | 37.62 | 11,400 | 10 | 1991 | | 2024.04.15 | ¿ù¼¼ | ÁøÀϺô¶ó2Â÷ | 3 | 46.53 | 1,000 | 60 | 1991 | | 2024.04.15 | ¿ù¼¼ | ÁøÀϺô¶ó2Â÷ | 3 | 46.53 | 1,000 | 60 | 1991 | | 2024.04.15 | Àü¼¼ | ŰǺô¶ó | -1 | 51.02 | 7,000 | 0 | 1991 | | 2024.04.15 | Àü¼¼ | ÇѼº¾ÆÆ®ºô(111-127) | 2 | 45 | 13,400 | 0 | 2004 | | 2024.04.15 | Àü¼¼ | Ç®Çâ±âºô¶ó2µ¿ | -1 | 24.92 | 3,800 | 0 | 1997 | | 2024.04.15 | Àü¼¼ | ÀºÇÏ¾ÆÆ®ºô | 5 | 59.34 | 19,000 | 0 | 2008 | | 2024.04.15 | ¿ù¼¼ | ¿Ã¶ó·çÁî | 6 | 29.98 | 5,000 | 120 | 2022 | | 2024.04.15 | Àü¼¼ | È£°æÁÖÅà | 5 | 27.72 | 7,400 | 0 | 2002 | | 2024.04.15 | Àü¼¼ | Ç®Çâ±âºô¶ó2µ¿ | 2 | 31.26 | 9,900 | 0 | 1997 | | 2024.04.15 | Àü¼¼ | µ¿¾çÇÏ¿ì¡(46-295) | 3 | 29.77 | 18,300 | 0 | 2014 | | 2024.04.15 | Àü¼¼ | ÇÏÀ̵¥ÄÚºô | -1 | 48.14 | 8,900 | 0 | 2003 | | 2024.04.15 | ¿ù¼¼ | Çϳªºô | 2 | 47.75 | 11,600 | 19 | 2008 | | 2024.04.15 | Àü¼¼ | ½ÅÈï¶ß¶õä | 6 | 40.99 | 23,600 | 0 | 2017 | | 2024.04.15 | Àü¼¼ | ¿ìȱ׸° | 2 | 45.18 | 19,400 | 0 | 2011 | | 2024.04.15 | Àü¼¼ | ÀºÇÏ¾ÆÆ®ºô | 5 | 59.34 | 19,000 | 0 | 2008 | | 2024.04.15 | Àü¼¼ | ÀºÇÏ¾ÆÆ®ºô | 5 | 59.34 | 19,000 | 0 | 2008 | | 2024.04.15 | ¿ù¼¼ | ÇѼº¾ÆÆ®ºô | 4 | 42.84 | 11,830 | 20 | 2000 | | 2024.04.15 | ¸Å¸Å | ´Ù¿Â½£ | 2 | 25.38 | 30,000 | | 2024 | | 2024.04.15 | ¸Å¸Å | ´Ù¿Â½£ | 3 | 25.38 | 30,000 | | 2024 | | 2024.04.15 | ¸Å¸Å | ´Ù¿Â½£ | 6 | 15.72 | 24,500 | | 2024 | | 2024.04.15 | ¸Å¸Å | ¿ì¼ººô¶óAµ¿(56-318) | 1 | 70.12 | 23,500 | | 2000 | | 2024.04.15 | ¸Å¸Å | ´ë¿õºô¶ó(56-146) | 2 | 35.22 | 13,500 | | 1991 | | 2024.04.15 | ¸Å¸Å | Çö´ëÆ®·¹º§ | 2 | 55.22 | 20,500 | | 2002 | | 2024.04.15 | ¸Å¸Å | ÀºÇÏÀ§³Êºô | 3 | 56.15 | 30,000 | | 2008 | | 2024.04.15 | ¸Å¸Å | º£¾ÆÆ®¸®½º(341-3) | 6 | 28.94 | 24,000 | | 2017 | | 2024.04.15 | ¸Å¸Å | ºô¶ó¿£Bµ¿ | 3 | 40.67 | 29,500 | | 2017 | | 2024.04.15 | ¿ù¼¼ | È£¼öŸ¿î5Â÷ | 1 | 47.97 | 11,000 | 10 | 2002 | | 2024.04.15 | ¸Å¸Å | ·Î¿¤ | 6 | 26.63 | 34,000 | | 2022 | | 2024.04.15 | ¸Å¸Å | ¾ÆÀκô | 6 | 45.57 | 28,000 | | 2016 | | 2024.04.15 | ¸Å¸Å | Çö´ë°ñµçºô¶ó | 2 | 49.5 | 15,000 | | 1991 | | 2024.04.15 | ¿ù¼¼ | µ¿³²ÁÖÅÃ(869-63) | 5 | 36.05 | 10,100 | 8 | 2002 | | 2024.04.15 | ¿ù¼¼ | (1071-37)Çѿ\ºìºô | 5 | 27.65 | 9,380 | 30 | 2009 | | 2024.04.15 | ¿ù¼¼ | À§´õ½ººô | 6 | 20.1 | 4,500 | 35 | 2013 | | 2024.04.15 | ¸Å¸Å | ´Ù¿Â½£ | 5 | 24.34 | 30,000 | | 2024 | | 2024.04.14 | Àü¼¼ | »ï¼ººô¶óAµ¿ | 4 | 68.76 | 17,500 | 0 | 2006 | | 2024.04.14 | ¿ù¼¼ | ÆäÆ®¶óÇϿ콺 | 4 | 83.95 | 15,000 | 75 | 2004 | | 2024.04.14 | ¿ù¼¼ | ´ëÇÑ¸Ç¼Ç | 4 | 57.38 | 5,000 | 60 | 1997 | | 2024.04.14 | ¸Å¸Å | ȼººô¶ó29Â÷ | 2 | 38.16 | 14,200 | | 2001 | | 2024.04.14 | ¸Å¸Å | ³²¼º¾ÆÆ®ºô(367-28) | 4 | 29.82 | 19,300 | | 2012 | | 2024.04.14 | ¿ù¼¼ | ÆäÆ®¶óÇϿ콺 | 4 | 83.95 | 15,000 | 75 | 2004 | | 2024.04.13 | ¸Å¸Å | µ¿¾çÇÏ¿ì¡(870-1) | 4 | 43.57 | 32,800 | | 2017 | | 2024.04.13 | ¿ù¼¼ | ¿¡½º¿¥ÆÄÅ©ºô(101µ¿102µ¿) | 3 | 32.52 | 5,000 | 70 | 2014 | | 2024.04.13 | Àü¼¼ | ÁÖ¿µÇϿ콺 | 4 | 27.09 | 14,990 | 0 | 2016 | | 2024.04.13 | Àü¼¼ | ¼ºÁøºô¶óAµ¿ | 1 | 60.21 | 15,000 | 0 | 1997 | | 2024.04.13 | Àü¼¼ | ´ë¼ºÅ¾½ººô(155-5) | 4 | 36.43 | 12,380 | 0 | 2010 | | 2024.04.13 | Àü¼¼ | À£ºù¶óÀÌÇÁ(155-6) | 4 | 29.91 | 11,500 | 0 | 2011 | | 2024.04.13 | ¿ù¼¼ | ºô¶óµå´ÙÀÎ | 5 | 14.3 | 5,000 | 35 | 2023 | | 2024.04.13 | Àü¼¼ | °Å¼º | 2 | 49.5 | 16,500 | 0 | 1986 | | 2024.04.13 | Àü¼¼ | ÀÎÅÍ½ÃÆ¼ºô¶ó(152-5) | 3 | 29.25 | 8,700 | 0 | 2001 | | 2024.04.13 | Àü¼¼ | Æ÷¸£Å×ÇÏÀÓ | 6 | 27.11 | 23,500 | 0 | 2023 | | 2024.04.13 | ¿ù¼¼ | ´Ù´Ï¿¤ºôµù | 5 | 19.07 | 6,200 | 7 | 2006 | | 2024.04.13 | ¿ù¼¼ | ¿ÀÈÁÖÅà | 4 | 60.39 | 3,000 | 74 | 2000 | | 2024.04.13 | ¸Å¸Å | DHÆÓ¸®½º101µ¿ | 2 | 29.86 | 23,700 | | 2018 | | 2024.04.13 | ¸Å¸Å | ȼº°ñµåºô¶ó12Â÷ | 1 | 55.29 | 18,500 | | 1996 | | 2024.04.13 | ¸Å¸Å | (342-20) | 2 | 40.75 | 16,500 | | 1986 | | 2024.04.13 | ¸Å¸Å | °¨¼ººô | 4 | 25.22 | 20,300 | | 2016 | | 2024.04.13 | ¸Å¸Å | ±¤¸íÇÏÀÌÃ÷18Â÷ | 1 | 73.02 | 26,300 | | 2000 | | 2024.04.13 | ¸Å¸Å | Ȳº¸¾ÆÆ®ºô | 2 | 37.739 | 23,500 | | 2016 | | 2024.04.13 | ¿ù¼¼ | ´Ù´Ï¿¤ºôµù | 5 | 19.07 | 6,400 | 6 | 2006 | | 2024.04.13 | Àü¼¼ | µ¿¸í³ëºí·¹½º(³ªµ¿) | 4 | 29.25 | 12,800 | 0 | 2011 | | 2024.04.13 | Àü¼¼ | ¼ºÁøºô¶óAµ¿ | 1 | 60.21 | 15,000 | 0 | 1997 | | 2024.04.13 | Àü¼¼ | ÇÑ¿ïÀÚÀ̺ô(346-21) | 4 | 70.99 | 21,500 | 0 | 2007 | | 2024.04.13 | Àü¼¼ | ´ë¼º¾ÆÆ®ºô(466-15) | 2 | 52.19 | 15,800 | 0 | 2003 | | 2024.04.13 | Àü¼¼ | ¾ÆÀνººôHANAGREEN | 2 | 26.35 | 17,100 | 0 | 2013 | | 2024.04.13 | Àü¼¼ | ³²±¤½¦¸£ºô(424-165) | 3 | 36.16 | 18,900 | 0 | 2013 | | 2024.04.13 | Àü¼¼ | ÁÖ¿µÇϿ콺 | 4 | 27.09 | 14,742 | 0 | 2016 | | 2024.04.13 | Àü¼¼ | OK¸Ç¼Ç | 4 | 59.92 | 17,820 | 0 | 2001 | | 2024.04.13 | Àü¼¼ | ºñ¿ø±×¸°ºô¶ó | 2 | 56.07 | 17,000 | 0 | 1986 | | 2024.04.13 | ¿ù¼¼ | À̼³±×¶ûºô(469-20) | 2 | 58.32 | 9,000 | 30 | 2002 | | 2024.04.13 | ¿ù¼¼ | ¿ÍÀ̾غñ | 5 | 29.74 | 3,000 | 85 | 2015 | | 2024.04.13 | ¿ù¼¼ | ȼººô¶ó(56-164) | 4 | 38.06 | 9,200 | 30 | 1993 | | 2024.04.13 | Àü¼¼ | ¿µ¿ì | -1 | 63.32 | 12,500 | 0 | 1991 | | 2024.04.13 | ¿ù¼¼ | ¿¹¼Û¿¡¹öºô | 4 | 39.73 | 4,900 | 36 | 2004 | | 2024.04.13 | Àü¼¼ | ¿ì¼ººô¶ó | 1 | 39.21 | 10,600 | 0 | 1993 | | 2024.04.13 | Àü¼¼ | ¼Ò´ã¹ë¸®(807-3) | 3 | 41.47 | 14,800 | 0 | 2013 | | 2024.04.13 | Àü¼¼ | »ó¾Æ¿¡ÄÚ¶óÀÌÇÁ | 3 | 50.31 | 16,250 | 0 | 2011 | | 2024.04.13 | ¿ù¼¼ | »ïÁ¤ÆÄÅ©ºä | 4 | 29.98 | 15,700 | 20 | 2012 | | 2024.04.13 | ¿ù¼¼ | ÈÞ&À¯ºô | 6 | 40.4 | 27,970 | 10 | 2020 | | 2024.04.13 | ¿ù¼¼ | ¾çÁöŸ¿î | 2 | 59.79 | 3,000 | 80 | 2000 | | 2024.04.13 | ¿ù¼¼ | ¼±¤¾ÆÆ®ºô(61-50) | 4 | 24.39 | 8,400 | 17 | 2008 | | 2024.04.13 | ¿ù¼¼ | ¼Ò´ã¹ë¸® | 5 | 29.14 | 3,000 | 53 | 2012 | | 2024.04.13 | ¿ù¼¼ | ¿¹¼Û¿¡¹öºô | 3 | 39.73 | 800 | 70 | 2004 | | 2024.04.13 | ¿ù¼¼ | ¼¿ïºô¶ó | 2 | 31.74 | 9,800 | 21 | 2002 | | 2024.04.12 | Àü¼¼ | À£½ºÇÏÀ̺ô(362-66) | 3 | 48.03 | 22,000 | 0 | 2013 | | 2024.04.12 | ¿ù¼¼ | µ¿¼±º§¸®Ã¼(366-57) | 3 | 25.24 | 0 | 85 | 2021 | | 2024.04.12 | ¸Å¸Å | ¶ó¶ã¸®¿¡ | 2 | 41.88 | 28,000 | | 2019 | | 2024.04.12 | ¸Å¸Å | ´ë¼º¾ÆÆ®ºô | 4 | 34.07 | 26,200 | | 2018 | | 2024.04.12 | ¸Å¸Å | ¹ß»ê | 2 | 49.93 | 16,500 | | 1993 | | 2024.04.12 | ¸Å¸Å | ½Å¿µº£¸£µð¿ò | 5 | 29.35 | 27,500 | | 2019 | | 2024.04.12 | ¸Å¸Å | ´Ù¿ø½´½´ºô13Â÷ | 2 | 37.69 | 18,000 | | 2011 | | 2024.04.12 | ¸Å¸Å | ¿¤¸®½Ã¾Æ | 5 | 26.26 | 14,300 | | 2013 | | 2024.04.12 | ¸Å¸Å | »ï¼ºÆÓ¸®½º | 4 | 29.17 | 29,000 | | 2022 | | 2024.04.12 | Àü¼¼ | û¸²¾ÆÆ®ºôAµ¿(1084-11) | 3 | 62.98 | 19,800 | 0 | 2002 | | 2024.04.12 | ¿ù¼¼ | ¾¾Æ¼ÇϿ콺ºñµ¿ | 3 | 23.57 | 16,200 | 15 | 2017 | | 2024.04.12 | ¿ù¼¼ | »þÀδõÈúȰî | 5 | 21.65 | 1,000 | 100 | 2023 | | 2024.04.12 | Àü¼¼ | ½ã¶óÀÎ | 6 | 29.14 | 20,835 | 0 | 2016 | | 2024.04.12 | Àü¼¼ | ½ã¶óÀÎ | 6 | 29.14 | 20,835 | 0 | 2016 | | 2024.04.12 | Àü¼¼ | Çϳª¾ÆÀÌÆÄÅ©ºô | 2 | 29.51 | 19,650 | 0 | 2019 | | 2024.04.12 | Àü¼¼ | Çϳª¾ÆÀÌÆÄÅ©ºô | 2 | 29.51 | 19,650 | 0 | 2019 | | 2024.04.12 | ¿ù¼¼ | ±ÝÈÇÏÀ̺ô | 3 | 67.11 | 6,000 | 80 | 2010 | | 2024.04.12 | ¿ù¼¼ | ÇѰŸ¿î | 5 | 29.64 | 2,000 | 95 | 2021 | | 2024.04.12 | Àü¼¼ | »óºô¶ó(56-155) | 2 | 36.9 | 10,450 | 0 | 1992 | | 2024.04.12 | ¿ù¼¼ | µ¿¿¬ÇϿ콺 | 2 | 38.22 | 1,000 | 66 | 2017 | | 2024.04.12 | ¿ù¼¼ | ¾¾Æ¼ÇϿ콺ºñµ¿ | 3 | 23.57 | 16,200 | 15 | 2017 | | 2024.04.12 | ¿ù¼¼ | ¾¾Æ¼ÇϿ콺ºñµ¿ | 3 | 23.57 | 16,000 | 15 | 2017 | | 2024.04.12 | Àü¼¼ | °æ¿øÅ¾½ººô | 2 | 72.03 | 20,000 | 0 | 2002 | | 2024.04.12 | Àü¼¼ | ´Ù¿Â½£ | 4 | 25.38 | 26,700 | 0 | 2024 | | 2024.04.12 | Àü¼¼ | ÀÚ¶óÇϿ콺 | 4 | 39.72 | 23,500 | 0 | 2013 | | 2024.04.12 | ¿ù¼¼ | ÀÌȺô¶ó°¡µ¿ | -1 | 35.94 | 5,000 | 5 | 1987 | | 2024.04.11 | ¸Å¸Å | µ¿¿ìÇÏÀ̺ô(996-19) | 5 | 20.26 | 28,500 | | 2022 | | 2024.04.11 | ¸Å¸Å | µ¿¿ìÇÏÀ̺ô(996-19) | 4 | 26.15 | 35,500 | | 2022 | | 2024.04.11 | Àü¼¼ | ÇÁ¸®¸Þ¶ó | 6 | 29.76 | 19,100 | 0 | 2018 | | 2024.04.11 | ¿ù¼¼ | Á¦ÀÌ¿¡½ººô | 2 | 26.4 | 1,500 | 105 | 2023 | | 2024.04.11 | ¿ù¼¼ | Á¦ÀÌ¿¡½ººô | 2 | 26.4 | 1,500 | 105 | 2023 | | 2024.04.11 | Àü¼¼ | »ïÈïÁÖÅà | 1 | 44.5 | 10,000 | 0 | 1986 | | 2024.04.11 | Àü¼¼ | ÀÎÅ;¾Æ¼ºô¶ó | 4 | 70.28 | 23,500 | 0 | 2007 | | 2024.04.11 | ¿ù¼¼ | »ï¼º´ºÈú(56-701) | 2 | 66.665 | 1,500 | 70 | 2003 | | 2024.04.11 | ¿ù¼¼ | ÇѰS-Ŭ·¡½º(1084-30) | 3 | 34.84 | 2,000 | 70 | 2012 | | 2024.04.11 | Àü¼¼ | ¼º¿îºô¶ó(354-4)5Â÷ | 5 | 59.52 | 18,900 | 0 | 2002 | | 2024.04.11 | Àü¼¼ | ¿µÁøÁÖÅà | 3 | 28.33 | 20,000 | 0 | 2023 | | 2024.04.11 | ¿ù¼¼ | ¼£·ÒÇϿ콺 | 4 | 22.97 | 1,000 | 58 | 2010 | | 2024.04.11 | ¿ù¼¼ | ´õÁ¸ÆÛ½ºÆ®ºô | 5 | 28.05 | 5,000 | 75 | 2017 | | 2024.04.11 | Àü¼¼ | µ¿¿ø¿¡À̽ººä(159-24) | 3 | 29.43 | 21,160 | 0 | 2020 | | 2024.04.11 | Àü¼¼ | °íÀº¾ÆÆ®ºô | 2 | 62.64 | 18,900 | 0 | 2002 | | 2024.04.11 | Àü¼¼ | Á¦¼±ÁÖÅÃ18Â÷ | 5 | 45.12 | 14,500 | 0 | 2008 | | 2024.04.11 | ¿ù¼¼ | ½Ö¿ëºô¶ó | 1 | 62.35 | 7,000 | 55 | 2001 | | 2024.04.11 | ¿ù¼¼ | Áø¿µÇÏÀ̺ô°¡µ¿ | 1 | 51.07 | 13,000 | 45 | 2001 | | 2024.04.11 | Àü¼¼ | °æ¹Î¾ÆÆ®ºô(105-21¹øÁö) | 2 | 29.01 | 16,800 | 0 | 2016 | | 2024.04.11 | ¿ù¼¼ | ¿Ã¶ó·çÁî | 2 | 25.19 | 5,000 | 100 | 2022 | | 2024.04.10 | ¸Å¸Å | ¿ì¼º(105-9¿Ü) | 2 | 28.18 | 18,200 | | 2015 | | 2024.04.10 | ¸Å¸Å | ½Å¼ºÁÖÅÃ(828-22) | 1 | 39.58 | 15,200 | | 2008 | | 2024.04.10 | ¸Å¸Å | ¶óºñ¾ÓÇϿ콺 | 3 | 26.85 | 20,845 | | 2014 | | 2024.04.10 | ¸Å¸Å | µ¿¿ìºô¶ó | -1 | 37.24 | 9,500 | | 1990 | | 2024.04.10 | Àü¼¼ | À̵µÆÓ¸®½º | 3 | 24.36 | 19,900 | 0 | 2021 | | 2024.04.10 | Àü¼¼ | °æ¿øÈ¨Å¸¿î | 2 | 61.25 | 18,750 | 0 | 2007 | | 2024.04.10 | Àü¼¼ | °¶·°½ÃÇÏÀ̺ô | 2 | 58.42 | 27,700 | 0 | 2011 | | 2024.04.10 | ¿ù¼¼ | °è¸íÀ§³Ê½º(872-4) | 3 | 39.83 | 1,000 | 65 | 2011 | | 2024.04.10 | ¿ù¼¼ | ÇÁ¶óÀÓºô | 2 | 46 | 15,000 | 50 | 2010 | | 2024.04.10 | Àü¼¼ | ³²±¤¼¼¸£ºô | 4 | 44.09 | 17,000 | 0 | 2010 | | 2024.04.10 | ¿ù¼¼ | À̼³±×¶ûºô(469-17) | 5 | 50.4 | 10,000 | 20 | 2002 | | 2024.04.10 | ¿ù¼¼ | ±×·¹´Ï¾î±îÄ¡»ê¿¡ÀÌ | 2 | 28.76 | 100 | 100 | 2023 | | 2024.04.10 | ¿ù¼¼ | ¶ó¿òÇϿ콺 | 6 | 17.91 | 100 | 25 | 2019 | | 2024.04.10 | ¿ù¼¼ | ¿ì¼ººô¶ó(346-72) | 2 | 33.45 | 16,000 | 15 | 2013 | | 2024.04.10 | ¿ù¼¼ | ºäƼ½¦¸£ºô353 | 2 | 45.93 | 21,900 | 25 | 2017 | | 2024.04.10 | Àü¼¼ | »ç¶ûºô¶ó | 2 | 55.9 | 12,200 | 0 | 1991 | | 2024.04.10 | Àü¼¼ | »ó¾Æºô¶ó | 2 | 66.66 | 19,500 | 0 | 2002 | | 2024.04.10 | Àü¼¼ | ÇØµå´ÂÅÍ | -1 | 56.87 | 15,500 | 0 | 2003 | | 2024.04.10 | ¿ù¼¼ | »ï¼ºº£½ºÆ®ºô(³ªµ¿) | 4 | 31.88 | 1,000 | 50 | 2001 | | 2024.04.10 | Àü¼¼ | ¾ÆÁÙ¸®¿ò(1049-24) | 2 | 26.24 | 18,900 | 0 | 2018 | | 2024.04.10 | Àü¼¼ | À£½ºÇÏÀ̺ô(362-66) | 3 | 48.03 | 22,000 | 0 | 2013 | | 2024.04.10 | Àü¼¼ | ¿©¸íÇÏÀÌÃ÷ºô¶ó | 3 | 59.95 | 15,750 | 0 | 1998 | | 2024.04.10 | Àü¼¼ | ÇØºñÄ¡ºô | 4 | 50.97 | 20,000 | 0 | 2011 | | 2024.04.10 | Àü¼¼ | Áø¼ººô¶ó(164-6) | 3 | 59.25 | 16,300 | 0 | 1993 | | 2024.04.10 | ¿ù¼¼ | °øÀ۸ǼÇ3Â÷ | 5 | 41.36 | 3,000 | 55 | 2001 | | 2024.04.09 | ¸Å¸Å | ¿ìÁÖºô¶óÆ® | 1 | 62.22 | 21,000 | | 2001 | | 2024.04.09 | Àü¼¼ | ¸ÞÁ¾µåÁª¸¶ | 3 | 32.6 | 21,000 | 0 | 2018 | | 2024.04.09 | ¸Å¸Å | ŸÀÓ¾ÆÆ®ºô(996-18) | 4 | 37 | 24,900 | | 2014 | | 2024.04.09 | ¸Å¸Å | OKÆÄÅ©ºô5Â÷(370-25) | 4 | 27.67 | 19,000 | | 2017 | | 2024.04.09 | ¸Å¸Å | ¼°ºô¶ó³ªµ¿ | 5 | 50.49 | 15,900 | | 2003 | | 2024.04.09 | ¸Å¸Å | ¸¶´çºô¶ó | 4 | 60.66 | 17,300 | | 1991 | | 2024.04.09 | ¸Å¸Å | »ï±¤¾ÆÆ®ºô(1074-5) | 4 | 60.46 | 24,000 | | 2001 | | 2024.04.09 | ¿ù¼¼ | °ñµçÆÓ¸®½º | 2 | 29.28 | 1,000 | 77 | 2019 | | 2024.04.09 | Àü¼¼ | ÇØÇ³±×·£µåŸ¿î | 2 | 74.38 | 22,100 | 0 | 2001 | | 2024.04.09 | Àü¼¼ | °Å¼º | 3 | 43.56 | 15,000 | 0 | 1986 | | 2024.04.09 | ¿ù¼¼ | Á¶Àººô¸®Áö(56-659) | 2 | 37.7 | 11,700 | 15 | 2002 | | 2024.04.09 | Àü¼¼ | µ¿³²ÁÖÅÃ(163-26) | 2 | 54.54 | 15,100 | 0 | 2003 | | 2024.04.09 | Àü¼¼ | µ¿³²ÁÖÅÃ(163-26) | 2 | 54.54 | 15,100 | 0 | 2003 | | 2024.04.09 | Àü¼¼ | ¿ì¼ºÇÏÀÌÃ÷ºô¶óB | 2 | 66.78 | 22,200 | 0 | 2000 | | 2024.04.09 | ¿ù¼¼ | ¼º¿øºô | 2 | 41.34 | 4,000 | 60 | 2003 | | 2024.04.09 | Àü¼¼ | »ïÀÍÇ콺Ƽ¾Æ | 2 | 48.92 | 20,800 | 0 | 2010 | | 2024.04.09 | Àü¼¼ | DHÆÓ¸®½º102µ¿ | 6 | 27.9 | 18,500 | 0 | 2018 | | 2024.04.09 | ¿ù¼¼ | ´õ¸Þ¸£¾¾¿¤ | 5 | 28.16 | 0 | 75 | 2020 | | 2024.04.09 | Àü¼¼ | Àκ£½ºÆ®ºô(460-11) | 2 | 41.22 | 11,000 | 0 | 2008 | | 2024.04.09 | Àü¼¼ | û±â¿Íºô¶ó | 1 | 41.43 | 9,000 | 0 | 1986 | | 2024.04.09 | Àü¼¼ | ¹Ì·¡½ºÅ¸ºô2Â÷ | 3 | 38.28 | 13,000 | 0 | 2008 | | 2024.04.09 | ¿ù¼¼ | ¹Ì·¡½ºÅ¸ºô2Â÷ | 2 | 45.61 | 13,000 | 15 | 2008 | | 2024.04.09 | Àü¼¼ | ÇÑ¿ï¶ß¶õä | 4 | 59.52 | 19,500 | 0 | 2010 | | 2024.04.09 | Àü¼¼ | ¿ì¼ºAµ¿ | 4 | 75.19 | 21,250 | 0 | 2001 | | 2024.04.09 | ¿ù¼¼ | ½Ç¹öºô¶ó³ªµ¿ | 1 | 47.28 | 13,100 | 25 | 1992 | | 2024.04.09 | ¿ù¼¼ | °è¸íÀ§³Ê½º(98-111) | 4 | 41.16 | 13,000 | 20 | 2008 | | 2024.04.09 | Àü¼¼ | û¼ÛÆòÈÇÏÀ̸ǼÇCµ¿(867-54) | 5 | 57.79 | 17,500 | 0 | 2005 | | 2024.04.09 | Àü¼¼ | õ¿ìÇÏÀ̺ô | 5 | 54.52 | 15,000 | 0 | 2001 | | 2024.04.08 | ¸Å¸Å | ´Ù¿ø½´½´ºô(470-8) | 2 | 39.69 | 20,000 | | 2010 | | 2024.04.08 | ¸Å¸Å | ³ª»êÁÖÅÃ(455-17) | 3 | 37.29 | 17,000 | | 2010 | | 2024.04.08 | ¸Å¸Å | ½Å¿ìºô¶ó | 1 | 54.12 | 17,800 | | 1994 | | 2024.04.08 | ¸Å¸Å | VILL73 | 3 | 20.36 | 23,000 | | 2021 | | 2024.04.08 | ¸Å¸Å | ¿ì¼º¿¬¸³(1134-7) | 3 | 52.2 | 25,000 | | 1985 | | 2024.04.08 | ¸Å¸Å | °Å¼º | 2 | 43.56 | 25,000 | | 1986 | | 2024.04.08 | ¿ù¼¼ | ºí¸®½º´ÙÀÓºô | 6 | 29.25 | 5,000 | 85 | 2023 | | 2024.04.08 | Àü¼¼ | (56-90) | 3 | 58.85 | 16,000 | 0 | 2009 | | 2024.04.08 | ¿ù¼¼ | »ï¼ºÆÓ¸®½º | 2 | 39.3 | 3,000 | 130 | 2022 | | 2024.04.08 | ¿ù¼¼ | ¿ì¼ºº£½ºÆ®ºô°¡µ¿ | 2 | 58.81 | 22,000 | 25 | 2002 | | 2024.04.08 | Àü¼¼ | ´õ¿ø7Â÷ | 4 | 28.14 | 24,000 | 0 | 2022 | | 2024.04.08 | Àü¼¼ | ³²±¤¼¼¸£ºô | 5 | 43.07 | 15,490 | 0 | 2010 | | 2024.04.08 | Àü¼¼ | ³²±¤¼¼¸£ºô | 5 | 43.07 | 16,000 | 0 | 2010 | | 2024.04.08 | ¿ù¼¼ | Çѹéºô¶ó | 1 | 39.62 | 10,060 | 27 | 2001 | | 2024.04.08 | Àü¼¼ | »ï¼º½¦¸£ºô(351-17¹øÁö) | 3 | 40.06 | 19,000 | 0 | 2016 | | 2024.04.08 | Àü¼¼ | ¿¹°¡ºô | 4 | 42.13 | 17,000 | 0 | 2012 | | 2024.04.08 | ¿ù¼¼ | Àº°¡¶÷ÆÓ¸®½º | 6 | 30.167 | 1,000 | 100 | 2022 | | 2024.04.08 | ¿ù¼¼ | Çѹéºô¶ó | 1 | 39.62 | 10,600 | 27 | 2001 | | 2024.04.08 | ¿ù¼¼ | (958-7) | -1 | 37.38 | 6,000 | 10 | 1986 | | 2024.04.08 | ¿ù¼¼ | â´ëºô¶ó(372-12) | 3 | 28.86 | 2,000 | 65 | 2014 | | 2024.04.08 | ¿ù¼¼ | ºí¸®½º´ÙÀÓºô | 5 | 29.38 | 5,000 | 90 | 2023 | | 2024.04.08 | Àü¼¼ | ¿ìÇöÆç¸®½º | 2 | 28.7 | 16,600 | 0 | 2016 | | 2024.04.08 | ¿ù¼¼ | °ñµå¸®¿ò | 5 | 27.25 | 3,000 | 90 | 2017 | | 2024.04.08 | ¿ù¼¼ | ¿ì¼ººô¶ó(102-67) | 4 | 52.92 | 5,000 | 90 | 2003 | | 2024.04.08 | ¿ù¼¼ | ¼°æÆÓ¸®½º | 8 | 18.57 | 12,800 | 10 | 2019 | | 2024.04.08 | ¿ù¼¼ | °æÇѺô¶ó(56-261) | 1 | 58.11 | 1,000 | 65 | 1991 | | 2024.04.07 | ¿ù¼¼ | Á¦ÀÌ¿¥ÆÓ¸®½º | 4 | 27.975 | 100 | 80 | 2021 | | 2024.04.07 | ¿ù¼¼ | ´ö¿ëÆÓ¸®Ã¼ | 3 | 24.89 | 1,000 | 65 | 2019 | | 2024.04.07 | Àü¼¼ | º®»êȨŸ¿î(969-14) | 2 | 54.77 | 15,850 | 0 | 2002 | | 2024.04.07 | Àü¼¼ | ¿ÍÀÌ¿£ºñ | 3 | 49.3 | 24,000 | 0 | 2017 | | 2024.04.06 | Àü¼¼ | ÇØÇǸ®¿ò | 5 | 31.41 | 13,500 | 0 | 2012 | | 2024.04.06 | ¿ù¼¼ | JEhouse | 4 | 23.39 | 5,500 | 65 | 2022 | | 2024.04.06 | Àü¼¼ | ÇØÇǸ®¿ò | 5 | 31.41 | 13,500 | 0 | 2012 | | 2024.04.06 | ¿ù¼¼ | LKµå¸²ºô | 5 | 39.24 | 5,000 | 80 | 2019 | | 2024.04.06 | ¿ù¼¼ | ´Ù¿ø½´½´ºô11Â÷ | 4 | 34.35 | 5,000 | 42 | 2011 | | 2024.04.06 | Àü¼¼ | Çý¼ºÆç¸®½ººô | 3 | 27.32 | 15,400 | 0 | 2018 | | 2024.04.06 | ¿ù¼¼ | ½Å¾Æºô¶ó(56-663) | 5 | 44.75 | 11,800 | 40 | 2001 | | 2024.04.06 | ¸Å¸Å | ½ÅÈï·¡¹Ì¾È | 3 | 43.37 | 21,300 | | 2011 | | 2024.04.06 | ¸Å¸Å | °¨¼º¸®Áîºô | 3 | 23.54 | 17,300 | | 2017 | | 2024.04.06 | Àü¼¼ | MÆç¸®Ã¼ | 2 | 38.52 | 28,000 | 0 | 2018 | | 2024.04.06 | Àü¼¼ | ÇÑ»ç¶ûºô¶ó | 5 | 73.16 | 18,700 | 0 | 2001 | | 2024.04.06 | Àü¼¼ | ½ÅÈï·¡¹Ì¾È | 3 | 43.37 | 15,800 | 0 | 2011 | | 2024.04.06 | ¿ù¼¼ | ¾ÆÆ®ºô(105-134) | 1 | 59.54 | 13,000 | 7 | 2002 | | 2024.04.06 | ¿ù¼¼ | ¾ÆÆ®ºô(105-134) | 1 | 59.54 | 13,000 | 7 | 2002 | | 2024.04.06 | ¿ù¼¼ | »ï¼ºÈÀÌÆ®ºô | 4 | 33.86 | 9,400 | 20 | 2002 | | 2024.04.06 | ¿ù¼¼ | ÇØÂùºô(24-550) | 4 | 19.15 | 7,500 | 3 | 2012 | | 2024.04.06 | ¸Å¸Å | ÆòȺô¶ó(827-6) | 5 | 30.25 | 14,800 | | 2010 | | 2024.04.06 | Àü¼¼ | ÇØÇǸ®¿ò | 5 | 31.41 | 13,000 | 0 | 2012 | | 2024.04.06 | Àü¼¼ | ºñ¿¡½ºÇÏ¿ì¡ | 3 | 33.27 | 22,400 | 0 | 2018 | | 2024.04.06 | ¿ù¼¼ | ±ÝÈÇÏÀ̺ô | 3 | 67.11 | 6,000 | 80 | 2010 | | 2024.04.06 | ¿ù¼¼ | ¹Ì¼Òºô | 3 | 25.96 | 17,100 | 10 | 2018 | | 2024.04.06 | ¿ù¼¼ | »ï¼ºÀ§ºêºô | 2 | 29.78 | 12,000 | 30 | 2012 | | 2024.04.05 | ¸Å¸Å | ´Ù¿Â½£ | 5 | 21.31 | 28,000 | | 2024 | | 2024.04.05 | ¸Å¸Å | ´Ù¿Â½£ | 6 | 21.04 | 26,500 | | 2024 | | 2024.04.05 | ¸Å¸Å | ¿ì¼º(105-9¿Ü) | 2 | 29.39 | 19,200 | | 2015 | | 2024.04.05 | ¸Å¸Å | ´ë°Çºô¶ó(102-251) | 3 | 42.3 | 17,200 | | 1995 | | 2024.04.05 | ¸Å¸Å | ½ºÀ§Æ®ÇϿ콺(1008-21) | 3 | 45.74 | 25,000 | | 2012 | | 2024.04.05 | Àü¼¼ | ¿ìÇöÆç¸®½º | 5 | 23.21 | 16,800 | 0 | 2016 | | 2024.04.05 | Àü¼¼ | ¶óÀÌÇÁŸ¿î | 2 | 57.16 | 21,000 | 0 | 2008 | | 2024.04.05 | ¿ù¼¼ | ºí·¹½ºÅ¸¿î | 2 | 39.78 | 3,500 | 34 | 2002 | | 2024.04.05 | ¿ù¼¼ | ±îÄ¡»êÆÈ¶óÀ̽º | 2 | 28.455 | 16,000 | 5 | 2015 | | 2024.04.05 | Àü¼¼ | µðÀÚÀÎÇϿ콺 | 5 | 41.55 | 16,600 | 0 | 2011 | | 2024.04.05 | Àü¼¼ | »ï¼ºÆç¸®Ã¼(864-52) | 3 | 31.92 | 17,700 | 0 | 2014 | | 2024.04.05 | Àü¼¼ | ´õ¿ø | 2 | 28.97 | 20,400 | 0 | 2019 | | 2024.04.05 | Àü¼¼ | ¼¿ï¸Ç¼Ç | 3 | 69.17 | 19,500 | 0 | 2000 | | 2024.04.05 | Àü¼¼ | »ï¼ºÆç¸®Ã¼(864-52) | 3 | 31.92 | 17,700 | 0 | 2014 | | 2024.04.05 | ¿ù¼¼ | ½Ö¿ëºô¶óAµ¿ | 4 | 43.95 | 2,000 | 70 | 2002 | | 2024.04.05 | Àü¼¼ | â´ëºô¶ó(371-42) | 3 | 54.91 | 18,700 | 0 | 2009 | | 2024.04.05 | ¿ù¼¼ | ´ë¼ºÅ¾½ººô(472-17) | 3 | 50.61 | 2,000 | 80 | 2002 | | 2024.04.05 | Àü¼¼ | ±¤¸í±×¸°¸Ç¼Ç13Â÷ | 3 | 62.33 | 18,000 | 0 | 1996 | | 2024.04.05 | ¿ù¼¼ | ±Â¸ð´×ºô(1115-17) | 3 | 49.93 | 5,000 | 60 | 2010 | | 2024.04.05 | ¿ù¼¼ | ´ë¼ºÅ¾½ººô(472-17) | 3 | 50.61 | 2,000 | 80 | 2002 | | 2024.04.05 | ¿ù¼¼ | Ÿ¿îºô(784-1) | 3 | 20.77 | 500 | 47 | 1993 | | 2024.04.05 | Àü¼¼ | µðÀÚÀÎÇϿ콺 | 5 | 41.55 | 16,380 | 0 | 2011 | | 2024.04.05 | ¿ù¼¼ | ¹Ì¼ººô¶ó(354-25) | 4 | 46.47 | 13,000 | 15 | 2002 | | 2024.04.05 | ¿ù¼¼ | ¿ìÁø¸Ç¼Ç | 4 | 61.69 | 15,600 | 15 | 2002 | | 2024.04.05 | ¿ù¼¼ | ¸®´õ½ºÅ¸¿î | 3 | 29.88 | 2,000 | 80 | 2016 | | 2024.04.05 | Àü¼¼ | ¿¡ºñ¾ÓÇϿ콺 | 1 | 29.67 | 18,640 | 0 | 2017 | | 2024.04.05 | Àü¼¼ | (876-20) | 1 | 42.74 | 11,900 | 0 | 1986 | | 2024.04.04 | ¸Å¸Å | ±Øµ¿ | 3 | 72.72 | 28,000 | | 1995 | | 2024.04.04 | ¸Å¸Å | ¹üÁøºô¶ó | 1 | 41.64 | 13,200 | | 1993 | | 2024.04.04 | ¿ù¼¼ | »ï¼ºÆÓ¸®½º | 5 | 39.3 | 5,000 | 125 | 2022 | | 2024.04.04 | Àü¼¼ | À̵µÅ¸¿î | 2 | 28.89 | 24,900 | 0 | 2022 | | 2024.04.04 | Àü¼¼ | ±îÄ¡»êÆÈ¶óÀ̽º | 2 | 29.28 | 17,400 | 0 | 2015 | | 2024.04.04 | ¿ù¼¼ | µ¿¼±º§¸®Ã¼ | 3 | 29.24 | 1,000 | 88 | 2020 | | 2024.04.04 | ¸Å¸Å | ¿¡µ§ÇϿ콺 | 2 | 58.75 | 17,100 | | 2002 | | 2024.04.04 | Àü¼¼ | LKµå¸²ºô(Ȱî504-12) | 4 | 36.69 | 17,500 | 0 | 2015 | | 2024.04.04 | ¿ù¼¼ | ¿Ã¶ó·çÁî | 6 | 25.19 | 5,000 | 90 | 2022 | | 2024.04.04 | ¿ù¼¼ | ·ÎÁîÆÓ¸®½ºÅõ(346-38) | 2 | 78.57 | 500 | 29 | 2009 | | 2024.04.04 | ¿ù¼¼ | Çý¼ºÆÓ¸®½º(155-17) | 3 | 28.91 | 15,490 | 12 | 2018 | | 2024.04.04 | ¿ù¼¼ | ºí·çÈú(846-14) | 6 | 23.47 | 18,648 | 5 | 2021 | | 2024.04.04 | ¸Å¸Å | À¯¿øÈ¨Å¸¿î | 3 | 46.23 | 30,700 | | 2015 | | 2024.04.04 | ¿ù¼¼ | ºí·çÈú(846-14) | 6 | 23.47 | 18,648 | 5 | 2021 | | 2024.04.04 | Àü¼¼ | Çý¼ºÆô¸®½º16Â÷ | 2 | 45.22 | 15,300 | 0 | 2010 | | 2024.04.04 | ¸Å¸Å | À¯¿øÈ¨Å¸¿î | 3 | 46.23 | 30,700 | | 2015 | | 2024.04.04 | ¿ù¼¼ | »ï¼ºÆÄÅ©ºô(464-1) | 4 | 55.06 | 19,500 | 12 | 2012 | | 2024.04.04 | ¿ù¼¼ | (973-6) | -1 | 33.3 | 1,000 | 40 | 1991 | | 2024.04.04 | ¸Å¸Å | ¿ì¼ººô¶ó | 1 | 39.21 | 14,100 | | 1993 | | 2024.04.04 | ¿ù¼¼ | µ¿¸²ÁÖÅÃ101µ¿ | 5 | 52.26 | 1,000 | 68 | 2003 | | 2024.04.04 | ¿ù¼¼ | ³ª»ê½¦¸£ºôA | 4 | 40.55 | 12,000 | 18 | 2001 | | 2024.04.04 | ¿ù¼¼ | ¿ìÁøºô¶ó(102-135) | 4 | 41.48 | 12,870 | 7 | 1995 | | 2024.04.04 | ¸Å¸Å | °æ¹Î¾ÆÆ®ºô | 5 | 26.4 | 19,800 | | 2016 | | 2024.04.03 | Àü¼¼ | THEJIA | 2 | 29.76 | 25,000 | 0 | 2022 | | 2024.04.03 | Àü¼¼ | ¿Ã¶ó·çÁî(HOLALUZ) | 4 | 23.99 | 24,400 | 0 | 2022 | | 2024.04.03 | Àü¼¼ | THEJIA | 2 | 29.76 | 25,000 | 0 | 2022 | | 2024.04.03 | Àü¼¼ | Å¿µÁÖÅÃ2 | 2 | 39.24 | 9,870 | 0 | 1991 | | 2024.04.03 | Àü¼¼ | ³²±¤ÆÄÅ©ºô | 5 | 44.06 | 14,300 | 0 | 2007 | | 2024.04.03 | Àü¼¼ | Çö´ëºô¶ó°¡µ¿ | 1 | 33.26 | 11,150 | 0 | 1991 | | 2024.04.03 | ¸Å¸Å | º¸Àººô¶ó | 4 | 59.58 | 25,700 | | 2001 | | 2024.04.03 | ¸Å¸Å | ¼öÁ¤ÁÖÅà | 2 | 66.9 | 23,500 | | 1997 | | 2024.04.03 | ¸Å¸Å | ´õ´©¸² | 3 | 29.01 | 19,600 | | 2018 | | 2024.04.03 | ¸Å¸Å | °æµ¿ÁÖÅà | 2 | 37.92 | 16,800 | | 2002 | | 2024.04.03 | ¸Å¸Å | (105-20) | 5 | 32.67 | 14,500 | | 2011 | | 2024.04.03 | ¸Å¸Å | ÀÌ¿¤ÇϿ콺 | 2 | 27.35 | 30,000 | | 2022 | | 2024.04.03 | ¸Å¸Å | ÇѼººô¶ó(56-655) | 4 | 51.45 | 13,500 | | 1994 | | 2024.04.03 | Àü¼¼ | ¼øÈ¯·¹¹Ì¾ÈB | 5 | 27.09 | 8,800 | 0 | 2002 | | 2024.04.03 | Àü¼¼ | À£ºù¶óÀÌÇÁ(155-6) | 2 | 29.91 | 12,300 | 0 | 2011 | | 2024.04.03 | ¿ù¼¼ | ·ç¹ÌÈú½º | 5 | 29.82 | 1,000 | 85 | 2021 | | 2024.04.03 | ¿ù¼¼ | Á־󸮸ǼÇ(476-46) | -1 | 61.31 | 3,000 | 70 | 2002 | | 2024.04.03 | Àü¼¼ | µ¿µµÇÏÀÌÃ÷(°¡µ¿) | 2 | 34.05 | 9,345 | 0 | 2001 | | 2024.04.03 | ¿ù¼¼ | ´ö¿ëÆÓ¸®Ã¼ | 3 | 25.52 | 5,000 | 75 | 2019 | | 2024.04.03 | ¿ù¼¼ | °ñµçÆÓ¸®½º | 4 | 15.66 | 1,000 | 75 | 2019 | | 2024.04.03 | Àü¼¼ | ¿¥Æç¸®Ã¼ºñµ¿ | 2 | 29.95 | 17,800 | 0 | 2017 | | 2024.04.03 | ¿ù¼¼ | Á¦ÀÌÁ¦ÀÌij½½ | 4 | 24.7 | 17,000 | 10 | 2016 | | 2024.04.03 | ¿ù¼¼ | Æ®¶ó¿òºô | 6 | 66.11 | 15,000 | 60 | 2012 | | 2024.04.03 | Àü¼¼ | (975-11) | 1 | 54.24 | 10,000 | 0 | 1991 | | 2024.04.03 | Àü¼¼ | ¸ÞÁ¾µåÁª¸¶ | 2 | 32.6 | 21,000 | 0 | 2018 | | 2024.04.03 | Àü¼¼ | ÇÑ¿ïÀÚÀ̺ô(1016-11) | 4 | 33.89 | 11,500 | 0 | 2009 | | 2024.04.03 | ¿ù¼¼ | ½Å¼º³×¿Àºô | 6 | 27.62 | 5,000 | 50 | 2018 | | 2024.04.03 | Àü¼¼ | À£ºù¶óÀÌÇÁ(155-6) | 2 | 29.91 | 12,300 | 0 | 2011 | | 2024.04.02 | ¸Å¸Å | ¼ºÈ£ºô¶ó2Â÷Bµ¿(57),¼ºÈ£2Â÷¸Ç¼ÇA | 3 | 65.93 | 30,800 | | 2002 | | 2024.04.02 | ¸Å¸Å | ³²¼º¾ÆÆ®ºô | 6 | 38.3 | 29,500 | | 2016 | | 2024.04.02 | ¿ù¼¼ | ÇØÂùºô(24-550) | 4 | 19.15 | 7,500 | 3 | 2012 | | 2024.04.02 | Àü¼¼ | ¾ÆÁÙÆ÷·¹ | 2 | 29.99 | 23,000 | 0 | 2023 | | 2024.04.02 | ¸Å¸Å | µÕÁöºô¶ó | 2 | 72.81 | 29,800 | | 2000 | | 2024.04.02 | ¸Å¸Å | ±Ù»óÇÁ¸®Áò¾ÆÆ®ºô | 2 | 55.3 | 31,500 | | 2010 | | 2024.04.02 | ¸Å¸Å | ÅÂÇÑÇÏÀ̺ô(382-25) | 2 | 26.62 | 16,000 | | 2017 | | 2024.04.02 | ¸Å¸Å | ¸þºñ¿ì½º(350-10) | 3 | 33.93 | 23,000 | | 2017 | | 2024.04.02 | ¸Å¸Å | ·Î¾âÇÏÀÌÃ÷(1045-13) | 5 | 49.68 | 20,000 | | 2008 | | 2024.04.02 | ¸Å¸Å | Á¤°¨ÇϿ콺 | 6 | 27.73 | 13,492 | | 2016 | | 2024.04.02 | ¿ù¼¼ | ¿Ã¶ó·çÁî | 3 | 25.19 | 5,000 | 85 | 2022 | | 2024.04.02 | ¿ù¼¼ | ³²¼º¾ÆÆ®ºô(381-1) | 6 | 35.49 | 4,000 | 100 | 2015 | | 2024.04.02 | Àü¼¼ | ¼º¿ì¾ÆÆ®ºô(346-78) | 2 | 59.76 | 22,000 | 0 | 2002 | | 2024.04.02 | ¿ù¼¼ | ÇÁ¶óÀÓÁÖÅÃ(393-22) | 3 | 21.87 | 13,800 | 3 | 2014 | | 2024.04.02 | Àü¼¼ | À̼öºô¶ó | 2 | 54.77 | 13,000 | 0 | 1992 | | 2024.04.02 | ¿ù¼¼ | ¸®¿ÀÆÄÅ©ºô | 4 | 27.71 | 20,000 | 10 | 2020 | | 2024.04.02 | ¿ù¼¼ | ÇÏÀ̺ô¶ó | 4 | 52.95 | 10,000 | 30 | 1993 | | 2024.04.02 | ¿ù¼¼ | ¸®¿ÀÆÄÅ©ºô | 4 | 27.71 | 19,500 | 12 | 2020 | | 2024.04.02 | Àü¼¼ | °æ¿øÁÖÅà | 4 | 55.92 | 15,100 | 0 | 2001 | | 2024.04.02 | Àü¼¼ | Ǫ¸¥Ç³°æÃ¤ | 2 | 26.29 | 25,570 | 0 | 2022 | | 2024.04.02 | ¿ù¼¼ | ±¤¸íÇÏÀÌÃ÷29Â÷°¡µ¿ | 4 | 35.4 | 10,000 | 28 | 2002 | | 2024.04.02 | ¿ù¼¼ | ÇÁ¶óÀÓÁÖÅÃ(393-22) | 3 | 21.87 | 13,500 | 5 | 2014 | | 2024.04.02 | ¿ù¼¼ | ¼þ´öÇÏÀÌÃ÷ºô¶ó | 4 | 61.8 | 14,200 | 15 | 1995 | | 2024.04.02 | ¿ù¼¼ | ´Ù¿Â½£ | 2 | 29.99 | 5,000 | 110 | 2021 | | 2024.04.02 | ¿ù¼¼ | ¸®´õ½ºÅ¸¿î | 5 | 22.05 | 5,000 | 50 | 2017 | | 2024.04.02 | ¿ù¼¼ | ¹Ì±¤½ºÅæºô | 5 | 60.39 | 2,000 | 75 | 2008 | | 2024.04.02 | ¿ù¼¼ | ´ë´öÇÏÀÌÃ÷ºô¶ó(330-27) | 2 | 52.68 | 2,000 | 70 | 1995 | | 2024.04.02 | Àü¼¼ | ¿ì¼ºÆÄÅ©¸Ç¼Ç(29-230) | 3 | 64.3 | 16,000 | 0 | 1983 | | 2024.04.02 | ¸Å¸Å | º¸¹èÇÁ¸®¸¶ºô | 4 | 60.72 | 24,800 | | 2008 | | 2024.04.02 | ¿ù¼¼ | ¼øÈ¯·¹¹Ì¾ÈB | 5 | 37.68 | 1,000 | 60 | 2002 | | 2024.04.01 | Àü¼¼ | ¼Û¿øÄ³½½ | 6 | 42.1 | 24,000 | 0 | 2017 | | 2024.04.01 | Àü¼¼ | ºí¸®½ººô101µ¿102µ¿ | 5 | 29.41 | 23,300 | 0 | 2022 | | 2024.04.01 | Àü¼¼ | ¼º¿ì¸®Ä¡ºô(56-667) | 4 | 64.4 | 17,000 | 0 | 2002 | | 2024.04.01 | ¿ù¼¼ | â´ë(366-34) | 3 | 28.91 | 2,000 | 75 | 2013 | | 2024.04.01 | Àü¼¼ | µ¿ÀÎ¸Ç¼Ç | 2 | 69.38 | 18,765 | 0 | 2002 | | 2024.04.01 | ¿ù¼¼ | ¿µÀÏ¾ÆÆ®ºô(352-10) | 1 | 61.64 | 16,300 | 18 | 2001 | | 2024.04.01 | Àü¼¼ | Çϳª¾ÆÀÌÆÄÅ©ºô | 2 | 28.81 | 17,300 | 0 | 2017 | | 2024.04.01 | ¿ù¼¼ | ÇÑ¿ïÀÚÀ̺ô(1129-32) | 4 | 67.65 | 17,200 | 15 | 2008 | | 2024.04.01 | ¸Å¸Å | ¿ì°æ¸Ç¼Ç | 2 | 37.8 | 14,500 | | 2002 | | 2024.04.01 | ¿ù¼¼ | ¹®È±×¸°Å¸¿î | -1 | 41.87 | 500 | 55 | 1994 | | 2024.04.01 | ¿ù¼¼ | ±Ù»óÇÁ¸®Áò¾ÆÆ®ºô | 6 | 55.3 | 20,000 | 30 | 2010 | | 2024.04.01 | ¿ù¼¼ | ȰîÇÏÀÌÃ÷ºô¶ó | 1 | 40 | 800 | 60 | 1991 | | 2024.04.01 | Àü¼¼ | ¼Û¿øÄ³½½ | 6 | 42.1 | 24,000 | 0 | 2017 | | 2024.04.01 | ¿ù¼¼ | ´ëÁÖ½¦¸£ºô(397-17) | 1 | 63.81 | 15,800 | 20 | 2002 | | 2024.04.01 | ¿ù¼¼ | ±Ù»óÇÁ¸®Áò¾ÆÆ®ºô | 6 | 55.3 | 20,000 | 30 | 2010 | | 2024.04.01 | Àü¼¼ | »ï¼ºÆÄÅ©ºô(464-1) | 4 | 55.06 | 22,000 | 0 | 2012 | | 2024.03.31 | Àü¼¼ | ¿µÇ³ºô¶ó(53-30) | 1 | 32.6 | 9,760 | 0 | 1986 | | 2024.03.31 | ¿ù¼¼ | ¿£¿¡½ºÆÄÅ©ºô | 3 | 28.36 | 0 | 50 | 2019 | | 2024.03.31 | Àü¼¼ | »ï¼ºÁÖÅÃ(159-1) | 2 | 73.74 | 20,655 | 0 | 1999 | | 2024.03.31 | Àü¼¼ | (410-80) | 2 | 70.56 | 22,900 | 0 | 2009 | | 2024.03.31 | Àü¼¼ | ºí¸®½º´ÙÀÓºô | 5 | 26.75 | 25,000 | 0 | 2023 | | 2024.03.31 | Àü¼¼ | »ï¿ø½ºÀ§Æ®ºô | 5 | 38.71 | 14,000 | 0 | 2011 | | 2024.03.31 | Àü¼¼ | ½Ã¿Â°ñµåºô¶ó | 2 | 59.61 | 16,800 | 0 | 1994 | | 2024.03.31 | ¿ù¼¼ | µ¿µµÇÏÀÌÃ÷ºô¶ó | 1 | 51.9 | 13,000 | 20 | 1996 | | 2024.03.30 | ¿ù¼¼ | Á¦ÀÌ¿¥ÆÓ¸®½º | 5 | 27.975 | 100 | 80 | 2021 | | 2024.03.30 | Àü¼¼ | Á¤ÀºÆÄÅ©ºô | 3 | 41.92 | 18,600 | 0 | 2016 | | 2024.03.30 | Àü¼¼ | HIGH-END480 | 3 | 29.84 | 21,100 | 0 | 2023 | | 2024.03.30 | ¿ù¼¼ | ȰîÅõ¿þ´ÏÆÛ½ºÆ® | 11 | 24.45 | 1,000 | 100 | 2018 | | 2024.03.30 | Àü¼¼ | °ø°¨ÁöÀ½410 | 2 | 26.86 | 500 | 0 | 2021 | | 2024.03.30 | ¿ù¼¼ | °ø°¨ÁöÀ½410 | 2 | 26.86 | 500 | 55 | 2021 | | 2024.03.30 | Àü¼¼ | ÇÁ¶óÀÓºô(783-15) | 2 | 66.3 | 21,500 | 0 | 2008 | | 2024.03.30 | Àü¼¼ | ÇÁ¶óÀÓºô(783-15) | 2 | 66.3 | 21,000 | 0 | 2008 | | 2024.03.30 | Àü¼¼ | ¾ÆÀνººôHANAGREEN | 2 | 35.59 | 18,300 | 0 | 2013 | | 2024.03.30 | ¿ù¼¼ | ³²¼º¾ÆÆ®ºô(381-1) | 3 | 28.55 | 3,000 | 75 | 2015 | | 2024.03.30 | Àü¼¼ | »õÇÑ¿¡¹öºô | 3 | 68.91 | 18,520 | 0 | 2002 | | 2024.03.30 | Àü¼¼ | ´ë±Ùºô¶ó | 2 | 41.76 | 9,000 | 0 | 1990 | | 2024.03.30 | Àü¼¼ | À̳뼿(INNOCELL) | 2 | 29.7 | 16,600 | 0 | 2017 | | 2024.03.30 | ¿ù¼¼ | ¿ì¼ººô¶ó | 2 | 51.87 | 12,700 | 10 | 1995 | | 2024.03.30 | Àü¼¼ | °è¸íÁÖÅø¶µ¿ | -1 | 66.54 | 13,500 | 0 | 2000 | | 2024.03.30 | ¿ù¼¼ | ¿¡ÀÌ¿£Äɽ½ | 2 | 27.86 | 6,000 | 60 | 2016 | | 2024.03.30 | Àü¼¼ | ¼°æÆÓ¸®½º | 7 | 28.53 | 20,500 | 0 | 2019 | | 2024.03.30 | Àü¼¼ | °ÇÇüºô¶ó(376-10) | 2 | 34.65 | 10,880 | 0 | 2002 | | 2024.03.30 | ¿ù¼¼ | ¾î¹ÝÇϿ콺 | 5 | 13.03 | 600 | 49 | 2018 | | 2024.03.30 | Àü¼¼ | °è¸íÁÖÅø¶µ¿ | -1 | 66.54 | 13,500 | 0 | 2000 | | 2024.03.30 | ¿ù¼¼ | ¾î¹ÝÇϿ콺 | 5 | 13.03 | 600 | 49 | 2018 | | 2024.03.30 | Àü¼¼ | »ï¹Ìºô¶ó | 3 | 50.22 | 15,200 | 0 | 2000 | | 2024.03.30 | Àü¼¼ | °ÇÇüºô¶ó(376-10) | 2 | 34.65 | 10,880 | 0 | 2002 | | 2024.03.29 | ¿ù¼¼ | µð¿¡½ºÅ×¶ó½º | 5 | 29.69 | 2,000 | 90 | 2022 | | 2024.03.29 | Àü¼¼ | ³²±¤½¦¸£ºô(424-165) | 5 | 34.5 | 15,490 | 0 | 2013 | | 2024.03.29 | Àü¼¼ | Çý¼ºÆÓ¸®½º¡¡ | 4 | 48.15 | 27,200 | 0 | 2019 | | 2024.03.29 | ¿ù¼¼ | ¿ì¸²ºô¶ó | -1 | 27.95 | 1,000 | 25 | 1997 | | 2024.03.29 | ¿ù¼¼ | ÇØ¿Âij½½ | 2 | 24.11 | 15,000 | 30 | 2019 | | 2024.03.29 | Àü¼¼ | ¿ì¼º | 4 | 29.23 | 15,000 | 0 | 2016 | | 2024.03.29 | ¿ù¼¼ | Á¦ÀÌ¿¥ÆÓ¸®½º | 2 | 27.975 | 1,000 | 95 | 2021 | | 2024.03.29 | ¿ù¼¼ | ´õ½ºÀ§Æ®(73-78) | 6 | 24.16 | 3,000 | 75 | 2022 | | 2024.03.29 | Àü¼¼ | »ï¼º½¦¸£ºô(346-62) | 3 | 29.52 | 16,300 | 0 | 2017 | | 2024.03.29 | ¿ù¼¼ | Çö´ëºô¶óÆ®6Â÷(³ªµ¿) | 2 | 60.83 | 17,380 | 15 | 2004 | | 2024.03.29 | Àü¼¼ | ´ë°Çºô¶ó(348-26) | 1 | 32.58 | 10,800 | 0 | 1991 | | 2024.03.29 | ¿ù¼¼ | µ¿µµÁÖÅÃ(391-51) | 2 | 53.17 | 4,000 | 60 | 1995 | | 2024.03.29 | Àü¼¼ | ÇÁ¶óÀÓºô(488-18) | 4 | 26.99 | 20,500 | 0 | 2019 | | 2024.03.29 | ¿ù¼¼ | ¾çÁøºô¶ó | 1 | 59.96 | 14,700 | 15 | 1997 | | 2024.03.29 | Àü¼¼ | Çý¼ºÆÓ¸®½º¡¡ | 4 | 48.15 | 27,200 | 0 | 2019 | | 2024.03.28 | Àü¼¼ | µ¿¼º¸®ºñ¾Ó | 4 | 27.48 | 14,600 | 0 | 2015 | | 2024.03.28 | Àü¼¼ | ¾¾Æ¼ÇϿ콺(376-21) | 4 | 47.54 | 18,000 | 0 | 2011 | | 2024.03.28 | Àü¼¼ | µ¿¿ìÇÏÀ̺ô(996-19) | 6 | 33.81 | 26,000 | 0 | 2022 | | 2024.03.28 | Àü¼¼ | ¿ìÀå»êÆÄÅ©ºô | 4 | 43.13 | 22,050 | 0 | 2013 | | 2024.03.28 | ¿ù¼¼ | º¹Áö¾ÆÆ®ºô¶ó2µ¿ | -1 | 55.68 | 2,000 | 50 | 2003 | | 2024.03.28 | ¿ù¼¼ | ¿Ã¶ó·çÁî | 6 | 29.98 | 5,000 | 115 | 2022 | | 2024.03.28 | ¿ù¼¼ | ¼º¿øºô | 3 | 37.5 | 4,000 | 60 | 2003 | | 2024.03.28 | ¿ù¼¼ | °æµ¿ÆÓ¸®½º5Â÷ | 5 | 65.16 | 3,000 | 90 | 2008 | | 2024.03.28 | Àü¼¼ | ¿¡À̽ººô¶óÆ® | 2 | 48.79 | 13,860 | 0 | 2001 | | 2024.03.28 | Àü¼¼ | ¿¡À̽ººô¶óÆ® | 2 | 48.79 | 13,600 | 0 | 2001 | | 2024.03.28 | ¿ù¼¼ | ÁØÀÌÇϿ콺 | 2 | 40.05 | 1,000 | 60 | 2016 | | 2024.03.27 | Àü¼¼ | ºí¸®½º´ÙÀÓºô | 2 | 29.12 | 25,000 | 0 | 2023 | | 2024.03.27 | Àü¼¼ | µå¸®¿ò | 4 | 29.97 | 39,000 | 0 | 2022 | | 2024.03.27 | Àü¼¼ | Ǫ¸¥Ç³°æÃ¤ | 3 | 26.29 | 25,570 | 0 | 2022 | | 2024.03.27 | ¿ù¼¼ | ½Ã¿Âºô¶ó | 1 | 65.88 | 15,000 | 30 | 1995 | | 2024.03.27 | Àü¼¼ | ¼ÀÈú | 2 | 45.46 | 12,600 | 0 | 2003 | | 2024.03.27 | Àü¼¼ | °Ç¿ì¿¬¸³ | -1 | 46.95 | 7,500 | 0 | 1994 | | 2024.03.27 | ¿ù¼¼ | À̰¡Ã¤(400-95) | 4 | 29.85 | 5,000 | 67 | 2012 | | 2024.03.27 | Àü¼¼ | ´ë¼ººô¶ó | 3 | 68.49 | 17,500 | 0 | 2001 | | 2024.03.27 | ¿ù¼¼ | ZION | 1 | 48.73 | 1,000 | 75 | 2003 | | 2024.03.27 | Àü¼¼ | ¸í½ÅŸ¿î8Â÷Bµ¿ | 5 | 61.2 | 17,000 | 0 | 2002 | | 2024.03.27 | Àü¼¼ | dzÀηÎÁîºô(98-144) | -1 | 57.24 | 10,500 | 0 | 2003 | | 2024.03.27 | Àü¼¼ | Çö´ë¸Ç¼Ç | 1 | 57.17 | 12,300 | 0 | 1996 | | 2024.03.27 | ¿ù¼¼ | °ñµçÆÓ¸®½º | 2 | 29.28 | 500 | 84 | 2019 | | 2024.03.27 | Àü¼¼ | µå¸®¿ò | 4 | 29.97 | 38,500 | 0 | 2022 | | 2024.03.27 | Àü¼¼ | µå¸®¿ò | 4 | 29.97 | 35,000 | 0 | 2022 | | 2024.03.27 | Àü¼¼ | DS¿¡ÄÚŸ¿î | 3 | 40.45 | 19,400 | 0 | 2014 | | 2024.03.27 | ¿ù¼¼ | ¿ìÁøÇÁ¸£¹Ì | 3 | 51.99 | 2,000 | 84 | 2011 | | 2024.03.27 | Àü¼¼ | À£ºù¶óÀÌÇÁ(155-6) | 5 | 49.995 | 16,800 | 0 | 2011 | | 2024.03.27 | Àü¼¼ | µå¸®¿ò | 4 | 29.97 | 35,000 | 0 | 2022 | | 2024.03.27 | Àü¼¼ | µå¸®¿ò | 4 | 29.97 | 38,500 | 0 | 2022 | | 2024.03.27 | Àü¼¼ | µå¸®¿ò | 4 | 29.97 | 35,000 | 0 | 2022 | | 2024.03.27 | ¿ù¼¼ | ·Î¾âÇÏÀÌÃ÷ | 4 | 36.96 | 1,000 | 80 | 2010 | | 2024.03.27 | Àü¼¼ | »þ·ÐÀÎÅÚ¸®¾ÈII | 5 | 39.1 | 13,600 | 0 | 2008 | | 2024.03.27 | Àü¼¼ | µå¸®¿ò | 4 | 29.97 | 38,500 | 0 | 2022 | | 2024.03.26 | ¿ù¼¼ | º¹ÁöÇÏÀÌÃ÷ºô¶óA | 4 | 59.83 | 13,000 | 30 | 1991 | | 2024.03.26 | Àü¼¼ | ¼¿ì802 | 2 | 28.88 | 20,530 | 0 | 2019 | | 2024.03.26 | ¿ù¼¼ | »ï¼º°¡¿ì½ººô(61-52) | 2 | 47.04 | 1,500 | 78 | 2010 | | 2024.03.26 | ¿ù¼¼ | µ¿¿øÁÖÅà | 1 | 45.36 | 11,000 | 10 | 1991 | | 2024.03.26 | ¿ù¼¼ | ¹Ì¼º¸Ç¼Ç | 4 | 57.33 | 13,000 | 10 | 1994 | | 2024.03.26 | Àü¼¼ | ´ë¼ººô¶ó | -1 | 66.84 | 11,500 | 0 | 1992 | | 2024.03.26 | ¿ù¼¼ | ¿µÀÏ¾ÆÆ®ºô(352-10) | 2 | 61.64 | 10,000 | 60 | 2001 | | 2024.03.26 | ¿ù¼¼ | »þÀδõÈúȰî | 2 | 29.3 | 1,000 | 110 | 2023 | | 2024.03.26 | ¿ù¼¼ | À¯°øÇÏÀÌÃ÷ºô¶ó | 2 | 53.52 | 16,000 | 18 | 1993 | | 2024.03.26 | Àü¼¼ | ÆÄũī¿îƼ | 5 | 67.94 | 20,600 | 0 | 2007 | | 2024.03.26 | ¿ù¼¼ | ¾ÆÀÌÆÄÅ©ºô | 3 | 65.34 | 10,000 | 60 | 2008 | | 2024.03.26 | ¿ù¼¼ | JEhouse | 4 | 24.82 | 5,500 | 70 | 2022 | | 2024.03.26 | ¿ù¼¼ | ¾ÆÀÌ¿øºô | 2 | 49.2 | 13,000 | 10 | 2002 | | 2024.03.26 | Àü¼¼ | ¼Ò´ã¹ë¸®½ºBµ¿ | 2 | 29.75 | 15,800 | 0 | 2013 | | 2024.03.26 | Àü¼¼ | »ïÀͺô¶ó | 2 | 71.1 | 17,000 | 0 | 1985 | | 2024.03.26 | Àü¼¼ | (42-65) | 2 | 26.35 | 15,240 | 0 | 2018 | | 2024.03.26 | ¿ù¼¼ | ¸í¼ººô¸®Áö | 4 | 42.35 | 2,000 | 60 | 2002 | | 2024.03.26 | ¿ù¼¼ | Ȳ±Ýºô¶ó | 2 | 36.64 | 1,000 | 50 | 1991 | | 2024.03.26 | ¿ù¼¼ | Ȳ±Ýºô¶ó | 2 | 36.64 | 1,000 | 50 | 1991 | | 2024.03.26 | Àü¼¼ | ¼¿ì802 | 2 | 28.88 | 20,530 | 0 | 2019 | | 2024.03.26 | Àü¼¼ | ¿¡½º¿¥ÆÄÅ©ºô(³ªµ¿´Ùµ¿) | 3 | 28.98 | 17,800 | 0 | 2017 | | 2024.03.26 | Àü¼¼ | ÆÄũī¿îƼ | 5 | 67.94 | 20,600 | 0 | 2007 | | 2024.03.26 | Àü¼¼ | »ï¼º°ñµçºô | 3 | 33.85 | 17,500 | 0 | 2014 | | 2024.03.26 | ¿ù¼¼ | ¿¥Æç¸®Ã¼(346-75) | 5 | 27.79 | 15,100 | 22 | 2015 | | 2024.03.26 | ¿ù¼¼ | º¹Áö±×¸°ºô(98-77) | -1 | 60.03 | 1,000 | 65 | 2001 | | 2024.03.25 | ¿ù¼¼ | À¯´ÏÅ©ºô | 1 | 28 | 5,000 | 35 | 2001 | | 2024.03.25 | ¿ù¼¼ | ÇÏ¿ìÀç995 | 2 | 29.98 | 5,000 | 65 | 2022 | | 2024.03.25 | ¿ù¼¼ | ¿¥Æç¸®Ã¼(346-75) | 5 | 27.79 | 15,100 | 22 | 2015 | | 2024.03.25 | ¿ù¼¼ | Å¿µ¾ÆÆ®ºô | 3 | 29.83 | 13,220 | 16 | 2014 | | 2024.03.25 | Àü¼¼ | ¼±°æºô¶ó(163-24) | 1 | 62.53 | 19,500 | 0 | 1999 | | 2024.03.25 | Àü¼¼ | Á¤ÀºÆÄÅ©ºô | 4 | 41.92 | 19,700 | 0 | 2016 | | 2024.03.25 | ¿ù¼¼ | ¿Ã¶ó·çÁî | 2 | 29.98 | 4,000 | 135 | 2022 | | 2024.03.25 | Àü¼¼ | ¼±°æºô¶ó(163-24) | 1 | 62.53 | 21,500 | 0 | 1999 | | 2024.03.25 | Àü¼¼ | Á¤ÀºÆÄÅ©ºô | 2 | 41.92 | 19,000 | 0 | 2016 | | 2024.03.25 | Àü¼¼ | Æ÷·¹½ºÆ®Èú | 5 | 87.15 | 23,900 | 0 | 2008 | | 2024.03.25 | Àü¼¼ | °¼´õÈú(962-4) | 2 | 30.38 | 12,310 | 0 | 2013 | | 2024.03.25 | Àü¼¼ | ÇÁ¸®Áòºô¶óAµ¿ | 4 | 41.24 | 12,852 | 0 | 2002 | | 2024.03.25 | ¿ù¼¼ | »þÀδõÈúȰî | 4 | 29.71 | 1,000 | 130 | 2023 | | 2024.03.25 | Àü¼¼ | Æú¶óºñ¿¤(1038-4) | 3 | 25.77 | 21,000 | 0 | 2018 | | 2024.03.25 | ¿ù¼¼ | (871-78) | 2 | 40.33 | 5,000 | 90 | 2024 | | 2024.03.25 | ¿ù¼¼ | Çö´ë¾ÆÆ®Å¸¿î | 4 | 51.27 | 2,500 | 60 | 1996 | | 2024.03.25 | Àü¼¼ | Á¦¼±ÁÖÅÃ17Â÷ | 2 | 59.84 | 19,000 | 0 | 2008 | | 2024.03.25 | Àü¼¼ | (366-42) | 2 | 40.5 | 9,450 | 0 | 1996 | | 2024.03.25 | Àü¼¼ | Á¤ÀºÆÄÅ©ºô | 4 | 41.92 | 19,700 | 0 | 2016 | | 2024.03.25 | Àü¼¼ | ÇÁ¸®Áòºô¶óAµ¿ | 4 | 41.24 | 11,567 | 0 | 2002 | | 2024.03.24 | Àü¼¼ | ³²¼º¾ÆÆ®ºô | 2 | 48.08 | 5,500 | 0 | 2010 | | 2024.03.24 | Àü¼¼ | º£¾ÆÆ®¸®½º | 2 | 29.35 | 18,500 | 0 | 2017 | | 2024.03.24 | Àü¼¼ | LKµå¸²ºô(504-80) | 4 | 25.64 | 17,200 | 0 | 2018 | | 2024.03.24 | Àü¼¼ | À£½ºÆÄÅ©ºô | 3 | 29.99 | 20,600 | 0 | 2018 | | 2024.03.24 | Àü¼¼ | ¾Æ¸§ÆÄÅ©ºô¶ó | 4 | 62.44 | 16,600 | 0 | 1992 | | 2024.03.24 | Àü¼¼ | Á¤°¨Å¸¿îB | 2 | 33.1 | 17,260 | 0 | 2016 | | 2024.03.24 | Àü¼¼ | ¸®´õ½ºÅ¸¿î | 2 | 29.37 | 17,700 | 0 | 2017 | | 2024.03.23 | ¿ù¼¼ | ´ë´öºô¶ó(164-26) | 4 | 59.97 | 14,000 | 40 | 2000 | | 2024.03.23 | ¿ù¼¼ | °æ¹æ±×¸°ºô | 1 | 55.36 | 14,500 | 20 | 2002 | | 2024.03.23 | ¿ù¼¼ | ´ë½ÅŸ¿î(339-16) | 4 | 65.45 | 13,000 | 60 | 2000 | | 2024.03.23 | Àü¼¼ | Æú¶óºñ¿¤(1038-4) | 3 | 29.24 | 23,300 | 0 | 2018 | | 2024.03.23 | Àü¼¼ | °¡³ª¾Æµ¨¸®¿ò(333-22) | 6 | 27.84 | 15,500 | 0 | 2014 | | 2024.03.23 | Àü¼¼ | ´õ-¶ó¿Â | 3 | 29.14 | 19,500 | 0 | 2018 | | 2024.03.23 | Àü¼¼ | ¿ì¼ººô¶ó(56-82) | 2 | 49.71 | 13,980 | 0 | 2000 | | 2024.03.23 | Àü¼¼ | LKµå¸²ºô(504-80) | 2 | 25.64 | 17,000 | 0 | 2018 | | 2024.03.23 | ¿ù¼¼ | ±î»çÁö¿À | 5 | 32.02 | 18,000 | 25 | 2015 | | 2024.03.23 | ¿ù¼¼ | Çý¼ºÆÓ¸®½ººô(392-2) | 4 | 60.99 | 2,000 | 95 | 2003 | | 2024.03.23 | ¿ù¼¼ | (376-27) | 2 | 37.5 | 1,500 | 40 | 1992 | | 2024.03.23 | Àü¼¼ | ¿£¿¡½ºÅ¸¿î | 8 | 25.86 | 21,540 | 0 | 2019 | | 2024.03.23 | ¿ù¼¼ | ȲÁ¦±×·£µåÆÄÅ© | 3 | 42.66 | 14,600 | 5 | 2008 | | 2024.03.23 | Àü¼¼ | ¼º¿îºô¶ó(56-348) | -1 | 61.38 | 11,000 | 0 | 2001 | | 2024.03.23 | ¿ù¼¼ | Á¶Àººô¶óBµ¿ | -1 | 34.06 | 6,100 | 10 | 1991 | | 2024.03.23 | ¿ù¼¼ | (871-78) | 3 | 40.33 | 5,000 | 90 | 2024 | | 2024.03.23 | Àü¼¼ | °¼´õÈú(962-4) | 2 | 16.66 | 6,067 | 0 | 2013 | | 2024.03.23 | ¿ù¼¼ | À̺ìÇϿ콺 | 5 | 29.24 | 100 | 80 | 2021 | | 2024.03.23 | ¿ù¼¼ | ±Â¸ð´×ºô(1115-17) | 5 | 56.04 | 1,000 | 75 | 2010 | | 2024.03.23 | Àü¼¼ | ¿£¿¡½ºÅ¸¿î | 8 | 25.86 | 21,168 | 0 | 2019 | | 2024.03.23 | Àü¼¼ | ¹üÁøºô¶ó | 1 | 44.73 | 11,500 | 0 | 1993 | | 2024.03.23 | Àü¼¼ | ÀºÇϼö±×¸°ºô | 3 | 47.64 | 12,000 | 0 | 2002 | | 2024.03.23 | ¿ù¼¼ | ´õ-¶ó¿Â | 3 | 29.14 | 15,900 | 20 | 2018 | | 2024.03.23 | Àü¼¼ | ȯÈñŸ¿î°¡µ¿ | 2 | 48 | 15,100 | 0 | 2002 | | 2024.03.23 | ¿ù¼¼ | õÁöºô | 2 | 28.21 | 500 | 47 | 2001 | | 2024.03.23 | Àü¼¼ | ȯÈñŸ¿î°¡µ¿ | 2 | 48 | 14,800 | 0 | 2002 | | 2024.03.23 | Àü¼¼ | °¡³ª¾Æµ¨¸®¿ò(333-22) | 6 | 27.84 | 15,500 | 0 | 2014 | | 2024.03.23 | ¿ù¼¼ | ½º¸¶ÀϺô | 3 | 15.79 | 1,000 | 45 | 2013 | | 2024.03.23 | Àü¼¼ | °Å¼º | 3 | 43.92 | 16,000 | 0 | 1987 | | 2024.03.22 | Àü¼¼ | °æ¿ø³×¹öºô³ªµ¿(111-44) | 4 | 48.2 | 15,000 | 0 | 2002 | | 2024.03.22 | ¿ù¼¼ | »ï¿øÇÏÀÌÃ÷ºô¶ó(56-406) | 4 | 33 | 8,400 | 20 | 1994 | | 2024.03.22 | ¿ù¼¼ | ¿ì¼º¿¬¸³(1134-7) | 3 | 51.48 | 14,000 | 30 | 1985 | | 2024.03.22 | ¿ù¼¼ | ¹Ì·¡ºô¶óÆ® | 4 | 46 | 13,000 | 15 | 2000 | | 2024.03.22 | Àü¼¼ | »ï¼ºÁÖÅ󪵿 | 1 | 37.74 | 10,500 | 0 | 1991 | | 2024.03.22 | ¿ù¼¼ | ´õ±×¶ó½Ã¾Æ | 1 | 24.41 | 18,900 | 10 | 2022 | | 2024.03.22 | ¿ù¼¼ | ¹Ì·¡½ºÅ¸ºô5Â÷(464-10) | 3 | 41.37 | 12,000 | 20 | 2008 | | 2024.03.22 | Àü¼¼ | »ï¼º½¦¸£ºô(346-62) | 6 | 41.52 | 19,900 | 0 | 2017 | | 2024.03.22 | Àü¼¼ | (56-193) | 4 | 84.94 | 15,500 | 0 | 2008 | | 2024.03.22 | ¿ù¼¼ | »ï¼º¿¬¸³(56-61) | 1 | 73.68 | 100 | 20 | 1977 | | 2024.03.22 | Àü¼¼ | ´õ±×¶ó½Ã¾Æ | 2 | 19.85 | 18,900 | 0 | 2022 | | 2024.03.22 | ¿ù¼¼ | Ÿ¿îºô¸®Áö³ªµ¿ | 4 | 47.49 | 8,000 | 20 | 1991 | | 2024.03.22 | ¿ù¼¼ | ¿ì¼ººô¶ó | 3 | 53.37 | 12,000 | 45 | 2000 | | 2024.03.22 | Àü¼¼ | ¼ºµµºô¶ó(29-86) | 3 | 45.37 | 13,700 | 0 | 2000 | | 2024.03.22 | Àü¼¼ | ¹Ì·¡¿ø·ëÅÚ | 3 | 22.82 | 9,000 | 0 | 2012 | | 2024.03.22 | ¿ù¼¼ | ºí¸®½º´ÙÀÓºô | 4 | 25.83 | 5,000 | 85 | 2023 | | 2024.03.22 | ¿ù¼¼ | ¼ºÁøÅ¸¿î | 3 | 28.27 | 12,500 | 5 | 2012 | | 2024.03.22 | ¿ù¼¼ | ´õ¿ø | 2 | 28.97 | 12,000 | 50 | 2019 | | 2024.03.22 | ¿ù¼¼ | ´º±×¸°ÆÄÅ©ºô | 4 | 35.56 | 3,000 | 60 | 2010 | | 2024.03.22 | ¿ù¼¼ | ¼ºÁøÅ¸¿î | 3 | 28.27 | 12,500 | 5 | 2012 | | 2024.03.22 | ¿ù¼¼ | ½Å¿µ¸®Ä¡ºô | 3 | 29.76 | 10,000 | 50 | 2016 | | 2024.03.22 | Àü¼¼ | µ¿±¤ºô¶ó(988-11) | 5 | 33.44 | 11,000 | 0 | 2002 | | 2024.03.22 | Àü¼¼ | ¼ºÁøÅ¸¿î | 2 | 36.75 | 15,000 | 0 | 2012 | | 2024.03.22 | ¿ù¼¼ | ´õ±×¶ó½Ã¾Æ | 1 | 24.41 | 18,900 | 10 | 2022 | | 2024.03.22 | Àü¼¼ | µ¿µµÁÖÅà | -1 | 49.22 | 9,990 | 0 | 1996 | | 2024.03.22 | ¿ù¼¼ | Å·´ý±×·¹À̽º | 4 | 27.31 | 17,800 | 10 | 2018 | | 2024.03.22 | ¿ù¼¼ | õÁöºô | 2 | 31.68 | 500 | 47 | 2001 | | 2024.03.22 | Àü¼¼ | º®»êȨŸ¿î(466-4) | 5 | 41.2 | 10,500 | 0 | 2002 | | 2024.03.22 | ¿ù¼¼ | ¶óÇǾƳë | 4 | 28.95 | 5,000 | 90 | 2022 | | 2024.03.22 | ¿ù¼¼ | ÇÏÀÌ63 | 2 | 47.34 | 21,000 | 5 | 2018 | | 2024.03.22 | ¿ù¼¼ | »ï¼º½¦¸£ºô(346-62) | 4 | 27.41 | 2,000 | 97 | 2017 | | 2024.03.21 | ¿ù¼¼ | °æ¹Î¾ÆÆ®ºô(393-21) | 6 | 23.97 | 1,000 | 74 | 2017 | | 2024.03.21 | ¿ù¼¼ | °æ¹Î¾ÆÆ®ºô(393-21) | 6 | 23.97 | 1,000 | 74 | 2017 | | 2024.03.21 | Àü¼¼ | Àå¿øºô¶ó | -1 | 58.16 | 11,700 | 0 | 2000 | | 2024.03.21 | Àü¼¼ | Çö´ëºí·ç¹Ö | 5 | 31.91 | 18,300 | 0 | 2015 | | 2024.03.21 | ¿ù¼¼ | Á¤°¨Å¸¿îA(346-92) | 4 | 24.97 | 15,240 | 10 | 2015 | | 2024.03.21 | ¿ù¼¼ | Áß¾ÓÇÏÀÌŬ·¡½º | 5 | 61.62 | 13,000 | 30 | 2008 | | 2024.03.21 | ¿ù¼¼ | ºí¸®½º´ÙÀÓºô | 2 | 35.51 | 3,000 | 110 | 2023 | | 2024.03.21 | ¿ù¼¼ | ÇÁ¸®¸Þ¶ó(369-31) | 3 | 44.68 | 12,000 | 55 | 2014 | | 2024.03.21 | Àü¼¼ | Çö´ëºí·ç¹Ö | 5 | 31.91 | 18,300 | 0 | 2015 | | 2024.03.21 | ¿ù¼¼ | ¿¤¸®½Ã¾Æ | 4 | 28.71 | 7,000 | 50 | 2013 | | 2024.03.21 | Àü¼¼ | ¿ì¼ºÅ׸¶ºôBµ¿(407-3) | 4 | 37.535 | 11,900 | 0 | 2005 | | 2024.03.21 | Àü¼¼ | º¹Áöºô¶ó | 2 | 51.17 | 13,550 | 0 | 2002 | | 2024.03.21 | Àü¼¼ | ±×·¹À̽ººô | 3 | 26.83 | 34,000 | 0 | 2022 | | 2024.03.21 | Àü¼¼ | ȼººô¶óDµ¿ | -1 | 42.83 | 6,700 | 0 | 2002 | | 2024.03.21 | ¿ù¼¼ | ¿©¸íÇÏÀÌÃ÷ | 4 | 67.86 | 4,000 | 85 | 2000 | | 2024.03.21 | ¿ù¼¼ | ¿ùµåºô | 2 | 26.46 | 500 | 45 | 2002 | | 2024.03.21 | ¿ù¼¼ | ºí¸®½º´ÙÀÓºô | 3 | 35.51 | 5,000 | 100 | 2023 | | 2024.03.21 | Àü¼¼ | ±×·¹À̽ººô | 3 | 26.83 | 34,000 | 0 | 2022 | | 2024.03.21 | Àü¼¼ | ÇѽžÆÀ̸£ºô13Â÷Aµ¿,Bµ¿ | 3 | 62.89 | 22,270 | 0 | 2009 | | 2024.03.21 | ¿ù¼¼ | ¿Ã¶ó·çÁî | 6 | 25.46 | 5,000 | 85 | 2022 | | 2024.03.21 | Àü¼¼ | ÇѿᄒƼºô | 2 | 59.99 | 19,200 | 0 | 2010 | | 2024.03.21 | ¿ù¼¼ | º£½ºÆ®ºô¶ó | 1 | 41.92 | 3,000 | 50 | 1994 | | 2024.03.21 | ¿ù¼¼ | ŸíÆÄÅ©ºô¶ó | 3 | 44.16 | 1,500 | 65 | 1992 | | 2024.03.20 | Àü¼¼ | ¼øÈ¯ºô¶ó(46-47) | 5 | 47.69 | 14,600 | 0 | 2001 | | 2024.03.20 | ¿ù¼¼ | ·¡¾Èºô | 4 | 38.36 | 0 | 225 | 2020 | | 2024.03.20 | ¿ù¼¼ | »ï¼ººô¶óAµ¿(423-26) | 5 | 40.86 | 11,700 | 20 | 2002 | | 2024.03.20 | Àü¼¼ | ±â¿õº£½ºÆ®ºô | 1 | 61.02 | 19,000 | 0 | 2002 | | 2024.03.20 | Àü¼¼ | ±â¿õº£½ºÆ®ºô | 1 | 61.02 | 19,000 | 0 | 2002 | | 2024.03.20 | Àü¼¼ | º¸½Å½¦¸£ºôAµ¿ | 5 | 43.05 | 16,000 | 0 | 2002 | | 2024.03.20 | Àü¼¼ | ´ÙÀÎÇϿ콺 | 4 | 29.96 | 29,000 | 0 | 2022 | | 2024.03.20 | ¿ù¼¼ | (340-98) | 2 | 47.94 | 2,000 | 60 | 2003 | | 2024.03.20 | ¿ù¼¼ | À̳뼿(831-5¿Ü) | 3 | 36.24 | 3,000 | 100 | 2014 | | 2024.03.20 | Àü¼¼ | ¹Ì·¡ºô¶óÆ® | 2 | 61.23 | 20,000 | 0 | 2000 | | 2024.03.20 | ¿ù¼¼ | ÀÌȺô¶ó(73-81) | 2 | 42.16 | 2,000 | 75 | 1992 | | 2024.03.20 | ¿ù¼¼ | ¿µ¿ø | 4 | 36.1 | 1,000 | 53 | 2007 | | 2024.03.20 | Àü¼¼ | ¸®´õ½ºÅ¸¿î(397-6) | 6 | 27.57 | 16,200 | 0 | 2016 | | 2024.03.20 | ¿ù¼¼ | ¿µ¿ø | 4 | 36.1 | 1,000 | 53 | 2007 | | 2024.03.20 | Àü¼¼ | ¸®´õ½ºÅ¸¿î(397-6) | 6 | 27.57 | 16,200 | 0 | 2016 | | 2024.03.20 | Àü¼¼ | ¸®´õ½ºÅ¸¿î(397-6) | 6 | 27.57 | 16,500 | 0 | 2016 | | 2024.03.20 | Àü¼¼ | ¾Æ¸£¶¼ºô | 2 | 29.9 | 15,400 | 0 | 2017 | | 2024.03.20 | ¿ù¼¼ | dz¼º¾Ö¶ã¾È | 2 | 56.62 | 21,000 | 30 | 2016 | | 2024.03.20 | ¿ù¼¼ | ÇÁ¶óÀÓÇϿ콺(393-23) | 4 | 29.54 | 5,000 | 46 | 2016 | | 2024.03.20 | Àü¼¼ | À̵µÆÓ¸®½º | 3 | 24.36 | 21,600 | 0 | 2021 | | 2024.03.20 | Àü¼¼ | (24-23) | 2 | 48.21 | 13,800 | 0 | 2002 | | 2024.03.20 | ¿ù¼¼ | ¼º¼öºô¶ó | 2 | 74.325 | 3,000 | 100 | 2001 | | 2024.03.20 | ¿ù¼¼ | Çì½êµå | 3 | 29.53 | 2,000 | 105 | 2022 | | 2024.03.19 | Àü¼¼ | °¼·º½ººô | 3 | 39.79 | 13,000 | 0 | 2008 | | 2024.03.19 | ¿ù¼¼ | Çì½êµå | 3 | 29.53 | 100 | 120 | 2022 | | 2024.03.19 | ¿ù¼¼ | Çì½êµå | 4 | 58.48 | 100 | 155 | 2022 | | 2024.03.19 | Àü¼¼ | ³ª¸°ÇÏÀÓBµ¿(976-4) | 2 | 26.78 | 15,750 | 0 | 2017 | | 2024.03.19 | Àü¼¼ | ½Å¶óÇÏÀÌÃ÷(Bµ¿) | 4 | 56.44 | 15,700 | 0 | 2002 | | 2024.03.19 | ¿ù¼¼ | ·Ôµ¥Å¸¿î(352-2) | 2 | 27.2 | 12,000 | 27 | 2014 | | 2024.03.19 | Àü¼¼ | ³ª¸°ÇÏÀÓBµ¿(976-4) | 2 | 26.78 | 16,100 | 0 | 2017 | | 2024.03.19 | Àü¼¼ | ¼ºÀç¼¼ÀÎÆ®(342-84) | 7 | 30 | 15,870 | 0 | 2012 | | 2024.03.19 | ¿ù¼¼ | ¼±°æºô¶ó(870-54) | -1 | 63.18 | 2,000 | 65 | 2001 | | 2024.03.19 | Àü¼¼ | û¼ÛÆòÈÇコÇϿ콺(457-3) | 3 | 29.85 | 17,200 | 0 | 2015 | | 2024.03.19 | Àü¼¼ | żººô¶ó(46-40) | 2 | 40.56 | 13,000 | 0 | 2003 | | 2024.03.19 | Àü¼¼ | »õÇÑÇÏÀÌÃ÷ºô¶ó(338-8) | 2 | 65.27 | 19,000 | 0 | 1996 | | 2024.03.19 | Àü¼¼ | °õ´Þ·¡¸¶À» | 3 | 84.95 | 31,800 | 0 | 1998 | | 2024.03.19 | ¿ù¼¼ | ¿ÁÅäµå¸²ºô(488-40) | 3 | 37.76 | 2,000 | 60 | 2010 | | 2024.03.19 | Àü¼¼ | THEJIA | 2 | 29.6 | 24,800 | 0 | 2022 | | 2024.03.19 | Àü¼¼ | Å©¸®½ºÅ»ºô(24-490) | 5 | 29.56 | 19,500 | 0 | 2014 | | 2024.03.19 | Àü¼¼ | żººô¶ó(46-40) | 2 | 40.56 | 12,000 | 0 | 2003 | | 2024.03.19 | Àü¼¼ | °õ´Þ·¡¸¶À» | 3 | 84.95 | 30,000 | 0 | 1998 | | 2024.03.19 | ¿ù¼¼ | ¸íÁøÈÀÌÆ®ºô(397-7) | 4 | 42.75 | 2,000 | 70 | 2008 | | 2024.03.19 | ¿ù¼¼ | À̽ºÆ®Èú | 3 | 62.31 | 3,000 | 95 | 2003 | | 2024.03.19 | ¿ù¼¼ | °¼¹Ì¸®³× | 3 | 55.85 | 12,000 | 40 | 2001 | | 2024.03.19 | Àü¼¼ | ´õ¿ø | 4 | 28.05 | 23,200 | 0 | 2019 | | 2024.03.19 | Àü¼¼ | ´ë¿ø¾ÆÆ®ºôBµ¿ | 5 | 35.25 | 10,100 | 0 | 2003 | | 2024.03.19 | Àü¼¼ | (338-41) | -1 | 36.86 | 6,900 | 0 | 1986 | | 2024.03.19 | Àü¼¼ | Çý¼ºÆç¸®½º29Â÷(163-8) | 5 | 27.03 | 15,450 | 0 | 2014 | | 2024.03.19 | ¿ù¼¼ | °¼¹Ì¸®³× | 3 | 55.85 | 12,000 | 40 | 2001 | | 2024.03.19 | ¿ù¼¼ | ÇູŸ¿î(105-123) | 5 | 29.67 | 10,900 | 20 | 2010 | | 2024.03.19 | Àü¼¼ | °æÇѺô¶ó(56-261) | 2 | 58.11 | 13,000 | 0 | 1991 | | 2024.03.19 | Àü¼¼ | ¾ÆÁÙ¸®¿ò(1049-24) | 2 | 34.73 | 24,060 | 0 | 2018 | | 2024.03.19 | Àü¼¼ | ¾ÆÁÙ¸®¿ò(1049-24) | 2 | 34.73 | 24,440 | 0 | 2018 | | 2024.03.18 | ¿ù¼¼ | ºñ¹öÇϿ콺(42-57) | 5 | 40.05 | 10,000 | 20 | 2012 | | 2024.03.18 | Àü¼¼ | ¿ì¼º¿¬¸³(1134-7) | 3 | 51.3 | 14,500 | 0 | 1985 | | 2024.03.18 | Àü¼¼ | ¼ÀÈú | 3 | 45.46 | 13,100 | 0 | 2003 | | 2024.03.18 | Àü¼¼ | »ï¼º°ñµçºô | 2 | 29.97 | 15,000 | 0 | 2014 | | 2024.03.18 | ¿ù¼¼ | ¶óÀÌÇÁŸ¿î(55-23) | 5 | 21.34 | 10,060 | 10 | 2013 | | 2024.03.18 | ¿ù¼¼ | ºÀȲ¾ÆÆ® | 4 | 31.28 | 10,000 | 20 | 2002 | | 2024.03.18 | Àü¼¼ | Ȱ´Ù¼¼´ë | 2 | 53.69 | 14,800 | 0 | 2004 | | 2024.03.18 | Àü¼¼ | ÇýÀζ߶õä | 6 | 52.42 | 23,000 | 0 | 2017 | | 2024.03.18 | ¿ù¼¼ | ºÒ·çºô | -1 | 29.96 | 5,000 | 11 | 1997 | | 2024.03.18 | ¿ù¼¼ | »êÈ£¸Ç¼Ç5Â÷ | 5 | 37.8 | 10,900 | 30 | 2002 | | 2024.03.18 | Àü¼¼ | (367-83) | 1 | 29.54 | 7,900 | 0 | 1986 | | 2024.03.18 | Àü¼¼ | Á¤°¨ÇϿ콺 | 2 | 43.78 | 21,000 | 0 | 2016 | | 2024.03.18 | Àü¼¼ | Ȱ´Ù¼¼´ë | 2 | 53.69 | 14,490 | 0 | 2004 | | 2024.03.18 | ¿ù¼¼ | ¼ºÇöÇÏÀÌÃ÷ºô¶ó | 1 | 63.04 | 2,000 | 70 | 2001 | | 2024.03.18 | ¿ù¼¼ | ¾çÁö»þÀκô | 2 | 39.28 | 500 | 105 | 2019 | | 2024.03.18 | Àü¼¼ | ºñ¿¡½ºÇÏ¿ì¡ | 3 | 28.98 | 20,280 | 0 | 2018 | | 2024.03.18 | Àü¼¼ | Ȱ´Ù¼¼´ë | 2 | 53.69 | 14,800 | 0 | 2004 | | 2024.03.18 | Àü¼¼ | û¼ÛÆòÈÇÏÀ̸ǼÇ(55-15) | 5 | 42.86 | 12,800 | 0 | 2009 | | 2024.03.18 | Àü¼¼ | º£½ºÆ®ºô | 3 | 28.28 | 25,900 | 0 | 2019 | | 2024.03.17 | ¿ù¼¼ | ½Å¿µÆÄÅ©Aµ¿Bµ¿ | 1 | 58.78 | 3,000 | 70 | 2001 | | 2024.03.17 | Àü¼¼ | ¼Û¿øÄ³½½ | 6 | 42.1 | 24,000 | 0 | 2017 | | 2024.03.17 | ¿ù¼¼ | »ï¿øÇÇ¾ÆÆ®Bµ¿ | 2 | 62.25 | 10,000 | 20 | 2001 | | 2024.03.17 | Àü¼¼ | ½Å¼º¸®Ä¡ºô¥² | 6 | 37.72 | 19,600 | 0 | 2015 | | 2024.03.17 | ¿ù¼¼ | JEhouse | 2 | 29.7 | 5,500 | 85 | 2022 | | 2024.03.17 | Àü¼¼ | µ¿¾çÇÏ¿ì¡ | 6 | 38.65 | 22,500 | 0 | 2016 | | 2024.03.17 | Àü¼¼ | ºí¸®½º´ÙÀÓºô | 2 | 29.98 | 25,000 | 0 | 2023 | | 2024.03.17 | ¿ù¼¼ | ¼öÇÇ¾Æ | 7 | 32.33 | 4,000 | 40 | 2019 | | 2024.03.17 | Àü¼¼ | DS¿¡ÄÚŸ¿î(471-18) | 4 | 35.76 | 19,000 | 0 | 2014 | | 2024.03.16 | Àü¼¼ | ¼ö¾ÆÆ®ºô | 2 | 29.9 | 16,000 | 0 | 2015 | | 2024.03.16 | Àü¼¼ | ´õ¿øÇϿ콺 | 2 | 29.74 | 22,900 | 0 | 2023 | | 2024.03.16 | ¿ù¼¼ | ¿ÍÀ̾غñ | 6 | 28.68 | 100 | 85 | 2021 | | 2024.03.16 | Àü¼¼ | ºí·çÈú(788-4) | 4 | 42.01 | 22,000 | 0 | 2016 | | 2024.03.16 | Àü¼¼ | ÇѰ¡¶÷ºô(856-18) | 2 | 43.38 | 18,000 | 0 | 2012 | | 2024.03.16 | Àü¼¼ | ¿ì¼ºÅ׸¶ºô(1044-20) | 4 | 66.22 | 23,200 | 0 | 2006 | | 2024.03.16 | ¿ù¼¼ | (871-78) | 3 | 33.92 | 3,000 | 88 | 2024 | | 2024.03.16 | Àü¼¼ | °¼±×¸°ºô¶ó | 2 | 50.83 | 12,000 | 0 | 2001 | | 2024.03.16 | ¿ù¼¼ | Å¿µ¾ÆÆ®ºô(362-131) | 3 | 51.24 | 15,200 | 18 | 2002 | | 2024.03.16 | ¿ù¼¼ | µ¿¾çÁÖÅÃ(452-27) | 2 | 37.2 | 2,000 | 80 | 2001 | | 2024.03.16 | ¿ù¼¼ | º§¶óÇϿ콺(83-15) | 3 | 27.55 | 2,000 | 70 | 2015 | | 2024.03.16 | ¿ù¼¼ | Á¦ÀÌ¿¥ÆÓ¸®½º | 1 | 26.855 | 500 | 100 | 2021 | | 2024.03.16 | Àü¼¼ | »ï¼º½¦¸£ºô(881-36) | 6 | 29.99 | 19,000 | 0 | 2014 | | 2024.03.16 | Àü¼¼ | ´Ù¼ºÀÌÁîºô | 2 | 49.8 | 16,800 | 0 | 2008 | | 2024.03.16 | Àü¼¼ | ´ë¼±ÇÏÀ̺ô | 5 | 29.94 | 19,900 | 0 | 2019 | | 2024.03.16 | Àü¼¼ | ³²¼º¾ÆÆ®ºô(166-35) | 5 | 45.31 | 21,900 | 0 | 2013 | | 2024.03.16 | Àü¼¼ | ºí¸®½º´ÙÀÓºô | 4 | 24.82 | 25,500 | 0 | 2023 | | 2024.03.16 | Àü¼¼ | LGŸ¿î9Â÷ | 3 | 59.39 | 17,260 | 0 | 2002 | | 2024.03.16 | ¿ù¼¼ | Èѹ̸®ÇÏÀÌÃ÷(56-187) | 2 | 39.51 | 10,000 | 20 | 1994 | | 2024.03.16 | Àü¼¼ | ¿¡½ºÄÉÀ̺ô¸®Áö | 2 | 29.7 | 16,000 | 0 | 2016 | | 2024.03.16 | Àü¼¼ | ³²¼º¾ÆÆ®ºô(166-35) | 5 | 45.31 | 22,400 | 0 | 2013 | | 2024.03.15 | ¿ù¼¼ | ½Å¿µº£¸£µð¿ò | 6 | 17.86 | 5,000 | 60 | 2019 | | 2024.03.15 | ¿ù¼¼ | »ï¼º½¦¸£ºô(61-118) | 2 | 46.32 | 14,500 | 30 | 2008 | | 2024.03.15 | Àü¼¼ | »ï¼ºÈ¨Å¸¿î3Â÷ | 3 | 45.99 | 12,900 | 0 | 2001 | | 2024.03.15 | Àü¼¼ | ³²°ºô¶óBµ¿(55-60) | 2 | 44.22 | 12,000 | 0 | 1986 | | 2024.03.15 | Àü¼¼ | ÇØºñÄ¡ºô | 4 | 31.95 | 26,000 | 0 | 2019 | | 2024.03.15 | Àü¼¼ | °¼´õÈú(962-4) | 1 | 30.38 | 13,840 | 0 | 2013 | | 2024.03.15 | Àü¼¼ | ÇÏÀÌÆÄÅ©ºô | 2 | 39.13 | 12,000 | 0 | 2007 | | 2024.03.15 | ¿ù¼¼ | ¼øÈ¯·¹¹Ì¾ÈA | 2 | 38.79 | 12,000 | 10 | 2002 | | 2024.03.15 | Àü¼¼ | ÇØºñÄ¡ºô | 4 | 31.95 | 26,000 | 0 | 2019 | | 2024.03.15 | Àü¼¼ | °¡»ê½¦¸£ºô | 3 | 54.05 | 17,800 | 0 | 2009 | | 2024.03.15 | Àü¼¼ | Çѱæºô¶ó³ªµ¿ | -1 | 35.07 | 6,500 | 0 | 1986 | | 2024.03.15 | ¿ù¼¼ | Èľϸ®Ä¡ºô | 4 | 60.88 | 1,500 | 95 | 2008 | | 2024.03.15 | Àü¼¼ | ±×·£µåºôAµ¿(24-341) | 2 | 82.08 | 23,688 | 0 | 2003 | | 2024.03.15 | Àü¼¼ | ÇØ¼ºÆÓ¸®½ººôB | 4 | 34.32 | 9,700 | 0 | 2002 | | 2024.03.15 | Àü¼¼ | µÕÁö¾ÆÆ®(56-570) | 2 | 55.51 | 13,230 | 0 | 1997 | | 2024.03.15 | Àü¼¼ | »ï¼º½¦¸£ºô(351-17¹øÁö) | 6 | 40.62 | 19,400 | 0 | 2016 | | 2024.03.15 | Àü¼¼ | Áøº¸ºô¶ó(56-196) | 1 | 54.44 | 15,050 | 0 | 2003 | | 2024.03.15 | Àü¼¼ | ´ë¸²ÁÖÅà | 1 | 47.06 | 14,600 | 0 | 1986 | | 2024.03.15 | Àü¼¼ | THEJIA | 3 | 29.6 | 24,800 | 0 | 2022 | | 2024.03.15 | Àü¼¼ | Á¦À̽ººô(969-5) | 4 | 29.86 | 23,800 | 0 | 2022 | | 2024.03.15 | ¿ù¼¼ | ¸®Á¨Æ®¶ó¿ò | 3 | 27.52 | 3,000 | 80 | 2014 | | 2024.03.15 | Àü¼¼ | ¿Ã¶ó·çÁî(HOLALUZ) | 4 | 23.99 | 34,500 | 0 | 2022 | | 2024.03.15 | ¿ù¼¼ | Á¦ÀÌ¿¥ÆÓ¸®½º | 3 | 26.855 | 0 | 80 | 2021 | | 2024.03.15 | Àü¼¼ | »ïÈ£¾ÆÆ®ºô | 2 | 61.32 | 23,000 | 0 | 2003 | | 2024.03.15 | ¿ù¼¼ | ¼Ò´ã¹ë¸® | 2 | 29.14 | 10,000 | 40 | 2012 | | 2024.03.15 | Àü¼¼ | ±¤¼ºÇÏÀÌÃ÷ | 4 | 36.9 | 12,600 | 0 | 2003 | | 2024.03.15 | Àü¼¼ | ´Ù¿ìºô¶ó | 2 | 44.28 | 7,000 | 0 | 1993 | | 2024.03.15 | Àü¼¼ | ÇÁ¶óÀÓÇϿ콺(393-23) | 2 | 56.85 | 14,000 | 0 | 2016 | | 2024.03.15 | Àü¼¼ | ³²¿µ2µ¿ | -1 | 36.54 | 6,000 | 0 | 1989 | | 2024.03.14 | ¿ù¼¼ | ±îÄ¡»êÆÈ¶óÀ̽º | 1 | 28.455 | 14,100 | 13 | 2015 | | 2024.03.14 | ¿ù¼¼ | ¿ìȱ׸° | 4 | 26.98 | 11,000 | 20 | 2012 | | 2024.03.14 | ¿ù¼¼ | ±ÃÀüºô¶ó(56-145) | 1 | 37.96 | 9,900 | 12 | 1991 | | 2024.03.14 | Àü¼¼ | ±¤¸íºô¶ó(56-98) | -1 | 43.2 | 7,000 | 0 | 1991 | | 2024.03.14 | ¿ù¼¼ | Áß¾Ó | 4 | 39.76 | 12,500 | 15 | 2001 | | 2024.03.14 | Àü¼¼ | ¸¶´çºô¶ó | 4 | 60.66 | 15,700 | 0 | 1991 | | 2024.03.14 | ¿ù¼¼ | ³²¼º¾ÆÆ®ºô(367-65) | 7 | 35.47 | 5,000 | 100 | 2017 | | 2024.03.14 | Àü¼¼ | ½Ö¿ë±×¸°¸Ç¼Ç | 3 | 48.84 | 14,400 | 0 | 1995 | | 2024.03.14 | Àü¼¼ | Ǫ¸¥Ç³°æÃ¤ | 2 | 26.29 | 25,570 | 0 | 2022 | | 2024.03.14 | ¿ù¼¼ | ´Ù¿Âºô | 2 | 27.81 | 16,100 | 20 | 2018 | | 2024.03.14 | Àü¼¼ | û¼Ö¸Ç¼ÇBµ¿ | 2 | 58.94 | 18,500 | 0 | 2002 | | 2024.03.14 | ¿ù¼¼ | ½ºÅ丮ÇϿ콺(1014-23) | 3 | 12.64 | 500 | 57 | 2012 | | 2024.03.14 | Àü¼¼ | »ï¼ººô¶ó | -1 | 49.05 | 8,800 | 0 | 1991 | | 2024.03.14 | ¿ù¼¼ | LUCE¥±(·çüby¿¹¿ì) | 4 | 14.2 | 3,000 | 22 | 2012 | | 2024.03.14 | Àü¼¼ | ´õ¿ø7Â÷ | 4 | 27.5 | 22,000 | 0 | 2022 | | 2024.03.14 | ¿ù¼¼ | °¡³ª¾Æµ¨¸®¿ò(504-111) | 2 | 44.86 | 3,000 | 90 | 2015 | | 2024.03.14 | ¿ù¼¼ | À¯¸²ÆÄÅ©ºô(372-60) | 5 | 56.14 | 17,000 | 10 | 2010 | | 2024.03.14 | Àü¼¼ | ¸ñ¿øÁÖÅÃ(105-185) | 2 | 63.32 | 17,000 | 0 | 2002 | | 2024.03.14 | ¿ù¼¼ | »õ¼¿ïºô¶ó | 2 | 42.54 | 13,000 | 5 | 1987 | | 2024.03.14 | ¿ù¼¼ | ¹Ù·ÎÅ©ºô | 3 | 29.9 | 13,000 | 18 | 2014 | | 2024.03.13 | Àü¼¼ | ·ÎºóÇϿ콺 | 3 | 29.58 | 21,400 | 0 | 2018 | | 2024.03.13 | Àü¼¼ | ºí¸®½º´ÙÀÓºô | 3 | 29.12 | 25,000 | 0 | 2023 | | 2024.03.13 | Àü¼¼ | °Å¼º | 1 | 43.92 | 10,500 | 0 | 1987 | | 2024.03.13 | Àü¼¼ | ³²¼º¾ÆÆ®ºô(385-18) | 4 | 49.7 | 21,400 | 0 | 2011 | | 2024.03.13 | Àü¼¼ | (969-15) | 5 | 19.79 | 9,500 | 0 | 2015 | | 2024.03.13 | Àü¼¼ | HIGH-END480 | 4 | 29.91 | 25,600 | 0 | 2023 | | 2024.03.13 | ¿ù¼¼ | (430-8) | 3 | 24.57 | 500 | 60 | 2013 | | 2024.03.13 | Àü¼¼ | Áø¿µ½ÃƼÆÄÅ©ºô | 2 | 48.57 | 19,000 | 0 | 2010 | | 2024.03.13 | ¿ù¼¼ | Áß¿ø¸®Ã÷ºô | 3 | 29.77 | 300 | 10 | 2012 | | 2024.03.13 | ¿ù¼¼ | Á¦ÀÌ¿¥ÆÓ¸®½º | 2 | 26.855 | 100 | 95 | 2021 | | 2024.03.13 | ¿ù¼¼ | ȰÁÖÅÃ(1118-5) | 4 | 46.65 | 1,500 | 63 | 2002 | | 2024.03.13 | ¿ù¼¼ | Á¦ÀÌ¿¥ÆÓ¸®½º | 3 | 26.855 | 1,000 | 95 | 2021 | | 2024.03.13 | Àü¼¼ | ÇѺû½ºÄ«À̺ô | 4 | 40.54 | 15,200 | 0 | 2008 | | 2024.03.13 | Àü¼¼ | û¿ìÆÄÅ©ºô | 3 | 55.04 | 18,300 | 0 | 2008 | | 2024.03.13 | ¿ù¼¼ | Á¦ÀÌ¿¥ÆÓ¸®½º | 1 | 26.855 | 1,000 | 95 | 2021 | | 2024.03.13 | Àü¼¼ | ¿ì¼º±×¸°ºô¶ó | 4 | 36.15 | 12,100 | 0 | 1993 | | 2024.03.13 | Àü¼¼ | ¿Ã¶ó·çÁî(HOLALUZ) | 4 | 23.99 | 24,000 | 0 | 2022 | | 2024.03.13 | Àü¼¼ | ±×·¹À̽ººô | 3 | 27.73 | 36,900 | 0 | 2022 | | 2024.03.13 | ¿ù¼¼ | ¿µÁøºô¶ó5Â÷Bµ¿ | 4 | 59.85 | 1,000 | 80 | 2000 | | 2024.03.13 | ¿ù¼¼ | ¼øÈ¯ºô¶ó(46-47) | 2 | 46.84 | 12,000 | 20 | 2001 | | 2024.03.13 | Àü¼¼ | À̵µÆÓ¸®½º | 2 | 23.73 | 19,000 | 0 | 2021 | | 2024.03.13 | Àü¼¼ | ¿ì½Å·Î¾âºô¶ó(997-14) | -1 | 49.92 | 9,340 | 0 | 1991 | | 2024.03.13 | Àü¼¼ | º¹Áö±×¸°ºô5Â÷ | 2 | 32.64 | 8,000 | 0 | 2002 | | 2024.03.13 | ¿ù¼¼ | ºí·ç½ºÄ«À̺ô | 2 | 35.71 | 5,000 | 85 | 2016 | | 2024.03.13 | Àü¼¼ | À̵µÆÓ¸®½º | 2 | 23.73 | 19,000 | 0 | 2021 | | 2024.03.13 | Àü¼¼ | ÇѺû½ºÄ«À̺ô | 4 | 40.54 | 15,200 | 0 | 2008 | | 2024.03.12 | ¿ù¼¼ | 424-205 | 2 | 45.91 | 18,000 | 20 | 2016 | | 2024.03.12 | ¿ù¼¼ | Á¦ÀÌ¿¥ÆÓ¸®½º | 5 | 26.855 | 100 | 105 | 2021 | | 2024.03.12 | ¿ù¼¼ | Æ®¶ó¿òºô | 5 | 36.89 | 21,000 | 5 | 2012 | | 2024.03.12 | Àü¼¼ | ¶ó¿ò¸®Ã÷ºô | 5 | 28.91 | 15,200 | 0 | 2016 | | 2024.03.12 | Àü¼¼ | ¾ËÆæ½Ã¾Æºô | 2 | 47.48 | 20,000 | 0 | 2011 | | 2024.03.12 | Àü¼¼ | ±×·¹À̽º¾ÆÆ®ºô | 4 | 63 | 17,100 | 0 | 2002 | | 2024.03.12 | Àü¼¼ | ¾ÆÁÙ¸®¿ò(1049-24) | 2 | 34.73 | 24,400 | 0 | 2018 | | 2024.03.12 | Àü¼¼ | õ¿ì±×¸°ºô | -1 | 59.75 | 11,000 | 0 | 2001 | | 2024.03.12 | Àü¼¼ | ÁÖ½Å¾ÆÆ®ºôBµ¿ | 1 | 42.75 | 8,000 | 0 | 2003 | | 2024.03.12 | ¿ù¼¼ | Àº°¡¶÷ÆÓ¸®½º | 5 | 37.345 | 5,000 | 90 | 2022 | | 2024.03.12 | Àü¼¼ | (1164-0) | 3 | 18.36 | 12,000 | 0 | 2014 | | 2024.03.12 | Àü¼¼ | ¿¡ÀÌ¿øºô | 6 | 44.77 | 18,000 | 0 | 2012 | | 2024.03.12 | ¿ù¼¼ | ´ëµ¿ºô¶ó(61-74) | 3 | 47.52 | 2,000 | 70 | 2001 | | 2024.03.12 | ¿ù¼¼ | À̵µÆ®¶ó¿ò2 | 3 | 35.34 | 4,500 | 85 | 2018 | | 2024.03.12 | Àü¼¼ | ±×·¹À̽º¾ÆÆ®ºô | 4 | 63 | 16,700 | 0 | 2002 | | 2024.03.12 | ¿ù¼¼ | À¯Çöºô | 2 | 28.82 | 1,000 | 60 | 2016 | | 2024.03.12 | ¿ù¼¼ | ÀÎÅÍ½ÃÆ¼ºô¶ó(409-92) | 4 | 43.72 | 1,000 | 60 | 2002 | | 2024.03.12 | ¿ù¼¼ | 424-205 | 2 | 45.91 | 18,000 | 20 | 2016 | | 2024.03.12 | Àü¼¼ | ´Ù¼ºÀÌÁîºô | 2 | 52.15 | 17,250 | 0 | 2008 | | 2024.03.12 | Àü¼¼ | MÆç¸®Ã¼ | 2 | 36.49 | 24,150 | 0 | 2018 | | 2024.03.12 | ¿ù¼¼ | ºÀ½ººô | 3 | 11.22 | 500 | 45 | 2011 | | 2024.03.12 | Àü¼¼ | ÀÌ·¹½¦¸£ºô(1046-5) | 3 | 40.79 | 19,900 | 0 | 2014 | | 2024.03.12 | ¿ù¼¼ | ¿Ã¶ó·çÁî | 5 | 25.19 | 5,000 | 85 | 2022 | | 2024.03.12 | ¿ù¼¼ | °è¸íÀ§³Ê½º | 3 | 51.4 | 5,000 | 90 | 2010 | | 2024.03.12 | ¿ù¼¼ | ÁØÀÌÇϿ콺 | 4 | 41.98 | 3,000 | 100 | 2016 | | 2024.03.12 | ¿ù¼¼ | ºí¸®½º´ÙÀÓºô | 2 | 29.97 | 2,000 | 115 | 2023 | | 2024.03.12 | ¿ù¼¼ | û¼ÛÆòÈÇÏÀ̸ǼÇ(102-309) | 5 | 28.27 | 2,000 | 65 | 2014 | | 2024.03.12 | ¿ù¼¼ | ±Ù»óÇÁ¸®Áò¾ÆÆ®ºô | 4 | 55.3 | 20,000 | 20 | 2010 | | 2024.03.12 | ¿ù¼¼ | »ï¼º½¦¸£ºô | 3 | 58.23 | 200 | 35 | 2002 | | 2024.03.12 | ¿ù¼¼ | (997-13) | 3 | 31.65 | 1,000 | 57 | 2002 | | 2024.03.12 | ¿ù¼¼ | ¼¸í´õÆÛ½ºÆ® | 2 | 29.39 | 23,800 | 20 | 2019 | | 2024.03.11 | ¿ù¼¼ | Á¦ÀÌÆÓ¸®½º | 2 | 29.93 | 50 | 60 | 2020 | | 2024.03.11 | ¿ù¼¼ | û¼Û³ªµ¿ | 2 | 67.5 | 5,000 | 20 | 1991 | | 2024.03.11 | Àü¼¼ | ¿¤¾¾ºô | 5 | 51.96 | 15,800 | 0 | 2008 | | 2024.03.11 | Àü¼¼ | Çý¼ºÆÓ¸®½ººô(392-31) | 2 | 37.66 | 18,200 | 0 | 2014 | | 2024.03.11 | Àü¼¼ | (876-18) | 1 | 42.74 | 12,280 | 0 | 1986 | | 2024.03.11 | Àü¼¼ | °Å¼º | 1 | 43.92 | 10,000 | 0 | 1987 | | 2024.03.11 | Àü¼¼ | ȰîÇÁ¶óÀÓ | 9 | 20.73 | 11,800 | 0 | 2012 | | 2024.03.11 | Àü¼¼ | ½Ã¿ø¾ÆÆ®ºô¶óµ¿ | 5 | 45.54 | 12,600 | 0 | 2002 | | 2024.03.11 | Àü¼¼ | ´ë±Ùºô¶ó | 1 | 46.44 | 12,000 | 0 | 1990 | | 2024.03.11 | ¿ù¼¼ | ¾î¹ÝÇϿ콺 | 4 | 18.27 | 1,000 | 65 | 2018 | | 2024.03.11 | ¿ù¼¼ | °Å¼º | 3 | 43.56 | 1,000 | 75 | 1986 | | 2024.03.11 | Àü¼¼ | »ï¼º½¦¸£ºô(346-62) | 6 | 41.52 | 22,400 | 0 | 2017 | | 2024.03.11 | Àü¼¼ | »ï¼º½¦¸£ºô(346-62) | 6 | 41.52 | 19,900 | 0 | 2017 | | 2024.03.11 | Àü¼¼ | ´õ¿ø | 3 | 28.05 | 19,500 | 0 | 2019 | | 2024.03.11 | Àü¼¼ | µ¿Èºô¶ó6Â÷ | 3 | 27.59 | 7,000 | 0 | 1990 | | 2024.03.11 | Àü¼¼ | ¿¹°¡ºô | 2 | 43.08 | 17,000 | 0 | 2012 | | 2024.03.11 | ¿ù¼¼ | µ¿ÈÅ׸¶ºô¶ó | 3 | 59.61 | 16,000 | 10 | 2002 | | 2024.03.11 | ¿ù¼¼ | µ¿ÈÆÓ¸®½º | 4 | 29.38 | 0 | 85 | 2020 | | 2024.03.11 | Àü¼¼ | ¾¾Æ¼ÇϿ콺(376-21) | 4 | 47.54 | 18,000 | 0 | 2011 | | 2024.03.11 | Àü¼¼ | Çý¼ºÆÓ¸®½ººô(392-31) | 2 | 37.66 | 18,000 | 0 | 2014 | | 2024.03.11 | ¿ù¼¼ | ½Â¼®ÈÙŸ¿î(1050-0) | 2 | 67.66 | 2,000 | 40 | 2001 | | 2024.03.11 | ¿ù¼¼ | ȯÈñŸ¿î³ªµ¿ | 2 | 49.83 | 2,000 | 60 | 2002 | | 2024.03.11 | ¿ù¼¼ | Á¤¿¬Ã¤ | 3 | 22.265 | 2,000 | 50 | 2018 | | 2024.03.11 | Àü¼¼ | ¿Ã¶ó·çÁî(HOLALUZ) | 2 | 23.99 | 23,500 | 0 | 2022 | | 2024.03.11 | Àü¼¼ | ½Å¶óÇÏÀÌÃ÷ºô¶ó | 3 | 54.12 | 17,000 | 0 | 1992 | | 2024.03.11 | Àü¼¼ | Á¤¿ì¾ÆÆ®ºô¶ó | 2 | 58.08 | 13,000 | 0 | 1994 | | 2024.03.11 | Àü¼¼ | Ǫ¸¥Ç³°æÃ¤(351-24) | 5 | 40.27 | 22,300 | 0 | 2017 | | 2024.03.11 | Àü¼¼ | ´ë¸²Èúž(1016-3) | 1 | 44.63 | 18,000 | 0 | 2012 | | 2024.03.11 | ¿ù¼¼ | Á¤¾Èºô¶ó(362-49)³ªµ¿ | 2 | 67.06 | 2,000 | 90 | 2002 | | 2024.03.11 | Àü¼¼ | ¿¤¾¾ºô | 5 | 51.96 | 15,800 | 0 | 2008 | | 2024.03.11 | ¿ù¼¼ | Á¤¿ì¾ÆÆ®ºô¶ó | 2 | 58.08 | 13,000 | 22 | 1994 | | 2024.03.11 | Àü¼¼ | Çʸ³ÇϿ콺 | 2 | 29.84 | 14,700 | 0 | 2012 | | 2024.03.11 | ¿ù¼¼ | ¸íÀÎÁÖÅà | 4 | 77 | 5,000 | 100 | 2003 | | 2024.03.11 | Àü¼¼ | »ï¼º½¦¸£ºô(346-62) | 6 | 41.52 | 19,900 | 0 | 2017 | | 2024.03.11 | ¿ù¼¼ | Çö´ë¾ÆÆ®ºô¶ó(962-16) | 1 | 53.92 | 500 | 27 | 1990 | | 2024.03.11 | ¿ù¼¼ | ÅÂÇö¸Ç¼Ç | 2 | 49.76 | 1,000 | 80 | 2000 | | 2024.03.11 | Àü¼¼ | ¿¤¾¾ºô | 5 | 51.96 | 15,800 | 0 | 2008 | | 2024.03.11 | ¿ù¼¼ | ½Å¾È½¦¸£ºô | 2 | 64.37 | 13,000 | 22 | 2005 | | 2024.03.11 | ¿ù¼¼ | Àº°¡¶÷ÆÓ¸®½º | 3 | 31.29 | 1,000 | 110 | 2022 | | 2024.03.10 | ¿ù¼¼ | ÀÎÅÍ½ÃÆ¼ºô¶ó(56-705) | 3 | 60.12 | 13,000 | 20 | 2008 | | 2024.03.10 | ¿ù¼¼ | ÀÎÅÍ½ÃÆ¼ºô¶ó(56-705) | 3 | 60.12 | 13,000 | 20 | 2008 | | 2024.03.10 | Àü¼¼ | ¹Ý¼®village | 2 | 51.02 | 21,500 | 0 | 2019 | | 2024.03.10 | Àü¼¼ | Áß¾ÓÇÏÀÌÃ÷ºô | 3 | 60.38 | 19,150 | 0 | 2008 | | 2024.03.10 | ¿ù¼¼ | Á¦ÀÌ¿¥ÆÓ¸®½º | 4 | 26.855 | 1,000 | 95 | 2021 | | 2024.03.10 | Àü¼¼ | À¯Çöºô | 2 | 27.77 | 15,000 | 0 | 2016 | | 2024.03.10 | Àü¼¼ | Áß¾ÓÇÏÀÌÃ÷ºô | 3 | 60.38 | 19,300 | 0 | 2008 | | 2024.03.09 | ¿ù¼¼ | ±Ý°ÁÖÅà | 1 | 40.57 | 500 | 15 | 1988 | | 2024.03.09 | ¿ù¼¼ | ȼººô¶ó29Â÷ | 4 | 25.86 | 1,000 | 45 | 2001 | | 2024.03.09 | Àü¼¼ | ¾ÆÁÙ¸®¿ò(1049-24) | 5 | 26.24 | 19,278 | 0 | 2018 | | 2024.03.09 | Àü¼¼ | Áø¼ººô¶ó(164-6) | 3 | 59.25 | 15,600 | 0 | 1993 | | 2024.03.09 | ¿ù¼¼ | (462-15) | 2 | 55.21 | 1,000 | 30 | 1978 | | 2024.03.09 | Àü¼¼ | Áøº¸ºô¶ó(398-28) | 2 | 60.87 | 18,100 | 0 | 2001 | | 2024.03.09 | ¿ù¼¼ | Àº°¡¶÷ÆÓ¸®½º | 2 | 37.505 | 1,000 | 110 | 2022 | | 2024.03.09 | Àü¼¼ | È£ºøÇϿ콺(155-36¿Ü) | 3 | 29.7 | 14,860 | 0 | 2014 | | 2024.03.09 | ¿ù¼¼ | ¾¾Æ¼ÇϿ콺ºñµ¿ | 5 | 11.75 | 5,000 | 72 | 2017 | | 2024.03.09 | ¿ù¼¼ | ¹Ù¿ìÇϿ콺(895-10) | 2 | 13.64 | 500 | 45 | 2011 | | 2024.03.09 | ¿ù¼¼ | LUCE¥±(·çüby¿¹¿ì) | 5 | 14.2 | 3,000 | 21 | 2012 | | 2024.03.09 | Àü¼¼ | ¾ÆÁÙ¸®¿ò(1049-24) | 5 | 26.24 | 19,278 | 0 | 2018 | | 2024.03.09 | Àü¼¼ | »ç¶ûºô¶ó | 2 | 55.9 | 12,000 | 0 | 1991 | | 2024.03.09 | ¿ù¼¼ | ¿µÁøÁÖÅà | 5 | 29.91 | 11,000 | 65 | 2023 | | 2024.03.09 | ¿ù¼¼ | ´º¿ùµåºô¶ó | 4 | 52.17 | 13,000 | 0 | 1998 | | 2024.03.09 | Àü¼¼ | Ǫ¸¥Ç³°æÃ¤ | 6 | 26.29 | 25,570 | 0 | 2022 | | 2024.03.09 | Àü¼¼ | ºñ¿£ÄÉÀÌÇϿ콺 | 5 | 29.9 | 23,800 | 0 | 2023 | | 2024.03.09 | Àü¼¼ | »õÇÑÁÖÅà | 1 | 62.5 | 16,300 | 0 | 1999 | | 2024.03.09 | ¿ù¼¼ | ÀÚ¶óÇϿ콺(366-19) | 4 | 42.36 | 3,000 | 85 | 2014 | | 2024.03.09 | Àü¼¼ | Å¿ø¿¬¸³ | 3 | 40.53 | 11,700 | 0 | 1981 | | 2024.03.09 | ¿ù¼¼ | º§¶óÇϿ콺 | 3 | 28.94 | 12,000 | 22 | 2012 | | 2024.03.09 | ¿ù¼¼ | (56-463) | 1 | 44.25 | 1,500 | 40 | 1990 | | 2024.03.09 | Àü¼¼ | ³×½ºÆ®ºô2Â÷ | 1 | 54.2 | 17,000 | 0 | 2008 | | 2024.03.09 | ¿ù¼¼ | »ç¶ûºô¶ó | 2 | 55.9 | 12,000 | 20 | 1991 | | 2024.03.09 | Àü¼¼ | È£ºøÇϿ콺(155-36¿Ü) | 3 | 29.7 | 14,860 | 0 | 2014 | | 2024.03.09 | ¿ù¼¼ | »ï¼º½¦¸£ºô(346-62) | 2 | 29.52 | 16,380 | 15 | 2017 | | 2024.03.09 | Àü¼¼ | ¸þºñ¿ì½º(156-12) | 6 | 34.45 | 17,500 | 0 | 2012 | | 2024.03.09 | Àü¼¼ | ±îÄ¡ºô¶ó(56-74) | 3 | 36.54 | 10,000 | 0 | 1991 | | 2024.03.09 | Àü¼¼ | ¸þºñ¿ì½º(156-12) | 6 | 34.45 | 17,500 | 0 | 2012 | | 2024.03.09 | Àü¼¼ | Å©¸®½ºÅ»ºô(24-490) | 2 | 28.39 | 13,500 | 0 | 2014 | | 2024.03.09 | Àü¼¼ | ¸þºñ¿ì½º(156-12) | 6 | 34.45 | 17,600 | 0 | 2012 | | 2024.03.09 | ¿ù¼¼ | ´º¿ùµåºô¶ó | 4 | 52.17 | 13,000 | 25 | 1998 | | 2024.03.09 | Àü¼¼ | ±¤¸íºô¶ó7Â÷(56-162) | 2 | 45.81 | 11,000 | 0 | 1994 | | 2024.03.09 | ¿ù¼¼ | ¶ó¿Âºô(341-21) | 2 | 25.65 | 2,000 | 70 | 2017 | | 2024.03.09 | ¿ù¼¼ | Ȱî»ç¶ûºô | 3 | 37.98 | 10,000 | 20 | 2011 | | 2024.03.09 | ¿ù¼¼ | ºäƼ½¦¸£ºô353 | 4 | 26.9 | 17,200 | 15 | 2017 | | 2024.03.09 | ¿ù¼¼ | ´Ù¿Âºô | 4 | 27.81 | 16,100 | 13 | 2018 | | 2024.03.09 | ¿ù¼¼ | (29-171) | 4 | 29.39 | 2,000 | 65 | 2020 | | 2024.03.09 | ¿ù¼¼ | ÇѱæÁÖÅà | 1 | 38.53 | 1,000 | 55 | 1986 | | 2024.03.09 | ¿ù¼¼ | °æµ¿ÁÖÅà | 1 | 16.4 | 300 | 300 | 2002 | | 2024.03.09 | ¿ù¼¼ | µµ¿ø¼ÖºñÄ¡ | 4 | 29.97 | 14,490 | 18 | 2015 | | 2024.03.09 | Àü¼¼ | È£ºøÇϿ콺(155-36¿Ü) | 3 | 29.7 | 14,860 | 0 | 2014 | | 2024.03.09 | ¿ù¼¼ | (29-171) | 2 | 28.6 | 1,000 | 60 | 2020 | | 2024.03.09 | ¿ù¼¼ | ¸¶·ç | 3 | 29.93 | 3,000 | 80 | 2017 | | 2024.03.08 | Àü¼¼ | ¼Çغô¶ó(56-73) | 1 | 32.37 | 8,600 | 0 | 1991 | | 2024.03.08 | Àü¼¼ | ±¹¹Î½¦¸£ºô2 | 2 | 29.21 | 13,980 | 0 | 2016 | | 2024.03.08 | Àü¼¼ | ¼Çغô¶ó(56-73) | 1 | 32.37 | 8,600 | 0 | 1991 | | 2024.03.08 | Àü¼¼ | ¿¤¿¡½ººô | 1 | 26.46 | 14,985 | 0 | 2016 | | 2024.03.08 | ¿ù¼¼ | ´Ù¾Èºô¶óÆ® | 6 | 53.62 | 500 | 92 | 2016 | | 2024.03.08 | ¿ù¼¼ | casagio | 3 | 27.98 | 3,000 | 80 | 2019 | | 2024.03.08 | Àü¼¼ | ´õ¿ø·¹¿Àºô | 2 | 29.04 | 22,680 | 0 | 2021 | | 2024.03.08 | Àü¼¼ | MAROO | 5 | 23.09 | 24,300 | 0 | 2019 | | 2024.03.08 | Àü¼¼ | ¼Çغô¶ó(56-73) | 1 | 32.37 | 8,600 | 0 | 1991 | | 2024.03.08 | Àü¼¼ | ¼Çغô¶ó(56-73) | 1 | 32.37 | 8,600 | 0 | 1991 | | 2024.03.08 | ¿ù¼¼ | ´õ¶ó¿Â | 1 | 29.63 | 800 | 97 | 2019 | | 2024.03.08 | ¿ù¼¼ | ½Ã±×´ÏÃÄ-S | 4 | 29.46 | 4,000 | 85 | 2023 | | 2024.03.08 | ¿ù¼¼ | Áß¾ÓÆÄÅ©¸Ç¼Ç | 2 | 66.9 | 17,760 | 10 | 1999 | | 2024.03.08 | Àü¼¼ | ¿¹¼º±×¸°Ä³½½1Â÷ | 3 | 48.02 | 13,100 | 0 | 2003 | | 2024.03.08 | Àü¼¼ | ÇÑÁøÅ¾½ººô | 4 | 68.97 | 18,700 | 0 | 2000 | | 2024.03.08 | ¿ù¼¼ | ½ÅÇϿ콺 | 7 | 29.88 | 14,900 | 17 | 2016 | | 2024.03.08 | ¿ù¼¼ | ´õ½ºÀ§Æ®(73-78) | 6 | 24.16 | 3,000 | 75 | 2022 | | 2024.03.08 | ¿ù¼¼ | ´Ù¼ØAµ¿(381-2¿Ü) | 6 | 25.12 | 2,000 | 85 | 2015 | | 2024.03.08 | Àü¼¼ | »ï¼º½¦¸£ºô(346-62) | 4 | 29.96 | 17,510 | 0 | 2017 | | 2024.03.08 | Àü¼¼ | MAROO | 5 | 23.09 | 24,300 | 0 | 2019 | | 2024.03.07 | ¿ù¼¼ | ¾¾Æ¼ÇϿ콺(773-10) | 3 | 29.86 | 1,000 | 80 | 2014 | | 2024.03.07 | ¿ù¼¼ | À̾ÈÁÖÅÃ(457-23) | 1 | 54.41 | 17,700 | 10 | 2008 | | 2024.03.07 | Àü¼¼ | À̾ÈÁÖÅÃ(457-23) | 1 | 54.41 | 17,700 | 0 | 2008 | | 2024.03.07 | ¿ù¼¼ | ´ë¼ºÄÉÀÌÁ¦ÀÌ | 11 | 29.06 | 3,000 | 100 | 2020 | | 2024.03.07 | Àü¼¼ | ¿ìÇöÆç¸®½º | 3 | 36.08 | 19,000 | 0 | 2016 | | 2024.03.07 | Àü¼¼ | ³ª·¡ÈÀÌÆ®ºô | 3 | 62.34 | 18,200 | 0 | 2004 | | 2024.03.07 | Àü¼¼ | ¿¡½º¿¥ÆÄÅ©ºô | 5 | 38.24 | 26,550 | 0 | 2018 | | 2024.03.07 | Àü¼¼ | »ï¿øºô¶ó(348-8) | 2 | 45.56 | 16,800 | 0 | 1997 | | 2024.03.07 | ¿ù¼¼ | ´õȨ | 5 | 16.31 | 500 | 46 | 2015 | | 2024.03.07 | Àü¼¼ | º£¸£µ¥ÇÇ¾Æ | 4 | 46.08 | 22,000 | 0 | 2016 | | 2024.03.07 | Àü¼¼ | À̵µÆÓ¸®½º | 2 | 24.36 | 21,600 | 0 | 2021 | | 2024.03.07 | Àü¼¼ | û¼ÛÆòÈÇコŸ¿ö | 13 | 33.5 | 20,948 | 0 | 2017 | | 2024.03.07 | ¿ù¼¼ | Æ®¸®ºô¸®Áö | 6 | 41.09 | 110 | 110 | 2021 | | 2024.03.07 | ¿ù¼¼ | Æç¸®Ã¼ÇϿ콺 | 4 | 52.83 | 20,000 | 15 | 2012 | | 2024.03.07 | Àü¼¼ | Å©¸®½ºÅ»ºô(354-21) | 2 | 29.1 | 13,900 | 0 | 2014 | | 2024.03.07 | ¿ù¼¼ | Áß¾Óºô¶ó | 3 | 31.47 | 3,500 | 35 | 2003 | | 2024.03.07 | ¿ù¼¼ | ±Û·Î¸®¾ÆÇϿ콺 | 3 | 27.52 | 5,000 | 75 | 2021 | | 2024.03.07 | ¿ù¼¼ | ´Ù¿Âºô | 2 | 27.81 | 16,100 | 10 | 2018 | | 2024.03.06 | ¿ù¼¼ | ¸ð´øºô(410-36) | 4 | 66.02 | 3,000 | 70 | 2002 | | 2024.03.06 | ¿ù¼¼ | ¿ÍÀ̾غñ(370-16) | 2 | 27.65 | 1,000 | 80 | 2015 | | 2024.03.06 | ¿ù¼¼ | ÀÌÈÇØµçºô(56-192) | 5 | 54.78 | 2,000 | 75 | 2010 | | 2024.03.06 | Àü¼¼ | ȼººô¶óAµ¿(56-323) | -1 | 34.17 | 6,000 | 0 | 2001 | | 2024.03.06 | Àü¼¼ | ½Å¼¼°èµå¸²ºô | 3 | 64.25 | 23,000 | 0 | 2002 | | 2024.03.06 | ¿ù¼¼ | Àå¼öÇϿ콺 | 4 | 44.52 | 1,000 | 57 | 2004 | | 2024.03.06 | ¿ù¼¼ | (367-84) | -1 | 40.81 | 300 | 32 | 1986 | | 2024.03.06 | Àü¼¼ | (1164-0) | 4 | 18.36 | 12,000 | 0 | 2014 | | 2024.03.06 | Àü¼¼ | À̳뼿 | 5 | 28.39 | 21,240 | 0 | 2016 | | 2024.03.06 | ¿ù¼¼ | ȼººô¶ó´Ùµ¿ | 2 | 46.8 | 2,500 | 60 | 2003 | | 2024.03.06 | Àü¼¼ | Á¤ÀºÆÄÅ©ºô | 2 | 41.92 | 19,000 | 0 | 2016 | | 2024.03.06 | ¿ù¼¼ | °è¸íÀ§³Ê½º(105-55) | 5 | 70.85 | 15,000 | 30 | 2011 | | 2024.03.06 | Àü¼¼ | ½ÅÁøºô¶ó | 3 | 59.24 | 7,500 | 0 | 1998 | | 2024.03.06 | ¿ù¼¼ | û»êºô¶ó(352-50) | -1 | 59.11 | 10,600 | 20 | 1996 | | 2024.03.06 | ¿ù¼¼ | ÇÑ¿ïÀÚÀ̺ô | 2 | 46.28 | 10,470 | 25 | 2007 | | 2024.03.06 | Àü¼¼ | ¿¡À̽ººô¶óÆ® | 3 | 40 | 11,440 | 0 | 2001 | | 2024.03.06 | Àü¼¼ | ½Å¼ººô¶ó | 2 | 73.01 | 19,600 | 0 | 1990 | | 2024.03.06 | Àü¼¼ | Á¦ÀÌÁ¦ÀÌij½½ | 5 | 29.5 | 20,000 | 0 | 2016 | | 2024.03.06 | ¿ù¼¼ | ½Å¿ø¾ÆÆ®ºô¶ó | 1 | 65.86 | 16,700 | 15 | 2001 | | 2024.03.06 | Àü¼¼ | ÈúÇϿ콺A,Bµ¿ | 3 | 51.2 | 17,000 | 0 | 2011 | | 2024.03.06 | Àü¼¼ | Ǫ¸¥Ç³°æÃ¤ | 5 | 26.29 | 25,570 | 0 | 2022 | | 2024.03.06 | ¿ù¼¼ | ´ë¿ø¸Ç¼Ç | 1 | 59.32 | 5,000 | 60 | 2001 | | 2024.03.05 | ¿ù¼¼ | »ï¼ººô¶óBµ¿ | 5 | 21.32 | 500 | 55 | 2002 | | 2024.03.05 | ¿ù¼¼ | û¼ÛÆòÈÇÏÀ̸ǼÇBµ¿(866-16) | 1 | 57.1 | 12,000 | 25 | 2001 | | 2024.03.05 | ¿ù¼¼ | û¼ÛÆòÈÇÏÀ̸ǼÇBµ¿(866-16) | 1 | 57.1 | 12,000 | 25 | 2001 | | 2024.03.05 | ¿ù¼¼ | ´ëÁÖ½¦¸£ºô | 1 | 61.96 | 14,800 | 15 | 2002 | | 2024.03.05 | ¿ù¼¼ | ´Ù³ª³×½ºÆ®ºô(56-379) | 5 | 41.32 | 12,000 | 23 | 2008 | | 2024.03.05 | ¿ù¼¼ | À¯ÇѺô | 6 | 29.25 | 200 | 70 | 2016 | | 2024.03.05 | Àü¼¼ | ¿Ã¶ó·çÁî(HOLALUZ) | 4 | 23.99 | 26,300 | 0 | 2022 | | 2024.03.05 | Àü¼¼ | ¿Ã¶ó·çÁî(HOLALUZ) | 4 | 23.99 | 26,300 | 0 | 2022 | | 2024.03.05 | Àü¼¼ | ¿¡½ºÄÉÀÌÆÄÅ©¸®¿ò(157-21) | 3 | 29.39 | 23,800 | 0 | 2020 | | 2024.03.05 | ¿ù¼¼ | µµ¾çºô¶ó | 3 | 69.965 | 2,000 | 90 | 2000 | | 2024.03.05 | ¿ù¼¼ | ¼Ò´ã¹ë¸®½ºBµ¿ | 3 | 29.75 | 1,000 | 80 | 2013 | | 2024.03.05 | Àü¼¼ | ½ºÀ§Æ®ºô(102-82) | 2 | 42.1 | 13,400 | 0 | 2008 | | 2024.03.05 | ¿ù¼¼ | ¸®Ä¡ÇϿ콺(346-18) | 4 | 26.26 | 16,600 | 15 | 2017 | | 2024.03.05 | Àü¼¼ | ¼±°æºôŸ¿î | 4 | 59.22 | 15,876 | 0 | 2001 | | 2024.03.05 | ¿ù¼¼ | ¶ó¿Âºô¸®Áö(397-3) | 4 | 24.42 | 3,000 | 60 | 2016 | | 2024.03.05 | ¿ù¼¼ | ÀÎÅÍ½ÃÆ¼Aµ¿(391-17) | 1 | 58.68 | 5,000 | 80 | 2001 | | 2024.03.05 | Àü¼¼ | ¼±°æºôŸ¿î | 4 | 59.22 | 16,000 | 0 | 2001 | | 2024.03.05 | ¿ù¼¼ | MONO(1044-11) | 3 | 29.91 | 1,000 | 75 | 2012 | | 2024.03.05 | ¿ù¼¼ | »ïȺô¸®Áö | 4 | 47.43 | 500 | 45 | 2017 | | 2024.03.05 | Àü¼¼ | À̰æ¼÷´Ù¼¼´ë | 3 | 58.51 | 19,000 | 0 | 2003 | | 2024.03.05 | Àü¼¼ | ¿¡½º¿¥ÆÄÅ©ºô | 5 | 38.24 | 26,550 | 0 | 2018 | | 2024.03.05 | Àü¼¼ | ³²ÇØ(352-58) | -1 | 36.59 | 6,690 | 0 | 1991 | | 2024.03.04 | ¿ù¼¼ | ¹Ý¼®ÇϿ콺 | 3 | 54.96 | 15,000 | 11 | 2012 | | 2024.03.04 | Àü¼¼ | ·ÎÁîºô(24-113) | 3 | 38.115 | 20,790 | 0 | 2018 | | 2024.03.04 | Àü¼¼ | Çϳªºô | 2 | 41.49 | 12,800 | 0 | 2008 | | 2024.03.04 | ¿ù¼¼ | ºÎÀϽ¦¸£ºôCµ¿ | 5 | 49.22 | 12,000 | 10 | 2002 | | 2024.03.04 | Àü¼¼ | ÈúŸ¿î(151-8) | 2 | 46.25 | 13,000 | 0 | 2002 | | 2024.03.04 | ¿ù¼¼ | ´õ½ºÀ§Æ®(457-20) | 3 | 29.16 | 5,000 | 70 | 2022 | | 2024.03.04 | ¿ù¼¼ | ¿¬¿ì³Ø½ºÆ®ºä | 13 | 13.16 | 13,000 | 7 | 2018 | | 2024.03.04 | ¿ù¼¼ | ·ÎºóÇϿ콺 | 2 | 25.69 | 2,000 | 70 | 2018 | | 2024.03.04 | ¿ù¼¼ | Æú¶óºñ¿¤ | 2 | 46.84 | 500 | 130 | 2017 | | 2024.03.04 | Àü¼¼ | ´ö¼ö±Ã(961-14) | 4 | 31.65 | 10,000 | 0 | 2007 | | 2024.03.04 | ¿ù¼¼ | »ï¼º½¦¸£ºô(400-16) | 6 | 29.31 | 16,600 | 15 | 2015 | | 2024.03.04 | Àü¼¼ | ÈúŸ¿î(151-8) | 2 | 46.25 | 13,000 | 0 | 2002 | | 2024.03.04 | ¿ù¼¼ | Çϳªºô | 5 | 41.28 | 2,000 | 60 | 2008 | | 2024.03.04 | Àü¼¼ | ¿Ã¶ó·çÁî(HOLALUZ) | 4 | 23.99 | 34,500 | 0 | 2022 | | 2024.03.04 | Àü¼¼ | ¿Ã¶ó·çÁî(HOLALUZ) | 4 | 23.99 | 34,500 | 0 | 2022 | | 2024.03.04 | Àü¼¼ | ºäƼ½¦¸£ºô353 | 3 | 45.93 | 23,100 | 0 | 2017 | | 2024.03.04 | Àü¼¼ | ¼ºÁøºô¶ó(352-4) | 2 | 61.47 | 17,500 | 0 | 2000 | | 2024.03.04 | ¿ù¼¼ | SKºô¸®Áö | 2 | 29.94 | 5,500 | 60 | 2015 | | 2024.03.04 | ¿ù¼¼ | Á¤Çöºô¶ó | 2 | 50.07 | 2,000 | 85 | 2000 | | 2024.03.04 | ¿ù¼¼ | ¿À¼ÖÁÖÅà | 3 | 52.92 | 10,000 | 30 | 2002 | | 2024.03.04 | ¿ù¼¼ | ±¤Áøºô¶ó | -1 | 61.82 | 2,000 | 60 | 1993 | | 2024.03.04 | ¿ù¼¼ | (29-171) | 3 | 28.6 | 1,000 | 60 | 2020 | | 2024.03.04 | ¿ù¼¼ | (56-193) | 3 | 40.32 | 2,000 | 50 | 2008 | | 2024.03.04 | Àü¼¼ | À£ÇϿ콺 | 1 | 63.12 | 14,000 | 0 | 2008 | | 2024.03.04 | ¿ù¼¼ | À̰¡Ã¤(400-95) | 4 | 29.85 | 5,000 | 72 | 2012 | | 2024.03.04 | ¿ù¼¼ | ºí·çÈú(846-14) | 3 | 25.83 | 2,000 | 105 | 2021 | | 2024.03.04 | ¿ù¼¼ | ¿ÀÄÉÀÌÆÄÅ©ºô(932-8) | 4 | 28.71 | 14,868 | 15 | 2015 | | 2024.03.04 | Àü¼¼ | ¿¡½ºÄÉÀÌÆÄÅ©¸®¿ò101µ¿102µ¿ | 2 | 46.87 | 34,600 | 0 | 2022 | | 2024.03.04 | Àü¼¼ | ¿¥Æç¸®Ã¼¿¡À̵¿ | 2 | 28.4 | 17,500 | 0 | 2016 | | 2024.03.03 | Àü¼¼ | ´ë·úŸ¿î | 7 | 29.07 | 16,800 | 0 | 2017 | | 2024.03.03 | Àü¼¼ | Ǫ¸¥Ç³°æÃ¤(351-24) | 2 | 40.66 | 22,000 | 0 | 2017 | | 2024.03.03 | ¿ù¼¼ | Çϳª½¦¸£ºô | 4 | 29.96 | 2,000 | 60 | 2013 | | 2024.03.03 | ¿ù¼¼ | Çϳª½¦¸£ºô | 4 | 29.96 | 2,000 | 60 | 2013 | | 2024.03.03 | ¿ù¼¼ | Áß¾Ó | 3 | 39.76 | 5,000 | 50 | 2001 | | 2024.03.03 | ¿ù¼¼ | ·Î¿¤ | 6 | 29.15 | 5,000 | 125 | 2022 | | 2024.03.03 | ¿ù¼¼ | °ø¿øÇÏÀ̺ô(56-179) | 3 | 39.21 | 200 | 60 | 2012 | | 2024.03.03 | ¿ù¼¼ | ·Î¿¤ | 6 | 29.15 | 5,000 | 125 | 2022 | | 2024.03.03 | Àü¼¼ | Ǫ¸¥Ç³°æÃ¤ | 6 | 29.98 | 29,230 | 0 | 2022 | | 2024.03.02 | Àü¼¼ | ´õ½ºÀ§Æ®(TheSuite) | 4 | 15.74 | 14,660 | 0 | 2021 | | 2024.03.02 | Àü¼¼ | ½Å¼ºÁÖÅÃ(46-17) | 4 | 37.49 | 15,600 | 0 | 2011 | | 2024.03.02 | Àü¼¼ | À̵µÆÓ¸®½º | 6 | 29.98 | 25,000 | 0 | 2021 | | 2024.03.02 | Àü¼¼ | ÇѺûÀ§³Ê½ººô(966-20) | 3 | 50.85 | 16,000 | 0 | 2008 | | 2024.03.02 | Àü¼¼ | ´õ½ºÀ§Æ®(TheSuite) | 4 | 15.74 | 14,860 | 0 | 2021 | | 2024.03.02 | Àü¼¼ | Á¦ÀÌÁ¦ÀÌij½½ | 4 | 24.7 | 16,800 | 0 | 2016 | | 2024.03.02 | ¿ù¼¼ | °æ¿øÁÖÅà | 3 | 69.51 | 19,000 | 5 | 2001 | | 2024.03.02 | Àü¼¼ | (1164-0) | 3 | 21.16 | 13,300 | 0 | 2014 | | 2024.03.02 | ¿ù¼¼ | Å¿µ¾ÆÆ®ºô(371-26) | 4 | 53.32 | 14,300 | 15 | 2002 | | 2024.03.02 | ¿ù¼¼ | °æ¿øÁÖÅà | 3 | 69.51 | 19,000 | 5 | 2001 | | 2024.03.02 | Àü¼¼ | (1164-0) | 3 | 21.16 | 13,300 | 0 | 2014 | | 2024.03.02 | Àü¼¼ | ÇØ¼ºÆÓ¸®½º3Â÷ | 2 | 61.12 | 16,380 | 0 | 2001 | | 2024.03.02 | Àü¼¼ | °¡¿Âºô | 5 | 27 | 14,900 | 0 | 2014 | | 2024.03.01 | ¿ù¼¼ | »þÀδõÈúȰî | 6 | 29.53 | 1,000 | 110 | 2023 | | 2024.03.01 | ¿ù¼¼ | ½Å¿µº£¸£µð¿ò | 2 | 32.71 | 2,000 | 90 | 2019 | | 2024.03.01 | Àü¼¼ | Ǫ¸¥Ç³°æÃ¤ | 4 | 26.29 | 25,570 | 0 | 2022 | | 2024.03.01 | ¿ù¼¼ | ÀºÇÏÇÁ¸®¸Þ¶ó | 5 | 28.61 | 1,000 | 70 | 2013 | | 2024.03.01 | ¿ù¼¼ | ÇüÁ¦ÁÖÅÃAµ¿(56-374) | 1 | 44.46 | 1,500 | 30 | 1990 | | 2024.03.01 | Àü¼¼ | ¿µÆç¸®½º | 3 | 40.05 | 13,000 | 0 | 2008 | | 2024.03.01 | ¿ù¼¼ | ¿©¸íÇÏÀÌÃ÷ºô¶ó | -1 | 59.95 | 4,000 | 73 | 1998 | | 2024.03.01 | ¿ù¼¼ | ¼ºÁøÅ¸¿îBµ¿(56-640) | 4 | 49.94 | 13,000 | 10 | 2001 | | 2024.03.01 | Àü¼¼ | ¿ÍÀ̾غñ | 2 | 25.61 | 16,600 | 0 | 2017 | | 2024.03.01 | Àü¼¼ | Á¦ÀÌÅõ¸®´õ½º | 4 | 27.58 | 22,000 | 0 | 2019 | | 2024.03.01 | Àü¼¼ | °æÀκô¶óBµ¿ | 5 | 54.09 | 14,700 | 0 | 2001 | | 2024.03.01 | Àü¼¼ | º¸±¤¾ÆÆ®ºô | 3 | 45.11 | 14,400 | 0 | 2004 | | 2024.03.01 | Àü¼¼ | ¹Ð·¹´Ï¾ö(46-391) | 3 | 49.23 | 16,000 | 0 | 2008 | | 2024.03.01 | ¿ù¼¼ | ¿¬ÈñÆÄÅ© | 1 | 39.8 | 1,000 | 25 | 1991 | | 2024.03.01 | Àü¼¼ | (848-13) | 2 | 80.86 | 15,000 | 0 | 1986 | | 2024.03.01 | ¿ù¼¼ | Çì½êµå | 4 | 29.53 | 3,000 | 100 | 2022 | | 2024.03.01 | ¿ù¼¼ | ¿µÆç¸®½º | 3 | 40.05 | 13,000 | 20 | 2008 | | 2024.03.01 | ¿ù¼¼ | ÃÊ·Ï¿ø·ë(109-9) | 4 | 16.65 | 500 | 48 | 2012 | | 2024.03.01 | ¿ù¼¼ | ¿¥Æç¸®Ã¼ºñµ¿ | 2 | 29.95 | 4,000 | 65 | 2017 | | 2024.03.01 | ¿ù¼¼ | ½ºÅ丮ÇϿ콺(1014-23) | 4 | 12.64 | 1,000 | 53 | 2012 | | 2024.03.01 | Àü¼¼ | ¿¹¿øºô¶ó6µ¿ | 1 | 36.98 | 10,000 | 0 | 1987 | | 2024.03.01 | ¿ù¼¼ | ¼±°æÇÏÀÌÃ÷(367-67) | 6 | 28.86 | 16,200 | 10 | 2012 | | 2024.03.01 | Àü¼¼ | ⵿ºô¶ó | 3 | 46.79 | 15,870 | 0 | 2008 | | 2024.03.01 | Àü¼¼ | ⵿ºô¶ó | 3 | 46.79 | 16,200 | 0 | 2008 | | 2024.02.29 | ¿ù¼¼ | ¼º¿ì¾ÆÆ®ºô(931-8) | 2 | 59.94 | 1,000 | 80 | 2003 | | 2024.02.29 | Àü¼¼ | ³«¿øºô¶ó(352-39) | 3 | 61.75 | 17,800 | 0 | 1994 | | 2024.02.29 | Àü¼¼ | µ¿À̺ô¶ó(362-120) | 2 | 55.67 | 16,700 | 0 | 2002 | | 2024.02.29 | Àü¼¼ | Ȱî·Î¾â¶óµ¿ | 1 | 33.93 | 5,500 | 0 | 1990 | | 2024.02.29 | ¿ù¼¼ | (859-6) | 1 | 16.92 | 300 | 45 | 2003 | | 2024.02.29 | Àü¼¼ | ±¤»ê±×¸°ºô(863-6) | 5 | 66.74 | 19,000 | 0 | 2003 | | 2024.02.29 | ¿ù¼¼ | ÇØ¼ºÆÓ¸®½ººô9Â÷ | 4 | 39.98 | 11,900 | 13 | 2002 | | 2024.02.29 | Àü¼¼ | ´ë¿ì | 1 | 43.06 | 16,500 | 0 | 1986 | | 2024.02.29 | Àü¼¼ | Ǫ¸¥Ç³°æÃ¤(351-24) | 5 | 40.27 | 22,300 | 0 | 2017 | | 2024.02.29 | ¿ù¼¼ | (376-27) | 3 | 28.44 | 1,000 | 45 | 1992 | | 2024.02.29 | Àü¼¼ | ¼¿¬ºí·çÈúºñ | 3 | 29.93 | 15,870 | 0 | 2016 | | 2024.02.29 | Àü¼¼ | ¸®´õ½ºÅ¸¿î | 4 | 18.15 | 14,800 | 0 | 2016 | | 2024.02.29 | ¿ù¼¼ | ¾ÆÆ®ºô(105-134) | 1 | 59.54 | 13,000 | 7 | 2002 | | 2024.02.29 | Àü¼¼ | ½Å¶óÇÏÀÌÃ÷ºô¶ó | 3 | 53.62 | 13,000 | 0 | 1992 | | 2024.02.29 | ¿ù¼¼ | ºô¶ó¾ØAµ¿ | 2 | 44.4 | 23,800 | 13 | 2017 | | 2024.02.29 | Àü¼¼ | ÇØºñÄ¡ºô | 4 | 26.23 | 22,500 | 0 | 2019 | | 2024.02.28 | Àü¼¼ | ´Ù¼Øºô¶óÆ®2Â÷ | 4 | 45.14 | 15,000 | 0 | 2001 | | 2024.02.28 | Àü¼¼ | µå¸®¹ÌŸ¿î(858-1) | 2 | 38.22 | 22,000 | 0 | 2015 | | 2024.02.28 | ¿ù¼¼ | ¼Ò´ã¹ë¸® | 3 | 29.14 | 3,000 | 60 | 2012 | | 2024.02.28 | ¿ù¼¼ | ¹Ì¸²ºô¶ó | 1 | 34.08 | 9,800 | 30 | 1991 | | 2024.02.28 | Àü¼¼ | ÇÁ¶óÀÓÇϿ콺(397-36) | 4 | 43.71 | 19,400 | 0 | 2011 | | 2024.02.28 | Àü¼¼ | ¹é¿îÀκ£½ºÆ®ºô | 2 | 43.57 | 16,000 | 0 | 2008 | | 2024.02.28 | ¿ù¼¼ | ¸¶À̹ٿò | 3 | 38.6 | 11,000 | 35 | 2011 | | 2024.02.28 | Àü¼¼ | ½Ã¿ø¾ÆÆ®ºô°¡µ¿ | 3 | 59.97 | 19,500 | 0 | 2002 | | 2024.02.28 | Àü¼¼ | Ǫ¸¥Ç³°æÃ¤ | 2 | 40.25 | 24,440 | 0 | 2019 | | 2024.02.28 | ¿ù¼¼ | ¾ÆÀÌÀ¯ÇÏÀÓ73 | 4 | 49.98 | 8,004 | 82 | 2022 | | 2024.02.28 | Àü¼¼ | ¸®Ä¡7 | 11 | 29.57 | 24,000 | 0 | 2022 | | 2024.02.28 | ¿ù¼¼ | Å»êºô(1114-17) | 4 | 40.95 | 3,000 | 55 | 2008 | | 2024.02.28 | Àü¼¼ | ¸ÞÁ¾µåÁª¸¶ | 3 | 32.24 | 20,900 | 0 | 2018 | | 2024.02.28 | ¿ù¼¼ | ±Ý»êÆÄÅ©ºô | 5 | 40.48 | 1,600 | 57 | 2008 | | 2024.02.28 | Àü¼¼ | ÇÁ¶óÀÓÇϿ콺(397-36) | 4 | 43.71 | 19,400 | 0 | 2011 | | 2024.02.28 | ¿ù¼¼ | ¼ÁÖºôµù(401-22) | 2 | 20.68 | 1,000 | 33 | 1996 | | 2024.02.28 | Àü¼¼ | Ǫ¸¥Ç³°æÃ¤ | 2 | 40.25 | 24,440 | 0 | 2019 | | 2024.02.28 | Àü¼¼ | ÇÁ¶óÀÓÇϿ콺(397-36) | 4 | 43.71 | 19,400 | 0 | 2011 | | 2024.02.28 | ¿ù¼¼ | ·çü¾²¸® | 7 | 12 | 2,500 | 27 | 2015 | | 2024.02.28 | Àü¼¼ | ÀçÇö | 2 | 52.36 | 16,000 | 0 | 1980 | | 2024.02.27 | ¿ù¼¼ | ½ºÅ丮ÇϿ콺(1014-23) | 4 | 13.44 | 1,000 | 51 | 2012 | | 2024.02.27 | ¿ù¼¼ | È°îÆ®À©½ººôB | 2 | 71.22 | 13,000 | 50 | 2001 | | 2024.02.27 | ¿ù¼¼ | Çö´ëȨŸ¿î(46-195) | 4 | 28.96 | 11,300 | 35 | 2010 | | 2024.02.27 | Àü¼¼ | Á¤¿ìºô¶ó | 1 | 46.82 | 11,000 | 0 | 1997 | | 2024.02.27 | Àü¼¼ | Ȳº¸¾ÆÆ®ºô(333-27) | 6 | 27.53 | 17,380 | 0 | 2018 | | 2024.02.27 | Àü¼¼ | ÇѼ±ºô¶ó³ªµ¿ | 1 | 33.15 | 9,000 | 0 | 1988 | | 2024.02.27 | ¿ù¼¼ | ¿¡½º¿¥ÆÄÅ©ºô | 3 | 36.24 | 19,400 | 5 | 2015 | | 2024.02.27 | Àü¼¼ | Ǫ¸¥Ç³°æÃ¤ | 3 | 26.29 | 25,570 | 0 | 2022 | | 2024.02.27 | Àü¼¼ | (424-5)½ÅÀϺô¶ó | 2 | 57.68 | 18,500 | 0 | 2007 | | 2024.02.27 | Àü¼¼ | ¿ì¼ºÅ׸¶ºô | 4 | 39.93 | 14,500 | 0 | 2006 | | 2024.02.27 | Àü¼¼ | ´õ¿øÇϿ콺 | 2 | 25.73 | 20,790 | 0 | 2023 | | 2024.02.27 | ¿ù¼¼ | (1014-14) | 3 | 26.58 | 1,000 | 45 | 2002 | | 2024.02.27 | Àü¼¼ | »õÇÑÇÏÀÌÃ÷ºô¶ó(338-8) | 3 | 65.27 | 21,000 | 0 | 1996 | | 2024.02.27 | Àü¼¼ | »ó¾Æ¸Ç¼Ç | 3 | 68.92 | 20,900 | 0 | 2001 | | 2024.02.27 | ¿ù¼¼ | ´õ¶ó¿Â | 5 | 29.72 | 1,000 | 95 | 2019 | | 2024.02.27 | Àü¼¼ | ¸®Á¨Æ®¶ó¿ò | 3 | 27.52 | 16,000 | 0 | 2014 | | 2024.02.27 | Àü¼¼ | ¼Ò´ã¹ë¸®½ºBµ¿ | 2 | 29.75 | 15,800 | 0 | 2013 | | 2024.02.27 | Àü¼¼ | ¼Ò´ã¹ë¸®½ºBµ¿ | 2 | 29.75 | 16,200 | 0 | 2013 | | 2024.02.27 | Àü¼¼ | ¿ìÁø¸Ç¼Ç(990-11) | 4 | 59.74 | 25,000 | 0 | 2001 | | 2024.02.27 | Àü¼¼ | Å©¸®½ºÅ»ºô(24-490) | 2 | 28.39 | 13,500 | 0 | 2014 | | 2024.02.26 | ¿ù¼¼ | »þÀδõÈúȰî | 6 | 29.81 | 1,000 | 110 | 2023 | | 2024.02.26 | ¿ù¼¼ | ¸¶À̹ٿò | 3 | 38.6 | 11,000 | 35 | 2011 | | 2024.02.26 | Àü¼¼ | ´Ù¿ï³×¹öºôBµ¿ | 1 | 69.77 | 24,000 | 0 | 2000 | | 2024.02.26 | Àü¼¼ | ´õ¿øÇϿ콺 | 3 | 23 | 20,790 | 0 | 2023 | | 2024.02.26 | Àü¼¼ | ÀÏÁÖÇϿ콺 | 3 | 29.99 | 21,000 | 0 | 2020 | | 2024.02.26 | Àü¼¼ | ¸ð¾ÆÈ¨Å¸¿î(1104-1) | 5 | 41.14 | 16,000 | 0 | 2011 | | 2024.02.26 | ¿ù¼¼ | µ¿µµÇÏÀÌÃ÷ºô¶ó(56-335) | 4 | 35.66 | 10,000 | 20 | 2000 | | 2024.02.26 | ¿ù¼¼ | È¿ÁøÇÏÀÌÃ÷(59-45) | 4 | 38.52 | 13,100 | 5 | 2011 | | 2024.02.26 | Àü¼¼ | ½ÅÈï·¡¹Ì¾È | 3 | 36.61 | 13,600 | 0 | 2011 | | 2024.02.26 | Àü¼¼ | ä¿øºô | 2 | 29.84 | 13,700 | 0 | 2012 | | 2024.02.26 | Àü¼¼ | ºí·ç½ºÄ«À̺ô(860-20) | 2 | 28.63 | 18,300 | 0 | 2014 | | 2024.02.26 | ¿ù¼¼ | J.SŸ¿î | 2 | 52.3 | 1,000 | 40 | 2002 | | 2024.02.26 | Àü¼¼ | żººí·çºô | 2 | 81.1 | 22,000 | 0 | 2002 | | 2024.02.26 | Àü¼¼ | ´õ¿øÇϿ콺 | 3 | 23 | 20,790 | 0 | 2023 | | 2024.02.26 | ¿ù¼¼ | ¸¶À̹ٿò | 3 | 38.6 | 11,000 | 35 | 2011 | | 2024.02.26 | Àü¼¼ | ÇØ¼ºÆç¸®½ººôA | 2 | 60.42 | 17,800 | 0 | 2002 | | 2024.02.26 | ¿ù¼¼ | áæõ½(988-22) | 3 | 19.61 | 500 | 32 | 2013 | | 2024.02.26 | Àü¼¼ | ¸ð¾ÆÈ¨Å¸¿î(1104-1) | 5 | 41.14 | 16,000 | 0 | 2011 | | 2024.02.26 | ¿ù¼¼ | »þÀδõÈúȰî | 2 | 29.25 | 1,000 | 100 | 2023 | | 2024.02.26 | ¿ù¼¼ | »þÀδõÈúȰî | 3 | 29.25 | 1,000 | 100 | 2023 | | 2024.02.26 | ¿ù¼¼ | °ø°£ÁöÀ½102 | 3 | 29.22 | 1,000 | 92 | 2021 | | 2024.02.26 | Àü¼¼ | ä¿øºô | 2 | 29.84 | 13,700 | 0 | 2012 | | 2024.02.26 | Àü¼¼ | ½Å¿ø¼¾½ººô(392-75) | 3 | 35.59 | 13,480 | 0 | 2010 | | 2024.02.26 | Àü¼¼ | ÇØ¿Âij½½ | 2 | 26.61 | 18,900 | 0 | 2019 | | 2024.02.26 | ¿ù¼¼ | ´Ù¿Âºô | 3 | 27.81 | 16,100 | 12 | 2018 | | 2024.02.25 | Àü¼¼ | À§µåij½½ | 3 | 37.59 | 24,300 | 0 | 2019 | | 2024.02.25 | ¿ù¼¼ | ºí·çÈú(846-14) | 6 | 23.47 | 18,648 | 5 | 2021 | | 2024.02.25 | Àü¼¼ | ´õŬ·¡½Ä | 5 | 44.85 | 25,000 | 0 | 2018 | | 2024.02.25 | ¿ù¼¼ | ºí¸®½º´ÙÀÓºô | 6 | 22.54 | 5,000 | 70 | 2023 | | 2024.02.25 | Àü¼¼ | ºñ¿£ÄÉÀÌÇϿ콺 | 2 | 28.25 | 22,500 | 0 | 2023 | | 2024.02.25 | ¿ù¼¼ | °æ¹Î¾ÆÆ®ºô(393-21) | 7 | 32.27 | 5,000 | 80 | 2017 | | 2024.02.25 | ¿ù¼¼ | °æ¹Î¾ÆÆ®ºô(393-21) | 7 | 32.27 | 5,000 | 80 | 2017 | | 2024.02.25 | Àü¼¼ | ¹Ì·¡½ºÅ¸ºô(1104-13) | 4 | 29.96 | 14,600 | 0 | 2014 | | 2024.02.24 | Àü¼¼ | ¹Ì·¡º£½ºÆ®ºô | 4 | 59 | 19,000 | 0 | 2002 | | 2024.02.24 | ¿ù¼¼ | ¼ºÀçij½ººô(408-22) | 2 | 47.87 | 3,000 | 110 | 2011 | | 2024.02.24 | Àü¼¼ | ¹Ì·¡º£½ºÆ®ºô | 4 | 59 | 18,500 | 0 | 2002 | | 2024.02.24 | ¿ù¼¼ | ´ëÈ£¼¾½ººô | 3 | 61.68 | 3,000 | 70 | 2002 | | 2024.02.24 | ¿ù¼¼ | °¨¼ººô | 3 | 26.77 | 300 | 65 | 2016 | | 2024.02.24 | ¿ù¼¼ | È£¼º±×¸°ºôBµ¿(1083-13) | 3 | 48.04 | 12,000 | 26 | 2001 | | 2024.02.24 | Àü¼¼ | È¿½Åºô¶ó | -1 | 56.25 | 9,000 | 0 | 1993 | | 2024.02.24 | Àü¼¼ | À¯³ëÀÌ¾Æ | 2 | 29.94 | 23,000 | 0 | 2023 | | 2024.02.24 | ¿ù¼¼ | °è¸íÀ§³Ê½º(56-163) | 2 | 58.93 | 10,000 | 42 | 2009 | | 2024.02.24 | ¿ù¼¼ | ´õÇϿ콺5Â÷ | 5 | 27.49 | 3,000 | 100 | 2023 | | 2024.02.24 | Àü¼¼ | ¿ìÇöÆç¸®½º | 3 | 29.5 | 16,800 | 0 | 2016 | | 2024.02.24 | Àü¼¼ | ±îÄ¡¸Ç¼Ç | -1 | 58.59 | 10,400 | 0 | 1993 | | 2024.02.24 | ¿ù¼¼ | Çູµå¸²ºôAµ¿ | 4 | 42.64 | 11,000 | 34 | 2002 | | 2024.02.24 | Àü¼¼ | ¿ìÇöÆç¸®½º | 3 | 29.5 | 16,800 | 0 | 2016 | | 2024.02.24 | ¿ù¼¼ | °æ³²¾ÆÆ®ºô | 2 | 44.09 | 2,000 | 35 | 1990 | | 2024.02.24 | Àü¼¼ | û´ã¾ÆÆ®ºô | 2 | 69.5 | 21,500 | 0 | 2002 | | 2024.02.24 | Àü¼¼ | °¼ººô¶ó2Â÷ | 1 | 40.44 | 12,000 | 0 | 1991 | | 2024.02.24 | ¿ù¼¼ | ¿ìÁ¤ºô¶óB | 4 | 54.81 | 10,000 | 20 | 1991 | | 2024.02.24 | ¿ù¼¼ | Á¦ÀÌ¿¥ÆÓ¸®½º | 4 | 27.975 | 1,000 | 95 | 2021 | | 2024.02.24 | ¿ù¼¼ | ¹Ð·¹´Ï¾ö(102-26) | 5 | 32.61 | 1,000 | 58 | 2008 | | 2024.02.23 | Àü¼¼ | ¾÷Ÿ¿îºô¸®Áö | 2 | 29.82 | 16,800 | 0 | 2017 | | 2024.02.23 | ¿ù¼¼ | ÇØ¿À¸§(24-59) | 4 | 13.44 | 4,900 | 20 | 2011 | | 2024.02.23 | ¿ù¼¼ | (972-14) | 3 | 29.95 | 3,000 | 60 | 2019 | | 2024.02.23 | ¿ù¼¼ | ¼£·ÒÇϿ콺 | 2 | 18.72 | 1,000 | 58 | 2010 | | 2024.02.23 | ¿ù¼¼ | °ø°£ÈÞ(864-10) | 2 | 26.29 | 3,000 | 79 | 2021 | | 2024.02.23 | ¿ù¼¼ | ÇÑ¼Ö¾ÆÆ®ºô8Â÷ | 3 | 39.46 | 13,000 | 20 | 2004 | | 2024.02.23 | Àü¼¼ | »ï¿øºô¶ó | -1 | 65.73 | 12,000 | 0 | 2000 | | 2024.02.23 | ¿ù¼¼ | Àκ£½ºÆ®¾ÆÆ®ºô | 4 | 62.01 | 13,000 | 28 | 2007 | | 2024.02.23 | ¿ù¼¼ | º§¶óÇϿ콺(354-23¹øÁö) | 4 | 27.46 | 14,100 | 15 | 2016 | | 2024.02.23 | Àü¼¼ | ÆÄÀÎÇϿ콺(1056-10) | 2 | 42.73 | 21,980 | 0 | 2014 | | 2024.02.23 | Àü¼¼ | ¿µ¼ö¸®¹öºô | 4 | 44.19 | 13,400 | 0 | 2003 | | 2024.02.23 | ¿ù¼¼ | º§¶óÇϿ콺(354-23¹øÁö) | 4 | 27.46 | 14,100 | 15 | 2016 | | 2024.02.23 | ¿ù¼¼ | żºÇÏÀÌÃ÷ºô¶ó(100-25) | 1 | 56.28 | 12,380 | 40 | 1995 | | 2024.02.23 | Àü¼¼ | ºñ¿¡½ºÇÏ¿ì¡ | 6 | 23.14 | 16,880 | 0 | 2018 | | 2024.02.23 | ¿ù¼¼ | û¿ìÇÏÀÌÃ÷ºô | 2 | 62.75 | 19,270 | 20 | 2004 | | 2024.02.23 | Àü¼¼ | ½ÃƼ¿ùºô¶ó | 2 | 38.74 | 9,400 | 0 | 2003 | | 2024.02.23 | Àü¼¼ | ¿¹°¡Ã¼¥±(1105-10) | 9 | 39.65 | 18,900 | 0 | 2014 | | 2024.02.23 | Àü¼¼ | ºñ¿£ÄÉÀÌÇϿ콺 | 3 | 28.25 | 22,500 | 0 | 2023 | | 2024.02.23 | Àü¼¼ | ÇϳªÅ¸¿îAµ¿ | 2 | 29.32 | 15,600 | 0 | 2015 | | 2024.02.22 | Àü¼¼ | Ȩ·£µå¸Ç¼Ç13Â÷ | 2 | 66.82 | 16,600 | 0 | 1996 | | 2024.02.22 | ¿ù¼¼ | °ø°£ÁöÀ½102 | 2 | 29.86 | 1,000 | 95 | 2021 | | 2024.02.22 | Àü¼¼ | ÇØºñÄ¡ºô | 5 | 26.23 | 21,000 | 0 | 2019 | | 2024.02.22 | Àü¼¼ | Ǫ¸¥Ç³°æÃ¤ | 4 | 26.29 | 25,570 | 0 | 2022 | | 2024.02.22 | Àü¼¼ | ±Ý°ÇÏÀÓºô | 3 | 29.84 | 16,600 | 0 | 2015 | | 2024.02.22 | Àü¼¼ | ±Ý°ÇÏÀÓºô | 3 | 29.84 | 16,600 | 0 | 2015 | | 2024.02.22 | ¿ù¼¼ | ȼººô¶ó(56-151) | -1 | 39.82 | 100 | 30 | 1995 | | 2024.02.22 | ¿ù¼¼ | ¿¬¿ì³Ø½ºÆ®ºä | 13 | 13.16 | 3,000 | 48 | 2018 | | 2024.02.22 | ¿ù¼¼ | ¼±ÇϿ콺 | 3 | 37.47 | 500 | 45 | 2002 | | 2024.02.22 | Àü¼¼ | Á¦ÀÌÁ¦ÀÌij½½ | 3 | 35.23 | 23,400 | 0 | 2016 | | 2024.02.22 | Àü¼¼ | ¿¡½º¿¥ÆÄÅ©ºô101µ¿102µ¿ | 4 | 27.27 | 16,880 | 0 | 2016 | | 2024.02.22 | Àü¼¼ | ´ë´öºô¶ó(353-46) | 3 | 59.97 | 19,400 | 0 | 2001 | | 2024.02.22 | Àü¼¼ | ¶óÅ׶󽺺ô(380-6) | 2 | 38.59 | 21,500 | 0 | 2016 | | 2024.02.22 | Àü¼¼ | ±Ý°ÇÏÀÓºô | 3 | 29.84 | 18,400 | 0 | 2015 | | 2024.02.22 | Àü¼¼ | ´õ¿ø¼¥5 | 3 | 29.99 | 26,900 | 0 | 2021 | | 2024.02.22 | ¿ù¼¼ | °Å¼º | 3 | 49.5 | 12,000 | 20 | 1986 | | 2024.02.22 | ¿ù¼¼ | ÀçÇö | 1 | 52.36 | 8,000 | 19 | 1980 | | 2024.02.22 | ¿ù¼¼ | ´Ù¼ØÇϿ콺 | 3 | 29.89 | 12,500 | 10 | 2012 | | 2024.02.22 | Àü¼¼ | È£¸²ºô¶ó | -1 | 40.44 | 6,500 | 0 | 1991 | | 2024.02.21 | Àü¼¼ | ¿¥Æç¸®Ã¼(346-82) | 6 | 44.44 | 26,000 | 0 | 2015 | | 2024.02.21 | ¿ù¼¼ | ±Ý°¾ÆÅ©·Îºô(56-424) | 4 | 65.61 | 3,000 | 80 | 2002 | | 2024.02.21 | ¿ù¼¼ | ¿¹¼ÖÇÏÀÌÃ÷ | 2 | 55.26 | 1,000 | 65 | 2008 | | 2024.02.21 | ¿ù¼¼ | ¿ì¼ººô¶óBµ¿(56-320) | 4 | 60.07 | 3,000 | 65 | 2000 | | 2024.02.21 | ¿ù¼¼ | Á¦ÀÌ¿¥ÆÓ¸®½º | 4 | 26.855 | 1,000 | 95 | 2021 | | 2024.02.21 | ¿ù¼¼ | ¿ì¼ººô¶óBµ¿(56-320) | 4 | 60.07 | 2,000 | 73 | 2000 | | 2024.02.21 | ¿ù¼¼ | ±×¸°ÆÄÅ©ºô(472-5) | 5 | 25.8 | 1,668 | 2 | 2011 | | 2024.02.21 | Àü¼¼ | µ¿ÀÎ¸Ç¼Ç | 5 | 34.53 | 9,350 | 0 | 2002 | | 2024.02.21 | Àü¼¼ | º¹Áö±×¸°ºô1Â÷ | 3 | 27.84 | 7,000 | 0 | 2001 | | 2024.02.21 | ¿ù¼¼ | ´ö¸²ÆÄÅ©ºô | -1 | 55.2 | 1,000 | 50 | 2008 | | 2024.02.21 | ¿ù¼¼ | ¸í»êºô¶ó | 1 | 64.96 | 1,000 | 55 | 2000 | | 2024.02.21 | Àü¼¼ | ¹Ì¼ºÇϸ£µò(1102-5) | 3 | 29.19 | 18,000 | 0 | 2018 | | 2024.02.21 | Àü¼¼ | ¸®ºùÇϿ콺3Â÷ | 2 | 41.14 | 17,600 | 0 | 2013 | | 2024.02.21 | ¿ù¼¼ | ÇÁ¶óÀÓÁÖÅÃ(392-15) | 4 | 28.56 | 2,000 | 58 | 2014 | | 2024.02.21 | Àü¼¼ | ºí·çÈú(846-14) | 5 | 27.3 | 22,680 | 0 | 2021 | | 2024.02.21 | ¿ù¼¼ | ÇÁ¶óÀÓºô(410-23) | 2 | 23.63 | 16,000 | 14 | 2019 | | 2024.02.21 | ¿ù¼¼ | (958-7) | 2 | 35.48 | 8,900 | 10 | 1986 | | 2024.02.21 | ¿ù¼¼ | °è¸íÁÖÅ󪵿 | 1 | 61.2 | 4,500 | 69 | 2000 | | 2024.02.21 | ¿ù¼¼ | °æ¿ø¾ÆÆ®ºôAµ¿ | 4 | 30.06 | 10,000 | 30 | 2001 | | 2024.02.21 | Àü¼¼ | ¿ì¼º | 6 | 29.74 | 18,400 | 0 | 2016 | | 2024.02.21 | Àü¼¼ | ³²¼º¾ÆÆ®ºô(354-41) | 3 | 34.01 | 16,000 | 0 | 2014 | | 2024.02.20 | Àü¼¼ | ¸®ºùÇϿ콺5Â÷ | 3 | 37.26 | 17,800 | 0 | 2015 | | 2024.02.20 | Àü¼¼ | Å©¸®½ºÅ»ºô(24-490) | 5 | 28.8 | 18,000 | 0 | 2014 | | 2024.02.20 | ¿ù¼¼ | ±Ý°´©¸®ºô(998-10) | 4 | 15.72 | 2,000 | 37 | 2012 | | 2024.02.20 | Àü¼¼ | ¿ì¼ººô¶ó | 3 | 59.85 | 17,200 | 0 | 1997 | | 2024.02.20 | Àü¼¼ | ±îÄ¡»êÆÈ¶óÀ̽º | 2 | 28.455 | 14,900 | 0 | 2015 | | 2024.02.20 | Àü¼¼ | Å©¸®½ºÅ»ºô(24-490) | 5 | 28.8 | 18,000 | 0 | 2014 | | 2024.02.20 | ¿ù¼¼ | À¯³ëÀÌ¾Æ | 3 | 51.98 | 5,000 | 150 | 2023 | | 2024.02.20 | Àü¼¼ | ¿ì¼ºÅ׸¶ºô | 4 | 39.93 | 16,100 | 0 | 2006 | | 2024.02.20 | Àü¼¼ | »ì·½ÇϿ콺 | -1 | 69.81 | 13,500 | 0 | 2001 | | 2024.02.20 | ¿ù¼¼ | ÇѾ縮Ã÷ºô | 2 | 45.11 | 1,733 | 14 | 2012 | | 2024.02.20 | ¿ù¼¼ | ¼º°áºô¶óÆ®(474-16) | 4 | 48.24 | 1,090 | 9 | 2008 | | 2024.02.20 | Àü¼¼ | »êÀÏ¿¥¹ö½ººô | 3 | 51.48 | 16,500 | 0 | 2008 | | 2024.02.20 | ¿ù¼¼ | ½Â½ÂÀ屸 | 5 | 34.91 | 1,000 | 40 | 2015 | | 2024.02.20 | ¿ù¼¼ | À¯³ëÀÌ¾Æ | 3 | 51.98 | 5,000 | 150 | 2023 | | 2024.02.20 | Àü¼¼ | °¼º±×¸°ºô¶ó | 4 | 33.9 | 10,000 | 0 | 1994 | | 2024.02.20 | Àü¼¼ | ±¤¸íºô¶ó7Â÷(56-162) | 2 | 45.81 | 11,000 | 0 | 1994 | | 2024.02.20 | Àü¼¼ | °Ç¼ÛÁÖÅÃBµ¿ | 3 | 73.08 | 15,000 | 0 | 2002 | | 2024.02.20 | Àü¼¼ | ¿ì¼ººô¶ó | 3 | 59.85 | 17,200 | 0 | 1997 | | 2024.02.20 | Àü¼¼ | (876-20) | 1 | 42.74 | 11,900 | 0 | 1986 | | 2024.02.20 | Àü¼¼ | µ¿Èºô | 2 | 28.6 | 16,000 | 0 | 2019 | | 2024.02.20 | Àü¼¼ | Çö´ëȨŸ¿î(46-195) | 2 | 29.86 | 12,000 | 0 | 2010 | | 2024.02.20 | ¿ù¼¼ | »þÀδõÈúȰî | 3 | 29.96 | 1,000 | 110 | 2023 | | 2024.02.20 | ¿ù¼¼ | °¨¼ººô | 4 | 25.22 | 16,750 | 11 | 2016 | | 2024.02.19 | Àü¼¼ | À̵µÆÓ¸®½º | 2 | 23.09 | 19,500 | 0 | 2021 | | 2024.02.19 | Àü¼¼ | ¿¡½ºÄÉÀÌÆÄÅ©¸®¿ò101µ¿102µ¿ | 3 | 46.87 | 33,000 | 0 | 2022 | | 2024.02.19 | Àü¼¼ | È¿¼ººô¶ó | 4 | 44.4 | 12,200 | 0 | 1991 | | 2024.02.19 | ¿ù¼¼ | ¸ð´øÇÏÀÌÃ÷ | 2 | 28.43 | 1,000 | 66 | 2012 | | 2024.02.19 | ¿ù¼¼ | ¿¹ÁöÆÓ¸®½º89Â÷ | 6 | 55.51 | 5,000 | 90 | 2016 | | 2024.02.19 | ¿ù¼¼ | â´ëºô¶óAµ¿ | 5 | 28.35 | 9,000 | 26 | 2013 | | 2024.02.19 | ¿ù¼¼ | ´Ù¿ï³×¹öºôBµ¿ | 4 | 61.11 | 16,200 | 20 | 2000 | | 2024.02.19 | Àü¼¼ | °øÀ۸ǼÇ6Â÷Aµ¿ | 3 | 54.72 | 14,100 | 0 | 2001 | | 2024.02.19 | Àü¼¼ | ¹Ì¸®³»ºô¸®Áö | 2 | 75.82 | 22,900 | 0 | 2001 | | 2024.02.19 | Àü¼¼ | À¯À¯±×¸°ºô¶óÆ® | 1 | 58.22 | 16,000 | 0 | 1995 | | 2024.02.19 | Àü¼¼ | ºí·çÈú(846-14) | 5 | 26.76 | 22,176 | 0 | 2021 | | 2024.02.19 | Àü¼¼ | ¿¡½ºÄÉÀÌÆÄÅ©¸®¿ò101µ¿102µ¿ | 5 | 46.87 | 34,600 | 0 | 2022 | | 2024.02.19 | Àü¼¼ | ¿¡½ºÄÉÀÌÆÄÅ©¸®¿ò101µ¿102µ¿ | 5 | 46.87 | 34,600 | 0 | 2022 | | 2024.02.19 | ¿ù¼¼ | È£¹Ýµð¿Àºô(975-1) | 3 | 28.16 | 14,300 | 10 | 2014 | | 2024.02.19 | ¿ù¼¼ | À̳뼿(867-21) | 5 | 34.37 | 3,000 | 70 | 2015 | | 2024.02.19 | Àü¼¼ | ±¤Áøºô¶óÆ®3µ¿ | 2 | 38 | 13,000 | 0 | 2003 | | 2024.02.19 | ¿ù¼¼ | ÀÎÅÍ½ÃÆ¼ºô¶óB | 1 | 61.26 | 6,000 | 55 | 2001 | | 2024.02.19 | Àü¼¼ | ºí·çÈú(846-14) | 5 | 26.76 | 22,176 | 0 | 2021 | | 2024.02.19 | Àü¼¼ | Á¤Àº±×¸°ÈÙ | 5 | 35.04 | 9,500 | 0 | 2002 | | 2024.02.19 | Àü¼¼ | ºí·çÈú(846-14) | 2 | 25.83 | 22,500 | 0 | 2021 | | 2024.02.19 | ¿ù¼¼ | ¿¹Àκô¶ó | 2 | 38.3 | 2,000 | 70 | 2001 | | 2024.02.19 | ¿ù¼¼ | Çý¼ºÆç¸®½º | 1 | 36.49 | 16,000 | 10 | 2011 | | 2024.02.19 | ¿ù¼¼ | ¸ð¾Æºô1 | 3 | 52.59 | 12,600 | 3 | 2007 | | 2024.02.19 | Àü¼¼ | °øÀ۸ǼÇ6Â÷Aµ¿ | 3 | 54.72 | 14,100 | 0 | 2001 | | 2024.02.19 | Àü¼¼ | ¿µÁøÁÖÅà | 2 | 27.38 | 21,000 | 0 | 2023 | | 2024.02.18 | ¿ù¼¼ | ´õ¿ø¼¥5 | 5 | 29.95 | 24,000 | 10 | 2021 | | 2024.02.18 | ¿ù¼¼ | ÁøÇüºô¶ó(353-112)°¡µ¿ | 2 | 50.58 | 2,000 | 60 | 2001 | | 2024.02.17 | ¿ù¼¼ | »þÀδõÈúȰî | 2 | 29.96 | 1,000 | 110 | 2023 | | 2024.02.17 | ¿ù¼¼ | û¼ÛÆòÈÇÏÀ̸ǼÇAµ¿(466-1) | 2 | 59.88 | 12,000 | 40 | 2002 | | 2024.02.17 | ¿ù¼¼ | ¿ùµåºô | 1 | 42.86 | 1,000 | 60 | 2002 | | 2024.02.17 | Àü¼¼ | ´Ù¼Ø | 5 | 43.06 | 19,900 | 0 | 2012 | | 2024.02.17 | ¿ù¼¼ | µ¿¿øºô¶ó | 1 | 63.12 | 12,000 | 13 | 1993 | | 2024.02.17 | Àü¼¼ | ´Ù¼Ø | 5 | 43.06 | 19,900 | 0 | 2012 | | 2024.02.17 | Àü¼¼ | ´Ù¼Ø | 5 | 43.06 | 20,700 | 0 | 2012 | | 2024.02.17 | Àü¼¼ | Æú¶óºñ¿¤ | 3 | 46.8 | 25,800 | 0 | 2017 | | 2024.02.17 | ¿ù¼¼ | ´º¿å·¹Áö´ø½º¥±(858-23) | 3 | 12.3 | 500 | 35 | 2012 | | 2024.02.17 | Àü¼¼ | °æÀνºÀ§Æ®È¨(408-63) | 3 | 44.77 | 14,500 | 0 | 2008 | | 2024.02.17 | ¿ù¼¼ | ·ç¹ÌÈú½º | 4 | 29 | 500 | 85 | 2021 | | 2024.02.17 | ¿ù¼¼ | ±×¸°Èú(105-384) | 5 | 33.94 | 8,400 | 28 | 2010 | | 2024.02.17 | ¿ù¼¼ | ¿¡º¥¿¡¼¿ | 4 | 15.66 | 1,000 | 45 | 2009 | | 2024.02.17 | ¿ù¼¼ | µ¿¿øÈ¨Å¸¿î(46-79) | 5 | 40.49 | 4,000 | 70 | 2015 | | 2024.02.17 | Àü¼¼ | ¿¡ÀÌ¿£Äɽ½ | 3 | 29.76 | 16,800 | 0 | 2016 | | 2024.02.17 | Àü¼¼ | À§ÇϿ콺(111-10) | 3 | 28.46 | 17,500 | 0 | 2016 | | 2024.02.17 | Àü¼¼ | µÎ»êºô¶ó(56-359) | 1 | 55 | 13,000 | 0 | 2000 | | 2024.02.16 | ¿ù¼¼ | ±Â¸ð´×ºô(1115-17) | 4 | 49.67 | 1,000 | 75 | 2010 | | 2024.02.16 | Àü¼¼ | È«¼ºµå¸²ºô | 3 | 59.71 | 18,300 | 0 | 2002 | | 2024.02.16 | Àü¼¼ | À§ÇϿ콺(111-10) | 6 | 27.84 | 16,200 | 0 | 2016 | | 2024.02.16 | Àü¼¼ | ¸®ºùÇϿ콺5Â÷ | 2 | 37.26 | 17,800 | 0 | 2015 | | 2024.02.16 | Àü¼¼ | ÇÁ¶óÀÓÇϿ콺(393-23) | 2 | 56.85 | 14,000 | 0 | 2016 | | 2024.02.16 | Àü¼¼ | ´ëµ¿ºô | 5 | 26.18 | 19,600 | 0 | 2020 | | 2024.02.16 | Àü¼¼ | ±Â¸ð´×ºô(1115-17) | 2 | 49.93 | 16,000 | 0 | 2010 | | 2024.02.16 | Àü¼¼ | ·Î¾âÇÏÀÌÃ÷(380-3) | 4 | 60.01 | 22,800 | 0 | 2008 | | 2024.02.16 | ¿ù¼¼ | À£½ºÆÄÅ©ºô | 5 | 28.04 | 1,000 | 73 | 2018 | | 2024.02.16 | ¿ù¼¼ | ÇØÇ³½ºÀ§Æ®ºô | 4 | 45.84 | 2,000 | 60 | 2002 | | 2024.02.16 | ¿ù¼¼ | Á¦À̽ººô(969-5) | 6 | 29.56 | 1,000 | 110 | 2022 | | 2024.02.16 | Àü¼¼ | ¶ó¿Âºô¸®Áö | 3 | 23.59 | 15,400 | 0 | 2016 | | 2024.02.16 | ¿ù¼¼ | °è¸íÁÖÅÃ(849-23) | 3 | 39.81 | 2,500 | 65 | 2002 | | 2024.02.16 | ¿ù¼¼ | Ȩ·£µåºô¶ó11Â÷ | 1 | 50.42 | 11,400 | 25 | 1995 | | 2024.02.16 | ¿ù¼¼ | ¼±°æºô¶ó | 5 | 66.48 | 12,000 | 35 | 2000 | | 2024.02.16 | ¿ù¼¼ | Á¦ÀÌ¿¥ÆÓ¸®½º | 5 | 27.975 | 1,000 | 95 | 2021 | | 2024.02.16 | Àü¼¼ | û¿î¸Ç¼ÇÁÖÅÃ2µ¿ | -1 | 63.03 | 12,000 | 0 | 2001 | | 2024.02.16 | Àü¼¼ | »ó¿ìºô¶óB | 2 | 50.91 | 17,800 | 0 | 2002 | | 2024.02.16 | Àü¼¼ | ¸®¹öij½½ | 2 | 24.54 | 16,300 | 0 | 2019 | | 2024.02.16 | ¿ù¼¼ | ½ºÀ§Æ®ÇϿ콺(1008-21) | 4 | 30.86 | 18,000 | 20 | 2012 | | 2024.02.16 | Àü¼¼ | µ¿µµÇÏÀÌÃ÷ºô¶ó¶óµ¿ | 5 | 43.23 | 11,000 | 0 | 2001 | | 2024.02.16 | ¿ù¼¼ | ´ë¸²Ä³½½(95-124) | 3 | 35.04 | 13,000 | 20 | 2012 | | 2024.02.15 | Àü¼¼ | DS¿¡ÄÚŸ¿î(471-18) | 3 | 35.76 | 19,000 | 0 | 2014 | | 2024.02.15 | ¿ù¼¼ | ¾ÆÀνººôHANAGREEN | 4 | 35.59 | 17,000 | 20 | 2013 | | 2024.02.15 | ¿ù¼¼ | »ï¼ººô¶ó | -1 | 42.97 | 500 | 55 | 1993 | | 2024.02.15 | ¿ù¼¼ | ¾ÆÀ̺ñ¸Ç¼ð | 3 | 57.59 | 3,000 | 90 | 2008 | | 2024.02.15 | ¿ù¼¼ | ¸®Ä¡ºô | 4 | 30.4 | 11,200 | 30 | 2009 | | 2024.02.15 | Àü¼¼ | °æ¹Î¾ÆÆ®ºô(882-32) | 6 | 29.9 | 22,200 | 0 | 2017 | | 2024.02.15 | ¿ù¼¼ | ¹Ð·¹´Ï¾ö(56-157) | 4 | 36.49 | 1,000 | 50 | 2012 | | 2024.02.15 | ¿ù¼¼ | ÄýÁîºô | 6 | 13.71 | 1,000 | 47 | 2016 | | 2024.02.15 | Àü¼¼ | (424-5)½ÅÀϺô¶ó | 4 | 47.76 | 14,000 | 0 | 2007 | | 2024.02.15 | Àü¼¼ | ´ë¸²Èúž | 1 | 41.43 | 19,000 | 0 | 2010 | | 2024.02.15 | ¿ù¼¼ | ´Ù¼ØÇϿ콺 | 3 | 29.89 | 12,500 | 10 | 2012 | | 2024.02.15 | Àü¼¼ | ±×¸°¸ð´×ºô°¡µ¿ | 5 | 38.07 | 10,800 | 0 | 2002 | | 2024.02.15 | Àü¼¼ | ¼º¿øÆÄÅ©ºô | 2 | 45.33 | 16,500 | 0 | 2008 | | 2024.02.15 | ¿ù¼¼ | ¸¶ÀÌȨ | 2 | 19.74 | 1,000 | 58 | 2017 | | 2024.02.15 | ¿ù¼¼ | ¿¡½ºÄÉÀ̹ٿòÇϿ콺(1073-28) | 5 | 23.13 | 3,000 | 85 | 2016 | | 2024.02.15 | ¿ù¼¼ | ÇѿコīÀ̺ô-³ªµ¿ | 4 | 49.44 | 12,550 | 30 | 2002 | | 2024.02.15 | ¿ù¼¼ | °©Áø°ñµåºô | 4 | 35.08 | 4,000 | 75 | 2013 | | 2024.02.15 | Àü¼¼ | ¸®ºùÇϿ콺3Â÷ | 2 | 41.14 | 18,900 | 0 | 2013 | | 2024.02.15 | Àü¼¼ | Åä¼®¾Æ³×½ººô(102-291) | 3 | 62.28 | 24,000 | 0 | 2008 | | 2024.02.15 | Àü¼¼ | ´ë¸²¾ÆÆ®ºô | 4 | 51.79 | 14,300 | 0 | 2002 | | 2024.02.15 | Àü¼¼ | ±×¸°ÆÄÅ©(460-8) | 2 | 47.76 | 10,000 | 0 | 2007 | | 2024.02.15 | Àü¼¼ | (859-2) | 1 | 35.69 | 9,000 | 0 | 1986 | | 2024.02.14 | Àü¼¼ | ´õ¿ø | 4 | 19.98 | 17,100 | 0 | 2019 | | 2024.02.14 | ¿ù¼¼ | Á¦À̽ººô(969-5) | 5 | 16.59 | 2,000 | 80 | 2022 | | 2024.02.14 | ¿ù¼¼ | ÇØÇÇÇϿ콺(1128-4) | 3 | 12.7 | 1,000 | 45 | 2012 | | 2024.02.14 | Àü¼¼ | THEJIA | 3 | 29.76 | 25,000 | 0 | 2022 | | 2024.02.14 | Àü¼¼ | µ¿Èºô | 2 | 23.95 | 16,000 | 0 | 2019 | | 2024.02.14 | Àü¼¼ | ´ë¼ºÁÖÅÃ(155-16) | 2 | 48.42 | 11,000 | 0 | 1987 | | 2024.02.14 | Àü¼¼ | ºí·çÈú | 3 | 27.12 | 21,000 | 0 | 2021 | | 2024.02.14 | Àü¼¼ | ³ª»ê¸Ç¼Ç2Â÷ | -1 | 37.23 | 7,800 | 0 | 2002 | | 2024.02.14 | ¿ù¼¼ | À£½ºÆÄÅ©ºô | 4 | 28.14 | 2,000 | 85 | 2018 | | 2024.02.14 | ¿ù¼¼ | ÀÎÅÍ½ÃÆ¼ºô¶ó(392-13) | -1 | 56.51 | 9,500 | 35 | 2000 | | 2024.02.14 | ¿ù¼¼ | SKÀÚÀ̺ô(421-29) | 5 | 28.18 | 2,000 | 60 | 2014 | | 2024.02.14 | Àü¼¼ | õ¿ìºô¶ó(353-48) | 3 | 59.9 | 22,800 | 0 | 2000 | | 2024.02.14 | Àü¼¼ | ´ö¼ºÀÚÀ̺ô | 4 | 58.27 | 20,000 | 0 | 2012 | | 2024.02.14 | Àü¼¼ | ÇѺûÀ§³Ê½ººô(966-20) | 3 | 50.85 | 16,000 | 0 | 2008 | | 2024.02.14 | Àü¼¼ | Áê¾ó¸®¸Ç¼Ç | 4 | 51.25 | 15,000 | 0 | 2003 | | 2024.02.14 | Àü¼¼ | ´õ¿ø | 5 | 28.11 | 23,000 | 0 | 2019 | | 2024.02.14 | ¿ù¼¼ | SKÀÚÀ̺ô(421-29) | 5 | 28.18 | 2,000 | 60 | 2014 | | 2024.02.14 | Àü¼¼ | ¿¡½ºÄÉÀÌÆÄÅ©¸®¿ò101µ¿102µ¿ | 3 | 29.95 | 28,000 | 0 | 2022 | | 2024.02.14 | Àü¼¼ | »ó¾Æ¿¡¹ö±×¸° | 5 | 42.96 | 18,600 | 0 | 2012 | | 2024.02.14 | ¿ù¼¼ | ¼ºÀººô¶óBµ¿(56-394) | 4 | 42.66 | 12,500 | 12 | 2000 | | 2024.02.14 | Àü¼¼ | ¼Û¿øÄ³½½ | 4 | 41.55 | 23,000 | 0 | 2017 | | 2024.02.14 | Àü¼¼ | ¼Û¿øÄ³½½ | 3 | 41.55 | 23,000 | 0 | 2017 | | 2024.02.14 | Àü¼¼ | µ¿Èºô | 2 | 23.95 | 16,000 | 0 | 2019 | | 2024.02.14 | ¿ù¼¼ | ¹Ì·¡½ºÅ¸ºô5Â÷(464-10) | 4 | 40.04 | 12,000 | 30 | 2008 | | 2024.02.13 | Àü¼¼ | ÀÎÅÍ½ÃÆ¼ºô¶ó(341-42) | 4 | 58.5 | 16,000 | 0 | 2000 | | 2024.02.13 | Àü¼¼ | À̳뼿(1) | 5 | 27.64 | 17,000 | 0 | 2015 | | 2024.02.13 | ¿ù¼¼ | JEhouse | 4 | 24.82 | 5,500 | 70 | 2022 | | 2024.02.13 | Àü¼¼ | À¯´Ï¿Âºô¸®Áö°¡µ¿ | 1 | 44.29 | 11,620 | 0 | 2001 | | 2024.02.13 | Àü¼¼ | ¼ö¸í±×¸°ºô | 6 | 34.58 | 17,500 | 0 | 2016 | | 2024.02.13 | Àü¼¼ | (362-67) | 1 | 41.1 | 11,000 | 0 | 1986 | | 2024.02.13 | Àü¼¼ | (377-64) | 1 | 35.91 | 9,000 | 0 | 1986 | | 2024.02.13 | Àü¼¼ | ±î»çÁö¿À | 4 | 29.77 | 22,600 | 0 | 2021 | | 2024.02.13 | Àü¼¼ | ½ºÆäÀ̽ººô(1018-21) | 5 | 36.48 | 16,000 | 0 | 2012 | | 2024.02.13 | ¿ù¼¼ | »ïÁ¤ÆÄÅ©ºä | 6 | 29.98 | 50 | 195 | 2012 | | 2024.02.13 | ¿ù¼¼ | Á¤ÆÄÅ©ºô | 2 | 45.19 | 13,000 | 25 | 2008 | | 2024.02.13 | ¿ù¼¼ | ¿µ¾Ïºô¶ó | 4 | 52.29 | 3,000 | 60 | 1998 | | 2024.02.13 | Àü¼¼ | ¼ºÁÖ¸Ç¼Ç | 1 | 61.8 | 16,200 | 0 | 2002 | | 2024.02.13 | ¿ù¼¼ | °è¸íÀ§³Ê½º(56-163) | 5 | 39.36 | 11,400 | 15 | 2009 | | 2024.02.13 | Àü¼¼ | À¯´Ï¿Âºô¸®Áö°¡µ¿ | 1 | 44.29 | 12,700 | 0 | 2001 | | 2024.02.13 | ¿ù¼¼ | Á¤¿ì¾ÆÆ®ºô¶ó | 1 | 58.08 | 13,000 | 10 | 1994 | | 2024.02.13 | ¿ù¼¼ | ÀÎÅÍ½ÃÆ¼ºô¶óAµ¿(457-5) | 2 | 53.24 | 15,000 | 3 | 2008 | | 2024.02.13 | Àü¼¼ | ÀÚ¶óÇϿ콺 | 3 | 41.1 | 20,000 | 0 | 2013 | | 2024.02.12 | Àü¼¼ | ½Å¿µ¸®Ä¡ºô | 6 | 28.37 | 18,000 | 0 | 2016 | | 2024.02.12 | ¿ù¼¼ | Çѹ響î(Cµ¿) | -1 | 60.69 | 1,000 | 80 | 2002 | | 2024.02.12 | ¿ù¼¼ | »ïȺô¸®Áö | 3 | 47.43 | 1,000 | 45 | 2017 | | 2024.02.09 | ¿ù¼¼ | º£½ºÆ®ºô | 2 | 28.28 | 2,000 | 57 | 2019 | | 2024.02.08 | ¿ù¼¼ | ¾¾Æ¼ºô¸®Áö | 3 | 58.3 | 1,000 | 100 | 1996 | | 2024.02.08 | Àü¼¼ | »ï¼ºÆÄÅ©ºô(464-1) | 4 | 54.38 | 23,500 | 0 | 2012 | | 2024.02.08 | Àü¼¼ | »ïÈïÇÏÀÌÃ÷ºô¶ó | 3 | 43.47 | 12,000 | 0 | 1992 | | 2024.02.08 | Àü¼¼ | ½¦¶óÅæºô¶ó(56-273) | 3 | 46.08 | 11,800 | 0 | 1991 | | 2024.02.08 | Àü¼¼ | ÇѽžÆÀ̸£ºô13Â÷Aµ¿,Bµ¿ | 2 | 62.89 | 20,000 | 0 | 2009 | | 2024.02.08 | Àü¼¼ | ´õ¿ø¼¥5 | 3 | 28.98 | 24,000 | 0 | 2021 | | 2024.02.07 | Àü¼¼ | ÇູŸ¿î5Â÷ | 5 | 56.08 | 17,000 | 0 | 2008 | | 2024.02.07 | Àü¼¼ | »ï¼º½¦¸£ºô | 3 | 58.23 | 16,300 | 0 | 2002 | | 2024.02.07 | Àü¼¼ | ¿ì¼ºÅ׸¶ºô(410-100) | 5 | 60.48 | 17,000 | 0 | 2005 | | 2024.02.07 | ¿ù¼¼ | ¼º¿ìÇÏÀÌÃ÷B | 1 | 52.83 | 13,480 | 3 | 2001 | | 2024.02.07 | ¿ù¼¼ | È£¼º±×¸°ºä(424-23) | 5 | 26.43 | 3,000 | 80 | 2016 | | 2024.02.07 | Àü¼¼ | ¶ó¿Âºô¸®Áö | 2 | 23.59 | 15,490 | 0 | 2016 | | 2024.02.07 | ¿ù¼¼ | ´Ù¼¼´ë(986-24) | 2 | 17.21 | 2,000 | 50 | 2017 | | 2024.02.07 | Àü¼¼ | ´Ù¾Èºô¶óÆ® | 3 | 33.12 | 20,600 | 0 | 2016 | | 2024.02.07 | ¿ù¼¼ | ·çü¾²¸® | 5 | 12 | 3,000 | 24 | 2015 | | 2024.02.07 | ¿ù¼¼ | ´ë¿ø¾ÆÆ®ºôBµ¿ | 2 | 53.03 | 17,000 | 10 | 2003 | | 2024.02.07 | Àü¼¼ | ´õ¿ø | 5 | 28.11 | 23,400 | 0 | 2019 | | 2024.02.07 | Àü¼¼ | ´Ù¾Èºô¶óÆ® | 3 | 33.12 | 20,600 | 0 | 2016 | | 2024.02.07 | Àü¼¼ | ·ÎºóÇϿ콺 | 5 | 26.11 | 19,000 | 0 | 2018 | | 2024.02.07 | Àü¼¼ | ÇØºñÄ¡ºô | 5 | 26.23 | 21,000 | 0 | 2019 | | 2024.02.07 | Àü¼¼ | ´ë´öºô¶ó(164-26) | 3 | 59.97 | 17,000 | 0 | 2000 | | 2024.02.07 | Àü¼¼ | ´ë¼Ûºô¶ó(155-26) | 1 | 61.92 | 15,700 | 0 | 2000 | | 2024.02.07 | Àü¼¼ | ¶ó¿Âºô¸®Áö | 2 | 23.59 | 15,490 | 0 | 2016 | | 2024.02.07 | Àü¼¼ | Å¿ø¿¬¸³ | 1 | 40.53 | 11,000 | 0 | 1981 | | 2024.02.07 | Àü¼¼ | ºí·ç½ºÄ«À̺ô(860-20) | 2 | 28.63 | 18,000 | 0 | 2014 | | 2024.02.07 | ¿ù¼¼ | ¿ÍÀ̾غñ´õ½ºÅ丮 | 4 | 29.72 | 4,000 | 125 | 2022 | | 2024.02.07 | ¿ù¼¼ | ³²¼º¾ÆÆ®ºô(367-65) | 8 | 25.63 | 15,300 | 35 | 2017 | | 2024.02.06 | Àü¼¼ | °è¸íÁÖÅ𡵿 | 4 | 52.3 | 16,000 | 0 | 2000 | | 2024.02.06 | Àü¼¼ | ´Ù¼ØÅ¸¿îAµ¿ | 5 | 35.08 | 17,000 | 0 | 2014 | | 2024.02.06 | Àü¼¼ | ´õ¿øÇϿ콺 | 3 | 29.14 | 22,420 | 0 | 2023 | | 2024.02.06 | ¿ù¼¼ | ANPȰî | 4 | 24.05 | 1,000 | 100 | 2022 | | 2024.02.06 | ¿ù¼¼ | ÃÊ¿øºô¶ó | -1 | 34.66 | 500 | 45 | 1994 | | 2024.02.06 | Àü¼¼ | ¹Ù¿ìÇϿ콺(895-10) | 4 | 12.16 | 5,990 | 0 | 2011 | | 2024.02.06 | ¿ù¼¼ | OKÆÄÅ©ºô5Â÷(370-25) | 6 | 36.6 | 5,000 | 100 | 2017 | | 2024.02.06 | ¿ù¼¼ | ¼º¿øÆÄÅ©ºô | 4 | 32.16 | 1,000 | 49 | 2008 | | 2024.02.06 | ¿ù¼¼ | µÕÁö¾ÆÆ®(56-570) | 2 | 56.76 | 2,000 | 60 | 1997 | | 2024.02.06 | ¿ù¼¼ | ¼±ÁøÇÁ¸®ÅÚ | 1 | 21.42 | 5,000 | 20 | 2002 | | 2024.02.06 | Àü¼¼ | LKµå¸²ºô(504-80) | 2 | 25.64 | 17,200 | 0 | 2018 | | 2024.02.06 | ¿ù¼¼ | ÇÑÀϱ׸°ºô | 2 | 59.37 | 17,800 | 10 | 2008 | | 2024.02.06 | Àü¼¼ | ´ë¸²Ä³½½(95-124) | 4 | 35.04 | 14,000 | 0 | 2012 | | 2024.02.06 | Àü¼¼ | °¼ÆÄÅ©ºäÅõ¿þ´ÏÆÛ½ºÆ® | 17 | 19.18 | 21,450 | 0 | 2020 | | 2024.02.06 | Àü¼¼ | ´õ¿ø | 5 | 28.11 | 28,500 | 0 | 2019 | | 2024.02.06 | Àü¼¼ | ´õŬ·¡½Ä | 4 | 29.46 | 19,300 | 0 | 2018 | | 2024.02.06 | Àü¼¼ | dz¼º¾Ö¶ã¾È | 5 | 46.88 | 27,000 | 0 | 2016 | | 2024.02.06 | ¿ù¼¼ | ½Å¿µºô¶óAµ¿(55-93) | 2 | 72 | 5,000 | 60 | 2001 | | 2024.02.06 | ¿ù¼¼ | ÇÁ¸®Áòºô¶óAµ¿ | 3 | 41.24 | 12,100 | 18 | 2002 | | 2024.02.06 | ¿ù¼¼ | ¾Ëº£·Î | 4 | 13.6 | 1,000 | 42 | 2011 | | 2024.02.06 | ¿ù¼¼ | ¸íÁøÈÀÌÆ®ºô(397-7) | 2 | 48.56 | 16,000 | 10 | 2008 | | 2024.02.06 | ¿ù¼¼ | Çý¼ºÆÓ¸®½º24Â÷(397-33) | 4 | 29.37 | 2,000 | 70 | 2013 | | 2024.02.05 | ¿ù¼¼ | Çý¼ºÆç¸®½ººô | 3 | 26.22 | 15,050 | 20 | 2018 | | 2024.02.05 | Àü¼¼ | ½Å¿ì¿¡À̽ººô(50-68) | 2 | 29.99 | 16,880 | 0 | 2018 | | 2024.02.05 | Àü¼¼ | ¾¾Æ¼ÇϿ콺ºñµ¿ | 4 | 23.57 | 16,000 | 0 | 2017 | | 2024.02.05 | ¿ù¼¼ | (362-67) | 1 | 41.1 | 10,000 | 12 | 1986 | | 2024.02.05 | ¿ù¼¼ | ±×¸°¸ð´×ºô³ªµ¿ | 3 | 57.58 | 3,000 | 80 | 2002 | | 2024.02.05 | Àü¼¼ | Æ®¸®Çÿ¡½ººô(966-22) | 4 | 34.11 | 13,000 | 0 | 2012 | | 2024.02.05 | ¿ù¼¼ | °æ¹Î¾ÆÆ®ºô(105-21¹øÁö) | 2 | 29.99 | 5,000 | 60 | 2016 | | 2024.02.05 | Àü¼¼ | HIGH-END480 | 5 | 29.98 | 27,300 | 0 | 2023 | | 2024.02.05 | ¿ù¼¼ | ¿ì¼ººô¶ó | 3 | 51.87 | 12,900 | 10 | 1995 | | 2024.02.05 | Àü¼¼ | ¹Ì¼ºÁÖÅà | 3 | 38.43 | 8,000 | 0 | 1991 | | 2024.02.05 | Àü¼¼ | ÇÑ¿ï¶ß¶õä | 2 | 37.89 | 15,600 | 0 | 2011 | | 2024.02.05 | ¿ù¼¼ | Çý¼ºÆç¸®½ººô | 3 | 26.22 | 17,050 | 10 | 2018 | | 2024.02.05 | ¿ù¼¼ | ¸í°¡ÇϿ콺 | 4 | 37 | 2,000 | 85 | 2016 | | 2024.02.05 | ¿ù¼¼ | ÇØ¿Âij½½ | 6 | 14.16 | 5,000 | 59 | 2019 | | 2024.02.05 | Àü¼¼ | â´ë(366-34) | 6 | 31.62 | 14,700 | 0 | 2013 | | 2024.02.05 | Àü¼¼ | (462-14) | 2 | 55.21 | 6,000 | 0 | 1978 | | 2024.02.05 | ¿ù¼¼ | »óÀç¾ÆÆ®ºô | 3 | 59.99 | 3,000 | 70 | 2003 | | 2024.02.05 | ¿ù¼¼ | ¼Ò´ã¹ë¸®(807-3) | 3 | 36.16 | 5,000 | 65 | 2013 | | 2024.02.05 | ¿ù¼¼ | ¼Ò´ã¹ë¸®(807-3) | 3 | 36.16 | 5,000 | 65 | 2013 | | 2024.02.05 | ¿ù¼¼ | ȼººô¶óAµ¿(56-323) | 4 | 28.53 | 7,560 | 18 | 2001 | | 2024.02.04 | ¿ù¼¼ | ¿¬¿ì³Ø½ºÆ®ºä | 13 | 13.16 | 13,000 | 10 | 2018 | | 2024.02.04 | ¿ù¼¼ | LKµå¸²ºô(Ȱî504-12) | 5 | 33.49 | 5,000 | 83 | 2015 | | 2024.02.04 | ¿ù¼¼ | ÇÑ¿ï | 3 | 55.46 | 13,500 | 20 | 1993 | | 2024.02.04 | ¿ù¼¼ | Çý¼ººô¶óA | 2 | 37.62 | 1,000 | 65 | 2005 | | 2024.02.04 | ¿ù¼¼ | ÁøÁÖºô¶ó(960-3) | 4 | 36.37 | 9,000 | 25 | 1991 | | 2024.02.04 | ¿ù¼¼ | ·ÎºóÇϿ콺 | 6 | 35.35 | 1,000 | 110 | 2018 | | 2024.02.03 | ¿ù¼¼ | ÇÏÀÌÆÄÅ©ºô | 5 | 32.26 | 5,500 | 60 | 2007 | | 2024.02.03 | ¿ù¼¼ | ·Î¾âÇÏÀÌÃ÷ | 4 | 52.49 | 2,000 | 70 | 2010 | | 2024.02.03 | ¿ù¼¼ | (29-171) | 2 | 29.55 | 3,000 | 60 | 2020 | | 2024.02.03 | Àü¼¼ | ÇѾçºô¶ó | 1 | 60.85 | 14,500 | 0 | 1992 | | 2024.02.03 | Àü¼¼ | ¸¶¸¶½ººô | 3 | 37.56 | 20,500 | 0 | 2017 | | 2024.02.03 | Àü¼¼ | ´ë¸í½ÃƼºô | 2 | 40.08 | 13,700 | 0 | 2007 | | 2024.02.03 | Àü¼¼ | ¹Ì·¡ÇϿ콺 | 4 | 22.38 | 20,000 | 0 | 2018 | | 2024.02.03 | ¿ù¼¼ | º¹Áö±×¸°ºô(98-77) | 2 | 62.68 | 16,000 | 10 | 2001 | | 2024.02.03 | Àü¼¼ | µ¿¼ºô¶óA | 1 | 54.57 | 12,800 | 0 | 1992 | | 2024.02.03 | ¿ù¼¼ | ÇØ¼Öº§¸® | 2 | 27.54 | 2,000 | 80 | 2021 | | 2024.02.03 | Àü¼¼ | Å¿µ¾ÆÆ®ºô | 2 | 43.46 | 18,200 | 0 | 2011 | | 2024.02.03 | ¿ù¼¼ | ´õ½ºÀ§Æ®(457-20) | 4 | 29.12 | 5,000 | 69 | 2022 | | 2024.02.02 | ¿ù¼¼ | Áø¿µÇÏÀ̺ô(24-243) | 1 | 39.58 | 10,800 | 22 | 2000 | | 2024.02.02 | Àü¼¼ | ÇϳªÇÏÀÌÃ÷(996-9) | 3 | 42.88 | 19,900 | 0 | 2012 | | 2024.02.02 | Àü¼¼ | ½Åµ¿¾Æºô¶ó | 2 | 37.2 | 10,500 | 0 | 1993 | | 2024.02.02 | Àü¼¼ | ¹Î¼ººô¶ó | 1 | 59.9 | 15,000 | 0 | 2000 | | 2024.02.02 | Àü¼¼ | °¨¼ºÇÏÀÌÃ÷ | 2 | 29.5 | 17,100 | 0 | 2017 | | 2024.02.02 | Àü¼¼ | µ¿µµÇÏÀÌÃ÷ºô¶ó(°¡µ¿) | 4 | 41.24 | 12,000 | 0 | 2001 | | 2024.02.02 | Àü¼¼ | ¿ë¹®Bµ¿ | 4 | 62.94 | 16,000 | 0 | 2000 | | 2024.02.02 | Àü¼¼ | µ¿±¤ºô¶ó5Â÷ | 2 | 46.8 | 14,300 | 0 | 1996 | | 2024.02.02 | Àü¼¼ | Çѹ鸮Ã÷ºô(56-547) | 3 | 48.28 | 15,000 | 0 | 2008 | | 2024.02.02 | Àü¼¼ | À£½ºÆÄÅ©ºô | 2 | 29.99 | 20,660 | 0 | 2018 | | 2024.02.02 | Àü¼¼ | Á¦ÀÌÅõ¸®´õ½º | 2 | 27.73 | 22,300 | 0 | 2019 | | 2024.02.02 | Àü¼¼ | ¿ÍÀ̾غñ´õ½ºÅ丮 | 3 | 28.52 | 21,900 | 0 | 2022 | | 2024.02.02 | ¿ù¼¼ | (1047-4) | 4 | 48.3 | 13,000 | 25 | 2000 | | 2024.02.01 | Àü¼¼ | µ¿¹æºô¶ó | -1 | 34.31 | 2,000 | 0 | 1991 | | 2024.02.01 | ¿ù¼¼ | ÿ½ÃÇϿ콺(424-35¿Ü1) | 2 | 42 | 500 | 100 | 2015 | | 2024.02.01 | Àü¼¼ | ¾ÆÁÙ¸®¾Æ | 5 | 35 | 21,000 | 0 | 2015 | | 2024.02.01 | ¿ù¼¼ | û¼ÛÆòÈÇコÇϿ콺(341-5) | 4 | 53.5 | 8,000 | 90 | 2018 | | 2024.02.01 | ¿ù¼¼ | (871-56) | 1 | 67.35 | 2,000 | 75 | 2000 | | 2024.02.01 | Àü¼¼ | ÀºÇÏŸ¿î¿¡À̵¿ | 2 | 55.56 | 17,000 | 0 | 2004 | | 2024.02.01 | Àü¼¼ | Ŭ·¡½ÄºäAµ¿ | 2 | 61.87 | 17,000 | 0 | 2002 | | 2024.02.01 | ¿ù¼¼ | ´Ù¾Èºô¶óÆ® | 3 | 33.12 | 4,000 | 70 | 2016 | | 2024.02.01 | Àü¼¼ | (158-10) | 3 | 117.8 | 24,690 | 0 | 1991 | | 2024.02.01 | ¿ù¼¼ | ¼ÁÖºôµù(401-22) | 3 | 20.24 | 500 | 49 | 1996 | | 2024.02.01 | ¿ù¼¼ | ÇØ¿Âij½½ | 2 | 26.93 | 17,000 | 20 | 2019 | | 2024.02.01 | ¿ù¼¼ | dz¸²·ÎÁîºôBµ¿ | 5 | 44.13 | 2,000 | 70 | 2002 | | 2024.02.01 | Àü¼¼ | º®»êȨŸ¿î(466-4) | 3 | 48.61 | 13,500 | 0 | 2002 | | 2024.02.01 | ¿ù¼¼ | ·ÎÁîºô(24-113) | 3 | 38.135 | 3,000 | 95 | 2018 | | 2024.02.01 | Àü¼¼ | ÀºÇÏŸ¿î¿¡À̵¿ | 2 | 55.56 | 17,000 | 0 | 2004 | | 2024.02.01 | Àü¼¼ | Çö´ëºô¸®Áö | 4 | 77.1 | 22,100 | 0 | 1997 | | 2024.01.31 | Àü¼¼ | ¼Û¿øÄ³½½ | 2 | 41.55 | 23,000 | 0 | 2017 | | 2024.01.31 | ¿ù¼¼ | Çý¼ºÆÓ¸®½º(155-17) | 4 | 27.08 | 15,120 | 10 | 2018 | | 2024.01.31 | ¿ù¼¼ | ´ë¿øºô¶ó(392-42) | 4 | 23.03 | 6,600 | 15 | 1999 | | 2024.01.31 | ¿ù¼¼ | ¸íÁøÈÀÌÆ®ºô | 4 | 24.42 | 1,000 | 60 | 2008 | | 2024.01.31 | Àü¼¼ | ´Ù¿Âä | 4 | 39.15 | 23,500 | 0 | 2018 | | 2024.01.31 | ¿ù¼¼ | °½Åºô¶ó³ªµ¿ | 2 | 34.77 | 10,000 | 10 | 1987 | | 2024.01.31 | ¿ù¼¼ | ±Ý°´©¸®ºô(998-10) | 5 | 15.72 | 6,840 | 3 | 2012 | | 2024.01.31 | Àü¼¼ | ±×¸°Å¸¿îºô | 4 | 59.49 | 22,300 | 0 | 2008 | | 2024.01.31 | ¿ù¼¼ | ´õ½ºÀ§Æ®(457-20) | 3 | 29.12 | 5,000 | 70 | 2022 | | 2024.01.31 | Àü¼¼ | ¿¤¾¾ºô | 5 | 51.96 | 15,800 | 0 | 2008 | | 2024.01.31 | Àü¼¼ | À̳뼿(1) | 5 | 27.64 | 15,600 | 0 | 2015 | | 2024.01.31 | ¿ù¼¼ | ¹Ì·¡ÇÏÀÌÃ÷(410-40) | 4 | 36.12 | 11,390 | 3 | 2002 | | 2024.01.31 | ¿ù¼¼ | ´õ½ºÀ§Æ®(457-20) | 2 | 29.36 | 3,000 | 85 | 2022 | | 2024.01.30 | Àü¼¼ | ¼º±¤ºô¶ó | 2 | 35.3 | 9,400 | 0 | 1987 | | 2024.01.30 | Àü¼¼ | ´ëÁÖ½¦¸£ºô | 4 | 54.33 | 15,600 | 0 | 2002 | | 2024.01.30 | ¿ù¼¼ | ´ë¿õÇÏÀÌÃ÷5Â÷ | -1 | 43.97 | 1,000 | 40 | 1992 | | 2024.01.30 | Àü¼¼ | Çý¼ºÆç¸®½ººô | 4 | 26.22 | 15,400 | 0 | 2018 | | 2024.01.30 | Àü¼¼ | ÀÏÁÖÇϿ콺 | 3 | 29.93 | 21,000 | 0 | 2020 | | 2024.01.30 | ¿ù¼¼ | ¿À¼ÖÁÖÅà | 4 | 26.52 | 4,000 | 30 | 2002 | | 2024.01.30 | Àü¼¼ | À¯³ëÀÌ¾Æ | 4 | 29.94 | 20,000 | 0 | 2023 | | 2024.01.30 | ¿ù¼¼ | ¼º¿øÇÁ¶ó¿ìµå | 2 | 28.44 | 800 | 70 | 2018 | | 2024.01.30 | ¿ù¼¼ | ·ÎÁîºô | 3 | 106.27 | 25,000 | 30 | 2004 | | 2024.01.30 | ¿ù¼¼ | µð¾Æ¸Á2(105-82) | 2 | 29.94 | 14,000 | 20 | 2014 | | 2024.01.30 | ¿ù¼¼ | ´õ¿ø#8 | 6 | 29.73 | 5,000 | 95 | 2022 | | 2024.01.30 | Àü¼¼ | THEJIA | 4 | 29.76 | 25,000 | 0 | 2022 | | 2024.01.30 | Àü¼¼ | º¹Áö±×¸°ºô | 3 | 61.69 | 18,000 | 0 | 2001 | | 2024.01.30 | Àü¼¼ | ¿ì¼º | 2 | 42.34 | 21,700 | 0 | 2015 | | 2024.01.30 | ¿ù¼¼ | (1071-37)Çѿ\ºìºô | 5 | 24.78 | 8,420 | 20 | 2009 | | 2024.01.30 | Àü¼¼ | ´õŬ·¡½Ä(857-19) | 4 | 26.95 | 16,800 | 0 | 2018 | | 2024.01.30 | Àü¼¼ | ÀÎÅÍ½ÃÆ¼ºô¶óCµ¿(457-8) | 3 | 83.5 | 23,400 | 0 | 2008 | | 2024.01.30 | Àü¼¼ | ¶óÀÎÆÄÅ© | 2 | 26.68 | 17,380 | 0 | 2018 | | 2024.01.29 | Àü¼¼ | ¹ÖÅ©ÇϿ콺 | -1 | 42.85 | 8,000 | 0 | 2001 | | 2024.01.29 | Àü¼¼ | ¸ð´øºô(410-36) | 2 | 70.74 | 16,000 | 0 | 2002 | | 2024.01.29 | Àü¼¼ | ¸ð´øºô(410-36) | 2 | 70.74 | 16,000 | 0 | 2002 | | 2024.01.29 | ¿ù¼¼ | Çý¼ºÆÓ¸®½ººô(392-31) | 3 | 37.66 | 3,000 | 70 | 2014 | | 2024.01.29 | ¿ù¼¼ | ¿¥Æç¸®Ã¼ | 4 | 35.76 | 3,000 | 85 | 2017 | | 2024.01.29 | ¿ù¼¼ | ´õÆ®¶óÀÌ¾Þ±Û | 5 | 27.91 | 8,000 | 80 | 2021 | | 2024.01.29 | ¿ù¼¼ | ÇϳªÇÏÀÌÃ÷(1098-14) | 5 | 56.98 | 17,000 | 20 | 2012 | | 2024.01.29 | Àü¼¼ | ȼººô¶ó(56-473) | 3 | 51.36 | 13,000 | 0 | 2002 | | 2024.01.29 | ¿ù¼¼ | »ïÀͺô¶ó | 3 | 38.03 | 10,800 | 5 | 1991 | | 2024.01.29 | Àü¼¼ | À¯³ëÀÌ¾Æ | 3 | 29.94 | 20,000 | 0 | 2023 | | 2024.01.29 | Àü¼¼ | ½Ã¿ø¾ÆÆ®ºô´Ùµ¿ | 2 | 45.9 | 14,200 | 0 | 2002 | | 2024.01.29 | Àü¼¼ | ·¹À̳ª | 4 | 35.9 | 17,700 | 0 | 2013 | | 2024.01.29 | Àü¼¼ | ´ÙÀÎÇϿ콺 | 5 | 27.46 | 26,000 | 0 | 2022 | | 2024.01.29 | Àü¼¼ | ´õ´©¸² | 2 | 29.39 | 18,700 | 0 | 2018 | | 2024.01.29 | Àü¼¼ | ¹Ì¼Òºô | 2 | 27.79 | 17,000 | 0 | 2018 | | 2024.01.29 | ¿ù¼¼ | ¼ºÀçij½½ºô(102-139) | 2 | 58.27 | 900 | 50 | 2008 | | 2024.01.28 | Àü¼¼ | ´õÇ÷¹À̽º | 2 | 26.05 | 15,000 | 0 | 2017 | | 2024.01.28 | Àü¼¼ | ½Å¿µº£¸£µð¿ò | 2 | 39.88 | 21,670 | 0 | 2017 | | 2024.01.27 | Àü¼¼ | ½Ö¿ëÇÏÀ̺ô | 3 | 46.53 | 15,000 | 0 | 2001 | | 2024.01.27 | Àü¼¼ | ¿¡µ§ºô¶ó | 2 | 67.81 | 17,000 | 0 | 1998 | | 2024.01.27 | ¿ù¼¼ | °¡¿Âºô | 4 | 29.84 | 2,000 | 70 | 2014 | | 2024.01.27 | ¿ù¼¼ | ¼º¿ìºô¶ó | 4 | 45.22 | 11,600 | 24 | 1993 | | 2024.01.27 | Àü¼¼ | ¼øÈ¯ºô¶óBµ¿ | 5 | 54.49 | 14,700 | 0 | 2001 | | 2024.01.27 | Àü¼¼ | °è¸íÁÖÅôٵ¿ | 4 | 56.15 | 17,500 | 0 | 2000 | | 2024.01.27 | ¿ù¼¼ | ±î»çÁö¿À | 3 | 26.74 | 1,000 | 70 | 2015 | | 2024.01.27 | Àü¼¼ | ¾÷Ÿ¿îºô¸®Áö | 3 | 29.94 | 17,800 | 0 | 2017 | | 2024.01.27 | ¿ù¼¼ | °ø°£ÁöÀ½102 | 4 | 29.52 | 1,000 | 92 | 2021 | | 2024.01.27 | ¿ù¼¼ | ÆÄÅ©±×¸°ºô¶ó | 4 | 43.72 | 2,000 | 70 | 2001 | | 2024.01.27 | ¿ù¼¼ | ¿ìȱ׸°(969-13) | 2 | 29.78 | 12,700 | 10 | 2012 | | 2024.01.27 | Àü¼¼ | ¼¾Æ®ºô3Â÷ | 3 | 45.64 | 18,600 | 0 | 2011 | | 2024.01.27 | Àü¼¼ | ¾÷Ÿ¿îºô¸®Áö | 3 | 29.94 | 17,000 | 0 | 2017 | | 2024.01.27 | ¿ù¼¼ | °æ½Å¾ÆÆ®ºô | 4 | 37.56 | 3,000 | 65 | 2002 | | 2024.01.27 | ¿ù¼¼ | ½ºÆäÀ̽ººô(1018-21) | 3 | 35.17 | 3,000 | 70 | 2012 | | 2024.01.27 | Àü¼¼ | ½îȨ¾ÆÆ®ºô | 3 | 40.25 | 19,000 | 0 | 2013 | | 2024.01.27 | Àü¼¼ | SKÀÚÀ̺ô(421-29) | 3 | 37.77 | 18,700 | 0 | 2014 | | 2024.01.27 | Àü¼¼ | ¾Æµ¥³ªÆÓ¸®½º | 5 | 34.68 | 19,400 | 0 | 2016 | | 2024.01.27 | Àü¼¼ | ¿ì¼ººô¶ó | 3 | 42.57 | 12,000 | 0 | 2002 | | 2024.01.27 | ¿ù¼¼ | ¾Æµ¥³ªÆÓ¸®½º | 7 | 23.56 | 19,000 | 15 | 2016 | | 2024.01.27 | Àü¼¼ | Àκ£½ºÆ®¾ÆÆ®ºô | 3 | 64.22 | 17,000 | 0 | 2007 | | 2024.01.27 | Àü¼¼ | HIGH-END480 | 6 | 29.97 | 27,100 | 0 | 2023 | | 2024.01.27 | Àü¼¼ | µ¿±¤ºô¶óÆ®(98-34) | 3 | 62.85 | 17,500 | 0 | 1997 | | 2024.01.26 | Àü¼¼ | ¼¼ÈÇÏÀÌÃ÷¸Ç¼Ç | 3 | 64.28 | 20,500 | 0 | 2001 | | 2024.01.26 | ¿ù¼¼ | ÇÁ¶óÀÓÁÖÅÃ(392-15) | 2 | 28.56 | 12,000 | 15 | 2014 | | 2024.01.26 | ¿ù¼¼ | Çö´ëÇÏ¿ì¡(51-37) | 5 | 31.74 | 5,000 | 50 | 2011 | | 2024.01.26 | ¿ù¼¼ | »ïȺô¸®Áö | 5 | 45.72 | 1,000 | 45 | 2017 | | 2024.01.26 | Àü¼¼ | û¼ÛÆòÈÇコÇϿ콺 | 3 | 39.84 | 23,000 | 0 | 2016 | | 2024.01.26 | Àü¼¼ | ¼ºÁøÅ¸¿î | 3 | 26.88 | 13,000 | 0 | 2012 | | 2024.01.26 | ¿ù¼¼ | ¾Æµ¨¸®¾Æ¥´(105-370) | 6 | 13.32 | 2,000 | 45 | 2013 | | 2024.01.26 | Àü¼¼ | ´õŬ·¡½Ä | 3 | 44.71 | 25,000 | 0 | 2018 | | 2024.01.26 | Àü¼¼ | À̵µÆÓ¸®½º | 5 | 22.56 | 20,000 | 0 | 2021 | | 2024.01.26 | Àü¼¼ | ÇÏÀ̺ô(346-111) | 4 | 41.4 | 12,900 | 0 | 2004 | | 2024.01.26 | Àü¼¼ | µð¾ÆÀνº(1075-27) | 6 | 22.97 | 14,000 | 0 | 2015 | | 2024.01.26 | Àü¼¼ | ´Ù´Ùºô¸®Áö | 6 | 34.09 | 21,000 | 0 | 2015 | | 2024.01.26 | ¿ù¼¼ | »ïȺô¸®Áö | 5 | 45.72 | 1,000 | 45 | 2017 | | 2024.01.25 | ¿ù¼¼ | °Å¼º | 2 | 43.56 | 13,000 | 10 | 1986 | | 2024.01.25 | ¿ù¼¼ | ºÎÀϽ¦¸£ºôAµ¿ | 5 | 31.46 | 9,620 | 20 | 2002 | | 2024.01.25 | Àü¼¼ | ¹Ì·¡ºô¶ó | 3 | 52.35 | 17,000 | 0 | 2003 | | 2024.01.25 | Àü¼¼ | ´ë½Å¸Ç¼Ç | 1 | 53.24 | 12,400 | 0 | 2002 | | 2024.01.25 | ¿ù¼¼ | ¿¡ÄÚºô | 3 | 28.97 | 5,000 | 70 | 2022 | | 2024.01.25 | ¿ù¼¼ | ¾¾Æ¼ÇϿ콺(773-10) | 3 | 29.99 | 3,000 | 75 | 2014 | | 2024.01.25 | Àü¼¼ | 338-10 | 2 | 34.03 | 21,500 | 0 | 2015 | | 2024.01.25 | Àü¼¼ | ·Ôµ¥Å¸¿î | 4 | 48.32 | 17,000 | 0 | 2011 | | 2024.01.25 | ¿ù¼¼ | ¿¤Æç¸®½º | 5 | 28.08 | 4,500 | 80 | 2022 | | 2024.01.25 | Àü¼¼ | ¼ö¸í±×¸°ºô | 2 | 39.77 | 22,500 | 0 | 2016 | | 2024.01.25 | Àü¼¼ | ´õ¿ø | 4 | 28.05 | 19,500 | 0 | 2019 | | 2024.01.25 | Àü¼¼ | (424-5)½ÅÀϺô¶ó | 1 | 53.94 | 9,000 | 0 | 2007 | | 2024.01.25 | Àü¼¼ | ¿ì¼ººô¶ó(352-47) | -1 | 59.9 | 11,000 | 0 | 1996 | | 2024.01.25 | Àü¼¼ | Á¦ÀÌÅõ¸®´õ½º | 2 | 27.73 | 22,300 | 0 | 2019 | | 2024.01.25 | Àü¼¼ | ´ëµ¿ºô | 5 | 26.18 | 19,600 | 0 | 2020 | | 2024.01.25 | Àü¼¼ | û¼ÛÆòÈÇコÇϿ콺(457-3) | 2 | 29.85 | 15,750 | 0 | 2015 | | 2024.01.25 | ¿ù¼¼ | Ãæ¹«ºô¶ó | 4 | 32.61 | 10,000 | 10 | 2002 | | 2024.01.24 | ¿ù¼¼ | ANA6 | 2 | 27.66 | 0 | 225 | 2022 | | 2024.01.24 | Àü¼¼ | ¹Ý¼®village | 2 | 29.6 | 16,350 | 0 | 2019 | | 2024.01.24 | ¿ù¼¼ | ½Å¼º¿¬¸³ | 3 | 47.55 | 5,000 | 45 | 1994 | | 2024.01.24 | ¿ù¼¼ | Á¦À̽ººô(969-5) | 3 | 19.23 | 5,000 | 40 | 2022 | | 2024.01.24 | ¿ù¼¼ | »ï¿øÇÏÀÌÃ÷3Â÷ | 3 | 45.3 | 12,380 | 8 | 1993 | | 2024.01.24 | Àü¼¼ | ¸í½ÅŸ¿î6Â÷(341-20) | 4 | 41.26 | 13,100 | 0 | 2001 | | 2024.01.24 | Àü¼¼ | ¿©¸íºô¶ó | 4 | 59.7 | 17,700 | 0 | 1999 | | 2024.01.24 | Àü¼¼ | żººñ¸®Ä¡¸Ç¼Ç | 2 | 63.72 | 16,500 | 0 | 2001 | | 2024.01.24 | Àü¼¼ | ȼººô¶ó(56-151) | 3 | 39.46 | 10,900 | 0 | 1995 | | 2024.01.24 | Àü¼¼ | ÈÀκô(822-11) | 3 | 54.88 | 18,500 | 0 | 2008 | | 2024.01.24 | ¿ù¼¼ | ¿ì¼º | 2 | 37.58 | 19,000 | 15 | 2016 | | 2024.01.24 | ¿ù¼¼ | (366-42) | 2 | 28.44 | 1,000 | 40 | 1996 | | 2024.01.24 | ¿ù¼¼ | ¼öÇÇ¾Æ | 6 | 35.2 | 5,000 | 35 | 2019 | | 2024.01.24 | Àü¼¼ | ÇÏÀÌÆ®¸Ç¼Ç(917-2) | 3 | 48.99 | 23,000 | 0 | 2001 | | 2024.01.24 | ¿ù¼¼ | ¼ºÀº¾ÆÆ®¸Ç¼Ç | 3 | 47.13 | 1,000 | 105 | 1997 | | 2024.01.24 | Àü¼¼ | »ï¼º½¦¸£ºô(881-36) | 2 | 39.67 | 23,500 | 0 | 2014 | | 2024.01.24 | Àü¼¼ | ¾ÆÁÙ¸®¿ò | 3 | 26.23 | 17,200 | 0 | 2017 | | 2024.01.24 | Àü¼¼ | ¿ìÇöÆç¸®½º | 2 | 29.5 | 16,880 | 0 | 2016 | | 2024.01.24 | Àü¼¼ | À̵µÆÓ¸®½º(1049-29) | 5 | 17.88 | 17,500 | 0 | 2022 | | 2024.01.23 | Àü¼¼ | µ¿µµÇÏÀÌÃ÷ºô¶ó¶óµ¿ | 5 | 43.23 | 10,000 | 0 | 2001 | | 2024.01.23 | ¿ù¼¼ | ¼Çöºô¶ó(56-103) | 1 | 42.34 | 10,060 | 25 | 2002 | | 2024.01.23 | ¿ù¼¼ | »õ·Ò½ºÅ¸Áî | 2 | 28.62 | 15,000 | 15 | 2016 | | 2024.01.23 | ¿ù¼¼ | ÇÏ¿ìÀç995 | 3 | 28.85 | 3,000 | 90 | 2022 | | 2024.01.23 | Àü¼¼ | »ï°æ±×¸°ºô¶ó | 3 | 61.64 | 19,000 | 0 | 2001 | | 2024.01.23 | ¿ù¼¼ | ¼Û¿øÄ³½½ | 5 | 29.91 | 12,000 | 20 | 2017 | | 2024.01.23 | ¿ù¼¼ | ¸®Ä¡ÇϿ콺 | 6 | 37.99 | 10,000 | 38 | 2016 | | 2024.01.23 | Àü¼¼ | À¯³ëÀÌ¾Æ | 4 | 51.06 | 30,000 | 0 | 2023 | | 2024.01.23 | ¿ù¼¼ | Çູµå¸²ºôAµ¿ | 2 | 42.64 | 3,000 | 70 | 2002 | | 2024.01.23 | Àü¼¼ | ¿¥Æç¸®Ã¼ | 2 | 35.97 | 21,168 | 0 | 2017 | | 2024.01.23 | Àü¼¼ | ¾ÆÁÙ¸®¾Æ | 4 | 35 | 21,000 | 0 | 2015 | | 2024.01.23 | Àü¼¼ | ³²¼º¾ÆÆ®ºô(381-1) | 7 | 42.22 | 23,400 | 0 | 2015 | | 2024.01.23 | ¿ù¼¼ | ¹é°¿ø·ë | 3 | 12.02 | 1,000 | 43 | 2011 | | 2024.01.23 | ¿ù¼¼ | ¶óÇǾƳë | 4 | 28.95 | 5,000 | 90 | 2022 | | 2024.01.23 | ¿ù¼¼ | Çູµå¸²ºôAµ¿ | 2 | 42.64 | 5,000 | 50 | 2002 | | 2024.01.22 | Àü¼¼ | ±¤´öÇÏÀ̺ô | 4 | 72.33 | 18,000 | 0 | 2002 | | 2024.01.22 | Àü¼¼ | °Å¼º | 3 | 43.92 | 12,500 | 0 | 1987 | | 2024.01.22 | Àü¼¼ | ½¦¶óÅæºô¶ó(56-273) | 3 | 46.08 | 11,800 | 0 | 1991 | | 2024.01.22 | ¿ù¼¼ | ȰîÅõ¿þ´ÏÆÛ½ºÆ® | 11 | 24.45 | 2,000 | 89 | 2018 | | 2024.01.22 | Àü¼¼ | ¹Ì¼ºÇϸ£µò(1102-5) | 3 | 29.19 | 22,400 | 0 | 2018 | | 2024.01.22 | ¿ù¼¼ | ¾ÆÁÖ¾ÆÆ®ºô¶ó | 4 | 57.42 | 3,000 | 65 | 1992 | | 2024.01.22 | ¿ù¼¼ | ¼ÁÖºôµù(401-22) | 3 | 18.5 | 500 | 36 | 1996 | | 2024.01.22 | ¿ù¼¼ | (792-10) | -1 | 41.69 | 2,000 | 45 | 1986 | | 2024.01.22 | Àü¼¼ | ´º±×¸°ÆÄÅ©ºô | 4 | 35.56 | 14,700 | 0 | 2010 | | 2024.01.22 | ¿ù¼¼ | Å¿µ¾ÆÆ®ºô | 2 | 30.07 | 13,300 | 15 | 2014 | | 2024.01.22 | Àü¼¼ | ´õ¿øÇϿ콺 | 4 | 22.95 | 20,660 | 0 | 2023 | | 2024.01.22 | Àü¼¼ | »ï¼ººí·ç¹Ö(101µ¿102µ¿) | 4 | 29.98 | 15,000 | 0 | 2015 | | 2024.01.22 | Àü¼¼ | °Å¼º | 3 | 43.92 | 12,500 | 0 | 1987 | | 2024.01.22 | ¿ù¼¼ | À̵µÆÓ¸®½º | 2 | 24.36 | 21,600 | 15 | 2021 | | 2024.01.22 | Àü¼¼ | ´õ¿ø | 3 | 28.97 | 20,160 | 0 | 2019 | | 2024.01.22 | Àü¼¼ | »õÇÑÇÏÀÌÃ÷ºô¶ó | 1 | 61.24 | 7,800 | 0 | 1996 | | 2024.01.22 | Àü¼¼ | õ¿ìºô¶ó(353-48) | 4 | 53.64 | 16,500 | 0 | 2000 | | 2024.01.22 | Àü¼¼ | ºäƼ½¦¸£ºô353 | 3 | 26.9 | 17,200 | 0 | 2017 | | 2024.01.22 | Àü¼¼ | ´õ¿øÇϿ콺 | 4 | 22.95 | 20,660 | 0 | 2023 | | 2024.01.21 | Àü¼¼ | º¸±¤¾ÆÆ®ºô | 4 | 41.18 | 13,700 | 0 | 2004 | | 2024.01.20 | Àü¼¼ | ´ë¿øºô¶ó(392-42) | 3 | 41.72 | 12,200 | 0 | 1999 | | 2024.01.20 | Àü¼¼ | ´ë¿øºô¶ó(392-42) | 3 | 41.72 | 12,200 | 0 | 1999 | | 2024.01.20 | Àü¼¼ | Àå¹Ì¸Ç¼Ç | 4 | 66.52 | 21,000 | 0 | 2001 | | 2024.01.20 | ¿ù¼¼ | Èľϸ®Ä¡ºô | 2 | 29.73 | 12,200 | 10 | 2010 | | 2024.01.20 | ¿ù¼¼ | JEhouse | 6 | 29.73 | 5,500 | 90 | 2022 | | 2024.01.20 | Àü¼¼ | ½Å¿ì¿¡À̽ººô(50-68) | 4 | 29.99 | 18,500 | 0 | 2018 | | 2024.01.20 | ¿ù¼¼ | ¼±°æºô¶ó | 2 | 51.94 | 1,000 | 85 | 2000 | | 2024.01.20 | Àü¼¼ | ÀÌ·¹ÇìºìÇϿ콺 | 6 | 19.36 | 12,000 | 0 | 2012 | | 2024.01.20 | Àü¼¼ | ¿¹ÀÎ¾ÆÆ®ºô¶ó(352-15) | 2 | 59.52 | 18,000 | 0 | 1999 | | 2024.01.20 | Àü¼¼ | Áê¾ó¸®¸Ç¼Ç(346-8)Aµ¿ | 4 | 59.98 | 19,500 | 0 | 2003 | | 2024.01.20 | ¿ù¼¼ | ¼¼Áøºô¶ó | 2 | 61.84 | 17,200 | 16 | 1996 | | 2024.01.20 | Àü¼¼ | ¿ì¼ººô¶ó | 2 | 64.56 | 17,500 | 0 | 2002 | | 2024.01.20 | ¿ù¼¼ | ¶óÅ׶󽺺ô(380-6) | 5 | 25.45 | 12,300 | 40 | 2016 | | 2024.01.19 | ¿ù¼¼ | ÀÎÅÍ½ÃÆ¼ºô¶óBµ¿ | 4 | 52.86 | 1,000 | 75 | 2008 | | 2024.01.19 | Àü¼¼ | ¿¡µ§ÇϿ콺 | 4 | 59.07 | 14,300 | 0 | 2002 | | 2024.01.19 | Àü¼¼ | Àº¼ºÄ³½½ | 2 | 28.14 | 24,690 | 0 | 2022 | | 2024.01.19 | ¿ù¼¼ | ºí¸®½º´ÙÀÓºô | 5 | 37.21 | 5,000 | 120 | 2023 | | 2024.01.19 | ¿ù¼¼ | ºí¸®½º´ÙÀÓºô | 5 | 37.21 | 3,000 | 130 | 2023 | | 2024.01.19 | Àü¼¼ | Àº¼ºÄ³½½ | 2 | 28.14 | 24,690 | 0 | 2022 | | 2024.01.19 | ¿ù¼¼ | ÇÞºû¾Ö | 3 | 51.38 | 2,000 | 100 | 2017 | | 2024.01.19 | ¿ù¼¼ | ¿¡º¥¿¡¼¿ | 6 | 15.66 | 500 | 45 | 2009 | | 2024.01.19 | Àü¼¼ | ¼¾Æ®ºô | 3 | 29.88 | 13,000 | 0 | 2012 | | 2024.01.19 | Àü¼¼ | µå¸²ÆÄÅ©ºô | 5 | 58.26 | 19,000 | 0 | 2011 | | 2024.01.19 | ¿ù¼¼ | ÁÖ¿µÇϿ콺 | 3 | 27.09 | 14,000 | 10 | 2016 | | 2024.01.19 | Àü¼¼ | ºñ¿£ÄÉÀÌÇϿ콺 | 2 | 29.33 | 26,300 | 0 | 2023 | | 2024.01.19 | Àü¼¼ | ¼¾Æ®¸®¿ò | 3 | 38.61 | 19,700 | 0 | 2015 | | 2024.01.19 | ¿ù¼¼ | ¼ºÁøºô¶ó(105-496) | 2 | 40.56 | 2,000 | 60 | 2000 | | 2024.01.19 | ¿ù¼¼ | ¶óÇǾƳë | 2 | 28.05 | 5,000 | 80 | 2022 | | 2024.01.19 | Àü¼¼ | ºñ¿£ÄÉÀÌÇϿ콺 | 2 | 29.33 | 26,300 | 0 | 2023 | | 2024.01.19 | Àü¼¼ | ¿¡µ§ÇϿ콺 | 4 | 59.07 | 14,300 | 0 | 2002 | | 2024.01.19 | Àü¼¼ | ´õ¿øÇϿ콺 | 2 | 25.73 | 20,790 | 0 | 2023 | | 2024.01.19 | Àü¼¼ | Èï¾çÈѹ̸®6Â÷ | 2 | 57.58 | 17,000 | 0 | 2002 | | 2024.01.19 | Àü¼¼ | ¾¾Æ¼ÇϿ콺ºñµ¿ | 5 | 22.9 | 15,700 | 0 | 2017 | | 2024.01.19 | Àü¼¼ | Á¤Çöºô¶ó | 1 | 62.65 | 17,000 | 0 | 1999 | | 2024.01.19 | ¿ù¼¼ | ¾¾Æ¼ÇϿ콺(1085-12) | 3 | 23.64 | 1,000 | 70 | 2012 | | 2024.01.19 | Àü¼¼ | ÇÑÀÏ¾ÆÆ®ºô¶ó | 2 | 36.36 | 12,000 | 0 | 1992 | | 2024.01.18 | ¿ù¼¼ | º¹Áö¾ÆÆ®ºô¶ó1µ¿ | 1 | 47.14 | 12,000 | 10 | 2003 | | 2024.01.18 | Àü¼¼ | ÇѿᄒƼºô | 4 | 59.99 | 22,000 | 0 | 2010 | | 2024.01.18 | ¿ù¼¼ | µ¿Çöºô¶ó(342-32) | 3 | 52.8 | 2,000 | 80 | 2003 | | 2024.01.18 | ¿ù¼¼ | ¼¼ÀÎÆ®ºô(409-75) | 4 | 53.74 | 500 | 40 | 2012 | | 2024.01.18 | Àü¼¼ | µµÇöºí¶ûºô | 2 | 53.07 | 15,740 | 0 | 2002 | | 2024.01.18 | ¿ù¼¼ | ÇѹéeŸ¿î(112-32) | 3 | 57.62 | 18,400 | 25 | 2002 | | 2024.01.18 | Àü¼¼ | ÇÑÀϱ׸°ºô | 4 | 45.49 | 13,700 | 0 | 2008 | | 2024.01.18 | ¿ù¼¼ | ºí¸®½º´ÙÀÓºô | 6 | 29.94 | 3,000 | 120 | 2023 | | 2024.01.18 | Àü¼¼ | HIGH-END480 | 5 | 29.93 | 27,300 | 0 | 2023 | | 2024.01.18 | Àü¼¼ | HIGH-END480 | 5 | 29.93 | 27,300 | 0 | 2023 | | 2024.01.18 | ¿ù¼¼ | ºí¸®½º´ÙÀÓºô | 3 | 29.98 | 5,000 | 90 | 2023 | | 2024.01.18 | Àü¼¼ | Çý¼ºÆç¸®½º29Â÷(163-8) | 3 | 29.5 | 13,860 | 0 | 2014 | | 2024.01.18 | ¿ù¼¼ | »ï¼º½¦¸£ºô(1081-30) | 5 | 22.23 | 10,600 | 24 | 2014 | | 2024.01.18 | Àü¼¼ | Á¤Çöºô¶ó | 3 | 50.07 | 15,400 | 0 | 2000 | | 2024.01.18 | Àü¼¼ | ´õ¿ø | 3 | 28.97 | 20,000 | 0 | 2019 | | 2024.01.18 | ¿ù¼¼ | (355-8)¼Û¿øºô¶ó | 3 | 143.56 | 5,000 | 60 | 1998 | | 2024.01.18 | ¿ù¼¼ | º¸¸®¼öŸ¿î | 6 | 12.58 | 500 | 45 | 2013 | | 2024.01.18 | Àü¼¼ | ±îÄ¡»êÆÈ¶óÀ̽º | 1 | 29.91 | 16,500 | 0 | 2015 | | 2024.01.18 | Àü¼¼ | ÇØºñÄ¡ºô | 6 | 26.23 | 21,000 | 0 | 2019 | | 2024.01.18 | ¿ù¼¼ | ±ÃÀüºô¶ó(111-72) | 3 | 53.46 | 12,000 | 15 | 1991 | | 2024.01.17 | Àü¼¼ | ÇÏÀÌÆ®¸Ç¼Ç(917-2) | 3 | 48.99 | 23,000 | 0 | 2001 | | 2024.01.17 | Àü¼¼ | ÈÞ&À¯ºô | 2 | 27.7 | 20,200 | 0 | 2020 | | 2024.01.17 | Àü¼¼ | LGŸ¿î7Â÷ | 4 | 43.68 | 13,400 | 0 | 2001 | | 2024.01.17 | Àü¼¼ | ´ëÀººñÀüºô | 4 | 63.92 | 22,800 | 0 | 2007 | | 2024.01.17 | Àü¼¼ | ´Ù¼ºÀÌÁîºô | 5 | 40.03 | 13,600 | 0 | 2008 | | 2024.01.17 | ¿ù¼¼ | ¼£·ÒÇϿ콺 | 2 | 16.38 | 1,000 | 52 | 2010 | | 2024.01.17 | Àü¼¼ | ¸ð´øºô(111-73) | 1 | 62.74 | 17,850 | 0 | 2003 | | 2024.01.17 | ¿ù¼¼ | Á¤°¨ÇϿ콺 | 4 | 25.11 | 500 | 70 | 2016 | | 2024.01.17 | Àü¼¼ | È£¼º±×¸°ºä(424-23) | 4 | 40.62 | 19,900 | 0 | 2016 | | 2024.01.17 | ¿ù¼¼ | ¾Ëº£·Î | 3 | 13.6 | 1,000 | 40 | 2011 | | 2024.01.17 | ¿ù¼¼ | ´õ¾î¿ï¸² | 3 | 29.23 | 9,000 | 60 | 2019 | | 2024.01.17 | ¿ù¼¼ | ºô¶óµå´ÙÀÎ | 3 | 27.81 | 5,000 | 75 | 2023 | | 2024.01.17 | ¿ù¼¼ | Ÿ¿îºô(784-1) | 3 | 27.13 | 500 | 47 | 1993 | | 2024.01.17 | Àü¼¼ | ÇѼֽºÀ§Æ®È¨9Â÷ | 2 | 76.17 | 26,300 | 0 | 2008 | | 2024.01.17 | ¿ù¼¼ | Èѹ̸®ºô | 5 | 45.6 | 5,000 | 70 | 2010 | | 2024.01.17 | Àü¼¼ | ¿¡µ§ÇϿ콺 | 1 | 59.07 | 13,000 | 0 | 2002 | | 2024.01.17 | Àü¼¼ | ÅÂÇÑÇÏÀ̺ô(382-25) | 5 | 26.62 | 16,900 | 0 | 2017 | | 2024.01.17 | ¿ù¼¼ | ÁÖ¿¬ÇϿ콺 | 2 | 43.67 | 5,000 | 120 | 2022 | | 2024.01.17 | Àü¼¼ | ¸®ºùÇϿ콺 | 3 | 25.97 | 16,000 | 0 | 2016 | | 2024.01.16 | Àü¼¼ | ȼººô¶ó(56-164) | 3 | 48.14 | 11,900 | 0 | 1993 | | 2024.01.16 | ¿ù¼¼ | ȲÁ¦±×·£µåÆÄÅ©(105-483) | 3 | 40.34 | 14,100 | 6 | 2008 | | 2024.01.16 | ¿ù¼¼ | ½Å¼ººôµù(1096-2) | 2 | 13.6 | 1,000 | 38 | 2011 | | 2024.01.16 | Àü¼¼ | (956-48) | 2 | 43.59 | 10,000 | 0 | 1986 | | 2024.01.16 | ¿ù¼¼ | û¼ÛÆòÈÇÏÀ̸ǼÇ(408-72) | 4 | 49.04 | 7,000 | 10 | 1996 | | 2024.01.16 | Àü¼¼ | ½ÅÈï¾Æ³Ê½ººô(´Ùµ¿) | 4 | 45.66 | 16,600 | 0 | 2010 | | 2024.01.16 | Àü¼¼ | µ¿¿ø¶óÅ×¶ó½º | 5 | 28.53 | 19,400 | 0 | 2018 | | 2024.01.16 | Àü¼¼ | (56-544) | 2 | 76.3 | 20,000 | 0 | 2009 | | 2024.01.16 | Àü¼¼ | ¼ºÁÖºô¶óBµ¿(46-105) | 4 | 49.17 | 12,000 | 0 | 1995 | | 2024.01.16 | Àü¼¼ | ´ö¿ëÆÓ¸®Ã¼ | 4 | 25.23 | 17,600 | 0 | 2019 | | 2024.01.16 | ¿ù¼¼ | ±¸»êÇØÇǹ븮Cµ¿ | 3 | 54.02 | 16,600 | 10 | 2002 | | 2024.01.16 | ¿ù¼¼ | ¾î¹ÝÇϿ콺 | 2 | 26.34 | 1,000 | 64 | 2018 | | 2024.01.16 | Àü¼¼ | ¾Æ³×½ºÇϿ콺 | 3 | 65.72 | 19,500 | 0 | 2002 | | 2024.01.16 | ¿ù¼¼ | ¹Ì·¡½ºÅ¸ºô(56-264) | 2 | 37.44 | 12,000 | 12 | 2010 | | 2024.01.16 | Àü¼¼ | °è¸íÀ§³Ê½º(46-109) | 5 | 47.67 | 15,000 | 0 | 2007 | | 2024.01.15 | ¿ù¼¼ | ¼¼¸í¾ÆÅ©·Îºô | 2 | 26.43 | 1,000 | 60 | 2017 | | 2024.01.15 | Àü¼¼ | ´õ¿øÇϿ콺 | 2 | 29.74 | 22,900 | 0 | 2023 | | 2024.01.15 | ¿ù¼¼ | ¿¹ÀÎ¾ÆÆ®ºô | 3 | 36.57 | 1,000 | 70 | 2003 | | 2024.01.15 | Àü¼¼ | 61-134 | 2 | 22.43 | 13,700 | 0 | 2015 | | 2024.01.15 | Àü¼¼ | µ¿±¤ºô¶ó5Â÷ | 2 | 46.8 | 13,400 | 0 | 1996 | | 2024.01.15 | Àü¼¼ | ´õ¿øÇϿ콺 | 3 | 23 | 20,790 | 0 | 2023 | | 2024.01.15 | Àü¼¼ | ºñ¿£ÄÉÀÌÇϿ콺 | 3 | 29.33 | 26,300 | 0 | 2023 | | 2024.01.15 | Àü¼¼ | ´õ¿øÇϿ콺 | 2 | 23 | 20,790 | 0 | 2023 | | 2024.01.15 | ¿ù¼¼ | Åä¼®¾Æ³×½ººô(102-291) | 5 | 40.25 | 2,000 | 70 | 2008 | | 2024.01.15 | Àü¼¼ | ´õ¿øÇϿ콺 | 2 | 23 | 20,790 | 0 | 2023 | | 2024.01.15 | ¿ù¼¼ | ¿¹ÀÎ¾ÆÆ®ºô | 3 | 36.57 | 1,000 | 70 | 2003 | | 2024.01.15 | Àü¼¼ | ÇØºñÄ¡ºô | 2 | 31.95 | 26,000 | 0 | 2019 | | 2024.01.15 | Àü¼¼ | Á¦ÀÌ¿ÍÀÌÆç¸®½º(849-16¹øÁö) | 4 | 29.89 | 18,000 | 0 | 2016 | | 2024.01.15 | Àü¼¼ | ÇѼֺô¸®ÁöA | 1 | 59.76 | 20,500 | 0 | 2002 | | 2024.01.15 | ¿ù¼¼ | ÇÁ¶óÀÓºô | 2 | 46.14 | 5,500 | 70 | 2010 | | 2024.01.15 | Àü¼¼ | »ï±¤¾ÆÆ®ºô(46-78) | 1 | 61.1 | 15,300 | 0 | 2001 | | 2024.01.15 | Àü¼¼ | ´ë¸í½ºÄ«ÀÌ | 4 | 49.32 | 25,000 | 0 | 2015 | | 2024.01.15 | Àü¼¼ | ´õ¶ó¿Â | 3 | 35.77 | 19,600 | 0 | 2016 | | 2024.01.15 | ¿ù¼¼ | ¿ì¼ººô¶ó(379-10) | 1 | 55.98 | 1,000 | 55 | 1994 | | 2024.01.15 | Àü¼¼ | Çö´ë¾ÆÆ®ºô¶ó | 4 | 44.91 | 12,970 | 0 | 1996 | | 2024.01.15 | Àü¼¼ | À¯¸²ºô | 2 | 35.52 | 13,700 | 0 | 2008 | | 2024.01.14 | Àü¼¼ | Å·´ý | 3 | 27.27 | 15,750 | 0 | 2016 | | 2024.01.14 | Àü¼¼ | 1STHOUSE | 4 | 27.65 | 20,160 | 0 | 2019 | | 2024.01.14 | Àü¼¼ | ¿ÀÄÉÀÌÆÄÅ©ºô(932-8) | 3 | 28.71 | 14,800 | 0 | 2015 | | 2024.01.14 | ¿ù¼¼ | ºí·çÈú | 2 | 43.31 | 23,900 | 20 | 2018 | | 2024.01.14 | ¿ù¼¼ | ¿ì¼ºB | 4 | 75.6 | 5,500 | 90 | 2001 | | 2024.01.14 | Àü¼¼ | ¾¾Æ¼ÇϿ콺(425-19) | 5 | 29.91 | 16,600 | 0 | 2014 | | 2024.01.14 | ¿ù¼¼ | »ï¹Ìºô¶ó | -1 | 31.35 | 500 | 45 | 2000 | | 2024.01.14 | ¿ù¼¼ | ¼öÁ¤ºô¶ó³ªµ¿ | 2 | 36.92 | 1,000 | 50 | 1992 | | 2024.01.14 | Àü¼¼ | µµÈÀ§³Ê½ººô(1083-7) | 3 | 40.69 | 14,700 | 0 | 2008 | | 2024.01.13 | Àü¼¼ | ¼ÛµµÄ«¿îƼ(105-107) | 3 | 38.37 | 16,000 | 0 | 2012 | | 2024.01.13 | ¿ù¼¼ | ±â¸°¾ÆÆ®ºô¶ó | 2 | 41.92 | 10,000 | 10 | 1995 | | 2024.01.13 | Àü¼¼ | ½ÅÈï¾Æ³Ê½ººô(410-237) | 2 | 59.94 | 19,000 | 0 | 2010 | | 2024.01.13 | ¿ù¼¼ | ÀÎÅÍ½ÃÆ¼ºô¶óAµ¿ | 4 | 69.17 | 22,500 | 15 | 2001 | | 2024.01.13 | Àü¼¼ | µð¿¡ÀÌÄ¡ÆÓ¸®½º | 2 | 27.23 | 15,400 | 0 | 2016 | | 2024.01.13 | ¿ù¼¼ | ³×¿ÀÆÄÅ©ºô(870-23) | 2 | 47.86 | 2,000 | 100 | 2008 | | 2024.01.13 | ¿ù¼¼ | °í¼¾¾ÆÆ®ºô | 3 | 29.24 | 1,000 | 85 | 2016 | | 2024.01.13 | Àü¼¼ | Ä¥¼º | 5 | 82.08 | 23,500 | 0 | 2002 | | 2024.01.13 | ¿ù¼¼ | ¿öµå¶÷ÇÏÀÌÃ÷ºô¶ó | -1 | 64.27 | 1,000 | 40 | 1991 | | 2024.01.13 | Àü¼¼ | ¶ó¿ÂÁ¦³ª | 3 | 46.59 | 31,000 | 0 | 2018 | | 2024.01.13 | ¿ù¼¼ | µ¿¾ÆÁÖÅÃ(349-29) | 2 | 37.56 | 6,000 | 40 | 1986 | | 2024.01.13 | Àü¼¼ | ¿ì¼ººô¶ó(102-67) | 4 | 55.78 | 13,000 | 0 | 2003 | | 2024.01.13 | ¿ù¼¼ | Àº°¡¶÷ÆÓ¸®½º | 5 | 42.08 | 1,000 | 130 | 2022 | | 2024.01.13 | Àü¼¼ | ¼øÈ¯ºô¶óBµ¿ | 5 | 30.81 | 8,400 | 0 | 2001 | | 2024.01.13 | Àü¼¼ | ·ÎºóÇϿ콺 | 5 | 44.56 | 22,800 | 0 | 2016 | | 2024.01.13 | Àü¼¼ | ¿ÍÀ̾غñ | 4 | 24.72 | 16,120 | 0 | 2017 | | 2024.01.13 | Àü¼¼ | À̵µÆÓ¸®½º | 3 | 23.09 | 27,900 | 0 | 2021 | | 2024.01.13 | Àü¼¼ | µ¿µµÆÄÅ©ºä(1088-4) | 3 | 33.14 | 14,500 | 0 | 2011 | | 2024.01.13 | Àü¼¼ | DSÇÁ¶ó´Ù(1084-59) | 3 | 32.65 | 16,000 | 0 | 2011 | | 2024.01.13 | Àü¼¼ | ÇÏÀººô¸®Áö | 4 | 34.64 | 19,500 | 0 | 2016 | | 2024.01.13 | ¿ù¼¼ | ³²¼º¾ÆÆ®ºô1 | 6 | 25.22 | 2,000 | 80 | 2015 | | 2024.01.13 | ¿ù¼¼ | ¹é°¿ø·ë | 2 | 12.02 | 1,000 | 35 | 2011 | | 2024.01.13 | Àü¼¼ | Á¤¿øºô¶ó(504-32) | 2 | 47.09 | 17,100 | 0 | 2012 | | 2024.01.13 | ¿ù¼¼ | ¶óÇǾƳë | 3 | 28.95 | 5,000 | 90 | 2022 | | 2024.01.12 | ¿ù¼¼ | °è¸íÀ§³Ê½º | 4 | 50.5 | 14,500 | 33 | 2008 | | 2024.01.12 | Àü¼¼ | ³ª¸°ÇÏÀÓAµ¿ | 3 | 32.69 | 18,000 | 0 | 2017 | | 2024.01.12 | Àü¼¼ | ³ª¸°ÇÏÀÓAµ¿ | 3 | 32.69 | 18,000 | 0 | 2017 | | 2024.01.12 | ¿ù¼¼ | ÀÎÅÍ½ÃÆ¼ºô¶ó(152-5) | 4 | 31.56 | 8,900 | 10 | 2001 | | 2024.01.12 | ¿ù¼¼ | ÇÁ¶óÀÓÁÖÅÃ(393-22) | 2 | 22.71 | 1,000 | 47 | 2014 | | 2024.01.12 | ¿ù¼¼ | °æ¿ìÇÏÀÌÃ÷¸Ç¼Ç(398-16) | 4 | 41.97 | 12,000 | 26 | 2001 | | 2024.01.12 | Àü¼¼ | ¼®Á¤ºô¶ó | 3 | 54.54 | 14,800 | 0 | 1993 | | 2024.01.12 | Àü¼¼ | ´ë½ÅŸ¿î(339-17) | 2 | 46.96 | 15,600 | 0 | 2000 | | 2024.01.12 | Àü¼¼ | âõ±×¸°ºô | 3 | 71.23 | 23,500 | 0 | 2002 | | 2024.01.12 | Àü¼¼ | Àνººô | 2 | 41.38 | 20,000 | 0 | 2017 | | 2024.01.12 | ¿ù¼¼ | ±×¸°Èú(105-384) | 3 | 61.68 | 20,000 | 30 | 2010 | | 2024.01.12 | Àü¼¼ | ÀÚ¶óÇϿ콺(366-19) | 5 | 41.7 | 25,000 | 0 | 2014 | | 2024.01.12 | ¿ù¼¼ | ¿ìÇöÆç¸®½º | 5 | 28.23 | 1,000 | 85 | 2016 | | 2024.01.12 | Àü¼¼ | ´ëµ¿ºô | 3 | 29.27 | 23,100 | 0 | 2020 | | 2024.01.12 | Àü¼¼ | ÀÚ¶óÇϿ콺(366-19) | 5 | 41.7 | 25,000 | 0 | 2014 | | 2024.01.12 | Àü¼¼ | ¸ð¾Æºô(870-47) | 2 | 52.45 | 13,700 | 0 | 2007 | | 2024.01.12 | Àü¼¼ | ÀÎÅÍ½ÃÆ¼ºô¶óA | 2 | 60.16 | 17,700 | 0 | 2001 | | 2024.01.12 | ¿ù¼¼ | ¾Æ¸£¶¼ºô | 6 | 40.88 | 5,500 | 90 | 2017 | | 2024.01.12 | Àü¼¼ | dz¸²ºô¶ó3Â÷ | 2 | 68.56 | 18,900 | 0 | 2002 | | 2024.01.11 | ¿ù¼¼ | º°Àå±×¸°ºô¶ó | 2 | 45.56 | 12,100 | 20 | 2002 | | 2024.01.11 | Àü¼¼ | Çý¼ºÆÓ¸®½º | 2 | 56.34 | 17,000 | 0 | 2008 | | 2024.01.11 | Àü¼¼ | ¿¡ÄÚºô¸®Áö(392-16) | 2 | 29.94 | 13,300 | 0 | 2014 | | 2024.01.11 | Àü¼¼ | Çູºô¶ó | 4 | 42.29 | 11,200 | 0 | 2000 | | 2024.01.11 | Àü¼¼ | ¸ð³ë6Â÷ | 3 | 29.99 | 17,000 | 0 | 2017 | | 2024.01.11 | ¿ù¼¼ | ȼººô¶óDµ¿ | 2 | 55.72 | 3,000 | 65 | 2002 | | 2024.01.11 | ¿ù¼¼ | ÁøÇϿ콺 | 5 | 38.14 | 11,500 | 20 | 2004 | | 2024.01.11 | ¿ù¼¼ | ÇϳªÅ¸¿îAµ¿ | 3 | 29.93 | 2,000 | 69 | 2015 | | 2024.01.11 | Àü¼¼ | Å©¸®½ºÅ»ºô(354-21) | 3 | 29.1 | 16,600 | 0 | 2014 | | 2024.01.11 | ¿ù¼¼ | »ïÀκô¶ó | 1 | 39.96 | 10,300 | 15 | 1992 | | 2024.01.11 | Àü¼¼ | Å©¸®½ºÅ»ºô(354-21) | 3 | 29.1 | 16,600 | 0 | 2014 | | 2024.01.11 | ¿ù¼¼ | À¯¸²ÆÄÅ©ºô(1016-18) | 5 | 33.6 | 11,400 | 15 | 2011 | | 2024.01.11 | ¿ù¼¼ | ºÀȲÁÖ»óº¹ÇÕ¾ÆÆ®ºô | 5 | 47.13 | 12,000 | 35 | 2003 | | 2024.01.10 | Àü¼¼ | ¿¹Áöºô¶óÆ®(410-105) | 5 | 60.11 | 15,000 | 0 | 2008 | | 2024.01.10 | Àü¼¼ | »ï¼ººô¶óÆ® | 3 | 55.83 | 15,400 | 0 | 2001 | | 2024.01.10 | Àü¼¼ | ¸¶Å©ÇϿ콺 | 4 | 28.98 | 21,700 | 0 | 2018 | | 2024.01.10 | ¿ù¼¼ | õÁöºô | 1 | 47.47 | 12,000 | 20 | 2001 | | 2024.01.10 | Àü¼¼ | ´õ¿øÇϿ콺 | 4 | 22.95 | 20,660 | 0 | 2023 | | 2024.01.10 | Àü¼¼ | ÈúŸ¿î(151-8) | 3 | 46.25 | 13,300 | 0 | 2002 | | 2024.01.10 | Àü¼¼ | ´õ¿øÇϿ콺 | 4 | 22.95 | 20,660 | 0 | 2023 | | 2024.01.10 | Àü¼¼ | »ï¼ººô¶óÆ® | 3 | 55.83 | 16,000 | 0 | 2001 | | 2024.01.10 | ¿ù¼¼ | ¿¬¿ì³Ø½ºÆ®ºä | 14 | 13.16 | 1,000 | 64 | 2018 | | 2024.01.10 | Àü¼¼ | Á¤¿ì¾ÆÆ®ºô¶ó | 1 | 55.08 | 12,800 | 0 | 1994 | | 2024.01.10 | Àü¼¼ | ´õ¿øÇϿ콺 | 4 | 22.95 | 20,660 | 0 | 2023 | | 2024.01.10 | ¿ù¼¼ | õÁöºô | 1 | 47.47 | 12,000 | 20 | 2001 | | 2024.01.10 | Àü¼¼ | À̵µÆÓ¸®½º | 5 | 22.56 | 20,000 | 0 | 2021 | | 2024.01.10 | Àü¼¼ | Å¿µÁÖÅÃ1 | 4 | 39.24 | 9,390 | 0 | 1991 | | 2024.01.10 | ¿ù¼¼ | ¿¡µ§ÇϿ콺 | -1 | 59.07 | 10,000 | 30 | 2002 | | 2024.01.10 | Àü¼¼ | ´õ¿øÇϿ콺 | 4 | 29.83 | 23,688 | 0 | 2023 | | 2024.01.10 | ¿ù¼¼ | ´ë¼±ÇÏÀ̺ô | 4 | 29.94 | 300 | 70 | 2019 | | 2024.01.10 | ¿ù¼¼ | ¿¤Æç¸®½º | 4 | 23.5 | 5,000 | 75 | 2022 | | 2024.01.09 | Àü¼¼ | ÃÊ¿øºô¶ó | 3 | 33.3 | 8,400 | 0 | 1994 | | 2024.01.09 | ¿ù¼¼ | ½Å¼º¿¬¸³ | 3 | 47.55 | 11,900 | 10 | 1994 | | 2024.01.09 | ¿ù¼¼ | ¼º½ÉÇÏÀÌÃ÷ | 5 | 50.14 | 3,000 | 80 | 2002 | | 2024.01.09 | ¿ù¼¼ | ´ë·úºô¶ó | 2 | 45.56 | 1,000 | 60 | 1993 | | 2024.01.09 | ¿ù¼¼ | ´ëÇѺô¶ó8Â÷ | 3 | 41 | 11,300 | 10 | 1993 | | 2024.01.09 | ¿ù¼¼ | µð¿¡½ºÅ×¶ó½º | 3 | 29.69 | 1,000 | 95 | 2022 | | 2024.01.09 | ¿ù¼¼ | ´Ù¿Èµµ·¡ | 3 | 19.86 | 1,500 | 55 | 2016 | | 2024.01.09 | Àü¼¼ | ÇѾç¸Ç¼ð(56-66) | 5 | 27.57 | 8,200 | 0 | 2000 | | 2024.01.09 | Àü¼¼ | µ¿µµÇÏÀÌÃ÷ºô¶ó(°¡µ¿) | 5 | 38.8 | 10,900 | 0 | 2001 | | 2024.01.09 | ¿ù¼¼ | ¼øÈ¯ºô¶óBµ¿(46-199) | 3 | 41.26 | 12,200 | 16 | 2001 | | 2024.01.09 | ¿ù¼¼ | Àå¿ø¾ÆÆ®ºô¶óB | 4 | 63.12 | 2,000 | 85 | 2000 | | 2024.01.09 | ¿ù¼¼ | »ï¼ººí·ç¹Ö(101µ¿102µ¿) | 4 | 29.97 | 8,000 | 30 | 2015 | | 2024.01.09 | Àü¼¼ | ³²¼º¾ÆÆ®ºô(357-21) | 3 | 43.53 | 21,000 | 0 | 2014 | | 2024.01.09 | ¿ù¼¼ | »õ·Òºô¸®Áö | 4 | 53.46 | 1,000 | 70 | 2002 | | 2024.01.09 | Àü¼¼ | ºñ¿£ÄÉÀÌÇϿ콺 | 2 | 29.76 | 26,300 | 0 | 2023 | | 2024.01.09 | ¿ù¼¼ | µ¿µµÆÄÅ©ºä(813-13) | 5 | 29.98 | 500 | 88 | 2013 | | 2024.01.09 | Àü¼¼ | ¼Û¸²ÁÖÅÃ(56-68) | 2 | 34.02 | 9,000 | 0 | 2001 | | 2024.01.09 | ¿ù¼¼ | Çý¼ººô¶ó(24-75) | 1 | 42.1 | 500 | 70 | 2002 | | 2024.01.08 | ¿ù¼¼ | ¿¡À̽ººô¶óÆ® | 3 | 40.23 | 8,600 | 12 | 2001 | | 2024.01.08 | ¿ù¼¼ | ¿¬¿ì³Ø½ºÆ®ºä | 15 | 13.16 | 2,000 | 60 | 2018 | | 2024.01.08 | Àü¼¼ | ¸¶¸®ºô¸®Áö(1121-13) | 3 | 48.48 | 19,500 | 0 | 2011 | | 2024.01.08 | ¿ù¼¼ | À¯Áø¼Ò¸£º£ | 4 | 27.56 | 12,000 | 30 | 2011 | | 2024.01.08 | Àü¼¼ | ȼººô¶ó29Â÷ | 1 | 32.8 | 9,900 | 0 | 2001 | | 2024.01.08 | ¿ù¼¼ | ÆäÆ®¶óÇϿ콺 | 6 | 83.95 | 23,000 | 25 | 2004 | | 2024.01.08 | Àü¼¼ | ÀÎÅÍ½ÃÆ¼ºô¶ó(409-60) | 2 | 44.76 | 12,380 | 0 | 2003 | | 2024.01.08 | Àü¼¼ | »ï¼ººô¶óÆ®Bµ¿ | 3 | 58.39 | 16,000 | 0 | 2000 | | 2024.01.08 | ¿ù¼¼ | ¼ºÁÖºô¶ó | 1 | 62.88 | 13,000 | 20 | 1995 | | 2024.01.08 | Àü¼¼ | ¿ìȱ׸° | 3 | 53.73 | 20,000 | 0 | 2011 | | 2024.01.08 | Àü¼¼ | ´õ¿øÇϿ콺 | 3 | 29.74 | 22,932 | 0 | 2023 | | 2024.01.08 | Àü¼¼ | żººô¶ó(56-215) | 2 | 36.9 | 10,400 | 0 | 1993 | | 2024.01.08 | Àü¼¼ | ¹Ù·ÎÅ©ºô | 2 | 29.9 | 15,600 | 0 | 2014 | | 2024.01.08 | ¿ù¼¼ | ¶ó¿Âºô¸®Áö | 2 | 24.25 | 15,700 | 25 | 2016 | | 2024.01.08 | ¿ù¼¼ | ¼ºÁر׸°ºô | 4 | 50.7 | 3,000 | 85 | 2001 | | 2024.01.08 | ¿ù¼¼ | ¿¹Àκô¶ó | 3 | 38.3 | 6,000 | 55 | 2001 | | 2024.01.08 | Àü¼¼ | È£¼º±×¸°ºôBµ¿(1083-13) | 2 | 39.27 | 12,290 | 0 | 2001 | | 2024.01.08 | Àü¼¼ | ´õ¿øÇϿ콺 | 3 | 29.74 | 22,932 | 0 | 2023 | | 2024.01.08 | ¿ù¼¼ | ºñ¿£ÄÉÀÌÇϿ콺 | 2 | 24.1 | 4,000 | 85 | 2023 | | 2024.01.08 | Àü¼¼ | û¸²ÇÏ¿ì¡ | 5 | 29.99 | 19,600 | 0 | 2017 | | 2024.01.08 | ¿ù¼¼ | °¡³ª¾Æµ¨¸®¿ò(102-120) | 3 | 32.48 | 10,000 | 40 | 2014 | | 2024.01.08 | ¿ù¼¼ | °è¸íÀ§³Ê½º(56-163) | 5 | 39.69 | 11,500 | 15 | 2009 | | 2024.01.08 | ¿ù¼¼ | µð¿¡½ºÅ×¶ó½º | 4 | 29.25 | 1,500 | 90 | 2022 | | 2024.01.08 | Àü¼¼ | ¹Ù·ÎÅ©ºô | 2 | 29.9 | 15,600 | 0 | 2014 | | 2024.01.08 | Àü¼¼ | ¹Ù·ÎÅ©ºô | 2 | 29.9 | 16,000 | 0 | 2014 | | 2024.01.07 | ¿ù¼¼ | ¿ìȱ׸° | 3 | 28.14 | 10,000 | 20 | 2012 | | 2024.01.07 | Àü¼¼ | ÈÀÌÆ®ºô | 1 | 55.44 | 14,300 | 0 | 2002 | | 2024.01.07 | Àü¼¼ | »ï¼º½¦¸£ºô(346-62) | 5 | 40.83 | 26,500 | 0 | 2017 | | 2024.01.07 | Àü¼¼ | ¼¿¬ºí·çÈú | 3 | 29.37 | 14,000 | 0 | 2016 | | 2024.01.07 | Àü¼¼ | ³²°æº£½ºÆ®ºô(Bµ¿) | 2 | 64.18 | 19,425 | 0 | 2001 | | 2024.01.06 | ¿ù¼¼ | ¹Ì·¡½ºÅ¸ºô5Â÷(464-10) | 5 | 42.9 | 12,800 | 10 | 2008 | | 2024.01.06 | ¿ù¼¼ | Á¦À̽ººô | 6 | 35.57 | 4,000 | 100 | 2019 | | 2024.01.06 | Àü¼¼ | ³ª¸®ºô¶ó(61-35) | 2 | 56.64 | 15,400 | 0 | 1991 | | 2024.01.06 | Àü¼¼ | ´ÙÁ¤ÁÖÅÃ3Â÷ | 3 | 61.86 | 17,500 | 0 | 1995 | | 2024.01.06 | Àü¼¼ | ³ª¸®ºô¶ó(61-35) | 2 | 56.64 | 15,400 | 0 | 1991 | | 2024.01.06 | Àü¼¼ | º¸¼ºÈ¨Å¸¿î | 3 | 74.13 | 16,000 | 0 | 2002 | | 2024.01.06 | ¿ù¼¼ | »ïÀÍÇ콺Ƽ¾Æ(1129-29) | 2 | 33.11 | 12,000 | 10 | 2011 | | 2024.01.06 | Àü¼¼ | ¸íÁøÈÀÌÆ®ºô(397-7) | 2 | 44.88 | 14,700 | 0 | 2008 | | 2024.01.06 | Àü¼¼ | ½Å¿ø¼¾½ººô(392-75) | 4 | 35.59 | 13,400 | 0 | 2010 | | 2024.01.06 | ¿ù¼¼ | ȰîÇÁ¶óÀÓ | 10 | 19.87 | 10,700 | 8 | 2012 | | 2024.01.06 | Àü¼¼ | »ïÈ£ÇÏÀÌÃ÷ºô¶ó | 1 | 84.51 | 19,700 | 0 | 1997 | | 2024.01.06 | ¿ù¼¼ | ¹Ì·¡½ºÅ¸ºô5Â÷(464-10) | 5 | 42.9 | 12,800 | 10 | 2008 | | 2024.01.06 | ¿ù¼¼ | ¿¤Æç¸®½º | 4 | 25.59 | 4,500 | 80 | 2022 | | 2024.01.06 | ¿ù¼¼ | Å¿µÆÓ¸®½º | 3 | 29.48 | 2,000 | 75 | 2016 | | 2024.01.06 | Àü¼¼ | ·Ôµ¥Å¸¿î(1085-25) | 3 | 49.27 | 22,000 | 0 | 2012 | | 2024.01.06 | ¿ù¼¼ | Å¿µÆÓ¸®½º | 3 | 29.48 | 2,000 | 75 | 2016 | | 2024.01.06 | Àü¼¼ | »ï¼º½¦¸£ºô(351-17¹øÁö) | 5 | 40.62 | 20,400 | 0 | 2016 | | 2024.01.06 | Àü¼¼ | ¶óÀÎÆÄÅ© | 5 | 29.48 | 21,000 | 0 | 2020 | | 2024.01.06 | Àü¼¼ | LKµå¸²ºô | 2 | 53.14 | 29,700 | 0 | 2019 | | 2024.01.06 | Àü¼¼ | ´õ¿øÇϿ콺 | 3 | 25.73 | 20,790 | 0 | 2023 | | 2024.01.06 | Àü¼¼ | ´õ¿øÇϿ콺 | 3 | 25.73 | 20,790 | 0 | 2023 | | 2024.01.06 | ¿ù¼¼ | ºí·çÈú(846-14) | 5 | 21.19 | 4,000 | 90 | 2021 | | 2024.01.06 | Àü¼¼ | MONO(1044-11) | 3 | 43.16 | 20,900 | 0 | 2012 | | 2024.01.06 | ¿ù¼¼ | ¾ÆÁÙ¸®¿ò(1038-13) | 4 | 27.84 | 1,500 | 80 | 2016 | | 2024.01.05 | Àü¼¼ | ¸ð³ë6Â÷ | 2 | 29.99 | 17,000 | 0 | 2017 | | 2024.01.05 | Àü¼¼ | Ȱ´Ù¼¼´ëÁÖÅà | 3 | 24.75 | 6,900 | 0 | 2003 | | 2024.01.05 | Àü¼¼ | ¿ì¼ººô¶ó | 1 | 49.17 | 10,000 | 0 | 1995 | | 2024.01.05 | Àü¼¼ | ¾÷Ÿ¿îºô¸®Áö | 2 | 29.94 | 17,000 | 0 | 2017 | | 2024.01.05 | ¿ù¼¼ | ¿ì¼º(408-86) | 2 | 48.27 | 5,000 | 110 | 2017 | | 2024.01.05 | Àü¼¼ | ¼¸í´õÆÛ½ºÆ® | 4 | 29.39 | 23,800 | 0 | 2019 | | 2024.01.05 | ¿ù¼¼ | ½Å¼¼°èµå¸²ºô(77-33) | 4 | 55.14 | 5,000 | 43 | 2001 | | 2024.01.05 | ¿ù¼¼ | ¼£·ÒÇϿ콺 | 3 | 16.38 | 1,000 | 52 | 2010 | | 2024.01.05 | ¿ù¼¼ | Á¤¿¬Ã¤ | 4 | 22.27 | 3,000 | 44 | 2018 | | 2024.01.05 | Àü¼¼ | ¿¡ÄÚ | 3 | 44.53 | 21,600 | 0 | 2013 | | 2024.01.05 | ¿ù¼¼ | À¯³ëÀÌ¾Æ | 2 | 51.06 | 5,000 | 130 | 2023 | | 2024.01.05 | Àü¼¼ | ¼ºÀººô¶ó(56-122) | 4 | 52.08 | 13,000 | 0 | 2000 | | 2024.01.05 | ¿ù¼¼ | ¿¡ÄÚºô | 3 | 28.97 | 5,000 | 70 | 2022 | | 2024.01.05 | ¿ù¼¼ | ¿ì¼º(408-86) | 2 | 48.27 | 5,000 | 110 | 2017 | | 2024.01.05 | Àü¼¼ | Ȱ´Ù¼¼´ëÁÖÅà | 3 | 24.75 | 6,900 | 0 | 2003 | | 2024.01.05 | Àü¼¼ | ´õ¿ø¼¥5 | 2 | 29.73 | 25,600 | 0 | 2021 | | 2024.01.05 | Àü¼¼ | ¿¡½º¿¥ÆÄÅ©ºô | 2 | 28.39 | 20,500 | 0 | 2018 | | 2024.01.05 | Àü¼¼ | ´õ¿ø¼¥5 | 2 | 29.73 | 25,600 | 0 | 2021 | | 2024.01.05 | ¿ù¼¼ | »ï¼º¾ÆÆ®ºô | 4 | 36.91 | 10,200 | 15 | 2002 | | 2024.01.05 | Àü¼¼ | µå¸²ºô3Â÷ | 1 | 57.48 | 13,000 | 0 | 2002 | | 2024.01.05 | Àü¼¼ | ¿ì¼ºÅ׸¶ºô(1044-7) | 3 | 71.73 | 23,000 | 0 | 2006 | | 2024.01.05 | Àü¼¼ | ÇѸ¶À½ºô¶ó | 5 | 41.76 | 13,000 | 0 | 2002 | | 2024.01.05 | Àü¼¼ | Á¶Àººô¸®Áö(56-659) | 2 | 37.7 | 13,650 | 0 | 2002 | | 2024.01.05 | ¿ù¼¼ | ¿¡ÄÚºô | 3 | 28.97 | 5,000 | 75 | 2022 | | 2024.01.04 | Àü¼¼ | ±¤Ãµ½¦¸£ºô | 2 | 42.43 | 12,000 | 0 | 2003 | | 2024.01.04 | Àü¼¼ | Å·½ººôAµ¿(56-665) | 4 | 63.38 | 17,000 | 0 | 2001 | | 2024.01.04 | Àü¼¼ | ´ö¼öºô¶óCµ¿ | 2 | 62.01 | 18,300 | 0 | 2003 | | 2024.01.04 | ¿ù¼¼ | ÆÄÅ©ºô(1081-20) | 4 | 37.98 | 5,000 | 70 | 2012 | | 2024.01.04 | Àü¼¼ | ȼººô¶óAµ¿(56-323) | -1 | 34.17 | 6,000 | 0 | 2001 | | 2024.01.04 | ¿ù¼¼ | ¿¬¿ì³Ø½ºÆ®ºä | 15 | 13.16 | 1,000 | 63 | 2018 | | 2024.01.04 | ¿ù¼¼ | ¼±°æºôŸ¿î | 1 | 57.1 | 3,000 | 80 | 2001 | | 2024.01.04 | ¿ù¼¼ | Á¦ÀÌ¿¡½ººô | 2 | 26.53 | 1,000 | 150 | 2023 | | 2024.01.04 | Àü¼¼ | Ǫ¸¥Ç³°æÃ¤ | 3 | 45.63 | 21,400 | 0 | 2016 | | 2024.01.04 | Àü¼¼ | ¾ÖÇÃÇϿ콺 | 6 | 28.91 | 15,500 | 0 | 2014 | | 2024.01.04 | ¿ù¼¼ | ½ºÄ«ÀÌij½½ | 4 | 26.61 | 4,000 | 43 | 2012 | | 2024.01.04 | ¿ù¼¼ | (870-40) | 1 | 41.24 | 500 | 60 | 1992 | | 2024.01.04 | Àü¼¼ | ¸®ºùÇϿ콺5Â÷ | 4 | 34.74 | 18,000 | 0 | 2015 | | 2024.01.04 | ¿ù¼¼ | µ¿¿ø¶óÅ׶󽺺ô | 2 | 40.31 | 3,000 | 90 | 2016 | | 2024.01.04 | Àü¼¼ | À̵µÆÓ¸®½º | 2 | 23.73 | 19,500 | 0 | 2021 | | 2024.01.04 | ¿ù¼¼ | ´õ¿ø#8 | 6 | 29.41 | 5,000 | 95 | 2022 | | 2024.01.04 | Àü¼¼ | ¼ºÁøºô¶ó(382-24) | 2 | 48.36 | 14,000 | 0 | 2001 | | 2024.01.04 | Àü¼¼ | ±Ý¼º¾ÆÆ®ºô(400-53) | 3 | 54.23 | 16,200 | 0 | 2001 | | 2024.01.04 | Àü¼¼ | û¼ÛÆòÈÇÏÀ̸ǼÇ(459-15) | 2 | 59.39 | 18,000 | 0 | 2010 | | 2024.01.04 | Àü¼¼ | ¿ì¼ººô¶ó | 2 | 65.25 | 18,200 | 0 | 2000 | | 2024.01.04 | Àü¼¼ | õ¿ì±×¸°ºô(Aµ¿) | 5 | 49.44 | 14,490 | 0 | 2001 | | 2024.01.03 | Àü¼¼ | ¼ºÁøÅ¸¿îCµ¿ | 1 | 57.18 | 14,700 | 0 | 2002 | | 2024.01.03 | Àü¼¼ | ¿¹Æòºô¶ó(1121-15) | -1 | 37.26 | 7,500 | 0 | 1996 | | 2024.01.03 | ¿ù¼¼ | ³²±¤ÆÄÅ©ºô | 4 | 51.13 | 15,000 | 20 | 2010 | | 2024.01.03 | Àü¼¼ | Áßµ¿¾ÆÆ®ºô | 4 | 45.15 | 15,390 | 0 | 2002 | | 2024.01.03 | Àü¼¼ | ±îÄ¡»êÆÈ¶óÀ̽º | 3 | 28.46 | 14,900 | 0 | 2015 | | 2024.01.03 | Àü¼¼ | ¿¬ÁÖºô¶ó | 2 | 45.21 | 10,400 | 0 | 2003 | | 2024.01.03 | ¿ù¼¼ | ¾¾Æ¼ÆÄÅ© | 5 | 57.76 | 2,000 | 100 | 2008 | | 2024.01.03 | Àü¼¼ | ¿¬ÁÖºô¶ó | 2 | 45.21 | 10,400 | 0 | 2003 | | 2024.01.03 | Àü¼¼ | »ï¼º´ºÈú(56-701) | 4 | 63.67 | 17,200 | 0 | 2003 | | 2024.01.03 | ¿ù¼¼ | ¸ðÀüÇ÷¯½ººôBµ¿ | 2 | 34.27 | 11,200 | 15 | 2002 | | 2024.01.03 | Àü¼¼ | ȼººô¶ó(56-34) | 2 | 51.54 | 13,900 | 0 | 2001 | | 2024.01.03 | Àü¼¼ | ¹Ì·¡½ºÅ¸ºô(56-264) | 4 | 64.97 | 17,000 | 0 | 2010 | | 2024.01.03 | Àü¼¼ | ¹Ì·¡½ºÅ¸ºô(56-264) | 4 | 64.97 | 17,000 | 0 | 2010 | | 2024.01.03 | Àü¼¼ | µ¿¾çÇÏ¿ì¡ | 4 | 40.79 | 23,300 | 0 | 2016 | | 2024.01.03 | Àü¼¼ | µ¿¾çÇÏ¿ì¡ | 4 | 40.79 | 23,300 | 0 | 2016 | | 2024.01.03 | Àü¼¼ | ÇÑ¿ïÆÓ¸®½º | 6 | 25.31 | 16,200 | 0 | 2017 | | 2024.01.03 | Àü¼¼ | ÆÄÅ©¾Æ¸®¿Â101µ¿102µ¿ | 12 | 25.44 | 24,300 | 0 | 2021 | | 2024.01.03 | ¿ù¼¼ | ¸®ºùÇϿ콺 | 2 | 26.32 | 2,000 | 68 | 2016 | | 2024.01.03 | Àü¼¼ | ¾¾Æ¼ÇϿ콺ºñµ¿ | 4 | 21.91 | 14,868 | 0 | 2017 | | 2024.01.03 | Àü¼¼ | »ï¼º´ºÈú(56-701) | 4 | 63.67 | 17,200 | 0 | 2003 | | 2024.01.03 | Àü¼¼ | ¼¼¸íº£¸£µð¿ò | 6 | 29.03 | 20,000 | 0 | 2016 | | 2024.01.03 | Àü¼¼ | (166-26) | 3 | 66.59 | 20,000 | 0 | 2004 | | 2024.01.03 | ¿ù¼¼ | »ï¼ºÆç¸®Ã¼(864-52) | 3 | 37.5 | 3,000 | 90 | 2014 | | 2024.01.03 | ¿ù¼¼ | ÀÚ¶óÇϿ콺(353-32) | 5 | 28.61 | 2,000 | 115 | 2015 | | 2024.01.02 | ¿ù¼¼ | ÇϳªÄ³½½ | 7 | 31.44 | 500 | 60 | 2013 | | 2024.01.02 | Àü¼¼ | Åõ¿ø¾¾ºô¸®Áö | 2 | 60.98 | 14,500 | 0 | 2002 | | 2024.01.02 | Àü¼¼ | ȲÁ¦¾ÆÀÌÆÄÅ©(55-50) | 1 | 38.36 | 11,900 | 0 | 2008 | | 2024.01.02 | ¿ù¼¼ | (959-22) | 1 | 26.32 | 500 | 40 | 2003 | | 2024.01.02 | Àü¼¼ | ¿¡½º¿¥ÆÄÅ©ºô(332-42) | 6 | 29.66 | 17,100 | 0 | 2015 | | 2024.01.02 | ¿ù¼¼ | ÇÁ¶óÀÓÇϿ콺 | 3 | 28.41 | 2,000 | 60 | 2019 | | 2024.01.02 | ¿ù¼¼ | dz¼º»õ·Òºô | 5 | 41.7 | 13,350 | 9 | 2009 |
|
|
|
 |
ÀÓÂ÷³»¿ª |
[¹è´ç¿ä±¸Á¾±âÀÏ : 2024/12/03] |
|
|
| ÀÓÂ÷ÀÎ |
Á¡À¯°ü°è |
ÀüÀÔÀÏÀÚ |
È®Á¤ÀÏÀÚ |
¹è´ç¿ä±¸ÀÏ |
º¸Áõ±Ý/Â÷ÀÓ |
´ëÇ׿ä°Ç |
ºñ°í |
| Á¤OO |
°Ç¹°ÀüºÎ |
2019.02.08. |
2019.01.17. |
|
220,000,000
|
O |
|
| ÁÖOO |
ÀüºÎ |
2019.02.08. |
2019.01.17. |
2024.11.27. |
220,000,000
|
O |
|
| ¸Å°¢¹°°Ç¸í¼¼ ºñ°í |
|
|
|
|
 |
Áö¿ªºÐ¼® |
|
|
|
|
| ÁöÇÏö |
|
Çб³ |
|
| °ü°ø¼ |
|
| ¹ý¿ø |
¼¿ï³²ºÎÁö¹æ¹ý¿ø (080-88)¼¿ïƯº°½Ã ¾çõ±¸ ½Å¿ù·Î 386(½ÅÁ¤µ¿) ´ëÇ¥ : 02)2192-1114 ¿µµîÆ÷±¸, °¼±¸, ¾çõ±¸, ±¸·Î±¸, ±Ýõ±¸ |
| µî±â¼Ò |
¼¿ï³²ºÎÁö¹æ¹ý¿ø º»¿ø µî±â±¹ (´ëÇ¥:1544-0773, ÆÑ½º:(02)2629-7307, ¼¿ïƯº°½Ã ¿µµîÆ÷±¸ °æÀηΠ772 (¹®·¡µ¿ 1°¡)) |
| ¼¼¹«¼ |
°¼¼¼¹«¼ (´ëÇ¥:02-2630-42, ÆÑ½º:02-2679-8777, ¼¿ïƯº°½Ã °¼±¸ ¸¶°î¼1·Î 60 (¸¶°îµ¿)) |
|
|
|
 |
¹ý¿ø ¹°°ÇÀÚ·á ¿ä¾à |
|
|
|
|
| ¼Ò¸êµÇÁö ¾Ê´Â µî±âºÎ±Ç¸® |
|
| ¼³Á¤µÈ °ÍÀ¸·Î º¸´Â Áö»ó±Ç |
|
| ¹ý¿øÀÚ·á Æ¯ÀÌ»çÇ× |
[ÁÖ¿ä ¹®°Ç Á¢¼ö ³»¿ª]
|
[¸Å°¢¹°°Ç¸í¼¼¼ ºñ°í¶õ]
Ưº°¸Å°¢Á¶°Ç: ä±ÇÀÚ´Â ¸Å¼öÀο¡ ´ëÇØ ¹è´ç¹ÞÁö ¸øÇÏ´Â Àܾ׿¡ ´ëÇÑ ÀÓ´ëÂ÷º¸Áõ±Ý ¹Ýȯû±¸±ÇÀ» Æ÷±âÇϰí, ÀÓÂ÷±Çµî±â¸¦ ¸»¼Ò
ÇÏ´Â °ÍÀ» Á¶°ÇÀ¸·Î ¸Å°¢ |
|
| ¿©ÀÇÁÖ°æ¸Å Á¶¾ð ÇѸ¶µð |
ÀÌ ºÎµ¿»êÀÇ ÀÔÂû¹ý¿øÀº ¼¿ï³²ºÎÁö¹æ¹ý¿øÀÔ´Ï´Ù.
ÀÔÂû½Ã°£Àº ~11:20ÀÔ´Ï´Ù. ÀÌ ¹ý¿ø¿¡´Â ½ÅÇÑÀºÇàÀÌ ÀÔÁ¡Çϰí ÀÖ½À´Ï´Ù.
|
¼±¼øÀ§ ÀÓÂ÷±Çµî±â°¡ µÇ¾î ÀÖ½À´Ï´Ù ´ëÇ×·ÂÀÌ ÀÖ´Â ¼±¼øÀ§ ÀÓÂ÷±Çµî±â ±Ç¸®ÀÚ°¡ ¹è´çÀ» Àü¾× ¹ÞÁö ¸øÇÒ °æ¿ì ³«ÂûÀÚ°¡ ÀÜ¿© º¸Áõ±ÝÀ» ÀμöÇØ¾ßÇÏ´Â °æ¿ìµµ ÀÖ½À´Ï´Ù. |
|
|
| Åë°è±â°£ |
³«Âû¹°°Ç¼ö |
Æò±Õ°¨Á¤°¡ |
Æò±Õ³«Âû°¡ |
³«Âû°¡À² |
À¯ÂûȽ¼ö |
| 3°³¿ù |
174°Ç |
252,609,518¿ø |
197,548,124¿ø |
79% |
2.6ȸ |
| 6°³¿ù |
437°Ç |
257,271,989¿ø |
201,424,195¿ø |
79% |
2.4ȸ |
| 12°³¿ù |
1,071°Ç |
254,648,591¿ø |
197,310,713¿ø |
78% |
3.5ȸ |
|
|
|
|
|
|
 |
|