|
| º» °æ¸Å¹°°ÇÀº ³«ÂûµÇ¾î ÀÌ¹Ì ¸ðµç °æ¸ÅÀýÂ÷°¡ ³¡³µ½À´Ï´Ù. ÀÌ ¹°°ÇÀº »ó´ãÇØ µå¸®Áö ¾Ê½À´Ï´Ù. |
|
|
| ¼ÒÀçÁö |
¼¿ïƯº°½Ã °¼±¸ ¿ùÁ¤·Î20±æ 82-6, Á¦4Ãþ Á¦403È£ (Ȱ, Çý¼º¿ÀÇǽºÅÚ)
±¸)¼¿ïƯº°½Ã °¼±¸ Ȱ 916-7
|
|
| »ç°Ç¹øÈ£ |
2024 Ÿ°æ 134275 |
¹°°Ç¹øÈ£ |
1
|
¹°°Ç¿ëµµ |
¿ÀÇǽºÅÚ |
| °¨Á¤Æò°¡¾× |
275,000,000¿ø |
°æ¸Å´ë»ó |
ÅäÁö ¹× °Ç¹°Àϰý ¸Å°¢ |
ÁøÇà»óÅ |
³«Âû |
ÃÖÀúÀÔÂû°¡ ³«Âû°¡ |
(80%) 220,000,000¿ø
(0.00%) 0¿ø |
°Ç¹°¸éÀû |
29.67§³(8.98Æò) |
ÀÔÂû±âÀÏ |
2025.06.26(¸ñ) 10:00
|
| ÀÔÂûº¸Áõ±Ý |
(10%) 22,000,000¿ø |
ÅäÁö¸éÀû |
7.83§³(2.37Æò)
|
À¯ÂûȽ¼ö |
1ȸ |
| ÀÔÂû¹ý¿ø |
¼¿ï³²ºÎÁö¹æ¹ý¿ø |
°æ¸Å¹æ¹ý |
|
¹°°ÇÁ¶È¸¼ö |
¿À´Ã: 3ȸ [´©Àû: 4ȸ]
|
| ¸»¼Ò±âÁØ | ÃÖ¼±¼øÀ§ ¼³Á¤ : 2022.7.19. ¾Ð·ù ¼³Á¤
|
|
|
|
|
|
|
|
|
|
|
°æ¸Å´ë»ó ¸ñ·Ï
|
|
| ±¸ºÐ |
¸ñ·Ï |
ÁÖ¼Ò |
±¸Á¶/¿ëµµ/´ëÁö±Ç |
ºñ°í |
´ëÁö±Ç
|
1 |
Ȱ 916-7 |
318.1ºÐÀÇ 7.83 |
7.83§³ (2.37Æò)
|
°Ç¹°
|
1 |
Ȱ 916-7 |
Á¦4Ãþ Á¦403È£ ö±ÙÄÜÅ©¸®Æ®±¸Á¶ |
29.67§³ (8.98Æò)
|
|
|
|
2025-05-22
À¯Âû
|
(100%)
275,000,000¿ø
|
|
|
|
2025-06-26
³«Âû
|
(80%)
220,000,000¿ø
|
|
|
¦±¦¬> ³«Âû°¡
 |
|
|
|
|
|
|
°¨Á¤Æò°¡¼ ¿ä¾à |
|
[À§Ä¡/ÁÖÀ§È¯°æ]
º»°ÇÀº ¼¿ïƯº°½Ã °¼±¸ Ȱ "±îÄ¡»ê¿ª" ³²¼Ãø Àαٿ¡ À§Ä¡Çϸç ÁÖÀ§´Â ¿ÀÇǽºÅÚ, ´Ù¼¼´ëÁÖÅà µîÀÌ ¼ÒÀçÇÏ´Â Áö¿ªÀ¸·Î Á¦¹Ý ÁÖÀ§È¯°æÀº º¸ÅëÀÔ´Ï´Ù.
[±³Åë»óȲ]
º»°Ç±îÁö Â÷·®ÀÇ ÁøÃâÀÔÀÌ °¡´ÉÇϰí Àαٿ¡ ¹ö½ºÁ¤·ùÀå ¹× ÁöÇÏö¿ª(2È£¼±, 5È£¼± "±îÄ¡»ê¿ª") µîÀÌ ¼ÒÀçÇÏ´Â µî Á¦¹Ý ±³Åë»óȲÀº º¸ÅëÀÔ´Ï´Ù.
[°Ç¹°±¸Á¶]
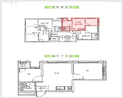
ö±ÙÄÜÅ©¸®Æ®±¸Á¶ Æò½½¶óºêÁöºØ ÁöÇÏ1Ãþ/Áö»ó12Ãþ °Ç¹° ³» Á¦4Ãþ Á¦403È£·Î¼,
(»ç¿ë½ÂÀÎÀÏ : 2021.02.18)
¿Üº® : ¼®ÀçºÙÀÓ ¸¶°¨ µî,
âȣ : »õ½Ãâȣ µî ÀÔ´Ï´Ù.
[ÀÌ¿ë»óÅÂ]
¿ÀÇǽºÅÚ·Î ÀÌ¿ë ÁßÀÎ °ÍÀ¸·Î ޹®Á¶»ç µÇ¾ú½À´Ï´Ù.
[¼³ºñ³»¿ª]
±âº»ÀûÀÎ À§»ý ¹× ±Þ¹è¼ö¼³ºñ, µµ½Ã°¡½º¿¡ ÀÇÇÑ ³¹æ¼³ºñ, ¼Òȼ³ºñ, ½Â°±â ¼³ºñ, ÁÖÂ÷ ¼³ºñ µîÀÌ ±¸ºñµÇ¾î ÀÖ½À´Ï´Ù.
[ÅäÁöÇü»ó/ÀÌ¿ë»óÅÂ]
º»°Ç ÅäÁö´Â ÀÎÁ¢Áö ´ëºñ µî°íÆòźÇÑ ¼¼ÀåÇü ÅäÁö·Î¼, ¿ÀÇǽºÅÚ °ÇºÎÁö·Î ÀÌ¿ë ÁßÀÔ´Ï´Ù.
7)ÀÎÁ¢ µµ·Î»óŵî
º»°Ç ºÏµ¿ÃøÀ¸·Î ³ëÆø ¾à 4m ³»¿ÜÀÇ Æ÷Àåµµ·Î¿Í Á¢ÇÕ´Ï´Ù.
[ÅäÁöÀÌ¿ë°èȹ]
µµ½ÃÁö¿ª, ÀϹݻó¾÷Áö¿ª, Áß¿ä½Ã¼³¹°º¸È£Áö±¸(°øÇ×), Áö±¸´ÜÀ§°èȹ±¸¿ª, °¡Ãà»çÀ°Á¦Çѱ¸¿ª(Áö¿ª°æÁ¦°ú È®ÀÎ ¿ä¸Á)£¼°¡ÃàºÐ´¢ÀÇ °ü¸® ¹× À̿뿡 °üÇÑ ¹ý·ü£¾, ¼öÆòÇ¥¸é±¸¿ª(¼öÆòÇ¥¸é)£¼°øÇ׽ü³¹ý£¾, ´ë°ø¹æ¾îÇùÁ¶±¸¿ª(À§Å¹°íµµ:77-257m)£¼±º»ç±âÁö ¹× ±º»ç½Ã¼³ º¸È£¹ý£¾, °ú¹Ð¾ïÁ¦±Ç¿ª£¼¼öµµ±ÇÁ¤ºñ°èȹ¹ý£¾
[°øºÎ¿ÍÀÇ Â÷ÀÌ]
ÇØ´ç ¾ø½À´Ï´Ù.
[Âü°í»çÇ×]
ÀÓ´ë ¹Ì»óÀÔ´Ï´Ù. |
|
|
°ÇÃ๰ÇöȲ |
|
|
|
| ¼ÒÀçÁö |
¼¿ïƯº°½Ã °¼±¸ Ȱ 916-7¹øÁö |
| ´ëÁö¸éÀû |
316.28§³(95.84Æò) |
¿¬¸éÀû |
1508.37§³(457.08Æò) |
ÁÖ¿ëµµ |
¾÷¹«½Ã¼³ |
| °ÇÃà¸éÀû |
135.57§³(41.08Æò) |
¿ëÀû·ü»êÁ¤¿¬¸éÀû |
1419.68§³(430.21Æò) |
Âø°øÀÏÀÚ |
2020.06.15 |
| °ÇÆóÀ² |
42.863918% |
¿ëÀû·ü |
448.87% |
»ç¿ë½ÂÀÎÀÏÀÚ |
2021.02.18 |
| Áö»óÃþ¼ö |
12Ãþ |
ÁöÇÏÃþ¼ö |
1Ãþ |
±¸Á¶ |
ö±ÙÄÜÅ©¸®Æ®±¸Á¶ |
°ÇÃ๰Ãþº°ÇöȲ [º¸±â]| Ãþº° | ±¸Á¶ | ¿ëµµ | ¸éÀû | | 1Ãþ | ÀϹÝö°ñ±¸Á¶ | ±â°è½ÄÁÖÂ÷Àå | 49.21§³ (14.91Æò) | | 1Ãþ | ö±ÙÄÜÅ©¸®Æ®±¸Á¶ | °ü¸®½Ç | 3.15§³ (0.95Æò) | | 1Ãþ | ö±ÙÄÜÅ©¸®Æ®±¸Á¶ | ¿ÀÇǽºÅÚ(1È£) | 38.45§³ (11.65Æò) | | 1Ãþ | ö±ÙÄÜÅ©¸®Æ®±¸Á¶ | ÇÊ·ÎÆ¼ÁÖÂ÷Àå | 100.24§³ (30.38Æò) | | 2Ãþ | ö±ÙÄÜÅ©¸®Æ®±¸Á¶ | ¿ÀÇǽºÅÚ(4È£) | 125.28§³ (37.96Æò) | | 3Ãþ | ö±ÙÄÜÅ©¸®Æ®±¸Á¶ | ¿ÀÇǽºÅÚ(4È£) | 125.28§³ (37.96Æò) | | 4Ãþ | ö±ÙÄÜÅ©¸®Æ®±¸Á¶ | ¿ÀÇǽºÅÚ(4È£) | 125.28§³ (37.96Æò) | | 5Ãþ | ö±ÙÄÜÅ©¸®Æ®±¸Á¶ | ¿ÀÇǽºÅÚ(4È£) | 125.28§³ (37.96Æò) | | 6Ãþ | ö±ÙÄÜÅ©¸®Æ®±¸Á¶ | ¿ÀÇǽºÅÚ(4È£) | 125.28§³ (37.96Æò) | | 7Ãþ | ö±ÙÄÜÅ©¸®Æ®±¸Á¶ | ¿ÀÇǽºÅÚ(4È£) | 125.28§³ (37.96Æò) | | 8Ãþ | ö±ÙÄÜÅ©¸®Æ®±¸Á¶ | ¿ÀÇǽºÅÚ(4È£) | 125.28§³ (37.96Æò) | | 9Ãþ | ö±ÙÄÜÅ©¸®Æ®±¸Á¶ | ¿ÀÇǽºÅÚ(4È£) | 125.28§³ (37.96Æò) | | 10Ãþ | ö±ÙÄÜÅ©¸®Æ®±¸Á¶ | ¿ÀÇǽºÅÚ(4È£) | 125.28§³ (37.96Æò) | | 11Ãþ | ö±ÙÄÜÅ©¸®Æ®±¸Á¶ | ¿ÀÇǽºÅÚ(4È£) | 125.28§³ (37.96Æò) | | 12Ãþ | ö±ÙÄÜÅ©¸®Æ®±¸Á¶ | ¿ÀÇǽºÅÚ(4È£) | 125.28§³ (37.96Æò) | | ¿Áž1Ãþ | ö±ÙÄÜÅ©¸®Æ®±¸Á¶ | °è´Ü½Ç/ELEV O.H | 21.24§³ (6.44Æò) | | Áö1Ãþ | ö±ÙÄÜÅ©¸®Æ®±¸Á¶ | Åë½Å½Ç/±â°è½Ç | 88.69§³ (26.88Æò) |
|
|
|
|
|
|
|
|
|
¸éÀû(§³), ±Ý¾×(¸¸¿ø)
| °è¾àÀÏ | ±âÁØ | °Ç¹°¸íĪ | Ãþ | Àü¿ë¸éÀû | °Å·¡±Ý¾× | °ÇÃà³âµµ | | °Å·¡³»¿ªÀÌ ¾ø½À´Ï´Ù. |
| °è¾àÀÏ | ±âÁØ | °Ç¹°¸íĪ | Ãþ | Àü¿ë¸éÀû | º¸Áõ±Ý | ¿ù¼¼ | °ÇÃà³âµµ | | 2025.10.25 | ¿ù¼¼ | Çý¼º¿ÀÇǽºÅÚ | 11 | 27.06 | 1,000 | 75 | 2021 | | 2025.06.17 | ¿ù¼¼ | Çý¼º¿ÀÇǽºÅÚ | 2 | 22.02 | 100 | 55 | 2021 | | 2024.08.23 | Àü¼¼ | Çý¼º¿ÀÇǽºÅÚ | 11 | 29.67 | 22,000 | 0 | 2021 |
|
|
|
 |
ÀÓÂ÷³»¿ª |
[¹è´ç¿ä±¸Á¾±âÀÏ : 2024/12/04] |
|
|
| ÀÓÂ÷ÀÎ |
Á¡À¯°ü°è |
ÀüÀÔÀÏÀÚ |
È®Á¤ÀÏÀÚ |
¹è´ç¿ä±¸ÀÏ |
º¸Áõ±Ý/Â÷ÀÓ |
´ëÇ׿ä°Ç |
ºñ°í |
| ¼OO |
ÀüºÎ |
2021.06.08. |
2021.05.21. |
|
274,000,000
|
O |
|
| ÁÖOO |
ÀüºÎ |
2021.06.08. |
2021.05.21. |
2024.12.4. |
274,000,000
|
O |
|
| ¸Å°¢¹°°Ç¸í¼¼ ºñ°í |
|
|
|
|
 |
Áö¿ªºÐ¼® |
|
|
|
|
| ÁöÇÏö |
|
Çб³ |
|
| °ü°ø¼ |
|
| ¹ý¿ø |
¼¿ï³²ºÎÁö¹æ¹ý¿ø (080-88)¼¿ïƯº°½Ã ¾çõ±¸ ½Å¿ù·Î 386(½ÅÁ¤µ¿) ´ëÇ¥ : 02)2192-1114 ¿µµîÆ÷±¸, °¼±¸, ¾çõ±¸, ±¸·Î±¸, ±Ýõ±¸ |
| µî±â¼Ò |
¼¿ï³²ºÎÁö¹æ¹ý¿ø º»¿ø µî±â±¹ (´ëÇ¥:1544-0773, ÆÑ½º:(02)2629-7307, ¼¿ïƯº°½Ã ¿µµîÆ÷±¸ °æÀηΠ772 (¹®·¡µ¿ 1°¡)) |
| ¼¼¹«¼ |
°¼¼¼¹«¼ (´ëÇ¥:02-2630-42, ÆÑ½º:02-2679-8777, ¼¿ïƯº°½Ã °¼±¸ ¸¶°î¼1·Î 60 (¸¶°îµ¿)) |
|
|
|
 |
¹ý¿ø ¹°°ÇÀÚ·á ¿ä¾à |
|
|
|
|
| ¼Ò¸êµÇÁö ¾Ê´Â µî±âºÎ±Ç¸® |
|
| ¼³Á¤µÈ °ÍÀ¸·Î º¸´Â Áö»ó±Ç |
|
| ¹ý¿øÀÚ·á Æ¯ÀÌ»çÇ× |
[ÁÖ¿ä ¹®°Ç Á¢¼ö ³»¿ª]
[2024.09.20] ä±ÇÀÚ ¼Ò¼Û´ë¸®ÀÎ ¹ýOOO OOOOOO ¼Û´ÞÀå¼Ò º¯°æ½Åû¼(乫ÀÚ) Á¦Ãâ
|
[¸Å°¢¹°°Ç¸í¼¼¼ ºñ°í¶õ]
Ưº°¸Å°¢Á¶°Ç: ä±ÇÀÚ´Â ¸Å¼öÀο¡ ´ëÇØ ¹è´ç¹ÞÁö ¸øÇÏ´Â Àܾ׿¡ ´ëÇÑ ÀÓ´ëÂ÷º¸Áõ±Ý ¹Ýȯû±¸±ÇÀ» Æ÷±âÇϰí, ÀÓÂ÷±Çµî±â¸¦ ¸»¼Ò
ÇÏ´Â °ÍÀ» Á¶°ÇÀ¸·Î ¸Å°¢ |
|
| ¿©ÀÇÁÖ°æ¸Å Á¶¾ð ÇѸ¶µð |
ÀÌ ºÎµ¿»êÀÇ ÀÔÂû¹ý¿øÀº ¼¿ï³²ºÎÁö¹æ¹ý¿øÀÔ´Ï´Ù.
ÀÔÂû½Ã°£Àº ~11:20ÀÔ´Ï´Ù. ÀÌ ¹ý¿ø¿¡´Â ½ÅÇÑÀºÇàÀÌ ÀÔÁ¡Çϰí ÀÖ½À´Ï´Ù.
|
¼±¼øÀ§ ÀÓÂ÷±Çµî±â°¡ µÇ¾î ÀÖ½À´Ï´Ù ´ëÇ×·ÂÀÌ ÀÖ´Â ¼±¼øÀ§ ÀÓÂ÷±Çµî±â ±Ç¸®ÀÚ°¡ ¹è´çÀ» Àü¾× ¹ÞÁö ¸øÇÒ °æ¿ì ³«ÂûÀÚ°¡ ÀÜ¿© º¸Áõ±ÝÀ» ÀμöÇØ¾ßÇÏ´Â °æ¿ìµµ ÀÖ½À´Ï´Ù. |
|
|
| Åë°è±â°£ |
³«Âû¹°°Ç¼ö |
Æò±Õ°¨Á¤°¡ |
Æò±Õ³«Âû°¡ |
³«Âû°¡À² |
À¯ÂûȽ¼ö |
| 3°³¿ù |
54°Ç |
267,870,370¿ø |
218,708,545¿ø |
82% |
1.9ȸ |
| 6°³¿ù |
114°Ç |
268,517,544¿ø |
219,113,365¿ø |
82% |
2.1ȸ |
| 12°³¿ù |
199°Ç |
264,648,241¿ø |
215,122,602¿ø |
82% |
2.6ȸ |
|
|
|
|
|
|
 |
|