|
|
| ¼ÒÀçÁö |
°æ±âµµ ¼º³²½Ã ¼öÁ¤±¸ »ê¼º´ë·Î 267, ÁöÇÏ1Ãþºñ1093È£ (½ÅÈﵿ,½ÅÈ↑½Ã³×¸¶Å¸¿ö)
±¸)°æ±âµµ ¼º³²½Ã ¼öÁ¤±¸ ½ÅÈﵿ 4124
|
|
| »ç°Ç¹øÈ£ |
2024 Ÿ°æ 5648 |
¹°°Ç¹øÈ£ |
1
|
¹°°Ç¿ëµµ |
»ó°¡,»ç¹«½Ç |
| °¨Á¤Æò°¡¾× |
257,000,000¿ø |
°æ¸Å´ë»ó |
ÅäÁö ¹× °Ç¹°Àϰý ¸Å°¢ |
ÁøÇà»óÅ |
ÀçÁøÇà |
| ÃÖÀúÀÔÂû°¡ |
(8%) 21,165,000¿ø
|
°Ç¹°¸éÀû |
10.53§³(3.19Æò) |
ÀÔÂû±âÀÏ |
2026.06.01(¿ù) 10:00
(ÀÔÂû 12ÀÏÀü)
|
| ÀÔÂûº¸Áõ±Ý |
(10%) 2,116,500¿ø |
ÅäÁö¸éÀû |
2.38§³(0.72Æò)
|
À¯ÂûȽ¼ö |
7ȸ |
| ÀÔÂû¹ý¿ø |
¼ö¿øÁö¹æ¹ý¿ø ¼º³²Áö¿ø |
°æ¸Å¹æ¹ý |
|
¹°°ÇÁ¶È¸¼ö |
¿À´Ã: 3ȸ [´©Àû: 1395ȸ]
|
| ¸»¼Ò±âÁØ | ÃÖ¼±¼øÀ§ ¼³Á¤ : 2019.1.23. ±ÙÀú´ç±Ç ¼³Á¤
|
|
|
|
|
|
|
|
|
|
|
°æ¸Å´ë»ó ¸ñ·Ï
|
|
| ±¸ºÐ |
¸ñ·Ï |
ÁÖ¼Ò |
±¸Á¶/¿ëµµ/´ëÁö±Ç |
ºñ°í |
´ëÁö±Ç
|
1 |
½ÅÈﵿ 4124 |
3278.7ºÐÀÇ 2.3812 |
2.3812§³ (0.72Æò)
|
°Ç¹°
|
1 |
½ÅÈﵿ 4124 |
ÁöÇÏ1Ãþºñ1093È£ ö±ÙÄÜÅ©¸®Æ®±¸Á¶ |
10.5331§³ (3.19Æò)
|
|
|
|
2025-06-02
À¯Âû
|
(100%)
257,000,000¿ø
|
|
|
|
2025-07-07
À¯Âû
|
(70%)
179,900,000¿ø
|
|
|
|
2025-08-11
À¯Âû
|
(49%)
125,930,000¿ø
|
|
|
|
2025-09-15
À¯Âû
|
(34%)
88,151,000¿ø
|
|
|
|
2025-11-24
À¯Âû
|
(24%)
61,706,000¿ø
|
|
|
|
2026-01-12
À¯Âû
|
(17%)
43,194,000¿ø
|
|
|
|
2026-02-13
À¯Âû
|
(12%)
30,236,000¿ø
|
|
|
|
2026-03-23
º¯°æ
|
(8%)
21,165,000¿ø
|
|
|
|
2026-06-01
ÁøÇà
|
(8%)
21,165,000¿ø
|
|
|
|
|
|
°¨Á¤Æò°¡¼ ¿ä¾à |
|
[À§Ä¡/ÁÖÀ§È¯°æ]
´ë»ó¹°°ÇÀº °æ±âµµ ¼º³²½Ã ¼öÁ¤±¸ ½ÅÈﵿ ¼ÒÀç "½ÅÈ↑(ÁöÇÏö8È£¼±)" ºÏ¼Ãø Àαٿ¡
À§Ä¡Çϸç, º»°Ç ÀαÙÀº ±Ù¸°»ýȰ½Ã¼³, ´ëÇü ÆÇ¸Å½Ã¼³ ¹× °ø°ø±â°ü µîÀÌ
¼ÒÀçÇÏ´Â »ó¾÷Áö´ëÀÓ.
[±³Åë»óȲ]
º»°Ç±îÁö Â÷·®ÀÇ Áø¡¤ÃâÀÔÀÌ ¿ëÀÌÇϰí,
Àαٿ¡ ³ë¼±¹ö½ºÁ¤·ùÀå ¹× ½ÅÈ↑(ÁöÇÏö8È£¼±) µîÀÌ ¼ÒÀçÇÏ´Â µî Á¦¹Ý±³Åë»çÁ¤Àº ¾çÈ£ÇÔ.
[°Ç¹°±¸Á¶]
ö±ÙÄÜÅ©¸®Æ®±¸Á¶ ÆòÁöºØ ÁöÇÏ 6Ãþ, Áö»ó 11Ãþ °Ç¹° ³» Á¦ÁöÇÏ1Ãþ Á¦ºñ1093È£·Î¼,
¿Ü º® : ¼®ÀçºÙÀÓ ¸¶°¨ µî,
â È£ : Æä¾î±Û¶ó½º ¹× ¼¦½Ãâȣ µîÀÓ.
[ÀÌ¿ë»óÅÂ]
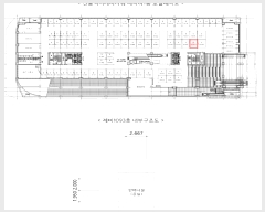
ÆÇ¸Å½Ã¼³(ÇöȲ °ø½Ç)·Î ÀÌ¿ëÁßÀÓ(ÈÄ÷ "³»ºÎ±¸Á¶µµ" ÂüÁ¶).
[¼³ºñ³»¿ª]
À§»ý¡¤±Þ¹è¼ö¼³ºñ, ¼ÒÈÀü¼³ºñ, ÈÀçŽÁö¼³ºñ, ½Â°±â¼³ºñ ¹× ÁÖÂ÷Àå¼³ºñ µî
±âº»ÀûÀÎ ¼³ºñ°¡ ±¸ºñµÇ¾î ÀÖÀ½.
[ÅäÁöÇü»ó/ÀÌ¿ë»óÅÂ]
¼¼ÀåÇü ÆòÁö·Î¼ ÆÇ¸Å½Ã¼³, Á¦1Á¾Á¦2Á¾±Ù¸°»ýȰ½Ã¼³, ¹®È¹×Áýȸ½Ã¼³ °ÇºÎÁö·Î ÀÌ¿ëÁßÀÓ.
7)ÀÎÁ¢ µµ·Î»óŵî
º»°Ç ³²ÃøÀ¸·Î ³ëÆø ¾à 50¹ÌÅÍ,
µ¿ÃøÀ¸·Î ³ëÆø ¾à 8¹ÌÅÍ, ºÏÃø ¹× ¼ÃøÀ¸·Î ³ëÆø ¾à 6m³»¿ÜÀÇ Æ÷Àåµµ·Î¿Í Á¢ÇÔ.
[ÅäÁöÀÌ¿ë°èȹ]
µµ½ÃÁö¿ª, ÀϹݻó¾÷Áö¿ª(2023-02-20), ¹æÈÁö±¸(2023-02-20), ½Ã°¡Áö°æ°üÁö±¸,
±¤·Î2·ù(Æø 50m-70m)(ÁÖ°£¼±µµ·Î)(Á¢ÇÕ), ¼Ò·Î2·ù(Æø 8m-10m)(2023-02-20)(Á¢ÇÕ),
Áß·Î2·ù(Æø 15m-20m)(2023-02-20)(Á¢ÇÕ), °¡Ãà»çÀ°Á¦Çѱ¸¿ª
£¼°¡ÃàºÐ´¢ÀÇ °ü¸® ¹× À̿뿡 °üÇÑ ¹ý·ü£¾, ºñÇà¾ÈÀüÁ¦6±¸¿ª(Àü¼ú)
£¼±º»ç±âÁö ¹× ±º»ç½Ã¼³ º¸È£¹ý£¾, ´ë±âȯ°æ±ÔÁ¦Áö¿ª£¼´ë±âȯ°æº¸Àü¹ý£¾,
µµ½Ã±³ÅëÁ¤ºñÁö¿ª£¼µµ½Ã±³ÅëÁ¤ºñÃËÁø¹ý£¾, °ú¹Ð¾ïÁ¦±Ç¿ª£¼¼öµµ±ÇÁ¤ºñ°èȹ¹ý£¾
[°øºÎ¿ÍÀÇ Â÷ÀÌ]
-
[Âü°í»çÇ×]
- |
|
|
°ÇÃ๰ÇöȲ |
|
|
|
| ¼ÒÀçÁö |
°æ±âµµ ¼º³²½Ã ¼öÁ¤±¸ ½ÅÈﵿ 4124¹øÁö |
| ´ëÁö¸éÀû |
3278.7§³(993.55Æò) |
¿¬¸éÀû |
38401.7328§³(11636.89Æò) |
ÁÖ¿ëµµ |
ÆÇ¸Å½Ã¼³ |
| °ÇÃà¸éÀû |
2394.3257§³(725.55Æò) |
¿ëÀû·ü»êÁ¤¿¬¸éÀû |
21883.2624§³(6631.29Æò) |
Âø°øÀÏÀÚ |
2016.12.29 |
| °ÇÆóÀ² |
73.0267% |
¿ëÀû·ü |
667.4372% |
»ç¿ë½ÂÀÎÀÏÀÚ |
2018.12.26 |
| Áö»óÃþ¼ö |
11Ãþ |
ÁöÇÏÃþ¼ö |
6Ãþ |
±¸Á¶ |
ö±ÙÄÜÅ©¸®Æ®±¸Á¶ |
°ÇÃ๰Ãþº°ÇöȲ [º¸±â]| Ãþº° | ±¸Á¶ | ¿ëµµ | ¸éÀû | | 1Ãþ | ö±ÙÄÜÅ©¸®Æ®±¸Á¶ | ÁÖÂ÷Àå | 257.7238§³ (78.1Æò) | | 1Ãþ | ö±ÙÄÜÅ©¸®Æ®±¸Á¶ | °è´Ü½Ç ¿¤¸®º£ÀÌÅÍ MDF µî | 124.366§³ (37.69Æò) | | 2Ãþ | ö±ÙÄÜÅ©¸®Æ®±¸Á¶ | º¹µµ ÈÀå½Ç | 430.773§³ (130.54Æò) | | 2Ãþ | ö±ÙÄÜÅ©¸®Æ®±¸Á¶ | Á¦2Á¾±Ù¸°»ýȰ½Ã¼³(±ÝÀ¶¾÷¼Ò) | 154.88§³ (46.93Æò) | | 2Ãþ | ö±ÙÄÜÅ©¸®Æ®±¸Á¶ | °è´Ü½Ç ¿¤¸®º£ÀÌÅÍ µî | 202.2119§³ (61.28Æò) | | 3Ãþ | ö±ÙÄÜÅ©¸®Æ®±¸Á¶ | ÆÇ¸Å½Ã¼³(»óÁ¡), ¾÷¹«½Ã¼³(»ç¹«¼Ò) | 1416.9787§³ (429.39Æò) | | 3Ãþ | ö±ÙÄÜÅ©¸®Æ®±¸Á¶ | Á¦1Á¾±Ù¸°»ýȰ½Ã¼³(Ä¡°úÀÇ¿ø) | 135.6004§³ (41.09Æò) | | 4Ãþ | ö±ÙÄÜÅ©¸®Æ®±¸Á¶ | º¹µµ ÈÀå½Ç | 463.613§³ (140.49Æò) | | 5Ãþ | ö±ÙÄÜÅ©¸®Æ®±¸Á¶ | Á¦1Á¾±Ù¸°»ýȰ½Ã¼³(ÀÇ¿ø), ÀÇ·á½Ã¼³( | 1574.8511§³ (477.23Æò) | | 7Ãþ | ö±ÙÄÜÅ©¸®Æ®±¸Á¶ | °è´Ü½Ç ¿¤¸®º£ÀÌÅÍ µî | 136.6318§³ (41.4Æò) | | 7Ãþ | ö±ÙÄÜÅ©¸®Æ®±¸Á¶ | Á¦2Á¾±Ù¸°»ýȰ½Ã¼³(ÀϹÝÀ½½ÄÁ¡) | 282.0749§³ (85.48Æò) | | 7Ãþ | ö±ÙÄÜÅ©¸®Æ®±¸Á¶ | º¹µµ | 98.1619§³ (29.75Æò) | | 8Ãþ | ö±ÙÄÜÅ©¸®Æ®±¸Á¶ | º¹µµ ÈÀå½Ç µî | 63.7845§³ (19.33Æò) | | 8Ãþ | ö±ÙÄÜÅ©¸®Æ®±¸Á¶ | °è´Ü½Ç â°í µî | 130.0854§³ (39.42Æò) | | 8Ãþ | ö±ÙÄÜÅ©¸®Æ®±¸Á¶ | º¹µµ ÈÀå½Ç µî | 414.7406§³ (125.68Æò) | | 8Ãþ | ö±ÙÄÜÅ©¸®Æ®±¸Á¶ | Á¦1Á¾±Ù¸°»ýȰ½Ã¼³(ÈÞ°ÔÀ½½ÄÁ¡) | 69.26§³ (20.99Æò) | | 9Ãþ | ö±ÙÄÜÅ©¸®Æ®±¸Á¶ | °è´Ü½Ç ¿¤¸®º£ÀÌÅÍ µî | 127.7334§³ (38.71Æò) | | 9Ãþ | ö±ÙÄÜÅ©¸®Æ®±¸Á¶ | º¹µµ AHU µî | 1009.0768§³ (305.78Æò) | | 10Ãþ | ö±ÙÄÜÅ©¸®Æ®±¸Á¶ | º¹µµ ÈÀå½Ç µî | 1019.3075§³ (308.88Æò) | | 11Ãþ | ö±ÙÄÜÅ©¸®Æ®±¸Á¶ | °è´Ü½Ç ¿¤¸®º£ÀÌÅÍ µî | 87.7494§³ (26.59Æò) | | ¿Áž1Ãþ | ö±ÙÄÜÅ©¸®Æ®±¸Á¶ | °è´Ü½Ç â°í µî (¿¬¸éÀû Á¦¿Ü) | 71.125§³ (21.55Æò) | | Áö1Ãþ | ö±ÙÄÜÅ©¸®Æ®±¸Á¶ | ÆÇ¸Å½Ã¼³(»óÁ¡) | 1073.6812§³ (325.36Æò) | | Áö1Ãþ | ö±ÙÄÜÅ©¸®Æ®±¸Á¶ | º¹µµ ÈÀå½Ç | 69.0847§³ (20.93Æò) | | Áö2Ãþ | ö±ÙÄÜÅ©¸®Æ®±¸Á¶ | ÁÖÂ÷Àå | 2591.2862§³ (785.24Æò) | | Áö2Ãþ | ö±ÙÄÜÅ©¸®Æ®±¸Á¶ | °è´Ü½Ç ¿¤¸®º£ÀÌÅÍ µî | 136.2743§³ (41.3Æò) | | Áö3Ãþ | ö±ÙÄÜÅ©¸®Æ®±¸Á¶ | °è´Ü½Ì ¿¤¸®º£ÀÌÅÍ µî | 69.5094§³ (21.06Æò) | | Áö4Ãþ | ö±ÙÄÜÅ©¸®Æ®±¸Á¶ | °è´Ü½Ç ¿¤¸®º£ÀÌÅÍ µî | 69.5094§³ (21.06Æò) | | Áö5Ãþ | ö±ÙÄÜÅ©¸®Æ®±¸Á¶ | ÁÖÂ÷Àå | 2668.3008§³ (808.58Æò) | | Áö6Ãþ | ö±ÙÄÜÅ©¸®Æ®±¸Á¶ | °è´Ü½Ç ¿¤¸®º£ÀÌÅÍ µî | 69.5094§³ (21.06Æò) | | Áö6Ãþ | ö±ÙÄÜÅ©¸®Æ®±¸Á¶ | ÁÖÂ÷Àå | 2077.6007§³ (629.58Æò) |
|
|
|
|
|
|
 |
ÀÓÂ÷³»¿ª |
[¹è´ç¿ä±¸Á¾±âÀÏ : 2024/11/11] |
|
|
| ÀÓÂ÷ÀÎ |
Á¡À¯°ü°è |
ÀüÀÔÀÏÀÚ |
È®Á¤ÀÏÀÚ |
¹è´ç¿ä±¸ÀÏ |
º¸Áõ±Ý/Â÷ÀÓ |
´ëÇ׿ä°Ç |
ºñ°í |
| Á¶»çµÈ ÀÓÂ÷³»¿ªÀÌ ¾ø½À´Ï´Ù. |
|
|
|
 |
Áö¿ªºÐ¼® |
|
|
|
|
| ÁöÇÏö |
|
Çб³ |
|
| °ü°ø¼ |
|
| ¹ý¿ø |
¼ö¿øÁö¹æ¹ý¿ø ¼º³²Áö¿ø (131-43)°æ±âµµ ¼º³²½Ã ¼öÁ¤±¸ »ê¼º´ë·Î 451 (´Ü´ëµ¿) ´ëÇ¥ : 031)737-1558, ¾ß°£ : 031)737-1120 ¼º³²½Ã, ±¤ÁÖ½Ã, Çϳ²½Ã |
| µî±â¼Ò |
¼ö¿øÁö¹æ¹ý¿ø ¼º³²Áö¿ø µî±â°ú (´ëÇ¥:1544-0773, ÆÑ½º:(031)741-2913, °æ±âµµ ¼º³²½Ã ¼öÁ¤±¸ »ê¼º´ë·Î 451 (´Ü´ëµ¿ 75)) |
| ¼¼¹«¼ |
¼º³²¼¼¹«¼ (´ëÇ¥:031-730-62, ÆÑ½º:031-736-1904, °æ±âµµ ¼º³²½Ã ¼öÁ¤±¸ Èñ¸Á·Î 480 (´Ü´ëµ¿)) |
|
|
|
 |
¹ý¿ø ¹°°ÇÀÚ·á ¿ä¾à |
|
|
|
|
| ¼Ò¸êµÇÁö ¾Ê´Â µî±âºÎ±Ç¸® |
|
| ¼³Á¤µÈ °ÍÀ¸·Î º¸´Â Áö»ó±Ç |
|
| ¹ý¿øÀÚ·á Æ¯ÀÌ»çÇ× |
[ÁÖ¿ä ¹®°Ç Á¢¼ö ³»¿ª]
|
[¸Å°¢¹°°Ç¸í¼¼¼ ºñ°í¶õ]
- ¿ÀÇÂÇü »ó°¡·Î °ø½Ç»óÅÂÀÌ¸ç °Ç¹°¹øÈ£Ç¥°¡ ¼³Ä¡µÇ¾î ÀÖÀ½ |
[ºÎµ¿»ê ÇöȲÁ¶»ç¼ ºñ°í¶õ]
- º»°Ç ºÎµ¿ |
|
| ¿©ÀÇÁÖ°æ¸Å Á¶¾ð ÇѸ¶µð |
ÀÌ ºÎµ¿»êÀÇ ÀÔÂû¹ý¿øÀº ¼ö¿øÁö¹æ¹ý¿ø ¼º³²Áö¿øÀÔ´Ï´Ù.
ÀÔÂûÀÏÀº 2026-06-01ÀÔ´Ï´Ù.
ÀÔÂû½Ã°£Àº ~11:10ÀÔ´Ï´Ù. ÀÌ ¹ý¿ø¿¡´Â ¿ì¸®ÀºÇàÀÌ ÀÔÁ¡Çϰí ÀÖ½À´Ï´Ù.
|
|
|
| Åë°è±â°£ |
³«Âû¹°°Ç¼ö |
Æò±Õ°¨Á¤°¡ |
Æò±Õ³«Âû°¡ |
³«Âû°¡À² |
À¯ÂûȽ¼ö |
| 3°³¿ù |
1°Ç |
11,010,445,650¿ø |
6,701,110,000¿ø |
61% |
2ȸ |
| 6°³¿ù |
3°Ç |
4,101,815,217¿ø |
2,397,299,900¿ø |
53% |
2.3ȸ |
| 12°³¿ù |
9°Ç |
2,166,771,739¿ø |
1,195,334,535¿ø |
51% |
2.4ȸ |
|
|
|
|
|
|
 |
|