|
|
| ¼ÒÀçÁö |
°æ»ó³²µµ â¿ø½Ã ¸¶»êȸ¿ø±¸ ³»¼À¾ »ï°è1±æ 18, 203µ¿ 10Ãþ1004È£ (Çѿ츮¾ÆÆÄÆ®)
±¸)°æ»ó³²µµ â¿ø½Ã ¸¶»êȸ¿ø±¸ ³»¼À¾ »ï°è¸® 42
|
|
| »ç°Ç¹øÈ£ |
2024 Ÿ°æ 1336 |
¹°°Ç¹øÈ£ |
1
|
¹°°Ç¿ëµµ |
¾ÆÆÄÆ® |
| °¨Á¤Æò°¡¾× |
127,000,000¿ø |
°æ¸Å´ë»ó |
ÅäÁö ¹× °Ç¹°Àϰý ¸Å°¢ |
ÁøÇà»óÅ |
º¯°æ |
| ÃÖÀúÀÔÂû°¡ |
(64%) 81,280,000¿ø
|
°Ç¹°¸éÀû |
59.87§³(18.11Æò) |
ÀÔÂû±âÀÏ |
2025.08.21(¸ñ) 10:00
|
| ÀÔÂûº¸Áõ±Ý |
(10%) 8,128,000¿ø |
ÅäÁö¸éÀû |
29.72§³(8.99Æò)
|
À¯ÂûȽ¼ö |
2ȸ |
| ÀÔÂû¹ý¿ø |
â¿øÁö¹æ¹ý¿ø ¸¶»êÁö¿ø |
°æ¸Å¹æ¹ý |
|
¹°°ÇÁ¶È¸¼ö |
¿À´Ã: 3ȸ [´©Àû: 20662ȸ]
|
| ¸»¼Ò±âÁØ | ÃÖ¼±¼øÀ§ ¼³Á¤ : 2022.03.25. ±ÙÀú´ç±Ç ¼³Á¤
|
|
|
|
|
|
|
|
|
|
|
°æ¸Å´ë»ó ¸ñ·Ï
|
|
| ±¸ºÐ |
¸ñ·Ï |
ÁÖ¼Ò |
±¸Á¶/¿ëµµ/´ëÁö±Ç |
ºñ°í |
´ëÁö±Ç
|
1 |
»ï°è¸® 42 |
9330.7ºÐÀÇ 29.7156 |
29.7156§³ (8.99Æò)
|
°Ç¹°
|
1 |
»ï°è¸® 42 |
203µ¿ 10Ãþ1004È£ ö±ÙÄÜÅ©¸®Æ® º®½ÄÁ¶ |
59.865§³ (18.11Æò)
|
|
|
|
2025-06-12
À¯Âû
|
(100%)
127,000,000¿ø
|
|
|
|
2025-07-17
À¯Âû
|
(80%)
101,600,000¿ø
|
|
|
|
2025-08-21
º¯°æ
|
(64%)
81,280,000¿ø
|
|
|
|
|
|
°¨Á¤Æò°¡¼ ¿ä¾à |
|
[À§Ä¡/ÁÖÀ§È¯°æ]
´ë»ó¹°°ÇÀº °æ»ó³²µµ â¿ø½Ã ¸¶»êȸ¿ø±¸ ³»¼À¾ »ï°è¸® ¼ÒÀç "±¤·ÁÃʵîÇб³" ³²Ãø¿¡ À§Ä¡
Çϸç, ÁÖÀ§´Â °øµ¿ÁÖÅà ¹× ±Ù¸°»ýȰ½Ã¼³ÀÌ È¥ÀçÇÏ´Â ÁÖÅÃÁö´ë ÀÔ´Ï´Ù.
[±³Åë»óȲ]
´ë»ó¹°°Ç±îÁö Â÷·®ÁøÃâÀÔ °¡´ÉÇϸç, Á¦¹Ý ´ëÁß±³Åë»çÁ¤Àº º¸Åë ÀÔ´Ï´Ù.
[°Ç¹°±¸Á¶]
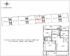
ö±ÙÄÜÅ©¸®Æ®º®½ÄÁ¶ °æ»ç½½·¡ºêÁöºØ Áö»ó 13Ãþ ¾ÆÆÄÆ® ³» 10Ãþ 1004È£·Î¼,
¿Ü º® : ¸ôÅ»À§ ÆäÀÎÆÃ ¸¶°¨.
â È£ : »õ½Ãâȣ ÀÔ´Ï´Ù.
[ÀÌ¿ë»óÅÂ]
¾ÆÆÄÆ®·Î ÀÌ¿ëÁß ÀÔ´Ï´Ù.
[¼³ºñ³»¿ª]
Á¦¹Ý À§»ý ¹× ±Þ¹è¼ö ¼³ºñ, ¿¤¸®º£ÀÌÅÍ ¼³ºñ, µµ½Ã°¡½º¿¡ ÀÇÇÑ ¹Ù´Ú³¹æ¼³ºñ µÇ¾î ÀÖ½À´Ï´Ù.
[ÅäÁöÇü»ó/ÀÌ¿ë»óÅÂ]
ÀÎÁ¢ÅäÁö¿Í µî°íÆòźÇÑ »ç´Ù¸®Çü ÅäÁö·Î¼, ¾ÆÆÄÆ® °ÇºÎÁö·Î ÀÌ¿ëÁß ÀÔ´Ï´Ù.
7)ÀÎÁ¢ µµ·Î»óŵî
µ¿ÃøÀ¸·Î ¿Õº¹ 6Â÷¼±, ºÏÃø ¹× ¼ÃøÀ¸·Î ¿Õº¹ 2Â÷¼± Æ÷Àåµµ·Î¿Í Á¢ÇÕ´Ï´Ù.
[ÅäÁöÀÌ¿ë°èȹ]
Á¦3Á¾ÀϹÝÁÖ°ÅÁö¿ª, Áö±¸´ÜÀ§°èȹ±¸¿ª, ´ë·Î1·ù(Æø 35m-40m)(Á¢ÇÕ), ¼Ò·Î1·ù(Æø 10m-12m)(±¹
Áöµµ·Î)(Á¢ÇÕ), ¼Ò·Î2·ù(Æø 8m-10m)(±¹Áöµµ·Î)(Á¢ÇÕ) °¡Ãà»çÀ°Á¦Çѱ¸¿ª(±×¿ÜÁö¿ª 200mÁ¦ÇÑ
Á¶·ÊÂüÁ¶)£¼°¡ÃàºÐ´¢ÀÇ °ü¸® ¹× À̿뿡 °üÇÑ ¹ý·ü£¾, »ó´ëº¸È£±¸¿ª(±¤·ÁÃʵîÇб³)£¼±³À°È¯°æ º¸
È£¿¡ °üÇÑ ¹ý·ü£¾, ÅÃÁö°³¹ßÁö±¸£¼ÅÃÁö°³¹ßÃËÁø¹ý£¾.
[°øºÎ¿ÍÀÇ Â÷ÀÌ]
¾ø½À´Ï´Ù.
[Âü°í»çÇ×]
ÀÓ´ë°ü°è´Â ¹Ì»óÀ̸ç, ÇöÀåÁ¶»ç½Ã ¼ÒÀ¯ÀÚ ¹× ÀÌÇØ°ü°èÀÎÀÇ Æó¹®ºÎÀç·Î ³»ºÎÈ®ÀÎÀÌ °ï¶õÇÏ¿©
Àα٠À¯»ç¹°°Ç ¹× ¿ÜºÎ°üÂû¿¡ ÀÇÇÑ Åë»óÀûÀÎ »óŸ¦ »óÁ¤ÇÏ¿© °¨Á¤Æò°¡ÇÏ¿´À¸¹Ç·Î °æ¸ÅÁøÇà
½Ã ´ë»ó¹°°ÇÀÇ ³»ºÎÀÇ ÀÌ¿ë»óȲ ¹× °ü¸®»óÅ µî¿¡ ´ëÇÑ ÀçÈ®ÀÎÀÌ ¿ä¸ÁµË´Ï´Ù. |
|
|
°ÇÃ๰ÇöȲ |
|
|
|
| ¼ÒÀçÁö |
°æ»ó³²µµ â¿ø½Ã ¸¶»êȸ¿ø±¸ ³»¼À¾ »ï°è¸® 42¹øÁö |
| ´ëÁö¸éÀû |
|
¿¬¸éÀû |
8654.76§³(2622.65Æò) |
ÁÖ¿ëµµ |
°øµ¿ÁÖÅà |
| °ÇÃà¸éÀû |
746.76§³(226.29Æò) |
¿ëÀû·ü»êÁ¤¿¬¸éÀû |
8654.76§³(2622.65Æò) |
Âø°øÀÏÀÚ |
1996.11.28 |
| °ÇÆóÀ² |
|
¿ëÀû·ü |
|
»ç¿ë½ÂÀÎÀÏÀÚ |
2001.06.30 |
| Áö»óÃþ¼ö |
15Ãþ |
ÁöÇÏÃþ¼ö |
|
±¸Á¶ |
ö±ÙÄÜÅ©¸®Æ®±¸Á¶ |
°ÇÃ๰Ãþº°ÇöȲ [º¸±â]| Ãþº° | ±¸Á¶ | ¿ëµµ | ¸éÀû | | 1Ãþ | ö±ÙÄÜÅ©¸®Æ®º®½Ä | ¾ÆÆÄÆ® | 584.76§³ (177.2Æò) | | 2Ãþ | ö±ÙÄÜÅ©¸®Æ®º®½Ä | ¾ÆÆÄÆ® | 584.76§³ (177.2Æò) | | 3Ãþ | ö±ÙÄÜÅ©¸®Æ®º®½Ä | ¾ÆÆÄÆ® | 584.76§³ (177.2Æò) | | 4Ãþ | ö±ÙÄÜÅ©¸®Æ®º®½Ä | ¾ÆÆÄÆ® | 575.04§³ (174.25Æò) | | 5Ãþ | ö±ÙÄÜÅ©¸®Æ®º®½Ä | ¾ÆÆÄÆ® | 575.04§³ (174.25Æò) | | 6Ãþ | ö±ÙÄÜÅ©¸®Æ®º®½Ä | ¾ÆÆÄÆ® | 575.04§³ (174.25Æò) | | 7Ãþ | ö±ÙÄÜÅ©¸®Æ®º®½Ä | ¾ÆÆÄÆ® | 575.04§³ (174.25Æò) | | 8Ãþ | ö±ÙÄÜÅ©¸®Æ®º®½Ä | ¾ÆÆÄÆ® | 575.04§³ (174.25Æò) | | 9Ãþ | ö±ÙÄÜÅ©¸®Æ®º®½Ä | ¾ÆÆÄÆ® | 575.04§³ (174.25Æò) | | 10Ãþ | ö±ÙÄÜÅ©¸®Æ®º®½Ä | ¾ÆÆÄÆ® | 575.04§³ (174.25Æò) | | 11Ãþ | ö±ÙÄÜÅ©¸®Æ®º®½Ä | ¾ÆÆÄÆ® | 575.04§³ (174.25Æò) | | 12Ãþ | ö±ÙÄÜÅ©¸®Æ®º®½Ä | ¾ÆÆÄÆ® | 575.04§³ (174.25Æò) | | 13Ãþ | ö±ÙÄÜÅ©¸®Æ®º®½Ä | ¾ÆÆÄÆ® | 575.04§³ (174.25Æò) |
|
|
|
|
|
|
 |
ÀÓÂ÷³»¿ª |
[¹è´ç¿ä±¸Á¾±âÀÏ : 2025/04/21] |
|
|
| ÀÓÂ÷ÀÎ |
Á¡À¯°ü°è |
ÀüÀÔÀÏÀÚ |
È®Á¤ÀÏÀÚ |
¹è´ç¿ä±¸ÀÏ |
º¸Áõ±Ý/Â÷ÀÓ |
´ëÇ׿ä°Ç |
ºñ°í |
| ³ëOO |
¹Ì»ó(º°ÁöÁ¡À¯°ü°èÁ¶»ç¼ÀDZ⟶õÂüÁ¶) |
2012.04.04 |
¹Ì»ó |
|
¹Ì»ó [¿ù]¹Ì»ó |
O |
|
| ¸Å°¢¹°°Ç¸í¼¼ ºñ°í |
|
|
|
|
 |
Áö¿ªºÐ¼® |
|
|
|
|
| ÁöÇÏö |
|
Çб³ |
|
| °ü°ø¼ |
|
| ¹ý¿ø |
â¿øÁö¹æ¹ý¿ø ¸¶»êÁö¿ø (512-65)°æ»ó³²µµ â¿ø½Ã ¸¶»êÇÕÆ÷±¸ ¿Ï¿ùµ¿ 7±æ 16 ´ëÇ¥ : 055)240-9300 ¸¶»ê½Ã ÇÕÆ÷±¸, ¸¶»ê½Ã ȸ¿ø±¸, ÀǷɱº, ÇԾȱº |
| µî±â¼Ò |
â¿øÁö¹æ¹ý¿ø ¸¶»êÁö¿ø µî±â°è (´ëÇ¥:1544-0773, ÆÑ½º:(055)242-2744, °æ³² â¿ø½Ã ¸¶»êÇÕÆ÷±¸ ¿Ï¿ùµ¿ 7±æ 16 (À屺µ¿4°¡ 26-87)) |
| ¼¼¹«¼ |
¸¶»ê¼¼¹«¼ (´ëÇ¥:055-240-02, ÆÑ½º:055-223-6881, °æ»ó³²µµ â¿ø½Ã ¸¶»êÇÕÆ÷±¸ ÇØ¾È´ë·Î 51 À¯·Î½ºÄù¾î 3Ãþ) |
|
|
|
 |
¹ý¿ø ¹°°ÇÀÚ·á ¿ä¾à |
|
|
|
|
| ¼Ò¸êµÇÁö ¾Ê´Â µî±âºÎ±Ç¸® |
|
| ¼³Á¤µÈ °ÍÀ¸·Î º¸´Â Áö»ó±Ç |
|
| ¹ý¿øÀÚ·á Æ¯ÀÌ»çÇ× |
[ÁÖ¿ä ¹®°Ç Á¢¼ö ³»¿ª]
|
[¸Å°¢¹°°Ç¸í¼¼¼ ºñ°í¶õ]
¾ÆÆÄÆ®. |
[ºÎµ¿»ê ÇöȲÁ¶»ç¼ ºñ°í¶õ]
º»°Ç1. ¾ÆÆÄ |
|
| ¿©ÀÇÁÖ°æ¸Å Á¶¾ð ÇѸ¶µð |
ÀÌ ºÎµ¿»êÀÇ ÀÔÂû¹ý¿øÀº â¿øÁö¹æ¹ý¿ø ¸¶»êÁö¿øÀÔ´Ï´Ù.
ÀÔÂûÀÏÀº 2025-08-21ÀÔ´Ï´Ù.
ÀÔÂû½Ã°£Àº ~11:10ÀÔ´Ï´Ù. ÀÌ ¹ý¿ø¿¡´Â °æ³²ÀºÇàÀÌ ÀÔÁ¡Çϰí ÀÖ½À´Ï´Ù.
|
|
|
| Åë°è±â°£ |
³«Âû¹°°Ç¼ö |
Æò±Õ°¨Á¤°¡ |
Æò±Õ³«Âû°¡ |
³«Âû°¡À² |
À¯ÂûȽ¼ö |
| 3°³¿ù |
26°Ç |
155,111,538¿ø |
129,326,847¿ø |
81% |
1.5ȸ |
| 6°³¿ù |
38°Ç |
169,181,579¿ø |
138,041,843¿ø |
80% |
1.5ȸ |
| 12°³¿ù |
59°Ç |
157,591,525¿ø |
127,964,665¿ø |
79% |
1.6ȸ |
|
|
|
|
|
|
 |
|