|
|
| ¼ÒÀçÁö |
¼¿ïƯº°½Ã °ü¾Ç±¸ ³°î·Î 298, 3Ãþ303È£ (½Å¸²µ¿,´õÀ§Àϰü¾ÇÆÄÅ©ºä)
±¸)¼¿ïƯº°½Ã °ü¾Ç±¸ ½Å¸²µ¿ 1568-5
|
|
| »ç°Ç¹øÈ£ |
2025 Ÿ°æ 100082 |
¹°°Ç¹øÈ£ |
1
|
¹°°Ç¿ëµµ |
¿ÀÇǽºÅÚ |
| °¨Á¤Æò°¡¾× |
270,000,000¿ø |
°æ¸Å´ë»ó |
ÅäÁö ¹× °Ç¹°Àϰý ¸Å°¢ |
ÁøÇà»óÅ |
À¯Âû |
| ÃÖÀúÀÔÂû°¡ |
(17%) 45,298,000¿ø
|
°Ç¹°¸éÀû |
19.97§³(6.04Æò) |
ÀÔÂû±âÀÏ |
2026.05.07(¸ñ) 10:00
(ÀÔÂû 7ÀÏÀü)
|
| ÀÔÂûº¸Áõ±Ý |
(10%) 4,529,800¿ø |
ÅäÁö¸éÀû |
4.72§³(1.43Æò)
|
À¯ÂûȽ¼ö |
8ȸ |
| ÀÔÂû¹ý¿ø |
¼¿ïÁß¾ÓÁö¹æ¹ý¿ø |
°æ¸Å¹æ¹ý |
|
¹°°ÇÁ¶È¸¼ö |
¿À´Ã: 5ȸ [´©Àû: 1184ȸ]
|
| ¸»¼Ò±âÁØ | ÃÖ¼±¼øÀ§ ¼³Á¤ : 2022.12.29. ¾Ð·ù
|
|
|
|
|
|
|
|
|
|
|
°æ¸Å´ë»ó ¸ñ·Ï
|
|
| ±¸ºÐ |
¸ñ·Ï |
ÁÖ¼Ò |
±¸Á¶/¿ëµµ/´ëÁö±Ç |
ºñ°í |
´ëÁö±Ç
|
1 |
½Å¸²µ¿ 1568-5 |
589.6ºÐÀÇ 4.7189 |
4.7189§³ (1.43Æò)
|
°Ç¹°
|
1 |
½Å¸²µ¿ 1568-5 |
3Ãþ303È£ ö±ÙÄÜÅ©¸®Æ®±¸Á¶ |
19.97§³ (6.04Æò)
|
|
|
|
2025-07-10
À¯Âû
|
(100%)
270,000,000¿ø
|
|
|
|
2025-08-14
À¯Âû
|
(80%)
216,000,000¿ø
|
|
|
|
2025-09-18
À¯Âû
|
(64%)
172,800,000¿ø
|
|
|
|
2025-10-30
À¯Âû
|
(51%)
138,240,000¿ø
|
|
|
|
2025-12-04
À¯Âû
|
(41%)
110,592,000¿ø
|
|
|
|
2026-01-15
À¯Âû
|
(33%)
88,474,000¿ø
|
|
|
|
2026-02-26
À¯Âû
|
(26%)
70,779,000¿ø
|
|
|
|
2026-04-02
À¯Âû
|
(21%)
56,623,000¿ø
|
|
|
|
2026-05-07
ÁøÇà
|
(17%)
45,298,000¿ø
|
|
|
|
|
|
°¨Á¤Æò°¡¼ ¿ä¾à |
|
[À§Ä¡/ÁÖÀ§È¯°æ]
¼¿ïƯº°½Ã °ü¾Ç±¸ ½Å¸²µ¿ ¼ÒÀç "½Å¸²°íµîÇб³" ¼ÒÀç ºÏ¼Ãø Àαٿ¡ À§Ä¡Çϸç, ÁÖÀ§´Â ´Ù¼¼
´ëÁÖÅÃ, ¾÷¹«½Ã¼³, ¿ÀÇǽºÅÚ ¹× ±Ù¸°»ýȰ½Ã¼³ µîÀÌ È¥ÀçÇÏ´Â Áö¿ªÀ¸·Î¼, Á¦¹Ý ÁÖÀ§È¯°æÀº
º¸ÅëÀÓ.
[±³Åë»óȲ]
º»°Ç±îÁö Â÷·®ÀÇ ÁøÃâÀÔÀÌ °¡´ÉÇϰí, Àαٿ¡ ³ë¼±¹ö½º Á¤·ùÀå ¹× ±Ù°Å¸®¿¡ "½Å´ë¹æ¿ª(ÁöÇÏö
2È£¼±)"ÀÌ ¼ÒÀçÇÏ´Â µî Á¦¹Ý ±³Åë»óȲÀº º¸ÅëÀÓ.
[°Ç¹°±¸Á¶]
ö±ÙÄÜÅ©¸®Æ®±¸Á¶ (ö±Ù)ÄÜÅ©¸®Æ®ÁöºØ 14Ãþ °Ç¹°³» Á¦3Ãþ Á¦303È£·Î¼,
(»ç¿ë½ÂÀÎÀÏ: 2021.12.13.)
-¿Üº® : ´ë¸®¼® ¹× ¼®Àç ºÙÀÓ ¸¶°¨ µî,
-âȣ : ¼¦½Ã âȣ µîÀÓ.
[ÀÌ¿ë»óÅÂ]
¿ÀÇǽºÅÚ·Î ÀÌ¿ë ÁßÀÓ.
[¼³ºñ³»¿ª]
±âº»ÀûÀÎ À§»ý ¹× ±Þ¹è¼ö¼³ºñ, ½Â°±â¼³ºñ, µµ½Ã°¡½º¿¡ ÀÇÇÑ ³¹æ¼³ºñ µîÀÌ ±¸ºñµÇ¾î ÀÖÀ½.
[ÅäÁöÇü»ó/ÀÌ¿ë»óÅÂ]
±âÈ£ 1, 2 °øÈ÷ ÀÎÁ¢µµ·Î ´ëºñ µî°íÆòźÇÑ °¡ÀåÇüÀÇ ÅäÁö·Î¼, ÀÏ´ÜÀÇ ¾÷¹«½Ã¼³ °ÇºÎÁö·Î
ÀÌ¿ë ÁßÀÓ.
7)ÀÎÁ¢ µµ·Î»óŵî
°øÈ÷ º»°Ç ³²¼ÃøÀ¸·Î Æø ¾à 30m ³»¿ÜÀÇ Æ÷Àåµµ·Î¿¡ Á¢ÇÔ.
[ÅäÁöÀÌ¿ë°èȹ]
- ±âÈ£ 1 : µµ½ÃÁö¿ª, ÀϹݻó¾÷Áö¿ª, Áö±¸´ÜÀ§°èȹ±¸¿ª(³°î»ç°Å¸®Áö±¸Áß½É(¼¿ïƯº°½Ã °í½Ã
Á¦2023-315È£(2023.07.27.))), µµ·Î(Á¢ÇÕ), °¡Ãà»çÀ°Á¦Çѱ¸¿ª£¼°¡ÃàºÐ´¢ÀÇ °ü¸® ¹× À̿뿡
°üÇÑ ¹ý·ü£¾, ´ë°ø¹æ¾îÇùÁ¶±¸¿ª(À§Å¹°íµµ:194m)£¼±º»ç±âÁö ¹× ±º»ç½Ã¼³ º¸È£¹ý£¾, °ú¹Ð¾ïÁ¦±Ç
¿ª£¼¼öµµ±ÇÁ¤ºñ°èȹ¹ý£¾, ÁßÁ¡°æ°ü°ü¸®±¸¿ª(ÁÖ¿ä»ê ÁÖº¯)
- ±âÈ£ 2 : µµ½ÃÁö¿ª, ÀϹݻó¾÷Áö¿ª, Áö±¸´ÜÀ§°èȹ±¸¿ª(³°î»ç°Å¸®Áö±¸Áß½É(¼¿ïƯº°½Ã °í½Ã
Á¦2023-315È£(2023.07.27.))), µµ·Î(Á¢ÇÕ), °¡Ãà»çÀ°Á¦Çѱ¸¿ª£¼°¡ÃàºÐ´¢ÀÇ °ü¸® ¹× À̿뿡
°üÇÑ ¹ý·ü£¾, »ó´ëº¸È£±¸¿ª£¼±³À°È¯°æ º¸È£¿¡ °üÇÑ ¹ý·ü£¾, ´ë°ø¹æ¾îÇùÁ¶±¸¿ª(À§Å¹°íµµ:194m)
£¼±º»ç±âÁö ¹× ±º»ç½Ã¼³ º¸È£¹ý£¾, °ú¹Ð¾ïÁ¦±Ç¿ª£¼¼öµµ±ÇÁ¤ºñ°èȹ¹ý£¾, ÁßÁ¡°æ°ü°ü¸®±¸¿ª(ÁÖ¿ä
»ê ÁÖº¯)ÀÓ.
[°øºÎ¿ÍÀÇ Â÷ÀÌ]
-
[Âü°í»çÇ×]
- |
|
|
°ÇÃ๰ÇöȲ |
|
|
|
| ¼ÒÀçÁö |
¼¿ïƯº°½Ã °ü¾Ç±¸ ½Å¸²µ¿ 1568-5¹øÁö |
| ´ëÁö¸éÀû |
589.6§³(178.67Æò) |
¿¬¸éÀû |
3974.81§³(1204.49Æò) |
ÁÖ¿ëµµ |
¾÷¹«½Ã¼³ |
| °ÇÃà¸éÀû |
352.96§³(106.96Æò) |
¿ëÀû·ü»êÁ¤¿¬¸éÀû |
3654.84§³(1107.53Æò) |
Âø°øÀÏÀÚ |
2020.12.15 |
| °ÇÆóÀ² |
59.86% |
¿ëÀû·ü |
619.88% |
»ç¿ë½ÂÀÎÀÏÀÚ |
2021.12.13 |
| Áö»óÃþ¼ö |
14Ãþ |
ÁöÇÏÃþ¼ö |
1Ãþ |
±¸Á¶ |
ö±ÙÄÜÅ©¸®Æ®±¸Á¶ |
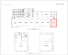
°ÇÃ๰Ãþº°ÇöȲ [º¸±â]| Ãþº° | ±¸Á¶ | ¿ëµµ | ¸éÀû | | 1Ãþ | ö±ÙÄÜÅ©¸®Æ®±¸Á¶ | ±â°è½ÄÁÖÂ÷Àå | 50.51§³ (15.31Æò) | | 1Ãþ | ö±ÙÄÜÅ©¸®Æ®±¸Á¶ | ÈÞ°ÔÀ½½ÄÁ¡ | 179.11§³ (54.28Æò) | | 2Ãþ | ö±ÙÄÜÅ©¸®Æ®±¸Á¶ | ÀϹÝÀ½½ÄÁ¡ | 125.05§³ (37.89Æò) | | 2Ãþ | ö±ÙÄÜÅ©¸®Æ®±¸Á¶ | ÈÞ°ÔÀ½½ÄÁ¡ | 108.04§³ (32.74Æò) | | 3Ãþ | ö±ÙÄÜÅ©¸®Æ®±¸Á¶ | ¿ÀÇǽºÅÚ | 270.22§³ (81.88Æò) | | 4Ãþ | ö±ÙÄÜÅ©¸®Æ®±¸Á¶ | ¿ÀÇǽºÅÚ | 270.22§³ (81.88Æò) | | 5Ãþ | ö±ÙÄÜÅ©¸®Æ®±¸Á¶ | ¿ÀÇǽºÅÚ | 270.22§³ (81.88Æò) | | 6Ãþ | ö±ÙÄÜÅ©¸®Æ®±¸Á¶ | ¿ÀÇǽºÅÚ | 270.22§³ (81.88Æò) | | 7Ãþ | ö±ÙÄÜÅ©¸®Æ®±¸Á¶ | ¿ÀÇǽºÅÚ | 270.22§³ (81.88Æò) | | 8Ãþ | ö±ÙÄÜÅ©¸®Æ®±¸Á¶ | ¿ÀÇǽºÅÚ | 270.22§³ (81.88Æò) | | 9Ãþ | ö±ÙÄÜÅ©¸®Æ®±¸Á¶ | ¿ÀÇǽºÅÚ | 270.22§³ (81.88Æò) | | 10Ãþ | ö±ÙÄÜÅ©¸®Æ®±¸Á¶ | ¿ÀÇǽºÅÚ | 270.22§³ (81.88Æò) | | 11Ãþ | ö±ÙÄÜÅ©¸®Æ®±¸Á¶ | ¿ÀÇǽºÅÚ | 270.22§³ (81.88Æò) | | 12Ãþ | ö±ÙÄÜÅ©¸®Æ®±¸Á¶ | ¿ÀÇǽºÅÚ | 270.22§³ (81.88Æò) | | 13Ãþ | ö±ÙÄÜÅ©¸®Æ®±¸Á¶ | ¿ÀÇǽºÅÚ | 270.22§³ (81.88Æò) | | 14Ãþ | ö±ÙÄÜÅ©¸®Æ®±¸Á¶ | ¿ÀÇǽºÅÚ | 270.22§³ (81.88Æò) | | ¿Áž1Ãþ | ö±ÙÄÜÅ©¸®Æ®±¸Á¶ | ¿Áž(¿¬¸éÀû Á¦¿Ü) | 21.38§³ (6.48Æò) | | Áö1 | ö±ÙÄÜÅ©¸®Æ®±¸Á¶ | ±â°è½Ç, Àü±â½Ç µî | 269.46§³ (81.65Æò) |
|
|
|
|
|
|
|
|
|
¸éÀû(§³), ±Ý¾×(¸¸¿ø)
| °è¾àÀÏ | ±âÁØ | °Ç¹°¸íĪ | Ãþ | Àü¿ë¸éÀû | °Å·¡±Ý¾× | °ÇÃà³âµµ | | °Å·¡³»¿ªÀÌ ¾ø½À´Ï´Ù. |
| °è¾àÀÏ | ±âÁØ | °Ç¹°¸íĪ | Ãþ | Àü¿ë¸éÀû | º¸Áõ±Ý | ¿ù¼¼ | °ÇÃà³âµµ | | 2026.03.19 | Àü¼¼ | ´õÀ§Àϰü¾ÇÆÄÅ©ºä | 7 | 19.97 | 25,000 | 0 | 2021 | | 2026.03.16 | ¿ù¼¼ | ´õÀ§Àϰü¾ÇÆÄÅ©ºä | 7 | 17.3 | 100 | 70 | 2021 | | 2026.03.09 | ¿ù¼¼ | ´õÀ§Àϰü¾ÇÆÄÅ©ºä | 4 | 17.3 | 100 | 70 | 2021 | | 2026.02.25 | Àü¼¼ | ´õÀ§Àϰü¾ÇÆÄÅ©ºä | 13 | 17.3 | 20,000 | 0 | 2021 | | 2026.02.07 | Àü¼¼ | ´õÀ§Àϰü¾ÇÆÄÅ©ºä | 11 | 18.86 | 18,000 | 0 | 2021 | | 2026.01.18 | ¿ù¼¼ | ´õÀ§Àϰü¾ÇÆÄÅ©ºä | 11 | 17.3 | 100 | 70 | 2021 | | 2025.12.10 | Àü¼¼ | ´õÀ§Àϰü¾ÇÆÄÅ©ºä | 11 | 18.86 | 16,000 | 0 | 2021 | | 2025.08.05 | ¿ù¼¼ | ´õÀ§Àϰü¾ÇÆÄÅ©ºä | 14 | 18.86 | 100 | 70 | 2021 | | 2025.06.27 | ¿ù¼¼ | ´õÀ§Àϰü¾ÇÆÄÅ©ºä | 5 | 17.3 | 100 | 70 | 2021 | | 2025.05.29 | ¿ù¼¼ | ´õÀ§Àϰü¾ÇÆÄÅ©ºä | 10 | 17.3 | 100 | 75 | 2021 | | 2025.02.16 | ¿ù¼¼ | ´õÀ§Àϰü¾ÇÆÄÅ©ºä | 3 | 17.3 | 3,000 | 75 | 2021 | | 2025.01.06 | ¿ù¼¼ | ´õÀ§Àϰü¾ÇÆÄÅ©ºä | 6 | 18.86 | 70 | 70 | 2021 |
|
|
|
 |
ÀÓÂ÷³»¿ª |
[¹è´ç¿ä±¸Á¾±âÀÏ : 2025/03/19] |
|
|
| ÀÓÂ÷ÀÎ |
Á¡À¯°ü°è |
ÀüÀÔÀÏÀÚ |
È®Á¤ÀÏÀÚ |
¹è´ç¿ä±¸ÀÏ |
º¸Áõ±Ý/Â÷ÀÓ |
´ëÇ׿ä°Ç |
ºñ°í |
| MOOOOOOOOO |
|
|
|
|
|
X |
|
| ¾ÈOO |
ÀüºÎ |
2022.04.01. |
2022.03.28. |
|
278,000,000
|
O |
2022.04.15.~ |
| ÃÖOO |
|
|
|
|
|
X |
|
| ¸Å°¢¹°°Ç¸í¼¼ ºñ°í |
¾È¼öÁ¤:ÁÖÅÃÀÓÂ÷±Çµî±âÀÏ 2024.02.07.
½Åûä±ÇÀÚ ÁÖÅõµ½Ãº¸Áõ°ø»ç°¡ È®Á¤ÀÏÀÚ ÀÓÂ÷ÀÎ ¾È¼öÁ¤ÀÇ ÀÓ´ëÂ÷º¸Áõ±Ý¹Ýȯä±ÇÀÇ ½Â°èÀÎÀÓ |
|
|
|
 |
Áö¿ªºÐ¼® |
|
|
|
|
| ÁöÇÏö |
|
Çб³ |
|
| °ü°ø¼ |
|
| ¹ý¿ø |
¼¿ïÁß¾ÓÁö¹æ¹ý¿ø (065-94)¼¿ïƯº°½Ã ¼Ãʱ¸ ¼ÃÊÁß¾Ó·Î 157 (¼Ãʵ¿) ´ëÇ¥ : 02)530-1114, ¾ß°£ : 02)530-1280/536-8003 Á¾·Î±¸, Áß±¸, °³²±¸, ¼Ãʱ¸, °ü¾Ç±¸, µ¿ÀÛ±¸ |
| µî±â¼Ò |
¼¿ïÁß¾ÓÁö¹æ¹ý¿ø º»¿ø µî±â±¹ (´ëÇ¥:1544-0773, ÆÑ½º:(02)590-1881, ¼¿ïƯº°½Ã ¼Ãʱ¸ ¹ý¿ø·Î3±æ 14 (¼Ãʵ¿ 1707-4)) |
| ¼¼¹«¼ |
°ü¾Ç¼¼¹«¼ (´ëÇ¥:02-2173-42, ÆÑ½º:02-2173-4269, ¼¿ïƯº°½Ã °ü¾Ç±¸ ¹®¼º·Î 187(½Å¸²µ¿)) |
|
|
|
 |
¹ý¿ø ¹°°ÇÀÚ·á ¿ä¾à |
|
|
|
|
| ¼Ò¸êµÇÁö ¾Ê´Â µî±âºÎ±Ç¸® |
À»±¸ ¼øÀ§ 3¹ø 2024.02.07. Á¢¼ö Á¦21550È£ ÁÖÅÃÀÓÂ÷±Çµî±â´Â ¹è´ç¿¡¼ º¸Áõ±ÝÀÌ Àü¾× º¯Á¦µÇÁö ¾Æ´ÏÇϸé Àܾ×À» ¸Å¼öÀÎÀÌ ÀÎ
¼öÇÔ |
| ¼³Á¤µÈ °ÍÀ¸·Î º¸´Â Áö»ó±Ç |
|
| ¹ý¿øÀÚ·á Æ¯ÀÌ»çÇ× |
|
| ¿©ÀÇÁÖ°æ¸Å Á¶¾ð ÇѸ¶µð |
ÀÌ ºÎµ¿»êÀÇ ÀÔÂû¹ý¿øÀº ¼¿ïÁß¾ÓÁö¹æ¹ý¿øÀÔ´Ï´Ù.
ÀÔÂûÀÏÀº 2026-05-07ÀÔ´Ï´Ù.
ÀÔÂû½Ã°£Àº ~11:00ÀÔ´Ï´Ù. ÀÌ ¹ý¿ø¿¡´Â ½ÅÇÑÀºÇàÀÌ ÀÔÁ¡Çϰí ÀÖ½À´Ï´Ù.
|
¼±¼øÀ§ ÀÓÂ÷±Çµî±â°¡ µÇ¾î ÀÖ½À´Ï´Ù ´ëÇ×·ÂÀÌ ÀÖ´Â ¼±¼øÀ§ ÀÓÂ÷±Çµî±â ±Ç¸®ÀÚ°¡ ¹è´çÀ» Àü¾× ¹ÞÁö ¸øÇÒ °æ¿ì ³«ÂûÀÚ°¡ ÀÜ¿© º¸Áõ±ÝÀ» ÀμöÇØ¾ßÇÏ´Â °æ¿ìµµ ÀÖ½À´Ï´Ù. |
|
|
| Åë°è±â°£ |
³«Âû¹°°Ç¼ö |
Æò±Õ°¨Á¤°¡ |
Æò±Õ³«Âû°¡ |
³«Âû°¡À² |
À¯ÂûȽ¼ö |
| 3°³¿ù |
9°Ç |
652,434,727¿ø |
535,571,156¿ø |
67% |
2.3ȸ |
| 6°³¿ù |
19°Ç |
396,227,959¿ø |
329,092,726¿ø |
79% |
1.9ȸ |
| 12°³¿ù |
26°Ç |
631,138,659¿ø |
512,754,791¿ø |
80% |
2ȸ |
|
|
|
|
|
|
 |
|