|
|
| ¼ÒÀçÁö |
°æ»ó³²µµ ¾ç»ê½Ã ´ö°è12±æ 10, 12Ãþ1201È£ (´ö°èµ¿,´ö°è´ëÀϾÆÀ̺ê1Â÷ÁÖ°ÇÃ๰Á¦1µ¿)
±¸)°æ»ó³²µµ ¾ç»ê½Ã ´ö°èµ¿ 724-1
|
|
| »ç°Ç¹øÈ£ |
2024 Ÿ°æ 113730 |
¹°°Ç¹øÈ£ |
1
|
¹°°Ç¿ëµµ |
¾ÆÆÄÆ® |
| °¨Á¤Æò°¡¾× |
210,000,000¿ø |
°æ¸Å´ë»ó |
ÅäÁö ¹× °Ç¹°Àϰý ¸Å°¢ |
ÁøÇà»óÅ |
À¯Âû |
| ÃÖÀúÀÔÂû°¡ |
(34%) 72,030,000¿ø
|
°Ç¹°¸éÀû |
68.55§³(20.74Æò) |
ÀÔÂû±âÀÏ |
2025.11.19(¼ö) 10:00
(ÀÔÂû 11ÀÏÀü)
|
| ÀÔÂûº¸Áõ±Ý |
(10%) 7,203,000¿ø |
ÅäÁö¸éÀû |
22.58§³(6.83Æò)
|
À¯ÂûȽ¼ö |
3ȸ |
| ÀÔÂû¹ý¿ø |
¿ï»êÁö¹æ¹ý¿ø |
°æ¸Å¹æ¹ý |
|
¹°°ÇÁ¶È¸¼ö |
¿À´Ã: 2ȸ [´©Àû: 2948ȸ]
|
| ¸»¼Ò±âÁØ | ÃÖ¼±¼øÀ§ ¼³Á¤ : 2023.08.31.°¡¾Ð·ù ¼³Á¤
|
|
|
|
|
|
|
|
|
|
|
°æ¸Å´ë»ó ¸ñ·Ï
|
|
| ±¸ºÐ |
¸ñ·Ï |
ÁÖ¼Ò |
±¸Á¶/¿ëµµ/´ëÁö±Ç |
ºñ°í |
´ëÁö±Ç
|
1 |
´ö°èµ¿ 724-1 |
1733ºÐÀÇ 22.5840 |
22.584§³ (6.83Æò)
|
°Ç¹°
|
1 |
´ö°èµ¿ 724-1 |
12Ãþ1201È£ ö±ÙÄÜÅ©¸®Æ®±¸Á¶ |
68.5526§³ (20.74Æò)
|
|
|
|
2025-07-30
À¯Âû
|
(100%)
210,000,000¿ø
|
|
|
|
2025-09-03
À¯Âû
|
(70%)
147,000,000¿ø
|
|
|
|
2025-10-15
À¯Âû
|
(49%)
102,900,000¿ø
|
|
|
|
2025-11-19
ÁøÇà
|
(34%)
72,030,000¿ø
|
|
|
|
|
|
°¨Á¤Æò°¡¼ ¿ä¾à |
|
[À§Ä¡/ÁÖÀ§È¯°æ]
º»°ÇÀº °æ»ó³²µµ ¾ç»ê½Ã ´ö°èµ¿ ¼ÒÀç "´ö°èÃʵîÇб³" ³²¼Ãø Àαٿ¡ À§Ä¡ÇÏ´Â ´ö°è´ëÀÏÀÌÀ̺ê1Â÷ÁÖ°ÇÃ๰Á¦1µ¿ 12Ãþ 1201È£·Î¼ ÁÖº¯Àº ±Ù¸°»ýȰ½Ã¼³ ¹× ÁÖÅÃ, Çб³ µîÀ¸·Î Çü¼ºµÇ¾î ÀÖÀ½.
[±³Åë»óȲ]
º»°Ç±îÁö Â÷·®ÃâÀÔ °¡´ÉÇÏ¸ç ´ëÁß±³Åë»çÁ¤Àº º¸Åë½ÃµÊ.
[°Ç¹°±¸Á¶]
ö±ÙÄÜÅ©¸®Æ®±¸Á¶ (ö±Ù)ÄÜÅ©¸®Æ®ÁöºØ 15Ãþ°ÇÁß 12Ãþ 1201È£·Î¼
¿Ü º® : Ä¡Àå¼® ¹× ½Ã¸àÆ® ¸ôÅ»À§ ÆäÀÎÆ® ¸¶°¨.
³» º® : º®Áö¸¶°¨ µî.
â È£ : ¼¦½ÃâÀÓ.
[ÀÌ¿ë»óÅÂ]
°øµ¿ÁÖÅÃ(¾ÆÆÄÆ®)À¸·Î ÀÌ¿ëÁßÀÓ.
[¼³ºñ³»¿ª]
À§»ý±Þ¹è¼ö½Ã¼³, ½Â°±â, ¼ÒÈÀü ¼³ºñ, µµ½Ã°¡½º¿¡ ÀÇÇÑ ³¹æ¼³ºñ µîÀÌ ¼³Ä¡µÇ¾î ÀÖÀ½.
[ÅäÁöÇü»ó/ÀÌ¿ë»óÅÂ]
ÀÎÁ¢Áö¿Í ´ëü·Î µî°íÆòźÇÑ »ç´Ù¸®ÇüÀÇ ÅäÁö·Î¼ °øµ¿ÁÖÅÃ, ¾÷¹«½Ã¼³, ±Ù¸°»ýȰ½Ã¼³
°ÇºÎÁö·Î ÀÌ¿ëÁßÀÓ.
7)ÀÎÁ¢ µµ·Î»óŵî
º»°Ç ºÏµ¿ÃøÀ¸·Î ¼Ò·ÎÇѸ鿡 Á¢ÇÔ.
[ÅäÁöÀÌ¿ë°èȹ]
ÀϹݻó¾÷Áö¿ª, ÁØÁÖ°ÅÁö¿ª, ¼Ò·Î2·ù(Æø8 -10M)(Á¢ÇÕ), °¡Ãà»çÀ°Á¦Çѱ¸¿ª(¸ðµçÃàÁ¾
Á¦ÇÑÁö¿ª)£¼°¡ÃàºÐ´¢ÀÇ °ü¸® ¹× À̿뿡 °üÇÑ ¹ý·ü£¾, »ó´ëº¸È£±¸¿ª£¼±³À°È¯°æº¸È£¿¡
°üÇÑ ¹ý·ü£¾, Àý´ëº¸È£±¸¿ª£¼±³À°È¯°æ º¸È£¿¡ °üÇÑ ¹ý·ü£¾
[°øºÎ¿ÍÀÇ Â÷ÀÌ]
¾ø À½.
[Âü°í»çÇ×]
ÀÓ´ë°ü°è :¹Ì»óÀÓ.
±âŸ: º»°ÇÀº °ÇÃ๰ÇöȲµµµî¿¡ ÀÇÇÏ¸é ¹ßÄÚ´Ï È®ÀåÇüÀ¸·Î ÃßÁ¤µÊ. |
|
|
°ÇÃ๰ÇöȲ |
|
|
|
| ¼ÒÀçÁö |
°æ»ó³²µµ ¾ç»ê½Ã ´ö°èµ¿ 724-1¹øÁö |
| ´ëÁö¸éÀû |
1733§³(525.15Æò) |
¿¬¸éÀû |
9319.86§³(2824.2Æò) |
ÁÖ¿ëµµ |
°øµ¿ÁÖÅà |
| °ÇÃà¸éÀû |
735§³(222.73Æò) |
¿ëÀû·ü»êÁ¤¿¬¸éÀû |
6642.06§³(2012.75Æò) |
Âø°øÀÏÀÚ |
2017.12.01 |
| °ÇÆóÀ² |
42.412% |
¿ëÀû·ü |
383.2695% |
»ç¿ë½ÂÀÎÀÏÀÚ |
2019.06.18 |
| Áö»óÃþ¼ö |
15Ãþ |
ÁöÇÏÃþ¼ö |
2Ãþ |
±¸Á¶ |
ö±ÙÄÜÅ©¸®Æ®±¸Á¶ |
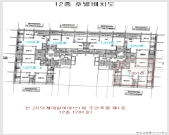
°ÇÃ๰Ãþº°ÇöȲ [º¸±â]| Ãþº° | ±¸Á¶ | ¿ëµµ | ¸éÀû | | 1Ãþ | ö±ÙÄÜÅ©¸®Æ®±¸Á¶ | ¼Ò¸ÅÁ¡ | 353.79§³ (107.21Æò) | | 1Ãþ | ö±ÙÄÜÅ©¸®Æ®±¸Á¶ | ºÎ´ëº¹¸®½Ã¼³ | 260.935§³ (79.07Æò) | | 2Ãþ | ö±ÙÄÜÅ©¸®Æ®±¸Á¶ | ¾ÆÆÄÆ® | 210.3525§³ (63.74Æò) | | 2Ãþ | ö±ÙÄÜÅ©¸®Æ®±¸Á¶ | ¿ÀÇǽºÅÚ | 269.4675§³ (81.66Æò) | | 3Ãþ | ö±ÙÄÜÅ©¸®Æ®±¸Á¶ | ¿ÀÇǽºÅÚ | 269.4675§³ (81.66Æò) | | 3Ãþ | ö±ÙÄÜÅ©¸®Æ®±¸Á¶ | ¾ÆÆÄÆ® | 210.3525§³ (63.74Æò) | | 4Ãþ | ö±ÙÄÜÅ©¸®Æ®±¸Á¶ | ¿ÀÇǽºÅÚ | 269.4675§³ (81.66Æò) | | 4Ãþ | ö±ÙÄÜÅ©¸®Æ®±¸Á¶ | ¾ÆÆÄÆ® | 210.3525§³ (63.74Æò) | | 5Ãþ | ö±ÙÄÜÅ©¸®Æ®±¸Á¶ | ¾ÆÆÄÆ® | 420.705§³ (127.49Æò) | | 6Ãþ | ö±ÙÄÜÅ©¸®Æ®±¸Á¶ | ¾ÆÆÄÆ® | 420.705§³ (127.49Æò) | | 7Ãþ | ö±ÙÄÜÅ©¸®Æ®±¸Á¶ | ¾ÆÆÄÆ® | 420.705§³ (127.49Æò) | | 8Ãþ | ö±ÙÄÜÅ©¸®Æ®±¸Á¶ | ¾ÆÆÄÆ® | 420.705§³ (127.49Æò) | | 9Ãþ | ö±ÙÄÜÅ©¸®Æ®±¸Á¶ | ¾ÆÆÄÆ® | 420.705§³ (127.49Æò) | | 10Ãþ | ö±ÙÄÜÅ©¸®Æ®±¸Á¶ | ¾ÆÆÄÆ® | 420.705§³ (127.49Æò) | | 11Ãþ | ö±ÙÄÜÅ©¸®Æ®±¸Á¶ | ¾ÆÆÄÆ® | 420.705§³ (127.49Æò) | | 12Ãþ | ö±ÙÄÜÅ©¸®Æ®±¸Á¶ | ¾ÆÆÄÆ® | 420.705§³ (127.49Æò) | | 13Ãþ | ö±ÙÄÜÅ©¸®Æ®±¸Á¶ | ¾ÆÆÄÆ® | 420.705§³ (127.49Æò) | | 14Ãþ | ö±ÙÄÜÅ©¸®Æ®±¸Á¶ | ¾ÆÆÄÆ® | 420.705§³ (127.49Æò) | | 15Ãþ | ö±ÙÄÜÅ©¸®Æ®±¸Á¶ | ¾ÆÆÄÆ® | 380.825§³ (115.4Æò) | | Áö1Ãþ | ö±ÙÄÜÅ©¸®Æ®±¸Á¶ | Àü±â½Ç,ÁÖÂ÷Àå | 1382.37§³ (418.9Æò) | | Áö2Ãþ | ö±ÙÄÜÅ©¸®Æ®±¸Á¶ | ±â°è½Ç,ÁÖÂ÷Àå | 1295.43§³ (392.55Æò) |
|
|
|
|
|
|
|
|
|
¸éÀû(§³), ±Ý¾×(¸¸¿ø)
| °è¾àÀÏ | ±âÁØ | ¾ÆÆÄÆ®¸í | Ãþ | Àü¿ë¸éÀû | °Å·¡±Ý¾× | °ÇÃà³âµµ | | °Å·¡³»¿ªÀÌ ¾ø½À´Ï´Ù. |
| °è¾àÀÏ | ±âÁØ | ¾ÆÆÄÆ®¸í | Ãþ | Àü¿ë¸éÀû | º¸Áõ±Ý | ¿ù¼¼ | °ÇÃà³âµµ | | 2025.09.09 | ¿ù¼¼ | ´ö°è´ëÀϾÆÀ̺ê1Â÷ | 14 | 50.7562 | 1,000 | 50 | 2019 | | 2025.09.02 | ¿ù¼¼ | ´ö°è´ëÀϾÆÀ̺ê1Â÷ | 7 | 68.5526 | 1,000 | 55 | 2019 | | 2025.07.28 | ¿ù¼¼ | ´ö°è´ëÀϾÆÀ̺ê1Â÷ | 12 | 51.884 | 1,000 | 45 | 2019 | | 2025.07.16 | ¸Å¸Å | ´ö°è´ëÀϾÆÀ̺ê1Â÷ | 14 | 51.884 | 10,500 | | 2019 | | 2025.07.16 | ¸Å¸Å | ´ö°è´ëÀϾÆÀ̺ê1Â÷ | 14 | 51.884 | 10,500 | | 2019 | | 2025.06.05 | Àü¼¼ | ´ö°è´ëÀϾÆÀ̺ê1Â÷ | 6 | 51.884 | 10,000 | 0 | 2019 | | 2025.05.23 | Àü¼¼ | ´ö°è´ëÀϾÆÀ̺ê1Â÷ | 15 | 51.884 | 11,000 | 0 | 2019 | | 2025.05.23 | ¿ù¼¼ | ´ö°è´ëÀϾÆÀ̺ê1Â÷ | 4 | 51.884 | 1,000 | 60 | 2019 | | 2025.05.16 | Àü¼¼ | ´ö°è´ëÀϾÆÀ̺ê1Â÷ | 15 | 51.884 | 11,000 | 0 | 2019 | | 2025.05.10 | ¿ù¼¼ | ´ö°è´ëÀϾÆÀ̺ê1Â÷ | 9 | 51.884 | 1,000 | 50 | 2019 | | 2025.03.19 | ¿ù¼¼ | ´ö°è´ëÀϾÆÀ̺ê1Â÷ | 12 | 51.884 | 1,000 | 45 | 2019 | | 2025.02.20 | ¿ù¼¼ | ´ö°è´ëÀϾÆÀ̺ê1Â÷ | 13 | 50.7562 | 500 | 55 | 2019 | | 2025.02.04 | Àü¼¼ | ´ö°è´ëÀϾÆÀ̺ê1Â÷ | 9 | 50.7562 | 10,800 | 0 | 2019 | | 2025.01.13 | ¸Å¸Å | ´ö°è´ëÀϾÆÀ̺ê1Â÷ | 15 | 57.9595 | 15,000 | | 2019 | | 2025.01.10 | ¿ù¼¼ | ´ö°è´ëÀϾÆÀ̺ê1Â÷ | 12 | 50.7562 | 1,000 | 54 | 2019 | | 2024.11.06 | ¸Å¸Å | ´ö°è´ëÀϾÆÀ̺ê1Â÷ | 8 | 68.5526 | 19,700 | | 2019 | | 2024.09.12 | ¿ù¼¼ | ´ö°è´ëÀϾÆÀ̺ê1Â÷ | 3 | 51.884 | 3,000 | 33 | 2019 | | 2024.09.12 | ¿ù¼¼ | ´ö°è´ëÀϾÆÀ̺ê1Â÷ | 3 | 51.884 | 3,000 | 33 | 2019 | | 2024.07.11 | ¿ù¼¼ | ´ö°è´ëÀϾÆÀ̺ê1Â÷ | 12 | 50.7562 | 2,000 | 45 | 2019 | | 2024.04.19 | Àü¼¼ | ´ö°è´ëÀϾÆÀ̺ê1Â÷ | 10 | 50.7562 | 10,000 | 0 | 2019 | | 2024.04.12 | ¿ù¼¼ | ´ö°è´ëÀϾÆÀ̺ê1Â÷ | 5 | 51.884 | 3,000 | 50 | 2019 | | 2024.03.23 | ¿ù¼¼ | ´ö°è´ëÀϾÆÀ̺ê1Â÷ | 3 | 50.7562 | 2,000 | 38 | 2019 | | 2024.03.14 | ¿ù¼¼ | ´ö°è´ëÀϾÆÀ̺ê1Â÷ | 3 | 50.7562 | 2,000 | 45 | 2019 | | 2024.02.14 | Àü¼¼ | ´ö°è´ëÀϾÆÀ̺ê1Â÷ | 11 | 50.7562 | 10,500 | 0 | 2019 | | 2024.02.07 | ¿ù¼¼ | ´ö°è´ëÀϾÆÀ̺ê1Â÷ | 8 | 51.884 | 2,500 | 40 | 2019 |
|
|
|
 |
ÀÓÂ÷³»¿ª |
[¹è´ç¿ä±¸Á¾±âÀÏ : 2024/11/04] |
|
|
| ÀÓÂ÷ÀÎ |
Á¡À¯°ü°è |
ÀüÀÔÀÏÀÚ |
È®Á¤ÀÏÀÚ |
¹è´ç¿ä±¸ÀÏ |
º¸Áõ±Ý/Â÷ÀÓ |
´ëÇ׿ä°Ç |
ºñ°í |
| ±èOO |
1201È£ |
2020.04.16. |
2020.04.16.(1Â÷)¾øÀ½(2Â÷) |
|
140,000,000¿ø(1Â÷)º¯µ¿¾øÀ½(2Â÷)
|
O |
2020.04.10.~2022.04.09.(1Â÷)2022.04.10.~2024.04.09.(2Â÷) |
| ¸Å°¢¹°°Ç¸í¼¼ ºñ°í |
±èµµÇü:ÀÌ »ç°Ç °æ¸Å½Åûä±ÇÀÚÀÓ. |
|
|
|
 |
Áö¿ªºÐ¼® |
|
|
|
|
| ÁöÇÏö |
|
Çб³ |
|
| °ü°ø¼ |
|
| ¹ý¿ø |
¿ï»êÁö¹æ¹ý¿ø (446-43)¿ï»ê±¤¿ª½Ã ³²±¸ ¹ý´ë·Î 55(¿Áµ¿ 1415) ´ëÇ¥ : 052)216-8000, ¹Î¿ø : 052)216-8021~3 ¿ï»ê±¤¿ª½Ã, ¾ç»ê½Ã |
| µî±â¼Ò |
¿ï»êÁö¹æ¹ý¿ø º»¿ø ¾ç»êµî±â¼Ò (´ëÇ¥:1544-0773, ÆÑ½º:(055)384-4180, °æ³² ¾ç»ê½Ã ºÏ¾È³²5±æ 12 (ºÏºÎµ¿ 373)) |
| ¼¼¹«¼ |
¾ç»ê¼¼¹«¼ (´ëÇ¥:055-389-62, ÆÑ½º:055-389-6602, °æ»ó³²µµ ¾ç»ê½Ã ¹°±ÝÀ¾ Áõ»ê¿ª·Î135, 9Ãþ, 10Ãþ(°¡Ã̸® 1296-1)) |
|
|
|
 |
¹ý¿ø ¹°°ÇÀÚ·á ¿ä¾à |
|
|
|
|
| ¼Ò¸êµÇÁö ¾Ê´Â µî±âºÎ±Ç¸® |
|
| ¼³Á¤µÈ °ÍÀ¸·Î º¸´Â Áö»ó±Ç |
|
| ¹ý¿øÀÚ·á Æ¯ÀÌ»çÇ× |
[ÁÖ¿ä ¹®°Ç Á¢¼ö ³»¿ª]
|
[¸Å°¢¹°°Ç¸í¼¼¼ ºñ°í¶õ]
´ö°è´ëÀϾÆÀ̺ê1Â÷ 1µ¿(ÇöÀå¿¡¼´Â 101µ¿À¸·Î »ç¿ëÁßÀÓ) 1201È£ÀÓ. |
[ºÎµ¿»ê ÇöȲÁ¶»ç¼ ºñ°í¶õ]
º»°Ç ºÎµ¿»êÀº ¾ç»ê ´ö°èµ¿ ¼ÒÀç ´ö°èÃʵîÇб³ ³²Ãø ÀαÙÇÑ ´ö°è´ëÀϾÆÀ̺ê1Â÷ 1µ¿(ÇöÀå¿¡¼´Â 101µ¿À¸·Î »ç¿ëÁßÀÓ) 1201È£ÀÓ. |
|
| ¿©ÀÇÁÖ°æ¸Å Á¶¾ð ÇѸ¶µð |
ÀÌ ºÎµ¿»êÀÇ ÀÔÂû¹ý¿øÀº ¿ï»êÁö¹æ¹ý¿øÀÔ´Ï´Ù.
ÀÔÂûÀÏÀº 2025-11-19ÀÔ´Ï´Ù.
ÀÔÂû½Ã°£Àº ~11:30ÀÔ´Ï´Ù. ÀÌ ¹ý¿ø¿¡´Â ½ÅÇÑÀºÇà,°æ³²ÀºÇàÀÌ ÀÔÁ¡Çϰí ÀÖ½À´Ï´Ù.
|
|
|
| Åë°è±â°£ |
³«Âû¹°°Ç¼ö |
Æò±Õ°¨Á¤°¡ |
Æò±Õ³«Âû°¡ |
³«Âû°¡À² |
À¯ÂûȽ¼ö |
| 3°³¿ù |
42°Ç |
170,538,095¿ø |
128,641,327¿ø |
73% |
1.4ȸ |
| 6°³¿ù |
76°Ç |
177,805,263¿ø |
138,734,335¿ø |
75% |
1.3ȸ |
| 12°³¿ù |
155°Ç |
197,456,129¿ø |
157,430,286¿ø |
77% |
1.3ȸ |
|
|
|
|
|
|
 |
|