|
|
| ¼ÒÀçÁö |
ÀÎõ±¤¿ª½Ã ¹ÌÃßȦ±¸ Á־ȼ·Î 15, 9Ãþ904È£ (Á־ȵ¿,¿£¿¡½ºÅ¸¿öÅÚ)
±¸)ÀÎõ±¤¿ª½Ã ¹ÌÃßȦ±¸ Á־ȵ¿ 200-15
|
|
| »ç°Ç¹øÈ£ |
2024 Ÿ°æ 549896 |
¹°°Ç¹øÈ£ |
1
|
¹°°Ç¿ëµµ |
¾ÆÆÄÆ® |
| °¨Á¤Æò°¡¾× |
52,000,000¿ø |
°æ¸Å´ë»ó |
ÅäÁö ¹× °Ç¹°Àϰý ¸Å°¢ |
ÁøÇà»óÅ |
À¯Âû |
| ÃÖÀúÀÔÂû°¡ |
(49%) 25,480,000¿ø
|
°Ç¹°¸éÀû |
14.20§³(4.30Æò) |
ÀÔÂû±âÀÏ |
2025.11.26(¼ö) 10:00
(ÀÔÂû 17ÀÏÀü)
|
| ÀÔÂûº¸Áõ±Ý |
(10%) 2,548,000¿ø |
ÅäÁö¸éÀû |
3.28§³(0.99Æò)
|
À¯ÂûȽ¼ö |
3ȸ |
| ÀÔÂû¹ý¿ø |
ÀÎõÁö¹æ¹ý¿ø |
°æ¸Å¹æ¹ý |
|
¹°°ÇÁ¶È¸¼ö |
¿À´Ã: 2ȸ [´©Àû: 2989ȸ]
|
| ¸»¼Ò±âÁØ | ÃÖ¼±¼øÀ§ ¼³Á¤ : 2023. 8. 10. °¡¾Ð·ù ¼³Á¤
|
|
|
|
|
|
|
|
|
|
|
°æ¸Å´ë»ó ¸ñ·Ï
|
|
| ±¸ºÐ |
¸ñ·Ï |
ÁÖ¼Ò |
±¸Á¶/¿ëµµ/´ëÁö±Ç |
ºñ°í |
´ëÁö±Ç
|
1 |
Á־ȵ¿ 200-15 |
346.6ºÐÀÇ 3.2812 |
3.2812§³ (0.99Æò)
|
°Ç¹°
|
1 |
Á־ȵ¿ 200-15 |
9Ãþ904È£ ö±ÙÄÜÅ©¸®Æ®±¸Á¶ |
14.2041§³ (4.30Æò)
|
|
|
|
2025-08-06
À¯Âû
|
(100%)
52,000,000¿ø
|
|
|
|
2025-09-09
º¯°æ
|
(70%)
36,400,000¿ø
|
|
|
|
2025-09-09
À¯Âû
|
(100%)
52,000,000¿ø
|
|
|
|
2025-10-27
À¯Âû
|
(70%)
36,400,000¿ø
|
|
|
|
2025-11-26
ÁøÇà
|
(49%)
25,480,000¿ø
|
|
|
|
|
|
°¨Á¤Æò°¡¼ ¿ä¾à |
|
[À§Ä¡/ÁÖÀ§È¯°æ]
º»°ÇÀº ÀÎõ±¤¿ª½Ã ¹ÌÃßȦ±¸ Á־ȵ¿ ¼ÒÀç "¹ÌÃßȦ±¸º¸¼±¼Ò" ³²Ãø Àαٿ¡ À§Ä¡Çϸç, ÁÖÀ§´Â ¾ÆÆÄÆ® ¹× ´Üµ¶ÁÖÅÃ, ´Ù¼¼´ëÁÖÅÃ, ±Ù¸°»ýȰ½Ã¼³, ¾÷¹«½Ã¼³ µîÀÌ ¼ÒÀçÇÏ¿© Á¦¹Ý ÁÖÀ§È¯°æÀº º¸ÅëÀÓ.
[±³Åë»óȲ]
º»°Ç±îÁö Â÷·®Á¢±ÙÀÌ °¡´ÉÇϸç, Àαٿ¡ ¹ö½ºÁ¤·ùÀå ¹× ÁöÇÏö¿ª(ÀÎõ2È£¼± ½Ã¹Î°ø¿ø¿ª)ÀÌ À§Ä¡ÇÏ¿© ´ëÁß±³Åë»óȲÀº º¸ÅëÀÓ.
[°Ç¹°±¸Á¶]
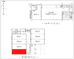
ö±ÙÄÜÅ©¸®Æ®±¸Á¶ Æò½º¶óºêÁöºØ 14Ãþ °Ç¹° ³» Á¦9Ãþ Á¦904È£·Î¼
¿Üº® : µ¹ ºÙÀÓ ¹× ¸ôÅ» À§ ÆäÀÎÆ® ¸¶°¨ µî,
³»º® : º®Áö ¹× ÀϺΠŸÀÏ ¸¶°¨ µî,
âȣ : »õ½Ã âȣ µîÀÓ.
[ÀÌ¿ë»óÅÂ]
¾ÆÆÄÆ®·Î ÀÌ¿ëÁßÀÓ.
[¼³ºñ³»¿ª]
±Þ¡¤¹è¼ö¼³ºñ ¹× À§»ý¼³ºñ, °¡½º¼³ºñ, ½Â°±â¼³ºñ, ³¹æ¼³ºñ µîÀÌ µÇ¾îÀÖÀ½.
[ÅäÁöÇü»ó/ÀÌ¿ë»óÅÂ]
ÀÎÁ¢ÇÊÁö¿Í µî°íÆòźÇÑ ºÎÁ¤Çü ÅäÁö·Î¼, °øµ¿ÁÖÅÃ(¾ÆÆÄÆ®-µµ½ÃÇü»ýȰÁÖÅÃ-¿ø·ëÇü) °ÇºÎÁö·Î ÀÌ¿ëÁßÀÓ.
7)ÀÎÁ¢ µµ·Î»óŵî
º»°ÇÀº µ¿ÃøÀ¸·Î ³ëÆø ¾à 15m ³»¿Ü µµ·Î¿¡ °¢°¢ Á¢ÇÔ.
[ÅäÁöÀÌ¿ë°èȹ]
ÀϹݻó¾÷Áö¿ª(2022-06-13), ¹æÈÁö±¸(2020-03-30), µµ½Ãöµµ(2016-07-14)(ÀúÃË), °¡Ãà»çÀ°Á¦Çѱ¸¿ª(ÀÎõ±¤¿ª½Ã ¹ÌÃßȦ±¸ °¡Ãà»çÀ°Á¦ÇÑ¿¡ °üÇÑ Á¶·Ê[2018. 7. 1.])£¼°¡ÃàºÐ´¢ÀÇ °ü¸® ¹× À̿뿡 °üÇÑ ¹ý·ü£¾, °ú¹Ð¾ïÁ¦±Ç¿ª£¼¼öµµ±ÇÁ¤ºñ°èȹ¹ý£¾, öµµº¸È£Áö±¸(2016-07-30)(½Ã öµµ°ú-552)£¼Ã¶µµ¾ÈÀü¹ý£¾ÀÓ.
[°øºÎ¿ÍÀÇ Â÷ÀÌ]
¾øÀ½.
[Âü°í»çÇ×]
ÀÓ´ë°ü°è ¹Ì»óÀÓ. |
|
|
°ÇÃ๰ÇöȲ |
|
|
|
| ¼ÒÀçÁö |
ÀÎõ±¤¿ª½Ã ¹ÌÃßȦ±¸ Á־ȵ¿ 200-15¹øÁö |
| ´ëÁö¸éÀû |
346.6§³(105.03Æò) |
¿¬¸éÀû |
2583.3193§³(782.82Æò) |
ÁÖ¿ëµµ |
°øµ¿ÁÖÅà |
| °ÇÃà¸éÀû |
261.1884§³(79.15Æò) |
¿ëÀû·ü»êÁ¤¿¬¸éÀû |
2335.7958§³(707.82Æò) |
Âø°øÀÏÀÚ |
2011.09.01 |
| °ÇÆóÀ² |
75.36% |
¿ëÀû·ü |
673.92% |
»ç¿ë½ÂÀÎÀÏÀÚ |
2012.09.13 |
| Áö»óÃþ¼ö |
14Ãþ |
ÁöÇÏÃþ¼ö |
2Ãþ |
±¸Á¶ |
ö±ÙÄÜÅ©¸®Æ®±¸Á¶ |
°ÇÃ๰Ãþº°ÇöȲ [º¸±â]| Ãþº° | ±¸Á¶ | ¿ëµµ | ¸éÀû | | 1Ãþ | ö±ÙÄÜÅ©¸®Æ®±¸Á¶ | °è´Ü½Ç1/ELEV,Åë½Å½Ç | 55.6362§³ (16.86Æò) | | 1Ãþ | ö±ÙÄÜÅ©¸®Æ®±¸Á¶ | °è´Ü½Ç2 | 13.032§³ (3.95Æò) | | 1Ãþ | ö±ÙÄÜÅ©¸®Æ®±¸Á¶ | Á¦1Á¾±Ù¸°»ýȰ½Ã¼³(¼Ò¸ÅÁ¡) | 26.4§³ (8Æò) | | 2Ãþ | ö±ÙÄÜÅ©¸®Æ®±¸Á¶ | °è´Ü½Ç2 | 13.032§³ (3.95Æò) | | 2Ãþ | ö±ÙÄÜÅ©¸®Æ®±¸Á¶ | °è´Ü½Ç1 | 13.032§³ (3.95Æò) | | 2Ãþ | ö±ÙÄÜÅ©¸®Æ®±¸Á¶ | Á¦1Á¾±Ù¸°»ýȰ½Ã¼³(ÀÇ¿ø) | 196.0349§³ (59.4Æò) | | 3Ãþ | ö±ÙÄÜÅ©¸®Æ®±¸Á¶ | °è´Ü½Ç2 | 13.032§³ (3.95Æò) | | 3Ãþ | ö±ÙÄÜÅ©¸®Æ®±¸Á¶ | °è´Ü½Ç1 | 13.032§³ (3.95Æò) | | 4Ãþ | ö±ÙÄÜÅ©¸®Æ®±¸Á¶ | °è´Ü½Ç1 | 13.032§³ (3.95Æò) | | 4Ãþ | ö±ÙÄÜÅ©¸®Æ®±¸Á¶ | °è´Ü½Ç2 | 13.032§³ (3.95Æò) | | 4Ãþ | ö±ÙÄÜÅ©¸®Æ®±¸Á¶ | Á¦1Á¾±Ù¸°»ýȰ½Ã¼³(ÀÇ¿ø) | 195.7149§³ (59.31Æò) | | 5Ãþ | ö±ÙÄÜÅ©¸®Æ®±¸Á¶ | °è´Ü½Ç1/ELEV,º¹µµ | 52.5§³ (15.91Æò) | | 5Ãþ | ö±ÙÄÜÅ©¸®Æ®±¸Á¶ | ¾ÆÆÄÆ®(µµ½ÃÇü»ýȰÁÖÅÃ-¿ø·ëÇü)-7¼¼´ë | 111.2546§³ (33.71Æò) | | 6Ãþ | ö±ÙÄÜÅ©¸®Æ®±¸Á¶ | ¾ÆÆÄÆ®(µµ½ÃÇü»ýȰÁÖÅÃ-¿ø·ëÇü)-7¼¼´ë | 111.2546§³ (33.71Æò) | | 6Ãþ | ö±ÙÄÜÅ©¸®Æ®±¸Á¶ | °è´Ü½Ç1/ELEV,º¹µµ | 52.5§³ (15.91Æò) | | 7Ãþ | ö±ÙÄÜÅ©¸®Æ®±¸Á¶ | ¾ÆÆÄÆ®(µµ½ÃÇü»ýȰÁÖÅÃ-¿ø·ëÇü)-7¼¼´ë | 111.2546§³ (33.71Æò) | | 8Ãþ | ö±ÙÄÜÅ©¸®Æ®±¸Á¶ | ¾ÆÆÄÆ®(µµ½ÃÇü»ýȰÁÖÅÃ-¿ø·ëÇü)-7¼¼´ë | 111.2546§³ (33.71Æò) | | 8Ãþ | ö±ÙÄÜÅ©¸®Æ®±¸Á¶ | °è´Ü½Ç1/ELEV,º¹µµ | 52.5§³ (15.91Æò) | | 9Ãþ | ö±ÙÄÜÅ©¸®Æ®±¸Á¶ | °è´Ü½Ç1/ELEV,º¹µµ | 52.5§³ (15.91Æò) | | 10Ãþ | ö±ÙÄÜÅ©¸®Æ®±¸Á¶ | ¾ÆÆÄÆ®(µµ½ÃÇü»ýȰÁÖÅÃ-¿ø·ëÇü)-7¼¼´ë | 111.2546§³ (33.71Æò) | | 10Ãþ | ö±ÙÄÜÅ©¸®Æ®±¸Á¶ | °è´Ü½Ç1/ELEV,º¹µµ | 52.5§³ (15.91Æò) | | 11Ãþ | ö±ÙÄÜÅ©¸®Æ®±¸Á¶ | ¾ÆÆÄÆ®(µµ½ÃÇü»ýȰÁÖÅÃ-¿ø·ëÇü)-7¼¼´ë | 111.2546§³ (33.71Æò) | | 12Ãþ | ö±ÙÄÜÅ©¸®Æ®±¸Á¶ | ¾ÆÆÄÆ®(µµ½ÃÇü»ýȰÁÖÅÃ-¿ø·ëÇü)-6¼¼´ë | 106.3349§³ (32.22Æò) | | 13Ãþ | ö±ÙÄÜÅ©¸®Æ®±¸Á¶ | °è´Ü½Ç1/ELEV,º¹µµ | 52.5§³ (15.91Æò) | | 13Ãþ | ö±ÙÄÜÅ©¸®Æ®±¸Á¶ | ¾ÆÆÄÆ®(µµ½ÃÇü»ýȰÁÖÅÃ-¿ø·ëÇü)-4¼¼´ë | 64.3749§³ (19.51Æò) | | 14Ãþ | ö±ÙÄÜÅ©¸®Æ®±¸Á¶ | ¾ÆÆÄÆ®(µµ½ÃÇü»ýȰÁÖÅÃ-¿ø·ëÇü)-4¼¼´ë | 64.3749§³ (19.51Æò) | | ¿Áž1Ãþ | ö±ÙÄÜÅ©¸®Æ®±¸Á¶ | °è´Ü½Ç1 | 32.6276§³ (9.89Æò) | | ¿Áž2Ãþ | ö±ÙÄÜÅ©¸®Æ®±¸Á¶ | °è´Ü½Ç1,EV±â°è½Ç,¹ßÀü±â½Ç | 32.6276§³ (9.89Æò) | | Áö1Ãþ | ö±ÙÄÜÅ©¸®Æ®±¸Á¶ | °è´Ü½Ç1,â°í | 51.22§³ (15.52Æò) | | Áö2Ãþ | ö±ÙÄÜÅ©¸®Æ®±¸Á¶ | ±â°è½ÄÁÖÂ÷Àå,ÆßÇÁ½Ç | 165.79§³ (50.24Æò) |
|
|
|
|
|
|
|
|
|
¸éÀû(§³), ±Ý¾×(¸¸¿ø)
| °è¾àÀÏ | ±âÁØ | ¾ÆÆÄÆ®¸í | Ãþ | Àü¿ë¸éÀû | °Å·¡±Ý¾× | °ÇÃà³âµµ | | 2024.01.31 | ¸Å¸Å | NSŸ¿öÅÚ | 12 | 14.2041 | 3,700 | 2012 |
| °è¾àÀÏ | ±âÁØ | ¾ÆÆÄÆ®¸í | Ãþ | Àü¿ë¸éÀû | º¸Áõ±Ý | ¿ù¼¼ | °ÇÃà³âµµ | | 2025.07.26 | Àü¼¼ | NSŸ¿öÅÚ | 12 | 14.4726 | 4,000 | 0 | 2012 | | 2025.06.13 | ¿ù¼¼ | NSŸ¿öÅÚ | 8 | 14.2041 | 0 | 42 | 2012 | | 2025.04.01 | ¿ù¼¼ | NSŸ¿öÅÚ | 7 | 13.8133 | 200 | 37 | 2012 | | 2025.03.12 | ¿ù¼¼ | NSŸ¿öÅÚ | 14 | 13.1893 | 200 | 35 | 2012 | | 2025.03.05 | ¿ù¼¼ | NSŸ¿öÅÚ | 14 | 14.4726 | 200 | 35 | 2012 | | 2025.02.18 | ¿ù¼¼ | NSŸ¿öÅÚ | 12 | 14.2041 | 200 | 33 | 2012 | | 2025.01.22 | ¿ù¼¼ | NSŸ¿öÅÚ | 7 | 14.2041 | 200 | 40 | 2012 | | 2025.01.02 | ¿ù¼¼ | NSŸ¿öÅÚ | 5 | 13.1893 | 500 | 32 | 2012 | | 2024.12.23 | ¿ù¼¼ | NSŸ¿öÅÚ | 11 | 14.2041 | 4,490 | 5 | 2012 | | 2024.10.15 | ¸Å¸Å | NSŸ¿öÅÚ | 13 | 13.1893 | 4,100 | | 2012 | | 2024.10.03 | ¸Å¸Å | NSŸ¿öÅÚ | 7 | 13.1893 | 4,200 | | 2012 | | 2024.09.07 | Àü¼¼ | NSŸ¿öÅÚ | 11 | 13.5523 | 4,300 | 0 | 2012 | | 2024.08.13 | Àü¼¼ | NSŸ¿öÅÚ | 11 | 14.4726 | 5,250 | 0 | 2012 | | 2024.06.13 | ¿ù¼¼ | NSŸ¿öÅÚ | 14 | 14.4726 | 200 | 40 | 2012 | | 2024.03.09 | ¿ù¼¼ | NSŸ¿öÅÚ | 12 | 14.4726 | 100 | 40 | 2012 | | 2024.03.05 | ¿ù¼¼ | NSŸ¿öÅÚ | 13 | 13.1893 | 100 | 40 | 2012 | | 2024.02.27 | Àü¼¼ | NSŸ¿öÅÚ | 13 | 14.2041 | 4,500 | 0 | 2012 |
|
|
|
 |
ÀÓÂ÷³»¿ª |
[¹è´ç¿ä±¸Á¾±âÀÏ : 2024/10/24] |
|
|
| ÀÓÂ÷ÀÎ |
Á¡À¯°ü°è |
ÀüÀÔÀÏÀÚ |
È®Á¤ÀÏÀÚ |
¹è´ç¿ä±¸ÀÏ |
º¸Áõ±Ý/Â÷ÀÓ |
´ëÇ׿ä°Ç |
ºñ°í |
| ÀÓOO |
|
2021. 4. 2. |
2021. 2. 26. |
|
54,000,000
|
O |
2021. 4. 2.~ |
| ÁÖOOOOOOOOOOOOOOO |
ÀüºÎ |
2021. 4. 2. |
2021. 2. 26. |
2024. 10. 10. |
54,000,000
|
O |
2021. 4. 2.~2023. 4. 1. |
| ¸Å°¢¹°°Ç¸í¼¼ ºñ°í |
- ÀÓÁö¿¬ : ÁÖÅÃÀÓÂ÷±Çµî±â±ÇÀڷμ ÁÖÅÃÀÓÂ÷±Çµî±âÀÏÀº 2023. 5. 8.ÀÓ
- ÁÖÅõµ½Ãº¸Áõ°ø»ç(ÀÓÂ÷ÀÎ ÀÓÁö¿¬) : °æ¸Å½Åû±ÇÀÚÀ̸ç ÁÖÅÃÀÓ´ëÂ÷º¸È£¹ý Á¦3Á¶ÀÇ2 Á¦7Ç× Á¦9È£ÀÇ ±â°üÀ¸·Î ÀÓÂ÷ÀÎ ÀÓÁö¿¬À¸·Î |
|
|
|
 |
Áö¿ªºÐ¼® |
|
|
|
|
| ÁöÇÏö |
|
Çб³ |
|
| °ü°ø¼ |
|
| ¹ý¿ø |
ÀÎõÁö¹æ¹ý¿ø (222-20)ÀÎõ±¤¿ª½Ã ¹ÌÃßȦ±¸ ¼Ò¼º·Î 163¹ø±æ 17(ÇÐÀ͵¿) ´ëÇ¥ : 032)860-1113~4 Áß±¸, µ¿±¸, ³²±¸, ¿¬¼ö±¸, ³²µ¿±¸, ºÎÆò±¸, °è¾ç±¸, ¼±¸, ¿ËÁø±º, °È±º |
| µî±â¼Ò |
ÀÎõÁö¹æ¹ý¿ø º»¿ø µî±â±¹ (´ëÇ¥:1544-0773, ÆÑ½º:(032)620-9099, ÀÎõ±¤¿ª½Ã ¹ÌÃßȦ±¸ °æ¿ø´ë·Î 881(Á־ȵ¿ 983)) |
| ¼¼¹«¼ |
ÀÎõ¼¼¹«¼ (´ëÇ¥:032-770-02, ÆÑ½º:032-777-8104, ÀÎõ±¤¿ª½Ã µ¿±¸ ¿ì°¢·Î 75 (⿵µ¿)) |
|
|
|
 |
¹ý¿ø ¹°°ÇÀÚ·á ¿ä¾à |
|
|
|
|
| ¼Ò¸êµÇÁö ¾Ê´Â µî±âºÎ±Ç¸® |
- À»±¸ ¼øÀ§ 3¹ø ÁÖÅÃÀÓÂ÷±Çµî±â(´Ù¸¸ ÁÖÅõµ½Ãº¸Áõ°ø»çÀÇ ¸»¼Òµ¿ÀÇ È®¾à¼°¡ Á¦ÃâµÊ)
-
º°µµµî±â ÀÖÀ½(1ÅäÁö, À»±¸ 10¹ø ±¸ºÐÁö»ó±Ç ¼³Á¤µî±â) |
| ¼³Á¤µÈ °ÍÀ¸·Î º¸´Â Áö»ó±Ç |
|
| ¹ý¿øÀÚ·á Æ¯ÀÌ»çÇ× |
[ÁÖ¿ä ¹®°Ç Á¢¼ö ³»¿ª]
|
[ºÎµ¿»ê ÇöȲÁ¶»ç¼ ºñ°í¶õ]
ö±ÙÄÜÅ©¸®Æ®±¸Á¶ Æò½º¶óºêÁöºØ 14Ãþ |
|
| ¿©ÀÇÁÖ°æ¸Å Á¶¾ð ÇѸ¶µð |
ÀÌ ºÎµ¿»êÀÇ ÀÔÂû¹ý¿øÀº ÀÎõÁö¹æ¹ý¿øÀÔ´Ï´Ù.
ÀÔÂûÀÏÀº 2025-11-26ÀÔ´Ï´Ù.
ÀÔÂû½Ã°£Àº ~11:20ÀÔ´Ï´Ù. ÀÌ ¹ý¿ø¿¡´Â KB±¹¹ÎÀºÇàÀÌ ÀÔÁ¡Çϰí ÀÖ½À´Ï´Ù.
|
¼±¼øÀ§ ÀÓÂ÷±Çµî±â°¡ µÇ¾î ÀÖ½À´Ï´Ù ´ëÇ×·ÂÀÌ ÀÖ´Â ¼±¼øÀ§ ÀÓÂ÷±Çµî±â ±Ç¸®ÀÚ°¡ ¹è´çÀ» Àü¾× ¹ÞÁö ¸øÇÒ °æ¿ì ³«ÂûÀÚ°¡ ÀÜ¿© º¸Áõ±ÝÀ» ÀμöÇØ¾ßÇÏ´Â °æ¿ìµµ ÀÖ½À´Ï´Ù. |
ÅäÁöº°µµµî±â°¡ ÀÖ´Â ¹°°ÇÀÔ´Ï´Ù ÁýÇհǹ°¿¡¼ ÅäÁöµî±âºÎ¿¡ ÀÖ´Â Àú´ç±Ç µî ºÎ´ãÀ» ÇØ¼ÒÇÏÁö ¸øÇØ ±×´ë·Î ³²¾Æ ÀÖ´Â °æ¿ì¿¡ ÁýÇհǹ°µî±âºÎ»ó¿¡ ±× »ç½ÇÀ» °ø½ÃÇÏ´Â °æ¿ìÀÔ´Ï´Ù. ³«ÂûÀÚ°¡ ÀμöÇÏ´Â °æ¿ìµµ ÀÖ°í ÅäÁöºÎºÐÀÇ ¸Å°¢´ë±Ý¿¡¼ ¹è´çÀ» ¹Þ°í ¸»¼Ò°¡ µÇ´Â °æ¿ìµµ ÀÖ½À´Ï´Ù. ¸Å°¢¹°°Ç¸í¼¼¼¿Í ÅäÁöµî±âºÎÀÇ È®ÀÎÀÌ ²À ÇÊ¿äÇÕ´Ï´Ù. |
|
|
| Åë°è±â°£ |
³«Âû¹°°Ç¼ö |
Æò±Õ°¨Á¤°¡ |
Æò±Õ³«Âû°¡ |
³«Âû°¡À² |
À¯ÂûȽ¼ö |
| 3°³¿ù |
176°Ç |
235,102,273¿ø |
141,735,310¿ø |
60% |
2.3ȸ |
| 6°³¿ù |
313°Ç |
236,709,265¿ø |
144,304,793¿ø |
61% |
2.2ȸ |
| 12°³¿ù |
504°Ç |
237,197,321¿ø |
147,040,332¿ø |
61% |
2.2ȸ |
|
|
|
|
|
|
 |
|