|
|
| ¼ÒÀçÁö |
±¤ÁÖ±¤¿ª½Ã ±¤»ê±¸ ÷´ÜÁß¾Ó·Î152¹ø±æ 81-10, 5Ãþ508È£
±¸)±¤ÁÖ±¤¿ª½Ã ±¤»ê±¸ ½Ö¾Ïµ¿ 672-2
|
|
| »ç°Ç¹øÈ£ |
2024 Ÿ°æ 7831 |
¹°°Ç¹øÈ£ |
|
¹°°Ç¿ëµµ |
¿ÀÇǽºÅÚ |
| °¨Á¤Æò°¡¾× |
53,000,000¿ø |
°æ¸Å´ë»ó |
ÅäÁö ¹× °Ç¹°Àϰý ¸Å°¢ |
ÁøÇà»óÅ |
À¯Âû |
| ÃÖÀúÀÔÂû°¡ |
(45%) 23,744,000¿ø
|
°Ç¹°¸éÀû |
38.85§³(11.75Æò) |
ÀÔÂû±âÀÏ |
2025.12.10(¼ö) 10:00
(ÀÔÂû 3ÀÏÀü)
|
| ÀÔÂûº¸Áõ±Ý |
(10%) 2,374,400¿ø |
ÅäÁö¸éÀû |
7.34§³(2.22Æò)
|
À¯ÂûȽ¼ö |
3ȸ |
| ÀÔÂû¹ý¿ø |
±¤ÁÖÁö¹æ¹ý¿ø |
°æ¸Å¹æ¹ý |
|
¹°°ÇÁ¶È¸¼ö |
¿À´Ã: 2ȸ [´©Àû: 49ȸ]
|
| ¸»¼Ò±âÁØ | ÃÖ¼±¼øÀ§ ¼³Á¤ : 2024.10.14.°æ¸Å°³½Ã°áÁ¤ ¼³Á¤
|
|
|
|
|
|
|
|
|
|
|
°æ¸Å´ë»ó ¸ñ·Ï
|
|
| ±¸ºÐ |
¸ñ·Ï |
ÁÖ¼Ò |
±¸Á¶/¿ëµµ/´ëÁö±Ç |
ºñ°í |
´ëÁö±Ç
|
2 |
½Ö¾Ïµ¿ 672-2 |
540.10ºÐÀÇ 7.34 |
7.34§³ (2.22Æò)
|
°Ç¹°
|
2 |
½Ö¾Ïµ¿ 672-2 |
5Ãþ508È£ ö°ñÄÜÅ©¸®Æ®±¸Á¶ |
38.85§³ (11.75Æò)
|
|
|
|
2025-08-06
À¯Âû
|
(100%)
53,000,000¿ø
|
|
|
|
2025-09-17
À¯Âû
|
(70%)
37,100,000¿ø
|
|
|
|
2025-10-29
À¯Âû
|
(56%)
29,680,000¿ø
|
|
|
|
2025-12-10
ÁøÇà
|
(45%)
23,744,000¿ø
|
|
|
|
|
|
°¨Á¤Æò°¡¼ ¿ä¾à |
|
[À§Ä¡/ÁÖÀ§È¯°æ]
º»°ÇÀº ±¤ÁÖ±¤¿ª½Ã ±¤»ê±¸ ½Ö¾Ïµ¿¿¡ À§Ä¡ÇÑ ·Ôµ¥¸¶Æ®Ã·´ãÁ¡ ºÏ¼Ãø¿¡ ¼ÒÀçÇϸç, º»°Ç ÁÖº¯Àº ÀϹݻó°¡Áö´ë ¹× °øµ¿ÁÖÅÃÁö´ë°¡ È¥ÀçÇÏ¿© ÁÖÀ§È¯°æÀº º¸ÅëÀÓ.
[±³Åë»óȲ]
Àαٿ¡ ¹ö½º½Â°ÀåÀÌ ¼ÒÀçÇÏ¿©, ±³Åë»óȲÀº º¸ÅëÀÓ.
[°Ç¹°±¸Á¶]
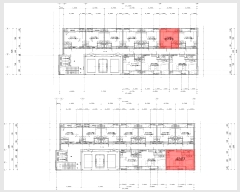
ö°ñö±ÙÄÜÅ©¸®Æ®±¸Á¶ ±âŸÁöºØ 10Ãþ °Ç¹° Áß Á¦5Ãþ Á¦508È£·Î¼,
¿Üº®:¸ôÅ»ÆäÀÎÆÃ µî,
³»º®:º®Áö µî ¸¶°¨,
âȣ:»þ½ÃâȣÀÓ.
[ÀÌ¿ë»óÅÂ]
¿ÀÇǽºÅÚÀÓ.
[¼³ºñ³»¿ª]
ÀϹÝÀûÀÎ À§»ý ¹× ±Þ¹è¼ö¼³ºñ, ½Â°±â¼³ºñ, ³¹æ¼³ºñ µîÀÌ ±¸ºñµÊ.
[ÅäÁöÇü»ó/ÀÌ¿ë»óÅÂ]
¼¼ÀåÇü ÆòÁöÀÇ ¿ÀÇǽºÅÚºÎÁöÀÓ.
7)ÀÎÁ¢ µµ·Î»óŵî
Áß·ÎÇѸéÀÓ.
[ÅäÁöÀÌ¿ë°èȹ]
-
[°øºÎ¿ÍÀÇ Â÷ÀÌ]
¾øÀ½.
[Âü°í»çÇ×]
ÀÓ´ë°ü°è´Â ¹Ì»óÀ̸ç, ÇöÀåÁ¶»ç ´ç½Ã ´ë»ó ¹°°ÇÀÇ À§Ä¡´Â ÃâÀÔ¹®¿¡ ±âÀçµÈ È£¼ö¸¦ ±âÁØÀ¸·Î ÆÄ¾ÇÇÏ¿´À½. |
|
|
°ÇÃ๰ÇöȲ |
|
|
|
| ¼ÒÀçÁö |
±¤ÁÖ±¤¿ª½Ã ±¤»ê±¸ ½Ö¾Ïµ¿ 672-2¹øÁö |
| ´ëÁö¸éÀû |
540.1§³(163.67Æò) |
¿¬¸éÀû |
3971.58§³(1203.51Æò) |
ÁÖ¿ëµµ |
¾÷¹«½Ã¼³ |
| °ÇÃà¸éÀû |
431.9§³(130.88Æò) |
¿ëÀû·ü»êÁ¤¿¬¸éÀû |
3554.71§³(1077.18Æò) |
Âø°øÀÏÀÚ |
2001.05.26 |
| °ÇÆóÀ² |
79.97% |
¿ëÀû·ü |
658.1% |
»ç¿ë½ÂÀÎÀÏÀÚ |
2002.04.11 |
| Áö»óÃþ¼ö |
10Ãþ |
ÁöÇÏÃþ¼ö |
1Ãþ |
±¸Á¶ |
ö°ñÄÜÅ©¸®Æ®±¸Á¶ |
°ÇÃ๰Ãþº°ÇöȲ [º¸±â]| Ãþº° | ±¸Á¶ | ¿ëµµ | ¸éÀû | | 1Ãþ | ö°ñÄÜÅ©¸®Æ®±¸Á¶ | ÀϹÝÀ½½ÄÁ¡&ÀÎÅͳÝÄÄÇ»ÅͰÔÀÓÁ¦°ø¾÷Àǽü³ | 401.1§³ (121.55Æò) | | 2Ãþ | ö°ñÄÜÅ©¸®Æ®±¸Á¶ | ¿ÀÇǽºÅÚ | 382.37§³ (115.87Æò) | | 3Ãþ | ö°ñÄÜÅ©¸®Æ®±¸Á¶ | ¿ÀÇǽºÅÚ | 382.37§³ (115.87Æò) | | 4Ãþ | ö°ñÄÜÅ©¸®Æ®±¸Á¶ | ¿ÀÇǽºÅÚ | 382.37§³ (115.87Æò) | | 5Ãþ | ö°ñÄÜÅ©¸®Æ®±¸Á¶ | ¿ÀÇǽºÅÚ | 382.37§³ (115.87Æò) | | 6Ãþ | ö°ñÄÜÅ©¸®Æ®±¸Á¶ | ¿ÀÇǽºÅÚ | 382.37§³ (115.87Æò) | | 7Ãþ | ö°ñÄÜÅ©¸®Æ®±¸Á¶ | ¿ÀÇǽºÅÚ | 382.37§³ (115.87Æò) | | 8Ãþ | ö°ñÄÜÅ©¸®Æ®±¸Á¶ | ¿ÀÇǽºÅÚ | 382.37§³ (115.87Æò) | | 9Ãþ | ö°ñÄÜÅ©¸®Æ®±¸Á¶ | ÈÞ°ÔÀ½½ÄÁ¡ | 382.37§³ (115.87Æò) | | 10Ãþ | ºí·Ï±¸Á¶ | ÀϹÝÀ½½ÄÁ¡ | 94.65§³ (28.68Æò) | | Áö1Ãþ | ö±ÙÄÜÅ©¸®Æ®±¸Á¶ | ´Ü¶õÁÖÁ¡ | 416.87§³ (126.32Æò) |
|
|
|
|
|
|
|
|
|
¸éÀû(§³), ±Ý¾×(¸¸¿ø)
| °è¾àÀÏ | ±âÁØ | °Ç¹°¸íĪ | Ãþ | Àü¿ë¸éÀû | °Å·¡±Ý¾× | °ÇÃà³âµµ | | °Å·¡³»¿ªÀÌ ¾ø½À´Ï´Ù. |
| °è¾àÀÏ | ±âÁØ | °Ç¹°¸íĪ | Ãþ | Àü¿ë¸éÀû | º¸Áõ±Ý | ¿ù¼¼ | °ÇÃà³âµµ | | 2025.10.16 | ¿ù¼¼ | (672-2) | 8 | 25.9 | 300 | 37 | 2002 | | 2025.09.25 | ¿ù¼¼ | (672-2) | 8 | 25.9 | 300 | 33 | 2002 | | 2025.08.29 | ¿ù¼¼ | (672-2) | 5 | 25.9 | 2,000 | 15 | 2002 | | 2025.08.27 | ¿ù¼¼ | (672-2) | 3 | 38.85 | 1,000 | 33 | 2002 | | 2025.06.19 | ¿ù¼¼ | (672-2) | 6 | 25.9 | 500 | 30 | 2002 | | 2025.06.11 | ¿ù¼¼ | (672-2) | 5 | 25.9 | 2,500 | 10 | 2002 | | 2025.05.17 | ¸Å¸Å | (672-2) | 5 | 25.9 | 3,330 | | 2002 | | 2025.04.24 | Àü¼¼ | (672-2) | 7 | 25.9 | 4,000 | 0 | 2002 | | 2025.04.04 | ¿ù¼¼ | (672-2) | 5 | 38.85 | 500 | 42 | 2002 | | 2025.04.01 | ¸Å¸Å | (672-2) | 8 | 25.9 | 4,000 | | 2002 | | 2025.04.01 | ¸Å¸Å | (672-2) | 4 | 25.9 | 4,000 | | 2002 | | 2025.04.01 | ¸Å¸Å | (672-2) | 4 | 25.9 | 4,000 | | 2002 | | 2025.02.27 | ¿ù¼¼ | (672-2) | 4 | 25.9 | 300 | 32 | 2002 | | 2025.02.24 | Àü¼¼ | (672-2) | 7 | 38.85 | 6,000 | 0 | 2002 | | 2025.02.20 | ¿ù¼¼ | (672-2) | 3 | 30.8 | 300 | 36 | 2002 | | 2025.02.15 | Àü¼¼ | (672-2) | 5 | 25.9 | 4,000 | 0 | 2002 | | 2025.02.13 | ¿ù¼¼ | (672-2) | 2 | 25.9 | 300 | 34 | 2002 | | 2025.02.05 | ¿ù¼¼ | (672-2) | 2 | 30.8 | 300 | 35 | 2002 | | 2025.01.21 | ¿ù¼¼ | (672-2) | 3 | 38.85 | 300 | 35 | 2002 | | 2025.01.11 | Àü¼¼ | (672-2) | 4 | 38.85 | 5,500 | 0 | 2002 | | 2024.12.19 | ¿ù¼¼ | (672-2) | 3 | 25.9 | 300 | 30 | 2002 | | 2024.12.11 | ¿ù¼¼ | (672-2) | 4 | 25.9 | 300 | 30 | 2002 | | 2024.09.01 | ¿ù¼¼ | (672-2) | 2 | 25.9 | 300 | 35 | 2002 | | 2024.07.01 | ¿ù¼¼ | (672-2) | 6 | 25.9 | 200 | 28 | 2002 | | 2024.04.07 | ¸Å¸Å | (672-2) | 6 | 25.9 | 3,500 | | 2002 | | 2024.03.11 | ¿ù¼¼ | (672-2) | 2 | 38.85 | 1,500 | 30 | 2002 | | 2024.02.18 | Àü¼¼ | (672-2) | 3 | 38.85 | 5,500 | 0 | 2002 | | 2024.01.21 | ¿ù¼¼ | (672-2) | 6 | 25.9 | 200 | 30 | 2002 | | 2024.01.18 | ¿ù¼¼ | (672-2) | 8 | 25.9 | 200 | 32 | 2002 |
|
|
|
 |
ÀÓÂ÷³»¿ª |
[¹è´ç¿ä±¸Á¾±âÀÏ : 2025/01/06] |
|
|
| ÀÓÂ÷ÀÎ |
Á¡À¯°ü°è |
ÀüÀÔÀÏÀÚ |
È®Á¤ÀÏÀÚ |
¹è´ç¿ä±¸ÀÏ |
º¸Áõ±Ý/Â÷ÀÓ |
´ëÇ׿ä°Ç |
ºñ°í |
| ÀåOO |
|
2020.06.12 |
|
|
|
O |
|
|
|
|
 |
Áö¿ªºÐ¼® |
|
|
|
|
| ÁöÇÏö |
|
Çб³ |
|
| °ü°ø¼ |
|
| ¹ý¿ø |
±¤ÁÖÁö¹æ¹ý¿ø (614-41)±¤ÁÖ±¤¿ª½Ã µ¿±¸ Áعý·Î 7-12(Áö»ê2µ¿) ´ëÇ¥ : 062)239-1114 ±¤ÁÖ±¤¿ª½Ã, ³ªÁÖ½Ã, ȼø±º, À强±º, ´ã¾ç±º, °î¼º±º, ¿µ±¤±º |
| µî±â¼Ò |
±¤ÁÖÁö¹æ¹ý¿ø º»¿ø µî±â±¹ (´ëÇ¥:1544-0773, ÆÑ½º:(062)381-0856, 381-0876, ±¤ÁÖ±¤¿ª½Ã ¼±¸ ½Ãû·Î 106 (Ä¡Æòµ¿ 1205)) |
| ¼¼¹«¼ |
¼±¤ÁÖ¼¼¹«¼ (´ëÇ¥:062-380-52, ÆÑ½º:062-716-7260, ±¤ÁÖ±¤¿ª½Ã ¼±¸ »ó¹«¹ÎÁÖ·Î 6¹ø±æ 31(½ÖÃ̵¿)) |
|
|
|
 |
¹ý¿ø ¹°°ÇÀÚ·á ¿ä¾à |
|
|
|
|
| ¼Ò¸êµÇÁö ¾Ê´Â µî±âºÎ±Ç¸® |
|
| ¼³Á¤µÈ °ÍÀ¸·Î º¸´Â Áö»ó±Ç |
|
| ¹ý¿øÀÚ·á Æ¯ÀÌ»çÇ× |
[ÁÖ¿ä ¹®°Ç Á¢¼ö ³»¿ª]
|
[¸Å°¢¹°°Ç¸í¼¼¼ ºñ°í¶õ]
-ÇöȲÀçÁ¶»çº¸°í¼¿¡ ÀÇÇϸé, ÀÓÂ÷ÀÎÀº ÀÔÁֽúÎÅÍ ÇöÀç±îÁö °ü¸®ºñ ¿¬Ã¼ÁßÀ̶ó°íÇÔ |
|
| ¿©ÀÇÁÖ°æ¸Å Á¶¾ð ÇѸ¶µð |
ÀÌ ºÎµ¿»êÀÇ ÀÔÂû¹ý¿øÀº ±¤ÁÖÁö¹æ¹ý¿øÀÔ´Ï´Ù.
ÀÔÂûÀÏÀº 2025-12-10ÀÔ´Ï´Ù.
ÀÔÂû½Ã°£Àº ~11:10ÀÔ´Ï´Ù. ÀÌ ¹ý¿ø¿¡´Â ±¤ÁÖÀºÇà,½ÅÇÑÀºÇàÀÌ ÀÔÁ¡Çϰí ÀÖ½À´Ï´Ù.
|
µ¿½Ã¹è´ç µÉ ¼ö ÀÖ½À´Ï´Ù. º» °ÇÀº ¿©·¯ °³ÀÇ ºÎµ¿»ê¿¡ Àú´ç±ÇÀÌ ¼³Á¤µÇ¾î ÀÖ´Â ºÎµ¿»êÀ» ºÐÇÒÇÏ¿© °æ¸Å°¡ ÁøÇà µÇ´Â ¹°°ÇÀÔ´Ï´Ù. ÀÌ·± °æ¿ì ÇϳªÀÇ »ç°Ç¹øÈ£¿¡ ¿©·¯ °³ÀÇ ¹°°Ç¹øÈ£¸¦ ºÙ¿© °æ¸Å¸¦ ÇÏ°Ô µÇ´Â µ¥, ³«Âû½ÃÁ¡ÀÌ ºü¸£´õ¶óµµ ¹è´çÀº ÃÖÈÄ¿¡ ³«ÂûµÈ ´Ù¸¥ ¹°°Ç°ú µ¿½Ã¿¡ ÀÌ·ç¾î Áú °¡´É¼ºÀÌ ÀÖ½À´Ï´Ù. |
|
|
| Åë°è±â°£ |
³«Âû¹°°Ç¼ö |
Æò±Õ°¨Á¤°¡ |
Æò±Õ³«Âû°¡ |
³«Âû°¡À² |
À¯ÂûȽ¼ö |
| 3°³¿ù |
4°Ç |
133,000,000¿ø |
115,988,750¿ø |
85% |
1ȸ |
| 6°³¿ù |
4°Ç |
133,000,000¿ø |
115,988,750¿ø |
85% |
1ȸ |
| 12°³¿ù |
4°Ç |
133,000,000¿ø |
115,988,750¿ø |
85% |
1ȸ |
|
|
|
|
|
|
 |
|