|
|
| ¼ÒÀçÁö |
¼¿ïƯº°½Ã °ü¾Ç±¸ ½Å¸²µ¿5°¡±æ 13, 5Ãþ508È£ (½Å¸²µ¿,žç¿ÀÇǽºÅÚ)
±¸)¼¿ïƯº°½Ã °ü¾Ç±¸ ½Å¸²µ¿ 1437-19
|
|
| »ç°Ç¹øÈ£ |
2025 Ÿ°æ 100815 |
¹°°Ç¹øÈ£ |
1
|
¹°°Ç¿ëµµ |
´Ù¼¼´ë,ºô¶ó |
| °¨Á¤Æò°¡¾× |
205,000,000¿ø |
°æ¸Å´ë»ó |
ÅäÁö ¹× °Ç¹°Àϰý ¸Å°¢ |
ÁøÇà»óÅ |
À¯Âû |
| ÃÖÀúÀÔÂû°¡ |
(51%) 104,960,000¿ø
|
°Ç¹°¸éÀû |
11.50§³(3.48Æò) |
ÀÔÂû±âÀÏ |
2025.12.09(È) 10:00
(ÀÔÂû 12ÀÏÀü)
|
| ÀÔÂûº¸Áõ±Ý |
(10%) 10,496,000¿ø |
ÅäÁö¸éÀû |
5.79§³(1.75Æò)
|
À¯ÂûȽ¼ö |
3ȸ |
| ÀÔÂû¹ý¿ø |
¼¿ïÁß¾ÓÁö¹æ¹ý¿ø |
°æ¸Å¹æ¹ý |
|
¹°°ÇÁ¶È¸¼ö |
¿À´Ã: 3ȸ [´©Àû: 27ȸ]
|
| ¸»¼Ò±âÁØ | ÃÖ¼±¼øÀ§ ¼³Á¤ : 2025. 01. 10. °æ¸Å°³½Ã°á ¼³Á¤ Á¤
|
|
|
|
|
|
|
|
|
|
|
°æ¸Å´ë»ó ¸ñ·Ï
|
|
| ±¸ºÐ |
¸ñ·Ï |
ÁÖ¼Ò |
±¸Á¶/¿ëµµ/´ëÁö±Ç |
ºñ°í |
´ëÁö±Ç
|
1 |
½Å¸²µ¿ 1437-19 |
379.8ºÐÀÇ 5.791 |
5.791§³ (1.75Æò)
|
°Ç¹°
|
1 |
½Å¸²µ¿ 1437-19 |
5Ãþ508È£ ö±ÙÄÜÅ©¸®Æ®±¸Á¶ |
11.5§³ (3.48Æò)
|
|
|
|
2025-08-12
À¯Âû
|
(100%)
205,000,000¿ø
|
|
|
|
2025-09-16
À¯Âû
|
(80%)
164,000,000¿ø
|
|
|
|
2025-10-21
À¯Âû
|
(64%)
131,200,000¿ø
|
|
|
|
2025-12-09
ÁøÇà
|
(51%)
104,960,000¿ø
|
|
|
|
|
|
°¨Á¤Æò°¡¼ ¿ä¾à |
|
[À§Ä¡/ÁÖÀ§È¯°æ]
º»°ÇÀº ¼¿ïƯº°½Ã °ü¾Ç±¸ ½Å¸²µ¿ ¼ÒÀç "½Å¸²¿ª" ºÏ¼Ãø Àαٿ¡ À§Ä¡Çϸç, ÁÖÀ§´Â ¾ÆÆÄÆ® ¹× ¿ÀÇǽºÅÚ, ´Ù¼¼´ëÁÖÅÃ, °ø¿ø, Çб³, °ü°ø¼, ±Ù¸°»ýȰ½Ã¼³ µîÀÌ È¥ÀçÇÏ´Â Áö¿ªÀ¸·Î¼ Á¦¹Ý ÁÖÀ§È¯°æÀº º¸ÅëÀÓ.
[±³Åë»óȲ]
º»°Ç±îÁö Â÷·®ÀÇ ÃâÀÔÀÌ °¡´ÉÇϸç. Àαٿ¡ ³ë¼±¹ö½ºÁ¤·ùÀå ¹× "½Å¸²¿ª"ÀÌ ¼ÒÀçÇÏ´Â µî Á¦¹Ý ±³Åë¿©°ÇÀº ¾çÈ£ÇÔ.
[°Ç¹°±¸Á¶]
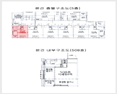
ö±ÙÄÜÅ©¸®Æ®±¸Á¶ Æò½º¶óºêÁöºØ ÁöÇÏ1Ãþ/Áö»ó8Ãþ °Ç¹° ³» Á¦5Ãþ Á¦508È£·Î¼.
(»ç¿ë½ÂÀÎÀÏ: 2021.01.28)
¿Üº®: ¼®Àç Ä¡Àå ¸¶°¨ µî
âȣ: ¼¦½Ã âȣ µîÀÓ..
[ÀÌ¿ë»óÅÂ]
´Ù¼¼´ëÁÖÅÃÀ¸·Î ÀÌ¿ëÁßÀÓ.(ÈÄ÷ ³»ºÎ±¸Á¶µµ ÂüÁ¶)
[¼³ºñ³»¿ª]
À§»ý¼³ºñ ¹× ±Þ¹è¼ö¼³ºñ, µµ½Ã°¡½º¿¡ ÀÇÇÑ °³º°³¹æ¼³ºñ. ½Â°±â¼³ºñ,¼ÒȰü·Ã ¼³ºñ,ÁÖÂ÷Àå¼³ºñ µîÀÌ ±¸ºñµÇ¾î ÀÖÀ½.
[ÅäÁöÇü»ó/ÀÌ¿ë»óÅÂ]
ÀÎÁ¢µµ·Î ¹× ÀÎÁ¢ÅäÁö¿Í ´ëü·Î µî°í ÆòźÇÑ »ç´Ù¸®Çü ÅäÁö·Î¼, ¿ÀÇǽºÅÚ ¹× ´Ù¼¼´ëÁÖÅà ¿ëµµÀÇ °ÇºÎÁö·Î ÀÌ¿ëÁßÀÓ.
7)ÀÎÁ¢ µµ·Î»óŵî
º»°Ç ºÏÃøÀ¸·Î ³ëÆø ¾à 6mÀÇ Æ÷Àåµµ·Î¿Í Á¢ÇÔ.
[ÅäÁöÀÌ¿ë°èȹ]
µµ½ÃÁö¿ª, ÁØÁÖ°ÅÁö¿ª, Áö±¸´ÜÀ§°èȹ±¸¿ª(2024-04-11), ¼Ò·Î3·ù(Æø 8m ¹Ì¸¸)(Á¢ÇÕ) °¡Ãà»çÀ°Á¦Çѱ¸¿ª£¼°¡ÃàºÐ´¢ÀÇ °ü¸® ¹× À̿뿡 °üÇÑ ¹ý·ü£¾, ´ë°ø¹æ¾îÇùÁ¶±¸¿ª(À§Å¹°íµµ:194m)£¼±º»ç±âÁö ¹× ±º»ç½Ã¼³ º¸È£¹ý£¾, °ú¹Ð¾ïÁ¦±Ç¿ª£¼¼öµµ±ÇÁ¤ºñ°èȹ¹ý£¾
[°øºÎ¿ÍÀÇ Â÷ÀÌ]
-
[Âü°í»çÇ×]
ÀÓ´ë°ü°è ¹Ì»óÀÓ.
º»°Ç ÇöÀåÁ¶»ç½Ã¿¡ ÀÌÇØ°ü°èÀÎÀÇ Æó¹®ºÎÀç·Î ³»ºÎÈ®ÀÎÀÌ ºÒ°¡´ÉÇÏ¿© ÈÄ÷ ³»ºÎ±¸Á¶µµ´Â ÁýÇÕ°ÇÃ๰´ëÀå»óÀÇ °ÇÃ๰ÇöȲµµ¿¡Àǰеµ½ÃÇÏ¿´À¸´Ï Âü°í¹Ù¶ó¸ç, °æ¸ÅÁøÇà½Ã ÀçÈ®ÀÎÀ» ¿äÇÕ´Ï´Ù. |
|
|
°ÇÃ๰ÇöȲ |
|
|
|
| ¼ÒÀçÁö |
¼¿ïƯº°½Ã °ü¾Ç±¸ ½Å¸²µ¿ 1437-19¹øÁö |
| ´ëÁö¸éÀû |
379.8§³(115.09Æò) |
¿¬¸éÀû |
1416.04§³(429.1Æò) |
ÁÖ¿ëµµ |
°øµ¿ÁÖÅà |
| °ÇÃà¸éÀû |
196.56§³(59.56Æò) |
¿ëÀû·ü»êÁ¤¿¬¸éÀû |
1138.08§³(344.87Æò) |
Âø°øÀÏÀÚ |
2020.03.09 |
| °ÇÆóÀ² |
51.75% |
¿ëÀû·ü |
299.65% |
»ç¿ë½ÂÀÎÀÏÀÚ |
2021.01.28 |
| Áö»óÃþ¼ö |
8Ãþ |
ÁöÇÏÃþ¼ö |
1Ãþ |
±¸Á¶ |
ö±ÙÄÜÅ©¸®Æ®±¸Á¶ |
°ÇÃ๰Ãþº°ÇöȲ [º¸±â]| Ãþº° | ±¸Á¶ | ¿ëµµ | ¸éÀû | | 1Ãþ | ö±ÙÄÜÅ©¸®Æ®±¸Á¶ | °è´Ü½Ç | 16.36§³ (4.96Æò) | | 1Ãþ | ö±ÙÄÜÅ©¸®Æ®±¸Á¶ | ±â°è½Ä ÁÖÂ÷Àå | 55.5§³ (16.82Æò) | | 1Ãþ | ö±ÙÄÜÅ©¸®Æ®±¸Á¶ | ÇÊ·ÎÆ¼ ÁÖÂ÷Àå/A.V | 124.7§³ (37.79Æò) | | 2Ãþ | ö±ÙÄÜÅ©¸®Æ®±¸Á¶ | »ç¹«¼Ò | 180.65§³ (54.74Æò) | | 2Ãþ | ö±ÙÄÜÅ©¸®Æ®±¸Á¶ | Åë½Å½Ç | 14.52§³ (4.4Æò) | | 3Ãþ | ö±ÙÄÜÅ©¸®Æ®±¸Á¶ | ¿ÀÇǽºÅÚ | 189.89§³ (57.54Æò) | | 4Ãþ | ö±ÙÄÜÅ©¸®Æ®±¸Á¶ | ¿ÀÇǽºÅÚ | 189.89§³ (57.54Æò) | | 5Ãþ | ö±ÙÄÜÅ©¸®Æ®±¸Á¶ | ´Ù¼¼´ëÁÖÅà | 143.26§³ (43.41Æò) | | 6Ãþ | ö±ÙÄÜÅ©¸®Æ®±¸Á¶ | ´Ù¼¼´ëÁÖÅà | 143.26§³ (43.41Æò) | | 7Ãþ | ö±ÙÄÜÅ©¸®Æ®±¸Á¶ | ´Ù¼¼´ëÁÖÅà | 142.83§³ (43.28Æò) | | 8Ãþ | ö±ÙÄÜÅ©¸®Æ®±¸Á¶ | ´Ù¼¼´ëÁÖÅà | 117.42§³ (35.58Æò) | | ¿Áž1Ãþ | ö±ÙÄÜÅ©¸®Æ®±¸Á¶ | °è´Ü½Ç | 12.04§³ (3.65Æò) | | Áö1 | ö±ÙÄÜÅ©¸®Æ®±¸Á¶ | ±â°è½Ä ÁÖÂ÷Àå | 149.88§³ (45.42Æò) | | Áö1 | ö±ÙÄÜÅ©¸®Æ®±¸Á¶ | °è´Ü½Ç | 9.24§³ (2.8Æò) | | Áö1 | ö±ÙÄÜÅ©¸®Æ®±¸Á¶ | ±â°è½Ç | 63.34§³ (19.19Æò) |
|
|
|
|
|
|
|
|
|
¸éÀû(§³), ±Ý¾×(¸¸¿ø)
| °è¾àÀÏ | ±âÁØ | °Ç¹°¸íĪ | Ãþ | ¿¬¸éÀû | ´ëÁö¸éÀû | °Å·¡±Ý¾× | °ÇÃà³âµµ | | 2024.03.30 | ¸Å¸Å | ±ÃÀü¿¡¹öºô(713-6) | 3 | 37.98 | 18.01 | 18,100 | 2003 | | 2024.03.29 | ¸Å¸Å | Çϳª¾ÆÆ®ºô¶ó | 2 | 46.86 | 22.92 | 19,000 | 2002 | | 2024.03.27 | ¸Å¸Å | µ¨·ç½Ã¾Æ.R | 3 | 29.945 | 24.09 | 29,000 | 2022 | | 2024.03.27 | ¸Å¸Å | ¼º°ÄÉ·»½Ã¾Æ | 2 | 52.26 | 36.23 | 32,000 | 2018 | | 2024.03.27 | ¸Å¸Å | ¿î¼¸Ç¼Ç(°¡) | 1 | 62.97 | 32.22 | 34,500 | 2002 | | 2024.03.25 | ¸Å¸Å | ûdzºô¶óÆ® | 2 | 49.75 | 22.52 | 22,000 | 2000 | | 2024.03.25 | ¸Å¸Å | ¸ÞÆ®·ÎŸ¿î6Â÷ | 4 | 46.59 | 27.24 | 36,000 | 2017 | | 2024.03.25 | ¸Å¸Å | ¸ÞÆ®·ÎŸ¿î6Â÷ | 4 | 46.59 | 27.24 | 36,000 | 2017 | | 2024.03.24 | ¸Å¸Å | ¾çÁöºô¶ó(408-163) | 1 | 43.67 | 29.46 | 24,500 | 1986 | | 2024.03.24 | ¸Å¸Å | º¸Àκô¶ó | 2 | 48.18 | 20.22 | 24,000 | 1991 | | 2024.03.23 | ¸Å¸Å | »ï¿ìÁÖÅÃ(86-26) | 2 | 40.35 | 40.58 | 22,000 | 1991 | | 2024.03.23 | ¸Å¸Å | ´ë¾çºô¶ó(610-49) | 3 | 36.33 | 20.63 | 16,500 | 1993 | | 2024.03.23 | ¸Å¸Å | ¾ÆÆ®ºôÇϿ콺2Â÷ | 2 | 47.27 | 27.1875 | 32,500 | 2011 | | 2024.03.23 | ¸Å¸Å | Å¿µ¾ÆÆ®ºô | 4 | 41.96 | 33.63 | 29,500 | 2016 | | 2024.03.22 | ¸Å¸Å | À¯¿£ºô¸®Áö(10-394) | -1 | 26.03 | 14.56 | 10,000 | 2000 | | 2024.03.22 | ¸Å¸Å | (1556-35) | 1 | 50.22 | 29.24 | 25,800 | 1993 | | 2024.03.22 | ¸Å¸Å | ÆÄÅ©¸Ç¼Ç | 4 | 74.03 | 24.6 | 31,500 | 2002 | | 2024.03.20 | ¸Å¸Å | »ï¹Ì¾ÆÆ®ºô(1661-9) | 3 | 44.76 | 27.696 | 30,500 | 2015 | | 2024.03.20 | ¸Å¸Å | À̾îºô¶ó | -1 | 61.32 | 37.047 | 32,000 | 1997 | | 2024.03.20 | ¸Å¸Å | ´ëÁÖ½¦¸£ºô | 4 | 44.7 | 29.31 | 12,000 | 2003 | | 2024.03.19 | ¸Å¸Å | ´ë½Å¾ÆÆ®ºô6Â÷ | 5 | 53.42 | 26.56 | 28,000 | 2003 | | 2024.03.18 | ¸Å¸Å | Çöó³ë | 4 | 29.99 | 20.6638 | 40,000 | 2024 | | 2024.03.16 | ¸Å¸Å | ·Î¾âÇÏÀÌÃ÷ | 3 | 31.07 | 17.62 | 18,300 | 2016 | | 2024.03.16 | ¸Å¸Å | 651-23 | 2 | 25.07 | 19.246 | 20,500 | 2016 | | 2024.03.15 | ¸Å¸Å | ¿ì¼®ºô¶ó5Â÷ | 1 | 39.63 | 17.48 | 11,800 | 1993 | | 2024.03.14 | ¸Å¸Å | ¾Æµ¨¸®¿ò3Â÷ | 2 | 42.15 | 24.9073 | 30,000 | 2014 | | 2024.03.14 | ¸Å¸Å | ÀÌȺô | 3 | 77.64 | 39.55 | 33,500 | 2002 | | 2024.03.13 | ¸Å¸Å | CG¾Æ¸§Ã¤(1´ÜÁö) | 5 | 26.83 | 17.53 | 27,500 | 2019 | | 2024.03.12 | ¸Å¸Å | (652-134) | 2 | 43.77 | 44.6 | 19,000 | 1981 | | 2024.03.12 | ¸Å¸Å | ±¤¿ìºô¶ó | 1 | 44.97 | 36.77 | 25,800 | 1991 | | 2024.03.12 | ¸Å¸Å | Çö´ë·Î¾âºô¶ó | 2 | 52.41 | 36.1 | 21,700 | 1991 | | 2024.03.12 | ¸Å¸Å | (87-44) | -1 | 45.36 | 33.97 | 15,000 | 1989 | | 2024.03.12 | ¸Å¸Å | (1505-4) | 2 | 40.8 | 20.45 | 20,000 | 2002 | | 2024.03.11 | ¸Å¸Å | (652-134) | 2 | 43.77 | 44.6 | 19,000 | 1981 | | 2024.03.09 | ¸Å¸Å | ¸ÞÆ®·ÎŸ¿î4Â÷ | 4 | 29.8 | 19.4301 | 27,000 | 2017 | | 2024.03.09 | ¸Å¸Å | ±¹Á¦¾Ë¾Øµå¾¾ | 4 | 28.58 | 17.76 | 26,000 | 2018 | | 2024.03.08 | ¸Å¸Å | (652-134) | 2 | 43.77 | 44.6 | 15,600 | 1981 | | 2024.03.07 | ¸Å¸Å | ¿¡µ§ºô | 2 | 37.51 | 30.96 | 33,000 | 2016 | | 2024.03.07 | ¸Å¸Å | żºÈÞºô3Â÷ | 5 | 33.76 | 21.81 | 30,000 | 2015 | | 2024.03.05 | ¸Å¸Å | (685-74) | 3 | 54.61 | 32.46 | 20,000 | 1991 | | 2024.03.04 | ¸Å¸Å | ÇÁ·¹¹Ì¿À(PREMIO)725Bµ¿ | 7 | 27.5 | 12.612 | 23,700 | 2016 | | 2024.03.04 | ¸Å¸Å | ¸®¹öÆÄÅ© | 8 | 52.66 | 18.4082 | 44,700 | 2015 | | 2024.03.03 | ¸Å¸Å | ±Û·Î¸®ÇϿ콺 | 2 | 24.11 | 16.23 | 27,000 | 2023 | | 2024.03.02 | ¸Å¸Å | CG¾Æ¸§Ã¤(2´ÜÁö) | 2 | 31.63 | 21.04 | 30,000 | 2019 | | 2024.03.01 | ¸Å¸Å | »ï¹Ì¾ÆÆ®ºô(1661-9) | 2 | 44.76 | 27.696 | 28,000 | 2015 | | 2024.03.01 | ¸Å¸Å | µ¿¼¸®Ä¡ºôµù | 6 | 84.76 | 22.7 | 55,700 | 1998 | | 2024.02.29 | ¸Å¸Å | ¼ºÀÏÁÖÅà | 4 | 53.02 | 26.535 | 24,900 | 2001 | | 2024.02.28 | ¸Å¸Å | ¼ºº¸ºô¶ó | 3 | 67.5 | 41.68 | 30,500 | 1990 | | 2024.02.28 | ¸Å¸Å | ±â¼öºô¶ó | 1 | 39.38 | 16.61 | 15,000 | 1993 | | 2024.02.27 | ¸Å¸Å | Æò°¾ÆÆ®È¨ | -1 | 40.46 | 18.48 | 15,050 | 1993 | | 2024.02.27 | ¸Å¸Å | (99-23) | 3 | 36.31 | 25.598 | 16,000 | 2011 | | 2024.02.27 | ¸Å¸Å | ºê¶ó¿îij½½(598-284) | 2 | 38.68 | 25.15 | 25,000 | 2013 | | 2024.02.24 | ¸Å¸Å | ÇѼֺô¶óÆ® | 2 | 50.98 | 24.49 | 28,500 | 1997 | | 2024.02.24 | ¸Å¸Å | ¾ÆÆ®ºô(526-5) | 3 | 60.4 | 32.6 | 34,500 | 2009 | | 2024.02.24 | ¸Å¸Å | ´ë¿ìºô¶ó | 3 | 46.38 | 19.43 | 26,000 | 1993 | | 2024.02.23 | ¸Å¸Å | µ¿¼º¸Ç¼Ç5Â÷ | 2 | 47.88 | 23.69 | 17,000 | 1996 | | 2024.02.22 | ¸Å¸Å | CG¾Æ¸§Ã¤ | 2 | 36.34 | 20.27 | 30,500 | 2019 | | 2024.02.22 | ¸Å¸Å | ¾Ö½Ã¾È4Â÷ | 5 | 41.86 | 24.26 | 32,500 | 2012 | | 2024.02.22 | ¸Å¸Å | ½ÅÈïºô¶ó3Â÷ | 1 | 35.91 | 27.1 | 17,000 | 1990 | | 2024.02.21 | ¸Å¸Å | ¼ºÁø¸®Ä¡ºô | 2 | 28.26 | 20.27 | 21,000 | 2020 | | 2024.02.20 | ¸Å¸Å | »ï¿À¾ÆÆ®ºô(Bµ¿) | 3 | 31.26 | 17.6 | 17,300 | 2002 | | 2024.02.17 | ¸Å¸Å | ÀÌȺô | 5 | 67.75 | 34.41 | 32,900 | 2002 | | 2024.02.17 | ¸Å¸Å | ¿¡½ºµðÇ÷¯½º¾ÆÅ©·Îºô | 5 | 39.97 | 17.58 | 33,700 | 2015 | | 2024.02.16 | ¸Å¸Å | ½Å¾Èºô¶óB | 2 | 70.56 | 49.67 | 19,000 | 1991 | | 2024.02.16 | ¸Å¸Å | ¼º±¤ºô¶óÆ®Bµ¿(500-5) | -1 | 69.83 | 38.312 | 26,300 | 1994 | | 2024.02.15 | ¸Å¸Å | ´õÁöÀ½ | 5 | 27.57 | 16.54 | 32,780 | 2023 | | 2024.02.14 | ¸Å¸Å | »ï¼º¾ÆÆ®ºô(306-51) | 4 | 66.72 | 35.09 | 27,600 | 2004 | | 2024.02.14 | ¸Å¸Å | CG¾Æ¸§Ã¤(1´ÜÁö) | 3 | 55.44 | 36.22 | 37,000 | 2019 | | 2024.02.14 | ¸Å¸Å | ¸®Ä¡Èú(750-27) | 5 | 43.83 | 26.15 | 30,500 | 2016 | | 2024.02.14 | ¸Å¸Å | Á¶À̺ô¸®Áö | 3 | 31.55 | 26.78 | 25,000 | 2018 | | 2024.02.14 | ¸Å¸Å | CG¾Æ¸§Ã¤(1´ÜÁö) | 2 | 29.29 | 19.13 | 27,000 | 2019 | | 2024.02.14 | ¸Å¸Å | CG¾Æ¸§Ã¤(2´ÜÁö) | 2 | 29.7 | 19.75 | 27,100 | 2019 | | 2024.02.13 | ¸Å¸Å | (94-29) | 3 | 29.47 | 15.83 | 26,400 | 2018 | | 2024.02.13 | ¸Å¸Å | ¼ö¿¡µå¿ø | 7 | 26.69 | 9.06 | 26,000 | 2016 | | 2024.02.12 | ¸Å¸Å | ÇØÇǽ¦¸£ºô | 3 | 52.39 | 30.38 | 26,000 | 2012 | | 2024.02.10 | ¸Å¸Å | À¯¿£ºô¸®Áö(10-394) | -1 | 26.03 | 14.56 | 15,600 | 2000 | | 2024.02.08 | ¸Å¸Å | ´ëÁÖ½¦¸£ºô | 5 | 40.26 | 26.39 | 13,000 | 2003 | | 2024.02.08 | ¸Å¸Å | À϶ôÇϿ콺 | 1 | 69.85 | 26.9 | 25,000 | 1994 | | 2024.02.07 | ¸Å¸Å | µ¿ºÎ¿¡À̽ººô | 3 | 41.46 | 27.18 | 24,600 | 2012 | | 2024.02.06 | ¸Å¸Å | ¾î¹ÝÆÓ¸®½º(103µ¿,105µ¿) | 5 | 29.73 | 18.7137 | 39,000 | 2017 | | 2024.02.06 | ¸Å¸Å | ¼¼ÇϺô¶óBµ¿ | -1 | 50.22 | 27.625 | 13,000 | 1993 | | 2024.02.05 | ¸Å¸Å | ½Å¸²µ¿Çϸ¶4Â÷ºô¶ó | -1 | 68.41 | 28.11 | 13,500 | 2001 | | 2024.02.05 | ¸Å¸Å | ±ÃÀü¿¡¹öºô3Â÷(711-38) | 2 | 47.02 | 34.7 | 31,000 | 2004 | | 2024.02.05 | ¸Å¸Å | ÁøÁÖ¸®Ã÷ºô(1490-21) | 2 | 45.17 | 27.76 | 31,700 | 2015 | | 2024.02.03 | ¸Å¸Å | ½ÅÈ¾ÆÆ®ºô | 4 | 45.69 | 22.97 | 20,500 | 2003 | | 2024.02.02 | ¸Å¸Å | ½Ö¿ëÇÁ¶óÀÓ(1481-6) | 2 | 38.87 | 24.44 | 31,000 | 2013 | | 2024.02.02 | ¸Å¸Å | ¿À¼º¿¬¸³ | 2 | 63.57 | 62.75 | 33,200 | 1978 | | 2024.02.01 | ¸Å¸Å | ´ë¼ººôµù | 4 | 52.56 | 21.19 | 30,500 | 1995 | | 2024.02.01 | ¸Å¸Å | µ¥½Ã¾Ó | 4 | 29.91 | 24.22 | 20,800 | 2015 | | 2024.01.31 | ¸Å¸Å | ¸ð´øÇϿ콺 | 5 | 26.82 | 15.5629 | 21,000 | 2019 | | 2024.01.31 | ¸Å¸Å | ´åÄÄÇϿ콺 | 3 | 84.67 | 37.87 | 44,000 | 2001 | | 2024.01.30 | ¸Å¸Å | µ¿¾Æ³ªµ¿ | 1 | 52.07 | 52.553 | 26,000 | 1982 | | 2024.01.30 | ¸Å¸Å | (251-236) | 3 | 29.9 | 20.828 | 15,200 | 2016 | | 2024.01.29 | ¸Å¸Å | ½Å¸²ºô¶ó(354-2) | 3 | 76.36 | 63.62 | 64,500 | 1984 | | 2024.01.27 | ¸Å¸Å | ¸ÞÆ®·ÎŸ¿î4Â÷ | 5 | 29.85 | 19.2398 | 26,000 | 2017 | | 2024.01.27 | ¸Å¸Å | ¸ÞÆ®·ÎŸ¿î4Â÷ | 5 | 29.85 | 19.2398 | 26,000 | 2017 | | 2024.01.25 | ¸Å¸Å | »õõ³âûdz | 2 | 50.58 | 22.36 | 21,650 | 2001 | | 2024.01.23 | ¸Å¸Å | ÀÚ¿¬Ã¤ | 2 | 29.91 | 16.5841 | 23,260 | 2013 | | 2024.01.22 | ¸Å¸Å | ¼ºÁöºô¶ó | -1 | 33.96 | 28.49 | 10,000 | 1991 | | 2024.01.19 | ¸Å¸Å | ¾î¹Ý | 2 | 37.28 | 23.31 | 31,400 | 2017 | | 2024.01.16 | ¸Å¸Å | ´ë¿¬ÇÏÀ̺ô(599-21) | 2 | 65.51 | 36.8341 | 35,500 | 2008 | | 2024.01.15 | ¸Å¸Å | ¿¡µ§ºô¶ó(610-25) | 5 | 68.94 | 34.582 | 29,000 | 2002 | | 2024.01.15 | ¸Å¸Å | Çѽźô¶ó | 1 | 32.56 | 22.92 | 13,500 | 1990 | | 2024.01.13 | ¸Å¸Å | ¿ìÇöÇÏ¿ì¡ | 5 | 50.94 | 32.2734 | 28,500 | 2012 | | 2024.01.13 | ¸Å¸Å | ´Ù¼Ø±×¶ûºôB | 2 | 31.4 | 26.0546 | 34,500 | 2022 | | 2024.01.13 | ¸Å¸Å | »ï¼ºÇì·»ÇϿ콺 | 1 | 33.17 | 23.28 | 28,500 | 2013 | | 2024.01.12 | ¸Å¸Å | ¿ìÇöÇÏ¿ì¡ | 5 | 50.94 | 32.2734 | 28,500 | 2012 | | 2024.01.12 | ¸Å¸Å | ¿¤½ÃƼ | 4 | 19.62 | 18.65 | 23,185 | 2013 | | 2024.01.12 | ¸Å¸Å | »ï»êºô¶ó | -1 | 45.18 | 25.356 | 15,000 | 1992 | | 2024.01.10 | ¸Å¸Å | »ïÇϺô¶ó(534-23) | 3 | 66.16 | 38.8 | 37,500 | 2003 | | 2024.01.09 | ¸Å¸Å | ½Å»çŸ¿îºô | 5 | 29.26 | 18.6223 | 27,000 | 2016 | | 2024.01.09 | ¸Å¸Å | 651-23 | 5 | 23.55 | 18.079 | 19,000 | 2016 | | 2024.01.08 | ¸Å¸Å | ¼º±¤ºô¶óÆ®Bµ¿(500-5) | 1 | 62.83 | 34.469 | 39,500 | 1994 | | 2024.01.08 | ¸Å¸Å | ´Ù¼Ø(1617-4) | 2 | 43.68 | 28.69 | 36,000 | 2015 | | 2024.01.07 | ¸Å¸Å | ¿ì¼ººô¶ó(597-98) | 2 | 47.88 | 31.91 | 15,000 | 1991 | | 2024.01.06 | ¸Å¸Å | ½Å¸²µ¿(412-180) | 2 | 31.26 | 18.75 | 26,500 | 1991 | | 2024.01.06 | ¸Å¸Å | Çѳª·¡(756-55) | 5 | 56.94 | 35.125 | 33,000 | 2015 | | 2024.01.06 | ¸Å¸Å | ų²ºô¶ó | 2 | 52.27 | 29.3 | 20,100 | 1991 | | 2024.01.05 | ¸Å¸Å | °ÇÈ«¾ÆÆ®ºô¶ó | -1 | 59.74 | 31.87 | 24,800 | 1994 | | 2024.01.05 | ¸Å¸Å | ¼º°ÄÉ·»½Ã¾Æ | 6 | 40.27 | 27.92 | 30,500 | 2018 | | 2024.01.04 | ¸Å¸Å | À¯¿£ºô¸®Áö(10-394) | -1 | 26.03 | 14.56 | 8,500 | 2000 | | 2024.01.04 | ¸Å¸Å | µ¿¼ÁÖÅà | 3 | 42.12 | 19.94 | 27,750 | 2000 | | 2024.01.03 | ¸Å¸Å | STAY¿Â-¥² | 7 | 26.05 | 13.5 | 29,800 | 2023 | | 2024.01.03 | ¸Å¸Å | STAY¿Â-¥² | 5 | 26.05 | 13.5 | 29,500 | 2023 | | 2024.01.03 | ¸Å¸Å | STAY¿Â-¥² | 6 | 27.84 | 14.43 | 31,850 | 2023 | | 2024.01.03 | ¸Å¸Å | STAY¿Â-¥² | 6 | 26.65 | 13.82 | 30,350 | 2023 | | 2024.01.03 | ¸Å¸Å | STAY¿Â-¥² | 6 | 26.05 | 13.5 | 29,800 | 2023 | | 2024.01.03 | ¸Å¸Å | STAY¿Â-¥² | 4 | 26.05 | 13.5 | 29,500 | 2023 | | 2024.01.03 | ¸Å¸Å | STAY¿Â-¥² | 5 | 27.84 | 14.43 | 31,550 | 2023 | | 2024.01.03 | ¸Å¸Å | ±×¸°¸Ç¼Ç | 2 | 49.96 | 41.375 | 27,300 | 2013 | | 2024.01.03 | ¸Å¸Å | STAY¿Â-¥² | 6 | 26.09 | 13.53 | 30,350 | 2023 | | 2024.01.03 | ¸Å¸Å | STAY¿Â-¥² | 4 | 26.65 | 13.82 | 30,000 | 2023 | | 2024.01.03 | ¸Å¸Å | STAY¿Â-¥² | 7 | 26.09 | 13.53 | 30,350 | 2023 | | 2024.01.03 | ¸Å¸Å | STAY¿Â-¥² | 4 | 27.84 | 14.43 | 31,550 | 2023 | | 2024.01.03 | ¸Å¸Å | ÆÄÅ©¸Ç¼Ç | 2 | 82.54 | 36.6 | 34,500 | 2002 | | 2024.01.03 | ¸Å¸Å | STAY¿Â-¥² | 5 | 26.09 | 13.53 | 30,000 | 2023 | | 2024.01.03 | ¸Å¸Å | STAY¿Â-¥² | 5 | 26.65 | 13.82 | 30,000 | 2023 | | 2024.01.03 | ¸Å¸Å | STAY¿Â-¥² | 7 | 27.84 | 14.43 | 31,850 | 2023 | | 2024.01.03 | ¸Å¸Å | STAY¿Â-¥² | 4 | 26.09 | 13.53 | 30,000 | 2023 | | 2024.01.03 | ¸Å¸Å | STAY¿Â-¥² | 7 | 26.65 | 13.82 | 30,350 | 2023 | | 2024.01.02 | ¸Å¸Å | Àå¹ÌÁ¤¿ø(1564-31) | 3 | 24.58 | 18.398 | 15,700 | 2014 | | 2024.01.02 | ¸Å¸Å | Àå¹ÌÁ¤¿ø(1564-31) | 1 | 25.37 | 18.99 | 15,300 | 2014 | | 2024.01.02 | ¸Å¸Å | Àå¹ÌÁ¤¿ø(1564-31) | 1 | 24.58 | 18.398 | 15,000 | 2014 | | 2024.01.02 | ¸Å¸Å | Àå¹ÌÁ¤¿ø(1564-31) | 2 | 24.58 | 18.398 | 15,700 | 2014 | | 2024.01.02 | ¸Å¸Å | Àå¹ÌÁ¤¿ø(1564-31) | 3 | 25.37 | 18.99 | 16,500 | 2014 | | 2024.01.02 | ¸Å¸Å | Àå¹ÌÁ¤¿ø(1564-31) | 4 | 44.22 | 33.104 | 25,300 | 2014 | | 2024.01.02 | ¸Å¸Å | Àå¹ÌÁ¤¿ø(1564-31) | 2 | 25.37 | 18.99 | 16,500 | 2014 |
| °è¾àÀÏ | ±âÁØ | °Ç¹°¸íĪ | Ãþ | ¿¬¸éÀû | º¸Áõ±Ý | ¿ù¼¼ | °ÇÃà³âµµ | | 2025.11.20 | ¿ù¼¼ | ¼¾Æ®·¹ºô(º») | 5 | 15.15 | 5,000 | 50 | 2018 | | 2025.11.20 | ¿ù¼¼ | »óÀººô¶ó | 1 | 56.59 | 10,000 | 52 | 2002 | | 2025.11.20 | ¿ù¼¼ | °ÅºÀSÇϿ콺½Å¸² | 4 | 39.15 | 2,871 | 30 | 2024 | | 2025.11.19 | ¿ù¼¼ | °ÅºÀ¾ÆÀ̾ؾ¾ | 6 | 29.41 | 2,205 | 23 | 2024 | | 2025.11.19 | ¿ù¼¼ | °ÅºÀ¾ÆÀ̾ؾ¾ | 3 | 29.55 | 2,214 | 23 | 2024 | | 2025.11.18 | ¿ù¼¼ | ÀÚÀÌÄŸºô | 4 | 29.97 | 10,000 | 20 | 2016 | | 2025.11.18 | Àü¼¼ | (545-23) | 4 | 45.29 | 29,000 | 0 | 2014 | | 2025.11.18 | Àü¼¼ | ¿¡µ§2Â÷ | 3 | 20.72 | 10,000 | 0 | 1991 | | 2025.11.17 | ¿ù¼¼ | ½Å¸²Å¸¿ö | 3 | 45.34 | 2,000 | 50 | 1992 | | 2025.11.17 | ¿ù¼¼ | (1430-27) | 4 | 83.18 | 28,000 | 25 | 2001 | | 2025.11.17 | ¿ù¼¼ | °ÅºÀ¾ÆÀ̾ؾ¾ | 2 | 40.7 | 2,925 | 30 | 2024 | | 2025.11.17 | ¿ù¼¼ | °ÅºÀ¾ÆÀ̾ؾ¾ | 2 | 37.81 | 2,781 | 29 | 2024 | | 2025.11.17 | ¸Å¸Å | ÆÈ·Î½º26 | 5 | 17.39 | 20,000 | | 2019 | | 2025.11.16 | Àü¼¼ | (1678-27) | 3 | 26.99 | 23,000 | 0 | 2025 | | 2025.11.16 | ¿ù¼¼ | ¼º¾Èºôµù(1667-1) | 5 | 23.05 | 15,000 | 12 | 2014 | | 2025.11.15 | ¿ù¼¼ | Áø¿ìºô¶ó | 2 | 35.72 | 11,000 | 6 | 2002 | | 2025.11.15 | ¿ù¼¼ | °Ç¿µºô¶ó(90-1) | 3 | 57.19 | 17,500 | 15 | 1995 | | 2025.11.14 | Àü¼¼ | Á¶¿ø°ñµçºô | 1 | 21.77 | 7,000 | 0 | 2011 | | 2025.11.14 | Àü¼¼ | ¸ÞÆ®·ÎŸ¿î6Â÷ | 3 | 46.59 | 33,000 | 0 | 2017 | | 2025.11.14 | ¿ù¼¼ | ¾ÆÁöÆ®(1432-51) | 9 | 27.98 | 22,900 | 30 | 2018 | | 2025.11.14 | ¸Å¸Å | ´ë»óÇÏÀÌÃ÷ºô | 4 | 48.13 | 22,500 | | 2011 | | 2025.11.14 | ¸Å¸Å | (127-23) | -1 | 49.7 | 15,000 | | 1992 | | 2025.11.13 | ¿ù¼¼ | û¿ëºô¶ó(102-27) | 1 | 38.25 | 200 | 37 | 2007 | | 2025.11.13 | Àü¼¼ | ¼º¿ìºô¶ó | 4 | 59.85 | 14,000 | 0 | 1991 | | 2025.11.13 | Àü¼¼ | ÇØµ¸ÀÌŸ¿î3Â÷ | 3 | 52.04 | 15,000 | 0 | 1993 | | 2025.11.13 | ¿ù¼¼ | (92-262) | 6 | 67.25 | 20,000 | 50 | 2012 | | 2025.11.12 | ¿ù¼¼ | Çö´ë½º¸¶Æ®ºô | 3 | 29.42 | 1,500 | 85 | 2012 | | 2025.11.12 | ¿ù¼¼ | »ï¼ºÇϿ콺 | 5 | 41.62 | 5,000 | 110 | 2015 | | 2025.11.12 | ¿ù¼¼ | ¿¤½ÃƼ | 3 | 19.2 | 3,000 | 60 | 2013 | | 2025.11.12 | ¿ù¼¼ | Àº¼±ºô¶ó(610-260) | 2 | 68.8 | 8,000 | 75 | 2002 | | 2025.11.12 | Àü¼¼ | ÀÎÁ¤°¡2(610-74) | 2 | 29.81 | 13,000 | 0 | 2013 | | 2025.11.12 | ¿ù¼¼ | Àϼººô¶ó | 4 | 41.58 | 11,500 | 20 | 1994 | | 2025.11.12 | Àü¼¼ | »ï¼º¾ÆÆ®ºô(610-384) | 3 | 29.08 | 15,600 | 0 | 2016 | | 2025.11.12 | ¿ù¼¼ | À¸¶äij½½ | 6 | 39.71 | 6,000 | 130 | 2022 | | 2025.11.11 | ¸Å¸Å | (409-277) | -1 | 69.12 | 38,000 | | 1990 | | 2025.11.11 | ¸Å¸Å | ¸ð°Ç¾ÆÆ®ºô | 3 | 39.39 | 33,000 | | 2017 | | 2025.11.11 | ¿ù¼¼ | ¿ùµåºô | 3 | 22.86 | 2,000 | 45 | 2003 | | 2025.11.11 | ¿ù¼¼ | (646-179) | 1 | 31.77 | 8,350 | 10 | 1986 | | 2025.11.11 | Àü¼¼ | Çѳª·¡3Â÷ | 3 | 37.04 | 20,600 | 0 | 2016 | | 2025.11.11 | Àü¼¼ | È¿ø±×¸°ºô¶ó | 1 | 63.57 | 13,000 | 0 | 1993 | | 2025.11.10 | Àü¼¼ | ¿ì¸²¾ÆÆ®ºô | 5 | 25.4 | 1,512 | 0 | 2018 | | 2025.11.10 | ¸Å¸Å | ½ÅÈïºô¶ó5Â÷ | 3 | 36.12 | 14,000 | | 1991 | | 2025.11.10 | Àü¼¼ | ½Å¾Èºô¶óA | 2 | 70.56 | 20,000 | 0 | 1991 | | 2025.11.10 | ¿ù¼¼ | (1678-27) | 2 | 26.99 | 20,000 | 15 | 2025 | | 2025.11.10 | Àü¼¼ | ÁÖ¿øº£¸£ºô(493-7) | 6 | 29.73 | 24,100 | 0 | 2016 | | 2025.11.09 | ¿ù¼¼ | °ñµçÈú | 3 | 19.46 | 2,000 | 78 | 2013 | | 2025.11.09 | ¿ù¼¼ | ¼ö¿ù´ç | 3 | 13.99 | 500 | 50 | 2013 | | 2025.11.08 | ¸Å¸Å | ±ÝÈ£88ºô¸®Áö | 4 | 37.8 | 43,500 | | 1998 | | 2025.11.08 | ¸Å¸Å | (412-456) | 3 | 48.82 | 34,500 | | 1993 | | 2025.11.08 | ¿ù¼¼ | JS¼¼¿ò | 2 | 38.55 | 4,000 | 70 | 2020 | | 2025.11.08 | Àü¼¼ | µ¿»êºô¸®Áö(92-175) | 1 | 46.27 | 15,000 | 0 | 1994 | | 2025.11.07 | ¸Å¸Å | ¿î¼¸Ç¼Ç(599-6) | -1 | 74.37 | 17,000 | | 2001 | | 2025.11.07 | ¿ù¼¼ | ¿ö³Êºô | 2 | 34.84 | 10,000 | 50 | 2006 | | 2025.11.07 | ¿ù¼¼ | ÇѾ縮Ã÷ºô | 6 | 42.84 | 3,000 | 120 | 2014 | | 2025.11.06 | ¿ù¼¼ | (1458-1) | 1 | 33.9 | 11,900 | 40 | 1986 | | 2025.11.06 | Àü¼¼ | ½ÅÀÏ | 1 | 47.49 | 13,000 | 0 | 1993 | | 2025.11.06 | ¿ù¼¼ | (1458-1) | 1 | 33.9 | 11,900 | 40 | 1986 | | 2025.11.06 | ¿ù¼¼ | (1458-1) | 1 | 33.9 | 11,900 | 40 | 1986 | | 2025.11.06 | ¸Å¸Å | ¿î¼¸Ç¼Ç10Â÷ | 2 | 41.63 | 26,000 | | 2002 | | 2025.11.05 | Àü¼¼ | Çö´ëÇÏÀÌÃ÷ºô¶ó | 3 | 54.21 | 23,300 | 0 | 1995 | | 2025.11.05 | Àü¼¼ | º»½ºÆäÀ̽º | 3 | 26.6 | 27,450 | 0 | 2020 | | 2025.11.04 | ¿ù¼¼ | µ¿¹®Å¸¿îB | 2 | 48.27 | 12,000 | 51 | 1995 | | 2025.11.04 | ¿ù¼¼ | ½ÅÈİ¡15Â÷ | 2 | 28.17 | 26,000 | 20 | 2023 | | 2025.11.04 | ¿ù¼¼ | ´ÃÁ¶Àººô | 3 | 32.66 | 5,000 | 120 | 2023 | | 2025.11.04 | ¿ù¼¼ | ¾çÁöºô¶óÆ®5Â÷ | 1 | 57.75 | 20,000 | 30 | 2002 | | 2025.11.04 | ¿ù¼¼ | ¾çÁöºô¶óÆ®5Â÷ | 1 | 57.75 | 20,000 | 30 | 2002 | | 2025.11.04 | ¿ù¼¼ | ½Å¸²ºôµù | 4 | 12.06 | 1,000 | 64 | 2018 | | 2025.11.04 | ¿ù¼¼ | µ¿¹®Å¸¿îB | 2 | 48.27 | 12,000 | 51 | 1995 | | 2025.11.04 | ¿ù¼¼ | ±ÝÁ¤ºô¶ó | -1 | 59.09 | 300 | 70 | 1996 | | 2025.11.04 | ¸Å¸Å | (652-134) | 1 | 43.74 | 15,000 | | 1981 | | 2025.11.03 | ¿ù¼¼ | ´ë¿Õºô¶ó2Â÷ | 1 | 49.56 | 10,000 | 20 | 1994 | | 2025.11.03 | ¿ù¼¼ | ÀºÇýºôµù | 6 | 63.74 | 18,000 | 48 | 2002 | | 2025.11.03 | ¿ù¼¼ | ¸ñ¿ø | 4 | 18.72 | 1,000 | 66 | 2013 | | 2025.11.03 | ¸Å¸Å | ÇѼֺô¶ó3 | 4 | 62.31 | 22,000 | | 2001 | | 2025.11.03 | ¸Å¸Å | (92-20) | 3 | 25.65 | 32,800 | | 1993 | | 2025.11.03 | ¿ù¼¼ | ±¤´öºô | 1 | 83.1 | 1,000 | 52 | 2004 | | 2025.11.02 | ¿ù¼¼ | ¿ÀÁÖÇϿ콺 | 4 | 14.85 | 1,000 | 42 | 2012 | | 2025.11.02 | ¿ù¼¼ | ±×¶û½Ã¿¤ | 7 | 29.89 | 3,000 | 50 | 2014 | | 2025.11.01 | ¸Å¸Å | Àü¿øÁÖÅà | 2 | 34.31 | 15,000 | | 1998 | | 2025.11.01 | ¸Å¸Å | (92-20) | 3 | 28.62 | 29,000 | | 1993 | | 2025.11.01 | ¸Å¸Å | ÁøÁÖºô¶ó(598-48) | -1 | 31.81 | 10,000 | | 1994 | | 2025.11.01 | Àü¼¼ | À¯Åäºô | 3 | 66.82 | 26,000 | 0 | 2006 | | 2025.11.01 | Àü¼¼ | FillYou | 5 | 28.67 | 25,200 | 0 | 2016 | | 2025.11.01 | ¿ù¼¼ | »ó¼±ºôµù | 4 | 74.25 | 19,400 | 4 | 2004 | | 2025.11.01 | ¿ù¼¼ | ¾Öµå¿ø | 8 | 14.99 | 5,000 | 42 | 2015 | | 2025.10.31 | ¿ù¼¼ | ¸Þ¸®Æ®È¨ | 3 | 12.03 | 9,000 | 10 | 2012 | | 2025.10.31 | ¿ù¼¼ | ·Îµ©ÇϿ콺 | 3 | 29.31 | 10,000 | 100 | 2021 | | 2025.10.31 | ¸Å¸Å | È¿ø±×¸°ºô¶ó | -1 | 63.57 | 61,750 | | 1993 | | 2025.10.30 | ¿ù¼¼ | ½ºÅÚ¶ó(1432-6) | 8 | 25.67 | 20,000 | 30 | 2017 | | 2025.10.29 | ¿ù¼¼ | ¼¾Æ®·¹ºô(º») | 5 | 18.36 | 6,000 | 40 | 2018 | | 2025.10.29 | Àü¼¼ | ASTONVILL(1490-23) | 3 | 45.22 | 22,000 | 0 | 2008 | | 2025.10.29 | Àü¼¼ | ¿øÁÖÅôٵ¿(412-316) | 3 | 41.88 | 11,000 | 0 | 1992 | | 2025.10.29 | Àü¼¼ | Çѳª·¡23Â÷ | 4 | 28.86 | 20,000 | 0 | 2022 | | 2025.10.28 | Àü¼¼ | °í¿øºô¶óÆ® | 1 | 24.39 | 7,000 | 0 | 1995 | | 2025.10.27 | Àü¼¼ | ºäÅ×¶ó½º | 3 | 29.87 | 20,250 | 0 | 2020 | | 2025.10.27 | ¿ù¼¼ | µµ·¹¸Ç¼Ç | 4 | 43.29 | 5,000 | 103 | 2016 | | 2025.10.27 | Àü¼¼ | ¾ËÆæÇϿ콺(563-20) | 3 | 49.915 | 30,000 | 0 | 2017 | | 2025.10.27 | ¿ù¼¼ | (412-335) | 4 | 17.07 | 500 | 55 | 1991 | | 2025.10.26 | ¿ù¼¼ | ¶óÆÄ¸£½Å¸² | 8 | 26.85 | 1,500 | 155 | 2023 | | 2025.10.26 | ¿ù¼¼ | ÇØ¶ß´ÂÁý2 | 5 | 22.98 | 14,000 | 14 | 2016 | | 2025.10.25 | ¿ù¼¼ | ±×·£µåÈú | 5 | 29.8 | 3,000 | 107 | 2015 | | 2025.10.25 | Àü¼¼ | ·Î¾âÆÓ¸®½º | 2 | 41.32 | 25,000 | 0 | 2016 | | 2025.10.25 | Àü¼¼ | (1678-27) | 2 | 26.99 | 23,000 | 0 | 2025 | | 2025.10.25 | ¿ù¼¼ | ¸Þ°¡´õŬ·¡½º | 2 | 29.96 | 3,000 | 75 | 2017 | | 2025.10.25 | Àü¼¼ | ÇÏ´Ã¸í°¡ | 4 | 49.27 | 19,000 | 0 | 2012 | | 2025.10.25 | ¸Å¸Å | ±ÃÀü | 1 | 53.82 | 36,350 | | 1991 | | 2025.10.25 | ¸Å¸Å | ÇÑ¾ç¾ÆÆ®ºô¸®Áö | 1 | 23.05 | 20,000 | | 1993 | | 2025.10.24 | ¿ù¼¼ | û¸²ºô¶ó(408-76) | 2 | 36.72 | 12,000 | 20 | 1990 | | 2025.10.24 | ¸Å¸Å | À¯ÁøÇÏÀÌÃ÷ºô | 5 | 52.79 | 26,500 | | 2011 | | 2025.10.24 | Àü¼¼ | ÆòÁÖºô¶ó(597-65) | 1 | 52.38 | 20,000 | 0 | 1996 | | 2025.10.23 | ¸Å¸Å | JÆç¸®Ã¼8Â÷ | 4 | 31.48 | 41,000 | | 2023 | | 2025.10.23 | ¿ù¼¼ | (757-31) | 1 | 44.91 | 14,000 | 10 | 1990 | | 2025.10.23 | ¸Å¸Å | ÇÑ¾ç¾ÆÆ®ºô¸®Áö | 1 | 27.27 | 28,000 | | 1993 | | 2025.10.23 | ¿ù¼¼ | ´Ù¼Ø½ÃƼºô | 7 | 16.38 | 17,200 | 30 | 2021 | | 2025.10.23 | ¿ù¼¼ | ´Ù¿¬Çູ | 2 | 23.48 | 3,000 | 75 | 2012 | | 2025.10.23 | Àü¼¼ | ½ºÄ«À̺ô(610-122) | 3 | 38.23 | 20,000 | 0 | 2015 | | 2025.10.23 | Àü¼¼ | (702-8) | 3 | 38.21 | 20,500 | 0 | 2013 | | 2025.10.22 | ¿ù¼¼ | Á¤¿øÆÓ¸®Ã¼Aµ¿Bµ¿ | 3 | 29.81 | 23,000 | 20 | 2019 | | 2025.10.22 | ¿ù¼¼ | ³ª¸£ÇϿ콺 | 4 | 26.21 | 3,300 | 34 | 2024 | | 2025.10.22 | ¿ù¼¼ | T&K½Å¸²¥² | 2 | 26.3 | 200 | 50 | 2023 | | 2025.10.22 | ¿ù¼¼ | ½¦¸£ºô | 3 | 15.3 | 10,000 | 10 | 2013 | | 2025.10.22 | ¿ù¼¼ | (10-584) | 3 | 91.05 | 1,000 | 50 | 2006 | | 2025.10.22 | ¸Å¸Å | ¿î»êºô¶ó(409-162) | 1 | 40.62 | 28,000 | | 1993 | | 2025.10.21 | ¿ù¼¼ | ±¤Èñ°¡ | 2 | 20.92 | 13,125 | 5 | 2015 | | 2025.10.21 | ¿ù¼¼ | ³ª¸£ÇϿ콺 | 3 | 29.53 | 3,750 | 39 | 2024 | | 2025.10.21 | ¿ù¼¼ | ³ë¾ÆÀǹæÁÖ | 2 | 18.45 | 12,000 | 35 | 2012 | | 2025.10.21 | ¿ù¼¼ | ½Å¸²ÆÄÅ©ºô | 4 | 45 | 1,611 | 44 | 2022 | | 2025.10.21 | Àü¼¼ | ¾Æ¸£¶¼ºô1 | 2 | 34.92 | 17,700 | 0 | 2015 | | 2025.10.21 | Àü¼¼ | ¹«±ÃȺô | 2 | 39.39 | 24,750 | 0 | 2012 | | 2025.10.21 | ¿ù¼¼ | THELIME | 12 | 25.51 | 26,400 | 21 | 2020 | | 2025.10.21 | ¿ù¼¼ | ÇÏÀÓ | 3 | 46.96 | 1,493 | 19 | 2017 | | 2025.10.21 | Àü¼¼ | ¾Æ¸£¶¼ºô1 | 2 | 34.92 | 17,700 | 0 | 2015 | | 2025.10.20 | ¿ù¼¼ | À¸¶äij½½ | 6 | 37.7 | 5,000 | 140 | 2022 | | 2025.10.20 | ¿ù¼¼ | ¾¾¿¤ºí·ç | 7 | 28.58 | 20,000 | 12 | 2015 | | 2025.10.20 | ¿ù¼¼ | Àº¿ìºô¶ó | 2 | 44.07 | 10,000 | 10 | 1991 | | 2025.10.20 | ¿ù¼¼ | ¶ó¿ÂÁ¦³ª | 2 | 12.88 | 500 | 41 | 2009 | | 2025.10.20 | ¿ù¼¼ | Å¿µ¹Î°¡(611-1) | 2 | 24.44 | 3,000 | 52 | 2017 | | 2025.10.20 | ¿ù¼¼ | Á¶¿øÇÏÀ̸ðºôµù | 3 | 26.27 | 1,000 | 48 | 2013 | | 2025.10.20 | ¿ù¼¼ | ÇÁ·¹¹Ì¿À(PREMIO)725Bµ¿ | 3 | 42.67 | 24,900 | 14 | 2016 | | 2025.10.20 | ¿ù¼¼ | ¾¾¿¤ºí·ç | 5 | 28.58 | 20,000 | 12 | 2015 | | 2025.10.20 | ¿ù¼¼ | (610-388) | 2 | 84.84 | 6,000 | 85 | 2000 | | 2025.10.19 | ¿ù¼¼ | Á¤Çöºô(1429-26) | 4 | 12.29 | 1,000 | 46 | 2013 | | 2025.10.19 | ¿ù¼¼ | Çö´ë±×¸°ºô¶ó(408-65) | 4 | 56.76 | 5,000 | 100 | 1994 | | 2025.10.19 | ¿ù¼¼ | ´õ¾¾¿¤ | 6 | 26.73 | 22,000 | 17 | 2015 | | 2025.10.18 | ¿ù¼¼ | ¶óÀÓ½ººô | 4 | 29.97 | 17,500 | 10 | 2020 | | 2025.10.18 | ¿ù¼¼ | (1502-5) | -1 | 66.03 | 1,000 | 35 | 2004 | | 2025.10.18 | ¿ù¼¼ | ¼¼Á¾ºô¶ó | 2 | 56.01 | 4,000 | 81 | 1994 | | 2025.10.17 | ¸Å¸Å | ¹Ì¸²ºô¶ó | 3 | 44.15 | 18,000 | | 1992 | | 2025.10.17 | ¸Å¸Å | ¸ð´×Èú(1564-9) | 1 | 40.39 | 27,000 | | 2016 | | 2025.10.17 | ¿ù¼¼ | ºÎ¿ä±×¸°Å¸¿î(92-305) | -1 | 33.28 | 500 | 55 | 1991 | | 2025.10.17 | ¿ù¼¼ | ½ò½ÃƼ | 6 | 27.9 | 4,000 | 95 | 2018 | | 2025.10.17 | ¿ù¼¼ | ¹Ì·¡¸®Ä¡ºô | 4 | 53.62 | 20,000 | 30 | 2003 | | 2025.10.17 | ¿ù¼¼ | ¶óÀÓij½½ | 5 | 29.64 | 26,000 | 5 | 2016 | | 2025.10.17 | Àü¼¼ | ·¹¿ÀÆÈ·¹½º | 7 | 50.28 | 29,000 | 0 | 2014 | | 2025.10.17 | ¿ù¼¼ | JÇìºìºô | 3 | 21.89 | 15,000 | 45 | 2015 | | 2025.10.16 | ¸Å¸Å | ±ÝÈÇÏÀ̺ô | 5 | 27.19 | 23,500 | | 2018 | | 2025.10.16 | ¸Å¸Å | ¿¡µ§ºô | 5 | 32.31 | 29,000 | | 2016 | | 2025.10.16 | ¸Å¸Å | »ï¼º¾ÆÆ®ºô | 3 | 29.9 | 21,000 | | 2017 | | 2025.10.16 | ¸Å¸Å | Çö´ë¾ÆÆ®ºô¶ó(92-157) | -1 | 41.48 | 8,400 | | 1991 | | 2025.10.16 | ¸Å¸Å | ¸ð´×Èú(1564-9) | 4 | 41.15 | 29,500 | | 2016 | | 2025.10.16 | ¸Å¸Å | ½Å¸²ÇÏÀÌÃ÷ºô¶ó1µ¿ | 2 | 82.55 | 62,000 | | 1989 | | 2025.10.16 | ¿ù¼¼ | (10-400) | -1 | 22.24 | 3,000 | 75 | 1990 | | 2025.10.16 | ¿ù¼¼ | À¯¼ººô¶ó(548-5) | 1 | 60.4 | 5,000 | 100 | 1993 | | 2025.10.16 | ¿ù¼¼ | ¿¡¾î½ºÆäÀ̽º | 2 | 24.83 | 15,870 | 17 | 2021 | | 2025.10.15 | ¸Å¸Å | ¸ÞÆ®·ÎŸ¿î2Â÷ | 6 | 42.3 | 37,000 | | 2017 | | 2025.10.15 | ¸Å¸Å | ¿ø¾Óºô¶ó(98-352) | 2 | 42.09 | 29,000 | | 2002 | | 2025.10.15 | ¸Å¸Å | ·Îµ©(1550) | 5 | 53.775 | 29,000 | | 2014 | | 2025.10.15 | ¸Å¸Å | È£¼±ºô¶ó | 2 | 35.61 | 17,500 | | 1996 | | 2025.10.15 | ¸Å¸Å | ´ë¿õºô¶ó | 3 | 48.42 | 20,000 | | 1992 | | 2025.10.15 | ¸Å¸Å | Àü¿øºô¶ó | 1 | 52.2 | 12,200 | | 1993 | | 2025.10.15 | ¸Å¸Å | ¿ùµå¾¾Æ¼ºôA | 4 | 55.47 | 25,000 | | 2002 | | 2025.10.15 | ¸Å¸Å | ÀϼÁÖÅà | 1 | 44.98 | 18,000 | | 1991 | | 2025.10.15 | ¸Å¸Å | (87-32) | 2 | 37.89 | 33,000 | | 2002 | | 2025.10.15 | Àü¼¼ | Çö´ëºô¶ó | 2 | 62.55 | 15,750 | 0 | 1993 | | 2025.10.15 | Àü¼¼ | È£¼öºô¶ó | 1 | 50.96 | 12,300 | 0 | 1999 | | 2025.10.15 | ¿ù¼¼ | ÇØ¹Ð | 3 | 47.35 | 2,000 | 93 | 2013 | | 2025.10.15 | ¿ù¼¼ | ¼º¾Èºôµù(1667-1) | 7 | 14.55 | 9,000 | 10 | 2014 | | 2025.10.15 | ¿ù¼¼ | (477-41) | 2 | 35.6452 | 2,695 | 42 | 2024 | | 2025.10.15 | ¿ù¼¼ | (477-41) | 3 | 38.5153 | 2,923 | 62 | 2024 | | 2025.10.15 | ¿ù¼¼ | ¿¡ÀÌºí·¦ | 4 | 28.16 | 4,983 | 10 | 2022 | | 2025.10.14 | ¸Å¸Å | ¾çÁöºô¶óÆ®(504-16) | 4 | 39.81 | 21,300 | | 2002 | | 2025.10.14 | ¸Å¸Å | °í¿øºô¶óÆ® | 1 | 24.39 | 12,300 | | 1995 | | 2025.10.14 | ¸Å¸Å | û¼Ûºô¶ó | 3 | 48.26 | 29,750 | | 2002 | | 2025.10.14 | ¸Å¸Å | û¼Ûºô¶ó | 3 | 48.26 | 29,750 | | 2002 | | 2025.10.14 | ¸Å¸Å | Æç¸®Ã¼ | 4 | 23.78 | 21,500 | | 2013 | | 2025.10.14 | ¸Å¸Å | 98-439 | 2 | 28.29 | 27,000 | | 2014 | | 2025.10.14 | ¿ù¼¼ | (À¸¶äij½½) | 5 | 29.99 | 2,000 | 130 | 2024 | | 2025.10.14 | ¿ù¼¼ | ¸®¾ØÃÊÀ̽º | 9 | 22.83 | 1,500 | 166 | 2023 | | 2025.10.14 | Àü¼¼ | (409-96) | 1 | 16.5 | 9,500 | 0 | 2013 | | 2025.10.13 | ¿ù¼¼ | ¶ó¿ÂÁ¦³ª | 1 | 16.15 | 1,000 | 34 | 2009 | | 2025.10.13 | Àü¼¼ | ¿À¼º¿¬¸³ | 2 | 63.57 | 13,000 | 0 | 1978 | | 2025.10.13 | ¿ù¼¼ | µ¿¹æÅ¸¿î(409-132) | 3 | 39.14 | 1,000 | 77 | 1996 | | 2025.10.13 | ¸Å¸Å | ¹ÂÁöÄÃÆÄÅ© | 3 | 29.95 | 23,000 | | 2014 | | 2025.10.13 | ¿ù¼¼ | (685-74) | 2 | 57.94 | 13,000 | 30 | 1991 | | 2025.10.12 | ¿ù¼¼ | µ¿¿ìºô¶óÆ® | 5 | 29.87 | 19,000 | 5 | 2015 | | 2025.10.11 | ¸Å¸Å | ¸ñȺô¶ó | -1 | 44.46 | 13,000 | | 1991 | | 2025.10.11 | Àü¼¼ | 1429-19 | 5 | 29.58 | 20,000 | 0 | 2016 | | 2025.10.11 | ¿ù¼¼ | ±×¶û½Ã¿¤ | 7 | 29.96 | 20,000 | 30 | 2014 | | 2025.10.11 | ¿ù¼¼ | dz¿øÇÏÀÓºô | 5 | 42.89 | 30,000 | 25 | 2018 | | 2025.10.11 | Àü¼¼ | (1480-29) | 3 | 49.68 | 18,600 | 0 | 2003 | | 2025.10.11 | Àü¼¼ | 1429-19 | 6 | 27.48 | 20,000 | 0 | 2016 | | 2025.10.11 | ¿ù¼¼ | ±×¶û½Ã¿¤ | 7 | 29.96 | 20,000 | 30 | 2014 | | 2025.10.10 | ¸Å¸Å | »ï¼º¿øºô(610-225) | 5 | 29.63 | 21,700 | | 2016 | | 2025.10.10 | ¸Å¸Å | ºÀȲºô¶ó(610-215) | 2 | 39.02 | 19,500 | | 1994 | | 2025.10.10 | ¸Å¸Å | û±¸ÇÏÀÌÃ÷ºô¶ó | 3 | 54.37 | 40,200 | | 1995 | | 2025.10.10 | ¸Å¸Å | µÎ¸®ÆÄÅ©ºôA | 3 | 49.24 | 23,000 | | 2002 | | 2025.10.10 | ¸Å¸Å | Àå¹Ìºô¶ó(1565-5) | -1 | 60.69 | 15,000 | | 1993 | | 2025.10.10 | ¿ù¼¼ | (10-584) | 1 | 109.66 | 1,000 | 49 | 2006 | | 2025.10.10 | Àü¼¼ | À²ÃÌÆÓ¸®½º | 4 | 27.7 | 18,000 | 0 | 2013 | | 2025.10.10 | ¿ù¼¼ | ¿À¿£ÇϿ콺 | 2 | 13.58 | 1,000 | 60 | 2014 | | 2025.10.08 | ¸Å¸Å | (98-385) | 4 | 34.53 | 21,000 | | 1996 | | 2025.10.06 | ¸Å¸Å | °Ç¿µºô¶ó(90-1) | 3 | 57.19 | 37,500 | | 1995 | | 2025.10.05 | ¿ù¼¼ | (92-240) | 2 | 31.17 | 2,000 | 60 | 1990 | | 2025.10.04 | ¸Å¸Å | (92-402) | 4 | 51.91 | 19,700 | | 1992 | | 2025.10.03 | ¸Å¸Å | À§µåºñ¿¥ | 2 | 29.69 | 23,800 | | 2019 | | 2025.10.03 | ¸Å¸Å | Ä¥¼ººô¶ó | 3 | 43.88 | 19,500 | | 1991 | | 2025.10.03 | ¿ù¼¼ | (646-263) | 1 | 54.04 | 2,000 | 95 | 2007 | | 2025.10.02 | Àü¼¼ | ÇØÂù¸Ç¼Ç(715-17) | 2 | 35.71 | 20,000 | 0 | 2014 | | 2025.10.02 | ¿ù¼¼ | ½ºÅ¸ºôµù | 5 | 13.56 | 500 | 58 | 2014 | | 2025.10.02 | Àü¼¼ | (412-158) | 1 | 29.83 | 16,000 | 0 | 2014 | | 2025.10.02 | ¿ù¼¼ | dz¿øÇÏÀÓºô | 3 | 28.87 | 23,300 | 10 | 2018 | | 2025.10.02 | ¿ù¼¼ | ±ÝÈ£¸Ç¼Ç(1570-28) | 5 | 47.32 | 16,000 | 5 | 2002 | | 2025.10.02 | ¿ù¼¼ | dz¿øÇÏÀÓºô | 3 | 28.87 | 23,300 | 10 | 2018 | | 2025.10.02 | ¸Å¸Å | 102-9 | 3 | 29.43 | 21,000 | | 2015 | | 2025.10.02 | ¿ù¼¼ | Àº¿¬Àç | 6 | 15.56 | 500 | 54 | 2013 | | 2025.10.02 | ¸Å¸Å | (1578-38) | 6 | 33.07 | 39,000 | | 2022 | | 2025.10.02 | ¸Å¸Å | (1578-38) | 6 | 56.71 | 53,500 | | 2022 | | 2025.10.02 | ¸Å¸Å | »ï¿øÇÏÀÌÃ÷ºô¶ó | -1 | 56.54 | 15,400 | | 1996 | | 2025.10.02 | ¸Å¸Å | ¼º½Åºô¶ó | 2 | 50.39 | 25,500 | | 1991 | | 2025.10.02 | ¸Å¸Å | (1622-5) | 3 | 69.24 | 36,000 | | 2003 | | 2025.10.02 | ¸Å¸Å | ¾ÆÀ̺ô3Â÷ | 4 | 51.59 | 31,000 | | 2008 | | 2025.10.02 | ¸Å¸Å | º»½ºÆäÀ̽º | 5 | 26.7 | 31,000 | | 2020 | | 2025.10.02 | ¸Å¸Å | CG¾Æ¸§Ã¤ | 4 | 37.56 | 31,500 | | 2019 | | 2025.10.01 | ¿ù¼¼ | (477-41) | 2 | 39.3883 | 2,918 | 63 | 2024 | | 2025.10.01 | ¿ù¼¼ | (477-41) | 5 | 38.5153 | 2,983 | 46 | 2024 | | 2025.10.01 | ¿ù¼¼ | (477-41) | 4 | 38.5153 | 2,938 | 45 | 2024 | | 2025.10.01 | ¿ù¼¼ | (477-41) | 4 | 37.6393 | 3,125 | 47 | 2024 | | 2025.10.01 | ¿ù¼¼ | (477-41) | 2 | 38.5153 | 2,873 | 44 | 2024 | | 2025.10.01 | ¿ù¼¼ | Àº¿¬Àç | 4 | 14.18 | 3,000 | 38 | 2013 | | 2025.10.01 | ¿ù¼¼ | Àº¿¬Àç | 4 | 14.78 | 500 | 50 | 2013 | | 2025.10.01 | ¿ù¼¼ | (477-41) | 5 | 36.9722 | 2,958 | 46 | 2024 | | 2025.10.01 | ¿ù¼¼ | ½Å¸²¾î¹Ý½ººô | 4 | 24.45 | 100 | 33 | 2023 | | 2025.10.01 | ¿ù¼¼ | ½Å¸²¾î¹Ý½ººô | 3 | 28.79 | 100 | 39 | 2023 | | 2025.10.01 | ¸Å¸Å | ´Ù¿ø¾ÆÆ®ºô(704-20) | 6 | 38.06 | 27,000 | | 2015 | | 2025.10.01 | ¸Å¸Å | ¼ºÁöºô¶ó | -1 | 36.36 | 14,300 | | 1991 | | 2025.10.01 | ¸Å¸Å | ¼ºÀº¸Ç¼Ç | 3 | 56.16 | 32,000 | | 1996 | | 2025.10.01 | ¿ù¼¼ | JCSTUDIO | 8 | 18.67 | 13,000 | 34 | 2018 | | 2025.10.01 | ¿ù¼¼ | (477-41) | 3 | 35.6452 | 2,740 | 58 | 2024 | | 2025.10.01 | ¿ù¼¼ | (477-41) | 2 | 36.9722 | 2,850 | 61 | 2024 | | 2025.10.01 | ¿ù¼¼ | (477-41) | 4 | 36.9722 | 2,910 | 62 | 2024 | | 2025.09.30 | ¿ù¼¼ | ´õº£¸®Å¸½º | 7 | 24.45 | 2,500 | 150 | 2022 | | 2025.09.30 | ¿ù¼¼ | ±¤Áøºô¶óÆ® | 4 | 34.32 | 1,000 | 50 | 1993 | | 2025.09.30 | ¿ù¼¼ | ¹Ì¸®³»ÆÄÅ©ºô¶ó | 1 | 40.68 | 2,000 | 55 | 1994 | | 2025.09.30 | ¿ù¼¼ | Àº¼ººô(1632-15) | 2 | 28.02 | 3,000 | 70 | 2012 | | 2025.09.30 | ¿ù¼¼ | ½Ã¿¤(ciel) | 6 | 29.53 | 20,918 | 14 | 2015 | | 2025.09.30 | ¿ù¼¼ | (414-53) | -1 | 38.64 | 500 | 45 | 1992 | | 2025.09.30 | ¿ù¼¼ | ¼¸²µµ½ÃÇü»ýȰÁÖÅà | 7 | 12.32 | 1,000 | 60 | 2013 | | 2025.09.30 | ¸Å¸Å | ȼººô¶ó | -1 | 47.39 | 61,500 | | 1989 | | 2025.09.30 | ¸Å¸Å | º¹Àººô¸®Áö | 3 | 74.1 | 51,500 | | 2022 | | 2025.09.30 | ¸Å¸Å | 98-439 | 4 | 28.08 | 26,000 | | 2014 | | 2025.09.30 | ¸Å¸Å | ½Å´ë¹æ³ëºí·çü | 16 | 24.34 | 25,000 | | 2019 | | 2025.09.30 | ¸Å¸Å | Á¶Àº¾ÆÆ®ºô(354-73) | 5 | 45.46 | 55,000 | | 2002 | | 2025.09.29 | ¿ù¼¼ | ¼Ò³ëÇϿ콺 | 2 | 21.78 | 3,000 | 56 | 2014 | | 2025.09.29 | Àü¼¼ | ºê¶ó¿îij½½(598-284) | 3 | 38.68 | 19,000 | 0 | 2013 | | 2025.09.29 | ¿ù¼¼ | ¿ì¼Û¾Æ¸£¶¼ºô | 2 | 29.92 | 13,000 | 30 | 2015 | | 2025.09.29 | ¿ù¼¼ | ±¤´öºô | 3 | 83.1 | 1,000 | 60 | 2004 | | 2025.09.29 | ¿ù¼¼ | ü³ªÄݺô | 3 | 29.93 | 5,000 | 104 | 2021 | | 2025.09.29 | Àü¼¼ | (254-130) | 1 | 48.6 | 14,000 | 0 | 1980 | | 2025.09.29 | ¿ù¼¼ | ¸ñ¿ø | 4 | 18.73 | 1,000 | 67 | 2013 | | 2025.09.29 | ¸Å¸Å | ½º¸¶Æ®¹ë¸® | 5 | 32.78 | 28,250 | | 2012 | | 2025.09.29 | ¸Å¸Å | ÁøÁÖºô¶ó(598-48) | 3 | 26.32 | 11,500 | | 1994 | | 2025.09.29 | ¸Å¸Å | ·º½ººô | 2 | 32.75 | 24,500 | | 2015 | | 2025.09.29 | ¿ù¼¼ | ¼¾Æ®·¹ºô(º») | 5 | 19.55 | 5,000 | 45 | 2018 | | 2025.09.29 | ¿ù¼¼ | ü³ªÄݺô | 3 | 29.93 | 5,000 | 99 | 2021 | | 2025.09.28 | ¿ù¼¼ | »ï¹Ì¾ÆÆ®ºô(1661-9) | 2 | 44.76 | 2,000 | 100 | 2015 | | 2025.09.28 | ¿ù¼¼ | »ï¼ººô¶ó(412-374) | 2 | 44.39 | 5,000 | 77 | 2003 | | 2025.09.28 | ¿ù¼¼ | (729-9) | 3 | 59.3 | 1,000 | 40 | 2013 | | 2025.09.27 | ¸Å¸Å | ½Å¾Èºô¶óB | 2 | 70.56 | 24,000 | | 1991 | | 2025.09.27 | ¸Å¸Å | ´ë¿Õºô¶ó2Â÷ | -1 | 49.56 | 15,100 | | 1994 | | 2025.09.27 | ¸Å¸Å | ·ÎÁî¾ÆÆ®ºô | 2 | 61.21 | 37,000 | | 2002 | | 2025.09.27 | ¿ù¼¼ | ¸®Ä¡Èú(750-27) | 3 | 46.02 | 13,000 | 70 | 2016 | | 2025.09.27 | ¸Å¸Å | ûdzºô¶ó9Â÷ | 4 | 50.37 | 19,000 | | 1996 | | 2025.09.27 | ¸Å¸Å | (646-179) | 2 | 69 | 17,000 | | 1986 | | 2025.09.27 | Àü¼¼ | ÁÖ¿øº£¸£ºô(493-7) | 3 | 29.73 | 22,000 | 0 | 2016 | | 2025.09.27 | ¿ù¼¼ | û¼Ö¾ÆÆ®ºô | 5 | 41.88 | 16,000 | 5 | 2002 | | 2025.09.27 | ¿ù¼¼ | »ï¼º¾ÆÆ®ºô(618-11) | 2 | 38.8 | 4,000 | 60 | 2002 | | 2025.09.27 | ¿ù¼¼ | ÆÊÆÄ½º | 3 | 20.39 | 5,000 | 56 | 2014 | | 2025.09.27 | Àü¼¼ | À¯Àκôµù | 3 | 29.96 | 20,000 | 0 | 2019 | | 2025.09.27 | ¿ù¼¼ | È¿ÁÖÆÄÅ©ºô | 5 | 35.39 | 5,000 | 85 | 2014 | | 2025.09.27 | Àü¼¼ | À¯Àκôµù | 3 | 29.96 | 20,000 | 0 | 2019 | | 2025.09.26 | Àü¼¼ | (652-134) | 1 | 43.77 | 11,400 | 0 | 1981 | | 2025.09.25 | ¸Å¸Å | CG¾Æ¸§Ã¤(1´ÜÁö) | 2 | 52.49 | 36,000 | | 2019 | | 2025.09.25 | ¿ù¼¼ | WannyVill(1487-21) | 3 | 45.76 | 24,000 | 5 | 2015 | | 2025.09.25 | ¸Å¸Å | ±âdzȨŸ¿ö | 4 | 84.91 | 58,500 | | 1998 | | 2025.09.25 | Àü¼¼ | ´Ù¼Ø | 2 | 34.4 | 18,000 | 0 | 2017 | | 2025.09.25 | ¿ù¼¼ | Á¶¿øµµ½ÃÇü»ýȰÁÖÅà | 5 | 15.46 | 500 | 51 | 2011 | | 2025.09.25 | ¿ù¼¼ | ÀÚÀÌ¿ÀÇǽºÅÚ | 8 | 10.946 | 3,000 | 59 | 2021 | | 2025.09.25 | Àü¼¼ | ½Å¸²ÇǾØÇϿ콺 | 3 | 33.19 | 25,000 | 0 | 2022 | | 2025.09.24 | ¿ù¼¼ | ¿ì¿Õºô¶ó | 1 | 35.01 | 8,000 | 10 | 1991 | | 2025.09.24 | ¿ù¼¼ | ¾î¹ÝÆÓ¸®½º(6~7µ¿) | 2 | 46.41 | 20,000 | 40 | 2018 | | 2025.09.24 | ¿ù¼¼ | ¾ÆÀÌÆÄÅ© | 6 | 25.04 | 18,900 | 40 | 2015 | | 2025.09.24 | ¿ù¼¼ | (92-131) | 2 | 71.01 | 1,000 | 140 | 1990 | | 2025.09.24 | ¿ù¼¼ | (100-10) | 2 | 51.75 | 1,000 | 70 | 1987 | | 2025.09.24 | ¿ù¼¼ | ¿ì¸®ºô | 2 | 12 | 300 | 44 | 2012 | | 2025.09.24 | ¸Å¸Å | Àü¿øºô¶ó | 1 | 52.2 | 12,000 | | 1993 | | 2025.09.23 | ¿ù¼¼ | À¯Åäºô | 5 | 102.6 | 36,000 | 10 | 2006 | | 2025.09.23 | ¿ù¼¼ | (305-3) | 2 | 44.21 | 13,000 | 15 | 1988 | | 2025.09.22 | ¿ù¼¼ | ¾à¼öºô¶ó | 1 | 73.92 | 2,000 | 25 | 1990 | | 2025.09.22 | ¿ù¼¼ | (120-95) | 1 | 36.36 | 1,000 | 80 | 1986 | | 2025.09.22 | ¿ù¼¼ | ¼±Áøºô¶óÆ® | -1 | 26.9 | 500 | 57 | 2002 | | 2025.09.22 | ¿ù¼¼ | YUHABA | 2 | 14.51 | 500 | 54 | 2012 | | 2025.09.22 | ¿ù¼¼ | (1452-36) | 2 | 17.4 | 12,000 | 5 | 2017 | | 2025.09.22 | ¿ù¼¼ | (468-1) | 6 | 28.1 | 8,000 | 70 | 2014 | | 2025.09.22 | ¿ù¼¼ | ¼º¿øºô¶ó(1464-72) | 5 | 37.88 | 14,000 | 40 | 2002 | | 2025.09.22 | ¿ù¼¼ | È«¿¬±×¸°ºô(571-1) | 3 | 22.11 | 10,000 | 10 | 2016 | | 2025.09.22 | ¸Å¸Å | Æ÷µµ¿ø½¦¸£ºô | 4 | 29.67 | 23,000 | | 2012 | | 2025.09.22 | ¸Å¸Å | ûdz¾ÆÆ®¸Ç¼Ç11Â÷ | 3 | 56.16 | 20,000 | | 1997 | | 2025.09.21 | Àü¼¼ | ¹Ì°¡ÁÖÅÃ(1617-8) | 4 | 29.77 | 15,000 | 0 | 2011 | | 2025.09.21 | ¿ù¼¼ | ÈÞºô¸®Áö(538-30) | 4 | 15.84 | 1,000 | 53 | 2013 | | 2025.09.21 | ¸Å¸Å | ÀºÇÏ¸Ç¼Ç | 2 | 53.97 | 25,000 | | 1995 | | 2025.09.20 | ¿ù¼¼ | ´õÁý(TheZIP) | 3 | 17.12 | 1,000 | 62 | 2012 | | 2025.09.20 | ¸Å¸Å | µ¿»êºô¸®Áö(92-175) | 1 | 46.27 | 19,200 | | 1994 | | 2025.09.20 | ¸Å¸Å | µ¿»êºô¶ó | 1 | 50.37 | 32,000 | | 1994 | | 2025.09.20 | ¿ù¼¼ | ±Ý¼ººô¶ó(598-14) | 2 | 61.89 | 2,000 | 75 | 2001 | | 2025.09.20 | ¿ù¼¼ | ±ÝÈ£ÇϿ콺 | 3 | 29.12 | 500 | 50 | 2017 | | 2025.09.20 | ¿ù¼¼ | (1520-2) | 3 | 15.76 | 2,000 | 55 | 2013 | | 2025.09.20 | ¿ù¼¼ | µ¿¹æÆÄ·¹½º´Ùµ¿ | 3 | 35.28 | 7,500 | 22 | 1991 | | 2025.09.20 | Àü¼¼ | Earth70 | 3 | 48.05 | 33,150 | 0 | 2018 | | 2025.09.19 | ¿ù¼¼ | ÀÌÁöºñ¾Æ | 6 | 27.01 | 22,700 | 17 | 2015 | | 2025.09.19 | ¿ù¼¼ | 98-135 | 1 | 28.04 | 16,000 | 25 | 2014 | | 2025.09.19 | ¿ù¼¼ | ½¦¸£ºô | 4 | 15.64 | 10,000 | 10 | 2013 | | 2025.09.19 | ¸Å¸Å | ³ëºí·¹½ººô | 2 | 52.92 | 33,500 | | 2002 | | 2025.09.19 | ¸Å¸Å | ºÎ¿µºô¶ó3µ¿ | -1 | 25.5 | 7,000 | | 2002 | | 2025.09.18 | ¿ù¼¼ | JS¼¼¿ò | 2 | 38.55 | 13,000 | 30 | 2020 | | 2025.09.18 | ¿ù¼¼ | ¿î¼ºô¶óÆ®4 | 4 | 49.96 | 2,000 | 65 | 2001 | | 2025.09.18 | ¿ù¼¼ | (105-15) | -1 | 47.07 | 1,000 | 60 | 1993 | | 2025.09.18 | ¸Å¸Å | û±¸ÇÏÀÌÃ÷ºô¶ó | 4 | 45.31 | 45,000 | | 1995 | | 2025.09.18 | ¸Å¸Å | º»½ºÆäÀ̽º | 3 | 26.62 | 32,000 | | 2020 | | 2025.09.17 | ¸Å¸Å | Çѳª·¡23Â÷ | 4 | 28.86 | 31,500 | | 2022 | | 2025.09.17 | ¸Å¸Å | ½ÅÀϺô¶ó(610-59) | 4 | 54.33 | 24,000 | | 1993 | | 2025.09.17 | Àü¼¼ | J.KÇϿ콺 | 7 | 10.62 | 9,000 | 0 | 2012 | | 2025.09.17 | ¿ù¼¼ | ¼¼Á¾ÇÁ¶óÀÓ(101,102) | 3 | 47.32 | 3,000 | 100 | 2015 | | 2025.09.16 | ¸Å¸Å | ¸ÞÆ®·ÎŸ¿î5Â÷ | 3 | 44.59 | 37,000 | | 2017 | | 2025.09.16 | ¿ù¼¼ | û¼Û | 2 | 22.58 | 1,000 | 55 | 2017 | | 2025.09.16 | Àü¼¼ | ´õ·°½ººô | 4 | 40.42 | 31,500 | 0 | 2022 | | 2025.09.16 | ¿ù¼¼ | »ïõ¸®¿¸Áºô¶ó | 2 | 47.67 | 2,000 | 55 | 1986 | | 2025.09.16 | ¿ù¼¼ | µ¿¹®ºô¶ó | 3 | 60.3 | 5,000 | 65 | 2002 | | 2025.09.16 | ¿ù¼¼ | µµ·¹¸Ç¼Ç | 3 | 43.29 | 5,000 | 103 | 2016 | | 2025.09.16 | Àü¼¼ | ¹®°æÀç | 2 | 21.88 | 20,000 | 0 | 2020 | | 2025.09.16 | Àü¼¼ | ¹®°æÀç | 3 | 21.88 | 20,000 | 0 | 2020 | | 2025.09.16 | ¿ù¼¼ | û¼Û | 2 | 22.58 | 1,000 | 55 | 2017 | | 2025.09.16 | Àü¼¼ | ¹®°æÀç | 3 | 21.88 | 20,000 | 0 | 2020 | | 2025.09.15 | ¸Å¸Å | 98-135 | 4 | 26.39 | 27,200 | | 2014 | | 2025.09.15 | ¸Å¸Å | ÇѼººô¶ó(10-451) | 1 | 52.41 | 25,000 | | 1992 | | 2025.09.15 | ¸Å¸Å | ¼º¿ø±×¸°ºô5Â÷ | 1 | 54.68 | 27,900 | | 2002 | | 2025.09.15 | ¸Å¸Å | ÀÚ¿¬Ã¤ | 3 | 29.91 | 31,500 | | 2013 | | 2025.09.15 | ¸Å¸Å | ºÎ¿äºô¸®Áö | 4 | 43.17 | 22,500 | | 1994 | | 2025.09.15 | ¸Å¸Å | °øÀ۸ǼÇ11Â÷ | 2 | 47.97 | 24,500 | | 1997 | | 2025.09.15 | ¿ù¼¼ | À¸¶äij½½ | 6 | 39.71 | 3,000 | 150 | 2022 | | 2025.09.15 | ¿ù¼¼ | (98-239) | 4 | 25.555 | 3,000 | 74 | 2018 | | 2025.09.15 | ¿ù¼¼ | (409-151) | 2 | 55.37 | 3,000 | 80 | 1981 | | 2025.09.15 | ¿ù¼¼ | (98-239) | 2 | 25.555 | 3,000 | 85 | 2018 | | 2025.09.15 | ¿ù¼¼ | Ç׿øºô¶ó | 2 | 61.24 | 24,000 | 5 | 2008 | | 2025.09.15 | ¿ù¼¼ | ¼±¶óÀÌÁ»ê | 6 | 30.45 | 5,000 | 70 | 2013 | | 2025.09.13 | ¿ù¼¼ | ´Ù¼Ø½ÃƼºô | 8 | 12.21 | 17,000 | 11 | 2021 | | 2025.09.13 | ¿ù¼¼ | ÇÁ·¹½ºÆ¼Áöºô | 3 | 29.95 | 17,800 | 10 | 2012 | | 2025.09.13 | Àü¼¼ | ºñ³ª¸®¿ò1Â÷(610-339) | 3 | 29.23 | 18,000 | 0 | 2017 | | 2025.09.13 | ¿ù¼¼ | ¸íÀÏÆÄÅ©ºô | 3 | 27.09 | 1,000 | 70 | 2016 | | 2025.09.13 | ¿ù¼¼ | ÇÁ·¹½ºÆ¼Áöºô | 3 | 29.95 | 17,800 | 10 | 2012 | | 2025.09.13 | ¿ù¼¼ | ¹Ì¼ØºôAµ¿ | 4 | 54.58 | 4,000 | 70 | 2014 | | 2025.09.13 | ¿ù¼¼ | ´Ù¼Ø½ÃƼºô | 8 | 12.21 | 13,000 | 31 | 2021 | | 2025.09.13 | ¸Å¸Å | ±ÝÈ£¸Ç¼Ç(1570-28) | 2 | 49.4 | 26,000 | | 2002 | | 2025.09.13 | Àü¼¼ | ¿µ¶ô | 2 | 55.08 | 18,300 | 0 | 1991 | | 2025.09.13 | ¸Å¸Å | ÆÛ½ºÆ®ºô | 2 | 42.21 | 31,900 | | 2016 | | 2025.09.13 | ¸Å¸Å | ¾î¹ÝÆÓ¸®½º(6~7µ¿) | 3 | 46.41 | 34,800 | | 2018 | | 2025.09.13 | ¸Å¸Å | ¸Þ°¡´õŬ·¡½º | 6 | 37.49 | 28,000 | | 2017 | | 2025.09.13 | ¿ù¼¼ | ´Ù¼Ø½ÃƼºô | 8 | 12.21 | 13,000 | 31 | 2021 | | 2025.09.12 | Àü¼¼ | ·Î¾âÆÓ¸®½º | 3 | 41.32 | 26,000 | 0 | 2016 | | 2025.09.12 | Àü¼¼ | ·Î¾âÆÓ¸®½º | 3 | 41.32 | 26,000 | 0 | 2016 | | 2025.09.12 | ¿ù¼¼ | ÇÏÀÓ | 2 | 48.42 | 1,649 | 21 | 2017 | | 2025.09.12 | ¿ù¼¼ | Arena | 5 | 29.93 | 1,026 | 30 | 2023 | | 2025.09.12 | ¿ù¼¼ | º¸¸®ÇϿ콺 | 5 | 25.03 | 12,000 | 42 | 2017 | | 2025.09.12 | Àü¼¼ | Àå¿ø(532-8) | 3 | 28.1 | 19,400 | 0 | 2017 | | 2025.09.12 | ¿ù¼¼ | ¿µÈºô¶ó | 1 | 32.69 | 8,600 | 20 | 1993 | | 2025.09.12 | ¿ù¼¼ | Arena | 4 | 29.99 | 2,619 | 27 | 2023 | | 2025.09.12 | ¿ù¼¼ | (1631-23) | 5 | 24.77 | 15,000 | 50 | 2023 | | 2025.09.11 | ¿ù¼¼ | ´ÃÁ¶Àººô | 5 | 32.56 | 5,000 | 80 | 2023 | | 2025.09.11 | ¸Å¸Å | Áß¿ø¸®Ã÷ºô(1483-5) | 4 | 27.68 | 26,000 | | 2017 | | 2025.09.11 | ¸Å¸Å | ¿ì¸²¾ÆÆ®ºô | 5 | 37.49 | 32,800 | | 2018 | | 2025.09.11 | ¸Å¸Å | ¿¹¼ºÈÞij½½ | 3 | 33.13 | 26,250 | | 2014 | | 2025.09.11 | ¿ù¼¼ | ¿ì¼®ºô¶ó14Â÷ | -1 | 44.19 | 1,000 | 65 | 1995 | | 2025.09.11 | ¿ù¼¼ | ¿î¼º | 7 | 34.65 | 25,000 | 12 | 2020 | | 2025.09.11 | ¿ù¼¼ | ¿ì¼ººô¶ó | -1 | 45.75 | 500 | 43 | 1991 | | 2025.09.11 | ¿ù¼¼ | (1476-8) | 3 | 74.64 | 10,000 | 75 | 2004 | | 2025.09.11 | ¿ù¼¼ | ´ÃÁ¶Àººô | 5 | 32.56 | 5,000 | 80 | 2023 | | 2025.09.11 | ¿ù¼¼ | ³×¿ÀÁö¿ò | 5 | 26.55 | 16,000 | 10 | 2015 | | 2025.09.11 | ¿ù¼¼ | ¸®Ä¡ÆÄÅ©ºô | 4 | 112.82 | 150 | 40 | 2002 | | 2025.09.11 | ¸Å¸Å | Àϼººô¶ó | 1 | 41.58 | 18,800 | | 1994 | | 2025.09.10 | ¿ù¼¼ | (92-262) | 5 | 37.71 | 13,000 | 35 | 2012 | | 2025.09.10 | ¿ù¼¼ | ºÀȲºô¶ó(610-145) | 3 | 43.89 | 4,000 | 70 | 1994 | | 2025.09.10 | ¸Å¸Å | ÀºÇÏÇϿ콺 | 3 | 79.36 | 34,500 | | 2004 | | 2025.09.10 | ¿ù¼¼ | ´Ù¿ÂŸ¿ö | 8 | 26.03 | 2,000 | 125 | 2022 | | 2025.09.10 | ¿ù¼¼ | ºÀȲºô¶ó(610-145) | 3 | 43.89 | 4,000 | 70 | 1994 | | 2025.09.10 | Àü¼¼ | ÃÊÀ̽ººô(626-37) | 2 | 36.59 | 23,000 | 0 | 2014 | | 2025.09.10 | ¿ù¼¼ | µ¿¹æÁÖÅÃ8Â÷1µ¿ | -1 | 36.83 | 7,300 | 15 | 1990 | | 2025.09.09 | ¸Å¸Å | ¾ÆÆ®¶ó¿ò(103-139) | 6 | 53.14 | 49,300 | | 2022 | | 2025.09.09 | ¸Å¸Å | ¾ÆÆ®¶ó¿ò(103-139) | 5 | 49.97 | 47,200 | | 2022 | | 2025.09.09 | ¸Å¸Å | ¾ÆÆ®¶ó¿ò(103-139) | 5 | 48.36 | 44,150 | | 2022 | | 2025.09.09 | ¸Å¸Å | ¾ÆÆ®¶ó¿ò(103-139) | 4 | 29.54 | 32,250 | | 2022 | | 2025.09.09 | ¸Å¸Å | ¾ÆÆ®¶ó¿ò(103-139) | 4 | 29.75 | 32,200 | | 2022 | | 2025.09.09 | ¸Å¸Å | ¾ÆÆ®¶ó¿ò(103-139) | 3 | 29.97 | 31,500 | | 2022 | | 2025.09.09 | ¸Å¸Å | ¾ÆÆ®¶ó¿ò(103-139) | 2 | 29.54 | 31,800 | | 2022 | | 2025.09.09 | ¸Å¸Å | ¾ÆÆ®¶ó¿ò(103-139) | 2 | 29.97 | 31,200 | | 2022 | | 2025.09.09 | ¸Å¸Å | ¾ÆÆ®¶ó¿ò(103-139) | 2 | 29.75 | 31,550 | | 2022 | | 2025.09.09 | ¸Å¸Å | ¾Æ¸£¶¼ºô1 | 3 | 34.92 | 21,000 | | 2015 | | 2025.09.09 | ¸Å¸Å | °í¿øºô¶óÆ® | 3 | 28.83 | 12,000 | | 1995 | | 2025.09.09 | ¸Å¸Å | ¾ÆÆ®¶ó¿ò(103-139) | 6 | 29.54 | 32,400 | | 2022 | | 2025.09.09 | ¸Å¸Å | ¾ÆÆ®¶ó¿ò(103-139) | 4 | 29.97 | 31,850 | | 2022 | | 2025.09.09 | ¿ù¼¼ | (10-367) | 2 | 55.73 | 20,000 | 10 | 2002 | | 2025.09.09 | ¸Å¸Å | ¾ÆÆ®¶ó¿ò(103-139) | 3 | 29.54 | 32,100 | | 2022 | | 2025.09.09 | Àü¼¼ | Àå¿ø(532-8) | 3 | 28.1 | 19,950 | 0 | 2017 | | 2025.09.09 | ¿ù¼¼ | ¿¬ºô | 2 | 12.05 | 3,000 | 45 | 2012 | | 2025.09.09 | ¸Å¸Å | ¾ÆÆ®¶ó¿ò(103-139) | 3 | 29.75 | 31,850 | | 2022 | | 2025.09.09 | ¿ù¼¼ | Àº¿¬Àç | 4 | 15.61 | 1,000 | 45 | 2013 | | 2025.09.09 | ¿ù¼¼ | 533-26 | 3 | 27.06 | 10,000 | 30 | 2015 | | 2025.09.09 | ¿ù¼¼ | ·¹¿ÀÆÈ·¹½º | 4 | 23.58 | 5,000 | 100 | 2014 | | 2025.09.09 | ¿ù¼¼ | (468-1) | 4 | 27.16 | 18,000 | 20 | 2014 | | 2025.09.08 | ¿ù¼¼ | Æç¸®Ã¼ºô¸®Áö | 5 | 39.07 | 22,500 | 17 | 2018 | | 2025.09.08 | ¿ù¼¼ | (1572-1) | 2 | 13.87 | 5,000 | 51 | 2017 | | 2025.09.08 | ¿ù¼¼ | Àº¿¬Àç | 4 | 14.27 | 1,000 | 47 | 2013 | | 2025.09.08 | Àü¼¼ | ÇѾ縮Ã÷ºô(610-405) | 4 | 56.77 | 19,200 | 0 | 2012 | | 2025.09.08 | ¸Å¸Å | ½Å»çŸ¿îºô | 3 | 44.46 | 43,500 | | 2016 | | 2025.09.08 | ¸Å¸Å | °µ¿2Â÷ | 3 | 70.47 | 34,100 | | 2002 | | 2025.09.08 | ¸Å¸Å | Ǫ¸£¹Ì¸£ºô2Â÷ | 2 | 28.33 | 19,900 | | 2012 | | 2025.09.08 | ¸Å¸Å | »ï¼º¾ÆÆ®ºô(613-25) | 2 | 59.22 | 22,000 | | 2002 | | 2025.09.08 | ¿ù¼¼ | À̷봺ij½½ | 6 | 39.58 | 5,000 | 130 | 2016 | | 2025.09.07 | ¸Å¸Å | ½Åâºô¶ó | 3 | 31.92 | 58,000 | | 1991 | | 2025.09.07 | ¸Å¸Å | õ³âij½½(98-357) | 2 | 19.01 | 19,000 | | 2017 | | 2025.09.06 | ¿ù¼¼ | ¶óÀÓ½ººô | 2 | 29.8 | 1,000 | 90 | 2020 | | 2025.09.06 | ¸Å¸Å | ÇѽÅÀ§³Ê½º(440-69) | 3 | 29.94 | 22,900 | | 2016 | | 2025.09.06 | ¿ù¼¼ | (10-584) | 1 | 109.66 | 500 | 47 | 2006 | | 2025.09.06 | ¿ù¼¼ | º£¸£Ã¼ | 7 | 26.31 | 15,000 | 37 | 2015 | | 2025.09.06 | ¸Å¸Å | Çö´ë2ºô¶ó | 3 | 41.22 | 20,500 | | 1991 | | 2025.09.06 | ¸Å¸Å | µ¿¹®¾ÆÆ®ºô | 4 | 28.71 | 13,200 | | 2001 | | 2025.09.05 | ¸Å¸Å | dz¿øÇÏÀÓºô | 5 | 28.87 | 29,000 | | 2018 | | 2025.09.05 | ¿ù¼¼ | ¿À·ûºô¶óCµ¿(708-29) | 1 | 41.4 | 1,000 | 50 | 1987 | | 2025.09.05 | Àü¼¼ | dz¿øÇÏÀÓºô | 3 | 31.025 | 24,000 | 0 | 2018 | | 2025.09.05 | ¿ù¼¼ | ÈÞ¸Õºô | 3 | 46.7 | 300 | 70 | 2018 | | 2025.09.05 | ¿ù¼¼ | ÈÞ¸Õºô | 3 | 46.7 | 300 | 70 | 2018 | | 2025.09.05 | ¿ù¼¼ | ´Ù¼Ø±×¶ûºô | 2 | 51.78 | 27,200 | 30 | 2019 | | 2025.09.05 | ¿ù¼¼ | ¿ÀÁÖÇϿ콺 | 3 | 15.16 | 2,000 | 19 | 2012 | | 2025.09.05 | ¿ù¼¼ | 98-135 | 2 | 27.43 | 16,700 | 5 | 2014 | | 2025.09.05 | Àü¼¼ | ¹ÂÁöÄÃÆÄÅ© | 4 | 58.08 | 20,000 | 0 | 2014 | | 2025.09.05 | ¸Å¸Å | ´åÄÄÇϿ콺 | 2 | 58.11 | 45,000 | | 2001 | | 2025.09.05 | ¸Å¸Å | ¸®´õ½ººô(1575-7) | 4 | 35.51 | 32,000 | | 2015 | | 2025.09.04 | ¿ù¼¼ | ¸ÞÆ®·ÎŸ¿î8Â÷ | 2 | 42.06 | 29,500 | 5 | 2017 | | 2025.09.04 | ¿ù¼¼ | ´Ù¿ÂŸ¿ö | 7 | 26.03 | 2,000 | 125 | 2022 | | 2025.09.04 | ¿ù¼¼ | Áß¾ÓÇÏÀÌÃ÷ | 3 | 29.94 | 1,000 | 55 | 1995 | | 2025.09.04 | ¿ù¼¼ | 533-26 | 2 | 25.46 | 5,000 | 49 | 2015 | | 2025.09.03 | ¿ù¼¼ | ´õÁý(TheZIP) | 2 | 22.15 | 1,000 | 55 | 2012 | | 2025.09.03 | ¸Å¸Å | ¸Þ°¡´õŬ·¡½º | 4 | 45.75 | 41,000 | | 2017 | | 2025.09.03 | ¸Å¸Å | ûdz¾ÆÆ®¸Ç¼Ç11Â÷ | 2 | 63.24 | 26,000 | | 1997 | | 2025.09.03 | ¸Å¸Å | µ¿¹æºô¶ó(92-21) | 1 | 36.36 | 21,000 | | 1993 | | 2025.09.03 | ¸Å¸Å | ¼¼¿øºô¶ócµ¿ | 2 | 45.59 | 17,000 | | 1986 | | 2025.09.02 | ¿ù¼¼ | ´õŬ·¡½Ä | 4 | 29.2 | 22,400 | 15 | 2024 | | 2025.09.02 | Àü¼¼ | (702-8) | 2 | 47.64 | 19,300 | 0 | 2013 | | 2025.09.02 | ¿ù¼¼ | ´ë¼ººô¶ó | 2 | 31.89 | 500 | 73 | 1984 | | 2025.09.02 | ¿ù¼¼ | (98-185) | 2 | 48.96 | 5,000 | 150 | 2022 | | 2025.09.02 | ¿ù¼¼ | ´Ù¿Â½¦¸£ºô | 6 | 31.68 | 19,000 | 7 | 2016 | | 2025.09.02 | ¿ù¼¼ | ¼Û±¤ºô¶ó | 2 | 50.42 | 12,000 | 22 | 2002 | | 2025.09.02 | ¸Å¸Å | 102-9 | 2 | 29.43 | 20,000 | | 2015 | | 2025.09.02 | ¸Å¸Å | »ï¼ººô¶ó(412-163) | 3 | 44.31 | 35,000 | | 2004 | | 2025.09.02 | ¸Å¸Å | Çö´ëºô¶ó | 2 | 40.5 | 18,500 | | 1992 | | 2025.09.02 | Àü¼¼ | (412-335) | 2 | 29.73 | 12,000 | 0 | 1991 | | 2025.09.02 | ¸Å¸Å | Áß¾ÓÈú102µ¿ | 1 | 67.53 | 28,000 | | 2002 | | 2025.09.01 | ¸Å¸Å | ¿µµ¿ºô¶ó(³ªµ¿) | 1 | 57.3 | 28,000 | | 2001 | | 2025.09.01 | ¸Å¸Å | Çѳª·¡Aµ¿ | 4 | 52.13 | 34,500 | | 2017 | | 2025.09.01 | ¸Å¸Å | ¿µµ¿ºô¶ó(³ªµ¿) | 1 | 57.3 | 28,000 | | 2001 | | 2025.09.01 | ¸Å¸Å | CG¾Æ¸§Ã¤(2´ÜÁö) | 2 | 40.47 | 34,800 | | 2019 | | 2025.09.01 | ¿ù¼¼ | º£½ºÆ®ÇÏ¿ì¡ | 3 | 59.65 | 450 | 50 | 2011 | | 2025.09.01 | ¿ù¼¼ | (492-6) | 5 | 21.81 | 1,500 | 62 | 2016 | | 2025.09.01 | ¿ù¼¼ | (10-584) | 1 | 109.66 | 2,000 | 50 | 2006 | | 2025.09.01 | Àü¼¼ | J.KÇϿ콺 | 5 | 12 | 9,000 | 0 | 2012 | | 2025.08.31 | Àü¼¼ | ¿¹¸²ºô¶ó | 3 | 42.63 | 16,000 | 0 | 1994 | | 2025.08.31 | ¸Å¸Å | ÇØµ¸ÀÌ | 1 | 83.7 | 40,500 | | 1991 | | 2025.08.31 | ¸Å¸Å | ´ë¸²ÇÏÀÌÃ÷ºô | 2 | 57.03 | 36,000 | | 1990 | | 2025.08.31 | ¿ù¼¼ | (98-239) | 4 | 30.51 | 3,000 | 85 | 2018 | | 2025.08.30 | ¿ù¼¼ | ¼Ò³ëÇϿ콺 | 3 | 20.43 | 4,000 | 50 | 2014 | | 2025.08.30 | Àü¼¼ | (127-14) | 1 | 54.66 | 13,000 | 0 | 1990 | | 2025.08.30 | ¿ù¼¼ | 651-23 | 5 | 25.07 | 1,000 | 68 | 2016 | | 2025.08.30 | ¿ù¼¼ | ³ª»ê¸Ç¼Ç1Â÷ | 3 | 43.16 | 13,500 | 20 | 1996 | | 2025.08.30 | ¿ù¼¼ | Âù¼ÖÆÓ¸®½º | 5 | 48.7 | 13,000 | 30 | 2014 | | 2025.08.30 | ¿ù¼¼ | Âù¼ÖÆÓ¸®½º | 5 | 48.7 | 12,000 | 35 | 2014 | | 2025.08.29 | Àü¼¼ | Çѳª·¡19Â÷ | 7 | 29.94 | 21,600 | 0 | 2020 | | 2025.08.29 | ¿ù¼¼ | Àº¿¬Àç | 4 | 14.18 | 300 | 49 | 2013 | | 2025.08.29 | ¿ù¼¼ | Çö´ë1ºô¶ó | 2 | 41.91 | 3,000 | 67 | 1991 | | 2025.08.29 | ¿ù¼¼ | ¿ìõ¾ÆÆ®ºô | 2 | 74.61 | 5,000 | 125 | 2003 | | 2025.08.29 | ¿ù¼¼ | ´ëÈ£ºô¶ó | 2 | 48.06 | 13,500 | 15 | 1993 | | 2025.08.29 | ¸Å¸Å | Çູ¸Ç¼Ç3Â÷ | 1 | 54.76 | 25,000 | | 1995 | | 2025.08.29 | ¸Å¸Å | ºÎ¿ä±×¸°Å¸¿î(92-305) | 3 | 31.04 | 12,500 | | 1991 | | 2025.08.29 | ¿ù¼¼ | °ñµåºô¸®Áö | 3 | 41.81 | 13,000 | 40 | 2014 | | 2025.08.29 | ¿ù¼¼ | À¸¶äij½½ | 6 | 39.71 | 3,000 | 175 | 2022 | | 2025.08.29 | ¿ù¼¼ | °¶·¯¸®ÇϿ콺 | 4 | 17.98 | 3,000 | 60 | 2012 | | 2025.08.29 | Àü¼¼ | º»½ºÆäÀ̽º | 6 | 25.72 | 25,950 | 0 | 2020 | | 2025.08.28 | ¿ù¼¼ | Çູ¸®Ä¡ºô | 4 | 29.94 | 2,500 | 74 | 2014 | | 2025.08.28 | ¿ù¼¼ | (10-584) | 3 | 91.05 | 1,000 | 58 | 2006 | | 2025.08.28 | ¿ù¼¼ | ³ë¾ÆÀǹæÁÖ | 3 | 18.45 | 12,000 | 20 | 2012 | | 2025.08.28 | ¿ù¼¼ | ½Å¸²ÇÏÀÌÃ÷ºô¶ó4µ¿ | 1 | 75.72 | 17,000 | 100 | 1989 | | 2025.08.28 | Àü¼¼ | µ¿¼öºô¶ó(619-2) | 2 | 45.36 | 13,590 | 0 | 1992 | | 2025.08.28 | ¿ù¼¼ | žçºô¶ó | 3 | 46.71 | 2,000 | 75 | 1986 | | 2025.08.28 | ¸Å¸Å | ´Ù¿ø¾ÆÆ®ºô | 1 | 43.87 | 34,700 | | 2002 | | 2025.08.28 | Àü¼¼ | ½Å´ë¹æ³ëºí·çü | 16 | 25.22 | 24,500 | 0 | 2019 | | 2025.08.28 | Àü¼¼ | (415-47) | 1 | 33.53 | 6,000 | 0 | 1992 | | 2025.08.28 | ¿ù¼¼ | Çູ¸®Ä¡ºô | 4 | 29.94 | 2,500 | 73 | 2014 | | 2025.08.27 | ¿ù¼¼ | ÇѼۺô | 2 | 29.34 | 21,000 | 15 | 2016 | | 2025.08.27 | ¸Å¸Å | ¸ÞÆ®·ÎŸ¿î4Â÷ | 5 | 29.7 | 27,900 | | 2017 | | 2025.08.27 | ¿ù¼¼ | (1629-9) | 1 | 53.72 | 2,000 | 74 | 2001 | | 2025.08.27 | Àü¼¼ | ¾çÁö±×¸°ºô°¡µ¿ | 2 | 59.29 | 15,000 | 0 | 2001 | | 2025.08.27 | ¿ù¼¼ | ÆÄÀκô | 5 | 26.21 | 21,900 | 4 | 2014 | | 2025.08.27 | ¿ù¼¼ | ÇѼۺô | 2 | 29.34 | 21,000 | 15 | 2016 | | 2025.08.27 | ¿ù¼¼ | Æç¸¯½º | 4 | 19.41 | 5,000 | 25 | 2019 | | 2025.08.27 | ¿ù¼¼ | (92-246) | 2 | 29.33 | 15,000 | 10 | 2004 | | 2025.08.27 | ¿ù¼¼ | (92-246) | 2 | 29.33 | 15,000 | 10 | 2004 | | 2025.08.27 | Àü¼¼ | ½Å¸²°¡ | 2 | 52.52 | 15,000 | 0 | 1989 | | 2025.08.26 | ¿ù¼¼ | Á¤¸²È¨½ºÅÚ(88-35) | 2 | 21.2 | 800 | 70 | 2000 | | 2025.08.26 | ¿ù¼¼ | sweetvill | 5 | 18.33 | 1,000 | 58 | 2015 | | 2025.08.26 | ¿ù¼¼ | ¾î¿ï¸® | 4 | 31.53 | 17,000 | 18 | 2025 | | 2025.08.26 | ¿ù¼¼ | (1452-36) | 3 | 14.96 | 3,000 | 42 | 2017 | | 2025.08.26 | ¸Å¸Å | »ïȺô(B) | 5 | 47.48 | 43,000 | | 2018 | | 2025.08.26 | ¿ù¼¼ | STAY¿Â-¥° | 4 | 26.11 | 4,457 | 46 | 2022 | | 2025.08.26 | ¿ù¼¼ | ÁÁÀº»ç¶÷ÁÁÀºÁý | 4 | 27.72 | 500 | 49 | 2016 | | 2025.08.26 | ¿ù¼¼ | ½Å¸²ºôµù | 6 | 12.06 | 1,000 | 60 | 2018 | | 2025.08.26 | ¿ù¼¼ | ¼º¹Î | 4 | 12.16 | 1,000 | 50 | 2012 | | 2025.08.26 | Àü¼¼ | ´Ù¿Âij½½ | 4 | 29.31 | 22,000 | 0 | 2023 | | 2025.08.26 | Àü¼¼ | »ï¼ººô¶ó(412-374) | 2 | 48.28 | 16,800 | 0 | 2003 | | 2025.08.26 | ¿ù¼¼ | (98-235) | 1 | 48.75 | 5,000 | 65 | 2003 | | 2025.08.26 | ¿ù¼¼ | Á¶¿øµµ½ÃÇü»ýȰÁÖÅà | 5 | 13.6 | 500 | 47 | 2011 | | 2025.08.25 | ¸Å¸Å | µ¿¹æÁÖÅÃ8Â÷1µ¿ | -1 | 36.83 | 25,400 | | 1990 | | 2025.08.25 | ¸Å¸Å | Çö´ë½º¸¶Æ®ºô | 2 | 29.91 | 26,500 | | 2012 | | 2025.08.25 | ¸Å¸Å | ¾î¹ÝÆÓ¸®½º(8~9µ¿) | 2 | 47.46 | 39,500 | | 2018 | | 2025.08.25 | ¸Å¸Å | ´Ù¿øºô | 4 | 48.38 | 39,500 | | 2016 | | 2025.08.25 | Àü¼¼ | Çѳª·¡Aµ¿ | 3 | 52.13 | 22,000 | 0 | 2017 | | 2025.08.25 | Àü¼¼ | ¼¿ïºô¶ó(610-194) | 4 | 38.79 | 6,000 | 0 | 1992 | | 2025.08.25 | Àü¼¼ | ±ÃÀü¿¡¹öºô(713-6) | 3 | 44.46 | 12,000 | 0 | 2003 | | 2025.08.25 | ¿ù¼¼ | ¾î¿ï¸® | 2 | 48.5 | 5,000 | 111 | 2025 | | 2025.08.25 | ¿ù¼¼ | WannyVill(1487-21) | 4 | 28.71 | 4,000 | 53 | 2015 | | 2025.08.25 | ¿ù¼¼ | JCSTUDIO | 11 | 18.67 | 6,000 | 45 | 2018 | | 2025.08.25 | ¿ù¼¼ | ÆÄÀκô | 6 | 26.21 | 18,900 | 8 | 2014 | | 2025.08.25 | ¿ù¼¼ | ¼¾Æ®·¹ºô | 4 | 25.86 | 16,500 | 10 | 2016 | | 2025.08.25 | ¿ù¼¼ | ¼ö¿ù´ç | 3 | 12.97 | 300 | 45 | 2013 | | 2025.08.25 | Àü¼¼ | Ǫ¸¥¼ÖÇϿ콺 | 3 | 29.67 | 24,000 | 0 | 2017 | | 2025.08.25 | Àü¼¼ | ¹Ì¸®³»ºô¶ó | -1 | 42.46 | 8,600 | 0 | 1993 | | 2025.08.24 | ¸Å¸Å | °æ±¤ºô¶ó | 3 | 50.89 | 17,250 | | 1996 | | 2025.08.24 | ¸Å¸Å | ¸ð´×Èú(1564-9) | 3 | 40.39 | 35,000 | | 2016 | | 2025.08.23 | ¿ù¼¼ | Èñ¶ôºô¸®ÁöBµ¿(1641-116) | 3 | 15.3 | 2,000 | 40 | 2012 | | 2025.08.23 | ¿ù¼¼ | ¾î¿ï¸® | 3 | 35.97 | 5,000 | 80 | 2025 | | 2025.08.23 | ¿ù¼¼ | ½ºÆäÀ̽ººô | 4 | 53.93 | 5,000 | 110 | 2020 | | 2025.08.23 | ¿ù¼¼ | ´õŬ·¡½Ä | 3 | 28.77 | 21,700 | 15 | 2024 | | 2025.08.23 | ¿ù¼¼ | ¾î¿ï¸® | 3 | 48.5 | 4,000 | 120 | 2025 | | 2025.08.23 | ¿ù¼¼ | Á¶Àººô | 4 | 12.25 | 2,000 | 55 | 2013 | | 2025.08.23 | ¸Å¸Å | Âù¼ÖÆÓ¸®½º | 6 | 53.865 | 31,800 | | 2014 | | 2025.08.23 | ¸Å¸Å | ÀÌȺô¸®Áö | 1 | 43.04 | 27,500 | | 1993 | | 2025.08.22 | ¿ù¼¼ | ÈñÁغô | 2 | 48.28 | 5,085 | 52 | 2024 | | 2025.08.22 | ¿ù¼¼ | ½Å¾Èºô¶óÆ®(1464-78) | 4 | 45.71 | 6,000 | 73 | 2002 | | 2025.08.22 | ¿ù¼¼ | ·ç½Ãµå | 7 | 29.8 | 4,000 | 65 | 2017 | | 2025.08.22 | ¿ù¼¼ | ÈñÁغô | 2 | 58.18 | 3,681 | 38 | 2024 | | 2025.08.21 | ¿ù¼¼ | ½Å¸²ÆÄÅ©ºô | 3 | 36.35 | 7,539 | 7 | 2022 | | 2025.08.21 | Àü¼¼ | °æ¿øÇÏÀÌÃ÷ÅÚ | 11 | 13.64 | 12,000 | 0 | 2019 | | 2025.08.21 | ¿ù¼¼ | (98-140) | 1 | 40.77 | 1,000 | 40 | 1993 | | 2025.08.21 | ¿ù¼¼ | ÈñÁغô | 3 | 48.28 | 5,145 | 53 | 2024 | | 2025.08.21 | Àü¼¼ | ÈÞij½½ | 4 | 38.02 | 24,430 | 0 | 2014 | | 2025.08.21 | ¸Å¸Å | ¸®´õ½ººô(1575-7) | 3 | 35.24 | 31,000 | | 2015 | | 2025.08.21 | ¸Å¸Å | ½ÅÀÏ | 1 | 47.49 | 55,000 | | 1993 | | 2025.08.21 | ¸Å¸Å | ±âdz°ü¾Ç¸Ç¼Ç | 3 | 74.15 | 18,400 | | 1997 | | 2025.08.20 | ¿ù¼¼ | °æÃáºô¶ó | 1 | 53.94 | 13,000 | 23 | 1991 | | 2025.08.20 | ¿ù¼¼ | ¿¡¾î½ºÆäÀ̽º | 4 | 30.86 | 16,590 | 37 | 2021 | | 2025.08.20 | ¿ù¼¼ | ÈñÁغô | 3 | 58.18 | 14,984 | 15 | 2024 | | 2025.08.20 | ¿ù¼¼ | ¸®¾ØÃÊÀ̽º | 8 | 29.97 | 5,000 | 151 | 2023 | | 2025.08.20 | ¿ù¼¼ | ÇØ¶ß´ÂÁý2 | 2 | 10.85 | 500 | 50 | 2016 | | 2025.08.20 | ¿ù¼¼ | ÈñÁغô | 5 | 48.28 | 3,087 | 32 | 2024 | | 2025.08.20 | Àü¼¼ | ¼Û¸²ÆÄÅ©ºô¶ó | 1 | 68.32 | 26,700 | 0 | 1992 | | 2025.08.20 | ¿ù¼¼ | JÇìºìºô | 5 | 24.14 | 1,000 | 50 | 2015 | | 2025.08.20 | ¿ù¼¼ | ÈñÁغô | 3 | 58.18 | 6,210 | 64 | 2024 | | 2025.08.20 | ¸Å¸Å | »ï¼º¾ÆÆ®ºô(613-25) | 2 | 59.22 | 22,000 | | 2002 | | 2025.08.20 | ¸Å¸Å | ¿ø¾Óºô¶ó(98-352) | 5 | 45.82 | 32,850 | | 2002 | | 2025.08.20 | ¿ù¼¼ | »ç¸£ºô | 4 | 20.36 | 3,000 | 100 | 2013 | | 2025.08.19 | ¿ù¼¼ | µ¿¸íºô | 5 | 19.47 | 1,000 | 60 | 2015 | | 2025.08.19 | Àü¼¼ | ÇÁ·¹½ºÆ¼Áöºô | 2 | 59.97 | 29,400 | 0 | 2012 | | 2025.08.19 | ¿ù¼¼ | ½ò½ÃƼ | 6 | 27.9 | 4,000 | 95 | 2018 | | 2025.08.19 | Àü¼¼ | °ÇÈ«ÇÏÀÌÃ÷ | -1 | 59.63 | 15,000 | 0 | 1992 | | 2025.08.19 | Àü¼¼ | °ÇÈ«ÇÏÀÌÃ÷ | -1 | 59.63 | 15,000 | 0 | 1992 | | 2025.08.19 | Àü¼¼ | °ÇÈ«ÇÏÀÌÃ÷ | -1 | 59.63 | 15,000 | 0 | 1992 | | 2025.08.19 | Àü¼¼ | ÇÁ·¹½ºÆ¼Áöºô | 2 | 59.97 | 29,400 | 0 | 2012 | | 2025.08.19 | ¸Å¸Å | ½ÅÈïÆÄÅ©°¡ | 3 | 55.2 | 20,000 | | 1990 | | 2025.08.19 | Àü¼¼ | °ÇÈ«ÇÏÀÌÃ÷ | -1 | 59.63 | 15,000 | 0 | 1992 | | 2025.08.18 | ¸Å¸Å | ´ëÈ£ºô¶ó | 2 | 48.06 | 30,000 | | 1993 | | 2025.08.18 | ¸Å¸Å | 570-7 | 2 | 29.02 | 25,500 | | 2015 | | 2025.08.18 | ¿ù¼¼ | ±×¸°ºô¸®Áö | 4 | 44.7 | 12,450 | 40 | 2001 | | 2025.08.18 | Àü¼¼ | ¹ÂÁöÄÃÆÄÅ© | 2 | 29.91 | 15,750 | 0 | 2014 | | 2025.08.18 | Àü¼¼ | ÀÌȺô¶ó1Â÷ | 4 | 75.42 | 24,500 | 0 | 2009 | | 2025.08.18 | Àü¼¼ | dz¾çºôµù | 6 | 22.315 | 9,371 | 0 | 2012 | | 2025.08.18 | Àü¼¼ | ¾î¹ÝÆÓ¸®½º(103µ¿,105µ¿) | 5 | 51.67 | 34,000 | 0 | 2017 | | 2025.08.18 | ¿ù¼¼ | ¼±ÀΟ¿î | 20 | 13.48 | 1,000 | 71 | 2017 | | 2025.08.18 | ¿ù¼¼ | K-VIEWTOWER¥² | 3 | 17.39 | 1,000 | 100 | 2024 | | 2025.08.17 | ¸Å¸Å | ·Î¾âÇÏÀÌÃ÷ | 2 | 31.07 | 19,300 | | 2016 | | 2025.08.17 | ¿ù¼¼ | J2tower | 2 | 14.26 | 1,000 | 65 | 2014 | | 2025.08.17 | ¿ù¼¼ | Dimanche | 8 | 18.17 | 5,000 | 85 | 2018 | | 2025.08.17 | Àü¼¼ | 306-119(¿¹ÁöÆÓ¸®½º78Â÷) | 4 | 54.28 | 27,000 | 0 | 2014 | | 2025.08.17 | ¿ù¼¼ | °æµµºô | 1 | 84.65 | 1,000 | 37 | 2004 | | 2025.08.17 | ¿ù¼¼ | ¾ÆÆ®¸®ºùÅÚ(1465-46) | 3 | 67.61 | 15,000 | 70 | 2002 | | 2025.08.16 | Àü¼¼ | (675-239) | 1 | 67.77 | 7,000 | 0 | 1981 | | 2025.08.16 | ¿ù¼¼ | ¾î¿ï¸® | 5 | 52.93 | 3,000 | 129 | 2025 | | 2025.08.16 | ¿ù¼¼ | ±¤¼ºÇÏÀÌÃ÷ºô¶ó | 3 | 43.47 | 13,000 | 17 | 1991 | | 2025.08.16 | ¿ù¼¼ | ¹Ì¼º¿¤¸®Æ® | 6 | 14.93 | 3,000 | 39 | 2013 | | 2025.08.16 | ¿ù¼¼ | Çö´ë(1419-9) | 4 | 12.09 | 2,000 | 50 | 2012 | | 2025.08.16 | ¿ù¼¼ | ¾î¿ï¸® | 5 | 52.93 | 5,000 | 120 | 2025 | | 2025.08.16 | ¿ù¼¼ | JÇìºìºô | 3 | 21.89 | 15,300 | 38 | 2015 | | 2025.08.16 | ¿ù¼¼ | JÇìºìºô | 3 | 21.89 | 15,500 | 38 | 2015 | | 2025.08.16 | ¿ù¼¼ | ¶óÀÓ½ººô | 5 | 29.79 | 16,800 | 10 | 2020 | | 2025.08.16 | Àü¼¼ | (1536-4) | 2 | 48.74 | 24,000 | 0 | 2018 | | 2025.08.16 | ¸Å¸Å | ·Î¾âÆÓ¸®½º | 2 | 41.32 | 30,500 | | 2016 | | 2025.08.16 | ¸Å¸Å | ½Å¾Èºô¶óA | 2 | 70.56 | 25,000 | | 1991 | | 2025.08.15 | ¿ù¼¼ | º¸¶ó¸Å119µ¿ | 4 | 59.8 | 10,000 | 75 | 2000 | | 2025.08.15 | ¿ù¼¼ | Çö´ë°³³ª¸®ºô¶ó5Â÷ | 3 | 68.52 | 1,000 | 30 | 1985 | | 2025.08.15 | ¿ù¼¼ | ·¡¹Ì¾È | 3 | 24.19 | 15,000 | 5 | 2011 | | 2025.08.14 | ¿ù¼¼ | ½á¹Ô(551-29) | 7 | 26.3 | 20,600 | 30 | 2017 | | 2025.08.14 | ¿ù¼¼ | ¹Ì¼º¿¤¸®Æ® | 6 | 15.64 | 3,000 | 45 | 2013 | | 2025.08.14 | ¿ù¼¼ | T&K½Å¸²¥³ | 2 | 38.55 | 2,853 | 29 | 2024 | | 2025.08.14 | ¿ù¼¼ | (94-179) | 1 | 54.2 | 15,000 | 15 | 1991 | | 2025.08.14 | ¿ù¼¼ | ȲÁ¦13(414-7) | 1 | 28.95 | 1,000 | 50 | 1991 | | 2025.08.14 | ¸Å¸Å | °Ç¿µºô¶ó(90-1) | 1 | 57.19 | 17,500 | | 1995 | | 2025.08.14 | ¿ù¼¼ | ½á¹Ô(551-29) | 7 | 26.3 | 20,600 | 30 | 2017 | | 2025.08.13 | Àü¼¼ | û¿î | 2 | 14.04 | 6,000 | 0 | 2013 | | 2025.08.13 | ¸Å¸Å | ¿¹°Çºô¶ó(90-46) | 2 | 53.03 | 25,000 | | 1991 | | 2025.08.13 | ¿ù¼¼ | ½Å¸²¸Ç¼Ç | 3 | 71.46 | 3,000 | 100 | 1984 | | 2025.08.13 | ¸Å¸Å | ¸ÞÆ®·ÎŸ¿î6Â÷ | 2 | 46.59 | 35,500 | | 2017 | | 2025.08.13 | ¿ù¼¼ | STAY¿Â-¥° | 3 | 26.11 | 8,030 | 29 | 2022 | | 2025.08.13 | ¿ù¼¼ | STAY¿Â-¥° | 3 | 26.11 | 4,647 | 48 | 2022 | | 2025.08.13 | ¿ù¼¼ | (1562-10) | 5 | 29.5 | 100 | 29 | 2024 | | 2025.08.13 | ¿ù¼¼ | (1452-36) | 3 | 18.48 | 13,400 | 12 | 2017 | | 2025.08.13 | ¸Å¸Å | ´ëÈïºô¶ó | 3 | 49.7 | 18,300 | | 1996 | | 2025.08.13 | ¸Å¸Å | È£±¤ºô¶ó | -1 | 53.97 | 12,000 | | 1992 | | 2025.08.13 | ¸Å¸Å | ¸ÞÆ®·ÎŸ¿î1Â÷(1480-30) | 5 | 40.31 | 32,300 | | 2016 | | 2025.08.13 | ¿ù¼¼ | (1572-1) | 5 | 12.72 | 3,000 | 55 | 2017 | | 2025.08.13 | ¿ù¼¼ | Á¶¿øÇÏÀ̸ðºôµù | 5 | 21.62 | 1,000 | 33 | 2013 | | 2025.08.13 | ¿ù¼¼ | ¿¡½ºÅæºô4Â÷ | 5 | 38.59 | 3,000 | 53 | 2008 | | 2025.08.12 | ¿ù¼¼ | Çѳª·¡(685-100) | 2 | 49.71 | 1,000 | 105 | 2017 | | 2025.08.12 | Àü¼¼ | (409-265) | 3 | 84.06 | 12,000 | 0 | 2003 | | 2025.08.12 | ¿ù¼¼ | µ¿½Å°ñµçºô | 2 | 56.11 | 5,000 | 80 | 2011 | | 2025.08.12 | ¿ù¼¼ | T&K½Å¸²1 | 2 | 29.8 | 100 | 34 | 2023 | | 2025.08.12 | ¿ù¼¼ | ´Ù¿Âºô | 4 | 35.14 | 2,000 | 115 | 2022 | | 2025.08.12 | ¿ù¼¼ | T&K½Å¸²¥³ | 2 | 43.61 | 7,822 | 7 | 2024 | | 2025.08.12 | ¿ù¼¼ | ´Ù¿Âij½½ | 3 | 29.31 | 22,000 | 10 | 2023 | | 2025.08.12 | ¿ù¼¼ | T&K½Å¸²¥³ | 2 | 43.61 | 3,159 | 33 | 2024 | | 2025.08.12 | ¿ù¼¼ | ÇѺ°#6 | 3 | 26.01 | 100 | 33 | 2023 | | 2025.08.12 | ¸Å¸Å | ¸ÞÆ®·ÎŸ¿î6Â÷ | 2 | 46.59 | 35,500 | | 2017 | | 2025.08.11 | ¿ù¼¼ | T&K½Å¸²¥² | 3 | 28.34 | 10,618 | 9 | 2023 | | 2025.08.11 | ¿ù¼¼ | Çìºìºô¸®Áö | 4 | 22.16 | 1,000 | 50 | 2015 | | 2025.08.11 | ¿ù¼¼ | (251-326) | 2 | 34.25 | 1,000 | 52 | 2002 | | 2025.08.11 | ¿ù¼¼ | ¼ºÁø¸®Ä¡ºô | 2 | 57.29 | 150 | 80 | 2020 | | 2025.08.11 | ¿ù¼¼ | T&K½Å¸²¥² | 3 | 28.34 | 4,287 | 44 | 2023 | | 2025.08.11 | ¿ù¼¼ | T&K½Å¸²¥³ | 3 | 43.61 | 1,288 | 37 | 2024 | | 2025.08.11 | ¿ù¼¼ | T&K½Å¸²¥³ | 3 | 43.61 | 3,222 | 33 | 2024 | | 2025.08.11 | ¿ù¼¼ | ¿¡¾î½ºÆäÀ̽º | 3 | 24.83 | 13,720 | 30 | 2021 | | 2025.08.11 | ¸Å¸Å | ÆÇÅ׿ | 2 | 29.05 | 27,500 | | 2022 | | 2025.08.11 | ¸Å¸Å | ÆÇÅ׿ | 3 | 29.05 | 27,500 | | 2022 | | 2025.08.11 | ¸Å¸Å | ÆÇÅ׿ | 2 | 29.05 | 27,500 | | 2022 | | 2025.08.11 | ¿ù¼¼ | ¿¤¸²ºô¶ó | 3 | 67.44 | 14,000 | 50 | 1995 | | 2025.08.10 | ¿ù¼¼ | ½Å¸²µ¿Çϸ¶4Â÷ºô¶ó | -1 | 68.41 | 500 | 68 | 2001 | | 2025.08.10 | ¿ù¼¼ | °æµµºô | 3 | 84.95 | 500 | 37 | 2004 | | 2025.08.10 | ¸Å¸Å | ÇѾ縮Ã÷ºô | 3 | 48.84 | 36,800 | | 2014 | | 2025.08.09 | ¿ù¼¼ | º¸¹è | 1 | 50.67 | 7,000 | 62 | 1994 | | 2025.08.09 | ¿ù¼¼ | J&KHOUSE | 6 | 17.45 | 3,000 | 56 | 2013 | | 2025.08.09 | ¿ù¼¼ | (568-20) | 1 | 39.14 | 1,000 | 68 | 1976 | | 2025.08.09 | ¿ù¼¼ | żºÈÞºôA,Bµ¿ | 3 | 28.79 | 1,000 | 90 | 2014 | | 2025.08.09 | ¿ù¼¼ | ÇѰ´º½ºÅ¸ | 2 | 29.93 | 18,000 | 20 | 2016 | | 2025.08.09 | Àü¼¼ | ¾î¿ï¸® | 2 | 35.97 | 22,000 | 0 | 2025 | | 2025.08.09 | ¿ù¼¼ | (409-223) | 3 | 68.46 | 19,200 | 5 | 1992 | | 2025.08.09 | ¿ù¼¼ | ¾ÆÆ®ÆÄÅ© | 4 | 74.36 | 22,900 | 35 | 2001 | | 2025.08.09 | Àü¼¼ | »ïȺô(1440-5) | 6 | 28.26 | 22,000 | 0 | 2014 | | 2025.08.09 | ¿ù¼¼ | »ï¼º¾ÆÆ®ºô | 1 | 29.9 | 5,000 | 105 | 2017 | | 2025.08.09 | ¿ù¼¼ | »ïÇϺô¶ó(534-23) | 3 | 62.68 | 2,000 | 85 | 2003 | | 2025.08.09 | Àü¼¼ | ºñ³ª¸®¿ò1Â÷(610-339) | 3 | 29.23 | 18,000 | 0 | 2017 | | 2025.08.09 | ¿ù¼¼ | (1657-26) | 5 | 24.48 | 12,600 | 20 | 2014 | | 2025.08.09 | ¿ù¼¼ | ¾î¿ï¸® | 2 | 39.77 | 5,000 | 89 | 2025 | | 2025.08.09 | ¿ù¼¼ | Àº¼ººô(1632-15) | 2 | 23.65 | 3,000 | 70 | 2012 | | 2025.08.09 | ¿ù¼¼ | ¾î¿ï¸® | 2 | 48.5 | 5,000 | 111 | 2025 | | 2025.08.08 | ¿ù¼¼ | ÇÑ¿µºô¶ó(412-321) | 2 | 42.93 | 3,000 | 50 | 1992 | | 2025.08.08 | Àü¼¼ | ¾çÁö¸®Ã÷Ÿ¿î | 6 | 48.9 | 25,800 | 0 | 2016 | | 2025.08.08 | ¿ù¼¼ | 103-134 | 2 | 30.26 | 3,000 | 57 | 2014 | | 2025.08.08 | ¸Å¸Å | È£¼öºô¶ó | 1 | 50.96 | 20,000 | | 1999 | | 2025.08.08 | ¿ù¼¼ | ³¼ººôµù | 5 | 29.99 | 5,000 | 50 | 2016 | | 2025.08.08 | Àü¼¼ | (412-158) | 1 | 29.83 | 16,000 | 0 | 2014 | | 2025.08.08 | Àü¼¼ | Ŭ·¡½ºÆ® | 4 | 41.97 | 30,000 | 0 | 2018 | | 2025.08.08 | ¿ù¼¼ | ¸ÞÆ®·ÎŸ¿î2Â÷ | 6 | 42.3 | 26,900 | 30 | 2017 | | 2025.08.07 | Àü¼¼ | ¸ð°Ç¾ÆÆ®ºô5Â÷ | 3 | 29.3 | 22,400 | 0 | 2019 | | 2025.08.07 | Àü¼¼ | (646-138) | 3 | 34.92 | 4,500 | 0 | 1993 | | 2025.08.07 | Àü¼¼ | ¾î¿ï¸® | 5 | 31.53 | 21,000 | 0 | 2025 | | 2025.08.07 | ¿ù¼¼ | ´õŬ·¡½Ä | 3 | 29 | 21,900 | 10 | 2024 | | 2025.08.07 | ¿ù¼¼ | ¼±¶óÀÌÁ»ê | 4 | 13.28 | 1,000 | 47 | 2013 | | 2025.08.07 | ¸Å¸Å | Çý¼ºÆç¸®½º | 5 | 26.09 | 24,500 | | 2015 | | 2025.08.07 | ¸Å¸Å | Çö´ë¾ÆÆ®ºô(1667-14) | 1 | 59.89 | 35,000 | | 1999 | | 2025.08.07 | ¸Å¸Å | ûdz¾ÆÆ®¸Ç¼Ç11Â÷ | 2 | 63.24 | 26,000 | | 1997 | | 2025.08.07 | ¸Å¸Å | ½ÅÈïºô¶ó(598-17) | 2 | 50.16 | 17,500 | | 1989 | | 2025.08.07 | ¸Å¸Å | Çö´ë¾ÆÆ®ºô(1667-14) | 1 | 59.89 | 35,000 | | 1999 | | 2025.08.06 | ¿ù¼¼ | ¾î¿ï¸® | 3 | 31.53 | 5,000 | 71 | 2025 | | 2025.08.06 | ¿ù¼¼ | µ¨·ç½Ã¾Æ.R | 4 | 29.945 | 5,000 | 90 | 2022 | | 2025.08.06 | Àü¼¼ | ÁÖ¿øº£¸£ºô(493-7) | 2 | 29.93 | 25,200 | 0 | 2016 | | 2025.08.06 | ¿ù¼¼ | ´Ù¿Âij½½ | 3 | 29.09 | 22,000 | 10 | 2023 | | 2025.08.06 | ¿ù¼¼ | ¾î¿ï¸® | 2 | 31.53 | 8,000 | 53 | 2025 | | 2025.08.06 | ¿ù¼¼ | BELITATERRA | 7 | 29.24 | 28,000 | 5 | 2016 | | 2025.08.06 | ¿ù¼¼ | º¸¾Æ½ººô | 2 | 54.6 | 18,000 | 25 | 2013 | | 2025.08.06 | ¿ù¼¼ | »ïõ¸®¿¸Áºô¶ó | 2 | 47.77 | 5,000 | 20 | 1986 | | 2025.08.06 | Àü¼¼ | ÁÖ¿øº£¸£ºô(493-7) | 2 | 29.93 | 25,200 | 0 | 2016 | | 2025.08.06 | ¿ù¼¼ | ·ç½Ãµå | 10 | 22.42 | 3,000 | 70 | 2017 | | 2025.08.06 | ¿ù¼¼ | Áß¿ø(°¡) | 1 | 36.55 | 1,000 | 75 | 1990 | | 2025.08.06 | ¸Å¸Å | (87-32) | 3 | 34.29 | 18,500 | | 2002 | | 2025.08.06 | ¿ù¼¼ | H.KVillage | 11 | 18.83 | 1,000 | 82 | 2018 | | 2025.08.05 | ¿ù¼¼ | ¾î¿ï¸® | 3 | 31.53 | 5,000 | 71 | 2025 | | 2025.08.05 | ¿ù¼¼ | ¾î¿ï¸® | 4 | 52.93 | 5,000 | 111 | 2025 | | 2025.08.05 | ¿ù¼¼ | ´Ù¿Âij½½ | 3 | 29.63 | 22,000 | 10 | 2023 | | 2025.08.05 | ¿ù¼¼ | (1506-6) | 1 | 45.85 | 3,000 | 45 | 2003 | | 2025.08.05 | Àü¼¼ | ·Î¾âÆÓ¸®½º | 2 | 41.32 | 25,000 | 0 | 2016 | | 2025.08.05 | ¿ù¼¼ | ¾î¿ï¸® | 4 | 52.93 | 5,000 | 111 | 2025 | | 2025.08.05 | ¿ù¼¼ | ¾î¿ï¸® | 5 | 52.93 | 21,000 | 49 | 2025 | | 2025.08.05 | Àü¼¼ | ÀÏÀ°»ïºô¶ó | -1 | 39.82 | 8,000 | 0 | 1993 | | 2025.08.05 | Àü¼¼ | ·Î¾âÆÓ¸®½º | 2 | 41.32 | 25,000 | 0 | 2016 | | 2025.08.05 | ¿ù¼¼ | ¾î¿ï¸® | 3 | 39.77 | 5,000 | 93 | 2025 | | 2025.08.05 | Àü¼¼ | ¶óÀÓ½ººô | 4 | 29.79 | 18,500 | 0 | 2020 | | 2025.08.05 | ¿ù¼¼ | °¶·¯¸®ÇϿ콺 | 3 | 13.06 | 2,000 | 58 | 2012 | | 2025.08.04 | ¿ù¼¼ | ¿¹ÇöÅ׶󽺺ô | 3 | 36.89 | 20,000 | 55 | 2024 | | 2025.08.04 | ¿ù¼¼ | °¡À± | 5 | 11.78 | 300 | 47 | 2017 | | 2025.08.04 | ¿ù¼¼ | Á¤½Éºô¶ó3Â÷ | 4 | 39.66 | 11,900 | 30 | 1993 | | 2025.08.04 | ¿ù¼¼ | ´ë¿ìºô¶ó | 2 | 46.2 | 12,000 | 10 | 1993 | | 2025.08.04 | ¿ù¼¼ | ´ë½Å¾ÆÆ®ºô6Â÷ | 2 | 57.08 | 3,000 | 95 | 2003 | | 2025.08.03 | ¿ù¼¼ | ¸íÀÏÆÄÅ©ºô | 2 | 17.64 | 2,000 | 58 | 2016 | | 2025.08.03 | ¿ù¼¼ | ÀÌÁöºñ¾Æ | 7 | 27.81 | 23,500 | 10 | 2015 | | 2025.08.03 | ¿ù¼¼ | Ŭ·¡½Äij½½ | 5 | 27.74 | 5,500 | 95 | 2024 | | 2025.08.03 | Àü¼¼ | °è¸²ºô¶ó | 3 | 59.04 | 19,000 | 0 | 1994 | | 2025.08.02 | ¿ù¼¼ | ÀÚÀÌ¿ÀÇǽºÅÚ | 8 | 10.644 | 2,000 | 63 | 2021 | | 2025.08.02 | ¿ù¼¼ | ÇѽÅÀ§³Ê½º | 5 | 29.87 | 3,000 | 140 | 2022 | | 2025.08.02 | ¿ù¼¼ | ÇÏ´ÃÁ¤¿øºô | 1 | 28.02 | 17,470 | 10 | 2013 | | 2025.08.01 | ¿ù¼¼ | ¸íÈÆ´çºô¶ó | 3 | 76.03 | 500 | 51 | 2004 | | 2025.08.01 | Àü¼¼ | ¶óÆÄ¸£½Å¸² | 6 | 26.85 | 35,000 | 0 | 2023 | | 2025.08.01 | Àü¼¼ | ¼¾Æ®·¹ºô(º») | 6 | 29.88 | 25,000 | 0 | 2018 | | 2025.08.01 | ¿ù¼¼ | ÆÇÅ׿ | 6 | 29.81 | 28,000 | 12 | 2022 | | 2025.08.01 | Àü¼¼ | ¼¾Æ®·¹ºô(º») | 6 | 29.88 | 25,000 | 0 | 2018 | | 2025.08.01 | Àü¼¼ | ¼ºÈ£¾ÆÆ®ºô | 4 | 29.93 | 15,300 | 0 | 2018 | | 2025.08.01 | ¿ù¼¼ | û¼Û | 3 | 21.1 | 2,000 | 50 | 2017 | | 2025.07.31 | ¸Å¸Å | »ï¿ìÁÖÅÃ(86-26) | 1 | 46.29 | 23,000 | | 1991 | | 2025.07.31 | ¿ù¼¼ | Áß¾Óºô¶ó | 4 | 73.74 | 6,000 | 40 | 1992 | | 2025.07.31 | Àü¼¼ | ¼¼¿õ±×¸°ºô¶ó³ªµ¿ | 4 | 63 | 19,400 | 0 | 1994 | | 2025.07.31 | Àü¼¼ | (409-96) | 3 | 15.18 | 11,000 | 0 | 2013 | | 2025.07.31 | Àü¼¼ | ¿¤¸²Å¸¿î | 3 | 20.07 | 14,000 | 0 | 2017 | | 2025.07.30 | ¸Å¸Å | ȲÁ¦7(415-63) | -1 | 40.5 | 20,000 | | 1991 | | 2025.07.30 | ¸Å¸Å | (92-131) | 2 | 71.01 | 30,800 | | 1990 | | 2025.07.30 | Àü¼¼ | CG¾Æ¸§Ã¤(1´ÜÁö) | 2 | 52.49 | 29,480 | 0 | 2019 | | 2025.07.30 | ¿ù¼¼ | ¼ö¿ù´ç | 3 | 12.24 | 200 | 50 | 2013 | | 2025.07.30 | Àü¼¼ | ·ç½Ãµå | 10 | 28.52 | 26,000 | 0 | 2017 | | 2025.07.30 | ¿ù¼¼ | ÇѾ縮Ã÷ºô(646-232) | 6 | 18.08 | 5,000 | 49 | 2017 | | 2025.07.29 | ¸Å¸Å | ¸ð´×Èú(1564-9) | 1 | 38.37 | 34,000 | | 2016 | | 2025.07.29 | Àü¼¼ | ÀÌȺô¸®Áö | 1 | 43.68 | 9,000 | 0 | 1993 | | 2025.07.29 | ¿ù¼¼ | ¿ì¼®ÆÄÅ©ºô | 4 | 47.16 | 8,000 | 45 | 2003 | | 2025.07.28 | ¸Å¸Å | ÇÁ·¹½ºÆ¼Áöºô | 3 | 29.95 | 27,500 | | 2012 | | 2025.07.28 | ¸Å¸Å | ¿ì¼®ºô¶ó13Â÷ | -1 | 36.61 | 13,000 | | 1995 | | 2025.07.28 | ¿ù¼¼ | T&K½Å¸²¥± | 2 | 26.08 | 7,876 | 7 | 2024 | | 2025.07.28 | ¿ù¼¼ | ¼ÇØ¾ÆÆ®ºô | 3 | 62.1 | 4,000 | 90 | 2003 | | 2025.07.28 | ¿ù¼¼ | ÇѼۺô | 2 | 29.23 | 21,000 | 18 | 2016 | | 2025.07.28 | ¿ù¼¼ | T&K½Å¸²¥± | 2 | 26.08 | 3,180 | 33 | 2024 | | 2025.07.28 | Àü¼¼ | ûdz±×¸°ºô | 1 | 57.76 | 18,000 | 0 | 2001 | | 2025.07.28 | ¿ù¼¼ | (570-18) | 4 | 35.09 | 1,000 | 90 | 2018 | | 2025.07.27 | ¿ù¼¼ | û¿ëºô¶ó(102-27) | 3 | 11.22 | 800 | 51 | 2007 | | 2025.07.27 | ¸Å¸Å | ¼º¿ìºô¶ó | 4 | 59.85 | 70,000 | | 1991 | | 2025.07.27 | ¿ù¼¼ | ¶óÀÓ½ººô | 3 | 29.79 | 16,500 | 10 | 2020 | | 2025.07.27 | ¿ù¼¼ | û¿ëºô¶ó(102-27) | 3 | 20 | 300 | 39 | 2007 | | 2025.07.27 | ¿ù¼¼ | °ñµåºô¸®Áö | 4 | 26.79 | 10,000 | 50 | 2014 | | 2025.07.26 | ¿ù¼¼ | ºÎ¿ä±×¸°Å¸¿î(¶óµ¿) | 1 | 53.23 | 13,000 | 5 | 1991 | | 2025.07.26 | Àü¼¼ | (10-347) | 2 | 16.6 | 14,500 | 0 | 2018 | | 2025.07.26 | ¿ù¼¼ | ÇÏ¿µºô¶ó | 3 | 20.03 | 1,000 | 54 | 2002 | | 2025.07.26 | ¿ù¼¼ | 92-59 | 4 | 18.63 | 10,000 | 19 | 2015 | | 2025.07.26 | ¿ù¼¼ | ±Ý¼ººô¶ó(598-14) | 2 | 61.89 | 2,000 | 75 | 2001 | | 2025.07.26 | Àü¼¼ | ±Ý°¾ÆÆ®ºô¶ó | 4 | 52.58 | 18,100 | 0 | 1993 | | 2025.07.26 | ¿ù¼¼ | 92-59 | 4 | 18.63 | 10,000 | 19 | 2015 | | 2025.07.26 | ¿ù¼¼ | ¸ÞÆ®·ÎŸ¿î5Â÷ | 2 | 27.5 | 20,000 | 10 | 2017 | | 2025.07.26 | Àü¼¼ | (10-347) | 3 | 16.6 | 14,500 | 0 | 2018 | | 2025.07.26 | Àü¼¼ | ±Ý°¾ÆÆ®ºô¶ó | 4 | 52.58 | 18,100 | 0 | 1993 | | 2025.07.25 | ¸Å¸Å | ÇÁ¶óÀÓºô | 5 | 29.99 | 27,050 | | 2025 | | 2025.07.25 | ¸Å¸Å | ÇÁ¶óÀÓºô | 4 | 82.9 | 59,800 | | 2025 | | 2025.07.25 | ¸Å¸Å | ÇÁ¶óÀÓºô | 4 | 29.99 | 27,050 | | 2025 | | 2025.07.25 | ¸Å¸Å | ÇÁ¶óÀÓºô | 3 | 29.99 | 27,050 | | 2025 | | 2025.07.25 | ¸Å¸Å | ÇÁ¶óÀÓºô | 3 | 29.99 | 27,900 | | 2025 | | 2025.07.25 | ¸Å¸Å | ÇÁ¶óÀÓºô | 3 | 29.99 | 26,500 | | 2025 | | 2025.07.25 | ¸Å¸Å | ÇÁ¶óÀÓºô | 3 | 29.99 | 27,050 | | 2025 | | 2025.07.25 | ¸Å¸Å | ÇÁ¶óÀÓºô | 2 | 29.99 | 26,500 | | 2025 | | 2025.07.25 | ¸Å¸Å | ÇÁ¶óÀÓºô | 2 | 29.99 | 27,350 | | 2025 | | 2025.07.25 | ¸Å¸Å | ÇÁ¶óÀÓºô | 2 | 29.99 | 25,950 | | 2025 | | 2025.07.25 | ¸Å¸Å | ÇÁ¶óÀÓºô | 2 | 29.99 | 26,500 | | 2025 | | 2025.07.25 | ¸Å¸Å | ÇÁ¶óÀÓºô | 5 | 60.95 | 45,150 | | 2025 | | 2025.07.25 | ¸Å¸Å | ÇÁ¶óÀÓºô | 6 | 72.52 | 52,350 | | 2025 | | 2025.07.25 | ¿ù¼¼ | (468-7) | 3 | 31.53 | 4,000 | 65 | 2013 | | 2025.07.25 | Àü¼¼ | 1429-19 | 4 | 29.93 | 20,000 | 0 | 2016 | | 2025.07.25 | ¿ù¼¼ | ÇѼۺô | 2 | 29.34 | 20,000 | 20 | 2016 | | 2025.07.25 | ¿ù¼¼ | ´ë¿øºô¸®Áö | -1 | 84.88 | 5,000 | 115 | 2011 | | 2025.07.25 | ¿ù¼¼ | ´õÄÉÀÌŸ¿ö | 15 | 26.422 | 17,000 | 49 | 2018 | | 2025.07.25 | ¿ù¼¼ | ÇØÇÇÇϿ콺(10-649) | 4 | 12 | 1,000 | 40 | 2003 | | 2025.07.25 | Àü¼¼ | Äھƺô | 4 | 63.67 | 17,400 | 0 | 2002 | | 2025.07.25 | ¿ù¼¼ | (89-1) | 3 | 22.16 | 1,000 | 58 | 2016 | | 2025.07.25 | ¿ù¼¼ | ´Ù¿Âij½½ | 5 | 29.09 | 22,000 | 10 | 2023 | | 2025.07.25 | ¿ù¼¼ | (466-13) | 2 | 53.69 | 15,000 | 30 | 2002 | | 2025.07.24 | ¿ù¼¼ | °ü¾Çºô¶ó | 2 | 43.47 | 1,300 | 90 | 2002 | | 2025.07.24 | ¿ù¼¼ | (255-68) | 2 | 13.23 | 200 | 29 | 2011 | | 2025.07.24 | ¸Å¸Å | ÇѾ縮Ã÷ºô(1667-5) | 5 | 50.57 | 31,800 | | 2015 | | 2025.07.23 | ¿ù¼¼ | ¼¸²µµ½ÃÇü»ýȰÁÖÅà | 7 | 12.32 | 1,000 | 55 | 2013 | | 2025.07.23 | ¿ù¼¼ | º¸¸²¾ÆÆ®ºô | 4 | 79.53 | 5,000 | 145 | 1997 | | 2025.07.23 | ¿ù¼¼ | º¸¸²¾ÆÆ®ºô | 4 | 79.53 | 5,000 | 145 | 1997 | | 2025.07.23 | ¸Å¸Å | ¾Æ¸£¶¼ºô1 | 2 | 34.92 | 20,000 | | 2015 | | 2025.07.23 | ¸Å¸Å | À϶ôÇϿ콺 | -1 | 50.43 | 21,900 | | 1994 | | 2025.07.22 | ¿ù¼¼ | ½ãÇϿ콺 | 2 | 40.48 | 8,000 | 36 | 2002 | | 2025.07.22 | ¿ù¼¼ | ¿¤ÇϿ콺 | 3 | 42.09 | 1,000 | 60 | 2011 | | 2025.07.22 | ¿ù¼¼ | dz¿øÇÏÀÓºô | 3 | 31.025 | 24,000 | 18 | 2018 | | 2025.07.22 | ¿ù¼¼ | ¿¡ÄÚ¸®¿òºô(¿¹¼úÀÎÁÖÅÃ) | 5 | 42.6 | 5,133 | 13 | 2020 | | 2025.07.22 | ¿ù¼¼ | žçºô¶ó | 1 | 47.7 | 14,000 | 35 | 1986 | | 2025.07.22 | ¿ù¼¼ | K-VIEWTOWER¥² | 3 | 17.39 | 1,000 | 100 | 2024 | | 2025.07.22 | ¿ù¼¼ | (98-239) | 3 | 34.017 | 2,000 | 86 | 2018 | | 2025.07.22 | ¿ù¼¼ | žçºô¶ó | 1 | 47.7 | 14,000 | 35 | 1986 | | 2025.07.22 | ¿ù¼¼ | ´Ù¿¬Çູ | 2 | 12.51 | 500 | 53 | 2012 | | 2025.07.22 | ¸Å¸Å | ½Å¸²°¡ | 2 | 52.52 | 24,000 | | 1989 | | 2025.07.21 | ¿ù¼¼ | ÇÑȺô¸®ÁöBµ¿ | 3 | 80.43 | 5,000 | 95 | 2003 | | 2025.07.21 | ¿ù¼¼ | ÂüÁ¸µÕÁöºô | 2 | 26.61 | 5,000 | 70 | 2012 | | 2025.07.21 | ¿ù¼¼ | ¾ÆÄ«µ¥¹ÌÇϿ콺 | 5 | 25.24 | 1,000 | 85 | 2019 | | 2025.07.20 | ¸Å¸Å | ¿ø¾Óºô¶ó | 1 | 52.73 | 25,500 | | 2001 | | 2025.07.20 | ¿ù¼¼ | ±×¸°ÇÏÀ̺ô | 4 | 28.75 | 21,000 | 20 | 2020 | | 2025.07.20 | ¸Å¸Å | ¿ø¾Óºô¶ó | 1 | 52.73 | 25,500 | | 2001 | | 2025.07.20 | ¿ù¼¼ | ¼º¿ø±×¸°ºô4Â÷ | 1 | 62.22 | 4,000 | 50 | 2002 | | 2025.07.19 | ¿ù¼¼ | ¼±ÀΟ¿î | 20 | 13.48 | 3,000 | 65 | 2017 | | 2025.07.19 | ¿ù¼¼ | Ç׿øºô¶ó | 4 | 61.24 | 23,000 | 7 | 2008 | | 2025.07.19 | Àü¼¼ | ¾çÁö¸®Ã÷Ÿ¿î | 6 | 54.01 | 29,000 | 0 | 2016 | | 2025.07.19 | Àü¼¼ | ¾î¹ÝÆÓ¸®½º(6~7µ¿) | 2 | 47.62 | 30,450 | 0 | 2018 | | 2025.07.19 | ¸Å¸Å | ½Å¸²ºô¶ó(354-2) | 2 | 79 | 83,000 | | 1984 | | 2025.07.19 | ¿ù¼¼ | (408-5) | 1 | 67.14 | 20 | 100 | 1991 | | 2025.07.19 | ¿ù¼¼ | ȼöºô¶óB | 3 | 45.83 | 3,000 | 80 | 1993 | | 2025.07.19 | Àü¼¼ | ¸ÞÆ®·ÎŸ¿î8Â÷ | 3 | 42.06 | 25,000 | 0 | 2017 | | 2025.07.19 | Àü¼¼ | ¾çÁö¸®Ã÷Ÿ¿î | 6 | 54.01 | 29,000 | 0 | 2016 | | 2025.07.19 | ¿ù¼¼ | º¸¶ó¸Å107µ¿ | 4 | 59.8 | 3,000 | 150 | 2000 | | 2025.07.19 | Àü¼¼ | dz¿øÇÏÀÓºô | 4 | 31.025 | 24,000 | 0 | 2018 | | 2025.07.19 | ¿ù¼¼ | ÇѼۺô | 3 | 29.74 | 20,000 | 22 | 2016 | | 2025.07.19 | ¿ù¼¼ | ÄÚÁöÇϿ콺(COZYHOUSE) | 5 | 13.89 | 500 | 50 | 2012 | | 2025.07.19 | ¿ù¼¼ | ÇÑÀÏÇÏÀ̺ô | 5 | 12.99 | 3,000 | 50 | 2013 | | 2025.07.19 | ¿ù¼¼ | K-VIEWTOWER¥² | 5 | 17.39 | 1,000 | 100 | 2024 | | 2025.07.18 | ¸Å¸Å | ¿¡À̽º¸Ç¼Ç2 | 2 | 25.69 | 22,000 | | 2015 | | 2025.07.18 | ¸Å¸Å | CG¾Æ¸§Ã¤ | 4 | 28.6 | 23,800 | | 2019 | | 2025.07.18 | ¿ù¼¼ | JWµå¸²ºô(1657-25) | 4 | 30.71 | 500 | 51 | 2017 | | 2025.07.18 | Àü¼¼ | ¿¤¸²Å¸¿î | 4 | 20.07 | 14,000 | 0 | 2017 | | 2025.07.18 | ¿ù¼¼ | ½Â¿ìij½½ | 4 | 29.88 | 15,600 | 40 | 2014 | | 2025.07.18 | ¿ù¼¼ | (409-151) | 1 | 55.37 | 2,000 | 65 | 1981 | | 2025.07.18 | Àü¼¼ | ¿¤¸²Å¸¿î | 4 | 20.07 | 14,000 | 0 | 2017 | | 2025.07.18 | Àü¼¼ | ¾Æ¸§Ã¤ | 3 | 59.95 | 29,000 | 0 | 2015 | | 2025.07.18 | ¿ù¼¼ | ½Â¿ìij½½ | 4 | 29.88 | 15,600 | 40 | 2014 | | 2025.07.18 | Àü¼¼ | (501-6) | 2 | 26.09 | 24,900 | 0 | 2022 | | 2025.07.18 | ¿ù¼¼ | ¼ö¿ù´ç | 3 | 12.16 | 300 | 42 | 2013 | | 2025.07.18 | ¿ù¼¼ | ÇØÇǺô | 3 | 36.42 | 3,000 | 90 | 2012 | | 2025.07.17 | ¸Å¸Å | (1554-1) | 3 | 62.73 | 24,000 | | 1991 | | 2025.07.17 | ¸Å¸Å | Çѳª·¡3Â÷ | 2 | 37.45 | 27,500 | | 2016 | | 2025.07.17 | ¿ù¼¼ | µ¿¼ººô¶ó3Â÷ | 2 | 58.42 | 17,200 | 10 | 1995 | | 2025.07.16 | ¸Å¸Å | Á¤¿øºô¶óÆ® | 7 | 32.59 | 29,000 | | 2014 | | 2025.07.16 | ¿ù¼¼ | ¿ì¼®ºô¶ó6Â÷ | 1 | 44.49 | 12,000 | 15 | 1994 | | 2025.07.16 | ¿ù¼¼ | ÀºÇýºôµù | 6 | 27.49 | 10,700 | 32 | 2002 | | 2025.07.16 | ¿ù¼¼ | ÇØ¶ß´ÂÁý2 | 2 | 13.41 | 8,800 | 2 | 2016 | | 2025.07.16 | Àü¼¼ | CG¾Æ¸§Ã¤ | 5 | 53.09 | 25,000 | 0 | 2019 | | 2025.07.16 | Àü¼¼ | ÈúžÇϿ콺 | 3 | 86.88 | 23,000 | 0 | 2001 | | 2025.07.16 | ¿ù¼¼ | ¼Áø(1595-4) | 5 | 20.65 | 20,000 | 3 | 2017 | | 2025.07.15 | ¿ù¼¼ | ´Ù¿Âä | 1 | 63.96 | 5,000 | 125 | 2009 | | 2025.07.15 | ¿ù¼¼ | ¸íÀÏÆÄÅ©ºô | 4 | 28.62 | 2,000 | 85 | 2016 | | 2025.07.15 | ¸Å¸Å | ´ÙÀÎij½½Aµ¿ | 1 | 29.87 | 25,000 | | 2018 | | 2025.07.15 | ¿ù¼¼ | JÇìºìºô | 4 | 24.14 | 3,000 | 40 | 2015 | | 2025.07.15 | ¸Å¸Å | THEÁöÀ½ | 4 | 29.751 | 33,800 | | 2023 | | 2025.07.15 | ¸Å¸Å | ¿î¼ºô¶óÆ®4 | -1 | 67.1 | 16,000 | | 2001 | | 2025.07.15 | Àü¼¼ | »êÈ£¾ÆÆ®ºô | 5 | 48.27 | 14,500 | 0 | 2002 | | 2025.07.15 | ¿ù¼¼ | ÀºÇÏ¸Ç¼Ç | 1 | 53.43 | 2,000 | 75 | 1995 | | 2025.07.15 | ¿ù¼¼ | °í¿øºô¶óÆ® | 1 | 27.45 | 8,300 | 20 | 1995 | | 2025.07.15 | ¿ù¼¼ | °í¿øºô¶óÆ® | 1 | 27.45 | 8,300 | 20 | 1995 | | 2025.07.15 | ¿ù¼¼ | ´Ù¿Âä | 1 | 63.96 | 5,000 | 125 | 2009 | | 2025.07.15 | ¿ù¼¼ | ´Ù¿Âä | 1 | 63.96 | 5,000 | 125 | 2009 | | 2025.07.15 | ¿ù¼¼ | ´ëµ¿ÇÏÀÌÃ÷ºô¶ó | 3 | 18.55 | 500 | 50 | 2002 | | 2025.07.15 | ¿ù¼¼ | dz¿øÇÏÀÓºô | 3 | 31.025 | 24,000 | 20 | 2018 | | 2025.07.14 | Àü¼¼ | ¹«Áö°³ºô¶ó | 2 | 43.2 | 24,000 | 0 | 1993 | | 2025.07.14 | Àü¼¼ | ¹«Áö°³ºô¶ó | 2 | 43.2 | 24,000 | 0 | 1993 | | 2025.07.14 | ¿ù¼¼ | ÇѸ²101µ¿ | 4 | 59.33 | 15,000 | 52 | 2001 | | 2025.07.14 | ¿ù¼¼ | 1415-7 | 6 | 22.44 | 1,000 | 90 | 2016 | | 2025.07.14 | ¿ù¼¼ | Àü¿øÇÏÀÌÃ÷°¡µ¿ | 2 | 40.65 | 2,000 | 65 | 1991 | | 2025.07.14 | ¿ù¼¼ | ÇѸ²101µ¿ | 4 | 59.33 | 15,000 | 52 | 2001 | | 2025.07.14 | ¿ù¼¼ | ¼Ò³ëÇϿ콺 | 2 | 20.53 | 3,000 | 52 | 2014 | | 2025.07.14 | ¿ù¼¼ | (1458-1) | -1 | 34.01 | 5,000 | 50 | 1986 | | 2025.07.14 | ¸Å¸Å | ½Å¸²ÇÏÀÌÃ÷ºô¶ó4µ¿ | 1 | 75.72 | 64,500 | | 1989 | | 2025.07.14 | ¸Å¸Å | º»½ºÆäÀ̽º | 6 | 25.71 | 30,300 | | 2020 | | 2025.07.14 | ¸Å¸Å | 98-135 | 1 | 28.04 | 25,000 | | 2014 | | 2025.07.13 | ¸Å¸Å | ¼º¿ìÆÄÅ©ºô | 2 | 65.97 | 35,000 | | 2002 | | 2025.07.13 | ¿ù¼¼ | Áß¿ø(³ªµ¿) | 2 | 36.55 | 4,000 | 55 | 1990 | | 2025.07.13 | Àü¼¼ | Å¿µ¾ÆÆ®ºô | 3 | 48.09 | 23,800 | 0 | 2016 | | 2025.07.12 | ¿ù¼¼ | ±×¸°Å¸¿î | 3 | 51.48 | 5,000 | 85 | 2002 | | 2025.07.12 | Àü¼¼ | õ³âij½½ | 3 | 51.3 | 20,000 | 0 | 2015 | | 2025.07.12 | ¿ù¼¼ | ¼¸²µµ½ÃÇü»ýȰÁÖÅà | 4 | 12.32 | 1,000 | 60 | 2013 | | 2025.07.12 | ¿ù¼¼ | (466-13) | 2 | 38 | 6,000 | 35 | 2002 | | 2025.07.12 | ¿ù¼¼ | ¶óÇî´Àºô(517-20) | 3 | 14.69 | 500 | 58 | 2011 | | 2025.07.12 | ¸Å¸Å | (414-53) | 1 | 32.94 | 23,300 | | 1992 | | 2025.07.12 | ¸Å¸Å | ¿¡µ§ºô¶ó | 2 | 45.01 | 29,000 | | 1991 | | 2025.07.11 | ¿ù¼¼ | ¹ý¿ø | 2 | 44.56 | 200 | 48 | 1979 | | 2025.07.11 | ¿ù¼¼ | U2 | 5 | 13.09 | 1,000 | 50 | 2012 | | 2025.07.11 | Àü¼¼ | ½Å¶óÁÖÅ󪵿 | 2 | 66.99 | 13,000 | 0 | 1986 | | 2025.07.11 | ¿ù¼¼ | À²ÃÌÆÓ¸®½º | 6 | 27 | 19,000 | 5 | 2013 | | 2025.07.11 | ¿ù¼¼ | 98-135 | 2 | 27.97 | 17,000 | 20 | 2014 | | 2025.07.11 | ¿ù¼¼ | (98-185) | 3 | 48.96 | 5,500 | 140 | 2022 | | 2025.07.11 | Àü¼¼ | (254-301) | 1 | 84.38 | 34,500 | 0 | 1991 | | 2025.07.11 | ¿ù¼¼ | (1572-1) | 5 | 21.35 | 1,000 | 88 | 2017 | | 2025.07.11 | ¿ù¼¼ | û¿î | 2 | 13.6 | 500 | 38 | 2013 | | 2025.07.11 | ¿ù¼¼ | Á¶Àººô | 5 | 12 | 500 | 55 | 2013 | | 2025.07.10 | ¸Å¸Å | »õ¼¿ïºô¶ó3Â÷ | 1 | 55.2 | 24,900 | | 1995 | | 2025.07.10 | ¿ù¼¼ | ¼±ÀΟ¿î | 20 | 13.48 | 500 | 68 | 2017 | | 2025.07.10 | ¿ù¼¼ | ¿ì¸®ºô | 4 | 12 | 1,000 | 40 | 2012 | | 2025.07.10 | ¿ù¼¼ | û¼Û | 6 | 19.21 | 2,000 | 75 | 2017 | | 2025.07.10 | ¿ù¼¼ | Å©³ªÅ«ÇϿ콺 | 5 | 29.58 | 10,000 | 26 | 2016 | | 2025.07.10 | ¿ù¼¼ | (468-1) | 3 | 27.82 | 10,000 | 34 | 2014 | | 2025.07.10 | ¿ù¼¼ | Å·½ºÅ¸¿î | 3 | 29.94 | 2,000 | 115 | 2015 | | 2025.07.09 | ¿ù¼¼ | º»ÇϿ콺 | 5 | 20.07 | 1,000 | 81 | 2016 | | 2025.07.09 | ¸Å¸Å | ÄÚ¿À·Õºô | -1 | 45.54 | 12,600 | | 1996 | | 2025.07.08 | Àü¼¼ | Á¶Àº¾ÆÆ®ºô(354-33) | 1 | 69.12 | 15,000 | 0 | 2003 | | 2025.07.08 | ¸Å¸Å | (646-138) | -1 | 39.87 | 12,500 | | 1993 | | 2025.07.08 | ¿ù¼¼ | žçÇÏÀÌÃ÷ºô¶ó | 1 | 44.85 | 1,000 | 77 | 1990 | | 2025.07.08 | Àü¼¼ | ¹Ùº§ | 5 | 29.88 | 18,810 | 0 | 2020 | | 2025.07.08 | Àü¼¼ | ÈÞ¸ÕÆ®¸® | 5 | 26.49 | 21,000 | 0 | 2016 | | 2025.07.08 | Àü¼¼ | ÈÞ¸ÕÆ®¸® | 5 | 26.49 | 21,000 | 0 | 2016 | | 2025.07.08 | ¿ù¼¼ | ¼¼¿îºô¶ó | 1 | 58.92 | 1,000 | 70 | 1993 | | 2025.07.07 | ¸Å¸Å | ȼöºô¶óB | -1 | 38.28 | 16,300 | | 1993 | | 2025.07.07 | ¿ù¼¼ | ½ÅÈİ¡15Â÷ | 4 | 28.17 | 5,000 | 125 | 2023 | | 2025.07.07 | Àü¼¼ | °í¿øºô¶óÆ® | 1 | 24.39 | 7,000 | 0 | 1995 | | 2025.07.07 | ¸Å¸Å | ¼¼Á¾ÇÁ¶óÀÓ(101,102) | 3 | 56.98 | 32,000 | | 2015 | | 2025.07.07 | ¸Å¸Å | Æ÷µµ¿ø½¦¸£ºô | 4 | 29.83 | 23,000 | | 2012 | | 2025.07.07 | ¸Å¸Å | Çö´ë1ºô¶ó | -1 | 45.64 | 12,800 | | 1991 | | 2025.07.07 | Àü¼¼ | ´ë¾ç±×¸°ºô¶ó | 3 | 42.21 | 13,000 | 0 | 1994 | | 2025.07.07 | Àü¼¼ | °í¿øºô¶óÆ® | 1 | 24.39 | 7,000 | 0 | 1995 | | 2025.07.07 | Àü¼¼ | ´ë¾ç±×¸°ºô¶ó | 3 | 42.21 | 13,000 | 0 | 1994 | | 2025.07.07 | ¿ù¼¼ | ¼±ÀΟ¿î | 19 | 13.48 | 1,000 | 64 | 2017 | | 2025.07.07 | Àü¼¼ | ¿¹±×¸° | 2 | 28.93 | 17,100 | 0 | 2018 | | 2025.07.06 | Àü¼¼ | ´õ·°½ººô | 2 | 39.92 | 26,500 | 0 | 2022 | | 2025.07.06 | ¿ù¼¼ | (92-246) | 1 | 59.92 | 24,500 | 5 | 2004 | | 2025.07.06 | Àü¼¼ | Ciel10(1410-10) | 7 | 29.69 | 28,300 | 0 | 2015 | | 2025.07.06 | Àü¼¼ | ´õ·°½ººô | 2 | 39.92 | 26,500 | 0 | 2022 | | 2025.07.06 | ¿ù¼¼ | ÀÌÁöºñ¾Æ | 5 | 27.18 | 21,000 | 15 | 2015 | | 2025.07.05 | Àü¼¼ | ¿¡µ§ÇϿ콺 | 3 | 29.95 | 15,900 | 0 | 2014 | | 2025.07.05 | ¿ù¼¼ | (409-96) | 3 | 13.62 | 9,500 | 5 | 2013 | | 2025.07.05 | ¿ù¼¼ | ¹®°æÀç | 4 | 24.82 | 18,000 | 3 | 2020 | | 2025.07.05 | Àü¼¼ | ÇØÇǺô¸®Áö2Â÷ | 2 | 39.85 | 23,000 | 0 | 2001 | | 2025.07.05 | ¿ù¼¼ | °¡¿Â´©¸® | 6 | 17.67 | 500 | 53 | 2015 | | 2025.07.05 | Àü¼¼ | ÁÖ¿øº£¸£ºô(493-7) | 6 | 28.68 | 29,000 | 0 | 2016 | | 2025.07.05 | Àü¼¼ | (254-301) | 2 | 84.38 | 40,000 | 0 | 1991 | | 2025.07.05 | ¿ù¼¼ | ·çÀ̺ô¸®Áö | 4 | 49.92 | 5,000 | 138 | 2021 | | 2025.07.05 | ¿ù¼¼ | ¼Û±¤ºô¶ó | 3 | 40.73 | 5,000 | 60 | 2002 | | 2025.07.05 | ¸Å¸Å | º§À¯¾îºí | 6 | 35.25 | 32,000 | | 2016 | | 2025.07.04 | Àü¼¼ | ¿¡¸£½º¶¼ | 13 | 23.93 | 20,340 | 0 | 2018 | | 2025.07.04 | ¿ù¼¼ | ÆÇÅ׿ | 3 | 29.05 | 27,700 | 10 | 2022 | | 2025.07.04 | ¿ù¼¼ | (10-357) | 1 | 50.02 | 17,000 | 20 | 1991 | | 2025.07.04 | ¿ù¼¼ | ÁÁÀºÁý | 3 | 15.43 | 500 | 40 | 2014 | | 2025.07.04 | ¿ù¼¼ | ¿ùµåºô | 1 | 25.2 | 2,000 | 44 | 2003 | | 2025.07.04 | ¸Å¸Å | (412-158) | 1 | 29.83 | 29,800 | | 2014 | | 2025.07.03 | ¸Å¸Å | »óÁöºô¶ó | 3 | 84.01 | 78,000 | | 1986 | | 2025.07.03 | ¿ù¼¼ | (1520-2) | 4 | 15.76 | 2,000 | 55 | 2013 | | 2025.07.03 | Àü¼¼ | ¾¾¹Ð·¹ | 1 | 28.95 | 15,000 | 0 | 2015 | | 2025.07.03 | ¿ù¼¼ | ÇØ¿À¸§(90-41) | 2 | 41.9 | 2,000 | 72 | 2013 | | 2025.07.03 | Àü¼¼ | ¸®Ã¦Æ® | 4 | 16.82 | 17,000 | 0 | 2012 | | 2025.07.03 | ¿ù¼¼ | ¼öÁ¤(98-202) | 3 | 38.82 | 1,000 | 75 | 1991 | | 2025.07.03 | ¿ù¼¼ | Âù¼ÖÆÓ¸®½º | 5 | 48.7 | 2,000 | 50 | 2014 | | 2025.07.03 | ¿ù¼¼ | (1654-12) | 3 | 13.4 | 500 | 35 | 2013 | | 2025.07.03 | ¸Å¸Å | »ï¼ºÇϿ콺 | 5 | 41.62 | 28,300 | | 2015 | | 2025.07.03 | ¸Å¸Å | (98-242) | 2 | 33.41 | 16,500 | | 1993 | | 2025.07.03 | ¿ù¼¼ | µ¿³²ºô¶ó(598-210) | 2 | 38.88 | 2,000 | 14 | 1992 | | 2025.07.02 | ¸Å¸Å | ¾çÁöºô¶ó(352-10) | -1 | 49.22 | 58,000 | | 1986 | | 2025.07.02 | ¸Å¸Å | Á¶Àº¾ÆÆ®ºô(354-73) | 5 | 46.21 | 61,500 | | 2002 | | 2025.07.02 | ¸Å¸Å | ½ºÀ§Æ®Ä³½½ | 6 | 29.7 | 36,320 | | 2019 | | 2025.07.02 | ¿ù¼¼ | ¿¹¼ºÈÞij½½ | 6 | 38.34 | 5,000 | 65 | 2014 | | 2025.07.02 | ¿ù¼¼ | (1631-23) | 5 | 24.35 | 21,200 | 24 | 2023 | | 2025.07.02 | ¿ù¼¼ | ü³ªÄݺô | 6 | 29.78 | 21,900 | 15 | 2021 | | 2025.07.02 | ¿ù¼¼ | È¿·ÉÇÏÀ̺ô | 3 | 48.56 | 5,000 | 88 | 2004 | | 2025.07.02 | ¿ù¼¼ | ¾Ö½ºÅæºô7Â÷ | 3 | 40.05 | 10,000 | 13 | 2008 | | 2025.07.02 | ¿ù¼¼ | ü³ªÄݺô | 5 | 29.6 | 12,000 | 68 | 2021 | | 2025.07.02 | Àü¼¼ | ÇØÇÇŸ¿ö | 7 | 26.77 | 20,830 | 0 | 2016 | | 2025.07.02 | ¿ù¼¼ | ´ÙÀÎij½½Aµ¿ | 1 | 29.87 | 21,500 | 30 | 2018 | | 2025.07.01 | ¿ù¼¼ | (468-1) | 5 | 27.82 | 15,000 | 40 | 2014 | | 2025.07.01 | ¸Å¸Å | (96-66) | 3 | 56 | 27,000 | | 2002 | | 2025.07.01 | ¿ù¼¼ | ¶óÇî´Àºô(517-20) | 2 | 14.69 | 3,000 | 50 | 2011 | | 2025.07.01 | ¸Å¸Å | ¾î¹ÝÆÓ¸®½º(103µ¿,105µ¿) | 5 | 51.67 | 39,650 | | 2017 | | 2025.07.01 | ¸Å¸Å | ´ë¸²¾ÆÆ®ºô | 3 | 37.77 | 27,000 | | 2018 | | 2025.06.30 | ¿ù¼¼ | ±Û·Î¸®¾Æ | 4 | 28.21 | 8,000 | 15 | 1992 | | 2025.06.30 | ¸Å¸Å | À̾îºô¶ó | 2 | 61.32 | 28,200 | | 1997 | | 2025.06.30 | ¸Å¸Å | 102-9 | 5 | 52.81 | 25,000 | | 2015 | | 2025.06.30 | ¿ù¼¼ | À¸¶äij½½ | 2 | 29.57 | 2,000 | 125 | 2022 | | 2025.06.30 | Àü¼¼ | Âù¼ÖÆÓ¸®½º | 5 | 48.7 | 15,000 | 0 | 2014 | | 2025.06.30 | Àü¼¼ | ¸ÞÆ®·ÎŸ¿î3Â÷ | 2 | 29.18 | 19,200 | 0 | 2017 | | 2025.06.30 | Àü¼¼ | ¿¡µ§ºô¶ó | 3 | 37.86 | 13,000 | 0 | 1991 | | 2025.06.30 | ¿ù¼¼ | STAY¿Â-¥° | 5 | 26.11 | 11,155 | 9 | 2022 | | 2025.06.28 | ¿ù¼¼ | ¶óÀÓÄ«¿îƼ | 3 | 28.52 | 5,000 | 70 | 2018 | | 2025.06.28 | Àü¼¼ | ´ë¼º¾ÆÆ®ºô | 2 | 25.93 | 18,500 | 0 | 2019 | | 2025.06.28 | Àü¼¼ | ÀÎÁ¤°¡1 | 2 | 29.2 | 15,000 | 0 | 2013 | | 2025.06.28 | ¿ù¼¼ | ¼¸²µµ½ÃÇü»ýȰÁÖÅà | 7 | 12.32 | 1,000 | 60 | 2013 | | 2025.06.28 | Àü¼¼ | ÀÎÁ¤°¡1 | 2 | 29.2 | 15,000 | 0 | 2013 | | 2025.06.28 | ¿ù¼¼ | Ŭ·¡½Äij½½ | 5 | 29.74 | 6,000 | 120 | 2024 | | 2025.06.28 | ¿ù¼¼ | ¸®Ã¦Æ® | 5 | 16.83 | 11,700 | 35 | 2012 | | 2025.06.28 | ¿ù¼¼ | ±â¸°ºô¶ó³ªµ¿ | 2 | 45.81 | 12,800 | 10 | 1994 | | 2025.06.28 | Àü¼¼ | µå¸²Å¸¿î | 7 | 24.03 | 25,000 | 0 | 2020 | | 2025.06.28 | ¸Å¸Å | °í¿øºô¶óÆ® | 2 | 23.76 | 12,000 | | 1995 | | 2025.06.27 | ¸Å¸Å | (412-158) | 3 | 29.83 | 29,700 | | 2014 | | 2025.06.27 | Àü¼¼ | ÇØ´ãä | 3 | 36.53 | 25,000 | 0 | 2015 | | 2025.06.27 | ¿ù¼¼ | ±¹Á¦¾Ë¾Øµå¾¾ | 2 | 28.58 | 1,000 | 80 | 2018 | | 2025.06.27 | ¿ù¼¼ | ¸ñ¿ø | 4 | 18.72 | 1,000 | 70 | 2013 | | 2025.06.27 | ¸Å¸Å | žçºô¶ó | 1 | 47.7 | 30,700 | | 1986 | | 2025.06.26 | ¿ù¼¼ | ¾ÆÁöÆ®(1432-51) | 7 | 27.98 | 22,600 | 40 | 2018 | | 2025.06.26 | ¸Å¸Å | Ǫ¸£¹Ì¸£ºô2Â÷ | 2 | 34.55 | 22,200 | | 2012 | | 2025.06.26 | ¸Å¸Å | ¿ø¾Óºô¶ó | 2 | 38.29 | 20,000 | | 1993 | | 2025.06.26 | Àü¼¼ | ¾ÆÁÖ¸Ç¼Ç | 4 | 46.2 | 15,000 | 0 | 1995 | | 2025.06.26 | Àü¼¼ | È«¸²ºô¶ó³ªµ¿ | -1 | 38.34 | 10,000 | 0 | 1988 | | 2025.06.26 | Àü¼¼ | û¼Ûºô¶ó | 2 | 48.26 | 18,770 | 0 | 2002 | | 2025.06.25 | Àü¼¼ | ½Å¼¼°èºô¶ó | 2 | 34.81 | 11,800 | 0 | 1991 | | 2025.06.25 | ¿ù¼¼ | ½Å¸²¿¡½ºÆ÷·¹ | 16 | 24.74 | 1,000 | 180 | 2024 | | 2025.06.25 | Àü¼¼ | ½Å¼¼°èºô¶ó | 2 | 34.81 | 11,800 | 0 | 1991 | | 2025.06.25 | ¸Å¸Å | (94-29) | 3 | 28.84 | 26,000 | | 2018 | | 2025.06.25 | ¿ù¼¼ | Çö´ë1ºô¶ó | 2 | 45.64 | 5,000 | 60 | 1991 | | 2025.06.25 | ¸Å¸Å | (306-49) | 4 | 75.51 | 35,000 | | 2002 | | 2025.06.24 | ¿ù¼¼ | ¿ì¸®ºô | 4 | 12.11 | 300 | 41 | 2012 | | 2025.06.24 | ¿ù¼¼ | (10-584) | 4 | 65.15 | 1,000 | 50 | 2006 | | 2025.06.24 | ¿ù¼¼ | û¼Û | 4 | 24.89 | 2,000 | 100 | 2017 | | 2025.06.24 | ¿ù¼¼ | PREMIO725C | 4 | 26.91 | 3,000 | 110 | 2022 | | 2025.06.24 | ¿ù¼¼ | Èñ¶ôºô¸®ÁöAµ¿(1641-45) | 5 | 15.54 | 2,000 | 40 | 2012 | | 2025.06.24 | ¿ù¼¼ | K-VIEWTOWER¥² | 4 | 17.39 | 5,000 | 80 | 2024 | | 2025.06.24 | ¿ù¼¼ | ÁÖ¿ø | 7 | 13.41 | 1,000 | 40 | 2013 | | 2025.06.24 | ¸Å¸Å | Èúž¼¼¶ó¹Í | 1 | 66.155 | 39,500 | | 1997 | | 2025.06.24 | ¸Å¸Å | ÀºÇÏÇϿ콺 | 4 | 68.32 | 28,000 | | 2004 | | 2025.06.24 | ¸Å¸Å | ÆÇÅ׿ | 3 | 29.05 | 28,100 | | 2022 | | 2025.06.24 | ¿ù¼¼ | ÇѸ²105µ¿ | 4 | 55.59 | 20,000 | 30 | 2001 | | 2025.06.24 | ¸Å¸Å | ±¹Á¦¾Ë¾Øµå¾¾ | 2 | 27.68 | 26,300 | | 2018 | | 2025.06.23 | ¿ù¼¼ | ȲÁ¦(415-51) | -1 | 36.66 | 500 | 40 | 1990 | | 2025.06.23 | Àü¼¼ | ´õ¾¾¿¤ | 5 | 29.94 | 24,150 | 0 | 2015 | | 2025.06.23 | ¿ù¼¼ | (757-21) | 3 | 42.19 | 3,000 | 50 | 1990 | | 2025.06.23 | ¿ù¼¼ | ÈñÇϿ콺 | 4 | 29.43 | 1,000 | 90 | 2019 | | 2025.06.23 | ¿ù¼¼ | Jin.H | 3 | 12.24 | 0 | 50 | 2013 | | 2025.06.23 | ¿ù¼¼ | °ñµçÈú | 4 | 24.78 | 11,000 | 30 | 2013 | | 2025.06.22 | ¿ù¼¼ | Çѳª·¡(1680-7) | 6 | 29.78 | 21,200 | 15 | 2017 | | 2025.06.22 | ¿ù¼¼ | Çѳª·¡(1680-7) | 6 | 29.78 | 21,200 | 15 | 2017 | | 2025.06.22 | ¿ù¼¼ | ´õŬ·¡½Ä | 3 | 29.56 | 22,000 | 20 | 2024 | | 2025.06.22 | Àü¼¼ | ÈÞ¸Õºô(610-223) | 3 | 28.74 | 17,100 | 0 | 2016 | | 2025.06.21 | Àü¼¼ | ÇÊÇϿ콺4Â÷ | 3 | 36.84 | 22,300 | 0 | 2014 | | 2025.06.21 | ¸Å¸Å | ½Å¸²¸Ç¼Ç | 1 | 71.46 | 42,000 | | 1984 | | 2025.06.21 | ¸Å¸Å | ½Å¾Èºô¶óÆ® | 5 | 52.15 | 25,500 | | 2003 | | 2025.06.21 | ¸Å¸Å | ´ë¾çȨ¸Ç¼Ç | 4 | 74.04 | 33,000 | | 2003 | | 2025.06.21 | ¸Å¸Å | ½ºÆäÀ̽ººô | 2 | 29.82 | 26,300 | | 2020 | | 2025.06.21 | ¿ù¼¼ | (255-120) | 1 | 70.2 | 6,000 | 80 | 1991 | | 2025.06.21 | ¿ù¼¼ | ¸ñȺôµù | 3 | 70.88 | 6,000 | 125 | 2004 | | 2025.06.21 | ¿ù¼¼ | Çʱ׸² | 2 | 46.78 | 2,000 | 90 | 2003 | | 2025.06.21 | ¸Å¸Å | Çì·»ÇϿ콺3Â÷ | 5 | 34.39 | 29,000 | | 2014 | | 2025.06.21 | ¿ù¼¼ | (10-419) | 4 | 47.26 | 1,000 | 50 | 2003 | | 2025.06.21 | Àü¼¼ | ÇÁ·»Ä¡ºô | 3 | 107.4 | 20,000 | 0 | 2004 | | 2025.06.21 | ¿ù¼¼ | ÁÁÀºÁý | 2 | 103.43 | 500 | 38 | 2014 | | 2025.06.21 | ¿ù¼¼ | ´õÄÉÀÌŸ¿ö | 15 | 14.101 | 2,000 | 67 | 2018 | | 2025.06.21 | ¿ù¼¼ | (255-120) | 1 | 70.2 | 6,000 | 80 | 1991 | | 2025.06.21 | ¿ù¼¼ | »ï¼º±×¸°ºô¶ó | 4 | 43.2 | 3,500 | 45 | 1998 | | 2025.06.20 | ¿ù¼¼ | ÇÁ¶óºñ´ÙS(10-356) | 5 | 23.35 | 13,000 | 30 | 2016 | | 2025.06.20 | ¿ù¼¼ | À§³Ê½ººô | 2 | 18.81 | 2,000 | 53 | 2014 | | 2025.06.20 | ¿ù¼¼ | ¾î¹ÝÆÓ¸®½º(6~7µ¿) | 2 | 47.93 | 29,600 | 10 | 2018 | | 2025.06.20 | ¿ù¼¼ | (1635-46) | 5 | 18.93 | 500 | 53 | 2012 | | 2025.06.20 | ¿ù¼¼ | Á¶¿øÇÏÀ̸ðºôµù | 5 | 19.79 | 1,000 | 36 | 2013 | | 2025.06.19 | Àü¼¼ | ½ã¹®ENCVill-II | -1 | 52 | 15,000 | 0 | 2017 | | 2025.06.19 | ¿ù¼¼ | (409-151) | 2 | 55.37 | 1,000 | 70 | 1981 | | 2025.06.19 | ¿ù¼¼ | ¼ö¿ù´ç | 2 | 12.51 | 300 | 42 | 2013 | | 2025.06.19 | ¿ù¼¼ | Çʱ׸² | 1 | 38.51 | 1,000 | 80 | 2003 | | 2025.06.19 | ¿ù¼¼ | (1631-23) | 4 | 58.47 | 34,000 | 5 | 2023 | | 2025.06.19 | ¿ù¼¼ | ±ÝÈ£ÇϿ콺 | 3 | 29.12 | 500 | 48 | 2017 | | 2025.06.19 | ¿ù¼¼ | (231-59) | 4 | 33.39 | 3,000 | 40 | 1997 | | 2025.06.19 | Àü¼¼ | ½ã¹®ENCVill-II | -1 | 52 | 15,000 | 0 | 2017 | | 2025.06.19 | ¿ù¼¼ | ÀÌÁ¦½ºÈ¦ | 4 | 44.19 | 22,000 | 40 | 2011 | | 2025.06.19 | ¿ù¼¼ | ³ìµÎ½ºÄù¾î | 3 | 27.96 | 1,000 | 83 | 2019 | | 2025.06.18 | ¸Å¸Å | ÆÇÅ׿ | 4 | 54.87 | 40,200 | | 2022 | | 2025.06.18 | ¸Å¸Å | ¼±Áøºô¶óÆ® | -1 | 26.9 | 5,400 | | 2002 | | 2025.06.18 | Àü¼¼ | ¶óÆÄ¸£½Å¸² | 7 | 26.85 | 35,000 | 0 | 2023 | | 2025.06.18 | ¿ù¼¼ | STAY¿Â-¥° | 5 | 26.11 | 10,838 | 11 | 2022 | | 2025.06.18 | ¿ù¼¼ | ¿ì¼®ºô¶ó9Â÷ | 3 | 38.37 | 1,000 | 65 | 1994 | | 2025.06.18 | Àü¼¼ | ½á´Ïºô | 9 | 24.14 | 18,000 | 0 | 2020 | | 2025.06.18 | ¿ù¼¼ | ÇѼֻêÀÚ¶ôºô¶ó | 2 | 10.21 | 5,700 | 10 | 2012 | | 2025.06.18 | ¿ù¼¼ | (À¸¶äij½½) | 2 | 29.99 | 3,000 | 135 | 2024 | | 2025.06.18 | Àü¼¼ | µ¿¾Æºô¶ó | 2 | 38.59 | 11,000 | 0 | 1994 | | 2025.06.18 | ¿ù¼¼ | (10-584) | 4 | 65.15 | 1,000 | 60 | 2006 | | 2025.06.18 | ¿ù¼¼ | À§³Ê½ººô | 2 | 13.77 | 2,000 | 43 | 2014 | | 2025.06.18 | Àü¼¼ | ÇÑ¹é¾ÆÆ®Aµ¿ | 3 | 51.54 | 21,700 | 0 | 2015 | | 2025.06.18 | ¿ù¼¼ | STAY¿Â-¥° | 5 | 26.01 | 11,114 | 9 | 2022 | | 2025.06.17 | ¿ù¼¼ | ½Å¸²¸®ÇϿ콺 | 3 | 29.51 | 17,500 | 5 | 2018 | | 2025.06.17 | ¿ù¼¼ | ½Å¸²¸®ÇϿ콺 | 3 | 29.51 | 17,500 | 5 | 2018 | | 2025.06.17 | Àü¼¼ | µµ°æ¾ÆÆ®ºô | 3 | 54.31 | 19,700 | 0 | 2008 | | 2025.06.17 | ¿ù¼¼ | À¸¶äij½½ | 4 | 29.57 | 3,000 | 120 | 2022 | | 2025.06.16 | ¸Å¸Å | ´ÃÁ¶Àººô | 1 | 32.42 | 35,000 | | 2023 | | 2025.06.16 | ¸Å¸Å | ¼Ò³ëij½½ | 6 | 19.2 | 15,000 | | 2014 | | 2025.06.16 | ¸Å¸Å | ³ª»ê¸Ç¼Ç1Â÷ | 3 | 42.12 | 23,000 | | 1996 | | 2025.06.16 | ¸Å¸Å | ¹ÂÁöÄÃÆÄÅ© | 2 | 59.18 | 29,700 | | 2014 | | 2025.06.16 | ¿ù¼¼ | K-VIEWTOWER¥² | 4 | 17.39 | 1,000 | 100 | 2024 | | 2025.06.16 | ¿ù¼¼ | ´õ·°½ººôII | 2 | 27.21 | 22,500 | 20 | 2024 | | 2025.06.16 | ¿ù¼¼ | û¼Û | 2 | 21.1 | 1,000 | 55 | 2017 | | 2025.06.16 | Àü¼¼ | ¿ì¼Û¾Æ¸£¶¼ºô | 2 | 29.92 | 15,700 | 0 | 2015 | | 2025.06.16 | ¿ù¼¼ | ´õº£¸®Å¸½º | 5 | 18.79 | 22,600 | 17 | 2022 | | 2025.06.16 | ¿ù¼¼ | (251-236) | 4 | 28.53 | 5,000 | 60 | 2016 | | 2025.06.16 | ¿ù¼¼ | (1652-30) | 3 | 71.34 | 2,000 | 85 | 2003 | | 2025.06.15 | ¿ù¼¼ | ¼±ÀΟ¿î | 19 | 13.48 | 1,000 | 70 | 2017 | | 2025.06.15 | ¸Å¸Å | ȲÁ¦3(415-60) | -1 | 43.56 | 22,900 | | 1991 | | 2025.06.15 | ¿ù¼¼ | ÇѸ²105µ¿ | 4 | 56.04 | 12,000 | 85 | 2001 | | 2025.06.15 | ¿ù¼¼ | (98-189) | 2 | 51.18 | 2,000 | 70 | 1991 | | 2025.06.15 | ¿ù¼¼ | JWµå¸²ºô(1657-25) | 2 | 19.32 | 1,000 | 56 | 2017 | | 2025.06.15 | ¿ù¼¼ | ´Ù¼Ø½ÃƼºô | 5 | 16.38 | 22,000 | 10 | 2021 | | 2025.06.15 | Àü¼¼ | Á¶Àººô¶ó | 1 | 42.25 | 16,000 | 0 | 1992 | | 2025.06.15 | ¿ù¼¼ | ÁøÁÖºô¶ó(409-141) | -1 | 36.87 | 500 | 85 | 1990 | | 2025.06.15 | Àü¼¼ | (596-7) | 2 | 46.5 | 20,000 | 0 | 2020 | | 2025.06.15 | Àü¼¼ | ¶óÀÓ½ººô | 4 | 29.95 | 17,000 | 0 | 2020 | | 2025.06.15 | ¿ù¼¼ | »ïõ¸®¿¸Áºô¶ó | 2 | 47.67 | 1,000 | 60 | 1986 | | 2025.06.15 | Àü¼¼ | ¹Ì¸®³»ºô¶ó(610-178) | 3 | 36.3 | 12,000 | 0 | 1991 | | 2025.06.14 | ¸Å¸Å | ½ÅÈï¸Ç¼Ç9Â÷ | 3 | 44.18 | 23,000 | | 1996 | | 2025.06.14 | ¸Å¸Å | µÎ¿µºô | 2 | 70.27 | 40,000 | | 2004 | | 2025.06.14 | ¸Å¸Å | ¾Æ½Ã¾Æ³ªºô¶ó | 3 | 50.13 | 23,000 | | 1993 | | 2025.06.14 | ¸Å¸Å | (610-230) | 1 | 36.49 | 19,500 | | 1986 | | 2025.06.14 | ¿ù¼¼ | Á¦ÀϺô¶ó(92-203) | 2 | 33.12 | 1,000 | 50 | 1991 | | 2025.06.14 | Àü¼¼ | ¿ì¸²¾ÆÆ®ºô | 5 | 25.4 | 19,000 | 0 | 2018 | | 2025.06.14 | ¿ù¼¼ | J2tower | 2 | 15.51 | 1,000 | 75 | 2014 | | 2025.06.14 | ¸Å¸Å | ±ÝÀÏ¿ùµå¸Ç¼Ç | 4 | 74.98 | 35,000 | | 2001 | | 2025.06.14 | ¸Å¸Å | ¸ÞÆ®·ÎŸ¿î3Â÷ | 4 | 29.18 | 24,800 | | 2017 | | 2025.06.14 | Àü¼¼ | Àå¿ø(532-8) | 2 | 28.1 | 19,400 | 0 | 2017 | | 2025.06.14 | ¿ù¼¼ | ½Å¾Èºô¶ó(610-143) | 2 | 40.64 | 2,000 | 60 | 1993 | | 2025.06.13 | ¸Å¸Å | ½ÅÈï¸Ç¼Ç9Â÷ | 1 | 51.36 | 22,500 | | 1996 | | 2025.06.13 | ¿ù¼¼ | Ŭ·¡½ºÆ® | 5 | 43.29 | 31,000 | 12 | 2018 | | 2025.06.13 | Àü¼¼ | (652-39) | 1 | 31.59 | 9,700 | 0 | 1991 | | 2025.06.13 | Àü¼¼ | ¿ì¸²¾ÆÆ®ºô | 3 | 35.35 | 23,000 | 0 | 2018 | | 2025.06.13 | ¿ù¼¼ | (468-1) | 5 | 27.16 | 18,000 | 22 | 2014 | | 2025.06.13 | ¿ù¼¼ | JÇìºìºô | 3 | 21.89 | 15,500 | 38 | 2015 | | 2025.06.13 | ¸Å¸Å | ±Ý¼º½¦¸£ºô | 4 | 61.02 | 31,800 | | 2002 | | 2025.06.13 | ¿ù¼¼ | Ŭ·¡½ºÆ® | 5 | 43.29 | 31,000 | 12 | 2018 | | 2025.06.13 | Àü¼¼ | ȼººô¶ó | -1 | 44.62 | 10,000 | 0 | 1989 | | 2025.06.13 | ¿ù¼¼ | °æ¿øÇÏÀÌÃ÷ÅÚ | 12 | 21.66 | 1,000 | 60 | 2019 | | 2025.06.13 | ¸Å¸Å | ¼Ò»êÇÏÀÌÃ÷¸Ç¼Ç | 3 | 39.53 | 26,000 | | 1995 | | 2025.06.13 | ¸Å¸Å | (610-354) | 1 | 38.55 | 16,200 | | 1996 | | 2025.06.13 | ¸Å¸Å | (528-14) | 3 | 34.32 | 17,300 | | 1993 | | 2025.06.13 | ¸Å¸Å | ¿ì¸²¾ÆÆ®ºô | 3 | 35.35 | 30,000 | | 2018 | | 2025.06.12 | Àü¼¼ | ÇÁ¶óÀÓºô(598-251) | 3 | 46.9 | 21,000 | 0 | 2012 | | 2025.06.12 | ¿ù¼¼ | »êõ¼ÛÇϿ콺(1574-30) | 3 | 47.16 | 3,000 | 70 | 2006 | | 2025.06.12 | ¿ù¼¼ | (511-7) | 4 | 19.8 | 16,000 | 20 | 2014 | | 2025.06.12 | ¿ù¼¼ | ´õ·°½ººô | 2 | 40.42 | 4,000 | 125 | 2022 | | 2025.06.12 | ¸Å¸Å | µ¿¼ººô¶ó | 3 | 64.8 | 24,000 | | 1999 | | 2025.06.12 | ¸Å¸Å | °ñµåÆÓ¸®½º | 4 | 32.68 | 26,800 | | 2016 | | 2025.06.12 | ¸Å¸Å | ±Ý¼ººô¶ó(598-14) | 2 | 61.89 | 30,000 | | 2001 | | 2025.06.12 | ¸Å¸Å | ±×·£µåij½½ | 2 | 29.87 | 27,000 | | 2015 | | 2025.06.12 | ¸Å¸Å | (610-318) | -1 | 42.57 | 16,500 | | 1986 | | 2025.06.12 | ¸Å¸Å | ´õ·°½ººô | 2 | 39.92 | 40,000 | | 2022 | | 2025.06.12 | Àü¼¼ | (409-323) | 1 | 36.8 | 10,000 | 0 | 1990 | | 2025.06.11 | ¸Å¸Å | ¹«±ÃȺô¶óÆ® | 1 | 49.08 | 56,000 | | 1993 | | 2025.06.11 | ¸Å¸Å | µ¥ÄÚºô(598-167) | 2 | 47.16 | 30,800 | | 2012 | | 2025.06.11 | ¿ù¼¼ | ÇѼººô¶ó³ªµ¿ | 3 | 42.91 | 2,000 | 40 | 1992 | | 2025.06.11 | ¿ù¼¼ | JÇìºìºô | 5 | 24.14 | 10,000 | 10 | 2015 | | 2025.06.11 | ¸Å¸Å | ¿À·ûºô¶óAµ¿(708-2) | 1 | 40.86 | 30,000 | | 1986 | | 2025.06.11 | ¸Å¸Å | ³×¿ÀÁö¿ò | 4 | 18.85 | 12,121 | | 2015 | | 2025.06.11 | ¿ù¼¼ | JÇìºìºô | 2 | 12.07 | 4,000 | 35 | 2015 | | 2025.06.11 | ¿ù¼¼ | ³ª¸£ÇϿ콺 | 5 | 44.52 | 3,051 | 31 | 2024 | | 2025.06.11 | ¿ù¼¼ | (1562-10) | 4 | 29.69 | 2,430 | 25 | 2024 | | 2025.06.11 | ¿ù¼¼ | (1562-10) | 6 | 29.93 | 100 | 30 | 2024 | | 2025.06.11 | ¿ù¼¼ | ³ª¸£ÇϿ콺 | 5 | 53.46 | 3,222 | 33 | 2024 | | 2025.06.11 | Àü¼¼ | ½Å±¤ºô¶ó | 4 | 42.09 | 10,000 | 0 | 1991 | | 2025.06.11 | ¿ù¼¼ | ¾ÆÁöÆ®(1432-51) | 7 | 27.98 | 22,600 | 40 | 2018 | | 2025.06.11 | ¿ù¼¼ | (98-239) | 2 | 34.637 | 3,000 | 85 | 2018 | | 2025.06.11 | ¿ù¼¼ | ´ë¼ººô¶ó | 2 | 28.94 | 500 | 81 | 1984 | | 2025.06.11 | ¿ù¼¼ | (10-584) | 1 | 109.66 | 2,000 | 53 | 2006 | | 2025.06.10 | ¿ù¼¼ | CG¾Æ¸§Ã¤(1´ÜÁö) | 3 | 29.29 | 20,000 | 20 | 2019 | | 2025.06.10 | Àü¼¼ | ÆòÁÖºô¶ó2Â÷ | 2 | 41.83 | 14,900 | 0 | 1995 | | 2025.06.10 | ¿ù¼¼ | (1562-10) | 4 | 29.5 | 2,340 | 24 | 2024 | | 2025.06.10 | ¿ù¼¼ | (1608-25) | 2 | 57.6 | 12,000 | 38 | 2004 | | 2025.06.10 | ¿ù¼¼ | º¸¶ó¸Å120µ¿ | 3 | 59.82 | 4,000 | 100 | 2000 | | 2025.06.10 | ¿ù¼¼ | ¿¡¾î½ºÆäÀ̽º | 3 | 24.83 | 8,853 | 46 | 2021 | | 2025.06.10 | ¿ù¼¼ | ¿¤¸²Å¸¿î | 4 | 20.07 | 14,000 | 10 | 2017 | | 2025.06.10 | ¿ù¼¼ | (1562-10) | 4 | 29.5 | 5,794 | 5 | 2024 | | 2025.06.10 | ¸Å¸Å | û¸²ºô¶ó | 2 | 62.64 | 31,700 | | 1996 | | 2025.06.10 | ¸Å¸Å | ¸®´õ½ººô(646-467) | 3 | 29.98 | 17,700 | | 2013 | | 2025.06.10 | ¸Å¸Å | ¿À·ûºô¶óBµ¿(708-28) | 2 | 33.25 | 25,000 | | 1986 | | 2025.06.10 | ¸Å¸Å | ¿À·ûºô¶óBµ¿(708-28) | 1 | 33.25 | 25,000 | | 1986 | | 2025.06.10 | ¸Å¸Å | ¿À·ûºô¶óAµ¿(708-2) | -1 | 40.86 | 26,500 | | 1986 | | 2025.06.10 | ¸Å¸Å | (96-66) | 3 | 58.01 | 28,800 | | 2002 | | 2025.06.10 | ¸Å¸Å | »ïÇϺô¶ó(534-23) | 4 | 66.16 | 34,500 | | 2003 | | 2025.06.10 | Àü¼¼ | Çö»êǪ¸¥½£ºôAµ¿ | 4 | 75.56 | 20,000 | 0 | 2009 | | 2025.06.10 | ¿ù¼¼ | ¿¡¾î½ºÆäÀ̽º | 2 | 24.83 | 14,104 | 22 | 2021 | | 2025.06.10 | ¿ù¼¼ | ½Å¾Èºô¶óÆ®(480-3) | 2 | 75.6 | 27,200 | 40 | 2001 | | 2025.06.10 | ¿ù¼¼ | (1562-10) | 5 | 29.93 | 6,019 | 5 | 2024 | | 2025.06.10 | ¿ù¼¼ | ¿¡¾î½ºÆäÀ̽º | 3 | 24.83 | 8,853 | 46 | 2021 | | 2025.06.10 | ¿ù¼¼ | ³ª¸£ÇϿ콺 | 4 | 26.21 | 766 | 22 | 2024 | | 2025.06.10 | ¿ù¼¼ | ³ª¸£ÇϿ콺 | 4 | 26.21 | 1,917 | 20 | 2024 | | 2025.06.10 | ¿ù¼¼ | ³ª¸£ÇϿ콺 | 2 | 29.53 | 100 | 27 | 2024 | | 2025.06.10 | ¿ù¼¼ | ³ª¸£ÇϿ콺 | 2 | 28.43 | 2,043 | 21 | 2024 | | 2025.06.10 | Àü¼¼ | ¼¼Á¤¾ÆÆ®ºô | 2 | 47.16 | 13,000 | 0 | 2005 | | 2025.06.10 | ¿ù¼¼ | K-VIEWTOWER¥² | 5 | 17.39 | 5,000 | 80 | 2024 | | 2025.06.10 | ¿ù¼¼ | T&K½Å¸²¥³ | 5 | 33.46 | 100 | 32 | 2024 | | 2025.06.10 | ¿ù¼¼ | T&K½Å¸²¥³ | 4 | 37.85 | 100 | 36 | 2024 | | 2025.06.10 | ¿ù¼¼ | T&K½Å¸²¥³ | 2 | 34.98 | 100 | 33 | 2024 | | 2025.06.10 | Àü¼¼ | »ï¼º¾ÆÆ®ºô6Â÷(626-56) | -1 | 63.4 | 9,000 | 0 | 2003 | | 2025.06.10 | ¿ù¼¼ | (1562-10) | 5 | 29.93 | 2,430 | 25 | 2024 | | 2025.06.10 | ¿ù¼¼ | ³ª¸£ÇϿ콺 | 2 | 28.43 | 2,043 | 21 | 2024 | | 2025.06.09 | ¿ù¼¼ | (1562-10) | 5 | 29.69 | 972 | 28 | 2024 | | 2025.06.09 | ¿ù¼¼ | (1562-10) | 6 | 29.69 | 100 | 30 | 2024 | | 2025.06.09 | ¿ù¼¼ | (1562-10) | 6 | 29.5 | 100 | 29 | 2024 | | 2025.06.09 | ¿ù¼¼ | °æÈ£ºô | 4 | 27.92 | 4,005 | 41 | 2023 | | 2025.06.09 | ¿ù¼¼ | T&K½Å¸²1 | 4 | 29.8 | 100 | 31 | 2023 | | 2025.06.09 | ¿ù¼¼ | ½Å¸²ÆÄÅ©ºô | 4 | 44.64 | 3,645 | 38 | 2022 | | 2025.06.09 | ¿ù¼¼ | T&K½Å¸²¥² | 2 | 28.34 | 4,242 | 44 | 2023 | | 2025.06.09 | ¿ù¼¼ | ³ª¸£ÇϿ콺 | 3 | 26.21 | 1,917 | 20 | 2024 | | 2025.06.09 | ¿ù¼¼ | ³ª¸£ÇϿ콺 | 4 | 26.22 | 100 | 24 | 2024 | | 2025.06.09 | ¿ù¼¼ | ³ª¸£ÇϿ콺 | 3 | 28.35 | 100 | 26 | 2024 | | 2025.06.09 | ¿ù¼¼ | ³ª¸£ÇϿ콺 | 4 | 27.24 | 2,052 | 21 | 2024 | | 2025.06.09 | ¿ù¼¼ | ³ª¸£ÇϿ콺 | 4 | 27.24 | 5,082 | 4 | 2024 | | 2025.06.09 | ¿ù¼¼ | ½Å¸²ÆÄÅ©ºô | 4 | 44.64 | 9,027 | 8 | 2022 | | 2025.06.09 | ¿ù¼¼ | T&K½Å¸²¥³ | 5 | 31.83 | 2,448 | 25 | 2024 | | 2025.06.09 | ¿ù¼¼ | °æÈ£ºô | 4 | 27.92 | 9,919 | 8 | 2023 | | 2025.06.09 | ¿ù¼¼ | µ¿Áøºô¶ó(610-290) | 3 | 41.52 | 2,000 | 40 | 1994 | | 2025.06.09 | ¿ù¼¼ | T&K½Å¸²¥² | 2 | 28.34 | 10,507 | 9 | 2023 | | 2025.06.09 | ¿ù¼¼ | T&K½Å¸²¥³ | 3 | 34.98 | 100 | 33 | 2024 | | 2025.06.09 | ¿ù¼¼ | T&K½Å¸²¥³ | 4 | 34.98 | 100 | 34 | 2024 | | 2025.06.09 | ¿ù¼¼ | T&K½Å¸²¥³ | 3 | 38.55 | 100 | 36 | 2024 | | 2025.06.09 | ¸Å¸Å | ¿À·ûºô¶óAµ¿(708-2) | 2 | 40.86 | 30,000 | | 1986 | | 2025.06.09 | ¸Å¸Å | ¿À·ûºô¶óAµ¿(708-2) | 2 | 40.86 | 30,000 | | 1986 | | 2025.06.09 | ¿ù¼¼ | (1562-10) | 5 | 29.69 | 2,430 | 25 | 2024 | | 2025.06.08 | ¿ù¼¼ | ÇÊÇϿ콺(1439-31) | 5 | 12.21 | 2,000 | 46 | 2013 | | 2025.06.08 | ¸Å¸Å | »ïȸǼÇ(598-137) | 5 | 52.42 | 30,000 | | 2012 | | 2025.06.08 | ¸Å¸Å | 598-50 | 3 | 27.98 | 18,500 | | 2015 | | 2025.06.08 | ¸Å¸Å | °æÀÏ | 3 | 43.67 | 16,800 | | 1991 | | 2025.06.08 | ¿ù¼¼ | ÁÁÀº»ç¶÷ÁÁÀºÁý | 3 | 14.4 | 11,000 | 2 | 2016 | | 2025.06.08 | ¿ù¼¼ | ÇѽÅÀ§³Ê½º | 3 | 27.58 | 22,550 | 20 | 2022 | | 2025.06.07 | ¸Å¸Å | ±¹Á¦¾Ë¾Øµå¾¾ | 4 | 27.68 | 26,500 | | 2018 | | 2025.06.07 | Àü¼¼ | ´õŬ·¡½Ä | 1 | 29 | 21,924 | 0 | 2024 | | 2025.06.07 | Àü¼¼ | ¿¡µ§ºô¶ó(90-71) | 1 | 51.49 | 19,400 | 0 | 2001 | | 2025.06.06 | ¿ù¼¼ | º¸¸®ÇϿ콺 | 4 | 24.79 | 12,000 | 33 | 2017 | | 2025.06.06 | Àü¼¼ | ÇѼۺô | 2 | 29.85 | 20,000 | 0 | 2016 | | 2025.06.06 | Àü¼¼ | ÈúžÇϿ콺 | 3 | 86.88 | 26,000 | 0 | 2001 | | 2025.06.06 | ¿ù¼¼ | ÆÊÆÄ½º | 4 | 21.92 | 2,000 | 76 | 2014 | | 2025.06.06 | Àü¼¼ | È£±¤ºô¶ó | 4 | 38.4 | 15,000 | 0 | 1992 | | 2025.06.06 | ¸Å¸Å | (1491-6) | 2 | 42.42 | 12,500 | | 1986 | | 2025.06.06 | Àü¼¼ | ÇØ´ãä | 4 | 33.85 | 22,000 | 0 | 2015 | | 2025.06.06 | ¸Å¸Å | (92-282) | 4 | 42.9 | 19,800 | | 1991 | | 2025.06.05 | Àü¼¼ | ÈÞ¸Õºô(610-123) | 3 | 38.23 | 19,900 | 0 | 2015 | | 2025.06.05 | ¸Å¸Å | º¹Àººô¸®Áö | 3 | 29.94 | 32,000 | | 2022 | | 2025.06.05 | Àü¼¼ | (1631-23) | 3 | 32.8 | 28,000 | 0 | 2023 | | 2025.06.05 | Àü¼¼ | ½Å¾ÈÁÖÅà | -1 | 36.86 | 7,100 | 0 | 1990 | | 2025.06.05 | ¿ù¼¼ | µ¿ºÎºô¶ó | 3 | 52.98 | 3,000 | 100 | 1995 | | 2025.06.04 | Àü¼¼ | ½á¹Ô(551-29) | 4 | 21.21 | 23,000 | 0 | 2017 | | 2025.06.04 | ¿ù¼¼ | ½ºÄ«ÀÌ | 2 | 29.02 | 1,000 | 91 | 2015 | | 2025.06.04 | Àü¼¼ | (92-131) | -1 | 71.01 | 22,000 | 0 | 1990 | | 2025.06.04 | ¸Å¸Å | ½Å¸²ÇÏÀÌÃ÷ºô¶ó7µ¿ | 2 | 84.96 | 60,000 | | 1989 | | 2025.06.04 | Àü¼¼ | (92-131) | -1 | 71.01 | 22,000 | 0 | 1990 | | 2025.06.04 | ¿ù¼¼ | AugustTower | 8 | 18.6 | 20,000 | 15 | 2021 | | 2025.06.04 | ¿ù¼¼ | Çѳª·¡19Â÷ | 8 | 29.94 | 21,700 | 5 | 2020 | | 2025.06.04 | ¸Å¸Å | žçÇÏÀÌÃ÷ºô¶ó | 1 | 44.85 | 18,000 | | 1990 | | 2025.06.04 | ¸Å¸Å | µ¿»êºô¸®Áö(92-175) | 4 | 43.18 | 25,000 | | 1994 | | 2025.06.04 | ¸Å¸Å | ¿ÍÀ̾ØÄ³½½ | 4 | 34.78 | 25,700 | | 2014 | | 2025.06.03 | Àü¼¼ | ¼±Èºô¶ó | -1 | 41.34 | 7,000 | 0 | 1992 | | 2025.06.03 | ¿ù¼¼ | ޶óÈÙ(10-433) | 2 | 16.2 | 1,000 | 17 | 2002 | | 2025.06.03 | ¿ù¼¼ | ½ºÄ«ÀÌ | 3 | 29.02 | 3,000 | 73 | 2015 | | 2025.06.03 | Àü¼¼ | Ŭ·¡½ºÆ® | 6 | 41.4 | 18,165 | 0 | 2018 | | 2025.06.03 | ¿ù¼¼ | ¼º¿øºô(1667-23) | 4 | 15.48 | 1,000 | 52 | 2017 | | 2025.06.02 | ¸Å¸Å | (90-143) | 2 | 81.06 | 30,000 | | 1990 | | 2025.06.02 | ¸Å¸Å | ±×¸°Å¸¿î | 2 | 61.56 | 33,000 | | 2002 | | 2025.06.02 | ¿ù¼¼ | K-VIEWTOWER¥² | 5 | 17.39 | 500 | 105 | 2024 | | 2025.06.02 | ¿ù¼¼ | T&K½Å¸²¥± | 2 | 27.77 | 200 | 42 | 2024 | | 2025.06.02 | ¿ù¼¼ | ÀÚÀÌ¿ÀÇǽºÅÚ | 10 | 11.657 | 4,000 | 61 | 2021 | | 2025.06.02 | ¿ù¼¼ | AugustTower | 6 | 13.83 | 16,000 | 15 | 2021 | | 2025.06.02 | Àü¼¼ | ¿À¾ÆÈÄ(1436-20) | 5 | 27.01 | 18,900 | 0 | 2017 | | 2025.06.02 | Àü¼¼ | º¥Ã÷ºô(98-120) | 1 | 40.7 | 13,000 | 0 | 2003 | | 2025.06.02 | ¿ù¼¼ | ¹Ì¸®³»ºô¶ó(610-178) | 2 | 36.29 | 3,000 | 50 | 1991 | | 2025.06.01 | ¸Å¸Å | ´ë¼º¾ÆÆ®ºô | 2 | 25.93 | 23,500 | | 2019 | | 2025.06.01 | ¿ù¼¼ | Àº¼ººô(1632-15) | 2 | 22.57 | 10,000 | 20 | 2012 | | 2025.06.01 | ¸Å¸Å | THEÁöÀ½ | 3 | 29.751 | 36,500 | | 2023 | | 2025.06.01 | ¿ù¼¼ | ¹Ì¸²ºô¶ó(92-242) | 1 | 46.66 | 5,000 | 60 | 1992 | | 2025.06.01 | Àü¼¼ | (251-236) | 3 | 29.88 | 14,000 | 0 | 2016 | | 2025.06.01 | ¿ù¼¼ | ¹Ì¸² | 6 | 48.23 | 3,600 | 80 | 2003 | | 2025.06.01 | ¿ù¼¼ | ÁÁÀº»ç¶÷ÁÁÀºÁý | 5 | 20.39 | 500 | 50 | 2016 | | 2025.06.01 | ¿ù¼¼ | Çϳª | 4 | 22.91 | 20,000 | 7 | 2018 | | 2025.05.31 | ¿ù¼¼ | ÇѾ矿îA | 4 | 92.24 | 23,000 | 30 | 1998 | | 2025.05.31 | ¸Å¸Å | ¾çÁöºô¶óÆ®5Â÷ | 1 | 57.75 | 21,000 | | 2002 | | 2025.05.31 | ¿ù¼¼ | ½Å³² | 2 | 29.65 | 5,000 | 64 | 2013 | | 2025.05.31 | ¿ù¼¼ | ¸Þ¸®Æ®¿¥Å¸¿ö | 8 | 12.6 | 10,000 | 36 | 2019 | | 2025.05.31 | ¿ù¼¼ | Àå¹ÌÁ¤¿ø(1564-31) | 1 | 25.37 | 3,000 | 80 | 2014 | | 2025.05.31 | Àü¼¼ | (617-24) | 5 | 47.62 | 22,050 | 0 | 2015 | | 2025.05.31 | ¿ù¼¼ | ÇѾ縮Ã÷ºô | 5 | 48.84 | 29,000 | 20 | 2014 | | 2025.05.31 | Àü¼¼ | (98-385) | 4 | 34.53 | 15,000 | 0 | 1996 | | 2025.05.31 | Àü¼¼ | Çö´ë(1419-9) | 6 | 12.25 | 7,300 | 0 | 2012 | | 2025.05.31 | ¿ù¼¼ | ¾Æ¿øºô | 4 | 48.34 | 20,500 | 15 | 2012 | | 2025.05.31 | Àü¼¼ | (1421-31) | 7 | 18.72 | 8,950 | 0 | 2015 | | 2025.05.31 | ¿ù¼¼ | Çϳªºô¸®Áö | 2 | 19.25 | 4,000 | 10 | 2002 | | 2025.05.30 | ¸Å¸Å | ¿ì¼Û¾Æ¸£¶¼ºô | 2 | 29.92 | 22,000 | | 2015 | | 2025.05.30 | ¸Å¸Å | ÇѸ¶À½ºô¶ó1Â÷ | 3 | 39 | 21,000 | | 1993 | | 2025.05.30 | ¿ù¼¼ | ¿¹´Ù¿Ã(501-20) | 3 | 12.68 | 1,000 | 48 | 2016 | | 2025.05.30 | Àü¼¼ | ÈÞij½½ | 6 | 37.73 | 24,600 | 0 | 2014 | | 2025.05.30 | Àü¼¼ | Çѳª·¡23Â÷ | 4 | 28.86 | 20,000 | 0 | 2022 | | 2025.05.30 | Àü¼¼ | ´ë¼º¾ÆÆ®ºô | 4 | 25.93 | 18,500 | 0 | 2019 | | 2025.05.30 | ¿ù¼¼ | Çâ¿øºô¶ó(1505-3) | 4 | 62.85 | 21,500 | 5 | 2008 | | 2025.05.30 | ¿ù¼¼ | ¿ì¸®ºô | 4 | 12 | 1,000 | 40 | 2012 | | 2025.05.30 | ¿ù¼¼ | ¹ÝµµÇϿ콺 | 2 | 14.44 | 1,000 | 60 | 2016 | | 2025.05.29 | ¿ù¼¼ | Á¶¿øµµ½ÃÇü»ýȰÁÖÅà | 5 | 15.46 | 500 | 54 | 2011 | | 2025.05.29 | ¿ù¼¼ | (1439-24) | 6 | 13 | 12,000 | 28 | 2020 | | 2025.05.29 | ¿ù¼¼ | µå¸²Çãºê | 10 | 22.5 | 17,380 | 50 | 2019 | | 2025.05.29 | ¿ù¼¼ | Á¶¿øµµ½ÃÇü»ýȰÁÖÅà | 4 | 13.6 | 500 | 49 | 2011 | | 2025.05.29 | ¿ù¼¼ | Á¶¿øµµ½ÃÇü»ýȰÁÖÅà | 5 | 15.46 | 500 | 54 | 2011 | | 2025.05.29 | ¿ù¼¼ | ¿¡¾î½ºÆäÀ̽º | 5 | 24.83 | 14,151 | 27 | 2021 | | 2025.05.29 | Àü¼¼ | dz¾çºôµù | 6 | 23.935 | 9,840 | 0 | 2012 | | 2025.05.28 | ¸Å¸Å | µ¿¿øºô¶ó | 4 | 31.86 | 18,000 | | 1993 | | 2025.05.28 | ¸Å¸Å | ´ÃÁ¶Àººô | 1 | 32.66 | 34,500 | | 2023 | | 2025.05.28 | ¿ù¼¼ | ¿À¸§ÇϿ콺 | 4 | 39.82 | 9,000 | 75 | 2013 | | 2025.05.28 | ¸Å¸Å | ´Ù¼Ø±×¶ûºôB | 4 | 28.02 | 31,500 | | 2022 | | 2025.05.28 | ¸Å¸Å | 98-439 | 3 | 28.29 | 17,800 | | 2014 | | 2025.05.28 | ¸Å¸Å | 98-439 | 3 | 28.12 | 17,800 | | 2014 | | 2025.05.28 | ¸Å¸Å | µ¿¼ººô¶ó3Â÷ | 2 | 58.42 | 21,200 | | 1995 | | 2025.05.28 | ¸Å¸Å | »óÁöºô¶ó°¡µ¿ | 2 | 48.48 | 20,000 | | 1989 | | 2025.05.28 | ¸Å¸Å | µ¿¿øºô¶ó | 4 | 31.86 | 18,000 | | 1993 | | 2025.05.28 | ¿ù¼¼ | (231-59) | 3 | 37.8 | 2,000 | 40 | 1997 | | 2025.05.28 | ¿ù¼¼ | (729-9) | 2 | 59.3 | 1,000 | 63 | 2013 | | 2025.05.28 | ¿ù¼¼ | µå¸²Ä³½½ | 4 | 27.92 | 3,000 | 82 | 2017 | | 2025.05.28 | ¿ù¼¼ | ´õÄÉÀÌŸ¿ö | 14 | 29.495 | 5,000 | 42 | 2018 | | 2025.05.28 | ¿ù¼¼ | °í¿øºô¶óÆ® | -1 | 27.45 | 1,000 | 35 | 1995 | | 2025.05.28 | ¿ù¼¼ | ³×¸ðÇϿ콺 | 3 | 26.5 | 23,000 | 22 | 2018 | | 2025.05.27 | Àü¼¼ | Çѳª·¡23Â÷ | 3 | 28.86 | 20,000 | 0 | 2022 | | 2025.05.27 | ¸Å¸Å | »ï¹Ì¾ÆÆ®ºô(1661-9) | 4 | 51.69 | 29,000 | | 2015 | | 2025.05.27 | ¸Å¸Å | ÇØµ¸ÀÌŸ¿î | -1 | 57.47 | 13,500 | | 1992 | | 2025.05.27 | ¿ù¼¼ | (646-142) | 2 | 27.36 | 500 | 40 | 1994 | | 2025.05.27 | ¿ù¼¼ | 103-134 | 3 | 29.99 | 3,000 | 40 | 2014 | | 2025.05.27 | Àü¼¼ | Áß¿ø°¡µ¿ | -1 | 34.85 | 9,000 | 0 | 1990 | | 2025.05.27 | ¿ù¼¼ | ½ºÄ«ÀÌij½½(92-214) | 2 | 50.09 | 5,000 | 100 | 2018 | | 2025.05.26 | ¿ù¼¼ | À¸¶äij½½ | 2 | 29.57 | 5,000 | 105 | 2022 | | 2025.05.26 | ¿ù¼¼ | ÆÇÅ׿ | 6 | 29.81 | 28,000 | 15 | 2022 | | 2025.05.26 | ¿ù¼¼ | dz¾çºôµù | 4 | 22.315 | 2,000 | 38 | 2012 | | 2025.05.26 | ¿ù¼¼ | ÈñÇϿ콺 | 1 | 29.96 | 1,000 | 90 | 2019 | | 2025.05.26 | ¸Å¸Å | »ïÇϺô¶ó(518-45) | 5 | 50.88 | 29,500 | | 2002 | | 2025.05.26 | ¿ù¼¼ | (98-185) | 2 | 27.79 | 5,000 | 85 | 2022 | | 2025.05.26 | ¿ù¼¼ | dz¾çºôµù | 4 | 22.315 | 2,000 | 40 | 2012 | | 2025.05.26 | ¸Å¸Å | ½Å¸²ÇÏÀÌÃ÷ºô¶ó6µ¿ | 1 | 84.96 | 60,000 | | 1989 | | 2025.05.26 | ¸Å¸Å | ½Å¸²ºô¶ó(10-438) | -1 | 49.76 | 21,050 | | 1991 | | 2025.05.26 | ¿ù¼¼ | ½Â¿ìÆÓ¸®½º | 5 | 29.74 | 17,300 | 20 | 2012 | | 2025.05.25 | ¿ù¼¼ | (10-450) | 1 | 50.11 | 1,500 | 31 | 2003 | | 2025.05.25 | ¿ù¼¼ | ¾Æµ¨¸®¿ò3Â÷ | 4 | 29.87 | 14,800 | 31 | 2014 | | 2025.05.25 | Àü¼¼ | (343-6) | 1 | 40.81 | 12,500 | 0 | 1987 | | 2025.05.25 | ¸Å¸Å | ÈÞ¸Õºô(610-223) | 3 | 28.74 | 22,000 | | 2016 | | 2025.05.25 | ¸Å¸Å | (610-559) | 2 | 38.27 | 16,000 | | 1986 | | 2025.05.25 | ¸Å¸Å | ¼Àü¸Ç¼Ç³ªµ¿ | 3 | 37.83 | 23,600 | | 2013 | | 2025.05.24 | ¿ù¼¼ | 103-134 | 2 | 25.49 | 5,000 | 59 | 2014 | | 2025.05.24 | ¿ù¼¼ | »ï¼º¾ÆÆ®ºô2Â÷ | 4 | 48.4 | 15,000 | 20 | 2002 | | 2025.05.24 | ¿ù¼¼ | À§³Ê½ººô | 4 | 14.355 | 500 | 43 | 2014 | | 2025.05.24 | ¿ù¼¼ | 103-134 | 5 | 32.32 | 3,200 | 52 | 2014 | | 2025.05.24 | ¿ù¼¼ | °üµ¿ÇÏÀÌÃ÷ | 2 | 35.28 | 500 | 42 | 2003 | | 2025.05.24 | ¿ù¼¼ | JCSTUDIO | 9 | 20.59 | 9,000 | 39 | 2018 | | 2025.05.24 | Àü¼¼ | ÈÞ¸Õºô(610-222) | 2 | 49.04 | 24,600 | 0 | 2016 | | 2025.05.24 | ¿ù¼¼ | ±¤Èñ°¡ | 4 | 21.7 | 15,000 | 8 | 2015 | | 2025.05.24 | ¿ù¼¼ | ½ºÀ§Æ®±×¸°ºô¶ó | 1 | 79.46 | 23,900 | 6 | 1994 | | 2025.05.24 | ¿ù¼¼ | ±¤Èñ°¡ | 4 | 21.7 | 15,000 | 8 | 2015 | | 2025.05.24 | ¿ù¼¼ | ÈñÇϿ콺 | 1 | 29.9 | 1,000 | 80 | 2019 | | 2025.05.24 | ¸Å¸Å | µ¿¿ìºô¶óÆ® | 5 | 29.87 | 21,000 | | 2015 | | 2025.05.24 | ¸Å¸Å | ºÎ¿äºô¸®Áö | 3 | 41.86 | 41,000 | | 1994 | | 2025.05.24 | Àü¼¼ | ÇØÇÇŸ¿ö | 7 | 26.77 | 20,830 | 0 | 2016 | | 2025.05.24 | ¿ù¼¼ | ÇѽÅÀ§³Ê½º | 4 | 29.91 | 3,000 | 130 | 2022 | | 2025.05.24 | Àü¼¼ | ¾ÆÄ«µ¥¹ÌÇϿ콺 | 4 | 29.42 | 21,400 | 0 | 2019 | | 2025.05.23 | ¿ù¼¼ | (1455-29) | 2 | 40.32 | 500 | 105 | 1993 | | 2025.05.23 | ¿ù¼¼ | (1631-23) | 3 | 33.87 | 28,100 | 8 | 2023 | | 2025.05.23 | ¿ù¼¼ | (1631-23) | 3 | 33.87 | 28,100 | 8 | 2023 | | 2025.05.23 | ¿ù¼¼ | ¿¡¾î½ºÆäÀ̽º | 3 | 35.16 | 20,556 | 30 | 2021 | | 2025.05.23 | Àü¼¼ | J.KÇϿ콺 | 6 | 10.62 | 8,000 | 0 | 2012 | | 2025.05.23 | ¿ù¼¼ | ÈñÇϿ콺 | 2 | 29.76 | 1,000 | 90 | 2019 | | 2025.05.23 | ¿ù¼¼ | ¿¡¾î½ºÆäÀ̽º | 3 | 35.16 | 20,556 | 30 | 2021 | | 2025.05.23 | ¿ù¼¼ | J2tower | 5 | 14.26 | 1,000 | 60 | 2014 | | 2025.05.23 | ¿ù¼¼ | ·ÎÇϽººô2Â÷ | 2 | 67.98 | 1,000 | 40 | 2009 | | 2025.05.23 | ¿ù¼¼ | ½Ã¸®¿ì½º | 4 | 26.58 | 5,000 | 110 | 2024 | | 2025.05.23 | ¿ù¼¼ | °øÀ۸ǼÇ6Â÷ | 4 | 39.36 | 5,000 | 40 | 1995 | | 2025.05.23 | ¸Å¸Å | ¹Ì¸®³»ºô¶ó | -1 | 41.9 | 12,500 | | 1993 | | 2025.05.23 | ¸Å¸Å | ´Ù¼Ø | 3 | 36.08 | 34,000 | | 2017 | | 2025.05.23 | ¸Å¸Å | (120-92) | 1 | 35.98 | 18,000 | | 1986 | | 2025.05.23 | ¿ù¼¼ | (676-9) | 1 | 68.62 | 700 | 50 | 1970 | | 2025.05.23 | ¿ù¼¼ | Àº¿¬Àç | 4 | 14.18 | 1,000 | 45 | 2013 | | 2025.05.22 | ¸Å¸Å | ¿ì¼®ºô¶ó12Â÷ | -1 | 42.54 | 17,000 | | 1995 | | 2025.05.22 | ¸Å¸Å | JÇìºìºô | 2 | 12.07 | 13,000 | | 2015 | | 2025.05.22 | ¸Å¸Å | JÇìºìºô | 4 | 21.89 | 24,500 | | 2015 | | 2025.05.22 | ¸Å¸Å | (92-131) | -1 | 71.01 | 28,500 | | 1990 | | 2025.05.22 | ¸Å¸Å | żººô¶ó | 1 | 41.49 | 15,000 | | 1993 | | 2025.05.22 | ¸Å¸Å | »ï¼º¾ÆÆ®ºô(610-384) | 2 | 37.51 | 28,700 | | 2016 | | 2025.05.22 | ¸Å¸Å | ¾çÁöºô¶ó | 1 | 54.72 | 38,000 | | 1986 | | 2025.05.22 | Àü¼¼ | Àå¿øºô¶ó | 2 | 44.81 | 9,500 | 0 | 1992 | | 2025.05.22 | ¿ù¼¼ | ¼¼Á¾ÇÁ¶óÀÓ(101,102) | 2 | 38.64 | 11,500 | 50 | 2015 | | 2025.05.22 | Àü¼¼ | ¾ÆÆ®Ä³½½ | 2 | 31.38 | 15,000 | 0 | 2013 | | 2025.05.22 | Àü¼¼ | ´ë»óÇÏÀÌÃ÷ºô | 2 | 57.48 | 19,000 | 0 | 2011 | | 2025.05.22 | ¿ù¼¼ | (1631-23) | 2 | 32.8 | 23,600 | 15 | 2023 | | 2025.05.22 | Àü¼¼ | dz¾çºôµù | 3 | 22.315 | 9,840 | 0 | 2012 | | 2025.05.22 | ¸Å¸Å | JÇìºìºô | 2 | 21.79 | 24,500 | | 2015 | | 2025.05.22 | ¸Å¸Å | JÇìºìºô | 2 | 12.07 | 13,000 | | 2015 | | 2025.05.22 | ¸Å¸Å | »õ¼¿ïºô¶ó3Â÷ | 1 | 55.2 | 23,000 | | 1995 | | 2025.05.22 | ¸Å¸Å | JÇìºìºô | 6 | 38.91 | 27,200 | | 2015 | | 2025.05.22 | ¸Å¸Å | JÇìºìºô | 5 | 21.89 | 24,000 | | 2015 | | 2025.05.22 | ¸Å¸Å | JÇìºìºô | 5 | 24.14 | 26,000 | | 2015 | | 2025.05.22 | ¸Å¸Å | JÇìºìºô | 5 | 18.58 | 13,300 | | 2015 | | 2025.05.22 | ¸Å¸Å | JÇìºìºô | 4 | 21.89 | 24,000 | | 2015 | | 2025.05.22 | ¸Å¸Å | JÇìºìºô | 4 | 24.14 | 26,000 | | 2015 | | 2025.05.22 | ¸Å¸Å | JÇìºìºô | 3 | 21.89 | 24,500 | | 2015 | | 2025.05.22 | ¸Å¸Å | JÇìºìºô | 3 | 12.07 | 13,000 | | 2015 | | 2025.05.22 | ¸Å¸Å | JÇìºìºô | 3 | 12.07 | 13,000 | | 2015 | | 2025.05.22 | ¸Å¸Å | JÇìºìºô | 3 | 21.89 | 24,500 | | 2015 | | 2025.05.22 | ¸Å¸Å | JÇìºìºô | 2 | 21.79 | 24,500 | | 2015 | | 2025.05.21 | ¿ù¼¼ | ¿ìÀü¾ÆÆ®ºô(646-294) | 1 | 42.21 | 300 | 55 | 2006 | | 2025.05.21 | ¿ù¼¼ | K-VIEWTOWER¥² | 5 | 17.39 | 1,000 | 100 | 2024 | | 2025.05.21 | ¿ù¼¼ | ¼±¶óÀÌÁ»ê | 5 | 30.45 | 1,000 | 90 | 2013 | | 2025.05.21 | ¿ù¼¼ | °øÀ۸ǼÇ7Â÷ | 4 | 46.03 | 13,000 | 20 | 1995 | | 2025.05.21 | Àü¼¼ | ¸ÞÆ®·ÎŸ¿î4Â÷ | 3 | 29.7 | 22,000 | 0 | 2017 | | 2025.05.21 | ¸Å¸Å | ´ë¿õºô¶ó | -1 | 48.42 | 20,100 | | 1992 | | 2025.05.21 | ¸Å¸Å | µ¿Èºô¶ó | 3 | 48.78 | 15,500 | | 1992 | | 2025.05.21 | ¸Å¸Å | ¿ì¸²¾ÆÆ®ºô | 4 | 37.49 | 31,800 | | 2018 | | 2025.05.21 | ¸Å¸Å | ½ÅÀϺô¶ó(610-59) | 1 | 45.56 | 19,200 | | 1993 | | 2025.05.20 | Àü¼¼ | ½Ã¿¤(ciel) | 8 | 29.53 | 24,250 | 0 | 2015 | | 2025.05.20 | Àü¼¼ | »ïȺô | 3 | 34.87 | 25,000 | 0 | 2021 | | 2025.05.20 | ¿ù¼¼ | ½Ã¸®¿ì½º | 2 | 27.49 | 3,000 | 120 | 2024 | | 2025.05.20 | ¿ù¼¼ | (À¸¶äij½½) | 4 | 29.99 | 5,000 | 110 | 2024 | | 2025.05.20 | Àü¼¼ | ½Ã¿¤(ciel) | 8 | 29.53 | 24,250 | 0 | 2015 | | 2025.05.20 | ¿ù¼¼ | ½Å¸²¿¡½ºÆ÷·¹ | 17 | 32.129 | 1,000 | 225 | 2024 | | 2025.05.20 | ¿ù¼¼ | ¸®¸µ(1439-25) | 3 | 25.17 | 5,500 | 72 | 2014 | | 2025.05.20 | Àü¼¼ | ¿©Èï¾ÆÆ®ºô | 5 | 67.79 | 25,000 | 0 | 2004 | | 2025.05.20 | ¿ù¼¼ | J2tower | 3 | 14.26 | 1,000 | 63 | 2014 | | 2025.05.20 | ¸Å¸Å | µå¸²Ä³½½ | 4 | 27.92 | 18,000 | | 2017 | | 2025.05.20 | ¸Å¸Å | ¿ì¼ºÈúŸ¿î | 5 | 55.26 | 44,000 | | 2015 | | 2025.05.20 | ¸Å¸Å | Æç¸®Ã¼ºô¸®Áö | 5 | 36.92 | 29,800 | | 2018 | | 2025.05.20 | ¿ù¼¼ | J2tower | 3 | 14.26 | 1,000 | 65 | 2014 | | 2025.05.19 | ¸Å¸Å | dz¿øÇÏÀÓºô | 3 | 28.87 | 27,500 | | 2018 | | 2025.05.19 | ¸Å¸Å | Çö¾ÆÆ®ºô | 3 | 27.64 | 28,550 | | 2016 | | 2025.05.19 | ¸Å¸Å | ÇѽÅÀ§³Ê½º(440-69) | 2 | 47.01 | 35,000 | | 2016 | | 2025.05.19 | Àü¼¼ | (412-334) | 3 | 31.02 | 12,000 | 0 | 1991 | | 2025.05.19 | Àü¼¼ | (254-301) | 3 | 79.39 | 30,000 | 0 | 1991 | | 2025.05.19 | Àü¼¼ | ¼Û¾ÏÇÏÀÌÃ÷ºô2 | 2 | 29.64 | 16,000 | 0 | 2017 | | 2025.05.19 | ¸Å¸Å | ½Å¸²ÇÏÀÌÃ÷ºô¶ó5µ¿ | 1 | 84.48 | 70,000 | | 1989 | | 2025.05.19 | ¸Å¸Å | Á¤¿øÆÓ¸®Ã¼Aµ¿Bµ¿ | 5 | 36.06 | 29,000 | | 2019 | | 2025.05.18 | Àü¼¼ | ¼¼Á¤¾ÆÆ®ºô | 3 | 47.16 | 15,000 | 0 | 2005 | | 2025.05.18 | ¸Å¸Å | ¿ì¼®ºô¶ó7Â÷ | -1 | 28.52 | 13,000 | | 1994 | | 2025.05.18 | ¸Å¸Å | ´Ù³ª³×½ºÆ®ºô(539-25) | 2 | 60.2 | 38,000 | | 2009 | | 2025.05.18 | ¿ù¼¼ | ·çÀ̺ô¸®Áö | 5 | 49.91 | 3,000 | 100 | 2021 | | 2025.05.18 | Àü¼¼ | Ŭ¶ó¿ìµå | 9 | 29.96 | 27,300 | 0 | 2018 | | 2025.05.18 | Àü¼¼ | EatonTower(1433-227) | 8 | 28.57 | 20,650 | 0 | 2017 | | 2025.05.18 | ¿ù¼¼ | ÇØÇÇÇϿ콺(10-649) | 2 | 26 | 3,000 | 65 | 2003 | | 2025.05.18 | ¿ù¼¼ | ±×·£µåÈú | 6 | 29.99 | 5,500 | 100 | 2015 | | 2025.05.17 | ¿ù¼¼ | ÇÊÇϿ콺(1439-31) | 5 | 12.21 | 10,000 | 5 | 2013 | | 2025.05.17 | ¿ù¼¼ | dz¿øÇÏÀÓºô | 4 | 28.87 | 23,000 | 25 | 2018 | | 2025.05.17 | ¿ù¼¼ | ½Å´ë¹æ³ëºí·çü | 17 | 24.34 | 22,400 | 15 | 2019 | | 2025.05.17 | ¿ù¼¼ | ½ºÅ¸ºôµù | 6 | 13.56 | 1,000 | 50 | 2014 | | 2025.05.17 | ¿ù¼¼ | ¼¸²µµ½ÃÇü»ýȰÁÖÅà | 6 | 12.32 | 1,000 | 55 | 2013 | | 2025.05.17 | ¿ù¼¼ | (1572-11) | -1 | 83 | 6,000 | 25 | 1991 | | 2025.05.17 | ¿ù¼¼ | º¸º¸½ºÁÖÅà | 4 | 13.89 | 3,000 | 80 | 2013 | | 2025.05.17 | Àü¼¼ | ·ÎÇϽº | 7 | 14.88 | 14,500 | 0 | 2012 | | 2025.05.17 | Àü¼¼ | ¹é¼Û | 6 | 12 | 9,400 | 0 | 2012 | | 2025.05.17 | ¿ù¼¼ | ¿ìÀü¾ÆÆ®ºô(646-294) | 2 | 42.21 | 300 | 52 | 2006 | | 2025.05.17 | Àü¼¼ | ÇÁ¶óÀÓºô(598-251) | 2 | 46.9 | 20,000 | 0 | 2012 | | 2025.05.17 | ¸Å¸Å | µ¿±Ãºô¶ó | 1 | 44.49 | 20,000 | | 1992 | | 2025.05.17 | ¸Å¸Å | ¼Ò³ëÆç¸®Ã¼I | 5 | 37.3 | 25,200 | | 2012 | | 2025.05.17 | ¸Å¸Å | ¼º°ÄÉ·»½Ã¾Æ | 6 | 40.27 | 31,000 | | 2018 | | 2025.05.17 | ¸Å¸Å | (98-242) | 2 | 33.41 | 17,300 | | 1993 | | 2025.05.17 | ¸Å¸Å | ¼¼Áøºô¶ó | 2 | 38.94 | 16,000 | | 2003 | | 2025.05.17 | ¸Å¸Å | ¼¼Áøºô¶ó | 2 | 38.94 | 16,000 | | 2003 | | 2025.05.16 | Àü¼¼ | ¶óÆÄ¸£½Å¸² | 6 | 27.61 | 35,500 | 0 | 2023 | | 2025.05.16 | ¸Å¸Å | ½º¸¶Æ®¹ë¸® | 3 | 32.78 | 26,500 | | 2012 | | 2025.05.16 | ¿ù¼¼ | ½ÅÈİ¡15Â÷ | 5 | 28.17 | 5,000 | 120 | 2023 | | 2025.05.16 | ¿ù¼¼ | ´õÆÛ½ºÆ®ÈÞ | 7 | 38.38 | 21,000 | 30 | 2016 | | 2025.05.16 | ¸Å¸Å | (610-559) | -1 | 44.15 | 12,000 | | 1986 | | 2025.05.16 | ¿ù¼¼ | (89-1) | 3 | 15.24 | 2,500 | 51 | 2016 | | 2025.05.16 | ¿ù¼¼ | 1429-19 | 4 | 29.93 | 15,000 | 25 | 2016 | | 2025.05.16 | ¿ù¼¼ | ±¤´öºô | 1 | 83.1 | 500 | 55 | 2004 | | 2025.05.16 | ¿ù¼¼ | ¿¹ÇϿ콺(1453-6) | 2 | 23.37 | 10,000 | 8 | 2013 | | 2025.05.16 | ¿ù¼¼ | Çϳª | 4 | 22.91 | 20,000 | 7 | 2018 | | 2025.05.15 | ¿ù¼¼ | º£³×Ä¡¾Æ | 5 | 26.6 | 1,000 | 130 | 2019 | | 2025.05.15 | ¿ù¼¼ | ÇØÇÇÇϿ콺(10-649) | 2 | 20.52 | 1,000 | 50 | 2003 | | 2025.05.15 | ¿ù¼¼ | 1664-25 | 2 | 13.12 | 500 | 43 | 2015 | | 2025.05.15 | ¿ù¼¼ | ¸ÞÆ®·ÎŸ¿î5Â÷ | 5 | 27.59 | 20,000 | 20 | 2017 | | 2025.05.15 | ¸Å¸Å | ¿ìÁÖºô¶ó | 2 | 39.36 | 19,500 | | 1990 | | 2025.05.15 | ¸Å¸Å | (610-354) | 1 | 38.55 | 14,000 | | 1996 | | 2025.05.15 | ¸Å¸Å | ¿ì¼ººô¶ó(610-351) | -1 | 35.62 | 15,500 | | 1990 | | 2025.05.15 | ¸Å¸Å | ½ÅÈï¸Ç¼Ç9Â÷ | -1 | 49.36 | 18,000 | | 1996 | | 2025.05.15 | ¿ù¼¼ | (92-246) | 3 | 29.33 | 1,000 | 82 | 2004 | | 2025.05.14 | ¿ù¼¼ | 570-7 | 2 | 26.02 | 3,000 | 70 | 2015 | | 2025.05.14 | ¿ù¼¼ | ¹Ì¼º¿¤¸®Æ® | 4 | 15.64 | 5,000 | 36 | 2013 | | 2025.05.14 | ¸Å¸Å | Çູºô¶ó | 1 | 37.86 | 22,000 | | 1993 | | 2025.05.14 | ¿ù¼¼ | ¶óÀÓÄ«¿îƼ | 8 | 29.68 | 27,000 | 1 | 2016 | | 2025.05.14 | ¿ù¼¼ | ¹Ì¼º¿¤¸®Æ® | 4 | 15.64 | 5,000 | 36 | 2013 | | 2025.05.14 | ¿ù¼¼ | ±ÝÈ£ºô¶ó2Â÷(412-343) | 2 | 43.58 | 300 | 20 | 1992 | | 2025.05.14 | Àü¼¼ | ¶óÆÄ¸£½Å¸² | 8 | 27.61 | 35,500 | 0 | 2023 | | 2025.05.14 | ¿ù¼¼ | 651-23 | 3 | 32.61 | 1,000 | 65 | 2016 | | 2025.05.14 | Àü¼¼ | ¹ÌÄ̶õ | 8 | 29.49 | 27,000 | 0 | 2016 | | 2025.05.14 | ¿ù¼¼ | ´Ù¿Â½¦¸£ºô | 4 | 32.15 | 22,800 | 11 | 2016 | | 2025.05.14 | ¿ù¼¼ | ´Ù¿Â½¦¸£ºô | 4 | 32.15 | 22,800 | 11 | 2016 | | 2025.05.13 | Àü¼¼ | µ¿¹æÁÖÅÃ8Â÷Aµ¿ | -1 | 36.42 | 9,000 | 0 | 1990 | | 2025.05.13 | ¿ù¼¼ | ½Å¸²´º¾¾¿¤(11-8) | 3 | 41.38 | 5,000 | 145 | 2017 | | 2025.05.13 | ¿ù¼¼ | Çʱ׸² | 2 | 46.78 | 1,000 | 94 | 2003 | | 2025.05.13 | ¿ù¼¼ | ³ª½½Ã¤ | 2 | 20.49 | 5,000 | 35 | 2014 | | 2025.05.13 | ¿ù¼¼ | ½Å¸²´º¾¾¿¤(11-8) | 3 | 41.38 | 5,000 | 145 | 2017 | | 2025.05.13 | ¸Å¸Å | ¼ºÀººô¶ó°¡µ¿ | -1 | 36.36 | 9,000 | | 1990 | | 2025.05.13 | ¸Å¸Å | ¼ÏƼºô¸®Áö | 2 | 60.18 | 48,500 | | 2008 | | 2025.05.13 | ¿ù¼¼ | ³ª½½Ã¤ | 2 | 20.49 | 5,000 | 35 | 2014 | | 2025.05.12 | Àü¼¼ | µ¿¹æÅ¸¿î(409-132) | 2 | 51.56 | 28,000 | 0 | 1996 | | 2025.05.12 | Àü¼¼ | °ñµåºô¸®Áö | 4 | 29.9 | 18,900 | 0 | 2014 | | 2025.05.12 | ¿ù¼¼ | ½¦¸£ºô | 4 | 15.64 | 10,000 | 40 | 2013 | | 2025.05.12 | ¿ù¼¼ | ÂüÁ¸µÕÁöºô | 2 | 26.61 | 5,000 | 70 | 2012 | | 2025.05.12 | ¿ù¼¼ | ¹«±ÃȺô | 3 | 39.39 | 21,000 | 9 | 2012 | | 2025.05.12 | Àü¼¼ | ¿¡¼¿ÆÄÅ©ºô¥± | 2 | 28.17 | 17,000 | 0 | 2018 | | 2025.05.12 | ¸Å¸Å | °øÀ۸ǼÇ9Â÷ | -1 | 43.58 | 14,200 | | 1996 | | 2025.05.12 | Àü¼¼ | »ïȺô¶ó | 4 | 36.55 | 11,000 | 0 | 1991 | | 2025.05.12 | Àü¼¼ | ¶óÆÄ¸£½Å¸² | 7 | 27.61 | 36,000 | 0 | 2023 | | 2025.05.12 | ¸Å¸Å | (414-10) | -1 | 40.92 | 20,000 | | 1991 | | 2025.05.12 | ¸Å¸Å | ¿ø¾Óºô¶ó | 2 | 28.55 | 13,000 | | 1993 | | 2025.05.11 | ¿ù¼¼ | EatonTower(1433-227) | 9 | 28.57 | 3,000 | 63 | 2017 | | 2025.05.11 | ¿ù¼¼ | ÀÚÀÌ¿ÀÇǽºÅÚ | 10 | 10.946 | 3,000 | 62 | 2021 | | 2025.05.11 | ¿ù¼¼ | ¾ÆÄ«µ¥¹ÌÇϿ콺 | 6 | 25.24 | 1,000 | 120 | 2019 | | 2025.05.11 | ¿ù¼¼ | URBAN5 | 5 | 57.11 | 40,000 | 20 | 2023 | | 2025.05.11 | ¿ù¼¼ | ´õŬ·¡½º | 3 | 28.56 | 2,000 | 60 | 2017 | | 2025.05.11 | ¿ù¼¼ | Èñ¶ôºô¸®ÁöBµ¿(1641-116) | 5 | 17.55 | 2,000 | 45 | 2012 | | 2025.05.11 | ¸Å¸Å | ÈÞ¸Õºô(610-222) | 2 | 49.04 | 30,000 | | 2016 | | 2025.05.11 | ¸Å¸Å | ÈÞ¸Õºô(610-222) | 2 | 49.04 | 30,000 | | 2016 | | 2025.05.11 | ¸Å¸Å | (610-318) | -1 | 36.18 | 15,500 | | 1986 | | 2025.05.10 | ¸Å¸Å | ½Å´ë¹æ³ëºí·çü | 17 | 24.15 | 26,700 | | 2019 | | 2025.05.10 | ¿ù¼¼ | Çູ¸®Ä¡ºô | 3 | 29.94 | 2,500 | 74 | 2014 | | 2025.05.10 | Àü¼¼ | ½Å¶óÁÖÅôٵ¿ | 1 | 38.16 | 13,650 | 0 | 1986 | | 2025.05.10 | ¿ù¼¼ | ÇÑȺô¸®ÁöBµ¿ | 4 | 65.19 | 3,000 | 90 | 2003 | | 2025.05.10 | ¿ù¼¼ | ±Ý°¸Ç¼Ç3Â÷ | 2 | 55.05 | 2,000 | 90 | 1992 | | 2025.05.10 | ¿ù¼¼ | (1629-9) | 2 | 57.8 | 3,000 | 73 | 2001 | | 2025.05.10 | ¸Å¸Å | ÂüÁ¸µÕÁöºô | 2 | 26.61 | 21,000 | | 2012 | | 2025.05.10 | ¿ù¼¼ | ¿ì¼®ºô¶ó1Â÷ | 3 | 42.67 | 3,000 | 60 | 1992 | | 2025.05.10 | ¿ù¼¼ | FillYou | 5 | 16.41 | 16,000 | 12 | 2016 | | 2025.05.10 | Àü¼¼ | ¿µµ¿ | 3 | 57.89 | 23,500 | 0 | 2002 | | 2025.05.10 | ¸Å¸Å | ³ª»ê¸Ç¼Ç1Â÷ | 2 | 59.37 | 28,000 | | 1996 | | 2025.05.10 | ¸Å¸Å | ¼±°æºô | 5 | 39.63 | 33,800 | | 2016 | | 2025.05.10 | Àü¼¼ | ¿¤¸²Å¸¿î | 5 | 18.235 | 14,000 | 0 | 2017 | | 2025.05.10 | ¿ù¼¼ | ¸íÀÏÆÄÅ©ºô | 2 | 27.09 | 3,000 | 65 | 2016 | | 2025.05.10 | ¿ù¼¼ | ´ë¿¬ | 2 | 62.565 | 7,000 | 60 | 2004 | | 2025.05.10 | Àü¼¼ | ½Å¶óÁÖÅôٵ¿ | 1 | 38.16 | 13,650 | 0 | 1986 | | 2025.05.10 | ¿ù¼¼ | ¸ñ¿ø | 3 | 21.5 | 1,000 | 68 | 2013 | | 2025.05.10 | ¿ù¼¼ | ´ëµµºô¶ó´Ùµ¿ | 1 | 47.38 | 5,000 | 70 | 1989 | | 2025.05.10 | Àü¼¼ | (529-15) | 9 | 10.99 | 13,700 | 0 | 2020 | | 2025.05.10 | ¿ù¼¼ | (610-221) | 2 | 40.96 | 500 | 50 | 1986 | | 2025.05.10 | Àü¼¼ | ±ÃÀü¿¡¹öºô(621-32) | 2 | 73.58 | 26,800 | 0 | 2002 | | 2025.05.10 | ¿ù¼¼ | (1581-39) | 2 | 37.38 | 1,000 | 60 | 1986 | | 2025.05.09 | ¿ù¼¼ | Çѳª·¡24Â÷ | 4 | 29.91 | 2,000 | 125 | 2023 | | 2025.05.09 | ¿ù¼¼ | ¼Û¸²ÆÄÅ©ºô¶ó | 2 | 68.32 | 17,660 | 10 | 1992 | | 2025.05.09 | Àü¼¼ | (306-52) | 3 | 42.635 | 15,000 | 0 | 2014 | | 2025.05.09 | Àü¼¼ | ±ÃÀü¿¡¹öºô(621-32) | 5 | 69.87 | 24,000 | 0 | 2002 | | 2025.05.09 | ¿ù¼¼ | Å©³ªÅ«ÇϿ콺 | 6 | 29.73 | 1,000 | 63 | 2016 | | 2025.05.09 | Àü¼¼ | (655-49) | -1 | 57.02 | 8,000 | 0 | 1990 | | 2025.05.09 | ¸Å¸Å | ´ë½ÅÇϿ콺 | 2 | 55.47 | 36,400 | | 2012 | | 2025.05.09 | ¸Å¸Å | ÇÁ·¹¹Ì¿À759 | 3 | 45.28 | 37,600 | | 2020 | | 2025.05.09 | ¸Å¸Å | ¼ö¿¡µå¿ø | 7 | 31.4 | 28,400 | | 2016 | | 2025.05.09 | ¸Å¸Å | µ¿¹æÆÄ·¹½º´Ùµ¿ | 1 | 35.28 | 16,000 | | 1991 | | 2025.05.09 | ¸Å¸Å | ÇÁ·¹¹Ì¿À759 | 3 | 45.28 | 37,600 | | 2020 | | 2025.05.08 | ¿ù¼¼ | ½ºÅÚ¶ó(1432-6) | 9 | 24.18 | 19,000 | 35 | 2017 | | 2025.05.08 | ¸Å¸Å | ½Å¸²ÇÏÀÌÃ÷ºô¶ó | 2 | 44.58 | 19,800 | | 1989 | | 2025.05.08 | ¿ù¼¼ | ¿¡À̽º¸Ç¼Ç | 3 | 25.43 | 18,200 | 15 | 2014 | | 2025.05.08 | Àü¼¼ | ºÀȲºô¶ó2Â÷ | 3 | 38.53 | 14,000 | 0 | 1993 | | 2025.05.08 | ¿ù¼¼ | ÆÄÅ©ºô | 7 | 26.2 | 20,000 | 40 | 2016 | | 2025.05.08 | ¿ù¼¼ | ´õŬ·¡½Ä | 1 | 29.56 | 22,000 | 15 | 2024 | | 2025.05.08 | ¿ù¼¼ | û¿ìºô¶ó(1678-52) | 1 | 55.92 | 5,000 | 50 | 2002 | | 2025.05.08 | ¿ù¼¼ | Çìºìºô¸®Áö | 2 | 22.16 | 5,000 | 60 | 2015 | | 2025.05.08 | ¿ù¼¼ | ÆÇÅ׿ | 2 | 29.05 | 27,500 | 15 | 2022 | | 2025.05.08 | ¸Å¸Å | ½ÅÀϺô¶ó5Â÷ | 1 | 40.86 | 15,000 | | 1996 | | 2025.05.08 | ¸Å¸Å | (408-5) | 1 | 83.7 | 40,000 | | 1991 | | 2025.05.08 | ¸Å¸Å | ¿¹ÁöÆÓ¸®½º78Â÷(101,102) | 3 | 57.12 | 40,500 | | 2014 | | 2025.05.07 | ¸Å¸Å | Á¶Àº¾ÆÆ®ºô(354-33) | 1 | 69.12 | 75,000 | | 2003 | | 2025.05.07 | ¸Å¸Å | ´õ·°½ººô | 3 | 27.36 | 30,000 | | 2022 | | 2025.05.07 | Àü¼¼ | ¹ÂÁöÄÃÆÄÅ© | 3 | 59.18 | 25,000 | 0 | 2014 | | 2025.05.07 | Àü¼¼ | (492-6) | 2 | 56.19 | 26,460 | 0 | 2016 | | 2025.05.07 | Àü¼¼ | (254-301) | 3 | 84.38 | 30,000 | 0 | 1991 | | 2025.05.07 | ¿ù¼¼ | »ï¼º¾ÆÆ®ºô2Â÷ | 4 | 48.4 | 15,000 | 20 | 2002 | | 2025.05.07 | ¸Å¸Å | (120-97) | -1 | 35.97 | 18,500 | | 1986 | | 2025.05.06 | ¿ù¼¼ | (255-68) | 2 | 12.03 | 100 | 29 | 2011 | | 2025.05.06 | ¿ù¼¼ | °ñµçÈú | 2 | 29.35 | 3,000 | 90 | 2013 | | 2025.05.06 | ¿ù¼¼ | ⿵ºô | 5 | 49.28 | 25,000 | 10 | 2015 | | 2025.05.06 | ¿ù¼¼ | ÁÁÀº»ç¶÷ÁÁÀºÁý | 6 | 43.32 | 3,000 | 102 | 2016 | | 2025.05.06 | ¿ù¼¼ | ⿵ºô | 5 | 49.28 | 25,000 | 10 | 2015 | | 2025.05.06 | ¸Å¸Å | ¿ì¸²¾ÆÆ®ºô | 2 | 37.49 | 31,000 | | 2018 | | 2025.05.06 | ¸Å¸Å | ´Ù¼Ø±×¶ûºôB | 3 | 24.01 | 23,000 | | 2022 | | 2025.05.05 | ¿ù¼¼ | µ¿¼º¸®Ä¡ºô | 2 | 55.97 | 3,000 | 70 | 2008 | | 2025.05.05 | ¿ù¼¼ | ±×¸°ºô | 2 | 43.54 | 3,000 | 60 | 2003 | | 2025.05.05 | ¿ù¼¼ | Á¤¸²È¨½ºÅÚ(88-35) | 2 | 24.55 | 1,000 | 55 | 2000 | | 2025.05.04 | ¿ù¼¼ | ÆÇÅ׿ | 2 | 29.05 | 27,500 | 15 | 2022 | | 2025.05.04 | ¿ù¼¼ | J2tower | 4 | 14.39 | 500 | 70 | 2014 | | 2025.05.04 | ¸Å¸Å | (120-96) | 1 | 35.97 | 17,500 | | 1986 | | 2025.05.04 | ¸Å¸Å | (120-96) | 1 | 35.97 | 17,500 | | 1986 | | 2025.05.04 | ¿ù¼¼ | ÆÇÅ׿ | 2 | 29.05 | 27,500 | 15 | 2022 | | 2025.05.03 | Àü¼¼ | Áê¹æ½º | 10 | 23.86 | 21,924 | 0 | 2018 | | 2025.05.03 | ¿ù¼¼ | ¼ºÁø¸®Ä¡ºô5Â÷ | 5 | 29.4 | 20,790 | 14 | 2021 | | 2025.05.03 | ¿ù¼¼ | ´ë¿µ¸Ç¼ð | 3 | 59.74 | 15,000 | 10 | 1982 | | 2025.05.03 | ¿ù¼¼ | (1631-23) | 3 | 19.03 | 16,000 | 16 | 2023 | | 2025.05.03 | ¸Å¸Å | ¸®Ä¡À£ÇϿ콺 | 2 | 26.5 | 18,200 | | 2016 | | 2025.05.03 | ¸Å¸Å | ´ë½Å¾ÆÆ®ºô2Â÷ | 4 | 75.57 | 38,000 | | 2002 | | 2025.05.03 | ¸Å¸Å | ¼±Èºô¶ó | -1 | 41.34 | 11,000 | | 1992 | | 2025.05.03 | ¸Å¸Å | À̷봺ij½½ | 4 | 39.58 | 39,300 | | 2016 | | 2025.05.03 | ¸Å¸Å | °øÀ۸ǼÇ8Â÷ | 4 | 43.67 | 18,900 | | 1996 | | 2025.05.03 | ¸Å¸Å | µ¿¾Æºô¶ó | 2 | 38.59 | 28,000 | | 1994 | | 2025.05.03 | ¸Å¸Å | Çì·»ÇϿ콺3Â÷ | 5 | 36.75 | 30,000 | | 2014 | | 2025.05.02 | Àü¼¼ | °í¿øºô¶óÆ® | -1 | 28.5 | 6,000 | 0 | 1995 | | 2025.05.02 | ¿ù¼¼ | Çö´ëº½ | 4 | 12.79 | 500 | 43 | 2013 | | 2025.05.02 | Àü¼¼ | (254-301) | 3 | 84.38 | 30,000 | 0 | 1991 | | 2025.05.02 | ¿ù¼¼ | ¿¡À̽ºÆÄÅ©ºô | 4 | 56.19 | 5,000 | 50 | 2002 | | 2025.05.02 | ¿ù¼¼ | Çö´ëº½ | 4 | 12.79 | 500 | 43 | 2013 | | 2025.05.02 | ¸Å¸Å | ´Ù¼Ø±×¶ûºôB | 5 | 32.32 | 32,000 | | 2022 | | 2025.05.01 | ¿ù¼¼ | ´õ¸¶Àεå | 9 | 26.69 | 1,000 | 160 | 2022 | | 2025.05.01 | Àü¼¼ | Jin.H | 3 | 21.82 | 15,000 | 0 | 2013 | | 2025.05.01 | ¿ù¼¼ | ½Å¾Èºô¶óB | 3 | 70.56 | 19,000 | 10 | 1991 | | 2025.05.01 | Àü¼¼ | ¾ÆÄ«µ¥¹ÌÇϿ콺 | 3 | 24.33 | 21,000 | 0 | 2019 | | 2025.05.01 | ¿ù¼¼ | ¼ö¿¬¾ÆÆ®ºô | 5 | 42.89 | 500 | 45 | 2012 | | 2025.05.01 | ¿ù¼¼ | (1570-27) | 3 | 49.26 | 3,000 | 80 | 2003 | | 2025.05.01 | ¿ù¼¼ | ´ë¼ººô¶ó | 3 | 27.74 | 500 | 65 | 1984 | | 2025.05.01 | Àü¼¼ | °ü¾Ç(98-395) | 2 | 84.76 | 17,000 | 0 | 1981 | | 2025.05.01 | ¿ù¼¼ | ÇØ´©¸® | 3 | 29.88 | 3,000 | 55 | 2012 | | 2025.05.01 | ¿ù¼¼ | ¿î¼º | 5 | 29.88 | 21,900 | 15 | 2020 | | 2025.05.01 | ¸Å¸Å | ¿À·ûºô¶óCµ¿(708-29) | 2 | 41.4 | 13,100 | | 1987 | | 2025.05.01 | ¸Å¸Å | Á¤½Éºô¶ó3Â÷ | 2 | 39.66 | 20,000 | | 1993 | | 2025.05.01 | ¸Å¸Å | ÅÂûÁÖÅà | 3 | 84.9 | 30,000 | | 1996 | | 2025.05.01 | Àü¼¼ | Jin.H | 3 | 21.82 | 15,000 | 0 | 2013 | | 2025.05.01 | ¿ù¼¼ | Çö´ë¾ÆÆ®ºô¶ó(409-292) | -1 | 37.27 | 1,000 | 70 | 1989 | | 2025.05.01 | ¿ù¼¼ | Çູ¸Ç¼Ç | 3 | 45.2 | 14,000 | 20 | 1995 | | 2025.05.01 | ¿ù¼¼ | ¿î¼º | 6 | 29.88 | 21,600 | 18 | 2020 | | 2025.05.01 | Àü¼¼ | ÅÂûÁÖÅà | 3 | 84.9 | 25,000 | 0 | 1996 | | 2025.04.30 | ¸Å¸Å | ¸®´õ½ººô(563-18) | 4 | 29.87 | 25,000 | | 2012 | | 2025.04.30 | ¸Å¸Å | ȲÁ¦(415-50) | -1 | 36.66 | 19,000 | | 1990 | | 2025.04.30 | Àü¼¼ | µ¿ºÎ | 9 | 50.57 | 35,000 | 0 | 1993 | | 2025.04.30 | ¿ù¼¼ | ¼¾ÅͽºÄù¾î¼¿ï´ëÁ¡ | 7 | 22.96 | 8,700 | 57 | 2024 | | 2025.04.30 | Àü¼¼ | ½Å¸²Çö´ë | 3 | 119.49 | 55,000 | 0 | 1993 | | 2025.04.30 | Àü¼¼ | ½Å¸²Çö´ë | 2 | 34.86 | 27,000 | 0 | 1993 | | 2025.04.30 | Àü¼¼ | ½Å¸²Çª¸£Áö¿À | 2 | 84.79 | 62,000 | 0 | 2005 | | 2025.04.30 | ¿ù¼¼ | ¼¾ÅͽºÄù¾î¼¿ï´ëÁ¡ | 7 | 22.96 | 8,700 | 57 | 2024 | | 2025.04.30 | ¿ù¼¼ | ¼¾ÅͽºÄù¾î¼¿ï´ëÁ¡ | 11 | 22.96 | 9,737 | 53 | 2024 | | 2025.04.30 | ¿ù¼¼ | ¼¾ÅͽºÄù¾î¼¿ï´ëÁ¡ | 7 | 22.96 | 8,700 | 57 | 2024 | | 2025.04.30 | Àü¼¼ | µ¿ºÎ | 9 | 50.57 | 35,000 | 0 | 1993 | | 2025.04.29 | ¿ù¼¼ | ÁöºØÀ§¾Ö | 8 | 16.17 | 650 | 63 | 2012 | | 2025.04.29 | ¿ù¼¼ | ÃְŸ¿ö | 10 | 42.86 | 10,800 | 86 | 2023 | | 2025.04.29 | ¿ù¼¼ | ¼¾ÅͽºÄù¾î¼¿ï´ëÁ¡ | 10 | 44.62 | 15,476 | 68 | 2024 | | 2025.04.29 | ¿ù¼¼ | ¼¾ÅͽºÄù¾î¼¿ï´ëÁ¡ | 10 | 44.62 | 10,300 | 86 | 2024 | | 2025.04.29 | ¿ù¼¼ | ¼¾ÅͽºÄù¾î¼¿ï´ëÁ¡ | 11 | 44.62 | 20,635 | 49 | 2024 | | 2025.04.29 | Àü¼¼ | ½Å¸²Çª¸£Áö¿À | 11 | 84.79 | 58,500 | 0 | 2005 | | 2025.04.29 | Àü¼¼ | °ü¾Ç»êÈ޸սþÆ2´ÜÁö | 10 | 84.97 | 41,500 | 0 | 2008 | | 2025.04.29 | Àü¼¼ | °ü¾Ç»êÈ޸սþÆ1´ÜÁö | 15 | 84.97 | 49,000 | 0 | 2008 | | 2025.04.29 | Àü¼¼ | ½Å¸²2Â÷Ǫ¸£Áö¿À | 12 | 84.8098 | 46,000 | 0 | 2007 | | 2025.04.29 | ¿ù¼¼ | º¸¶ó¸ÅÆÓ¸®½º | 9 | 19.04 | 3,000 | 52 | 2012 | | 2025.04.29 | ¸Å¸Å | ±×¸°ºô(1455-15) | 4 | 19.53 | 29,800 | | 2016 | | 2025.04.29 | ¸Å¸Å | ½Å¸²ºô¶ó(10-438) | 2 | 50.93 | 26,500 | | 1991 | | 2025.04.29 | ¸Å¸Å | Àϼººô¶ó | 2 | 40.68 | 17,500 | | 1994 | | 2025.04.29 | ¸Å¸Å | (1578-38) | 5 | 57.31 | 51,800 | | 2022 | | 2025.04.29 | ¸Å¸Å | ½Å¸²ºô¶ó(10-438) | 2 | 50.93 | 26,500 | | 1991 | | 2025.04.28 | Àü¼¼ | Çö´ë | 13 | 84.44 | 34,000 | 0 | 1991 | | 2025.04.28 | ¿ù¼¼ | ¼¾ÅͽºÄù¾î¼¿ï´ëÁ¡ | 10 | 22.96 | 8,700 | 57 | 2024 | | 2025.04.28 | ¿ù¼¼ | ÃְŸ¿ö | 12 | 42.86 | 9,400 | 93 | 2023 | | 2025.04.28 | Àü¼¼ | û¾ÏµÎ»êÀ§ºê¼¾Æ¼¿ò | 15 | 83.64 | 53,000 | 0 | 2005 | | 2025.04.28 | Àü¼¼ | °ü¾Ç»êÈ޸սþÆ1´ÜÁö | 14 | 59.96 | 34,600 | 0 | 2008 | | 2025.04.28 | ¿ù¼¼ | ¼¾ÅͽºÄù¾î¼¿ï´ëÁ¡ | 3 | 22.96 | 9,737 | 53 | 2024 | | 2025.04.28 | Àü¼¼ | °Ç¿µ4 | 14 | 84.89 | 45,000 | 0 | 1997 | | 2025.04.28 | ¿ù¼¼ | ¼¾ÅͽºÄù¾î¼¿ï´ëÁ¡ | 7 | 44.62 | 10,300 | 86 | 2024 | | 2025.04.28 | ¸Å¸Å | ½Â¿ìÆÓ¸®½º | 3 | 29.74 | 22,000 | | 2012 | | 2025.04.27 | ¿ù¼¼ | ¼¾ÅͽºÄù¾î¼¿ï´ëÁ¡ | 10 | 22.96 | 5,410 | 72 | 2024 | | 2025.04.27 | ¿ù¼¼ | ¼¾ÅͽºÄù¾î¼¿ï´ëÁ¡ | 15 | 22.96 | 6,500 | 67 | 2024 | | 2025.04.27 | ¿ù¼¼ | ¼¾ÅͽºÄù¾î¼¿ï´ëÁ¡ | 8 | 44.62 | 10,300 | 86 | 2024 | | 2025.04.27 | ¿ù¼¼ | ¼¾ÅͽºÄù¾î¼¿ï´ëÁ¡ | 9 | 22.96 | 9,737 | 53 | 2024 | | 2025.04.27 | ¿ù¼¼ | LIG´ëÇи¶À»(°Ç¿µ¾ÆÆÄÆ®3Â÷) | 6 | 69.17 | 32,000 | 12 | 1996 | | 2025.04.27 | Àü¼¼ | ±¹Á¦»êÀå | 12 | 59.94 | 28,000 | 0 | 1993 | | 2025.04.26 | ¸Å¸Å | (1578-38) | 3 | 59.97 | 54,500 | | 2022 | | 2025.04.26 | Àü¼¼ | °ü¾Ç»êÈ޸սþÆ2´ÜÁö | 10 | 84.97 | 35,700 | 0 | 2008 | | 2025.04.26 | Àü¼¼ | °ü¾Ç»êÈ޸սþÆ2´ÜÁö | 8 | 84.97 | 39,044 | 0 | 2008 | | 2025.04.26 | Àü¼¼ | °ü¾Ç»êÈ޸սþÆ2´ÜÁö | 3 | 84.98 | 43,000 | 0 | 2008 | | 2025.04.26 | ¸Å¸Å | (98-385) | 4 | 34.53 | 18,500 | | 1996 | | 2025.04.26 | ¸Å¸Å | µ¿½Å¸Ç¼Ç | 3 | 65.16 | 36,500 | | 1994 | | 2025.04.26 | ¸Å¸Å | ¾î¹ÝÆÓ¸®½º(103µ¿,105µ¿) | 2 | 50.71 | 39,800 | | 2017 | | 2025.04.26 | Àü¼¼ | »ï¼º»êÁÖ°ø(ÁÖ°ø3´ÜÁö) | 19 | 83.21 | 42,000 | 0 | 2000 | | 2025.04.26 | ¸Å¸Å | ´Ù½£ | 4 | 53.54 | 45,700 | | 2016 | | 2025.04.26 | ¸Å¸Å | µ¨·ç½Ã¾Æ.R | 4 | 29.685 | 30,300 | | 2022 | | 2025.04.26 | Àü¼¼ | °ü¾Ç»êÈ޸սþÆ2´ÜÁö | 15 | 84.98 | 37,000 | 0 | 2008 | | 2025.04.26 | ¿ù¼¼ | ½Å¸²Çö´ë | 4 | 34.86 | 10,000 | 60 | 1993 | | 2025.04.26 | ¿ù¼¼ | ½Å¸²Çö´ë | 8 | 59.85 | 10,000 | 85 | 1993 | | 2025.04.26 | Àü¼¼ | »ï¼º»êÁÖ°ø(ÁÖ°ø3´ÜÁö) | 8 | 83.21 | 38,000 | 0 | 2000 | | 2025.04.26 | ¿ù¼¼ | µ¿ºÎ | 14 | 60.38 | 30,000 | 50 | 1993 | | 2025.04.26 | ¿ù¼¼ | ¼¾ÅͽºÄù¾î¼¿ï´ëÁ¡ | 9 | 44.62 | 20,635 | 49 | 2024 | | 2025.04.26 | ¿ù¼¼ | ·Î»çÀ̽Ÿ² | 9 | 18.09 | 1,000 | 120 | 2022 | | 2025.04.26 | Àü¼¼ | Èú½ºÅ×ÀÌÆ®´ºÆ÷·¹ | 11 | 84.9433 | 74,000 | 0 | 2022 | | 2025.04.26 | Àü¼¼ | Èú½ºÅ×ÀÌÆ®´ºÆ÷·¹ | 8 | 59.9882 | 58,800 | 0 | 2022 | | 2025.04.26 | ¿ù¼¼ | ½Å¸²Å¥ºê | 5 | 12.395 | 9,840 | 3 | 2015 | | 2025.04.25 | ¸Å¸Å | ¾Æ¸§Ã¤ | 2 | 52.4 | 37,500 | | 2015 | | 2025.04.25 | ¸Å¸Å | ȲÁ¦5,ȲÁ¦6(415-62) | -1 | 33.84 | 25,000 | | 1991 | | 2025.04.25 | ¿ù¼¼ | ¼¾ÅͽºÄù¾î¼¿ï´ëÁ¡ | 13 | 44.62 | 20,635 | 49 | 2024 | | 2025.04.25 | ¿ù¼¼ | ½Å¸²Çö´ë | 6 | 82.2 | 5,000 | 160 | 1993 | | 2025.04.25 | ¿ù¼¼ | ½Å¸²Çö´ë | 6 | 82.2 | 5,000 | 160 | 1993 | | 2025.04.24 | Àü¼¼ | Èú½ºÅ×ÀÌÆ®´ºÆ÷·¹ | 30 | 59.9986 | 55,650 | 0 | 2022 | | 2025.04.24 | Àü¼¼ | ½Å¸²Çö´ë | 9 | 82.2 | 42,000 | 0 | 1993 | | 2025.04.24 | ¿ù¼¼ | °Ç¿µ1 | 6 | 74.13 | 13,000 | 60 | 1984 | | 2025.04.24 | ¿ù¼¼ | ½Å¸²2´ÜÁöÁÖ°ø(ÀÓ´ë) | 11 | 39.01 | 2,156 | 26 | 2000 | | 2025.04.24 | ¿ù¼¼ | ½Å¸²Å¥ºê | 5 | 12.96 | 3,000 | 37 | 2015 | | 2025.04.24 | Àü¼¼ | Èú½ºÅ×ÀÌÆ®´ºÆ÷·¹ | 30 | 59.9986 | 55,650 | 0 | 2022 | | 2025.04.24 | ¿ù¼¼ | °ü¾Ç»êÈ޸սþÆ2´ÜÁö | 12 | 84.97 | 36,000 | 20 | 2008 | | 2025.04.24 | ¿ù¼¼ | ½Å¸²2´ÜÁöÁÖ°ø(ÀÓ´ë) | 11 | 39.01 | 2,156 | 26 | 2000 | | 2025.04.23 | ¿ù¼¼ | ±ÝÈ£(1Â÷) | 10 | 84.96 | 10,000 | 120 | 1997 | | 2025.04.23 | ¿ù¼¼ | ½Å¾È | 4 | 55.21 | 2,500 | 80 | 1978 | | 2025.04.23 | Àü¼¼ | ½Å¸²µ¿½Ö¿ë¾ÆÆÄÆ® | 3 | 59.26 | 28,350 | 0 | 1998 | | 2025.04.23 | Àü¼¼ | ½Å¸²Çª¸£Áö¿À | 23 | 84.79 | 63,000 | 0 | 2005 | | 2025.04.23 | ¸Å¸Å | ¸ÞÆ®·ÎŸ¿î3Â÷ | 5 | 29.18 | 25,500 | | 2017 | | 2025.04.23 | ¸Å¸Å | (412-158) | 2 | 29.9 | 29,500 | | 2014 | | 2025.04.23 | Àü¼¼ | °ü¾Ç»êÈ޸սþÆ2´ÜÁö | 2 | 114.7 | 45,000 | 0 | 2008 | | 2025.04.23 | ¿ù¼¼ | ±ÝÈ£(1Â÷) | 10 | 84.96 | 10,000 | 120 | 1997 | | 2025.04.23 | ¿ù¼¼ | ÃְŸ¿ö | 17 | 42.72 | 9,800 | 78 | 2023 | | 2025.04.23 | ¿ù¼¼ | Èú½ºÅ×ÀÌÆ®´ºÆ÷·¹ | 18 | 59.9882 | 30,000 | 110 | 2022 | | 2025.04.23 | Àü¼¼ | °ü¾Ç»êÈ޸սþÆ1´ÜÁö | 14 | 59.96 | 34,600 | 0 | 2008 | | 2025.04.23 | Àü¼¼ | °ü¾Ç»êÈ޸սþÆ2´ÜÁö | 2 | 114.7 | 45,000 | 0 | 2008 | | 2025.04.22 | ¿ù¼¼ | ¾Æµ¥³ª | 2 | 17.94 | 2,000 | 50 | 2010 | | 2025.04.22 | ¿ù¼¼ | C&Aºôµù | 10 | 15.26 | 500 | 46 | 2014 | | 2025.04.22 | Àü¼¼ | µ¿ºÎ | 5 | 50.57 | 35,000 | 0 | 1993 | | 2025.04.22 | Àü¼¼ | ½Å¸²Çö´ë | 12 | 119.49 | 60,000 | 0 | 1993 | | 2025.04.22 | Àü¼¼ | °Ç¿µ1 | 4 | 74.13 | 40,000 | 0 | 1984 | | 2025.04.22 | ¿ù¼¼ | ÃְŸ¿ö | 8 | 42.72 | 9,800 | 77 | 2023 | | 2025.04.22 | ¿ù¼¼ | ·Î»çÀ̽Ÿ² | 6 | 20.56 | 1,000 | 110 | 2022 | | 2025.04.22 | Àü¼¼ | Èú½ºÅ×ÀÌÆ®´ºÆ÷·¹ | 9 | 59.9882 | 57,750 | 0 | 2022 | | 2025.04.22 | ¿ù¼¼ | ÃְŸ¿ö | 9 | 17.98 | 5,000 | 37 | 2023 | | 2025.04.21 | Àü¼¼ | °ü¾Ç»êÈ޸սþÆ2´ÜÁö | 2 | 84.97 | 39,000 | 0 | 2008 | | 2025.04.21 | Àü¼¼ | °ü¾Ç»êÈ޸սþÆ2´ÜÁö | 8 | 114.7 | 55,000 | 0 | 2008 | | 2025.04.21 | ¸Å¸Å | ¿¡À̽º¸Ç¼Ç2 | 2 | 25.69 | 22,000 | | 2015 | | 2025.04.21 | ¸Å¸Å | 98-439 | 4 | 27.21 | 25,400 | | 2014 | | 2025.04.21 | Àü¼¼ | °ü¾Ç»êÈ޸սþÆ2´ÜÁö | 8 | 114.7 | 55,000 | 0 | 2008 | | 2025.04.21 | Àü¼¼ | ½Å¸²Çª¸£Áö¿À | 16 | 84.79 | 58,000 | 0 | 2005 | | 2025.04.21 | Àü¼¼ | Çö´ë | 10 | 84.22 | 35,000 | 0 | 1991 | | 2025.04.21 | Àü¼¼ | °Ç¿µ2 | 3 | 43.92 | 17,700 | 0 | 1988 | | 2025.04.21 | Àü¼¼ | ½Å¸²Çö´ë | 2 | 34.86 | 19,635 | 0 | 1993 | | 2025.04.21 | Àü¼¼ | Èú½ºÅ×ÀÌÆ®´ºÆ÷·¹ | 23 | 59.9882 | 62,000 | 0 | 2022 | | 2025.04.21 | ¿ù¼¼ | Èú½ºÅ×ÀÌÆ®´ºÆ÷·¹ | 18 | 44.9796 | 15,280 | 21 | 2022 | | 2025.04.21 | ¿ù¼¼ | °ü¾Ç»êÈ޸սþÆ3´ÜÁö | 7 | 39.82 | 6,432 | 12 | 2008 | | 2025.04.20 | ¸Å¸Å | ¸ÞÆ®·ÎŸ¿î7Â÷ | 5 | 29.82 | 28,000 | | 2017 | | 2025.04.20 | ¸Å¸Å | ÇѾ縮Ã÷ºô(1667-5) | 5 | 50.57 | 33,800 | | 2015 | | 2025.04.20 | ¸Å¸Å | ÆÇÅ׿ | 6 | 29.81 | 29,500 | | 2022 | | 2025.04.20 | ¿ù¼¼ | ¾Æµ¥³ª | 9 | 17.94 | 1,000 | 60 | 2010 | | 2025.04.20 | ¿ù¼¼ | û±¤ | 10 | 59.91 | 29,700 | 10 | 2000 | | 2025.04.19 | Àü¼¼ | ½Å¸²Çö´ë | 11 | 119.49 | 52,000 | 0 | 1993 | | 2025.04.19 | Àü¼¼ | °Ç¿µ1 | 6 | 60.27 | 28,000 | 0 | 1984 | | 2025.04.19 | Àü¼¼ | °ü¾Ç»êÈ޸սþÆ2´ÜÁö | 6 | 114.7 | 42,000 | 0 | 2008 | | 2025.04.19 | ¿ù¼¼ | °Ç¿µ1 | 8 | 41.04 | 3,000 | 75 | 1984 | | 2025.04.19 | Àü¼¼ | ½Å¸²2Â÷Ǫ¸£Áö¿À | 4 | 84.8098 | 41,000 | 0 | 2007 | | 2025.04.19 | Àü¼¼ | ½Å¸²2Â÷Ǫ¸£Áö¿À | 4 | 84.8098 | 41,000 | 0 | 2007 | | 2025.04.19 | Àü¼¼ | °ü¾Ç»êÈ޸սþÆ2´ÜÁö | 6 | 59.96 | 31,500 | 0 | 2008 | | 2025.04.19 | Àü¼¼ | ±¹Á¦»êÀå | 11 | 84.15 | 26,250 | 0 | 1993 | | 2025.04.19 | Àü¼¼ | ½Å¸²µ¿½Ö¿ë¾ÆÆÄÆ® | 5 | 59.26 | 30,000 | 0 | 1998 | | 2025.04.19 | ¸Å¸Å | ´ë¾çºô¶ó | 2 | 41.52 | 17,000 | | 1991 | | 2025.04.19 | Àü¼¼ | ¿ìÁ¤ÇÏÀ̺ñÀü2 | 4 | 84.58 | 36,000 | 0 | 2004 | | 2025.04.19 | ¿ù¼¼ | ¿ì¹ÎÁ¶¿ø | 4 | 90.041 | 35,000 | 80 | 2003 | | 2025.04.18 | Àü¼¼ | ±ÝÈ£(1Â÷) | 4 | 59.4 | 25,000 | 0 | 1997 | | 2025.04.18 | ¿ù¼¼ | À±¼ºÅ¸¿ö | 8 | 29.57 | 28,000 | 6 | 2020 | | 2025.04.18 | ¸Å¸Å | dz¿øÇÏÀÓºô | 4 | 42.89 | 39,500 | | 2018 | | 2025.04.17 | ¸Å¸Å | ¶óÀÓ½ººô | 3 | 28.79 | 22,500 | | 2019 | | 2025.04.17 | ¸Å¸Å | ¹Ì¼ººô¶ó | 1 | 54.49 | 19,000 | | 1993 | | 2025.04.17 | ¸Å¸Å | Á¤½Éºô¶ó3Â÷ | -1 | 38.55 | 19,700 | | 1993 | | 2025.04.17 | ¸Å¸Å | ³Çâºô¶ó | 1 | 60.42 | 20,000 | | 1998 | | 2025.04.17 | ¿ù¼¼ | ¼¾ÅͽºÄù¾î¼¿ï´ëÁ¡ | 5 | 22.96 | 9,737 | 53 | 2024 | | 2025.04.17 | Àü¼¼ | µ¿ºÎ | 2 | 50.57 | 31,000 | 0 | 1993 | | 2025.04.17 | ¿ù¼¼ | ½Å¸²Çö´ë | 7 | 59.85 | 5,000 | 115 | 1993 | | 2025.04.17 | ¸Å¸Å | (127-14) | 1 | 54.66 | 23,900 | | 1990 | | 2025.04.16 | ¸Å¸Å | »õõ³âûdz | 4 | 95.76 | 34,500 | | 2001 | | 2025.04.16 | Àü¼¼ | Èú½ºÅ×ÀÌÆ®´ºÆ÷·¹ | 22 | 84.9433 | 75,000 | 0 | 2022 | | 2025.04.16 | ¿ù¼¼ | µ¿ºÎ | 11 | 26.66 | 238 | 9 | 1993 | | 2025.04.16 | Àü¼¼ | ½Å¸²Çö´ë | 13 | 34.86 | 23,100 | 0 | 1993 | | 2025.04.15 | ¸Å¸Å | ´Ù½£ | 6 | 53.37 | 44,000 | | 2016 | | 2025.04.15 | ¿ù¼¼ | ÃְŸ¿ö | 17 | 39.66 | 10,290 | 45 | 2023 | | 2025.04.15 | Àü¼¼ | °Ç¿µ2 | 4 | 59.76 | 23,000 | 0 | 1988 | | 2025.04.15 | ¸Å¸Å | °ÇÈ«ÇÏÀÌÃ÷ | -1 | 59.63 | 21,500 | | 1992 | | 2025.04.15 | ¸Å¸Å | ½Å¿ìºô¶ó(409-124) | 4 | 48.13 | 34,900 | | 1997 | | 2025.04.15 | ¿ù¼¼ | µ¿ºÎ | 11 | 26.66 | 595 | 9 | 1993 | | 2025.04.15 | ¿ù¼¼ | µ¿ºÎ | 15 | 26.66 | 595 | 9 | 1993 | | 2025.04.15 | Àü¼¼ | Çö´ë | 4 | 71.9 | 25,200 | 0 | 1991 | | 2025.04.15 | ¿ù¼¼ | ¼¾ÅͽºÄù¾î¼¿ï´ëÁ¡ | 12 | 22.96 | 8,700 | 57 | 2024 | | 2025.04.14 | ¸Å¸Å | ¾î¹ÝÆÓ¸®½º(103µ¿,105µ¿) | 2 | 44.48 | 34,400 | | 2017 | | 2025.04.14 | ¸Å¸Å | µ¿¿ìºô¶óÆ® | 2 | 51.8 | 29,500 | | 2015 | | 2025.04.14 | ¿ù¼¼ | ½Å¸²Çö´ë | 9 | 34.86 | 1,000 | 95 | 1993 | | 2025.04.14 | Àü¼¼ | ½Å¸²Çö´ë | 4 | 82.2 | 45,000 | 0 | 1993 | | 2025.04.14 | Àü¼¼ | ½Å¸²Çö´ë | 1 | 59.85 | 30,000 | 0 | 1993 | | 2025.04.14 | ¿ù¼¼ | ½Å¸²Çª¸£Áö¿À | 2 | 84.87 | 30,000 | 100 | 2005 | | 2025.04.14 | Àü¼¼ | ½Å¸²Çª¸£Áö¿À | 2 | 114.84 | 55,000 | 0 | 2005 | | 2025.04.13 | ¸Å¸Å | ¸ð´×Èú(1564-9) | 2 | 38.37 | 32,000 | | 2016 | | 2025.04.13 | ¸Å¸Å | ¸ð´×Èú(1564-9) | 3 | 38.37 | 32,000 | | 2016 | | 2025.04.13 | Àü¼¼ | Èú½ºÅ×ÀÌÆ®´ºÆ÷·¹ | 28 | 59.9882 | 65,000 | 0 | 2022 | | 2025.04.13 | ¿ù¼¼ | ÇÁ¶óºñ´ÙÆ®¶ó¿ò | 3 | 14.05 | 100 | 60 | 2013 | | 2025.04.13 | ¸Å¸Å | ¸ð´×Èú(1564-9) | 2 | 40.39 | 34,000 | | 2016 | | 2025.04.13 | ¿ù¼¼ | Èú½ºÅ×ÀÌÆ®´ºÆ÷·¹ | 24 | 59.9986 | 30,000 | 111 | 2022 | | 2025.04.13 | Àü¼¼ | °ü¾Ç»êÈ޸սþÆ2´ÜÁö | 7 | 59.96 | 35,280 | 0 | 2008 | | 2025.04.13 | Àü¼¼ | Èú½ºÅ×ÀÌÆ®´ºÆ÷·¹ | 8 | 59.9882 | 52,500 | 0 | 2022 | | 2025.04.13 | Àü¼¼ | Èú½ºÅ×ÀÌÆ®´ºÆ÷·¹ | 28 | 59.9882 | 65,000 | 0 | 2022 | | 2025.04.12 | Àü¼¼ | °ü¾Ç»êÈ޸սþÆ1´ÜÁö | 4 | 114.7 | 59,500 | 0 | 2008 | | 2025.04.12 | Àü¼¼ | °ü¾Ç»êÈ޸սþÆ2´ÜÁö | 14 | 114.7 | 49,000 | 0 | 2008 | | 2025.04.12 | Àü¼¼ | ½Å¸²Çö´ë | 14 | 105.36 | 45,000 | 0 | 1993 | | 2025.04.12 | Àü¼¼ | »ï¼º»êÁÖ°ø(ÁÖ°ø3´ÜÁö) | 7 | 83.21 | 38,000 | 0 | 2000 | | 2025.04.12 | ¿ù¼¼ | ½Å¸²Çö´ë | 1 | 34.86 | 10,000 | 50 | 1993 | | 2025.04.12 | ¿ù¼¼ | ½Å¸²Çö´ë | 1 | 105.36 | 30,000 | 80 | 1993 | | 2025.04.12 | ¿ù¼¼ | ½Å¸²Çö´ë | 1 | 34.86 | 10,000 | 50 | 1993 | | 2025.04.12 | ¸Å¸Å | 1477-14 | 5 | 29.92 | 20,000 | | 2014 | | 2025.04.12 | ¸Å¸Å | º¸¶ó¸Å108µ¿ | 2 | 59.94 | 37,700 | | 2000 | | 2025.04.12 | ¸Å¸Å | ½Å¸²ÇÏÀÌÃ÷ºô¶ó6µ¿ | 1 | 84.96 | 60,000 | | 1989 | | 2025.04.11 | ¿ù¼¼ | ·Î»çÀ̽Ÿ² | 9 | 17.84 | 1,000 | 100 | 2022 | | 2025.04.11 | Àü¼¼ | Èú½ºÅ×ÀÌÆ®´ºÆ÷·¹ | 29 | 84.9433 | 69,000 | 0 | 2022 | | 2025.04.11 | Àü¼¼ | ½Å¸²Çª¸£Áö¿À | 9 | 84.79 | 62,000 | 0 | 2005 | | 2025.04.11 | ¸Å¸Å | Áø¼ººô¶ó | -1 | 24.89 | 8,200 | | 1992 | | 2025.04.11 | ¿ù¼¼ | ÇѽŠ| 8 | 28.37 | 1,000 | 76 | 2017 | | 2025.04.11 | ¿ù¼¼ | Ǫ¸®¸¶Å¸¿î | 17 | 12.95 | 2,000 | 55 | 2014 | | 2025.04.11 | ¿ù¼¼ | ½Å¸²Çª¸£Áö¿À | 7 | 138.64 | 10,000 | 210 | 2005 | | 2025.04.11 | ¿ù¼¼ | ÃְŸ¿ö | 6 | 18.89 | 5,200 | 38 | 2023 | | 2025.04.10 | ¿ù¼¼ | °ü¾Ç»êÈ޸սþÆ2´ÜÁö | 6 | 84.97 | 22,000 | 50 | 2008 | | 2025.04.10 | Àü¼¼ | ½Å¸²2Â÷Ǫ¸£Áö¿À | 12 | 84.8098 | 44,000 | 0 | 2007 | | 2025.04.10 | ¿ù¼¼ | ½Å¸²Çö´ë | 5 | 34.86 | 13,000 | 60 | 1993 | | 2025.04.10 | ¿ù¼¼ | ½Å¸²Çö´ë | 5 | 34.86 | 13,000 | 60 | 1993 | | 2025.04.10 | Àü¼¼ | ½Å¸²2Â÷Ǫ¸£Áö¿À | 5 | 84.8098 | 42,000 | 0 | 2007 | | 2025.04.10 | Àü¼¼ | °Ç¿µ1 | 11 | 60.27 | 33,000 | 0 | 1984 | | 2025.04.10 | ¿ù¼¼ | ÄÚ½º¸ð±×¸° | 11 | 12.21 | 500 | 55 | 2012 | | 2025.04.10 | Àü¼¼ | ½Å¸²Çª¸£Áö¿À | 5 | 138.74 | 70,000 | 0 | 2005 | | 2025.04.10 | ¸Å¸Å | µ¿µµºô¶óÆ® | -1 | 76.74 | 28,500 | | 1994 | | 2025.04.09 | Àü¼¼ | °ü¾Ç»êÈ޸սþÆ2´ÜÁö | 5 | 59.99 | 34,500 | 0 | 2008 | | 2025.04.09 | ¿ù¼¼ | µ¿ºÎ | 10 | 60.38 | 5,000 | 130 | 1993 | | 2025.04.09 | ¿ù¼¼ | ½Å¸²Çö´ë | 14 | 34.86 | 2,000 | 70 | 1993 | | 2025.04.09 | ¿ù¼¼ | °ü¾Ç»êÈ޸սþÆ3´ÜÁö | 6 | 39.82 | 3,398 | 29 | 2008 | | 2025.04.09 | Àü¼¼ | °Ç¿µ1 | 6 | 41.04 | 19,500 | 0 | 1984 | | 2025.04.08 | ¿ù¼¼ | »ï¼º»êÁÖ°ø(ÁÖ°ø3´ÜÁö) | 8 | 83.21 | 5,000 | 140 | 2000 | | 2025.04.08 | ¸Å¸Å | ¹Ì¼Øºô(507-9) | 3 | 29.94 | 28,400 | | 2017 | | 2025.04.08 | ¿ù¼¼ | °Ç¿µ2 | 6 | 43.92 | 5,000 | 55 | 1988 | | 2025.04.08 | ¿ù¼¼ | ¼¾ÅͽºÄù¾î¼¿ï´ëÁ¡ | 12 | 22.96 | 6,500 | 67 | 2024 | | 2025.04.08 | ¿ù¼¼ | ¼¾ÅͽºÄù¾î¼¿ï´ëÁ¡ | 16 | 22.96 | 8,700 | 57 | 2024 | | 2025.04.08 | ¿ù¼¼ | ÇÁ¶óºñ´ÙÆ®¶ó¿ò | 10 | 14.06 | 10,500 | 5 | 2013 | | 2025.04.08 | ¸Å¸Å | ¾Æ¸£¶¼ºô(725-14) | 7 | 29.19 | 25,000 | | 2014 | | 2025.04.08 | ¿ù¼¼ | ½Å¸²Çª¸£Áö¿À | 22 | 84.79 | 35,000 | 80 | 2005 | | 2025.04.07 | ¸Å¸Å | (685-74) | 2 | 57.94 | 22,500 | | 1991 | | 2025.04.07 | Àü¼¼ | °ü¾Ç»êÈ޸սþÆ2´ÜÁö | 11 | 84.97 | 39,900 | 0 | 2008 | | 2025.04.07 | Àü¼¼ | ¿ì¹ÎÁ¶¿ø | 9 | 73.36 | 37,000 | 0 | 2003 | | 2025.04.07 | ¸Å¸Å | (1480-29) | 2 | 49.68 | 25,200 | | 2003 | | 2025.04.07 | ¿ù¼¼ | ½Å¸²Çö´ë | 12 | 34.86 | 1,000 | 80 | 1993 | | 2025.04.07 | Àü¼¼ | »ï¼º»êÁÖ°ø(ÁÖ°ø3´ÜÁö) | 4 | 83.21 | 31,000 | 0 | 2000 | | 2025.04.07 | ¿ù¼¼ | °ü¾Ç | 4 | 56.39 | 3,000 | 80 | 1983 | | 2025.04.06 | ¿ù¼¼ | ½Å¸²Çª¸£Áö¿À | 18 | 84.79 | 7,000 | 155 | 2005 | | 2025.04.06 | ¿ù¼¼ | »ï¼º»êÁÖ°ø(ÁÖ°ø3´ÜÁö) | 20 | 83.21 | 10,000 | 100 | 2000 | | 2025.04.06 | ¿ù¼¼ | ±¹Á¦»êÀå | 15 | 84.15 | 23,000 | 35 | 1993 | | 2025.04.06 | Àü¼¼ | ¿ìÁ¤ÇÏÀ̺ñÀü2 | 15 | 84.58 | 35,000 | 0 | 2004 | | 2025.04.06 | ¿ù¼¼ | ½Å¸²Çª¸£Áö¿À | 18 | 84.79 | 7,000 | 155 | 2005 | | 2025.04.06 | Àü¼¼ | ±×´ëÊ« | 14 | 59.6 | 35,800 | 0 | 2003 | | 2025.04.05 | Àü¼¼ | ½Å¸²Çö´ë | 12 | 34.86 | 27,000 | 0 | 1993 | | 2025.04.05 | Àü¼¼ | »ï¼º»êÁÖ°ø(ÁÖ°ø3´ÜÁö) | 17 | 58.55 | 30,450 | 0 | 2000 | | 2025.04.05 | Àü¼¼ | ±ÝÈ£(1Â÷) | 10 | 59.4 | 30,000 | 0 | 1997 | | 2025.04.05 | ¿ù¼¼ | ½Å¸²Çö´ë | 5 | 59.85 | 13,000 | 82 | 1993 | | 2025.04.05 | Àü¼¼ | ½Å¸²Çö´ë | 7 | 34.86 | 27,500 | 0 | 1993 | | 2025.04.05 | ¿ù¼¼ | ½Å¸²Çö´ë | 6 | 59.85 | 5,000 | 120 | 1993 | | 2025.04.05 | Àü¼¼ | ½Å¸²Çö´ë | 5 | 105.36 | 45,000 | 0 | 1993 | | 2025.04.05 | Àü¼¼ | Å¿µ | 22 | 51.84 | 34,700 | 0 | 1997 | | 2025.04.05 | Àü¼¼ | ½Å¸²Çª¸£Áö¿À | 8 | 84.79 | 60,000 | 0 | 2005 | | 2025.04.05 | ¿ù¼¼ | ¼Ãʱ׸° | 4 | 59.81 | 28,000 | 30 | 2005 | | 2025.04.05 | ¿ù¼¼ | ¼Ãʱ׸° | 4 | 59.81 | 28,000 | 30 | 2005 | | 2025.04.05 | ¸Å¸Å | ´õŬ·¡½Ä | 4 | 28.41 | 33,500 | | 2024 | | 2025.04.05 | ¸Å¸Å | ÇÁ·¹¹Ì¿À(PREMIO)725Aµ¿ | 3 | 42.67 | 36,000 | | 2016 | | 2025.04.05 | ¸Å¸Å | ´õŬ·¡½Ä | 4 | 28.41 | 33,500 | | 2024 | | 2025.04.05 | Àü¼¼ | ½Å¸²2Â÷Ǫ¸£Áö¿À | 15 | 59.985 | 39,000 | 0 | 2007 | | 2025.04.05 | Àü¼¼ | ½Å¸²Çö´ë | 7 | 119.49 | 34,650 | 0 | 1993 | | 2025.04.05 | ¿ù¼¼ | LIG´ëÇи¶À»(°Ç¿µ¾ÆÆÄÆ®3Â÷) | 12 | 58.9 | 3,000 | 130 | 1996 | | 2025.04.05 | Àü¼¼ | Èú½ºÅ×ÀÌÆ®´ºÆ÷·¹ | 5 | 84.9433 | 75,000 | 0 | 2022 | | 2025.04.05 | ¿ù¼¼ | ¼¾ÅͽºÄù¾î¼¿ï´ëÁ¡ | 5 | 22.96 | 8,700 | 57 | 2024 | | 2025.04.05 | ¿ù¼¼ | ½Å¸²2Â÷Ǫ¸£Áö¿À | 2 | 84.8098 | 30,000 | 40 | 2007 | | 2025.04.05 | Àü¼¼ | °ü¾Ç»êÈ޸սþÆ2´ÜÁö | 8 | 84.97 | 39,900 | 0 | 2008 | | 2025.04.05 | Àü¼¼ | °ü¾Ç»êÈ޸սþÆ2´ÜÁö | 10 | 114.7 | 43,000 | 0 | 2008 | | 2025.04.05 | ¿ù¼¼ | º®»êºí·ç¹Ö | 8 | 84.98 | 16,000 | 75 | 2005 | | 2025.04.04 | ¸Å¸Å | ¸í¼ººô¶ó | -1 | 51.81 | 21,150 | | 1992 | | 2025.04.04 | ¸Å¸Å | ¿¡¹öÇϿ콺(745-1) | 3 | 51.48 | 29,800 | | 2012 | | 2025.04.04 | ¿ù¼¼ | ½Å¸²Çö´ë | 11 | 34.86 | 5,000 | 85 | 1993 | | 2025.04.04 | ¿ù¼¼ | ¼¾ÅͽºÄù¾î¼¿ï´ëÁ¡ | 14 | 22.96 | 8,700 | 57 | 2024 | | 2025.04.04 | ¿ù¼¼ | ÃְŸ¿ö | 4 | 42.72 | 9,800 | 77 | 2023 | | 2025.04.04 | ¿ù¼¼ | ·Î»çÀ̽Ÿ² | 4 | 19.92 | 1,000 | 110 | 2022 | | 2025.04.04 | ¿ù¼¼ | Èú½ºÅ×ÀÌÆ®´ºÆ÷·¹ | 9 | 59.9986 | 25,100 | 38 | 2022 | | 2025.04.04 | Àü¼¼ | Èú½ºÅ×ÀÌÆ®´ºÆ÷·¹ | 19 | 59.9882 | 51,450 | 0 | 2022 | | 2025.04.04 | Àü¼¼ | Èú½ºÅ×ÀÌÆ®´ºÆ÷·¹ | 19 | 59.9882 | 51,450 | 0 | 2022 | | 2025.04.03 | Àü¼¼ | LIG´ëÇи¶À»(°Ç¿µ¾ÆÆÄÆ®3Â÷) | 3 | 84.82 | 47,000 | 0 | 1996 | | 2025.04.03 | ¸Å¸Å | (610-127) | 1 | 37.17 | 13,600 | | 1987 | | 2025.04.03 | ¿ù¼¼ | žç | 4 | 48.99 | 2,000 | 60 | 2000 | | 2025.04.03 | Àü¼¼ | °ü¾Ç»êÈ޸սþÆ2´ÜÁö | 17 | 114.7 | 51,000 | 0 | 2008 | | 2025.04.03 | Àü¼¼ | Èú½ºÅ×ÀÌÆ®´ºÆ÷·¹ | 35 | 59.9882 | 52,500 | 0 | 2022 | | 2025.04.03 | Àü¼¼ | ½Å¸²Çö´ë | 14 | 105.36 | 45,000 | 0 | 1993 | | 2025.04.03 | ¿ù¼¼ | ÇѽŠ| 10 | 28.37 | 1,000 | 60 | 2017 | | 2025.04.03 | ¿ù¼¼ | ¶óÀÌÇÁ¹Ì¼º | 4 | 71.31 | 5,000 | 95 | 1982 | | 2025.04.03 | ¿ù¼¼ | ·Î»çÀ̽Ÿ² | 7 | 20.56 | 1,000 | 110 | 2022 | | 2025.04.03 | ¿ù¼¼ | ·Î»çÀ̽Ÿ² | 7 | 20.56 | 1,000 | 110 | 2022 | | 2025.04.02 | ¿ù¼¼ | °ü¾Ç»êÈ޸սþÆ2´ÜÁö | 5 | 84.97 | 3,000 | 130 | 2008 | | 2025.04.02 | ¸Å¸Å | ¿¡À̽º¸Ç¼Ç | 4 | 25.43 | 24,200 | | 2014 | | 2025.04.02 | ¸Å¸Å | ¿¡ÄÚÇ÷¯½º(Aµ¿,Bµ¿) | 5 | 28.29 | 26,000 | | 2017 | | 2025.04.02 | ¸Å¸Å | ¿ì¼®ºô¶ó1Â÷ | 2 | 36.95 | 18,500 | | 1992 | | 2025.04.02 | ¸Å¸Å | ûdz¾ÆÆ®ºô | 3 | 50.94 | 26,000 | | 2002 | | 2025.04.02 | ¸Å¸Å | (757-21) | 3 | 42.19 | 17,300 | | 1990 | | 2025.04.02 | ¿ù¼¼ | ½Å¸²Çö´ë | 7 | 34.86 | 2,000 | 85 | 1993 | | 2025.04.02 | ¸Å¸Å | ÆÓ¸®½ºÅ¸¿î | 4 | 41.71 | 34,000 | | 2020 | | 2025.04.01 | Àü¼¼ | µ¿ºÎ | 4 | 78.43 | 52,000 | 0 | 1993 | | 2025.04.01 | ¸Å¸Å | ¾ËÆæÇϿ콺(685-86) | 4 | 43.68 | 30,500 | | 2017 | | 2025.04.01 | ¸Å¸Å | ÀçÀ±ºô¶ó³ª | -1 | 50.99 | 11,000 | | 1988 | | 2025.04.01 | ¸Å¸Å | (1455-29) | 2 | 40.32 | 28,000 | | 1993 | | 2025.04.01 | ¸Å¸Å | ¿¡µ§ÇϿ콺 | 3 | 29.95 | 17,500 | | 2014 | | 2025.04.01 | ¿ù¼¼ | ·Î»çÀ̽Ÿ² | 3 | 17.98 | 1,000 | 110 | 2022 | | 2025.04.01 | ¿ù¼¼ | ÃְŸ¿ö | 5 | 42.86 | 10,800 | 86 | 2023 | | 2025.04.01 | ¿ù¼¼ | ·¡µð¾Ó¾ÆÆÄÆ® | 1 | 67.88 | 5,000 | 140 | 2016 | | 2025.04.01 | ¿ù¼¼ | °Ç¿µ2 | 12 | 59.76 | 15,000 | 45 | 1988 | | 2025.04.01 | ¿ù¼¼ | LIG´ëÇи¶À»(°Ç¿µ¾ÆÆÄÆ®3Â÷) | 12 | 58.9 | 0 | 123 | 1996 | | 2025.04.01 | Àü¼¼ | ±ÝÈ£(1Â÷) | 8 | 59.4 | 26,250 | 0 | 1997 | | 2025.04.01 | ¸Å¸Å | ¹Ì¸®³»±×¸°ºô¶ó | 4 | 34.91 | 22,800 | | 1993 | | 2025.04.01 | Àü¼¼ | ±ÝÈ£(1Â÷) | 8 | 59.4 | 26,250 | 0 | 1997 | | 2025.04.01 | ¸Å¸Å | Çö´ë2ºô¶ó | 3 | 41.22 | 17,700 | | 1991 | | 2025.04.01 | ¿ù¼¼ | ÅÂÈï | 3 | 59.86 | 1,500 | 95 | 1995 | | 2025.02.28 | Àü¼¼ | ÈÞ¸Õºô | 3 | 45.99 | 26,900 | 0 | 2018 | | 2025.02.28 | ¿ù¼¼ | Çý¼ºÆç¸®½º | 6 | 50.82 | 15,000 | 48 | 2015 | | 2025.02.28 | Àü¼¼ | ¿¤¸®½Ã¾Æ | 2 | 29.91 | 16,000 | 0 | 2013 | | 2025.02.28 | ¿ù¼¼ | °æ¿øÇÏÀÌÃ÷ÅÚ | 9 | 21.76 | 1,000 | 60 | 2019 | | 2025.02.28 | ¿ù¼¼ | ÀÚÀÌ¿ÀÇǽºÅÚ | 9 | 11.657 | 5,000 | 60 | 2021 | | 2025.02.28 | ¿ù¼¼ | (À¸¶äij½½) | 3 | 29.99 | 3,000 | 120 | 2024 | | 2025.02.28 | Àü¼¼ | ÀÏÇØ¸®ºùÅÚ³ªµ¿(750-10) | 5 | 47.28 | 16,100 | 0 | 2002 | | 2025.02.28 | Àü¼¼ | Çູ¸Ç¼Ç3Â÷ | 2 | 48.08 | 14,000 | 0 | 1995 | | 2025.02.28 | ¿ù¼¼ | »õ¼¿ïºô¶ó2Â÷ | 1 | 44.66 | 2,000 | 60 | 1994 | | 2025.02.28 | ¿ù¼¼ | »ïºÎºô¶ó | 1 | 83.82 | 15,000 | 5 | 1984 | | 2025.02.28 | ¿ù¼¼ | ´ëÈ£ºô(412-318) | 2 | 23.07 | 1,000 | 70 | 2016 | | 2025.02.27 | ¸Å¸Å | ¼ºÈ£¾ÆÆ®ºô | 3 | 29.93 | 26,000 | | 2018 | | 2025.02.27 | ¿ù¼¼ | (617-24) | 3 | 20.96 | 3,000 | 30 | 2015 | | 2025.02.27 | Àü¼¼ | żº(1596-6) | 6 | 17.68 | 23,000 | 0 | 2022 | | 2025.02.27 | ¿ù¼¼ | ÈÞºô¸®Áö(538-30) | 7 | 11.52 | 500 | 46 | 2013 | | 2025.02.27 | Àü¼¼ | (1430-47) | 2 | 62.86 | 14,300 | 0 | 2002 | | 2025.02.27 | Àü¼¼ | ·Î¾âÆÓ¸®½º | 3 | 41.32 | 25,000 | 0 | 2016 | | 2025.02.27 | ¿ù¼¼ | ¿¬ºô | 2 | 12.01 | 3,000 | 45 | 2012 | | 2025.02.27 | Àü¼¼ | Æ÷µµ¿ø½¦¸£ºô | 5 | 33.79 | 22,000 | 0 | 2012 | | 2025.02.27 | Àü¼¼ | Äھƺô | 4 | 54.45 | 17,000 | 0 | 2002 | | 2025.02.27 | ¿ù¼¼ | ¶óÀÓÄ«¿îƼ | 10 | 29.76 | 25,300 | 5 | 2016 | | 2025.02.27 | Àü¼¼ | ÈÞ¸Õºô | 3 | 45.99 | 26,900 | 0 | 2018 | | 2025.02.27 | Àü¼¼ | żº(1596-6) | 6 | 17.68 | 23,000 | 0 | 2022 | | 2025.02.26 | ¿ù¼¼ | ¼¾Æ®·¹ºô(º») | 6 | 25.29 | 23,000 | 5 | 2018 | | 2025.02.26 | ¿ù¼¼ | »ï¼º¿øºô(610-225) | 4 | 29.63 | 2,000 | 70 | 2016 | | 2025.02.26 | ¿ù¼¼ | 1429-44 | 4 | 25.56 | 500 | 95 | 2014 | | 2025.02.26 | ¸Å¸Å | ¿ì¸²¾ÆÆ®ºô | 5 | 37.49 | 30,000 | | 2018 | | 2025.02.25 | Àü¼¼ | ÆÓ¸®½ººô | 2 | 32.12 | 18,000 | 0 | 2013 | | 2025.02.25 | ¸Å¸Å | ±Û·Î¸®ÇϿ콺 | 5 | 38.87 | 43,000 | | 2023 | | 2025.02.25 | ¿ù¼¼ | ÇØ¿À¸§(90-41) | 1 | 20.4 | 100 | 45 | 2013 | | 2025.02.25 | Àü¼¼ | ÇÊÇϿ콺(1439-31) | 3 | 12.21 | 9,400 | 0 | 2013 | | 2025.02.25 | ¿ù¼¼ | Àº¿¬Àç | 7 | 14.18 | 1,000 | 43 | 2013 | | 2025.02.25 | ¿ù¼¼ | ´õÁý(TheZIP) | 2 | 17.12 | 1,000 | 38 | 2012 | | 2025.02.25 | ¿ù¼¼ | Ŭ¶ó¿ìµåºô5Â÷ | 5 | 39.89 | 5,000 | 120 | 2015 | | 2025.02.25 | Àü¼¼ | »ó¼±ºôµù | 4 | 67.9 | 18,900 | 0 | 2004 | | 2025.02.24 | Àü¼¼ | ÅÂÇÑÇÏÀ̺ô | 7 | 27.27 | 22,050 | 0 | 2016 | | 2025.02.24 | ¸Å¸Å | ºÎ¸²ºô¶ó | 4 | 39.84 | 20,000 | | 1993 | | 2025.02.24 | ¸Å¸Å | ·Îµ©ÇϿ콺 | 2 | 29.31 | 33,300 | | 2021 | | 2025.02.24 | Àü¼¼ | »ï¿ìÁÖÅÃ(86-26) | 2 | 45.09 | 18,580 | 0 | 1991 | | 2025.02.24 | Àü¼¼ | (251-236) | 1 | 29.88 | 16,000 | 0 | 2016 | | 2025.02.24 | ¿ù¼¼ | °æÃáºô¶ó | 1 | 53.94 | 13,000 | 20 | 1991 | | 2025.02.24 | ¿ù¼¼ | ·Î¾â·°½º½ÃƼ | 5 | 12.6 | 9,000 | 15 | 2012 | | 2025.02.24 | ¿ù¼¼ | JÇìºìºô | 5 | 18.58 | 5,000 | 85 | 2015 | | 2025.02.24 | Àü¼¼ | ÀÌÁöºñ¾Æ | 8 | 27.81 | 25,467 | 0 | 2015 | | 2025.02.24 | ¿ù¼¼ | (254-301) | 1 | 79.39 | 10,000 | 120 | 1991 | | 2025.02.23 | ¿ù¼¼ | 92-59 | 3 | 21.92 | 12,852 | 9 | 2015 | | 2025.02.23 | Àü¼¼ | °æ¿øÇÏÀÌÃ÷ÅÚ | 9 | 21.66 | 15,000 | 0 | 2019 | | 2025.02.23 | Àü¼¼ | Á꺣¶ó | 5 | 27.83 | 26,250 | 0 | 2018 | | 2025.02.23 | Àü¼¼ | Á꺣¶ó | 5 | 27.83 | 26,250 | 0 | 2018 | | 2025.02.23 | ¿ù¼¼ | ¸®Ä¡ºô¸®Áö | 6 | 21.14 | 5,500 | 70 | 2017 | | 2025.02.23 | ¿ù¼¼ | ´ëÇкô¸®ÁöBµ¿ | 3 | 44.15 | 200 | 43 | 1993 | | 2025.02.23 | ¿ù¼¼ | ¾¾¿¤ºí·ç | 7 | 28.58 | 20,600 | 15 | 2015 | | 2025.02.23 | ¸Å¸Å | ÈÞÇ÷¯½º | 3 | 28.04 | 32,700 | | 2017 | | 2025.02.23 | ¿ù¼¼ | ÁÁÀºÁý | 3 | 15.43 | 500 | 40 | 2014 | | 2025.02.23 | ¿ù¼¼ | 92-59 | 2 | 21.92 | 12,852 | 4 | 2015 | | 2025.02.23 | ¿ù¼¼ | ¾¾¿¤ºí·ç | 7 | 27.76 | 19,800 | 19 | 2015 | | 2025.02.22 | ¸Å¸Å | µ¿¼º¸Ç¼Ç6Â÷ | 3 | 43.2 | 20,500 | | 1996 | | 2025.02.22 | Àü¼¼ | »ó¼±ºôµù | 5 | 67.95 | 21,000 | 0 | 2004 | | 2025.02.22 | Àü¼¼ | »ó¼±ºôµù | 5 | 67.95 | 21,000 | 0 | 2004 | | 2025.02.22 | Àü¼¼ | ¿¡µ§(³ªµ¿) | 2 | 53.13 | 19,500 | 0 | 1989 | | 2025.02.22 | ¿ù¼¼ | (1503-2) | 3 | 61.47 | 7,000 | 50 | 2002 | | 2025.02.22 | ¿ù¼¼ | ½Å¾È¸Ç¼Ç(610-167) | 4 | 55.47 | 13,000 | 30 | 1995 | | 2025.02.22 | Àü¼¼ | (363-8) | 1 | 40.75 | 9,000 | 0 | 1986 | | 2025.02.22 | ¸Å¸Å | ÆÇÅ׿ | 4 | 29.91 | 29,000 | | 2022 | | 2025.02.22 | ¸Å¸Å | ´ëµµºô¶ó³ªµ¿ | -1 | 21.7 | 9,600 | | 1989 | | 2025.02.22 | ¿ù¼¼ | º¸º¸½ºÁÖÅà | 3 | 13.33 | 300 | 40 | 2013 | | 2025.02.22 | ¿ù¼¼ | (À¸¶äij½½) | 3 | 29.99 | 3,000 | 130 | 2024 | | 2025.02.22 | ¿ù¼¼ | AugustTower | 6 | 15.7 | 15,000 | 20 | 2021 | | 2025.02.22 | ¿ù¼¼ | (468-1) | 4 | 27.82 | 18,000 | 24 | 2014 | | 2025.02.22 | Àü¼¼ | ´Ù¼Øºô¶ó | 2 | 45.28 | 20,000 | 0 | 2004 | | 2025.02.21 | Àü¼¼ | ¿¡µ§ÇϿ콺 | 3 | 29.95 | 14,400 | 0 | 2014 | | 2025.02.21 | ¿ù¼¼ | ¿øÁÖÅ󪵿(412-315) | 2 | 62.64 | 15,000 | 20 | 1992 | | 2025.02.21 | ¿ù¼¼ | (1635-46) | 2 | 40.89 | 19,100 | 10 | 2012 | | 2025.02.21 | ¿ù¼¼ | ´Ù¿¬Çູ | 4 | 23.48 | 3,000 | 81 | 2012 | | 2025.02.21 | ¿ù¼¼ | ´Ù¿¬Çູ | 4 | 23.48 | 3,000 | 61 | 2012 | | 2025.02.21 | Àü¼¼ | B.SŸ¿î(1622-15) | 2 | 13.92 | 7,000 | 0 | 2013 | | 2025.02.21 | Àü¼¼ | ¾ÆÄ«µ¥¹ÌÇϿ콺 | 2 | 24.33 | 18,200 | 0 | 2019 | | 2025.02.21 | Àü¼¼ | ¾ÆÄ«µ¥¹ÌÇϿ콺 | 2 | 24.33 | 18,200 | 0 | 2019 | | 2025.02.21 | ¿ù¼¼ | (À¸¶äij½½) | 2 | 29.54 | 3,000 | 130 | 2024 | | 2025.02.21 | ¸Å¸Å | (120-92) | 2 | 35.98 | 16,000 | | 1986 | | 2025.02.21 | ¸Å¸Å | ûµ¿±×¸°ÇϿ콺 | 2 | 39.42 | 19,200 | | 1994 | | 2025.02.21 | ¸Å¸Å | ±Ý¼ººô¶ó(598-14) | 3 | 61.89 | 26,770 | | 2001 | | 2025.02.21 | ¸Å¸Å | ÆÇÅ׿ | 6 | 29.92 | 35,000 | | 2022 | | 2025.02.21 | Àü¼¼ | ¿¡µ§ÇϿ콺 | 3 | 29.95 | 14,400 | 0 | 2014 | | 2025.02.21 | ¿ù¼¼ | (626-60) | 2 | 22.42 | 2,600 | 9 | 2023 | | 2025.02.21 | ¿ù¼¼ | Çѳª·¡23Â÷ | 3 | 43.39 | 2,000 | 130 | 2022 | | 2025.02.20 | ¿ù¼¼ | ¿ìõ¾ÆÆ®ºô | 1 | 81.09 | 25,200 | 30 | 2003 | | 2025.02.20 | ¸Å¸Å | °ÅºÀ¾ÆÀ̾ؾ¾ | 3 | 29.55 | 28,000 | | 2024 | | 2025.02.20 | Àü¼¼ | û¼Ö¸Ç¼Ç | 4 | 115.68 | 28,000 | 0 | 1998 | | 2025.02.20 | ¿ù¼¼ | żººô¶ó | 1 | 40.95 | 11,110 | 22 | 1993 | | 2025.02.20 | Àü¼¼ | µ¿¼ººô¶ó | -1 | 66.93 | 19,500 | 0 | 1999 | | 2025.02.20 | ¿ù¼¼ | ¿¹ÁöÆÓ¸®½º78Â÷(101,102) | 5 | 57.12 | 3,000 | 150 | 2014 | | 2025.02.20 | ¿ù¼¼ | 103-134 | 2 | 24.57 | 4,000 | 52 | 2014 | | 2025.02.20 | ¿ù¼¼ | CG¾Æ¸§Ã¤ | 4 | 36.34 | 100 | 80 | 2019 | | 2025.02.20 | ¿ù¼¼ | JÇìºìºô | 5 | 24.14 | 1,000 | 45 | 2015 | | 2025.02.20 | ¿ù¼¼ | ¾ÆÆ®¶ó¿ò | 3 | 29.29 | 20,790 | 20 | 2020 | | 2025.02.20 | ¿ù¼¼ | Å©³ªÅ«ÇϿ콺 | 4 | 29.76 | 5,000 | 54 | 2016 | | 2025.02.20 | ¸Å¸Å | °ÅºÀ¾ÆÀ̾ؾ¾ | 6 | 29.41 | 28,050 | | 2024 | | 2025.02.20 | ¸Å¸Å | °ÅºÀ¾ÆÀ̾ؾ¾ | 4 | 29.95 | 29,150 | | 2024 | | 2025.02.20 | ¸Å¸Å | °ÅºÀ¾ÆÀ̾ؾ¾ | 4 | 29.96 | 29,150 | | 2024 | | 2025.02.20 | ¸Å¸Å | °ÅºÀ¾ÆÀ̾ؾ¾ | 5 | 29.95 | 29,450 | | 2024 | | 2025.02.20 | ¸Å¸Å | °ÅºÀ¾ÆÀ̾ؾ¾ | 5 | 29.96 | 29,450 | | 2024 | | 2025.02.20 | ¸Å¸Å | °ÅºÀ¾ÆÀ̾ؾ¾ | 2 | 29.55 | 27,700 | | 2024 | | 2025.02.20 | ¸Å¸Å | °ÅºÀ¾ÆÀ̾ؾ¾ | 2 | 29.89 | 27,700 | | 2024 | | 2025.02.20 | ¸Å¸Å | °ÅºÀ¾ÆÀ̾ؾ¾ | 2 | 29.41 | 27,400 | | 2024 | | 2025.02.20 | ¸Å¸Å | °ÅºÀ¾ÆÀ̾ؾ¾ | 3 | 29.89 | 28,000 | | 2024 | | 2025.02.20 | ¸Å¸Å | °ÅºÀ¾ÆÀ̾ؾ¾ | 3 | 29.41 | 27,700 | | 2024 | | 2025.02.20 | ¸Å¸Å | °ÅºÀ¾ÆÀ̾ؾ¾ | 4 | 29.55 | 28,000 | | 2024 | | 2025.02.20 | ¸Å¸Å | °ÅºÀ¾ÆÀ̾ؾ¾ | 4 | 29.89 | 28,000 | | 2024 | | 2025.02.20 | ¸Å¸Å | °ÅºÀ¾ÆÀ̾ؾ¾ | 4 | 29.41 | 27,700 | | 2024 | | 2025.02.20 | ¸Å¸Å | °ÅºÀ¾ÆÀ̾ؾ¾ | 5 | 29.89 | 28,300 | | 2024 | | 2025.02.20 | ¸Å¸Å | °ÅºÀ¾ÆÀ̾ؾ¾ | 3 | 37.81 | 35,200 | | 2024 | | 2025.02.20 | ¸Å¸Å | °ÅºÀ¾ÆÀ̾ؾ¾ | 3 | 40.7 | 36,850 | | 2024 | | 2025.02.20 | ¸Å¸Å | °ÅºÀ¾ÆÀ̾ؾ¾ | 3 | 29.99 | 28,550 | | 2024 | | 2025.02.20 | ¸Å¸Å | °ÅºÀ¾ÆÀ̾ؾ¾ | 6 | 29.89 | 28,300 | | 2024 | | 2025.02.20 | ¸Å¸Å | °ÅºÀ¾ÆÀ̾ؾ¾ | 6 | 29.55 | 28,300 | | 2024 | | 2025.02.20 | ¸Å¸Å | °ÅºÀ¾ÆÀ̾ؾ¾ | 5 | 29.55 | 28,300 | | 2024 | | 2025.02.20 | ¸Å¸Å | °ÅºÀ¾ÆÀ̾ؾ¾ | 5 | 29.41 | 28,050 | | 2024 | | 2025.02.20 | ¸Å¸Å | °ÅºÀ¾ÆÀ̾ؾ¾ | 2 | 29.96 | 28,250 | | 2024 | | 2025.02.20 | ¸Å¸Å | °ÅºÀ¾ÆÀ̾ؾ¾ | 2 | 37.81 | 34,850 | | 2024 | | 2025.02.20 | ¸Å¸Å | °ÅºÀ¾ÆÀ̾ؾ¾ | 2 | 40.7 | 36,450 | | 2024 | | 2025.02.20 | ¸Å¸Å | °ÅºÀ¾ÆÀ̾ؾ¾ | 2 | 37.81 | 34,850 | | 2024 | | 2025.02.20 | ¸Å¸Å | °ÅºÀ¾ÆÀ̾ؾ¾ | 2 | 29.99 | 28,250 | | 2024 | | 2025.02.20 | ¸Å¸Å | °ÅºÀ¾ÆÀ̾ؾ¾ | 3 | 29.96 | 28,550 | | 2024 | | 2025.02.20 | ¸Å¸Å | °ÅºÀ¾ÆÀ̾ؾ¾ | 3 | 37.81 | 35,200 | | 2024 | | 2025.02.19 | Àü¼¼ | ¿ì¼®¾ÆÆ®ºô | 3 | 40.27 | 17,000 | 0 | 2002 | | 2025.02.19 | ¿ù¼¼ | (549-2) | 3 | 52.53 | 10,000 | 70 | 2002 | | 2025.02.19 | Àü¼¼ | (110-65) | 2 | 56.93 | 23,000 | 0 | 1975 | | 2025.02.19 | ¿ù¼¼ | »þÀκô | 2 | 68.94 | 2,000 | 84 | 2008 | | 2025.02.19 | Àü¼¼ | 3.2¿ÀÇǽºÅÚ | 4 | 16.45 | 9,000 | 0 | 2012 | | 2025.02.19 | Àü¼¼ | 3.2¿ÀÇǽºÅÚ | 4 | 16.45 | 9,000 | 0 | 2012 | | 2025.02.19 | ¿ù¼¼ | Æ÷µµ¿ø2 | 5 | 29.93 | 2,000 | 83 | 2013 | | 2025.02.19 | Àü¼¼ | ¿¡¸£½º¶¼ | 12 | 25.55 | 28,300 | 0 | 2018 | | 2025.02.19 | ¿ù¼¼ | Àͼöºôµù | 5 | 28.74 | 19,000 | 20 | 2015 | | 2025.02.19 | Àü¼¼ | ¿À¸§ÇϿ콺3Â÷ | 6 | 51.41 | 27,000 | 0 | 2016 | | 2025.02.19 | ¿ù¼¼ | CG¾Æ¸§Ã¤ | 3 | 29.35 | 19,000 | 15 | 2019 | | 2025.02.19 | Àü¼¼ | ¿À¸§ÇϿ콺3Â÷ | 6 | 51.41 | 27,000 | 0 | 2016 | | 2025.02.19 | ¿ù¼¼ | ³ª½½Ã¤ | 2 | 19.27 | 4,000 | 38 | 2014 | | 2025.02.19 | Àü¼¼ | ¿À¸§ÇϿ콺3Â÷ | 4 | 51.41 | 27,000 | 0 | 2016 | | 2025.02.19 | ¸Å¸Å | ´ë¾çºô¶ó(610-49) | 3 | 36.33 | 19,000 | | 1993 | | 2025.02.18 | ¿ù¼¼ | AugustTower | 7 | 14.21 | 17,000 | 15 | 2021 | | 2025.02.18 | ¸Å¸Å | ¾ÆÁÖ¸Ç¼Ç | 1 | 38.48 | 14,450 | | 1995 | | 2025.02.18 | ¸Å¸Å | ½ÅŹÇÏÀÌÃ÷ºô¶ó(305-1) | 1 | 50.04 | 22,000 | | 1988 | | 2025.02.18 | Àü¼¼ | ½ºÆäÀ̽ººô | 4 | 29.66 | 22,100 | 0 | 2020 | | 2025.02.18 | ¿ù¼¼ | TeraTower | 12 | 29.45 | 25,000 | 6 | 2018 | | 2025.02.18 | ¿ù¼¼ | ÁÁÀºÁý | 3 | 14.78 | 1,000 | 45 | 2014 | | 2025.02.18 | ¿ù¼¼ | Çö´ë(1419-9) | 6 | 12.25 | 1,000 | 40 | 2012 | | 2025.02.18 | ¿ù¼¼ | ȯ¿µÅ¸¿î | 5 | 73.18 | 500 | 37 | 2008 | | 2025.02.18 | ¿ù¼¼ | (675-123) | 2 | 53.63 | 3,000 | 70 | 1991 | | 2025.02.18 | ¸Å¸Å | dz¿øÇÏÀÓºô | 4 | 28.87 | 26,000 | | 2018 | | 2025.02.18 | Àü¼¼ | ½ºÆäÀ̽ººô | 4 | 29.66 | 22,100 | 0 | 2020 | | 2025.02.18 | ¿ù¼¼ | (675-123) | 2 | 53.63 | 3,000 | 70 | 1991 | | 2025.02.17 | ¸Å¸Å | ¼öÁ¤¸Ç¼Ç | 3 | 64.39 | 28,000 | | 1997 | | 2025.02.17 | Àü¼¼ | Ŭ·¡½ºÆ® | 5 | 47.49 | 32,000 | 0 | 2018 | | 2025.02.17 | Àü¼¼ | ÂüÁ¸µÕÁöºô | 4 | 47.69 | 28,500 | 0 | 2012 | | 2025.02.17 | Àü¼¼ | ¾ç.¾Èºôµù | 3 | 26.01 | 17,850 | 0 | 2012 | | 2025.02.17 | ¿ù¼¼ | ½Å¿ìºô(10-40) | 4 | 26.315 | 5,000 | 90 | 2014 | | 2025.02.17 | ¿ù¼¼ | Àͼöºôµù | 4 | 28.74 | 19,000 | 25 | 2015 | | 2025.02.17 | Àü¼¼ | ·Î¾âÇÏÀÌÃ÷ | 3 | 31.07 | 17,800 | 0 | 2016 | | 2025.02.17 | Àü¼¼ | ½Å´ë¹æ³ëºí·çü | 15 | 24.34 | 22,000 | 0 | 2019 | | 2025.02.17 | ¿ù¼¼ | º»½ºÆäÀ̽º | 2 | 26.53 | 26,500 | 10 | 2020 | | 2025.02.17 | ¿ù¼¼ | º»½ºÆäÀ̽º | 2 | 26.53 | 26,000 | 10 | 2020 | | 2025.02.16 | ¿ù¼¼ | ÆÄÅ©ºô | 7 | 26.2 | 21,000 | 35 | 2016 | | 2025.02.16 | ¿ù¼¼ | ÁÁÀº»ç¶÷ÁÁÀºÁý | 4 | 17.04 | 1,000 | 43 | 2016 | | 2025.02.15 | ¸Å¸Å | »ïȺô¶ó(610-106) | 2 | 43.49 | 22,000 | | 1992 | | 2025.02.15 | Àü¼¼ | ´õŬ·¡½Ä | 1 | 28.77 | 22,000 | 0 | 2024 | | 2025.02.15 | ¿ù¼¼ | º¸¶ó¸Å½ºÀ§Æ® | 3 | 45.91 | 2,000 | 62 | 2002 | | 2025.02.15 | Àü¼¼ | È«¿¬±×¸°ºô(571-1) | 3 | 20.96 | 25,830 | 0 | 2016 | | 2025.02.15 | ¿ù¼¼ | ±×¸°ºô(1455-15) | 2 | 50.91 | 29,000 | 5 | 2016 | | 2025.02.15 | ¿ù¼¼ | Çì·»ºô¸®Áö(1663-26) | 3 | 29.04 | 7,000 | 75 | 2015 | | 2025.02.15 | ¿ù¼¼ | (1421-31) | 9 | 18.1 | 1,000 | 55 | 2015 | | 2025.02.15 | Àü¼¼ | ±Ý¼ºÇÏÀÌÃ÷ºô | 3 | 60.96 | 20,000 | 0 | 2001 | | 2025.02.15 | Àü¼¼ | ¼º½Åºô¶ó | -1 | 50.39 | 12,000 | 0 | 1991 | | 2025.02.15 | ¿ù¼¼ | (254-25) | 1 | 76.76 | 3,000 | 70 | 2004 | | 2025.02.15 | Àü¼¼ | ¸ð´øÇϿ콺 | 3 | 27.68 | 25,830 | 0 | 2019 | | 2025.02.15 | Àü¼¼ | ´ÃÁ¶Àººô | 5 | 32.51 | 26,500 | 0 | 2023 | | 2025.02.15 | Àü¼¼ | ´õŬ·¡½Ä | 1 | 28.77 | 21,798 | 0 | 2024 | | 2025.02.14 | Àü¼¼ | ºäÅ×¶ó½º | 2 | 29.52 | 22,000 | 0 | 2020 | | 2025.02.14 | ¸Å¸Å | Çö´ë¾ÆÆ®ºô(409-94) | 1 | 53.42 | 40,000 | | 2002 | | 2025.02.14 | ¸Å¸Å | ¸®Ä¡ºô¶ó(91-21) | -1 | 56.73 | 25,050 | | 1993 | | 2025.02.14 | ¸Å¸Å | ½Å¾Èºô¶ó(610-143) | 2 | 41.35 | 20,500 | | 1993 | | 2025.02.14 | Àü¼¼ | ±ÝÈÇÏÀ̺ô | 4 | 27.46 | 20,000 | 0 | 2018 | | 2025.02.14 | ¿ù¼¼ | À̽ºÅϺô | 8 | 28.01 | 18,000 | 20 | 2015 | | 2025.02.14 | ¿ù¼¼ | ¼º¾Èºôµù(1667-1) | 6 | 23.05 | 15,000 | 6 | 2014 | | 2025.02.14 | ¿ù¼¼ | ¼º¾Èºôµù(1667-1) | 6 | 23.05 | 15,000 | 6 | 2014 | | 2025.02.14 | ¿ù¼¼ | ÇØ¹Ð | 3 | 47.35 | 2,000 | 93 | 2013 | | 2025.02.14 | Àü¼¼ | °æ¿øÇÏÀÌÃ÷ÅÚ | 9 | 22.01 | 14,000 | 0 | 2019 | | 2025.02.14 | Àü¼¼ | »ï¿ìÇÏÀÌÃ÷ºô¶ó | 4 | 31.76 | 8,700 | 0 | 1993 | | 2025.02.14 | ¿ù¼¼ | º¸¶÷ºô¶ó | 3 | 35.37 | 9,700 | 10 | 1992 | | 2025.02.14 | Àü¼¼ | (306-21) | 2 | 36.36 | 8,000 | 0 | 1991 | | 2025.02.14 | ¿ù¼¼ | U2 | 4 | 16.48 | 1,000 | 70 | 2012 | | 2025.02.13 | ¿ù¼¼ | ÈÞ¸Õºô(610-223) | 2 | 27.05 | 15,700 | 15 | 2016 | | 2025.02.13 | ¿ù¼¼ | ÇØÇǺô | 5 | 29.32 | 500 | 50 | 2012 | | 2025.02.13 | ¿ù¼¼ | Á¶¿øµµ½ÃÇü»ýȰÁÖÅà | 2 | 15.46 | 500 | 57 | 2011 | | 2025.02.13 | ¿ù¼¼ | ±Ý°¸Ç¼Ç3Â÷ | 1 | 55.05 | 2,000 | 100 | 1992 | | 2025.02.13 | ¿ù¼¼ | ¼¼Á¾ºô¶ó | 3 | 56.01 | 3,000 | 76 | 1994 | | 2025.02.13 | Àü¼¼ | ÃÊ¿ø¸Ç¼Ç9Â÷ | 4 | 78.48 | 30,450 | 0 | 1998 | | 2025.02.13 | ¸Å¸Å | ¿µµ¿ÇÏÀÌÃ÷ | -1 | 70.9 | 28,800 | | 2002 | | 2025.02.13 | Àü¼¼ | ÃÊ¿ø¸Ç¼Ç9Â÷ | 4 | 78.48 | 30,450 | 0 | 1998 | | 2025.02.13 | ¸Å¸Å | ¼Ò³ëÄ«¿ìÄ¡¥° | 5 | 29.97 | 22,500 | | 2013 | | 2025.02.13 | ¿ù¼¼ | ü³ªÄݺô | 2 | 29.78 | 3,000 | 110 | 2021 | | 2025.02.13 | ¸Å¸Å | ¾ËÆæÇϿ콺(612-25) | 3 | 51.98 | 28,500 | | 2012 | | 2025.02.12 | ¿ù¼¼ | ¿ø¾Óºô¶ó | 1 | 28.55 | 8,200 | 10 | 1993 | | 2025.02.12 | ¿ù¼¼ | Áß¿ø¸®Ã÷ºô(1483-5) | 6 | 17.69 | 5,000 | 55 | 2017 | | 2025.02.12 | ¸Å¸Å | ¿ø¾Óºô¶ó | -1 | 73.68 | 19,800 | | 2001 | | 2025.02.12 | ¿ù¼¼ | º£¸£Ã¼ | 7 | 26.61 | 15,000 | 24 | 2015 | | 2025.02.12 | ¿ù¼¼ | ¿ø¾Óºô¶ó | 1 | 28.55 | 8,200 | 10 | 1993 | | 2025.02.12 | Àü¼¼ | (511-7) | 2 | 56.88 | 25,000 | 0 | 2014 | | 2025.02.12 | ¿ù¼¼ | (466-13) | 1 | 48.8 | 16,000 | 18 | 2002 | | 2025.02.11 | Àü¼¼ | CG¾Æ¸§Ã¤ | 3 | 53.09 | 26,000 | 0 | 2019 | | 2025.02.11 | Àü¼¼ | ÇѾ縮Ã÷ºô(1667-5) | 5 | 50.57 | 24,600 | 0 | 2015 | | 2025.02.11 | ¸Å¸Å | Áø±¤ºô¶ó | 3 | 44.8 | 19,500 | | 1992 | | 2025.02.11 | ¿ù¼¼ | û¿øºô¶ó | 2 | 38 | 10,500 | 10 | 1991 | | 2025.02.11 | ¿ù¼¼ | µ¿¹æÆÄ·¹½º¸¶µ¿ | -1 | 36.33 | 500 | 70 | 1991 | | 2025.02.11 | ¿ù¼¼ | ¸¶À̹ٿò½Å¸² | 4 | 23.4 | 2,000 | 68 | 2012 | | 2025.02.11 | ¿ù¼¼ | ÁÁÀºÁý | 4 | 12.4 | 500 | 40 | 2014 | | 2025.02.11 | Àü¼¼ | 98-135 | 3 | 28.04 | 18,200 | 0 | 2014 | | 2025.02.11 | ¿ù¼¼ | µ¿¿¬ÇÏÀÌÃ÷ | 4 | 15.07 | 1,000 | 50 | 2015 | | 2025.02.11 | ¿ù¼¼ | »ê¸¶·çºô | 2 | 25.37 | 14,700 | 18 | 2017 | | 2025.02.10 | ¿ù¼¼ | ¸Þ¸®Æ®¿¥Å¸¿ö | 9 | 12.6 | 9,900 | 27 | 2019 | | 2025.02.10 | Àü¼¼ | (529-15) | 8 | 11.83 | 12,000 | 0 | 2020 | | 2025.02.10 | ¸Å¸Å | 98-135 | 1 | 27.43 | 25,500 | | 2014 | | 2025.02.10 | ¸Å¸Å | Áø±¤ºô¶ó | 2 | 42.3 | 21,800 | | 1992 | | 2025.02.10 | ¸Å¸Å | »ï¼º¾ÆÆ®ºô(617-21) | 4 | 43.84 | 24,000 | | 2003 | | 2025.02.10 | ¸Å¸Å | µ¿ÀÏ¿ëȺô¶óB(412-194) | 3 | 34.46 | 30,000 | | 1992 | | 2025.02.10 | ¿ù¼¼ | ´ë¸²¾ÆÆ®ºô | 4 | 28.92 | 5,000 | 60 | 2018 | | 2025.02.10 | ¿ù¼¼ | Èѹ̸®ºô¶ó(610-18) | -1 | 38.62 | 1,000 | 50 | 1991 | | 2025.02.10 | ¿ù¼¼ | Àº¿¬Àç | 6 | 15.61 | 500 | 47 | 2013 | | 2025.02.10 | Àü¼¼ | °µ¿2Â÷ | 3 | 70.47 | 31,500 | 0 | 2002 | | 2025.02.10 | ¿ù¼¼ | ÈïÀϺô¶ó | 3 | 49.48 | 2,000 | 90 | 1991 | | 2025.02.10 | ¿ù¼¼ | (412-55) | 4 | 44.74 | 12,000 | 30 | 2003 | | 2025.02.10 | ¿ù¼¼ | ÈÞÆÄÅ© | 4 | 17.56 | 7,000 | 33 | 2015 | | 2025.02.10 | ¿ù¼¼ | ¼¼Á¾µµ½ÃÇü»ýȰÁÖÅà | 5 | 12.95 | 100 | 11 | 2011 | | 2025.02.09 | ¿ù¼¼ | ¼º¿ì(1433-180) | 7 | 28.71 | 20,000 | 25 | 2014 | | 2025.02.09 | ¿ù¼¼ | (1572-1) | 4 | 22.03 | 3,000 | 86 | 2017 | | 2025.02.09 | ¿ù¼¼ | ÆÊÆÄ½º | 5 | 21.92 | 10,000 | 42 | 2014 | | 2025.02.08 | Àü¼¼ | (120-44) | 2 | 59.49 | 24,000 | 0 | 1996 | | 2025.02.08 | ¸Å¸Å | û¿îÇÏÀÌÃ÷ºô¶ó | 3 | 60.25 | 29,800 | | 2002 | | 2025.02.08 | Àü¼¼ | (108-105) | 1 | 43.4 | 15,500 | 0 | 1991 | | 2025.02.08 | Àü¼¼ | ¹Ì¼º(610-366) | 3 | 74.97 | 21,000 | 0 | 2000 | | 2025.02.08 | ¿ù¼¼ | ¸ñ¿ø | 3 | 24 | 1,000 | 77 | 2013 | | 2025.02.08 | ¿ù¼¼ | Àº¿¬Àç | 5 | 14.27 | 1,000 | 47 | 2013 | | 2025.02.08 | Àü¼¼ | ¿¡À̽º¸Ç¼Ç2 | 2 | 25.69 | 18,900 | 0 | 2015 | | 2025.02.08 | ¿ù¼¼ | (251-236) | 2 | 29.97 | 3,000 | 75 | 2016 | | 2025.02.08 | Àü¼¼ | ¿¡¼¿ÆÄÅ©ºô¥± | 5 | 25.92 | 17,850 | 0 | 2018 | | 2025.02.08 | ¸Å¸Å | Âù¼ÖÆÓ¸®½º | 5 | 48.7 | 28,000 | | 2014 | | 2025.02.07 | ¿ù¼¼ | ½Å¸²¾î¹Ý½ººô | 1 | 28.79 | 3,900 | 15 | 2023 | | 2025.02.07 | ¿ù¼¼ | ½Å¸²¾î¹Ý½ººô | 1 | 26.38 | 3,610 | 14 | 2023 | | 2025.02.07 | ¿ù¼¼ | ¹ÌÄ̶õ | 6 | 29.49 | 15,000 | 50 | 2016 | | 2025.02.07 | ¸Å¸Å | µ¥½Ã¾Ó | 4 | 40.91 | 12,500 | | 2015 | | 2025.02.07 | ¸Å¸Å | ÇູÀ̰¡µæÇÑÁý | 3 | 57.42 | 35,000 | | 2003 | | 2025.02.07 | ¿ù¼¼ | ¼ö¿ù´ç | 1 | 12.07 | 300 | 39 | 2013 | | 2025.02.07 | ¿ù¼¼ | Æ®¸®ÇÃÈú½º2 | 5 | 29.53 | 6,000 | 75 | 2023 | | 2025.02.07 | ¿ù¼¼ | ¸ÞÁ¾570 | 2 | 59.56 | 8,055 | 21 | 2023 | | 2025.02.07 | ¿ù¼¼ | ´õÁý(TheZIP) | 4 | 22.77 | 1,000 | 72 | 2012 | | 2025.02.07 | ¿ù¼¼ | ¸ñ¿ø | 3 | 18.73 | 1,000 | 75 | 2013 | | 2025.02.07 | Àü¼¼ | °ñµå·Î½ººô | 3 | 30.9 | 18,700 | 0 | 2013 | | 2025.02.07 | ¿ù¼¼ | µ¿¾Æ³ªµ¿ | 3 | 52.07 | 12,000 | 30 | 1982 | | 2025.02.07 | ¿ù¼¼ | ¼¾Æ®·¹ºô(º») | 5 | 16.74 | 6,000 | 50 | 2018 | | 2025.02.07 | ¿ù¼¼ | ´Ù¼Ø±×¶ûºô(654-38) | 1 | 28.21 | 3,000 | 105 | 2022 | | 2025.02.07 | ¿ù¼¼ | ´Ù¼Ø±×¶ûºô(654-38) | 2 | 22.98 | 4,000 | 95 | 2022 | | 2025.02.06 | Àü¼¼ | ´ÃÁ¶Àººô | 5 | 32.51 | 26,500 | 0 | 2023 | | 2025.02.06 | ¿ù¼¼ | (98-185) | 4 | 48.15 | 5,000 | 140 | 2022 | | 2025.02.06 | Àü¼¼ | ¼®¿µ | 3 | 46.79 | 27,500 | 0 | 2022 | | 2025.02.06 | ¿ù¼¼ | THELIME | 12 | 14.09 | 21,400 | 4 | 2020 | | 2025.02.06 | ¿ù¼¼ | ¶óÀÓÄ«¿îƼ | 10 | 29.68 | 22,900 | 21 | 2016 | | 2025.02.06 | ¿ù¼¼ | Æç¸®Ã¼ | 2 | 23.78 | 13,000 | 50 | 2013 | | 2025.02.06 | ¿ù¼¼ | Æç¸®Ã¼ | 2 | 23.78 | 13,000 | 50 | 2013 | | 2025.02.06 | Àü¼¼ | ´Ù¼Øºô¶ó | 3 | 24.64 | 16,000 | 0 | 2004 | | 2025.02.06 | ¸Å¸Å | ½Å¾Èºô¶ó(610-143) | 1 | 38.6 | 20,000 | | 1993 | | 2025.02.06 | ¿ù¼¼ | Çì·»4Â÷ | 4 | 28.45 | 20,900 | 6 | 2016 | | 2025.02.06 | ¸Å¸Å | Æç¸®Ã¼ºô¸®Áö | 2 | 36.92 | 30,000 | | 2018 | | 2025.02.06 | ¸Å¸Å | ¿ì¼®ºô¶ó14Â÷ | 4 | 34.28 | 18,000 | | 1995 | | 2025.02.06 | ¸Å¸Å | (120-96) | -1 | 35.97 | 12,000 | | 1986 | | 2025.02.05 | ¿ù¼¼ | º»ÇϿ콺 | 4 | 29.05 | 500 | 50 | 2016 | | 2025.02.05 | ¿ù¼¼ | ´Ù¿ø¾ÆÆ®ºô | 2 | 41.89 | 2,000 | 70 | 2002 | | 2025.02.05 | Àü¼¼ | ¸®Ä¡ÆÄÅ©ºô | 2 | 74.58 | 22,800 | 0 | 2002 | | 2025.02.05 | ¿ù¼¼ | ÇÑÂ÷ÀÓºô | 2 | 29.93 | 500 | 110 | 2021 | | 2025.02.05 | ¸Å¸Å | 98-439 | 1 | 28.29 | 25,500 | | 2014 | | 2025.02.05 | ¸Å¸Å | ±¤Áøºô¶ó | 2 | 34.2 | 18,500 | | 1991 | | 2025.02.05 | ¿ù¼¼ | T&K½Å¸²¥± | 3 | 26.08 | 5,891 | 8 | 2024 | | 2025.02.04 | ¸Å¸Å | ±ÝÈ£ºô¶ó(363-3) | -1 | 68.25 | 32,000 | | 1996 | | 2025.02.04 | ¸Å¸Å | ´ë¸²¾ÆÆ®ºô | 4 | 28.92 | 20,000 | | 2018 | | 2025.02.04 | ¿ù¼¼ | ÇÁ·Î·»½º | 5 | 29.98 | 8,000 | 68 | 2015 | | 2025.02.04 | Àü¼¼ | µå¸²Å¸¿î | 7 | 26.9 | 25,000 | 0 | 2020 | | 2025.02.04 | ¿ù¼¼ | ´ë¿õºô¶ó | 4 | 40.38 | 12,000 | 55 | 1992 | | 2025.02.04 | ¿ù¼¼ | ¾ÆÀ϶ó(1432-19) | 9 | 27.74 | 23,000 | 25 | 2018 | | 2025.02.04 | ¿ù¼¼ | ³×¿ÀÁö¿ò | 5 | 29.16 | 17,380 | 5 | 2015 | | 2025.02.04 | ¿ù¼¼ | ÇÁ·Î·»½º | 5 | 29.98 | 8,000 | 68 | 2015 | | 2025.02.04 | ¿ù¼¼ | ¸íÀÏÆÄÅ©ºô | 2 | 27.09 | 3,000 | 72 | 2016 | | 2025.02.04 | Àü¼¼ | EatonTower(1433-227) | 10 | 29.71 | 28,870 | 0 | 2017 | | 2025.02.04 | ¿ù¼¼ | ¼±ÀΟ¿î | 18 | 13.48 | 1,000 | 67 | 2017 | | 2025.02.03 | ¿ù¼¼ | Å´½ººô¸® | 1 | 39.9 | 2,000 | 70 | 2002 | | 2025.02.03 | Àü¼¼ | »ïÇϺô¶ó(518-45) | 5 | 50.88 | 18,000 | 0 | 2002 | | 2025.02.03 | ¿ù¼¼ | (537-2) | 3 | 73.47 | 6,000 | 80 | 1994 | | 2025.02.03 | ¿ù¼¼ | µ¿¼ººô¶ó(598-79) | -1 | 51.15 | 2,000 | 50 | 1993 | | 2025.02.03 | Àü¼¼ | ±Ý¼ººô¶ó(610-468) | -1 | 40.08 | 9,000 | 0 | 1996 | | 2025.02.03 | ¿ù¼¼ | (1502-4) | 4 | 49.45 | 1,000 | 62 | 2003 | | 2025.02.03 | ¿ù¼¼ | ¸®´õ½ººô(563-18) | 5 | 48.54 | 3,500 | 100 | 2012 | | 2025.02.03 | Àü¼¼ | °ñµå·Î½ººô | 3 | 30.9 | 18,700 | 0 | 2013 | | 2025.02.03 | ¿ù¼¼ | ³×¿ÀÁö¿ò | 2 | 23.89 | 200 | 75 | 2015 | | 2025.02.03 | ¿ù¼¼ | ºê¶ó¿îij½½(1480-1) | 3 | 48.21 | 34,650 | 10 | 2017 | | 2025.02.03 | ¿ù¼¼ | BELITATERRA | 9 | 29.24 | 24,690 | 25 | 2016 | | 2025.02.03 | ¸Å¸Å | ½ÅÁø¿ùµå¸Ç¼Ç7Â÷ | 1 | 76.08 | 43,000 | | 2001 | | 2025.02.03 | ¸Å¸Å | ½Å´ë¹æ³ëºí·çü | 15 | 24.34 | 26,600 | | 2019 | | 2025.02.03 | ¸Å¸Å | ¾çÁöºô¶óÆ®(547-17) | 3 | 47.93 | 30,000 | | 2002 | | 2025.02.03 | Àü¼¼ | »ïȺô | 3 | 34.87 | 25,000 | 0 | 2021 | | 2025.02.03 | ¿ù¼¼ | (626-60) | 3 | 19.77 | 2,480 | 9 | 2023 | | 2025.02.03 | ¿ù¼¼ | T&K½Å¸²¥± | 3 | 27.77 | 2,034 | 33 | 2024 | | 2025.02.02 | ¿ù¼¼ | ¿Á¿µÁÖÅôٵ¿ | -1 | 43.15 | 2,000 | 50 | 1991 | | 2025.02.02 | Àü¼¼ | ¿¹±×¸° | 5 | 47.23 | 23,000 | 0 | 2014 | | 2025.02.01 | ¿ù¼¼ | (415-38) | 2 | 30.1 | 800 | 30 | 1992 | | 2025.02.01 | ¿ù¼¼ | ´õÄÉÀÌŸ¿ö | 13 | 14.101 | 1,000 | 42 | 2018 | | 2025.02.01 | ¸Å¸Å | ´ë¸²ºô¶ó(598-148) | 4 | 42.12 | 22,000 | | 1993 | | 2025.02.01 | ¿ù¼¼ | (251-251) | 4 | 37.78 | 500 | 50 | 2005 | | 2025.02.01 | ¿ù¼¼ | (97-5) | -1 | 41.5 | 500 | 60 | 1996 | | 2025.02.01 | ¿ù¼¼ | ¼¼Á¾µµ½ÃÇü»ýȰÁÖÅà | 6 | 14.35 | 1,000 | 42 | 2011 | | 2025.02.01 | ¿ù¼¼ | ±×¸°ÆÄÅ© | 5 | 24.88 | 5,000 | 70 | 2014 | | 2025.02.01 | ¿ù¼¼ | BIGTREE | 6 | 27 | 19,000 | 35 | 2016 | | 2025.02.01 | ¿ù¼¼ | (492-6) | 5 | 29.95 | 2,000 | 90 | 2016 | | 2025.02.01 | ¸Å¸Å | µ¿ÀÏ¿ëȺô¶óB(412-194) | 3 | 34.46 | 30,000 | | 1992 | | 2025.01.31 | ¿ù¼¼ | ´õÆÛ½ºÆ®ºô(98-54) | 4 | 28.08 | 1,000 | 40 | 2016 | | 2025.01.31 | ¿ù¼¼ | JWµå¸²ºô(1657-25) | 2 | 28.09 | 500 | 54 | 2017 | | 2025.01.31 | ¿ù¼¼ | ÁÖ¿ø | 7 | 12.7 | 2,000 | 46 | 2013 | | 2025.01.31 | ¿ù¼¼ | ¾ÆÀÌÆÄÅ© | 8 | 25.04 | 20,000 | 20 | 2015 | | 2025.01.31 | ¿ù¼¼ | ¼ö¿ù´ç | 2 | 13.26 | 300 | 45 | 2013 | | 2025.01.31 | ¸Å¸Å | µ¿ÀÏ¿ëȺô¶óA | 3 | 70.78 | 26,000 | | 1991 | | 2025.01.31 | ¸Å¸Å | û¼Ûºô¶ó | 3 | 48.26 | 28,000 | | 2002 | | 2025.01.31 | ¸Å¸Å | (610-354) | -1 | 39.18 | 13,800 | | 1996 | | 2025.01.27 | ¿ù¼¼ | µ¿¹®ºô¶ó | 1 | 60.3 | 8,000 | 35 | 2002 | | 2025.01.26 | ¿ù¼¼ | °üµ¿ÇÏÀÌÃ÷ | 4 | 49.86 | 5,000 | 60 | 2003 | | 2025.01.26 | ¿ù¼¼ | °üµ¿ÇÏÀÌÃ÷ | 4 | 49.86 | 5,000 | 60 | 2003 | | 2025.01.26 | ¿ù¼¼ | ÇÁ·¹¹Ì¿À(PREMIO)725Aµ¿ | 5 | 27.5 | 17,000 | 17 | 2016 | | 2025.01.25 | ¿ù¼¼ | µ¿¿¬ÇÏÀÌÃ÷ | 3 | 15.07 | 1,000 | 50 | 2015 | | 2025.01.25 | ¿ù¼¼ | ¸¶À̹ٿò½Å¸² | 2 | 23.4 | 1,000 | 65 | 2012 | | 2025.01.25 | ¿ù¼¼ | ´åÄÄÇϿ콺 | 2 | 58.11 | 22,000 | 22 | 2001 | | 2025.01.25 | Àü¼¼ | (254-301) | 1 | 79.39 | 33,000 | 0 | 1991 | | 2025.01.25 | ¿ù¼¼ | ÇØÇÇÇϿ콺(10-649) | 3 | 20.52 | 1,000 | 50 | 2003 | | 2025.01.24 | ¿ù¼¼ | Çѳª·¡24Â÷ | 6 | 42.87 | 3,000 | 145 | 2023 | | 2025.01.24 | ¿ù¼¼ | ¼º¿øºô(1667-23) | 4 | 21.2 | 1,000 | 63 | 2017 | | 2025.01.24 | ¿ù¼¼ | ½ºÆäÀ̽ººô | 5 | 31.62 | 5,000 | 83 | 2020 | | 2025.01.24 | Àü¼¼ | (394-14) | 2 | 54.54 | 15,000 | 0 | 1993 | | 2025.01.24 | Àü¼¼ | (394-14) | 2 | 54.54 | 15,000 | 0 | 1993 | | 2025.01.24 | ¿ù¼¼ | »ïÈÇÏÀÌÃ÷¸Ç¼Ç(1453-2) | 2 | 73.5 | 5,000 | 120 | 2003 | | 2025.01.24 | ¸Å¸Å | Á¶Àººô¶ó | 3 | 42.69 | 21,000 | | 1992 | | 2025.01.23 | ¿ù¼¼ | (120-97) | 1 | 35.97 | 4,000 | 90 | 1986 | | 2025.01.23 | Àü¼¼ | ´õŬ·¡½Ä | 1 | 28.77 | 22,000 | 0 | 2024 | | 2025.01.23 | ¿ù¼¼ | °¡À± | 8 | 14.01 | 500 | 56 | 2017 | | 2025.01.23 | ¿ù¼¼ | dz¾çºôµù | 4 | 23.935 | 3,000 | 32 | 2012 | | 2025.01.23 | ¿ù¼¼ | Ŭ·¡½Äij½½ | 5 | 29.66 | 6,000 | 115 | 2024 | | 2025.01.23 | ¿ù¼¼ | ¸®Ä¡ºô¸®Áö | 3 | 29.73 | 21,000 | 10 | 2017 | | 2025.01.23 | ¿ù¼¼ | ÇÊÇϿ콺(1439-31) | 4 | 12.27 | 1,000 | 52 | 2013 | | 2025.01.23 | ¿ù¼¼ | ¼º¿ì(1433-180) | 7 | 28.71 | 1,000 | 65 | 2014 | | 2025.01.23 | ¿ù¼¼ | ¸®Ä¡ºô¶ó | 2 | 40.41 | 11,800 | 30 | 1994 | | 2025.01.23 | ¿ù¼¼ | ¹Ì¸®³»±×¸°ºô¶ó | 3 | 40.5 | 13,500 | 11 | 1993 | | 2025.01.23 | ¿ù¼¼ | ¹Ì¸®³»±×¸°ºô¶ó | 3 | 40.5 | 12,500 | 11 | 1993 | | 2025.01.23 | ¿ù¼¼ | °ñµå³ªÀÎ | 8 | 29.76 | 15,000 | 36 | 2017 | | 2025.01.23 | Àü¼¼ | ´õŬ·¡½Ä | 2 | 29 | 22,000 | 0 | 2024 | | 2025.01.23 | ¿ù¼¼ | ¶óÀÓ½ººô | 4 | 28.79 | 2,000 | 90 | 2019 | | 2025.01.23 | ¸Å¸Å | »ê¸¶·çºô | 4 | 28.55 | 30,000 | | 2017 | | 2025.01.23 | ¸Å¸Å | ÆÓ¸®½ººô | 4 | 33.47 | 19,000 | | 2013 | | 2025.01.23 | ¸Å¸Å | ÆÓ¸®½ººô | 4 | 33.47 | 19,000 | | 2013 | | 2025.01.22 | Àü¼¼ | ȲÁ¦(415-51) | 2 | 36.48 | 10,000 | 0 | 1990 | | 2025.01.22 | ¿ù¼¼ | Àº¿¬Àç | 7 | 14.18 | 500 | 47 | 2013 | | 2025.01.22 | Àü¼¼ | Á¶Èïºô¶óÆ® | 2 | 44.41 | 20,000 | 0 | 2006 | | 2025.01.22 | ¿ù¼¼ | AugustTower | 6 | 13.83 | 15,000 | 15 | 2021 | | 2025.01.22 | ¿ù¼¼ | (À¸¶äij½½) | 4 | 26.65 | 4,000 | 125 | 2024 | | 2025.01.22 | ¿ù¼¼ | ¸ñ¿ø | 3 | 16.24 | 1,000 | 55 | 2013 | | 2025.01.22 | ¿ù¼¼ | ¸ÞÆ®·ÎŸ¿î1Â÷(1480-30) | 4 | 28.88 | 20,000 | 12 | 2016 | | 2025.01.22 | ¿ù¼¼ | (231-37) | 1 | 116.85 | 100 | 29 | 1976 | | 2025.01.22 | Àü¼¼ | 98-135 | 3 | 27.43 | 17,500 | 0 | 2014 | | 2025.01.22 | Àü¼¼ | ¿¡¼¿ÆÄÅ©ºô¥± | 4 | 27.98 | 20,000 | 0 | 2018 | | 2025.01.22 | ¿ù¼¼ | 103-134 | 2 | 24.57 | 2,000 | 51 | 2014 | | 2025.01.22 | ¿ù¼¼ | ¸®Ã÷¿ÀÇǽºÅÚ&µµ½ÃÇü»ýȰÁÖÅà | 6 | 14.4 | 9,200 | 10 | 2014 | | 2025.01.22 | Àü¼¼ | ÀÎÁ¤°¡1 | 3 | 29.2 | 15,000 | 0 | 2013 | | 2025.01.22 | ¿ù¼¼ | ½Å¸²ºôµù | 4 | 10.89 | 1,000 | 62 | 2018 | | 2025.01.22 | ¸Å¸Å | ´ÃÁ¶Àººô | 5 | 32.51 | 35,500 | | 2023 | | 2025.01.21 | ¿ù¼¼ | ¾Öµå¿ø | 8 | 14.65 | 3,000 | 47 | 2015 | | 2025.01.21 | ¿ù¼¼ | ³×¸ðÇϿ콺 | 4 | 29.47 | 24,500 | 20 | 2018 | | 2025.01.21 | Àü¼¼ | ¶óÆÄ¸£½Å¸² | 7 | 27.61 | 36,000 | 0 | 2023 | | 2025.01.21 | ¿ù¼¼ | ´ëÇкô¸®ÁöBµ¿ | 1 | 52.11 | 200 | 35 | 1993 | | 2025.01.21 | ¿ù¼¼ | ÈÞ½ºÅ×ÀÌ | 3 | 29.56 | 2,000 | 130 | 2023 | | 2025.01.21 | ¿ù¼¼ | ½º¸¶Æ®ºô | 3 | 29.04 | 15,000 | 33 | 2013 | | 2025.01.21 | ¿ù¼¼ | ¸ÞÁ¾570 | 6 | 57.5 | 2,838 | 55 | 2023 | | 2025.01.21 | Àü¼¼ | û¿î | 3 | 14.04 | 6,000 | 0 | 2013 | | 2025.01.21 | ¿ù¼¼ | ä¼®°¡ | 6 | 29.347 | 26,000 | 15 | 2021 | | 2025.01.21 | ¿ù¼¼ | ÀÏÀ°»ïºô¶ó | 3 | 39.82 | 1,000 | 85 | 1993 | | 2025.01.21 | Àü¼¼ | ÆÈ·Î½º26 | 5 | 17.39 | 20,000 | 0 | 2019 | | 2025.01.21 | ¿ù¼¼ | ¿¡½ºÅæºô4Â÷ | 2 | 37.2 | 2,000 | 67 | 2008 | | 2025.01.21 | ¸Å¸Å | ¼¸²ÇÏÀÌÃ÷ºô¶ó | 3 | 67.08 | 33,500 | | 1993 | | 2025.01.21 | ¸Å¸Å | ¾Æ¸£¶¼ºô(95-64) | 2 | 40.56 | 26,500 | | 2015 | | 2025.01.21 | ¸Å¸Å | ´Ù¿Ã626 | 6 | 52.1 | 57,500 | | 2024 | | 2025.01.20 | Àü¼¼ | ¼¸²ºô | 3 | 29.5 | 29,400 | 0 | 2022 | | 2025.01.20 | ¿ù¼¼ | º¸º¸½ºÁÖÅà | 3 | 12.94 | 500 | 40 | 2013 | | 2025.01.20 | Àü¼¼ | Çö´ë°³³ª¸®ºô¶ó5Â÷ | 1 | 75.12 | 15,000 | 0 | 1985 | | 2025.01.20 | ¸Å¸Å | ·çÀ̺ô¸®Áö | 5 | 49.91 | 43,500 | | 2021 | | 2025.01.20 | ¸Å¸Å | (306-101) | 2 | 60.92 | 28,500 | | 1989 | | 2025.01.20 | ¸Å¸Å | 98-439 | 1 | 28.04 | 25,500 | | 2014 | | 2025.01.19 | ¿ù¼¼ | BELITATERRA | 7 | 29.24 | 18,000 | 56 | 2016 | | 2025.01.19 | ¿ù¼¼ | ³²ºÎ½ºÄ«À̺ô | 2 | 29.62 | 18,200 | 20 | 2013 | | 2025.01.18 | Àü¼¼ | ½Ã¿¤(ciel) | 6 | 29.5 | 24,300 | 0 | 2015 | | 2025.01.18 | ¿ù¼¼ | ½Å»çŸ¿îºô | 3 | 29.19 | 22,500 | 15 | 2016 | | 2025.01.18 | ¿ù¼¼ | THELIME | 13 | 14.09 | 26,200 | 5 | 2020 | | 2025.01.18 | Àü¼¼ | À±ºô¸®Áö | 5 | 40.33 | 15,600 | 0 | 2012 | | 2025.01.18 | ¿ù¼¼ | ¼º¿ìºô¶ó | 2 | 59.85 | 13,000 | 20 | 1991 | | 2025.01.18 | ¿ù¼¼ | ´ëµ¿ÆÓ¸®½º | 5 | 13.05 | 5,000 | 70 | 1985 | | 2025.01.18 | ¿ù¼¼ | µ¿¿ìºô¶óÆ® | 4 | 51.8 | 4,000 | 100 | 2015 | | 2025.01.18 | Àü¼¼ | ¿¡µ§ºô¶ó(90-71) | 3 | 51.49 | 20,000 | 0 | 2001 | | 2025.01.18 | ¸Å¸Å | ¸ÞÆ®·ÎŸ¿î7Â÷ | 5 | 51.43 | 50,000 | | 2017 | | 2025.01.18 | ¿ù¼¼ | ¾Öµå¿ø | 8 | 14.65 | 4,000 | 39 | 2015 | | 2025.01.17 | Àü¼¼ | ½ÅÈïºô¶ó6Â÷ | 2 | 33.1 | 9,000 | 0 | 1991 | | 2025.01.17 | Àü¼¼ | ¸®´õ½ºÈú | 4 | 29.97 | 20,070 | 0 | 2018 | | 2025.01.17 | Àü¼¼ | Çöó³ë | 5 | 52.07 | 35,100 | 0 | 2024 | | 2025.01.17 | ¿ù¼¼ | ¿¡¾î½ºÆäÀ̽º(1560-17) | 3 | 23.55 | 13,534 | 19 | 2022 | | 2025.01.17 | Àü¼¼ | Çöó³ë | 5 | 52.07 | 33,500 | 0 | 2024 | | 2025.01.17 | Àü¼¼ | ¸®´õ½ºÈú | 2 | 29.99 | 19,700 | 0 | 2018 | | 2025.01.17 | Àü¼¼ | »ï¼º¾ÆÆ®ºô | 3 | 48.01 | 25,650 | 0 | 2017 | | 2025.01.17 | ¿ù¼¼ | ÁøÁÖºô¶ó(598-48) | 4 | 39.06 | 10,000 | 10 | 1994 | | 2025.01.17 | ¿ù¼¼ | ½ºÄ«ÀÌij½½ | 2 | 59.33 | 25,000 | 30 | 2023 | | 2025.01.17 | ¿ù¼¼ | ½ºÄ«ÀÌij½½ | 2 | 59.33 | 25,000 | 30 | 2023 | | 2025.01.17 | ¿ù¼¼ | ¿¡¾î½ºÆäÀ̽º(1560-17) | 3 | 23.55 | 13,534 | 19 | 2022 | | 2025.01.17 | ¿ù¼¼ | Á¤¸í½¦¸£ºô(525-4) | 1 | 50.12 | 3,000 | 90 | 2002 | | 2025.01.17 | Àü¼¼ | ¸®´õ½ºÈú | 2 | 29.99 | 19,710 | 0 | 2018 | | 2025.01.17 | Àü¼¼ | ÁÖ¿øº£¸£ºô(493-7) | 2 | 29.73 | 25,200 | 0 | 2016 | | 2025.01.17 | ¿ù¼¼ | ´õ¸¶Àεå | 10 | 27.34 | 5,000 | 140 | 2022 | | 2025.01.17 | ¿ù¼¼ | ´õ¸¶Àεå | 10 | 27.34 | 5,000 | 140 | 2022 | | 2025.01.16 | ¸Å¸Å | 98-135 | 3 | 28.04 | 25,500 | | 2014 | | 2025.01.16 | Àü¼¼ | °æ¿øÇÏÀÌÃ÷ÅÚ | 12 | 21.66 | 15,000 | 0 | 2019 | | 2025.01.16 | ¿ù¼¼ | ½º¸¶Æ®ºô | 2 | 29.04 | 6,000 | 70 | 2013 | | 2025.01.16 | ¿ù¼¼ | ÁÁÀºÁý | 6 | 12.9 | 3,000 | 39 | 2014 | | 2025.01.16 | Àü¼¼ | ´Ù¿ø¾ÆÆ®ºô(704-20) | 5 | 36.68 | 19,700 | 0 | 2015 | | 2025.01.16 | ¿ù¼¼ | Àº¿¬Àç | 7 | 15.61 | 1,200 | 46 | 2013 | | 2025.01.16 | Àü¼¼ | ´Ù¿ø¾ÆÆ®ºô(704-20) | 5 | 36.68 | 19,700 | 0 | 2015 | | 2025.01.16 | ¿ù¼¼ | º¸¶÷ºô¶ó | 3 | 43.76 | 10,230 | 30 | 1992 | | 2025.01.16 | ¿ù¼¼ | Çìºìºô¸®Áö | 3 | 22.16 | 500 | 40 | 2015 | | 2025.01.16 | Àü¼¼ | ½á¹Ô(551-29) | 6 | 27.81 | 22,000 | 0 | 2017 | | 2025.01.16 | ¿ù¼¼ | H.KVillage | 10 | 17.85 | 1,000 | 90 | 2018 | | 2025.01.16 | ¿ù¼¼ | Çìºìºô¸®Áö | 3 | 19.91 | 2,000 | 75 | 2015 | | 2025.01.15 | Àü¼¼ | Á¤¿øÇÏÀ̸®ºô | 4 | 54 | 23,000 | 0 | 2002 | | 2025.01.15 | ¿ù¼¼ | ÇѸ¶À½ºô(1490-5) | 5 | 79.36 | 31,800 | 15 | 2007 | | 2025.01.15 | ¿ù¼¼ | ÇѸ¶À½ºô(1490-5) | 5 | 79.36 | 31,800 | 15 | 2007 | | 2025.01.15 | ¿ù¼¼ | FillYou | 5 | 14.87 | 14,900 | 10 | 2016 | | 2025.01.15 | ¿ù¼¼ | (1588-3) | 6 | 18.58 | 21,400 | 5 | 2019 | | 2025.01.15 | ¿ù¼¼ | Ǫ¸£¹Ì¸£ºô | 2 | 49.71 | 22,000 | 15 | 2012 | | 2025.01.15 | ¿ù¼¼ | (1588-3) | 4 | 18.58 | 20,800 | 5 | 2019 | | 2025.01.15 | ¿ù¼¼ | ½Å¸²ºô¶ó(354-2) | 3 | 76.36 | 13,000 | 20 | 1984 | | 2025.01.15 | Àü¼¼ | Á¤È£ºô¶ó³ªµ¿(1563-42) | 1 | 33.69 | 8,000 | 0 | 1994 | | 2025.01.15 | ¿ù¼¼ | º¸º¸½ºÁÖÅà | 4 | 13.89 | 500 | 90 | 2013 | | 2025.01.15 | ¿ù¼¼ | º¸º¸½ºÁÖÅà | 4 | 13.89 | 500 | 90 | 2013 | | 2025.01.15 | ¿ù¼¼ | ±ÝÀÏ¿ùµå¸Ç¼Ç | 2 | 74.98 | 26,000 | 30 | 2001 | | 2025.01.15 | ¸Å¸Å | (1464-57) | 1 | 29.58 | 19,000 | | 1991 | | 2025.01.15 | ¿ù¼¼ | ÇѸ¶À½ºô(1490-5) | 5 | 79.36 | 31,800 | 15 | 2007 | | 2025.01.15 | ¿ù¼¼ | ´õÄÉÀÌŸ¿ö | 12 | 14.101 | 3,000 | 61 | 2018 | | 2025.01.15 | ¿ù¼¼ | (408-17) | 2 | 53.64 | 15,000 | 30 | 2002 | | 2025.01.15 | Àü¼¼ | ¸®´õ½ºÈú | 6 | 29.99 | 20,070 | 0 | 2018 | | 2025.01.15 | ¿ù¼¼ | ·Î¾â¸Ç¼Ç | -1 | 66.2 | 13,000 | 10 | 1997 | | 2025.01.14 | ¿ù¼¼ | ¾î¹Ý°ñµå | 3 | 28.15 | 14,000 | 15 | 2018 | | 2025.01.14 | ¸Å¸Å | 98-135 | 2 | 27.97 | 25,500 | | 2014 | | 2025.01.14 | ¸Å¸Å | È¿ø±×¸°ºô¶ó | 3 | 67.62 | 50,000 | | 1993 | | 2025.01.14 | ¿ù¼¼ | ¹Ì¼ººô¶ó(10-29) | 3 | 43.44 | 2,000 | 95 | 1991 | | 2025.01.14 | ¿ù¼¼ | (1588-3) | 6 | 21.08 | 21,000 | 9 | 2019 | | 2025.01.14 | ¿ù¼¼ | ¿ìÁÖºô¶óÆ® | 3 | 36.06 | 9,000 | 10 | 1994 | | 2025.01.14 | Àü¼¼ | (1421-31) | 7 | 19.17 | 9,450 | 0 | 2015 | | 2025.01.14 | Àü¼¼ | (254-301) | 3 | 84.72 | 39,000 | 0 | 1991 | | 2025.01.14 | Àü¼¼ | ´õ·°½ººô | 2 | 27.36 | 21,000 | 0 | 2022 | | 2025.01.14 | ¿ù¼¼ | ´õÄÉÀÌŸ¿ö | 12 | 26.422 | 5,000 | 100 | 2018 | | 2025.01.14 | Àü¼¼ | ¾ÆÀ϶ó(1432-19) | 10 | 26.67 | 27,000 | 0 | 2018 | | 2025.01.13 | ¸Å¸Å | ¾çÁö¸®Ã÷Ÿ¿î | 5 | 57.53 | 51,000 | | 2016 | | 2025.01.13 | Àü¼¼ | ž罦¸£ºôBµ¿ | 4 | 75.46 | 26,000 | 0 | 2003 | | 2025.01.13 | ¿ù¼¼ | ¸Þ¸®Æ®È¨ | 6 | 12.11 | 9,810 | 5 | 2012 | | 2025.01.13 | ¿ù¼¼ | (501-6) | 4 | 27.7 | 24,000 | 12 | 2022 | | 2025.01.13 | ¿ù¼¼ | µå¸²Çãºê | 8 | 47.31 | 25,000 | 20 | 2019 | | 2025.01.13 | ¿ù¼¼ | ¿ÀÁÖÇϿ콺 | 3 | 19.68 | 3,000 | 35 | 2012 | | 2025.01.13 | Àü¼¼ | Áß¾ÓŸ¿îCµ¿ | 4 | 41.31 | 11,980 | 0 | 1997 | | 2025.01.13 | ¿ù¼¼ | ¹Ì¸®³»ºô¶ó(598-252) | 2 | 39.71 | 11,000 | 20 | 1992 | | 2025.01.12 | ¿ù¼¼ | ÇÏ¿µºô¶ó | 3 | 20.03 | 500 | 56 | 2002 | | 2025.01.12 | ¿ù¼¼ | (414-10) | -1 | 40.92 | 3,000 | 50 | 1991 | | 2025.01.12 | ¿ù¼¼ | Àå¹ÌÁ¤¿ø(1564-31) | 3 | 25.37 | 2,000 | 78 | 2014 | | 2025.01.12 | ¿ù¼¼ | ¼±ÀΟ¿î | 18 | 13.48 | 2,000 | 62 | 2017 | | 2025.01.12 | ¿ù¼¼ | Á¤¸²È¨½ºÅÚ(88-35) | 3 | 22.71 | 1,000 | 60 | 2000 | | 2025.01.11 | ¿ù¼¼ | ÀÌȱ׸°ºô | 2 | 58.23 | 7,000 | 58 | 2003 | | 2025.01.11 | Àü¼¼ | ¼¾Æ®·¹ºô(º») | 4 | 18.36 | 13,000 | 0 | 2018 | | 2025.01.11 | Àü¼¼ | µ¿¼ººô¶ó(598-79) | 1 | 52.2 | 16,200 | 0 | 1993 | | 2025.01.11 | ¸Å¸Å | ȲÁ¦(415-51) | 2 | 36.48 | 24,500 | | 1990 | | 2025.01.11 | ¸Å¸Å | µ¿¼ººô¶ó2Â÷ | -1 | 44.07 | 11,500 | | 1994 | | 2025.01.11 | Àü¼¼ | µ¿¼ººô¶ó(598-79) | 1 | 52.2 | 14,580 | 0 | 1993 | | 2025.01.11 | ¿ù¼¼ | °Ç¿øº£½ºÆ®¿ø | 18 | 18.087 | 500 | 70 | 2024 | | 2025.01.11 | ¿ù¼¼ | ¾î¹ÝÆÓ¸®½º(103µ¿,105µ¿) | 2 | 41.91 | 27,300 | 20 | 2017 | | 2025.01.11 | ¿ù¼¼ | ´ëÇкô¸®ÁöAµ¿ | 1 | 47.16 | 500 | 52 | 1993 | | 2025.01.11 | ¿ù¼¼ | (92-246) | 2 | 59 | 3,000 | 90 | 2004 | | 2025.01.11 | Àü¼¼ | ÇѼֺô¶óÆ® | 2 | 55.34 | 20,000 | 0 | 1997 | | 2025.01.11 | ¿ù¼¼ | Æ÷µµ¿ø½¦¸£ºô | 4 | 29.83 | 18,900 | 30 | 2012 | | 2025.01.11 | ¿ù¼¼ | (87-44) | -1 | 45.36 | 9,800 | 30 | 1989 | | 2025.01.11 | ¿ù¼¼ | ½º¸¶Æ®ºô | 2 | 29.04 | 15,700 | 40 | 2013 | | 2025.01.11 | ¿ù¼¼ | (409-96) | 2 | 13.62 | 9,500 | 2 | 2013 | | 2025.01.11 | ¿ù¼¼ | »ïºÎºô¶ó | 3 | 83.82 | 500 | 75 | 1984 | | 2025.01.10 | ¸Å¸Å | Çì·»ÇϿ콺3Â÷ | 6 | 36.44 | 27,200 | | 2014 | | 2025.01.10 | Àü¼¼ | CG¾Æ¸§Ã¤(1´ÜÁö) | 3 | 58.15 | 25,000 | 0 | 2019 | | 2025.01.10 | ¿ù¼¼ | (98-185) | 2 | 27.79 | 5,000 | 100 | 2022 | | 2025.01.10 | ¿ù¼¼ | (457-27) | 2 | 51.79 | 10,000 | 65 | 2004 | | 2025.01.10 | Àü¼¼ | º¸³×¸£ºô | 6 | 29.95 | 19,600 | 0 | 2017 | | 2025.01.10 | Àü¼¼ | ¼ºÃ¢ºô¶ó | -1 | 47.65 | 11,400 | 0 | 1991 | | 2025.01.10 | ¿ù¼¼ | Çѳª·¡24Â÷ | 4 | 43.29 | 4,000 | 140 | 2023 | | 2025.01.10 | ¿ù¼¼ | µ¿µµ¾ÆÆ®ºô¸®ÁöCµ¿ | 1 | 57.87 | 17,000 | 30 | 1993 | | 2025.01.10 | Àü¼¼ | ¿µµ¿ÇÏÀÌÃ÷ | 3 | 59.88 | 10,000 | 0 | 2002 | | 2025.01.10 | ¿ù¼¼ | Çѳª·¡24Â÷ | 3 | 29.91 | 2,000 | 120 | 2023 | | 2025.01.10 | ¿ù¼¼ | ¼ºÃ¢ºô¶ó | -1 | 47.65 | 10,900 | 8 | 1991 | | 2025.01.09 | ¿ù¼¼ | ¿µÈºô¶ó³ªµ¿(412-212) | -1 | 37.33 | 6,800 | 11 | 1991 | | 2025.01.09 | ¿ù¼¼ | ±×·£µåÈú | 7 | 29.99 | 3,000 | 79 | 2015 | | 2025.01.09 | ¿ù¼¼ | ½Å¿ìºô¶óAµ¿ | 1 | 40.89 | 9,500 | 10 | 1987 | | 2025.01.09 | Àü¼¼ | Çö´ëÆÄÅ©ºô¶óA | 2 | 45.81 | 12,500 | 0 | 1995 | | 2025.01.09 | ¿ù¼¼ | ½ÅÈïºô¶ó6Â÷ | 1 | 33.1 | 2,000 | 40 | 1991 | | 2025.01.09 | Àü¼¼ | Å©³ªÅ«ÇϿ콺 | 4 | 29.76 | 15,000 | 0 | 2016 | | 2025.01.09 | ¿ù¼¼ | Á¤Çöºô(1429-26) | 5 | 31.76 | 17,500 | 25 | 2013 | | 2025.01.09 | ¿ù¼¼ | ´ö¾Ï | 3 | 13.52 | 100 | 30 | 2012 | | 2025.01.09 | Àü¼¼ | ´ÙÀÎij½½Bµ¿ | 3 | 28.76 | 21,190 | 0 | 2018 | | 2025.01.08 | ¸Å¸Å | Ŭ¶ó¿ìµåºô5Â÷ | 3 | 32.41 | 30,800 | | 2015 | | 2025.01.08 | ¿ù¼¼ | (409-323) | -1 | 36.8 | 6,500 | 35 | 1990 | | 2025.01.08 | ¿ù¼¼ | ÇØ¹Ð | 2 | 47.35 | 3,000 | 90 | 2013 | | 2025.01.08 | ¿ù¼¼ | ÇÁ¶óºñ´ÙS(10-356) | 7 | 22.55 | 13,000 | 30 | 2016 | | 2025.01.08 | ¿ù¼¼ | Á¤Çöºô(1429-26) | 4 | 14.88 | 7,000 | 35 | 2013 | | 2025.01.08 | Àü¼¼ | (1588-3) | 4 | 18.58 | 22,000 | 0 | 2019 | | 2025.01.08 | ¿ù¼¼ | ¹Ì¸®³»(610-401) | -1 | 34.85 | 1,000 | 40 | 1990 | | 2025.01.08 | ¿ù¼¼ | (1588-3) | 4 | 18.58 | 20,800 | 5 | 2019 | | 2025.01.08 | ¿ù¼¼ | ¸ð´øºô¶ó | -1 | 40.95 | 2,500 | 33 | 1995 | | 2025.01.07 | ¿ù¼¼ | ¼º»ê¿ø·ë | 2 | 15.75 | 500 | 50 | 2012 | | 2025.01.07 | Àü¼¼ | ¼Áø(1595-4) | 7 | 15.64 | 22,000 | 0 | 2017 | | 2025.01.07 | ¿ù¼¼ | ¿ÍÀ̾ØÄ³½½ | 5 | 33.23 | 18,000 | 20 | 2014 | | 2025.01.07 | Àü¼¼ | Çöó³ë | 5 | 52.07 | 35,100 | 0 | 2024 | | 2025.01.07 | Àü¼¼ | (1588-3) | 6 | 18.58 | 22,000 | 0 | 2019 | | 2025.01.07 | ¿ù¼¼ | (1588-3) | 5 | 18.58 | 20,000 | 9 | 2019 | | 2025.01.07 | Àü¼¼ | Çöó³ë | 5 | 52.07 | 36,200 | 0 | 2024 | | 2025.01.07 | ¿ù¼¼ | (92-402) | 1 | 37.9 | 1,000 | 70 | 1992 | | 2025.01.07 | ¿ù¼¼ | ¿¡µ§(³ªµ¿) | 1 | 53.13 | 2,000 | 90 | 1989 | | 2025.01.06 | ¸Å¸Å | 98-439 | 1 | 28.12 | 25,500 | | 2014 | | 2025.01.06 | ¸Å¸Å | ºñ³ª¸®¿ò1Â÷(610-339) | 5 | 35.07 | 29,000 | | 2017 | | 2025.01.06 | Àü¼¼ | ¼¸²ºô | 2 | 29.79 | 29,400 | 0 | 2022 | | 2025.01.06 | Àü¼¼ | ·Î¾âÆÓ¸®½º | 2 | 28.63 | 20,000 | 0 | 2016 | | 2025.01.06 | ¿ù¼¼ | (610-388) | 3 | 84.84 | 2,000 | 115 | 2000 | | 2025.01.06 | ¿ù¼¼ | ´Ù¿Â½¦¸£ºô | 3 | 32.58 | 23,700 | 20 | 2016 | | 2025.01.06 | ¿ù¼¼ | ºÎ¿ä±×¸°Å¸¿î(°¡µ¿) | 1 | 40.21 | 10,700 | 20 | 1991 | | 2025.01.06 | ¿ù¼¼ | (À¸¶äij½½) | 4 | 25.83 | 7,000 | 110 | 2024 | | 2025.01.06 | ¿ù¼¼ | ´Ù¿Â½¦¸£ºô | 3 | 32.58 | 23,700 | 20 | 2016 | | 2025.01.06 | ¿ù¼¼ | ´õÇϿ콺 | 8 | 22.27 | 2,000 | 69 | 2020 | | 2025.01.06 | ¿ù¼¼ | ±ÝÈ£ÇϿ콺 | 4 | 23.94 | 500 | 47 | 2017 | | 2025.01.06 | ¿ù¼¼ | º¸¸®ÇϿ콺 | 3 | 25.03 | 13,000 | 30 | 2017 | | 2025.01.06 | ¿ù¼¼ | (409-323) | 2 | 36.8 | 10,000 | 10 | 1990 | | 2025.01.06 | Àü¼¼ | È£¼ö¶ã¾Èä(515-14) | 5 | 23.9 | 17,280 | 0 | 2016 | | 2025.01.06 | ¿ù¼¼ | Àº¿¬Àç | 6 | 14.27 | 1,000 | 43 | 2013 | | 2025.01.06 | ¿ù¼¼ | ½Ã¸®¿ì½º | 3 | 27.28 | 5,000 | 110 | 2024 | | 2025.01.05 | ¸Å¸Å | ´õÆÛ½ºÆ®ºô(98-54) | 2 | 29.66 | 20,500 | | 2016 | | 2025.01.05 | ¿ù¼¼ | (501-6) | 3 | 20.46 | 17,000 | 30 | 2022 | | 2025.01.05 | ¿ù¼¼ | (10-584) | 4 | 65.15 | 100 | 33 | 2006 | | 2025.01.05 | ¿ù¼¼ | ¸ð¾Æºô¶óÆ®4 | 3 | 41.86 | 3,000 | 80 | 2011 | | 2025.01.05 | Àü¼¼ | ÇÑ¾ç¾ÆÆ®ºô¸®Áö | 1 | 27.27 | 15,000 | 0 | 1993 | | 2025.01.05 | ¿ù¼¼ | (501-6) | 2 | 20.46 | 20,000 | 14 | 2022 | | 2025.01.05 | ¿ù¼¼ | Èñ¶ôºô¸®ÁöBµ¿(1641-116) | 2 | 15.3 | 500 | 55 | 2012 | | 2025.01.05 | ¿ù¼¼ | (501-6) | 2 | 20.46 | 20,000 | 14 | 2022 | | 2025.01.05 | ¿ù¼¼ | (501-6) | 2 | 26.28 | 23,000 | 5 | 2022 | | 2025.01.04 | ¿ù¼¼ | 103-134 | 3 | 34.38 | 5,000 | 47 | 2014 | | 2025.01.04 | ¿ù¼¼ | À§³Ê½ººô | 4 | 13.11 | 500 | 38 | 2014 | | 2025.01.04 | ¿ù¼¼ | ´Ù¿Âºô | 3 | 35.14 | 3,000 | 110 | 2022 | | 2025.01.04 | ¿ù¼¼ | Àͼöºôµù | 6 | 28.74 | 15,000 | 20 | 2015 | | 2025.01.04 | ¸Å¸Å | ½ºÆäÀ̽ººô | 2 | 29.66 | 26,200 | | 2020 | | 2025.01.04 | ¸Å¸Å | ³¿ì¸Ç¼Ç | 1 | 61.62 | 34,500 | | 1993 | | 2025.01.04 | ¿ù¼¼ | Àͼöºôµù | 4 | 28.74 | 18,000 | 25 | 2015 | | 2025.01.04 | ¿ù¼¼ | (108-105) | 2 | 45.24 | 13,000 | 25 | 1991 | | 2025.01.04 | ¿ù¼¼ | 103-134 | 3 | 34.38 | 5,000 | 47 | 2014 | | 2025.01.04 | ¿ù¼¼ | ÁøÁÖºô¶ó(1455-32) | 2 | 38.08 | 4,000 | 83 | 1993 | | 2025.01.04 | ¿ù¼¼ | (10-450) | 2 | 99.2 | 0 | 35 | 2003 | | 2025.01.04 | ¿ù¼¼ | ÃÊ¿øºô¶ó5Â÷ | 4 | 61.16 | 5,000 | 110 | 1995 | | 2025.01.04 | ¿ù¼¼ | Æç¸®Ã¼ºô¸®Áö | 2 | 30.21 | 1,000 | 70 | 2018 | | 2025.01.04 | ¿ù¼¼ | Æç¸®Ã¼ºô¸®Áö | 2 | 30.21 | 1,000 | 70 | 2018 | | 2025.01.04 | ¿ù¼¼ | (1452-36) | 4 | 27.72 | 500 | 47 | 2017 | | 2025.01.03 | ¿ù¼¼ | Ŭ·¡½ºÆ® | 3 | 47.4 | 28,090 | 34 | 2018 | | 2025.01.03 | Àü¼¼ | µ¿¼º¸Ç¼Ç5Â÷ | -1 | 44.68 | 9,300 | 0 | 1996 | | 2025.01.03 | ¿ù¼¼ | »óÀººô¶ó | 4 | 56.91 | 4,000 | 50 | 2002 | | 2025.01.03 | ¿ù¼¼ | (468-1) | 2 | 28.1 | 19,000 | 22 | 2014 | | 2025.01.03 | Àü¼¼ | ¿À¸§ÇϿ콺3Â÷ | 2 | 51.41 | 27,000 | 0 | 2016 | | 2025.01.03 | ¿ù¼¼ | (251-236) | 4 | 28.53 | 7,000 | 47 | 2016 | | 2025.01.03 | ¿ù¼¼ | (1588-3) | 6 | 21.08 | 20,000 | 12 | 2019 | | 2025.01.03 | ¿ù¼¼ | 103-134 | 4 | 28.8 | 3,200 | 66 | 2014 | | 2025.01.03 | ¿ù¼¼ | ÁÖ¿ø | 9 | 12.06 | 2,500 | 31 | 2013 | | 2025.01.03 | Àü¼¼ | ¹®Èºô¶ó | 3 | 45.84 | 20,000 | 0 | 2001 | | 2025.01.03 | ¿ù¼¼ | (501-6) | 3 | 26.09 | 20,000 | 20 | 2022 | | 2025.01.03 | ¿ù¼¼ | ¾çÁöºô¶óÆ®(504-16) | 3 | 56.01 | 3,000 | 85 | 2002 | | 2025.01.03 | Àü¼¼ | Á¶¿ø°ñµçºô | 2 | 16.01 | 7,000 | 0 | 2011 | | 2025.01.03 | ¿ù¼¼ | JCSTUDIO | 11 | 18.24 | 14,000 | 12 | 2018 | | 2025.01.03 | ¿ù¼¼ | (468-1) | 2 | 28.1 | 19,000 | 22 | 2014 | | 2025.01.03 | ¿ù¼¼ | À屺ºô¶ó | 1 | 54.66 | 3,000 | 79 | 2003 | | 2025.01.03 | ¿ù¼¼ | ÈÞºô¸®Áö(538-30) | 6 | 15.84 | 1,000 | 47 | 2013 | | 2025.01.03 | ¸Å¸Å | ÇѸ²102µ¿ | 3 | 59.12 | 33,000 | | 2001 | | 2025.01.03 | ¸Å¸Å | Áß¿ø³ªµ¿ | 2 | 36.36 | 11,000 | | 1990 | | 2025.01.02 | ¿ù¼¼ | (98-185) | 3 | 29.94 | 5,000 | 100 | 2022 | | 2025.01.02 | ¿ù¼¼ | ½ÅÈİ¡15Â÷ | 2 | 27.98 | 5,000 | 121 | 2023 | | 2025.01.02 | ¿ù¼¼ | ÇÁ·Î·»½º | 7 | 29.98 | 21,420 | 7 | 2015 | | 2025.01.02 | ¸Å¸Å | ±¹Á¦¾Ë¾Øµå¾¾ | 3 | 28.47 | 25,800 | | 2018 | | 2025.01.02 | ¿ù¼¼ | ¿ì¸®ºô | 4 | 12 | 500 | 43 | 2012 | | 2025.01.02 | ¿ù¼¼ | Æ®¸®ÇÃÈú½º2 | 6 | 47.58 | 10,000 | 110 | 2023 | | 2025.01.02 | ¿ù¼¼ | PREMIO725C | 6 | 26.91 | 1,500 | 115 | 2022 | | 2025.01.02 | Àü¼¼ | CG¾Æ¸§Ã¤(2´ÜÁö) | 2 | 53.09 | 28,300 | 0 | 2019 | | 2025.01.02 | ¿ù¼¼ | žç¿ÀÇǽºÅÚ | 8 | 12.6 | 0 | 50 | 2021 | | 2025.01.02 | Àü¼¼ | Á¶¿ø°ñµçºô | 2 | 16.01 | 7,000 | 0 | 2011 | | 2025.01.01 | ¿ù¼¼ | ÇѼۺô | 4 | 13.42 | 3,000 | 90 | 2016 | | 2025.01.01 | ¿ù¼¼ | ¼¼Á¾ºô¶ó | -1 | 52.71 | 1,500 | 61 | 1994 | | 2024.12.31 | ¿ù¼¼ | ÀÚÀÌ¿ÀÇǽºÅÚ | 10 | 11.657 | 3,000 | 75 | 2021 | | 2024.12.31 | ¿ù¼¼ | ½ÅÀϺô¶ó(597-67) | 1 | 41.13 | 2,000 | 55 | 1995 | | 2024.12.31 | ¸Å¸Å | µ¿µµ¾ÆÆ®ºô¸®ÁöCµ¿ | -1 | 41.76 | 11,800 | | 1993 | | 2024.12.31 | ¿ù¼¼ | ¼º¹Î | 5 | 12.16 | 1,000 | 54 | 2012 | | 2024.12.31 | ¿ù¼¼ | ¼º¿ì(1433-180) | 6 | 27.47 | 19,500 | 28 | 2014 | | 2024.12.31 | ¿ù¼¼ | ½ÅÈİ¡15Â÷ | 1 | 27.98 | 2,000 | 130 | 2023 | | 2024.12.31 | ¿ù¼¼ | ´ë¿µºô¶ó°¡µ¿ | -1 | 36.7 | 900 | 50 | 1990 | | 2024.12.31 | ¿ù¼¼ | ´õÄÉÀÌŸ¿ö | 13 | 26.422 | 26,000 | 15 | 2018 | | 2024.12.30 | Àü¼¼ | (254-301) | 3 | 84.6 | 40,000 | 0 | 1991 | | 2024.12.30 | Àü¼¼ | 1415-7 | 4 | 22.44 | 22,000 | 0 | 2016 | | 2024.12.30 | ¿ù¼¼ | ¼±¹ÎŸ¿î | -1 | 57.3 | 2,000 | 60 | 1992 | | 2024.12.30 | ¿ù¼¼ | (676-2) | 4 | 37.19 | 2,000 | 60 | 2024 | | 2024.12.30 | ¸Å¸Å | º¸¶ó¸Å108µ¿ | 2 | 59.94 | 30,000 | | 2000 | | 2024.12.30 | ¿ù¼¼ | »ïdz±×¸°ºô¸®Áö | 4 | 39.15 | 2,000 | 45 | 1991 | | 2024.12.30 | ¿ù¼¼ | È޵帲 | 7 | 24.7 | 15,000 | 25 | 2017 | | 2024.12.30 | ¿ù¼¼ | È޵帲 | 7 | 24.7 | 15,000 | 25 | 2017 | | 2024.12.30 | ¿ù¼¼ | ¼±¹ÎŸ¿î | -1 | 57.3 | 1,000 | 65 | 1992 | | 2024.12.30 | ¿ù¼¼ | »ï¼º¾ÆÆ®ºô(610-384) | 4 | 49.98 | 2,000 | 90 | 2016 | | 2024.12.30 | ¿ù¼¼ | ¿¹ÁöÆÓ¸®½º78Â÷(101,102) | 5 | 57.12 | 3,000 | 150 | 2014 | | 2024.12.29 | Àü¼¼ | ¶ó¿ò | 5 | 28.59 | 32,800 | 0 | 2022 | | 2024.12.29 | ¿ù¼¼ | ¶ó¿ò | 5 | 28.59 | 29,500 | 15 | 2022 | | 2024.12.29 | ¿ù¼¼ | Á꺣¶ó | 6 | 27.15 | 20,000 | 32 | 2018 | | 2024.12.29 | ¿ù¼¼ | ºê¶ó¿îij½½ | 3 | 29.38 | 9,000 | 70 | 2015 | | 2024.12.28 | ¿ù¼¼ | Çູ°¡µæÇѺô | 4 | 48.34 | 13,000 | 40 | 2008 | | 2024.12.28 | ¿ù¼¼ | ¿ì¼®ºô¶ó9Â÷ | 3 | 38.37 | 4,000 | 50 | 1994 | | 2024.12.28 | ¸Å¸Å | Àü¿øÁÖÅÃ(98-134) | 1 | 40.92 | 14,800 | | 1992 | | 2024.12.28 | ¿ù¼¼ | ¿¡½ºÅæºô4Â÷ | 2 | 35.04 | 2,700 | 60 | 2008 | | 2024.12.28 | ¿ù¼¼ | ¾î¹Ý°ñµå | 3 | 28.15 | 5,000 | 50 | 2018 | | 2024.12.28 | ¿ù¼¼ | (1573-33) | 3 | 16.79 | 500 | 44 | 2012 | | 2024.12.27 | ¿ù¼¼ | ½ÅÈİ¡15Â÷ | 1 | 28.06 | 3,000 | 120 | 2023 | | 2024.12.27 | Àü¼¼ | ¼¸²ºô | 4 | 29.86 | 30,000 | 0 | 2022 | | 2024.12.27 | ¿ù¼¼ | ¿ö³Êºô | 2 | 34.1 | 13,000 | 26 | 2006 | | 2024.12.27 | Àü¼¼ | (1588-3) | 4 | 21.08 | 22,000 | 0 | 2019 | | 2024.12.27 | ¿ù¼¼ | ´õ¸¶Àεå | 8 | 27.34 | 5,000 | 140 | 2022 | | 2024.12.27 | ¿ù¼¼ | ¿¤ÇϿ콺 | 4 | 16.37 | 5,000 | 50 | 2011 | | 2024.12.27 | ¿ù¼¼ | J2tower | 5 | 14.39 | 700 | 71 | 2014 | | 2024.12.26 | ¿ù¼¼ | ½Å¸²¾î¹Ý½ººô | 4 | 24.45 | 100 | 33 | 2023 | | 2024.12.26 | Àü¼¼ | ½Å¸²ºô¶óÆ® | 2 | 76.6 | 25,000 | 0 | 2002 | | 2024.12.26 | Àü¼¼ | Á¶¿ø°ñµçºô | 1 | 21.77 | 7,000 | 0 | 2011 | | 2024.12.26 | ¿ù¼¼ | (254-100) | 5 | 35.15 | 3,281 | 0 | 2012 | | 2024.12.26 | ¿ù¼¼ | ¸ÞÁ¾570 | 2 | 59.56 | 2,715 | 52 | 2023 | | 2024.12.26 | ¿ù¼¼ | ¸ÞÁ¾570 | 3 | 59.56 | 2,778 | 39 | 2023 | | 2024.12.26 | ¿ù¼¼ | ½Å¸²¾î¹Ý½ººô | 1 | 24.45 | 100 | 32 | 2023 | | 2024.12.26 | ¿ù¼¼ | ½Å¸²¾î¹Ý½ººô | 1 | 28.79 | 100 | 37 | 2023 | | 2024.12.26 | ¿ù¼¼ | (626-60) | 2 | 19.77 | 200 | 22 | 2023 | | 2024.12.26 | Àü¼¼ | ½Å¸²ºô¶óÆ® | 2 | 76.6 | 25,000 | 0 | 2002 | | 2024.12.26 | ¿ù¼¼ | ¾ËÆæÇϿ콺 | 2 | 42.48 | 27,000 | 10 | 2018 | | 2024.12.26 | ¿ù¼¼ | Á꺣¶ó | 8 | 24.03 | 25,000 | 11 | 2018 | | 2024.12.26 | ¸Å¸Å | (415-48) | 1 | 27.92 | 25,500 | | 1990 | | 2024.12.26 | ¿ù¼¼ | ½Å¸²¾î¹Ý½ººô | 2 | 26.38 | 100 | 35 | 2023 | | 2024.12.26 | ¿ù¼¼ | ¿¡½ºÅæºô4Â÷ | 3 | 35.52 | 3,000 | 58 | 2008 | | 2024.12.25 | ¿ù¼¼ | ¼Áø(1595-4) | 5 | 15.64 | 18,300 | 20 | 2017 | | 2024.12.25 | ¿ù¼¼ | ¼Áø(1595-4) | 5 | 15.64 | 22,000 | 6 | 2017 | | 2024.12.25 | ¸Å¸Å | ¾ËÆæÇϿ콺(612-25) | 5 | 60.89 | 27,500 | | 2012 | | 2024.12.24 | ¿ù¼¼ | Çѳª·¡(756-55) | 4 | 56.94 | 1,000 | 40 | 2015 | | 2024.12.24 | ¿ù¼¼ | ½Å¸²¾î¹Ý½ººô | 2 | 24.45 | 100 | 32 | 2023 | | 2024.12.24 | ¿ù¼¼ | ½Å¸²¾î¹Ý½ººô | 1 | 24.45 | 100 | 32 | 2023 | | 2024.12.24 | ¿ù¼¼ | ½Å¸²¾î¹Ý½ººô | 4 | 27.54 | 100 | 37 | 2023 | | 2024.12.24 | ¿ù¼¼ | ½Å¸²¾î¹Ý½ººô | 2 | 29.16 | 100 | 38 | 2023 | | 2024.12.24 | ¿ù¼¼ | ½Å¸²¾î¹Ý½ººô | 2 | 26.38 | 100 | 35 | 2023 | | 2024.12.24 | ¿ù¼¼ | ½Å¸²¾î¹Ý½ººô | 3 | 26.38 | 100 | 35 | 2023 | | 2024.12.24 | ¿ù¼¼ | ½Å¸²¾î¹Ý½ººô | 4 | 26.38 | 100 | 35 | 2023 | | 2024.12.24 | ¿ù¼¼ | ½Å¸²¾î¹Ý½ººô | 4 | 27.54 | 100 | 37 | 2023 | | 2024.12.24 | ¿ù¼¼ | ½Å¸²¾î¹Ý½ººô | 2 | 29.16 | 100 | 38 | 2023 | | 2024.12.24 | ¿ù¼¼ | ½Å¸²¾î¹Ý½ººô | 2 | 24.45 | 100 | 32 | 2023 | | 2024.12.24 | ¿ù¼¼ | ½Å¸²¾î¹Ý½ººô | 2 | 28.79 | 100 | 38 | 2023 | | 2024.12.24 | ¿ù¼¼ | ½Å¸²¾î¹Ý½ººô | 1 | 28.79 | 100 | 37 | 2023 | | 2024.12.24 | ¿ù¼¼ | Çѳª·¡(756-55) | 4 | 56.94 | 2,000 | 50 | 2015 | | 2024.12.24 | Àü¼¼ | ½ºÆäÀ̽ººô | 5 | 29.66 | 22,000 | 0 | 2020 | | 2024.12.24 | ¿ù¼¼ | (626-60) | 3 | 22.42 | 100 | 19 | 2023 | | 2024.12.24 | ¿ù¼¼ | (626-60) | 2 | 22.42 | 200 | 23 | 2023 | | 2024.12.24 | ¿ù¼¼ | (626-60) | 3 | 19.77 | 200 | 22 | 2023 | | 2024.12.24 | ¿ù¼¼ | (626-60) | 2 | 22.42 | 100 | 19 | 2023 | | 2024.12.24 | ¿ù¼¼ | (626-60) | 2 | 19.77 | 100 | 18 | 2023 | | 2024.12.24 | ¿ù¼¼ | (626-60) | 3 | 22.42 | 100 | 19 | 2023 | | 2024.12.24 | ¿ù¼¼ | »ïÁøÅ¸¿î3Â÷(467-17) | 4 | 32.08 | 12,800 | 20 | 2003 | | 2024.12.24 | ¿ù¼¼ | ½Å¸²¾î¹Ý½ººô | 1 | 29.16 | 100 | 37 | 2023 | | 2024.12.24 | ¿ù¼¼ | ½Å¸²¾î¹Ý½ººô | 1 | 29.16 | 100 | 37 | 2023 | | 2024.12.24 | ¿ù¼¼ | ½Å¸²¾î¹Ý½ººô | 2 | 28.79 | 100 | 38 | 2023 | | 2024.12.24 | ¿ù¼¼ | ¸ÞÁ¾570 | 5 | 57.5 | 2,818 | 39 | 2023 | | 2024.12.24 | ¿ù¼¼ | ½Å¸²¾î¹Ý½ººô | 1 | 26.38 | 100 | 34 | 2023 | | 2024.12.24 | ¿ù¼¼ | ´ëÇкô¸®ÁöAµ¿ | 3 | 47.16 | 500 | 52 | 1993 | | 2024.12.24 | ¿ù¼¼ | ½Ã¸®¿ì½º | 3 | 27.49 | 20,000 | 37 | 2024 | | 2024.12.24 | ¿ù¼¼ | »ïÁøÅ¸¿î3Â÷(467-17) | 4 | 32.08 | 12,800 | 20 | 2003 | | 2024.12.24 | ¿ù¼¼ | ÇÁ¶óºñ´ÙS(10-356) | 5 | 23.35 | 13,000 | 30 | 2016 | | 2024.12.24 | ¿ù¼¼ | (492-6) | 5 | 29.5 | 3,000 | 74 | 2016 | | 2024.12.24 | ¿ù¼¼ | ¸ÞÁ¾570 | 4 | 51.28 | 2,525 | 36 | 2023 | | 2024.12.24 | ¿ù¼¼ | ½Å¸²¾î¹Ý½ººô | 1 | 26.38 | 100 | 34 | 2023 | | 2024.12.24 | ¿ù¼¼ | Áß¿ø°¡µ¿ | 1 | 34.85 | 1,000 | 50 | 1990 | | 2024.12.24 | ¿ù¼¼ | ¸ÞÁ¾570 | 2 | 59.34 | 2,690 | 52 | 2023 | | 2024.12.24 | ¿ù¼¼ | ¸ÞÁ¾570 | 6 | 57.5 | 2,755 | 39 | 2023 | | 2024.12.24 | ¿ù¼¼ | ¸ÞÁ¾570 | 4 | 51.61 | 2,553 | 36 | 2023 | | 2024.12.24 | ¿ù¼¼ | ¸ÞÁ¾570 | 5 | 57.5 | 2,818 | 39 | 2023 | | 2024.12.23 | ¿ù¼¼ | ÈúÇϿ콺(1477-11) | 5 | 44.26 | 19,900 | 10 | 2010 | | 2024.12.23 | ¿ù¼¼ | ½ÅÈİ¡15Â÷ | 5 | 29.2 | 10,000 | 85 | 2023 | | 2024.12.23 | ¿ù¼¼ | (501-6) | 4 | 26.28 | 17,000 | 32 | 2022 | | 2024.12.23 | ¿ù¼¼ | ȲÁ¦4(415-61) | -1 | 39.47 | 7,000 | 20 | 1991 | | 2024.12.23 | ¿ù¼¼ | ¼º°ø¸®Ä¡ºô | 3 | 29.86 | 200 | 55 | 2021 | | 2024.12.23 | ¿ù¼¼ | ¾ÆÀ϶ó(1432-19) | 9 | 26.4 | 21,900 | 30 | 2018 | | 2024.12.23 | Àü¼¼ | µ¿¹æºô¶ó(412-75) | 1 | 37.9 | 11,370 | 0 | 1990 | | 2024.12.23 | ¿ù¼¼ | (1432-58) | 6 | 12.47 | 1,000 | 40 | 2009 | | 2024.12.23 | ¿ù¼¼ | ½ÅÈİ¡15Â÷ | 5 | 29.2 | 10,000 | 85 | 2023 | | 2024.12.23 | ¿ù¼¼ | ´õÁý(TheZIP) | 4 | 22.15 | 1,000 | 59 | 2012 | | 2024.12.23 | Àü¼¼ | ÇÁ·¹¹Ì¿À | 2 | 46.8 | 27,300 | 0 | 2018 | | 2024.12.23 | ¸Å¸Å | ¹Ùº§ | 6 | 29.74 | 24,300 | | 2020 | | 2024.12.22 | ¿ù¼¼ | (468-1) | 3 | 27.16 | 18,000 | 20 | 2014 | | 2024.12.22 | ¸Å¸Å | µ¨·ç½Ã¾Æ.R | 4 | 29.945 | 31,000 | | 2022 | | 2024.12.22 | Àü¼¼ | ½Ã¿¤(ciel) | 8 | 29.53 | 25,350 | 0 | 2015 | | 2024.12.22 | ¿ù¼¼ | (102-53) | 2 | 43.63 | 500 | 45 | 1991 | | 2024.12.22 | ¿ù¼¼ | ¼ºÁø¸®Ä¡ºô | 4 | 25.74 | 500 | 80 | 2020 | | 2024.12.21 | ¿ù¼¼ | J&KHOUSE | 5 | 17.45 | 2,000 | 59 | 2013 | | 2024.12.21 | ¸Å¸Å | ¿î¼¸Ç¼Ç9Â÷ | 3 | 45.33 | 23,000 | | 2002 | | 2024.12.21 | ¸Å¸Å | ¿ì¸²¾ÆÆ®ºô | 5 | 35.35 | 32,000 | | 2018 | | 2024.12.21 | ¿ù¼¼ | ¿ì¸®ºô | 3 | 12.11 | 300 | 40 | 2012 | | 2024.12.21 | ¿ù¼¼ | ¼º¿ì(1433-180) | 5 | 28.71 | 20,000 | 25 | 2014 | | 2024.12.21 | ¿ù¼¼ | (92-240) | 1 | 31.17 | 1,000 | 70 | 1990 | | 2024.12.21 | Àü¼¼ | (702-8) | 2 | 38.21 | 20,000 | 0 | 2013 | | 2024.12.21 | Àü¼¼ | ¿ì¸²¾ÆÆ®ºô | 5 | 35.35 | 22,800 | 0 | 2018 | | 2024.12.21 | ¿ù¼¼ | 92-59 | 1 | 21.92 | 12,300 | 12 | 2015 | | 2024.12.21 | ¿ù¼¼ | û¿î | 2 | 14.04 | 3,000 | 31 | 2013 | | 2024.12.21 | ¿ù¼¼ | ½Å³²195 | 4 | 16.26 | 16,200 | 20 | 2020 | | 2024.12.21 | ¿ù¼¼ | ÇÑ¾ç¾ÆÆ®ºô¸®Áö | 3 | 34.51 | 1,000 | 75 | 1993 | | 2024.12.21 | Àü¼¼ | ¾ÆÄ«µ¥¹ÌÇϿ콺 | 3 | 29.35 | 20,000 | 0 | 2019 | | 2024.12.21 | ¿ù¼¼ | ½Å¸²´º¾¾¿¤(11-8) | 5 | 31.01 | 5,000 | 140 | 2017 | | 2024.12.21 | ¿ù¼¼ | ´Ù¿¬Çູ | 4 | 23.48 | 4,000 | 83 | 2012 | | 2024.12.20 | ¿ù¼¼ | Èñ¶ôºô¸®ÁöAµ¿(1641-45) | 5 | 15.54 | 2,000 | 40 | 2012 | | 2024.12.20 | ¸Å¸Å | URBAN5 | 6 | 57.03 | 55,500 | | 2023 | | 2024.12.20 | ¿ù¼¼ | °æ¿øÇÏÀÌÃ÷ÅÚ | 9 | 21.76 | 1,000 | 60 | 2019 | | 2024.12.20 | Àü¼¼ | EatonTower(1433-227) | 7 | 29.71 | 25,830 | 0 | 2017 | | 2024.12.20 | ¿ù¼¼ | Èñ¶ôºô¸®ÁöAµ¿(1641-45) | 4 | 16.5 | 500 | 55 | 2012 | | 2024.12.20 | ¿ù¼¼ | Çູ¸®Ä¡ºô | 3 | 29.94 | 2,000 | 73 | 2014 | | 2024.12.20 | ¿ù¼¼ | ¸®¾ØÃÊÀ̽º | 10 | 25.68 | 27,000 | 45 | 2023 | | 2024.12.20 | ¿ù¼¼ | °æµµºô | 1 | 84.65 | 1,000 | 45 | 2004 | | 2024.12.20 | ¿ù¼¼ | Èñ¶ôºô¸®ÁöBµ¿(1641-116) | 3 | 15.3 | 2,000 | 40 | 2012 | | 2024.12.20 | ¿ù¼¼ | (98-239) | 3 | 34.637 | 2,000 | 86 | 2018 | | 2024.12.20 | ¿ù¼¼ | °¡À± | 6 | 14.01 | 500 | 47 | 2017 | | 2024.12.20 | ¿ù¼¼ | Á¤¸²È¨½ºÅÚ(88-35) | 3 | 21.86 | 5,000 | 33 | 2000 | | 2024.12.19 | ¸Å¸Å | ´ë¸²¾ÆÆ®ºô | 4 | 28.92 | 20,000 | | 2018 | | 2024.12.19 | ¿ù¼¼ | (98-242) | 2 | 33.41 | 10,700 | 20 | 1993 | | 2024.12.19 | ¿ù¼¼ | Å¿µ¹Î°¡(611-1) | 1 | 34.99 | 1,000 | 66 | 2017 | | 2024.12.19 | ¿ù¼¼ | û¿î | 3 | 14.04 | 300 | 41 | 2013 | | 2024.12.19 | Àü¼¼ | J.KÇϿ콺 | 5 | 12.3 | 7,140 | 0 | 2012 | | 2024.12.19 | ¿ù¼¼ | ¶óÀÓij½½ | 6 | 28.87 | 11,000 | 55 | 2016 | | 2024.12.19 | ¿ù¼¼ | À¸¶äij½½ | 3 | 24.98 | 5,000 | 105 | 2022 | | 2024.12.19 | ¿ù¼¼ | »ï¼ººô¶ó³ªµ¿ | 3 | 36.45 | 10,000 | 10 | 1990 | | 2024.12.19 | ¿ù¼¼ | ÀÌÁ¦½ºÈ¦ | 4 | 40.59 | 20,900 | 45 | 2011 | | 2024.12.18 | Àü¼¼ | žçºô¸®Áö | 4 | 52.02 | 13,650 | 0 | 2002 | | 2024.12.18 | ¿ù¼¼ | (10-584) | 2 | 109.66 | 1,000 | 48 | 2006 | | 2024.12.18 | ¿ù¼¼ | (10-584) | 2 | 109.66 | 500 | 50 | 2006 | | 2024.12.18 | Àü¼¼ | ¾ç.¾Èºôµù | 3 | 29.38 | 17,535 | 0 | 2012 | | 2024.12.18 | Àü¼¼ | ¼¸²ºô | 2 | 29.5 | 29,000 | 0 | 2022 | | 2024.12.18 | ¿ù¼¼ | ¿ÀÁÖÇϿ콺 | 3 | 15.34 | 4,000 | 37 | 2012 | | 2024.12.18 | ¿ù¼¼ | (654-34) | 1 | 50.41 | 300 | 42 | 1980 | | 2024.12.18 | Àü¼¼ | Á¤½Âºô¶ó(652-93) | 3 | 54.12 | 15,000 | 0 | 1991 | | 2024.12.18 | ¸Å¸Å | ÇØÂù¸Ç¼Ç(715-17) | 5 | 49.86 | 24,700 | | 2014 | | 2024.12.17 | ¸Å¸Å | ±ÝÁ¤ºô¶ó(610-324) | -1 | 31.58 | 15,000 | | 1991 | | 2024.12.17 | ¿ù¼¼ | ´Ù¿Â½¦¸£ºô | 2 | 32.15 | 21,100 | 17 | 2016 | | 2024.12.17 | ¿ù¼¼ | (1430-42) | 4 | 59.79 | 200 | 30 | 2001 | | 2024.12.17 | ¿ù¼¼ | FillYou | 7 | 14.87 | 14,900 | 10 | 2016 | | 2024.12.17 | ¿ù¼¼ | û¿î | 3 | 14.04 | 3,000 | 23 | 2013 | | 2024.12.17 | Àü¼¼ | ´õ·°½ººô | 4 | 27.36 | 25,800 | 0 | 2022 | | 2024.12.17 | ¿ù¼¼ | (1430-42) | 3 | 74.33 | 200 | 30 | 2001 | | 2024.12.17 | ¿ù¼¼ | (107-73) | 2 | 34.71 | 2,000 | 80 | 1990 | | 2024.12.17 | ¿ù¼¼ | FillYou | 7 | 14.87 | 14,900 | 10 | 2016 | | 2024.12.16 | ¿ù¼¼ | ¿¤¸²ºô¶ó | 1 | 78.74 | 15,000 | 45 | 1995 | | 2024.12.16 | ¸Å¸Å | ½Å¸²ÇǾØÇϿ콺 | 5 | 33.05 | 31,000 | | 2022 | | 2024.12.16 | ¿ù¼¼ | ޶óÈÙ(10-433) | 5 | 35.34 | 2,000 | 50 | 2002 | | 2024.12.16 | ¿ù¼¼ | ¿¹´Ù¿Ã(501-20) | 3 | 12.68 | 1,000 | 48 | 2016 | | 2024.12.16 | ¿ù¼¼ | µ¿¹®Å¸¿îA | 1 | 36.36 | 10,000 | 44 | 1995 | | 2024.12.16 | Àü¼¼ | ¼º°ø¸®Ä¡ºô | 2 | 29.92 | 26,400 | 0 | 2021 | | 2024.12.16 | ¿ù¼¼ | °í¿øºô¶óÆ® | 2 | 29.52 | 500 | 55 | 1995 | | 2024.12.16 | ¿ù¼¼ | ´Ù¿Â½¦¸£ºô | 2 | 32.58 | 22,900 | 22 | 2016 | | 2024.12.16 | ¿ù¼¼ | ¶óÀÓ½ººô | 5 | 47.61 | 20,000 | 20 | 2015 | | 2024.12.16 | ¿ù¼¼ | ±×¶û½Ã¿¤ | 5 | 29.76 | 20,000 | 5 | 2014 | | 2024.12.16 | ¿ù¼¼ | ±×¶û½Ã¿¤ | 5 | 29.76 | 20,000 | 5 | 2014 | | 2024.12.16 | ¿ù¼¼ | ÇѸ²102µ¿ | 5 | 59.12 | 21,000 | 10 | 2001 | | 2024.12.16 | ¸Å¸Å | ºÎ¼ººô¶ó | -1 | 59.28 | 23,600 | | 1997 | | 2024.12.16 | ¸Å¸Å | ¿¤¸²ºô¶ó | 1 | 78.74 | 20,500 | | 1995 | | 2024.12.16 | ¸Å¸Å | Çö´ëÇÏÀÌÃ÷ºô¶ó | 4 | 47.6 | 20,000 | | 1995 | | 2024.12.16 | ¸Å¸Å | (1455-29) | 1 | 34.92 | 23,000 | | 1993 | | 2024.12.16 | ¸Å¸Å | ¾çÁö±×¸°ºô°¡µ¿ | 2 | 59.29 | 71,000 | | 2001 | | 2024.12.16 | ¿ù¼¼ | ¿î¼º | 5 | 29.88 | 23,000 | 10 | 2020 | | 2024.12.16 | ¸Å¸Å | ¿¤¸²ºô¶ó | 1 | 78.74 | 20,500 | | 1995 | | 2024.12.16 | Àü¼¼ | ÆÓ¸®½ººô | 3 | 32.12 | 20,000 | 0 | 2013 | | 2024.12.15 | ¿ù¼¼ | ¼¸²µµ½ÃÇü»ýȰÁÖÅà | 4 | 12.32 | 2,000 | 50 | 2013 | | 2024.12.15 | Àü¼¼ | ½Ã¿¤(ciel) | 5 | 29.53 | 24,250 | 0 | 2015 | | 2024.12.15 | Àü¼¼ | »ï±¤¾ÆÆ®ºôB | 2 | 61.74 | 15,000 | 0 | 2002 | | 2024.12.15 | ¸Å¸Å | Á¶Àººô¶ó | -1 | 47.05 | 15,500 | | 1992 | | 2024.12.14 | Àü¼¼ | (120-44) | -1 | 36.9 | 12,500 | 0 | 1996 | | 2024.12.14 | ¿ù¼¼ | µ¨Çdzëºô1Â÷ | 6 | 31.3 | 3,000 | 75 | 2014 | | 2024.12.14 | ¿ù¼¼ | Çìºìºô¸®Áö | 2 | 19.48 | 1,000 | 48 | 2015 | | 2024.12.14 | ¿ù¼¼ | Ç׿øºô¶ó | 3 | 61.24 | 20,000 | 20 | 2008 | | 2024.12.14 | Àü¼¼ | ¼¸²ºô | 2 | 29.86 | 30,000 | 0 | 2022 | | 2024.12.14 | ¿ù¼¼ | ·¡¹Ì¾È | 3 | 25.48 | 16,000 | 10 | 2011 | | 2024.12.13 | ¿ù¼¼ | ¿ì¸®ºô | 2 | 12.08 | 300 | 38 | 2012 | | 2024.12.13 | ¿ù¼¼ | ¿¡µ§ºô¶ó(610-25) | 3 | 45.66 | 16,560 | 15 | 2002 | | 2024.12.13 | ¿ù¼¼ | (675-3) | 1 | 41.46 | 1,000 | 40 | 1980 | | 2024.12.13 | ¿ù¼¼ | T&K½Å¸²¥± | 2 | 27.77 | 2,070 | 21 | 2024 | | 2024.12.13 | ¿ù¼¼ | T&K½Å¸²¥± | 4 | 40.41 | 2,880 | 30 | 2024 | | 2024.12.13 | ¸Å¸Å | ¸ÞÆ®·ÎŸ¿î3Â÷ | 2 | 47.18 | 35,000 | | 2017 | | 2024.12.13 | ¿ù¼¼ | (478-12) | 4 | 41.84 | 3,000 | 50 | 2003 | | 2024.12.13 | ¿ù¼¼ | STAY¿Â-¥² | 4 | 27.84 | 100 | 32 | 2023 | | 2024.12.13 | ¿ù¼¼ | T&K½Å¸²¥± | 4 | 40.41 | 7,133 | 6 | 2024 | | 2024.12.13 | ¿ù¼¼ | STAY¿Â-¥² | 4 | 27.84 | 4,701 | 6 | 2023 | | 2024.12.13 | ¸Å¸Å | »õ¼¿ïºô¶ó2Â÷ | 1 | 44.66 | 19,500 | | 1994 | | 2024.12.12 | ¿ù¼¼ | Á¤Çöºô(1429-26) | 5 | 17.09 | 10,000 | 40 | 2013 | | 2024.12.12 | ¿ù¼¼ | URBAN5 | 2 | 57.03 | 38,000 | 30 | 2023 | | 2024.12.12 | ¿ù¼¼ | STAY¿Â-¥± | 4 | 26.86 | 2,816 | 29 | 2022 | | 2024.12.12 | ¿ù¼¼ | ·Îµ©ÇϿ콺 | 4 | 29.99 | 25,000 | 25 | 2021 | | 2024.12.12 | Àü¼¼ | »ï¿ÀÇÏÀÌÃ÷ºô¶ó | 1 | 45.41 | 21,500 | 0 | 1992 | | 2024.12.12 | Àü¼¼ | (108-35) | 2 | 40.59 | 15,200 | 0 | 1991 | | 2024.12.12 | ¿ù¼¼ | À¸¶äij½½ | 3 | 24.98 | 3,000 | 100 | 2022 | | 2024.12.12 | ¿ù¼¼ | (501-6) | 4 | 25.66 | 20,000 | 20 | 2022 | | 2024.12.12 | Àü¼¼ | ±ÝÈ£ºô¶ó(412-92) | 1 | 59.5 | 9,000 | 0 | 1990 | | 2024.12.12 | ¸Å¸Å | Arena | 5 | 29.96 | 37,750 | | 2023 | | 2024.12.12 | ¸Å¸Å | ¾çÁöºô¶óÆ®4Â÷ | 4 | 63.58 | 36,000 | | 2002 | | 2024.12.12 | ¸Å¸Å | Arena | 2 | 29.99 | 37,000 | | 2023 | | 2024.12.12 | ¸Å¸Å | Arena | 2 | 29.99 | 37,250 | | 2023 | | 2024.12.12 | ¸Å¸Å | Arena | 2 | 29.99 | 37,050 | | 2023 | | 2024.12.12 | ¸Å¸Å | Arena | 3 | 29.99 | 37,600 | | 2023 | | 2024.12.12 | ¸Å¸Å | Arena | 3 | 29.99 | 37,800 | | 2023 | | 2024.12.12 | ¸Å¸Å | Arena | 3 | 29.99 | 37,800 | | 2023 | | 2024.12.12 | ¸Å¸Å | Arena | 3 | 29.99 | 37,450 | | 2023 | | 2024.12.12 | ¸Å¸Å | Arena | 4 | 29.99 | 37,800 | | 2023 | | 2024.12.12 | ¸Å¸Å | Arena | 4 | 29.99 | 39,100 | | 2023 | | 2024.12.12 | ¸Å¸Å | Arena | 2 | 29.99 | 37,250 | | 2023 | | 2024.12.12 | ¸Å¸Å | Çö´ëÇÏÀÌÃ÷ºô¶ó | -1 | 55.56 | 15,000 | | 1995 | | 2024.12.12 | ¸Å¸Å | Æç¸®Ã¼ | 2 | 23.78 | 23,300 | | 2013 | | 2024.12.12 | ¸Å¸Å | Arena | 6 | 29.99 | 37,800 | | 2023 | | 2024.12.12 | ¸Å¸Å | Arena | 6 | 29.99 | 37,600 | | 2023 | | 2024.12.12 | ¸Å¸Å | Arena | 5 | 29.93 | 37,900 | | 2023 | | 2024.12.12 | ¸Å¸Å | Arena | 5 | 29.99 | 37,800 | | 2023 | | 2024.12.12 | ¸Å¸Å | Arena | 4 | 29.99 | 38,000 | | 2023 | | 2024.12.11 | ¸Å¸Å | ûÃá°¡¿Á | 4 | 23.29 | 19,650 | | 2024 | | 2024.12.11 | ¸Å¸Å | ûÃá°¡¿Á | 3 | 17.8 | 14,750 | | 2024 | | 2024.12.11 | ¸Å¸Å | µ¿½Åºô¶ó | -1 | 34.74 | 12,200 | | 1994 | | 2024.12.11 | ¸Å¸Å | ´ëµµºô¶ó¶óµ¿ | -1 | 21.7 | 8,900 | | 1989 | | 2024.12.11 | ¸Å¸Å | ûÃá°¡¿Á | 2 | 17.8 | 14,550 | | 2024 | | 2024.12.11 | ¸Å¸Å | ûÃá°¡¿Á | 2 | 17.41 | 14,250 | | 2024 | | 2024.12.11 | ¸Å¸Å | ûÃá°¡¿Á | 3 | 17.41 | 14,400 | | 2024 | | 2024.12.11 | ¸Å¸Å | ûÃá°¡¿Á | 3 | 17.12 | 14,150 | | 2024 | | 2024.12.11 | ¸Å¸Å | ûÃá°¡¿Á | 5 | 22.53 | 18,900 | | 2024 | | 2024.12.11 | ¸Å¸Å | ûÃá°¡¿Á | 4 | 21.46 | 17,550 | | 2024 | | 2024.12.11 | Àü¼¼ | ¸®Ã¦Æ® | 5 | 48.41 | 23,000 | 0 | 2012 | | 2024.12.11 | ¿ù¼¼ | ¿î¼¸Ç¼Ç10Â÷ | 4 | 48.58 | 5,000 | 75 | 2002 | | 2024.12.11 | Àü¼¼ | À¯Åäºô | 3 | 75.12 | 28,010 | 0 | 2006 | | 2024.12.11 | Àü¼¼ | 98-135 | 1 | 27.43 | 17,300 | 0 | 2014 | | 2024.12.11 | ¿ù¼¼ | ¿î¼¸Ç¼Ç10Â÷ | 4 | 48.58 | 5,000 | 75 | 2002 | | 2024.12.11 | ¿ù¼¼ | °¡¿Â´©¸®ºô(763-14) | 3 | 28.42 | 1,000 | 66 | 2012 | | 2024.12.11 | ¿ù¼¼ | ÀÚÀÌ¿ÀÇǽºÅÚ | 8 | 10.946 | 3,000 | 59 | 2021 | | 2024.12.11 | ¿ù¼¼ | Çʱ׸² | 3 | 46.78 | 2,000 | 105 | 2003 | | 2024.12.10 | ¿ù¼¼ | Àº¼ººô(1632-15) | 3 | 22.57 | 3,000 | 70 | 2012 | | 2024.12.10 | ¿ù¼¼ | (10-584) | 4 | 65.15 | 1,000 | 64 | 2006 | | 2024.12.10 | ¿ù¼¼ | STAY¿Â-¥² | 4 | 26.65 | 100 | 31 | 2023 | | 2024.12.10 | Àü¼¼ | dz¾çºôµù | 4 | 23.935 | 9,260 | 0 | 2012 | | 2024.12.10 | ¿ù¼¼ | (92-262) | 2 | 35.01 | 14,000 | 30 | 2012 | | 2024.12.10 | ¿ù¼¼ | T&K½Å¸²¥± | 4 | 39.99 | 2,925 | 30 | 2024 | | 2024.12.10 | ¿ù¼¼ | ½ºÄ«ÀÌ | 3 | 29.34 | 5,000 | 70 | 2015 | | 2024.12.10 | ¿ù¼¼ | STAY¿Â-¥± | 4 | 26.3 | 5,365 | 26 | 2022 | | 2024.12.10 | ¿ù¼¼ | (À¸¶äij½½) | 2 | 29.99 | 1,000 | 145 | 2024 | | 2024.12.10 | ¸Å¸Å | ¹Ý¼®ºô¶ó(506-1) | 3 | 72.63 | 25,000 | | 1997 | | 2024.12.09 | ¿ù¼¼ | T&K½Å¸²¥± | 3 | 28.31 | 5,394 | 4 | 2024 | | 2024.12.09 | ¿ù¼¼ | STAY¿Â-¥² | 7 | 26.65 | 1,000 | 29 | 2023 | | 2024.12.09 | Àü¼¼ | FillYou | 8 | 16.41 | 17,850 | 0 | 2016 | | 2024.12.09 | ¿ù¼¼ | STAY¿Â-¥² | 7 | 26.05 | 100 | 30 | 2023 | | 2024.12.09 | ¿ù¼¼ | STAY¿Â-¥² | 7 | 26.09 | 100 | 30 | 2023 | | 2024.12.09 | ¸Å¸Å | ´ÃÁ¶Àººô | 3 | 32.42 | 31,000 | | 2023 | | 2024.12.09 | ¿ù¼¼ | ¼º¾Èºôµù(1667-1) | 7 | 14.77 | 10,000 | 10 | 2014 | | 2024.12.09 | ¿ù¼¼ | ÇÏ´ÃÁ¤¿øºô | 2 | 28.02 | 15,000 | 20 | 2013 | | 2024.12.09 | ¸Å¸Å | ½Å¸²´º¾¾¿¤(11-8) | 4 | 46.37 | 47,000 | | 2017 | | 2024.12.09 | ¸Å¸Å | ´ÃÁ¶Àººô | 1 | 32.42 | 31,000 | | 2023 | | 2024.12.09 | ¸Å¸Å | ºê¶ó¿îij½½4Â÷ | 3 | 51.12 | 22,000 | | 2016 | | 2024.12.09 | ¿ù¼¼ | STAY¿Â-¥² | 7 | 26.05 | 4,398 | 6 | 2023 | | 2024.12.08 | ¸Å¸Å | ±ÝÈ£ºô | 3 | 33.91 | 23,200 | | 2015 | | 2024.12.08 | ¿ù¼¼ | ¾ÆÆ®Ä³½½ | 4 | 74.3 | 1,000 | 50 | 2013 | | 2024.12.08 | ¿ù¼¼ | Àº¿¬Àç | 6 | 14.18 | 500 | 54 | 2013 | | 2024.12.08 | ¿ù¼¼ | Æç¸®Ã¼ºô¸®Áö | 6 | 39.07 | 23,900 | 15 | 2018 | | 2024.12.08 | ¿ù¼¼ | (255-46) | 2 | 84.09 | 50 | 35 | 2002 | | 2024.12.08 | ¿ù¼¼ | ¾ÆÅ©·Î(1432-48) | 9 | 28.89 | 23,000 | 20 | 2018 | | 2024.12.07 | ¿ù¼¼ | URBAN5 | 2 | 57.11 | 42,000 | 10 | 2023 | | 2024.12.07 | ¸Å¸Å | ¸ÞÆ®·ÎŸ¿î7Â÷ | 2 | 29.11 | 25,000 | | 2017 | | 2024.12.07 | Àü¼¼ | (610-26) | -1 | 68.7 | 13,500 | 0 | 1993 | | 2024.12.07 | ¿ù¼¼ | °ñµå³ªÀÎ | 8 | 29.76 | 20,000 | 10 | 2017 | | 2024.12.07 | ¿ù¼¼ | Çѳª·¡3Â÷ | 5 | 29.44 | 8,000 | 40 | 2016 | | 2024.12.07 | Àü¼¼ | ·ÎÇϽº | 4 | 12.67 | 13,500 | 0 | 2012 | | 2024.12.07 | ¿ù¼¼ | ÈÞ¸Õºô | 2 | 27.25 | 2,000 | 70 | 2017 | | 2024.12.07 | ¿ù¼¼ | À¯¼ººô¶ó(548-5) | 1 | 60.4 | 21,000 | 5 | 1993 | | 2024.12.07 | ¿ù¼¼ | URBAN5 | 2 | 57.11 | 42,000 | 10 | 2023 | | 2024.12.07 | ¸Å¸Å | ÇØ¹Ð | 2 | 47.35 | 23,300 | | 2013 | | 2024.12.06 | ¿ù¼¼ | À¸¶äij½½ | 5 | 29.57 | 4,000 | 95 | 2022 | | 2024.12.06 | ¿ù¼¼ | À¸¶äij½½ | 5 | 29.57 | 4,000 | 95 | 2022 | | 2024.12.06 | ¿ù¼¼ | ¼ºÁöºô¶ó | -1 | 33.96 | 1,000 | 50 | 1991 | | 2024.12.06 | ¿ù¼¼ | (À¸¶äij½½) | 2 | 25.83 | 5,000 | 110 | 2024 | | 2024.12.06 | ¸Å¸Å | 2Â÷ÇѸ¶À½ºô¶ó | -1 | 38.35 | 14,000 | | 1993 | | 2024.12.06 | Àü¼¼ | û¿øºô¶ó | 1 | 38 | 7,000 | 0 | 1991 | | 2024.12.05 | Àü¼¼ | ÁÖ¿øº£¸£ºô(493-7) | 5 | 29.73 | 25,200 | 0 | 2016 | | 2024.12.05 | ¿ù¼¼ | ´Ù»êºô(1627-90) | 2 | 29.39 | 18,700 | 30 | 2012 | | 2024.12.05 | ¿ù¼¼ | Á¶Àººô¶ó | 3 | 42.69 | 2,000 | 60 | 1992 | | 2024.12.05 | ¸Å¸Å | »ï¼º¿øºô(610-225) | 5 | 28.97 | 20,000 | | 2016 | | 2024.12.05 | ¿ù¼¼ | µ¿±Ãºô¶ó | 2 | 44.49 | 13,000 | 20 | 1992 | | 2024.12.05 | ¿ù¼¼ | ½ºÆäÀ̽ººô | 3 | 29.66 | 22,000 | 20 | 2020 | | 2024.12.05 | ¸Å¸Å | ½Å¿ìºô¶ó(409-124) | 1 | 47.4 | 35,000 | | 1997 | | 2024.12.05 | ¸Å¸Å | Á¤½Éºô¶ó(598-72) | 3 | 37.86 | 18,200 | | 1992 | | 2024.12.04 | ¿ù¼¼ | ½ÅÀÏAµ¿(751-2) | 5 | 28.89 | 5,000 | 60 | 2014 | | 2024.12.04 | ¸Å¸Å | ¼±Èºô¶ó | 3 | 34.69 | 18,850 | | 1992 | | 2024.12.04 | ¸Å¸Å | ½Å¸²ÇǾØÇϿ콺 | 3 | 30.92 | 28,000 | | 2022 | | 2024.12.04 | ¸Å¸Å | ¾çÁöºô¶ó | 3 | 55.24 | 30,000 | | 2003 | | 2024.12.04 | Àü¼¼ | (251-236) | 2 | 29.88 | 14,000 | 0 | 2016 | | 2024.12.04 | ¸Å¸Å | ÃÊ¿øºô¶ó6Â÷ | 4 | 84.57 | 30,000 | | 1996 | | 2024.12.04 | ¿ù¼¼ | FillYou | 6 | 16.41 | 16,000 | 13 | 2016 | | 2024.12.04 | Àü¼¼ | (501-6) | 3 | 25.66 | 24,000 | 0 | 2022 | | 2024.12.04 | Àü¼¼ | »ïÇùÇÊÇϿ콺-¥µ | 3 | 13.09 | 10,000 | 0 | 2012 | | 2024.12.04 | ¸Å¸Å | ¸ð´øºô¶ó | 4 | 40.53 | 20,500 | | 1995 | | 2024.12.04 | ¿ù¼¼ | URBAN5 | 3 | 57.11 | 42,000 | 10 | 2023 | | 2024.12.04 | ¿ù¼¼ | URBAN5 | 3 | 57.11 | 42,000 | 10 | 2023 | | 2024.12.03 | ¸Å¸Å | ¿ø¾Óºô¶ó(98-352) | 5 | 58.38 | 17,400 | | 2002 | | 2024.12.03 | ¸Å¸Å | ¶óÀÓ½ººô | 4 | 28.79 | 21,500 | | 2019 | | 2024.12.03 | ¸Å¸Å | ´õ·°½ººôII | 5 | 27.69 | 30,700 | | 2024 | | 2024.12.03 | ¸Å¸Å | ¿¡À̽º¸Ç¼Ç | 2 | 42.25 | 34,700 | | 2014 | | 2024.12.03 | ¿ù¼¼ | ȲÁ¦14(414-13) | 1 | 36.96 | 1,000 | 55 | 1991 | | 2024.12.03 | ¿ù¼¼ | (501-6) | 2 | 22.34 | 21,900 | 10 | 2022 | | 2024.12.03 | ¿ù¼¼ | Jin.H | 4 | 24.94 | 5,000 | 80 | 2013 | | 2024.12.03 | ¿ù¼¼ | ¼º¸²ºô¶ó | 2 | 36.12 | 1,000 | 40 | 1991 | | 2024.12.02 | Àü¼¼ | EatonTower(1433-227) | 8 | 29.71 | 26,600 | 0 | 2017 | | 2024.12.02 | ¸Å¸Å | ¿ì¼®ºô¶ó8Â÷ | -1 | 44.52 | 10,000 | | 1994 | | 2024.12.02 | ¿ù¼¼ | ¿¹ÇöÅ׶󽺺ô | 2 | 46.86 | 30,000 | 50 | 2024 | | 2024.12.02 | ¿ù¼¼ | (1455-3) | 3 | 16.89 | 1,000 | 52 | 2015 | | 2024.12.02 | Àü¼¼ | EatonTower(1433-227) | 8 | 29.71 | 26,600 | 0 | 2017 | | 2024.12.02 | Àü¼¼ | ¼¸²ºô | 2 | 29.5 | 29,000 | 0 | 2022 | | 2024.12.02 | Àü¼¼ | (92-262) | 2 | 35.01 | 20,000 | 0 | 2012 | | 2024.12.02 | ¿ù¼¼ | EatonTower(1433-227) | 8 | 29.71 | 26,000 | 3 | 2017 | | 2024.12.02 | Àü¼¼ | (363-8) | -1 | 40.75 | 8,400 | 0 | 1986 | | 2024.12.02 | ¿ù¼¼ | dz¿øÇÏÀÓºô | 4 | 28.87 | 1,000 | 70 | 2018 | | 2024.12.02 | ¿ù¼¼ | µå¸²Çãºê | 10 | 24.81 | 18,900 | 35 | 2019 | | 2024.12.01 | ¿ù¼¼ | ´õÇϿ콺 | 9 | 22.27 | 18,000 | 3 | 2020 | | 2024.12.01 | ¿ù¼¼ | (409-323) | -1 | 36.8 | 8,000 | 15 | 1990 | | 2024.12.01 | ¸Å¸Å | Âù¼ÖÆÓ¸®½º | 4 | 56.06 | 36,500 | | 2014 | | 2024.11.30 | ¿ù¼¼ | ÁÁÀºÁý | 3 | 14.76 | 1,000 | 46 | 2014 | | 2024.11.30 | ¿ù¼¼ | ÇØÇÇÇϿ콺(10-649) | 3 | 25.48 | 3,000 | 65 | 2003 | | 2024.11.30 | Àü¼¼ | °ñµå³ªÀÎ | 9 | 29.76 | 25,000 | 0 | 2017 | | 2024.11.30 | ¿ù¼¼ | BIGTREE | 6 | 23.72 | 9,000 | 75 | 2016 | | 2024.11.30 | ¿ù¼¼ | ÁÁÀºÁý | 4 | 14.76 | 3,000 | 34 | 2014 | | 2024.11.30 | ¿ù¼¼ | 92-59 | 1 | 21.92 | 12,300 | 11 | 2015 | | 2024.11.30 | ¸Å¸Å | »ï¼º¿øºô(610-225) | 5 | 28.97 | 20,000 | | 2016 | | 2024.11.30 | ¸Å¸Å | ¼º´öºô¶ó | 2 | 62.64 | 64,700 | | 1996 | | 2024.11.30 | ¸Å¸Å | żºÈÞºôA,Bµ¿ | 4 | 27.54 | 21,700 | | 2014 | | 2024.11.30 | ¿ù¼¼ | û¿î | 3 | 13.6 | 1,000 | 37 | 2013 | | 2024.11.30 | ¿ù¼¼ | CG¾Æ¸§Ã¤(1´ÜÁö) | 2 | 55.44 | 22,000 | 35 | 2019 | | 2024.11.30 | ¿ù¼¼ | 92-59 | 1 | 21.92 | 12,300 | 11 | 2015 | | 2024.11.30 | ¸Å¸Å | ÃÊ¿øºô¶ó(95-88) | 1 | 60.28 | 26,000 | | 1994 | | 2024.11.29 | ¸Å¸Å | »ï¼º¸Ç¼Ç(610-160) | 1 | 49.06 | 20,000 | | 1996 | | 2024.11.29 | ¸Å¸Å | ºÀȲºô¶ó(610-145) | -1 | 39.9 | 15,300 | | 1994 | | 2024.11.29 | ¿ù¼¼ | À̵µÆÄÅ©ºô | 3 | 26.31 | 4,077 | 33 | 2023 | | 2024.11.29 | ¿ù¼¼ | ½º¸¶Æ®ºô | 2 | 14.52 | 9,500 | 10 | 2013 | | 2024.11.29 | ¸Å¸Å | ±Ý¼ººô¶ó(610-468) | 4 | 27.18 | 11,300 | | 1996 | | 2024.11.29 | ¿ù¼¼ | ¼º¾Èºôµù(1667-1) | 7 | 23.05 | 15,000 | 18 | 2014 | | 2024.11.29 | ¿ù¼¼ | Á¶¿øÇÏÀ̸ðºôµù | 4 | 21.62 | 1,000 | 37 | 2013 | | 2024.11.29 | ¿ù¼¼ | 103-231 | 4 | 54.21 | 2,371 | 31 | 2019 | | 2024.11.29 | ¿ù¼¼ | ÇѼۺô | 3 | 29.96 | 12,000 | 48 | 2016 | | 2024.11.29 | ¿ù¼¼ | ¹é¼Û | 5 | 12 | 9,300 | 15 | 2012 | | 2024.11.29 | Àü¼¼ | ¿ì¼®ºô¶ó3Â÷ | 4 | 38.7 | 10,000 | 0 | 1993 | | 2024.11.29 | ¿ù¼¼ | Çö´ë·Î¾âºô¶ó | -1 | 50.35 | 2,000 | 70 | 1991 | | 2024.11.29 | ¿ù¼¼ | ½º¸¶Æ®ºô | 2 | 14.52 | 9,500 | 10 | 2013 | | 2024.11.28 | ¿ù¼¼ | µ¿¾Æ³ªµ¿ | 3 | 52.07 | 6,500 | 60 | 1982 | | 2024.11.28 | ¸Å¸Å | ½Å¸²ÇǾØÇϿ콺 | 4 | 32.92 | 33,000 | | 2022 | | 2024.11.28 | ¸Å¸Å | ±Ý¼ººô¶ó(598-14) | 3 | 61.89 | 26,770 | | 2001 | | 2024.11.28 | ¿ù¼¼ | ¼¾Æ®·¹ºô | 2 | 16.78 | 13,000 | 10 | 2016 | | 2024.11.28 | Àü¼¼ | »ï¿øÇÏÀÌÃ÷ºô¶ó | -1 | 56.54 | 12,000 | 0 | 1996 | | 2024.11.28 | ¿ù¼¼ | (685-25) | -1 | 45.89 | 8,800 | 15 | 1991 | | 2024.11.27 | ¸Å¸Å | ¿µÁøºô¶óBµ¿ | -1 | 34.56 | 12,500 | | 1989 | | 2024.11.27 | ¿ù¼¼ | (À¸¶äij½½) | 4 | 29.54 | 5,000 | 120 | 2024 | | 2024.11.27 | ¸Å¸Å | ¼¼Áøºô¶ó | 2 | 40.65 | 14,900 | | 2003 | | 2024.11.27 | ¿ù¼¼ | ¼¸²ºô | 5 | 29.86 | 31,200 | 10 | 2022 | | 2024.11.27 | ¿ù¼¼ | ¿µ´ëÁÖÅà | 1 | 59.29 | 20,000 | 15 | 2002 | | 2024.11.27 | ¿ù¼¼ | ¼¸²ºô | 5 | 29.86 | 31,200 | 10 | 2022 | | 2024.11.27 | ¸Å¸Å | žçÇÏÀÌÃ÷ºô¶ó | 1 | 44.4 | 21,500 | | 1990 | | 2024.11.27 | ¸Å¸Å | µ¿Áøºô¶ó(610-290) | 4 | 41.52 | 20,000 | | 1994 | | 2024.11.26 | Àü¼¼ | (624-33) | 2 | 55.05 | 13,890 | 0 | 1980 | | 2024.11.26 | ¿ù¼¼ | ÇÊÇϿ콺4Â÷ | 3 | 45.48 | 25,500 | 10 | 2014 | | 2024.11.26 | ¿ù¼¼ | ÇÊÇϿ콺4Â÷ | 3 | 45.48 | 25,500 | 10 | 2014 | | 2024.11.26 | Àü¼¼ | ¹Ì¸²ºô¸®ÁöB | 2 | 49.38 | 13,700 | 0 | 1992 | | 2024.11.26 | Àü¼¼ | ÇØµ¸ÀÌŸ¿î3Â÷ | 3 | 49.34 | 16,000 | 0 | 1993 | | 2024.11.26 | ¿ù¼¼ | ÇØµ¸ÀÌŸ¿î3Â÷ | 3 | 49.34 | 16,000 | 20 | 1993 | | 2024.11.26 | ¿ù¼¼ | ÆòÁֱ׸°¸Ç¼Ç | -1 | 65.98 | 12,000 | 25 | 1997 | | 2024.11.26 | ¿ù¼¼ | Çö´ëºô¶ó(412-124) | 1 | 47.82 | 13,000 | 20 | 2002 | | 2024.11.25 | ¿ù¼¼ | Çѽźô¶ó | 1 | 32.56 | 4,000 | 30 | 1990 | | 2024.11.25 | ¿ù¼¼ | ¿î¼º | 6 | 34.65 | 23,500 | 17 | 2020 | | 2024.11.25 | ¿ù¼¼ | (1520-2) | 4 | 15.76 | 1,000 | 60 | 2013 | | 2024.11.25 | ¿ù¼¼ | »ï¼ººô¶ó(412-458) | 3 | 39.81 | 100 | 20 | 2004 | | 2024.11.25 | ¿ù¼¼ | (120-4) | 1 | 35.97 | 1,000 | 139 | 1986 | | 2024.11.25 | ¿ù¼¼ | (120-4) | 1 | 35.97 | 1,000 | 139 | 1986 | | 2024.11.25 | Àü¼¼ | û¿ëºô¶ó(102-27) | 1 | 23.97 | 9,400 | 0 | 2007 | | 2024.11.25 | Àü¼¼ | û¿ëºô¶ó(102-27) | 1 | 23.97 | 9,400 | 0 | 2007 | | 2024.11.25 | ¿ù¼¼ | Àº¿¬Àç | 7 | 14.18 | 1,000 | 51 | 2013 | | 2024.11.25 | ¸Å¸Å | ±ÝÈ£ºô¶ó2Â÷(412-343) | 1 | 43.58 | 23,000 | | 1992 | | 2024.11.25 | ¿ù¼¼ | Æ÷µµ¿ø2 | 4 | 29.93 | 3,000 | 74 | 2013 | | 2024.11.25 | ¸Å¸Å | ´ÃÁ¶Àººô | 4 | 32.51 | 35,400 | | 2023 | | 2024.11.25 | ¸Å¸Å | (1455-29) | 1 | 34.92 | 22,000 | | 1993 | | 2024.11.24 | ¸Å¸Å | ¼¿ïºô¶ó(610-194) | 2 | 42.84 | 16,500 | | 1992 | | 2024.11.24 | ¸Å¸Å | ¿ì¼ººô¶ó(610-351) | 1 | 35.62 | 18,500 | | 1990 | | 2024.11.24 | ¿ù¼¼ | º£½ºÆ®ºô | 5 | 26.68 | 5,000 | 51 | 2013 | | 2024.11.23 | ¸Å¸Å | ÇѼֺô¶óÆ® | 2 | 55.34 | 30,000 | | 1997 | | 2024.11.23 | ¿ù¼¼ | ¼º¾Èºôµù(1667-1) | 6 | 14.77 | 10,000 | 7 | 2014 | | 2024.11.23 | ¿ù¼¼ | Çϳªºô¶ó | 1 | 36.48 | 1,000 | 55 | 1990 | | 2024.11.23 | Àü¼¼ | ¿ì¼º¾ÆÆ®ºô | 2 | 48.46 | 26,500 | 0 | 2013 | | 2024.11.23 | Àü¼¼ | ¸ÞÆ®·ÎŸ¿î2Â÷ | 4 | 45.88 | 27,200 | 0 | 2017 | | 2024.11.23 | ¿ù¼¼ | ´ÙÀÎij½½Aµ¿ | 2 | 29.1 | 24,600 | 11 | 2018 | | 2024.11.23 | ¿ù¼¼ | ½Â¿ìij½½ | 3 | 29.88 | 17,000 | 10 | 2014 | | 2024.11.23 | Àü¼¼ | ÈÞij½½ | 6 | 37.73 | 30,000 | 0 | 2014 | | 2024.11.23 | ¸Å¸Å | ½Å¸²ÇǾØÇϿ콺 | 3 | 33.19 | 30,000 | | 2022 | | 2024.11.23 | ¿ù¼¼ | ´õº£¸£Èú | 5 | 37.96 | 3,000 | 70 | 2013 | | 2024.11.23 | ¸Å¸Å | (1564-35) | 3 | 60.02 | 31,000 | | 2003 | | 2024.11.23 | ¸Å¸Å | Á¤½Éºô¶óBµ¿ | 1 | 35.31 | 19,000 | | 1992 | | 2024.11.23 | ¸Å¸Å | ¹Ì¸®³»(610-401) | 1 | 34.85 | 18,900 | | 1990 | | 2024.11.23 | ¸Å¸Å | dz¿øÇÏÀÓºô | 5 | 44.87 | 41,000 | | 2018 | | 2024.11.23 | ¸Å¸Å | ¿ì¼®ºô¶ó2Â÷ | 3 | 39.6 | 15,400 | | 1992 | | 2024.11.22 | ¿ù¼¼ | ¼Ò³ëÇϿ콺 | 3 | 20.43 | 3,000 | 50 | 2014 | | 2024.11.22 | Àü¼¼ | ¸Þ¸®Æ®È¨ | 4 | 12.03 | 9,810 | 0 | 2012 | | 2024.11.22 | ¿ù¼¼ | ¹Ì¸²ºô¶ó | 2 | 44.15 | 12,000 | 30 | 1992 | | 2024.11.22 | Àü¼¼ | »ï¼ººô¶ó(412-374) | 3 | 48.28 | 15,400 | 0 | 2003 | | 2024.11.22 | ¿ù¼¼ | Űæºô | 2 | 29.28 | 22,000 | 30 | 2020 | | 2024.11.22 | ¿ù¼¼ | µ¿½Éºô¶ó | 2 | 58.75 | 13,000 | 20 | 1993 | | 2024.11.22 | Àü¼¼ | Áø¼ººô¶ó | 2 | 38.84 | 11,530 | 0 | 1992 | | 2024.11.22 | Àü¼¼ | ¾î¹ÝÆÓ¸®½º(8~9µ¿) | 3 | 49.67 | 30,000 | 0 | 2018 | | 2024.11.22 | ¿ù¼¼ | ¾ËÆæÇϿ콺(612-25) | 4 | 51.95 | 21,900 | 10 | 2012 | | 2024.11.22 | ¿ù¼¼ | ¿¹°Çºô¶ó(90-46) | 2 | 51.93 | 2,000 | 90 | 1991 | | 2024.11.22 | Àü¼¼ | ¾î¹ÝÆÓ¸®½º(8~9µ¿) | 3 | 49.67 | 30,000 | 0 | 2018 | | 2024.11.21 | ¿ù¼¼ | (120-44) | 2 | 43.74 | 1,000 | 75 | 1996 | | 2024.11.21 | ¸Å¸Å | Á¤È£ºô¶ó°¡µ¿(1563-41) | 1 | 33.69 | 12,500 | | 1994 | | 2024.11.20 | Àü¼¼ | ½Å»çŸ¿îºô | 2 | 29.26 | 27,000 | 0 | 2016 | | 2024.11.20 | Àü¼¼ | ¿Áµ¿±×¸° | 2 | 55.39 | 8,000 | 0 | 2004 | | 2024.11.20 | ¿ù¼¼ | Áø¿ìºô¶ó | 1 | 41.26 | 13,500 | 3 | 2002 | | 2024.11.20 | ¸Å¸Å | µ¿¾çºô¶ó | 3 | 39.36 | 19,500 | | 1993 | | 2024.11.20 | ¿ù¼¼ | ¿À¼ººô¶ó(90-64) | 2 | 49.64 | 1,000 | 95 | 2002 | | 2024.11.20 | Àü¼¼ | ¸ð´øÇϿ콺 | 4 | 26.82 | 25,000 | 0 | 2019 | | 2024.11.20 | ¿ù¼¼ | (1439-24) | 8 | 11.81 | 5,000 | 52 | 2020 | | 2024.11.20 | ¿ù¼¼ | (102-53) | 2 | 43.63 | 12,000 | 25 | 1991 | | 2024.11.19 | ¸Å¸Å | ¸ð´øºô¶ó | 4 | 40.53 | 20,500 | | 1995 | | 2024.11.19 | ¿ù¼¼ | ¿ö³Êºô | 4 | 72.99 | 17,500 | 48 | 2006 | | 2024.11.19 | ¿ù¼¼ | °üµ¿ÇÏÀÌÃ÷ | 2 | 35.28 | 11,000 | 5 | 2003 | | 2024.11.19 | ¿ù¼¼ | (1520-2) | 5 | 15.76 | 2,000 | 55 | 2013 | | 2024.11.19 | Àü¼¼ | ¼¸²ºô | 3 | 28.2 | 28,500 | 0 | 2022 | | 2024.11.19 | ¿ù¼¼ | Èâ¾ÆÆ®ºô | 3 | 57.75 | 5,000 | 120 | 2004 | | 2024.11.19 | ¿ù¼¼ | ÀÚÀÌ¿ÀÇǽºÅÚ | 10 | 14.431 | 4,000 | 71 | 2021 | | 2024.11.18 | ¿ù¼¼ | ºÎ¿µºô¶ó3µ¿ | 1 | 53.31 | 2,000 | 90 | 2002 | | 2024.11.18 | ¿ù¼¼ | ¿ì¼®ºô¶ó7Â÷ | 2 | 41.54 | 2,000 | 50 | 1994 | | 2024.11.18 | ¿ù¼¼ | BIGTREE | 6 | 27 | 10,000 | 75 | 2016 | | 2024.11.18 | Àü¼¼ | Á¶¿ø°ñµçºô | 3 | 21.77 | 8,000 | 0 | 2011 | | 2024.11.18 | ¿ù¼¼ | ³ÇâÇì·»ÇϿ콺 | 4 | 37.17 | 10,000 | 50 | 2013 | | 2024.11.18 | ¿ù¼¼ | ¿¹±×¸° | 1 | 28.93 | 19,000 | 10 | 2018 | | 2024.11.18 | Àü¼¼ | 641-15 | 6 | 29.78 | 19,500 | 0 | 2015 | | 2024.11.18 | Àü¼¼ | (685-45) | -1 | 34.74 | 7,000 | 0 | 2005 | | 2024.11.18 | ¸Å¸Å | ½Å¿ìºô¶ó(409-124) | -1 | 61.82 | 25,500 | | 1997 | | 2024.11.18 | ¸Å¸Å | ½Å»çŸ¿îºô | 2 | 39.26 | 40,500 | | 2016 | | 2024.11.18 | ¸Å¸Å | ½Å¿ìºô¶ó(409-124) | -1 | 61.82 | 25,500 | | 1997 | | 2024.11.18 | ¸Å¸Å | ½Å¿ìºô¶ó(409-124) | -1 | 61.82 | 25,500 | | 1997 | | 2024.11.17 | ¸Å¸Å | ¿ì¼º¾ÆÆ®ºô¶óBµ¿ | 2 | 33.6 | 27,800 | | 1991 | | 2024.11.17 | Àü¼¼ | ÁÖ¿øº£¸£ºô(493-7) | 2 | 29.73 | 25,200 | 0 | 2016 | | 2024.11.17 | ¸Å¸Å | ¼¿ïºô¶ó(610-194) | 2 | 42.84 | 16,500 | | 1992 | | 2024.11.17 | ¿ù¼¼ | ¿ì¼ºÁÖÅà | 1 | 41.6 | 1,000 | 65 | 1993 | | 2024.11.16 | Àü¼¼ | (504-25) | 1 | 60.6 | 12,000 | 0 | 1979 | | 2024.11.16 | Àü¼¼ | ¼Áø(1595-4) | 4 | 15.64 | 22,000 | 0 | 2017 | | 2024.11.16 | Àü¼¼ | (492-6) | 3 | 56.19 | 27,563 | 0 | 2016 | | 2024.11.16 | ¿ù¼¼ | ½Ã¿¤(ciel) | 7 | 29.53 | 25,300 | 5 | 2015 | | 2024.11.16 | Àü¼¼ | º¸¶ó¸Å117µ¿ | 3 | 59.99 | 26,000 | 0 | 2000 | | 2024.11.16 | ¿ù¼¼ | ¼®¿µ | 6 | 40.24 | 200 | 200 | 2022 | | 2024.11.16 | ¸Å¸Å | ÇØ´ãä | 6 | 50.1 | 34,300 | | 2015 | | 2024.11.16 | Àü¼¼ | ¼Áø(1595-4) | 4 | 15.64 | 22,000 | 0 | 2017 | | 2024.11.16 | ¿ù¼¼ | (100-10) | 2 | 51.75 | 10,000 | 65 | 1987 | | 2024.11.16 | Àü¼¼ | ¸ð´×Èú(1564-9) | 3 | 40.39 | 24,000 | 0 | 2016 | | 2024.11.15 | ¿ù¼¼ | À¯¼ººô¶ó(548-5) | 3 | 60.4 | 10,000 | 80 | 1993 | | 2024.11.15 | ¸Å¸Å | ÈñÁغô | 3 | 58.18 | 49,550 | | 2024 | | 2024.11.15 | Àü¼¼ | ÀºÅ¹ºô | 5 | 64.2 | 30,000 | 0 | 2010 | | 2024.11.15 | ¸Å¸Å | ÈñÁغô | 4 | 56.98 | 48,800 | | 2024 | | 2024.11.15 | ¸Å¸Å | ÈñÁغô | 2 | 49.82 | 40,500 | | 2024 | | 2024.11.15 | ¸Å¸Å | ÈñÁغô | 5 | 48.28 | 40,450 | | 2024 | | 2024.11.15 | ¸Å¸Å | ¿¡µ§ÇϿ콺 | 4 | 29.95 | 22,100 | | 2014 | | 2024.11.15 | ¸Å¸Å | °¡¿Âij½½(1481-3) | 4 | 39.3 | 33,000 | | 2014 | | 2024.11.15 | ¸Å¸Å | ÈñÁغô | 5 | 49.82 | 43,150 | | 2024 | | 2024.11.15 | ¸Å¸Å | ÈñÁغô | 4 | 49.82 | 43,350 | | 2024 | | 2024.11.15 | ¸Å¸Å | ÈñÁغô | 3 | 48.28 | 40,900 | | 2024 | | 2024.11.15 | ¸Å¸Å | ÈñÁغô | 3 | 49.82 | 43,350 | | 2024 | | 2024.11.15 | ¿ù¼¼ | (À¸¶äij½½) | 5 | 29.99 | 2,000 | 110 | 2024 | | 2024.11.15 | ¸Å¸Å | ÈñÁغô | 2 | 48.28 | 40,200 | | 2024 | | 2024.11.15 | ¸Å¸Å | ÈñÁغô | 2 | 58.18 | 48,650 | | 2024 | | 2024.11.14 | ¿ù¼¼ | »ïȺô¶ó | 1 | 37.36 | 10,000 | 10 | 1991 | | 2024.11.14 | ¿ù¼¼ | ¿¡ÀÌºí·¦ | 4 | 27.3 | 2,295 | 24 | 2022 | | 2024.11.14 | ¿ù¼¼ | ±Ý»ù¾ÆÆ®ºô | 2 | 24.75 | 17,800 | 10 | 2016 | | 2024.11.14 | ¿ù¼¼ | Çϳª | 4 | 22.47 | 19,650 | 15 | 2018 | | 2024.11.14 | Àü¼¼ | ¾ÆÆ®¸®ºùÅÚ(748-14) | 3 | 76.95 | 28,000 | 0 | 2002 | | 2024.11.14 | ¿ù¼¼ | °¡À± | 7 | 14.01 | 1,000 | 54 | 2017 | | 2024.11.14 | ¿ù¼¼ | ½Å³²195 | 5 | 16.26 | 16,200 | 18 | 2020 | | 2024.11.14 | ¿ù¼¼ | ¿¡ÀÌºí·¦ | 5 | 28.22 | 4,495 | 9 | 2022 | | 2024.11.14 | ¿ù¼¼ | ¸®´õ½ººô | 2 | 34.11 | 5,000 | 20 | 2015 | | 2024.11.14 | Àü¼¼ | ¾ÆÆ®¸®ºùÅÚ(748-14) | 3 | 76.95 | 28,000 | 0 | 2002 | | 2024.11.13 | ¸Å¸Å | ±Ý°ºô¶ó(610-136) | 4 | 30.72 | 13,500 | | 1993 | | 2024.11.13 | Àü¼¼ | »óÁöºô¶ó´Ùµ¿ | 1 | 33.03 | 9,000 | 0 | 1989 | | 2024.11.13 | ¸Å¸Å | ¼º¿ìºô¶ó | 2 | 59.85 | 62,000 | | 1991 | | 2024.11.13 | ¿ù¼¼ | Æ®¸®ÇÃÈú½º2 | 5 | 28.17 | 5,000 | 100 | 2023 | | 2024.11.13 | ¿ù¼¼ | º§¶óÈú | 9 | 29.2 | 25,000 | 20 | 2018 | | 2024.11.13 | Àü¼¼ | ´ÃÁ¶Àººô | 1 | 32.66 | 26,700 | 0 | 2023 | | 2024.11.12 | ¿ù¼¼ | ºÀȲºô¶ó(610-145) | -1 | 39.9 | 8,100 | 10 | 1994 | | 2024.11.12 | ¿ù¼¼ | J2tower | 5 | 14.26 | 1,000 | 65 | 2014 | | 2024.11.12 | Àü¼¼ | (511-7) | 1 | 46.8 | 20,000 | 0 | 2014 | | 2024.11.12 | ¿ù¼¼ | (1439-24) | 8 | 21.01 | 4,000 | 55 | 2020 | | 2024.11.12 | ¿ù¼¼ | º¸º¸½ºÁÖÅà | 4 | 13.33 | 1,000 | 40 | 2013 | | 2024.11.12 | ¿ù¼¼ | Çູ°¡µæÇѺô | 4 | 48.34 | 12,000 | 39 | 2008 | | 2024.11.12 | ¿ù¼¼ | Çູ°¡µæÇѺô | 4 | 48.34 | 12,000 | 39 | 2008 | | 2024.11.12 | ¿ù¼¼ | ºÀȲºô¶ó(610-145) | -1 | 39.9 | 8,100 | 10 | 1994 | | 2024.11.12 | ¸Å¸Å | ¿ìÁÖºô¶ó | -1 | 33.84 | 12,000 | | 1990 | | 2024.11.12 | ¿ù¼¼ | (501-6) | 3 | 26.28 | 20,000 | 20 | 2022 | | 2024.11.12 | ¸Å¸Å | THEÁöÀ½ | 2 | 29.52 | 37,000 | | 2023 | | 2024.11.12 | ¸Å¸Å | Çູ¸Ç¼Ç3Â÷ | -1 | 53.37 | 15,500 | | 1995 | | 2024.11.11 | ¿ù¼¼ | ¿¬ºô | 4 | 12.01 | 2,000 | 55 | 2012 | | 2024.11.11 | Àü¼¼ | Çö´ë±×¸°ºô¶ó(408-65) | 2 | 44.65 | 17,000 | 0 | 1994 | | 2024.11.11 | ¿ù¼¼ | ·Î¾âÇÏÀÌÃ÷ | 4 | 15.58 | 5,000 | 50 | 2016 | | 2024.11.11 | ¿ù¼¼ | (412-55) | 1 | 44.56 | 9,500 | 20 | 2003 | | 2024.11.11 | Àü¼¼ | dz¾çºôµù | 3 | 22.315 | 9,371 | 0 | 2012 | | 2024.11.11 | ¿ù¼¼ | ´õÇϿ콺 | 9 | 22.79 | 3,500 | 58 | 2020 | | 2024.11.11 | ¿ù¼¼ | (412-334) | 2 | 31.02 | 4,000 | 65 | 1991 | | 2024.11.11 | Àü¼¼ | ¿¤¸®½Ã¾Æ | 5 | 57.36 | 20,000 | 0 | 2013 | | 2024.11.11 | ¿ù¼¼ | ¼±ÀΟ¿î | 18 | 14.52 | 3,000 | 60 | 2017 | | 2024.11.11 | ¸Å¸Å | ±¹Á¦¾Ë¾Øµå¾¾ | 6 | 28.58 | 26,300 | | 2018 | | 2024.11.11 | ¿ù¼¼ | ÁÁÀº»ç¶÷ÁÁÀºÁý | 6 | 43.32 | 3,000 | 102 | 2016 | | 2024.11.11 | ¿ù¼¼ | Àü¿øÁÖÅÃ(98-134) | 1 | 40.92 | 11,490 | 10 | 1992 | | 2024.11.10 | ¸Å¸Å | ÇØ¹Ð | 3 | 47.35 | 23,000 | | 2013 | | 2024.11.10 | ¿ù¼¼ | ű¤ºô¶ó | 3 | 51.31 | 19,000 | 45 | 2000 | | 2024.11.10 | Àü¼¼ | Á꺣¶ó | 6 | 25.89 | 26,700 | 0 | 2018 | | 2024.11.10 | ¿ù¼¼ | JCSTUDIO | 8 | 23.46 | 10,000 | 40 | 2018 | | 2024.11.09 | ¿ù¼¼ | º¸¶÷¸Ç¼Ç | 4 | 51.75 | 18,800 | 30 | 1998 | | 2024.11.09 | ¿ù¼¼ | (1520-2) | 4 | 15.76 | 2,000 | 47 | 2013 | | 2024.11.09 | ¿ù¼¼ | (1657-26) | 4 | 37.11 | 17,500 | 25 | 2014 | | 2024.11.09 | ¿ù¼¼ | Á¤È£ÆÄÅ©ºô3Â÷ | 2 | 59.27 | 10,000 | 70 | 2008 | | 2024.11.09 | ¿ù¼¼ | ¿¹´Ù¿Ã(501-20) | 4 | 12.23 | 1,000 | 47 | 2016 | | 2024.11.09 | ¸Å¸Å | ´õÁöÀ½ | 2 | 27.91 | 34,500 | | 2023 | | 2024.11.09 | Àü¼¼ | (511-7) | 2 | 46.8 | 22,500 | 0 | 2014 | | 2024.11.09 | ¿ù¼¼ | º£¸£Ã¼ | 6 | 26.61 | 14,000 | 27 | 2015 | | 2024.11.09 | ¸Å¸Å | ·Î¾âA | 2 | 50.77 | 20,000 | | 1991 | | 2024.11.09 | ¿ù¼¼ | (1520-2) | 4 | 15.76 | 1,000 | 60 | 2013 | | 2024.11.09 | ¿ù¼¼ | U2 | 4 | 16.48 | 1,000 | 58 | 2012 | | 2024.11.09 | ¿ù¼¼ | ÇÑÂ÷ÀÓºô | 6 | 29.84 | 500 | 110 | 2021 | | 2024.11.08 | ¸Å¸Å | ÇѾ縮Ã÷ºô(610-405) | 2 | 56.77 | 36,000 | | 2012 | | 2024.11.08 | ¸Å¸Å | 598-50 | 3 | 27.98 | 18,000 | | 2015 | | 2024.11.08 | ¸Å¸Å | ±¤¼º¾ÆÆ®ºô | 2 | 62.18 | 27,400 | | 2003 | | 2024.11.08 | ¸Å¸Å | ¼±°æºô | 4 | 41.92 | 33,000 | | 2016 | | 2024.11.08 | ¿ù¼¼ | °¡À± | 5 | 14.01 | 500 | 52 | 2017 | | 2024.11.08 | ¸Å¸Å | Çູºô¶ó | 4 | 39.42 | 20,000 | | 1993 | | 2024.11.08 | ¿ù¼¼ | ÀÌ·¹ºô¶ó | 4 | 50.51 | 27,900 | 15 | 2013 | | 2024.11.08 | ¿ù¼¼ | (1452-36) | 2 | 18.48 | 12,600 | 9 | 2017 | | 2024.11.08 | Àü¼¼ | ¾ÆÄ«µ¥¹ÌÇϿ콺 | 5 | 29.42 | 21,000 | 0 | 2019 | | 2024.11.08 | ¿ù¼¼ | À²ÃÌÆÓ¸®½º | 5 | 27.7 | 13,000 | 29 | 2013 | | 2024.11.08 | ¿ù¼¼ | (306-52) | 3 | 30.875 | 14,000 | 9 | 2014 | | 2024.11.08 | ¿ù¼¼ | À²ÃÌÆÓ¸®½º | 7 | 28.8 | 20,000 | 17 | 2013 | | 2024.11.08 | Àü¼¼ | ±×¶û½Ã¿¤ | 5 | 29.96 | 25,210 | 0 | 2014 | | 2024.11.08 | ¿ù¼¼ | À²ÃÌÆÓ¸®½º | 7 | 28.8 | 20,000 | 17 | 2013 | | 2024.11.07 | ¸Å¸Å | ºÀȲºô¶ó2Â÷ | -1 | 36.64 | 13,000 | | 1993 | | 2024.11.07 | ¸Å¸Å | ¸ñÈŸ¿î(379-2) | 3 | 75.01 | 65,000 | | 2003 | | 2024.11.07 | ¸Å¸Å | ·Î¾âÇÏÀÌÃ÷ | 3 | 31.07 | 19,000 | | 2016 | | 2024.11.07 | ¸Å¸Å | (412-335) | 3 | 25.78 | 25,000 | | 1991 | | 2024.11.07 | ¸Å¸Å | ±â¸°ºô¶ó³ªµ¿ | -1 | 43.32 | 13,000 | | 1994 | | 2024.11.07 | ¸Å¸Å | Àϼººô¶ó | -1 | 34.29 | 12,800 | | 1994 | | 2024.11.07 | ¿ù¼¼ | °¶·¯¸®ÇϿ콺 | 4 | 13.06 | 1,000 | 51 | 2012 | | 2024.11.07 | Àü¼¼ | Áß¿ø°¡µ¿ | 1 | 34.85 | 12,600 | 0 | 1990 | | 2024.11.07 | ¿ù¼¼ | ¼¼Áøºô | 3 | 26.25 | 3,000 | 70 | 2013 | | 2024.11.07 | ¿ù¼¼ | ¾Æ¸§Ã¤(1566-13) | 2 | 43.05 | 26,500 | 20 | 2017 | | 2024.11.07 | ¿ù¼¼ | ¾Æ¸§Ã¤(1566-13) | 2 | 43.05 | 26,500 | 20 | 2017 | | 2024.11.07 | ¿ù¼¼ | (409-25) | 2 | 51.27 | 18,000 | 15 | 1995 | | 2024.11.07 | ¿ù¼¼ | Çö´ë°³³ª¸®ºô¶ó5Â÷ | 3 | 68.52 | 1,000 | 35 | 1985 | | 2024.11.07 | ¿ù¼¼ | JWµå¸²ºô(1657-25) | 2 | 26.48 | 800 | 48 | 2017 | | 2024.11.07 | ¿ù¼¼ | JÇìºìºô | 5 | 21.89 | 15,000 | 25 | 2015 | | 2024.11.07 | ¿ù¼¼ | Èñ¶ôºô¸®ÁöAµ¿(1641-45) | 2 | 16.5 | 2,000 | 40 | 2012 | | 2024.11.07 | ¿ù¼¼ | Áß¾ÓÇÏÀÌÃ÷ | 2 | 43.17 | 14,700 | 30 | 1995 | | 2024.11.07 | ¿ù¼¼ | ½Å³²195 | 7 | 16.26 | 17,300 | 27 | 2020 | | 2024.11.06 | ¿ù¼¼ | (89-1) | 4 | 12.95 | 3,000 | 42 | 2016 | | 2024.11.06 | ¸Å¸Å | Á¤½Éºô¶ó(610-344) | 1 | 39.15 | 15,400 | | 1993 | | 2024.11.06 | Àü¼¼ | ¿¡µ§2Â÷ | 3 | 20.72 | 10,000 | 0 | 1991 | | 2024.11.06 | ¿ù¼¼ | Àº¿¬Àç | 6 | 15.56 | 500 | 52 | 2013 | | 2024.11.06 | ¿ù¼¼ | ¾ÆÅ©·Î(1432-48) | 9 | 28.89 | 21,000 | 20 | 2018 | | 2024.11.06 | ¿ù¼¼ | »óÀººô¶ó | 4 | 56.91 | 4,000 | 53 | 2002 | | 2024.11.06 | Àü¼¼ | ÁÖ¿øº£¸£ºô(493-7) | 3 | 29.93 | 25,200 | 0 | 2016 | | 2024.11.06 | Àü¼¼ | ¿¡µ§2Â÷ | 3 | 20.72 | 10,000 | 0 | 1991 | | 2024.11.06 | Àü¼¼ | ¿¹¸²ºô¶óÆ® | 2 | 59.78 | 18,000 | 0 | 1997 | | 2024.11.06 | ¿ù¼¼ | (306-22) | 1 | 76.05 | 13,000 | 50 | 1994 | | 2024.11.06 | Àü¼¼ | ¾ËÆæÇϿ콺(612-25) | 3 | 51.98 | 22,000 | 0 | 2012 | | 2024.11.05 | ¸Å¸Å | »ó¾Æ±×¸°ºô¶ó | 2 | 36.3 | 16,500 | | 1991 | | 2024.11.05 | ¸Å¸Å | °øÀ۸ǼÇ(610-139) | 2 | 45.62 | 19,500 | | 1994 | | 2024.11.05 | ¸Å¸Å | »ïȺô¶ó(463-12) | 1 | 64.51 | 29,700 | | 1992 | | 2024.11.05 | Àü¼¼ | ½Å¸²ºô¶ó(354-2) | 1 | 76.36 | 15,000 | 0 | 1984 | | 2024.11.05 | ¿ù¼¼ | Àº¿¬Àç | 4 | 14.78 | 500 | 48 | 2013 | | 2024.11.05 | ¸Å¸Å | ¿ì¼®ºô¶ó11Â÷ | -1 | 44.19 | 16,000 | | 1995 | | 2024.11.05 | ¿ù¼¼ | WannyVill(1487-21) | 5 | 18.33 | 3,000 | 52 | 2015 | | 2024.11.05 | ¸Å¸Å | ½ºÆäÀ̽ººô | 3 | 29.66 | 25,500 | | 2020 | | 2024.11.04 | ¿ù¼¼ | À§³Ê½ººô | 5 | 17.29 | 4,000 | 41 | 2014 | | 2024.11.04 | ¸Å¸Å | µ¿½Åºô¶ó | 4 | 35.1 | 16,500 | | 1994 | | 2024.11.04 | Àü¼¼ | µå¸²Å¸¿î | 6 | 22.81 | 25,000 | 0 | 2020 | | 2024.11.04 | Àü¼¼ | µå¸²Å¸¿î | 6 | 22.81 | 25,000 | 0 | 2020 | | 2024.11.04 | Àü¼¼ | ¾î¹ÝÆÓ¸®½º(8~9µ¿) | 2 | 49.67 | 30,000 | 0 | 2018 | | 2024.11.04 | Àü¼¼ | Æç¸®Ã¼ºô¸®Áö | 3 | 51.51 | 24,400 | 0 | 2018 | | 2024.11.04 | ¸Å¸Å | THEÁöÀ½ | 2 | 29.89 | 36,000 | | 2023 | | 2024.11.04 | ¿ù¼¼ | ¿¹´Ù¿Ã(501-20) | 2 | 28.87 | 15,000 | 24 | 2016 | | 2024.11.04 | ¸Å¸Å | ½Å¸²ÇǾØÇϿ콺 | 2 | 33.19 | 28,500 | | 2022 | | 2024.11.03 | ¸Å¸Å | ½Å¾Èºô¶ó(610-143) | 3 | 41.35 | 17,500 | | 1993 | | 2024.11.03 | ¸Å¸Å | ´ëµ¿ÇÏÀÌÃ÷ºô¶ó | 3 | 18.55 | 8,100 | | 2002 | | 2024.11.03 | ¿ù¼¼ | ¿¹´Ù¿Ã(501-20) | 2 | 27.7 | 3,000 | 77 | 2016 | | 2024.11.03 | ¿ù¼¼ | (À¸¶äij½½) | 3 | 26.65 | 5,000 | 110 | 2024 | | 2024.11.03 | ¿ù¼¼ | º»µ¿È²Á¦ | 2 | 43.53 | 14,000 | 8 | 1990 | | 2024.11.02 | Àü¼¼ | Æç¸¯½º | 5 | 27.57 | 16,800 | 0 | 2019 | | 2024.11.02 | ¿ù¼¼ | Çູ¸Ç¼Ç5Â÷ | -1 | 43.14 | 3,000 | 60 | 1995 | | 2024.11.02 | ¿ù¼¼ | È£»ê±×¸°ºô | 3 | 45.6 | 3,000 | 80 | 2002 | | 2024.11.02 | Àü¼¼ | ÇØ´ãä | 3 | 36.53 | 24,900 | 0 | 2015 | | 2024.11.02 | ¿ù¼¼ | (468-1) | 6 | 27.82 | 10,000 | 48 | 2014 | | 2024.11.02 | ¿ù¼¼ | ÇÑÀÏÇÏÀ̺ô | 6 | 12.99 | 10,000 | 10 | 2013 | | 2024.11.02 | ¿ù¼¼ | ÆÊÆÄ½º | 4 | 16.15 | 3,000 | 55 | 2014 | | 2024.11.02 | Àü¼¼ | ¿ì¸²¾ÆÆ®ºô | 3 | 37.49 | 24,300 | 0 | 2018 | | 2024.11.02 | ¿ù¼¼ | õÀÏ¾ÆÆ®ºô | 4 | 70.17 | 28,000 | 7 | 2002 | | 2024.11.02 | ¿ù¼¼ | »ï¼ºÇϿ콺 | 2 | 29.8 | 5,000 | 60 | 2015 | | 2024.11.02 | ¿ù¼¼ | ¼öÁ¤(98-202) | 3 | 38.82 | 1,000 | 75 | 1991 | | 2024.11.02 | ¸Å¸Å | ¸ÞÆ®·ÎŸ¿î1Â÷(1480-30) | 3 | 40.31 | 34,500 | | 2016 | | 2024.11.01 | ¿ù¼¼ | ÀºÇýºôµù | 5 | 26.75 | 10,800 | 22 | 2002 | | 2024.11.01 | Àü¼¼ | ¹é»ïºô¶ó | 1 | 77.2 | 24,000 | 0 | 1992 | | 2024.11.01 | Àü¼¼ | ¸íÀÏÆÄÅ©ºô | 3 | 22.38 | 14,400 | 0 | 2016 | | 2024.11.01 | ¿ù¼¼ | ¶ó¿ÂÁ¦³ª | 2 | 16.93 | 500 | 51 | 2009 | | 2024.11.01 | ¿ù¼¼ | ½º¸¶Æ®ºô | 5 | 76.28 | 33,000 | 30 | 2013 | | 2024.11.01 | ¿ù¼¼ | Á¶Àººô | 5 | 12 | 1,000 | 55 | 2013 | | 2024.11.01 | ¿ù¼¼ | º§¶óÈú | 10 | 26.52 | 26,000 | 15 | 2018 | | 2024.10.31 | ¿ù¼¼ | (À¸¶äij½½) | 3 | 25.83 | 3,000 | 120 | 2024 | | 2024.10.31 | Àü¼¼ | ¾çÁö±×¸°ºô°¡µ¿ | 2 | 59.29 | 28,500 | 0 | 2001 | | 2024.10.31 | Àü¼¼ | ³ª»ê¸Ç¼Ç1Â÷ | 2 | 48.02 | 14,900 | 0 | 1996 | | 2024.10.31 | Àü¼¼ | ±ÝÈ£88ºô¸®Áö | 4 | 37.8 | 19,500 | 0 | 1998 | | 2024.10.31 | ¿ù¼¼ | CG¾Æ¸§Ã¤(1´ÜÁö) | 2 | 29.29 | 20,160 | 10 | 2019 | | 2024.10.31 | ¿ù¼¼ | »ï¼º±×¸°Å¸¿î(306-1) | 2 | 74.35 | 19,900 | 20 | 1999 | | 2024.10.31 | ¿ù¼¼ | Çö´ë¾ÆÆ®ºô¶ó(409-292) | -1 | 37.27 | 1,000 | 70 | 1989 | | 2024.10.31 | ¿ù¼¼ | Áø±¤ºô¶ó | 2 | 42.3 | 11,800 | 20 | 1992 | | 2024.10.31 | ¿ù¼¼ | ûdzºô¶ó12Â÷(1563-36) | -1 | 59.51 | 5,000 | 40 | 1999 | | 2024.10.31 | ¿ù¼¼ | »ï¼º±×¸°Å¸¿î(306-1) | 2 | 74.35 | 19,900 | 20 | 1999 | | 2024.10.31 | ¸Å¸Å | ¼¸²ºô¶ó | 3 | 35.66 | 22,000 | | 1994 | | 2024.10.30 | ¸Å¸Å | ´Ù¿ø¾ÆÆ®ºô(704-20) | 5 | 36.68 | 27,500 | | 2015 | | 2024.10.30 | ¸Å¸Å | ¿ì¼®ºô¶ó5Â÷ | 1 | 39.63 | 17,000 | | 1993 | | 2024.10.30 | Àü¼¼ | ¹Ì¸²ºô¶ó | -1 | 43.95 | 8,100 | 0 | 1992 | | 2024.10.30 | ¸Å¸Å | Áß¾ÓŸ¿îCµ¿ | 4 | 41.31 | 15,800 | | 1997 | | 2024.10.30 | ¸Å¸Å | ½Â¿ìÆÓ¸®½º | 5 | 29.74 | 20,500 | | 2012 | | 2024.10.29 | ¿ù¼¼ | ¶óÆÄ¸£½Å¸² | 9 | 27.61 | 30,000 | 30 | 2023 | | 2024.10.29 | ¿ù¼¼ | ¶óÆÄ¸£½Å¸² | 9 | 27.61 | 30,000 | 30 | 2023 | | 2024.10.29 | ¿ù¼¼ | ÃÊ¿øºô¶ó5Â÷ | 3 | 50.92 | 3,000 | 90 | 1995 | | 2024.10.29 | Àü¼¼ | ¿µ½Å | 1 | 45.69 | 16,500 | 0 | 1980 | | 2024.10.29 | ¸Å¸Å | ·Î¾âÇÏÀÌÃ÷ | 2 | 28.87 | 19,600 | | 2016 | | 2024.10.29 | ¸Å¸Å | ûȣ±×¸°ºô | 1 | 57.41 | 24,300 | | 2002 | | 2024.10.29 | ¸Å¸Å | CG¾Æ¸§Ã¤(2´ÜÁö) | 4 | 29.94 | 26,000 | | 2019 | | 2024.10.29 | Àü¼¼ | »ó·ÏȨŸ¿î | 3 | 77.19 | 23,500 | 0 | 2002 | | 2024.10.29 | ¿ù¼¼ | 1429-44 | 4 | 24.63 | 1,000 | 85 | 2014 | | 2024.10.29 | ¿ù¼¼ | ¼¸²µµ½ÃÇü»ýȰÁÖÅà | 5 | 12.32 | 1,000 | 55 | 2013 | | 2024.10.29 | ¿ù¼¼ | ÈÞÇ÷¯½º | 4 | 28.04 | 19,000 | 5 | 2017 | | 2024.10.28 | ¸Å¸Å | ´åÄÄij½½ | 5 | 40.54 | 25,000 | | 2014 | | 2024.10.28 | ¸Å¸Å | ÇѾçºô¶ó | 3 | 39.05 | 18,000 | | 1992 | | 2024.10.28 | Àü¼¼ | °è¸²ºô¶ó | 1 | 59.16 | 25,000 | 0 | 1994 | | 2024.10.28 | ¿ù¼¼ | º£¸£Ã¼ | 4 | 26.31 | 15,000 | 35 | 2015 | | 2024.10.28 | ¿ù¼¼ | ¿¹´Ù¿Ã(501-20) | 3 | 12 | 1,000 | 50 | 2016 | | 2024.10.28 | ¿ù¼¼ | ·ÎÇϽººô2Â÷ | 3 | 67.98 | 100 | 50 | 2009 | | 2024.10.28 | Àü¼¼ | ÇѾ縮Ã÷ºô(629-15) | 6 | 43.85 | 19,500 | 0 | 2016 | | 2024.10.28 | ¿ù¼¼ | ´Ù¿Â½¦¸£ºô | 4 | 32.58 | 22,000 | 28 | 2016 | | 2024.10.28 | ¿ù¼¼ | µ¿¼º¸Ç¼Ç | 1 | 63.69 | 17,000 | 20 | 1997 | | 2024.10.28 | Àü¼¼ | °è¸²ºô¶ó | 1 | 59.16 | 25,000 | 0 | 1994 | | 2024.10.28 | ¿ù¼¼ | CG¾Æ¸§Ã¤(1´ÜÁö) | 4 | 28.51 | 3,000 | 75 | 2019 | | 2024.10.28 | ¿ù¼¼ | (10-450) | 1 | 50.11 | 200 | 31 | 2003 | | 2024.10.28 | Àü¼¼ | ÇѾ縮Ã÷ºô(629-15) | 6 | 43.85 | 19,500 | 0 | 2016 | | 2024.10.27 | ¿ù¼¼ | ÁÁÀº»ç¶÷ÁÁÀºÁý | 3 | 22.24 | 1,000 | 78 | 2016 | | 2024.10.27 | ¸Å¸Å | ¿¡ÄÚÇ÷¯½º(Aµ¿,Bµ¿) | 6 | 28.29 | 25,800 | | 2017 | | 2024.10.27 | ¸Å¸Å | ¼·¡ÇϿ콺(685-71) | 2 | 29.97 | 24,000 | | 2017 | | 2024.10.27 | Àü¼¼ | µå¸²Å¸¿î | 5 | 24.68 | 25,000 | 0 | 2020 | | 2024.10.27 | ¿ù¼¼ | »ïÇϺô¶ó(533-11) | 3 | 58.2 | 8,000 | 60 | 2001 | | 2024.10.26 | ¸Å¸Å | Á¤È£ºô¶ó³ªµ¿(1563-42) | 1 | 33.69 | 12,500 | | 1994 | | 2024.10.26 | Àü¼¼ | ¼¾Æ®·¹ºô | 2 | 19.57 | 15,000 | 0 | 2016 | | 2024.10.26 | ¸Å¸Å | ´ë¾çºô¶ó(610-49) | 2 | 36.33 | 17,800 | | 1993 | | 2024.10.26 | ¸Å¸Å | ¿ø¾Óºô¶ó(1454-16) | 1 | 39.69 | 22,000 | | 1991 | | 2024.10.26 | ¸Å¸Å | ´ë¾çºô¶ó(610-49) | 2 | 36.33 | 17,800 | | 1993 | | 2024.10.26 | Àü¼¼ | ¶óÀÓ½ººô | 4 | 29.8 | 19,950 | 0 | 2020 | | 2024.10.26 | ¿ù¼¼ | (1439-24) | 8 | 21.01 | 5,000 | 50 | 2020 | | 2024.10.26 | ¿ù¼¼ | ÆÄÅ©ºä23 | 2 | 52.8 | 27,400 | 13 | 2016 | | 2024.10.25 | ¸Å¸Å | ¾î¹ÝÆÓ¸®½º(101µ¿,102µ¿) | 3 | 57.01 | 37,800 | | 2017 | | 2024.10.25 | ¸Å¸Å | »ï¼º¾ÆÆ®ºô6Â÷(626-56) | -1 | 63.4 | 11,200 | | 2003 | | 2024.10.25 | Àü¼¼ | ½Å¾Èºô¶ó | -1 | 37.08 | 7,000 | 0 | 1990 | | 2024.10.25 | ¿ù¼¼ | ½Å¸²¾î¹Ý½ººô | 4 | 27.08 | 3,277 | 10 | 2023 | | 2024.10.25 | ¿ù¼¼ | ¾ÆÆ®ºô(1606-8) | 2 | 75.24 | 5,000 | 90 | 2004 | | 2024.10.25 | ¿ù¼¼ | ¿¡¾î½ºÆäÀ̽º(1560-17) | 2 | 23.55 | 13,253 | 16 | 2022 | | 2024.10.25 | ¿ù¼¼ | ¾Öµå¿ø | 6 | 14.99 | 3,000 | 45 | 2015 | | 2024.10.25 | Àü¼¼ | ±Ý°ºô¶ó(610-136) | 4 | 27.72 | 7,000 | 0 | 1993 | | 2024.10.25 | Àü¼¼ | ³ª¿µ°¡µç | 3 | 45.42 | 12,540 | 0 | 1994 | | 2024.10.25 | Àü¼¼ | ¿¡¸£½º¶¼ | 12 | 25.87 | 24,400 | 0 | 2018 | | 2024.10.25 | ¿ù¼¼ | (10-347) | 3 | 17.48 | 8,000 | 32 | 2018 | | 2024.10.25 | ¿ù¼¼ | ¿¡¾î½ºÆäÀ̽º(1560-17) | 2 | 23.55 | 13,253 | 16 | 2022 | | 2024.10.25 | ¿ù¼¼ | Ÿ¿îij½½7Â÷ | 2 | 29.78 | 18,000 | 20 | 2015 | | 2024.10.25 | ¿ù¼¼ | À屺»êÀåºô¶ó | 2 | 67 | 5,000 | 110 | 2001 | | 2024.10.25 | ¿ù¼¼ | ¿µ´ëÁÖÅà | 2 | 26.72 | 1,000 | 60 | 2002 | | 2024.10.25 | ¿ù¼¼ | ¼®¿µ | 3 | 32.28 | 5,000 | 95 | 2022 | | 2024.10.25 | ¿ù¼¼ | ¸Þ¸®Æ®¿¥Å¸¿ö | 7 | 15.12 | 18,000 | 11 | 2019 | | 2024.10.24 | ¸Å¸Å | JÆç¸®Ã¼8Â÷ | 3 | 29.98 | 35,500 | | 2023 | | 2024.10.24 | ¸Å¸Å | ´ë¾ç±×¸°ºô¶ó | 4 | 35.63 | 18,000 | | 1994 | | 2024.10.24 | ¿ù¼¼ | Á¦À̽ººô | 2 | 39.66 | 25,650 | 11 | 2014 | | 2024.10.24 | ¿ù¼¼ | ¸®¸µ(1439-25) | 4 | 19.16 | 3,200 | 80 | 2014 | | 2024.10.24 | ¿ù¼¼ | ¼±¿ìºô | 2 | 44.57 | 10,000 | 50 | 2003 | | 2024.10.24 | ¿ù¼¼ | µå¸²Ä³½½ | 2 | 27.08 | 4,000 | 60 | 2017 | | 2024.10.24 | ¿ù¼¼ | ³ë¾ÆÀǹæÁÖ | 3 | 24.2 | 14,800 | 15 | 2012 | | 2024.10.24 | Àü¼¼ | È£¼±ºô¶ó | 3 | 25.64 | 13,000 | 0 | 1996 | | 2024.10.24 | Àü¼¼ | È£¼±ºô¶ó | 3 | 25.64 | 13,000 | 0 | 1996 | | 2024.10.23 | ¿ù¼¼ | (409-256) | 2 | 67.29 | 13,000 | 30 | 1990 | | 2024.10.23 | ¸Å¸Å | ¿ì¼®ºô¶ó6Â÷ | 1 | 44.49 | 20,000 | | 1994 | | 2024.10.23 | ¸Å¸Å | ·Î¾â¸Ç¼Ç | 2 | 65.96 | 29,000 | | 1997 | | 2024.10.23 | Àü¼¼ | ¼ºÃ¢ºô¶ó | 2 | 47.65 | 16,000 | 0 | 1991 | | 2024.10.23 | ¿ù¼¼ | ·ÎÁî¾ÆÆ®ºô | 5 | 45.65 | 17,500 | 15 | 2002 | | 2024.10.23 | Àü¼¼ | ¿øÁÖÅ󪵿(412-315) | 2 | 62.64 | 15,000 | 0 | 1992 | | 2024.10.23 | ¿ù¼¼ | (412-165) | 2 | 45.5 | 4,500 | 42 | 1996 | | 2024.10.23 | ¿ù¼¼ | (409-256) | 2 | 67.29 | 13,000 | 20 | 1990 | | 2024.10.23 | ¿ù¼¼ | (89-1) | 4 | 22.16 | 2,000 | 53 | 2016 | | 2024.10.23 | Àü¼¼ | CG¾Æ¸§Ã¤(1´ÜÁö) | 3 | 52.07 | 28,000 | 0 | 2019 | | 2024.10.22 | ¿ù¼¼ | °¡¿Â´©¸®ºô(763-14) | 2 | 28.42 | 3,000 | 58 | 2012 | | 2024.10.22 | ¿ù¼¼ | ÇѽÅÀ§³Ê½º | 6 | 29.2 | 5,000 | 130 | 2022 | | 2024.10.22 | Àü¼¼ | ¼¾Æ®·¹ºô(º») | 5 | 16.74 | 16,000 | 0 | 2018 | | 2024.10.22 | ¿ù¼¼ | BELITATERRA | 8 | 29.24 | 24,690 | 25 | 2016 | | 2024.10.22 | ¸Å¸Å | (685-25) | -1 | 45.89 | 13,000 | | 1991 | | 2024.10.22 | ¿ù¼¼ | Á¦ÀϺô¶ó(92-200) | 3 | 30.92 | 9,000 | 10 | 1991 | | 2024.10.21 | ¿ù¼¼ | ÀÚÀÌÇϿ콺 | 6 | 43.89 | 3,000 | 95 | 2016 | | 2024.10.21 | ¿ù¼¼ | YUHABA | 2 | 17.13 | 500 | 50 | 2012 | | 2024.10.21 | ¿ù¼¼ | ȼöºô¶óB | 3 | 45.84 | 6,000 | 95 | 1993 | | 2024.10.21 | ¿ù¼¼ | ¾ÆÅ©·Î(1432-48) | 10 | 58.5 | 5,000 | 150 | 2018 | | 2024.10.21 | ¿ù¼¼ | ¾ÆÅ©·Î(1432-48) | 8 | 28.89 | 21,000 | 30 | 2018 | | 2024.10.21 | ¸Å¸Å | »ï¼º±×¸°Å¸¿î(306-1) | 2 | 74.35 | 35,000 | | 1999 | | 2024.10.21 | ¿ù¼¼ | ¼º¿ì(1433-180) | 6 | 28.71 | 20,000 | 25 | 2014 | | 2024.10.21 | Àü¼¼ | Çì·»4Â÷ | 6 | 21.67 | 21,700 | 0 | 2016 | | 2024.10.21 | ¿ù¼¼ | ½ëÃ߸®·ÎÁîºô | 4 | 27.01 | 2,500 | 38 | 2002 | | 2024.10.21 | ¸Å¸Å | Çö´ë½º¸¶Æ®ºô | 3 | 29.9 | 26,200 | | 2012 | | 2024.10.21 | ¸Å¸Å | À屺»êÀåºô¶ó | 2 | 67.01 | 32,000 | | 2001 | | 2024.10.20 | ¿ù¼¼ | ´Ù¿Â½¦¸£ºô | 6 | 32.58 | 23,700 | 19 | 2016 | | 2024.10.20 | ¿ù¼¼ | ÇãºêÇϿ콺 | 4 | 21.82 | 12,000 | 30 | 2015 | | 2024.10.20 | Àü¼¼ | ÇູÀ̰¡µæÇÑÁý | 2 | 57.42 | 21,000 | 0 | 2003 | | 2024.10.20 | ¸Å¸Å | (120-93) | -1 | 37.32 | 12,400 | | 1986 | | 2024.10.20 | ¸Å¸Å | ÇѽÅÀ§³Ê½º(440-69) | 2 | 29.91 | 20,950 | | 2016 | | 2024.10.20 | ¿ù¼¼ | ÁÁÀº»ç¶÷ÁÁÀºÁý | 4 | 30.61 | 8,000 | 61 | 2016 | | 2024.10.20 | ¿ù¼¼ | È£±¤ºô¶ó | 2 | 51.57 | 5,000 | 58 | 1992 | | 2024.10.19 | ¿ù¼¼ | Çѳª·¡(1680-7) | 5 | 29.78 | 2,000 | 105 | 2017 | | 2024.10.19 | Àü¼¼ | »ïÁøÅ¸¿î | 3 | 51.54 | 20,000 | 0 | 2001 | | 2024.10.19 | ¿ù¼¼ | Çѳª·¡(1680-7) | 5 | 29.78 | 2,000 | 105 | 2017 | | 2024.10.19 | ¿ù¼¼ | 1627-39 | 3 | 39.71 | 10,000 | 40 | 2013 | | 2024.10.19 | ¿ù¼¼ | ¼º°Ã»¾Èä(1487-4) | 5 | 34.08 | 19,000 | 10 | 2015 | | 2024.10.19 | ¿ù¼¼ | Űæºô | 1 | 29.86 | 100 | 95 | 2020 | | 2024.10.19 | Àü¼¼ | ´Ù¼Ø½ÃƼºô | 8 | 13.74 | 19,000 | 0 | 2021 | | 2024.10.19 | Àü¼¼ | ºÎ¸²¸Ç¼Ç | 2 | 76.9 | 29,000 | 0 | 1992 | | 2024.10.19 | Àü¼¼ | ¾çÁöºô¶óÆ®(459-39) | -1 | 60.6 | 15,000 | 0 | 2002 | | 2024.10.19 | Àü¼¼ | µ¿ºÎ¿¡À̽ººô | 2 | 29.65 | 14,000 | 0 | 2012 | | 2024.10.19 | ¿ù¼¼ | ½Å³²195 | 6 | 16.26 | 16,000 | 25 | 2020 | | 2024.10.19 | ¿ù¼¼ | (1585-6) | 2 | 38.64 | 16,000 | 10 | 2002 | | 2024.10.19 | Àü¼¼ | »ïÁøÅ¸¿î | 3 | 51.54 | 20,000 | 0 | 2001 | | 2024.10.19 | Àü¼¼ | ´Ù¼Ø½ÃƼºô | 8 | 13.74 | 19,000 | 0 | 2021 | | 2024.10.19 | ¿ù¼¼ | ÇѼۺô | 2 | 29.34 | 3,000 | 90 | 2016 | | 2024.10.18 | Àü¼¼ | À¯Àκôµù | 3 | 29.905 | 23,000 | 0 | 2019 | | 2024.10.18 | Àü¼¼ | »ïÁøÅ¸¿î | 3 | 51.54 | 20,000 | 0 | 2001 | | 2024.10.18 | ¿ù¼¼ | (1439-24) | 5 | 11.59 | 11,000 | 35 | 2020 | | 2024.10.18 | Àü¼¼ | »ïÁøÅ¸¿î | 3 | 51.54 | 20,000 | 0 | 2001 | | 2024.10.18 | ¿ù¼¼ | µ¿¹®Å¸¿î | 1 | 41.28 | 12,000 | 45 | 1996 | | 2024.10.18 | ¿ù¼¼ | Á¶Àººô | 5 | 12 | 1,000 | 55 | 2013 | | 2024.10.18 | ¸Å¸Å | µ¿ºÎ¿¡À̽ººô | 4 | 29.65 | 17,700 | | 2012 | | 2024.10.18 | ¸Å¸Å | º¸¶ó¸Å117µ¿ | 3 | 59.99 | 31,500 | | 2000 | | 2024.10.17 | ¿ù¼¼ | Á¶Àººô¶ó(631-26) | 2 | 45.63 | 13,300 | 20 | 1991 | | 2024.10.17 | ¿ù¼¼ | µ¿¼öºô¶ó(619-2) | 1 | 41.16 | 12,200 | 20 | 1992 | | 2024.10.17 | ¿ù¼¼ | ¼º¿ø±×¸°ºôBµ¿(610-590) | 3 | 61.88 | 10,000 | 50 | 2002 | | 2024.10.17 | Àü¼¼ | ¿©Èï¾ÆÆ®ºô | 5 | 67.79 | 23,800 | 0 | 2004 | | 2024.10.17 | ¿ù¼¼ | U2 | 6 | 13.09 | 2,000 | 40 | 2012 | | 2024.10.17 | Àü¼¼ | ¼±¤ | -1 | 37.7 | 1,000 | 0 | 2003 | | 2024.10.17 | ¸Å¸Å | »ï¿ìÁÖÅÃ(86-26) | -1 | 48.09 | 22,000 | | 1991 | | 2024.10.17 | ¸Å¸Å | ÇÁ¶óÀÓºô(626-45) | 2 | 61.74 | 35,500 | | 2011 | | 2024.10.17 | Àü¼¼ | ¿ùµå±×¸°ºô | 1 | 69.12 | 17,000 | 0 | 2002 | | 2024.10.17 | ¿ù¼¼ | ¿¹ÇöÅ׶󽺺ô | 4 | 36.89 | 10,000 | 103 | 2024 | | 2024.10.17 | ¿ù¼¼ | ´Ù»êºô(1627-90) | 5 | 35.34 | 18,100 | 30 | 2012 | | 2024.10.17 | ¿ù¼¼ | À¯¿£ºô¸®Áö | 1 | 57.75 | 18,000 | 35 | 2001 | | 2024.10.17 | Àü¼¼ | ÃÊ¿ø¸Ç¼Ç9Â÷ | 1 | 78.48 | 31,000 | 0 | 1998 | | 2024.10.17 | ¸Å¸Å | »ïdz±×¸°ºô¸®Áö | 4 | 39.15 | 14,000 | | 1991 | | 2024.10.17 | ¿ù¼¼ | ÄÚÁöÇϿ콺(COZYHOUSE) | 6 | 12.03 | 500 | 51 | 2012 | | 2024.10.16 | Àü¼¼ | CG¾Æ¸§Ã¤(1´ÜÁö) | 6 | 26.27 | 17,850 | 0 | 2019 | | 2024.10.16 | Àü¼¼ | ¼¸²ºô | 4 | 39.42 | 36,000 | 0 | 2022 | | 2024.10.16 | Àü¼¼ | µå¸²Å¸¿î | 7 | 20.46 | 23,000 | 0 | 2020 | | 2024.10.16 | ¿ù¼¼ | µ¿ÀϺô¶ó | 2 | 43.26 | 13,000 | 20 | 2000 | | 2024.10.16 | ¿ù¼¼ | ¸®Ã÷¿ÀÇǽºÅÚ&µµ½ÃÇü»ýȰÁÖÅà | 4 | 17.7 | 13,000 | 2 | 2014 | | 2024.10.16 | Àü¼¼ | µå¸²Å¸¿î | 7 | 20.46 | 23,000 | 0 | 2020 | | 2024.10.16 | ¿ù¼¼ | ¼º¾Èºôµù(1667-1) | 7 | 14.77 | 10,000 | 7 | 2014 | | 2024.10.16 | ¿ù¼¼ | ¿¡µ§±×¸°ºô¶ó | -1 | 60.66 | 2,000 | 80 | 1992 | | 2024.10.16 | ¿ù¼¼ | ÇѽÅÀ§³Ê½º(1678-24) | 2 | 49.63 | 20,000 | 10 | 2011 | | 2024.10.15 | Àü¼¼ | ·¹¿ÀÆÈ·¹½º | 4 | 28.23 | 18,000 | 0 | 2014 | | 2024.10.15 | ¿ù¼¼ | Æ®¸®ÇÃÈú½º2 | 5 | 29.03 | 5,000 | 100 | 2023 | | 2024.10.15 | ¿ù¼¼ | (253-14) | -1 | 31.95 | 1,000 | 70 | 1987 | | 2024.10.15 | Àü¼¼ | Àü¿øÁÖÅà | 4 | 32.16 | 10,000 | 0 | 1998 | | 2024.10.15 | ¿ù¼¼ | 94-155 | 3 | 22.89 | 16,000 | 10 | 2016 | | 2024.10.15 | ¿ù¼¼ | Æ®¸®ÇÃÈú½º2 | 5 | 29.03 | 5,000 | 100 | 2023 | | 2024.10.15 | ¿ù¼¼ | Äھƺô | 3 | 70.53 | 5,000 | 50 | 2002 | | 2024.10.15 | ¸Å¸Å | ½Å»çŸ¿îºô | 2 | 39.26 | 40,500 | | 2016 | | 2024.10.14 | ¿ù¼¼ | ¿¡¾î½ºÆäÀ̽º | 2 | 35.16 | 20,280 | 29 | 2021 | | 2024.10.14 | ¿ù¼¼ | WannyVill(1487-21) | 2 | 41.43 | 8,800 | 62 | 2015 | | 2024.10.14 | Àü¼¼ | EatonTower(1433-227) | 9 | 28.57 | 19,200 | 0 | 2017 | | 2024.10.14 | Àü¼¼ | (254-301) | 1 | 79.39 | 32,000 | 0 | 1991 | | 2024.10.14 | ¿ù¼¼ | Àü¿øÁÖÅà | -1 | 25.43 | 0 | 75 | 1998 | | 2024.10.13 | Àü¼¼ | ¾ÆÆ®ÆÄÅ©(485-26) | 2 | 78.76 | 27,000 | 0 | 2002 | | 2024.10.13 | ¿ù¼¼ | (468-1) | 6 | 28.1 | 8,000 | 67 | 2014 | | 2024.10.13 | ¿ù¼¼ | ¾¾¿¤ºí·ç | 8 | 28.78 | 13,000 | 11 | 2015 | | 2024.10.13 | ¸Å¸Å | µ¿½Åºô¶ó | 1 | 36.74 | 17,000 | | 1994 | | 2024.10.12 | ¿ù¼¼ | ´ÙÀÎij½½Bµ¿ | 3 | 29.93 | 21,300 | 12 | 2018 | | 2024.10.12 | ¿ù¼¼ | ÇÑÂ÷ÀÓºô | 6 | 27.72 | 5,000 | 85 | 2021 | | 2024.10.12 | ¿ù¼¼ | (1480-29) | 1 | 73.86 | 3,000 | 60 | 2003 | | 2024.10.12 | ¿ù¼¼ | ¶óÆÄ¸£½Å¸² | 8 | 26.85 | 1,500 | 150 | 2023 | | 2024.10.12 | ¿ù¼¼ | °üµ¿È÷¸»¶ó¾ß2Â÷B | 5 | 24.59 | 1,000 | 70 | 2016 | | 2024.10.12 | ¿ù¼¼ | (468-1) | 4 | 27.78 | 15,000 | 25 | 2014 | | 2024.10.12 | ¿ù¼¼ | ¼Ò³ëÇϿ콺 | 3 | 20.43 | 1,000 | 63 | 2014 | | 2024.10.12 | ¿ù¼¼ | µ¿¾Æ°¡µ¿ | 3 | 52.89 | 13,000 | 15 | 1982 | | 2024.10.12 | ¿ù¼¼ | ¸ð¾Æºô¶óÆ®4 | 1 | 47.5 | 4,000 | 65 | 2011 | | 2024.10.12 | ¿ù¼¼ | ¸®Ã÷¿ÀÇǽºÅÚ&µµ½ÃÇü»ýȰÁÖÅà | 5 | 14.31 | 3,500 | 46 | 2014 | | 2024.10.12 | Àü¼¼ | ¸ð´×Èú(1564-9) | 2 | 38.37 | 24,000 | 0 | 2016 | | 2024.10.12 | ¿ù¼¼ | ±¤Èñ°¡ | 2 | 26.46 | 3,000 | 21 | 2015 | | 2024.10.12 | ¸Å¸Å | ÀºÅ¹ºô | 4 | 65.16 | 34,300 | | 2010 | | 2024.10.12 | ¸Å¸Å | ¿ì¼®ºô¶ó14Â÷ | 4 | 27.22 | 16,700 | | 1995 | | 2024.10.12 | ¿ù¼¼ | ¼¼ÁøÇÏÀÌÃ÷ºô¶ó | 4 | 30 | 3,000 | 80 | 1991 | | 2024.10.12 | ¿ù¼¼ | ½áµåÇ÷¹À̽º½Å¸² | 2 | 22.92 | 10,000 | 62 | 2023 | | 2024.10.12 | ¿ù¼¼ | ½Å¿ìºô¶óBµ¿ | 1 | 40.89 | 1,700 | 28 | 1987 | | 2024.10.12 | ¿ù¼¼ | ¸®Ã÷¿ÀÇǽºÅÚ&µµ½ÃÇü»ýȰÁÖÅà | 5 | 14.31 | 3,500 | 46 | 2014 | | 2024.10.12 | Àü¼¼ | ¸ð´×Èú(1564-9) | 3 | 38.37 | 24,000 | 0 | 2016 | | 2024.10.12 | ¿ù¼¼ | (468-1) | 4 | 27.78 | 15,000 | 25 | 2014 | | 2024.10.11 | ¿ù¼¼ | ´ÃÁ¶Àººô | 2 | 32.42 | 5,000 | 100 | 2023 | | 2024.10.11 | Àü¼¼ | ÁøÁÖ¸®Ã÷ºô(440-45) | 5 | 40.77 | 22,500 | 0 | 2014 | | 2024.10.11 | Àü¼¼ | (255-120) | 3 | 66.6 | 18,900 | 0 | 1991 | | 2024.10.11 | Àü¼¼ | µå¸²Å¸¿î | 6 | 22.23 | 23,000 | 0 | 2020 | | 2024.10.11 | Àü¼¼ | µå¸²Å¸¿î | 6 | 22.23 | 23,000 | 0 | 2020 | | 2024.10.11 | ¿ù¼¼ | ¶ó¿ÂÁ¦³ª | 2 | 16.15 | 1,000 | 32 | 2009 | | 2024.10.10 | ¸Å¸Å | ¿¹°Çºô¶ó(90-46) | 2 | 51.93 | 12,000 | | 1991 | | 2024.10.10 | ¿ù¼¼ | È«¿¬±×¸°ºô(571-1) | 3 | 29.84 | 13,000 | 29 | 2016 | | 2024.10.10 | Àü¼¼ | (254-301) | 3 | 79.39 | 35,000 | 0 | 1991 | | 2024.10.10 | ¿ù¼¼ | ½Ã¸®¿ì½º | 5 | 26.61 | 4,000 | 110 | 2024 | | 2024.10.10 | ¿ù¼¼ | Űæºô | 2 | 29.86 | 1,000 | 90 | 2020 | | 2024.10.10 | Àü¼¼ | ½º¸¶Æ®ºô | 5 | 20.44 | 14,500 | 0 | 2013 | | 2024.10.10 | ¿ù¼¼ | ¿¹¼ºÈÞij½½ | 3 | 36.62 | 1,000 | 140 | 2014 | | 2024.10.10 | Àü¼¼ | ¼¿øºô¶ó¸¶µ¿ | 1 | 41.97 | 10,000 | 0 | 1992 | | 2024.10.10 | ¿ù¼¼ | (409-96) | 4 | 16.83 | 11,000 | 20 | 2013 | | 2024.10.10 | ¿ù¼¼ | °æµµºô | 1 | 84.65 | 500 | 39 | 2004 | | 2024.10.10 | ¿ù¼¼ | ´õÆÛ½ºÆ®ºô(98-54) | 3 | 28.93 | 12,000 | 50 | 2016 | | 2024.10.09 | ¸Å¸Å | Ä¥¼ººô¶ó | -1 | 64.25 | 25,000 | | 1991 | | 2024.10.09 | Àü¼¼ | ÅÂÇÑÇÏÀ̺ô | 7 | 27.27 | 25,000 | 0 | 2016 | | 2024.10.09 | Àü¼¼ | ´Ù¼Ø±×¶ûºô(654-38) | 4 | 17.64 | 20,000 | 0 | 2022 | | 2024.10.09 | ¸Å¸Å | »ïÇϺô¶ó(534-23) | 5 | 63.78 | 33,000 | | 2003 | | 2024.10.09 | ¸Å¸Å | ¸Þ°¡´õŬ·¡½º | 4 | 48.51 | 45,000 | | 2017 | | 2024.10.09 | ¸Å¸Å | ´ë¾ç±×¸°ºô¶ó | 3 | 43.03 | 19,000 | | 1994 | | 2024.10.09 | Àü¼¼ | ÆÓ¸®½ººô | 3 | 32.12 | 20,000 | 0 | 2013 | | 2024.10.09 | ¿ù¼¼ | ¸ð¾Æºô¶óÆ®4 | -1 | 29.84 | 7,500 | 10 | 2011 | | 2024.10.09 | ¿ù¼¼ | º¸¸®ÇϿ콺 | 5 | 24.79 | 12,000 | 22 | 2017 | | 2024.10.09 | ¿ù¼¼ | (1439-24) | 5 | 11.17 | 10,700 | 33 | 2020 | | 2024.10.09 | ¿ù¼¼ | (1439-24) | 5 | 11.17 | 10,700 | 33 | 2020 | | 2024.10.09 | Àü¼¼ | ÇÑ¾ç¾ÆÆ®ºô¸®Áö | 2 | 37.54 | 14,500 | 0 | 1993 | | 2024.10.09 | ¿ù¼¼ | º¸¸®ÇϿ콺 | 5 | 24.79 | 12,000 | 22 | 2017 | | 2024.10.08 | ¿ù¼¼ | J2tower | 2 | 14.39 | 1,000 | 65 | 2014 | | 2024.10.08 | ¿ù¼¼ | ³ìµÎ½ºÄù¾î | 3 | 28.9 | 1,000 | 84 | 2019 | | 2024.10.08 | ¿ù¼¼ | ¼¼À±ºô¸®Áö | -1 | 60.52 | 2,000 | 70 | 2009 | | 2024.10.08 | ¿ù¼¼ | ½º¸¶Æ®ºô | 4 | 14.52 | 9,500 | 13 | 2013 | | 2024.10.08 | ¿ù¼¼ | À̷봺ij½½ | 4 | 40.09 | 5,000 | 100 | 2016 | | 2024.10.08 | ¸Å¸Å | ½ÅÈïºô¶ó(598-17) | -1 | 50.16 | 16,500 | | 1989 | | 2024.10.08 | ¸Å¸Å | ¿¡¸£½º¶¼ | 11 | 26.4 | 30,600 | | 2018 | | 2024.10.08 | ¿ù¼¼ | Âù¼ÖÆÓ¸®½º | 4 | 49.78 | 19,200 | 20 | 2014 | | 2024.10.08 | ¿ù¼¼ | Âù¼ÖÆÓ¸®½º | 4 | 49.78 | 19,200 | 20 | 2014 | | 2024.10.08 | ¿ù¼¼ | »ï¼º¾ÆÆ®ºô9Â÷Bµ¿ | 4 | 52.9 | 16,000 | 20 | 2004 | | 2024.10.08 | ¿ù¼¼ | ¼º¾Èºôµù(1667-1) | 8 | 23.05 | 15,000 | 8 | 2014 | | 2024.10.08 | ¿ù¼¼ | J2tower | 2 | 14.39 | 1,000 | 65 | 2014 | | 2024.10.08 | ¿ù¼¼ | À̵µÆÄÅ©ºô | 2 | 36.97 | 1,854 | 54 | 2023 | | 2024.10.08 | Àü¼¼ | (1599-4) | 4 | 61.14 | 25,000 | 0 | 2003 | | 2024.10.08 | ¿ù¼¼ | °æ¿øÇÏÀÌÃ÷ÅÚ | 10 | 21.76 | 1,000 | 59 | 2019 | | 2024.10.08 | ¿ù¼¼ | ¼º¾Èºôµù(1667-1) | 8 | 23.05 | 15,000 | 8 | 2014 | | 2024.10.08 | Àü¼¼ | ÁÖ¿øº£¸£ºô(493-7) | 3 | 29.93 | 25,200 | 0 | 2016 | | 2024.10.08 | ¿ù¼¼ | µÎ»ïºô¶ó | 1 | 65.21 | 16,000 | 15 | 1995 | | 2024.10.08 | ¿ù¼¼ | ¿ì¸² | 2 | 59.96 | 1,000 | 20 | 1991 | | 2024.10.08 | Àü¼¼ | ½º¸¶Æ®ºô | 2 | 14.52 | 10,500 | 0 | 2013 | | 2024.10.08 | ¿ù¼¼ | ¿ö³Êºô | 4 | 53.89 | 100 | 35 | 2006 | | 2024.10.07 | ¿ù¼¼ | T&K½Å¸²¥² | 4 | 28.97 | 4,129 | 43 | 2023 | | 2024.10.07 | ¿ù¼¼ | ûdzºô¶ó10Â÷ | -1 | 65.03 | 12,000 | 15 | 1996 | | 2024.10.07 | ¿ù¼¼ | ½ºÄ«ÀÌij½½ | 3 | 59.33 | 28,000 | 25 | 2023 | | 2024.10.07 | ¿ù¼¼ | FillYou | 5 | 16.41 | 16,000 | 12 | 2016 | | 2024.10.07 | Àü¼¼ | À̽ºÆ®ºô | 3 | 49.86 | 18,000 | 0 | 2002 | | 2024.10.07 | Àü¼¼ | Á¤È£ºô¶ó³ªµ¿(1563-42) | 1 | 33.69 | 8,000 | 0 | 1994 | | 2024.10.07 | ¿ù¼¼ | (1464-13) | 2 | 38.63 | 2,000 | 77 | 2005 | | 2024.10.07 | ¿ù¼¼ | (729-9) | 2 | 59.3 | 1,000 | 67 | 2013 | | 2024.10.07 | Àü¼¼ | »ê¸¶·çºô(98-82) | 4 | 19.06 | 18,450 | 0 | 2016 | | 2024.10.07 | ¿ù¼¼ | dz¿øÇÏÀÓºô | 2 | 28.87 | 23,000 | 25 | 2018 | | 2024.10.07 | ¿ù¼¼ | ³ÇâÇì·»ÇϿ콺 | 4 | 29.9 | 3,000 | 70 | 2013 | | 2024.10.07 | Àü¼¼ | Çì·»4Â÷ | 6 | 21.67 | 24,703 | 0 | 2016 | | 2024.10.07 | ¿ù¼¼ | ¿ÍÀ̾ØÄ³½½ | 2 | 34.72 | 19,000 | 15 | 2014 | | 2024.10.07 | ¿ù¼¼ | ´Ù¿Â½¦¸£ºô | 3 | 32.15 | 21,000 | 21 | 2016 | | 2024.10.07 | ¿ù¼¼ | ½ºÄ«ÀÌij½½ | 3 | 59.33 | 28,000 | 25 | 2023 | | 2024.10.07 | ¿ù¼¼ | ÈÞÆÄÅ© | 3 | 21.54 | 3,000 | 77 | 2015 | | 2024.10.07 | ¿ù¼¼ | dz¿øÇÏÀÓºô | 2 | 28.87 | 23,000 | 25 | 2018 | | 2024.10.07 | ¿ù¼¼ | ºÀȲºô¶ó | 2 | 41.38 | 9,000 | 25 | 1994 | | 2024.10.06 | Àü¼¼ | °æ±¤ºô¶ó3Â÷(1564-6) | 4 | 39.43 | 18,000 | 0 | 1997 | | 2024.10.06 | Àü¼¼ | µå¸²Å¸¿î | 5 | 21.39 | 23,000 | 0 | 2020 | | 2024.10.06 | ¿ù¼¼ | º¸¶ó¸Å115µ¿ | 4 | 59.9 | 15,000 | 55 | 2000 | | 2024.10.06 | ¿ù¼¼ | º¸¶ó¸Å115µ¿ | 4 | 59.9 | 15,000 | 55 | 2000 | | 2024.10.06 | ¿ù¼¼ | µå¸²Å¸¿î | 5 | 21.39 | 20,000 | 15 | 2020 | | 2024.10.05 | ¿ù¼¼ | ¸®Ã÷¿ÀÇǽºÅÚ&µµ½ÃÇü»ýȰÁÖÅà | 5 | 14.31 | 8,400 | 2 | 2014 | | 2024.10.05 | ¿ù¼¼ | ÁÁÀºÁý | 4 | 12.76 | 1,000 | 42 | 2014 | | 2024.10.05 | ¿ù¼¼ | (1421-31) | 6 | 18.1 | 1,000 | 53 | 2015 | | 2024.10.05 | ¿ù¼¼ | ´Ù¿ø¾ÆÆ®ºô(704-20) | 6 | 38.06 | 20,500 | 20 | 2015 | | 2024.10.05 | ¿ù¼¼ | 103-134 | 2 | 30.26 | 3,000 | 57 | 2014 | | 2024.10.05 | Àü¼¼ | ´õÆÛ½ºÆ®ºô(98-54) | 2 | 29.66 | 17,500 | 0 | 2016 | | 2024.10.05 | ¿ù¼¼ | (1506-6) | 1 | 44.93 | 2,000 | 70 | 2003 | | 2024.10.05 | ¿ù¼¼ | ½ºÅ¸ºôµù | 5 | 15.66 | 1,000 | 55 | 2014 | | 2024.10.05 | ¿ù¼¼ | ¸®Ã÷¿ÀÇǽºÅÚ&µµ½ÃÇü»ýȰÁÖÅà | 5 | 14.31 | 8,400 | 2 | 2014 | | 2024.10.05 | ¿ù¼¼ | (1439-24) | 8 | 11.17 | 5,000 | 55 | 2020 | | 2024.10.05 | ¸Å¸Å | ±âdz°ü¾Ç¸Ç¼Ç | 3 | 74.15 | 31,000 | | 1997 | | 2024.10.04 | Àü¼¼ | ÀÌÁöºñ¾Æ | 5 | 27.01 | 23,100 | 0 | 2015 | | 2024.10.04 | Àü¼¼ | ´õ·°½ººôII | 5 | 27.21 | 24,000 | 0 | 2024 | | 2024.10.04 | ¿ù¼¼ | (120-4) | 2 | 35.97 | 1,000 | 85 | 1986 | | 2024.10.04 | ¿ù¼¼ | ¾ÆÆ®ºô | 3 | 31.88 | 1,000 | 73 | 2001 | | 2024.10.04 | ¿ù¼¼ | ¸ÞÆ®·ÎŸ¿î8Â÷ | 2 | 29.98 | 10,000 | 35 | 2017 | | 2024.10.04 | ¸Å¸Å | ¾ËÆæÇϿ콺(612-25) | 4 | 51.95 | 26,300 | | 2012 | | 2024.10.04 | ¸Å¸Å | ¼º¿ìÆÄÅ©ºô | 2 | 73.35 | 40,000 | | 2002 | | 2024.10.04 | Àü¼¼ | ±¹Á¦¾Ë¾Øµå¾¾ | 2 | 28.47 | 25,000 | 0 | 2018 | | 2024.10.03 | Àü¼¼ | Áê¹æ½º | 7 | 25.33 | 25,000 | 0 | 2018 | | 2024.10.03 | ¿ù¼¼ | ´Ù¼Øºô¶ó520-4 | 2 | 51.47 | 1,000 | 95 | 2014 | | 2024.10.03 | ¸Å¸Å | ¹Ì¼º(610-366) | 3 | 74.97 | 24,000 | | 2000 | | 2024.10.03 | Àü¼¼ | ÀÚ¿¬Ã¤ | 3 | 28.59 | 17,000 | 0 | 2013 | | 2024.10.03 | ¿ù¼¼ | ¾ÆÁöÆ®(1432-51) | 9 | 27.98 | 21,000 | 25 | 2018 | | 2024.10.03 | ¿ù¼¼ | ¼º¸ºô¶ó°¡µ¿ | 2 | 34.61 | 9,900 | 20 | 1988 | | 2024.10.03 | ¿ù¼¼ | THELIME | 11 | 25.51 | 28,350 | 6 | 2020 | | 2024.10.03 | ¸Å¸Å | ³ÇâÇì·»ÇϿ콺 | 6 | 37.17 | 28,000 | | 2013 | | 2024.10.03 | ¸Å¸Å | ¼Ò³ëij½½ | 3 | 40.34 | 35,000 | | 2014 | | 2024.10.02 | ¸Å¸Å | ¿µ¿ìºô¸®Áö | 4 | 34.5 | 17,500 | | 2003 | | 2024.10.02 | ¸Å¸Å | ·ÎÁî¾ÆÆ®ºô | 3 | 59.61 | 35,000 | | 2002 | | 2024.10.02 | ¸Å¸Å | ¾çÁö¸®Ã÷Ÿ¿î | 3 | 57.53 | 42,400 | | 2016 | | 2024.10.02 | ¿ù¼¼ | Á¤Çöºô(1429-26) | 7 | 17.09 | 10,000 | 32 | 2013 | | 2024.10.02 | Àü¼¼ | ¶óÀÓ½ººô | 3 | 29.8 | 20,000 | 0 | 2020 | | 2024.10.02 | Àü¼¼ | ¸íÁøºô¶ó7Â÷ | 2 | 47.1 | 18,000 | 0 | 1992 | | 2024.10.02 | ¿ù¼¼ | ¿ì¼ººô¶ó(597-79) | 1 | 52.86 | 50 | 25 | 1991 | | 2024.10.02 | ¿ù¼¼ | ¾ÆÆ®ºôÇϿ콺(598-136) | 5 | 46.27 | 18,000 | 20 | 2011 | | 2024.10.01 | ¿ù¼¼ | ¼º¿ì(1433-180) | 6 | 28.71 | 20,000 | 25 | 2014 | | 2024.10.01 | ¸Å¸Å | º¸¶÷ºô¶ó | 3 | 35.37 | 15,500 | | 1992 | | 2024.10.01 | ¸Å¸Å | ½Å¾ÈÁÖÅà | 3 | 36.86 | 17,000 | | 1990 | | 2024.10.01 | ¿ù¼¼ | ÇüÁ¦ºôµù | 4 | 31.08 | 1,000 | 110 | 2020 | | 2024.10.01 | ¿ù¼¼ | Àº¿¬Àç | 4 | 14.27 | 1,000 | 45 | 2013 | | 2024.10.01 | Àü¼¼ | 641-15 | 3 | 41.21 | 25,500 | 0 | 2015 | | 2024.10.01 | ¿ù¼¼ | ±¤´öºô | 3 | 83.1 | 1,000 | 60 | 2004 | | 2024.09.30 | ¿ù¼¼ | º¸¶ó¸Å116µ¿ | 2 | 59.68 | 21,000 | 20 | 2000 | | 2024.09.30 | ¿ù¼¼ | º¸¶ó¸Å116µ¿ | 2 | 59.68 | 21,000 | 20 | 2000 | | 2024.09.30 | ¿ù¼¼ | º¸¶ó¸Å116µ¿ | 2 | 59.68 | 21,000 | 20 | 2000 | | 2024.09.30 | ¿ù¼¼ | ³ª½½Ã¤ | 3 | 20.49 | 3,000 | 53 | 2014 | | 2024.09.30 | ¿ù¼¼ | ä¼®°¡ | 3 | 20.34 | 18,000 | 35 | 2021 | | 2024.09.30 | ¿ù¼¼ | ä¼®°¡ | 3 | 20.34 | 18,000 | 35 | 2021 | | 2024.09.30 | ¿ù¼¼ | ´Ù¿Âij½½ | 4 | 29.63 | 22,000 | 10 | 2023 | | 2024.09.30 | ¸Å¸Å | »ï¿ìÁÖÅÃ(86-26) | -1 | 48.09 | 22,000 | | 1991 | | 2024.09.30 | ¿ù¼¼ | Á¦ÀϺô¶ó(92-200) | 1 | 30.92 | 4,000 | 40 | 1991 | | 2024.09.29 | ¿ù¼¼ | (306-52) | 5 | 31.995 | 14,000 | 9 | 2014 | | 2024.09.29 | ¿ù¼¼ | ÄÚÁöÇϿ콺(COZYHOUSE) | 5 | 12.03 | 500 | 47 | 2012 | | 2024.09.29 | ¸Å¸Å | ÇѸ²103µ¿ | 3 | 59.95 | 32,800 | | 2001 | | 2024.09.28 | Àü¼¼ | 1429-19 | 5 | 27.48 | 21,000 | 0 | 2016 | | 2024.09.28 | ¿ù¼¼ | µ¨·ç½Ã¾Æ.R | 2 | 29.685 | 5,000 | 90 | 2022 | | 2024.09.28 | ¿ù¼¼ | ¾ÆÀ϶ó(1432-19) | 7 | 26.67 | 24,000 | 15 | 2018 | | 2024.09.28 | ¿ù¼¼ | ¾ÆÀ϶ó(1432-19) | 7 | 26.67 | 24,000 | 15 | 2018 | | 2024.09.28 | ¿ù¼¼ | Ŭ·¡½Äij½½ | 2 | 29.94 | 6,000 | 115 | 2024 | | 2024.09.28 | Àü¼¼ | û»ê»ç¸£ºô | 3 | 52.91 | 22,000 | 0 | 2003 | | 2024.09.28 | ¿ù¼¼ | ¼º°Ã»¾Èä(1487-4) | 3 | 45.07 | 4,000 | 106 | 2015 | | 2024.09.28 | ¿ù¼¼ | ÆÊÆÄ½º | 2 | 16.15 | 2,000 | 59 | 2014 | | 2024.09.28 | ¿ù¼¼ | ¿ì¼º¾ÆÆ®ºô | 3 | 48.46 | 24,000 | 5 | 2013 | | 2024.09.28 | Àü¼¼ | Çö´ëºô¶ó(412-124) | 4 | 56.76 | 16,600 | 0 | 2002 | | 2024.09.28 | ¸Å¸Å | ¼ºÀººô¶ó³ªµ¿ | 2 | 36.36 | 19,800 | | 1990 | | 2024.09.28 | ¸Å¸Å | ¼¼Áøºô | 3 | 26.25 | 21,000 | | 2013 | | 2024.09.27 | ¸Å¸Å | µ¿¾çºô¶ó | 2 | 37.36 | 15,000 | | 1993 | | 2024.09.27 | Àü¼¼ | ½Å¿ìºô¶ó(409-124) | 1 | 47.75 | 13,000 | 0 | 1997 | | 2024.09.27 | ¿ù¼¼ | ¸ð¾Æºô¶óÆ®4 | 2 | 41.86 | 5,000 | 55 | 2011 | | 2024.09.27 | ¿ù¼¼ | ±ÝÈ£ºô | 4 | 33.91 | 5,000 | 70 | 2015 | | 2024.09.27 | ¿ù¼¼ | ÇØ¶ß´ÂÁý2 | 4 | 24.24 | 11,000 | 26 | 2016 | | 2024.09.27 | ¿ù¼¼ | ¹®°æÀç | 5 | 17.46 | 17,550 | 15 | 2020 | | 2024.09.26 | ¿ù¼¼ | È«¿¬±×¸°ºô(571-1) | 3 | 29.84 | 5,000 | 38 | 2016 | | 2024.09.26 | ¿ù¼¼ | ±¹Èºô¶ó3µ¿ | 2 | 60.3 | 7,500 | 55 | 1994 | | 2024.09.26 | Àü¼¼ | (1432-58) | 7 | 12.47 | 7,500 | 0 | 2009 | | 2024.09.26 | Àü¼¼ | (1432-58) | 7 | 12.47 | 7,500 | 0 | 2009 | | 2024.09.26 | ¿ù¼¼ | Çì·»ÇϿ콺3Â÷ | 5 | 26.89 | 4,000 | 55 | 2014 | | 2024.09.26 | ¿ù¼¼ | (1421-31) | 6 | 17.32 | 1,000 | 53 | 2015 | | 2024.09.26 | Àü¼¼ | ¼±°æºô | 2 | 41.92 | 28,200 | 0 | 2016 | | 2024.09.26 | ¿ù¼¼ | È«¿¬±×¸°ºô(571-1) | 3 | 20.96 | 5,000 | 38 | 2016 | | 2024.09.26 | ¿ù¼¼ | È«¿¬±×¸°ºô(571-1) | 3 | 29.84 | 13,000 | 29 | 2016 | | 2024.09.26 | ¿ù¼¼ | È«¿¬±×¸°ºô(571-1) | 3 | 20.96 | 5,000 | 38 | 2016 | | 2024.09.26 | ¿ù¼¼ | ¿¡ÄÚ¸®¿òºô(¿¹¼úÀÎÁÖÅÃ) | 2 | 31.08 | 1,410 | 23 | 2020 | | 2024.09.26 | Àü¼¼ | ´õ·°½ººôII | 6 | 27.21 | 24,000 | 0 | 2024 | | 2024.09.26 | Àü¼¼ | ´õ·°½ººôII | 5 | 27.21 | 24,000 | 0 | 2024 | | 2024.09.26 | ¸Å¸Å | µ¿¹æÁÖÅÃ8Â÷Bµ¿ | 3 | 36.42 | 28,500 | | 1990 | | 2024.09.26 | Àü¼¼ | ´õ·°½ººôII | 2 | 27.21 | 24,000 | 0 | 2024 | | 2024.09.25 | ¿ù¼¼ | (626-60) | 4 | 32.06 | 2,576 | 8 | 2023 | | 2024.09.25 | ¸Å¸Å | ÇѾ縮Ã÷ºô(629-15) | 6 | 20.51 | 19,800 | | 2016 | | 2024.09.25 | ¸Å¸Å | ¿ì¹Ì¸Ç¼ð | 1 | 57.59 | 39,900 | | 1980 | | 2024.09.25 | ¸Å¸Å | Á¶Àººô¶ó(631-26) | -1 | 44.08 | 13,250 | | 1991 | | 2024.09.25 | ¿ù¼¼ | ½ºÆäÀ̽ººô | 4 | 53.93 | 5,000 | 100 | 2020 | | 2024.09.25 | Àü¼¼ | Ȳ±Ýºô¶ó | 3 | 76.12 | 20,000 | 0 | 1984 | | 2024.09.25 | ¿ù¼¼ | Å©³ªÅ«ÇϿ콺 | 5 | 29.25 | 3,000 | 48 | 2016 | | 2024.09.25 | ¿ù¼¼ | ÀÚ¿¬¾Ö°¡ | 5 | 23.92 | 11,400 | 17 | 2016 | | 2024.09.25 | ¿ù¼¼ | (306-52) | 4 | 42.635 | 17,000 | 7 | 2014 | | 2024.09.25 | Àü¼¼ | ¸®Ã÷¿ÀÇǽºÅÚ&µµ½ÃÇü»ýȰÁÖÅà | 5 | 17.7 | 11,000 | 0 | 2014 | | 2024.09.24 | Àü¼¼ | ÅÂÇÑÇÏÀ̺ô | 6 | 27.27 | 23,800 | 0 | 2016 | | 2024.09.24 | Àü¼¼ | ´õ·°½ººôII | 6 | 27.21 | 24,000 | 0 | 2024 | | 2024.09.24 | Àü¼¼ | ½Å¸²ºô¶ó(354-2) | 1 | 75.48 | 13,650 | 0 | 1984 | | 2024.09.24 | ¿ù¼¼ | û¿îºô¶ó | 1 | 33.57 | 500 | 55 | 1991 | | 2024.09.24 | Àü¼¼ | µ¿»êºô¶ó | 2 | 45.28 | 12,400 | 0 | 1991 | | 2024.09.24 | ¿ù¼¼ | ¿µ´ëÁÖÅà | 3 | 24.47 | 2,000 | 52 | 2002 | | 2024.09.24 | ¿ù¼¼ | (567-30) | 3 | 57.3 | 25,000 | 10 | 2015 | | 2024.09.24 | Àü¼¼ | EatonTower(1433-227) | 9 | 29.71 | 25,880 | 0 | 2017 | | 2024.09.24 | ¸Å¸Å | »ïÁøÅ¸¿î | 3 | 51.54 | 27,700 | | 2001 | | 2024.09.24 | ¸Å¸Å | ¹«Áö°³ºô¶ó | 4 | 29.26 | 25,000 | | 1993 | | 2024.09.24 | ¸Å¸Å | ½Å¸²ÇÏÀÌÃ÷ºô¶ó3µ¿ | 1 | 84.64 | 66,700 | | 1989 | | 2024.09.24 | ¿ù¼¼ | Æ®¸®ÇÃÈú½º2 | 3 | 29.59 | 5,000 | 100 | 2023 | | 2024.09.23 | ¸Å¸Å | °øÀ۸ǼÇ9Â÷ | 3 | 59.71 | 27,000 | | 1996 | | 2024.09.23 | ¿ù¼¼ | žçºô¶ó | 3 | 46.71 | 2,000 | 75 | 1986 | | 2024.09.23 | ¸Å¸Å | ¾çÁöºô¶óÆ® | 4 | 62.04 | 27,500 | | 2001 | | 2024.09.23 | Àü¼¼ | ÆòÁÖºô¶ó2Â÷ | 1 | 37.85 | 11,800 | 0 | 1995 | | 2024.09.23 | Àü¼¼ | ¿ø¾Óºô¶ó(98-111) | 3 | 60.63 | 20,500 | 0 | 2001 | | 2024.09.23 | ¿ù¼¼ | ¿µÈºô¶ó³ªµ¿(412-212) | 2 | 37.33 | 10,500 | 20 | 1991 | | 2024.09.23 | ¿ù¼¼ | ¼º¿ø±×¸°ºô5Â÷ | 1 | 54.68 | 16,600 | 20 | 2002 | | 2024.09.23 | Àü¼¼ | (678-26) | 2 | 38.63 | 9,900 | 0 | 1971 | | 2024.09.23 | Àü¼¼ | (678-26) | 2 | 38.63 | 9,900 | 0 | 1971 | | 2024.09.23 | ¿ù¼¼ | (298-4) | 1 | 86.34 | 200 | 20 | 1983 | | 2024.09.23 | Àü¼¼ | dz¾çºôµù | 6 | 22.315 | 9,371 | 0 | 2012 | | 2024.09.23 | Àü¼¼ | ´õ·°½ººôII | 2 | 27.21 | 24,000 | 0 | 2024 | | 2024.09.23 | Àü¼¼ | (676-2) | 3 | 49.46 | 20,000 | 0 | 2024 | | 2024.09.23 | ¿ù¼¼ | ÇÑÂ÷ÀÓºô | 2 | 29.85 | 500 | 100 | 2021 | | 2024.09.23 | ¿ù¼¼ | ÆÄÀκô | 3 | 27.33 | 21,000 | 9 | 2014 | | 2024.09.23 | ¿ù¼¼ | ³ë¾ÆÀǹæÁÖ | 4 | 20.25 | 12,800 | 25 | 2012 | | 2024.09.22 | Àü¼¼ | ¾¾Æ¼ºô,¾ç¾¾ | 4 | 52.77 | 17,300 | 0 | 2000 | | 2024.09.22 | ¿ù¼¼ | µ¨·ç½Ã¾Æ.R | 3 | 29.685 | 5,000 | 90 | 2022 | | 2024.09.21 | ¿ù¼¼ | (394-14) | 1 | 35.19 | 1,000 | 45 | 1993 | | 2024.09.21 | ¸Å¸Å | µ¿¹æÁÖÅÃ8Â÷Aµ¿ | 2 | 36.42 | 31,000 | | 1990 | | 2024.09.21 | ¸Å¸Å | µ¿¹æÁÖÅÃ8Â÷Aµ¿ | 2 | 36.42 | 31,000 | | 1990 | | 2024.09.21 | Àü¼¼ | (630-25) | 2 | 78.3 | 26,000 | 0 | 2002 | | 2024.09.21 | Àü¼¼ | ½ÅÈïºô¶ó8Â÷ | 2 | 50.44 | 14,800 | 0 | 1996 | | 2024.09.21 | ¿ù¼¼ | 98-123 | 2 | 35.1 | 10,000 | 55 | 2015 | | 2024.09.21 | ¿ù¼¼ | ¼º¿øºô(1667-23) | 4 | 15.48 | 500 | 54 | 2017 | | 2024.09.21 | ¿ù¼¼ | ½Å¸²ºôµù | 5 | 10.89 | 500 | 64 | 2018 | | 2024.09.21 | ¿ù¼¼ | ¹®°æÀç | 5 | 19.85 | 18,900 | 5 | 2020 | | 2024.09.21 | ¿ù¼¼ | ½á´Ïºô | 9 | 24.14 | 2,000 | 70 | 2020 | | 2024.09.21 | ¿ù¼¼ | (1502-5) | 1 | 34.04 | 1,000 | 40 | 2004 | | 2024.09.20 | ¸Å¸Å | ±¹Á¦¾Ë¾Øµå¾¾ | 2 | 28.58 | 25,500 | | 2018 | | 2024.09.20 | ¿ù¼¼ | ¼öÁ¤(98-202) | 2 | 38.82 | 5,000 | 50 | 1991 | | 2024.09.20 | Àü¼¼ | ¿¡¼¿ÆÄÅ©ºô¥± | 3 | 25.38 | 19,000 | 0 | 2018 | | 2024.09.20 | ¿ù¼¼ | JCSTUDIO | 9 | 18.67 | 10,000 | 22 | 2018 | | 2024.09.20 | ¿ù¼¼ | (1578-38) | 4 | 57.31 | 2,000 | 155 | 2022 | | 2024.09.20 | ¿ù¼¼ | (1578-38) | 4 | 57.31 | 2,000 | 155 | 2022 | | 2024.09.20 | ¿ù¼¼ | (626-60) | 4 | 32.06 | 2,129 | 10 | 2023 | | 2024.09.19 | ¿ù¼¼ | ´ë¼ººô¶ó | 4 | 31.89 | 500 | 74 | 1984 | | 2024.09.19 | ¿ù¼¼ | (1439-24) | 7 | 11.81 | 11,300 | 35 | 2020 | | 2024.09.19 | ¿ù¼¼ | (306-52) | 5 | 28.5 | 15,000 | 6 | 2014 | | 2024.09.18 | ¿ù¼¼ | (10-450) | 5 | 34.73 | 7,200 | 10 | 2003 | | 2024.09.14 | ¿ù¼¼ | ¾¾¿¤ºí·ç | 5 | 27.76 | 23,000 | 5 | 2015 | | 2024.09.14 | ¿ù¼¼ | ¿µÈºô¶ó³ªµ¿(412-212) | 2 | 37.33 | 10,500 | 8 | 1991 | | 2024.09.14 | ¿ù¼¼ | ½º¸¶Æ®ºô | 4 | 14.52 | 9,500 | 13 | 2013 | | 2024.09.14 | ¿ù¼¼ | ¼º¿ì(1433-180) | 4 | 27.47 | 19,000 | 25 | 2014 | | 2024.09.14 | ¿ù¼¼ | ¾¾¿¤ºí·ç | 5 | 27.76 | 23,000 | 5 | 2015 | | 2024.09.13 | Àü¼¼ | (100-10) | 1 | 53.43 | 15,000 | 0 | 1987 | | 2024.09.13 | Àü¼¼ | ¿î¼º | 7 | 34.65 | 27,000 | 0 | 2020 | | 2024.09.13 | ¿ù¼¼ | Á꺣¶ó | 7 | 24.03 | 25,000 | 9 | 2018 | | 2024.09.13 | Àü¼¼ | žçºô¶ó | 1 | 59.7 | 23,500 | 0 | 1986 | | 2024.09.13 | Àü¼¼ | »êÀåºô¶ó | 4 | 61.8 | 15,750 | 0 | 1995 | | 2024.09.13 | Àü¼¼ | (100-10) | 1 | 53.43 | 15,000 | 0 | 1987 | | 2024.09.13 | ¸Å¸Å | ¶óÀÓ½ººô | 3 | 28.79 | 24,800 | | 2019 | | 2024.09.12 | ¸Å¸Å | ȼöºô¶óB | 3 | 45.84 | 27,000 | | 1993 | | 2024.09.12 | ¸Å¸Å | (1578-38) | 3 | 59.97 | 56,000 | | 2022 | | 2024.09.12 | ¿ù¼¼ | BELITATERRA | 8 | 29.24 | 24,690 | 25 | 2016 | | 2024.09.12 | Àü¼¼ | ´õ·°½ººôII | 2 | 27.69 | 24,000 | 0 | 2024 | | 2024.09.12 | Àü¼¼ | ´õ·°½ººôII | 2 | 27.69 | 24,000 | 0 | 2024 | | 2024.09.12 | ¿ù¼¼ | (98-364) | 2 | 27.36 | 10,000 | 35 | 2015 | | 2024.09.12 | ¿ù¼¼ | (415-38) | 4 | 20.25 | 5,700 | 10 | 1992 | | 2024.09.12 | ¿ù¼¼ | ÀÌÁ¦½ºÈ¦ | 5 | 39.15 | 20,000 | 20 | 2011 | | 2024.09.12 | Àü¼¼ | ¾Æ¿øºô | 3 | 48.24 | 23,500 | 0 | 2012 | | 2024.09.12 | ¿ù¼¼ | ´õÁý(TheZIP) | 3 | 22.77 | 1,000 | 74 | 2012 | | 2024.09.12 | Àü¼¼ | (702-8) | 3 | 47.64 | 21,000 | 0 | 2013 | | 2024.09.12 | Àü¼¼ | (702-8) | 3 | 47.64 | 21,000 | 0 | 2013 | | 2024.09.11 | ¸Å¸Å | (1562-10) | 4 | 29.86 | 31,450 | | 2024 | | 2024.09.11 | ¸Å¸Å | (1562-10) | 3 | 29.5 | 29,850 | | 2024 | | 2024.09.11 | ¿ù¼¼ | ºÀȲºô¶ó(598-78) | 1 | 54 | 10,000 | 28 | 1993 | | 2024.09.11 | ¸Å¸Å | (1562-10) | 4 | 29.69 | 31,450 | | 2024 | | 2024.09.11 | ¸Å¸Å | (1562-10) | 4 | 46.88 | 46,650 | | 2024 | | 2024.09.11 | ¸Å¸Å | (1562-10) | 3 | 29.28 | 30,100 | | 2024 | | 2024.09.11 | ¸Å¸Å | (1562-10) | 3 | 39.63 | 37,150 | | 2024 | | 2024.09.11 | ¸Å¸Å | (1562-10) | 3 | 32.09 | 31,100 | | 2024 | | 2024.09.11 | ¸Å¸Å | (1562-10) | 4 | 29.5 | 29,850 | | 2024 | | 2024.09.11 | ¸Å¸Å | (1562-10) | 2 | 29.28 | 29,800 | | 2024 | | 2024.09.11 | ¸Å¸Å | (1562-10) | 3 | 29.69 | 31,450 | | 2024 | | 2024.09.11 | ¸Å¸Å | (1562-10) | 3 | 29.86 | 31,450 | | 2024 | | 2024.09.11 | ¸Å¸Å | (1562-10) | 2 | 29.5 | 29,550 | | 2024 | | 2024.09.11 | ¿ù¼¼ | (98-140) | 2 | 42.39 | 10,000 | 15 | 1993 | | 2024.09.11 | ¿ù¼¼ | ½Å¸²µ¿(412-180) | 1 | 30.84 | 8,800 | 20 | 1991 | | 2024.09.11 | ¸Å¸Å | (1562-10) | 6 | 29.69 | 31,250 | | 2024 | | 2024.09.11 | ¸Å¸Å | (1562-10) | 6 | 29.93 | 30,750 | | 2024 | | 2024.09.11 | ¸Å¸Å | (1562-10) | 5 | 29.5 | 29,850 | | 2024 | | 2024.09.11 | ¸Å¸Å | (1562-10) | 5 | 29.69 | 31,450 | | 2024 | | 2024.09.11 | ¸Å¸Å | Á¶Àººô¶ó | 3 | 42.69 | 21,000 | | 1992 | | 2024.09.11 | ¸Å¸Å | (1562-10) | 2 | 29.86 | 31,150 | | 2024 | | 2024.09.11 | ¸Å¸Å | (1562-10) | 2 | 29.69 | 31,100 | | 2024 | | 2024.09.11 | ¸Å¸Å | Á¶Àººô¶ó | 4 | 27.41 | 10,200 | | 1992 | | 2024.09.11 | ¸Å¸Å | (1562-10) | 2 | 39.63 | 36,750 | | 2024 | | 2024.09.11 | ¸Å¸Å | (1562-10) | 5 | 29.93 | 30,950 | | 2024 | | 2024.09.11 | ¸Å¸Å | (1562-10) | 6 | 29.5 | 29,700 | | 2024 | | 2024.09.11 | ¿ù¼¼ | (1432-58) | 5 | 14.52 | 6,300 | 5 | 2009 | | 2024.09.11 | ¿ù¼¼ | Æ÷µµ¿ø½¦¸£ºô | 2 | 29.83 | 18,900 | 15 | 2012 | | 2024.09.11 | Àü¼¼ | DaehoVill | 1 | 29.37 | 15,000 | 0 | 2016 | | 2024.09.11 | ¿ù¼¼ | ÁÁÀº»ç¶÷ÁÁÀºÁý | 4 | 27.72 | 500 | 47 | 2016 | | 2024.09.11 | Àü¼¼ | ÇÁ¶óºñ´ÙS(10-356) | 6 | 22.55 | 18,800 | 0 | 2016 | | 2024.09.11 | ¿ù¼¼ | ¸ÞÆ®·ÎŸ¿î7Â÷ | 3 | 29.14 | 19,000 | 30 | 2017 | | 2024.09.11 | ¿ù¼¼ | H.KVillage | 9 | 18.83 | 1,000 | 82 | 2018 | | 2024.09.11 | ¿ù¼¼ | ´ÃÁ¶Àººô | 4 | 32.51 | 7,000 | 110 | 2023 | | 2024.09.11 | ¿ù¼¼ | ½Å¸²¾î¹Ý½ººô | 3 | 24.45 | 636 | 23 | 2023 | | 2024.09.11 | ¸Å¸Å | (1562-10) | 2 | 32.09 | 30,800 | | 2024 | | 2024.09.11 | Àü¼¼ | J.KÇϿ콺 | 7 | 12 | 9,800 | 0 | 2012 | | 2024.09.10 | ¿ù¼¼ | Àº¿¬Àç | 6 | 14.78 | 1,000 | 45 | 2013 | | 2024.09.10 | Àü¼¼ | ´õ·°½ººôII | 3 | 27.21 | 24,000 | 0 | 2024 | | 2024.09.10 | ¿ù¼¼ | ´ÃÁ¶Àººô | 3 | 32.66 | 5,000 | 110 | 2023 | | 2024.09.10 | ¿ù¼¼ | ¿¡¾î½ºÆäÀ̽º(1560-17) | 4 | 48.31 | 21,172 | 46 | 2022 | | 2024.09.10 | Àü¼¼ | ÁÖ¿øº£¸£ºô(493-7) | 2 | 29.73 | 25,200 | 0 | 2016 | | 2024.09.10 | ¿ù¼¼ | ÇØ¶ß´ÂÁý2 | 2 | 10.85 | 500 | 50 | 2016 | | 2024.09.10 | ¿ù¼¼ | dz¾çºôµù | 6 | 27.12 | 5,000 | 29 | 2012 | | 2024.09.10 | ¿ù¼¼ | Àº¿¬Àç | 6 | 14.78 | 1,000 | 45 | 2013 | | 2024.09.10 | ¿ù¼¼ | (661-69) | 2 | 39.5 | 11,990 | 15 | 1980 | | 2024.09.10 | ¿ù¼¼ | ºÎ¸²ÆÄÅ©ºô¶ó | 4 | 38.85 | 10,000 | 10 | 1995 | | 2024.09.10 | ¸Å¸Å | ÅÂÇü±×¸°ºô¶ó(1650-9) | 3 | 58.23 | 26,000 | | 1992 | | 2024.09.09 | ¿ù¼¼ | BELITATERRA | 8 | 29.24 | 24,690 | 25 | 2016 | | 2024.09.09 | ¿ù¼¼ | (468-1) | 5 | 27.78 | 18,000 | 14 | 2014 | | 2024.09.09 | ¿ù¼¼ | ÇÏ´Ãä | 8 | 27.6 | 2,000 | 75 | 2016 | | 2024.09.09 | Àü¼¼ | ´õ·°½ººôII | 6 | 23.27 | 21,000 | 0 | 2024 | | 2024.09.09 | ¿ù¼¼ | (570-18) | 4 | 35.09 | 1,000 | 90 | 2018 | | 2024.09.09 | ¿ù¼¼ | Á꺣¶ó | 7 | 24.03 | 25,000 | 9 | 2018 | | 2024.09.09 | ¿ù¼¼ | ¼ºÁø¸®Ä¡ºô5Â÷ | 2 | 29.54 | 300 | 25 | 2021 | | 2024.09.09 | Àü¼¼ | ´õ·°½ººôII | 4 | 27.21 | 24,000 | 0 | 2024 | | 2024.09.09 | Àü¼¼ | ´õ·°½ººôII | 4 | 27.21 | 24,000 | 0 | 2024 | | 2024.09.09 | ¿ù¼¼ | (1629-70) | 1 | 44.1 | 2,000 | 50 | 1992 | | 2024.09.09 | Àü¼¼ | À¯Áø | 2 | 32.76 | 14,000 | 0 | 1991 | | 2024.09.09 | Àü¼¼ | ´õ·°½ººôII | 4 | 27.21 | 24,000 | 0 | 2024 | | 2024.09.09 | Àü¼¼ | ´õ·°½ººôII | 6 | 23.27 | 21,000 | 0 | 2024 | | 2024.09.08 | ¸Å¸Å | ´ëµ¿B | 2 | 53.37 | 18,000 | | 1986 | | 2024.09.08 | Àü¼¼ | ºÎ¿ä±×¸°Å¸¿î(92-305) | 3 | 31.04 | 12,000 | 0 | 1991 | | 2024.09.08 | ¸Å¸Å | ½ÅÀÏ¸Ç¼Ç | 1 | 57.36 | 24,500 | | 2002 | | 2024.09.08 | ¿ù¼¼ | Èñ¶ôºô¸®ÁöBµ¿(1641-116) | 2 | 15.3 | 1,500 | 45 | 2012 | | 2024.09.08 | Àü¼¼ | ½á´Ïºô | 5 | 24.88 | 26,250 | 0 | 2020 | | 2024.09.08 | ¿ù¼¼ | (412-114) | 1 | 36.1 | 10,190 | 22 | 1992 | | 2024.09.07 | ¿ù¼¼ | (1657-26) | 2 | 37.83 | 17,800 | 30 | 2014 | | 2024.09.07 | Àü¼¼ | ¼º¾Èºôµù(1667-1) | 5 | 14.77 | 10,000 | 0 | 2014 | | 2024.09.07 | ¿ù¼¼ | ¿¬ºô | 3 | 12.01 | 1,000 | 67 | 2012 | | 2024.09.07 | ¿ù¼¼ | ½º¸¶Æ®ºô | 3 | 14.52 | 9,500 | 12 | 2013 | | 2024.09.07 | Àü¼¼ | ¼ö¿µ½¦¸£ºô | 4 | 33.6 | 11,490 | 0 | 2003 | | 2024.09.07 | ¿ù¼¼ | ¼¼Á¾ºô¶ó | 4 | 56.01 | 2,000 | 70 | 1994 | | 2024.09.07 | ¿ù¼¼ | Èñ¶ôºô¸®ÁöAµ¿(1641-45) | 4 | 16.99 | 2,000 | 50 | 2012 | | 2024.09.07 | ¿ù¼¼ | ÇÑ¿µºô¶ó(412-205) | 1 | 36.31 | 10,400 | 15 | 1990 | | 2024.09.07 | ¿ù¼¼ | ÈÞ¸Õºô | 5 | 27.25 | 10,000 | 50 | 2017 | | 2024.09.07 | ¿ù¼¼ | ¾ËÆæÇϿ콺 | 2 | 42.82 | 26,000 | 20 | 2018 | | 2024.09.07 | ¸Å¸Å | ±ÝÈ£¾ÆÆ®ºô | 6 | 82.33 | 38,000 | | 2012 | | 2024.09.07 | Àü¼¼ | Æç¸®Ã¼ºô¸®Áö | 2 | 36.92 | 23,220 | 0 | 2018 | | 2024.09.07 | ¿ù¼¼ | ÈÞ¸Õºô | 5 | 27.25 | 10,000 | 50 | 2017 | | 2024.09.07 | ¸Å¸Å | ·Î¾âÇÏÀÌÃ÷ | 2 | 28.87 | 19,000 | | 2016 | | 2024.09.07 | ¸Å¸Å | ûdzºô¶ó10Â÷ | -1 | 65.03 | 17,200 | | 1996 | | 2024.09.06 | ¿ù¼¼ | Àº¿¬Àç | 4 | 15.61 | 1,000 | 43 | 2013 | | 2024.09.06 | ¿ù¼¼ | ¼¸²µµ½ÃÇü»ýȰÁÖÅà | 4 | 12.32 | 2,000 | 50 | 2013 | | 2024.09.06 | ¿ù¼¼ | (102-60) | 2 | 43.23 | 13,000 | 20 | 2010 | | 2024.09.06 | Àü¼¼ | »ï¼º¾ÆÆ®ºô(618-11) | 3 | 38.8 | 14,000 | 0 | 2002 | | 2024.09.06 | ¿ù¼¼ | Ä¥¼ººô¶ó | 3 | 43.88 | 12,000 | 15 | 1991 | | 2024.09.06 | ¿ù¼¼ | ÁøÁÖºô¶ó(598-48) | 1 | 32.49 | 3,000 | 40 | 1994 | | 2024.09.06 | ¿ù¼¼ | (98-140) | 2 | 42.39 | 10,500 | 10 | 1993 | | 2024.09.06 | ¿ù¼¼ | ¼±ÀΟ¿î | 20 | 13.48 | 3,000 | 65 | 2017 | | 2024.09.06 | ¿ù¼¼ | °¡À± | 8 | 14.01 | 1,000 | 47 | 2017 | | 2024.09.06 | ¿ù¼¼ | ´Ù¿Â½¦¸£ºô | 5 | 32.15 | 21,700 | 24 | 2016 | | 2024.09.06 | ¿ù¼¼ | THELIME | 13 | 29.31 | 38,325 | 8 | 2020 | | 2024.09.06 | ¿ù¼¼ | THELIME | 13 | 25.51 | 36,500 | 8 | 2020 | | 2024.09.06 | ¿ù¼¼ | THELIME | 10 | 17.11 | 23,100 | 5 | 2020 | | 2024.09.06 | ¸Å¸Å | º§À¯¾îºí | 4 | 34.83 | 32,000 | | 2016 | | 2024.09.06 | ¿ù¼¼ | THELIME | 10 | 17.11 | 23,100 | 5 | 2020 | | 2024.09.05 | ¿ù¼¼ | ¿ì¿µArte5Â÷ | 5 | 26.4 | 19,500 | 18 | 2017 | | 2024.09.05 | Àü¼¼ | ÆÄÀμ¾Æ®·²ºô | 3 | 54.23 | 20,000 | 0 | 2016 | | 2024.09.05 | ¿ù¼¼ | ÁÁÀºÁý | 6 | 13.33 | 1,000 | 42 | 2014 | | 2024.09.05 | ¿ù¼¼ | È²ÇØºô¶ó | 3 | 42.26 | 11,800 | 15 | 1991 | | 2024.09.05 | ¿ù¼¼ | ¼Û±¤ºô¶ó | 4 | 40.73 | 5,000 | 60 | 2002 | | 2024.09.05 | ¿ù¼¼ | Çѳª·¡(1680-7) | 3 | 29.79 | 18,000 | 25 | 2017 | | 2024.09.05 | ¿ù¼¼ | Çѳª·¡(1680-7) | 3 | 29.79 | 18,000 | 25 | 2017 | | 2024.09.05 | ¿ù¼¼ | (1439-24) | 5 | 11.81 | 11,300 | 33 | 2020 | | 2024.09.05 | ¿ù¼¼ | ¿¡¾î½ºÆäÀ̽º | 5 | 24.83 | 16,510 | 22 | 2021 | | 2024.09.05 | Àü¼¼ | ³ª»ê¸Ç¼Ç1Â÷ | 2 | 48.02 | 14,900 | 0 | 1996 | | 2024.09.05 | ¸Å¸Å | ÇØ´ãä | 2 | 29.97 | 22,500 | | 2018 | | 2024.09.05 | ¸Å¸Å | À¯¼ººô¶ó(548-5) | 3 | 60.4 | 32,000 | | 1993 | | 2024.09.05 | ¿ù¼¼ | ¿¡¾î½ºÆäÀ̽º | 5 | 24.83 | 16,510 | 22 | 2021 | | 2024.09.04 | ¿ù¼¼ | ´ë¾çºô¶ó(610-49) | 2 | 36.33 | 11,000 | 10 | 1993 | | 2024.09.04 | ¿ù¼¼ | µ¿¼º¸Ç¼Ç | 1 | 63.69 | 17,000 | 20 | 1997 | | 2024.09.04 | ¿ù¼¼ | µ¿¹æÆÄ·¹½º°¡µ¿ | 3 | 35.28 | 9,800 | 20 | 1991 | | 2024.09.04 | ¿ù¼¼ | µ¿¹æÆÄ·¹½º°¡µ¿ | 3 | 35.28 | 9,800 | 20 | 1991 | | 2024.09.04 | ¿ù¼¼ | ±âÈ£ºô¶ó | 2 | 41.97 | 12,000 | 15 | 1993 | | 2024.09.04 | Àü¼¼ | Çö´ë¾ÆÆ®ºô¸®Áö | -1 | 61.95 | 10,000 | 0 | 1997 | | 2024.09.04 | ¿ù¼¼ | Çâ¿øºô¶ó(1505-3) | 1 | 46.55 | 22,000 | 5 | 2008 | | 2024.09.04 | ¿ù¼¼ | ÁÁÀº»ç¶÷ÁÁÀºÁý | 5 | 20.39 | 500 | 50 | 2016 | | 2024.09.04 | ¿ù¼¼ | ÁÁÀº»ç¶÷ÁÁÀºÁý | 5 | 20.39 | 500 | 50 | 2016 | | 2024.09.04 | Àü¼¼ | Earth70 | 4 | 48.05 | 35,000 | 0 | 2018 | | 2024.09.04 | ¸Å¸Å | Çö´ëºô¶ó(474-7) | 3 | 67.08 | 36,500 | | 1994 | | 2024.09.04 | ¿ù¼¼ | ûÃá°¡¿Á | 2 | 30.07 | 1,842 | 24 | 2020 | | 2024.09.04 | ¿ù¼¼ | µ¿ÀϺô¶ó | 2 | 43.26 | 5,000 | 75 | 2000 | | 2024.09.04 | Àü¼¼ | ¿î¼ºô¶óÆ®4 | 2 | 60.14 | 18,000 | 0 | 2001 | | 2024.09.04 | ¸Å¸Å | Áß¿ø°¡µ¿ | -1 | 34.85 | 14,400 | | 1990 | | 2024.09.04 | ¸Å¸Å | ¼¼¿øºô¶óAµ¿(598-334) | 2 | 52.62 | 16,700 | | 1986 | | 2024.09.03 | Àü¼¼ | ÁÖ¿øº£¸£ºô(493-7) | 4 | 29.93 | 25,200 | 0 | 2016 | | 2024.09.03 | ¿ù¼¼ | ¼º¿ì(1433-180) | 5 | 27.47 | 19,500 | 22 | 2014 | | 2024.09.03 | Àü¼¼ | û¸²ÁÖÅà | 1 | 73.99 | 20,000 | 0 | 1997 | | 2024.09.03 | ¿ù¼¼ | ´ëÇкô¸®ÁöBµ¿ | 1 | 54.54 | 200 | 32 | 1993 | | 2024.09.03 | ¿ù¼¼ | ±¤´öºô | 1 | 83.1 | 500 | 49 | 2004 | | 2024.09.03 | ¸Å¸Å | ¹Ì¸²ÇÏÀÌÃ÷ºô¶ó | 1 | 66.18 | 25,000 | | 1991 | | 2024.09.03 | ¸Å¸Å | Àϼººô¶ó | 1 | 40.68 | 18,500 | | 1994 | | 2024.09.03 | ¸Å¸Å | µ¿¼öºô¶ó(619-2) | 1 | 41.16 | 15,300 | | 1992 | | 2024.09.03 | ¿ù¼¼ | ¿¡¾î½ºÆäÀ̽º(1560-17) | 2 | 48.31 | 20,819 | 44 | 2022 | | 2024.09.03 | ¿ù¼¼ | ¿¡¾î½ºÆäÀ̽º(1560-17) | 2 | 48.31 | 20,819 | 44 | 2022 | | 2024.09.03 | Àü¼¼ | ¼º¿ø±×¸°ºô | 2 | 59.64 | 20,000 | 0 | 2001 | | 2024.09.03 | Àü¼¼ | (1452-36) | 3 | 18.48 | 13,400 | 0 | 2017 | | 2024.09.03 | ¿ù¼¼ | ¸®¾ØÃÊÀ̽º | 9 | 29.97 | 29,700 | 26 | 2023 | | 2024.09.03 | ¿ù¼¼ | Àº¿¬Àç | 7 | 14.18 | 500 | 47 | 2013 | | 2024.09.02 | Àü¼¼ | ¼¾Æ®¶ó³ë½Å¸² | 7 | 25.99 | 34,000 | 0 | 2021 | | 2024.09.02 | ¿ù¼¼ | ¶óÆÄ¸£½Å¸² | 6 | 27.61 | 30,000 | 25 | 2023 | | 2024.09.02 | ¿ù¼¼ | ÁÖ¿øº£¸£ºô(493-7) | 4 | 26.75 | 22,900 | 13 | 2016 | | 2024.09.02 | Àü¼¼ | Àº¼ººôµù | 3 | 14.96 | 10,000 | 0 | 2008 | | 2024.09.02 | ¿ù¼¼ | Á¶¿øÇÏÀ̸ðºôµù | 4 | 19.79 | 1,000 | 35 | 2013 | | 2024.09.02 | Àü¼¼ | ´Ù»êºô(1627-90) | 4 | 29.39 | 18,700 | 0 | 2012 | | 2024.09.02 | ¿ù¼¼ | (231-59) | 1 | 33.39 | 2,000 | 40 | 1997 | | 2024.09.02 | Àü¼¼ | »ï¼ººô¶ó(409-217) | 1 | 33.36 | 8,300 | 0 | 1992 | | 2024.09.02 | Àü¼¼ | ·ç½Ãµå | 8 | 22.42 | 19,000 | 0 | 2017 | | 2024.09.02 | ¿ù¼¼ | »ïÇϺô¶ó(534-23) | 4 | 34.46 | 5,000 | 40 | 2003 | | 2024.09.02 | Àü¼¼ | ´ë¿õºô¶ó | 2 | 48.42 | 21,000 | 0 | 1992 | | 2024.09.02 | ¿ù¼¼ | ·ÎÇϽººô2Â÷ | 2 | 67.98 | 200 | 40 | 2009 | | 2024.09.01 | ¿ù¼¼ | ÁÁÀºÁý | 4 | 15.12 | 3,000 | 34 | 2014 | | 2024.09.01 | Àü¼¼ | ¿¡µ§ÇϿ콺 | 3 | 29.95 | 17,250 | 0 | 2014 | | 2024.09.01 | ¸Å¸Å | ¿ì¿Õºô¶óB | -1 | 31.02 | 10,800 | | 1991 | | 2024.09.01 | ¸Å¸Å | 475-53(¾Æ¸£¶¼ºô) | 5 | 46.62 | 37,700 | | 2014 | | 2024.09.01 | ¿ù¼¼ | ½¦¸£ºô | 2 | 15.64 | 2,000 | 50 | 2013 | | 2024.09.01 | ¿ù¼¼ | À¯ÁøÇÏÀÌÃ÷ | 3 | 39.78 | 3,000 | 65 | 2004 | | 2024.09.01 | Àü¼¼ | »ïȺô | 3 | 34.87 | 30,200 | 0 | 2021 | | 2024.08.31 | ¿ù¼¼ | »ï¼ººô¶ó(409-217) | 3 | 30.67 | 8,000 | 25 | 1992 | | 2024.08.31 | ¿ù¼¼ | (1654-12) | 3 | 13.4 | 500 | 35 | 2013 | | 2024.08.31 | ¸Å¸Å | ¼º¸ºô¶ó³ªµ¿ | -1 | 38.25 | 9,500 | | 1988 | | 2024.08.31 | ¸Å¸Å | ¼¼Áøºô | 3 | 26.25 | 21,000 | | 2013 | | 2024.08.31 | ¿ù¼¼ | ¶óÆÄ¸£½Å¸² | 8 | 27.61 | 30,000 | 30 | 2023 | | 2024.08.31 | ¿ù¼¼ | °ñµçÈú | 2 | 19.46 | 2,000 | 72 | 2013 | | 2024.08.31 | ¿ù¼¼ | ¿ø¸²ºô¶ó | 2 | 32.4 | 9,700 | 12 | 1992 | | 2024.08.31 | ¿ù¼¼ | ½Å¾Èºô¶ó(610-143) | 4 | 32.82 | 9,000 | 25 | 1993 | | 2024.08.31 | ¿ù¼¼ | ´Ù¿¬Çູ | 3 | 12.51 | 2,000 | 46 | 2012 | | 2024.08.31 | Àü¼¼ | ÇѾçºô¶ó | 3 | 39.05 | 11,300 | 0 | 1992 | | 2024.08.31 | ¿ù¼¼ | ´ÃÁ¶Àººô | 3 | 32.42 | 5,000 | 90 | 2023 | | 2024.08.31 | ¿ù¼¼ | ÇØÂù¸Ç¼Ç(715-17) | 3 | 49.86 | 10,000 | 60 | 2014 | | 2024.08.31 | ¿ù¼¼ | ¾Öµå¿ø | 8 | 14.65 | 5,000 | 34 | 2015 | | 2024.08.30 | ¿ù¼¼ | ¼ö¿ù´ç | 1 | 12.07 | 300 | 41 | 2013 | | 2024.08.30 | ¸Å¸Å | ÈÞÇ÷¯½º | 2 | 38.01 | 36,500 | | 2017 | | 2024.08.30 | ¸Å¸Å | ÃÖ»óÇÏÀ̺ô | 4 | 63.4 | 35,000 | | 2002 | | 2024.08.30 | ¿ù¼¼ | ¾î¹ÝÆÓ¸®½º(8~9µ¿) | 2 | 43.12 | 1,000 | 80 | 2018 | | 2024.08.30 | ¿ù¼¼ | Àü¿øÁÖÅà | -1 | 25.43 | 500 | 50 | 1998 | | 2024.08.30 | Àü¼¼ | µå¸²Å¸¿î | 8 | 22.81 | 25,000 | 0 | 2020 | | 2024.08.30 | ¿ù¼¼ | º¸¸®ÇϿ콺 | 5 | 27.36 | 10,000 | 40 | 2017 | | 2024.08.30 | Àü¼¼ | µå¸²Å¸¿î | 8 | 22.81 | 25,000 | 0 | 2020 | | 2024.08.30 | ¿ù¼¼ | ½ÅÀÏAµ¿(751-2) | 3 | 45.105 | 14,500 | 50 | 2014 | | 2024.08.30 | ¿ù¼¼ | °¡À± | 5 | 11.78 | 500 | 49 | 2017 | | 2024.08.30 | ¿ù¼¼ | µµ·¹¸Ç¼Ç | 6 | 43.29 | 23,000 | 12 | 2016 | | 2024.08.30 | ¿ù¼¼ | µµ·¹¸Ç¼Ç | 6 | 43.29 | 23,000 | 12 | 2016 | | 2024.08.30 | ¿ù¼¼ | ¸ÞÆ®·ÎŸ¿î5Â÷ | 4 | 44.59 | 2,000 | 150 | 2017 | | 2024.08.30 | ¸Å¸Å | ½ÅÈïºô¶ó3Â÷ | 1 | 35.91 | 12,000 | | 1990 | | 2024.08.30 | ¿ù¼¼ | (10-584) | -1 | 62.32 | 1,000 | 45 | 2006 | | 2024.08.29 | ¸Å¸Å | ±ÝÈ£¾ÆÆ®ºô | 6 | 82.33 | 38,000 | | 2012 | | 2024.08.29 | ¸Å¸Å | °µ¿2Â÷ | 2 | 70.47 | 35,000 | | 2002 | | 2024.08.29 | ¿ù¼¼ | ȲÁ¦12(414-11) | 2 | 30.24 | 8,500 | 25 | 1992 | | 2024.08.29 | ¿ù¼¼ | µ¿¿øÇÏÀÌÃ÷ºô¶ó | -1 | 43.53 | 1,000 | 60 | 1993 | | 2024.08.29 | ¿ù¼¼ | ½áµåÇ÷¹À̽º½Å¸² | 3 | 25.07 | 19,000 | 35 | 2023 | | 2024.08.29 | ¿ù¼¼ | (10-584) | 1 | 109.66 | 1,000 | 55 | 2006 | | 2024.08.29 | ¿ù¼¼ | ´Ù¿Âºô | 4 | 29.02 | 2,000 | 105 | 2022 | | 2024.08.29 | ¿ù¼¼ | ȲÁ¦12(414-11) | 2 | 30.24 | 8,500 | 25 | 1992 | | 2024.08.29 | ¿ù¼¼ | Á¶¿øµµ½ÃÇü»ýȰÁÖÅà | 5 | 13.6 | 500 | 46 | 2011 | | 2024.08.29 | Àü¼¼ | ½ÅÈï¸Ç¼Ç9Â÷ | 2 | 49.81 | 14,000 | 0 | 1996 | | 2024.08.29 | Àü¼¼ | ûdz±×¸°ºô | 2 | 57.49 | 19,000 | 0 | 2001 | | 2024.08.29 | ¿ù¼¼ | ¼º¿ì(1433-180) | 7 | 28.71 | 20,000 | 20 | 2014 | | 2024.08.28 | ¿ù¼¼ | ÇÑ¿ïºô¸®Áö | -1 | 31.59 | 300 | 27 | 1995 | | 2024.08.28 | ¸Å¸Å | ±ÝÈÇÏÀ̺ô | 2 | 27.46 | 22,000 | | 2018 | | 2024.08.28 | ¸Å¸Å | ¿î¼¸Ç¼Ç10Â÷ | 3 | 51.94 | 28,000 | | 2002 | | 2024.08.28 | ¸Å¸Å | ±¹Á¦¾Ë¾Øµå¾¾ | 2 | 26.48 | 26,100 | | 2018 | | 2024.08.28 | ¿ù¼¼ | ¼º¾Èºôµù(1667-1) | 6 | 14.77 | 10,000 | 5 | 2014 | | 2024.08.28 | ¿ù¼¼ | ±¤Èñ°¡ | 4 | 20.92 | 3,000 | 60 | 2015 | | 2024.08.28 | Àü¼¼ | ¿À¾ÆÈÄ(1436-20) | 6 | 27.01 | 26,460 | 0 | 2017 | | 2024.08.28 | Àü¼¼ | ¾çÁöºô¶ó(408-69) | 2 | 40.05 | 13,000 | 0 | 1986 | | 2024.08.28 | ¿ù¼¼ | ½Å¾Èºô¶ó(98-222) | 2 | 43.59 | 2,000 | 80 | 1991 | | 2024.08.28 | Àü¼¼ | Çѳª·¡Aµ¿ | 4 | 52.13 | 23,000 | 0 | 2017 | | 2024.08.28 | Àü¼¼ | ´õ·°½ººôII | 3 | 27.69 | 24,000 | 0 | 2024 | | 2024.08.28 | ¿ù¼¼ | ½ÅÀϺô¶ó(610-59) | 1 | 35.14 | 1,000 | 50 | 1993 | | 2024.08.28 | Àü¼¼ | ´õ·°½ººôII | 3 | 27.21 | 24,000 | 0 | 2024 | | 2024.08.28 | ¸Å¸Å | ÅÂÆò¾ÆÆ®ºô | 5 | 37.83 | 19,500 | | 2011 | | 2024.08.27 | ¸Å¸Å | žçºô¸®Áö | 5 | 66.24 | 22,000 | | 2002 | | 2024.08.27 | ¸Å¸Å | ¿ì¼®±×·£µåºô | 3 | 52.4 | 21,200 | | 2002 | | 2024.08.27 | ¸Å¸Å | Çö´ë1ºô¶ó | 3 | 45.64 | 17,000 | | 1991 | | 2024.08.27 | Àü¼¼ | ÇÏ´Ã¸í°¡ | 3 | 39.01 | 17,640 | 0 | 2014 | | 2024.08.27 | ¿ù¼¼ | ¿ö³Êºô | 4 | 53.89 | 2,000 | 45 | 2006 | | 2024.08.27 | Àü¼¼ | ÇÏ´Ã¸í°¡ | 5 | 16.63 | 9,000 | 0 | 2014 | | 2024.08.27 | ¿ù¼¼ | º£¾ÆÆ®¸®½º | 6 | 25.95 | 15,400 | 25 | 2015 | | 2024.08.27 | ¿ù¼¼ | º»ÇϿ콺 | 6 | 29.05 | 500 | 54 | 2016 | | 2024.08.27 | Àü¼¼ | »ï¼º¿øºô(610-225) | 5 | 28.97 | 15,000 | 0 | 2016 | | 2024.08.27 | ¿ù¼¼ | ½¦¸£ºô | 2 | 15.12 | 2,000 | 50 | 2013 | | 2024.08.27 | Àü¼¼ | Çâ¿øºô¶ó(1505-3) | 2 | 46.55 | 23,000 | 0 | 2008 | | 2024.08.26 | ¸Å¸Å | 98-135 | 2 | 27.97 | 30,000 | | 2014 | | 2024.08.26 | ¿ù¼¼ | ÀÚÀÌ¿ÀÇǽºÅÚ | 10 | 12.26 | 3,000 | 56 | 2021 | | 2024.08.26 | ¿ù¼¼ | °æ¿øÇÏÀÌÃ÷ÅÚ | 11 | 21.76 | 1,000 | 60 | 2019 | | 2024.08.26 | ¿ù¼¼ | ´ë½Å¾ÆÆ®ºô | 3 | 64.68 | 5,000 | 95 | 2004 | | 2024.08.26 | ¸Å¸Å | ¸ÞÆ®·ÎŸ¿î4Â÷ | 4 | 29.7 | 27,900 | | 2017 | | 2024.08.26 | ¸Å¸Å | ȯ¿µÅ¸¿î | 4 | 73.18 | 35,500 | | 2008 | | 2024.08.26 | ¸Å¸Å | ¼Ò³ëÆÓ¸®Ã¼(1481-2) | 5 | 37.57 | 20,000 | | 2014 | | 2024.08.26 | ¿ù¼¼ | °¶·¯¸®ÇϿ콺 | 3 | 13.06 | 2,000 | 55 | 2012 | | 2024.08.26 | Àü¼¼ | ±ÝÈ£ºô¶ó(1635-92) | 2 | 65.61 | 22,500 | 0 | 1995 | | 2024.08.26 | ¿ù¼¼ | Áø¼ºÅ¸¿î | 3 | 38.71 | 13,000 | 30 | 1990 | | 2024.08.26 | ¿ù¼¼ | Áø¼ºÅ¸¿î | 3 | 38.71 | 13,000 | 30 | 1990 | | 2024.08.25 | Àü¼¼ | °ÇÈ«ÇÏÀÌÃ÷ | 1 | 59.63 | 22,000 | 0 | 1992 | | 2024.08.25 | Àü¼¼ | °ÇÈ«ÇÏÀÌÃ÷ | 1 | 59.63 | 22,000 | 0 | 1992 | | 2024.08.25 | ¿ù¼¼ | µµ·¹¸Ç¼Ç | 7 | 43.29 | 15,000 | 58 | 2016 | | 2024.08.25 | Àü¼¼ | Àå¹ÌÁ¤¿ø(1564-31) | 2 | 25.37 | 10,000 | 0 | 2014 | | 2024.08.25 | Àü¼¼ | °ÇÈ«ÇÏÀÌÃ÷ | 1 | 59.63 | 22,000 | 0 | 1992 | | 2024.08.25 | Àü¼¼ | ¿µµ¿ºô¶ó(°¡µ¿) | 3 | 55.9 | 24,700 | 0 | 2001 | | 2024.08.25 | Àü¼¼ | Æç¸®Ã¼ºô¸®Áö | 6 | 33.75 | 20,000 | 0 | 2018 | | 2024.08.25 | Àü¼¼ | ÇÁ·¹¹Ì¿À | 2 | 26.69 | 23,400 | 0 | 2018 | | 2024.08.24 | ¸Å¸Å | ¹éÇÕºô¶ó | 4 | 47.1 | 20,000 | | 1994 | | 2024.08.24 | Àü¼¼ | Ciel-31 | 8 | 27.16 | 28,000 | 0 | 2016 | | 2024.08.24 | ¿ù¼¼ | ¹Ùº§ | 3 | 27.66 | 100 | 90 | 2020 | | 2024.08.24 | ¿ù¼¼ | ¼¸²µµ½ÃÇü»ýȰÁÖÅà | 6 | 12.32 | 1,000 | 55 | 2013 | | 2024.08.24 | ¿ù¼¼ | SKºô¶óÆ® | 5 | 33.38 | 12,000 | 23 | 2012 | | 2024.08.24 | ¸Å¸Å | µ¿½Å¸Ç¼Ç | 1 | 69.48 | 29,000 | | 1994 | | 2024.08.23 | Àü¼¼ | ´õ·°½ººôII | 5 | 27.21 | 24,000 | 0 | 2024 | | 2024.08.23 | Àü¼¼ | °üµ¿ÇÏÀÌÃ÷ | 2 | 35.28 | 12,000 | 0 | 2003 | | 2024.08.23 | Àü¼¼ | ½ºÄ«ÀÌij½½ | 3 | 59.33 | 33,000 | 0 | 2023 | | 2024.08.23 | ¿ù¼¼ | õ³âij½½(98-357) | 2 | 22.05 | 9,000 | 40 | 2017 | | 2024.08.23 | Àü¼¼ | ´õ·°½ººôII | 5 | 27.21 | 24,000 | 0 | 2024 | | 2024.08.23 | ¿ù¼¼ | Áø¼ºÅ¸¿î | -1 | 41.95 | 10,000 | 30 | 1990 | | 2024.08.23 | ¸Å¸Å | ³ÇâÇì·»ÇϿ콺 | 4 | 29.9 | 25,000 | | 2013 | | 2024.08.23 | ¸Å¸Å | ¸ÞÆ®·ÎŸ¿î5Â÷ | 2 | 44.59 | 36,000 | | 2017 | | 2024.08.23 | ¿ù¼¼ | µ¿¹®Å¸¿îB | 4 | 29.52 | 10,000 | 44 | 1995 | | 2024.08.23 | ¿ù¼¼ | õ³âij½½(98-357) | 2 | 22.05 | 10,000 | 35 | 2017 | | 2024.08.23 | Àü¼¼ | ´ëÇÐÃ̺ô¶ó | 2 | 33.92 | 9,200 | 0 | 1991 | | 2024.08.23 | Àü¼¼ | ½ºÄ«ÀÌij½½ | 3 | 59.33 | 33,500 | 0 | 2023 | | 2024.08.22 | ¸Å¸Å | (1505-4) | 1 | 39.46 | 16,000 | | 2002 | | 2024.08.22 | ¿ù¼¼ | ¿ÀÁÖÇϿ콺 | 4 | 15.16 | 3,000 | 42 | 2012 | | 2024.08.22 | ¿ù¼¼ | Ciel-31 | 7 | 27.16 | 25,000 | 10 | 2016 | | 2024.08.22 | Àü¼¼ | Á¶¿øµµ½ÃÇü»ýȰÁÖÅà | 4 | 15.46 | 22,000 | 0 | 2011 | | 2024.08.22 | ¿ù¼¼ | ¿¹ÇöÅ׶󽺺ô | 2 | 36.89 | 26,000 | 19 | 2024 | | 2024.08.22 | ¿ù¼¼ | ½Å¸²ºôµù | 7 | 12.16 | 2,000 | 54 | 2018 | | 2024.08.21 | ¿ù¼¼ | È«¿¬±×¸°ºô(571-1) | 3 | 22.11 | 12,000 | 5 | 2016 | | 2024.08.21 | Àü¼¼ | µ¿»êºô¶ó | 1 | 31.32 | 11,200 | 0 | 1993 | | 2024.08.21 | Àü¼¼ | ⿵ºô | 2 | 41.28 | 24,000 | 0 | 2015 | | 2024.08.21 | ¿ù¼¼ | º£¾ÆÆ®¸®½º | 5 | 29.02 | 17,300 | 10 | 2015 | | 2024.08.21 | ¿ù¼¼ | ÆÄÅ©ºô | 4 | 26.2 | 20,900 | 25 | 2016 | | 2024.08.21 | ¿ù¼¼ | µ¿¹æ¾ÆÆ®ºô¶ó | 2 | 37.19 | 10,700 | 20 | 1991 | | 2024.08.21 | ¿ù¼¼ | ¼¾Æ®·¹ºô(º») | 4 | 16.74 | 5,000 | 50 | 2018 | | 2024.08.21 | ¿ù¼¼ | STAY¿Â-¥² | 5 | 26.05 | 100 | 30 | 2023 | | 2024.08.21 | ¿ù¼¼ | µ¿±Ãºô¶ó | 1 | 44.49 | 1,000 | 70 | 1992 | | 2024.08.21 | ¿ù¼¼ | º£¾ÆÆ®¸®½º | 5 | 29.02 | 17,300 | 10 | 2015 | | 2024.08.21 | ¿ù¼¼ | ¿¡ÄÚÇ÷¯½º(Aµ¿,Bµ¿) | 6 | 28.08 | 2,000 | 110 | 2017 | | 2024.08.21 | ¸Å¸Å | õ³âij½½(98-357) | 1 | 22.05 | 23,000 | | 2017 | | 2024.08.21 | Àü¼¼ | ±×¸°ºô¶ó(108-97) | 2 | 59.01 | 23,000 | 0 | 1986 | | 2024.08.20 | ¸Å¸Å | ±ÝÁ¤ºô¶ó(610-324) | 1 | 36.44 | 17,900 | | 1991 | | 2024.08.20 | ¿ù¼¼ | (1520-2) | 5 | 15.76 | 1,000 | 57 | 2013 | | 2024.08.20 | ¿ù¼¼ | ÀÌ·ë¾ÆÆ®ºô | 4 | 52.77 | 20,000 | 10 | 2002 | | 2024.08.20 | ¿ù¼¼ | Èñ¶ôºô¸®ÁöAµ¿(1641-45) | 2 | 14.8 | 2,000 | 40 | 2012 | | 2024.08.20 | ¿ù¼¼ | (305-3) | 2 | 44.21 | 13,000 | 20 | 1988 | | 2024.08.20 | ¿ù¼¼ | (306-52) | 4 | 30.875 | 14,500 | 6 | 2014 | | 2024.08.20 | ¿ù¼¼ | ÇѼۺô | 4 | 29.74 | 3,000 | 90 | 2016 | | 2024.08.20 | ¿ù¼¼ | È«¸²ºô¶ó°¡µ¿ | 1 | 33.78 | 9,600 | 20 | 1989 | | 2024.08.19 | ¿ù¼¼ | STAY¿Â-¥² | 6 | 26.05 | 3,323 | 12 | 2023 | | 2024.08.19 | ¿ù¼¼ | Çì·»4Â÷ | 6 | 29.14 | 3,000 | 95 | 2016 | | 2024.08.19 | ¿ù¼¼ | STAY¿Â-¥² | 6 | 26.05 | 100 | 30 | 2023 | | 2024.08.19 | ¿ù¼¼ | ´Ù¿Âºô | 3 | 29.02 | 2,000 | 105 | 2022 | | 2024.08.19 | ¿ù¼¼ | (1452-36) | 4 | 27.72 | 4,000 | 119 | 2017 | | 2024.08.19 | Àü¼¼ | ´õ·°½ººôII | 6 | 22.85 | 21,000 | 0 | 2024 | | 2024.08.19 | Àü¼¼ | ¹éÇÕºô¶ó | 2 | 64.62 | 15,000 | 0 | 1994 | | 2024.08.18 | ¿ù¼¼ | ½Å¾È¸Ç¼Ç(610-167) | 1 | 44.25 | 500 | 40 | 1995 | | 2024.08.18 | Àü¼¼ | ÇÁ·¹¹Ì¿À759 | 4 | 28.86 | 27,600 | 0 | 2020 | | 2024.08.18 | ¿ù¼¼ | Çö´ëº½ | 5 | 12.79 | 500 | 44 | 2013 | | 2024.08.17 | ¸Å¸Å | ½º¸¶Æ®¹ë¸® | 2 | 32.78 | 25,000 | | 2012 | | 2024.08.17 | ¿ù¼¼ | ¾ÆÀ϶ó | 9 | 26.43 | 20,286 | 30 | 2018 | | 2024.08.17 | Àü¼¼ | ÇØÇÇŸ¿ö | 7 | 27.25 | 21,650 | 0 | 2016 | | 2024.08.17 | ¿ù¼¼ | ¾ÆÀ϶ó | 9 | 26.43 | 20,286 | 30 | 2018 | | 2024.08.17 | Àü¼¼ | ÇØ´ãä | 2 | 29.97 | 19,600 | 0 | 2018 | | 2024.08.17 | ¿ù¼¼ | »ó¼±ºôµù | 4 | 74.25 | 18,500 | 4 | 2004 | | 2024.08.17 | ¿ù¼¼ | ´õ¸¶Àεå | 8 | 24.93 | 3,000 | 165 | 2022 | | 2024.08.17 | ¿ù¼¼ | jk·°½ººô | 4 | 22.83 | 1,000 | 80 | 2015 | | 2024.08.17 | ¸Å¸Å | µ¿½Âºô¶ó¶óµ¿(736-6) | -1 | 16.97 | 7,000 | | 1992 | | 2024.08.16 | ¿ù¼¼ | °¡À± | 8 | 11.78 | 300 | 55 | 2017 | | 2024.08.16 | ¿ù¼¼ | J2tower | 2 | 14.26 | 1,000 | 65 | 2014 | | 2024.08.16 | ¿ù¼¼ | ÁÖ¿øº£¸£ºô(493-7) | 3 | 29.73 | 21,200 | 24 | 2016 | | 2024.08.16 | ¿ù¼¼ | (1452-36) | 2 | 25.61 | 10,000 | 46 | 2017 | | 2024.08.16 | ¿ù¼¼ | (1520-2) | 4 | 15.76 | 1,000 | 60 | 2013 | | 2024.08.16 | Àü¼¼ | ´õ¾¾¿¤ | 7 | 26.73 | 26,250 | 0 | 2015 | | 2024.08.16 | ¿ù¼¼ | ·ÎÇϽººô2Â÷ | 3 | 67.98 | 300 | 42 | 2009 | | 2024.08.16 | ¸Å¸Å | ÃÊ¿øºô¶ó(610-335) | 2 | 36.02 | 21,500 | | 1990 | | 2024.08.16 | ¸Å¸Å | Çö´ë3ºô¶ó | 1 | 40.32 | 18,000 | | 1991 | | 2024.08.15 | ¿ù¼¼ | (306-95) | -1 | 36.81 | 7,600 | 24 | 1986 | | 2024.08.15 | ¿ù¼¼ | ´õÁý(TheZIP) | 2 | 17.77 | 1,000 | 50 | 2012 | | 2024.08.15 | ¿ù¼¼ | ¹Ì¼º¿¤¸®Æ® | 6 | 14.93 | 3,000 | 37 | 2013 | | 2024.08.15 | Àü¼¼ | ¼ºµµºô¶ó | 4 | 43.93 | 13,000 | 0 | 1993 | | 2024.08.15 | ¿ù¼¼ | dz¿øÇÏÀÓºô | 5 | 42.89 | 30,000 | 25 | 2018 | | 2024.08.15 | ¿ù¼¼ | µ¿¾çºô¶ó | -1 | 38.41 | 7,000 | 15 | 1993 | | 2024.08.15 | ¿ù¼¼ | (98-239) | 3 | 30.51 | 2,000 | 90 | 2018 | | 2024.08.15 | ¸Å¸Å | 598-50 | 4 | 37.98 | 27,000 | | 2015 | | 2024.08.15 | ¿ù¼¼ | sweetvill | 3 | 45.76 | 20,000 | 6 | 2015 | | 2024.08.15 | ¿ù¼¼ | dz¿øÇÏÀÓºô | 5 | 42.89 | 30,000 | 25 | 2018 | | 2024.08.15 | ¿ù¼¼ | dz¿øÇÏÀÓºô | 5 | 42.89 | 30,000 | 25 | 2018 | | 2024.08.15 | ¿ù¼¼ | µ¿»êºô¶ó(10-436) | 3 | 36.45 | 13,000 | 50 | 1993 | | 2024.08.14 | ¿ù¼¼ | ÆÄÅ©ºô1Â÷(626-59) | 4 | 60.12 | 21,750 | 10 | 2009 | | 2024.08.14 | ¿ù¼¼ | (1509-1) | 3 | 48.6 | 17,000 | 30 | 2003 | | 2024.08.14 | Àü¼¼ | Ŭ¶ó¿ìµå | 8 | 27.23 | 26,200 | 0 | 2018 | | 2024.08.14 | Àü¼¼ | Ŭ¶ó¿ìµå | 8 | 27.23 | 26,200 | 0 | 2018 | | 2024.08.14 | Àü¼¼ | ±Ý¼º½¦¸£ºô | 4 | 61.02 | 25,000 | 0 | 2002 | | 2024.08.14 | ¿ù¼¼ | º£³×½ºÆ® | 2 | 28.07 | 13,500 | 10 | 2012 | | 2024.08.14 | ¿ù¼¼ | ºÎ¿ä±×¸°Å¸¿î(°¡µ¿) | -1 | 40.44 | 500 | 60 | 1991 | | 2024.08.14 | ¿ù¼¼ | ¿ì¼®ºô¶ó11Â÷ | 1 | 44.19 | 1,500 | 55 | 1995 | | 2024.08.14 | ¿ù¼¼ | »þÀκô¸®Áö | 6 | 23.35 | 21,500 | 5 | 2015 | | 2024.08.13 | ¿ù¼¼ | ¸ð¾Æºô¶óÆ®4 | 3 | 41.86 | 4,000 | 65 | 2011 | | 2024.08.13 | ¿ù¼¼ | T&K½Å¸²¥² | 3 | 28.61 | 2,472 | 25 | 2023 | | 2024.08.13 | Àü¼¼ | µ¿»êºô¶óAµ¿(412-167) | -1 | 51.27 | 8,000 | 0 | 1993 | | 2024.08.13 | ¿ù¼¼ | T&K½Å¸²¥² | 3 | 26.3 | 9,384 | 8 | 2023 | | 2024.08.13 | ¿ù¼¼ | (1430-27) | 5 | 40.16 | 15,800 | 35 | 2001 | | 2024.08.13 | ¿ù¼¼ | T&K½Å¸²¥² | 3 | 26.3 | 3,789 | 39 | 2023 | | 2024.08.13 | Àü¼¼ | µ¿»êºô¶óAµ¿(412-167) | -1 | 51.27 | 8,000 | 0 | 1993 | | 2024.08.13 | ¸Å¸Å | ÇÁ¶óÀÓºô(610-72) | 2 | 51.76 | 31,000 | | 2013 | | 2024.08.13 | ¸Å¸Å | ½Å¸²´º¾¾¿¤(11-8) | 4 | 29.99 | 30,500 | | 2017 | | 2024.08.13 | ¸Å¸Å | ÇÁ¶óÀÓºô(610-72) | 2 | 51.76 | 31,000 | | 2013 | | 2024.08.13 | ¸Å¸Å | ÇÁ¶óÀÓºô(610-72) | 2 | 51.76 | 31,000 | | 2013 | | 2024.08.13 | ¿ù¼¼ | ¿¤¸®½Ã¾Æ | 5 | 57.36 | 5,000 | 85 | 2013 | | 2024.08.13 | ¸Å¸Å | ¼ºµµºô¶ó | 3 | 43.93 | 20,000 | | 1993 | | 2024.08.13 | ¸Å¸Å | 598-50 | 2 | 29.49 | 18,800 | | 2015 | | 2024.08.12 | ¿ù¼¼ | À̵µÆÄÅ©ºô | 2 | 27.12 | 8,768 | 7 | 2023 | | 2024.08.12 | ¿ù¼¼ | À̵µÆÄÅ©ºô | 2 | 27.12 | 3,540 | 36 | 2023 | | 2024.08.12 | ¿ù¼¼ | ÇÑÂ÷ÀÓºô | 3 | 29.85 | 500 | 100 | 2021 | | 2024.08.12 | ¿ù¼¼ | (468-7) | 2 | 32.48 | 3,000 | 73 | 2013 | | 2024.08.12 | Àü¼¼ | (1678-10) | 1 | 54.51 | 12,000 | 0 | 1982 | | 2024.08.12 | ¿ù¼¼ | (409-260) | 2 | 41.33 | 12,000 | 2 | 1990 | | 2024.08.12 | ¸Å¸Å | ÇÁ¶óÀÓºô | 3 | 64.28 | 37,500 | | 2011 | | 2024.08.12 | ¸Å¸Å | ±×¸°ºô¶ó(105-41) | 3 | 55.38 | 30,500 | | 1995 | | 2024.08.12 | ¸Å¸Å | º»½ºÆäÀ̽º | 5 | 26.53 | 31,000 | | 2020 | | 2024.08.12 | Àü¼¼ | È«¸²ºô¶ó³ªµ¿ | 2 | 38.34 | 10,900 | 0 | 1988 | | 2024.08.11 | Àü¼¼ | ¼ºÈÁÖÅô٠| -1 | 52.38 | 9,700 | 0 | 1993 | | 2024.08.11 | ¸Å¸Å | ÇѾ縮Ã÷ºô(610-405) | 2 | 56.77 | 31,000 | | 2012 | | 2024.08.11 | ¸Å¸Å | ½Â¿ìij½½ | 5 | 47.13 | 28,200 | | 2014 | | 2024.08.11 | ¿ù¼¼ | ¼¾Æ®¶ó³ë½Å¸² | 5 | 22.67 | 25,000 | 15 | 2021 | | 2024.08.11 | ¿ù¼¼ | ¸ÞÁ¾µå¸¶¾ß | 5 | 16.5 | 5,000 | 44 | 2014 | | 2024.08.10 | ¸Å¸Å | ¾Æ¿øºô | 5 | 48.9 | 29,500 | | 2012 | | 2024.08.10 | Àü¼¼ | Á꺣¶ó | 5 | 27.15 | 26,500 | 0 | 2018 | | 2024.08.10 | ¿ù¼¼ | À²ÃÌ | 1 | 60.27 | 2,000 | 87 | 1980 | | 2024.08.10 | ¿ù¼¼ | Àå¿øºô | 4 | 21.93 | 500 | 65 | 2017 | | 2024.08.10 | Àü¼¼ | ¿î»êºô¶ó | 4 | 67.14 | 12,700 | 0 | 1994 | | 2024.08.10 | ¿ù¼¼ | ¿¥¿¤½¦¸£ºô | 4 | 29.58 | 5,000 | 100 | 2021 | | 2024.08.10 | Àü¼¼ | Çö´ëºô¶ó | 2 | 40.5 | 8,500 | 0 | 1992 | | 2024.08.10 | ¸Å¸Å | ¿ì¼®ºô¶ó9Â÷ | 4 | 25.67 | 13,500 | | 1994 | | 2024.08.10 | ¸Å¸Å | ±Ý¿øÇÁ¶óÀÚ | 4 | 95.88 | 55,000 | | 1997 | | 2024.08.10 | ¿ù¼¼ | ¹Ì¼º¿¤¸®Æ® | 6 | 15.64 | 3,000 | 43 | 2013 | | 2024.08.10 | ¸Å¸Å | ¿µÁøÇÏÀÌÃ÷ºô¶ó | 2 | 59.86 | 42,500 | | 1996 | | 2024.08.10 | ¿ù¼¼ | ÇÑÀÏÇÏÀ̺ô | 6 | 20.88 | 4,000 | 58 | 2013 | | 2024.08.10 | ¿ù¼¼ | ¼Ò»êÇÏÀÌÃ÷¸Ç¼Ç | 2 | 39.53 | 12,000 | 20 | 1995 | | 2024.08.10 | ¿ù¼¼ | (1657-26) | 3 | 37.83 | 17,800 | 30 | 2014 | | 2024.08.10 | ¸Å¸Å | ÀÚÀÌÄŸºô | 5 | 29.97 | 26,000 | | 2016 | | 2024.08.10 | ¸Å¸Å | 2Â÷ÇѸ¶À½ºô¶ó | 3 | 38.35 | 16,000 | | 1993 | | 2024.08.09 | Àü¼¼ | ±¹Á¦¾Ë¾Øµå¾¾ | 2 | 28.58 | 20,000 | 0 | 2018 | | 2024.08.09 | ¸Å¸Å | ÇØ¿À¸§¾ÆÆ®ºô | 2 | 59.66 | 33,500 | | 2016 | | 2024.08.09 | Àü¼¼ | ¸¶·çºô(598-205) | 5 | 31.23 | 11,500 | 0 | 2012 | | 2024.08.09 | ¸Å¸Å | ÇѾ縮Ã÷ºô(626-24) | -1 | 59.57 | 20,000 | | 2011 | | 2024.08.09 | ¿ù¼¼ | µ¿µµºô¶óÆ®(1556-18) | 4 | 65.49 | 16,000 | 20 | 1995 | | 2024.08.09 | Àü¼¼ | ¹Ì¸®³»(610-401) | 1 | 34.85 | 9,990 | 0 | 1990 | | 2024.08.09 | ¿ù¼¼ | BELITATERRA | 8 | 29.24 | 24,690 | 25 | 2016 | | 2024.08.09 | ¸Å¸Å | ÀÌ·¹ºô¶ó | 4 | 50.51 | 38,500 | | 2013 | | 2024.08.08 | Àü¼¼ | ´õÄÉÀÌŸ¿ö | 12 | 29.386 | 25,000 | 0 | 2018 | | 2024.08.08 | ¿ù¼¼ | (231-59) | 3 | 64.46 | 3,000 | 30 | 1997 | | 2024.08.08 | Àü¼¼ | ¿ì¼®ºô¶ó14Â÷ | 4 | 34.28 | 10,900 | 0 | 1995 | | 2024.08.08 | ¿ù¼¼ | (1439-24) | 7 | 11.93 | 11,300 | 30 | 2020 | | 2024.08.08 | Àü¼¼ | Á꺣¶ó | 5 | 24.03 | 25,000 | 0 | 2018 | | 2024.08.08 | Àü¼¼ | WannyVill(1487-21) | 3 | 45.76 | 24,000 | 0 | 2015 | | 2024.08.08 | ¿ù¼¼ | ¼Ò³ëÆÓ¸®Ã¼(1481-2) | 6 | 29.95 | 1,000 | 100 | 2014 | | 2024.08.08 | Àü¼¼ | ½¦¸£ºô | 2 | 31.28 | 19,000 | 0 | 2013 | | 2024.08.07 | Àü¼¼ | ȶûºô¶ó(251-101) | 2 | 48.89 | 15,000 | 0 | 1986 | | 2024.08.07 | ¿ù¼¼ | Áß¾Óºô¶ó(511-14) | 1 | 65.48 | 15,000 | 68 | 1999 | | 2024.08.07 | ¿ù¼¼ | (1439-24) | 6 | 13 | 12,000 | 25 | 2020 | | 2024.08.07 | ¿ù¼¼ | ¿µ´ëÁÖÅà | 3 | 59.29 | 20,000 | 25 | 2002 | | 2024.08.07 | ¿ù¼¼ | 1664-25 | 2 | 16.7 | 500 | 52 | 2015 | | 2024.08.07 | ¿ù¼¼ | (1421-31) | 7 | 18.1 | 1,000 | 55 | 2015 | | 2024.08.07 | ¿ù¼¼ | Æ÷µµ¿ø½¦¸£ºô | 4 | 29.67 | 18,900 | 16 | 2012 | | 2024.08.07 | ¸Å¸Å | ¸ÞÆ®·ÎŸ¿î7Â÷ | 3 | 29.11 | 25,800 | | 2017 | | 2024.08.07 | ¸Å¸Å | (377-12) | 2 | 70.88 | 73,500 | | 2004 | | 2024.08.07 | ¸Å¸Å | ¿¡¹öÇϿ콺9Â÷ | 4 | 84.87 | 42,000 | | 2011 | | 2024.08.07 | ¸Å¸Å | ½Å¸²ÇǾØÇϿ콺 | 4 | 34.19 | 29,500 | | 2022 | | 2024.08.07 | ¸Å¸Å | (306-95) | 2 | 37.05 | 17,300 | | 1986 | | 2024.08.06 | ¿ù¼¼ | ¼±ÀΟ¿î | 19 | 13.48 | 1,000 | 70 | 2017 | | 2024.08.06 | ¸Å¸Å | ¾î¹ÝÆÓ¸®½º(103µ¿,105µ¿) | 4 | 41.91 | 34,500 | | 2017 | | 2024.08.06 | ¿ù¼¼ | ¸¶À̹ٿò½Å¸² | 2 | 23.4 | 1,000 | 65 | 2012 | | 2024.08.06 | ¿ù¼¼ | °ü¾Çµå¸²ºô | 3 | 40.22 | 4,000 | 100 | 2014 | | 2024.08.06 | Àü¼¼ | ¸®Ã÷¿ÀÇǽºÅÚ&µµ½ÃÇü»ýȰÁÖÅà | 6 | 22.41 | 17,800 | 0 | 2014 | | 2024.08.06 | ¿ù¼¼ | ¿ø¿ÀÇǽºÅÚ(1432-151) | 7 | 47.92 | 300 | 35 | 2002 | | 2024.08.06 | ¿ù¼¼ | ä¼®°¡ | 3 | 27.635 | 23,400 | 8 | 2021 | | 2024.08.06 | ¿ù¼¼ | À¯´ÏÅ©ÇϿ콺(440-41) | 5 | 42.42 | 3,000 | 150 | 2016 | | 2024.08.06 | Àü¼¼ | »ïµµÇϿ콺 | 5 | 32.39 | 19,000 | 0 | 2013 | | 2024.08.05 | ¿ù¼¼ | µµ·¹¸Ç¼Ç | 5 | 29.12 | 5,000 | 45 | 2016 | | 2024.08.05 | ¿ù¼¼ | ºÎ¿ä±×¸°Å¸¿î(´Ùµ¿) | 1 | 51.45 | 12,000 | 5 | 1991 | | 2024.08.05 | ¸Å¸Å | µ¨·ç½Ã¾Æ.R | 1 | 29.85 | 27,000 | | 2022 | | 2024.08.05 | ¸Å¸Å | ¸íºô¶ó | 2 | 37.27 | 25,700 | | 1991 | | 2024.08.05 | ¿ù¼¼ | ¼ºÃ¢ºô¶ó | 2 | 47.65 | 11,000 | 50 | 1991 | | 2024.08.05 | ¿ù¼¼ | ¼ºÃ¢ºô¶ó | 2 | 47.65 | 9,900 | 50 | 1991 | | 2024.08.05 | ¸Å¸Å | (1518-16) | 1 | 58.52 | 29,700 | | 1986 | | 2024.08.05 | ¿ù¼¼ | ÆÊÆÄ½º | 5 | 15.14 | 3,000 | 44 | 2014 | | 2024.08.05 | ¸Å¸Å | (1518-16) | 1 | 58.52 | 29,700 | | 1986 | | 2024.08.04 | ¿ù¼¼ | ¶óÀÓÄ«¿îƼ | 4 | 28.52 | 1,000 | 75 | 2018 | | 2024.08.04 | Àü¼¼ | Çì·»4Â÷ | 5 | 25.16 | 21,000 | 0 | 2016 | | 2024.08.04 | Àü¼¼ | dz¿øÇÏÀÓºô | 2 | 28.87 | 23,310 | 0 | 2018 | | 2024.08.04 | Àü¼¼ | ½Å¸²ÇǾØÇϿ콺 | 2 | 33.19 | 26,000 | 0 | 2022 | | 2024.08.03 | Àü¼¼ | 1477-14 | 5 | 29.92 | 19,000 | 0 | 2014 | | 2024.08.03 | ¸Å¸Å | ÁذæÇÏÀÌÃ÷ºô(551-41) | 3 | 64.32 | 38,500 | | 2003 | | 2024.08.03 | Àü¼¼ | µ¿ÀÏ¿ëȺô¶óB(412-194) | 1 | 34.46 | 8,000 | 0 | 1992 | | 2024.08.03 | Àü¼¼ | (415-20) | 3 | 55.44 | 22,000 | 0 | 2004 | | 2024.08.03 | ¿ù¼¼ | Çϳª | 5 | 22.91 | 20,000 | 8 | 2018 | | 2024.08.03 | ¿ù¼¼ | ½Å¶óÁÖÅ𡵿 | 1 | 36.9 | 1,000 | 72 | 1986 | | 2024.08.03 | Àü¼¼ | »ó¸íÇÏÀÌÃ÷ºô¶ó | 4 | 51.6 | 20,100 | 0 | 2002 | | 2024.08.03 | ¸Å¸Å | Çѳª·¡Bµ¿ | 5 | 48.85 | 37,400 | | 2017 | | 2024.08.02 | ¿ù¼¼ | JÇìºìºô | 3 | 21.89 | 15,000 | 45 | 2015 | | 2024.08.02 | Àü¼¼ | DaehoVill | 2 | 29.37 | 16,000 | 0 | 2016 | | 2024.08.02 | ¿ù¼¼ | ´õ¸¶Àεå | 10 | 26.69 | 2,500 | 152 | 2022 | | 2024.08.02 | ¿ù¼¼ | ȲÁ¦9(415-9) | 1 | 40.5 | 10,000 | 13 | 1991 | | 2024.08.02 | ¿ù¼¼ | 1429-44 | 4 | 24.63 | 1,000 | 85 | 2014 | | 2024.08.02 | ¿ù¼¼ | ·Î¾â·°½º½ÃƼ | 4 | 25.91 | 17,500 | 17 | 2012 | | 2024.08.02 | Àü¼¼ | À¯ÁøÇÏÀÌÃ÷ºô | 2 | 53.91 | 24,700 | 0 | 2011 | | 2024.08.02 | ¿ù¼¼ | J2tower | 5 | 16.05 | 1,000 | 70 | 2014 | | 2024.08.02 | ¿ù¼¼ | À¯ÁøÇÏÀÌÃ÷ºô | 2 | 53.91 | 23,400 | 9 | 2011 | | 2024.08.02 | ¿ù¼¼ | ¸ÞÁ¾µå¸¶¾ß | 6 | 16.22 | 3,000 | 57 | 2014 | | 2024.08.02 | Àü¼¼ | DaehoVill | 2 | 29.37 | 16,000 | 0 | 2016 | | 2024.08.02 | ¿ù¼¼ | ȲÁ¦9(415-9) | 1 | 40.5 | 10,000 | 13 | 1991 | | 2024.08.02 | ¿ù¼¼ | ·Î¾â·°½º½ÃƼ | 4 | 25.91 | 16,000 | 24 | 2012 | | 2024.08.01 | Àü¼¼ | Æç¸®Ã¼ºô¸®Áö | 2 | 39.07 | 22,170 | 0 | 2018 | | 2024.08.01 | Àü¼¼ | ¼Ò³ëÆÓ¸®Ã¼III | 5 | 67.65 | 23,000 | 0 | 2013 | | 2024.08.01 | ¸Å¸Å | ÆòÁÖÆÄÅ©ºô¶ó | -1 | 49.13 | 16,500 | | 1997 | | 2024.08.01 | ¿ù¼¼ | »ï¼ºÇÏÀÌÃ÷ºô5Â÷ | 4 | 53.06 | 15,000 | 25 | 2003 | | 2024.08.01 | ¿ù¼¼ | Çູ¸Ç¼Ç3Â÷ | -1 | 48.08 | 4,500 | 29 | 1995 | | 2024.08.01 | ¸Å¸Å | Çູ¸Ç¼Ç3Â÷ | -1 | 48.08 | 17,000 | | 1995 | | 2024.08.01 | Àü¼¼ | Çì·»4Â÷ | 3 | 23.58 | 19,500 | 0 | 2016 | | 2024.08.01 | ¿ù¼¼ | ´åÄÄij½½ | 6 | 29.9 | 7,000 | 35 | 2014 | | 2024.08.01 | ¿ù¼¼ | Á¤¿ìÇÏÀÌÃ÷Bµ¿ | 5 | 40.97 | 10,000 | 100 | 2016 | | 2024.08.01 | ¿ù¼¼ | Á¤¸²È¨½ºÅÚ(88-35) | 4 | 32.66 | 6,000 | 67 | 2000 | | 2024.08.01 | Àü¼¼ | ½Å¾Èºô¶ó(610-143) | 3 | 41.35 | 11,000 | 0 | 1993 | | 2024.08.01 | Àü¼¼ | ¼Ò³ëÆÓ¸®Ã¼III | 5 | 67.65 | 23,000 | 0 | 2013 | | 2024.08.01 | Àü¼¼ | ºñÄ¡(1416-36) | 6 | 27.945 | 22,000 | 0 | 2016 | | 2024.07.31 | ¸Å¸Å | ű¤ºô¶ó | 3 | 51.31 | 37,500 | | 2000 | | 2024.07.31 | Àü¼¼ | ºäÅ×¶ó½º | 4 | 29.99 | 22,300 | 0 | 2020 | | 2024.07.31 | ¸Å¸Å | ¸®´õ½ººô | 5 | 35.66 | 39,000 | | 2015 | | 2024.07.31 | ¸Å¸Å | ¿µÈ¾ÆÆ®ºô¶ó | 3 | 46.56 | 18,000 | | 1992 | | 2024.07.31 | Àü¼¼ | ¼ºº¸ºô¸®Áö°¡µ¿ | -1 | 59.98 | 13,000 | 0 | 1993 | | 2024.07.31 | ¿ù¼¼ | ½¦¸£ºô | 4 | 15.3 | 1,000 | 55 | 2013 | | 2024.07.31 | Àü¼¼ | ·Îµ©(1550) | 4 | 53.84 | 20,000 | 0 | 2014 | | 2024.07.31 | ¿ù¼¼ | ½Å¸²ºôµù | 6 | 12.06 | 2,000 | 53 | 2018 | | 2024.07.31 | Àü¼¼ | ¿¡¼¿ÆÄÅ©ºô¥± | 3 | 27.98 | 20,000 | 0 | 2018 | | 2024.07.31 | Àü¼¼ | ¿¡¼¿ÆÄÅ©ºô¥± | 3 | 27.98 | 20,000 | 0 | 2018 | | 2024.07.31 | ¿ù¼¼ | ½Å¸²¸Ç¼Ç | 3 | 71.46 | 1,000 | 90 | 1984 | | 2024.07.31 | ¿ù¼¼ | °æµµºô | 2 | 84.65 | 2,000 | 25 | 2004 | | 2024.07.31 | ¿ù¼¼ | (409-151) | 2 | 55.37 | 3,000 | 60 | 1981 | | 2024.07.30 | ¸Å¸Å | (306-22) | 1 | 76.05 | 35,000 | | 1994 | | 2024.07.30 | ¸Å¸Å | URBAN5 | 6 | 57.11 | 59,000 | | 2023 | | 2024.07.30 | Àü¼¼ | (1654-12) | 2 | 13.4 | 8,900 | 0 | 2013 | | 2024.07.30 | Àü¼¼ | À屺ºô¶ó | 1 | 54.66 | 22,000 | 0 | 2003 | | 2024.07.30 | ¿ù¼¼ | (127-23) | 2 | 49.7 | 13,000 | 40 | 1992 | | 2024.07.30 | ¿ù¼¼ | »ïÇùÇÊÇϿ콺-¥µ | 4 | 13.09 | 1,000 | 50 | 2012 | | 2024.07.30 | Àü¼¼ | ºñ³ª¸®¿ò1Â÷(610-339) | 2 | 29.23 | 17,800 | 0 | 2017 | | 2024.07.29 | ¸Å¸Å | Á¤¿ìÇÏÀÌÃ÷Aµ¿ | 5 | 41 | 34,500 | | 2016 | | 2024.07.29 | ¸Å¸Å | ÈÞ¸Õºô | 5 | 27.25 | 23,000 | | 2017 | | 2024.07.29 | Àü¼¼ | µå¸²Å¸¿î | 5 | 26.9 | 25,000 | 0 | 2020 | | 2024.07.29 | ¿ù¼¼ | ½Å¾È¸Ç¼Ç(610-167) | 2 | 44.1 | 13,000 | 20 | 1995 | | 2024.07.29 | Àü¼¼ | Àϼººô¶ó | -1 | 34.29 | 8,000 | 0 | 1994 | | 2024.07.29 | ¿ù¼¼ | (1439-24) | 6 | 11.93 | 11,390 | 25 | 2020 | | 2024.07.29 | ¿ù¼¼ | ´ë¿µ¸Ç¼ð | 1 | 74.25 | 5,000 | 80 | 1982 | | 2024.07.29 | Àü¼¼ | (1652-25) | 4 | 29.42 | 18,500 | 0 | 2014 | | 2024.07.29 | ¿ù¼¼ | ½Å¾È¸Ç¼Ç(610-167) | 2 | 44.1 | 13,000 | 20 | 1995 | | 2024.07.29 | ¸Å¸Å | µå¸²Ä³½½ | 2 | 29.56 | 20,000 | | 2017 | | 2024.07.29 | ¿ù¼¼ | dz¾çºôµù | 5 | 23.935 | 5,000 | 31 | 2012 | | 2024.07.28 | ¿ù¼¼ | ޶óÈÙ(10-433) | 3 | 19.68 | 500 | 38 | 2002 | | 2024.07.28 | ¿ù¼¼ | À¸¶äij½½ | 4 | 24.98 | 2,000 | 100 | 2022 | | 2024.07.28 | ¿ù¼¼ | ÁÖ¿ø | 7 | 13.41 | 2,000 | 34 | 2013 | | 2024.07.27 | Àü¼¼ | ·Î¾âÇÏÀÌÃ÷ | 2 | 28.87 | 17,000 | 0 | 2016 | | 2024.07.27 | Àü¼¼ | ¿î¼ºô¶óÆ®2 | 1 | 61.2 | 25,000 | 0 | 2000 | | 2024.07.27 | ¿ù¼¼ | (567-30) | 3 | 57.3 | 10,000 | 100 | 2015 | | 2024.07.27 | ¿ù¼¼ | ÆÊÆÄ½º | 2 | 16.15 | 5,000 | 45 | 2014 | | 2024.07.27 | ¿ù¼¼ | ´Ù¿¬Çູ | 3 | 23.48 | 2,000 | 75 | 2012 | | 2024.07.27 | ¿ù¼¼ | Çö´ë(1419-9) | 4 | 12.09 | 1,000 | 45 | 2012 | | 2024.07.27 | Àü¼¼ | Á¤½Éºô¶óBµ¿ | 1 | 35.31 | 10,400 | 0 | 1992 | | 2024.07.27 | ¸Å¸Å | ȶûºô¶ó(251-101) | 2 | 48.89 | 16,800 | | 1986 | | 2024.07.27 | Àü¼¼ | »ï¿À¸Ç¼Ç(598-117) | 4 | 38.52 | 10,680 | 0 | 1993 | | 2024.07.27 | ¿ù¼¼ | ¼±¿µºô¶ó | 2 | 54.66 | 2,000 | 95 | 2003 | | 2024.07.26 | Àü¼¼ | ´õÁöÀ½ | 2 | 20.49 | 24,500 | 0 | 2023 | | 2024.07.26 | ¿ù¼¼ | (498-36) | 3 | 98.23 | 5,000 | 40 | 2003 | | 2024.07.26 | ¿ù¼¼ | ´º¼¿ïºô¸®Áö | 1 | 69.81 | 14,500 | 20 | 1990 | | 2024.07.26 | ¿ù¼¼ | ´ëµ¿ÆÓ¸®½º | 5 | 13.05 | 1,000 | 95 | 1985 | | 2024.07.26 | Àü¼¼ | (412-332) | 2 | 52.76 | 11,450 | 0 | 1978 | | 2024.07.26 | ¸Å¸Å | »ï¼º¾ÆÆ®ºô11Â÷(1564-38) | 1 | 46.41 | 24,200 | | 2005 | | 2024.07.26 | ¸Å¸Å | º»½ºÆäÀ̽º | 5 | 26.53 | 31,000 | | 2020 | | 2024.07.26 | ¸Å¸Å | ´õÁöÀ½ | 2 | 20.49 | 26,950 | | 2023 | | 2024.07.26 | ¸Å¸Å | º»½ºÆäÀ̽º | 5 | 26.53 | 31,000 | | 2020 | | 2024.07.26 | ¿ù¼¼ | ´Ù»êºô(1627-90) | 4 | 27.82 | 18,200 | 30 | 2012 | | 2024.07.25 | ¿ù¼¼ | Æ÷µµ¿ø½¦¸£ºô | 4 | 29.83 | 22,000 | 5 | 2012 | | 2024.07.25 | ¿ù¼¼ | Àº¿¬Àç | 4 | 14.18 | 500 | 47 | 2013 | | 2024.07.25 | Àü¼¼ | Áø¼ººô¶ó | -1 | 24.89 | 5,000 | 0 | 1992 | | 2024.07.25 | ¿ù¼¼ | Çϸ¶ºô¶ó | 5 | 58.66 | 2,000 | 100 | 2000 | | 2024.07.25 | Àü¼¼ | µ¿ÀÏ¿ëȺô¶óB(412-194) | 4 | 34.46 | 9,580 | 0 | 1992 | | 2024.07.25 | ¿ù¼¼ | (10-450) | 3 | 81.26 | 2,000 | 43 | 2003 | | 2024.07.25 | ¿ù¼¼ | Àº¿¬Àç | 4 | 14.18 | 500 | 47 | 2013 | | 2024.07.25 | ¿ù¼¼ | PREMIO725C | 5 | 26.91 | 3,000 | 110 | 2022 | | 2024.07.25 | Àü¼¼ | º¸¶ó¸Å107µ¿ | 4 | 59.8 | 25,000 | 0 | 2000 | | 2024.07.25 | Àü¼¼ | º¸¶ó¸Å107µ¿ | 4 | 59.8 | 25,000 | 0 | 2000 | | 2024.07.25 | ¸Å¸Å | ´Ù¿ø¾ÆÆ®ºô | 4 | 45.24 | 34,500 | | 2002 | | 2024.07.25 | Àü¼¼ | (401-19) | -1 | 42.84 | 10,000 | 0 | 1991 | | 2024.07.25 | ¸Å¸Å | ½ÅÈİ¡ | 2 | 49.08 | 32,000 | | 2016 | | 2024.07.25 | ¸Å¸Å | THEÁöÀ½ | 3 | 29.72 | 40,500 | | 2023 | | 2024.07.24 | Àü¼¼ | ºäÅ×¶ó½º | 1 | 29.92 | 26,500 | 0 | 2020 | | 2024.07.24 | ¿ù¼¼ | ±ÝÈ£ºô¶ó2Â÷(412-343) | 4 | 30.33 | 7,500 | 25 | 1992 | | 2024.07.24 | Àü¼¼ | ÇÑ¾ç¾ÆÆ®ºô¸®Áö | 3 | 37.54 | 12,000 | 0 | 1993 | | 2024.07.24 | ¿ù¼¼ | ¿¹¼º±×¸°ºô¶ó | 1 | 45 | 10,000 | 30 | 1993 | | 2024.07.24 | ¿ù¼¼ | °¶·¯¸®ÇϿ콺 | 4 | 18.865 | 3,000 | 57 | 2012 | | 2024.07.24 | Àü¼¼ | (702-8) | 4 | 38.9 | 20,000 | 0 | 2013 | | 2024.07.24 | ¿ù¼¼ | BIGTREE | 5 | 23.72 | 7,000 | 95 | 2016 | | 2024.07.24 | Àü¼¼ | (702-8) | 4 | 38.9 | 20,000 | 0 | 2013 | | 2024.07.24 | ¿ù¼¼ | ±ÝÈ£ºô¶ó2Â÷(412-343) | 4 | 30.33 | 7,500 | 12 | 1992 | | 2024.07.24 | ¸Å¸Å | ûdz±×¸°ºô | 2 | 54.67 | 24,500 | | 2001 | | 2024.07.24 | ¿ù¼¼ | ¾ËÆæÇϿ콺(563-20) | 6 | 49.915 | 7,000 | 130 | 2017 | | 2024.07.24 | Àü¼¼ | ÁÖ¿øº£¸£ºô(493-7) | 4 | 27.93 | 23,850 | 0 | 2016 | | 2024.07.24 | Àü¼¼ | ³×¿ÀÁö¿ò | 4 | 18.85 | 12,000 | 0 | 2015 | | 2024.07.23 | ¿ù¼¼ | (408-17) | 1 | 53.64 | 14,000 | 30 | 2002 | | 2024.07.23 | ¿ù¼¼ | ȲÁ¦7(415-63) | 4 | 40.5 | 10,700 | 10 | 1991 | | 2024.07.23 | ¿ù¼¼ | ¼Ò³ëÆÓ¸®Ã¼III | 3 | 40.3 | 5,000 | 80 | 2013 | | 2024.07.23 | ¿ù¼¼ | ÈÞºô¸®Áö(538-30) | 5 | 15.84 | 1,000 | 45 | 2013 | | 2024.07.23 | ¿ù¼¼ | ÇÁ·¹¹Ì¿À(PREMIO)725Aµ¿ | 4 | 27.5 | 17,000 | 10 | 2016 | | 2024.07.23 | ¿ù¼¼ | ½ºÄ«À̺ô(598-57) | 3 | 38.43 | 5,000 | 75 | 2016 | | 2024.07.23 | ¿ù¼¼ | »ï¿ìÇÏÀÌÃ÷ºô¶ó | 3 | 26.34 | 7,800 | 25 | 1993 | | 2024.07.23 | Àü¼¼ | (98-242) | 3 | 33.41 | 10,000 | 0 | 1993 | | 2024.07.23 | Àü¼¼ | Á¤¿øÆÓ¸®Ã¼Aµ¿Bµ¿ | 4 | 50.77 | 32,000 | 0 | 2019 | | 2024.07.23 | ¿ù¼¼ | (650-20) | 2 | 29.63 | 1,735 | 18 | 2021 | | 2024.07.23 | ¸Å¸Å | À¯¼ººô¶ó(548-5) | 3 | 60.4 | 34,500 | | 1993 | | 2024.07.23 | ¿ù¼¼ | ¼¾Æ®·¹ºô(º») | 4 | 16.74 | 6,000 | 45 | 2018 | | 2024.07.22 | Àü¼¼ | µ¿ÀÏ¸Ç¼Ç | 2 | 79.06 | 10,000 | 0 | 2002 | | 2024.07.22 | ¿ù¼¼ | ´õ¸¶Àεå | 7 | 26.69 | 3,000 | 150 | 2022 | | 2024.07.22 | ¿ù¼¼ | Àå¿øºô | 4 | 21.93 | 10,000 | 44 | 2017 | | 2024.07.22 | ¿ù¼¼ | Ŭ·¡½Äij½½ | 3 | 37.15 | 8,000 | 140 | 2024 | | 2024.07.22 | Àü¼¼ | ¼º¾Èºôµù(1667-1) | 5 | 14.55 | 9,800 | 0 | 2014 | | 2024.07.22 | Àü¼¼ | Çѳª·¡3Â÷ | 2 | 37.45 | 23,100 | 0 | 2016 | | 2024.07.22 | Àü¼¼ | ¿ì¸²ºô¶ó | 4 | 60.48 | 19,400 | 0 | 1994 | | 2024.07.22 | ¿ù¼¼ | ´ëÇÐÃ̺ô¶ó | 2 | 34.63 | 9,300 | 10 | 1991 | | 2024.07.22 | ¿ù¼¼ | À§³Ê½ººô | 2 | 14.355 | 500 | 51 | 2014 | | 2024.07.22 | ¸Å¸Å | ÇÑ¿ïºô¶óÆ® | 2 | 65.06 | 42,800 | | 2003 | | 2024.07.22 | Àü¼¼ | (511-7) | 3 | 56.88 | 24,100 | 0 | 2014 | | 2024.07.21 | Àü¼¼ | Á¤È£ºô¶ó°¡µ¿(1563-41) | -1 | 33.69 | 4,000 | 0 | 1994 | | 2024.07.21 | ¿ù¼¼ | ÈÞºô¸®Áö(538-30) | 5 | 15.84 | 1,000 | 45 | 2013 | | 2024.07.20 | ¿ù¼¼ | ÀÚÀÌ¿ÀÇǽºÅÚ | 9 | 12.26 | 3,000 | 68 | 2021 | | 2024.07.20 | ¸Å¸Å | ±ÝÈ£¸Ç¼Ç | 2 | 70.4 | 36,200 | | 2002 | | 2024.07.20 | ¸Å¸Å | ·Îµ©(1550) | 4 | 53.84 | 25,000 | | 2014 | | 2024.07.20 | ¿ù¼¼ | ÈÞºô¸®Áö(538-30) | 5 | 11.52 | 500 | 45 | 2013 | | 2024.07.20 | ¿ù¼¼ | ÇØÂù¸Ç¼Ç(715-17) | 3 | 49.86 | 10,000 | 60 | 2014 | | 2024.07.20 | ¿ù¼¼ | ±×¶û½Ã¿¤ | 7 | 29.76 | 23,000 | 10 | 2014 | | 2024.07.20 | ¿ù¼¼ | ¿ìÇöºô | 2 | 49.96 | 24,000 | 25 | 2014 | | 2024.07.20 | ¿ù¼¼ | ¾¾¿¤ºí·ç | 6 | 27.76 | 23,000 | 5 | 2015 | | 2024.07.20 | ¸Å¸Å | µ¿½Åºô¶ó | 2 | 37.56 | 19,900 | | 1994 | | 2024.07.20 | Àü¼¼ | Á꺣¶ó | 7 | 25.89 | 26,500 | 0 | 2018 | | 2024.07.20 | Àü¼¼ | ÁÖ¿øº£¸£ºô(493-7) | 5 | 29.73 | 25,200 | 0 | 2016 | | 2024.07.20 | Àü¼¼ | Áê¹æ½º | 8 | 23.86 | 22,500 | 0 | 2018 | | 2024.07.20 | ¿ù¼¼ | ¾¾¿¤ºí·ç | 6 | 27.76 | 23,000 | 5 | 2015 | | 2024.07.20 | Àü¼¼ | ½ºÄ«À̺ô(610-122) | 2 | 39.08 | 20,000 | 0 | 2015 | | 2024.07.19 | Àü¼¼ | »ïȸǼÇ(610-203) | 5 | 54.77 | 18,000 | 0 | 2011 | | 2024.07.19 | ¿ù¼¼ | ¼º°Ã¤ | 5 | 36.54 | 4,000 | 80 | 2015 | | 2024.07.19 | ¿ù¼¼ | °¡À± | 7 | 14.01 | 1,000 | 51 | 2017 | | 2024.07.19 | Àü¼¼ | ÇÏÀÌ¿ø·Î¾âij½½ | 2 | 64.73 | 25,000 | 0 | 2015 | | 2024.07.19 | ¸Å¸Å | Áß¾Óºô¶ó | 2 | 43.56 | 16,200 | | 1992 | | 2024.07.19 | Àü¼¼ | µ¿ÀÏ¸Ç¼Ç | 1 | 79.06 | 23,000 | 0 | 2002 | | 2024.07.19 | ¿ù¼¼ | ü³ªÄݺô | 6 | 29.6 | 5,000 | 100 | 2021 | | 2024.07.19 | ¸Å¸Å | ½ºÄ«À̺ô(707-6) | 5 | 42.44 | 30,000 | | 2017 | | 2024.07.19 | Àü¼¼ | À屺ºô¶ó | 3 | 54.66 | 21,000 | 0 | 2003 | | 2024.07.19 | Àü¼¼ | µ¿ÀÏ¸Ç¼Ç | 1 | 79.06 | 22,000 | 0 | 2002 | | 2024.07.19 | Àü¼¼ | »ïȸǼÇ(610-203) | 5 | 54.77 | 18,000 | 0 | 2011 | | 2024.07.18 | Àü¼¼ | Ŭ·¡½Äij½½ | 4 | 37.15 | 37,000 | 0 | 2024 | | 2024.07.18 | ¿ù¼¼ | (626-60) | 5 | 32.06 | 636 | 19 | 2023 | | 2024.07.18 | ¿ù¼¼ | ¿¡¾î½ºÆäÀ̽º(1560-17) | 4 | 49.96 | 20,060 | 57 | 2022 | | 2024.07.18 | ¿ù¼¼ | Àå¿øºô | 4 | 21.3 | 12,000 | 10 | 2017 | | 2024.07.18 | ¿ù¼¼ | ºê¶ó¿îij½½ | 2 | 29.38 | 21,900 | 10 | 2015 | | 2024.07.18 | ¿ù¼¼ | ºê¶ó¿îij½½ | 2 | 29.38 | 21,900 | 10 | 2015 | | 2024.07.18 | ¿ù¼¼ | ÄÚÁöÇϿ콺(COZYHOUSE) | 4 | 13.89 | 500 | 48 | 2012 | | 2024.07.18 | ¿ù¼¼ | À²ÃÌÆÓ¸®½º | 4 | 27 | 15,000 | 20 | 2013 | | 2024.07.18 | ¿ù¼¼ | ¿¤ÇϿ콺 | 5 | 13 | 5,500 | 20 | 2011 | | 2024.07.18 | ¿ù¼¼ | ÀºÇýºôµù | 5 | 27.49 | 11,200 | 19 | 2002 | | 2024.07.17 | ¿ù¼¼ | ÆÊÆÄ½º | 5 | 16.15 | 7,000 | 23 | 2014 | | 2024.07.17 | ¿ù¼¼ | ¿ì¼º¾ÆÆ®ºô¶óBµ¿ | 1 | 33.6 | 9,700 | 15 | 1991 | | 2024.07.17 | Àü¼¼ | ¼º¿ø±×¸°ºôAµ¿(610-84) | 3 | 62.14 | 20,000 | 0 | 2002 | | 2024.07.17 | ¸Å¸Å | °ÅºÀSÇϿ콺½Å¸² | 3 | 29.22 | 28,500 | | 2024 | | 2024.07.17 | ¸Å¸Å | ÆòÁÖÆÄÅ©ºô¶ó | -1 | 49.13 | 10,800 | | 1997 | | 2024.07.17 | ¸Å¸Å | ¼¿ø | 4 | 39.7 | 12,000 | | 2003 | | 2024.07.17 | ¸Å¸Å | °ÅºÀSÇϿ콺½Å¸² | 4 | 29.63 | 28,900 | | 2024 | | 2024.07.17 | ¸Å¸Å | °ÅºÀSÇϿ콺½Å¸² | 5 | 29.63 | 29,200 | | 2024 | | 2024.07.17 | ¸Å¸Å | °ÅºÀSÇϿ콺½Å¸² | 5 | 39.15 | 35,800 | | 2024 | | 2024.07.17 | ¸Å¸Å | °ÅºÀSÇϿ콺½Å¸² | 6 | 29.63 | 29,200 | | 2024 | | 2024.07.17 | ¸Å¸Å | °ÅºÀSÇϿ콺½Å¸² | 6 | 39.15 | 35,800 | | 2024 | | 2024.07.17 | ¸Å¸Å | °ÅºÀSÇϿ콺½Å¸² | 2 | 29.29 | 26,950 | | 2024 | | 2024.07.17 | ¸Å¸Å | °ÅºÀSÇϿ콺½Å¸² | 2 | 29.22 | 28,200 | | 2024 | | 2024.07.17 | ¸Å¸Å | °ÅºÀSÇϿ콺½Å¸² | 3 | 29.92 | 29,800 | | 2024 | | 2024.07.17 | ¸Å¸Å | °ÅºÀSÇϿ콺½Å¸² | 3 | 29.92 | 29,800 | | 2024 | | 2024.07.17 | ¸Å¸Å | ÀºÅ¾ºô¶ó1Â÷ | 2 | 51.1 | 27,900 | | 1994 | | 2024.07.17 | ¸Å¸Å | °ÅºÀSÇϿ콺½Å¸² | 2 | 29.63 | 28,600 | | 2024 | | 2024.07.17 | ¸Å¸Å | °ÅºÀSÇϿ콺½Å¸² | 2 | 29.92 | 29,500 | | 2024 | | 2024.07.17 | ¸Å¸Å | °ÅºÀSÇϿ콺½Å¸² | 2 | 29.92 | 29,500 | | 2024 | | 2024.07.17 | ¸Å¸Å | °ÅºÀSÇϿ콺½Å¸² | 3 | 29.63 | 28,900 | | 2024 | | 2024.07.17 | ¸Å¸Å | °ÅºÀSÇϿ콺½Å¸² | 4 | 39.15 | 35,500 | | 2024 | | 2024.07.17 | Àü¼¼ | ÇÑÂ÷ÀÓºô | 2 | 29.84 | 32,000 | 0 | 2021 | | 2024.07.17 | ¸Å¸Å | °ÅºÀSÇϿ콺½Å¸² | 3 | 39.15 | 35,500 | | 2024 | | 2024.07.17 | ¸Å¸Å | °ÅºÀSÇϿ콺½Å¸² | 2 | 35.37 | 32,700 | | 2024 | | 2024.07.17 | ¸Å¸Å | °ÅºÀSÇϿ콺½Å¸² | 2 | 35.47 | 31,950 | | 2024 | | 2024.07.17 | ¸Å¸Å | °ÅºÀSÇϿ콺½Å¸² | 3 | 35.37 | 33,100 | | 2024 | | 2024.07.17 | ¸Å¸Å | °ÅºÀSÇϿ콺½Å¸² | 2 | 39.15 | 35,100 | | 2024 | | 2024.07.17 | ¸Å¸Å | °ÅºÀSÇϿ콺½Å¸² | 3 | 29.29 | 27,250 | | 2024 | | 2024.07.17 | ¸Å¸Å | °ÅºÀSÇϿ콺½Å¸² | 5 | 29.29 | 27,550 | | 2024 | | 2024.07.17 | ¸Å¸Å | °ÅºÀSÇϿ콺½Å¸² | 5 | 29.22 | 28,800 | | 2024 | | 2024.07.17 | ¸Å¸Å | °ÅºÀSÇϿ콺½Å¸² | 6 | 29.29 | 27,550 | | 2024 | | 2024.07.17 | ¸Å¸Å | °ÅºÀSÇϿ콺½Å¸² | 6 | 29.22 | 28,800 | | 2024 | | 2024.07.17 | ¸Å¸Å | °ÅºÀSÇϿ콺½Å¸² | 4 | 29.99 | 28,550 | | 2024 | | 2024.07.17 | ¸Å¸Å | °ÅºÀSÇϿ콺½Å¸² | 4 | 29.22 | 28,500 | | 2024 | | 2024.07.17 | ¸Å¸Å | °ÅºÀSÇϿ콺½Å¸² | 4 | 29.29 | 27,250 | | 2024 | | 2024.07.17 | ¸Å¸Å | °ÅºÀSÇϿ콺½Å¸² | 3 | 35.47 | 32,300 | | 2024 | | 2024.07.16 | Àü¼¼ | (98-140) | -1 | 41.76 | 6,800 | 0 | 1993 | | 2024.07.16 | ¸Å¸Å | (306-21) | -1 | 36.36 | 15,500 | | 1991 | | 2024.07.16 | ¿ù¼¼ | ÈñÇϿ콺 | 4 | 29.73 | 1,000 | 85 | 2019 | | 2024.07.16 | ¿ù¼¼ | »ïȺô | 4 | 34.87 | 27,900 | 15 | 2021 | | 2024.07.16 | ¿ù¼¼ | ½Å¸²ºôµù | 5 | 13.26 | 1,000 | 63 | 2018 | | 2024.07.16 | ¿ù¼¼ | ÆÄÀκô | 6 | 27.33 | 19,000 | 7 | 2014 | | 2024.07.16 | ¿ù¼¼ | (1510-1) | 1 | 53.55 | 16,800 | 38 | 2004 | | 2024.07.16 | ¿ù¼¼ | ½Å¾Èºô¶óÆ®(1464-78) | 1 | 45.71 | 18,000 | 30 | 2002 | | 2024.07.16 | Àü¼¼ | ¼º¿ø±×¸°ºô5Â÷ | 3 | 57.92 | 18,000 | 0 | 2002 | | 2024.07.16 | Àü¼¼ | (98-140) | -1 | 41.76 | 6,800 | 0 | 1993 | | 2024.07.16 | ¿ù¼¼ | ¿¹ÇöÅ׶󽺺ô | 5 | 32.52 | 22,000 | 15 | 2024 | | 2024.07.16 | ¸Å¸Å | ÆòÁֱ׸°¸Ç¼Ç | 4 | 43.08 | 19,500 | | 1997 | | 2024.07.15 | ¿ù¼¼ | (617-24) | 4 | 47.62 | 19,845 | 10 | 2015 | | 2024.07.15 | ¸Å¸Å | Çѳª·¡ºô | 1 | 53.56 | 34,500 | | 2016 | | 2024.07.15 | Àü¼¼ | µ¨¸®½Ã¾Æ4Â÷ | 6 | 26.9 | 24,100 | 0 | 2015 | | 2024.07.15 | ¿ù¼¼ | »ó·ÏÇϿ콺 | 4 | 38.65 | 3,000 | 85 | 2013 | | 2024.07.15 | ¿ù¼¼ | ÆÄÀκô | 4 | 27.33 | 17,000 | 25 | 2014 | | 2024.07.15 | ¿ù¼¼ | ÇѸ¶À½ºô¶ó1Â÷ | 3 | 39 | 12,000 | 20 | 1993 | | 2024.07.15 | Àü¼¼ | Á¤¿øÆÓ¸®Ã¼Aµ¿Bµ¿ | 1 | 48.18 | 29,200 | 0 | 2019 | | 2024.07.15 | Àü¼¼ | µ¨¸®½Ã¾Æ4Â÷ | 6 | 26.9 | 24,100 | 0 | 2015 | | 2024.07.15 | ¿ù¼¼ | Çϳª | 6 | 22.91 | 20,000 | 9 | 2018 | | 2024.07.14 | Àü¼¼ | ¼¾Æ®·¹ºô | 3 | 19.57 | 15,000 | 0 | 2016 | | 2024.07.14 | ¿ù¼¼ | ÁÁÀºÁý | 5 | 13.33 | 3,000 | 35 | 2014 | | 2024.07.14 | ¿ù¼¼ | ¼¼Á¾ºô¶ó | -1 | 52.71 | 1,500 | 55 | 1994 | | 2024.07.13 | ¿ù¼¼ | °¡À± | 8 | 14.01 | 500 | 50 | 2017 | | 2024.07.13 | ¿ù¼¼ | (1439-24) | 6 | 11.81 | 13,000 | 10 | 2020 | | 2024.07.13 | ¿ù¼¼ | µ¿¹æºô¸®Áö7Â÷³ªµ¿ | 1 | 36.9 | 11,000 | 3 | 1989 | | 2024.07.13 | ¸Å¸Å | ´Ù½£ | 6 | 53.84 | 45,000 | | 2016 | | 2024.07.13 | ¸Å¸Å | Á¤È£ÆÄÅ©ºô1Â÷ | 5 | 50.53 | 23,000 | | 2004 | | 2024.07.13 | ¸Å¸Å | ºê¶ó¿îij½½ | 5 | 45.86 | 39,400 | | 2015 | | 2024.07.13 | ¸Å¸Å | ¿î¼ºô¶óÆ®8 | 3 | 61.74 | 24,300 | | 2002 | | 2024.07.13 | ¿ù¼¼ | »ïÀÏ | 3 | 44.87 | 12,000 | 12 | 1991 | | 2024.07.13 | ¿ù¼¼ | »ïÀÏ | 3 | 44.87 | 12,000 | 11 | 1991 | | 2024.07.13 | ¿ù¼¼ | Á¤¸í½¦¸£ºô(525-4) | 2 | 50.61 | 10,100 | 45 | 2002 | | 2024.07.13 | ¿ù¼¼ | ÇѼֻêÀÚ¶ôºô¶ó | 2 | 17.12 | 8,900 | 20 | 2012 | | 2024.07.13 | ¿ù¼¼ | Çϳª | 6 | 22.47 | 19,650 | 14 | 2018 | | 2024.07.13 | ¿ù¼¼ | (89-1) | 3 | 22.16 | 1,000 | 55 | 2016 | | 2024.07.13 | ¿ù¼¼ | (1452-36) | 2 | 14.96 | 4,000 | 44 | 2017 | | 2024.07.13 | ¿ù¼¼ | È޵帲 | 9 | 29.98 | 1,000 | 45 | 2017 | | 2024.07.13 | Àü¼¼ | ¿ø¿ÀÇǽºÅÚ(1432-151) | 5 | 19.99 | 9,500 | 0 | 2002 | | 2024.07.13 | Àü¼¼ | (409-175) | 3 | 57.24 | 16,000 | 0 | 2007 | | 2024.07.13 | ¿ù¼¼ | µ¿¾Æ³ªµ¿ | 3 | 52.07 | 10,000 | 55 | 1982 | | 2024.07.12 | ¸Å¸Å | (409-151) | 2 | 55.37 | 30,400 | | 1981 | | 2024.07.12 | ¿ù¼¼ | Çѳª·¡(1680-7) | 6 | 29.79 | 20,900 | 7 | 2017 | | 2024.07.12 | ¸Å¸Å | ¾î¹ÝÆÓ¸®½º(101µ¿,102µ¿) | 4 | 51.7 | 37,800 | | 2017 | | 2024.07.12 | ¿ù¼¼ | ¿ÀÁÖÇϿ콺 | 2 | 18.22 | 2,000 | 49 | 2012 | | 2024.07.12 | ¿ù¼¼ | ½ÅÀÏ | 1 | 57.89 | 13,000 | 18 | 1993 | | 2024.07.12 | ¿ù¼¼ | Èúž¼¼¶ó¹Í | 1 | 66.155 | 24,000 | 10 | 1997 | | 2024.07.12 | ¿ù¼¼ | ¿µ´ëÁÖÅà | 3 | 26.72 | 500 | 60 | 2002 | | 2024.07.12 | Àü¼¼ | µÎ¿µ°ñµçºô | 4 | 95.45 | 25,000 | 0 | 2002 | | 2024.07.12 | Àü¼¼ | µÎ¿µ°ñµçºô | 4 | 95.45 | 25,000 | 0 | 2002 | | 2024.07.12 | Àü¼¼ | »ïȺô | 2 | 34.87 | 29,850 | 0 | 2021 | | 2024.07.12 | Àü¼¼ | »ïȺô | 2 | 34.87 | 29,800 | 0 | 2021 | | 2024.07.11 | ¿ù¼¼ | »ïdz±×¸°ºô¸®Áö | 3 | 52.92 | 5,000 | 60 | 1991 | | 2024.07.11 | ¿ù¼¼ | °æ±¤ºô¶ó | 4 | 34.61 | 9,220 | 9 | 1996 | | 2024.07.11 | ¸Å¸Å | µ¨·ç½Ã¾Æ.R | 1 | 29.685 | 27,900 | | 2022 | | 2024.07.11 | ¿ù¼¼ | È²ÇØºô¶ó | 4 | 42.26 | 11,200 | 15 | 1991 | | 2024.07.11 | ¿ù¼¼ | H.KVillage | 11 | 18.83 | 1,000 | 78 | 2018 | | 2024.07.11 | ¸Å¸Å | ¿ì¼ººô¶ó(1504-1) | 1 | 44.44 | 21,000 | | 1993 | | 2024.07.10 | ¸Å¸Å | ºê¶ó¿îij½½ | 2 | 42.83 | 39,000 | | 2015 | | 2024.07.10 | ¿ù¼¼ | ´ë¿øºô¶ó | 2 | 42.48 | 900 | 76 | 1992 | | 2024.07.10 | ¿ù¼¼ | ´ë¿øºô¶ó | 2 | 42.48 | 900 | 76 | 1992 | | 2024.07.10 | ¸Å¸Å | Á¶±¤ÇÏÀÌÃ÷ | 3 | 82.96 | 28,500 | | 1996 | | 2024.07.10 | Àü¼¼ | ¼ºÀº¾ÆÆ®¸Ç¼Ç | 4 | 39.22 | 14,600 | 0 | 1995 | | 2024.07.10 | ¿ù¼¼ | ¸Þ¸®Æ®¿¥Å¸¿ö | 7 | 12.6 | 9,900 | 26 | 2019 | | 2024.07.10 | ¿ù¼¼ | ü³ªÄݺô | 4 | 29.6 | 1,000 | 115 | 2021 | | 2024.07.10 | ¿ù¼¼ | ´Ù¼Ø±×¶ûºô(654-38) | 2 | 24.23 | 19,000 | 30 | 2022 | | 2024.07.10 | ¿ù¼¼ | È«¿¬±×¸°ºô(571-1) | 4 | 17.52 | 6,500 | 55 | 2016 | | 2024.07.09 | ¸Å¸Å | ¾ÆÆ®¸®ºùÅÚ(491-3) | 4 | 66.26 | 45,000 | | 2001 | | 2024.07.09 | ¿ù¼¼ | (412-456) | 1 | 48.82 | 13,000 | 10 | 1993 | | 2024.07.09 | Àü¼¼ | ÇÑÂ÷ÀÓºô | 2 | 29.84 | 32,000 | 0 | 2021 | | 2024.07.09 | Àü¼¼ | ³×¿ÀÁö¿ò | 4 | 18.85 | 16,000 | 0 | 2015 | | 2024.07.09 | ¿ù¼¼ | ÁÁÀºÁý | 6 | 12.9 | 2,000 | 40 | 2014 | | 2024.07.09 | ¿ù¼¼ | ¼öÁ¤2Â÷ | 2 | 36.3 | 10,500 | 25 | 1993 | | 2024.07.09 | ¸Å¸Å | ¾ÆÆ®¸®ºùÅÚ(491-3) | 4 | 66.26 | 42,000 | | 2001 | | 2024.07.09 | ¿ù¼¼ | µ¿¹®Å¸¿îA | 1 | 39.46 | 12,000 | 45 | 1995 | | 2024.07.08 | ¿ù¼¼ | µ¿¼öºô¶ó(619-2) | 3 | 41.76 | 10,000 | 15 | 1992 | | 2024.07.08 | ¿ù¼¼ | ¿ì¼®ºô¶ó11Â÷ | -1 | 44.19 | 9,600 | 25 | 1995 | | 2024.07.08 | ¿ù¼¼ | ÇÑ¿ïºô¶óÆ® | 4 | 55.75 | 8,000 | 50 | 2003 | | 2024.07.08 | Àü¼¼ | Áö¿Àºô | 4 | 48.59 | 19,500 | 0 | 2010 | | 2024.07.08 | Àü¼¼ | ÃÊ¿øºô¶ó5Â÷ | 3 | 50.27 | 17,000 | 0 | 1995 | | 2024.07.08 | ¿ù¼¼ | ¼¾Æ®¶ó³ë½Å¸² | 8 | 22.67 | 21,000 | 20 | 2021 | | 2024.07.08 | ¿ù¼¼ | ¹é¼Û | 5 | 12 | 9,000 | 25 | 2012 | | 2024.07.08 | Àü¼¼ | ÇÏ´Ãä | 6 | 28.99 | 22,800 | 0 | 2016 | | 2024.07.08 | ¿ù¼¼ | ¼Ò³ëÇϿ콺 | 2 | 20.53 | 7,000 | 30 | 2014 | | 2024.07.08 | ¸Å¸Å | »ïȸǼÇ(610-203) | 5 | 54.77 | 22,500 | | 2011 | | 2024.07.08 | ¿ù¼¼ | »ïÀͺô¶ó | -1 | 43.23 | 3,000 | 50 | 1992 | | 2024.07.07 | ¸Å¸Å | Áø¼ºÅ¸¿î | -1 | 41.95 | 14,500 | | 1990 | | 2024.07.07 | ¸Å¸Å | Áø¼ºÅ¸¿î | -1 | 41.95 | 14,500 | | 1990 | | 2024.07.07 | ¸Å¸Å | ÇÁ·¹¹Ì¿À(PREMIO)725Aµ¿ | 7 | 27.5 | 25,000 | | 2016 | | 2024.07.07 | Àü¼¼ | ÇÑÂ÷ÀÓºô | 2 | 29.84 | 32,000 | 0 | 2021 | | 2024.07.07 | Àü¼¼ | ÇÑÂ÷ÀÓºô | 2 | 29.84 | 31,920 | 0 | 2021 | | 2024.07.07 | Àü¼¼ | ³×¸ðÇϿ콺 | 4 | 26.5 | 27,300 | 0 | 2018 | | 2024.07.07 | Àü¼¼ | Äھƺô | 2 | 70.53 | 19,100 | 0 | 2002 | | 2024.07.07 | Àü¼¼ | (610-559) | -1 | 38.27 | 10,000 | 0 | 1986 | | 2024.07.06 | ¿ù¼¼ | ¿¹´Ù¿Ã(501-20) | 4 | 12 | 1,000 | 50 | 2016 | | 2024.07.06 | Àü¼¼ | Áø¿µºô¶ó | 2 | 50.01 | 18,000 | 0 | 2001 | | 2024.07.06 | Àü¼¼ | Áø¿µºô¶ó | 2 | 50.01 | 18,000 | 0 | 2001 | | 2024.07.06 | Àü¼¼ | ¿µ¶ô | 3 | 55.08 | 20,000 | 0 | 1991 | | 2024.07.06 | Àü¼¼ | ÀåÇ׺ôµù | 5 | 40.65 | 18,900 | 0 | 2006 | | 2024.07.06 | ¿ù¼¼ | ÁÁÀº»ç¶÷ÁÁÀºÁý | 2 | 25.96 | 500 | 55 | 2016 | | 2024.07.06 | ¿ù¼¼ | Ŭ·¡½Äij½½ | 3 | 29.94 | 6,000 | 110 | 2024 | | 2024.07.06 | ¸Å¸Å | ¾Æ¸§Ã¤(1566-13) | 3 | 42.87 | 36,000 | | 2017 | | 2024.07.06 | ¿ù¼¼ | µ¿»êºô¶ó | 2 | 29.32 | 9,400 | 5 | 1993 | | 2024.07.06 | Àü¼¼ | ¿µ¶ô | 3 | 55.08 | 20,000 | 0 | 1991 | | 2024.07.05 | Àü¼¼ | ¸®¹öÆÄÅ© | 8 | 52.66 | 30,000 | 0 | 2015 | | 2024.07.05 | ¿ù¼¼ | ½ºÅ¸Èú½º | 5 | 29.12 | 21,000 | 7 | 2015 | | 2024.07.05 | ¿ù¼¼ | ¼Ò¸Á¾ÆÆ®ºô(652-170) | 5 | 23.39 | 1,500 | 85 | 2016 | | 2024.07.05 | ¸Å¸Å | ¾Æ¿øºô | 3 | 48.34 | 25,200 | | 2012 | | 2024.07.05 | ¿ù¼¼ | ¹Ì¸®³»(610-401) | 1 | 34.85 | 9,800 | 15 | 1990 | | 2024.07.05 | ¿ù¼¼ | JCSTUDIO | 8 | 18.67 | 10,000 | 45 | 2018 | | 2024.07.05 | ¿ù¼¼ | (409-260) | 3 | 41.32 | 11,000 | 10 | 1990 | | 2024.07.05 | ¿ù¼¼ | ¾ÆÇö | 2 | 14.63 | 1,000 | 50 | 2012 | | 2024.07.05 | ¸Å¸Å | ¿¡¸£½º¶¼ | 12 | 25.73 | 29,700 | | 2018 | | 2024.07.05 | ¿ù¼¼ | ¼ö¿ù´ç | 3 | 12.51 | 200 | 42 | 2013 | | 2024.07.05 | ¸Å¸Å | ¼ö¿¡µå¿ø | 8 | 26.69 | 27,000 | | 2016 | | 2024.07.05 | ¿ù¼¼ | Á¤Çöºô(1429-26) | 6 | 12.29 | 500 | 52 | 2013 | | 2024.07.05 | ¿ù¼¼ | °¡¿Âij½½(1481-3) | 4 | 47.53 | 23,000 | 12 | 2014 | | 2024.07.04 | Àü¼¼ | ±ÝÈ£ºô¶ó(363-3) | -1 | 68.25 | 10,000 | 0 | 1996 | | 2024.07.04 | Àü¼¼ | ¿À¸§ÇϿ콺3Â÷ | 5 | 51.41 | 26,500 | 0 | 2016 | | 2024.07.04 | ¿ù¼¼ | (1439-24) | 8 | 21.01 | 3,000 | 65 | 2020 | | 2024.07.04 | Àü¼¼ | ¹Ý¼®ºô¶ó | 2 | 59.85 | 14,700 | 0 | 1993 | | 2024.07.04 | ¿ù¼¼ | żºÈÞºô3Â÷ | 6 | 24.76 | 1,000 | 70 | 2015 | | 2024.07.03 | Àü¼¼ | ½Å¾Èºô¶ó(98-222) | 2 | 45 | 15,000 | 0 | 1991 | | 2024.07.03 | ¿ù¼¼ | Æ÷µµ¿ø2 | 5 | 29.93 | 2,000 | 83 | 2013 | | 2024.07.03 | ¿ù¼¼ | Á¤Çöºô(1429-26) | 4 | 17.09 | 7,500 | 40 | 2013 | | 2024.07.03 | ¿ù¼¼ | ´Ù¼Ø±×¶ûºôB | 2 | 24.01 | 3,000 | 100 | 2022 | | 2024.07.03 | ¿ù¼¼ | ½Å¼¼°èºô¶ó | 1 | 38.4 | 10,000 | 10 | 1991 | | 2024.07.03 | ¸Å¸Å | Áö¿Àºô | 3 | 48.59 | 30,300 | | 2010 | | 2024.07.03 | ¸Å¸Å | ¿ì¼®ºô¶ó14Â÷ | 1 | 39.96 | 18,500 | | 1995 | | 2024.07.03 | ¸Å¸Å | ´åÄÄij½½ | 2 | 42.975 | 23,900 | | 2014 | | 2024.07.03 | ¸Å¸Å | ¿ìÇöÇÏ¿ì¡ | 2 | 50.94 | 29,000 | | 2012 | | 2024.07.03 | ¸Å¸Å | ¿ì¼®ºô¶ó6Â÷ | 1 | 45.32 | 22,000 | | 1994 | | 2024.07.02 | Àü¼¼ | 1429-19 | 7 | 88.4 | 40,000 | 0 | 2016 | | 2024.07.02 | ¿ù¼¼ | ¹®°æÀç | 4 | 24.89 | 20,000 | 8 | 2020 | | 2024.07.02 | Àü¼¼ | (408-5) | 2 | 78.9 | 25,000 | 0 | 1991 | | 2024.07.02 | ¿ù¼¼ | (10-453) | 2 | 39.2 | 300 | 40 | 2003 | | 2024.07.02 | ¿ù¼¼ | ÈÞ½ºÅ×ÀÌ | 4 | 29.47 | 2,000 | 130 | 2023 | | 2024.07.02 | ¸Å¸Å | ½Å¾È¸Ç¼Ç(610-167) | 2 | 44.1 | 17,700 | | 1995 | | 2024.07.02 | ¿ù¼¼ | ¼¼ÁøÅ¸¿î | 3 | 51.19 | 10,000 | 90 | 2014 | | 2024.07.01 | ¿ù¼¼ | ¸ÞÁ¾µå¸¶¾ß | 4 | 16.22 | 14,000 | 6 | 2014 | | 2024.07.01 | ¿ù¼¼ | dz¿øÇÏÀÓºô | 4 | 31.025 | 24,000 | 20 | 2018 | | 2024.07.01 | ¿ù¼¼ | »ê¸¶·çºô | 5 | 17.91 | 5,000 | 45 | 2017 | | 2024.07.01 | ¿ù¼¼ | »ê¸¶·çºô | 5 | 17.91 | 5,000 | 45 | 2017 | | 2024.07.01 | Àü¼¼ | ¸®Ã÷ºô(598-74) | 5 | 51.28 | 18,700 | 0 | 2011 | | 2024.07.01 | ¿ù¼¼ | ÇÑÀÏÇÏÀ̺ô | 6 | 14.7 | 2,000 | 55 | 2013 | | 2024.07.01 | Àü¼¼ | 1429-19 | 7 | 88.4 | 40,000 | 0 | 2016 | | 2024.07.01 | ¿ù¼¼ | ¾Öµå¿ø | 7 | 14.65 | 3,000 | 45 | 2015 | | 2024.07.01 | Àü¼¼ | ¸®´õ½ººô(1575-7) | 5 | 34.17 | 26,700 | 0 | 2015 | | 2024.07.01 | Àü¼¼ | ¸®Ä¡ºô¸®Áö | 4 | 29.73 | 20,000 | 0 | 2017 | | 2024.07.01 | ¿ù¼¼ | µ¿¾çºô¶ó | -1 | 38.41 | 7,000 | 15 | 1993 | | 2024.07.01 | Àü¼¼ | ¾çÁö¸Ç¼Ç | 2 | 77.6 | 19,000 | 0 | 2002 | | 2024.07.01 | ¿ù¼¼ | µ¿»êºô¶ó(10-436) | -1 | 59.76 | 1,000 | 80 | 1993 | | 2024.07.01 | ¸Å¸Å | (298-4) | 4 | 58.56 | 56,000 | | 1983 | | 2024.07.01 | ¿ù¼¼ | ¾Æ½Ã¾Æ³ªºô¶ó | 1 | 50.13 | 13,000 | 18 | 1993 | | 2024.07.01 | ¿ù¼¼ | ÀÏÀ°»ïºô¶ó | 1 | 39.82 | 500 | 30 | 1993 | | 2024.07.01 | ¸Å¸Å | ÀÚÀÌÄŸºô | 5 | 29.97 | 25,000 | | 2016 | | 2024.06.30 | Àü¼¼ | ¾î¹ÝÆÓ¸®½º(6~7µ¿) | 4 | 49.85 | 32,000 | 0 | 2018 | | 2024.06.30 | Àü¼¼ | ¾Æ¸£¶¼ºô | 2 | 29.97 | 18,600 | 0 | 2015 | | 2024.06.30 | ¿ù¼¼ | (10-347) | 3 | 15.29 | 13,000 | 8 | 2018 | | 2024.06.29 | ¿ù¼¼ | ¾Æ¸£¶¼ºô | 3 | 26.79 | 5,000 | 70 | 2015 | | 2024.06.29 | ¿ù¼¼ | (1509-1) | 1 | 22.15 | 1,000 | 40 | 2003 | | 2024.06.29 | ¿ù¼¼ | 103-134 | 2 | 25.49 | 5,000 | 56 | 2014 | | 2024.06.29 | ¿ù¼¼ | ¼º¹Î | 6 | 12.16 | 500 | 58 | 2012 | | 2024.06.29 | Àü¼¼ | (711-96) | 5 | 32.86 | 3,670 | 0 | 2013 | | 2024.06.29 | Àü¼¼ | dz¾çºôµù | 6 | 23.935 | 9,371 | 0 | 2012 | | 2024.06.29 | ¿ù¼¼ | (592-19) | 5 | 28.802 | 5,500 | 82 | 2024 | | 2024.06.29 | ¿ù¼¼ | ¿ì¼®ºô¶ó6Â÷ | 1 | 45.32 | 15,000 | 10 | 1994 | | 2024.06.29 | Àü¼¼ | ¿¹¸²ºô¶ó | 3 | 42.74 | 13,500 | 0 | 1994 | | 2024.06.29 | Àü¼¼ | ÅÂÇÑÇÏÀ̺ô | 7 | 27.27 | 22,050 | 0 | 2016 | | 2024.06.29 | Àü¼¼ | ´ë¿ì¾ÆÆ®ºô | 2 | 40.54 | 21,672 | 0 | 2018 | | 2024.06.29 | ¿ù¼¼ | J2tower | 3 | 15.51 | 2,000 | 70 | 2014 | | 2024.06.29 | ¿ù¼¼ | ¹Ì¼º¿¤¸®Æ® | 7 | 22.15 | 15,750 | 4 | 2013 | | 2024.06.29 | ¿ù¼¼ | º£¸£Ã¼ | 7 | 26.61 | 20,000 | 4 | 2015 | | 2024.06.29 | Àü¼¼ | SKºô¶óÆ® | 2 | 51.53 | 22,000 | 0 | 2012 | | 2024.06.29 | ¿ù¼¼ | TOV | 5 | 24.2 | 24,000 | 40 | 2023 | | 2024.06.28 | ¿ù¼¼ | Áß¿ø(°¡) | -1 | 36.55 | 1,000 | 80 | 1990 | | 2024.06.28 | ¿ù¼¼ | (598-59) | -1 | 47.07 | 8,700 | 15 | 1996 | | 2024.06.28 | ¿ù¼¼ | º¸¶÷¸Ç¼Ç | 4 | 44.5 | 10,000 | 60 | 1998 | | 2024.06.28 | Àü¼¼ | ¸íºô¶ó | 2 | 37.27 | 9,450 | 0 | 1991 | | 2024.06.28 | Àü¼¼ | µå¸²Å¸¿î | 6 | 20.46 | 23,000 | 0 | 2020 | | 2024.06.28 | ¿ù¼¼ | (1583-31) | -1 | 19.86 | 200 | 35 | 1991 | | 2024.06.28 | Àü¼¼ | ÅÂÇÑÇÏÀ̺ô | 8 | 27.27 | 23,000 | 0 | 2016 | | 2024.06.28 | Àü¼¼ | µ¿¼¸®Ä¡ºô8Â÷ | -1 | 42.09 | 9,300 | 0 | 1996 | | 2024.06.28 | ¿ù¼¼ | ±×¸°ºô(1455-15) | 4 | 19.53 | 15,000 | 60 | 2016 | | 2024.06.28 | Àü¼¼ | (306-70) | -1 | 36.89 | 12,000 | 0 | 1989 | | 2024.06.28 | Àü¼¼ | ½á´Ïºô | 9 | 13.12 | 17,000 | 0 | 2020 | | 2024.06.27 | Àü¼¼ | (440-51) | 3 | 72.98 | 24,000 | 0 | 1991 | | 2024.06.27 | ¿ù¼¼ | (1662-19) | -1 | 33.55 | 300 | 35 | 1977 | | 2024.06.27 | ¿ù¼¼ | JÇìºìºô | 2 | 12.07 | 8,500 | 20 | 2015 | | 2024.06.27 | ¿ù¼¼ | Çö´ë¾ÆÆ®ºô | 3 | 52.87 | 4,000 | 120 | 2017 | | 2024.06.27 | ¿ù¼¼ | (1662-19) | -1 | 33.55 | 300 | 35 | 1977 | | 2024.06.27 | Àü¼¼ | ¹Ì·¡¸®Ä¡ºô | 2 | 53.62 | 23,600 | 0 | 2003 | | 2024.06.27 | Àü¼¼ | (412-334) | 3 | 31.02 | 8,000 | 0 | 1991 | | 2024.06.27 | Àü¼¼ | (412-334) | 3 | 31.02 | 8,000 | 0 | 1991 | | 2024.06.27 | ¸Å¸Å | ÆÄÀμ¾Æ®·²ºô | 4 | 47.06 | 33,000 | | 2016 | | 2024.06.26 | ¿ù¼¼ | ½Ö¿ëÇÁ¶óÀÓ(1481-6) | 5 | 29.34 | 16,700 | 32 | 2013 | | 2024.06.26 | Àü¼¼ | À¯¼ººô¶ó(548-5) | 1 | 60.4 | 25,000 | 0 | 1993 | | 2024.06.26 | Àü¼¼ | ´ë¾çºô¶ó(610-49) | 3 | 36.33 | 10,700 | 0 | 1993 | | 2024.06.26 | ¿ù¼¼ | ºÎ¿ä±×¸°Å¸¿î(°¡µ¿) | -1 | 40.44 | 500 | 65 | 1991 | | 2024.06.26 | ¸Å¸Å | ´ë¾ç±×¸°ºô¶ó | 2 | 42.21 | 24,000 | | 1994 | | 2024.06.25 | ¿ù¼¼ | 651-23 | 6 | 35.14 | 3,000 | 100 | 2016 | | 2024.06.25 | Àü¼¼ | ½ëÃ߸®·ÎÁîºô | -1 | 21.93 | 12,000 | 0 | 2002 | | 2024.06.25 | Àü¼¼ | Ŭ·¡½ºÆ® | 6 | 41.4 | 17,300 | 0 | 2018 | | 2024.06.25 | ¿ù¼¼ | (1421-31) | 9 | 18.72 | 1,000 | 60 | 2015 | | 2024.06.25 | ¿ù¼¼ | ½Å³² | 2 | 29.65 | 3,500 | 67 | 2013 | | 2024.06.25 | ¿ù¼¼ | ÇѺ°#6 | 4 | 26.01 | 2,439 | 25 | 2023 | | 2024.06.25 | ¿ù¼¼ | (306-25) | 4 | 57.78 | 15,000 | 15 | 1997 | | 2024.06.25 | ¸Å¸Å | ±×¸°ÆÄÅ© | 3 | 26.07 | 25,900 | | 2014 | | 2024.06.25 | ¸Å¸Å | ´Ù½£ | 2 | 53.37 | 44,500 | | 2016 | | 2024.06.25 | Àü¼¼ | ´åÄÄij½½ | 3 | 41.05 | 18,000 | 0 | 2014 | | 2024.06.24 | ¸Å¸Å | ÀÚÀÌÄŸºô | 2 | 29.97 | 26,500 | | 2016 | | 2024.06.24 | ¸Å¸Å | ¼Ò³ëÆç¸®Ã¼I | 5 | 41.59 | 24,800 | | 2012 | | 2024.06.24 | ¿ù¼¼ | (592-19) | 4 | 37.897 | 5,500 | 105 | 2024 | | 2024.06.24 | Àü¼¼ | ¿¹ÇöÅ׶󽺺ô | 6 | 50.87 | 54,801 | 0 | 2024 | | 2024.06.24 | Àü¼¼ | dz¾çºôµù | 5 | 22.315 | 9,371 | 0 | 2012 | | 2024.06.24 | Àü¼¼ | µå¸²Å¸¿î | 8 | 24.03 | 25,000 | 0 | 2020 | | 2024.06.23 | Àü¼¼ | JÇìºìºô | 6 | 38.91 | 30,000 | 0 | 2015 | | 2024.06.22 | Àü¼¼ | ¿µ´ëÁÖÅà | 2 | 59.29 | 23,800 | 0 | 2002 | | 2024.06.22 | Àü¼¼ | ÃÊ¿øºô¶ó(610-335) | 1 | 36.02 | 13,500 | 0 | 1990 | | 2024.06.22 | Àü¼¼ | Çâ¿øºô¶ó | -1 | 63.89 | 11,000 | 0 | 1997 | | 2024.06.22 | ¿ù¼¼ | J2tower | 3 | 15.51 | 2,000 | 70 | 2014 | | 2024.06.22 | ¿ù¼¼ | ÇÏ¿µºô¶ó | 3 | 20.03 | 500 | 56 | 2002 | | 2024.06.22 | Àü¼¼ | ¿µ´ëÁÖÅà | 2 | 59.29 | 21,500 | 0 | 2002 | | 2024.06.22 | Àü¼¼ | ºñ³ª¸®¿ò1Â÷(610-339) | 3 | 29.23 | 17,800 | 0 | 2017 | | 2024.06.22 | ¿ù¼¼ | ¶ó¿Âºô | 3 | 29.58 | 1,000 | 68 | 2018 | | 2024.06.22 | ¸Å¸Å | ¼¼ÁøÇÏÀÌÃ÷ºô¶ó | 4 | 30 | 19,800 | | 1991 | | 2024.06.21 | ¸Å¸Å | ÈÞ¸Õºô(610-123) | 4 | 42.9 | 31,200 | | 2015 | | 2024.06.21 | ¿ù¼¼ | Æ÷½ºÆ®ºô | 1 | 95.69 | 3,000 | 90 | 1998 | | 2024.06.21 | Àü¼¼ | ½Å¸²ºô¶ó(354-2) | 3 | 76.36 | 14,400 | 0 | 1984 | | 2024.06.21 | ¿ù¼¼ | ¿ì¼®ºô¶ó10Â÷ | 1 | 40.94 | 12,700 | 10 | 1994 | | 2024.06.21 | Àü¼¼ | ½ÅÀÏ | 2 | 53 | 28,000 | 0 | 1993 | | 2024.06.21 | Àü¼¼ | ¿ì¼®±×·£µåºô | 2 | 52.2 | 16,000 | 0 | 2002 | | 2024.06.21 | ¿ù¼¼ | ¼±¶óÀÌÁ»ê | 3 | 13.28 | 1,000 | 52 | 2013 | | 2024.06.21 | Àü¼¼ | ¿ì¼®±×·£µåºô | 2 | 52.2 | 16,000 | 0 | 2002 | | 2024.06.20 | ¿ù¼¼ | ¸Þ¸®Æ®¿¥Å¸¿ö | 9 | 15.12 | 11,900 | 41 | 2019 | | 2024.06.20 | Àü¼¼ | ±¤Áøºô¶ó | 2 | 39.66 | 14,600 | 0 | 1991 | | 2024.06.20 | ¿ù¼¼ | È£±¤ºô¶ó | 2 | 48.87 | 13,000 | 20 | 1992 | | 2024.06.20 | ¿ù¼¼ | 94-155 | 5 | 17.58 | 5,500 | 61 | 2016 | | 2024.06.20 | ¿ù¼¼ | Űæºô | 4 | 29.28 | 1,000 | 70 | 2020 | | 2024.06.20 | ¿ù¼¼ | ±¤Áøºô¶ó | 2 | 39.66 | 13,100 | 15 | 1991 | | 2024.06.20 | Àü¼¼ | ÇѾ矿îA | 3 | 71.52 | 19,000 | 0 | 1998 | | 2024.06.20 | ¿ù¼¼ | Àº¿¬Àç | 7 | 15.56 | 1,000 | 48 | 2013 | | 2024.06.20 | ¿ù¼¼ | È£±¤ºô¶ó | 2 | 48.87 | 13,000 | 20 | 1992 | | 2024.06.20 | ¿ù¼¼ | (107-52) | 2 | 14.41 | 1,000 | 46 | 2013 | | 2024.06.19 | ¿ù¼¼ | ¼ö¿ù´ç | 1 | 12.32 | 300 | 42 | 2013 | | 2024.06.19 | ¸Å¸Å | ´Ù¼Ø | 4 | 36.47 | 34,700 | | 2017 | | 2024.06.19 | ¸Å¸Å | ´Ù¼Ø | 4 | 36.47 | 34,700 | | 2017 | | 2024.06.19 | ¸Å¸Å | ·ÎÁî¾ÆÆ®ºô | 3 | 61.21 | 34,500 | | 2002 | | 2024.06.19 | ¿ù¼¼ | ½ºÅ¸Èú½º | 6 | 29.12 | 2,000 | 101 | 2015 | | 2024.06.19 | Àü¼¼ | ½ÅÀÏ¸Ç¼Ç | 3 | 57.36 | 19,200 | 0 | 2002 | | 2024.06.19 | ¿ù¼¼ | ±¤´öºô | 3 | 83.1 | 500 | 50 | 2004 | | 2024.06.19 | ¿ù¼¼ | PREMIO725C | 5 | 29.42 | 3,000 | 100 | 2022 | | 2024.06.19 | ¿ù¼¼ | »ïÀͺô¶ó | -1 | 45.04 | 500 | 60 | 1990 | | 2024.06.19 | Àü¼¼ | °ñµçºô¸®Áö | 4 | 58.47 | 14,000 | 0 | 1991 | | 2024.06.19 | ¿ù¼¼ | dz¿øÇÏÀÓºô | 4 | 31.025 | 24,000 | 15 | 2018 | | 2024.06.19 | ¿ù¼¼ | Çѳª·¡23Â÷ | 1 | 28.86 | 19,000 | 20 | 2022 | | 2024.06.19 | Àü¼¼ | ºäÅ×¶ó½º | 2 | 29.92 | 28,700 | 0 | 2020 | | 2024.06.18 | ¸Å¸Å | ´õÁöÀ½ | 3 | 20.49 | 26,950 | | 2023 | | 2024.06.18 | ¸Å¸Å | ¼º¿ø±×¸°ºôBµ¿(610-590) | 1 | 61.88 | 23,000 | | 2002 | | 2024.06.18 | Àü¼¼ | ½Å¾Èºô¶óÆ®(1464-78) | 1 | 45.71 | 19,500 | 0 | 2002 | | 2024.06.18 | Àü¼¼ | ÇÑÂ÷ÀÓºô | 5 | 29.84 | 33,000 | 0 | 2021 | | 2024.06.18 | Àü¼¼ | ´Ù¼Ø½ÃƼºô | 8 | 12.65 | 19,680 | 0 | 2021 | | 2024.06.18 | ¿ù¼¼ | µ¿¹æÆÄ·¹½º»çµ¿ | 3 | 36.18 | 10,900 | 10 | 1993 | | 2024.06.18 | Àü¼¼ | ¿¡¸£½º¶¼ | 13 | 26.4 | 29,500 | 0 | 2018 | | 2024.06.18 | Àü¼¼ | ÇѼֻêÀÚ¶ôºô¶ó | 2 | 22.92 | 11,000 | 0 | 2012 | | 2024.06.18 | Àü¼¼ | ´ë½Å¾ÆÆ®ºô6Â÷ | 4 | 55.83 | 23,050 | 0 | 2003 | | 2024.06.18 | ¿ù¼¼ | ÇÏ¿µºô¶ó | 2 | 20.03 | 1,000 | 54 | 2002 | | 2024.06.18 | ¿ù¼¼ | (1430-42) | 2 | 74.33 | 300 | 40 | 2001 | | 2024.06.18 | Àü¼¼ | ÇѼֻêÀÚ¶ôºô¶ó | 2 | 22.92 | 11,000 | 0 | 2012 | | 2024.06.17 | ¸Å¸Å | ¿µÈºô¶ó³ªµ¿(412-212) | 2 | 37.33 | 25,500 | | 1991 | | 2024.06.17 | ¿ù¼¼ | TeraTower | 12 | 29.45 | 25,000 | 10 | 2018 | | 2024.06.17 | ¿ù¼¼ | ½ºÄ«ÀÌij½½ | 1 | 57.22 | 25,000 | 25 | 2023 | | 2024.06.17 | Àü¼¼ | B.SŸ¿î(1622-15) | 2 | 27.53 | 11,000 | 0 | 2013 | | 2024.06.17 | ¿ù¼¼ | ½ºÄ«ÀÌij½½ | 1 | 57.22 | 25,000 | 25 | 2023 | | 2024.06.17 | Àü¼¼ | ÇϴϺô | 3 | 19.22 | 10,000 | 0 | 2002 | | 2024.06.17 | ¿ù¼¼ | ¼ºÈ£¾ÆÆ®ºô | 3 | 34.57 | 10,000 | 60 | 2016 | | 2024.06.16 | ¿ù¼¼ | ´Ù¼Ø±×¶ûºôB | 4 | 23.06 | 5,000 | 90 | 2022 | | 2024.06.16 | ¸Å¸Å | (306-70) | -1 | 36.89 | 12,900 | | 1989 | | 2024.06.16 | Àü¼¼ | ¿ì¼ººô¶ó(597-79) | -1 | 56.19 | 13,000 | 0 | 1991 | | 2024.06.15 | ¸Å¸Å | Á¤¿øÆÓ¸®Ã¼Aµ¿Bµ¿ | 6 | 29.84 | 30,000 | | 2019 | | 2024.06.15 | ¿ù¼¼ | ¼º¿øºô¶ó(1464-72) | 5 | 37.88 | 2,500 | 100 | 2002 | | 2024.06.15 | ¿ù¼¼ | ·Îµ©ÇϿ콺 | 3 | 29.98 | 1,000 | 140 | 2021 | | 2024.06.15 | Àü¼¼ | ½ºÄ«ÀÌij½½ | 4 | 43.14 | 24,700 | 0 | 2023 | | 2024.06.15 | ¸Å¸Å | (409-262) | -1 | 34.15 | 22,000 | | 1991 | | 2024.06.15 | ¸Å¸Å | ÈÞ¸Õºô(610-223) | 3 | 28.74 | 20,000 | | 2016 | | 2024.06.15 | ¸Å¸Å | (98-87) | -1 | 21.18 | 6,200 | | 1991 | | 2024.06.15 | ¿ù¼¼ | (412-158) | 3 | 29.9 | 2,000 | 70 | 2014 | | 2024.06.15 | Àü¼¼ | ¶óÀÓÄ«¿îƼ | 2 | 29.16 | 18,000 | 0 | 2018 | | 2024.06.15 | ¿ù¼¼ | ½áµåÇ÷¹À̽º½Å¸² | 4 | 27.7 | 20,000 | 25 | 2023 | | 2024.06.14 | ¿ù¼¼ | ÆòÁÖÆÄÅ©ºô¶ó | -1 | 49.13 | 10,500 | 10 | 1997 | | 2024.06.14 | Àü¼¼ | »ï¼º¾ÆÆ®ºô(617-21) | 4 | 43.84 | 15,000 | 0 | 2003 | | 2024.06.14 | ¿ù¼¼ | ½ÅÈİ¡15Â÷ | 4 | 29.93 | 27,000 | 15 | 2023 | | 2024.06.14 | Àü¼¼ | »ï¼º¾ÆÆ®ºô(617-21) | 4 | 43.84 | 15,000 | 0 | 2003 | | 2024.06.14 | ¸Å¸Å | Á¤¿øÆÓ¸®Ã¼Aµ¿Bµ¿ | 6 | 29.84 | 30,000 | | 2019 | | 2024.06.14 | ¸Å¸Å | µ¿¹æÆÄ·¹½º´Ùµ¿ | 2 | 35.28 | 20,000 | | 1991 | | 2024.06.14 | ¿ù¼¼ | BELITATERRA | 9 | 29.24 | 24,600 | 25 | 2016 | | 2024.06.14 | ¿ù¼¼ | ÇѾ縮Ã÷ºô | 5 | 48.84 | 28,000 | 25 | 2014 | | 2024.06.14 | Àü¼¼ | ºÎÀÚ¸Ç¼Ç | 3 | 67.05 | 18,000 | 0 | 2002 | | 2024.06.13 | ¿ù¼¼ | ¹«±ÃȺô | 4 | 39.39 | 21,000 | 9 | 2012 | | 2024.06.13 | ¿ù¼¼ | ¹«±ÃȺô | 4 | 39.39 | 20,000 | 9 | 2012 | | 2024.06.13 | ¿ù¼¼ | Çö´ë¾ÆÆ®ºô¶ó(409-292) | -1 | 37.27 | 500 | 40 | 1989 | | 2024.06.13 | ¿ù¼¼ | À̵µÆÄÅ©ºô | 4 | 45.21 | 3,348 | 35 | 2023 | | 2024.06.13 | Àü¼¼ | µå¸²Å¸¿î | 8 | 24.03 | 25,000 | 0 | 2020 | | 2024.06.13 | ¿ù¼¼ | ¾ÆÄ«µ¥¹ÌÇϿ콺 | 6 | 25.24 | 1,000 | 120 | 2019 | | 2024.06.13 | ¿ù¼¼ | ±¤´öºô | 1 | 83.1 | 500 | 55 | 2004 | | 2024.06.13 | ¸Å¸Å | (440-51) | 1 | 44.76 | 26,000 | | 1991 | | 2024.06.13 | ¸Å¸Å | ¿ì¿Õºô¶ó | 1 | 35.01 | 14,000 | | 1991 | | 2024.06.13 | ¸Å¸Å | (408-5) | 2 | 78.9 | 36,000 | | 1991 | | 2024.06.13 | ¿ù¼¼ | À̵µÆÄÅ©ºô | 3 | 36.97 | 4,201 | 12 | 2023 | | 2024.06.13 | ¿ù¼¼ | ¿ì¼®ºô¶ó5Â÷ | 1 | 39.63 | 10,800 | 18 | 1993 | | 2024.06.13 | ¿ù¼¼ | T&K½Å¸²¥² | 2 | 28.61 | 100 | 30 | 2023 | | 2024.06.12 | ¿ù¼¼ | °æ¿øÇÏÀÌÃ÷ÅÚ | 10 | 21.76 | 1,000 | 60 | 2019 | | 2024.06.12 | ¿ù¼¼ | ûdz±×¸°ºô2Â÷ | 4 | 62.44 | 19,000 | 20 | 2002 | | 2024.06.12 | Àü¼¼ | ¸ð´øÇϿ콺 | 5 | 29.62 | 28,000 | 0 | 2019 | | 2024.06.12 | ¿ù¼¼ | PREMIO725C | 4 | 26.91 | 3,000 | 110 | 2022 | | 2024.06.12 | ¿ù¼¼ | È£¼ö | 2 | 55.73 | 1,000 | 66 | 1994 | | 2024.06.12 | ¿ù¼¼ | ±¤´öºô | -1 | 69.08 | 300 | 32 | 2004 | | 2024.06.12 | ¿ù¼¼ | (1666-13) | 5 | 78.721 | 30,000 | 10 | 2016 | | 2024.06.11 | ¸Å¸Å | û¸²ÁÖÅà | 1 | 73.99 | 31,000 | | 1997 | | 2024.06.11 | ¿ù¼¼ | T&K½Å¸²¥² | 2 | 38.89 | 5,682 | 8 | 2023 | | 2024.06.11 | Àü¼¼ | (102-24) | 1 | 57.55 | 18,000 | 0 | 2002 | | 2024.06.11 | ¿ù¼¼ | »ïȺô | 4 | 34.87 | 27,900 | 15 | 2021 | | 2024.06.11 | ¿ù¼¼ | T&K½Å¸²¥² | 4 | 29.27 | 1,084 | 31 | 2023 | | 2024.06.11 | Àü¼¼ | (102-24) | 1 | 57.55 | 18,000 | 0 | 2002 | | 2024.06.11 | ¿ù¼¼ | YUHABA | 3 | 17.13 | 1,000 | 55 | 2012 | | 2024.06.11 | ¿ù¼¼ | Á¤¸²È¨½ºÅÚ(88-35) | 2 | 21.2 | 1,000 | 51 | 2000 | | 2024.06.11 | ¿ù¼¼ | À̵µÆÄÅ©ºô | 2 | 26.31 | 8,543 | 7 | 2023 | | 2024.06.11 | ¿ù¼¼ | ¸®Ã÷¿ÀÇǽºÅÚ&µµ½ÃÇü»ýȰÁÖÅà | 5 | 17.7 | 1,000 | 61 | 2014 | | 2024.06.11 | ¿ù¼¼ | °üµ¿È÷¸»¶ó¾ß2Â÷A | 5 | 24.59 | 2,000 | 70 | 2016 | | 2024.06.11 | ¿ù¼¼ | Ŭ·¡½Äij½½ | 4 | 29.05 | 8,000 | 78 | 2024 | | 2024.06.11 | Àü¼¼ | »ïȺô | 4 | 34.87 | 29,800 | 0 | 2021 | | 2024.06.11 | Àü¼¼ | ¸ð´øÇϿ콺 | 5 | 26.82 | 22,300 | 0 | 2019 | | 2024.06.11 | ¿ù¼¼ | Áø¿ìºô¶ó | 2 | 41.26 | 13,000 | 3 | 2002 | | 2024.06.11 | ¿ù¼¼ | T&K½Å¸²¥² | 2 | 38.89 | 100 | 39 | 2023 | | 2024.06.11 | ¿ù¼¼ | (1452-36) | 4 | 17.28 | 700 | 65 | 2017 | | 2024.06.11 | ¿ù¼¼ | ¹®°æÀç | 3 | 20.74 | 19,500 | 3 | 2020 | | 2024.06.11 | Àü¼¼ | Ciel-31 | 5 | 21.66 | 25,000 | 0 | 2016 | | 2024.06.11 | ¸Å¸Å | ¿î¼¸Ç¼Ç11Â÷ | 5 | 87.84 | 31,000 | | 2002 | | 2024.06.11 | ¸Å¸Å | ±âdzȨŸ¿ö | 5 | 84.91 | 49,000 | | 1998 | | 2024.06.11 | ¸Å¸Å | ½Å¿ìºô¶óBµ¿ | 3 | 40.89 | 8,000 | | 1987 | | 2024.06.11 | ¸Å¸Å | Ÿ¿îij½½(1621-32) | 2 | 49.75 | 33,000 | | 2014 | | 2024.06.11 | ¿ù¼¼ | ³²ºÎ½ºÄ«À̺ô | 4 | 29.62 | 18,000 | 15 | 2013 | | 2024.06.11 | ¿ù¼¼ | T&K½Å¸²¥² | 2 | 38.89 | 100 | 8 | 2023 | | 2024.06.11 | Àü¼¼ | Á¤½Éºô¶ó(598-72) | -1 | 22.82 | 6,000 | 0 | 1992 | | 2024.06.11 | ¿ù¼¼ | Àº¿¬Àç | 7 | 14.27 | 1,000 | 46 | 2013 | | 2024.06.10 | ¿ù¼¼ | T&K½Å¸²¥² | 2 | 37.9 | 3,923 | 17 | 2023 | | 2024.06.10 | ¿ù¼¼ | ÀÎÅäÇϿ콺 | 5 | 58.56 | 22,000 | 29 | 2002 | | 2024.06.10 | ¿ù¼¼ | T&K½Å¸²¥² | 2 | 26.3 | 2,250 | 23 | 2023 | | 2024.06.10 | ¿ù¼¼ | ´Ù¿Âºô | 3 | 35.14 | 3,000 | 105 | 2022 | | 2024.06.10 | Àü¼¼ | ½ÅÈïºô¶ó8Â÷ | 4 | 27.88 | 10,000 | 0 | 1996 | | 2024.06.10 | Àü¼¼ | ÀÎÅäÇϿ콺 | 5 | 58.56 | 22,000 | 0 | 2002 | | 2024.06.10 | ¿ù¼¼ | ¸¶À̹ٿò½Å¸² | 4 | 30.08 | 1,500 | 75 | 2012 | | 2024.06.10 | ¿ù¼¼ | T&K½Å¸²¥² | 2 | 37.9 | 100 | 38 | 2023 | | 2024.06.10 | ¸Å¸Å | ¾ËÆæÇϿ콺(685-86) | 2 | 55.37 | 33,100 | | 2017 | | 2024.06.10 | ¸Å¸Å | ¿ì¼®ºô¶ó9Â÷ | 2 | 40.72 | 20,800 | | 1994 | | 2024.06.10 | ¸Å¸Å | ¹é»ïºô¶ó | 1 | 77.2 | 20,000 | | 1992 | | 2024.06.10 | ¸Å¸Å | µ¨·ç½Ã¾Æ.L | 3 | 48.73 | 42,500 | | 2022 | | 2024.06.09 | ¿ù¼¼ | ¼¾Æ®·¹ºô | 3 | 16.78 | 11,000 | 10 | 2016 | | 2024.06.08 | ¿ù¼¼ | ¿¡¸£½º¶¼ | 11 | 26.4 | 1,000 | 65 | 2018 | | 2024.06.08 | Àü¼¼ | °Ç¿µºô¶ó(90-1) | 3 | 57.19 | 12,000 | 0 | 1995 | | 2024.06.08 | ¸Å¸Å | ¹Ì¼ØºôBµ¿ | 2 | 41.84 | 20,000 | | 2014 | | 2024.06.08 | ¿ù¼¼ | ¸Þ¸®Æ®¿¥Å¸¿ö | 9 | 12.6 | 9,900 | 26 | 2019 | | 2024.06.08 | ¸Å¸Å | ÇѼֻêÀÚ¶ôºô¶ó | -1 | 53.28 | 16,000 | | 2012 | | 2024.06.08 | ¿ù¼¼ | Ŭ·¡½Äij½½ | 4 | 29.94 | 8,000 | 70 | 2024 | | 2024.06.08 | ¿ù¼¼ | ÈÞ½ºÅ×ÀÌ | 4 | 29.65 | 2,000 | 120 | 2023 | | 2024.06.08 | Àü¼¼ | ȲÁ¦12(414-11) | 3 | 27.54 | 7,700 | 0 | 1992 | | 2024.06.08 | ¿ù¼¼ | ¸®¸µ(1439-25) | 3 | 25.17 | 5,500 | 68 | 2014 | | 2024.06.07 | ¿ù¼¼ | ¼ö¿ù´ç | 3 | 13.26 | 200 | 46 | 2013 | | 2024.06.07 | ¿ù¼¼ | Ŭ·¡½Äij½½ | 5 | 27.74 | 5,000 | 83 | 2024 | | 2024.06.07 | ¿ù¼¼ | »þÀκô¸®Áö | 5 | 14.14 | 8,000 | 48 | 2015 | | 2024.06.07 | ¿ù¼¼ | ÇØÇÇÇϿ콺(10-649) | 1 | 25.48 | 15,000 | 21 | 2003 | | 2024.06.07 | Àü¼¼ | °¡¿Âij½½(1481-3) | 3 | 39.3 | 20,000 | 0 | 2014 | | 2024.06.07 | ¿ù¼¼ | ½ÅÈİ¡15Â÷ | 4 | 29.93 | 27,000 | 15 | 2023 | | 2024.06.07 | ¿ù¼¼ | °¡¿Â´©¸®ºô(763-14) | 3 | 36.14 | 14,000 | 34 | 2012 | | 2024.06.07 | ¿ù¼¼ | °¡¿Â´©¸®ºô(763-14) | 3 | 36.14 | 14,000 | 34 | 2012 | | 2024.06.07 | Àü¼¼ | ÇÑ¿µºô¶ó(412-321) | 3 | 36.73 | 6,000 | 0 | 1992 | | 2024.06.07 | Àü¼¼ | ´Ù»êºô(1627-90) | 4 | 29.36 | 19,900 | 0 | 2012 | | 2024.06.07 | Àü¼¼ | ´Ù»êºô(1627-90) | 4 | 29.36 | 18,700 | 0 | 2012 | | 2024.06.07 | ¿ù¼¼ | ±×·£µåÈú | 6 | 29.8 | 3,000 | 104 | 2015 | | 2024.06.07 | ¿ù¼¼ | PREMIO725C | 4 | 29.42 | 3,000 | 100 | 2022 | | 2024.06.07 | ¸Å¸Å | °ñµç³×½ºÆ® | 2 | 50.38 | 34,500 | | 2018 | | 2024.06.06 | ¿ù¼¼ | (1556-35) | 2 | 49.08 | 12,000 | 30 | 1993 | | 2024.06.06 | ¿ù¼¼ | ½Å¾ÈÁÖÅà | 2 | 36.86 | 10,700 | 10 | 1990 | | 2024.06.06 | ¿ù¼¼ | ÇѼֻêÀÚ¶ôºô¶ó | 4 | 10.21 | 5,700 | 10 | 2012 | | 2024.06.06 | ¿ù¼¼ | (1454-9) | 1 | 52.05 | 300 | 35 | 2003 | | 2024.06.06 | Àü¼¼ | ÈÞÇ÷¯½º | 2 | 38.01 | 24,000 | 0 | 2017 | | 2024.06.06 | Àü¼¼ | Ŭ·¡½Äij½½ | 3 | 29.05 | 29,500 | 0 | 2024 | | 2024.06.06 | ¿ù¼¼ | ¹Ì¸®³»¾ÆÆ®ºô¶ó | 4 | 40.11 | 11,300 | 10 | 1993 | | 2024.06.05 | Àü¼¼ | ¿ø¾Óºô¶ó(98-111) | 1 | 60.63 | 19,400 | 0 | 2001 | | 2024.06.05 | Àü¼¼ | Ŭ¶ó¿ìµå | 8 | 29.81 | 28,300 | 0 | 2018 | | 2024.06.05 | ¿ù¼¼ | ±×¶û½Ã¿¤ | 5 | 29.89 | 20,500 | 4 | 2014 | | 2024.06.05 | ¿ù¼¼ | û¿ëºô¶ó(102-27) | 2 | 38.25 | 5,000 | 16 | 2007 | | 2024.06.05 | ¸Å¸Å | Çູ¸Ç¼Ç5Â÷ | -1 | 43.14 | 19,000 | | 1995 | | 2024.06.05 | ¿ù¼¼ | ±×¶û½Ã¿¤ | 5 | 29.89 | 20,500 | 4 | 2014 | | 2024.06.05 | ¿ù¼¼ | û¿ëºô¶ó(102-27) | 2 | 38.25 | 5,000 | 16 | 2007 | | 2024.06.05 | ¿ù¼¼ | (1510-1) | 1 | 53.55 | 16,800 | 38 | 2004 | | 2024.06.04 | ¿ù¼¼ | URBAN5 | 3 | 57.03 | 42,000 | 10 | 2023 | | 2024.06.04 | Àü¼¼ | ½ÅÇÑ(646-261) | -1 | 34.3 | 5,000 | 0 | 1992 | | 2024.06.04 | ¿ù¼¼ | ½áµåÇ÷¹À̽º½Å¸² | 3 | 22.04 | 18,000 | 5 | 2023 | | 2024.06.04 | Àü¼¼ | (92-182) | 4 | 26.13 | 7,300 | 0 | 1993 | | 2024.06.04 | ¿ù¼¼ | (528-14) | -1 | 42.12 | 9,800 | 25 | 1993 | | 2024.06.04 | ¿ù¼¼ | ½áµåÇ÷¹À̽º½Å¸² | 2 | 26.95 | 14,000 | 30 | 2023 | | 2024.06.04 | ¿ù¼¼ | ¼ö¿ù´ç | 4 | 13.26 | 300 | 45 | 2013 | | 2024.06.04 | ¿ù¼¼ | ÇѼֺô¶ó(98-388) | 2 | 50.37 | 3,000 | 70 | 1994 | | 2024.06.04 | ¿ù¼¼ | ÇѼֺô¶ó(98-388) | 2 | 50.37 | 3,000 | 70 | 1994 | | 2024.06.04 | ¿ù¼¼ | µµ·¹¸Ç¼Ç | 4 | 26.59 | 4,000 | 39 | 2016 | | 2024.06.04 | ¿ù¼¼ | 103-134 | 5 | 22.56 | 3,200 | 55 | 2014 | | 2024.06.04 | ¸Å¸Å | ¼ºÁø¸®Ä¡ºô | 5 | 55.6 | 33,000 | | 2020 | | 2024.06.03 | ¿ù¼¼ | ¿¡¾î½ºÆäÀ̽º(1560-17) | 3 | 45.53 | 19,970 | 38 | 2022 | | 2024.06.03 | Àü¼¼ | º¸¶ó¸Å115µ¿ | 2 | 59.9 | 28,000 | 0 | 2000 | | 2024.06.03 | Àü¼¼ | À̷봺ij½½ | 6 | 40.09 | 25,000 | 0 | 2016 | | 2024.06.03 | Àü¼¼ | À̷봺ij½½ | 6 | 40.09 | 25,000 | 0 | 2016 | | 2024.06.03 | ¿ù¼¼ | (1572-1) | 2 | 11.1 | 3,000 | 60 | 2017 | | 2024.06.03 | ¿ù¼¼ | ½Å¼¼°èºô¶ó(98-149) | 2 | 42.42 | 5,000 | 40 | 1995 | | 2024.06.03 | ¿ù¼¼ | J.KÇϿ콺 | 5 | 10.62 | 2,000 | 34 | 2012 | | 2024.06.03 | ¿ù¼¼ | ºÎ¿äºô¸®Áö | 2 | 46.55 | 2,000 | 80 | 1994 | | 2024.06.03 | ¿ù¼¼ | BIGTREE | 7 | 23.72 | 15,000 | 55 | 2016 | | 2024.06.03 | ¿ù¼¼ | ¿¡¾î½ºÆäÀ̽º(1560-17) | 3 | 48.31 | 24,724 | 34 | 2022 | | 2024.06.03 | ¸Å¸Å | ¾çÁöºô¶ó(408-163) | 1 | 36.53 | 18,000 | | 1986 | | 2024.06.02 | Àü¼¼ | ÈÞ¸Õºô(610-223) | 3 | 28.74 | 16,800 | 0 | 2016 | | 2024.06.02 | ¿ù¼¼ | °¡¿Â´©¸®ºô(763-14) | 3 | 44.64 | 18,900 | 4 | 2012 | | 2024.06.02 | Àü¼¼ | ÈÞ¸Õºô(610-223) | 3 | 28.74 | 16,800 | 0 | 2016 | | 2024.06.02 | ¿ù¼¼ | ¼±ÀΟ¿î | 20 | 14.52 | 1,000 | 72 | 2017 | | 2024.06.01 | Àü¼¼ | º£³×½ºÆ® | 4 | 27.2 | 13,230 | 0 | 2012 | | 2024.06.01 | ¿ù¼¼ | ´õ¸¶Àεå | 9 | 27.34 | 5,000 | 130 | 2022 | | 2024.06.01 | ¿ù¼¼ | (1452-36) | 4 | 27.72 | 2,000 | 47 | 2017 | | 2024.06.01 | Àü¼¼ | ÆòÁֱ׸°¸Ç¼Ç | 3 | 68.1 | 10,000 | 0 | 1997 | | 2024.06.01 | ¿ù¼¼ | (89-1) | 3 | 12.95 | 1,500 | 54 | 2016 | | 2024.06.01 | ¿ù¼¼ | ÇÑÀÏÇÏÀ̺ô | 4 | 12.99 | 2,000 | 52 | 2013 | | 2024.06.01 | Àü¼¼ | ¸®½Ö | 4 | 27.3 | 17,000 | 0 | 2014 | | 2024.06.01 | ¿ù¼¼ | µ¿¼º¸Ç¼Ç6Â÷ | 2 | 44.82 | 2,000 | 50 | 1996 | | 2024.06.01 | Àü¼¼ | °ñµå·Î½ººô | 3 | 30.41 | 18,000 | 0 | 2013 | | 2024.06.01 | ¸Å¸Å | Çö´ëºô¶ó³ªµ¿ | 1 | 35.52 | 17,000 | | 1990 | | 2024.06.01 | ¸Å¸Å | °ñµå·Î½ººô | 2 | 30.41 | 21,000 | | 2013 | | 2024.06.01 | ¸Å¸Å | ¸ð°Ç¾ÆÆ®ºô | 5 | 39.39 | 27,500 | | 2017 | | 2024.06.01 | ¿ù¼¼ | ÃÊ¿ø8Â÷¸Ç¼Ç | -1 | 57.08 | 1,000 | 62 | 1996 | | 2024.06.01 | Àü¼¼ | ´Ù¼Ø(1617-4) | 6 | 28.44 | 20,000 | 0 | 2015 | | 2024.06.01 | ¿ù¼¼ | ¾ÆÆ®Ä³½½ | 1 | 18.49 | 2,000 | 74 | 2013 | | 2024.05.31 | Àü¼¼ | È«¸²ºô¶ó°¡µ¿ | 1 | 33.78 | 13,500 | 0 | 1989 | | 2024.05.31 | ¿ù¼¼ | J.KÇϿ콺 | 7 | 10.62 | 8,000 | 4 | 2012 | | 2024.05.31 | Àü¼¼ | ¼ºµ¿ºô¶ó | 3 | 57.21 | 17,000 | 0 | 1992 | | 2024.05.31 | ¿ù¼¼ | (94-29) | 3 | 27.97 | 23,400 | 200 | 2018 | | 2024.05.31 | ¿ù¼¼ | ¹Ý¼®ºô¶ó | 1 | 40.32 | 10,000 | 15 | 1991 | | 2024.05.31 | Àü¼¼ | (98-385) | 4 | 34.53 | 15,000 | 0 | 1996 | | 2024.05.31 | ¿ù¼¼ | J.KÇϿ콺 | 7 | 10.62 | 8,000 | 4 | 2012 | | 2024.05.31 | ¿ù¼¼ | ¿ì¸²¾ÆÆ®ºô | 3 | 35.35 | 1,000 | 115 | 2018 | | 2024.05.31 | ¿ù¼¼ | žçÇÏÀÌÃ÷ºô¶ó | 3 | 45 | 1,000 | 69 | 1990 | | 2024.05.31 | ¿ù¼¼ | ¿ì±Ôºôµù | 6 | 74.49 | 29,300 | 30 | 2014 | | 2024.05.31 | ¸Å¸Å | (412-334) | 1 | 31.02 | 18,800 | | 1991 | | 2024.05.30 | Àü¼¼ | ¼®¿µ | 4 | 52.07 | 30,000 | 0 | 2022 | | 2024.05.30 | ¿ù¼¼ | ³×¸ðÇϿ콺 | 2 | 26.5 | 22,900 | 21 | 2018 | | 2024.05.30 | ¿ù¼¼ | Çö´ë(1419-9) | 5 | 17.2 | 2,000 | 50 | 2012 | | 2024.05.30 | Àü¼¼ | ¼®¿µ | 4 | 52.07 | 30,000 | 0 | 2022 | | 2024.05.30 | ¿ù¼¼ | ¸¶·çºô | 3 | 55.32 | 14,000 | 20 | 1999 | | 2024.05.30 | ¸Å¸Å | ¼ö¿¡µå¿ø | 7 | 29.66 | 24,500 | | 2016 | | 2024.05.30 | Àü¼¼ | ¿¡µ§ºô¶ó(90-71) | 1 | 50.48 | 19,000 | 0 | 2001 | | 2024.05.29 | ¿ù¼¼ | ÀÌȺô¸®Áö | 1 | 43.68 | 4,000 | 40 | 1993 | | 2024.05.29 | ¿ù¼¼ | µ¿¹®Å¸¿îB | 4 | 27.53 | 11,600 | 40 | 1995 | | 2024.05.29 | ¿ù¼¼ | ä¼®°¡ | 3 | 23.35 | 20,000 | 25 | 2021 | | 2024.05.29 | Àü¼¼ | dz¿øÇÏÀÓºô | 2 | 31.025 | 28,000 | 0 | 2018 | | 2024.05.29 | ¿ù¼¼ | ¾î¹Ý°ñµå | 4 | 28.15 | 10,000 | 34 | 2018 | | 2024.05.29 | ¿ù¼¼ | °æ±¤ºô¶ó | 4 | 31.42 | 1,000 | 50 | 1996 | | 2024.05.29 | ¿ù¼¼ | ÇÑ¿µºô¶ó(412-321) | 1 | 42.93 | 2,000 | 60 | 1992 | | 2024.05.29 | ¿ù¼¼ | ä¼®°¡ | 3 | 21.835 | 18,900 | 30 | 2021 | | 2024.05.29 | ¸Å¸Å | Á¦ÀϺô¶ó(92-203) | -1 | 33.12 | 14,500 | | 1991 | | 2024.05.29 | ¿ù¼¼ | ¿ùµåºô | 3 | 26.34 | 1,000 | 48 | 2003 | | 2024.05.29 | ¿ù¼¼ | °¡À± | 8 | 14.01 | 500 | 59 | 2017 | | 2024.05.29 | Àü¼¼ | ¹ÂÁöÄÃÆÄÅ© | 3 | 59.18 | 21,000 | 0 | 2014 | | 2024.05.29 | ¿ù¼¼ | ½¦¸£ºô | 4 | 15.64 | 1,000 | 55 | 2013 | | 2024.05.28 | ¸Å¸Å | dz¿øÇÏÀÓºô | 4 | 31.025 | 28,500 | | 2018 | | 2024.05.28 | ¸Å¸Å | »õ¼¿ïºô¶ó | 3 | 41.27 | 17,300 | | 1992 | | 2024.05.28 | ¿ù¼¼ | À̽ºÅϺô | 7 | 28.01 | 10,000 | 65 | 2015 | | 2024.05.28 | Àü¼¼ | ½ÅÈïºô¶ó7Â÷ | 1 | 42.16 | 6,500 | 0 | 1992 | | 2024.05.28 | ¿ù¼¼ | dz¿øÇÏÀÓºô | 2 | 31.025 | 24,000 | 20 | 2018 | | 2024.05.28 | ¿ù¼¼ | ´Ù¿Âºô | 4 | 35.14 | 3,000 | 105 | 2022 | | 2024.05.28 | Àü¼¼ | °øÀ۸ǼÇ8Â÷ | -1 | 64.2 | 12,000 | 0 | 1996 | | 2024.05.28 | ¿ù¼¼ | 103-134 | 5 | 32.32 | 3,200 | 49 | 2014 | | 2024.05.28 | ¿ù¼¼ | ºê¶ó¿îij½½(1480-1) | 3 | 48.21 | 36,010 | 10 | 2017 | | 2024.05.27 | ¿ù¼¼ | û¼Öºô¶ó | 2 | 53.56 | 15,000 | 10 | 2002 | | 2024.05.27 | Àü¼¼ | µå¸²Å¸¿î | 6 | 20.46 | 23,000 | 0 | 2020 | | 2024.05.27 | ¿ù¼¼ | jk·°½ººô | 4 | 14.16 | 500 | 50 | 2015 | | 2024.05.27 | ¿ù¼¼ | (255-46) | 1 | 65.82 | 50 | 35 | 2002 | | 2024.05.27 | ¿ù¼¼ | ¼º¿øºô(1667-23) | 4 | 15.48 | 1,000 | 63 | 2017 | | 2024.05.27 | ¿ù¼¼ | 1415-7 | 6 | 22.44 | 3,000 | 80 | 2016 | | 2024.05.27 | ¿ù¼¼ | 1415-7 | 5 | 22.44 | 2,000 | 85 | 2016 | | 2024.05.27 | ¿ù¼¼ | ¿¡¾î½ºÆäÀ̽º(1560-17) | 3 | 27.43 | 15,714 | 22 | 2022 | | 2024.05.27 | ¿ù¼¼ | ½ºÅ¸Èú½º | 7 | 29.12 | 12,000 | 51 | 2015 | | 2024.05.27 | ¿ù¼¼ | ä¼®°¡ | 5 | 26.645 | 15,000 | 50 | 2021 | | 2024.05.27 | Àü¼¼ | »ï¼ºÇϿ콺 | 3 | 50 | 27,400 | 0 | 2015 | | 2024.05.27 | ¸Å¸Å | ¾çÁöºô¶ó(408-163) | 2 | 44.73 | 23,000 | | 1986 | | 2024.05.27 | ¸Å¸Å | ¾çÁöºô¶ó(408-69) | 2 | 40.05 | 23,500 | | 1986 | | 2024.05.27 | ¸Å¸Å | ÆòÁÖºô¶ó | 1 | 44.53 | 19,000 | | 1995 | | 2024.05.27 | ¸Å¸Å | Áß¾ÓŸ¿îAµ¿Bµ¿ | 1 | 55.1 | 20,000 | | 1997 | | 2024.05.27 | ¸Å¸Å | ±×¸°ºô¸®Áö | 2 | 45.67 | 28,000 | | 2001 | | 2024.05.26 | ¿ù¼¼ | (498-9) | 1 | 40.47 | 3,000 | 80 | 1986 | | 2024.05.26 | ¿ù¼¼ | ´õº£¸®Å¸½º | 4 | 24.59 | 2,000 | 125 | 2022 | | 2024.05.26 | ¿ù¼¼ | ±ÝÈ£ÇϿ콺 | 3 | 29.12 | 500 | 47 | 2017 | | 2024.05.26 | ¿ù¼¼ | »êõ¼ÛÇϿ콺(1574-30) | 2 | 47.16 | 5,000 | 70 | 2006 | | 2024.05.25 | ¿ù¼¼ | JÇìºìºô | 2 | 21.79 | 15,000 | 25 | 2015 | | 2024.05.25 | ¿ù¼¼ | JÇìºìºô | 2 | 21.79 | 15,000 | 25 | 2015 | | 2024.05.25 | ¿ù¼¼ | (98-239) | 2 | 30.51 | 2,000 | 89 | 2018 | | 2024.05.25 | Àü¼¼ | Àͼöºôµù | 5 | 28.34 | 19,000 | 0 | 2015 | | 2024.05.25 | Àü¼¼ | ûµ¿±×¸°ÇϿ콺 | 2 | 39.18 | 9,000 | 0 | 1994 | | 2024.05.25 | ¸Å¸Å | ¾î¹ÝÆÓ¸®½º(6~7µ¿) | 5 | 45.37 | 35,000 | | 2018 | | 2024.05.25 | Àü¼¼ | Å´½ººô¸® | 4 | 38.91 | 12,450 | 0 | 2002 | | 2024.05.25 | ¿ù¼¼ | Ä¥¼ººô¶ó | 1 | 43.48 | 14,500 | 30 | 1991 | | 2024.05.25 | Àü¼¼ | ¹Ì°¡ÁÖÅÃ(1617-8) | 3 | 13.68 | 8,000 | 0 | 2011 | | 2024.05.25 | Àü¼¼ | ¿µÈºô¶ó³ªµ¿(412-212) | -1 | 37.33 | 8,000 | 0 | 1991 | | 2024.05.25 | ¿ù¼¼ | 92-59 | 2 | 21.92 | 12,000 | 11 | 2015 | | 2024.05.24 | ¸Å¸Å | (102-47) | -1 | 36.51 | 14,000 | | 1986 | | 2024.05.24 | ¿ù¼¼ | ·¡¹Ì¾È | 2 | 25.5 | 4,000 | 53 | 2011 | | 2024.05.24 | ¿ù¼¼ | ¸Þ¸®Æ®¿¥Å¸¿ö | 9 | 12.6 | 9,900 | 35 | 2019 | | 2024.05.24 | ¿ù¼¼ | Çüº¸ºô | 2 | 24.75 | 4,000 | 52 | 2013 | | 2024.05.24 | ¿ù¼¼ | ¼±¶óÀÌÁ»ê | 6 | 30.45 | 7,000 | 60 | 2013 | | 2024.05.24 | ¿ù¼¼ | (102-60) | 1 | 25.37 | 11,000 | 10 | 2010 | | 2024.05.24 | ¸Å¸Å | ±Û·Î¸®ÇϿ콺 | 4 | 38.87 | 43,000 | | 2023 | | 2024.05.24 | ¸Å¸Å | ¸Þ°¡´õŬ·¡½º | 2 | 46.9 | 40,000 | | 2017 | | 2024.05.24 | ¿ù¼¼ | ¼±¶óÀÌÁ»ê | 5 | 30.88 | 5,000 | 60 | 2013 | | 2024.05.24 | ¸Å¸Å | ¿ì¹Ì¸Ç¼ð | 2 | 64.56 | 36,000 | | 1980 | | 2024.05.23 | ¸Å¸Å | Æ÷µµ¿ø½¦¸£ºô | 2 | 29.83 | 22,700 | | 2012 | | 2024.05.23 | ¸Å¸Å | »ê¸¶·çºô | 3 | 25.37 | 28,500 | | 2017 | | 2024.05.23 | ¸Å¸Å | ¿¹¸²ºô¶óÆ® | 2 | 59.78 | 27,300 | | 1997 | | 2024.05.23 | ¸Å¸Å | Çö´ë¾ÆÆ®ºô(1667-14) | 4 | 59.89 | 30,000 | | 1999 | | 2024.05.23 | ¿ù¼¼ | ½ÅÈİ¡15Â÷ | 4 | 27.98 | 5,000 | 120 | 2023 | | 2024.05.23 | ¿ù¼¼ | ÈÞ½ºÅ×ÀÌ | 3 | 29.56 | 2,000 | 130 | 2023 | | 2024.05.23 | Àü¼¼ | ±¹Á¦¾Ë¾Øµå¾¾ | 6 | 24.55 | 24,000 | 0 | 2018 | | 2024.05.23 | Àü¼¼ | ´Ù¼Øºô¶ó520-4 | 5 | 21.6 | 11,000 | 0 | 2014 | | 2024.05.23 | ¿ù¼¼ | ¶óÆÄ¸£½Å¸² | 8 | 27.61 | 5,500 | 135 | 2023 | | 2024.05.23 | ¿ù¼¼ | ¶óÆÄ¸£½Å¸² | 8 | 27.61 | 5,500 | 135 | 2023 | | 2024.05.23 | Àü¼¼ | ´Ù¼Øºô¶ó520-4 | 5 | 21.6 | 11,000 | 0 | 2014 | | 2024.05.22 | ¿ù¼¼ | Ciel-31 | 7 | 21.66 | 22,000 | 15 | 2016 | | 2024.05.22 | Àü¼¼ | ½Å¸²¾ÆÆÄÆ®(1709-1) | 4 | 59.94 | 23,000 | 0 | 2000 | | 2024.05.22 | ¿ù¼¼ | ¸®¾ØÃÊÀ̽º | 10 | 22.83 | 20,000 | 75 | 2023 | | 2024.05.22 | ¿ù¼¼ | °øÀ۸ǼÇ5Â÷ | 3 | 46.09 | 14,000 | 25 | 1995 | | 2024.05.22 | ¸Å¸Å | JS¼¼¿ò | 3 | 41.32 | 30,000 | | 2020 | | 2024.05.22 | ¸Å¸Å | ¹Ì¼Øºô(507-9) | 6 | 44.38 | 38,200 | | 2017 | | 2024.05.21 | ¸Å¸Å | ÆòÁÖÆÄÅ©ºô¶ó | -1 | 49.13 | 10,800 | | 1997 | | 2024.05.21 | ¸Å¸Å | »ïµµÇϿ콺 | 2 | 46.48 | 28,600 | | 2013 | | 2024.05.21 | ¿ù¼¼ | ¾Öµå¿ø | 6 | 14.99 | 5,000 | 37 | 2015 | | 2024.05.21 | ¿ù¼¼ | Ciel10(1410-10) | 5 | 29.69 | 27,000 | 7 | 2015 | | 2024.05.21 | ¿ù¼¼ | ´ÀƼ³ª¹«ºô¶ó | 3 | 51.09 | 1,000 | 50 | 1994 | | 2024.05.21 | ¿ù¼¼ | ¿î¼³ëºíÇϿ콺 | 3 | 37.44 | 15,000 | 35 | 2014 | | 2024.05.21 | Àü¼¼ | 457-1 | 3 | 61.93 | 20,000 | 0 | 2003 | | 2024.05.21 | ¿ù¼¼ | »ï¼ºÇϿ콺 | 3 | 29.8 | 16,500 | 20 | 2015 | | 2024.05.21 | Àü¼¼ | Çѳª·¡ºô | 4 | 52.53 | 26,500 | 0 | 2016 | | 2024.05.21 | Àü¼¼ | CG¾Æ¸§Ã¤(2´ÜÁö) | 2 | 53.09 | 36,000 | 0 | 2019 | | 2024.05.20 | Àü¼¼ | ½Å¸²¸®ÇϿ콺 | 2 | 29.87 | 17,000 | 0 | 2018 | | 2024.05.20 | Àü¼¼ | µ¿¹æ¾ÆÆ®ºô | 4 | 56.24 | 25,000 | 0 | 1992 | | 2024.05.20 | ¿ù¼¼ | (529-15) | 10 | 11.36 | 5,000 | 50 | 2020 | | 2024.05.20 | ¿ù¼¼ | (478-12) | 3 | 41.84 | 2,500 | 55 | 2003 | | 2024.05.20 | ¿ù¼¼ | ¶óÀÓÄ«¿îƼ | 7 | 29.76 | 22,910 | 17 | 2016 | | 2024.05.20 | ¿ù¼¼ | µ¿Èºô¶ó | 4 | 48.78 | 1,500 | 35 | 1992 | | 2024.05.20 | ¿ù¼¼ | ¶óÀÓÄ«¿îƼ | 7 | 29.76 | 22,910 | 17 | 2016 | | 2024.05.20 | ¸Å¸Å | Àå¹Ì¸Ç¼Ç(10-580) | -1 | 52.21 | 20,650 | | 1991 | | 2024.05.20 | Àü¼¼ | 1678-33 | 4 | 29.75 | 13,900 | 0 | 2014 | | 2024.05.20 | ¿ù¼¼ | Àå¹ÌÁ¤¿ø(1564-31) | 3 | 24.58 | 3,000 | 65 | 2014 | | 2024.05.20 | ¿ù¼¼ | ¼Ò¸Áºô(475-60) | 3 | 59.3 | 3,956 | 24 | 2016 | | 2024.05.20 | Àü¼¼ | Ciel-31 | 7 | 21.66 | 25,000 | 0 | 2016 | | 2024.05.20 | Àü¼¼ | µ¿¹®¾ÆÆ®ºô | 2 | 74.41 | 31,000 | 0 | 2001 | | 2024.05.19 | ¸Å¸Å | dz¿øÇÏÀÓºô | 4 | 44.87 | 40,000 | | 2018 | | 2024.05.19 | ¿ù¼¼ | ¸ð°Ç¾ÆÆ®ºô5Â÷ | 2 | 29.4 | 20,000 | 25 | 2019 | | 2024.05.19 | ¿ù¼¼ | (562-20) | 3 | 47.73 | 14,000 | 20 | 2003 | | 2024.05.19 | ¿ù¼¼ | (306-52) | 2 | 42.635 | 17,850 | 4 | 2014 | | 2024.05.19 | Àü¼¼ | ¿þ½ºÅÏ | 8 | 29.97 | 27,560 | 0 | 2015 | | 2024.05.19 | ¸Å¸Å | (401-19) | -1 | 42.84 | 54,500 | | 1991 | | 2024.05.18 | Àü¼¼ | (92-262) | 4 | 35.01 | 20,000 | 0 | 2012 | | 2024.05.18 | ¿ù¼¼ | ¼º¿øºô(1667-23) | 3 | 15.48 | 1,000 | 47 | 2017 | | 2024.05.18 | ¿ù¼¼ | Çϳª | 5 | 22.47 | 19,000 | 15 | 2018 | | 2024.05.18 | ¿ù¼¼ | ¼º¿øºô(1667-23) | 3 | 15.48 | 1,000 | 47 | 2017 | | 2024.05.18 | Àü¼¼ | Á¤¿øÆÓ¸®Ã¼Aµ¿Bµ¿ | 2 | 46.12 | 27,000 | 0 | 2019 | | 2024.05.18 | ¸Å¸Å | Ǫ¸§³×ÀÌÃĺô(661-46) | 5 | 28.13 | 23,000 | | 2016 | | 2024.05.18 | ¿ù¼¼ | Çϳª | 5 | 22.47 | 19,000 | 15 | 2018 | | 2024.05.18 | ¸Å¸Å | µ¿»êºô¸®Áö(92-175) | 3 | 34.01 | 14,300 | | 1994 | | 2024.05.17 | ¿ù¼¼ | TOV | 6 | 24.1 | 20,000 | 60 | 2023 | | 2024.05.17 | ¿ù¼¼ | ½ºÄ«ÀÌij½½(92-214) | 2 | 38.73 | 23,000 | 30 | 2018 | | 2024.05.17 | ¿ù¼¼ | ½ÅÈİ¡15Â÷ | 4 | 28.06 | 5,000 | 120 | 2023 | | 2024.05.17 | ¿ù¼¼ | ÇÁ¶óºñ´ÙS(10-356) | 4 | 22.55 | 10,000 | 40 | 2016 | | 2024.05.17 | Àü¼¼ | 98-135 | 2 | 27.97 | 18,600 | 0 | 2014 | | 2024.05.17 | Àü¼¼ | ÈÞÇ÷¯½º | 4 | 38.01 | 231,000 | 0 | 2017 | | 2024.05.17 | Àü¼¼ | È޵帲 | 7 | 21.81 | 18,000 | 0 | 2017 | | 2024.05.17 | Àü¼¼ | ÆÈ·Î½º26 | 3 | 24.16 | 23,500 | 0 | 2019 | | 2024.05.17 | Àü¼¼ | (10-347) | 3 | 16.6 | 16,000 | 0 | 2018 | | 2024.05.17 | ¿ù¼¼ | ¹Ì¸²ÇÏÀÌÃ÷ºô¶ó | 2 | 66.18 | 13,000 | 10 | 1991 | | 2024.05.17 | ¿ù¼¼ | Ǫ¸£¹Ì¸£ºô2Â÷ | 4 | 37.53 | 12,700 | 40 | 2012 | | 2024.05.17 | ¿ù¼¼ | ¼º¸²ºô¶ó | 3 | 36.12 | 1,000 | 50 | 1991 | | 2024.05.17 | ¿ù¼¼ | ÇѸ²101µ¿ | 3 | 29.37 | 5,250 | 45 | 2001 | | 2024.05.17 | ¸Å¸Å | ¸ÞÆ®·ÎŸ¿î2Â÷ | 5 | 42.06 | 25,200 | | 2017 | | 2024.05.17 | Àü¼¼ | È޵帲 | 7 | 21.81 | 18,000 | 0 | 2017 | | 2024.05.17 | ¿ù¼¼ | Æ÷µµ¿ø2 | 6 | 59.86 | 1,000 | 60 | 2013 | | 2024.05.17 | ¿ù¼¼ | ¿¡¾î½ºÆäÀ̽º(1560-17) | 3 | 22.5 | 7,387 | 36 | 2022 | | 2024.05.17 | ¿ù¼¼ | (92-246) | 4 | 49.97 | 3,000 | 110 | 2004 | | 2024.05.17 | Àü¼¼ | (10-347) | 3 | 16.6 | 16,000 | 0 | 2018 | | 2024.05.17 | ¸Å¸Å | ½Å¾Èºô¶óB | 2 | 70.56 | 22,800 | | 1991 | | 2024.05.16 | ¸Å¸Å | ±×¸°ÆÄÅ©ºô | 2 | 46.86 | 24,000 | | 2003 | | 2024.05.16 | ¸Å¸Å | ÀÏÀ°»ï¿ÀÇǽººô¶ó | 3 | 20.23 | 11,750 | | 1994 | | 2024.05.16 | ¸Å¸Å | ÀÏÀ°»ï¿ÀÇǽººô¶ó | 1 | 20.23 | 11,650 | | 1994 | | 2024.05.16 | ¸Å¸Å | ÀÏÀ°»ï¿ÀÇǽººô¶ó | -1 | 22.23 | 8,500 | | 1994 | | 2024.05.16 | ¸Å¸Å | ÀÏÀ°»ï¿ÀÇǽººô¶ó | -1 | 20.23 | 7,750 | | 1994 | | 2024.05.16 | ¸Å¸Å | ÀÏÀ°»ï¿ÀÇǽººô¶ó | 2 | 20.23 | 11,750 | | 1994 | | 2024.05.16 | Àü¼¼ | (409-175) | 2 | 57.24 | 16,000 | 0 | 2007 | | 2024.05.16 | ¸Å¸Å | (1614-6) | 1 | 48.12 | 19,100 | | 1991 | | 2024.05.16 | ¿ù¼¼ | ³ìµÎ½ºÄù¾î | 4 | 29.96 | 1,000 | 90 | 2019 | | 2024.05.16 | ¸Å¸Å | µ¿¼º¸Ç¼Ç6Â÷ | 2 | 46.74 | 20,700 | | 1996 | | 2024.05.16 | Àü¼¼ | ¼¾Æ®¶ó³ë½Å¸² | 6 | 25.99 | 32,000 | 0 | 2021 | | 2024.05.16 | ¿ù¼¼ | ¶ó¿Â | 2 | 47.1 | 2,979 | 31 | 2023 | | 2024.05.16 | ¿ù¼¼ | ¸®¾ØÃÊÀ̽º | 7 | 23.27 | 29,000 | 30 | 2023 | | 2024.05.16 | Àü¼¼ | ´õÁöÀ½ | 2 | 27.91 | 34,000 | 0 | 2023 | | 2024.05.16 | Àü¼¼ | CG¾Æ¸§Ã¤(1´ÜÁö) | 5 | 26.83 | 21,000 | 0 | 2019 | | 2024.05.16 | ¿ù¼¼ | Àå¿øºô¶ó(1441-14) | 3 | 58.4 | 4,000 | 102 | 2002 | | 2024.05.15 | Àü¼¼ | (1510-1) | 1 | 53.93 | 25,000 | 0 | 2004 | | 2024.05.15 | Àü¼¼ | Àü¿øºô¶ó(409-98) | 1 | 49.71 | 15,200 | 0 | 1992 | | 2024.05.15 | ¿ù¼¼ | 3.2¿ÀÇǽºÅÚ | 3 | 16.45 | 7,700 | 12 | 2012 | | 2024.05.15 | ¿ù¼¼ | J2tower | 2 | 14.26 | 2,000 | 60 | 2014 | | 2024.05.15 | ¿ù¼¼ | »ï¼ººô¶ó(409-218) | -1 | 33.89 | 6,600 | 20 | 1993 | | 2024.05.15 | Àü¼¼ | (1510-1) | 1 | 53.93 | 25,000 | 0 | 2004 | | 2024.05.15 | ¿ù¼¼ | Àº¿¬Àç | 5 | 14.78 | 3,000 | 34 | 2013 | | 2024.05.15 | ¿ù¼¼ | JÇìºìºô | 2 | 21.79 | 15,000 | 25 | 2015 | | 2024.05.15 | ¿ù¼¼ | Àº¿¬Àç | 5 | 14.78 | 3,000 | 34 | 2013 | | 2024.05.15 | ¿ù¼¼ | ¼ö¿ù´ç | 3 | 12.07 | 300 | 41 | 2013 | | 2024.05.14 | ¿ù¼¼ | °üµ¿ÇÏÀÌÃ÷ | 2 | 35.28 | 500 | 43 | 2003 | | 2024.05.14 | ¿ù¼¼ | ¿¡¾î½ºÆäÀ̽º | 2 | 24.83 | 15,121 | 16 | 2021 | | 2024.05.14 | Àü¼¼ | ´õÄÉÀÌŸ¿ö | 14 | 21.616 | 18,000 | 0 | 2018 | | 2024.05.14 | ¿ù¼¼ | T&K½Å¸²1 | 3 | 29.8 | 4,574 | 6 | 2023 | | 2024.05.14 | ¿ù¼¼ | º¸¶ó¸Å101µ¿ | 5 | 59.07 | 3,000 | 100 | 2000 | | 2024.05.14 | ¿ù¼¼ | ¸®¾ØÃÊÀ̽º | 7 | 22.83 | 20,000 | 70 | 2023 | | 2024.05.14 | ¿ù¼¼ | T&K½Å¸²1 | 3 | 29.8 | 100 | 31 | 2023 | | 2024.05.14 | Àü¼¼ | ´õÄÉÀÌŸ¿ö | 14 | 21.616 | 18,000 | 0 | 2018 | | 2024.05.14 | ¿ù¼¼ | ¿¡¾î½ºÆäÀ̽º | 2 | 24.83 | 15,121 | 16 | 2021 | | 2024.05.14 | ¸Å¸Å | ¾Æ½Ã¾Æ³ªºô¶ó | 1 | 50.13 | 14,500 | | 1993 | | 2024.05.14 | ¿ù¼¼ | ¸®¾ØÃÊÀ̽º | 7 | 22.83 | 20,000 | 70 | 2023 | | 2024.05.14 | Àü¼¼ | ´õÄÉÀÌŸ¿ö | 14 | 21.616 | 18,000 | 0 | 2018 | | 2024.05.14 | ¿ù¼¼ | °æÈ£ºô | 4 | 27.16 | 4,095 | 42 | 2023 | | 2024.05.13 | ¿ù¼¼ | °æ¿øÇÏÀÌÃ÷ÅÚ | 10 | 13.64 | 11,500 | 12 | 2019 | | 2024.05.13 | ¸Å¸Å | °ñµåºô | 2 | 36.03 | 19,000 | | 2011 | | 2024.05.13 | ¸Å¸Å | °ñµåºô | 2 | 36.03 | 19,000 | | 2011 | | 2024.05.13 | ¿ù¼¼ | (1458-1) | 2 | 33.9 | 11,000 | 20 | 1986 | | 2024.05.13 | Àü¼¼ | µ¿Áøºô¶ó(598-56) | 4 | 60.34 | 15,400 | 0 | 2002 | | 2024.05.13 | ¿ù¼¼ | Àͼöºôµù | 7 | 26.62 | 18,000 | 14 | 2015 | | 2024.05.13 | ¿ù¼¼ | (1509-1) | 1 | 22.15 | 1,000 | 39 | 2003 | | 2024.05.13 | Àü¼¼ | µ¿¹æÁÖÅÃ8Â÷Bµ¿ | -1 | 36.42 | 11,300 | 0 | 1990 | | 2024.05.12 | ¸Å¸Å | ½Â¿ìÆÓ¸®½º | 4 | 29.74 | 21,700 | | 2012 | | 2024.05.12 | ¿ù¼¼ | ¼Û±¤ºô¶ó | 2 | 40.73 | 4,000 | 50 | 2002 | | 2024.05.12 | ¿ù¼¼ | H.KVillage | 12 | 29.49 | 3,000 | 120 | 2018 | | 2024.05.12 | ¿ù¼¼ | ¹Ì¼º¿¤¸®Æ® | 7 | 15.64 | 3,000 | 35 | 2013 | | 2024.05.12 | ¿ù¼¼ | (10-347) | 4 | 29.85 | 24,000 | 50 | 2018 | | 2024.05.12 | ¿ù¼¼ | ¸Þ¸®Æ®¿¥Å¸¿ö | 9 | 12.6 | 9,500 | 35 | 2019 | | 2024.05.11 | ¿ù¼¼ | ½ºÅ¸ºôµù | 5 | 13.56 | 1,000 | 55 | 2014 | | 2024.05.11 | Àü¼¼ | °æÀÏ | 2 | 56.16 | 9,000 | 0 | 1991 | | 2024.05.11 | ¿ù¼¼ | Çö´ëºô¶ó | 1 | 38.88 | 1,000 | 47 | 1992 | | 2024.05.11 | Àü¼¼ | (1652-25) | 2 | 29.42 | 18,000 | 0 | 2014 | | 2024.05.11 | ¿ù¼¼ | (1464-13) | 4 | 42.78 | 3,000 | 90 | 2005 | | 2024.05.11 | Àü¼¼ | CG¾Æ¸§Ã¤ | 2 | 36.34 | 22,000 | 0 | 2019 | | 2024.05.11 | ¿ù¼¼ | (661-65) | 2 | 34.92 | 900 | 33 | 1988 | | 2024.05.11 | ¿ù¼¼ | JÆç¸®Ã¼8Â÷ | 3 | 21.14 | 2,000 | 100 | 2023 | | 2024.05.11 | Àü¼¼ | ¿¡µ§ºô¶ó(598-113) | 1 | 63.02 | 19,900 | 0 | 2001 | | 2024.05.11 | ¿ù¼¼ | ±ÝÁ¤ºô¶ó | 4 | 55.61 | 500 | 50 | 1996 | | 2024.05.11 | ¿ù¼¼ | ¼º¾Èºôµù(1667-1) | 6 | 14.77 | 10,000 | 6 | 2014 | | 2024.05.11 | ¿ù¼¼ | ÈñÇϿ콺 | 1 | 29.9 | 1,000 | 80 | 2019 | | 2024.05.11 | ¸Å¸Å | ¸ð´øºô¶ó | 4 | 40.53 | 18,000 | | 1995 | | 2024.05.11 | ¸Å¸Å | ÈÞ¸Õºô(610-123) | 4 | 42.9 | 31,200 | | 2015 | | 2024.05.11 | ¸Å¸Å | ¼¼¿øºô¶ócµ¿ | 1 | 48.89 | 17,900 | | 1986 | | 2024.05.10 | ¿ù¼¼ | »ïÀÏ | 1 | 47.34 | 1,000 | 70 | 1991 | | 2024.05.10 | ¿ù¼¼ | Ç׿øºô¶ó | 4 | 61.24 | 23,500 | 5 | 2008 | | 2024.05.10 | Àü¼¼ | º¸¹è | 2 | 50.67 | 20,500 | 0 | 1994 | | 2024.05.10 | ¿ù¼¼ | õ³âij½½(98-357) | 1 | 19.01 | 8,000 | 25 | 2017 | | 2024.05.10 | ¿ù¼¼ | Áß¿ø³ªµ¿ | 1 | 36.36 | 10,000 | 10 | 1990 | | 2024.05.10 | ¿ù¼¼ | ³²ºÎ½ºÄ«À̺ô | 3 | 29.62 | 18,000 | 15 | 2013 | | 2024.05.10 | ¿ù¼¼ | ä¼®°¡ | 3 | 19.5 | 16,000 | 50 | 2021 | | 2024.05.10 | Àü¼¼ | ¿¹¼º±×¸°ºô¶ó | -1 | 45 | 7,000 | 0 | 1993 | | 2024.05.10 | Àü¼¼ | µ¿½Å¸Ç¼Ç | 3 | 65.16 | 1,000 | 0 | 1994 | | 2024.05.10 | ¿ù¼¼ | ¼ö¿µ½¦¸£ºô | 4 | 49.2 | 1,380 | 60 | 2003 | | 2024.05.10 | ¿ù¼¼ | ÇØÇǺô¸®Áö2Â÷ | 4 | 39.85 | 16,000 | 20 | 2001 | | 2024.05.09 | ¿ù¼¼ | (1413-6) | 2 | 34.86 | 5,000 | 70 | 2004 | | 2024.05.09 | Àü¼¼ | (511-7) | 3 | 46.8 | 23,000 | 0 | 2014 | | 2024.05.09 | ¿ù¼¼ | ¸ñ¿ø | 4 | 19.04 | 1,000 | 64 | 2013 | | 2024.05.09 | ¸Å¸Å | ¼º¿ø±×¸°ºôAµ¿(610-84) | 3 | 62.14 | 23,500 | | 2002 | | 2024.05.09 | Àü¼¼ | Àü¿øºô¶ó | 2 | 32.49 | 10,500 | 0 | 1991 | | 2024.05.09 | Àü¼¼ | (1611-12) | 2 | 51.55 | 28,000 | 0 | 2002 | | 2024.05.09 | Àü¼¼ | Æò»ê¾ÆÆ®ºô¶ó | 3 | 66.51 | 17,000 | 0 | 1994 | | 2024.05.09 | Àü¼¼ | ´ÃÁ¶Àººô | 1 | 32.42 | 26,400 | 0 | 2023 | | 2024.05.09 | ¿ù¼¼ | ÈÞ¸Õºô | 4 | 45.99 | 22,300 | 25 | 2018 | | 2024.05.09 | ¿ù¼¼ | ´Ù¿Âºô | 2 | 35.14 | 3,000 | 100 | 2022 | | 2024.05.08 | ¿ù¼¼ | ÇÊÇϿ콺(1439-31) | 3 | 12.27 | 3,000 | 35 | 2013 | | 2024.05.08 | ¿ù¼¼ | ÇÊÇϿ콺(1439-31) | 3 | 12.27 | 3,000 | 35 | 2013 | | 2024.05.08 | Àü¼¼ | (409-347) | 1 | 24.32 | 13,000 | 0 | 2014 | | 2024.05.08 | ¸Å¸Å | ¸ð´øºô¶ó | 4 | 40.95 | 18,500 | | 1995 | | 2024.05.08 | ¸Å¸Å | ºÎ¸²ÆÄÅ©ºô¶ó | 4 | 38.22 | 18,000 | | 1995 | | 2024.05.08 | ¸Å¸Å | È£¼ö | 1 | 46.08 | 19,500 | | 1994 | | 2024.05.07 | ¿ù¼¼ | À¯Àκôµù | 4 | 29.96 | 18,000 | 25 | 2019 | | 2024.05.07 | ¸Å¸Å | ¿¹±×¸° | 2 | 35.25 | 18,200 | | 2014 | | 2024.05.07 | ¸Å¸Å | ºÎ¸²ÆÄÅ©ºô¶ó | 4 | 38.22 | 17,900 | | 1995 | | 2024.05.07 | ¿ù¼¼ | û±¸ÇÏÀÌÃ÷ºô¶ó | 3 | 54.37 | 17,200 | 35 | 1995 | | 2024.05.07 | ¿ù¼¼ | ¸ð°Ç¾ÆÆ®ºô5Â÷ | 2 | 29.3 | 0 | 90 | 2019 | | 2024.05.07 | ¿ù¼¼ | ÇÑÀÏÇÏÀ̺ô | 4 | 12.4 | 3,000 | 30 | 2013 | | 2024.05.07 | ¿ù¼¼ | ޶óÈÙ(10-433) | 3 | 18.12 | 1,000 | 33 | 2002 | | 2024.05.07 | ¿ù¼¼ | û±¸ÇÏÀÌÃ÷ºô¶ó | 3 | 54.37 | 17,200 | 35 | 1995 | | 2024.05.07 | ¿ù¼¼ | È«¿¬±×¸°ºô(571-1) | 2 | 20.96 | 2,000 | 46 | 2016 | | 2024.05.07 | Àü¼¼ | ȲÁ¦11 | -1 | 34.95 | 6,300 | 0 | 1991 | | 2024.05.07 | ¿ù¼¼ | ¿¡¾î½ºÆäÀ̽º(1560-17) | 3 | 22.5 | 7,387 | 36 | 2022 | | 2024.05.07 | ¿ù¼¼ | ¿¡¾î½ºÆäÀ̽º(1560-17) | 3 | 22.5 | 7,387 | 36 | 2022 | | 2024.05.06 | Àü¼¼ | ¿î¼ºô¶óÆ®8 | 3 | 61.74 | 19,000 | 0 | 2002 | | 2024.05.06 | Àü¼¼ | žçºô¶ó | 1 | 59.7 | 24,000 | 0 | 1986 | | 2024.05.06 | ¿ù¼¼ | û¸²ÁÖÅà | 4 | 73.99 | 21,000 | 15 | 1997 | | 2024.05.06 | ¸Å¸Å | ¼öÁ¤ºô¶ó | 2 | 39.35 | 20,000 | | 1992 | | 2024.05.05 | ¿ù¼¼ | (468-1) | 4 | 28.1 | 19,000 | 21 | 2014 | | 2024.05.05 | ¿ù¼¼ | ±¤Áøºô¶óÆ® | 4 | 34.32 | 1,000 | 50 | 1993 | | 2024.05.05 | Àü¼¼ | (108-35) | 3 | 38.4 | 13,600 | 0 | 1991 | | 2024.05.05 | ¿ù¼¼ | Àº¿¬Àç | 4 | 14.18 | 1,000 | 43 | 2013 | | 2024.05.05 | ¿ù¼¼ | ·Îµ©ºô | 2 | 15.07 | 1,000 | 55 | 2015 | | 2024.05.04 | Àü¼¼ | Çѳª·¡(1680-7) | 4 | 29.78 | 20,900 | 0 | 2017 | | 2024.05.04 | ¿ù¼¼ | Àå¿ø(532-8) | 3 | 22.12 | 12,000 | 4 | 2017 | | 2024.05.04 | ¿ù¼¼ | È¿·ÉÇÏÀ̺ô | 2 | 48.56 | 10,000 | 70 | 2004 | | 2024.05.04 | Àü¼¼ | ¼¼ÇϺô¶óAµ¿ | 2 | 52.77 | 14,490 | 0 | 1993 | | 2024.05.04 | Àü¼¼ | ±¹Èºô¶ó2µ¿ | 2 | 60.3 | 12,000 | 0 | 1994 | | 2024.05.04 | Àü¼¼ | ´ëÇÐÃ̺ô¶ó | 2 | 34.63 | 14,000 | 0 | 1991 | | 2024.05.04 | Àü¼¼ | Çѳª·¡(1680-7) | 4 | 29.78 | 20,900 | 0 | 2017 | | 2024.05.04 | ¿ù¼¼ | °æ¿øÇÏÀÌÃ÷ÅÚ | 11 | 22.01 | 1,000 | 60 | 2019 | | 2024.05.04 | ¿ù¼¼ | ¿øÁÖÅôٵ¿(412-316) | 1 | 44.04 | 2,500 | 40 | 1992 | | 2024.05.04 | ¸Å¸Å | ¹Ì¸®³»±×¸°ºô¶ó | 3 | 40.5 | 17,500 | | 1993 | | 2024.05.04 | ¸Å¸Å | Ÿ¿îij½½(1621-32) | 2 | 32.81 | 21,000 | | 2014 | | 2024.05.04 | ¸Å¸Å | µ¿¹æÁÖÅÃ8Â÷Bµ¿ | 2 | 36.42 | 29,000 | | 1990 | | 2024.05.04 | ¸Å¸Å | ±¹Á¦¾Ë¾Øµå¾¾ | 6 | 26.48 | 25,800 | | 2018 | | 2024.05.03 | ¿ù¼¼ | (1520-2) | 4 | 15.76 | 2,000 | 50 | 2013 | | 2024.05.03 | Àü¼¼ | Ŭ¶ó¿ìµå | 9 | 27.23 | 25,200 | 0 | 2018 | | 2024.05.03 | ¿ù¼¼ | ÇѽÅÀ§³Ê½º | 2 | 27.58 | 22,600 | 10 | 2022 | | 2024.05.03 | Àü¼¼ | CG¾Æ¸§Ã¤(1´ÜÁö) | 3 | 52.07 | 28,000 | 0 | 2019 | | 2024.05.03 | ¿ù¼¼ | ¸®¾ØÃÊÀ̽º | 8 | 23.27 | 25,000 | 45 | 2023 | | 2024.05.03 | ¿ù¼¼ | ¸®¾ØÃÊÀ̽º | 8 | 23.27 | 25,000 | 45 | 2023 | | 2024.05.03 | Àü¼¼ | ´ÀƼ³ª¹«ºô¶ó | -1 | 45.51 | 8,700 | 0 | 1994 | | 2024.05.03 | Àü¼¼ | Ŭ¶ó¿ìµå | 9 | 27.23 | 25,200 | 0 | 2018 | | 2024.05.03 | ¿ù¼¼ | TOV | 6 | 24.2 | 20,000 | 50 | 2023 | | 2024.05.03 | ¸Å¸Å | ¿î¼ºô¶óÆ®4 | 2 | 60.14 | 25,000 | | 2001 | | 2024.05.02 | ¸Å¸Å | ¼±Áøºô¶óÆ® | 3 | 44.24 | 18,500 | | 2002 | | 2024.05.02 | ¸Å¸Å | ÇѼֻêÀÚ¶ôºô¶ó | -1 | 53.28 | 16,000 | | 2012 | | 2024.05.02 | Àü¼¼ | (120-3) | 1 | 27.16 | 10,000 | 0 | 1986 | | 2024.05.02 | Àü¼¼ | Ǫ¸£¹Ì¸£ºô3Â÷ | 5 | 48.9 | 23,400 | 0 | 2013 | | 2024.05.02 | Àü¼¼ | ½ÅÈİ¡15Â÷ | 2 | 29.93 | 27,400 | 0 | 2023 | | 2024.05.02 | Àü¼¼ | ÇÑÂ÷ÀÓºô | 4 | 29.84 | 29,300 | 0 | 2021 | | 2024.05.02 | ¿ù¼¼ | (1432-58) | 4 | 14.52 | 7,000 | 5 | 2009 | | 2024.05.02 | Àü¼¼ | (646-138) | -1 | 39.87 | 7,600 | 0 | 1993 | | 2024.05.02 | ¸Å¸Å | (92-240) | -1 | 26.97 | 15,000 | | 1990 | | 2024.05.02 | ¸Å¸Å | Á¤È£ÆÄÅ© | 2 | 76.01 | 32,000 | | 2008 | | 2024.05.02 | ¸Å¸Å | ±Û·Î¸®¾Æ | 4 | 28.21 | 18,000 | | 1992 | | 2024.05.02 | ¸Å¸Å | À¯¼ººô¶ó(548-5) | 1 | 60.4 | 34,000 | | 1993 | | 2024.05.02 | ¸Å¸Å | È£¼±ºô¶ó | 3 | 25.64 | 17,000 | | 1996 | | 2024.05.02 | ¸Å¸Å | ºÎ¿ä±×¸°Å¸¿î(³ªµ¿) | 3 | 42.02 | 19,000 | | 1991 | | 2024.05.02 | ¸Å¸Å | Á¦ÀϺô¶ó(92-203) | 1 | 33.12 | 21,000 | | 1991 | | 2024.05.02 | ¸Å¸Å | ¼º°ø¸®Ä¡ºô | 5 | 33.28 | 15,000 | | 2021 | | 2024.05.02 | ¸Å¸Å | ³ª·¡ | -1 | 37.22 | 18,000 | | 1994 | | 2024.05.02 | ¸Å¸Å | (92-182) | 2 | 26.13 | 17,000 | | 1993 | | 2024.05.02 | ¿ù¼¼ | ¼º¿ø±×¸°ºôAµ¿ | 5 | 46.74 | 14,800 | 25 | 2003 | | 2024.05.01 | Àü¼¼ | ÀåÇ׺ôµù | 7 | 61.5 | 27,560 | 0 | 2006 | | 2024.05.01 | ¿ù¼¼ | ÁøÁÖ¾ÆÆ®ºô | -1 | 68.92 | 1,000 | 70 | 2002 | | 2024.05.01 | ¿ù¼¼ | ¿¡¼¿ÆÄÅ©ºô¥± | 1 | 27.98 | 12,000 | 20 | 2018 | | 2024.05.01 | ¿ù¼¼ | ¾à¼öºô¶ó | 2 | 73.92 | 1,000 | 20 | 1990 | | 2024.05.01 | Àü¼¼ | ¼º°ÄÉ·»½Ã¾Æ | 5 | 40.27 | 23,000 | 0 | 2018 | | 2024.05.01 | ¿ù¼¼ | ¸®¸µ(1439-25) | 6 | 46.25 | 20,700 | 50 | 2014 | | 2024.05.01 | ¿ù¼¼ | 533-26 | 3 | 27.84 | 10,000 | 39 | 2015 | | 2024.05.01 | Àü¼¼ | ÇÏÀÌ¿ø·Î¾âij½½ | 2 | 49.04 | 30,000 | 0 | 2015 | | 2024.05.01 | ¿ù¼¼ | Çѳª·¡ºô | 2 | 53.56 | 0 | 30 | 2016 | | 2024.05.01 | Àü¼¼ | (102-24) | 4 | 46.05 | 13,000 | 0 | 2002 | | 2024.05.01 | Àü¼¼ | µ¿¼ººô¶ó(598-79) | 2 | 53.01 | 14,800 | 0 | 1993 | | 2024.05.01 | ¸Å¸Å | ÇÁ·¹¹Ì¿À759 | 5 | 41.19 | 33,900 | | 2020 | | 2024.05.01 | ¸Å¸Å | 2Â÷ÇѸ¶À½ºô¶ó | -1 | 38.35 | 11,500 | | 1993 | | 2024.04.30 | ¿ù¼¼ | ¾ÆÆ®ºôÇϿ콺1Â÷ | 4 | 35.08 | 17,300 | 30 | 2011 | | 2024.04.30 | ¿ù¼¼ | (1585-6) | 1 | 53.2 | 16,000 | 8 | 2002 | | 2024.04.30 | ¿ù¼¼ | ´Ù¼Øºô¶ó | 3 | 24.64 | 9,700 | 30 | 2004 | | 2024.04.30 | ¿ù¼¼ | Èñ¶ôºô¸®ÁöBµ¿(1641-116) | 2 | 15.3 | 2,000 | 40 | 2012 | | 2024.04.30 | ¿ù¼¼ | JCSTUDIO | 8 | 20.59 | 15,000 | 14 | 2018 | | 2024.04.30 | ¸Å¸Å | (1616-5) | 4 | 70.83 | 33,000 | | 2003 | | 2024.04.30 | Àü¼¼ | Çý¼ºÆç¸®½º | 5 | 26.09 | 18,000 | 0 | 2015 | | 2024.04.30 | Àü¼¼ | (1652-25) | 3 | 50.6 | 25,000 | 0 | 2014 | | 2024.04.30 | Àü¼¼ | Çö´ë¾ÆÆ®ºô(1667-14) | 1 | 59.89 | 25,000 | 0 | 1999 | | 2024.04.30 | ¿ù¼¼ | ºñÄ¡(1416-36) | 8 | 27.945 | 20,000 | 5 | 2016 | | 2024.04.30 | Àü¼¼ | ÀåÇ׺ôµù | 5 | 37.12 | 17,500 | 0 | 2006 | | 2024.04.30 | ¿ù¼¼ | Á¶¿øÇÏÀ̸ðºôµù | 3 | 21.62 | 1,000 | 23 | 2013 | | 2024.04.30 | Àü¼¼ | ¼Ò»êÇÏÀÌÃ÷¸Ç¼Ç | 3 | 39.53 | 15,000 | 0 | 1995 | | 2024.04.30 | Àü¼¼ | ¸®½Ö | 6 | 27.29 | 17,000 | 0 | 2014 | | 2024.04.30 | ¿ù¼¼ | (675-3) | 1 | 41.46 | 1,000 | 40 | 1980 | | 2024.04.29 | ¿ù¼¼ | (94-179) | 3 | 48.8 | 13,500 | 40 | 1991 | | 2024.04.29 | Àü¼¼ | »óÁöºô¶ó¶óµ¿ | -1 | 36.36 | 10,000 | 0 | 1989 | | 2024.04.29 | ¿ù¼¼ | º£¸£Ã¼ | 6 | 26.31 | 17,000 | 17 | 2015 | | 2024.04.29 | Àü¼¼ | (110-66) | 3 | 56.86 | 17,850 | 0 | 1975 | | 2024.04.29 | ¿ù¼¼ | ±ÃÀü | 3 | 43.92 | 12,800 | 20 | 1991 | | 2024.04.29 | ¿ù¼¼ | ´õ·°½ººô | 3 | 27.36 | 3,000 | 90 | 2022 | | 2024.04.29 | ¿ù¼¼ | À¸¶äij½½ | 3 | 29.57 | 3,000 | 100 | 2022 | | 2024.04.29 | ¿ù¼¼ | ¾ÆÆ®ºô | 2 | 44.76 | 1,000 | 85 | 2001 | | 2024.04.29 | ¿ù¼¼ | (94-179) | 3 | 48.8 | 13,500 | 40 | 1991 | | 2024.04.29 | ¿ù¼¼ | (89-1) | 3 | 15.24 | 2,000 | 58 | 2016 | | 2024.04.29 | ¸Å¸Å | ÀÌ·ë¾ÆÆ®ºô | 2 | 47.685 | 25,000 | | 2002 | | 2024.04.29 | ¸Å¸Å | ¶ôÅ©ºô | 4 | 55.54 | 28,000 | | 2012 | | 2024.04.29 | ¸Å¸Å | ¿ì¼Û¾Æ¸£¶¼ºô | 5 | 29.87 | 22,000 | | 2015 | | 2024.04.28 | Àü¼¼ | ÀåÇ׺ôµù | 4 | 40.65 | 18,375 | 0 | 2006 | | 2024.04.28 | ¿ù¼¼ | ¾ÆÇö | 4 | 13.11 | 1,000 | 47 | 2012 | | 2024.04.27 | ¿ù¼¼ | Àº¼ººô(1632-15) | 3 | 32.11 | 13,000 | 13 | 2012 | | 2024.04.27 | Àü¼¼ | ¶óÀÓÄ«¿îƼ | 1 | 29.16 | 18,000 | 0 | 2018 | | 2024.04.27 | Àü¼¼ | ¿¡À̽ºÆÄÅ©ºô | -1 | 56.63 | 11,730 | 0 | 2002 | | 2024.04.27 | ¿ù¼¼ | Çì·»ºô¸®Áö(1663-26) | 4 | 29.84 | 20,000 | 10 | 2015 | | 2024.04.27 | Àü¼¼ | ¸ð´øÇϿ콺 | 5 | 29.62 | 28,000 | 0 | 2019 | | 2024.04.27 | Àü¼¼ | ½Å¸²ÇÏÀÌÃ÷ºô¶ó³ªµ¿ | 3 | 79.14 | 36,000 | 0 | 1989 | | 2024.04.27 | Àü¼¼ | ¿¡À̽ºÆÄÅ©ºô | -1 | 56.63 | 11,900 | 0 | 2002 | | 2024.04.27 | Àü¼¼ | ¶óÀÓÄ«¿îƼ | 1 | 29.16 | 18,000 | 0 | 2018 | | 2024.04.27 | ¿ù¼¼ | (1654-12) | 3 | 13.4 | 300 | 35 | 2013 | | 2024.04.27 | Àü¼¼ | ¶óÀÓÄ«¿îƼ | 1 | 29.16 | 18,000 | 0 | 2018 | | 2024.04.27 | ¿ù¼¼ | ¸®¾ØÃÊÀ̽º | 9 | 23.27 | 29,850 | 20 | 2023 | | 2024.04.27 | ¿ù¼¼ | ¸®¾ØÃÊÀ̽º | 7 | 22.83 | 24,000 | 50 | 2023 | | 2024.04.27 | ¿ù¼¼ | (1578-38) | 2 | 59.97 | 5,000 | 155 | 2022 | | 2024.04.27 | Àü¼¼ | ¸®¹öÆÄÅ© | 8 | 52.66 | 40,000 | 0 | 2015 | | 2024.04.27 | ¿ù¼¼ | ¶óÀÓÄ«¿îƼ | 1 | 28.52 | 13,000 | 20 | 2018 | | 2024.04.26 | ¿ù¼¼ | dz¿øÇÏÀÓºô | 4 | 28.87 | 23,000 | 25 | 2018 | | 2024.04.26 | ¿ù¼¼ | Çö´ëÇÏÀÌÃ÷ºô¶ó | 4 | 47.6 | 10,000 | 47 | 1995 | | 2024.04.26 | ¿ù¼¼ | °æ¿øÇÏÀÌÃ÷ÅÚ | 10 | 21.66 | 3,000 | 47 | 2019 | | 2024.04.26 | Àü¼¼ | µ¿¿¬ÇÏÀÌÃ÷ | 5 | 29.91 | 18,900 | 0 | 2015 | | 2024.04.26 | ¿ù¼¼ | (592-19) | 2 | 29.904 | 5,500 | 90 | 2024 | | 2024.04.26 | ¿ù¼¼ | »ï¼º¿øºô(610-225) | 5 | 29.63 | 12,400 | 20 | 2016 | | 2024.04.26 | Àü¼¼ | żº(1596-6) | 5 | 23.06 | 20,400 | 0 | 2022 | | 2024.04.26 | ¿ù¼¼ | ¾Öµå¿ø | 6 | 14.65 | 1,000 | 55 | 2015 | | 2024.04.26 | ¸Å¸Å | Áø¿µºô¶ó | 2 | 50.01 | 25,000 | | 2001 | | 2024.04.26 | ¸Å¸Å | Á¤½Éºô¶óAµ¿ | 2 | 39.95 | 13,800 | | 1992 | | 2024.04.26 | ¸Å¸Å | ¿ì¼®ºô¶ó13Â÷ | 2 | 41.16 | 17,500 | | 1995 | | 2024.04.26 | ¸Å¸Å | ¸ÞÆ®·ÎŸ¿î3Â÷ | 5 | 53.99 | 36,000 | | 2017 | | 2024.04.25 | ¿ù¼¼ | ½Å¸²¾ÆÆÄÆ®(1709-1) | 3 | 59.94 | 25,000 | 10 | 2000 | | 2024.04.25 | Àü¼¼ | (120-44) | 1 | 41.67 | 15,000 | 0 | 1996 | | 2024.04.25 | ¿ù¼¼ | ÀÌȱ׸°ºô | 3 | 63.16 | 3,000 | 130 | 2003 | | 2024.04.25 | Àü¼¼ | µ¨¸®½Ã¾Æ4Â÷ | 6 | 26.9 | 24,100 | 0 | 2015 | | 2024.04.25 | Àü¼¼ | ÇØÇÇŸ¿ö | 6 | 27.25 | 19,449 | 0 | 2016 | | 2024.04.25 | ¿ù¼¼ | È«¿¬±×¸°ºô(571-1) | 2 | 29.84 | 1,000 | 63 | 2016 | | 2024.04.25 | ¸Å¸Å | ¼Ò»êÇÏÀÌÃ÷¸Ç¼Ç | 3 | 39.53 | 22,400 | | 1995 | | 2024.04.24 | ¿ù¼¼ | ⿵ºô | 5 | 49.28 | 25,000 | 10 | 2015 | | 2024.04.24 | ¿ù¼¼ | µå¸²Çãºê | 10 | 22.5 | 3,000 | 90 | 2019 | | 2024.04.24 | Àü¼¼ | ±ÝÈ£ºô¶ó2Â÷(412-343) | 3 | 43.58 | 17,500 | 0 | 1992 | | 2024.04.24 | Àü¼¼ | ¸ÞÆ®·ÎŸ¿î8Â÷ | 3 | 26.77 | 21,700 | 0 | 2017 | | 2024.04.24 | Àü¼¼ | ºê¶ó¿îij½½4Â÷ | 3 | 51.12 | 22,000 | 0 | 2016 | | 2024.04.24 | ¿ù¼¼ | ´ÃÁ¶Àººô | 3 | 32.66 | 5,000 | 120 | 2023 | | 2024.04.24 | ¿ù¼¼ | ´ÃÁ¶Àººô | 3 | 32.66 | 5,000 | 120 | 2023 | | 2024.04.24 | ¿ù¼¼ | (592-19) | 2 | 40.643 | 6,000 | 105 | 2024 | | 2024.04.24 | ¿ù¼¼ | ´ÃÁ¶Àººô | 3 | 32.66 | 5,000 | 120 | 2023 | | 2024.04.24 | ¿ù¼¼ | °è¸²ºô¶ó | 3 | 59.07 | 3,000 | 90 | 1994 | | 2024.04.24 | Àü¼¼ | ±ÝÈ£ºô¶ó2Â÷(412-343) | 3 | 43.58 | 17,500 | 0 | 1992 | | 2024.04.24 | ¿ù¼¼ | ¼±ÀΟ¿î | 20 | 13.48 | 2,000 | 68 | 2017 | | 2024.04.24 | ¿ù¼¼ | ÇØÇǺô | 4 | 48.84 | 500 | 45 | 2012 | | 2024.04.24 | ¿ù¼¼ | ÇÏ´Ã¸í°¡ | 2 | 50.3 | 20,948 | 5 | 2014 | | 2024.04.24 | ¿ù¼¼ | (408-17) | 2 | 53.64 | 16,000 | 15 | 2002 | | 2024.04.24 | ¸Å¸Å | Á¤¸í½¦¸£ºô(535-22) | 1 | 52 | 20,000 | | 2002 | | 2024.04.24 | ¸Å¸Å | ¹®¼ººô¶ó(1565-2) | 3 | 49.55 | 18,500 | | 1991 | | 2024.04.24 | Àü¼¼ | 98-135 | 1 | 27.97 | 17,600 | 0 | 2014 | | 2024.04.24 | Àü¼¼ | (1611-12) | 2 | 51.55 | 28,000 | 0 | 2002 | | 2024.04.24 | Àü¼¼ | 98-135 | 1 | 27.97 | 17,600 | 0 | 2014 | | 2024.04.23 | ¸Å¸Å | ¿¹¼º±×¸°ºô¶ó | -1 | 45 | 24,500 | | 1993 | | 2024.04.23 | ¸Å¸Å | ¼¼ÁøÅ¸¿î | 3 | 51.19 | 38,000 | | 2014 | | 2024.04.23 | ¿ù¼¼ | ¸®Ã÷¿ÀÇǽºÅÚ&µµ½ÃÇü»ýȰÁÖÅà | 7 | 12.62 | 8,500 | 2 | 2014 | | 2024.04.23 | Àü¼¼ | °Ç¿µºô¶ó(1632-3) | -1 | 48.33 | 10,500 | 0 | 1991 | | 2024.04.23 | ¿ù¼¼ | ÇѽÅÀ§³Ê½º | 6 | 29.87 | 3,000 | 140 | 2022 | | 2024.04.23 | ¿ù¼¼ | Çìºìºô¸®Áö | 3 | 19.91 | 3,000 | 70 | 2015 | | 2024.04.23 | Àü¼¼ | ¿¤¸²ºô¶ó | -1 | 42.84 | 7,000 | 0 | 1995 | | 2024.04.23 | ¿ù¼¼ | ÀÚÀÌ¿ÀÇǽºÅÚ | 9 | 11.657 | 1,000 | 68 | 2021 | | 2024.04.22 | ¸Å¸Å | ¿¹¼ºÈÞij½½ | 5 | 36.62 | 26,500 | | 2014 | | 2024.04.22 | Àü¼¼ | Àü¿øÇÏÀÌÃ÷°¡µ¿ | 4 | 43.02 | 13,120 | 0 | 1991 | | 2024.04.22 | Àü¼¼ | żº(1596-6) | 4 | 17.68 | 19,500 | 0 | 2022 | | 2024.04.22 | ¿ù¼¼ | Çö´ëºô¶ó³ªµ¿ | 1 | 35.53 | 500 | 50 | 1990 | | 2024.04.22 | Àü¼¼ | ¼Û¾ÏÇÏÀÌÃ÷ºô2 | 1 | 29.64 | 17,100 | 0 | 2017 | | 2024.04.22 | ¸Å¸Å | (98-110) | -1 | 31.23 | 5,000 | | 1991 | | 2024.04.22 | Àü¼¼ | (120-13) | 1 | 49.29 | 15,500 | 0 | 1986 | | 2024.04.22 | Àü¼¼ | ¼Û¾ÏÇÏÀÌÃ÷ºô2 | 1 | 29.64 | 18,000 | 0 | 2017 | | 2024.04.22 | ¸Å¸Å | ¿µ¸ð´øºô | 3 | 48.68 | 40,000 | | 2015 | | 2024.04.22 | ¿ù¼¼ | (1614-14) | 2 | 35.4 | 3,000 | 50 | 1994 | | 2024.04.22 | ¿ù¼¼ | °øÀ۸ǼÇ11Â÷ | 2 | 47.97 | 5,000 | 60 | 1997 | | 2024.04.22 | ¿ù¼¼ | ´Ù½£ | 3 | 53.37 | 29,800 | 20 | 2016 | | 2024.04.22 | Àü¼¼ | ¿À¼º¿¬¸³ | 1 | 63.5 | 15,000 | 0 | 1978 | | 2024.04.22 | ¿ù¼¼ | ½ò½ÃƼ | 7 | 28.57 | 3,000 | 94 | 2018 | | 2024.04.22 | ¿ù¼¼ | (1614-14) | 2 | 35.4 | 3,000 | 50 | 1994 | | 2024.04.22 | ¸Å¸Å | ¼º¶ôºô¶ó | 1 | 76.4 | 68,000 | | 1985 | | 2024.04.21 | ¿ù¼¼ | ¸®´õ½ººô(646-467) | 2 | 28.78 | 14,100 | 15 | 2013 | | 2024.04.21 | ¿ù¼¼ | ³×¸ðÇϿ콺 | 2 | 29.47 | 24,500 | 10 | 2018 | | 2024.04.21 | ¿ù¼¼ | ¸®´õ½ººô(646-467) | 2 | 28.78 | 14,100 | 15 | 2013 | | 2024.04.21 | Àü¼¼ | 1678-33 | 3 | 31.44 | 14,000 | 0 | 2014 | | 2024.04.21 | ¿ù¼¼ | ´õº£¸®Å¸½º | 7 | 24.45 | 3,000 | 135 | 2022 | | 2024.04.21 | ¿ù¼¼ | (468-1) | 5 | 28.1 | 19,000 | 20 | 2014 | | 2024.04.21 | ¿ù¼¼ | ¼·¡ÇϿ콺 | 3 | 35.11 | 5,000 | 70 | 2017 | | 2024.04.21 | ¸Å¸Å | ½ÅÀÏ | 2 | 53 | 65,000 | | 1993 | | 2024.04.21 | ¸Å¸Å | ¿µµ¿ºô¶ó(95-79) | 5 | 61.56 | 31,000 | | 2000 | | 2024.04.20 | ¿ù¼¼ | ÇѼۺô | 2 | 16.5 | 2,000 | 49 | 2016 | | 2024.04.20 | ¿ù¼¼ | ´Ù¿ø¾ÆÆ®ºô | -1 | 47.99 | 11,000 | 30 | 2002 | | 2024.04.20 | ¿ù¼¼ | ´Ù´ãºô101µ¿&102µ¿ | 5 | 29.04 | 1,000 | 70 | 2016 | | 2024.04.20 | ¿ù¼¼ | 103-134 | 2 | 24.57 | 3,200 | 52 | 2014 | | 2024.04.20 | ¿ù¼¼ | (10-442) | 3 | 35.16 | 5,000 | 65 | 2010 | | 2024.04.20 | Àü¼¼ | 98-439 | 1 | 28.29 | 17,400 | 0 | 2014 | | 2024.04.20 | ¿ù¼¼ | ´Ù´ãºô101µ¿&102µ¿ | 5 | 29.04 | 1,000 | 70 | 2016 | | 2024.04.20 | Àü¼¼ | (412-332) | 1 | 52.76 | 11,800 | 0 | 1978 | | 2024.04.20 | Àü¼¼ | ¼¸²ºô | 6 | 29.86 | 35,000 | 0 | 2022 | | 2024.04.20 | ¿ù¼¼ | °¡À± | 6 | 14.01 | 2,000 | 48 | 2017 | | 2024.04.20 | Àü¼¼ | ´ÃÁ¶Àººô | 1 | 32.42 | 26,400 | 0 | 2023 | | 2024.04.20 | ¿ù¼¼ | µ¿¼ÁÖÅà | 2 | 42.12 | 15,400 | 5 | 2000 | | 2024.04.20 | Àü¼¼ | ½á´Ïºô | 9 | 13.12 | 16,000 | 0 | 2020 | | 2024.04.20 | ¿ù¼¼ | ÇØÇÇÇϿ콺(10-649) | 3 | 21.09 | 1,000 | 51 | 2003 | | 2024.04.20 | ¸Å¸Å | (100-10) | -1 | 51.75 | 12,000 | | 1987 | | 2024.04.20 | Àü¼¼ | sweetvill | 2 | 41.43 | 19,400 | 0 | 2015 | | 2024.04.20 | Àü¼¼ | sweetvill | 2 | 41.43 | 19,400 | 0 | 2015 | | 2024.04.20 | ¿ù¼¼ | TOV | 5 | 24.1 | 20,000 | 50 | 2023 | | 2024.04.19 | ¿ù¼¼ | ÇϴϺô | 3 | 23.14 | 8,000 | 15 | 2002 | | 2024.04.19 | ¿ù¼¼ | (98-239) | 5 | 11.435 | 3,000 | 67 | 2018 | | 2024.04.19 | Àü¼¼ | û¿î¸Ç¼Ç | 2 | 65.38 | 13,000 | 0 | 1993 | | 2024.04.19 | Àü¼¼ | ûdz±×¸°ºô | 3 | 54.67 | 17,000 | 0 | 2001 | | 2024.04.19 | ¿ù¼¼ | (102-56) | -1 | 50.94 | 2,000 | 55 | 1988 | | 2024.04.19 | ¸Å¸Å | Á¤¿øºô¶ó(458-33) | -1 | 40.68 | 12,800 | | 1991 | | 2024.04.19 | Àü¼¼ | û¿î¸Ç¼Ç | 2 | 65.38 | 13,000 | 0 | 1993 | | 2024.04.18 | ¿ù¼¼ | ½ºÄ«ÀÌij½½(92-214) | 2 | 50.09 | 9,000 | 80 | 2018 | | 2024.04.18 | ¿ù¼¼ | ½Å¸²µ¿Çϸ¶4Â÷ºô¶ó | -1 | 68.41 | 500 | 50 | 2001 | | 2024.04.18 | Àü¼¼ | ÁøÈ¯ºô | 3 | 29.81 | 10,500 | 0 | 2011 | | 2024.04.18 | Àü¼¼ | ±¹Á¦¾Ë¾Øµå¾¾ | 4 | 26.48 | 24,500 | 0 | 2018 | | 2024.04.18 | Àü¼¼ | żº(1596-6) | 7 | 41.08 | 16,000 | 0 | 2022 | | 2024.04.18 | ¿ù¼¼ | ¼±¹ÎŸ¿î | 1 | 56.46 | 15,000 | 20 | 1992 | | 2024.04.18 | ¸Å¸Å | ûdzºô¶óÆ® | 3 | 48.16 | 20,000 | | 2000 | | 2024.04.17 | ¿ù¼¼ | ÈÞÆÄÅ© | 4 | 22.61 | 2,000 | 60 | 2015 | | 2024.04.17 | ¿ù¼¼ | Çѳª·¡24Â÷ | 2 | 29.91 | 3,000 | 115 | 2023 | | 2024.04.17 | Àü¼¼ | Àº¼ººôµù | 3 | 14.96 | 9,500 | 0 | 2008 | | 2024.04.17 | ¿ù¼¼ | 94-161 | -1 | 33.6 | 500 | 40 | 1993 | | 2024.04.17 | Àü¼¼ | ¾ÆÀÌÆÄÅ© | 5 | 22.94 | 24,000 | 0 | 2015 | | 2024.04.17 | ¿ù¼¼ | 103-134 | 2 | 24.57 | 3,000 | 40 | 2014 | | 2024.04.17 | Àü¼¼ | °æ¿øÇÏÀÌÃ÷ÅÚ | 10 | 21.76 | 13,000 | 0 | 2019 | | 2024.04.17 | ¿ù¼¼ | ´ö¿ìºô¶ó | 1 | 36.83 | 9,000 | 15 | 1991 | | 2024.04.17 | ¿ù¼¼ | ¿¡¾î½ºÆäÀ̽º(1560-17) | 2 | 22.5 | 10,632 | 23 | 2022 | | 2024.04.17 | Àü¼¼ | ¼®¿µ | 2 | 38.41 | 27,200 | 0 | 2022 | | 2024.04.17 | Àü¼¼ | È£¼±ºô¶ó | 2 | 23.76 | 8,000 | 0 | 1996 | | 2024.04.17 | ¸Å¸Å | ¶óÀÓij½½ | 6 | 28.87 | 27,500 | | 2016 | | 2024.04.16 | ¿ù¼¼ | (675-123) | 2 | 53.63 | 5,000 | 65 | 1991 | | 2024.04.16 | ¿ù¼¼ | ¾ÆÆ®ºô | 4 | 73.65 | 5,000 | 120 | 2001 | | 2024.04.16 | ¿ù¼¼ | 103-134 | 4 | 41.4 | 3,000 | 44 | 2014 | | 2024.04.16 | ¿ù¼¼ | ¾ÆÆ®ºô | 4 | 73.65 | 5,000 | 120 | 2001 | | 2024.04.16 | ¸Å¸Å | ¾î¹ÝÆÓ¸®½º(101µ¿,102µ¿) | 4 | 57.01 | 39,000 | | 2017 | | 2024.04.16 | ¸Å¸Å | dz¿øÇÏÀÓºô | 4 | 31.025 | 28,200 | | 2018 | | 2024.04.16 | ¸Å¸Å | °ü¾ÇÆÄÅ©ºô | 4 | 53.19 | 20,000 | | 2004 | | 2024.04.16 | ¸Å¸Å | Çѳª·¡15Â÷ | 7 | 50.14 | 34,500 | | 2018 | | 2024.04.16 | ¸Å¸Å | dz¿øÇÏÀÓºô | 4 | 31.025 | 28,200 | | 2018 | | 2024.04.15 | Àü¼¼ | µ¿ÀÏ¿ëȺô¶óB(412-194) | 1 | 34.46 | 8,000 | 0 | 1992 | | 2024.04.15 | Àü¼¼ | Ŭ¶ó¿ìµå | 10 | 18.04 | 18,900 | 0 | 2018 | | 2024.04.15 | ¸Å¸Å | ½Å¸²ÆÄÅ©ºô¶ó³ªµ¿ | 2 | 39.27 | 28,000 | | 1993 | | 2024.04.15 | ¸Å¸Å | Æò°¾ÆÆ®È¨ | -1 | 40.46 | 15,100 | | 1993 | | 2024.04.15 | ¿ù¼¼ | (102-24) | 3 | 51.5 | 12,000 | 20 | 2002 | | 2024.04.15 | Àü¼¼ | Ŭ¶ó¿ìµå | 10 | 18.04 | 18,900 | 0 | 2018 | | 2024.04.15 | ¿ù¼¼ | ¼±¿µºô¶ó | 2 | 54.66 | 2,000 | 95 | 2003 | | 2024.04.15 | Àü¼¼ | (415-47) | 2 | 36.12 | 10,000 | 0 | 1992 | | 2024.04.15 | ¿ù¼¼ | (415-47) | 2 | 36.12 | 10,000 | 20 | 1992 | | 2024.04.15 | ¿ù¼¼ | (92-131) | 1 | 71.01 | 3,000 | 100 | 1990 | | 2024.04.15 | ¸Å¸Å | ÁøÁÖ¾ÆÆ®ºô | -1 | 68.92 | 22,000 | | 2002 | | 2024.04.15 | ¿ù¼¼ | (409-96) | 3 | 16.5 | 11,000 | 10 | 2013 | | 2024.04.15 | ¸Å¸Å | ´Ù¿ø¾ÆÆ®ºô(704-20) | 7 | 36.68 | 28,000 | | 2015 | | 2024.04.15 | ¸Å¸Å | ¾ÆÆ®ºô(526-5) | 5 | 60.4 | 27,500 | | 2009 | | 2024.04.15 | ¿ù¼¼ | û±¸ºô¶ó°¡µ¿ | 2 | 36.8 | 10,700 | 10 | 1990 | | 2024.04.15 | ¿ù¼¼ | »ó·ÏÇϿ콺 | 3 | 79.98 | 10,000 | 97 | 2013 | | 2024.04.14 | ¸Å¸Å | ¿¡½ºÄÉÀÌ¿¥ | 5 | 25.27 | 37,000 | | 2023 | | 2024.04.14 | ¿ù¼¼ | ¹Ì¼º¿¤¸®Æ® | 4 | 14.93 | 11,000 | 1 | 2013 | | 2024.04.14 | ¿ù¼¼ | ¼¸²µµ½ÃÇü»ýȰÁÖÅà | 6 | 12.32 | 2,500 | 20 | 2013 | | 2024.04.13 | Àü¼¼ | À²ÃÌÆÓ¸®½º | 7 | 28.8 | 20,000 | 0 | 2013 | | 2024.04.13 | ¿ù¼¼ | ÇöÁø | 7 | 99.52 | 5,000 | 100 | 1996 | | 2024.04.13 | Àü¼¼ | ¿µÁöºô¶ó | -1 | 43.47 | 8,600 | 0 | 1990 | | 2024.04.13 | Àü¼¼ | »ïȺô | 4 | 34.87 | 24,000 | 0 | 2021 | | 2024.04.13 | Àü¼¼ | ¿µÁöºô¶ó | -1 | 43.47 | 8,600 | 0 | 1990 | | 2024.04.13 | Àü¼¼ | ȼöºô¶óA | 1 | 69.9 | 33,000 | 0 | 1994 | | 2024.04.13 | ¿ù¼¼ | ÇöÁø | 7 | 99.52 | 5,000 | 100 | 1996 | | 2024.04.13 | Àü¼¼ | »ï¼ºÇϿ콺 | 4 | 21.64 | 11,000 | 0 | 2015 | | 2024.04.13 | ¿ù¼¼ | ÂüÁ¸µÕÁöºô | 3 | 47.69 | 5,000 | 130 | 2012 | | 2024.04.13 | Àü¼¼ | ÇѼֻêÀÚ¶ôºô¶ó | 1 | 49.52 | 15,000 | 0 | 2012 | | 2024.04.12 | ¸Å¸Å | (1487-19) | 2 | 42.45 | 18,000 | | 1991 | | 2024.04.12 | ¿ù¼¼ | ¿ì¼Û¾Æ¸£¶¼ºô | 6 | 29.92 | 3,000 | 65 | 2015 | | 2024.04.12 | ¿ù¼¼ | µ¿Èºô¶ó | 2 | 41.24 | 10,900 | 25 | 1991 | | 2024.04.12 | ¿ù¼¼ | °¡À± | 6 | 14.01 | 1,000 | 56 | 2017 | | 2024.04.12 | Àü¼¼ | ±Ý°¸Ç¼Ç3Â÷ | 3 | 45.72 | 19,800 | 0 | 1992 | | 2024.04.12 | ¿ù¼¼ | µ¿³²ºô¶ó | -1 | 50.91 | 10,300 | 15 | 1990 | | 2024.04.12 | Àü¼¼ | (1464-73) | 2 | 38.4 | 11,100 | 0 | 1986 | | 2024.04.12 | ¿ù¼¼ | JÆç¸®Ã¼8Â÷ | 2 | 21.72 | 2,000 | 100 | 2023 | | 2024.04.12 | ¿ù¼¼ | ³×ÀÌóºô | 2 | 27.84 | 4,003 | 8 | 2023 | | 2024.04.12 | Àü¼¼ | ÇѽÅÀ§³Ê½º(1678-46) | 2 | 39.075 | 25,000 | 0 | 2017 | | 2024.04.12 | ¿ù¼¼ | º¸¶ó¸Å113µ¿ | 3 | 59.93 | 25,000 | 20 | 2000 | | 2024.04.11 | ¿ù¼¼ | ³ë¾ÆÀǹæÁÖ | 3 | 12.9 | 9,000 | 15 | 2012 | | 2024.04.11 | ¿ù¼¼ | ûÃá°¡¿Á2È£ | 3 | 28.9 | 1,908 | 20 | 2023 | | 2024.04.11 | ¸Å¸Å | ´Ù½£ | 2 | 53.54 | 43,000 | | 2016 | | 2024.04.11 | ¸Å¸Å | ¼±¤ºô¶ó | 2 | 60.78 | 28,000 | | 1994 | | 2024.04.11 | ¸Å¸Å | ½ÅÈïºô¶ó7Â÷ | 3 | 42.16 | 17,500 | | 1992 | | 2024.04.11 | ¸Å¸Å | (120-4) | 1 | 35.97 | 16,500 | | 1986 | | 2024.04.11 | ¸Å¸Å | (1551-9) | -1 | 48.94 | 13,300 | | 1990 | | 2024.04.11 | ¿ù¼¼ | ÆòÁÖºô¶ó | 1 | 44.53 | 12,500 | 25 | 1995 | | 2024.04.11 | Àü¼¼ | ¿ì¼º¾ÆÆ®ºô(610-249) | 2 | 26.67 | 18,770 | 0 | 2019 | | 2024.04.11 | ¿ù¼¼ | ûÃá°¡¿Á2È£ | 5 | 38.03 | 5,254 | 10 | 2023 | | 2024.04.11 | ¿ù¼¼ | ûÃá°¡¿Á2È£ | 3 | 27.85 | 3,888 | 8 | 2023 | | 2024.04.11 | ¿ù¼¼ | ¿¡¾î½ºÆäÀ̽º(1560-17) | 2 | 27.43 | 15,439 | 22 | 2022 | | 2024.04.11 | ¿ù¼¼ | ¿¡¾î½ºÆäÀ̽º(1560-17) | 2 | 27.43 | 15,439 | 22 | 2022 | | 2024.04.11 | ¿ù¼¼ | ¹®°æÀç | 4 | 19.99 | 19,000 | 9 | 2020 | | 2024.04.11 | ¿ù¼¼ | ±×¸°ºô | 3 | 43.54 | 4,000 | 75 | 2003 | | 2024.04.11 | ¿ù¼¼ | ûÃá°¡¿Á2È£ | 3 | 28.9 | 4,021 | 8 | 2023 | | 2024.04.11 | Àü¼¼ | û¿î¾ÆÆ®ºô | 2 | 26.77 | 17,500 | 0 | 2020 | | 2024.04.11 | ¿ù¼¼ | (1556-35) | 3 | 38.64 | 12,000 | 20 | 1993 | | 2024.04.10 | ¸Å¸Å | ÀÌȺô¸®Áö | 4 | 39.36 | 19,600 | | 1993 | | 2024.04.10 | Àü¼¼ | ÇüÁ¦ºôµù | 2 | 35.5 | 25,000 | 0 | 2020 | | 2024.04.10 | ¸Å¸Å | °Ç¿µÆÄÅ©ºô¶ó | 2 | 69.06 | 31,000 | | 2002 | | 2024.04.10 | ¸Å¸Å | ¿ì¿Õºô¶ó | 2 | 35.01 | 13,900 | | 1991 | | 2024.04.10 | ¿ù¼¼ | ÆÊÆÄ½º | 2 | 16.15 | 6,000 | 33 | 2014 | | 2024.04.10 | Àü¼¼ | ¿À¾ÆÈÄ(1436-20) | 8 | 27.01 | 28,930 | 0 | 2017 | | 2024.04.10 | Àü¼¼ | °Ç¿µºô¶ó | 4 | 29.83 | 7,000 | 0 | 1992 | | 2024.04.10 | ¿ù¼¼ | ¸ð°Ç¾ÆÆ®ºô5Â÷ | 4 | 29.3 | 21,168 | 30 | 2019 | | 2024.04.10 | ¿ù¼¼ | ¸®¾ØÃÊÀ̽º | 10 | 22.83 | 24,600 | 52 | 2023 | | 2024.04.10 | ¿ù¼¼ | ¾ÆÄ«µ¥¹ÌÇϿ콺 | 3 | 29.42 | 3,000 | 60 | 2019 | | 2024.04.10 | ¿ù¼¼ | ¿¤½ÃƼ | 3 | 21.35 | 2,000 | 70 | 2013 | | 2024.04.09 | ¸Å¸Å | Áß¿ø°¡µ¿ | 1 | 34.85 | 14,000 | | 1990 | | 2024.04.09 | ¸Å¸Å | ÃÊ¿øºô¶ó(610-335) | 1 | 36.02 | 19,600 | | 1990 | | 2024.04.09 | ¸Å¸Å | ¹Ì¸²ºô¸®ÁöA | 2 | 55.55 | 18,000 | | 1992 | | 2024.04.09 | ¿ù¼¼ | ÇÊÇϿ콺(1439-31) | 4 | 12.27 | 1,000 | 47 | 2013 | | 2024.04.09 | ¿ù¼¼ | µ¿ÀÏ¿ëȺô¶óA(412-193) | 4 | 34.46 | 300 | 55 | 1992 | | 2024.04.09 | ¿ù¼¼ | È«¸²ºô¶ó°¡µ¿ | 1 | 35.79 | 10,000 | 30 | 1989 | | 2024.04.09 | ¿ù¼¼ | ¿µÁø¾ÆÆ®ºô | 1 | 46.92 | 12,000 | 20 | 2002 | | 2024.04.09 | ¿ù¼¼ | ¼º¾Èºôµù(1667-1) | 8 | 23.05 | 15,000 | 10 | 2014 | | 2024.04.09 | ¿ù¼¼ | ¼¼Á¾µµ½ÃÇü»ýȰÁÖÅà | 8 | 13.3 | 1,000 | 45 | 2011 | | 2024.04.09 | Àü¼¼ | Àº¼ººôµù | 3 | 15.3 | 8,500 | 0 | 2008 | | 2024.04.09 | Àü¼¼ | ¼ºÁø¸®Ä¡ºô | 3 | 28.26 | 18,270 | 0 | 2020 | | 2024.04.09 | Àü¼¼ | ÇÑÂ÷ÀÓºô | 3 | 29.93 | 28,000 | 0 | 2021 | | 2024.04.09 | ¿ù¼¼ | Èñ¶ôºô¸®ÁöAµ¿(1641-45) | 2 | 16.5 | 2,000 | 40 | 2012 | | 2024.04.09 | ¸Å¸Å | µ¿¾Æ³ªµ¿ | 2 | 52.07 | 27,000 | | 1982 | | 2024.04.09 | ¿ù¼¼ | È«¸²ºô¶ó°¡µ¿ | 1 | 35.79 | 10,000 | 30 | 1989 | | 2024.04.09 | Àü¼¼ | (529-15) | 10 | 10.99 | 13,600 | 0 | 2020 | | 2024.04.08 | ¸Å¸Å | ¼º¿ø±×¸°ºô4Â÷ | 4 | 74.98 | 27,000 | | 2002 | | 2024.04.08 | ¿ù¼¼ | Á¤¸²È¨½ºÅÚ(88-35) | 2 | 21.49 | 5,000 | 40 | 2000 | | 2024.04.08 | ¸Å¸Å | º¸¸²ÁÖÅà | 2 | 84.94 | 52,000 | | 1997 | | 2024.04.08 | ¸Å¸Å | ºí·çÈÀÌÆ®ºô(483-11) | -1 | 54.95 | 14,000 | | 2002 | | 2024.04.08 | Àü¼¼ | ¼ºÈÁÖÅø¶µ¿ | 2 | 58.66 | 16,800 | 0 | 1995 | | 2024.04.08 | Àü¼¼ | 98-135 | 4 | 26.39 | 17,600 | 0 | 2014 | | 2024.04.08 | ¿ù¼¼ | ´ë¿øºô¶ó | 2 | 42.48 | 500 | 80 | 1992 | | 2024.04.08 | ¿ù¼¼ | (592-19) | 3 | 40.643 | 5,000 | 110 | 2024 | | 2024.04.08 | Àü¼¼ | ±¤¼º¾ÆÆ®ºô | -1 | 58.22 | 12,000 | 0 | 2003 | | 2024.04.08 | ¿ù¼¼ | (110-64) | 3 | 56.93 | 500 | 40 | 1975 | | 2024.04.08 | Àü¼¼ | ȲÁ¦14(414-13) | 3 | 36.96 | 13,000 | 0 | 1991 | | 2024.04.07 | ¿ù¼¼ | ¸®¾ØÃÊÀ̽º | 8 | 22.83 | 22,000 | 55 | 2023 | | 2024.04.07 | Àü¼¼ | ¼®¿µ | 5 | 50.2 | 30,000 | 0 | 2022 | | 2024.04.07 | Àü¼¼ | ½Å¸²¶ó¿Âºô | 2 | 40.15 | 22,100 | 0 | 2019 | | 2024.04.07 | Àü¼¼ | ¼®¿µ | 5 | 50.2 | 30,000 | 0 | 2022 | | 2024.04.07 | Àü¼¼ | ºí·ç¶ó±º | 8 | 26.46 | 22,000 | 0 | 2017 | | 2024.04.07 | ¿ù¼¼ | ¸®¾ØÃÊÀ̽º | 9 | 22.83 | 24,600 | 45 | 2023 | | 2024.04.07 | ¿ù¼¼ | ÀÌÁ¦½ºÈ¦ | 5 | 39.15 | 20,000 | 15 | 2011 | | 2024.04.07 | ¸Å¸Å | ½Å´ë¹æ³ëºí·çü | 16 | 24.34 | 28,200 | | 2019 | | 2024.04.07 | Àü¼¼ | ¹é¼Û | 4 | 12 | 10,000 | 0 | 2012 | | 2024.04.07 | Àü¼¼ | Ŭ¶ó¿ìµå | 9 | 29.96 | 27,300 | 0 | 2018 | | 2024.04.07 | ¿ù¼¼ | ¿µ½Å | 1 | 45.72 | 5,000 | 60 | 1980 | | 2024.04.07 | ¿ù¼¼ | ÇѼۺô | 5 | 20.71 | 2,000 | 100 | 2016 | | 2024.04.06 | ¸Å¸Å | °ñµç³×½ºÆ® | 4 | 28.49 | 24,900 | | 2018 | | 2024.04.06 | ¿ù¼¼ | ´Ù¿Âij½½ | 2 | 29.63 | 22,000 | 10 | 2023 | | 2024.04.06 | ¿ù¼¼ | ´Ù´ãºô101µ¿&102µ¿ | 5 | 31.4 | 1,000 | 70 | 2016 | | 2024.04.06 | ¿ù¼¼ | ´Ù´ãºô101µ¿&102µ¿ | 5 | 31.4 | 1,000 | 70 | 2016 | | 2024.04.06 | ¿ù¼¼ | ¸Þ¸®Æ®¿¥Å¸¿ö | 8 | 12.6 | 12,000 | 28 | 2019 | | 2024.04.06 | ¿ù¼¼ | ¾Öµå¿ø | 6 | 17.7 | 11,000 | 28 | 2015 | | 2024.04.06 | ¿ù¼¼ | ¼Ò³ëÆÓ¸®Ã¼(1481-2) | 6 | 22.51 | 1,000 | 90 | 2014 | | 2024.04.06 | ¿ù¼¼ | ¿¡½ºÄÉÀÌ¿¥ | 5 | 25.27 | 2,000 | 100 | 2023 | | 2024.04.06 | ¿ù¼¼ | (98-239) | 3 | 30.51 | 3,000 | 82 | 2018 | | 2024.04.06 | Àü¼¼ | µ¿ºÎ¿¡À̽ººô | 4 | 41.34 | 19,000 | 0 | 2012 | | 2024.04.05 | Àü¼¼ | Çö´ëÆÄÅ©ºô¶óA | 3 | 39.84 | 11,300 | 0 | 1995 | | 2024.04.05 | ¸Å¸Å | ±Ý¼ººô¶ó(610-468) | 2 | 40.08 | 15,000 | | 1996 | | 2024.04.05 | ¸Å¸Å | ±ÝÈ£¸Ç¼Ç9Â÷ | 3 | 60.44 | 30,000 | | 2002 | | 2024.04.05 | ¸Å¸Å | żºÈÞºô3Â÷ | 5 | 33.76 | 30,000 | | 2015 | | 2024.04.05 | ¿ù¼¼ | ¼¸²µµ½ÃÇü»ýȰÁÖÅà | 5 | 12.32 | 1,000 | 30 | 2013 | | 2024.04.05 | Àü¼¼ | 592-12 | 1 | 36.33 | 15,000 | 0 | 2015 | | 2024.04.05 | ¿ù¼¼ | (1510-1) | 2 | 53.93 | 20,000 | 30 | 2004 | | 2024.04.05 | Àü¼¼ | Çâ¿øºô¶ó(1505-3) | 1 | 46.55 | 21,000 | 0 | 2008 | | 2024.04.05 | ¿ù¼¼ | ½Åâºô¶ó | 2 | 31.92 | 1,000 | 40 | 1991 | | 2024.04.05 | Àü¼¼ | »ïÁøÅ¸¿î3Â÷(467-17) | 4 | 32.08 | 15,700 | 0 | 2003 | | 2024.04.05 | ¿ù¼¼ | (502-24) | 2 | 20.44 | 1,000 | 47 | 2003 | | 2024.04.05 | Àü¼¼ | žçÇÏÀÌÃ÷ºô¶ó | 2 | 44.31 | 13,650 | 0 | 1990 | | 2024.04.05 | ¿ù¼¼ | µå¸²Å¸¿î | 6 | 24.03 | 24,000 | 3 | 2020 | | 2024.04.05 | Àü¼¼ | žçÇÏÀÌÃ÷ºô¶ó | 2 | 44.31 | 13,650 | 0 | 1990 | | 2024.04.04 | ¿ù¼¼ | ±Ý¼ººô¶ó(610-101) | 1 | 38.88 | 11,000 | 10 | 1994 | | 2024.04.04 | ¸Å¸Å | ¿ø¾Óºô¶ó(98-352) | 3 | 56.72 | 26,000 | | 2002 | | 2024.04.04 | Àü¼¼ | ½Å¾ÈÁÖÅà | -1 | 36.86 | 6,000 | 0 | 1990 | | 2024.04.04 | ¿ù¼¼ | »ïÇùÇÊÇϿ콺-¥µ | 4 | 11.42 | 2,500 | 40 | 2012 | | 2024.04.04 | ¿ù¼¼ | ±×¸°ºô¶ó(108-97) | 1 | 57.63 | 13,000 | 60 | 1986 | | 2024.04.04 | ¿ù¼¼ | ±Ý¼ººô¶ó(610-101) | 1 | 38.88 | 11,000 | 10 | 1994 | | 2024.04.04 | ¿ù¼¼ | ÇÑÀ½ºô¶ó | 3 | 36.28 | 9,300 | 20 | 1992 | | 2024.04.04 | Àü¼¼ | ·ÎÇϽººô2Â÷ | 2 | 67.98 | 13,000 | 0 | 2009 | | 2024.04.04 | ¿ù¼¼ | ÇÑÀ½ºô¶ó | 3 | 36.28 | 9,300 | 20 | 1992 | | 2024.04.04 | ¿ù¼¼ | sweetvill | 1 | 49.14 | 12,000 | 27 | 2015 | | 2024.04.04 | ¿ù¼¼ | º¸º¸½ºÁÖÅà | 4 | 13.89 | 500 | 90 | 2013 | | 2024.04.04 | ¿ù¼¼ | û¿îºô¶ó | 3 | 33.18 | 11,000 | 20 | 1991 | | 2024.04.03 | ¸Å¸Å | Áß¾Óºô¶ó(511-14) | -1 | 76.14 | 24,450 | | 1999 | | 2024.04.03 | ¿ù¼¼ | ÇѺ°#6 | 6 | 26.01 | 2,538 | 26 | 2023 | | 2024.04.03 | ¿ù¼¼ | °¶·¯¸®ÇϿ콺 | 2 | 12.3 | 500 | 48 | 2012 | | 2024.04.03 | ¿ù¼¼ | (729-9) | 4 | 17.33 | 500 | 40 | 2013 | | 2024.04.03 | ¿ù¼¼ | ÇѺ°#6 | 6 | 26.01 | 6,284 | 5 | 2023 | | 2024.04.03 | ¿ù¼¼ | T&K½Å¸²1 | 4 | 45.75 | 100 | 43 | 2023 | | 2024.04.03 | Àü¼¼ | ±¤Áøºô¶óÆ® | 4 | 34.32 | 10,000 | 0 | 1993 | | 2024.04.03 | Àü¼¼ | µ¿½Å2Â÷ | 2 | 31.74 | 10,500 | 0 | 1991 | | 2024.04.03 | ¿ù¼¼ | STAY¿Â-¥° | 5 | 17.52 | 1,222 | 35 | 2022 | | 2024.04.03 | ¿ù¼¼ | ¼¸²ºô¶ó | 2 | 35.66 | 4,000 | 80 | 1994 | | 2024.04.03 | Àü¼¼ | ÇϿ콺¹Ì | 3 | 53.6 | 36,700 | 0 | 2017 | | 2024.04.02 | ¸Å¸Å | Ǫ¸£¹Ì¸£ºô | 2 | 49.71 | 27,950 | | 2012 | | 2024.04.02 | ¿ù¼¼ | °¶·¯¸®ÇϿ콺 | 3 | 20.645 | 13,734 | 6 | 2012 | | 2024.04.02 | ¿ù¼¼ | ¿ì¹æ¸Ç¼Ç | 4 | 60.83 | 21,000 | 10 | 2002 | | 2024.04.02 | ¿ù¼¼ | ÆÄÀκô | 5 | 27.33 | 20,700 | 4 | 2014 | | 2024.04.02 | ¿ù¼¼ | ÆÄÀκô | 5 | 27.33 | 20,700 | 4 | 2014 | | 2024.04.02 | ¿ù¼¼ | ÈÞºô¸®Áö(538-30) | 6 | 11.52 | 500 | 47 | 2013 | | 2024.04.02 | ¿ù¼¼ | ´Ù¿ÂŸ¿ö | 9 | 34.07 | 3,000 | 140 | 2022 | | 2024.04.02 | ¿ù¼¼ | (1616-5) | 4 | 70.83 | 21,000 | 15 | 2003 | | 2024.04.02 | ¿ù¼¼ | ÇѺ°#6 | 6 | 26.14 | 2,583 | 27 | 2023 | | 2024.04.02 | Àü¼¼ | (610-354) | -1 | 38.55 | 7,000 | 0 | 1996 | | 2024.04.01 | ¸Å¸Å | CG¾Æ¸§Ã¤(1´ÜÁö) | 6 | 26.27 | 20,000 | | 2019 | | 2024.04.01 | ¸Å¸Å | ´ëÇÐÃ̺ô¶ó | 4 | 46.16 | 14,200 | | 1991 | | 2024.04.01 | ¸Å¸Å | CG¾Æ¸§Ã¤(1´ÜÁö) | 3 | 52.07 | 36,000 | | 2019 | | 2024.04.01 | Àü¼¼ | SKºô¶óÆ® | 3 | 51.53 | 21,000 | 0 | 2012 | | 2024.04.01 | ¿ù¼¼ | ´Ù¿ÂŸ¿ö | 7 | 34.07 | 5,000 | 130 | 2022 | | 2024.04.01 | Àü¼¼ | »ï¼ººô¶óBµ¿ | -1 | 40.89 | 10,000 | 0 | 1991 | | 2024.04.01 | Àü¼¼ | À§³Ê½º | 5 | 23.01 | 25,000 | 0 | 2015 | | 2024.04.01 | ¿ù¼¼ | µ¿¸íÇÏÀÌÃ÷ºô | 1 | 68.38 | 5,000 | 75 | 2002 | | 2024.04.01 | ¿ù¼¼ | (94-179) | 1 | 54.2 | 15,000 | 10 | 1991 | | 2024.04.01 | ¿ù¼¼ | (255-68) | 2 | 12.94 | 200 | 29 | 2011 | | 2024.04.01 | ¿ù¼¼ | ¾ÆÆ®ºô | 3 | 31.74 | 1,000 | 75 | 2001 | | 2024.04.01 | ¸Å¸Å | CG¾Æ¸§Ã¤(1´ÜÁö) | 2 | 52.49 | 35,000 | | 2019 | | 2024.04.01 | Àü¼¼ | ³×¸ðÇϿ콺 | 6 | 26.16 | 26,500 | 0 | 2018 | | 2024.04.01 | ¸Å¸Å | ½Å¾ÈÁÖÅà | -1 | 36.86 | 9,500 | | 1990 | | 2024.03.31 | ¿ù¼¼ | ³×¸ðÇϿ콺 | 5 | 26.5 | 22,900 | 10 | 2018 | | 2024.03.31 | ¿ù¼¼ | Àº¿¬Àç | 5 | 15.61 | 1,000 | 41 | 2013 | | 2024.03.31 | ¿ù¼¼ | Çâ¿øºô¶ó(1505-3) | 3 | 46.57 | 4,000 | 60 | 2008 | | 2024.03.30 | ¿ù¼¼ | ¸®Ã÷¿ÀÇǽºÅÚ&µµ½ÃÇü»ýȰÁÖÅà | 4 | 17.7 | 13,500 | 3 | 2014 | | 2024.03.30 | ¿ù¼¼ | ´ë¿µ¼¾½ººô | 4 | 50.36 | 300 | 30 | 2001 | | 2024.03.30 | ¿ù¼¼ | ·ÎÇϽººô2Â÷ | 3 | 67.98 | 500 | 40 | 2009 | | 2024.03.30 | Àü¼¼ | °í¿øºô¶óÆ® | 1 | 24.39 | 9,000 | 0 | 1995 | | 2024.03.30 | ¿ù¼¼ | Á¶Àººô | 6 | 12.25 | 500 | 62 | 2013 | | 2024.03.30 | ¿ù¼¼ | ·ÎÇϽººô2Â÷ | 3 | 67.98 | 500 | 40 | 2009 | | 2024.03.30 | ¿ù¼¼ | Ŭ¶ó¿ìµåºô5Â÷ | 6 | 34.32 | 5,000 | 90 | 2015 | | 2024.03.30 | ¿ù¼¼ | »ïÀϺô¶ó | 3 | 32.2 | 10,000 | 30 | 2002 | | 2024.03.30 | ¿ù¼¼ | ½ò½ÃƼ | 6 | 27.9 | 5,000 | 70 | 2018 | | 2024.03.30 | ¿ù¼¼ | Áê¹æ½º | 8 | 25.33 | 22,500 | 5 | 2018 | | 2024.03.30 | ¿ù¼¼ | FillYou | 7 | 16.41 | 16,000 | 10 | 2016 | | 2024.03.30 | ¿ù¼¼ | 94-155 | 2 | 22.89 | 15,400 | 11 | 2016 | | 2024.03.30 | ¿ù¼¼ | ÁÖ¿ø | 8 | 13.41 | 1,000 | 31 | 2013 | | 2024.03.30 | ¿ù¼¼ | ¸®¾ØÃÊÀ̽º | 8 | 22.83 | 20,000 | 70 | 2023 | | 2024.03.30 | ¿ù¼¼ | ½ºÄ«ÀÌ¿ÀÇǽºÅÚ | 2 | 37.62 | 500 | 63 | 2003 | | 2024.03.30 | ¿ù¼¼ | (89-1) | 4 | 14.65 | 3,000 | 30 | 2016 | | 2024.03.29 | ¿ù¼¼ | THELIME | 11 | 29.31 | 24,500 | 29 | 2020 | | 2024.03.29 | ¿ù¼¼ | ¼Ò»êÇÏÀÌÃ÷¸Ç¼Ç | 1 | 30.24 | 100 | 33 | 1995 | | 2024.03.29 | ¿ù¼¼ | °¡À± | 7 | 14.01 | 1,000 | 50 | 2017 | | 2024.03.29 | ¿ù¼¼ | ¶ó¿Â | 5 | 48.62 | 3,006 | 31 | 2023 | | 2024.03.29 | ¿ù¼¼ | (98-239) | 3 | 34.017 | 5,000 | 74 | 2018 | | 2024.03.29 | ¿ù¼¼ | ¸ñ¿ø | 4 | 53.68 | 1,500 | 135 | 2013 | | 2024.03.29 | Àü¼¼ | Çöó³ë | 2 | 29.89 | 26,900 | 0 | 2024 | | 2024.03.29 | Àü¼¼ | Çöó³ë | 2 | 29.89 | 26,900 | 0 | 2024 | | 2024.03.29 | Àü¼¼ | Çöó³ë | 2 | 29.89 | 26,900 | 0 | 2024 | | 2024.03.28 | ¿ù¼¼ | ûÃá°¡¿Á2È£ | 4 | 28.41 | 1,917 | 20 | 2023 | | 2024.03.28 | ¿ù¼¼ | ¶ó¿Â | 2 | 54.29 | 5,580 | 58 | 2023 | | 2024.03.28 | ¿ù¼¼ | ´Ù¿ÂŸ¿ö | 10 | 26.03 | 3,000 | 120 | 2022 | | 2024.03.28 | ¿ù¼¼ | ûÃá°¡¿Á2È£ | 4 | 28.41 | 4,039 | 8 | 2023 | | 2024.03.28 | Àü¼¼ | žçºô¶ó | 2 | 59.7 | 25,000 | 0 | 1986 | | 2024.03.28 | ¿ù¼¼ | ÁÖ¿ø | 6 | 12.25 | 2,000 | 31 | 2013 | | 2024.03.28 | Àü¼¼ | ¹Ì¸®³»ºô¶ó | 3 | 34.06 | 9,300 | 0 | 1993 | | 2024.03.28 | Àü¼¼ | ¿¡½ºµðÇ÷¯½º¾ÆÅ©·Îºô | 7 | 29.89 | 13,000 | 0 | 2015 | | 2024.03.28 | Àü¼¼ | SKºô¶óÆ® | 4 | 38.44 | 15,500 | 0 | 2012 | | 2024.03.28 | ¿ù¼¼ | ÇÁ¶óºñ´ÙS(10-356) | 6 | 23.35 | 3,000 | 78 | 2016 | | 2024.03.28 | ¿ù¼¼ | ûÃá°¡¿Á2È£ | 2 | 35.1 | 2,331 | 24 | 2023 | | 2024.03.28 | ¿ù¼¼ | ¶ó¿Â | 6 | 57.3 | 3,717 | 38 | 2023 | | 2024.03.28 | ¿ù¼¼ | ûÃá°¡¿Á2È£ | 4 | 29.16 | 1,971 | 20 | 2023 | | 2024.03.28 | ¿ù¼¼ | Æ÷µµ¿ø2 | 4 | 29.93 | 5,000 | 52 | 2013 | | 2024.03.28 | ¿ù¼¼ | ³×ÀÌóºô | 4 | 36.47 | 5,254 | 10 | 2023 | | 2024.03.28 | ¿ù¼¼ | ûÃá°¡¿Á2È£ | 2 | 35.1 | 4,913 | 10 | 2023 | | 2024.03.28 | Àü¼¼ | ¶ó¼ººô¶ó | 4 | 56.75 | 24,000 | 0 | 1995 | | 2024.03.28 | ¿ù¼¼ | ³×¸ðÇϿ콺 | 2 | 29.98 | 25,000 | 10 | 2018 | | 2024.03.28 | Àü¼¼ | ÈÞij½½ | 4 | 28.59 | 18,900 | 0 | 2014 | | 2024.03.28 | ¿ù¼¼ | Çöó³ë | 5 | 29.8 | 26,900 | 10 | 2024 | | 2024.03.28 | Àü¼¼ | ÈÞij½½ | 4 | 28.59 | 19,200 | 0 | 2014 | | 2024.03.28 | ¿ù¼¼ | (412-158) | 1 | 29.9 | 1,000 | 65 | 2014 | | 2024.03.28 | ¿ù¼¼ | ûÃá°¡¿Á2È£ | 4 | 29.16 | 4,154 | 8 | 2023 | | 2024.03.28 | ¿ù¼¼ | È«¿¬±×¸°ºô(571-1) | 4 | 19.11 | 1,000 | 57 | 2016 | | 2024.03.28 | ¿ù¼¼ | ûÃá°¡¿Á2È£ | 5 | 30.97 | 2,079 | 21 | 2023 | | 2024.03.28 | Àü¼¼ | žçºô¶ó | 2 | 59.7 | 25,000 | 0 | 1986 | | 2024.03.28 | ¿ù¼¼ | ³ÇâÇì·»ÇϿ콺 | 3 | 43.45 | 16,800 | 30 | 2013 | | 2024.03.27 | ¿ù¼¼ | ¶ó¿Â | 4 | 44.97 | 2,961 | 31 | 2023 | | 2024.03.27 | ¿ù¼¼ | ¶ó¿Â | 4 | 44.97 | 2,961 | 31 | 2023 | | 2024.03.27 | Àü¼¼ | ¸®Ä¡Å¸¿îAµ¿ | 4 | 38.13 | 10,300 | 0 | 2002 | | 2024.03.27 | Àü¼¼ | ½ÅÈïºô¶ó3Â÷ | 1 | 35.91 | 8,000 | 0 | 1990 | | 2024.03.27 | ¿ù¼¼ | »ê¸¶·çºô | 5 | 28.55 | 16,750 | 5 | 2017 | | 2024.03.27 | Àü¼¼ | żº(1596-6) | 6 | 23.06 | 17,100 | 0 | 2022 | | 2024.03.27 | ¿ù¼¼ | dz¿øÇÏÀÓºô | 2 | 31.025 | 24,000 | 15 | 2018 | | 2024.03.27 | Àü¼¼ | Äھƺô | 2 | 70.53 | 19,200 | 0 | 2002 | | 2024.03.27 | ¿ù¼¼ | ´ÃÁ¶Àººô | 2 | 32.42 | 5,000 | 120 | 2023 | | 2024.03.27 | ¿ù¼¼ | ¶ó¿Â | 3 | 47.1 | 6,410 | 13 | 2023 | | 2024.03.27 | ¿ù¼¼ | ûÃá°¡¿Á2È£ | 3 | 29.9 | 799 | 23 | 2023 | | 2024.03.27 | ¿ù¼¼ | ³×ÀÌóºô | 3 | 29.23 | 4,116 | 8 | 2023 | | 2024.03.27 | ¿ù¼¼ | ûÃá°¡¿Á2È£ | 2 | 30.97 | 2,061 | 21 | 2023 | | 2024.03.27 | Àü¼¼ | żº(1596-6) | 6 | 23.06 | 17,100 | 0 | 2022 | | 2024.03.27 | ¿ù¼¼ | ÇѽÅÀ§³Ê½º | 5 | 29.2 | 3,000 | 150 | 2022 | | 2024.03.26 | Àü¼¼ | ½Å¿ìºô¶óCµ¿ | -1 | 61.74 | 11,500 | 0 | 1988 | | 2024.03.26 | ¿ù¼¼ | ¿ì¿Õºô¶ó | -1 | 35.01 | 8,040 | 2 | 1991 | | 2024.03.26 | ¿ù¼¼ | ½ÅÈ¾ÆÆ®ºô | 5 | 85.56 | 10,000 | 70 | 2003 | | 2024.03.26 | ¿ù¼¼ | ³×ÀÌóºô | 5 | 28.75 | 1,899 | 20 | 2023 | | 2024.03.26 | ¿ù¼¼ | ³×ÀÌóºô | 4 | 37.41 | 2,637 | 27 | 2023 | | 2024.03.26 | ¿ù¼¼ | ³×ÀÌóºô | 2 | 29.23 | 1,908 | 20 | 2023 | | 2024.03.26 | ¿ù¼¼ | ³×ÀÌóºô | 4 | 27.75 | 1,917 | 20 | 2023 | | 2024.03.26 | Àü¼¼ | (251-236) | 2 | 29.9 | 16,000 | 0 | 2016 | | 2024.03.26 | ¿ù¼¼ | ³×ÀÌóºô | 4 | 37.41 | 5,558 | 11 | 2023 | | 2024.03.26 | ¿ù¼¼ | ûÃá°¡¿Á2È£ | 3 | 35.1 | 950 | 27 | 2023 | | 2024.03.26 | ¿ù¼¼ | ûÃá°¡¿Á2È£ | 2 | 28.9 | 3,946 | 8 | 2023 | | 2024.03.26 | Àü¼¼ | °¡¿Â´©¸®ºô(763-14) | 4 | 61.02 | 22,000 | 0 | 2012 | | 2024.03.26 | ¿ù¼¼ | Àº¿¬Àç | 5 | 14.18 | 1,000 | 41 | 2013 | | 2024.03.26 | ¿ù¼¼ | ´ëµµºô¶ó¶óµ¿ | 1 | 47.62 | 6,500 | 30 | 1989 | | 2024.03.26 | ¿ù¼¼ | ³×ÀÌóºô | 2 | 26.07 | 3,755 | 7 | 2023 | | 2024.03.26 | ¿ù¼¼ | ûÃá°¡¿Á2È£ | 5 | 27.48 | 720 | 21 | 2023 | | 2024.03.25 | ¿ù¼¼ | ûÃá°¡¿Á2È£ | 4 | 30.97 | 2,097 | 22 | 2023 | | 2024.03.25 | Àü¼¼ | Àº¼ººôµù | 2 | 15.3 | 8,500 | 0 | 2008 | | 2024.03.25 | ¿ù¼¼ | Áß¾ÓÇÏÀÌÃ÷ | 2 | 46.01 | 15,000 | 25 | 1995 | | 2024.03.25 | Àü¼¼ | žçºô¶ó | 3 | 47.7 | 15,000 | 0 | 1986 | | 2024.03.25 | ¿ù¼¼ | (10-453) | 2 | 61 | 200 | 40 | 2003 | | 2024.03.25 | Àü¼¼ | ÇüÁ¦ºôµù | 3 | 36.63 | 25,200 | 0 | 2020 | | 2024.03.25 | Àü¼¼ | ÀÏÀ°»ïºô¶ó | -1 | 31.31 | 10,000 | 0 | 1993 | | 2024.03.25 | ¿ù¼¼ | Áß¾ÓÇÏÀÌÃ÷ | 2 | 46.01 | 15,000 | 25 | 1995 | | 2024.03.25 | ¿ù¼¼ | À¸¶äij½½ | 4 | 24.98 | 23,000 | 10 | 2022 | | 2024.03.25 | ¿ù¼¼ | Çʱ׸² | 2 | 46.78 | 2,000 | 90 | 2003 | | 2024.03.25 | ¿ù¼¼ | ¿î¼ºô¶óÆ®6 | 2 | 60.9 | 3,000 | 60 | 2001 | | 2024.03.25 | ¿ù¼¼ | (1578-38) | 4 | 57.31 | 2,000 | 155 | 2022 | | 2024.03.24 | Àü¼¼ | ½Å¸²ÇÏÀÌÃ÷ºô¶ó3µ¿ | 1 | 84.64 | 32,000 | 0 | 1989 | | 2024.03.23 | ¿ù¼¼ | Àº¿¬Àç | 6 | 14.18 | 500 | 46 | 2013 | | 2024.03.23 | ¿ù¼¼ | Á¶Àººô | 6 | 12 | 500 | 49 | 2013 | | 2024.03.23 | ¿ù¼¼ | Á¶Àººô | 6 | 12 | 500 | 49 | 2013 | | 2024.03.23 | ¿ù¼¼ | ¼¾Æ®¶ó³ë½Å¸² | 8 | 25.99 | 23,000 | 20 | 2021 | | 2024.03.23 | ¿ù¼¼ | ¼º¾Èºôµù(1667-1) | 5 | 23.05 | 15,000 | 9 | 2014 | | 2024.03.23 | Àü¼¼ | ÃÊ¿øºô¶ó(610-335) | 2 | 36.02 | 15,000 | 0 | 1990 | | 2024.03.23 | ¿ù¼¼ | ¼º¿ì(1433-180) | 4 | 28.71 | 5,000 | 90 | 2014 | | 2024.03.23 | ¿ù¼¼ | (253-14) | -1 | 31.95 | 1,000 | 70 | 1987 | | 2024.03.23 | ¿ù¼¼ | Àͼöºôµù | 7 | 28.34 | 19,000 | 15 | 2015 | | 2024.03.23 | ¿ù¼¼ | dz¿øÇÏÀÓºô | 5 | 31.025 | 24,000 | 15 | 2018 | | 2024.03.23 | ¿ù¼¼ | Á¦´Ï½º | 5 | 23.89 | 20,000 | 15 | 2015 | | 2024.03.23 | ¿ù¼¼ | ÆòÁÖÆÄÅ©ºô¶ó | 1 | 62.37 | 3,000 | 80 | 1997 | | 2024.03.23 | ¿ù¼¼ | »ï¼ºÆÄÅ©ºô | 3 | 73.72 | 21,700 | 30 | 2004 | | 2024.03.23 | ¿ù¼¼ | dz¿øÇÏÀÓºô | 5 | 31.025 | 24,000 | 15 | 2018 | | 2024.03.23 | Àü¼¼ | ¿¹¸²ºô¶óÆ® | 4 | 59.78 | 15,500 | 0 | 1997 | | 2024.03.23 | Àü¼¼ | ¼¸²ÇÏÀÌÃ÷ºô¶ó | 3 | 67.08 | 26,000 | 0 | 1993 | | 2024.03.22 | Àü¼¼ | Çöó³ë | 3 | 29.84 | 26,900 | 0 | 2024 | | 2024.03.22 | Àü¼¼ | ³×¸ðÇϿ콺 | 3 | 26.5 | 24,000 | 0 | 2018 | | 2024.03.22 | ¿ù¼¼ | Çöó³ë | 3 | 29.83 | 26,900 | 10 | 2024 | | 2024.03.22 | Àü¼¼ | º§¶óÈú | 10 | 73.46 | 35,000 | 0 | 2018 | | 2024.03.22 | ¿ù¼¼ | ½á´Ïºô | 8 | 25.89 | 5,000 | 35 | 2020 | | 2024.03.22 | ¿ù¼¼ | ¾ÆÆ®¶ó¿ò | 2 | 39.82 | 200 | 100 | 2020 | | 2024.03.21 | ¿ù¼¼ | µ¿¹®Å¸¿îA | 3 | 39.46 | 12,000 | 13 | 1995 | | 2024.03.21 | Àü¼¼ | ¸íÀÏÆÄÅ©ºô | 4 | 27.02 | 20,948 | 0 | 2016 | | 2024.03.21 | Àü¼¼ | Çöó³ë | 2 | 29.84 | 26,900 | 0 | 2024 | | 2024.03.21 | Àü¼¼ | µå¸²Çãºê | 10 | 24.81 | 19,100 | 0 | 2019 | | 2024.03.21 | Àü¼¼ | Å¿µ¾ÆÆ®ºô | 3 | 48.09 | 23,300 | 0 | 2016 | | 2024.03.21 | ¿ù¼¼ | Çöó³ë | 4 | 29.85 | 26,900 | 10 | 2024 | | 2024.03.21 | ¿ù¼¼ | µ¿¹®Å¸¿îA | 3 | 39.46 | 12,000 | 13 | 1995 | | 2024.03.21 | ¿ù¼¼ | (1433-187) | 3 | 43.33 | 1,000 | 95 | 2002 | | 2024.03.21 | Àü¼¼ | ¿¤¸²ÇϿ콺 | 2 | 42.69 | 13,500 | 0 | 2003 | | 2024.03.21 | Àü¼¼ | µå¸²Çãºê | 9 | 47.31 | 27,000 | 0 | 2019 | | 2024.03.21 | Àü¼¼ | Earth70 | 4 | 45.76 | 33,000 | 0 | 2018 | | 2024.03.21 | ¿ù¼¼ | (1578-38) | 5 | 57.31 | 2,000 | 165 | 2022 | | 2024.03.21 | ¿ù¼¼ | µ¿¹®Å¸¿îA | 3 | 39.46 | 12,000 | 3 | 1995 | | 2024.03.21 | ¿ù¼¼ | ¼®¿µ | 5 | 47 | 27,000 | 10 | 2022 | | 2024.03.21 | ¿ù¼¼ | µ¿¹®Å¸¿îA | 3 | 39.46 | 12,000 | 3 | 1995 | | 2024.03.21 | Àü¼¼ | Çöó³ë | 2 | 29.84 | 26,900 | 0 | 2024 | | 2024.03.21 | ¿ù¼¼ | Çöó³ë | 3 | 29.89 | 26,900 | 10 | 2024 | | 2024.03.21 | ¿ù¼¼ | 103-134 | 2 | 25.49 | 5,000 | 56 | 2014 | | 2024.03.20 | Àü¼¼ | º§¶óÈú | 9 | 28.5 | 25,000 | 0 | 2018 | | 2024.03.20 | ¿ù¼¼ | À¯¸²ºô¶ó | 2 | 52.96 | 1,959 | 16 | 2011 | | 2024.03.20 | Àü¼¼ | ½ÅÀϺô¶ó(597-67) | 1 | 43.57 | 13,500 | 0 | 1995 | | 2024.03.20 | Àü¼¼ | ´ÃÁ¶Àººô | 1 | 32.42 | 26,400 | 0 | 2023 | | 2024.03.20 | ¿ù¼¼ | J&KHOUSE | 6 | 19.2 | 2,000 | 53 | 2013 | | 2024.03.20 | ¿ù¼¼ | ¸®¾ØÃÊÀ̽º | 9 | 22.83 | 5,000 | 145 | 2023 | | 2024.03.20 | ¿ù¼¼ | Çö´ë1ºô¶ó | 1 | 41.91 | 2,000 | 55 | 1991 | | 2024.03.20 | ¿ù¼¼ | »êõ¼ÛÇϿ콺(1574-30) | 3 | 47.16 | 5,000 | 80 | 2006 | | 2024.03.20 | Àü¼¼ | ¸í¼ººô¶ó | 1 | 65.82 | 27,700 | 0 | 1992 | | 2024.03.20 | Àü¼¼ | Çöó³ë | 2 | 29.89 | 26,900 | 0 | 2024 | | 2024.03.20 | Àü¼¼ | ´ë¿¬ÇÏÀ̺ô(599-21) | 4 | 60.67 | 22,000 | 0 | 2008 | | 2024.03.19 | ¿ù¼¼ | µ¿³²ºô¶ó | 2 | 41.13 | 12,500 | 35 | 1990 | | 2024.03.19 | ¿ù¼¼ | JCSTUDIO | 8 | 20.59 | 12,000 | 27 | 2018 | | 2024.03.19 | Àü¼¼ | º§¶óÈú | 7 | 29.2 | 25,000 | 0 | 2018 | | 2024.03.19 | ¿ù¼¼ | µ¿¿ìºô¶óÆ® | 5 | 29.82 | 3,000 | 85 | 2015 | | 2024.03.19 | Àü¼¼ | ÇÁ¶óÀÓºô(598-251) | 3 | 46.9 | 20,000 | 0 | 2012 | | 2024.03.19 | ¿ù¼¼ | ÇѽÅÀ§³Ê½º | 6 | 29.2 | 23,900 | 20 | 2022 | | 2024.03.19 | ¿ù¼¼ | TOV | 7 | 24.1 | 20,000 | 25 | 2023 | | 2024.03.19 | ¿ù¼¼ | jk·°½ººô | 3 | 14.04 | 500 | 50 | 2015 | | 2024.03.19 | ¿ù¼¼ | FillYou | 6 | 16.41 | 16,000 | 10 | 2016 | | 2024.03.19 | Àü¼¼ | (254-301) | 2 | 84.72 | 31,000 | 0 | 1991 | | 2024.03.19 | ¿ù¼¼ | ºÎ¿äºô¸®Áö | 2 | 46.55 | 1,000 | 80 | 1994 | | 2024.03.19 | Àü¼¼ | ºê¶ó¿îij½½(1480-1) | 4 | 45.63 | 33,000 | 0 | 2017 | | 2024.03.19 | ¿ù¼¼ | µ¿³²ºô¶ó | 2 | 41.13 | 12,500 | 35 | 1990 | | 2024.03.19 | ¿ù¼¼ | ¸ÞÆ®·ÎŸ¿î8Â÷ | 2 | 29.98 | 10,000 | 35 | 2017 | | 2024.03.19 | ¿ù¼¼ | ¸íÀÏÆÄÅ©ºô | 2 | 21.83 | 1,000 | 65 | 2016 | | 2024.03.19 | ¿ù¼¼ | Çö´ë¾ÆÆ®ºô¶ó(92-157) | 2 | 43.23 | 1,000 | 65 | 1991 | | 2024.03.19 | Àü¼¼ | º§¶óÈú | 7 | 29.2 | 25,000 | 0 | 2018 | | 2024.03.19 | ¿ù¼¼ | ½¦¸£ºô | 2 | 15.3 | 1,000 | 55 | 2013 | | 2024.03.18 | Àü¼¼ | ¿î¼¸Ç¼Ç8Â÷ | 4 | 59.52 | 19,000 | 0 | 2002 | | 2024.03.18 | Àü¼¼ | ¼º¹Î | 5 | 12.16 | 9,300 | 0 | 2012 | | 2024.03.18 | ¿ù¼¼ | ÈÞºô¸®Áö(538-30) | 6 | 12.6 | 1,500 | 45 | 2013 | | 2024.03.17 | ¿ù¼¼ | (646-2) | 1 | 56.69 | 1,500 | 75 | 1997 | | 2024.03.17 | ¿ù¼¼ | ¾ÆÀÌÆÄÅ© | 6 | 22.94 | 8,000 | 85 | 2015 | | 2024.03.17 | ¿ù¼¼ | ¸®Ä¡ÆÄÅ©ºô | 4 | 112.82 | 2,000 | 80 | 2002 | | 2024.03.17 | Àü¼¼ | °è¸²ºô¶ó | 4 | 59.71 | 23,000 | 0 | 1994 | | 2024.03.16 | Àü¼¼ | µ¿¹æÅ¸¿î | 1 | 59.94 | 18,200 | 0 | 1994 | | 2024.03.16 | Àü¼¼ | »ê¸¶·çºô | 2 | 28.55 | 18,000 | 0 | 2017 | | 2024.03.16 | ¿ù¼¼ | BELITATERRA | 10 | 29.24 | 24,900 | 20 | 2016 | | 2024.03.16 | Àü¼¼ | ´ëÈ£ºô¶ó | 2 | 48.06 | 18,000 | 0 | 1993 | | 2024.03.16 | ¿ù¼¼ | ´ë¿¬ÇÏÀ̺ô(599-21) | 4 | 45.13 | 2,000 | 55 | 2008 | | 2024.03.16 | Àü¼¼ | ¿¡µ§ºô¶ó(598-113) | 4 | 65.06 | 20,000 | 0 | 2001 | | 2024.03.16 | ¿ù¼¼ | J&KHOUSE | 7 | 17.45 | 1,000 | 57 | 2013 | | 2024.03.16 | Àü¼¼ | ´ëÈ£ºô¶ó | 2 | 48.06 | 18,000 | 0 | 1993 | | 2024.03.16 | Àü¼¼ | ´ëÈ£ºô¶ó | 2 | 48.06 | 18,000 | 0 | 1993 | | 2024.03.16 | ¿ù¼¼ | ÈÞºô¸®Áö(538-30) | 4 | 10.68 | 1,000 | 42 | 2013 | | 2024.03.16 | ¿ù¼¼ | (757-31) | 2 | 44.91 | 2,500 | 37 | 1990 | | 2024.03.16 | ¿ù¼¼ | BIGTREE | 4 | 23.72 | 15,000 | 50 | 2016 | | 2024.03.16 | ¿ù¼¼ | ½ÅÈ¾ÆÆ®È¨ | 4 | 62.14 | 5,000 | 65 | 2002 | | 2024.03.15 | ¿ù¼¼ | Çì·»4Â÷ | 2 | 23.58 | 19,800 | 12 | 2016 | | 2024.03.15 | ¿ù¼¼ | ¸íÁøºô¶ó7Â÷ | 1 | 47.1 | 50 | 10 | 1992 | | 2024.03.15 | Àü¼¼ | ÇѼººô¶ó³ªµ¿ | 1 | 47.16 | 15,000 | 0 | 1992 | | 2024.03.15 | Àü¼¼ | À¯Àκôµù | 3 | 29.905 | 23,100 | 0 | 2019 | | 2024.03.15 | Àü¼¼ | ¼®¿µ | 6 | 47.96 | 29,000 | 0 | 2022 | | 2024.03.15 | ¿ù¼¼ | ¹Ì¼º¿¤¸®Æ® | 5 | 15.64 | 5,000 | 35 | 2013 | | 2024.03.15 | ¿ù¼¼ | ¼öÁ¤(98-202) | 1 | 38.82 | 5,000 | 50 | 1991 | | 2024.03.15 | ¿ù¼¼ | ¼¼ÁøÇÏÀÌÃ÷ºô¶ó | 2 | 39.24 | 3,000 | 85 | 1991 | | 2024.03.15 | Àü¼¼ | (501-6) | 2 | 26.09 | 24,150 | 0 | 2022 | | 2024.03.15 | Àü¼¼ | (610-127) | 1 | 37.17 | 9,800 | 0 | 1987 | | 2024.03.15 | Àü¼¼ | (610-127) | 1 | 37.17 | 9,800 | 0 | 1987 | | 2024.03.15 | ¿ù¼¼ | Á¤¸²È¨½ºÅÚ(88-35) | 3 | 22.71 | 1,000 | 65 | 2000 | | 2024.03.15 | Àü¼¼ | À϶ôÇϿ콺 | 1 | 69.85 | 16,000 | 0 | 1994 | | 2024.03.14 | Àü¼¼ | sweetvill | 2 | 41.43 | 19,400 | 0 | 2015 | | 2024.03.14 | Àü¼¼ | µå¸²Å¸¿î | 7 | 22.23 | 23,000 | 0 | 2020 | | 2024.03.14 | Àü¼¼ | (610-537) | -1 | 40.96 | 10,000 | 0 | 1986 | | 2024.03.14 | Àü¼¼ | ·ÎÇϽº | 4 | 14.88 | 15,500 | 0 | 2012 | | 2024.03.14 | Àü¼¼ | µå¸²Å¸¿î | 6 | 24.68 | 25,000 | 0 | 2020 | | 2024.03.14 | Àü¼¼ | µ¿¼º¸Ç¼Ç5Â÷ | 1 | 45.43 | 13,400 | 0 | 1996 | | 2024.03.14 | Àü¼¼ | µå¸²Å¸¿î | 7 | 22.23 | 23,000 | 0 | 2020 | | 2024.03.14 | Àü¼¼ | µå¸²Å¸¿î | 7 | 22.23 | 23,000 | 0 | 2020 | | 2024.03.14 | Àü¼¼ | µ¿¼º¸Ç¼Ç5Â÷ | 1 | 45.43 | 13,400 | 0 | 1996 | | 2024.03.14 | ¿ù¼¼ | ½ò½ÃƼ | 5 | 27.9 | 3,000 | 90 | 2018 | | 2024.03.14 | Àü¼¼ | µ¿Çö¾ÆÆ®ºô(704-44) | 5 | 24.61 | 12,000 | 0 | 2012 | | 2024.03.14 | ¿ù¼¼ | ÁÖ¿ø | 5 | 12.38 | 1,000 | 32 | 2013 | | 2024.03.14 | ¿ù¼¼ | ¼±¶óÀÌÁ»ê | 5 | 30.45 | 2,000 | 86 | 2013 | | 2024.03.14 | ¿ù¼¼ | ÁÖ¿ø | 5 | 12.38 | 1,000 | 32 | 2013 | | 2024.03.14 | ¿ù¼¼ | »ï¼º¾ÆÆ®ºô(618-11) | 2 | 42 | 2,000 | 70 | 2002 | | 2024.03.13 | Àü¼¼ | ÈÞÇ÷¯½º | 3 | 38.01 | 25,000 | 0 | 2017 | | 2024.03.13 | ¿ù¼¼ | Àº¿¬Àç | 5 | 14.18 | 1,000 | 44 | 2013 | | 2024.03.13 | Àü¼¼ | J.KÇϿ콺 | 6 | 11.56 | 9,450 | 0 | 2012 | | 2024.03.13 | ¿ù¼¼ | º£¸£Ã¼ | 7 | 26.31 | 17,000 | 26 | 2015 | | 2024.03.13 | ¿ù¼¼ | Çö´ëºô¶ó | 4 | 55.08 | 17,000 | 10 | 1993 | | 2024.03.13 | ¿ù¼¼ | ÀÚÀÌ¿ÀÇǽºÅÚ | 8 | 11.657 | 1,000 | 76 | 2021 | | 2024.03.13 | ¿ù¼¼ | ¿øÁÖÅôٵ¿(412-316) | 1 | 40.71 | 12,000 | 40 | 1992 | | 2024.03.13 | ¿ù¼¼ | ¿øÁÖÅôٵ¿(412-316) | 1 | 40.71 | 12,000 | 40 | 1992 | | 2024.03.13 | ¿ù¼¼ | ´Ù¿Âij½½ | 6 | 29.54 | 25,000 | 10 | 2023 | | 2024.03.13 | Àü¼¼ | (244-77) | 2 | 33.45 | 24,000 | 0 | 2020 | | 2024.03.13 | Àü¼¼ | ¸íÁøºô¶ó7Â÷ | 2 | 47.1 | 18,000 | 0 | 1992 | | 2024.03.12 | Àü¼¼ | ´ëÈ£ºô¶ó | 4 | 44.46 | 15,000 | 0 | 1993 | | 2024.03.12 | Àü¼¼ | ºê¶ó¿îij½½2Â÷(597-58) | 2 | 38.41 | 25,000 | 0 | 2014 | | 2024.03.12 | Àü¼¼ | ·çÀ̺ô¸®Áö | 3 | 49.78 | 34,900 | 0 | 2021 | | 2024.03.12 | ¿ù¼¼ | Áß¿ø(°¡) | 1 | 36.55 | 1,000 | 75 | 1990 | | 2024.03.12 | ¿ù¼¼ | ¸®¾ØÃÊÀ̽º | 10 | 23.27 | 27,000 | 35 | 2023 | | 2024.03.12 | ¿ù¼¼ | ³²ºÎ½ºÄ«À̺ô | 6 | 29.11 | 2,000 | 97 | 2013 | | 2024.03.12 | Àü¼¼ | ´ëÈ£ºô¶ó | 4 | 44.46 | 15,000 | 0 | 1993 | | 2024.03.12 | Àü¼¼ | (1487-19) | 2 | 46.74 | 19,000 | 0 | 1991 | | 2024.03.12 | Àü¼¼ | ´ëÈ£ºô¶ó | 4 | 44.46 | 15,000 | 0 | 1993 | | 2024.03.12 | ¿ù¼¼ | µ¿¼º¸Ç¼Ç6Â÷ | 4 | 42.64 | 1,000 | 80 | 1996 | | 2024.03.12 | ¿ù¼¼ | ½Å³² | 5 | 54.16 | 4,000 | 80 | 2013 | | 2024.03.12 | Àü¼¼ | ´ÃÁ¶Àººô | 3 | 32.42 | 26,400 | 0 | 2023 | | 2024.03.12 | Àü¼¼ | ´ÃÁ¶Àººô | 3 | 32.42 | 26,400 | 0 | 2023 | | 2024.03.12 | Àü¼¼ | µå¸²Çãºê | 11 | 18.12 | 14,000 | 0 | 2019 | | 2024.03.11 | ¿ù¼¼ | ³×¸ðÇϿ콺 | 5 | 26.5 | 22,900 | 10 | 2018 | | 2024.03.11 | Àü¼¼ | ½ºÆäÀ̽ººô | 4 | 29.82 | 22,500 | 0 | 2020 | | 2024.03.11 | ¿ù¼¼ | ´õÁý(TheZIP) | 5 | 17.12 | 1,000 | 52 | 2012 | | 2024.03.11 | ¿ù¼¼ | (92-402) | 1 | 37.9 | 1,000 | 50 | 1992 | | 2024.03.11 | ¿ù¼¼ | ¹ÎÇö¾ÆÆ®ºô | 3 | 43.42 | 18,000 | 15 | 2001 | | 2024.03.11 | ¿ù¼¼ | ¿ì¸®ºô | 3 | 12 | 500 | 47 | 2012 | | 2024.03.11 | ¿ù¼¼ | ´ë¿µºô¶ó(409-317) | 1 | 29.07 | 8,400 | 1 | 1992 | | 2024.03.11 | ¿ù¼¼ | Æ÷µµ¿ø2 | 5 | 29.93 | 3,000 | 72 | 2013 | | 2024.03.11 | ¿ù¼¼ | ÄÚ¿À·Õºô | 1 | 45.54 | 2,500 | 60 | 1996 | | 2024.03.10 | Àü¼¼ | µ¿¼ººô¶ó(598-79) | 2 | 53.01 | 15,430 | 0 | 1993 | | 2024.03.10 | Àü¼¼ | CG¾Æ¸§Ã¤(1´ÜÁö) | 3 | 55.44 | 29,900 | 0 | 2019 | | 2024.03.10 | ¿ù¼¼ | Àº¼®ÇϿ콺 | 2 | 49 | 1,000 | 55 | 2015 | | 2024.03.10 | ¿ù¼¼ | Àº¼®ÇϿ콺 | 2 | 49 | 1,000 | 55 | 2015 | | 2024.03.09 | ¿ù¼¼ | µ¿³²ºô¶ó(598-210) | 2 | 37.05 | 10,000 | 35 | 1992 | | 2024.03.09 | Àü¼¼ | µ¿¼ººô¶ó2Â÷ | 3 | 38.28 | 13,000 | 0 | 1994 | | 2024.03.09 | Àü¼¼ | ¿ìÀü¾ÆÆ®ºô(646-294) | 4 | 44.04 | 10,000 | 0 | 2006 | | 2024.03.09 | ¿ù¼¼ | TOV | 7 | 24.2 | 20,000 | 40 | 2023 | | 2024.03.09 | Àü¼¼ | ºê¶ó¿îij½½(598-284) | 2 | 38.68 | 19,000 | 0 | 2013 | | 2024.03.09 | ¿ù¼¼ | Àº¿¬Àç | 7 | 14.18 | 1,000 | 41 | 2013 | | 2024.03.09 | Àü¼¼ | (254-301) | 3 | 79.39 | 30,000 | 0 | 1991 | | 2024.03.09 | Àü¼¼ | ¿ìÀü¾ÆÆ®ºô(646-294) | 4 | 44.04 | 10,000 | 0 | 2006 | | 2024.03.09 | Àü¼¼ | (254-301) | 3 | 79.39 | 30,000 | 0 | 1991 | | 2024.03.09 | Àü¼¼ | ±¹Á¦¾Ë¾Øµå¾¾ | 5 | 28.47 | 25,000 | 0 | 2018 | | 2024.03.09 | ¿ù¼¼ | ÇÑ¾ç¾ÆÆ®ºô¸®Áö | 1 | 28.98 | 1,000 | 75 | 1993 | | 2024.03.09 | Àü¼¼ | TOV | 7 | 24.2 | 20,000 | 0 | 2023 | | 2024.03.09 | ¿ù¼¼ | Áß¾ÓŸ¿îDµ¿ | 3 | 30.33 | 1,000 | 50 | 1997 | | 2024.03.09 | ¿ù¼¼ | À¸¶äij½½ | 2 | 24.98 | 3,000 | 100 | 2022 | | 2024.03.08 | ¿ù¼¼ | THELIME | 12 | 29.31 | 29,400 | 6 | 2020 | | 2024.03.08 | ¿ù¼¼ | È¿·ÉÇÏÀ̺ô | 3 | 48.6 | 15,000 | 55 | 2004 | | 2024.03.08 | Àü¼¼ | ºí¸®½º´ëÇö | 5 | 29.97 | 22,500 | 0 | 2016 | | 2024.03.08 | ¿ù¼¼ | ±Û·Î¸®¾Æ | 2 | 28.21 | 9,000 | 15 | 1992 | | 2024.03.08 | ¿ù¼¼ | ¸ð°Ç¾ÆÆ®ºô5Â÷ | 6 | 42.09 | 3,000 | 100 | 2019 | | 2024.03.08 | ¿ù¼¼ | THELIME | 10 | 29.31 | 29,400 | 7 | 2020 | | 2024.03.07 | Àü¼¼ | Á¤¿øÆÓ¸®Ã¼Aµ¿Bµ¿ | 2 | 50.77 | 37,800 | 0 | 2019 | | 2024.03.07 | Àü¼¼ | »ïȸǼÇ(598-131) | 2 | 51.66 | 10,000 | 0 | 2012 | | 2024.03.07 | ¿ù¼¼ | ¿ÀÁÖÇϿ콺 | 3 | 14.85 | 5,000 | 28 | 2012 | | 2024.03.07 | Àü¼¼ | J.KÇϿ콺 | 7 | 12.3 | 10,000 | 0 | 2012 | | 2024.03.07 | Àü¼¼ | ´Ù¼Ø½ÃƼºô | 8 | 16.38 | 24,000 | 0 | 2021 | | 2024.03.07 | Àü¼¼ | °øÀ۸ǼÇ(610-139) | 4 | 40.45 | 13,500 | 0 | 1994 | | 2024.03.07 | Àü¼¼ | ¾ÆÅ©·Î(1432-48) | 7 | 28.89 | 23,000 | 0 | 2018 | | 2024.03.07 | ¿ù¼¼ | µ¿¹æ¾ÆÆ®ºô | 1 | 55.29 | 500 | 45 | 1992 | | 2024.03.07 | Àü¼¼ | ½Å¾Èºô¶ó(610-143) | 2 | 41.35 | 12,300 | 0 | 1993 | | 2024.03.07 | Àü¼¼ | (646-263) | 3 | 54.04 | 18,300 | 0 | 2007 | | 2024.03.07 | ¿ù¼¼ | ¿À¸§ÇϿ콺2 | 3 | 29.97 | 20,000 | 23 | 2013 | | 2024.03.06 | ¿ù¼¼ | ´Ù¿Âij½½ | 6 | 29.95 | 25,000 | 15 | 2023 | | 2024.03.06 | Àü¼¼ | ¹Ì¸®³»¾ÆÆ®ºô¶ó | 2 | 40.35 | 14,500 | 0 | 1993 | | 2024.03.06 | Àü¼¼ | Áê¹æ½º | 9 | 23.86 | 23,000 | 0 | 2018 | | 2024.03.06 | ¿ù¼¼ | ´Ù¿ÂŸ¿ö | 8 | 26.03 | 3,000 | 115 | 2022 | | 2024.03.06 | Àü¼¼ | 457-1 | 5 | 61.93 | 25,000 | 0 | 2003 | | 2024.03.06 | ¿ù¼¼ | ä¼®°¡ | 5 | 23.35 | 18,000 | 9 | 2021 | | 2024.03.05 | Àü¼¼ | Dimanche | 6 | 18.17 | 24,675 | 0 | 2018 | | 2024.03.05 | ¿ù¼¼ | µ¿¹æ¾ÆÆ®ºô | 1 | 51.69 | 1,000 | 40 | 1992 | | 2024.03.05 | Àü¼¼ | ¿Õ¼ººô¸®Áö | 3 | 62.51 | 19,000 | 0 | 1992 | | 2024.03.05 | ¿ù¼¼ | µ¿ÀϺô¶ó | 3 | 43.26 | 5,000 | 70 | 2000 | | 2024.03.05 | ¿ù¼¼ | »óÀººô¶ó | 1 | 56.59 | 3,000 | 74 | 2002 | | 2024.03.05 | ¿ù¼¼ | µ¿ÀϺô¶ó | 3 | 43.26 | 5,000 | 70 | 2000 | | 2024.03.05 | ¿ù¼¼ | ÇѽÅÀ§³Ê½º | 2 | 27.58 | 3,000 | 120 | 2022 | | 2024.03.05 | ¿ù¼¼ | º¸Àκô¶ó | 2 | 48.18 | 1,000 | 85 | 1991 | | 2024.03.04 | ¿ù¼¼ | ¿î¼¸Ç¼Ç(³ª) | -1 | 62.24 | 13,000 | 30 | 2001 | | 2024.03.04 | ¿ù¼¼ | Àº¿ìºô¶ó | -1 | 37.98 | 1,000 | 55 | 1991 | | 2024.03.04 | ¿ù¼¼ | Çö´ë·Î¾âºô¶ó | -1 | 50.35 | 2,000 | 70 | 1991 | | 2024.03.04 | Àü¼¼ | È²ÇØºô¶ó | 1 | 42.33 | 12,300 | 0 | 1991 | | 2024.03.04 | Àü¼¼ | ȲÁ¦1(415-58) | 4 | 37.41 | 9,900 | 0 | 1991 | | 2024.03.04 | ¿ù¼¼ | °¡À± | 5 | 14.01 | 400 | 49 | 2017 | | 2024.03.03 | ¿ù¼¼ | (251-236) | 4 | 28.53 | 2,000 | 70 | 2016 | | 2024.03.03 | ¿ù¼¼ | Çì·»ÇϿ콺V(1481-28) | 5 | 29.89 | 16,000 | 40 | 2014 | | 2024.03.03 | Àü¼¼ | (254-301) | 2 | 84.67 | 28,000 | 0 | 1991 | | 2024.03.03 | ¿ù¼¼ | ¼±ÀΟ¿î | 18 | 14.52 | 3,000 | 60 | 2017 | | 2024.03.03 | Àü¼¼ | ¹ÂÁöÄÃÆÄÅ© | 2 | 59.18 | 20,000 | 0 | 2014 | | 2024.03.02 | ¿ù¼¼ | ¹é³âÆÄÅ©ºô | 2 | 65.85 | 5,000 | 130 | 2000 | | 2024.03.02 | ¿ù¼¼ | ½¦¸£ºô | 3 | 15.12 | 4,000 | 35 | 2013 | | 2024.03.02 | Àü¼¼ | ºäÅ×¶ó½º | 2 | 29.19 | 26,500 | 0 | 2020 | | 2024.03.02 | Àü¼¼ | ¿À¼Û¸Ç¼Ç(651-42) | 5 | 45.13 | 20,700 | 0 | 2015 | | 2024.03.02 | ¿ù¼¼ | µ¨·ç½Ã¾Æ.R | 2 | 29.685 | 5,000 | 90 | 2022 | | 2024.03.02 | ¿ù¼¼ | º£¸£Ã¼ | 5 | 26.31 | 20,000 | 13 | 2015 | | 2024.03.02 | ¿ù¼¼ | (1572-1) | 2 | 13.87 | 3,000 | 55 | 2017 | | 2024.03.02 | ¿ù¼¼ | 533-26 | 2 | 25.46 | 5,000 | 46 | 2015 | | 2024.03.02 | Àü¼¼ | ¾ËÆæÇϿ콺(612-25) | 2 | 51.98 | 22,000 | 0 | 2012 | | 2024.03.02 | Àü¼¼ | ³×¸ðÇϿ콺 | 6 | 26.16 | 27,500 | 0 | 2018 | | 2024.03.02 | ¿ù¼¼ | »ïÀͺô¶ó | 3 | 44.13 | 12,800 | 10 | 1992 | | 2024.03.01 | ¿ù¼¼ | ¿ì¸®ºô | 3 | 12 | 300 | 42 | 2012 | | 2024.03.01 | ¿ù¼¼ | ÁÁÀºÁý | 3 | 15.43 | 500 | 40 | 2014 | | 2024.03.01 | ¿ù¼¼ | ÁÁÀºÁý | 3 | 15.43 | 500 | 40 | 2014 | | 2024.03.01 | Àü¼¼ | (1652-25) | 2 | 28.7 | 18,400 | 0 | 2014 | | 2024.03.01 | Àü¼¼ | Earth70 | 2 | 48.05 | 32,125 | 0 | 2018 | | 2024.03.01 | ¿ù¼¼ | (1652-25) | 3 | 28.7 | 11,400 | 45 | 2014 | | 2024.03.01 | Àü¼¼ | ¾ÆÆ®ºô(526-5) | 3 | 62.7 | 32,000 | 0 | 2009 | | 2024.03.01 | Àü¼¼ | ±Ù»ýÁÖÅà | 2 | 47.25 | 12,000 | 0 | 2002 | | 2024.03.01 | ¿ù¼¼ | ´ë¸²ºô¶ó | 2 | 39.67 | 1,000 | 50 | 1993 | | 2024.03.01 | ¿ù¼¼ | »ï¿ìÁÖÅÃ(86-26) | 2 | 48.51 | 3,000 | 122 | 1991 | | 2024.03.01 | Àü¼¼ | »ó¼±ºôµù | 5 | 62 | 19,200 | 0 | 2004 | | 2024.03.01 | Àü¼¼ | Earth70 | 2 | 48.05 | 32,125 | 0 | 2018 | | 2024.02.29 | Àü¼¼ | °æ¿øÇÏÀÌÃ÷ÅÚ | 11 | 22.01 | 14,000 | 0 | 2019 | | 2024.02.29 | Àü¼¼ | Àü¿øÁÖÅà | 2 | 34.31 | 11,300 | 0 | 1998 | | 2024.02.29 | Àü¼¼ | »ï¼º¾ÆÆ®ºô | 2 | 29.9 | 20,600 | 0 | 2017 | | 2024.02.29 | ¿ù¼¼ | ·ç½Ãµå | 9 | 28.52 | 21,000 | 20 | 2017 | | 2024.02.29 | ¿ù¼¼ | ¸®Ã¦Æ® | 2 | 19.48 | 15,000 | 20 | 2012 | | 2024.02.29 | Àü¼¼ | ´ÃÁ¶Àººô | 1 | 32.66 | 26,000 | 0 | 2023 | | 2024.02.29 | Àü¼¼ | ¿î¼¸Ç¼Ç11Â÷ | 2 | 48.12 | 15,000 | 0 | 2002 | | 2024.02.29 | ¿ù¼¼ | (94-165) | 1 | 56.99 | 19,000 | 5 | 2003 | | 2024.02.29 | Àü¼¼ | Àü¿øÁÖÅà | 2 | 34.31 | 11,200 | 0 | 1998 | | 2024.02.29 | Àü¼¼ | Àü¿øÁÖÅà | 2 | 34.31 | 11,300 | 0 | 1998 | | 2024.02.28 | ¿ù¼¼ | ¸®¸µ(1439-25) | 5 | 25.17 | 3,000 | 57 | 2014 | | 2024.02.28 | Àü¼¼ | (570-18) | 3 | 54.44 | 23,000 | 0 | 2018 | | 2024.02.28 | ¿ù¼¼ | ´õÇϿ콺 | 10 | 22.27 | 5,000 | 63 | 2020 | | 2024.02.27 | ¿ù¼¼ | ⿵ºô | 4 | 25.52 | 15,000 | 20 | 2015 | | 2024.02.27 | Àü¼¼ | »ï»êºô¶ó | -1 | 45 | 9,000 | 0 | 1992 | | 2024.02.27 | Àü¼¼ | »ï»êºô¶ó | -1 | 45.18 | 9,000 | 0 | 1992 | | 2024.02.27 | ¿ù¼¼ | ¼Ò¸Áºô¶ó | -1 | 61.12 | 2,000 | 55 | 1993 | | 2024.02.27 | ¿ù¼¼ | 1415-7 | 7 | 22.44 | 1,000 | 90 | 2016 | | 2024.02.27 | ¿ù¼¼ | º£¸£Ã¼ | 5 | 26.61 | 22,000 | 8 | 2015 | | 2024.02.27 | Àü¼¼ | ¹ý¿ø | 1 | 44.56 | 10,000 | 0 | 1979 | | 2024.02.26 | ¿ù¼¼ | ½ºÆäÀ̽ººô | 2 | 29.66 | 22,000 | 15 | 2020 | | 2024.02.26 | ¿ù¼¼ | ¿¡µ§2Â÷ | 3 | 20.72 | 8,000 | 10 | 1991 | | 2024.02.26 | Àü¼¼ | ¿ù¾ÏÇÏÀÌÃ÷ºô¶ó(10-256) | 1 | 45.18 | 18,000 | 0 | 1991 | | 2024.02.26 | Àü¼¼ | Çöó¿öºô | 4 | 51.36 | 23,000 | 0 | 2012 | | 2024.02.26 | Àü¼¼ | ´Ù¼Øºô¶ó520-4 | 3 | 51.47 | 23,000 | 0 | 2014 | | 2024.02.26 | Àü¼¼ | Áß¾ÓÇÏÀÌÃ÷ | 3 | 43.17 | 19,000 | 0 | 1995 | | 2024.02.26 | Àü¼¼ | ³×¿Àºô | 3 | 38.04 | 13,900 | 0 | 2011 | | 2024.02.26 | ¿ù¼¼ | ÆòÈÁÖÅà | 2 | 33.96 | 10,700 | 10 | 1992 | | 2024.02.26 | Àü¼¼ | ÈÞ½ºÅ×ÀÌ | 2 | 29.47 | 29,000 | 0 | 2023 | | 2024.02.26 | ¿ù¼¼ | ÆòÈÁÖÅà | 2 | 33.96 | 10,700 | 10 | 1992 | | 2024.02.26 | Àü¼¼ | Áö¿Àºô | 5 | 53.28 | 20,000 | 0 | 2010 | | 2024.02.25 | Àü¼¼ | À§³Ê½º | 7 | 23.01 | 22,500 | 0 | 2015 | | 2024.02.25 | Àü¼¼ | ½á´Ïºô | 8 | 24.88 | 25,000 | 0 | 2020 | | 2024.02.25 | ¿ù¼¼ | ½Å»ç¾ÆÀ̺ô | 3 | 54.83 | 20,000 | 20 | 2014 | | 2024.02.25 | Àü¼¼ | (254-301) | 2 | 79.39 | 29,000 | 0 | 1991 | | 2024.02.25 | ¿ù¼¼ | ½ºÄ«ÀÌ | 3 | 29.34 | 7,000 | 61 | 2015 | | 2024.02.25 | ¿ù¼¼ | ÀÌ·¹ºô¸®Áö | 2 | 49.23 | 1,500 | 85 | 1993 | | 2024.02.25 | ¿ù¼¼ | ½ºÄ«ÀÌ | 3 | 29.34 | 5,000 | 70 | 2015 | | 2024.02.25 | ¿ù¼¼ | (10-584) | 2 | 109.66 | 2,000 | 50 | 2006 | | 2024.02.25 | ¿ù¼¼ | õ³âij½½(98-357) | 3 | 19.01 | 12,000 | 20 | 2017 | | 2024.02.25 | Àü¼¼ | ½á´Ïºô | 8 | 24.88 | 25,000 | 0 | 2020 | | 2024.02.24 | ¿ù¼¼ | ÆÊÆÄ½º | 5 | 21.92 | 5,000 | 59 | 2014 | | 2024.02.24 | Àü¼¼ | ÈÞ½ºÅ×ÀÌ | 3 | 29.85 | 29,000 | 0 | 2023 | | 2024.02.24 | Àü¼¼ | ÆÓ¸®½ººô | 4 | 33.73 | 19,000 | 0 | 2013 | | 2024.02.24 | ¿ù¼¼ | ´õÄÉÀÌŸ¿ö | 13 | 14.101 | 2,000 | 36 | 2018 | | 2024.02.24 | Àü¼¼ | ÈÞ½ºÅ×ÀÌ | 3 | 29.85 | 29,000 | 0 | 2023 | | 2024.02.24 | ¿ù¼¼ | »ïÇϺô¶ó(533-11) | 3 | 58.2 | 3,000 | 90 | 2001 | | 2024.02.24 | Àü¼¼ | ÈÞ½ºÅ×ÀÌ | 3 | 29.85 | 29,000 | 0 | 2023 | | 2024.02.24 | Àü¼¼ | ÀÏÇØ¸®ºùÅÚ³ªµ¿(750-10) | 3 | 52.41 | 19,000 | 0 | 2002 | | 2024.02.24 | ¿ù¼¼ | (98-49) | -1 | 49.6 | 9,800 | 10 | 1991 | | 2024.02.23 | ¿ù¼¼ | ¸ñ¿ø | 3 | 18.73 | 800 | 70 | 2013 | | 2024.02.23 | Àü¼¼ | û¼Ûºô¶ó | 2 | 48.26 | 19,900 | 0 | 2002 | | 2024.02.23 | Àü¼¼ | ¼¸²ºô | 3 | 29.79 | 30,000 | 0 | 2022 | | 2024.02.23 | Àü¼¼ | ´õ¾¾¿¤ | 8 | 29.3 | 29,000 | 0 | 2015 | | 2024.02.23 | Àü¼¼ | û¼Ûºô¶ó | 2 | 48.26 | 19,900 | 0 | 2002 | | 2024.02.23 | ¿ù¼¼ | ·ç½Ãµå | 7 | 28.52 | 21,000 | 20 | 2017 | | 2024.02.23 | Àü¼¼ | (610-354) | 2 | 36.12 | 10,000 | 0 | 1996 | | 2024.02.22 | ¿ù¼¼ | ¸®¾ØÃÊÀ̽º | 8 | 29.97 | 2,000 | 155 | 2023 | | 2024.02.22 | ¿ù¼¼ | (466-13) | 1 | 48.8 | 16,000 | 18 | 2002 | | 2024.02.22 | ¿ù¼¼ | ³²ºÎ½ºÄ«À̺ô | 3 | 29.62 | 2,000 | 100 | 2013 | | 2024.02.22 | ¿ù¼¼ | (1657-26) | 5 | 37.11 | 17,100 | 26 | 2014 | | 2024.02.22 | ¿ù¼¼ | ¾ÆÆ®¶ó¿ò(103-139) | 5 | 49.97 | 5,000 | 150 | 2022 | | 2024.02.22 | ¿ù¼¼ | (466-13) | 1 | 48.8 | 16,000 | 20 | 2002 | | 2024.02.22 | Àü¼¼ | ¸ÞÆ®·ÎŸ¿î8Â÷ | 3 | 42.06 | 24,000 | 0 | 2017 | | 2024.02.22 | ¿ù¼¼ | ½Å¸²Å¸¿î | 4 | 52.2 | 300 | 95 | 2023 | | 2024.02.22 | Àü¼¼ | 1415-7 | 6 | 22.04 | 21,000 | 0 | 2016 | | 2024.02.21 | Àü¼¼ | °¡¿Âºô | 2 | 52.36 | 28,200 | 0 | 2017 | | 2024.02.21 | ¿ù¼¼ | ³ë¾ÆÀǹæÁÖ | 2 | 12.9 | 9,000 | 10 | 2012 | | 2024.02.21 | ¿ù¼¼ | ¸®Ä¡Èú | 5 | 54.18 | 5,994 | 50 | 2015 | | 2024.02.21 | Àü¼¼ | ÈÞ¸Õºô(610-222) | 4 | 57.42 | 25,000 | 0 | 2016 | | 2024.02.21 | Àü¼¼ | ¿¡ÄÚÇÏÀÓ | 2 | 48.22 | 7,875 | 0 | 2020 | | 2024.02.21 | Àü¼¼ | ¹Ì¸®³»ºô¶ó | -1 | 42.46 | 8,700 | 0 | 1993 | | 2024.02.21 | ¿ù¼¼ | Àº¿¬Àç | 7 | 15.61 | 1,000 | 47 | 2013 | | 2024.02.21 | ¿ù¼¼ | ¹é°æºô¸®Áö | 3 | 24.25 | 3,000 | 80 | 2014 | | 2024.02.21 | Àü¼¼ | dz¿øÇÏÀÓºô | 3 | 40.03 | 32,500 | 0 | 2018 | | 2024.02.21 | ¿ù¼¼ | ½ºÄ«ÀÌ | 4 | 26.78 | 5,000 | 67 | 2015 | | 2024.02.21 | Àü¼¼ | ¿À¸§ÇϿ콺 | 3 | 46.3 | 24,500 | 0 | 2013 | | 2024.02.21 | ¿ù¼¼ | µå¸²Çãºê | 8 | 18.12 | 14,000 | 45 | 2019 | | 2024.02.21 | ¿ù¼¼ | T&K½Å¸²1 | 6 | 45.75 | 100 | 43 | 2023 | | 2024.02.20 | ¿ù¼¼ | °æÈ£ºô | 3 | 27.64 | 200 | 49 | 2023 | | 2024.02.20 | ¿ù¼¼ | AugustTower | 7 | 18.6 | 17,600 | 17 | 2021 | | 2024.02.20 | ¿ù¼¼ | Á¶À̺ô¸®Áö | 3 | 31.55 | 2,000 | 60 | 2018 | | 2024.02.20 | Àü¼¼ | ¿ìÀü¾ÆÆ®ºô(646-294) | 2 | 58.18 | 18,000 | 0 | 2006 | | 2024.02.20 | ¿ù¼¼ | °æÈ£ºô | 5 | 47.8 | 3,663 | 38 | 2023 | | 2024.02.20 | ¿ù¼¼ | ¸®¾ØÃÊÀ̽º | 8 | 25.68 | 5,000 | 140 | 2023 | | 2024.02.20 | Àü¼¼ | µ¿¼º¸Ç¼Ç5Â÷ | 2 | 47.88 | 13,000 | 0 | 1996 | | 2024.02.20 | ¿ù¼¼ | ¸®¾ØÃÊÀ̽º | 7 | 25.68 | 25,000 | 45 | 2023 | | 2024.02.20 | Àü¼¼ | ¹Ì¸²ºô¸®ÁöB | 2 | 49.38 | 13,000 | 0 | 1992 | | 2024.02.20 | Àü¼¼ | ÇϴϺô | 2 | 22.9 | 12,500 | 0 | 2002 | | 2024.02.20 | Àü¼¼ | ¹é¼Û | 6 | 12 | 14,500 | 0 | 2012 | | 2024.02.19 | ¿ù¼¼ | Çѳª·¡24Â÷ | 2 | 42.87 | 2,000 | 150 | 2023 | | 2024.02.19 | Àü¼¼ | ´ë¸²ºô¶ó | 4 | 35.06 | 9,500 | 0 | 1993 | | 2024.02.19 | ¿ù¼¼ | Ǫ¸¥¼ÖÇϿ콺 | 3 | 29.67 | 3,400 | 69 | 2017 | | 2024.02.19 | ¿ù¼¼ | 103-134 | 2 | 24.57 | 2,000 | 58 | 2014 | | 2024.02.19 | ¿ù¼¼ | 103-134 | 3 | 29.99 | 3,200 | 37 | 2014 | | 2024.02.19 | Àü¼¼ | ±¹Á¦¾Ë¾Øµå¾¾ | 5 | 27.68 | 23,540 | 0 | 2018 | | 2024.02.19 | ¿ù¼¼ | ¸®Ä¡ºô¶ó | 3 | 41.94 | 10,000 | 21 | 1994 | | 2024.02.19 | Àü¼¼ | ÆÈ·Î½º26 | 2 | 24.16 | 23,000 | 0 | 2019 | | 2024.02.19 | ¿ù¼¼ | ´ë¾çŸ¿î | 3 | 43.89 | 13,900 | 4 | 1992 | | 2024.02.18 | ¿ù¼¼ | ½Å¸²ºôµù | 4 | 13.26 | 2,000 | 55 | 2018 | | 2024.02.17 | ¿ù¼¼ | µ¿¹æºô¸®Áö7Â÷¸¶µ¿ | 1 | 38.52 | 9,500 | 33 | 1989 | | 2024.02.17 | ¿ù¼¼ | ¿¹ÇϿ콺(1453-6) | 4 | 18.27 | 500 | 55 | 2013 | | 2024.02.17 | Àü¼¼ | ¿¥¿¤½¦¸£ºô | 6 | 29.94 | 26,500 | 0 | 2021 | | 2024.02.17 | ¿ù¼¼ | ¸®¾ØÃÊÀ̽º | 9 | 25.68 | 25,000 | 50 | 2023 | | 2024.02.17 | ¿ù¼¼ | ½Å¸²¶ó¿Âºô | 3 | 47.59 | 10,000 | 68 | 2019 | | 2024.02.17 | ¿ù¼¼ | ¸®Ä¡ºô¶ó(91-21) | 4 | 33.6 | 2,000 | 70 | 1993 | | 2024.02.17 | ¿ù¼¼ | (92-246) | 2 | 29.33 | 3,000 | 54 | 2004 | | 2024.02.17 | Àü¼¼ | ÇØÇÇŸ¿ö | 6 | 26.77 | 15,300 | 0 | 2016 | | 2024.02.17 | Àü¼¼ | 650-22 | 5 | 46.75 | 24,000 | 0 | 2016 | | 2024.02.17 | Àü¼¼ | ±×¸°ÇÏÀÌÃ÷ | 4 | 80.9 | 26,000 | 0 | 2000 | | 2024.02.17 | Àü¼¼ | ÇØÂù¸Ç¼Ç(715-17) | 3 | 49.86 | 22,100 | 0 | 2014 | | 2024.02.17 | ¿ù¼¼ | ´ë½ÅÇϿ콺15Â÷ | 6 | 38.34 | 26,000 | 20 | 2015 | | 2024.02.17 | ¿ù¼¼ | ÁÖ¿ø | 5 | 13.41 | 500 | 38 | 2013 | | 2024.02.17 | Àü¼¼ | ±Ý¼ºÇÏÀÌÃ÷ºô¶ó | 3 | 76.56 | 20,500 | 0 | 2001 | | 2024.02.17 | Àü¼¼ | (254-301) | 1 | 84.72 | 30,000 | 0 | 1991 | | 2024.02.17 | ¿ù¼¼ | ¼¾Æ®¶ó³ë½Å¸² | 5 | 22.47 | 5,000 | 110 | 2021 | | 2024.02.17 | Àü¼¼ | °æ¿øÇÏÀÌÃ÷ÅÚ | 10 | 21.76 | 13,000 | 0 | 2019 | | 2024.02.17 | ¿ù¼¼ | ¾ÆÆ®Ä³½½ | 2 | 16.78 | 2,000 | 70 | 2013 | | 2024.02.17 | Àü¼¼ | 650-22 | 5 | 46.75 | 24,000 | 0 | 2016 | | 2024.02.17 | Àü¼¼ | Á¤½Âºô¶ó(652-93) | -1 | 52.23 | 9,500 | 0 | 1991 | | 2024.02.16 | Àü¼¼ | ¹Ì¸®³»¾ÆÆ®ºô¶ó | 3 | 40.41 | 11,000 | 0 | 1993 | | 2024.02.16 | Àü¼¼ | Èѹ̸®ºô¶ó(610-18) | 2 | 37.33 | 11,000 | 0 | 1991 | | 2024.02.16 | Àü¼¼ | ¿¡½ºµðÇ÷¯½º¾ÆÅ©·Îºô | 5 | 39.97 | 29,000 | 0 | 2015 | | 2024.02.16 | Àü¼¼ | ¿¡µ§ºô¶ó(610-25) | 5 | 68.94 | 20,000 | 0 | 2002 | | 2024.02.16 | Àü¼¼ | 94-155 | 4 | 22.89 | 18,000 | 0 | 2016 | | 2024.02.16 | ¿ù¼¼ | ¶óÇî´Àºô(517-20) | 3 | 14.69 | 1,000 | 53 | 2011 | | 2024.02.16 | ¿ù¼¼ | ÇѽÅÀ§³Ê½º | 3 | 29.73 | 24,400 | 20 | 2022 | | 2024.02.16 | Àü¼¼ | ¿¡½ºµðÇ÷¯½º¾ÆÅ©·Îºô | 5 | 39.97 | 25,600 | 0 | 2015 | | 2024.02.16 | ¿ù¼¼ | ¸ÞÆ®·ÎŸ¿î4Â÷ | 2 | 29.8 | 20,000 | 20 | 2017 | | 2024.02.15 | ¿ù¼¼ | (468-1) | 2 | 27.78 | 19,000 | 12 | 2014 | | 2024.02.15 | ¿ù¼¼ | ÁÖ¿ø | 7 | 12.12 | 1,000 | 42 | 2013 | | 2024.02.15 | Àü¼¼ | ±Ù»ýÁÖÅà | 3 | 47.25 | 11,000 | 0 | 2002 | | 2024.02.15 | ¿ù¼¼ | ÁÁÀºÁý | 6 | 13.33 | 500 | 40 | 2014 | | 2024.02.15 | Àü¼¼ | ÆÄ¶û»õºô¶ó | 2 | 59.34 | 19,000 | 0 | 1993 | | 2024.02.15 | ¿ù¼¼ | ÇØ¿À¸§(90-41) | 3 | 33.1 | 1,000 | 75 | 2013 | | 2024.02.15 | Àü¼¼ | µ¿Çö¾ÆÆ®ºô(704-44) | 4 | 40.97 | 15,000 | 0 | 2012 | | 2024.02.15 | ¿ù¼¼ | ûÃá°¡¿Á | 5 | 27.056 | 3,991 | 9 | 2020 | | 2024.02.15 | ¿ù¼¼ | ¿î¼ºô¶óÆ®2 | 4 | 50.6 | 14,800 | 10 | 2000 | | 2024.02.15 | ¿ù¼¼ | µ¿ÀϺô¶ó | 3 | 43.26 | 5,000 | 70 | 2000 | | 2024.02.15 | Àü¼¼ | µ¿¿ìºô¶óÆ® | 4 | 47.78 | 27,000 | 0 | 2015 | | 2024.02.15 | ¿ù¼¼ | WannyVill(1487-21) | 2 | 45.76 | 2,500 | 88 | 2015 | | 2024.02.15 | ¿ù¼¼ | JÇìºìºô | 4 | 21.89 | 15,000 | 25 | 2015 | | 2024.02.15 | Àü¼¼ | ¿ø¿ÀÇǽºÅÚ(1432-151) | 5 | 20.72 | 8,000 | 0 | 2002 | | 2024.02.15 | ¿ù¼¼ | µ¿ÀϺô¶ó | 3 | 43.26 | 5,000 | 70 | 2000 | | 2024.02.14 | ¿ù¼¼ | ·¡¹Ì¾È | 4 | 24.19 | 15,000 | 7 | 2011 | | 2024.02.14 | Àü¼¼ | (498-9) | 2 | 80.12 | 30,000 | 0 | 1986 | | 2024.02.14 | ¿ù¼¼ | (498-9) | -1 | 39.65 | 2,500 | 35 | 1986 | | 2024.02.14 | ¿ù¼¼ | ¼º¿ì(1433-180) | 7 | 28.71 | 1,000 | 61 | 2014 | | 2024.02.14 | ¿ù¼¼ | (251-236) | 2 | 29.97 | 1,000 | 80 | 2016 | | 2024.02.14 | ¿ù¼¼ | ·¡¹Ì¾È | 4 | 24.19 | 15,000 | 7 | 2011 | | 2024.02.14 | Àü¼¼ | CG¾Æ¸§Ã¤ | 6 | 51.13 | 27,900 | 0 | 2019 | | 2024.02.14 | ¿ù¼¼ | (498-9) | 1 | 39.65 | 5,000 | 50 | 1986 | | 2024.02.14 | Àü¼¼ | Àü¿øÇÏÀÌÃ÷ºô¶ó³ªµ¿ | 4 | 43.02 | 10,000 | 0 | 1991 | | 2024.02.14 | ¿ù¼¼ | ºÎ¿µºô¶ó3µ¿ | 4 | 53.31 | 3,000 | 75 | 2002 | | 2024.02.14 | ¿ù¼¼ | ÇÏ´Ã¸í°¡ | 5 | 46.14 | 19,000 | 20 | 2012 | | 2024.02.14 | ¿ù¼¼ | (415-20) | 3 | 50.7 | 14,000 | 40 | 2004 | | 2024.02.14 | ¿ù¼¼ | °ñµçÈú | 3 | 26.75 | 3,000 | 75 | 2013 | | 2024.02.14 | Àü¼¼ | ÇØ¶ß´ÂÁý2 | 3 | 11.73 | 8,400 | 0 | 2016 | | 2024.02.13 | ¿ù¼¼ | ÀÚÀÌ¿ÀÇǽºÅÚ | 10 | 10.946 | 2,000 | 58 | 2021 | | 2024.02.13 | ¿ù¼¼ | ÆÊÆÄ½º | 2 | 21.92 | 2,000 | 67 | 2014 | | 2024.02.13 | Àü¼¼ | µ¿¾Æ³ªµ¿ | 1 | 52.07 | 750 | 0 | 1982 | | 2024.02.13 | ¿ù¼¼ | STAY¿Â-¥° | 5 | 26.11 | 100 | 33 | 2022 | | 2024.02.13 | ¿ù¼¼ | ±¤´öºô | 2 | 83.1 | 500 | 47 | 2004 | | 2024.02.13 | ¿ù¼¼ | (1464-13) | 5 | 42.78 | 5,000 | 90 | 2005 | | 2024.02.13 | Àü¼¼ | µ¿¾Æ³ªµ¿ | 1 | 52.07 | 16,250 | 0 | 1982 | | 2024.02.13 | ¿ù¼¼ | âÁøºô¶ó | 1 | 46.3 | 13,000 | 60 | 1994 | | 2024.02.13 | ¿ù¼¼ | ±Ý»ù¾ÆÆ®ºô | 5 | 24.75 | 15,000 | 30 | 2016 | | 2024.02.13 | Àü¼¼ | ½º¸¶Æ®ºô | 4 | 14.52 | 11,000 | 0 | 2013 | | 2024.02.13 | ¿ù¼¼ | ÀÚÀÌ¿ÀÇǽºÅÚ | 10 | 10.717 | 3,000 | 62 | 2021 | | 2024.02.12 | Àü¼¼ | À¯Àκôµù | 5 | 29.96 | 18,000 | 0 | 2019 | | 2024.02.12 | Àü¼¼ | ÇÑÂ÷ÀÓºô | 6 | 29.93 | 31,000 | 0 | 2021 | | 2024.02.12 | ¿ù¼¼ | ´Ù¿ø¾ÆÆ®ºô | -1 | 47.99 | 11,000 | 40 | 2002 | | 2024.02.12 | ¿ù¼¼ | ÆÄÀκô | 4 | 26.21 | 20,700 | 5 | 2014 | | 2024.02.12 | Àü¼¼ | ¿ø¾Óºô¶ó(305-28) | 1 | 40.7 | 20,500 | 0 | 2012 | | 2024.02.11 | Àü¼¼ | »ï¿øÇÏÀÌÃ÷ | 2 | 40.68 | 27,400 | 0 | 2022 | | 2024.02.11 | Àü¼¼ | ºê¶ó¿îij½½ | 4 | 42.83 | 20,000 | 0 | 2015 | | 2024.02.11 | ¿ù¼¼ | ⿵ºô | 3 | 30.85 | 18,500 | 20 | 2015 | | 2024.02.11 | ¿ù¼¼ | ⿵ºô | 3 | 30.85 | 18,500 | 20 | 2015 | | 2024.02.08 | ¿ù¼¼ | JÇìºìºô | 3 | 12.07 | 11,000 | 10 | 2015 | | 2024.02.08 | Àü¼¼ | µ¿¹æ¾ÆÆ®ºô | 2 | 19.78 | 7,000 | 0 | 1992 | | 2024.02.08 | ¿ù¼¼ | ´õ·°½ººô | 5 | 41.49 | 5,000 | 125 | 2022 | | 2024.02.07 | ¿ù¼¼ | ¶ó¿ÂÁ¦³ª | 2 | 16.15 | 500 | 40 | 2009 | | 2024.02.07 | ¿ù¼¼ | ½Å¿µºô¶ó(1454-11) | 1 | 39 | 6,000 | 70 | 1987 | | 2024.02.07 | ¿ù¼¼ | Á¶¿øµµ½ÃÇü»ýȰÁÖÅà | 4 | 13.6 | 500 | 47 | 2011 | | 2024.02.07 | ¿ù¼¼ | ½Å³²195 | 6 | 16.26 | 16,000 | 15 | 2020 | | 2024.02.07 | ¿ù¼¼ | ½Å¸²ºô¶ó(354-2) | 2 | 79 | 13,000 | 15 | 1984 | | 2024.02.07 | Àü¼¼ | º§¶óÈú | 7 | 29.2 | 25,000 | 0 | 2018 | | 2024.02.07 | ¿ù¼¼ | ±ÃÀü | 2 | 53.82 | 15,000 | 25 | 1991 | | 2024.02.06 | ¿ù¼¼ | Áß¿ø³ªµ¿ | 2 | 36.36 | 10,500 | 20 | 1990 | | 2024.02.06 | Àü¼¼ | 1477-14 | 4 | 29.92 | 18,000 | 0 | 2014 | | 2024.02.06 | Àü¼¼ | ¿ì¼®¾ÆÆ®ºô | 1 | 40.27 | 26,000 | 0 | 2002 | | 2024.02.06 | ¿ù¼¼ | (409-262) | -1 | 34.15 | 6,500 | 25 | 1991 | | 2024.02.06 | ¿ù¼¼ | º¸¶ó¸Å120µ¿ | 4 | 59.82 | 25,000 | 25 | 2000 | | 2024.02.06 | ¿ù¼¼ | (1573-33) | 2 | 41.04 | 17,000 | 18 | 2012 | | 2024.02.06 | ¿ù¼¼ | ÇѽÅÀ§³Ê½º | 3 | 27.58 | 2,000 | 100 | 2022 | | 2024.02.06 | Àü¼¼ | ÇÊÇϿ콺4Â÷ | 2 | 31.25 | 19,650 | 0 | 2014 | | 2024.02.06 | Àü¼¼ | ºÎ¸²ÆÄÅ©ºô¶ó | -1 | 42.48 | 9,000 | 0 | 1995 | | 2024.02.06 | ¿ù¼¼ | º¸¶ó¸Å120µ¿ | 4 | 59.82 | 25,000 | 25 | 2000 | | 2024.02.06 | Àü¼¼ | º¸³×¸£ºô | 3 | 28.05 | 22,000 | 0 | 2017 | | 2024.02.06 | Àü¼¼ | ÇÊÇϿ콺4Â÷ | 2 | 31.25 | 19,650 | 0 | 2014 | | 2024.02.06 | ¿ù¼¼ | ¼±¶óÀÌÁ»ê | 3 | 13.28 | 1,000 | 52 | 2013 | | 2024.02.05 | Àü¼¼ | û¿î | 2 | 17.28 | 8,000 | 0 | 2013 | | 2024.02.05 | Àü¼¼ | ½ÅÈİ¡15Â÷ | 3 | 28.06 | 30,000 | 0 | 2023 | | 2024.02.05 | ¿ù¼¼ | ÁÁÀºÁý | 3 | 12.4 | 500 | 40 | 2014 | | 2024.02.05 | Àü¼¼ | ¾ÆÀ϶ó | 10 | 29.54 | 25,000 | 0 | 2018 | | 2024.02.05 | Àü¼¼ | 98-135 | 2 | 27.43 | 17,600 | 0 | 2014 | | 2024.02.05 | ¿ù¼¼ | À§³Ê½ººô | 5 | 17.17 | 500 | 52 | 2014 | | 2024.02.05 | ¿ù¼¼ | º£¸£Ã¼ | 5 | 26.31 | 20,000 | 13 | 2015 | | 2024.02.05 | Àü¼¼ | ½º¸¶Æ®ºô | 2 | 29.04 | 10,000 | 0 | 2013 | | 2024.02.05 | Àü¼¼ | µå¸²Å¸¿î | 8 | 22.23 | 23,000 | 0 | 2020 | | 2024.02.05 | Àü¼¼ | ´ë¿øÆÄÅ©¸Ç¼Ç | 4 | 43.3 | 14,000 | 0 | 1994 | | 2024.02.04 | ¿ù¼¼ | U2 | 6 | 16.48 | 2,000 | 62 | 2012 | | 2024.02.04 | ¿ù¼¼ | µå¸²ÇϿ콺 | 3 | 32.42 | 24,000 | 10 | 2015 | | 2024.02.04 | ¿ù¼¼ | ¼¸²µµ½ÃÇü»ýȰÁÖÅà | 7 | 12.32 | 2,000 | 20 | 2013 | | 2024.02.04 | ¿ù¼¼ | (10-453) | 1 | 37.6 | 200 | 38 | 2003 | | 2024.02.03 | Àü¼¼ | ÇÁ·¹¹Ì¿À | 3 | 26.69 | 20,000 | 0 | 2018 | | 2024.02.03 | ¿ù¼¼ | Ǫ¸¥¼ÖÇϿ콺 | 2 | 29.67 | 3,000 | 78 | 2017 | | 2024.02.03 | ¿ù¼¼ | 103-134 | 3 | 35.44 | 15,000 | 19 | 2014 | | 2024.02.03 | ¿ù¼¼ | ·ç½Ãµå | 8 | 29.8 | 7,000 | 40 | 2017 | | 2024.02.03 | Àü¼¼ | žçºô¶ó | 3 | 47.7 | 15,000 | 0 | 1986 | | 2024.02.03 | Àü¼¼ | »ï¼ºÇì·»ÇϿ콺 | 1 | 33.17 | 20,000 | 0 | 2013 | | 2024.02.03 | ¿ù¼¼ | CG¾Æ¸§Ã¤ | 3 | 53.09 | 17,000 | 35 | 2019 | | 2024.02.03 | ¿ù¼¼ | °üµ¿ÇÏÀÌÃ÷ | 4 | 49.86 | 3,000 | 70 | 2003 | | 2024.02.03 | ¿ù¼¼ | û¼Û | 3 | 21.1 | 1,000 | 53 | 2017 | | 2024.02.03 | ¿ù¼¼ | Àº¿¬Àç | 4 | 14.78 | 500 | 48 | 2013 | | 2024.02.03 | ¿ù¼¼ | ûdz±×¸°ºô2Â÷ | 3 | 62.44 | 5,000 | 70 | 2002 | | 2024.02.03 | ¿ù¼¼ | (1608-25) | 2 | 61.06 | 13,000 | 60 | 2004 | | 2024.02.03 | Àü¼¼ | ÁÖ¿øº£¸£ºô(493-7) | 5 | 29.54 | 24,100 | 0 | 2016 | | 2024.02.03 | ¿ù¼¼ | ´Ù¿¬Çູ | 3 | 23.48 | 5,000 | 71 | 2012 | | 2024.02.03 | Àü¼¼ | Á¤¿ìÇÏÀÌÃ÷Bµ¿ | 3 | 40.97 | 27,900 | 0 | 2016 | | 2024.02.03 | Àü¼¼ | ¹Ì¸®³»ºô¶ó | 2 | 34.06 | 11,000 | 0 | 1993 | | 2024.02.03 | Àü¼¼ | Å´½ººô¸® | 4 | 39.45 | 12,600 | 0 | 2002 | | 2024.02.03 | ¿ù¼¼ | û¿î | 2 | 14.04 | 3,000 | 30 | 2013 | | 2024.02.03 | ¿ù¼¼ | ´ëÇкô¸®ÁöAµ¿ | 2 | 47.16 | 300 | 52 | 1993 | | 2024.02.02 | ¿ù¼¼ | ¼º»ê¿ø·ë | 5 | 14.61 | 500 | 58 | 2012 | | 2024.02.02 | ¿ù¼¼ | (1662-19) | 1 | 30.15 | 500 | 50 | 1977 | | 2024.02.02 | Àü¼¼ | ¿î¼¸Ç¼Ç10Â÷ | 3 | 81.04 | 28,000 | 0 | 2002 | | 2024.02.02 | Àü¼¼ | ÇѽÅÀ§³Ê½º | 4 | 21.01 | 18,600 | 0 | 2022 | | 2024.02.02 | ¿ù¼¼ | ¼¿ïºô¶ó | 2 | 61.72 | 15,010 | 10 | 2002 | | 2024.02.02 | Àü¼¼ | ½ºÄ«ÀÌij½½(92-214) | 3 | 59.63 | 35,600 | 0 | 2018 | | 2024.02.02 | ¿ù¼¼ | ¼Û±¤ºô¶ó | 2 | 50.42 | 12,000 | 19 | 2002 | | 2024.02.02 | ¿ù¼¼ | (89-1) | 3 | 22.16 | 1,000 | 60 | 2016 | | 2024.02.02 | ¿ù¼¼ | ¿ù¾ÏÇÏÀÌÃ÷ºô¶ó(10-256) | 2 | 45.18 | 5,000 | 70 | 1991 | | 2024.02.02 | Àü¼¼ | ¿î¼¸Ç¼Ç10Â÷ | 3 | 81.04 | 28,000 | 0 | 2002 | | 2024.02.01 | ¿ù¼¼ | Æ®¸®ÇÃÈú½º2 | 3 | 29.69 | 5,000 | 100 | 2023 | | 2024.02.01 | Àü¼¼ | Çö´ëºô¶ó(610-255) | 4 | 34.95 | 11,000 | 0 | 2003 | | 2024.02.01 | ¿ù¼¼ | ¾ÆÆ®ºôÇϿ콺(598-136) | 4 | 40.62 | 3,000 | 85 | 2011 | | 2024.02.01 | ¿ù¼¼ | 103-134 | 2 | 24.57 | 5,000 | 36 | 2014 | | 2024.02.01 | ¿ù¼¼ | ¿¡¼¿ÆÄÅ©ºô¥± | 2 | 25.38 | 19,100 | 19 | 2018 | | 2024.02.01 | Àü¼¼ | ÈÞ½ºÅ×ÀÌ | 2 | 26.33 | 26,000 | 0 | 2023 | | 2024.02.01 | ¿ù¼¼ | (685-74) | 3 | 54.61 | 13,900 | 6 | 1991 | | 2024.02.01 | Àü¼¼ | Áß¾Óºô¶ó | -1 | 43.56 | 9,000 | 0 | 1992 | | 2024.02.01 | ¿ù¼¼ | µå¸²ÇϿ콺 | 5 | 35.66 | 15,000 | 50 | 2015 | | 2024.02.01 | Àü¼¼ | ³×¸ðÇϿ콺 | 5 | 29.47 | 25,000 | 0 | 2018 | | 2024.02.01 | ¿ù¼¼ | (363-8) | -1 | 40.75 | 300 | 52 | 1986 | | 2024.01.31 | ¿ù¼¼ | ÁÁÀºÁý | 2 | 103.43 | 3,000 | 28 | 2014 | | 2024.01.31 | ¿ù¼¼ | EatonTower(1433-227) | 9 | 28.57 | 1,000 | 65 | 2017 | | 2024.01.31 | ¿ù¼¼ | Á¶¿øÇÏÀ̸ðºôµù | 6 | 24.87 | 1,000 | 48 | 2013 | | 2024.01.31 | Àü¼¼ | ÁøÈ¯ºô | 2 | 37.27 | 10,500 | 0 | 2011 | | 2024.01.31 | ¿ù¼¼ | ¾çÁöºô¶óÆ®(504-16) | 3 | 56.01 | 2,000 | 75 | 2002 | | 2024.01.31 | ¿ù¼¼ | ·ç½Ãµå | 8 | 28.52 | 21,000 | 20 | 2017 | | 2024.01.31 | ¿ù¼¼ | (1452-36) | 4 | 27.72 | 500 | 47 | 2017 | | 2024.01.30 | ¿ù¼¼ | ½ÅÈİ¡15Â÷ | 3 | 29.93 | 5,000 | 115 | 2023 | | 2024.01.30 | Àü¼¼ | CG¾Æ¸§Ã¤ | 6 | 51.13 | 27,900 | 0 | 2019 | | 2024.01.30 | ¿ù¼¼ | ´Ù´ãºô101µ¿&102µ¿ | 3 | 59.59 | 3,000 | 95 | 2016 | | 2024.01.30 | ¿ù¼¼ | 306-119(¿¹ÁöÆÓ¸®½º78Â÷) | 2 | 54.28 | 25,000 | 10 | 2014 | | 2024.01.30 | ¿ù¼¼ | ½Å¸²µ¿(412-180) | 4 | 25.82 | 7,740 | 10 | 1991 | | 2024.01.30 | Àü¼¼ | ÈÞÇ÷¯½º | 2 | 28.04 | 18,770 | 0 | 2017 | | 2024.01.30 | Àü¼¼ | (529-15) | 9 | 11.36 | 16,350 | 0 | 2020 | | 2024.01.29 | ¿ù¼¼ | ½ÅÈİ¡15Â÷ | 3 | 27.98 | 5,000 | 120 | 2023 | | 2024.01.29 | ¿ù¼¼ | ´Ù»êºô(1627-90) | 3 | 29.39 | 18,000 | 30 | 2012 | | 2024.01.29 | ¿ù¼¼ | ¼¼¿µºô¶óBµ¿ | 3 | 50.75 | 100 | 30 | 2005 | | 2024.01.29 | Àü¼¼ | ¸ð´×Èú(1564-9) | 3 | 40.39 | 23,000 | 0 | 2016 | | 2024.01.29 | ¿ù¼¼ | (107-52) | 2 | 18.56 | 1,000 | 48 | 2013 | | 2024.01.29 | Àü¼¼ | ·ÎÁîºô | 3 | 66.12 | 20,000 | 0 | 2002 | | 2024.01.29 | Àü¼¼ | ¶óÆÄ¸£½Å¸² | 6 | 27.61 | 35,500 | 0 | 2023 | | 2024.01.29 | ¿ù¼¼ | ¿¤¸²Å¸¿î | 2 | 40.95 | 24,000 | 10 | 2017 | | 2024.01.29 | ¿ù¼¼ | ÇѺ°#6 | 4 | 26.23 | 6,284 | 5 | 2023 | | 2024.01.29 | Àü¼¼ | (1652-25) | 2 | 50.6 | 24,000 | 0 | 2014 | | 2024.01.29 | ¿ù¼¼ | ¹®°æÀç | 5 | 19.99 | 19,300 | 5 | 2020 | | 2024.01.29 | ¿ù¼¼ | Á¤¿øºô¶ó(458-33) | 4 | 35.64 | 10,000 | 30 | 1991 | | 2024.01.29 | Àü¼¼ | ´õÁöÀ½ | 2 | 20.49 | 26,800 | 0 | 2023 | | 2024.01.29 | ¿ù¼¼ | ¸®Ã÷¿ÀÇǽºÅÚ&µµ½ÃÇü»ýȰÁÖÅà | 6 | 14.4 | 10,000 | 2 | 2014 | | 2024.01.29 | ¿ù¼¼ | Á¶Àººô | 4 | 12.25 | 2,000 | 55 | 2013 | | 2024.01.28 | Àü¼¼ | (702-8) | 4 | 38.13 | 18,500 | 0 | 2013 | | 2024.01.28 | Àü¼¼ | ½º¸¶Æ®ºô | 2 | 29.04 | 19,500 | 0 | 2013 | | 2024.01.28 | ¿ù¼¼ | ÁøÈ¯ºô | 2 | 34.59 | 1,000 | 40 | 2011 | | 2024.01.27 | Àü¼¼ | ½ÅÀϺô¶ó(610-59) | 1 | 45.56 | 12,300 | 0 | 1993 | | 2024.01.27 | Àü¼¼ | (1432-58) | 4 | 12 | 5,000 | 0 | 2009 | | 2024.01.27 | ¿ù¼¼ | µ¿¹æÆÄ·¹½º°¡µ¿ | 1 | 35.28 | 9,400 | 25 | 1991 | | 2024.01.27 | ¿ù¼¼ | AugustTower | 8 | 13.83 | 12,000 | 30 | 2021 | | 2024.01.26 | ¿ù¼¼ | ¼¼Áøºô | 4 | 26.25 | 3,000 | 70 | 2013 | | 2024.01.26 | Àü¼¼ | û¿î | 2 | 13.12 | 7,000 | 0 | 2013 | | 2024.01.26 | ¿ù¼¼ | ½ÅÈï¸Ç¼Ç9Â÷ | 3 | 44.18 | 12,000 | 7 | 1996 | | 2024.01.26 | Àü¼¼ | ÈúÇϿ콺(1477-11) | 2 | 44.26 | 20,000 | 0 | 2010 | | 2024.01.26 | ¿ù¼¼ | ¼±ÀΟ¿î | 20 | 13.48 | 1,000 | 68 | 2017 | | 2024.01.26 | Àü¼¼ | ´Ù¼Øºô¶ó | 2 | 45.28 | 20,000 | 0 | 2004 | | 2024.01.26 | ¿ù¼¼ | °¡À± | 5 | 11.78 | 500 | 49 | 2017 | | 2024.01.25 | ¿ù¼¼ | (414-55) | 2 | 38.88 | 11,000 | 10 | 1992 | | 2024.01.25 | ¿ù¼¼ | Àº¿¬Àç | 7 | 14.78 | 1,000 | 48 | 2013 | | 2024.01.25 | Àü¼¼ | ÀÌÁöºñ¾Æ | 7 | 27.01 | 25,350 | 0 | 2015 | | 2024.01.24 | Àü¼¼ | (251-89) | 1 | 57.52 | 14,000 | 0 | 1991 | | 2024.01.24 | ¿ù¼¼ | (1520-2) | 2 | 15.76 | 1,000 | 55 | 2013 | | 2024.01.24 | ¿ù¼¼ | ±ÝÈÇÏÀ̺ô | 3 | 27.19 | 500 | 92 | 2018 | | 2024.01.24 | Àü¼¼ | (94-179) | 3 | 54.2 | 19,000 | 0 | 1991 | | 2024.01.24 | ¿ù¼¼ | ½á¹Ô(551-29) | 5 | 27.81 | 22,000 | 5 | 2017 | | 2024.01.24 | Àü¼¼ | ½ºÅÚ¶ó(1432-6) | 8 | 24.18 | 23,000 | 0 | 2017 | | 2024.01.24 | ¿ù¼¼ | ȲÁ¦12(414-11) | 2 | 27.54 | 1,000 | 60 | 1992 | | 2024.01.24 | ¿ù¼¼ | Àº¿¬Àç | 6 | 14.27 | 1,000 | 41 | 2013 | | 2024.01.23 | Àü¼¼ | Á¤¿øºô¶ó | 4 | 34.65 | 12,000 | 0 | 1991 | | 2024.01.23 | ¿ù¼¼ | ¶ó¼ººô¶ó | 4 | 51.62 | 19,200 | 45 | 1995 | | 2024.01.23 | Àü¼¼ | ÀÌÁöºñ¾Æ | 6 | 27.18 | 25,000 | 0 | 2015 | | 2024.01.23 | Àü¼¼ | ÇØ¹Ð | 3 | 51.17 | 20,000 | 0 | 2013 | | 2024.01.23 | ¿ù¼¼ | ÇѾçºô¶ó | -1 | 39.47 | 1,000 | 30 | 1992 | | 2024.01.23 | Àü¼¼ | ÈÞ½ºÅ×ÀÌ | 3 | 29.47 | 29,000 | 0 | 2023 | | 2024.01.23 | ¿ù¼¼ | °Ç±¹ºô¶ó | 4 | 31.04 | 11,000 | 19 | 1993 | | 2024.01.23 | Àü¼¼ | ±¹Á¦¾Ë¾Øµå¾¾ | 4 | 28.47 | 24,500 | 0 | 2018 | | 2024.01.23 | ¿ù¼¼ | ¶ó¼ººô¶ó | 4 | 51.62 | 19,000 | 45 | 1995 | | 2024.01.22 | ¿ù¼¼ | ÇѼۺô | 2 | 17.49 | 1,000 | 54 | 2016 | | 2024.01.22 | ¿ù¼¼ | ÇØÇÇÇϿ콺(10-649) | 2 | 21.09 | 1,000 | 51 | 2003 | | 2024.01.22 | ¿ù¼¼ | ¼®¿µ | 4 | 47 | 25,000 | 30 | 2022 | | 2024.01.22 | ¿ù¼¼ | Æ®¸®ÇÃÈú½º2 | 3 | 29.59 | 4,000 | 110 | 2023 | | 2024.01.22 | ¿ù¼¼ | ÁÁÀº»ç¶÷ÁÁÀºÁý | 3 | 25.96 | 10,000 | 6 | 2016 | | 2024.01.22 | ¿ù¼¼ | ¿¹´Ù¿Ã(501-20) | 4 | 14.15 | 1,000 | 46 | 2016 | | 2024.01.22 | ¿ù¼¼ | ÃÊ¿ø7Â÷ºô¶ó | 4 | 49.77 | 20,000 | 20 | 1996 | | 2024.01.22 | ¿ù¼¼ | (1536-4) | 5 | 46.5 | 10,000 | 50 | 2018 | | 2024.01.20 | ¿ù¼¼ | ÁÁÀº»ç¶÷ÁÁÀºÁý | 4 | 17.04 | 500 | 43 | 2016 | | 2024.01.20 | Àü¼¼ | B.SŸ¿î(1622-15) | 2 | 13.92 | 7,000 | 0 | 2013 | | 2024.01.20 | Àü¼¼ | 98-135 | 2 | 28.04 | 17,600 | 0 | 2014 | | 2024.01.20 | Àü¼¼ | µ¿¹æÆÄ·¹½º´Ùµ¿ | 2 | 35.28 | 10,800 | 0 | 1991 | | 2024.01.20 | ¿ù¼¼ | °æ¿øÇÏÀÌÃ÷ÅÚ | 12 | 21.76 | 2,000 | 55 | 2019 | | 2024.01.20 | ¿ù¼¼ | (1503-2) | 2 | 49.18 | 5,000 | 70 | 2002 | | 2024.01.20 | ¿ù¼¼ | ½ºÆäÀ̽ººô | 5 | 29.82 | 22,500 | 15 | 2020 | | 2024.01.19 | ¿ù¼¼ | ´õÄÉÀÌŸ¿ö | 13 | 21.62 | 3,000 | 74 | 2018 | | 2024.01.19 | Àü¼¼ | û¿î | 3 | 17.28 | 9,000 | 0 | 2013 | | 2024.01.19 | ¿ù¼¼ | °æµµºô | 3 | 84.95 | 2,000 | 25 | 2004 | | 2024.01.19 | Àü¼¼ | È£¼ö¶ã¾Èä(515-14) | 4 | 27.13 | 18,900 | 0 | 2016 | | 2024.01.19 | ¿ù¼¼ | ¾ÆÆ®Ä³½½ | 3 | 16.78 | 2,000 | 69 | 2013 | | 2024.01.19 | ¿ù¼¼ | PROUD(ÇÁ¶ó¿ìµå) | 10 | 27.48 | 19,000 | 30 | 2015 | | 2024.01.18 | ¿ù¼¼ | Áß¿ø¸®Ã÷ºô(1483-5) | 4 | 27.68 | 17,500 | 10 | 2017 | | 2024.01.18 | Àü¼¼ | µ¿¾Æ°¡µ¿ | 3 | 52.89 | 13,000 | 0 | 1982 | | 2024.01.17 | ¿ù¼¼ | ¸íÈÆ´çºô¶ó | 1 | 22.04 | 12,000 | 15 | 2004 | | 2024.01.17 | ¿ù¼¼ | û¿î | 3 | 14.04 | 1,000 | 37 | 2013 | | 2024.01.17 | ¿ù¼¼ | ÇÁ¶óºñ´ÙS(10-356) | 5 | 23.35 | 12,000 | 35 | 2016 | | 2024.01.16 | Àü¼¼ | ¿þ½ºÅÏ | 6 | 25.24 | 24,300 | 0 | 2015 | | 2024.01.16 | ¿ù¼¼ | Àº¿¬Àç | 4 | 15.56 | 1,000 | 42 | 2013 | | 2024.01.16 | ¿ù¼¼ | (1635-46) | 3 | 40.89 | 5,000 | 68 | 2012 | | 2024.01.16 | Àü¼¼ | »ï¼ºÆÄÅ©ºô | 4 | 73.72 | 20,000 | 0 | 2004 | | 2024.01.16 | Àü¼¼ | (596-7) | 4 | 29.66 | 18,000 | 0 | 2020 | | 2024.01.16 | Àü¼¼ | ½ÅÈİ¡ | 3 | 48.31 | 21,500 | 0 | 2016 | | 2024.01.16 | Àü¼¼ | ¸ð´×Èú(1564-9) | 5 | 41.15 | 24,000 | 0 | 2016 | | 2024.01.16 | Àü¼¼ | ¸ð´×Èú(1564-9) | 5 | 41.15 | 24,000 | 0 | 2016 | | 2024.01.16 | Àü¼¼ | Çѳª·¡3Â÷ | 2 | 37.45 | 22,600 | 0 | 2016 | | 2024.01.16 | Àü¼¼ | »ï¼ºÆÄÅ©ºô | 4 | 73.72 | 20,000 | 0 | 2004 | | 2024.01.16 | ¿ù¼¼ | sweetvill | 2 | 45.76 | 20,000 | 20 | 2015 | | 2024.01.15 | Àü¼¼ | ½Å¶óÁÖÅ󪵿 | -1 | 37.14 | 10,000 | 0 | 1986 | | 2024.01.15 | ¿ù¼¼ | ¼º¿ì(1433-180) | 5 | 28.71 | 10,000 | 70 | 2014 | | 2024.01.15 | ¿ù¼¼ | Æ®¸®ÇÃÈú½º2 | 4 | 29.59 | 5,000 | 100 | 2023 | | 2024.01.15 | Àü¼¼ | °Ç±¹ºô¶ó | 3 | 35.67 | 17,000 | 0 | 1993 | | 2024.01.15 | ¿ù¼¼ | (10-367) | 3 | 55.73 | 20,000 | 11 | 2002 | | 2024.01.15 | Àü¼¼ | µ¿¸íÇÏÀÌÃ÷ºô | 2 | 68.38 | 22,000 | 0 | 2002 | | 2024.01.15 | Àü¼¼ | (570-18) | 2 | 48.27 | 20,000 | 0 | 2018 | | 2024.01.15 | ¿ù¼¼ | Áß¾ÓÇÏÀÌÃ÷ºôAµ¿ | 2 | 46.89 | 6,000 | 75 | 2002 | | 2024.01.15 | Àü¼¼ | Á꺣¶ó | 5 | 25.89 | 26,500 | 0 | 2018 | | 2024.01.15 | ¿ù¼¼ | (10-367) | 3 | 55.73 | 20,000 | 11 | 2002 | | 2024.01.14 | ¿ù¼¼ | Æ®¸®ÇÃÈú½º2 | 5 | 28.17 | 5,000 | 100 | 2023 | | 2024.01.13 | ¿ù¼¼ | ÇØÇǺô¸®Áö | 3 | 75.08 | 15,000 | 58 | 2001 | | 2024.01.13 | Àü¼¼ | ÅÂÇÑÇÏÀ̺ô | 8 | 27.27 | 23,000 | 0 | 2016 | | 2024.01.13 | ¿ù¼¼ | ¿¹ÁöÆÓ¸®½º78Â÷(101,102) | 2 | 57.12 | 10,000 | 65 | 2014 | | 2024.01.13 | ¿ù¼¼ | ¿¹ÁöÆÓ¸®½º78Â÷(101,102) | 2 | 57.12 | 10,000 | 65 | 2014 | | 2024.01.13 | ¿ù¼¼ | Áø¼ºÅ¸¿î | 1 | 41.95 | 17,000 | 20 | 1990 | | 2024.01.13 | ¿ù¼¼ | Æ®¸®ÇÃÈú½º2 | 4 | 29.03 | 5,000 | 100 | 2023 | | 2024.01.13 | ¿ù¼¼ | º¸¸®ÇϿ콺 | 4 | 27.36 | 13,000 | 18 | 2017 | | 2024.01.13 | ¿ù¼¼ | ¼¸²µµ½ÃÇü»ýȰÁÖÅà | 5 | 12.32 | 1,000 | 20 | 2013 | | 2024.01.13 | ¿ù¼¼ | ÇØ¶ß´ÂÁý2 | 2 | 14.52 | 2,000 | 37 | 2016 | | 2024.01.13 | Àü¼¼ | ÇѽÅÀ§³Ê½º(1678-24) | 4 | 49.62 | 20,000 | 0 | 2011 | | 2024.01.13 | ¿ù¼¼ | Áø¼ºÅ¸¿î | 1 | 41.95 | 17,000 | 20 | 1990 | | 2024.01.13 | Àü¼¼ | ȼººô¶ó | 2 | 42.57 | 12,000 | 0 | 1989 | | 2024.01.13 | ¿ù¼¼ | ½ÅÈİ¡15Â÷ | 1 | 27.98 | 4,000 | 100 | 2023 | | 2024.01.13 | Àü¼¼ | ½ÅÈİ¡15Â÷ | 3 | 28.17 | 30,000 | 0 | 2023 | | 2024.01.13 | Àü¼¼ | ¿µÁøÇÏÀÌÃ÷ºô¶ó | 2 | 59.86 | 26,000 | 0 | 1996 | | 2024.01.13 | Àü¼¼ | ÀÚ¿¬Ã¤ | 3 | 29.91 | 18,600 | 0 | 2013 | | 2024.01.13 | ¿ù¼¼ | ¼¿ïºô¶ó(598-105) | 2 | 39.69 | 11,600 | 25 | 1993 | | 2024.01.13 | Àü¼¼ | ¸ÞÆ®·ÎŸ¿î8Â÷ | 2 | 43.45 | 30,000 | 0 | 2017 | | 2024.01.13 | Àü¼¼ | ½ÅÈïºô¶ó6Â÷ | 1 | 34.28 | 9,300 | 0 | 1991 | | 2024.01.13 | ¿ù¼¼ | ¼º¿øºô(1667-23) | 4 | 21.2 | 11,000 | 20 | 2017 | | 2024.01.13 | ¿ù¼¼ | µå¸²Çãºê | 9 | 18.12 | 14,000 | 45 | 2019 | | 2024.01.12 | ¿ù¼¼ | Çö´ëº½ | 3 | 12.79 | 500 | 36 | 2013 | | 2024.01.12 | ¿ù¼¼ | Àº¼ººô(1632-15) | 5 | 84.27 | 10,000 | 70 | 2012 | | 2024.01.12 | ¿ù¼¼ | ¼±¤ | 1 | 43.16 | 6,000 | 40 | 2003 | | 2024.01.12 | ¿ù¼¼ | ¿¡µ§ºô¶ó(598-113) | 1 | 63.76 | 3,000 | 75 | 2001 | | 2024.01.12 | ¿ù¼¼ | (610-230) | 2 | 36.49 | 9,500 | 20 | 1986 | | 2024.01.12 | Àü¼¼ | Æç¸®Ã¼ºô¸®Áö | 5 | 36.92 | 21,900 | 0 | 2018 | | 2024.01.12 | Àü¼¼ | (610-239) | -1 | 55.05 | 10,000 | 0 | 1988 | | 2024.01.12 | Àü¼¼ | 98-135 | 3 | 27.43 | 17,500 | 0 | 2014 | | 2024.01.12 | Àü¼¼ | ÁÖ¿øº£¸£ºô(493-7) | 5 | 29.54 | 24,100 | 0 | 2016 | | 2024.01.11 | ¿ù¼¼ | ¿ì¸²¾ÆÆ®ºô | 5 | 37.49 | 2,000 | 55 | 2018 | | 2024.01.11 | ¿ù¼¼ | ¼þ¸íºô¶ó2Â÷ | 1 | 36.72 | 4,000 | 50 | 1994 | | 2024.01.11 | ¿ù¼¼ | ½Å¶óÁÖÅ𡵿 | -1 | 36.9 | 1,000 | 50 | 1986 | | 2024.01.11 | Àü¼¼ | ´õÁöÀ½ | 5 | 27.57 | 29,800 | 0 | 2023 | | 2024.01.11 | Àü¼¼ | ÈÄÀκô¶ó | -1 | 62.01 | 19,000 | 0 | 1995 | | 2024.01.11 | Àü¼¼ | ÈÞij½½ | 3 | 36.09 | 21,900 | 0 | 2014 | | 2024.01.10 | Àü¼¼ | (1446-29) | 2 | 37.36 | 15,000 | 0 | 2005 | | 2024.01.10 | ¿ù¼¼ | ¸®Ã÷¿ÀÇǽºÅÚ&µµ½ÃÇü»ýȰÁÖÅà | 6 | 14.4 | 10,000 | 10 | 2014 | | 2024.01.10 | ¿ù¼¼ | (650-20) | 3 | 29.63 | 694 | 20 | 2021 | | 2024.01.10 | Àü¼¼ | ¼®¿µ | 3 | 46.79 | 27,000 | 0 | 2022 | | 2024.01.10 | Àü¼¼ | ½Å¼ºÅ¸¿î(306-31) | 2 | 59.99 | 18,000 | 0 | 1996 | | 2024.01.10 | ¿ù¼¼ | ³ª½½Ã¤ | 2 | 19.27 | 4,000 | 39 | 2014 | | 2024.01.10 | ¿ù¼¼ | (1502-5) | -1 | 66.03 | 1,000 | 30 | 2004 | | 2024.01.10 | ¿ù¼¼ | ¼±¶óÀÌÁ»ê | 6 | 30.45 | 1,000 | 90 | 2013 | | 2024.01.10 | ¿ù¼¼ | ÇÊÇϿ콺(1439-31) | 4 | 12.27 | 2,000 | 46 | 2013 | | 2024.01.10 | Àü¼¼ | (1652-25) | 4 | 28.7 | 18,900 | 0 | 2014 | | 2024.01.10 | ¿ù¼¼ | ¾ÆÆ®Ä³½½ | 3 | 17.91 | 1,000 | 75 | 2013 | | 2024.01.10 | ¿ù¼¼ | sweetvill | 5 | 18.33 | 1,000 | 58 | 2015 | | 2024.01.10 | Àü¼¼ | »ïȺô(601-10) | 2 | 47.91 | 23,000 | 0 | 2017 | | 2024.01.09 | Àü¼¼ | »ïâºô¶ó | 1 | 60.45 | 17,800 | 0 | 2003 | | 2024.01.09 | ¿ù¼¼ | (1520-2) | 3 | 15.76 | 2,000 | 53 | 2013 | | 2024.01.09 | ¿ù¼¼ | (1520-2) | 3 | 15.76 | 2,000 | 53 | 2013 | | 2024.01.09 | Àü¼¼ | ¼®¿µ | 2 | 38.41 | 27,000 | 0 | 2022 | | 2024.01.09 | ¿ù¼¼ | Àº¿¬Àç | 5 | 14.27 | 1,000 | 45 | 2013 | | 2024.01.09 | ¿ù¼¼ | U2 | 4 | 13.09 | 2,000 | 45 | 2012 | | 2024.01.09 | ¿ù¼¼ | ¾ÆÆ®¶ó¿ò(103-139) | 4 | 29.54 | 5,000 | 100 | 2022 | | 2024.01.09 | ¿ù¼¼ | ¸®¾ØÃÊÀ̽º | 9 | 29.97 | 30,000 | 25 | 2023 | | 2024.01.09 | ¿ù¼¼ | ÇѾ縮Ã÷ºô | 6 | 42.84 | 3,000 | 110 | 2014 | | 2024.01.09 | ¿ù¼¼ | ´Ù¿ÂŸ¿ö | 7 | 26.03 | 3,000 | 120 | 2022 | | 2024.01.09 | ¿ù¼¼ | ½Å¿µºô¶ó(1454-11) | 1 | 39 | 12,000 | 25 | 1987 | | 2024.01.09 | ¿ù¼¼ | ½º¸¶Æ®ºô | 2 | 29.04 | 5,000 | 70 | 2013 | | 2024.01.09 | Àü¼¼ | ±¹Á¦¾Ë¾Øµå¾¾ | 3 | 26.48 | 24,500 | 0 | 2018 | | 2024.01.09 | ¿ù¼¼ | ÁÁÀº»ç¶÷ÁÁÀºÁý | 2 | 25.96 | 500 | 50 | 2016 | | 2024.01.09 | ¿ù¼¼ | Çö´ëº½ | 5 | 12.79 | 500 | 47 | 2013 | | 2024.01.09 | ¿ù¼¼ | ÁÁÀº»ç¶÷ÁÁÀºÁý | 2 | 25.96 | 500 | 50 | 2016 | | 2024.01.09 | ¿ù¼¼ | À§³Ê½º | 8 | 29.37 | 25,000 | 10 | 2015 | | 2024.01.08 | ¿ù¼¼ | ´Ù»êºô(1627-90) | 2 | 27.35 | 16,880 | 30 | 2012 | | 2024.01.08 | Àü¼¼ | ¿ÏÁø¾ÆÆ®ºô | 2 | 85.66 | 28,500 | 0 | 2005 | | 2024.01.08 | Àü¼¼ | ÇѾ縮Ã÷ºô(610-405) | 4 | 56.77 | 18,300 | 0 | 2012 | | 2024.01.08 | Àü¼¼ | ÇѾ縮Ã÷ºô(610-405) | 4 | 56.77 | 18,300 | 0 | 2012 | | 2024.01.08 | ¿ù¼¼ | ´Ù»êºô(1627-90) | 2 | 27.35 | 16,880 | 30 | 2012 | | 2024.01.08 | ¿ù¼¼ | ´Ù»êºô(1627-90) | 2 | 27.35 | 16,880 | 30 | 2012 | | 2024.01.08 | Àü¼¼ | ¿ÏÁø¾ÆÆ®ºô | 2 | 85.66 | 28,500 | 0 | 2005 | | 2024.01.08 | ¿ù¼¼ | ´Ù¼Øºô¶ó | 3 | 45.28 | 18,000 | 10 | 2004 | | 2024.01.08 | Àü¼¼ | TeraTower | 9 | 29.82 | 18,000 | 0 | 2018 | | 2024.01.08 | Àü¼¼ | Á꺣¶ó | 6 | 24.03 | 25,200 | 0 | 2018 | | 2024.01.08 | Àü¼¼ | TeraTower | 9 | 29.82 | 18,000 | 0 | 2018 | | 2024.01.08 | Àü¼¼ | ´ë¾çŸ¿î | 3 | 40.44 | 20,000 | 0 | 1992 | | 2024.01.07 | Àü¼¼ | ¼º°ø¸®Ä¡ºô | 2 | 29.92 | 22,500 | 0 | 2021 | | 2024.01.07 | Àü¼¼ | 650-22 | 2 | 46.75 | 24,000 | 0 | 2016 | | 2024.01.06 | Àü¼¼ | (1572-1) | 2 | 13.87 | 13,000 | 0 | 2017 | | 2024.01.06 | ¿ù¼¼ | ¸®¾ØÃÊÀ̽º | 10 | 25.68 | 4,000 | 150 | 2023 | | 2024.01.06 | ¿ù¼¼ | ÇѼººô¶ó | 2 | 37.15 | 11,000 | 25 | 1990 | | 2024.01.06 | Àü¼¼ | ¿ø¾ÓÇϿ콺 | 2 | 44.89 | 28,000 | 0 | 2015 | | 2024.01.06 | ¿ù¼¼ | YUHABA | 5 | 23.74 | 1,000 | 53 | 2012 | | 2024.01.06 | Àü¼¼ | ±ÝÈ£¸Ç¼Ç(1570-28) | 5 | 47.32 | 16,000 | 0 | 2002 | | 2024.01.06 | Àü¼¼ | ±ÝÈ£¸Ç¼Ç(1570-28) | 5 | 47.32 | 16,000 | 0 | 2002 | | 2024.01.06 | ¿ù¼¼ | ¹ÂÁöÄÃÆÄÅ© | 3 | 29.95 | 10,000 | 35 | 2014 | | 2024.01.06 | ¿ù¼¼ | ÇÏ´Ãä | 7 | 27.6 | 18,900 | 20 | 2016 | | 2024.01.06 | ¿ù¼¼ | Àº¼ººôµù | 2 | 22.1 | 4,000 | 51 | 2008 | | 2024.01.06 | ¿ù¼¼ | ü³ªÄݺô | 5 | 29.78 | 3,000 | 105 | 2021 | | 2024.01.06 | ¿ù¼¼ | (1659-18) | 3 | 53.87 | 500 | 60 | 2004 | | 2024.01.05 | Àü¼¼ | (231-37) | 1 | 116.85 | 8,000 | 0 | 1976 | | 2024.01.05 | Àü¼¼ | ·ÎÅͽººô2(255-182) | 2 | 72.38 | 12,000 | 0 | 2009 | | 2024.01.05 | Àü¼¼ | ·ÎÅͽººô2(255-182) | 4 | 72.68 | 13,000 | 0 | 2009 | | 2024.01.05 | ¿ù¼¼ | (103-219) | 4 | 84.43 | 1,500 | 32 | 2001 | | 2024.01.05 | ¿ù¼¼ | (103-219) | 3 | 84.43 | 1,500 | 32 | 2001 | | 2024.01.05 | Àü¼¼ | (466-13) | 4 | 23.22 | 9,400 | 0 | 2002 | | 2024.01.05 | ¿ù¼¼ | ´Ù¿ÂŸ¿ö | 7 | 34.07 | 5,000 | 130 | 2022 | | 2024.01.05 | ¿ù¼¼ | FillYou | 8 | 14.87 | 15,000 | 4 | 2016 | | 2024.01.05 | ¿ù¼¼ | º£¸£Ã¼ | 4 | 26.61 | 15,000 | 30 | 2015 | | 2024.01.05 | ¿ù¼¼ | ÆÄÅ©ºô | 6 | 25.56 | 21,000 | 10 | 2016 | | 2024.01.04 | Àü¼¼ | ¾çÁö±×¸°ºô³ªµ¿ | 3 | 57.74 | 26,000 | 0 | 2001 | | 2024.01.04 | ¿ù¼¼ | Àº¿¬Àç | 6 | 15.56 | 500 | 52 | 2013 | | 2024.01.04 | ¿ù¼¼ | ´ëÇÐÃ̺ô¶ó | 3 | 33.92 | 9,000 | 15 | 1991 | | 2024.01.04 | Àü¼¼ | (414-55) | -1 | 38.88 | 4,000 | 0 | 1992 | | 2024.01.04 | Àü¼¼ | (414-55) | -1 | 38.88 | 4,000 | 0 | 1992 | | 2024.01.04 | ¿ù¼¼ | Å©³ªÅ«ÇϿ콺 | 4 | 29.76 | 1,000 | 51 | 2016 | | 2024.01.04 | ¿ù¼¼ | ·ÎÇϽº | 6 | 12.67 | 12,000 | 8 | 2012 | | 2024.01.03 | ¿ù¼¼ | Á¤Çöºô(1429-26) | 6 | 31.76 | 17,000 | 30 | 2013 | | 2024.01.03 | Àü¼¼ | Çö´ëºô¶ó | 1 | 31.62 | 8,700 | 0 | 1992 | | 2024.01.03 | ¿ù¼¼ | Àº¿¬Àç | 6 | 15.61 | 500 | 45 | 2013 | | 2024.01.03 | ¿ù¼¼ | ¼¾Æ®¶ó³ë½Å¸² | 4 | 22.47 | 21,000 | 10 | 2021 | | 2024.01.03 | ¿ù¼¼ | (1520-2) | 3 | 15.76 | 1,000 | 50 | 2013 | | 2024.01.03 | Àü¼¼ | 98-439 | 2 | 28.29 | 16,880 | 0 | 2014 | | 2024.01.03 | ¿ù¼¼ | ¼¾Æ®¶ó³ë½Å¸² | 4 | 22.47 | 21,000 | 10 | 2021 | | 2024.01.03 | Àü¼¼ | Æç¸®Ã¼ºô¸®Áö | 4 | 48.96 | 23,000 | 0 | 2018 | | 2024.01.02 | Àü¼¼ | »ïȺô¶ó(463-12) | 3 | 48.91 | 20,000 | 0 | 1992 | | 2024.01.02 | ¿ù¼¼ | ÈúÇ÷¹À̽º | 3 | 52.17 | 29,000 | 5 | 2018 | | 2024.01.01 | Àü¼¼ | »þÀκô¸®Áö | 5 | 23.35 | 21,900 | 0 | 2015 |
|
|
|
 |
ÀÓÂ÷³»¿ª |
[¹è´ç¿ä±¸Á¾±âÀÏ : 2025/03/26] |
|
|
| ÀÓÂ÷ÀÎ |
Á¡À¯°ü°è |
ÀüÀÔÀÏÀÚ |
È®Á¤ÀÏÀÚ |
¹è´ç¿ä±¸ÀÏ |
º¸Áõ±Ý/Â÷ÀÓ |
´ëÇ׿ä°Ç |
ºñ°í |
| Á¤OO |
ÀüÀ¯ºÎºÐÀüºÎ |
2022.02.15. |
2022.01.14. |
|
215,000,000
|
O |
2022.02.15. |
| ÁÖOOOOOOOOOOOO |
Á¦508È£ÀüºÎ |
2022.2.15. |
2022.1.14. |
2025.7.15. |
215,000,000
|
O |
2022.2.15~2024.2.14. |
| ¸Å°¢¹°°Ç¸í¼¼ ºñ°í |
ÁÖÅõµ½Ãº¸Áõ°ø»ç(Á¤È¿È¯):½Åûä±ÇÀÚ °â ÀÓÂ÷ÀÎ Á¤È¿È¯ÀÇ ÀÓÂ÷º¸Áõ±Ý ¿ì¼±º¯Á¦±Ç ½Â°èÀÎÀÓ(ÁÖÅÃÀÓ´ëÂ÷º¸È£¹ý Á¦3Á¶ÀÇ2 Á¦7
Ç×) |
|
|
|
 |
Áö¿ªºÐ¼® |
|
|
|
|
| ÁöÇÏö |
|
Çб³ |
|
| °ü°ø¼ |
|
| ¹ý¿ø |
¼¿ïÁß¾ÓÁö¹æ¹ý¿ø (065-94)¼¿ïƯº°½Ã ¼Ãʱ¸ ¼ÃÊÁß¾Ó·Î 157 (¼Ãʵ¿) ´ëÇ¥ : 02)530-1114, ¾ß°£ : 02)530-1280/536-8003 Á¾·Î±¸, Áß±¸, °³²±¸, ¼Ãʱ¸, °ü¾Ç±¸, µ¿ÀÛ±¸ |
| µî±â¼Ò |
¼¿ïÁß¾ÓÁö¹æ¹ý¿ø º»¿ø µî±â±¹ (´ëÇ¥:1544-0773, ÆÑ½º:(02)590-1881, ¼¿ïƯº°½Ã ¼Ãʱ¸ ¹ý¿ø·Î3±æ 14 (¼Ãʵ¿ 1707-4)) |
| ¼¼¹«¼ |
°ü¾Ç¼¼¹«¼ (´ëÇ¥:02-2173-42, ÆÑ½º:02-2173-4269, ¼¿ïƯº°½Ã °ü¾Ç±¸ ¹®¼º·Î 187(½Å¸²µ¿)) |
|
|
|
 |
¹ý¿ø ¹°°ÇÀÚ·á ¿ä¾à |
|
|
|
|
| ¼Ò¸êµÇÁö ¾Ê´Â µî±âºÎ±Ç¸® |
¸Å¼öÀο¡°Ô ´ëÇ×ÇÒ ¼ö ÀÖ´Â À»±¸ 1¹ø ÀÓÂ÷±Çµî±â(ÀÓ´ëÂ÷º¸Áõ±Ý 215,000,000 ¿ø, ÀüÀÔÀÏÀÚ 2022.02.15., È®Á¤ÀÏÀÚ 2022.01.14.)°¡
ÀÖÀ¸¹Ç·Î ¹è´ç¿¡¼ Àü¾× º¯Á¦µÇÁö ¾Æ´ÏÇϸé Àܾ×À» ¸Å¼öÀÎÀÌ ÀμöÇÔ(¶Ç´Â Àܾ×Àº ¸Å¼öÀο¡°Ô ÀμöµÉ ¼ö ÀÖÀ½) |
| ¼³Á¤µÈ °ÍÀ¸·Î º¸´Â Áö»ó±Ç |
|
| ¹ý¿øÀÚ·á Æ¯ÀÌ»çÇ× |
|
| ¿©ÀÇÁÖ°æ¸Å Á¶¾ð ÇѸ¶µð |
ÀÌ ºÎµ¿»êÀÇ ÀÔÂû¹ý¿øÀº ¼¿ïÁß¾ÓÁö¹æ¹ý¿øÀÔ´Ï´Ù.
ÀÔÂûÀÏÀº 2025-12-09ÀÔ´Ï´Ù.
ÀÔÂû½Ã°£Àº ~11:00ÀÔ´Ï´Ù. ÀÌ ¹ý¿ø¿¡´Â ½ÅÇÑÀºÇàÀÌ ÀÔÁ¡Çϰí ÀÖ½À´Ï´Ù.
|
¼±¼øÀ§ ÀÓÂ÷±Çµî±â°¡ µÇ¾î ÀÖ½À´Ï´Ù ´ëÇ×·ÂÀÌ ÀÖ´Â ¼±¼øÀ§ ÀÓÂ÷±Çµî±â ±Ç¸®ÀÚ°¡ ¹è´çÀ» Àü¾× ¹ÞÁö ¸øÇÒ °æ¿ì ³«ÂûÀÚ°¡ ÀÜ¿© º¸Áõ±ÝÀ» ÀμöÇØ¾ßÇÏ´Â °æ¿ìµµ ÀÖ½À´Ï´Ù. |
|
|
| Åë°è±â°£ |
³«Âû¹°°Ç¼ö |
Æò±Õ°¨Á¤°¡ |
Æò±Õ³«Âû°¡ |
³«Âû°¡À² |
À¯ÂûȽ¼ö |
| 3°³¿ù |
10°Ç |
329,900,000¿ø |
274,951,966¿ø |
85% |
2.5ȸ |
| 6°³¿ù |
16°Ç |
275,875,000¿ø |
240,795,666¿ø |
87% |
1.9ȸ |
| 12°³¿ù |
17°Ç |
292,705,882¿ø |
253,078,274¿ø |
87% |
1.8ȸ |
|
|
|
|
|
|
 |
|