|
|
| ¼ÒÀçÁö |
¼¿ïƯº°½Ã °ü¾Ç±¸ ½Å¸²µ¿ 1568-5 ´õÀ§Àϰü¾ÇÆÄÅ©ºä 8Ãþ804È£
|
|
| »ç°Ç¹øÈ£ |
2025 Ÿ°æ 102186 |
¹°°Ç¹øÈ£ |
1
|
¹°°Ç¿ëµµ |
¿ÀÇǽºÅÚ |
| °¨Á¤Æò°¡¾× |
240,000,000¿ø |
°æ¸Å´ë»ó |
ÅäÁö ¹× °Ç¹°Àϰý ¸Å°¢ |
ÁøÇà»óÅ |
À¯Âû |
| ÃÖÀúÀÔÂû°¡ |
(51%) 122,880,000¿ø
|
°Ç¹°¸éÀû |
17.30§³(5.23Æò) |
ÀÔÂû±âÀÏ |
2025.12.10(¼ö) 10:00
(ÀÔÂû 6ÀÏÀü)
|
| ÀÔÂûº¸Áõ±Ý |
(10%) 12,288,000¿ø |
ÅäÁö¸éÀû |
4.09§³(1.24Æò)
|
À¯ÂûȽ¼ö |
3ȸ |
| ÀÔÂû¹ý¿ø |
¼¿ïÁß¾ÓÁö¹æ¹ý¿ø |
°æ¸Å¹æ¹ý |
|
¹°°ÇÁ¶È¸¼ö |
¿À´Ã: 1ȸ [´©Àû: 35ȸ]
|
| ¸»¼Ò±âÁØ | ÃÖ¼±¼øÀ§ ¼³Á¤ : 2023.03.20. ¾Ð·ù ¼³Á¤
|
|
|
|
|
|
|
|
|
|
|
°æ¸Å´ë»ó ¸ñ·Ï
|
|
| ±¸ºÐ |
¸ñ·Ï |
ÁÖ¼Ò |
±¸Á¶/¿ëµµ/´ëÁö±Ç |
ºñ°í |
´ëÁö±Ç
|
1 |
½Å¸²µ¿ 1568-5 |
589.6ºÐÀÇ 4.088 |
4.088§³ (1.24Æò)
|
°Ç¹°
|
1 |
½Å¸²µ¿ 1568-5 |
8Ãþ804È£ ö±ÙÄÜÅ©¸®Æ®±¸Á¶ |
17.3§³ (5.23Æò)
|
|
|
|
2025-08-20
À¯Âû
|
(100%)
240,000,000¿ø
|
|
|
|
2025-09-24
À¯Âû
|
(80%)
192,000,000¿ø
|
|
|
|
2025-11-05
À¯Âû
|
(64%)
153,600,000¿ø
|
|
|
|
2025-12-10
ÁøÇà
|
(51%)
122,880,000¿ø
|
|
|
|
|
|
|
|
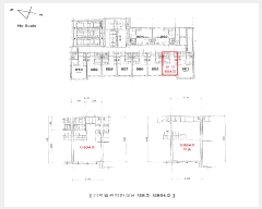
°ÇÃ๰ÇöȲ |
|
|
|
| ¼ÒÀçÁö |
¼¿ïƯº°½Ã °ü¾Ç±¸ ½Å¸²µ¿ 1568-5¹øÁö |
| ´ëÁö¸éÀû |
589.6§³(178.67Æò) |
¿¬¸éÀû |
3974.81§³(1204.49Æò) |
ÁÖ¿ëµµ |
¾÷¹«½Ã¼³ |
| °ÇÃà¸éÀû |
352.96§³(106.96Æò) |
¿ëÀû·ü»êÁ¤¿¬¸éÀû |
3654.84§³(1107.53Æò) |
Âø°øÀÏÀÚ |
2020.12.15 |
| °ÇÆóÀ² |
59.86% |
¿ëÀû·ü |
619.88% |
»ç¿ë½ÂÀÎÀÏÀÚ |
2021.12.13 |
| Áö»óÃþ¼ö |
14Ãþ |
ÁöÇÏÃþ¼ö |
1Ãþ |
±¸Á¶ |
ö±ÙÄÜÅ©¸®Æ®±¸Á¶ |
°ÇÃ๰Ãþº°ÇöȲ [º¸±â]| Ãþº° | ±¸Á¶ | ¿ëµµ | ¸éÀû | | 1Ãþ | ö±ÙÄÜÅ©¸®Æ®±¸Á¶ | ±â°è½ÄÁÖÂ÷Àå | 50.51§³ (15.31Æò) | | 1Ãþ | ö±ÙÄÜÅ©¸®Æ®±¸Á¶ | ÈÞ°ÔÀ½½ÄÁ¡ | 179.11§³ (54.28Æò) | | 2Ãþ | ö±ÙÄÜÅ©¸®Æ®±¸Á¶ | ÀϹÝÀ½½ÄÁ¡ | 125.05§³ (37.89Æò) | | 2Ãþ | ö±ÙÄÜÅ©¸®Æ®±¸Á¶ | ÈÞ°ÔÀ½½ÄÁ¡ | 108.04§³ (32.74Æò) | | 3Ãþ | ö±ÙÄÜÅ©¸®Æ®±¸Á¶ | ¿ÀÇǽºÅÚ | 270.22§³ (81.88Æò) | | 4Ãþ | ö±ÙÄÜÅ©¸®Æ®±¸Á¶ | ¿ÀÇǽºÅÚ | 270.22§³ (81.88Æò) | | 5Ãþ | ö±ÙÄÜÅ©¸®Æ®±¸Á¶ | ¿ÀÇǽºÅÚ | 270.22§³ (81.88Æò) | | 6Ãþ | ö±ÙÄÜÅ©¸®Æ®±¸Á¶ | ¿ÀÇǽºÅÚ | 270.22§³ (81.88Æò) | | 7Ãþ | ö±ÙÄÜÅ©¸®Æ®±¸Á¶ | ¿ÀÇǽºÅÚ | 270.22§³ (81.88Æò) | | 8Ãþ | ö±ÙÄÜÅ©¸®Æ®±¸Á¶ | ¿ÀÇǽºÅÚ | 270.22§³ (81.88Æò) | | 9Ãþ | ö±ÙÄÜÅ©¸®Æ®±¸Á¶ | ¿ÀÇǽºÅÚ | 270.22§³ (81.88Æò) | | 10Ãþ | ö±ÙÄÜÅ©¸®Æ®±¸Á¶ | ¿ÀÇǽºÅÚ | 270.22§³ (81.88Æò) | | 11Ãþ | ö±ÙÄÜÅ©¸®Æ®±¸Á¶ | ¿ÀÇǽºÅÚ | 270.22§³ (81.88Æò) | | 12Ãþ | ö±ÙÄÜÅ©¸®Æ®±¸Á¶ | ¿ÀÇǽºÅÚ | 270.22§³ (81.88Æò) | | 13Ãþ | ö±ÙÄÜÅ©¸®Æ®±¸Á¶ | ¿ÀÇǽºÅÚ | 270.22§³ (81.88Æò) | | 14Ãþ | ö±ÙÄÜÅ©¸®Æ®±¸Á¶ | ¿ÀÇǽºÅÚ | 270.22§³ (81.88Æò) | | ¿Áž1Ãþ | ö±ÙÄÜÅ©¸®Æ®±¸Á¶ | ¿Áž(¿¬¸éÀû Á¦¿Ü) | 21.38§³ (6.48Æò) | | Áö1 | ö±ÙÄÜÅ©¸®Æ®±¸Á¶ | ±â°è½Ç, Àü±â½Ç µî | 269.46§³ (81.65Æò) |
|
|
|
|
|
|
|
|
|
¸éÀû(§³), ±Ý¾×(¸¸¿ø)
| °è¾àÀÏ | ±âÁØ | °Ç¹°¸íĪ | Ãþ | Àü¿ë¸éÀû | °Å·¡±Ý¾× | °ÇÃà³âµµ | | °Å·¡³»¿ªÀÌ ¾ø½À´Ï´Ù. |
| °è¾àÀÏ | ±âÁØ | °Ç¹°¸íĪ | Ãþ | Àü¿ë¸éÀû | º¸Áõ±Ý | ¿ù¼¼ | °ÇÃà³âµµ | | 2025.08.05 | ¿ù¼¼ | ´õÀ§Àϰü¾ÇÆÄÅ©ºä | 14 | 18.86 | 100 | 70 | 2021 | | 2025.06.27 | ¿ù¼¼ | ´õÀ§Àϰü¾ÇÆÄÅ©ºä | 5 | 17.3 | 100 | 70 | 2021 | | 2025.05.29 | ¿ù¼¼ | ´õÀ§Àϰü¾ÇÆÄÅ©ºä | 10 | 17.3 | 100 | 75 | 2021 | | 2025.02.16 | ¿ù¼¼ | ´õÀ§Àϰü¾ÇÆÄÅ©ºä | 3 | 17.3 | 3,000 | 75 | 2021 | | 2025.01.06 | ¿ù¼¼ | ´õÀ§Àϰü¾ÇÆÄÅ©ºä | 6 | 18.86 | 70 | 70 | 2021 | | 2024.12.14 | Àü¼¼ | ´õÀ§Àϰü¾ÇÆÄÅ©ºä | 11 | 17.3 | 20,000 | 0 | 2021 | | 2024.12.03 | ¿ù¼¼ | ´õÀ§Àϰü¾ÇÆÄÅ©ºä | 13 | 17.3 | 70 | 70 | 2021 | | 2024.11.19 | ¿ù¼¼ | ´õÀ§Àϰü¾ÇÆÄÅ©ºä | 3 | 18.86 | 100 | 70 | 2021 | | 2024.04.26 | ¿ù¼¼ | ´õÀ§Àϰü¾ÇÆÄÅ©ºä | 10 | 17.3 | 100 | 70 | 2021 | | 2024.03.30 | Àü¼¼ | ´õÀ§Àϰü¾ÇÆÄÅ©ºä | 7 | 19.97 | 24,000 | 0 | 2021 | | 2024.02.04 | Àü¼¼ | ´õÀ§Àϰü¾ÇÆÄÅ©ºä | 13 | 17.3 | 20,000 | 0 | 2021 | | 2024.01.05 | Àü¼¼ | ´õÀ§Àϰü¾ÇÆÄÅ©ºä | 13 | 17.3 | 20,000 | 0 | 2021 |
|
|
|
 |
ÀÓÂ÷³»¿ª |
[¹è´ç¿ä±¸Á¾±âÀÏ : 2025/05/07] |
|
|
| ÀÓÂ÷ÀÎ |
Á¡À¯°ü°è |
ÀüÀÔÀÏÀÚ |
È®Á¤ÀÏÀÚ |
¹è´ç¿ä±¸ÀÏ |
º¸Áõ±Ý/Â÷ÀÓ |
´ëÇ׿ä°Ç |
ºñ°í |
| ±èOO |
ÀüÀ¯ºÎºÐÀüºÎ |
2022.02.28. |
2022.01.20. |
|
240,000,000
|
O |
2022.02.28. |
| ÁÖOOOOOOOOOOOO |
ÀüÀ¯ºÎºÐÀüºÎ |
2022.02.28. |
2022.01.20. |
|
240,000,000
|
O |
2022.02.28. |
| ¸Å°¢¹°°Ç¸í¼¼ ºñ°í |
ÀÌ »ç°Ç °æ¸Å½Åûä±ÇÀÚ ÁÖÅõµ½Ãº¸Áõ°ø»ç°¡ ÀÓÂ÷ÀÎ ±è¼±È£ÀÇ ÀÓÂ÷º¸Áõ±Ý¹Ýȯä±ÇÀ» ½Â°èÇÔ(ÁÖÅÃÀÓ´ëÂ÷º¸È£¹ý Á¦3Á¶ÀÇ2 Á¦7Ç×). |
|
|
|
 |
Áö¿ªºÐ¼® |
|
|
|
|
| ÁöÇÏö |
|
Çб³ |
|
| °ü°ø¼ |
|
| ¹ý¿ø |
¼¿ïÁß¾ÓÁö¹æ¹ý¿ø (065-94)¼¿ïƯº°½Ã ¼Ãʱ¸ ¼ÃÊÁß¾Ó·Î 157 (¼Ãʵ¿) ´ëÇ¥ : 02)530-1114, ¾ß°£ : 02)530-1280/536-8003 Á¾·Î±¸, Áß±¸, °³²±¸, ¼Ãʱ¸, °ü¾Ç±¸, µ¿ÀÛ±¸ |
| µî±â¼Ò |
¼¿ïÁß¾ÓÁö¹æ¹ý¿ø º»¿ø µî±â±¹ (´ëÇ¥:1544-0773, ÆÑ½º:(02)590-1881, ¼¿ïƯº°½Ã ¼Ãʱ¸ ¹ý¿ø·Î3±æ 14 (¼Ãʵ¿ 1707-4)) |
| ¼¼¹«¼ |
°ü¾Ç¼¼¹«¼ (´ëÇ¥:02-2173-42, ÆÑ½º:02-2173-4269, ¼¿ïƯº°½Ã °ü¾Ç±¸ ¹®¼º·Î 187(½Å¸²µ¿)) |
|
|
|
 |
¹ý¿ø ¹°°ÇÀÚ·á ¿ä¾à |
|
|
|
|
| ¼Ò¸êµÇÁö ¾Ê´Â µî±âºÎ±Ç¸® |
À»±¸ ¼øÀ§ 3¹ø ÁÖÅÃÀÓÂ÷±Çµî±â(ÀÓ´ëÂ÷º¸Áõ±Ý 240,000,000¿ø, ÀüÀÔÀÏ 2022. 2. 28. È®Á¤ÀÏÀÚ 2022. 1. 20.)´Â ¹è´ç¿¡¼ º¸Áõ±ÝÀÌ
Àü¾× º¯Á¦µÇÁö ¾Æ´ÏÇϸé Àܾ×À» ¸Å¼öÀÎÀÌ ÀμöÇÔ. |
| ¼³Á¤µÈ °ÍÀ¸·Î º¸´Â Áö»ó±Ç |
|
| ¹ý¿øÀÚ·á Æ¯ÀÌ»çÇ× |
|
| ¿©ÀÇÁÖ°æ¸Å Á¶¾ð ÇѸ¶µð |
ÀÌ ºÎµ¿»êÀÇ ÀÔÂû¹ý¿øÀº ¼¿ïÁß¾ÓÁö¹æ¹ý¿øÀÔ´Ï´Ù.
ÀÔÂûÀÏÀº 2025-12-10ÀÔ´Ï´Ù.
ÀÔÂû½Ã°£Àº ~11:00ÀÔ´Ï´Ù. ÀÌ ¹ý¿ø¿¡´Â ½ÅÇÑÀºÇàÀÌ ÀÔÁ¡Çϰí ÀÖ½À´Ï´Ù.
|
¼±¼øÀ§ ÀÓÂ÷±Çµî±â°¡ µÇ¾î ÀÖ½À´Ï´Ù ´ëÇ×·ÂÀÌ ÀÖ´Â ¼±¼øÀ§ ÀÓÂ÷±Çµî±â ±Ç¸®ÀÚ°¡ ¹è´çÀ» Àü¾× ¹ÞÁö ¸øÇÒ °æ¿ì ³«ÂûÀÚ°¡ ÀÜ¿© º¸Áõ±ÝÀ» ÀμöÇØ¾ßÇÏ´Â °æ¿ìµµ ÀÖ½À´Ï´Ù. |
|
|
| Åë°è±â°£ |
³«Âû¹°°Ç¼ö |
Æò±Õ°¨Á¤°¡ |
Æò±Õ³«Âû°¡ |
³«Âû°¡À² |
À¯ÂûȽ¼ö |
| 3°³¿ù |
8°Ç |
185,762,500¿ø |
158,639,713¿ø |
82% |
2.4ȸ |
| 6°³¿ù |
13°Ç |
773,205,686¿ø |
624,382,729¿ø |
85% |
2ȸ |
| 12°³¿ù |
13°Ç |
773,205,686¿ø |
624,382,729¿ø |
85% |
2ȸ |
|
|
|
|
|
|
 |
|