|
|
| ¼ÒÀçÁö |
¿ï»ê±¤¿ª½Ã ³²±¸ Áß¾Ó·Î 158, 6Ãþ 602È£
±¸)¿ï»ê±¤¿ª½Ã ³²±¸ ´Þµ¿ 881-10
|
|
| »ç°Ç¹øÈ£ |
2024 Ÿ°æ 110397 |
¹°°Ç¹øÈ£ |
1
|
¹°°Ç¿ëµµ |
¿ÀÇǽºÅÚ |
| °¨Á¤Æò°¡¾× |
268,000,000¿ø |
°æ¸Å´ë»ó |
ÅäÁö ¹× °Ç¹°Àϰý ¸Å°¢ |
ÁøÇà»óÅ |
À¯Âû |
| ÃÖÀúÀÔÂû°¡ |
(34%) 91,924,000¿ø
|
°Ç¹°¸éÀû |
46.77§³(14.15Æò) |
ÀÔÂû±âÀÏ |
2025.12.10(¼ö) 10:00
(ÀÔÂû 6ÀÏÀü)
|
| ÀÔÂûº¸Áõ±Ý |
(10%) 9,192,400¿ø |
ÅäÁö¸éÀû |
7.44§³(2.25Æò)
|
À¯ÂûȽ¼ö |
3ȸ |
| ÀÔÂû¹ý¿ø |
¿ï»êÁö¹æ¹ý¿ø |
°æ¸Å¹æ¹ý |
|
¹°°ÇÁ¶È¸¼ö |
¿À´Ã: 3ȸ [´©Àû: 54ȸ]
|
| ¸»¼Ò±âÁØ | ÃÖ¼±¼øÀ§ ¼³Á¤ : 2024.04.11. °¡¾Ð·ù ¼³Á¤
|
|
|
|
|
|
|
|
|
|
|
°æ¸Å´ë»ó ¸ñ·Ï
|
|
| ±¸ºÐ |
¸ñ·Ï |
ÁÖ¼Ò |
±¸Á¶/¿ëµµ/´ëÁö±Ç |
ºñ°í |
´ëÁö±Ç
|
1 |
´Þµ¿ 881-10 |
395.7ºÐÀÇ 7.4396 |
7.4396§³ (2.25Æò)
|
°Ç¹°
|
1 |
´Þµ¿ 881-10 |
6Ãþ 602È£ ö±ÙÄÜÅ©¸®Æ®±¸Á¶ |
46.7659§³ (14.15Æò)
|
|
|
|
2025-08-27
À¯Âû
|
(100%)
268,000,000¿ø
|
|
|
|
2025-10-01
À¯Âû
|
(70%)
187,600,000¿ø
|
|
|
|
2025-11-05
À¯Âû
|
(49%)
131,320,000¿ø
|
|
|
|
2025-12-10
ÁøÇà
|
(34%)
91,924,000¿ø
|
|
|
|
|
|
°¨Á¤Æò°¡¼ ¿ä¾à |
|
[À§Ä¡/ÁÖÀ§È¯°æ]
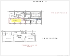
º»°ÇÀº ¿ï»ê±¤¿ª½Ã ³²±¸ ´Þµ¿ ¼ÒÀç "·Ôµ¥¸¶Æ®" ºÏ¼Ãø Àαٿ¡ ¼ÒÀçÇÏ´Â ÇöĪ"»Ú¶ìÆÈ·¹µå½ÃƼ" 6Ãþ 602È£·Î¼, ÁÖÀ§´Â ³ëº¯ »ó°¡Áö´ë·Î »ó°¡, ¿ÀÇǽººôµù, ¿ÀÇǽºÅÚ µîÀ¸·Î Çü¼ºµÇ¾î ÀÖ½À´Ï´Ù.
[±³Åë»óȲ]
º»°Ç±îÁö Á¦Â÷·® Á¢±Ù °¡´ÉÇϸç, Àαٿ¡ ½Ã³»¹ö½ºÁ¤·ùÀåÀÌ ¼ÒÀçÇÏ¿© °£¼±µµ·ÎÀÎ Á߾ӷκ¯¿¡ À§Ä¡ÇÏ¿© Á¦¹Ý ±³Åë»çÁ¤Àº ºñ±³Àû ¾çÈ£ÇÑÆíÀÓ.
[°Ç¹°±¸Á¶]
ö±ÙÄÜÅ©¸®Æ®±¸Á¶ (ö±Ù)ÄÜÅ©¸®Æ®ÁöºØ 18Ãþ Áß 6Ãþ 602·ÎÈ£¼
¿Üº® : Ä¡Àå¼®ºÙÀÓ, º¹ÇÕÆÇ³Ú µî ¸¶°¨
³»º® : º®Áö¹Ù¸§, ŸÀϺÙÀÓ µî ¸¶°¨
âȣ : ¼¦½Ãâ µîÀÔ´Ï´Ù.
[ÀÌ¿ë»óÅÂ]
ÁÖ°ÅÇü ¿ÀÇǽºÅÚ·Î ÀÌ¿ë ÁßÀÔ´Ï´Ù.
[¼³ºñ³»¿ª]
À§»ý ¹× ±Þ¹è¼ö¼³ºñ, ½Â°±â¼³ºñ, ¼ÒÈÀü¼³ºñ µîÀÌ ¼³Ä¡µÇ¾î ÀÖ½À´Ï´Ù.
[ÅäÁöÇü»ó/ÀÌ¿ë»óÅÂ]
¼¼ÀåÇüÀÇ ÅäÁö·Î ÀÎÁ¢ µµ·Î¿Í ´ëü·Î µî°íÆòźÇϸç, ¾÷¹«½Ã¼³ÀÇ ºÎÁö·Î ÀÌ¿ë ÁßÀÔ´Ï´Ù.
7)ÀÎÁ¢ µµ·Î»óŵî
º»°Ç ³²¼ÃøÀ¸·Î ±¤´ë·Î, ³²µ¿ÃøÀ¸·Î ¼Ò·Î°¡ °³¼³µÇ¾î ÀÖ½À´Ï´Ù.
[ÅäÁöÀÌ¿ë°èȹ]
µµ½ÃÁö¿ª, ÀϹݻó¾÷Áö¿ª, ´ë·Î2·ù(Æø 30m-35m)(º¸Á¶°£¼±µµ·Î)(Á¢ÇÕ), ¼Ò·Î2·ù(Æø
8m-10m)(Á¢ÇÕ), °¡Ãà»çÀ°Á¦Çѱ¸¿ª£¼°¡ÃàºÐ´¢ÀÇ °ü¸® ¹× À̿뿡 °üÇÑ ¹ý·ü£¾ÀÔ´Ï´Ù
[°øºÎ¿ÍÀÇ Â÷ÀÌ]
¾ø À½.
[Âü°í»çÇ×]
ÇöÀç ÀÓ´ëÁßÀÌ¸ç µî±â»çÇ×ÀüºÎÁõ¸í¼»ó ÀÓÂ÷ÀθíÀÇÀÇ ÁÖÅÃÀÓÂ÷±Ç(157,500,000¿ø)ÀÌ ¼³Á¤µÇ¾î ÀÖÀ½. |
|
|
°ÇÃ๰ÇöȲ |
|
|
|
| ¼ÒÀçÁö |
¿ï»ê±¤¿ª½Ã ³²±¸ ´Þµ¿ 881-10¹øÁö |
| ´ëÁö¸éÀû |
395.7§³(119.91Æò) |
¿¬¸éÀû |
3425.9585§³(1038.17Æò) |
ÁÖ¿ëµµ |
¾÷¹«½Ã¼³ |
| °ÇÃà¸éÀû |
266.69§³(80.82Æò) |
¿ëÀû·ü»êÁ¤¿¬¸éÀû |
3365.0852§³(1019.72Æò) |
Âø°øÀÏÀÚ |
2018.03.20 |
| °ÇÆóÀ² |
67.397% |
¿ëÀû·ü |
850.4132% |
»ç¿ë½ÂÀÎÀÏÀÚ |
2020.03.27 |
| Áö»óÃþ¼ö |
18Ãþ |
ÁöÇÏÃþ¼ö |
1Ãþ |
±¸Á¶ |
ö±ÙÄÜÅ©¸®Æ®±¸Á¶ |
°ÇÃ๰Ãþº°ÇöȲ [º¸±â]| Ãþº° | ±¸Á¶ | ¿ëµµ | ¸éÀû | | 1Ãþ | ö±ÙÄÜÅ©¸®Æ®±¸Á¶ | Á¦1Á¾±Ù¸°»ýȰ½Ã¼³(¼Ò¸ÅÁ¡) | 170.236§³ (51.59Æò) | | 2Ãþ | ö±ÙÄÜÅ©¸®Æ®±¸Á¶ | Á¦2Á¾±Ù¸°»ýȰ½Ã¼³(»ç¹«¼Ò) | 180§³ (54.55Æò) | | 3Ãþ | ö±ÙÄÜÅ©¸®Æ®±¸Á¶ | ¿ÀÇǽºÅÚ | 185.2225§³ (56.13Æò) | | 4Ãþ | ö±ÙÄÜÅ©¸®Æ®±¸Á¶ | ¿ÀÇǽºÅÚ | 185.2225§³ (56.13Æò) | | 5Ãþ | ö±ÙÄÜÅ©¸®Æ®±¸Á¶ | ¿ÀÇǽºÅÚ | 185.2225§³ (56.13Æò) | | 6Ãþ | ö±ÙÄÜÅ©¸®Æ®±¸Á¶ | ¿ÀÇǽºÅÚ | 185.2225§³ (56.13Æò) | | 7Ãþ | ö±ÙÄÜÅ©¸®Æ®±¸Á¶ | ¿ÀÇǽºÅÚ | 185.2225§³ (56.13Æò) | | 8Ãþ | ö±ÙÄÜÅ©¸®Æ®±¸Á¶ | ¿ÀÇǽºÅÚ | 185.2225§³ (56.13Æò) | | 9Ãþ | ö±ÙÄÜÅ©¸®Æ®±¸Á¶ | ¿ÀÇǽºÅÚ | 185.2225§³ (56.13Æò) | | 10Ãþ | ö±ÙÄÜÅ©¸®Æ®±¸Á¶ | ¿ÀÇǽºÅÚ | 185.2225§³ (56.13Æò) | | 11Ãþ | ö±ÙÄÜÅ©¸®Æ®±¸Á¶ | ¿ÀÇǽºÅÚ | 185.2225§³ (56.13Æò) | | 12Ãþ | ö±ÙÄÜÅ©¸®Æ®±¸Á¶ | ¿ÀÇǽºÅÚ | 185.2225§³ (56.13Æò) | | 13Ãþ | ö±ÙÄÜÅ©¸®Æ®±¸Á¶ | ¿ÀÇǽºÅÚ | 185.2225§³ (56.13Æò) | | 14Ãþ | ö±ÙÄÜÅ©¸®Æ®±¸Á¶ | ¿ÀÇǽºÅÚ | 185.2225§³ (56.13Æò) | | 15Ãþ | ö±ÙÄÜÅ©¸®Æ®±¸Á¶ | ¿ÀÇǽºÅÚ | 185.2225§³ (56.13Æò) | | 16Ãþ | ö±ÙÄÜÅ©¸®Æ®±¸Á¶ | ¿ÀÇǽºÅÚ | 185.2225§³ (56.13Æò) | | 17Ãþ | ö±ÙÄÜÅ©¸®Æ®±¸Á¶ | ¿ÀÇǽºÅÚ | 185.2225§³ (56.13Æò) | | 18Ãþ | ö±ÙÄÜÅ©¸®Æ®±¸Á¶ | ¿ÀÇǽºÅÚ | 236.635§³ (71.71Æò) | | Áö1Ãþ | ö±ÙÄÜÅ©¸®Æ®±¸Á¶ | Åë½Å½Ç, °¨½ÃÁ¦¾î¹Ý½Ç | 60.75§³ (18.41Æò) |
|
|
|
|
|
|
|
|
|
¸éÀû(§³), ±Ý¾×(¸¸¿ø)
| °è¾àÀÏ | ±âÁØ | °Ç¹°¸íĪ | Ãþ | Àü¿ë¸éÀû | °Å·¡±Ý¾× | °ÇÃà³âµµ | | °Å·¡³»¿ªÀÌ ¾ø½À´Ï´Ù. |
| °è¾àÀÏ | ±âÁØ | °Ç¹°¸íĪ | Ãþ | Àü¿ë¸éÀû | º¸Áõ±Ý | ¿ù¼¼ | °ÇÃà³âµµ | | 2025.10.27 | Àü¼¼ | (881-10) | 3 | 47.67 | 18,000 | 0 | 2020 | | 2025.05.30 | Àü¼¼ | (881-10) | 8 | 46.77 | 18,000 | 0 | 2020 | | 2025.04.08 | ¸Å¸Å | (881-10) | 9 | 46.7659 | 17,000 | | 2020 | | 2024.08.01 | Àü¼¼ | (881-10) | 6 | 46.24 | 17,000 | 0 | 2020 | | 2024.07.30 | Àü¼¼ | (881-10) | 10 | 46.24 | 17,850 | 0 | 2020 | | 2024.04.01 | Àü¼¼ | (881-10) | 7 | 47.67 | 17,000 | 0 | 2020 | | 2024.03.24 | Àü¼¼ | (881-10) | 9 | 46.77 | 15,750 | 0 | 2020 | | 2024.03.05 | Àü¼¼ | (881-10) | 8 | 46.77 | 18,000 | 0 | 2020 | | 2024.02.26 | Àü¼¼ | (881-10) | 5 | 47.67 | 17,000 | 0 | 2020 | | 2024.01.03 | Àü¼¼ | (881-10) | 7 | 46.77 | 18,000 | 0 | 2020 |
|
|
|
 |
ÀÓÂ÷³»¿ª |
[¹è´ç¿ä±¸Á¾±âÀÏ : 2024/09/23] |
|
|
| ÀÓÂ÷ÀÎ |
Á¡À¯°ü°è |
ÀüÀÔÀÏÀÚ |
È®Á¤ÀÏÀÚ |
¹è´ç¿ä±¸ÀÏ |
º¸Áõ±Ý/Â÷ÀÓ |
´ëÇ׿ä°Ç |
ºñ°í |
| Á¶OO |
|
2020.04.03. |
2020.04.03.(¿ø°è¾à),2022.03.08.(Àç°è¾à) |
|
157,500,000¿ø(2020³â3¿ù30ÀÏ150,000,000¿ø,2022³â3¿ù4ÀÏ7,500,000¿øÁõ¾×)
|
O |
2020.04.15. |
| ¸Å°¢¹°°Ç¸í¼¼ ºñ°í |
Á¶Ã¢¹Î:ÀÌ »ç°Ç °æ¸Å½Åû ä±ÇÀÚÀ̰í ÁÖÅÃÀÓÂ÷±Çµî±â±ÇÀڷμ ÁÖÅÃÀÓÂ÷±Çµî±âÀÏÀº 2024. 6. 19.ÀÓ |
|
|
|
 |
Áö¿ªºÐ¼® |
|
|
|
|
| ÁöÇÏö |
|
Çб³ |
|
| °ü°ø¼ |
|
| ¹ý¿ø |
¿ï»êÁö¹æ¹ý¿ø (446-43)¿ï»ê±¤¿ª½Ã ³²±¸ ¹ý´ë·Î 55(¿Áµ¿ 1415) ´ëÇ¥ : 052)216-8000, ¹Î¿ø : 052)216-8021~3 ¿ï»ê±¤¿ª½Ã, ¾ç»ê½Ã |
| µî±â¼Ò |
¿ï»êÁö¹æ¹ý¿ø º»¿ø µî±â°ú (´ëÇ¥:1544-0773, ÆÑ½º:(052)260-6293, ¿ï»ê±¤¿ª½Ã ³²±¸ ¹ý´ë·Î 55 (¿Áµ¿ 1415)) |
| ¼¼¹«¼ |
¿ï»ê¼¼¹«¼ (´ëÇ¥:052-259-02, ÆÑ½º:052-266-2135, ¿ï»ê±¤¿ª½Ã ³²±¸ °¥¹ç·Î 49 (»ï»êµ¿)) |
|
|
|
 |
¹ý¿ø ¹°°ÇÀÚ·á ¿ä¾à |
|
|
|
|
| ¼Ò¸êµÇÁö ¾Ê´Â µî±âºÎ±Ç¸® |
¸Å¼öÀο¡°Ô ´ëÇ×ÇÒ ¼ö ÀÖ´Â À»±¸ ¼øÀ§ 1¹ø ÀÓÂ÷±Çµî±â(2024. 6. 19. µî±â) ÀÖÀ½(ÀÓ´ëÂ÷º¸Áõ±Ý 157,500,000¿ø, ÀüÀÔÀÏ 2020. 4.
3., È®Á¤ÀÏÀÚ 2022. 3. 8.). ¹è´ç¿¡¼ º¸Áõ±ÝÀÌ Àü¾× º¯Á¦µÇÁö ¾Æ´ÏÇϸé Àܾ×À» ¸Å¼öÀÎÀÌ ÀμöÇÔ |
| ¼³Á¤µÈ °ÍÀ¸·Î º¸´Â Áö»ó±Ç |
|
| ¹ý¿øÀÚ·á Æ¯ÀÌ»çÇ× |
[ÁÖ¿ä ¹®°Ç Á¢¼ö ³»¿ª]
|
[ºÎµ¿»ê ÇöȲÁ¶»ç¼ ºñ°í¶õ]
º» °ÇÀº ¿ï»ê ³²±¸ ´Þµ¿¿¡ ¼ÒÀçÇÏ´Â ºÎµ¿»êÀÓ. |
|
| ¿©ÀÇÁÖ°æ¸Å Á¶¾ð ÇѸ¶µð |
ÀÌ ºÎµ¿»êÀÇ ÀÔÂû¹ý¿øÀº ¿ï»êÁö¹æ¹ý¿øÀÔ´Ï´Ù.
ÀÔÂûÀÏÀº 2025-12-10ÀÔ´Ï´Ù.
ÀÔÂû½Ã°£Àº ~11:30ÀÔ´Ï´Ù. ÀÌ ¹ý¿ø¿¡´Â ½ÅÇÑÀºÇà,°æ³²ÀºÇàÀÌ ÀÔÁ¡Çϰí ÀÖ½À´Ï´Ù.
|
¼±¼øÀ§ ÀÓÂ÷±Çµî±â°¡ µÇ¾î ÀÖ½À´Ï´Ù ´ëÇ×·ÂÀÌ ÀÖ´Â ¼±¼øÀ§ ÀÓÂ÷±Çµî±â ±Ç¸®ÀÚ°¡ ¹è´çÀ» Àü¾× ¹ÞÁö ¸øÇÒ °æ¿ì ³«ÂûÀÚ°¡ ÀÜ¿© º¸Áõ±ÝÀ» ÀμöÇØ¾ßÇÏ´Â °æ¿ìµµ ÀÖ½À´Ï´Ù. |
|
|
| Åë°è±â°£ |
³«Âû¹°°Ç¼ö |
Æò±Õ°¨Á¤°¡ |
Æò±Õ³«Âû°¡ |
³«Âû°¡À² |
À¯ÂûȽ¼ö |
| 3°³¿ù |
35°Ç |
156,171,429¿ø |
90,577,774¿ø |
58% |
2.2ȸ |
| 6°³¿ù |
40°Ç |
163,825,000¿ø |
91,882,550¿ø |
57% |
2.6ȸ |
| 12°³¿ù |
56°Ç |
176,214,286¿ø |
102,036,157¿ø |
59% |
2.4ȸ |
|
|
|
|
|
|
 |
|