|
|
| ¼ÒÀçÁö |
°æ±âµµ °í¾ç½Ã ´ö¾ç±¸ ½Å¿ø·Î 40-36, 2Ãþ202È£ (½Å¿øµ¿,´Ù¿Âºôµù»ó°¡)
±¸)°æ±âµµ °í¾ç½Ã ´ö¾ç±¸ ½Å¿øµ¿ 624-1
|
|
| »ç°Ç¹øÈ£ |
2024 Ÿ°æ 9224 |
¹°°Ç¹øÈ£ |
1
|
¹°°Ç¿ëµµ |
»ó°¡,»ç¹«½Ç |
| °¨Á¤Æò°¡¾× |
443,000,000¿ø |
°æ¸Å´ë»ó |
ÅäÁö ¹× °Ç¹°Àϰý ¸Å°¢ |
ÁøÇà»óÅ |
ÀçÁøÇà |
| ÃÖÀúÀÔÂû°¡ |
(34%) 151,949,000¿ø
|
°Ç¹°¸éÀû |
208.48§³(63.07Æò) |
ÀÔÂû±âÀÏ |
2026.03.18(¼ö) 10:00
(ÀÔÂû 20ÀÏÀü)
|
| ÀÔÂûº¸Áõ±Ý |
(10%) 15,194,900¿ø |
ÅäÁö¸éÀû |
163.50§³(49.46Æò)
|
À¯ÂûȽ¼ö |
3ȸ |
| ÀÔÂû¹ý¿ø |
ÀÇÁ¤ºÎÁö¹æ¹ý¿ø °í¾çÁö¿ø |
°æ¸Å¹æ¹ý |
|
¹°°ÇÁ¶È¸¼ö |
¿À´Ã: 2ȸ [´©Àû: 1074ȸ]
|
| ¸»¼Ò±âÁØ | ÃÖ¼±¼øÀ§ ¼³Á¤ : 2023.5.15. ±ÙÀú´ç±Ç ¼³Á¤
|
|
|
|
|
|
|
|
|
|
|
°æ¸Å´ë»ó ¸ñ·Ï
|
|
| ±¸ºÐ |
¸ñ·Ï |
ÁÖ¼Ò |
±¸Á¶/¿ëµµ/´ëÁö±Ç |
ºñ°í |
´ëÁö±Ç
|
1 |
½Å¿øµ¿ 624-1 |
874.8ºÐÀÇ 163.50 |
163.5§³ (49.46Æò)
|
°Ç¹°
|
1 |
½Å¿øµ¿ 624-1 |
2Ãþ202È£ ö±ÙÄÜÅ©¸®Æ®±¸Á¶ |
208.48§³ (63.07Æò)
|
|
|
|
2025-09-03
À¯Âû
|
(100%)
443,000,000¿ø
|
|
|
|
2025-10-15
À¯Âû
|
(70%)
310,100,000¿ø
|
|
|
|
2025-11-19
À¯Âû
|
(49%)
217,070,000¿ø
|
|
|
|
2025-12-24
º¯°æ
|
(34%)
151,949,000¿ø
|
|
|
|
2026-03-18
ÁøÇà
|
(34%)
151,949,000¿ø
|
|
|
|
|
|
°¨Á¤Æò°¡¼ ¿ä¾à |
|
[À§Ä¡/ÁÖÀ§È¯°æ]
°æ±âµµ °í¾ç½Ã ´ö¾ç±¸ ½Å¿øµ¿ ¼ÒÀç ½Å¿øÁßÇб³ ³²µ¿Ãø¿¡ Àαٿ¡ À§Ä¡Çϰí,
ÁÖÀ§´Â ÀϹݻó¾÷Áö¿ªÀÌ¸ç ±× ¿Ü°ûÀº ¾ÆÆÄÆ® ¹× ´Üµ¶ÁÖÅÃÀÌ ÀÔÁöÇØ ÀÖ´Â Áö¿ªÀÓ.
[±³Åë»óȲ]
±Ù°Å¸®¿¡ ¼öµµ±ÇÁ¦1¼øÈ¯°í¼Óµµ·Î ÅëÀÏ·Î IC°¡ ÀÖ°í º»°Ç±îÁö Â÷·®Á¢±ÙÀÌ °¡´ÉÇÏ¿©
Á¦¹Ý ±³Åë¿©°ÇÀº º¸ÅëÀÓ.
[°Ç¹°±¸Á¶]
ö±ÙÄÜÅ©¸®Æ®±¸Á¶ ö±ÙÄÜÅ©¸®Æ®(Æò½½·¡ºê)ÁöºØ Áö»ó 3Ãþ °Ç¹°(2016. 9. 23. »ç¿ë½ÂÀÎ)
Áß 2Ãþ 202È£ÀÓ.
[ÀÌ¿ë»óÅÂ]
°ÇÃ๰´ëÀå»ó ÆÇ¸Å½Ã¼³(ÀϹݰÔÀÓÁ¦°ø¾÷ÀÇ ½Ã¼³)·Î µî·ÏµÇ¾î ÀÖÀ¸³ª ÇöÀåÁ¶»çÀÏ ÇöÀç
Æó¹®ºÎÀç »óÅÂÀ̰í, °£ÆÇµµ ¼³Ä¡ ºÎÂøµÇ¾î ÀÖÁö ¾Æ´ÏÇϸç Ä¿ÅÙÀÌ ¼³Ä¡µÇ¾î ÀÖ¾î
ÀÌ¿ë»óŸ¦ Á¤È®ÇÏ°Ô È®ÀÎÇϱâ´Â °ï¶õÇϳª ޹®Á¶»çÇÑ ¹Ù¿¡ ÀÇÇÏ¸é ³»ºÎ¿¡ ÁüÀÌ ÀϺÎ
º¸°üµÇ¾î ÀÖ´Ù°í ÇÔ.
[¼³ºñ³»¿ª]
½Â°±â ¹× À§»ý¼³ºñ µî ¼³Ä¡µÇ¾î ÀÖ´Â °Ç¹°ÀÓ.
[ÅäÁöÇü»ó/ÀÌ¿ë»óÅÂ]
À广ÇüÀÇ ÅäÁöÀ̰í, ±Ù¸°»ýȰ½Ã¼³ °Ç¹°ÀÇ ºÎÁö·Î ÀÌ¿ë ÁßÀÓ.
7)ÀÎÁ¢ µµ·Î»óŵî
³²µ¿ÃøÀ¸·Î Áß·Î, ºÏ¼ÃøÀ¸·Î ¼Ò·Î¿¡ Á¢ÇÔ.
[ÅäÁöÀÌ¿ë°èȹ]
ÀϹݻó¾÷Áö¿ª, Áö±¸´ÜÀ§°èȹ±¸¿ª(»ï¼ÛÅÃÁö°³¹ß), °¡Ãà»çÀ° Á¦Çѱ¸¿ª, °ú¹Ð¾ïÁ¦±Ç¿ª,
ÅÃÁö°³¹ßÁö±¸, ÇѰÆó±â¹°¸Å¸³½Ã¼³ ¼³Ä¡ Á¦ÇÑÁö¿ªÀÓ.
[°øºÎ¿ÍÀÇ Â÷ÀÌ]
¾øÀ½.
[Âü°í»çÇ×]
ÀÓ´ë°ü°è ¹Ì»óÀÓ.
|
|
|
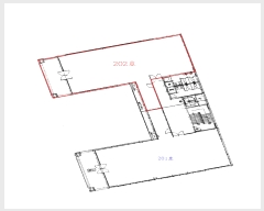
°ÇÃ๰ÇöȲ |
|
|
|
| ¼ÒÀçÁö |
°æ±âµµ °í¾ç½Ã ´ö¾ç±¸ ½Å¿øµ¿ 624-1¹øÁö |
| ´ëÁö¸éÀû |
874.8§³(265.09Æò) |
¿¬¸éÀû |
1445.82§³(438.13Æò) |
ÁÖ¿ëµµ |
Á¦2Á¾±Ù¸°»ýȰ½Ã¼³ |
| °ÇÃà¸éÀû |
517.28§³(156.75Æò) |
¿ëÀû·ü»êÁ¤¿¬¸éÀû |
1401.96§³(424.84Æò) |
Âø°øÀÏÀÚ |
2016.05.02 |
| °ÇÆóÀ² |
59.13% |
¿ëÀû·ü |
160.26% |
»ç¿ë½ÂÀÎÀÏÀÚ |
2016.09.23 |
| Áö»óÃþ¼ö |
3Ãþ |
ÁöÇÏÃþ¼ö |
|
±¸Á¶ |
ö±ÙÄÜÅ©¸®Æ®±¸Á¶ |
°ÇÃ๰Ãþº°ÇöȲ [º¸±â]| Ãþº° | ±¸Á¶ | ¿ëµµ | ¸éÀû | | 1Ãþ | ö±ÙÄÜÅ©¸®Æ®±¸Á¶ | Á¦2Á¾±Ù¸°»ýȰ½Ã¼³(ÈÞ°ÔÀ½½ÄÁ¡) | 427.52§³ (129.55Æò) | | 1Ãþ | ö±ÙÄÜÅ©¸®Æ®±¸Á¶ | Á¦2Á¾±Ù¸°»ýȰ½Ã¼³(±âŸÁ¦2Á¾±Ù¸°»ýȰ½Ã | 43.86§³ (13.29Æò) | | 2Ãþ | ö±ÙÄÜÅ©¸®Æ®±¸Á¶ | Á¦2Á¾±Ù¸°»ýȰ½Ã¼³(»ç¹«½Ç) | 503.06§³ (152.44Æò) | | 3Ãþ | ö±ÙÄÜÅ©¸®Æ®±¸Á¶ | Á¦2Á¾±Ù¸°»ýȰ½Ã¼³(Çпø) | 471.38§³ (142.84Æò) | | ¿Áž1Ãþ | ö±ÙÄÜÅ©¸®Æ®±¸Á¶ | ¹°ÅÊÅ©½Ç/°è´Ü½Ç(¿¬¸éÀûÁ¦¿Ü) | 53.68§³ (16.27Æò) |
|
|
|
|
|
|
 |
ÀÓÂ÷³»¿ª |
[¹è´ç¿ä±¸Á¾±âÀÏ : 2025/03/07] |
|
|
| ÀÓÂ÷ÀÎ |
Á¡À¯°ü°è |
ÀüÀÔÀÏÀÚ |
È®Á¤ÀÏÀÚ |
¹è´ç¿ä±¸ÀÏ |
º¸Áõ±Ý/Â÷ÀÓ |
´ëÇ׿ä°Ç |
ºñ°í |
| Á¶»çµÈ ÀÓÂ÷³»¿ªÀÌ ¾ø½À´Ï´Ù. |
|
|
|
 |
Áö¿ªºÐ¼® |
|
|
|
|
| ÁöÇÏö |
|
Çб³ |
|
| °ü°ø¼ |
|
| ¹ý¿ø |
ÀÇÁ¤ºÎÁö¹æ¹ý¿ø °í¾çÁö¿ø (104-13)°æ±âµµ °í¾ç½Ã Àϻ굿±¸ Àå¹é·Î 209 ´ëÇ¥ : 031)920-6114, ¾ß°£ : 031)920-6550, ÆÑ½º : 031)920-6119 °í¾ç½Ã, ÆÄÁֽà |
| µî±â¼Ò |
ÀÇÁ¤ºÎÁö¹æ¹ý¿ø °í¾çÁö¿ø °í¾çµî±â¼Ò (´ëÇ¥:1544-0773, ÆÑ½º:(031)920-5959, °æ±âµµ °í¾ç½Ã Àϻ굿±¸ Áß¾Ó·Î1275¹ø±æ 38-30 (ÀåÇ×µ¿ 773)) |
| ¼¼¹«¼ |
µ¿°í¾ç¼¼¹«¼ (´ëÇ¥:031-900-62, ÆÑ½º:031-963-2979, °æ±âµµ °í¾ç½Ã ´ö¾ç±¸ ÈÁß·Î 104¹ø±æ 16(ÈÁ¤µ¿)) |
|
|
|
 |
¹ý¿ø ¹°°ÇÀÚ·á ¿ä¾à |
|
|
|
|
| ¼Ò¸êµÇÁö ¾Ê´Â µî±âºÎ±Ç¸® |
ÇØ´ç»çÇ×¾øÀ½ |
| ¼³Á¤µÈ °ÍÀ¸·Î º¸´Â Áö»ó±Ç |
ÇØ´ç»çÇ×¾øÀ½ |
| ¹ý¿øÀÚ·á Æ¯ÀÌ»çÇ× |
[ÁÖ¿ä ¹®°Ç Á¢¼ö ³»¿ª]
[2025.01.21] ä±ÇÀÚ ¾çOO OOOOOOOOO OOOOOOOOO ä±ÇÀÚº¯°æ½Å°í¼ Á¦Ãâ
|
[¸Å°¢¹°°Ç¸í¼¼¼ ºñ°í¶õ]
°¨Á¤¼(2024.12.30.ȸ½Å)»ó °Ç¹° ³»ºÎ¿¡ ÁüÀÌ ÀϺΠº¸°üµÇ¾îÀÖ´Ù ÇÔ |
[ºÎµ¿»ê ÇöȲÁ¶»ç¼ ºñ°í¶õ]
ö±ÙÄÜÅ©¸®Æ®±¸Á¶ ö±ÙÄÜÅ©¸® |
|
| ¿©ÀÇÁÖ°æ¸Å Á¶¾ð ÇѸ¶µð |
ÀÌ ºÎµ¿»êÀÇ ÀÔÂû¹ý¿øÀº ÀÇÁ¤ºÎÁö¹æ¹ý¿ø °í¾çÁö¿øÀÔ´Ï´Ù.
ÀÔÂûÀÏÀº 2026-03-18ÀÔ´Ï´Ù.
ÀÔÂû½Ã°£Àº ~11:20ÀÔ´Ï´Ù. ÀÌ ¹ý¿ø¿¡´Â ½ÅÇÑÀºÇàÀÌ ÀÔÁ¡Çϰí ÀÖ½À´Ï´Ù.
|
|
|
| Åë°è±â°£ |
³«Âû¹°°Ç¼ö |
Æò±Õ°¨Á¤°¡ |
Æò±Õ³«Âû°¡ |
³«Âû°¡À² |
À¯ÂûȽ¼ö |
| 3°³¿ù |
7°Ç |
842,990,493¿ø |
467,330,001¿ø |
55% |
2.6ȸ |
| 6°³¿ù |
9°Ç |
926,437,050¿ø |
474,590,001¿ø |
52% |
2.7ȸ |
| 12°³¿ù |
11°Ç |
851,448,495¿ø |
419,363,637¿ø |
52% |
2.6ȸ |
|
|
|
|
|
|
 |
|