|
|
| ¼ÒÀçÁö |
°æ±âµµ ¾È»ê½Ã ´Ü¿ø±¸ Ȳ±Ý2±æ 12, 2Ãþ201È£
±¸)°æ±âµµ ¾È»ê½Ã ´Ü¿ø±¸ ¿Íµ¿ 695-17
|
|
| »ç°Ç¹øÈ£ |
2024 Ÿ°æ 5397 |
¹°°Ç¹øÈ£ |
1
|
¹°°Ç¿ëµµ |
´Ù¼¼´ë,ºô¶ó |
| °¨Á¤Æò°¡¾× |
135,000,000¿ø |
°æ¸Å´ë»ó |
ÅäÁö ¹× °Ç¹°Àϰý ¸Å°¢ |
ÁøÇà»óÅ |
ÀçÁøÇà |
| ÃÖÀúÀÔÂû°¡ |
(70%) 94,500,000¿ø
|
°Ç¹°¸éÀû |
67.34§³(20.37Æò) |
ÀÔÂû±âÀÏ |
2026.01.22(¸ñ) 10:30
(ÀÔÂû 24ÀÏÀü)
|
| ÀÔÂûº¸Áõ±Ý |
(10%) 9,450,000¿ø |
ÅäÁö¸éÀû |
34.74§³(10.51Æò)
|
À¯ÂûȽ¼ö |
1ȸ |
| ÀÔÂû¹ý¿ø |
¼ö¿øÁö¹æ¹ý¿ø ¾È»êÁö¿ø |
°æ¸Å¹æ¹ý |
|
¹°°ÇÁ¶È¸¼ö |
¿À´Ã: 8ȸ [´©Àû: 44ȸ]
|
| ¸»¼Ò±âÁØ | ÃÖ¼±¼øÀ§ ¼³Á¤ : 2014.04.22. (±ÙÀú´ç±Ç) ¼³Á¤
|
|
|
|
|
|
|
|
|
|
|
°æ¸Å´ë»ó ¸ñ·Ï
|
|
| ±¸ºÐ |
¸ñ·Ï |
ÁÖ¼Ò |
±¸Á¶/¿ëµµ/´ëÁö±Ç |
ºñ°í |
´ëÁö±Ç
|
1 |
¿Íµ¿ 695-17 |
253.6ºÐÀÇ 34.74 |
34.74§³ (10.51Æò)
|
°Ç¹°
|
1 |
¿Íµ¿ 695-17 |
2Ãþ201È£ ö±ÙÄÜÅ©¸®Æ®Á¶ |
67.335§³ (20.37Æò)
|
|
|
|
2025-09-25
À¯Âû
|
(100%)
135,000,000¿ø
|
|
|
|
2025-10-30
³«Âû
|
(70%)
94,500,000¿ø
|
|
|
¦±¦¬> ³«Âû°¡
 |
|
|
|
|
2026-01-22
ÁøÇà
|
(70%)
94,500,000¿ø
|
|
|
|
|
|
°¨Á¤Æò°¡¼ ¿ä¾à |
|
[À§Ä¡/ÁÖÀ§È¯°æ]
´ë»ó¹°°ÇÀº °æ±âµµ ¾È»ê½Ã ´Ü¿ø±¸ ¿Íµ¿ ¼ÒÀç¡®¿Íµ¿ÃʵîÇб³¡¯³²¼Ãø Àαٿ¡ À§Ä¡ÇÏ´Â ºÎµ¿»ê
(±¸ºÐ°Ç¹° ¸ð´×½ºÀ§Æ® Á¦2Ãþ Á¦201È£)À¸·Î¼, ÁÖÀ§´Â ¾ÆÆÄÆ®´ÜÁö, ´Ù¼¼´ëÁÖÅÃ, ¿ÀÇǽºÅÚ, °ø
¿ø, °¢±Þ Çб³ ¹× °¢Á¾ ±Ù¸°»ýȰ½Ã¼³ µîÀÌ È¥ÀçÇÏ´Â Áö¿ªÀ¸·Î Á¦¹Ý ÁÖÀ§ ȯ°æÀº º¸ÅëÀÔ´Ï´Ù.
[±³Åë»óȲ]
º»°Ç±îÁö Â÷·®ÀÇ Áø¤ýÃâÀÔÀÌ °¡´ÉÇϸç, ¼Ãø(¿Íµ¿·Î) ¹× ³²¼Ãø(»ïÀÏ·Î)À¸·Î ´ëÁß±³Åë ¼ö´Ü
À» ÀÌ¿ëÇÒ ¼ö ÀÖ´Â ³ë¼±¹ö½ºÁ¤·ùÀåÀÌ ¼ÒÀçÇÕ´Ï´Ù.
[°Ç¹°±¸Á¶]
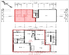
ö±ÙÄÜÅ©¸®Æ®Á¶ Æò½º¶óºêÁöºØ Áö»ó4Ãþ °Ç¹° ³» Á¦2Ãþ Á¦201È£·Î¼,
(»ç¿ë½ÂÀÎÀÏ : 2000.11.14.)
¿Üº® : µå¶óÀ̺ñÆ® ¸¶°¨ µî.
âȣ : ÇÏÀÌ»õ½Ã âȣ µîÀÔ´Ï´Ù.
[ÀÌ¿ë»óÅÂ]
º»°ÇÀº "´Ù¼¼´ëÁÖÅÃ(¸ð´×½ºÀ§Æ®)"À¸·Î ÀÌ¿ëÁßÀÔ´Ï´Ù.
[¼³ºñ³»¿ª]
À§»ý¼³ºñ(±Þ¹è¼ö, ±ÞÅÁ), ³¹æ¼³ºñ(µµ½Ã°¡½ºº¸ÀÏ·¯) µîÀÌ µÇ¾îÀÖ½À´Ï´Ù.
[ÅäÁöÇü»ó/ÀÌ¿ë»óÅÂ]
ÀÎÁ¢µµ·Î ¹× ÀÎÁ¢ÅäÁö¿Í µî°í ÆòźÇÑ ¼¼ÀåÇü ÅäÁö·Î¼, ÁÖ°Å¿ë(¸ð´×½ºÀ§Æ®) °ÇºÎÁö·Î ÀÌ¿ë
ÁßÀÔ´Ï´Ù.
7)ÀÎÁ¢ µµ·Î»óŵî
ºÏ¼ÃøÀ¸·Î ³ëÆø ¾à 6m ³»¿ÜÀÇ ¾Æ½ºÆÈÆ® Æ÷Àåµµ·Î¿Í Á¢ÇÕ´Ï´Ù.
[ÅäÁöÀÌ¿ë°èȹ]
ÅäÁö±âÈ£(1) : µµ½ÃÁö¿ª, Á¦2Á¾ÀϹÝÁÖ°ÅÁö¿ª, ½Ã°¡Áö°æ°üÁö±¸(ÀϹÝ), ¼Ò·Î3·ù(Æø 8m ¹Ì¸¸)(
Á¢ÇÕ), °¡Ãà»çÀ°Á¦Çѱ¸¿ª£¼°¡ÃàºÐ´¢ÀÇ °ü¸® ¹× À̿뿡 °üÇÑ ¹ý·ü£¾, »ó´ëº¸È£±¸¿ª(2013-10-21)
(ÇູÇÑÀ¯Ä¡¿ø)£¼±³À°È¯°æ º¸È£¿¡ °üÇÑ ¹ý·ü£¾, ´ë±â°ü¸®±Ç¿ª£¼´ë±â°ü¸®±Ç¿ªÀÇ ´ë±âȯ°æ°³¼±¿¡
°üÇÑ Æ¯º°¹ý£¾, µµ½Ã±³ÅëÁ¤ºñÁö¿ª£¼µµ½Ã±³ÅëÁ¤ºñÃËÁø¹ý£¾, »ýȰ¼ÒÀ½Áøµ¿°ü¸®Áö¿ª£¼¼ÒÀ½Áøµ¿°ü¸®
¹ý£¾, ¼ºÀå°ü¸®±Ç¿ª£¼¼öµµ±ÇÁ¤ºñ°èȹ¹ý£¾.
[°øºÎ¿ÍÀÇ Â÷ÀÌ]
º»°ÇÀº ÁýÇÕ°ÇÃ๰´ëÀå»ó ¸íĪ¿¡¡®¸ð´×½ºÀ§Æ®¡¯·Î µîÀçµÇ¾î ÀÖÀ¸³ª, ÁýÇհǹ°µî±â»çÇ×ÀüºÎÁõ
¸í¼»ó µîÀç µÇ¾îÀÖÁö ¾ÊÀº¹Ù, °æ¸Å ÁøÇà½Ã Âü°íÇϽñ⠹ٶø´Ï´Ù.
[Âü°í»çÇ×]
ÀÓ´ë°ü°è : ¹Ì»óÀÔ´Ï´Ù.
±âŸ»çÇ× : ¾ø½À´Ï´Ù. |
|
|
°ÇÃ๰ÇöȲ |
|
|
|
| ¼ÒÀçÁö |
°æ±âµµ ¾È»ê½Ã ´Ü¿ø±¸ ¿Íµ¿ 695-17¹øÁö |
| ´ëÁö¸éÀû |
253.6§³(76.85Æò) |
¿¬¸éÀû |
539.32§³(163.43Æò) |
ÁÖ¿ëµµ |
°øµ¿ÁÖÅà |
| °ÇÃà¸éÀû |
149.75§³(45.38Æò) |
¿ëÀû·ü»êÁ¤¿¬¸éÀû |
539.32§³(163.43Æò) |
Âø°øÀÏÀÚ |
2000.07.03 |
| °ÇÆóÀ² |
59.04% |
¿ëÀû·ü |
212.66% |
»ç¿ë½ÂÀÎÀÏÀÚ |
2000.11.14 |
| Áö»óÃþ¼ö |
4Ãþ |
ÁöÇÏÃþ¼ö |
|
±¸Á¶ |
ö±ÙÄÜÅ©¸®Æ®±¸Á¶ |
°ÇÃ๰Ãþº°ÇöȲ [º¸±â]| Ãþº° | ±¸Á¶ | ¿ëµµ | ¸éÀû | | 1Ãþ | ö±ÙÄÜÅ©¸®Æ®±¸Á¶ | ´Ù¼¼´ëÁÖÅÃ(2) | 135.95§³ (41.2Æò) | | 2Ãþ | ö±ÙÄÜÅ©¸®Æ®±¸Á¶ | ´Ù¼¼´ëÁÖÅÃ(2) | 147.15§³ (44.59Æò) | | 3Ãþ | ö±ÙÄÜÅ©¸®Æ®±¸Á¶ | ´Ù¼¼´ëÁÖÅÃ(2) | 147.15§³ (44.59Æò) | | 4Ãþ | ö±ÙÄÜÅ©¸®Æ®±¸Á¶ | ´Ù¼¼´ëÁÖÅÃ(2) | 109.07§³ (33.05Æò) |
|
|
|
|
|
|
 |
ÀÓÂ÷³»¿ª |
[¹è´ç¿ä±¸Á¾±âÀÏ : 2025/02/03] |
|
|
| ÀÓÂ÷ÀÎ |
Á¡À¯°ü°è |
ÀüÀÔÀÏÀÚ |
È®Á¤ÀÏÀÚ |
¹è´ç¿ä±¸ÀÏ |
º¸Áõ±Ý/Â÷ÀÓ |
´ëÇ׿ä°Ç |
ºñ°í |
| Á¶»çµÈ ÀÓÂ÷³»¿ªÀÌ ¾ø½À´Ï´Ù. |
|
|
|
 |
Áö¿ªºÐ¼® |
|
|
|
|
| ÁöÇÏö |
|
Çб³ |
|
| °ü°ø¼ |
|
| ¹ý¿ø |
¼ö¿øÁö¹æ¹ý¿ø ¾È»êÁö¿ø (140-54)°æ±âµµ ¾È»ê½Ã ´Ü¿ø±¸ ±¤´ö¼·Î 75 (°íÀܵ¿) ´ëÇ¥ : 031)481-1114, ¹Î¿ø : 031)481-1238, ¾ß°£ : 031)481-1112 ¾È»ê½Ã, ±¤¸í½Ã, ½ÃÈï½Ã |
| µî±â¼Ò |
¼ö¿øÁö¹æ¹ý¿ø ¾È»êÁö¿ø µî±â°ú (´ëÇ¥:1544-0773, ÆÑ½º:(031)481-1290~1292, °æ±âµµ ¾È»ê½Ã ´Ü¿ø±¸ ±¤´ö¼·Î 75 (°íÀܵ¿ 711)) |
| ¼¼¹«¼ |
¾È»ê¼¼¹«¼ (´ëÇ¥:031-412-32, ÆÑ½º:031-412-3268, °æ±âµµ ¾È»ê½Ã ´Ü¿ø±¸ ȶû·Î 350 (°íÀܵ¿ 517)) |
|
|
|
 |
¹ý¿ø ¹°°ÇÀÚ·á ¿ä¾à |
|
|
|
|
| ¼Ò¸êµÇÁö ¾Ê´Â µî±âºÎ±Ç¸® |
|
| ¼³Á¤µÈ °ÍÀ¸·Î º¸´Â Áö»ó±Ç |
|
| ¹ý¿øÀÚ·á Æ¯ÀÌ»çÇ× |
[ÁÖ¿ä ¹®°Ç Á¢¼ö ³»¿ª]
|
[¸Å°¢¹°°Ç¸í¼¼¼ ºñ°í¶õ]
ÁýÇÕ°ÇÃ๰ ´ëÀå»ó ¸íĪÀº `¸ð´×½ºÀ§Æ®`·Î µîÀçµÇ¾î ÀÖÀ½ |
[ºÎµ¿»ê ÇöȲÁ¶»ç¼ ºñ°í¶õ]
- Æó¹®ºÎÀç·Î ¼ÒÀ¯ÀÚ³ª Á¡À¯ÀÚ¸¦ ¸¸³ªÁö ¸øÇÏ¿© ¼¼´ë Çö°ü¹®¿¡ ¾È³»¹®À» ºÎÂøÇÔ.
- º»°Ç °Ç¹° ¿Üº®¿¡ `¸ð´×½ºÀ§Æ®` Ç¥½Ã°¡ µÇ¾î ÀÖÀ¸¸ç, 2Ãþ¿¡ °ÅÁÖÇÏ´Â 2¼¼´ë Áß ¿ìÃø¿¡ À§Ä¡ÇÔ. |
|
| ¿©ÀÇÁÖ°æ¸Å Á¶¾ð ÇѸ¶µð |
ÀÌ ºÎµ¿»êÀÇ ÀÔÂû¹ý¿øÀº ¼ö¿øÁö¹æ¹ý¿ø ¾È»êÁö¿øÀÔ´Ï´Ù.
ÀÔÂûÀÏÀº 2026-01-22ÀÔ´Ï´Ù.
ÀÔÂû½Ã°£Àº ~11:00ÀÔ´Ï´Ù. ÀÌ ¹ý¿ø¿¡´Â ½ÅÇÑÀºÇàÀÌ ÀÔÁ¡Çϰí ÀÖ½À´Ï´Ù.
|
ÃëÇÏ ¶Ç´Â Ãë¼ÒµÉ °¡´É¼º ÀÖ½À´Ï´Ù
ÀÌ ¹°°ÇÀÇ °¨Á¤°¡°ÝÀº 135,000,000¿øÀÔ´Ï´Ù. °æ¸Å¸¦ ½ÅûÇÑ Ã¤±ÇÀÚ°¡ ¹è´ç ¹Þ¾Æ¾ß ÇÒ ±Ý¾×Àº 39,625,895¿ø À¸·Î °¨Á¤°¡°Ý ´ëºñ »ó´çÈ÷ ÀûÀº ±Ý¾×ÀÔ´Ï´Ù.
ÀÌ·± °æ¿ì, 乫°¡°¡ º¯Á¦ÇÏ¿© °æ¸Å¸¦ ÃëÇϽÃŰ°Å³ª °æ¸Å½Åûä±ÇÀÚ°¡ ¹è´ç¹ÞÀ» ±Ý¿øÀÌ ¾ø°ÔµÇ¾î À̸¥ ¹Ù "¹«À׿©¿¡ ÀÇÇÑ Ãë¼Ò"°¡ µÉ °¡´É¼ºÀÌ ÀÖ½À´Ï´Ù.
|
|
|
| Åë°è±â°£ |
³«Âû¹°°Ç¼ö |
Æò±Õ°¨Á¤°¡ |
Æò±Õ³«Âû°¡ |
³«Âû°¡À² |
À¯ÂûȽ¼ö |
| 3°³¿ù |
11°Ç |
147,090,909¿ø |
112,310,909¿ø |
75% |
1.5ȸ |
| 6°³¿ù |
25°Ç |
215,000,000¿ø |
152,164,440¿ø |
74% |
1.4ȸ |
| 12°³¿ù |
64°Ç |
185,878,125¿ø |
131,001,244¿ø |
71% |
1.9ȸ |
|
|
|
|
|
|
 |
|