|
|
| ¼ÒÀçÁö |
¼¿ïƯº°½Ã °¼±¸ ±îÄ¡»ê·Î15±æ 21, Á¦2Ãþ Á¦201È£ (Ȱ, ´ëÈï¿ÀÇǽºÅÚ)
±¸)¼¿ïƯº°½Ã °¼±¸ Ȱ 24-53
|
|
| »ç°Ç¹øÈ£ |
2024 Ÿ°æ 138543 |
¹°°Ç¹øÈ£ |
1
|
¹°°Ç¿ëµµ |
¿ÀÇǽºÅÚ |
| °¨Á¤Æò°¡¾× |
88,400,000¿ø |
°æ¸Å´ë»ó |
ÅäÁö ¹× °Ç¹°Àϰý ¸Å°¢ |
ÁøÇà»óÅ |
À¯Âû |
| ÃÖÀúÀÔÂû°¡ |
(80%) 70,720,000¿ø
|
°Ç¹°¸éÀû |
30.60§³(9.26Æò) |
ÀÔÂû±âÀÏ |
2025.11.13(¸ñ) 10:00
(¿À´ÃÀÔÂû)
|
| ÀÔÂûº¸Áõ±Ý |
(10%) 7,072,000¿ø |
ÅäÁö¸éÀû |
8.17§³(2.47Æò)
|
À¯ÂûȽ¼ö |
1ȸ |
| ÀÔÂû¹ý¿ø |
¼¿ï³²ºÎÁö¹æ¹ý¿ø |
°æ¸Å¹æ¹ý |
|
¹°°ÇÁ¶È¸¼ö |
¿À´Ã: 7ȸ [´©Àû: 12ȸ]
|
| ¸»¼Ò±âÁØ | ÃÖ¼±¼øÀ§ ¼³Á¤ : 2024.10.16. °Á¦°æ¸Å°³½Ã ¼³Á¤
|
|
|
|
|
|
|
|
|
|
|
°æ¸Å´ë»ó ¸ñ·Ï
|
|
| ±¸ºÐ |
¸ñ·Ï |
ÁÖ¼Ò |
±¸Á¶/¿ëµµ/´ëÁö±Ç |
ºñ°í |
´ëÁö±Ç
|
1 |
Ȱ 24-53 |
462ºÐÀÇ 8.166 |
8.166§³ (2.47Æò)
|
°Ç¹°
|
1 |
Ȱ 24-53 |
Á¦2Ãþ Á¦201È£ ö±ÙÄÜÅ©¸®Æ®Á¶ |
30.6§³ (9.26Æò)
|
|
|
|
2025-10-14
À¯Âû
|
(100%)
88,400,000¿ø
|
|
|
|
2025-11-13
ÁøÇà
|
(80%)
70,720,000¿ø
|
|
|
|
|
|
°¨Á¤Æò°¡¼ ¿ä¾à |
|
[À§Ä¡/ÁÖÀ§È¯°æ]
º»°ÇÀº ¼¿ïƯº°½Ã °¼±¸ Ȱ ¼ÒÀç "¿ìÀåÃʵîÇб³" ³²Ãø Àαٿ¡ À§Ä¡Çϸç ÀαÙÀº ±Ù¸°»ýȰ½Ã¼³, ¿ÀÇǽºÅÚ, ¾ÆÆÄÆ® µîÀÌ È¥ÀçÇÏ´Â Áö¿ªÀ¸·Î Á¦¹Ý ÁÖÀ§È¯°æÀº º¸ÅëÀÔ´Ï´Ù.
[±³Åë»óȲ]
º»°Ç±îÁö Â÷·®Á¢±ÙÀÌ °¡´ÉÇϸç Àαٿ¡ ¹ö½ºÁ¤·ùÀå ¹× ¿ø°Å¸® ³» ÁöÇÏö¿ª 5È£¼± "Ȱ"µîÀÌ ¼ÒÀçÇÏ´Â µî ´ëÁß±³Åë ¿©°ÇÀº º¸ÅëÀÔ´Ï´Ù.
[°Ç¹°±¸Á¶]
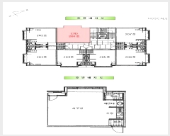
º»°ÇÀº ö±ÙÄÜÅ©¸®Æ®±¸Á¶ ½º¶óºêÁöºØ ÁöÇÏ1Ãþ Áö»ó9Ãþ °Ç¹° ³» Á¦2Ãþ Á¦201È£·Î¼,
¿Üº®: ¸ôÅ»À§ ÆäÀÎÆÃ ¸¶°¨ µî,
³»º®: º®Áöµµ¹è ¹× ÀϺΠŸÀϺÙÀÓ ¸¶°¨ µî,
âȣ: »õ½Ã âȣ µîÀÔ´Ï´Ù.
ÀÌ¿ë»óÅ : °øºÎ ¹× ÇöȲ ¾÷¹«½Ã¼³(¿ÀÇǽºÅÚ)·Î ÀÌ¿ë ÁßÀÔ´Ï´Ù.
[ÀÌ¿ë»óÅÂ]
¾÷¹«½Ã¼³(¿ÀÇǽºÅÚ)·Î ÀÌ¿ëÁßÀÔ´Ï´Ù.
[¼³ºñ³»¿ª]
±âº»ÀûÀÎ À§»ý ¹× ±Þ¹è¼ö¼³ºñ, ³¹æ¼³ºñ, ¼ÒÈÀü¼³ºñ, ½Â°±â¼³ºñ, µµ½Ã°¡½º¼³ºñ, ÁÖÂ÷¼³ºñ µîÀÌ ±¸ºñµÇ¾î ÀÖ½À´Ï´Ù.
[ÅäÁöÇü»ó/ÀÌ¿ë»óÅÂ]
ÀÎÁ¢ÅäÁö ´ëºñ µî°íÆòźÇÑ 3ÇÊ ÀÏ´ÜÀÇ ¼¼ÀåÇü ÅäÁö·Î¼, ¾÷¹«¿ë(¿ÀÇǽºÅÚ) °ÇºÎÁö·Î ÀÌ¿ëÁßÀÔ´Ï´Ù.
7)ÀÎÁ¢ µµ·Î»óŵî
º»°Ç ³²¼ÃøÀ¸·Î ³ëÆø ¾à 6¹ÌÅÍ ³»¿Ü, ºÏµ¿ÃøÀ¸·Î ³ëÆø ¾à 8¹ÌÅÍ ³»¿ÜÀÇ Æ÷Àåµµ·Î¿Í °¢°¢ Á¢ÇÕ´Ï´Ù.
[ÅäÁöÀÌ¿ë°èȹ]
ÅäÁö ±âÈ£(1-3) : µµ½ÃÁö¿ª , ÀϹݻó¾÷Áö¿ª , Áß¿ä½Ã¼³¹°º¸È£Áö±¸(°øÇ×), °¡Ãà»çÀ°Á¦Çѱ¸¿ª(Áö¿ª°æÁ¦°ú È®ÀÎ ¿ä¸Á)£¼°¡ÃàºÐ´¢ÀÇ °ü¸® ¹× À̿뿡 °üÇÑ ¹ý·ü£¾, °¡·Î±¸¿ªº° ÃÖ°í³ôÀÌ Á¦ÇÑÁö¿ª(2015-08-27)£¼°ÇÃà¹ý£¾, °¡·Î±¸¿ªº° ÃÖ°í³ôÀÌ Á¦ÇÑÁö¿ª(2022-06-09)£¼°ÇÃà¹ý£¾, µµ½Ã±âŸ¿ëµµÁö¿ªÁö±¸¹ÌºÐ·ù(°¡·Î±¸¿ªº° °ÇÃ๰ ÃÖ°í³ôÀÌ:ÀÚ¼¼ÇÑ »çÇ×Àº °ÇÃà°ú ¹®ÀÇ)£¼°ÇÃà¹ý£¾, ¼öÆòÇ¥¸é±¸¿ª(¼öÆòÇ¥¸é)£¼°øÇ׽ü³¹ý£¾, »ó´ëº¸È£±¸¿ª(°¼±³À°Áö¿øÃ»¿¡ ¹Ýµå½Ã È®ÀÎ ¿ä¸Á)£¼±³À°È¯°æ º¸È£¿¡ °üÇÑ ¹ý·ü£¾, ´ë°ø¹æ¾îÇùÁ¶±¸¿ª(À§Å¹°íµµ:77-257m)£¼±º»ç±âÁö ¹× ±º»ç½Ã¼³ º¸È£¹ý£¾, °ú¹Ð¾ïÁ¦±Ç¿ª£¼¼öµµ±ÇÁ¤ºñ°èȹ¹ý£¾
[°øºÎ¿ÍÀÇ Â÷ÀÌ]
ÇØ´ç ¾ø½À´Ï´Ù.
[Âü°í»çÇ×]
ÀÓ´ë°ü°è ¹Ì»óÀÔ´Ï´Ù. |
|
|
|
|
|
|
|
¸éÀû(§³), ±Ý¾×(¸¸¿ø)
| °è¾àÀÏ | ±âÁØ | °Ç¹°¸íĪ | Ãþ | Àü¿ë¸éÀû | °Å·¡±Ý¾× | °ÇÃà³âµµ | | °Å·¡³»¿ªÀÌ ¾ø½À´Ï´Ù. |
| °è¾àÀÏ | ±âÁØ | °Ç¹°¸íĪ | Ãþ | Àü¿ë¸éÀû | º¸Áõ±Ý | ¿ù¼¼ | °ÇÃà³âµµ | | 2025.07.08 | ¿ù¼¼ | ´ëÈï¿ÀÇǽºÅÚ | 5 | 30.42 | 500 | 50 | 1997 | | 2025.01.19 | ¿ù¼¼ | ´ëÈï¿ÀÇǽºÅÚ | 6 | 33.59 | 500 | 50 | 1997 | | 2025.01.08 | ¿ù¼¼ | ´ëÈï¿ÀÇǽºÅÚ | 1 | 20.67 | 500 | 40 | 1997 | | 2025.01.03 | ¿ù¼¼ | ´ëÈï¿ÀÇǽºÅÚ | 4 | 33.59 | 1,000 | 40 | 1997 | | 2024.12.13 | ¸Å¸Å | ´ëÈï¿ÀÇǽºÅÚ | 5 | 33.585 | 8,200 | | 1997 | | 2024.12.03 | ¿ù¼¼ | ´ëÈï¿ÀÇǽºÅÚ | 3 | 35.01 | 500 | 58 | 1997 | | 2024.10.23 | ¿ù¼¼ | ´ëÈï¿ÀÇǽºÅÚ | 5 | 30.42 | 500 | 50 | 1997 | | 2024.10.21 | ¿ù¼¼ | ´ëÈï¿ÀÇǽºÅÚ | 5 | 33.59 | 500 | 50 | 1997 | | 2024.09.23 | ¿ù¼¼ | ´ëÈï¿ÀÇǽºÅÚ | 3 | 36.29 | 1,000 | 50 | 1997 | | 2024.05.18 | ¸Å¸Å | ´ëÈï¿ÀÇǽºÅÚ | 6 | 30.6 | 9,000 | | 1997 | | 2024.04.26 | ¿ù¼¼ | ´ëÈï¿ÀÇǽºÅÚ | 4 | 35.01 | 500 | 50 | 1997 | | 2024.04.24 | ¿ù¼¼ | ´ëÈï¿ÀÇǽºÅÚ | 5 | 30.42 | 500 | 50 | 1997 | | 2024.04.09 | ¿ù¼¼ | ´ëÈï¿ÀÇǽºÅÚ | 2 | 33.59 | 500 | 45 | 1997 | | 2024.04.07 | ¿ù¼¼ | ´ëÈï¿ÀÇǽºÅÚ | 6 | 36.29 | 500 | 45 | 1997 |
|
|
|
 |
ÀÓÂ÷³»¿ª |
[¹è´ç¿ä±¸Á¾±âÀÏ : 2025/01/15] |
|
|
| ÀÓÂ÷ÀÎ |
Á¡À¯°ü°è |
ÀüÀÔÀÏÀÚ |
È®Á¤ÀÏÀÚ |
¹è´ç¿ä±¸ÀÏ |
º¸Áõ±Ý/Â÷ÀÓ |
´ëÇ׿ä°Ç |
ºñ°í |
| ½ÉOO |
ÀüºÎ |
2019.12.13. |
2019.11.21.(120,000,000¿ø)/2023.11.10.(5,000,000¿ø) |
2024.10.10. |
125,000,000
|
O |
2019.12.13.~ |
| ¸Å°¢¹°°Ç¸í¼¼ ºñ°í |
½ÉÀç¿À:½Åûä±ÇÀÚÀÓ |
|
|
|
 |
Áö¿ªºÐ¼® |
|
|
|
|
| ÁöÇÏö |
|
Çб³ |
|
| °ü°ø¼ |
|
| ¹ý¿ø |
¼¿ï³²ºÎÁö¹æ¹ý¿ø (080-88)¼¿ïƯº°½Ã ¾çõ±¸ ½Å¿ù·Î 386(½ÅÁ¤µ¿) ´ëÇ¥ : 02)2192-1114 ¿µµîÆ÷±¸, °¼±¸, ¾çõ±¸, ±¸·Î±¸, ±Ýõ±¸ |
| µî±â¼Ò |
¼¿ï³²ºÎÁö¹æ¹ý¿ø º»¿ø µî±â±¹ (´ëÇ¥:1544-0773, ÆÑ½º:(02)2629-7307, ¼¿ïƯº°½Ã ¿µµîÆ÷±¸ °æÀηΠ772 (¹®·¡µ¿ 1°¡)) |
| ¼¼¹«¼ |
°¼¼¼¹«¼ (´ëÇ¥:02-2630-42, ÆÑ½º:02-2679-8777, ¼¿ïƯº°½Ã °¼±¸ ¸¶°î¼1·Î 60 (¸¶°îµ¿)) |
|
|
|
 |
¹ý¿ø ¹°°ÇÀÚ·á ¿ä¾à |
|
|
|
|
| ¼Ò¸êµÇÁö ¾Ê´Â µî±âºÎ±Ç¸® |
¸Å¼öÀο¡°Ô ´ëÇ×ÇÒ ¼ö ÀÖ´Â À»±¸ ¼øÀ§5¹ø ÀÓÂ÷±Çµî±â(¹è´ç¿¡¼ º¸Áõ±ÝÀÌ Àü¾× º¯Á¦µÇÁö ¾Æ´ÏÇϸé Àܾ×À» ¸Å¼öÀÎÀÌ ÀμöÇÔ) |
| ¼³Á¤µÈ °ÍÀ¸·Î º¸´Â Áö»ó±Ç |
|
| ¹ý¿øÀÚ·á Æ¯ÀÌ»çÇ× |
[ÁÖ¿ä ¹®°Ç Á¢¼ö ³»¿ª]
[2025.06.30] 乫ÀÚ°â¼ÒÀ¯ÀÚ ±èOO 乫ÀÚ¿¡ ´ëÇÑ ÆÄ»ê¼±°í ¹× °æ¸Å¼ÓÇà ½Åû Á¦Ãâ
|
|
| ¿©ÀÇÁÖ°æ¸Å Á¶¾ð ÇѸ¶µð |
ÀÌ ºÎµ¿»êÀÇ ÀÔÂû¹ý¿øÀº ¼¿ï³²ºÎÁö¹æ¹ý¿øÀÔ´Ï´Ù.
ÀÔÂûÀÏÀº 2025-11-13ÀÔ´Ï´Ù.
ÀÔÂû½Ã°£Àº ~11:20ÀÔ´Ï´Ù. ÀÌ ¹ý¿ø¿¡´Â ½ÅÇÑÀºÇàÀÌ ÀÔÁ¡Çϰí ÀÖ½À´Ï´Ù.
|
¼±¼øÀ§ ÀÓÂ÷±Çµî±â°¡ µÇ¾î ÀÖ½À´Ï´Ù ´ëÇ×·ÂÀÌ ÀÖ´Â ¼±¼øÀ§ ÀÓÂ÷±Çµî±â ±Ç¸®ÀÚ°¡ ¹è´çÀ» Àü¾× ¹ÞÁö ¸øÇÒ °æ¿ì ³«ÂûÀÚ°¡ ÀÜ¿© º¸Áõ±ÝÀ» ÀμöÇØ¾ßÇÏ´Â °æ¿ìµµ ÀÖ½À´Ï´Ù. |
|
|
| Åë°è±â°£ |
³«Âû¹°°Ç¼ö |
Æò±Õ°¨Á¤°¡ |
Æò±Õ³«Âû°¡ |
³«Âû°¡À² |
À¯ÂûȽ¼ö |
| 3°³¿ù |
158°Ç |
265,898,734¿ø |
221,226,537¿ø |
83% |
1.7ȸ |
| 6°³¿ù |
258°Ç |
265,693,798¿ø |
223,650,061¿ø |
84% |
1.5ȸ |
| 12°³¿ù |
375°Ç |
266,402,667¿ø |
222,331,605¿ø |
84% |
1.8ȸ |
|
|
|
|
|
|
 |
|