|
|
| ¼ÒÀçÁö |
°æ±âµµ ±èÆ÷½Ã Àå±âµ¿ 2004-4 ¼öÁ¤¸¶À»½Ö¿ë¿¹°¡¾ÆÆÄÆ® 102µ¿ 4Ãþ 401È£
|
|
| »ç°Ç¹øÈ£ |
2025 Ÿ°æ 33418 Áߺ¹ 2025Ÿ°æ33658, |
¹°°Ç¹øÈ£ |
1
|
¹°°Ç¿ëµµ |
¾ÆÆÄÆ® |
| °¨Á¤Æò°¡¾× |
469,000,000¿ø |
°æ¸Å´ë»ó |
ÅäÁö ¹× °Ç¹°Àϰý ¸Å°¢ |
ÁøÇà»óÅ |
ÀçÁøÇà |
| ÃÖÀúÀÔÂû°¡ |
(70%) 328,300,000¿ø
|
°Ç¹°¸éÀû |
84.75§³(25.64Æò) |
ÀÔÂû±âÀÏ |
2026.03.17(È) 10:00
(ÀÔÂû 12ÀÏÀü)
|
| ÀÔÂûº¸Áõ±Ý |
(10%) 32,830,000¿ø |
ÅäÁö¸éÀû |
55.20§³(16.70Æò)
|
À¯ÂûȽ¼ö |
1ȸ |
| ÀÔÂû¹ý¿ø |
ÀÎõÁö¹æ¹ý¿ø ºÎõÁö¿ø |
°æ¸Å¹æ¹ý |
|
¹°°ÇÁ¶È¸¼ö |
¿À´Ã: 3ȸ [´©Àû: 1133ȸ]
|
| ¸»¼Ò±âÁØ | ÃÖ¼±¼øÀ§ ¼³Á¤ : 2019.4.10.±ÙÀú´ç ¼³Á¤
|
|
|
|
|
|
|
|
|
|
|
°æ¸Å´ë»ó ¸ñ·Ï
|
|
| ±¸ºÐ |
¸ñ·Ï |
ÁÖ¼Ò |
±¸Á¶/¿ëµµ/´ëÁö±Ç |
ºñ°í |
´ëÁö±Ç
|
1 |
Àå±âµ¿ 2004-4 |
82306.8ºÐÀÇ 55.195 |
55.195§³ (16.70Æò)
|
°Ç¹°
|
1 |
Àå±âµ¿ 2004-4 |
102µ¿ 4Ãþ 401È£ ö±ÙÄÜÅ©¸®Æ®Á¶ |
84.753§³ (25.64Æò)
|
|
|
|
2025-10-16
À¯Âû
|
(100%)
469,000,000¿ø
|
|
|
|
2025-11-20
º¯°æ
|
(70%)
328,300,000¿ø
|
|
|
|
2026-01-29
º¯°æ
|
(70%)
328,300,000¿ø
|
|
|
|
2026-03-17
ÁøÇà
|
(70%)
328,300,000¿ø
|
|
|
|
|
|
|
|
°ÇÃ๰ÇöȲ |
|
|
|
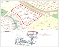
| ¼ÒÀçÁö |
°æ±âµµ ±èÆ÷½Ã Àå±âµ¿ 2004-4¹øÁö |
| ´ëÁö¸éÀû |
|
¿¬¸éÀû |
7513.26§³(2276.75Æò) |
ÁÖ¿ëµµ |
°øµ¿ÁÖÅà |
| °ÇÃà¸éÀû |
616.35§³(186.77Æò) |
¿ëÀû·ü»êÁ¤¿¬¸éÀû |
7513.26§³(2276.75Æò) |
Âø°øÀÏÀÚ |
2009.01.19 |
| °ÇÆóÀ² |
|
¿ëÀû·ü |
|
»ç¿ë½ÂÀÎÀÏÀÚ |
2011.06.29 |
| Áö»óÃþ¼ö |
19Ãþ |
ÁöÇÏÃþ¼ö |
|
±¸Á¶ |
ö±ÙÄÜÅ©¸®Æ®±¸Á¶ |
°ÇÃ๰Ãþº°ÇöȲ [º¸±â]| Ãþº° | ±¸Á¶ | ¿ëµµ | ¸éÀû | | 1Ãþ | ö±ÙÄÜÅ©¸®Æ®±¸Á¶ | ¾ÆÆÄÆ® | 72.524§³ (21.98Æò) | | 1Ãþ | ö±ÙÄÜÅ©¸®Æ®±¸Á¶ | ¾ÆÆÄÆ® | 71.36§³ (21.62Æò) | | 2Ãþ | ö±ÙÄÜÅ©¸®Æ®±¸Á¶ | ¾ÆÆÄÆ® | 547.903§³ (166.03Æò) | | 3Ãþ | ö±ÙÄÜÅ©¸®Æ®±¸Á¶ | ¾ÆÆÄÆ® | 547.903§³ (166.03Æò) | | 4Ãþ | ö±ÙÄÜÅ©¸®Æ®±¸Á¶ | ¾ÆÆÄÆ® | 547.903§³ (166.03Æò) | | 5Ãþ | ö±ÙÄÜÅ©¸®Æ®±¸Á¶ | ¾ÆÆÄÆ® | 437.646§³ (132.62Æò) | | 5Ãþ | ö±ÙÄÜÅ©¸®Æ®±¸Á¶ | ¾ÆÆÄÆ® | 547.903§³ (166.03Æò) | | 5Ãþ | ö±ÙÄÜÅ©¸®Æ®±¸Á¶ | ¾ÆÆÄÆ® | 439.992§³ (133.33Æò) | | 6Ãþ | ö±ÙÄÜÅ©¸®Æ®±¸Á¶ | ¾ÆÆÄÆ® | 547.903§³ (166.03Æò) | | 6Ãþ | ö±ÙÄÜÅ©¸®Æ®±¸Á¶ | ¾ÆÆÄÆ® | 437.646§³ (132.62Æò) | | 7Ãþ | ö±ÙÄÜÅ©¸®Æ®±¸Á¶ | ¾ÆÆÄÆ® | 547.903§³ (166.03Æò) | | 8Ãþ | ö±ÙÄÜÅ©¸®Æ®±¸Á¶ | ¾ÆÆÄÆ® | 547.903§³ (166.03Æò) | | 9Ãþ | ö±ÙÄÜÅ©¸®Æ®±¸Á¶ | ¾ÆÆÄÆ® | 547.903§³ (166.03Æò) | | 9Ãþ | ö±ÙÄÜÅ©¸®Æ®±¸Á¶ | ¾ÆÆÄÆ® | 437.646§³ (132.62Æò) | | 10Ãþ | ö±ÙÄÜÅ©¸®Æ®±¸Á¶ | ¾ÆÆÄÆ® | 547.903§³ (166.03Æò) | | 11Ãþ | ö±ÙÄÜÅ©¸®Æ®±¸Á¶ | ¾ÆÆÄÆ® | 437.646§³ (132.62Æò) | | 11Ãþ | ö±ÙÄÜÅ©¸®Æ®±¸Á¶ | ¾ÆÆÄÆ® | 547.903§³ (166.03Æò) | | 12Ãþ | ö±ÙÄÜÅ©¸®Æ®±¸Á¶ | ¾ÆÆÄÆ® | 547.903§³ (166.03Æò) | | 13Ãþ | ö±ÙÄÜÅ©¸®Æ®±¸Á¶ | ¾ÆÆÄÆ® | 547.903§³ (166.03Æò) | | 14Ãþ | ö±ÙÄÜÅ©¸®Æ®±¸Á¶ | ¾ÆÆÄÆ® | 547.903§³ (166.03Æò) | | 15Ãþ | ö±ÙÄÜÅ©¸®Æ®±¸Á¶ | ¾ÆÆÄÆ® | 547.903§³ (166.03Æò) | | 15Ãþ | ö±ÙÄÜÅ©¸®Æ®±¸Á¶ | ¾ÆÆÄÆ® | 437.646§³ (132.62Æò) | | 16Ãþ | ö±ÙÄÜÅ©¸®Æ®±¸Á¶ | ¾ÆÆÄÆ® | 547.903§³ (166.03Æò) | | 16Ãþ | ö±ÙÄÜÅ©¸®Æ®±¸Á¶ | ¾ÆÆÄÆ® | 437.646§³ (132.62Æò) | | 17Ãþ | ö±ÙÄÜÅ©¸®Æ®±¸Á¶ | ¾ÆÆÄÆ® | 328.236§³ (99.47Æò) | | 18Ãþ | ö±ÙÄÜÅ©¸®Æ®±¸Á¶ | ¾ÆÆÄÆ® | 328.236§³ (99.47Æò) | | 19Ãþ | ö±ÙÄÜÅ©¸®Æ®±¸Á¶ | ¾ÆÆÄÆ® | 328.236§³ (99.47Æò) | | 20Ãþ | ö±ÙÄÜÅ©¸®Æ®±¸Á¶ | ¾ÆÆÄÆ® | 328.236§³ (99.47Æò) | | 20Ãþ | ö±ÙÄÜÅ©¸®Æ®±¸Á¶ | ¾ÆÆÄÆ® | 219.996§³ (66.67Æò) | | 21Ãþ | ö±ÙÄÜÅ©¸®Æ®±¸Á¶ | ¾ÆÆÄÆ® | 135.886§³ (41.18Æò) |
|
|
|
|
|
|
|
|
|
¸éÀû(§³), ±Ý¾×(¸¸¿ø)
| °è¾àÀÏ | ±âÁØ | ¾ÆÆÄÆ®¸í | Ãþ | Àü¿ë¸éÀû | °Å·¡±Ý¾× | °ÇÃà³âµµ | | °Å·¡³»¿ªÀÌ ¾ø½À´Ï´Ù. |
| °è¾àÀÏ | ±âÁØ | ¾ÆÆÄÆ®¸í | Ãþ | Àü¿ë¸éÀû | º¸Áõ±Ý | ¿ù¼¼ | °ÇÃà³âµµ | | 2026.02.24 | ¸Å¸Å | ¼öÁ¤¸¶À»(½Ö¿ë¿¹°¡) | 18 | 84.65 | 40,800 | | 2011 | | 2026.02.11 | ¿ù¼¼ | ¼öÁ¤¸¶À»(½Ö¿ë¿¹°¡) | 10 | 84.779 | 8,000 | 100 | 2011 | | 2026.02.07 | Àü¼¼ | ¼öÁ¤¸¶À»(½Ö¿ë¿¹°¡) | 8 | 84.753 | 29,000 | 0 | 2011 | | 2026.02.06 | ¿ù¼¼ | ¼öÁ¤¸¶À»(½Ö¿ë¿¹°¡) | 18 | 84.561 | 3,000 | 130 | 2011 | | 2026.02.04 | Àü¼¼ | ¼öÁ¤¸¶À»(½Ö¿ë¿¹°¡) | 8 | 84.561 | 33,000 | 0 | 2011 | | 2026.02.02 | Àü¼¼ | ¼öÁ¤¸¶À»(½Ö¿ë¿¹°¡) | 12 | 84.753 | 29,000 | 0 | 2011 | | 2026.01.30 | Àü¼¼ | ¼öÁ¤¸¶À»(½Ö¿ë¿¹°¡) | 20 | 84.561 | 30,300 | 0 | 2011 | | 2026.01.28 | Àü¼¼ | ¼öÁ¤¸¶À»(½Ö¿ë¿¹°¡) | 5 | 84.779 | 28,000 | 0 | 2011 | | 2026.01.27 | ¿ù¼¼ | ¼öÁ¤¸¶À»(½Ö¿ë¿¹°¡) | 2 | 84.753 | 3,000 | 116 | 2011 | | 2026.01.27 | Àü¼¼ | ¼öÁ¤¸¶À»(½Ö¿ë¿¹°¡) | 20 | 84.779 | 27,000 | 0 | 2011 | | 2026.01.22 | Àü¼¼ | ¼öÁ¤¸¶À»(½Ö¿ë¿¹°¡) | 8 | 84.753 | 30,000 | 0 | 2011 | | 2026.01.22 | Àü¼¼ | ¼öÁ¤¸¶À»(½Ö¿ë¿¹°¡) | 17 | 84.561 | 30,000 | 0 | 2011 | | 2026.01.21 | Àü¼¼ | ¼öÁ¤¸¶À»(½Ö¿ë¿¹°¡) | 6 | 84.779 | 31,000 | 0 | 2011 | | 2026.01.20 | ¸Å¸Å | ¼öÁ¤¸¶À»(½Ö¿ë¿¹°¡) | 7 | 84.753 | 41,000 | | 2011 | | 2026.01.19 | Àü¼¼ | ¼öÁ¤¸¶À»(½Ö¿ë¿¹°¡) | 5 | 84.752 | 31,000 | 0 | 2011 | | 2026.01.17 | Àü¼¼ | ¼öÁ¤¸¶À»(½Ö¿ë¿¹°¡) | 3 | 84.753 | 28,500 | 0 | 2011 | | 2026.01.17 | Àü¼¼ | ¼öÁ¤¸¶À»(½Ö¿ë¿¹°¡) | 3 | 84.753 | 28,500 | 0 | 2011 | | 2026.01.10 | ¿ù¼¼ | ¼öÁ¤¸¶À»(½Ö¿ë¿¹°¡) | 13 | 84.561 | 3,000 | 130 | 2011 | | 2026.01.10 | ¸Å¸Å | ¼öÁ¤¸¶À»(½Ö¿ë¿¹°¡) | 21 | 84.753 | 41,000 | | 2011 | | 2026.01.10 | ¸Å¸Å | ¼öÁ¤¸¶À»(½Ö¿ë¿¹°¡) | 2 | 84.752 | 40,000 | | 2011 | | 2026.01.06 | ¸Å¸Å | ¼öÁ¤¸¶À»(½Ö¿ë¿¹°¡) | 14 | 84.561 | 42,500 | | 2011 | | 2026.01.05 | ¸Å¸Å | ¼öÁ¤¸¶À»(½Ö¿ë¿¹°¡) | 5 | 84.752 | 42,200 | | 2011 | | 2025.12.30 | ¿ù¼¼ | ¼öÁ¤¸¶À»(½Ö¿ë¿¹°¡) | 15 | 84.779 | 3,000 | 130 | 2011 | | 2025.12.29 | ¸Å¸Å | ¼öÁ¤¸¶À»(½Ö¿ë¿¹°¡) | 17 | 84.752 | 44,300 | | 2011 | | 2025.12.29 | ¿ù¼¼ | ¼öÁ¤¸¶À»(½Ö¿ë¿¹°¡) | 3 | 84.65 | 1,000 | 140 | 2011 | | 2025.12.23 | Àü¼¼ | ¼öÁ¤¸¶À»(½Ö¿ë¿¹°¡) | 4 | 84.753 | 30,000 | 0 | 2011 | | 2025.12.21 | Àü¼¼ | ¼öÁ¤¸¶À»(½Ö¿ë¿¹°¡) | 19 | 84.752 | 30,000 | 0 | 2011 | | 2025.12.13 | Àü¼¼ | ¼öÁ¤¸¶À»(½Ö¿ë¿¹°¡) | 18 | 84.753 | 28,000 | 0 | 2011 | | 2025.12.12 | Àü¼¼ | ¼öÁ¤¸¶À»(½Ö¿ë¿¹°¡) | 15 | 84.65 | 27,000 | 0 | 2011 | | 2025.12.08 | Àü¼¼ | ¼öÁ¤¸¶À»(½Ö¿ë¿¹°¡) | 2 | 84.779 | 22,000 | 0 | 2011 | | 2025.12.05 | Àü¼¼ | ¼öÁ¤¸¶À»(½Ö¿ë¿¹°¡) | 14 | 84.561 | 28,000 | 0 | 2011 | | 2025.12.04 | ¿ù¼¼ | ¼öÁ¤¸¶À»(½Ö¿ë¿¹°¡) | 6 | 84.561 | 2,500 | 135 | 2011 | | 2025.12.02 | Àü¼¼ | ¼öÁ¤¸¶À»(½Ö¿ë¿¹°¡) | 18 | 84.779 | 28,350 | 0 | 2011 | | 2025.11.28 | Àü¼¼ | ¼öÁ¤¸¶À»(½Ö¿ë¿¹°¡) | 5 | 84.752 | 29,400 | 0 | 2011 | | 2025.11.25 | ¿ù¼¼ | ¼öÁ¤¸¶À»(½Ö¿ë¿¹°¡) | 4 | 84.752 | 3,000 | 120 | 2011 | | 2025.11.24 | Àü¼¼ | ¼öÁ¤¸¶À»(½Ö¿ë¿¹°¡) | 13 | 84.561 | 28,000 | 0 | 2011 | | 2025.11.24 | ¸Å¸Å | ¼öÁ¤¸¶À»(½Ö¿ë¿¹°¡) | 5 | 84.65 | 41,000 | | 2011 | | 2025.11.21 | Àü¼¼ | ¼öÁ¤¸¶À»(½Ö¿ë¿¹°¡) | 14 | 84.753 | 30,000 | 0 | 2011 | | 2025.11.21 | Àü¼¼ | ¼öÁ¤¸¶À»(½Ö¿ë¿¹°¡) | 2 | 84.752 | 28,000 | 0 | 2011 | | 2025.11.20 | Àü¼¼ | ¼öÁ¤¸¶À»(½Ö¿ë¿¹°¡) | 2 | 84.779 | 22,000 | 0 | 2011 | | 2025.11.17 | Àü¼¼ | ¼öÁ¤¸¶À»(½Ö¿ë¿¹°¡) | 12 | 84.561 | 31,000 | 0 | 2011 | | 2025.11.15 | ¸Å¸Å | ¼öÁ¤¸¶À»(½Ö¿ë¿¹°¡) | 12 | 84.561 | 42,800 | | 2011 | | 2025.11.12 | ¸Å¸Å | ¼öÁ¤¸¶À»(½Ö¿ë¿¹°¡) | 8 | 84.752 | 44,800 | | 2011 | | 2025.11.08 | ¸Å¸Å | ¼öÁ¤¸¶À»(½Ö¿ë¿¹°¡) | 3 | 84.752 | 43,000 | | 2011 | | 2025.11.08 | Àü¼¼ | ¼öÁ¤¸¶À»(½Ö¿ë¿¹°¡) | 7 | 84.561 | 25,200 | 0 | 2011 | | 2025.11.07 | ¿ù¼¼ | ¼öÁ¤¸¶À»(½Ö¿ë¿¹°¡) | 5 | 84.752 | 3,000 | 130 | 2011 | | 2025.11.07 | Àü¼¼ | ¼öÁ¤¸¶À»(½Ö¿ë¿¹°¡) | 3 | 84.779 | 32,000 | 0 | 2011 | | 2025.11.04 | ¸Å¸Å | ¼öÁ¤¸¶À»(½Ö¿ë¿¹°¡) | 17 | 84.753 | 42,000 | | 2011 | | 2025.11.03 | ¸Å¸Å | ¼öÁ¤¸¶À»(½Ö¿ë¿¹°¡) | 18 | 84.779 | 40,500 | | 2011 | | 2025.11.01 | ¸Å¸Å | ¼öÁ¤¸¶À»(½Ö¿ë¿¹°¡) | 17 | 84.753 | 42,500 | | 2011 | | 2025.10.30 | ¿ù¼¼ | ¼öÁ¤¸¶À»(½Ö¿ë¿¹°¡) | 14 | 84.561 | 2,000 | 140 | 2011 | | 2025.10.29 | Àü¼¼ | ¼öÁ¤¸¶À»(½Ö¿ë¿¹°¡) | 6 | 84.779 | 27,000 | 0 | 2011 | | 2025.10.28 | Àü¼¼ | ¼öÁ¤¸¶À»(½Ö¿ë¿¹°¡) | 12 | 84.753 | 25,000 | 0 | 2011 | | 2025.10.27 | ¸Å¸Å | ¼öÁ¤¸¶À»(½Ö¿ë¿¹°¡) | 15 | 84.779 | 39,000 | | 2011 | | 2025.10.22 | ¿ù¼¼ | ¼öÁ¤¸¶À»(½Ö¿ë¿¹°¡) | 9 | 84.753 | 2,000 | 145 | 2011 | | 2025.10.20 | ¿ù¼¼ | ¼öÁ¤¸¶À»(½Ö¿ë¿¹°¡) | 19 | 84.561 | 3,000 | 130 | 2011 | | 2025.10.18 | ¿ù¼¼ | ¼öÁ¤¸¶À»(½Ö¿ë¿¹°¡) | 12 | 84.561 | 5,000 | 120 | 2011 | | 2025.10.16 | ¸Å¸Å | ¼öÁ¤¸¶À»(½Ö¿ë¿¹°¡) | 9 | 84.561 | 45,000 | | 2011 | | 2025.10.11 | Àü¼¼ | ¼öÁ¤¸¶À»(½Ö¿ë¿¹°¡) | 11 | 84.65 | 21,000 | 0 | 2011 | | 2025.10.01 | ¿ù¼¼ | ¼öÁ¤¸¶À»(½Ö¿ë¿¹°¡) | 18 | 84.561 | 3,000 | 126 | 2011 | | 2025.09.25 | Àü¼¼ | ¼öÁ¤¸¶À»(½Ö¿ë¿¹°¡) | 12 | 84.779 | 30,000 | 0 | 2011 | | 2025.09.25 | Àü¼¼ | ¼öÁ¤¸¶À»(½Ö¿ë¿¹°¡) | 12 | 84.779 | 30,000 | 0 | 2011 | | 2025.09.19 | ¸Å¸Å | ¼öÁ¤¸¶À»(½Ö¿ë¿¹°¡) | 3 | 84.753 | 38,500 | | 2011 | | 2025.09.13 | ¸Å¸Å | ¼öÁ¤¸¶À»(½Ö¿ë¿¹°¡) | 4 | 84.752 | 42,000 | | 2011 | | 2025.09.12 | ¸Å¸Å | ¼öÁ¤¸¶À»(½Ö¿ë¿¹°¡) | 8 | 84.753 | 41,000 | | 2011 | | 2025.09.09 | ¸Å¸Å | ¼öÁ¤¸¶À»(½Ö¿ë¿¹°¡) | 11 | 84.561 | 41,900 | | 2011 | | 2025.09.08 | Àü¼¼ | ¼öÁ¤¸¶À»(½Ö¿ë¿¹°¡) | 15 | 84.753 | 29,000 | 0 | 2011 | | 2025.09.08 | Àü¼¼ | ¼öÁ¤¸¶À»(½Ö¿ë¿¹°¡) | 2 | 84.561 | 26,250 | 0 | 2011 | | 2025.09.06 | Àü¼¼ | ¼öÁ¤¸¶À»(½Ö¿ë¿¹°¡) | 11 | 84.753 | 30,000 | 0 | 2011 | | 2025.09.06 | ¿ù¼¼ | ¼öÁ¤¸¶À»(½Ö¿ë¿¹°¡) | 4 | 84.561 | 15,000 | 30 | 2011 | | 2025.09.05 | ¿ù¼¼ | ¼öÁ¤¸¶À»(½Ö¿ë¿¹°¡) | 14 | 84.779 | 2,000 | 126 | 2011 | | 2025.09.02 | Àü¼¼ | ¼öÁ¤¸¶À»(½Ö¿ë¿¹°¡) | 3 | 84.752 | 30,000 | 0 | 2011 | | 2025.09.01 | ¿ù¼¼ | ¼öÁ¤¸¶À»(½Ö¿ë¿¹°¡) | 19 | 84.509 | 2,800 | 145 | 2011 | | 2025.08.30 | Àü¼¼ | ¼öÁ¤¸¶À»(½Ö¿ë¿¹°¡) | 18 | 84.752 | 29,400 | 0 | 2011 | | 2025.08.30 | Àü¼¼ | ¼öÁ¤¸¶À»(½Ö¿ë¿¹°¡) | 9 | 84.65 | 31,500 | 0 | 2011 | | 2025.08.30 | Àü¼¼ | ¼öÁ¤¸¶À»(½Ö¿ë¿¹°¡) | 5 | 84.753 | 29,000 | 0 | 2011 | | 2025.08.25 | Àü¼¼ | ¼öÁ¤¸¶À»(½Ö¿ë¿¹°¡) | 11 | 84.753 | 27,000 | 0 | 2011 | | 2025.08.25 | Àü¼¼ | ¼öÁ¤¸¶À»(½Ö¿ë¿¹°¡) | 11 | 84.753 | 27,000 | 0 | 2011 | | 2025.08.23 | Àü¼¼ | ¼öÁ¤¸¶À»(½Ö¿ë¿¹°¡) | 17 | 84.753 | 16,000 | 0 | 2011 | | 2025.08.18 | ¸Å¸Å | ¼öÁ¤¸¶À»(½Ö¿ë¿¹°¡) | 5 | 84.561 | 41,000 | | 2011 | | 2025.08.18 | ¸Å¸Å | ¼öÁ¤¸¶À»(½Ö¿ë¿¹°¡) | 5 | 84.561 | 41,000 | | 2011 | | 2025.08.18 | ¿ù¼¼ | ¼öÁ¤¸¶À»(½Ö¿ë¿¹°¡) | 15 | 84.779 | 28,000 | 10 | 2011 | | 2025.08.18 | Àü¼¼ | ¼öÁ¤¸¶À»(½Ö¿ë¿¹°¡) | 11 | 84.753 | 27,000 | 0 | 2011 | | 2025.08.15 | Àü¼¼ | ¼öÁ¤¸¶À»(½Ö¿ë¿¹°¡) | 14 | 84.779 | 28,500 | 0 | 2011 | | 2025.08.15 | Àü¼¼ | ¼öÁ¤¸¶À»(½Ö¿ë¿¹°¡) | 6 | 84.753 | 29,000 | 0 | 2011 | | 2025.08.12 | ¸Å¸Å | ¼öÁ¤¸¶À»(½Ö¿ë¿¹°¡) | 10 | 84.65 | 37,700 | | 2011 | | 2025.08.09 | ¿ù¼¼ | ¼öÁ¤¸¶À»(½Ö¿ë¿¹°¡) | 5 | 84.752 | 2,000 | 120 | 2011 | | 2025.08.08 | Àü¼¼ | ¼öÁ¤¸¶À»(½Ö¿ë¿¹°¡) | 11 | 84.779 | 25,500 | 0 | 2011 | | 2025.08.06 | ¿ù¼¼ | ¼öÁ¤¸¶À»(½Ö¿ë¿¹°¡) | 13 | 84.65 | 3,000 | 130 | 2011 | | 2025.08.04 | Àü¼¼ | ¼öÁ¤¸¶À»(½Ö¿ë¿¹°¡) | 13 | 84.752 | 28,000 | 0 | 2011 | | 2025.07.30 | Àü¼¼ | ¼öÁ¤¸¶À»(½Ö¿ë¿¹°¡) | 2 | 84.561 | 24,000 | 0 | 2011 | | 2025.07.29 | ¸Å¸Å | ¼öÁ¤¸¶À»(½Ö¿ë¿¹°¡) | 5 | 84.753 | 41,000 | | 2011 | | 2025.07.28 | ¸Å¸Å | ¼öÁ¤¸¶À»(½Ö¿ë¿¹°¡) | 2 | 84.753 | 39,500 | | 2011 | | 2025.07.28 | Àü¼¼ | ¼öÁ¤¸¶À»(½Ö¿ë¿¹°¡) | 16 | 84.752 | 29,000 | 0 | 2011 | | 2025.07.26 | Àü¼¼ | ¼öÁ¤¸¶À»(½Ö¿ë¿¹°¡) | 13 | 84.753 | 28,000 | 0 | 2011 | | 2025.07.26 | Àü¼¼ | ¼öÁ¤¸¶À»(½Ö¿ë¿¹°¡) | 11 | 84.753 | 29,000 | 0 | 2011 | | 2025.07.26 | ¿ù¼¼ | ¼öÁ¤¸¶À»(½Ö¿ë¿¹°¡) | 18 | 84.753 | 2,000 | 145 | 2011 | | 2025.07.26 | ¸Å¸Å | ¼öÁ¤¸¶À»(½Ö¿ë¿¹°¡) | 12 | 84.753 | 41,400 | | 2011 | | 2025.07.26 | Àü¼¼ | ¼öÁ¤¸¶À»(½Ö¿ë¿¹°¡) | 13 | 84.753 | 28,000 | 0 | 2011 | | 2025.07.24 | ¿ù¼¼ | ¼öÁ¤¸¶À»(½Ö¿ë¿¹°¡) | 20 | 84.752 | 3,000 | 125 | 2011 | | 2025.07.23 | ¿ù¼¼ | ¼öÁ¤¸¶À»(½Ö¿ë¿¹°¡) | 16 | 84.779 | 3,000 | 120 | 2011 | | 2025.07.22 | ¸Å¸Å | ¼öÁ¤¸¶À»(½Ö¿ë¿¹°¡) | 9 | 84.752 | 43,000 | | 2011 | | 2025.07.22 | ¸Å¸Å | ¼öÁ¤¸¶À»(½Ö¿ë¿¹°¡) | 18 | 84.779 | 40,000 | | 2011 | | 2025.07.19 | ¸Å¸Å | ¼öÁ¤¸¶À»(½Ö¿ë¿¹°¡) | 2 | 84.752 | 41,900 | | 2011 | | 2025.07.17 | Àü¼¼ | ¼öÁ¤¸¶À»(½Ö¿ë¿¹°¡) | 11 | 84.752 | 28,000 | 0 | 2011 | | 2025.07.15 | Àü¼¼ | ¼öÁ¤¸¶À»(½Ö¿ë¿¹°¡) | 7 | 84.752 | 26,250 | 0 | 2011 | | 2025.07.12 | ¸Å¸Å | ¼öÁ¤¸¶À»(½Ö¿ë¿¹°¡) | 21 | 84.561 | 42,500 | | 2011 | | 2025.06.26 | Àü¼¼ | ¼öÁ¤¸¶À»(½Ö¿ë¿¹°¡) | 11 | 84.561 | 25,500 | 0 | 2011 | | 2025.06.25 | Àü¼¼ | ¼öÁ¤¸¶À»(½Ö¿ë¿¹°¡) | 14 | 84.753 | 32,000 | 0 | 2011 | | 2025.06.21 | ¸Å¸Å | ¼öÁ¤¸¶À»(½Ö¿ë¿¹°¡) | 4 | 84.752 | 41,500 | | 2011 | | 2025.06.17 | Àü¼¼ | ¼öÁ¤¸¶À»(½Ö¿ë¿¹°¡) | 12 | 84.753 | 25,000 | 0 | 2011 | | 2025.06.13 | ¸Å¸Å | ¼öÁ¤¸¶À»(½Ö¿ë¿¹°¡) | 7 | 84.752 | 41,900 | | 2011 | | 2025.06.12 | ¸Å¸Å | ¼öÁ¤¸¶À»(½Ö¿ë¿¹°¡) | 14 | 84.779 | 46,400 | | 2011 | | 2025.06.06 | Àü¼¼ | ¼öÁ¤¸¶À»(½Ö¿ë¿¹°¡) | 9 | 84.561 | 25,000 | 0 | 2011 | | 2025.06.06 | Àü¼¼ | ¼öÁ¤¸¶À»(½Ö¿ë¿¹°¡) | 10 | 84.561 | 28,350 | 0 | 2011 | | 2025.06.04 | Àü¼¼ | ¼öÁ¤¸¶À»(½Ö¿ë¿¹°¡) | 12 | 84.753 | 29,000 | 0 | 2011 | | 2025.06.02 | Àü¼¼ | ¼öÁ¤¸¶À»(½Ö¿ë¿¹°¡) | 10 | 84.752 | 25,900 | 0 | 2011 | | 2025.05.31 | Àü¼¼ | ¼öÁ¤¸¶À»(½Ö¿ë¿¹°¡) | 15 | 84.753 | 26,000 | 0 | 2011 | | 2025.05.31 | Àü¼¼ | ¼öÁ¤¸¶À»(½Ö¿ë¿¹°¡) | 9 | 84.753 | 27,000 | 0 | 2011 | | 2025.05.31 | ¸Å¸Å | ¼öÁ¤¸¶À»(½Ö¿ë¿¹°¡) | 2 | 84.752 | 41,300 | | 2011 | | 2025.05.27 | Àü¼¼ | ¼öÁ¤¸¶À»(½Ö¿ë¿¹°¡) | 11 | 84.753 | 28,300 | 0 | 2011 | | 2025.05.22 | Àü¼¼ | ¼öÁ¤¸¶À»(½Ö¿ë¿¹°¡) | 12 | 84.753 | 26,700 | 0 | 2011 | | 2025.05.20 | ¸Å¸Å | ¼öÁ¤¸¶À»(½Ö¿ë¿¹°¡) | 14 | 84.753 | 41,200 | | 2011 | | 2025.05.18 | ¿ù¼¼ | ¼öÁ¤¸¶À»(½Ö¿ë¿¹°¡) | 10 | 84.779 | 8,000 | 90 | 2011 | | 2025.05.17 | Àü¼¼ | ¼öÁ¤¸¶À»(½Ö¿ë¿¹°¡) | 5 | 84.779 | 25,000 | 0 | 2011 | | 2025.05.17 | ¿ù¼¼ | ¼öÁ¤¸¶À»(½Ö¿ë¿¹°¡) | 10 | 84.753 | 8,000 | 90 | 2011 | | 2025.05.17 | ¿ù¼¼ | ¼öÁ¤¸¶À»(½Ö¿ë¿¹°¡) | 10 | 84.753 | 8,000 | 90 | 2011 | | 2025.05.17 | Àü¼¼ | ¼öÁ¤¸¶À»(½Ö¿ë¿¹°¡) | 14 | 84.753 | 24,000 | 0 | 2011 | | 2025.05.17 | ¸Å¸Å | ¼öÁ¤¸¶À»(½Ö¿ë¿¹°¡) | 4 | 84.752 | 46,000 | | 2011 | | 2025.05.16 | Àü¼¼ | ¼öÁ¤¸¶À»(½Ö¿ë¿¹°¡) | 10 | 84.752 | 27,000 | 0 | 2011 | | 2025.05.16 | ¿ù¼¼ | ¼öÁ¤¸¶À»(½Ö¿ë¿¹°¡) | 16 | 84.65 | 3,000 | 125 | 2011 | | 2025.05.14 | Àü¼¼ | ¼öÁ¤¸¶À»(½Ö¿ë¿¹°¡) | 3 | 84.561 | 24,000 | 0 | 2011 | | 2025.05.13 | ¸Å¸Å | ¼öÁ¤¸¶À»(½Ö¿ë¿¹°¡) | 6 | 84.561 | 43,000 | | 2011 | | 2025.05.10 | ¸Å¸Å | ¼öÁ¤¸¶À»(½Ö¿ë¿¹°¡) | 17 | 84.561 | 42,500 | | 2011 | | 2025.05.03 | Àü¼¼ | ¼öÁ¤¸¶À»(½Ö¿ë¿¹°¡) | 10 | 84.752 | 28,000 | 0 | 2011 | | 2025.05.02 | Àü¼¼ | ¼öÁ¤¸¶À»(½Ö¿ë¿¹°¡) | 13 | 84.753 | 23,500 | 0 | 2011 | | 2025.05.01 | Àü¼¼ | ¼öÁ¤¸¶À»(½Ö¿ë¿¹°¡) | 17 | 84.752 | 28,000 | 0 | 2011 | | 2025.04.30 | Àü¼¼ | ¼öÁ¤¸¶À»(½Ö¿ë¿¹°¡) | 18 | 84.561 | 25,900 | 0 | 2011 | | 2025.04.28 | ¿ù¼¼ | ¼öÁ¤¸¶À»(½Ö¿ë¿¹°¡) | 9 | 84.753 | 8,000 | 90 | 2011 | | 2025.04.26 | ¸Å¸Å | ¼öÁ¤¸¶À»(½Ö¿ë¿¹°¡) | 6 | 84.779 | 39,500 | | 2011 | | 2025.04.26 | Àü¼¼ | ¼öÁ¤¸¶À»(½Ö¿ë¿¹°¡) | 19 | 84.753 | 25,000 | 0 | 2011 | | 2025.04.26 | ¿ù¼¼ | ¼öÁ¤¸¶À»(½Ö¿ë¿¹°¡) | 4 | 84.779 | 3,000 | 125 | 2011 | | 2025.04.19 | Àü¼¼ | ¼öÁ¤¸¶À»(½Ö¿ë¿¹°¡) | 15 | 84.561 | 27,000 | 0 | 2011 | | 2025.04.19 | ¸Å¸Å | ¼öÁ¤¸¶À»(½Ö¿ë¿¹°¡) | 10 | 84.753 | 43,000 | | 2011 | | 2025.04.19 | ¸Å¸Å | ¼öÁ¤¸¶À»(½Ö¿ë¿¹°¡) | 10 | 84.753 | 43,000 | | 2011 | | 2025.04.19 | ¸Å¸Å | ¼öÁ¤¸¶À»(½Ö¿ë¿¹°¡) | 10 | 84.753 | 43,000 | | 2011 | | 2025.04.12 | Àü¼¼ | ¼öÁ¤¸¶À»(½Ö¿ë¿¹°¡) | 18 | 84.561 | 33,000 | 0 | 2011 | | 2025.04.11 | ¸Å¸Å | ¼öÁ¤¸¶À»(½Ö¿ë¿¹°¡) | 4 | 84.561 | 43,000 | | 2011 | | 2025.04.08 | ¸Å¸Å | ¼öÁ¤¸¶À»(½Ö¿ë¿¹°¡) | 5 | 84.561 | 42,000 | | 2011 | | 2025.04.07 | Àü¼¼ | ¼öÁ¤¸¶À»(½Ö¿ë¿¹°¡) | 7 | 84.779 | 23,000 | 0 | 2011 | | 2025.04.05 | ¸Å¸Å | ¼öÁ¤¸¶À»(½Ö¿ë¿¹°¡) | 14 | 84.752 | 44,000 | | 2011 | | 2025.04.01 | ¿ù¼¼ | ¼öÁ¤¸¶À»(½Ö¿ë¿¹°¡) | 12 | 84.752 | 5,000 | 120 | 2011 | | 2025.03.29 | Àü¼¼ | ¼öÁ¤¸¶À»(½Ö¿ë¿¹°¡) | 11 | 84.752 | 32,500 | 0 | 2011 | | 2025.03.29 | Àü¼¼ | ¼öÁ¤¸¶À»(½Ö¿ë¿¹°¡) | 11 | 84.752 | 32,500 | 0 | 2011 | | 2025.03.27 | Àü¼¼ | ¼öÁ¤¸¶À»(½Ö¿ë¿¹°¡) | 10 | 84.753 | 28,000 | 0 | 2011 | | 2025.03.25 | Àü¼¼ | ¼öÁ¤¸¶À»(½Ö¿ë¿¹°¡) | 16 | 84.779 | 28,000 | 0 | 2011 | | 2025.03.25 | Àü¼¼ | ¼öÁ¤¸¶À»(½Ö¿ë¿¹°¡) | 16 | 84.779 | 28,000 | 0 | 2011 | | 2025.03.21 | Àü¼¼ | ¼öÁ¤¸¶À»(½Ö¿ë¿¹°¡) | 19 | 84.753 | 27,000 | 0 | 2011 | | 2025.03.20 | ¸Å¸Å | ¼öÁ¤¸¶À»(½Ö¿ë¿¹°¡) | 2 | 84.752 | 42,900 | | 2011 | | 2025.03.19 | ¿ù¼¼ | ¼öÁ¤¸¶À»(½Ö¿ë¿¹°¡) | 12 | 84.752 | 14,000 | 70 | 2011 | | 2025.03.19 | Àü¼¼ | ¼öÁ¤¸¶À»(½Ö¿ë¿¹°¡) | 14 | 84.753 | 27,000 | 0 | 2011 | | 2025.03.19 | ¿ù¼¼ | ¼öÁ¤¸¶À»(½Ö¿ë¿¹°¡) | 16 | 84.561 | 300 | 25 | 2011 | | 2025.03.17 | Àü¼¼ | ¼öÁ¤¸¶À»(½Ö¿ë¿¹°¡) | 16 | 84.779 | 30,500 | 0 | 2011 | | 2025.03.17 | Àü¼¼ | ¼öÁ¤¸¶À»(½Ö¿ë¿¹°¡) | 8 | 84.561 | 22,000 | 0 | 2011 | | 2025.03.16 | Àü¼¼ | ¼öÁ¤¸¶À»(½Ö¿ë¿¹°¡) | 20 | 84.561 | 27,800 | 0 | 2011 | | 2025.03.15 | Àü¼¼ | ¼öÁ¤¸¶À»(½Ö¿ë¿¹°¡) | 7 | 84.561 | 30,000 | 0 | 2011 | | 2025.03.13 | ¸Å¸Å | ¼öÁ¤¸¶À»(½Ö¿ë¿¹°¡) | 6 | 84.753 | 41,500 | | 2011 | | 2025.03.11 | Àü¼¼ | ¼öÁ¤¸¶À»(½Ö¿ë¿¹°¡) | 19 | 84.753 | 25,100 | 0 | 2011 | | 2025.03.10 | Àü¼¼ | ¼öÁ¤¸¶À»(½Ö¿ë¿¹°¡) | 8 | 84.65 | 24,150 | 0 | 2011 | | 2025.03.08 | Àü¼¼ | ¼öÁ¤¸¶À»(½Ö¿ë¿¹°¡) | 7 | 84.779 | 30,000 | 0 | 2011 | | 2025.03.08 | ¸Å¸Å | ¼öÁ¤¸¶À»(½Ö¿ë¿¹°¡) | 13 | 84.752 | 44,500 | | 2011 | | 2025.03.08 | ¸Å¸Å | ¼öÁ¤¸¶À»(½Ö¿ë¿¹°¡) | 18 | 84.561 | 46,000 | | 2011 | | 2025.03.08 | ¸Å¸Å | ¼öÁ¤¸¶À»(½Ö¿ë¿¹°¡) | 18 | 84.561 | 46,000 | | 2011 | | 2025.03.04 | Àü¼¼ | ¼öÁ¤¸¶À»(½Ö¿ë¿¹°¡) | 17 | 84.753 | 23,000 | 0 | 2011 | | 2025.03.03 | ¸Å¸Å | ¼öÁ¤¸¶À»(½Ö¿ë¿¹°¡) | 14 | 84.752 | 51,500 | | 2011 | | 2025.03.03 | ¿ù¼¼ | ¼öÁ¤¸¶À»(½Ö¿ë¿¹°¡) | 16 | 84.561 | 3,000 | 115 | 2011 | | 2025.03.02 | ¸Å¸Å | ¼öÁ¤¸¶À»(½Ö¿ë¿¹°¡) | 8 | 84.561 | 43,900 | | 2011 | | 2025.03.01 | Àü¼¼ | ¼öÁ¤¸¶À»(½Ö¿ë¿¹°¡) | 5 | 84.561 | 23,100 | 0 | 2011 | | 2025.02.28 | ¸Å¸Å | ¼öÁ¤¸¶À»(½Ö¿ë¿¹°¡) | 10 | 84.65 | 43,200 | | 2011 | | 2025.02.28 | ¸Å¸Å | ¼öÁ¤¸¶À»(½Ö¿ë¿¹°¡) | 10 | 84.65 | 43,200 | | 2011 | | 2025.02.26 | Àü¼¼ | ¼öÁ¤¸¶À»(½Ö¿ë¿¹°¡) | 7 | 84.65 | 24,500 | 0 | 2011 | | 2025.02.25 | ¸Å¸Å | ¼öÁ¤¸¶À»(½Ö¿ë¿¹°¡) | 10 | 84.561 | 43,900 | | 2011 | | 2025.02.24 | ¿ù¼¼ | ¼öÁ¤¸¶À»(½Ö¿ë¿¹°¡) | 6 | 84.779 | 4,000 | 125 | 2011 | | 2025.02.22 | Àü¼¼ | ¼öÁ¤¸¶À»(½Ö¿ë¿¹°¡) | 2 | 84.753 | 25,200 | 0 | 2011 | | 2025.02.22 | ¸Å¸Å | ¼öÁ¤¸¶À»(½Ö¿ë¿¹°¡) | 12 | 84.752 | 43,500 | | 2011 | | 2025.02.18 | Àü¼¼ | ¼öÁ¤¸¶À»(½Ö¿ë¿¹°¡) | 13 | 84.752 | 28,000 | 0 | 2011 | | 2025.02.17 | ¸Å¸Å | ¼öÁ¤¸¶À»(½Ö¿ë¿¹°¡) | 9 | 84.753 | 41,800 | | 2011 | | 2025.02.17 | ¸Å¸Å | ¼öÁ¤¸¶À»(½Ö¿ë¿¹°¡) | 9 | 84.753 | 41,800 | | 2011 | | 2025.02.15 | ¿ù¼¼ | ¼öÁ¤¸¶À»(½Ö¿ë¿¹°¡) | 13 | 84.752 | 3,000 | 130 | 2011 | | 2025.02.13 | Àü¼¼ | ¼öÁ¤¸¶À»(½Ö¿ë¿¹°¡) | 5 | 84.561 | 29,000 | 0 | 2011 | | 2025.02.12 | ¸Å¸Å | ¼öÁ¤¸¶À»(½Ö¿ë¿¹°¡) | 15 | 84.753 | 47,000 | | 2011 | | 2025.02.08 | Àü¼¼ | ¼öÁ¤¸¶À»(½Ö¿ë¿¹°¡) | 3 | 84.779 | 27,000 | 0 | 2011 | | 2025.02.06 | ¿ù¼¼ | ¼öÁ¤¸¶À»(½Ö¿ë¿¹°¡) | 2 | 84.561 | 3,000 | 105 | 2011 | | 2025.02.01 | ¸Å¸Å | ¼öÁ¤¸¶À»(½Ö¿ë¿¹°¡) | 19 | 84.561 | 42,700 | | 2011 | | 2025.01.21 | Àü¼¼ | ¼öÁ¤¸¶À»(½Ö¿ë¿¹°¡) | 10 | 84.753 | 30,000 | 0 | 2011 | | 2025.01.20 | ¿ù¼¼ | ¼öÁ¤¸¶À»(½Ö¿ë¿¹°¡) | 13 | 84.753 | 13,000 | 46 | 2011 | | 2025.01.18 | Àü¼¼ | ¼öÁ¤¸¶À»(½Ö¿ë¿¹°¡) | 3 | 84.752 | 24,100 | 0 | 2011 | | 2025.01.18 | Àü¼¼ | ¼öÁ¤¸¶À»(½Ö¿ë¿¹°¡) | 3 | 84.752 | 30,000 | 0 | 2011 | | 2025.01.17 | Àü¼¼ | ¼öÁ¤¸¶À»(½Ö¿ë¿¹°¡) | 9 | 84.753 | 30,000 | 0 | 2011 | | 2025.01.09 | Àü¼¼ | ¼öÁ¤¸¶À»(½Ö¿ë¿¹°¡) | 4 | 84.561 | 25,000 | 0 | 2011 | | 2025.01.08 | ¸Å¸Å | ¼öÁ¤¸¶À»(½Ö¿ë¿¹°¡) | 17 | 84.561 | 40,000 | | 2011 | | 2025.01.04 | ¸Å¸Å | ¼öÁ¤¸¶À»(½Ö¿ë¿¹°¡) | 15 | 84.779 | 47,500 | | 2011 | | 2025.01.03 | ¿ù¼¼ | ¼öÁ¤¸¶À»(½Ö¿ë¿¹°¡) | 9 | 84.561 | 10,500 | 75 | 2011 |
|
|
|
 |
ÀÓÂ÷³»¿ª |
[¹è´ç¿ä±¸Á¾±âÀÏ : 2025/07/18] |
|
|
| ÀÓÂ÷ÀÎ |
Á¡À¯°ü°è |
ÀüÀÔÀÏÀÚ |
È®Á¤ÀÏÀÚ |
¹è´ç¿ä±¸ÀÏ |
º¸Áõ±Ý/Â÷ÀÓ |
´ëÇ׿ä°Ç |
ºñ°í |
| Á¶»çµÈ ÀÓÂ÷³»¿ªÀÌ ¾ø½À´Ï´Ù. |
|
|
|
¾ÆÆÄÆ® °³¿ä |
|
|
|
| ¾ÆÆÄÆ®¸í |
°Ç¼³È¸»ç |
ÀÔÁֳ⵵ |
ÃѰ¡±¸¼ö |
ÃâÀÔ±¸Á¶ |
Àü¿ë¸éÀûºÐÆ÷ |
³¹æ¹æ½Ä |
°ü¸®»ç¹«¼Ò |
| ¾ÆÆÄÆ® |
|
-01 |
|
½Ä |
§³ |
|
¢Ï |
|
|
|
 |
Áö¿ªºÐ¼® |
|
|
|
|
| ÁöÇÏö |
|
Çб³ |
|
| °ü°ø¼ |
|
| ¹ý¿ø |
ÀÎõÁö¹æ¹ý¿ø ºÎõÁö¿ø (146-02)°æ±âµµ ºÎõ½Ã ¿ø¹Ì±¸ »óÀÏ·Î 129(»óµ¿) ´ëÇ¥ : 032)320-1114, ¹Î¿ø : 032)320-1234 ºÎõ½Ã, ±èÆ÷½Ã |
| µî±â¼Ò |
ÀÎõÁö¹æ¹ý¿ø ºÎõÁö¿ø ±èÆ÷µî±â¼Ò (´ëÇ¥:1544-0773, ÆÑ½º:(031)982-6997, °æ±âµµ ±èÆ÷½Ã ºÀÈ·Î 16 (»ç¿ìµ¿ 240-2)) |
| ¼¼¹«¼ |
±èÆ÷¼¼¹«¼ (´ëÇ¥:031-980-32, ÆÑ½º:031-987-9932, °æ±âµµ ±èÆ÷½Ã ±èÆ÷ÇѰ1·Î 22 (Àå±âµ¿)) |
|
|
|
 |
¹ý¿ø ¹°°ÇÀÚ·á ¿ä¾à |
|
|
|
|
| ¼Ò¸êµÇÁö ¾Ê´Â µî±âºÎ±Ç¸® |
|
| ¼³Á¤µÈ °ÍÀ¸·Î º¸´Â Áö»ó±Ç |
|
| ¹ý¿øÀÚ·á Æ¯ÀÌ»çÇ× |
[ÁÖ¿ä ¹®°Ç Á¢¼ö ³»¿ª]
[2025.11.19] ä±ÇÀÚ ÇÑOOOOOOO ±âÀϺ¯°æ½Åû¼ Á¦Ãâ
[2026.01.27] ä±ÇÀÚ ÇÑOOOOOOO ±âÀϺ¯°æ½Åû¼ Á¦Ãâ
|
|
| ¿©ÀÇÁÖ°æ¸Å Á¶¾ð ÇѸ¶µð |
ÀÌ ºÎµ¿»êÀÇ ÀÔÂû¹ý¿øÀº ÀÎõÁö¹æ¹ý¿ø ºÎõÁö¿øÀÔ´Ï´Ù.
ÀÔÂûÀÏÀº 2026-03-17ÀÔ´Ï´Ù.
ÀÔÂû½Ã°£Àº ~11:10ÀÔ´Ï´Ù. ÀÌ ¹ý¿ø¿¡´Â ½ÅÇÑÀºÇàÀÌ ÀÔÁ¡Çϰí ÀÖ½À´Ï´Ù.
|
|
|
| Åë°è±â°£ |
³«Âû¹°°Ç¼ö |
Æò±Õ°¨Á¤°¡ |
Æò±Õ³«Âû°¡ |
³«Âû°¡À² |
À¯ÂûȽ¼ö |
|
|
|
|
|
|
 |
|