|
|
| ¼ÒÀçÁö |
°¿øÆ¯º°ÀÚÄ¡µµ °¸ª½Ã °¸ª´ë·Î 285, 13Ãþ1329È£ (±³µ¿,°¸ª¿ª ºí·çÇÉ)
±¸)°¿øÆ¯º°ÀÚÄ¡µµ °¸ª½Ã ±³µ¿ 140-16
|
|
| »ç°Ç¹øÈ£ |
2024 Ÿ°æ 54890 |
¹°°Ç¹øÈ£ |
1
|
¹°°Ç¿ëµµ |
¿ÀÇǽºÅÚ |
| °¨Á¤Æò°¡¾× |
109,000,000¿ø |
°æ¸Å´ë»ó |
ÅäÁö ¹× °Ç¹°Àϰý ¸Å°¢ |
ÁøÇà»óÅ |
À¯Âû |
| ÃÖÀúÀÔÂû°¡ |
(49%) 53,410,000¿ø
|
°Ç¹°¸éÀû |
22.00§³(6.66Æò) |
ÀÔÂû±âÀÏ |
2025.12.22(¿ù) 10:00
(ÀÔÂû 1ÀÏÀü)
|
| ÀÔÂûº¸Áõ±Ý |
(10%) 5,341,000¿ø |
ÅäÁö¸éÀû |
4.10§³(1.24Æò)
|
À¯ÂûȽ¼ö |
2ȸ |
| ÀÔÂû¹ý¿ø |
ÃáõÁö¹æ¹ý¿ø °¸ªÁö¿ø |
°æ¸Å¹æ¹ý |
|
¹°°ÇÁ¶È¸¼ö |
¿À´Ã: 3ȸ [´©Àû: 129ȸ]
|
| ¸»¼Ò±âÁØ | ÃÖ¼±¼øÀ§ ¼³Á¤ : 2022.06.30. Àü¼¼±Ç ¼³Á¤
|
|
|
|
|
|
|
|
|
|
|
°æ¸Å´ë»ó ¸ñ·Ï
|
|
| ±¸ºÐ |
¸ñ·Ï |
ÁÖ¼Ò |
±¸Á¶/¿ëµµ/´ëÁö±Ç |
ºñ°í |
´ëÁö±Ç
|
1 |
±³µ¿ 140-16 |
2413.3ºÐÀÇ 4.1 |
4.1§³ (1.24Æò)
|
°Ç¹°
|
1 |
±³µ¿ 140-16 |
13Ãþ1329È£ ö°ñö±ÙÄÜÅ©¸®Æ®±¸Á¶ |
22§³ (6.66Æò)
|
|
|
|
2025-10-20
À¯Âû
|
(100%)
109,000,000¿ø
|
|
|
|
2025-11-24
À¯Âû
|
(70%)
76,300,000¿ø
|
|
|
|
2025-12-22
ÁøÇà
|
(49%)
53,410,000¿ø
|
|
|
|
|
|
°¨Á¤Æò°¡¼ ¿ä¾à |
|
[À§Ä¡/ÁÖÀ§È¯°æ]
º»°ÇÀº °¿øÆ¯º°ÀÚÄ¡µµ °¸ª½Ã ±³µ¿ ¼ÒÀç "°¸ª¿ª" ³²Ãø Àαٿ¡ À§Ä¡Çϸç, ÁÖÀ§´Â °¸ª¿ª
ÁÖº¯À¸·Î »ó¾÷¿ë µîÀ¸·Î Çü¼ºµÇ¾î ÀÖÀ¸¸ç »ó±ÇÀÇ Çü¼ºÁ¤µµ´Â º¸ÅëÁ¤µµÀÓ.
[±³Åë»óȲ]
º»°Ç±îÁö Â÷·®Á¢±Ù °¡´ÉÇϸç, ´ëÁß±³Åë»óȲÀº °¸ª¿ªÀ¸·Î °¢ ¹æÇâÀÇ ³ë¼±¹ö½º°¡ ¿îÇàµÇ°í ÀÖ
°í ¹ö½ºÁ¤·ùÀå°úÀÇ °Å¸® ¹× ¹èÂ÷°£°Ý µîÀ» °í·Á½Ã ¾çÈ£ÇÑ »óȲÀÓ.
[°Ç¹°±¸Á¶]
ö°ñö±ÙÄÜÅ©¸®Æ®±¸Á¶ (ö±Ù)ÄÜÅ©¸®Æ®ÁöºØ ÁöÇÏ5Ãþ/Áö»ó17Ãþ °Ç¹° Áß Á¦13Ãþ Á¦1329È£·Î¼
¿Üº®: ¼®À縶°¨ µî
³»º®: º®Áö ¹× ÀϺΠŸÀϸ¶°¨ µî
¹Ù´Ú: ÀåÆÇÁö ¹× ÀϺΠŸÀϸ¶°¨ µî
õÀå: ÅØ½ºÀ§ º®Áö¸¶°¨ µî
âȣ: »õ»õâȣ µîÀÓ.
[ÀÌ¿ë»óÅÂ]
¾÷¹«½Ã¼³(¿ÀÇǽºÅÚ:°Å½Ç°âÁÖ¹æ, ¿å½Ç, º¸ÀÏ·¯½Ç µî)·Î ÀÌ¿ë ÁßÀÓ.
[¼³ºñ³»¿ª]
À§»ý¼³ºñ, ³¹æ¼³ºñ, ¿¤¸®º£ÀÌÅͼ³ºñ, ÁöÇÏÁÖÂ÷Àå¼³ºñ ¹× ¼Ò¹æ¼³ºñ µîÀÌ µÇ¾î ÀÖÀ½.
[ÅäÁöÇü»ó/ÀÌ¿ë»óÅÂ]
ºÎÁ¤Çü ÆòÁö·Î ¾÷¹«½Ã¼³ °ÇºÎÁö·Î ÀÌ¿ëÁßÀÓ.
7)ÀÎÁ¢ µµ·Î»óŵî
º»°Ç ³²µ¿Ãø, ºÏ¼ÃøÀ¸·Î µµ·Î¿¡ Á¢ÇÔ.
[ÅäÁöÀÌ¿ë°èȹ]
ÀϹݻó¾÷Áö¿ª, ¹æÈÁö±¸, ½Ã°¡Áö°æ°üÁö±¸(ÀϹÝ)(2017-08-18), ´ë·Î3·ù(Æø 25m-30m)(ÁÖ°£¼±µµ
·Î)(Á¢ÇÕ), °¡Ãà»çÀ°Á¦Çѱ¸¿ª(2024-10-30)(¸ðµçÃàÁ¾ »çÀ°Á¦Çѱ¸¿ª)£¼°¡ÃàºÐ´¢ÀÇ °ü¸® ¹× ÀÌ¿ë
¿¡ °üÇÑ ¹ý·ü£¾, ºñÇà¾ÈÀüÁ¦6±¸¿ª(Àü¼ú)£¼±º»ç±âÁö ¹× ±º»ç½Ã¼³ º¸È£¹ý£¾, ¿ª»ç¹®Èȯ°æº¸Á¸Áö
¿ª£¼¹®ÈÀ¯»êÀÇ º¸Á¸ ¹× Ȱ¿ë¿¡ °üÇÑ ¹ý·ü£¾
[°øºÎ¿ÍÀÇ Â÷ÀÌ]
¾øÀ½.
[Âü°í»çÇ×]
º»°ÇÀº ÇöÀå Á¶»ç ½Ã ÀÌÇØ°ü°èÀÎ ºÎÀç µîÀ¸·Î ³»ºÎÈ®ÀÎÀÌ °ï¶õÇÏ¿© ºÎµæÀÌ ¿ÜºÎ¿¡¼ °üÂû ¹×
ÁýÇÕ°ÇÃ๰´ëÀå»óÀÇ °ÇÃ๰ÇöȲµµ µîÀ» ±âÁØÀ¸·Î °¨Á¤Æò°¡ÇÏ¿´À¸¸ç ÀÓ´ë°ü°è µîÀº ¹Ì»óÀÓ. |
|
|
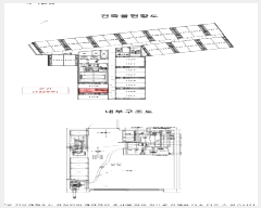
°ÇÃ๰ÇöȲ |
|
|
|
| ¼ÒÀçÁö |
°¿øÆ¯º°ÀÚÄ¡µµ °¸ª½Ã ±³µ¿ 140-16¹øÁö |
| ´ëÁö¸éÀû |
2413.3§³(731.3Æò) |
¿¬¸éÀû |
28048.08§³(8499.42Æò) |
ÁÖ¿ëµµ |
¾÷¹«½Ã¼³ |
| °ÇÃà¸éÀû |
1892§³(573.33Æò) |
¿ëÀû·ü»êÁ¤¿¬¸éÀû |
18491.52§³(5603.49Æò) |
Âø°øÀÏÀÚ |
2017.12.22 |
| °ÇÆóÀ² |
78.4% |
¿ëÀû·ü |
766.23% |
»ç¿ë½ÂÀÎÀÏÀÚ |
2020.06.12 |
| Áö»óÃþ¼ö |
17Ãþ |
ÁöÇÏÃþ¼ö |
5Ãþ |
±¸Á¶ |
ö°ñö±ÙÄÜÅ©¸®Æ®±¸Á¶ |
°ÇÃ๰Ãþº°ÇöȲ [º¸±â]| Ãþº° | ±¸Á¶ | ¿ëµµ | ¸éÀû | | 1Ãþ | ö°ñö±ÙÄÜÅ©¸®Æ®±¸Á¶ | ¼Ò¸ÅÁ¡ | 1430.64§³ (433.53Æò) | | 1Ãþ | ö°ñö±ÙÄÜÅ©¸®Æ®±¸Á¶ | ¼Ò¸ÅÁ¡ | 1430.64§³ (433.53Æò) | | 2Ãþ | ö°ñö±ÙÄÜÅ©¸®Æ®±¸Á¶ | ¼Ò¸ÅÁ¡ | 1777.05§³ (538.5Æò) | | 2Ãþ | ö°ñö±ÙÄÜÅ©¸®Æ®±¸Á¶ | ¼Ò¸ÅÁ¡ | 1777.05§³ (538.5Æò) | | 3Ãþ | ö°ñö±ÙÄÜÅ©¸®Æ®±¸Á¶ | ¾÷¹«½Ã¼³(¿ÀÇǽºÅÚ) | 1018.93§³ (308.77Æò) | | 3Ãþ | ö°ñö±ÙÄÜÅ©¸®Æ®±¸Á¶ | ¾÷¹«½Ã¼³(¿ÀÇǽºÅÚ) | 1018.93§³ (308.77Æò) | | 4Ãþ | ö°ñö±ÙÄÜÅ©¸®Æ®±¸Á¶ | ¾÷¹«½Ã¼³(¿ÀÇǽºÅÚ) | 1018.93§³ (308.77Æò) | | 4Ãþ | ö°ñö±ÙÄÜÅ©¸®Æ®±¸Á¶ | ¾÷¹«½Ã¼³(¿ÀÇǽºÅÚ) | 1018.93§³ (308.77Æò) | | 5Ãþ | ö°ñö±ÙÄÜÅ©¸®Æ®±¸Á¶ | ¾÷¹«½Ã¼³(¿ÀÇǽºÅÚ) | 1018.93§³ (308.77Æò) | | 5Ãþ | ö°ñö±ÙÄÜÅ©¸®Æ®±¸Á¶ | ¾÷¹«½Ã¼³(¿ÀÇǽºÅÚ) | 1018.93§³ (308.77Æò) | | 6Ãþ | ö°ñö±ÙÄÜÅ©¸®Æ®±¸Á¶ | ¾÷¹«½Ã¼³(¿ÀÇǽºÅÚ) | 1018.93§³ (308.77Æò) | | 6Ãþ | ö°ñö±ÙÄÜÅ©¸®Æ®±¸Á¶ | ¾÷¹«½Ã¼³(¿ÀÇǽºÅÚ) | 1018.93§³ (308.77Æò) | | 7Ãþ | ö°ñö±ÙÄÜÅ©¸®Æ®±¸Á¶ | ¾÷¹«½Ã¼³(¿ÀÇǽºÅÚ) | 1018.93§³ (308.77Æò) | | 7Ãþ | ö°ñö±ÙÄÜÅ©¸®Æ®±¸Á¶ | ¾÷¹«½Ã¼³(¿ÀÇǽºÅÚ) | 1018.93§³ (308.77Æò) | | 8Ãþ | ö°ñö±ÙÄÜÅ©¸®Æ®±¸Á¶ | ¾÷¹«½Ã¼³(¿ÀÇǽºÅÚ) | 1018.93§³ (308.77Æò) | | 8Ãþ | ö°ñö±ÙÄÜÅ©¸®Æ®±¸Á¶ | ¾÷¹«½Ã¼³(¿ÀÇǽºÅÚ) | 1018.93§³ (308.77Æò) | | 9Ãþ | ö°ñö±ÙÄÜÅ©¸®Æ®±¸Á¶ | ¾÷¹«½Ã¼³(¿ÀÇǽºÅÚ) | 1018.93§³ (308.77Æò) | | 9Ãþ | ö°ñö±ÙÄÜÅ©¸®Æ®±¸Á¶ | ¾÷¹«½Ã¼³(¿ÀÇǽºÅÚ) | 1018.93§³ (308.77Æò) | | 10Ãþ | ö°ñö±ÙÄÜÅ©¸®Æ®±¸Á¶ | ¾÷¹«½Ã¼³(¿ÀÇǽºÅÚ) | 1018.93§³ (308.77Æò) | | 10Ãþ | ö°ñö±ÙÄÜÅ©¸®Æ®±¸Á¶ | ¾÷¹«½Ã¼³(¿ÀÇǽºÅÚ) | 1018.93§³ (308.77Æò) | | 11Ãþ | ö°ñö±ÙÄÜÅ©¸®Æ®±¸Á¶ | ¾÷¹«½Ã¼³(¿ÀÇǽºÅÚ) | 1018.93§³ (308.77Æò) | | 11Ãþ | ö°ñö±ÙÄÜÅ©¸®Æ®±¸Á¶ | ¾÷¹«½Ã¼³(¿ÀÇǽºÅÚ) | 1018.93§³ (308.77Æò) | | 12Ãþ | ö°ñö±ÙÄÜÅ©¸®Æ®±¸Á¶ | ¾÷¹«½Ã¼³(¿ÀÇǽºÅÚ) | 1018.93§³ (308.77Æò) | | 12Ãþ | ö°ñö±ÙÄÜÅ©¸®Æ®±¸Á¶ | ¾÷¹«½Ã¼³(¿ÀÇǽºÅÚ) | 1018.93§³ (308.77Æò) | | 13Ãþ | ö°ñö±ÙÄÜÅ©¸®Æ®±¸Á¶ | ¾÷¹«½Ã¼³(¿ÀÇǽºÅÚ) | 1018.93§³ (308.77Æò) | | 13Ãþ | ö°ñö±ÙÄÜÅ©¸®Æ®±¸Á¶ | ¾÷¹«½Ã¼³(¿ÀÇǽºÅÚ) | 1018.93§³ (308.77Æò) | | 14Ãþ | ö°ñö±ÙÄÜÅ©¸®Æ®±¸Á¶ | ¾÷¹«½Ã¼³(¿ÀÇǽºÅÚ) | 1018.93§³ (308.77Æò) | | 14Ãþ | ö°ñö±ÙÄÜÅ©¸®Æ®±¸Á¶ | ¾÷¹«½Ã¼³(¿ÀÇǽºÅÚ) | 1018.93§³ (308.77Æò) | | 15Ãþ | ö°ñö±ÙÄÜÅ©¸®Æ®±¸Á¶ | ¾÷¹«½Ã¼³(¿ÀÇǽºÅÚ) | 1018.97§³ (308.78Æò) | | 15Ãþ | ö°ñö±ÙÄÜÅ©¸®Æ®±¸Á¶ | ¾÷¹«½Ã¼³(¿ÀÇǽºÅÚ) | 1018.97§³ (308.78Æò) | | 16Ãþ | ö°ñö±ÙÄÜÅ©¸®Æ®±¸Á¶ | ¾÷¹«½Ã¼³(¿ÀÇǽºÅÚ) | 1018.77§³ (308.72Æò) | | 16Ãþ | ö°ñö±ÙÄÜÅ©¸®Æ®±¸Á¶ | ¾÷¹«½Ã¼³(¿ÀÇǽºÅÚ) | 1018.77§³ (308.72Æò) | | 17Ãþ | ö°ñö±ÙÄÜÅ©¸®Æ®±¸Á¶ | ¾÷¹«½Ã¼³(¿ÀÇǽºÅÚ) | 1018.93§³ (308.77Æò) | | 17Ãþ | ö°ñö±ÙÄÜÅ©¸®Æ®±¸Á¶ | ¾÷¹«½Ã¼³(¿ÀÇǽºÅÚ) | 1018.93§³ (308.77Æò) | | Áö1Ãþ | ö°ñö±ÙÄÜÅ©¸®Æ®±¸Á¶ | ÁöÇÏÁÖÂ÷Àå | 1971.88§³ (597.54Æò) | | Áö1Ãþ | ö°ñö±ÙÄÜÅ©¸®Æ®±¸Á¶ | ÁöÇÏÁÖÂ÷Àå | 1971.88§³ (597.54Æò) | | Áö2Ãþ | ö°ñö±ÙÄÜÅ©¸®Æ®±¸Á¶ | ÁöÇÏÁÖÂ÷Àå | 1932.4§³ (585.58Æò) | | Áö2Ãþ | ö°ñö±ÙÄÜÅ©¸®Æ®±¸Á¶ | ÁöÇÏÁÖÂ÷Àå | 1932.4§³ (585.58Æò) | | Áö3Ãþ | ö°ñö±ÙÄÜÅ©¸®Æ®±¸Á¶ | ÁöÇÏÁÖÂ÷Àå | 1932.96§³ (585.75Æò) | | Áö3Ãþ | ö°ñö±ÙÄÜÅ©¸®Æ®±¸Á¶ | ÁöÇÏÁÖÂ÷Àå | 1932.96§³ (585.75Æò) | | Áö4Ãþ | ö°ñö±ÙÄÜÅ©¸®Æ®±¸Á¶ | ÁöÇÏÁÖÂ÷Àå | 1986.8§³ (602.06Æò) | | Áö4Ãþ | ö°ñö±ÙÄÜÅ©¸®Æ®±¸Á¶ | ÁöÇÏÁÖÂ÷Àå | 1986.8§³ (602.06Æò) | | Áö5Ãþ | ö°ñö±ÙÄÜÅ©¸®Æ®±¸Á¶ | ÁöÇÏÁÖÂ÷Àå,±â°è½Ç,Àü±â½Ç,¹ßÀü±â½Ç | 1732.52§³ (525.01Æò) | | Áö5Ãþ | ö°ñö±ÙÄÜÅ©¸®Æ®±¸Á¶ | ÁöÇÏÁÖÂ÷Àå,±â°è½Ç,Àü±â½Ç,¹ßÀü±â½Ç | 1732.52§³ (525.01Æò) |
|
|
|
|
|
|
|
|
|
¸éÀû(§³), ±Ý¾×(¸¸¿ø)
| °è¾àÀÏ | ±âÁØ | °Ç¹°¸íĪ | Ãþ | Àü¿ë¸éÀû | °Å·¡±Ý¾× | °ÇÃà³âµµ | | 2024.03.19 | ¸Å¸Å | °¸ª¿ª ºí·çÇÉ | 10 | 22 | 11,500 | 2020 | | 2024.03.11 | ¸Å¸Å | °¸ª¿ª ºí·çÇÉ | 14 | 22 | 11,100 | 2020 | | 2024.03.08 | ¸Å¸Å | °¸ª¿ª ºí·çÇÉ | 15 | 22 | 12,189 | 2020 | | 2024.03.05 | ¸Å¸Å | °¸ª¿ª ºí·çÇÉ | 14 | 22 | 11,700 | 2020 | | 2024.03.05 | ¸Å¸Å | °¸ª¿ª ºí·çÇÉ | 14 | 22 | 11,700 | 2020 | | 2024.02.26 | ¸Å¸Å | °¸ª¿ª ºí·çÇÉ | 14 | 22 | 9,500 | 2020 | | 2024.02.17 | ¸Å¸Å | °¸ª¿ª ºí·çÇÉ | 16 | 22 | 11,700 | 2020 | | 2024.02.15 | ¸Å¸Å | °¸ª¿ª ºí·çÇÉ | 12 | 22 | 10,000 | 2020 | | 2024.02.07 | ¸Å¸Å | °¸ª¿ª ºí·çÇÉ | 3 | 22 | 8,650 | 2020 | | 2024.01.25 | ¸Å¸Å | °¸ª¿ª ºí·çÇÉ | 7 | 22 | 10,250 | 2020 | | 2024.01.20 | ¸Å¸Å | °¸ª¿ª ºí·çÇÉ | 10 | 22 | 10,250 | 2020 | | 2024.01.13 | ¸Å¸Å | °¸ª¿ª ºí·çÇÉ | 17 | 22 | 12,750 | 2020 |
| °è¾àÀÏ | ±âÁØ | °Ç¹°¸íĪ | Ãþ | Àü¿ë¸éÀû | º¸Áõ±Ý | ¿ù¼¼ | °ÇÃà³âµµ | | 2025.11.25 | Àü¼¼ | °¸ª¿ª ºí·çÇÉ | 3 | 22 | 8,500 | 0 | 2020 | | 2025.11.20 | Àü¼¼ | °¸ª¿ª ºí·çÇÉ | 16 | 22 | 8,000 | 0 | 2020 | | 2025.11.16 | ¿ù¼¼ | °¸ª¿ª ºí·çÇÉ | 14 | 22 | 500 | 50 | 2020 | | 2025.11.07 | ¿ù¼¼ | °¸ª¿ª ºí·çÇÉ | 9 | 22 | 300 | 47 | 2020 | | 2025.10.31 | ¿ù¼¼ | °¸ª¿ª ºí·çÇÉ | 6 | 22 | 2,000 | 42 | 2020 | | 2025.10.24 | Àü¼¼ | °¸ª¿ª ºí·çÇÉ | 16 | 22 | 8,500 | 0 | 2020 | | 2025.10.08 | ¿ù¼¼ | °¸ª¿ª ºí·çÇÉ | 5 | 22 | 300 | 50 | 2020 | | 2025.09.30 | ¿ù¼¼ | °¸ª¿ª ºí·çÇÉ | 16 | 22 | 2,000 | 40 | 2020 | | 2025.09.30 | ¿ù¼¼ | °¸ª¿ª ºí·çÇÉ | 17 | 22 | 500 | 58 | 2020 | | 2025.09.29 | Àü¼¼ | °¸ª¿ª ºí·çÇÉ | 17 | 22 | 11,000 | 0 | 2020 | | 2025.09.27 | ¿ù¼¼ | °¸ª¿ª ºí·çÇÉ | 12 | 22 | 500 | 50 | 2020 | | 2025.09.22 | Àü¼¼ | °¸ª¿ª ºí·çÇÉ | 16 | 22 | 8,000 | 0 | 2020 | | 2025.09.16 | ¿ù¼¼ | °¸ª¿ª ºí·çÇÉ | 15 | 22 | 300 | 50 | 2020 | | 2025.08.28 | ¿ù¼¼ | °¸ª¿ª ºí·çÇÉ | 12 | 22 | 500 | 50 | 2020 | | 2025.08.25 | ¿ù¼¼ | °¸ª¿ª ºí·çÇÉ | 11 | 22 | 300 | 50 | 2020 | | 2025.08.25 | Àü¼¼ | °¸ª¿ª ºí·çÇÉ | 4 | 22 | 8,500 | 0 | 2020 | | 2025.08.21 | ¿ù¼¼ | °¸ª¿ª ºí·çÇÉ | 11 | 22 | 300 | 50 | 2020 | | 2025.08.14 | ¿ù¼¼ | °¸ª¿ª ºí·çÇÉ | 13 | 22 | 300 | 47 | 2020 | | 2025.08.12 | ¿ù¼¼ | °¸ª¿ª ºí·çÇÉ | 13 | 22 | 500 | 50 | 2020 | | 2025.08.08 | ¿ù¼¼ | °¸ª¿ª ºí·çÇÉ | 11 | 22 | 400 | 52 | 2020 | | 2025.08.05 | Àü¼¼ | °¸ª¿ª ºí·çÇÉ | 7 | 22 | 8,800 | 0 | 2020 | | 2025.08.04 | ¿ù¼¼ | °¸ª¿ª ºí·çÇÉ | 6 | 22 | 6,000 | 10 | 2020 | | 2025.07.29 | ¿ù¼¼ | °¸ª¿ª ºí·çÇÉ | 3 | 22 | 500 | 49 | 2020 | | 2025.07.26 | ¿ù¼¼ | °¸ª¿ª ºí·çÇÉ | 9 | 22 | 500 | 50 | 2020 | | 2025.07.14 | Àü¼¼ | °¸ª¿ª ºí·çÇÉ | 12 | 22 | 8,500 | 0 | 2020 | | 2025.07.12 | ¿ù¼¼ | °¸ª¿ª ºí·çÇÉ | 7 | 22 | 1,000 | 44 | 2020 | | 2025.07.09 | ¿ù¼¼ | °¸ª¿ª ºí·çÇÉ | 6 | 22 | 7,000 | 8 | 2020 | | 2025.07.08 | ¿ù¼¼ | °¸ª¿ª ºí·çÇÉ | 8 | 22 | 500 | 50 | 2020 | | 2025.06.30 | ¿ù¼¼ | °¸ª¿ª ºí·çÇÉ | 12 | 22 | 500 | 50 | 2020 | | 2025.06.28 | ¿ù¼¼ | °¸ª¿ª ºí·çÇÉ | 6 | 22 | 7,000 | 3 | 2020 | | 2025.06.26 | Àü¼¼ | °¸ª¿ª ºí·çÇÉ | 17 | 22 | 10,500 | 0 | 2020 | | 2025.06.23 | ¿ù¼¼ | °¸ª¿ª ºí·çÇÉ | 8 | 22 | 500 | 53 | 2020 | | 2025.06.23 | ¸Å¸Å | °¸ª¿ª ºí·çÇÉ | 3 | 22 | 8,296 | | 2020 | | 2025.06.15 | ¿ù¼¼ | °¸ª¿ª ºí·çÇÉ | 9 | 22 | 500 | 48 | 2020 | | 2025.06.10 | ¿ù¼¼ | °¸ª¿ª ºí·çÇÉ | 10 | 22 | 500 | 50 | 2020 | | 2025.06.03 | ¸Å¸Å | °¸ª¿ª ºí·çÇÉ | 17 | 22 | 12,900 | | 2020 | | 2025.05.31 | ¿ù¼¼ | °¸ª¿ª ºí·çÇÉ | 14 | 22 | 300 | 50 | 2020 | | 2025.05.30 | ¿ù¼¼ | °¸ª¿ª ºí·çÇÉ | 8 | 22 | 300 | 50 | 2020 | | 2025.05.23 | ¸Å¸Å | °¸ª¿ª ºí·çÇÉ | 3 | 22 | 8,300 | | 2020 | | 2025.05.15 | ¿ù¼¼ | °¸ª¿ª ºí·çÇÉ | 6 | 22 | 300 | 50 | 2020 | | 2025.05.15 | ¿ù¼¼ | °¸ª¿ª ºí·çÇÉ | 7 | 22 | 300 | 50 | 2020 | | 2025.05.14 | ¿ù¼¼ | °¸ª¿ª ºí·çÇÉ | 7 | 22 | 2,500 | 25 | 2020 | | 2025.05.13 | ¿ù¼¼ | °¸ª¿ª ºí·çÇÉ | 6 | 22 | 5,000 | 13 | 2020 | | 2025.04.28 | ¸Å¸Å | °¸ª¿ª ºí·çÇÉ | 3 | 22 | 9,300 | | 2020 | | 2025.04.28 | ¸Å¸Å | °¸ª¿ª ºí·çÇÉ | 3 | 22 | 9,300 | | 2020 | | 2025.04.23 | Àü¼¼ | °¸ª¿ª ºí·çÇÉ | 12 | 22 | 8,000 | 0 | 2020 | | 2025.04.05 | ¿ù¼¼ | °¸ª¿ª ºí·çÇÉ | 13 | 22 | 300 | 50 | 2020 | | 2025.04.01 | ¿ù¼¼ | °¸ª¿ª ºí·çÇÉ | 9 | 22 | 500 | 51 | 2020 | | 2025.02.27 | ¿ù¼¼ | °¸ª¿ª ºí·çÇÉ | 11 | 22 | 300 | 50 | 2020 | | 2025.02.26 | ¸Å¸Å | °¸ª¿ª ºí·çÇÉ | 11 | 22 | 9,300 | | 2020 | | 2025.02.25 | ¿ù¼¼ | °¸ª¿ª ºí·çÇÉ | 9 | 22 | 500 | 51 | 2020 | | 2025.02.24 | ¿ù¼¼ | °¸ª¿ª ºí·çÇÉ | 13 | 22 | 500 | 50 | 2020 | | 2025.02.14 | Àü¼¼ | °¸ª¿ª ºí·çÇÉ | 7 | 22 | 8,400 | 0 | 2020 | | 2025.02.11 | ¿ù¼¼ | °¸ª¿ª ºí·çÇÉ | 6 | 22 | 500 | 50 | 2020 | | 2025.02.08 | ¸Å¸Å | °¸ª¿ª ºí·çÇÉ | 6 | 22 | 9,500 | | 2020 | | 2025.02.07 | Àü¼¼ | °¸ª¿ª ºí·çÇÉ | 14 | 22 | 8,000 | 0 | 2020 | | 2025.01.31 | ¿ù¼¼ | °¸ª¿ª ºí·çÇÉ | 10 | 22 | 500 | 52 | 2020 | | 2025.01.17 | ¿ù¼¼ | °¸ª¿ª ºí·çÇÉ | 9 | 22 | 500 | 50 | 2020 | | 2025.01.10 | ¸Å¸Å | °¸ª¿ª ºí·çÇÉ | 10 | 22 | 9,300 | | 2020 | | 2025.01.10 | ¿ù¼¼ | °¸ª¿ª ºí·çÇÉ | 12 | 22 | 500 | 50 | 2020 | | 2025.01.10 | Àü¼¼ | °¸ª¿ª ºí·çÇÉ | 17 | 22 | 9,500 | 0 | 2020 | | 2025.01.09 | ¸Å¸Å | °¸ª¿ª ºí·çÇÉ | 13 | 22 | 9,000 | | 2020 | | 2025.01.09 | Àü¼¼ | °¸ª¿ª ºí·çÇÉ | 10 | 22 | 8,900 | 0 | 2020 | | 2025.01.05 | ¿ù¼¼ | °¸ª¿ª ºí·çÇÉ | 8 | 22 | 500 | 50 | 2020 | | 2025.01.04 | Àü¼¼ | °¸ª¿ª ºí·çÇÉ | 3 | 22 | 8,000 | 0 | 2020 | | 2025.01.03 | Àü¼¼ | °¸ª¿ª ºí·çÇÉ | 3 | 22 | 8,000 | 0 | 2020 | | 2025.01.03 | ¿ù¼¼ | °¸ª¿ª ºí·çÇÉ | 3 | 22 | 300 | 52 | 2020 | | 2024.12.29 | ¸Å¸Å | °¸ª¿ª ºí·çÇÉ | 9 | 22 | 9,000 | | 2020 | | 2024.12.26 | ¿ù¼¼ | °¸ª¿ª ºí·çÇÉ | 16 | 22 | 400 | 50 | 2020 | | 2024.12.25 | ¿ù¼¼ | °¸ª¿ª ºí·çÇÉ | 14 | 22 | 500 | 50 | 2020 | | 2024.12.22 | ¿ù¼¼ | °¸ª¿ª ºí·çÇÉ | 11 | 22 | 300 | 50 | 2020 | | 2024.12.17 | ¸Å¸Å | °¸ª¿ª ºí·çÇÉ | 12 | 22 | 10,500 | | 2020 | | 2024.12.12 | Àü¼¼ | °¸ª¿ª ºí·çÇÉ | 5 | 22 | 8,800 | 0 | 2020 | | 2024.12.11 | ¿ù¼¼ | °¸ª¿ª ºí·çÇÉ | 14 | 22 | 500 | 50 | 2020 | | 2024.12.05 | Àü¼¼ | °¸ª¿ª ºí·çÇÉ | 10 | 22 | 8,400 | 0 | 2020 | | 2024.11.30 | ¿ù¼¼ | °¸ª¿ª ºí·çÇÉ | 16 | 22 | 300 | 49 | 2020 | | 2024.11.13 | ¿ù¼¼ | °¸ª¿ª ºí·çÇÉ | 5 | 22 | 8,000 | 2 | 2020 | | 2024.11.11 | Àü¼¼ | °¸ª¿ª ºí·çÇÉ | 8 | 22 | 8,500 | 0 | 2020 | | 2024.11.06 | Àü¼¼ | °¸ª¿ª ºí·çÇÉ | 14 | 22 | 10,000 | 0 | 2020 | | 2024.11.01 | Àü¼¼ | °¸ª¿ª ºí·çÇÉ | 6 | 22 | 8,000 | 0 | 2020 | | 2024.10.31 | ¿ù¼¼ | °¸ª¿ª ºí·çÇÉ | 17 | 22 | 500 | 55 | 2020 | | 2024.10.25 | ¸Å¸Å | °¸ª¿ª ºí·çÇÉ | 6 | 22 | 9,000 | | 2020 | | 2024.10.20 | ¿ù¼¼ | °¸ª¿ª ºí·çÇÉ | 9 | 22 | 300 | 50 | 2020 | | 2024.10.18 | ¿ù¼¼ | °¸ª¿ª ºí·çÇÉ | 13 | 22 | 500 | 50 | 2020 | | 2024.10.14 | ¿ù¼¼ | °¸ª¿ª ºí·çÇÉ | 7 | 22 | 500 | 49 | 2020 | | 2024.10.14 | ¿ù¼¼ | °¸ª¿ª ºí·çÇÉ | 10 | 22 | 500 | 50 | 2020 | | 2024.10.10 | Àü¼¼ | °¸ª¿ª ºí·çÇÉ | 5 | 22 | 8,000 | 0 | 2020 | | 2024.10.08 | Àü¼¼ | °¸ª¿ª ºí·çÇÉ | 12 | 22 | 8,400 | 0 | 2020 | | 2024.10.04 | Àü¼¼ | °¸ª¿ª ºí·çÇÉ | 15 | 22 | 8,400 | 0 | 2020 | | 2024.10.01 | ¿ù¼¼ | °¸ª¿ª ºí·çÇÉ | 6 | 22 | 105 | 19 | 2020 | | 2024.09.28 | ¿ù¼¼ | °¸ª¿ª ºí·çÇÉ | 14 | 22 | 500 | 52 | 2020 | | 2024.09.27 | Àü¼¼ | °¸ª¿ª ºí·çÇÉ | 16 | 22 | 9,450 | 0 | 2020 | | 2024.09.25 | Àü¼¼ | °¸ª¿ª ºí·çÇÉ | 17 | 22 | 11,000 | 0 | 2020 | | 2024.09.21 | ¿ù¼¼ | °¸ª¿ª ºí·çÇÉ | 7 | 22 | 500 | 47 | 2020 | | 2024.09.19 | Àü¼¼ | °¸ª¿ª ºí·çÇÉ | 12 | 22 | 8,800 | 0 | 2020 | | 2024.09.13 | ¸Å¸Å | °¸ª¿ª ºí·çÇÉ | 7 | 22 | 10,000 | | 2020 | | 2024.09.06 | ¿ù¼¼ | °¸ª¿ª ºí·çÇÉ | 8 | 22 | 500 | 50 | 2020 | | 2024.09.06 | ¿ù¼¼ | °¸ª¿ª ºí·çÇÉ | 11 | 22 | 300 | 50 | 2020 | | 2024.09.06 | Àü¼¼ | °¸ª¿ª ºí·çÇÉ | 7 | 22 | 8,800 | 0 | 2020 | | 2024.09.04 | ¸Å¸Å | °¸ª¿ª ºí·çÇÉ | 13 | 22 | 9,000 | | 2020 | | 2024.09.02 | Àü¼¼ | °¸ª¿ª ºí·çÇÉ | 13 | 22 | 8,400 | 0 | 2020 | | 2024.08.31 | Àü¼¼ | °¸ª¿ª ºí·çÇÉ | 17 | 22 | 10,000 | 0 | 2020 | | 2024.08.26 | ¿ù¼¼ | °¸ª¿ª ºí·çÇÉ | 14 | 22 | 300 | 52 | 2020 | | 2024.08.25 | ¿ù¼¼ | °¸ª¿ª ºí·çÇÉ | 6 | 22 | 7,000 | 6 | 2020 | | 2024.08.20 | ¸Å¸Å | °¸ª¿ª ºí·çÇÉ | 14 | 22 | 9,950 | | 2020 | | 2024.08.15 | ¿ù¼¼ | °¸ª¿ª ºí·çÇÉ | 6 | 22 | 7,000 | 8 | 2020 | | 2024.08.14 | Àü¼¼ | °¸ª¿ª ºí·çÇÉ | 11 | 22 | 8,400 | 0 | 2020 | | 2024.08.14 | ¸Å¸Å | °¸ª¿ª ºí·çÇÉ | 13 | 22 | 9,900 | | 2020 | | 2024.08.13 | Àü¼¼ | °¸ª¿ª ºí·çÇÉ | 5 | 22 | 10,000 | 0 | 2020 | | 2024.08.02 | ¿ù¼¼ | °¸ª¿ª ºí·çÇÉ | 7 | 22 | 4,000 | 20 | 2020 | | 2024.07.27 | ¿ù¼¼ | °¸ª¿ª ºí·çÇÉ | 4 | 22 | 500 | 50 | 2020 | | 2024.07.18 | Àü¼¼ | °¸ª¿ª ºí·çÇÉ | 10 | 22 | 8,800 | 0 | 2020 | | 2024.07.08 | ¸Å¸Å | °¸ª¿ª ºí·çÇÉ | 8 | 22 | 10,000 | | 2020 | | 2024.07.08 | ¿ù¼¼ | °¸ª¿ª ºí·çÇÉ | 15 | 22 | 500 | 50 | 2020 | | 2024.07.01 | Àü¼¼ | °¸ª¿ª ºí·çÇÉ | 4 | 22 | 9,000 | 0 | 2020 | | 2024.05.20 | ¿ù¼¼ | °¸ª¿ª ºí·çÇÉ | 6 | 22 | 300 | 50 | 2020 | | 2024.05.09 | Àü¼¼ | °¸ª¿ª ºí·çÇÉ | 12 | 22 | 8,700 | 0 | 2020 | | 2024.05.08 | Àü¼¼ | °¸ª¿ª ºí·çÇÉ | 16 | 22 | 10,000 | 0 | 2020 | | 2024.05.02 | ¿ù¼¼ | °¸ª¿ª ºí·çÇÉ | 10 | 22 | 500 | 50 | 2020 | | 2024.05.02 | ¿ù¼¼ | °¸ª¿ª ºí·çÇÉ | 3 | 22 | 300 | 50 | 2020 | | 2024.04.09 | ¿ù¼¼ | °¸ª¿ª ºí·çÇÉ | 8 | 22 | 300 | 51 | 2020 | | 2024.04.06 | ¿ù¼¼ | °¸ª¿ª ºí·çÇÉ | 7 | 22 | 400 | 50 | 2020 | | 2024.04.04 | Àü¼¼ | °¸ª¿ª ºí·çÇÉ | 10 | 22 | 9,000 | 0 | 2020 | | 2024.03.29 | ¿ù¼¼ | °¸ª¿ª ºí·çÇÉ | 6 | 22 | 8,000 | 3 | 2020 | | 2024.03.26 | Àü¼¼ | °¸ª¿ª ºí·çÇÉ | 11 | 22 | 8,500 | 0 | 2020 | | 2024.03.20 | Àü¼¼ | °¸ª¿ª ºí·çÇÉ | 14 | 22 | 8,300 | 0 | 2020 | | 2024.03.16 | ¿ù¼¼ | °¸ª¿ª ºí·çÇÉ | 7 | 22 | 500 | 49 | 2020 | | 2024.03.07 | ¿ù¼¼ | °¸ª¿ª ºí·çÇÉ | 4 | 22 | 300 | 55 | 2020 | | 2024.03.02 | Àü¼¼ | °¸ª¿ª ºí·çÇÉ | 15 | 22 | 9,000 | 0 | 2020 | | 2024.02.29 | ¿ù¼¼ | °¸ª¿ª ºí·çÇÉ | 3 | 22 | 500 | 46 | 2020 | | 2024.02.23 | ¿ù¼¼ | °¸ª¿ª ºí·çÇÉ | 9 | 22 | 500 | 50 | 2020 | | 2024.02.19 | ¿ù¼¼ | °¸ª¿ª ºí·çÇÉ | 4 | 22 | 500 | 50 | 2020 | | 2024.02.16 | Àü¼¼ | °¸ª¿ª ºí·çÇÉ | 9 | 22 | 9,000 | 0 | 2020 | | 2024.02.07 | ¿ù¼¼ | °¸ª¿ª ºí·çÇÉ | 17 | 22 | 500 | 54 | 2020 | | 2024.01.25 | ¿ù¼¼ | °¸ª¿ª ºí·çÇÉ | 7 | 22 | 500 | 50 | 2020 | | 2024.01.23 | ¿ù¼¼ | °¸ª¿ª ºí·çÇÉ | 10 | 22 | 300 | 50 | 2020 | | 2024.01.17 | ¿ù¼¼ | °¸ª¿ª ºí·çÇÉ | 5 | 22 | 300 | 50 | 2020 | | 2024.01.15 | ¿ù¼¼ | °¸ª¿ª ºí·çÇÉ | 3 | 22 | 500 | 50 | 2020 | | 2024.01.15 | ¿ù¼¼ | °¸ª¿ª ºí·çÇÉ | 3 | 22 | 500 | 50 | 2020 | | 2024.01.06 | Àü¼¼ | °¸ª¿ª ºí·çÇÉ | 13 | 22 | 8,000 | 0 | 2020 | | 2024.01.01 | ¿ù¼¼ | °¸ª¿ª ºí·çÇÉ | 16 | 22 | 400 | 50 | 2020 |
|
|
|
 |
ÀÓÂ÷³»¿ª |
[¹è´ç¿ä±¸Á¾±âÀÏ : 2025/02/05] |
|
|
| ÀÓÂ÷ÀÎ |
Á¡À¯°ü°è |
ÀüÀÔÀÏÀÚ |
È®Á¤ÀÏÀÚ |
¹è´ç¿ä±¸ÀÏ |
º¸Áõ±Ý/Â÷ÀÓ |
´ëÇ׿ä°Ç |
ºñ°í |
| À¯OO |
ÁÖ°Å¿ë°Ç¹°ÀüºÎ |
|
2022.06.30.(Àü¼¼±Ç¼³Á¤) |
2024.11.1. |
100,000,000
|
X |
2022.07.01¡2024.07.01 |
|
|
|
 |
Áö¿ªºÐ¼® |
|
|
|
|
| ÁöÇÏö |
|
Çб³ |
|
| °ü°ø¼ |
|
| ¹ý¿ø |
ÃáõÁö¹æ¹ý¿ø °¸ªÁö¿ø (254-63)°¿øµµ °¸ª½Ã µ¿ÇØ´ë·Î 3288-18 (³°îµ¿) ´ëÇ¥ : 033)640-1000, ¾ß°£ : 033)640-1199 °¸ª½Ã, µ¿ÇؽÃ, »ïô½Ã |
| µî±â¼Ò |
ÃáõÁö¹æ¹ý¿ø °¸ªÁö¿ø µî±â°ú (´ëÇ¥:1544-0773, ÆÑ½º:(033)647-5110, °¿øµµ °¸ª½Ã µ¿ÇØ´ë·Î 3288-18 (³°îµ¿ 117-1)) |
| ¼¼¹«¼ |
°¸ª¼¼¹«¼ (´ëÇ¥:033-610-92, ÆÑ½º:033-641-4186, °¿øµµ °¸ª½Ã ¼ö¸®°ñ±æ 65 (±³µ¿)) |
|
|
|
 |
¹ý¿ø ¹°°ÇÀÚ·á ¿ä¾à |
|
|
|
|
| ¼Ò¸êµÇÁö ¾Ê´Â µî±âºÎ±Ç¸® |
|
| ¼³Á¤µÈ °ÍÀ¸·Î º¸´Â Áö»ó±Ç |
|
| ¹ý¿øÀÚ·á Æ¯ÀÌ»çÇ× |
[ÁÖ¿ä ¹®°Ç Á¢¼ö ³»¿ª]
[2024.11.14] °¡¾Ð·ù±ÇÀÚ ÇÏOOO OOOO 乫ºÎÁ¸ÀçÈ®Àμ Á¦Ãâ
|
[¸Å°¢¹°°Ç¸í¼¼¼ ºñ°í¶õ]
-Àü¼¼±ÇÀÚ°¡ °æ¸Å½Åûä±ÇÀÚÀ̰í, ¹è´ç¿ä±¸ÀÏÀÚ´Â °æ¸Å½ÅûÀÏÀÓ |
[ºÎµ¿»ê ÇöȲÁ¶»ç¼ ºñ°í¶õ]
¼ÒÀç : °¸ª½Ã ±³µ¿ °¸ª¸í·û°íµîÇб³ ³²µ¿Ãø¿¡ À§Ä¡ÇÔ.
ÇöȲ |
|
| ¿©ÀÇÁÖ°æ¸Å Á¶¾ð ÇѸ¶µð |
ÀÌ ºÎµ¿»êÀÇ ÀÔÂû¹ý¿øÀº ÃáõÁö¹æ¹ý¿ø °¸ªÁö¿øÀÔ´Ï´Ù.
ÀÔÂûÀÏÀº 2025-12-22ÀÔ´Ï´Ù.
ÀÔÂû½Ã°£Àº ~11:20ÀÔ´Ï´Ù. ÀÌ ¹ý¿ø¿¡´Â NH³óÇùÀºÇàÀÌ ÀÔÁ¡Çϰí ÀÖ½À´Ï´Ù.
|
|
|
| Åë°è±â°£ |
³«Âû¹°°Ç¼ö |
Æò±Õ°¨Á¤°¡ |
Æò±Õ³«Âû°¡ |
³«Âû°¡À² |
À¯ÂûȽ¼ö |
| 3°³¿ù |
1°Ç |
288,000,000¿ø |
60,000,000¿ø |
21% |
5ȸ |
| 6°³¿ù |
2°Ç |
196,500,000¿ø |
69,649,500¿ø |
48% |
3ȸ |
| 12°³¿ù |
2°Ç |
196,500,000¿ø |
69,649,500¿ø |
48% |
3ȸ |
|
|
|
|
|
|
 |
|