|
|
| ¼ÒÀçÁö |
¼¿ïƯº°½Ã ±¸·Î±¸ °³ºÀµ¿ 272-2 ´Ù¿ø¸®Ä¡ºô3Â÷ Á¦4Ãþ Á¦402È£
|
|
| »ç°Ç¹øÈ£ |
2025 Ÿ°æ 9460 |
¹°°Ç¹øÈ£ |
1
|
¹°°Ç¿ëµµ |
´Ù¼¼´ë,ºô¶ó |
| °¨Á¤Æò°¡¾× |
269,000,000¿ø |
°æ¸Å´ë»ó |
ÅäÁö ¹× °Ç¹°Àϰý ¸Å°¢ |
ÁøÇà»óÅ |
À¯Âû |
| ÃÖÀúÀÔÂû°¡ |
(64%) 172,160,000¿ø
|
°Ç¹°¸éÀû |
24.35§³(7.37Æò) |
ÀÔÂû±âÀÏ |
2026.01.21(¼ö) 10:00
(ÀÔÂû 43ÀÏÀü)
|
| ÀÔÂûº¸Áõ±Ý |
(10%) 17,216,000¿ø |
ÅäÁö¸éÀû |
21.03§³(6.36Æò)
|
À¯ÂûȽ¼ö |
2ȸ |
| ÀÔÂû¹ý¿ø |
¼¿ï³²ºÎÁö¹æ¹ý¿ø |
°æ¸Å¹æ¹ý |
|
¹°°ÇÁ¶È¸¼ö |
¿À´Ã: 3ȸ [´©Àû: 62ȸ]
|
| ¸»¼Ò±âÁØ | ÃÖ¼±¼øÀ§ ¼³Á¤ : 2023.07.24. ¾Ð·ù ¼³Á¤
|
|
|
|
|
|
|
|
|
|
|
°æ¸Å´ë»ó ¸ñ·Ï
|
|
| ±¸ºÐ |
¸ñ·Ï |
ÁÖ¼Ò |
±¸Á¶/¿ëµµ/´ëÁö±Ç |
ºñ°í |
´ëÁö±Ç
|
1 |
°³ºÀµ¿ 272-2 |
233ºÐÀÇ 21.026 |
21.026§³ (6.36Æò)
|
°Ç¹°
|
1 |
°³ºÀµ¿ 272-2 |
Á¦4Ãþ Á¦402È£ ö±ÙÄÜÅ©¸®Æ®±¸Á¶ |
24.35§³ (7.37Æò)
|
|
|
|
2025-10-23
À¯Âû
|
(100%)
269,000,000¿ø
|
|
|
|
2025-11-26
À¯Âû
|
(80%)
215,200,000¿ø
|
|
|
|
2026-01-21
ÁøÇà
|
(64%)
172,160,000¿ø
|
|
|
|
|
|
|
|
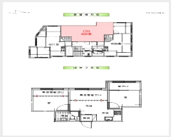
°ÇÃ๰ÇöȲ |
|
|
|
| ¼ÒÀçÁö |
¼¿ïƯº°½Ã ±¸·Î±¸ °³ºÀµ¿ 272-2¹øÁö |
| ´ëÁö¸éÀû |
233§³(70.61Æò) |
¿¬¸éÀû |
348.41§³(105.58Æò) |
ÁÖ¿ëµµ |
°øµ¿ÁÖÅà |
| °ÇÃà¸éÀû |
135.4§³(41.03Æò) |
¿ëÀû·ü»êÁ¤¿¬¸éÀû |
348.41§³(105.58Æò) |
Âø°øÀÏÀÚ |
2020.04.16 |
| °ÇÆóÀ² |
58.11% |
¿ëÀû·ü |
149.53% |
»ç¿ë½ÂÀÎÀÏÀÚ |
2021.02.26 |
| Áö»óÃþ¼ö |
5Ãþ |
ÁöÇÏÃþ¼ö |
|
±¸Á¶ |
ö±ÙÄÜÅ©¸®Æ®±¸Á¶ |
°ÇÃ๰Ãþº°ÇöȲ [º¸±â]| Ãþº° | ±¸Á¶ | ¿ëµµ | ¸éÀû | | 1Ãþ | ö±ÙÄÜÅ©¸®Æ®±¸Á¶ | °è´Ü½Ç | 8.4§³ (2.55Æò) | | 1Ãþ | ö±ÙÄÜÅ©¸®Æ®±¸Á¶ | °è´Ü½Ç | 8.4§³ (2.55Æò) | | 2Ãþ | ö±ÙÄÜÅ©¸®Æ®±¸Á¶ | µµ½ÃÇü»ýȰÁÖÅÃ(´ÜÁöÇü´Ù¼¼´ëÁÖÅÃ)-3¼¼ | 90.26§³ (27.35Æò) | | 2Ãþ | ö±ÙÄÜÅ©¸®Æ®±¸Á¶ | µµ½ÃÇü»ýȰÁÖÅÃ(´ÜÁöÇü´Ù¼¼´ëÁÖÅÃ)-3¼¼ | 90.26§³ (27.35Æò) | | 3Ãþ | ö±ÙÄÜÅ©¸®Æ®±¸Á¶ | µµ½ÃÇü»ýȰÁÖÅÃ(´ÜÁöÇü´Ù¼¼´ëÁÖÅÃ)-3¼¼ | 90.26§³ (27.35Æò) | | 3Ãþ | ö±ÙÄÜÅ©¸®Æ®±¸Á¶ | µµ½ÃÇü»ýȰÁÖÅÃ(´ÜÁöÇü´Ù¼¼´ëÁÖÅÃ)-3¼¼ | 90.26§³ (27.35Æò) | | 4Ãþ | ö±ÙÄÜÅ©¸®Æ®±¸Á¶ | µµ½ÃÇü»ýȰÁÖÅÃ(´ÜÁöÇü´Ù¼¼´ëÁÖÅÃ)-3¼¼ | 90.26§³ (27.35Æò) | | 4Ãþ | ö±ÙÄÜÅ©¸®Æ®±¸Á¶ | µµ½ÃÇü»ýȰÁÖÅÃ(´ÜÁöÇü´Ù¼¼´ëÁÖÅÃ)-3¼¼ | 90.26§³ (27.35Æò) | | 5Ãþ | ö±ÙÄÜÅ©¸®Æ®±¸Á¶ | µµ½ÃÇü»ýȰÁÖÅÃ(´ÜÁöÇü´Ù¼¼´ëÁÖÅÃ)-2¼¼ | 69.23§³ (20.98Æò) | | 5Ãþ | ö±ÙÄÜÅ©¸®Æ®±¸Á¶ | µµ½ÃÇü»ýȰÁÖÅÃ(´ÜÁöÇü´Ù¼¼´ëÁÖÅÃ)-2¼¼ | 69.23§³ (20.98Æò) | | ¿Áž1Ãþ | ö±ÙÄÜÅ©¸®Æ®±¸Á¶ | °è´Ü½Ç(¿¬¸éÀûÁ¦¿Ü) | 13.86§³ (4.2Æò) | | ¿Áž1Ãþ | ö±ÙÄÜÅ©¸®Æ®±¸Á¶ | °è´Ü½Ç(¿¬¸éÀûÁ¦¿Ü) | 13.86§³ (4.2Æò) |
|
|
|
|
|
|
|
|
|
¸éÀû(§³), ±Ý¾×(¸¸¿ø)
| °è¾àÀÏ | ±âÁØ | °Ç¹°¸íĪ | Ãþ | ¿¬¸éÀû | ´ëÁö¸éÀû | °Å·¡±Ý¾× | °ÇÃà³âµµ | | 2024.03.30 | ¸Å¸Å | µ¿½Å¿¬¸³(170-36) | 1 | 60.5 | 41.9 | 41,700 | 1977 | | 2024.03.27 | ¸Å¸Å | µ¿½ÅÇÏÀÌÃ÷¸Ç¼Ç(365-17) | 4 | 59.77 | 29.7 | 22,600 | 2001 | | 2024.03.26 | ¸Å¸Å | Àå¹Ìºô¶ó(277-11) | 3 | 41.76 | 23.3 | 18,900 | 1993 | | 2024.03.25 | ¸Å¸Å | µ¿¿øºô¶ó(378-5) | -1 | 54.44 | 31.68 | 14,550 | 2002 | | 2024.03.25 | ¸Å¸Å | µ¿¿øºô¶ó(378-5) | -1 | 54.44 | 31.68 | 14,550 | 2002 | | 2024.03.23 | ¸Å¸Å | û¿øÁÖÅÃ(308-10) | 4 | 73.46 | 37.55 | 27,000 | 2002 | | 2024.03.22 | ¸Å¸Å | ±×¸°¾ÆÆ®ºô(356-2) | 4 | 59.46 | 33.584 | 24,000 | 2002 | | 2024.03.22 | ¸Å¸Å | À§ÇϿ콺(312-6) | 4 | 39.28 | 25.36 | 29,600 | 2017 | | 2024.03.22 | ¸Å¸Å | ³ì¿øºô¶ó(345-13) | 3 | 45.92 | 25.961 | 16,900 | 1993 | | 2024.03.21 | ¸Å¸Å | ÁöÀ± | 2 | 54.93 | 30.59 | 20,000 | 2012 | | 2024.03.21 | ¸Å¸Å | ÇÑ»ù½¦¸£ºô(138-7) | 1 | 61.6 | 33.94 | 20,300 | 2002 | | 2024.03.20 | ¸Å¸Å | µ¿¾Æºô¶ó(344-4) | 1 | 59.88 | 40.146 | 17,000 | 1996 | | 2024.03.16 | ¸Å¸Å | ·Î¾âÇÏÀÌÃ÷(265-3) | 3 | 29.97 | 18.09 | 21,000 | 2015 | | 2024.03.15 | ¸Å¸Å | ½Ã¸ó¾ÆÆ®ºô¶ó1Â÷(305-5) | 3 | 76.29 | 38.52 | 29,800 | 2001 | | 2024.03.14 | ¸Å¸Å | ¿Àº¹¶ß¶õä | 5 | 69.01 | 37.49 | 29,300 | 2006 | | 2024.03.14 | ¸Å¸Å | ´ë¿ì½ºÀ§Æ®Èú(496) | 4 | 25.87 | 16.76 | 23,000 | 2020 | | 2024.03.12 | ¸Å¸Å | ¸í¹®»Ú¶ìÇϿ콺(357-39) | 5 | 50.49 | 28.472 | 26,000 | 2011 | | 2024.03.11 | ¸Å¸Å | ·Î¾âÇÏÀÌÃ÷(365-1) | 2 | 25.97 | 15.57 | 20,500 | 2017 | | 2024.03.11 | ¸Å¸Å | »ï¼ººô¶ó(°¡)(309-2) | 3 | 57.74 | 25.655 | 24,000 | 2003 | | 2024.03.09 | ¸Å¸Å | »þÀÎÇϿ콺(38-49) | 5 | 28.51 | 16.54 | 16,500 | 2014 | | 2024.03.07 | ¸Å¸Å | ·Î¾âȨŸ¿î | 7 | 38 | 20.7 | 29,000 | 2019 | | 2024.03.06 | ¸Å¸Å | »ï¼º½¦¸£ºôAµ¿ | 5 | 50.3 | 31.1262 | 19,000 | 2016 | | 2024.03.06 | ¸Å¸Å | SKYVILLE(333-8) | 4 | 37.17 | 18.4 | 16,000 | 2002 | | 2024.03.06 | ¸Å¸Å | »ï¼º½¦¸£ºôAµ¿ | 5 | 50.3 | 31.1262 | 19,000 | 2016 | | 2024.03.06 | ¸Å¸Å | ·Î¾âÇÏÀÌÃ÷(344-18) | 2 | 39.31 | 23 | 25,300 | 2017 | | 2024.03.05 | ¸Å¸Å | »ï¼ººô¶ó(³ª)(309-3) | 3 | 59.66 | 27 | 25,500 | 2003 | | 2024.03.04 | ¸Å¸Å | °Å¼ººô¶ó9µ¿ | -1 | 47.57 | 40.33 | 15,000 | 1990 | | 2024.03.04 | ¸Å¸Å | ·Î¾âÇÏÀÌÃ÷(361-11) | 2 | 40.59 | 26.56 | 28,200 | 2020 | | 2024.03.04 | ¸Å¸Å | ÇØ´ãºô | 5 | 54.46 | 31.28 | 29,000 | 2012 | | 2024.03.02 | ¸Å¸Å | ¸ÞÀÎÇϿ콺(279-7) | 5 | 28.61 | 16.82 | 21,300 | 2018 | | 2024.03.02 | ¸Å¸Å | ´ëÈïºô¸®ÁöÁ¦1µ¿ | 2 | 52.12 | 31.2 | 35,900 | 2016 | | 2024.03.01 | ¸Å¸Å | ¾Ö½Ã¾È(355-12) | 5 | 70.78 | 39.18 | 32,000 | 2010 | | 2024.03.01 | ¸Å¸Å | ű¤±×¸°ºô(330-9) | -1 | 59.56 | 29.71 | 13,000 | 2001 | | 2024.03.01 | ¸Å¸Å | Á¤¿¬ºô¶ó(352-13) | 2 | 64.47 | 32.69 | 29,500 | 2002 | | 2024.02.29 | ¸Å¸Å | ¾È´ö±×¸°ºô¶ó2Â÷(340-1) | 3 | 68.23 | 31.39 | 22,800 | 1997 | | 2024.02.29 | ¸Å¸Å | µå¸²Ä³½½(405-6) | 3 | 27.3 | 21.96 | 17,000 | 2012 | | 2024.02.29 | ¸Å¸Å | °Å¼ººô¶ó9µ¿ | -1 | 47.57 | 40.33 | 15,000 | 1990 | | 2024.02.28 | ¸Å¸Å | ´ë¿ì½ºÀ§Æ®Èú(120-12) | 5 | 31.6 | 19.07 | 22,000 | 2015 | | 2024.02.27 | ¸Å¸Å | ¸®¾ÈÇϿ콺(343-45) | 5 | 25.51 | 15.56 | 15,700 | 2017 | | 2024.02.26 | ¸Å¸Å | »ï¿ø¾ÆÀ̺ôB(314-87) | 2 | 28.14 | 21.36 | 26,000 | 2022 | | 2024.02.24 | ¸Å¸Å | °³ºÀÆÄ·¹½ººô¶ó°¡,³ªµ¿(170-1) | 2 | 48.12 | 30.06 | 35,000 | 1993 | | 2024.02.24 | ¸Å¸Å | ¿¡µ§ºô¶ó(337-15) | 2 | 52.03 | 34.56 | 15,000 | 1997 | | 2024.02.24 | ¸Å¸Å | ¿¡Äڱ׷κ꿡ÀÌ | 3 | 29.93 | 22.804 | 30,000 | 2018 | | 2024.02.23 | ¸Å¸Å | ²Þ¾Ö±×¸°ºô4Â÷ | 2 | 44.71 | 26.07 | 23,500 | 2016 | | 2024.02.22 | ¸Å¸Å | ºí·ç¹ÖÇϿ콺A | 6 | 46.94 | 22.35 | 40,000 | 2024 | | 2024.02.22 | ¸Å¸Å | ºí·ç¹ÖÇϿ콺A | 5 | 51.53 | 24.53 | 40,000 | 2024 | | 2024.02.22 | ¸Å¸Å | ºí·ç¹ÖÇϿ콺A | 5 | 46.94 | 22.35 | 40,000 | 2024 | | 2024.02.22 | ¸Å¸Å | ºí·ç¹ÖÇϿ콺A | 4 | 51.53 | 24.53 | 40,000 | 2024 | | 2024.02.22 | ¸Å¸Å | ºí·ç¹ÖÇϿ콺A | 4 | 46.94 | 22.35 | 40,000 | 2024 | | 2024.02.22 | ¸Å¸Å | ºí·ç¹ÖÇϿ콺A | 3 | 51.53 | 24.53 | 40,000 | 2024 | | 2024.02.22 | ¸Å¸Å | ºí·ç¹ÖÇϿ콺A | 3 | 46.94 | 22.35 | 40,000 | 2024 | | 2024.02.22 | ¸Å¸Å | ºí·ç¹ÖÇϿ콺A | 2 | 51.53 | 24.53 | 40,000 | 2024 | | 2024.02.22 | ¸Å¸Å | ºí·ç¹ÖÇϿ콺A | 2 | 46.94 | 22.35 | 40,000 | 2024 | | 2024.02.22 | ¸Å¸Å | ºí·ç¹ÖÇϿ콺A | 6 | 51.53 | 24.53 | 40,000 | 2024 | | 2024.02.22 | ¸Å¸Å | ºí·ç¹ÖÇϿ콺B | 3 | 54.18 | 28.22 | 44,950 | 2024 | | 2024.02.22 | ¸Å¸Å | ºí·ç¹ÖÇϿ콺B | 2 | 40.43 | 21.05 | 34,500 | 2024 | | 2024.02.22 | ¸Å¸Å | ÀÌȺô¶ó(367-13) | 2 | 36.96 | 32.45 | 20,300 | 1990 | | 2024.02.22 | ¸Å¸Å | ºí·ç¹ÖÇϿ콺B | 2 | 54.18 | 28.22 | 44,750 | 2024 | | 2024.02.22 | ¸Å¸Å | ºí·ç¹ÖÇϿ콺B | 3 | 40.43 | 21.05 | 34,700 | 2024 | | 2024.02.22 | ¸Å¸Å | ºí·ç¹ÖÇϿ콺B | 4 | 40.43 | 21.05 | 35,050 | 2024 | | 2024.02.22 | ¸Å¸Å | ºí·ç¹ÖÇϿ콺B | 4 | 54.18 | 28.22 | 45,350 | 2024 | | 2024.02.22 | ¸Å¸Å | ºí·ç¹ÖÇϿ콺B | 5 | 40.43 | 21.05 | 35,050 | 2024 | | 2024.02.22 | ¸Å¸Å | ºí·ç¹ÖÇϿ콺B | 5 | 48.92 | 25.48 | 41,150 | 2024 | | 2024.02.22 | ¸Å¸Å | ºí·ç¹ÖÇϿ콺B | 6 | 40.43 | 21.05 | 35,050 | 2024 | | 2024.02.22 | ¸Å¸Å | ºí·ç¹ÖÇϿ콺B | 6 | 38.99 | 20.31 | 33,700 | 2024 | | 2024.02.21 | ¸Å¸Å | ºê¶ó¿î½ºÅæ | 3 | 71.4 | 38.47 | 28,500 | 2008 | | 2024.02.21 | ¸Å¸Å | ·º½ººô(332-15) | 4 | 61.55 | 28.65 | 20,000 | 2002 | | 2024.02.20 | ¸Å¸Å | Àå¹Ìºô¶ó(277-11) | 2 | 41.76 | 23.3 | 17,000 | 1993 | | 2024.02.20 | ¸Å¸Å | ´õÁ¸ÆÛ½ºÆ® | 3 | 23.47 | 17.0615 | 19,000 | 2020 | | 2024.02.20 | ¸Å¸Å | À§ÇϿ콺(264-12) | 4 | 36.55 | 22.26 | 28,500 | 2018 | | 2024.02.19 | ¸Å¸Å | ½Å¼¼°è·ÎÁîºô | 4 | 28.09 | 17.37 | 15,200 | 2012 | | 2024.02.18 | ¸Å¸Å | ´ëÈï¾ÆÀ̺ô1µ¿ | 6 | 25.85 | 13.33 | 19,000 | 2017 | | 2024.02.17 | ¸Å¸Å | ¼ºÇغô¶óÆ®(319-6) | 4 | 56.29 | 28.061 | 19,000 | 2002 | | 2024.02.16 | ¸Å¸Å | PAPRICA276 | 3 | 12.55 | 11.14 | 7,300 | 2012 | | 2024.02.15 | ¸Å¸Å | ¿¡½º¿¥º§¸®Ã¼(289-22) | 5 | 29.94 | 14.356 | 19,800 | 2017 | | 2024.02.15 | ¸Å¸Å | ¸íǰÁؽ¦¸£ºô | 3 | 48.01 | 28.89 | 25,000 | 2014 | | 2024.02.14 | ¸Å¸Å | ·Î¾âÇÏÀÌÃ÷(331-17) | 6 | 22.84 | 15.73 | 17,000 | 2021 | | 2024.02.08 | ¸Å¸Å | ¸®Ä¡±×¸°A(317-1) | 1 | 29.98 | 19.89 | 17,500 | 2012 | | 2024.02.08 | ¸Å¸Å | ·Î¾âÇÏÀÌÃ÷(331-17) | 6 | 22.69 | 15.63 | 17,000 | 2021 | | 2024.02.07 | ¸Å¸Å | ±Ý¼®¿¬¸³(170-33) | 2 | 53.605 | 124.8 | 9,740 | 1981 | | 2024.02.07 | ¸Å¸Å | ±Ý¼®¿¬¸³(170-33) | 2 | 53.605 | 124.8 | 9,740 | 1981 | | 2024.02.07 | ¸Å¸Å | ±Ý¼®¿¬¸³(170-33) | 1 | 53.605 | 124.8 | 9,190 | 1981 | | 2024.02.07 | ¸Å¸Å | ±Ý¼®¿¬¸³(170-33) | 1 | 53.605 | 124.8 | 9,190 | 1981 | | 2024.02.05 | ¸Å¸Å | ½Ã¸ó½¦¸£ºô(351-11) | 3 | 74.76 | 47.77 | 26,000 | 2007 | | 2024.02.03 | ¸Å¸Å | ·Î¾âÇÏÀÌÃ÷(361-11) | 5 | 40.59 | 26.56 | 27,900 | 2020 | | 2024.02.03 | ¸Å¸Å | »ï¼º½¦¸£ºô | 2 | 60.68 | 38.108 | 25,700 | 2010 | | 2024.02.01 | ¸Å¸Å | »ï¼ºÆÄÅ©ºô(321-3) | 1 | 59.94 | 29.54 | 23,000 | 2001 | | 2024.02.01 | ¸Å¸Å | ÇØ¸¶·ç(341-7) | 4 | 37.34 | 21.93 | 28,000 | 2017 | | 2024.01.30 | ¸Å¸Å | Çý¼ºÆÓ¸®½º | 7 | 22.1 | 13.84 | 20,800 | 2019 | | 2024.01.29 | ¸Å¸Å | ¼öÁ¤ÇÏÀÌÃ÷ | 1 | 56.19 | 32.17 | 14,500 | 2003 | | 2024.01.27 | ¸Å¸Å | ±âÁ¤¾ÆÆ®ºô2(416-270) | 5 | 55.78 | 27.34 | 16,000 | 2003 | | 2024.01.26 | ¸Å¸Å | ⵿ºô¶ó102µ¿ | -1 | 58.26 | 36.5 | 15,000 | 1993 | | 2024.01.26 | ¸Å¸Å | ¸®¿òÇϿ콺(339-9) | 2 | 29.86 | 16.63 | 16,700 | 2011 | | 2024.01.25 | ¸Å¸Å | ¿µ¸ð´øºô | 6 | 27.47 | 17.7 | 20,000 | 2016 | | 2024.01.24 | ¸Å¸Å | ºê¶ó¿î½ºÅæ | 1 | 71.4 | 38.47 | 27,000 | 2008 | | 2024.01.23 | ¸Å¸Å | µðÀÚÀÎÇϿ콺(305-2) | 2 | 37.72 | 21.22 | 17,000 | 2011 | | 2024.01.23 | ¸Å¸Å | ½ÅºÎÆÄ½ºÄ«ºôAµ¿ | 3 | 59.9 | 41.6596 | 24,700 | 2015 | | 2024.01.23 | ¸Å¸Å | Ç®ÇϿ콺 | 3 | 70.83 | 39.0146 | 30,000 | 2010 | | 2024.01.22 | ¸Å¸Å | Æòȱ׸°ºôBµ¿(324-6) | 1 | 59.7 | 31.91 | 25,000 | 2002 | | 2024.01.22 | ¸Å¸Å | °Å¿µºí·çÈú | 1 | 29.89 | 16.4 | 20,000 | 2011 | | 2024.01.20 | ¸Å¸Å | µµ´ãº£½ºÆ®ºô(341-16) | 3 | 29.99 | 22.05 | 21,400 | 2020 | | 2024.01.18 | ¸Å¸Å | ±×·¹À̽ººô(309-11) | 4 | 60.18 | 34.24 | 25,400 | 2010 | | 2024.01.16 | ¸Å¸Å | º°Àåºô¶ó1µ¿(50-40) | 1 | 37.44 | 26.875 | 18,000 | 1989 | | 2024.01.16 | ¸Å¸Å | ¼ºÈ¸®Ä¡ºô2Â÷ | 3 | 57.16 | 35.66 | 26,700 | 2011 | | 2024.01.15 | ¸Å¸Å | ·Î¾âÇÏÀÌÃ÷(361-11) | 4 | 28.32 | 18.531 | 21,150 | 2020 | | 2024.01.13 | ¸Å¸Å | µ¿½Å¿¬¸³(170-36) | 2 | 63.81 | 41.9 | 38,000 | 1977 | | 2024.01.13 | ¸Å¸Å | »óÁø°ñµåºô | 2 | 75.06 | 41.14 | 24,900 | 2008 | | 2024.01.12 | ¸Å¸Å | »þÀÎÇϿ콺(38-49) | 2 | 27.64 | 17 | 19,900 | 2014 | | 2024.01.10 | ¸Å¸Å | OKºô¸®Áö | 1 | 60.79 | 34.94 | 28,500 | 2002 | | 2024.01.10 | ¸Å¸Å | ´ë¿ì¾ÆÆ®ºô¶ó(329-17) | 1 | 69.43 | 32.12 | 28,800 | 2002 | | 2024.01.10 | ¸Å¸Å | ½Ã¸ó¾ÆÆ®ºô¶ó4Â÷(322-3) | 1 | 75.37 | 32.82 | 24,000 | 2002 | | 2024.01.08 | ¸Å¸Å | ·Î¾âÇÏÀÌÃ÷(343-5) | 4 | 38.9 | 22.97 | 25,500 | 2018 | | 2024.01.05 | ¸Å¸Å | ¾¾Æ¼ºô¶ó(331-7) | 2 | 59.965 | 32.97 | 25,000 | 2002 | | 2024.01.05 | ¸Å¸Å | ÀºÇϸǼÇAµ¿ | 1 | 63.91 | 32.73 | 27,000 | 2001 | | 2024.01.05 | ¸Å¸Å | À¯ÁøÄ³½½(332-24) | 6 | 39.87 | 26.53 | 29,000 | 2017 | | 2024.01.04 | ¸Å¸Å | À£ÇϿ콺(288-13) | 2 | 38.59 | 23.41 | 31,500 | 2018 | | 2024.01.03 | ¸Å¸Å | ÇÑÁøºô¸®Áö2Â÷(368-4) | -1 | 39.22 | 21.66 | 10,300 | 2002 | | 2024.01.03 | ¸Å¸Å | ¿ÀÂ÷µå | 2 | 47.95 | 30.79 | 26,500 | 2017 | | 2024.01.02 | ¸Å¸Å | ´ë¿ì½ºÀ§Æ®Èú(306-53) | 3 | 40.54 | 17.13 | 35,500 | 2019 | | 2024.01.02 | ¸Å¸Å | ·Î¾âȨŸ¿î | 7 | 38 | 20.7 | 28,000 | 2019 |
| °è¾àÀÏ | ±âÁØ | °Ç¹°¸íĪ | Ãþ | ¿¬¸éÀû | º¸Áõ±Ý | ¿ù¼¼ | °ÇÃà³âµµ | | 2025.11.28 | ¿ù¼¼ | ¸®¿òÇϿ콺(310-28) | 2 | 29.67 | 2,188 | 12 | 2014 | | 2025.11.28 | ¿ù¼¼ | »ïÀÌÇÏ¿ì¡ | 4 | 51.95 | 15,055 | 13 | 2022 | | 2025.11.26 | ¿ù¼¼ | ¿¡½º¿¥º§¸®Ã¼(279-9) | 2 | 28.05 | 18,100 | 10 | 2017 | | 2025.11.25 | Àü¼¼ | ÁöÀ± | 2 | 36.17 | 15,300 | 0 | 2012 | | 2025.11.25 | Àü¼¼ | ¼±°æºô¶ó | -1 | 59.79 | 11,500 | 0 | 2002 | | 2025.11.25 | ¿ù¼¼ | µå¸²ºô¸®Áö | 6 | 29.96 | 3,000 | 90 | 2022 | | 2025.11.24 | ¿ù¼¼ | ½ºÅ¸ºô | 5 | 41.25 | 3,000 | 80 | 2020 | | 2025.11.24 | Àü¼¼ | »ïº¸Èѹ̸®ºô(319-9) | 2 | 58.92 | 18,000 | 0 | 2001 | | 2025.11.24 | Àü¼¼ | û´ãÈú½ººô | 3 | 29.95 | 16,500 | 0 | 2012 | | 2025.11.22 | ¿ù¼¼ | ±ÃÀü±×¸°ºô¶ó(263-5) | 1 | 59.96 | 3,000 | 60 | 1997 | | 2025.11.22 | Àü¼¼ | ¿¡½ºÄÉÀÌÆÓ·¹½º | 5 | 26.6 | 13,000 | 0 | 2018 | | 2025.11.21 | ¿ù¼¼ | ÇØ´ãÇϿ콺 | 4 | 53.38 | 8,051 | 8 | 2021 | | 2025.11.21 | Àü¼¼ | ¼ö¸íÁÖÅÃ(132-4) | 6 | 29.76 | 21,000 | 0 | 2023 | | 2025.11.21 | ¿ù¼¼ | žºô¸®Áö(312-10) | 1 | 61.98 | 16,500 | 5 | 2003 | | 2025.11.21 | ¿ù¼¼ | ¿¹±×¸®³ª | 2 | 36.34 | 14,000 | 5 | 2012 | | 2025.11.21 | ¿ù¼¼ | ¿¹´ã½ºÅ×À̰³ºÀ¿ª | 2 | 25.38 | 5,000 | 90 | 2023 | | 2025.11.20 | Àü¼¼ | ´Ù¿ø¾ÆÆ®ºô4Â÷ | 6 | 40.23 | 19,000 | 0 | 2015 | | 2025.11.19 | ¿ù¼¼ | »ùÅͺô | 2 | 38.42 | 2,005 | 9 | 2014 | | 2025.11.19 | Àü¼¼ | ¼ö¸íÁÖÅÃ(132-4) | 3 | 29.76 | 20,650 | 0 | 2023 | | 2025.11.18 | Àü¼¼ | ´ë¿ì½ºÀ§Æ®Èú(306-53) | 6 | 26.04 | 18,360 | 0 | 2019 | | 2025.11.17 | Àü¼¼ | ¼ö¸íÁÖÅÃ(132-4) | 6 | 29.81 | 22,000 | 0 | 2023 | | 2025.11.16 | Àü¼¼ | (70-20) | 3 | 26.33 | 11,075 | 0 | 2013 | | 2025.11.15 | Àü¼¼ | ½Å¼¼°èº¹ÇÕºôµù | 7 | 19.22 | 15,430 | 0 | 2017 | | 2025.11.15 | Àü¼¼ | ·Î¾âȨŸ¿î | 3 | 38.64 | 23,700 | 0 | 2019 | | 2025.11.15 | Àü¼¼ | ÁöÀ± | 2 | 36.17 | 15,300 | 0 | 2012 | | 2025.11.14 | Àü¼¼ | »õ·Òºô¶óÆ®(303-13) | -1 | 67.75 | 14,000 | 0 | 2002 | | 2025.11.14 | ¿ù¼¼ | ÇØ´ãÇϿ콺2Â÷ | 2 | 29.097 | 2,370 | 24 | 2023 | | 2025.11.14 | Àü¼¼ | ±×´ë¿Í³»°¡ | 3 | 57.87 | 19,100 | 0 | 2009 | | 2025.11.13 | Àü¼¼ | ¼ö¸íÁÖÅÃ(132-4) | 4 | 29.76 | 20,650 | 0 | 2023 | | 2025.11.13 | ¿ù¼¼ | (202-15) | 4 | 17.85 | 1,000 | 19 | 2012 | | 2025.11.13 | Àü¼¼ | ¼ö¸íÁÖÅÃ(132-4) | 4 | 29.81 | 20,790 | 0 | 2023 | | 2025.11.12 | ¿ù¼¼ | º°Àåºô¶ó1µ¿(50-40) | 3 | 37.44 | 1,000 | 20 | 1989 | | 2025.11.12 | Àü¼¼ | ÀÌ´Ùij½½¥±(322-10) | 3 | 73.55 | 19,500 | 0 | 2002 | | 2025.11.12 | ¸Å¸Å | »ó¶¼±×¸°ºôBµ¿ | 2 | 28.84 | 23,000 | | 2018 | | 2025.11.11 | ¸Å¸Å | Å·½ºÅ¸¿î | 4 | 29.95 | 19,800 | | 2014 | | 2025.11.11 | ¸Å¸Å | ÇØ¸¶·ç(378-23) | 5 | 42.5 | 30,000 | | 2016 | | 2025.11.10 | ¸Å¸Å | °³²¼¾½ººô | 4 | 48.63 | 22,500 | | 2012 | | 2025.11.09 | ¸Å¸Å | ½ºÅ¸ºô | 5 | 41.25 | 23,000 | | 2020 | | 2025.11.08 | Àü¼¼ | û¿ì¾ÆÆ®ºô-Aµ¿(456-22) | 5 | 45.84 | 14,000 | 0 | 2003 | | 2025.11.08 | ¿ù¼¼ | ¼ººÎºô¶óAµ¿(331-3) | 3 | 59.78 | 5,000 | 100 | 1997 | | 2025.11.08 | ¿ù¼¼ | žºô¸®Áö(312-36) | 4 | 47.61 | 11,700 | 10 | 2003 | | 2025.11.08 | Àü¼¼ | »ïÇöºô¶ó(70-15) | 2 | 22.69 | 6,900 | 0 | 1998 | | 2025.11.07 | Àü¼¼ | µðÀÚÀΰñµçºô(153-17) | 3 | 51.98 | 22,600 | 0 | 2016 | | 2025.11.07 | Àü¼¼ | À§µåij½½ | 3 | 29.68 | 1,629 | 0 | 2020 | | 2025.11.06 | Àü¼¼ | žºô¸®Áö(312-10) | 3 | 61.12 | 17,200 | 0 | 2003 | | 2025.11.06 | Àü¼¼ | ´Ùºóºô | 4 | 24.75 | 16,750 | 0 | 2019 | | 2025.11.06 | Àü¼¼ | žºô¸®Áö(312-10) | 3 | 61.12 | 17,200 | 0 | 2003 | | 2025.11.06 | Àü¼¼ | ¼ö¸íÁÖÅÃ(132-4) | 5 | 29.81 | 22,000 | 0 | 2023 | | 2025.11.06 | ¿ù¼¼ | ¸ÞÀÎÇϿ콺(326-4) | 3 | 45.95 | 22,000 | 25 | 2019 | | 2025.11.06 | ¸Å¸Å | »ïº¸Èѹ̸®ºô(319-9) | -1 | 58.92 | 18,000 | | 2001 | | 2025.11.05 | ¿ù¼¼ | °í·ÁÁÖÅÃ(333-1) | 2 | 68.47 | 4,000 | 80 | 1992 | | 2025.11.05 | ¿ù¼¼ | ¿øÅ©¸®½ºÅ»(92-7) | 4 | 49.1 | 5,000 | 48 | 2002 | | 2025.11.05 | Àü¼¼ | »ó¶¼±×¸°ºô(279-2) | 4 | 29.2 | 18,000 | 0 | 2018 | | 2025.11.05 | ¿ù¼¼ | ÀÌ·¹ÆÓ¸®½º(338-12) | 4 | 55.34 | 662 | 32 | 2013 | | 2025.11.04 | ¸Å¸Å | °³²¾ÆÅ©·Îºô(331-6) | 2 | 63.84 | 27,500 | | 2001 | | 2025.11.04 | ¸Å¸Å | ´Ù¿ø¾ÆÆ® | 6 | 41.84 | 26,700 | | 2014 | | 2025.11.04 | ¿ù¼¼ | ´ë¸²¼ºÈȨŸ¿î³ªµ¿ | 4 | 44.18 | 13,000 | 30 | 2002 | | 2025.11.04 | Àü¼¼ | ¹Ìµµ¸Ç¼Ç(323-24) | 1 | 59.76 | 16,200 | 0 | 2000 | | 2025.11.04 | ¿ù¼¼ | µ¿ºÎ¿¡À̽º | 6 | 29.94 | 2,000 | 70 | 2014 | | 2025.11.03 | Àü¼¼ | ÀÌȺô¶ó(367-13) | 1 | 36.96 | 9,198 | 0 | 1990 | | 2025.11.03 | Àü¼¼ | ½Å¼¼°èµå¸²ºô | 5 | 57.41 | 16,000 | 0 | 2008 | | 2025.11.03 | ¸Å¸Å | Áö¿ÀÆç¸®Ã¼ | 2 | 29.96 | 22,500 | | 2021 | | 2025.11.03 | ¸Å¸Å | ÇÏÀÌÆ®¸Ç¼Ç(342-19) | 2 | 62.73 | 30,500 | | 2002 | | 2025.11.03 | ¿ù¼¼ | ⵿±×¸°ºô¶ó´Ùµ¿(52-9) | 1 | 48.84 | 1,000 | 60 | 1989 | | 2025.11.03 | Àü¼¼ | »ï¿ì¿¬¸³A,Bµ¿(286-4) | 2 | 82.08 | 20,000 | 0 | 1981 | | 2025.11.03 | ¿ù¼¼ | º£½ºÆ® | 2 | 19.56 | 9,200 | 18 | 2012 | | 2025.11.02 | Àü¼¼ | »ï¼ººô¸®Áö | 4 | 50.51 | 17,000 | 0 | 2013 | | 2025.11.01 | Àü¼¼ | ±¹Èºô¶ó(171-1) | 3 | 80.44 | 20,000 | 0 | 1983 | | 2025.11.01 | Àü¼¼ | ¿¹´ã½ºÅ×À̰³ºÀ¿ª | 2 | 25.68 | 5,000 | 0 | 2023 | | 2025.11.01 | ¿ù¼¼ | ¿¹´ã½ºÅ×À̰³ºÀ¿ª | 3 | 25.38 | 5,000 | 100 | 2023 | | 2025.10.31 | ¸Å¸Å | PAPRICA276 | 3 | 12.55 | 7,500 | | 2012 | | 2025.10.31 | Àü¼¼ | ´ë¸²±×¸°ºô°¡µ¿ | 2 | 49.68 | 16,000 | 0 | 2002 | | 2025.10.30 | ¸Å¸Å | ¿¡Äڱ׷κêºñ | 5 | 29.91 | 38,500 | | 2018 | | 2025.10.30 | Àü¼¼ | ³ëºí¸®¿ò3Â÷ | 2 | 50.37 | 16,500 | 0 | 2014 | | 2025.10.29 | ¿ù¼¼ | ¿µÁøºô¶ó(³ª)(347-12) | 3 | 59.44 | 15,000 | 30 | 1996 | | 2025.10.29 | Àü¼¼ | µðÀÚÀΰñµçºô(153-17) | 4 | 29.96 | 15,000 | 0 | 2016 | | 2025.10.29 | Àü¼¼ | Áß¾ÓÈúŸ¿î(°¡)(450-10) | 5 | 45.13 | 12,000 | 0 | 2002 | | 2025.10.28 | ¿ù¼¼ | Áø¿µ¿¡ÄÚºô | 4 | 47.8 | 551 | 46 | 2018 | | 2025.10.28 | ¿ù¼¼ | ¾Æµ§ÇÏÀÓ | 4 | 56.1 | 619 | 51 | 2018 | | 2025.10.27 | ¿ù¼¼ | ¿ì¹Ìºí·ç¹Ö | 5 | 28.92 | 1,000 | 112 | 2022 | | 2025.10.27 | ¿ù¼¼ | ÇØ´ãÇϿ콺 | 2 | 40.35 | 311 | 32 | 2021 | | 2025.10.27 | ¿ù¼¼ | ´ë¿ì½ºÀ§Æ®ºô(340-11) | 4 | 42.56 | 2,000 | 60 | 2014 | | 2025.10.27 | Àü¼¼ | °Å¼ººô¶ó6µ¿ | 2 | 31.68 | 7,000 | 0 | 1990 | | 2025.10.26 | ¸Å¸Å | ¿¡½º¿¥º§¸®Ã¼(279-9) | 4 | 40.44 | 29,500 | | 2017 | | 2025.10.26 | ¸Å¸Å | ¿ì½Âºô¸®Áö | 4 | 35.61 | 12,000 | | 2001 | | 2025.10.25 | ¿ù¼¼ | ´õÀ£ | 4 | 39.8 | 30 | 75 | 2021 | | 2025.10.24 | ¿ù¼¼ | ¿¡µ§¸Ç¼Ç(318-9) | 2 | 62.76 | 5,000 | 70 | 1997 | | 2025.10.24 | ¿ù¼¼ | ·Î¾âÇÏÀÌÃ÷(321-5) | 2 | 29.4 | 5,000 | 50 | 2016 | | 2025.10.24 | ¸Å¸Å | ¸íÁøÇÏÀÌÃ÷ºô(346-24) | 2 | 62.46 | 29,800 | | 2001 | | 2025.10.24 | ¿ù¼¼ | ¼öÁ¤ÈúŸ¿î³ªµ¿ | 3 | 51.75 | 14,000 | 22 | 2002 | | 2025.10.24 | ¸Å¸Å | °ñµçij½½2Â÷ | 6 | 38.17 | 31,700 | | 2019 | | 2025.10.23 | ¿ù¼¼ | »ï¼ººô¸®Áö | 2 | 36.31 | 3,000 | 55 | 2013 | | 2025.10.23 | ¸Å¸Å | ÈÞÇ÷¯½º(306-31) | 5 | 55.92 | 29,000 | | 2014 | | 2025.10.23 | ¿ù¼¼ | »ïÀÌÇÏ¿ì¡ | 6 | 59.82 | 4,221 | 44 | 2022 | | 2025.10.22 | ¿ù¼¼ | Çϴûç¶ûä | 3 | 19.6 | 4,641 | 5 | 2022 | | 2025.10.22 | ¿ù¼¼ | ¿¡À̽ººô | 4 | 26.34 | 2,079 | 27 | 2020 | | 2025.10.22 | Àü¼¼ | ¸í¹®´ºÄ³½½(344-22) | 2 | 60.43 | 10,000 | 0 | 2009 | | 2025.10.22 | Àü¼¼ | º®´ã¸®Ä¡ºô | 5 | 51.36 | 27,200 | 0 | 2010 | | 2025.10.21 | ¿ù¼¼ | »ï¼º½¦¸£ºôBµ¿ | 3 | 44.01 | 300 | 30 | 2016 | | 2025.10.21 | ¸Å¸Å | ÀÌÈ£½ººô(153-30) | 4 | 58.38 | 20,000 | | 2001 | | 2025.10.21 | Àü¼¼ | »ó¶¼±×¸°Èú(359-10) | 7 | 29.9 | 18,720 | 0 | 2020 | | 2025.10.21 | ¿ù¼¼ | À̵¥¾ÆÇϿ콺B(346-47) | 4 | 31.5 | 3,000 | 55 | 2014 | | 2025.10.21 | ¿ù¼¼ | ´Ù¼Øºô | 3 | 29.99 | 3,000 | 60 | 2011 | | 2025.10.21 | ¿ù¼¼ | Áêºô¸® | 2 | 45.01 | 1,435 | 23 | 2021 | | 2025.10.21 | ¿ù¼¼ | ´ÙÀÎÁÖÅà | 5 | 52.14 | 2,566 | 21 | 2015 | | 2025.10.21 | ¸Å¸Å | ¾ÆÀ̺ñij½½ | 3 | 45.075 | 27,500 | | 2017 | | 2025.10.20 | Àü¼¼ | ¸¶Èå¹Ù¿ò | 4 | 26.5 | 12,393 | 0 | 2019 | | 2025.10.20 | Àü¼¼ | Áö¿ÀÆÄÅ©(350-2) | -1 | 35.85 | 8,500 | 0 | 2002 | | 2025.10.20 | Àü¼¼ | û¿ì¾ÆÆ®ºô-Aµ¿(456-22) | 5 | 45.84 | 15,300 | 0 | 2003 | | 2025.10.20 | Àü¼¼ | µ¿À¯ºô¶ó(102-1) | 2 | 92.62 | 16,000 | 0 | 1986 | | 2025.10.19 | ¿ù¼¼ | ¿¹´ã½ºÅ×À̰³ºÀ¿ª | 2 | 25.38 | 2,000 | 115 | 2023 | | 2025.10.18 | Àü¼¼ | ½ÅÈïºô¶ó(314-97) | 3 | 44.89 | 10,000 | 0 | 1991 | | 2025.10.18 | ¿ù¼¼ | ·Î¾âÇÏÀÌÃ÷(278-7) | 2 | 29.94 | 14,800 | 12 | 2013 | | 2025.10.18 | ¸Å¸Å | ¼º¿øº£½ºÆ®ºô | 5 | 36.05 | 15,800 | | 2002 | | 2025.10.18 | ¸Å¸Å | ´Ù¿ø¾ÆÆ®2Â÷ | 2 | 29.9 | 17,500 | | 2014 | | 2025.10.18 | ¸Å¸Å | ÅäºêÇϿ콺 | 2 | 29.56 | 16,000 | | 2018 | | 2025.10.18 | ¿ù¼¼ | ű¤±×¸°ºô(330-9) | 4 | 55.19 | 15,300 | 20 | 2001 | | 2025.10.17 | ¿ù¼¼ | »ï¿ø¾ÆÀ̺ôA(286-3) | 2 | 22.79 | 100 | 70 | 2021 | | 2025.10.17 | ¸Å¸Å | ¸¶À̺ô7Â÷ | 4 | 29.94 | 19,000 | | 2019 | | 2025.10.17 | ¸Å¸Å | ÇÑ¹é¾ÆÆ®ºô¶ó³ªµ¿(325-15) | 2 | 36.23 | 18,000 | | 2001 | | 2025.10.17 | ¿ù¼¼ | ¿ì¹Ìºí·ç¹Ö | 3 | 28.92 | 1,000 | 110 | 2022 | | 2025.10.17 | ¿ù¼¼ | û¿øÁÖÅÃ(308-10) | 5 | 49.06 | 2,000 | 65 | 2002 | | 2025.10.17 | Àü¼¼ | ´ë¸²¾ÆÆ®ºô°¡µ¿ | 4 | 48.9 | 16,350 | 0 | 2002 | | 2025.10.16 | ¸Å¸Å | ¸¶À̺ô3Â÷ | 5 | 29.65 | 14,500 | | 2018 | | 2025.10.16 | ¿ù¼¼ | ³²°æº£½ºÆ®ºô(309-10) | -1 | 67.83 | 11,900 | 5 | 2001 | | 2025.10.16 | ¿ù¼¼ | °æÁøÁÖÅÃ(310-33) | 5 | 43.66 | 1,000 | 75 | 2001 | | 2025.10.16 | ¿ù¼¼ | ³²°æº£½ºÆ®ºô(309-10) | -1 | 67.83 | 11,900 | 5 | 2001 | | 2025.10.16 | ¿ù¼¼ | (453-8) | -1 | 43.52 | 500 | 30 | 1986 | | 2025.10.16 | ¿ù¼¼ | µå¸²ºô¸®Áö | 3 | 29.96 | 2,000 | 90 | 2022 | | 2025.10.16 | ¸Å¸Å | (323-11) | 2 | 52.31 | 27,900 | | 2012 | | 2025.10.15 | ¸Å¸Å | ´º½ºÄ«À̺ô2Â÷ | 4 | 65.3 | 26,000 | | 2010 | | 2025.10.15 | ¿ù¼¼ | Àººûºô¶ó(334-13) | 3 | 71.58 | 15,000 | 20 | 1992 | | 2025.10.15 | Àü¼¼ | À¯È£ÁÖÅÃ(346-22) | 2 | 58.44 | 13,500 | 0 | 1987 | | 2025.10.15 | ¸Å¸Å | ¸ÞÀÎÇϿ콺(326-4) | 3 | 45.95 | 23,800 | | 2019 | | 2025.10.15 | ¸Å¸Å | (323-11) | 3 | 64.62 | 32,700 | | 2012 | | 2025.10.15 | ¸Å¸Å | °ñµçij½½(327-37) | 3 | 32.96 | 21,000 | | 2018 | | 2025.10.15 | ¸Å¸Å | Çѽźô¶ó(278-10) | 3 | 32.22 | 10,850 | | 1993 | | 2025.10.15 | Àü¼¼ | ÇÑ»ùÇÏÀ̺ô3Â÷ | 4 | 57.67 | 15,800 | 0 | 2002 | | 2025.10.15 | ¿ù¼¼ | ¹ÌÁÖºô¶óA,Bµ¿(181-1) | 2 | 69.24 | 3,000 | 70 | 1986 | | 2025.10.15 | Àü¼¼ | °Å¼ººô¶ó7µ¿ | 2 | 34.11 | 8,000 | 0 | 1990 | | 2025.10.15 | ¿ù¼¼ | Áêºô¸® | 5 | 46.59 | 311 | 31 | 2021 | | 2025.10.14 | Àü¼¼ | ¿¡Äڱ׷κêºô¸®Áö | 4 | 34.09 | 25,000 | 0 | 2021 | | 2025.10.14 | Àü¼¼ | ½Å¾ÆÆÄÅ©ºô¸Ç¼Ç(312-47) | 4 | 32.93 | 9,000 | 0 | 2002 | | 2025.10.14 | Àü¼¼ | ¿¡Äڱ׷κêºô¸®Áö | 4 | 34.09 | 25,000 | 0 | 2021 | | 2025.10.14 | ¿ù¼¼ | Çö´ë¸Ç¼ÇB(343-24) | -1 | 57.01 | 2,000 | 75 | 2001 | | 2025.10.14 | Àü¼¼ | ¼ö¸íÁÖÅÃ(132-4) | 4 | 29.14 | 19,950 | 0 | 2023 | | 2025.10.14 | ¿ù¼¼ | µå¸²Ä³½½(365-9) | 4 | 45.93 | 2,000 | 90 | 2012 | | 2025.10.14 | ¸Å¸Å | ´õÈú½ººô(352-3) | 5 | 46.76 | 30,000 | | 2019 | | 2025.10.14 | ¸Å¸Å | ¿¡Äڱ׷κ꿡ÀÌ | 2 | 25.92 | 26,500 | | 2018 | | 2025.10.14 | ¸Å¸Å | ¾Æ½ºÅæºô(304-32) | 4 | 29.65 | 19,500 | | 2014 | | 2025.10.14 | ¸Å¸Å | Æ÷À¯ºô | 5 | 27.08 | 21,300 | | 2021 | | 2025.10.13 | ¸Å¸Å | ÀÌ´ã䥲 | 5 | 29.93 | 21,000 | | 2020 | | 2025.10.13 | ¿ù¼¼ | ¹ÌÁÖºô¶óA,Bµ¿(181-1) | 2 | 78.52 | 5,000 | 85 | 1986 | | 2025.10.13 | ¿ù¼¼ | ¹ÌÁÖºô¶óA,Bµ¿(181-1) | 2 | 78.52 | 5,000 | 85 | 1986 | | 2025.10.13 | Àü¼¼ | °ñµçij½½3Â÷ | 3 | 28.64 | 18,018 | 0 | 2019 | | 2025.10.13 | Àü¼¼ | ·Î¾âÇÏÀÌÃ÷(361-11) | 4 | 28.2 | 24,500 | 0 | 2020 | | 2025.10.13 | Àü¼¼ | ¿¡Äڱ׷κê(403-150) | 3 | 28.83 | 17,000 | 0 | 2017 | | 2025.10.13 | ¸Å¸Å | »ï¿øÇÏÀ̺ô(284-38) | 5 | 19.82 | 9,700 | | 2015 | | 2025.10.12 | ¸Å¸Å | ¿¹Àº¸®Ä¡ºô | 2 | 36.39 | 24,500 | | 2015 | | 2025.10.11 | ¿ù¼¼ | ÀÌ´ã䥲 | 3 | 29.96 | 100 | 60 | 2020 | | 2025.10.11 | ¿ù¼¼ | da°ñµå¸®¿ò(272-16) | 3 | 32.69 | 1,000 | 125 | 2022 | | 2025.10.11 | ¸Å¸Å | ¿Àº¹È¨Å¸¿î(345-3) | -1 | 35.67 | 8,800 | | 2001 | | 2025.10.11 | ¿ù¼¼ | ½ºÄ«À̺ô | 5 | 59.11 | 10,000 | 32 | 2009 | | 2025.10.10 | Àü¼¼ | ¼öÁ¤µå¸²ºô | 5 | 51.36 | 17,380 | 0 | 2011 | | 2025.10.10 | Àü¼¼ | Áß¾Ó¾ÆÆ®ÈúBµ¿ | 5 | 44.82 | 13,000 | 0 | 2003 | | 2025.10.10 | ¸Å¸Å | »ïº¸Èѹ̸®ºô(319-9) | 2 | 58.92 | 21,800 | | 2001 | | 2025.10.10 | ¸Å¸Å | ÆòȺô¶ó(304-2) | -1 | 61.05 | 11,000 | | 1991 | | 2025.10.10 | ¸Å¸Å | ¼Ò¸Áºô¶ó(332-3) | 2 | 77.2 | 33,000 | | 2002 | | 2025.10.09 | Àü¼¼ | ¿¡½ºÄÉÀÌÆÓ·¹½º | 5 | 27.87 | 18,000 | 0 | 2018 | | 2025.10.09 | ¿ù¼¼ | ¿µÁøº£½ºÆ®ºô(271-28) | 2 | 51.87 | 2,000 | 60 | 2002 | | 2025.10.09 | Àü¼¼ | ¿¡½ºÄÉÀÌÆÓ·¹½º | 5 | 27.87 | 18,000 | 0 | 2018 | | 2025.10.04 | ¸Å¸Å | Á¦ÀϸǼð(357-9) | 3 | 46.26 | 17,000 | | 1992 | | 2025.10.04 | ¸Å¸Å | º£½ºÆ®ºôÀÏÂ÷ | 5 | 42.71 | 23,000 | | 2011 | | 2025.10.03 | ¸Å¸Å | ·Î¾âȨŸ¿î | 3 | 38.04 | 31,700 | | 2019 | | 2025.10.03 | ¸Å¸Å | »ó¶¼±×¸°Èú(359-10) | 5 | 29.92 | 29,000 | | 2020 | | 2025.10.03 | ¸Å¸Å | ÇѾçºô¶ó(335-20) | 3 | 36 | 12,300 | | 1990 | | 2025.10.03 | ¸Å¸Å | ´ë¿ìÇ÷¯½ººô(326-3) | 1 | 66.02 | 27,800 | | 2001 | | 2025.10.03 | ¸Å¸Å | ÇØ¸¶·ç(341-7) | 6 | 41.37 | 29,000 | | 2017 | | 2025.10.02 | Àü¼¼ | Áö¿ÀÆç¸®Ã¼ | 3 | 29.96 | 15,840 | 0 | 2021 | | 2025.10.02 | ¿ù¼¼ | ¿¡À̽ººô | 2 | 29.92 | 4,173 | 4 | 2020 | | 2025.10.02 | Àü¼¼ | Å×¶óµç | 5 | 29.94 | 15,840 | 0 | 2021 | | 2025.10.02 | Àü¼¼ | »ïÇöºô¶ó(70-15) | 1 | 27.61 | 6,900 | 0 | 1998 | | 2025.10.02 | ¿ù¼¼ | ¿¹´ã½ºÅ×À̰³ºÀ¿ª | 3 | 26.91 | 5,000 | 100 | 2023 | | 2025.10.02 | ¸Å¸Å | û¼Öºô | 1 | 48.76 | 22,000 | | 2008 | | 2025.10.01 | ¸Å¸Å | ¼Á¤¾ÆÆ®ºô¶ó(330-4) | 2 | 58.47 | 30,000 | | 2001 | | 2025.10.01 | ¸Å¸Å | (323-11) | 1 | 52.31 | 25,750 | | 2012 | | 2025.10.01 | ¿ù¼¼ | Èú½º¹Ù·ÎÅ©ºô | 2 | 52.74 | 2,500 | 30 | 2012 | | 2025.09.30 | ¿ù¼¼ | ¿¹´ã½ºÅ×À̰³ºÀ¿ª | 2 | 26.91 | 5,000 | 85 | 2023 | | 2025.09.30 | ¿ù¼¼ | ¿¹´ã½ºÅ×À̰³ºÀ¿ª | 5 | 25.68 | 5,000 | 90 | 2023 | | 2025.09.30 | ¿ù¼¼ | ¾Æµ§ÇÏÀÓ | 3 | 58.14 | 638 | 53 | 2018 | | 2025.09.30 | ¿ù¼¼ | Áø¼ºÈ¨Å¸¿î | 2 | 54.83 | 100 | 59 | 2017 | | 2025.09.30 | ¸Å¸Å | ½Å¼¼°èµå¸²ºô(264-4) | 2 | 52.95 | 23,500 | | 2012 | | 2025.09.30 | ¸Å¸Å | »ï¹ÌÇÁ¸®ºô102Â÷(330-20) | 3 | 61.07 | 29,000 | | 2001 | | 2025.09.30 | ¸Å¸Å | »ï¼ººô¸®Áö | 2 | 36.31 | 24,000 | | 2013 | | 2025.09.29 | ¿ù¼¼ | º¸¼ººô¶ó | 3 | 29.46 | 3,000 | 50 | 2018 | | 2025.09.29 | ¿ù¼¼ | ¿ìºÐÅõÆ÷·¹½ºÆ® | 18 | 28.42 | 3,000 | 59 | 2020 | | 2025.09.29 | ¸Å¸Å | °Ç¾çºô¶ó(327-4) | 3 | 60.07 | 28,000 | | 2002 | | 2025.09.29 | ¸Å¸Å | ÈÀÌÆ®Ä³½½Aµ¿ | 4 | 41.92 | 31,200 | | 2019 | | 2025.09.29 | ¸Å¸Å | Æòȱ׸°ºôBµ¿(324-6) | 1 | 56.19 | 29,200 | | 2002 | | 2025.09.29 | ¸Å¸Å | µ¿¿Ï¾ÆÆ®ºô | 3 | 54.43 | 27,000 | | 2011 | | 2025.09.29 | ¿ù¼¼ | ¼ºÈ£ÇÏÀÌÃ÷ºô¶ó(461-2) | 1 | 41.29 | 1,000 | 50 | 1994 | | 2025.09.28 | ¿ù¼¼ | ½Ã¸ó¾ÆÆ®ºô¶ó6Â÷(322-2) | 2 | 75.24 | 3,000 | 90 | 2002 | | 2025.09.27 | ¸Å¸Å | û¼Öºô | 3 | 48.76 | 21,000 | | 2008 | | 2025.09.27 | Àü¼¼ | º¸Çغô¶ó(319-15) | 2 | 62.91 | 16,200 | 0 | 1997 | | 2025.09.27 | ¿ù¼¼ | ·Ôµ¥ÇÏÀÌÃ÷(320-13) | 3 | 59.68 | 3,000 | 75 | 2002 | | 2025.09.27 | ¿ù¼¼ | da°ñµå¸®¿ò(272-16) | 5 | 24.79 | 1,000 | 125 | 2022 | | 2025.09.26 | Àü¼¼ | ¶óÀÌÇÁºô¶óAµ¿(50-49) | 2 | 35.73 | 8,490 | 0 | 1989 | | 2025.09.25 | ¿ù¼¼ | È޹̶ô³ªµ¿ | 2 | 56.2 | 1,378 | 38 | 2022 | | 2025.09.25 | ¿ù¼¼ | ¿¡µ§¸Ç¼Ç(318-9) | 3 | 62.76 | 2,000 | 90 | 1997 | | 2025.09.24 | ¿ù¼¼ | ¿¹ÀºÆÄÅ©Èú | 4 | 51.27 | 2,000 | 70 | 2009 | | 2025.09.24 | ¿ù¼¼ | »þÀÎÇϿ콺(38-49) | 5 | 27.64 | 12,700 | 20 | 2014 | | 2025.09.24 | ¿ù¼¼ | »ï¼º½¦¸£ºôBµ¿ | 4 | 44.57 | 5,000 | 65 | 2016 | | 2025.09.24 | ¿ù¼¼ | ·Î¾âȨŸ¿î | 4 | 26.73 | 3,000 | 75 | 2019 | | 2025.09.24 | ¸Å¸Å | û¾Ï¾ÆÆ®ºô³ªµ¿(342-43) | 5 | 54.4 | 18,500 | | 2003 | | 2025.09.24 | ¿ù¼¼ | ¿ì°¡ºô¸®ÁöB(346-11) | 3 | 59.44 | 3,000 | 75 | 1997 | | 2025.09.23 | ¿ù¼¼ | ¸®¾ÈÇϿ콺(326-6) | 2 | 26.11 | 2,000 | 75 | 2017 | | 2025.09.23 | ¿ù¼¼ | °³²¾ÆÅ©·Îºô(264-10) | 1 | 64.63 | 5,000 | 100 | 2002 | | 2025.09.23 | ¸Å¸Å | ¿¹±¤ºô¸®Áö(319-25) | 3 | 59.9 | 25,000 | | 2001 | | 2025.09.23 | Àü¼¼ | À¯¹Ìºô¶ó | 2 | 44.67 | 14,000 | 0 | 1991 | | 2025.09.22 | ¸Å¸Å | û±¸ºô¶ó(305-10) | 3 | 59.94 | 25,500 | | 1997 | | 2025.09.21 | ¿ù¼¼ | ¿¹´ã½ºÅ×À̰³ºÀ¿ª | 2 | 25.68 | 2,000 | 95 | 2023 | | 2025.09.20 | Àü¼¼ | »ïÇöºô¶ó(70-15) | 2 | 22.29 | 6,800 | 0 | 1998 | | 2025.09.20 | Àü¼¼ | ´õºíÀ¯ÇϿ콺 | 5 | 39.96 | 17,800 | 0 | 2011 | | 2025.09.20 | ¿ù¼¼ | Çý¼ºÆÓ¸®½º | 6 | 25.57 | 1,000 | 80 | 2019 | | 2025.09.20 | ¿ù¼¼ | DA°ñµå¸®¿ò | 6 | 41.03 | 2,000 | 117 | 2022 | | 2025.09.20 | ¿ù¼¼ | ¿øÃ¢¾ÆÆ®ºô2 | 3 | 26.1608 | 50 | 50 | 2020 | | 2025.09.20 | Àü¼¼ | ÇÑ»ùÇÏÀ̺ô3Â÷ | 3 | 68.9 | 19,900 | 0 | 2002 | | 2025.09.20 | ¸Å¸Å | ¿¡µ§¸Ç¼ÇBµ¿ | 4 | 58.66 | 24,000 | | 2002 | | 2025.09.19 | Àü¼¼ | žºô¸®Áö(312-36) | 1 | 44.89 | 11,000 | 0 | 2003 | | 2025.09.19 | ¸Å¸Å | ÇÑ»ùÇÏÀ̺ô3Â÷ | -1 | 59.24 | 13,000 | | 2002 | | 2025.09.18 | ¸Å¸Å | À§ÇϿ콺(264-12) | 2 | 36.55 | 29,000 | | 2018 | | 2025.09.17 | ¸Å¸Å | ¸®¾ÈÇϿ콺 | 6 | 29.77 | 20,500 | | 2015 | | 2025.09.17 | Àü¼¼ | ½ÅÈ↓¸³A,Bµ¿ | 2 | 50 | 11,700 | 0 | 1976 | | 2025.09.17 | ¿ù¼¼ | ÀÌ´ãä2 | 5 | 38.89 | 4,000 | 80 | 2017 | | 2025.09.17 | Àü¼¼ | ´ë¿ìÇ÷¯½ººô(326-3) | 4 | 58.26 | 16,000 | 0 | 2001 | | 2025.09.16 | ¸Å¸Å | Çϳª¾ÆÀÌÆÄÅ©ºô | 5 | 27.05 | 18,500 | | 2016 | | 2025.09.16 | ¸Å¸Å | (279-17) | 4 | 45.45 | 18,900 | | 2002 | | 2025.09.16 | ¿ù¼¼ | ¿ì¹Ìºí·ç¹Ö | 2 | 27.42 | 1,000 | 110 | 2022 | | 2025.09.15 | ¿ù¼¼ | ´õ¿¡Äڱ׷κê8Â÷ | 6 | 30.33 | 150 | 60 | 2020 | | 2025.09.15 | Àü¼¼ | ·Î¾âȨŸ¿î | 7 | 40.7 | 27,590 | 0 | 2019 | | 2025.09.15 | Àü¼¼ | °Å¿µºí·çÈú | 3 | 29.89 | 10,000 | 0 | 2011 | | 2025.09.15 | ¸Å¸Å | ¿ìÁ¤ÁÖÅà | 3 | 57.6 | 37,000 | | 1997 | | 2025.09.15 | ¸Å¸Å | ÇØ¿À¸§3Â÷ | 2 | 39.82 | 25,500 | | 2015 | | 2025.09.13 | Àü¼¼ | ¿¡µ§ºô¶ó(337-15) | 2 | 52.03 | 13,200 | 0 | 1997 | | 2025.09.13 | ¿ù¼¼ | ¸íǰÁؽ¦¸£ºô | 2 | 48.01 | 19,000 | 15 | 2014 | | 2025.09.13 | ¿ù¼¼ | ±¹Èºô¶ó(171-1) | 2 | 80.44 | 3,000 | 85 | 1983 | | 2025.09.13 | Àü¼¼ | ´ë¿øºô¶ó(340-7) | 4 | 65.87 | 19,000 | 0 | 2000 | | 2025.09.13 | ¸Å¸Å | ´ë¿ì½ºÀ§Æ®Èú(496) | 6 | 37.43 | 29,000 | | 2020 | | 2025.09.12 | Àü¼¼ | ¼Ò¸Áºô¶ó(315-8) | 5 | 59.435 | 15,400 | 0 | 2003 | | 2025.09.12 | Àü¼¼ | G&S¿£ºä | 3 | 49.36 | 19,400 | 0 | 2012 | | 2025.09.12 | Àü¼¼ | ¼Ò¸Áºô¶ó(315-8) | 5 | 59.435 | 15,400 | 0 | 2003 | | 2025.09.11 | ¸Å¸Å | ÇÏÀÌÆ®¸Ç¼Ç(342-19) | 4 | 57.33 | 21,000 | | 2002 | | 2025.09.11 | ¸Å¸Å | À§ÇϿ콺(264-12) | 6 | 29.92 | 22,000 | | 2018 | | 2025.09.11 | Àü¼¼ | µ¿¼ºô¶ó(313-31) | 3 | 42.72 | 16,800 | 0 | 2000 | | 2025.09.11 | ¿ù¼¼ | ¼±°æºô¶ó(352-11) | 2 | 63.13 | 5,000 | 80 | 2000 | | 2025.09.11 | Àü¼¼ | ÇØ¸¶·ç(341-7) | 4 | 41.37 | 20,600 | 0 | 2017 | | 2025.09.11 | ¿ù¼¼ | ·°Å°ÇÏÀÌÃ÷ºô¶ó(334-18) | -1 | 56.44 | 4,000 | 55 | 1997 | | 2025.09.10 | ¸Å¸Å | °Åâºô¶ó¶óµ¿(46-15) | 3 | 40.47 | 14,800 | | 1991 | | 2025.09.10 | ¸Å¸Å | ¿ëµÎ¿¬¸³(138-2) | 2 | 68.09 | 28,000 | | 1982 | | 2025.09.10 | ¿ù¼¼ | µå¸²ºô¸®Áö | 4 | 29.96 | 2,000 | 90 | 2022 | | 2025.09.09 | ¸Å¸Å | °ñµçij½½(327-37) | 4 | 28.55 | 21,000 | | 2018 | | 2025.09.09 | ¸Å¸Å | À§ÇϿ콺(264-12) | 5 | 39.78 | 31,000 | | 2018 | | 2025.09.09 | ¿ù¼¼ | û¿øÁÖÅÃ(309-23) | 4 | 29.54 | 8,900 | 25 | 2002 | | 2025.09.09 | ¿ù¼¼ | ¿¡À̽ººô¶ó | 4 | 43.21 | 2,000 | 75 | 2002 | | 2025.09.08 | ¿ù¼¼ | µµÀϺô¶óAµ¿(320-11) | 1 | 63.79 | 2,000 | 50 | 1987 | | 2025.09.08 | Àü¼¼ | ·Î¾âÇÏÀÌÃ÷(260-10) | 5 | 45.24 | 18,000 | 0 | 2011 | | 2025.09.08 | ¿ù¼¼ | û±¸ºô¶ó(351-6) | 2 | 72.06 | 5,000 | 90 | 1994 | | 2025.09.08 | ¿ù¼¼ | À£Å¸¿î | 10 | 18.97 | 3,000 | 70 | 2024 | | 2025.09.08 | ¸Å¸Å | ·Î¾âȨŸ¿î | 4 | 26.65 | 21,000 | | 2019 | | 2025.09.06 | Àü¼¼ | ·Î¾âȨŸ¿î | 5 | 26.73 | 17,100 | 0 | 2019 | | 2025.09.05 | ¿ù¼¼ | µðÀÚÀÎÇϿ콺(305-2) | 2 | 37.72 | 5,000 | 50 | 2011 | | 2025.09.05 | ¿ù¼¼ | ¿¡½ºÄÉÀÌÆÄÅ©ºô | 3 | 28.75 | 2,000 | 100 | 2023 | | 2025.09.05 | Àü¼¼ | µðÀÚÀΰñµçºô(304-5) | 3 | 29.73 | 17,000 | 0 | 2014 | | 2025.09.04 | ¸Å¸Å | ´õºíÀ¯ÇϿ콺 | 3 | 39.96 | 22,000 | | 2011 | | 2025.09.04 | ¿ù¼¼ | (202-15) | 4 | 16.8 | 1,000 | 18 | 2012 | | 2025.09.04 | ¸Å¸Å | ÇÔâ±×¸°ºô¶ó(361-9) | 3 | 51.68 | 19,000 | | 1994 | | 2025.09.03 | ¸Å¸Å | ¿¡Äڱ׷κ꿡ÀÌ | 3 | 25.92 | 26,500 | | 2018 | | 2025.09.03 | Àü¼¼ | ⵿ºô¶ó´Ùµ¿ | 1 | 46.44 | 13,000 | 0 | 1988 | | 2025.09.03 | ¿ù¼¼ | ´Ù¼Ø±×¶ûºô | 2 | 29.67 | 2,800 | 62 | 2021 | | 2025.09.03 | Àü¼¼ | ⵿ºô¶ó´Ùµ¿ | 1 | 46.44 | 13,000 | 0 | 1988 | | 2025.09.03 | ¿ù¼¼ | ¿¡½º¿¥º§¸®Ã¼(350-8) | 3 | 29.71 | 2,000 | 75 | 2016 | | 2025.09.02 | ¿ù¼¼ | ¹Ì·¡ºô¸®Áö3(320-2) | 5 | 19.72 | 500 | 35 | 2002 | | 2025.09.02 | ¸Å¸Å | ·Î¾âȨŸ¿î | 4 | 26.73 | 19,500 | | 2019 | | 2025.09.02 | ¿ù¼¼ | ¼Áø¾ÆÆ®ºô¶ó(326-16) | 1 | 53.49 | 2,000 | 80 | 2002 | | 2025.09.01 | ¿ù¼¼ | »ï¿ø¾ÆÀ̺ôA(286-3) | 3 | 22.79 | 150 | 70 | 2021 | | 2025.09.01 | Àü¼¼ | °Å¿µºí·çÈú | 2 | 53.61 | 18,000 | 0 | 2011 | | 2025.09.01 | Àü¼¼ | ´ë¸²±×¸°ºô¶ó(338-11) | -1 | 62.79 | 10,000 | 0 | 1996 | | 2025.09.01 | ¸Å¸Å | °³ºÀ | 2 | 61.09 | 13,900 | | 1978 | | 2025.09.01 | ¸Å¸Å | ½Ã¸ó¾ÆÆ®ºô¶ó3Â÷(322-1) | 4 | 67.96 | 19,700 | | 2002 | | 2025.08.30 | ¿ù¼¼ | È¿¼ººô¶ó(70-54) | 3 | 41.76 | 500 | 50 | 1987 | | 2025.08.30 | ¿ù¼¼ | µ¿¿ìºô¶ó(139-151) | 2 | 43.72 | 1,000 | 55 | 2001 | | 2025.08.30 | ¿ù¼¼ | ¸®¾ÈÇϿ콺(343-45) | 2 | 26.22 | 2,500 | 65 | 2017 | | 2025.08.30 | ¿ù¼¼ | û¿øÁÖÅÃ(309-23) | 4 | 29.54 | 11,000 | 5 | 2002 | | 2025.08.30 | ¿ù¼¼ | »ï¼º½¦¸£ºôAµ¿ | 2 | 41.52 | 13,000 | 30 | 2016 | | 2025.08.30 | Àü¼¼ | Å»깫Áö°³(307-19) | 4 | 54.8 | 21,700 | 0 | 2013 | | 2025.08.29 | ¸Å¸Å | È«½Çºô¶ó(357-12) | -1 | 36.33 | 9,000 | | 1991 | | 2025.08.29 | ¸Å¸Å | ´ë¿ì½ºÀ§Æ®Èú(305-6) | 4 | 40.01 | 33,500 | | 2021 | | 2025.08.29 | ¿ù¼¼ | ÇØ¿À¸§(364-10) | 3 | 29.95 | 2,000 | 60 | 2017 | | 2025.08.29 | Àü¼¼ | Å¥ºêÇϿ콺2Â÷ | 4 | 23.14 | 12,000 | 0 | 2017 | | 2025.08.29 | ¸Å¸Å | ÀÌÈ£½ººô(153-14) | 3 | 59.51 | 42,300 | | 2002 | | 2025.08.28 | Àü¼¼ | ´ë¸²±×¸°ºô¶ó(338-11) | -1 | 62.79 | 10,000 | 0 | 1996 | | 2025.08.27 | Àü¼¼ | ½ÅÈïºô¶ó(367-12) | 2 | 37.32 | 9,700 | 0 | 1990 | | 2025.08.27 | ¸Å¸Å | ´Ù¿ø¾ÆÆ®5Â÷ | 2 | 30.72 | 20,500 | | 2015 | | 2025.08.27 | ¸Å¸Å | »õ·ÒÇϿ콺(308-9) | 3 | 59.19 | 22,800 | | 2002 | | 2025.08.27 | ¸Å¸Å | »ï¿ø¾ÆÀ̺ôB(314-87) | 5 | 14.68 | 17,500 | | 2022 | | 2025.08.26 | ¿ù¼¼ | ¹Ì°Ç½ºÀ§Æ®ºô(102µ¿)417-10 | 2 | 39.9 | 3,000 | 60 | 2002 | | 2025.08.26 | ¸Å¸Å | ¹Ì¸²ºô¶ó°¡~¶óµ¿(108-5) | 3 | 56.1 | 22,600 | | 1982 | | 2025.08.26 | ¸Å¸Å | ¹Ì¸²ºô¶ó°¡~¶óµ¿(108-5) | 2 | 61.19 | 24,500 | | 1982 | | 2025.08.25 | ¸Å¸Å | ·Î¾âÇÏÀÌÃ÷(357-5) | 2 | 41.74 | 29,500 | | 2016 | | 2025.08.25 | ¿ù¼¼ | ½ºÅ¸ºô | 3 | 47.77 | 80 | 80 | 2020 | | 2025.08.23 | Àü¼¼ | ¹«µîºô¶ó(460-1) | 1 | 42.22 | 7,000 | 0 | 1992 | | 2025.08.23 | ¸Å¸Å | À̵¥¾ÆÇϿ콺(363-4) | 3 | 44.68 | 27,700 | | 2013 | | 2025.08.23 | ¸Å¸Å | ºñ¹ßµðij½½2Â÷ | 6 | 52.69 | 33,000 | | 2016 | | 2025.08.23 | ¿ù¼¼ | ¿µÁøºô¶ó(°¡)(347-13) | 4 | 59.44 | 15,800 | 20 | 1996 | | 2025.08.23 | Àü¼¼ | ´õºíÀ¯ÇϿ콺 | 3 | 56.83 | 20,400 | 0 | 2011 | | 2025.08.22 | ¿ù¼¼ | ºí·ç¹ÖÇϿ콺B | 3 | 54.18 | 3,159 | 33 | 2024 | | 2025.08.22 | ¸Å¸Å | ¼ºÈ¯ºô¶ó(330-19) | 4 | 64.56 | 26,000 | | 2001 | | 2025.08.22 | ¿ù¼¼ | ºí·ç¹ÖÇϿ콺B | 3 | 54.18 | 7,822 | 7 | 2024 | | 2025.08.22 | ¸Å¸Å | ´ëÈïºô¸®ÁöÁ¦2µ¿ | 6 | 52.12 | 36,500 | | 2016 | | 2025.08.22 | ¿ù¼¼ | °ÅÆòºô¶ó | 4 | 46.48 | 3,000 | 65 | 2002 | | 2025.08.22 | ¿ù¼¼ | ÇØ´ãºô | 3 | 54.4 | 3,000 | 90 | 2012 | | 2025.08.22 | ¿ù¼¼ | ¼´Éºô¶ó³ªµ¿(179-36) | 1 | 70.17 | 3,000 | 80 | 1984 | | 2025.08.21 | ¿ù¼¼ | (202-15) | 3 | 17.85 | 1,000 | 50 | 2012 | | 2025.08.21 | ¿ù¼¼ | ¸®¿ò°ñµçºô | 5 | 49.35 | 2,641 | 12 | 2016 | | 2025.08.21 | ¿ù¼¼ | ¿¹´ã½ºÅ×À̰³ºÀ¿ª | 4 | 25.38 | 5,000 | 90 | 2023 | | 2025.08.21 | ¸Å¸Å | OKºô¸®ÁöBµ¿ | 1 | 53.64 | 21,000 | | 2002 | | 2025.08.20 | ¸Å¸Å | ¸ÞÀÎÆÓ¸®½º | 13 | 21.37 | 26,000 | | 2021 | | 2025.08.20 | ¿ù¼¼ | ÇØ´ãÇϿ콺 | 6 | 58.69 | 3,573 | 37 | 2021 | | 2025.08.19 | ¿ù¼¼ | ¸®¿ò°ñµçºô | 5 | 48.21 | 3,826 | 2 | 2016 | | 2025.08.19 | ¿ù¼¼ | À§ÇϿ콺(270-5) | 4 | 27.96 | 12,400 | 10 | 2012 | | 2025.08.18 | Àü¼¼ | ¸®Ä¡±×¸°B(317-2) | 3 | 46.23 | 18,000 | 0 | 2012 | | 2025.08.18 | Àü¼¼ | ÀÌ´Ùij½½¥±(322-10) | 3 | 73.55 | 17,300 | 0 | 2002 | | 2025.08.18 | Àü¼¼ | ¼ºÈ½ºÀ§Æ®ºô(153-56) | 3 | 66.24 | 22,000 | 0 | 2002 | | 2025.08.16 | ¿ù¼¼ | µ¿½Å¿¬¸³(170-35) | 2 | 63.81 | 2,000 | 75 | 1977 | | 2025.08.16 | ¿ù¼¼ | ¼Û½Åºô¶ó | -1 | 58.66 | 10,000 | 17 | 1998 | | 2025.08.15 | ¿ù¼¼ | ´ë¿ì½ºÀ§Æ®Èú(361-10) | 3 | 39.96 | 2,000 | 70 | 2011 | | 2025.08.15 | ¿ù¼¼ | Çö´ëºô¶ó(302-14) | 2 | 59.34 | 3,000 | 80 | 1996 | | 2025.08.15 | ¸Å¸Å | Å»êÇÏ¿ì¡ | 2 | 37.84 | 22,500 | | 2016 | | 2025.08.15 | ¿ù¼¼ | Çö´ëºô¶ó(302-14) | 2 | 59.34 | 3,000 | 80 | 1996 | | 2025.08.15 | ¿ù¼¼ | ·Î¾âÇÏÀÌÃ÷(271-4) | 2 | 38.43 | 5,000 | 100 | 2025 | | 2025.08.15 | ¿ù¼¼ | (202-15) | 5 | 23.3 | 1,000 | 50 | 2012 | | 2025.08.14 | Àü¼¼ | ´Ùºóºô | 2 | 26.44 | 13,000 | 0 | 2019 | | 2025.08.14 | ¿ù¼¼ | Çϴûç¶ûä | 3 | 20.9 | 4,286 | 8 | 2022 | | 2025.08.13 | ¸Å¸Å | »êÈ£ÆÄÅ©¸Ç¼Ç(322-7) | 2 | 60.91 | 20,000 | | 1993 | | 2025.08.13 | ¿ù¼¼ | ÆÐ¹Ð¸®ÇϿ콺 | 5 | 47.82 | 4,000 | 70 | 2011 | | 2025.08.13 | ¿ù¼¼ | ¿ì¸²¸Þ¸£µð¾Ó | 6 | 57.08 | 3,000 | 50 | 2013 | | 2025.08.13 | Àü¼¼ | ÇÑÁøºô¸®Áö2Â÷(368-4) | 3 | 58.56 | 18,000 | 0 | 2002 | | 2025.08.12 | ¿ù¼¼ | ¿¤¸²ÇϿ콺(109-14) | 3 | 59.7 | 636 | 58 | 2019 | | 2025.08.11 | ¸Å¸Å | ÀÌ´Ùij½½¥±(322-10) | 3 | 73.55 | 25,000 | | 2002 | | 2025.08.09 | Àü¼¼ | ¸ñÈŸ¿î3µ¿(50-33) | 1 | 34.28 | 8,300 | 0 | 1987 | | 2025.08.09 | ¿ù¼¼ | ¼ººÎºô¶óBµ¿(331-2 | 3 | 59.78 | 3,000 | 70 | 1997 | | 2025.08.09 | ¸Å¸Å | µ¿½Å¿¬¸³(170-36) | 1 | 60.5 | 37,000 | | 1997 | | 2025.08.09 | ¿ù¼¼ | ¹«µîºô¶ó(460-1) | 3 | 42.22 | 1,000 | 60 | 1992 | | 2025.08.08 | ¸Å¸Å | Çà¿î°¡ | 1 | 41.61 | 19,200 | | 2012 | | 2025.08.08 | ¸Å¸Å | ·Î¾âÇÏÀÌÃ÷(276-15) | 3 | 58.07 | 28,000 | | 2014 | | 2025.08.08 | ¿ù¼¼ | ¶ó´ÙÆÓ¸®½º | 3 | 51.05 | 600 | 47 | 2016 | | 2025.08.07 | Àü¼¼ | ¼ººÎºô¶óA(350-13) | 1 | 59.94 | 14,000 | 0 | 1995 | | 2025.08.06 | ¿ù¼¼ | ¿¹´ã½ºÅ×À̰³ºÀ¿ª | 4 | 26.91 | 7,000 | 70 | 2023 | | 2025.08.06 | ¿ù¼¼ | ¼ö¸í±×¸°ºô | 3 | 27.63 | 1,000 | 63 | 2017 | | 2025.08.05 | ¸Å¸Å | Çѽźô¶ó(334-11) | 2 | 31.83 | 9,750 | | 1990 | | 2025.08.05 | Àü¼¼ | »ï¿ø¾ÆÀ̺ô(312-69) | 2 | 42.86 | 22,000 | 0 | 2017 | | 2025.08.05 | ¿ù¼¼ | ¸¶Èå¹Ù¿ò | 5 | 29.66 | 16,000 | 15 | 2019 | | 2025.08.05 | ¿ù¼¼ | ¿À¼ºµå¸²ºô(155-33) | 5 | 57.84 | 5,390 | 21 | 2017 | | 2025.08.04 | ¸Å¸Å | °ñµçij½½(320-16) | 2 | 44.67 | 27,500 | | 2017 | | 2025.08.04 | ¿ù¼¼ | ¾Æ³Ê½ººô | 4 | 28.44 | 1,500 | 58 | 2013 | | 2025.08.04 | ¿ù¼¼ | ´õ¿¡Äڱ׷κê(279-10) | 3 | 29.98 | 2,000 | 55 | 2019 | | 2025.08.04 | ¸Å¸Å | ·Î¾âÇÏÀÌÃ÷(265-3) | 3 | 39.1 | 28,500 | | 2015 | | 2025.08.04 | ¿ù¼¼ | »ï¼º½¦¸£ºô6Â÷ | 3 | 53.75 | 3,000 | 85 | 2012 | | 2025.08.04 | ¿ù¼¼ | J.ArkVill | 2 | 39.86 | 2,000 | 68 | 2014 | | 2025.08.03 | ¿ù¼¼ | ⵿ºô¶ó³ªµ¿ | -1 | 47.94 | 1,000 | 40 | 1988 | | 2025.08.02 | ¸Å¸Å | µðÀÚÀÎÇϿ콺(305-2) | 3 | 37.72 | 19,100 | | 2011 | | 2025.08.02 | ¿ù¼¼ | da°ñµå¸®¿ò(272-16) | 3 | 23.75 | 1,000 | 98 | 2022 | | 2025.08.02 | Àü¼¼ | ¼ö¸í±×¸°ºô | 3 | 25.2 | 14,000 | 0 | 2017 | | 2025.08.01 | ¿ù¼¼ | (367-35) | 2 | 62.1 | 5,000 | 75 | 1997 | | 2025.08.01 | ¿ù¼¼ | ´Ù¼Ø±×¶ûºô | 4 | 29.07 | 33 | 120 | 2021 | | 2025.07.31 | ¸Å¸Å | ´õ¿¡Äڱ׷κê(279-22) | 6 | 29.84 | 18,000 | | 2019 | | 2025.07.31 | Àü¼¼ | µ¿½Å¿¬¸³(170-36) | 1 | 60.5 | 17,000 | 0 | 1997 | | 2025.07.30 | Àü¼¼ | ¹ÌÁÖºô¶ó | 4 | 59.47 | 19,500 | 0 | 2002 | | 2025.07.30 | ¿ù¼¼ | À£Å¸¿î | 7 | 17.93 | 1,000 | 95 | 2024 | | 2025.07.30 | ¿ù¼¼ | Æ®¶ó¿òÇϿ콺 | 2 | 40.32 | 17,000 | 3 | 2012 | | 2025.07.29 | ¿ù¼¼ | ¿ì¹Ìºí·ç¹Ö | 4 | 29.16 | 1,000 | 115 | 2022 | | 2025.07.29 | ¿ù¼¼ | »ï¼º±×¸°ºô¶ó(337-4) | 4 | 50.21 | 1,000 | 40 | 1998 | | 2025.07.29 | ¸Å¸Å | PAPRICA276 | 2 | 13.02 | 7,600 | | 2012 | | 2025.07.29 | ¿ù¼¼ | DA°ñµå¸®¿ò | 2 | 32.48 | 1,000 | 128 | 2022 | | 2025.07.29 | ¿ù¼¼ | ´õ¿¡Äڱ׷κê8Â÷ | 3 | 28.18 | 150 | 75 | 2020 | | 2025.07.26 | Àü¼¼ | û´ãÈú½ººô | 2 | 29.95 | 11,800 | 0 | 2012 | | 2025.07.26 | ¿ù¼¼ | À§µåij½½ | 2 | 26.02 | 13,000 | 23 | 2020 | | 2025.07.26 | ¿ù¼¼ | ·Î¾âÇÏÀÌÃ÷(276-15) | 5 | 58.23 | 4,000 | 85 | 2014 | | 2025.07.26 | ¸Å¸Å | À§º£½ºÆ®2Â÷ | 4 | 47.09 | 24,500 | | 2014 | | 2025.07.26 | Àü¼¼ | ½Å¼¼°èº¹ÇÕºôµù | 6 | 19.22 | 15,980 | 0 | 2017 | | 2025.07.26 | Àü¼¼ | ´ë¿ì½ºÀ§Æ®Èú(305-6) | 5 | 23.59 | 20,400 | 0 | 2021 | | 2025.07.25 | Àü¼¼ | Çý¼ºÆÓ¸®½º | 4 | 25.57 | 15,030 | 0 | 2019 | | 2025.07.25 | ¿ù¼¼ | ´ë¸²¾ÆÅ©ºô | 2 | 29.78 | 10,000 | 65 | 2023 | | 2025.07.25 | Àü¼¼ | ¿¡Äڱ׷κêºñ | 2 | 25.92 | 17,000 | 0 | 2018 | | 2025.07.24 | Àü¼¼ | µðÀÚÀÎÈÀÌÆ®ºô(326-14) | 3 | 57.49 | 18,500 | 0 | 2011 | | 2025.07.24 | ¿ù¼¼ | µ¿½Å¿¬¸³(170-36) | 2 | 63.81 | 1,500 | 28 | 1977 | | 2025.07.23 | ¿ù¼¼ | ¾Æ³Ê½ººô | 2 | 28.44 | 1,500 | 60 | 2013 | | 2025.07.23 | Àü¼¼ | žçºô¶ó(364-3) | 5 | 40.52 | 12,000 | 0 | 2002 | | 2025.07.23 | ¸Å¸Å | ¼ººÎºô¶óA(350-13) | 1 | 59.94 | 18,300 | | 1995 | | 2025.07.23 | Àü¼¼ | µðÀÚÀΰñµçºô(304-5) | 2 | 29.92 | 15,370 | 0 | 2014 | | 2025.07.22 | ¿ù¼¼ | »þÀÎÇϿ콺(309-30) | 5 | 57.54 | 2,690 | 22 | 2015 | | 2025.07.22 | ¿ù¼¼ | žçºô¶ó(271-32) | -1 | 36.24 | 5,000 | 25 | 1990 | | 2025.07.22 | Àü¼¼ | ¿¡½º¿¥º§¸®Ã¼(279-9) | 3 | 28.05 | 19,000 | 0 | 2017 | | 2025.07.22 | ¿ù¼¼ | °¡¿øÀÌ·¹ºô | 4 | 43.44 | 1,529 | 30 | 2019 | | 2025.07.22 | ¸Å¸Å | ´ë¿ì½ºÀ§Æ®Èú(357-4) | 6 | 44.9 | 27,000 | | 2015 | | 2025.07.22 | Àü¼¼ | ¿¡½º¿¥º§¸®Ã¼(279-9) | 3 | 28.05 | 19,000 | 0 | 2017 | | 2025.07.21 | ¿ù¼¼ | »þÀÎÇϿ콺(310-42) | 4 | 46.1 | 4,292 | 2 | 2014 | | 2025.07.19 | ¿ù¼¼ | ¿ì·¹ÇÏÀ̺ô(405-18) | 4 | 17.92 | 500 | 40 | 2002 | | 2025.07.19 | ¸Å¸Å | °ñµçij½½(327-37) | 4 | 28.55 | 21,000 | | 2018 | | 2025.07.19 | ¿ù¼¼ | ¿ì¹Ìºí·ç¹Ö | 4 | 27.42 | 1,000 | 115 | 2022 | | 2025.07.19 | ¿ù¼¼ | ¿ì¹Ìºí·ç¹Ö | 4 | 27.42 | 1,000 | 115 | 2022 | | 2025.07.18 | ¿ù¼¼ | »ï¼º±×¸°ºô¶ó(337-4) | 2 | 74.19 | 5,750 | 75 | 1998 | | 2025.07.18 | ¿ù¼¼ | ºÎ¿øºô¶ó(323-9) | 4 | 61.47 | 5,000 | 75 | 2003 | | 2025.07.17 | Àü¼¼ | ´ë¿ìÇ÷¯½ººô(326-3) | 3 | 58.26 | 17,000 | 0 | 2001 | | 2025.07.17 | ¸Å¸Å | ½Ã¸ó¾ÆÆ®ºô¶ó10Â÷(378-1) | 1 | 68.17 | 28,300 | | 2002 | | 2025.07.16 | ¿ù¼¼ | ´õ½Ã±×´Ïó | 3 | 19.15 | 50 | 50 | 2021 | | 2025.07.16 | ¸Å¸Å | º¸Çغô¶ó(319-15) | 1 | 62.91 | 24,000 | | 1997 | | 2025.07.16 | ¸Å¸Å | ´ë¿ì½ºÀ§Æ®Èú(120-12) | 4 | 41.08 | 26,000 | | 2015 | | 2025.07.15 | ¿ù¼¼ | ¶ó¿Â±×¸°ºô2 | 4 | 29.8 | 300 | 80 | 2022 | | 2025.07.15 | Àü¼¼ | ·Î¾âȨŸ¿î | 6 | 38.06 | 23,680 | 0 | 2019 | | 2025.07.15 | ¿ù¼¼ | ·Î¾âÇÏÀÌÃ÷B(278-14) | 2 | 33.38 | 1,000 | 75 | 2014 | | 2025.07.15 | Àü¼¼ | ·Î¾âȨŸ¿î | 6 | 26.68 | 17,000 | 0 | 2019 | | 2025.07.15 | ¿ù¼¼ | ±×·£µåÆÄÅ©ºô(304-1) | 2 | 68.74 | 5,000 | 80 | 2003 | | 2025.07.15 | ¿ù¼¼ | ÀÌ·¹ÆÓ¸®½º | 4 | 41.96 | 507 | 30 | 2014 | | 2025.07.15 | ¿ù¼¼ | °³ºÀÆÄ·¹½ººô¶ó°¡,³ªµ¿(170-1) | -1 | 48.23 | 4,600 | 32 | 1993 | | 2025.07.14 | ¸Å¸Å | OKºô¸®ÁöBµ¿ | -1 | 56.52 | 15,700 | | 2002 | | 2025.07.14 | Àü¼¼ | ´ë¸²±×¸°ºô³ªµ¿ | 2 | 49.68 | 18,000 | 0 | 2002 | | 2025.07.12 | Àü¼¼ | µðÀÚÀΰñµçºô(304-5) | 2 | 29.92 | 15,370 | 0 | 2014 | | 2025.07.12 | Àü¼¼ | ÇØ¸¶·çºô(312-64) | 3 | 43.56 | 14,000 | 0 | 2003 | | 2025.07.12 | Àü¼¼ | ÇØ¸¶·çºô(312-64) | 3 | 43.56 | 12,825 | 0 | 2003 | | 2025.07.12 | ¿ù¼¼ | Çö´ëºô¶ó(302-14) | 2 | 59.34 | 4,000 | 75 | 1996 | | 2025.07.12 | ¸Å¸Å | °³¹Ìºô¶óEµ¿(270-60) | 1 | 47.74 | 13,000 | | 1986 | | 2025.07.12 | ¸Å¸Å | µå¸²ºô | 4 | 25.08 | 15,000 | | 2008 | | 2025.07.11 | ¿ù¼¼ | ¿¡Äڱ׷κê | 5 | 27.53 | 6,000 | 45 | 2016 | | 2025.07.11 | ¸Å¸Å | ÀÌ´ãä2 | 6 | 42.26 | 25,000 | | 2017 | | 2025.07.11 | ¸Å¸Å | º®´ã¸®Ä¡ºô | 3 | 49.6 | 27,000 | | 2010 | | 2025.07.10 | ¿ù¼¼ | ÇØ´ãÇϿ콺2Â÷ | 2 | 39.295 | 1,099 | 32 | 2023 | | 2025.07.10 | ¿ù¼¼ | »ó¶¼±×¸°Èú(334-4) | 2 | 28.38 | 50 | 70 | 2020 | | 2025.07.10 | ¿ù¼¼ | ¸®¿ø | 2 | 28.74 | 100 | 80 | 2022 | | 2025.07.10 | ¿ù¼¼ | ´º»ïÀÍ2µ¿(311-28) | 2 | 36.95 | 1,000 | 55 | 1986 | | 2025.07.10 | ¿ù¼¼ | ÇØ´ãÇϿ콺2Â÷ | 3 | 29.002 | 854 | 25 | 2023 | | 2025.07.10 | ¸Å¸Å | µðÀÚÀΰñµçºô(153-17) | 4 | 29.96 | 19,500 | | 2016 | | 2025.07.09 | Àü¼¼ | LG¸íǰºô | 4 | 41.95 | 18,300 | 0 | 2012 | | 2025.07.09 | ¿ù¼¼ | µ¿¾Æºô¶ó(278-1) | 2 | 67.71 | 100 | 20 | 1997 | | 2025.07.09 | ¸Å¸Å | Ãæ¹«ºô¶ó(326-8) | 4 | 26.19 | 13,000 | | 2002 | | 2025.07.08 | ¿ù¼¼ | ´Ù¿ø¾ÆÆ®3Â÷ | 3 | 37.97 | 3,000 | 70 | 2014 | | 2025.07.08 | ¿ù¼¼ | ÁØÇϿ콺 | 5 | 13.58 | 500 | 40 | 2019 | | 2025.07.08 | Àü¼¼ | ¸¶À̺ô9Â÷ | 2 | 15.48 | 9,990 | 0 | 2020 | | 2025.07.08 | Àü¼¼ | ´Ù¿ø¾ÆÆ®3Â÷ | 5 | 41.02 | 19,780 | 0 | 2014 | | 2025.07.08 | ¸Å¸Å | µðÀÚÀÎÇϿ콺(305-2) | 4 | 59.71 | 27,000 | | 2011 | | 2025.07.08 | ¸Å¸Å | ¿µ¸ð´øºô | 2 | 27.01 | 16,000 | | 2016 | | 2025.07.08 | ¸Å¸Å | SKYVILLE(333-8) | 5 | 75.92 | 22,900 | | 2002 | | 2025.07.08 | Àü¼¼ | ·Î¾âÇÏÀÌÃ÷(264-29) | 6 | 40.98 | 23,000 | 0 | 2017 | | 2025.07.08 | Àü¼¼ | ¾ÆÅ©·ÎÆÄÅ©ºô | 2 | 29.98 | 21,000 | 0 | 2020 | | 2025.07.08 | Àü¼¼ | ´Ù¿ø¾ÆÆ®3Â÷ | 5 | 41.02 | 19,780 | 0 | 2014 | | 2025.07.08 | ¸Å¸Å | °ø¿øºô¶óA(339-7) | 3 | 70.46 | 24,500 | | 2000 | | 2025.07.07 | Àü¼¼ | °Å¸ñºô¶ó(345-6) | 2 | 67.84 | 16,000 | 0 | 1992 | | 2025.07.07 | ¿ù¼¼ | D.H¹Ì¼Òºô | 2 | 18.77 | 1,000 | 45 | 2012 | | 2025.07.07 | ¿ù¼¼ | ÇÏÀººô¸®Áö | 6 | 25.99 | 2,000 | 60 | 2015 | | 2025.07.07 | ¿ù¼¼ | ½Å¼¼°èº¹ÇÕºôµù | 7 | 16.26 | 1,000 | 56 | 2017 | | 2025.07.07 | ¿ù¼¼ | D.H¹Ì¼Òºô | 2 | 18.77 | 1,000 | 45 | 2012 | | 2025.07.06 | ¸Å¸Å | ¶óÀÌÇÁŸ¿î | 2 | 71.61 | 32,200 | | 2011 | | 2025.07.05 | ¿ù¼¼ | ´õ¿¡Äڱ׷κê8Â÷ | 3 | 28.18 | 150 | 75 | 2020 | | 2025.07.04 | Àü¼¼ | ·Î¾âÇÏÀÌÃ÷(361-11) | 4 | 28.2 | 24,500 | 0 | 2020 | | 2025.07.04 | ¸Å¸Å | ·Î¾âÇÏÀÌÃ÷(272-8) | 2 | 36.64 | 35,800 | | 2025 | | 2025.07.03 | Àü¼¼ | ±ÃÀüºô¶ó(65-1) | 1 | 59.46 | 14,400 | 0 | 1994 | | 2025.07.03 | ¸Å¸Å | LG¸íǰºô | 2 | 36.46 | 21,500 | | 2012 | | 2025.07.03 | ¸Å¸Å | ´ëÈïºô¸®ÁöÁ¦4µ¿ | 4 | 51.69 | 39,700 | | 2016 | | 2025.07.03 | Àü¼¼ | ±ÃÀüºô¶ó(65-1) | 1 | 59.46 | 16,000 | 0 | 1994 | | 2025.07.03 | ¿ù¼¼ | ¿¤¸²ÇϿ콺(109-14) | 2 | 58.78 | 627 | 41 | 2019 | | 2025.07.03 | ¿ù¼¼ | µå¸²ºô(153-105) | 3 | 44.83 | 5,000 | 45 | 2002 | | 2025.07.03 | ¿ù¼¼ | ¿À¼ºµå¸²ºô(155-33) | 5 | 57.84 | 100 | 51 | 2017 | | 2025.07.03 | Àü¼¼ | µðÀÚÀΰñµçºô(304-5) | 4 | 29.73 | 14,140 | 0 | 2014 | | 2025.07.02 | ¿ù¼¼ | ¸í¹®´ºÄ³½½(327-18) | 5 | 63.33 | 5,000 | 80 | 2010 | | 2025.07.02 | Àü¼¼ | ¸¶À̺ô8Â÷ | 3 | 29.76 | 16,650 | 0 | 2020 | | 2025.07.01 | ¸Å¸Å | ¸®¾ÈÇϿ콺(326-6) | 4 | 40.6 | 29,000 | | 2017 | | 2025.07.01 | ¸Å¸Å | ÀÌÈ£½ººô(153-30) | 4 | 58.38 | 25,000 | | 2001 | | 2025.07.01 | ¿ù¼¼ | °ñµçij½½3Â÷ | 4 | 41.94 | 300 | 80 | 2019 | | 2025.07.01 | ¸Å¸Å | G&S¿£ºä | 3 | 49.36 | 22,500 | | 2012 | | 2025.07.01 | ¸Å¸Å | º°Àåºô¶ó°¡µ¿,³ªµ¿(50-43) | 1 | 36.76 | 15,500 | | 1989 | | 2025.06.30 | Àü¼¼ | ¼¼°èŸ¿ö1Â÷(132-65) | 3 | 41.4 | 16,200 | 0 | 2017 | | 2025.06.30 | ¸Å¸Å | ¾ÆÀ̺ñij½½ | 4 | 27.03 | 20,500 | | 2017 | | 2025.06.30 | ¸Å¸Å | ÇÑÅä¼¼¶óºô(286-2) | 2 | 69.16 | 25,000 | | 2002 | | 2025.06.29 | Àü¼¼ | ¼ºÈ(448-10) | 1 | 75.3 | 14,000 | 0 | 1981 | | 2025.06.29 | ¸Å¸Å | ·Î¾âÇÏÀÌÃ÷(272-8) | 3 | 36.64 | 34,500 | | 2025 | | 2025.06.28 | ¸Å¸Å | ÇØÇÇÇϿ콺 | 2 | 28.33 | 19,000 | | 2016 | | 2025.06.28 | ¸Å¸Å | Å»깫Áö°³ | 3 | 73.61 | 35,900 | | 2010 | | 2025.06.28 | Àü¼¼ | °ÅÆòºô¶ó | 2 | 59.9 | 17,300 | 0 | 2002 | | 2025.06.28 | ¿ù¼¼ | ¿À¼ºµå¸²ºô(155-33) | 4 | 58.835 | 4,300 | 28 | 2017 | | 2025.06.28 | ¿ù¼¼ | û±¸ÆÄÅ©ºô¶ó(318-13) | 3 | 34.38 | 8,600 | 6 | 1993 | | 2025.06.28 | ¿ù¼¼ | À¯½Âºô¶ó(368-22) | -1 | 66.29 | 2,000 | 70 | 2000 | | 2025.06.27 | ¿ù¼¼ | ´õ¿¡Äڱ׷κê8Â÷ | 4 | 28.18 | 100 | 55 | 2020 | | 2025.06.27 | ¿ù¼¼ | µðÀÚÀÎÇϿ콺 | 3 | 29.65 | 2,000 | 70 | 2016 | | 2025.06.27 | ¸Å¸Å | ·Î¾âÇÏÀÌÃ÷(265-3) | 5 | 29.59 | 20,500 | | 2015 | | 2025.06.27 | ¸Å¸Å | ·Î¾âÇÏÀÌÃ÷(365-1) | 3 | 35.81 | 27,000 | | 2017 | | 2025.06.27 | ¿ù¼¼ | µå¸²ºô¸®Áö | 4 | 29.96 | 3,000 | 85 | 2022 | | 2025.06.26 | Àü¼¼ | Á¦ÀϸǼð(357-9) | -1 | 46.26 | 7,800 | 0 | 1992 | | 2025.06.26 | ¸Å¸Å | À§º£½ºÆ® | 2 | 44.34 | 23,000 | | 2013 | | 2025.06.26 | ¿ù¼¼ | ¿¡µ§¸Ç¼Ç(318-9) | 3 | 62.76 | 3,000 | 80 | 1997 | | 2025.06.26 | ¿ù¼¼ | ¼®À±ÁÖÅà | 2 | 20.75 | 5,115 | 5 | 2021 | | 2025.06.26 | ¸Å¸Å | (70-20) | 3 | 26.33 | 13,500 | | 2013 | | 2025.06.26 | ¿ù¼¼ | À̵¥¾ÆÇϿ콺 | 1 | 43.01 | 5,000 | 60 | 2011 | | 2025.06.26 | ¸Å¸Å | ÁøÁÖ¾ÆÆ®ºô(64-24) | 2 | 76.52 | 20,000 | | 2003 | | 2025.06.25 | ¸Å¸Å | °³ºÀ | 2 | 61.19 | 12,000 | | 1978 | | 2025.06.25 | ¿ù¼¼ | ¾ÆÀ̺ñij½½ | 2 | 27.03 | 1,000 | 80 | 2017 | | 2025.06.25 | ¿ù¼¼ | ´ë¼ºÈѹ̸®Å¸¿î(321-14) | 4 | 57.32 | 15,600 | 17 | 2000 | | 2025.06.24 | Àü¼¼ | ±Ý¹Ý¼®ºô¶ó | -1 | 54.15 | 7,200 | 0 | 1997 | | 2025.06.24 | ¿ù¼¼ | û¸²ºô(309-13) | 3 | 49.02 | 4,000 | 80 | 2012 | | 2025.06.24 | Àü¼¼ | °ø°£ÇϿ콺 | 2 | 53.2 | 5,000 | 0 | 2002 | | 2025.06.24 | ¸Å¸Å | º£½ºÆ®¹Ù·ÎÅ©ºô | 5 | 50.25 | 21,800 | | 2012 | | 2025.06.23 | ¿ù¼¼ | »ï¿ø¾ÆÀ̺ôB(286-1) | 3 | 24.54 | 100 | 70 | 2021 | | 2025.06.23 | Àü¼¼ | »ó¶¼±×¸°Èú(334-4) | 4 | 29.56 | 19,900 | 0 | 2020 | | 2025.06.23 | Àü¼¼ | Áß¾ÓÈúŸ¿î-³ª(457-15) | 5 | 38.72 | 13,000 | 0 | 2002 | | 2025.06.23 | Àü¼¼ | Çö´ëÇÏÀÌÃ÷ºô(318-11) | 1 | 60.63 | 13,600 | 0 | 2002 | | 2025.06.23 | ¸Å¸Å | ÁøÁÖºô¶ó(298-28) | 3 | 47.05 | 18,000 | | 1990 | | 2025.06.23 | ¸Å¸Å | û¿øÁÖÅÃ(320-10) | 4 | 57.96 | 20,000 | | 2002 | | 2025.06.23 | ¸Å¸Å | µðÀÚÀÎÈÀÌÆ®ºô(326-14) | 3 | 57.49 | 26,700 | | 2011 | | 2025.06.22 | ¿ù¼¼ | ÇÁ¶óÀ̺øÄ³½½3Â÷ | 3 | 28.28 | 500 | 80 | 2023 | | 2025.06.21 | ¸Å¸Å | ¸®¾ÈÇϿ콺(343-45) | 6 | 31.41 | 15,000 | | 2017 | | 2025.06.21 | Àü¼¼ | ¼´Éºô¶ó°¡µ¿(179-14) | 2 | 62.92 | 18,000 | 0 | 1983 | | 2025.06.21 | ¿ù¼¼ | »ï¿ì¿¬¸³A,Bµ¿(286-4) | 3 | 78.68 | 16,500 | 10 | 1981 | | 2025.06.21 | ¿ù¼¼ | »ï¿ì¿¬¸³A,Bµ¿(286-4) | 3 | 78.68 | 16,500 | 10 | 1981 | | 2025.06.21 | Àü¼¼ | ÄÚÁö¹ë¸®(460) | 4 | 76 | 21,000 | 0 | 2003 | | 2025.06.21 | Àü¼¼ | ¿¡µ§Ä³½½ | 4 | 41.54 | 21,000 | 0 | 2018 | | 2025.06.21 | ¿ù¼¼ | Áö¿ÀÆç¸®Ã¼ | 3 | 29.8 | 150 | 75 | 2021 | | 2025.06.21 | ¿ù¼¼ | ¸ñÈŸ¿î2µ¿(50-32) | -1 | 31.53 | 1,000 | 40 | 1987 | | 2025.06.20 | ¿ù¼¼ | Æòȱ׸°ºô¶ó(311-25) | -1 | 59.97 | 360 | 30 | 1998 | | 2025.06.20 | ¿ù¼¼ | ¿¡À̽ººô | 5 | 28.7 | 3,604 | 3 | 2019 | | 2025.06.20 | ¿ù¼¼ | Å·½ºÅ¸¿î | 3 | 29.95 | 3,000 | 60 | 2014 | | 2025.06.20 | ¿ù¼¼ | ´ëÁ¤ÀÌ¿À½º°³ºÀ1Â÷ | 3 | 29.64 | 1,833 | 19 | 2021 | | 2025.06.20 | ¿ù¼¼ | ·Î¾âÇÏÀÌÃ÷(321-5) | 5 | 29.85 | 2,000 | 65 | 2016 | | 2025.06.20 | ¸Å¸Å | ´Ùºóºô | 2 | 26.44 | 19,800 | | 2019 | | 2025.06.20 | Àü¼¼ | »ó¶¼±×¸°Èú(334-4) | 5 | 37.8 | 22,900 | 0 | 2020 | | 2025.06.19 | Àü¼¼ | »ïÇöºô¶ó(70-15) | -1 | 50.3 | 11,000 | 0 | 1998 | | 2025.06.18 | Àü¼¼ | µ¿¿Ï¾ÆÆ®ºô | 2 | 54.46 | 18,500 | 0 | 2011 | | 2025.06.18 | ¿ù¼¼ | º¸¼®ºô | 4 | 34.74 | 500 | 60 | 2008 | | 2025.06.18 | ¸Å¸Å | ´ë½Å¾ÆÆ®ºô(350-27) | 4 | 44.58 | 18,000 | | 2003 | | 2025.06.18 | ¸Å¸Å | Çö´ë¾ÆÀ̺ô | 3 | 29.94 | 16,700 | | 2017 | | 2025.06.17 | ¿ù¼¼ | (279-18) | 2 | 66.84 | 300 | 40 | 2001 | | 2025.06.17 | ¿ù¼¼ | ±×¸°Èú | 2 | 41.97 | 706 | 6 | 2013 | | 2025.06.17 | ¿ù¼¼ | µ¿¾Æ¿¬¸³(265-5) | 2 | 78.25 | 20,000 | 10 | 1979 | | 2025.06.17 | ¸Å¸Å | ¸¶À̺ô3Â÷ | 2 | 29.55 | 19,000 | | 2018 | | 2025.06.17 | Àü¼¼ | °ñµçij½½2Â÷ | 4 | 41.24 | 24,000 | 0 | 2019 | | 2025.06.17 | Àü¼¼ | ·Î¾âȨŸ¿î | 3 | 26.73 | 17,000 | 0 | 2019 | | 2025.06.16 | ¸Å¸Å | ⵿Ÿ¿î102µ¿(60-97) | 4 | 59.56 | 24,500 | | 1993 | | 2025.06.16 | ¸Å¸Å | º¸¼ººô¶ó | 3 | 29.46 | 18,000 | | 2018 | | 2025.06.16 | ¿ù¼¼ | »ù¹°ÁÖÅà | 2 | 61.11 | 3,000 | 10 | 1996 | | 2025.06.16 | ¸Å¸Å | Å»깫Áö°³(367-26) | 4 | 38.58 | 20,200 | | 2011 | | 2025.06.15 | ¿ù¼¼ | ·Ôµ¥ÇÏÀÌÃ÷(320-13) | 3 | 42.96 | 13,800 | 6 | 2002 | | 2025.06.15 | ¿ù¼¼ | ´Ù¼Ø±×¶ûºô | 2 | 29.52 | 33 | 149 | 2021 | | 2025.06.14 | Àü¼¼ | º£½ºÆ®ºôÀÏÂ÷ | 2 | 42.71 | 18,300 | 0 | 2011 | | 2025.06.14 | ¿ù¼¼ | »ï´öºô¶ó(271-11) | 1 | 61.82 | 1,000 | 50 | 1979 | | 2025.06.14 | Àü¼¼ | ½Å¿ìºô¶ó(358-13) | 3 | 37.44 | 13,000 | 0 | 1993 | | 2025.06.14 | ¸Å¸Å | ±×·£µåÆÄÅ©ºô(304-1) | 2 | 68.74 | 32,800 | | 2003 | | 2025.06.13 | ¸Å¸Å | û±¸ºô¶ó(305-10) | 3 | 59.94 | 23,500 | | 1997 | | 2025.06.13 | Àü¼¼ | ´º»ïÀÍ2µ¿(311-28) | -1 | 36.95 | 8,000 | 0 | 1986 | | 2025.06.13 | ¸Å¸Å | °Å¼ººô¶ó1µ¿ | -1 | 36.72 | 10,000 | | 1990 | | 2025.06.12 | ¸Å¸Å | °Å¿µºí·çÈú | 1 | 29.89 | 20,000 | | 2011 | | 2025.06.12 | ¿ù¼¼ | Èú½º¹Ù·ÎÅ©ºô | 2 | 29.9 | 1,000 | 82 | 2012 | | 2025.06.12 | ¸Å¸Å | ¸®¾ÈÇϿ콺(343-45) | 2 | 26.22 | 17,250 | | 2017 | | 2025.06.12 | ¸Å¸Å | »ó¶¼±×¸°Èú(334-4) | 1 | 28.38 | 21,800 | | 2020 | | 2025.06.12 | Àü¼¼ | »ó¶¼±×¸°Èú(359-10) | 6 | 29.9 | 20,000 | 0 | 2020 | | 2025.06.11 | ¿ù¼¼ | ¹é»êºô¶ó(319-30) | 3 | 38.7 | 500 | 70 | 1991 | | 2025.06.11 | ¿ù¼¼ | »ïÈ¿¡ÄÚºô | 2 | 29.73 | 942 | 27 | 2023 | | 2025.06.11 | ¿ù¼¼ | »ïÈ¿¡ÄÚºô | 2 | 29.73 | 2,356 | 24 | 2023 | | 2025.06.11 | Àü¼¼ | º£½ºÆ®ºô3Â÷ | 3 | 50.01 | 19,000 | 0 | 2011 | | 2025.06.10 | ¿ù¼¼ | ºÎ±¤È¨Å¸¿î(343-16) | 4 | 58.06 | 3,000 | 80 | 2002 | | 2025.06.10 | ¿ù¼¼ | ´ë¿ì½ºÀ§Æ®Èú(306-53) | 2 | 40.46 | 25,000 | 5 | 2019 | | 2025.06.09 | ¸Å¸Å | ²Þ¾Ö±×¸°ºô(323-20) | 2 | 51.37 | 26,400 | | 2014 | | 2025.06.09 | ¸Å¸Å | »ï¼º¾ÆÆ®ºô(343-20) | 2 | 59.96 | 25,500 | | 2001 | | 2025.06.09 | ¿ù¼¼ | »ïÈ¿¡ÄÚºô | 2 | 27.48 | 2,176 | 22 | 2023 | | 2025.06.09 | ¿ù¼¼ | º°Àåºô¶ó°¡µ¿,³ªµ¿(50-41) | 1 | 36.92 | 2,000 | 55 | 1989 | | 2025.06.09 | ¿ù¼¼ | °¡Àç¿ïºô | 3 | 58.99 | 3,000 | 73 | 2016 | | 2025.06.09 | ¿ù¼¼ | ¸®¾ÈÇϿ콺(366-10) | 4 | 39.99 | 3,000 | 80 | 2016 | | 2025.06.08 | ¿ù¼¼ | ÀÌ´ã䥲 | 4 | 29.78 | 50 | 80 | 2020 | | 2025.06.08 | Àü¼¼ | Áß¾Ó¾ÆÆ®ÈúAµ¿ | 2 | 46.7 | 15,500 | 0 | 2004 | | 2025.06.08 | ¸Å¸Å | Àå¹Ìºô¶ó(277-11) | 1 | 41.76 | 18,000 | | 1993 | | 2025.06.07 | ¸Å¸Å | Áö¿ÀÆÄÅ©(350-2) | 2 | 59.83 | 30,000 | | 2002 | | 2025.06.07 | Àü¼¼ | ·Î¾âȨŸ¿î | 4 | 35.45 | 22,170 | 0 | 2019 | | 2025.06.07 | Àü¼¼ | ·Î¾âȨŸ¿î | 4 | 35.45 | 22,170 | 0 | 2019 | | 2025.06.06 | ¸Å¸Å | »ï¿øÇÏÀ̺ô(284-38) | 3 | 39.26 | 26,800 | | 2015 | | 2025.06.06 | ¿ù¼¼ | ÅäºêÇϿ콺 | 6 | 29.29 | 1,000 | 70 | 2018 | | 2025.06.05 | Àü¼¼ | ¸®Ä¡±×¸°B(317-2) | 4 | 52.68 | 19,000 | 0 | 2012 | | 2025.06.04 | ¸Å¸Å | ´ë¿ìÇ÷¯½ººô(326-3) | 3 | 58.26 | 24,500 | | 2001 | | 2025.06.04 | ¸Å¸Å | ·Î¾âÇÏÀÌÃ÷(321-5) | 6 | 27.2 | 15,500 | | 2016 | | 2025.06.04 | ¸Å¸Å | »ï¼º¾ÆÆ®ºô(343-20) | 2 | 59.96 | 25,500 | | 2001 | | 2025.06.04 | ¿ù¼¼ | »ïÀÌÇÏ¿ì¡ | 2 | 51.95 | 6,142 | 63 | 2022 | | 2025.06.04 | ¿ù¼¼ | »ïÀÌÇÏ¿ì¡ | 2 | 56.26 | 6,646 | 68 | 2022 | | 2025.06.04 | ¿ù¼¼ | Áß¾ÓÈúŸ¿î | 2 | 67.86 | 20,000 | 10 | 2002 | | 2025.06.04 | ¿ù¼¼ | Áø¿øÈ¨Å¸¿î(310-36) | 3 | 43.74 | 12,850 | 3 | 2002 | | 2025.06.04 | ¿ù¼¼ | »ïÀÌÇÏ¿ì¡ | 2 | 56.26 | 16,460 | 14 | 2022 | | 2025.06.04 | ¿ù¼¼ | »ïÀÌÇÏ¿ì¡ | 2 | 51.95 | 15,211 | 13 | 2022 | | 2025.06.04 | ¿ù¼¼ | »ïÀÌÇÏ¿ì¡ | 4 | 52.59 | 6,142 | 63 | 2022 | | 2025.06.03 | ¸Å¸Å | ÇÏÀººô¸®Áö | 6 | 40.06 | 32,500 | | 2015 | | 2025.06.03 | ¸Å¸Å | ¸®¿òÇϿ콺(339-9) | 3 | 47.94 | 23,000 | | 2011 | | 2025.06.03 | Àü¼¼ | Æòȱ׸°ºô¶ó(311-25) | 2 | 59.97 | 14,000 | 0 | 1998 | | 2025.06.03 | ¿ù¼¼ | ¼Á¤¾ÆÆ®ºô¶ó(330-4) | -1 | 59.9 | 4,000 | 55 | 2001 | | 2025.06.02 | ¿ù¼¼ | ·Î¾âÇÏÀÌÃ÷(321-5) | 6 | 27.2 | 13,480 | 5 | 2016 | | 2025.06.01 | Àü¼¼ | ¸®Ä¡±×¸°A(317-1) | 4 | 44.53 | 10,500 | 0 | 2012 | | 2025.05.31 | ¿ù¼¼ | ´õºíÀ¯ÇϿ콺 | 6 | 29.99 | 3,000 | 60 | 2011 | | 2025.05.31 | ¿ù¼¼ | ´õºíÀ¯ÇϿ콺 | 6 | 29.99 | 3,000 | 60 | 2011 | | 2025.05.31 | ¿ù¼¼ | ¾à¼ö¿¬¸³Cµ¿(273-11) | 2 | 35.47 | 1,000 | 40 | 1987 | | 2025.05.31 | ¸Å¸Å | º¸¶óȨŸ¿î(310-4) | 5 | 43.1 | 16,500 | | 2001 | | 2025.05.31 | ¸Å¸Å | ·Î¾âÇÏÀÌÃ÷(343-5) | 4 | 29.59 | 19,300 | | 2018 | | 2025.05.30 | ¿ù¼¼ | ´õ¿¡Äڱ׷κê(279-22) | 2 | 25.4 | 100 | 80 | 2019 | | 2025.05.30 | ¿ù¼¼ | ¼®À±ÁÖÅà | 4 | 21.13 | 200 | 25 | 2021 | | 2025.05.30 | Àü¼¼ | ¸ÅºÀ±×¸°¸Ç¼Ç | 2 | 66.93 | 25,000 | 0 | 2001 | | 2025.05.30 | ¿ù¼¼ | ¼ºÇغô¶óÆ®(319-6) | 4 | 56.29 | 15,400 | 6 | 2002 | | 2025.05.30 | ¸Å¸Å | Çѽźô¶ó(334-11) | 1 | 31.83 | 8,000 | | 1990 | | 2025.05.30 | ¸Å¸Å | »ï¹ÌÁÖÅÃ104Â÷(330-21) | 3 | 61.48 | 25,950 | | 2002 | | 2025.05.30 | ¿ù¼¼ | »ïÀÌÇÏ¿ì¡ | 4 | 59.97 | 14,399 | 31 | 2022 | | 2025.05.29 | ¸Å¸Å | ½Å¼ººô¶ó(314-3) | 3 | 48.09 | 18,000 | | 1996 | | 2025.05.29 | ¿ù¼¼ | ±¹Èºô¶ó(171-1) | 3 | 80.44 | 16,000 | 20 | 1983 | | 2025.05.29 | Àü¼¼ | ¿ÀÂ÷µå | 3 | 47.95 | 22,900 | 0 | 2017 | | 2025.05.28 | ¸Å¸Å | µ¿¾Æºô¶ó(344-4) | 2 | 59.88 | 26,600 | | 1996 | | 2025.05.28 | ¿ù¼¼ | ¿¹´ã½ºÅ×À̰³ºÀ¿ª | 3 | 25.38 | 2,000 | 110 | 2023 | | 2025.05.28 | ¿ù¼¼ | da°ñµå¸®¿ò(272-16) | 5 | 35.17 | 5,500 | 100 | 2022 | | 2025.05.28 | ¿ù¼¼ | ºñÀü¾ÆÆ®ºô | 2 | 49.32 | 2,000 | 60 | 2012 | | 2025.05.27 | ¿ù¼¼ | »ïÀÌÇÏ¿ì¡ | 2 | 57.94 | 14,043 | 30 | 2022 | | 2025.05.27 | ¿ù¼¼ | ¸ð´øÇϿ콺(332-32) | 4 | 26.58 | 2,488 | 26 | 2021 | | 2025.05.27 | ¸Å¸Å | ¿¡½ºÄÉÀÌÆÓ·¹½º | 2 | 29.03 | 19,000 | | 2018 | | 2025.05.27 | ¸Å¸Å | ·Î¾âÇÏÀÌÃ÷(344-18) | 3 | 39.06 | 29,000 | | 2017 | | 2025.05.27 | ¸Å¸Å | ÅäºêÇϿ콺 | 3 | 29.56 | 19,000 | | 2018 | | 2025.05.27 | Àü¼¼ | ¾ÆÀ̺ñij½½ | 4 | 27.03 | 16,000 | 0 | 2017 | | 2025.05.27 | ¸Å¸Å | ÅäºêÇϿ콺 | 3 | 29.56 | 19,000 | | 2018 | | 2025.05.27 | Àü¼¼ | ´ë±¤ÆÄÅ©¸Ç¼ð(295-1) | 3 | 92.03 | 21,000 | 0 | 1983 | | 2025.05.27 | Àü¼¼ | ¿¡µ§¸Ç¼ÇAµ¿ | 1 | 59.35 | 15,000 | 0 | 2001 | | 2025.05.27 | Àü¼¼ | ´ë±¤ÆÄÅ©¸Ç¼ð(295-1) | 3 | 92.03 | 21,000 | 0 | 1983 | | 2025.05.26 | ¸Å¸Å | ¸®¾ÈÇϿ콺(343-45) | 6 | 42.28 | 25,500 | | 2017 | | 2025.05.26 | ¸Å¸Å | »ï¿øºô¶ó(344-8) | 4 | 31.62 | 13,200 | | 2002 | | 2025.05.26 | ¸Å¸Å | ¿ì¼ººô¶ó(357-24) | 3 | 45.12 | 15,700 | | 1991 | | 2025.05.26 | ¸Å¸Å | ´ë·úºô¶ó | 4 | 36.26 | 18,000 | | 2001 | | 2025.05.26 | ¸Å¸Å | µå¸²Ä³½½(405-6) | 2 | 29.78 | 14,000 | | 2012 | | 2025.05.26 | ¿ù¼¼ | ½¦¸£º¸³× | 2 | 36.59 | 4,000 | 80 | 2023 | | 2025.05.26 | ¿ù¼¼ | »ïÀÌÇÏ¿ì¡ | 4 | 56.38 | 13,560 | 29 | 2022 | | 2025.05.26 | ¸Å¸Å | ´ë·Î | 2 | 70.67 | 39,900 | | 2013 | | 2025.05.25 | ¿ù¼¼ | ´Ù¿ø¾ÆÆ®ºô | 2 | 29.78 | 100 | 70 | 2018 | | 2025.05.24 | ¿ù¼¼ | »ï¼ººñÃëºô¥°(330-6) | 3 | 59.94 | 15,000 | 40 | 2002 | | 2025.05.24 | Àü¼¼ | Çö¿ìºô¶ó | 5 | 35.71 | 12,900 | 0 | 2002 | | 2025.05.24 | Àü¼¼ | Çö¿ìºô¶ó | 5 | 35.71 | 12,900 | 0 | 2002 | | 2025.05.24 | Àü¼¼ | ²Þ¾Ö±×¸°ºô(323-20) | 3 | 57.34 | 20,000 | 0 | 2014 | | 2025.05.24 | ¿ù¼¼ | ¿À¼ºµå¸²ºô(155-33) | 4 | 49.05 | 4,920 | 19 | 2017 | | 2025.05.24 | Àü¼¼ | µå¸²ºô | 3 | 31.02 | 12,000 | 0 | 2008 | | 2025.05.24 | ¿ù¼¼ | ¸í¹®´ºÄ³½½(344-22) | 3 | 60.43 | 3,000 | 80 | 2009 | | 2025.05.23 | ¸Å¸Å | ´ë¸²±×¸°ºô¶ó(338-11) | 3 | 62.79 | 22,500 | | 1996 | | 2025.05.23 | ¿ù¼¼ | ´Ù¼Ø±×¶ûºô | 5 | 30.4 | 100 | 60 | 2021 | | 2025.05.23 | ¿ù¼¼ | ½Å¿ìºô¶ó(358-13) | -1 | 33.57 | 5,000 | 15 | 1993 | | 2025.05.23 | ¸Å¸Å | ¿ì¹Ìºí·ç¹Ö | 4 | 27.42 | 31,500 | | 2022 | | 2025.05.23 | ¸Å¸Å | ¿¡½º¿¥º§¸®Ã¼(279-9) | 3 | 28.01 | 23,000 | | 2017 | | 2025.05.22 | ¿ù¼¼ | °³ºÀºô¶ó(278-9) | 3 | 38.83 | 11,000 | 10 | 1994 | | 2025.05.22 | ¿ù¼¼ | ÇѸ¶À½ÇÁ¶óÀÚ | 4 | 51.27 | 3,000 | 110 | 2003 | | 2025.05.21 | ¿ù¼¼ | »ïÀÌÇÏ¿ì¡ | 3 | 57.94 | 14,043 | 30 | 2022 | | 2025.05.21 | ¿ù¼¼ | ¿¡Äڱ׷κêºô¸®Áö | 2 | 43.17 | 1,000 | 120 | 2021 | | 2025.05.21 | Àü¼¼ | ¸íÁÖ½¦¸£ºô | 4 | 72.03 | 11,000 | 0 | 2002 | | 2025.05.21 | ¿ù¼¼ | »ïÀÌÇÏ¿ì¡ | 4 | 56.26 | 8,115 | 17 | 2022 | | 2025.05.21 | ¿ù¼¼ | ½Å¿ìºô¶ó(358-13) | -1 | 33.57 | 500 | 40 | 1993 | | 2025.05.20 | Àü¼¼ | ¸¶À̺ô4Â÷ | 3 | 29.78 | 19,950 | 0 | 2018 | | 2025.05.20 | Àü¼¼ | ·Î¾âÇÏÀÌÃ÷(343-5) | 6 | 41.72 | 19,500 | 0 | 2018 | | 2025.05.20 | ¸Å¸Å | ·Î¾âȨŸ¿î | 7 | 38.05 | 34,000 | | 2019 | | 2025.05.20 | ¿ù¼¼ | »ïÀÌÇÏ¿ì¡ | 2 | 59.97 | 14,562 | 31 | 2022 | | 2025.05.20 | ¸Å¸Å | ½Ã¸ó¾ÆÆ®ºô¶ó9Â÷(331-14) | 2 | 62.41 | 29,250 | | 2003 | | 2025.05.20 | ¸Å¸Å | ½Ã¸ó¾ÆÆ®ºô¶ó9Â÷(331-14) | 2 | 62.41 | 29,250 | | 2003 | | 2025.05.19 | ¸Å¸Å | ´ë¿ì½ºÀ§Æ®Èú(120-12) | 2 | 42.39 | 29,000 | | 2015 | | 2025.05.19 | ¸Å¸Å | ´ë±¤ÆÄÅ©¸Ç¼ð(295-1) | 2 | 77.4 | 20,000 | | 1983 | | 2025.05.18 | ¸Å¸Å | ¿ì¸²¸Þ¸£µð¾Ó | 5 | 56.63 | 34,500 | | 2013 | | 2025.05.17 | ¿ù¼¼ | ·Î¾âÇÏÀÌÃ÷(343-5) | 3 | 29 | 1,000 | 90 | 2018 | | 2025.05.17 | ¿ù¼¼ | Å¥ºêÇϿ콺2Â÷ | 3 | 28.18 | 2,000 | 44 | 2017 | | 2025.05.17 | Àü¼¼ | À¯¹Ìºô¶ó | 2 | 44.67 | 11,500 | 0 | 1991 | | 2025.05.17 | Àü¼¼ | Æ®¶ó¿òÇϿ콺 | 2 | 39.71 | 16,300 | 0 | 2012 | | 2025.05.17 | ¿ù¼¼ | ÀÌÈ¾ÆÆ®ºô(345-17) | 4 | 59.29 | 17,890 | 5 | 2002 | | 2025.05.17 | ¸Å¸Å | ´Ùû¸²102 | 2 | 59.88 | 29,000 | | 2011 | | 2025.05.17 | ¸Å¸Å | »ï¼ººô¶ó(°¡)(309-2) | 2 | 57.74 | 27,500 | | 2003 | | 2025.05.17 | ¸Å¸Å | ¼ºÁÖºô¶ó(351-8) | 2 | 63.66 | 31,000 | | 2001 | | 2025.05.17 | ¸Å¸Å | º£½ºÆ® | 2 | 19.56 | 13,400 | | 2012 | | 2025.05.16 | ¿ù¼¼ | µ¿¹éºô¶óBµ¿(106-3) | 2 | 32.36 | 12,000 | 15 | 1990 | | 2025.05.16 | Àü¼¼ | »ï¼º¿¬¸³(313-27) | 3 | 85.83 | 10,000 | 0 | 1984 | | 2025.05.15 | ¿ù¼¼ | ¿À¼ºµå¸²ºô(155-33) | 2 | 69.01 | 6,380 | 25 | 2017 | | 2025.05.15 | ¸Å¸Å | °Ç¿µÇÏÀÌÃ÷ºô¶ó(329-14) | 3 | 59.64 | 24,500 | | 1997 | | 2025.05.14 | Àü¼¼ | µ¿¿î³×½ºÆ®ºô(337-8) | 4 | 46.68 | 11,000 | 0 | 2003 | | 2025.05.14 | ¸Å¸Å | »ïÁ¤ºô¶ó(62-23) | 2 | 62.46 | 22,500 | | 1995 | | 2025.05.13 | ¿ù¼¼ | ´ë¸²¾ÆÅ©ºô | 2 | 29.78 | 2,000 | 105 | 2023 | | 2025.05.13 | ¸Å¸Å | ÇÑÀÏÄÚÁö¼¼»ó(101µ¿) | 3 | 53.41 | 30,500 | | 2012 | | 2025.05.12 | Àü¼¼ | ·Î¾âȨŸ¿î | 3 | 34.1 | 20,000 | 0 | 2019 | | 2025.05.12 | ¸Å¸Å | PAPRICA276 | 3 | 12.9 | 7,550 | | 2012 | | 2025.05.12 | Àü¼¼ | À£ÇϿ콺(288-13) | 3 | 31.19 | 19,350 | 0 | 2018 | | 2025.05.12 | Àü¼¼ | À£ÇϿ콺(288-13) | 3 | 31.19 | 19,350 | 0 | 2018 | | 2025.05.11 | ¿ù¼¼ | ¹ÌÁÖºô¶óA,Bµ¿(181-1) | 1 | 78.52 | 2,500 | 80 | 1986 | | 2025.05.10 | Àü¼¼ | LG¸íǰºô | 4 | 41.95 | 18,500 | 0 | 2012 | | 2025.05.10 | Àü¼¼ | 2Â÷ÇÑ»ùÇÏÀ̺ô1µ¿(342-10) | -1 | 42.76 | 8,800 | 0 | 2002 | | 2025.05.10 | Àü¼¼ | ±×·£µåÆÄÅ©ºô(304-1) | 5 | 68.75 | 19,400 | 0 | 2003 | | 2025.05.09 | Àü¼¼ | ·Î¾âÇÏÀÌÃ÷(361-11) | 4 | 28.2 | 24,500 | 0 | 2020 | | 2025.05.09 | Àü¼¼ | ½ÅºÎÆÄ½ºÄ«ºô2Â÷ | 2 | 59.09 | 22,800 | 0 | 2016 | | 2025.05.09 | ¸Å¸Å | °¡µçºô¶ó | 2 | 48.44 | 18,000 | | 1986 | | 2025.05.09 | ¸Å¸Å | ·Î¾âÇÏÀÌÃ÷(344-18) | 3 | 30.18 | 20,000 | | 2017 | | 2025.05.07 | ¿ù¼¼ | Å·½ºÅ¸¿î | 5 | 29.95 | 2,000 | 60 | 2014 | | 2025.05.07 | ¿ù¼¼ | ¸®Ä¡ÆÓ¸®½º(337-3) | 1 | 59.89 | 3,000 | 78 | 2010 | | 2025.05.07 | Àü¼¼ | ±ÝÈ£¾ÆÆ®ºôA(305-15) | 3 | 74.96 | 20,000 | 0 | 2002 | | 2025.05.06 | ¿ù¼¼ | ¸¶À̺ô¥µ | 3 | 58.01 | 2,000 | 105 | 2019 | | 2025.05.06 | Àü¼¼ | ±×¸°Èú | 4 | 29.77 | 17,500 | 0 | 2014 | | 2025.05.06 | Àü¼¼ | û¿ì¾ÆÆ®ºô-Aµ¿(456-22) | 2 | 45.84 | 15,800 | 0 | 2003 | | 2025.05.06 | ¿ù¼¼ | û¿ì¾ÆÆ®ºô-Aµ¿(456-22) | 2 | 45.84 | 15,800 | 21 | 2003 | | 2025.05.06 | ¿ù¼¼ | ±×¸°Èú | 2 | 29.8 | 13,000 | 3 | 2014 | | 2025.05.06 | ¿ù¼¼ | ´õÁ¸ÆÛ½ºÆ® | 2 | 23.47 | 500 | 70 | 2020 | | 2025.05.06 | ¿ù¼¼ | ±×¸°Èú | 4 | 29.77 | 17,000 | 3 | 2014 | | 2025.05.03 | ¿ù¼¼ | ¿¤¸²°¡µç | 3 | 28.48 | 20,400 | 5 | 2020 | | 2025.05.02 | ¿ù¼¼ | ¸®Ä¡ÆÓ¸®½ºAµ¿,Bµ¿ | 2 | 58.45 | 3,000 | 75 | 2011 | | 2025.05.02 | Àü¼¼ | °ÅÆòºô¶ó | 1 | 59.9 | 16,000 | 0 | 2002 | | 2025.05.02 | Àü¼¼ | ¾ÆÀ̺ñij½½ | 4 | 26.58 | 16,700 | 0 | 2017 | | 2025.05.01 | ¿ù¼¼ | »ï¿ø¾ÆÀ̺ôA(286-3) | 2 | 24.21 | 150 | 70 | 2021 | | 2025.05.01 | Àü¼¼ | »ù¹°ÁÖÅà | 1 | 61.71 | 5,000 | 0 | 1996 | | 2025.05.01 | Àü¼¼ | Å¿µ¾ÆÆ®ºô(328-19) | 3 | 54.62 | 16,500 | 0 | 2002 | | 2025.05.01 | Àü¼¼ | º£½ºÆ®ºôÀÏÂ÷ | 2 | 42.71 | 18,000 | 0 | 2011 | | 2025.05.01 | Àü¼¼ | ÇѼֺô¶ó | 3 | 45.09 | 10,000 | 0 | 1995 | | 2025.05.01 | ¸Å¸Å | ºÎ±¤ºô¶ó | -1 | 42.84 | 9,000 | | 1991 | | 2025.04.30 | ¸Å¸Å | ±ÝÈ£¾ÆÆ®ºôA(305-15) | 3 | 74.96 | 29,000 | | 2002 | | 2025.04.30 | ¸Å¸Å | °Å¼ººô¶ó6µ¿ | 1 | 31.68 | 9,500 | | 1990 | | 2025.04.30 | Àü¼¼ | °³ºÀµ¿Çö´ë¾ÆÀÌÆÄÅ© | 10 | 84.98 | 45,150 | 0 | 2006 | | 2025.04.30 | Àü¼¼ | °³ºÀǪ¸£Áö¿À | 24 | 84.94 | 54,000 | 0 | 2014 | | 2025.04.30 | Àü¼¼ | µÎ»ê | 6 | 59.69 | 35,000 | 0 | 1997 | | 2025.04.30 | ¿ù¼¼ | µÎ»ê | 10 | 84.96 | 21,500 | 60 | 1997 | | 2025.04.29 | ¸Å¸Å | ´Ù¿ø¾ÆÆ®2Â÷ | 5 | 40.02 | 26,250 | | 2014 | | 2025.04.29 | ¸Å¸Å | ºÎ±¤¶ã¾Èä | 5 | 29.9 | 16,400 | | 2012 | | 2025.04.29 | ¸Å¸Å | ·Î¾âÇÏÀÌÃ÷C(276-35) | 5 | 39.69 | 18,800 | | 2014 | | 2025.04.29 | ¸Å¸Å | ½ÅÈïA(359-22) | 2 | 50.24 | 17,000 | | 1974 | | 2025.04.28 | ¸Å¸Å | ·Î¾âÇÏÀÌÃ÷(321-5) | 6 | 27.2 | 15,000 | | 2016 | | 2025.04.28 | ¸Å¸Å | »þÀÎÇϿ콺(38-49) | 5 | 28.51 | 16,500 | | 2014 | | 2025.04.28 | ¸Å¸Å | ·Î¾âÇÏÀÌÃ÷(321-5) | 6 | 27.2 | 15,200 | | 2016 | | 2025.04.28 | ¸Å¸Å | Ãæ¹«ºô¶ó(326-8) | 4 | 26.19 | 15,300 | | 2002 | | 2025.04.28 | ¸Å¸Å | º£½ºÆ® | 2 | 19.56 | 13,500 | | 2012 | | 2025.04.28 | ¸Å¸Å | »þÀÎÇϿ콺(38-49) | 5 | 28.51 | 16,500 | | 2014 | | 2025.04.28 | ¿ù¼¼ | Çö´ë | 25 | 59.94 | 7,500 | 89 | 2001 | | 2025.04.28 | Àü¼¼ | °³ºÀǪ¸£Áö¿À | 8 | 84.94 | 47,200 | 0 | 2014 | | 2025.04.27 | ¿ù¼¼ | ÇÑÁø | 12 | 59.95 | 4,000 | 100 | 2000 | | 2025.04.26 | Àü¼¼ | ÇÑÁø | 11 | 84.96 | 46,500 | 0 | 2000 | | 2025.04.26 | Àü¼¼ | ÇÑÁø | 1 | 84.96 | 40,000 | 0 | 2000 | | 2025.04.26 | Àü¼¼ | µÎ»ê | 17 | 84.96 | 39,000 | 0 | 1997 | | 2025.04.26 | Àü¼¼ | ÇÑÁø | 10 | 59.95 | 27,000 | 0 | 2000 | | 2025.04.25 | ¿ù¼¼ | ¼¾Æ®·¹ºô·¹¿ì½º1´ÜÁö | 32 | 74.9361 | 25,825 | 41 | 2020 | | 2025.04.25 | ¿ù¼¼ | ÇѸ¶À» | 22 | 59.57 | 10,000 | 85 | 1999 | | 2025.04.25 | Àü¼¼ | Çö´ë | 17 | 84.99 | 52,000 | 0 | 2001 | | 2025.04.25 | Àü¼¼ | °Å¼º | 2 | 58.23 | 18,000 | 0 | 1988 | | 2025.04.23 | Àü¼¼ | Çö´ë | 5 | 114.99 | 51,450 | 0 | 2001 | | 2025.04.23 | ¿ù¼¼ | °³ºÀµ¿Çö´ë¾ÆÀÌÆÄÅ© | 24 | 117.74 | 10,000 | 180 | 2006 | | 2025.04.23 | Àü¼¼ | °Å¼º | 5 | 58.23 | 20,000 | 0 | 1988 | | 2025.04.23 | ¸Å¸Å | ´º½ºÄ«À̺ô2Â÷ | 3 | 65.3 | 27,700 | | 2010 | | 2025.04.23 | ¸Å¸Å | ±¤¼ºÇÏÀ̺ôBµ¿(332-34) | 3 | 61.16 | 27,500 | | 2002 | | 2025.04.23 | ¸Å¸Å | ´ë¼ºÈѹ̸®Å¸¿î(321-14) | 4 | 57.32 | 24,000 | | 2000 | | 2025.04.23 | ¸Å¸Å | ¸¶À̺ô | 4 | 29.98 | 18,000 | | 2016 | | 2025.04.22 | ¿ù¼¼ | ¿µÈ | 13 | 143.09 | 10,000 | 100 | 1998 | | 2025.04.22 | ¿ù¼¼ | ¼¼ÀÌÁö¿ò°³ºÀ | 4 | 39.415 | 19,100 | 42 | 2025 | | 2025.04.22 | ¿ù¼¼ | °³ºÀǪ¸£Áö¿À | 3 | 84.88 | 20,000 | 130 | 2014 | | 2025.04.21 | ¸Å¸Å | û¼Öºô¸®Áö(328-6) | 2 | 54.6 | 26,800 | | 2002 | | 2025.04.21 | ¸Å¸Å | ½ÅÈïºô¶ó(367-12) | -1 | 37.32 | 9,700 | | 1990 | | 2025.04.21 | ¸Å¸Å | ½ÅÈïA(359-22) | 2 | 51.96 | 13,500 | | 1974 | | 2025.04.21 | ¿ù¼¼ | ¼¾Æ®·¹ºô·¹¿ì½º1´ÜÁö | 13 | 74.9361 | 25,825 | 41 | 2020 | | 2025.04.21 | ¿ù¼¼ | ÇÑÁø | 8 | 84.96 | 15,000 | 130 | 2000 | | 2025.04.19 | ¿ù¼¼ | ÇÑÁø | 4 | 59.95 | 5,000 | 90 | 2000 | | 2025.04.19 | Àü¼¼ | Çö´ë | 7 | 114.99 | 55,500 | 0 | 2001 | | 2025.04.19 | Àü¼¼ | ÇѸ¶À» | 20 | 59.57 | 38,550 | 0 | 1999 | | 2025.04.19 | Àü¼¼ | Çö´ë | 2 | 59.94 | 35,700 | 0 | 2001 | | 2025.04.19 | ¿ù¼¼ | Çö´ë | 19 | 84.99 | 18,000 | 120 | 2001 | | 2025.04.19 | Àü¼¼ | ÇѸ¶À» | 15 | 59.57 | 42,000 | 0 | 1999 | | 2025.04.19 | ¿ù¼¼ | °³ºÀǪ¸£Áö¿À | 20 | 59.9 | 10,000 | 100 | 2014 | | 2025.04.19 | Àü¼¼ | ¿ì¼º | 5 | 59.87 | 26,250 | 0 | 1995 | | 2025.04.19 | Àü¼¼ | ¿µÈ | 15 | 84.96 | 48,000 | 0 | 1998 | | 2025.04.19 | Àü¼¼ | ¿µÈ | 25 | 143.09 | 50,400 | 0 | 1998 | | 2025.04.19 | ¿ù¼¼ | µÎ»ê | 19 | 84.96 | 20,000 | 60 | 1997 | | 2025.04.19 | Àü¼¼ | ÇѸ¶À» | 15 | 59.57 | 42,000 | 0 | 1999 | | 2025.04.18 | Àü¼¼ | °³ºÀǪ¸£Áö¿À | 22 | 59.86 | 26,223 | 0 | 2014 | | 2025.04.18 | ¸Å¸Å | ¹ÌÁÖºô¶ó | -1 | 38.06 | 9,400 | | 2002 | | 2025.04.18 | Àü¼¼ | »ïȯ | 20 | 114.48 | 49,500 | 0 | 1995 | | 2025.04.18 | ¿ù¼¼ | ¼¾Æ®·¹ºô·¹¿ì½º1´ÜÁö | 25 | 74.9361 | 25,825 | 41 | 2020 | | 2025.04.17 | Àü¼¼ | À²Æ÷±×·¹À̽ººô | 2 | 84.78 | 39,300 | 0 | 2002 | | 2025.04.17 | Àü¼¼ | Çö´ë | 7 | 59.94 | 34,650 | 0 | 2001 | | 2025.04.17 | Àü¼¼ | ÇÑÁø | 15 | 84.96 | 42,000 | 0 | 2000 | | 2025.04.17 | Àü¼¼ | ÇÑÁø | 1 | 84.96 | 35,000 | 0 | 2000 | | 2025.04.17 | ¸Å¸Å | ¸®Ä¡ÆÓ¸®½º(339-12) | 2 | 41.655 | 19,500 | | 2013 | | 2025.04.17 | ¸Å¸Å | À§ÇϿ콺(494) | 2 | 27.49 | 22,500 | | 2018 | | 2025.04.16 | ¿ù¼¼ | ½Å¼¼±â | 7 | 60.72 | 5,000 | 100 | 2003 | | 2025.04.16 | Àü¼¼ | »ïȯ | 11 | 59.4 | 38,000 | 0 | 1995 | | 2025.04.16 | Àü¼¼ | °Ç¿µ | 12 | 84.41 | 35,000 | 0 | 1994 | | 2025.04.16 | Àü¼¼ | °Å¼ºÇª¸£¸þ | 3 | 132.68 | 44,000 | 0 | 1993 | | 2025.04.15 | Àü¼¼ | Çö´ëȨŸ¿î | 21 | 59.49 | 40,000 | 0 | 2001 | | 2025.04.15 | Àü¼¼ | ÇѸ¶À» | 12 | 59.57 | 45,000 | 0 | 1999 | | 2025.04.15 | Àü¼¼ | °³ºÀǪ¸£Áö¿À | 12 | 59.86 | 26,223 | 0 | 2014 | | 2025.04.14 | Àü¼¼ | ÇÑÁø | 8 | 59.95 | 32,000 | 0 | 2000 | | 2025.04.14 | ¿ù¼¼ | ÇѸ¶À» | 2 | 84.57 | 15,000 | 140 | 1999 | | 2025.04.14 | Àü¼¼ | ÇѸ¶À» | 7 | 59.57 | 45,000 | 0 | 1999 | | 2025.04.14 | Àü¼¼ | ÇѸ¶À» | 24 | 84.57 | 44,100 | 0 | 1999 | | 2025.04.14 | Àü¼¼ | µÎ»ê | 13 | 59.69 | 29,000 | 0 | 1997 | | 2025.04.14 | ¸Å¸Å | Çö´ëÇÏÀÌÃ÷ºô(318-11) | 1 | 60.63 | 22,500 | | 2002 | | 2025.04.13 | Àü¼¼ | Çö´ëȨŸ¿î | 24 | 84.915 | 48,000 | 0 | 2001 | | 2025.04.12 | Àü¼¼ | °³ºÀµ¿Çö´ë¾ÆÀÌÆÄÅ© | 7 | 117.74 | 50,000 | 0 | 2006 | | 2025.04.12 | Àü¼¼ | °Å¼ºÇª¸£¸þ | 13 | 59.89 | 26,500 | 0 | 1993 | | 2025.04.12 | Àü¼¼ | °Å¼ºÇª¸£¸þ | 13 | 59.89 | 26,500 | 0 | 1993 | | 2025.04.12 | Àü¼¼ | µÎ»ê | 18 | 59.69 | 33,000 | 0 | 1997 | | 2025.04.12 | Àü¼¼ | µÎ»ê | 18 | 59.69 | 33,000 | 0 | 1997 | | 2025.04.12 | Àü¼¼ | ÇѸ¶À» | 19 | 59.57 | 34,650 | 0 | 1999 | | 2025.04.12 | Àü¼¼ | ÇѸ¶À» | 5 | 123.46 | 56,300 | 0 | 1999 | | 2025.04.12 | Àü¼¼ | ÇѸ¶À» | 15 | 123.46 | 55,000 | 0 | 1999 | | 2025.04.12 | ¸Å¸Å | ´õºíÀ¯ÇϿ콺 | 5 | 56.64 | 30,500 | | 2011 | | 2025.04.12 | Àü¼¼ | ÇѸ¶À» | 12 | 59.57 | 43,000 | 0 | 1999 | | 2025.04.12 | Àü¼¼ | ÇѸ¶À» | 5 | 123.46 | 56,300 | 0 | 1999 | | 2025.04.12 | ¿ù¼¼ | ÇѸ¶À» | 16 | 59.57 | 5,000 | 110 | 1999 | | 2025.04.12 | Àü¼¼ | ÇÑÁø | 18 | 84.96 | 37,000 | 0 | 2000 | | 2025.04.12 | ¸Å¸Å | ¿Àº¹ÇѸ¶À½ºô | 2 | 75.42 | 32,000 | | 2005 | | 2025.04.12 | ¸Å¸Å | ¿Àº¹ÇѸ¶À½ºô | 3 | 75.42 | 34,500 | | 2005 | | 2025.04.12 | ¿ù¼¼ | ÇѸ¶À» | 9 | 149.97 | 10,000 | 180 | 1999 | | 2025.04.12 | Àü¼¼ | Çö´ë | 3 | 84.99 | 50,000 | 0 | 2001 | | 2025.04.11 | Àü¼¼ | Çö´ë | 18 | 84.99 | 46,725 | 0 | 2001 | | 2025.04.11 | ¿ù¼¼ | °³ºÀǪ¸£Áö¿À | 11 | 84.88 | 25,000 | 109 | 2014 | | 2025.04.11 | ¸Å¸Å | ¹Ì¸²ºô¶ó°¡~¶óµ¿(108-5) | 3 | 56.06 | 19,500 | | 1982 | | 2025.04.10 | Àü¼¼ | °Å¼ºÇª¸£¸þ | 17 | 132.68 | 44,000 | 0 | 1993 | | 2025.04.09 | Àü¼¼ | ½Å°³ºÀ»ïȯ | 7 | 59.81 | 34,650 | 0 | 2001 | | 2025.04.09 | Àü¼¼ | »ïȯ | 3 | 59.4 | 30,000 | 0 | 1995 | | 2025.04.09 | ¸Å¸Å | µ¿µµÇÏÀÌÃ÷ºô¶ó(327-11) | 4 | 71.2 | 30,400 | | 2000 | | 2025.04.09 | ¸Å¸Å | ÀÌȺô¶ó(367-13) | 2 | 36.96 | 20,500 | | 1990 | | 2025.04.08 | Àü¼¼ | Çö´ëȨŸ¿î | 14 | 59.49 | 38,000 | 0 | 2001 | | 2025.04.08 | ¸Å¸Å | ·Î¾âȨŸ¿î | 5 | 34.1 | 29,500 | | 2019 | | 2025.04.08 | Àü¼¼ | °Å¼ºÇª¸£¸þ | 10 | 132.68 | 40,000 | 0 | 1993 | | 2025.04.07 | ¿ù¼¼ | °Å¼ºÇª¸£¸þ2 | 6 | 59.9 | 5,000 | 64 | 1994 | | 2025.04.07 | ¿ù¼¼ | °Ç¿µ | 8 | 62.23 | 21,000 | 20 | 1994 | | 2025.04.07 | Àü¼¼ | °³ºÀǪ¸£Áö¿À | 21 | 59.86 | 42,000 | 0 | 2014 | | 2025.04.07 | Àü¼¼ | °³ºÀǪ¸£Áö¿À | 21 | 59.86 | 42,000 | 0 | 2014 | | 2025.04.07 | ¿ù¼¼ | ¼¾Æ®·¹ºô·¹¿ì½º1´ÜÁö | 4 | 74.9361 | 25,475 | 38 | 2020 | | 2025.04.07 | ¿ù¼¼ | °Ç¿µ | 8 | 62.23 | 21,000 | 20 | 1994 | | 2025.04.07 | ¸Å¸Å | ´º»ïÀÍ5µ¿(311-31) | 1 | 36.95 | 13,000 | | 1986 | | 2025.04.07 | ¸Å¸Å | Áß¾ÓÈúŸ¿î(³ª)(450-11) | 2 | 44.3 | 25,000 | | 2002 | | 2025.04.06 | Àü¼¼ | ÇÑÁø | 7 | 59.95 | 29,760 | 0 | 2000 | | 2025.04.05 | Àü¼¼ | »ïÈ£ | 9 | 59.86 | 40,000 | 0 | 1996 | | 2025.04.05 | Àü¼¼ | ÇѸ¶À» | 10 | 59.57 | 36,500 | 0 | 1999 | | 2025.04.05 | ¿ù¼¼ | ¿µÈ¾ÆÀ̴нº | 2 | 65.71 | 7,000 | 80 | 2005 | | 2025.04.05 | Àü¼¼ | °³ºÀµ¿Çö´ë¾ÆÀÌÆÄÅ© | 2 | 59.99 | 42,000 | 0 | 2006 | | 2025.04.05 | Àü¼¼ | û½Ç | 7 | 76.08 | 28,000 | 0 | 1987 | | 2025.04.04 | ¸Å¸Å | ·Î¾âÇÏÀÌÃ÷(344-18) | 4 | 30.13 | 20,000 | | 2017 | | 2025.04.04 | Àü¼¼ | °³ºÀǪ¸£Áö¿À | 14 | 71.95 | 50,000 | 0 | 2014 | | 2025.04.04 | Àü¼¼ | ÇѸ¶À» | 23 | 59.57 | 43,500 | 0 | 1999 | | 2025.04.04 | Àü¼¼ | ÇѸ¶À» | 1 | 84.57 | 45,000 | 0 | 1999 | | 2025.04.04 | Àü¼¼ | °³ºÀǪ¸£Áö¿À | 14 | 71.95 | 50,000 | 0 | 2014 | | 2025.04.03 | Àü¼¼ | Çö´ë | 3 | 114.99 | 49,000 | 0 | 2001 | | 2025.04.02 | ¿ù¼¼ | ¼¾Æ®·¹ºô·¹¿ì½º1´ÜÁö | 16 | 74.9145 | 25,825 | 41 | 2020 | | 2025.04.02 | ¸Å¸Å | ¸¶À̺ô3Â÷ | 6 | 29.82 | 14,000 | | 2018 | | 2025.04.02 | Àü¼¼ | °³ºÀǪ¸£Áö¿À | 20 | 84.83 | 55,000 | 0 | 2014 | | 2025.04.02 | ¸Å¸Å | ´õºíÀ¯ÇϿ콺 | 6 | 56.64 | 29,000 | | 2011 | | 2025.04.01 | ¸Å¸Å | ¿¡Äڱ׷κ꿡ÀÌ | 3 | 25.92 | 26,500 | | 2018 | | 2025.04.01 | ¸Å¸Å | µðÀÚÀΰñµçºô(153-17) | 2 | 29.96 | 19,800 | | 2016 | | 2025.04.01 | ¸Å¸Å | »ï¿ø¾ÆÀ̺ô2Â÷ | 2 | 29.95 | 19,500 | | 2016 | | 2025.04.01 | ¸Å¸Å | º¸¶óȨŸ¿î(310-4) | 2 | 43.1 | 18,300 | | 2001 | | 2025.04.01 | ¸Å¸Å | ¿¡Äڱ׷κ꿡ÀÌ | 2 | 25.92 | 26,500 | | 2018 | | 2025.02.28 | ¿ù¼¼ | Áø¼ºÆÄũŸ¿î | 3 | 29.77 | 56 | 25 | 2016 | | 2025.02.28 | Àü¼¼ | ¼ºÈ´ÜÁö(458-7) | 1 | 53.37 | 11,500 | 0 | 1986 | | 2025.02.28 | Àü¼¼ | »ï¼ººñÃëºô¥±(330-5) | -1 | 36.41 | 6,000 | 0 | 2002 | | 2025.02.28 | ¸Å¸Å | ÀÌ´ãä | 3 | 29.33 | 21,000 | | 2016 | | 2025.02.28 | ¸Å¸Å | ¹Ì·¡ºô¸®Áö3(320-2) | 3 | 43.4 | 17,200 | | 2002 | | 2025.02.27 | ¸Å¸Å | ÀºÇϸǼÇ(270-74) | 4 | 59.86 | 24,000 | | 1996 | | 2025.02.27 | ¸Å¸Å | ´õºíÀ¯ÇϿ콺 | 5 | 56.64 | 32,000 | | 2011 | | 2025.02.27 | ¸Å¸Å | ´Ù¿ø¾ÆÆ®2Â÷ | 4 | 43.91 | 25,500 | | 2014 | | 2025.02.27 | ¿ù¼¼ | ¼Ò¸Áºô¶ó(352-1) | 5 | 75.5 | 5,000 | 60 | 2003 | | 2025.02.27 | Àü¼¼ | ¹ÌÁÖºô¶óA,Bµ¿(181-1) | 2 | 81.08 | 17,500 | 0 | 1986 | | 2025.02.27 | Àü¼¼ | ·Î¾âÇÏÀÌÃ÷(278-12) | 5 | 43.11 | 32,500 | 0 | 2018 | | 2025.02.27 | Àü¼¼ | ·Î¾âÇÏÀÌÃ÷(278-12) | 5 | 43.11 | 33,000 | 0 | 2018 | | 2025.02.27 | Àü¼¼ | »ï¼ººô¶ó(³ª)(309-3) | -1 | 47.83 | 8,800 | 0 | 2003 | | 2025.02.26 | ¿ù¼¼ | ¸¶À̺ô2Â÷ | 5 | 46.88 | 5,000 | 90 | 2017 | | 2025.02.25 | Àü¼¼ | ¹«±ÃÈ¿¬¸³1µ¿(149-4) | 2 | 54.78 | 14,500 | 0 | 1986 | | 2025.02.25 | Àü¼¼ | ÀÌÈ¿¬¸³(313-33) | 3 | 71.58 | 14,000 | 0 | 1983 | | 2025.02.25 | Àü¼¼ | ¹é»êºô¶ó(319-30) | 3 | 38.7 | 11,500 | 0 | 1991 | | 2025.02.25 | Àü¼¼ | ´Ù¿ø¸®Ä¡ºô5Â÷ | 2 | 37.33 | 26,800 | 0 | 2021 | | 2025.02.25 | ¿ù¼¼ | ¼ö¸íÁÖÅÃ(132-4) | 4 | 29.95 | 20,000 | 4 | 2023 | | 2025.02.25 | ¸Å¸Å | ÈÀÌÆ®Ä³½½Bµ¿ | 5 | 35.71 | 17,900 | | 2019 | | 2025.02.24 | Àü¼¼ | ´ë¸í¿ùµå(343-9) | 2 | 74.36 | 26,000 | 0 | 2005 | | 2025.02.24 | ¸Å¸Å | ·Î¾âÇÏÀÌÃ÷(343-5) | 4 | 41.37 | 26,000 | | 2018 | | 2025.02.24 | ¿ù¼¼ | °¡¿øÀÌ·¹ºô | 6 | 29.5 | 4,374 | 13 | 2019 | | 2025.02.23 | ¸Å¸Å | ¾à¼öºô¶ó | 1 | 46.92 | 20,000 | | 1987 | | 2025.02.23 | Àü¼¼ | »ï¼º½¦¸£ºôBµ¿ | 2 | 29.48 | 15,750 | 0 | 2016 | | 2025.02.22 | Àü¼¼ | ´º»ïÀÍ4µ¿(311-30) | 2 | 36.95 | 10,000 | 0 | 1986 | | 2025.02.22 | Àü¼¼ | ¸íÁøÇÏÀÌÃ÷ºô(346-24) | 4 | 59.45 | 17,600 | 0 | 2001 | | 2025.02.22 | ¸Å¸Å | º°Àåºô¶ó2Â÷Aµ¿(50-20) | 2 | 45.9 | 17,000 | | 1989 | | 2025.02.22 | ¿ù¼¼ | ÇØÇÇÇϿ콺 | 3 | 56.34 | 9,000 | 90 | 2016 | | 2025.02.22 | ¸Å¸Å | ´ë¿ìºô¶ó(378) | 3 | 78.32 | 30,000 | | 2006 | | 2025.02.21 | ¸Å¸Å | Çö´ëºô¶ó(319-17) | 3 | 59.95 | 21,000 | | 1997 | | 2025.02.21 | ¿ù¼¼ | ¿¡Äڱ׷κêºô¸®Áö | 2 | 33.79 | 1,000 | 115 | 2021 | | 2025.02.21 | Àü¼¼ | ¼´Éºô¶ó°¡µ¿(179-14) | 3 | 62.92 | 16,000 | 0 | 1983 | | 2025.02.21 | Àü¼¼ | »ó¶¼±×¸°Èú(334-4) | 3 | 37.8 | 23,300 | 0 | 2020 | | 2025.02.20 | ¿ù¼¼ | ¿À¼ºµå¸²ºô(155-33) | 4 | 58.835 | 3,800 | 31 | 2017 | | 2025.02.20 | ¿ù¼¼ | Áö¿ÀÆç¸®Ã¼ | 3 | 29.8 | 150 | 70 | 2021 | | 2025.02.19 | ¿ù¼¼ | ÇѸ¶À½ÇÁ¶óÀÚ | 3 | 64.68 | 2,000 | 135 | 2003 | | 2025.02.19 | ¸Å¸Å | »ïȾ¾Æ¼ºôBµ¿(68-15) | 2 | 59.05 | 25,250 | | 2005 | | 2025.02.19 | Àü¼¼ | ¿ìÁ¤ÁÖÅà | 3 | 57.6 | 16,000 | 0 | 1997 | | 2025.02.18 | ¿ù¼¼ | ¸¶À̺ô9Â÷ | 2 | 29.86 | 2,000 | 92 | 2020 | | 2025.02.18 | ¿ù¼¼ | ½ºÅæºô(318-6) | 1 | 19.89 | 1,410 | 4 | 2014 | | 2025.02.18 | ¸Å¸Å | ¸í¹®´ºÄ³½½(351-12) | 3 | 73.68 | 25,000 | | 2010 | | 2025.02.18 | ¸Å¸Å | ·Î¾âȨŸ¿î | 4 | 38.63 | 30,300 | | 2019 | | 2025.02.18 | Àü¼¼ | ´ë¿øºô¶ó(330-3) | 4 | 59.71 | 16,000 | 0 | 2001 | | 2025.02.17 | ¿ù¼¼ | Çѽźô¶ó(278-10) | 1 | 33.39 | 1,000 | 65 | 1993 | | 2025.02.17 | Àü¼¼ | Çϳª¾ÆÀÌÆÄÅ©ºô | 4 | 28.73 | 14,700 | 0 | 2016 | | 2025.02.17 | ¿ù¼¼ | ¿¡½º¿¥º§¸®Ã¼(350-8) | 4 | 53.92 | 2,000 | 80 | 2016 | | 2025.02.16 | Àü¼¼ | ´Ù¿ø¾ÆÆ®ºô(321-15) | 3 | 29.78 | 19,000 | 0 | 2018 | | 2025.02.16 | ¿ù¼¼ | ½Å¼¼°è·ÎÁîºô | 5 | 28.09 | 2,000 | 80 | 2012 | | 2025.02.15 | Àü¼¼ | ¸ÞÀÎÇϿ콺(261-10) | 3 | 47.33 | 26,000 | 0 | 2018 | | 2025.02.15 | Àü¼¼ | JÆÓ¸®½º5Â÷ | 4 | 27.315 | 11,800 | 0 | 2012 | | 2025.02.15 | ¿ù¼¼ | Á¤Àº½¦¸£ºô(120-16) | 1 | 44.82 | 2,000 | 60 | 2002 | | 2025.02.14 | ¸Å¸Å | ¿¡ÄÚ¸®¿òÆç¸®Ã¼ | 2 | 36.555 | 21,700 | | 2017 | | 2025.02.14 | ¿ù¼¼ | ¿ì¹Ìºí·ç¹Ö | 5 | 27.42 | 2,000 | 105 | 2022 | | 2025.02.13 | ¸Å¸Å | ¸ÅºÀ¾ÆÆ®ºô¶ó | 2 | 38.67 | 19,500 | | 2001 | | 2025.02.13 | Àü¼¼ | Áø¿µ±×¸°ºô | 2 | 72.1 | 19,400 | 0 | 2002 | | 2025.02.13 | Àü¼¼ | º¸¼ººô¶ó | 2 | 29.46 | 13,000 | 0 | 2018 | | 2025.02.13 | ¿ù¼¼ | »ï¿ø¾ÆÀ̺ôA(286-3) | 5 | 21.85 | 80 | 80 | 2021 | | 2025.02.13 | ¿ù¼¼ | ¼ö¸íÁÖÅÃ(132-4) | 4 | 29.56 | 20,000 | 4 | 2023 | | 2025.02.12 | Àü¼¼ | ´ë¿ìÇ÷¯½ººô(326-3) | 3 | 58.26 | 17,000 | 0 | 2001 | | 2025.02.12 | ¸Å¸Å | ¿¡½º¿¥º§¸®Ã¼(289-22) | 4 | 29.1 | 21,800 | | 2017 | | 2025.02.12 | ¿ù¼¼ | ÇѸ¶À½ÇÁ¶óÀÚ | 5 | 59.99 | 5,000 | 100 | 2003 | | 2025.02.11 | Àü¼¼ | (367-35) | 1 | 62.1 | 20,000 | 0 | 1997 | | 2025.02.11 | ¸Å¸Å | ºê¶ó¿î½ºÅæ | 2 | 71.4 | 27,700 | | 2008 | | 2025.02.11 | Àü¼¼ | ±×¸°Èú | 2 | 29.77 | 17,000 | 0 | 2014 | | 2025.02.11 | Àü¼¼ | ´õ¿¡Äڱ׷κê8Â÷ | 5 | 25.55 | 20,000 | 0 | 2020 | | 2025.02.11 | Àü¼¼ | ´õ¿¡Äڱ׷κê8Â÷ | 5 | 25.55 | 20,000 | 0 | 2020 | | 2025.02.11 | ¿ù¼¼ | »ïÁ¤¾ÆÆ®ºô9Â÷(321-1) | -1 | 59.98 | 2,000 | 55 | 2002 | | 2025.02.11 | ¸Å¸Å | ·Î¾âÇÏÀÌÃ÷(365-1) | 5 | 25.97 | 21,000 | | 2017 | | 2025.02.10 | ¿ù¼¼ | ½ÅÈ↓¸³A,Bµ¿ | 3 | 49.97 | 2,000 | 50 | 1976 | | 2025.02.10 | Àü¼¼ | ¹ÌÁøÁÖÅà | 5 | 54.18 | 10,000 | 0 | 2002 | | 2025.02.10 | ¿ù¼¼ | ¿À¼ºµå¸²ºô(155-33) | 3 | 58.87 | 5,600 | 22 | 2017 | | 2025.02.10 | ¿ù¼¼ | ÇØ´ãÇϿ콺2Â÷ | 3 | 45.331 | 1,636 | 35 | 2023 | | 2025.02.09 | ¿ù¼¼ | º£½ºÆ® | 2 | 19.24 | 500 | 46 | 2012 | | 2025.02.08 | Àü¼¼ | ¹Ì¸²ºô¶ó°¡~¶óµ¿(108-5) | 3 | 61.19 | 12,000 | 0 | 1982 | | 2025.02.08 | Àü¼¼ | ¹Ì¸²ºô¶ó°¡~¶óµ¿(108-5) | 3 | 61.19 | 12,000 | 0 | 1982 | | 2025.02.08 | ¿ù¼¼ | ÇÏÀººô¸®Áö | 5 | 27.19 | 3,000 | 70 | 2015 | | 2025.02.08 | ¿ù¼¼ | ÇÏÀººô¸®Áö | 5 | 27.19 | 3,000 | 70 | 2015 | | 2025.02.07 | Àü¼¼ | ¾ÆÀÌij½½ | 2 | 43.92 | 11,900 | 0 | 2002 | | 2025.02.07 | ¿ù¼¼ | ¿ìºÐÅõÆ÷·¹½ºÆ® | 18 | 28.42 | 3,000 | 57 | 2020 | | 2025.02.07 | ¿ù¼¼ | ¿ìºÐÅõÆ÷·¹½ºÆ® | 18 | 25.01 | 3,000 | 57 | 2020 | | 2025.02.06 | Àü¼¼ | °Ç¿µºô¸®Áö | 3 | 29.98 | 16,500 | 0 | 2012 | | 2025.02.06 | ¸Å¸Å | º£½ºÆ®¹Ù·ÎÅ©ºô | 2 | 44.87 | 20,500 | | 2012 | | 2025.02.05 | ¿ù¼¼ | ¿ì¹Ìºí·ç¹Ö | 4 | 28.92 | 1,000 | 90 | 2022 | | 2025.02.05 | ¿ù¼¼ | ÇѸ¶À½ÇÁ¶óÀÚ | 3 | 51.55 | 3,000 | 100 | 2003 | | 2025.02.05 | ¿ù¼¼ | ½ÅºÎÆÄ½ºÄ«ºôAµ¿ | 4 | 51.34 | 5,000 | 50 | 2015 | | 2025.02.05 | Àü¼¼ | µðÀÚÀΰñµçºô(304-5) | 4 | 29.92 | 15,100 | 0 | 2014 | | 2025.02.05 | ¿ù¼¼ | ·Î¾â¾ÆÆ®ºô | 3 | 56.18 | 3,000 | 50 | 2003 | | 2025.02.04 | Àü¼¼ | ·Î¾âȨŸ¿î | 5 | 26.73 | 17,100 | 0 | 2019 | | 2025.02.04 | ¿ù¼¼ | Áß¾ÓÈúŸ¿î-°¡(457-14) | 2 | 49.12 | 5,000 | 50 | 2002 | | 2025.02.03 | Àü¼¼ | µå¸²Ä³½½(405-6) | 2 | 27.3 | 13,000 | 0 | 2012 | | 2025.02.03 | ¿ù¼¼ | ±¤¼ºÇÏÀ̺ôAµ¿(332-8) | 1 | 61.16 | 10,000 | 50 | 2002 | | 2025.02.02 | Àü¼¼ | ÁøÁÖ¾ÆÆ®ºô(64-24) | 2 | 76.52 | 18,000 | 0 | 2003 | | 2025.02.01 | ¿ù¼¼ | Áö¿ÀÆÄÅ©(350-2) | 2 | 59.83 | 200 | 50 | 2002 | | 2025.01.31 | ¿ù¼¼ | ¸¶À̺ô4Â÷ | 4 | 27.82 | 8,000 | 50 | 2018 | | 2025.01.31 | ¿ù¼¼ | ¿ìºÐÅõÆ÷·¹½ºÆ® | 18 | 29.4 | 3,000 | 66 | 2020 | | 2025.01.31 | ¸Å¸Å | ´ë¿ì½ºÀ§Æ®Èú(120-12) | 3 | 41.08 | 23,800 | | 2015 | | 2025.01.28 | ¿ù¼¼ | ¿ì¹Ìºí·ç¹Ö | 4 | 29.16 | 4,000 | 85 | 2022 | | 2025.01.27 | ¸Å¸Å | ´Ù¿ø¸®Ä¡ºô5Â÷ | 2 | 37.33 | 27,000 | | 2021 | | 2025.01.25 | ¸Å¸Å | ¼±°æºô¶ó | 2 | 59.79 | 27,800 | | 2002 | | 2025.01.25 | Àü¼¼ | ½Å¿ø°ñµçºôAµ¿ | 3 | 56.7 | 23,000 | 0 | 2015 | | 2025.01.25 | Àü¼¼ | ¸ÞÀÎÇϿ콺(326-4) | 2 | 29.92 | 18,270 | 0 | 2019 | | 2025.01.25 | Àü¼¼ | ÇѸ¶À½¾ÆÆ®ºô(322-15) | 3 | 69.3 | 19,500 | 0 | 2001 | | 2025.01.24 | Àü¼¼ | ·Î¾âÇÏÀÌÃ÷(344-18) | 4 | 30.18 | 16,000 | 0 | 2017 | | 2025.01.24 | ¿ù¼¼ | Á¤¸²ÆÄũŸ¿î | 2 | 57.21 | 2,088 | 27 | 2017 | | 2025.01.24 | ¿ù¼¼ | ¿¡Äڱ׷κêºô¸®Áö | 4 | 33.79 | 1,000 | 115 | 2021 | | 2025.01.24 | Àü¼¼ | ½Å¿ø°ñµçºôBµ¿ | 2 | 58.04 | 24,000 | 0 | 2015 | | 2025.01.23 | ¿ù¼¼ | ¶óÀÎij½½ | 3 | 33.98 | 10,000 | 35 | 2016 | | 2025.01.23 | ¿ù¼¼ | ´ë¿ì¸¶À̺ô(344-28) | 4 | 56.54 | 17,200 | 15 | 2012 | | 2025.01.22 | ¿ù¼¼ | °³ºÀÆÄÅ©ºô2(131-5) | 5 | 28.9 | 2,014 | 28 | 2019 | | 2025.01.21 | ¿ù¼¼ | °¡¿øÀÌ·¹ºô | 6 | 29.5 | 1,044 | 32 | 2019 | | 2025.01.21 | Àü¼¼ | Áß¾ÓÈúŸ¿î(°¡)(450-10) | 3 | 45.13 | 15,000 | 0 | 2002 | | 2025.01.21 | ¿ù¼¼ | µ¿¾Æ¾ÆÆ®ºô¶ó(338-1) | -1 | 37.8 | 300 | 30 | 1993 | | 2025.01.21 | Àü¼¼ | ¿ì¼®½¦¸£ºô | 5 | 61.82 | 17,000 | 0 | 2008 | | 2025.01.21 | ¿ù¼¼ | ´õÁ¸ÆÛ½ºÆ® | 4 | 22.52 | 300 | 60 | 2020 | | 2025.01.21 | Àü¼¼ | µ¿¾Æ¿¬¸³(265-5) | 2 | 87.11 | 20,000 | 0 | 1979 | | 2025.01.21 | Àü¼¼ | ¿¡µ§Ä³½½ | 4 | 51.29 | 23,000 | 0 | 2018 | | 2025.01.21 | ¿ù¼¼ | µ¿¿ø¾ÆÆ®Èú(303-36) | 3 | 73.26 | 21,700 | 15 | 2004 | | 2025.01.21 | ¸Å¸Å | È¿¼ººô¶ó(70-54) | 3 | 35.3 | 9,500 | | 1987 | | 2025.01.21 | ¿ù¼¼ | °¡¿øÀÌ·¹ºô | 2 | 29.59 | 1,045 | 31 | 2019 | | 2025.01.21 | Àü¼¼ | À¯½Âºô¶ó(368-22) | 4 | 66.29 | 18,900 | 0 | 2000 | | 2025.01.21 | ¿ù¼¼ | ¾¾Æ¼ÇϿ콺 | 4 | 44.83 | 2,173 | 22 | 2021 | | 2025.01.20 | Àü¼¼ | ½Å¼¼°èº¹ÇÕºôµù | 7 | 16.26 | 13,900 | 0 | 2017 | | 2025.01.20 | ¿ù¼¼ | µå¸²ºô¸®Áö | 3 | 29.96 | 1,000 | 95 | 2022 | | 2025.01.20 | ¿ù¼¼ | Çà¿î°¡ | 3 | 56.46 | 500 | 50 | 2012 | | 2025.01.20 | Àü¼¼ | LG¸íǰºô | 2 | 41.95 | 16,500 | 0 | 2012 | | 2025.01.20 | Àü¼¼ | »ï¹ÌÁÖÅÃ104Â÷(330-21) | 3 | 61.48 | 19,000 | 0 | 2002 | | 2025.01.18 | Àü¼¼ | G&S¿£ºä | 3 | 49.86 | 19,600 | 0 | 2012 | | 2025.01.17 | ¿ù¼¼ | »ïÀÌÇÏ¿ì¡ | 6 | 59.82 | 4,063 | 42 | 2022 | | 2025.01.17 | Àü¼¼ | ¿¡µ§Ä³½½ | 2 | 59.61 | 26,000 | 0 | 2018 | | 2025.01.17 | ¿ù¼¼ | »ïÀÌÇÏ¿ì¡ | 6 | 59.82 | 4,063 | 42 | 2022 | | 2025.01.17 | ¿ù¼¼ | ´õ¿¡Äڱ׷κê8Â÷ | 3 | 27.35 | 100 | 55 | 2020 | | 2025.01.17 | Àü¼¼ | »ï¿ø¾ÆÀ̺ô2Â÷ | 6 | 42.17 | 18,500 | 0 | 2016 | | 2025.01.17 | Àü¼¼ | ±×¸°Èú | 3 | 29.8 | 17,850 | 0 | 2014 | | 2025.01.17 | ¸Å¸Å | Áø¿µ±×¸°ºô | 2 | 72.1 | 26,000 | | 2002 | | 2025.01.15 | Àü¼¼ | ¸¶À̺ô7Â÷ | 2 | 44.31 | 20,610 | 0 | 2019 | | 2025.01.15 | Àü¼¼ | ¸¶À̺ô7Â÷ | 3 | 44.31 | 17,370 | 0 | 2019 | | 2025.01.15 | Àü¼¼ | ´ë±¤ÆÄÅ©¸Ç¼ð(295-1) | 2 | 95.69 | 22,000 | 0 | 1983 | | 2025.01.15 | ¿ù¼¼ | °³ºÀ¿¬¸³(92-2) | 3 | 81.82 | 2,000 | 80 | 1981 | | 2025.01.14 | ¸Å¸Å | »ï¿ø¾ÆÀ̺ô(357-11) | 2 | 40.06 | 27,500 | | 2015 | | 2025.01.14 | ¸Å¸Å | ⵿ºô¶ó101µ¿ | -1 | 59.4 | 14,600 | | 1993 | | 2025.01.14 | Àü¼¼ | Çö´ë¾ÆÆ®ºô¶ó | 2 | 105.05 | 29,800 | 0 | 1995 | | 2025.01.14 | ¸Å¸Å | ½Å¾ÆÆÄÅ©ºô¸Ç¼Ç(312-47) | 3 | 53.51 | 20,000 | | 2002 | | 2025.01.14 | ¿ù¼¼ | ¹Ì°Ç½ºÀ§Æ®ºô(103µ¿)417-9 | 3 | 33.15 | 2,000 | 73 | 2002 | | 2025.01.14 | Àü¼¼ | ¿µÁøºô¶ó(³ª)(347-12) | 1 | 59.44 | 15,400 | 0 | 1996 | | 2025.01.14 | ¿ù¼¼ | ¹Ì°Ç½ºÀ§Æ®ºô(103µ¿)417-9 | 3 | 33.15 | 2,000 | 73 | 2002 | | 2025.01.13 | Àü¼¼ | ´ëº¹ÁÖÅÃ(33-168) | 2 | 49.28 | 10,000 | 0 | 1986 | | 2025.01.11 | ¸Å¸Å | ¸íǰ¸®Ä¡ºô(333-18) | 2 | 40.57 | 24,500 | | 2012 | | 2025.01.11 | Àü¼¼ | À§µåij½½ | 2 | 28.8 | 18,100 | 0 | 2020 | | 2025.01.11 | ¿ù¼¼ | ½¦¸£º¸³× | 4 | 51.88 | 5,500 | 110 | 2023 | | 2025.01.11 | Àü¼¼ | µ¿³²ÁÖÅà | 2 | 63.78 | 16,400 | 0 | 2003 | | 2025.01.11 | Àü¼¼ | µðÀÚÀΰñµçºô(304-5) | 2 | 29.73 | 17,000 | 0 | 2014 | | 2025.01.11 | Àü¼¼ | À§µåij½½ | 3 | 26.3 | 18,100 | 0 | 2020 | | 2025.01.11 | ¿ù¼¼ | ¿ì¹Ìºí·ç¹Ö | 5 | 26.1 | 3,000 | 95 | 2022 | | 2025.01.09 | ¸Å¸Å | ¶óÀÎij½½ | 6 | 36.07 | 19,400 | | 2016 | | 2025.01.09 | ¿ù¼¼ | Å»깫Áö°³(107-0) | 6 | 48.03 | 1,000 | 70 | 2011 | | 2025.01.08 | ¸Å¸Å | ÁØÇϿ콺 | 5 | 13.58 | 6,533 | | 2019 | | 2025.01.08 | Àü¼¼ | µ¿½ÅÈѹи®ºô2Â÷ | 5 | 75.99 | 20,900 | 0 | 2004 | | 2025.01.07 | ¸Å¸Å | ÇØ¸¶·ç(33-35) | 3 | 43.44 | 28,000 | | 2018 | | 2025.01.07 | ¿ù¼¼ | Çö´ëºô¶ó(319-17) | 4 | 53.82 | 7,000 | 20 | 1997 | | 2025.01.07 | ¿ù¼¼ | °ñµçºä | 3 | 59.96 | 16,500 | 8 | 2012 | | 2025.01.07 | ¿ù¼¼ | ´ë¿ìÈѹи®ºô(274-0) | 2 | 37.22 | 3,000 | 60 | 2001 | | 2025.01.07 | ¸Å¸Å | ÁØÇϿ콺 | 3 | 28.15 | 13,821 | | 2019 | | 2025.01.07 | ¸Å¸Å | ´ëÈïºô¸®ÁöÁ¦1µ¿ | 2 | 52.12 | 34,600 | | 2016 | | 2025.01.07 | ¸Å¸Å | À̵¥¾ÆÇϿ콺 | 2 | 43 | 23,000 | | 2011 | | 2025.01.04 | Àü¼¼ | ¼¼¿øº£½ºÆ®ºô3Â÷ | 4 | 71.18 | 24,000 | 0 | 2008 | | 2025.01.04 | ¿ù¼¼ | ´ë¿ì½ºÀ§Æ®Èú(342-2) | 5 | 46.17 | 100 | 80 | 2021 | | 2025.01.04 | ¿ù¼¼ | ½Å¼¼°èº¹ÇÕºôµù | 5 | 16.26 | 2,000 | 45 | 2017 | | 2025.01.04 | ¿ù¼¼ | Çý¼ºÆÓ¸®½º | 5 | 29.7 | 2,000 | 85 | 2019 | | 2025.01.04 | ¸Å¸Å | µ¿¾Æ¾ÆÆ®ºô¶ó(338-1) | 1 | 39.94 | 13,800 | | 1993 | | 2025.01.03 | ¸Å¸Å | Áö¿ÀÆÄÅ©(350-2) | 1 | 59.31 | 28,000 | | 2002 | | 2025.01.02 | Àü¼¼ | ¿¡µ§¸Ç¼ÇBµ¿ | 2 | 59.37 | 16,000 | 0 | 2002 | | 2025.01.02 | Àü¼¼ | ´ë¸²¾ÆÆ®ºô³ªµ¿ | 2 | 44.08 | 15,000 | 0 | 2002 | | 2025.01.02 | ¿ù¼¼ | º¸¼®ºô | 4 | 28.68 | 500 | 58 | 2008 | | 2024.12.31 | ¸Å¸Å | Æòȱ׸°ºôBµ¿(324-6) | -1 | 56.19 | 14,000 | | 2002 | | 2024.12.31 | Àü¼¼ | ½Å¼¼°è·ÎÁîºô | 4 | 28.09 | 12,500 | 0 | 2012 | | 2024.12.31 | ¿ù¼¼ | ´ë¸²¾ÆÅ©ºô | 2 | 29.78 | 10,000 | 60 | 2023 | | 2024.12.30 | Àü¼¼ | ¼º»ê¿¡À̽ººô | 2 | 59.91 | 17,000 | 0 | 2004 | | 2024.12.30 | ¿ù¼¼ | ¿øÃ¢¾ÆÆ®ºô | 2 | 26.45 | 300 | 60 | 2019 | | 2024.12.30 | ¸Å¸Å | LG¸íǰºô | 4 | 36.46 | 20,000 | | 2012 | | 2024.12.28 | Àü¼¼ | »ï¼ººñÃëºô¥°(330-6) | 2 | 65.97 | 18,000 | 0 | 2002 | | 2024.12.28 | ¸Å¸Å | ¼ººÎºô¶óBµ¿(331-2 | 2 | 59.78 | 24,800 | | 1997 | | 2024.12.28 | ¸Å¸Å | »êÈ£ÆÄÅ©¸Ç¼Ç(322-7) | -1 | 60.91 | 15,000 | | 1993 | | 2024.12.28 | ¸Å¸Å | ¸®Ä¡ÆÓ¸®½º(339-12) | 5 | 41.675 | 20,000 | | 2013 | | 2024.12.28 | Àü¼¼ | ½Å¼¼°èµå¸²ºô(345-23) | 4 | 48.96 | 17,000 | 0 | 2011 | | 2024.12.27 | Àü¼¼ | »ï¿ø¾ÆÆ®ºô(344-7) | 3 | 59.83 | 18,000 | 0 | 2001 | | 2024.12.27 | ¿ù¼¼ | ·Î¾âÆÄÅ©ºä | 3 | 29.74 | 200 | 75 | 2021 | | 2024.12.27 | Àü¼¼ | ´Ù¿ø¸®Ä¡ºô5Â÷ | 2 | 37.44 | 26,800 | 0 | 2021 | | 2024.12.26 | ¿ù¼¼ | ¿¤¸²ÇϿ콺(109-14) | 3 | 58.78 | 610 | 53 | 2019 | | 2024.12.26 | Àü¼¼ | ·Î¾âÇÏÀÌÃ÷(361-11) | 5 | 28.2 | 19,100 | 0 | 2020 | | 2024.12.25 | ¸Å¸Å | ¸®¾ÈÇϿ콺(366-10) | 3 | 44.07 | 26,100 | | 2016 | | 2024.12.24 | ¿ù¼¼ | ¸®ºùÇϿ콺 | 4 | 37.97 | 5,000 | 45 | 2011 | | 2024.12.24 | ¿ù¼¼ | °¡¿øÀÌ·¹ºô | 4 | 27.77 | 983 | 31 | 2019 | | 2024.12.24 | ¸Å¸Å | ´ë¿ì½ºÀ§Æ®Èú(120-12) | 4 | 32.38 | 21,500 | | 2015 | | 2024.12.24 | ¿ù¼¼ | ¿À¼ºµå¸²ºô(155-33) | 2 | 58.87 | 100 | 54 | 2017 | | 2024.12.24 | Àü¼¼ | »þÀÎÇϿ콺(38-49) | 5 | 28.51 | 12,900 | 0 | 2014 | | 2024.12.24 | Àü¼¼ | ¸íǰ¸®Ä¡ºô2 | 1 | 28.47 | 12,200 | 0 | 2012 | | 2024.12.24 | ¿ù¼¼ | ¿À¼ºµå¸²ºô(155-33) | 3 | 58.87 | 100 | 54 | 2017 | | 2024.12.24 | ¿ù¼¼ | ¿À¼ºµå¸²ºô(155-33) | 4 | 58.835 | 100 | 52 | 2017 | | 2024.12.24 | ¿ù¼¼ | °¡¿øÀÌ·¹ºô | 4 | 27.77 | 4,133 | 12 | 2019 | | 2024.12.24 | ¿ù¼¼ | µ¿¿ìºô¶ó(139-151) | 2 | 44 | 12,700 | 15 | 2001 | | 2024.12.23 | ¸Å¸Å | ¸®ºùÇϿ콺 | 2 | 45.66 | 22,800 | | 2011 | | 2024.12.23 | ¿ù¼¼ | °³ºÀÆÄ·¹½ººô¶ó°¡,³ªµ¿(170-1) | -1 | 54.84 | 1,000 | 50 | 1993 | | 2024.12.23 | ¿ù¼¼ | °³ºÀÆÄ·¹½ººô¶ó°¡,³ªµ¿(170-1) | -1 | 54.84 | 1,000 | 50 | 1993 | | 2024.12.23 | ¿ù¼¼ | °³ºÀÆÄ·¹½ººô¶ó°¡,³ªµ¿(170-1) | -1 | 54.84 | 1,000 | 50 | 1993 | | 2024.12.23 | ¿ù¼¼ | ºÀ´ãºô¶ó | 5 | 29.9 | 105 | 21 | 2021 | | 2024.12.23 | ¸Å¸Å | °Å¼ººô¶ó13µ¿ | 1 | 36.72 | 17,000 | | 1990 | | 2024.12.23 | ¿ù¼¼ | °³ºÀÆÄ·¹½ººô¶ó°¡,³ªµ¿(170-1) | -1 | 54.84 | 1,000 | 50 | 1993 | | 2024.12.22 | ¿ù¼¼ | À£Å¸¿î | 9 | 17.98 | 1,000 | 100 | 2024 | | 2024.12.21 | ¿ù¼¼ | ÈÀÎ¾ÆÆ®ºô(450-12) | 2 | 43.31 | 13,000 | 15 | 2002 | | 2024.12.21 | ¿ù¼¼ | °¡Àç¿ïºô | 3 | 58.99 | 3,000 | 73 | 2016 | | 2024.12.21 | ¿ù¼¼ | ÈÀÎ¾ÆÆ®ºô(450-12) | 2 | 43.31 | 13,000 | 15 | 2002 | | 2024.12.21 | ¿ù¼¼ | ¿øÃ¢¾ÆÆ®ºô | 3 | 29.04 | 2,000 | 75 | 2019 | | 2024.12.20 | ¿ù¼¼ | ¸®¿òÇϿ콺(303-30) | 3 | 15.77 | 852 | 6 | 2013 | | 2024.12.20 | ¿ù¼¼ | ¿¹±×¸®³ª | 3 | 51.65 | 4,000 | 70 | 2012 | | 2024.12.20 | Àü¼¼ | û¼Öºô | 3 | 20.95 | 8,000 | 0 | 2008 | | 2024.12.19 | Àü¼¼ | ¹ÌÁÖºô¶óA,Bµ¿(181-1) | 1 | 69.24 | 15,000 | 0 | 1986 | | 2024.12.19 | ¿ù¼¼ | ¿¡Äڱ׷κêºô¸®Áö | 3 | 33.79 | 1,000 | 115 | 2021 | | 2024.12.19 | Àü¼¼ | ºÎ±¤ºô¶ó2Â÷ | 3 | 49.2 | 12,000 | 0 | 1992 | | 2024.12.18 | ¿ù¼¼ | ¾È´ö±×¸°ºô¶ó2Â÷(340-1) | 1 | 68.34 | 3,500 | 120 | 1997 | | 2024.12.18 | Àü¼¼ | ´ë¸²¾ÆÆ®ºô°¡µ¿ | 3 | 48.9 | 17,100 | 0 | 2002 | | 2024.12.18 | Àü¼¼ | º°Àåºô¶ó2Â÷Bµ¿(50-13) | 1 | 49.54 | 11,500 | 0 | 1989 | | 2024.12.18 | Àü¼¼ | ´ë¸²¾ÆÆ®ºô°¡µ¿ | 3 | 48.9 | 17,000 | 0 | 2002 | | 2024.12.18 | Àü¼¼ | ÇÁ¶óÀÓºô2Â÷ | 2 | 29.96 | 15,750 | 0 | 2015 | | 2024.12.18 | Àü¼¼ | ·Î¾â¸ð´×ºô | 4 | 45.11 | 11,000 | 0 | 2002 | | 2024.12.17 | Àü¼¼ | À§µåij½½ | 3 | 26.02 | 18,000 | 0 | 2020 | | 2024.12.17 | ¿ù¼¼ | ±ÝÁ¤ºô¶ó(352-15) | 4 | 58.9 | 16,800 | 10 | 2002 | | 2024.12.16 | ¿ù¼¼ | Áß¾ÓÁÖÅ𡵿(323-18) | 3 | 55.46 | 500 | 70 | 1994 | | 2024.12.15 | ¿ù¼¼ | ¸¶À̺ô7Â÷ | 5 | 55.66 | 1,000 | 60 | 2019 | | 2024.12.15 | ¸Å¸Å | µå¸²Ä³½½(405-6) | 5 | 19.98 | 15,300 | | 2012 | | 2024.12.14 | ¸Å¸Å | ¾È´ö±×¸°ºô¶ó2Â÷(340-1) | 4 | 58.01 | 20,520 | | 1997 | | 2024.12.14 | Àü¼¼ | ¼ö¸í±×¸°ºô | 5 | 27.42 | 16,600 | 0 | 2017 | | 2024.12.14 | Àü¼¼ | ÇüÁ¦ºô¶ó(305-9) | 3 | 77.12 | 23,500 | 0 | 2001 | | 2024.12.14 | Àü¼¼ | Èú½º¹Ù·ÎÅ©ºô | 3 | 29.9 | 11,600 | 0 | 2012 | | 2024.12.13 | ¸Å¸Å | ½ÅÈ↓¸³A,Bµ¿ | 2 | 49.97 | 9,000 | | 1976 | | 2024.12.13 | Àü¼¼ | ¿¡µ§Ä³½½ | 5 | 37.84 | 20,000 | 0 | 2018 | | 2024.12.13 | Àü¼¼ | ÇöÁö¿¡¹öºô | 3 | 58.985 | 21,000 | 0 | 2012 | | 2024.12.12 | ¿ù¼¼ | ¼®À±ÁÖÅà | 3 | 20.75 | 2,025 | 21 | 2021 | | 2024.12.12 | ¿ù¼¼ | ºê¶ó¿î½ºÅæ(15-2) | 5 | 67.8 | 15,500 | 25 | 2009 | | 2024.12.12 | ¿ù¼¼ | ÇØ¿À¸§(363-1) | 3 | 59.75 | 22,300 | 10 | 2013 | | 2024.12.12 | ¿ù¼¼ | °³ºÀÆÄÅ©ºô¥° | 2 | 29.64 | 2,164 | 30 | 2019 | | 2024.12.12 | ¿ù¼¼ | ¼®À±ÁÖÅà | 3 | 20.75 | 5,014 | 4 | 2021 | | 2024.12.11 | ¿ù¼¼ | ´ëÈï¾ÆÀ̺ô2µ¿ | 9 | 46.09 | 1,000 | 20 | 2017 | | 2024.12.11 | ¿ù¼¼ | º°Àåºô¶ó8µ¿(50-38) | 2 | 36.76 | 2,000 | 50 | 1989 | | 2024.12.11 | Àü¼¼ | ·Î¾âÇÏÀÌÃ÷(361-11) | 2 | 28.32 | 19,100 | 0 | 2020 | | 2024.12.11 | ¿ù¼¼ | °ñµçij½½2Â÷ | 4 | 26.61 | 2,000 | 65 | 2019 | | 2024.12.10 | ¿ù¼¼ | °³Èºô¶óÆ®(359-45) | 4 | 47.13 | 3,000 | 50 | 2002 | | 2024.12.10 | ¿ù¼¼ | ÀÌ´ã䥲 | 3 | 29.74 | 100 | 60 | 2020 | | 2024.12.10 | ¿ù¼¼ | °³Èºô¶óÆ®(359-45) | 4 | 47.13 | 3,000 | 50 | 2002 | | 2024.12.10 | Àü¼¼ | µðÀÚÀΰñµçºô(304-5) | 5 | 29.73 | 17,000 | 0 | 2014 | | 2024.12.10 | Àü¼¼ | µðÀÚÀÎÈÀÌÆ®ºô(304-8) | 3 | 50.59 | 20,790 | 0 | 2013 | | 2024.12.09 | ¿ù¼¼ | ¶ó¿Â±×¸°ºô2 | 7 | 45.11 | 100 | 80 | 2022 | | 2024.12.09 | ¿ù¼¼ | ¸ð´øÇϿ콺(332-32) | 3 | 29.52 | 2,670 | 28 | 2021 | | 2024.12.07 | Àü¼¼ | µå¸²Ä³½½(365-9) | 4 | 21.28 | 10,000 | 0 | 2012 | | 2024.12.07 | Àü¼¼ | ¼Ò¸Áºô¶ó(315-8) | 4 | 67.66 | 18,520 | 0 | 2003 | | 2024.12.07 | Àü¼¼ | ±ÃÀüºô¶ó(65-1) | 3 | 59.46 | 15,100 | 0 | 1994 | | 2024.12.07 | Àü¼¼ | ÇØ¿À¸§(287-12) | 2 | 44.24 | 21,400 | 0 | 2017 | | 2024.12.06 | ¿ù¼¼ | da°ñµå¸®¿ò(272-16) | 2 | 33.07 | 1,000 | 118 | 2022 | | 2024.12.06 | Àü¼¼ | ÁøÁÖ¾ÆÆ®ºô(36-1) | 5 | 57.86 | 15,600 | 0 | 2002 | | 2024.12.06 | ¿ù¼¼ | ¿ì¹Ìºí·ç¹Ö | 2 | 29.16 | 1,000 | 105 | 2022 | | 2024.12.05 | ¸Å¸Å | ¼ºÈ¯ºô¶ó(330-19) | 3 | 64.56 | 27,500 | | 2001 | | 2024.12.05 | ¿ù¼¼ | ¿øÃ¢¾ÆÆ®ºô | 2 | 29.04 | 500 | 60 | 2019 | | 2024.12.04 | ¿ù¼¼ | ´Ù¿ø¾ÆÆ®ºô(321-15) | 5 | 43.37 | 500 | 120 | 2018 | | 2024.12.04 | ¿ù¼¼ | ¿Àº¹Çѿ츮 | 5 | 46.99 | 5,000 | 65 | 2013 | | 2024.12.04 | ¸Å¸Å | ¿ëµÎ¿¬¸³(138-2) | 1 | 68.09 | 31,000 | | 1982 | | 2024.12.04 | ¸Å¸Å | ÇØ¿À¸§ºñµ¿(284-25) | 2 | 34.55 | 17,000 | | 2014 | | 2024.12.03 | ¿ù¼¼ | ·Î¾âȨŸ¿î | 6 | 38.63 | 13,000 | 50 | 2019 | | 2024.12.03 | Àü¼¼ | ´Ù¿ø¸®Ä¡ºô5Â÷ | 2 | 37.44 | 26,800 | 0 | 2021 | | 2024.12.03 | Àü¼¼ | ÇÑÅä¼¼¶óºô(286-2) | 4 | 52.14 | 14,700 | 0 | 2002 | | 2024.12.02 | Àü¼¼ | °³²¼¾½ººô | 2 | 45.64 | 17,500 | 0 | 2012 | | 2024.12.02 | ¿ù¼¼ | °ñµçij½½3Â÷ | 5 | 29.75 | 300 | 70 | 2019 | | 2024.12.02 | Àü¼¼ | ¿¡µ§¸Ç¼ÇBµ¿ | 2 | 59.37 | 11,000 | 0 | 2002 | | 2024.12.02 | ¿ù¼¼ | ÀÌ´ã䥲 | 2 | 29.78 | 100 | 60 | 2020 | | 2024.12.02 | ¸Å¸Å | ´ë°æ¿¬¸³(305-4) | 2 | 41.36 | 13,000 | | 1986 | | 2024.12.02 | Àü¼¼ | »ï¼ººô¶ó(³ª)(309-3) | 3 | 59.66 | 21,700 | 0 | 2003 | | 2024.12.02 | ¿ù¼¼ | °Å¼ººô¶ó12µ¿ | 1 | 36.53 | 500 | 35 | 1990 | | 2024.12.01 | Àü¼¼ | ¸ÞÀÎÇϿ콺(261-10) | 2 | 28.51 | 19,460 | 0 | 2018 | | 2024.12.01 | ¸Å¸Å | ´ö¹®ºô¶ó | 1 | 59.31 | 25,000 | | 1995 | | 2024.11.30 | Àü¼¼ | °ñµçij½½(327-37) | 2 | 28.55 | 17,000 | 0 | 2018 | | 2024.11.30 | Àü¼¼ | °ñµçij½½(327-37) | 2 | 28.55 | 17,000 | 0 | 2018 | | 2024.11.30 | Àü¼¼ | ·Î¾âȨŸ¿î | 3 | 26.68 | 17,000 | 0 | 2019 | | 2024.11.29 | ¿ù¼¼ | ´ö¼ºÇÏÀ̺ô | 5 | 29.94 | 1,000 | 70 | 2011 | | 2024.11.29 | Àü¼¼ | ´ë¿ì½ºÀ§Æ®Èú | 3 | 29.67 | 15,000 | 0 | 2015 | | 2024.11.29 | ¿ù¼¼ | ·Î¾âÇÏÀÌÃ÷D(277-1) | 3 | 32.58 | 16,600 | 16 | 2015 | | 2024.11.29 | Àü¼¼ | »ï¿ø¾ÆÀ̺ôB(314-87) | 5 | 14.68 | 11,000 | 0 | 2022 | | 2024.11.28 | ¸Å¸Å | ¿ì¼®½¦¸£ºô | 5 | 61.82 | 26,500 | | 2008 | | 2024.11.28 | ¿ù¼¼ | ·Î¸Á½ººô(453-1) | 4 | 44.3 | 12,000 | 25 | 2002 | | 2024.11.28 | ¿ù¼¼ | ¸®¿òÇϿ콺(310-28) | 3 | 29.62 | 3,590 | 3 | 2014 | | 2024.11.28 | ¿ù¼¼ | ¼ö¸íÁÖÅÃ(132-4) | 4 | 29.56 | 20,000 | 4 | 2023 | | 2024.11.27 | Àü¼¼ | ·Î¾âÇÏÀÌÃ÷(365-1) | 5 | 35.81 | 23,480 | 0 | 2017 | | 2024.11.27 | ¿ù¼¼ | ½Å¼¼°è·ÎÁîºô | 3 | 29.82 | 2,000 | 60 | 2012 | | 2024.11.27 | ¸Å¸Å | ¾Æ¸£¶¼ºô | 2 | 28.67 | 18,700 | | 2016 | | 2024.11.27 | ¿ù¼¼ | ¸¶À̺ô5Â÷ | 2 | 36.97 | 3,000 | 80 | 2018 | | 2024.11.27 | ¿ù¼¼ | ±×¸°Èú | 2 | 29.8 | 13,000 | 17 | 2014 | | 2024.11.26 | ¸Å¸Å | »ï¿ø¾ÆÀ̺ô¿¡ÀÌ | 6 | 27.64 | 20,300 | | 2018 | | 2024.11.26 | ¿ù¼¼ | ³ì¿øºô¶ó(345-13) | 3 | 45.92 | 2,000 | 60 | 1993 | | 2024.11.25 | ¸Å¸Å | ¼ºÈºô¶ó | 1 | 57.39 | 25,000 | | 2001 | | 2024.11.25 | ¸Å¸Å | ¼ºÈºô¶ó | 1 | 57.39 | 25,000 | | 2001 | | 2024.11.25 | ¸Å¸Å | Å»깫Áö°³(367-26) | 3 | 45.91 | 23,000 | | 2011 | | 2024.11.25 | Àü¼¼ | À§ÇϿ콺(494) | 3 | 27.49 | 19,800 | 0 | 2018 | | 2024.11.25 | ¿ù¼¼ | (306-45) | 5 | 39.97 | 2,398 | 13 | 2014 | | 2024.11.25 | ¿ù¼¼ | ¿ì¹Ìºí·ç¹Ö | 2 | 28.92 | 1,000 | 105 | 2022 | | 2024.11.23 | Àü¼¼ | ¼¼Á¾¾ÆÆ®ºô(68-150) | 4 | 59.72 | 25,500 | 0 | 2018 | | 2024.11.23 | ¸Å¸Å | ±ÝÁ¤ºô¶ó5Â÷(349-10) | 1 | 62.58 | 28,000 | | 2002 | | 2024.11.23 | ¿ù¼¼ | û¸²ºô(309-13) | 5 | 51.4 | 1,000 | 60 | 2012 | | 2024.11.23 | Àü¼¼ | ÇØ¸¶·ç(33-35) | 3 | 48.02 | 22,000 | 0 | 2018 | | 2024.11.23 | Àü¼¼ | ¾à¼ö¿¬¸³Aµ¿(273-13) | 1 | 35.47 | 11,300 | 0 | 1987 | | 2024.11.23 | Àü¼¼ | ÇØ¸¶·ç(33-35) | 3 | 48.02 | 22,000 | 0 | 2018 | | 2024.11.22 | Àü¼¼ | »ï¹ÌÇÁ¸®ºô102Â÷(330-20) | -1 | 53.43 | 10,700 | 0 | 2001 | | 2024.11.22 | ¿ù¼¼ | ÈÞ¸ÕÆÓ¸®½º°¡µ¿³ªµ¿ | 6 | 40.31 | 17,500 | 40 | 2016 | | 2024.11.22 | ¿ù¼¼ | ¸ð´øÇϿ콺(332-32) | 2 | 29.52 | 6,563 | 8 | 2021 | | 2024.11.22 | ¸Å¸Å | ¸®¾ÈÇϿ콺(326-6) | 3 | 40.66 | 26,950 | | 2017 | | 2024.11.21 | ¿ù¼¼ | »þÀÎÇϿ콺(309-30) | 4 | 50.73 | 4,637 | 1 | 2015 | | 2024.11.20 | Àü¼¼ | ¿¤¸²°¡µç | 3 | 24.81 | 17,850 | 0 | 2020 | | 2024.11.20 | ¿ù¼¼ | DA°ñµå¸®¿ò | 4 | 29.94 | 5,000 | 90 | 2022 | | 2024.11.20 | ¿ù¼¼ | Áö¿ÀÆÄÅ©(317-5) | 5 | 43.14 | 400 | 40 | 2002 | | 2024.11.19 | ¿ù¼¼ | µå¸²ºô¸®Áö | 2 | 29.96 | 1,000 | 90 | 2022 | | 2024.11.19 | ¿ù¼¼ | ¿À¼Çºô | 2 | 23.28 | 1,661 | 9 | 2013 | | 2024.11.18 | ¿ù¼¼ | »ï¿ø¾ÆÆ®ºô(344-7) | -1 | 59.83 | 11,700 | 10 | 2001 | | 2024.11.16 | Àü¼¼ | ´ë¿ì½ºÀ§Æ®Èú(120-12) | 5 | 41.5 | 16,000 | 0 | 2015 | | 2024.11.16 | Àü¼¼ | ¿øÅ©¸®½ºÅ»(92-7) | 2 | 61.08 | 16,500 | 0 | 2002 | | 2024.11.16 | ¿ù¼¼ | »ï¿øÇϿ콺 | 3 | 36.34 | 1,000 | 75 | 2016 | | 2024.11.15 | ¸Å¸Å | ½Å¿øÇÁ¸°½º¿¡À̵¿,ºñµ¿ | 5 | 54.67 | 20,800 | | 2013 | | 2024.11.15 | ¸Å¸Å | ¿µ¾Æ¸Ç¼Ç(356-3) | 3 | 59.95 | 26,500 | | 2002 | | 2024.11.15 | Àü¼¼ | ¸®Ä¡±×¸°A(317-1) | 1 | 29.98 | 13,500 | 0 | 2012 | | 2024.11.15 | ¿ù¼¼ | Ä«»çÆç¸®Áî(345-10) | 2 | 39.84 | 2,000 | 65 | 2002 | | 2024.11.15 | ¿ù¼¼ | È޹̶ô³ªµ¿ | 6 | 50.07 | 300 | 37 | 2022 | | 2024.11.15 | Àü¼¼ | ¿¡µ§ºô¶ó | 5 | 45.06 | 21,500 | 0 | 2016 | | 2024.11.14 | Àü¼¼ | ½Å¿øÇÁ¸°½º¿¡À̵¿,ºñµ¿ | 2 | 57.23 | 22,000 | 0 | 2013 | | 2024.11.14 | ¸Å¸Å | ÇØ¸¶·ç(378-23) | 6 | 38.73 | 26,500 | | 2016 | | 2024.11.14 | Àü¼¼ | º¸¼®ºô | 3 | 44.88 | 20,700 | 0 | 2008 | | 2024.11.14 | ¸Å¸Å | ¼¼Á¾¾ÆÆ®ºô(68-150) | 5 | 55.16 | 30,000 | | 2018 | | 2024.11.14 | ¸Å¸Å | µ¿Áøºô¶ó(367-24) | 2 | 59.1 | 25,800 | | 2002 | | 2024.11.14 | ¿ù¼¼ | ÇØ´ãÇϿ콺2Â÷ | 2 | 45.331 | 3,106 | 32 | 2023 | | 2024.11.13 | Àü¼¼ | »ï¿ø¾ÆÀ̺ôB(314-87) | 5 | 29.72 | 26,000 | 0 | 2022 | | 2024.11.13 | ¸Å¸Å | ¿¡µ§¸Ç¼ÇBµ¿ | 2 | 59.37 | 17,000 | | 2002 | | 2024.11.13 | Àü¼¼ | »ï¿ø¾ÆÀ̺ôB(314-87) | 5 | 29.72 | 24,700 | 0 | 2022 | | 2024.11.13 | ¿ù¼¼ | ´õ¿¡Äڱ׷κê8Â÷ | 6 | 27.64 | 150 | 60 | 2020 | | 2024.11.12 | ¿ù¼¼ | ·Î¾âÇÏÀÌÃ÷(343-5) | 3 | 41.12 | 15,000 | 35 | 2018 | | 2024.11.12 | Àü¼¼ | µðÀÚÀÎÇϿ콺(358) | 4 | 79.47 | 24,000 | 0 | 2010 | | 2024.11.12 | ¿ù¼¼ | ³ëºí¸®¿ò3Â÷ | 5 | 47.65 | 1,000 | 20 | 2014 | | 2024.11.12 | Àü¼¼ | º£½ºÆ®ºô2Â÷ | 2 | 29.92 | 13,400 | 0 | 2011 | | 2024.11.11 | Àü¼¼ | ÇѼº½ºÀ§Æ®ºô(457-9) | 4 | 30.61 | 11,500 | 0 | 2002 | | 2024.11.11 | ¿ù¼¼ | da°ñµå¸®¿ò(272-16) | 2 | 23.75 | 1,000 | 92 | 2022 | | 2024.11.11 | ¿ù¼¼ | »ïÇöºô¶ó(70-15) | -1 | 27.61 | 3,000 | 25 | 1998 | | 2024.11.10 | ¸Å¸Å | ¸®¾ÈÇϿ콺(366-10) | 3 | 40.12 | 27,000 | | 2016 | | 2024.11.10 | Àü¼¼ | µ¿¾Æ¿¬¸³(265-5) | 2 | 78.28 | 21,000 | 0 | 1979 | | 2024.11.09 | ¿ù¼¼ | °ñµçij½½3Â÷ | 4 | 41.94 | 400 | 80 | 2019 | | 2024.11.09 | ¸Å¸Å | ÇØ¸¶·ç(378-23) | 5 | 27.87 | 17,900 | | 2016 | | 2024.11.08 | Àü¼¼ | µµ´ãº£½ºÆ®ºô(341-16) | 2 | 29.99 | 18,500 | 0 | 2020 | | 2024.11.08 | ¿ù¼¼ | ¸®¾ÈÇϿ콺(326-6) | 3 | 26.11 | 1,000 | 65 | 2017 | | 2024.11.08 | ¸Å¸Å | »ó¶¼±×¸°ºô(153-66) | 3 | 29.95 | 20,000 | | 2018 | | 2024.11.07 | Àü¼¼ | µðÀÚÀÎÈÀÌÆ®ºô | 2 | 49.16 | 18,900 | 0 | 2013 | | 2024.11.07 | ¸Å¸Å | ¿Àº¹È¨Å¸¿î(345-3) | 3 | 59.35 | 28,900 | | 2001 | | 2024.11.06 | ¿ù¼¼ | ´õ¿¡Äڱ׷κê8Â÷ | 6 | 30.33 | 150 | 60 | 2020 | | 2024.11.06 | ¿ù¼¼ | ÇØ´ãÇϿ콺2Â÷ | 6 | 47.308 | 5,093 | 23 | 2023 | | 2024.11.06 | Àü¼¼ | °ñµçij½½(320-16) | 5 | 45.47 | 21,000 | 0 | 2017 | | 2024.11.06 | ¸Å¸Å | º¸¼ººô¶ó | 2 | 29.46 | 17,300 | | 2018 | | 2024.11.06 | Àü¼¼ | º¸°ºô¶ó(319-10) | 2 | 63.06 | 17,700 | 0 | 2001 | | 2024.11.05 | ¸Å¸Å | ÇÑ»ùºô¶ó(343-12) | 1 | 40.92 | 13,000 | | 1991 | | 2024.11.05 | ¿ù¼¼ | ÅäºêÇϿ콺 | 2 | 29.56 | 16,800 | 5 | 2018 | | 2024.11.05 | ¿ù¼¼ | ÅäºêÇϿ콺 | 2 | 29.56 | 14,100 | 20 | 2018 | | 2024.11.05 | Àü¼¼ | ½Å¿øÇÁ¸°½º¿¡À̵¿,ºñµ¿ | 5 | 35.73 | 19,400 | 0 | 2013 | | 2024.11.05 | Àü¼¼ | ¸ñÈŸ¿î7µ¿(50-37) | 2 | 39.54 | 9,700 | 0 | 1987 | | 2024.11.04 | ¿ù¼¼ | ½ÅÇѾçºô¶ó(338-17) | 1 | 53.38 | 11,000 | 15 | 1986 | | 2024.11.04 | ¸Å¸Å | »ï¼º½¦¸£ºô6Â÷ | 5 | 54.43 | 23,000 | | 2012 | | 2024.11.04 | Àü¼¼ | ¿¤¸²°¡µç | 2 | 24.81 | 17,800 | 0 | 2020 | | 2024.11.04 | Àü¼¼ | ¿¤¸²°¡µç | 2 | 24.81 | 17,800 | 0 | 2020 | | 2024.11.04 | Àü¼¼ | Å¿µºô¶ó | 4 | 74.17 | 20,000 | 0 | 2007 | | 2024.11.04 | ¿ù¼¼ | ÁøÁÖ¾ÆÆ®ºô | 4 | 38.43 | 10,000 | 5 | 2003 | | 2024.11.04 | Àü¼¼ | ´Ù¿ø¸®Ä¡ºô2Â÷ | 5 | 24.98 | 22,600 | 0 | 2020 | | 2024.11.02 | ¸Å¸Å | ·Î¾âȨŸ¿î | 4 | 35.35 | 29,000 | | 2019 | | 2024.11.02 | Àü¼¼ | µ¿³²ÁÖÅà | 5 | 35.37 | 8,700 | 0 | 2003 | | 2024.11.02 | Àü¼¼ | ¼ö¸í±×¸°ºô | 5 | 27.42 | 16,600 | 0 | 2017 | | 2024.10.31 | Àü¼¼ | ÇØ¿À¸§(287-12) | 5 | 23.78 | 14,895 | 0 | 2017 | | 2024.10.31 | Àü¼¼ | °³ºÀÆÄ·¹½ººô¶ó°¡,³ªµ¿(170-1) | -1 | 48.12 | 9,390 | 0 | 1993 | | 2024.10.30 | Àü¼¼ | ´Ù¿ø¸®Ä¡ºô4Â÷ | 4 | 28.51 | 27,500 | 0 | 2021 | | 2024.10.30 | Àü¼¼ | ½Ã¸ó¾ÆÆ®ºô¶ó6Â÷(322-2) | 4 | 73.17 | 21,700 | 0 | 2002 | | 2024.10.30 | ¸Å¸Å | ¿ëµÎ¿¬¸³(138-2) | 3 | 68.09 | 32,500 | | 1982 | | 2024.10.30 | ¸Å¸Å | °³¹Ìºô¶óEµ¿(270-60) | 1 | 47.74 | 13,600 | | 1986 | | 2024.10.29 | ¿ù¼¼ | ¾Æµ§ÇÏÀÓ | 5 | 50.25 | 545 | 44 | 2018 | | 2024.10.29 | Àü¼¼ | ¿¤¸²°¡µç | 2 | 28.46 | 19,800 | 0 | 2020 | | 2024.10.29 | ¸Å¸Å | »ï¼º½¦¸£ºôAµ¿ | 2 | 41.52 | 21,000 | | 2016 | | 2024.10.28 | Àü¼¼ | ¿¤¸²°¡µç | 3 | 28.98 | 20,500 | 0 | 2020 | | 2024.10.28 | ¿ù¼¼ | È£¹Ý¾ÆÆ®ºô(306-42) | 5 | 58.7 | 3,000 | 47 | 2002 | | 2024.10.28 | Àü¼¼ | ´Ù¿ø¸®Ä¡ºô2Â÷ | 5 | 26.57 | 23,000 | 0 | 2020 | | 2024.10.28 | ¿ù¼¼ | ¿ì°¡ºô¸®ÁöA(346-12) | 1 | 59.43 | 2,000 | 60 | 1997 | | 2024.10.28 | Àü¼¼ | ·Î¾âÆÄÅ©(306-48) | 5 | 67.87 | 18,500 | 0 | 2002 | | 2024.10.27 | ¿ù¼¼ | da°ñµå¸®¿ò(272-16) | 2 | 32.69 | 1,000 | 118 | 2022 | | 2024.10.26 | Àü¼¼ | °Ç¿ìÆÄÅ©ºô | 2 | 48.7 | 17,100 | 0 | 2011 | | 2024.10.26 | Àü¼¼ | ¿µ¸ð´øºô | 4 | 27.01 | 13,900 | 0 | 2016 | | 2024.10.26 | ¿ù¼¼ | ¹Ì°Ç½ºÀ§Æ®ºô(101µ¿)417-17 | 2 | 22.12 | 1,000 | 35 | 2002 | | 2024.10.26 | Àü¼¼ | ¿¡µ§¸Ç¼ÇDµ¿ | 3 | 59.76 | 18,300 | 0 | 2003 | | 2024.10.26 | ¸Å¸Å | À¯È£ºô¶ó(346-46) | 1 | 35.34 | 14,200 | | 1987 | | 2024.10.26 | ¸Å¸Å | »ó¶¼±×¸°ºô(153-66) | 5 | 41.94 | 29,300 | | 2018 | | 2024.10.26 | ¸Å¸Å | ´ëÀ±ºô | 5 | 50.37 | 26,800 | | 2016 | | 2024.10.26 | ¸Å¸Å | ÆÓ¸®½ººä | 5 | 29.71 | 18,000 | | 2016 | | 2024.10.25 | ¸Å¸Å | »ïÁ¤ºô¶ó(62-23) | -1 | 73.26 | 13,000 | | 1995 | | 2024.10.25 | Àü¼¼ | º®´ã¸®Ä¡ºô | 5 | 51.36 | 18,000 | 0 | 2010 | | 2024.10.25 | Àü¼¼ | Áß¾ÓÁÖÅ󪵿(323-44) | -1 | 68.23 | 8,000 | 0 | 1994 | | 2024.10.24 | ¿ù¼¼ | Çѽźô¶ó(334-11) | 1 | 31.83 | 345 | 11 | 1990 | | 2024.10.24 | Àü¼¼ | Çѽźô¶ó(334-11) | 1 | 31.83 | 6,900 | 0 | 1990 | | 2024.10.24 | Àü¼¼ | µ¿½Å¿¬¸³(170-37) | 1 | 53.22 | 12,000 | 0 | 1978 | | 2024.10.24 | ¿ù¼¼ | °Å¼ººô¶ó2µ¿ | 1 | 36.72 | 8,600 | 5 | 1990 | | 2024.10.24 | ¿ù¼¼ | ´õ¿¡Äڱ׷κê(279-10) | 5 | 29.93 | 150 | 80 | 2019 | | 2024.10.23 | Àü¼¼ | ½Å¿øÇÁ¸°½º¿¡À̵¿,ºñµ¿ | 2 | 54.28 | 21,700 | 0 | 2013 | | 2024.10.23 | Àü¼¼ | »ï¼º½¦¸£ºô(350-12) | 2 | 59.97 | 20,000 | 0 | 2002 | | 2024.10.22 | ¿ù¼¼ | ¸®¿òÇϿ콺(317-11) | 2 | 25.52 | 3,258 | 7 | 2014 | | 2024.10.22 | ¸Å¸Å | È¿¼ººô¶ó(70-54) | 2 | 41.76 | 18,000 | | 1987 | | 2024.10.21 | ¸Å¸Å | °ñµçij½½(327-37) | 2 | 28.55 | 19,000 | | 2018 | | 2024.10.20 | ¸Å¸Å | ·Î¾âÇÏÀÌÃ÷(343-5) | 3 | 41.12 | 30,000 | | 2018 | | 2024.10.20 | ¿ù¼¼ | °ñµçij½½2Â÷ | 3 | 26.61 | 15,000 | 25 | 2019 | | 2024.10.20 | Àü¼¼ | µ¿ºÎ¿¡À̽º | 7 | 55.51 | 28,700 | 0 | 2014 | | 2024.10.19 | Àü¼¼ | ·Ôµ¥ÇÏÀÌÃ÷(320-13) | 4 | 76.65 | 15,700 | 0 | 2002 | | 2024.10.18 | ¿ù¼¼ | Á¦ÀÌ¿¡½ººô | 3 | 47.25 | 2,000 | 30 | 2018 | | 2024.10.18 | ¿ù¼¼ | ¼¼Á¾¾ÆÆ®ºô(68-150) | 5 | 46.16 | 22,800 | 10 | 2018 | | 2024.10.18 | Àü¼¼ | Áß¾ÓÈúŸ¿î(°¡)(450-10) | 3 | 45.13 | 16,500 | 0 | 2002 | | 2024.10.17 | Àü¼¼ | »ï¿ø¾ÆÀ̺ôB(314-87) | 5 | 24.68 | 24,000 | 0 | 2022 | | 2024.10.17 | ¿ù¼¼ | (315-5) | -1 | 28.93 | 500 | 30 | 1986 | | 2024.10.17 | Àü¼¼ | ÇÁ¶óÀ̺øÄ³½½°³ºÀ1Â÷ | 2 | 45.86 | 21,000 | 0 | 2022 | | 2024.10.16 | ¿ù¼¼ | °ñµçºä | 2 | 59.83 | 15,000 | 21 | 2012 | | 2024.10.16 | Àü¼¼ | ±¹Èºô¶ó(171-1) | 1 | 80.44 | 24,000 | 0 | 1983 | | 2024.10.16 | ¿ù¼¼ | µå¸²ºô¸®Áö | 2 | 29.96 | 1,000 | 90 | 2022 | | 2024.10.16 | Àü¼¼ | Å»깫Áö°³(307-19) | 6 | 51.04 | 26,500 | 0 | 2013 | | 2024.10.16 | Àü¼¼ | Å»깫Áö°³(307-19) | 6 | 51.04 | 20,100 | 0 | 2013 | | 2024.10.15 | ¿ù¼¼ | LG³ëºí¸®¿ò | 4 | 54.95 | 13,000 | 25 | 2012 | | 2024.10.15 | Àü¼¼ | ű¤±×¸°ºô(330-9) | -1 | 59.56 | 11,500 | 0 | 2001 | | 2024.10.15 | ¿ù¼¼ | DA°ñµå¸®¿ò | 2 | 32.48 | 1,000 | 128 | 2022 | | 2024.10.15 | ¿ù¼¼ | ·Î¾âÇÏÀÌÃ÷(331-17) | 4 | 25.02 | 19,500 | 10 | 2021 | | 2024.10.15 | Àü¼¼ | °Å¼ººô¶ó13µ¿ | 2 | 36.72 | 9,000 | 0 | 1990 | | 2024.10.15 | ¿ù¼¼ | LG³ëºí¸®¿ò | 4 | 54.95 | 13,000 | 25 | 2012 | | 2024.10.15 | Àü¼¼ | °ÅÆòºô¶ó | 4 | 46.48 | 14,000 | 0 | 2002 | | 2024.10.15 | ¿ù¼¼ | ´ë¿ì¾ÆÆ®ºô | 5 | 63.74 | 500 | 50 | 2011 | | 2024.10.15 | ¸Å¸Å | µå¸²Ä³½½(405-6) | 4 | 26.24 | 15,700 | | 2012 | | 2024.10.14 | ¸Å¸Å | û±¸ºô¶ó(351-6) | 1 | 73.5 | 24,800 | | 1994 | | 2024.10.12 | ¸Å¸Å | »ï¿ø¾ÆÀ̺ô(312-69) | 2 | 28.56 | 22,500 | | 2017 | | 2024.10.12 | ¸Å¸Å | ¸í¹®¾ÆÀ̺ô101µ¿,102µ¿ | 4 | 50.12 | 32,000 | | 2014 | | 2024.10.11 | ¿ù¼¼ | ´õ¿¡Äڱ׷κê8Â÷ | 3 | 29.83 | 150 | 70 | 2020 | | 2024.10.11 | ¿ù¼¼ | »ïÈ¿¡ÄÚºô | 4 | 29.66 | 9,537 | 8 | 2023 | | 2024.10.10 | Àü¼¼ | µ¿½Å¿¬¸³(170-36) | 1 | 60.5 | 14,800 | 0 | 1977 | | 2024.10.10 | Àü¼¼ | µ¿½Å¿¬¸³(170-36) | 1 | 60.5 | 14,800 | 0 | 1977 | | 2024.10.09 | ¸Å¸Å | ÆÓ¸®½ººä | 2 | 29.75 | 18,200 | | 2016 | | 2024.10.09 | ¿ù¼¼ | ·Î¾âÇÏÀÌÃ÷(321-5) | 2 | 29.4 | 5,000 | 50 | 2016 | | 2024.10.09 | Àü¼¼ | ´ë¿øºô¶ó(342-12) | 4 | 65.62 | 18,000 | 0 | 2001 | | 2024.10.09 | Àü¼¼ | žºô¸®Áö(312-36) | 4 | 47.61 | 14,700 | 0 | 2003 | | 2024.10.08 | ¿ù¼¼ | ½Å¼¼°èµå¸²ºô(345-23) | 3 | 50.35 | 100 | 80 | 2011 | | 2024.10.08 | Àü¼¼ | À§µåij½½ | 5 | 26.3 | 18,500 | 0 | 2020 | | 2024.10.08 | ¿ù¼¼ | PAPRICA276 | 2 | 12.55 | 1,000 | 35 | 2012 | | 2024.10.08 | ¸Å¸Å | µ¿¾Æ¿¬¸³(265-5) | 2 | 78.28 | 36,000 | | 1979 | | 2024.10.07 | Àü¼¼ | ÈïÁøºô¶ó(306-28) | 4 | 69 | 24,000 | 0 | 2002 | | 2024.10.07 | Àü¼¼ | ´Ù¿ø¸®Ä¡ºô4Â÷ | 4 | 28.51 | 27,500 | 0 | 2021 | | 2024.10.07 | ¿ù¼¼ | da°ñµå¸®¿ò(272-16) | 3 | 33.07 | 1,000 | 118 | 2022 | | 2024.10.07 | ¸Å¸Å | »ï¿ø¾ÆÀ̺ôºñ | 6 | 44.87 | 31,000 | | 2018 | | 2024.10.07 | ¿ù¼¼ | °íµëÇϿ콺 | 3 | 29.01 | 1,000 | 120 | 2022 | | 2024.10.07 | ¿ù¼¼ | °Å¼ººô¶ó13µ¿ | 1 | 36.72 | 9,000 | 10 | 1990 | | 2024.10.06 | Àü¼¼ | ¼Ò¸Áºô¶ó(315-8) | 2 | 40.74 | 11,535 | 0 | 2003 | | 2024.10.05 | Àü¼¼ | ¿¡½º¿¥º§¸®Ã¼(279-9) | 2 | 28.05 | 21,300 | 0 | 2017 | | 2024.10.05 | ¿ù¼¼ | ¼º¿ì¸Ç¼Ç(456-1) | 1 | 74.71 | 1,000 | 60 | 1982 | | 2024.10.05 | ¸Å¸Å | ¿Àº¹È¨Å¸¿î | 2 | 61.98 | 26,700 | | 2002 | | 2024.10.04 | ¸Å¸Å | ´ëÈïºô¸®ÁöÁ¦1µ¿ | 6 | 52.12 | 34,500 | | 2016 | | 2024.10.04 | ¿ù¼¼ | »ïÈ¿¡ÄÚºô | 4 | 31.57 | 9,931 | 8 | 2023 | | 2024.10.03 | ¸Å¸Å | ¼ºÀººô¶ó(307-10) | 3 | 48.07 | 20,500 | | 2002 | | 2024.10.03 | Àü¼¼ | °Å¼ººô¶ó4µ¿ | 1 | 31.27 | 7,400 | 0 | 1990 | | 2024.10.03 | ¿ù¼¼ | 2Â÷ÇÑ»ùÇÏÀ̺ô2µ¿(342-33) | -1 | 42.76 | 1,000 | 47 | 2002 | | 2024.10.02 | Àü¼¼ | ¼º¿øº£½ºÆ®ºô | 5 | 36.05 | 9,900 | 0 | 2002 | | 2024.10.02 | ¿ù¼¼ | ¾Æµ§ÇÏÀÓ | 4 | 43.36 | 1,498 | 28 | 2020 | | 2024.10.02 | Àü¼¼ | ·¹¿ÀÇÏÀÌÃ÷(327-2) | 4 | 76.86 | 22,500 | 0 | 2000 | | 2024.10.02 | ¿ù¼¼ | Áø¿µ¿¡ÄÚºô | 2 | 29.34 | 335 | 31 | 2018 | | 2024.10.02 | ¿ù¼¼ | Áø¿µ¿¡ÄÚºô | 3 | 29.71 | 335 | 30 | 2018 | | 2024.10.02 | Àü¼¼ | ¼º¿øº£½ºÆ®ºô | 5 | 36.05 | 9,900 | 0 | 2002 | | 2024.10.02 | ¿ù¼¼ | ¾Æµ§ÇÏÀÓ | 4 | 43.36 | 1,490 | 28 | 2020 | | 2024.10.01 | ¸Å¸Å | ÇÏÀººô¸®Áö | 3 | 27.19 | 21,000 | | 2015 | | 2024.10.01 | ¸Å¸Å | ·Î¾âÇÏÀÌÃ÷(345-40) | 2 | 51.93 | 33,000 | | 2017 | | 2024.10.01 | Àü¼¼ | »ï¿ø¾ÆÀ̺ôA | 5 | 20.67 | 13,000 | 0 | 2022 | | 2024.10.01 | Àü¼¼ | ±×·¹À̽ººô(309-11) | 5 | 54.9 | 15,000 | 0 | 2010 | | 2024.10.01 | ¿ù¼¼ | »ï¿øÇϿ콺 | 1 | 29.93 | 4,000 | 40 | 2016 | | 2024.09.30 | ¿ù¼¼ | ¾ÆÀ̺ô3Â÷ | 2 | 50.21 | 105 | 35 | 2019 | | 2024.09.30 | ¸Å¸Å | µ¿³²ÁÖÅà | 2 | 63.78 | 26,000 | | 2003 | | 2024.09.30 | Àü¼¼ | ¼ö¿µºô¶óÆ®(68-288) | 1 | 49.18 | 14,800 | 0 | 2006 | | 2024.09.29 | ¸Å¸Å | ·Î¾âȨŸ¿î | 4 | 34.62 | 28,900 | | 2019 | | 2024.09.29 | Àü¼¼ | ÇÑ»ùÇÏÀ̺ô3Â÷ | 4 | 57.67 | 16,000 | 0 | 2002 | | 2024.09.28 | Àü¼¼ | ±Ý°½ºÀ§Æ®È¨(302-2) | 1 | 62.28 | 17,000 | 0 | 2002 | | 2024.09.28 | ¿ù¼¼ | ¼±°æºô¶ó(346-7) | 3 | 59.7 | 16,000 | 20 | 1996 | | 2024.09.28 | Àü¼¼ | ¹Ì°Ç½ºÀ§Æ®ºô(101µ¿)417-17 | 4 | 22.12 | 8,000 | 0 | 2002 | | 2024.09.28 | Àü¼¼ | À§ÇϿ콺(339-5) | 1 | 48.52 | 22,900 | 0 | 2016 | | 2024.09.28 | ¿ù¼¼ | ¿øÃ¢¾ÆÆ®ºô | 4 | 26.45 | 550 | 55 | 2019 | | 2024.09.28 | ¸Å¸Å | º¸¼ººô¶ó | 2 | 59.36 | 24,800 | | 2018 | | 2024.09.27 | ¿ù¼¼ | °ñµçij½½(320-16) | 4 | 21.42 | 2,000 | 45 | 2017 | | 2024.09.27 | ¿ù¼¼ | ¿¡Äڱ׷κ꿡ÀÌ | 2 | 29.93 | 3,000 | 90 | 2018 | | 2024.09.27 | Àü¼¼ | ¸®Ä¡ÆÓ¸®½º(339-12) | 4 | 48.1 | 19,000 | 0 | 2013 | | 2024.09.27 | ¿ù¼¼ | À¯´Ï¿Âºô¶ó | 4 | 46.03 | 1,000 | 63 | 2008 | | 2024.09.27 | Àü¼¼ | Å¿µ¾ÆÆ®ºô(328-19) | 2 | 54.62 | 20,000 | 0 | 2002 | | 2024.09.26 | ¸Å¸Å | ¼ÛÁ¤·¹µð¿¥ | 4 | 49.57 | 14,000 | | 2012 | | 2024.09.26 | Àü¼¼ | »ï¿ì¿¬¸³A,Bµ¿(286-4) | 1 | 78.61 | 17,000 | 0 | 1981 | | 2024.09.26 | ¿ù¼¼ | °³ºÀ½ºÅ¸Èú | 5 | 24.03 | 3,000 | 90 | 2021 | | 2024.09.25 | ¸Å¸Å | ÇØ¿À¸§(287-12) | 3 | 44.24 | 23,900 | | 2017 | | 2024.09.25 | ¸Å¸Å | ¿¡½º¿¥º§¸®Ã¼(350-8) | 3 | 29.71 | 20,500 | | 2016 | | 2024.09.25 | ¿ù¼¼ | ¼ºÁø±×¸°ºô2 | 2 | 29.94 | 3,000 | 95 | 2022 | | 2024.09.24 | Àü¼¼ | ¸í¹®»Ú¶ì | 3 | 50.79 | 18,000 | 0 | 2011 | | 2024.09.24 | Àü¼¼ | À§µåij½½ | 4 | 28.8 | 18,375 | 0 | 2020 | | 2024.09.23 | ¿ù¼¼ | »ïÀÌÇÏ¿ì¡ | 3 | 51.95 | 6,142 | 63 | 2022 | | 2024.09.23 | Àü¼¼ | (323-11) | 2 | 28.62 | 12,200 | 0 | 2012 | | 2024.09.23 | Àü¼¼ | 2Â÷ÇÑ»ùÇÏÀ̺ô1µ¿(342-10) | 2 | 59.84 | 18,100 | 0 | 2002 | | 2024.09.23 | ¸Å¸Å | À§ÇϿ콺(494) | 4 | 27.49 | 20,200 | | 2018 | | 2024.09.23 | ¸Å¸Å | ÇØ¿À¸§(367-17) | 5 | 28.37 | 20,800 | | 2016 | | 2024.09.23 | ¿ù¼¼ | ÇѸ¶À½ÇÁ¶óÀÚ | 4 | 50.56 | 3,000 | 110 | 2003 | | 2024.09.23 | ¿ù¼¼ | »ïÀÌÇÏ¿ì¡ | 3 | 51.95 | 15,211 | 13 | 2022 | | 2024.09.22 | ¿ù¼¼ | °íµëÇϿ콺 | 6 | 29.01 | 3,000 | 105 | 2022 | | 2024.09.22 | ¿ù¼¼ | °íµëÇϿ콺 | 5 | 29.01 | 3,000 | 105 | 2022 | | 2024.09.22 | ¿ù¼¼ | ÇØ¿À¸§(316-11) | 2 | 29.8 | 5,000 | 85 | 2019 | | 2024.09.21 | Àü¼¼ | ´ë¿ì½ºÀ§Æ®Èú(305-6) | 4 | 25.16 | 20,500 | 0 | 2021 | | 2024.09.21 | ¸Å¸Å | ±Ý°È¨Å¸¿î(356-4) | 1 | 62.6 | 29,000 | | 2002 | | 2024.09.21 | ¸Å¸Å | ű¤±×¸°ºô(330-9) | -1 | 59.56 | 13,500 | | 2001 | | 2024.09.21 | ¸Å¸Å | û¸²ºô(340-14) | 2 | 52.77 | 24,500 | | 2012 | | 2024.09.20 | ¿ù¼¼ | Çý¼ºÆÓ¸®½º | 5 | 29.7 | 2,000 | 85 | 2019 | | 2024.09.20 | ¸Å¸Å | ·Î¾âȨŸ¿î | 3 | 38.06 | 29,300 | | 2019 | | 2024.09.20 | ¿ù¼¼ | »ï¿ø¾ÆÀ̺ôB(286-1) | 4 | 25.37 | 150 | 70 | 2021 | | 2024.09.19 | ¿ù¼¼ | ´õ¿¡Äڱ׷κê(279-22) | 3 | 44.47 | 24,000 | 15 | 2019 | | 2024.09.19 | ¿ù¼¼ | ºñÀüÇϿ콺(323-7) | 1 | 19.76 | 1,302 | 7 | 2013 | | 2024.09.19 | Àü¼¼ | µ¿¾Æ¿¬¸³(265-5) | 1 | 78.05 | 23,000 | 0 | 1979 | | 2024.09.19 | Àü¼¼ | µ¿¹éºô¶óAµ¿(106-5) | 2 | 35.88 | 8,500 | 0 | 1990 | | 2024.09.19 | Àü¼¼ | ´ë·úºô¶ó | 4 | 36.26 | 10,700 | 0 | 2001 | | 2024.09.19 | ¿ù¼¼ | ¸ð´øÇϿ콺(332-32) | 2 | 29.58 | 2,945 | 7 | 2021 | | 2024.09.19 | ¿ù¼¼ | »ïȾ¾Æ¼ºôBµ¿(68-15) | 3 | 59.05 | 2,000 | 50 | 2005 | | 2024.09.18 | Àü¼¼ | ·Î¾âÇÏÀÌÃ÷(278-12) | 3 | 43.09 | 22,400 | 0 | 2018 | | 2024.09.16 | Àü¼¼ | µ¿¸²¾ÆÆ®ºô | 2 | 53.56 | 19,900 | 0 | 2012 | | 2024.09.14 | ¿ù¼¼ | ºí·ç½ºÄ«ÀÌ | 5 | 35.66 | 3,000 | 70 | 2014 | | 2024.09.14 | ¿ù¼¼ | ¼ÛÇкô¶ó(317-3) | 2 | 70.16 | 3,000 | 63 | 1998 | | 2024.09.13 | ¸Å¸Å | ¹Ì°Ç½ºÀ§Æ®ºô(107µ¿)417-25 | 3 | 56.79 | 26,150 | | 2001 | | 2024.09.12 | ¿ù¼¼ | È޹̶ô³ªµ¿ | 3 | 56.2 | 7,672 | 10 | 2022 | | 2024.09.12 | ¿ù¼¼ | È޹̶ô³ªµ¿ | 6 | 57.08 | 3,383 | 35 | 2022 | | 2024.09.12 | ¿ù¼¼ | È޹̶ô³ªµ¿ | 6 | 57.08 | 8,378 | 7 | 2022 | | 2024.09.12 | Àü¼¼ | µðÀÚÀÎÇϿ콺(305-2) | 2 | 48.41 | 21,000 | 0 | 2011 | | 2024.09.12 | ¿ù¼¼ | °ñµå¿ø¾ÆÆ®ºô | 3 | 39.63 | 1,000 | 70 | 2014 | | 2024.09.11 | Àü¼¼ | ¸íǰ¸®Ä¡ºô(333-18) | 2 | 40.57 | 16,200 | 0 | 2012 | | 2024.09.11 | ¸Å¸Å | ÇØ¸¶·ç(378-23) | 5 | 27.79 | 17,000 | | 2016 | | 2024.09.10 | ¸Å¸Å | ´ë½Å¸Ç¼ð(50-22) | 3 | 44.46 | 13,500 | | 1991 | | 2024.09.10 | ¿ù¼¼ | È޹̶ô³ªµ¿ | 3 | 58.14 | 3,439 | 35 | 2022 | | 2024.09.10 | ¸Å¸Å | ´º»ïÀÍ1µ¿(311-1) | -1 | 33.47 | 10,800 | | 1986 | | 2024.09.10 | Àü¼¼ | ¼Û¾Ïºô(153-69) | 3 | 54.69 | 13,500 | 0 | 2002 | | 2024.09.10 | ¿ù¼¼ | È޹̶ô³ªµ¿ | 3 | 53.52 | 7,839 | 7 | 2022 | | 2024.09.10 | ¿ù¼¼ | È޹̶ô³ªµ¿ | 4 | 58.14 | 3,439 | 35 | 2022 | | 2024.09.10 | ¿ù¼¼ | À§ÇϿ콺(494) | 4 | 32.79 | 21,400 | 20 | 2018 | | 2024.09.10 | ¿ù¼¼ | ÇÑ»ù1Â÷ÇÏÀ̺ô(343-19) | 1 | 36.47 | 1,500 | 64 | 2001 | | 2024.09.10 | ¿ù¼¼ | ±¤¼ºÇÏÀ̺ôAµ¿(332-8) | 1 | 61.16 | 10,000 | 50 | 2002 | | 2024.09.10 | Àü¼¼ | ·Î¾â¾ÆÆ®ºô | 5 | 41.26 | 12,000 | 0 | 2003 | | 2024.09.10 | Àü¼¼ | ·Î¾â¾ÆÆ®ºô | 5 | 41.26 | 12,000 | 0 | 2003 | | 2024.09.10 | Àü¼¼ | ¼Û¾Ïºô(153-69) | 3 | 54.69 | 13,500 | 0 | 2002 | | 2024.09.10 | ¿ù¼¼ | È޹̶ô³ªµ¿ | 5 | 59.24 | 3,505 | 36 | 2022 | | 2024.09.09 | ¿ù¼¼ | È޹̶ô³ªµ¿ | 5 | 59.58 | 3,524 | 36 | 2022 | | 2024.09.09 | ¿ù¼¼ | È޹̶ô³ªµ¿ | 3 | 58.64 | 3,468 | 36 | 2022 | | 2024.09.09 | ¿ù¼¼ | È޹̶ô³ªµ¿ | 5 | 59.17 | 8,682 | 7 | 2022 | | 2024.09.09 | ¿ù¼¼ | È޹̶ô³ªµ¿ | 5 | 59.58 | 8,726 | 7 | 2022 | | 2024.09.09 | ¿ù¼¼ | À̵¥¾ÆÇϿ콺A(346-5) | 3 | 29.87 | 0 | 40 | 2015 | | 2024.09.09 | Àü¼¼ | °Ç¿ìÆÄÅ©ºô | 2 | 48.7 | 17,100 | 0 | 2011 | | 2024.09.09 | ¿ù¼¼ | ½Å¿ìºô¶ó(358-13) | -1 | 33.57 | 1,000 | 35 | 1993 | | 2024.09.09 | ¿ù¼¼ | È޹̶ô³ªµ¿ | 6 | 54.76 | 3,241 | 33 | 2022 | | 2024.09.09 | ¿ù¼¼ | È޹̶ô³ªµ¿ | 5 | 59.17 | 3,505 | 36 | 2022 | | 2024.09.09 | ¿ù¼¼ | da°ñµå¸®¿ò(272-16) | 4 | 32.69 | 1,000 | 118 | 2022 | | 2024.09.09 | ¿ù¼¼ | žçºô¶ó(271-32) | 1 | 36.24 | 8,000 | 10 | 1990 | | 2024.09.09 | Àü¼¼ | À§µåij½½ | 5 | 28.8 | 18,375 | 0 | 2020 | | 2024.09.08 | ¿ù¼¼ | ÇØ´ãºô | 3 | 54.4 | 5,000 | 80 | 2012 | | 2024.09.07 | Àü¼¼ | º£½ºÆ®ºôÀÏÂ÷ | 4 | 42.71 | 18,000 | 0 | 2011 | | 2024.09.07 | Àü¼¼ | ¼ºÁø±×¸°ºô | 2 | 29.75 | 18,500 | 0 | 2019 | | 2024.09.07 | Àü¼¼ | »ï¿ø¾ÆÀ̺ôA | 3 | 26.06 | 19,000 | 0 | 2022 | | 2024.09.07 | ¸Å¸Å | °Å¼ººô¶ó2µ¿ | 1 | 36.72 | 14,000 | | 1990 | | 2024.09.06 | ¸Å¸Å | ¼ÛÁ¤·¹µð¿¥ | 4 | 49.57 | 14,000 | | 2012 | | 2024.09.06 | ¸Å¸Å | Çѹéºô¶ó(61-18) | 4 | 75 | 29,900 | | 2003 | | 2024.09.06 | ¿ù¼¼ | »ïÈ¿¡ÄÚºô | 3 | 27.48 | 8,641 | 7 | 2023 | | 2024.09.06 | Àü¼¼ | µ¿¿Ï¾ÆÆ® | 4 | 74.33 | 5,000 | 0 | 2010 | | 2024.09.05 | ¿ù¼¼ | Ãæ¹«ºô¶ó(326-8) | 3 | 27.71 | 9,000 | 10 | 2002 | | 2024.09.05 | Àü¼¼ | »ï¹ÌÁÖÅÃ104Â÷(330-21) | 3 | 61.48 | 22,700 | 0 | 2002 | | 2024.09.05 | Àü¼¼ | »ï¿ø¾ÆÀ̺ôA | 5 | 29.86 | 27,000 | 0 | 2022 | | 2024.09.04 | Àü¼¼ | ±×·¹À̽ººô3Â÷ | 4 | 55.53 | 18,600 | 0 | 2011 | | 2024.09.04 | ¿ù¼¼ | º®´ã¸®Ä¡ºô | 5 | 51.36 | 14,000 | 25 | 2010 | | 2024.09.04 | Àü¼¼ | ´º·£µåºô3Â÷ | 5 | 54.46 | 15,498 | 0 | 2010 | | 2024.09.04 | Àü¼¼ | µ¿½Å¿¬¸³(170-35) | -1 | 58.84 | 25,000 | 0 | 1977 | | 2024.09.04 | ¿ù¼¼ | º®´ã¸®Ä¡ºô | 5 | 51.36 | 14,000 | 25 | 2010 | | 2024.09.03 | Àü¼¼ | ÀÌÈ£½ººô(153-14) | 1 | 59.5 | 20,000 | 0 | 2002 | | 2024.09.03 | Àü¼¼ | ¼¼°èŸ¿ö1Â÷(132-65) | 3 | 42.82 | 15,500 | 0 | 2017 | | 2024.09.03 | ¸Å¸Å | °æ¿øºô¸®Áö°¡µ¿(328-10) | 1 | 62.52 | 29,000 | | 2002 | | 2024.09.03 | Àü¼¼ | °³ºÀ | 2 | 61.09 | 13,000 | 0 | 1978 | | 2024.09.02 | Àü¼¼ | ´ë¿øºô¶ó(340-7) | 4 | 65.87 | 19,000 | 0 | 2000 | | 2024.09.02 | ¿ù¼¼ | Å»깫Áö°³(107-0) | 6 | 48.77 | 2,000 | 85 | 2011 | | 2024.09.02 | ¿ù¼¼ | ½Å¼¼°èº¹ÇÕºôµù | 5 | 19.22 | 5,000 | 47 | 2017 | | 2024.09.02 | Àü¼¼ | ¶ó¿Â±×¸°ºô2 | 7 | 40.33 | 33,500 | 0 | 2022 | | 2024.08.31 | Àü¼¼ | ±¤¼ºÇÏÀ̺ôAµ¿(332-8) | 3 | 61.16 | 19,000 | 0 | 2002 | | 2024.08.31 | Àü¼¼ | ´ë¿øºô¶ó(330-3) | 4 | 52.38 | 14,300 | 0 | 2001 | | 2024.08.31 | Àü¼¼ | ·Î¾âÇÏÀÌÃ÷(260-10) | 4 | 38.76 | 16,000 | 0 | 2011 | | 2024.08.30 | ¿ù¼¼ | ¸®¾ÈÇϿ콺(343-45) | 2 | 26.22 | 2,500 | 60 | 2017 | | 2024.08.30 | Àü¼¼ | ¸ÞÀÎÇϿ콺(326-4) | 2 | 45.95 | 23,800 | 0 | 2019 | | 2024.08.30 | ¿ù¼¼ | ´ë¸²±×¸°ºô°¡µ¿ | 3 | 49.68 | 4,000 | 70 | 2002 | | 2024.08.30 | Àü¼¼ | ´ë¸í¿ùµå | 4 | 48.64 | 19,170 | 0 | 2011 | | 2024.08.30 | ¿ù¼¼ | ¶óÀÌÇÁºô¶óAµ¿(50-49) | -1 | 35.73 | 1,000 | 30 | 1989 | | 2024.08.30 | Àü¼¼ | ÇѸ¶À½¾ÆÆ®ºô¶óAµ¿(325-13) | 3 | 59.32 | 24,150 | 0 | 2002 | | 2024.08.29 | ¿ù¼¼ | ȸ¸²ÇÊ(304-17) | 5 | 61.04 | 1,000 | 20 | 2001 | | 2024.08.29 | Àü¼¼ | µ¿À¯ºô¶ó(102-1) | 3 | 92.62 | 9,000 | 0 | 1986 | | 2024.08.29 | Àü¼¼ | û±¸ºô¶ó(323-26) | 1 | 36.33 | 10,300 | 0 | 1994 | | 2024.08.29 | Àü¼¼ | ¿¡Äڱ׷κêºô¸®Áö | 6 | 45.52 | 29,000 | 0 | 2021 | | 2024.08.29 | ¸Å¸Å | ¹Ì·¡ºô¸®Áö2(320-3) | 4 | 47.94 | 22,500 | | 2002 | | 2024.08.29 | ¸Å¸Å | ´ë¿ìÇÁ¸°½ººô¶ó | 2 | 49.74 | 17,000 | | 2001 | | 2024.08.28 | Àü¼¼ | Å»깫Áö°³(107-0) | 3 | 48.03 | 16,880 | 0 | 2011 | | 2024.08.28 | ¸Å¸Å | ¼º¿øº£½ºÆ®ºô | 5 | 36.05 | 14,800 | | 2002 | | 2024.08.28 | Àü¼¼ | ·Î¾â¾ÆÆ®ºô | 5 | 42.13 | 12,000 | 0 | 2003 | | 2024.08.28 | Àü¼¼ | Å»깫Áö°³(107-0) | 3 | 48.03 | 16,880 | 0 | 2011 | | 2024.08.28 | ¸Å¸Å | ÇÏÀÌÆÓ¸®½º | 2 | 41.01 | 25,700 | | 2015 | | 2024.08.27 | ¸Å¸Å | ·Î¾âÇÏÀÌÃ÷(344-18) | 4 | 30.85 | 23,000 | | 2017 | | 2024.08.27 | ¸Å¸Å | ¸í¹®¾ÆÀ̺ô101µ¿,102µ¿ | 2 | 54.33 | 28,800 | | 2014 | | 2024.08.27 | Àü¼¼ | º¸¶ó¸Ç¼Ç(321-10) | 1 | 59.88 | 15,000 | 0 | 2000 | | 2024.08.27 | ¸Å¸Å | µ¿½Å¿¬¸³(170-35) | -1 | 58.84 | 37,000 | | 1977 | | 2024.08.26 | Àü¼¼ | µðÀÚÀΰñµçºô(304-5) | 4 | 29.92 | 17,000 | 0 | 2014 | | 2024.08.24 | ¿ù¼¼ | ±Ý°½ºÀ§Æ®È¨(302-2) | 3 | 62.58 | 7,000 | 70 | 2002 | | 2024.08.24 | Àü¼¼ | ¼Ò¸Áºô¶ó(315-8) | 3 | 40.74 | 11,535 | 0 | 2003 | | 2024.08.23 | ¿ù¼¼ | D.H¹Ì¼Òºô | 2 | 18.77 | 1,000 | 45 | 2012 | | 2024.08.23 | ¿ù¼¼ | ´õ¿¡Äڱ׷κê8Â÷ | 4 | 29.83 | 22,000 | 15 | 2020 | | 2024.08.22 | ¿ù¼¼ | »ïÀÌÇÏ¿ì¡ | 3 | 59.97 | 14,935 | 29 | 2022 | | 2024.08.22 | ¿ù¼¼ | ºí·ç¹ÖÇϿ콺A | 4 | 51.53 | 9,011 | 30 | 2024 | | 2024.08.22 | ¿ù¼¼ | ºí·ç¹ÖÇϿ콺B | 5 | 48.92 | 2,943 | 30 | 2024 | | 2024.08.22 | ¿ù¼¼ | ºí·ç¹ÖÇϿ콺A | 2 | 51.53 | 4,995 | 51 | 2024 | | 2024.08.22 | Àü¼¼ | ¿øÃ¢¾ÆÆ®ºô2 | 3 | 37.209 | 23,000 | 0 | 2020 | | 2024.08.22 | ¿ù¼¼ | »ïÀÌÇÏ¿ì¡ | 3 | 59.97 | 7,087 | 73 | 2022 | | 2024.08.22 | ¿ù¼¼ | »ïÀÌÇÏ¿ì¡ | 3 | 59.97 | 7,087 | 73 | 2022 | | 2024.08.22 | ¿ù¼¼ | ÇÁ¶óÀ̺øÄ³½½3Â÷ | 4 | 29.95 | 1,000 | 75 | 2023 | | 2024.08.22 | ¿ù¼¼ | ºí·ç¹ÖÇϿ콺A | 6 | 46.94 | 11,403 | 9 | 2024 | | 2024.08.22 | ¿ù¼¼ | ÇØÇǺô | 4 | 24.8 | 2,680 | 4 | 2013 | | 2024.08.22 | ¿ù¼¼ | ´ÙÀÎÁÖÅà | 3 | 59.29 | 3,369 | 28 | 2015 | | 2024.08.22 | ¸Å¸Å | »êÈ£ÆÄÅ©¸Ç¼Ç(322-7) | 1 | 60.91 | 23,000 | | 1993 | | 2024.08.21 | ¿ù¼¼ | ⵿±×¸°ºô¶ó³ªµ¿(52-8) | 2 | 46.44 | 11,800 | 15 | 1989 | | 2024.08.21 | ¿ù¼¼ | da°ñµå¸®¿ò(272-16) | 4 | 33.07 | 1,000 | 120 | 2022 | | 2024.08.21 | ¸Å¸Å | ¸¶À̺ô7Â÷ | 3 | 40.82 | 26,500 | | 2019 | | 2024.08.21 | ¿ù¼¼ | ºí·ç¹ÖÇϿ콺A | 5 | 51.53 | 5,055 | 52 | 2024 | | 2024.08.21 | Àü¼¼ | ºñÀü¾ÆÆ®¸®¿ò³ªµ¿ | 4 | 51.98 | 18,200 | 0 | 2002 | | 2024.08.20 | Àü¼¼ | À§ÇϿ콺(270-5) | 4 | 27.96 | 12,500 | 0 | 2012 | | 2024.08.20 | Àü¼¼ | ÀÌ´Ùij½½¥±(322-10) | 4 | 73.55 | 19,200 | 0 | 2002 | | 2024.08.20 | ¿ù¼¼ | ¿ì¸²¸Þ¸£µð¾Ó | 4 | 56.63 | 5,000 | 85 | 2013 | | 2024.08.20 | ¿ù¼¼ | °í·ÁÁÖÅÃ(333-1) | 2 | 68.47 | 3,000 | 90 | 1992 | | 2024.08.20 | ¸Å¸Å | º®´ã¸®Ä¡ºô | 5 | 51.36 | 27,200 | | 2010 | | 2024.08.19 | ¸Å¸Å | ÇູŸ¿î(130-28) | 1 | 66.34 | 12,000 | | 2002 | | 2024.08.19 | ¸Å¸Å | ´ë¼ºÈѹ̸®Å¸¿î(321-14) | 3 | 62.52 | 24,500 | | 2000 | | 2024.08.19 | Àü¼¼ | û±¸ºô¶ó(305-10) | 3 | 59.94 | 19,000 | 0 | 1997 | | 2024.08.19 | ¿ù¼¼ | ºí·ç¹ÖÇϿ콺B | 2 | 54.18 | 7,996 | 39 | 2024 | | 2024.08.19 | ¿ù¼¼ | ´©¸®¾Öºô | 3 | 51.28 | 5,000 | 80 | 2010 | | 2024.08.19 | Àü¼¼ | ÄÚ½º¸ð½º(352-2) | 1 | 59.17 | 17,100 | 0 | 1991 | | 2024.08.18 | ¿ù¼¼ | »ï¿ø¾ÆÀ̺ô¿¡ÀÌ | 3 | 28.36 | 10,000 | 40 | 2018 | | 2024.08.17 | ¸Å¸Å | ¸ÞÀÎÇϿ콺(261-10) | 3 | 47.75 | 29,500 | | 2018 | | 2024.08.17 | ¸Å¸Å | ´ë¿ì½ºÀ§Æ®Èú(305-11) | 4 | 45.66 | 26,000 | | 2012 | | 2024.08.17 | Àü¼¼ | ÀÌȺô¶ó(367-13) | -1 | 36.96 | 6,100 | 0 | 1990 | | 2024.08.16 | ¸Å¸Å | ¿¹±¤ºô¸®Áö(319-25) | 2 | 59.9 | 25,300 | | 2001 | | 2024.08.16 | Àü¼¼ | Áö¿ÀÆÄÅ©(350-2) | -1 | 35.85 | 10,500 | 0 | 2002 | | 2024.08.15 | Àü¼¼ | ¿Àº¹È¨¸Ç¼Ç(342-17) | -1 | 35.43 | 8,000 | 0 | 2004 | | 2024.08.15 | ¸Å¸Å | ÈÞÇ÷¯½º(306-31) | 4 | 59.82 | 30,000 | | 2014 | | 2024.08.14 | ¿ù¼¼ | À§µåij½½ | 5 | 28.8 | 15,000 | 20 | 2020 | | 2024.08.14 | ¿ù¼¼ | ÃÊ¿øÆÄÅ©ºô(309-7) | -1 | 59.95 | 1,000 | 55 | 2001 | | 2024.08.13 | ¸Å¸Å | Áö¿ÀÆÄÅ©(350-2) | 2 | 59.83 | 28,500 | | 2002 | | 2024.08.13 | ¿ù¼¼ | »ïÈ¿¡ÄÚºô | 4 | 31.57 | 4,010 | 41 | 2023 | | 2024.08.13 | ¸Å¸Å | ÀÌ´ãä2 | 2 | 40.41 | 27,000 | | 2017 | | 2024.08.13 | Àü¼¼ | ÇØ¿À¸§¿¡À̵¿(284-27) | 4 | 49.82 | 18,700 | 0 | 2014 | | 2024.08.13 | Àü¼¼ | LG¸íǰºô | 2 | 36.41 | 15,000 | 0 | 2012 | | 2024.08.13 | Àü¼¼ | È¿¼ººô¶ó(70-54) | 2 | 31.845 | 7,800 | 0 | 1987 | | 2024.08.13 | ¿ù¼¼ | »ïÈ¿¡ÄÚºô | 3 | 31.57 | 4,010 | 41 | 2023 | | 2024.08.13 | Àü¼¼ | È¿¼ººô¶ó(70-54) | 2 | 31.845 | 7,800 | 0 | 1987 | | 2024.08.12 | ¿ù¼¼ | ¹«µîºô¶ó(460-1) | 2 | 42.39 | 9,000 | 20 | 1992 | | 2024.08.12 | Àü¼¼ | ´º»ïÀÍ2µ¿(311-28) | 2 | 36.95 | 10,250 | 0 | 1986 | | 2024.08.12 | ¿ù¼¼ | ÇÁ¶óÀ̺øÄ³½½3Â÷ | 5 | 29.95 | 500 | 43 | 2023 | | 2024.08.12 | ¿ù¼¼ | »ïÀÌÇÏ¿ì¡ | 3 | 44.79 | 5,402 | 56 | 2022 | | 2024.08.11 | ¸Å¸Å | ´ë¿ì½ºÀ§Æ®Èú(357-4) | 2 | 42.35 | 28,500 | | 2015 | | 2024.08.10 | ¿ù¼¼ | ⵿ºô¶ó | 3 | 69.32 | 10,000 | 20 | 1988 | | 2024.08.10 | ¿ù¼¼ | »ï¼º¾ÆÆ®ºô(343-20) | 1 | 59.96 | 5,000 | 50 | 2001 | | 2024.08.10 | Àü¼¼ | JÆÓ¸®½º5Â÷ | 4 | 27.315 | 11,800 | 0 | 2012 | | 2024.08.10 | ¿ù¼¼ | ⵿ºô¶ó | 3 | 69.32 | 10,000 | 20 | 1988 | | 2024.08.10 | Àü¼¼ | (323-11) | 3 | 64.62 | 26,000 | 0 | 2012 | | 2024.08.09 | ¿ù¼¼ | »ïȾ¾Æ¼ºô2Â÷ | 4 | 59.98 | 8,000 | 42 | 2005 | | 2024.08.09 | ¸Å¸Å | ¸ÞÀÎÇϿ콺(261-10) | 6 | 29.96 | 20,750 | | 2018 | | 2024.08.09 | ¿ù¼¼ | ¿ìºÐÅõÆ÷·¹½ºÆ® | 19 | 28.42 | 3,000 | 59 | 2020 | | 2024.08.09 | ¸Å¸Å | À¯´Ï¿Âºô¶ó | 4 | 29.63 | 14,800 | | 2008 | | 2024.08.09 | ¿ù¼¼ | ¿ìºÐÅõÆ÷·¹½ºÆ® | 19 | 28.42 | 3,000 | 59 | 2020 | | 2024.08.09 | Àü¼¼ | À§µåij½½ | 3 | 28.8 | 18,375 | 0 | 2020 | | 2024.08.08 | ¸Å¸Å | ¼ºÀººô¶ó(307-10) | 4 | 43.87 | 20,500 | | 2002 | | 2024.08.08 | ¸Å¸Å | ÇØ´ãºô | 6 | 54.46 | 27,700 | | 2012 | | 2024.08.08 | ¸Å¸Å | ¿øÃ¢¾ÆÆ®ºô2 | 2 | 37.15 | 26,500 | | 2020 | | 2024.08.08 | Àü¼¼ | °ñµçij½½(327-37) | 4 | 28.55 | 17,100 | 0 | 2018 | | 2024.08.08 | Àü¼¼ | À¯´Ï¿Âºô¶ó | 4 | 29.63 | 10,000 | 0 | 2008 | | 2024.08.07 | Àü¼¼ | µå¸²Èú | 1 | 52.68 | 17,300 | 0 | 2009 | | 2024.08.07 | ¿ù¼¼ | »ï¿øºô¸®Áö(345-19) | 4 | 59.69 | 500 | 35 | 2002 | | 2024.08.07 | Àü¼¼ | Æ®¶ó¿ò | 3 | 45.01 | 20,400 | 0 | 2016 | | 2024.08.07 | Àü¼¼ | ¼ÛÁ¤·¹µð¿¥ | 5 | 52.75 | 19,000 | 0 | 2012 | | 2024.08.06 | Àü¼¼ | µ¿ºÎ¸Ç¼Ç(309-1) | 3 | 56.46 | 17,280 | 0 | 2002 | | 2024.08.06 | Àü¼¼ | »ï¿øÇÏÀ̺ô(284-38) | 5 | 39.26 | 25,000 | 0 | 2015 | | 2024.08.06 | Àü¼¼ | »ï¿øÇÏÀ̺ô(284-38) | 5 | 39.26 | 25,000 | 0 | 2015 | | 2024.08.06 | Àü¼¼ | ¾à¼ö¿¬¸³Aµ¿(273-13) | 2 | 35.47 | 11,000 | 0 | 1987 | | 2024.08.06 | Àü¼¼ | ·Ôµ¥Å¸¿î | 2 | 43.98 | 18,100 | 0 | 2014 | | 2024.08.06 | Àü¼¼ | Çö´ëȨ¸Ç¼Ç(307-11) | 2 | 44.94 | 13,000 | 0 | 2002 | | 2024.08.06 | Àü¼¼ | ¹«±ÃÈ¿¬¸³1µ¿(149-4) | 2 | 54.78 | 14,500 | 0 | 1986 | | 2024.08.05 | ¿ù¼¼ | ÇÑ»ùÇÏÀ̺ô3Â÷ | 1 | 37.82 | 10,300 | 10 | 2002 | | 2024.08.05 | ¸Å¸Å | ´ë¸í¿ùµå2Â÷(338-5) | 3 | 59.88 | 23,300 | | 2008 | | 2024.08.05 | ¸Å¸Å | ¿¡ÄÚ¸®¿òÆç¸®Ã¼ | 3 | 36.555 | 23,000 | | 2017 | | 2024.08.02 | Àü¼¼ | µå¸²Ä³½½(405-6) | 4 | 26.24 | 14,000 | 0 | 2012 | | 2024.08.02 | Àü¼¼ | ´Ù¿ø¸®Ä¡ºô2Â÷ | 5 | 25.96 | 24,000 | 0 | 2020 | | 2024.08.02 | ¸Å¸Å | À¯»óºô¸®Áö(370-12) | 3 | 47.68 | 24,500 | | 2003 | | 2024.08.02 | ¿ù¼¼ | Å·½ºÅ¸¿î | 2 | 29.89 | 5,000 | 65 | 2014 | | 2024.08.02 | Àü¼¼ | ´ë¸²¼ºÈȨŸ¿î³ªµ¿ | 5 | 44.18 | 15,035 | 0 | 2002 | | 2024.08.01 | ¸Å¸Å | °³²¼¾½ººô | 2 | 46.82 | 21,000 | | 2012 | | 2024.08.01 | ¿ù¼¼ | ¿¡Äڱ׷κêºô¸®Áö | 5 | 34.06 | 100 | 100 | 2021 | | 2024.08.01 | Àü¼¼ | °³¹Ìºô¶óBµ¿(270-64) | -1 | 47.37 | 9,000 | 0 | 1986 | | 2024.07.31 | ¸Å¸Å | ½ÅºÎÆÄ½ºÄ«ºô2Â÷ | 3 | 59.09 | 24,800 | | 2016 | | 2024.07.30 | ¿ù¼¼ | ¸®Ä¡±×¸°B(317-2) | 1 | 50.92 | 2,000 | 70 | 2012 | | 2024.07.30 | Àü¼¼ | µ¿ºÎ¸Ç¼Ç(309-1) | 3 | 56.46 | 17,280 | 0 | 2002 | | 2024.07.30 | Àü¼¼ | ·¹¿ÀÇÏÀÌÃ÷2Â÷(305-8) | 4 | 77.38 | 18,000 | 0 | 2000 | | 2024.07.30 | ¸Å¸Å | ´Ù¿ø¸®Ä¡ºô2Â÷ | 5 | 25.96 | 25,000 | | 2020 | | 2024.07.29 | ¿ù¼¼ | ¾Æ³Ê½ººô | 2 | 31.32 | 1,500 | 47 | 2013 | | 2024.07.29 | ¸Å¸Å | »ó¶¼±×¸°ºô(279-2) | 3 | 39.96 | 29,500 | | 2018 | | 2024.07.29 | ¿ù¼¼ | û¹Î±×¸°ºô¶ó | 1 | 36.42 | 8,800 | 8 | 1991 | | 2024.07.29 | ¿ù¼¼ | À§µåij½½ | 5 | 28.14 | 16,000 | 15 | 2020 | | 2024.07.27 | ¸Å¸Å | Çö´ëÇÏÀÌÃ÷ºô(318-11) | 2 | 75.76 | 25,800 | | 2002 | | 2024.07.27 | ¸Å¸Å | Çö´ëÇÏÀÌÃ÷ºô(318-11) | 2 | 75.76 | 25,800 | | 2002 | | 2024.07.27 | Àü¼¼ | ÇØ¸¶·çºô(312-64) | 3 | 41.96 | 11,400 | 0 | 2003 | | 2024.07.26 | Àü¼¼ | »ïȾ¾Æ¼ºô2Â÷Cµ¿ | 2 | 54.06 | 15,498 | 0 | 2004 | | 2024.07.26 | Àü¼¼ | ´õ½Ã±×´Ïó | 3 | 45.78 | 23,500 | 0 | 2021 | | 2024.07.26 | Àü¼¼ | ³²°æº£½ºÆ®ºô(309-4) | 1 | 62.11 | 22,500 | 0 | 2002 | | 2024.07.26 | ¸Å¸Å | °æÁøÁÖÅÃ(310-33) | 3 | 43.66 | 18,000 | | 2001 | | 2024.07.25 | ¸Å¸Å | µðÀÚÀÎÇϿ콺(346-23) | 2 | 37.96 | 19,900 | | 2011 | | 2024.07.24 | ¿ù¼¼ | Á¤ÀºÇÏÀ̺ô(122-1) | -1 | 32.49 | 5,600 | 5 | 2001 | | 2024.07.24 | ¸Å¸Å | ´ë¿ì½ºÀ§Æ®Èú(120-12) | 2 | 41.08 | 21,000 | | 2015 | | 2024.07.23 | ¿ù¼¼ | ¿Àº¹È¨Å¸¿î | 2 | 61.98 | 2,000 | 100 | 2002 | | 2024.07.23 | ¿ù¼¼ | ÇÏÀººô¸®Áö | 5 | 29.58 | 3,000 | 60 | 2015 | | 2024.07.23 | ¸Å¸Å | ·Î¾âÇÏÀÌÃ÷(278-12) | 2 | 40.48 | 31,000 | | 2018 | | 2024.07.23 | Àü¼¼ | ·Î¾âÇÏÀÌÃ÷(278-12) | 3 | 28.59 | 8,000 | 0 | 2018 | | 2024.07.23 | Àü¼¼ | ÇÏÀººô¸®Áö | 5 | 29.58 | 16,000 | 0 | 2015 | | 2024.07.23 | Àü¼¼ | Áß¾ÓÈúŸ¿î(°¡)(450-10) | 5 | 45.13 | 15,000 | 0 | 2002 | | 2024.07.23 | Àü¼¼ | µå¸²Ä³½½(405-6) | 4 | 26.24 | 14,000 | 0 | 2012 | | 2024.07.23 | Àü¼¼ | ¹ÌÁÖºô¶ó(344-12) | 4 | 59.72 | 18,850 | 0 | 2002 | | 2024.07.23 | ¿ù¼¼ | ¿¡µ§¸Ç¼Ç(318-9) | 3 | 62.76 | 5,000 | 60 | 1997 | | 2024.07.22 | ¸Å¸Å | ÀÌ´Ùij½½¥±(322-10) | 5 | 56.25 | 22,500 | | 2002 | | 2024.07.22 | Àü¼¼ | ¿¡Äڱ׷κêºô¸®Áö10Â÷201µ¿ | 5 | 29.64 | 24,500 | 0 | 2023 | | 2024.07.22 | Àü¼¼ | ´º·£µåºô2Â÷ | 5 | 49.61 | 18,500 | 0 | 2009 | | 2024.07.20 | ¿ù¼¼ | ½¦¸£º¸³× | 2 | 46.89 | 5,000 | 45 | 2023 | | 2024.07.20 | Àü¼¼ | µðÀÚÀΰñµçºô(304-5) | 4 | 29.73 | 14,990 | 0 | 2014 | | 2024.07.20 | ¿ù¼¼ | °³ºÀ±×¸°¸Ç¼Ç(170-45) | 3 | 59.16 | 3,000 | 65 | 1995 | | 2024.07.20 | ¿ù¼¼ | µ¿¾Æ¾ÆÆ®ºô¶ó(338-1) | 1 | 39.84 | 1,000 | 52 | 1993 | | 2024.07.20 | Àü¼¼ | ¼ºÈºô¶ó | 3 | 57.39 | 16,000 | 0 | 2001 | | 2024.07.19 | ¸Å¸Å | µ¿½Å¸Ç¼Ç(345-16) | 4 | 57.34 | 24,500 | | 2000 | | 2024.07.19 | ¸Å¸Å | µ¿½Å¸Ç¼Ç(345-16) | 4 | 57.34 | 24,500 | | 2000 | | 2024.07.19 | Àü¼¼ | ÇÑ¹é¾ÆÆ®ºô¶ó°¡µ¿(325-4) | 3 | 67.56 | 22,000 | 0 | 2001 | | 2024.07.19 | ¸Å¸Å | ¾ÆÅ©·ÎÆÄÅ©ºô | 2 | 29.97 | 28,200 | | 2020 | | 2024.07.18 | ¸Å¸Å | ÇѼֺô¶óÆ®(Bµ¿)(305-27) | 2 | 54.24 | 28,000 | | 2003 | | 2024.07.18 | ¸Å¸Å | ·Î¾âȨŸ¿î | 7 | 26.81 | 20,000 | | 2019 | | 2024.07.17 | ¸Å¸Å | ·Î¾âÇÏÀÌÃ÷(321-5) | 4 | 41.3 | 27,750 | | 2016 | | 2024.07.17 | ¿ù¼¼ | žçÇÏÀÌÃ÷(327-10) | 2 | 44.46 | 12,000 | 10 | 1994 | | 2024.07.16 | Àü¼¼ | »ïÇöºô¶ó(70-15) | -1 | 22.69 | 5,950 | 0 | 1998 | | 2024.07.16 | ¿ù¼¼ | µå¸²ºô¸®Áö | 5 | 29.96 | 3,000 | 80 | 2022 | | 2024.07.16 | ¿ù¼¼ | ¾Æµ§ÇÏÀÓ | 4 | 59.6 | 4,636 | 36 | 2018 | | 2024.07.15 | Àü¼¼ | ½ÅÈ↓¸³A,Bµ¿ | 2 | 49.97 | 11,000 | 0 | 1976 | | 2024.07.15 | Àü¼¼ | ¼ö¸í±×¸°ºô | 5 | 25.2 | 15,700 | 0 | 2017 | | 2024.07.15 | Àü¼¼ | »ï¼º½¦¸£ºôAµ¿ | 3 | 43.38 | 17,030 | 0 | 2016 | | 2024.07.15 | Àü¼¼ | ÇÑÀÏÄÚÁö¼¼»ó(102µ¿) | 4 | 53.41 | 20,034 | 0 | 2012 | | 2024.07.15 | ¿ù¼¼ | »ïȾ¾Æ¼ºô2Â÷Cµ¿ | 4 | 59.11 | 1,000 | 40 | 2004 | | 2024.07.13 | ¸Å¸Å | ÇØ¿À¸§(367-17) | 2 | 28.37 | 20,000 | | 2016 | | 2024.07.13 | ¸Å¸Å | ¿øÃ¢¾ÆÆ®ºô2 | 2 | 37.209 | 25,700 | | 2020 | | 2024.07.13 | ¿ù¼¼ | ÀÌ´ã䥲 | 2 | 29.93 | 100 | 60 | 2020 | | 2024.07.13 | ¸Å¸Å | ÀºÇϸǼÇBµ¿ | 1 | 65.49 | 28,000 | | 2003 | | 2024.07.13 | ¿ù¼¼ | ½¦¸£º¸³× | 5 | 41.52 | 5,000 | 80 | 2023 | | 2024.07.13 | ¿ù¼¼ | ½¦¸£º¸³× | 5 | 41.52 | 5,000 | 80 | 2023 | | 2024.07.13 | ¿ù¼¼ | À¯»óºô¸®Áö(370-12) | 4 | 41.95 | 3,000 | 60 | 2003 | | 2024.07.13 | Àü¼¼ | ÇØ¸¶·ç(378-23) | 6 | 27.87 | 14,700 | 0 | 2016 | | 2024.07.13 | Àü¼¼ | ÇØ¸¶·ç(378-23) | 6 | 27.87 | 14,700 | 0 | 2016 | | 2024.07.13 | Àü¼¼ | ÇѼº½ºÀ§Æ®ºô(457-9) | 4 | 30.61 | 11,500 | 0 | 2002 | | 2024.07.13 | Àü¼¼ | µ¿¾Æ¿¬¸³(265-5) | 2 | 78.05 | 23,000 | 0 | 1979 | | 2024.07.12 | Àü¼¼ | ±×·¹À̽ººô2Â÷ | 3 | 72.45 | 34,200 | 0 | 2010 | | 2024.07.12 | ¿ù¼¼ | ´ë¸²±×¸°ºô°¡µ¿ | 4 | 30.33 | 11,000 | 5 | 2002 | | 2024.07.12 | Àü¼¼ | ±×·¹À̽ººô2Â÷ | 3 | 72.45 | 34,500 | 0 | 2010 | | 2024.07.12 | ¸Å¸Å | º£½ºÆ®ºô2Â÷ | 3 | 29.92 | 20,500 | | 2011 | | 2024.07.12 | Àü¼¼ | µ¿½Å¿¬¸³(170-37) | -1 | 53.22 | 13,000 | 0 | 1978 | | 2024.07.12 | ¿ù¼¼ | ·Î¾âÇÏÀÌÃ÷(265-3) | 3 | 39.14 | 900 | 60 | 2015 | | 2024.07.12 | ¿ù¼¼ | ÇϳªÁÖÅà | 2 | 13.95 | 118 | 14 | 2013 | | 2024.07.12 | ¿ù¼¼ | ¹Ì°Ç½ºÀ§Æ®ºô(102µ¿)417-10 | 5 | 39.9 | 1,000 | 66 | 2002 | | 2024.07.12 | ¸Å¸Å | ¸í¹®¾ÆÀ̺ô101µ¿,102µ¿ | 3 | 47.55 | 28,500 | | 2014 | | 2024.07.12 | ¸Å¸Å | Å¿µ¾ÆÆ®ºô(328-19) | 3 | 54.62 | 23,500 | | 2002 | | 2024.07.12 | Àü¼¼ | °Å¼ººô¶ó13µ¿ | 2 | 36.72 | 9,000 | 0 | 1990 | | 2024.07.11 | Àü¼¼ | ´õºíÀ¯ÇϿ콺 | 3 | 38.49 | 17,100 | 0 | 2011 | | 2024.07.11 | ¿ù¼¼ | ÀÌ´ã䥲 | 4 | 29.78 | 200 | 85 | 2020 | | 2024.07.10 | ¿ù¼¼ | »ïÀÌÇÏ¿ì¡ | 3 | 56.38 | 16,498 | 14 | 2022 | | 2024.07.10 | ¸Å¸Å | ·Î¾â¾ÆÆ®ºô | 5 | 42.13 | 15,400 | | 2003 | | 2024.07.10 | ¿ù¼¼ | ¸®Ä¡ÆÓ¸®½ºAµ¿,Bµ¿ | 4 | 58.45 | 16,600 | 15 | 2011 | | 2024.07.10 | ¿ù¼¼ | »ïÀÌÇÏ¿ì¡ | 5 | 50.22 | 14,237 | 12 | 2022 | | 2024.07.10 | Àü¼¼ | (323-11) | 2 | 28.62 | 12,200 | 0 | 2012 | | 2024.07.10 | ¸Å¸Å | ¸í¹®¾ÆÀ̺ô101µ¿,102µ¿ | 2 | 58.84 | 27,000 | | 2014 | | 2024.07.10 | ¿ù¼¼ | ¾Ö½Ã¾È(355-3) | 3 | 49.09 | 3,000 | 110 | 2011 | | 2024.07.10 | ¿ù¼¼ | ÀÌ´ã䥲 | 3 | 29.96 | 100 | 60 | 2020 | | 2024.07.10 | ¿ù¼¼ | »ïÀÌÇÏ¿ì¡ | 5 | 50.22 | 5,748 | 59 | 2022 | | 2024.07.09 | ¿ù¼¼ | °³ºÀÆÄÅ©ºô2(131-5) | 4 | 29.53 | 2,044 | 28 | 2019 | | 2024.07.09 | ¿ù¼¼ | ´ë¿ì½ºÀ§Æ®Èú(361-10) | 3 | 39.96 | 3,000 | 65 | 2011 | | 2024.07.09 | Àü¼¼ | ÇöÁö¿¡¹öºô | 4 | 35.72 | 12,000 | 0 | 2012 | | 2024.07.09 | Àü¼¼ | LG¸íǰºô | 3 | 41.95 | 16,000 | 0 | 2012 | | 2024.07.09 | ¿ù¼¼ | ¸ÞÀÎÆÓ¸®½º | 11 | 21.29 | 3,000 | 80 | 2021 | | 2024.07.09 | ¸Å¸Å | ¿Àº¹Çѿ츮 | 2 | 37.27 | 20,900 | | 2013 | | 2024.07.08 | ¿ù¼¼ | ¸íÁøÇÏÀÌÃ÷ºô(346-24) | 1 | 55.6 | 3,000 | 65 | 2001 | | 2024.07.08 | ¿ù¼¼ | ¸íÁøÇÏÀÌÃ÷ºô(346-24) | 1 | 55.6 | 3,000 | 65 | 2001 | | 2024.07.06 | ¸Å¸Å | ´Ù¿ø¾ÆÆ®3Â÷ | 5 | 29.99 | 16,500 | | 2014 | | 2024.07.06 | Àü¼¼ | ¹Ì¸²ºô¶ó°¡~¶óµ¿(108-5) | 3 | 56.06 | 15,000 | 0 | 1982 | | 2024.07.06 | ¿ù¼¼ | ´ºÇà¿îŸ¿î(139-11) | 5 | 53.27 | 16,000 | 10 | 2002 | | 2024.07.06 | ¿ù¼¼ | ÀÌ´ã䥲 | 5 | 29.78 | 300 | 85 | 2020 | | 2024.07.05 | ¿ù¼¼ | ÇѸ¶À½ÇÁ¶óÀÚ | 3 | 57.16 | 3,000 | 120 | 2003 | | 2024.07.05 | Àü¼¼ | °ñµçij½½2Â÷ | 5 | 26.61 | 17,200 | 0 | 2019 | | 2024.07.05 | ¿ù¼¼ | º£½ºÆ® | 3 | 19.24 | 1,000 | 46 | 2012 | | 2024.07.04 | ¸Å¸Å | ¼¿¬¾ÆÆ®ºô | 5 | 32.01 | 19,500 | | 2018 | | 2024.07.04 | ¸Å¸Å | ´ë¸²±×¸°ºô¶ó(338-11) | 4 | 53.3 | 22,000 | | 1996 | | 2024.07.04 | ¿ù¼¼ | Æ®¶ó¿òÇϿ콺 | 4 | 29.88 | 1,000 | 65 | 2012 | | 2024.07.04 | Àü¼¼ | »þÀÎÇϿ콺(38-49) | 2 | 27.64 | 13,200 | 0 | 2014 | | 2024.07.04 | ¸Å¸Å | µðÀÚÀÎÇϿ콺(368-31) | 2 | 59.6 | 29,000 | | 2017 | | 2024.07.04 | ¿ù¼¼ | »ïÇöºô¶ó(70-15) | -1 | 19.92 | 500 | 33 | 1998 | | 2024.07.04 | Àü¼¼ | »þÀÎÇϿ콺(38-49) | 2 | 27.64 | 13,200 | 0 | 2014 | | 2024.07.03 | ¿ù¼¼ | ´ë¿ì·º½ººô | 3 | 40.76 | 3,000 | 65 | 2012 | | 2024.07.03 | Àü¼¼ | ¿¡µ§ºô¶ó | 2 | 42.02 | 26,400 | 0 | 2016 | | 2024.07.03 | ¸Å¸Å | ´ë¿ì¾ÆÆ®ºô(348-3) | -1 | 73.01 | 14,800 | | 2002 | | 2024.07.03 | ¸Å¸Å | »ï¿ø¾ÆÀ̺ô¿¡ÀÌ | 4 | 27.89 | 23,900 | | 2018 | | 2024.07.03 | ¿ù¼¼ | ´ë¿ì·º½ººô | 3 | 40.76 | 3,000 | 65 | 2012 | | 2024.07.02 | ¸Å¸Å | ¸®¿òÇϿ콺(339-9) | 3 | 29.86 | 16,700 | | 2011 | | 2024.07.02 | Àü¼¼ | °³ºÀ±×¸°¸Ç¼Ç(170-45) | 3 | 100.32 | 30,000 | 0 | 1995 | | 2024.07.02 | Àü¼¼ | ºÎ±¤ºô¶ó2Â÷ | -1 | 56.94 | 10,000 | 0 | 1992 | | 2024.07.01 | ¿ù¼¼ | ¿¡Äڱ׷κêºô¸®Áö | 6 | 45.52 | 1,000 | 140 | 2021 | | 2024.07.01 | Àü¼¼ | ¹Ì·¡°¡ | 3 | 50.82 | 22,900 | 0 | 2016 | | 2024.06.29 | Àü¼¼ | ½Å¾ÆÆÄÅ©ºô¸Ç¼Ç(312-58) | 1 | 45.48 | 11,800 | 0 | 2002 | | 2024.06.29 | Àü¼¼ | ¾ÆÅ©·ÎÆÄÅ©ºô | 2 | 29.98 | 24,000 | 0 | 2020 | | 2024.06.29 | ¸Å¸Å | ±Ý¹Ý¼®½ÃƼºô36Â÷ | 4 | 66.95 | 28,200 | | 2007 | | 2024.06.28 | ¸Å¸Å | ¿¡µ§¸Ç¼ÇAµ¿ | 3 | 59.14 | 22,500 | | 2001 | | 2024.06.28 | ¿ù¼¼ | ÇØÇÇÇϿ콺 | 5 | 45.43 | 5,000 | 100 | 2016 | | 2024.06.27 | ¸Å¸Å | G&S¿£ºä | 5 | 38.28 | 15,100 | | 2012 | | 2024.06.27 | ¸Å¸Å | G&S¿£ºä | 5 | 38.28 | 15,100 | | 2012 | | 2024.06.27 | Àü¼¼ | ±×·¹À̽ººô7Â÷ | 3 | 56.12 | 20,000 | 0 | 2013 | | 2024.06.26 | Àü¼¼ | ¶ó¿Â±×¸°ºô2 | 3 | 29.65 | 25,300 | 0 | 2022 | | 2024.06.26 | Àü¼¼ | ¶ó¿Â±×¸°ºô2 | 3 | 29.65 | 25,300 | 0 | 2022 | | 2024.06.26 | Àü¼¼ | ¶ó¿Â±×¸°ºô2 | 3 | 29.65 | 25,300 | 0 | 2022 | | 2024.06.26 | ¸Å¸Å | µðÀÚÀΰñµçºô(153-17) | 2 | 51.98 | 31,500 | | 2016 | | 2024.06.26 | ¸Å¸Å | ¼¿¬¾ÆÆ®ºô | 5 | 47.65 | 27,500 | | 2018 | | 2024.06.26 | ¸Å¸Å | ´ëÈï¾ÆÀ̺ô1µ¿ | 7 | 45.79 | 34,000 | | 2017 | | 2024.06.26 | Àü¼¼ | JÆÓ¸®½º5Â÷ | 5 | 51.58 | 17,000 | 0 | 2012 | | 2024.06.26 | Àü¼¼ | (202-15) | 6 | 17.5 | 6,000 | 0 | 2012 | | 2024.06.25 | ¿ù¼¼ | ¾Æµ§ÇÏÀÓ | 4 | 56.1 | 612 | 38 | 2018 | | 2024.06.24 | Àü¼¼ | ±¤¼ºÇÏÀ̺ô(309-21) | 5 | 56.98 | 15,000 | 0 | 2003 | | 2024.06.24 | ¿ù¼¼ | °³²¼¾½ººô | 4 | 48.37 | 5,000 | 70 | 2012 | | 2024.06.21 | ¸Å¸Å | ·Î¾âÇÏÀÌÃ÷(276-15) | 6 | 50.62 | 26,950 | | 2014 | | 2024.06.21 | ¸Å¸Å | À§ÇϿ콺(494) | 3 | 32.79 | 27,400 | | 2018 | | 2024.06.21 | ¸Å¸Å | Á¦ÀÌ¿¡½ººô | 4 | 33.6 | 21,500 | | 2018 | | 2024.06.21 | ¿ù¼¼ | ½ÅÈïºô¶ó(314-97) | 3 | 45.64 | 7,000 | 22 | 1991 | | 2024.06.21 | ¿ù¼¼ | Ãæ¹«ºô¶ó(326-8) | 4 | 26.19 | 8,700 | 20 | 2002 | | 2024.06.21 | Àü¼¼ | (323-11) | 3 | 64.62 | 21,000 | 0 | 2012 | | 2024.06.20 | Àü¼¼ | Å·½ºÅ¸¿î | 4 | 29.95 | 17,000 | 0 | 2014 | | 2024.06.20 | Àü¼¼ | ¼ºÈ¯ºô¶ó(330-19) | 1 | 45.24 | 20,396 | 0 | 2001 | | 2024.06.20 | Àü¼¼ | ¸ÞÀÎÇϿ콺(326-4) | 6 | 29.8 | 18,000 | 0 | 2019 | | 2024.06.19 | ¸Å¸Å | ½ÅºÎÆÄ½ºÄ«ºôAµ¿ | 5 | 29.92 | 16,000 | | 2015 | | 2024.06.19 | ¿ù¼¼ | ¹Ì°Ç½ºÀ§Æ®ºô(103µ¿)417-9 | 3 | 33.15 | 2,000 | 70 | 2002 | | 2024.06.19 | Àü¼¼ | ¼±°æÅ¾½ººô¶ó(335-24) | 1 | 77.76 | 19,000 | 0 | 1996 | | 2024.06.18 | ¸Å¸Å | PAPRICA276 | 4 | 14.4 | 8,000 | | 2012 | | 2024.06.18 | ¸Å¸Å | PAPRICA276 | 2 | 12.55 | 7,700 | | 2012 | | 2024.06.18 | ¸Å¸Å | ÇØ¸¶·ç(33-35) | 5 | 40.99 | 33,000 | | 2018 | | 2024.06.18 | Àü¼¼ | ¸®¿òÇϿ콺(317-11) | 3 | 21.06 | 2,740 | 0 | 2014 | | 2024.06.17 | ¿ù¼¼ | ½Å¼ººô¶ó(314-85) | 3 | 52.32 | 2,500 | 60 | 1997 | | 2024.06.17 | Àü¼¼ | ÇØ´ãºô | 3 | 54.46 | 20,500 | 0 | 2012 | | 2024.06.17 | ¿ù¼¼ | ¸¶À̺ô4Â÷ | 2 | 29.78 | 16,500 | 20 | 2018 | | 2024.06.17 | ¿ù¼¼ | ½¦¸£º¸³× | 4 | 46.89 | 5,000 | 95 | 2023 | | 2024.06.15 | Àü¼¼ | ¹ÌÁÖºô¶óA,Bµ¿(181-1) | 1 | 78.52 | 21,400 | 0 | 1986 | | 2024.06.15 | ¿ù¼¼ | µðÀÚÀÎÈÀÌÆ®ºô | 4 | 37.41 | 5,000 | 30 | 2013 | | 2024.06.15 | Àü¼¼ | ¹ÌÁÖºô¶óA,Bµ¿(181-1) | 1 | 78.52 | 21,400 | 0 | 1986 | | 2024.06.15 | Àü¼¼ | Ƚަ¸£ºô | 2 | 54.45 | 18,900 | 0 | 2015 | | 2024.06.15 | Àü¼¼ | È¿¼º¸®´õ½ººô | 2 | 29.91 | 14,850 | 0 | 2016 | | 2024.06.14 | ¿ù¼¼ | ¸í¹®´ºÄ³½½(327-18) | 5 | 63.33 | 5,000 | 80 | 2010 | | 2024.06.13 | Àü¼¼ | ¿¡Äڱ׷κêºô¸®Áö10Â÷201µ¿ | 5 | 29.64 | 25,000 | 0 | 2023 | | 2024.06.13 | ¿ù¼¼ | È޹̶ô°¡µ¿ | 4 | 56.8 | 300 | 39 | 2022 | | 2024.06.13 | ¸Å¸Å | ÀÏÁøÆÄÅ©ºôA(351-21) | -1 | 61.86 | 16,650 | | 2002 | | 2024.06.13 | ¸Å¸Å | ¼±°æºô¶ó(330-2) | -1 | 47.26 | 14,400 | | 2001 | | 2024.06.12 | Àü¼¼ | ºñÀü¾ÆÆ®¸®¿ò³ªµ¿ | 3 | 51.98 | 15,000 | 0 | 2002 | | 2024.06.12 | ¿ù¼¼ | »ïÈ¿¡ÄÚºô | 4 | 29.18 | 200 | 46 | 2023 | | 2024.06.12 | ¸Å¸Å | °¡Àç¿ïºô | 3 | 54.21 | 23,500 | | 2016 | | 2024.06.12 | ¿ù¼¼ | °ïÁö±×¸°ºô | 2 | 26.8 | 2,000 | 60 | 2012 | | 2024.06.12 | Àü¼¼ | ´Ù¿ø¸®Ä¡ºô5Â÷ | 5 | 29.94 | 23,300 | 0 | 2021 | | 2024.06.11 | ¸Å¸Å | ÇÏÀÌÆÓ¸®½º | 2 | 44.05 | 25,500 | | 2015 | | 2024.06.11 | ¿ù¼¼ | »ïÈ¿¡ÄÚºô | 5 | 41.71 | 7,623 | 6 | 2023 | | 2024.06.11 | ¿ù¼¼ | ÇÁ¶óÀ̺øÄ³½½3Â÷ | 3 | 28.28 | 1,000 | 75 | 2023 | | 2024.06.11 | ¿ù¼¼ | »ïÈ¿¡ÄÚºô | 5 | 31.57 | 5,959 | 5 | 2023 | | 2024.06.11 | ¿ù¼¼ | ÇØ¿À¸§(287-12) | 4 | 29.92 | 1,500 | 63 | 2017 | | 2024.06.11 | Àü¼¼ | ¼Ò¸Áºô¶ó(315-8) | 2 | 35.14 | 12,670 | 0 | 2003 | | 2024.06.11 | ¿ù¼¼ | »ïÈ¿¡ÄÚºô | 5 | 31.57 | 2,406 | 25 | 2023 | | 2024.06.10 | Àü¼¼ | ¶ó¿Â±×¸°ºô2 | 3 | 28.03 | 24,940 | 0 | 2022 | | 2024.06.10 | Àü¼¼ | µå¸²Ä³½½(405-6) | 4 | 26.24 | 16,000 | 0 | 2012 | | 2024.06.10 | ¿ù¼¼ | »ïÈ¿¡ÄÚºô | 3 | 27.01 | 100 | 26 | 2023 | | 2024.06.10 | ¿ù¼¼ | »ïÈ¿¡ÄÚºô | 2 | 31.57 | 953 | 3 | 2023 | | 2024.06.10 | Àü¼¼ | ¿¡µ§Ä³½½ | 4 | 41.54 | 19,100 | 0 | 2018 | | 2024.06.10 | Àü¼¼ | ¶ó¿Â±×¸°ºô2 | 3 | 28.03 | 24,940 | 0 | 2022 | | 2024.06.10 | Àü¼¼ | ¶ó¿Â±×¸°ºô2 | 3 | 29.8 | 24,500 | 0 | 2022 | | 2024.06.10 | ¿ù¼¼ | JÆÓ¸®½º8Â÷ | 4 | 42.42 | 2,000 | 80 | 2013 | | 2024.06.10 | ¸Å¸Å | ÅäºêÇϿ콺 | 3 | 28.32 | 19,000 | | 2018 | | 2024.06.10 | ¸Å¸Å | ÇØ¸¶·çºô(312-64) | 3 | 41.96 | 18,200 | | 2003 | | 2024.06.10 | ¸Å¸Å | ·Î¾âÇÏÀÌÃ÷(364-2) | 2 | 40.78 | 28,000 | | 2018 | | 2024.06.10 | ¸Å¸Å | ½Å¾ÆÆÄÅ©ºô¸Ç¼Ç(312-47) | 1 | 53.51 | 21,000 | | 2002 | | 2024.06.10 | ¿ù¼¼ | »ïÈ¿¡ÄÚºô | 3 | 29.73 | 3,774 | 39 | 2023 | | 2024.06.10 | Àü¼¼ | ½ÅÈïB(359-21) | 3 | 60.63 | 11,600 | 0 | 1974 | | 2024.06.10 | ¿ù¼¼ | »ïÈ¿¡ÄÚºô | 4 | 30.21 | 3,835 | 40 | 2023 | | 2024.06.08 | Àü¼¼ | ±âÁ¤¾ÆÆ®ºô2(416-270) | 5 | 66.14 | 15,400 | 0 | 2003 | | 2024.06.08 | Àü¼¼ | ÇØ¿À¸§(367-17) | 6 | 44.56 | 20,000 | 0 | 2016 | | 2024.06.08 | Àü¼¼ | ÇØ¿À¸§(367-17) | 6 | 44.56 | 20,000 | 0 | 2016 | | 2024.06.08 | Àü¼¼ | ÀÏÁøÆÄÅ©ºôA(351-21) | 2 | 64.84 | 21,000 | 0 | 2002 | | 2024.06.08 | ¿ù¼¼ | ÀºÇϸǼÇAµ¿ | 4 | 60.61 | 4,000 | 75 | 2001 | | 2024.06.08 | Àü¼¼ | ¼ºÈ(448-10) | 3 | 76.36 | 8,500 | 0 | 1981 | | 2024.06.08 | ¸Å¸Å | »ï¼º½¦¸£ºô(33) | 3 | 44.37 | 30,800 | | 2015 | | 2024.06.08 | ¸Å¸Å | ÇØ¿À¸§(364-10) | 2 | 29.11 | 20,800 | | 2017 | | 2024.06.07 | Àü¼¼ | ¶ó¿Â±×¸°ºô2 | 4 | 28.03 | 24,900 | 0 | 2022 | | 2024.06.07 | Àü¼¼ | Æòȱ׸°ºô | 4 | 44.85 | 13,500 | 0 | 2001 | | 2024.06.07 | Àü¼¼ | ±×·¹À̽ººô(323-23) | 5 | 43.3 | 23,000 | 0 | 2012 | | 2024.06.07 | ¸Å¸Å | ¸ñ·ÃÁÖÅÃ(334-15) | 3 | 60.06 | 19,000 | | 1993 | | 2024.06.07 | ¸Å¸Å | »ó¶¼±×¸°ºô(279-2) | 2 | 29.2 | 22,800 | | 2018 | | 2024.06.06 | ¸Å¸Å | ·Î¾âÇÏÀÌÃ÷(343-5) | 5 | 28.62 | 19,000 | | 2018 | | 2024.06.06 | Àü¼¼ | µðÀÚÀΰñµçºô(304-5) | 3 | 29.92 | 16,400 | 0 | 2014 | | 2024.06.06 | ¿ù¼¼ | µµ´ãº£½ºÆ®ºô(341-16) | 5 | 29.25 | 150 | 60 | 2020 | | 2024.06.06 | ¿ù¼¼ | ´ë¿ì»þÀκô | 3 | 49.73 | 2,000 | 70 | 2014 | | 2024.06.06 | ¸Å¸Å | ÇØ¿À¸§(367-17) | 6 | 44.56 | 28,000 | | 2016 | | 2024.06.06 | ¸Å¸Å | ¸®¾ÈÇϿ콺(343-45) | 6 | 29.1 | 19,500 | | 2017 | | 2024.06.05 | ¿ù¼¼ | °ñµçºä | 3 | 59.83 | 15,000 | 22 | 2012 | | 2024.06.04 | ¸Å¸Å | ·Î¾âȨŸ¿î | 5 | 26.65 | 20,350 | | 2019 | | 2024.06.04 | ¿ù¼¼ | ±×·¹À̽ººô3Â÷ | 5 | 36.02 | 6,000 | 45 | 2011 | | 2024.06.04 | Àü¼¼ | ¼¿îºô¸®Áö(342-13) | 1 | 60.88 | 16,000 | 0 | 2001 | | 2024.06.04 | Àü¼¼ | »ï¿ø¾ÆÀ̺ôA | 2 | 23.41 | 18,000 | 0 | 2022 | | 2024.06.04 | Àü¼¼ | ¼ö¸í±×¸°ºô | 5 | 27.63 | 16,500 | 0 | 2017 | | 2024.06.04 | ¿ù¼¼ | µðÀÚÀΰñµçºô(278-2) | 2 | 29.63 | 3,000 | 55 | 2014 | | 2024.06.04 | Àü¼¼ | ¼ö¸í±×¸°ºô | 5 | 27.63 | 16,500 | 0 | 2017 | | 2024.06.04 | ¸Å¸Å | ±Ý°½ºÀ§Æ®È¨(302-2) | 2 | 62.65 | 32,000 | | 2002 | | 2024.06.03 | Àü¼¼ | À§µåij½½ | 5 | 26.02 | 18,375 | 0 | 2020 | | 2024.06.03 | Àü¼¼ | ¿¤¸²°¡µç | 2 | 28.98 | 20,500 | 0 | 2020 | | 2024.06.03 | ¿ù¼¼ | º°Àåºô¶ó9µ¿(50-46) | -1 | 36.76 | 1,000 | 35 | 1989 | | 2024.06.03 | Àü¼¼ | »ï¿ø¾ÆÀ̺ôB(314-87) | 2 | 26.13 | 20,000 | 0 | 2022 | | 2024.06.03 | Àü¼¼ | ÁøÁÖºô¶ó(298-28) | 1 | 34.03 | 1,000 | 0 | 1990 | | 2024.06.03 | ¸Å¸Å | ·Î¾âÇÏÀÌÃ÷(278-12) | 4 | 28.59 | 21,400 | | 2018 | | 2024.06.02 | ¸Å¸Å | ¿¡½ºÄÉÀÌÆÓ·¹½º | 3 | 27.87 | 18,000 | | 2018 | | 2024.06.01 | Àü¼¼ | ´ëÁøºô¶ó(310-8) | 4 | 36.36 | 8,000 | 0 | 2002 | | 2024.06.01 | ¿ù¼¼ | û¼ÖÈÀÌÆ®ºô | 4 | 55.16 | 15,700 | 13 | 2004 | | 2024.06.01 | ¿ù¼¼ | ½Å¼¼°èº¹ÇÕºôµù | 6 | 19.22 | 1,000 | 66 | 2017 | | 2024.05.31 | ¸Å¸Å | ¹Ì·¡ºô¸®Áö1(320-25) | 2 | 51.72 | 24,300 | | 2002 | | 2024.05.31 | Àü¼¼ | ¶ó¿Â±×¸°ºô2 | 3 | 28.03 | 24,900 | 0 | 2022 | | 2024.05.31 | ¿ù¼¼ | ÇÁ¶óÀ̺øÄ³½½3Â÷ | 3 | 29.95 | 1,000 | 75 | 2023 | | 2024.05.31 | ¿ù¼¼ | µð¾ÆÆ®¶ó¿ò | 2 | 28.73 | 17,700 | 10 | 2019 | | 2024.05.31 | Àü¼¼ | ¶ó¿Â±×¸°ºô2 | 3 | 28.03 | 24,900 | 0 | 2022 | | 2024.05.30 | Àü¼¼ | »ï¿ø¾ÆÀ̺ôB(314-87) | 3 | 23.29 | 18,000 | 0 | 2022 | | 2024.05.30 | Àü¼¼ | ¶ó¿Â±×¸°ºô2 | 4 | 28.03 | 24,940 | 0 | 2022 | | 2024.05.30 | Àü¼¼ | ¿øÃ¢¾ÆÆ®ºô2 | 3 | 37.209 | 23,000 | 0 | 2020 | | 2024.05.30 | Àü¼¼ | »ï¿ø¾ÆÀ̺ôA | 3 | 26.93 | 20,000 | 0 | 2022 | | 2024.05.30 | ¿ù¼¼ | ÇØ´ãÇϿ콺 | 5 | 58.69 | 8,359 | 9 | 2021 | | 2024.05.30 | ¸Å¸Å | ÇØ¸¶·ç(341-7) | 5 | 27.92 | 19,750 | | 2017 | | 2024.05.29 | ¸Å¸Å | ½Ã¸ó¾ÆÆ®ºô¶ó5Â÷(322-17) | 2 | 74.97 | 28,700 | | 2002 | | 2024.05.29 | Àü¼¼ | ¿ÀÂ÷µå | 4 | 47.95 | 22,000 | 0 | 2017 | | 2024.05.29 | Àü¼¼ | ÇÑ¹é¾ÆÆ®¸®¿ò(322-8) | 4 | 67.27 | 16,600 | 0 | 2000 | | 2024.05.29 | Àü¼¼ | ¿µ¸ð´øºô | 6 | 27.47 | 14,200 | 0 | 2016 | | 2024.05.29 | Àü¼¼ | µ¿½Å¿¬¸³(170-36) | 1 | 60.5 | 15,500 | 0 | 1977 | | 2024.05.29 | Àü¼¼ | ¿¹Àº¸®Ä¡ºô | 2 | 35.89 | 18,500 | 0 | 2015 | | 2024.05.29 | Àü¼¼ | »ï¿ø¾ÆÀ̺ôB(314-87) | 2 | 23.29 | 18,000 | 0 | 2022 | | 2024.05.29 | Àü¼¼ | Å¥ºêÇϿ콺2Â÷ | 2 | 28.18 | 14,000 | 0 | 2017 | | 2024.05.28 | ¿ù¼¼ | ÇöÁö¿¡¹öºô | 3 | 40.26 | 13,000 | 15 | 2012 | | 2024.05.28 | ¿ù¼¼ | ¸®¿ò°ñµçºô | 3 | 46.36 | 1,517 | 20 | 2016 | | 2024.05.28 | ¸Å¸Å | ³ëºí¸®¿ò(327-21) | 3 | 56.67 | 25,700 | | 2013 | | 2024.05.28 | ¿ù¼¼ | ¿¡Äڱ׷κ꿡ÀÌ | 3 | 29.93 | 3,000 | 90 | 2018 | | 2024.05.27 | ¿ù¼¼ | »ïÀÌÇÏ¿ì¡ | 5 | 52.31 | 10,940 | 34 | 2022 | | 2024.05.27 | ¸Å¸Å | °³¿õºô¶ó(272-1) | 1 | 68.64 | 27,000 | | 1996 | | 2024.05.27 | ¿ù¼¼ | »ïÀÌÇÏ¿ì¡ | 4 | 44.79 | 5,355 | 55 | 2022 | | 2024.05.27 | ¿ù¼¼ | »ïÀÌÇÏ¿ì¡ | 5 | 52.59 | 14,899 | 12 | 2022 | | 2024.05.27 | ¿ù¼¼ | »ïÀÌÇÏ¿ì¡ | 6 | 54.65 | 15,172 | 13 | 2022 | | 2024.05.27 | ¿ù¼¼ | »ïÀÌÇÏ¿ì¡ | 3 | 52.59 | 15,367 | 64 | 2022 | | 2024.05.27 | ¿ù¼¼ | »ïÀÌÇÏ¿ì¡ | 6 | 54.65 | 15,172 | 13 | 2022 | | 2024.05.27 | ¿ù¼¼ | »ïÀÌÇÏ¿ì¡ | 3 | 56.26 | 6,646 | 68 | 2022 | | 2024.05.27 | ¿ù¼¼ | »ïÀÌÇÏ¿ì¡ | 2 | 52.59 | 6,205 | 64 | 2022 | | 2024.05.27 | ¿ù¼¼ | »ïÀÌÇÏ¿ì¡ | 2 | 52.59 | 15,367 | 13 | 2022 | | 2024.05.27 | ¿ù¼¼ | »ïÀÌÇÏ¿ì¡ | 3 | 56.26 | 16,460 | 14 | 2022 | | 2024.05.27 | ¿ù¼¼ | »ïÀÌÇÏ¿ì¡ | 2 | 51.95 | 15,211 | 13 | 2022 | | 2024.05.27 | ¿ù¼¼ | »ïÀÌÇÏ¿ì¡ | 5 | 51.8 | 14,704 | 12 | 2022 | | 2024.05.26 | Àü¼¼ | ¶ó¿Â±×¸°ºô2 | 4 | 29.65 | 25,000 | 0 | 2022 | | 2024.05.25 | Àü¼¼ | °³ºÀÆÄ·¹½ººô¶ó°¡,³ªµ¿(170-1) | 2 | 48.12 | 10,000 | 0 | 1993 | | 2024.05.25 | ¿ù¼¼ | »þÀÎÇϿ콺(38-49) | 2 | 27.64 | 13,000 | 15 | 2014 | | 2024.05.25 | ¸Å¸Å | ¸íǰ¸®Ä¡ºô2 | 1 | 40.72 | 25,700 | | 2012 | | 2024.05.25 | ¸Å¸Å | ¸íǰ¸®Ä¡ºô2 | 1 | 40.72 | 24,700 | | 2012 | | 2024.05.25 | ¸Å¸Å | °Å¼ººô¶ó11µ¿ | -1 | 36.04 | 10,000 | | 1990 | | 2024.05.24 | ¸Å¸Å | ¿µÇ³±×¸°ºô¶ó(365-8) | 2 | 57.9 | 9,800 | | 1998 | | 2024.05.24 | Àü¼¼ | ¼±°æ¾ÆÆ®ºô¶ó(322-9) | 2 | 39.54 | 10,100 | 0 | 1993 | | 2024.05.24 | Àü¼¼ | ¶ó¿Â±×¸°ºô2 | 3 | 29.8 | 24,500 | 0 | 2022 | | 2024.05.24 | ¿ù¼¼ | ¸¶À̺ô4Â÷ | 4 | 21.06 | 5,000 | 50 | 2018 | | 2024.05.24 | ¿ù¼¼ | Æ÷À¯ºô | 3 | 27.08 | 500 | 60 | 2021 | | 2024.05.24 | ¸Å¸Å | »ï¼ºÆÄÅ©ºô(321-3) | -1 | 32.48 | 14,000 | | 2001 | | 2024.05.23 | ¿ù¼¼ | ¸®¿ø | 3 | 29.51 | 500 | 85 | 2022 | | 2024.05.23 | ¿ù¼¼ | ÇØ´ãÇϿ콺2Â÷ | 6 | 57.387 | 1,502 | 43 | 2023 | | 2024.05.23 | ¸Å¸Å | ±âÁ¤¾ÆÆ®ºô2(416-270) | 5 | 66.14 | 20,000 | | 2003 | | 2024.05.23 | ¸Å¸Å | À§º£½ºÆ® | 1 | 52.29 | 23,000 | | 2013 | | 2024.05.22 | Àü¼¼ | ¿ÀÂ÷µå | 4 | 47.95 | 22,000 | 0 | 2017 | | 2024.05.22 | ¿ù¼¼ | ºÎ¿øºô¶ó(320-14) | 3 | 54.08 | 300 | 35 | 2002 | | 2024.05.22 | Àü¼¼ | °Åâºô¶ó¹Ùµ¿(46-14) | 3 | 41.91 | 9,900 | 0 | 1990 | | 2024.05.22 | Àü¼¼ | ¶ó¿Â±×¸°ºô2 | 6 | 29.65 | 25,300 | 0 | 2022 | | 2024.05.22 | Àü¼¼ | °Åâºô¶ó¹Ùµ¿(46-14) | 3 | 41.91 | 9,900 | 0 | 1990 | | 2024.05.22 | Àü¼¼ | ¼ºÁø±×¸°ºô2 | 5 | 28.9 | 19,400 | 0 | 2022 | | 2024.05.22 | ¸Å¸Å | ÇØ¸¶·çºô(312-65) | 1 | 55.32 | 26,000 | | 2003 | | 2024.05.22 | Àü¼¼ | ¶ó¿Â±×¸°ºô2 | 6 | 29.65 | 25,300 | 0 | 2022 | | 2024.05.21 | ¸Å¸Å | Çö´ë¾ÆÀ̺ô | 3 | 44.84 | 25,700 | | 2017 | | 2024.05.21 | Àü¼¼ | ¹Ì¸²ºô¶ó°¡~¶óµ¿(108-5) | 3 | 56.06 | 12,000 | 0 | 1982 | | 2024.05.21 | ¿ù¼¼ | ±×¸°Èú | 4 | 29.77 | 11,000 | 19 | 2014 | | 2024.05.21 | Àü¼¼ | ¹Ì¸²ºô¶ó°¡~¶óµ¿(108-5) | 3 | 56.06 | 12,000 | 0 | 1982 | | 2024.05.20 | ¿ù¼¼ | ½¦¸£º¸³× | 2 | 36.59 | 3,000 | 85 | 2023 | | 2024.05.20 | Àü¼¼ | (141-60) | 3 | 80.73 | 12,500 | 0 | 2002 | | 2024.05.20 | Àü¼¼ | º¸Çغô¶ó(319-15) | 3 | 46.92 | 14,300 | 0 | 1997 | | 2024.05.20 | Àü¼¼ | (141-60) | 3 | 80.73 | 12,500 | 0 | 2002 | | 2024.05.20 | ¿ù¼¼ | ¸®¿òÇϿ콺(33-147) | 4 | 46.34 | 1,517 | 13 | 2012 | | 2024.05.20 | ¸Å¸Å | À§ÇϿ콺(264-12) | 2 | 29.88 | 19,900 | | 2018 | | 2024.05.20 | ¸Å¸Å | Áø¿ìºô¶ó(344-25) | -1 | 52.8 | 12,800 | | 2000 | | 2024.05.20 | ¸Å¸Å | ½ÅÈïB(359-21) | 3 | 60.63 | 14,200 | | 1974 | | 2024.05.20 | Àü¼¼ | º¸Çغô¶ó(319-15) | 3 | 46.92 | 14,300 | 0 | 1997 | | 2024.05.18 | ¿ù¼¼ | Ãæ¹«ºô¶ó(326-8) | 4 | 26.19 | 8,700 | 20 | 2002 | | 2024.05.18 | Àü¼¼ | À§ÇϿ콺(264-12) | 5 | 39.78 | 21,900 | 0 | 2018 | | 2024.05.18 | ¿ù¼¼ | ÇÁ¶óÀ̺øÄ³½½3Â÷ | 2 | 29.95 | 300 | 80 | 2023 | | 2024.05.18 | ¿ù¼¼ | ½¦¸£º¸³× | 3 | 34.98 | 3,000 | 80 | 2023 | | 2024.05.18 | ¿ù¼¼ | ½¦¸£º¸³× | 2 | 34.98 | 5,500 | 65 | 2023 | | 2024.05.18 | ¿ù¼¼ | °³ºÀ½ºÅ¸Èú | 3 | 24.03 | 5,000 | 70 | 2021 | | 2024.05.18 | ¸Å¸Å | ¸ÞÀÎÇϿ콺(261-10) | 6 | 29.96 | 22,500 | | 2018 | | 2024.05.18 | ¸Å¸Å | ÆÓ¸®½ººä | 2 | 29.94 | 17,300 | | 2016 | | 2024.05.18 | ¿ù¼¼ | ½¦¸£º¸³× | 2 | 34.98 | 5,500 | 65 | 2023 | | 2024.05.17 | ¿ù¼¼ | û¹Î±×¸°ºô¶ó | -1 | 36.42 | 6,500 | 30 | 1991 | | 2024.05.17 | Àü¼¼ | ºÎ±¤ºô¶ó | -1 | 42.84 | 6,500 | 0 | 1991 | | 2024.05.17 | Àü¼¼ | ½Ã¸ó¾ÆÆ®ºô¶ó3Â÷(322-1) | 4 | 67.96 | 18,700 | 0 | 2002 | | 2024.05.17 | Àü¼¼ | ½Ã¸ó¾ÆÆ®ºô¶ó3Â÷(322-1) | 4 | 67.96 | 18,700 | 0 | 2002 | | 2024.05.17 | Àü¼¼ | ÇÑ»ù½¦¸£ºô(138-7) | 4 | 57.82 | 15,000 | 0 | 2002 | | 2024.05.16 | ¿ù¼¼ | ¿¡Äڱ׷κêºñ | 3 | 29.88 | 500 | 60 | 2018 | | 2024.05.15 | Àü¼¼ | ¼ö¸í±×¸°ºô | 5 | 27.42 | 16,600 | 0 | 2017 | | 2024.05.15 | ¸Å¸Å | Çö´ëȨ¸Ç¼Ç(307-11) | 5 | 44.94 | 16,000 | | 2002 | | 2024.05.15 | ¸Å¸Å | ¸í¹®¾ÆÀ̺ô(358-15) | 2 | 29.59 | 17,800 | | 2011 | | 2024.05.15 | ¸Å¸Å | ¿øÃ¢¾ÆÆ®ºô2 | 3 | 37.209 | 25,700 | | 2020 | | 2024.05.15 | Àü¼¼ | ½Ã¸ó¾ÆÆ®ºô¶ó8Â÷(339-2) | 2 | 70.16 | 20,000 | 0 | 2002 | | 2024.05.14 | Àü¼¼ | ¼Ò¸Áºô¶ó(315-8) | 5 | 59.435 | 15,600 | 0 | 2003 | | 2024.05.14 | Àü¼¼ | ¶óÀÌÇÁȨŸ¿î | 5 | 72.5 | 22,000 | 0 | 2003 | | 2024.05.14 | Àü¼¼ | °ñµçij½½3Â÷ | 3 | 29.39 | 20,000 | 0 | 2019 | | 2024.05.13 | Àü¼¼ | ¿¹ÀºÆÄÅ©Èú | 5 | 49.42 | 15,200 | 0 | 2009 | | 2024.05.13 | Àü¼¼ | ·Î¾âȨŸ¿î | 7 | 26.81 | 17,100 | 0 | 2019 | | 2024.05.13 | ¸Å¸Å | ÇØ¿À¸§(363-1) | 4 | 39.02 | 20,000 | | 2013 | | 2024.05.13 | ¸Å¸Å | ´ë¿ì¾ÆÆ®ºô2Â÷ | 5 | 60.46 | 31,000 | | 2012 | | 2024.05.13 | ¸Å¸Å | ÇѸ¶À½¾ÆÆ®ºô¶óAµ¿(325-13) | 3 | 59.32 | 27,900 | | 2002 | | 2024.05.13 | ¸Å¸Å | µ¿¿ì¸Ç¼Ç(363-2) | 1 | 68.95 | 25,000 | | 2000 | | 2024.05.11 | Àü¼¼ | µðÀÚÀΰñµçºô(304-5) | 3 | 29.73 | 17,200 | 0 | 2014 | | 2024.05.11 | Àü¼¼ | º£½ºÆ®ºô3Â÷ | 3 | 50.01 | 19,000 | 0 | 2011 | | 2024.05.11 | ¸Å¸Å | 2Â÷ÇÑ»ùÇÏÀ̺ô1µ¿(342-10) | 1 | 34.44 | 12,550 | | 2002 | | 2024.05.10 | ¿ù¼¼ | ¸®¿ø | 4 | 29.86 | 500 | 10 | 2022 | | 2024.05.10 | Àü¼¼ | ÇÁ¶óÀ̺øÄ³½½°³ºÀ1Â÷ | 3 | 45.86 | 20,000 | 0 | 2022 | | 2024.05.10 | ¿ù¼¼ | ¹Ì¸²ºô¶ó°¡~¶óµ¿(108-5) | 2 | 56.1 | 3,000 | 50 | 1982 | | 2024.05.10 | ¿ù¼¼ | ¸®¿ø | 3 | 28.46 | 1,000 | 80 | 2022 | | 2024.05.10 | Àü¼¼ | »ï¿ø¾ÆÀ̺ô¿¡ÀÌ | 2 | 27.89 | 18,700 | 0 | 2018 | | 2024.05.10 | Àü¼¼ | ¼º¿øº£½ºÆ®ºô | 2 | 49.64 | 14,490 | 0 | 2002 | | 2024.05.10 | Àü¼¼ | ¼º¿øº£½ºÆ®ºô | 2 | 49.64 | 14,490 | 0 | 2002 | | 2024.05.10 | ¿ù¼¼ | ¸®¿ø | 4 | 29.86 | 500 | 30 | 2022 | | 2024.05.09 | Àü¼¼ | ºê¶ó¿î½ºÅæ(340-3) | 1 | 74.2 | 25,100 | 0 | 2007 | | 2024.05.09 | ¿ù¼¼ | ÇÏÀººô¸®Áö | 6 | 25.99 | 2,000 | 53 | 2015 | | 2024.05.09 | ¿ù¼¼ | ½¦¸£º¸³× | 3 | 36.59 | 3,000 | 90 | 2023 | | 2024.05.09 | ¸Å¸Å | PAPRICA276 | 2 | 13.02 | 7,500 | | 2012 | | 2024.05.08 | ¿ù¼¼ | ¹ÌÁÖºô¶óA,Bµ¿(181-1) | 2 | 78.52 | 21,900 | 20 | 1986 | | 2024.05.08 | ¿ù¼¼ | ºñÀü¾ÆÆ®ºô | 3 | 49.32 | 19,000 | 13 | 2012 | | 2024.05.08 | Àü¼¼ | ½Å¼¼°èµå¸²ºô | 2 | 71.44 | 25,000 | 0 | 2008 | | 2024.05.08 | ¿ù¼¼ | Áß¾ÓÈúŸ¿î-°¡(457-14) | 4 | 49.12 | 13,000 | 10 | 2002 | | 2024.05.08 | ¿ù¼¼ | Áß¾ÓÈúŸ¿î-°¡(457-14) | 4 | 49.12 | 13,000 | 10 | 2002 | | 2024.05.08 | ¿ù¼¼ | ¹ÌÁÖºô¶óA,Bµ¿(181-1) | 2 | 78.52 | 21,900 | 20 | 1986 | | 2024.05.08 | ¿ù¼¼ | (115-40) | 2 | 28.67 | 0 | 27 | 2023 | | 2024.05.07 | ¿ù¼¼ | ·Î¾âȨŸ¿î | 7 | 26.98 | 17,500 | 10 | 2019 | | 2024.05.06 | Àü¼¼ | ¿¡½º¿¥º§¸®Ã¼(279-9) | 3 | 28.01 | 17,800 | 0 | 2017 | | 2024.05.06 | Àü¼¼ | ¼ö¸íÁÖÅÃ(132-4) | 5 | 59.92 | 31,000 | 0 | 2023 | | 2024.05.06 | ¿ù¼¼ | ±¹Èºô¶ó(171-1) | 3 | 80.44 | 5,000 | 70 | 1983 | | 2024.05.06 | Àü¼¼ | ¿¡½º¿¥º§¸®Ã¼(279-9) | 3 | 28.01 | 17,800 | 0 | 2017 | | 2024.05.06 | ¸Å¸Å | »ïº¸Èѹ̸®ºô(319-9) | 1 | 58.92 | 23,000 | | 2001 | | 2024.05.05 | Àü¼¼ | µðÀÚÀΰñµçºô(304-5) | 3 | 29.73 | 17,200 | 0 | 2014 | | 2024.05.04 | ¿ù¼¼ | da°ñµå¸®¿ò(272-16) | 4 | 24.06 | 3,000 | 80 | 2022 | | 2024.05.04 | ¿ù¼¼ | À§µåij½½ | 3 | 28.14 | 16,000 | 12 | 2020 | | 2024.05.03 | ¸Å¸Å | ½Ã¸ó¾ÆÆ®ºô¶ó6Â÷(322-2) | 1 | 75.67 | 31,500 | | 2002 | | 2024.05.03 | ¸Å¸Å | ⵿ºô¶ó101µ¿ | -1 | 59.4 | 11,000 | | 1993 | | 2024.05.03 | Àü¼¼ | ¿¡µ§ºô¶ó | 3 | 42.02 | 25,000 | 0 | 2016 | | 2024.05.02 | ¿ù¼¼ | ´Ùºóºô | 4 | 26.44 | 2,000 | 65 | 2019 | | 2024.05.02 | ¿ù¼¼ | »ï¼º±×¸°ºô¶ó(337-4) | 4 | 61.37 | 5,000 | 70 | 1998 | | 2024.05.02 | Àü¼¼ | ÇØÇÇÇϿ콺 | 2 | 28.33 | 15,000 | 0 | 2016 | | 2024.05.02 | ¿ù¼¼ | û¹Î±×¸°ºô¶ó | -1 | 36.42 | 6,500 | 30 | 1991 | | 2024.05.02 | ¿ù¼¼ | ¹Ì°Ç½ºÀ§Æ®ºô(101µ¿)417-17 | 2 | 22.12 | 1,500 | 30 | 2002 | | 2024.05.02 | ¿ù¼¼ | °³ºÀºô¶ó(278-9) | 4 | 36.96 | 2,000 | 60 | 1994 | | 2024.05.02 | ¿ù¼¼ | ¸®Ä¡ÆÓ¸®½º(337-3) | 1 | 59.89 | 3,000 | 74 | 2010 | | 2024.05.02 | ¿ù¼¼ | º£½ºÆ®¹Ù·ÎÅ©ºô | 4 | 35.27 | 3,000 | 50 | 2012 | | 2024.05.02 | ¸Å¸Å | ºÎ¿øºô¶ó(323-10) | 2 | 71.19 | 27,000 | | 2002 | | 2024.05.02 | ¸Å¸Å | °Å¼ººô¶ó9µ¿ | 1 | 47.57 | 14,700 | | 1990 | | 2024.05.01 | Àü¼¼ | ¼ºÁø±×¸°ºô2 | 3 | 29.94 | 20,000 | 0 | 2022 | | 2024.05.01 | Àü¼¼ | ÇÁ¶óÀ̺øÄ³½½°³ºÀ1Â÷ | 4 | 42.69 | 19,000 | 0 | 2022 | | 2024.05.01 | ¿ù¼¼ | û¹Î±×¸°ºô¶ó | -1 | 36.42 | 6,500 | 30 | 1991 | | 2024.04.29 | ¸Å¸Å | º¸¶óȨŸ¿î(310-4) | 4 | 43.1 | 17,600 | | 2001 | | 2024.04.29 | Àü¼¼ | Áö³ëºô | 4 | 42.94 | 11,000 | 0 | 2004 | | 2024.04.29 | Àü¼¼ | Áö³ëºô | 4 | 42.94 | 11,000 | 0 | 2004 | | 2024.04.29 | ¿ù¼¼ | Áö³ëºô | 4 | 42.94 | 10,500 | 9 | 2004 | | 2024.04.29 | ¿ù¼¼ | ·º½ººô(332-15) | -1 | 58.82 | 1,000 | 75 | 2002 | | 2024.04.29 | ¿ù¼¼ | À§ÇϿ콺(270-5) | 4 | 44.22 | 17,500 | 20 | 2012 | | 2024.04.29 | Àü¼¼ | À§µåij½½ | 2 | 28.14 | 17,500 | 0 | 2020 | | 2024.04.29 | ¿ù¼¼ | À§ÇϿ콺(270-5) | 4 | 44.22 | 17,500 | 20 | 2012 | | 2024.04.29 | ¸Å¸Å | ´º·£µåºô3Â÷ | 2 | 73.31 | 22,500 | | 2010 | | 2024.04.28 | Àü¼¼ | ¸®¾ÈÇϿ콺(366-10) | 2 | 36.97 | 20,000 | 0 | 2016 | | 2024.04.27 | ¸Å¸Å | ¼¿¬¾ÆÆ®ºô | 3 | 42.26 | 19,900 | | 2018 | | 2024.04.27 | Àü¼¼ | ¸ð´øÇϿ콺 | 3 | 50.8 | 18,000 | 0 | 2015 | | 2024.04.27 | ¿ù¼¼ | û¿ìȨŸ¿î | 5 | 50.12 | 10,000 | 9 | 2002 | | 2024.04.27 | ¿ù¼¼ | °³ºÀÇÏÀÌÃ÷ºô¶óÆ®(170-14) | 2 | 66.51 | 5,000 | 85 | 1994 | | 2024.04.27 | ¿ù¼¼ | ¿µ¸ð´øºô | 2 | 27.01 | 13,000 | 20 | 2016 | | 2024.04.27 | ¿ù¼¼ | ºÎ¿øºô¶ó(320-14) | 2 | 54.08 | 5,000 | 70 | 2002 | | 2024.04.27 | ¿ù¼¼ | ´õ¿¡Äڱ׷κê(279-22) | 6 | 29.35 | 3,000 | 65 | 2019 | | 2024.04.26 | ¸Å¸Å | ¿µÁøºô¶ó(307-55) | 2 | 34.23 | 19,000 | | 1986 | | 2024.04.26 | Àü¼¼ | ·Î¾âÆÄÅ©ºä | 4 | 29.74 | 23,500 | 0 | 2021 | | 2024.04.26 | Àü¼¼ | µðÀÚÀΰñµçºô(304-5) | 5 | 29.73 | 14,360 | 0 | 2014 | | 2024.04.26 | Àü¼¼ | °Å¸ñºô¶ó(345-6) | 2 | 67.84 | 18,600 | 0 | 1992 | | 2024.04.25 | ¿ù¼¼ | ÇÁ¶óÀ̺øÄ³½½3Â÷(141-59) | 1 | 26.67 | 1,000 | 75 | 2023 | | 2024.04.25 | Àü¼¼ | ¼¼Á¾¾ÆÆ®ºô(68-150) | 3 | 59.72 | 28,000 | 0 | 2018 | | 2024.04.24 | Àü¼¼ | »ï¿ø¾ÆÀ̺ôB(314-87) | 3 | 28.14 | 21,000 | 0 | 2022 | | 2024.04.24 | ¿ù¼¼ | ¿¡Äڱ׷κêºô¸®Áö | 3 | 34.09 | 1,000 | 110 | 2021 | | 2024.04.24 | ¿ù¼¼ | ³ëºí¸®¿ò(344-6) | 4 | 46.7 | 15,000 | 15 | 2014 | | 2024.04.24 | ¸Å¸Å | ¼±°æ¾ÆÆ®ºô¶ó(322-9) | 2 | 39.54 | 13,000 | | 1993 | | 2024.04.24 | ¿ù¼¼ | Ãæ¹«ºô¶ó(326-8) | 5 | 51.86 | 5,000 | 55 | 2002 | | 2024.04.24 | Àü¼¼ | »ï¿ø¾ÆÀ̺ôB(314-87) | 2 | 28.14 | 19,000 | 0 | 2022 | | 2024.04.23 | Àü¼¼ | ¿¡µ§¸Ç¼Ç | 2 | 59.54 | 17,000 | 0 | 2000 | | 2024.04.23 | ¿ù¼¼ | žºô¸®Áö(312-10) | 4 | 56.43 | 3,000 | 70 | 2003 | | 2024.04.23 | ¿ù¼¼ | ¸®¿òÇϿ콺(33-82) | 3 | 52.41 | 1,855 | 15 | 2013 | | 2024.04.22 | ¿ù¼¼ | ¼ºÁø±×¸°ºô2 | 4 | 29.85 | 20,000 | 5 | 2022 | | 2024.04.22 | ¿ù¼¼ | ¸®¿òÇϿ콺(303-30) | 5 | 15.77 | 999 | 6 | 2013 | | 2024.04.22 | ¿ù¼¼ | Æ®¶ó¿òÇϿ콺 | 3 | 39.71 | 5,000 | 60 | 2012 | | 2024.04.22 | ¿ù¼¼ | ¸ÞÀÎÇϿ콺(279-7) | 4 | 40.57 | 22,680 | 20 | 2018 | | 2024.04.22 | ¿ù¼¼ | ¸ÞÀÎÇϿ콺(279-7) | 4 | 40.57 | 22,680 | 20 | 2018 | | 2024.04.22 | ¿ù¼¼ | ¸ÞÀÎÇϿ콺(279-7) | 4 | 40.57 | 23,000 | 20 | 2018 | | 2024.04.20 | Àü¼¼ | ºñÀü¾ÆÆ®¸®¿ò´Ùµ¿ | 2 | 74.97 | 18,000 | 0 | 2002 | | 2024.04.20 | ¿ù¼¼ | PAPRICA276 | 2 | 12.9 | 6,900 | 5 | 2012 | | 2024.04.20 | ¿ù¼¼ | ·Î¾âÇÏÀÌÃ÷(343-5) | 3 | 29 | 3,000 | 75 | 2018 | | 2024.04.20 | ¸Å¸Å | ´Ù¿ø¾ÆÆ®3Â÷ | 5 | 29.99 | 15,700 | | 2014 | | 2024.04.19 | Àü¼¼ | ·Î¾âÇÏÀÌÃ÷(343-5) | 3 | 28.62 | 16,600 | 0 | 2018 | | 2024.04.19 | ¿ù¼¼ | ¿¡Äڱ׷κ꿡ÀÌ | 3 | 29.91 | 3,000 | 90 | 2018 | | 2024.04.19 | Àü¼¼ | ºñÀü¾ÆÆ®¸®¿ò°¡µ¿ | 3 | 42.8 | 14,350 | 0 | 2002 | | 2024.04.18 | ¿ù¼¼ | ºÀ´ãºô¶ó | 3 | 49.7 | 1,053 | 28 | 2021 | | 2024.04.18 | ¿ù¼¼ | ¿¡Äڱ׷κêºô¸®Áö | 2 | 27.2 | 300 | 25 | 2021 | | 2024.04.18 | ¿ù¼¼ | ½¦¸£º¸³× | 3 | 34.98 | 5,000 | 45 | 2023 | | 2024.04.18 | Àü¼¼ | »ó¶¼±×¸°Èú(334-4) | 1 | 28.38 | 18,700 | 0 | 2020 | | 2024.04.18 | Àü¼¼ | ´ë¸²È¨Å¸¿î(141-58) | 2 | 69.84 | 19,100 | 0 | 2001 | | 2024.04.18 | Àü¼¼ | ÇØ¿À¸§(367-17) | 2 | 44.56 | 20,000 | 0 | 2016 | | 2024.04.18 | ¸Å¸Å | (314-90) | 3 | 32.34 | 12,000 | | 2007 | | 2024.04.17 | ¿ù¼¼ | ¿µÇ³±×¸°ºô¶ó(365-8) | 4 | 51.15 | 5,000 | 60 | 1998 | | 2024.04.17 | Àü¼¼ | »ï¿ø¾ÆÀ̺ôA | 4 | 26.93 | 20,600 | 0 | 2022 | | 2024.04.17 | Àü¼¼ | »ï¿ø¾ÆÀ̺ôA | 4 | 26.93 | 21,000 | 0 | 2022 | | 2024.04.17 | Àü¼¼ | ·Ôµ¥Å¸¿î | 3 | 46.87 | 22,050 | 0 | 2014 | | 2024.04.17 | ¿ù¼¼ | ´õÁ¸ÆÛ½ºÆ® | 2 | 23.47 | 500 | 70 | 2020 | | 2024.04.17 | Àü¼¼ | µðÀÚÀΰñµçºô(304-5) | 3 | 29.92 | 16,000 | 0 | 2014 | | 2024.04.17 | ¸Å¸Å | »ó¶¼±×¸°ºôBµ¿ | 2 | 35.58 | 30,500 | | 2018 | | 2024.04.17 | ¸Å¸Å | LIPÁÖÅà | 5 | 76.35 | 31,800 | | 2008 | | 2024.04.17 | ¸Å¸Å | LG³ëºí¸®¿ò | 2 | 59.8 | 27,000 | | 2012 | | 2024.04.16 | ¸Å¸Å | ÇÑ¿ìºô¸®Áö(368-5) | 2 | 61.86 | 28,500 | | 2002 | | 2024.04.16 | ¿ù¼¼ | ºÀ´ãºô¶ó | 4 | 49.7 | 4,090 | 16 | 2021 | | 2024.04.16 | Àü¼¼ | ¿¡½ºÄÉÀÌÆÓ·¹½º | 4 | 29.08 | 18,000 | 0 | 2018 | | 2024.04.15 | ¸Å¸Å | ¸®¾ÈÇϿ콺(343-45) | 3 | 38.21 | 25,000 | | 2017 | | 2024.04.14 | ¿ù¼¼ | PAPRICA276 | 2 | 13.02 | 500 | 35 | 2012 | | 2024.04.14 | ¸Å¸Å | Çö´ë¾ÆÀ̺ô | 2 | 29.94 | 18,000 | | 2017 | | 2024.04.13 | ¸Å¸Å | ÇÏÀººô¸®Áö | 3 | 53.3 | 35,000 | | 2015 | | 2024.04.13 | Àü¼¼ | ¼öÁ¤ÈúŸ¿î°¡µ¿ | 4 | 52.2 | 16,000 | 0 | 2002 | | 2024.04.12 | ¿ù¼¼ | da°ñµå¸®¿ò(272-16) | 2 | 23.75 | 1,000 | 92 | 2022 | | 2024.04.12 | ¸Å¸Å | ´Ù¿ø¾ÆÆ®ºô(321-15) | 5 | 43.31 | 23,700 | | 2018 | | 2024.04.12 | ¿ù¼¼ | ÇØ´ãÇϿ콺 | 4 | 39.55 | 300 | 31 | 2021 | | 2024.04.12 | Àü¼¼ | ÈÀÎ¾ÆÆ®ºô(450-12) | 2 | 43.31 | 11,000 | 0 | 2002 | | 2024.04.12 | Àü¼¼ | ¿¤¸²°¡µç | 3 | 28.46 | 20,400 | 0 | 2020 | | 2024.04.12 | Àü¼¼ | ¿¤¸²°¡µç | 3 | 28.98 | 20,500 | 0 | 2020 | | 2024.04.12 | ¿ù¼¼ | ÇØ¸¶·ç(341-7) | 4 | 37.34 | 3,000 | 75 | 2017 | | 2024.04.12 | Àü¼¼ | Å»깫Áö°³ | 3 | 73.61 | 27,000 | 0 | 2010 | | 2024.04.11 | ¿ù¼¼ | ºí·ç½ºÄ«ÀÌ | 6 | 23.81 | 500 | 20 | 2014 | | 2024.04.10 | ¿ù¼¼ | ¿¡½º¿¥º§¸®Ã¼(350-8) | 2 | 40.32 | 3,000 | 75 | 2016 | | 2024.04.10 | Àü¼¼ | ¿ìÁ¤¾ÆÆ®ºô¶ó(317-13) | 3 | 53.62 | 10,000 | 0 | 1991 | | 2024.04.10 | Àü¼¼ | ½Ã¸ó¾ÆÆ®ºô¶ó4Â÷(322-3) | 4 | 75.37 | 20,700 | 0 | 2002 | | 2024.04.10 | ¿ù¼¼ | (331-21) | 1 | 48 | 2,000 | 68 | 1993 | | 2024.04.10 | Àü¼¼ | ÇØ¿À¸§¿¡À̵¿(284-27) | 5 | 49.82 | 21,000 | 0 | 2014 | | 2024.04.10 | Àü¼¼ | ½Ã¸ó¾ÆÆ®ºô¶ó4Â÷(322-3) | 4 | 75.37 | 21,000 | 0 | 2002 | | 2024.04.09 | Àü¼¼ | ¹ÌÁÖºô¶ó(349-8) | 3 | 62.88 | 22,000 | 0 | 2002 | | 2024.04.09 | ¿ù¼¼ | °Å¼ººô¶ó8µ¿ | -1 | 36.72 | 1,000 | 45 | 1990 | | 2024.04.09 | ¿ù¼¼ | Áø¿µ¿¡ÄÚºô | 5 | 47.8 | 545 | 45 | 2018 | | 2024.04.09 | Àü¼¼ | ¿¡µ§ºô¶ó | 5 | 21.21 | 11,000 | 0 | 2016 | | 2024.04.09 | ¸Å¸Å | ´ë¿ì½ºÀ§Æ®Èú(357-4) | 6 | 44.41 | 27,200 | | 2015 | | 2024.04.08 | ¸Å¸Å | »ï¿ø¾ÆÀ̺ô(326-1) | 3 | 35.37 | 31,000 | | 2018 | | 2024.04.08 | ¸Å¸Å | ´ëÈï¾ÆÀ̺ô2µ¿ | 7 | 45.79 | 33,000 | | 2017 | | 2024.04.08 | Àü¼¼ | ½Å¼ººô¶ó(314-3) | 1 | 26.79 | 10,000 | 0 | 1996 | | 2024.04.08 | Àü¼¼ | ¿¡Äڱ׷κ꿡ÀÌ | 3 | 29.93 | 23,000 | 0 | 2018 | | 2024.04.08 | ¿ù¼¼ | Ä«»çÆç¸®Áî(345-10) | 2 | 39.84 | 2,000 | 65 | 2002 | | 2024.04.06 | Àü¼¼ | Áß¾ÓÈúŸ¿î | 1 | 67.86 | 19,200 | 0 | 2002 | | 2024.04.06 | ¿ù¼¼ | žºô¸®Áö(312-10) | 3 | 61.98 | 5,000 | 70 | 2003 | | 2024.04.06 | ¸Å¸Å | µ¿µµÇÏÀÌÃ÷ºô¶ó(327-11) | 2 | 71.2 | 29,000 | | 2000 | | 2024.04.06 | ¿ù¼¼ | žºô¸®Áö(312-10) | 3 | 61.98 | 5,000 | 70 | 2003 | | 2024.04.06 | ¸Å¸Å | ¿µ¸ð´øºô | 6 | 27.47 | 18,000 | | 2016 | | 2024.04.06 | ¸Å¸Å | ¼Ò¸Áºô¶ó(332-3) | 1 | 76.3 | 31,000 | | 2002 | | 2024.04.06 | Àü¼¼ | ÀÌ´ãä2 | 2 | 36.04 | 19,900 | 0 | 2017 | | 2024.04.05 | ¿ù¼¼ | ÇÁ¶óÀ̺øÄ³½½3Â÷(141-59) | 2 | 26.67 | 1,000 | 60 | 2023 | | 2024.04.05 | Àü¼¼ | ¸¶À̺ô5Â÷ | 5 | 38.35 | 17,000 | 0 | 2018 | | 2024.04.05 | Àü¼¼ | ¹Ì¸²ºô¶ó°¡~¶óµ¿(108-5) | 1 | 61.16 | 14,000 | 0 | 1982 | | 2024.04.05 | ¿ù¼¼ | ÇÁ¶óÀ̺øÄ³½½3Â÷(141-59) | 2 | 26.67 | 1,000 | 60 | 2023 | | 2024.04.04 | Àü¼¼ | ¿¡Äڱ׷κêºñ | 3 | 29.91 | 19,200 | 0 | 2018 | | 2024.04.04 | Àü¼¼ | ´ë¸²±×¸°ºô°¡µ¿ | 4 | 49.68 | 13,000 | 0 | 2002 | | 2024.04.04 | ¿ù¼¼ | ű¤±×¸°ºô(330-9) | 2 | 65.62 | 5,000 | 80 | 2001 | | 2024.04.04 | Àü¼¼ | û¸²ºô(309-13) | 2 | 49.02 | 18,600 | 0 | 2012 | | 2024.04.04 | Àü¼¼ | ¿¡Äڱ׷κêºñ | 3 | 29.91 | 19,200 | 0 | 2018 | | 2024.04.03 | ¸Å¸Å | µ¿¿ì¸Ç¼Ç(363-2) | 3 | 68.95 | 28,000 | | 2000 | | 2024.04.03 | Àü¼¼ | Çö´ëȨ¸Ç¼Ç(307-11) | 3 | 46.43 | 13,000 | 0 | 2002 | | 2024.04.03 | Àü¼¼ | G&S¿£ºä | 3 | 49.36 | 19,400 | 0 | 2012 | | 2024.04.03 | ¿ù¼¼ | º¸¶ó¸Ç¼Ç2Â÷(330-17) | -1 | 56.52 | 2,000 | 50 | 2001 | | 2024.04.03 | ¿ù¼¼ | »ïÇöºô¶ó(70-15) | 1 | 21.62 | 1,000 | 35 | 1998 | | 2024.04.03 | ¿ù¼¼ | ¹Ì°Ç½ºÀ§Æ®ºô(103µ¿)417-9 | 4 | 33.15 | 2,000 | 50 | 2002 | | 2024.04.03 | Àü¼¼ | »ïÇöºô¶ó(70-15) | 2 | 21.62 | 6,000 | 0 | 1998 | | 2024.04.02 | ¸Å¸Å | »ï¿ø¾ÆÆ®ºô(344-7) | 2 | 59.83 | 29,000 | | 2001 | | 2024.04.02 | ¸Å¸Å | °Å¸ñºô¶ó(345-6) | 2 | 67.84 | 28,300 | | 1992 | | 2024.04.02 | ¸Å¸Å | ÀÌȺô¶ó(367-13) | 1 | 36.96 | 17,300 | | 1990 | | 2024.04.02 | ¸Å¸Å | ´ë¸²È¨Å¸¿î(141-58) | 2 | 69.84 | 26,500 | | 2001 | | 2024.04.01 | ¸Å¸Å | ´ö¼ºÇÏÀ̺ô | 2 | 29.89 | 15,000 | | 2011 | | 2024.04.01 | ¸Å¸Å | ·Î¾âÇÏÀÌÃ÷(278-12) | 3 | 28.59 | 21,000 | | 2018 | | 2024.04.01 | ¿ù¼¼ | ¼Û½Åºô¶ó | 3 | 111.8 | 100 | 15 | 1998 | | 2024.04.01 | Àü¼¼ | ´õ¿¡Äڱ׷κê(279-22) | 2 | 49.28 | 28,000 | 0 | 2019 | | 2024.04.01 | ¸Å¸Å | ¼ºÁø±×¸°ºô | 2 | 29.75 | 22,500 | | 2019 | | 2024.04.01 | ¸Å¸Å | À¯´Ï¿Âºô¶ó | 4 | 29.63 | 14,800 | | 2008 | | 2024.03.30 | ¿ù¼¼ | ´º»ïÀÍ1µ¿(311-1) | -1 | 33.47 | 1,000 | 70 | 1986 | | 2024.03.30 | Àü¼¼ | »ï¼ººô¶óÆ®(331-18) | 1 | 58.41 | 20,100 | 0 | 2001 | | 2024.03.30 | ¿ù¼¼ | ´Ù¿ø¸®Ä¡ºô2Â÷ | 2 | 32.81 | 850 | 70 | 2020 | | 2024.03.28 | ¿ù¼¼ | ¹Ì·¡ºô¸®Áö3(320-2) | 5 | 19.72 | 500 | 35 | 2002 | | 2024.03.27 | Àü¼¼ | µ¿½ÅÇÏÀÌÃ÷¸Ç¼Ç(365-17) | 4 | 59.77 | 15,498 | 0 | 2001 | | 2024.03.27 | ¿ù¼¼ | ÀÌ´ã䥲 | 3 | 29.78 | 300 | 85 | 2020 | | 2024.03.27 | ¿ù¼¼ | º£½ºÆ®ºô3Â÷ | 5 | 37.35 | 2,000 | 60 | 2011 | | 2024.03.27 | Àü¼¼ | µ¿½ÅÇÏÀÌÃ÷¸Ç¼Ç(365-17) | 4 | 59.77 | 18,500 | 0 | 2001 | | 2024.03.27 | Àü¼¼ | »ïÇöºô¶ó(70-15) | 1 | 50.3 | 15,000 | 0 | 1998 | | 2024.03.26 | Àü¼¼ | ¿¡½º¿¥º§¸®Ã¼(350-8) | 2 | 40.32 | 19,500 | 0 | 2016 | | 2024.03.26 | ¿ù¼¼ | ¸ñȺô¶ó(303-38) | 3 | 67.34 | 5,000 | 80 | 1994 | | 2024.03.26 | ¿ù¼¼ | ¸ñȺô¶ó(303-38) | 3 | 67.34 | 5,000 | 80 | 1994 | | 2024.03.25 | Àü¼¼ | ¼Ò¸Áºô¶ó(315-8) | 3 | 35.14 | 11,600 | 0 | 2003 | | 2024.03.25 | ¿ù¼¼ | °¡Àç¿ïºô | 2 | 54.21 | 3,000 | 73 | 2016 | | 2024.03.25 | Àü¼¼ | ´õºíÀ¯ÇϿ콺 | 2 | 38.49 | 16,000 | 0 | 2011 | | 2024.03.24 | ¿ù¼¼ | °ñµçij½½(327-37) | 5 | 23.7 | 1,000 | 55 | 2018 | | 2024.03.23 | ¿ù¼¼ | ¼±°æºô¶ó(346-7) | 3 | 59.7 | 16,000 | 20 | 1996 | | 2024.03.23 | ¿ù¼¼ | º£½ºÆ®ºôÀÏÂ÷ | 2 | 42.83 | 18,000 | 10 | 2011 | | 2024.03.23 | Àü¼¼ | °³ºÀºô¶ó(278-9) | -1 | 38.83 | 6,000 | 0 | 1994 | | 2024.03.23 | ¿ù¼¼ | ¼ºÁø±×¸°ºô | 3 | 28.88 | 2,000 | 70 | 2019 | | 2024.03.23 | ¿ù¼¼ | ¹Ì¼ºÁÖÅÃ(332-16) | -1 | 41.58 | 1,000 | 50 | 1987 | | 2024.03.23 | ¿ù¼¼ | º¸³ªºô¶ó(153-22) | 3 | 59.29 | 3,000 | 70 | 2003 | | 2024.03.22 | Àü¼¼ | Áö¿ÀÆÄÅ©(317-5) | 4 | 47.66 | 15,100 | 0 | 2002 | | 2024.03.22 | ¿ù¼¼ | ÇѸÆÄÉ·»½Ã¾Æ | 5 | 43.68 | 6,301 | 7 | 2020 | | 2024.03.22 | ¿ù¼¼ | ÇѸÆÄÉ·»½Ã¾Æ | 5 | 43.68 | 6,301 | 7 | 2020 | | 2024.03.22 | Àü¼¼ | ´ë¿ì½ºÀ§Æ®Èú | 5 | 29.67 | 13,000 | 0 | 2015 | | 2024.03.21 | ¿ù¼¼ | û¿ìºô¶ó(339-19) | 2 | 40.74 | 2,000 | 55 | 1993 | | 2024.03.21 | Àü¼¼ | ¶óÀÌÇÁȨŸ¿î | 2 | 76.59 | 23,000 | 0 | 2003 | | 2024.03.21 | ¿ù¼¼ | ´ëÈïºô¸®ÁöÁ¦3µ¿ | 5 | 51.65 | 10,000 | 70 | 2016 | | 2024.03.21 | ¿ù¼¼ | ¸¶À̺ô | 2 | 29.98 | 14,800 | 10 | 2016 | | 2024.03.20 | Àü¼¼ | ¸¶À̺ô3Â÷ | 3 | 20.15 | 15,500 | 0 | 2018 | | 2024.03.20 | Àü¼¼ | JÆÓ¸®½º5Â÷ | 5 | 51.58 | 17,500 | 0 | 2012 | | 2024.03.20 | Àü¼¼ | º¸Çغô¶ó(319-15) | 1 | 62.91 | 16,150 | 0 | 1997 | | 2024.03.20 | ¿ù¼¼ | ÀÌ´ã䥲 | 3 | 29.93 | 100 | 70 | 2020 | | 2024.03.19 | ¿ù¼¼ | ¿¤¸²ÇϿ콺°¡,³ªµ¿ | 3 | 52.07 | 2,356 | 31 | 2018 | | 2024.03.19 | ¿ù¼¼ | º£½ºÆ® | 3 | 19.56 | 500 | 50 | 2012 | | 2024.03.19 | ¿ù¼¼ | »þÀÎÇϿ콺(310-42) | 3 | 45.53 | 4,116 | 7 | 2014 | | 2024.03.19 | ¿ù¼¼ | Áø¿µ¿¡ÄÚºô | 5 | 59.31 | 679 | 51 | 2018 | | 2024.03.19 | ¿ù¼¼ | (141-14) | 1 | 53.86 | 2,000 | 70 | 1986 | | 2024.03.18 | Àü¼¼ | ¼ºÈ¯ºô¶ó(330-19) | -1 | 64.56 | 14,000 | 0 | 2001 | | 2024.03.18 | Àü¼¼ | »ï¼º½¦¸£ºô(350-12) | -1 | 54.1 | 11,700 | 0 | 2002 | | 2024.03.18 | Àü¼¼ | ¼ºÈ½ºÀ§Æ®ºô(153-56) | 4 | 52.98 | 12,000 | 0 | 2002 | | 2024.03.18 | ¿ù¼¼ | da°ñµå¸®¿ò(272-16) | 5 | 24.79 | 1,000 | 118 | 2022 | | 2024.03.18 | ¿ù¼¼ | ±Ý°½ºÀ§Æ®È¨(302-2) | -1 | 32.78 | 1,000 | 40 | 2002 | | 2024.03.18 | ¿ù¼¼ | ¹Ì°Ç½ºÀ§Æ®ºô(105µ¿)417-16 | 4 | 32.4 | 3,800 | 50 | 2002 | | 2024.03.18 | Àü¼¼ | µ¿¿î³×½ºÆ®ºô(337-8) | 2 | 44.12 | 12,000 | 0 | 2003 | | 2024.03.17 | Àü¼¼ | Áø¿µ±×¸°ºô | 5 | 64.62 | 16,500 | 0 | 2002 | | 2024.03.16 | Àü¼¼ | °³²¾ÆÅ©·Îºô(331-6) | 2 | 63.84 | 18,396 | 0 | 2001 | | 2024.03.16 | Àü¼¼ | ½Å¼¼°èº¹ÇÕºôµù | 5 | 20.09 | 17,900 | 0 | 2017 | | 2024.03.16 | Àü¼¼ | PAPRICA276 | 2 | 13.02 | 7,000 | 0 | 2012 | | 2024.03.16 | Àü¼¼ | û¿ìȨŸ¿î | 4 | 50.28 | 15,000 | 0 | 2002 | | 2024.03.15 | ¿ù¼¼ | °³ºÀ¿ì¸®ºô | 6 | 54.3 | 300 | 35 | 2021 | | 2024.03.15 | ¿ù¼¼ | da°ñµå¸®¿ò(272-16) | 3 | 23.75 | 1,000 | 92 | 2022 | | 2024.03.15 | ¿ù¼¼ | ÀÌ´ã䥲 | 5 | 29.93 | 300 | 80 | 2020 | | 2024.03.15 | ¿ù¼¼ | ÀÌ´ã䥲 | 5 | 29.93 | 300 | 80 | 2020 | | 2024.03.15 | ¿ù¼¼ | ¸¶À̺ô¥µ | 5 | 29.34 | 3,300 | 60 | 2019 | | 2024.03.15 | Àü¼¼ | ¿¡½ºÄÉÀÌÆÓ·¹½º | 6 | 27.87 | 18,000 | 0 | 2018 | | 2024.03.15 | Àü¼¼ | »ï¼ººô¸®Áö | 4 | 50.51 | 13,000 | 0 | 2013 | | 2024.03.15 | Àü¼¼ | ¿¡½ºÄÉÀÌÆÓ·¹½º | 6 | 27.87 | 18,000 | 0 | 2018 | | 2024.03.15 | ¿ù¼¼ | ±Ý¿Àºô¶ó(304-9) | 2 | 72.88 | 10,000 | 40 | 2001 | | 2024.03.15 | Àü¼¼ | ¿ìÁ¤¾ÆÆ®ºô¶ó(317-13) | 2 | 53.62 | 13,075 | 0 | 1991 | | 2024.03.14 | Àü¼¼ | ¼ÛÁ¤·¹µð¿¥ | 2 | 53.73 | 23,000 | 0 | 2012 | | 2024.03.14 | ¿ù¼¼ | ÇѸ¶À½ÇÁ¶óÀÚ | 3 | 50.56 | 2,000 | 100 | 2003 | | 2024.03.14 | ¿ù¼¼ | Çö´ëºô¶ó(302-14) | 3 | 59.34 | 3,000 | 85 | 1996 | | 2024.03.14 | ¿ù¼¼ | Áêºô¸® | 3 | 57.07 | 871 | 32 | 2021 | | 2024.03.13 | ¿ù¼¼ | ¹Ì°Ç½ºÀ§Æ®ºô(101µ¿)417-17 | 4 | 23.17 | 5,000 | 35 | 2002 | | 2024.03.13 | Àü¼¼ | ÀÌȺô¶ó(367-13) | 2 | 36.96 | 9,700 | 0 | 1990 | | 2024.03.13 | Àü¼¼ | ÀÌȺô¶ó(367-13) | 2 | 36.96 | 9,500 | 0 | 1990 | | 2024.03.12 | ¿ù¼¼ | ¼ºÀººô¶ó(307-10) | 3 | 43.87 | 6,000 | 55 | 2002 | | 2024.03.12 | Àü¼¼ | ·Î¸Á½ººô(453-1) | 2 | 44.3 | 14,500 | 0 | 2002 | | 2024.03.11 | ¿ù¼¼ | »ï¼ººô¶ó(345-7) | 1 | 42.51 | 11,360 | 15 | 1993 | | 2024.03.11 | Àü¼¼ | ÁöÀ»ÇϿ콺 | 2 | 29.93 | 24,000 | 0 | 2023 | | 2024.03.11 | Àü¼¼ | ÁöÀ»ÇϿ콺 | 3 | 29.93 | 24,000 | 0 | 2023 | | 2024.03.10 | ¿ù¼¼ | À£Å¸¿î | 7 | 18.97 | 2,000 | 80 | 2024 | | 2024.03.10 | ¿ù¼¼ | da°ñµå¸®¿ò(272-16) | 3 | 24.06 | 1,000 | 92 | 2022 | | 2024.03.10 | Àü¼¼ | ´ë¸í¿ùµå | 2 | 44.06 | 16,500 | 0 | 2011 | | 2024.03.09 | Àü¼¼ | ´Ù¿ø¸®Ä¡ºô | 3 | 35.18 | 22,000 | 0 | 2019 | | 2024.03.09 | ¿ù¼¼ | ÇØÇ°´Þ¸®Ä¡ºô | 5 | 54 | 3,000 | 100 | 2012 | | 2024.03.09 | ¿ù¼¼ | À§ÇϿ콺(264-12) | 4 | 29.92 | 2,000 | 75 | 2018 | | 2024.03.09 | Àü¼¼ | Áß¾Ó¾ÆÆ®ÈúBµ¿ | 5 | 44.82 | 12,000 | 0 | 2003 | | 2024.03.09 | ¿ù¼¼ | ·Î¾âÇÏÀÌÃ÷C(276-35) | 3 | 29.9 | 2,000 | 53 | 2014 | | 2024.03.08 | ¿ù¼¼ | ¶óÀÎij½½ | 3 | 47.03 | 22,000 | 10 | 2016 | | 2024.03.08 | ¿ù¼¼ | ¹Ì°Ç½ºÀ§Æ®ºô(103µ¿)417-9 | 3 | 33.15 | 1,500 | 60 | 2002 | | 2024.03.07 | Àü¼¼ | ÁöÀ»ÇϿ콺 | 3 | 29.93 | 24,000 | 0 | 2023 | | 2024.03.07 | Àü¼¼ | ÁöÀ»ÇϿ콺 | 4 | 29.93 | 24,000 | 0 | 2023 | | 2024.03.07 | Àü¼¼ | º°Àåºô¶ó1µ¿(50-40) | 1 | 37.44 | 9,250 | 0 | 1989 | | 2024.03.07 | Àü¼¼ | ¿¡µ§Ä³½½ | 2 | 59.61 | 25,000 | 0 | 2018 | | 2024.03.07 | Àü¼¼ | ÁöÀ»ÇϿ콺 | 2 | 29.93 | 24,000 | 0 | 2023 | | 2024.03.06 | ¿ù¼¼ | ¿¡Äڱ׷κê | 5 | 27.53 | 5,000 | 60 | 2016 | | 2024.03.06 | Àü¼¼ | °³ºÀÆÄ·¹½ººô¶ó°¡,³ªµ¿(170-1) | 3 | 70.8 | 19,000 | 0 | 1993 | | 2024.03.06 | ¿ù¼¼ | ºÎ¿øºô¶ó(320-14) | 4 | 45.68 | 2,000 | 70 | 2002 | | 2024.03.06 | Àü¼¼ | ÁöÀ»ÇϿ콺 | 5 | 28.41 | 25,000 | 0 | 2023 | | 2024.03.06 | Àü¼¼ | SKYVILLE(333-8) | 4 | 37.17 | 13,800 | 0 | 2002 | | 2024.03.05 | ¿ù¼¼ | DA°ñµå¸®¿ò | 5 | 29.8 | 1,000 | 98 | 2022 | | 2024.03.05 | Àü¼¼ | ¿¡Äڱ׷κê | 3 | 26.96 | 15,000 | 0 | 2016 | | 2024.03.05 | ¿ù¼¼ | Áö¿ÀÆç¸®Ã¼ | 3 | 25.94 | 150 | 65 | 2021 | | 2024.03.05 | ¿ù¼¼ | º¸³ªºô¶ó(153-22) | 3 | 42.44 | 2,000 | 50 | 2003 | | 2024.03.05 | ¿ù¼¼ | ´ë·úºô¶ó | 2 | 40.43 | 7,000 | 25 | 2001 | | 2024.03.05 | Àü¼¼ | ÁöÀ»ÇϿ콺 | 3 | 29.88 | 24,000 | 0 | 2023 | | 2024.03.05 | ¿ù¼¼ | °Å¼º(³ª) | 1 | 35.29 | 1,000 | 35 | 1991 | | 2024.03.05 | Àü¼¼ | ¾çÁö½¦¸£ºô(310-5) | 5 | 54.37 | 20,900 | 0 | 2011 | | 2024.03.05 | ¿ù¼¼ | ÀÌȺô¶ó(367-13) | -1 | 36.96 | 500 | 40 | 1990 | | 2024.03.05 | ¿ù¼¼ | DA°ñµå¸®¿ò | 5 | 29.8 | 1,000 | 98 | 2022 | | 2024.03.05 | Àü¼¼ | º°Àåºô¶ó°¡µ¿,³ªµ¿(50-43) | -1 | 36.76 | 6,000 | 0 | 1989 | | 2024.03.04 | Àü¼¼ | ´ë¸²±×¸°ºô³ªµ¿ | 4 | 30.33 | 10,600 | 0 | 2002 | | 2024.03.04 | ¿ù¼¼ | Æ÷À¯ºô | 5 | 27.08 | 100 | 55 | 2021 | | 2024.03.04 | Àü¼¼ | ´ë¸²¾ÆÆ®ºô³ªµ¿ | 4 | 44.08 | 14,500 | 0 | 2002 | | 2024.03.04 | Àü¼¼ | ¿¡Äڱ׷κêºô¸®Áö10Â÷201µ¿ | 2 | 29.81 | 25,000 | 0 | 2023 | | 2024.03.03 | Àü¼¼ | ½Å¼¼°è·ÎÁîºô | 2 | 29.82 | 13,230 | 0 | 2012 | | 2024.03.02 | ¿ù¼¼ | µðÀÚÀÎÇϿ콺(305-2) | 5 | 59.71 | 4,000 | 80 | 2011 | | 2024.03.02 | ¿ù¼¼ | ¹Ì¸²ºô¶ó°¡~¶óµ¿(108-5) | 2 | 59.67 | 7,500 | 25 | 1982 | | 2024.03.02 | Àü¼¼ | Æ®¶ó¿ò | 2 | 38.63 | 19,600 | 0 | 2016 | | 2024.03.01 | Àü¼¼ | ¼¼Á¾¾ÆÆ®ºô(68-150) | 2 | 55.25 | 26,500 | 0 | 2018 | | 2024.03.01 | Àü¼¼ | »ó¶¼±×¸°Èú(334-4) | 5 | 35.23 | 22,100 | 0 | 2020 | | 2024.02.29 | ¿ù¼¼ | ¿ì¹Ìºí·ç¹Ö | 5 | 28.92 | 1,000 | 100 | 2022 | | 2024.02.28 | Àü¼¼ | ¿¹Àº¸®Ä¡ºô | 4 | 36.39 | 20,000 | 0 | 2015 | | 2024.02.27 | Àü¼¼ | À¯»óºô¸®Áö(370-12) | 5 | 47.68 | 13,300 | 0 | 2003 | | 2024.02.27 | ¿ù¼¼ | »ó¶¼±×¸°Èú(334-4) | 5 | 35.23 | 4,000 | 65 | 2020 | | 2024.02.27 | Àü¼¼ | µ¿¾Æ¿¬¸³(265-5) | 1 | 78.25 | 26,000 | 0 | 1979 | | 2024.02.27 | Àü¼¼ | ÇѼº½ºÀ§Æ®ºô(457-9) | 2 | 51.36 | 15,000 | 0 | 2002 | | 2024.02.26 | Àü¼¼ | ¸ð´øºô(280-25) | 1 | 63.13 | 25,000 | 0 | 2002 | | 2024.02.26 | ¿ù¼¼ | DA°ñµå¸®¿ò | 4 | 29.04 | 1,000 | 118 | 2022 | | 2024.02.24 | Àü¼¼ | °ø¿øºô¶óA(339-7) | 3 | 70.46 | 22,000 | 0 | 2000 | | 2024.02.24 | Àü¼¼ | »ó¶¼±×¸°ºô(279-2) | 5 | 28.69 | 18,000 | 0 | 2018 | | 2024.02.23 | ¿ù¼¼ | ÀÏÁøÆÄÅ©ºôB(351-4) | 1 | 64.84 | 2,000 | 110 | 2002 | | 2024.02.23 | ¿ù¼¼ | ÇÏÀººô¸®Áö | 6 | 27.19 | 15,000 | 10 | 2015 | | 2024.02.23 | Àü¼¼ | ½Å¼ººô¶ó(314-3) | 3 | 48.09 | 11,000 | 0 | 1996 | | 2024.02.23 | ¿ù¼¼ | da°ñµå¸®¿ò(272-16) | 4 | 23.75 | 1,000 | 92 | 2022 | | 2024.02.23 | Àü¼¼ | ·Î¾âÇÏÀÌÃ÷(361-11) | 2 | 28.2 | 19,600 | 0 | 2020 | | 2024.02.22 | Àü¼¼ | ÁöÀ»ÇϿ콺 | 5 | 29.93 | 24,000 | 0 | 2023 | | 2024.02.22 | ¿ù¼¼ | ¿¡Äڱ׷κêºô¸®Áö | 3 | 27.2 | 200 | 80 | 2021 | | 2024.02.22 | Àü¼¼ | J.ArkVill | 5 | 54.87 | 23,000 | 0 | 2014 | | 2024.02.21 | Àü¼¼ | ±×¸°Èú | 3 | 29.8 | 17,000 | 0 | 2014 | | 2024.02.21 | ¿ù¼¼ | ¼ºÁø±×¸°ºô | 5 | 29.87 | 100 | 65 | 2019 | | 2024.02.21 | ¿ù¼¼ | »ó¶¼±×¸°ºô(153-66) | 3 | 41.94 | 3,000 | 75 | 2018 | | 2024.02.20 | Àü¼¼ | ´Ù¿ø¾ÆÆ®ºô(321-15) | 3 | 45.27 | 19,500 | 0 | 2018 | | 2024.02.20 | Àü¼¼ | ÈÀÎ¾ÆÆ®ºô(450-12) | 5 | 58.92 | 18,000 | 0 | 2002 | | 2024.02.19 | Àü¼¼ | Æ®¶ó¿òÇϿ콺 | 2 | 40.32 | 18,000 | 0 | 2012 | | 2024.02.19 | Àü¼¼ | (323-11) | 2 | 52.31 | 19,500 | 0 | 2012 | | 2024.02.19 | Àü¼¼ | ÁöÀ»ÇϿ콺 | 4 | 29.88 | 24,000 | 0 | 2023 | | 2024.02.19 | Àü¼¼ | ½Å¼¼°è·ÎÁîºô | 4 | 28.09 | 12,500 | 0 | 2012 | | 2024.02.18 | ¿ù¼¼ | ºñ¹ßµðij½½2Â÷ | 3 | 39.64 | 3,000 | 60 | 2016 | | 2024.02.17 | ¿ù¼¼ | ¼ººÎºô¶óBµ¿(331-2 | 4 | 49.84 | 4,000 | 70 | 1997 | | 2024.02.17 | ¿ù¼¼ | ÇØ¸¶·çºô(312-65) | 3 | 55.32 | 1,000 | 80 | 2003 | | 2024.02.17 | Àü¼¼ | ±×·¹À̽ººô3Â÷ | 5 | 46.99 | 13,000 | 0 | 2011 | | 2024.02.16 | ¿ù¼¼ | µå¸²ºô¸®Áö | 5 | 29.96 | 5,000 | 70 | 2022 | | 2024.02.16 | Àü¼¼ | ´ë¸²±×¸°ºô³ªµ¿ | 3 | 49.68 | 15,000 | 0 | 2002 | | 2024.02.16 | ¿ù¼¼ | ´ë¿ì½ºÀ§Æ®Èú(305-11) | 3 | 45.66 | 2,000 | 70 | 2012 | | 2024.02.16 | Àü¼¼ | û´ãÈú½ººô | 3 | 29.95 | 11,970 | 0 | 2012 | | 2024.02.16 | Àü¼¼ | ¿¡µ§ºô¶ó | 3 | 42.02 | 21,500 | 0 | 2016 | | 2024.02.16 | ¿ù¼¼ | ¸í°¡ÁÖÅà | 6 | 53.42 | 2,677 | 22 | 2015 | | 2024.02.16 | Àü¼¼ | û´ãÈú½ººô | 3 | 29.95 | 11,970 | 0 | 2012 | | 2024.02.15 | Àü¼¼ | ÈÞÇ÷¯½º(306-31) | 5 | 55.92 | 13,000 | 0 | 2014 | | 2024.02.15 | ¿ù¼¼ | °³ºÀ½ºÅ¸Èú | 6 | 24.03 | 2,000 | 95 | 2021 | | 2024.02.14 | Àü¼¼ | ³ëºí¸®¿ò(327-21) | 5 | 43.77 | 16,000 | 0 | 2013 | | 2024.02.14 | ¿ù¼¼ | ´ÙÀκô | 5 | 36.16 | 1,796 | 15 | 2015 | | 2024.02.13 | ¿ù¼¼ | ¸ÞÀÎÇϿ콺(279-7) | 2 | 40.57 | 16,000 | 40 | 2018 | | 2024.02.13 | Àü¼¼ | ¼ö¸íÁÖÅÃ(132-4) | 5 | 59.45 | 30,000 | 0 | 2023 | | 2024.02.13 | Àü¼¼ | ¿¹Àº¸®Ä¡ºô | 2 | 36.39 | 23,000 | 0 | 2015 | | 2024.02.13 | Àü¼¼ | ¸ð´øºô(280-25) | 3 | 63.13 | 22,500 | 0 | 2002 | | 2024.02.13 | Àü¼¼ | ¿¹Àº¸®Ä¡ºô | 2 | 36.39 | 23,000 | 0 | 2015 | | 2024.02.13 | Àü¼¼ | Çö´ë¸Ç¼ÇB(343-24) | 3 | 62.99 | 16,000 | 0 | 2001 | | 2024.02.09 | ¿ù¼¼ | ·Î¾âÇÏÀÌÃ÷(321-5) | 5 | 29.85 | 2,000 | 65 | 2016 | | 2024.02.08 | ¿ù¼¼ | ÇÁ¶óÀ̺øÄ³½½3Â÷ | 2 | 29.79 | 500 | 65 | 2023 | | 2024.02.08 | ¿ù¼¼ | Áö³ëºô | 1 | 39.44 | 10,000 | 29 | 2004 | | 2024.02.08 | ¿ù¼¼ | ¸¶À̺ô¥µ | 2 | 29.81 | 2,000 | 65 | 2019 | | 2024.02.08 | ¿ù¼¼ | ÇÁ¶óÀ̺øÄ³½½3Â÷(141-59) | 1 | 26.67 | 1,000 | 75 | 2023 | | 2024.02.07 | ¿ù¼¼ | °³ºÀ½ºÅ¸Èú | 2 | 24.1 | 2,000 | 85 | 2021 | | 2024.02.07 | ¿ù¼¼ | ¿ì¹Ìºí·ç¹Ö | 3 | 27.42 | 1,000 | 95 | 2022 | | 2024.02.06 | Àü¼¼ | »ï¿øÇÏÀ̺ô(284-5) | 6 | 41.46 | 22,000 | 0 | 2015 | | 2024.02.06 | Àü¼¼ | ÁöÀ»ÇϿ콺 | 4 | 29.86 | 25,000 | 0 | 2023 | | 2024.02.05 | Àü¼¼ | ÁöÀ»ÇϿ콺 | 6 | 29.93 | 24,000 | 0 | 2023 | | 2024.02.04 | ¿ù¼¼ | º¸¼®ºô | 5 | 45.78 | 500 | 61 | 2008 | | 2024.02.03 | ¿ù¼¼ | ·Î¾âÇÏÀÌÃ÷(278-7) | 5 | 28.69 | 2,000 | 63 | 2013 | | 2024.02.03 | ¿ù¼¼ | ´Ùºóºô | 3 | 26.61 | 2,000 | 60 | 2019 | | 2024.02.03 | ¿ù¼¼ | Á¦ÀϸǼð(357-9) | 2 | 46.26 | 5,000 | 39 | 1992 | | 2024.02.03 | Àü¼¼ | ¸íǰ¸®Ä¡ºô(333-18) | 3 | 40.57 | 16,300 | 0 | 2012 | | 2024.02.02 | ¿ù¼¼ | °³ºÀ½ºÅ¸Èú | 4 | 24.03 | 4,000 | 80 | 2021 | | 2024.02.02 | ¿ù¼¼ | ºñ¹ßµðij½½2Â÷ | 6 | 39.64 | 18,000 | 10 | 2016 | | 2024.02.02 | ¿ù¼¼ | ¿ìÁ¤ÁÖÅà | 4 | 49.92 | 10,000 | 45 | 1997 | | 2024.02.02 | Àü¼¼ | ¼¿¬¾ÆÆ®ºô | 2 | 42.26 | 19,500 | 0 | 2018 | | 2024.02.02 | ¿ù¼¼ | (344-14) | 5 | 46.07 | 500 | 35 | 2016 | | 2024.02.01 | Àü¼¼ | (70-20) | 5 | 46.14 | 15,000 | 0 | 2013 | | 2024.02.01 | Àü¼¼ | ±×¸°Èú | 2 | 29.77 | 17,000 | 0 | 2014 | | 2024.02.01 | Àü¼¼ | Çà¿î°¡ | 1 | 41.61 | 15,400 | 0 | 2012 | | 2024.01.31 | ¿ù¼¼ | º°Àåºô¶ó2Â÷Aµ¿(50-20) | -1 | 45.9 | 1,000 | 50 | 1989 | | 2024.01.30 | Àü¼¼ | Àå¿øÅ¸¿î³ªµ¿(309-9) | 2 | 59.97 | 18,000 | 0 | 2002 | | 2024.01.29 | Àü¼¼ | µå¸²ºô | 4 | 25.08 | 14,000 | 0 | 2008 | | 2024.01.29 | Àü¼¼ | ºÎ±¤ºô¶ó2Â÷ | 1 | 49.2 | 11,000 | 0 | 1992 | | 2024.01.29 | ¿ù¼¼ | ´Ùºóºô | 5 | 33.42 | 5,000 | 60 | 2019 | | 2024.01.28 | ¿ù¼¼ | ¿ì¹Ìºí·ç¹Ö | 4 | 29.16 | 4,000 | 80 | 2022 | | 2024.01.28 | Àü¼¼ | ¼®À±ºô¶ó | 5 | 34.78 | 9,500 | 0 | 2002 | | 2024.01.27 | ¿ù¼¼ | ¿ì¹Ìºí·ç¹Ö | 5 | 28.92 | 17,000 | 15 | 2022 | | 2024.01.27 | Àü¼¼ | ÈÀÌÆ®ºô | 4 | 56.43 | 15,000 | 0 | 2003 | | 2024.01.27 | ¿ù¼¼ | ¹Ì·¡ºô¸®Áö3(320-2) | 5 | 21.17 | 500 | 34 | 2002 | | 2024.01.26 | ¿ù¼¼ | µµ·¡¸ñ·Ã°¡ | 6 | 46.62 | 1,000 | 60 | 2017 | | 2024.01.25 | ¿ù¼¼ | ¿ì¹Ìºí·ç¹Ö | 4 | 28.92 | 2,000 | 90 | 2022 | | 2024.01.25 | Àü¼¼ | ¸ÞÀÎÇϿ콺(326-4) | 3 | 29.92 | 20,000 | 0 | 2019 | | 2024.01.25 | Àü¼¼ | ÁöÀ»ÇϿ콺 | 4 | 22.89 | 20,000 | 0 | 2023 | | 2024.01.24 | ¿ù¼¼ | °³ºÀÆÄÅ©ºô2(131-5) | 2 | 29.53 | 2,074 | 27 | 2019 | | 2024.01.23 | Àü¼¼ | ¸¶À̺ô3Â÷ | 4 | 29.38 | 17,500 | 0 | 2018 | | 2024.01.20 | Àü¼¼ | ½Å¾Æ¸Ç¼Ç(316-12) | 1 | 44.62 | 11,700 | 0 | 2001 | | 2024.01.20 | Àü¼¼ | Ƚަ¸£ºô | 2 | 54.45 | 21,000 | 0 | 2015 | | 2024.01.19 | ¿ù¼¼ | Áø¿µ¿¡ÄÚºô | 2 | 29.96 | 3,600 | 14 | 2018 | | 2024.01.15 | Àü¼¼ | ¸ð´øºô(280-25) | 4 | 63.13 | 20,000 | 0 | 2002 | | 2024.01.15 | ¿ù¼¼ | DA°ñµå¸®¿ò | 3 | 27.28 | 3,000 | 80 | 2022 | | 2024.01.15 | ¿ù¼¼ | Å»깫Áö°³(365-32) | 2 | 29.99 | 0 | 40 | 2011 | | 2024.01.13 | ¿ù¼¼ | ¸®¿ø | 5 | 28.28 | 500 | 80 | 2022 | | 2024.01.13 | Àü¼¼ | °¡Àç¿ïºô | 2 | 58.99 | 20,900 | 0 | 2016 | | 2024.01.12 | Àü¼¼ | ±×·¹À̽ººô(309-11) | 4 | 60.18 | 20,000 | 0 | 2010 | | 2024.01.11 | ¿ù¼¼ | Áß¾ÓÈúŸ¿î-°¡(457-14) | 2 | 49.12 | 2,000 | 75 | 2002 | | 2024.01.11 | ¿ù¼¼ | ¿ì¹Ìºí·ç¹Ö | 3 | 29.16 | 1,500 | 90 | 2022 | | 2024.01.11 | Àü¼¼ | ´Ù¿ø¸®Ä¡ºô | 5 | 34.15 | 32,400 | 0 | 2019 | | 2024.01.10 | ¿ù¼¼ | °³ºÀÆÄÅ©ºô¥° | 4 | 44.43 | 3,066 | 40 | 2019 | | 2024.01.10 | ¿ù¼¼ | ÇÁ¶óÀ̺øÄ³½½3Â÷(141-59) | 2 | 29.54 | 500 | 70 | 2023 | | 2024.01.09 | Àü¼¼ | ±¹Èºô¶ó(171-1) | 2 | 80.44 | 16,000 | 0 | 1983 | | 2024.01.09 | ¿ù¼¼ | ¿¡½ºÄÉÀÌÆÓ·¹½º | 6 | 37.9 | 5,000 | 100 | 2018 | | 2024.01.09 | Àü¼¼ | Áß¾Ó¾ÆÆ®ÈúAµ¿ | 5 | 45.8 | 12,500 | 0 | 2004 | | 2024.01.09 | ¿ù¼¼ | ½Å¼ººô¶ó(314-3) | 3 | 39.06 | 3,000 | 50 | 1996 | | 2024.01.09 | Àü¼¼ | Áß¾Ó¾ÆÆ®ÈúAµ¿ | 5 | 45.8 | 12,500 | 0 | 2004 | | 2024.01.08 | Àü¼¼ | ´ë¿ì½ºÀ§Æ®Èú(120-12) | 5 | 30.84 | 18,000 | 0 | 2015 | | 2024.01.08 | ¿ù¼¼ | ¿ì¹Ìºí·ç¹Ö | 6 | 29.16 | 2,000 | 90 | 2022 | | 2024.01.07 | ¿ù¼¼ | °ñµå¿ø¾ÆÆ®ºô | 4 | 39.53 | 2,000 | 63 | 2014 | | 2024.01.06 | ¿ù¼¼ | ´Ù¿ø¸®Ä¡ºô4Â÷ | 1 | 22.75 | 500 | 42 | 2021 | | 2024.01.06 | ¿ù¼¼ | À̵¥¾ÆÇϿ콺B(346-47) | 2 | 31.5 | 3,000 | 75 | 2014 | | 2024.01.06 | Àü¼¼ | ·Î¾âÇÏÀÌÃ÷(365-1) | 3 | 35.81 | 25,000 | 0 | 2017 | | 2024.01.06 | Àü¼¼ | ÆÓ¸®½ººä | 4 | 29.69 | 17,300 | 0 | 2016 | | 2024.01.06 | ¿ù¼¼ | ¿¹´ã½ºÅ×À̰³ºÀ¿ª | 5 | 25.68 | 5,500 | 85 | 2023 | | 2024.01.06 | ¿ù¼¼ | ¸®¿ø | 3 | 29.87 | 500 | 85 | 2022 | | 2024.01.05 | ¿ù¼¼ | û±¸ºô¶ó(305-10) | 1 | 51.84 | 12,300 | 27 | 1997 | | 2024.01.05 | Àü¼¼ | »ï¿ø¾ÆÀ̺ôA(286-3) | 2 | 22.79 | 21,600 | 0 | 2021 | | 2024.01.05 | ¿ù¼¼ | DA°ñµå¸®¿ò | 6 | 41.03 | 3,000 | 112 | 2022 | | 2024.01.05 | ¿ù¼¼ | Çѽźô¶ó(278-10) | 3 | 32.22 | 7,900 | 25 | 1993 | | 2024.01.05 | ¿ù¼¼ | Çѽźô¶ó(264-6) | 4 | 43.85 | 11,800 | 30 | 1997 | | 2024.01.05 | Àü¼¼ | Çö´ë¾ÆÀ̺ô | 3 | 29.94 | 16,200 | 0 | 2017 | | 2024.01.04 | Àü¼¼ | (70-20) | 3 | 26.33 | 11,786 | 0 | 2013 | | 2024.01.04 | Àü¼¼ | (70-20) | 3 | 26.33 | 12,200 | 0 | 2013 | | 2024.01.03 | Àü¼¼ | Áß¾ÓÈúŸ¿î-³ª(457-15) | 5 | 48.84 | 14,000 | 0 | 2002 | | 2024.01.03 | ¿ù¼¼ | Ãæ¹«ºô¶ó(326-8) | 4 | 53.61 | 1,500 | 60 | 2002 | | 2024.01.03 | Àü¼¼ | ·Î¾âÇÏÀÌÃ÷(264-29) | 4 | 38.89 | 20,000 | 0 | 2017 | | 2024.01.02 | Àü¼¼ | ¿¡½ºÄÉÀÌÆÓ·¹½º | 2 | 28.68 | 15,750 | 0 | 2018 | | 2024.01.02 | ¿ù¼¼ | ¿¡½ºÄÉÀÌÆÄÅ©ºô | 5 | 29.42 | 2,500 | 55 | 2023 | | 2024.01.02 | ¿ù¼¼ | ´õ¿¡Äڱ׷κê8Â÷ | 3 | 27.35 | 100 | 50 | 2020 |
|
|
|
 |
ÀÓÂ÷³»¿ª |
[¹è´ç¿ä±¸Á¾±âÀÏ : 2025/07/07] |
|
|
| ÀÓÂ÷ÀÎ |
Á¡À¯°ü°è |
ÀüÀÔÀÏÀÚ |
È®Á¤ÀÏÀÚ |
¹è´ç¿ä±¸ÀÏ |
º¸Áõ±Ý/Â÷ÀÓ |
´ëÇ׿ä°Ç |
ºñ°í |
| ¼ºOO |
°Ç¹°ÀüºÎ |
2021.11.03 |
2021.09.28 |
|
259,000,000
|
O |
2021.10.25 ~ |
| ÁÖOOOOOOO |
402È£ÀüºÎ |
2021.11.03(¼º¾Æ¿¬) |
2021.09.28 |
2025.4.4. |
259,000,000
|
O |
2021.10.25 ~2023.10.24 |
| ¸Å°¢¹°°Ç¸í¼¼ ºñ°í |
¼º¾Æ¿¬ : ÁÖÅÃÀÓÂ÷±Ç µî±âÀÏÀº 2023.10.18.ÀÓ
ÁÖÅõµ½Ãº¸Áõ°ø»ç : ÁÖÅÃÀÓÂ÷±ÇÀÚ ¼º¾Æ¿¬ÀÇ ÁöÀ§¸¦ ½Â°èÇÑ ÀÌ »ç°Ç ½Åûä±ÇÀÚ·Î ±Ç¸®½Å°í ¹× ¹è´ç¿ä±¸ÀÏÀº °æ¸Å½ÅûÀÏÀÓ |
|
|
|
 |
Áö¿ªºÐ¼® |
|
|
|
|
| ÁöÇÏö |
|
Çб³ |
|
| °ü°ø¼ |
|
| ¹ý¿ø |
¼¿ï³²ºÎÁö¹æ¹ý¿ø (080-88)¼¿ïƯº°½Ã ¾çõ±¸ ½Å¿ù·Î 386(½ÅÁ¤µ¿) ´ëÇ¥ : 02)2192-1114 ¿µµîÆ÷±¸, °¼±¸, ¾çõ±¸, ±¸·Î±¸, ±Ýõ±¸ |
| µî±â¼Ò |
¼¿ï³²ºÎÁö¹æ¹ý¿ø º»¿ø µî±â±¹ (´ëÇ¥:1544-0773, ÆÑ½º:(02)2629-7307, ¼¿ïƯº°½Ã ¿µµîÆ÷±¸ °æÀηΠ772 (¹®·¡µ¿ 1°¡)) |
| ¼¼¹«¼ |
±¸·Î¼¼¹«¼ (´ëÇ¥:02-2630-72, ÆÑ½º:02-2679-6394, ¼¿ïƯº°½Ã ¿µµîÆ÷±¸ °æÀηΠ778 (¹®·¡µ¿1°¡)) |
|
|
|
 |
¹ý¿ø ¹°°ÇÀÚ·á ¿ä¾à |
|
|
|
|
| ¼Ò¸êµÇÁö ¾Ê´Â µî±âºÎ±Ç¸® |
|
| ¼³Á¤µÈ °ÍÀ¸·Î º¸´Â Áö»ó±Ç |
|
| ¹ý¿øÀÚ·á Æ¯ÀÌ»çÇ× |
[ÁÖ¿ä ¹®°Ç Á¢¼ö ³»¿ª]
|
[¸Å°¢¹°°Ç¸í¼¼¼ ºñ°í¶õ]
- ÀÓÂ÷ÀÎ ¼º¾Æ¿¬ ¹× ÁÖÅÃÀÓÂ÷±Ç ½Â°èÀÎ ÁÖÅõµ½Ãº¸Áõ°ø»ç´Â ¸Å¼öÀο¡ ´ëÇÏ¿© ¹è´ç¹ÞÁö ¸øÇÏ´Â Àܾ׿¡ ´ëÇÑ ÀÓÂ÷º¸Áõ±Ý¹Ýȯû
±¸±ÇÀ» Æ÷±âÇϰí, ÁÖÅÃÀÓÂ÷±Çµî±â¸¦ ¸»¼ÒÇÏ´Â °ÍÀ» Á¶°ÇÀ¸·Î ¸Å°¢ |
|
| ¿©ÀÇÁÖ°æ¸Å Á¶¾ð ÇѸ¶µð |
ÀÌ ºÎµ¿»êÀÇ ÀÔÂû¹ý¿øÀº ¼¿ï³²ºÎÁö¹æ¹ý¿øÀÔ´Ï´Ù.
ÀÔÂûÀÏÀº 2026-01-21ÀÔ´Ï´Ù.
ÀÔÂû½Ã°£Àº ~11:20ÀÔ´Ï´Ù. ÀÌ ¹ý¿ø¿¡´Â ½ÅÇÑÀºÇàÀÌ ÀÔÁ¡Çϰí ÀÖ½À´Ï´Ù.
|
¼±¼øÀ§ ÀÓÂ÷±Çµî±â°¡ µÇ¾î ÀÖ½À´Ï´Ù ´ëÇ×·ÂÀÌ ÀÖ´Â ¼±¼øÀ§ ÀÓÂ÷±Çµî±â ±Ç¸®ÀÚ°¡ ¹è´çÀ» Àü¾× ¹ÞÁö ¸øÇÒ °æ¿ì ³«ÂûÀÚ°¡ ÀÜ¿© º¸Áõ±ÝÀ» ÀμöÇØ¾ßÇÏ´Â °æ¿ìµµ ÀÖ½À´Ï´Ù. |
|
|
| Åë°è±â°£ |
³«Âû¹°°Ç¼ö |
Æò±Õ°¨Á¤°¡ |
Æò±Õ³«Âû°¡ |
³«Âû°¡À² |
À¯ÂûȽ¼ö |
| 3°³¿ù |
63°Ç |
265,323,810¿ø |
209,114,309¿ø |
79% |
2.1ȸ |
| 6°³¿ù |
146°Ç |
254,293,685¿ø |
198,018,943¿ø |
76% |
2.5ȸ |
| 12°³¿ù |
311°Ç |
263,159,288¿ø |
208,713,944¿ø |
78% |
2.2ȸ |
|
|
|
|
|
|
 |
|