|
|
| ¼ÒÀçÁö |
°æ±âµµ ½ÃÈï½Ã Á¤¿Õµ¿ 2256-3 ºÀ¿ìÆÓ¸®½º1µ¿ 5Ãþ502È£
|
|
| »ç°Ç¹øÈ£ |
2025 Ÿ°æ 51635 |
¹°°Ç¹øÈ£ |
1
|
¹°°Ç¿ëµµ |
´Ù¼¼´ë,ºô¶ó |
| °¨Á¤Æò°¡¾× |
228,000,000¿ø |
°æ¸Å´ë»ó |
ÅäÁö ¹× °Ç¹°Àϰý ¸Å°¢ |
ÁøÇà»óÅ |
À¯Âû |
| ÃÖÀúÀÔÂû°¡ |
(49%) 111,720,000¿ø
|
°Ç¹°¸éÀû |
47.78§³(14.45Æò) |
ÀÔÂû±âÀÏ |
2026.01.22(¸ñ) 10:30
(ÀÔÂû 39ÀÏÀü)
|
| ÀÔÂûº¸Áõ±Ý |
(10%) 11,172,000¿ø |
ÅäÁö¸éÀû |
32.48§³(9.83Æò)
|
À¯ÂûȽ¼ö |
2ȸ |
| ÀÔÂû¹ý¿ø |
¼ö¿øÁö¹æ¹ý¿ø ¾È»êÁö¿ø |
°æ¸Å¹æ¹ý |
|
¹°°ÇÁ¶È¸¼ö |
¿À´Ã: 4ȸ [´©Àû: 80ȸ]
|
| ¸»¼Ò±âÁØ | ÃÖ¼±¼øÀ§ ¼³Á¤ : 2023.11.23. (¾Ð·ù) ¼³Á¤
|
|
|
|
|
|
|
|
|
|
|
°æ¸Å´ë»ó ¸ñ·Ï
|
|
| ±¸ºÐ |
¸ñ·Ï |
ÁÖ¼Ò |
±¸Á¶/¿ëµµ/´ëÁö±Ç |
ºñ°í |
´ëÁö±Ç
|
1 |
Á¤¿Õµ¿ 2256-3 |
397ºÐÀÇ 32.48 |
32.48§³ (9.83Æò)
|
°Ç¹°
|
1 |
Á¤¿Õµ¿ 2256-3 |
5Ãþ502È£ ö±ÙÄÜÅ©¸®Æ®±¸Á¶ |
47.78§³ (14.45Æò)
|
|
|
|
2025-10-30
À¯Âû
|
(100%)
228,000,000¿ø
|
|
|
|
2025-12-11
À¯Âû
|
(70%)
159,600,000¿ø
|
|
|
|
2026-01-22
ÁøÇà
|
(49%)
111,720,000¿ø
|
|
|
|
|
|
|
|
°ÇÃ๰ÇöȲ |
|
|
|
| ¼ÒÀçÁö |
°æ±âµµ ½ÃÈï½Ã Á¤¿Õµ¿ 2256-3¹øÁö |
| ´ëÁö¸éÀû |
397§³(120.3Æò) |
¿¬¸éÀû |
659.6§³(199.88Æò) |
ÁÖ¿ëµµ |
°øµ¿ÁÖÅà |
| °ÇÃà¸éÀû |
206.38§³(62.54Æò) |
¿ëÀû·ü»êÁ¤¿¬¸éÀû |
659.6§³(199.88Æò) |
Âø°øÀÏÀÚ |
2019.10.25 |
| °ÇÆóÀ² |
51.98% |
¿ëÀû·ü |
166.15% |
»ç¿ë½ÂÀÎÀÏÀÚ |
2020.03.24 |
| Áö»óÃþ¼ö |
5Ãþ |
ÁöÇÏÃþ¼ö |
|
±¸Á¶ |
ö±ÙÄÜÅ©¸®Æ®±¸Á¶ |
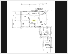
°ÇÃ๰Ãþº°ÇöȲ [º¸±â]| Ãþº° | ±¸Á¶ | ¿ëµµ | ¸éÀû | | 1Ãþ | ö±ÙÄÜÅ©¸®Æ®±¸Á¶ | °è´Ü½Ç | 12.96§³ (3.93Æò) | | 1Ãþ | ö±ÙÄÜÅ©¸®Æ®±¸Á¶ | ÁÖÂ÷Àå(¿¬¸éÀû¿¡ Á¦¿Ü) | 190.74§³ (57.8Æò) | | 1Ãþ | ö±ÙÄÜÅ©¸®Æ®±¸Á¶ | °è´Ü½Ç | 12.96§³ (3.93Æò) | | 1Ãþ | ö±ÙÄÜÅ©¸®Æ®±¸Á¶ | ÁÖÂ÷Àå(¿¬¸éÀû¿¡ Á¦¿Ü) | 190.74§³ (57.8Æò) | | 2Ãþ | ö±ÙÄÜÅ©¸®Æ®±¸Á¶ | °øµ¿ÁÖÅÃ(µµ½ÃÇü»ýȰÁÖÅÃ(´ÜÁöÇü´Ù¼¼´ë) | 161.66§³ (48.99Æò) | | 2Ãþ | ö±ÙÄÜÅ©¸®Æ®±¸Á¶ | °øµ¿ÁÖÅÃ(µµ½ÃÇü»ýȰÁÖÅÃ(´ÜÁöÇü´Ù¼¼´ë) | 161.66§³ (48.99Æò) | | 3Ãþ | ö±ÙÄÜÅ©¸®Æ®±¸Á¶ | °øµ¿ÁÖÅÃ(µµ½ÃÇü»ýȰÁÖÅÃ(´ÜÁöÇü´Ù¼¼´ë) | 161.66§³ (48.99Æò) | | 3Ãþ | ö±ÙÄÜÅ©¸®Æ®±¸Á¶ | °øµ¿ÁÖÅÃ(µµ½ÃÇü»ýȰÁÖÅÃ(´ÜÁöÇü´Ù¼¼´ë) | 161.66§³ (48.99Æò) | | 4Ãþ | ö±ÙÄÜÅ©¸®Æ®±¸Á¶ | °øµ¿ÁÖÅÃ(µµ½ÃÇü»ýȰÁÖÅÃ(´ÜÁöÇü´Ù¼¼´ë) | 161.66§³ (48.99Æò) | | 4Ãþ | ö±ÙÄÜÅ©¸®Æ®±¸Á¶ | °øµ¿ÁÖÅÃ(µµ½ÃÇü»ýȰÁÖÅÃ(´ÜÁöÇü´Ù¼¼´ë) | 161.66§³ (48.99Æò) | | 5Ãþ | ö±ÙÄÜÅ©¸®Æ®±¸Á¶ | °øµ¿ÁÖÅÃ(µµ½ÃÇü»ýȰÁÖÅÃ(´ÜÁöÇü´Ù¼¼´ë) | 161.66§³ (48.99Æò) | | 5Ãþ | ö±ÙÄÜÅ©¸®Æ®±¸Á¶ | °øµ¿ÁÖÅÃ(µµ½ÃÇü»ýȰÁÖÅÃ(´ÜÁöÇü´Ù¼¼´ë) | 161.66§³ (48.99Æò) | | ¿Áž1Ãþ | ö±ÙÄÜÅ©¸®Æ®±¸Á¶ | °è´Ü½Ç,¹°ÅÊÅ©½Ç(¿¬¸éÀû¿¡ Á¦¿Ü) | 25.59§³ (7.75Æò) | | ¿Áž1Ãþ | ö±ÙÄÜÅ©¸®Æ®±¸Á¶ | °è´Ü½Ç,¹°ÅÊÅ©½Ç(¿¬¸éÀû¿¡ Á¦¿Ü) | 25.59§³ (7.75Æò) |
|
|
|
|
|
|
|
|
|
¸éÀû(§³), ±Ý¾×(¸¸¿ø)
| °è¾àÀÏ | ±âÁØ | °Ç¹°¸íĪ | Ãþ | ¿¬¸éÀû | ´ëÁö¸éÀû | °Å·¡±Ý¾× | °ÇÃà³âµµ | | 2024.03.31 | ¸Å¸Å | LGŸ¿î | 2 | 58.43 | 29 | 12,500 | 2002 | | 2024.03.27 | ¸Å¸Å | »þÀÎ¾ÆÆ®ºô | 2 | 59.55 | 29.935 | 12,700 | 2002 | | 2024.03.26 | ¸Å¸Å | ´Ù¼öºô¸®Áö | 2 | 59.52 | 29.5125 | 9,000 | 2002 | | 2024.03.18 | ¸Å¸Å | ¹ÝµµÆÄÅ©ºô(1983-1) | 1 | 58.94 | 28.0747 | 9,700 | 2003 | | 2024.03.16 | ¸Å¸Å | »ï¼º½¦¸£ºôAµ¿ | 1 | 59.32 | 28.875 | 9,500 | 2002 | | 2024.03.03 | ¸Å¸Å | ÇØÇÇÇϿ콺 | 2 | 38.43 | 19.271 | 7,650 | 2002 | | 2024.02.19 | ¸Å¸Å | Á¦ÀÏ¾ÆÆ®È¨2Â÷ | 3 | 58.58 | 30.35 | 11,000 | 2009 | | 2024.01.25 | ¸Å¸Å | (1980-8) | 3 | 63.955 | 24.44 | 12,700 | 2003 |
| °è¾àÀÏ | ±âÁØ | °Ç¹°¸íĪ | Ãþ | ¿¬¸éÀû | º¸Áõ±Ý | ¿ù¼¼ | °ÇÃà³âµµ | | 2025.11.27 | ¿ù¼¼ | ´ÙÀÎij½½ | 4 | 47.23 | 0 | 60 | 2018 | | 2025.11.26 | ¿ù¼¼ | Sºô¶ó(2791-4) | 4 | 18.525 | 200 | 17 | 2018 | | 2025.11.25 | Àü¼¼ | ¿À¼Çºô | 3 | 22.32 | 5,000 | 0 | 2018 | | 2025.11.22 | Àü¼¼ | ¿µÁغôµù2 | 4 | 36.88 | 8,000 | 0 | 2018 | | 2025.11.22 | ¿ù¼¼ | (2796-7) | 4 | 19.41 | 300 | 33 | 2018 | | 2025.11.21 | ¿ù¼¼ | ½ÂÁø | 4 | 22.22 | 200 | 30 | 2018 | | 2025.11.20 | ¿ù¼¼ | ´Üºô¶ó | 4 | 19.38 | 300 | 34 | 2018 | | 2025.11.19 | ¿ù¼¼ | Áø¸í | 4 | 21.66 | 300 | 38 | 2018 | | 2025.11.19 | ¿ù¼¼ | ÆÄÀκô | 3 | 27.25 | 500 | 48 | 2020 | | 2025.11.18 | ¿ù¼¼ | ÇѾçºô¶ó1 | 3 | 21.36 | 200 | 32 | 2018 | | 2025.11.17 | ¿ù¼¼ | (2751-10) | 4 | 27.85 | 500 | 53 | 2021 | | 2025.11.16 | ¿ù¼¼ | Èñºô¸®Áö | 4 | 17.11 | 300 | 30 | 2021 | | 2025.11.16 | ¿ù¼¼ | (2295-10) | 2 | 16.14 | 500 | 37 | 2012 | | 2025.11.15 | ¿ù¼¼ | (2746-2) | 3 | 23.46 | 300 | 40 | 2018 | | 2025.11.13 | ¿ù¼¼ | ÈÀÌÆ®ºô¸®Áö | 2 | 17.68 | 300 | 33 | 2018 | | 2025.11.11 | ¿ù¼¼ | ÄÚ³ÚÇϿ콺 | 4 | 29.74 | 500 | 50 | 2020 | | 2025.11.11 | ¿ù¼¼ | Áغô¸®Áö | 3 | 20.65 | 300 | 45 | 2022 | | 2025.11.11 | ¸Å¸Å | (2259-11) | 4 | 59.67 | 11,000 | | 2004 | | 2025.11.10 | ¿ù¼¼ | Èï»ê | 4 | 29.84 | 500 | 62 | 2018 | | 2025.11.10 | ¿ù¼¼ | (2749-1) | 3 | 18.46 | 300 | 33 | 2022 | | 2025.11.10 | Àü¼¼ | ±×¸°Å¸¿î | 1 | 59.12 | 7,500 | 0 | 2003 | | 2025.11.10 | ¿ù¼¼ | (2784-3) | 3 | 16.27 | 300 | 35 | 2019 | | 2025.11.10 | ¿ù¼¼ | Sºô¶ó(2791-4) | 4 | 18.86 | 1,000 | 10 | 2018 | | 2025.11.10 | ¿ù¼¼ | (2305-28) | 2 | 21.56 | 300 | 28 | 2003 | | 2025.11.09 | ¿ù¼¼ | µµÇâ | 4 | 26.68 | 500 | 44 | 2022 | | 2025.11.08 | ¿ù¼¼ | û¼Öºô¶ó(2783-5) | 4 | 19.87 | 500 | 45 | 2019 | | 2025.11.07 | ¿ù¼¼ | º£³×Ä¡¾Æ(2776-5) | 2 | 28.785 | 500 | 55 | 2018 | | 2025.11.07 | ¿ù¼¼ | Áغô¸®Áö | 4 | 20.65 | 300 | 44 | 2022 | | 2025.11.06 | ¿ù¼¼ | (2771-14) | 2 | 35.67 | 1,000 | 72 | 2021 | | 2025.11.06 | ¿ù¼¼ | (2745-5) | 3 | 16.34 | 300 | 30 | 2018 | | 2025.11.06 | ¿ù¼¼ | ºñ¹ÙÈ£¼ö | 4 | 33.755 | 1,000 | 70 | 2022 | | 2025.11.06 | ¿ù¼¼ | (2770-10) | 3 | 17.735 | 1,000 | 47 | 2018 | | 2025.11.04 | ¿ù¼¼ | (2767-5) | 2 | 16.56 | 300 | 28 | 2018 | | 2025.11.04 | ¿ù¼¼ | (2757-1) | 4 | 22.02 | 300 | 36 | 2018 | | 2025.11.04 | ¿ù¼¼ | ¿øºô¸®Áö | 2 | 13.36 | 300 | 40 | 2020 | | 2025.11.04 | ¿ù¼¼ | Å丶ÇϿ콺 | 3 | 46.29 | 1,000 | 65 | 2018 | | 2025.11.04 | ¸Å¸Å | Á¤¿Õ½¦¸£ºô5Â÷ | 3 | 60.01 | 11,630 | | 2004 | | 2025.11.03 | Àü¼¼ | (2310-9) | 4 | 38.73 | 9,000 | 0 | 2012 | | 2025.11.03 | ¿ù¼¼ | (2751-7) | 3 | 25.79 | 500 | 45 | 2018 | | 2025.11.03 | ¿ù¼¼ | ¸¶ÇϳªÀÓ | 6 | 43.99 | 5,000 | 33 | 2016 | | 2025.11.03 | ¿ù¼¼ | ±×·¹À̽º | 3 | 28.21 | 500 | 50 | 2019 | | 2025.11.03 | ¿ù¼¼ | (2760-3) | 3 | 22.27 | 500 | 55 | 2018 | | 2025.11.03 | ¿ù¼¼ | (2770-12) | 2 | 18.32 | 300 | 30 | 2018 | | 2025.11.01 | ¿ù¼¼ | (2797-1) | 3 | 16.66 | 300 | 33 | 2018 | | 2025.11.01 | ¿ù¼¼ | ºñ¹ÙÈ£¼ö | 2 | 22.89 | 300 | 36 | 2022 | | 2025.11.01 | ¿ù¼¼ | ÈÀÌÆ®ºô¸®Áö | 4 | 35.73 | 500 | 19 | 2018 | | 2025.10.31 | ¿ù¼¼ | ¹Ì°¡¶÷ | 4 | 20.805 | 300 | 38 | 2018 | | 2025.10.31 | ¿ù¼¼ | GOLDVIEW | 3 | 19.77 | 300 | 32 | 2018 | | 2025.10.31 | ¿ù¼¼ | GOLDVIEW | 3 | 19.77 | 300 | 32 | 2018 | | 2025.10.30 | ¿ù¼¼ | (2766-5) | 2 | 24.51 | 300 | 50 | 2018 | | 2025.10.30 | ¿ù¼¼ | ¿¹´ãÁÖÅà | 4 | 25.55 | 300 | 39 | 2018 | | 2025.10.29 | ¿ù¼¼ | ³ªÆú¸® | 2 | 17.34 | 200 | 40 | 2018 | | 2025.10.29 | ¿ù¼¼ | ÀÌ·¹ | 3 | 27.77 | 500 | 50 | 2021 | | 2025.10.29 | ¿ù¼¼ | (2766-3) | 4 | 23.72 | 200 | 33 | 2018 | | 2025.10.29 | ¿ù¼¼ | (2305-28) | 4 | 39.06 | 300 | 36 | 2003 | | 2025.10.29 | ¿ù¼¼ | (2758-3) | 4 | 25.92 | 300 | 40 | 2020 | | 2025.10.29 | ¿ù¼¼ | (2793-1) | 4 | 30.32 | 500 | 50 | 2020 | | 2025.10.29 | ¿ù¼¼ | (2781-3) | 4 | 38.445 | 10,000 | 10 | 2021 | | 2025.10.28 | ¿ù¼¼ | (2771-4) | 3 | 26.9375 | 300 | 40 | 2018 | | 2025.10.28 | ¿ù¼¼ | ¼¿øÇϿ콺 | 3 | 22.8 | 300 | 31 | 2018 | | 2025.10.28 | ¿ù¼¼ | µå¸²ºôµù2 | 4 | 16.08 | 300 | 35 | 2018 | | 2025.10.27 | ¿ù¼¼ | ÇÏ´ÃÁ¤¿ø | 2 | 32.39 | 500 | 64 | 2022 | | 2025.10.27 | ¿ù¼¼ | (2763-5) | 3 | 22.78 | 50 | 30 | 2018 | | 2025.10.27 | ¿ù¼¼ | ¿À¼Çºô | 2 | 22.46 | 300 | 34 | 2018 | | 2025.10.27 | ¿ù¼¼ | ³ªÀ̽ººôCµ¿ | 4 | 19.28 | 300 | 30 | 2019 | | 2025.10.27 | Àü¼¼ | ÀºÇýºôµù(2305-7) | 4 | 24.14 | 5,000 | 0 | 2003 | | 2025.10.26 | ¿ù¼¼ | º£³×Ä¡¾Æ(2776-5) | 3 | 21.85 | 300 | 30 | 2018 | | 2025.10.25 | ¿ù¼¼ | ÇÏ´ÃÁ¤¿ø | 4 | 20.4 | 500 | 44 | 2022 | | 2025.10.25 | ¿ù¼¼ | ´ëdz¾ÆÆ®ºôIV | 2 | 25.25 | 150 | 55 | 2021 | | 2025.10.25 | ¿ù¼¼ | Èñºô¸®Áö | 4 | 18.73 | 300 | 45 | 2021 | | 2025.10.25 | ¿ù¼¼ | (2762-1) | 2 | 19.05 | 300 | 30 | 2020 | | 2025.10.25 | Àü¼¼ | ±×¸°³ª·¡ | 4 | 21.07 | 4,200 | 0 | 2018 | | 2025.10.25 | ¿ù¼¼ | »þ¹ÙÆ®ºô | 4 | 25.06 | 500 | 40 | 2018 | | 2025.10.24 | ¿ù¼¼ | (2755-3) | 4 | 29.02 | 500 | 55 | 2020 | | 2025.10.24 | ¿ù¼¼ | ½ÅÇÑȨŸ¿î | 4 | 20.69 | 500 | 37 | 2014 | | 2025.10.24 | ¿ù¼¼ | (2754-4) | 2 | 26.95 | 500 | 57 | 2020 | | 2025.10.24 | ¿ù¼¼ | ¹Ù´Ùdz°æ | 2 | 20.58 | 5,000 | 11 | 2021 | | 2025.10.24 | ¿ù¼¼ | (1185-4) | 2 | 15.105 | 200 | 30 | 2013 | | 2025.10.24 | ¿ù¼¼ | (2747-5) | 3 | 20.83 | 300 | 32 | 2018 | | 2025.10.22 | Àü¼¼ | ÇູȨŸ¿î | 3 | 19.5 | 6,000 | 0 | 2014 | | 2025.10.22 | ¿ù¼¼ | ¿¹Áغô¸®Áö | 4 | 25.66 | 1,700 | 52 | 2020 | | 2025.10.21 | ¿ù¼¼ | (2770-12) | 3 | 23.095 | 500 | 40 | 2018 | | 2025.10.21 | Àü¼¼ | ´ëdz¾ÆÆ®ºô¥² | 3 | 22.74 | 4,500 | 0 | 2020 | | 2025.10.21 | ¿ù¼¼ | (2770-12) | 2 | 17.8 | 300 | 29 | 2018 | | 2025.10.21 | ¿ù¼¼ | ³ªºñÇϿ콺 | 4 | 18.95 | 300 | 36 | 2019 | | 2025.10.20 | ¿ù¼¼ | (2770-10) | 2 | 19.97 | 200 | 31 | 2018 | | 2025.10.20 | ¿ù¼¼ | (2770-10) | 3 | 19.97 | 200 | 29 | 2018 | | 2025.10.20 | ¿ù¼¼ | ³Ýºô | 3 | 30.68 | 500 | 56 | 2020 | | 2025.10.20 | ¿ù¼¼ | È¿¿ø(2293-14) | 3 | 28.48 | 500 | 54 | 2014 | | 2025.10.18 | Àü¼¼ | ´õ½ºÅ×ÀÌ(2748-3) | 2 | 23.19 | 5,500 | 0 | 2019 | | 2025.10.18 | ¿ù¼¼ | (2760-3) | 2 | 22.27 | 500 | 55 | 2018 | | 2025.10.18 | Àü¼¼ | ´õ½ºÅ×ÀÌ(2748-3) | 2 | 27.72 | 7,500 | 0 | 2019 | | 2025.10.17 | ¿ù¼¼ | Áø¸í | 3 | 18.8 | 300 | 33 | 2018 | | 2025.10.17 | Àü¼¼ | (1193-8) | 2 | 14.244 | 4,000 | 0 | 2012 | | 2025.10.17 | Àü¼¼ | (2255-9) | 4 | 17.6 | 3,600 | 0 | 2013 | | 2025.10.16 | ¿ù¼¼ | BrownHill | 3 | 31.12 | 300 | 50 | 2018 | | 2025.10.16 | ¿ù¼¼ | (2778-4) | 4 | 34.93 | 500 | 65 | 2018 | | 2025.10.16 | ¿ù¼¼ | (2758-5) | 2 | 31.58 | 500 | 52 | 2018 | | 2025.10.16 | ¸Å¸Å | ÇູÁÖÅÃÇ÷¯½º | 5 | 47.61 | 17,500 | | 2021 | | 2025.10.15 | ¿ù¼¼ | È£ºô¸®Áö | 2 | 18.55 | 500 | 60 | 2021 | | 2025.10.15 | ¿ù¼¼ | °í¸Þ¸£ÇϿ콺 | 3 | 27.8 | 500 | 45 | 2021 | | 2025.10.15 | ¸Å¸Å | ÀºÇϺô¶ó | 4 | 59.12 | 13,500 | | 2003 | | 2025.10.14 | ¿ù¼¼ | ºÎÈïºô¶óÆ®Aµ¿ | 3 | 59.33 | 1,000 | 55 | 2001 | | 2025.10.14 | ¿ù¼¼ | Áø¸í | 2 | 21.66 | 300 | 36 | 2018 | | 2025.10.14 | ¿ù¼¼ | (2746-1) | 3 | 20.16 | 400 | 38 | 2018 | | 2025.10.13 | ¿ù¼¼ | ±Û·Î¹úºô¸®Áö | 4 | 16.02 | 300 | 38 | 2018 | | 2025.10.13 | ¿ù¼¼ | (2775-1) | 3 | 26.632 | 500 | 47 | 2023 | | 2025.10.13 | ¿ù¼¼ | È£¼öÁ¤¿ø | 2 | 24.385 | 500 | 46 | 2022 | | 2025.10.13 | ¿ù¼¼ | ´ÙÀÎ | 2 | 31.1 | 500 | 55 | 2018 | | 2025.10.13 | ¿ù¼¼ | (2750-1) | 4 | 28.08 | 500 | 45 | 2018 | | 2025.10.12 | ¿ù¼¼ | ½ºÀ§Æ®Å¸¿î | 2 | 22.11 | 300 | 30 | 2015 | | 2025.10.11 | ¿ù¼¼ | (2315-2) | 5 | 15.31 | 300 | 32 | 2012 | | 2025.10.10 | Àü¼¼ | »êÈ£ | 4 | 28.85 | 9,000 | 0 | 2015 | | 2025.10.10 | ¿ù¼¼ | È£¼öµå¸²ºô | 2 | 15.98 | 300 | 30 | 2018 | | 2025.10.09 | ¿ù¼¼ | ÇØµçºô | 2 | 29.88 | 500 | 24 | 2018 | | 2025.10.08 | ¿ù¼¼ | ´ëÄ¡ºô | 5 | 43.105 | 500 | 60 | 2008 | | 2025.10.08 | ¿ù¼¼ | (2293-3) | 3 | 29.64 | 2,000 | 56 | 2016 | | 2025.10.08 | Àü¼¼ | (2796-7) | 2 | 35.04 | 8,500 | 0 | 2018 | | 2025.10.04 | ¿ù¼¼ | È£¼öÁ¤¿ø | 3 | 20.13 | 500 | 43 | 2022 | | 2025.10.04 | ¿ù¼¼ | (2771-2) | 4 | 29.61 | 500 | 52 | 2021 | | 2025.10.04 | ¿ù¼¼ | ´õÅ©¸®½º¸¶½º | 2 | 20.5 | 300 | 27 | 2021 | | 2025.10.04 | ¿ù¼¼ | ±Û·Î¹úºô¸®Áö | 2 | 31.4 | 500 | 50 | 2018 | | 2025.10.04 | ¿ù¼¼ | ±Û·Î¹úºô¸®Áö | 2 | 31.4 | 500 | 50 | 2018 | | 2025.10.04 | ¸Å¸Å | ¼öÁ¤ÇÏÀ̺ô | 3 | 59.24 | 9,900 | | 2003 | | 2025.10.03 | Àü¼¼ | Á¤¼öºôµù | 3 | 15.18 | 2,500 | 0 | 2011 | | 2025.10.03 | ¿ù¼¼ | Sºô¶ó(2765-5) | 2 | 23.25 | 200 | 28 | 2018 | | 2025.10.03 | ¿ù¼¼ | ºñ¹ÙÈ£¼ö | 4 | 29.55 | 1,000 | 47 | 2022 | | 2025.10.03 | ¿ù¼¼ | (2790-4) | 4 | 34.41 | 1,000 | 67 | 2021 | | 2025.10.03 | ¿ù¼¼ | (2761-1) | 4 | 39.63 | 500 | 65 | 2018 | | 2025.10.02 | ¿ù¼¼ | (2781-3) | 2 | 39.315 | 1,000 | 70 | 2021 | | 2025.10.02 | ¿ù¼¼ | (2781-3) | 2 | 39.315 | 1,000 | 70 | 2021 | | 2025.10.02 | ¿ù¼¼ | (2787-0) | 4 | 27.985 | 500 | 70 | 2023 | | 2025.10.02 | ¿ù¼¼ | ¾ÆÆ®ºô | 3 | 18.72 | 300 | 36 | 2020 | | 2025.10.02 | ¿ù¼¼ | ¿¹Àº¾ÆÆ®ºô | 4 | 23.385 | 300 | 37 | 2018 | | 2025.10.02 | ¿ù¼¼ | (2797-0) | 2 | 23.67 | 300 | 39 | 2019 | | 2025.10.01 | ¿ù¼¼ | (2771-4) | 3 | 26.6 | 1,000 | 40 | 2018 | | 2025.10.01 | ¿ù¼¼ | (2771-4) | 3 | 26.6 | 1,000 | 37 | 2018 | | 2025.10.01 | ¿ù¼¼ | (2771-13) | 2 | 25.48 | 300 | 40 | 2020 | | 2025.10.01 | ¿ù¼¼ | ¹Ù´Ùdz°æ | 4 | 20.58 | 5,000 | 10 | 2021 | | 2025.10.01 | Àü¼¼ | (2752-7) | 3 | 25.7 | 5,300 | 0 | 2020 | | 2025.09.30 | ¿ù¼¼ | (2792-1) | 4 | 36.38 | 1,000 | 60 | 2023 | | 2025.09.30 | ¸Å¸Å | ¸¶ÀÌȨºô¸®Áö(2015-8) | 2 | 58.55 | 12,200 | | 2002 | | 2025.09.29 | ¿ù¼¼ | (2771-7) | 3 | 36.02 | 1,000 | 75 | 2022 | | 2025.09.29 | ¿ù¼¼ | ¸íǰÇϿ콺 | 4 | 24.72 | 300 | 38 | 2018 | | 2025.09.29 | ¿ù¼¼ | (2790-3) | 3 | 31.61 | 500 | 45 | 2021 | | 2025.09.29 | ¿ù¼¼ | ¼ºÁøºô¶ó | 3 | 21.6 | 200 | 30 | 2018 | | 2025.09.29 | ¸Å¸Å | ½Å¼¼°èȨŸ¿î4Â÷Aµ¿ | 2 | 59.09 | 9,500 | | 2002 | | 2025.09.28 | ¿ù¼¼ | ´ëµ¿ºô¶ó | 3 | 57.94 | 1,000 | 70 | 2001 | | 2025.09.27 | ¸Å¸Å | »ï¼º¾ÆÆ®ºô(2038-3) | 4 | 54.41 | 9,800 | | 2006 | | 2025.09.27 | ¿ù¼¼ | ´öÁÖºô¶ó | 3 | 22.6 | 300 | 35 | 2021 | | 2025.09.27 | ¿ù¼¼ | ´ë¼ººô¸®Áö1Â÷ | 1 | 54.675 | 1,000 | 60 | 2001 | | 2025.09.27 | ¿ù¼¼ | ½ºÀ§Æ®Å¸¿î | 2 | 20.68 | 2,000 | 15 | 2015 | | 2025.09.27 | ¿ù¼¼ | û¼Û¾ÆÆ®ºô | 3 | 18.36 | 200 | 30 | 2018 | | 2025.09.27 | ¸Å¸Å | ½Å¼¼°èȨŸ¿î3Â÷Aµ¿ | 2 | 59.09 | 10,700 | | 2002 | | 2025.09.26 | ¿ù¼¼ | (1989-6) | 4 | 35.13 | 6,000 | 27 | 2015 | | 2025.09.26 | ¿ù¼¼ | (2749-0000) | 3 | 20.47 | 300 | 36 | 2024 | | 2025.09.26 | ¿ù¼¼ | ÇѽÅÁÖÅà | 1 | 30.83 | 500 | 35 | 2002 | | 2025.09.25 | ¿ù¼¼ | (2790-4) | 3 | 26.22 | 300 | 40 | 2021 | | 2025.09.25 | ¿ù¼¼ | (2790-3) | 4 | 27 | 500 | 43 | 2021 | | 2025.09.25 | ¿ù¼¼ | Á¤¿ø | 3 | 30.61 | 500 | 47 | 2021 | | 2025.09.24 | ¿ù¼¼ | ¼º¿ìŸ¿î | 4 | 58.24 | 1,000 | 65 | 2003 | | 2025.09.23 | ¿ù¼¼ | GOLDVIEW | 2 | 19.77 | 300 | 35 | 2018 | | 2025.09.23 | ¿ù¼¼ | (2766-3) | 2 | 20.6 | 200 | 37 | 2018 | | 2025.09.23 | ¿ù¼¼ | BOBOSVILL | 2 | 20.2 | 300 | 38 | 2018 | | 2025.09.23 | ¿ù¼¼ | Áغô¥° | 4 | 25.26 | 500 | 55 | 2020 | | 2025.09.23 | ¸Å¸Å | »ï¼ºÇÏÀÌÃ÷ºô | 1 | 62.22 | 9,500 | | 2002 | | 2025.09.22 | ¿ù¼¼ | ÀºÇýºôµù(2305-7) | 3 | 44.26 | 1,000 | 60 | 2003 | | 2025.09.22 | ¿ù¼¼ | ÀºÇýºôµù(2305-7) | 3 | 44.26 | 1,000 | 55 | 2003 | | 2025.09.22 | Àü¼¼ | (2299-3) | 4 | 26.19 | 7,500 | 0 | 2016 | | 2025.09.22 | ¿ù¼¼ | (2300-16) | 2 | 14.09 | 90 | 27 | 2012 | | 2025.09.20 | ¿ù¼¼ | (2762-2) | 2 | 22.715 | 500 | 50 | 2021 | | 2025.09.20 | ¿ù¼¼ | (2771-4) | 4 | 21.6225 | 300 | 33 | 2018 | | 2025.09.20 | ¿ù¼¼ | ¿ìÁ¤ÁÖÅà | 4 | 45.99 | 500 | 54 | 2017 | | 2025.09.20 | Àü¼¼ | GOLDVIEW | 2 | 20.2 | 5,000 | 0 | 2018 | | 2025.09.19 | Àü¼¼ | (2752-7) | 3 | 25.7 | 7,000 | 0 | 2020 | | 2025.09.19 | ¿ù¼¼ | (2771-4) | 4 | 26.6 | 500 | 40 | 2018 | | 2025.09.19 | ¿ù¼¼ | ÀÎÈÁÖÅà | 3 | 17.025 | 257 | 10 | 2018 | | 2025.09.18 | ¸Å¸Å | ¸¶ÀÌȨºô¸®Áö(2015-8) | 5 | 58.55 | 12,200 | | 2002 | | 2025.09.18 | ¿ù¼¼ | û¿îÁÖÅÃ(2305-43) | 3 | 43.24 | 3,000 | 54 | 2004 | | 2025.09.17 | ¿ù¼¼ | ¾ÆÆ®ºô | 4 | 17.85 | 300 | 36 | 2020 | | 2025.09.17 | ¿ù¼¼ | ´ÙÀο츮°¡2Â÷ | 4 | 19.55 | 300 | 33 | 2019 | | 2025.09.17 | ¿ù¼¼ | (2784-2) | 2 | 23.39 | 500 | 48 | 2023 | | 2025.09.16 | Àü¼¼ | GOLDVIEW | 4 | 29.8 | 8,000 | 0 | 2018 | | 2025.09.16 | ¿ù¼¼ | (2761-1) | 3 | 19.98 | 300 | 33 | 2018 | | 2025.09.16 | Àü¼¼ | »ïÁÖ°ñµçºô | 3 | 74.34 | 10,500 | 0 | 2003 | | 2025.09.15 | ¿ù¼¼ | Sºô¶ó(2791-4) | 3 | 16 | 1,000 | 27 | 2018 | | 2025.09.15 | ¿ù¼¼ | ¿µºô¸®Áö | 2 | 17.15 | 200 | 40 | 2018 | | 2025.09.15 | ¿ù¼¼ | (2797-0) | 3 | 20.3 | 300 | 33 | 2019 | | 2025.09.15 | Àü¼¼ | ´õÆÓ¸®½º¥² | 4 | 36.8 | 12,000 | 0 | 2019 | | 2025.09.14 | ¿ù¼¼ | (2013-5) | 4 | 23.18 | 100 | 40 | 2014 | | 2025.09.14 | ¿ù¼¼ | ¿¹Àκô | 3 | 16.66 | 200 | 35 | 2018 | | 2025.09.13 | ¿ù¼¼ | °¡¶÷ºô | 2 | 22.4 | 1,700 | 12 | 2019 | | 2025.09.13 | ¿ù¼¼ | ¸®Á¨ºô | 3 | 30.6 | 500 | 48 | 2021 | | 2025.09.13 | ¿ù¼¼ | (2775-1) | 3 | 25.67 | 500 | 40 | 2023 | | 2025.09.13 | ¿ù¼¼ | °¡¿Âºô¸®Áö | 2 | 34.44 | 500 | 56 | 2018 | | 2025.09.13 | ¿ù¼¼ | (2781-4) | 2 | 37.97 | 1,000 | 65 | 2021 | | 2025.09.13 | ¿ù¼¼ | (2797-0) | 2 | 20.67 | 300 | 33 | 2019 | | 2025.09.13 | ¿ù¼¼ | (2796-10) | 4 | 22.84 | 1,000 | 45 | 2023 | | 2025.09.12 | ¿ù¼¼ | (2786-4) | 4 | 36.13 | 2,000 | 59 | 2022 | | 2025.09.11 | Àü¼¼ | (2796-8) | 3 | 21.125 | 4,000 | 0 | 2018 | | 2025.09.11 | ¿ù¼¼ | ³ªÆú¸® | 2 | 17.34 | 200 | 40 | 2018 | | 2025.09.11 | Àü¼¼ | ´õ½ºÅ×ÀÌ(2748-3) | 3 | 21.985 | 5,000 | 0 | 2019 | | 2025.09.10 | ¿ù¼¼ | ÇϳªÄ³½½ | 2 | 25.55 | 300 | 38 | 2018 | | 2025.09.10 | ¿ù¼¼ | ³ªÆú¸® | 4 | 28.88 | 300 | 44 | 2018 | | 2025.09.10 | ¿ù¼¼ | ÇϳªÄ³½½ | 4 | 26.76 | 300 | 41 | 2018 | | 2025.09.10 | ¿ù¼¼ | ´Ù¿Âºô¶ó | 4 | 19.71 | 300 | 33 | 2018 | | 2025.09.10 | ¿ù¼¼ | ´õÆÓ¸®½º¥± | 2 | 23.31 | 500 | 52 | 2018 | | 2025.09.09 | ¸Å¸Å | (2018-8) | 3 | 58.855 | 12,900 | | 2002 | | 2025.09.09 | ¿ù¼¼ | Å©¸®½ºÅ» | 3 | 33.25 | 1,500 | 40 | 2018 | | 2025.09.09 | ¿ù¼¼ | (1198-4) | 4 | 20.48 | 500 | 45 | 2017 | | 2025.09.09 | ¿ù¼¼ | Çʱ׸° | 2 | 21.84 | 200 | 33 | 2018 | | 2025.09.09 | ¿ù¼¼ | (2757-1) | 3 | 20.96 | 300 | 36 | 2018 | | 2025.09.09 | ¿ù¼¼ | ³ªºñÇϿ콺 | 4 | 18.95 | 300 | 36 | 2019 | | 2025.09.08 | ¿ù¼¼ | ´õÆÈ·¹½º1 | 3 | 25.25 | 300 | 38 | 2018 | | 2025.09.08 | ¿ù¼¼ | ´õÆÓ¸®½º¥² | 2 | 22.45 | 500 | 48 | 2019 | | 2025.09.06 | ¿ù¼¼ | (2770-5) | 3 | 21.855 | 300 | 35 | 2018 | | 2025.09.06 | ¿ù¼¼ | Sºô¶ó(2775-5) | 3 | 18.55 | 300 | 31 | 2018 | | 2025.09.06 | ¿ù¼¼ | (2776-3) | 4 | 23.4 | 300 | 55 | 2021 | | 2025.09.06 | ¿ù¼¼ | ´ëdz¾ÆÆ®ºô¥² | 2 | 18.55 | 300 | 47 | 2020 | | 2025.09.06 | ¿ù¼¼ | Èñ¹Îºô | 3 | 20.365 | 300 | 35 | 2020 | | 2025.09.06 | ¿ù¼¼ | ½ÂÁø | 3 | 24.19 | 300 | 40 | 2018 | | 2025.09.05 | ¿ù¼¼ | (1984-5) | 5 | 44.015 | 500 | 50 | 2012 | | 2025.09.05 | ¿ù¼¼ | Ȳ±Ý³ëÀ» | 3 | 16.04 | 200 | 31 | 2018 | | 2025.09.04 | ¿ù¼¼ | (2751-6) | 2 | 26.72 | 1,000 | 40 | 2023 | | 2025.09.04 | Àü¼¼ | µ¿ÀÎÇÏÀÌÃ÷ºô | 2 | 59.56 | 8,300 | 0 | 2002 | | 2025.09.04 | ¿ù¼¼ | (2749-3) | 2 | 16.98 | 200 | 40 | 2020 | | 2025.09.04 | ¿ù¼¼ | ÈÀÌÆ®ºô¸®Áö | 2 | 17.34 | 300 | 35 | 2018 | | 2025.09.03 | ¿ù¼¼ | BaileyHouse | 2 | 16.77 | 500 | 50 | 2018 | | 2025.09.03 | ¸Å¸Å | ¾¾¾Øºô | 1 | 58.3 | 11,000 | | 2002 | | 2025.09.03 | ¿ù¼¼ | (2752-7) | 2 | 40.71 | 1,000 | 54 | 2020 | | 2025.09.02 | ¿ù¼¼ | (2762-1) | 3 | 18.72 | 200 | 41 | 2020 | | 2025.09.02 | ¸Å¸Å | ¸¶ÀÌȨºô¸®Áö(2013-12) | 2 | 59.71 | 11,800 | | 2003 | | 2025.09.01 | ¿ù¼¼ | ´õ½ºÅ×ÀÌ | 4 | 43.16 | 1,000 | 80 | 2020 | | 2025.09.01 | ¿ù¼¼ | (2782-5) | 3 | 24.63 | 300 | 38 | 2018 | | 2025.09.01 | Àü¼¼ | ´ÞºûÈ£¼ö¿¡¼ | 2 | 23.76 | 5,500 | 0 | 2020 | | 2025.09.01 | ¿ù¼¼ | (2749-0000) | 2 | 20.47 | 300 | 36 | 2024 | | 2025.09.01 | ¿ù¼¼ | ´õÇϿ콺 | 4 | 23.86 | 500 | 54 | 2020 | | 2025.08.30 | ¸Å¸Å | »êÈ£ | 5 | 22.41 | 6,300 | | 2015 | | 2025.08.30 | ¿ù¼¼ | (2746-1) | 4 | 29.955 | 500 | 50 | 2018 | | 2025.08.30 | ¸Å¸Å | »êÈ£ | 2 | 28.5 | 8,000 | | 2015 | | 2025.08.30 | ¸Å¸Å | »êÈ£ | 2 | 20.3 | 5,700 | | 2015 | | 2025.08.30 | ¸Å¸Å | »êÈ£ | 2 | 20.3 | 5,700 | | 2015 | | 2025.08.30 | ¸Å¸Å | »êÈ£ | 2 | 28.5 | 8,000 | | 2015 | | 2025.08.30 | ¸Å¸Å | »êÈ£ | 3 | 28.5 | 8,000 | | 2015 | | 2025.08.30 | ¸Å¸Å | »êÈ£ | 3 | 20.3 | 5,700 | | 2015 | | 2025.08.30 | ¸Å¸Å | »êÈ£ | 3 | 20.3 | 5,700 | | 2015 | | 2025.08.30 | ¸Å¸Å | »êÈ£ | 3 | 28.5 | 8,000 | | 2015 | | 2025.08.30 | ¸Å¸Å | »êÈ£ | 4 | 23 | 6,500 | | 2015 | | 2025.08.30 | ¸Å¸Å | »êÈ£ | 4 | 12.9 | 3,600 | | 2015 | | 2025.08.30 | ¸Å¸Å | »êÈ£ | 4 | 28.85 | 8,200 | | 2015 | | 2025.08.30 | ¸Å¸Å | »êÈ£ | 5 | 28.03 | 8,000 | | 2015 | | 2025.08.30 | ¿ù¼¼ | (2752-8) | 2 | 32.71 | 500 | 57 | 2018 | | 2025.08.29 | ¿ù¼¼ | ½ãºô | 2 | 19.22 | 300 | 45 | 2020 | | 2025.08.29 | Àü¼¼ | ÃÊ¿øºôµù | 5 | 25.92 | 10,000 | 0 | 2003 | | 2025.08.29 | ¿ù¼¼ | È¿¿ø(2293-14) | 4 | 28.48 | 0 | 40 | 2014 | | 2025.08.29 | ¿ù¼¼ | (2758-3) | 2 | 23.4 | 300 | 32 | 2020 | | 2025.08.28 | ¿ù¼¼ | (2770-12) | 3 | 16.53 | 300 | 28 | 2018 | | 2025.08.27 | ¿ù¼¼ | û¼Öºô¶ó(2786-0) | 2 | 14.57 | 400 | 28 | 2019 | | 2025.08.27 | ¿ù¼¼ | (2776-1) | 3 | 36.7 | 500 | 65 | 2018 | | 2025.08.26 | ¿ù¼¼ | ´õÀ§µå | 3 | 29.65 | 500 | 68 | 2021 | | 2025.08.26 | Àü¼¼ | ÇູÁÖÅÃÇ÷¯½º | 5 | 51.19 | 16,600 | 0 | 2021 | | 2025.08.25 | ¿ù¼¼ | ´ÙÀο츮°¡2Â÷ | 2 | 20.575 | 300 | 35 | 2019 | | 2025.08.25 | ¿ù¼¼ | (2745-3) | 3 | 17.525 | 200 | 37 | 2021 | | 2025.08.25 | ¿ù¼¼ | (2770-10) | 3 | 20.895 | 200 | 37 | 2018 | | 2025.08.25 | ¿ù¼¼ | ±×·¹À̽ººô(2755-2) | 2 | 27 | 500 | 60 | 2021 | | 2025.08.25 | ¿ù¼¼ | û´ãºô | 4 | 19.96 | 302 | 11 | 2018 | | 2025.08.25 | ¿ù¼¼ | (2771-13) | 3 | 29.62 | 500 | 50 | 2020 | | 2025.08.24 | Àü¼¼ | È¿¿ø(2293-14) | 4 | 21.62 | 5,000 | 0 | 2014 | | 2025.08.23 | ¿ù¼¼ | (2771-13) | 3 | 29.6 | 500 | 55 | 2020 | | 2025.08.23 | ¿ù¼¼ | ¸íǰÇϿ콺 | 2 | 24.72 | 300 | 38 | 2018 | | 2025.08.23 | ¿ù¼¼ | ¿ÀÀ̵µÁ¶ÀºÇϿ콺 | 3 | 21.63 | 200 | 27 | 2003 | | 2025.08.22 | ¿ù¼¼ | ³ëÀ»ºûÈ£¼ö¿¡¼ | 2 | 21.285 | 300 | 36 | 2020 | | 2025.08.22 | ¿ù¼¼ | GOLDVIEW | 2 | 19.77 | 1,500 | 10 | 2018 | | 2025.08.20 | ¿ù¼¼ | È¿¿ø(2293-14) | 2 | 19.18 | 0 | 22 | 2014 | | 2025.08.20 | ¿ù¼¼ | ¹Ì°¡¶÷ | 2 | 20.805 | 300 | 35 | 2018 | | 2025.08.20 | ¿ù¼¼ | È¿¿ø(2293-14) | 3 | 14.25 | 0 | 22 | 2014 | | 2025.08.20 | ¿ù¼¼ | È¿¿ø(2293-14) | 2 | 14.25 | 0 | 22 | 2014 | | 2025.08.20 | ¿ù¼¼ | ½ÂÁø | 3 | 20.56 | 100 | 40 | 2018 | | 2025.08.20 | ¿ù¼¼ | ±×·¹À̽ººô | 3 | 18.52 | 500 | 44 | 2020 | | 2025.08.19 | ¿ù¼¼ | BOBOSVILLS | 2 | 17.95 | 200 | 35 | 2018 | | 2025.08.19 | ¿ù¼¼ | (2781-3) | 3 | 25.44 | 500 | 50 | 2021 | | 2025.08.18 | ¿ù¼¼ | ´õ½ºÅ×ÀÌ | 3 | 43.16 | 1,700 | 78 | 2020 | | 2025.08.18 | ¿ù¼¼ | Á¤¿Õ½¦¸£ºô4Â÷ | 1 | 59.85 | 1,000 | 60 | 2003 | | 2025.08.17 | ¿ù¼¼ | È¿¿ø(2293-14) | 5 | 21.6 | 0 | 22 | 2014 | | 2025.08.17 | Àü¼¼ | ´ë¼ÛÁÖÅà | 4 | 46.35 | 3,500 | 0 | 2018 | | 2025.08.16 | ¿ù¼¼ | (2296-3) | 2 | 14.26 | 300 | 35 | 2012 | | 2025.08.15 | ¿ù¼¼ | ´Üºô¶ó | 4 | 19.72 | 300 | 33 | 2018 | | 2025.08.15 | ¿ù¼¼ | µµÇâ | 4 | 39.06 | 1,000 | 66 | 2022 | | 2025.08.15 | ¿ù¼¼ | (2241-5) | 4 | 63.88 | 500 | 50 | 2016 | | 2025.08.14 | ¿ù¼¼ | (2786-4) | 3 | 24.35 | 1,000 | 47 | 2022 | | 2025.08.14 | ¿ù¼¼ | ½Ã±×´ÏóÇϿ콺 | 3 | 37.12 | 1,000 | 84 | 2022 | | 2025.08.13 | ¿ù¼¼ | Áß¾ÓÇÏÀÌÃ÷ºô(1976-4) | 4 | 58.135 | 500 | 75 | 2002 | | 2025.08.13 | ¿ù¼¼ | ´ë¼º¸Ç¼Ç | 3 | 43.47 | 500 | 50 | 2002 | | 2025.08.13 | Àü¼¼ | °¡µð¾ðÇϿ콺 | 4 | 15.82 | 3,500 | 0 | 2019 | | 2025.08.13 | ¿ù¼¼ | (2784-2) | 3 | 23.39 | 500 | 31 | 2023 | | 2025.08.12 | ¿ù¼¼ | °¡¶÷ºô | 2 | 22.08 | 1,700 | 23 | 2019 | | 2025.08.12 | ¿ù¼¼ | ´Ù¼öºô¸®Áö | 5 | 59.52 | 1,000 | 45 | 2002 | | 2025.08.12 | ¿ù¼¼ | (2797-1) | 4 | 43.63 | 500 | 60 | 2018 | | 2025.08.12 | ¿ù¼¼ | ´Ù¼öºô¸®Áö | 5 | 59.52 | 1,000 | 45 | 2002 | | 2025.08.11 | ¿ù¼¼ | ¿ùµåºô¶ó | 2 | 57.88 | 1,000 | 65 | 2002 | | 2025.08.11 | ¿ù¼¼ | (2781-4) | 4 | 19.81 | 500 | 50 | 2021 | | 2025.08.11 | ¿ù¼¼ | Á¤¿Õµå¸²ºô¥² | 5 | 16.12 | 500 | 38 | 2013 | | 2025.08.11 | ¿ù¼¼ | È£¼öÁ¤¿ø | 4 | 20.13 | 500 | 44 | 2022 | | 2025.08.11 | ¿ù¼¼ | (2766-3) | 3 | 20.54 | 200 | 35 | 2018 | | 2025.08.09 | ¿ù¼¼ | (2790-4) | 2 | 26.22 | 300 | 44 | 2021 | | 2025.08.09 | ¿ù¼¼ | ´Üºô¶ó | 3 | 15.82 | 300 | 29 | 2018 | | 2025.08.09 | ¿ù¼¼ | ½ÂÁø | 4 | 20.56 | 100 | 38 | 2018 | | 2025.08.08 | ¿ù¼¼ | Èï»ê | 4 | 23.39 | 300 | 38 | 2018 | | 2025.08.08 | ¿ù¼¼ | (1164-3) | 2 | 29.96 | 200 | 33 | 2016 | | 2025.08.08 | ¿ù¼¼ | ÇØ¸¶·ç | 2 | 16.56 | 300 | 37 | 2021 | | 2025.08.08 | ¿ù¼¼ | Ȳ±Ý³ëÀ» | 3 | 17.87 | 200 | 35 | 2018 | | 2025.08.08 | ¿ù¼¼ | Á¤¿Õ½¦¸£ºô(6Â÷) | 3 | 66.36 | 2,000 | 65 | 2004 | | 2025.08.06 | Àü¼¼ | (2299-3) | 3 | 28.57 | 9,000 | 0 | 2016 | | 2025.08.06 | ¿ù¼¼ | ÇϳªÄ³½½ | 4 | 26.04 | 300 | 35 | 2018 | | 2025.08.06 | ¿ù¼¼ | ÇØÁøÅ¸¿î | 4 | 19.93 | 500 | 39 | 2013 | | 2025.08.05 | ¿ù¼¼ | Çʱ׸° | 3 | 22.68 | 300 | 34 | 2018 | | 2025.08.05 | ¿ù¼¼ | (2751-10) | 3 | 28.39 | 500 | 50 | 2021 | | 2025.08.05 | ¿ù¼¼ | Èñºô¸®Áö | 3 | 17.11 | 300 | 40 | 2021 | | 2025.08.04 | ¿ù¼¼ | ÇØ¸¶·ç | 3 | 30.98 | 500 | 55 | 2021 | | 2025.08.04 | ¿ù¼¼ | Èñ¹Îºô | 2 | 19.245 | 300 | 36 | 2020 | | 2025.08.04 | ¿ù¼¼ | Çϳªºô | 4 | 21.6 | 300 | 37 | 2018 | | 2025.08.04 | ¿ù¼¼ | ÇÏ´ÃÁ¤¿ø | 3 | 20.4 | 500 | 43 | 2022 | | 2025.08.03 | ¿ù¼¼ | ¸í¹®½¦¸£ºô | 4 | 59.31 | 1,000 | 60 | 2002 | | 2025.08.02 | ¿ù¼¼ | È¿¿ø(2293-14) | 5 | 14.25 | 0 | 22 | 2014 | | 2025.08.02 | ¿ù¼¼ | (1172-8) | 2 | 29.3675 | 100 | 33 | 2015 | | 2025.08.02 | ¿ù¼¼ | Sºô¶ó(2765-5) | 2 | 19.6 | 200 | 30 | 2018 | | 2025.08.02 | ¿ù¼¼ | (2796-7) | 4 | 19.41 | 200 | 40 | 2018 | | 2025.08.01 | ¿ù¼¼ | ÇØÁøÅ¸¿î | 5 | 18.6 | 500 | 37 | 2013 | | 2025.08.01 | ¿ù¼¼ | (2747-3) | 4 | 29.88 | 1,000 | 65 | 2019 | | 2025.08.01 | ¿ù¼¼ | È¿¿ø(2293-14) | 3 | 16.66 | 0 | 22 | 2014 | | 2025.08.01 | ¿ù¼¼ | (2763-2) | 3 | 21.25 | 200 | 33 | 2018 | | 2025.08.01 | ¿ù¼¼ | (2784-2) | 4 | 29.79 | 500 | 60 | 2023 | | 2025.07.31 | ¿ù¼¼ | º£³×Ä¡¾Æ | 4 | 41.57 | 1,000 | 63 | 2018 | | 2025.07.31 | ¿ù¼¼ | (2794-8) | 2 | 16.32 | 300 | 34 | 2020 | | 2025.07.30 | ¿ù¼¼ | (2782-1) | 3 | 34.92 | 500 | 70 | 2022 | | 2025.07.30 | ¿ù¼¼ | Áغô¸®Áö | 2 | 22.75 | 300 | 45 | 2022 | | 2025.07.30 | ¿ù¼¼ | ÆÄÅ©ºä | 2 | 19.835 | 300 | 36 | 2019 | | 2025.07.29 | ¿ù¼¼ | ´ëdz¾ÆÆ®ºôVII | 4 | 29.1 | 1,000 | 75 | 2022 | | 2025.07.29 | ¿ù¼¼ | (2782-5) | 3 | 19.72 | 200 | 30 | 2018 | | 2025.07.29 | ¿ù¼¼ | »ïº¸¾ÆÆ®ºô | 2 | 59.92 | 700 | 67 | 2002 | | 2025.07.29 | ¿ù¼¼ | µå¸²ºôµù2 | 3 | 17.28 | 300 | 30 | 2018 | | 2025.07.29 | ¸Å¸Å | ¿ùµåºô¶ó | 2 | 57.88 | 10,000 | | 2002 | | 2025.07.28 | ¸Å¸Å | (1205-7) | 1 | 29.49 | 12,524 | | 2016 | | 2025.07.28 | ¿ù¼¼ | ´ÙÀο츮°¡2Â÷ | 2 | 19.88 | 300 | 33 | 2019 | | 2025.07.28 | ¿ù¼¼ | ´ÙÀο츮°¡2Â÷ | 2 | 19.88 | 300 | 33 | 2019 | | 2025.07.28 | Àü¼¼ | ½ÂÁø | 2 | 22.2 | 4,000 | 0 | 2018 | | 2025.07.28 | ¿ù¼¼ | ´ëÇѺôµù | 2 | 17.16 | 300 | 33 | 2018 | | 2025.07.28 | ¸Å¸Å | (1205-7) | 4 | 29.15 | 12,376 | | 2016 | | 2025.07.28 | ¸Å¸Å | (1205-7) | 3 | 27.58 | 11,715 | | 2016 | | 2025.07.28 | ¸Å¸Å | (1205-7) | 3 | 19.94 | 8,470 | | 2016 | | 2025.07.28 | ¸Å¸Å | (1205-7) | 3 | 19.94 | 8,470 | | 2016 | | 2025.07.28 | ¸Å¸Å | (1205-7) | 3 | 27.58 | 11,715 | | 2016 | | 2025.07.28 | ¸Å¸Å | (1205-7) | 2 | 28.51 | 12,108 | | 2016 | | 2025.07.28 | ¸Å¸Å | (1205-7) | 2 | 19.94 | 8,470 | | 2016 | | 2025.07.28 | ¸Å¸Å | (1205-7) | 2 | 27.58 | 11,715 | | 2016 | | 2025.07.28 | ¸Å¸Å | (1205-7) | 1 | 24.42 | 10,372 | | 2016 | | 2025.07.28 | ¸Å¸Å | (1205-7) | 4 | 24.95 | 10,594 | | 2016 | | 2025.07.28 | ¸Å¸Å | (1205-7) | 2 | 19.94 | 8,470 | | 2016 | | 2025.07.27 | Àü¼¼ | °¡¶÷ºô | 3 | 19.6 | 4,725 | 0 | 2019 | | 2025.07.26 | ¿ù¼¼ | (1989-6) | 2 | 30.96 | 500 | 57 | 2015 | | 2025.07.26 | ¿ù¼¼ | ³ªºñÇϿ콺 | 3 | 29.81 | 300 | 38 | 2019 | | 2025.07.26 | ¿ù¼¼ | È£¼öµå¸²ºô | 2 | 15.95 | 200 | 25 | 2018 | | 2025.07.26 | ¿ù¼¼ | ´ÞºûÈ£¼ö¿¡¼ | 3 | 23.76 | 500 | 47 | 2020 | | 2025.07.26 | ¿ù¼¼ | ¿¤¸² | 2 | 31.65 | 1,000 | 38 | 2021 | | 2025.07.25 | ¿ù¼¼ | Á¶¿îÁý | 3 | 21.005 | 300 | 33 | 2018 | | 2025.07.25 | ¸Å¸Å | ÇູÁÖÅÃÇ÷¯½º | 3 | 51.19 | 21,000 | | 2021 | | 2025.07.25 | ¸Å¸Å | ÇູÁÖÅÃÇ÷¯½º | 5 | 51.19 | 21,000 | | 2021 | | 2025.07.24 | ¿ù¼¼ | (2793-3) | 3 | 17.28 | 500 | 70 | 2019 | | 2025.07.24 | ¿ù¼¼ | ÇØµçºô | 3 | 26.83 | 300 | 38 | 2018 | | 2025.07.24 | ¿ù¼¼ | ÇØ°¡µæ | 2 | 30.15 | 500 | 61 | 2020 | | 2025.07.23 | ¸Å¸Å | »ïº¸È¨Å¸¿î1µ¿ | 1 | 59.65 | 9,000 | | 2002 | | 2025.07.23 | ¿ù¼¼ | (1989-15) | 5 | 18.24 | 100 | 23 | 2014 | | 2025.07.23 | ¿ù¼¼ | (2297-2) | 4 | 12.04 | 2,500 | 13 | 2012 | | 2025.07.21 | ¿ù¼¼ | (2751-10) | 2 | 31.3 | 1,000 | 61 | 2021 | | 2025.07.21 | Àü¼¼ | ´ÞºûÈ£¼ö¿¡¼ | 3 | 29 | 6,000 | 0 | 2020 | | 2025.07.21 | ¿ù¼¼ | ´õÀ§µådz°æ | 2 | 27.15 | 500 | 55 | 2021 | | 2025.07.20 | ¿ù¼¼ | È¿¿ø(2293-14) | 3 | 14.2 | 0 | 22 | 2014 | | 2025.07.20 | ¿ù¼¼ | ¶ó¿Â | 5 | 12.24 | 300 | 11 | 2011 | | 2025.07.19 | ¿ù¼¼ | ´ëdz¾ÆÆ®ºôVII | 2 | 19.25 | 300 | 45 | 2022 | | 2025.07.19 | ¿ù¼¼ | Á¤¿Õµ¿2784-5µµ½ÃÇü»ýȰÁÖÅà | 4 | 39.94 | 2,000 | 57 | 2023 | | 2025.07.19 | ¿ù¼¼ | ¼±¿ì½¦¸£ºô | 4 | 17.675 | 300 | 35 | 2018 | | 2025.07.19 | ¿ù¼¼ | ¼±¿ì½¦¸£ºô | 2 | 17.675 | 300 | 33 | 2018 | | 2025.07.19 | ¿ù¼¼ | ´õȨºô¶ó | 2 | 20.74 | 300 | 35 | 2020 | | 2025.07.19 | ¿ù¼¼ | ¹Ì°¡¶÷ | 3 | 20.805 | 300 | 40 | 2018 | | 2025.07.19 | ¿ù¼¼ | ±×·¹À̽ººô | 2 | 20.74 | 500 | 48 | 2020 | | 2025.07.19 | ¿ù¼¼ | ´ëdz¾ÆÆ®ºôVII | 3 | 26.42 | 2,000 | 50 | 2022 | | 2025.07.18 | ¿ù¼¼ | ¾ÆÀÎÇϿ콺 | 4 | 21.75 | 200 | 40 | 2018 | | 2025.07.18 | ¿ù¼¼ | ÇϳªÄ³½½ | 2 | 26.04 | 300 | 38 | 2018 | | 2025.07.18 | Àü¼¼ | ½ºÀ§Æ®Å¸¿î | 4 | 17.16 | 3,500 | 0 | 2015 | | 2025.07.18 | ¿ù¼¼ | (2761-2) | 2 | 29.175 | 500 | 43 | 2018 | | 2025.07.17 | ¿ù¼¼ | ÇϳªÄ³½½ | 3 | 25.55 | 300 | 43 | 2018 | | 2025.07.17 | ¸Å¸Å | Á¦ÀϺô¶óÆ®(2042-4) | 5 | 56.67 | 13,800 | | 2008 | | 2025.07.17 | ¿ù¼¼ | (2771-0) | 3 | 20.58 | 1,700 | 20 | 2020 | | 2025.07.15 | ¿ù¼¼ | ´õȨºô¶ó | 3 | 23.13 | 300 | 47 | 2020 | | 2025.07.15 | ¿ù¼¼ | BrownHill | 4 | 19.44 | 300 | 38 | 2018 | | 2025.07.15 | ¿ù¼¼ | ¿À¼Çºô | 1 | 59.875 | 5,000 | 30 | 2005 | | 2025.07.15 | ¿ù¼¼ | ¼ö | 2 | 14.9 | 80 | 31 | 2013 | | 2025.07.14 | Àü¼¼ | ¸ÅÁ÷ | 3 | 20.8 | 5,800 | 0 | 2018 | | 2025.07.14 | ¿ù¼¼ | ºÎÀÚ¸¶À» | 3 | 22.288 | 300 | 43 | 2018 | | 2025.07.14 | ¿ù¼¼ | ºÎÈïºô¶óÆ®Bµ¿ | 1 | 59.33 | 1,000 | 60 | 2001 | | 2025.07.12 | ¿ù¼¼ | Sºô¶ó(2775-5) | 4 | 18.02 | 300 | 33 | 2018 | | 2025.07.12 | ¿ù¼¼ | ³ªºñÇϿ콺 | 2 | 19.54 | 500 | 35 | 2019 | | 2025.07.12 | ¿ù¼¼ | Á¤¿Õµå¸²ºô¥± | 3 | 18.58 | 500 | 35 | 2012 | | 2025.07.12 | ¿ù¼¼ | ½ÃÈ£°¡ | 4 | 28.175 | 500 | 43 | 2018 | | 2025.07.12 | ¿ù¼¼ | ½Ã±×´ÏóÇϿ콺 | 2 | 37.12 | 4,000 | 65 | 2022 | | 2025.07.12 | ¿ù¼¼ | ½ãºô | 3 | 21.95 | 300 | 40 | 2020 | | 2025.07.12 | ¿ù¼¼ | ´õÆÈ·¹½º1 | 4 | 29.945 | 1,000 | 33 | 2018 | | 2025.07.11 | ¿ù¼¼ | È£¼öÁ¤¿ø | 2 | 32.4 | 500 | 63 | 2022 | | 2025.07.11 | ¿ù¼¼ | ÇØ¸¶·ç | 4 | 16.56 | 500 | 35 | 2021 | | 2025.07.11 | Àü¼¼ | Çö¿ìºô¶ó | 4 | 37.41 | 6,000 | 0 | 2003 | | 2025.07.11 | ¿ù¼¼ | (2305-28) | 3 | 18.99 | 500 | 50 | 2003 | | 2025.07.11 | ¸Å¸Å | (1992-3) | 1 | 42.04 | 7,800 | | 2001 | | 2025.07.11 | ¿ù¼¼ | (2305-28) | 3 | 30.09 | 500 | 50 | 2003 | | 2025.07.10 | ¿ù¼¼ | ´õ½ºÅ×ÀÌ(2748-3) | 2 | 19.31 | 300 | 38 | 2019 | | 2025.07.10 | ¿ù¼¼ | ±×¸°³ª·¡ | 4 | 24.96 | 300 | 35 | 2018 | | 2025.07.10 | ¸Å¸Å | Áß¾ÓÇÏÀÌÃ÷ºô | 2 | 59.01 | 11,650 | | 2002 | | 2025.07.09 | ¿ù¼¼ | (2254-11) | 2 | 57.61 | 500 | 42 | 2016 | | 2025.07.09 | ¿ù¼¼ | ¹Ì°¡¶÷ | 4 | 42.33 | 500 | 70 | 2018 | | 2025.07.08 | Àü¼¼ | °¡¶÷ºô | 3 | 25.48 | 5,000 | 0 | 2019 | | 2025.07.08 | ¿ù¼¼ | (1989-15) | 5 | 18.24 | 50 | 25 | 2014 | | 2025.07.08 | ¿ù¼¼ | µå¸²ºôµù2 | 3 | 17.28 | 1,700 | 18 | 2018 | | 2025.07.07 | ¿ù¼¼ | ½°ÇϿ콺 | 4 | 98.32 | 1,700 | 105 | 2018 | | 2025.07.07 | ¿ù¼¼ | Çö´ë¾ÆÆ®ºô1(2305-15) | -1 | 37.16 | 2,000 | 45 | 2003 | | 2025.07.07 | ¿ù¼¼ | Å©¸®½ºÅ» | 2 | 21.87 | 200 | 35 | 2018 | | 2025.07.07 | ¿ù¼¼ | ³Ýºô | 3 | 30.32 | 500 | 55 | 2020 | | 2025.07.07 | ¿ù¼¼ | (2776-3) | 3 | 23.4 | 300 | 55 | 2021 | | 2025.07.07 | ¿ù¼¼ | º£Àϸ® | 3 | 26.86 | 500 | 45 | 2021 | | 2025.07.05 | ¿ù¼¼ | (2794-7) | 4 | 16.32 | 300 | 37 | 2018 | | 2025.07.05 | ¿ù¼¼ | ¾ÆÆ®ºô | 2 | 17.85 | 300 | 36 | 2020 | | 2025.07.05 | Àü¼¼ | ½Ã±×´Ïó | 2 | 28.53 | 9,000 | 0 | 2021 | | 2025.07.05 | ¿ù¼¼ | (2750-5) | 2 | 37.15 | 500 | 53 | 2021 | | 2025.07.05 | ¿ù¼¼ | (2796-10) | 2 | 22.84 | 300 | 45 | 2023 | | 2025.07.05 | Àü¼¼ | ¸ð¾Æºôµù | 2 | 13.34 | 5,000 | 0 | 2012 | | 2025.07.04 | ¿ù¼¼ | Å¿øºô | 3 | 23.81 | 300 | 40 | 2019 | | 2025.07.04 | ¿ù¼¼ | ³ªºñÇϿ콺 | 3 | 19.54 | 300 | 35 | 2019 | | 2025.07.04 | ¿ù¼¼ | (2236-1) | 4 | 62.49 | 300 | 34 | 2023 | | 2025.07.03 | ¿ù¼¼ | (2743-6) | 4 | 29.46 | 500 | 50 | 2018 | | 2025.07.02 | ¿ù¼¼ | ºê¶ó¿îÇϿ콺 | 4 | 33.15 | 200 | 22 | 2019 | | 2025.07.02 | ¿ù¼¼ | ºê¶ó¿îÇϿ콺 | 4 | 33.15 | 200 | 22 | 2019 | | 2025.07.02 | ¿ù¼¼ | (2771-2) | 4 | 22.74 | 500 | 40 | 2021 | | 2025.07.02 | ¿ù¼¼ | Èñ¸ÁŸ¿î | 4 | 18.38 | 200 | 17 | 2019 | | 2025.07.02 | ¸Å¸Å | ·Ôµ¥»þÀκô | 2 | 58.38 | 12,500 | | 2009 | | 2025.07.02 | ¿ù¼¼ | ÇØ¸¶·ç | 3 | 22.38 | 500 | 50 | 2021 | | 2025.07.02 | ¿ù¼¼ | (2318-1) | 5 | 38.145 | 500 | 51 | 2016 | | 2025.07.02 | ¿ù¼¼ | û¼Û¾ÆÆ®ºô | 2 | 35.1 | 500 | 60 | 2018 | | 2025.07.02 | ¿ù¼¼ | (2781-3) | 4 | 25.62 | 500 | 40 | 2021 | | 2025.07.01 | ¿ù¼¼ | ÇϿ콺Å丮 | 3 | 22.95 | 300 | 31 | 2018 | | 2025.07.01 | ¿ù¼¼ | (2030-1) | 2 | 20.34 | 300 | 29 | 2012 | | 2025.06.30 | ¿ù¼¼ | (2236-1) | 4 | 62.61 | 300 | 42 | 2023 | | 2025.06.30 | ¿ù¼¼ | (2768-3) | 3 | 29.63 | 1,000 | 76 | 2019 | | 2025.06.30 | ¿ù¼¼ | (2781-3) | 4 | 38.445 | 700 | 70 | 2021 | | 2025.06.30 | ¿ù¼¼ | (2790-4) | 3 | 19.53 | 300 | 33 | 2021 | | 2025.06.30 | ¿ù¼¼ | (2784-2) | 2 | 39.72 | 1,000 | 70 | 2023 | | 2025.06.28 | ¿ù¼¼ | (2758-4) | 3 | 32.31 | 500 | 60 | 2020 | | 2025.06.28 | Àü¼¼ | °¡¶÷ºô | 3 | 22.08 | 5,000 | 0 | 2019 | | 2025.06.28 | ¿ù¼¼ | ´ëÇѺôµù | 4 | 19.68 | 1,700 | 14 | 2018 | | 2025.06.28 | ¿ù¼¼ | (2794-7) | 4 | 21.26 | 300 | 38 | 2018 | | 2025.06.27 | Àü¼¼ | µå¸²ºô¶ó | 4 | 58.57 | 7,400 | 0 | 2002 | | 2025.06.27 | Àü¼¼ | µå¸²ºô¶ó | 4 | 58.57 | 7,400 | 0 | 2002 | | 2025.06.25 | ¿ù¼¼ | °¡¿Âºô¸®Áö | 3 | 17.3 | 300 | 35 | 2018 | | 2025.06.25 | ¿ù¼¼ | (2293-3) | 2 | 29.64 | 4,000 | 39 | 2016 | | 2025.06.24 | ¸Å¸Å | û¼Öºô¶óÆ® | 1 | 57.93 | 9,800 | | 2002 | | 2025.06.24 | ¿ù¼¼ | ¼®À±ºô | 3 | 24.49 | 500 | 36 | 2012 | | 2025.06.24 | ¿ù¼¼ | (2781-0000) | 2 | 19.74 | 500 | 50 | 2023 | | 2025.06.23 | ¿ù¼¼ | ºê¸¯ºô | 2 | 24.32 | 500 | 28 | 2020 | | 2025.06.23 | ¿ù¼¼ | ÀºÇýºôµù(2305-7) | 4 | 24.14 | 300 | 32 | 2003 | | 2025.06.23 | ¿ù¼¼ | BOBOSVILL | 2 | 21.1 | 300 | 39 | 2018 | | 2025.06.23 | ¿ù¼¼ | ´õ½ºÅ×ÀÌ | 3 | 30.96 | 500 | 58 | 2020 | | 2025.06.23 | ¿ù¼¼ | (2770-12) | 3 | 17.8 | 1,000 | 27 | 2018 | | 2025.06.23 | ¿ù¼¼ | ¼ºÁøºô¶ó | 2 | 20.06 | 200 | 32 | 2018 | | 2025.06.22 | ¸Å¸Å | (2297-2) | 4 | 27.18 | 8,000 | | 2012 | | 2025.06.22 | ¸Å¸Å | (2297-2) | 4 | 12.09 | 3,056 | | 2012 | | 2025.06.22 | ¸Å¸Å | (2297-2) | 4 | 12.09 | 3,056 | | 2012 | | 2025.06.22 | ¸Å¸Å | (2297-2) | 4 | 12.04 | 3,044 | | 2012 | | 2025.06.22 | ¸Å¸Å | (2297-2) | 4 | 12.04 | 3,044 | | 2012 | | 2025.06.22 | ¸Å¸Å | (2297-2) | 5 | 12.04 | 3,044 | | 2012 | | 2025.06.22 | ¸Å¸Å | (2297-2) | 5 | 12.01 | 3,036 | | 2012 | | 2025.06.22 | ¸Å¸Å | (2297-2) | 5 | 12 | 3,034 | | 2012 | | 2025.06.22 | ¸Å¸Å | (2297-2) | 5 | 12.09 | 3,056 | | 2012 | | 2025.06.22 | ¸Å¸Å | (2297-2) | 5 | 12.09 | 3,056 | | 2012 | | 2025.06.22 | ¸Å¸Å | (2297-2) | 5 | 12.04 | 3,044 | | 2012 | | 2025.06.22 | ¸Å¸Å | (2297-2) | 5 | 21.61 | 6,500 | | 2012 | | 2025.06.22 | ¸Å¸Å | (2297-2) | 4 | 12.04 | 3,044 | | 2012 | | 2025.06.22 | ¸Å¸Å | (2297-2) | 4 | 12.17 | 3,077 | | 2012 | | 2025.06.22 | ¸Å¸Å | (2297-2) | 2 | 12.16 | 3,077 | | 2012 | | 2025.06.22 | ¸Å¸Å | (2297-2) | 3 | 12.04 | 3,044 | | 2012 | | 2025.06.22 | ¸Å¸Å | (2297-2) | 3 | 12.09 | 3,056 | | 2012 | | 2025.06.22 | ¸Å¸Å | (2297-2) | 2 | 12.09 | 3,056 | | 2012 | | 2025.06.22 | ¸Å¸Å | (2297-2) | 3 | 12.09 | 3,056 | | 2012 | | 2025.06.22 | ¸Å¸Å | (2297-2) | 2 | 12.04 | 3,044 | | 2012 | | 2025.06.22 | ¸Å¸Å | (2297-2) | 2 | 12.04 | 3,044 | | 2012 | | 2025.06.22 | ¸Å¸Å | (2297-2) | 2 | 12.01 | 3,036 | | 2012 | | 2025.06.22 | ¸Å¸Å | (2297-2) | 2 | 12 | 3,034 | | 2012 | | 2025.06.22 | ¸Å¸Å | (2297-2) | 2 | 12.09 | 3,056 | | 2012 | | 2025.06.22 | ¸Å¸Å | (2297-2) | 2 | 12.04 | 3,044 | | 2012 | | 2025.06.22 | ¸Å¸Å | (2297-2) | 3 | 12.17 | 3,077 | | 2012 | | 2025.06.22 | ¸Å¸Å | (2297-2) | 3 | 12.04 | 3,044 | | 2012 | | 2025.06.22 | ¸Å¸Å | (2297-2) | 3 | 12.04 | 3,044 | | 2012 | | 2025.06.22 | ¸Å¸Å | (2297-2) | 3 | 27.18 | 8,200 | | 2012 | | 2025.06.21 | ¿ù¼¼ | ¼öºô¸®Áö | 2 | 23.92 | 1,700 | 45 | 2021 | | 2025.06.21 | ¿ù¼¼ | (2774-6) | 4 | 31.53 | 500 | 45 | 2018 | | 2025.06.21 | Àü¼¼ | Sºô¶ó | 4 | 20.87 | 4,200 | 0 | 2018 | | 2025.06.21 | ¿ù¼¼ | Á¤¿Õµ¿2784-5µµ½ÃÇü»ýȰÁÖÅà | 4 | 31.93 | 2,000 | 60 | 2023 | | 2025.06.21 | ¿ù¼¼ | ½Å¾Èµµ½ÃÇü»ýȰÁÖÅà | 4 | 17.3 | 100 | 31 | 2012 | | 2025.06.20 | ¸Å¸Å | ¼Ãʺô | 5 | 98.87 | 22,300 | | 2008 | | 2025.06.20 | ¿ù¼¼ | (2771-0) | 2 | 30.105 | 1,700 | 35 | 2020 | | 2025.06.20 | ¿ù¼¼ | Å¿øºô | 3 | 27.98 | 500 | 65 | 2019 | | 2025.06.20 | ¿ù¼¼ | ¿¹Áغô¸®Áö | 3 | 25.66 | 500 | 57 | 2020 | | 2025.06.20 | ¿ù¼¼ | ¼Âºô | 4 | 27.03 | 1,700 | 45 | 2020 | | 2025.06.20 | ¿ù¼¼ | ¿À¼Çºô | 2 | 20.62 | 300 | 33 | 2018 | | 2025.06.19 | ¿ù¼¼ | (2751-6) | 3 | 34.77 | 500 | 65 | 2023 | | 2025.06.19 | ¿ù¼¼ | ÇϳªÄ³½½ | 2 | 22.32 | 300 | 36 | 2018 | | 2025.06.19 | ¿ù¼¼ | ÆÄÀκô | 2 | 21.95 | 500 | 44 | 2020 | | 2025.06.19 | ¿ù¼¼ | (2782-5) | 4 | 18.08 | 300 | 35 | 2018 | | 2025.06.19 | ¿ù¼¼ | ´ÙÀο츮°¡2Â÷ | 2 | 22.5 | 300 | 31 | 2019 | | 2025.06.19 | ¸Å¸Å | (2767-5) | 4 | 16.2 | 5,800 | | 2018 | | 2025.06.19 | ¸Å¸Å | (2767-5) | 4 | 36.04 | 14,000 | | 2018 | | 2025.06.19 | ¸Å¸Å | (2767-5) | 4 | 36.63 | 14,500 | | 2018 | | 2025.06.19 | ¸Å¸Å | (2767-5) | 4 | 16.56 | 6,000 | | 2018 | | 2025.06.19 | ¿ù¼¼ | »ï¼º°ñµåºô | 2 | 59.63 | 1,000 | 65 | 2003 | | 2025.06.19 | ¸Å¸Å | (2767-5) | 4 | 15.75 | 5,800 | | 2018 | | 2025.06.19 | ¸Å¸Å | (2767-5) | 2 | 16.56 | 5,900 | | 2018 | | 2025.06.19 | ¸Å¸Å | (2767-5) | 2 | 15.75 | 5,800 | | 2018 | | 2025.06.19 | ¸Å¸Å | (2767-5) | 2 | 16.56 | 5,900 | | 2018 | | 2025.06.19 | ¸Å¸Å | (2767-5) | 2 | 21.29 | 7,600 | | 2018 | | 2025.06.19 | ¸Å¸Å | (2767-5) | 3 | 16.2 | 5,800 | | 2018 | | 2025.06.19 | ¸Å¸Å | (2767-5) | 3 | 16.2 | 5,900 | | 2018 | | 2025.06.19 | ¸Å¸Å | (2767-5) | 3 | 20.93 | 7,500 | | 2018 | | 2025.06.19 | ¸Å¸Å | (2767-5) | 3 | 21.29 | 7,600 | | 2018 | | 2025.06.19 | ¸Å¸Å | (2767-5) | 3 | 16.56 | 6,000 | | 2018 | | 2025.06.19 | ¸Å¸Å | (2767-5) | 3 | 16.56 | 6,000 | | 2018 | | 2025.06.19 | ¸Å¸Å | (2767-5) | 2 | 20.93 | 7,500 | | 2018 | | 2025.06.19 | ¸Å¸Å | (2767-5) | 2 | 16.2 | 5,800 | | 2018 | | 2025.06.19 | ¸Å¸Å | (2767-5) | 2 | 16.2 | 5,800 | | 2018 | | 2025.06.19 | ¸Å¸Å | (2767-5) | 3 | 15.75 | 5,800 | | 2018 | | 2025.06.18 | ¿ù¼¼ | (2754-1) | 2 | 25.83 | 200 | 35 | 2018 | | 2025.06.18 | ¿ù¼¼ | ¼º¿øºôµù | 5 | 37.82 | 500 | 50 | 2012 | | 2025.06.18 | ¿ù¼¼ | (2754-1) | 3 | 25.83 | 200 | 35 | 2018 | | 2025.06.18 | ¿ù¼¼ | (2776-3) | 3 | 23.4 | 300 | 50 | 2021 | | 2025.06.17 | ¿ù¼¼ | µÑºô | 3 | 30.96 | 500 | 55 | 2019 | | 2025.06.17 | ¿ù¼¼ | Èñºô¸®Áö | 3 | 18.55 | 300 | 45 | 2021 | | 2025.06.17 | ¿ù¼¼ | û¼Û¾ÆÆ®ºô | 4 | 41.3 | 2,000 | 56 | 2018 | | 2025.06.17 | ¿ù¼¼ | (2749-1) | 2 | 27.26 | 1,000 | 52 | 2022 | | 2025.06.16 | ¿ù¼¼ | (2296-3) | 2 | 21.92 | 1,000 | 55 | 2012 | | 2025.06.16 | ¿ù¼¼ | »ó¿øºô¶ó | 2 | 21.74 | 300 | 34 | 2018 | | 2025.06.16 | Àü¼¼ | °¡µð¾ðÇϿ콺 | 2 | 23.96 | 8,400 | 0 | 2019 | | 2025.06.16 | ¸Å¸Å | Á¦ÀϺô¶óÆ® | 1 | 59.96 | 10,100 | | 2002 | | 2025.06.15 | ¿ù¼¼ | ±×·¹À̽ººô(2755-2) | 2 | 14.8 | 300 | 43 | 2021 | | 2025.06.14 | ¿ù¼¼ | ¼±¤´ºÅ¸¿î | 5 | 130.68 | 3,000 | 61 | 2003 | | 2025.06.14 | ¿ù¼¼ | Å丶ÇϿ콺 | 2 | 46.29 | 1,000 | 63 | 2018 | | 2025.06.14 | ¿ù¼¼ | ¼ö¸²ºô¶óÆ®5Â÷ | 3 | 59.92 | 1,000 | 60 | 2002 | | 2025.06.14 | ¿ù¼¼ | ¼Âºô | 3 | 26.29 | 500 | 57 | 2020 | | 2025.06.14 | ¿ù¼¼ | (1185-4) | 1 | 24.255 | 200 | 37 | 2013 | | 2025.06.14 | ¿ù¼¼ | ¼ö¸²ºô¶óÆ®5Â÷ | 3 | 59.92 | 1,000 | 60 | 2002 | | 2025.06.14 | ¿ù¼¼ | (1164-3) | 2 | 29.96 | 200 | 33 | 2016 | | 2025.06.14 | ¿ù¼¼ | ¹Ì°¡¶÷ | 3 | 20.805 | 300 | 35 | 2018 | | 2025.06.14 | ¿ù¼¼ | (2766-3) | 3 | 23.34 | 300 | 31 | 2018 | | 2025.06.14 | ¿ù¼¼ | ¶ó¿ÂÇϿ콺 | 3 | 20.03 | 300 | 40 | 2018 | | 2025.06.14 | ¿ù¼¼ | ¼Âºô | 3 | 26.29 | 500 | 57 | 2020 | | 2025.06.13 | Àü¼¼ | µå¸²ºô¶ó | 4 | 58.57 | 7,400 | 0 | 2002 | | 2025.06.12 | ¿ù¼¼ | ´Ù¿ø | 4 | 20.575 | 300 | 35 | 2018 | | 2025.06.11 | ¿ù¼¼ | ¼Âºô | 2 | 26.29 | 1,200 | 50 | 2020 | | 2025.06.11 | ¿ù¼¼ | (2790-4) | 4 | 19.53 | 300 | 33 | 2021 | | 2025.06.11 | ¿ù¼¼ | ¼Âºô | 2 | 26.29 | 1,200 | 50 | 2020 | | 2025.06.11 | ¿ù¼¼ | ´ÙÀÎij½½ | 2 | 31.65 | 1,000 | 62 | 2018 | | 2025.06.11 | ¿ù¼¼ | ¿¹Áغô¸®Áö | 3 | 19.46 | 300 | 38 | 2020 | | 2025.06.10 | ¸Å¸Å | ±×¸°Å¸¿î | 4 | 55.62 | 8,000 | | 2003 | | 2025.06.09 | ¸Å¸Å | ¼º¿ø¾ÆÆ®ºô | 4 | 30.87 | 10,500 | | 2018 | | 2025.06.09 | ¸Å¸Å | ¼º¿ø¾ÆÆ®ºô | 2 | 30.87 | 10,500 | | 2018 | | 2025.06.09 | ¸Å¸Å | ¼º¿ø¾ÆÆ®ºô | 2 | 30.87 | 10,500 | | 2018 | | 2025.06.09 | ¸Å¸Å | ¼º¿ø¾ÆÆ®ºô | 2 | 23.04 | 8,100 | | 2018 | | 2025.06.09 | ¸Å¸Å | ¼º¿ø¾ÆÆ®ºô | 2 | 18.23 | 6,500 | | 2018 | | 2025.06.09 | ¸Å¸Å | ¼º¿ø¾ÆÆ®ºô | 2 | 30.87 | 10,500 | | 2018 | | 2025.06.09 | ¸Å¸Å | ¼º¿ø¾ÆÆ®ºô | 3 | 30.87 | 10,500 | | 2018 | | 2025.06.09 | ¸Å¸Å | ¼º¿ø¾ÆÆ®ºô | 4 | 30.87 | 10,500 | | 2018 | | 2025.06.09 | ¿ù¼¼ | (2797-0) | 2 | 20.01 | 300 | 34 | 2019 | | 2025.06.09 | ¸Å¸Å | ¼º¿ø¾ÆÆ®ºô | 4 | 30.87 | 10,500 | | 2018 | | 2025.06.09 | ¸Å¸Å | ¼º¿ø¾ÆÆ®ºô | 3 | 23.04 | 8,200 | | 2018 | | 2025.06.09 | ¸Å¸Å | ¼º¿ø¾ÆÆ®ºô | 4 | 18.23 | 6,500 | | 2018 | | 2025.06.09 | ¸Å¸Å | ¼º¿ø¾ÆÆ®ºô | 3 | 30.87 | 10,500 | | 2018 | | 2025.06.09 | ¸Å¸Å | ¼º¿ø¾ÆÆ®ºô | 3 | 30.87 | 10,500 | | 2018 | | 2025.06.09 | ¸Å¸Å | ¼º¿ø¾ÆÆ®ºô | 3 | 18.23 | 6,500 | | 2018 | | 2025.06.09 | ¸Å¸Å | ¼º¿ø¾ÆÆ®ºô | 4 | 23.04 | 8,200 | | 2018 | | 2025.06.07 | ¿ù¼¼ | ¿¤¸² | 2 | 21.24 | 200 | 37 | 2021 | | 2025.06.07 | ¿ù¼¼ | ½ÂÁø | 2 | 21.09 | 300 | 30 | 2018 | | 2025.06.06 | ¿ù¼¼ | -2793 | 4 | 19.95 | 100 | 40 | 2019 | | 2025.06.06 | ¿ù¼¼ | ³ªÆú¸® | 2 | 37.12 | 500 | 59 | 2018 | | 2025.06.06 | ¿ù¼¼ | (2797-0) | 3 | 20.67 | 300 | 33 | 2019 | | 2025.06.06 | ¿ù¼¼ | (2782-0) | 2 | 17.85 | 300 | 40 | 2018 | | 2025.06.06 | ¿ù¼¼ | ´ëdz¾ÆÆ®ºôVII | 4 | 26.42 | 1,000 | 60 | 2022 | | 2025.06.05 | ¿ù¼¼ | ½Ã±×´ÏóÇϿ콺 | 2 | 32.83 | 4,000 | 60 | 2022 | | 2025.06.05 | ¸Å¸Å | ÀºÇÏ¸Ç¼Ç | 4 | 59.76 | 8,900 | | 2003 | | 2025.06.04 | ¿ù¼¼ | (2790-4) | 2 | 19.53 | 300 | 38 | 2021 | | 2025.06.04 | ¿ù¼¼ | ÇØÇÇÇϿ콺 | 3 | 38.43 | 300 | 37 | 2002 | | 2025.06.04 | ¿ù¼¼ | (2758-3) | 3 | 17.72 | 100 | 34 | 2020 | | 2025.06.04 | ¿ù¼¼ | (2787-0) | 4 | 25.41 | 500 | 68 | 2023 | | 2025.06.03 | ¿ù¼¼ | (2241-5) | 5 | 63.88 | 500 | 50 | 2016 | | 2025.06.03 | Àü¼¼ | ³ëÀ»ºûÈ£¼ö¿¡¼ | 4 | 46.34 | 9,000 | 0 | 2020 | | 2025.06.03 | ¿ù¼¼ | (2778-1) | 3 | 20.365 | 300 | 40 | 2020 | | 2025.06.03 | ¿ù¼¼ | ±×·¹À̽ººô(2755-2) | 3 | 27 | 300 | 40 | 2021 | | 2025.06.02 | ¿ù¼¼ | ¾¾¾Øºô | 3 | 58.3 | 2,000 | 60 | 2002 | | 2025.06.02 | ¿ù¼¼ | û¼Öºô¶ó(2783-1) | 3 | 17.5 | 400 | 30 | 2018 | | 2025.06.02 | ¿ù¼¼ | ¾ÆÆ®ºô | 4 | 20.88 | 300 | 38 | 2020 | | 2025.06.02 | Àü¼¼ | (2771-9) | 4 | 26.9375 | 6,300 | 0 | 2018 | | 2025.06.02 | ¸Å¸Å | »ï¼º°ñµåºô | 2 | 59.63 | 10,700 | | 2003 | | 2025.06.01 | Àü¼¼ | (1204-12) | 4 | 28.59 | 9,000 | 0 | 2016 | | 2025.06.01 | ¿ù¼¼ | ´õ½ºÅ×ÀÌ | 2 | 29.4 | 500 | 60 | 2020 | | 2025.06.01 | ¿ù¼¼ | ÇູÇÑÁý | 3 | 18.1 | 200 | 38 | 2014 | | 2025.05.31 | ¿ù¼¼ | (2768-2) | 3 | 45 | 1,000 | 75 | 2019 | | 2025.05.31 | ¿ù¼¼ | (2778-1) | 2 | 20.9 | 300 | 38 | 2020 | | 2025.05.30 | ¿ù¼¼ | ´ÙÀο츮°¡2Â÷ | 2 | 31.695 | 500 | 40 | 2019 | | 2025.05.29 | Àü¼¼ | ¼ö¾Èä | 2 | 23.26 | 5,000 | 0 | 2018 | | 2025.05.29 | ¿ù¼¼ | (2743-6) | 2 | 27.86 | 500 | 50 | 2018 | | 2025.05.29 | ¿ù¼¼ | (2746-0) | 4 | 26.7 | 300 | 45 | 2018 | | 2025.05.28 | ¿ù¼¼ | (2796-7) | 2 | 19.68 | 300 | 38 | 2018 | | 2025.05.28 | ¿ù¼¼ | ´ÙÀο츮°¡2Â÷ | 3 | 19.88 | 300 | 30 | 2019 | | 2025.05.28 | ¿ù¼¼ | (2750-1) | 2 | 29.94 | 500 | 57 | 2018 | | 2025.05.28 | Àü¼¼ | ´õÆÓ¸®½º¥± | 3 | 21.1 | 7,000 | 0 | 2018 | | 2025.05.28 | ¿ù¼¼ | ³ªÀ̽ººôCµ¿ | 4 | 19.28 | 100 | 35 | 2019 | | 2025.05.27 | ¿ù¼¼ | (2315-2) | 3 | 12.17 | 200 | 24 | 2012 | | 2025.05.27 | ¿ù¼¼ | Áغô¸®Áö | 3 | 24.14 | 500 | 60 | 2022 | | 2025.05.26 | ¸Å¸Å | ÇູÁÖÅÃÇ÷¯½º | 4 | 47.61 | 21,000 | | 2021 | | 2025.05.26 | Àü¼¼ | (1161-7) | 2 | 29.455 | 4,000 | 0 | 2014 | | 2025.05.25 | ¿ù¼¼ | ¼ÇذñµçŸ¿î(1982-11) | 4 | 58.12 | 3,000 | 55 | 2002 | | 2025.05.25 | ¿ù¼¼ | (2766-5) | 4 | 24.51 | 300 | 25 | 2018 | | 2025.05.24 | ¿ù¼¼ | ´õÆÓ¸®½º¥² | 2 | 22.45 | 500 | 51 | 2019 | | 2025.05.24 | ¿ù¼¼ | õ°ºô¶ó | 4 | 19.08 | 300 | 32 | 2018 | | 2025.05.24 | ¿ù¼¼ | ¸®Á¨ºô | 3 | 25.46 | 500 | 40 | 2021 | | 2025.05.24 | ¸Å¸Å | ÇÑȸǼÇ2Â÷ | 4 | 57.9 | 8,700 | | 2002 | | 2025.05.23 | ¿ù¼¼ | ³ªÆú¸® | 3 | 17.34 | 200 | 39 | 2018 | | 2025.05.23 | ¿ù¼¼ | ½ÂÁø | 2 | 24.19 | 200 | 45 | 2018 | | 2025.05.23 | ¿ù¼¼ | º¹Àüºô¶ó2Â÷ | 1 | 58.24 | 1,000 | 45 | 2002 | | 2025.05.23 | ¿ù¼¼ | °Å»ê¾ÆÆ®ºô | 2 | 61.095 | 1,000 | 75 | 2007 | | 2025.05.21 | ¸Å¸Å | ÇູÁÖÅÃÇ÷¯½º | 3 | 47.61 | 21,000 | | 2021 | | 2025.05.21 | ¿ù¼¼ | ¿¹Áغô¸®Áö | 4 | 29.86 | 500 | 50 | 2020 | | 2025.05.21 | ¿ù¼¼ | (2790-3) | 2 | 28.84 | 500 | 45 | 2021 | | 2025.05.21 | ¿ù¼¼ | Á¤¿ø | 2 | 23.94 | 500 | 46 | 2021 | | 2025.05.21 | ¿ù¼¼ | ¾Æ¸§´Ù¿îÁý | 5 | 17.6 | 300 | 43 | 2013 | | 2025.05.20 | ¸Å¸Å | Çö¿ìºô¶ó | 3 | 35.41 | 7,000 | | 2003 | | 2025.05.20 | ¿ù¼¼ | CASABEE | 4 | 28.35 | 1,000 | 55 | 2019 | | 2025.05.20 | ¿ù¼¼ | Á¤¿Õµ¿µµ½ÃÇüÁÖÅÃ(À±¹Ì¿Á) | 2 | 26.495 | 500 | 55 | 2021 | | 2025.05.20 | ¿ù¼¼ | ´ëdz¾ÆÆ®ºôVII | 2 | 18.69 | 300 | 47 | 2022 | | 2025.05.20 | ¿ù¼¼ | ´ÙÀÎij½½ | 3 | 16.27 | 300 | 33 | 2018 | | 2025.05.20 | Àü¼¼ | ³ëÀ»ºûÈ£¼ö¿¡¼ | 2 | 22.71 | 4,000 | 0 | 2020 | | 2025.05.20 | ¿ù¼¼ | Á¤¿Õµ¿µµ½ÃÇüÁÖÅÃ(À±¹Ì¿Á) | 2 | 34.99 | 500 | 65 | 2021 | | 2025.05.19 | ¿ù¼¼ | Çý¼®ºô | 2 | 21.665 | 300 | 36 | 2018 | | 2025.05.19 | ¿ù¼¼ | °Å»ê¾ÆÆ®ºô | 4 | 61.095 | 8,325 | 15 | 2007 | | 2025.05.17 | ¿ù¼¼ | Ȳ±Ý³ëÀ» | 3 | 17.095 | 200 | 35 | 2018 | | 2025.05.17 | Àü¼¼ | ´ëdz¾ÆÆ®ºô¥² | 2 | 22.74 | 4,500 | 0 | 2020 | | 2025.05.17 | ¿ù¼¼ | ½ÂÁø | 4 | 22.2 | 300 | 40 | 2018 | | 2025.05.16 | ¿ù¼¼ | û¼Ö(2785-2) | 3 | 23.96 | 500 | 45 | 2018 | | 2025.05.16 | ¿ù¼¼ | ÆÛ½ºÆ®ºô(2770-4) | 2 | 22.18 | 200 | 32 | 2018 | | 2025.05.16 | ¿ù¼¼ | °¡¶÷ºô | 3 | 22.4 | 1,500 | 30 | 2019 | | 2025.05.16 | ¿ù¼¼ | ³ªÀ̽ººôDµ¿ | 2 | 19.6 | 200 | 30 | 2019 | | 2025.05.15 | ¿ù¼¼ | (2767-5) | 4 | 36.04 | 1,000 | 68 | 2018 | | 2025.05.15 | ¿ù¼¼ | ´õÀ§µå | 2 | 31.72 | 500 | 70 | 2021 | | 2025.05.15 | ¿ù¼¼ | ½ÂÁø | 3 | 22.2 | 300 | 40 | 2018 | | 2025.05.15 | ¿ù¼¼ | ºê¸¯ºô | 3 | 24.32 | 300 | 37 | 2020 | | 2025.05.15 | ¿ù¼¼ | µµÇâ | 2 | 26.68 | 500 | 45 | 2022 | | 2025.05.14 | Àü¼¼ | (2750-4) | 3 | 28.5 | 8,000 | 0 | 2022 | | 2025.05.14 | Àü¼¼ | (2750-4) | 3 | 29.16 | 10,000 | 0 | 2022 | | 2025.05.13 | ¿ù¼¼ | (2782-0) | 2 | 30.38 | 500 | 55 | 2018 | | 2025.05.13 | ¿ù¼¼ | (2775-8) | 2 | 17.85 | 200 | 35 | 2021 | | 2025.05.13 | ¸Å¸Å | ¸í¹®½¦¸£ºô | 4 | 59.31 | 9,000 | | 2002 | | 2025.05.13 | ¸Å¸Å | ºÎÈïºô¶óÆ®Aµ¿ | 3 | 59.33 | 10,000 | | 2001 | | 2025.05.12 | ¿ù¼¼ | °Ç¾ç½¦¸£ºô | 2 | 29.48 | 200 | 25 | 2015 | | 2025.05.12 | ¿ù¼¼ | µå¸²ºôµù2 | 4 | 29.925 | 4,000 | 38 | 2018 | | 2025.05.10 | ¿ù¼¼ | Å¿øºô | 2 | 22.64 | 300 | 40 | 2019 | | 2025.05.10 | ¸Å¸Å | ½Å¼¼°èȨŸ¿î3Â÷Bµ¿ | 4 | 54.85 | 8,700 | | 2002 | | 2025.05.10 | ¿ù¼¼ | (2787-0) | 2 | 31.185 | 500 | 58 | 2023 | | 2025.05.10 | ¿ù¼¼ | »ïº¸¾ÆÆ®ºô | 2 | 59.92 | 700 | 67 | 2002 | | 2025.05.10 | ¿ù¼¼ | BOBOSVILL | 4 | 22.465 | 300 | 36 | 2018 | | 2025.05.10 | ¿ù¼¼ | ½Å¾Èµµ½ÃÇü»ýȰÁÖÅà | 5 | 19.14 | 100 | 35 | 2012 | | 2025.05.10 | ¿ù¼¼ | Sºô¶ó(2791-4) | 4 | 18.525 | 200 | 17 | 2018 | | 2025.05.10 | ¿ù¼¼ | ±Û·Î¹úºô¸®Áö | 2 | 31.4 | 500 | 55 | 2018 | | 2025.05.09 | ¸Å¸Å | ¸í¹®½¦¸£ºô | 4 | 59.31 | 9,100 | | 2002 | | 2025.05.09 | ¿ù¼¼ | ¸®Á¨ºô | 3 | 19.47 | 300 | 35 | 2021 | | 2025.05.09 | ¿ù¼¼ | ÀÌ·¹ | 4 | 27.77 | 500 | 50 | 2021 | | 2025.05.09 | ¿ù¼¼ | (2762-1) | 4 | 14.43 | 300 | 32 | 2020 | | 2025.05.09 | ¿ù¼¼ | µå¸²ºôµù2 | 2 | 18.19 | 500 | 33 | 2018 | | 2025.05.08 | ¿ù¼¼ | (2752-7) | 4 | 25.7 | 500 | 45 | 2020 | | 2025.05.08 | ¿ù¼¼ | Á¤¿ø | 4 | 26.51 | 500 | 43 | 2021 | | 2025.05.08 | Àü¼¼ | ¶ó¿ÂÇϿ콺 | 4 | 47.47 | 12,000 | 0 | 2018 | | 2025.05.07 | Àü¼¼ | (2750-4) | 4 | 29.16 | 10,000 | 0 | 2022 | | 2025.05.07 | ¿ù¼¼ | (2770-5) | 3 | 26.9375 | 500 | 47 | 2018 | | 2025.05.07 | ¿ù¼¼ | ¸ð¾Æºôµù | 2 | 13.2 | 100 | 36 | 2012 | | 2025.05.07 | ¸Å¸Å | ÇູÁÖÅÃÇ÷¯½º | 2 | 47.61 | 21,000 | | 2021 | | 2025.05.07 | ¿ù¼¼ | ´ÙÀο츮Â÷3Â÷ | 2 | 18.87 | 300 | 20 | 2020 | | 2025.05.05 | ¿ù¼¼ | ´Üºô¶ó | 3 | 18.325 | 300 | 32 | 2018 | | 2025.05.04 | ¿ù¼¼ | (2027-1) | 2 | 61.08 | 1,500 | 64 | 2003 | | 2025.05.03 | ¿ù¼¼ | (2771-0) | 3 | 38.71 | 8,000 | 9 | 2020 | | 2025.05.03 | ¿ù¼¼ | Ȳ±Ý³ëÀ» | 4 | 17.87 | 200 | 35 | 2018 | | 2025.05.03 | Àü¼¼ | (1173-13) | 2 | 26.49 | 6,000 | 0 | 2016 | | 2025.05.03 | ¿ù¼¼ | (2776-1) | 2 | 36.7 | 1,000 | 39 | 2018 | | 2025.05.03 | ¿ù¼¼ | ½ãºô | 3 | 22.14 | 300 | 45 | 2020 | | 2025.05.01 | ¿ù¼¼ | (2770-9) | 4 | 31.82 | 1,700 | 27 | 2019 | | 2025.05.01 | ¿ù¼¼ | (2784-2) | 3 | 20.64 | 300 | 30 | 2023 | | 2025.05.01 | ¿ù¼¼ | û¼Ö(2785-2) | 3 | 14.18 | 300 | 28 | 2018 | | 2025.05.01 | ¿ù¼¼ | ´ëÇѺôµù | 2 | 17.16 | 300 | 34 | 2018 | | 2025.05.01 | Àü¼¼ | È¿¿ø(2293-12) | 3 | 23.12 | 5,500 | 0 | 2014 | | 2025.04.30 | ¸Å¸Å | ¼ÇذñµçŸ¿î(1982-13) | 2 | 60.18 | 11,000 | | 2002 | | 2025.04.30 | Àü¼¼ | ½Ãȵλê | 3 | 59.97 | 16,000 | 0 | 1996 | | 2025.04.30 | ¿ù¼¼ | ºÎ¼ºÆÄ½ºÅÚ | 6 | 59.96 | 2,000 | 85 | 1997 | | 2025.04.30 | ¿ù¼¼ | °Ç¿µ1 | 9 | 84.93 | 2,000 | 105 | 1997 | | 2025.04.30 | ¿ù¼¼ | Áø·Î | 5 | 59.286 | 1,000 | 84 | 1997 | | 2025.04.30 | Àü¼¼ | »ïȯ | 5 | 51.74 | 14,000 | 0 | 1997 | | 2025.04.30 | ¿ù¼¼ | °íÇÕ | 1 | 59.96 | 2,000 | 70 | 1998 | | 2025.04.29 | Àü¼¼ | ¿µ³²6 | 2 | 59.99 | 23,000 | 0 | 1997 | | 2025.04.29 | ¿ù¼¼ | ½ÃÈMTVÈ£¹Ý½á¹Ô´õÆÛ½ºÆ®¿À¼Ç | 2 | 84.8821 | 1,000 | 130 | 2022 | | 2025.04.29 | ¿ù¼¼ | ½ÃÈMTVÈ£¹Ý½á¹Ô´õÆÛ½ºÆ®¿À¼Ç | 16 | 59.9407 | 3,000 | 100 | 2022 | | 2025.04.29 | ¿ù¼¼ | µ¿¿ø | 6 | 84.75 | 2,000 | 100 | 1998 | | 2025.04.29 | ¿ù¼¼ | ¿µ³²2 | 10 | 59.908 | 1,500 | 75 | 1996 | | 2025.04.29 | Àü¼¼ | »ïȯ | 1 | 51.74 | 14,700 | 0 | 1997 | | 2025.04.28 | ¿ù¼¼ | °íÇÕ | 1 | 59.96 | 16,000 | 10 | 1998 | | 2025.04.28 | Àü¼¼ | µ¿³² | 5 | 46.95 | 14,500 | 0 | 1998 | | 2025.04.28 | ¿ù¼¼ | ÁÖ°ø4 | 1 | 59.59 | 13,000 | 40 | 1998 | | 2025.04.28 | ¿ù¼¼ | ¿µ³²3 | 3 | 59.908 | 2,000 | 75 | 1996 | | 2025.04.28 | Àü¼¼ | ¿µ³²2 | 10 | 59.908 | 15,000 | 0 | 1996 | | 2025.04.28 | Àü¼¼ | º¸¼º | 4 | 41.97 | 13,000 | 0 | 1998 | | 2025.04.28 | ¿ù¼¼ | ½Ãȵλê | 5 | 50.03 | 1,000 | 70 | 1996 | | 2025.04.28 | Àü¼¼ | ´ë¸²4 | 2 | 84.891 | 25,000 | 0 | 1997 | | 2025.04.28 | ¿ù¼¼ | ´ë¸²2 | 4 | 51.228 | 1,000 | 70 | 1998 | | 2025.04.28 | Àü¼¼ | ´ë¸²2 | 2 | 59.903 | 21,000 | 0 | 1998 | | 2025.04.28 | ¿ù¼¼ | ¹«Áø | 6 | 59.58 | 1,000 | 90 | 1995 | | 2025.04.28 | Àü¼¼ | ´ë¸²2 | 3 | 59.903 | 18,000 | 0 | 1998 | | 2025.04.27 | Àü¼¼ | ÁÖ°ø1 | 6 | 59.59 | 20,000 | 0 | 1997 | | 2025.04.27 | Àü¼¼ | ÁÖ°ø4 | 8 | 59.62 | 15,700 | 0 | 1998 | | 2025.04.26 | ¸Å¸Å | (2767-5) | 4 | 36.04 | 14,000 | | 2018 | | 2025.04.26 | ¸Å¸Å | (2767-5) | 3 | 20.93 | 7,500 | | 2018 | | 2025.04.26 | Àü¼¼ | µ¿º¸ | 4 | 84.94 | 18,900 | 0 | 1997 | | 2025.04.26 | ¸Å¸Å | (2767-5) | 2 | 15.75 | 5,800 | | 2018 | | 2025.04.26 | ¸Å¸Å | (2767-5) | 2 | 16.2 | 5,800 | | 2018 | | 2025.04.26 | ¸Å¸Å | (2767-5) | 3 | 21.29 | 7,600 | | 2018 | | 2025.04.26 | ¸Å¸Å | (2767-5) | 3 | 16.56 | 6,000 | | 2018 | | 2025.04.26 | ¸Å¸Å | (2767-5) | 3 | 16.56 | 6,000 | | 2018 | | 2025.04.26 | ¸Å¸Å | (2767-5) | 4 | 15.75 | 5,800 | | 2018 | | 2025.04.26 | ¸Å¸Å | (2767-5) | 4 | 16.2 | 5,800 | | 2018 | | 2025.04.26 | ¸Å¸Å | (2767-5) | 4 | 36.63 | 14,500 | | 2018 | | 2025.04.26 | ¸Å¸Å | (2767-5) | 4 | 16.56 | 6,000 | | 2018 | | 2025.04.26 | ¸Å¸Å | (2767-5) | 3 | 16.2 | 5,900 | | 2018 | | 2025.04.26 | ¸Å¸Å | (2767-5) | 3 | 16.2 | 5,800 | | 2018 | | 2025.04.26 | ¸Å¸Å | (2767-5) | 2 | 20.93 | 7,500 | | 2018 | | 2025.04.26 | ¸Å¸Å | (2767-5) | 2 | 21.29 | 7,600 | | 2018 | | 2025.04.26 | ¸Å¸Å | (2767-5) | 2 | 16.56 | 5,900 | | 2018 | | 2025.04.26 | ¸Å¸Å | (2767-5) | 2 | 16.2 | 5,800 | | 2018 | | 2025.04.26 | ¸Å¸Å | (2767-5) | 2 | 16.56 | 5,900 | | 2018 | | 2025.04.26 | ¸Å¸Å | (2767-5) | 3 | 15.75 | 5,800 | | 2018 | | 2025.04.25 | ¿ù¼¼ | ´ë¸²3 | 6 | 117.251 | 3,000 | 140 | 1998 | | 2025.04.25 | Àü¼¼ | µ¿º¸ | 3 | 84.94 | 17,850 | 0 | 1997 | | 2025.04.25 | Àü¼¼ | ¸ð¾Æ | 10 | 59.97 | 18,000 | 0 | 1997 | | 2025.04.25 | ¿ù¼¼ | º¸¼º | 2 | 41.97 | 1,000 | 65 | 1998 | | 2025.04.25 | ¿ù¼¼ | ¼¼Á¾1 | 1 | 74.56 | 2,000 | 90 | 1996 | | 2025.04.25 | ¿ù¼¼ | ¼¼Á¾1 | 1 | 74.56 | 2,000 | 90 | 1996 | | 2025.04.25 | Àü¼¼ | ½Åµ¿¾Æ | 1 | 59.78 | 17,500 | 0 | 1996 | | 2025.04.25 | ¿ù¼¼ | È£¹Ý½á¹Ô´õÇÁ¶óÀÓ | 12 | 74.8946 | 2,000 | 130 | 2023 | | 2025.04.25 | ¿ù¼¼ | µ¿³² | 2 | 46.95 | 3,000 | 60 | 1998 | | 2025.04.25 | Àü¼¼ | °è·æ2 | 3 | 59.79 | 15,500 | 0 | 1998 | | 2025.04.25 | ¸Å¸Å | Áß¾ÓÇÏÀÌÃ÷ºô | 2 | 59.01 | 11,300 | | 2002 | | 2025.04.24 | ¿ù¼¼ | °è·æ¸®½´ºô | 5 | 84.97 | 2,000 | 120 | 1997 | | 2025.04.24 | Àü¼¼ | û¼Ö¾ÆÆÄÆ® | 6 | 48.45 | 13,650 | 0 | 1999 | | 2025.04.24 | Àü¼¼ | û¼Ö¾ÆÆÄÆ® | 1 | 48.45 | 13,100 | 0 | 1999 | | 2025.04.24 | Àü¼¼ | È£¹Ý½á¹Ô´õÇÁ¶óÀÓ | 10 | 74.8946 | 22,000 | 0 | 2023 | | 2025.04.24 | Àü¼¼ | ±Ý° | 6 | 59.97 | 21,000 | 0 | 1996 | | 2025.04.24 | Àü¼¼ | ±Ý° | 6 | 59.97 | 21,000 | 0 | 1996 | | 2025.04.24 | ¿ù¼¼ | ½Ãȵλê | 5 | 59.97 | 2,000 | 80 | 1996 | | 2025.04.24 | Àü¼¼ | º¸¼º | 3 | 41.97 | 14,500 | 0 | 1998 | | 2025.04.24 | ¿ù¼¼ | ÁÖ°ø4 | 5 | 59.56 | 2,000 | 60 | 1998 | | 2025.04.23 | Àü¼¼ | °è·æ2 | 8 | 84.91 | 18,900 | 0 | 1998 | | 2025.04.23 | ¿ù¼¼ | ºÎ¼ºÆÄ½ºÅÚ | 7 | 59.96 | 2,000 | 80 | 1997 | | 2025.04.23 | Àü¼¼ | ¼¼Á¾3 | 1 | 124.77 | 27,000 | 0 | 1998 | | 2025.04.23 | Àü¼¼ | ½Åµ¿¾Æ | 5 | 59.78 | 17,000 | 0 | 1996 | | 2025.04.23 | Àü¼¼ | ¿µ³²4 | 4 | 59.908 | 20,000 | 0 | 1996 | | 2025.04.23 | Àü¼¼ | ÁÖ°ø5 | 6 | 59.56 | 15,750 | 0 | 1998 | | 2025.04.22 | Àü¼¼ | ¹«Áø | 10 | 59.58 | 17,000 | 0 | 1996 | | 2025.04.22 | ¿ù¼¼ | ½ºÄ«À̵帲¾¾Æ¼ | 9 | 14.34 | 3,000 | 33 | 2017 | | 2025.04.22 | Àü¼¼ | ´ë¸²2 | 4 | 51.228 | 16,000 | 0 | 1998 | | 2025.04.22 | Àü¼¼ | ¹«Áø | 2 | 54.63 | 15,000 | 0 | 1996 | | 2025.04.22 | ¿ù¼¼ | »ïȯ | 4 | 51.74 | 1,000 | 75 | 1997 | | 2025.04.22 | ¿ù¼¼ | ÁÖ°ø3 | 9 | 59.67 | 2,000 | 75 | 1997 | | 2025.04.22 | ¿ù¼¼ | ¿µ³²6 | 2 | 26.88 | 2,000 | 50 | 1997 | | 2025.04.22 | Àü¼¼ | ÁÖ°ø2 | 1 | 84.64 | 20,000 | 0 | 1997 | | 2025.04.21 | ¸Å¸Å | ¹Ì¼ººô¸®Áö(1981-11) | 3 | 59.255 | 10,900 | | 2002 | | 2025.04.21 | ¿ù¼¼ | È£¹Ý½á¹Ô´õÇÁ¶óÀÓ | 21 | 59.5893 | 3,000 | 85 | 2023 | | 2025.04.21 | Àü¼¼ | °íÇÕ | 2 | 59.96 | 19,000 | 0 | 1998 | | 2025.04.21 | ¿ù¼¼ | ½Ãȵλê | 5 | 50.03 | 1,000 | 70 | 1996 | | 2025.04.21 | Àü¼¼ | ¼¼Á¾2 | 2 | 59.88 | 17,000 | 0 | 1997 | | 2025.04.21 | ¿ù¼¼ | ¿µÈÇÏÀ̴нº | 2 | 66.99 | 2,000 | 85 | 2002 | | 2025.04.20 | ¿ù¼¼ | À¯Ãµ | 8 | 84.72 | 3,000 | 70 | 1996 | | 2025.04.19 | ¿ù¼¼ | ºÎ¼ºÆÄ½ºÅÚ | 3 | 49.78 | 1,000 | 70 | 1997 | | 2025.04.19 | Àü¼¼ | º¸¼º | 3 | 33.4 | 12,000 | 0 | 1998 | | 2025.04.19 | Àü¼¼ | ºÎ¼ºÆÄ½ºÅÚ | 4 | 49.78 | 16,000 | 0 | 1997 | | 2025.04.19 | Àü¼¼ | ¸ð¾Æ | 3 | 59.97 | 22,000 | 0 | 1997 | | 2025.04.19 | ¿ù¼¼ | ´ë¿ì | 3 | 73.9944 | 1,000 | 95 | 1996 | | 2025.04.19 | Àü¼¼ | ½Ãȵλê | 1 | 50.03 | 14,000 | 0 | 1996 | | 2025.04.19 | Àü¼¼ | ´ë¸²1 | 4 | 59.903 | 20,000 | 0 | 1998 | | 2025.04.19 | Àü¼¼ | °íÇÕ | 3 | 59.96 | 17,700 | 0 | 1998 | | 2025.04.19 | Àü¼¼ | º¸¼º | 10 | 59.89 | 22,000 | 0 | 1998 | | 2025.04.19 | Àü¼¼ | °Ç¿µ1 | 10 | 59.98 | 15,000 | 0 | 1997 | | 2025.04.19 | ¿ù¼¼ | ºÎ¼ºÆÄ½ºÅÚ | 4 | 59.96 | 1,000 | 85 | 1997 | | 2025.04.19 | Àü¼¼ | µ¿³² | 4 | 46.95 | 14,500 | 0 | 1998 | | 2025.04.19 | ¿ù¼¼ | ½ÅÈ£»õÇÇ¾Ó | 4 | 84.96 | 1,500 | 90 | 1997 | | 2025.04.19 | ¿ù¼¼ | ½ÃÈï±Ý°ÆæÅ׸®¿ò¿À¼Çº£ÀÌ | 6 | 84.9133 | 3,000 | 130 | 2023 | | 2025.04.19 | Àü¼¼ | ½ÃÈï±Ý°ÆæÅ׸®¿ò¿À¼Çº£ÀÌ | 13 | 59.9879 | 24,000 | 0 | 2023 | | 2025.04.19 | ¿ù¼¼ | È£¹Ý½á¹Ô´õÇÁ¶óÀÓ | 19 | 59.7925 | 2,000 | 95 | 2023 | | 2025.04.19 | Àü¼¼ | È£¹Ý½á¹Ô´õÇÁ¶óÀÓ | 14 | 59.5893 | 19,950 | 0 | 2023 | | 2025.04.19 | Àü¼¼ | ±Ý° | 1 | 59.97 | 18,500 | 0 | 1996 | | 2025.04.19 | ¿ù¼¼ | ¿ùµå | 6 | 59.935 | 2,000 | 85 | 1995 | | 2025.04.19 | Àü¼¼ | ¾ÆÁÖ | 10 | 60.625 | 17,000 | 0 | 1994 | | 2025.04.19 | ¿ù¼¼ | ¿µ³²1 | 10 | 59.908 | 2,000 | 90 | 1996 | | 2025.04.19 | ¿ù¼¼ | È£¹Ý½á¹Ô´õÇÁ¶óÀÓ | 25 | 74.8946 | 3,000 | 120 | 2023 | | 2025.04.18 | Àü¼¼ | ¾ÆÁÖ | 5 | 34.8 | 12,000 | 0 | 1994 | | 2025.04.18 | Àü¼¼ | ½Åµ¿¾Æ | 10 | 84.883 | 24,500 | 0 | 1996 | | 2025.04.18 | Àü¼¼ | ÁÖ°ø3 | 3 | 59.67 | 14,700 | 0 | 1997 | | 2025.04.18 | ¿ù¼¼ | °Ç¿µ2 | 8 | 59.98 | 2,000 | 80 | 1997 | | 2025.04.18 | Àü¼¼ | ¿µ³²6 | 4 | 59.99 | 18,500 | 0 | 1997 | | 2025.04.18 | Àü¼¼ | ¼¼Á¾2 | 5 | 59.88 | 18,500 | 0 | 1997 | | 2025.04.17 | ¿ù¼¼ | ¿µ³²2 | 5 | 59.908 | 2,000 | 90 | 1996 | | 2025.04.17 | ¿ù¼¼ | ¿µ³²6 | 10 | 59.99 | 1,000 | 80 | 1997 | | 2025.04.17 | Àü¼¼ | ½Åµ¿¾Æ | 5 | 59.78 | 13,100 | 0 | 1996 | | 2025.04.17 | ¿ù¼¼ | û¼Ö¾ÆÆÄÆ® | 2 | 48.45 | 1,000 | 70 | 1999 | | 2025.04.17 | ¿ù¼¼ | ½Ãȵλê | 5 | 59.97 | 1,500 | 85 | 1996 | | 2025.04.17 | Àü¼¼ | °è·æ2 | 8 | 59.79 | 15,500 | 0 | 1998 | | 2025.04.17 | Àü¼¼ | ÁÖ°ø4 | 8 | 59.62 | 15,700 | 0 | 1998 | | 2025.04.17 | ¿ù¼¼ | ÁÖ°ø6 | 1 | 59.94 | 1,000 | 80 | 1998 | | 2025.04.17 | ¿ù¼¼ | °Ç¿µ5 | 3 | 84.98 | 2,000 | 105 | 2002 | | 2025.04.16 | ¿ù¼¼ | ½ºÄ«À̵帲¾¾Æ¼ | 11 | 14.34 | 500 | 45 | 2017 | | 2025.04.16 | ¿ù¼¼ | º¸¼º | 1 | 41.97 | 2,000 | 60 | 1998 | | 2025.04.16 | ¿ù¼¼ | ¿µ³²3 | 4 | 59.983 | 2,000 | 80 | 1996 | | 2025.04.16 | ¿ù¼¼ | ¿ùµå | 2 | 47.455 | 1,000 | 75 | 1995 | | 2025.04.16 | ¿ù¼¼ | ÇÑÀÏ | 3 | 84.76 | 2,000 | 110 | 1996 | | 2025.04.16 | Àü¼¼ | ¿µ³²6 | 3 | 26.88 | 9,500 | 0 | 1997 | | 2025.04.16 | ¿ù¼¼ | û¼Ö¾ÆÆÄÆ® | 4 | 48.45 | 1,000 | 65 | 1999 | | 2025.04.16 | ¿ù¼¼ | ¸ð¾Æ | 9 | 59.97 | 2,000 | 85 | 1997 | | 2025.04.15 | Àü¼¼ | °Ç¿µ5 | 6 | 84.92 | 23,100 | 0 | 2002 | | 2025.04.15 | Àü¼¼ | À¯Ãµ | 5 | 59.995 | 18,000 | 0 | 1996 | | 2025.04.15 | Àü¼¼ | ¹ÌÁÖ | 4 | 84.87 | 25,000 | 0 | 1996 | | 2025.04.15 | ¿ù¼¼ | û¼Ö¾ÆÆÄÆ® | 2 | 48.45 | 1,000 | 55 | 1999 | | 2025.04.15 | ¿ù¼¼ | ¿µ³²3 | 8 | 59.908 | 2,000 | 70 | 1996 | | 2025.04.15 | Àü¼¼ | û¼Ö¾ÆÆÄÆ® | 1 | 48.45 | 12,400 | 0 | 1999 | | 2025.04.15 | ¿ù¼¼ | ÁÖ°ø4 | 10 | 84.84 | 2,000 | 80 | 1998 | | 2025.04.15 | ¿ù¼¼ | ºÎ¼ºÆÄ½ºÅÚ | 2 | 59.96 | 7,000 | 50 | 1997 | | 2025.04.15 | ¿ù¼¼ | ÇѽŰø¿µ | 3 | 59.8 | 1,000 | 90 | 1996 | | 2025.04.14 | Àü¼¼ | ½ÃÈMTVÈ£¹Ý½á¹Ô´õÆÛ½ºÆ®¿À¼Ç | 12 | 59.9117 | 25,000 | 0 | 2022 | | 2025.04.14 | ¿ù¼¼ | ºÎ¼ºÆÄ½ºÅÚ | 1 | 59.96 | 2,000 | 75 | 1997 | | 2025.04.14 | ¿ù¼¼ | º¸¼º | 3 | 41.97 | 1,000 | 65 | 1998 | | 2025.04.14 | Àü¼¼ | ¿µ³²6 | 2 | 59.99 | 23,000 | 0 | 1997 | | 2025.04.14 | Àü¼¼ | û¼Ö¾ÆÆÄÆ® | 3 | 48.45 | 15,000 | 0 | 1999 | | 2025.04.14 | Àü¼¼ | ¿µ³²6 | 5 | 26.88 | 9,000 | 0 | 1997 | | 2025.04.14 | Àü¼¼ | À¯Ãµ | 3 | 59.92 | 18,000 | 0 | 1996 | | 2025.04.14 | Àü¼¼ | À¯Ãµ | 3 | 59.92 | 18,000 | 0 | 1996 | | 2025.04.14 | Àü¼¼ | Áø·Î | 4 | 59.286 | 21,000 | 0 | 1997 | | 2025.04.14 | ¿ù¼¼ | ¹®¿µ¼¾½ººô | 5 | 59.937 | 0 | 40 | 2002 | | 2025.04.14 | Àü¼¼ | ¹«Áø | 10 | 59.58 | 17,000 | 0 | 1996 | | 2025.04.13 | Àü¼¼ | ¼¼Á¾3 | 1 | 124.77 | 28,000 | 0 | 1998 | | 2025.04.13 | ¿ù¼¼ | ÁÖ°ø2 | 5 | 59.67 | 1,000 | 60 | 1997 | | 2025.04.12 | ¸Å¸Å | (1189-0) | 5 | 23.11 | 9,397 | | 2016 | | 2025.04.12 | ¸Å¸Å | (1189-0) | 3 | 22.73 | 9,257 | | 2016 | | 2025.04.12 | ¸Å¸Å | (1189-0) | 2 | 15.32 | 6,513 | | 2016 | | 2025.04.12 | ¸Å¸Å | (1189-0) | 2 | 15.18 | 6,461 | | 2016 | | 2025.04.12 | ¸Å¸Å | (1189-0) | 2 | 25.05 | 10,116 | | 2016 | | 2025.04.12 | Àü¼¼ | ºÎ¼ºÆÄ½ºÅÚ | 3 | 59.96 | 18,900 | 0 | 1997 | | 2025.04.12 | ¿ù¼¼ | ½ÃÈï±Ý°ÆæÅ׸®¿ò¿À¼Çº£ÀÌ | 2 | 84.9133 | 3,000 | 126 | 2023 | | 2025.04.12 | ¸Å¸Å | (1189-0) | 5 | 21.78 | 8,905 | | 2016 | | 2025.04.12 | ¸Å¸Å | (1189-0) | 5 | 14.05 | 6,042 | | 2016 | | 2025.04.12 | ¸Å¸Å | (1189-0) | 5 | 14.04 | 6,039 | | 2016 | | 2025.04.12 | ¸Å¸Å | (1189-0) | 3 | 15.18 | 6,461 | | 2016 | | 2025.04.12 | ¸Å¸Å | (1189-0) | 3 | 15.32 | 6,513 | | 2016 | | 2025.04.12 | ¸Å¸Å | (1189-0) | 3 | 25.05 | 10,116 | | 2016 | | 2025.04.12 | ¸Å¸Å | (1189-0) | 4 | 27.37 | 10,975 | | 2016 | | 2025.04.12 | ¸Å¸Å | (1189-0) | 4 | 14.05 | 6,042 | | 2016 | | 2025.04.12 | ¸Å¸Å | (1189-0) | 4 | 14.04 | 6,039 | | 2016 | | 2025.04.12 | ¸Å¸Å | (1189-0) | 4 | 25.14 | 10,149 | | 2016 | | 2025.04.12 | ¸Å¸Å | (1189-0) | 2 | 22.73 | 9,257 | | 2016 | | 2025.04.12 | Àü¼¼ | ¸ð¾Æ | 4 | 59.97 | 19,000 | 0 | 1997 | | 2025.04.11 | ¿ù¼¼ | ´ë¸²2 | 2 | 51.228 | 1,000 | 70 | 1998 | | 2025.04.11 | ¿ù¼¼ | ½ÃÈMTVÈ£¹Ý½á¹Ô´õÆÛ½ºÆ®¿À¼Ç | 10 | 84.8821 | 15,000 | 30 | 2022 | | 2025.04.11 | Àü¼¼ | ½ÃÈMTVÈ£¹Ý½á¹Ô´õÆÛ½ºÆ®¿À¼Ç | 7 | 84.8821 | 24,150 | 0 | 2022 | | 2025.04.11 | Àü¼¼ | ¼¼Á¾1 | 2 | 74.56 | 21,000 | 0 | 1996 | | 2025.04.11 | ¿ù¼¼ | »ïȯ | 6 | 59.88 | 2,000 | 80 | 1997 | | 2025.04.11 | Àü¼¼ | ´ë¸²3 | 4 | 84.98 | 23,000 | 0 | 1998 | | 2025.04.11 | ¿ù¼¼ | °Ç¿µ1 | 9 | 84.93 | 3,000 | 110 | 1997 | | 2025.04.11 | ¿ù¼¼ | °Ç¿µ1 | 9 | 84.93 | 3,000 | 110 | 1997 | | 2025.04.11 | ¿ù¼¼ | ½ÃÈï±Ý°ÆæÅ׸®¿ò¿À¼Çº£ÀÌ | 3 | 84.9133 | 21,000 | 55 | 2023 | | 2025.04.11 | Àü¼¼ | ½ÃÈMTVÈ£¹Ý½á¹Ô´õÆÛ½ºÆ®¿À¼Ç | 7 | 84.8821 | 24,150 | 0 | 2022 | | 2025.04.11 | ¿ù¼¼ | Áø·Î | 5 | 59.78 | 2,000 | 65 | 1997 | | 2025.04.10 | ¿ù¼¼ | º¸¼º | 5 | 41.97 | 1,000 | 60 | 1998 | | 2025.04.10 | Àü¼¼ | µ¿³² | 1 | 46.95 | 15,000 | 0 | 1998 | | 2025.04.10 | Àü¼¼ | °è·æ2 | 6 | 59.79 | 18,000 | 0 | 1998 | | 2025.04.10 | ¿ù¼¼ | ½Ãȵλê | 3 | 50.03 | 3,000 | 65 | 1996 | | 2025.04.10 | Àü¼¼ | ±Ý° | 5 | 84.84 | 25,000 | 0 | 1996 | | 2025.04.10 | ¿ù¼¼ | ÁÖ°ø4 | 4 | 59.62 | 2,000 | 75 | 1998 | | 2025.04.09 | ¸Å¸Å | µ¿ÀÎÇÏÀÌÃ÷ºô | 3 | 59.56 | 11,200 | | 2002 | | 2025.04.09 | Àü¼¼ | ¾ÆÁÖ | 17 | 34.8 | 11,025 | 0 | 1994 | | 2025.04.09 | Àü¼¼ | ½ÅÇѹÌÁö¿£ | 9 | 115 | 29,000 | 0 | 1997 | | 2025.04.09 | Àü¼¼ | ¾ÆÁÖ | 17 | 34.8 | 11,025 | 0 | 1994 | | 2025.04.08 | Àü¼¼ | ÇѽŰø¿µ | 3 | 59.8 | 18,000 | 0 | 1996 | | 2025.04.08 | Àü¼¼ | ¿µ³²4 | 5 | 59.908 | 21,000 | 0 | 1996 | | 2025.04.08 | Àü¼¼ | ¿µ³²4 | 5 | 59.908 | 21,000 | 0 | 1996 | | 2025.04.08 | ¿ù¼¼ | ´ë¸²2 | 2 | 59.901 | 1,000 | 85 | 1998 | | 2025.04.08 | Àü¼¼ | °Ç¿µ2 | 7 | 84.93 | 26,000 | 0 | 1997 | | 2025.04.08 | Àü¼¼ | °Ç¿µ2 | 5 | 59.99 | 13,650 | 0 | 1997 | | 2025.04.08 | ¿ù¼¼ | µ¿³² | 2 | 46.95 | 1,000 | 75 | 1998 | | 2025.04.08 | Àü¼¼ | ¿µ³²4 | 5 | 59.908 | 21,000 | 0 | 1996 | | 2025.04.08 | Àü¼¼ | ¿äÁø | 5 | 59.846 | 15,000 | 0 | 1997 | | 2025.04.08 | Àü¼¼ | ¿µ³²6 | 2 | 59.99 | 25,000 | 0 | 1997 | | 2025.04.08 | Àü¼¼ | ÁÖ°ø3 | 5 | 59.88 | 18,000 | 0 | 1997 | | 2025.04.08 | Àü¼¼ | ¿µ³²5 | 3 | 101.94 | 27,000 | 0 | 1996 | | 2025.04.08 | Àü¼¼ | º¸¼º | 4 | 41.97 | 14,000 | 0 | 1998 | | 2025.04.07 | Àü¼¼ | À¯Ãµ | 7 | 84.72 | 22,000 | 0 | 1996 | | 2025.04.07 | Àü¼¼ | µ¿³² | 2 | 46.95 | 16,000 | 0 | 1998 | | 2025.04.07 | Àü¼¼ | µ¿³² | 2 | 46.95 | 16,000 | 0 | 1998 | | 2025.04.07 | Àü¼¼ | ´ë¸²1 | 2 | 51.228 | 17,000 | 0 | 1998 | | 2025.04.07 | Àü¼¼ | ¿µ³²2 | 5 | 59.983 | 12,000 | 0 | 1996 | | 2025.04.07 | ¿ù¼¼ | À¯Ãµ | 2 | 59.92 | 2,000 | 80 | 1996 | | 2025.04.07 | Àü¼¼ | ÁÖ°ø4 | 4 | 59.59 | 17,500 | 0 | 1998 | | 2025.04.06 | ¿ù¼¼ | ½ÃÈï±Ý°ÆæÅ׸®¿ò¿À¼Çº£ÀÌ | 29 | 84.9133 | 3,000 | 145 | 2023 | | 2025.04.05 | Àü¼¼ | °Ç¿µ2 | 3 | 59.99 | 19,000 | 0 | 1997 | | 2025.04.05 | Àü¼¼ | °Ç¿µ2 | 3 | 59.99 | 19,000 | 0 | 1997 | | 2025.04.05 | Àü¼¼ | °Ç¿µ2 | 3 | 59.99 | 19,000 | 0 | 1997 | | 2025.04.05 | Àü¼¼ | ÆÄ¶ó°ï¼¾Æ®·²¿À¼Ç½ÃƼ | 2 | 84.9665 | 28,000 | 0 | 2023 | | 2025.04.05 | ¿ù¼¼ | ÆÄ¶ó°ï¼¾Æ®·²¿À¼Ç½ÃƼ | 5 | 84.9225 | 2,000 | 106 | 2023 | | 2025.04.05 | Àü¼¼ | °Ç¿µ2 | 2 | 84.93 | 18,375 | 0 | 1997 | | 2025.04.05 | ¿ù¼¼ | ±Ý° | 9 | 84.84 | 4,000 | 120 | 1996 | | 2025.04.05 | ¿ù¼¼ | ´ë¸²2 | 2 | 51.228 | 1,000 | 75 | 1998 | | 2025.04.05 | ¿ù¼¼ | ´ë¸²2 | 3 | 59.903 | 1,000 | 90 | 1998 | | 2025.04.05 | Àü¼¼ | ½Ãȵλê | 5 | 50.03 | 15,000 | 0 | 1996 | | 2025.04.05 | ¿ù¼¼ | º¸¼º | 7 | 59.89 | 2,000 | 85 | 1998 | | 2025.04.05 | ¿ù¼¼ | »ïȯ | 4 | 59.88 | 2,000 | 60 | 1997 | | 2025.04.05 | ¿ù¼¼ | ÇÑÀÏ | 5 | 59.25 | 1,000 | 85 | 1996 | | 2025.04.05 | ¿ù¼¼ | ¹®¿µ¼¾½ººô | 6 | 59.937 | 2,000 | 85 | 2002 | | 2025.04.05 | Àü¼¼ | È£¹Ý½á¹Ô´õÇÁ¶óÀÓ | 17 | 59.7925 | 27,000 | 0 | 2023 | | 2025.04.05 | Àü¼¼ | °Ç¿µ2 | 3 | 59.99 | 19,000 | 0 | 1997 | | 2025.04.04 | Àü¼¼ | ½ÃÈMTVÈ£¹Ý½á¹Ô´õÆÛ½ºÆ®¿À¼Ç | 6 | 84.9959 | 29,000 | 0 | 2022 | | 2025.04.04 | ¿ù¼¼ | µ¿º¸ | 2 | 25.04 | 500 | 43 | 1997 | | 2025.04.04 | Àü¼¼ | ´ë¸²4 | 2 | 117.251 | 30,000 | 0 | 1997 | | 2025.04.04 | ¿ù¼¼ | ´ë¸²2 | 6 | 59.901 | 2,000 | 80 | 1998 | | 2025.04.04 | Àü¼¼ | ´ë¸²2 | 1 | 59.903 | 20,000 | 0 | 1998 | | 2025.04.04 | ¿ù¼¼ | °Ç¿µ2 | 3 | 84.93 | 1,000 | 105 | 1997 | | 2025.04.04 | Àü¼¼ | û¼Ö¾ÆÆÄÆ® | 10 | 48.45 | 13,230 | 0 | 1999 | | 2025.04.04 | Àü¼¼ | È£¹Ý½á¹Ô´õÇÁ¶óÀÓ | 3 | 59.5893 | 25,000 | 0 | 2023 | | 2025.04.03 | ¿ù¼¼ | ´ë¸²2 | 6 | 59.903 | 1,000 | 80 | 1998 | | 2025.04.03 | ¿ù¼¼ | ½ÃÈMTVÈ£¹Ý½á¹Ô´õÆÛ½ºÆ®¿À¼Ç | 20 | 59.9117 | 2,500 | 100 | 2022 | | 2025.04.03 | ¿ù¼¼ | ¿ùµå | 2 | 47.455 | 1,000 | 70 | 1995 | | 2025.04.03 | Àü¼¼ | ¿äÁø | 10 | 59.856 | 17,850 | 0 | 1997 | | 2025.04.03 | ¿ù¼¼ | º¸¼º | 5 | 41.97 | 1,000 | 60 | 1998 | | 2025.04.03 | Àü¼¼ | µ¿º¸ | 4 | 84.94 | 18,900 | 0 | 1997 | | 2025.04.03 | Àü¼¼ | µ¿º¸ | 5 | 59.835 | 18,000 | 0 | 1997 | | 2025.04.02 | ¿ù¼¼ | ÁÖ°ø1 | 1 | 59.59 | 4,000 | 53 | 1997 | | 2025.04.02 | Àü¼¼ | ÆÄ¶ó°ï¼¾Æ®·²¿À¼Ç½ÃƼ | 25 | 59.7075 | 20,475 | 0 | 2023 | | 2025.04.02 | ¿ù¼¼ | °Ç¿µ3 | 9 | 84.92 | 3,000 | 85 | 2002 | | 2025.04.02 | Àü¼¼ | û¼Ö¾ÆÆÄÆ® | 9 | 48.45 | 15,200 | 0 | 1999 | | 2025.04.02 | Àü¼¼ | ½Ãȵλê | 5 | 50.03 | 14,000 | 0 | 1996 | | 2025.04.02 | ¿ù¼¼ | ¿µ³²3 | 4 | 59.908 | 2,000 | 85 | 1996 | | 2025.04.02 | Àü¼¼ | À¯Ãµ | 5 | 59.995 | 17,640 | 0 | 1996 | | 2025.04.02 | ¿ù¼¼ | ÁÖ°ø5 | 3 | 59.59 | 2,000 | 85 | 1998 | | 2025.04.02 | ¿ù¼¼ | ¹®¿µ¼¾½ººô | 6 | 59.937 | 2,500 | 80 | 2002 | | 2025.04.01 | Àü¼¼ | È£¹Ý½á¹Ô´õÇÁ¶óÀÓ | 23 | 74.8946 | 23,000 | 0 | 2023 | | 2025.04.01 | Àü¼¼ | È£¹Ý½á¹Ô´õÇÁ¶óÀÓ | 23 | 74.8946 | 23,000 | 0 | 2023 | | 2025.04.01 | ¸Å¸Å | ¾¾¾Øºô2Â÷ | 3 | 54.2 | 9,500 | | 2004 | | 2025.04.01 | ¿ù¼¼ | ÁÖ°ø5 | 5 | 84.64 | 12,000 | 50 | 1998 | | 2025.04.01 | Àü¼¼ | ÁÖ°ø4 | 3 | 84.84 | 19,950 | 0 | 1998 | | 2025.04.01 | Àü¼¼ | ½Ãȵλê | 6 | 59.97 | 17,600 | 0 | 1996 | | 2025.04.01 | ¿ù¼¼ | µ¿¿ø | 1 | 84.75 | 2,000 | 115 | 1998 | | 2025.04.01 | Àü¼¼ | È£¹Ý½á¹Ô´õÇÁ¶óÀÓ | 18 | 84.7402 | 26,250 | 0 | 2023 | | 2025.04.01 | ¸Å¸Å | Çö¿ìºô¶ó | 5 | 37.41 | 6,000 | | 2003 | | 2025.02.28 | ¿ù¼¼ | ¿À¼Çºô | 4 | 38.275 | 300 | 45 | 2005 | | 2025.02.28 | ¿ù¼¼ | (2766-3) | 2 | 18.4 | 300 | 32 | 2018 | | 2025.02.28 | ¿ù¼¼ | ¼¼ºìÇÏÀÌÃ÷ | 2 | 20.815 | 300 | 33 | 2019 | | 2025.02.26 | Àü¼¼ | Å©¸®½ºÅ» | 4 | 48.18 | 7,700 | 0 | 2018 | | 2025.02.26 | ¿ù¼¼ | ¹Ì°¡¶÷ | 4 | 42.33 | 500 | 65 | 2018 | | 2025.02.26 | ¿ù¼¼ | ´Ù¿Âºô¶ó | 2 | 19.71 | 300 | 32 | 2018 | | 2025.02.26 | ¿ù¼¼ | ¼ö¿µµµ½ÃÇüÁÖÅà | 4 | 24.82 | 300 | 26 | 2014 | | 2025.02.25 | ¿ù¼¼ | (2752-1) | 3 | 19.24 | 300 | 37 | 2021 | | 2025.02.25 | ¿ù¼¼ | (2782-0) | 4 | 17.85 | 1,700 | 20 | 2018 | | 2025.02.25 | ¿ù¼¼ | (1983-8) | 3 | 16.67 | 0 | 10 | 2012 | | 2025.02.24 | ¸Å¸Å | ÇÑȸǼÇ2Â÷ | 3 | 57.9 | 9,000 | | 2002 | | 2025.02.22 | ¿ù¼¼ | (2319-1) | 4 | 42.02 | 3,000 | 23 | 2015 | | 2025.02.21 | Àü¼¼ | (2771-9) | 4 | 26.6 | 6,500 | 0 | 2018 | | 2025.02.20 | ¿ù¼¼ | µ¿»êÀ̽ºÆ®ºô | 4 | 59.94 | 2,000 | 60 | 2003 | | 2025.02.20 | Àü¼¼ | ´õÆÈ·¹½º1 | 4 | 20.35 | 5,250 | 0 | 2018 | | 2025.02.20 | ¿ù¼¼ | (2747-3) | 2 | 18.87 | 200 | 33 | 2019 | | 2025.02.19 | ¿ù¼¼ | (2770-10) | 3 | 20.895 | 200 | 35 | 2018 | | 2025.02.19 | ¿ù¼¼ | (2771-14) | 2 | 19.83 | 300 | 40 | 2021 | | 2025.02.18 | ¿ù¼¼ | (2754-4) | 3 | 20.94 | 500 | 38 | 2020 | | 2025.02.18 | ¿ù¼¼ | (2260-7) | 6 | 28.11 | 1,000 | 50 | 2018 | | 2025.02.17 | ¿ù¼¼ | ¼Âºô | 2 | 25.76 | 500 | 55 | 2020 | | 2025.02.17 | ¿ù¼¼ | (2790-2) | 3 | 24.59 | 300 | 36 | 2018 | | 2025.02.15 | ¿ù¼¼ | ¼º¿ø¾ÆÆ®ºô | 2 | 18.23 | 300 | 33 | 2018 | | 2025.02.15 | ¿ù¼¼ | ÆÄÅ©ºä | 2 | 22.62 | 200 | 42 | 2019 | | 2025.02.15 | ¿ù¼¼ | ¶ó¿îºô | 2 | 24.93 | 300 | 29 | 2019 | | 2025.02.14 | Àü¼¼ | (2752-7) | 2 | 40.71 | 10,450 | 0 | 2020 | | 2025.02.14 | ¿ù¼¼ | ´ëdz¾ÆÆ®ºôVII | 2 | 20.15 | 300 | 45 | 2022 | | 2025.02.14 | Àü¼¼ | (2752-7) | 2 | 40.71 | 10,700 | 0 | 2020 | | 2025.02.14 | Àü¼¼ | (2752-7) | 4 | 40.71 | 10,450 | 0 | 2020 | | 2025.02.14 | Àü¼¼ | (2752-7) | 4 | 40.71 | 10,450 | 0 | 2020 | | 2025.02.14 | Àü¼¼ | (2752-7) | 3 | 25.7 | 7,000 | 0 | 2020 | | 2025.02.14 | ¿ù¼¼ | ¿À¼Çºä | 3 | 19.245 | 300 | 35 | 2019 | | 2025.02.14 | ¿ù¼¼ | Å丶ÇϿ콺 | 4 | 21.12 | 300 | 32 | 2018 | | 2025.02.14 | ¿ù¼¼ | (2778-4) | 4 | 19.89 | 200 | 39 | 2018 | | 2025.02.13 | ¿ù¼¼ | ´ë¼º¸Ç¼Ç | 2 | 43.47 | 5,600 | 11 | 2002 | | 2025.02.13 | ¿ù¼¼ | (2793-3) | 4 | 17.28 | 500 | 65 | 2019 | | 2025.02.13 | ¿ù¼¼ | (2751-6) | 4 | 35.18 | 2,500 | 40 | 2023 | | 2025.02.12 | ¿ù¼¼ | (2750-4) | 2 | 38.22 | 500 | 70 | 2022 | | 2025.02.12 | ¿ù¼¼ | (2305-28) | 2 | 18.36 | 200 | 32 | 2003 | | 2025.02.12 | ¿ù¼¼ | ¿µºô¸®Áö | 3 | 18.88 | 200 | 35 | 2018 | | 2025.02.12 | ¿ù¼¼ | ¼Çر׸°ºô | 2 | 17.34 | 300 | 33 | 2018 | | 2025.02.12 | ¿ù¼¼ | (2758-3) | 3 | 23.4 | 200 | 35 | 2020 | | 2025.02.11 | ¿ù¼¼ | Èñºô¸®Áö | 3 | 17.11 | 300 | 45 | 2021 | | 2025.02.11 | ¿ù¼¼ | ´õÆÓ¸®½º¥² | 2 | 22.45 | 500 | 48 | 2019 | | 2025.02.11 | ¿ù¼¼ | (2763-4) | 3 | 19.875 | 1,700 | 28 | 2018 | | 2025.02.10 | Àü¼¼ | ´ëdz¾ÆÆ®ºôll | 4 | 22.55 | 5,000 | 0 | 2020 | | 2025.02.10 | ¿ù¼¼ | ´ëdz¾ÆÆ®ºôIV | 2 | 18.55 | 300 | 47 | 2021 | | 2025.02.10 | ¿ù¼¼ | ÄÚ³ÚÇϿ콺 | 4 | 17.01 | 300 | 33 | 2020 | | 2025.02.10 | Àü¼¼ | (2796-9) | 2 | 21.125 | 5,000 | 0 | 2018 | | 2025.02.10 | ¿ù¼¼ | ´õÆÓ¸®½º¥± | 2 | 23.31 | 500 | 50 | 2018 | | 2025.02.10 | ¿ù¼¼ | (2791-2) | 3 | 20.23 | 300 | 32 | 2018 | | 2025.02.10 | Àü¼¼ | ¾ÆÆ®ºô | 4 | 43.92 | 10,000 | 0 | 2020 | | 2025.02.10 | ¿ù¼¼ | ´õÇϿ콺 | 4 | 26.92 | 500 | 52 | 2020 | | 2025.02.09 | ¿ù¼¼ | ¿øºô¸®Áö | 3 | 13.36 | 300 | 40 | 2020 | | 2025.02.08 | ¿ù¼¼ | (2796-10) | 4 | 19.64 | 500 | 50 | 2023 | | 2025.02.08 | ¿ù¼¼ | Á¤¿ø | 2 | 23.94 | 500 | 46 | 2021 | | 2025.02.08 | ¿ù¼¼ | ¼öºô¸®Áö | 3 | 16.92 | 500 | 30 | 2021 | | 2025.02.08 | Àü¼¼ | ¼¼ºìÇÏÀÌÃ÷ | 4 | 42.88 | 12,500 | 0 | 2019 | | 2025.02.08 | ¿ù¼¼ | ´ëÇѺôµù | 5 | 16.86 | 500 | 32 | 2013 | | 2025.02.08 | Àü¼¼ | ÇÑ»ç¶ûºô | 3 | 18.36 | 4,000 | 0 | 2018 | | 2025.02.06 | Àü¼¼ | (2750-4) | 2 | 29.16 | 10,000 | 0 | 2022 | | 2025.02.06 | ¿ù¼¼ | Á¤¿Õµå¸²ºô¥± | 3 | 18.58 | 700 | 30 | 2012 | | 2025.02.06 | Àü¼¼ | (2796-8) | 3 | 20.165 | 4,000 | 0 | 2018 | | 2025.02.05 | ¸Å¸Å | ¼öÁ¤ÇÏÀ̺ô | 4 | 59.24 | 11,000 | | 2003 | | 2025.02.05 | ¿ù¼¼ | (2295-10) | 3 | 17.5 | 500 | 39 | 2012 | | 2025.02.05 | ¿ù¼¼ | (2748-4) | 4 | 18.9 | 200 | 35 | 2018 | | 2025.02.05 | Àü¼¼ | (2771-9) | 4 | 26.9375 | 6,300 | 0 | 2018 | | 2025.02.05 | ¿ù¼¼ | ´ëdz¾ÆÆ®ºôIV | 3 | 26.41 | 500 | 57 | 2021 | | 2025.02.04 | ¿ù¼¼ | ¼öºô¸®Áö | 4 | 16.92 | 1,700 | 30 | 2021 | | 2025.02.04 | ¿ù¼¼ | ºñ¹ÙÈ£¼ö | 3 | 33.755 | 1,000 | 70 | 2022 | | 2025.02.03 | Àü¼¼ | ´ëÇѺôµù | 2 | 20.28 | 4,800 | 0 | 2013 | | 2025.02.01 | ¿ù¼¼ | ÇÏ´ÃÁ¤¿ø | 2 | 34.16 | 500 | 67 | 2022 | | 2025.02.01 | ¿ù¼¼ | (2783-2) | 2 | 22.2 | 500 | 47 | 2022 | | 2025.02.01 | ¿ù¼¼ | (2782-5) | 2 | 26.28 | 300 | 35 | 2018 | | 2025.01.31 | ¿ù¼¼ | ÇØÇǺô¸®Áö | 2 | 16.45 | 1,700 | 25 | 2018 | | 2025.01.31 | ¿ù¼¼ | (2782-1) | 2 | 28.82 | 500 | 40 | 2022 | | 2025.01.31 | Àü¼¼ | ´õÀ§µå | 2 | 29.65 | 8,000 | 0 | 2021 | | 2025.01.25 | ¿ù¼¼ | (2794-8) | 3 | 16.32 | 300 | 33 | 2020 | | 2025.01.25 | ¿ù¼¼ | ´öÁÖºô¶ó | 4 | 46.62 | 1,000 | 80 | 2021 | | 2025.01.24 | ¿ù¼¼ | ½Ã±×´ÏóÇϿ콺 | 4 | 37.12 | 1,000 | 85 | 2022 | | 2025.01.24 | Àü¼¼ | (2782-0) | 4 | 17.85 | 4,000 | 0 | 2018 | | 2025.01.22 | ¿ù¼¼ | »þ¹ÙÆ®ºô | 3 | 17.56 | 200 | 38 | 2018 | | 2025.01.22 | ¿ù¼¼ | (2782-1) | 2 | 34.92 | 1,000 | 60 | 2022 | | 2025.01.21 | ¿ù¼¼ | ´õȨºô¶ó | 4 | 23.52 | 300 | 45 | 2020 | | 2025.01.21 | ¿ù¼¼ | (2770-12) | 4 | 17.8 | 1,500 | 18 | 2018 | | 2025.01.20 | ¿ù¼¼ | (2780-4) | 4 | 84.14 | 1,700 | 110 | 2018 | | 2025.01.19 | ¸Å¸Å | Á¦ÀÏ¾ÆÆ®È¨4Â÷ | 2 | 57.2 | 13,100 | | 2010 | | 2025.01.18 | ¿ù¼¼ | (2758-5) | 3 | 30.01 | 500 | 50 | 2018 | | 2025.01.18 | ¿ù¼¼ | (2751-10) | 4 | 29.14 | 500 | 50 | 2021 | | 2025.01.17 | Àü¼¼ | (2757-1) | 4 | 39.22 | 11,000 | 0 | 2018 | | 2025.01.17 | ¿ù¼¼ | °í¸Þ¸£ÇϿ콺 | 3 | 27.8 | 500 | 46 | 2021 | | 2025.01.17 | ¿ù¼¼ | ´Ù¿Âºô¶ó | 2 | 20.12 | 1,700 | 23 | 2018 | | 2025.01.16 | ¿ù¼¼ | µå¸²ºôµù2 | 2 | 17.28 | 300 | 35 | 2018 | | 2025.01.16 | ¿ù¼¼ | Á¤¿øÇϿ콺 | 4 | 23.4 | 5,000 | 5 | 2018 | | 2025.01.15 | ¸Å¸Å | ÇØÇÇÇϿ콺 | 1 | 38.43 | 7,000 | | 2002 | | 2025.01.15 | ¿ù¼¼ | Sºô¶ó(2775-5) | 2 | 18.55 | 300 | 27 | 2018 | | 2025.01.15 | ¿ù¼¼ | ¶ó¿Â | 2 | 14.81 | 500 | 21 | 2011 | | 2025.01.15 | ¿ù¼¼ | (2762-2) | 3 | 22.715 | 500 | 45 | 2021 | | 2025.01.14 | ¿ù¼¼ | ¼±¿ì½¦¸£ºô | 2 | 17.675 | 300 | 30 | 2018 | | 2025.01.14 | Àü¼¼ | ´ëdz¾ÆÆ®ºôIV | 3 | 20.94 | 5,500 | 0 | 2021 | | 2025.01.13 | ¿ù¼¼ | ´ëdz¾ÆÆ®ºô¥² | 2 | 22.55 | 500 | 34 | 2020 | | 2025.01.13 | ¿ù¼¼ | ´õÆÓ¸®½º¥² | 2 | 18.95 | 500 | 47 | 2019 | | 2025.01.13 | Àü¼¼ | (2797-4) | 4 | 49.425 | 12,000 | 0 | 2018 | | 2025.01.13 | Àü¼¼ | (2310-9) | 3 | 15.38 | 4,000 | 0 | 2012 | | 2025.01.12 | ¿ù¼¼ | (2766-3) | 3 | 20.69 | 200 | 37 | 2018 | | 2025.01.10 | ¿ù¼¼ | (2770-2) | 2 | 20.8 | 200 | 33 | 2018 | | 2025.01.09 | ¿ù¼¼ | ¹Ì°¡¶÷ | 4 | 20.805 | 300 | 36 | 2018 | | 2025.01.08 | ¿ù¼¼ | (2783-2) | 2 | 26.37 | 500 | 48 | 2022 | | 2025.01.07 | ¿ù¼¼ | û¼Öºô¶ó | 2 | 16.7 | 500 | 28 | 2018 | | 2025.01.07 | ¿ù¼¼ | (2775-10) | 3 | 24.395 | 300 | 39 | 2018 | | 2025.01.07 | ¿ù¼¼ | ÇÑ»ç¶ûºô | 4 | 23.56 | 200 | 29 | 2018 | | 2025.01.06 | ¿ù¼¼ | ¹Ì°¡¶÷ | 2 | 20.805 | 200 | 40 | 2018 | | 2025.01.06 | ¿ù¼¼ | (2783-2) | 2 | 22.2 | 500 | 46 | 2022 | | 2025.01.04 | Àü¼¼ | (2319-1) | 5 | 27.46 | 6,000 | 0 | 2015 | | 2025.01.04 | ¿ù¼¼ | È¿¿ø(2293-12) | 5 | 20.61 | 500 | 47 | 2014 | | 2025.01.04 | ¿ù¼¼ | (2796-8) | 3 | 19.8 | 2,500 | 15 | 2018 | | 2025.01.04 | ¿ù¼¼ | (2783-2) | 4 | 28.1 | 500 | 51 | 2022 | | 2025.01.03 | ¿ù¼¼ | ´õÆÓ¸®½º¥² | 3 | 20.7 | 500 | 45 | 2019 | | 2025.01.02 | ¿ù¼¼ | ¼º¿ø¾ÆÆ®ºô | 3 | 30.87 | 500 | 45 | 2018 | | 2025.01.02 | Àü¼¼ | (2764-4) | 2 | 20.7 | 4,000 | 0 | 2018 | | 2024.12.31 | Àü¼¼ | ½Ã±×´ÏóÇϿ콺 | 4 | 37.77 | 19,000 | 0 | 2022 | | 2024.12.31 | ¿ù¼¼ | (1989-6) | 5 | 30.96 | 500 | 59 | 2015 | | 2024.12.31 | ¿ù¼¼ | Á¤¿Õµ¿µµ½ÃÇüÁÖÅÃ(À±¹Ì¿Á) | 4 | 16.155 | 300 | 30 | 2021 | | 2024.12.30 | ¿ù¼¼ | (2781-3) | 3 | 34.315 | 500 | 63 | 2021 | | 2024.12.28 | ¿ù¼¼ | µå¸²ºô¶ó | 3 | 58.57 | 1,000 | 70 | 2002 | | 2024.12.28 | ¿ù¼¼ | ±×·¹À̽º | 4 | 28.22 | 500 | 45 | 2019 | | 2024.12.28 | ¿ù¼¼ | (2797-1) | 2 | 16.66 | 300 | 30 | 2018 | | 2024.12.27 | ¿ù¼¼ | (2754-4) | 2 | 14.4 | 200 | 30 | 2020 | | 2024.12.27 | ¿ù¼¼ | ¾Æ¸§´Ù¿îÁý | 4 | 16.46 | 5,500 | 10 | 2013 | | 2024.12.26 | ¿ù¼¼ | (2749-1) | 3 | 27.26 | 2,000 | 40 | 2022 | | 2024.12.25 | ¿ù¼¼ | Sºô¶ó(2761-4) | 3 | 24.84 | 300 | 38 | 2018 | | 2024.12.24 | ¸Å¸Å | (2752-7) | 3 | 40.71 | 12,750 | | 2020 | | 2024.12.24 | ¸Å¸Å | (2752-7) | 3 | 40.71 | 12,750 | | 2020 | | 2024.12.24 | ¸Å¸Å | (2752-7) | 2 | 25.7 | 8,260 | | 2020 | | 2024.12.24 | ¸Å¸Å | (2752-7) | 3 | 24.23 | 7,900 | | 2020 | | 2024.12.24 | ¸Å¸Å | (2752-7) | 3 | 25.7 | 8,270 | | 2020 | | 2024.12.24 | ¸Å¸Å | (2752-7) | 4 | 40.71 | 12,750 | | 2020 | | 2024.12.24 | ¸Å¸Å | (2752-7) | 4 | 24.23 | 7,900 | | 2020 | | 2024.12.24 | ¸Å¸Å | (2752-7) | 2 | 40.71 | 12,750 | | 2020 | | 2024.12.24 | ¸Å¸Å | (2752-7) | 2 | 40.71 | 12,750 | | 2020 | | 2024.12.24 | ¸Å¸Å | (2752-7) | 4 | 25.7 | 8,270 | | 2020 | | 2024.12.24 | ¿ù¼¼ | (2797-3) | 3 | 16.66 | 300 | 32 | 2018 | | 2024.12.24 | ¸Å¸Å | (2752-7) | 4 | 40.71 | 12,750 | | 2020 | | 2024.12.24 | ¸Å¸Å | (2752-7) | 2 | 24.23 | 7,900 | | 2020 | | 2024.12.23 | ¿ù¼¼ | ¼öºô¸®Áö | 2 | 16.92 | 300 | 30 | 2021 | | 2024.12.23 | Àü¼¼ | CS¾ÆÆ®ºô | 3 | 33.14 | 9,000 | 0 | 2018 | | 2024.12.23 | ¿ù¼¼ | (2782-5) | 2 | 26.28 | 300 | 37 | 2018 | | 2024.12.23 | ¸Å¸Å | »ï¼ºÇÏÀÌÃ÷ºô(2Â÷) | 3 | 62.22 | 8,300 | | 2002 | | 2024.12.22 | ¿ù¼¼ | (2781-0000) | 3 | 20.8 | 500 | 58 | 2023 | | 2024.12.21 | ¿ù¼¼ | ³ëÀ»ºûÈ£¼ö¿¡¼ | 3 | 21.285 | 300 | 39 | 2020 | | 2024.12.19 | Àü¼¼ | (1166-3) | 5 | 19.86 | 4,300 | 0 | 2013 | | 2024.12.19 | ¿ù¼¼ | ´õȨºô¶ó | 2 | 20.74 | 300 | 31 | 2020 | | 2024.12.19 | ¸Å¸Å | Áß¾ÓÇÏÀÌÃ÷ºô | 1 | 59.01 | 9,200 | | 2002 | | 2024.12.18 | ¿ù¼¼ | È£ºô¸®Áö | 2 | 15.01 | 300 | 44 | 2021 | | 2024.12.18 | ¿ù¼¼ | (2771-14) | 4 | 33.64 | 1,000 | 70 | 2021 | | 2024.12.18 | ¿ù¼¼ | (2033-2) | 1 | 15.78 | 200 | 25 | 2013 | | 2024.12.18 | ¿ù¼¼ | ¶ó¿ÂÇϿ콺 | 2 | 22.16 | 300 | 40 | 2018 | | 2024.12.17 | ¿ù¼¼ | (2766-3) | 2 | 23.34 | 200 | 33 | 2018 | | 2024.12.17 | ¿ù¼¼ | (2293-3) | 2 | 29.92 | 1,000 | 60 | 2016 | | 2024.12.16 | ¿ù¼¼ | (2784-2) | 3 | 39.72 | 500 | 53 | 2023 | | 2024.12.16 | ¿ù¼¼ | (2797-4) | 3 | 24.005 | 6,000 | 2 | 2018 | | 2024.12.16 | ¿ù¼¼ | (2763-2) | 3 | 20.95 | 300 | 34 | 2018 | | 2024.12.14 | ¿ù¼¼ | ´ëdz¾ÆÆ®ºô5 | 2 | 22.8 | 300 | 47 | 2021 | | 2024.12.14 | ¿ù¼¼ | (1989-6) | 2 | 30.96 | 500 | 58 | 2015 | | 2024.12.14 | ¿ù¼¼ | º£³×Ä¡¾Æ | 2 | 21.2 | 300 | 36 | 2018 | | 2024.12.14 | ¿ù¼¼ | ³ªÆú¸® | 3 | 17.34 | 100 | 33 | 2018 | | 2024.12.13 | ¿ù¼¼ | ¼ºÁøºô¶ó | 4 | 22.43 | 200 | 30 | 2018 | | 2024.12.12 | Àü¼¼ | »ï¼º½¦¸£ºôAµ¿ | 4 | 59.32 | 9,000 | 0 | 2002 | | 2024.12.12 | ¿ù¼¼ | ÇØ°¡µæ | 3 | 29.85 | 300 | 59 | 2020 | | 2024.12.12 | ¿ù¼¼ | (2792-1) | 2 | 44.835 | 2,000 | 60 | 2023 | | 2024.12.12 | ¿ù¼¼ | (2781-4) | 4 | 37.97 | 1,000 | 68 | 2021 | | 2024.12.12 | ¿ù¼¼ | û¼Öºô¶ó | 3 | 17.71 | 500 | 27 | 2018 | | 2024.12.11 | ¿ù¼¼ | ½°ÇϿ콺 | 3 | 22.76 | 300 | 33 | 2018 | | 2024.12.11 | ¿ù¼¼ | È£ºô¸®Áö | 3 | 15.01 | 300 | 40 | 2021 | | 2024.12.10 | ¿ù¼¼ | (1983-8) | 5 | 14.03 | 50 | 10 | 2012 | | 2024.12.10 | ¿ù¼¼ | ¼Çر׸°ºô | 3 | 35.51 | 500 | 61 | 2018 | | 2024.12.09 | ¿ù¼¼ | ºÎÀÚ¸¶À» | 4 | 17.085 | 300 | 37 | 2018 | | 2024.12.08 | ¿ù¼¼ | ´ë¼º¸Ç¼Ç | 1 | 35.8 | 500 | 45 | 2002 | | 2024.12.06 | ¿ù¼¼ | ½Ã±×´ÏóÇϿ콺 | 2 | 38.67 | 12,000 | 40 | 2022 | | 2024.12.06 | ¿ù¼¼ | (2796-10) | 3 | 21.782 | 500 | 45 | 2023 | | 2024.12.06 | Àü¼¼ | CASABEE | 4 | 28.38 | 9,900 | 0 | 2019 | | 2024.12.06 | Àü¼¼ | CASABEE | 4 | 29.86 | 10,000 | 0 | 2019 | | 2024.12.05 | ¿ù¼¼ | (2315-2) | 3 | 15.31 | 500 | 29 | 2012 | | 2024.12.05 | ¿ù¼¼ | »ï¼º½¦¸£ºôAµ¿ | 2 | 59.32 | 1,000 | 50 | 2002 | | 2024.12.05 | ¿ù¼¼ | (2797-1) | 4 | 33.32 | 500 | 62 | 2018 | | 2024.12.05 | ¿ù¼¼ | ÄÚ³ÚÇϿ콺 | 3 | 29.74 | 800 | 61 | 2020 | | 2024.12.05 | ¿ù¼¼ | ´ëdz¾ÆÆ®ºôVII | 2 | 22.65 | 300 | 50 | 2022 | | 2024.12.05 | ¿ù¼¼ | (2748-4) | 4 | 23.595 | 300 | 43 | 2018 | | 2024.12.05 | ¿ù¼¼ | ÀºÇýºôµù(2305-7) | 4 | 46.64 | 1,000 | 48 | 2003 | | 2024.12.04 | ¿ù¼¼ | ¼ºÁøºô¶ó | 3 | 20.06 | 200 | 35 | 2018 | | 2024.12.04 | ¿ù¼¼ | û¼Öºô¶ó | 2 | 15.64 | 500 | 30 | 2018 | | 2024.12.03 | ¿ù¼¼ | (2763-4) | 2 | 19.875 | 500 | 23 | 2018 | | 2024.12.02 | ¿ù¼¼ | ÀÌ·¹ | 2 | 17.37 | 300 | 30 | 2021 | | 2024.12.02 | ¸Å¸Å | °Å»ê¾ÆÆ®ºô | 2 | 61.095 | 9,250 | | 2007 | | 2024.12.02 | ¸Å¸Å | °Å»ê¾ÆÆ®ºô | 2 | 61.095 | 9,250 | | 2007 | | 2024.12.02 | ¸Å¸Å | °Å»ê¾ÆÆ®ºô | 3 | 61.095 | 9,250 | | 2007 | | 2024.12.02 | ¸Å¸Å | °Å»ê¾ÆÆ®ºô | 3 | 61.095 | 9,250 | | 2007 | | 2024.12.02 | ¸Å¸Å | °Å»ê¾ÆÆ®ºô | 4 | 61.095 | 9,250 | | 2007 | | 2024.12.02 | ¸Å¸Å | °Å»ê¾ÆÆ®ºô | 4 | 61.095 | 9,250 | | 2007 | | 2024.12.02 | ¸Å¸Å | °Å»ê¾ÆÆ®ºô | 5 | 104.7 | 9,500 | | 2007 | | 2024.12.02 | ¿ù¼¼ | (2310-9) | 4 | 38.73 | 800 | 55 | 2012 | | 2024.11.30 | ¿ù¼¼ | (2743-6) | 3 | 20.74 | 300 | 30 | 2018 | | 2024.11.30 | ¿ù¼¼ | ÇØµçºô | 3 | 20.36 | 1,700 | 14 | 2018 | | 2024.11.30 | ¿ù¼¼ | ºÎÀÚ¸¶À» | 3 | 17.34 | 1,000 | 30 | 2018 | | 2024.11.30 | Àü¼¼ | ´õÆÈ·¹½º1 | 4 | 29.945 | 9,450 | 0 | 2018 | | 2024.11.28 | ¿ù¼¼ | (2775-8) | 4 | 25.58 | 1,000 | 40 | 2021 | | 2024.11.27 | ¿ù¼¼ | û¼Û¾ÆÆ®ºô | 4 | 18.72 | 300 | 36 | 2018 | | 2024.11.27 | ¿ù¼¼ | Çö´ëºô¶óÆ® | 4 | 59.96 | 800 | 62 | 2001 | | 2024.11.26 | Àü¼¼ | ºÎÈïºô¶óÆ®Bµ¿ | 2 | 59.33 | 7,000 | 0 | 2001 | | 2024.11.25 | ¿ù¼¼ | BOBOSVILLS | 4 | 27.04 | 300 | 44 | 2018 | | 2024.11.25 | ¿ù¼¼ | û¼Öºô¶ó | 2 | 14.9 | 500 | 27 | 2018 | | 2024.11.25 | ¿ù¼¼ | (2793-1) | 3 | 27.82 | 500 | 40 | 2020 | | 2024.11.24 | ¿ù¼¼ | º£³×Ä¡¾Æ(2776-5) | 3 | 24.15 | 300 | 21 | 2018 | | 2024.11.23 | ¿ù¼¼ | (2784-3) | 3 | 17.1 | 300 | 32 | 2019 | | 2024.11.21 | ¿ù¼¼ | (2797-1) | 3 | 16.17 | 300 | 35 | 2018 | | 2024.11.20 | ¿ù¼¼ | ´ëdz¾ÆÆ®ºô5 | 4 | 30.98 | 500 | 70 | 2021 | | 2024.11.19 | ¸Å¸Å | Á¦ÀÏ¾ÆÆ®È¨2Â÷ | 2 | 58.58 | 11,000 | | 2009 | | 2024.11.19 | Àü¼¼ | û¼Û | 3 | 25.74 | 6,000 | 0 | 2015 | | 2024.11.19 | ¿ù¼¼ | (2758-3) | 4 | 29.12 | 500 | 58 | 2020 | | 2024.11.18 | ¿ù¼¼ | ºÎÀÚ¸¶À» | 3 | 37.25 | 2,000 | 67 | 2018 | | 2024.11.18 | ¿ù¼¼ | Çϳªºô | 2 | 21.09 | 1,700 | 21 | 2018 | | 2024.11.18 | ¿ù¼¼ | Ȳ±Ý³ëÀ» | 3 | 16.15 | 200 | 30 | 2018 | | 2024.11.16 | ¸Å¸Å | ÀÏÁ¶È¨Å¸¿î(2027-6) | 4 | 59.93 | 12,500 | | 2003 | | 2024.11.16 | ¿ù¼¼ | ÆÄÅ©ºä | 3 | 19.835 | 300 | 40 | 2019 | | 2024.11.16 | ¿ù¼¼ | °Å¸¢ºôµù | 3 | 33.64 | 300 | 30 | 2014 | | 2024.11.15 | ¿ù¼¼ | µå¸²Å¸¿î | 3 | 59.47 | 1,000 | 60 | 2002 | | 2024.11.15 | ¿ù¼¼ | °¡¶÷ºô | 4 | 19.6 | 1,700 | 17 | 2019 | | 2024.11.14 | ¿ù¼¼ | ¼¼ºìÇÏÀÌÃ÷ | 3 | 25.62 | 500 | 43 | 2019 | | 2024.11.13 | ¿ù¼¼ | ¼º¿ø¾ÆÆ®ºô | 3 | 30.87 | 500 | 46 | 2018 | | 2024.11.13 | ¿ù¼¼ | ´Üºô¶ó | 4 | 17.36 | 300 | 29 | 2018 | | 2024.11.12 | ¿ù¼¼ | ÇØ¸¶·ç | 4 | 30.98 | 500 | 55 | 2021 | | 2024.11.11 | ¿ù¼¼ | ±×¸°³ª·¡ | 3 | 20.24 | 200 | 34 | 2018 | | 2024.11.11 | ¿ù¼¼ | ´õ½ºÅ×ÀÌ(2748-3) | 3 | 27.72 | 500 | 65 | 2019 | | 2024.11.11 | Àü¼¼ | (2784-4) | 4 | 84.75 | 18,700 | 0 | 2018 | | 2024.11.11 | ¿ù¼¼ | (2757-1) | 2 | 20.96 | 300 | 37 | 2018 | | 2024.11.11 | ¿ù¼¼ | (2791-2) | 4 | 40.46 | 300 | 33 | 2018 | | 2024.11.10 | ¿ù¼¼ | ½Å¾Èµµ½ÃÇü»ýȰÁÖÅà | 3 | 20.9 | 100 | 37 | 2012 | | 2024.11.09 | Àü¼¼ | ¿ìÁ¤¾ÆÆ®ºô | 4 | 37.08 | 4,500 | 0 | 2002 | | 2024.11.09 | ¿ù¼¼ | (2762-2) | 3 | 22.025 | 300 | 51 | 2021 | | 2024.11.08 | ¿ù¼¼ | ¶ó¿Â | 4 | 19.68 | 2,000 | 26 | 2011 | | 2024.11.08 | Àü¼¼ | È¿¿ø(2293-14) | 3 | 14.25 | 3,800 | 0 | 2014 | | 2024.11.07 | ¿ù¼¼ | ±×·¹À̽ººô | 3 | 22.06 | 300 | 36 | 2020 | | 2024.11.07 | ¿ù¼¼ | (2791-2) | 3 | 21.15 | 300 | 33 | 2018 | | 2024.11.07 | ¿ù¼¼ | È£¼öÁ¤¿ø | 3 | 32.4 | 1,000 | 66 | 2022 | | 2024.11.07 | Àü¼¼ | ÀºÇýºôµù(2305-7) | 4 | 34.78 | 7,000 | 0 | 2003 | | 2024.11.07 | Àü¼¼ | ¼Âºô | 3 | 26.97 | 13,000 | 0 | 2020 | | 2024.11.06 | Àü¼¼ | (2782-1) | 3 | 19.44 | 5,000 | 0 | 2022 | | 2024.11.06 | ¿ù¼¼ | ÇØ¸¶·ç | 4 | 35.22 | 2,000 | 39 | 2021 | | 2024.11.06 | ¿ù¼¼ | °í¸Þ¸£ÇϿ콺 | 3 | 19.44 | 300 | 38 | 2021 | | 2024.11.04 | ¿ù¼¼ | ´õÆÓ¸®½º¥² | 3 | 18.95 | 500 | 17 | 2019 | | 2024.11.04 | ¿ù¼¼ | (2761-2) | 2 | 33.275 | 500 | 53 | 2018 | | 2024.11.04 | ¿ù¼¼ | Ȳ±Ý³ëÀ» | 2 | 16.04 | 200 | 29 | 2018 | | 2024.11.02 | ¿ù¼¼ | (2774-4) | 2 | 16.775 | 200 | 31 | 2019 | | 2024.11.01 | ¿ù¼¼ | ÇູÇÑÁý´Ù¸ð¾Æ | 3 | 22.29 | 300 | 30 | 2018 | | 2024.11.01 | ¿ù¼¼ | È£¼öµå¸²ºô | 4 | 29.81 | 500 | 26 | 2018 | | 2024.10.31 | ¿ù¼¼ | (2309-11) | 4 | 18.78 | 1,000 | 30 | 2012 | | 2024.10.30 | Àü¼¼ | ´ëdz¾ÆÆ®ºô | 3 | 38.04 | 9,500 | 0 | 2018 | | 2024.10.30 | ¿ù¼¼ | º¸±ÝÀÚ¸® | 3 | 62.01 | 500 | 65 | 2003 | | 2024.10.30 | ¿ù¼¼ | (2745-5) | 2 | 24.4 | 300 | 35 | 2018 | | 2024.10.30 | ¿ù¼¼ | (2763-4) | 2 | 19.575 | 200 | 33 | 2018 | | 2024.10.29 | ¿ù¼¼ | ¿À¼Çºô | 4 | 24.09 | 300 | 37 | 2018 | | 2024.10.29 | ¿ù¼¼ | ½Ã±×´ÏóÇϿ콺 | 2 | 37.12 | 1,000 | 80 | 2022 | | 2024.10.29 | Àü¼¼ | ¿ìÁ¤¾ÆÆ®ºô2Â÷ | 2 | 58.935 | 8,100 | 0 | 2003 | | 2024.10.29 | Àü¼¼ | Çϳªºô | 2 | 20.565 | 4,500 | 0 | 2018 | | 2024.10.28 | ¿ù¼¼ | ´õÆÓ¸®½º¥² | 4 | 20.7 | 300 | 35 | 2019 | | 2024.10.28 | ¿ù¼¼ | (2763-2) | 3 | 21.12 | 300 | 32 | 2018 | | 2024.10.28 | ¿ù¼¼ | (2796-7) | 2 | 19.68 | 300 | 31 | 2018 | | 2024.10.28 | ¿ù¼¼ | ÇØ¸¶·ç | 3 | 30.98 | 500 | 55 | 2021 | | 2024.10.26 | ¿ù¼¼ | ¸ð¾Æºôµù | 4 | 13.32 | 100 | 30 | 2012 | | 2024.10.25 | ¿ù¼¼ | (2781-4) | 2 | 19.81 | 500 | 45 | 2021 | | 2024.10.24 | Àü¼¼ | È¿¿ø(2293-12) | 3 | 23.84 | 8,000 | 0 | 2014 | | 2024.10.24 | ¿ù¼¼ | ¼¼ºìÇÏÀÌÃ÷2 | 2 | 21.553 | 300 | 39 | 2020 | | 2024.10.24 | ¸Å¸Å | ´ëÁøºô¶ó | 3 | 59.58 | 9,400 | | 2002 | | 2024.10.24 | ¸Å¸Å | Á¤¾Ïºô¶ó | 3 | 59.04 | 9,500 | | 2003 | | 2024.10.23 | ¿ù¼¼ | (2033-6) | 4 | 17.5 | 1,000 | 34 | 2018 | | 2024.10.22 | ¿ù¼¼ | (2754-4) | 2 | 26.95 | 500 | 55 | 2020 | | 2024.10.21 | ¿ù¼¼ | ÃÊ¿øºôµù | 5 | 23.4 | 500 | 40 | 2003 | | 2024.10.21 | ¿ù¼¼ | µå¸²ºôµù2 | 4 | 16.08 | 300 | 35 | 2018 | | 2024.10.21 | ¿ù¼¼ | GOLDVIEW | 2 | 25.03 | 300 | 43 | 2018 | | 2024.10.21 | ¸Å¸Å | (1975-5) | 3 | 59.92 | 11,000 | | 2003 | | 2024.10.21 | ¿ù¼¼ | ¹Ì¼ººô¸®Áö(1996-7) | 5 | 59.44 | 1,000 | 55 | 2002 | | 2024.10.20 | Àü¼¼ | ´ëdz¾ÆÆ®ºôIV | 4 | 29.93 | 14,500 | 0 | 2021 | | 2024.10.20 | ¿ù¼¼ | ´Ù¼öºô¸®Áö | 5 | 59.52 | 1,000 | 45 | 2002 | | 2024.10.19 | ¿ù¼¼ | ½ÅÇÑȨŸ¿î | 4 | 19.67 | 500 | 36 | 2014 | | 2024.10.19 | ¸Å¸Å | ¿ìÁ¤¾ÆÆ®ºô2Â÷ | 5 | 42.975 | 6,700 | | 2003 | | 2024.10.19 | ¿ù¼¼ | ¼º¿ìŸ¿î | 3 | 58.24 | 2,000 | 65 | 2003 | | 2024.10.19 | ¿ù¼¼ | ³ëÀ»ºûÈ£¼ö¿¡¼ | 2 | 21.285 | 200 | 38 | 2020 | | 2024.10.19 | ¿ù¼¼ | ´ÙÀÎij½½ | 3 | 16.27 | 300 | 30 | 2018 | | 2024.10.19 | ¿ù¼¼ | Sºô¶ó(2775-5) | 4 | 42.12 | 1,000 | 70 | 2018 | | 2024.10.19 | ¿ù¼¼ | ¼º¿ø¾ÆÆ®ºô | 4 | 30.87 | 500 | 45 | 2018 | | 2024.10.19 | ¿ù¼¼ | ºÎ±¤Ä³½½ | 3 | 20.41 | 100 | 28 | 2013 | | 2024.10.18 | ¸Å¸Å | ´Ù¼öÄܵµºô | 3 | 34 | 5,500 | | 2002 | | 2024.10.18 | ¿ù¼¼ | û¼Öºô¶ó(2783-5) | 4 | 19.87 | 500 | 47 | 2019 | | 2024.10.18 | ¿ù¼¼ | ¿À¼Çºä | 2 | 20.365 | 300 | 32 | 2019 | | 2024.10.18 | ¿ù¼¼ | Çϳªºô | 2 | 20.565 | 1,000 | 29 | 2018 | | 2024.10.17 | ¿ù¼¼ | ±×¸°³ª·¡ | 2 | 20.24 | 300 | 33 | 2018 | | 2024.10.16 | Àü¼¼ | ½Å¼¼°èȨŸ¿î3Â÷Bµ¿ | 3 | 59.09 | 9,400 | 0 | 2002 | | 2024.10.16 | ¿ù¼¼ | (2747-5) | 4 | 20.83 | 300 | 30 | 2018 | | 2024.10.16 | ¿ù¼¼ | (2754-4) | 3 | 14.4 | 300 | 30 | 2020 | | 2024.10.15 | ¸Å¸Å | ´ë¼ººô¸®Áö1Â÷ | 2 | 54.675 | 9,500 | | 2001 | | 2024.10.15 | Àü¼¼ | ÀºÇýºôµù(2305-7) | 4 | 20.57 | 4,000 | 0 | 2003 | | 2024.10.14 | ¿ù¼¼ | ¿¹Àκô | 2 | 41.6 | 500 | 55 | 2018 | | 2024.10.14 | ¿ù¼¼ | ½ÅÇÑȨŸ¿î | 2 | 20.45 | 500 | 36 | 2014 | | 2024.10.14 | ¸Å¸Å | (1992-1) | 4 | 59.7 | 12,000 | | 2002 | | 2024.10.14 | ¿ù¼¼ | ÇØµçºô | 4 | 17.76 | 300 | 33 | 2018 | | 2024.10.14 | ¿ù¼¼ | (2030-5) | 3 | 17.55 | 50 | 20 | 2013 | | 2024.10.14 | ¿ù¼¼ | ¾ÖÇÃÇϿ콺 | 4 | 45.83 | 1,000 | 70 | 2018 | | 2024.10.14 | Àü¼¼ | ½°ÇϿ콺 | 3 | 34.64 | 7,700 | 0 | 2018 | | 2024.10.13 | ¿ù¼¼ | º£Àϸ® | 4 | 28.22 | 500 | 40 | 2021 | | 2024.10.13 | ¿ù¼¼ | ¾ÖÇÃÇϿ콺 | 4 | 20.82 | 300 | 30 | 2018 | | 2024.10.12 | ¿ù¼¼ | ´õÆÈ·¹½º1 | 3 | 25.25 | 300 | 38 | 2018 | | 2024.10.12 | ¿ù¼¼ | ´ëdz¾ÆÆ®ºô¥² | 2 | 17.22 | 300 | 48 | 2020 | | 2024.10.11 | Àü¼¼ | ¹Ì¼ººô¸®Áö(1981-11) | 1 | 59.255 | 7,000 | 0 | 2002 | | 2024.10.11 | ¿ù¼¼ | (2762-1) | 4 | 13.94 | 300 | 30 | 2020 | | 2024.10.11 | ¿ù¼¼ | (2794-7) | 2 | 24.72 | 500 | 34 | 2018 | | 2024.10.10 | ¿ù¼¼ | û´ãºô | 3 | 37.62 | 488 | 18 | 2018 | | 2024.10.10 | ¿ù¼¼ | BrownHill | 3 | 31.12 | 300 | 50 | 2018 | | 2024.10.10 | ¿ù¼¼ | ±Ý¼ºÅ¸¿î | 5 | 74.25 | 3,000 | 90 | 2012 | | 2024.10.10 | ¿ù¼¼ | µå¸²ºôµù2 | 3 | 17.28 | 500 | 35 | 2018 | | 2024.10.09 | ¿ù¼¼ | (2771-14) | 3 | 35.67 | 1,000 | 72 | 2021 | | 2024.10.09 | ¿ù¼¼ | CASABEE | 3 | 20.53 | 300 | 34 | 2019 | | 2024.10.09 | ¿ù¼¼ | (2295-10) | 4 | 18.98 | 500 | 38 | 2012 | | 2024.10.09 | ¿ù¼¼ | (2781-5) | 3 | 30.01 | 1,700 | 56 | 2020 | | 2024.10.09 | Àü¼¼ | Sºô¶ó(2791-4) | 2 | 16.95 | 4,000 | 0 | 2018 | | 2024.10.09 | ¿ù¼¼ | (2748-4) | 3 | 24.52 | 7,000 | 7 | 2018 | | 2024.10.08 | ¿ù¼¼ | (2764-4) | 4 | 20.7 | 200 | 30 | 2018 | | 2024.10.05 | ¿ù¼¼ | °¡µð¾ðÇϿ콺 | 4 | 15.82 | 1,000 | 25 | 2019 | | 2024.10.05 | ¿ù¼¼ | ¼º¿ø¾ÆÆ®ºô | 4 | 30.87 | 500 | 46 | 2018 | | 2024.10.05 | ¿ù¼¼ | ±×·¹À̽ººô | 4 | 19.03 | 300 | 36 | 2020 | | 2024.10.05 | ¿ù¼¼ | (2752-8) | 3 | 32.71 | 500 | 57 | 2018 | | 2024.10.05 | Àü¼¼ | (2764-4) | 3 | 20.7 | 3,800 | 0 | 2018 | | 2024.10.05 | Àü¼¼ | ´õ½ºÅ×ÀÌ(2748-3) | 4 | 27.72 | 9,000 | 0 | 2019 | | 2024.10.04 | ¿ù¼¼ | Á¤¿øÇϿ콺 | 4 | 23.4 | 300 | 35 | 2018 | | 2024.10.04 | ¸Å¸Å | »ïº¸È¨Å¸¿îA | 3 | 59.65 | 10,300 | | 2002 | | 2024.10.04 | ¿ù¼¼ | ¼º¿ø¾ÆÆ®ºô | 3 | 18.23 | 300 | 33 | 2018 | | 2024.10.04 | ¿ù¼¼ | ¸ÅÁ÷ | 3 | 19.47 | 300 | 27 | 2018 | | 2024.10.04 | ¿ù¼¼ | (2771-13) | 3 | 29.6 | 500 | 55 | 2020 | | 2024.10.04 | Àü¼¼ | ´õ½ºÅ×ÀÌ(2785-4) | 2 | 30.76 | 7,500 | 0 | 2020 | | 2024.10.04 | ¿ù¼¼ | °í¸Þ¸£ÇϿ콺 | 4 | 38.56 | 500 | 65 | 2021 | | 2024.10.04 | ¿ù¼¼ | (2784-3) | 3 | 16.27 | 300 | 35 | 2019 | | 2024.10.03 | ¿ù¼¼ | (2743-6) | 4 | 35.43 | 500 | 35 | 2018 | | 2024.10.03 | Àü¼¼ | Çϳªºô | 2 | 21.6 | 4,500 | 0 | 2018 | | 2024.10.03 | ¿ù¼¼ | (2749-1) | 2 | 16.9 | 2,000 | 10 | 2022 | | 2024.10.02 | ¿ù¼¼ | ¸®Ä¡Ä³½½ | 3 | 28.16 | 500 | 55 | 2021 | | 2024.10.01 | ¿ù¼¼ | (2780-4) | 2 | 20.88 | 300 | 33 | 2018 | | 2024.09.30 | ¿ù¼¼ | (2037-7) | 4 | 24.39 | 200 | 35 | 2014 | | 2024.09.30 | ¿ù¼¼ | (2766-5) | 2 | 18.36 | 200 | 25 | 2018 | | 2024.09.29 | Àü¼¼ | ´ëdz¾ÆÆ®ºôIV | 4 | 29.93 | 14,500 | 0 | 2021 | | 2024.09.28 | ¿ù¼¼ | ¹ß·»½Ã¾Æ | 4 | 29.413 | 500 | 45 | 2018 | | 2024.09.28 | ¿ù¼¼ | °¡µð¾ðÇϿ콺 | 3 | 15.51 | 300 | 25 | 2019 | | 2024.09.28 | ¿ù¼¼ | Å丶ÇϿ콺 | 2 | 23.52 | 300 | 33 | 2018 | | 2024.09.28 | Àü¼¼ | û¿îÁÖÅÃ(2305-43) | 3 | 43.24 | 10,000 | 0 | 2004 | | 2024.09.28 | ¿ù¼¼ | º£Àϸ® | 2 | 26.86 | 2,500 | 30 | 2021 | | 2024.09.28 | ¿ù¼¼ | ÁغôII | 3 | 37.185 | 1,000 | 55 | 2020 | | 2024.09.27 | ¿ù¼¼ | Á¤¿ø | 2 | 26.51 | 500 | 41 | 2021 | | 2024.09.27 | ¿ù¼¼ | ¿¤¸² | 4 | 31.05 | 1,700 | 40 | 2021 | | 2024.09.27 | ¿ù¼¼ | (2310-9) | 5 | 84.27 | 1,000 | 60 | 2012 | | 2024.09.26 | ¿ù¼¼ | °¡¶÷ºô | 4 | 22.08 | 1,700 | 22 | 2019 | | 2024.09.26 | ¿ù¼¼ | (2775-8) | 2 | 21.88 | 300 | 40 | 2021 | | 2024.09.25 | ¿ù¼¼ | ºÎ°Å¸¿î | 3 | 19.04 | 200 | 30 | 2013 | | 2024.09.25 | ¿ù¼¼ | ¸ÅÁ÷ | 2 | 20.8 | 200 | 35 | 2018 | | 2024.09.25 | ¿ù¼¼ | (2751-6) | 2 | 22.2 | 2,500 | 20 | 2023 | | 2024.09.24 | ¿ù¼¼ | ´ÞºûÈ£¼ö¿¡¼ | 3 | 23.76 | 500 | 47 | 2020 | | 2024.09.24 | Àü¼¼ | ½Å¼¼°èȨŸ¿î4Â÷Aµ¿ | 2 | 59.09 | 8,600 | 0 | 2002 | | 2024.09.24 | ¿ù¼¼ | ³ªºñÇϿ콺 | 4 | 21.62 | 300 | 38 | 2019 | | 2024.09.23 | ¿ù¼¼ | ´õÀ§µådz°æ | 2 | 27.15 | 500 | 55 | 2021 | | 2024.09.23 | ¿ù¼¼ | ´õ½ºÅ×ÀÌ | 3 | 30.96 | 500 | 60 | 2020 | | 2024.09.23 | Àü¼¼ | ½Ã±×´ÏóÇϿ콺 | 3 | 37.77 | 18,000 | 0 | 2022 | | 2024.09.23 | Àü¼¼ | ½Ã±×´ÏóÇϿ콺 | 3 | 37.77 | 16,000 | 0 | 2022 | | 2024.09.22 | ¿ù¼¼ | ÇѽÅÁÖÅà | 1 | 37.17 | 500 | 54 | 2002 | | 2024.09.22 | Àü¼¼ | ½Ã±×´ÏóÇϿ콺 | 3 | 37.77 | 18,000 | 0 | 2022 | | 2024.09.22 | Àü¼¼ | ½Ã±×´ÏóÇϿ콺 | 3 | 37.77 | 16,000 | 0 | 2022 | | 2024.09.21 | ¿ù¼¼ | (2747-3) | 4 | 27.84 | 1,000 | 65 | 2019 | | 2024.09.21 | ¿ù¼¼ | Sºô¶ó | 4 | 25.63 | 300 | 38 | 2018 | | 2024.09.21 | ¿ù¼¼ | ¿µÁغôµù2 | 4 | 18.9 | 100 | 37 | 2018 | | 2024.09.21 | ¿ù¼¼ | (2033-6) | 3 | 18.48 | 200 | 26 | 2018 | | 2024.09.20 | Àü¼¼ | (2750-4) | 2 | 28.5 | 8,000 | 0 | 2022 | | 2024.09.20 | Àü¼¼ | (2750-4) | 2 | 28.5 | 8,000 | 0 | 2022 | | 2024.09.20 | ¿ù¼¼ | (2749-3) | 2 | 23.8 | 500 | 60 | 2020 | | 2024.09.20 | ¿ù¼¼ | (0-0) | 2 | 18.65 | 300 | 32 | 2018 | | 2024.09.20 | ¿ù¼¼ | (1173-12) | 4 | 15.15 | 800 | 38 | 2015 | | 2024.09.19 | ¿ù¼¼ | (2786-4) | 3 | 32.45 | 500 | 65 | 2022 | | 2024.09.19 | Àü¼¼ | (2771-0) | 4 | 23.12 | 4,500 | 0 | 2020 | | 2024.09.19 | Àü¼¼ | ¹Ý¼®ºôµù | 3 | 20.74 | 3,500 | 0 | 2003 | | 2024.09.18 | ¿ù¼¼ | ´Üºô¶ó | 4 | 18.72 | 300 | 27 | 2018 | | 2024.09.18 | ¿ù¼¼ | ³ªºñÇϿ콺 | 4 | 22.4 | 300 | 28 | 2019 | | 2024.09.14 | ¿ù¼¼ | (2796-8) | 4 | 19.8 | 300 | 30 | 2018 | | 2024.09.13 | ¿ù¼¼ | (2042-11) | 2 | 54.01 | 300 | 32 | 2016 | | 2024.09.12 | ¸Å¸Å | Á¤¿Õ¸®Ä¡ºô | 3 | 62.16 | 11,800 | | 2002 | | 2024.09.12 | Àü¼¼ | ¿ùµåºô¶ó | 4 | 57.88 | 8,925 | 0 | 2002 | | 2024.09.11 | ¿ù¼¼ | (2758-4) | 4 | 18.38 | 300 | 33 | 2020 | | 2024.09.10 | Àü¼¼ | (2750-4) | 3 | 28.5 | 8,000 | 0 | 2022 | | 2024.09.09 | ¸Å¸Å | ÆÄÅ©ºô¶ó2Â÷ | 1 | 61.425 | 7,800 | | 2002 | | 2024.09.09 | ¿ù¼¼ | (2030-10) | 3 | 18.15 | 300 | 35 | 2012 | | 2024.09.09 | Àü¼¼ | ¿ÁÅͺô¶óÆ®1Â÷ | 2 | 58.825 | 9,500 | 0 | 2001 | | 2024.09.08 | Àü¼¼ | ½Ã±×´Ïó | 2 | 25.395 | 8,000 | 0 | 2021 | | 2024.09.06 | ¿ù¼¼ | ¿À¼Çºä | 4 | 39.61 | 500 | 65 | 2019 | | 2024.09.06 | ¿ù¼¼ | ¼ºÈ£ÇÏÀ̺ô1Â÷ | 1 | 57.35 | 1,000 | 60 | 2002 | | 2024.09.05 | ¿ù¼¼ | ½ÅÁ¤ÆÄÅ©¸Ç¼Ç(2305-18) | 4 | 59.51 | 7,000 | 35 | 2003 | | 2024.09.05 | ¿ù¼¼ | (2775-1) | 2 | 28.98 | 500 | 45 | 2023 | | 2024.09.05 | ¿ù¼¼ | ´ëÈï | 5 | 17.92 | 1,000 | 30 | 2013 | | 2024.09.05 | ¿ù¼¼ | ´õÀ§µådz°æ | 3 | 25.925 | 500 | 55 | 2021 | | 2024.09.05 | ¿ù¼¼ | (2792-1) | 3 | 29.195 | 500 | 47 | 2023 | | 2024.09.04 | ¿ù¼¼ | ´ëdz¾ÆÆ®ºôVII | 2 | 19.25 | 300 | 47 | 2022 | | 2024.09.04 | ¸Å¸Å | ¼ºÈ£ÇÏÀ̺ô1Â÷ | 1 | 51.28 | 8,150 | | 2002 | | 2024.09.03 | Àü¼¼ | À±È£ÇϿ콺 | 3 | 59.65 | 15,000 | 0 | 2023 | | 2024.09.03 | ¿ù¼¼ | (2764-1) | 2 | 33.72 | 500 | 55 | 2021 | | 2024.09.03 | ¿ù¼¼ | (2030-10) | 5 | 18.15 | 300 | 35 | 2012 | | 2024.09.03 | Àü¼¼ | ´õ½ºÅ×ÀÌ(2785-4) | 4 | 24.38 | 8,000 | 0 | 2020 | | 2024.09.02 | ¿ù¼¼ | (2749-0000) | 3 | 23.18 | 500 | 40 | 2024 | | 2024.09.02 | ¿ù¼¼ | (2771-7) | 3 | 27.78 | 500 | 50 | 2022 | | 2024.09.02 | ¿ù¼¼ | (2782-1) | 3 | 27.22 | 1,000 | 42 | 2022 | | 2024.09.02 | ¸Å¸Å | Á¤¿Õ¸®Ä¡ºô | 4 | 62.16 | 11,500 | | 2002 | | 2024.09.02 | ¿ù¼¼ | (2782-1) | 3 | 27.22 | 1,000 | 45 | 2022 | | 2024.09.02 | ¸Å¸Å | ¿ÁÅͺô¶óÆ®3Â÷ | 1 | 59.12 | 8,300 | | 2002 | | 2024.08.31 | ¿ù¼¼ | ´õÆÈ·¹½º1 | 3 | 29.945 | 1,000 | 54 | 2018 | | 2024.08.31 | ¿ù¼¼ | (2794-8) | 3 | 21.82 | 500 | 39 | 2020 | | 2024.08.29 | ¿ù¼¼ | È£ºô¸®Áö | 4 | 15.01 | 300 | 43 | 2021 | | 2024.08.29 | Àü¼¼ | ¿¤¸² | 3 | 31.65 | 8,000 | 0 | 2021 | | 2024.08.29 | ¿ù¼¼ | ¿¤¸² | 2 | 19.81 | 300 | 37 | 2021 | | 2024.08.29 | ¿ù¼¼ | ºê¸¯ºô | 4 | 31.23 | 500 | 50 | 2020 | | 2024.08.28 | ¿ù¼¼ | (2784-4) | 3 | 43.74 | 500 | 63 | 2018 | | 2024.08.28 | Àü¼¼ | (2747-5) | 3 | 21.87 | 4,700 | 0 | 2018 | | 2024.08.27 | ¸Å¸Å | ÆÄÅ©ºô¶ó1Â÷ | 4 | 59.79 | 9,500 | | 2002 | | 2024.08.27 | ¿ù¼¼ | (2796-10) | 4 | 19.64 | 500 | 50 | 2023 | | 2024.08.27 | Àü¼¼ | (2781-3) | 2 | 34.315 | 12,000 | 0 | 2021 | | 2024.08.26 | ¿ù¼¼ | ¶ó¿ÂÇϿ콺 | 2 | 24.24 | 400 | 40 | 2018 | | 2024.08.26 | Àü¼¼ | (2743-6) | 2 | 20.4 | 8,500 | 0 | 2018 | | 2024.08.25 | Àü¼¼ | °Ç¾ç±×¸°ºô | 4 | 19.035 | 3,000 | 0 | 2014 | | 2024.08.25 | Àü¼¼ | (2781-3) | 4 | 38.445 | 12,000 | 0 | 2021 | | 2024.08.24 | ¿ù¼¼ | (2771-7) | 3 | 36.02 | 1,000 | 70 | 2022 | | 2024.08.24 | ¿ù¼¼ | (2797-4) | 3 | 24.005 | 300 | 35 | 2018 | | 2024.08.24 | Àü¼¼ | (2782-1) | 2 | 34.92 | 10,000 | 0 | 2022 | | 2024.08.24 | ¿ù¼¼ | Sºô¶ó(2778-3) | 3 | 19.84 | 200 | 30 | 2018 | | 2024.08.23 | ¿ù¼¼ | (2310-9) | 4 | 38.73 | 800 | 55 | 2012 | | 2024.08.23 | Àü¼¼ | ¿À¼Çºô | 3 | 24.09 | 5,500 | 0 | 2018 | | 2024.08.22 | Àü¼¼ | (2750-4) | 3 | 29.16 | 11,000 | 0 | 2022 | | 2024.08.22 | ¸Å¸Å | ´ë¼º¸Ç¼Ç | 1 | 35.8 | 4,850 | | 2002 | | 2024.08.22 | ¿ù¼¼ | (2749-0000) | 2 | 20.47 | 300 | 35 | 2024 | | 2024.08.21 | ¿ù¼¼ | ¿¤¸² | 2 | 21.24 | 300 | 38 | 2021 | | 2024.08.21 | ¿ù¼¼ | ´ëdz¾ÆÆ®ºô5 | 3 | 24.15 | 300 | 52 | 2021 | | 2024.08.21 | Àü¼¼ | (2784-4) | 2 | 43.74 | 6,800 | 0 | 2018 | | 2024.08.21 | ¿ù¼¼ | ¼Çر׸°ºô | 3 | 17.34 | 200 | 35 | 2018 | | 2024.08.20 | ¿ù¼¼ | »þ¹ÙÆ®ºô | 4 | 17.56 | 300 | 30 | 2018 | | 2024.08.20 | ¿ù¼¼ | (2762-1) | 3 | 28.17 | 1,500 | 55 | 2020 | | 2024.08.20 | ¿ù¼¼ | (2746-2) | 2 | 20.95 | 50 | 36 | 2018 | | 2024.08.20 | Àü¼¼ | °í¸Þ¸£ÇϿ콺 | 2 | 27.8 | 8,000 | 0 | 2021 | | 2024.08.19 | Àü¼¼ | ÆÄÅ©ºä | 3 | 22.62 | 8,000 | 0 | 2019 | | 2024.08.19 | ¿ù¼¼ | (2764-4) | 3 | 20.01 | 200 | 30 | 2018 | | 2024.08.19 | ¿ù¼¼ | ¾Öºñ´ººô | 4 | 16.17 | 300 | 22 | 2018 | | 2024.08.18 | Àü¼¼ | ÆÄÅ©ºä | 3 | 19.835 | 6,000 | 0 | 2019 | | 2024.08.18 | Àü¼¼ | ÆÄÅ©ºä | 4 | 22.62 | 8,500 | 0 | 2019 | | 2024.08.17 | ¿ù¼¼ | (2754-4) | 4 | 35.65 | 500 | 67 | 2020 | | 2024.08.17 | Àü¼¼ | ÆÄÅ©ºä | 4 | 42.48 | 13,000 | 0 | 2019 | | 2024.08.17 | Àü¼¼ | ÆÄÅ©ºä | 4 | 19.835 | 8,000 | 0 | 2019 | | 2024.08.17 | Àü¼¼ | ÆÄÅ©ºä | 4 | 19.835 | 7,500 | 0 | 2019 | | 2024.08.17 | ¿ù¼¼ | (1210-3) | 3 | 19.53 | 200 | 32 | 2015 | | 2024.08.17 | ¿ù¼¼ | ¿øºô¸®Áö | 3 | 17.86 | 500 | 53 | 2020 | | 2024.08.17 | Àü¼¼ | Sºô¶ó(2791-4) | 4 | 19.54 | 4,000 | 0 | 2018 | | 2024.08.16 | ¿ù¼¼ | (2748-4) | 2 | 23.595 | 300 | 43 | 2018 | | 2024.08.16 | ¸Å¸Å | ÇѽÅÁÖÅà | 1 | 37.17 | 5,300 | | 2002 | | 2024.08.16 | ¿ù¼¼ | Sºô¶ó | 3 | 29.66 | 4,500 | 2 | 2018 | | 2024.08.16 | ¿ù¼¼ | ÆÄÅ©ºä | 2 | 19.835 | 300 | 36 | 2019 | | 2024.08.16 | ¿ù¼¼ | ÇØµçºô | 2 | 29.88 | 500 | 23 | 2018 | | 2024.08.15 | Àü¼¼ | ½Ã±×´Ïó | 2 | 28.53 | 10,000 | 0 | 2021 | | 2024.08.15 | ¿ù¼¼ | ¾¾¾Øºô2Â÷ | 1 | 60.68 | 1,000 | 70 | 2004 | | 2024.08.15 | Àü¼¼ | Å©¸®½ºÅ» | 3 | 26.88 | 5,000 | 0 | 2018 | | 2024.08.15 | Àü¼¼ | ½Ã±×´Ïó | 2 | 25.395 | 8,000 | 0 | 2021 | | 2024.08.15 | Àü¼¼ | ½Ã±×´Ïó | 2 | 28.53 | 10,000 | 0 | 2021 | | 2024.08.14 | ¿ù¼¼ | (2783-2) | 3 | 28.47 | 500 | 48 | 2022 | | 2024.08.14 | ¿ù¼¼ | ÆÄÀκô | 3 | 21.95 | 1,500 | 38 | 2020 | | 2024.08.14 | Àü¼¼ | ÇູȨŸ¿î | 2 | 21.6 | 5,900 | 0 | 2014 | | 2024.08.14 | Àü¼¼ | ½Ã±×´Ïó | 3 | 25.395 | 9,000 | 0 | 2021 | | 2024.08.14 | Àü¼¼ | ¿ìÁ¤ÁÖÅà | 3 | 29.8 | 4,000 | 0 | 2017 | | 2024.08.14 | ¸Å¸Å | Çö´ë¾ÆÆ®ºô1(2305-15) | 3 | 37.16 | 11,800 | | 2003 | | 2024.08.12 | Àü¼¼ | (1173-12) | 3 | 14.94 | 3,600 | 0 | 2015 | | 2024.08.12 | Àü¼¼ | (2743-6) | 4 | 21.84 | 9,500 | 0 | 2018 | | 2024.08.12 | ¿ù¼¼ | (2749-0000) | 2 | 23 | 500 | 40 | 2024 | | 2024.08.12 | ¸Å¸Å | (1980-8) | 5 | 63.955 | 11,000 | | 2003 | | 2024.08.10 | ¿ù¼¼ | È£ºô¸®Áö | 2 | 18.6 | 500 | 60 | 2021 | | 2024.08.10 | ¿ù¼¼ | ´õ½ºÅ×ÀÌ(2785-4) | 2 | 30.76 | 7,500 | 7 | 2020 | | 2024.08.10 | ¿ù¼¼ | ³ëÀ»ºûÈ£¼ö¿¡¼ | 2 | 21.285 | 300 | 35 | 2020 | | 2024.08.10 | ¿ù¼¼ | ´õ½ºÅ×ÀÌ(2785-4) | 4 | 17.73 | 3,700 | 5 | 2020 | | 2024.08.09 | ¿ù¼¼ | ÆÛ½ºÆ®ºô | 4 | 20.16 | 300 | 32 | 2019 | | 2024.08.09 | Àü¼¼ | (2743-6) | 3 | 27.86 | 8,000 | 0 | 2018 | | 2024.08.09 | Àü¼¼ | (2319-1) | 4 | 47.03 | 6,000 | 0 | 2015 | | 2024.08.08 | Àü¼¼ | (2023-6) | 4 | 14.62 | 3,000 | 0 | 2012 | | 2024.08.07 | ¿ù¼¼ | Çö´ëºô¶óÆ® | 4 | 56.78 | 1,000 | 55 | 2001 | | 2024.08.06 | ¿ù¼¼ | ´ëdz¾ÆÆ®ºôIV | 2 | 25.25 | 300 | 45 | 2021 | | 2024.08.06 | ¿ù¼¼ | ¼ºÁøºô¶ó | 4 | 18.755 | 100 | 33 | 2018 | | 2024.08.06 | Àü¼¼ | ´ëdz¾ÆÆ®ºô¥² | 4 | 29.65 | 9,000 | 0 | 2020 | | 2024.08.05 | ¿ù¼¼ | Á¤¿Õµå¸²ºô¥² | 3 | 19.39 | 2,000 | 23 | 2013 | | 2024.08.05 | ¿ù¼¼ | ´ëdz¾ÆÆ®ºô¥² | 2 | 27.18 | 300 | 55 | 2020 | | 2024.08.05 | ¿ù¼¼ | ´ëdz¾ÆÆ®ºô5 | 2 | 24.15 | 300 | 54 | 2021 | | 2024.08.05 | ¿ù¼¼ | Èñºô¸®Áö | 4 | 19.47 | 500 | 38 | 2021 | | 2024.08.05 | ¿ù¼¼ | (2771-0) | 2 | 38.71 | 9,000 | 5 | 2020 | | 2024.08.03 | Àü¼¼ | (2743-6) | 4 | 27.86 | 8,000 | 0 | 2018 | | 2024.08.03 | ¿ù¼¼ | ´Ù¿ø | 4 | 20.575 | 300 | 35 | 2018 | | 2024.08.03 | ¿ù¼¼ | (2766-3) | 2 | 18.614 | 200 | 32 | 2018 | | 2024.08.03 | Àü¼¼ | (2743-6) | 2 | 27.86 | 8,000 | 0 | 2018 | | 2024.08.02 | ¿ù¼¼ | (1185-4) | 3 | 17.955 | 200 | 27 | 2013 | | 2024.08.02 | ¿ù¼¼ | (2796-9) | 4 | 86.18 | 3,000 | 110 | 2018 | | 2024.08.02 | Àü¼¼ | ´ëÇѺôµù | 2 | 19.28 | 6,000 | 0 | 2013 | | 2024.07.31 | Àü¼¼ | ½Å¼¼°èȨŸ¿î3Â÷Bµ¿ | 2 | 59.09 | 8,600 | 0 | 2002 | | 2024.07.31 | ¿ù¼¼ | ¼Çر׸°ºô | 2 | 17.34 | 200 | 35 | 2018 | | 2024.07.31 | ¿ù¼¼ | ´ÙÀÎij½½ | 3 | 16.27 | 300 | 33 | 2018 | | 2024.07.31 | ¿ù¼¼ | »ïÁÖ°ñµçºô | 4 | 57.72 | 600 | 30 | 2003 | | 2024.07.29 | ¸Å¸Å | ¼ö¸²ºô¶óÆ®(3Â÷) | 1 | 59.54 | 10,700 | | 2002 | | 2024.07.29 | ¿ù¼¼ | ÇູÁÖÅÃÇ÷¯½º | 5 | 47.61 | 3,000 | 79 | 2021 | | 2024.07.29 | Àü¼¼ | (2296-4) | 3 | 14.52 | 4,000 | 0 | 2013 | | 2024.07.29 | ¿ù¼¼ | (2305-38) | 4 | 49.81 | 300 | 28 | 2004 | | 2024.07.29 | ¿ù¼¼ | Á¤¿Õµ¿2784-5µµ½ÃÇü»ýȰÁÖÅà | 2 | 39.94 | 700 | 69 | 2023 | | 2024.07.27 | ¿ù¼¼ | º£³×Ä¡¾Æ | 4 | 41.57 | 500 | 65 | 2018 | | 2024.07.27 | ¿ù¼¼ | (2296-3) | 2 | 21.92 | 1,000 | 55 | 2012 | | 2024.07.27 | ¿ù¼¼ | (2295-4) | 3 | 15.78 | 500 | 45 | 2013 | | 2024.07.27 | ¿ù¼¼ | µå¸²ºôµù2 | 3 | 17.28 | 1,700 | 17 | 2018 | | 2024.07.27 | ¿ù¼¼ | º£³×Ä¡¾Æ(2776-5) | 4 | 28.785 | 500 | 43 | 2018 | | 2024.07.27 | ¿ù¼¼ | û¼Öºô¶ó(2786-0) | 3 | 17.1 | 400 | 30 | 2019 | | 2024.07.26 | ¿ù¼¼ | ºÎ±¤Ä³½½ | 5 | 65.06 | 1,000 | 62 | 2013 | | 2024.07.24 | ¿ù¼¼ | ÈÀÌÆ®ºô¸®Áö | 3 | 35.73 | 500 | 57 | 2018 | | 2024.07.24 | ¿ù¼¼ | (2797-4) | 2 | 16.575 | 300 | 30 | 2018 | | 2024.07.24 | ¿ù¼¼ | (2013-5) | 2 | 22.46 | 200 | 38 | 2014 | | 2024.07.24 | ¿ù¼¼ | (2782-1) | 2 | 27.22 | 300 | 45 | 2022 | | 2024.07.24 | ¿ù¼¼ | -2793 | 2 | 19.95 | 200 | 30 | 2019 | | 2024.07.24 | ¿ù¼¼ | ½°ÇϿ콺 | 4 | 98.32 | 1,700 | 100 | 2018 | | 2024.07.23 | Àü¼¼ | (2752-7) | 4 | 40.71 | 10,450 | 0 | 2020 | | 2024.07.23 | Àü¼¼ | (2297-2) | 4 | 12.04 | 3,100 | 0 | 2012 | | 2024.07.23 | ¸Å¸Å | ¸í¹®½¦¸£ºô | 5 | 59.31 | 8,700 | | 2002 | | 2024.07.22 | ¿ù¼¼ | (1987-8) | 4 | 13.65 | 200 | 30 | 2015 | | 2024.07.22 | ¿ù¼¼ | (2752-8) | 3 | 32.71 | 500 | 57 | 2018 | | 2024.07.22 | Àü¼¼ | (2752-7) | 4 | 40.71 | 10,450 | 0 | 2020 | | 2024.07.20 | ¿ù¼¼ | (2752-1) | 2 | 22.68 | 500 | 42 | 2021 | | 2024.07.20 | Àü¼¼ | (2764-4) | 3 | 20.7 | 4,200 | 0 | 2018 | | 2024.07.20 | ¿ù¼¼ | (2775-8) | 4 | 17.85 | 300 | 30 | 2021 | | 2024.07.19 | ¿ù¼¼ | Èñ¹Îºô | 4 | 39.61 | 1,000 | 73 | 2020 | | 2024.07.19 | ¿ù¼¼ | ´õÅ©¸®½º¸¶½º | 4 | 20.64 | 300 | 38 | 2021 | | 2024.07.19 | ¿ù¼¼ | (2293-3) | 4 | 24.93 | 2,000 | 48 | 2016 | | 2024.07.18 | ¸Å¸Å | (1996-2) | 2 | 63.955 | 11,600 | | 2003 | | 2024.07.17 | Àü¼¼ | ½ºÀ§Æ®Å¸¿î | 2 | 24.34 | 4,000 | 0 | 2015 | | 2024.07.17 | ¿ù¼¼ | ÇØÇǺô¸®Áö | 3 | 16.45 | 600 | 36 | 2018 | | 2024.07.16 | ¸Å¸Å | (2310-9) | 3 | 16.54 | 6,344 | | 2012 | | 2024.07.16 | Àü¼¼ | (2792-1) | 2 | 21.07 | 6,000 | 0 | 2023 | | 2024.07.16 | ¿ù¼¼ | (2305-38) | 3 | 20.9 | 300 | 30 | 2004 | | 2024.07.16 | ¿ù¼¼ | ¿¤¸² | 3 | 21.24 | 300 | 40 | 2021 | | 2024.07.16 | Àü¼¼ | (2792-1) | 2 | 18 | 6,000 | 0 | 2023 | | 2024.07.16 | ¸Å¸Å | (2310-9) | 4 | 15.85 | 6,109 | | 2012 | | 2024.07.16 | ¸Å¸Å | (2310-9) | 4 | 15.38 | 5,949 | | 2012 | | 2024.07.16 | ¸Å¸Å | (2310-9) | 2 | 16.54 | 6,344 | | 2012 | | 2024.07.16 | ¸Å¸Å | (2310-9) | 2 | 16.54 | 6,344 | | 2012 | | 2024.07.16 | ¸Å¸Å | (2310-9) | 3 | 17.38 | 6,631 | | 2012 | | 2024.07.16 | ¸Å¸Å | (2310-9) | 5 | 33.45 | 12,115 | | 2012 | | 2024.07.16 | ¸Å¸Å | (2310-9) | 4 | 17.38 | 6,631 | | 2012 | | 2024.07.16 | ¸Å¸Å | (2310-9) | 3 | 15.85 | 6,109 | | 2012 | | 2024.07.16 | ¸Å¸Å | (2310-9) | 3 | 15.38 | 5,949 | | 2012 | | 2024.07.16 | ¸Å¸Å | (2310-9) | 3 | 16.54 | 6,344 | | 2012 | | 2024.07.16 | ¸Å¸Å | (2310-9) | 3 | 16.54 | 6,344 | | 2012 | | 2024.07.16 | ¸Å¸Å | (2310-9) | 3 | 16.54 | 6,344 | | 2012 | | 2024.07.16 | ¸Å¸Å | (2310-9) | 2 | 15.85 | 6,109 | | 2012 | | 2024.07.16 | ¸Å¸Å | (2310-9) | 2 | 17.38 | 6,631 | | 2012 | | 2024.07.16 | ¸Å¸Å | (2310-9) | 2 | 15.38 | 5,949 | | 2012 | | 2024.07.16 | ¸Å¸Å | (2310-9) | 2 | 16.54 | 6,344 | | 2012 | | 2024.07.16 | ¸Å¸Å | (2310-9) | 2 | 16.54 | 6,344 | | 2012 | | 2024.07.15 | ¸Å¸Å | Á¤¿Õ½¦¸£ºô(7Â÷) | 1 | 58.03 | 10,200 | | 2004 | | 2024.07.15 | ¿ù¼¼ | ÇϳªÄ³½½ | 2 | 26.04 | 200 | 35 | 2018 | | 2024.07.13 | ¿ù¼¼ | ÇØ°¡µæ | 3 | 26.29 | 500 | 53 | 2020 | | 2024.07.13 | ¿ù¼¼ | ÇÏ´ÃÁ¤¿ø | 3 | 20.4 | 500 | 43 | 2022 | | 2024.07.13 | ¿ù¼¼ | ¿À¼Çºô | 4 | 45.83 | 1,000 | 68 | 2018 | | 2024.07.13 | ¿ù¼¼ | ´ÙÀÎ | 2 | 27.95 | 500 | 46 | 2018 | | 2024.07.12 | ¿ù¼¼ | (2790-3) | 3 | 28.84 | 1,000 | 43 | 2021 | | 2024.07.12 | Àü¼¼ | ÇÑ»ç¶ûºô | 3 | 14.62 | 5,000 | 0 | 2018 | | 2024.07.12 | ¿ù¼¼ | ´ÙÀÎ | 4 | 26.6 | 500 | 47 | 2018 | | 2024.07.12 | ¿ù¼¼ | ÆÄÅ©ºä | 3 | 19.835 | 300 | 40 | 2019 | | 2024.07.12 | Àü¼¼ | ÇÑ»ç¶ûºô | 3 | 14.62 | 5,000 | 0 | 2018 | | 2024.07.12 | Àü¼¼ | ´ë¼º¸Ç¼Ç | 3 | 36.14 | 900 | 0 | 2002 | | 2024.07.11 | ¸Å¸Å | Á¤¿Õ½¦¸£ºô3Â÷ | 4 | 60.01 | 9,800 | | 2003 | | 2024.07.11 | ¿ù¼¼ | È£¼öÁ¤¿ø | 4 | 20.13 | 500 | 42 | 2022 | | 2024.07.11 | ¿ù¼¼ | È£¼öÁ¤¿ø | 3 | 20.98 | 500 | 41 | 2022 | | 2024.07.11 | ¿ù¼¼ | ´ÙÀο츮°¡2Â÷ | 4 | 19.88 | 300 | 35 | 2019 | | 2024.07.10 | ¿ù¼¼ | (2306-8) | 4 | 16.63 | 500 | 30 | 2013 | | 2024.07.10 | ¿ù¼¼ | (2771-0) | 3 | 22.76 | 5,000 | 5 | 2020 | | 2024.07.10 | ¿ù¼¼ | ÇØÇǺô¸®Áö | 3 | 16.45 | 500 | 35 | 2018 | | 2024.07.09 | ¿ù¼¼ | ¸®Á¨ºô | 3 | 30.6 | 500 | 48 | 2021 | | 2024.07.09 | Àü¼¼ | (2786-4) | 2 | 36.13 | 10,000 | 0 | 2022 | | 2024.07.08 | ¿ù¼¼ | Áغô¥° | 4 | 25.26 | 300 | 45 | 2020 | | 2024.07.08 | ¿ù¼¼ | ¾ÆÆ®ºô | 4 | 17.85 | 300 | 35 | 2020 | | 2024.07.08 | ¿ù¼¼ | ´õÀ§µå | 3 | 27.17 | 500 | 55 | 2021 | | 2024.07.08 | ¿ù¼¼ | (2797-1) | 4 | 43.63 | 600 | 57 | 2018 | | 2024.07.08 | Àü¼¼ | ºÎÀÚ¸¶À» | 4 | 37.25 | 9,000 | 0 | 2018 | | 2024.07.06 | ¿ù¼¼ | ¼ºÁøºô¶ó | 2 | 21.6 | 200 | 30 | 2018 | | 2024.07.06 | ¿ù¼¼ | ÇØµçºô | 2 | 20.36 | 300 | 33 | 2018 | | 2024.07.06 | ¿ù¼¼ | (2781-4) | 4 | 19.81 | 500 | 47 | 2021 | | 2024.07.05 | ¿ù¼¼ | ¶ó¿ÂÇϿ콺 | 4 | 20.03 | 400 | 40 | 2018 | | 2024.07.05 | ¿ù¼¼ | ´õ½ºÅ×ÀÌ(2748-3) | 2 | 19.31 | 200 | 37 | 2019 | | 2024.07.05 | Àü¼¼ | ´ëdz¾ÆÆ®ºô¥² | 3 | 22.74 | 5,000 | 0 | 2020 | | 2024.07.05 | Àü¼¼ | ´ëdz¾ÆÆ®ºô¥² | 3 | 22.74 | 5,000 | 0 | 2020 | | 2024.07.05 | ¿ù¼¼ | (2796-10) | 2 | 22.887 | 500 | 42 | 2023 | | 2024.07.04 | ¿ù¼¼ | ¸¶ÇϳªÀÓ | 6 | 38.05 | 5,000 | 33 | 2016 | | 2024.07.04 | ¿ù¼¼ | º£³×Ä¡¾Æ(2776-5) | 4 | 24.15 | 300 | 33 | 2018 | | 2024.07.03 | ¿ù¼¼ | ´ëdz¾ÆÆ®ºôVII | 3 | 26.42 | 500 | 62 | 2022 | | 2024.07.03 | ¿ù¼¼ | (2752-8) | 3 | 32.71 | 500 | 58 | 2018 | | 2024.07.02 | ¿ù¼¼ | (2771-0) | 2 | 30.105 | 5,000 | 12 | 2020 | | 2024.07.02 | ¿ù¼¼ | Á¤¿øÇϿ콺 | 3 | 23.4 | 300 | 33 | 2018 | | 2024.07.02 | ¸Å¸Å | ´ëµ¿ºô¶ó | 3 | 57.94 | 9,200 | | 2001 | | 2024.07.01 | ¿ù¼¼ | ÇູÇÑÁý | 4 | 25.03 | 500 | 59 | 2014 | | 2024.07.01 | ¿ù¼¼ | (1975-5) | 4 | 59.92 | 1,000 | 53 | 2003 | | 2024.07.01 | ¿ù¼¼ | (2771-14) | 3 | 36.25 | 1,000 | 80 | 2021 | | 2024.07.01 | ¸Å¸Å | Áß¾ÓÇÏÀÌÃ÷ºô(1976-11) | 4 | 59.275 | 9,800 | | 2002 | | 2024.07.01 | ¿ù¼¼ | (2750-4) | 3 | 38.22 | 1,000 | 60 | 2022 | | 2024.06.30 | ¿ù¼¼ | ¸¶ÀÌȨºô¸®Áö(2015-8) | 5 | 58.55 | 1,000 | 65 | 2002 | | 2024.06.29 | ¿ù¼¼ | (2770-2) | 3 | 22.16 | 300 | 38 | 2018 | | 2024.06.29 | ¿ù¼¼ | (2255-9) | 3 | 17.3 | 200 | 30 | 2013 | | 2024.06.29 | ¿ù¼¼ | Çý¼®ºô | 4 | 13.3 | 200 | 25 | 2018 | | 2024.06.29 | ¿ù¼¼ | ¼º¿øºôµù | 3 | 16.4 | 300 | 35 | 2012 | | 2024.06.29 | ¸Å¸Å | ºÎÈïºô¶óÆ®Bµ¿ | 3 | 59.33 | 9,700 | | 2001 | | 2024.06.29 | Àü¼¼ | ³ëÀ»ºûÈ£¼ö¿¡¼ | 4 | 28.355 | 7,000 | 0 | 2020 | | 2024.06.29 | ¿ù¼¼ | (2770-2) | 3 | 22.16 | 300 | 38 | 2018 | | 2024.06.28 | ¿ù¼¼ | ´ëdz¾ÆÆ®ºôVII | 4 | 29.1 | 500 | 75 | 2022 | | 2024.06.28 | Àü¼¼ | ÇØÇÇÇϿ콺 | 1 | 38.43 | 5,980 | 0 | 2002 | | 2024.06.28 | ¿ù¼¼ | (1987-8) | 4 | 14.4 | 1,500 | 15 | 2015 | | 2024.06.27 | Àü¼¼ | (1166-3) | 2 | 18.1 | 3,500 | 0 | 2013 | | 2024.06.27 | ¸Å¸Å | »ïº¸¾ÆÆ®ºô | 2 | 59.92 | 11,000 | | 2002 | | 2024.06.26 | Àü¼¼ | ¿À¼Çºô | 4 | 18.2 | 4,500 | 0 | 2018 | | 2024.06.26 | Àü¼¼ | È¿¿ø(2293-12) | 4 | 23.84 | 8,000 | 0 | 2014 | | 2024.06.26 | ¿ù¼¼ | (2775-1) | 2 | 25.805 | 500 | 50 | 2023 | | 2024.06.26 | ¿ù¼¼ | ´õÇϿ콺 | 3 | 26.83 | 500 | 47 | 2020 | | 2024.06.26 | ¿ù¼¼ | (2778-4) | 4 | 19.89 | 100 | 37 | 2018 | | 2024.06.26 | ¿ù¼¼ | (2746-2) | 2 | 21.25 | 300 | 31 | 2018 | | 2024.06.26 | ¿ù¼¼ | °¡¶÷ºô | 4 | 22.08 | 1,700 | 22 | 2019 | | 2024.06.25 | ¿ù¼¼ | ¿¹Áغô¸®Áö | 2 | 19.41 | 300 | 40 | 2020 | | 2024.06.25 | ¿ù¼¼ | ÆÄÀκô | 2 | 27.25 | 500 | 43 | 2020 | | 2024.06.25 | ¸Å¸Å | ºÀ¿ìÆÓ¸®½º | 4 | 56.44 | 16,000 | | 2020 | | 2024.06.25 | Àü¼¼ | ´ë¼º¸Ç¼Ç | 3 | 36.14 | 5,600 | 0 | 2002 | | 2024.06.25 | ¿ù¼¼ | Áß¾Ó¾ÆÆ®ºô | 3 | 55.38 | 2,000 | 55 | 2008 | | 2024.06.24 | ¿ù¼¼ | CS¾ÆÆ®ºô | 2 | 18.72 | 200 | 30 | 2018 | | 2024.06.24 | ¿ù¼¼ | CS¾ÆÆ®ºô | 4 | 18 | 300 | 30 | 2018 | | 2024.06.24 | Àü¼¼ | CS¾ÆÆ®ºô | 2 | 18 | 5,000 | 0 | 2018 | | 2024.06.24 | ¿ù¼¼ | CS¾ÆÆ®ºô | 3 | 33.14 | 500 | 65 | 2018 | | 2024.06.24 | ¿ù¼¼ | CS¾ÆÆ®ºô | 2 | 34.03 | 500 | 65 | 2018 | | 2024.06.24 | ¿ù¼¼ | CS¾ÆÆ®ºô | 3 | 33.14 | 500 | 65 | 2018 | | 2024.06.24 | Àü¼¼ | CS¾ÆÆ®ºô | 3 | 34.03 | 8,000 | 0 | 2018 | | 2024.06.24 | ¿ù¼¼ | CS¾ÆÆ®ºô | 2 | 33.14 | 300 | 58 | 2018 | | 2024.06.24 | Àü¼¼ | CS¾ÆÆ®ºô | 4 | 96.24 | 15,000 | 0 | 2018 | | 2024.06.24 | ¸Å¸Å | Á¤¿Õ½¦¸£ºô5Â÷ | 4 | 60.01 | 10,500 | | 2004 | | 2024.06.23 | ¸Å¸Å | ¼öÁ¤ÇÏÀ̺ô | 2 | 59.24 | 10,800 | | 2003 | | 2024.06.22 | ¿ù¼¼ | ÇÑ»ç¶ûºô | 2 | 18.36 | 300 | 35 | 2018 | | 2024.06.22 | Àü¼¼ | ÇØÇÇÇϿ콺 | 1 | 38.43 | 5,980 | 0 | 2002 | | 2024.06.22 | Àü¼¼ | (2786-4) | 3 | 36.13 | 15,000 | 0 | 2022 | | 2024.06.22 | ¸Å¸Å | ½ÅÁ¤ÆÄÅ©¸Ç¼Ç(2305-18) | 4 | 59.51 | 13,000 | | 2003 | | 2024.06.22 | Àü¼¼ | (2786-4) | 3 | 36.13 | 15,000 | 0 | 2022 | | 2024.06.21 | ¿ù¼¼ | (2771-0) | 3 | 20.58 | 5,000 | 6 | 2020 | | 2024.06.21 | ¿ù¼¼ | (2782-5) | 4 | 18.08 | 300 | 35 | 2018 | | 2024.06.20 | ¸Å¸Å | ºÎÈïºô¶óÆ®Aµ¿ | 2 | 59.33 | 9,600 | | 2001 | | 2024.06.20 | ¿ù¼¼ | ÀÌ·¹ | 3 | 18.72 | 300 | 33 | 2021 | | 2024.06.20 | Àü¼¼ | ¿µÁغôµù2 | 3 | 18.9 | 4,000 | 0 | 2018 | | 2024.06.20 | ¿ù¼¼ | ¼Çر׸°ºô | 2 | 17.34 | 300 | 35 | 2018 | | 2024.06.20 | ¿ù¼¼ | ¿¤¸² | 3 | 19.81 | 300 | 35 | 2021 | | 2024.06.18 | ¿ù¼¼ | (2771-9) | 4 | 21.855 | 300 | 30 | 2018 | | 2024.06.18 | Àü¼¼ | (2792-1) | 2 | 44.835 | 13,000 | 0 | 2023 | | 2024.06.18 | ¿ù¼¼ | Èï»ê | 2 | 19.25 | 200 | 31 | 2018 | | 2024.06.18 | ¿ù¼¼ | (2792-1) | 2 | 21.07 | 300 | 35 | 2023 | | 2024.06.18 | ¿ù¼¼ | Å¿øºô | 3 | 23.81 | 300 | 38 | 2019 | | 2024.06.18 | ¿ù¼¼ | ´õÇϿ콺 | 3 | 24.8 | 500 | 47 | 2020 | | 2024.06.18 | ¿ù¼¼ | (2787-0) | 3 | 22.015 | 500 | 67 | 2023 | | 2024.06.18 | ¿ù¼¼ | Èñºô¸®Áö | 2 | 22.05 | 300 | 35 | 2021 | | 2024.06.15 | Àü¼¼ | (2743-6) | 2 | 20.74 | 4,500 | 0 | 2018 | | 2024.06.15 | ¸Å¸Å | »ïÁÖ°ñµçºô | 4 | 57.72 | 12,800 | | 2003 | | 2024.06.15 | ¿ù¼¼ | (2781-3) | 3 | 25.44 | 2,000 | 20 | 2021 | | 2024.06.15 | ¿ù¼¼ | (2792-1) | 3 | 21.07 | 300 | 35 | 2023 | | 2024.06.14 | ¿ù¼¼ | (2776-3) | 4 | 23.4 | 300 | 48 | 2021 | | 2024.06.13 | ¸Å¸Å | »ïº¸¾ÆÆ®ºô | 2 | 59.92 | 11,000 | | 2002 | | 2024.06.13 | ¿ù¼¼ | ±×¸°³ª·¡ | 4 | 24.96 | 500 | 43 | 2018 | | 2024.06.12 | ¿ù¼¼ | ¹Ì°¡¶÷ | 2 | 20.805 | 300 | 30 | 2018 | | 2024.06.12 | Àü¼¼ | ¼ö¾Èä | 3 | 22.16 | 4,500 | 0 | 2018 | | 2024.06.12 | ¿ù¼¼ | (2797-3) | 3 | 16.66 | 300 | 29 | 2018 | | 2024.06.12 | ¿ù¼¼ | ÇϳªÄ³½½ | 3 | 26.76 | 300 | 38 | 2018 | | 2024.06.12 | ¸Å¸Å | ½ÅÁ¤ÆÄÅ©¸Ç¼Ç(2305-18) | 4 | 59.51 | 13,000 | | 2003 | | 2024.06.11 | ¿ù¼¼ | (2757-1) | 4 | 20.96 | 300 | 35 | 2018 | | 2024.06.09 | ¿ù¼¼ | (2792-1) | 2 | 29.195 | 500 | 45 | 2023 | | 2024.06.09 | ¿ù¼¼ | (2792-1) | 4 | 29.94 | 500 | 45 | 2023 | | 2024.06.08 | ¿ù¼¼ | ¸®Á¨ºô | 2 | 19.24 | 300 | 35 | 2021 | | 2024.06.08 | ¿ù¼¼ | ºê¸¯ºô | 3 | 24.32 | 300 | 37 | 2020 | | 2024.06.08 | ¿ù¼¼ | ÇϳªÄ³½½ | 4 | 26.04 | 300 | 35 | 2018 | | 2024.06.08 | ¿ù¼¼ | ÇѾçºô¶ó1 | 4 | 41.15 | 1,000 | 46 | 2018 | | 2024.06.08 | ¿ù¼¼ | °¡¶÷ºô | 4 | 25.48 | 300 | 45 | 2019 | | 2024.06.08 | ¿ù¼¼ | û¼Û¾ÆÆ®ºô | 4 | 35.51 | 500 | 66 | 2018 | | 2024.06.07 | Àü¼¼ | ÇÑ»ç¶ûºô | 2 | 23.56 | 4,000 | 0 | 2018 | | 2024.06.07 | ¿ù¼¼ | ´öÁÖºô¶ó | 4 | 23.12 | 300 | 35 | 2021 | | 2024.06.07 | ¿ù¼¼ | Áغô¥° | 2 | 25.26 | 1,500 | 30 | 2020 | | 2024.06.06 | Àü¼¼ | µÑºô | 3 | 28.95 | 8,000 | 0 | 2019 | | 2024.06.06 | ¿ù¼¼ | Á¤Àººô | 4 | 35.6 | 500 | 55 | 2009 | | 2024.06.06 | ¿ù¼¼ | (2780-4) | 4 | 21.85 | 300 | 39 | 2018 | | 2024.06.05 | ¿ù¼¼ | ´õÀ§µå | 2 | 19.38 | 200 | 40 | 2021 | | 2024.06.05 | ¿ù¼¼ | (2787-0) | 3 | 30.02 | 1,000 | 65 | 2023 | | 2024.06.05 | ¿ù¼¼ | (2781-3) | 2 | 39.315 | 2,000 | 52 | 2021 | | 2024.06.04 | Àü¼¼ | (2743-6) | 2 | 27.86 | 8,000 | 0 | 2018 | | 2024.06.04 | ¿ù¼¼ | ³ªºñÇϿ콺 | 3 | 29.81 | 300 | 40 | 2019 | | 2024.06.03 | ¿ù¼¼ | ´õ½ºÅ×ÀÌ(2785-4) | 2 | 22.26 | 500 | 62 | 2020 | | 2024.06.03 | ¿ù¼¼ | (2792-1) | 4 | 28.295 | 2,000 | 35 | 2023 | | 2024.06.03 | ¿ù¼¼ | (2758-3) | 3 | 18.36 | 300 | 35 | 2020 | | 2024.06.02 | ¿ù¼¼ | (2790-2) | 3 | 18.4 | 300 | 33 | 2018 | | 2024.06.02 | ¿ù¼¼ | Á¶¿îÁý | 2 | 22.48 | 300 | 33 | 2018 | | 2024.06.01 | ¿ù¼¼ | Áغô¥° | 2 | 35.64 | 1,700 | 40 | 2020 | | 2024.06.01 | ¿ù¼¼ | (2790-4) | 3 | 19.53 | 300 | 38 | 2021 | | 2024.06.01 | ¿ù¼¼ | (2792-1) | 3 | 29.195 | 500 | 45 | 2023 | | 2024.06.01 | ¿ù¼¼ | ÇØ¸¶·ç | 2 | 16.56 | 200 | 37 | 2021 | | 2024.06.01 | ¸Å¸Å | (2022-8) | 2 | 58.8 | 10,500 | | 2002 | | 2024.05.30 | ¿ù¼¼ | (2794-7) | 2 | 24.72 | 300 | 35 | 2018 | | 2024.05.28 | ¿ù¼¼ | (2752-8) | 2 | 32.71 | 500 | 56 | 2018 | | 2024.05.28 | ¿ù¼¼ | ½Ã±×´Ïó | 2 | 38.515 | 1,000 | 70 | 2021 | | 2024.05.28 | ¿ù¼¼ | µÑºô | 3 | 30.96 | 500 | 62 | 2019 | | 2024.05.28 | ¿ù¼¼ | ¹Ù´Ùdz°æ | 4 | 38.71 | 1,000 | 65 | 2021 | | 2024.05.27 | ¿ù¼¼ | (2784-2) | 2 | 39.72 | 1,000 | 56 | 2023 | | 2024.05.27 | ¸Å¸Å | ±×¸°Å¸¿î | 4 | 55.62 | 8,800 | | 2003 | | 2024.05.27 | ¿ù¼¼ | (2797-4) | 3 | 16.575 | 300 | 30 | 2018 | | 2024.05.27 | ¿ù¼¼ | BOBOSVILLS | 4 | 29.97 | 1,000 | 44 | 2018 | | 2024.05.25 | ¿ù¼¼ | (2318-7) | 3 | 29.4 | 500 | 51 | 2016 | | 2024.05.25 | ¿ù¼¼ | Áø¸í | 3 | 18.8 | 300 | 32 | 2018 | | 2024.05.25 | Àü¼¼ | (2743-6) | 2 | 20.4 | 4,000 | 0 | 2018 | | 2024.05.25 | ¿ù¼¼ | (2787-0) | 4 | 25.41 | 500 | 68 | 2023 | | 2024.05.25 | Àü¼¼ | »ïÁÖ°ñµçºô | 2 | 74.34 | 11,400 | 0 | 2003 | | 2024.05.25 | ¿ù¼¼ | Èñºô¸®Áö | 3 | 17.11 | 300 | 47 | 2021 | | 2024.05.25 | ¸Å¸Å | CS¾ÆÆ®ºô | 4 | 18.5 | 7,050 | | 2018 | | 2024.05.25 | ¸Å¸Å | CS¾ÆÆ®ºô | 3 | 18.72 | 7,150 | | 2018 | | 2024.05.25 | ¸Å¸Å | CS¾ÆÆ®ºô | 3 | 34.03 | 13,800 | | 2018 | | 2024.05.25 | ¸Å¸Å | CS¾ÆÆ®ºô | 3 | 33.14 | 13,660 | | 2018 | | 2024.05.25 | ¸Å¸Å | CS¾ÆÆ®ºô | 4 | 96.24 | 28,580 | | 2018 | | 2024.05.25 | ¸Å¸Å | CS¾ÆÆ®ºô | 3 | 18 | 7,030 | | 2018 | | 2024.05.25 | ¸Å¸Å | CS¾ÆÆ®ºô | 3 | 18.5 | 7,130 | | 2018 | | 2024.05.25 | ¸Å¸Å | CS¾ÆÆ®ºô | 2 | 18.72 | 7,150 | | 2018 | | 2024.05.25 | ¸Å¸Å | CS¾ÆÆ®ºô | 2 | 34.03 | 13,800 | | 2018 | | 2024.05.25 | ¸Å¸Å | CS¾ÆÆ®ºô | 2 | 33.14 | 13,660 | | 2018 | | 2024.05.25 | ¸Å¸Å | CS¾ÆÆ®ºô | 2 | 18 | 7,030 | | 2018 | | 2024.05.25 | ¸Å¸Å | CS¾ÆÆ®ºô | 2 | 18.5 | 7,130 | | 2018 | | 2024.05.25 | ¸Å¸Å | CS¾ÆÆ®ºô | 4 | 18 | 6,830 | | 2018 | | 2024.05.24 | ¿ù¼¼ | (2784-2) | 3 | 20.64 | 300 | 23 | 2023 | | 2024.05.24 | ¿ù¼¼ | (2786-4) | 4 | 24.35 | 8,000 | 10 | 2022 | | 2024.05.23 | ¿ù¼¼ | º¹Àüºô¶ó2Â÷ | 1 | 58.24 | 1,000 | 43 | 2002 | | 2024.05.23 | ¸Å¸Å | ÀÏÁ¶È¨Å¸¿î(2027-6) | 3 | 59.805 | 13,300 | | 2003 | | 2024.05.23 | ¿ù¼¼ | ¸®Ä¡Ä³½½ | 2 | 28.16 | 500 | 50 | 2021 | | 2024.05.23 | ¸Å¸Å | ÀºÇÏ¸Ç¼Ç | 4 | 59.76 | 8,700 | | 2003 | | 2024.05.22 | Àü¼¼ | È¿¿ø(2293-14) | 3 | 14.2 | 4,000 | 0 | 2014 | | 2024.05.21 | ¿ù¼¼ | ¹Ì¼ººô¸®Áö(1996-7) | 4 | 59.44 | 500 | 65 | 2002 | | 2024.05.20 | Àü¼¼ | ºÎÈïºô¶óÆ®Aµ¿ | 2 | 59.33 | 8,000 | 0 | 2001 | | 2024.05.20 | ¿ù¼¼ | ´õ½ºÅ×ÀÌ(2748-3) | 4 | 19.31 | 200 | 40 | 2019 | | 2024.05.20 | Àü¼¼ | û¿îÁÖÅÃ(2305-43) | 4 | 43.24 | 9,500 | 0 | 2004 | | 2024.05.20 | ¿ù¼¼ | ´Ù¿Âºô¶ó | 4 | 29.37 | 500 | 64 | 2018 | | 2024.05.18 | ¿ù¼¼ | ´õ½ºÅ×ÀÌ(2785-4) | 4 | 17.73 | 100 | 35 | 2020 | | 2024.05.18 | ¿ù¼¼ | (2771-2) | 3 | 25.32 | 300 | 42 | 2021 | | 2024.05.16 | Àü¼¼ | (2743-6) | 4 | 27.86 | 8,000 | 0 | 2018 | | 2024.05.16 | ¿ù¼¼ | ÇѽÅÁÖÅà | 3 | 32.75 | 500 | 45 | 2002 | | 2024.05.15 | Àü¼¼ | ¼ö¾Èä | 4 | 22.16 | 4,700 | 0 | 2018 | | 2024.05.14 | ¸Å¸Å | ¿ÁÅͺô¶óÆ®2Â÷ | 2 | 59.17 | 9,300 | | 2001 | | 2024.05.14 | ¿ù¼¼ | (2776-3) | 2 | 27 | 500 | 50 | 2021 | | 2024.05.14 | ¿ù¼¼ | ¿µºô¸®Áö | 4 | 14.08 | 300 | 42 | 2018 | | 2024.05.14 | Àü¼¼ | ¹ÝµµÆÄÅ©ºô(1983-1) | 3 | 59.24 | 9,000 | 0 | 2003 | | 2024.05.13 | ¿ù¼¼ | (2771-13) | 4 | 28.86 | 1,500 | 48 | 2020 | | 2024.05.13 | ¿ù¼¼ | Èñ¹Îºô | 3 | 19.245 | 300 | 40 | 2020 | | 2024.05.13 | ¿ù¼¼ | (1980-8) | 3 | 63.955 | 1,000 | 65 | 2003 | | 2024.05.13 | ¿ù¼¼ | (2792-1) | 3 | 44.835 | 500 | 70 | 2023 | | 2024.05.12 | ¿ù¼¼ | ¼¿øÇϿ콺 | 2 | 22.8 | 300 | 40 | 2018 | | 2024.05.11 | Àü¼¼ | ´ëdz¾ÆÆ®ºôll | 4 | 23.52 | 5,000 | 0 | 2020 | | 2024.05.11 | ¿ù¼¼ | °í¸Þ¸£ÇϿ콺 | 4 | 26.7 | 500 | 50 | 2021 | | 2024.05.11 | ¿ù¼¼ | (2786-4) | 4 | 36.13 | 500 | 65 | 2022 | | 2024.05.11 | ¿ù¼¼ | ½Ã±×´Ïó | 2 | 24.46 | 1,000 | 46 | 2021 | | 2024.05.10 | ¿ù¼¼ | (2752-1) | 3 | 40.63 | 1,000 | 70 | 2021 | | 2024.05.10 | ¿ù¼¼ | °¡¶÷ºô | 3 | 22.4 | 1,500 | 25 | 2019 | | 2024.05.10 | Àü¼¼ | °¡µð¾ðÇϿ콺 | 2 | 14.18 | 5,800 | 0 | 2019 | | 2024.05.10 | Àü¼¼ | (2778-4) | 3 | 30.21 | 6,000 | 0 | 2018 | | 2024.05.09 | ¿ù¼¼ | (2770-9) | 4 | 31.82 | 1,700 | 25 | 2019 | | 2024.05.08 | ¿ù¼¼ | (2745-3) | 2 | 17.525 | 1,500 | 25 | 2021 | | 2024.05.07 | ¿ù¼¼ | (2758-5) | 4 | 23.37 | 300 | 32 | 2018 | | 2024.05.06 | ¿ù¼¼ | ¼ö¾Èä | 4 | 19.38 | 1,500 | 20 | 2018 | | 2024.05.06 | ¿ù¼¼ | LGŸ¿î | 2 | 58.43 | 1,500 | 60 | 2002 | | 2024.05.04 | Àü¼¼ | ´ëdz¾ÆÆ®ºô | 4 | 44.4 | 9,000 | 0 | 2018 | | 2024.05.04 | ¿ù¼¼ | ¼ö¾Èä | 2 | 22.16 | 300 | 39 | 2018 | | 2024.05.04 | ¿ù¼¼ | ¼ö¾Èä | 3 | 22.16 | 300 | 38 | 2018 | | 2024.05.03 | ¿ù¼¼ | ÇÏ´ÃÁ¤¿ø | 4 | 19.17 | 500 | 45 | 2022 | | 2024.05.02 | ¿ù¼¼ | ÇØÁøÅ¸¿î | 2 | 18.79 | 500 | 35 | 2013 | | 2024.05.02 | ¿ù¼¼ | (2750-5) | 2 | 27.375 | 500 | 47 | 2021 | | 2024.05.02 | Àü¼¼ | Áغô¥° | 2 | 25.26 | 6,000 | 0 | 2020 | | 2024.05.01 | ¿ù¼¼ | Çʱ׸° | 2 | 22.68 | 200 | 31 | 2018 | | 2024.05.01 | ¿ù¼¼ | (1984-10) | 5 | 16.38 | 100 | 25 | 2012 | | 2024.05.01 | ¿ù¼¼ | ±¤¼ºÆÄÅ©(1989-11) | 4 | 15.75 | 50 | 25 | 2013 | | 2024.05.01 | ¿ù¼¼ | ¹Ù´Ùdz°æ | 3 | 21.89 | 1,000 | 40 | 2021 | | 2024.05.01 | ¿ù¼¼ | ¼¿øÇϿ콺 | 4 | 86.14 | 1,700 | 54 | 2018 | | 2024.05.01 | ¿ù¼¼ | ¿µºô¸®Áö | 3 | 15.68 | 100 | 30 | 2018 | | 2024.05.01 | ¿ù¼¼ | Áø¸í | 2 | 42.81 | 500 | 19 | 2018 | | 2024.05.01 | ¸Å¸Å | ¼ö¸²ºô¶óÆ®(3Â÷) | 3 | 59.54 | 10,100 | | 2002 | | 2024.04.30 | ¿ù¼¼ | (2037-7) | 3 | 48.19 | 300 | 33 | 2014 | | 2024.04.27 | ¿ù¼¼ | Sºô¶ó(2765-5) | 4 | 19.6 | 300 | 33 | 2018 | | 2024.04.27 | ¿ù¼¼ | È£ºô¸®Áö | 4 | 17.2 | 300 | 50 | 2021 | | 2024.04.27 | ¿ù¼¼ | (2767-5) | 3 | 21.29 | 300 | 40 | 2018 | | 2024.04.27 | ¿ù¼¼ | (2761-2) | 3 | 29.175 | 1,000 | 45 | 2018 | | 2024.04.25 | ¿ù¼¼ | ´õÀ§µå | 2 | 31.72 | 500 | 69 | 2021 | | 2024.04.25 | ¿ù¼¼ | (2236-1) | 3 | 62.49 | 300 | 33 | 2023 | | 2024.04.25 | ¿ù¼¼ | ¼º¿øºôµù | 3 | 20.68 | 500 | 37 | 2012 | | 2024.04.25 | ¿ù¼¼ | (2752-7) | 4 | 25.7 | 500 | 45 | 2020 | | 2024.04.25 | ¿ù¼¼ | (2781-5) | 4 | 30.01 | 500 | 55 | 2020 | | 2024.04.25 | ¿ù¼¼ | Á¤¿Õµ¿2784-5µµ½ÃÇü»ýȰÁÖÅà | 4 | 39.94 | 1,200 | 60 | 2023 | | 2024.04.24 | ¿ù¼¼ | µµÇâ | 3 | 31.81 | 500 | 44 | 2022 | | 2024.04.24 | ¿ù¼¼ | ½Å¼¼°èȨŸ¿î4Â÷Aµ¿ | 3 | 59.09 | 4,000 | 45 | 2002 | | 2024.04.23 | ¿ù¼¼ | °Å¸¢ºôµù | 3 | 49.66 | 200 | 35 | 2014 | | 2024.04.23 | ¿ù¼¼ | ÆÄÅ©ºä | 2 | 19.835 | 300 | 37 | 2019 | | 2024.04.23 | ¿ù¼¼ | Å丶ÇϿ콺 | 2 | 46.29 | 1,000 | 60 | 2018 | | 2024.04.22 | ¿ù¼¼ | Èñºô¸®Áö | 3 | 18.55 | 300 | 45 | 2021 | | 2024.04.20 | ¿ù¼¼ | (2293-3) | 3 | 28.1 | 1,000 | 50 | 2016 | | 2024.04.20 | ¿ù¼¼ | ¸íǰÇϿ콺 | 3 | 16.32 | 300 | 40 | 2018 | | 2024.04.20 | ¿ù¼¼ | (2781-3) | 2 | 25.62 | 500 | 40 | 2021 | | 2024.04.20 | Àü¼¼ | (2309-5) | 3 | 15.49 | 5,000 | 0 | 2012 | | 2024.04.19 | ¿ù¼¼ | (2771-2) | 4 | 29.61 | 500 | 52 | 2021 | | 2024.04.18 | ¿ù¼¼ | ÁغôII | 4 | 25.64 | 500 | 47 | 2020 | | 2024.04.17 | ¿ù¼¼ | ½ãºô | 2 | 21.81 | 300 | 43 | 2020 | | 2024.04.17 | ¿ù¼¼ | »ïº¸¾ÆÆ®ºô | 4 | 55.52 | 1,000 | 55 | 2002 | | 2024.04.17 | ¿ù¼¼ | ´ÙÀÎij½½ | 2 | 16.27 | 1,500 | 25 | 2018 | | 2024.04.16 | Àü¼¼ | »ï¼º½¦¸£ºôAµ¿ | 3 | 59.32 | 7,500 | 0 | 2002 | | 2024.04.16 | ¿ù¼¼ | ½Ã±×´Ïó | 4 | 25.395 | 500 | 44 | 2021 | | 2024.04.16 | ¸Å¸Å | µÎ¼ºÇÏÀÌÃ÷ºô | 1 | 59.87 | 9,400 | | 2002 | | 2024.04.16 | Àü¼¼ | (1204-12) | 4 | 28.59 | 9,000 | 0 | 2016 | | 2024.04.15 | ¿ù¼¼ | (2784-3) | 3 | 35.225 | 1,000 | 55 | 2019 | | 2024.04.15 | ¿ù¼¼ | (2786-4) | 4 | 32.45 | 500 | 60 | 2022 | | 2024.04.15 | Àü¼¼ | ´Ù¼ØÇϿ콺 | 2 | 19.48 | 3,500 | 0 | 2016 | | 2024.04.15 | ¿ù¼¼ | ½Ã±×´Ïó | 4 | 32.73 | 500 | 75 | 2021 | | 2024.04.15 | ¿ù¼¼ | Çö´ë¾ÆÆ®ºô1(2305-15) | -1 | 37.16 | 2,000 | 45 | 2003 | | 2024.04.13 | ¿ù¼¼ | Å¿øºô | 2 | 27.98 | 500 | 60 | 2019 | | 2024.04.12 | ¿ù¼¼ | (2752-1) | 2 | 30.42 | 500 | 49 | 2021 | | 2024.04.11 | ¿ù¼¼ | ¼Âºô | 2 | 27.03 | 500 | 56 | 2020 | | 2024.04.11 | ¿ù¼¼ | ÇÏ´ÃÁ¤¿ø | 2 | 32.39 | 1,000 | 60 | 2022 | | 2024.04.10 | ¿ù¼¼ | ¼º¿ø¾ÆÆ®ºô | 2 | 30.87 | 500 | 45 | 2018 | | 2024.04.10 | ¿ù¼¼ | (1984-10) | 4 | 16.38 | 200 | 30 | 2012 | | 2024.04.10 | ¿ù¼¼ | (2750-4) | 4 | 28.5 | 2,000 | 35 | 2022 | | 2024.04.10 | ¿ù¼¼ | ÆÄÀκô | 2 | 26.52 | 500 | 45 | 2020 | | 2024.04.09 | ¿ù¼¼ | (2786-4) | 2 | 24.35 | 50 | 50 | 2022 | | 2024.04.09 | Àü¼¼ | (2743-6) | 3 | 27.86 | 8,000 | 0 | 2018 | | 2024.04.08 | ¿ù¼¼ | BOBOSVILL | 4 | 20.275 | 200 | 34 | 2018 | | 2024.04.08 | ¿ù¼¼ | ¼º¿ø¾ÆÆ®ºô | 4 | 23.04 | 300 | 45 | 2018 | | 2024.04.06 | ¿ù¼¼ | Áغô¥° | 3 | 25.26 | 300 | 45 | 2020 | | 2024.04.06 | ¿ù¼¼ | ³ªºñÇϿ콺 | 3 | 23.14 | 500 | 60 | 2019 | | 2024.04.06 | ¿ù¼¼ | (2790-4) | 4 | 26.22 | 300 | 39 | 2021 | | 2024.04.06 | ¿ù¼¼ | ±×·¹À̽ººô(2755-2) | 2 | 23.16 | 300 | 34 | 2021 | | 2024.04.06 | ¿ù¼¼ | (2750-5) | 3 | 27.375 | 1,000 | 45 | 2021 | | 2024.04.04 | ¿ù¼¼ | µµÇâ | 3 | 26.68 | 500 | 45 | 2022 | | 2024.04.04 | ¿ù¼¼ | (2746-0) | 3 | 21.03 | 300 | 30 | 2018 | | 2024.04.03 | ¿ù¼¼ | (2770-12) | 2 | 26.1 | 500 | 50 | 2018 | | 2024.04.03 | ¿ù¼¼ | ´ëdz¾ÆÆ®ºôVII | 3 | 18.08 | 300 | 47 | 2022 | | 2024.04.03 | Àü¼¼ | ¼öÁ¤ÇÏÀ̺ô | 5 | 59.24 | 6,500 | 0 | 2003 | | 2024.04.02 | ¸Å¸Å | û¼Û¾ÆÆ®ºô | 3 | 18.36 | 7,500 | | 2018 | | 2024.04.02 | ¿ù¼¼ | ºê¸¯ºô | 3 | 31.23 | 500 | 47 | 2020 | | 2024.04.02 | ¸Å¸Å | û¼Û¾ÆÆ®ºô | 4 | 35.1 | 12,000 | | 2018 | | 2024.04.02 | ¸Å¸Å | û¼Û¾ÆÆ®ºô | 4 | 41.3 | 12,500 | | 2018 | | 2024.04.02 | ¸Å¸Å | û¼Û¾ÆÆ®ºô | 2 | 35.51 | 12,000 | | 2018 | | 2024.04.02 | ¸Å¸Å | û¼Û¾ÆÆ®ºô | 2 | 18.87 | 7,500 | | 2018 | | 2024.04.02 | ¸Å¸Å | û¼Û¾ÆÆ®ºô | 3 | 18.72 | 7,500 | | 2018 | | 2024.04.02 | ¸Å¸Å | û¼Û¾ÆÆ®ºô | 2 | 18.72 | 7,500 | | 2018 | | 2024.04.02 | ¸Å¸Å | û¼Û¾ÆÆ®ºô | 3 | 18.87 | 7,500 | | 2018 | | 2024.04.02 | ¸Å¸Å | û¼Û¾ÆÆ®ºô | 4 | 35.51 | 12,000 | | 2018 | | 2024.04.02 | ¸Å¸Å | û¼Û¾ÆÆ®ºô | 2 | 18.36 | 7,500 | | 2018 | | 2024.04.02 | ¸Å¸Å | û¼Û¾ÆÆ®ºô | 3 | 35.51 | 12,000 | | 2018 | | 2024.04.02 | ¸Å¸Å | û¼Û¾ÆÆ®ºô | 4 | 18.72 | 7,500 | | 2018 | | 2024.04.02 | ¸Å¸Å | û¼Û¾ÆÆ®ºô | 3 | 35.1 | 12,000 | | 2018 | | 2024.04.02 | ¸Å¸Å | û¼Û¾ÆÆ®ºô | 2 | 35.1 | 12,000 | | 2018 | | 2024.04.02 | ¿ù¼¼ | (2793-1) | 3 | 27.82 | 500 | 40 | 2020 | | 2024.04.02 | ¿ù¼¼ | (2784-2) | 3 | 20.64 | 2,000 | 20 | 2023 | | 2024.04.01 | ¿ù¼¼ | (2797-0) | 2 | 20.01 | 300 | 36 | 2019 | | 2024.04.01 | ¿ù¼¼ | ´õÀ§µå | 2 | 19.9 | 300 | 40 | 2021 | | 2024.04.01 | Àü¼¼ | ´õ½ºÅ×ÀÌ(2748-3) | 3 | 21.985 | 5,000 | 0 | 2019 | | 2024.03.30 | ¿ù¼¼ | (2781-0000) | 4 | 19.74 | 500 | 50 | 2023 | | 2024.03.29 | ¿ù¼¼ | (2754-4) | 2 | 35.65 | 500 | 65 | 2020 | | 2024.03.29 | Àü¼¼ | (1980-8) | 4 | 63.955 | 8,500 | 0 | 2003 | | 2024.03.29 | ¿ù¼¼ | ´õÀ§µå | 3 | 29.65 | 500 | 68 | 2021 | | 2024.03.29 | ¿ù¼¼ | ´Ù¼öÄܵµºô | 2 | 34 | 300 | 45 | 2002 | | 2024.03.28 | ¿ù¼¼ | (1989-6) | 3 | 35.13 | 500 | 57 | 2015 | | 2024.03.27 | ¿ù¼¼ | (1989-6) | 5 | 35.13 | 1,000 | 52 | 2015 | | 2024.03.26 | ¿ù¼¼ | ´õÆÓ¸®½º¥² | 4 | 22.45 | 300 | 11 | 2019 | | 2024.03.26 | ¿ù¼¼ | ÈÀÌÆ®ºô¸®Áö | 3 | 35.32 | 500 | 57 | 2018 | | 2024.03.25 | ¿ù¼¼ | (2762-2) | 4 | 23.628 | 500 | 45 | 2021 | | 2024.03.25 | ¿ù¼¼ | (2781-5) | 4 | 30.24 | 500 | 67 | 2020 | | 2024.03.25 | ¿ù¼¼ | º£³×Ä¡¾Æ(2776-5) | 2 | 28.785 | 1,700 | 36 | 2018 | | 2024.03.25 | ¿ù¼¼ | ´ëdz¾ÆÆ®ºôVI | 2 | 27.38 | 500 | 62 | 2021 | | 2024.03.23 | ¿ù¼¼ | (1173-13) | 2 | 18.53 | 3,000 | 7 | 2016 | | 2024.03.23 | ¿ù¼¼ | ¾Öºñ´ººô | 3 | 26.78 | 5,250 | 4 | 2018 | | 2024.03.23 | Àü¼¼ | (2745-3) | 4 | 24.745 | 5,000 | 0 | 2021 | | 2024.03.23 | ¿ù¼¼ | (2745-5) | 4 | 37.21 | 300 | 33 | 2018 | | 2024.03.22 | ¿ù¼¼ | (2784-4) | 3 | 43.74 | 500 | 63 | 2018 | | 2024.03.22 | ¿ù¼¼ | (2790-3) | 2 | 28.84 | 1,000 | 50 | 2021 | | 2024.03.22 | Àü¼¼ | (2306-12) | 4 | 12.69 | 2,800 | 0 | 2012 | | 2024.03.22 | ¿ù¼¼ | Á¤¿ø | 4 | 27.53 | 500 | 47 | 2021 | | 2024.03.21 | ¿ù¼¼ | CASABEE | 2 | 20.53 | 300 | 33 | 2019 | | 2024.03.21 | ¿ù¼¼ | ÇØÁøÅ¸¿î | 3 | 18.79 | 500 | 38 | 2013 | | 2024.03.21 | ¿ù¼¼ | BrownHill | 3 | 31.12 | 500 | 50 | 2018 | | 2024.03.21 | ¿ù¼¼ | (2013-5) | 2 | 22.46 | 100 | 30 | 2014 | | 2024.03.21 | ¿ù¼¼ | CASABEE | 2 | 20.53 | 240 | 33 | 2019 | | 2024.03.20 | ¿ù¼¼ | Sºô¶ó(2765-5) | 3 | 22.14 | 100 | 29 | 2018 | | 2024.03.20 | ¿ù¼¼ | (2797-3) | 3 | 41.59 | 1,000 | 40 | 2018 | | 2024.03.19 | ¿ù¼¼ | Sºô¶ó(2765-5) | 3 | 19.6 | 300 | 17 | 2018 | | 2024.03.19 | ¿ù¼¼ | (2752-1) | 3 | 19.24 | 300 | 40 | 2021 | | 2024.03.19 | ¿ù¼¼ | (2761-1) | 2 | 21.6 | 200 | 32 | 2018 | | 2024.03.19 | ¿ù¼¼ | (2771-13) | 2 | 28.86 | 500 | 42 | 2020 | | 2024.03.18 | Àü¼¼ | ¼ö¾Èä | 4 | 22.16 | 4,700 | 0 | 2018 | | 2024.03.16 | ¿ù¼¼ | ´ÙÀÎij½½ | 4 | 16.27 | 300 | 34 | 2018 | | 2024.03.16 | ¿ù¼¼ | ´ëdz¾ÆÆ®ºôll | 2 | 23.52 | 500 | 55 | 2020 | | 2024.03.16 | ¿ù¼¼ | ±×·¹À̽ººô | 3 | 22.06 | 300 | 36 | 2020 | | 2024.03.16 | ¿ù¼¼ | ´ëdz¾ÆÆ®ºôll | 4 | 23.52 | 300 | 47 | 2020 | | 2024.03.15 | ¿ù¼¼ | ÇØÇǺô¸®Áö | 4 | 32.52 | 8,500 | 10 | 2018 | | 2024.03.15 | ¿ù¼¼ | ½Å¾Èµµ½ÃÇü»ýȰÁÖÅà | 5 | 13.4 | 100 | 32 | 2012 | | 2024.03.15 | Àü¼¼ | ÇØÇǺô¸®Áö | 3 | 17.57 | 4,935 | 0 | 2018 | | 2024.03.15 | ¿ù¼¼ | Sºô¶ó(2765-5) | 3 | 19.6 | 200 | 28 | 2018 | | 2024.03.14 | ¿ù¼¼ | (2751-6) | 4 | 35.18 | 2,500 | 40 | 2023 | | 2024.03.14 | ¿ù¼¼ | (2751-6) | 4 | 26.3 | 500 | 33 | 2023 | | 2024.03.13 | ¿ù¼¼ | (2781-4) | 4 | 19.2 | 500 | 50 | 2021 | | 2024.03.13 | Àü¼¼ | ±ÝÁ¤¹ë¸® | 2 | 20.52 | 5,000 | 0 | 2012 | | 2024.03.12 | ¿ù¼¼ | ¼ºÈ£ÇÏÀ̺ô1Â÷ | 3 | 59 | 1,000 | 60 | 2002 | | 2024.03.12 | ¿ù¼¼ | ÁغôII | 4 | 28 | 500 | 55 | 2020 | | 2024.03.12 | ¿ù¼¼ | ÇØÁøÅ¸¿î | 2 | 19.93 | 500 | 42 | 2013 | | 2024.03.12 | ¿ù¼¼ | ºñ¹ÙÈ£¼ö | 3 | 21.255 | 500 | 35 | 2022 | | 2024.03.10 | Àü¼¼ | (2319-1) | 4 | 44.1 | 6,000 | 0 | 2015 | | 2024.03.09 | Àü¼¼ | (2770-9) | 3 | 24.71 | 4,500 | 0 | 2019 | | 2024.03.09 | ¿ù¼¼ | Á¤¿ø | 3 | 23.94 | 500 | 48 | 2021 | | 2024.03.09 | ¿ù¼¼ | (2784-3) | 4 | 16.27 | 1,500 | 29 | 2019 | | 2024.03.09 | ¿ù¼¼ | (2790-4) | 4 | 20.46 | 300 | 38 | 2021 | | 2024.03.09 | ¿ù¼¼ | ´õÅ©¸®½º¸¶½º | 4 | 34.03 | 500 | 59 | 2021 | | 2024.03.09 | ¿ù¼¼ | (2794-8) | 2 | 16.32 | 300 | 34 | 2020 | | 2024.03.09 | ¿ù¼¼ | Sºô¶ó(2765-5) | 4 | 20.3 | 300 | 16 | 2018 | | 2024.03.08 | Àü¼¼ | »ï¼º½¦¸£ºôAµ¿ | 2 | 59.32 | 7,600 | 0 | 2002 | | 2024.03.07 | Àü¼¼ | Çϳªºô | 3 | 20.565 | 4,500 | 0 | 2018 | | 2024.03.07 | Àü¼¼ | (2770-5) | 4 | 26.9375 | 6,300 | 0 | 2018 | | 2024.03.07 | ¿ù¼¼ | Å¿øºô | 3 | 26.47 | 500 | 65 | 2019 | | 2024.03.07 | Àü¼¼ | (2775-7) | 4 | 26.6 | 6,300 | 0 | 2018 | | 2024.03.07 | ¿ù¼¼ | (2775-8) | 2 | 17.85 | 300 | 32 | 2021 | | 2024.03.06 | ¿ù¼¼ | ÇØÇǺô¸®Áö | 4 | 32.52 | 9,000 | 5 | 2018 | | 2024.03.05 | Àü¼¼ | (2775-7) | 3 | 26.9375 | 6,000 | 0 | 2018 | | 2024.03.05 | ¿ù¼¼ | ¾Æ¸§´Ù¿îÁý | 2 | 16.46 | 300 | 42 | 2013 | | 2024.03.05 | ¿ù¼¼ | (2783-2) | 4 | 22.2 | 400 | 48 | 2022 | | 2024.03.04 | ¿ù¼¼ | ´õÆÓ¸®½º¥² | 2 | 20.7 | 500 | 45 | 2019 | | 2024.03.04 | ¿ù¼¼ | (2780-4) | 2 | 20.88 | 300 | 33 | 2018 | | 2024.03.04 | ¿ù¼¼ | ¼º¿ø¾ÆÆ®ºô | 4 | 30.87 | 300 | 47 | 2018 | | 2024.03.04 | ¿ù¼¼ | (2771-14) | 2 | 19.83 | 300 | 45 | 2021 | | 2024.03.04 | ¿ù¼¼ | (2751-6) | 3 | 26.72 | 500 | 35 | 2023 | | 2024.03.02 | ¿ù¼¼ | ¸®Á¨ºô | 2 | 31.39 | 500 | 48 | 2021 | | 2024.03.02 | ¿ù¼¼ | û¼Öºô¶ó(2786-0) | 3 | 25.47 | 500 | 41 | 2019 | | 2024.03.02 | ¿ù¼¼ | Çý¼®ºô | 4 | 24.28 | 200 | 31 | 2018 | | 2024.03.01 | Àü¼¼ | ¿µÁغôµù2 | 2 | 36.88 | 8,400 | 0 | 2018 | | 2024.03.01 | Àü¼¼ | (2770-9) | 3 | 24.88 | 7,350 | 0 | 2019 | | 2024.02.29 | Àü¼¼ | Çϳªºô | 4 | 39.71 | 10,000 | 0 | 2018 | | 2024.02.28 | ¿ù¼¼ | ´ëdz¾ÆÆ®ºôIV | 2 | 26.41 | 300 | 52 | 2021 | | 2024.02.28 | ¿ù¼¼ | (2306-8) | 5 | 16.63 | 400 | 30 | 2013 | | 2024.02.28 | ¿ù¼¼ | (1161-5) | 2 | 26 | 2,000 | 28 | 2012 | | 2024.02.28 | ¿ù¼¼ | (1161-5) | 4 | 26 | 2,000 | 28 | 2012 | | 2024.02.27 | Àü¼¼ | È¿¿ø(2293-12) | 5 | 23.84 | 7,500 | 0 | 2014 | | 2024.02.27 | Àü¼¼ | Sºô¶ó(2791-4) | 3 | 16.45 | 3,500 | 0 | 2018 | | 2024.02.27 | Àü¼¼ | (2310-9) | 4 | 15.38 | 4,000 | 0 | 2012 | | 2024.02.27 | ¿ù¼¼ | ¾¾¾Øºô | 3 | 58.3 | 2,000 | 60 | 2002 | | 2024.02.26 | ¿ù¼¼ | (2775-1) | 3 | 28.98 | 500 | 47 | 2023 | | 2024.02.26 | ¿ù¼¼ | (2776-3) | 2 | 32.89 | 500 | 54 | 2021 | | 2024.02.26 | ¿ù¼¼ | û¼Öºô¶ó(2786-0) | 2 | 14.57 | 400 | 30 | 2019 | | 2024.02.26 | ¿ù¼¼ | ´õÀ§µå | 3 | 19.38 | 300 | 42 | 2021 | | 2024.02.26 | ¿ù¼¼ | ÇÑȸǼÇ1Â÷ | 2 | 57.36 | 1,000 | 55 | 2002 | | 2024.02.24 | Àü¼¼ | ¹Ì°¡¶÷ | 4 | 20.805 | 4,200 | 0 | 2018 | | 2024.02.24 | ¿ù¼¼ | (2782-5) | 3 | 26.28 | 300 | 35 | 2018 | | 2024.02.24 | Àü¼¼ | ´ëdz¾ÆÆ®ºôIV | 4 | 29.21 | 10,000 | 0 | 2021 | | 2024.02.24 | Àü¼¼ | ´õ½ºÅ×ÀÌ(2748-3) | 2 | 23.19 | 6,000 | 0 | 2019 | | 2024.02.24 | ¿ù¼¼ | (2260-7) | 6 | 28.11 | 1,000 | 50 | 2018 | | 2024.02.24 | Àü¼¼ | ´õÀ§µå | 2 | 29.65 | 8,000 | 0 | 2021 | | 2024.02.23 | Àü¼¼ | (2770-9) | 2 | 24.71 | 4,500 | 0 | 2019 | | 2024.02.22 | ¿ù¼¼ | ¾ÆÀÎÇϿ콺 | 4 | 21.75 | 300 | 35 | 2018 | | 2024.02.22 | ¿ù¼¼ | (1188-3) | 1 | 22.385 | 200 | 40 | 2016 | | 2024.02.22 | Àü¼¼ | (2743-6) | 2 | 22.86 | 5,000 | 0 | 2018 | | 2024.02.22 | ¿ù¼¼ | ´ÙÀο츮°¡2Â÷ | 3 | 31.695 | 500 | 35 | 2019 | | 2024.02.21 | ¿ù¼¼ | ´Ù¼öÄܵµºô | 3 | 36.4 | 3,500 | 15 | 2002 | | 2024.02.21 | ¿ù¼¼ | ºÎ°Å¸¿î | 5 | 66.36 | 2,000 | 80 | 2013 | | 2024.02.20 | ¿ù¼¼ | ½ãºô | 2 | 19.22 | 500 | 350 | 2020 | | 2024.02.20 | ¿ù¼¼ | ºÎ±¤Ä³½½ | 3 | 20.41 | 100 | 30 | 2013 | | 2024.02.20 | ¿ù¼¼ | ±×·¹À̽º | 3 | 27.6 | 500 | 52 | 2019 | | 2024.02.20 | ¿ù¼¼ | Áø¸í | 3 | 42.81 | 500 | 40 | 2018 | | 2024.02.20 | Àü¼¼ | ½Å¼¼°èȨŸ¿î3Â÷Bµ¿ | 2 | 59.09 | 8,600 | 0 | 2002 | | 2024.02.19 | ¿ù¼¼ | (2782-5) | 3 | 19.72 | 200 | 35 | 2018 | | 2024.02.19 | Àü¼¼ | Sºô¶ó | 3 | 29.66 | 4,500 | 0 | 2018 | | 2024.02.19 | ¿ù¼¼ | ´ëdz¾ÆÆ®ºôVI | 4 | 23.27 | 300 | 50 | 2021 | | 2024.02.19 | ¿ù¼¼ | Á¤¿Õµ¿µµ½ÃÇüÁÖÅÃ(À±¹Ì¿Á) | 2 | 15.685 | 200 | 32 | 2021 | | 2024.02.19 | ¿ù¼¼ | ÇູÇÑÁý´Ù¸ð¾Æ | 4 | 28.175 | 500 | 39 | 2018 | | 2024.02.19 | ¿ù¼¼ | (2747-3) | 4 | 18.87 | 300 | 33 | 2019 | | 2024.02.17 | ¿ù¼¼ | ±×·¹À̽º | 4 | 33.03 | 500 | 55 | 2019 | | 2024.02.17 | ¿ù¼¼ | (2308-2) | 2 | 16.009 | 300 | 30 | 2012 | | 2024.02.17 | ¿ù¼¼ | (2775-1) | 3 | 27.018 | 500 | 47 | 2023 | | 2024.02.17 | ¿ù¼¼ | (2760-0) | 4 | 29.96 | 5,000 | 20 | 2018 | | 2024.02.17 | Àü¼¼ | ¿µÁغôµù2 | 4 | 36.88 | 8,400 | 0 | 2018 | | 2024.02.17 | ¿ù¼¼ | (2786-5) | 4 | 21.6 | 200 | 31 | 2018 | | 2024.02.15 | ¿ù¼¼ | ÇϳªÄ³½½ | 2 | 22.32 | 300 | 35 | 2018 | | 2024.02.14 | Àü¼¼ | (2310-9) | 4 | 15.85 | 4,000 | 0 | 2012 | | 2024.02.14 | ¿ù¼¼ | Çϳªºô | 2 | 21.09 | 2,000 | 20 | 2018 | | 2024.02.14 | ¿ù¼¼ | ³ªºñÇϿ콺 | 3 | 19.54 | 300 | 35 | 2019 | | 2024.02.14 | ¿ù¼¼ | Å¿øºô | 3 | 22.27 | 300 | 36 | 2019 | | 2024.02.13 | Àü¼¼ | ÇÑ»ç¶ûºô | 2 | 18.36 | 4,000 | 0 | 2018 | | 2024.02.13 | ¿ù¼¼ | Ȳ±Ý³ëÀ» | 3 | 18.715 | 200 | 27 | 2018 | | 2024.02.13 | ¿ù¼¼ | ´ÙÀÎij½½ | 2 | 16.27 | 300 | 33 | 2018 | | 2024.02.13 | ¿ù¼¼ | Áغô¸®Áö | 2 | 24.14 | 500 | 50 | 2022 | | 2024.02.13 | ¿ù¼¼ | (2746-2) | 4 | 44.58 | 300 | 40 | 2018 | | 2024.02.12 | ¿ù¼¼ | û¼Û | 3 | 25.74 | 500 | 28 | 2015 | | 2024.02.11 | ¿ù¼¼ | º£Àϸ® | 2 | 30.58 | 500 | 40 | 2021 | | 2024.02.08 | ¿ù¼¼ | ´ëdz¾ÆÆ®ºôVI | 2 | 19.7 | 300 | 45 | 2021 | | 2024.02.08 | ¿ù¼¼ | (2763-4) | 2 | 19.575 | 300 | 33 | 2018 | | 2024.02.08 | ¿ù¼¼ | (2296-4) | 4 | 15.18 | 2,000 | 20 | 2013 | | 2024.02.07 | ¿ù¼¼ | ´õ½ºÅ×ÀÌ(2785-4) | 3 | 30.76 | 8,000 | 10 | 2020 | | 2024.02.07 | ¿ù¼¼ | ¼¼ºìÇÏÀÌÃ÷2 | 4 | 20.998 | 300 | 40 | 2020 | | 2024.02.06 | ¿ù¼¼ | È£¼öµå¸²ºô | 3 | 18.6 | 300 | 31 | 2018 | | 2024.02.05 | ¿ù¼¼ | ´õÇϿ콺 | 4 | 27.39 | 500 | 48 | 2020 | | 2024.02.05 | ¿ù¼¼ | (2001-2) | 3 | 13.73 | 100 | 30 | 2012 | | 2024.02.05 | ¿ù¼¼ | (2751-6) | 3 | 22.2 | 500 | 40 | 2023 | | 2024.02.04 | ¿ù¼¼ | ³ªÆú¸® | 3 | 28.88 | 300 | 48 | 2018 | | 2024.02.03 | ¿ù¼¼ | ´õ½ºÅ×ÀÌ | 4 | 29.4 | 500 | 60 | 2020 | | 2024.02.03 | Àü¼¼ | ´õ½ºÅ×ÀÌ(2785-4) | 4 | 30.76 | 8,000 | 0 | 2020 | | 2024.02.03 | ¿ù¼¼ | (2771-13) | 4 | 96.01 | 10,000 | 90 | 2020 | | 2024.02.02 | ¿ù¼¼ | (2764-1) | 4 | 20.47 | 300 | 33 | 2021 | | 2024.02.01 | ¿ù¼¼ | ÇØ°¡µæ | 4 | 20.75 | 700 | 33 | 2020 | | 2024.01.31 | ¿ù¼¼ | ±×·¹À̽ººô | 2 | 26.19 | 500 | 52 | 2020 | | 2024.01.31 | ¿ù¼¼ | (2782-5) | 2 | 26.28 | 300 | 35 | 2018 | | 2024.01.30 | ¿ù¼¼ | ÇØÇǺô¸®Áö | 2 | 17.57 | 100 | 38 | 2018 | | 2024.01.30 | ¿ù¼¼ | (2790-2) | 2 | 16.79 | 300 | 30 | 2018 | | 2024.01.29 | ¿ù¼¼ | ¼ÇذñµçŸ¿î(1982-11) | 2 | 59.38 | 2,000 | 60 | 2002 | | 2024.01.29 | ¿ù¼¼ | GOLDVIEW | 3 | 19.77 | 300 | 31 | 2018 | | 2024.01.29 | ¿ù¼¼ | ´Ù¿Âºô¶ó | 2 | 20.12 | 1,700 | 23 | 2018 | | 2024.01.28 | ¿ù¼¼ | (2751-6) | 3 | 34.77 | 1,000 | 60 | 2023 | | 2024.01.27 | ¿ù¼¼ | (2794-7) | 3 | 21.26 | 300 | 35 | 2018 | | 2024.01.27 | ¿ù¼¼ | (2796-10) | 2 | 21.72 | 500 | 41 | 2023 | | 2024.01.26 | ¿ù¼¼ | (2781-4) | 2 | 37.97 | 1,000 | 65 | 2021 | | 2024.01.24 | ¿ù¼¼ | (2797-3) | 2 | 17.28 | 300 | 34 | 2018 | | 2024.01.24 | ¿ù¼¼ | ´õÆÓ¸®½º¥± | 3 | 23.31 | 500 | 51 | 2018 | | 2024.01.24 | ¿ù¼¼ | (2796-10) | 3 | 21.72 | 500 | 45 | 2023 | | 2024.01.24 | Àü¼¼ | -2793 | 4 | 20.83 | 7,800 | 0 | 2019 | | 2024.01.23 | ¿ù¼¼ | (2758-4) | 2 | 32.31 | 500 | 64 | 2020 | | 2024.01.23 | ¿ù¼¼ | ´Ù¿ø | 3 | 20.58 | 300 | 36 | 2018 | | 2024.01.23 | ¿ù¼¼ | (2747-3) | 2 | 18.87 | 200 | 35 | 2019 | | 2024.01.22 | Àü¼¼ | Å©¸®½ºÅ» | 4 | 48.18 | 10,000 | 0 | 2018 | | 2024.01.22 | ¿ù¼¼ | Å¿øºô | 3 | 26.47 | 500 | 60 | 2019 | | 2024.01.20 | ¿ù¼¼ | ¼¿øÇϿ콺 | 2 | 31.55 | 500 | 50 | 2018 | | 2024.01.20 | ¿ù¼¼ | (2762-1) | 3 | 19.05 | 300 | 33 | 2020 | | 2024.01.19 | Àü¼¼ | ´ëdz¾ÆÆ®ºô | 2 | 23.6 | 4,000 | 0 | 2018 | | 2024.01.18 | ¿ù¼¼ | (2751-6) | 4 | 26.72 | 500 | 50 | 2023 | | 2024.01.17 | ¿ù¼¼ | Sºô¶ó(2761-4) | 2 | 24.84 | 300 | 36 | 2018 | | 2024.01.17 | ¿ù¼¼ | ´õÇϿ콺 | 2 | 26.83 | 500 | 45 | 2020 | | 2024.01.16 | Àü¼¼ | (2299-3) | 2 | 28.57 | 10,000 | 0 | 2016 | | 2024.01.15 | ¿ù¼¼ | ´õȨºô¶ó | 3 | 21.95 | 300 | 41 | 2020 | | 2024.01.15 | Àü¼¼ | ¿µÁغôµù2 | 2 | 36.88 | 8,400 | 0 | 2018 | | 2024.01.15 | ¿ù¼¼ | (2767-1) | 3 | 21.35 | 2,160 | 8 | 2020 | | 2024.01.15 | ¿ù¼¼ | °¡¿Âºô¸®Áö | 2 | 34.44 | 500 | 55 | 2018 | | 2024.01.15 | ¿ù¼¼ | ºÎ°Å¸¿î | 3 | 16.32 | 200 | 30 | 2013 | | 2024.01.13 | ¿ù¼¼ | (2001-2) | 3 | 14.24 | 300 | 27 | 2012 | | 2024.01.13 | ¿ù¼¼ | (2001-2) | 3 | 14.24 | 300 | 27 | 2012 | | 2024.01.13 | ¿ù¼¼ | (1984-5) | 5 | 40.91 | 2,000 | 55 | 2012 | | 2024.01.13 | ¿ù¼¼ | ´ëdz¾ÆÆ®ºô¥² | 2 | 27.18 | 300 | 55 | 2020 | | 2024.01.13 | ¿ù¼¼ | (2790-3) | 3 | 26.1 | 2,000 | 45 | 2021 | | 2024.01.12 | ¿ù¼¼ | ÁغôII | 2 | 38.75 | 500 | 65 | 2020 | | 2024.01.12 | ¿ù¼¼ | ºê¸¯ºô | 4 | 28.31 | 1,000 | 45 | 2020 | | 2024.01.10 | ¿ù¼¼ | ´õ½ºÅ×ÀÌ(2748-3) | 4 | 19.31 | 200 | 27 | 2019 | | 2024.01.10 | ¿ù¼¼ | (2762-1) | 4 | 14.43 | 300 | 33 | 2020 | | 2024.01.10 | ¿ù¼¼ | (2749-1) | 4 | 27.26 | 500 | 55 | 2022 | | 2024.01.09 | ¿ù¼¼ | (2745-3) | 3 | 28.1 | 500 | 55 | 2021 | | 2024.01.09 | ¿ù¼¼ | û¼Û¾ÆÆ®ºô | 2 | 35.51 | 500 | 65 | 2018 | | 2024.01.09 | ¿ù¼¼ | ÇູȨŸ¿î | 3 | 22.15 | 500 | 35 | 2014 | | 2024.01.08 | Àü¼¼ | (2310-9) | 4 | 15.85 | 4,000 | 0 | 2012 | | 2024.01.08 | Àü¼¼ | (2790-3) | 3 | 18.9 | 5,000 | 0 | 2021 | | 2024.01.08 | ¿ù¼¼ | ½ãºô | 3 | 21.95 | 300 | 45 | 2020 | | 2024.01.08 | ¿ù¼¼ | ±×·¹À̽ººô | 3 | 18.52 | 500 | 42 | 2020 | | 2024.01.06 | ¿ù¼¼ | BrownHill | 4 | 31.12 | 1,500 | 45 | 2018 | | 2024.01.05 | ¿ù¼¼ | ÆÛ½ºÆ®ºô | 4 | 24.14 | 300 | 9 | 2019 | | 2024.01.05 | ¿ù¼¼ | (2751-6) | 2 | 26.72 | 500 | 40 | 2023 | | 2024.01.04 | Àü¼¼ | (2750-1) | 4 | 33.2 | 7,875 | 0 | 2018 | | 2024.01.03 | ¿ù¼¼ | Á¤¿Õµ¿µµ½ÃÇüÁÖÅÃ(À±¹Ì¿Á) | 4 | 29.79 | 500 | 60 | 2021 | | 2024.01.03 | ¿ù¼¼ | Á¤¿Õµ¿µµ½ÃÇüÁÖÅÃ(À±¹Ì¿Á) | 4 | 16.16 | 300 | 33 | 2021 | | 2024.01.02 | ¿ù¼¼ | (1989-6) | 3 | 30.96 | 500 | 56 | 2015 | | 2024.01.02 | Àü¼¼ | ±Û·Î¹úºô¸®Áö | 4 | 31.4 | 8,500 | 0 | 2018 |
|
|
|
 |
ÀÓÂ÷³»¿ª |
[¹è´ç¿ä±¸Á¾±âÀÏ : 2025/04/30] |
|
|
| ÀÓÂ÷ÀÎ |
Á¡À¯°ü°è |
ÀüÀÔÀÏÀÚ |
È®Á¤ÀÏÀÚ |
¹è´ç¿ä±¸ÀÏ |
º¸Áõ±Ý/Â÷ÀÓ |
´ëÇ׿ä°Ç |
ºñ°í |
| ÁÖOOOOOOOOOOOOOOO |
ÀüÀ¯ºÎºÐÀüºÎ |
2021.04.01. |
2021.03.02. |
|
215,000,000
|
O |
2021.04.01.~ |
| ¸Å°¢¹°°Ç¸í¼¼ ºñ°í |
ÁÖÅõµ½Ãº¸Áõ°ø»ç(ÀÓÂ÷ÀÎ Á¶Áø¿ì):
¨ç°æ¸Å½Åûä±ÇÀڷμ `ÁÖÅÃÀÓ´ëÂ÷º¸È£¹ý` Á¦3Á¶ÀÇ 2 Á¦7Ç× Á¦9È£ÀÇ ¾ç¼öÀÎÀÓ
¨èÀÓÂ÷ÀÎ`Á¶Áø¿ì`´Â ÁÖÅÃÀÓÂ÷±ÇÀڷμ ÁÖÅÃÀÓÂ÷±Çµî±âÀÏÀº 2023.05.26.ÀÓ |
|
|
|
 |
Áö¿ªºÐ¼® |
|
|
|
|
| ÁöÇÏö |
|
Çб³ |
|
| °ü°ø¼ |
|
| ¹ý¿ø |
¼ö¿øÁö¹æ¹ý¿ø ¾È»êÁö¿ø (140-54)°æ±âµµ ¾È»ê½Ã ´Ü¿ø±¸ ±¤´ö¼·Î 75 (°íÀܵ¿) ´ëÇ¥ : 031)481-1114, ¹Î¿ø : 031)481-1238, ¾ß°£ : 031)481-1112 ¾È»ê½Ã, ±¤¸í½Ã, ½ÃÈï½Ã |
| µî±â¼Ò |
¼ö¿øÁö¹æ¹ý¿ø ¾È»êÁö¿ø ½ÃÈïµî±â¼Ò (´ëÇ¥:1544-0773, ÆÑ½º:(031)317-8903, 8904, °æ±âµµ ½ÃÈï½Ã ¿¬¼º·Î 31 (ÇÏÁßµ¿ 872-1)) |
| ¼¼¹«¼ |
½ÃÈï¼¼¹«¼ (´ëÇ¥:031-310-72, ÆÑ½º:02-314-3973, °æ±âµµ ½ÃÈï½Ã ¸¶À¯·Î 368 (Á¤¿Õµ¿)) |
|
|
|
 |
¹ý¿ø ¹°°ÇÀÚ·á ¿ä¾à |
|
|
|
|
| ¼Ò¸êµÇÁö ¾Ê´Â µî±âºÎ±Ç¸® |
¸Å¼öÀο¡°Ô ´ëÇ×ÇÒ ¼ö ÀÖ´Â ÁÖÅÃÀÓÂ÷±ÇÀÚ(À»±¸1¹ø) ÀÖÀ½(ÀÓ´ëÂ÷º¸Áõ±Ý:215,000,000¿ø/ ÀüÀÔÀÏÀÚ:2021.04.01./ È®Á¤ÀÏÀÚ:2021 .03.02.)
¹è´ç¿¡¼ º¸Áõ±ÝÀÌ Àü¾× º¯Á¦µÇÁö ¾Ê´Â °æ¿ì Àܾ×À» ¸Å¼öÀÎÀÌ ÀμöÇÏ¿©¾ß ÇÔ |
| ¼³Á¤µÈ °ÍÀ¸·Î º¸´Â Áö»ó±Ç |
|
| ¹ý¿øÀÚ·á Æ¯ÀÌ»çÇ× |
|
| ¿©ÀÇÁÖ°æ¸Å Á¶¾ð ÇѸ¶µð |
ÀÌ ºÎµ¿»êÀÇ ÀÔÂû¹ý¿øÀº ¼ö¿øÁö¹æ¹ý¿ø ¾È»êÁö¿øÀÔ´Ï´Ù.
ÀÔÂûÀÏÀº 2026-01-22ÀÔ´Ï´Ù.
ÀÔÂû½Ã°£Àº ~11:00ÀÔ´Ï´Ù. ÀÌ ¹ý¿ø¿¡´Â ½ÅÇÑÀºÇàÀÌ ÀÔÁ¡Çϰí ÀÖ½À´Ï´Ù.
|
|
|
| Åë°è±â°£ |
³«Âû¹°°Ç¼ö |
Æò±Õ°¨Á¤°¡ |
Æò±Õ³«Âû°¡ |
³«Âû°¡À² |
À¯ÂûȽ¼ö |
| 3°³¿ù |
14°Ç |
298,642,857¿ø |
176,978,271¿ø |
64% |
3ȸ |
| 6°³¿ù |
21°Ç |
249,285,714¿ø |
148,329,339¿ø |
63% |
2.8ȸ |
| 12°³¿ù |
63°Ç |
170,396,825¿ø |
102,772,728¿ø |
60% |
2.5ȸ |
|
|
|
|
|
|
 |
|