|
|
| ¼ÒÀçÁö |
¼¿ïƯº°½Ã °µ¿±¸ ¾çÀç´ë·Î102±æ 17, 8Ãþ803È£ (µÐÃ̵¿,ÇÑ¿ïµÐÃ̺£¾ÆÃ¼)
±¸)¼¿ïƯº°½Ã °µ¿±¸ µÐÃ̵¿ 435-1
|
|
| »ç°Ç¹øÈ£ |
2024 Ÿ°æ 63165 |
¹°°Ç¹øÈ£ |
1
|
¹°°Ç¿ëµµ |
¿ÀÇǽºÅÚ |
| °¨Á¤Æò°¡¾× |
328,000,000¿ø |
°æ¸Å´ë»ó |
ÅäÁö ¹× °Ç¹°Àϰý ¸Å°¢ |
ÁøÇà»óÅ |
À¯Âû |
| ÃÖÀúÀÔÂû°¡ |
(80%) 262,400,000¿ø
|
°Ç¹°¸éÀû |
27.54§³(8.33Æò) |
ÀÔÂû±âÀÏ |
2025.12.08(¿ù) 10:00
(¿À´ÃÀÔÂû)
|
| ÀÔÂûº¸Áõ±Ý |
(10%) 26,240,000¿ø |
ÅäÁö¸éÀû |
9.20§³(2.78Æò)
|
À¯ÂûȽ¼ö |
1ȸ |
| ÀÔÂû¹ý¿ø |
¼¿ïµ¿ºÎÁö¹æ¹ý¿ø |
°æ¸Å¹æ¹ý |
|
¹°°ÇÁ¶È¸¼ö |
¿À´Ã: 5ȸ [´©Àû: 59ȸ]
|
| ¸»¼Ò±âÁØ | ÃÖ¼±¼øÀ§ ¼³Á¤ : 2024.10.25.°æ¸Å°³½Ã°áÁ¤ ¼³Á¤
|
|
|
|
|
|
|
|
|
|
|
°æ¸Å´ë»ó ¸ñ·Ï
|
|
| ±¸ºÐ |
¸ñ·Ï |
ÁÖ¼Ò |
±¸Á¶/¿ëµµ/´ëÁö±Ç |
ºñ°í |
´ëÁö±Ç
|
1 |
µÐÃ̵¿ 435-1 |
411.3ºÐÀÇ 9.2 |
9.2§³ (2.78Æò)
|
°Ç¹°
|
1 |
µÐÃ̵¿ 435-1 |
8Ãþ803È£ ö±ÙÄÜÅ©¸®Æ®±¸Á¶ |
27.54§³ (8.33Æò)
|
|
|
|
2025-11-03
À¯Âû
|
(100%)
328,000,000¿ø
|
|
|
|
2025-12-08
ÁøÇà
|
(80%)
262,400,000¿ø
|
|
|
|
|
|
°¨Á¤Æò°¡¼ ¿ä¾à |
|
[À§Ä¡/ÁÖÀ§È¯°æ]
º»°ÇÀº ¼¿ïƯº°½Ã °µ¿±¸ µÐÃ̵¿ ¼ÒÀç "ÇÑ»êÁßÇб³" ºÏ¼Ãø ±Ù°Å¸®¿¡ À§Ä¡Çϸç, ÁÖÀ§´Â ¾ÆÆÄÆ®´ÜÁö, ¿ÀÇǽºÅÚ ¹× °¢Á¾ ±Ù¸°»ýȰ½Ã¼³ µîÀÌ È¥ÀçÇÏ´Â Áö¿ªÀ¸·Î¼, Á¦¹Ý ÁÖÀ§È¯°æÀº º¸Åë½Ã µÊ.
[±³Åë»óȲ]
º»°Ç±îÁö Â÷·® ÁøÃâÀÔÀÌ ¿ëÀÌÇϸç, Àαٿ¡ ¹ö½ºÁ¤·ùÀåÀÌ ¼ÒÀçÇÏ´Â µî ´ëÁß±³Åë ÀÌ¿ë ÆíÀǵµ´Â º¸Åë½Ã µÊ.
[°Ç¹°±¸Á¶]
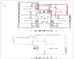
ö±ÙÄÜÅ©¸®Æ®±¸Á¶ Æò½º¶óºêÁöºØ ÁöÇÏ1Ãþ/Áö»ó12Ãþ °Ç¹° ³» Á¦8Ãþ Á¦803È£·Î¼,
¿Üº® : ¼®¹è ºÙÀÓ ¸¶°¨ µî,
³»º® : º®Áö ¹× ÀϺΠŸÀϺÙÀÓ ¸¶°¨ µî,
âȣ : ÇÏÀ̼¦½Ãâȣ ¸¶°¨ÀÓ.
[ÀÌ¿ë»óÅÂ]
¿ÀÇǽºÅÚ·Î ÀÌ¿ëÁßÀÓ.
[¼³ºñ³»¿ª]
±âº»Àû À§»ý¼³ºñ, ±Þ¹è¼ö¼³ºñ, ½Â°±â¼³ºñ, ÈÀçŽÁö½Ã¼³, ±â°è½Ä ÁÖÂ÷Àå¼³ºñ µîÀÌ °®Ãß¾îÁ® ÀÖÀ½.
[ÅäÁöÇü»ó/ÀÌ¿ë»óÅÂ]
2ÇÊÁö ÀÏ´ÜÀÇ Á¤¹æÇü ÅäÁö·Î¼, ¿ÀÇǽºÅÚ ¹× ±Ù¸°»ýȰ½Ã¼³ °ÇºÎÁö·Î ÀÌ¿ëÁßÀÓ.
7)ÀÎÁ¢ µµ·Î»óŵî
º»°Ç ³²ÃøÀ¸·Î ³ëÆø ¾à 10m, µ¿ÃøÀ¸·Î ³ëÆø ¾à 6m ³»¿ÜÀÇ µµ·Î¿Í °¢°¢ Á¢ÇÔ.
[ÅäÁöÀÌ¿ë°èȹ]
£¼435-1£¾
µµ½ÃÁö¿ª , ÁØÁÖ°ÅÁö¿ª(2004-11-05) , Áö±¸´ÜÀ§°èȹ±¸¿ª(õȣÁö±¸) , ¼Ò·Î1·ù(Æø 10m-12m)(Á¢ÇÕ), °¡Ãà»çÀ°Á¦Çѱ¸¿ª(2014-06-25)£¼°¡ÃàºÐ´¢ÀÇ °ü¸® ¹× À̿뿡 °üÇÑ ¹ý·ü£¾, ±³À°È¯°æº¸È£±¸¿ª£¼±³À°È¯°æ º¸È£¿¡ °üÇÑ ¹ý·ü£¾, ´ë°ø¹æ¾îÇùÁ¶±¸¿ª(À§Å¹°íµµ:ÇØ¹ß163m(Áö¹Ý+°ÇÃà+¿Áž µî))£¼±º»ç±âÁö ¹× ±º»ç½Ã¼³ º¸È£¹ý£¾, ºñÇà¾ÈÀüÁ¦3±¸¿ª(Àü¼ú)£¼±º»ç±âÁö ¹× ±º»ç½Ã¼³ º¸È£¹ý£¾, °ú¹Ð¾ïÁ¦±Ç¿ª£¼¼öµµ±ÇÁ¤ºñ°èȹ¹ý£¾, °øÀå¼³¸³½ÂÀÎÁö¿ª(2016-11-28)(2È£)£¼¼öµµ¹ý£¾ÀÓ.
£¼435£¾
µµ½ÃÁö¿ª , ÁØÁÖ°ÅÁö¿ª(2004-11-05) , Áö±¸´ÜÀ§°èȹ±¸¿ª(õȣÁö±¸) , ¼Ò·Î1·ù(Æø 10m-12m)(Á¢ÇÕ) , ¼Ò·Î3·ù(Æø 8m ¹Ì¸¸)(Á¢ÇÕ), °¡Ãà»çÀ°Á¦Çѱ¸¿ª(2014-06-25)£¼°¡ÃàºÐ´¢ÀÇ °ü¸® ¹× À̿뿡 °üÇÑ ¹ý·ü£¾, ±³À°È¯°æº¸È£±¸¿ª£¼±³À°È¯°æ º¸È£¿¡ °üÇÑ ¹ý·ü£¾, ´ë°ø¹æ¾îÇùÁ¶±¸¿ª(À§Å¹°íµµ:ÇØ¹ß163m(Áö¹Ý+°ÇÃà+¿Áž µî))£¼±º»ç±âÁö ¹× ±º»ç½Ã¼³ º¸È£¹ý£¾, ºñÇà¾ÈÀüÁ¦3±¸¿ª(Àü¼ú)£¼±º»ç±âÁö ¹× ±º»ç½Ã¼³ º¸È£¹ý£¾, °ú¹Ð¾ïÁ¦±Ç¿ª£¼¼öµµ±ÇÁ¤ºñ°èȹ¹ý£¾, °øÀå¼³¸³½ÂÀÎÁö¿ª(2016-11-28)(2È£)£¼¼öµµ¹ý£¾ÀÓ.
[°øºÎ¿ÍÀÇ Â÷ÀÌ]
-
[Âü°í»çÇ×]
¹Ì»óÀÓ. |
|
|
°ÇÃ๰ÇöȲ |
|
|
|
| ¼ÒÀçÁö |
¼¿ïƯº°½Ã °µ¿±¸ µÐÃ̵¿ 435-1¹øÁö |
| ´ëÁö¸éÀû |
411.3§³(124.64Æò) |
¿¬¸éÀû |
1659.22§³(502.79Æò) |
ÁÖ¿ëµµ |
¾÷¹«½Ã¼³ |
| °ÇÃà¸éÀû |
200.05§³(60.62Æò) |
¿ëÀû·ü»êÁ¤¿¬¸éÀû |
1475.36§³(447.08Æò) |
Âø°øÀÏÀÚ |
2019.09.16 |
| °ÇÆóÀ² |
48.64% |
¿ëÀû·ü |
358.71% |
»ç¿ë½ÂÀÎÀÏÀÚ |
2021.07.20 |
| Áö»óÃþ¼ö |
12Ãþ |
ÁöÇÏÃþ¼ö |
1Ãþ |
±¸Á¶ |
ö±ÙÄÜÅ©¸®Æ®±¸Á¶ |
°ÇÃ๰Ãþº°ÇöȲ [º¸±â]| Ãþº° | ±¸Á¶ | ¿ëµµ | ¸éÀû | | 1Ãþ | ö±ÙÄÜÅ©¸®Æ®±¸Á¶ | ±â°è½Ä ÁÖÂ÷ | 49.5§³ (15Æò) | | 1Ãþ | ö±ÙÄÜÅ©¸®Æ®±¸Á¶ | ±â°è½Ä ÁÖÂ÷ | 49.5§³ (15Æò) | | 1Ãþ | ö±ÙÄÜÅ©¸®Æ®±¸Á¶ | °è´Ü½Ç | 14.48§³ (4.39Æò) | | 1Ãþ | ö±ÙÄÜÅ©¸®Æ®±¸Á¶ | °è´Ü½Ç | 14.48§³ (4.39Æò) | | 2Ãþ | ö±ÙÄÜÅ©¸®Æ®±¸Á¶ | ¿ÀÇǽºÅÚ(4È£) | 138.24§³ (41.89Æò) | | 2Ãþ | ö±ÙÄÜÅ©¸®Æ®±¸Á¶ | ¿ÀÇǽºÅÚ(4È£) | 138.24§³ (41.89Æò) | | 3Ãþ | ö±ÙÄÜÅ©¸®Æ®±¸Á¶ | ¿ÀÇǽºÅÚ(4È£) | 138.24§³ (41.89Æò) | | 3Ãþ | ö±ÙÄÜÅ©¸®Æ®±¸Á¶ | ¿ÀÇǽºÅÚ(4È£) | 138.24§³ (41.89Æò) | | 4Ãþ | ö±ÙÄÜÅ©¸®Æ®±¸Á¶ | ¿ÀÇǽºÅÚ(4È£) | 138.24§³ (41.89Æò) | | 4Ãþ | ö±ÙÄÜÅ©¸®Æ®±¸Á¶ | ¿ÀÇǽºÅÚ(4È£) | 138.24§³ (41.89Æò) | | 5Ãþ | ö±ÙÄÜÅ©¸®Æ®±¸Á¶ | ¿ÀÇǽºÅÚ(4È£) | 138.24§³ (41.89Æò) | | 5Ãþ | ö±ÙÄÜÅ©¸®Æ®±¸Á¶ | ¿ÀÇǽºÅÚ(4È£) | 138.24§³ (41.89Æò) | | 6Ãþ | ö±ÙÄÜÅ©¸®Æ®±¸Á¶ | ¿ÀÇǽºÅÚ(4È£) | 138.24§³ (41.89Æò) | | 6Ãþ | ö±ÙÄÜÅ©¸®Æ®±¸Á¶ | ¿ÀÇǽºÅÚ(4È£) | 138.24§³ (41.89Æò) | | 7Ãþ | ö±ÙÄÜÅ©¸®Æ®±¸Á¶ | ¿ÀÇǽºÅÚ(4È£) | 138.24§³ (41.89Æò) | | 7Ãþ | ö±ÙÄÜÅ©¸®Æ®±¸Á¶ | ¿ÀÇǽºÅÚ(4È£) | 138.24§³ (41.89Æò) | | 8Ãþ | ö±ÙÄÜÅ©¸®Æ®±¸Á¶ | ¿ÀÇǽºÅÚ(4È£) | 138.24§³ (41.89Æò) | | 8Ãþ | ö±ÙÄÜÅ©¸®Æ®±¸Á¶ | ¿ÀÇǽºÅÚ(4È£) | 138.24§³ (41.89Æò) | | 9Ãþ | ö±ÙÄÜÅ©¸®Æ®±¸Á¶ | ¿ÀÇǽºÅÚ(4È£) | 138.24§³ (41.89Æò) | | 9Ãþ | ö±ÙÄÜÅ©¸®Æ®±¸Á¶ | ¿ÀÇǽºÅÚ(4È£) | 138.24§³ (41.89Æò) | | 10Ãþ | ö±ÙÄÜÅ©¸®Æ®±¸Á¶ | ¿ÀÇǽºÅÚ(4È£) | 138.24§³ (41.89Æò) | | 10Ãþ | ö±ÙÄÜÅ©¸®Æ®±¸Á¶ | ¿ÀÇǽºÅÚ(4È£) | 138.24§³ (41.89Æò) | | 11Ãþ | ö±ÙÄÜÅ©¸®Æ®±¸Á¶ | ¿ÀÇǽºÅÚ(4È£) | 138.24§³ (41.89Æò) | | 11Ãþ | ö±ÙÄÜÅ©¸®Æ®±¸Á¶ | ¿ÀÇǽºÅÚ(4È£) | 138.24§³ (41.89Æò) | | 12Ãþ | ö±ÙÄÜÅ©¸®Æ®±¸Á¶ | ¿ÀÇǽºÅÚ(2È£) | 78.48§³ (23.78Æò) | | 12Ãþ | ö±ÙÄÜÅ©¸®Æ®±¸Á¶ | ¿ÀÇǽºÅÚ(2È£) | 78.48§³ (23.78Æò) | | ¿ÁžÃþ | ö±ÙÄÜÅ©¸®Æ®±¸Á¶ | °è´Ü½Ç(¿¬¸éÀûÁ¦¿Ü) | 14.28§³ (4.33Æò) | | ¿ÁžÃþ | ö±ÙÄÜÅ©¸®Æ®±¸Á¶ | °è´Ü½Ç(¿¬¸éÀûÁ¦¿Ü) | 14.28§³ (4.33Æò) | | Áö1Ãþ | ö±ÙÄÜÅ©¸®Æ®±¸Á¶ | ±â°è½Ç/Àü±â½Ç/°è´Ü½Ç | 67.28§³ (20.39Æò) | | Áö1Ãþ | ö±ÙÄÜÅ©¸®Æ®±¸Á¶ | Á¦1Á¾±Ù¸°»ýȰ½Ã¼³(¼Ò¸ÅÁ¡) | 67.08§³ (20.33Æò) | | Áö1Ãþ | ö±ÙÄÜÅ©¸®Æ®±¸Á¶ | ±â°è½Ç/Àü±â½Ç/°è´Ü½Ç | 67.28§³ (20.39Æò) | | Áö1Ãþ | ö±ÙÄÜÅ©¸®Æ®±¸Á¶ | Á¦1Á¾±Ù¸°»ýȰ½Ã¼³(¼Ò¸ÅÁ¡) | 67.08§³ (20.33Æò) |
|
|
|
|
|
|
|
|
|
¸éÀû(§³), ±Ý¾×(¸¸¿ø)
| °è¾àÀÏ | ±âÁØ | °Ç¹°¸íĪ | Ãþ | Àü¿ë¸éÀû | °Å·¡±Ý¾× | °ÇÃà³âµµ | | °Å·¡³»¿ªÀÌ ¾ø½À´Ï´Ù. |
| °è¾àÀÏ | ±âÁØ | °Ç¹°¸íĪ | Ãþ | Àü¿ë¸éÀû | º¸Áõ±Ý | ¿ù¼¼ | °ÇÃà³âµµ | | 2025.11.07 | Àü¼¼ | ÇÑ¿ïµÐÃ̺£¾ÆÃ¼ | 7 | 27.95 | 20,250 | 0 | 2021 | | 2025.07.17 | ¿ù¼¼ | ÇÑ¿ïµÐÃ̺£¾ÆÃ¼ | 12 | 27.95 | 5,000 | 116 | 2021 | | 2024.02.20 | Àü¼¼ | ÇÑ¿ïµÐÃ̺£¾ÆÃ¼ | 12 | 27.41 | 30,000 | 0 | 2021 |
|
|
|
 |
ÀÓÂ÷³»¿ª |
[¹è´ç¿ä±¸Á¾±âÀÏ : 2025/01/13] |
|
|
| ÀÓÂ÷ÀÎ |
Á¡À¯°ü°è |
ÀüÀÔÀÏÀÚ |
È®Á¤ÀÏÀÚ |
¹è´ç¿ä±¸ÀÏ |
º¸Áõ±Ý/Â÷ÀÓ |
´ëÇ׿ä°Ç |
ºñ°í |
| ½ÉOOOOOOOOOOOOO |
803È£27.54§³ÀüºÎ |
2022.08.31. |
2022.07.21. |
|
325,000,000
|
O |
|
| ÁÖOOOOOOOOOOOO |
803È£ |
2022.08.31. |
2022.07.21. |
2024.10.24. |
325,000,000
|
O |
2022.07.21.~2024.07.20. |
| ¸Å°¢¹°°Ç¸í¼¼ ºñ°í |
½É»ó¹Ì(UH SANG MI) : ÁÖÅÃÀÓÂ÷±ÇÀڷμ ÀÓÂ÷±Çµî±âÀÏÀº 2023.9.11.ÀÓ
ÁÖÅõµ½Ãº¸Áõ°ø»ç(½É»ó¹Ì) : ½Åûä±ÇÀÚ·Î ÀÓÂ÷±ÇÀÚ ½É»ó¹ÌÀÇ ÀÓÂ÷º¸Áõ±ÝÀ» ´ëÀ§º¯Á¦ÇÔ. ¹è´ç¿ä±¸ÀÏÀÚ´Â °æ¸Å½ÅûÀÏÀÓ |
|
|
|
 |
Áö¿ªºÐ¼® |
|
|
|
|
| ÁöÇÏö |
|
Çб³ |
|
| °ü°ø¼ |
|
| ¹ý¿ø |
¼¿ïµ¿ºÎÁö¹æ¹ý¿ø (058-56)¼¿ïƯº°½Ã ¼ÛÆÄ±¸ ¹ý¿ø·Î 101 (¹®Á¤µ¿) ´ëÇ¥ : 02)2204-2114, ¾ß°£ : 02)2204-2701 ¼ºµ¿±¸, ±¤Áø±¸, °µ¿±¸, ¼ÛÆÄ±¸ |
| µî±â¼Ò |
¼¿ïµ¿ºÎÁö¹æ¹ý¿ø º»¿ø µî±â±¹ (´ëÇ¥:1544-0773, ÆÑ½º:(02)2204-2181, ¼¿ïƯº°½Ã ¼ÛÆÄ±¸ ¹ý¿ø·Î 101 (¹®Á¤µ¿ 650)) |
| ¼¼¹«¼ |
°µ¿¼¼¹«¼ (´ëÇ¥:02-2224-02, ÆÑ½º:02-489-3251, ¼¿ïƯº°½Ã °µ¿±¸ õȣ´ë·Î 1139 (±æµ¿)) |
|
|
|
 |
¹ý¿ø ¹°°ÇÀÚ·á ¿ä¾à |
|
|
|
|
| ¼Ò¸êµÇÁö ¾Ê´Â µî±âºÎ±Ç¸® |
2023. 9. 11. Á¢¼ö Á¦134966È£·Î °æ·áµÈ À»±¸5¹ø ÁÖÅÃÀÓÂ÷±Çµî±â´Â ¹è´ç¿¡¼ Àü¾× º¯Á¦¹ÞÁö ¾ÊÀ¸¸é Àܾ×À» ¸Å¼öÀÎÀÌ ÀμöÇÔ |
| ¼³Á¤µÈ °ÍÀ¸·Î º¸´Â Áö»ó±Ç |
ÇØ´ç»çÇ×¾øÀ½ |
| ¹ý¿øÀÚ·á Æ¯ÀÌ»çÇ× |
|
| ¿©ÀÇÁÖ°æ¸Å Á¶¾ð ÇѸ¶µð |
ÀÌ ºÎµ¿»êÀÇ ÀÔÂû¹ý¿øÀº ¼¿ïµ¿ºÎÁö¹æ¹ý¿øÀÔ´Ï´Ù.
ÀÔÂûÀÏÀº 2025-12-08ÀÔ´Ï´Ù.
ÀÔÂû½Ã°£Àº ~11:10ÀÔ´Ï´Ù. ÀÌ ¹ý¿ø¿¡´Â ½ÅÇÑÀºÇàÀÌ ÀÔÁ¡Çϰí ÀÖ½À´Ï´Ù.
|
¼±¼øÀ§ ÀÓÂ÷±Çµî±â°¡ µÇ¾î ÀÖ½À´Ï´Ù ´ëÇ×·ÂÀÌ ÀÖ´Â ¼±¼øÀ§ ÀÓÂ÷±Çµî±â ±Ç¸®ÀÚ°¡ ¹è´çÀ» Àü¾× ¹ÞÁö ¸øÇÒ °æ¿ì ³«ÂûÀÚ°¡ ÀÜ¿© º¸Áõ±ÝÀ» ÀμöÇØ¾ßÇÏ´Â °æ¿ìµµ ÀÖ½À´Ï´Ù. |
|
|
| Åë°è±â°£ |
³«Âû¹°°Ç¼ö |
Æò±Õ°¨Á¤°¡ |
Æò±Õ³«Âû°¡ |
³«Âû°¡À² |
À¯ÂûȽ¼ö |
| 3°³¿ù |
2°Ç |
139,500,000¿ø |
118,135,000¿ø |
86% |
3.5ȸ |
| 6°³¿ù |
6°Ç |
161,666,667¿ø |
136,482,707¿ø |
86% |
1.8ȸ |
| 12°³¿ù |
13°Ç |
222,000,000¿ø |
170,984,394¿ø |
78% |
3.4ȸ |
|
|
|
|
|
|
 |
|