|
|
| ¼ÒÀçÁö |
ÀÎõ±¤¿ª½Ã ³²µ¿±¸ ¼±¼öÃ̰ø¿ø·Î 96, 206µ¿ 3Ãþ301È£ (±¸¿ùµ¿,±¸¿ù¾Æ½Ã¾Æµå¼±¼öÃÌ2´ÜÁö)
±¸)ÀÎõ±¤¿ª½Ã ³²µ¿±¸ ±¸¿ùµ¿ 1485
|
|
| »ç°Ç¹øÈ£ |
2024 Ÿ°æ 12356 Áߺ¹ 2024Ÿ°æ562875, |
¹°°Ç¹øÈ£ |
1
|
¹°°Ç¿ëµµ |
¾ÆÆÄÆ® |
| °¨Á¤Æò°¡¾× |
323,000,000¿ø |
°æ¸Å´ë»ó |
ÅäÁö ¹× °Ç¹°Àϰý ¸Å°¢ |
ÁøÇà»óÅ |
½Å°Ç |
| ÃÖÀúÀÔÂû°¡ |
(100%) 323,000,000¿ø
|
°Ç¹°¸éÀû |
51.95§³(15.71Æò) |
ÀÔÂû±âÀÏ |
2025.11.11(È) 10:00
(ÀÔÂû 6ÀÏÀü)
|
| ÀÔÂûº¸Áõ±Ý |
(10%) 32,300,000¿ø |
ÅäÁö¸éÀû |
40.78§³(12.34Æò)
|
À¯ÂûȽ¼ö |
0ȸ |
| ÀÔÂû¹ý¿ø |
ÀÎõÁö¹æ¹ý¿ø |
°æ¸Å¹æ¹ý |
|
¹°°ÇÁ¶È¸¼ö |
¿À´Ã: 5ȸ [´©Àû: 35ȸ]
|
| ¸»¼Ò±âÁØ | ÃÖ¼±¼øÀ§ ¼³Á¤ : 2015.10.05. ±ÙÀú´ç ¼³Á¤
|
|
|
|
|
|
|
|
|
|
|
°æ¸Å´ë»ó ¸ñ·Ï
|
|
| ±¸ºÐ |
¸ñ·Ï |
ÁÖ¼Ò |
±¸Á¶/¿ëµµ/´ëÁö±Ç |
ºñ°í |
´ëÁö±Ç
|
1 |
±¸¿ùµ¿ 1485 |
28722.9ºÐÀÇ 40.7831 |
40.7831§³ (12.34Æò)
|
°Ç¹°
|
1 |
±¸¿ùµ¿ 1485 |
206µ¿ 3Ãþ301È£ ö±ÙÄÜÅ©¸®Æ®±¸Á¶ |
51.95§³ (15.71Æò)
|
|
|
|
2025-11-11
ÁøÇà
|
(100%)
323,000,000¿ø
|
|
|
|
|
|
°¨Á¤Æò°¡¼ ¿ä¾à |
|
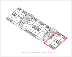
[À§Ä¡/ÁÖÀ§È¯°æ]
º»°ÇÀº ÀÎõ±¤¿ª½Ã ³²µ¿±¸ ±¸¿ùµ¿ ¼ÒÀç "±¸¿ù1µ¿ÇàÁ¤º¹Áö¼¾ÅÍ" ºÏµ¿Ãø Àαٿ¡ À§Ä¡Çϸç, ÁÖ
À§´Â ¾ÆÆÄÆ®´ÜÁö, ±Ù¸°»ýȰ½Ã¼³, °ø¿ø, Çб³ µîÀ¸·Î Çü¼ºµÇ¾î ÀÖÀ½.
[±³Åë»óȲ]
º»°Ç±îÁö Â÷·®ÃâÀÔ °¡´ÉÇϸç, Àαٿ¡ ¹ö½ºÁ¤·ùÀåÀÌ ¼ÒÀçÇÏ´Â µî Á¦¹Ý ±³Åë»çÁ¤Àº º¸ÅëÀÓ.
[°Ç¹°±¸Á¶]
ö±ÙÄÜÅ©¸®Æ®±¸Á¶ (ö±Ù)ÄÜÅ©¸®Æ®ÆòÁöºØ 10Ãþ ³» Á¦3Ãþ Á¦301È£·Î¼,
(»ç¿ë½ÂÀÎÀÏ : 2015.06.02)
¿Üº® : µ¹ºÙÀÓ ¹× ¸ôÅ»À§ ÆäÀÎÆÃ ¸¶°¨.
âȣ : ¼¦½Ã âȣÀÓ.
[ÀÌ¿ë»óÅÂ]
¾ÆÆÄÆ®·Î ÀÌ¿ëÁßÀÓ.
[¼³ºñ³»¿ª]
À§»ý¼³ºñ, ±Þ¹è¼ö¼³ºñ, µµ½Ã°¡½º¼³ºñ, °³º°³¹æ¼³ºñ, ÈÀç°æº¸ ¹× ¼ÒÈÀü¼³ºñ, ½Â°±â¼³ºñ
µîÀÌ µÇ¾î ÀÖÀ½.
[ÅäÁöÇü»ó/ÀÌ¿ë»óÅÂ]
º»°Ç ´ÜÁö´Â ÀÎÁ¢µµ·Î¿Í µî°í ÆòźÇÑ ±¤Æò¼öÀÇ ºÎÁ¤Çü ÅäÁö·Î¼, ¾ÆÆÄÆ® °ÇºÎÁö·Î ÀÌ¿ëÁßÀÓ.
7)ÀÎÁ¢ µµ·Î»óŵî
º»°Ç ´ÜÁö´Â ¼ÃøÀ¸·Î Æø ¾à20¹ÌÅÍ Æ÷Àåµµ·Î¿Í Á¢ÇÔ.
[ÅäÁöÀÌ¿ë°èȹ]
Á¦3Á¾ÀϹÝÁÖ°ÅÁö¿ª, Á¦1Á¾Áö±¸´ÜÀ§°èȹ±¸¿ª(±¸¿ù °ø°øÁÖÅÃ), Áß·Î1·ù(Æø 20m-25m)(Á¢ÇÔ),
°¡Ãà»çÀ°Á¦Çѱ¸¿ª(2013-03-08)(¹®ÀÇ :³²µ¿±¸È¯°æº¸Àü°ú 032-453- 2434))£¼°¡ÃàºÐ´¢ÀÇ °ü¸® ¹×
À̿뿡 °üÇÑ ¹ý·ü£¾, »ó´ëº¸È£±¸¿ª(2020-09-28)(¹®ÀÇ: ÀÎõµ¿ºÎ±³À°Áö¿øÃ» Æò»ý±³À°°Ç°°ú 46
0-6087)£¼±³À°È¯°æ º¸È£¿¡ °üÇÑ ¹ý·ü£¾, »ó´ëº¸È£±¸¿ª(2020-09-28)(¹®ÀÇ: ÀÎõµ¿ºÎ±³À°Áö¿øÃ»
Æò»ý±³À°°Ç°°ú 460-6086)£¼±³À°È¯°æ º¸È£¿¡ °üÇÑ ¹ý·ü£¾, °ú¹Ð¾ïÁ¦±Ç¿ª£¼¼öµµ±ÇÁ¤ºñ°èȹ¹ý£¾ÀÓ.
[°øºÎ¿ÍÀÇ Â÷ÀÌ]
ÇØ´ç¾øÀ½.
[Âü°í»çÇ×]
ÀÓ´ë°ü°è ¹Ì»óÀÓ. |
|
|
°ÇÃ๰ÇöȲ |
|
|
|
| ¼ÒÀçÁö |
ÀÎõ±¤¿ª½Ã ³²µ¿±¸ ±¸¿ùµ¿ 1485¹øÁö |
| ´ëÁö¸éÀû |
|
¿¬¸éÀû |
4669.3§³(1414.94Æò) |
ÁÖ¿ëµµ |
°øµ¿ÁÖÅà |
| °ÇÃà¸éÀû |
656.72§³(199.01Æò) |
¿ëÀû·ü»êÁ¤¿¬¸éÀû |
4480.98§³(1357.87Æò) |
Âø°øÀÏÀÚ |
2012.03.15 |
| °ÇÆóÀ² |
|
¿ëÀû·ü |
|
»ç¿ë½ÂÀÎÀÏÀÚ |
2015.06.02 |
| Áö»óÃþ¼ö |
10Ãþ |
ÁöÇÏÃþ¼ö |
1Ãþ |
±¸Á¶ |
ö±ÙÄÜÅ©¸®Æ®±¸Á¶ |
°ÇÃ๰Ãþº°ÇöȲ [º¸±â]| Ãþº° | ±¸Á¶ | ¿ëµµ | ¸éÀû | | 1Ãþ | ö±ÙÄÜÅ©¸®Æ®±¸Á¶ | ¾ÆÆÄÆ® | 249.34§³ (75.56Æò) | | 2Ãþ | ö±ÙÄÜÅ©¸®Æ®±¸Á¶ | ¾ÆÆÄÆ® | 236.84§³ (71.77Æò) | | 3Ãþ | ö±ÙÄÜÅ©¸®Æ®±¸Á¶ | ¾ÆÆÄÆ® | 293.42§³ (88.92Æò) | | 4Ãþ | ö±ÙÄÜÅ©¸®Æ®±¸Á¶ | ¾ÆÆÄÆ® | 289.18§³ (87.63Æò) | | 5Ãþ | ö±ÙÄÜÅ©¸®Æ®±¸Á¶ | ¾ÆÆÄÆ® | 289.18§³ (87.63Æò) | | 6Ãþ | ö±ÙÄÜÅ©¸®Æ®±¸Á¶ | ¾ÆÆÄÆ® | 289.18§³ (87.63Æò) | | 7Ãþ | ö±ÙÄÜÅ©¸®Æ®±¸Á¶ | ¾ÆÆÄÆ® | 289.18§³ (87.63Æò) | | 8Ãþ | ö±ÙÄÜÅ©¸®Æ®±¸Á¶ | ¾ÆÆÄÆ® | 289.18§³ (87.63Æò) | | 9Ãþ | ö±ÙÄÜÅ©¸®Æ®±¸Á¶ | ¾ÆÆÄÆ® | 146.17§³ (44.29Æò) | | 10Ãþ | ö±ÙÄÜÅ©¸®Æ®±¸Á¶ | ¾ÆÆÄÆ® | 146.17§³ (44.29Æò) | | Áö1 | ö±ÙÄÜÅ©¸®Æ®±¸Á¶ | ¾ÆÆÄÆ® | 96.79§³ (29.33Æò) | | Áö2 | ö±ÙÄÜÅ©¸®Æ®±¸Á¶ | ¾ÆÆÄÆ® | 95.36§³ (28.9Æò) |
|
|
|
|
|
|
|
|
|
¸éÀû(§³), ±Ý¾×(¸¸¿ø)
| °è¾àÀÏ | ±âÁØ | ¾ÆÆÄÆ®¸í | Ãþ | Àü¿ë¸éÀû | °Å·¡±Ý¾× | °ÇÃà³âµµ | | 2024.03.31 | ¸Å¸Å | ±¸¿ù¾Æ½Ã¾Æµå¼±¼öÃÌ2´ÜÁö | 17 | 59.99 | 37,300 | 2015 | | 2024.03.23 | ¸Å¸Å | ±¸¿ù¾Æ½Ã¾Æµå¼±¼öÃÌ2´ÜÁö | 24 | 59.99 | 37,500 | 2015 | | 2024.03.18 | ¸Å¸Å | ±¸¿ù¾Æ½Ã¾Æµå¼±¼öÃÌ2´ÜÁö | 5 | 51.56 | 32,200 | 2015 | | 2024.03.07 | ¸Å¸Å | ±¸¿ù¾Æ½Ã¾Æµå¼±¼öÃÌ2´ÜÁö | 7 | 59.57 | 37,650 | 2015 | | 2024.03.01 | ¸Å¸Å | ±¸¿ù¾Æ½Ã¾Æµå¼±¼öÃÌ2´ÜÁö | 14 | 51.56 | 32,500 | 2015 | | 2024.02.20 | ¸Å¸Å | ±¸¿ù¾Æ½Ã¾Æµå¼±¼öÃÌ2´ÜÁö | 7 | 51.95 | 30,500 | 2015 | | 2024.01.30 | ¸Å¸Å | ±¸¿ù¾Æ½Ã¾Æµå¼±¼öÃÌ2´ÜÁö | 17 | 51.56 | 31,500 | 2015 | | 2024.01.09 | ¸Å¸Å | ±¸¿ù¾Æ½Ã¾Æµå¼±¼öÃÌ2´ÜÁö | 1 | 51.56 | 29,000 | 2015 |
| °è¾àÀÏ | ±âÁØ | ¾ÆÆÄÆ®¸í | Ãþ | Àü¿ë¸éÀû | º¸Áõ±Ý | ¿ù¼¼ | °ÇÃà³âµµ | | 2025.10.21 | Àü¼¼ | ±¸¿ù¾Æ½Ã¾Æµå¼±¼öÃÌ2´ÜÁö | 28 | 59.57 | 30,500 | 0 | 2015 | | 2025.10.16 | ¸Å¸Å | ±¸¿ù¾Æ½Ã¾Æµå¼±¼öÃÌ2´ÜÁö | 10 | 51.56 | 33,700 | | 2015 | | 2025.10.12 | ¸Å¸Å | ±¸¿ù¾Æ½Ã¾Æµå¼±¼öÃÌ2´ÜÁö | 17 | 59.99 | 40,000 | | 2015 | | 2025.10.02 | ¸Å¸Å | ±¸¿ù¾Æ½Ã¾Æµå¼±¼öÃÌ2´ÜÁö | 7 | 59.57 | 39,500 | | 2015 | | 2025.10.02 | ¸Å¸Å | ±¸¿ù¾Æ½Ã¾Æµå¼±¼öÃÌ2´ÜÁö | 7 | 51.95 | 32,600 | | 2015 | | 2025.09.13 | ¿ù¼¼ | ±¸¿ù¾Æ½Ã¾Æµå¼±¼öÃÌ2´ÜÁö | 12 | 51.56 | 3,000 | 105 | 2015 | | 2025.09.13 | ¿ù¼¼ | ±¸¿ù¾Æ½Ã¾Æµå¼±¼öÃÌ2´ÜÁö | 12 | 51.56 | 3,000 | 105 | 2015 | | 2025.09.10 | ¸Å¸Å | ±¸¿ù¾Æ½Ã¾Æµå¼±¼öÃÌ2´ÜÁö | 10 | 51.56 | 33,300 | | 2015 | | 2025.09.01 | ¿ù¼¼ | ±¸¿ù¾Æ½Ã¾Æµå¼±¼öÃÌ2´ÜÁö | 20 | 51.56 | 2,000 | 100 | 2015 | | 2025.08.29 | Àü¼¼ | ±¸¿ù¾Æ½Ã¾Æµå¼±¼öÃÌ2´ÜÁö | 22 | 59.57 | 18,000 | 0 | 2015 | | 2025.08.26 | Àü¼¼ | ±¸¿ù¾Æ½Ã¾Æµå¼±¼öÃÌ2´ÜÁö | 8 | 59.99 | 27,000 | 0 | 2015 | | 2025.08.18 | ¸Å¸Å | ±¸¿ù¾Æ½Ã¾Æµå¼±¼öÃÌ2´ÜÁö | 3 | 59.57 | 38,100 | | 2015 | | 2025.08.16 | Àü¼¼ | ±¸¿ù¾Æ½Ã¾Æµå¼±¼öÃÌ2´ÜÁö | 9 | 51.95 | 24,000 | 0 | 2015 | | 2025.08.13 | ¿ù¼¼ | ±¸¿ù¾Æ½Ã¾Æµå¼±¼öÃÌ2´ÜÁö | 10 | 51.56 | 2,000 | 95 | 2015 | | 2025.08.09 | Àü¼¼ | ±¸¿ù¾Æ½Ã¾Æµå¼±¼öÃÌ2´ÜÁö | 10 | 51.95 | 23,500 | 0 | 2015 | | 2025.07.26 | ¿ù¼¼ | ±¸¿ù¾Æ½Ã¾Æµå¼±¼öÃÌ2´ÜÁö | 4 | 51.56 | 3,100 | 60 | 2015 | | 2025.07.25 | Àü¼¼ | ±¸¿ù¾Æ½Ã¾Æµå¼±¼öÃÌ2´ÜÁö | 3 | 51.95 | 25,000 | 0 | 2015 | | 2025.07.21 | Àü¼¼ | ±¸¿ù¾Æ½Ã¾Æµå¼±¼öÃÌ2´ÜÁö | 10 | 51.56 | 23,100 | 0 | 2015 | | 2025.07.18 | Àü¼¼ | ±¸¿ù¾Æ½Ã¾Æµå¼±¼öÃÌ2´ÜÁö | 10 | 51.95 | 25,000 | 0 | 2015 | | 2025.07.02 | ¸Å¸Å | ±¸¿ù¾Æ½Ã¾Æµå¼±¼öÃÌ2´ÜÁö | 10 | 51.95 | 33,200 | | 2015 | | 2025.06.27 | ¸Å¸Å | ±¸¿ù¾Æ½Ã¾Æµå¼±¼öÃÌ2´ÜÁö | 2 | 51.95 | 31,200 | | 2015 | | 2025.06.27 | ¸Å¸Å | ±¸¿ù¾Æ½Ã¾Æµå¼±¼öÃÌ2´ÜÁö | 4 | 59.99 | 37,700 | | 2015 | | 2025.06.27 | ¸Å¸Å | ±¸¿ù¾Æ½Ã¾Æµå¼±¼öÃÌ2´ÜÁö | 7 | 59.99 | 41,000 | | 2015 | | 2025.06.24 | ¿ù¼¼ | ±¸¿ù¾Æ½Ã¾Æµå¼±¼öÃÌ2´ÜÁö | 4 | 59.57 | 3,000 | 110 | 2015 | | 2025.06.24 | ¸Å¸Å | ±¸¿ù¾Æ½Ã¾Æµå¼±¼öÃÌ2´ÜÁö | 10 | 59.57 | 38,000 | | 2015 | | 2025.06.23 | ¸Å¸Å | ±¸¿ù¾Æ½Ã¾Æµå¼±¼öÃÌ2´ÜÁö | 2 | 59.99 | 36,200 | | 2015 | | 2025.06.21 | ¸Å¸Å | ±¸¿ù¾Æ½Ã¾Æµå¼±¼öÃÌ2´ÜÁö | 2 | 59.57 | 37,500 | | 2015 | | 2025.06.20 | ¿ù¼¼ | ±¸¿ù¾Æ½Ã¾Æµå¼±¼öÃÌ2´ÜÁö | 3 | 51.95 | 2,000 | 90 | 2015 | | 2025.06.14 | ¸Å¸Å | ±¸¿ù¾Æ½Ã¾Æµå¼±¼öÃÌ2´ÜÁö | 13 | 59.57 | 39,800 | | 2015 | | 2025.06.12 | Àü¼¼ | ±¸¿ù¾Æ½Ã¾Æµå¼±¼öÃÌ2´ÜÁö | 15 | 51.56 | 26,000 | 0 | 2015 | | 2025.06.12 | Àü¼¼ | ±¸¿ù¾Æ½Ã¾Æµå¼±¼öÃÌ2´ÜÁö | 15 | 51.56 | 26,000 | 0 | 2015 | | 2025.06.10 | ¿ù¼¼ | ±¸¿ù¾Æ½Ã¾Æµå¼±¼öÃÌ2´ÜÁö | 10 | 59.57 | 2,000 | 120 | 2015 | | 2025.06.04 | ¸Å¸Å | ±¸¿ù¾Æ½Ã¾Æµå¼±¼öÃÌ2´ÜÁö | 7 | 51.95 | 33,200 | | 2015 | | 2025.05.28 | ¸Å¸Å | ±¸¿ù¾Æ½Ã¾Æµå¼±¼öÃÌ2´ÜÁö | 18 | 59.57 | 39,500 | | 2015 | | 2025.05.24 | Àü¼¼ | ±¸¿ù¾Æ½Ã¾Æµå¼±¼öÃÌ2´ÜÁö | 15 | 59.57 | 30,000 | 0 | 2015 | | 2025.05.24 | ¸Å¸Å | ±¸¿ù¾Æ½Ã¾Æµå¼±¼öÃÌ2´ÜÁö | 9 | 51.95 | 31,800 | | 2015 | | 2025.05.08 | ¿ù¼¼ | ±¸¿ù¾Æ½Ã¾Æµå¼±¼öÃÌ2´ÜÁö | 4 | 51.95 | 10,000 | 50 | 2015 | | 2025.05.06 | ¸Å¸Å | ±¸¿ù¾Æ½Ã¾Æµå¼±¼öÃÌ2´ÜÁö | 18 | 59.57 | 39,600 | | 2015 | | 2025.05.05 | ¸Å¸Å | ±¸¿ù¾Æ½Ã¾Æµå¼±¼öÃÌ2´ÜÁö | 20 | 59.99 | 39,500 | | 2015 | | 2025.05.01 | Àü¼¼ | ±¸¿ù¾Æ½Ã¾Æµå¼±¼öÃÌ2´ÜÁö | 26 | 59.57 | 29,000 | 0 | 2015 | | 2025.04.23 | ¸Å¸Å | ±¸¿ù¾Æ½Ã¾Æµå¼±¼öÃÌ2´ÜÁö | 15 | 51.56 | 33,700 | | 2015 | | 2025.04.23 | ¸Å¸Å | ±¸¿ù¾Æ½Ã¾Æµå¼±¼öÃÌ2´ÜÁö | 22 | 59.57 | 39,700 | | 2015 | | 2025.04.19 | Àü¼¼ | ±¸¿ù¾Æ½Ã¾Æµå¼±¼öÃÌ2´ÜÁö | 26 | 59.99 | 22,000 | 0 | 2015 | | 2025.04.19 | ¸Å¸Å | ±¸¿ù¾Æ½Ã¾Æµå¼±¼öÃÌ2´ÜÁö | 17 | 51.56 | 32,000 | | 2015 | | 2025.04.16 | ¿ù¼¼ | ±¸¿ù¾Æ½Ã¾Æµå¼±¼öÃÌ2´ÜÁö | 9 | 51.56 | 2,500 | 95 | 2015 | | 2025.04.15 | ¸Å¸Å | ±¸¿ù¾Æ½Ã¾Æµå¼±¼öÃÌ2´ÜÁö | 19 | 51.56 | 33,600 | | 2015 | | 2025.04.12 | ¿ù¼¼ | ±¸¿ù¾Æ½Ã¾Æµå¼±¼öÃÌ2´ÜÁö | 21 | 59.57 | 2,000 | 120 | 2015 | | 2025.04.09 | Àü¼¼ | ±¸¿ù¾Æ½Ã¾Æµå¼±¼öÃÌ2´ÜÁö | 10 | 59.57 | 30,000 | 0 | 2015 | | 2025.04.09 | Àü¼¼ | ±¸¿ù¾Æ½Ã¾Æµå¼±¼öÃÌ2´ÜÁö | 10 | 59.57 | 30,000 | 0 | 2015 | | 2025.04.05 | Àü¼¼ | ±¸¿ù¾Æ½Ã¾Æµå¼±¼öÃÌ2´ÜÁö | 20 | 51.56 | 25,000 | 0 | 2015 | | 2025.04.05 | ¸Å¸Å | ±¸¿ù¾Æ½Ã¾Æµå¼±¼öÃÌ2´ÜÁö | 12 | 59.99 | 39,500 | | 2015 | | 2025.04.04 | Àü¼¼ | ±¸¿ù¾Æ½Ã¾Æµå¼±¼öÃÌ2´ÜÁö | 3 | 59.57 | 30,000 | 0 | 2015 | | 2025.04.03 | Àü¼¼ | ±¸¿ù¾Æ½Ã¾Æµå¼±¼öÃÌ2´ÜÁö | 23 | 51.56 | 25,000 | 0 | 2015 | | 2025.03.31 | Àü¼¼ | ±¸¿ù¾Æ½Ã¾Æµå¼±¼öÃÌ2´ÜÁö | 22 | 51.56 | 21,000 | 0 | 2015 | | 2025.03.22 | ¿ù¼¼ | ±¸¿ù¾Æ½Ã¾Æµå¼±¼öÃÌ2´ÜÁö | 8 | 51.95 | 3,000 | 90 | 2015 | | 2025.03.21 | ¿ù¼¼ | ±¸¿ù¾Æ½Ã¾Æµå¼±¼öÃÌ2´ÜÁö | 3 | 59.57 | 3,000 | 110 | 2015 | | 2025.03.19 | Àü¼¼ | ±¸¿ù¾Æ½Ã¾Æµå¼±¼öÃÌ2´ÜÁö | 1 | 51.95 | 20,500 | 0 | 2015 | | 2025.03.18 | Àü¼¼ | ±¸¿ù¾Æ½Ã¾Æµå¼±¼öÃÌ2´ÜÁö | 4 | 51.56 | 23,100 | 0 | 2015 | | 2025.03.17 | ¸Å¸Å | ±¸¿ù¾Æ½Ã¾Æµå¼±¼öÃÌ2´ÜÁö | 4 | 59.57 | 37,000 | | 2015 | | 2025.03.09 | ¸Å¸Å | ±¸¿ù¾Æ½Ã¾Æµå¼±¼öÃÌ2´ÜÁö | 13 | 59.57 | 39,300 | | 2015 | | 2025.03.08 | ¸Å¸Å | ±¸¿ù¾Æ½Ã¾Æµå¼±¼öÃÌ2´ÜÁö | 11 | 51.56 | 33,500 | | 2015 | | 2025.03.01 | Àü¼¼ | ±¸¿ù¾Æ½Ã¾Æµå¼±¼öÃÌ2´ÜÁö | 4 | 51.95 | 24,000 | 0 | 2015 | | 2025.02.22 | ¸Å¸Å | ±¸¿ù¾Æ½Ã¾Æµå¼±¼öÃÌ2´ÜÁö | 19 | 51.56 | 33,500 | | 2015 | | 2025.02.22 | Àü¼¼ | ±¸¿ù¾Æ½Ã¾Æµå¼±¼öÃÌ2´ÜÁö | 10 | 59.57 | 25,000 | 0 | 2015 | | 2025.02.10 | Àü¼¼ | ±¸¿ù¾Æ½Ã¾Æµå¼±¼öÃÌ2´ÜÁö | 6 | 51.95 | 26,000 | 0 | 2015 | | 2025.02.08 | ¸Å¸Å | ±¸¿ù¾Æ½Ã¾Æµå¼±¼öÃÌ2´ÜÁö | 13 | 59.57 | 39,500 | | 2015 | | 2025.02.08 | ¿ù¼¼ | ±¸¿ù¾Æ½Ã¾Æµå¼±¼öÃÌ2´ÜÁö | 7 | 51.56 | 2,000 | 95 | 2015 | | 2025.02.08 | Àü¼¼ | ±¸¿ù¾Æ½Ã¾Æµå¼±¼öÃÌ2´ÜÁö | 12 | 59.99 | 21,000 | 0 | 2015 | | 2025.02.02 | Àü¼¼ | ±¸¿ù¾Æ½Ã¾Æµå¼±¼öÃÌ2´ÜÁö | 23 | 59.57 | 23,600 | 0 | 2015 | | 2025.01.22 | ¿ù¼¼ | ±¸¿ù¾Æ½Ã¾Æµå¼±¼öÃÌ2´ÜÁö | 3 | 51.56 | 2,000 | 94 | 2015 | | 2025.01.20 | Àü¼¼ | ±¸¿ù¾Æ½Ã¾Æµå¼±¼öÃÌ2´ÜÁö | 9 | 59.57 | 29,000 | 0 | 2015 | | 2025.01.11 | Àü¼¼ | ±¸¿ù¾Æ½Ã¾Æµå¼±¼öÃÌ2´ÜÁö | 8 | 59.57 | 25,000 | 0 | 2015 | | 2025.01.05 | ¸Å¸Å | ±¸¿ù¾Æ½Ã¾Æµå¼±¼öÃÌ2´ÜÁö | 17 | 59.57 | 37,800 | | 2015 | | 2025.01.04 | Àü¼¼ | ±¸¿ù¾Æ½Ã¾Æµå¼±¼öÃÌ2´ÜÁö | 9 | 59.57 | 30,000 | 0 | 2015 | | 2024.12.20 | ¿ù¼¼ | ±¸¿ù¾Æ½Ã¾Æµå¼±¼öÃÌ2´ÜÁö | 18 | 51.56 | 3,000 | 90 | 2015 | | 2024.12.17 | Àü¼¼ | ±¸¿ù¾Æ½Ã¾Æµå¼±¼öÃÌ2´ÜÁö | 4 | 51.95 | 25,000 | 0 | 2015 | | 2024.12.17 | Àü¼¼ | ±¸¿ù¾Æ½Ã¾Æµå¼±¼öÃÌ2´ÜÁö | 4 | 51.95 | 25,000 | 0 | 2015 | | 2024.12.14 | Àü¼¼ | ±¸¿ù¾Æ½Ã¾Æµå¼±¼öÃÌ2´ÜÁö | 4 | 51.95 | 23,500 | 0 | 2015 | | 2024.12.09 | ¸Å¸Å | ±¸¿ù¾Æ½Ã¾Æµå¼±¼öÃÌ2´ÜÁö | 5 | 59.99 | 39,000 | | 2015 | | 2024.12.09 | Àü¼¼ | ±¸¿ù¾Æ½Ã¾Æµå¼±¼öÃÌ2´ÜÁö | 5 | 59.99 | 28,000 | 0 | 2015 | | 2024.12.07 | Àü¼¼ | ±¸¿ù¾Æ½Ã¾Æµå¼±¼öÃÌ2´ÜÁö | 18 | 59.57 | 30,000 | 0 | 2015 | | 2024.12.07 | ¸Å¸Å | ±¸¿ù¾Æ½Ã¾Æµå¼±¼öÃÌ2´ÜÁö | 5 | 59.57 | 37,000 | | 2015 | | 2024.11.30 | ¸Å¸Å | ±¸¿ù¾Æ½Ã¾Æµå¼±¼öÃÌ2´ÜÁö | 15 | 59.57 | 40,250 | | 2015 | | 2024.11.12 | ¸Å¸Å | ±¸¿ù¾Æ½Ã¾Æµå¼±¼öÃÌ2´ÜÁö | 13 | 59.99 | 41,000 | | 2015 | | 2024.10.31 | ¿ù¼¼ | ±¸¿ù¾Æ½Ã¾Æµå¼±¼öÃÌ2´ÜÁö | 1 | 59.99 | 3,000 | 100 | 2015 | | 2024.10.31 | ¿ù¼¼ | ±¸¿ù¾Æ½Ã¾Æµå¼±¼öÃÌ2´ÜÁö | 1 | 59.99 | 3,000 | 100 | 2015 | | 2024.10.30 | ¸Å¸Å | ±¸¿ù¾Æ½Ã¾Æµå¼±¼öÃÌ2´ÜÁö | 4 | 51.95 | 31,000 | | 2015 | | 2024.10.19 | ¸Å¸Å | ±¸¿ù¾Æ½Ã¾Æµå¼±¼öÃÌ2´ÜÁö | 22 | 51.56 | 33,750 | | 2015 | | 2024.10.12 | ¸Å¸Å | ±¸¿ù¾Æ½Ã¾Æµå¼±¼öÃÌ2´ÜÁö | 9 | 51.95 | 33,600 | | 2015 | | 2024.10.08 | ¿ù¼¼ | ±¸¿ù¾Æ½Ã¾Æµå¼±¼öÃÌ2´ÜÁö | 2 | 59.99 | 15,349 | 60 | 2015 | | 2024.10.05 | Àü¼¼ | ±¸¿ù¾Æ½Ã¾Æµå¼±¼öÃÌ2´ÜÁö | 19 | 59.57 | 30,000 | 0 | 2015 | | 2024.10.05 | ¸Å¸Å | ±¸¿ù¾Æ½Ã¾Æµå¼±¼öÃÌ2´ÜÁö | 17 | 51.56 | 33,000 | | 2015 | | 2024.10.05 | ¸Å¸Å | ±¸¿ù¾Æ½Ã¾Æµå¼±¼öÃÌ2´ÜÁö | 25 | 59.57 | 39,000 | | 2015 | | 2024.10.05 | Àü¼¼ | ±¸¿ù¾Æ½Ã¾Æµå¼±¼öÃÌ2´ÜÁö | 19 | 59.57 | 30,000 | 0 | 2015 | | 2024.10.03 | Àü¼¼ | ±¸¿ù¾Æ½Ã¾Æµå¼±¼öÃÌ2´ÜÁö | 15 | 59.99 | 30,000 | 0 | 2015 | | 2024.10.02 | ¸Å¸Å | ±¸¿ù¾Æ½Ã¾Æµå¼±¼öÃÌ2´ÜÁö | 7 | 51.95 | 31,500 | | 2015 | | 2024.09.30 | ¸Å¸Å | ±¸¿ù¾Æ½Ã¾Æµå¼±¼öÃÌ2´ÜÁö | 27 | 59.99 | 39,300 | | 2015 | | 2024.09.25 | Àü¼¼ | ±¸¿ù¾Æ½Ã¾Æµå¼±¼öÃÌ2´ÜÁö | 20 | 59.57 | 30,000 | 0 | 2015 | | 2024.09.12 | ¸Å¸Å | ±¸¿ù¾Æ½Ã¾Æµå¼±¼öÃÌ2´ÜÁö | 21 | 59.99 | 38,800 | | 2015 | | 2024.09.02 | ¸Å¸Å | ±¸¿ù¾Æ½Ã¾Æµå¼±¼öÃÌ2´ÜÁö | 16 | 59.57 | 38,800 | | 2015 | | 2024.09.02 | ¸Å¸Å | ±¸¿ù¾Æ½Ã¾Æµå¼±¼öÃÌ2´ÜÁö | 25 | 51.56 | 33,000 | | 2015 | | 2024.08.30 | ¸Å¸Å | ±¸¿ù¾Æ½Ã¾Æµå¼±¼öÃÌ2´ÜÁö | 10 | 51.95 | 32,000 | | 2015 | | 2024.08.15 | ¸Å¸Å | ±¸¿ù¾Æ½Ã¾Æµå¼±¼öÃÌ2´ÜÁö | 5 | 51.95 | 32,900 | | 2015 | | 2024.08.13 | ¸Å¸Å | ±¸¿ù¾Æ½Ã¾Æµå¼±¼öÃÌ2´ÜÁö | 7 | 59.57 | 38,800 | | 2015 | | 2024.08.13 | ¸Å¸Å | ±¸¿ù¾Æ½Ã¾Æµå¼±¼öÃÌ2´ÜÁö | 7 | 59.57 | 38,800 | | 2015 | | 2024.08.10 | Àü¼¼ | ±¸¿ù¾Æ½Ã¾Æµå¼±¼öÃÌ2´ÜÁö | 28 | 51.56 | 27,400 | 0 | 2015 | | 2024.08.08 | ¸Å¸Å | ±¸¿ù¾Æ½Ã¾Æµå¼±¼öÃÌ2´ÜÁö | 7 | 51.95 | 34,300 | | 2015 | | 2024.08.06 | ¸Å¸Å | ±¸¿ù¾Æ½Ã¾Æµå¼±¼öÃÌ2´ÜÁö | 19 | 59.57 | 39,000 | | 2015 | | 2024.08.05 | ¿ù¼¼ | ±¸¿ù¾Æ½Ã¾Æµå¼±¼öÃÌ2´ÜÁö | 10 | 59.57 | 2,000 | 110 | 2015 | | 2024.08.05 | ¿ù¼¼ | ±¸¿ù¾Æ½Ã¾Æµå¼±¼öÃÌ2´ÜÁö | 10 | 59.57 | 2,000 | 110 | 2015 | | 2024.07.31 | ¸Å¸Å | ±¸¿ù¾Æ½Ã¾Æµå¼±¼öÃÌ2´ÜÁö | 1 | 51.95 | 28,500 | | 2015 | | 2024.07.30 | Àü¼¼ | ±¸¿ù¾Æ½Ã¾Æµå¼±¼öÃÌ2´ÜÁö | 22 | 59.99 | 28,000 | 0 | 2015 | | 2024.07.26 | Àü¼¼ | ±¸¿ù¾Æ½Ã¾Æµå¼±¼öÃÌ2´ÜÁö | 21 | 59.99 | 23,000 | 0 | 2015 | | 2024.07.20 | ¸Å¸Å | ±¸¿ù¾Æ½Ã¾Æµå¼±¼öÃÌ2´ÜÁö | 1 | 59.57 | 35,200 | | 2015 | | 2024.07.20 | ¸Å¸Å | ±¸¿ù¾Æ½Ã¾Æµå¼±¼öÃÌ2´ÜÁö | 21 | 59.99 | 38,500 | | 2015 | | 2024.07.12 | ¿ù¼¼ | ±¸¿ù¾Æ½Ã¾Æµå¼±¼öÃÌ2´ÜÁö | 5 | 59.99 | 3,000 | 100 | 2015 | | 2024.07.11 | ¸Å¸Å | ±¸¿ù¾Æ½Ã¾Æµå¼±¼öÃÌ2´ÜÁö | 3 | 59.57 | 37,500 | | 2015 | | 2024.07.08 | ¸Å¸Å | ±¸¿ù¾Æ½Ã¾Æµå¼±¼öÃÌ2´ÜÁö | 7 | 51.95 | 31,500 | | 2015 | | 2024.07.08 | ¸Å¸Å | ±¸¿ù¾Æ½Ã¾Æµå¼±¼öÃÌ2´ÜÁö | 7 | 51.95 | 31,500 | | 2015 | | 2024.07.06 | ¿ù¼¼ | ±¸¿ù¾Æ½Ã¾Æµå¼±¼öÃÌ2´ÜÁö | 4 | 59.57 | 3,000 | 105 | 2015 | | 2024.07.02 | ¿ù¼¼ | ±¸¿ù¾Æ½Ã¾Æµå¼±¼öÃÌ2´ÜÁö | 14 | 51.56 | 2,000 | 90 | 2015 | | 2024.07.01 | ¸Å¸Å | ±¸¿ù¾Æ½Ã¾Æµå¼±¼öÃÌ2´ÜÁö | 9 | 51.95 | 32,000 | | 2015 | | 2024.06.29 | ¿ù¼¼ | ±¸¿ù¾Æ½Ã¾Æµå¼±¼öÃÌ2´ÜÁö | 5 | 51.95 | 2,000 | 90 | 2015 | | 2024.06.20 | Àü¼¼ | ±¸¿ù¾Æ½Ã¾Æµå¼±¼öÃÌ2´ÜÁö | 4 | 51.56 | 27,000 | 0 | 2015 | | 2024.06.19 | ¸Å¸Å | ±¸¿ù¾Æ½Ã¾Æµå¼±¼öÃÌ2´ÜÁö | 8 | 51.95 | 33,000 | | 2015 | | 2024.06.15 | Àü¼¼ | ±¸¿ù¾Æ½Ã¾Æµå¼±¼öÃÌ2´ÜÁö | 17 | 59.99 | 28,000 | 0 | 2015 | | 2024.06.13 | Àü¼¼ | ±¸¿ù¾Æ½Ã¾Æµå¼±¼öÃÌ2´ÜÁö | 6 | 59.57 | 28,000 | 0 | 2015 | | 2024.06.11 | ¿ù¼¼ | ±¸¿ù¾Æ½Ã¾Æµå¼±¼öÃÌ2´ÜÁö | 7 | 51.56 | 2,000 | 90 | 2015 | | 2024.06.07 | ¸Å¸Å | ±¸¿ù¾Æ½Ã¾Æµå¼±¼öÃÌ2´ÜÁö | 13 | 51.56 | 33,900 | | 2015 | | 2024.06.07 | Àü¼¼ | ±¸¿ù¾Æ½Ã¾Æµå¼±¼öÃÌ2´ÜÁö | 8 | 59.57 | 28,000 | 0 | 2015 | | 2024.06.07 | Àü¼¼ | ±¸¿ù¾Æ½Ã¾Æµå¼±¼öÃÌ2´ÜÁö | 8 | 59.57 | 28,000 | 0 | 2015 | | 2024.06.05 | ¸Å¸Å | ±¸¿ù¾Æ½Ã¾Æµå¼±¼öÃÌ2´ÜÁö | 20 | 51.56 | 32,400 | | 2015 | | 2024.05.28 | ¸Å¸Å | ±¸¿ù¾Æ½Ã¾Æµå¼±¼öÃÌ2´ÜÁö | 19 | 51.56 | 32,000 | | 2015 | | 2024.05.20 | ¸Å¸Å | ±¸¿ù¾Æ½Ã¾Æµå¼±¼öÃÌ2´ÜÁö | 10 | 59.57 | 37,500 | | 2015 | | 2024.05.18 | Àü¼¼ | ±¸¿ù¾Æ½Ã¾Æµå¼±¼öÃÌ2´ÜÁö | 23 | 51.56 | 25,000 | 0 | 2015 | | 2024.05.15 | Àü¼¼ | ±¸¿ù¾Æ½Ã¾Æµå¼±¼öÃÌ2´ÜÁö | 11 | 59.99 | 27,000 | 0 | 2015 | | 2024.05.15 | Àü¼¼ | ±¸¿ù¾Æ½Ã¾Æµå¼±¼öÃÌ2´ÜÁö | 8 | 59.99 | 27,000 | 0 | 2015 | | 2024.05.09 | Àü¼¼ | ±¸¿ù¾Æ½Ã¾Æµå¼±¼öÃÌ2´ÜÁö | 11 | 59.57 | 26,000 | 0 | 2015 | | 2024.05.06 | Àü¼¼ | ±¸¿ù¾Æ½Ã¾Æµå¼±¼öÃÌ2´ÜÁö | 7 | 59.57 | 29,000 | 0 | 2015 | | 2024.04.19 | ¿ù¼¼ | ±¸¿ù¾Æ½Ã¾Æµå¼±¼öÃÌ2´ÜÁö | 14 | 51.56 | 3,000 | 90 | 2015 | | 2024.04.15 | Àü¼¼ | ±¸¿ù¾Æ½Ã¾Æµå¼±¼öÃÌ2´ÜÁö | 11 | 59.57 | 27,000 | 0 | 2015 | | 2024.04.12 | ¸Å¸Å | ±¸¿ù¾Æ½Ã¾Æµå¼±¼öÃÌ2´ÜÁö | 28 | 59.99 | 38,500 | | 2015 | | 2024.04.10 | ¸Å¸Å | ±¸¿ù¾Æ½Ã¾Æµå¼±¼öÃÌ2´ÜÁö | 19 | 59.57 | 38,000 | | 2015 | | 2024.04.06 | ¸Å¸Å | ±¸¿ù¾Æ½Ã¾Æµå¼±¼öÃÌ2´ÜÁö | 27 | 51.56 | 31,500 | | 2015 | | 2024.03.30 | ¿ù¼¼ | ±¸¿ù¾Æ½Ã¾Æµå¼±¼öÃÌ2´ÜÁö | 13 | 59.99 | 3,000 | 103 | 2015 | | 2024.03.23 | Àü¼¼ | ±¸¿ù¾Æ½Ã¾Æµå¼±¼öÃÌ2´ÜÁö | 15 | 59.57 | 27,000 | 0 | 2015 | | 2024.03.22 | Àü¼¼ | ±¸¿ù¾Æ½Ã¾Æµå¼±¼öÃÌ2´ÜÁö | 23 | 59.99 | 27,000 | 0 | 2015 | | 2024.03.22 | ¿ù¼¼ | ±¸¿ù¾Æ½Ã¾Æµå¼±¼öÃÌ2´ÜÁö | 7 | 59.99 | 3,078 | 56 | 2015 | | 2024.03.22 | Àü¼¼ | ±¸¿ù¾Æ½Ã¾Æµå¼±¼öÃÌ2´ÜÁö | 23 | 59.99 | 27,000 | 0 | 2015 | | 2024.03.20 | Àü¼¼ | ±¸¿ù¾Æ½Ã¾Æµå¼±¼öÃÌ2´ÜÁö | 3 | 59.99 | 27,000 | 0 | 2015 | | 2024.03.06 | Àü¼¼ | ±¸¿ù¾Æ½Ã¾Æµå¼±¼öÃÌ2´ÜÁö | 9 | 59.99 | 26,000 | 0 | 2015 | | 2024.03.02 | Àü¼¼ | ±¸¿ù¾Æ½Ã¾Æµå¼±¼öÃÌ2´ÜÁö | 4 | 59.99 | 26,000 | 0 | 2015 | | 2024.03.02 | ¿ù¼¼ | ±¸¿ù¾Æ½Ã¾Æµå¼±¼öÃÌ2´ÜÁö | 12 | 51.56 | 4,000 | 80 | 2015 | | 2024.02.21 | ¿ù¼¼ | ±¸¿ù¾Æ½Ã¾Æµå¼±¼öÃÌ2´ÜÁö | 21 | 59.99 | 2,000 | 105 | 2015 | | 2024.02.15 | Àü¼¼ | ±¸¿ù¾Æ½Ã¾Æµå¼±¼öÃÌ2´ÜÁö | 9 | 51.56 | 25,000 | 0 | 2015 | | 2024.02.14 | Àü¼¼ | ±¸¿ù¾Æ½Ã¾Æµå¼±¼öÃÌ2´ÜÁö | 1 | 51.95 | 20,800 | 0 | 2015 | | 2024.02.03 | ¿ù¼¼ | ±¸¿ù¾Æ½Ã¾Æµå¼±¼öÃÌ2´ÜÁö | 4 | 51.95 | 2,000 | 88 | 2015 | | 2024.01.31 | ¿ù¼¼ | ±¸¿ù¾Æ½Ã¾Æµå¼±¼öÃÌ2´ÜÁö | 10 | 59.57 | 15,438 | 20 | 2015 | | 2024.01.17 | Àü¼¼ | ±¸¿ù¾Æ½Ã¾Æµå¼±¼öÃÌ2´ÜÁö | 11 | 59.99 | 27,000 | 0 | 2015 | | 2024.01.15 | Àü¼¼ | ±¸¿ù¾Æ½Ã¾Æµå¼±¼öÃÌ2´ÜÁö | 21 | 59.99 | 25,000 | 0 | 2015 | | 2024.01.13 | Àü¼¼ | ±¸¿ù¾Æ½Ã¾Æµå¼±¼öÃÌ2´ÜÁö | 15 | 51.56 | 25,500 | 0 | 2015 |
|
|
|
 |
ÀÓÂ÷³»¿ª |
[¹è´ç¿ä±¸Á¾±âÀÏ : 2024/12/09] |
|
|
| ÀÓÂ÷ÀÎ |
Á¡À¯°ü°è |
ÀüÀÔÀÏÀÚ |
È®Á¤ÀÏÀÚ |
¹è´ç¿ä±¸ÀÏ |
º¸Áõ±Ý/Â÷ÀÓ |
´ëÇ׿ä°Ç |
ºñ°í |
| Á¶»çµÈ ÀÓÂ÷³»¿ªÀÌ ¾ø½À´Ï´Ù. |
|
|
|
 |
Áö¿ªºÐ¼® |
|
|
|
|
| ÁöÇÏö |
|
Çб³ |
|
| °ü°ø¼ |
|
| ¹ý¿ø |
ÀÎõÁö¹æ¹ý¿ø (222-20)ÀÎõ±¤¿ª½Ã ¹ÌÃßȦ±¸ ¼Ò¼º·Î 163¹ø±æ 17(ÇÐÀ͵¿) ´ëÇ¥ : 032)860-1113~4 Áß±¸, µ¿±¸, ³²±¸, ¿¬¼ö±¸, ³²µ¿±¸, ºÎÆò±¸, °è¾ç±¸, ¼±¸, ¿ËÁø±º, °È±º |
| µî±â¼Ò |
ÀÎõÁö¹æ¹ý¿ø º»¿ø µî±â±¹ (´ëÇ¥:1544-0773, ÆÑ½º:(032)620-9099, ÀÎõ±¤¿ª½Ã ¹ÌÃßȦ±¸ °æ¿ø´ë·Î 881(Á־ȵ¿ 983)) |
| ¼¼¹«¼ |
³²ÀÎõ¼¼¹«¼ (´ëÇ¥:032-460-52, ÆÑ½º:032-463-5778, ÀÎõ±¤¿ª½Ã ³²µ¿±¸ ÀÎÇÏ·Î 548 (±¸¿ùµ¿)) |
|
|
|
 |
¹ý¿ø ¹°°ÇÀÚ·á ¿ä¾à |
|
|
|
|
| ¼Ò¸êµÇÁö ¾Ê´Â µî±âºÎ±Ç¸® |
|
| ¼³Á¤µÈ °ÍÀ¸·Î º¸´Â Áö»ó±Ç |
|
| ¹ý¿øÀÚ·á Æ¯ÀÌ»çÇ× |
|
| ¿©ÀÇÁÖ°æ¸Å Á¶¾ð ÇѸ¶µð |
ÀÌ ºÎµ¿»êÀÇ ÀÔÂû¹ý¿øÀº ÀÎõÁö¹æ¹ý¿øÀÔ´Ï´Ù.
ÀÔÂûÀÏÀº 2025-11-11ÀÔ´Ï´Ù.
ÀÔÂû½Ã°£Àº ~11:20ÀÔ´Ï´Ù. ÀÌ ¹ý¿ø¿¡´Â KB±¹¹ÎÀºÇàÀÌ ÀÔÁ¡Çϰí ÀÖ½À´Ï´Ù.
|
|
|
| Åë°è±â°£ |
³«Âû¹°°Ç¼ö |
Æò±Õ°¨Á¤°¡ |
Æò±Õ³«Âû°¡ |
³«Âû°¡À² |
À¯ÂûȽ¼ö |
| 3°³¿ù |
43°Ç |
371,790,698¿ø |
310,017,377¿ø |
82% |
1.5ȸ |
| 6°³¿ù |
84°Ç |
384,297,619¿ø |
319,959,396¿ø |
83% |
1.4ȸ |
| 12°³¿ù |
166°Ç |
377,783,133¿ø |
312,684,983¿ø |
81% |
1.4ȸ |
|
|
|
|
|
|
 |
|