|
|
| ¼ÒÀçÁö |
ÀÎõ±¤¿ª½Ã ³²µ¿±¸ ÀåÀÚ·Î 29, 5Ãþ502È£ (Àå¼öµ¿,Èޱ׸°)
±¸)ÀÎõ±¤¿ª½Ã ³²µ¿±¸ Àå¼öµ¿ 779-17
|
|
| »ç°Ç¹øÈ£ |
2024 Ÿ°æ 519383 |
¹°°Ç¹øÈ£ |
1
|
¹°°Ç¿ëµµ |
´Ù¼¼´ë,ºô¶ó |
| °¨Á¤Æò°¡¾× |
317,000,000¿ø |
°æ¸Å´ë»ó |
ÅäÁö ¹× °Ç¹°Àϰý ¸Å°¢ |
ÁøÇà»óÅ |
À¯Âû |
| ÃÖÀúÀÔÂû°¡ |
(70%) 221,900,000¿ø
|
°Ç¹°¸éÀû |
70.12§³(21.21Æò) |
ÀÔÂû±âÀÏ |
2025.12.23(È) 10:00
(ÀÔÂû 15ÀÏÀü)
|
| ÀÔÂûº¸Áõ±Ý |
(10%) 22,190,000¿ø |
ÅäÁö¸éÀû |
43.36§³(13.12Æò)
|
À¯ÂûȽ¼ö |
1ȸ |
| ÀÔÂû¹ý¿ø |
ÀÎõÁö¹æ¹ý¿ø |
°æ¸Å¹æ¹ý |
|
¹°°ÇÁ¶È¸¼ö |
¿À´Ã: 2ȸ [´©Àû: 65ȸ]
|
| ¸»¼Ò±âÁØ | ÃÖ¼±¼øÀ§ ¼³Á¤ : 2024.03.28. °Á¦°æ¸Å°³½Ã ¼³Á¤ °áÁ¤
|
|
|
|
|
|
|
|
|
|
|
°æ¸Å´ë»ó ¸ñ·Ï
|
|
| ±¸ºÐ |
¸ñ·Ï |
ÁÖ¼Ò |
±¸Á¶/¿ëµµ/´ëÁö±Ç |
ºñ°í |
´ëÁö±Ç
|
1 |
Àå¼öµ¿ 779-17 |
391.7ºÐÀÇ 43.36 |
43.36§³ (13.12Æò)
|
°Ç¹°
|
1 |
Àå¼öµ¿ 779-17 |
5Ãþ502È£ ö±ÙÄÜÅ©¸®Æ®±¸Á¶ |
70.12§³ (21.21Æò)
|
| Á¦½Ã¿Ü°Ç¹° |
1 |
Àå¼öµ¿ 779-17 |
º¹Ãþ |
59.42
§³(17.97Æò) Æ÷ÇÔ |
|
|
|
2025-11-21
À¯Âû
|
(100%)
317,000,000¿ø
|
|
|
|
2025-12-23
ÁøÇà
|
(70%)
221,900,000¿ø
|
|
|
|
|
|
°¨Á¤Æò°¡¼ ¿ä¾à |
|
[À§Ä¡/ÁÖÀ§È¯°æ]
´ë»ó¹°°ÇÀº ÀÎõ±¤¿ª½Ã ³²µ¿±¸ Àå¼öµ¿ ¼ÒÀç "ÀÎõ±¤¿ª½Ãû¼Ò³â¼ö·Ã°ü" ³²µ¿Ãø Àαٿ¡ À§
Ä¡Çϸç, ºÎ±ÙÀº ¾ÆÆÄÆ®, ´Ù¼¼´ëÁÖÅÃ, ±Ù¸°»ýȰ½Ã¼³ µîÀÌ È¥ÀçÇÏ´Â Áö¿ªÀ¸·Î¼ Á¦¹Ý ÁÖÀ§
ȯ°æÀº º¸ÅëÀÓ.
[±³Åë»óȲ]
´ë»ó¹°°Ç±îÁö Â÷·® µîÀÇ ÃâÀÔÀÌ °¡´ÉÇϸç, Àαٿ¡ ¹ö½ºÁ¤·ùÀå ¹× ±Ù°Å¸®¿¡ ÁöÇÏö ÀÎõ2
È£¼± "ÀÎõ´ë°ø¿ø¿ª" µîÀÌ ¼ÒÀçÇÏ¿© ´ëÁß±³Åë ÀÌ¿ëÆíÀÍÀº º¸ÅëÀÓ.
[°Ç¹°±¸Á¶]
ö±ÙÄÜÅ©¸®Æ®±¸Á¶ (ö±Ù)ÄÜÅ©¸®Æ®ÁöºØ 5Ãþ °Ç¹° ³» 5Ãþ 502È£·Î¼,
2017³â 08¿ù 11ÀÏ »ç¿ë½ÂÀεǾúÀ¸¸ç,
¿Ü º® : Ä¡À庮µ¹½×±â ¹× ¼®ÀçºÙÀÓ ¸¶°¨ µî,
³» º® : º®Áöµµ¹è ¹× ÀϺΠŸÀϸ¶°¨ µî,
â È£ : ¼¦½Ãâ µîÀÓ.
[ÀÌ¿ë»óÅÂ]
´ë»ó¹°°ÇÀº ´Ù¼¼´ëÁÖÅÃÀ¸·Î ÀÌ¿ëÁßÀ̸ç, º¹Ãþ±¸Á¶ÀÎ °ÍÀ¸·Î ¿ÜºÎ°üÂû ¹× Àα٠ÁÖ¹ÎÀÇ Å½
¹® µî¿¡ ÀǰŠÁ¶»çµÇ¾úÀ½.
[¼³ºñ³»¿ª]
±Þ¡¤¹è¼ö½Ã¼³, À§»ý¼³ºñ, ³¹æ¼³ºñ, ½Â°±â¼³ºñ µîÀ» °®Ãß¾úÀ½.
[ÅäÁöÇü»ó/ÀÌ¿ë»óÅÂ]
ÀÎÁ¢ÇÊÁö ´ëºñ µî°íÆòźÇÑ Á¤¹æÇüÀÇ ÅäÁö·Î¼ ´Ù¼¼´ëÁÖÅà °ÇºÎÁö·Î ÀÌ¿ëÁßÀÓ.
7)ÀÎÁ¢ µµ·Î»óŵî
º»°Ç ³²ÃøÀ¸·Î Áß·Î, µ¿ÃøÀ¸·Î ¼¼·ÎÀÇ Æ÷Àåµµ·Î¿Í Á¢Çϸç, µµ·Î»óÅ º¸ÅëÀÓ.
[ÅäÁöÀÌ¿ë°èȹ]
Á¦2Á¾ÀϹÝÁÖ°ÅÁö¿ª, Á¦1Á¾Áö±¸´ÜÀ§°èȹ±¸¿ª(Àå¼ö±¸È¹), °¡Ãà»çÀ°Á¦Çѱ¸¿ª(2013-03-08)((
¹®ÀÇ:³²µ¿±¸È¯°æº¸Àü°ú 032-453-2343))£¼°¡ÃàºÐ´¢ÀÇ °ü¸® ¹× À̿뿡 °üÇÑ ¹ý·ü£¾, °ú¹Ð¾ïÁ¦
±Ç¿ª£¼¼öµµ±ÇÁ¤ºñ°èȹ¹ý£¾.
[°øºÎ¿ÍÀÇ Â÷ÀÌ]
´ë»ó¹°°ÇÀº º¹Ãþ ±¸Á¶ÀÓ.
[Âü°í»çÇ×]
ÀÓ´ë°ü°è´Â ¹Ì»óÀÓ. |
|
|
°ÇÃ๰ÇöȲ |
|
|
|
| ¼ÒÀçÁö |
ÀÎõ±¤¿ª½Ã ³²µ¿±¸ Àå¼öµ¿ 779-17¹øÁö |
| ´ëÁö¸éÀû |
391.7§³(118.7Æò) |
¿¬¸éÀû |
726.75§³(220.23Æò) |
ÁÖ¿ëµµ |
°øµ¿ÁÖÅà |
| °ÇÃà¸éÀû |
232.66§³(70.5Æò) |
¿ëÀû·ü»êÁ¤¿¬¸éÀû |
726.75§³(220.23Æò) |
Âø°øÀÏÀÚ |
2017.04.05 |
| °ÇÆóÀ² |
59.4% |
¿ëÀû·ü |
185.54% |
»ç¿ë½ÂÀÎÀÏÀÚ |
2017.08.11 |
| Áö»óÃþ¼ö |
5Ãþ |
ÁöÇÏÃþ¼ö |
|
±¸Á¶ |
ö±ÙÄÜÅ©¸®Æ®±¸Á¶ |
°ÇÃ๰Ãþº°ÇöȲ [º¸±â]| Ãþº° | ±¸Á¶ | ¿ëµµ | ¸éÀû | | 1Ãþ | ö±ÙÄÜÅ©¸®Æ®±¸Á¶ | ¼Ò¸ÅÁ¡ | 66.77§³ (20.23Æò) | | 1Ãþ | ö±ÙÄÜÅ©¸®Æ®±¸Á¶ | °è´Ü½Ç | 20.28§³ (6.15Æò) | | 2Ãþ | ö±ÙÄÜÅ©¸®Æ®±¸Á¶ | ´Ù¼¼´ëÁÖÅà | 160.72§³ (48.7Æò) | | 3Ãþ | ö±ÙÄÜÅ©¸®Æ®±¸Á¶ | ´Ù¼¼´ëÁÖÅà | 160.72§³ (48.7Æò) | | 4Ãþ | ö±ÙÄÜÅ©¸®Æ®±¸Á¶ | ´Ù¼¼´ëÁÖÅà | 159.66§³ (48.38Æò) | | 5Ãþ | ö±ÙÄÜÅ©¸®Æ®±¸Á¶ | ´Ù¼¼´ëÁÖÅà | 158.6§³ (48.06Æò) |
|
|
|
|
|
|
|
|
|
¸éÀû(§³), ±Ý¾×(¸¸¿ø)
| °è¾àÀÏ | ±âÁØ | °Ç¹°¸íĪ | Ãþ | ¿¬¸éÀû | ´ëÁö¸éÀû | °Å·¡±Ý¾× | °ÇÃà³âµµ | | 2024.03.30 | ¸Å¸Å | Çϴø¶À» | 2 | 65.39 | 38.419 | 17,000 | 2011 | | 2024.03.08 | ¸Å¸Å | Àå¼ö¸®µåºô101µ¿ | 4 | 59.62 | 32.8925 | 13,000 | 2010 | | 2024.03.07 | ¸Å¸Å | µµ´ãºô¸®Áö | 4 | 50.64 | 32.437 | 15,000 | 2018 | | 2024.02.14 | ¸Å¸Å | ½á´ÏÇϿ콺102µ¿ | 2 | 65.19 | 37.63 | 21,200 | 2009 | | 2024.02.05 | ¸Å¸Å | Çϴø¶À» | 5 | 67.24 | 39.509 | 18,200 | 2011 | | 2024.01.29 | ¸Å¸Å | ¶ôÇϿ콺Aµ¿(777-1) | 2 | 73.08 | 41.23 | 21,000 | 2011 | | 2024.01.12 | ¸Å¸Å | ¼ÛÀ̺ô | 3 | 66.515 | 37.808 | 21,500 | 2014 | | 2024.01.10 | ¸Å¸Å | ¹Ì¼ÒÁøÆÄÅ©(368-6) | 3 | 65.03 | 51.45 | 15,000 | 2013 | | 2024.01.06 | ¸Å¸Å | ÇØÇÇÇϿ콺(793-15) | 2 | 53.34 | 29.8 | 13,500 | 2009 |
| °è¾àÀÏ | ±âÁØ | °Ç¹°¸íĪ | Ãþ | ¿¬¸éÀû | º¸Áõ±Ý | ¿ù¼¼ | °ÇÃà³âµµ | | 2025.11.20 | ¸Å¸Å | ±×¸°³ª·¡ºô¶óA,Bµ¿ | 4 | 71.47 | 19,000 | | 2016 | | 2025.11.16 | ¸Å¸Å | ±¤¹éµå¸²ºô(777-18) | 3 | 52.52 | 13,000 | | 2011 | | 2025.11.14 | Àü¼¼ | ü¸®ÆÄÅ©Èú | 5 | 34.05 | 10,700 | 0 | 2021 | | 2025.11.10 | Àü¼¼ | ½Åµ¿¾ÆÆç¸®½º(781-2) | 5 | 71.78 | 13,900 | 0 | 2008 | | 2025.11.07 | ¸Å¸Å | ½á´ÏÇϿ콺101µ¿ | 5 | 66.1 | 22,500 | | 2010 | | 2025.11.06 | ¸Å¸Å | ¼öÇöÆÄÅ©ºô | 1 | 52.55 | 9,500 | | 2011 | | 2025.10.29 | Àü¼¼ | Áß¾ÓÈúŸ¿î(773-6) | 3 | 78.9 | 14,000 | 0 | 2008 | | 2025.10.26 | ¿ù¼¼ | (790-4) | 3 | 29.83 | 500 | 53 | 2015 | | 2025.10.10 | ¸Å¸Å | ¶ó¿ÂÇÏÁ¦B | 4 | 64.6 | 29,800 | | 2023 | | 2025.09.25 | ¸Å¸Å | ½á´ÏÇϿ콺103µ¿ | 5 | 66.1 | 17,000 | | 2009 | | 2025.09.24 | ¿ù¼¼ | À¯´Ï¿ÂŸ¿î(542-1) | 3 | 41.26 | 500 | 40 | 1993 | | 2025.09.21 | ¸Å¸Å | ±×·çÇϿ콺 | 2 | 38.19 | 11,000 | | 2011 | | 2025.09.11 | Àü¼¼ | ÅÂÁÖ¸®½´ºô | 4 | 56.95 | 11,370 | 0 | 2008 | | 2025.09.09 | ¿ù¼¼ | À¯¿£ºô¸®Áö#6 | 2 | 52.38 | 2,000 | 55 | 2012 | | 2025.09.01 | ¸Å¸Å | Àå¼öºô¶ó(766-13) | 3 | 39.57 | 7,100 | | 1992 | | 2025.08.27 | ¸Å¸Å | ¼öÇöÆÄÅ©ºô | 3 | 67.45 | 14,500 | | 2011 | | 2025.08.26 | ¸Å¸Å | Áß¾ÓÈúŸ¿î(773-6) | 2 | 78.9 | 22,100 | | 2008 | | 2025.08.22 | ¸Å¸Å | ¶ó¿ÂÇÏÁ¦B | 2 | 64.6 | 28,500 | | 2023 | | 2025.08.21 | ¸Å¸Å | À¯´Ï¿ÂŸ¿î(542-2) | 2 | 41.26 | 7,950 | | 1994 | | 2025.08.19 | ¿ù¼¼ | ´ëµ¿ÆÄÅ©ºô | 5 | 46.42 | 2,000 | 60 | 2011 | | 2025.08.17 | ¸Å¸Å | ¶ó¿ÂÇÏÁ¦B | 2 | 64.6 | 28,500 | | 2023 | | 2025.08.15 | ¿ù¼¼ | (790-4) | 3 | 29.83 | 1,000 | 50 | 2015 | | 2025.08.14 | Àü¼¼ | Àå¼öÈ޸սþÆ2µ¿ | 4 | 39.31 | 9,000 | 0 | 2015 | | 2025.08.14 | Àü¼¼ | Àå¼öÈ޸սþÆ2µ¿ | 4 | 39.31 | 9,000 | 0 | 2015 | | 2025.08.14 | ¿ù¼¼ | ¶ôÇϿ콺1Â÷(Aµ¿)(777-23) | 4 | 31.32 | 1,000 | 40 | 2008 | | 2025.08.14 | ¿ù¼¼ | ¶ôÇϿ콺1Â÷(Aµ¿)(777-23) | 4 | 31.32 | 1,000 | 40 | 2008 | | 2025.08.14 | Àü¼¼ | Àå¼öÈ޸սþÆ2µ¿ | 4 | 39.31 | 9,000 | 0 | 2015 | | 2025.08.12 | ¿ù¼¼ | Çѿ츮ÆÄÅ©102µ¿ | 2 | 59.26 | 4,500 | 30 | 2015 | | 2025.08.09 | ¿ù¼¼ | ¸¶ÀÎij½½1µ¿(781-5) | 2 | 32.72 | 2,000 | 35 | 2011 | | 2025.07.26 | ¸Å¸Å | ¶ó¿ÂÇÏÁ¦A | 2 | 66.75 | 27,600 | | 2023 | | 2025.07.25 | ¸Å¸Å | ¼öÇöÆÄÅ©ºô | 4 | 62.49 | 12,000 | | 2011 | | 2025.07.25 | Àü¼¼ | ¶ôÇϿ콺1Â÷(Bµ¿)(777-24) | 5 | 74.2 | 15,750 | 0 | 2008 | | 2025.07.21 | ¸Å¸Å | ¶ôÇϿ콺2Â÷(Aµ¿)(778-1) | 5 | 84.83 | 30,000 | | 2010 | | 2025.07.20 | ¿ù¼¼ | ÇѼָ®Ä¡ºô202µ¿ | 5 | 50.57 | 1,000 | 72 | 2010 | | 2025.07.18 | Àü¼¼ | ÇØ¿À¸§ÆÄÅ©102µ¿ | 3 | 59.38 | 10,710 | 0 | 2015 | | 2025.07.14 | Àü¼¼ | Áß¾ÓÈúŸ¿î5Â÷(788-19) | 5 | 34.82 | 9,000 | 0 | 2010 | | 2025.07.07 | ¸Å¸Å | ½Ã¿ÂÄŸºô(786-6) | 2 | 77.265 | 16,900 | | 2010 | | 2025.07.02 | ¸Å¸Å | Àå¼öÈ޸սþÆ1µ¿ | 3 | 58.66 | 14,616 | | 2015 | | 2025.07.02 | ¸Å¸Å | ÅÂÁÖ¸®½´ºô | 4 | 56.95 | 7,500 | | 2008 | | 2025.07.01 | ¸Å¸Å | ÈúŸ¿î1µ¿ | 5 | 48.71 | 10,000 | | 2010 | | 2025.07.01 | ¸Å¸Å | ´ëµ¿ÆÄÅ©ºô | 3 | 45.86 | 16,500 | | 2011 | | 2025.06.25 | ¿ù¼¼ | ´ëµ¿ÆÄÅ©ºô | 3 | 40.75 | 1,000 | 45 | 2011 | | 2025.06.19 | ¸Å¸Å | ´ë°ø¿øÄ³½½ | 3 | 32.79 | 17,800 | | 2019 | | 2025.06.17 | ¸Å¸Å | ¸ð½ºÆ®ºô2µ¿ | 2 | 64.402 | 21,000 | | 2016 | | 2025.06.10 | ¿ù¼¼ | Âü¹þ¸¶À» | 3 | 58.65 | 1,000 | 55 | 2008 | | 2025.06.09 | ¿ù¼¼ | ±Ý°¾ÆÆ®ºô(778-22) | 4 | 44.79 | 700 | 60 | 2009 | | 2025.06.04 | ¸Å¸Å | Àå¼öµå¸²ºô | 4 | 56.95 | 19,000 | | 2017 | | 2025.06.03 | ¸Å¸Å | ¸ð½ºÆ®ºô2µ¿ | 2 | 54.3725 | 17,500 | | 2016 | | 2025.06.03 | ¸Å¸Å | Àå¼öµå¸²ºô | 3 | 56.95 | 19,500 | | 2017 | | 2025.05.28 | Àü¼¼ | ±×¸°³ª·¡ºô¶óA,Bµ¿ | 2 | 69.46 | 15,660 | 0 | 2016 | | 2025.05.28 | ¿ù¼¼ | Âü¹þ¸¶À» | 4 | 58.65 | 1,000 | 50 | 2008 | | 2025.05.27 | ¸Å¸Å | ¶ó¿ÂÇÏÁ¦B | 3 | 64.6 | 29,500 | | 2023 | | 2025.05.19 | ¸Å¸Å | ¿ì½É¾ÆÆ®ºô | 4 | 49.35 | 13,900 | | 2011 | | 2025.05.19 | ¸Å¸Å | ¿ì½É¾ÆÆ®ºô | 4 | 49.35 | 13,900 | | 2011 | | 2025.05.15 | ¸Å¸Å | ¸íǰºô¸®Áö | 2 | 37.96 | 11,000 | | 2011 | | 2025.05.12 | Àü¼¼ | ¹Ì¼ÒÁøÆÄÅ©(368-6) | 2 | 64.75 | 14,600 | 0 | 2013 | | 2025.05.03 | ¸Å¸Å | (779-1)³ëºí·¹½º | 5 | 63.59 | 21,000 | | 2013 | | 2025.04.28 | ¸Å¸Å | Æ÷ÀÎÆ®ºô3Â÷(789-20) | 3 | 47.96 | 13,000 | | 2011 | | 2025.04.26 | ¸Å¸Å | ¹Ì¼ÒÁøÆÄÅ©(369-0) | 2 | 70.32 | 13,000 | | 2013 | | 2025.04.25 | ¸Å¸Å | ±×¸®´Ï | 5 | 26.33 | 7,500 | | 2015 | | 2025.04.21 | ¸Å¸Å | ¶ôÇϿ콺1Â÷(Aµ¿)(777-23) | 3 | 60.61 | 12,000 | | 2008 | | 2025.04.18 | ¿ù¼¼ | ÀåÀÚ¸¶À»ÇѺ°·º½ºÈú | 6 | 165.76 | 10,000 | 150 | 2007 | | 2025.04.16 | ¿ù¼¼ | ÁÖ°øÀÓ´ë(806-3) | 11 | 46.22 | 5,029 | 12 | 2005 | | 2025.04.08 | ¸Å¸Å | ´Ù¿Âºô¸®Áö1Â÷ | 3 | 66.22 | 16,500 | | 2010 | | 2025.04.01 | ¸Å¸Å | Àå¼öºô¶ó1µ¿(766-12) | 2 | 37.68 | 7,000 | | 1992 | | 2025.02.24 | ¿ù¼¼ | ´ëµ¿ÆÄÅ©ºô | 4 | 50 | 1,000 | 60 | 2011 | | 2025.02.21 | ¸Å¸Å | ¹®È¸¶À» | 2 | 51.39 | 18,000 | | 2012 | | 2025.02.21 | Àü¼¼ | ¹Ì¼ÒÁøÆÄÅ©(368-0) | 3 | 59.11 | 12,500 | 0 | 2013 | | 2025.02.13 | ¸Å¸Å | Ãʷϸ¶À» | 3 | 58.68 | 19,700 | | 2014 | | 2025.02.09 | Àü¼¼ | ±¤¹éµå¸²ºô(777-19) | 2 | 36.36 | 8,900 | 0 | 2011 | | 2025.02.05 | Àü¼¼ | ½Ã¿ÂÄŸºô(786-6) | 4 | 55.67 | 11,800 | 0 | 2010 | | 2025.02.02 | ¸Å¸Å | ÈúŸ¿î2µ¿ | 2 | 43.95 | 12,800 | | 2010 | | 2025.02.02 | ¿ù¼¼ | ±Ý°¾ÆÆ®ºô(789-2) | 5 | 30.06 | 1,000 | 35 | 2008 | | 2025.01.31 | ¸Å¸Å | ¸¶ÀÎij½½(778-16) | 4 | 42.65 | 10,000 | | 2010 | | 2025.01.19 | ¸Å¸Å | ±¤¹éµå¸²ºôAµ¿(778-5) | 5 | 84.96 | 18,000 | | 2010 | | 2025.01.17 | ¿ù¼¼ | ü¸®ÆÄÅ©Èú | 2 | 37.68 | 1,000 | 65 | 2021 | | 2025.01.15 | Àü¼¼ | ¶ó¿ÂÈÞ | 3 | 51.6988 | 13,800 | 0 | 2016 | | 2025.01.15 | Àü¼¼ | ¶ó¿ÂÈÞ | 3 | 51.6988 | 13,800 | 0 | 2016 | | 2025.01.12 | ¸Å¸Å | ±¤¹éµå¸²ºô(776-1) | 4 | 75.53 | 16,500 | | 2009 | | 2025.01.12 | Àü¼¼ | »ê¿¡µé¿¡502µ¿ | 2 | 55.415 | 11,000 | 0 | 2009 | | 2025.01.12 | Àü¼¼ | »ê¿¡µé¿¡502µ¿ | 2 | 55.415 | 11,000 | 0 | 2009 | | 2025.01.08 | ¸Å¸Å | ´ë°ø¿øÄ³½½ | 2 | 32.69 | 15,800 | | 2019 | | 2025.01.04 | Àü¼¼ | ´ÙÀººô¸®Áö2Â÷ | 2 | 72.48 | 18,000 | 0 | 2010 | | 2025.01.03 | ¿ù¼¼ | ¸¶ÀÎij½½(778-16) | 5 | 40.7 | 100 | 40 | 2010 | | 2025.01.03 | ¿ù¼¼ | ¸¶ÀÎij½½(778-16) | 5 | 40.7 | 100 | 40 | 2010 | | 2024.12.28 | ¸Å¸Å | ¹®È¸¶À» | 3 | 49.95 | 11,000 | | 2012 | | 2024.12.12 | Àü¼¼ | Àå¼ö¸®µåºô102µ¿ | 4 | 59.97 | 12,800 | 0 | 2010 | | 2024.12.09 | Àü¼¼ | ´ÙÀººô¸®Áö2Â÷ | 2 | 72.48 | 15,000 | 0 | 2010 | | 2024.12.07 | ¿ù¼¼ | ·Ôµ¥Æç¸®½º | 2 | 67.99 | 2,000 | 60 | 2009 | | 2024.12.05 | ¸Å¸Å | ±×¸°³ª·¡ºô¶óCµ¿ | 5 | 73.71 | 19,400 | | 2017 | | 2024.11.28 | ¿ù¼¼ | ¸¶ÀÎij½½1µ¿(781-5) | 2 | 36.06 | 1,000 | 50 | 2011 | | 2024.11.21 | Àü¼¼ | ±¤¹éµå¸²ºô(788-15) | 3 | 49.96 | 11,000 | 0 | 2010 | | 2024.11.21 | ¸Å¸Å | ¹®È¸¶À» | 2 | 51.39 | 17,500 | | 2012 | | 2024.11.15 | Àü¼¼ | ÆÄÅ©ºô | 2 | 64.735 | 13,000 | 0 | 2008 | | 2024.11.13 | Àü¼¼ | ¹Ì¼ÒÁøÆÄÅ©(368-6) | 2 | 64.75 | 14,900 | 0 | 2013 | | 2024.11.12 | ¿ù¼¼ | ¼öÇöÆÄÅ©ºô | 4 | 69.47 | 3,000 | 70 | 2011 | | 2024.11.08 | ¸Å¸Å | ¶ó¿ÂÇÏÁ¦A | 4 | 71.49 | 18,550 | | 2023 | | 2024.11.08 | ¸Å¸Å | ¶ó¿ÂÇÏÁ¦A | 4 | 66.75 | 17,313 | | 2023 | | 2024.11.08 | ¸Å¸Å | ¶ó¿ÂÇÏÁ¦A | 2 | 66.75 | 17,313 | | 2023 | | 2024.11.08 | ¸Å¸Å | ¶ó¿ÂÇÏÁ¦A | 3 | 66.75 | 17,313 | | 2023 | | 2024.11.08 | ¸Å¸Å | ¶ó¿ÂÇÏÁ¦A | 5 | 65.93 | 20,758 | | 2023 | | 2024.11.08 | ¸Å¸Å | ¶ó¿ÂÇÏÁ¦A | 5 | 62.27 | 19,787 | | 2023 | | 2024.11.08 | ¸Å¸Å | ¶ó¿ÂÇÏÁ¦A | 3 | 71.49 | 18,550 | | 2023 | | 2024.11.08 | ¸Å¸Å | ¶ó¿ÂÇÏÁ¦A | 2 | 71.49 | 18,550 | | 2023 | | 2024.11.08 | ¸Å¸Å | ¶ó¿ÂÇÏÁ¦B | 5 | 69.87 | 21,818 | | 2023 | | 2024.11.08 | ¸Å¸Å | ¶ó¿ÂÇÏÁ¦B | 5 | 64.6 | 20,317 | | 2023 | | 2024.11.08 | ¸Å¸Å | ¶ó¿ÂÇÏÁ¦B | 4 | 69.87 | 18,197 | | 2023 | | 2024.11.08 | ¸Å¸Å | ¶ó¿ÂÇÏÁ¦B | 3 | 69.87 | 18,197 | | 2023 | | 2024.11.08 | ¸Å¸Å | ¶ó¿ÂÇÏÁ¦B | 4 | 64.6 | 16,783 | | 2023 | | 2024.11.08 | ¸Å¸Å | ¶ó¿ÂÇÏÁ¦B | 3 | 64.6 | 16,783 | | 2023 | | 2024.11.08 | ¸Å¸Å | ¶ó¿ÂÇÏÁ¦B | 2 | 69.87 | 18,197 | | 2023 | | 2024.11.08 | ¸Å¸Å | ¶ó¿ÂÇÏÁ¦B | 2 | 64.6 | 16,783 | | 2023 | | 2024.11.01 | ¸Å¸Å | ½Åµ¿¾ÆÆÓ¸®½º(780-5) | 3 | 58.52 | 13,700 | | 2009 | | 2024.10.28 | ¸Å¸Å | Ãʷϸ¶À» | 5 | 74.48 | 31,800 | | 2014 | | 2024.10.28 | ¸Å¸Å | Ãʷϸ¶À» | 5 | 74.48 | 31,800 | | 2014 | | 2024.10.19 | ¿ù¼¼ | ±¤¹éµå¸²ºô(777-19) | 3 | 37.9 | 1,500 | 40 | 2011 | | 2024.10.18 | ¸Å¸Å | ¸ð½ºÆ®ºô2µ¿ | 3 | 64.402 | 21,000 | | 2016 | | 2024.10.15 | Àü¼¼ | ÈúŸ¿î8Â÷ | 5 | 55.15 | 11,600 | 0 | 2012 | | 2024.10.15 | Àü¼¼ | ÈúŸ¿î8Â÷ | 5 | 55.15 | 11,600 | 0 | 2012 | | 2024.10.14 | ¸Å¸Å | Çϴø¶À» | 5 | 65.39 | 15,500 | | 2011 | | 2024.10.07 | Àü¼¼ | ´ë°ø¿øÄ³½½ | 4 | 32.69 | 12,000 | 0 | 2019 | | 2024.10.03 | Àü¼¼ | ±¤¹éµå¸²ºô(778-2) | 3 | 71.73 | 15,100 | 0 | 2009 | | 2024.09.30 | ¸Å¸Å | ±×¸®´Ï | 4 | 31.58 | 11,500 | | 2015 | | 2024.09.28 | ¿ù¼¼ | ±¤¹éµå¸²ºô(788-10) | 2 | 40.93 | 3,000 | 40 | 2010 | | 2024.09.26 | Àü¼¼ | Áß¾ÓÈúŸ¿î3Â÷(783-1) | 2 | 68.62 | 13,900 | 0 | 2008 | | 2024.09.25 | Àü¼¼ | ½Å¼º±×¸°ºô | 3 | 37.55 | 8,200 | 0 | 2009 | | 2024.09.25 | Àü¼¼ | ½Å¼º±×¸°ºô | 3 | 37.55 | 8,200 | 0 | 2009 | | 2024.09.24 | ¸Å¸Å | ·Ôµ¥Æç¸®½º | 3 | 49.73 | 14,700 | | 2009 | | 2024.09.23 | Àü¼¼ | ¶ôÇϿ콺2Â÷(Bµ¿)(778-25) | 5 | 63.37 | 15,800 | 0 | 2010 | | 2024.09.09 | ¸Å¸Å | Áß¾ÓÈúŸ¿î5Â÷(788-19) | 3 | 36.43 | 12,000 | | 2010 | | 2024.08.30 | ¸Å¸Å | À¯¿£ºô¸®Áö#6 | 5 | 52.38 | 14,000 | | 2012 | | 2024.08.21 | ¸Å¸Å | Áß¾ÓÈúŸ¿î3Â÷(783-1) | 2 | 68.62 | 13,500 | | 2008 | | 2024.08.20 | ¸Å¸Å | Áß¾ÓÈúŸ¿î3Â÷(783-1) | 3 | 60.4 | 16,700 | | 2008 | | 2024.08.10 | ¸Å¸Å | ÅÂÁÖ¸®½´ºô | 4 | 56.95 | 10,900 | | 2008 | | 2024.08.08 | ¸Å¸Å | »ê¿¡µé¿¡501µ¿ | 5 | 55.585 | 13,500 | | 2009 | | 2024.08.07 | ¿ù¼¼ | ¼öÇöÆÄÅ©ºô | 2 | 62.49 | 1,000 | 65 | 2011 | | 2024.08.01 | ¿ù¼¼ | »ó¾Æ±×¸°ºô¶ó | 1 | 37.27 | 3,000 | 25 | 1994 | | 2024.07.29 | Àü¼¼ | »ê¿¡µé¿¡503µ¿ | 4 | 88.11 | 15,000 | 0 | 2009 | | 2024.07.25 | Àü¼¼ | ¶ôÇϿ콺1Â÷(Bµ¿)(777-24) | 5 | 74.2 | 15,750 | 0 | 2008 | | 2024.07.16 | ¸Å¸Å | Àå¼öºô¶ó(766-13) | -1 | 42.72 | 4,200 | | 1992 | | 2024.07.01 | Àü¼¼ | È£¼ºÇÏÀ̺ô(767-10) | 2 | 62.63 | 13,000 | 0 | 2011 | | 2024.07.01 | Àü¼¼ | È£¼ºÇÏÀ̺ô(767-10) | 2 | 62.63 | 13,000 | 0 | 2011 | | 2024.06.25 | Àü¼¼ | Àå¼ö¶ß·¹ºô | 3 | 58.13 | 12,000 | 0 | 2009 | | 2024.06.24 | ¸Å¸Å | È£¼ºÇÏÀ̺ô(767-10) | 4 | 44.04 | 13,700 | | 2011 | | 2024.06.23 | Àü¼¼ | ·ÎÁ¦Èú | 4 | 73.405 | 23,000 | 0 | 2015 | | 2024.06.21 | ¸Å¸Å | ¼öÇöÆÄÅ©ºô | 3 | 69.47 | 14,300 | | 2011 | | 2024.06.19 | ¿ù¼¼ | ±×¸®´Ï | 5 | 26.33 | 1,000 | 40 | 2015 | | 2024.06.18 | ¿ù¼¼ | ±Ý°¾ÆÆ®ºô(778-22) | 3 | 50.4 | 3,500 | 40 | 2009 | | 2024.06.08 | ¸Å¸Å | ¶ôÇϿ콺2Â÷(Aµ¿)(778-1) | 3 | 84.83 | 22,000 | | 2010 | | 2024.06.06 | ¸Å¸Å | º½ºû¸¶À» | 5 | 45.92 | 24,400 | | 2015 | | 2024.06.03 | ¿ù¼¼ | ±×¸°³ª·¡ºô¶óA,Bµ¿ | 3 | 71.47 | 2,000 | 70 | 2016 | | 2024.06.02 | ¿ù¼¼ | ÇØ¿À¸§ÆÄÅ©104µ¿ | 3 | 57.84 | 2,000 | 60 | 2015 | | 2024.05.07 | ¸Å¸Å | ½Ã¿ÂÄŸºô(786-6) | 4 | 56.16 | 16,000 | | 2010 | | 2024.05.06 | ¿ù¼¼ | Àå¼öºô¶ó(766-13) | 2 | 42.72 | 1,000 | 40 | 1992 | | 2024.04.30 | Àü¼¼ | Áß¾ÓÈúŸ¿î5Â÷(788-19) | 5 | 34.82 | 9,000 | 0 | 2010 | | 2024.04.16 | ¸Å¸Å | ûºÀ»ê¿¡µé¿¡ | 5 | 58.87 | 17,300 | | 2010 | | 2024.04.13 | ¿ù¼¼ | (790-4) | 2 | 51.65 | 500 | 40 | 2015 | | 2024.03.29 | ¿ù¼¼ | ±¤¹éµå¸²ºô(777-19) | 4 | 59.95 | 2,000 | 60 | 2011 | | 2024.03.25 | ¿ù¼¼ | º®»êºô3Â÷ | 3 | 52.36 | 1,000 | 60 | 2009 | | 2024.03.19 | Àü¼¼ | ½Åµ¿¾ÆÆÓ¸®½º(780-5) | 4 | 58.52 | 10,000 | 0 | 2009 | | 2024.03.17 | ¿ù¼¼ | ±Ý°¾ÆÆ®ºô(789-2) | 5 | 30.06 | 500 | 50 | 2008 | | 2024.03.15 | Àü¼¼ | ½Åµ¿¾ÆÆÓ¸®½º(780-5) | 4 | 58.52 | 10,000 | 0 | 2009 | | 2024.03.12 | ¿ù¼¼ | ÆÄÅ©ºô-A | 5 | 64.735 | 3,000 | 65 | 2008 | | 2024.03.12 | Àü¼¼ | ÈúŸ¿î2µ¿ | 4 | 52.44 | 11,490 | 0 | 2010 | | 2024.03.09 | ¿ù¼¼ | º®»êºô3Â÷ | 4 | 53 | 500 | 50 | 2009 | | 2024.03.09 | ¿ù¼¼ | º®»êºô3Â÷ | 4 | 53 | 500 | 50 | 2009 | | 2024.03.09 | ¿ù¼¼ | º®»êºô3Â÷ | 4 | 53 | 500 | 50 | 2009 | | 2024.02.26 | Àü¼¼ | ÇØ¿À¸§ÆÄÅ©103µ¿ | 2 | 59.31 | 12,000 | 0 | 2015 | | 2024.02.20 | Àü¼¼ | »ï¼ºº£¶óü | 5 | 46.04 | 8,000 | 0 | 2009 | | 2024.02.05 | Àü¼¼ | ½Åµ¿¾ÆÆç¸®½º(781-2) | 2 | 71.78 | 15,100 | 0 | 2008 | | 2024.01.07 | Àü¼¼ | ¶ôÇϿ콺1Â÷(Bµ¿)(777-24) | 4 | 58.24 | 14,000 | 0 | 2008 |
|
|
|
 |
ÀÓÂ÷³»¿ª |
[¹è´ç¿ä±¸Á¾±âÀÏ : 2024/06/26] |
|
|
| ÀÓÂ÷ÀÎ |
Á¡À¯°ü°è |
ÀüÀÔÀÏÀÚ |
È®Á¤ÀÏÀÚ |
¹è´ç¿ä±¸ÀÏ |
º¸Áõ±Ý/Â÷ÀÓ |
´ëÇ׿ä°Ç |
ºñ°í |
| ˱OO |
ÀüºÎ |
2021.03.12. |
2021.02.01. |
|
334,000,000
|
O |
|
| ÁÖOOOOOOOOOOOOOOOO |
ÀüºÎ |
2021.03.12. |
2021.02.01. |
2024.6.25. |
334,000,000
|
O |
2021.03.12.~2023.03.11. |
| ¸Å°¢¹°°Ç¸í¼¼ ºñ°í |
À±µ¿Áø:ÁÖÅÃÀÓÂ÷±Çµî±â±ÇÀڷμ ÁÖÅÃÀÓÂ÷±Çµî±âÀÏÀº 2023.04.12. ÀÓ
ÁÖÅõµ½Ãº¸Áõ°ø»ç(ÀÓÂ÷ÀÎ:À±µ¿Áø):ÁÖÅÃÀÓÂ÷±ÇÀÇ ½Â°èÀÎÀÎ ÁÖÅõµ½Ãº¸Áõ°ø»ç·ÎºÎÅÍ ¿ì¼±º¯Á¦±Ç¸¸ ÁÖÀåÇÏ°í ´ëÇ×·ÂÀº Æ÷±âÇϸç,
ÀÓ´ëÂ÷º¸Áõ±Ý Àü¾×À» º¯Á¦¹ÞÁö ¸øÇÏ´õ¶óµµ ¸Å¼öÀο¡ ´ëÇÑ ÀÜÁ¸ ÀÓ´ëÂ÷º¸Áõ±Ý ¹Ýȯû±¸±ÇÀ» Æ÷±âÇϰí ÀÓ´ëÂ÷µî±â¸¦ ¸»¼ÒÇÏ´Â
°Í¿¡ µ¿ÀÇÇÑ´Ù´Â È®¾à¼°¡ Á¦ÃâµÊ |
|
|
|
 |
Áö¿ªºÐ¼® |
|
|
|
|
| ÁöÇÏö |
|
Çб³ |
|
| °ü°ø¼ |
|
| ¹ý¿ø |
ÀÎõÁö¹æ¹ý¿ø (222-20)ÀÎõ±¤¿ª½Ã ¹ÌÃßȦ±¸ ¼Ò¼º·Î 163¹ø±æ 17(ÇÐÀ͵¿) ´ëÇ¥ : 032)860-1113~4 Áß±¸, µ¿±¸, ³²±¸, ¿¬¼ö±¸, ³²µ¿±¸, ºÎÆò±¸, °è¾ç±¸, ¼±¸, ¿ËÁø±º, °È±º |
| µî±â¼Ò |
ÀÎõÁö¹æ¹ý¿ø º»¿ø µî±â±¹ (´ëÇ¥:1544-0773, ÆÑ½º:(032)620-9099, ÀÎõ±¤¿ª½Ã ¹ÌÃßȦ±¸ °æ¿ø´ë·Î 881(Á־ȵ¿ 983)) |
| ¼¼¹«¼ |
³²ÀÎõ¼¼¹«¼ (´ëÇ¥:032-460-52, ÆÑ½º:032-463-5778, ÀÎõ±¤¿ª½Ã ³²µ¿±¸ ÀÎÇÏ·Î 548 (±¸¿ùµ¿)) |
|
|
|
 |
¹ý¿ø ¹°°ÇÀÚ·á ¿ä¾à |
|
|
|
|
| ¼Ò¸êµÇÁö ¾Ê´Â µî±âºÎ±Ç¸® |
À»±¸ ¼øÀ§3¹ø ÁÖÅÃÀÓÂ÷±Çµî±â(´Ù¸¸ ÁÖÅõµ½Ãº¸Áõ°ø»çÀÇ ¸»¼Òµ¿ÀÇ È®¾à¼°¡ Á¦ÃâµÊ) |
| ¼³Á¤µÈ °ÍÀ¸·Î º¸´Â Áö»ó±Ç |
|
| ¹ý¿øÀÚ·á Æ¯ÀÌ»çÇ× |
[ÁÖ¿ä ¹®°Ç Á¢¼ö ³»¿ª]
|
[¸Å°¢¹°°Ç¸í¼¼¼ ºñ°í¶õ]
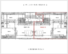
- °¨Á¤Æò°¡¼ ³»ºÎ±¸Á¶µµ »ó 501È£¿Í 502È£ÀÇ À§Ä¡°¡ ¿ÀÇ¥±â µÇ¾î, »ç½ÇÁ¶È¸ ȸ½Å¼·Î Á¤Á¤ÇÔ(¸Å°¢¹°°ÇÀÎ 502È£´Â ³»ºÎ±¸Á¶µµ»ó ¿ÞÂÊÀÓ)
- Á¦½Ã¿Ü °Ç¹°(ö±ÙÄÜÅ©¸®Æ® ±¸Á¶ ¹× ÁöºØ, º¹Ãþ 59.42§³) Æ÷ÇÔ
- º¹Ãþ±¸Á¶·Î À̸¦ °í·ÁÇÏ¿© °¨Á¤Æò°¡µÊ(°¨Á¤Æò°¡¼ ÂüÁ¶)
- º¹ÃþÀº ¹Ù´ÚÃþÀ» ÅëÇØ¼¸¸ ÃâÀÔÀÌ °¡´ÉÇÔ(»ç½ÇÁ¶È¸ ȸ½Å¼ ÂüÁ¶)
- º¹ÃþÀº ¹Ù´ÚÃþ°ú µ¿ÀϽñâ ÁõÃàµÈ °ÍÀ¸·Î È®Àεdzª, °ÇÃ๰´ëÀå µî °øÀû ÀåºÎ¿¡´Â ÁõÃà±â·ÏÀÌ ¾øÀ½(»ç½ÇÁ¶È¸ ȸ½Å¼ ÂüÁ¶) |
|
| ¿©ÀÇÁÖ°æ¸Å Á¶¾ð ÇѸ¶µð |
ÀÌ ºÎµ¿»êÀÇ ÀÔÂû¹ý¿øÀº ÀÎõÁö¹æ¹ý¿øÀÔ´Ï´Ù.
ÀÔÂûÀÏÀº 2025-12-23ÀÔ´Ï´Ù.
ÀÔÂû½Ã°£Àº ~11:20ÀÔ´Ï´Ù. ÀÌ ¹ý¿ø¿¡´Â KB±¹¹ÎÀºÇàÀÌ ÀÔÁ¡Çϰí ÀÖ½À´Ï´Ù.
|
¼±¼øÀ§ ÀÓÂ÷±Çµî±â°¡ µÇ¾î ÀÖ½À´Ï´Ù ´ëÇ×·ÂÀÌ ÀÖ´Â ¼±¼øÀ§ ÀÓÂ÷±Çµî±â ±Ç¸®ÀÚ°¡ ¹è´çÀ» Àü¾× ¹ÞÁö ¸øÇÒ °æ¿ì ³«ÂûÀÚ°¡ ÀÜ¿© º¸Áõ±ÝÀ» ÀμöÇØ¾ßÇÏ´Â °æ¿ìµµ ÀÖ½À´Ï´Ù. |
Á¦½Ã¿Ü ¹°°ÇÀÌ Æ÷ÇԵǾî ÀÖ½À´Ï´Ù ¡®Á¦½Ã¿Ü ¹°°Ç¡¯Àº ÇØ´ç °øºÎ»ó¿¡´Â Á¸ÀçÇÏÁö ¾ÊÁö¸¸, ÇöÀå¿¡ Á¸Àç°¡ È®ÀεǴ ¿©·¯ ÇüÅÂÀÇ °Ç¹°, ±â°è±â±¸ µîÀ» ¸»ÇÕ´Ï´Ù. ÀÌµé ´ëºÎºÐÀº ¹«Çã°¡, ¹«½Å°íÀ̰ųª »ç¿ë½ÂÀÎÀ» ¹ÞÁö ¾ÊÀº °ÍÀÔ´Ï´Ù. ¡®Á¦½Ã¿Ü ¹°°Ç¡¯ÀÌ °æ¸Å´ë»ó¿¡ Æ÷ÇԵǾî ÀÖ´Ù¸é ³«ÂûÀÚÀÇ ¼ÒÀ¯±Ç Ãëµæ¿¡´Â ¾Æ¹«·± ¹®Á¦°¡ ¾ø½À´Ï´Ù. |
|
|
| Åë°è±â°£ |
³«Âû¹°°Ç¼ö |
Æò±Õ°¨Á¤°¡ |
Æò±Õ³«Âû°¡ |
³«Âû°¡À² |
À¯ÂûȽ¼ö |
| 3°³¿ù |
53°Ç |
129,743,774¿ø |
80,105,018¿ø |
60% |
2.4ȸ |
| 6°³¿ù |
139°Ç |
131,866,331¿ø |
82,848,115¿ø |
61% |
2.2ȸ |
| 12°³¿ù |
257°Ç |
129,075,306¿ø |
82,253,245¿ø |
62% |
2.2ȸ |
|
|
|
|
|
|
 |
|