|
| º» °æ¸Å¹°°ÇÀº ³«ÂûµÇ¾î ÀÌ¹Ì ¸ðµç °æ¸ÅÀýÂ÷°¡ ³¡³µ½À´Ï´Ù. ÀÌ ¹°°ÇÀº »ó´ãÇØ µå¸®Áö ¾Ê½À´Ï´Ù. |
|
|
| ¼ÒÀçÁö |
°æ±âµµ Æ÷õ½Ã ¼ÒÈêÀ¾ źÀ·Î 227, 208µ¿ 20Ãþ 2001È£ (¼Ûõ¸¶À»¶ß¶õä)
±¸)°æ±âµµ Æ÷õ½Ã ¼ÒÈêÀ¾ ¼Û¿ì¸® 725-6
|
|
| »ç°Ç¹øÈ£ |
2025 Ÿ°æ 72031 |
¹°°Ç¹øÈ£ |
1
|
¹°°Ç¿ëµµ |
¾ÆÆÄÆ® |
| °¨Á¤Æò°¡¾× |
251,000,000¿ø |
°æ¸Å´ë»ó |
ÅäÁö ¹× °Ç¹°Àϰý¸Å°¢ |
ÁøÇà»óÅ |
³«Âû |
ÃÖÀúÀÔÂû°¡ ³«Âû°¡ |
(70%) 175,700,000¿ø
(0.00%) 0¿ø |
°Ç¹°¸éÀû |
84.86§³(25.67Æò) |
ÀÔÂû±âÀÏ |
2026.01.22(¸ñ) 10:30
|
| ÀÔÂûº¸Áõ±Ý |
(10%) 17,570,000¿ø |
ÅäÁö¸éÀû |
59.51§³(18.00Æò)
|
À¯ÂûȽ¼ö |
1ȸ |
| ÀÔÂû¹ý¿ø |
ÀÇÁ¤ºÎÁö¹æ¹ý¿ø |
°æ¸Å¹æ¹ý |
|
¹°°ÇÁ¶È¸¼ö |
¿À´Ã: 1ȸ [´©Àû: 1225ȸ]
|
| ¸»¼Ò±âÁØ | |
|
|
|
|
|
|
|
|
|
|
°æ¸Å´ë»ó ¸ñ·Ï
|
|
| ±¸ºÐ |
¸ñ·Ï |
ÁÖ¼Ò |
±¸Á¶/¿ëµµ/´ëÁö±Ç |
ºñ°í |
´ëÁö±Ç
|
1 |
¼Û¿ì¸® 725-6 |
68478.1 ºÐÀÇ 59.51 |
59.51§³ (18.00Æò)
|
°Ç¹°
|
1 |
¼Û¿ì¸® 725-6 |
208µ¿ 20Ãþ 2001È£ ö±ÙÄÜÅ©¸®Æ®±¸Á¶ |
84.86§³ (25.67Æò)
|
|
|
|
2025-12-04
À¯Âû
|
(100%)
251,000,000¿ø
|
|
|
|
2026-01-22
³«Âû
|
(70%)
175,700,000¿ø
|
|
|
¦±¦¬> ³«Âû°¡
 |
|
|
|
|
|
|
°¨Á¤Æò°¡¼ ¿ä¾à |
|
[À§Ä¡/ÁÖÀ§È¯°æ]
´ë»ó¹°°ÇÀº °æ±âµµ Æ÷õ½Ã ¼ÒÈêÀ¾ ¼Û¿ì¸® ¼ÒÀ确źÀÃʵîÇб³¡¯µ¿Ãø Àαٿ¡ À§Ä¡Çϸç, ÁÖÀ§´Â ¾ÆÆÄÆ®´ÜÁö, ±Ù¸°»ýȰ½Ã¼³, °¢ ±Þ Çб³ µîÀÌ È¥ÀçÇÏ´Â Áö¿ªÀ¸·Î¼, Á¦¹Ý ÁÖÀ§È¯°æÀº º¸ÅëÀÓ.
[±³Åë»óȲ]
º»°Ç±îÁö Â÷·®ÁøÃâÀÔÀÌ °¡´ÉÇϰí Àαٿ¡ ³ë¼±¹ö½ºÁ¤·ùÀå, °£¼±µµ·Î µîÀÌ ¼ÒÀçÇÏ´Â µî Á¦¹Ý ±³Åë»óȲÀº º¸ÅëÀÓ.
[°Ç¹°±¸Á¶]
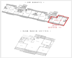
ö±ÙÄÜÅ©¸®Æ®±¸Á¶ ±âŸÁöºØ, °æ»çÁöºØ ÁöÇÏ1Ãþ/Áö»ó20Ãþ ³» Á¦20Ãþ Á¦2001È£·Î¼,
¿Üº® : ¸ôÅ»À§ÆäÀÎÆÃ µî ¸¶°¨,
âȣ : ÇÏÀ̼¦½Ã µî ¸¶°¨.
[ÀÌ¿ë»óÅÂ]
¾ÆÆÄÆ®(¹æ3, ÈÀå½Ç2, ¹ßÄÚ´Ï, ÁÖ¹æ, °Å½Ç, Çö°ü µî)À¸·Î ÀÌ¿ëÁßÀÓ.
[¼³ºñ³»¿ª]
À§»ý ¹× ±Þ¹è¼ö¼³ºñ, µµ½Ã°¡½º¿¡ ÀÇÇÑ ¹Ù´Ú³¹æ¼³ºñ, ¼ÒÈÀü¼³ºñ, ÈÀçŽÁö¼³ºñ, ½Â°±â¼³ºñ µî ¼³Ä¡µÇ¾î ÀÖÀ½.
[ÅäÁöÇü»ó/ÀÌ¿ë»óÅÂ]
ÀÎÁ¢ ÇÊÁö ¹× µµ·Î ´ëºñ ´ëü·Î µî°íÆòźÇÑ ºÎÁ¤Çü ÅäÁö·Î¼, ¾ÆÆÄÆ® °ÇºÎÁö·Î ÀÌ¿ëÁßÀÓ.
7)ÀÎÁ¢ µµ·Î»óŵî
´ÜÁö ³» µµ·Î¸¦ ÅëÇÏ¿© ¿ÜºÎ°øµµ¿Í Á¢ÇÔ.
[ÅäÁöÀÌ¿ë°èȹ]
µµ½ÃÁö¿ª(¼ÒÈêµµ½Ã), Á¦3Á¾ÀϹÝÁÖ°ÅÁö¿ª, Áö±¸´ÜÀ§°èȹ±¸¿ª(¼Û¿ìÅÃÁö°³¹ßÁö±¸µµ½Ã°ú ¹®ÀÇ), ¼Ò·Î3·ù(Æø 8m ¹Ì¸¸)(Ư¼öµµ·Î)(Á¢ÇÕ), Áß·Î2·ù(Æø 15m~20m)(Áý»êµµ·Î)(Á¢ÇÕ), °¡Ãà»çÀ°Á¦Çѱ¸¿ª(2023-06-22)(ÀüºÎÁ¦Çѱ¸¿ª)£¼°¡ÃàºÐ´¢ÀÇ °ü¸® ¹× À̿뿡 °üÇÑ ¹ý·ü£¾, »ó´ëº¸È£±¸¿ª£¼±³À°È¯°æ º¸È£¿¡ °üÇÑ ¹ý·ü£¾, Àý´ëº¸È£±¸¿ª£¼±³À°È¯°æ º¸È£¿¡ °üÇÑ ¹ý·ü£¾, ¹èÃâ½Ã¼³¼³Ä¡Á¦ÇÑÁö¿ª£¼¹°È¯°æº¸Àü¹ý£¾, ¼ºÀå°ü¸®±Ç¿ª£¼¼öµµ±ÇÁ¤ºñ°èȹ¹ý£¾
[°øºÎ¿ÍÀÇ Â÷ÀÌ]
ÇØ´ç»çÇ× ¾øÀ½.
[Âü°í»çÇ×]
ÀÓ´ë ¹Ì»óÀÓ. |
|
|
|
|
|
|
|
¸éÀû(§³), ±Ý¾×(¸¸¿ø)
| °è¾àÀÏ | ±âÁØ | ¾ÆÆÄÆ®¸í | Ãþ | Àü¿ë¸éÀû | °Å·¡±Ý¾× | °ÇÃà³âµµ | | °Å·¡³»¿ªÀÌ ¾ø½À´Ï´Ù. |
| °è¾àÀÏ | ±âÁØ | ¾ÆÆÄÆ®¸í | Ãþ | Àü¿ë¸éÀû | º¸Áõ±Ý | ¿ù¼¼ | °ÇÃà³âµµ | | 2026.02.13 | ¸Å¸Å | ¼Ûõ¸¶À» | 20 | 75.99 | 27,000 | | 2005 | | 2026.02.07 | ¿ù¼¼ | ¼Ûõ¸¶À» | 8 | 84.86 | 2,000 | 80 | 2005 | | 2026.01.31 | ¸Å¸Å | ¼Ûõ¸¶À» | 11 | 75.99 | 21,900 | | 2005 | | 2026.01.20 | ¸Å¸Å | ¼Ûõ¸¶À» | 8 | 84.86 | 23,200 | | 2005 | | 2026.01.15 | ¿ù¼¼ | ¼Ûõ¸¶À» | 7 | 75.99 | 2,000 | 80 | 2005 | | 2026.01.15 | ¿ù¼¼ | ¼Ûõ¸¶À» | 4 | 84.03 | 2,000 | 75 | 2005 | | 2026.01.14 | ¸Å¸Å | ¼Ûõ¸¶À» | 7 | 84.86 | 23,500 | | 2005 | | 2026.01.05 | ¿ù¼¼ | ¼Ûõ¸¶À» | 12 | 84.86 | 2,000 | 70 | 2005 | | 2026.01.02 | ¿ù¼¼ | ¼Ûõ¸¶À» | 18 | 84.86 | 2,000 | 80 | 2005 | | 2025.12.29 | ¸Å¸Å | ¼Ûõ¸¶À» | 7 | 84.03 | 24,000 | | 2005 | | 2025.12.23 | ¸Å¸Å | ¼Ûõ¸¶À» | 6 | 75.99 | 23,000 | | 2005 | | 2025.12.20 | ¸Å¸Å | ¼Ûõ¸¶À» | 3 | 75.99 | 20,800 | | 2005 | | 2025.12.20 | ¿ù¼¼ | ¼Ûõ¸¶À» | 6 | 84.86 | 16,000 | 10 | 2005 | | 2025.12.17 | Àü¼¼ | ¼Ûõ¸¶À» | 4 | 75.99 | 17,000 | 0 | 2005 | | 2025.12.17 | Àü¼¼ | ¼Ûõ¸¶À» | 20 | 75.99 | 18,000 | 0 | 2005 | | 2025.12.12 | ¿ù¼¼ | ¼Ûõ¸¶À» | 4 | 84.03 | 4,500 | 55 | 2005 | | 2025.12.06 | ¿ù¼¼ | ¼Ûõ¸¶À» | 13 | 75.99 | 3,000 | 70 | 2005 | | 2025.12.05 | ¿ù¼¼ | ¼Ûõ¸¶À» | 9 | 75.99 | 2,000 | 75 | 2005 | | 2025.12.01 | Àü¼¼ | ¼Ûõ¸¶À» | 14 | 84.86 | 18,000 | 0 | 2005 | | 2025.11.27 | Àü¼¼ | ¼Ûõ¸¶À» | 4 | 75.99 | 17,000 | 0 | 2005 | | 2025.11.20 | ¸Å¸Å | ¼Ûõ¸¶À» | 16 | 84.86 | 23,000 | | 2005 | | 2025.11.20 | ¸Å¸Å | ¼Ûõ¸¶À» | 19 | 84.86 | 23,800 | | 2005 | | 2025.11.19 | Àü¼¼ | ¼Ûõ¸¶À» | 5 | 84.03 | 17,000 | 0 | 2005 | | 2025.11.18 | ¸Å¸Å | ¼Ûõ¸¶À» | 20 | 84.86 | 22,000 | | 2005 | | 2025.11.14 | ¸Å¸Å | ¼Ûõ¸¶À» | 15 | 84.86 | 23,500 | | 2005 | | 2025.11.11 | ¸Å¸Å | ¼Ûõ¸¶À» | 13 | 84.86 | 24,200 | | 2005 | | 2025.11.08 | ¸Å¸Å | ¼Ûõ¸¶À» | 15 | 84.86 | 23,500 | | 2005 | | 2025.11.08 | ¿ù¼¼ | ¼Ûõ¸¶À» | 11 | 75.99 | 12,000 | 30 | 2005 | | 2025.11.05 | ¸Å¸Å | ¼Ûõ¸¶À» | 13 | 84.86 | 23,800 | | 2005 | | 2025.11.01 | Àü¼¼ | ¼Ûõ¸¶À» | 19 | 84.86 | 19,000 | 0 | 2005 | | 2025.10.31 | Àü¼¼ | ¼Ûõ¸¶À» | 6 | 75.99 | 18,000 | 0 | 2005 | | 2025.10.28 | ¸Å¸Å | ¼Ûõ¸¶À» | 7 | 84.86 | 23,000 | | 2005 | | 2025.10.27 | Àü¼¼ | ¼Ûõ¸¶À» | 18 | 84.86 | 18,000 | 0 | 2005 | | 2025.10.20 | ¸Å¸Å | ¼Ûõ¸¶À» | 12 | 84.86 | 22,700 | | 2005 | | 2025.10.18 | ¸Å¸Å | ¼Ûõ¸¶À» | 16 | 84.86 | 23,000 | | 2005 | | 2025.10.16 | Àü¼¼ | ¼Ûõ¸¶À» | 5 | 84.86 | 17,000 | 0 | 2005 | | 2025.10.15 | ¿ù¼¼ | ¼Ûõ¸¶À» | 16 | 84.03 | 17,850 | 8 | 2005 | | 2025.09.25 | ¿ù¼¼ | ¼Ûõ¸¶À» | 16 | 84.86 | 3,000 | 75 | 2005 | | 2025.09.20 | ¸Å¸Å | ¼Ûõ¸¶À» | 13 | 84.86 | 24,700 | | 2005 | | 2025.09.19 | ¿ù¼¼ | ¼Ûõ¸¶À» | 8 | 84.86 | 3,000 | 70 | 2005 | | 2025.09.19 | ¿ù¼¼ | ¼Ûõ¸¶À» | 5 | 84.86 | 3,000 | 70 | 2005 | | 2025.09.09 | ¸Å¸Å | ¼Ûõ¸¶À» | 1 | 84.86 | 23,700 | | 2005 | | 2025.08.30 | ¸Å¸Å | ¼Ûõ¸¶À» | 10 | 84.03 | 24,000 | | 2005 | | 2025.08.28 | Àü¼¼ | ¼Ûõ¸¶À» | 1 | 84.86 | 18,000 | 0 | 2005 | | 2025.08.16 | ¸Å¸Å | ¼Ûõ¸¶À» | 11 | 84.86 | 22,500 | | 2005 | | 2025.08.14 | Àü¼¼ | ¼Ûõ¸¶À» | 12 | 84.86 | 18,000 | 0 | 2005 | | 2025.08.06 | ¸Å¸Å | ¼Ûõ¸¶À» | 16 | 84.86 | 24,000 | | 2005 | | 2025.08.06 | ¸Å¸Å | ¼Ûõ¸¶À» | 17 | 84.03 | 22,700 | | 2005 | | 2025.08.03 | ¿ù¼¼ | ¼Ûõ¸¶À» | 12 | 75.99 | 3,000 | 70 | 2005 | | 2025.08.01 | ¿ù¼¼ | ¼Ûõ¸¶À» | 9 | 84.03 | 3,000 | 70 | 2005 | | 2025.07.24 | ¸Å¸Å | ¼Ûõ¸¶À» | 18 | 84.86 | 22,800 | | 2005 | | 2025.07.21 | ¸Å¸Å | ¼Ûõ¸¶À» | 16 | 75.99 | 12,131 | | 2005 | | 2025.07.21 | ¸Å¸Å | ¼Ûõ¸¶À» | 13 | 84.86 | 22,700 | | 2005 | | 2025.07.21 | ¿ù¼¼ | ¼Ûõ¸¶À» | 12 | 84.86 | 2,000 | 70 | 2005 | | 2025.07.17 | ¿ù¼¼ | ¼Ûõ¸¶À» | 12 | 84.86 | 2,000 | 70 | 2005 | | 2025.07.12 | ¸Å¸Å | ¼Ûõ¸¶À» | 14 | 84.03 | 25,400 | | 2005 | | 2025.07.10 | Àü¼¼ | ¼Ûõ¸¶À» | 16 | 84.86 | 15,000 | 0 | 2005 | | 2025.07.08 | ¸Å¸Å | ¼Ûõ¸¶À» | 18 | 84.86 | 25,000 | | 2005 | | 2025.07.07 | ¸Å¸Å | ¼Ûõ¸¶À» | 2 | 84.86 | 23,200 | | 2005 | | 2025.07.04 | Àü¼¼ | ¼Ûõ¸¶À» | 6 | 84.86 | 16,000 | 0 | 2005 | | 2025.06.16 | Àü¼¼ | ¼Ûõ¸¶À» | 12 | 84.86 | 18,000 | 0 | 2005 | | 2025.06.12 | ¸Å¸Å | ¼Ûõ¸¶À» | 1 | 84.03 | 20,500 | | 2005 | | 2025.06.07 | ¿ù¼¼ | ¼Ûõ¸¶À» | 17 | 84.86 | 2,000 | 70 | 2005 | | 2025.06.05 | ¿ù¼¼ | ¼Ûõ¸¶À» | 15 | 84.86 | 2,000 | 70 | 2005 | | 2025.06.04 | ¿ù¼¼ | ¼Ûõ¸¶À» | 9 | 84.86 | 1,000 | 75 | 2005 | | 2025.06.04 | Àü¼¼ | ¼Ûõ¸¶À» | 13 | 75.99 | 16,000 | 0 | 2005 | | 2025.05.29 | Àü¼¼ | ¼Ûõ¸¶À» | 18 | 84.86 | 15,000 | 0 | 2005 | | 2025.05.27 | ¸Å¸Å | ¼Ûõ¸¶À» | 2 | 84.86 | 20,000 | | 2005 | | 2025.05.24 | ¿ù¼¼ | ¼Ûõ¸¶À» | 5 | 84.86 | 2,000 | 80 | 2005 | | 2025.05.20 | ¸Å¸Å | ¼Ûõ¸¶À» | 4 | 84.03 | 22,300 | | 2005 | | 2025.05.19 | Àü¼¼ | ¼Ûõ¸¶À» | 18 | 84.86 | 18,000 | 0 | 2005 | | 2025.05.13 | Àü¼¼ | ¼Ûõ¸¶À» | 7 | 75.99 | 17,000 | 0 | 2005 | | 2025.05.13 | ¿ù¼¼ | ¼Ûõ¸¶À» | 7 | 84.03 | 2,000 | 80 | 2005 | | 2025.05.13 | ¿ù¼¼ | ¼Ûõ¸¶À» | 7 | 84.03 | 2,000 | 80 | 2005 | | 2025.05.13 | ¿ù¼¼ | ¼Ûõ¸¶À» | 8 | 84.86 | 3,000 | 60 | 2005 | | 2025.05.07 | ¸Å¸Å | ¼Ûõ¸¶À» | 3 | 84.86 | 22,000 | | 2005 | | 2025.05.06 | ¸Å¸Å | ¼Ûõ¸¶À» | 8 | 75.99 | 21,500 | | 2005 | | 2025.04.28 | ¸Å¸Å | ¼Ûõ¸¶À» | 3 | 84.86 | 21,500 | | 2005 | | 2025.04.28 | Àü¼¼ | ¼Ûõ¸¶À» | 7 | 84.86 | 17,500 | 0 | 2005 | | 2025.04.23 | ¿ù¼¼ | ¼Ûõ¸¶À» | 15 | 84.86 | 3,000 | 70 | 2005 | | 2025.04.17 | Àü¼¼ | ¼Ûõ¸¶À» | 13 | 75.99 | 16,500 | 0 | 2005 | | 2025.04.16 | ¸Å¸Å | ¼Ûõ¸¶À» | 7 | 75.99 | 22,000 | | 2005 | | 2025.04.16 | ¿ù¼¼ | ¼Ûõ¸¶À» | 11 | 75.99 | 3,000 | 60 | 2005 | | 2025.04.13 | ¸Å¸Å | ¼Ûõ¸¶À» | 3 | 75.99 | 20,000 | | 2005 | | 2025.04.12 | ¿ù¼¼ | ¼Ûõ¸¶À» | 8 | 84.86 | 2,000 | 80 | 2005 | | 2025.04.10 | ¿ù¼¼ | ¼Ûõ¸¶À» | 3 | 84.86 | 3,000 | 65 | 2005 | | 2025.04.05 | Àü¼¼ | ¼Ûõ¸¶À» | 12 | 75.99 | 15,000 | 0 | 2005 | | 2025.04.05 | ¸Å¸Å | ¼Ûõ¸¶À» | 14 | 75.99 | 21,300 | | 2005 | | 2025.04.02 | ¿ù¼¼ | ¼Ûõ¸¶À» | 7 | 84.03 | 3,000 | 65 | 2005 | | 2025.04.02 | ¿ù¼¼ | ¼Ûõ¸¶À» | 7 | 84.03 | 3,000 | 65 | 2005 | | 2025.04.02 | ¸Å¸Å | ¼Ûõ¸¶À» | 7 | 75.99 | 21,000 | | 2005 | | 2025.04.01 | ¸Å¸Å | ¼Ûõ¸¶À» | 11 | 75.99 | 20,000 | | 2005 | | 2025.03.28 | Àü¼¼ | ¼Ûõ¸¶À» | 18 | 84.86 | 18,000 | 0 | 2005 | | 2025.03.25 | ¸Å¸Å | ¼Ûõ¸¶À» | 2 | 84.03 | 23,500 | | 2005 | | 2025.03.22 | ¸Å¸Å | ¼Ûõ¸¶À» | 18 | 84.86 | 22,600 | | 2005 | | 2025.03.18 | ¿ù¼¼ | ¼Ûõ¸¶À» | 3 | 84.03 | 2,000 | 85 | 2005 | | 2025.03.16 | ¿ù¼¼ | ¼Ûõ¸¶À» | 4 | 75.99 | 3,000 | 60 | 2005 | | 2025.03.14 | Àü¼¼ | ¼Ûõ¸¶À» | 11 | 84.86 | 16,100 | 0 | 2005 | | 2025.03.13 | ¸Å¸Å | ¼Ûõ¸¶À» | 18 | 75.99 | 23,500 | | 2005 | | 2025.03.13 | Àü¼¼ | ¼Ûõ¸¶À» | 4 | 84.86 | 17,500 | 0 | 2005 | | 2025.03.11 | ¸Å¸Å | ¼Ûõ¸¶À» | 12 | 84.86 | 21,400 | | 2005 | | 2025.02.28 | Àü¼¼ | ¼Ûõ¸¶À» | 16 | 84.86 | 15,000 | 0 | 2005 | | 2025.02.25 | ¸Å¸Å | ¼Ûõ¸¶À» | 7 | 75.99 | 20,800 | | 2005 | | 2025.02.25 | Àü¼¼ | ¼Ûõ¸¶À» | 15 | 75.99 | 15,000 | 0 | 2005 | | 2025.02.24 | ¸Å¸Å | ¼Ûõ¸¶À» | 5 | 84.86 | 21,500 | | 2005 | | 2025.02.21 | ¸Å¸Å | ¼Ûõ¸¶À» | 9 | 84.86 | 22,200 | | 2005 | | 2025.02.21 | ¿ù¼¼ | ¼Ûõ¸¶À» | 6 | 75.99 | 1,500 | 75 | 2005 | | 2025.02.19 | ¿ù¼¼ | ¼Ûõ¸¶À» | 8 | 84.86 | 2,000 | 75 | 2005 | | 2025.02.15 | ¸Å¸Å | ¼Ûõ¸¶À» | 5 | 84.86 | 21,000 | | 2005 | | 2025.02.15 | ¸Å¸Å | ¼Ûõ¸¶À» | 11 | 84.86 | 21,600 | | 2005 | | 2025.02.15 | ¸Å¸Å | ¼Ûõ¸¶À» | 5 | 84.86 | 21,000 | | 2005 | | 2025.02.12 | ¸Å¸Å | ¼Ûõ¸¶À» | 12 | 84.86 | 24,500 | | 2005 | | 2025.02.08 | ¿ù¼¼ | ¼Ûõ¸¶À» | 14 | 84.03 | 3,000 | 70 | 2005 | | 2025.02.05 | Àü¼¼ | ¼Ûõ¸¶À» | 6 | 84.86 | 15,000 | 0 | 2005 | | 2025.02.05 | ¸Å¸Å | ¼Ûõ¸¶À» | 15 | 75.99 | 22,000 | | 2005 | | 2025.01.25 | ¸Å¸Å | ¼Ûõ¸¶À» | 9 | 84.86 | 24,700 | | 2005 | | 2025.01.24 | ¸Å¸Å | ¼Ûõ¸¶À» | 12 | 84.86 | 24,700 | | 2005 | | 2025.01.22 | Àü¼¼ | ¼Ûõ¸¶À» | 10 | 84.03 | 16,000 | 0 | 2005 | | 2025.01.20 | ¿ù¼¼ | ¼Ûõ¸¶À» | 7 | 84.86 | 2,000 | 85 | 2005 | | 2025.01.20 | ¸Å¸Å | ¼Ûõ¸¶À» | 8 | 84.86 | 25,000 | | 2005 | | 2025.01.18 | ¸Å¸Å | ¼Ûõ¸¶À» | 11 | 75.99 | 22,400 | | 2005 | | 2025.01.17 | ¸Å¸Å | ¼Ûõ¸¶À» | 1 | 84.86 | 21,600 | | 2005 | | 2025.01.17 | Àü¼¼ | ¼Ûõ¸¶À» | 6 | 84.86 | 16,500 | 0 | 2005 | | 2025.01.11 | ¸Å¸Å | ¼Ûõ¸¶À» | 7 | 84.03 | 21,800 | | 2005 | | 2025.01.05 | ¸Å¸Å | ¼Ûõ¸¶À» | 9 | 75.99 | 22,500 | | 2005 |
|
|
|
 |
ÀÓÂ÷³»¿ª |
[¹è´ç¿ä±¸Á¾±âÀÏ : 2025/07/01] |
|
|
| ÀÓÂ÷ÀÎ |
Á¡À¯°ü°è |
ÀüÀÔÀÏÀÚ |
È®Á¤ÀÏÀÚ |
¹è´ç¿ä±¸ÀÏ |
º¸Áõ±Ý/Â÷ÀÓ |
´ëÇ׿ä°Ç |
ºñ°í |
| Á¶»çµÈ ÀÓÂ÷³»¿ªÀÌ ¾ø½À´Ï´Ù. |
|
|
|
 |
Áö¿ªºÐ¼® |
|
|
|
|
| ÁöÇÏö |
|
Çб³ |
|
| °ü°ø¼ |
|
| ¹ý¿ø |
ÀÇÁ¤ºÎÁö¹æ¹ý¿ø (116-16)°æ±âµµ ÀÇÁ¤ºÎ½Ã ³ì¾ç·Î34¹ø±æ 23 (°¡´Éµ¿) ´ëÇ¥ : 031)828-0114 ÀÇÁ¤ºÎ½Ã, ¾çÁÖ½Ã, ³²¾çÁÖ½Ã, ±¸¸®½Ã, ¿¬Ãµ±º, Æ÷õ½Ã, °¡Æò±º, µ¿µÎõ½Ã, ö¿ø±º |
| µî±â¼Ò |
ÀÇÁ¤ºÎÁö¹æ¹ý¿ø º»¿ø Æ÷õµî±â¼Ò (´ëÇ¥:1544-0773, ÆÑ½º:(031)532-7888, °æ±âµµ Æ÷õ½Ã Áß¾Ó·Î 27 (½ÅÀ¾µ¿ 376-4)) |
| ¼¼¹«¼ |
Æ÷õ¼¼¹«¼ (´ëÇ¥:031-538-72, ÆÑ½º:031-544-6090, °æ±âµµ Æ÷õ½Ã ¼ÒÈêÀ¾ ¼Û¿ì·Î 75) |
|
|
|
 |
¹ý¿ø ¹°°ÇÀÚ·á ¿ä¾à |
|
|
|
|
| ¼Ò¸êµÇÁö ¾Ê´Â µî±âºÎ±Ç¸® |
|
| ¼³Á¤µÈ °ÍÀ¸·Î º¸´Â Áö»ó±Ç |
|
| ¹ý¿øÀÚ·á Æ¯ÀÌ»çÇ× |
[ÁÖ¿ä ¹®°Ç Á¢¼ö ³»¿ª]
[2025.04.28] °¡¾Ð·ù±ÇÀÚ ³óOOOOOOOOOOO ä±ÇÀÚº¯°æ ½Å°í¼ Á¦Ãâ
|
[ºÎµ¿»ê ÇöȲÁ¶»ç¼ ºñ°í¶õ]
- °øºÎ»ó ö±ÙÄÜÅ©¸®Æ®±¸Á¶ °æ»çÁöºØ 20Ãþ ¾ÆÆÄÆ®À̰í
- º»°Ç ÁÖÅÃÀÇ Á¤È®ÇÑ ¸éÀû¹× ±¸Á¶ µîÀº Ãø·® µî º°µµÀÇ È®ÀÎÀ» ¿äÇÔ |
|
| ¿©ÀÇÁÖ°æ¸Å Á¶¾ð ÇѸ¶µð |
ÀÌ ºÎµ¿»êÀÇ ÀÔÂû¹ý¿øÀº ÀÇÁ¤ºÎÁö¹æ¹ý¿øÀÔ´Ï´Ù.
ÀÔÂû½Ã°£Àº ~11:50ÀÔ´Ï´Ù. ÀÌ ¹ý¿ø¿¡´Â ½ÅÇÑÀºÇàÀÌ ÀÔÁ¡Çϰí ÀÖ½À´Ï´Ù.
|
ÃëÇÏ ¶Ç´Â Ãë¼ÒµÉ °¡´É¼º ÀÖ½À´Ï´Ù
ÀÌ ¹°°ÇÀÇ °¨Á¤°¡°ÝÀº 251,000,000¿øÀÔ´Ï´Ù. °æ¸Å¸¦ ½ÅûÇÑ Ã¤±ÇÀÚ°¡ ¹è´ç ¹Þ¾Æ¾ß ÇÒ ±Ý¾×Àº 83,239,833¿ø À¸·Î °¨Á¤°¡°Ý ´ëºñ »ó´çÈ÷ ÀûÀº ±Ý¾×ÀÔ´Ï´Ù.
ÀÌ·± °æ¿ì, 乫°¡°¡ º¯Á¦ÇÏ¿© °æ¸Å¸¦ ÃëÇϽÃŰ°Å³ª °æ¸Å½Åûä±ÇÀÚ°¡ ¹è´ç¹ÞÀ» ±Ý¿øÀÌ ¾ø°ÔµÇ¾î À̸¥ ¹Ù "¹«À׿©¿¡ ÀÇÇÑ Ãë¼Ò"°¡ µÉ °¡´É¼ºÀÌ ÀÖ½À´Ï´Ù.
|
|
|
| Åë°è±â°£ |
³«Âû¹°°Ç¼ö |
Æò±Õ°¨Á¤°¡ |
Æò±Õ³«Âû°¡ |
³«Âû°¡À² |
À¯ÂûȽ¼ö |
| 3°³¿ù |
4°Ç |
312,250,000¿ø |
226,180,780¿ø |
73% |
1.5ȸ |
| 6°³¿ù |
15°Ç |
250,333,333¿ø |
203,607,856¿ø |
81% |
1.2ȸ |
| 12°³¿ù |
31°Ç |
234,825,806¿ø |
188,294,779¿ø |
80% |
1.3ȸ |
|
|
|
|
|
|
 |
|