|
|
| ¼ÒÀçÁö |
¼¿ïƯº°½Ã °µ¿±¸ õȣ´ë·Î175±æ 16, 19Ãþ1906È£ (±æµ¿,°µ¿Å¥ºê)
±¸)¼¿ïƯº°½Ã °µ¿±¸ ±æµ¿ 456-3
|
|
| »ç°Ç¹øÈ£ |
2024 Ÿ°æ 65093 |
¹°°Ç¹øÈ£ |
1
|
¹°°Ç¿ëµµ |
¿ÀÇǽºÅÚ |
| °¨Á¤Æò°¡¾× |
127,000,000¿ø |
°æ¸Å´ë»ó |
ÅäÁö ¹× °Ç¹°Àϰý ¸Å°¢ |
ÁøÇà»óÅ |
À¯Âû |
| ÃÖÀúÀÔÂû°¡ |
(64%) 81,280,000¿ø
|
°Ç¹°¸éÀû |
12.49§³(3.78Æò) |
ÀÔÂû±âÀÏ |
2026.03.16(¿ù) 10:00
(ÀÔÂû 27ÀÏÀü)
|
| ÀÔÂûº¸Áõ±Ý |
(10%) 8,128,000¿ø |
ÅäÁö¸éÀû |
3.77§³(1.14Æò)
|
À¯ÂûȽ¼ö |
2ȸ |
| ÀÔÂû¹ý¿ø |
¼¿ïµ¿ºÎÁö¹æ¹ý¿ø |
°æ¸Å¹æ¹ý |
|
¹°°ÇÁ¶È¸¼ö |
¿À´Ã: 2ȸ [´©Àû: 1264ȸ]
|
| ¸»¼Ò±âÁØ | ÃÖ¼±¼øÀ§ ¼³Á¤ : 2024.12.17.°æ¸Å°³½Ã°áÁ¤ ¼³Á¤
|
|
|
|
|
|
|
|
|
|
|
°æ¸Å´ë»ó ¸ñ·Ï
|
|
| ±¸ºÐ |
¸ñ·Ï |
ÁÖ¼Ò |
±¸Á¶/¿ëµµ/´ëÁö±Ç |
ºñ°í |
´ëÁö±Ç
|
1 |
±æµ¿ 456-3 |
552.4ºÐÀÇ 3.77 |
3.77§³ (1.14Æò)
|
°Ç¹°
|
1 |
±æµ¿ 456-3 |
19Ãþ1906È£ ö±ÙÄÜÅ©¸®Æ®±¸Á¶ |
12.49§³ (3.78Æò)
|
|
|
|
2025-12-08
À¯Âû
|
(100%)
127,000,000¿ø
|
|
|
|
2026-01-26
À¯Âû
|
(80%)
101,600,000¿ø
|
|
|
|
2026-03-16
ÁøÇà
|
(64%)
81,280,000¿ø
|
|
|
|
|
|
°¨Á¤Æò°¡¼ ¿ä¾à |
|
[À§Ä¡/ÁÖÀ§È¯°æ]
º»°ÇÀº ¼¿ïƯº°½Ã °µ¿±¸ ±æµ¿ ¼ÒÀç "°µ¿¿ª(5È£¼±)" µ¿Ãø Àαٿ¡ À§Ä¡Çϸç, ÀαÙÀº ±Ù¸°»ýȰ½Ã¼³, ¾÷¹«½Ã¼³, º´¿ø, ¿ÀÇǽºÅÚ µîÀÌ È¥ÀçÇÏ´Â Áö¿ªÀ¸·Î¼, Á¦¹Ý ÁÖÀ§È¯°æÀº º¸ÅëÀÓ.
[±³Åë»óȲ]
º»°Ç Â÷·®ÀÇ ÁøÃâÀÔÀÌ °¡´ÉÇϰí, Àαٿ¡ ¹ö½ºÁ¤·ùÀå ¹× "°µ¿¿ª(5È£¼±)"ÀÌ ¼ÒÀçÇÏ´Â µî Á¦¹Ý ±³Åë»çÁ¤Àº ¾çÈ£ÇÑ ÆíÀÓ.
[°Ç¹°±¸Á¶]
ö±ÙÄÜÅ©¸®Æ®±¸Á¶ (ö±Ù)ÄÜÅ©¸®Æ®ÁöºØ 20Ãþ °Ç¹° ³» Á¦ 19Ãþ Á¦1906È£·Î¼,
¿Üº®: º¹ÇÕÆÇ³Ú ¹× ¼®ÀçºÙÀÓ ¸¶°¨ µî
³»ºÎ: º®Áö, ÀÎÅ׸®¾î ¸¶°¨ µî
âȣ: ¼¦½Ã âȣ µîÀÓ.
[ÀÌ¿ë»óÅÂ]
º»°ÇÀº °øµ¿ÁÖÅÃ(µµ½ÃÇü»ýȰÁÖÅÃ-¿ø·ëÇü)À¸·Î ÀÌ¿ëÁßÀÓ.(ÈÄ÷ "°Ç¹°°³È²µµ" ÂüÁ¶)
[¼³ºñ³»¿ª]
À§»ý¡¤±Þ¹è¼ö¼³ºñ, ±ÞÅÁ¼³ºñ, ³¹æ¼³ºñ, ½Â°±â¼³ºñ, ÁÖÂ÷¼³ºñ, ¼Ò¹æ¼³ºñ µîÀÌ µÇ¾î ÀÖÀ½.
[ÅäÁöÇü»ó/ÀÌ¿ë»óÅÂ]
´ëü·Î µî°íÆòźÇÑ ¼¼ÀåÇü ÅäÁö·Î¼, ¿ÀÇǽºÅÚ ¹× °øµ¿ÁÖÅà °ÇºÎÁö·Î ÀÌ¿ëÁßÀÓ.
7)ÀÎÁ¢ µµ·Î»óŵî
º»°ÇÀº ºÏ¼ÃøÀ¸·Î Æø 10¹ÌÅÍ ³»¿Ü Æ÷Àåµµ·Î¿Í Á¢Çϰí ÀÖÀ½.
[ÅäÁöÀÌ¿ë°èȹ]
µµ½ÃÁö¿ª, ÀϹݻó¾÷Áö¿ª, Áö±¸´ÜÀ§°èȹ±¸¿ª(õȣÁö±¸), Áß·Î3·ù(Æø 12m-15m)(Á¢ÇÕ), °¡Ãà»çÀ°Á¦Çѱ¸¿ª
(2014-06-25)£¼°¡ÃàºÐ´¢ÀÇ °ü¸® ¹× À̿뿡 °üÇÑ ¹ý·ü£¾, ´ë°ø¹æ¾îÇùÁ¶±¸¿ª(À§Å¹°íµµ:ÇØ¹ß163m(Áö¹Ý+°ÇÃà+¿Á
ž µî))£¼±º»ç±âÁö ¹× ±º»ç½Ã¼³ º¸È£¹ý£¾, ºñÇà¾ÈÀüÁ¦3±¸¿ª(Àü¼ú)£¼±º»ç±âÁö ¹× ±º»ç½Ã¼³ º¸È£¹ý£¾, °ú¹Ð¾ïÁ¦±Ç¿ª
£¼¼öµµ±ÇÁ¤ºñ°èȹ¹ý£¾, °øÀå¼³¸³½ÂÀÎÁö¿ª(2016-11-28)(2È£)£¼¼öµµ¹ý£¾
[°øºÎ¿ÍÀÇ Â÷ÀÌ]
¾ø À½.
[Âü°í»çÇ×]
ÀÓ´ë°ü°è´Â ¹Ì»óÀ̸ç, µî±â»çÇ×ÀüºÎÁõ¸í¼»ó ÀÓÂ÷±Ç(º¸Áõ±Ý 123,000,000¿ø(2023³â 1¿ù18ÀÏ ±Ý 2,000,000¿ø °¨¾×))¼³Á¤ µÇ¾î ÀÖÀ½. |
|
|
°ÇÃ๰ÇöȲ |
|
|
|
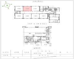
| ¼ÒÀçÁö |
¼¿ïƯº°½Ã °µ¿±¸ ±æµ¿ 456-3¹øÁö |
| ´ëÁö¸éÀû |
552.4§³(167.39Æò) |
¿¬¸éÀû |
3745.79§³(1135.09Æò) |
ÁÖ¿ëµµ |
°øµ¿ÁÖÅà |
| °ÇÃà¸éÀû |
287.18§³(87.02Æò) |
¿ëÀû·ü»êÁ¤¿¬¸éÀû |
3313.79§³(1004.18Æò) |
Âø°øÀÏÀÚ |
2011.04.21 |
| °ÇÆóÀ² |
51.99% |
¿ëÀû·ü |
599.89% |
»ç¿ë½ÂÀÎÀÏÀÚ |
2013.02.21 |
| Áö»óÃþ¼ö |
20Ãþ |
ÁöÇÏÃþ¼ö |
1Ãþ |
±¸Á¶ |
ö±ÙÄÜÅ©¸®Æ®±¸Á¶ |
°ÇÃ๰Ãþº°ÇöȲ [º¸±â]| Ãþº° | ±¸Á¶ | ¿ëµµ | ¸éÀû | | 1Ãþ | ö±ÙÄÜÅ©¸®Æ®±¸Á¶ | µµ½ÃÇü»ýȰÁÖÅà ¿ø·ëÇü(ELEV,Ȧ,°è | 66.38§³ (20.12Æò) | | 1Ãþ | ö±ÙÄÜÅ©¸®Æ®±¸Á¶ | ¿ÀÇǽºÅÚ(ÁÖÂ÷Àå) | 25§³ (7.58Æò) | | 1Ãþ | ö±ÙÄÜÅ©¸®Æ®±¸Á¶ | µµ½ÃÇü»ýȰÁÖÅà ¿ø·ëÇü(ÁÖÂ÷Àå) | 20.83§³ (6.31Æò) | | 1Ãþ | ö±ÙÄÜÅ©¸®Æ®±¸Á¶ | Á¦2Á¾±Ù¸°»ýȰ½Ã¼³(ELEV,Ȧ,°è´Ü½Ç | 0.39§³ (0.12Æò) | | 1Ãþ | ö±ÙÄÜÅ©¸®Æ®±¸Á¶ | Á¦Á¾2±Ù¸°»ýȰ½Ã¼³(ºÎµ¿»êÁß°³»ç¹«¼Ò) | 20.55§³ (6.23Æò) | | 1Ãþ | ö±ÙÄÜÅ©¸®Æ®±¸Á¶ | ¿ÀÇǽºÅÚ(ELEV,Ȧ,°è´Ü½Ç,º¹µµ) | 33.62§³ (10.19Æò) | | 3Ãþ | ö±ÙÄÜÅ©¸®Æ®±¸Á¶ | ¾÷¹«½Ã¼³(¿ÀÇǽºÅÚ 7È£) | 134.68§³ (40.81Æò) | | 3Ãþ | ö±ÙÄÜÅ©¸®Æ®±¸Á¶ | µµ½ÃÇü»ýȰÁÖÅà ¿ø·ëÇü(ELEV,Ȧ,°è | 12.92§³ (3.92Æò) | | 3Ãþ | ö±ÙÄÜÅ©¸®Æ®±¸Á¶ | ¿ÀÇǽºÅÚ(ELEV,Ȧ,°è´Ü½Ç,º¹µµ) | 69.77§³ (21.14Æò) | | 4Ãþ | ö±ÙÄÜÅ©¸®Æ®±¸Á¶ | ¿ÀÇǽºÅÚ(ELEV,Ȧ,°è´Ü½Ç,º¹µµ) | 69.77§³ (21.14Æò) | | 4Ãþ | ö±ÙÄÜÅ©¸®Æ®±¸Á¶ | µµ½ÃÇü»ýȰÁÖÅà ¿ø·ëÇü(ELEV,Ȧ,°è | 12.92§³ (3.92Æò) | | 4Ãþ | ö±ÙÄÜÅ©¸®Æ®±¸Á¶ | ¾÷¹«½Ã¼³(¿ÀÇǽºÅÚ 7È£) | 134.68§³ (40.81Æò) | | 5Ãþ | ö±ÙÄÜÅ©¸®Æ®±¸Á¶ | ¾÷¹«½Ã¼³(¿ÀÇǽºÅÚ 7È£) | 134.68§³ (40.81Æò) | | 6Ãþ | ö±ÙÄÜÅ©¸®Æ®±¸Á¶ | ¾÷¹«½Ã¼³(¿ÀÇǽºÅÚ 7È£) | 134.68§³ (40.81Æò) | | 6Ãþ | ö±ÙÄÜÅ©¸®Æ®±¸Á¶ | ¿ÀÇǽºÅÚ(ELEV,Ȧ,°è´Ü½Ç,º¹µµ) | 69.77§³ (21.14Æò) | | 7Ãþ | ö±ÙÄÜÅ©¸®Æ®±¸Á¶ | µµ½ÃÇü»ýȰÁÖÅà ¿ø·ëÇü(ELEV,Ȧ,°è | 12.92§³ (3.92Æò) | | 7Ãþ | ö±ÙÄÜÅ©¸®Æ®±¸Á¶ | ¿ÀÇǽºÅÚ(ELEV,Ȧ,°è´Ü½Ç,º¹µµ) | 69.77§³ (21.14Æò) | | 7Ãþ | ö±ÙÄÜÅ©¸®Æ®±¸Á¶ | ¾÷¹«½Ã¼³(¿ÀÇǽºÅÚ 7È£) | 134.68§³ (40.81Æò) | | 8Ãþ | ö±ÙÄÜÅ©¸®Æ®±¸Á¶ | °øµ¿ÁÖÅÃ(µµ½ÃÇü»ýȰÁÖÅà ¿ø·ëÇü 7¼¼´ë | 162§³ (49.09Æò) | | 10Ãþ | ö±ÙÄÜÅ©¸®Æ®±¸Á¶ | °øµ¿ÁÖÅÃ(µµ½ÃÇü»ýȰÁÖÅà ¿ø·ëÇü 7¼¼´ë | 162§³ (49.09Æò) | | 11Ãþ | ö±ÙÄÜÅ©¸®Æ®±¸Á¶ | °øµ¿ÁÖÅÃ(µµ½ÃÇü»ýȰÁÖÅà ¿ø·ëÇü 7¼¼´ë | 162§³ (49.09Æò) | | 13Ãþ | ö±ÙÄÜÅ©¸®Æ®±¸Á¶ | °øµ¿ÁÖÅÃ(µµ½ÃÇü»ýȰÁÖÅà ¿ø·ëÇü 7¼¼´ë | 162§³ (49.09Æò) | | 14Ãþ | ö±ÙÄÜÅ©¸®Æ®±¸Á¶ | °øµ¿ÁÖÅÃ(µµ½ÃÇü»ýȰÁÖÅà ¿ø·ëÇü 7¼¼´ë | 162§³ (49.09Æò) | | 15Ãþ | ö±ÙÄÜÅ©¸®Æ®±¸Á¶ | °øµ¿ÁÖÅÃ(µµ½ÃÇü»ýȰÁÖÅà ¿ø·ëÇü 7¼¼´ë | 162§³ (49.09Æò) | | 16Ãþ | ö±ÙÄÜÅ©¸®Æ®±¸Á¶ | °øµ¿ÁÖÅÃ(µµ½ÃÇü»ýȰÁÖÅà ¿ø·ëÇü 7¼¼´ë | 162§³ (49.09Æò) | | 18Ãþ | ö±ÙÄÜÅ©¸®Æ®±¸Á¶ | °øµ¿ÁÖÅÃ(µµ½ÃÇü»ýȰÁÖÅà ¿ø·ëÇü 7¼¼´ë | 162§³ (49.09Æò) | | 19Ãþ | ö±ÙÄÜÅ©¸®Æ®±¸Á¶ | °øµ¿ÁÖÅÃ(µµ½ÃÇü»ýȰÁÖÅà ¿ø·ëÇü 7¼¼´ë | 162§³ (49.09Æò) | | 20Ãþ | ö±ÙÄÜÅ©¸®Æ®±¸Á¶ | °øµ¿ÁÖÅÃ(µµ½ÃÇü»ýȰÁÖÅà ¿ø·ëÇü 7¼¼´ë | 162§³ (49.09Æò) | | Áö1Ãþ | ö±ÙÄÜÅ©¸®Æ®±¸Á¶ | Á¦2Á¾±Ù¸°»ýȰ½Ã¼³(±â°è,Àü±â½Ç) | 2.9§³ (0.88Æò) | | Áö1Ãþ | ö±ÙÄÜÅ©¸®Æ®±¸Á¶ | ¿ÀÇǽºÅÚ(±â°è,Àü±â½Ç) | 94.99§³ (28.78Æò) |
|
|
|
|
|
|
|
|
|
¸éÀû(§³), ±Ý¾×(¸¸¿ø)
| °è¾àÀÏ | ±âÁØ | °Ç¹°¸íĪ | Ãþ | Àü¿ë¸éÀû | °Å·¡±Ý¾× | °ÇÃà³âµµ | | °Å·¡³»¿ªÀÌ ¾ø½À´Ï´Ù. |
| °è¾àÀÏ | ±âÁØ | °Ç¹°¸íĪ | Ãþ | Àü¿ë¸éÀû | º¸Áõ±Ý | ¿ù¼¼ | °ÇÃà³âµµ | | 2026.01.01 | Àü¼¼ | °µ¿ Å¥ºê | 4 | 19.24 | 12,600 | 0 | 2013 | | 2025.04.05 | ¿ù¼¼ | °µ¿ Å¥ºê | 7 | 19.24 | 9,500 | 10 | 2013 | | 2025.01.15 | ¿ù¼¼ | °µ¿ Å¥ºê | 7 | 19.24 | 500 | 53 | 2013 |
|
|
|
 |
ÀÓÂ÷³»¿ª |
[¹è´ç¿ä±¸Á¾±âÀÏ : 2025/03/10] |
|
|
| ÀÓÂ÷ÀÎ |
Á¡À¯°ü°è |
ÀüÀÔÀÏÀÚ |
È®Á¤ÀÏÀÚ |
¹è´ç¿ä±¸ÀÏ |
º¸Áõ±Ý/Â÷ÀÓ |
´ëÇ׿ä°Ç |
ºñ°í |
| Á¤OO |
1906È£12.49§³ÀüºÎ |
2021.02.16. |
2021.01.12.(ÃÖÃÊ) |
|
123,000,000(ÃÖÈÄ)
|
O |
|
| ¸Å°¢¹°°Ç¸í¼¼ ºñ°í |
Á¤ÀÇÁø : ½Åûä±ÇÀÚ °â ÁÖÅÃÀÓÂ÷±ÇÀڷμ ÀÓÂ÷±Çµî±âÀÏÀº 2024.3.14.ÀÓ. ¹è´ç¿ä±¸ÀÏÀÚ´Â °æ¸Å½ÅûÀÏ(2024.12.10.)ÀÓ. |
|
|
|
 |
Áö¿ªºÐ¼® |
|
|
|
|
| ÁöÇÏö |
|
Çб³ |
|
| °ü°ø¼ |
|
| ¹ý¿ø |
¼¿ïµ¿ºÎÁö¹æ¹ý¿ø (058-56)¼¿ïƯº°½Ã ¼ÛÆÄ±¸ ¹ý¿ø·Î 101 (¹®Á¤µ¿) ´ëÇ¥ : 02)2204-2114, ¾ß°£ : 02)2204-2701 ¼ºµ¿±¸, ±¤Áø±¸, °µ¿±¸, ¼ÛÆÄ±¸ |
| µî±â¼Ò |
¼¿ïµ¿ºÎÁö¹æ¹ý¿ø º»¿ø µî±â±¹ (´ëÇ¥:1544-0773, ÆÑ½º:(02)2204-2181, ¼¿ïƯº°½Ã ¼ÛÆÄ±¸ ¹ý¿ø·Î 101 (¹®Á¤µ¿ 650)) |
| ¼¼¹«¼ |
°µ¿¼¼¹«¼ (´ëÇ¥:02-2224-02, ÆÑ½º:02-489-3251, ¼¿ïƯº°½Ã °µ¿±¸ õȣ´ë·Î 1139 (±æµ¿)) |
|
|
|
 |
¹ý¿ø ¹°°ÇÀÚ·á ¿ä¾à |
|
|
|
|
| ¼Ò¸êµÇÁö ¾Ê´Â µî±âºÎ±Ç¸® |
2024. 3. 14. Á¢¼ö Á¦42130È£·Î °æ·áµÈ À»±¸3¹ø ÁÖÅÃÀÓÂ÷±Çµî±â´Â ¹è´ç¿¡¼ Àü¾× º¯Á¦¹ÞÁö ¾ÊÀ¸¸é Àܾ×À» ¸Å¼öÀÎÀÌ ÀμöÇÔ |
| ¼³Á¤µÈ °ÍÀ¸·Î º¸´Â Áö»ó±Ç |
ÇØ´ç»çÇ×¾øÀ½ |
| ¹ý¿øÀÚ·á Æ¯ÀÌ»çÇ× |
|
| ¿©ÀÇÁÖ°æ¸Å Á¶¾ð ÇѸ¶µð |
ÀÌ ºÎµ¿»êÀÇ ÀÔÂû¹ý¿øÀº ¼¿ïµ¿ºÎÁö¹æ¹ý¿øÀÔ´Ï´Ù.
ÀÔÂûÀÏÀº 2026-03-16ÀÔ´Ï´Ù.
ÀÔÂû½Ã°£Àº ~11:10ÀÔ´Ï´Ù. ÀÌ ¹ý¿ø¿¡´Â ½ÅÇÑÀºÇàÀÌ ÀÔÁ¡Çϰí ÀÖ½À´Ï´Ù.
|
¼±¼øÀ§ ÀÓÂ÷±Çµî±â°¡ µÇ¾î ÀÖ½À´Ï´Ù ´ëÇ×·ÂÀÌ ÀÖ´Â ¼±¼øÀ§ ÀÓÂ÷±Çµî±â ±Ç¸®ÀÚ°¡ ¹è´çÀ» Àü¾× ¹ÞÁö ¸øÇÒ °æ¿ì ³«ÂûÀÚ°¡ ÀÜ¿© º¸Áõ±ÝÀ» ÀμöÇØ¾ßÇÏ´Â °æ¿ìµµ ÀÖ½À´Ï´Ù. |
|
|
| Åë°è±â°£ |
³«Âû¹°°Ç¼ö |
Æò±Õ°¨Á¤°¡ |
Æò±Õ³«Âû°¡ |
³«Âû°¡À² |
À¯ÂûȽ¼ö |
| 3°³¿ù |
2°Ç |
139,500,000¿ø |
118,135,000¿ø |
86% |
3.5ȸ |
| 6°³¿ù |
5°Ç |
164,600,000¿ø |
134,379,248¿ø |
83% |
2.2ȸ |
| 12°³¿ù |
11°Ç |
215,090,909¿ø |
161,282,385¿ø |
77% |
3.6ȸ |
|
|
|
|
|
|
 |
|