|
|
| ¼ÒÀçÁö |
¿ï»ê±¤¿ª½Ã ³²±¸ ¹®¼ö·Î302¹ø±æ 9, 102µ¿ 7Ãþ708È£ (¿Áµ¿,¿Áµ¿»ïÀÍ¾ÆÆÄÆ®)
±¸)¿ï»ê±¤¿ª½Ã ³²±¸ ¿Áµ¿ 256
|
|
| »ç°Ç¹øÈ£ |
2024 Ÿ°æ 6214 Áߺ¹ 2025Ÿ°æ11732, |
¹°°Ç¹øÈ£ |
1
|
¹°°Ç¿ëµµ |
¾ÆÆÄÆ® |
| °¨Á¤Æò°¡¾× |
414,000,000¿ø |
°æ¸Å´ë»ó |
ÅäÁö ¹× °Ç¹°Àϰý ¸Å°¢ |
ÁøÇà»óÅ |
½Å°Ç |
| ÃÖÀúÀÔÂû°¡ |
(100%) 414,000,000¿ø
|
°Ç¹°¸éÀû |
59.64§³(18.04Æò) |
ÀÔÂû±âÀÏ |
2025.12.09(È) 10:00
(ÀÔÂû 11ÀÏÀü)
|
| ÀÔÂûº¸Áõ±Ý |
(10%) 41,400,000¿ø |
ÅäÁö¸éÀû |
22.33§³(6.75Æò)
|
À¯ÂûȽ¼ö |
0ȸ |
| ÀÔÂû¹ý¿ø |
¿ï»êÁö¹æ¹ý¿ø |
°æ¸Å¹æ¹ý |
|
¹°°ÇÁ¶È¸¼ö |
¿À´Ã: 4ȸ [´©Àû: 17ȸ]
|
| ¸»¼Ò±âÁØ | ÃÖ¼±¼øÀ§ ¼³Á¤ : 2021. 12. 13. ±ÙÀú´ç±Ç ¼³Á¤
|
|
|
|
|
|
|
|
|
|
|
°æ¸Å´ë»ó ¸ñ·Ï
|
|
| ±¸ºÐ |
¸ñ·Ï |
ÁÖ¼Ò |
±¸Á¶/¿ëµµ/´ëÁö±Ç |
ºñ°í |
´ëÁö±Ç
|
1 |
¿Áµ¿ 255-2 |
9623.1ºÐÀÇ 22.325 |
22.325§³ (6.75Æò)
|
°Ç¹°
|
1 |
¿Áµ¿ 255-2 |
102µ¿ 7Ãþ708È£ ö±ÙÄÜÅ©¸®Æ®Á¶ |
59.64§³ (18.04Æò)
|
|
|
|
2025-12-09
ÁøÇà
|
(100%)
414,000,000¿ø
|
|
|
|
|
|
°¨Á¤Æò°¡¼ ¿ä¾à |
|
[À§Ä¡/ÁÖÀ§È¯°æ]
º»°ÇÀº ¿ï»ê±¤¿ª½Ã ³²±¸ ¿Áµ¿ °Ýµ¿ÃʵîÇб³ ¼Ãø Àαٿ¡ ¼ÒÀçÇϰí, ÁÖº¯Àº ¾ÆÆÄÆ®´ÜÁö, ¼Ò±Ô
¸ð°øµ¿ÁÖÅÃ, ±Ù¸°»ýȰ½Ã¼³, Çб³ µîÀ¸·Î Çü¼ºµÇ¾î ÀÖÀ¸¸ç ³²Ãø¿¡ ¿ï»ê´ë°ø¿ø ºÏÃø Àαٿ¡ ¿ï
»êÁö¹æ¹ý¿ø ¼ÃøÀαٿ¡ 7¹ø±¹µµ ÁøÃâÀԷΰ¡ ¼ÒÀçÇÔ.
[±³Åë»óȲ]
´ÜÁö³» Â÷·®ÃâÀÔ ¿ëÀÌÇÏ°í ¹ö½ºÁ¤·ù¼Ò°¡ Àαٿ¡ ¼ÒÀçÇÔ.
[°Ç¹°±¸Á¶]
ö±ÙÄÜÅ©¸®Æ®Á¶ ½½·¡ºêÁöºØ 20Ãþ°Ç³» 7ÃþÀ¸·Î Áֿ丶°¨Àº
¿Üº® : ÆäÀÎÆÃ
âȣ : »þ½ÃÀÌÁßâ
³»º® : º®Áö µî
[ÀÌ¿ë»óÅÂ]
¾ÆÆÄÆ®.
[¼³ºñ³»¿ª]
±Þ¹è¼ö¼³ºñ, À§»ý¼³ºñ, ½Â°±â, µµ½Ã°¡½º¼³ºñ, ÈÀç°ü¸®¼³ºñ µî.
[ÅäÁöÇü»ó/ÀÌ¿ë»óÅÂ]
´ëü·Î ÆòźÇÏ°Ô Á¶¼ºµÈ »ç´Ù¸®Çü ¹× À广Çü À¯»çÁö·Î ¾ÆÆÄÆ®´ÜÁö·Î ÀÌ¿ëÁßÀÓ.
¿Áµ¿ 255-2´Â 101µ¿ ¼ÒÀç, ¿Áµ¿ 256Àº 102µ¿ ¹× 103µ¿¼ÒÀçÇÏ°í ¿Áµ¿ 255-2¿Í ¿Áµ¿ 256»çÀÌ¿¡ Æø8¹ÌÅÍÁ¤µµÀÇ µµ·Î°¡ Åë°úÇϰí ÀÖÀ½.
7)ÀÎÁ¢ µµ·Î»óŵî
8-15¹ÌÅÍ Á¤µµÀÇ µµ·Î¿¡¼ Â÷·® ÁøÃâÀÔ ¿ëÀÌÇÔ.
[ÅäÁöÀÌ¿ë°èȹ]
¿Áµ¿ 255-2 : Á¦3Á¾ÀϹÝÁÖ°ÅÁö¿ª, ½Ã°¡Áö°æ°üÁö±¸(ÀϹÝ), ¼Ò·Î1·ù(Æø 10m-12m)(Á¢ÇÕ), ¼Ò·Î2·ù(Æø 8m-10m)(Á¢ÇÕ), Áß·Î2·ù(Æø 15m-20m)(2006-08-03)(Á¢ÇÕ) °¡Ãà»çÀ°Á¦Çѱ¸¿ª£¼°¡ÃàºÐ´¢ÀÇ °ü¸® ¹× À̿뿡 °üÇÑ ¹ý·ü£¾ µµ½Ã°ü¸®°èȹ ÀÔ¾ÈÁß(2030 µµ½Ã°ü¸®°èȹ ÀçÁ¤ºñ)
¿Áµ¿ 256 : Á¦3Á¾ÀϹÝÁÖ°ÅÁö¿ª, ½Ã°¡Áö°æ°üÁö±¸(ÀϹÝ), ¼Ò·Î1·ù(Æø 10m-12m)(Á¢ÇÕ), ¼Ò·Î2·ù(Æø 8m-10m)(Á¢ÇÕ), Áß·Î2·ù(Æø 15m-20m)(2006-08-03)(Á¢ÇÕ), Áß·Î2·ù(Æø 15m-20m)(Áý»êµµ·Î)(Á¢ÇÕ) °¡Ãà»çÀ°Á¦Çѱ¸¿ª£¼°¡ÃàºÐ´¢ÀÇ °ü¸® ¹× À̿뿡 °üÇÑ ¹ý·ü£¾, »ó´ëº¸È£±¸¿ª(2017-03-30)(°Ýµ¿ÃʵîÇб³)£¼±³À°È¯°æ º¸È£¿¡ °üÇÑ ¹ý·ü£¾, »ó´ëº¸È£±¸¿ª(2017-03-30)(¼ÒÁ¤½£À¯Ä¡¿ø)£¼±³À°È¯°æ º¸È£¿¡ °üÇÑ ¹ý·ü£¾ µµ½Ã°ü¸®°èȹ ÀÔ¾ÈÁß(2030 µµ½Ã°ü¸®°èȹ ÀçÁ¤ºñ)
[°øºÎ¿ÍÀÇ Â÷ÀÌ]
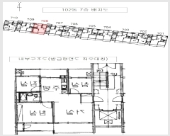
1.º»°Ç 7Ãþ708È£ ÇöȲµµ ¹× °°Àº ¸éÀûÀÎ 7Ãþ 707È£ ÇöȲµµ´Â µ¿ÀÏÇÏ¸ç ¸ðµÎ Çö°üÈ£½ÇÇ¥½Ã
7Ãþ 707È£ÀÇ À§Ä¡ÀÓ.(7Ãþ 707È£ ÇöȲµµ´Â ³²±¸Ã» °ÇÃà°ú¿¡ ÀüÈ·Î È®ÀÎÇÏ¿´À½)
2.±×·¯¹Ç·Î ¸éÀûÀÌ µ¿ÀÏÇϰí Á¿ì´ëĪÀÎ 7È£¿Í 8È£¶óÀÎÀÇ ÇöȲµµ´Â 7È£¶óÀÎ ÇöȲµµ 1ÀåÀ»
ÀÛ¼ºÇÏ¿© 7È£¶óÀÎ 8È£¶óÀο¡ ¸ðµÎ Àû¿ëÇÑ °ÍÀ¸·Î ÃßÁ¤µÇ¹Ç·Î ÀÌ ÇöȲµµ·Î À§Ä¡È®ÀÎÀº ºÒ°¡´É
ÇÏ¿© ÇöÀå¿¡¼ Çö°üÈ£½ÇÇ¥½Ã¸¦ È®ÀÎÇÏ¿© º»°ÇÀÇ À§Ä¡¸¦ Çö°üÈ£½ÇÇ¥½Ã 708È£·Î ƯÁ¤ÇÏ°í Æò°¡
ÇÏ¿´À¸¹Ç·Î °æ¸ÅÁøÇà ¹× ÀÀÂû½Ã ÀçÈ®ÀÎÇϽñ⠹ٶø´Ï´Ù.
[Âü°í»çÇ×]
ÀÓ´ë°ü°è ¹Ì»óÀÔ´Ï´Ù. |
|
|
°ÇÃ๰ÇöȲ |
|
|
|
| ¼ÒÀçÁö |
¿ï»ê±¤¿ª½Ã ³²±¸ ¿Áµ¿ 255-2¹øÁö |
| ´ëÁö¸éÀû |
|
¿¬¸éÀû |
18784.66§³(5692.32Æò) |
ÁÖ¿ëµµ |
°øµ¿ÁÖÅà |
| °ÇÃà¸éÀû |
1119.72§³(339.31Æò) |
¿ëÀû·ü»êÁ¤¿¬¸éÀû |
17933.4§³(5434.36Æò) |
Âø°øÀÏÀÚ |
1996.06.30 |
| °ÇÆóÀ² |
|
¿ëÀû·ü |
|
»ç¿ë½ÂÀÎÀÏÀÚ |
1999.05.13 |
| Áö»óÃþ¼ö |
20Ãþ |
ÁöÇÏÃþ¼ö |
1Ãþ |
±¸Á¶ |
ö±ÙÄÜÅ©¸®Æ®±¸Á¶ |
°ÇÃ๰Ãþº°ÇöȲ [º¸±â]| Ãþº° | ±¸Á¶ | ¿ëµµ | ¸éÀû | | 1Ãþ | ö±ÙÄÜÅ©¸®Æ®Á¶ | °øµ¿ÁÖÅÃ(¾ÆÆÄÆ®) | 907.38§³ (274.96Æò) | | 2Ãþ | ö±ÙÄÜÅ©¸®Æ®Á¶ | °øµ¿ÁÖÅÃ(¾ÆÆÄÆ®) | 907.38§³ (274.96Æò) | | 3Ãþ | ö±ÙÄÜÅ©¸®Æ®Á¶ | °øµ¿ÁÖÅÃ(¾ÆÆÄÆ®) | 907.38§³ (274.96Æò) | | 4Ãþ | ö±ÙÄÜÅ©¸®Æ®Á¶ | °øµ¿ÁÖÅÃ(¾ÆÆÄÆ®) | 894.78§³ (271.15Æò) | | 5Ãþ | ö±ÙÄÜÅ©¸®Æ®Á¶ | °øµ¿ÁÖÅÃ(¾ÆÆÄÆ®) | 894.78§³ (271.15Æò) | | 6Ãþ | ö±ÙÄÜÅ©¸®Æ®Á¶ | °øµ¿ÁÖÅÃ(¾ÆÆÄÆ®) | 894.78§³ (271.15Æò) | | 7Ãþ | ö±ÙÄÜÅ©¸®Æ®Á¶ | °øµ¿ÁÖÅÃ(¾ÆÆÄÆ®) | 894.78§³ (271.15Æò) | | 8Ãþ | ö±ÙÄÜÅ©¸®Æ®Á¶ | °øµ¿ÁÖÅÃ(¾ÆÆÄÆ®) | 894.78§³ (271.15Æò) | | 9Ãþ | ö±ÙÄÜÅ©¸®Æ®Á¶ | °øµ¿ÁÖÅÃ(¾ÆÆÄÆ®) | 894.78§³ (271.15Æò) | | 10Ãþ | ö±ÙÄÜÅ©¸®Æ®Á¶ | °øµ¿ÁÖÅÃ(¾ÆÆÄÆ®) | 894.78§³ (271.15Æò) | | 11Ãþ | ö±ÙÄÜÅ©¸®Æ®Á¶ | °øµ¿ÁÖÅÃ(¾ÆÆÄÆ®) | 894.78§³ (271.15Æò) | | 12Ãþ | ö±ÙÄÜÅ©¸®Æ®Á¶ | °øµ¿ÁÖÅÃ(¾ÆÆÄÆ®) | 894.78§³ (271.15Æò) | | 13Ãþ | ö±ÙÄÜÅ©¸®Æ®Á¶ | °øµ¿ÁÖÅÃ(¾ÆÆÄÆ®) | 894.78§³ (271.15Æò) | | 14Ãþ | ö±ÙÄÜÅ©¸®Æ®Á¶ | °øµ¿ÁÖÅÃ(¾ÆÆÄÆ®) | 894.78§³ (271.15Æò) | | 15Ãþ | ö±ÙÄÜÅ©¸®Æ®Á¶ | °øµ¿ÁÖÅÃ(¾ÆÆÄÆ®) | 894.78§³ (271.15Æò) | | 16Ãþ | ö±ÙÄÜÅ©¸®Æ®Á¶ | °øµ¿ÁÖÅÃ(¾ÆÆÄÆ®) | 894.78§³ (271.15Æò) | | 17Ãþ | ö±ÙÄÜÅ©¸®Æ®Á¶ | °øµ¿ÁÖÅÃ(¾ÆÆÄÆ®) | 894.78§³ (271.15Æò) | | 18Ãþ | ö±ÙÄÜÅ©¸®Æ®Á¶ | °øµ¿ÁÖÅÃ(¾ÆÆÄÆ®) | 894.78§³ (271.15Æò) | | 19Ãþ | ö±ÙÄÜÅ©¸®Æ®Á¶ | °øµ¿ÁÖÅÃ(¾ÆÆÄÆ®) | 894.78§³ (271.15Æò) | | 20Ãþ | ö±ÙÄÜÅ©¸®Æ®Á¶ | °øµ¿ÁÖÅÃ(¾ÆÆÄÆ®) | 894.78§³ (271.15Æò) | | Áö1 | ö±ÙÄÜÅ©¸®Æ®Á¶ | °øµ¿ÁÖÅÃ(´ëÇǼÒ) | 851.26§³ (257.96Æò) |
|
|
|
|
|
|
 |
ÀÓÂ÷³»¿ª |
[¹è´ç¿ä±¸Á¾±âÀÏ : 2024/10/21] |
|
|
| ÀÓÂ÷ÀÎ |
Á¡À¯°ü°è |
ÀüÀÔÀÏÀÚ |
È®Á¤ÀÏÀÚ |
¹è´ç¿ä±¸ÀÏ |
º¸Áõ±Ý/Â÷ÀÓ |
´ëÇ׿ä°Ç |
ºñ°í |
| ¸Å°¢±âÀÏ 7ÀÏÀü¿¡ ¸Å°¢¹°°Ç¸í¼¼¼°¡ °ø°íµÇ¿À´Ï È®ÀÎÇϽñ⠹ٶø´Ï´Ù. |
| ¹®OO |
|
1999. 5. 6. |
|
|
|
O |
|
| ¸Å°¢¹°°Ç¸í¼¼ ºñ°í |
¹®Àº·ü:ÀÌ »ç°Ç 乫ÀÚ °â ¼ÒÀ¯ÀÚ ÃÖÀ̼ØÀÇ ¹è¿ìÀÚ |
|
|
|
 |
Áö¿ªºÐ¼® |
|
|
|
|
| ÁöÇÏö |
|
Çб³ |
|
| °ü°ø¼ |
|
| ¹ý¿ø |
¿ï»êÁö¹æ¹ý¿ø (446-43)¿ï»ê±¤¿ª½Ã ³²±¸ ¹ý´ë·Î 55(¿Áµ¿ 1415) ´ëÇ¥ : 052)216-8000, ¹Î¿ø : 052)216-8021~3 ¿ï»ê±¤¿ª½Ã, ¾ç»ê½Ã |
| µî±â¼Ò |
¿ï»êÁö¹æ¹ý¿ø º»¿ø µî±â°ú (´ëÇ¥:1544-0773, ÆÑ½º:(052)260-6293, ¿ï»ê±¤¿ª½Ã ³²±¸ ¹ý´ë·Î 55 (¿Áµ¿ 1415)) |
| ¼¼¹«¼ |
¿ï»ê¼¼¹«¼ (´ëÇ¥:052-259-02, ÆÑ½º:052-266-2135, ¿ï»ê±¤¿ª½Ã ³²±¸ °¥¹ç·Î 49 (»ï»êµ¿)) |
|
|
|
 |
¹ý¿ø ¹°°ÇÀÚ·á ¿ä¾à |
|
|
|
|
| ¼Ò¸êµÇÁö ¾Ê´Â µî±âºÎ±Ç¸® |
|
| ¼³Á¤µÈ °ÍÀ¸·Î º¸´Â Áö»ó±Ç |
|
| ¹ý¿øÀÚ·á Æ¯ÀÌ»çÇ× |
[ÁÖ¿ä ¹®°Ç Á¢¼ö ³»¿ª]
|
[¸Å°¢¹°°Ç¸í¼¼¼ ºñ°í¶õ]
º» °Ç 7Ãþ 708È£¿Í 707È£ ÇöȲµµ´Â µ¿ÀÏÇÏ¸ç ¸ðµÎ Çö°üÈ£½Ç Ç¥½Ã 7Ãþ 707È£ÀÇ À§Ä¡ÀÓ(¸éÀûÀÌ µ¿ÀÏÇϰí Á¿ì´ëĪÀÎ 7È£¿Í 8È£
¶óÀÎÀÇ ÇöȲµµ´Â 7È£¶óÀÎ ÇöȲµµ 1ÀåÀ» ÀÛ¼ºÇÏ¿© 7È£¶óÀÎ 8È£¶óÀο¡ ¸ðµÎ Àû¿ëÇÑ °ÍÀ¸·Î ÃßÁ¤µÊ), ÀÌ ÇöȲµµ·Î´Â À§Ä¡ È®ÀÎ
ºÒ°¡´ÉÇÏ¿© ÇöÀå¿¡¼ Çö°üÈ£½Ç Ç¥½Ã È®ÀÎÇÏ¿© º» °ÇÀÇ À§Ä¡¸¦ Çö°üÈ£½Ç Ç¥½Ã 708È£·Î ƯÁ¤ÇÏ°í Æò°¡ÇÔ |
[ºÎµ¿»ê ÇöȲÁ¶»ç¼ ºñ°í¶õ]
º» °ÇÀº ¿ï»ê ³²±¸ ¿Áµ¿¿¡ ¼ÒÀçÇÏ´Â ºÎµ¿»êÀÓ. |
|
| ¿©ÀÇÁÖ°æ¸Å Á¶¾ð ÇѸ¶µð |
ÀÌ ºÎµ¿»êÀÇ ÀÔÂû¹ý¿øÀº ¿ï»êÁö¹æ¹ý¿øÀÔ´Ï´Ù.
ÀÔÂûÀÏÀº 2025-12-09ÀÔ´Ï´Ù.
ÀÔÂû½Ã°£Àº ~11:30ÀÔ´Ï´Ù. ÀÌ ¹ý¿ø¿¡´Â ½ÅÇÑÀºÇà,°æ³²ÀºÇàÀÌ ÀÔÁ¡Çϰí ÀÖ½À´Ï´Ù.
|
ÃëÇÏ ¶Ç´Â Ãë¼ÒµÉ °¡´É¼ºÀº ÀÖÀ¸³ª ±×´ë·Î ÁøÇàµÉ °¡´É¼ºµµ ¸¹½À´Ï´Ù
¼±Çà°æ¸Å¸¦ ½ÅûÇÑ Ã¤±ÇÀÚ°¡ ¹è´ç ¹Þ¾Æ¾ß ÇÒ ±Ý¾×Àº 94,645,354¿øÀ¸·Î °¨Á¤°¡°Ý ´ëºñ »ó´çÈ÷ ÀûÀº ±Ý¾×À̼
°æ¸Å°¡ ÃëÇϵǰųª Ãë¼Ò µÉ °¡´É¼ºÀÌ ÀÖ½À´Ï´Ù. ±×·±µ¥ ÈÄÇà°æ¸Å »ç°Ç (Áߺ¹ 2025Ÿ°æ11732,)ÀÌ ÀÖ¾î¼ ÃëÇÏ,Ãë¼ÒµÇÁö ¾Ê°í ÁøÇàµÉ °¡´É¼ºµµ ¸¹½À´Ï´Ù.
|
|
|
| Åë°è±â°£ |
³«Âû¹°°Ç¼ö |
Æò±Õ°¨Á¤°¡ |
Æò±Õ³«Âû°¡ |
³«Âû°¡À² |
À¯ÂûȽ¼ö |
| 3°³¿ù |
21°Ç |
322,947,143¿ø |
272,041,772¿ø |
83% |
1.7ȸ |
| 6°³¿ù |
45°Ç |
355,219,778¿ø |
304,522,521¿ø |
86% |
1.4ȸ |
| 12°³¿ù |
87°Ç |
339,791,839¿ø |
282,999,421¿ø |
83% |
1.4ȸ |
|
|
|
|
|
|
 |
|