|
|
| ¼ÒÀçÁö |
ÀÎõ±¤¿ª½Ã ³²µ¿±¸ ³íÇöµ¿ 111-183 1Ãþ111È£
|
|
| »ç°Ç¹øÈ£ |
2025 Ÿ°æ 507756 Áߺ¹ 2025Ÿ°æ507933, |
¹°°Ç¹øÈ£ |
1
|
¹°°Ç¿ëµµ |
»ó°¡,»ç¹«½Ç |
| °¨Á¤Æò°¡¾× |
734,000,000¿ø |
°æ¸Å´ë»ó |
ÅäÁö ¹× °Ç¹°Àϰý ¸Å°¢ |
ÁøÇà»óÅ |
À¯Âû |
| ÃÖÀúÀÔÂû°¡ |
(70%) 513,800,000¿ø
|
°Ç¹°¸éÀû |
113.22§³(34.25Æò) |
ÀÔÂû±âÀÏ |
2026.01.22(¸ñ) 10:00
(ÀÔÂû 3ÀÏÀü)
|
| ÀÔÂûº¸Áõ±Ý |
(10%) 51,380,000¿ø |
ÅäÁö¸éÀû |
81.04§³(24.51Æò)
|
À¯ÂûȽ¼ö |
1ȸ |
| ÀÔÂû¹ý¿ø |
ÀÎõÁö¹æ¹ý¿ø |
°æ¸Å¹æ¹ý |
|
¹°°ÇÁ¶È¸¼ö |
¿À´Ã: 5ȸ [´©Àû: 182ȸ]
|
| ¸»¼Ò±âÁØ | ÃÖ¼±¼øÀ§ ¼³Á¤ : (¸ñ·Ï1,2.) ¼³Á¤
2024.01.25. ±ÙÀú´ç±Ç
|
|
|
|
|
|
|
|
|
|
|
°æ¸Å´ë»ó ¸ñ·Ï
|
|
| ±¸ºÐ |
¸ñ·Ï |
ÁÖ¼Ò |
±¸Á¶/¿ëµµ/´ëÁö±Ç |
ºñ°í |
´ëÁö±Ç
|
1 |
³íÇöµ¿ 111-183 |
1723ºÐÀÇ 40.52 |
40.52§³ (12.26Æò)
|
| 2 |
³íÇöµ¿ 111-183 |
1723ºÐÀÇ 40.52 |
40.52§³ (12.26Æò)
|
°Ç¹°
|
1 |
³íÇöµ¿ 111-183 |
1Ãþ111È£ ö±ÙÄÜÅ©¸®Æ®Á¶ |
56.61§³ (17.12Æò)
|
| 2 |
³íÇöµ¿ 111-183 |
1Ãþ112È£ ö±ÙÄÜÅ©¸®Æ®Á¶ |
56.61§³ (17.12Æò)
|
|
|
|
2025-12-09
À¯Âû
|
(100%)
734,000,000¿ø
|
|
|
|
2026-01-22
ÁøÇà
|
(70%)
513,800,000¿ø
|
|
|
|
|
|
°¨Á¤Æò°¡¼ ¿ä¾à |
|
[À§Ä¡/ÁÖÀ§È¯°æ]
º»°ÇÀº ÀÎõ±¤¿ª½Ã ³²µ¿±¸ ³íÇöµ¿ ""¼Ò·¡Æ÷±¸Á¾ÇÕ¾î½ÃÀå""µ¿Ãø Àαٿ¡ À§Ä¡Çϸç ÁÖÀ§´Â °øµ¿ÁÖÅÃ, ¼ö»ê½ÃÀå, °¢Á¾ ±Ù¸°»ýȰ½Ã¼³ µîÀÌ ¼ÒÀçÇÕ´Ï´Ù.
[±³Åë»óȲ]
º»°Ç±îÁö Â÷·®Á¢±ÙÀÌ °¡´ÉÇϸç Àαٿ¡ ¹ö½ºÁ¤·ùÀå ±Ù°Å¸®¿¡ ÁöÇÏö¿ª µîÀÌ ¼ÒÀçÇÕ´Ï´Ù.
[°Ç¹°±¸Á¶]
ö±ÙÄÜÅ©¸®Æ®Á¶ ½½·¡ºêÁöºØ 3Ãþ °Ç ³» 1Ãþ 111È£,112È£·Î¼,
¿Üº® : ¼®ÀçºÙÀÓ, ¸ôÅ»À§ÆäÀÎÆÃ µî ¸¶°¨
âȣ : ¼¦½Ãâȣ µî ÀÔ´Ï´Ù.
[ÀÌ¿ë»óÅÂ]
111È£,112È£ : ÇöȲ ÀϹÝÀ½½ÄÁ¡À¸·Î ÃßÁ¤µË´Ï´Ù.
[¼³ºñ³»¿ª]
À§»ý¼³ºñ ¹× ±Þ¹è¼ö¼³ºñ µîÀÌ µÇ¾îÀÖ½À´Ï´Ù.
[ÅäÁöÇü»ó/ÀÌ¿ë»óÅÂ]
´ëü·Î °¡ÀåÇüÀÇ ÅäÁö·Î¼, ±Ù¸°»ýȰ½Ã¼³ ¹× ¿îµ¿½Ã¼³ °ÇºÎÁö µîÀ¸·Î ÀÌ¿ë ÁßÀÔ´Ï´Ù.
7)ÀÎÁ¢ µµ·Î»óŵî
º»°Ç ºÏÃø, ¼Ãø, ³²ÃøÀ¸·Î µµ·Î°¡ ¼ÒÀçÇÕ´Ï´Ù.
[ÅäÁöÀÌ¿ë°èȹ]
ÁØÁÖ°ÅÁö¿ª(2018-12-21) , Áö±¸´ÜÀ§°èȹ±¸¿ª(2018-12-21)(¼Ò·¡) , ¼Ò·Î2·ù(Æø 8m~10m)(2021-12-30)(¼Ò·Î2-10)(Á¢ÇÕ) , Áß·Î1·ù(Æø 20m~25m)(ÀúÃË),°¡Ãà»çÀ°Á¦Çѱ¸¿ª(2013-03-08)((¹®ÀÇ:³²µ¿±¸È¯°æº¸Àü°ú 032-453-2343))£¼°¡ÃàºÐ´¢ÀÇ °ü¸® ¹× À̿뿡 °üÇÑ ¹ý·ü£¾, Çö»óº¯°æÇã°¡ ´ë»ó±¸¿ª(2024-04-03)(¿ª»ç¹®Èȯ°æ º¸Á¸Áö¿ª(¹®ÀÇ: ¹®È°ü±¤°ú 032-453-2134))£¼¹®ÈÀ¯»êÀÇ º¸Á¸ ¹× Ȱ¿ë¿¡ °üÇÑ ¹ý·ü£¾, °ú¹Ð¾ïÁ¦±Ç¿ª£¼¼öµµ±ÇÁ¤ºñ°èȹ¹ý£¾ÀÔ´Ï´Ù.
[°øºÎ¿ÍÀÇ Â÷ÀÌ]
¾ø½À´Ï´Ù.
[Âü°í»çÇ×]
ÀϷùøÈ£1(111È£),ÀϷùøÈ£2(112È£)´Â ÀÎÁ¢È£¼ö¿Í º®Ã¼ °æ°è±¸ºÐ ¾øÀÌ »ç¿ë ÁßÀÎ °ÍÀ¸·Î ÆÄ¾ÇµÇ´Â ¹Ù, ÃßÈÄ Á¤È®ÇÑ »ç½ÇÈ®ÀÎÀ» ¿äÇÏ¸ç °æ¸ÅÁøÇà½Ã ÂüÁ¶¹Ù¶ø´Ï´Ù. |
|
|
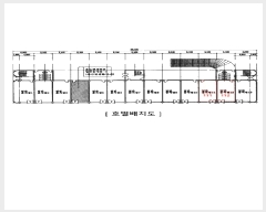
°ÇÃ๰ÇöȲ |
|
|
|
| ¼ÒÀçÁö |
ÀÎõ±¤¿ª½Ã ³²µ¿±¸ ³íÇöµ¿ 111-183¹øÁö |
| ´ëÁö¸éÀû |
1723§³(522.12Æò) |
¿¬¸éÀû |
3077.66§³(932.62Æò) |
ÁÖ¿ëµµ |
Á¦2Á¾±Ù¸°»ýȰ½Ã¼³ |
| °ÇÃà¸éÀû |
987.99§³(299.39Æò) |
¿ëÀû·ü»êÁ¤¿¬¸éÀû |
2805.75§³(850.23Æò) |
Âø°øÀÏÀÚ |
1995.02.14 |
| °ÇÆóÀ² |
57.34% |
¿ëÀû·ü |
162.84% |
»ç¿ë½ÂÀÎÀÏÀÚ |
1995.10.21 |
| Áö»óÃþ¼ö |
3Ãþ |
ÁöÇÏÃþ¼ö |
1Ãþ |
±¸Á¶ |
ö±ÙÄÜÅ©¸®Æ®±¸Á¶ |
°ÇÃ๰Ãþº°ÇöȲ [º¸±â]| Ãþº° | ±¸Á¶ | ¿ëµµ | ¸éÀû | | 1Ãþ | ö±ÙÄÜÅ©¸®Æ®Á¶ | ±Ù¸°»ýȰ½Ã¼³(ÀϹÝÀ½½ÄÁ¡,¼Ò¸ÅÁ¡) | 878.73§³ (266.28Æò) | | 2Ãþ | ö±ÙÄÜÅ©¸®Æ®Á¶ | ±Ù¸°»ýȰ½Ã¼³(ÀϹÝÀ½½ÄÁ¡,»ç¹«½Ç,´Ü¶õÁÖ | 939.03§³ (284.55Æò) | | 3Ãþ | ö±ÙÄÜÅ©¸®Æ®Á¶ | ±Ù¸°»ýȰ½Ã¼³(ÀϹÝÀ½½ÄÁ¡,»ç¹«½Ç,³ë·¡¿¬ | 987.99§³ (299.39Æò) | | ÁöÇÏÃþ | ö±ÙÄÜÅ©¸®Æ®Á¶ | ÁÖÂ÷Àå | 271.91§³ (82.4Æò) |
|
|
|
|
|
|
 |
ÀÓÂ÷³»¿ª |
[¹è´ç¿ä±¸Á¾±âÀÏ : 2025/05/26] |
|
|
| ÀÓÂ÷ÀÎ |
Á¡À¯°ü°è |
ÀüÀÔÀÏÀÚ |
È®Á¤ÀÏÀÚ |
¹è´ç¿ä±¸ÀÏ |
º¸Áõ±Ý/Â÷ÀÓ |
´ëÇ׿ä°Ç |
ºñ°í |
| ÁöOO |
1Ãþ111È£,112È£ |
2024.03.18 |
|
|
30,000,000 [¿ù]1,500,000 |
X |
2024.02.29.~2026.02.07. |
|
|
|
 |
Áö¿ªºÐ¼® |
|
|
|
|
| ÁöÇÏö |
|
Çб³ |
|
| °ü°ø¼ |
|
| ¹ý¿ø |
ÀÎõÁö¹æ¹ý¿ø (222-20)ÀÎõ±¤¿ª½Ã ¹ÌÃßȦ±¸ ¼Ò¼º·Î 163¹ø±æ 17(ÇÐÀ͵¿) ´ëÇ¥ : 032)860-1113~4 Áß±¸, µ¿±¸, ³²±¸, ¿¬¼ö±¸, ³²µ¿±¸, ºÎÆò±¸, °è¾ç±¸, ¼±¸, ¿ËÁø±º, °È±º |
| µî±â¼Ò |
ÀÎõÁö¹æ¹ý¿ø º»¿ø µî±â±¹ (´ëÇ¥:1544-0773, ÆÑ½º:(032)620-9099, ÀÎõ±¤¿ª½Ã ¹ÌÃßȦ±¸ °æ¿ø´ë·Î 881(Á־ȵ¿ 983)) |
| ¼¼¹«¼ |
³²ÀÎõ¼¼¹«¼ (´ëÇ¥:032-460-52, ÆÑ½º:032-463-5778, ÀÎõ±¤¿ª½Ã ³²µ¿±¸ ÀÎÇÏ·Î 548 (±¸¿ùµ¿)) |
|
|
|
 |
¹ý¿ø ¹°°ÇÀÚ·á ¿ä¾à |
|
|
|
|
| ¼Ò¸êµÇÁö ¾Ê´Â µî±âºÎ±Ç¸® |
|
| ¼³Á¤µÈ °ÍÀ¸·Î º¸´Â Áö»ó±Ç |
|
| ¹ý¿øÀÚ·á Æ¯ÀÌ»çÇ× |
[ÁÖ¿ä ¹®°Ç Á¢¼ö ³»¿ª]
|
[¸Å°¢¹°°Ç¸í¼¼¼ ºñ°í¶õ]
-Àϰý¸Å°¢
-1¸ñ·Ï°ú 2¸ñ·Ï »çÀÌ º®Ã¼ ±¸ºÐ¾øÀÌ »ý¼±È½ÁýÀ¸·Î »ç¿ëÇϰí ÀÖÀ½ |
[ºÎµ¿»ê ÇöȲÁ¶»ç¼ ºñ°í¶õ]
- º»°Ç ºÎµ¿»êÀº ¼Ò·¡Æ÷±¸³»¿¡ À§Ä¡ÇÏ |
|
| ¿©ÀÇÁÖ°æ¸Å Á¶¾ð ÇѸ¶µð |
ÀÌ ºÎµ¿»êÀÇ ÀÔÂû¹ý¿øÀº ÀÎõÁö¹æ¹ý¿øÀÔ´Ï´Ù.
ÀÔÂûÀÏÀº 2026-01-22ÀÔ´Ï´Ù.
ÀÔÂû½Ã°£Àº ~11:20ÀÔ´Ï´Ù. ÀÌ ¹ý¿ø¿¡´Â KB±¹¹ÎÀºÇàÀÌ ÀÔÁ¡Çϰí ÀÖ½À´Ï´Ù.
|
|
|
| Åë°è±â°£ |
³«Âû¹°°Ç¼ö |
Æò±Õ°¨Á¤°¡ |
Æò±Õ³«Âû°¡ |
³«Âû°¡À² |
À¯ÂûȽ¼ö |
| 3°³¿ù |
17°Ç |
470,882,353¿ø |
148,084,518¿ø |
33% |
3.6ȸ |
| 6°³¿ù |
31°Ç |
423,387,097¿ø |
146,193,684¿ø |
40% |
3.4ȸ |
| 12°³¿ù |
43°Ç |
472,379,084¿ø |
186,053,135¿ø |
42% |
3.2ȸ |
|
|
|
|
|
|
 |
|