|
| º» °æ¸Å¹°°ÇÀº ³«ÂûµÇ¾î ÀÌ¹Ì ¸ðµç °æ¸ÅÀýÂ÷°¡ ³¡³µ½À´Ï´Ù. ÀÌ ¹°°ÇÀº »ó´ãÇØ µå¸®Áö ¾Ê½À´Ï´Ù. |
|
|
| ¼ÒÀçÁö |
¼¿ïƯº°½Ã °ü¾Ç±¸ ºÀõµ¿ 1513-5 Áö1Ãþºñ01È£
|
|
| »ç°Ç¹øÈ£ |
2025 Ÿ°æ 102904 |
¹°°Ç¹øÈ£ |
1
|
¹°°Ç¿ëµµ |
´Ù¼¼´ë,ºô¶ó |
| °¨Á¤Æò°¡¾× |
179,000,000¿ø |
°æ¸Å´ë»ó |
ÅäÁö ¹× °Ç¹°Àϰý ¸Å°¢ |
ÁøÇà»óÅ |
³«Âû |
ÃÖÀúÀÔÂû°¡ ³«Âû°¡ |
(64%) 114,560,000¿ø
(0.00%) 0¿ø |
°Ç¹°¸éÀû |
34.52§³(10.44Æò) |
ÀÔÂû±âÀÏ |
2026.03.03(È) 10:00
|
| ÀÔÂûº¸Áõ±Ý |
(10%) 11,456,000¿ø |
ÅäÁö¸éÀû |
23.02§³(6.96Æò)
|
À¯ÂûȽ¼ö |
2ȸ |
| ÀÔÂû¹ý¿ø |
¼¿ïÁß¾ÓÁö¹æ¹ý¿ø |
°æ¸Å¹æ¹ý |
|
¹°°ÇÁ¶È¸¼ö |
¿À´Ã: 4ȸ [´©Àû: 1549ȸ]
|
| ¸»¼Ò±âÁØ | ÃÖ¼±¼øÀ§ ¼³Á¤ : 2023.9.12.¾Ð·ù ¼³Á¤
|
|
|
|
|
|
|
|
|
|
|
°æ¸Å´ë»ó ¸ñ·Ï
|
|
| ±¸ºÐ |
¸ñ·Ï |
ÁÖ¼Ò |
±¸Á¶/¿ëµµ/´ëÁö±Ç |
ºñ°í |
´ëÁö±Ç
|
1 |
ºÀõµ¿ 1513-5 |
363.1ºÐÀÇ 23.0196 |
23.0196§³ (6.96Æò)
|
°Ç¹°
|
1 |
ºÀõµ¿ 1513-5 |
Áö1Ãþºñ01È£ ö±ÙÄÜÅ©¸®Æ®±¸Á¶ |
34.515§³ (10.44Æò)
|
|
|
|
2025-12-16
À¯Âû
|
(100%)
179,000,000¿ø
|
|
|
|
2026-01-20
À¯Âû
|
(80%)
143,200,000¿ø
|
|
|
|
2026-03-03
³«Âû
|
(64%)
114,560,000¿ø
|
|
|
¦±¦¬> ³«Âû°¡
 |
|
|
|
|
°¨Á¤Æò°¡¼ ¿ä¾à |
|
[À§Ä¡/ÁÖÀ§È¯°æ]
º»°ÇÀº ¼¿ïƯº°½Ã °ü¾Ç±¸ ºÀõµ¿ ¼ÒÀç ""¼¿ï½ÅºÀÃʵîÇб³"" ³²µ¿Ãø Àαٿ¡ À§Ä¡Çϸç
ÁÖº¯Àº °øµ¿ÁÖÅÃ, ´Üµ¶ÁÖÅÃ, ±Ù¸°»ýȰ½Ã¼³ µîÀÌ È¥ÀçµÈ Áö¿ªÀ¸·Î ȯ°æ º¸Åë½ÃµÊ.
[±³Åë»óȲ]
º»°Ç±îÁö Â÷·®ÃâÀÔ °¡´ÉÇϰí Àαٿ¡ ¹ö½º½Â°ÀåÀÌ ¼ÒÀçÇÏ¿© ´ëÁß±³Åë»çÁ¤ º¸Åë½ÃµÊ.
[°Ç¹°±¸Á¶]
ö±ÙÄÜÅ©¸®Æ®±¸Á¶ (ö±Ù)ÄÜÅ©¸®Æ®ÁöºØ ÁöÇÏ2Ãþ Áö»ó4Ãþ °Ç¹° ³» ±¸ºÐ ¼ÒÀ¯µÈ
Áö1Ãþ ºñ01È£·Î¼, (»ç¿ë½ÂÀÎÀÏ: 2015³â 05¿ù 21ÀÏ)
¿Üº®: ¼®ÀçºÙÀÓ ¸¶°¨ µî
âȣ: ¼¦½Ãâȣ µîÀÓ.
[ÀÌ¿ë»óÅÂ]
ÁÖÅÃ(¹æ2, ÁÖ¹æ1, ÈÀå½Ç µî)À¸·Î ÀÌ¿ëÁßÀÎ °ÍÀ¸·Î ޹® Á¶»çµÊ.
[¼³ºñ³»¿ª]
À§»ý¼³ºñ ¹× ±Þ¹è¼ö¼³ºñ, ³¹æ¼³ºñ, ½Â°±â¼³ºñ µî
[ÅäÁöÇü»ó/ÀÌ¿ë»óÅÂ]
2ÇÊÁö ÀÏ´ÜÀÇ ³²ÃøÇÏÇ⠿ϰæ»çÀÇ ºÎÁ¤Çü ÅäÁö·Î¼, °øµ¿ÁÖÅà ¹× Á¦2Á¾±Ù¸°»ýȰ½Ã¼³
°ÇºÎÁö·Î ÀÌ¿ë ÁßÀÓ.
7)ÀÎÁ¢ µµ·Î»óŵî
ºÏÃøÀ¸·Î ³ëÆø ¾à 6¹ÌÅÍ Æ÷ÀåµÈ µµ·Î¿Í ÀÎÁ¢ÇÔ.
[ÅäÁöÀÌ¿ë°èȹ]
±âÈ£(1)ÅäÁö :
µµ½ÃÁö¿ª, Á¦2Á¾ÀϹÝÁÖ°ÅÁö¿ª(7ÃþÀÌÇÏ), °¡Ãà»çÀ°Á¦Çѱ¸¿ª£¼°¡ÃàºÐ´¢Àǰü¸® ¹× À̿뿡 °üÇÑ
¹ý·ü£¾, ±³À°È¯°æº¸È£±¸¿ª(»ó´ë/Àý´ëÁ¤È±¸¿ª ÃÖÁ¾È®ÀÎÀº µ¿ÀÛ±³À°Ã»¿¡¹Ýµå½Ã È®ÀÎÀÌ ÇÊ¿äÇÑ
»çÇ×ÀÓ)£¼±³À°È¯°æ º¸È£¿¡ °üÇÑ ¹ý·ü£¾, »ó´ëº¸È£±¸¿ª£¼±³À°È¯°æ º¸È£¿¡ °üÇÑ ¹ý·ü£¾, ´ë°ø¹æ¾î
ÇùÁ¶±¸¿ª(À§Å¹°íµµ:194m)£¼±º»ç±âÁö ¹× ±º»ç½Ã¼³ º¸È£¹ý£¾, °ú¹Ð¾ïÁ¦±Ç¿ª£¼¼öµµ±ÇÁ¤ºñ°èȹ¹ý£¾
±âÈ£(2)ÅäÁö :
µµ½ÃÁö¿ª, Á¦2Á¾ÀϹÝÁÖ°ÅÁö¿ª(7ÃþÀÌÇÏ), µµ·Î(Á¢ÇÕ), °¡Ãà»çÀ°Á¦Çѱ¸¿ª£¼°¡ÃàºÐ´¢Àǰü¸® ¹×
À̿뿡 °üÇѹý·ü£¾, ±³À°È¯°æº¸È£±¸¿ª(»ó´ë/Àý´ëÁ¤È±¸¿ª ÃÖÁ¾È®ÀÎÀº µ¿ÀÛ±³À°Ã»¿¡¹Ýµå½Ã
È®ÀÎÀÌ ÇÊ¿äÇÑ »çÇ×ÀÓ)£¼±³À°È¯°æ º¸È£¿¡ °üÇÑ ¹ý·ü£¾, »ó´ëº¸È£±¸¿ª£¼±³À°È¯°æ º¸È£¿¡ °üÇÑ
¹ý·ü£¾, ´ë°ø¹æ¾îÇùÁ¶±¸¿ª(À§Å¹°íµµ:194m)£¼±º»ç±âÁö ¹× ±º»ç½Ã¼³ º¸È£¹ý£¾, °ú¹Ð¾ïÁ¦±Ç¿ª
£¼¼öµµ±ÇÁ¤ºñ°èȹ¹ý£¾
[°øºÎ¿ÍÀÇ Â÷ÀÌ]
º»°ÇÀº ÁýÇÕ°ÇÃ๰´ëÀå»ó »ç¹«¼Ò·Î µîÀçµÇ¾î ÀÖÀ¸³ª, ÇöȲ ÁÖÅÃÀ¸·Î ÀÌ¿ëÁßÀÎ °ÍÀ¸·Î
޹®µÊ.
[Âü°í»çÇ×]
º»°ÇÀº ÇöÀåÁ¶»ç½Ã Á¡À¯ÀÎÀÇ ÇöÀåÁ¶»ç °ÅºÎ·Î ÀÓ´ë°ü°è ¹Ì»óÀÓ.
|
|
|
°ÇÃ๰ÇöȲ |
|
|
|
| ¼ÒÀçÁö |
¼¿ïƯº°½Ã °ü¾Ç±¸ ºÀõµ¿ 1513-5¹øÁö |
| ´ëÁö¸éÀû |
363.1§³(110.03Æò) |
¿¬¸éÀû |
1001.53§³(303.49Æò) |
ÁÖ¿ëµµ |
°øµ¿ÁÖÅà |
| °ÇÃà¸éÀû |
201.76§³(61.14Æò) |
¿ëÀû·ü»êÁ¤¿¬¸éÀû |
571.31§³(173.12Æò) |
Âø°øÀÏÀÚ |
2014.10.18 |
| °ÇÆóÀ² |
55.57% |
¿ëÀû·ü |
157.34% |
»ç¿ë½ÂÀÎÀÏÀÚ |
2015.05.21 |
| Áö»óÃþ¼ö |
4Ãþ |
ÁöÇÏÃþ¼ö |
2Ãþ |
±¸Á¶ |
ö±ÙÄÜÅ©¸®Æ®±¸Á¶ |
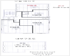
°ÇÃ๰Ãþº°ÇöȲ [º¸±â]| Ãþº° | ±¸Á¶ | ¿ëµµ | ¸éÀû | | 1Ãþ | ö±ÙÄÜÅ©¸®Æ®±¸Á¶ | ´Ù¼¼´ëÁÖÅà | 137.25§³ (41.59Æò) | | 1Ãþ | ö±ÙÄÜÅ©¸®Æ®±¸Á¶ | ÇÊ·ÎÆ¼ÁÖÂ÷Àå | 28.8§³ (8.73Æò) | | 2Ãþ | ö±ÙÄÜÅ©¸®Æ®±¸Á¶ | ´Ù¼¼´ëÁÖÅà | 157.96§³ (47.87Æò) | | 3Ãþ | ö±ÙÄÜÅ©¸®Æ®±¸Á¶ | ´Ù¼¼´ëÁÖÅà | 160.52§³ (48.64Æò) | | 4Ãþ | ö±ÙÄÜÅ©¸®Æ®±¸Á¶ | ´Ù¼¼´ëÁÖÅà | 115.58§³ (35.02Æò) | | ¿Áž1Ãþ | ö±ÙÄÜÅ©¸®Æ®±¸Á¶ | °è´Ü½Ç | 13.16§³ (3.99Æò) | | Áö1 | ö±ÙÄÜÅ©¸®Æ®±¸Á¶ | »ç¹«¼Ò | 198.46§³ (60.14Æò) | | Áö2 | ö±ÙÄÜÅ©¸®Æ®±¸Á¶ | ÁÖÂ÷Àå | 202.96§³ (61.5Æò) |
|
|
|
|
|
|
|
|
|
¸éÀû(§³), ±Ý¾×(¸¸¿ø)
| °è¾àÀÏ | ±âÁØ | °Ç¹°¸íĪ | Ãþ | ¿¬¸éÀû | ´ëÁö¸éÀû | °Å·¡±Ý¾× | °ÇÃà³âµµ | | °Å·¡³»¿ªÀÌ ¾ø½À´Ï´Ù. |
| °è¾àÀÏ | ±âÁØ | °Ç¹°¸íĪ | Ãþ | ¿¬¸éÀû | º¸Áõ±Ý | ¿ù¼¼ | °ÇÃà³âµµ | | 2026.03.13 | ¿ù¼¼ | YK¼¿ï´ë | 5 | 12.25 | 3,554 | 5 | 2020 | | 2026.03.13 | ¸Å¸Å | ±×¸°ÇϿ콺 | 2 | 59.86 | 11,200 | | 1996 | | 2026.03.12 | ¸Å¸Å | ±×¸°ÇϿ콺 | 3 | 46.01 | 29,350 | | 2016 | | 2026.03.12 | ¸Å¸Å | õÁöºô¶ó | 2 | 72.94 | 25,500 | | 1991 | | 2026.03.12 | ¿ù¼¼ | SBHOUSE | 6 | 29.38 | 5,000 | 115 | 2025 | | 2026.03.12 | ¿ù¼¼ | SBHOUSE | 5 | 29.38 | 20,000 | 40 | 2025 | | 2026.03.12 | ¿ù¼¼ | °æ¿øºô¶ó | 2 | 60.48 | 13,000 | 35 | 1993 | | 2026.03.11 | ¿ù¼¼ | (1668-9) | 3 | 58.71 | 12,000 | 74 | 2005 | | 2026.03.11 | Àü¼¼ | ´º°ñµçÇÏÀ̺ô | 1 | 59.47 | 20,000 | 0 | 2003 | | 2026.03.11 | Àü¼¼ | ¿µ¼öºôµù | 6 | 12.04 | 12,000 | 0 | 2013 | | 2026.03.11 | ¿ù¼¼ | ÇÊÇϿ콺2Â÷101µ¿ | 5 | 42.36 | 5,000 | 150 | 2016 | | 2026.03.11 | ¿ù¼¼ | YK¼¿ï´ë | 3 | 13.14 | 3,756 | 5 | 2020 | | 2026.03.11 | ¿ù¼¼ | ´õÇ츣¹Ì¿Â | 14 | 11.61 | 18,000 | 35 | 2021 | | 2026.03.11 | ¿ù¼¼ | YK¼¿ï´ë | 6 | 12.25 | 3,554 | 5 | 2020 | | 2026.03.10 | Àü¼¼ | °Ç¿ìÁö¿ìºô | 5 | 55.09 | 20,000 | 0 | 2013 | | 2026.03.10 | ¸Å¸Å | ÃÊ¿øºô¶ó | 3 | 55.54 | 21,000 | | 1990 | | 2026.03.10 | ¿ù¼¼ | ºñ°ÇÇϿ콺2 | 4 | 28.56 | 17,640 | 5 | 2017 | | 2026.03.09 | ¿ù¼¼ | YK¼¿ï´ë | 5 | 13.14 | 1,258 | 13 | 2020 | | 2026.03.09 | ¿ù¼¼ | E.H.Vill | 2 | 18.41 | 5,500 | 50 | 2016 | | 2026.03.09 | ¿ù¼¼ | ¿øÁÖºô¶ó | 2 | 41.52 | 13,000 | 30 | 1988 | | 2026.03.09 | ¿ù¼¼ | 660-10 | 2 | 29.91 | 20,700 | 20 | 2016 | | 2026.03.08 | Àü¼¼ | (675-6) | 2 | 55.37 | 17,000 | 0 | 1993 | | 2026.03.08 | ¿ù¼¼ | CJ¿ÀÇǽºÅÚ | 4 | 10.11 | 8,000 | 34 | 2017 | | 2026.03.08 | ¿ù¼¼ | ¿¡½ºÅ¬·¡½º | 5 | 29.3 | 26,900 | 30 | 2020 | | 2026.03.08 | ¿ù¼¼ | ±×·¹À̺ô | 5 | 27.1 | 21,000 | 9 | 2017 | | 2026.03.07 | ¿ù¼¼ | ÆÄÅ©ºä | 3 | 37.41 | 2,000 | 115 | 2013 | | 2026.03.07 | ¿ù¼¼ | ¿ìÁøÇϿ콺 | 1 | 108.4 | 500 | 45 | 2009 | | 2026.03.07 | ¿ù¼¼ | ¿øÀϺô | 1 | 53.86 | 5,000 | 120 | 2003 | | 2026.03.07 | ¿ù¼¼ | µ¿ºÎ±×¸°ºô | 2 | 65.07 | 24,800 | 50 | 2002 | | 2026.03.07 | ¿ù¼¼ | (942-19) | 3 | 54.95 | 10,000 | 100 | 2002 | | 2026.03.07 | ¿ù¼¼ | Çö´ëºô¶óÆ®(872-18) | 4 | 34.89 | 4,000 | 106 | 2008 | | 2026.03.07 | ¸Å¸Å | ¹éÁ¶¾ÆÆ®ºô¶ó | 1 | 57.38 | 26,900 | | 1996 | | 2026.03.07 | Àü¼¼ | ³ª¹«±×´Ãºô | 3 | 42.77 | 26,900 | 0 | 2017 | | 2026.03.06 | ¸Å¸Å | JSÇ÷¯½ººô | 6 | 20.58 | 18,000 | | 2016 | | 2026.03.06 | ¸Å¸Å | JSÇ÷¯½ººô | 5 | 20.16 | 18,000 | | 2016 | | 2026.03.06 | ¸Å¸Å | JSÇ÷¯½ººô | 6 | 20.16 | 18,000 | | 2016 | | 2026.03.06 | ¸Å¸Å | JSÇ÷¯½ººô | 6 | 20.16 | 18,000 | | 2016 | | 2026.03.06 | ¸Å¸Å | ´ö»êºô¸®Áö | 4 | 58.77 | 43,500 | | 2015 | | 2026.03.06 | ¸Å¸Å | ºÀõ¾ÆÆ®ºô | 2 | 76.32 | 98,500 | | 2003 | | 2026.03.06 | ¸Å¸Å | JSÇ÷¯½ººô | 5 | 20.16 | 18,000 | | 2016 | | 2026.03.06 | ¸Å¸Å | JSÇ÷¯½ººô | 7 | 20.16 | 18,000 | | 2016 | | 2026.03.06 | ¸Å¸Å | JSÇ÷¯½ººô | 5 | 20.58 | 18,000 | | 2016 | | 2026.03.06 | ¿ù¼¼ | (955-39) | 2 | 36.8 | 3,000 | 100 | 1990 | | 2026.03.06 | ¸Å¸Å | JSÇ÷¯½ººô | 7 | 20.16 | 18,000 | | 2016 | | 2026.03.06 | ¸Å¸Å | JSÇ÷¯½ººô | 8 | 42.35 | 38,500 | | 2016 | | 2026.03.06 | ¸Å¸Å | JSÇ÷¯½ººô | 7 | 20.58 | 18,000 | | 2016 | | 2026.03.06 | ¿ù¼¼ | ½ÅȰñµçŸ¿ö | 10 | 22.34 | 16,000 | 3 | 2019 | | 2026.03.06 | ¿ù¼¼ | (1622-28) | 4 | 35.68 | 1,000 | 70 | 2003 | | 2026.03.06 | ¿ù¼¼ | ¶ó¸Þ¸£ | 11 | 29.54 | 26,000 | 45 | 2022 | | 2026.03.05 | ¿ù¼¼ | ´õÇ츣¹Ì¿Â | 14 | 10.87 | 3,891 | 6 | 2021 | | 2026.03.05 | ¿ù¼¼ | ´ö»êŸ¿ö | 10 | 15.39 | 20,000 | 5 | 2019 | | 2026.03.05 | Àü¼¼ | ¼±°æ³×½ººô | 4 | 62.24 | 23,000 | 0 | 2002 | | 2026.03.04 | Àü¼¼ | (14-9) | 1 | 29.56 | 26,500 | 0 | 2016 | | 2026.03.04 | ¿ù¼¼ | SBHOUSE | 2 | 29.15 | 30,000 | 15 | 2025 | | 2026.03.04 | ¸Å¸Å | ÇöÆÄÅ©ºô | 1 | 72.9 | 35,000 | | 2004 | | 2026.03.04 | ¿ù¼¼ | °üÀü¾ÆÆ®ºô | 2 | 81.97 | 10,000 | 100 | 2011 | | 2026.03.04 | Àü¼¼ | (178-319) | 3 | 65.58 | 28,350 | 0 | 2002 | | 2026.03.04 | ¿ù¼¼ | SJÇÁ¸®¹Ì¾î¿ÀÇǽºÅÚ | 14 | 18.54 | 2,000 | 114 | 2021 | | 2026.03.04 | ¿ù¼¼ | ÀÓ¸¶´©¿¤ÇϿ콺 | 4 | 26.58 | 15,000 | 65 | 2013 | | 2026.03.04 | ¿ù¼¼ | (1688-97) | 2 | 43.24 | 10,000 | 65 | 2004 | | 2026.03.04 | Àü¼¼ | ¿ÍÀÌÁîÈú(635-343) | 3 | 28.14 | 26,750 | 0 | 2020 | | 2026.03.04 | ¿ù¼¼ | ¾Æ¸§½Ç | 2 | 12.9 | 3,500 | 44 | 2013 | | 2026.03.04 | ¿ù¼¼ | µ¿¹æÅ¸¿î | 1 | 53.63 | 7,000 | 60 | 1995 | | 2026.03.03 | Àü¼¼ | À翵¸Ç¼Ç(1515-8) | 3 | 73.24 | 30,000 | 0 | 2004 | | 2026.03.03 | ¿ù¼¼ | ¿¤µðŸ¿î | 8 | 17.1 | 1,000 | 64 | 2013 | | 2026.03.03 | ¸Å¸Å | À¯Ã¢ºô | 5 | 26.24 | 63,000 | | 2007 | | 2026.03.02 | ¿ù¼¼ | ¸ÞÀÌÇýºÅ×ÀÌ | 9 | 13.42 | 3,000 | 78 | 2017 | | 2026.03.02 | ¿ù¼¼ | ´õ¿ï¸²¸ÞÆ®·ÎŸ¿ö | 6 | 20.81 | 16,300 | 25 | 2022 | | 2026.03.02 | ¿ù¼¼ | ´õ¿ï¸²¸ÞÆ®·ÎŸ¿ö | 6 | 20.81 | 16,300 | 25 | 2022 | | 2026.03.02 | ¿ù¼¼ | ÁÖÇϿ콺 | 3 | 19.13 | 500 | 50 | 2014 | | 2026.03.01 | Àü¼¼ | E.H.Vill | 2 | 15.55 | 16,000 | 0 | 2016 | | 2026.03.01 | ¿ù¼¼ | (180-156) | 1 | 36.57 | 2,000 | 60 | 1986 | | 2026.03.01 | ¿ù¼¼ | Å¿õºô | 3 | 42.24 | 8,000 | 70 | 2008 | | 2026.02.28 | ¸Å¸Å | (41-109) | 1 | 35.19 | 26,350 | | 1992 | | 2026.02.28 | ¿ù¼¼ | ¹é¼³ºô¶ó | 4 | 32.69 | 12,000 | 55 | 1993 | | 2026.02.27 | ¿ù¼¼ | ´õºí·¹½º2Â÷ | 6 | 23.83 | 2,000 | 100 | 2017 | | 2026.02.27 | Àü¼¼ | °³²ºô¸®Áö | -1 | 45.12 | 8,800 | 0 | 1993 | | 2026.02.27 | ¿ù¼¼ | 196-67 | 3 | 40.44 | 17,000 | 30 | 2014 | | 2026.02.27 | ¿ù¼¼ | À¯´Ï¿Âºô | 5 | 58.12 | 500 | 45 | 2005 | | 2026.02.27 | ¿ù¼¼ | Àå¹Ìºô¶ó(°¡)µ¿ | 2 | 39.64 | 14,300 | 6 | 1987 | | 2026.02.26 | ¿ù¼¼ | Ç÷¯½ºÅ¸¿ö | 9 | 11.87 | 3,000 | 67 | 2002 | | 2026.02.26 | ¿ù¼¼ | (196-152) | 1 | 42.92 | 15,000 | 70 | 2005 | | 2026.02.26 | Àü¼¼ | ¿ÍÀÌÁîÈú(635-343) | 3 | 29.83 | 25,000 | 0 | 2020 | | 2026.02.26 | ¿ù¼¼ | ±×·£Á®ºô¶ó3Â÷ | 2 | 39.01 | 14,400 | 25 | 1993 | | 2026.02.26 | ¿ù¼¼ | ¿¬Èñºô¶ó | 3 | 60.28 | 18,000 | 5 | 1985 | | 2026.02.26 | ¿ù¼¼ | ¿¬Èñºô¶ó | 3 | 60.28 | 18,000 | 5 | 1985 | | 2026.02.26 | Àü¼¼ | ½ÅÀÏ¿¬¸³ | 1 | 49.71 | 23,000 | 0 | 1986 | | 2026.02.26 | ¿ù¼¼ | SBHOUSE | 4 | 28.59 | 5,500 | 110 | 2025 | | 2026.02.26 | Àü¼¼ | SBHOUSE | 3 | 28.39 | 35,000 | 0 | 2025 | | 2026.02.26 | ¸Å¸Å | ´©¸®ÇϿ콺 | 3 | 29.63 | 31,500 | | 2019 | | 2026.02.26 | ¿ù¼¼ | ÈÞÅ×¶ó½º | 4 | 35.98 | 30,500 | 15 | 2019 | | 2026.02.25 | Àü¼¼ | Ç÷º½ººô(715-143) | 1 | 20.65 | 5,000 | 0 | 2001 | | 2026.02.25 | ¿ù¼¼ | Æò¾Èºô¸®Áö | 1 | 43.11 | 18,000 | 20 | 1993 | | 2026.02.25 | ¿ù¼¼ | Á¤Çýºô¶ó | 2 | 51.36 | 2,000 | 66 | 1992 | | 2026.02.25 | ¿ù¼¼ | ¿ø¾Ó(917-12) | 2 | 53.37 | 3,000 | 80 | 1991 | | 2026.02.25 | ¸Å¸Å | üÀ̽ººôAµ¿ | 5 | 26.21 | 24,700 | | 2016 | | 2026.02.25 | ¿ù¼¼ | ¿µ¼öºôµù | 5 | 12.4 | 9,000 | 15 | 2013 | | 2026.02.25 | ¸Å¸Å | ºí·çºô | 4 | 46.54 | 41,000 | | 2015 | | 2026.02.24 | ¸Å¸Å | žçºô¶ó | 2 | 56.26 | 27,000 | | 1997 | | 2026.02.24 | ¸Å¸Å | ¿µ¶ôºô¶ó | 1 | 57.55 | 25,000 | | 1990 | | 2026.02.24 | ¿ù¼¼ | ¾Æ¸ð¸£ºôB | 2 | 23.89 | 15,000 | 20 | 2016 | | 2026.02.24 | ¿ù¼¼ | T&kºÀõI | 5 | 29.99 | 2,169 | 22 | 2025 | | 2026.02.24 | Àü¼¼ | µ¿³²ºô¶ó | 2 | 46.78 | 18,500 | 0 | 1991 | | 2026.02.24 | ¿ù¼¼ | (41-109) | -1 | 31.34 | 7,000 | 20 | 1992 | | 2026.02.24 | ¿ù¼¼ | û±¸ºô¶ó | 1 | 39.79 | 12,000 | 35 | 1993 | | 2026.02.24 | ¿ù¼¼ | Ǫ¸£ºô | 4 | 20.48 | 2,000 | 33 | 2006 | | 2026.02.23 | Àü¼¼ | ¾Æ¸ð¸£ºôB | 3 | 23.89 | 18,900 | 0 | 2016 | | 2026.02.23 | ¿ù¼¼ | ÆÛ½ºÆ®ÇÁ¸®¹Ì¾ö | 1 | 28.76 | 21,500 | 11 | 2017 | | 2026.02.23 | ¿ù¼¼ | »õ½Ç¿ø·ëÇϿ콺 | 2 | 14.37 | 5,000 | 45 | 1996 | | 2026.02.23 | Àü¼¼ | ¾Æ¸ð¸£ºôB | 3 | 23.89 | 18,900 | 0 | 2016 | | 2026.02.23 | ¸Å¸Å | ½Å¿øºô¶ó | 3 | 45.18 | 110,000 | | 1987 | | 2026.02.23 | ¸Å¸Å | ÀÎÇåºô¸®Áö | 2 | 53.02 | 22,000 | | 2003 | | 2026.02.22 | Àü¼¼ | ¿µ¶ô¾ÆÆ®ºô¶ó2Â÷(³ª) | -1 | 59.51 | 15,000 | 0 | 1993 | | 2026.02.22 | ¿ù¼¼ | »ïÁ¤ÇÏÀÌÃ÷ºô¶ó(°¡µ¿) | -1 | 49.38 | 1,000 | 70 | 1990 | | 2026.02.22 | ¿ù¼¼ | (196-268) | 2 | 57.7 | 2,000 | 105 | 2004 | | 2026.02.21 | ¿ù¼¼ | õ¿ì¸Ç¼ð2Â÷ | 2 | 57.24 | 19,100 | 10 | 1991 | | 2026.02.21 | ¿ù¼¼ | ´ëÇдç | 1 | 13.5 | 1,000 | 36 | 2011 | | 2026.02.21 | ¿ù¼¼ | ´Ù¼¼´ë(1539-19¿Ü1) | 3 | 29.945 | 27,600 | 10 | 2020 | | 2026.02.21 | ¿ù¼¼ | ¶ó¿Â3 | 8 | 12.291 | 3,000 | 38 | 2018 | | 2026.02.21 | ¿ù¼¼ | (1709-13) | 3 | 56.3 | 18,000 | 53 | 1996 | | 2026.02.21 | ¿ù¼¼ | Á¶Àººô | 3 | 12.15 | 5,500 | 27 | 2013 | | 2026.02.21 | Àü¼¼ | ·ÎÁ¦ÇϿ콺 | 2 | 27.82 | 25,000 | 0 | 2017 | | 2026.02.21 | ¿ù¼¼ | ÇöÁø·ÎÁîºô | 1 | 50.82 | 16,000 | 15 | 2003 | | 2026.02.21 | ¸Å¸Å | ±×¸°ÇϿ콺 | 5 | 45.89 | 28,500 | | 2016 | | 2026.02.21 | ¸Å¸Å | (635-478) | 1 | 36.41 | 20,000 | | 1991 | | 2026.02.21 | ¸Å¸Å | ¿ì¼ººô¶ó | 5 | 79.17 | 39,000 | | 2002 | | 2026.02.21 | Àü¼¼ | ½ÉÁö(457-115) | 6 | 28.75 | 26,100 | 0 | 2018 | | 2026.02.21 | ¿ù¼¼ | Á¤¿øÆÄÅ©ºô | 6 | 28.94 | 3,000 | 89 | 2018 | | 2026.02.21 | ¿ù¼¼ | °ñµåÇÏÀÓ2Â÷ | 3 | 24.41 | 7,000 | 79 | 2015 | | 2026.02.21 | ¸Å¸Å | ¿ì³²ºô¶ó¸¶ | 1 | 35.54 | 16,000 | | 1989 | | 2026.02.21 | ¿ù¼¼ | (895-25) | 1 | 58.04 | 2,000 | 60 | 1976 | | 2026.02.20 | ¿ù¼¼ | µå¸²Ä³½½ | 6 | 24.62 | 20,000 | 40 | 2016 | | 2026.02.20 | ¿ù¼¼ | ¿µ¿ìµµ½ÃÇü»ýȰÁÖÅà | 3 | 21.25 | 500 | 55 | 2012 | | 2026.02.20 | ¿ù¼¼ | Çö´ëMŸ¿î | 5 | 27.76 | 22,000 | 20 | 2017 | | 2026.02.20 | ¿ù¼¼ | (´õºô) | 5 | 25.6 | 5,500 | 105 | 2022 | | 2026.02.20 | Àü¼¼ | °æÈ¾ÆÆ®ºô¶ó(°¡) | -1 | 53.28 | 10,000 | 0 | 1994 | | 2026.02.20 | ¿ù¼¼ | ´Ù¼¼´ëÁÖÅÃ(1686-4) | 4 | 51.92 | 3,000 | 59 | 2018 | | 2026.02.19 | ¸Å¸Å | ÇØÇǵ帲8Â÷ | 2 | 53.39 | 34,000 | | 2015 | | 2026.02.19 | ¿ù¼¼ | KSŸ¿ö | 10 | 26.4 | 20,000 | 51 | 2017 | | 2026.02.18 | ¸Å¸Å | ¿ì¿ù±×¸°ºô¸®Áö | 2 | 68.74 | 32,800 | | 1996 | | 2026.02.15 | ¿ù¼¼ | Á¶Àººô | 4 | 14.17 | 5,000 | 26 | 2013 | | 2026.02.15 | ¿ù¼¼ | (180-590) | 2 | 29.68 | 8,000 | 1 | 1994 | | 2026.02.15 | ¸Å¸Å | »ïâºô¶ó | -1 | 53.85 | 18,500 | | 1994 | | 2026.02.15 | ¸Å¸Å | ·ÎÁ¦ÇϿ콺(6Â÷) | 3 | 60.15 | 34,000 | | 2004 | | 2026.02.15 | ¿ù¼¼ | (´õºô) | 4 | 27.15 | 5,500 | 110 | 2022 | | 2026.02.14 | Àü¼¼ | ¼±°æÇÏÀÌÃ÷(635-287) | 2 | 31.05 | 18,900 | 0 | 2014 | | 2026.02.14 | ¿ù¼¼ | ½ÅȰñµçŸ¿ö | 9 | 11.56 | 15,000 | 10 | 2019 | | 2026.02.14 | ¿ù¼¼ | ´ëµ¿ÇÏÀÌÃ÷ | 3 | 40.94 | 1,000 | 70 | 1992 | | 2026.02.14 | Àü¼¼ | »ïº¸È¨Å¸¿î | 5 | 53.72 | 30,000 | 0 | 2014 | | 2026.02.14 | Àü¼¼ | ¿ì¿ùÆÄÅ© | 4 | 40.47 | 12,500 | 0 | 1995 | | 2026.02.14 | Àü¼¼ | ¼±°æÇÏÀÌÃ÷(635-287) | 2 | 31.05 | 18,900 | 0 | 2014 | | 2026.02.13 | ¿ù¼¼ | À屺ķÆÛ½ºÅÚ | 3 | 80.55 | 1,000 | 45 | 2003 | | 2026.02.13 | Àü¼¼ | °ü¾Ç±×¸°ºô¶ó | 1 | 104.72 | 24,000 | 0 | 1987 | | 2026.02.13 | ¸Å¸Å | ¼ºÁø¸®Ä¡ºô6Â÷ | 4 | 34.66 | 45,500 | | 2022 | | 2026.02.13 | ¸Å¸Å | ÇѼºÆÄÅ©ºô¸®Áö | 2 | 54 | 34,000 | | 2018 | | 2026.02.12 | Àü¼¼ | (100-357) | 3 | 35.91 | 12,000 | 0 | 1990 | | 2026.02.12 | ¿ù¼¼ | ±Ýµ¿»ç¶û¹æ | 8 | 13.37 | 15,000 | 35 | 2022 | | 2026.02.12 | Àü¼¼ | À±°ºô¶ó3Â÷ | 1 | 62.08 | 24,000 | 0 | 2003 | | 2026.02.12 | ¿ù¼¼ | ÿ½ÃÇϿ콺Aµ¿Bµ¿ | 2 | 43.08 | 1,000 | 90 | 2019 | | 2026.02.12 | Àü¼¼ | villaM | 10 | 18.77 | 16,700 | 0 | 2018 | | 2026.02.12 | ¿ù¼¼ | SBHOUSE | 3 | 29.15 | 10,000 | 110 | 2025 | | 2026.02.12 | ¸Å¸Å | (480-109) | 1 | 25.79 | 57,000 | | 2002 | | 2026.02.11 | ¿ù¼¼ | ÃÊ¿øºô¶ó | 3 | 55.54 | 16,500 | 10 | 1990 | | 2026.02.11 | ¿ù¼¼ | Áø¼ººô¶ó | 2 | 45.54 | 17,700 | 30 | 2003 | | 2026.02.11 | Àü¼¼ | (921-35) | 4 | 15.23 | 11,000 | 0 | 2011 | | 2026.02.11 | ¿ù¼¼ | ¿¡ÀÌ¿øºô | 3 | 44.14 | 20,000 | 96 | 2016 | | 2026.02.11 | ¿ù¼¼ | ¿¡ÀÌ¿øºô | 3 | 44.14 | 20,000 | 96 | 2016 | | 2026.02.11 | Àü¼¼ | ·ÎÁ¦ÇϿ콺(180-76) | 2 | 39.79 | 25,200 | 0 | 2016 | | 2026.02.11 | ¸Å¸Å | ¼öÆÓ¸®½ºFT | 5 | 55.58 | 41,000 | | 2018 | | 2026.02.11 | ¿ù¼¼ | Á¦¿µºôµù | 4 | 29.41 | 5,000 | 89 | 2020 | | 2026.02.10 | ¸Å¸Å | ÇѼºÆÄÅ©ºô¸®Áö | 5 | 54 | 33,500 | | 2018 | | 2026.02.10 | Àü¼¼ | ´ë¿øÇö´ëºô¶ó | 2 | 91.62 | 35,000 | 0 | 1985 | | 2026.02.10 | ¿ù¼¼ | (715-135) | 1 | 41.64 | 13,000 | 15 | 1988 | | 2026.02.10 | ¿ù¼¼ | 1612-53 | 3 | 20 | 5,000 | 79 | 2014 | | 2026.02.10 | Àü¼¼ | ÇѰ¡¶÷Ÿ¿î | 3 | 20.92 | 18,000 | 0 | 2019 | | 2026.02.10 | ¸Å¸Å | ÈÀÌÆ®±×¸°ºô | 4 | 60.34 | 27,000 | | 2001 | | 2026.02.09 | ¿ù¼¼ | ºñÀüÇϿ콺 | 2 | 16.87 | 1,000 | 58 | 2016 | | 2026.02.09 | ¿ù¼¼ | SBHOUSE | 5 | 27.37 | 5,000 | 130 | 2025 | | 2026.02.09 | ¿ù¼¼ | (1679-2) | 3 | 44.82 | 6,000 | 74 | 2003 | | 2026.02.09 | Àü¼¼ | °Ç¿ìÁö¿ìºô | 2 | 55.21 | 24,800 | 0 | 2013 | | 2026.02.09 | Àü¼¼ | ¼±¸°ºô¶ó | 1 | 46.43 | 15,000 | 0 | 1990 | | 2026.02.09 | ¿ù¼¼ | ´Ù¿øºô | 3 | 41.7 | 25,000 | 35 | 2018 | | 2026.02.09 | Àü¼¼ | »ï¼ºÁÖÅÃAµ¿ | 2 | 58.59 | 26,000 | 0 | 2002 | | 2026.02.08 | ¿ù¼¼ | (148-41) | 1 | 16.5 | 7,400 | 8 | 2006 | | 2026.02.08 | Àü¼¼ | ´Ù¿ÃÇϿ콺 | 4 | 29.88 | 23,000 | 0 | 2017 | | 2026.02.07 | ¿ù¼¼ | ¾¦°í°³Çظ¼À½ | 10 | 29.2 | 30,000 | 25 | 2024 | | 2026.02.07 | ¸Å¸Å | °üÀü¾ÆÆ®ºô | 3 | 45.52 | 32,000 | | 2001 | | 2026.02.07 | ¸Å¸Å | ¹Ì¸²ºô¶ó | -1 | 39.52 | 15,500 | | 2002 | | 2026.02.07 | ¿ù¼¼ | (1533-33) | -1 | 62.64 | 3,000 | 60 | 1986 | | 2026.02.07 | ¿ù¼¼ | 897-18 | 3 | 29.86 | 2,500 | 77 | 2014 | | 2026.02.07 | ¿ù¼¼ | º¸¶ó¸Åºô | 2 | 29.75 | 5,000 | 98 | 2021 | | 2026.02.07 | ¿ù¼¼ | Á¶Àººô¶ó | 1 | 52.5 | 17,500 | 40 | 1995 | | 2026.02.07 | ¿ù¼¼ | º¸Àººô¶ó | -1 | 39.03 | 500 | 60 | 1992 | | 2026.02.07 | Àü¼¼ | ºû°íÀ»ÇϿ콺 | 2 | 40.7 | 23,900 | 0 | 2013 | | 2026.02.07 | ¸Å¸Å | È«³²ºô¶ó³ªµ¿ | 3 | 49.95 | 75,000 | | 1991 | | 2026.02.06 | ¸Å¸Å | ½Å¾È¿Â´©¸® | 3 | 36.27 | 23,700 | | 2014 | | 2026.02.06 | ¸Å¸Å | (1584-42) | -1 | 66.03 | 22,000 | | 1986 | | 2026.02.06 | ¸Å¸Å | ´ëÇѺô¶ó | 1 | 45.15 | 20,000 | | 1993 | | 2026.02.06 | ¿ù¼¼ | Çö´ëºô¶ó | 3 | 51.87 | 13,900 | 20 | 1991 | | 2026.02.06 | Àü¼¼ | villaM | 10 | 18.77 | 16,700 | 0 | 2018 | | 2026.02.06 | ¿ù¼¼ | ¹«±ÃȸǼÇ(876-22) | 4 | 38.28 | 500 | 90 | 1994 | | 2026.02.06 | ¿ù¼¼ | (1-72) | 2 | 41.88 | 464 | 55 | 1986 | | 2026.02.06 | ¿ù¼¼ | (195-29) | 1 | 26.82 | 15,000 | 5 | 1990 | | 2026.02.06 | ¿ù¼¼ | ½ÅȰñµçŸ¿ö | 7 | 11.56 | 15,000 | 10 | 2019 | | 2026.02.06 | ¿ù¼¼ | ·ç³ª;¸ÞÀÌÆ® | 5 | 29.94 | 24,600 | 40 | 2021 | | 2026.02.05 | ¿ù¼¼ | (196-355) | -1 | 36.92 | 500 | 45 | 1987 | | 2026.02.05 | ¿ù¼¼ | µµ¿ø¸Ç¼Ç(B) | 3 | 64.63 | 2,000 | 135 | 2004 | | 2026.02.05 | ¿ù¼¼ | SBHOUSE | 4 | 27.6 | 23,000 | 10 | 2025 | | 2026.02.05 | Àü¼¼ | Æç¸®Ã¼ÇϿ콺 | 3 | 34.4 | 27,700 | 0 | 2020 | | 2026.02.05 | Àü¼¼ | ¸ñȺô¸®ÁöB | 3 | 68.78 | 26,000 | 0 | 2002 | | 2026.02.05 | Àü¼¼ | (728-163) | 2 | 46.13 | 15,000 | 0 | 2002 | | 2026.02.05 | ¿ù¼¼ | ÄŸºô·¹7Â÷ | 11 | 12.12 | 3,000 | 63 | 2020 | | 2026.02.05 | Àü¼¼ | SBHOUSE | 4 | 28.13 | 30,000 | 0 | 2025 | | 2026.02.05 | ¿ù¼¼ | (1688-86) | 2 | 38.73 | 8,000 | 35 | 2004 | | 2026.02.05 | ¿ù¼¼ | (148-41) | 3 | 17.36 | 1,000 | 46 | 2006 | | 2026.02.05 | ¿ù¼¼ | (871-13) | 2 | 19.93 | 2,000 | 60 | 2002 | | 2026.02.05 | ¿ù¼¼ | ÄŸºô·¹7Â÷ | 11 | 12.12 | 2,000 | 75 | 2020 | | 2026.02.04 | ¸Å¸Å | ´ëµ¿ÇÏÀÌÃ÷ | 3 | 39.34 | 18,800 | | 1992 | | 2026.02.04 | ¿ù¼¼ | (647-57) | -1 | 38.69 | 6,300 | 15 | 1988 | | 2026.02.04 | ¸Å¸Å | º¸¶ó¸Å¾ÆÆ®ºô | 2 | 58.86 | 21,500 | | 2003 | | 2026.02.04 | ¸Å¸Å | °ø°£2Â÷ | 3 | 37.28 | 18,000 | | 1995 | | 2026.02.04 | ¸Å¸Å | ¸¶ÀÌÇØÇÇÇϿ콺 | 2 | 44.69 | 33,500 | | 2013 | | 2026.02.04 | ¸Å¸Å | ºñÁꟿîA | 4 | 26.54 | 25,500 | | 2016 | | 2026.02.04 | ¸Å¸Å | °ñµçÆ®¸®ºô¸®Áö | 3 | 48.33 | 39,800 | | 2017 | | 2026.02.04 | ¿ù¼¼ | ´ö»êŸ¿ö | 11 | 18.48 | 20,000 | 15 | 2019 | | 2026.02.04 | ¿ù¼¼ | ÀÌ·¹ÇϿ콺 | 5 | 47.79 | 4,200 | 37 | 2003 | | 2026.02.04 | Àü¼¼ | ¿¹¿ø¾ÆÆ®ºô2Â÷ | 5 | 56.1 | 19,500 | 0 | 2002 | | 2026.02.04 | Àü¼¼ | ½ÅȰñµçŸ¿ö | 9 | 10.78 | 14,000 | 0 | 2019 | | 2026.02.04 | Àü¼¼ | ¿ì¿µARTEVILLNAKSUNG | 2 | 29.04 | 30,000 | 0 | 2022 | | 2026.02.03 | ¿ù¼¼ | ¼¾Æ®·²Æ÷ÀÎÆ® | 10 | 11.56 | 10,000 | 32 | 2019 | | 2026.02.03 | ¿ù¼¼ | °ñµåÇÏÀÓ2Â÷ | 4 | 25.02 | 7,000 | 86 | 2015 | | 2026.02.03 | ¿ù¼¼ | ¼¾Æ®·²Æ÷ÀÎÆ® | 10 | 11.56 | 10,000 | 32 | 2019 | | 2026.02.03 | Àü¼¼ | ·ÎÁ¦ÇϿ콺(180-195) | 3 | 25.47 | 12,000 | 0 | 2016 | | 2026.02.03 | ¿ù¼¼ | ½ÂÈñ¸®Ä¡ºô | 1 | 17.48 | 300 | 42 | 2002 | | 2026.02.03 | Àü¼¼ | ¿ÍÀÌÁîÈú(635-343) | 4 | 29.83 | 28,300 | 0 | 2020 | | 2026.02.02 | ¿ù¼¼ | 905-15 | 3 | 40.7 | 12,000 | 42 | 2013 | | 2026.02.02 | ¸Å¸Å | È«³²ºô¶ó°¡µ¿ | 2 | 30 | 64,000 | | 1991 | | 2026.02.02 | ¸Å¸Å | »ï¼ºÇÏÀÌÃ÷ºô | 3 | 59.44 | 34,000 | | 2003 | | 2026.02.02 | Àü¼¼ | ½ÅȰñµçŸ¿ö | 9 | 11.56 | 14,000 | 0 | 2019 | | 2026.02.02 | Àü¼¼ | ½ÅȰñµçŸ¿ö | 9 | 11.56 | 13,500 | 0 | 2019 | | 2026.02.02 | Àü¼¼ | ½ÅȰñµçŸ¿ö | 9 | 11.56 | 13,500 | 0 | 2019 | | 2026.02.02 | Àü¼¼ | ´õ°ÔÀÌÆ® | 6 | 29.87 | 27,000 | 0 | 2016 | | 2026.02.02 | Àü¼¼ | ÁÖÇÏ¾ÆÆ®ºô | 3 | 46.99 | 25,000 | 0 | 2017 | | 2026.02.02 | Àü¼¼ | ÈÞÅ×¶ó½º | 2 | 29.94 | 30,500 | 0 | 2019 | | 2026.02.02 | Àü¼¼ | È«³²ºô¶ó°¡µ¿ | 2 | 30 | 20,000 | 0 | 1991 | | 2026.02.02 | Àü¼¼ | È£±¤ÁÖÅÃCµ¿ | 1 | 31.83 | 10,000 | 0 | 1986 | | 2026.02.01 | ¸Å¸Å | »ïÀϸǼǸ¶µ¿ | 1 | 50.88 | 82,000 | | 1986 | | 2026.02.01 | ¿ù¼¼ | (´õºô) | 2 | 25.57 | 5,500 | 110 | 2022 | | 2026.02.01 | ¸Å¸Å | ´ë¿øÇö´ëºô¶ó | 2 | 89.01 | 92,000 | | 1985 | | 2026.02.01 | Àü¼¼ | »ïÀϸǼǸ¶µ¿ | 1 | 50.88 | 40,000 | 0 | 1986 | | 2026.02.01 | Àü¼¼ | ºñ°ÇÇϿ콺2 | 4 | 29.95 | 18,500 | 0 | 2017 | | 2026.02.01 | Àü¼¼ | ´ë¿øÇö´ëºô¶ó | 2 | 89.01 | 50,000 | 0 | 1985 | | 2026.01.31 | ¿ù¼¼ | ·Î¾âÇÏÀÌÃ÷(1682-12) | 4 | 84.87 | 2,000 | 40 | 2000 | | 2026.01.31 | ¸Å¸Å | ±ÃÀü¸Ç¼ÇBµ¿ | 2 | 80.59 | 44,100 | | 2003 | | 2026.01.31 | ¿ù¼¼ | (950-12) | 5 | 48.3 | 1,000 | 55 | 2011 | | 2026.01.31 | ¸Å¸Å | ÀºÃµºô¶ó3Â÷ | 3 | 62.88 | 38,500 | | 2002 | | 2026.01.31 | ¸Å¸Å | (635-542) | 1 | 37.35 | 26,500 | | 1989 | | 2026.01.31 | ¸Å¸Å | Á¤´Ù¿îºô¶ó | -1 | 54.98 | 13,000 | | 1987 | | 2026.01.31 | ¿ù¼¼ | 1614-2 | 5 | 27.28 | 2,000 | 59 | 2016 | | 2026.01.31 | ¿ù¼¼ | ¸ð°Ç¾ÆÆ®ºô | 5 | 35.08 | 21,500 | 25 | 2016 | | 2026.01.31 | ¸Å¸Å | ¹éÇÕºô¶ó | 1 | 72.61 | 100,000 | | 1998 | | 2026.01.31 | ¿ù¼¼ | ¿¡ÀÌÄ¡ÇÏÀÓ | 11 | 10 | 5,000 | 65 | 2024 | | 2026.01.31 | ¿ù¼¼ | ¾Æ½¬·¹ºô | 3 | 16.39 | 2,000 | 43 | 2012 | | 2026.01.31 | ¿ù¼¼ | ÀÓ¸¶´©¿¤ÇϿ콺 | 2 | 14.7 | 3,000 | 50 | 2013 | | 2026.01.31 | ¿ù¼¼ | (898-3) | 7 | 16.25 | 5,000 | 94 | 2022 | | 2026.01.31 | ¿ù¼¼ | (950-12) | 3 | 16.2 | 500 | 50 | 2011 | | 2026.01.31 | ¿ù¼¼ | (1622-16) | 2 | 49.02 | 7,000 | 75 | 2003 | | 2026.01.30 | ¸Å¸Å | Ä¥¼º¿¬¸³°¡µ¿ | 2 | 80.76 | 30,000 | | 1983 | | 2026.01.30 | ¿ù¼¼ | ¿¡ÀÌÄ¡ÇÏÀÓ | 10 | 16.24 | 5,000 | 107 | 2024 | | 2026.01.30 | ¿ù¼¼ | µ¿¾çºô¶óBµ¿ | 1 | 40.35 | 12,800 | 20 | 1986 | | 2026.01.30 | ¿ù¼¼ | (1520-27) | 2 | 19.41 | 1,000 | 51 | 2004 | | 2026.01.30 | Àü¼¼ | ¼¼ÇϺô¶ó | -1 | 52.95 | 14,000 | 0 | 1993 | | 2026.01.30 | ¿ù¼¼ | ¹Ì¸¤ºôµù | 9 | 12.79 | 2,000 | 79 | 2018 | | 2026.01.29 | Àü¼¼ | »õ¿òºô | 2 | 31.24 | 18,000 | 0 | 2016 | | 2026.01.29 | Àü¼¼ | SBHOUSE | 3 | 29.85 | 30,000 | 0 | 2025 | | 2026.01.29 | Àü¼¼ | SBHOUSE | 2 | 29.85 | 30,000 | 0 | 2025 | | 2026.01.29 | ¸Å¸Å | (480-101) | -1 | 66.69 | 85,000 | | 1991 | | 2026.01.29 | Àü¼¼ | µ¿Èºô¶ó | 4 | 86.72 | 23,500 | 0 | 1992 | | 2026.01.29 | Àü¼¼ | ºñ±äÇϿ콺 | 2 | 46.2 | 26,250 | 0 | 2015 | | 2026.01.29 | Àü¼¼ | (480-101) | -1 | 66.69 | 43,000 | 0 | 1991 | | 2026.01.29 | ¿ù¼¼ | ·Î¾âÆÓ¸®½ºAµ¿ | 4 | 53.25 | 34,000 | 30 | 2016 | | 2026.01.29 | ¸Å¸Å | ±ÝÈ£ÆÄÅ©ºô | 4 | 67.09 | 35,000 | | 2003 | | 2026.01.29 | ¿ù¼¼ | ·Î¾âÆÓ¸®½ºAµ¿ | 4 | 53.25 | 34,000 | 30 | 2016 | | 2026.01.28 | ¿ù¼¼ | ¼öÆÓ¸®½ºTD | 2 | 34.2 | 5,000 | 135 | 2022 | | 2026.01.28 | ¿ù¼¼ | û·Ïºô¶ó | -1 | 51.03 | 2,000 | 75 | 1993 | | 2026.01.28 | Àü¼¼ | CG¾Æ¸§Ã¤14Â÷ | 5 | 22.1 | 22,000 | 0 | 2021 | | 2026.01.28 | ¿ù¼¼ | Á¶Àººô¶ó | -1 | 41.02 | 1,000 | 55 | 1995 | | 2026.01.28 | Àü¼¼ | ¸®¹ö½ºÅ¸¿î3Â÷ | 4 | 37.78 | 22,590 | 0 | 2015 | | 2026.01.28 | ¿ù¼¼ | (1679-17) | 3 | 56.64 | 25,000 | 50 | 2019 | | 2026.01.28 | ¿ù¼¼ | ¸®Ä¡ÇϿ콺 | 3 | 41.52 | 18,000 | 60 | 2013 | | 2026.01.28 | Àü¼¼ | ºÀõÇÏÀ̺ô | 3 | 52.35 | 18,000 | 0 | 2003 | | 2026.01.27 | ¸Å¸Å | (41-537) | 3 | 39.84 | 29,900 | | 2002 | | 2026.01.27 | Àü¼¼ | ¾ÆÀ̸®½º | 1 | 69.68 | 30,000 | 0 | 2012 | | 2026.01.27 | ¿ù¼¼ | ÀÏÇüºô¶ó | 1 | 35.83 | 18,000 | 10 | 1998 | | 2026.01.27 | Àü¼¼ | (1-1462) | 2 | 57.43 | 17,500 | 0 | 1986 | | 2026.01.27 | ¸Å¸Å | (480-144) | 2 | 62.64 | 90,000 | | 1992 | | 2026.01.27 | ¿ù¼¼ | ´õ½ºÆ©µð¿ÀÈÆ | 4 | 21.17 | 13,000 | 34 | 2010 | | 2026.01.27 | Àü¼¼ | (480-144) | 2 | 62.64 | 20,000 | 0 | 1992 | | 2026.01.27 | Àü¼¼ | ´õ¿ï¸²¸ÞÆ®·ÎŸ¿ö | 5 | 13.94 | 12,000 | 0 | 2022 | | 2026.01.27 | ¿ù¼¼ | ´õ½ºÆ©µð¿ÀÈÆ | 5 | 18.56 | 14,700 | 29 | 2010 | | 2026.01.27 | ¿ù¼¼ | 905-15 | 5 | 15.18 | 500 | 42 | 2013 | | 2026.01.27 | ¿ù¼¼ | ´Ù¼¼´ëÁÖÅÃ(887-7) | 2 | 27.06 | 5,000 | 91 | 2018 | | 2026.01.26 | ¿ù¼¼ | (879-1) | 4 | 48.98 | 5,000 | 100 | 1996 | | 2026.01.26 | ¿ù¼¼ | ±î»ç¿¤¶ó | 5 | 21.21 | 1,500 | 70 | 2018 | | 2026.01.26 | Àü¼¼ | dz¿øÇÏÀÌÃ÷ºô¶ó | 1 | 46.02 | 19,000 | 0 | 1990 | | 2026.01.26 | ¿ù¼¼ | (178-4) | 2 | 31.94 | 2,000 | 60 | 1991 | | 2026.01.26 | ¿ù¼¼ | (660-35) | 2 | 41.52 | 13,000 | 27 | 1993 | | 2026.01.26 | ¿ù¼¼ | ¿¹Àκô¶óÆ® | -1 | 54.96 | 1,000 | 40 | 1993 | | 2026.01.26 | ¿ù¼¼ | ¼º¿øºô¶ó(916-2) | 1 | 27.78 | 5,000 | 60 | 1996 | | 2026.01.25 | ¿ù¼¼ | 905-15 | 5 | 15.04 | 500 | 46 | 2013 | | 2026.01.25 | ¿ù¼¼ | ÇÊÇϿ콺2Â÷102µ¿ | 5 | 27.94 | 10,000 | 80 | 2016 | | 2026.01.25 | Àü¼¼ | ¿ÍÀÌÁîÈú(635-343) | 4 | 29.33 | 27,300 | 0 | 2020 | | 2026.01.25 | ¿ù¼¼ | µå¸²ÇϿ콺 | 3 | 29.27 | 2,000 | 87 | 2011 | | 2026.01.25 | ¿ù¼¼ | °íÀººô¶ó | 4 | 52.95 | 20,000 | 20 | 2001 | | 2026.01.25 | ¸Å¸Å | Á¤ÀºÆç¸®½º9Â÷ | 3 | 57.02 | 38,000 | | 2018 | | 2026.01.24 | ¿ù¼¼ | üÀ̽ººôBµ¿ | 3 | 24.67 | 300 | 85 | 2016 | | 2026.01.24 | ¸Å¸Å | ·Î¾âÇÏÀÌÃ÷(1682-12) | 2 | 58.56 | 38,000 | | 2000 | | 2026.01.24 | ¿ù¼¼ | (480-133) | -1 | 33.34 | 500 | 50 | 1987 | | 2026.01.24 | ¿ù¼¼ | THELIME(´õ¶óÀÓ) | 14 | 26.24 | 30,000 | 38 | 2021 | | 2026.01.24 | ¿ù¼¼ | (195-31) | 2 | 10.14 | 500 | 36 | 2013 | | 2026.01.24 | Àü¼¼ | (1-207) | 3 | 42.5 | 17,000 | 0 | 1991 | | 2026.01.24 | ¿ù¼¼ | (964-5) | 1 | 42.84 | 5,000 | 35 | 1989 | | 2026.01.24 | ¿ù¼¼ | ÃʷϺô¶ó | 2 | 49.32 | 9,000 | 10 | 1991 | | 2026.01.24 | ¸Å¸Å | ÇÏ¿ìÁ¨-ºô | 4 | 84.52 | 90,000 | | 2004 | | 2026.01.24 | ¸Å¸Å | »ïÀÍij½½101µ¿ | 2 | 47.71 | 44,000 | | 2016 | | 2026.01.23 | ¿ù¼¼ | ¼ö±¤ºô¶ó | 3 | 42.51 | 15,000 | 5 | 1993 | | 2026.01.23 | ¸Å¸Å | ¿ùµåºô¶ó(1529-30) | 3 | 87.66 | 43,500 | | 2000 | | 2026.01.23 | ¸Å¸Å | Á¤±¤ºô¶ó(1690-65) | 2 | 56.6 | 30,000 | | 1993 | | 2026.01.23 | ¿ù¼¼ | (897-24) | 3 | 58.36 | 500 | 45 | 2003 | | 2026.01.23 | ¿ù¼¼ | (480-14) | -1 | 32.13 | 50 | 40 | 1987 | | 2026.01.23 | ¿ù¼¼ | µî¿øÇÏÀÌÃ÷ºô¶ó | -1 | 45.36 | 2,000 | 85 | 1991 | | 2026.01.23 | ¿ù¼¼ | ÇÁ¶óÀÓ | 7 | 21.6 | 15,800 | 40 | 2013 | | 2026.01.23 | ¿ù¼¼ | ¿¤¸² | 2 | 12.42 | 9,000 | 5 | 2012 | | 2026.01.23 | ¿ù¼¼ | ¼¾Æ®·²Æ÷ÀÎÆ® | 11 | 11.93 | 5,000 | 52 | 2019 | | 2026.01.22 | ¸Å¸Å | ¼ö±¤¸Ç¼Ç | 2 | 57.42 | 82,000 | | 1992 | | 2026.01.22 | ¿ù¼¼ | YB1979 | 2 | 42.85 | 3,500 | 108 | 2020 | | 2026.01.22 | ¸Å¸Å | Çϳªºô¸®Áö | 2 | 72.39 | 38,000 | | 1998 | | 2026.01.22 | ¿ù¼¼ | ¶ó¿Â3 | 8 | 12.412 | 5,000 | 53 | 2018 | | 2026.01.22 | ¿ù¼¼ | Á¦¿µºôµù | 6 | 29.41 | 22,000 | 28 | 2020 | | 2026.01.22 | ¿ù¼¼ | SBHOUSE | 6 | 27.37 | 5,000 | 120 | 2025 | | 2026.01.22 | ¿ù¼¼ | SBHOUSE | 6 | 22.31 | 13,000 | 40 | 2025 | | 2026.01.22 | Àü¼¼ | ·ÎÁ¦ÇϿ콺 | 2 | 41.05 | 27,000 | 0 | 2017 | | 2026.01.22 | Àü¼¼ | °üÀü¾ÆÆ®ºô(463-21) | 2 | 62.52 | 26,700 | 0 | 2002 | | 2026.01.22 | ¿ù¼¼ | (1687-18) | 4 | 24.47 | 27,000 | 5 | 2016 | | 2026.01.22 | ¿ù¼¼ | ¹Ì¸®³» | 2 | 22.95 | 1,000 | 69 | 2017 | | 2026.01.22 | ¸Å¸Å | ºñ°ÇÇϿ콺2 | 2 | 29.95 | 26,000 | | 2017 | | 2026.01.22 | ¸Å¸Å | µµ¿ø¸Ç¼Ç | 3 | 65.9 | 46,000 | | 2004 | | 2026.01.22 | ¸Å¸Å | Á¤ÀºÆç¸®½º9Â÷ | 2 | 51.9 | 35,000 | | 2018 | | 2026.01.21 | ¿ù¼¼ | ¼¾Æ®·²Æ÷ÀÎÆ® | 10 | 14.99 | 3,000 | 87 | 2019 | | 2026.01.21 | ¿ù¼¼ | ¼¾Æ®·²Æ÷ÀÎÆ® | 10 | 14.99 | 5,000 | 79 | 2019 | | 2026.01.21 | ¸Å¸Å | Çö´ëMŸ¿î | 6 | 27.76 | 34,800 | | 2017 | | 2026.01.21 | ¸Å¸Å | ž½ººô | -1 | 74.4 | 32,000 | | 1997 | | 2026.01.20 | ¿ù¼¼ | »ïȺô¸®Áö | 1 | 88.92 | 15,000 | 65 | 1989 | | 2026.01.20 | Àü¼¼ | ¼Û¸²ºô¶ó(Eµ¿) | 1 | 48.84 | 21,000 | 0 | 1994 | | 2026.01.20 | ¿ù¼¼ | Çö°æÇ÷¹ÀÎÁî | 3 | 12.41 | 500 | 35 | 2002 | | 2026.01.20 | ¸Å¸Å | ¼¼Á¾ÇÏÀÌÆ®ºô¶ó | 3 | 76.98 | 44,000 | | 2002 | | 2026.01.20 | ¸Å¸Å | µ¿±¤ºô¶ó | 4 | 54.46 | 26,000 | | 1996 | | 2026.01.20 | ¸Å¸Å | ¼öÆÓ¸®½ºFT | 2 | 29.47 | 33,000 | | 2019 | | 2026.01.20 | ¸Å¸Å | (635-190) | -1 | 47.79 | 20,000 | | 1991 | | 2026.01.20 | ¸Å¸Å | (713-39) | -1 | 35.92 | 32,000 | | 1992 | | 2026.01.20 | ¸Å¸Å | ¿ì¸²ºô¶ó5Â÷ | 1 | 52.02 | 22,000 | | 1993 | | 2026.01.20 | ¸Å¸Å | (635-190) | -1 | 47.79 | 20,000 | | 1991 | | 2026.01.20 | Àü¼¼ | ÀÎÇå¸Ç¼Ç(1510-21) | 2 | 84.18 | 25,000 | 0 | 1996 | | 2026.01.20 | Àü¼¼ | º¸¶÷¾ÆÆ®ºô¶ó | 1 | 52.41 | 19,000 | 0 | 1997 | | 2026.01.20 | ¿ù¼¼ | (955-39) | 2 | 36.8 | 3,000 | 100 | 1990 | | 2026.01.20 | ¿ù¼¼ | (196-242) | 3 | 33.78 | 3,000 | 60 | 2004 | | 2026.01.20 | ¿ù¼¼ | Àϱ¤¸®Ä¡ºô | 4 | 30.53 | 18,000 | 10 | 2014 | | 2026.01.19 | ¿ù¼¼ | (935-28) | -1 | 36.76 | 1,000 | 50 | 1990 | | 2026.01.19 | ¿ù¼¼ | ´ë»êÇÏÀÌÃ÷ºô¶ó | 3 | 75.13 | 25,200 | 15 | 2003 | | 2026.01.19 | ¿ù¼¼ | À¯´Ï¿Âºô | 3 | 44.52 | 12,000 | 55 | 2005 | | 2026.01.19 | ¿ù¼¼ | »ïÈÁÖÅÃ(1513-10) | -1 | 46.81 | 12,000 | 30 | 1988 | | 2026.01.19 | ¿ù¼¼ | ÇÑ¼Ö¾ÆÆ®ºô | 3 | 64.47 | 29,000 | 15 | 2003 | | 2026.01.19 | Àü¼¼ | ´ö»ê¿¡ÄÚºô | 8 | 45.43 | 45,000 | 0 | 2016 | | 2026.01.19 | ¿ù¼¼ | ESvill | 4 | 80.15 | 3,000 | 50 | 2006 | | 2026.01.19 | ¿ù¼¼ | »ïÈÁÖÅÃ(1513-10) | -1 | 46.81 | 11,500 | 33 | 1988 | | 2026.01.19 | Àü¼¼ | °üÀü¼¾Æ®·¹ºô | 1 | 44.46 | 500 | 0 | 2017 | | 2026.01.19 | ¿ù¼¼ | (480-144) | -1 | 62.64 | 1,000 | 45 | 1992 | | 2026.01.19 | Àü¼¼ | ´ö»êŸ¿ö | 13 | 17.03 | 21,300 | 0 | 2019 | | 2026.01.19 | ¸Å¸Å | ºñ°ÇÇϿ콺2 | 2 | 29.95 | 27,000 | | 2017 | | 2026.01.19 | ¸Å¸Å | ºñ°ÇÇϿ콺2 | 3 | 29.95 | 27,000 | | 2017 | | 2026.01.19 | ¸Å¸Å | ºñ°ÇÇϿ콺2 | 2 | 29.37 | 27,000 | | 2017 | | 2026.01.19 | ¸Å¸Å | ºñ°ÇÇϿ콺2 | 4 | 28.56 | 27,000 | | 2017 | | 2026.01.19 | ¸Å¸Å | ºñ°ÇÇϿ콺2 | 4 | 29.23 | 27,000 | | 2017 | | 2026.01.19 | ¸Å¸Å | ºñ°ÇÇϿ콺2 | 3 | 29.95 | 27,000 | | 2017 | | 2026.01.19 | ¸Å¸Å | ºñ°ÇÇϿ콺2 | 4 | 29.95 | 27,000 | | 2017 | | 2026.01.19 | ¸Å¸Å | ºñ°ÇÇϿ콺2 | 3 | 28.56 | 27,000 | | 2017 | | 2026.01.19 | ¸Å¸Å | (921-35) | 6 | 63.46 | 22,000 | | 2011 | | 2026.01.18 | Àü¼¼ | ´ö»êŸ¿ö | 11 | 17.03 | 21,300 | 0 | 2019 | | 2026.01.18 | ¸Å¸Å | »ïÀϸǼǰ¡µ¿ | -1 | 48 | 70,000 | | 1986 | | 2026.01.18 | ¸Å¸Å | ÇÏ¿ìÁ¨-ºô | 5 | 84.62 | 82,800 | | 2004 | | 2026.01.18 | ¿ù¼¼ | ¿øÀϺô | 2 | 53.86 | 5,000 | 105 | 2003 | | 2026.01.18 | Àü¼¼ | ¼º°Ã»¾Èä | 4 | 49.89 | 24,000 | 0 | 2014 | | 2026.01.17 | ¿ù¼¼ | ³ëºí·¹½º(952-14) | 6 | 29.9 | 3,000 | 90 | 2016 | | 2026.01.17 | ¿ù¼¼ | ÄŸºô·¹7Â÷ | 11 | 12.12 | 12,000 | 30 | 2020 | | 2026.01.17 | ¿ù¼¼ | ±×·¹À̺ô | 7 | 22.47 | 20,500 | 11 | 2017 | | 2026.01.17 | ¿ù¼¼ | Áظ®Ä¡ºô | 4 | 43.72 | 20,000 | 10 | 2011 | | 2026.01.17 | Àü¼¼ | ¼¼½ÅÁÖÅÃ(180-232) | 1 | 63.76 | 21,000 | 0 | 2000 | | 2026.01.17 | Àü¼¼ | ¼öÆÓ¸®½ºFT | 5 | 55.58 | 31,500 | 0 | 2018 | | 2026.01.17 | Àü¼¼ | ±ÃÀü¸Ç¼ÇBµ¿ | 4 | 41.94 | 23,000 | 0 | 2003 | | 2026.01.17 | ¿ù¼¼ | ÄŸºô·¹7Â÷ | 11 | 12.12 | 12,000 | 30 | 2020 | | 2026.01.17 | ¿ù¼¼ | ¸ÞÀÌÇýºÅ×ÀÌ | 9 | 14.72 | 3,000 | 75 | 2017 | | 2026.01.17 | ¿ù¼¼ | Èú¹Ù¿ò | 3 | 38.84 | 26,000 | 10 | 2015 | | 2026.01.17 | ¿ù¼¼ | (1709-10) | 4 | 44.54 | 2,000 | 75 | 1995 | | 2026.01.17 | ¿ù¼¼ | ¼·¡¸¶À» | 9 | 23.23 | 17,000 | 23 | 2017 | | 2026.01.17 | ¿ù¼¼ | °æµ¿Å¸¿î | 7 | 12.06 | 1,000 | 54 | 2014 | | 2026.01.17 | ¿ù¼¼ | (898-3) | 7 | 21.12 | 5,000 | 92 | 2022 | | 2026.01.17 | ¿ù¼¼ | ¼ºÁø¸®Ä¡ºô | 2 | 34.44 | 16,800 | 15 | 2013 | | 2026.01.17 | ¿ù¼¼ | SUNÆç¸®½º | 3 | 18.87 | 10,000 | 35 | 2019 | | 2026.01.17 | ¸Å¸Å | µ¿±¤ºô¶ó | 1 | 66.21 | 34,000 | | 1996 | | 2026.01.17 | ¸Å¸Å | ÇØÁ¾ºô¶ó | 2 | 37.06 | 18,000 | | 1991 | | 2026.01.17 | ¸Å¸Å | (480-14) | 1 | 32.13 | 61,000 | | 1987 | | 2026.01.17 | ¸Å¸Å | °Ç¿ìÁö¿ìºô | 5 | 48.71 | 33,000 | | 2013 | | 2026.01.17 | Àü¼¼ | ¶ó¸Þ¸£ | 12 | 29.54 | 39,000 | 0 | 2022 | | 2026.01.17 | ¿ù¼¼ | (195-31) | 1 | 13.28 | 300 | 29 | 2013 | | 2026.01.16 | ¿ù¼¼ | ÇÏÀÓS | 9 | 13.61 | 3,000 | 62 | 2018 | | 2026.01.16 | ¿ù¼¼ | 635-468 | 1 | 24.86 | 9,000 | 35 | 2014 | | 2026.01.16 | ¿ù¼¼ | ´õ¿ï¸²¸ÞÆ®·ÎŸ¿ö | 6 | 13.94 | 13,000 | 30 | 2022 | | 2026.01.16 | ¿ù¼¼ | ¼¾Æ®·²Æ÷ÀÎÆ® | 11 | 14.99 | 1,000 | 82 | 2019 | | 2026.01.16 | ¿ù¼¼ | ¿ùµåŸ¿ö | 3 | 19.8 | 16,500 | 33 | 2017 | | 2026.01.16 | ¿ù¼¼ | Ȳ±Ýºô | 2 | 29.96 | 19,000 | 30 | 2018 | | 2026.01.16 | Àü¼¼ | ¸á¶ó | 3 | 31.77 | 28,000 | 0 | 2021 | | 2026.01.16 | ¿ù¼¼ | 41-817 | 3 | 29.8 | 7,000 | 50 | 2014 | | 2026.01.16 | ¿ù¼¼ | ½Å¿øºô¶ó | 3 | 38.7 | 1,000 | 45 | 1987 | | 2026.01.16 | ¿ù¼¼ | 1612-53 | 5 | 20 | 3,400 | 89 | 2014 | | 2026.01.16 | Àü¼¼ | °ü¾ÇÆÄ·¹½º | 2 | 64.8 | 7,600 | 0 | 1991 | | 2026.01.16 | ¿ù¼¼ | ½Å¿µÇÏÀÌÃ÷ºô | 1 | 46.38 | 1,000 | 70 | 1993 | | 2026.01.16 | ¿ù¼¼ | (148-41) | 5 | 10.9 | 1,000 | 34 | 2006 | | 2026.01.16 | ¿ù¼¼ | ¸¶À̹ٿòºÀõ | 3 | 20.98 | 4,000 | 60 | 2016 | | 2026.01.16 | ¸Å¸Å | û±¸ºô¶óÆ®(196-53) | 3 | 59.95 | 39,600 | | 2002 | | 2026.01.15 | ¿ù¼¼ | (1528-14) | 5 | 29.73 | 18,000 | 50 | 2021 | | 2026.01.15 | ¿ù¼¼ | ¼¾Æ®·²Æ÷ÀÎÆ® | 11 | 11.56 | 3,700 | 68 | 2019 | | 2026.01.15 | ¿ù¼¼ | (´õºô) | 4 | 28 | 3,000 | 120 | 2022 | | 2026.01.15 | ¿ù¼¼ | CJ¾ÆÆ®ºô | 6 | 29.92 | 12,000 | 70 | 2015 | | 2026.01.15 | ¿ù¼¼ | (1528-14) | 5 | 29.73 | 18,000 | 50 | 2021 | | 2026.01.15 | Àü¼¼ | ¿ì¿µARTEVILLNAKSUNG | 6 | 29.3 | 34,500 | 0 | 2022 | | 2026.01.15 | ¿ù¼¼ | ºÎ¿µºôµù | 3 | 79.2 | 5,000 | 125 | 2000 | | 2026.01.15 | ¿ù¼¼ | ¶ó¿Â3 | 8 | 11.834 | 3,000 | 61 | 2018 | | 2026.01.15 | ¿ù¼¼ | ¼öÁ¤ºô¶ó(1523-5) | 4 | 27.48 | 3,000 | 70 | 2002 | | 2026.01.15 | ¸Å¸Å | ¶óºñ¾Ó·ÎÁîBµ¿ | 5 | 38.79 | 38,000 | | 2014 | | 2026.01.15 | Àü¼¼ | ºÎ¼º | 4 | 29.39 | 21,500 | 0 | 2016 | | 2026.01.14 | ¿ù¼¼ | JSÇ÷¯½ººô | 5 | 20.16 | 13,900 | 15 | 2016 | | 2026.01.14 | ¿ù¼¼ | ¸ÞÀÌÇýºÅ×ÀÌ | 11 | 13.26 | 3,000 | 75 | 2017 | | 2026.01.14 | ¿ù¼¼ | (195-29) | 2 | 27.18 | 10,800 | 30 | 1990 | | 2026.01.14 | ¿ù¼¼ | ºÀõµ¿´Ù¼¼´ëÁÖÅà | 3 | 14.65 | 500 | 29 | 2001 | | 2026.01.14 | ¿ù¼¼ | ½ÉÁö(457-115) | 7 | 25.79 | 24,300 | 15 | 2018 | | 2026.01.14 | ¿ù¼¼ | (1688-40) | 2 | 31.62 | 3,000 | 75 | 2004 | | 2026.01.14 | ¸Å¸Å | ½Å°Çµå¸²¿øºô | 2 | 49.75 | 28,500 | | 2012 | | 2026.01.14 | ¿ù¼¼ | ½ÉÁö(457-115) | 7 | 25.79 | 19,000 | 15 | 2018 | | 2026.01.14 | ¸Å¸Å | ÈÞÅ×¶ó½º | 3 | 29.94 | 21,000 | | 2019 | | 2026.01.14 | ¸Å¸Å | (635-194) | -1 | 36.15 | 8,500 | | 1987 | | 2026.01.14 | ¸Å¸Å | »ïº¸ÆÄÅ©ºô¶ó | 1 | 50.25 | 21,500 | | 1990 | | 2026.01.14 | ¿ù¼¼ | (195-29) | 2 | 27.18 | 10,800 | 30 | 1990 | | 2026.01.13 | Àü¼¼ | THELIME(´õ¶óÀÓ) | 12 | 29.92 | 33,000 | 0 | 2021 | | 2026.01.13 | ¸Å¸Å | ÇѼººô¶ó(898-9) | 3 | 41.16 | 22,500 | | 1993 | | 2026.01.13 | ¸Å¸Å | Çູä¿ò¥° | 2 | 29.135 | 24,700 | | 2014 | | 2026.01.13 | ¸Å¸Å | ÇÏ¿ìÁ¨-ºô | 6 | 84.55 | 83,500 | | 2004 | | 2026.01.13 | ¸Å¸Å | ´ÃǪ¸¥½£ | 5 | 50.55 | 35,000 | | 2017 | | 2026.01.13 | ¿ù¼¼ | ´Ùº¹ºô¸®Áö | 4 | 26.51 | 2,000 | 70 | 2013 | | 2026.01.13 | ¿ù¼¼ | (1688-30) | 4 | 31.48 | 4,000 | 40 | 2003 | | 2026.01.13 | ¿ù¼¼ | ½ÅȰñµçŸ¿ö | 8 | 10.78 | 14,000 | 15 | 2019 | | 2026.01.13 | ¿ù¼¼ | (1678-10) | 1 | 33.25 | 5,000 | 70 | 1987 | | 2026.01.13 | ¿ù¼¼ | Áö¸®»êÇϿ콺 | 4 | 29.77 | 19,500 | 40 | 2015 | | 2026.01.13 | Àü¼¼ | ÇÏ¿ìÁ¨-ºô | 6 | 84.55 | 40,000 | 0 | 2004 | | 2026.01.13 | ¿ù¼¼ | ÇÏÀÓS | 9 | 13.61 | 1,000 | 70 | 2018 | | 2026.01.13 | Àü¼¼ | ¼¼±âÇÏÀÌÃ÷ºô¶ó | 1 | 36.01 | 17,000 | 0 | 1993 | | 2026.01.13 | ¿ù¼¼ | Àϱ¤¸®Ä¡ºô | 3 | 36.63 | 20,000 | 10 | 2014 | | 2026.01.13 | ¿ù¼¼ | ½ÅȰñµçŸ¿ö | 8 | 10.78 | 15,000 | 10 | 2019 | | 2026.01.13 | ¿ù¼¼ | (1688-30) | 4 | 31.48 | 4,000 | 40 | 2003 | | 2026.01.13 | Àü¼¼ | YK¼¿ï´ë | 6 | 12.41 | 19,000 | 0 | 2020 | | 2026.01.13 | ¿ù¼¼ | ´Ù¼¼´ë(1539-19¿Ü1) | 3 | 29.945 | 27,600 | 12 | 2020 | | 2026.01.12 | Àü¼¼ | ¿ì¿µArteVill | 5 | 29.59 | 28,610 | 0 | 2018 | | 2026.01.12 | ¿ù¼¼ | ¼¾Æ®·²Æ÷ÀÎÆ® | 9 | 14.99 | 10,000 | 54 | 2019 | | 2026.01.12 | Àü¼¼ | Á¶ÀºÁý | 2 | 46.94 | 22,000 | 0 | 2013 | | 2026.01.12 | ¿ù¼¼ | ´õ½ºÆ©µð¿ÀÈÆ | 4 | 21.17 | 13,000 | 34 | 2010 | | 2026.01.12 | Àü¼¼ | ¿ì¿µArteVill | 4 | 29.83 | 29,000 | 0 | 2018 | | 2026.01.12 | ¿ù¼¼ | ´ë¿ø¾Æ·¹Å× | 5 | 40.13 | 1,000 | 90 | 2012 | | 2026.01.12 | ¿ù¼¼ | µÎ¿µÇϿ콺 | 2 | 35.46 | 10,000 | 40 | 2002 | | 2026.01.12 | ¿ù¼¼ | À¯´Ï¿Âºô | 4 | 90.89 | 1,000 | 45 | 2005 | | 2026.01.12 | ¿ù¼¼ | ÈÀ±¾ÆÆ®ºô | 5 | 34.57 | 20,000 | 25 | 2022 | | 2026.01.12 | ¿ù¼¼ | (674-14) | 2 | 46.98 | 13,000 | 25 | 1991 | | 2026.01.12 | ¿ù¼¼ | ¿ì¼ººô¶ó | 2 | 55.08 | 10,000 | 50 | 1993 | | 2026.01.12 | ¿ù¼¼ | ÇÑÀϺô¶ó | 1 | 39.26 | 200 | 35 | 1991 | | 2026.01.11 | ¿ù¼¼ | (1688-37) | 1 | 45.7 | 15,000 | 30 | 2003 | | 2026.01.11 | ¿ù¼¼ | ¿ø¾Óºô | 4 | 32 | 7,000 | 120 | 2023 | | 2026.01.11 | ¿ù¼¼ | ºÀõºô¶ó(1685-11) | 2 | 45.92 | 500 | 60 | 2006 | | 2026.01.11 | ¿ù¼¼ | ½º¸¶ÀÏŸ¿î | 9 | 12.25 | 3,000 | 63 | 2019 | | 2026.01.11 | ¸Å¸Å | ¾ÆÀ̺ô(1618-9) | 2 | 32.41 | 27,000 | | 2014 | | 2026.01.10 | ¿ù¼¼ | ¼º±¤ºô¶ó(1530-18) | 4 | 68.87 | 17,500 | 40 | 1989 | | 2026.01.10 | ¿ù¼¼ | ÁÖÇϿ콺 | 3 | 16.17 | 500 | 50 | 2014 | | 2026.01.10 | Àü¼¼ | ·ÎÁ¦ÇϿ콺 | 3 | 28.35 | 22,000 | 0 | 2017 | | 2026.01.10 | ¿ù¼¼ | ±¤¿µºô¶ó | 1 | 42.9 | 4,000 | 35 | 1991 | | 2026.01.10 | ¿ù¼¼ | ´ë°Ç(180-409) | 4 | 29.25 | 500 | 45 | 2016 | | 2026.01.10 | ¸Å¸Å | »ê¾Æ±×¸°¸Ç¼Ç | 1 | 115.95 | 66,000 | | 1996 | | 2026.01.10 | ¸Å¸Å | 1513-5 | 3 | 52.29 | 34,500 | | 2015 | | 2026.01.10 | Àü¼¼ | ½ÅȰñµçŸ¿ö | 7 | 11.56 | 17,000 | 0 | 2019 | | 2026.01.10 | ¿ù¼¼ | ´õ½ºÆ©µð¿ÀÈÆ | 3 | 21.9 | 5,000 | 59 | 2010 | | 2026.01.10 | Àü¼¼ | ¼ºÁöºô¶ó3Â÷ | 1 | 29.46 | 9,000 | 0 | 1991 | | 2026.01.10 | ¿ù¼¼ | ´õ½ºÆ©µð¿ÀÈÆ | 3 | 21.9 | 5,000 | 59 | 2010 | | 2026.01.10 | ¿ù¼¼ | À𽺹Π| 2 | 12.13 | 1,000 | 50 | 2014 | | 2026.01.10 | ¿ù¼¼ | (1644-15) | 3 | 14.28 | 1,000 | 60 | 2005 | | 2026.01.10 | ¿ù¼¼ | º£½ºÆ®ºô2 | 4 | 17.89 | 3,000 | 40 | 2018 | | 2026.01.10 | ¿ù¼¼ | °ü¾ÇÁ߾ӷξâºô¶ó | 2 | 47.54 | 1,000 | 45 | 2012 | | 2026.01.10 | ¿ù¼¼ | ½ÅȰñµçŸ¿ö | 7 | 11.56 | 15,000 | 10 | 2019 | | 2026.01.10 | ¿ù¼¼ | (41-168) | 1 | 38.16 | 500 | 42 | 2001 | | 2026.01.10 | ¿ù¼¼ | (´õºô) | 2 | 27.49 | 5,000 | 112 | 2022 | | 2026.01.10 | ¿ù¼¼ | ¾ö¸¶ÀÇ²Þ | 2 | 47.07 | 10,000 | 63 | 2013 | | 2026.01.10 | ¿ù¼¼ | ´õºô | 4 | 49.83 | 5,000 | 120 | 2018 | | 2026.01.10 | ¿ù¼¼ | ´õij½½(100-581) | 2 | 22.93 | 19,000 | 35 | 2018 | | 2026.01.10 | ¿ù¼¼ | ´õºô | 4 | 49.83 | 5,000 | 120 | 2018 | | 2026.01.10 | ¿ù¼¼ | º£½ºÆ®ºô2 | 4 | 17.89 | 3,000 | 40 | 2018 | | 2026.01.09 | Àü¼¼ | THEVIEW | 4 | 42.3 | 27,300 | 0 | 2016 | | 2026.01.09 | ¿ù¼¼ | »ï¼º¾ÆÆ®ºô(196-83) | 3 | 31.47 | 5,000 | 80 | 2010 | | 2026.01.09 | ¿ù¼¼ | °üÀüÇÏÀ̺ô | 3 | 73.68 | 3,000 | 30 | 2010 | | 2026.01.09 | ¿ù¼¼ | ½ÂÈñ¸®Ä¡ºô | 1 | 87.89 | 8,000 | 82 | 2002 | | 2026.01.09 | ¸Å¸Å | ±ÃÁ¤ºô¶ó | -1 | 54.55 | 19,800 | | 1992 | | 2026.01.09 | Àü¼¼ | ºñ±äÇϿ콺 | 3 | 46.2 | 28,000 | 0 | 2015 | | 2026.01.09 | ¿ù¼¼ | ¾ÆÁøºô¶ó3Â÷ | 4 | 41.58 | 4,000 | 61 | 2003 | | 2026.01.09 | ¿ù¼¼ | ´ÃǪ¸¥½£ | 6 | 50.55 | 20,000 | 45 | 2017 | | 2026.01.09 | ¿ù¼¼ | ½º¸¶ÀÏŸ¿î | 8 | 13.12 | 3,000 | 62 | 2019 | | 2026.01.09 | ¿ù¼¼ | (1688-37) | 2 | 50.82 | 17,800 | 45 | 2003 | | 2026.01.09 | ¿ù¼¼ | (886-49) | 3 | 26.4 | 9,500 | 20 | 1994 | | 2026.01.09 | ¿ù¼¼ | ÆÛ½ºÆ®ÇÁ¸®¹Ì¾ö | 1 | 28.76 | 21,500 | 11 | 2017 | | 2026.01.09 | ¿ù¼¼ | (1688-37) | 2 | 50.82 | 17,800 | 45 | 2003 | | 2026.01.09 | ¿ù¼¼ | (1520-27) | 1 | 14.52 | 1,000 | 40 | 2004 | | 2026.01.09 | ¿ù¼¼ | 1612-53 | 4 | 20 | 6,000 | 78 | 2014 | | 2026.01.09 | Àü¼¼ | ´Ù¿ÃÇϿ콺 | 3 | 29.88 | 26,000 | 0 | 2017 | | 2026.01.08 | ¿ù¼¼ | ¿¡µ§ºô¶ó | -1 | 55.65 | 0 | 100 | 2001 | | 2026.01.08 | ¸Å¸Å | (41-109) | 2 | 35.19 | 26,000 | | 1992 | | 2026.01.08 | ¿ù¼¼ | žç | 9 | 50.83 | 3,000 | 65 | 2019 | | 2026.01.08 | ¿ù¼¼ | (180-590) | 4 | 70.56 | 300 | 45 | 1994 | | 2026.01.08 | ¿ù¼¼ | (47-1) | 2 | 46.44 | 1,000 | 100 | 2004 | | 2026.01.08 | Àü¼¼ | ´õ¿ï¸²¸ÞÆ®·ÎŸ¿ö | 4 | 20.81 | 20,000 | 0 | 2022 | | 2026.01.08 | ¿ù¼¼ | CSstay(854-4) | 15 | 19.8 | 17,000 | 15 | 2017 | | 2026.01.08 | ¿ù¼¼ | ÀºÃµ½¦¸£ºô | 2 | 43.35 | 16,000 | 17 | 2012 | | 2026.01.07 | ¸Å¸Å | ½Å¿øºô¶ó | 1 | 27.81 | 85,000 | | 1987 | | 2026.01.07 | Àü¼¼ | ·ÎÁ¦ÇϿ콺 | 3 | 39.24 | 27,000 | 0 | 2017 | | 2026.01.07 | ¿ù¼¼ | ½ÅȰñµçŸ¿ö | 10 | 24.97 | 15,000 | 10 | 2019 | | 2026.01.07 | ¿ù¼¼ | YB1979 | 5 | 29.58 | 4,000 | 107 | 2020 | | 2026.01.07 | Àü¼¼ | ¿ì¿µARTEVILLNAKSUNG | 8 | 29.3 | 37,000 | 0 | 2022 | | 2026.01.07 | ¿ù¼¼ | ¿ì¸®ÇϿ콺 | 1 | 18.57 | 400 | 41 | 2012 | | 2026.01.07 | Àü¼¼ | ¿¬Èñºô¶ó | 3 | 77.88 | 17,000 | 0 | 1985 | | 2026.01.07 | ¿ù¼¼ | ½Å¿øºô¶ó | 3 | 38.7 | 1,000 | 50 | 1987 | | 2026.01.07 | ¿ù¼¼ | ÇѼººô¶ó | 3 | 59.59 | 16,000 | 10 | 1994 | | 2026.01.07 | ¿ù¼¼ | µµ´ãºô | 3 | 31.22 | 15,000 | 42 | 2011 | | 2026.01.07 | ¿ù¼¼ | (100-324) | 3 | 28.12 | 15,000 | 35 | 2014 | | 2026.01.07 | ¿ù¼¼ | °ü¾ÇÂüÁ¸ºô | 3 | 29.94 | 10,000 | 60 | 2015 | | 2026.01.06 | ¿ù¼¼ | CJ¾ÆÆ®ºô | 7 | 29.6 | 13,000 | 60 | 2015 | | 2026.01.06 | ¿ù¼¼ | µ¿±Ãºô¶ó | 2 | 104.52 | 5,000 | 150 | 1983 | | 2026.01.06 | ¿ù¼¼ | µå¸²ÇϿ콺(41-231) | 2 | 12.14 | 8,500 | 40 | 2012 | | 2026.01.06 | ¿ù¼¼ | ´ö»êŸ¿ö | 10 | 18.48 | 23,000 | 4 | 2019 | | 2026.01.06 | ¿ù¼¼ | ½ÅȰñµçŸ¿ö | 8 | 11.56 | 15,000 | 10 | 2019 | | 2026.01.06 | ¿ù¼¼ | ESvill | 4 | 80.15 | 2,000 | 75 | 2006 | | 2026.01.06 | ¿ù¼¼ | »þÀκô(1605-12) | 2 | 31.62 | 1,000 | 65 | 2006 | | 2026.01.06 | ¿ù¼¼ | ºñ°ÇÇϿ콺2 | 3 | 28.56 | 17,600 | 5 | 2017 | | 2026.01.06 | ¿ù¼¼ | (1617-26) | 3 | 40.38 | 14,000 | 15 | 2002 | | 2026.01.06 | Àü¼¼ | ¹éÇÕ¸Ç¼Ç | 1 | 77.76 | 30,000 | 0 | 1995 | | 2026.01.06 | ¿ù¼¼ | ¿¥Á¦ÀÌÇϿ콺 | 1 | 25.85 | 15,000 | 50 | 2022 | | 2026.01.06 | ¿ù¼¼ | µ¿Áøºô¶ó(180-138) | 2 | 72.52 | 22,000 | 20 | 1998 | | 2026.01.06 | ¿ù¼¼ | ¶ó¿Â3 | 10 | 11.834 | 3,000 | 63 | 2018 | | 2026.01.06 | ¿ù¼¼ | ÇØ¿À¸§¾ÆÆ®ºô | 2 | 29.99 | 16,000 | 18 | 2014 | | 2026.01.06 | Àü¼¼ | Á¶Àººô | 5 | 45.6 | 25,000 | 0 | 2013 | | 2026.01.06 | Àü¼¼ | »ïõ¸®ÁÖÅà | 1 | 69.12 | 19,530 | 0 | 1982 | | 2026.01.06 | ¿ù¼¼ | ¼Áø·°½ººô | 1 | 12.48 | 7,900 | 20 | 2013 | | 2026.01.06 | ¿ù¼¼ | (1688-36) | 1 | 45.68 | 2,000 | 50 | 2003 | | 2026.01.06 | Àü¼¼ | Áß¾ÓÇÏÀ̺ô(1514-2) | 1 | 52.98 | 20,000 | 0 | 2002 | | 2026.01.05 | Àü¼¼ | ÇູÇÑÁý(635-279) | 1 | 34.4 | 15,000 | 0 | 2013 | | 2026.01.05 | ¿ù¼¼ | (196-90) | 2 | 33.21 | 1,000 | 70 | 2003 | | 2026.01.05 | ¿ù¼¼ | (918-21) | 4 | 30.42 | 10,000 | 50 | 2013 | | 2026.01.05 | ¸Å¸Å | ½´ÇÁ¸²´õÇÏÀÌ¿ò | 10 | 59.3 | 55,607 | | 2025 | | 2026.01.05 | ¿ù¼¼ | ¶ó¿Â3 | 10 | 11.887 | 2,000 | 67 | 2018 | | 2026.01.05 | ¿ù¼¼ | ¿¢½ºÆ÷ÁÖÅà | -1 | 54.51 | 100 | 60 | 1993 | | 2026.01.05 | Àü¼¼ | ºû°íÀ»ÇϿ콺 | 3 | 40.7 | 23,900 | 0 | 2013 | | 2026.01.05 | ¿ù¼¼ | (715-44) | -1 | 24.85 | 2,000 | 45 | 2003 | | 2026.01.05 | ¿ù¼¼ | ¸®Ä¡È¨ | 5 | 42.48 | 20,000 | 30 | 2017 | | 2026.01.05 | ¸Å¸Å | ½´ÇÁ¸²´õÇÏÀÌ¿ò | 7 | 59.49 | 58,017 | | 2025 | | 2026.01.05 | ¸Å¸Å | ºû°íÀ»ÇϿ콺 | 3 | 40.7 | 32,000 | | 2013 | | 2026.01.05 | ¸Å¸Å | ½´ÇÁ¸²´õÇÏÀÌ¿ò | 8 | 57.17 | 57,522 | | 2025 | | 2026.01.05 | ¸Å¸Å | ½´ÇÁ¸²´õÇÏÀÌ¿ò | 7 | 59.49 | 58,367 | | 2025 | | 2026.01.05 | ¸Å¸Å | ½´ÇÁ¸²´õÇÏÀÌ¿ò | 7 | 57.17 | 57,372 | | 2025 | | 2026.01.05 | ¸Å¸Å | ½´ÇÁ¸²´õÇÏÀÌ¿ò | 6 | 59.49 | 57,842 | | 2025 | | 2026.01.05 | ¸Å¸Å | ÆÛ½ºÆ®ÇÁ¸®¹Ì¾ö | 5 | 26.13 | 22,800 | | 2017 | | 2026.01.05 | ¸Å¸Å | ¶ß·¹ºñ¾Ó3Â÷ | 2 | 58.32 | 40,000 | | 2008 | | 2026.01.05 | ¸Å¸Å | ¾ÆÅ©·ÎÆÓ¸®½º | 4 | 28.24 | 32,800 | | 2020 | | 2026.01.05 | ¸Å¸Å | ½´ÇÁ¸²´õÇÏÀÌ¿ò | 7 | 58.94 | 58,719 | | 2025 | | 2026.01.05 | ¸Å¸Å | ½´ÇÁ¸²´õÇÏÀÌ¿ò | 8 | 58.94 | 58,869 | | 2025 | | 2026.01.05 | ¸Å¸Å | ½´ÇÁ¸²´õÇÏÀÌ¿ò | 8 | 59.49 | 58,167 | | 2025 | | 2026.01.05 | ¸Å¸Å | ½´ÇÁ¸²´õÇÏÀÌ¿ò | 9 | 57.17 | 57,697 | | 2025 | | 2026.01.05 | ¸Å¸Å | ½´ÇÁ¸²´õÇÏÀÌ¿ò | 8 | 59.49 | 58,517 | | 2025 | | 2026.01.05 | ¸Å¸Å | ½´ÇÁ¸²´õÇÏÀÌ¿ò | 9 | 58.94 | 59,069 | | 2025 | | 2026.01.05 | ¸Å¸Å | ½´ÇÁ¸²´õÇÏÀÌ¿ò | 9 | 59.49 | 58,692 | | 2025 | | 2026.01.05 | ¸Å¸Å | ½´ÇÁ¸²´õÇÏÀÌ¿ò | 9 | 59.49 | 58,342 | | 2025 | | 2026.01.05 | ¸Å¸Å | ½´ÇÁ¸²´õÇÏÀÌ¿ò | 10 | 57.17 | 57,697 | | 2025 | | 2026.01.05 | ¸Å¸Å | ½´ÇÁ¸²´õÇÏÀÌ¿ò | 10 | 59.49 | 58,342 | | 2025 | | 2026.01.05 | ¸Å¸Å | ½´ÇÁ¸²´õÇÏÀÌ¿ò | 10 | 58.94 | 59,069 | | 2025 | | 2026.01.04 | ¿ù¼¼ | °ñµçºô¸®Áö | 2 | 73.2 | 28,600 | 20 | 2002 | | 2026.01.04 | ¿ù¼¼ | ¸íÁöºô¶ó(´Ùµ¿) | 1 | 44.32 | 17,000 | 35 | 1993 | | 2026.01.04 | Àü¼¼ | ÆÓ¸®½ºÅ¸¿îB | 4 | 46.23 | 32,600 | 0 | 2015 | | 2026.01.03 | ¸Å¸Å | ÆÓ¸®½ºÅ¸¿îBµ¿ | 1 | 38.87 | 28,000 | | 2013 | | 2026.01.03 | ¸Å¸Å | ¿¡ÀÌ¿øºô | 5 | 37.48 | 38,000 | | 2016 | | 2026.01.03 | Àü¼¼ | ÅÂÁøºô¶ó | 1 | 60.48 | 20,000 | 0 | 1991 | | 2026.01.03 | ¸Å¸Å | ¹é»óºô¶ó | 3 | 44.9 | 29,900 | | 2002 | | 2026.01.03 | ¸Å¸Å | (635-81) | 2 | 35.19 | 18,300 | | 1986 | | 2026.01.03 | ¿ù¼¼ | ´ëÁø¿¬¸³ | 2 | 21.69 | 2,000 | 80 | 1977 | | 2026.01.03 | ¿ù¼¼ | (1644-15) | 2 | 15.78 | 2,000 | 70 | 2005 | | 2026.01.03 | Àü¼¼ | ½Å¼ººô¶ó(196-188) | 1 | 52.74 | 19,000 | 0 | 1990 | | 2026.01.03 | ¿ù¼¼ | (1524-43) | 1 | 79.83 | 2,000 | 65 | 1978 | | 2026.01.02 | Àü¼¼ | º¸¶ó¸Åµå¸²ÆÄÅ© | 2 | 23.51 | 20,000 | 0 | 2018 | | 2026.01.02 | ¿ù¼¼ | ´ë¿ø±×¸°ºô¶ó | 2 | 36.48 | 10,000 | 10 | 1990 | | 2026.01.02 | ¿ù¼¼ | ·ÎÁ¦ÇϿ콺(180-195) | 5 | 27.46 | 17,300 | 15 | 2016 | | 2026.01.02 | ¿ù¼¼ | 897-18 | 3 | 29.98 | 17,500 | 58 | 2014 | | 2026.01.02 | ¿ù¼¼ | ´ë¿ø±×¸°ºô¶ó | 2 | 36.48 | 10,000 | 10 | 1990 | | 2026.01.02 | ¿ù¼¼ | (712-21) | 2 | 73.77 | 3,000 | 30 | 2002 | | 2026.01.02 | Àü¼¼ | º¸¶ó¸Åµå¸²ÆÄÅ© | 2 | 23.51 | 20,000 | 0 | 2018 | | 2025.12.31 | ¿ù¼¼ | ¶ó¿Â3 | 9 | 11.834 | 3,000 | 67 | 2018 | | 2025.12.31 | ¸Å¸Å | ¼ºÁöºô¶ó3Â÷ | 3 | 29.46 | 25,000 | | 1991 | | 2025.12.31 | ¿ù¼¼ | ¿µ´öÇϿ콺 | 4 | 17.76 | 1,000 | 80 | 2011 | | 2025.12.31 | ¿ù¼¼ | À𽺹Π| 4 | 12.13 | 3,000 | 35 | 2014 | | 2025.12.31 | ¿ù¼¼ | 1513-5 | 3 | 29.94 | 2,000 | 120 | 2015 | | 2025.12.31 | ¿ù¼¼ | µå¸²ÇϿ콺 | 2 | 29.71 | 5,000 | 63 | 2011 | | 2025.12.31 | ¿ù¼¼ | ¿¹¿ø | 3 | 31.75 | 5,000 | 150 | 2004 | | 2025.12.31 | ¸Å¸Å | ÇöÆÄÅ©ºô | 3 | 79.43 | 35,000 | | 2004 | | 2025.12.30 | ¿ù¼¼ | »õ½Ç¿ø·ëÇϿ콺 | 1 | 14.38 | 3,000 | 60 | 1996 | | 2025.12.30 | ¿ù¼¼ | ÆÄ½ºÅÚ2 | -1 | 24.48 | 500 | 42 | 2002 | | 2025.12.30 | ¿ù¼¼ | ¾Æ½¬·¹ºô | 2 | 12.94 | 2,000 | 45 | 2012 | | 2025.12.30 | ¿ù¼¼ | (180-590) | 1 | 28.02 | 6,000 | 2 | 1994 | | 2025.12.30 | ¿ù¼¼ | ROCKSTAY(1667-63) | 4 | 65.89 | 500 | 65 | 2017 | | 2025.12.30 | ¿ù¼¼ | »ïÀϺôµù | 5 | 12.44 | 2,000 | 88 | 2015 | | 2025.12.30 | ¿ù¼¼ | Æç¸®Ã¼ÇϿ콺 | 3 | 38.04 | 22,000 | 60 | 2020 | | 2025.12.30 | ¿ù¼¼ | ÀºÃµÆÄÅ©ºô2 | 4 | 49.44 | 300 | 15 | 2002 | | 2025.12.30 | ¿ù¼¼ | ±ÝÈ£ÆÄÅ©ºô(1535-5) | 1 | 71.46 | 15,000 | 50 | 2002 | | 2025.12.30 | ¿ù¼¼ | ºÀõµ¿´Ù¼¼´ëÁÖÅà | 3 | 14.39 | 300 | 30 | 2001 | | 2025.12.30 | ¿ù¼¼ | (1528-14) | 3 | 29.95 | 24,500 | 18 | 2021 | | 2025.12.30 | ¿ù¼¼ | ±¤µ¿ºô¶ó | 3 | 66.16 | 24,000 | 20 | 2001 | | 2025.12.29 | ¿ù¼¼ | ½ÅȰñµçŸ¿ö | 9 | 10.78 | 15,000 | 10 | 2019 | | 2025.12.29 | ¸Å¸Å | ÈÞÅ×¶ó½º | 3 | 29.94 | 28,268 | | 2019 | | 2025.12.29 | Àü¼¼ | (1513-11) | 2 | 61.98 | 19,845 | 0 | 2004 | | 2025.12.29 | ¸Å¸Å | ÇѰáºô¶ó | 2 | 52.31 | 16,200 | | 1991 | | 2025.12.29 | Àü¼¼ | È«³²ºô¶ó³ªµ¿ | -1 | 49.14 | 20,000 | 0 | 1991 | | 2025.12.29 | ¿ù¼¼ | ±Ý°ÆÓ¸®½º | 2 | 13.44 | 7,600 | 14 | 2014 | | 2025.12.29 | ¿ù¼¼ | (148-41) | 1 | 18.9 | 1,000 | 35 | 2006 | | 2025.12.29 | Àü¼¼ | YK¼¿ï´ë | 6 | 11.19 | 19,000 | 0 | 2020 | | 2025.12.29 | ¿ù¼¼ | (1528-14) | 3 | 29.88 | 20,000 | 42 | 2021 | | 2025.12.29 | ¿ù¼¼ | û¼öºô¶ó | 4 | 48.12 | 16,000 | 20 | 1991 | | 2025.12.29 | ¿ù¼¼ | ±Ý°ÆÓ¸®½º | 4 | 15.54 | 8,000 | 20 | 2014 | | 2025.12.29 | ¿ù¼¼ | ´õÇ츣¹Ì¿Â | 12 | 11.61 | 3,000 | 100 | 2021 | | 2025.12.29 | ¿ù¼¼ | ¶ó¿Â3 | 10 | 12.412 | 3,000 | 61 | 2018 | | 2025.12.29 | ¿ù¼¼ | (148-41) | 1 | 18.9 | 1,000 | 45 | 2006 | | 2025.12.28 | ¿ù¼¼ | (1674-19) | 6 | 12.075 | 1,000 | 64 | 2019 | | 2025.12.27 | ¸Å¸Å | ¼ÛÀÌ¿¬¸³°¡µ¿ | 1 | 73.55 | 33,000 | | 1982 | | 2025.12.27 | ¸Å¸Å | ¼ö±¤ºô¶ó(877-17) | 3 | 47.52 | 34,000 | | 1995 | | 2025.12.27 | ¸Å¸Å | (1687-30) | 3 | 52.3 | 28,800 | | 2001 | | 2025.12.27 | ¿ù¼¼ | YKŸ¿ö | 2 | 12.14 | 17,800 | 4 | 2019 | | 2025.12.27 | ¿ù¼¼ | ¶ó¿Â3 | 10 | 11.624 | 3,000 | 69 | 2018 | | 2025.12.27 | ¿ù¼¼ | (1650-7) | 3 | 28.95 | 1,000 | 115 | 2012 | | 2025.12.27 | ¿ù¼¼ | ´©¸®ÇϿ콺 | 5 | 25.56 | 4,500 | 90 | 2019 | | 2025.12.27 | ¿ù¼¼ | ´ë¿îÆÓ¸®½º | 3 | 32.22 | 300 | 60 | 2014 | | 2025.12.27 | ¸Å¸Å | ¿ì¿ù±×¸°ºô¸®Áö | 1 | 68.74 | 29,500 | | 1996 | | 2025.12.27 | ¿ù¼¼ | Á¤Çýºô¶ó | 1 | 45.63 | 2,000 | 69 | 1992 | | 2025.12.26 | ¸Å¸Å | ºñ°ÇÇϿ콺2 | 3 | 29.37 | 27,000 | | 2017 | | 2025.12.26 | ¿ù¼¼ | ¾à¼öÆÄÅ©¸Ç¼Ç | 1 | 44.82 | 12,500 | 18 | 1992 | | 2025.12.26 | ¿ù¼¼ | Ç÷¯½ºÅ¸¿ö | 8 | 14.55 | 10,000 | 27 | 2002 | | 2025.12.26 | ¿ù¼¼ | Æ®¶ó¿ò | 9 | 28 | 24,800 | 32 | 2020 | | 2025.12.26 | ¿ù¼¼ | ´õºí·¹½º2Â÷ | 5 | 23.83 | 2,000 | 80 | 2017 | | 2025.12.26 | ¿ù¼¼ | ¹Ì¸¤ºôµù | 11 | 12.79 | 500 | 57 | 2018 | | 2025.12.26 | ¿ù¼¼ | û±¸ºô¶ó(180-197) | 3 | 62.4 | 24,000 | 15 | 2007 | | 2025.12.26 | ¸Å¸Å | ·Î¾âÆÓ¸®½ºBµ¿ | 1 | 53.25 | 40,000 | | 2016 | | 2025.12.26 | ¸Å¸Å | ºê¶ó¿îÇϿ콺 | 2 | 41.36 | 40,000 | | 2013 | | 2025.12.26 | ¸Å¸Å | »ï¿ì±×¸°ºô | 2 | 70.31 | 50,000 | | 2004 | | 2025.12.26 | ¸Å¸Å | °¼ººô¶ó | 1 | 29.66 | 18,000 | | 1991 | | 2025.12.26 | ¸Å¸Å | (635-142) | -1 | 33.57 | 10,000 | | 1988 | | 2025.12.25 | Àü¼¼ | ´õ°ÔÀÌÆ® | 7 | 28.76 | 26,000 | 0 | 2016 | | 2025.12.25 | ¸Å¸Å | ºñ°ÇÇϿ콺2 | 4 | 25.44 | 25,000 | | 2017 | | 2025.12.25 | ¸Å¸Å | ¸á¶ó | 3 | 27.42 | 26,000 | | 2021 | | 2025.12.25 | ¿ù¼¼ | Çö°æÇ÷¹ÀÎÁî | 5 | 12.41 | 1,000 | 32 | 2002 | | 2025.12.25 | ¿ù¼¼ | Æ®¶ó¿ò | 8 | 28 | 24,800 | 34 | 2020 | | 2025.12.25 | ¿ù¼¼ | ¸íÁöºô¶ó(´Ùµ¿) | 1 | 44.32 | 16,000 | 40 | 1993 | | 2025.12.25 | ¿ù¼¼ | Æ®¶ó¿ò | 8 | 28 | 24,800 | 34 | 2020 | | 2025.12.25 | ¿ù¼¼ | ¿µ±¤ºô¶ó(635-477) | 2 | 42.18 | 1,000 | 55 | 1992 | | 2025.12.25 | ¿ù¼¼ | (950-12) | 2 | 15.81 | 1,000 | 45 | 2011 | | 2025.12.24 | ¸Å¸Å | (1628-21) | 1 | 33.82 | 16,000 | | 1987 | | 2025.12.24 | ¿ù¼¼ | (100-88) | 4 | 69 | 8,000 | 60 | 2003 | | 2025.12.24 | ¿ù¼¼ | (100-88) | 4 | 69 | 8,000 | 60 | 2003 | | 2025.12.24 | Àü¼¼ | Á¨ÇϿ콺 | 3 | 29.922 | 17,010 | 0 | 2017 | | 2025.12.24 | ¸Å¸Å | ´ë»êÇÏÀÌÃ÷ºô¶ó | 5 | 73.51 | 30,000 | | 2003 | | 2025.12.23 | ¿ù¼¼ | ´ëÇдç | 2 | 12.9 | 1,000 | 49 | 2011 | | 2025.12.23 | Àü¼¼ | ´õ¿ï¸²¸ÞÆ®·ÎŸ¿ö | 5 | 20.81 | 20,000 | 0 | 2022 | | 2025.12.23 | ¿ù¼¼ | ´ëÇдç | 2 | 12.9 | 1,000 | 42 | 2011 | | 2025.12.23 | ¸Å¸Å | ¹éÃ̺ô¶ó | 1 | 29.02 | 10,500 | | 2002 | | 2025.12.23 | ¸Å¸Å | (635-142) | 2 | 33.57 | 13,000 | | 1988 | | 2025.12.23 | ¸Å¸Å | ÇØ¿À¸§¾ÆÆ®ºô | 2 | 29.99 | 22,000 | | 2014 | | 2025.12.23 | ¿ù¼¼ | ´ë¼±ºô | 2 | 38.79 | 5,000 | 100 | 2014 | | 2025.12.23 | ¿ù¼¼ | (1622-25) | 2 | 37.54 | 5,000 | 81 | 2002 | | 2025.12.23 | ¿ù¼¼ | »ïȺô¸®Áö | 1 | 85.8 | 0 | 20 | 1989 | | 2025.12.23 | ¿ù¼¼ | ±Ý°ÆÓ¸®½º | 3 | 31.68 | 14,500 | 40 | 2014 | | 2025.12.23 | ¿ù¼¼ | (1688-94) | 1 | 68.41 | 3,000 | 130 | 2005 | | 2025.12.23 | ¿ù¼¼ | Àü¿ø¿¬¸³ | 1 | 52.88 | 1,000 | 60 | 1976 | | 2025.12.22 | Àü¼¼ | ¸íÁöºô¶ó(³ªµ¿) | 2 | 56.93 | 21,000 | 0 | 1993 | | 2025.12.22 | ¿ù¼¼ | (1522-16) | 1 | 81.45 | 2,000 | 60 | 1976 | | 2025.12.22 | ¿ù¼¼ | (196-197) | 2 | 59.58 | 500 | 55 | 1985 | | 2025.12.22 | ¿ù¼¼ | ÀÌ¿¡½ºÇÏÀÓ11Â÷ | 3 | 25.99 | 33 | 82 | 2021 | | 2025.12.22 | ¿ù¼¼ | StoneYill | 1 | 22.57 | 14,000 | 10 | 2014 | | 2025.12.22 | ¿ù¼¼ | ³×¿À¹ë¸® | 3 | 45.34 | 1,000 | 80 | 1996 | | 2025.12.22 | Àü¼¼ | ¸íÁöºô¶ó(³ªµ¿) | 2 | 56.93 | 6,000 | 0 | 1993 | | 2025.12.22 | ¿ù¼¼ | ÇÞºû(180-360) | 2 | 16.83 | 1,000 | 57 | 2017 | | 2025.12.22 | ¿ù¼¼ | (645-20) | 3 | 140.83 | 4,000 | 110 | 2000 | | 2025.12.22 | ¿ù¼¼ | JSÇ÷¯½ººô | 6 | 20.16 | 13,000 | 25 | 2016 | | 2025.12.22 | Àü¼¼ | (100-196) | 3 | 41.04 | 18,180 | 0 | 2004 | | 2025.12.22 | ¿ù¼¼ | Çö°æÇ÷¹ÀÎÁî | 6 | 12.08 | 500 | 33 | 2002 | | 2025.12.21 | ¿ù¼¼ | ½Å±¤ºô¶ó | 2 | 29.96 | 5,000 | 52 | 2012 | | 2025.12.21 | ¿ù¼¼ | (1687-28) | 3 | 35.39 | 5,000 | 47 | 2001 | | 2025.12.21 | Àü¼¼ | ûÀÚºô¶ó | 3 | 80.69 | 30,500 | 0 | 2003 | | 2025.12.21 | ¿ù¼¼ | ±×·¹À̺ô | 7 | 22.47 | 21,000 | 9 | 2017 | | 2025.12.21 | ¸Å¸Å | ÅĵðÇϿ콺5Â÷ | 4 | 54.03 | 22,700 | | 2002 | | 2025.12.20 | ¿ù¼¼ | ½Å¿øºô¶ó | 3 | 38.7 | 1,000 | 50 | 1987 | | 2025.12.20 | ¿ù¼¼ | (1-72) | 2 | 41.88 | 500 | 55 | 1986 | | 2025.12.20 | ¿ù¼¼ | ´Ù³²ºô¶ó(180-166) | 1 | 46.54 | 13,000 | 20 | 1991 | | 2025.12.20 | Àü¼¼ | (897-25) | 2 | 21.17 | 8,500 | 0 | 2003 | | 2025.12.20 | ¸Å¸Å | ´ë¿øÇö´ëºô¶ó | 2 | 91.62 | 87,000 | | 1985 | | 2025.12.20 | ¿ù¼¼ | 1583-5 | 2 | 29.7 | 2,000 | 115 | 2013 | | 2025.12.20 | ¸Å¸Å | ±ÃÀü¸Ç¼ÇAµ¿ | 3 | 59.72 | 38,000 | | 2004 | | 2025.12.20 | ¸Å¸Å | Á¤ÀºÆç¸®½º9Â÷ | 5 | 29.93 | 27,000 | | 2018 | | 2025.12.20 | ¸Å¸Å | Á¤ÀºÆç¸®½º9Â÷ | 4 | 24.1 | 24,000 | | 2018 | | 2025.12.19 | ¿ù¼¼ | ºí·çºô | 2 | 51.09 | 29,000 | 40 | 2015 | | 2025.12.19 | ¿ù¼¼ | ±×¸°ÆÄÅ© | 3 | 60.03 | 5,000 | 100 | 1994 | | 2025.12.19 | ¿ù¼¼ | ±×¸°ÆÄÅ© | 3 | 60.03 | 5,000 | 100 | 1994 | | 2025.12.19 | ¿ù¼¼ | ´Ù¿ÂÇϿ콺 | 3 | 27.42 | 20,000 | 40 | 2019 | | 2025.12.19 | ¿ù¼¼ | ESvill | 2 | 79.93 | 2,000 | 60 | 2006 | | 2025.12.19 | ¿ù¼¼ | º¸¶ó¸Åºô | 5 | 24.55 | 5,000 | 69 | 2021 | | 2025.12.19 | ¿ù¼¼ | »ïÀϺôµù | 3 | 12.44 | 2,000 | 90 | 2015 | | 2025.12.19 | Àü¼¼ | ¸®Ä¡Ä³½½ | 4 | 14.3 | 14,500 | 0 | 2015 | | 2025.12.19 | ¿ù¼¼ | »ïÁø¾ÆÆ®ºô¶ó | 3 | 64.72 | 23,000 | 70 | 1989 | | 2025.12.19 | Àü¼¼ | ½ÅȰñµçŸ¿ö | 9 | 10.78 | 14,000 | 0 | 2019 | | 2025.12.19 | Àü¼¼ | ´ö»êŸ¿ö | 12 | 15.39 | 20,000 | 0 | 2019 | | 2025.12.19 | ¿ù¼¼ | ´ë°Ç(180-409) | 4 | 29.25 | 2,000 | 70 | 2016 | | 2025.12.19 | ¿ù¼¼ | ¼¾Æ®·²Æ÷ÀÎÆ® | 9 | 11.93 | 5,000 | 66 | 2019 | | 2025.12.19 | ¸Å¸Å | ROCKSTAY(1667-63) | 3 | 49.26 | 38,800 | | 2017 | | 2025.12.19 | ¸Å¸Å | ¸ñȺô¶ó | 2 | 53.66 | 24,300 | | 1991 | | 2025.12.19 | ¸Å¸Å | (480-144) | 1 | 62.64 | 75,000 | | 1992 | | 2025.12.18 | ¿ù¼¼ | °æµ¿Å¸¿î | 8 | 48.71 | 3,000 | 64 | 2014 | | 2025.12.18 | ¿ù¼¼ | Çì¼¼µåÇϿ콺 | 2 | 39.83 | 28,000 | 15 | 2021 | | 2025.12.18 | Àü¼¼ | Çì¼¼µåÇϿ콺 | 2 | 39.83 | 32,000 | 0 | 2021 | | 2025.12.18 | ¿ù¼¼ | (41-109) | 1 | 33.56 | 4,000 | 61 | 1992 | | 2025.12.18 | ¿ù¼¼ | Å丶½ººô | 3 | 21 | 8,000 | 29 | 2001 | | 2025.12.17 | ¸Å¸Å | ACOCITY¼¿ï´ëÀÔ±¸¿ª | 13 | 37.16 | 40,699 | | 2025 | | 2025.12.17 | ¸Å¸Å | ACOCITY¼¿ï´ëÀÔ±¸¿ª | 15 | 37.16 | 40,699 | | 2025 | | 2025.12.17 | ¸Å¸Å | ACOCITY¼¿ï´ëÀÔ±¸¿ª | 15 | 35.22 | 38,827 | | 2025 | | 2025.12.17 | ¸Å¸Å | ACOCITY¼¿ï´ëÀÔ±¸¿ª | 13 | 40.07 | 41,545 | | 2025 | | 2025.12.17 | ¸Å¸Å | ACOCITY¼¿ï´ëÀÔ±¸¿ª | 12 | 35.22 | 38,827 | | 2025 | | 2025.12.17 | ¸Å¸Å | ACOCITY¼¿ï´ëÀÔ±¸¿ª | 12 | 40.07 | 41,545 | | 2025 | | 2025.12.17 | ¸Å¸Å | ACOCITY¼¿ï´ëÀÔ±¸¿ª | 14 | 37.16 | 40,699 | | 2025 | | 2025.12.17 | ¸Å¸Å | ACOCITY¼¿ï´ëÀÔ±¸¿ª | 12 | 37.16 | 40,699 | | 2025 | | 2025.12.17 | ¸Å¸Å | ACOCITY¼¿ï´ëÀÔ±¸¿ª | 14 | 40.07 | 41,545 | | 2025 | | 2025.12.17 | ¸Å¸Å | ACOCITY¼¿ï´ëÀÔ±¸¿ª | 13 | 35.22 | 38,827 | | 2025 | | 2025.12.17 | ¸Å¸Å | 1710-10 | 2 | 39.68 | 16,000 | | 1998 | | 2025.12.17 | ¸Å¸Å | ACOCITY¼¿ï´ëÀÔ±¸¿ª | 15 | 40.07 | 41,545 | | 2025 | | 2025.12.17 | ¸Å¸Å | ACOCITY¼¿ï´ëÀÔ±¸¿ª | 14 | 35.22 | 38,827 | | 2025 | | 2025.12.17 | ¿ù¼¼ | ÀÎÇåºô | 3 | 40.83 | 2,000 | 63 | 2005 | | 2025.12.17 | ¿ù¼¼ | û¿î¸Ç¼Ç | 3 | 61.62 | 4,000 | 100 | 1997 | | 2025.12.17 | ¿ù¼¼ | û¿î¸Ç¼Ç | 3 | 61.62 | 4,000 | 100 | 1997 | | 2025.12.17 | ¿ù¼¼ | ¼öÁ¤ºô¶ó | -1 | 35.96 | 500 | 10 | 1998 | | 2025.12.17 | Àü¼¼ | (1526-9) | 2 | 19.25 | 9,000 | 0 | 2001 | | 2025.12.17 | ¿ù¼¼ | µµ¿ø¾ÆÆ®ºô(860-51) | 5 | 63.87 | 5,000 | 120 | 2005 | | 2025.12.17 | ¿ù¼¼ | »þÀκô | 3 | 48.31 | 2,000 | 100 | 2002 | | 2025.12.17 | ¿ù¼¼ | ¹éÇÕºô¶ó(928-11) | 3 | 43.14 | 15,000 | 25 | 1991 | | 2025.12.17 | ¿ù¼¼ | ±×¸°¾ÆÆ® | 4 | 33.49 | 2,000 | 70 | 1994 | | 2025.12.16 | ¿ù¼¼ | ÇÏÀÓS | 8 | 13.61 | 3,000 | 63 | 2018 | | 2025.12.16 | ¿ù¼¼ | °æµ¿Å¸¿î | 5 | 12.06 | 2,000 | 57 | 2014 | | 2025.12.16 | ¿ù¼¼ | (1515-12) | 3 | 58.62 | 1,000 | 102 | 2002 | | 2025.12.16 | ¿ù¼¼ | °æµ¿Å¸¿î | 8 | 13.83 | 2,000 | 50 | 2014 | | 2025.12.15 | ¿ù¼¼ | ¼ÛÁöºô¶ó | -1 | 37.06 | 6,000 | 35 | 1991 | | 2025.12.15 | ¿ù¼¼ | ¹Ì¼ºÇÏÀÌÃ÷°¡ | -1 | 63.24 | 1,000 | 75 | 1991 | | 2025.12.15 | ¿ù¼¼ | ¹Ì¸¤ºôµù | 10 | 12.79 | 2,000 | 66 | 2018 | | 2025.12.15 | ¸Å¸Å | °ñµåºô(41-110) | 3 | 82.46 | 41,600 | | 2011 | | 2025.12.15 | ¿ù¼¼ | ±×¸°¸Ç¼Ç(880-5) | 3 | 59.63 | 8,000 | 125 | 1997 | | 2025.12.15 | ¿ù¼¼ | 897-18 | 2 | 24.54 | 3,000 | 78 | 2014 | | 2025.12.15 | ¿ù¼¼ | (1709-13) | 4 | 56.3 | 12,000 | 30 | 1996 | | 2025.12.15 | ¿ù¼¼ | ¼ÛÁöºô¶ó | -1 | 37.06 | 6,000 | 35 | 1991 | | 2025.12.15 | Àü¼¼ | ±â¸°¾ÆÆ®ºô¶ó5 | 1 | 66.66 | 18,000 | 0 | 1994 | | 2025.12.15 | ¸Å¸Å | ¹«±ÃȸǼÇ(180-146) | 4 | 41.07 | 18,000 | | 1994 | | 2025.12.15 | ¿ù¼¼ | (196-95) | 2 | 58.65 | 3,000 | 40 | 2007 | | 2025.12.14 | ¿ù¼¼ | µå¸²ÇϿ콺(41-231) | 4 | 12.1 | 8,500 | 30 | 2012 | | 2025.12.14 | ¿ù¼¼ | µ¿¾Æºô¶ó8Â÷ | 2 | 21.45 | 1,000 | 50 | 2000 | | 2025.12.14 | ¿ù¼¼ | ¼º½Åºô¶óAµ¿ | -1 | 59.67 | 14,000 | 15 | 1989 | | 2025.12.14 | ¸Å¸Å | ¿î»êºô¶ó | 2 | 56.66 | 30,000 | | 1992 | | 2025.12.14 | ¸Å¸Å | Çâ³²ºô¶ó | -1 | 40.68 | 10,000 | | 1993 | | 2025.12.13 | ¸Å¸Å | Èï³²ºô¶ó2Â÷³ªµ¿ | 3 | 61.38 | 64,500 | | 1992 | | 2025.12.13 | ¿ù¼¼ | ÀÎÇåºô | 2 | 43.26 | 2,000 | 68 | 2005 | | 2025.12.13 | Àü¼¼ | º¸¶ó¸Åµå¸²ÆÄÅ© | 3 | 29.38 | 20,000 | 0 | 2018 | | 2025.12.13 | Àü¼¼ | ¼¼Á¾ÇÏÀÌÃ÷¶óµ¿ | 2 | 50.22 | 18,000 | 0 | 1991 | | 2025.12.13 | ¿ù¼¼ | º¸¶ó¸Åµå¸²ÆÄÅ© | 3 | 29.38 | 20,000 | 11 | 2018 | | 2025.12.13 | ¿ù¼¼ | ´Ù¼¼´ëÁÖÅÃ(1686-4) | 3 | 51.92 | 2,000 | 73 | 2018 | | 2025.12.13 | ¿ù¼¼ | CJ¾ÆÆ®ºô | 5 | 29.92 | 14,470 | 63 | 2015 | | 2025.12.13 | ¿ù¼¼ | (´õºô) | 3 | 27.49 | 3,000 | 120 | 2022 | | 2025.12.13 | ¸Å¸Å | ´ë»êÇÏÀÌÃ÷ºô | 4 | 73.24 | 36,800 | | 2003 | | 2025.12.13 | ¸Å¸Å | û¿îºô¶ó2Â÷ | 1 | 51.3 | 25,000 | | 1994 | | 2025.12.13 | ¸Å¸Å | üÀ̽ººôAµ¿ | 2 | 26.58 | 23,000 | | 2016 | | 2025.12.12 | ¿ù¼¼ | ¶ó¿Â3 | 9 | 11.887 | 3,000 | 66 | 2018 | | 2025.12.12 | ¿ù¼¼ | Å丶½ººô | 3 | 48.03 | 18,000 | 15 | 2001 | | 2025.12.12 | ¿ù¼¼ | µå¸²ºô(65-6) | 2 | 41.22 | 5,000 | 64 | 2008 | | 2025.12.12 | Àü¼¼ | º¸´´¸£Å¸¿î7Â÷ | 3 | 39.97 | 28,000 | 0 | 2015 | | 2025.12.12 | ¿ù¼¼ | µå¸²ºô(65-6) | 2 | 41.22 | 5,000 | 64 | 2008 | | 2025.12.12 | ¿ù¼¼ | ½ÅȰñµçŸ¿ö | 9 | 11.56 | 11,000 | 30 | 2019 | | 2025.12.12 | ¿ù¼¼ | ¿ùµåŸ¿ö | 3 | 19.8 | 16,500 | 32 | 2017 | | 2025.12.12 | ¿ù¼¼ | Å丶½ººô | 3 | 48.03 | 18,000 | 15 | 2001 | | 2025.12.12 | ¸Å¸Å | ÇѼºÆÄÅ©ºô¸®Áö | 3 | 70.87 | 41,000 | | 2018 | | 2025.12.12 | ¿ù¼¼ | ÇØ¿À¸§¾ÆÆ®ºô | 4 | 41.57 | 21,000 | 30 | 2014 | | 2025.12.12 | ¿ù¼¼ | ½ÅȰñµçŸ¿ö | 9 | 11.56 | 11,000 | 30 | 2019 | | 2025.12.12 | ¸Å¸Å | ¼¼ÇϺô¶ó | -1 | 52.95 | 18,500 | | 1993 | | 2025.12.12 | ¿ù¼¼ | ÇØ¿À¸§¾ÆÆ®ºô | 4 | 41.57 | 21,000 | 30 | 2014 | | 2025.12.12 | ¿ù¼¼ | ·¡µð¾Ó | 9 | 29.34 | 19,700 | 8 | 2015 | | 2025.12.12 | ¿ù¼¼ | ÁÖÇϿ콺 | 3 | 15.68 | 500 | 50 | 2014 | | 2025.12.12 | ¿ù¼¼ | ¼¼±âÇÏÀÌÃ÷ºô¶ó | -1 | 46.46 | 10,800 | 30 | 1993 | | 2025.12.11 | ¸Å¸Å | û±¸ºô¶óÆ®(180-273) | 1 | 67.73 | 34,000 | | 2002 | | 2025.12.11 | ¸Å¸Å | °æÈ¾ÆÆ®ºô¶ó³ª | 3 | 35.28 | 27,000 | | 1995 | | 2025.12.11 | ¸Å¸Å | ¸á¶ó | 3 | 31.77 | 30,000 | | 2021 | | 2025.12.11 | ¸Å¸Å | ´ë¿ø¾Æ¶óÅ× | 3 | 29.94 | 25,500 | | 2013 | | 2025.12.11 | ¸Å¸Å | ´º°ü¾Çºô¶ó | 1 | 79.29 | 43,500 | | 1994 | | 2025.12.11 | Àü¼¼ | ½Å¿øºô¶ó | 1 | 38.7 | 15,000 | 0 | 1987 | | 2025.12.11 | ¿ù¼¼ | (41-39) | -1 | 47.79 | 3,000 | 100 | 1986 | | 2025.12.11 | Àü¼¼ | À¯ÁøÇÏÀÌÃ÷ºô¶ó | 1 | 45.36 | 21,000 | 0 | 1991 | | 2025.12.11 | ¿ù¼¼ | ûµµ¸Ç¼Ç | 3 | 34.83 | 10,000 | 35 | 1991 | | 2025.12.11 | ¿ù¼¼ | ½ÅȰñµçŸ¿ö | 7 | 10.78 | 14,000 | 15 | 2019 | | 2025.12.11 | ¿ù¼¼ | ´Ù¿øºô | 5 | 43.33 | 4,000 | 97 | 2018 | | 2025.12.10 | ¿ù¼¼ | ¸®Ä¡ºô | 3 | 19.15 | 3,000 | 60 | 2014 | | 2025.12.10 | Àü¼¼ | ¿ø¾ÆÆ®ºô | 2 | 67.61 | 31,000 | 0 | 2012 | | 2025.12.10 | ¿ù¼¼ | ¿À¶Ñ±â | 2 | 16.7 | 11,140 | 13 | 2016 | | 2025.12.10 | ¿ù¼¼ | »ïÀϺôµù | 3 | 12.92 | 5,000 | 79 | 2015 | | 2025.12.10 | ¿ù¼¼ | Çѵ¶ºô¶ó | 2 | 48.57 | 4,000 | 50 | 1989 | | 2025.12.10 | Àü¼¼ | (635-669) | -1 | 28.27 | 4,700 | 0 | 1988 | | 2025.12.10 | ¿ù¼¼ | (100-100) | 4 | 44.79 | 14,000 | 10 | 2004 | | 2025.12.10 | ¿ù¼¼ | 897-18 | 3 | 24.54 | 3,000 | 79 | 2014 | | 2025.12.09 | ¿ù¼¼ | (1688-86) | 4 | 70.84 | 24,300 | 23 | 2004 | | 2025.12.09 | ¿ù¼¼ | (1688-97) | 2 | 52.62 | 19,000 | 35 | 2004 | | 2025.12.09 | Àü¼¼ | ·¡µð¾Ó | 9 | 29.34 | 21,400 | 0 | 2015 | | 2025.12.09 | ¿ù¼¼ | ½ÉÀü¸Ç¼Ç | 1 | 121.78 | 35,000 | 20 | 1993 | | 2025.12.09 | Àü¼¼ | ¿ì¸®ÇÏ¿¬ºô | 3 | 64.31 | 24,000 | 0 | 2003 | | 2025.12.09 | ¿ù¼¼ | ½ÉÀü¸Ç¼Ç | 1 | 121.78 | 35,000 | 20 | 1993 | | 2025.12.09 | ¿ù¼¼ | ±Ýµ¿»ç¶û¹æ | 7 | 12.96 | 5,000 | 80 | 2022 | | 2025.12.09 | ¿ù¼¼ | ¼ººÎºô¶ó | 1 | 27.02 | 8,800 | 20 | 1991 | | 2025.12.09 | ¿ù¼¼ | (1510-44) | 3 | 47.7 | 15,000 | 60 | 2004 | | 2025.12.09 | ¿ù¼¼ | (1510-44) | 3 | 47.7 | 15,000 | 60 | 2004 | | 2025.12.09 | ¿ù¼¼ | µå¸²ºô(65-6) | 2 | 18 | 1,000 | 37 | 2008 | | 2025.12.09 | ¿ù¼¼ | »õ½Ç¿ø·ëÇϿ콺 | 2 | 14.37 | 2,000 | 65 | 1996 | | 2025.12.09 | ¿ù¼¼ | ¼öÁ¤±×¸°ºô | 3 | 62.81 | 5,000 | 80 | 2001 | | 2025.12.08 | ¿ù¼¼ | ¼¾Æ®·²Æ÷ÀÎÆ® | 11 | 11.56 | 3,700 | 68 | 2019 | | 2025.12.08 | ¸Å¸Å | ´õÁÁÀºÁý | 3 | 37.63 | 29,500 | | 2020 | | 2025.12.08 | ¿ù¼¼ | CJ¾ÆÆ®ºô | 5 | 27.37 | 13,900 | 59 | 2015 | | 2025.12.08 | ¿ù¼¼ | ¼¼Á¤È¨Å¸¿î | 2 | 42.63 | 11,000 | 63 | 2003 | | 2025.12.08 | Àü¼¼ | ÆÛ½ºÆ®ÇÁ¸®¹Ì¾ö | 1 | 28.76 | 24,500 | 0 | 2017 | | 2025.12.08 | ¿ù¼¼ | ±Ýµ¿»ç¶û¹æ | 10 | 12.34 | 3,000 | 90 | 2022 | | 2025.12.08 | ¿ù¼¼ | ¿µÁøºô¶ó(180-213) | 2 | 51.24 | 2,000 | 110 | 1996 | | 2025.12.08 | ¿ù¼¼ | ÀºÃµ½¦¸£ºô | 1 | 43.35 | 14,000 | 25 | 2012 | | 2025.12.08 | ¿ù¼¼ | ÇØÁ¾ºô¶ó | 1 | 35.08 | 10,000 | 25 | 1991 | | 2025.12.08 | ¿ù¼¼ | ÇØÁ¾ºô¶ó | 1 | 35.08 | 10,000 | 25 | 1991 | | 2025.12.08 | ¿ù¼¼ | ´ëÇдç | 4 | 12.15 | 500 | 44 | 2011 | | 2025.12.07 | ¿ù¼¼ | ·ç³ª;¸ÞÀÌÆ® | 3 | 25.29 | 18,000 | 35 | 2021 | | 2025.12.07 | ¿ù¼¼ | ¼¾Æ®·²Æ÷ÀÎÆ® | 9 | 11.56 | 5,000 | 58 | 2019 | | 2025.12.07 | ¿ù¼¼ | (1528-14) | 2 | 29.95 | 7,000 | 92 | 2021 | | 2025.12.07 | ¿ù¼¼ | ¾ÆÆ®¸®¿ò(43-6) | 11 | 27.32 | 10,000 | 130 | 2017 | | 2025.12.06 | ¿ù¼¼ | ½ÅºÀ¸¶À»Fµ¿ | 4 | 36.18 | 2,000 | 65 | 2001 | | 2025.12.06 | ¿ù¼¼ | YK¼¿ï´ë | 4 | 12.41 | 16,800 | 15 | 2020 | | 2025.12.06 | ¿ù¼¼ | ûµµ¸Ç¼Ç | 2 | 62.61 | 2,000 | 70 | 1991 | | 2025.12.06 | ¿ù¼¼ | (1650-7) | 2 | 24.02 | 2,000 | 110 | 2012 | | 2025.12.06 | Àü¼¼ | °üÀü¾ÆÆ®ºô(41-199) | -1 | 63.8 | 16,000 | 0 | 2002 | | 2025.12.06 | ¿ù¼¼ | °ñµåÇÏÀÓ2Â÷ | 5 | 26.82 | 22,000 | 20 | 2015 | | 2025.12.06 | Àü¼¼ | (935-4) | 3 | 98.71 | 20,000 | 0 | 1984 | | 2025.12.06 | Àü¼¼ | µ¿¼º¸Ç¼Ç | 2 | 62.43 | 20,500 | 0 | 2002 | | 2025.12.06 | ¿ù¼¼ | ¸¶¸®³ª156 | 2 | 26.45 | 3,000 | 27 | 2014 | | 2025.12.06 | ¿ù¼¼ | µ¿ºÎÆÄÅ©ºô | 2 | 20.61 | 1,000 | 40 | 2008 | | 2025.12.06 | ¸Å¸Å | ÇÏ¿ìÁ¨-ºô | 7 | 84.52 | 81,000 | | 2004 | | 2025.12.06 | ¿ù¼¼ | ´õ¿ï¸²¸ÞÆ®·ÎŸ¿ö | 4 | 13.94 | 4,000 | 70 | 2022 | | 2025.12.06 | ¿ù¼¼ | 1583-5 | 3 | 29.47 | 3,000 | 115 | 2013 | | 2025.12.06 | ¿ù¼¼ | ´©¸®ÇϿ콺 | 4 | 20.22 | 4,000 | 80 | 2019 | | 2025.12.06 | ¸Å¸Å | Çö´ëºô¶óÆ®(872-18) | 2 | 35.84 | 28,000 | | 2008 | | 2025.12.06 | ¸Å¸Å | ¼º¿øºô¶ó(1532-1) | 4 | 52.46 | 25,700 | | 1993 | | 2025.12.06 | ¸Å¸Å | ¿ì¿ù¸Ç¼Ç | -1 | 46.92 | 15,300 | | 1995 | | 2025.12.06 | ¸Å¸Å | (937-5) | 3 | 36.16 | 19,000 | | 1986 | | 2025.12.05 | ¿ù¼¼ | ¿ì¿ø½ÃƼ | 3 | 44.775 | 22,000 | 4 | 1996 | | 2025.12.05 | ¿ù¼¼ | ½ÅȰñµçŸ¿ö | 8 | 10.78 | 14,000 | 15 | 2019 | | 2025.12.05 | ¿ù¼¼ | º¸¶ó¸Åºô | 4 | 28.21 | 17,000 | 20 | 2021 | | 2025.12.05 | ¿ù¼¼ | ´ëÈ£ÁÖÅà | 2 | 35.55 | 11,000 | 30 | 1986 | | 2025.12.05 | ¿ù¼¼ | (635-436) | 1 | 68.85 | 3,000 | 50 | 1989 | | 2025.12.05 | ¸Å¸Å | ¼Û¸²ºô¶ó(Aµ¿) | 1 | 46.99 | 25,500 | | 1994 | | 2025.12.05 | ¿ù¼¼ | º¸¶ó¸Åºô | 4 | 28.21 | 17,000 | 20 | 2021 | | 2025.12.05 | ¸Å¸Å | ÃÊ¿øºô¸®Áö | 2 | 69.12 | 38,000 | | 2002 | | 2025.12.05 | ¿ù¼¼ | CG¾Æ¸§Ã¤15Â÷ | 1 | 28.85 | 100 | 70 | 2021 | | 2025.12.05 | ¸Å¸Å | ¼Û¸²ºô¶ó(Eµ¿) | 3 | 48.84 | 23,600 | | 1994 | | 2025.12.05 | ¿ù¼¼ | (918-21) | 5 | 30.42 | 5,000 | 70 | 2013 | | 2025.12.05 | ¿ù¼¼ | °æ¿øºô¶ó | -1 | 62.64 | 1,000 | 70 | 1993 | | 2025.12.05 | Àü¼¼ | °ü¾ÇÆÄ·¹½ººô¶ó | 2 | 62.68 | 23,000 | 0 | 1991 | | 2025.12.04 | ¸Å¸Å | ³ª¹«±×´Ãºô(647-13) | 4 | 42.53 | 37,000 | | 2018 | | 2025.12.04 | ¿ù¼¼ | ¶ó¸Þ¸£ | 13 | 29.54 | 25,900 | 40 | 2022 | | 2025.12.04 | ¸Å¸Å | °üÀü¼¾Æ®·¹ºô | 1 | 44.46 | 43,000 | | 2017 | | 2025.12.04 | ¸Å¸Å | ´Ù¼¼´ëÁÖÅÃ(706-13) | 2 | 22.74 | 20,000 | | 2019 | | 2025.12.04 | ¸Å¸Å | ÿ½ÃÇϿ콺Aµ¿Bµ¿ | 2 | 41.36 | 36,500 | | 2019 | | 2025.12.04 | ¿ù¼¼ | µ¿¼ºµå¸²ºô | 2 | 43.22 | 10,000 | 50 | 2003 | | 2025.12.04 | Àü¼¼ | ´ë¼º(916-32) | 3 | 48.96 | 9,000 | 0 | 1991 | | 2025.12.04 | ¿ù¼¼ | °æ¼ººô¶ó | 2 | 49.92 | 15,200 | 40 | 1991 | | 2025.12.04 | Àü¼¼ | ÆÛ½ºÆ®ÇÁ¸®¹Ì¾ö | 4 | 28.76 | 24,500 | 0 | 2017 | | 2025.12.04 | Àü¼¼ | (893-19) | 2 | 55.67 | 10,000 | 0 | 1979 | | 2025.12.04 | ¿ù¼¼ | ¼ºÁö¿ø·ë | 2 | 12.55 | 500 | 39 | 2013 | | 2025.12.03 | ¸Å¸Å | ´ë¼ººô¶ó | 2 | 62.94 | 30,500 | | 2001 | | 2025.12.03 | ¸Å¸Å | µå¸²¸Ç¼Ç | 2 | 64.2 | 36,700 | | 2003 | | 2025.12.03 | ¿ù¼¼ | °ü¾ÇÁ߾ӷξâºô¶ó | 6 | 29.3 | 500 | 65 | 2012 | | 2025.12.03 | ¿ù¼¼ | (178-20) | -1 | 32.04 | 1,000 | 45 | 1991 | | 2025.12.03 | ¿ù¼¼ | ·ÎÁ¦ÇϿ콺(4Â÷) | 3 | 58.06 | 23,900 | 10 | 2004 | | 2025.12.03 | ¿ù¼¼ | °æµ¿Å¸¿î | 6 | 11.43 | 3,000 | 60 | 2014 | | 2025.12.02 | ¿ù¼¼ | µå¸²ºô(65-6) | 3 | 56.55 | 3,000 | 87 | 2008 | | 2025.12.02 | ¿ù¼¼ | ¿¬Èñºô¶ó | 3 | 60.68 | 12,000 | 40 | 1985 | | 2025.12.02 | Àü¼¼ | (635-403) | 2 | 34.94 | 7,000 | 0 | 1988 | | 2025.12.02 | ¸Å¸Å | ºÎ¿µ¸Ç¼Ç | 3 | 68.04 | 40,000 | | 2001 | | 2025.12.02 | ¿ù¼¼ | º°ºñä(960-7) | 3 | 27.37 | 1,000 | 75 | 2014 | | 2025.12.02 | ¿ù¼¼ | YKŸ¿ö | 2 | 12.46 | 17,400 | 3 | 2019 | | 2025.12.02 | Àü¼¼ | ¼±¸°ºô¶ó | 2 | 46.43 | 15,700 | 0 | 1990 | | 2025.12.02 | ¿ù¼¼ | ÇÞºû(180-360) | 3 | 16.83 | 1,000 | 56 | 2017 | | 2025.12.02 | ¿ù¼¼ | º¸¶ó¸Åºô | 2 | 29.96 | 3,000 | 96 | 2021 | | 2025.12.02 | ¿ù¼¼ | µå¸²ÇϿ콺 | 5 | 21.43 | 5,000 | 37 | 2011 | | 2025.12.02 | ¿ù¼¼ | ½º¸¶ÀÏŸ¿î | 8 | 12.95 | 3,000 | 61 | 2019 | | 2025.12.01 | ¿ù¼¼ | ÆÛ½ºÆ®ÇÁ¸®¹Ì¾ö | 2 | 28.76 | 21,500 | 11 | 2017 | | 2025.12.01 | ¸Å¸Å | (480-144) | 1 | 62.55 | 76,000 | | 1992 | | 2025.12.01 | Àü¼¼ | ´ë¼º(916-32) | 3 | 48.96 | 9,000 | 0 | 1991 | | 2025.12.01 | ¿ù¼¼ | ÇÏÀ̺ô | 4 | 41.86 | 1,000 | 110 | 2003 | | 2025.12.01 | ¿ù¼¼ | ±¤µ¿ºô¶ó(1597-33) | 3 | 40.65 | 1,000 | 52 | 1996 | | 2025.12.01 | ¿ù¼¼ | (897-24) | 3 | 58.36 | 3,000 | 85 | 2003 | | 2025.12.01 | Àü¼¼ | (178-349) | -1 | 42 | 12,500 | 0 | 2003 | | 2025.12.01 | Àü¼¼ | ´ë¼º(916-32) | 3 | 48.96 | 18,000 | 0 | 1991 | | 2025.12.01 | Àü¼¼ | ÆÛ½ºÆ®ÇÁ¸®¹Ì¾ö | 2 | 28.76 | 24,500 | 0 | 2017 | | 2025.12.01 | ¿ù¼¼ | ¼ºÁöºô¶ó7Â÷ | 4 | 53.45 | 15,000 | 40 | 1995 | | 2025.12.01 | ¿ù¼¼ | ¿Ã¸²ÇÁ½ººô¸®Áö | 1 | 55.45 | 24,000 | 25 | 2012 | | 2025.12.01 | ¿ù¼¼ | (1709-12) | 4 | 59.72 | 5,000 | 90 | 1996 | | 2025.12.01 | ¸Å¸Å | ¼ÛÀ̺ô¶ó³ªµ¿ | 3 | 65.68 | 27,000 | | 1982 | | 2025.12.01 | ¿ù¼¼ | (178-20) | -1 | 32.04 | 1,000 | 45 | 1991 | | 2025.12.01 | ¿ù¼¼ | ¿¡ÀÌÄ¡ÇÏÀÓ | 10 | 17.32 | 3,000 | 120 | 2024 | | 2025.11.30 | Àü¼¼ | µµ¿ø¾ÆÆ®ºô(860-53) | 3 | 66.58 | 35,000 | 0 | 2005 | | 2025.11.30 | ¿ù¼¼ | THELIME(´õ¶óÀÓ) | 12 | 29.48 | 32,400 | 30 | 2021 | | 2025.11.30 | ¸Å¸Å | º¸´´¸£Å¸¿î7Â÷ | 3 | 40.53 | 35,000 | | 2015 | | 2025.11.30 | ¿ù¼¼ | ¾ÆÁøºô¶ó3Â÷ | 4 | 41.58 | 9,000 | 42 | 2003 | | 2025.11.29 | Àü¼¼ | ·ÎÁ¦ÇϿ콺(180-122) | 2 | 23.3 | 15,048 | 0 | 2011 | | 2025.11.29 | Àü¼¼ | ±×·£Á®ºô¶ó3Â÷ | 3 | 48.96 | 20,000 | 0 | 1993 | | 2025.11.29 | ¸Å¸Å | º¸³×¸£ºô3Â÷ | 5 | 41.09 | 35,000 | | 2014 | | 2025.11.29 | ¿ù¼¼ | ºÀõµ¿´Ù¼¼´ëÁÖÅà | 2 | 73.36 | 500 | 35 | 2003 | | 2025.11.29 | Àü¼¼ | ¿ì¿µARTEVILLNAKSUNG | 5 | 29.04 | 35,000 | 0 | 2022 | | 2025.11.29 | ¿ù¼¼ | ±×·¹À̺ô | 6 | 27.1 | 21,500 | 9 | 2017 | | 2025.11.29 | ¿ù¼¼ | ±×·¹À̺ô | 6 | 27.1 | 21,500 | 9 | 2017 | | 2025.11.29 | ¿ù¼¼ | ±×·¹À̺ô | 7 | 22.47 | 21,000 | 9 | 2017 | | 2025.11.29 | ¿ù¼¼ | »ïÀϺôµù | 3 | 12.92 | 5,000 | 75 | 2015 | | 2025.11.29 | ¿ù¼¼ | (897-25) | 2 | 42.49 | 17,000 | 20 | 2003 | | 2025.11.29 | Àü¼¼ | (1510-44) | -1 | 29.28 | 6,000 | 0 | 2004 | | 2025.11.29 | Àü¼¼ | ·Ôµ¥ÇÏÀÌÃ÷ | -1 | 66.57 | 14,550 | 0 | 1992 | | 2025.11.28 | Àü¼¼ | ½ÅȰñµçŸ¿ö | 9 | 13.41 | 17,000 | 0 | 2019 | | 2025.11.28 | ¿ù¼¼ | (100-100) | 3 | 33.6 | 14,000 | 35 | 2004 | | 2025.11.28 | ¸Å¸Å | ¿¬Èñºô¶ó | 1 | 60.28 | 33,000 | | 1985 | | 2025.11.28 | ¸Å¸Å | ½ºÀ§½ººôB | 4 | 27.39 | 18,500 | | 2002 | | 2025.11.28 | ¸Å¸Å | ¸®¹ö½ºÅ¸¿î3Â÷ | 6 | 31.75 | 22,000 | | 2015 | | 2025.11.28 | ¿ù¼¼ | °øÈƺô¶ó | 1 | 48.72 | 7,000 | 10 | 1991 | | 2025.11.28 | ¿ù¼¼ | ÀºÇýºô¶ó(1528-23) | 1 | 40.32 | 1,000 | 100 | 1994 | | 2025.11.28 | ¿ù¼¼ | (1678-10) | 1 | 33.25 | 5,000 | 70 | 1987 | | 2025.11.28 | ¿ù¼¼ | ±îÄ¡ºô¶ó(³ª)µ¿(1691-28) | 2 | 36.94 | 1,710 | 52 | 1989 | | 2025.11.28 | ¿ù¼¼ | Çö´ëÆÄ¶ó°ï | 3 | 29.2 | 200 | 100 | 2021 | | 2025.11.27 | ¿ù¼¼ | (180-72) | -1 | 34.59 | 500 | 23 | 1993 | | 2025.11.27 | ¿ù¼¼ | (1562-10) | 4 | 23.93 | 20,000 | 20 | 2016 | | 2025.11.27 | ¸Å¸Å | »ïÈÁÖÅÃ(1513-7) | -1 | 42.48 | 11,000 | | 1988 | | 2025.11.27 | ¿ù¼¼ | ÇÞºû(180-360) | 3 | 40.82 | 4,000 | 76 | 2017 | | 2025.11.26 | Àü¼¼ | ¶ó³ë½º | 10 | 28.14 | 27,000 | 0 | 2017 | | 2025.11.26 | ¿ù¼¼ | YK¼¿ï´ë | 3 | 11.19 | 18,000 | 5 | 2020 | | 2025.11.26 | ¸Å¸Å | ÀÏÁÖÇϿ콺 | 3 | 47.43 | 42,900 | | 2016 | | 2025.11.26 | ¿ù¼¼ | (41-82) | 4 | 26.09 | 12,000 | 30 | 2011 | | 2025.11.26 | ¿ù¼¼ | (41-82) | 4 | 26.09 | 12,000 | 30 | 2011 | | 2025.11.26 | Àü¼¼ | ±ÃÀü±×¸°ÆÄũŸ¿î2Â÷ | 3 | 47.64 | 17,000 | 0 | 1993 | | 2025.11.26 | ¿ù¼¼ | (100-125) | 3 | 22.5 | 500 | 54 | 2001 | | 2025.11.26 | ¸Å¸Å | (715-86) | 3 | 74.24 | 24,600 | | 1996 | | 2025.11.25 | ¿ù¼¼ | ÇѰ¡¶÷Ÿ¿î | 4 | 20.92 | 7,000 | 30 | 2019 | | 2025.11.25 | ¿ù¼¼ | (´õºô) | 5 | 19.69 | 3,000 | 82 | 2022 | | 2025.11.25 | Àü¼¼ | żººô¶ó | 1 | 62.91 | 31,000 | 0 | 1992 | | 2025.11.24 | ¿ù¼¼ | ¼Ò»êÇÏÀÌÃ÷¸Ç¼ð | 3 | 28.53 | 10,500 | 17 | 1996 | | 2025.11.24 | ¿ù¼¼ | (5-26) | -1 | 39.87 | 8,000 | 10 | 1991 | | 2025.11.24 | Àü¼¼ | ¿¢½ºÆ÷ºô¶óÆ® | -1 | 38.4 | 8,000 | 0 | 1993 | | 2025.11.24 | ¸Å¸Å | ºÀõ¾ÆÆ®ºô | 3 | 76.32 | 83,000 | | 2003 | | 2025.11.24 | ¿ù¼¼ | ¼Ò»êÇÏÀÌÃ÷¸Ç¼ð | 3 | 28.53 | 10,500 | 17 | 1996 | | 2025.11.24 | Àü¼¼ | Ãë¼Û | 3 | 54.3 | 24,500 | 0 | 2004 | | 2025.11.24 | ¿ù¼¼ | Çö°æÇ÷¹ÀÎÁî | 4 | 12.41 | 500 | 35 | 2002 | | 2025.11.24 | ¿ù¼¼ | Á¶Àººô | 3 | 12.15 | 5,000 | 22 | 2013 | | 2025.11.24 | Àü¼¼ | ´ë°Ç(180-409) | 3 | 13.09 | 10,990 | 0 | 2016 | | 2025.11.24 | Àü¼¼ | ´Ù¼¼´ëÁÖÅÿÜ(695-13) | 3 | 29.84 | 23,000 | 0 | 2017 | | 2025.11.24 | ¸Å¸Å | À±°ºô¶ó | 1 | 53.4 | 30,000 | | 2002 | | 2025.11.23 | ¿ù¼¼ | ¿ì¿ùÆÄÅ© | 1 | 64.17 | 20,000 | 35 | 1995 | | 2025.11.23 | Àü¼¼ | Çö´ë±×¸°ºô¶ó | 2 | 59.96 | 26,250 | 0 | 1992 | | 2025.11.23 | Àü¼¼ | ·Îµ©ÇϿ콺 | 3 | 42.34 | 24,500 | 0 | 2012 | | 2025.11.22 | Àü¼¼ | ¶ó¿Âºô¸®Áö | 10 | 23.45 | 26,250 | 0 | 2019 | | 2025.11.22 | ¿ù¼¼ | ¸íÁøºô¶ó | 2 | 29.4 | 10,000 | 50 | 2016 | | 2025.11.22 | ¿ù¼¼ | ¿À·»ÁöÇÏÀÓ(1681-16) | 3 | 29.54 | 5,000 | 112 | 2019 | | 2025.11.22 | Àü¼¼ | º¸´´¸£Å¸¿î7Â÷ | 3 | 39.97 | 29,000 | 0 | 2015 | | 2025.11.22 | ¿ù¼¼ | üÀ̽ººôBµ¿ | 4 | 13.92 | 2,000 | 80 | 2016 | | 2025.11.22 | ¿ù¼¼ | ÇØ¿À¸§¾ÆÆ®ºô | 2 | 29.99 | 16,000 | 18 | 2014 | | 2025.11.22 | ¿ù¼¼ | ¼öÁ¤ºô¶ó | 1 | 35.77 | 6,000 | 35 | 1998 | | 2025.11.22 | ¿ù¼¼ | »ê¿ì°¡(1510-43) | 2 | 50.52 | 16,000 | 45 | 2003 | | 2025.11.21 | ¸Å¸Å | ³ëºíÇϿ콺 | 2 | 62.4 | 36,000 | | 2002 | | 2025.11.21 | ¿ù¼¼ | (959-16) | 3 | 12.16 | 500 | 50 | 2011 | | 2025.11.21 | ¿ù¼¼ | žçºô¶ó | 4 | 53.53 | 3,000 | 95 | 1997 | | 2025.11.21 | ¿ù¼¼ | ¿ì¸®ÇϿ콺 | 2 | 13.36 | 1,000 | 40 | 2012 | | 2025.11.21 | ¿ù¼¼ | ¾ÆÀ̺ô(1618-9) | 3 | 29.88 | 3,000 | 117 | 2014 | | 2025.11.21 | ¿ù¼¼ | YK¼¿ï´ë | 5 | 14.51 | 19,800 | 4 | 2020 | | 2025.11.20 | ¸Å¸Å | ¿ì¿µ¾ÆÆ®ºô | 1 | 59.08 | 28,500 | | 2001 | | 2025.11.20 | ¿ù¼¼ | ¿µºô | 2 | 76.71 | 1,500 | 56 | 2008 | | 2025.11.20 | ¿ù¼¼ | ¿¤µðŸ¿î | 8 | 17.1 | 1,000 | 65 | 2013 | | 2025.11.20 | ¿ù¼¼ | Çö´ëºô¶ó(180-425) | 2 | 54.38 | 100 | 50 | 1988 | | 2025.11.20 | Àü¼¼ | û¸²Æ÷·¹½ºÆ®ºô | 5 | 39.94 | 20,500 | 0 | 2013 | | 2025.11.20 | ¸Å¸Å | µð¾Ø¾¾Å¸¿îAµ¿Bµ¿ | 3 | 45.58 | 44,500 | | 2019 | | 2025.11.20 | ¿ù¼¼ | 196-67 | 2 | 29.61 | 17,500 | 20 | 2014 | | 2025.11.19 | ¿ù¼¼ | ¶ó¿Â3 | 10 | 12.468 | 5,000 | 59 | 2018 | | 2025.11.19 | ¿ù¼¼ | °¼ººô¶ó | 3 | 30 | 14,000 | 40 | 1991 | | 2025.11.19 | ¿ù¼¼ | ¿ì¼ººô¶ó | 3 | 44.17 | 1,000 | 75 | 1992 | | 2025.11.19 | ¿ù¼¼ | ¼·¡¸¶À» | 8 | 23.23 | 17,000 | 21 | 2017 | | 2025.11.19 | ¿ù¼¼ | ¾Æ½¬·¹ºô | 4 | 27.72 | 3,000 | 68 | 2012 | | 2025.11.19 | Àü¼¼ | ´õ°ÔÀÌÆ® | 4 | 29.05 | 27,000 | 0 | 2016 | | 2025.11.19 | Àü¼¼ | ´õ°ÔÀÌÆ® | 4 | 29.05 | 27,000 | 0 | 2016 | | 2025.11.19 | ¿ù¼¼ | (28-30) | 5 | 17.76 | 16,000 | 10 | 2016 | | 2025.11.19 | ¿ù¼¼ | ´Ù¿ÂÇϿ콺 | 2 | 25.47 | 20,000 | 15 | 2019 | | 2025.11.19 | ¸Å¸Å | ¼º½Åºô¶ó | 1 | 91.44 | 32,000 | | 1986 | | 2025.11.18 | ¿ù¼¼ | ·º¼½ººô | 2 | 80.03 | 15,000 | 40 | 2006 | | 2025.11.18 | ¿ù¼¼ | ¿µÈ£ºô¶ó | -1 | 49.41 | 12,000 | 5 | 1991 | | 2025.11.18 | ¿ù¼¼ | »ïÁ¤ÇÏÀÌÃ÷ºô¶ó(¹Ùµ¿) | 2 | 36.5 | 14,000 | 40 | 1990 | | 2025.11.18 | ¿ù¼¼ | (180-72) | 1 | 29.18 | 9,400 | 3 | 1993 | | 2025.11.18 | ¿ù¼¼ | ¹®¼ººô | 2 | 29.06 | 20,000 | 25 | 2017 | | 2025.11.18 | Àü¼¼ | üÀ̽ººôAµ¿ | 2 | 26.58 | 16,500 | 0 | 2016 | | 2025.11.18 | Àü¼¼ | üÀ̽ººôAµ¿ | 2 | 26.58 | 16,500 | 0 | 2016 | | 2025.11.18 | ¿ù¼¼ | ÇãºêÇϿ콺(958-28) | 2 | 17.5 | 1,000 | 47 | 2012 | | 2025.11.18 | ¸Å¸Å | È«Áø±×¸°¸Ç¼Ç7Â÷ | 3 | 67.47 | 37,000 | | 1996 | | 2025.11.18 | ¸Å¸Å | ¿ì¼ººô¶ó | 2 | 55.08 | 27,300 | | 1993 | | 2025.11.18 | ¸Å¸Å | °üÀü¼¾Æ®·¹ºô | 3 | 44.46 | 41,500 | | 2017 | | 2025.11.17 | ¿ù¼¼ | ¹é¼³Aºô¶ó | 1 | 65.16 | 300 | 50 | 1990 | | 2025.11.17 | ¸Å¸Å | ¾ÆÀ̸®½º | 1 | 69.68 | 43,500 | | 2012 | | 2025.11.17 | ¿ù¼¼ | (1688-79) | 4 | 104.36 | 2,000 | 65 | 2003 | | 2025.11.17 | ¿ù¼¼ | 905-15 | 5 | 15.18 | 500 | 42 | 2013 | | 2025.11.17 | Àü¼¼ | ³ª¶óȨŸ¿î | 2 | 48.17 | 27,000 | 0 | 2016 | | 2025.11.17 | Àü¼¼ | 635-118 | 2 | 27.98 | 18,000 | 0 | 2016 | | 2025.11.17 | ¿ù¼¼ | »ïÀÍij½½102µ¿ | 2 | 47.77 | 18,000 | 70 | 2016 | | 2025.11.17 | ¿ù¼¼ | ¶ó¿Â3 | 8 | 11.834 | 3,000 | 38 | 2018 | | 2025.11.16 | ¿ù¼¼ | (180-156) | 1 | 36.57 | 1,500 | 60 | 1986 | | 2025.11.16 | Àü¼¼ | »õ½Ç¿ø·ëÇϿ콺 | 2 | 14.38 | 11,000 | 0 | 1996 | | 2025.11.16 | ¸Å¸Å | ¿¹¿ø¾ÆÆ®ºô | 3 | 67.59 | 34,000 | | 2002 | | 2025.11.15 | ¿ù¼¼ | ¹Ì¸¤ºôµù | 11 | 12.87 | 13,500 | 18 | 2018 | | 2025.11.15 | Àü¼¼ | ÇѼºÆÄÅ©ºô¸®Áö | 6 | 51.88 | 29,800 | 0 | 2018 | | 2025.11.15 | ¿ù¼¼ | (1692-25) | -1 | 41.39 | 9,600 | 22 | 1987 | | 2025.11.15 | ¿ù¼¼ | °ø°£2Â÷ | 2 | 27.32 | 1,000 | 50 | 1995 | | 2025.11.15 | Àü¼¼ | ÇѼºÆÄÅ©ºô¸®Áö | 6 | 51.88 | 29,800 | 0 | 2018 | | 2025.11.15 | ¿ù¼¼ | ´Ù¿øºô | 6 | 24.88 | 3,000 | 80 | 2017 | | 2025.11.15 | ¿ù¼¼ | Çູä¿ò¥° | 2 | 29.135 | 15,600 | 20 | 2014 | | 2025.11.15 | ¿ù¼¼ | (1692-25) | -1 | 41.39 | 9,600 | 22 | 1987 | | 2025.11.15 | Àü¼¼ | ¿ø´ç¸Ç¼Ç | 3 | 84.7 | 41,000 | 0 | 2000 | | 2025.11.15 | ¿ù¼¼ | ¸á¶ó | 5 | 24.5 | 5,000 | 110 | 2021 | | 2025.11.15 | Àü¼¼ | ¿ì¿µARTEVILLNAKSUNG | 3 | 29.04 | 34,500 | 0 | 2022 | | 2025.11.15 | ¿ù¼¼ | ¸ÞÀÌÇýºÅ×ÀÌ | 12 | 26.68 | 2,000 | 83 | 2017 | | 2025.11.15 | ¸Å¸Å | ¼º½ÉÁÖÅà | -1 | 41.73 | 10,000 | | 1991 | | 2025.11.14 | ¿ù¼¼ | ÀåÆò2Ÿ¿î | 2 | 63.1 | 100 | 10 | 2003 | | 2025.11.14 | ¸Å¸Å | À¯Ã¢ºô | 4 | 36.73 | 56,000 | | 2007 | | 2025.11.14 | ¸Å¸Å | °¡µîºô¶ó | 1 | 81.6 | 44,000 | | 1991 | | 2025.11.14 | ¸Å¸Å | Àå¹Ì±×¸°ºô¶ó | 1 | 54.13 | 31,100 | | 1995 | | 2025.11.14 | Àü¼¼ | ¾ÆÅ©·ÎÆÓ¸®½º | 3 | 29.9 | 23,940 | 0 | 2020 | | 2025.11.14 | Àü¼¼ | ¿ì¿µARTEVILLNAKSUNG | 4 | 29.47 | 35,000 | 0 | 2022 | | 2025.11.13 | ¿ù¼¼ | »ê¿ì°¡(1510-43) | 2 | 50.52 | 16,000 | 45 | 2003 | | 2025.11.13 | Àü¼¼ | ¾Æ¸£¶¼ºô(635-455) | 1 | 20.76 | 18,000 | 0 | 2021 | | 2025.11.13 | ¿ù¼¼ | ¿ì¼ÖÇϿ콺 | 4 | 50.38 | 2,000 | 60 | 2016 | | 2025.11.13 | ¿ù¼¼ | (1646-6) | 2 | 41.22 | 12,900 | 10 | 1986 | | 2025.11.13 | ¸Å¸Å | ¸®Ä¡ÇϿ콺 | 2 | 41.52 | 30,900 | | 2013 | | 2025.11.12 | Àü¼¼ | ¼öÆÓ¸®½ºFT | 6 | 40.65 | 27,090 | 0 | 2020 | | 2025.11.12 | ¿ù¼¼ | µµ¿ø¸Ç¼Ç(C) | 4 | 61.08 | 3,000 | 100 | 2003 | | 2025.11.12 | ¿ù¼¼ | »ïõ¸®ÁÖÅà | 2 | 69.12 | 3,000 | 80 | 1982 | | 2025.11.12 | ¿ù¼¼ | ¿øÀϺô | -1 | 30.8 | 1,000 | 65 | 2003 | | 2025.11.12 | ¿ù¼¼ | µµ¿ø¸Ç¼Ç(C) | 4 | 61.08 | 3,000 | 100 | 2003 | | 2025.11.12 | ¿ù¼¼ | (715-44) | 4 | 64.28 | 5,000 | 33 | 2003 | | 2025.11.12 | ¸Å¸Å | Çö´ë¾ÆÆ®ºô(1652-5) | 1 | 52.95 | 24,000 | | 1990 | | 2025.11.11 | ¿ù¼¼ | (1691-27) | 1 | 41.62 | 13,400 | 40 | 1986 | | 2025.11.11 | ¿ù¼¼ | ¿µ¼öºôµù | 4 | 12.4 | 9,000 | 15 | 2013 | | 2025.11.11 | ¿ù¼¼ | ´õÇ츣¹Ì¿Â | 11 | 12.61 | 18,000 | 30 | 2021 | | 2025.11.11 | ¿ù¼¼ | (1531-9) | 1 | 68.59 | 500 | 47 | 1977 | | 2025.11.11 | ¸Å¸Å | Áß¾Ó¾ÆÆ®ºô | 2 | 41.37 | 35,000 | | 2015 | | 2025.11.11 | ¿ù¼¼ | Àå¹Ìºô¶ó(³ª)µ¿ | 1 | 41.01 | 5,000 | 110 | 1987 | | 2025.11.10 | ¿ù¼¼ | ´Ù¿ÂÇϿ콺 | 4 | 25.47 | 20,000 | 15 | 2019 | | 2025.11.10 | ¿ù¼¼ | ·ç³ª;¸ÞÀÌÆ® | 2 | 25.34 | 18,000 | 30 | 2021 | | 2025.11.10 | ¸Å¸Å | Á¤ÀºÆç¸®½º9Â÷ | 2 | 57.02 | 36,000 | | 2018 | | 2025.11.10 | Àü¼¼ | »ïº¸ºô¶ó(1608-29) | 2 | 50.62 | 19,000 | 0 | 1987 | | 2025.11.10 | Àü¼¼ | (100-324) | 2 | 51.28 | 27,000 | 0 | 2014 | | 2025.11.10 | Àü¼¼ | ·ÎÁ¦ÇϿ콺(180-534) | 4 | 22.24 | 12,000 | 0 | 2014 | | 2025.11.10 | ¿ù¼¼ | º¸³×¸£ºô2Â÷ | 2 | 52.89 | 25,000 | 30 | 2014 | | 2025.11.10 | Àü¼¼ | KWŸ¿ö | 10 | 55.24 | 43,000 | 0 | 2017 | | 2025.11.10 | ¸Å¸Å | ¸®º¥ÇÏÀÓ | 5 | 28.65 | 27,800 | | 2017 | | 2025.11.10 | ¸Å¸Å | (1-72) | 2 | 41.88 | 90,000 | | 1986 | | 2025.11.10 | ¿ù¼¼ | (180-402) | 3 | 24.4 | 1,000 | 66 | 2017 | | 2025.11.10 | ¿ù¼¼ | ¹Ì¸¤ºôµù | 8 | 11.74 | 5,000 | 65 | 2018 | | 2025.11.09 | ¿ù¼¼ | ¹«±ÃȸǼÇ(180-146) | 3 | 51.51 | 5,000 | 85 | 1994 | | 2025.11.08 | Àü¼¼ | ±ÃÀüºô¸®Áö(°¡.³ªµ¿) | 2 | 49.86 | 25,000 | 0 | 1990 | | 2025.11.08 | ¿ù¼¼ | À翵¸Ç¼Ç(1515-8) | 3 | 73.24 | 27,000 | 20 | 2004 | | 2025.11.08 | ¸Å¸Å | °Ç¿ìÁö¿ìºô | 2 | 59.15 | 44,800 | | 2013 | | 2025.11.08 | ¿ù¼¼ | ÇູÀ²¸®¾Æ | 3 | 29.83 | 16,700 | 22 | 2014 | | 2025.11.08 | ¿ù¼¼ | µî¿øÇÏÀÌÃ÷ºô¶ó | 2 | 77.22 | 26,500 | 20 | 1991 | | 2025.11.08 | ¿ù¼¼ | ¼Öö¿õÁÖÅÃ(´Ùµ¿) | -1 | 49.68 | 14,000 | 20 | 1995 | | 2025.11.08 | ¿ù¼¼ | ÇູÇѱ×Áý | 2 | 56.2 | 3,000 | 115 | 2009 | | 2025.11.08 | ¿ù¼¼ | »ï¼ººô¸®Áö | 2 | 59.64 | 20,000 | 35 | 2013 | | 2025.11.08 | ¿ù¼¼ | ÁÖÇϿ콺 | 2 | 16.17 | 500 | 50 | 2014 | | 2025.11.08 | ¿ù¼¼ | ¼Öö¿õÁÖÅÃ(´Ùµ¿) | -1 | 49.68 | 12,000 | 30 | 1995 | | 2025.11.07 | ¿ù¼¼ | (196-352) | 2 | 84.79 | 300 | 10 | 1985 | | 2025.11.07 | ¿ù¼¼ | E.H.Vill | 3 | 15.55 | 11,500 | 20 | 2016 | | 2025.11.07 | Àü¼¼ | ´ÃǪ¸¥½£ | 5 | 50.55 | 29,480 | 0 | 2017 | | 2025.11.07 | ¿ù¼¼ | ¿µÁøºô¶ó³ªµ¿ | 2 | 47.76 | 3,000 | 95 | 1992 | | 2025.11.07 | ¿ù¼¼ | ÇÏÀÌŬ¶ó½ººô | 2 | 48.555 | 2,000 | 105 | 2008 | | 2025.11.06 | ¸Å¸Å | ±¹ÈŸ¿öºô | 4 | 75.19 | 41,000 | | 2003 | | 2025.11.06 | ¸Å¸Å | Çö´ëMŸ¿î | 7 | 27.76 | 34,500 | | 2017 | | 2025.11.06 | ¸Å¸Å | Èѹ̸®¾ÆB | 3 | 64.74 | 32,500 | | 1994 | | 2025.11.06 | ¿ù¼¼ | (41-82) | 3 | 29.56 | 3,000 | 74 | 2011 | | 2025.11.06 | ¿ù¼¼ | ´ë¸²ºô¶ó | 5 | 78.7 | 3,000 | 125 | 2003 | | 2025.11.06 | ¿ù¼¼ | Çöºô¸®Áö | 2 | 47.07 | 500 | 28 | 2003 | | 2025.11.06 | ¿ù¼¼ | ÁÖÇϿ콺 | 3 | 19.13 | 500 | 39 | 2014 | | 2025.11.06 | Àü¼¼ | ÇѼºÆÄÅ©ºô¸®Áö | 3 | 51.96 | 30,000 | 0 | 2018 | | 2025.11.06 | ¿ù¼¼ | (909-10) | 3 | 38.05 | 3,000 | 105 | 2009 | | 2025.11.05 | Àü¼¼ | ¿ì¹æÅ¸¿î | 4 | 34.34 | 16,000 | 0 | 1997 | | 2025.11.05 | ¸Å¸Å | ÀºÃµ¸Ç¼Ç | 4 | 35.37 | 17,000 | | 1994 | | 2025.11.05 | ¸Å¸Å | È«Áø±×¸°¸Ç¼Ç7Â÷ | 4 | 34.95 | 25,000 | | 1996 | | 2025.11.05 | ¿ù¼¼ | (´õºô) | 3 | 23.9 | 5,500 | 100 | 2022 | | 2025.11.04 | ¿ù¼¼ | ÇѼººô¶ó | 3 | 40.65 | 13,000 | 15 | 1996 | | 2025.11.04 | ¿ù¼¼ | CJ¾ÆÆ®ºô | 6 | 29.36 | 15,000 | 38 | 2015 | | 2025.11.04 | ¿ù¼¼ | »þÀÎij½½ | 4 | 48.77 | 26,400 | 18 | 2017 | | 2025.11.04 | Àü¼¼ | (1535-35) | 2 | 66.61 | 22,500 | 0 | 1982 | | 2025.11.04 | ¿ù¼¼ | (1534-27) | 2 | 49.23 | 4,000 | 70 | 2003 | | 2025.11.03 | ¿ù¼¼ | Àå¾È¿¬¸³ | 1 | 49.28 | 500 | 70 | 1977 | | 2025.11.03 | ¿ù¼¼ | (1524-2) | 4 | 20.4 | 1,000 | 53 | 2002 | | 2025.11.03 | ¸Å¸Å | ¼Öºû±×¸°ºô | 2 | 57.03 | 38,700 | | 2003 | | 2025.11.03 | ¿ù¼¼ | Çöºô¸®Áö | 2 | 47.07 | 4,000 | 15 | 2003 | | 2025.11.02 | Àü¼¼ | 635-47 | 3 | 38.43 | 25,000 | 0 | 2015 | | 2025.11.02 | ¿ù¼¼ | »ïÁ¤±×¸°ºô¶ó³ªµ¿ | -1 | 57.15 | 1,000 | 100 | 2002 | | 2025.11.02 | ¿ù¼¼ | ÀÌ·¹ÇϿ콺 | 3 | 47.94 | 4,000 | 37 | 2003 | | 2025.11.01 | ¿ù¼¼ | ·ç³ª;¸ÞÀÌÆ® | 3 | 24.66 | 17,500 | 35 | 2021 | | 2025.11.01 | Àü¼¼ | ´õ¹Ù¿ò | 3 | 59.35 | 34,000 | 0 | 2019 | | 2025.11.01 | ¿ù¼¼ | µµ¿ø¾ÆÆ®ºô(860-50) | 5 | 57.82 | 5,000 | 110 | 2005 | | 2025.11.01 | ¿ù¼¼ | (959-16) | 5 | 14.38 | 500 | 52 | 2011 | | 2025.11.01 | ¿ù¼¼ | ÁÖÇϿ콺 | 5 | 18.62 | 500 | 50 | 2014 | | 2025.11.01 | ¿ù¼¼ | (1511-34) | 4 | 66.92 | 17,000 | 45 | 2004 | | 2025.11.01 | ¸Å¸Å | ´ë¿øÇö´ëºô¶ó | 1 | 91.62 | 81,500 | | 1985 | | 2025.11.01 | ¸Å¸Å | ÇѼººô¶ó(898-9) | 3 | 38.36 | 24,900 | | 1993 | | 2025.11.01 | ¿ù¼¼ | (1511-34) | 4 | 66.92 | 17,000 | 45 | 2004 | | 2025.11.01 | ¿ù¼¼ | (964-29) | -1 | 51.47 | 1,000 | 75 | 1986 | | 2025.11.01 | ¿ù¼¼ | Áß¾Óºô¶ó(881-13) | 4 | 54.36 | 3,000 | 95 | 1996 | | 2025.11.01 | ¿ù¼¼ | ¼±¿ìºô¸®Áö2µ¿ | 3 | 64.53 | 28,500 | 40 | 2002 | | 2025.11.01 | ¿ù¼¼ | (932-15) | 2 | 44.86 | 2,000 | 78 | 2002 | | 2025.10.31 | ¿ù¼¼ | »ó¸íÇÏÀÌÃ÷ | 4 | 81.01 | 5,000 | 120 | 2000 | | 2025.10.31 | ¿ù¼¼ | ºÎÈïºô¶ó(1645-15) | 3 | 45.84 | 2,500 | 80 | 1992 | | 2025.10.31 | Àü¼¼ | ¿¬Èñºô¶ó | 2 | 60.28 | 15,000 | 0 | 1985 | | 2025.10.31 | ¿ù¼¼ | ÀÌ¿ø | 4 | 26.52 | 2,000 | 55 | 2013 | | 2025.10.31 | ¿ù¼¼ | (148-41) | 3 | 22.97 | 8,000 | 20 | 2006 | | 2025.10.30 | ¿ù¼¼ | ³Ø½ºÆ®¿ùµåÇϿ콺 | 1 | 29.66 | 2,000 | 70 | 2001 | | 2025.10.30 | ¿ù¼¼ | (34-33) | 2 | 33.71 | 12,200 | 30 | 1988 | | 2025.10.30 | ¿ù¼¼ | (457-372) | 2 | 25.1 | 5,000 | 26 | 2013 | | 2025.10.30 | ¿ù¼¼ | ³Ø½ºÆ®¿ùµåÇϿ콺 | 1 | 29.66 | 2,000 | 70 | 2001 | | 2025.10.30 | ¿ù¼¼ | ´ëÇдç | 3 | 12.9 | 1,000 | 45 | 2011 | | 2025.10.30 | ¿ù¼¼ | CJ¿ÀÇǽºÅÚ | 4 | 8.93 | 10,000 | 23 | 2017 | | 2025.10.30 | ¿ù¼¼ | CJ¿ÀÇǽºÅÚ | 4 | 10.81 | 12,000 | 15 | 2017 | | 2025.10.30 | ¿ù¼¼ | ¸ÞÀÌÇýºÅ×ÀÌ | 10 | 14.72 | 3,000 | 78 | 2017 | | 2025.10.30 | ¿ù¼¼ | Ç÷¯½ºÅ¸¿ö | 10 | 10.5 | 3,000 | 61 | 2002 | | 2025.10.30 | ¿ù¼¼ | SUNÆç¸®½º | 2 | 17.92 | 10,000 | 35 | 2019 | | 2025.10.30 | ¿ù¼¼ | À̷봺ij½½ | 5 | 40.05 | 5,000 | 150 | 2017 | | 2025.10.30 | ¸Å¸Å | Çö´ë¾ÆÆ®ºô¶ó°¡ | -1 | 50.9 | 15,000 | | 1990 | | 2025.10.30 | ¸Å¸Å | »ï¿ìÆÄÅ©ºô | 3 | 41.505 | 35,300 | | 2015 | | 2025.10.29 | Àü¼¼ | º¸¶÷¾ÆÆ®ºô¶ó | 1 | 52.41 | 19,000 | 0 | 1997 | | 2025.10.29 | ¿ù¼¼ | °ü¼ººô¶ó | 4 | 52.62 | 3,000 | 86 | 2008 | | 2025.10.29 | ¸Å¸Å | ¼º°Ã»¾Èä | 3 | 49.89 | 36,000 | | 2014 | | 2025.10.29 | ¸Å¸Å | ¿¬Èñºô¶ó | 1 | 60.28 | 33,000 | | 1985 | | 2025.10.29 | Àü¼¼ | µ¿º¸ºô¶ó | 1 | 36.96 | 13,500 | 0 | 1987 | | 2025.10.29 | ¿ù¼¼ | KSŸ¿ö | 9 | 28.02 | 14,000 | 36 | 2017 | | 2025.10.29 | ¿ù¼¼ | ¾ÆÄ«µ¥¹ÌÇϿ콺3Â÷ | 4 | 42.1 | 33,000 | 60 | 2023 | | 2025.10.29 | Àü¼¼ | Ãë¼Û | 2 | 54.3 | 22,000 | 0 | 2004 | | 2025.10.29 | ¿ù¼¼ | ¿µºô | 4 | 76.71 | 9,000 | 33 | 2008 | | 2025.10.29 | ¿ù¼¼ | ¸®Ä¡Ä³½½ | 6 | 14.3 | 12,000 | 15 | 2015 | | 2025.10.29 | ¿ù¼¼ | (´õºô) | 3 | 23.9 | 5,500 | 100 | 2022 | | 2025.10.29 | Àü¼¼ | ·ÎÁ¦ÇϿ콺(180-122) | 2 | 19.15 | 15,000 | 0 | 2011 | | 2025.10.28 | ¿ù¼¼ | ÁÖÇϿ콺 | 2 | 15.68 | 500 | 39 | 2014 | | 2025.10.28 | ¿ù¼¼ | ¿î»êºô¶ó | 1 | 56.66 | 14,000 | 50 | 1992 | | 2025.10.28 | ¿ù¼¼ | ¼ö±¤ÇÏÀÌÃ÷³ªµ¿ | 3 | 45.18 | 500 | 60 | 1991 | | 2025.10.28 | Àü¼¼ | ½ãÈúºô¶ó | 4 | 47 | 19,800 | 0 | 2002 | | 2025.10.28 | ¿ù¼¼ | Àå¹Ìºô¶ó | -1 | 53.97 | 2,000 | 80 | 1991 | | 2025.10.28 | Àü¼¼ | ¾Æ¸£¶¼ºô(635-455) | 1 | 20.76 | 18,900 | 0 | 2021 | | 2025.10.28 | ¸Å¸Å | Á¤¼®ºô¶ó | 4 | 58.63 | 32,500 | | 2003 | | 2025.10.27 | ¿ù¼¼ | Çϳªºô¶ó(635-176) | 1 | 24.11 | 1,000 | 55 | 2009 | | 2025.10.27 | ¿ù¼¼ | »êÀ彦¸£ºô1Â÷ | -1 | 55.27 | 14,000 | 30 | 2003 | | 2025.10.27 | ¸Å¸Å | ÀåÈïºô¶óCµ¿ | 3 | 61.29 | 40,000 | | 1994 | | 2025.10.27 | ¿ù¼¼ | ¿ÍÀÌÁîÈú(635-343) | 2 | 29.83 | 24,000 | 10 | 2020 | | 2025.10.27 | ¿ù¼¼ | ¿ÍÀÌÁîÈú(635-343) | 2 | 29.83 | 25,000 | 5 | 2020 | | 2025.10.27 | ¿ù¼¼ | °ñµçºô | 2 | 25.34 | 5,000 | 53 | 2013 | | 2025.10.27 | Àü¼¼ | (670-80) | 2 | 20.47 | 7,500 | 0 | 2007 | | 2025.10.27 | ¿ù¼¼ | ¼±¿ìºô¸®Áö3µ¿ | 2 | 20.08 | 8,500 | 20 | 2002 | | 2025.10.27 | ¿ù¼¼ | (196-150) | 3 | 24.36 | 5,400 | 63 | 2014 | | 2025.10.26 | ¸Å¸Å | (1710-9) | 1 | 47.67 | 28,800 | | 1996 | | 2025.10.26 | ¸Å¸Å | ¿ø´çºô¸®ÁöBµ¿ | 1 | 52.8 | 36,000 | | 1995 | | 2025.10.26 | ¸Å¸Å | Àå¹Ìºô¶ó | 2 | 56.32 | 28,500 | | 1991 | | 2025.10.25 | ¿ù¼¼ | ·ç³ª;¸ÞÀÌÆ® | 5 | 29.94 | 24,000 | 30 | 2021 | | 2025.10.25 | ¿ù¼¼ | °ü¾ÇÁ߾ӷξâºô¶ó | 5 | 29.06 | 4,000 | 75 | 2012 | | 2025.10.25 | ¿ù¼¼ | ·ç³ª;¸ÞÀÌÆ® | 2 | 25.29 | 18,000 | 30 | 2021 | | 2025.10.25 | ¿ù¼¼ | µ¿¼ººô¶ó | 4 | 57.42 | 10,000 | 80 | 2003 | | 2025.10.25 | Àü¼¼ | û¿ë¸Ç¼Ç | 4 | 59.67 | 28,000 | 0 | 2001 | | 2025.10.25 | ¿ù¼¼ | °Å¼ººô¶ó | 1 | 50.49 | 13,000 | 40 | 1992 | | 2025.10.25 | Àü¼¼ | ÆÛ½ºÆ®ÇÁ¸®¹Ì¾ö | 3 | 28.38 | 24,500 | 0 | 2017 | | 2025.10.25 | Àü¼¼ | ±â¸°¾ÆÆ®ºô¶ó8 | 1 | 65.8 | 20,500 | 0 | 1994 | | 2025.10.25 | Àü¼¼ | ´õÁÁÀºÁý | 3 | 37.63 | 24,000 | 0 | 2020 | | 2025.10.25 | ¸Å¸Å | 21ÇÏ¿ì¡ | 3 | 54.91 | 43,500 | | 2015 | | 2025.10.25 | ¸Å¸Å | °íÈï¸Ç¼Ç | 4 | 78.64 | 56,000 | | 2000 | | 2025.10.25 | ¸Å¸Å | (635-80) | 1 | 34.4 | 19,000 | | 1986 | | 2025.10.24 | ¿ù¼¼ | ¼¼½ÅÁÖÅÃ(180-231) | 4 | 64.54 | 22,500 | 20 | 2000 | | 2025.10.24 | ¿ù¼¼ | ¸ÞÀÌÇýºÅ×ÀÌ | 12 | 26.68 | 1,000 | 88 | 2017 | | 2025.10.24 | ¿ù¼¼ | ¿À·»ÁöÇÏÀÓ(1681-16) | 5 | 20.56 | 2,000 | 77 | 2019 | | 2025.10.24 | Àü¼¼ | (1-72) | 1 | 41.07 | 8,400 | 0 | 1986 | | 2025.10.23 | ¿ù¼¼ | »ï¿øºô¶ó´Ù | 2 | 33.48 | 1,000 | 70 | 1991 | | 2025.10.23 | ¿ù¼¼ | ¹Ì¼ººô¶ó(1536-1) | 1 | 51.18 | 3,000 | 59 | 1987 | | 2025.10.23 | ¿ù¼¼ | ¿À·»ÁöÇÏÀÓ(1681-16) | 2 | 29.96 | 5,000 | 116 | 2019 | | 2025.10.23 | ¿ù¼¼ | (879-1) | 2 | 50.78 | 2,000 | 120 | 1996 | | 2025.10.23 | ¿ù¼¼ | (1668-9) | 3 | 46.95 | 5,000 | 91 | 2005 | | 2025.10.23 | ¸Å¸Å | ·°Å°¸Ç¼Ç | 2 | 49.68 | 27,500 | | 1993 | | 2025.10.23 | ¸Å¸Å | ´õÆÛ½ºÆ®°¡ | 2 | 51.55 | 39,500 | | 2018 | | 2025.10.22 | Àü¼¼ | ¸íÀººô¶ó | 1 | 55.56 | 23,000 | 0 | 2007 | | 2025.10.22 | ¿ù¼¼ | YB1979 | 6 | 19.4 | 3,500 | 60 | 2020 | | 2025.10.22 | ¿ù¼¼ | (1688-40) | 3 | 30.6 | 1,000 | 85 | 2004 | | 2025.10.22 | ¿ù¼¼ | °üÀü¾Æ¸£ºô | 4 | 47.96 | 18,900 | 30 | 2008 | | 2025.10.22 | ¿ù¼¼ | 635-198 | 1 | 33.32 | 17,000 | 30 | 2014 | | 2025.10.22 | ¿ù¼¼ | CJ¾ÆÆ®ºô | 6 | 29.99 | 18,000 | 25 | 2015 | | 2025.10.22 | ¿ù¼¼ | (1529-46) | -1 | 36.3 | 100 | 20 | 1986 | | 2025.10.22 | ¿ù¼¼ | Çö¿ìºô¶ó | 2 | 58.41 | 3,700 | 78 | 1993 | | 2025.10.22 | ¿ù¼¼ | ÀÌÁøÅ¸¿î(1624-41) | -1 | 31.24 | 2,000 | 35 | 1993 | | 2025.10.22 | Àü¼¼ | ¿ø¾Ó(917-12) | 4 | 53.37 | 23,300 | 0 | 1991 | | 2025.10.22 | ¿ù¼¼ | µ¿¼ºô¶ó | 3 | 50.85 | 9,000 | 60 | 1992 | | 2025.10.22 | ¸Å¸Å | ¹üâºô¶ó | 1 | 49.62 | 24,000 | | 1990 | | 2025.10.22 | ¸Å¸Å | ´©¸®ÇϿ콺 | 2 | 29.63 | 30,000 | | 2019 | | 2025.10.22 | ¸Å¸Å | ¹éÇÕ¸Ç¼Ç | 1 | 77.76 | 90,000 | | 1995 | | 2025.10.21 | Àü¼¼ | °üÀü¼¾Æ®·¹ºô | 2 | 44.46 | 32,000 | 0 | 2017 | | 2025.10.21 | ¿ù¼¼ | ´ë¿øÇö´ëºô¶ó | 3 | 91.61 | 1,000 | 50 | 1985 | | 2025.10.21 | Àü¼¼ | ¾çÁö¸Ç¼Ç(³ª)µ¿ | 3 | 82.82 | 31,500 | 0 | 1993 | | 2025.10.21 | ¿ù¼¼ | Àξƺôµù | 2 | 22.92 | 14,700 | 35 | 2011 | | 2025.10.21 | ¿ù¼¼ | ºÎÈïºô¶ó(1645-15) | 3 | 45.03 | 3,000 | 80 | 1992 | | 2025.10.21 | ¿ù¼¼ | 1675-4 | 2 | 36.68 | 13,000 | 15 | 2003 | | 2025.10.21 | ¸Å¸Å | ¹éÇÕ¸Ç¼Ç | 4 | 73.98 | 95,000 | | 1995 | | 2025.10.21 | ¸Å¸Å | ¼ÇØÈúžºô¸®ÁöA | 2 | 46.07 | 22,500 | | 2003 | | 2025.10.21 | ¿ù¼¼ | CSstay(854-4) | 15 | 23.58 | 19,000 | 5 | 2017 | | 2025.10.21 | ¿ù¼¼ | 1675-4 | 2 | 36.68 | 13,000 | 15 | 2003 | | 2025.10.20 | ¿ù¼¼ | (1572-21) | 3 | 91.71 | 5,000 | 50 | 2003 | | 2025.10.20 | Àü¼¼ | ¿ëȺô¶ó | -1 | 37.45 | 9,200 | 0 | 1993 | | 2025.10.20 | Àü¼¼ | °Ç¿ì½¦¸£ºô | 5 | 70.32 | 32,000 | 0 | 2010 | | 2025.10.20 | ¿ù¼¼ | ¿µ´öÇϿ콺 | 2 | 29.87 | 2,000 | 80 | 2011 | | 2025.10.19 | ¸Å¸Å | ±×¸°Å¸¿î | 2 | 51.81 | 67,000 | | 2004 | | 2025.10.19 | ¿ù¼¼ | ¸¶¸®³ª156 | 3 | 24.75 | 3,000 | 32 | 2014 | | 2025.10.19 | Àü¼¼ | Á¶Àººô¶ó | 3 | 59.79 | 17,000 | 0 | 2001 | | 2025.10.19 | ¿ù¼¼ | ´Ù¿ÂÇϿ콺 | 3 | 25.47 | 20,000 | 20 | 2019 | | 2025.10.19 | ¿ù¼¼ | Å丶½ººô | 1 | 48.03 | 1,500 | 99 | 2001 | | 2025.10.19 | ¸Å¸Å | ´Ù¿øºô | 5 | 29.99 | 24,000 | | 2018 | | 2025.10.18 | ¿ù¼¼ | Ȳ±Ý¸Ç¼ð | 2 | 59.98 | 5,000 | 100 | 1996 | | 2025.10.18 | ¿ù¼¼ | ·ÎÁ¦ÇϿ콺(180-195) | 3 | 25.47 | 7,500 | 70 | 2016 | | 2025.10.18 | ¿ù¼¼ | ÇãºêÇϿ콺(958-28) | 3 | 13.32 | 1,000 | 51 | 2012 | | 2025.10.18 | ¿ù¼¼ | (1607-13) | -1 | 43.2 | 500 | 60 | 1992 | | 2025.10.18 | ¿ù¼¼ | Çö´ëMŸ¿î | 6 | 28.52 | 20,000 | 40 | 2017 | | 2025.10.18 | ¸Å¸Å | ¿¡½ºÅ¬·¡½º | 8 | 29.3 | 39,500 | | 2020 | | 2025.10.18 | ¿ù¼¼ | (148-41) | 2 | 18.9 | 3,000 | 37 | 2006 | | 2025.10.18 | ¿ù¼¼ | Çö´ëMŸ¿î | 6 | 28.52 | 20,000 | 40 | 2017 | | 2025.10.18 | ¿ù¼¼ | ¼º¿øºô¶ó(1532-1) | 4 | 52.46 | 17,600 | 10 | 1993 | | 2025.10.18 | ¿ù¼¼ | ¿ì¶÷ºô¶ó | 1 | 35.16 | 5,000 | 60 | 1991 | | 2025.10.18 | ¿ù¼¼ | CJ¿ÀÇǽºÅÚ | 3 | 10.81 | 10,000 | 23 | 2017 | | 2025.10.18 | Àü¼¼ | (715-188) | 2 | 40.44 | 6,000 | 0 | 1988 | | 2025.10.18 | ¿ù¼¼ | ¼¼Á¾¾ÆÆ®ºô(180-177) | 3 | 84.9 | 34,000 | 10 | 2002 | | 2025.10.18 | ¿ù¼¼ | (480-144) | 1 | 62.64 | 5,000 | 70 | 1992 | | 2025.10.18 | ¿ù¼¼ | ±×·¹À̺ô | 6 | 24.26 | 3,000 | 110 | 2017 | | 2025.10.18 | ¿ù¼¼ | (148-41) | 2 | 18.9 | 3,000 | 37 | 2006 | | 2025.10.17 | ¸Å¸Å | ±×·£µåºô | 5 | 46.94 | 25,300 | | 2015 | | 2025.10.17 | ¸Å¸Å | ¸í¼ººô¶ó(180-362) | 3 | 44.66 | 20,000 | | 1990 | | 2025.10.17 | ¿ù¼¼ | ¿¤µðŸ¿î | 7 | 17.1 | 1,000 | 65 | 2013 | | 2025.10.17 | ¿ù¼¼ | ¿¤µðŸ¿î | 7 | 17.1 | 1,000 | 65 | 2013 | | 2025.10.17 | ¿ù¼¼ | ±Ý°ÆÓ¸®½º | 3 | 32.4 | 14,800 | 3 | 2014 | | 2025.10.17 | Àü¼¼ | ¼Á¤½¦¸£ºô(706-11) | 3 | 29.75 | 22,000 | 0 | 2016 | | 2025.10.17 | Àü¼¼ | ¶ó¿Âºô¸®Áö | 8 | 23.45 | 26,250 | 0 | 2019 | | 2025.10.17 | ¿ù¼¼ | (1531-3) | 1 | 96.09 | 300 | 25 | 1977 | | 2025.10.17 | ¿ù¼¼ | (1531-3) | 1 | 96.09 | 300 | 25 | 1977 | | 2025.10.17 | ¿ù¼¼ | ¼¾Æ®·²Æ÷ÀÎÆ® | 10 | 11.93 | 3,000 | 67 | 2019 | | 2025.10.17 | ¿ù¼¼ | ¿ìÀÎ¾ÆÆ®ºô¶ó | 3 | 47.79 | 3,000 | 105 | 1991 | | 2025.10.17 | Àü¼¼ | CG¾Æ¸§Ã¤14Â÷ | 2 | 21.675 | 19,100 | 0 | 2021 | | 2025.10.16 | Àü¼¼ | ¼ºÁø¸®Ä¡ºô6Â÷ | 4 | 40.27 | 33,000 | 0 | 2022 | | 2025.10.16 | ¸Å¸Å | °ü¾ÇÆÄ·¹½ººô¶ó | 2 | 62.68 | 28,500 | | 1991 | | 2025.10.16 | ¸Å¸Å | ¿ì¼ºº£½ºÆ®ºô(1515-10) | 2 | 70.66 | 44,000 | | 2003 | | 2025.10.16 | ¸Å¸Å | °ü¾Ç±×¸°ºô¶ó | 1 | 53.44 | 19,000 | | 1987 | | 2025.10.16 | ¸Å¸Å | ¼ºÁø¸®Ä¡ºô6Â÷ | 2 | 34.66 | 35,000 | | 2022 | | 2025.10.16 | ¸Å¸Å | ±â¸°¾ÆÆ®ºô¶ó5 | 1 | 66.66 | 26,000 | | 1994 | | 2025.10.16 | ¸Å¸Å | ±×¸°ºô(1692-15) | 4 | 39.45 | 35,000 | | 2014 | | 2025.10.16 | ¿ù¼¼ | ¾à¼öÆÄÅ©¸Ç¼Ç | 1 | 44.82 | 9,000 | 25 | 1992 | | 2025.10.16 | ¿ù¼¼ | W´Ù¼¼´ëÁÖÅÃ(1661-9) | 7 | 21.09 | 23,700 | 5 | 2017 | | 2025.10.16 | ¿ù¼¼ | SJÇÁ¸®¹Ì¾î¿ÀÇǽºÅÚ | 12 | 17.88 | 2,000 | 113 | 2021 | | 2025.10.16 | ¸Å¸Å | ¿¢½ºÆ÷ºô¶óÆ® | -1 | 38.4 | 12,100 | | 1993 | | 2025.10.15 | ¸Å¸Å | (909-27) | 3 | 67.68 | 38,800 | | 2001 | | 2025.10.15 | ¸Å¸Å | Ç÷º½ººô(715-143) | 1 | 24.05 | 36,000 | | 2001 | | 2025.10.15 | ¸Å¸Å | Çö´ëºô¶óÆ®(41-83) | 1 | 62.48 | 25,300 | | 2009 | | 2025.10.15 | ¸Å¸Å | °Ç¿ìÁö¿ìºô | 2 | 55.21 | 42,000 | | 2013 | | 2025.10.15 | ¸Å¸Å | ÇѾ罦¸£ºô | 4 | 68.04 | 35,500 | | 2003 | | 2025.10.15 | ¸Å¸Å | ¼ºÁø¸®Ä¡ºô6Â÷ | 4 | 40.27 | 43,000 | | 2022 | | 2025.10.15 | ¸Å¸Å | È£±¤ÁÖÅÃCµ¿ | 1 | 31.83 | 70,000 | | 1986 | | 2025.10.15 | ¸Å¸Å | ¼±¸°ºô¶ó | -1 | 46.43 | 13,000 | | 1990 | | 2025.10.15 | ¸Å¸Å | ¼ºÁø¸®Ä¡ºô6Â÷ | 4 | 40.27 | 42,000 | | 2022 | | 2025.10.15 | ¸Å¸Å | ¼±¿ì¾ÆÆ®ºôB | 2 | 70.92 | 39,500 | | 2004 | | 2025.10.15 | ¸Å¸Å | °Ç¿ìÁö¿ìºô | 5 | 55.09 | 35,000 | | 2013 | | 2025.10.15 | ¸Å¸Å | (178-20) | -1 | 32.04 | 12,600 | | 1991 | | 2025.10.15 | ¸Å¸Å | (1710-2) | -1 | 52.43 | 17,500 | | 2000 | | 2025.10.15 | ¸Å¸Å | (492-27) | 2 | 72.76 | 93,400 | | 1978 | | 2025.10.15 | ¿ù¼¼ | ÀºÃµ½¦¸£ºô | 1 | 44.05 | 18,390 | 5 | 2012 | | 2025.10.15 | ¿ù¼¼ | W´Ù¼¼´ëÁÖÅÃ(1661-9) | 7 | 22.17 | 24,900 | 5 | 2017 | | 2025.10.15 | Àü¼¼ | ´õ°ÔÀÌÆ® | 6 | 26.84 | 26,900 | 0 | 2016 | | 2025.10.15 | ¿ù¼¼ | ¼º°æ¾ÆÆ®ºô | 4 | 15.34 | 500 | 53 | 2012 | | 2025.10.15 | ¿ù¼¼ | E.H.Vill | 4 | 15.55 | 2,000 | 57 | 2016 | | 2025.10.15 | Àü¼¼ | (100-196) | 2 | 41.04 | 16,170 | 0 | 2004 | | 2025.10.15 | ¿ù¼¼ | µ¿¾Æºô¶ó9Â÷ | -1 | 23.57 | 1,000 | 26 | 2001 | | 2025.10.15 | ¸Å¸Å | ½Å¼ººô¶ó | 3 | 39.93 | 21,000 | | 1993 | | 2025.10.14 | ¿ù¼¼ | ÀÏÇüºô¶ó | -1 | 34.51 | 5,000 | 15 | 1998 | | 2025.10.14 | ¿ù¼¼ | THELIME(´õ¶óÀÓ) | 11 | 26.24 | 29,550 | 34 | 2021 | | 2025.10.14 | Àü¼¼ | »ï¼ººô¶ó | 1 | 37.8 | 16,000 | 0 | 1993 | | 2025.10.14 | ¿ù¼¼ | »ïõ¸®ÁÖÅà | 2 | 69.12 | 2,000 | 100 | 1982 | | 2025.10.14 | ¿ù¼¼ | ÇѸ¶À½ºô | 5 | 12.25 | 500 | 46 | 2003 | | 2025.10.14 | Àü¼¼ | Űæ6Â÷ | 2 | 24.08 | 16,500 | 0 | 2018 | | 2025.10.14 | ¸Å¸Å | ½Å¿øºô¶ó | 2 | 38.7 | 97,000 | | 1987 | | 2025.10.14 | ¸Å¸Å | ¿ø¾Óºô | 2 | 32.69 | 37,000 | | 2023 | | 2025.10.13 | ¿ù¼¼ | ¾ö¸¶ÀÇ²Þ | 2 | 47.61 | 2,700 | 81 | 2013 | | 2025.10.13 | ¿ù¼¼ | À屺ķÆÛ½ºÅÚ | 2 | 29.22 | 1,000 | 40 | 2003 | | 2025.10.13 | ¸Å¸Å | ¾Æ¸§Ã¤ | 4 | 51.825 | 41,000 | | 2016 | | 2025.10.13 | ¸Å¸Å | È¿¼º¸Ç¼Ç | 1 | 62.49 | 11,000 | | 1994 | | 2025.10.13 | ¿ù¼¼ | µµ´ãºô | 2 | 31.22 | 20,000 | 23 | 2011 | | 2025.10.13 | Àü¼¼ | ¿¬Èñºô¶ó | 3 | 60.68 | 17,000 | 0 | 1985 | | 2025.10.13 | ¿ù¼¼ | ¸®Ä¡ºô | 3 | 19.15 | 5,000 | 33 | 2014 | | 2025.10.12 | ¸Å¸Å | ¼ö±¤¸Ç¼Ç | 1 | 55.83 | 59,000 | | 1992 | | 2025.10.12 | ¸Å¸Å | ¼ö±¤¸Ç¼Ç | 1 | 55.83 | 59,000 | | 1992 | | 2025.10.11 | ¿ù¼¼ | ´ëÁø¿¬¸³ | 1 | 21.69 | 2,000 | 85 | 1977 | | 2025.10.11 | ¸Å¸Å | û¼Öºô¸®Áö | 5 | 59.69 | 44,000 | | 2013 | | 2025.10.11 | ¿ù¼¼ | ÇѾçºô¶ó | 1 | 41.11 | 12,000 | 30 | 1986 | | 2025.10.11 | ¿ù¼¼ | ºÎ¼ººô¶ó | 2 | 36 | 3,000 | 50 | 1991 | | 2025.10.11 | ¿ù¼¼ | ½ÃƼ¿¡ºñ´º | 1 | 23.15 | 5,000 | 70 | 2014 | | 2025.10.10 | ¿ù¼¼ | ÇìºìŸ¿ö | 5 | 14.8 | 1,000 | 55 | 2013 | | 2025.10.10 | ¿ù¼¼ | ½º¸¶Æ®ºô | 3 | 39.23 | 1,000 | 80 | 2013 | | 2025.10.10 | ¿ù¼¼ | Á¶Àººô | 3 | 12.15 | 5,000 | 22 | 2013 | | 2025.10.10 | ¿ù¼¼ | W´Ù¼¼´ëÁÖÅÃ(1661-9) | 8 | 24.61 | 26,000 | 4 | 2017 | | 2025.10.10 | Àü¼¼ | ½ãÈúºô¶ó | 4 | 47 | 21,600 | 0 | 2002 | | 2025.10.10 | ¿ù¼¼ | W´Ù¼¼´ëÁÖÅÃ(1661-9) | 8 | 24.61 | 26,000 | 4 | 2017 | | 2025.10.10 | ¿ù¼¼ | (1526-9) | 2 | 23.22 | 2,000 | 35 | 2001 | | 2025.10.10 | ¸Å¸Å | µ¿¿øÇÏÀ̺ô1Â÷ | 3 | 63.68 | 33,000 | | 2002 | | 2025.10.09 | ¸Å¸Å | È£±¤ÁÖÅÃCµ¿ | -1 | 33.53 | 65,000 | | 1986 | | 2025.10.08 | ¿ù¼¼ | (196-244) | 4 | 23.9 | 300 | 48 | 2003 | | 2025.10.07 | Àü¼¼ | ´ö»êºô¶ó(1685-25) | 3 | 50.39 | 23,000 | 0 | 1992 | | 2025.10.07 | Àü¼¼ | ¼º½Å±×¸°ºô¶ó | 2 | 55.47 | 24,000 | 0 | 1993 | | 2025.10.05 | ¸Å¸Å | ¾ÆÅ©·ÎÆÓ¸®½º | 2 | 29.9 | 31,000 | | 2020 | | 2025.10.04 | ¿ù¼¼ | ¹Ý¼®¸Ç¼ÇA(1571-16) | 2 | 106.92 | 44,500 | 30 | 1998 | | 2025.10.04 | Àü¼¼ | ±¤µ¿ºô¶ó(1597-33) | 2 | 89.61 | 38,588 | 0 | 1996 | | 2025.10.04 | ¿ù¼¼ | »ïÈÁÖÅÃ(1513-16) | -1 | 41.04 | 3,000 | 70 | 1988 | | 2025.10.04 | ¸Å¸Å | º§À¯¾îºí(41-16) | 6 | 29.87 | 25,000 | | 2014 | | 2025.10.03 | ¸Å¸Å | ¹Ýµµºô¶ó | -1 | 30 | 59,970 | | 1992 | | 2025.10.03 | ¿ù¼¼ | ¸ÞÁ¾µðÀÚÀÎÇϿ콺 | 4 | 47.03 | 5,000 | 80 | 2016 | | 2025.10.03 | ¿ù¼¼ | üÀ̽ººôBµ¿ | 1 | 24.75 | 3,000 | 80 | 2016 | | 2025.10.03 | ¿ù¼¼ | µå¸²ÇϿ콺 | 3 | 29.71 | 5,000 | 70 | 2011 | | 2025.10.03 | ¿ù¼¼ | (1-1434) | 2 | 45.29 | 2,000 | 40 | 1976 | | 2025.10.02 | ¿ù¼¼ | °æÈ¾ÆÆ®ºô¶ó³ª | 3 | 35.28 | 12,000 | 30 | 1995 | | 2025.10.02 | ¿ù¼¼ | ¼öÁ¤ºô¶ó | 2 | 42.32 | 1,000 | 87 | 2003 | | 2025.10.02 | ¿ù¼¼ | ÀÌ·¹Å¸¿ö | 4 | 24.65 | 5,000 | 130 | 2022 | | 2025.10.02 | ¿ù¼¼ | ´ë½ÅÇÏÀÌÃ÷ºô¶ó | 4 | 40.26 | 1,000 | 55 | 1992 | | 2025.10.02 | ¸Å¸Å | ÈÞÅ×¶ó½º | 3 | 29.94 | 30,000 | | 2019 | | 2025.10.02 | ¸Å¸Å | Çö´ëAºô¶ó | -1 | 59.22 | 19,500 | | 1993 | | 2025.10.02 | Àü¼¼ | ÇѸ¶À½¸Ç¼Ç | 4 | 74.04 | 23,000 | 0 | 1996 | | 2025.10.01 | ¸Å¸Å | ¿øÇϿ콺 | 4 | 22.23 | 30,075 | | 2025 | | 2025.10.01 | ¸Å¸Å | ¾ÆÁøºô¶ó | 5 | 104.19 | 45,500 | | 2002 | | 2025.10.01 | ¿ù¼¼ | ±Ýµ¿»ç¶û¹æ | 9 | 13.37 | 15,000 | 30 | 2022 | | 2025.10.01 | ¿ù¼¼ | ¿¹ÁöÇϿ콺 | 5 | 27.51 | 5,000 | 79 | 2019 | | 2025.10.01 | Àü¼¼ | ±Ýµ¿»ç¶û¹æ | 9 | 13.37 | 21,000 | 0 | 2022 | | 2025.10.01 | Àü¼¼ | °üÀü¼¾Æ®·¹ºô | 3 | 44.46 | 33,600 | 0 | 2017 | | 2025.10.01 | ¿ù¼¼ | ºÀõºô¶ó | 1 | 36.63 | 2,000 | 80 | 1990 | | 2025.10.01 | Àü¼¼ | ¾ÆÀ̺ô(180-128) | 5 | 51.36 | 25,600 | 0 | 2012 | | 2025.10.01 | Àü¼¼ | ¾ÆÀ̺ô(180-128) | 5 | 51.36 | 25,600 | 0 | 2012 | | 2025.10.01 | ¿ù¼¼ | ºÀõºô¶ó | 1 | 36.63 | 2,000 | 80 | 1990 | | 2025.10.01 | ¸Å¸Å | ¿øÇϿ콺 | 2 | 22.23 | 29,610 | | 2025 | | 2025.10.01 | ¸Å¸Å | ¿¬Èñºô¶ó | 3 | 60.68 | 26,500 | | 1985 | | 2025.10.01 | ¸Å¸Å | ¿øÇϿ콺 | 3 | 23.98 | 31,945 | | 2025 | | 2025.10.01 | ¸Å¸Å | ¿øÇϿ콺 | 3 | 21.86 | 29,120 | | 2025 | | 2025.10.01 | ¸Å¸Å | ¿øÇϿ콺 | 3 | 22.23 | 29,910 | | 2025 | | 2025.10.01 | ¸Å¸Å | ¿øÇϿ콺 | 2 | 22.23 | 29,610 | | 2025 | | 2025.10.01 | ¸Å¸Å | ¿øÇϿ콺 | 2 | 21.86 | 28,890 | | 2025 | | 2025.10.01 | ¸Å¸Å | ¿øÇϿ콺 | 2 | 23.98 | 31,695 | | 2025 | | 2025.10.01 | ¸Å¸Å | ¿øÇϿ콺 | 2 | 23.98 | 31,620 | | 2025 | | 2025.10.01 | ¸Å¸Å | ¿øÇϿ콺 | 2 | 21.86 | 28,825 | | 2025 | | 2025.10.01 | ¸Å¸Å | ¿øÇϿ콺 | 3 | 23.98 | 32,020 | | 2025 | | 2025.10.01 | ¸Å¸Å | ¿øÇϿ콺 | 3 | 21.86 | 29,190 | | 2025 | | 2025.10.01 | ¸Å¸Å | ¼ºÁöºô¶ó2Â÷ | 3 | 35.64 | 24,000 | | 1990 | | 2025.10.01 | ¸Å¸Å | ¿øÇϿ콺 | 5 | 22.23 | 30,220 | | 2025 | | 2025.10.01 | ¸Å¸Å | ¿øÇϿ콺 | 5 | 22.23 | 30,220 | | 2025 | | 2025.10.01 | ¸Å¸Å | ¿øÇϿ콺 | 5 | 27.82 | 39,220 | | 2025 | | 2025.10.01 | ¸Å¸Å | ¿øÇϿ콺 | 4 | 28.75 | 39,355 | | 2025 | | 2025.10.01 | ¸Å¸Å | ¿øÇϿ콺 | 4 | 28.75 | 39,265 | | 2025 | | 2025.10.01 | ¸Å¸Å | ¿øÇϿ콺 | 4 | 22.23 | 30,075 | | 2025 | | 2025.10.01 | ¸Å¸Å | ¿øÇϿ콺 | 3 | 22.23 | 29,910 | | 2025 | | 2025.09.30 | ¿ù¼¼ | ·Î¾âÆÓ¸®½ºAµ¿ | 3 | 53.25 | 34,500 | 30 | 2016 | | 2025.09.30 | ¿ù¼¼ | (959-16) | 5 | 14.38 | 200 | 48 | 2011 | | 2025.09.30 | ¸Å¸Å | »ïÁø¾ÆÆ®ºô¶ó | 1 | 64.73 | 42,000 | | 1989 | | 2025.09.29 | ¸Å¸Å | »ï¼ººô¶ó | 1 | 37.8 | 21,000 | | 1993 | | 2025.09.29 | ¸Å¸Å | ¼Öö¿õÁÖÅÃ(°¡µ¿) | 2 | 46.74 | 27,400 | | 1995 | | 2025.09.29 | ¿ù¼¼ | ¿µ¼öºôµù | 4 | 12.04 | 9,000 | 15 | 2013 | | 2025.09.29 | ¿ù¼¼ | ºñÁꟿî2Â÷ | 3 | 29.69 | 200 | 128 | 2016 | | 2025.09.29 | ¿ù¼¼ | (41-168) | 4 | 38.16 | 500 | 45 | 2001 | | 2025.09.29 | ¿ù¼¼ | ·ç³ª;¸ÞÀÌÆ® | 6 | 29.71 | 21,900 | 30 | 2021 | | 2025.09.29 | Àü¼¼ | °ü¾Çµå¸²ºô | 2 | 75.78 | 25,000 | 0 | 2003 | | 2025.09.29 | ¿ù¼¼ | (178-38) | 2 | 60.07 | 12,000 | 20 | 1979 | | 2025.09.28 | ¿ù¼¼ | ¾Æ¸£¶¼ºô(635-516) | 2 | 27.15 | 300 | 70 | 2021 | | 2025.09.28 | ¸Å¸Å | (635-478) | 2 | 37.28 | 20,000 | | 1991 | | 2025.09.28 | Àü¼¼ | ´ë°Ç(180-409) | 2 | 13.53 | 11,000 | 0 | 2016 | | 2025.09.28 | Àü¼¼ | ·ÎÁ¦ÇϿ콺(180-534) | 5 | 29.73 | 30,000 | 0 | 2014 | | 2025.09.27 | ¿ù¼¼ | ³Ø½ºÆ®¿ùµåÇϿ콺 | 2 | 29.66 | 1,000 | 70 | 2001 | | 2025.09.27 | ¸Å¸Å | dz¿øÇÏÀÓºô | 5 | 40.78 | 37,000 | | 2016 | | 2025.09.27 | ¿ù¼¼ | ÇູÀ²¸®¾Æ | 2 | 29.83 | 16,700 | 12 | 2014 | | 2025.09.27 | ¿ù¼¼ | Èѹ̸®ÇϿ콺 | 4 | 52.65 | 12,000 | 95 | 2015 | | 2025.09.27 | ¿ù¼¼ | (180-590) | 3 | 49.09 | 7,500 | 25 | 1994 | | 2025.09.27 | ¿ù¼¼ | (1626-7) | 1 | 96.31 | 1,000 | 75 | 1977 | | 2025.09.27 | Àü¼¼ | ÀÏÀ°»ï¾ÆÆ®ºô¶ó | 3 | 64.8 | 30,000 | 0 | 1995 | | 2025.09.27 | ¿ù¼¼ | ´Ù¼¼´ëÁÖÅÿÜ(695-13) | 6 | 28.95 | 20,400 | 15 | 2017 | | 2025.09.26 | ¿ù¼¼ | ¸®Ä¡Ä³½½ | 6 | 11.91 | 13,000 | 5 | 2015 | | 2025.09.26 | ¿ù¼¼ | ¿ùµåºô¶óA | 2 | 72.63 | 500 | 47 | 1990 | | 2025.09.26 | ¿ù¼¼ | (1674-19) | 7 | 13.83 | 1,000 | 69 | 2019 | | 2025.09.26 | ¸Å¸Å | ºÀõÇÏÀ̺ô | 2 | 50.71 | 72,800 | | 2003 | | 2025.09.26 | ¸Å¸Å | ¾ÆÀ̸®½º | 2 | 52.6 | 42,700 | | 2012 | | 2025.09.26 | ¸Å¸Å | ·ÎÁ¦ÇϿ콺 | 3 | 61.95 | 36,200 | | 2002 | | 2025.09.26 | ¸Å¸Å | µ¿µµºô¶óÆ® | 4 | 75.67 | 43,500 | | 1993 | | 2025.09.26 | Àü¼¼ | ÈÁ¾ºô¶ó | 2 | 27.56 | 10,000 | 0 | 1992 | | 2025.09.25 | ¿ù¼¼ | ·º¼½ººô | 1 | 79.22 | 19,000 | 10 | 2006 | | 2025.09.25 | ¿ù¼¼ | W´Ù¼¼´ëÁÖÅÃ(1661-9) | 8 | 21.09 | 23,700 | 9 | 2017 | | 2025.09.25 | ¿ù¼¼ | »êÈ£¸Ç¼ÇB | 2 | 48.61 | 19,000 | 5 | 2003 | | 2025.09.25 | ¿ù¼¼ | E.H.Vill | 4 | 15.55 | 10,000 | 20 | 2016 | | 2025.09.25 | ¿ù¼¼ | ¹Ì¼ººô¶ó(1536-1) | 2 | 51.18 | 6,000 | 60 | 1987 | | 2025.09.24 | ¸Å¸Å | ¿¡½ºÅ¬·¡½º | 7 | 29.3 | 36,000 | | 2020 | | 2025.09.23 | ¸Å¸Å | ·°Å°ÇϿ콺 | 1 | 49.23 | 25,000 | | 2003 | | 2025.09.23 | ¸Å¸Å | ÆÄ½ºÅÚºô¸®Áö3 | 4 | 45.92 | 26,700 | | 2003 | | 2025.09.23 | ¿ù¼¼ | ÈÀ±¾ÆÆ®ºô | 5 | 43.85 | 30,000 | 40 | 2022 | | 2025.09.23 | ¿ù¼¼ | À¯¼ººô¶ó | 3 | 80.07 | 24,000 | 30 | 1992 | | 2025.09.23 | Àü¼¼ | µ¿¸íºô¶ó | 2 | 51.12 | 20,700 | 0 | 1995 | | 2025.09.23 | Àü¼¼ | È£±¤ÁÖÅÃCµ¿ | -1 | 33.53 | 15,000 | 0 | 1986 | | 2025.09.23 | ¿ù¼¼ | (1687-28) | 4 | 17.64 | 4,000 | 50 | 2001 | | 2025.09.23 | ¿ù¼¼ | ½ÂÈñ¸®Ä¡ºô | 2 | 87.89 | 12,000 | 64 | 2002 | | 2025.09.22 | ¸Å¸Å | ¿ì¿ùÆÄÅ© | 4 | 40.47 | 19,400 | | 1995 | | 2025.09.22 | Àü¼¼ | (908-30) | 4 | 37.26 | 12,000 | 0 | 2002 | | 2025.09.22 | ¿ù¼¼ | »ïÁ¤¾ÆÆ®ºô¶ó | 3 | 49.21 | 2,000 | 60 | 1994 | | 2025.09.22 | ¿ù¼¼ | DVville | 4 | 41.94 | 13,000 | 80 | 2004 | | 2025.09.22 | ¿ù¼¼ | CJ¿ÀÇǽºÅÚ | 5 | 10.11 | 10,000 | 27 | 2017 | | 2025.09.22 | Àü¼¼ | ¸®Ä¡Ä³½½ | 6 | 14.3 | 15,000 | 0 | 2015 | | 2025.09.22 | Àü¼¼ | (1513-11) | 1 | 33.19 | 8,215 | 0 | 2004 | | 2025.09.22 | Àü¼¼ | (1513-11) | 2 | 61.98 | 19,845 | 0 | 2004 | | 2025.09.21 | ¿ù¼¼ | (1572-2) | 2 | 75.61 | 8,000 | 105 | 2009 | | 2025.09.21 | ¸Å¸Å | CG¾Æ¸§Ã¤14Â÷ | 5 | 22.915 | 21,800 | | 2021 | | 2025.09.21 | ¸Å¸Å | Çö´ë¾ÆÆ®ºô¶ó | 3 | 74.63 | 30,500 | | 1990 | | 2025.09.21 | ¿ù¼¼ | (1652-11) | 4 | 39.09 | 5,000 | 95 | 2004 | | 2025.09.21 | Àü¼¼ | YK¼¿ï´ë | 3 | 14.51 | 20,000 | 0 | 2020 | | 2025.09.20 | ¿ù¼¼ | ÇØÁ¾ºô¶ó | 2 | 35.08 | 10,500 | 10 | 1991 | | 2025.09.20 | ¿ù¼¼ | ÈÞÅ×¶ó½º | 2 | 29.86 | 25,500 | 31 | 2019 | | 2025.09.20 | ¸Å¸Å | ÇѰ¡Á·ºô¶ó | 4 | 83.43 | 50,700 | | 1994 | | 2025.09.19 | Àü¼¼ | ¾çÁöºô´Ùµ¿ | 3 | 58.045 | 23,000 | 0 | 2005 | | 2025.09.19 | ¿ù¼¼ | ¼Û¸²ºô¶óCµ¿ | 1 | 46.53 | 10,000 | 35 | 1994 | | 2025.09.19 | ¿ù¼¼ | ´ëÈ£ºô¶ó | 4 | 31.98 | 12,800 | 35 | 2002 | | 2025.09.19 | ¿ù¼¼ | Á¶¾àµ¹ºô¥² | 10 | 28.1 | 22,000 | 20 | 2018 | | 2025.09.19 | ¸Å¸Å | ´ë±¤ºô¶ó(1678-7) | -1 | 54.1 | 17,700 | | 1993 | | 2025.09.19 | ¿ù¼¼ | 21ÇÏ¿ì¡ | 7 | 54.4 | 500 | 150 | 2015 | | 2025.09.19 | ¿ù¼¼ | ÅÂ¾ç¾ÆÆ®ºô | 3 | 42.29 | 2,000 | 70 | 2003 | | 2025.09.18 | Àü¼¼ | ¼öÆÓ¸®½ºFT | 5 | 29.99 | 25,000 | 0 | 2020 | | 2025.09.18 | Àü¼¼ | »ïº¸ÆÄÅ©ºô¶ó | 1 | 50.25 | 13,000 | 0 | 1990 | | 2025.09.18 | ¿ù¼¼ | º¸¶ó¸Å¸®¹ö½ºÅ¸¿î | 2 | 31.35 | 3,000 | 95 | 2014 | | 2025.09.18 | Àü¼¼ | ¾ÆÀ̺ô(180-461) | 5 | 38.81 | 29,000 | 0 | 2014 | | 2025.09.17 | ¸Å¸Å | È¿¼ººô¶ó(1512-12) | 2 | 50.04 | 30,000 | | 1994 | | 2025.09.17 | ¸Å¸Å | »ïÈÁÖÅÃ(1513-16) | 1 | 41.04 | 22,800 | | 1988 | | 2025.09.17 | ¿ù¼¼ | (196-90) | 2 | 35.64 | 3,000 | 80 | 2003 | | 2025.09.17 | ¿ù¼¼ | ¼ºÁø¸®Ä¡ºô6Â÷ | 2 | 40.27 | 30,000 | 25 | 2022 | | 2025.09.17 | ¿ù¼¼ | »ï¼º¸Ç¼Ç | 4 | 39.08 | 17,000 | 15 | 2002 | | 2025.09.17 | ¿ù¼¼ | (895-25) | 1 | 67.04 | 1,000 | 60 | 1976 | | 2025.09.17 | Àü¼¼ | (1692-25) | -1 | 41.39 | 13,500 | 0 | 1987 | | 2025.09.17 | ¿ù¼¼ | (1688-36) | 2 | 45.68 | 15,000 | 55 | 2003 | | 2025.09.17 | ¿ù¼¼ | »ïÀϺôµù | 3 | 12.92 | 2,000 | 86 | 2015 | | 2025.09.17 | Àü¼¼ | ½Å¼ººô¶ó | 3 | 39.93 | 14,490 | 0 | 1993 | | 2025.09.17 | ¿ù¼¼ | ·ç³ª;¸ÞÀÌÆ® | 4 | 24.66 | 17,500 | 35 | 2021 | | 2025.09.17 | ¿ù¼¼ | ´õÆÛ½ºÆ®ºô¸®Áö | 2 | 25.52 | 7,000 | 80 | 2020 | | 2025.09.16 | ¸Å¸Å | ¿ì¸®ÇÏ¿¬ºô | 2 | 64.31 | 57,000 | | 2003 | | 2025.09.16 | ¸Å¸Å | (1711-7) | 3 | 47.18 | 26,400 | | 1999 | | 2025.09.16 | ¿ù¼¼ | (41-109) | 2 | 33.56 | 6,000 | 50 | 1992 | | 2025.09.16 | ¿ù¼¼ | (41-109) | 2 | 33.56 | 6,000 | 50 | 1992 | | 2025.09.16 | ¿ù¼¼ | ½ÃƼ¿¡ºñ´º | 3 | 23.15 | 15,000 | 25 | 2014 | | 2025.09.16 | ¿ù¼¼ | (41-109) | 2 | 33.56 | 6,000 | 50 | 1992 | | 2025.09.16 | ¿ù¼¼ | ä¿ò | 3 | 21.21 | 1,000 | 105 | 2023 | | 2025.09.15 | ¸Å¸Å | ÇÑ¼Ö¾ÆÆ®ºô | 3 | 64.47 | 35,300 | | 2003 | | 2025.09.15 | ¿ù¼¼ | (673-124) | 3 | 37.95 | 5,000 | 40 | 1992 | | 2025.09.15 | Àü¼¼ | ½ÂÈñ¸®Ä¡ºô | 2 | 87.89 | 12,000 | 0 | 2002 | | 2025.09.15 | Àü¼¼ | ¿¬Èñºô¶ó | 1 | 60.68 | 13,000 | 0 | 1985 | | 2025.09.15 | ¿ù¼¼ | µå¸²ÇϿ콺 | 4 | 26.81 | 14,500 | 36 | 2011 | | 2025.09.15 | ¿ù¼¼ | (635-137) | 1 | 34.02 | 8,600 | 15 | 1993 | | 2025.09.15 | ¿ù¼¼ | (1520-27) | 1 | 16.2 | 500 | 37 | 2004 | | 2025.09.14 | ¸Å¸Å | ºÎ¸²ºô¶ó | 2 | 54.92 | 25,800 | | 1989 | | 2025.09.14 | ¿ù¼¼ | ¶ó³ë½º | 9 | 25.23 | 20,900 | 20 | 2017 | | 2025.09.13 | ¿ù¼¼ | CJ¿ÀÇǽºÅÚ | 3 | 11.77 | 11,000 | 23 | 2017 | | 2025.09.13 | ¿ù¼¼ | ±×·£Á®ºô¶ó3Â÷ | 3 | 39.01 | 17,000 | 35 | 1993 | | 2025.09.13 | ¿ù¼¼ | YKŸ¿ö | 3 | 12.14 | 18,000 | 3 | 2019 | | 2025.09.13 | ¿ù¼¼ | Á¶ÀºÁý | 2 | 46.94 | 1,500 | 65 | 2013 | | 2025.09.13 | ¿ù¼¼ | Á¶ÀºÁý | 5 | 46.41 | 1,500 | 65 | 2013 | | 2025.09.13 | ¿ù¼¼ | ¼º°Ã»¾Èä | 6 | 36.38 | 22,000 | 20 | 2014 | | 2025.09.13 | ¿ù¼¼ | ±×·£Á®ºô¶ó3Â÷ | 3 | 39.01 | 17,000 | 35 | 1993 | | 2025.09.13 | ¿ù¼¼ | ·ç³ª;¸ÞÀÌÆ® | 4 | 25.29 | 18,000 | 30 | 2021 | | 2025.09.13 | Àü¼¼ | Á¤¿øÆÄÅ©ºô | 5 | 28.94 | 22,400 | 0 | 2018 | | 2025.09.13 | Àü¼¼ | ¸®º¥ÇÏÀÓ | 3 | 28.31 | 22,500 | 0 | 2017 | | 2025.09.13 | ¿ù¼¼ | ºÀõµ¿´Ù¼¼´ëÁÖÅà | 2 | 14.65 | 500 | 30 | 2001 | | 2025.09.12 | ¿ù¼¼ | ´ë°Ç(180-409) | 4 | 22.22 | 3,000 | 70 | 2016 | | 2025.09.12 | ¿ù¼¼ | ÆÓ¸®½ºÅ¸¿î¥± | 2 | 33.8 | 3,000 | 90 | 2014 | | 2025.09.12 | ¿ù¼¼ | ÆÛ½ºÆ®ÇÁ¸®¹Ì¾ö | 5 | 28.76 | 21,500 | 12 | 2017 | | 2025.09.12 | ¿ù¼¼ | ·ç³ª;¸ÞÀÌÆ® | 2 | 25.86 | 18,000 | 30 | 2021 | | 2025.09.12 | ¿ù¼¼ | ´õÁÁÀºÁý | 5 | 35.78 | 23,800 | 12 | 2020 | | 2025.09.11 | ¿ù¼¼ | ´Ù³²ºô¶ó(180-166) | 3 | 53.98 | 18,000 | 10 | 1991 | | 2025.09.11 | ¿ù¼¼ | ·ç³ª;¸ÞÀÌÆ® | 3 | 25.34 | 18,000 | 30 | 2021 | | 2025.09.11 | Àü¼¼ | ûÀÚºô¶ó | 2 | 80.69 | 30,000 | 0 | 2003 | | 2025.09.11 | ¸Å¸Å | ¹éÁ¶¾ÆÆ®ºô¶ó | 3 | 57.95 | 24,700 | | 1996 | | 2025.09.11 | ¸Å¸Å | °üÀü¾Æ¸£ºô | 2 | 54.12 | 27,500 | | 2008 | | 2025.09.11 | ¸Å¸Å | ½Å¾È¿Â´©¸® | 4 | 29.56 | 20,300 | | 2014 | | 2025.09.11 | ¿ù¼¼ | ÇѾçÆÄÅ©ºô¶ó | 2 | 33.8 | 3,000 | 40 | 1993 | | 2025.09.11 | ¿ù¼¼ | ¼±°æºô¸®Áö | 2 | 38.67 | 3,000 | 80 | 1991 | | 2025.09.11 | ¸Å¸Å | »ï¼º±×¸°¸Ç¼Ç | 3 | 67.71 | 31,500 | | 1996 | | 2025.09.11 | ¸Å¸Å | û¿îºô¶ó | 1 | 52.52 | 29,800 | | 1996 | | 2025.09.10 | ¸Å¸Å | ´Ù»êºô¶ó | 1 | 63.12 | 36,500 | | 2002 | | 2025.09.10 | Àü¼¼ | ±îÄ¡¸Ç¼Ç | -1 | 54.2 | 16,000 | 0 | 1996 | | 2025.09.10 | ¿ù¼¼ | ºÀõºô¶ó(1685-11) | 4 | 45.92 | 500 | 60 | 2006 | | 2025.09.10 | ¿ù¼¼ | ¾ÆÆ®¸®¿ò | 3 | 13.7 | 1,500 | 47 | 2011 | | 2025.09.10 | ¸Å¸Å | Á¤Ã¢ | 1 | 96.99 | 31,950 | | 1976 | | 2025.09.10 | ¸Å¸Å | ¹Ð·¹´Ï¾ö¸Ç¼ð | 1 | 64.53 | 38,000 | | 2000 | | 2025.09.10 | Àü¼¼ | ¹é³âºô¸®Áö | 5 | 65.97 | 24,400 | 0 | 2002 | | 2025.09.09 | ¸Å¸Å | ÇѸ¶À½ºô | 5 | 70.76 | 36,000 | | 2003 | | 2025.09.09 | Àü¼¼ | (1527-5) | 1 | 59.55 | 7,000 | 0 | 1975 | | 2025.09.09 | ¿ù¼¼ | ¼ºÈ£ºô¶ó | 1 | 74.7 | 10,000 | 150 | 1997 | | 2025.09.09 | ¿ù¼¼ | »ïÀÍ¸Ç¼Ç | 1 | 78.45 | 500 | 35 | 1988 | | 2025.09.09 | ¿ù¼¼ | (1674-19) | 6 | 8.865 | 1,000 | 62 | 2019 | | 2025.09.08 | ¿ù¼¼ | ´õÆÛ½ºÆ®°¡ | 2 | 30.73 | 3,000 | 100 | 2018 | | 2025.09.08 | ¸Å¸Å | ´º°ü¾Çºô¶ó | 1 | 79.29 | 51,000 | | 1994 | | 2025.09.08 | ¿ù¼¼ | ³ëºíij½½ | 3 | 50.25 | 3,100 | 127 | 2017 | | 2025.09.08 | Àü¼¼ | ¾Æ¸£¶¼ºô(635-455) | 1 | 20.76 | 20,000 | 0 | 2021 | | 2025.09.08 | Àü¼¼ | µå¸²¾ÆÆ®ºô | 1 | 62.67 | 25,500 | 0 | 2008 | | 2025.09.08 | ¿ù¼¼ | (1687-28) | 2 | 60.28 | 19,400 | 33 | 2001 | | 2025.09.08 | ¿ù¼¼ | ³ëºíij½½ | 3 | 50.25 | 3,100 | 127 | 2017 | | 2025.09.08 | ¿ù¼¼ | ´ëÇдç | 2 | 13.5 | 500 | 44 | 2011 | | 2025.09.07 | ¿ù¼¼ | S&Ytown | 3 | 24.89 | 1,000 | 60 | 2016 | | 2025.09.07 | ¸Å¸Å | ·Îµ©ÇϿ콺3 | 2 | 41.56 | 33,500 | | 2012 | | 2025.09.06 | ¿ù¼¼ | ÇãºêÇϿ콺(958-28) | 3 | 17.5 | 500 | 49 | 2012 | | 2025.09.06 | ¿ù¼¼ | ¼¼Áø±×¸°¸Ç¼Ç(5Â÷) | -1 | 59.14 | 3,000 | 85 | 1996 | | 2025.09.06 | ¿ù¼¼ | (1521-1) | 1 | 42.24 | 5,000 | 63 | 2014 | | 2025.09.06 | ¿ù¼¼ | (670-80) | 4 | 34.49 | 11,000 | 20 | 2007 | | 2025.09.06 | ¸Å¸Å | ¾ÆÀ̸®½ºÇÏÀÓ | 1 | 56.07 | 44,200 | | 2012 | | 2025.09.06 | ¸Å¸Å | ¾à¼öÆÄÅ©¸Ç¼Ç | 1 | 44.82 | 18,600 | | 1992 | | 2025.09.06 | ¸Å¸Å | ¿ø¾ÆÆ®ºô | 5 | 67.61 | 38,500 | | 2012 | | 2025.09.06 | ¸Å¸Å | µ¿¿ø±×¸°ºô | 4 | 44.8 | 26,000 | | 2004 | | 2025.09.06 | ¸Å¸Å | ´ö»êºô¶ó | 4 | 58.83 | 25,000 | | 2000 | | 2025.09.06 | ¿ù¼¼ | YKŸ¿ö | 5 | 12.14 | 18,000 | 10 | 2019 | | 2025.09.06 | ¿ù¼¼ | °ü¼ººô¶ó | 5 | 40.74 | 1,000 | 63 | 2008 | | 2025.09.06 | Àü¼¼ | ¼±¤ºô¶ó | 2 | 40.62 | 17,850 | 0 | 1993 | | 2025.09.06 | ¿ù¼¼ | °æÈ¾ÆÅ©·Îºô¶ó | 3 | 68.91 | 18,000 | 35 | 1999 | | 2025.09.06 | ¿ù¼¼ | (1-485) | 2 | 21.06 | 1,000 | 18 | 1993 | | 2025.09.06 | ¿ù¼¼ | (1-485) | 2 | 34.02 | 2,000 | 22 | 1993 | | 2025.09.06 | Àü¼¼ | µ¿¸íºô¶ó | 2 | 51.12 | 19,100 | 0 | 1995 | | 2025.09.05 | ¿ù¼¼ | Áغô¶ó | 1 | 28.77 | 1,000 | 85 | 2011 | | 2025.09.05 | ¿ù¼¼ | ¸¶À̹ٿòºÀõ | 3 | 21.69 | 1,000 | 75 | 2016 | | 2025.09.05 | ¸Å¸Å | (685-82) | 1 | 49.24 | 31,000 | | 1991 | | 2025.09.05 | ¸Å¸Å | ´ë¿µ¾ÆÆ®ºô | 3 | 53.59 | 36,000 | | 2008 | | 2025.09.05 | ¿ù¼¼ | (41-168) | 3 | 38.16 | 500 | 43 | 2001 | | 2025.09.05 | Àü¼¼ | (42-45) | 2 | 56.76 | 22,000 | 0 | 1992 | | 2025.09.05 | ¿ù¼¼ | ¼Á¤½¦¸£ºô(706-11) | 4 | 25.98 | 3,000 | 42 | 2016 | | 2025.09.05 | ¿ù¼¼ | ±×¶ûºô | 3 | 42.32 | 2,000 | 84 | 2002 | | 2025.09.05 | Àü¼¼ | BCÇϿ콺 | 5 | 61.51 | 25,000 | 0 | 2002 | | 2025.09.05 | ¿ù¼¼ | (173-24) | 1 | 41.02 | 12,500 | 10 | 1986 | | 2025.09.05 | ¿ù¼¼ | ±×¶ûºô | 3 | 42.32 | 2,000 | 84 | 2002 | | 2025.09.05 | Àü¼¼ | ¿¹¿ø¾ÆÆ®ºô2Â÷ | 5 | 56.1 | 26,000 | 0 | 2002 | | 2025.09.04 | ¿ù¼¼ | (1675-11) | 2 | 28.48 | 1,000 | 65 | 2002 | | 2025.09.04 | ¿ù¼¼ | Âü¼Ò¸ÁŸ¿î | 6 | 25.56 | 1,000 | 41 | 2012 | | 2025.09.04 | ¿ù¼¼ | ºñ°ÇÇϿ콺2 | 3 | 29.95 | 18,500 | 5 | 2017 | | 2025.09.04 | ¸Å¸Å | ±îÄ¡ºô¶ó(°¡)µ¿ | -1 | 36.96 | 15,300 | | 1989 | | 2025.09.04 | ¸Å¸Å | Çö´ëºô¶ó | 1 | 49.53 | 23,000 | | 1990 | | 2025.09.04 | ¸Å¸Å | »ó¿ì¾ÆÆ®ºô(715-23) | 1 | 50.73 | 19,300 | | 2002 | | 2025.09.04 | ¿ù¼¼ | ÀÌ¿ø | 4 | 24.64 | 2,000 | 55 | 2013 | | 2025.09.03 | ¸Å¸Å | µ¿Ã¢¸Ç¼Ç2Â÷ | 1 | 84.46 | 70,000 | | 1996 | | 2025.09.03 | ¿ù¼¼ | ¿¬¼ö·¡ | 3 | 20.99 | 10,000 | 52 | 2022 | | 2025.09.03 | ¸Å¸Å | ÿ½ÃÇϿ콺Cµ¿ | 6 | 31.92 | 33,000 | | 2019 | | 2025.09.03 | ¿ù¼¼ | ´Ù¼¼´ëÁÖÅÃ(887-7) | 4 | 27.24 | 5,000 | 106 | 2018 | | 2025.09.03 | ¿ù¼¼ | °ñµçºô | 4 | 25.34 | 1,000 | 77 | 2013 | | 2025.09.03 | ¿ù¼¼ | ±ÝÈ£¸Ç¼Ç(880-20) | 1 | 112.18 | 2,000 | 120 | 1994 | | 2025.09.03 | ¸Å¸Å | (715-86) | 2 | 57.76 | 29,000 | | 1996 | | 2025.09.03 | ¿ù¼¼ | ¾Æ¸§½Ç | 2 | 12.17 | 3,000 | 46 | 2013 | | 2025.09.03 | ¸Å¸Å | (1711-1) | 3 | 42.69 | 26,000 | | 1997 | | 2025.09.02 | ¸Å¸Å | »õ½Ç¿ø·ëÇϿ콺 | 1 | 14.02 | 11,174 | | 1996 | | 2025.09.02 | ¸Å¸Å | »õ½Ç¿ø·ëÇϿ콺 | 1 | 16.4 | 12,683 | | 1996 | | 2025.09.02 | ¸Å¸Å | »õ½Ç¿ø·ëÇϿ콺 | 1 | 16.4 | 12,683 | | 1996 | | 2025.09.02 | ¸Å¸Å | »õ½Ç¿ø·ëÇϿ콺 | 1 | 14.38 | 11,546 | | 1996 | | 2025.09.02 | ¸Å¸Å | »õ½Ç¿ø·ëÇϿ콺 | 1 | 13.08 | 10,468 | | 1996 | | 2025.09.02 | ¸Å¸Å | StoneYill | 1 | 22.28 | 19,800 | | 2014 | | 2025.09.02 | ¸Å¸Å | »õ½Ç¿ø·ëÇϿ콺 | 1 | 14.37 | 11,546 | | 1996 | | 2025.09.02 | ¿ù¼¼ | º¸´´¸£Å¸¿î7Â÷ | 2 | 39.97 | 3,000 | 120 | 2015 | | 2025.09.02 | Àü¼¼ | »ïȺô¸®Áö | 2 | 88.92 | 21,000 | 0 | 1989 | | 2025.09.02 | ¸Å¸Å | »õ½Ç¿ø·ëÇϿ콺 | 2 | 14.37 | 12,115 | | 1996 | | 2025.09.02 | ¸Å¸Å | »õ½Ç¿ø·ëÇϿ콺 | 2 | 13.08 | 10,978 | | 1996 | | 2025.09.02 | ¸Å¸Å | »õ½Ç¿ø·ëÇϿ콺 | 2 | 14.38 | 12,115 | | 1996 | | 2025.09.02 | ¸Å¸Å | »õ½Ç¿ø·ëÇϿ콺 | 4 | 20.51 | 15,997 | | 1996 | | 2025.09.02 | ¸Å¸Å | »õ½Ç¿ø·ëÇϿ콺 | 4 | 52.99 | 31,366 | | 1996 | | 2025.09.02 | ¸Å¸Å | »õ½Ç¿ø·ëÇϿ콺 | 4 | 21.95 | 16,781 | | 1996 | | 2025.09.02 | ¸Å¸Å | »õ½Ç¿ø·ëÇϿ콺 | 4 | 12.56 | 10,253 | | 1996 | | 2025.09.02 | ¸Å¸Å | »õ½Ç¿ø·ëÇϿ콺 | 1 | 14.37 | 11,546 | | 1996 | | 2025.09.02 | ¸Å¸Å | ½ÅÈİ¡ | 2 | 45.31 | 31,200 | | 2017 | | 2025.09.02 | ¸Å¸Å | »õ½Ç¿ø·ëÇϿ콺 | 3 | 14.37 | 12,115 | | 1996 | | 2025.09.02 | ¸Å¸Å | »õ½Ç¿ø·ëÇϿ콺 | 3 | 14.37 | 12,115 | | 1996 | | 2025.09.02 | ¸Å¸Å | »õ½Ç¿ø·ëÇϿ콺 | 3 | 14.02 | 11,762 | | 1996 | | 2025.09.02 | ¸Å¸Å | »õ½Ç¿ø·ëÇϿ콺 | 3 | 12.72 | 10,704 | | 1996 | | 2025.09.02 | ¸Å¸Å | »õ½Ç¿ø·ëÇϿ콺 | 2 | 16.4 | 13,311 | | 1996 | | 2025.09.02 | ¸Å¸Å | »õ½Ç¿ø·ëÇϿ콺 | 2 | 16.4 | 13,311 | | 1996 | | 2025.09.02 | ¸Å¸Å | »õ½Ç¿ø·ëÇϿ콺 | 2 | 12.72 | 10,704 | | 1996 | | 2025.09.02 | ¸Å¸Å | »õ½Ç¿ø·ëÇϿ콺 | 2 | 14.02 | 11,762 | | 1996 | | 2025.09.02 | ¸Å¸Å | »õ½Ç¿ø·ëÇϿ콺 | 3 | 13.08 | 10,978 | | 1996 | | 2025.09.02 | ¸Å¸Å | »õ½Ç¿ø·ëÇϿ콺 | 3 | 14.38 | 12,115 | | 1996 | | 2025.09.02 | ¸Å¸Å | »õ½Ç¿ø·ëÇϿ콺 | 3 | 16.4 | 13,311 | | 1996 | | 2025.09.02 | ¸Å¸Å | »õ½Ç¿ø·ëÇϿ콺 | 3 | 16.4 | 13,311 | | 1996 | | 2025.09.02 | ¸Å¸Å | »õ½Ç¿ø·ëÇϿ콺 | 2 | 14.37 | 12,115 | | 1996 | | 2025.09.02 | ¸Å¸Å | »õ½Ç¿ø·ëÇϿ콺 | 1 | 12.72 | 10,135 | | 1996 | | 2025.09.01 | ¸Å¸Å | ¹Ýµµºô¶ó(635-192) | -1 | 33.24 | 12,000 | | 1992 | | 2025.09.01 | ¿ù¼¼ | ¶ó¿ÂÇϿ콺 | 4 | 30.6 | 1,000 | 65 | 2015 | | 2025.09.01 | ¿ù¼¼ | ¿ì¿µ¾ÆÆ®ºô | 3 | 61.8 | 10,000 | 90 | 2001 | | 2025.09.01 | ¿ù¼¼ | ¿ì¿µArteVill | 6 | 27.09 | 17,000 | 50 | 2018 | | 2025.09.01 | ¿ù¼¼ | S&Ytown | 2 | 29.04 | 2,000 | 130 | 2016 | | 2025.09.01 | ¿ù¼¼ | ±³Ã¼ºô¶ó | 3 | 57.12 | 1,000 | 80 | 1991 | | 2025.09.01 | ¿ù¼¼ | °ü»êÁÖÅà | 1 | 53.13 | 4,000 | 74 | 1995 | | 2025.09.01 | Àü¼¼ | ·ÎÁ¦ÇϿ콺(180-534) | 2 | 35.76 | 21,700 | 0 | 2014 | | 2025.09.01 | Àü¼¼ | ÆÓ¸®½ºÅ¸¿îBµ¿ | 1 | 38.87 | 21,000 | 0 | 2013 | | 2025.08.31 | ¸Å¸Å | ±×¸°¸Ç¼Ç(880-5) | 3 | 59.63 | 37,500 | | 1997 | | 2025.08.31 | ¿ù¼¼ | ¿¹´Ù¿òºô | 2 | 34.93 | 2,000 | 84 | 2013 | | 2025.08.31 | ¿ù¼¼ | ºÀõºô¶ó(1685-11) | 2 | 45.92 | 500 | 60 | 2006 | | 2025.08.30 | ¿ù¼¼ | ´Ù¿Âºô | 2 | 22.32 | 5,000 | 75 | 2025 | | 2025.08.30 | ¿ù¼¼ | »ïÀϺôµù | 6 | 13.89 | 1,000 | 82 | 2015 | | 2025.08.30 | ¿ù¼¼ | ä¿ò | 5 | 21.93 | 1,000 | 100 | 2023 | | 2025.08.30 | Àü¼¼ | ¸¸ÀÎÁÖÅà | 2 | 58.68 | 22,000 | 0 | 1991 | | 2025.08.30 | ¿ù¼¼ | ´Ù¿Âºô | 3 | 22.32 | 4,500 | 75 | 2025 | | 2025.08.30 | ¸Å¸Å | µ¿±¤ºô¶ó | 2 | 39.01 | 18,000 | | 1994 | | 2025.08.30 | ¿ù¼¼ | °æ¼ººô¶ó | 2 | 49.92 | 15,200 | 40 | 1991 | | 2025.08.29 | ¿ù¼¼ | ¼¼Á¾ÇÏÀÌÃ÷¶óµ¿ | 2 | 50.22 | 2,000 | 86 | 1991 | | 2025.08.29 | ¸Å¸Å | ÇÑ¿µÄ³½½101µ¿102µ¿ | 5 | 35.53 | 31,000 | | 2015 | | 2025.08.28 | ¿ù¼¼ | (1674-19) | 4 | 12.075 | 1,000 | 65 | 2019 | | 2025.08.28 | ¿ù¼¼ | (1674-19) | 4 | 12.075 | 1,000 | 62 | 2019 | | 2025.08.28 | ¿ù¼¼ | (1524-43) | 1 | 79.83 | 500 | 36 | 1978 | | 2025.08.28 | ¿ù¼¼ | ´õÇ츣¹Ì¿Â | 13 | 11.61 | 18,000 | 25 | 2021 | | 2025.08.28 | ¸Å¸Å | ·ÎÁ¦ÇϿ콺 | 4 | 49.47 | 22,000 | | 2002 | | 2025.08.28 | ¸Å¸Å | dzÁøºô¶ó | 2 | 55.8 | 37,500 | | 1992 | | 2025.08.27 | ¸Å¸Å | ´ë¿øºô¶ó | 3 | 86.07 | 44,500 | | 2002 | | 2025.08.27 | ¿ù¼¼ | ¿À·»ÁöÇÏÀÓ(1681-16) | 2 | 29.54 | 4,900 | 115 | 2019 | | 2025.08.27 | ¿ù¼¼ | (972-30) | 5 | 36.49 | 10,000 | 25 | 2001 | | 2025.08.27 | ¿ù¼¼ | CJ¾ÆÆ®ºô | 7 | 27.37 | 14,000 | 63 | 2015 | | 2025.08.27 | Àü¼¼ | »ï¼º½ÃƼºô | 2 | 70.34 | 30,000 | 0 | 2002 | | 2025.08.27 | ¿ù¼¼ | ÆÓ¸®½ºÅ¸¿îB | 4 | 50.21 | 5,000 | 110 | 2015 | | 2025.08.27 | ¿ù¼¼ | ´Ù¿Âºô | 1 | 22.76 | 5,000 | 75 | 2025 | | 2025.08.26 | Àü¼¼ | (1643-31) | 3 | 34.84 | 20,000 | 0 | 2004 | | 2025.08.26 | Àü¼¼ | (41-149) | 3 | 67.08 | 26,000 | 0 | 1991 | | 2025.08.26 | ¿ù¼¼ | ´Ù¿Âºô | 2 | 22.32 | 1,000 | 80 | 2025 | | 2025.08.26 | Àü¼¼ | Á¶ÀºÁý | 2 | 49.66 | 19,000 | 0 | 2013 | | 2025.08.25 | ¿ù¼¼ | (178-4) | 3 | 31.94 | 2,000 | 70 | 1991 | | 2025.08.25 | ¿ù¼¼ | ÇѰ¡¶÷Ÿ¿î | 5 | 61.44 | 2,000 | 60 | 2019 | | 2025.08.25 | ¿ù¼¼ | (178-4) | 3 | 31.94 | 2,000 | 70 | 1991 | | 2025.08.25 | ¿ù¼¼ | ¿¤µðŸ¿î | 9 | 17.1 | 1,000 | 65 | 2013 | | 2025.08.24 | ¸Å¸Å | (635-81) | 2 | 35.19 | 16,500 | | 1986 | | 2025.08.24 | ¿ù¼¼ | ¹éÃ̺ô¶ó | 1 | 29.02 | 1,000 | 50 | 2002 | | 2025.08.24 | ¿ù¼¼ | (196-243) | 4 | 36.62 | 10,000 | 45 | 2003 | | 2025.08.24 | ¿ù¼¼ | ¿ì¿ùÆÄÅ© | 2 | 70.65 | 7,500 | 65 | 1995 | | 2025.08.23 | ¿ù¼¼ | (1667-60) | 5 | 29.97 | 2,000 | 50 | 2016 | | 2025.08.23 | ¿ù¼¼ | (1688-40) | 2 | 24.8 | 1,000 | 75 | 2004 | | 2025.08.23 | ¸Å¸Å | (41-56) | 1 | 36 | 20,400 | | 1990 | | 2025.08.23 | ¿ù¼¼ | 190ÁÖÅà | 3 | 36.54 | 20,000 | 70 | 2025 | | 2025.08.23 | ¸Å¸Å | (480-14) | -1 | 31.59 | 49,000 | | 1987 | | 2025.08.23 | ¿ù¼¼ | ¿¡ÀÌ¿øºô | 3 | 53.63 | 20,000 | 70 | 2016 | | 2025.08.23 | ¿ù¼¼ | ¹Ì¸¤ºôµù | 10 | 12.87 | 11,000 | 30 | 2018 | | 2025.08.23 | ¿ù¼¼ | ¿¤µðŸ¿î | 10 | 17.1 | 1,000 | 62 | 2013 | | 2025.08.23 | ¿ù¼¼ | ¼ÛÀÌ¿¬¸³°¡µ¿ | 2 | 64.24 | 3,000 | 80 | 1982 | | 2025.08.22 | ¿ù¼¼ | ¸¶À̹ٿòºÀõ | 3 | 21.69 | 1,000 | 75 | 2016 | | 2025.08.22 | Àü¼¼ | Á¶ÀºÁý | 3 | 46.94 | 20,000 | 0 | 2013 | | 2025.08.22 | ¿ù¼¼ | (1688-1) | 1 | 43.96 | 14,300 | 30 | 1991 | | 2025.08.22 | ¿ù¼¼ | ¿¬Èñºô¶ó | 2 | 60.68 | 12,000 | 30 | 1985 | | 2025.08.22 | ¿ù¼¼ | ¸¶À̹ٿòºÀõ | 2 | 36.46 | 4,000 | 85 | 2016 | | 2025.08.22 | ¿ù¼¼ | ¿¬Èñºô¶ó | 2 | 60.68 | 12,000 | 30 | 1985 | | 2025.08.21 | ¿ù¼¼ | ´ë¿¬ÇÏÀ̺ô | 2 | 78.42 | 21,000 | 50 | 2009 | | 2025.08.21 | ¿ù¼¼ | ÇѾ縮Ã÷ºô | 3 | 49.36 | 2,000 | 106 | 2015 | | 2025.08.21 | ¿ù¼¼ | ¿¬¼ö·¡ | 2 | 27.43 | 16,000 | 44 | 2022 | | 2025.08.21 | ¿ù¼¼ | (898-3) | 9 | 16.25 | 5,000 | 107 | 2022 | | 2025.08.21 | ¿ù¼¼ | ¾Æ¸§½Ç | 3 | 12.17 | 4,000 | 39 | 2013 | | 2025.08.21 | Àü¼¼ | »êÀ彦¸£ºô1Â÷ | 1 | 68.58 | 26,000 | 0 | 2003 | | 2025.08.21 | Àü¼¼ | ¾Æ¸£¶¼ºô(635-455) | 3 | 20.76 | 22,000 | 0 | 2021 | | 2025.08.21 | ¿ù¼¼ | ¹Ìµµ¸Ç¼Ç | 2 | 59.34 | 10,000 | 33 | 1991 | | 2025.08.21 | ¿ù¼¼ | Ǫ¸£ºô | 3 | 13.68 | 5,490 | 18 | 2006 | | 2025.08.20 | ¿ù¼¼ | ´ë¿îÆÓ¸®½º | 1 | 32.19 | 17,600 | 15 | 2014 | | 2025.08.20 | ¿ù¼¼ | ÇìºìŸ¿ö | 7 | 14.8 | 1,000 | 56 | 2013 | | 2025.08.20 | ¿ù¼¼ | (1688-37) | 2 | 45.7 | 18,000 | 35 | 2003 | | 2025.08.20 | ¿ù¼¼ | Á¶Àººô | 4 | 14.25 | 6,000 | 9 | 2013 | | 2025.08.20 | Àü¼¼ | Àϱ¤¸®Ä¡ºô(673-94) | 2 | 47.34 | 25,000 | 0 | 2015 | | 2025.08.20 | ¿ù¼¼ | ¼öÆÓ¸®½ºFT | 3 | 48.535 | 27,000 | 10 | 2019 | | 2025.08.20 | Àü¼¼ | ¸®¹ö½ºÅ¸¿î3Â÷ | 5 | 47.51 | 28,000 | 0 | 2015 | | 2025.08.20 | ¿ù¼¼ | ¿¹ÁöÇϿ콺 | 2 | 28.3 | 24,000 | 15 | 2019 | | 2025.08.19 | ¸Å¸Å | StoneYill | 3 | 22.28 | 19,500 | | 2014 | | 2025.08.19 | Àü¼¼ | (1534-27) | 1 | 49.23 | 18,000 | 0 | 2003 | | 2025.08.19 | Àü¼¼ | ´ö»êŸ¿ö | 13 | 15.52 | 20,800 | 0 | 2019 | | 2025.08.19 | ¿ù¼¼ | ¿µ¿ìµµ½ÃÇü»ýȰÁÖÅà | 4 | 21.25 | 10,000 | 20 | 2012 | | 2025.08.19 | ¿ù¼¼ | CJ¿ÀÇǽºÅÚ | 5 | 10.81 | 12,000 | 18 | 2017 | | 2025.08.18 | Àü¼¼ | ¿µ¶ôºô¶ó | 3 | 57.13 | 25,000 | 0 | 1990 | | 2025.08.18 | Àü¼¼ | ¿µ¶ôºô¶ó | 3 | 57.13 | 25,000 | 0 | 1990 | | 2025.08.18 | ¸Å¸Å | ±¹ÈŸ¿öºô | 3 | 75.19 | 41,000 | | 2003 | | 2025.08.18 | ¸Å¸Å | Àå¹Ìºô¶ó | -1 | 59.68 | 19,800 | | 1995 | | 2025.08.18 | ¿ù¼¼ | ¿¤¸²ÇϿ콺 | 5 | 65.9 | 500 | 45 | 2003 | | 2025.08.18 | ¿ù¼¼ | º¸¶ó¸Å¸®¹ö½ºÅ¸¿î | 2 | 31.35 | 3,000 | 95 | 2014 | | 2025.08.18 | ¿ù¼¼ | ½Åº¹È¨Å¸¿î | 4 | 24 | 500 | 52 | 2001 | | 2025.08.17 | ¸Å¸Å | ÀÎÇå(173-57) | 2 | 58.68 | 30,500 | | 1993 | | 2025.08.17 | Àü¼¼ | (1562-10) | 4 | 27.35 | 23,000 | 0 | 2016 | | 2025.08.16 | ¸Å¸Å | (1691-11) | 2 | 52.2 | 29,500 | | 1986 | | 2025.08.16 | ¿ù¼¼ | ´ë±¤ºô¶ó(1709-4) | 4 | 56.92 | 5,000 | 110 | 1995 | | 2025.08.16 | ¿ù¼¼ | ¶ó¸Þ¸£ | 11 | 29.54 | 25,900 | 45 | 2022 | | 2025.08.16 | ¿ù¼¼ | (635-80) | 1 | 34.4 | 8,800 | 20 | 1986 | | 2025.08.16 | Àü¼¼ | ¸®Ä¡È¨ | 4 | 48.64 | 31,500 | 0 | 2017 | | 2025.08.16 | ¿ù¼¼ | (635-80) | 1 | 34.4 | 8,800 | 20 | 1986 | | 2025.08.15 | ¿ù¼¼ | Á¶Àººô | 2 | 12.15 | 6,000 | 13 | 2013 | | 2025.08.15 | Àü¼¼ | »õ¿òºô | 3 | 31.24 | 18,000 | 0 | 2016 | | 2025.08.15 | Àü¼¼ | ´ëµ¿ºô¶ó | 3 | 41.02 | 11,000 | 0 | 1989 | | 2025.08.14 | Àü¼¼ | µå¸²Æç¸®½º | 4 | 59.96 | 27,000 | 0 | 2007 | | 2025.08.14 | Àü¼¼ | È£¼ººô¶ó | 1 | 53.64 | 26,000 | 0 | 2002 | | 2025.08.14 | Àü¼¼ | È£¼ººô¶ó | 1 | 53.64 | 26,000 | 0 | 2002 | | 2025.08.14 | ¿ù¼¼ | ¼ºÁöºô¶ó2Â÷ | -1 | 33.78 | 1,300 | 50 | 1990 | | 2025.08.14 | Àü¼¼ | »ó¿øÇÏÀ̺ô | 2 | 53.65 | 27,000 | 0 | 2014 | | 2025.08.14 | ¿ù¼¼ | È¿¼ººô¶ó | 3 | 49.07 | 1,000 | 120 | 2004 | | 2025.08.14 | ¿ù¼¼ | µð¾Ø¾¾Å¸¿îAµ¿Bµ¿ | 4 | 45.05 | 10,000 | 100 | 2019 | | 2025.08.14 | ¿ù¼¼ | (1667-60) | 4 | 19.08 | 5,000 | 67 | 2016 | | 2025.08.14 | Àü¼¼ | ¹éÇÕºô¶ó | 4 | 72.49 | 25,000 | 0 | 1998 | | 2025.08.14 | ¿ù¼¼ | ¼ÃÊÇϿ콺(914-17) | 6 | 28.5 | 21,000 | 40 | 2016 | | 2025.08.14 | Àü¼¼ | À𽺹κô¶ó³ªµ¿ | -1 | 40.05 | 10,000 | 0 | 1992 | | 2025.08.14 | Àü¼¼ | ¼Á¤½¦¸£ºô(706-11) | 2 | 29.75 | 21,000 | 0 | 2016 | | 2025.08.14 | ¸Å¸Å | ´õÆÛ½ºÆ®ºô¸®Áö | 5 | 48.61 | 47,500 | | 2020 | | 2025.08.14 | ¸Å¸Å | ¿µ¿øÁÖÅà | 1 | 39.15 | 24,000 | | 1995 | | 2025.08.13 | ¿ù¼¼ | (670-80) | -1 | 19.04 | 1,000 | 40 | 2007 | | 2025.08.13 | ¿ù¼¼ | µå¸²ÇϿ콺 | 2 | 29.88 | 9,500 | 53 | 2011 | | 2025.08.13 | ¿ù¼¼ | ³×¿À¹ë¸® | 1 | 45.34 | 500 | 70 | 1996 | | 2025.08.13 | ¿ù¼¼ | ´Ù¿ÃÇϿ콺 | 3 | 29.88 | 3,000 | 70 | 2017 | | 2025.08.13 | ¿ù¼¼ | ¿¹ÁöÇϿ콺 | 3 | 28.59 | 25,000 | 5 | 2019 | | 2025.08.13 | ¿ù¼¼ | SJÇÁ¸®¹Ì¾î¿ÀÇǽºÅÚ | 15 | 17.88 | 2,000 | 115 | 2021 | | 2025.08.13 | ¿ù¼¼ | ºñÁꟿîC | 4 | 28.52 | 20,000 | 10 | 2016 | | 2025.08.13 | Àü¼¼ | ÈÞÅ×¶ó½º | 3 | 29.86 | 30,900 | 0 | 2019 | | 2025.08.13 | ¿ù¼¼ | ºñÁꟿîC | 4 | 28.52 | 20,000 | 10 | 2016 | | 2025.08.13 | ¿ù¼¼ | °ñµåÇÏÀÓ2Â÷ | 3 | 25.02 | 14,000 | 33 | 2015 | | 2025.08.13 | ¸Å¸Å | ÆÓ¸®½ºÅ¸¿î(635-124) | 3 | 29.96 | 24,000 | | 2015 | | 2025.08.12 | ¿ù¼¼ | »ó¾Æºô¶ó | 4 | 35.96 | 2,000 | 85 | 1991 | | 2025.08.12 | ¿ù¼¼ | ¾Æ¸§½Ç | 4 | 17.65 | 7,000 | 50 | 2013 | | 2025.08.12 | ¿ù¼¼ | ¿µ¿ìµµ½ÃÇü»ýȰÁÖÅà | 3 | 21.25 | 8,000 | 33 | 2012 | | 2025.08.12 | ¿ù¼¼ | ¿µ¿ìµµ½ÃÇü»ýȰÁÖÅà | 3 | 21.25 | 8,000 | 33 | 2012 | | 2025.08.12 | ¸Å¸Å | ¹é³âºô¸®Áö | 5 | 69.66 | 32,000 | | 2002 | | 2025.08.12 | ¿ù¼¼ | (898-3) | 9 | 17.49 | 3,000 | 102 | 2022 | | 2025.08.11 | Àü¼¼ | Űæ9Â÷ | 2 | 27.91 | 19,170 | 0 | 2020 | | 2025.08.11 | ¸Å¸Å | ½ºÀ§½ººôB | 4 | 44.29 | 23,000 | | 2002 | | 2025.08.11 | ¿ù¼¼ | (100-293) | 1 | 46.3 | 100 | 70 | 1991 | | 2025.08.11 | ¿ù¼¼ | ²ÞÀDZÃÀü | 3 | 26.42 | 889 | 26 | 2024 | | 2025.08.11 | ¿ù¼¼ | ²ÞÀDZÃÀü | 4 | 38.17 | 100 | 38 | 2024 | | 2025.08.11 | ¿ù¼¼ | ²ÞÀDZÃÀü | 3 | 26.42 | 2,223 | 23 | 2024 | | 2025.08.10 | ¸Å¸Å | »ï¼ºÇÏÀ̺ô | 4 | 51.57 | 32,000 | | 2003 | | 2025.08.10 | ¿ù¼¼ | SJÇÁ¸®¹Ì¾î¿ÀÇǽºÅÚ | 13 | 17.88 | 2,000 | 110 | 2021 | | 2025.08.10 | Àü¼¼ | ±ÝÈ£ÆÄÅ©ºô(1535-5) | 3 | 71.46 | 29,700 | 0 | 2002 | | 2025.08.10 | ¿ù¼¼ | ¹Ì¸¤ºôµù | 11 | 12.79 | 2,000 | 80 | 2018 | | 2025.08.10 | Àü¼¼ | ±ÝÈ£ÆÄÅ©ºô(1535-5) | 3 | 71.46 | 29,700 | 0 | 2002 | | 2025.08.09 | ¸Å¸Å | û·Ï¾ÆÆ®ºô¥° | 6 | 96.4 | 54,000 | | 2002 | | 2025.08.09 | Àü¼¼ | (1562-10) | 6 | 27.35 | 24,100 | 0 | 2016 | | 2025.08.09 | ¿ù¼¼ | ±î»ç¿¤¶ó | 3 | 29.77 | 14,150 | 51 | 2018 | | 2025.08.09 | Àü¼¼ | ¸®¹ö½ºÅ¸¿î3Â÷ | 4 | 32.46 | 21,000 | 0 | 2015 | | 2025.08.09 | Àü¼¼ | ¸®¹ö½ºÅ¸¿î3Â÷ | 4 | 32.46 | 21,000 | 0 | 2015 | | 2025.08.09 | Àü¼¼ | (635-142) | 1 | 33.57 | 9,500 | 0 | 1988 | | 2025.08.09 | ¿ù¼¼ | ´Ù¼¼´ëÁÖÅÃ(1686-4) | 5 | 51.92 | 2,000 | 54 | 2018 | | 2025.08.09 | ¿ù¼¼ | (´õºô) | 5 | 16.45 | 5,000 | 60 | 2022 | | 2025.08.09 | ¸Å¸Å | ºñÁꟿîB | 4 | 26.69 | 25,500 | | 2016 | | 2025.08.08 | ¿ù¼¼ | (1674-19) | 4 | 8.865 | 1,000 | 57 | 2019 | | 2025.08.08 | ¿ù¼¼ | û±¸ºô¶ó(180-197) | 5 | 51.6 | 15,000 | 32 | 2007 | | 2025.08.08 | ¸Å¸Å | ¼öÆÓ¸®½ºFT | 3 | 48.535 | 33,500 | | 2019 | | 2025.08.08 | ¿ù¼¼ | ½ÅºÀ¸¶À»E(885-50) | 4 | 29.07 | 5,000 | 45 | 2003 | | 2025.08.08 | ¸Å¸Å | ¹Ð·¹´Ï¾ö¸Ç¼ð | 1 | 64.53 | 38,000 | | 2000 | | 2025.08.08 | Àü¼¼ | °¡µçºô¶ó°¡ | 1 | 56.64 | 18,000 | 0 | 1988 | | 2025.08.07 | Àü¼¼ | ¾ÆÀ̺ô(180-266) | 5 | 27.1 | 23,000 | 0 | 2013 | | 2025.08.07 | ¿ù¼¼ | »ïõ¸®ÁÖÅà | 3 | 69.12 | 6,000 | 85 | 1982 | | 2025.08.07 | Àü¼¼ | ´Ù¿ÃÇϿ콺 | 4 | 29.88 | 20,500 | 0 | 2017 | | 2025.08.07 | ¿ù¼¼ | Æç¸®Ã¼ÇϿ콺 | 3 | 34.4 | 2,000 | 125 | 2020 | | 2025.08.07 | ¿ù¼¼ | ´Ù¿ÂÇϿ콺 | 2 | 28.82 | 21,700 | 17 | 2019 | | 2025.08.07 | ¿ù¼¼ | YB1979 | 2 | 29.58 | 3,000 | 92 | 2020 | | 2025.08.07 | ¿ù¼¼ | Àϱ¤ | 3 | 78.74 | 5,000 | 152 | 2001 | | 2025.08.07 | ¸Å¸Å | ¾Æ¸ð¸£ºôA | 5 | 57.45 | 33,800 | | 2016 | | 2025.08.06 | ¿ù¼¼ | YB1979 | 3 | 29.46 | 4,500 | 105 | 2020 | | 2025.08.06 | ¿ù¼¼ | ÀÌÈ¸Ç¼Ç | 4 | 60.71 | 200 | 28 | 2000 | | 2025.08.06 | Àü¼¼ | (1573-13) | 1 | 44.02 | 20,000 | 0 | 1991 | | 2025.08.06 | ¸Å¸Å | ¿µ¶ô¾ÆÆ®ºô¶ó(°¡) | 3 | 54.8 | 28,000 | | 1992 | | 2025.08.06 | ¸Å¸Å | 190ÁÖÅà | 3 | 36.54 | 55,000 | | 2025 | | 2025.08.05 | ¸Å¸Å | ¼öÆÓ¸®½ºFT | 5 | 29.47 | 29,500 | | 2019 | | 2025.08.05 | ¿ù¼¼ | YB1979 | 4 | 42.85 | 3,500 | 108 | 2020 | | 2025.08.05 | ¿ù¼¼ | YB1979 | 2 | 29.46 | 3,000 | 88 | 2020 | | 2025.08.05 | ¿ù¼¼ | ºû°íÀ»ÇϿ콺 | 4 | 40.7 | 23,940 | 10 | 2013 | | 2025.08.05 | ¿ù¼¼ | (100-274) | 1 | 37.61 | 13,500 | 5 | 1991 | | 2025.08.05 | ¿ù¼¼ | ·Î¾âÇÏÀÌÃ÷(1682-12) | 1 | 56.6 | 16,000 | 50 | 2000 | | 2025.08.05 | ¿ù¼¼ | YB1979 | 4 | 29.58 | 3,000 | 96 | 2020 | | 2025.08.05 | ¿ù¼¼ | ¸í¹®Å¸¿ö | 11 | 10.11 | 15,000 | 20 | 2022 | | 2025.08.05 | ¿ù¼¼ | ¼¾Æ®·²Æ÷ÀÎÆ® | 10 | 11.56 | 5,000 | 58 | 2019 | | 2025.08.05 | ¿ù¼¼ | ·ç³ª;¸ÞÀÌÆ® | 4 | 25.34 | 18,000 | 30 | 2021 | | 2025.08.05 | Àü¼¼ | Çö´ë¾ÆÆ®ºô¶ó | 3 | 74.63 | 20,500 | 0 | 1990 | | 2025.08.05 | ¿ù¼¼ | °ü¾ÇÂüÁ¸ºô | 3 | 43.92 | 16,000 | 100 | 2015 | | 2025.08.04 | ¸Å¸Å | µµ¿ø¾ÆÆ®ºô(860-51) | 5 | 65.58 | 38,000 | | 2005 | | 2025.08.04 | ¿ù¼¼ | °æµ¿Å¸¿î | 7 | 11.43 | 2,000 | 65 | 2014 | | 2025.08.04 | Àü¼¼ | ¸®Ä¡È¨ | 2 | 20.43 | 13,500 | 0 | 2017 | | 2025.08.04 | ¿ù¼¼ | (1710-6) | 1 | 59.7 | 25,500 | 10 | 1997 | | 2025.08.03 | ¿ù¼¼ | Á¤ÀºÆç¸®½º9Â÷ | 3 | 51.9 | 23,500 | 20 | 2018 | | 2025.08.03 | ¿ù¼¼ | ¿¤¸² | 4 | 41.7 | 21,000 | 15 | 2012 | | 2025.08.03 | ¿ù¼¼ | E.H.Vill | 3 | 19.07 | 5,000 | 56 | 2016 | | 2025.08.02 | ¿ù¼¼ | À𽺹Π| 3 | 12.15 | 3,000 | 40 | 2014 | | 2025.08.02 | ¿ù¼¼ | ¼Áø·°½ººô | 3 | 14.475 | 9,000 | 10 | 2013 | | 2025.08.02 | ¿ù¼¼ | ÀºÇüºô¶óBµ¿ | 2 | 33.05 | 13,700 | 12 | 1991 | | 2025.08.02 | ¿ù¼¼ | ¼Áø·°½ººô | 3 | 14.475 | 9,000 | 10 | 2013 | | 2025.08.02 | ¿ù¼¼ | 1614-2 | 3 | 29.94 | 1,000 | 59 | 2016 | | 2025.08.02 | ¿ù¼¼ | ÇÏÀÓS | 9 | 10.98 | 2,000 | 64 | 2018 | | 2025.08.02 | Àü¼¼ | ³«¿ø¸Ç¼Ç | 2 | 67.65 | 25,000 | 0 | 1996 | | 2025.08.02 | ¸Å¸Å | (480-14) | 1 | 32.13 | 50,000 | | 1987 | | 2025.08.02 | ¿ù¼¼ | (1594-3) | 3 | 48.79 | 24,000 | 50 | 2007 | | 2025.08.02 | ¿ù¼¼ | ±¤¼ºÁÖÅà | 2 | 13.35 | 1,000 | 45 | 2012 | | 2025.08.01 | Àü¼¼ | ¾Æ¸£¶¼ºô(635-455) | 2 | 20.76 | 22,000 | 0 | 2021 | | 2025.08.01 | ¸Å¸Å | û±¸ºô¶ó | 1 | 39.79 | 22,000 | | 1993 | | 2025.07.31 | ¿ù¼¼ | Àξƺôµù | 3 | 22.92 | 18,000 | 15 | 2011 | | 2025.07.31 | ¿ù¼¼ | (28-30) | 4 | 17.82 | 13,500 | 25 | 2016 | | 2025.07.31 | ¿ù¼¼ | û·Ï¾ÆÆ®ºô¥° | 5 | 100.32 | 500 | 55 | 2002 | | 2025.07.31 | ¿ù¼¼ | Çö°æÇ÷¹ÀÎÁî | 4 | 14.48 | 1,500 | 35 | 2002 | | 2025.07.31 | ¿ù¼¼ | ±¸¼ºÈ¨Å¸¿îºô¶ó | 4 | 70.15 | 1,000 | 80 | 2002 | | 2025.07.31 | ¿ù¼¼ | (28-30) | 4 | 17.82 | 13,500 | 25 | 2016 | | 2025.07.31 | ¸Å¸Å | ÇѼºÆÄÅ©ºô¸®Áö | 6 | 51.96 | 36,000 | | 2018 | | 2025.07.30 | ¸Å¸Å | ´õ¹Ù¿ò | 3 | 58.84 | 43,000 | | 2019 | | 2025.07.30 | Àü¼¼ | 647-79 | 1 | 35.4 | 5,000 | 0 | 1987 | | 2025.07.29 | ¿ù¼¼ | È¿¼ººô¶ó(1512-12) | 2 | 50.04 | 20,000 | 10 | 1994 | | 2025.07.29 | ¿ù¼¼ | ¹®¼ººô | 2 | 21.75 | 13,000 | 50 | 2017 | | 2025.07.29 | ¿ù¼¼ | ¹®¼ººô | 2 | 21.75 | 13,000 | 50 | 2017 | | 2025.07.29 | ¿ù¼¼ | ÀÎÇåºô | 3 | 45.06 | 2,000 | 65 | 2005 | | 2025.07.29 | ¿ù¼¼ | THELIME(´õ¶óÀÓ) | 14 | 29.92 | 27,000 | 46 | 2021 | | 2025.07.29 | ¿ù¼¼ | THELIME(´õ¶óÀÓ) | 14 | 29.92 | 27,000 | 46 | 2021 | | 2025.07.29 | Àü¼¼ | °ü¾Ç±×¸°ºô¶ó | 2 | 53.44 | 19,500 | 0 | 1987 | | 2025.07.29 | ¸Å¸Å | ¸®¹ö½ºÅ¸¿î3Â÷ | 3 | 47.4 | 35,000 | | 2015 | | 2025.07.28 | ¿ù¼¼ | ´õ½ºÆ©µð¿ÀÈÆ | 4 | 20.7 | 19,000 | 11 | 2010 | | 2025.07.28 | ¿ù¼¼ | À̷봺ij½½ | 5 | 29.87 | 28,800 | 15 | 2018 | | 2025.07.28 | ¿ù¼¼ | ¿ëȺô¶ó | 2 | 42.8 | 1,000 | 60 | 1993 | | 2025.07.28 | ¿ù¼¼ | µµ¿ø¾ÆÆ®ºô(860-46) | 3 | 74.03 | 10,000 | 90 | 2006 | | 2025.07.28 | ¸Å¸Å | (196-352) | 1 | 85.07 | 36,000 | | 1985 | | 2025.07.28 | ¿ù¼¼ | (28-30) | 3 | 17.82 | 15,000 | 15 | 2016 | | 2025.07.27 | ¿ù¼¼ | º£³×½ºÆ® | 7 | 31.11 | 200 | 70 | 2020 | | 2025.07.27 | ¿ù¼¼ | žç | 10 | 50.83 | 2,000 | 65 | 2019 | | 2025.07.27 | ¿ù¼¼ | (908-10) | 4 | 44.91 | 14,000 | 40 | 2002 | | 2025.07.27 | Àü¼¼ | CG¾Æ¸§Ã¤14Â÷ | 5 | 22.915 | 17,000 | 0 | 2021 | | 2025.07.27 | ¿ù¼¼ | ³ëºíij½½ | 2 | 59.6 | 10,000 | 98 | 2017 | | 2025.07.26 | ¿ù¼¼ | ¾ÆÄ«µ¥¹ÌÇϿ콺3Â÷ | 2 | 42.68 | 33,000 | 60 | 2023 | | 2025.07.26 | ¿ù¼¼ | CJ»þ¸£¸Á | 3 | 29.02 | 22,000 | 70 | 2022 | | 2025.07.26 | ¿ù¼¼ | (1690-95) | 2 | 50.14 | 19,500 | 37 | 2002 | | 2025.07.26 | Àü¼¼ | ½Å¿øºô¶ó | 3 | 38.7 | 12,000 | 0 | 1987 | | 2025.07.26 | ¿ù¼¼ | (918-21) | 2 | 30.42 | 3,000 | 84 | 2013 | | 2025.07.26 | ¿ù¼¼ | ¾Ö°æÇϿ콺 | 2 | 22.33 | 16,000 | 5 | 2014 | | 2025.07.26 | ¿ù¼¼ | CJ»þ¸£¸Á | 3 | 29.02 | 22,000 | 70 | 2022 | | 2025.07.25 | ¸Å¸Å | ÅÂÁø·°½ººô | 3 | 29.61 | 30,300 | | 2016 | | 2025.07.25 | ¿ù¼¼ | ÀÌÁøÅ¸¿î(1624-41) | -1 | 31.24 | 2,000 | 35 | 1993 | | 2025.07.25 | ¿ù¼¼ | StoneYill | 1 | 22.28 | 14,000 | 12 | 2014 | | 2025.07.25 | Àü¼¼ | KWŸ¿ö | 8 | 32.43 | 30,870 | 0 | 2017 | | 2025.07.25 | ¿ù¼¼ | »þÀκô | 2 | 48.31 | 9,000 | 55 | 2002 | | 2025.07.25 | ¿ù¼¼ | ½ºÅ¸ | 4 | 23.47 | 5,000 | 120 | 2018 | | 2025.07.25 | ¿ù¼¼ | ´õ°ÔÀÌÆ® | 4 | 28.76 | 22,300 | 18 | 2016 | | 2025.07.24 | Àü¼¼ | »ó¿ì¾ÆÆ®ºô(715-23) | 1 | 50.73 | 16,000 | 0 | 2002 | | 2025.07.24 | ¿ù¼¼ | ´Ù¿Âºô | 1 | 22.76 | 100 | 100 | 2025 | | 2025.07.24 | ¸Å¸Å | Çö´ëMŸ¿î | 8 | 28.52 | 34,300 | | 2017 | | 2025.07.24 | ¿ù¼¼ | ¹Ì¸¤ºôµù | 8 | 25.58 | 11,000 | 55 | 2018 | | 2025.07.24 | ¸Å¸Å | ¹«±ÃÈÁ¦3Â÷¸Ç¼Ç | 1 | 43.5 | 24,000 | | 1998 | | 2025.07.24 | ¸Å¸Å | ½Ã´ëºô¶óÆ® | 1 | 60.23 | 33,900 | | 2001 | | 2025.07.24 | ¿ù¼¼ | ÀÏÁÖÇϿ콺Bµ¿ | 5 | 34.69 | 500 | 75 | 2015 | | 2025.07.24 | ¿ù¼¼ | KSŸ¿ö | 10 | 32.79 | 10,000 | 59 | 2017 | | 2025.07.23 | ¸Å¸Å | º¸¿øºô¶ó | 3 | 26.63 | 12,000 | | 1993 | | 2025.07.23 | ¿ù¼¼ | µå¸²ÇϿ콺(41-231) | 4 | 12.23 | 7,000 | 30 | 2012 | | 2025.07.23 | Àü¼¼ | ÿ½ÃÇϿ콺Cµ¿ | 5 | 31.92 | 24,800 | 0 | 2019 | | 2025.07.23 | Àü¼¼ | ¿ì¿µARTEVILLNAKSUNG | 4 | 29.3 | 34,600 | 0 | 2022 | | 2025.07.23 | Àü¼¼ | ¼ºÁø¸®Ä¡ºô6Â÷ | 6 | 33.16 | 29,600 | 0 | 2022 | | 2025.07.23 | Àü¼¼ | ¿ì¿µARTEVILLNAKSUNG | 4 | 29.3 | 35,000 | 0 | 2022 | | 2025.07.23 | Àü¼¼ | (180-295) | 1 | 60.4 | 26,010 | 0 | 2008 | | 2025.07.23 | ¿ù¼¼ | ¸í¹®Å¸¿ö | 12 | 10.11 | 15,000 | 15 | 2022 | | 2025.07.23 | ¿ù¼¼ | ž½ººô | 1 | 76.86 | 16,000 | 42 | 1997 | | 2025.07.23 | ¿ù¼¼ | Ç÷¯½ºÅ¸¿ö | 8 | 10.89 | 5,000 | 57 | 2002 | | 2025.07.23 | ¿ù¼¼ | ¼öÆÓ¸®½ºTD | 2 | 34.84 | 2,000 | 150 | 2022 | | 2025.07.22 | ¿ù¼¼ | °Ç¿µºô¶ó | 1 | 49.84 | 7,000 | 58 | 1995 | | 2025.07.22 | ¿ù¼¼ | ¾ÆÄ«µ¥¹ÌÇϿ콺3Â÷ | 2 | 42.1 | 30,000 | 75 | 2023 | | 2025.07.22 | ¿ù¼¼ | ´õ°ÔÀÌÆ® | 4 | 28.76 | 22,300 | 18 | 2016 | | 2025.07.22 | ¿ù¼¼ | ¾ÆÆ®¸®¿ò | 3 | 17.7 | 1,000 | 55 | 2011 | | 2025.07.22 | ¿ù¼¼ | (1650-7) | 2 | 27.74 | 2,000 | 100 | 2012 | | 2025.07.22 | ¿ù¼¼ | žç | 8 | 50.83 | 1,000 | 70 | 2019 | | 2025.07.22 | ¸Å¸Å | »þÀκô | 4 | 47.97 | 37,000 | | 2020 | | 2025.07.22 | ¿ù¼¼ | (1691-17) | 1 | 35.93 | 3,000 | 53 | 1980 | | 2025.07.21 | ¿ù¼¼ | THELIME(´õ¶óÀÓ) | 13 | 29.48 | 32,400 | 20 | 2021 | | 2025.07.21 | ¿ù¼¼ | ´Ù¿Âºô | 3 | 22.32 | 5,000 | 100 | 2025 | | 2025.07.21 | ¿ù¼¼ | ´Ù¿Âºô | 3 | 22.32 | 5,000 | 40 | 2025 | | 2025.07.21 | ¿ù¼¼ | ´Ù¿Âºô | 4 | 29.33 | 5,000 | 40 | 2025 | | 2025.07.21 | ¿ù¼¼ | THELIME(´õ¶óÀÓ) | 13 | 29.48 | 32,400 | 20 | 2021 | | 2025.07.21 | ¿ù¼¼ | ¼º°æ¾ÆÆ®ºô | 3 | 15.34 | 1,000 | 50 | 2012 | | 2025.07.21 | ¿ù¼¼ | (457-372) | 3 | 25.1 | 14,000 | 26 | 2013 | | 2025.07.21 | Àü¼¼ | (457-372) | 3 | 27.11 | 13,650 | 0 | 2013 | | 2025.07.21 | ¿ù¼¼ | (196-268) | 3 | 36.56 | 10,000 | 30 | 2004 | | 2025.07.21 | ¿ù¼¼ | (196-268) | 3 | 36.56 | 10,000 | 37 | 2004 | | 2025.07.21 | ¿ù¼¼ | 1614-2 | 5 | 27.28 | 1,000 | 53 | 2016 | | 2025.07.21 | ¿ù¼¼ | Ç÷¯½ºÅ¸¿ö | 9 | 10.89 | 3,000 | 65 | 2002 | | 2025.07.21 | ¿ù¼¼ | 1614-2 | 3 | 26.22 | 3,000 | 47 | 2016 | | 2025.07.21 | ¸Å¸Å | ÅĵðÇϿ콺5Â÷ | 3 | 64.01 | 34,600 | | 2002 | | 2025.07.20 | ¸Å¸Å | ³²Çâºô¶ó(1652-25) | 1 | 46.76 | 24,000 | | 1990 | | 2025.07.20 | ¸Å¸Å | ¾È³ª½ººô | 2 | 57.15 | 42,000 | | 2011 | | 2025.07.20 | ¿ù¼¼ | Çö°æÇ÷¹ÀÎÁî | 6 | 15.72 | 1,000 | 42 | 2002 | | 2025.07.20 | ¿ù¼¼ | ¹Ì¸¤ºôµù | 8 | 12.79 | 3,000 | 76 | 2018 | | 2025.07.19 | ¿ù¼¼ | ¼·¡¸¶À» | 8 | 23.23 | 17,000 | 32 | 2017 | | 2025.07.19 | ¿ù¼¼ | ÇÏÀÓS | 9 | 13.61 | 2,000 | 64 | 2018 | | 2025.07.19 | ¿ù¼¼ | ´ö»êŸ¿ö | 10 | 17.03 | 18,000 | 10 | 2019 | | 2025.07.19 | ¿ù¼¼ | »ïÀϺôµù | 4 | 12.44 | 2,000 | 90 | 2015 | | 2025.07.19 | ¿ù¼¼ | ¼·¡¸¶À» | 7 | 23.23 | 21,000 | 17 | 2017 | | 2025.07.19 | ¿ù¼¼ | (47-1) | 3 | 46.44 | 1,000 | 84 | 2004 | | 2025.07.19 | Àü¼¼ | ÿ½ÃÇϿ콺Cµ¿ | 6 | 27.85 | 20,000 | 0 | 2019 | | 2025.07.19 | ¸Å¸Å | È£±¤ÁÖÅÃBµ¿ | -1 | 28.06 | 61,000 | | 1986 | | 2025.07.19 | ¸Å¸Å | ¿ø¾Óºô | 2 | 32.02 | 35,500 | | 2023 | | 2025.07.19 | ¸Å¸Å | StoneYill | 2 | 22.57 | 19,500 | | 2014 | | 2025.07.19 | ¸Å¸Å | Àå¹Ìºô¶ó | -1 | 58.92 | 16,000 | | 1991 | | 2025.07.19 | ¸Å¸Å | ¿ì¿ùÀü¿ø | 4 | 54.59 | 26,000 | | 1997 | | 2025.07.19 | ¿ù¼¼ | Á¶Àººô | 2 | 12.15 | 6,000 | 13 | 2013 | | 2025.07.18 | Àü¼¼ | µ¿Áøºô¶ó(180-138) | 2 | 54.4 | 21,000 | 0 | 1998 | | 2025.07.18 | ¿ù¼¼ | (1674-19) | 6 | 12.075 | 1,000 | 65 | 2019 | | 2025.07.18 | ¿ù¼¼ | °øÈƺô¶ó | 3 | 35.9 | 1,000 | 83 | 1991 | | 2025.07.18 | ¿ù¼¼ | (100-191) | 2 | 23.58 | 60 | 50 | 2018 | | 2025.07.18 | Àü¼¼ | (1562-10) | 5 | 23.93 | 23,000 | 0 | 2016 | | 2025.07.18 | ¿ù¼¼ | (1531-1) | 1 | 69.06 | 50 | 33 | 1977 | | 2025.07.18 | ¿ù¼¼ | ±¤Àϱ׸°ºô | -1 | 51.8 | 1,000 | 70 | 2002 | | 2025.07.17 | ¿ù¼¼ | ¿¹ÁöÇϿ콺 | 2 | 28.59 | 25,000 | 11 | 2019 | | 2025.07.17 | Àü¼¼ | ¿¬Èñºô¶ó | 1 | 77.88 | 18,000 | 0 | 1985 | | 2025.07.17 | ¸Å¸Å | ¾Æ¸£¶¼ºôA | 3 | 48.23 | 42,000 | | 2016 | | 2025.07.17 | ¿ù¼¼ | (734-16) | 4 | 41.61 | 500 | 53 | 2014 | | 2025.07.16 | ¸Å¸Å | ÇÏÀÌŬ¶ó½ººô5Â÷ | 2 | 31.08 | 15,500 | | 2009 | | 2025.07.16 | ¸Å¸Å | ´Ù¿ÃÇϿ콺 | 1 | 29.88 | 33,000 | | 2017 | | 2025.07.16 | ¸Å¸Å | ÇÁ·¯½ººô | 3 | 43.42 | 32,500 | | 2008 | | 2025.07.16 | Àü¼¼ | Æ®¶ó¿òºô | 4 | 83.9 | 37,000 | 0 | 2010 | | 2025.07.16 | Àü¼¼ | ¼ö±¤ºô¶ó(877-17) | 1 | 50.7 | 20,000 | 0 | 1995 | | 2025.07.16 | Àü¼¼ | ¼öÆÓ¸®½ºFT | 5 | 29.25 | 25,000 | 0 | 2019 | | 2025.07.15 | ¿ù¼¼ | ½ÂÈñ¸®Ä¡ºô | 3 | 105.38 | 34,500 | 30 | 2002 | | 2025.07.15 | ¿ù¼¼ | ÇѾçºô¶ó | 2 | 41.11 | 13,000 | 45 | 1986 | | 2025.07.15 | ¿ù¼¼ | (1709-13) | 1 | 56.3 | 2,000 | 80 | 1996 | | 2025.07.15 | ¿ù¼¼ | ÇѾçºô¶ó | 2 | 41.11 | 13,000 | 45 | 1986 | | 2025.07.15 | ¿ù¼¼ | ½ÂÈñ¸®Ä¡ºô | 3 | 105.38 | 34,500 | 30 | 2002 | | 2025.07.15 | Àü¼¼ | ¿£Á©Å¸¿î6Â÷ | 4 | 43.47 | 25,000 | 0 | 2017 | | 2025.07.15 | ¿ù¼¼ | ¼Áø·°½ººô | 2 | 12.48 | 3,000 | 50 | 2013 | | 2025.07.14 | ¿ù¼¼ | °ü¾ÇÂüÁ¸ºô | 4 | 29.94 | 13,000 | 63 | 2015 | | 2025.07.14 | ¿ù¼¼ | ¿¡ÀÌÄ¡ÇÏÀÓ | 10 | 14.59 | 4,000 | 102 | 2024 | | 2025.07.14 | ¿ù¼¼ | ¿À·»ÁöÇÏÀÓ(1681-16) | 3 | 26.97 | 5,000 | 93 | 2019 | | 2025.07.14 | ¿ù¼¼ | ½Åº¹È¨Å¸¿î | -1 | 65.5 | 1,000 | 65 | 2001 | | 2025.07.14 | ¿ù¼¼ | (1528-14) | 2 | 28.37 | 17,000 | 42 | 2021 | | 2025.07.14 | ¿ù¼¼ | (1688-40) | 3 | 58.18 | 1,000 | 85 | 2004 | | 2025.07.14 | ¿ù¼¼ | µ¿¿øÇÏÀ̺ô1Â÷ | 5 | 57.5 | 10,000 | 60 | 2002 | | 2025.07.13 | ¿ù¼¼ | ÇãºêÇϿ콺(958-28) | 2 | 13.32 | 500 | 50 | 2012 | | 2025.07.13 | ¸Å¸Å | ½ÅÁøÁÖÅà | 2 | 106.53 | 45,000 | | 1996 | | 2025.07.13 | ¸Å¸Å | ´õÆÛ½ºÆ®ºô¸®Áö | 2 | 25.52 | 28,800 | | 2020 | | 2025.07.13 | ¿ù¼¼ | ½ÂÈñ¸®Ä¡ºô | 2 | 17.48 | 500 | 37 | 2002 | | 2025.07.12 | ¿ù¼¼ | ¸ÞÀÌÇýºÅ×ÀÌ | 9 | 13.26 | 3,000 | 78 | 2017 | | 2025.07.12 | ¿ù¼¼ | ºÀõµ¿´Ù¼¼´ëÁÖÅÃ(56-109) | 2 | 44.56 | 12,000 | 27 | 2003 | | 2025.07.12 | ¿ù¼¼ | (1687-28) | 2 | 60.28 | 19,500 | 33 | 2001 | | 2025.07.12 | ¿ù¼¼ | (1687-28) | 2 | 60.28 | 19,500 | 33 | 2001 | | 2025.07.12 | ¿ù¼¼ | (950-12) | 3 | 15.81 | 1,000 | 45 | 2011 | | 2025.07.12 | Àü¼¼ | (1711-2) | 3 | 52.21 | 27,000 | 0 | 1996 | | 2025.07.12 | ¿ù¼¼ | ÆòȸǼð(915-5) | 3 | 41.49 | 10,000 | 50 | 1995 | | 2025.07.12 | ¿ù¼¼ | Çູ¿À°í | 3 | 26.91 | 1,000 | 55 | 2013 | | 2025.07.12 | ¿ù¼¼ | ¾ÆÅ©·ÎÆÓ¸®½º | 3 | 28.24 | 25,000 | 22 | 2020 | | 2025.07.12 | Àü¼¼ | »êÀå¾ÆÆ®ºô | 3 | 50.04 | 19,000 | 0 | 2002 | | 2025.07.12 | ¿ù¼¼ | ÇÊÇϿ콺2Â÷102µ¿ | 3 | 26.89 | 2,000 | 100 | 2016 | | 2025.07.12 | ¸Å¸Å | ¶óÀÌÇÁºô | 3 | 34.77 | 24,500 | | 2013 | | 2025.07.12 | ¸Å¸Å | ½ÅÁøÁÖÅà | 3 | 102.81 | 50,000 | | 1996 | | 2025.07.12 | ¸Å¸Å | ÇѼºÆÐ¹Ð¸®Å¸¿îA | 2 | 46.32 | 25,700 | | 1991 | | 2025.07.12 | ¸Å¸Å | ÇÑ¿ïä | 5 | 69.51 | 43,000 | | 2010 | | 2025.07.11 | ¿ù¼¼ | (909-10) | 2 | 36.57 | 2,000 | 103 | 2009 | | 2025.07.11 | ¿ù¼¼ | ¿¹´Ù¿òºô | 1 | 34.93 | 1,000 | 88 | 2013 | | 2025.07.11 | ¸Å¸Å | StoneYill | 2 | 22.28 | 19,200 | | 2014 | | 2025.07.11 | Àü¼¼ | Űæ9Â÷ | 4 | 28.35 | 22,000 | 0 | 2020 | | 2025.07.11 | ¸Å¸Å | ¿¹Áøºô¶ó | 1 | 84.7 | 51,500 | | 1998 | | 2025.07.11 | ¿ù¼¼ | ÆÓ¸®½ºÅ¸¿î(635-124) | 3 | 29.91 | 4,000 | 65 | 2015 | | 2025.07.11 | ¿ù¼¼ | CJ»þ¸£¸Á | 3 | 28.7 | 20,000 | 75 | 2022 | | 2025.07.11 | ¸Å¸Å | ½Å°Çµå¸²¿øºô | 5 | 49.75 | 26,500 | | 2012 | | 2025.07.10 | ¿ù¼¼ | ºÀõµ¿´Ù¼¼´ëÁÖÅÃ(56-109) | 2 | 35.57 | 10,000 | 33 | 2003 | | 2025.07.10 | ¸Å¸Å | º§À¯¾îºí3Â÷ | 2 | 57.62 | 41,000 | | 2014 | | 2025.07.10 | ¸Å¸Å | »ï¿øºô¶ó(¶óµ¿) | 1 | 56.46 | 27,800 | | 1988 | | 2025.07.10 | ¸Å¸Å | º¸¶óºô¶ó | -1 | 50.79 | 18,300 | | 1995 | | 2025.07.10 | Àü¼¼ | 21ÇÏ¿ì¡ | 4 | 54.4 | 26,900 | 0 | 2015 | | 2025.07.10 | Àü¼¼ | 905-15 | 4 | 35.63 | 18,900 | 0 | 2013 | | 2025.07.10 | ¿ù¼¼ | (100-290) | 5 | 26.46 | 500 | 43 | 2003 | | 2025.07.10 | ¿ù¼¼ | (100-125) | 3 | 22.5 | 500 | 54 | 2001 | | 2025.07.10 | Àü¼¼ | ´õ°ÔÀÌÆ® | 4 | 29.87 | 26,000 | 0 | 2016 | | 2025.07.10 | ¿ù¼¼ | (1613-6) | 3 | 29.44 | 15,000 | 40 | 2011 | | 2025.07.10 | ¿ù¼¼ | Ç÷º½ººô(715-143) | 2 | 15.3 | 300 | 27 | 2001 | | 2025.07.09 | ¿ù¼¼ | (670-80) | 1 | 17.28 | 8,000 | 10 | 2007 | | 2025.07.09 | Àü¼¼ | ´õ¹Ù¿ò | 5 | 58.41 | 31,000 | 0 | 2019 | | 2025.07.09 | Àü¼¼ | ¶ó¿Âºô¸®Áö | 10 | 23.45 | 26,700 | 0 | 2019 | | 2025.07.09 | ¿ù¼¼ | À¯´Ï¿Âºô | 2 | 42.64 | 1,000 | 63 | 2005 | | 2025.07.09 | ¿ù¼¼ | ¶ó¿Â3 | 9 | 12.412 | 3,000 | 64 | 2018 | | 2025.07.08 | ¸Å¸Å | »ïÁ¤±×¸°ºô¶ó°¡µ¿ | -1 | 60.39 | 17,500 | | 2002 | | 2025.07.08 | ¸Å¸Å | Àå¹Ìºô¶ó(°¡)(³ª) | 1 | 52.8 | 24,000 | | 1987 | | 2025.07.08 | ¿ù¼¼ | 905-15 | 3 | 36.01 | 10,000 | 54 | 2013 | | 2025.07.08 | ¸Å¸Å | ´ëÁöºô¶ó | -1 | 38.58 | 26,500 | | 1991 | | 2025.07.08 | ¸Å¸Å | »ïÁ¤±×¸°ºô¶ó°¡µ¿ | -1 | 60.39 | 17,350 | | 2002 | | 2025.07.07 | ¸Å¸Å | ÄŸºô·¹7Â÷ | 11 | 12.12 | 19,700 | | 2020 | | 2025.07.07 | Àü¼¼ | ´ãÀººô | 5 | 42.24 | 28,300 | 0 | 2017 | | 2025.07.07 | ¿ù¼¼ | ¹Ì·¡ºô¶ó(1510-31) | 3 | 40.9 | 1,000 | 87 | 2003 | | 2025.07.07 | ¿ù¼¼ | ¿µºô | 1 | 27.6 | 3,000 | 50 | 2008 | | 2025.07.07 | ¿ù¼¼ | ¿µºô | 1 | 27.6 | 3,000 | 43 | 2008 | | 2025.07.07 | ¿ù¼¼ | »óÀº±×¸°ºôA | 2 | 81.92 | 28,000 | 20 | 2002 | | 2025.07.07 | ¸Å¸Å | ±¤Àϵ帲ºô | 1 | 56.92 | 28,000 | | 2002 | | 2025.07.07 | ¸Å¸Å | ÇѾ縮Ã÷ºô | 4 | 54.8 | 40,000 | | 2015 | | 2025.07.06 | ¿ù¼¼ | (1688-30) | 4 | 48.38 | 4,000 | 40 | 2003 | | 2025.07.06 | ¿ù¼¼ | ¹Ì¸¤ºôµù | 8 | 24.53 | 13,000 | 33 | 2018 | | 2025.07.06 | ¿ù¼¼ | Űæ9Â÷ | 3 | 29.31 | 21,000 | 20 | 2020 | | 2025.07.06 | ¿ù¼¼ | ´ëÇдç | 1 | 13.5 | 2,000 | 35 | 2011 | | 2025.07.06 | ¸Å¸Å | À¯¿ø¾ÆÆ®ºô | 2 | 70.33 | 38,300 | | 2002 | | 2025.07.06 | ¿ù¼¼ | Çϳªºô(1690-63) | 1 | 27.57 | 3,000 | 50 | 2003 | | 2025.07.05 | ¿ù¼¼ | ÀºÃµºô¸®Áö | 2 | 23.5 | 3,000 | 75 | 2012 | | 2025.07.05 | Àü¼¼ | (1643-31) | 2 | 34.84 | 20,000 | 0 | 2004 | | 2025.07.05 | ¿ù¼¼ | Ç÷¯½ºÅ¸¿ö | 10 | 12.14 | 4,000 | 67 | 2002 | | 2025.07.05 | ¿ù¼¼ | (1644-15) | 2 | 34.66 | 1,000 | 70 | 2005 | | 2025.07.05 | ¿ù¼¼ | µµ¿ø¸Ç¼Ç(B) | 3 | 64.63 | 28,300 | 12 | 2004 | | 2025.07.05 | ¿ù¼¼ | ½Å±¤ºô¶ó | 4 | 28.49 | 6,000 | 68 | 2012 | | 2025.07.05 | ¸Å¸Å | ½Å¿øºô¶ó | 3 | 38.7 | 95,000 | | 1987 | | 2025.07.05 | ¿ù¼¼ | ´õ¿ï¸²¸ÞÆ®·ÎŸ¿ö | 6 | 13.94 | 13,000 | 30 | 2022 | | 2025.07.05 | ¿ù¼¼ | ÇöÆÄÅ©ºô | 3 | 79.43 | 29,100 | 6 | 2004 | | 2025.07.05 | ¿ù¼¼ | Á¶¾àµ¹ºô¥² | 9 | 28.1 | 22,000 | 25 | 2018 | | 2025.07.05 | ¿ù¼¼ | »ï¿øºô¶ó´Ù | 3 | 33.48 | 3,000 | 50 | 1991 | | 2025.07.05 | Àü¼¼ | ÀÏÀ°»ï¾ÆÆ®ºô¶ó | 3 | 64.8 | 34,000 | 0 | 1995 | | 2025.07.05 | ¿ù¼¼ | ´ë¿µºô¶ó | 2 | 59.8 | 24,000 | 10 | 1991 | | 2025.07.04 | ¿ù¼¼ | ¾Èµ¿ºô¶ó(1518-4) | 1 | 80.94 | 2,000 | 110 | 1991 | | 2025.07.04 | Àü¼¼ | ½ÅºÀ¸¶À»C(885-46) | 4 | 63.96 | 20,000 | 0 | 2003 | | 2025.07.04 | ¿ù¼¼ | YB1979 | 4 | 29.46 | 3,000 | 98 | 2020 | | 2025.07.03 | ¸Å¸Å | »êÀåºô¶ó | 3 | 57.96 | 22,000 | | 1993 | | 2025.07.03 | ¿ù¼¼ | ´Ù¿ÃÇϿ콺 | 1 | 29.88 | 19,000 | 15 | 2017 | | 2025.07.03 | ¿ù¼¼ | ´õÆÛ½ºÆ®ºô¸®Áö | 5 | 45.09 | 32,000 | 40 | 2020 | | 2025.07.03 | Àü¼¼ | ¼®¿ì¾ÆÆ®ºô¶ó | 1 | 43.62 | 22,100 | 0 | 1991 | | 2025.07.03 | ¿ù¼¼ | ¿¡ÀÌÄ¡ÇÏÀÓ | 12 | 14.59 | 5,000 | 100 | 2024 | | 2025.07.03 | Àü¼¼ | ¼®¿ì¾ÆÆ®ºô¶ó | 1 | 43.62 | 21,500 | 0 | 1991 | | 2025.07.03 | ¿ù¼¼ | Çö´ë¸Ç¼Ç(196-272) | 3 | 60.81 | 23,000 | 50 | 1991 | | 2025.07.03 | ¿ù¼¼ | ¿¤¸² | 2 | 12.4 | 8,000 | 15 | 2012 | | 2025.07.03 | ¿ù¼¼ | µµ¿ø¾ÆÆ®ºô(860-46) | 5 | 74.03 | 10,000 | 105 | 2006 | | 2025.07.02 | ¿ù¼¼ | Àϱ¤¸®Ä¡ºô | 3 | 39.03 | 13,000 | 30 | 2014 | | 2025.07.02 | ¿ù¼¼ | ºÀõµ¿´Ù¼¼´ëÁÖÅà | 1 | 47.99 | 500 | 25 | 2003 | | 2025.07.02 | Àü¼¼ | Çì¼¼µåÇϿ콺 | -1 | 54.43 | 25,500 | 0 | 2021 | | 2025.07.02 | Àü¼¼ | Çì¼¼µåÇϿ콺 | -1 | 54.43 | 25,500 | 0 | 2021 | | 2025.07.02 | ¿ù¼¼ | (893-19) | 2 | 55.67 | 2,000 | 55 | 1979 | | 2025.07.02 | Àü¼¼ | û¸²ºô¶ó | 1 | 39.74 | 15,000 | 0 | 1993 | | 2025.07.01 | ¿ù¼¼ | ±Ý°ÆÓ¸®½º | 4 | 31.68 | 12,000 | 37 | 2014 | | 2025.07.01 | ¸Å¸Å | ¿ì¿ùÀü¿ø | 2 | 48.48 | 22,900 | | 1997 | | 2025.07.01 | ¿ù¼¼ | (895-14) | 7 | 23.18 | 16,800 | 42 | 2017 | | 2025.07.01 | Àü¼¼ | ¸®¹ö½ºÅ¸¿î3Â÷ | 3 | 47.4 | 26,000 | 0 | 2015 | | 2025.07.01 | ¿ù¼¼ | ¾çÁöºôBµ¿ | 3 | 46.13 | 4,000 | 70 | 2003 | | 2025.06.30 | ¿ù¼¼ | Ç÷¯½ºÅ¸¿ö | 9 | 11.87 | 1,500 | 72 | 2002 | | 2025.06.30 | ¿ù¼¼ | û¼Ûºô | -1 | 42.68 | 1,000 | 52 | 2003 | | 2025.06.30 | Àü¼¼ | ºû°íÀ»ÇϿ콺 | 2 | 40.7 | 24,000 | 0 | 2013 | | 2025.06.30 | ¸Å¸Å | ¼¾ÈÁÖÅà | -1 | 84.53 | 22,500 | | 1994 | | 2025.06.30 | ¿ù¼¼ | ¼¼ÇѺô¶ó | 2 | 36.9 | 15,000 | 30 | 1990 | | 2025.06.30 | Àü¼¼ | ¿ì¹æÅ¸¿î | 1 | 57.73 | 3,000 | 0 | 1997 | | 2025.06.30 | ¿ù¼¼ | ¸ð´øºô | 2 | 26.22 | 100 | 35 | 2023 | | 2025.06.29 | ¿ù¼¼ | »ï¼ºÇÏÀÌÃ÷ºô | 2 | 66.09 | 500 | 35 | 2003 | | 2025.06.29 | ¿ù¼¼ | 1583-5 | 4 | 29.7 | 5,000 | 100 | 2013 | | 2025.06.29 | Àü¼¼ | (1562-10) | 7 | 27.35 | 22,000 | 0 | 2016 | | 2025.06.29 | ¿ù¼¼ | ¾Æ½¬·¹ºô | 2 | 19.4 | 2,000 | 40 | 2012 | | 2025.06.29 | ¸Å¸Å | µ¿½Åºô | 5 | 44.59 | 35,000 | | 2016 | | 2025.06.28 | ¿ù¼¼ | ºÀõµ¿´Ù¼¼´ëÁÖÅà | 1 | 47.99 | 500 | 31 | 2003 | | 2025.06.28 | ¿ù¼¼ | LIEBE | 13 | 27.75 | 25,000 | 35 | 2023 | | 2025.06.28 | ¿ù¼¼ | (1516-6) | 3 | 61.16 | 21,000 | 5 | 2002 | | 2025.06.28 | Àü¼¼ | Á¤ÀºÆç¸®½º9Â÷ | 2 | 51.9 | 32,000 | 0 | 2018 | | 2025.06.28 | ¿ù¼¼ | º¸¶ó¸Åºô | 2 | 29.54 | 5,000 | 93 | 2021 | | 2025.06.28 | ¿ù¼¼ | ¿ìûºô¶ó | 2 | 59.84 | 5,000 | 100 | 1991 | | 2025.06.28 | ¿ù¼¼ | ¸ÞÀÌÇýºÅ×ÀÌ | 10 | 14.72 | 3,000 | 73 | 2017 | | 2025.06.28 | ¿ù¼¼ | ¸ÞÀÌÇýºÅ×ÀÌ | 10 | 14.72 | 3,000 | 73 | 2017 | | 2025.06.28 | ¿ù¼¼ | ¾ÆÀ̺ô(180-242) | 2 | 45.61 | 20,000 | 40 | 2012 | | 2025.06.28 | ¿ù¼¼ | »õ½Ç¿ø·ëÇϿ콺 | 1 | 16.4 | 8,000 | 20 | 1996 | | 2025.06.27 | Àü¼¼ | (1709-10) | 1 | 44.54 | 20,000 | 0 | 1995 | | 2025.06.27 | Àü¼¼ | (900-102) | 1 | 62.05 | 24,000 | 0 | 2001 | | 2025.06.27 | ¿ù¼¼ | ¿¤¸²ÇϿ콺 | 2 | 15.6 | 300 | 31 | 2003 | | 2025.06.27 | ¿ù¼¼ | (933-19) | 1 | 56.98 | 4,000 | 80 | 2004 | | 2025.06.27 | ¿ù¼¼ | (635-471) | 2 | 32.38 | 8,800 | 15 | 1992 | | 2025.06.27 | ¸Å¸Å | Áß¾ÓÇÏÀ̺ô(1514-2) | 2 | 52.73 | 30,000 | | 2002 | | 2025.06.27 | ¸Å¸Å | ¼¼Á¾¾ÆÆ®ºô(180-177) | 3 | 84.9 | 47,000 | | 2002 | | 2025.06.27 | ¸Å¸Å | ¼¼Á¾¾ÆÆ®ºô(180-177) | 3 | 84.9 | 47,000 | | 2002 | | 2025.06.27 | ¸Å¸Å | ¼¼Á¾¾ÆÆ®ºô(180-177) | 3 | 84.9 | 47,000 | | 2002 | | 2025.06.27 | Àü¼¼ | ·ÎÁ¦ÇϿ콺 | 4 | 22.4 | 34,000 | 0 | 2017 | | 2025.06.26 | Àü¼¼ | ¿¬Èñºô¶ó | 1 | 60.68 | 13,000 | 0 | 1985 | | 2025.06.26 | Àü¼¼ | ´õ°ÔÀÌÆ® | 5 | 26.84 | 26,000 | 0 | 2016 | | 2025.06.26 | Àü¼¼ | W´Ù¼¼´ëÁÖÅÃ(1661-9) | 9 | 24.61 | 26,000 | 0 | 2017 | | 2025.06.26 | Àü¼¼ | ¼Û¾ÏÇÏÀÌÃ÷ºô¶ó | 2 | 29.52 | 21,000 | 0 | 2016 | | 2025.06.26 | ¿ù¼¼ | ¿¹Áøºô¸®Áö | 4 | 44.85 | 5,000 | 118 | 2004 | | 2025.06.26 | ¿ù¼¼ | (898-3) | 7 | 17.49 | 2,000 | 101 | 2022 | | 2025.06.26 | ¿ù¼¼ | ·Î¾âÇÏÀÌÃ÷(1682-12) | 1 | 56.6 | 16,000 | 50 | 2000 | | 2025.06.26 | ¿ù¼¼ | ¶ó³ë½º | 10 | 25.23 | 20,000 | 40 | 2017 | | 2025.06.25 | ¿ù¼¼ | µ¿Áø¸Ç¼Ç | 2 | 78.76 | 3,000 | 150 | 2006 | | 2025.06.25 | ¸Å¸Å | ¼öÆÓ¸®½ºFT | 5 | 29.64 | 24,000 | | 2019 | | 2025.06.25 | ¿ù¼¼ | ¸®Ä¡ºô | 3 | 15.55 | 5,000 | 36 | 2014 | | 2025.06.25 | ¿ù¼¼ | ¾ÆÀÎÆÄÅ©ºô | 2 | 80.76 | 5,000 | 45 | 2006 | | 2025.06.25 | ¿ù¼¼ | (1617-29) | 2 | 29.31 | 5,000 | 90 | 2014 | | 2025.06.25 | ¸Å¸Å | ¹é»óºô¶ó | 4 | 57.85 | 32,800 | | 2002 | | 2025.06.25 | ¿ù¼¼ | 1675-4 | 4 | 36.675 | 13,000 | 18 | 2003 | | 2025.06.24 | ¸Å¸Å | ¾Æ½Åºô¶ó | 2 | 49.6 | 17,000 | | 1986 | | 2025.06.24 | ¿ù¼¼ | ¹Ì¸®³» | 2 | 22.796 | 100 | 62 | 2017 | | 2025.06.24 | ¿ù¼¼ | ÿ½ÃÇϿ콺Cµ¿ | 4 | 31.92 | 24,000 | 3 | 2019 | | 2025.06.24 | Àü¼¼ | ÃÊ¿øºô¶ó | 3 | 55.54 | 16,000 | 0 | 1990 | | 2025.06.24 | ¿ù¼¼ | »ïÀϺôµù | 4 | 12.92 | 2,000 | 89 | 2015 | | 2025.06.24 | ¿ù¼¼ | ºû°íÀ»ÇϿ콺 | 4 | 32.26 | 15,000 | 28 | 2013 | | 2025.06.24 | ¿ù¼¼ | ¾Æ½Åºô¶ó | 2 | 49.6 | 1,500 | 85 | 1986 | | 2025.06.24 | ¿ù¼¼ | (1607-13) | 4 | 43.2 | 10,000 | 38 | 1992 | | 2025.06.24 | ¿ù¼¼ | Çö´ëŸ¿î | 3 | 51.285 | 5,000 | 140 | 2016 | | 2025.06.24 | ¸Å¸Å | ¹Ð·¹´Ï¾ö14Â÷ | 1 | 66.95 | 43,000 | | 2000 | | 2025.06.24 | ¿ù¼¼ | ¼ö±¤ºô¶ó(919-6) | 2 | 34.98 | 3,000 | 70 | 1994 | | 2025.06.23 | ¿ù¼¼ | (457-210) | 4 | 69.3 | 18,100 | 40 | 2001 | | 2025.06.23 | ¿ù¼¼ | ÇÞºû(180-360) | 4 | 37.92 | 3,000 | 92 | 2017 | | 2025.06.23 | ¿ù¼¼ | ¾Æ¸§½Ç | 2 | 12.9 | 4,500 | 35 | 2013 | | 2025.06.23 | ¿ù¼¼ | °Ü¿ï³ª¹« | 3 | 29.87 | 21,000 | 15 | 2019 | | 2025.06.23 | ¿ù¼¼ | ¿¹ÁöÇϿ콺 | 4 | 28.59 | 21,000 | 30 | 2019 | | 2025.06.23 | ¸Å¸Å | ½Å¿øºô¶ó | 3 | 27.81 | 80,000 | | 1987 | | 2025.06.22 | ¿ù¼¼ | ¿¹ÁöÇϿ콺 | 4 | 29.63 | 4,000 | 105 | 2019 | | 2025.06.22 | ¸Å¸Å | ÀåÆò2Ÿ¿î | 5 | 63.1 | 35,000 | | 2003 | | 2025.06.22 | ¿ù¼¼ | ÀºÃµºô¸®Áö | 6 | 31.01 | 3,000 | 70 | 2012 | | 2025.06.22 | ¿ù¼¼ | (935-28) | 1 | 36.76 | 2,000 | 90 | 1990 | | 2025.06.22 | ¿ù¼¼ | Á߾ӸǼÇ(Aµ¿) | 4 | 77.98 | 27,000 | 40 | 1998 | | 2025.06.21 | ¿ù¼¼ | ±¤µ¿ºô¶ó(1597-33) | 4 | 34.38 | 1,000 | 55 | 1996 | | 2025.06.21 | ¸Å¸Å | Æò»êBºô¶ó | 3 | 57.09 | 31,900 | | 1993 | | 2025.06.21 | ¸Å¸Å | À£ºùÇϿ콺 | 1 | 82.78 | 47,000 | | 2004 | | 2025.06.21 | ¸Å¸Å | dz¾Èºô¶ó | 3 | 37.5 | 19,900 | | 1992 | | 2025.06.21 | ¸Å¸Å | È£±¤ÁÖÅÃBµ¿ | 2 | 28.06 | 61,500 | | 1986 | | 2025.06.21 | ¸Å¸Å | (635-196) | 1 | 32.13 | 16,000 | | 1990 | | 2025.06.21 | ¿ù¼¼ | ÇÊÇϿ콺2Â÷102µ¿ | 5 | 40.79 | 5,000 | 110 | 2016 | | 2025.06.21 | ¿ù¼¼ | ÀÌ·¹Å¸¿ö | 5 | 24.65 | 5,000 | 120 | 2022 | | 2025.06.21 | ¿ù¼¼ | ±Ýµ¿»ç¶û¹æ | 9 | 12.34 | 14,000 | 30 | 2022 | | 2025.06.21 | ¿ù¼¼ | ±×·£µåºô | 5 | 44.64 | 10,000 | 70 | 2015 | | 2025.06.21 | Àü¼¼ | ¼ö±¤ÇÏÀÌÃ÷³ªµ¿ | 1 | 45.99 | 15,100 | 0 | 1991 | | 2025.06.21 | Àü¼¼ | ¸®Ä¡È¨ | 2 | 20.43 | 13,000 | 0 | 2017 | | 2025.06.21 | Àü¼¼ | º§À¯¾îºí(41-16) | 5 | 29.77 | 20,000 | 0 | 2014 | | 2025.06.21 | Àü¼¼ | ÆÛ½ºÆ®ÇÁ¸®¹Ì¾ö | 4 | 28.76 | 24,700 | 0 | 2017 | | 2025.06.21 | ¿ù¼¼ | »õ³²ºô¸®Áö | 1 | 50.86 | 1,000 | 79 | 2004 | | 2025.06.21 | ¿ù¼¼ | ±×·¹À̺ô | 7 | 27.1 | 21,000 | 9 | 2017 | | 2025.06.21 | ¿ù¼¼ | ±¤¿µºô¶ó | 1 | 42.6 | 5,000 | 30 | 1991 | | 2025.06.20 | ¿ù¼¼ | ¿¹Àκô¶óÆ® | 2 | 54.96 | 18,000 | 10 | 1993 | | 2025.06.20 | ¿ù¼¼ | ¿µ¼öºôµù | 4 | 12.4 | 9,000 | 15 | 2013 | | 2025.06.20 | Àü¼¼ | È¿¼º¸Ç¼Ç | -1 | 37.99 | 8,000 | 0 | 1994 | | 2025.06.20 | ¿ù¼¼ | ºñÀüÇϿ콺 | 2 | 18.04 | 1,000 | 58 | 2016 | | 2025.06.20 | Àü¼¼ | ¸®º¥ÇÏÀÓ | 2 | 27.26 | 21,600 | 0 | 2017 | | 2025.06.20 | ¿ù¼¼ | 897-18 | 4 | 18.82 | 3,000 | 78 | 2014 | | 2025.06.20 | ¸Å¸Å | ¹«±ÃÈÁÖÅà | 4 | 37.89 | 20,000 | | 1993 | | 2025.06.20 | ¿ù¼¼ | (1674-19) | 5 | 12.075 | 1,000 | 63 | 2019 | | 2025.06.20 | ¿ù¼¼ | ·£µåÆÄÅ©ºô | 2 | 46.23 | 4,300 | 70 | 2009 | | 2025.06.20 | ¿ù¼¼ | dz¿øÇÏÀÓºô | 3 | 28 | 14,000 | 45 | 2016 | | 2025.06.20 | ¿ù¼¼ | ¼öÁ¤ºô¶ó(196-111) | 4 | 57.16 | 21,000 | 35 | 1995 | | 2025.06.19 | ¸Å¸Å | Çö´ëAºô¶ó | -1 | 59.22 | 21,000 | | 1993 | | 2025.06.19 | ¿ù¼¼ | üÀ̽ººô | 5 | 21.84 | 18,900 | 20 | 2015 | | 2025.06.19 | ¿ù¼¼ | °Ç¿µºô¶ó(929-24) | 4 | 43.48 | 4,000 | 90 | 1993 | | 2025.06.19 | ¿ù¼¼ | ÇìºìŸ¿ö | 5 | 14.43 | 1,000 | 36 | 2013 | | 2025.06.19 | ¿ù¼¼ | ¸á¶ó | 3 | 27.42 | 150 | 75 | 2021 | | 2025.06.19 | ¿ù¼¼ | ±Ý°ÆÓ¸®½º | 2 | 14.28 | 2,000 | 44 | 2014 | | 2025.06.19 | ¿ù¼¼ | (1667-60) | 2 | 25.79 | 5,000 | 56 | 2016 | | 2025.06.19 | ¿ù¼¼ | LIEBE | 13 | 29.97 | 30,000 | 16 | 2023 | | 2025.06.18 | ¸Å¸Å | Űæ8Â÷ | 5 | 47.99 | 35,000 | | 2020 | | 2025.06.18 | ¸Å¸Å | ÀåÈïºô¶óBµ¿ | 1 | 38.01 | 11,000 | | 1993 | | 2025.06.18 | ¸Å¸Å | º¸¶÷ºô¸®Áö | 1 | 57.77 | 31,500 | | 1996 | | 2025.06.18 | ¿ù¼¼ | Çö´ëŸ¿î | 6 | 51.285 | 15,000 | 80 | 2016 | | 2025.06.18 | ¿ù¼¼ | ·Ôµ¥ºô¶ó | 1 | 33.8 | 1,000 | 100 | 1992 | | 2025.06.18 | ¿ù¼¼ | (972-44) | 5 | 33.2 | 11,700 | 20 | 2002 | | 2025.06.17 | Àü¼¼ | ¸íÁöºô¶ó(³ªµ¿) | 2 | 57.4 | 21,000 | 0 | 1993 | | 2025.06.17 | ¿ù¼¼ | ´Ù¼¼´ëÁÖÅÃ(1686-4) | 4 | 51.92 | 1,000 | 52 | 2018 | | 2025.06.17 | ¿ù¼¼ | ÀÌȺô¸®Áö | 2 | 60.46 | 17,000 | 40 | 1993 | | 2025.06.17 | ¿ù¼¼ | ´ë¼±ºô | 3 | 45.99 | 3,000 | 110 | 2014 | | 2025.06.17 | ¸Å¸Å | ´õÇ츣¹Ì¿Â | 13 | 11.61 | 25,000 | | 2021 | | 2025.06.16 | ¸Å¸Å | Á¤ÀºÆç¸®½º9Â÷ | 3 | 51.9 | 32,500 | | 2018 | | 2025.06.16 | ¸Å¸Å | ¹Ì¼ºÇÏÀÌÃ÷°¡ | 1 | 63.24 | 31,700 | | 1991 | | 2025.06.16 | ¸Å¸Å | µ¿µµºô¶óÆ®(178-39) | 1 | 63.15 | 33,500 | | 1994 | | 2025.06.16 | Àü¼¼ | »ïÁ¤ÇÏÀÌÃ÷ºô¶ó(¾Æµ¿) | 2 | 36.5 | 13,800 | 0 | 1990 | | 2025.06.16 | ¿ù¼¼ | ESvill | 2 | 79.93 | 4,000 | 50 | 2006 | | 2025.06.16 | ¿ù¼¼ | ¶ó¿Â3 | 10 | 12.291 | 3,000 | 61 | 2018 | | 2025.06.16 | ¿ù¼¼ | ¼ÃÊÇϿ콺(914-17) | 7 | 28.5 | 21,000 | 30 | 2016 | | 2025.06.16 | ¿ù¼¼ | À¯¼ººô¶ó | 3 | 42.15 | 5,000 | 84 | 1993 | | 2025.06.16 | ¿ù¼¼ | »ïÀϺôµù | 4 | 12.92 | 10,000 | 40 | 2015 | | 2025.06.16 | ¿ù¼¼ | ÀÀº¹ÁÖÅà | 2 | 29.51 | 3,000 | 61 | 2010 | | 2025.06.15 | ¿ù¼¼ | ´ëÇдç | 4 | 12.15 | 800 | 42 | 2011 | | 2025.06.15 | ¿ù¼¼ | ¼ºÁö | 2 | 39.995 | 13,000 | 19 | 1989 | | 2025.06.14 | ¿ù¼¼ | ¿¡ÀÌÄ¡ÇÏÀÓ | 10 | 17.32 | 3,000 | 120 | 2024 | | 2025.06.14 | ¿ù¼¼ | ÈÞÅ×¶ó½º | 3 | 29.94 | 26,000 | 20 | 2019 | | 2025.06.14 | ¿ù¼¼ | (1594-3) | 2 | 48.79 | 22,000 | 35 | 2007 | | 2025.06.14 | ¿ù¼¼ | µ¿±Ãºô¸®Áö | -1 | 59.85 | 1,500 | 75 | 1991 | | 2025.06.14 | Àü¼¼ | Ãë¼Û | 3 | 54.3 | 25,000 | 0 | 2004 | | 2025.06.14 | ¿ù¼¼ | ¿À·»ÁöÇÏÀÓ(1681-16) | 2 | 26.97 | 5,000 | 102 | 2019 | | 2025.06.14 | ¿ù¼¼ | Á¤Çýºô¶ó | 3 | 51.36 | 2,000 | 74 | 1992 | | 2025.06.14 | Àü¼¼ | ¼ö±¤ºô¶ó(919-6) | 2 | 32.37 | 19,000 | 0 | 1994 | | 2025.06.14 | Àü¼¼ | ´õ°ÔÀÌÆ® | 5 | 28.76 | 26,000 | 0 | 2016 | | 2025.06.14 | ¸Å¸Å | Áß¾ÓÇÏÀ̺ô(1514-2) | 3 | 52.98 | 31,500 | | 2002 | | 2025.06.14 | Àü¼¼ | ÇØ¿À¸§¾ÆÆ®ºô | 2 | 29.99 | 16,000 | 0 | 2014 | | 2025.06.14 | ¸Å¸Å | »óÀϺô¶ó | 4 | 51.72 | 25,000 | | 1991 | | 2025.06.14 | ¿ù¼¼ | StoneYill | 2 | 22.57 | 14,800 | 10 | 2014 | | 2025.06.13 | ¿ù¼¼ | ÅÂÁø·°½ººô | 6 | 41.26 | 5,000 | 115 | 2016 | | 2025.06.13 | ¸Å¸Å | ¿øÁÖºô¶ó | 1 | 48.36 | 21,000 | | 1988 | | 2025.06.13 | ¸Å¸Å | (1711-5) | 4 | 59.31 | 30,000 | | 1996 | | 2025.06.13 | ¸Å¸Å | À𽺹κô¶ó³ªµ¿ | -1 | 40.05 | 70,000 | | 1992 | | 2025.06.13 | ¸Å¸Å | ¹éÇÕºô¶ó | 4 | 72.49 | 80,000 | | 1998 | | 2025.06.13 | Àü¼¼ | ·¡µð¾Ó | 7 | 29.34 | 20,948 | 0 | 2015 | | 2025.06.13 | ¿ù¼¼ | ·Î¾âÇÏÀÌÃ÷(1682-12) | 1 | 56.6 | 16,000 | 50 | 2000 | | 2025.06.12 | ¿ù¼¼ | µµ¿ø¾ÆÆ®ºô(860-48) | 5 | 74.02 | 31,000 | 10 | 2005 | | 2025.06.12 | ¸Å¸Å | Çö´ëÁÖÅà | -1 | 38.1 | 9,800 | | 1990 | | 2025.06.12 | ¿ù¼¼ | (215-20) | 1 | 50.31 | 100 | 70 | 2004 | | 2025.06.12 | ¿ù¼¼ | µ¿µµºô¶óÆ®(178-39) | 3 | 63.15 | 20,000 | 40 | 1994 | | 2025.06.12 | ¸Å¸Å | ÀºÃµÆÄÅ©ºô2 | 2 | 61.07 | 34,200 | | 2002 | | 2025.06.11 | Àü¼¼ | ÆÓ¸®½ºÅ¸¿î¥± | 1 | 33.8 | 19,700 | 0 | 2014 | | 2025.06.11 | ¿ù¼¼ | CG¾Æ¸§Ã¤14Â÷ | 2 | 22.35 | 19,000 | 15 | 2021 | | 2025.06.11 | ¿ù¼¼ | ²ÞÀDZÃÀü | 2 | 30.46 | 4,355 | 9 | 2024 | | 2025.06.11 | ¿ù¼¼ | ²ÞÀDZÃÀü | 2 | 26.42 | 100 | 27 | 2024 | | 2025.06.11 | Àü¼¼ | ¼¼±âÇÏÀÌÃ÷ºô¶ó | -1 | 60.48 | 18,000 | 0 | 1993 | | 2025.06.11 | ¿ù¼¼ | ²ÞÀDZÃÀü | 2 | 30.46 | 2,097 | 22 | 2024 | | 2025.06.11 | Àü¼¼ | °üÀü¼¾Æ®·¹ºô | 2 | 44.46 | 29,000 | 0 | 2017 | | 2025.06.11 | Àü¼¼ | dzÁøºô¶ó | 3 | 48.78 | 19,000 | 0 | 1992 | | 2025.06.11 | ¿ù¼¼ | ¿¤¸²ÇϿ콺 | 3 | 15.6 | 500 | 43 | 2003 | | 2025.06.11 | ¸Å¸Å | »ï¼ºÇÏÀÌÃ÷ºô | 4 | 45.675 | 20,500 | | 2002 | | 2025.06.11 | ¸Å¸Å | µå¸²Æç¸®½º | 4 | 59.39 | 23,000 | | 2007 | | 2025.06.11 | ¸Å¸Å | ÿ½ÃÇϿ콺Aµ¿Bµ¿ | 3 | 38.83 | 34,000 | | 2019 | | 2025.06.11 | ¸Å¸Å | ¿ì¿ù±ÃÀü | 3 | 84.73 | 43,000 | | 1997 | | 2025.06.10 | ¿ù¼¼ | ¿¡µ§ºô¶ó | 2 | 49 | 1,500 | 75 | 1991 | | 2025.06.10 | ¿ù¼¼ | °ñµçºô | 3 | 29.25 | 2,000 | 72 | 2013 | | 2025.06.10 | Àü¼¼ | ÇູÇÑÁý(635-279) | -1 | 44.32 | 16,000 | 0 | 2013 | | 2025.06.10 | ¿ù¼¼ | ¸®Ä¡ºô | 4 | 27.93 | 2,000 | 65 | 2014 | | 2025.06.10 | Àü¼¼ | µ¿±¤ºô¶ó | 2 | 70.15 | 27,000 | 0 | 1996 | | 2025.06.10 | ¸Å¸Å | ½ÅºÀ¸¶À»C(885-46) | 3 | 66.51 | 36,630 | | 2003 | | 2025.06.10 | ¿ù¼¼ | ÇÞºû(180-360) | 3 | 40.82 | 4,000 | 76 | 2017 | | 2025.06.10 | ¸Å¸Å | ÇູŸ¿î | 2 | 60.11 | 33,500 | | 2001 | | 2025.06.09 | ¿ù¼¼ | ²ÞÀDZÃÀü | 5 | 27.62 | 4,319 | 6 | 2024 | | 2025.06.09 | ¿ù¼¼ | (1674-19) | 4 | 12.075 | 1,000 | 65 | 2019 | | 2025.06.09 | Àü¼¼ | û¸²Æ÷·¹½ºÆ®ºô | 5 | 25.24 | 12,000 | 0 | 2013 | | 2025.06.09 | ¸Å¸Å | ¼öÆÓ¸®½ºFT | 3 | 44.84 | 44,000 | | 2020 | | 2025.06.09 | ¿ù¼¼ | ²ÞÀDZÃÀü | 5 | 27.62 | 100 | 29 | 2024 | | 2025.06.09 | ¿ù¼¼ | ²ÞÀDZÃÀü | 3 | 30.46 | 100 | 26 | 2024 | | 2025.06.09 | ¿ù¼¼ | ¸ÞÀÌÇýºÅ×ÀÌ | 10 | 13.26 | 3,000 | 64 | 2017 | | 2025.06.09 | Àü¼¼ | ÆÄÅ©½¦¸£ºô | 1 | 64.08 | 32,000 | 0 | 2002 | | 2025.06.09 | ¿ù¼¼ | ²ÞÀDZÃÀü | 4 | 38.38 | 7,666 | 6 | 2024 | | 2025.06.09 | ¿ù¼¼ | ²ÞÀDZÃÀü | 2 | 36.22 | 100 | 35 | 2024 | | 2025.06.09 | ¿ù¼¼ | ²ÞÀDZÃÀü | 4 | 38.38 | 3,096 | 32 | 2024 | | 2025.06.09 | ¿ù¼¼ | ´Ù°æºô | 2 | 44.01 | 3,505 | 36 | 2022 | | 2025.06.09 | ¸Å¸Å | ºñÁꟿîC | 4 | 28.52 | 23,500 | | 2016 | | 2025.06.09 | ¸Å¸Å | Àå¹Ìºô¶ó | -1 | 53.97 | 14,000 | | 1991 | | 2025.06.09 | ¸Å¸Å | ¾ÆÆ®ºô¸®Áö | 4 | 60.55 | 34,000 | | 2001 | | 2025.06.09 | ¸Å¸Å | ¶óÀθǼÇ4Â÷ | 3 | 66.85 | 36,700 | | 2002 | | 2025.06.09 | ¿ù¼¼ | ²ÞÀDZÃÀü | 3 | 36.22 | 100 | 36 | 2024 | | 2025.06.08 | ¿ù¼¼ | »ïÀϺôµù | 4 | 12.92 | 10,000 | 48 | 2015 | | 2025.06.08 | ¿ù¼¼ | ÀºÃµ½¦¸£ºô | 4 | 50.73 | 2,000 | 33 | 2012 | | 2025.06.08 | Àü¼¼ | ÀÏ¿µÇÏÀÌÃ÷ºô¶ó | 3 | 39.97 | 22,000 | 0 | 1997 | | 2025.06.07 | ¿ù¼¼ | (480-109) | 1 | 28.46 | 500 | 50 | 2002 | | 2025.06.07 | ¿ù¼¼ | Çѱ¹ÁÖÅà | 4 | 67.69 | 21,600 | 15 | 2006 | | 2025.06.07 | ¿ù¼¼ | ÈÞÅ×¶ó½º | 3 | 29.94 | 5,000 | 115 | 2019 | | 2025.06.07 | ¿ù¼¼ | ´ãÀººô | 3 | 29.81 | 3,000 | 60 | 2017 | | 2025.06.07 | Àü¼¼ | ´ÃǪ¸¥½£ | 4 | 49.12 | 29,000 | 0 | 2017 | | 2025.06.07 | ¸Å¸Å | ¼±°æºô¶ó(180-38) | 3 | 59.63 | 33,550 | | 1997 | | 2025.06.07 | ¸Å¸Å | (1-1434) | 1 | 47.6 | 72,000 | | 1976 | | 2025.06.07 | ¸Å¸Å | Ȳ±Ý¸Ç¼ð | 2 | 59.98 | 35,800 | | 1996 | | 2025.06.06 | ¸Å¸Å | º¸¶ó¸Å¸®¹ö½ºÅ¸¿î | 2 | 31.35 | 25,000 | | 2014 | | 2025.06.06 | ¿ù¼¼ | ¿ì¸®ÇϿ콺 | 2 | 22.06 | 8,000 | 25 | 2012 | | 2025.06.06 | ¿ù¼¼ | (148-41) | 2 | 18.49 | 4,000 | 39 | 2006 | | 2025.06.06 | ¿ù¼¼ | ÀºÃµºô¸®Áö | 4 | 21.77 | 5,000 | 65 | 2012 | | 2025.06.05 | ¸Å¸Å | ¾Æ¿øµ¥ÄÚºô | 3 | 67.62 | 34,300 | | 2002 | | 2025.06.05 | ¸Å¸Å | µ¿Áø°ñµå¸Ç¼Ç | 1 | 67.79 | 21,000 | | 2002 | | 2025.06.05 | ¿ù¼¼ | ÈÞÅ×¶ó½º | 3 | 29.94 | 26,000 | 20 | 2019 | | 2025.06.05 | ¿ù¼¼ | ´õ½ºÆ©µð¿ÀÈÆ | 3 | 20.7 | 17,000 | 19 | 2010 | | 2025.06.05 | ¿ù¼¼ | CJ¾ÆÆ®ºô | 7 | 72.72 | 17,000 | 87 | 2015 | | 2025.06.05 | ¿ù¼¼ | °ü¾Çºô¸®Áö | -1 | 69.06 | 18,000 | 20 | 1996 | | 2025.06.05 | ¿ù¼¼ | (893-19) | 1 | 55.67 | 3,000 | 65 | 1979 | | 2025.06.05 | ¿ù¼¼ | »þÀκô | 3 | 48.31 | 10,000 | 45 | 2002 | | 2025.06.05 | ¿ù¼¼ | ´õÇ츣¹Ì¿Â | 11 | 11.61 | 2,000 | 100 | 2021 | | 2025.06.05 | ¿ù¼¼ | ºÀõ¿ì¼º | 21 | 30.42 | 3,549 | 16 | 2000 | | 2025.06.04 | Àü¼¼ | ´õ¹Ù¿ò | 2 | 59.06 | 33,600 | 0 | 2019 | | 2025.06.04 | ¸Å¸Å | °ø°£2Â÷ | -1 | 22.62 | 12,000 | | 1995 | | 2025.06.04 | ¿ù¼¼ | ¿µÁøºô¶ó°¡µ¿ | 1 | 44.52 | 5,000 | 75 | 1992 | | 2025.06.04 | ¿ù¼¼ | (1692-9) | 1 | 37.2 | 13,100 | 45 | 1989 | | 2025.06.04 | ¿ù¼¼ | ¸ð´øºô | 2 | 24.64 | 100 | 30 | 2023 | | 2025.06.04 | Àü¼¼ | (180-95) | 3 | 32.06 | 20,000 | 0 | 2012 | | 2025.06.04 | ¸Å¸Å | ÀÏÀ°»ï¾ÆÆ®ºô¶ó | 3 | 64.8 | 49,500 | | 1995 | | 2025.06.04 | ¸Å¸Å | ¼±°æºô¶ó(1709-1) | -1 | 54.3 | 17,000 | | 1995 | | 2025.06.04 | ¸Å¸Å | ÀÏÀ°»ï¾ÆÆ®ºô¶ó | 3 | 64.8 | 49,500 | | 1995 | | 2025.06.04 | ¿ù¼¼ | (1692-9) | 1 | 37.2 | 13,100 | 45 | 1989 | | 2025.06.04 | Àü¼¼ | ÀÎÇå(173-57) | 3 | 70.11 | 27,560 | 0 | 1993 | | 2025.06.04 | ¿ù¼¼ | ¾ÆÆ®¸®¿ò(43-6) | 11 | 27.32 | 10,000 | 130 | 2017 | | 2025.06.03 | ¿ù¼¼ | ¸®Ä¡ºô | 4 | 27.93 | 3,000 | 35 | 2014 | | 2025.06.03 | ¿ù¼¼ | À翵¸Ç¼Ç(635-553) | 4 | 84.42 | 2,000 | 120 | 2006 | | 2025.06.03 | ¿ù¼¼ | °æ¿øÇÏÀÌÃ÷ | 2 | 71.14 | 28,000 | 35 | 2002 | | 2025.06.03 | ¿ù¼¼ | ±×·¹À̺ô | 6 | 27.52 | 5,000 | 100 | 2017 | | 2025.06.03 | ¿ù¼¼ | µå¸²¾ÆÆ®ºô | 1 | 61.74 | 3,000 | 90 | 2008 | | 2025.06.03 | ¿ù¼¼ | ÇØ¸ÂÀÌŸ¿î | 3 | 39.6 | 5,000 | 70 | 1994 | | 2025.06.03 | ¿ù¼¼ | 635-274 | 3 | 24.78 | 7,000 | 50 | 2014 | | 2025.06.03 | ¿ù¼¼ | 635-274 | 3 | 24.78 | 7,000 | 50 | 2014 | | 2025.06.02 | ¸Å¸Å | °ü¾Ç¸Ç¼Ç(180-176) | 2 | 65.9 | 34,900 | | 2001 | | 2025.06.02 | ¸Å¸Å | ¸®Ä¡ÆÓ¸®½º | 3 | 29.91 | 27,000 | | 2013 | | 2025.06.02 | ¸Å¸Å | ¸®Ä¡ÆÓ¸®½º | 3 | 29.91 | 27,000 | | 2013 | | 2025.06.02 | ¸Å¸Å | ¼±¤ºô¶ó | 1 | 40.62 | 24,000 | | 1993 | | 2025.06.02 | ¿ù¼¼ | ¼º°æ¾ÆÆ®ºô | 3 | 15.35 | 1,000 | 43 | 2012 | | 2025.06.02 | ¿ù¼¼ | û¸²ºô¶ó(4-39) | 2 | 32.1 | 1,000 | 40 | 2009 | | 2025.06.02 | ¿ù¼¼ | ´ë°Ç(180-409) | 2 | 13.09 | 500 | 42 | 2016 | | 2025.06.01 | Àü¼¼ | ½Å¿øºô¶ó | 3 | 45.18 | 11,010 | 0 | 1987 | | 2025.06.01 | ¿ù¼¼ | ½ºÄ«À̺ô(1511-42) | 3 | 45.17 | 10,000 | 65 | 2003 | | 2025.06.01 | ¿ù¼¼ | ·Î¾âºô¶ó | -1 | 70.23 | 200 | 28 | 1991 | | 2025.05.31 | ¿ù¼¼ | ºÀõºô¶ó(1685-11) | 3 | 45.92 | 500 | 60 | 2006 | | 2025.05.31 | ¿ù¼¼ | »ï¼ººô¶ó | 2 | 37.26 | 1,000 | 60 | 1993 | | 2025.05.31 | Àü¼¼ | ºÀõµ¿´Ù¼¼´ë(919-1) | 2 | 51.27 | 20,000 | 0 | 2002 | | 2025.05.31 | Àü¼¼ | ½ºÄ«À̺ô | 1 | 49.05 | 26,010 | 0 | 2013 | | 2025.05.31 | ¿ù¼¼ | ¿ì¿ù¸Ç¼Ç | 1 | 46.92 | 17,000 | 30 | 1995 | | 2025.05.31 | ¿ù¼¼ | ¾ÆÀÎÆÄÅ©ºô | 1 | 80.76 | 2,000 | 60 | 2006 | | 2025.05.31 | ¸Å¸Å | ÁÖÇÏ¾ÆÆ®ºô | 3 | 46.99 | 35,000 | | 2017 | | 2025.05.31 | ¸Å¸Å | ·°Å°±×¸°ÇϿ콺 | 1 | 57.42 | 26,000 | | 1992 | | 2025.05.31 | ¸Å¸Å | ¿ùµåºô | 1 | 66.94 | 34,850 | | 2002 | | 2025.05.31 | ¸Å¸Å | ½ÅºÀ¾ÆÆ®ºô¶ó(457-139) | 4 | 68.18 | 36,000 | | 2003 | | 2025.05.31 | ¸Å¸Å | °ñµçºô¸®Áö | 3 | 61.59 | 36,000 | | 2002 | | 2025.05.30 | ¸Å¸Å | ¸íÁöºô¶ó(³ªµ¿) | 2 | 57.4 | 23,500 | | 1993 | | 2025.05.30 | Àü¼¼ | THELIME(´õ¶óÀÓ) | 12 | 29.92 | 32,800 | 0 | 2021 | | 2025.05.30 | ¿ù¼¼ | Ãë¼Û | 1 | 54.3 | 21,000 | 9 | 2004 | | 2025.05.30 | Àü¼¼ | THELIME(´õ¶óÀÓ) | 12 | 29.92 | 32,800 | 0 | 2021 | | 2025.05.30 | ¿ù¼¼ | ÃÊ¿øºô¶ó | 2 | 55.54 | 1,000 | 65 | 1990 | | 2025.05.30 | Àü¼¼ | ·ÎÁ¦ÇϿ콺 | 4 | 28.44 | 29,400 | 0 | 2017 | | 2025.05.30 | Àü¼¼ | THELIME(´õ¶óÀÓ) | 12 | 29.92 | 33,000 | 0 | 2021 | | 2025.05.30 | ¿ù¼¼ | ¿¥Á¦ÀÌÇϿ콺 | 2 | 33.2 | 29,800 | 30 | 2022 | | 2025.05.30 | ¿ù¼¼ | ±Ýµ¿»ç¶û¹æ | 8 | 17.83 | 18,000 | 30 | 2022 | | 2025.05.30 | ¿ù¼¼ | ÇѼºÆÄÅ©ºô¸®Áö | 2 | 55.14 | 100 | 100 | 2018 | | 2025.05.30 | ¿ù¼¼ | ¿¥Á¦ÀÌÇϿ콺 | 2 | 33.2 | 29,800 | 30 | 2022 | | 2025.05.30 | ¸Å¸Å | ÇÑ¿µÄ³½½101µ¿102µ¿ | 5 | 34.56 | 25,600 | | 2015 | | 2025.05.30 | ¿ù¼¼ | °ñµåºô | 3 | 59.85 | 22,000 | 30 | 2008 | | 2025.05.29 | ¿ù¼¼ | ¿øÀϺô | 1 | 57.22 | 5,000 | 97 | 2003 | | 2025.05.29 | ¿ù¼¼ | ¿µ´öÇϿ콺 | 1 | 29.46 | 2,000 | 80 | 2011 | | 2025.05.29 | ¿ù¼¼ | (895-14) | 5 | 23.52 | 17,000 | 42 | 2017 | | 2025.05.29 | ¿ù¼¼ | ¸¶¸®³ª156 | 2 | 24.75 | 3,000 | 49 | 2014 | | 2025.05.29 | ¿ù¼¼ | º°ºñä(960-7) | 4 | 28.43 | 1,000 | 75 | 2014 | | 2025.05.29 | Àü¼¼ | ¶óµ¥ÆÎ½º | 2 | 59.38 | 28,000 | 0 | 2015 | | 2025.05.29 | Àü¼¼ | À¯ÇÑÇÏÀÌÃ÷ºô¶ó(685-97) | 4 | 47.39 | 12,600 | 0 | 1999 | | 2025.05.29 | ¿ù¼¼ | ¿¤¸² | 3 | 33.12 | 20,000 | 25 | 2012 | | 2025.05.29 | Àü¼¼ | ÇÁ¶óÀÓ21 | 6 | 23.32 | 23,600 | 0 | 2019 | | 2025.05.29 | Àü¼¼ | ¿µ¶ôºô¶ó | 1 | 57.55 | 21,500 | 0 | 1990 | | 2025.05.29 | ¸Å¸Å | µ¿¹æÅ¸¿î | -1 | 56.77 | 19,000 | | 1995 | | 2025.05.28 | Àü¼¼ | dz¿øÇÏÀÌÃ÷ºô¶ó | 1 | 46.02 | 19,000 | 0 | 1990 | | 2025.05.28 | ¸Å¸Å | ´Ù¿ÃÇϿ콺 | 1 | 29.88 | 35,000 | | 2017 | | 2025.05.28 | ¿ù¼¼ | ÀºÃµÆÄÅ©ºô | 4 | 58.07 | 22,000 | 15 | 2001 | | 2025.05.28 | ¿ù¼¼ | ½º¸¶ÀÏŸ¿î | 9 | 13.12 | 2,000 | 63 | 2019 | | 2025.05.28 | Àü¼¼ | ·ÎÁ¦ÇϿ콺(180-534) | 5 | 32.51 | 23,152 | 0 | 2014 | | 2025.05.27 | ¿ù¼¼ | (180-104) | 2 | 30.48 | 10,500 | 20 | 1994 | | 2025.05.27 | ¿ù¼¼ | ºÀõ¿ì¼º | 13 | 30.42 | 574 | 9 | 2000 | | 2025.05.27 | ¿ù¼¼ | ¹Ì¸²ÇÏÀÌÃ÷ºô¶ó | 1 | 58.24 | 6,000 | 80 | 1993 | | 2025.05.27 | ¿ù¼¼ | ¾Æ¸§½Ç | 3 | 17.65 | 8,000 | 32 | 2013 | | 2025.05.27 | ¸Å¸Å | (480-14) | 1 | 32.13 | 47,000 | | 1987 | | 2025.05.27 | ¿ù¼¼ | ¼¼Á¤È¨Å¸¿î | 4 | 127.87 | 3,000 | 55 | 2003 | | 2025.05.27 | Àü¼¼ | Æ®¶ó¿òºô | 5 | 44.66 | 17,500 | 0 | 2010 | | 2025.05.26 | ¿ù¼¼ | ¿ì¸®ÇϿ콺 | 2 | 22.06 | 4,000 | 50 | 2012 | | 2025.05.26 | ¿ù¼¼ | ¿µÈ£ºô¶ó | 3 | 40.35 | 15,000 | 30 | 1991 | | 2025.05.26 | ¿ù¼¼ | ´õij½½(100-581) | 2 | 38.41 | 28,000 | 40 | 2018 | | 2025.05.26 | ¿ù¼¼ | (1652-11) | 2 | 39.09 | 5,000 | 83 | 2004 | | 2025.05.26 | ¿ù¼¼ | ´Ù°æºô | 5 | 54.95 | 4,280 | 44 | 2022 | | 2025.05.26 | Àü¼¼ | (196-150) | 2 | 25.7 | 20,400 | 0 | 2014 | | 2025.05.26 | ¸Å¸Å | ºÀÀÎÁÖÅà | -1 | 45.04 | 17,200 | | 1991 | | 2025.05.26 | ¸Å¸Å | CG¾Æ¸§Ã¤14Â÷ | 2 | 22.35 | 25,000 | | 2021 | | 2025.05.25 | ¸Å¸Å | »ïÀÍij½½102µ¿ | 2 | 47.77 | 34,000 | | 2016 | | 2025.05.24 | ¸Å¸Å | ¼ö±¤¸Ç¼Ç | 4 | 46.47 | 59,800 | | 1992 | | 2025.05.24 | ¸Å¸Å | ¿£Á©Å¸¿î6Â÷ | 3 | 43.46 | 36,500 | | 2017 | | 2025.05.24 | ¸Å¸Å | (100-274) | 2 | 56.64 | 30,000 | | 1991 | | 2025.05.24 | ¸Å¸Å | ¼Öºû¾ÆÆ®ºô | 4 | 64.67 | 37,000 | | 2003 | | 2025.05.24 | ¿ù¼¼ | (1634-13) | 1 | 34.2 | 11,800 | 20 | 1991 | | 2025.05.24 | ¿ù¼¼ | ¼º°æ¾ÆÆ®ºô | 4 | 15.34 | 1,000 | 48 | 2012 | | 2025.05.24 | Àü¼¼ | ÆÓ¸®½ºÅ¸¿î | 3 | 41.39 | 23,000 | 0 | 2014 | | 2025.05.24 | ¿ù¼¼ | (1511-34) | 3 | 44.87 | 14,000 | 25 | 2004 | | 2025.05.24 | ¿ù¼¼ | ´öȯºô¶ó | 3 | 48.09 | 15,000 | 40 | 2004 | | 2025.05.24 | Àü¼¼ | ÆÛ½ºÆ®ÇÁ¸®¹Ì¾ö | 4 | 28.38 | 24,700 | 0 | 2017 | | 2025.05.24 | ¿ù¼¼ | (1646-6) | 2 | 41.22 | 12,500 | 48 | 1986 | | 2025.05.24 | ¿ù¼¼ | ´öȯºô¶ó | 3 | 48.09 | 15,000 | 40 | 2004 | | 2025.05.24 | ¿ù¼¼ | ¿À·»ÁöÇÏÀÓ(1681-16) | 4 | 29.82 | 5,000 | 96 | 2019 | | 2025.05.24 | ¿ù¼¼ | ½ÉÁö(457-115) | 8 | 28.75 | 24,300 | 20 | 2018 | | 2025.05.23 | ¿ù¼¼ | Å丶½ººô | 2 | 48.03 | 10,000 | 35 | 2001 | | 2025.05.23 | ¿ù¼¼ | ÆÄÀθ®Ã÷ºô(891-1) | 5 | 63.92 | 19,000 | 20 | 2003 | | 2025.05.23 | ¿ù¼¼ | °ü¾ÇÂüÁ¸ºô | 1 | 44.32 | 33,000 | 10 | 2015 | | 2025.05.23 | ¿ù¼¼ | °ü¾ÇÂüÁ¸ºô | 1 | 44.32 | 30,000 | 10 | 2015 | | 2025.05.23 | ¿ù¼¼ | (180-72) | -1 | 34.59 | 500 | 23 | 1993 | | 2025.05.23 | ¿ù¼¼ | (196-150) | 1 | 25.7 | 10,500 | 50 | 2014 | | 2025.05.23 | Àü¼¼ | ¸®Ä¡È¨ | 4 | 17.76 | 25,000 | 0 | 2017 | | 2025.05.23 | ¿ù¼¼ | ¾Èµ¿ºô¶ó(1518-4) | 1 | 80.94 | 5,000 | 160 | 1991 | | 2025.05.23 | ¸Å¸Å | ´Ù»êºô¶ó | 4 | 47.6 | 25,000 | | 2001 | | 2025.05.23 | ¿ù¼¼ | Å¿ìºô¶ó | -1 | 75.31 | 5,000 | 70 | 2001 | | 2025.05.23 | ¿ù¼¼ | (713-39) | 1 | 35.92 | 5,000 | 60 | 1992 | | 2025.05.23 | ¿ù¼¼ | (180-72) | 1 | 29.18 | 500 | 35 | 1993 | | 2025.05.23 | ¸Å¸Å | ´ë¼±ºô | 2 | 45.99 | 32,300 | | 2014 | | 2025.05.23 | ¸Å¸Å | ÇູÇÑÁý(635-279) | -1 | 44.32 | 18,500 | | 2013 | | 2025.05.23 | ¸Å¸Å | ÀºÃµÆÄÅ©ºô2 | 2 | 61.07 | 34,200 | | 2002 | | 2025.05.22 | Àü¼¼ | (1562-10) | 5 | 27.35 | 25,200 | 0 | 2016 | | 2025.05.22 | ¸Å¸Å | û¸²Æ÷·¹½ºÆ®ºô | 3 | 35.98 | 13,300 | | 2013 | | 2025.05.22 | ¿ù¼¼ | Ç÷¯½ºÅ¸¿ö | 8 | 11.87 | 12,000 | 10 | 2002 | | 2025.05.22 | Àü¼¼ | ·°Å°ÇϿ콺 | 1 | 49.23 | 20,700 | 0 | 2003 | | 2025.05.22 | Àü¼¼ | ÆÛ½ºÆ®ÇÁ¸®¹Ì¾ö | 2 | 28.76 | 23,600 | 0 | 2017 | | 2025.05.22 | ¿ù¼¼ | ´Ù¼¼´ëÁÖÅÃ(887-7) | 2 | 22.57 | 2,000 | 89 | 2018 | | 2025.05.22 | ¸Å¸Å | û¸²Æ÷·¹½ºÆ®ºô | 3 | 35.98 | 13,300 | | 2013 | | 2025.05.22 | Àü¼¼ | (1562-10) | 5 | 27.35 | 25,200 | 0 | 2016 | | 2025.05.22 | ¿ù¼¼ | û±¸ºô¶ó | 2 | 39.79 | 11,000 | 42 | 1993 | | 2025.05.22 | ¸Å¸Å | »ó¿øÇÏÀ̺ô | 2 | 53.65 | 41,000 | | 2014 | | 2025.05.21 | ¿ù¼¼ | (932-15) | 2 | 44.86 | 3,000 | 73 | 2002 | | 2025.05.21 | ¿ù¼¼ | »õ½Ç¿ø·ëÇϿ콺 | 2 | 13.08 | 5,000 | 40 | 1996 | | 2025.05.21 | ¿ù¼¼ | Ȳ±Ýºô | 2 | 29.96 | 22,000 | 10 | 2018 | | 2025.05.21 | ¿ù¼¼ | ¸á¶ó | 2 | 33.2 | 150 | 75 | 2021 | | 2025.05.21 | ¿ù¼¼ | Èѹ̸®ÇϿ콺 | 4 | 52.65 | 10,000 | 103 | 2015 | | 2025.05.21 | ¿ù¼¼ | (937-14) | 1 | 34.26 | 2,000 | 50 | 1986 | | 2025.05.21 | ¸Å¸Å | ´õºí·¹½º2Â÷ | 2 | 35.69 | 33,500 | | 2017 | | 2025.05.21 | ¿ù¼¼ | »ï¿ø¸Ç¼Ç | 1 | 84.6 | 24,000 | 15 | 1983 | | 2025.05.21 | ¸Å¸Å | ¿ì¿ù¸Ç¼Ç | 1 | 46.92 | 21,500 | | 1995 | | 2025.05.20 | ¿ù¼¼ | ºÀõµ¿´Ù¼¼´ëÁÖÅà | 3 | 123.04 | 500 | 45 | 2003 | | 2025.05.20 | ¿ù¼¼ | »õ³²ºô¸®Áö | -1 | 51.55 | 1,000 | 68 | 2004 | | 2025.05.20 | ¿ù¼¼ | ³×¿À¹ë¸® | 3 | 45.34 | 1,000 | 82 | 1996 | | 2025.05.20 | ¿ù¼¼ | 1612-53 | 2 | 20 | 3,000 | 95 | 2014 | | 2025.05.20 | Àü¼¼ | Àξƺôµù | 2 | 29.56 | 22,500 | 0 | 2011 | | 2025.05.20 | ¿ù¼¼ | ÇѾçºô¶ó | 2 | 59.94 | 25,000 | 5 | 1990 | | 2025.05.20 | ¿ù¼¼ | ÀÓ¸¶´©¿¤ÇϿ콺 | 3 | 29.31 | 15,000 | 50 | 2013 | | 2025.05.19 | ¸Å¸Å | ´ë¼ººô¶ó | 3 | 62.94 | 30,000 | | 2001 | | 2025.05.19 | ¸Å¸Å | ½Å¼ººô¶ó | -1 | 46.2 | 12,000 | | 1991 | | 2025.05.19 | ¿ù¼¼ | ±×·£µåÇÏÀÓ | 4 | 47.18 | 31,800 | 10 | 2017 | | 2025.05.19 | Àü¼¼ | Á¤±¤ºô¶ó(1690-65) | 4 | 53.12 | 23,000 | 0 | 1993 | | 2025.05.19 | ¸Å¸Å | (635-419) | 5 | 23.65 | 20,000 | | 2014 | | 2025.05.19 | ¿ù¼¼ | ÇãºêÇϿ콺(958-28) | 4 | 16.8 | 1,000 | 42 | 2012 | | 2025.05.19 | ¿ù¼¼ | ÀÌ·¹Å¸¿ö | 5 | 24.65 | 5,000 | 117 | 2022 | | 2025.05.19 | ¿ù¼¼ | CJ¾ÆÆ®ºô | 6 | 27.37 | 13,000 | 52 | 2015 | | 2025.05.19 | ¿ù¼¼ | ¾Æ¸£¶¼ºô(180-252) | 4 | 15.35 | 300 | 25 | 2021 | | 2025.05.18 | Àü¼¼ | CG¾Æ¸§Ã¤14Â÷ | 3 | 21.675 | 25,000 | 0 | 2021 | | 2025.05.18 | ¿ù¼¼ | žçºô¶ó | -1 | 55.18 | 300 | 82 | 1997 | | 2025.05.18 | ¿ù¼¼ | ¸®Ä¡ºô | 2 | 17.34 | 3,000 | 60 | 2014 | | 2025.05.17 | ¸Å¸Å | È«³²ºô¶ó³ªµ¿ | -1 | 49.14 | 46,050 | | 1991 | | 2025.05.17 | ¸Å¸Å | ÇÁ¸®¿ì½º | 3 | 28.74 | 26,300 | | 2013 | | 2025.05.17 | ¸Å¸Å | (1-1434) | 1 | 47.6 | 72,000 | | 1976 | | 2025.05.17 | ¸Å¸Å | ½Å¿øºô¶ó | 1 | 27.81 | 77,000 | | 1987 | | 2025.05.17 | Àü¼¼ | 1688-29 | 2 | 53.44 | 18,500 | 0 | 2002 | | 2025.05.17 | ¿ù¼¼ | ¿À¶Ñ±â | 3 | 28.08 | 19,600 | 13 | 2016 | | 2025.05.17 | ¿ù¼¼ | ¹üâºô¶ó2Â÷ | 4 | 55.91 | 18,000 | 10 | 1991 | | 2025.05.17 | ¿ù¼¼ | KSŸ¿ö | 7 | 24.3 | 20,000 | 13 | 2017 | | 2025.05.17 | Àü¼¼ | ¹Ì¼ººô¶ó(1536-1) | 2 | 51.18 | 20,000 | 0 | 1987 | | 2025.05.17 | ¿ù¼¼ | ÀºÇϺô¶ó | -1 | 40.8 | 1,000 | 60 | 1991 | | 2025.05.17 | ¿ù¼¼ | ¿À¶Ñ±â | 3 | 28.08 | 19,600 | 13 | 2016 | | 2025.05.17 | ¿ù¼¼ | õÀÏÇÏÀÌÃ÷2Â÷ | -1 | 35.15 | 1,000 | 70 | 2002 | | 2025.05.17 | ¿ù¼¼ | ¹üâºô¶ó2Â÷ | 4 | 55.91 | 18,000 | 10 | 1991 | | 2025.05.17 | ¿ù¼¼ | Á¤¿ø¸Ç¼Ç | 2 | 69.45 | 14,000 | 45 | 1998 | | 2025.05.17 | ¿ù¼¼ | ¾ÆÄ«µ¥¹ÌÇϿ콺3Â÷ | 6 | 37.84 | 30,000 | 70 | 2023 | | 2025.05.17 | Àü¼¼ | ÃÊ¿øºô¶ó | 2 | 55.54 | 14,000 | 0 | 1990 | | 2025.05.17 | Àü¼¼ | ¼Áø·°½ººô | 2 | 14.475 | 10,500 | 0 | 2013 | | 2025.05.16 | Àü¼¼ | 635-135 | 2 | 48.95 | 27,500 | 0 | 2015 | | 2025.05.16 | ¸Å¸Å | ¼ºÁö | 2 | 39.995 | 20,000 | | 1989 | | 2025.05.16 | ¸Å¸Å | ´ë¿µ¼¾½ººô(924-43) | 2 | 51.71 | 38,800 | | 2002 | | 2025.05.16 | ¿ù¼¼ | Çö´ë¾ÆÆ®ºô¶ó | 2 | 66.55 | 23,900 | 5 | 1990 | | 2025.05.16 | Àü¼¼ | ½º¸¶Æ®ºô | 3 | 34.49 | 21,400 | 0 | 2013 | | 2025.05.16 | Àü¼¼ | ½º¸¶Æ®ºô | 3 | 34.49 | 21,400 | 0 | 2013 | | 2025.05.15 | ¿ù¼¼ | (180-590) | 1 | 29.68 | 6,500 | 1 | 1994 | | 2025.05.15 | ¿ù¼¼ | ºÀõºô¶ó(1685-11) | 4 | 45.92 | 1,000 | 60 | 2006 | | 2025.05.15 | ¿ù¼¼ | »ïÀϺôµù | 4 | 12.44 | 2,000 | 86 | 2015 | | 2025.05.15 | ¸Å¸Å | °ü¾Ç±×¸°ºô¶ó | 2 | 53.44 | 15,000 | | 1987 | | 2025.05.15 | ¿ù¼¼ | ¼±°æºô¶ó(1684-9) | 4 | 49.06 | 3,000 | 90 | 1992 | | 2025.05.15 | ¿ù¼¼ | Ç÷¯½ºÅ¸¿ö | 8 | 10.5 | 2,000 | 68 | 2002 | | 2025.05.14 | Àü¼¼ | ÇѰ¡¶÷Ÿ¿î | 3 | 29.8 | 23,700 | 0 | 2019 | | 2025.05.14 | ¿ù¼¼ | Á¶Àººô | 2 | 14.17 | 2,000 | 39 | 2013 | | 2025.05.14 | ¸Å¸Å | ¿£Á©Å¸¿î6Â÷ | 4 | 43.47 | 41,800 | | 2017 | | 2025.05.14 | Àü¼¼ | Àû¼ººô¶ó | 2 | 84.36 | 15,000 | 0 | 1986 | | 2025.05.14 | ¿ù¼¼ | »ï¼º±×¸°¸Ç¼Ç | 1 | 69.14 | 23,000 | 15 | 1996 | | 2025.05.14 | ¸Å¸Å | °ü¾ÇÆÄ·¹½ººô¶ó | 1 | 62.68 | 27,700 | | 1991 | | 2025.05.14 | ¿ù¼¼ | CJ¿ÀÇǽºÅÚ | 5 | 10.81 | 11,000 | 20 | 2017 | | 2025.05.14 | ¿ù¼¼ | (180-104) | 1 | 29.04 | 3,000 | 70 | 1994 | | 2025.05.13 | ¿ù¼¼ | ºñ°ÇÇϿ콺2 | 5 | 29.19 | 5,000 | 65 | 2017 | | 2025.05.13 | ¿ù¼¼ | ÀÏ¿µÇÏÀÌÃ÷ºô¶ó | 1 | 45.49 | 12,000 | 40 | 1997 | | 2025.05.13 | ¿ù¼¼ | ¼ºÁö | 1 | 39.995 | 12,500 | 10 | 1989 | | 2025.05.13 | Àü¼¼ | ¼±°æ³×½ººô | 4 | 62.24 | 23,500 | 0 | 2002 | | 2025.05.13 | ¿ù¼¼ | ºñÀüÇϿ콺 | 4 | 28.12 | 3,000 | 72 | 2016 | | 2025.05.13 | ¿ù¼¼ | È«³²ºô¶ó³ªµ¿ | -1 | 49.95 | 500 | 40 | 1991 | | 2025.05.13 | ¸Å¸Å | (635-478) | 2 | 37.28 | 17,700 | | 1991 | | 2025.05.13 | ¸Å¸Å | (178-20) | -1 | 32.04 | 12,000 | | 1991 | | 2025.05.12 | Àü¼¼ | ÇѼºÇÏÀÌÃ÷ºô¶ó | 2 | 49.41 | 18,500 | 0 | 1990 | | 2025.05.12 | ¿ù¼¼ | ÀÌ¿ø | 5 | 26.88 | 2,000 | 55 | 2013 | | 2025.05.12 | ¿ù¼¼ | (492-27) | 2 | 72.79 | 1,000 | 55 | 1978 | | 2025.05.12 | Àü¼¼ | (196-150) | 1 | 28.22 | 18,220 | 0 | 2014 | | 2025.05.12 | ¿ù¼¼ | Àå¹Ìºô¶ó | 3 | 43.64 | 15,000 | 25 | 1991 | | 2025.05.12 | Àü¼¼ | ±îÄ¡ºô¶ó(°¡)µ¿ | -1 | 46.7 | 15,000 | 0 | 1990 | | 2025.05.12 | Àü¼¼ | ÇÑ½Å¸Ç¼Ç | 2 | 57.66 | 24,000 | 0 | 1993 | | 2025.05.12 | ¸Å¸Å | »ïÁ¤±×¸°ºô¶ó³ªµ¿ | 3 | 52.65 | 27,500 | | 2002 | | 2025.05.12 | Àü¼¼ | Çö´ëÆÄ¶ó°ï | 5 | 29.57 | 38,000 | 0 | 2021 | | 2025.05.11 | ¿ù¼¼ | (1652-11) | 3 | 39.09 | 5,000 | 90 | 2004 | | 2025.05.11 | ¿ù¼¼ | E.H.Vill | 2 | 15.55 | 3,000 | 53 | 2016 | | 2025.05.11 | ¸Å¸Å | ¾ÆÅ©·ÎÆÓ¸®½º | 6 | 29.9 | 32,000 | | 2020 | | 2025.05.10 | Àü¼¼ | (1687-18) | 4 | 24.47 | 27,000 | 0 | 2016 | | 2025.05.10 | Àü¼¼ | (1687-18) | 5 | 24.47 | 26,000 | 0 | 2016 | | 2025.05.10 | ¿ù¼¼ | (1687-18) | 6 | 24.8 | 25,200 | 10 | 2016 | | 2025.05.10 | Àü¼¼ | (1687-18) | 4 | 24.8 | 27,000 | 0 | 2016 | | 2025.05.10 | Àü¼¼ | ¸í¼º±×¸°ÇϿ콺 | 1 | 73.29 | 35,000 | 0 | 2003 | | 2025.05.10 | Àü¼¼ | ·ÎÁ¦ÇϿ콺(180-195) | 4 | 25.47 | 22,000 | 0 | 2016 | | 2025.05.10 | Àü¼¼ | ·ÎÁ¦ÇϿ콺(180-195) | 4 | 25.47 | 22,000 | 0 | 2016 | | 2025.05.10 | ¿ù¼¼ | (1687-18) | 6 | 24.47 | 27,000 | 5 | 2016 | | 2025.05.10 | ¿ù¼¼ | (1668-9) | 2 | 58.71 | 5,000 | 102 | 2005 | | 2025.05.10 | ¿ù¼¼ | (1687-18) | 6 | 24.8 | 24,000 | 10 | 2016 | | 2025.05.10 | Àü¼¼ | (1687-18) | 7 | 24.47 | 27,000 | 0 | 2016 | | 2025.05.10 | Àü¼¼ | (1687-18) | 6 | 24.47 | 27,000 | 0 | 2016 | | 2025.05.10 | ¿ù¼¼ | (1687-18) | 4 | 24.8 | 21,000 | 45 | 2016 | | 2025.05.10 | ¿ù¼¼ | (1687-18) | 5 | 24.8 | 26,000 | 10 | 2016 | | 2025.05.10 | ¿ù¼¼ | (1687-18) | 5 | 24.8 | 25,000 | 25 | 2016 | | 2025.05.10 | ¿ù¼¼ | (´õºô) | 3 | 26.82 | 5,500 | 110 | 2022 | | 2025.05.10 | ¿ù¼¼ | Çö´ë¸Ç¼Ç(196-272) | 4 | 60.81 | 22,800 | 40 | 1991 | | 2025.05.10 | ¸Å¸Å | À¯¿£¸Ç¼Ç | 3 | 57.35 | 37,000 | | 2002 | | 2025.05.10 | ¿ù¼¼ | 905-15 | 5 | 24.91 | 2,000 | 66 | 2013 | | 2025.05.10 | ¿ù¼¼ | À¯¿£IÆÄÅ©ºô | 1 | 66.09 | 4,000 | 110 | 2008 | | 2025.05.09 | Àü¼¼ | ¿ì¿µARTEVILLNAKSUNG | 2 | 29.04 | 28,000 | 0 | 2022 | | 2025.05.09 | ¸Å¸Å | ¼ºÁöºô¶ó3Â÷ | 3 | 29.46 | 19,300 | | 1991 | | 2025.05.09 | ¸Å¸Å | ¿¬Èñºô¶ó | 1 | 60.68 | 29,000 | | 1985 | | 2025.05.09 | ¿ù¼¼ | ±Ýµ¿»ç¶û¹æ | 7 | 13.37 | 8,000 | 60 | 2022 | | 2025.05.09 | ¿ù¼¼ | (1667-60) | 2 | 29.97 | 20,000 | 32 | 2016 | | 2025.05.09 | ¿ù¼¼ | ±î»çµåÁ¦ÀÌ | 3 | 28.6 | 24,440 | 39 | 2022 | | 2025.05.09 | Àü¼¼ | ´õºí·¹½º2Â÷ | 4 | 35.69 | 20,000 | 0 | 2017 | | 2025.05.09 | ¸Å¸Å | °íÈï¸Ç¼Ç | 3 | 84.99 | 57,000 | | 2000 | | 2025.05.09 | ¿ù¼¼ | ±î»çµåÁ¦ÀÌ | 3 | 28.6 | 24,440 | 39 | 2022 | | 2025.05.08 | Àü¼¼ | »ï¼º¾ÆÆ®ºô(886-23) | 4 | 36.89 | 23,000 | 0 | 2003 | | 2025.05.08 | ¸Å¸Å | »ï¼º¾ÆÆ®ºô(886-23) | 4 | 36.89 | 25,000 | | 2003 | | 2025.05.07 | ¿ù¼¼ | ¿µ¿ìµµ½ÃÇü»ýȰÁÖÅà | 2 | 21.25 | 2,000 | 60 | 2012 | | 2025.05.07 | ¿ù¼¼ | (893-19) | 1 | 55.67 | 2,000 | 100 | 1979 | | 2025.05.07 | ¿ù¼¼ | ´Ù¼¼´ëÁÖÅÃ(1686-4) | 4 | 51.92 | 2,000 | 61 | 2018 | | 2025.05.07 | ¿ù¼¼ | ´ë¸í´çºô¸®Áö | 3 | 28.41 | 21,000 | 30 | 2015 | | 2025.05.06 | ¿ù¼¼ | ¹Ì¸²ÇÏÀÌÃ÷ºô¶ó | -1 | 58.24 | 1,000 | 77 | 1993 | | 2025.05.06 | ¿ù¼¼ | º¸¶ó¸Åµå¸²ÆÄÅ© | 4 | 29.38 | 20,000 | 14 | 2018 | | 2025.05.06 | ¿ù¼¼ | (100-88) | 2 | 66.26 | 1,000 | 35 | 2003 | | 2025.05.06 | Àü¼¼ | (670-80) | 1 | 20.47 | 9,000 | 0 | 2007 | | 2025.05.06 | ¿ù¼¼ | ÀºÃµ½¦¸£ºô | 2 | 44.05 | 18,300 | 8 | 2012 | | 2025.05.06 | ¸Å¸Å | ½ÅºÀ¸¶À»Gµ¿ | 2 | 59.97 | 35,000 | | 2003 | | 2025.05.05 | ¿ù¼¼ | û¸²ÁÖÅà | 2 | 42.82 | 11,000 | 43 | 2003 | | 2025.05.04 | ¸Å¸Å | û¿îÇÏÀÌÃ÷ºô | -1 | 68.57 | 21,000 | | 2001 | | 2025.05.04 | ¿ù¼¼ | (1679-17) | 1 | 56.64 | 10,000 | 100 | 2019 | | 2025.05.03 | ¿ù¼¼ | ´ëÇдç | 3 | 12.9 | 1,000 | 43 | 2011 | | 2025.05.03 | ¿ù¼¼ | Çö°æÇ÷¹ÀÎÁî | 5 | 12.08 | 500 | 33 | 2002 | | 2025.05.03 | ¿ù¼¼ | ±×¸°ºô´åÄÄ | 4 | 68.81 | 1,000 | 90 | 2017 | | 2025.05.03 | ¿ù¼¼ | ±¤µ¿ºô¶ó(1597-33) | 3 | 40.65 | 1,000 | 60 | 1996 | | 2025.05.03 | ¿ù¼¼ | ¾ö¸¶ÀÇ²Þ | 4 | 26.94 | 1,000 | 70 | 2013 | | 2025.05.03 | ¿ù¼¼ | ¼Áø·°½ººô | 2 | 13.08 | 3,000 | 42 | 2013 | | 2025.05.03 | ¿ù¼¼ | ±Ý°ÆÓ¸®½º | 3 | 37.08 | 12,000 | 41 | 2014 | | 2025.05.03 | ¿ù¼¼ | (1674-19) | 7 | 8.865 | 1,000 | 63 | 2019 | | 2025.05.02 | Àü¼¼ | (196-339) | 2 | 82.26 | 37,700 | 0 | 2006 | | 2025.05.02 | ¿ù¼¼ | ´ë¾çȨ¸Ç¼Ç | 3 | 57.9 | 5,000 | 90 | 2003 | | 2025.05.02 | ¿ù¼¼ | ¾ÆÄ«µ¥¹ÌÇϿ콺3Â÷ | 6 | 40.1 | 27,000 | 65 | 2023 | | 2025.05.02 | ¿ù¼¼ | ÇѾ罦¸£ºô | 1 | 62.1 | 10,000 | 70 | 2003 | | 2025.05.02 | ¿ù¼¼ | ¼º°æ¾ÆÆ®ºô | 2 | 15.34 | 1,000 | 51 | 2012 | | 2025.05.02 | ¿ù¼¼ | ¼ºÀº¾ÆÆ®¸Ç¼Ç | 1 | 62.94 | 4,000 | 100 | 1997 | | 2025.05.02 | ¿ù¼¼ | (47-1) | 2 | 46.44 | 1,000 | 100 | 2004 | | 2025.05.02 | ¸Å¸Å | »êÀ彦¸£ºô1Â÷ | 3 | 53.96 | 22,500 | | 2003 | | 2025.05.02 | ¸Å¸Å | ¼öÁ¤ºô¶ó(196-111) | 4 | 60.06 | 27,000 | | 1995 | | 2025.05.02 | ¸Å¸Å | û¸²ºô¶ó | 3 | 39.74 | 19,000 | | 1993 | | 2025.05.01 | ¿ù¼¼ | »ïÀϺôµù | 4 | 12.92 | 4,000 | 76 | 2015 | | 2025.05.01 | ¿ù¼¼ | villaM | 10 | 19.1 | 17,000 | 40 | 2018 | | 2025.05.01 | Àü¼¼ | (1628-32) | -1 | 33.36 | 9,000 | 0 | 1987 | | 2025.05.01 | ¿ù¼¼ | ´ë»êÇÏÀÌÃ÷ºô | 1 | 16.65 | 500 | 50 | 2003 | | 2025.05.01 | ¿ù¼¼ | ´ë»êÇÏÀÌÃ÷ºô | 1 | 16.65 | 500 | 50 | 2003 | | 2025.05.01 | ¿ù¼¼ | ¸¶ÀÌÇØÇÇÇϿ콺 | 4 | 44.69 | 5,000 | 90 | 2013 | | 2025.05.01 | ¸Å¸Å | ºÎ¼ººô¶ó | 2 | 36 | 10,500 | | 1991 | | 2025.05.01 | ¸Å¸Å | ¿ì¼ººô¶ó | 4 | 53.3 | 32,000 | | 2002 | | 2025.04.30 | Àü¼¼ | º®»êºí·ç¹Ö3Â÷ | 5 | 59.8 | 49,000 | 0 | 2004 | | 2025.04.30 | Àü¼¼ | º®»êºí·ç¹Ö3Â÷ | 5 | 59.8 | 49,000 | 0 | 2004 | | 2025.04.30 | ¿ù¼¼ | º®»êºí·ç¹Ö | 2 | 84.99 | 10,000 | 160 | 2005 | | 2025.04.30 | Àü¼¼ | º®»êºí·ç¹Ö | 25 | 59.99 | 44,000 | 0 | 2005 | | 2025.04.30 | Àü¼¼ | ·Î¸¶¾ÆÆ®ºô | 2 | 84.47 | 12,000 | 0 | 2003 | | 2025.04.30 | Àü¼¼ | °ü¾ÇǪ¸£Áö¿À | 15 | 84.75 | 55,000 | 0 | 2004 | | 2025.04.30 | ¿ù¼¼ | º®»êºí·ç¹Ö | 2 | 101.95 | 24,000 | 100 | 2005 | | 2025.04.30 | ¿ù¼¼ | »õÁø(1653-10) | 2 | 77.01 | 18,000 | 100 | 2003 | | 2025.04.30 | Àü¼¼ | ºÀõ¿ì¼º | 14 | 84.96 | 42,000 | 0 | 2000 | | 2025.04.30 | Àü¼¼ | °ü¾Çµå¸²(µ¿¾Æ) | 15 | 60 | 36,750 | 0 | 2003 | | 2025.04.30 | Àü¼¼ | °ü¾ÇÁß¾ÓÇÏÀÌÃ÷Æ÷·¹ | 4 | 79.1689 | 50,000 | 0 | 2022 | | 2025.04.30 | Àü¼¼ | eÆíÇѼ¼»ó¼¿ï´ëÀÔ±¸1´ÜÁö | 9 | 84.93 | 70,000 | 0 | 2019 | | 2025.04.29 | Àü¼¼ | ºÀõ¿ì¼º | 21 | 84.96 | 54,000 | 0 | 2000 | | 2025.04.29 | ¿ù¼¼ | °ü¾ÇǪ¸£Áö¿À | 8 | 32.37 | 1,492 | 15 | 2004 | | 2025.04.29 | Àü¼¼ | eÆíÇѼ¼»ó¼¿ï´ëÀÔ±¸2Â÷ | 9 | 84.31 | 71,500 | 0 | 2020 | | 2025.04.29 | Àü¼¼ | °ü¾Çµå¸²(»ï¼º) | 9 | 59.85 | 47,000 | 0 | 2003 | | 2025.04.29 | Àü¼¼ | µÎ»ê | 15 | 59.92 | 50,000 | 0 | 2000 | | 2025.04.29 | Àü¼¼ | º®»êºí·ç¹Ö | 11 | 59.99 | 34,650 | 0 | 2005 | | 2025.04.29 | Àü¼¼ | °ü¾ÇǪ¸£Áö¿À | 1 | 59.58 | 45,000 | 0 | 2004 | | 2025.04.28 | Àü¼¼ | ¼¿ï´ëÀÔ±¸¾ÆÀÌ¿ø(1560-61) | 13 | 59.96 | 52,500 | 0 | 2006 | | 2025.04.28 | ¿ù¼¼ | µÎ»ê(ÀÓ´ë) | 13 | 31.53 | 2,969 | 5 | 2000 | | 2025.04.28 | Àü¼¼ | °ü¾Çµå¸²(µ¿¾Æ) | 4 | 84.96 | 47,250 | 0 | 2003 | | 2025.04.28 | Àü¼¼ | µÎ»ê | 18 | 59.92 | 54,000 | 0 | 2000 | | 2025.04.28 | Àü¼¼ | µÎ»ê | 4 | 84.87 | 59,000 | 0 | 2000 | | 2025.04.28 | Àü¼¼ | º®»êºí·ç¹Ö3Â÷ | 11 | 84.72 | 51,000 | 0 | 2004 | | 2025.04.28 | Àü¼¼ | º®»êºí·ç¹Ö | 5 | 59.99 | 37,000 | 0 | 2005 | | 2025.04.28 | ¿ù¼¼ | ÀºÃµ2´ÜÁö¾ÆÆÄÆ® | 6 | 49.95 | 3,000 | 130 | 2000 | | 2025.04.28 | Àü¼¼ | °ü¾ÇǪ¸£Áö¿À | 18 | 59.58 | 36,750 | 0 | 2004 | | 2025.04.28 | Àü¼¼ | º®»êºí·ç¹Ö | 3 | 59.99 | 35,000 | 0 | 2005 | | 2025.04.28 | Àü¼¼ | º®»êºí·ç¹Ö | 5 | 59.99 | 37,000 | 0 | 2005 | | 2025.04.28 | ¿ù¼¼ | °ü¾ÇǪ¸£Áö¿À | 16 | 59.58 | 6,000 | 130 | 2004 | | 2025.04.27 | Àü¼¼ | Èú½ºÅ×ÀÌÆ®°ü¾Ç¼¾Æ®¾¾¿¤ | 11 | 59.96 | 60,000 | 0 | 2024 | | 2025.04.27 | Àü¼¼ | eÆíÇѼ¼»ó¼¿ï´ëÀÔ±¸2Â÷ | 5 | 59.85 | 63,000 | 0 | 2020 | | 2025.04.27 | ¿ù¼¼ | ÇÁ¶óºñ´Ù2 | 11 | 18.83 | 1,000 | 75 | 2013 | | 2025.04.27 | Àü¼¼ | °ü¾ÇǪ¸£Áö¿À | 3 | 59.58 | 37,800 | 0 | 2004 | | 2025.04.27 | Àü¼¼ | °ü¾ÇǪ¸£Áö¿À | 3 | 59.58 | 37,800 | 0 | 2004 | | 2025.04.27 | ¿ù¼¼ | º®»êºí·ç¹Ö | 14 | 59.99 | 7,000 | 101 | 2005 | | 2025.04.27 | Àü¼¼ | °Ç¿µ6 | 12 | 82.75 | 51,000 | 0 | 1999 | | 2025.04.27 | Àü¼¼ | µÎ»ê | 19 | 84.92 | 49,600 | 0 | 2000 | | 2025.04.26 | ¿ù¼¼ | ´õºíÀ¯¿¡½ºÅ¸¿ö | 14 | 19.63 | 1,000 | 80 | 2013 | | 2025.04.26 | ¿ù¼¼ | ¶ó¿Â | 5 | 13.31 | 4,000 | 48 | 2013 | | 2025.04.26 | ¿ù¼¼ | eÆíÇѼ¼»ó¼¿ï´ëÀÔ±¸1´ÜÁö | 6 | 59.96 | 35,000 | 100 | 2019 | | 2025.04.26 | Àü¼¼ | eÆíÇѼ¼»ó¼¿ï´ëÀÔ±¸2Â÷ | 11 | 84.31 | 70,000 | 0 | 2020 | | 2025.04.26 | ¿ù¼¼ | µÎ»ê | 17 | 59.92 | 20,000 | 100 | 2000 | | 2025.04.26 | ¿ù¼¼ | µÎ»ê | 16 | 59.92 | 5,000 | 165 | 2000 | | 2025.04.26 | Àü¼¼ | ºÀõ¿ì¼º | 20 | 59.76 | 37,000 | 0 | 2000 | | 2025.04.26 | ¿ù¼¼ | Çö´ë(°ü¾Ç) | 9 | 58.59 | 25,000 | 60 | 1992 | | 2025.04.26 | Àü¼¼ | °ü¾ÇǪ¸£Áö¿À | 17 | 84.2 | 47,250 | 0 | 2004 | | 2025.04.26 | ¿ù¼¼ | °ü¾ÇǪ¸£Áö¿À | 3 | 59.58 | 5,000 | 140 | 2004 | | 2025.04.26 | ¸Å¸Å | û¼öºô¶ó | 4 | 48.12 | 26,800 | | 1991 | | 2025.04.26 | Àü¼¼ | Çö´ë(°ü¾Ç) | 3 | 116.72 | 57,000 | 0 | 1992 | | 2025.04.25 | Àü¼¼ | µÎ»ê | 1 | 59.92 | 40,000 | 0 | 2000 | | 2025.04.25 | ¸Å¸Å | żº±×¶ûºô(670-61) | 3 | 76.47 | 38,000 | | 2002 | | 2025.04.25 | Àü¼¼ | º®»êºí·ç¹Ö | 12 | 59.99 | 45,000 | 0 | 2005 | | 2025.04.25 | Àü¼¼ | °ü¾ÇǪ¸£Áö¿À | 11 | 59.58 | 36,500 | 0 | 2004 | | 2025.04.25 | Àü¼¼ | º®»êºí·ç¹Ö | 21 | 59.99 | 36,750 | 0 | 2005 | | 2025.04.25 | ¿ù¼¼ | µ¿¾ÆÅ¸¿î | 3 | 32.76 | 10,000 | 50 | 1999 | | 2025.04.25 | Àü¼¼ | °ü¾Çµå¸²(µ¿¾Æ) | 2 | 59.85 | 41,000 | 0 | 2003 | | 2025.04.25 | ¿ù¼¼ | ¼¿ï´ëÀÔ±¸¿ª´õÇÏÀ̺꼾Ʈ·² | 4 | 59.74 | 30,000 | 60 | 2024 | | 2025.04.25 | ¿ù¼¼ | ¼¿ï´ëÀÔ±¸¿ª´õÇÏÀ̺꼾Ʈ·² | 4 | 59.74 | 30,000 | 60 | 2024 | | 2025.04.25 | Àü¼¼ | eÆíÇѼ¼»ó¼¿ï´ëÀÔ±¸2´ÜÁö | 7 | 84.93 | 75,000 | 0 | 2019 | | 2025.04.25 | ¿ù¼¼ | eÆíÇѼ¼»ó¼¿ï´ëÀÔ±¸1´ÜÁö | 10 | 84.97 | 33,000 | 150 | 2019 | | 2025.04.25 | ¿ù¼¼ | ¿ì¼º(ÀÓ´ë) | 9 | 30.42 | 379 | 15 | 2000 | | 2025.04.25 | ¿ù¼¼ | ¿ì¼º(ÀÓ´ë) | 13 | 30.42 | 379 | 15 | 2000 | | 2025.04.25 | ¸Å¸Å | ¿µ¿ìºô¶ó | 4 | 52.13 | 31,000 | | 2002 | | 2025.04.24 | Àü¼¼ | º®»êºí·ç¹Ö3Â÷ | 14 | 83.87 | 49,000 | 0 | 2004 | | 2025.04.24 | Àü¼¼ | ¼¿ï´ëÀÔ±¸¾ÆÀÌ¿ø(1560-61) | 10 | 84.89 | 65,000 | 0 | 2006 | | 2025.04.24 | ¸Å¸Å | (100-245) | -1 | 38.85 | 8,500 | | 1993 | | 2025.04.24 | Àü¼¼ | ºÀõ¿ì¼º | 16 | 84.96 | 55,000 | 0 | 2000 | | 2025.04.24 | Àü¼¼ | µÎ»ê | 7 | 84.87 | 58,500 | 0 | 2000 | | 2025.04.24 | ¿ù¼¼ | ¼¿ï´ëÀÔ±¸ÇÑ¾ç¾ÆÀÌŬ·¡½º | 10 | 16.58 | 1,000 | 79 | 2018 | | 2025.04.24 | ¿ù¼¼ | ´õºíÀ¯¿¡½ºÅ¸¿ö | 7 | 19.63 | 12,800 | 15 | 2013 | | 2025.04.23 | ¿ù¼¼ | ¿ì¼º(ÀÓ´ë) | 11 | 30.42 | 1,327 | 19 | 2000 | | 2025.04.23 | Àü¼¼ | °ü¾ÇÀ¯¾Ø¾ÆÀÌ | 10 | 84.877 | 58,000 | 0 | 2009 | | 2025.04.23 | ¿ù¼¼ | eÆíÇѼ¼»ó¼¿ï´ëÀÔ±¸2Â÷ | 13 | 84.31 | 5,000 | 275 | 2020 | | 2025.04.23 | Àü¼¼ | °ü¾Çµå¸²(»ï¼º) | 21 | 84.96 | 60,000 | 0 | 2003 | | 2025.04.23 | Àü¼¼ | µÎ»ê | 12 | 59.92 | 50,000 | 0 | 2000 | | 2025.04.23 | Àü¼¼ | °ü¾ÇǪ¸£Áö¿À | 17 | 59.58 | 47,000 | 0 | 2004 | | 2025.04.23 | Àü¼¼ | °ü¾ÇÄ·ÆÛ½ºÅ¸¿ö | 16 | 24.96 | 13,000 | 0 | 1998 | | 2025.04.23 | ¿ù¼¼ | µÎ»ê | 5 | 59.92 | 5,000 | 170 | 2000 | | 2025.04.22 | ¸Å¸Å | (50-175) | 2 | 49.24 | 30,700 | | 2001 | | 2025.04.22 | ¿ù¼¼ | º®»êºí·ç¹Ö3Â÷ | 2 | 84.72 | 30,000 | 58 | 2004 | | 2025.04.22 | ¿ù¼¼ | °ü¾Çµå¸²Å¸¿î(ÀÓ´ë) | 16 | 32.76 | 3,278 | 13 | 2003 | | 2025.04.21 | Àü¼¼ | ºÀõ¿ì¼º | 14 | 84.96 | 49,000 | 0 | 2000 | | 2025.04.21 | Àü¼¼ | °ü¾Çµå¸²(»ï¼º) | 15 | 84.96 | 52,000 | 0 | 2003 | | 2025.04.21 | Àü¼¼ | eÆíÇѼ¼»ó¼¿ï´ëÀÔ±¸2Â÷ | 9 | 59.85 | 62,500 | 0 | 2020 | | 2025.04.21 | ¿ù¼¼ | ´ë¿ìµð¿À½´Æä¸®¿ò1´ÜÁö | 10 | 55.04 | 20,000 | 125 | 2007 | | 2025.04.21 | Àü¼¼ | °ü¾ÇǪ¸£Áö¿À | 8 | 59.58 | 45,000 | 0 | 2004 | | 2025.04.21 | Àü¼¼ | º®»êºí·ç¹Ö | 12 | 59.99 | 39,900 | 0 | 2005 | | 2025.04.21 | ¸Å¸Å | µ¿¾Æºô¶ó8Â÷ | -1 | 21.45 | 7,500 | | 2000 | | 2025.04.21 | ¸Å¸Å | ÈÀÌÆ®±×¸°ºô | 3 | 70.68 | 37,000 | | 2001 | | 2025.04.21 | ¸Å¸Å | (1690-95) | 3 | 50.14 | 21,400 | | 2002 | | 2025.04.20 | Àü¼¼ | °ü¾Çµå¸²(µ¿¾Æ) | 6 | 60 | 38,850 | 0 | 2003 | | 2025.04.20 | Àü¼¼ | °ü¾ÇÆÄũǪ¸£Áö¿À | 19 | 84.99 | 54,957 | 0 | 2014 | | 2025.04.20 | ¸Å¸Å | ½Å°Çµå¸²¿øºô | 4 | 49.75 | 28,500 | | 2012 | | 2025.04.20 | ¸Å¸Å | »ï¿øºô¶ó(Aµ¿) | 2 | 47.28 | 13,000 | | 1987 | | 2025.04.20 | ¸Å¸Å | Çö´ë¸Ç¼Ç(196-272) | 3 | 60.81 | 36,000 | | 1991 | | 2025.04.20 | ¿ù¼¼ | º®»êºí·ç¹Ö | 3 | 59.99 | 3,000 | 155 | 2005 | | 2025.04.20 | ¸Å¸Å | ½Å°Çµå¸²¿øºô | 4 | 49.75 | 28,500 | | 2012 | | 2025.04.19 | ¿ù¼¼ | eÆíÇѼ¼»ó¼¿ï´ëÀÔ±¸1´ÜÁö | 16 | 84.92 | 42,000 | 102 | 2019 | | 2025.04.19 | ¿ù¼¼ | eÆíÇѼ¼»ó¼¿ï´ëÀÔ±¸1´ÜÁö | 12 | 84.95 | 52,500 | 50 | 2019 | | 2025.04.19 | ¿ù¼¼ | °ü¾Çµå¸²(µ¿¾Æ) | 6 | 84.96 | 50,000 | 4 | 2003 | | 2025.04.19 | Àü¼¼ | µÎ»ê | 17 | 59.92 | 55,000 | 0 | 2000 | | 2025.04.19 | Àü¼¼ | °ü¾ÇǪ¸£Áö¿À | 24 | 59.58 | 41,500 | 0 | 2004 | | 2025.04.19 | Àü¼¼ | °ü¾ÇǪ¸£Áö¿À | 24 | 59.58 | 41,500 | 0 | 2004 | | 2025.04.19 | Àü¼¼ | º®»êºí·ç¹Ö | 6 | 84.99 | 50,000 | 0 | 2005 | | 2025.04.19 | ¿ù¼¼ | º®»êºí·ç¹Ö3Â÷ | 10 | 84.72 | 5,000 | 160 | 2004 | | 2025.04.19 | Àü¼¼ | ÀºÃµ1 | 13 | 84.65 | 54,700 | 0 | 2001 | | 2025.04.19 | Àü¼¼ | ÀºÃµ2´ÜÁö¾ÆÆÄÆ® | 9 | 49.95 | 39,000 | 0 | 2000 | | 2025.04.19 | ¿ù¼¼ | ºÀõ¿ì¼º | 8 | 59.76 | 10,000 | 125 | 2000 | | 2025.04.19 | Àü¼¼ | ºÀõ¿ì¼º | 21 | 114.78 | 47,400 | 0 | 2000 | | 2025.04.19 | Àü¼¼ | µÎ»ê | 17 | 59.92 | 55,000 | 0 | 2000 | | 2025.04.19 | ¿ù¼¼ | µÎ»ê | 15 | 59.92 | 7,000 | 150 | 2000 | | 2025.04.18 | ¸Å¸Å | ÀÎÇå(173-57) | 2 | 70.11 | 36,800 | | 1993 | | 2025.04.18 | ¸Å¸Å | ¼öÆÓ¸®½ºFT | 6 | 29.99 | 30,000 | | 2020 | | 2025.04.18 | ¸Å¸Å | ´ë¼ººô¸®Áö3Â÷ | 4 | 31.11 | 18,900 | | 1994 | | 2025.04.18 | ¿ù¼¼ | µ¿¾Æ(ÀÓ´ë) | 5 | 32.76 | 511 | 18 | 2000 | | 2025.04.18 | ¿ù¼¼ | ¼¿ï´ëÀÔ±¸ÇÑ¾ç¾ÆÀÌŬ·¡½º | 15 | 15.96 | 1,000 | 80 | 2018 | | 2025.04.18 | ¿ù¼¼ | (854-3) | 17 | 31.5 | 10,000 | 66 | 2022 | | 2025.04.18 | Àü¼¼ | °ü¾ÇÆÄũǪ¸£Áö¿À | 4 | 84.99 | 60,000 | 0 | 2014 | | 2025.04.18 | Àü¼¼ | ÀºÃµ2´ÜÁö¾ÆÆÄÆ® | 13 | 59.93 | 43,000 | 0 | 2000 | | 2025.04.18 | Àü¼¼ | ÀºÃµ1 | 2 | 84.83 | 48,300 | 0 | 2001 | | 2025.04.18 | ¿ù¼¼ | µÎ»ê | 15 | 114.99 | 30,000 | 150 | 2000 | | 2025.04.18 | Àü¼¼ | º®»êºí·ç¹Ö | 16 | 59.99 | 43,000 | 0 | 2005 | | 2025.04.18 | Àü¼¼ | º®»êºí·ç¹Ö | 7 | 59.99 | 42,000 | 0 | 2005 | | 2025.04.18 | Àü¼¼ | º®»êºí·ç¹Ö | 11 | 59.99 | 42,000 | 0 | 2005 | | 2025.04.18 | Àü¼¼ | eÆíÇѼ¼»ó¼¿ï´ëÀÔ±¸1´ÜÁö | 4 | 84.95 | 72,000 | 0 | 2019 | | 2025.04.17 | Àü¼¼ | °ü¾ÇǪ¸£Áö¿À | 5 | 59.58 | 39,900 | 0 | 2004 | | 2025.04.17 | Àü¼¼ | °ü¾ÇǪ¸£Áö¿À | 1 | 114.69 | 58,000 | 0 | 2004 | | 2025.04.17 | ¿ù¼¼ | ¿ì¼º(ÀÓ´ë) | 4 | 30.42 | 379 | 15 | 2000 | | 2025.04.17 | Àü¼¼ | °ü¾Çµå¸²(»ï¼º) | 9 | 84.96 | 46,200 | 0 | 2003 | | 2025.04.17 | ¿ù¼¼ | °ü¾Çµå¸²(»ï¼º) | 12 | 102 | 33,000 | 83 | 2003 | | 2025.04.17 | ¿ù¼¼ | º¸¶ó¸Å»ï¼º | 9 | 84.84 | 25,000 | 120 | 1996 | | 2025.04.17 | Àü¼¼ | ³«¼º´ëÇö´ë¾ÆÆÄÆ® | 8 | 61.74 | 37,800 | 0 | 1988 | | 2025.04.17 | Àü¼¼ | °ü¾Çµå¸²(µ¿¾Æ) | 25 | 59.85 | 46,000 | 0 | 2003 | | 2025.04.17 | ¸Å¸Å | ÀºÃµÆÄÅ©ºô2 | 3 | 57.65 | 34,000 | | 2002 | | 2025.04.16 | ¿ù¼¼ | ¼¿ï´ëÀÔ±¸ÇÑ¾ç¾ÆÀÌŬ·¡½º | 12 | 16.4 | 5,000 | 62 | 2018 | | 2025.04.16 | ¿ù¼¼ | µ¿¾Æ(ÀÓ´ë) | 9 | 32.76 | 511 | 18 | 2000 | | 2025.04.16 | ¿ù¼¼ | µ¿¾Æ(ÀÓ´ë) | 9 | 32.76 | 1,279 | 17 | 2000 | | 2025.04.16 | ¿ù¼¼ | ¿ì¼º(ÀÓ´ë) | 9 | 30.42 | 948 | 14 | 2000 | | 2025.04.16 | ¿ù¼¼ | ¿ì¼º(ÀÓ´ë) | 12 | 30.42 | 948 | 14 | 2000 | | 2025.04.16 | Àü¼¼ | ´õºíÀ¯¿¡½ºÅ¸¿ö | 15 | 19.63 | 17,000 | 0 | 2013 | | 2025.04.16 | ¿ù¼¼ | °ü¾Çµå¸²Å¸¿î(ÀÓ´ë) | 6 | 32.76 | 1,136 | 16 | 2003 | | 2025.04.16 | ¿ù¼¼ | ÀºÃµ·ÎÁ¦¸®¿ò | 3 | 19.25 | 3,000 | 80 | 2014 | | 2025.04.16 | ¿ù¼¼ | (854-3) | 16 | 31.5 | 10,000 | 68 | 2022 | | 2025.04.16 | ¿ù¼¼ | °ü¾ÇǪ¸£Áö¿À | 5 | 32.37 | 3,073 | 6 | 2004 | | 2025.04.16 | ¿ù¼¼ | ºÀõµ¿¾Æ | 17 | 32.76 | 511 | 18 | 2000 | | 2025.04.16 | ¿ù¼¼ | °ü¾Çµå¸²Å¸¿î | 14 | 32.76 | 2,824 | 6 | 2003 | | 2025.04.16 | Àü¼¼ | °ü¾ÇǪ¸£Áö¿À | 23 | 59.58 | 39,900 | 0 | 2004 | | 2025.04.16 | ¿ù¼¼ | ¿ì¼º(ÀÓ´ë) | 15 | 30.42 | 948 | 14 | 2000 | | 2025.04.16 | Àü¼¼ | °ü¾Çµå¸²(»ï¼º) | 12 | 59.83 | 47,000 | 0 | 2003 | | 2025.04.16 | ¿ù¼¼ | µÎ»ê | 11 | 114.99 | 10,000 | 210 | 2000 | | 2025.04.16 | Àü¼¼ | °ü¾Çµå¸²(µ¿¾Æ) | 15 | 60 | 36,750 | 0 | 2003 | | 2025.04.16 | Àü¼¼ | ÀºÃµ1 | 16 | 84.65 | 47,250 | 0 | 2001 | | 2025.04.16 | Àü¼¼ | ÀϵÎ(1021) | 5 | 46.75 | 24,000 | 0 | 1985 | | 2025.04.16 | ¿ù¼¼ | º®»êºí·ç¹Ö | 3 | 32.92 | 1,268 | 16 | 2005 | | 2025.04.16 | ¿ù¼¼ | º®»êºí·ç¹Ö | 9 | 32.92 | 1,268 | 18 | 2005 | | 2025.04.16 | ¿ù¼¼ | °ü¾Çµå¸²(µ¿¾Æ) | 1 | 60 | 5,000 | 160 | 2003 | | 2025.04.16 | ¸Å¸Å | û±¸ºô¶ó | 2 | 39.79 | 22,000 | | 1993 | | 2025.04.16 | ¿ù¼¼ | ¿ì¼º(ÀÓ´ë) | 15 | 30.42 | 2,402 | 5 | 2000 | | 2025.04.15 | Àü¼¼ | ±Ý°¾Æ¹Ì¿ò(105µ¿) | 5 | 71.3453 | 55,000 | 0 | 2010 | | 2025.04.15 | Àü¼¼ | eÆíÇѼ¼»ó¼¿ï´ëÀÔ±¸1´ÜÁö | 2 | 84.93 | 70,000 | 0 | 2019 | | 2025.04.15 | ¿ù¼¼ | ¿ì¼º(ÀÓ´ë) | 16 | 30.42 | 379 | 15 | 2000 | | 2025.04.15 | ¿ù¼¼ | ¿ì¼º(ÀÓ´ë) | 13 | 30.42 | 948 | 14 | 2000 | | 2025.04.15 | ¿ù¼¼ | ¿ì¼º(ÀÓ´ë) | 4 | 30.42 | 948 | 14 | 2000 | | 2025.04.15 | ¿ù¼¼ | ¿ì¼º(ÀÓ´ë) | 16 | 30.42 | 948 | 14 | 2000 | | 2025.04.15 | ¿ù¼¼ | ¿ì¼º(ÀÓ´ë) | 1 | 30.42 | 948 | 14 | 2000 | | 2025.04.15 | ¿ù¼¼ | ¿ì¼º(ÀÓ´ë) | 5 | 30.42 | 948 | 14 | 2000 | | 2025.04.15 | ¿ù¼¼ | ¿ì¼º(ÀÓ´ë) | 9 | 30.42 | 948 | 14 | 2000 | | 2025.04.15 | ¿ù¼¼ | ¿ì¼º(ÀÓ´ë) | 9 | 30.42 | 2,402 | 5 | 2000 | | 2025.04.15 | ¿ù¼¼ | µ¿¾Æ(ÀÓ´ë) | 5 | 32.76 | 1,279 | 17 | 2000 | | 2025.04.15 | ¸Å¸Å | (972-44) | 4 | 33.2 | 14,500 | | 2002 | | 2025.04.15 | ¿ù¼¼ | eÆíÇѼ¼»ó¼¿ï´ëÀÔ±¸3´ÜÁö(ÀÓ´ë) | 8 | 30.11 | 2,425 | 14 | 2019 | | 2025.04.15 | Àü¼¼ | Èú½ºÅ×ÀÌÆ®°ü¾Ç¼¾Æ®¾¾¿¤ | 18 | 59.98 | 55,000 | 0 | 2024 | | 2025.04.15 | Àü¼¼ | °ü¾ÇǪ¸£Áö¿À | 19 | 59.58 | 50,000 | 0 | 2004 | | 2025.04.15 | ¿ù¼¼ | °ü¾ÇǪ¸£Áö¿À | 5 | 59.58 | 24,150 | 67 | 2004 | | 2025.04.15 | ¿ù¼¼ | eÆíÇѼ¼»ó¼¿ï´ëÀÔ±¸3´ÜÁö(ÀÓ´ë) | 8 | 30.11 | 970 | 17 | 2019 | | 2025.04.15 | Àü¼¼ | °ü¾Çµ¿ºÎ¼¾Æ®·¹ºô | 10 | 84.7 | 58,000 | 0 | 2004 | | 2025.04.15 | Àü¼¼ | ÇØ¹Ù¶ó±â | 4 | 49.02 | 7,000 | 0 | 1978 | | 2025.04.15 | ¿ù¼¼ | °ü¾Çµå¸²(»ï¼º) | 11 | 59.83 | 9,000 | 125 | 2003 | | 2025.04.14 | ¿ù¼¼ | °ü¾Çµå¸²(»ï¼º) | 20 | 59.85 | 15,000 | 130 | 2003 | | 2025.04.14 | ¸Å¸Å | ÇѾçȨŸ¿î | 3 | 60.26 | 33,000 | | 2003 | | 2025.04.14 | ¸Å¸Å | ¿¹Áøºô¸®Áö | 4 | 44.85 | 27,300 | | 2004 | | 2025.04.14 | Àü¼¼ | °Ç¿µ6 | 3 | 59.9 | 45,150 | 0 | 1999 | | 2025.04.14 | Àü¼¼ | °ü¾Çµå¸²(µ¿¾Æ) | 9 | 114.75 | 60,000 | 0 | 2003 | | 2025.04.14 | ¿ù¼¼ | º®»êŸ¿îII | 2 | 57.36 | 31,000 | 30 | 2003 | | 2025.04.14 | ¿ù¼¼ | º®»êŸ¿îII | 2 | 57.36 | 31,000 | 30 | 2003 | | 2025.04.14 | Àü¼¼ | º¸¶ó¸Å»ï¼º | 15 | 84.84 | 50,000 | 0 | 1996 | | 2025.04.13 | ¸Å¸Å | »þÀÎij½½ | 5 | 48.95 | 30,500 | | 2017 | | 2025.04.13 | ¸Å¸Å | û¿îºô¶ó2Â÷ | 4 | 32.04 | 17,000 | | 1994 | | 2025.04.13 | ¿ù¼¼ | µÎ»ê | 4 | 114.99 | 40,000 | 50 | 2000 | | 2025.04.12 | ¿ù¼¼ | ¿¡¸Þ¶öµå101µ¿ | 6 | 48.45 | 31,750 | 5 | 2007 | | 2025.04.12 | Àü¼¼ | eÆíÇѼ¼»ó¼¿ï´ëÀÔ±¸1´ÜÁö | 7 | 114.88 | 100,000 | 0 | 2019 | | 2025.04.12 | ¿ù¼¼ | ¿¡¸Þ¶öµå101µ¿ | 6 | 48.45 | 31,750 | 5 | 2007 | | 2025.04.12 | Àü¼¼ | ºÀõ¿ì¼º | 21 | 114.78 | 65,000 | 0 | 2000 | | 2025.04.12 | ¸Å¸Å | Ǫ¸£ºô8Â÷ | 3 | 61.35 | 39,000 | | 2008 | | 2025.04.12 | Àü¼¼ | µÎ»ê | 1 | 114.99 | 63,500 | 0 | 2000 | | 2025.04.12 | Àü¼¼ | °ü¾Çµå¸²(µ¿¾Æ) | 24 | 114.75 | 70,000 | 0 | 2003 | | 2025.04.12 | ¿ù¼¼ | º®»êºí·ç¹Ö | 18 | 114.97 | 30,000 | 100 | 2005 | | 2025.04.12 | Àü¼¼ | °ü¾ÇÁß¾ÓÇÏÀÌÃ÷Æ÷·¹ | 1 | 46.6783 | 38,000 | 0 | 2022 | | 2025.04.12 | Àü¼¼ | °ü¾ÇÁß¾ÓÇÏÀÌÃ÷Æ÷·¹ | 1 | 46.6783 | 38,000 | 0 | 2022 | | 2025.04.12 | Àü¼¼ | eÆíÇѼ¼»ó¼¿ï´ëÀÔ±¸2´ÜÁö | 9 | 84.97 | 70,000 | 0 | 2019 | | 2025.04.12 | Àü¼¼ | eÆíÇѼ¼»ó¼¿ï´ëÀÔ±¸2´ÜÁö | 9 | 84.97 | 70,000 | 0 | 2019 | | 2025.04.12 | Àü¼¼ | eÆíÇѼ¼»ó¼¿ï´ëÀÔ±¸1´ÜÁö | 12 | 84.93 | 68,000 | 0 | 2019 | | 2025.04.12 | Àü¼¼ | ºÀõ¿ì¼º | 13 | 84.96 | 50,000 | 0 | 2000 | | 2025.04.12 | Àü¼¼ | ÇØÅº¸¶ó¸ÅŸ¿ö | 7 | 59.94 | 37,485 | 0 | 1996 | | 2025.04.12 | ¸Å¸Å | (622-16) | 1 | 59.54 | 28,000 | | 1976 | | 2025.04.12 | ¸Å¸Å | ´Ù¼Øºô | 2 | 23.87 | 35,000 | | 2023 | | 2025.04.12 | Àü¼¼ | º®»êºí·ç¹Ö | 15 | 84.99 | 53,000 | 0 | 2005 | | 2025.04.12 | ¿ù¼¼ | Çö´ë(°ü¾Ç) | 1 | 68.8 | 22,000 | 46 | 1992 | | 2025.04.12 | Àü¼¼ | º®»êºí·ç¹Ö | 13 | 59.99 | 43,000 | 0 | 2005 | | 2025.04.12 | Àü¼¼ | Çö´ë(°ü¾Ç) | 13 | 68.8 | 45,000 | 0 | 1992 | | 2025.04.12 | Àü¼¼ | Çö´ë(°ü¾Ç) | 4 | 58.59 | 31,000 | 0 | 1992 | | 2025.04.11 | ¿ù¼¼ | eÆíÇѼ¼»ó¼¿ï´ëÀÔ±¸1´ÜÁö | 3 | 84.93 | 15,000 | 190 | 2019 | | 2025.04.11 | Àü¼¼ | ºÀõµ¿¾Æ | 10 | 84.87 | 49,350 | 0 | 2000 | | 2025.04.11 | ¸Å¸Å | ´Ù¿ÃÇϿ콺 | 3 | 29.88 | 35,000 | | 2017 | | 2025.04.11 | ¸Å¸Å | ´õÁÁÀºÁý | 2 | 37.63 | 29,500 | | 2020 | | 2025.04.11 | ¸Å¸Å | ¿ì¸®ÇÏ¿¬ºô | 1 | 67.37 | 55,000 | | 2003 | | 2025.04.11 | Àü¼¼ | °ü¾ÇǪ¸£Áö¿À | 7 | 59.58 | 46,000 | 0 | 2004 | | 2025.04.11 | Àü¼¼ | °ü¾ÇǪ¸£Áö¿À | 18 | 59.58 | 39,900 | 0 | 2004 | | 2025.04.11 | ¿ù¼¼ | °ü¾ÇǪ¸£Áö¿À | 17 | 59.58 | 12,000 | 107 | 2004 | | 2025.04.11 | ¿ù¼¼ | µÎ»ê | 13 | 84.87 | 50,000 | 25 | 2000 | | 2025.04.11 | Àü¼¼ | µÎ»ê | 16 | 59.92 | 48,000 | 0 | 2000 | | 2025.04.11 | Àü¼¼ | °ü¾Çµå¸²(µ¿¾Æ) | 2 | 59.83 | 36,750 | 0 | 2003 | | 2025.04.10 | ¸Å¸Å | û¿îºô¶ó2Â÷ | 2 | 52.44 | 23,800 | | 1994 | | 2025.04.10 | ¿ù¼¼ | ºÀõ¿ì¼º | 6 | 114.78 | 53,000 | 50 | 2000 | | 2025.04.10 | Àü¼¼ | ºÀõ¿ì¼º | 17 | 84.96 | 47,200 | 0 | 2000 | | 2025.04.10 | Àü¼¼ | Çö´ë(°ü¾Ç) | 6 | 116.72 | 45,000 | 0 | 1992 | | 2025.04.10 | ¸Å¸Å | (972-44) | 5 | 35.38 | 15,000 | | 2002 | | 2025.04.10 | ¸Å¸Å | »ó·Ï±×¸°Å¸¿î | 2 | 75.42 | 35,000 | | 2003 | | 2025.04.10 | ¸Å¸Å | (972-44) | 5 | 33.2 | 14,000 | | 2002 | | 2025.04.09 | ¿ù¼¼ | º®»êºí·ç¹Ö | 7 | 84.99 | 5,000 | 160 | 2005 | | 2025.04.09 | Àü¼¼ | ºÀõ¿ì¼º | 9 | 84.96 | 39,900 | 0 | 2000 | | 2025.04.09 | ¿ù¼¼ | ¾ÆÆ¼Å©ºôµù | 11 | 20.98 | 4,000 | 60 | 2018 | | 2025.04.09 | Àü¼¼ | eÆíÇѼ¼»ó¼¿ï´ëÀÔ±¸1´ÜÁö | 11 | 59.9 | 58,800 | 0 | 2019 | | 2025.04.09 | Àü¼¼ | µÎ»ê | 2 | 84.92 | 62,000 | 0 | 2000 | | 2025.04.09 | Àü¼¼ | µÎ»ê | 20 | 84.87 | 61,000 | 0 | 2000 | | 2025.04.09 | ¿ù¼¼ | eÆíÇѼ¼»ó¼¿ï´ëÀÔ±¸3´ÜÁö(ÀÓ´ë) | 4 | 30.11 | 11,597 | 29 | 2019 | | 2025.04.09 | Àü¼¼ | ºÀõ¿ì¼º | 24 | 59.76 | 44,000 | 0 | 2000 | | 2025.04.09 | ¸Å¸Å | Űæ6Â÷ | 3 | 25.85 | 19,200 | | 2018 | | 2025.04.09 | ¸Å¸Å | À¯¼ººô¶ó | -1 | 35.1 | 12,000 | | 1993 | | 2025.04.09 | ¸Å¸Å | ÇÑ¿ïºô¸®Áö | 5 | 79.15 | 54,000 | | 2007 | | 2025.04.08 | ¸Å¸Å | (41-109) | -1 | 31.34 | 18,000 | | 1992 | | 2025.04.08 | Àü¼¼ | ºÀõ¿ì¼º | 16 | 59.76 | 44,000 | 0 | 2000 | | 2025.04.08 | Àü¼¼ | º®»êºí·ç¹Ö | 1 | 101.95 | 55,000 | 0 | 2005 | | 2025.04.08 | Àü¼¼ | º®»êºí·ç¹Ö | 1 | 101.95 | 55,000 | 0 | 2005 | | 2025.04.08 | Àü¼¼ | µÎ»ê | 16 | 114.99 | 56,700 | 0 | 2000 | | 2025.04.08 | ¿ù¼¼ | °ü¾Çµå¸²(µ¿¾Æ) | 26 | 59.83 | 25,000 | 36 | 2003 | | 2025.04.08 | ¿ù¼¼ | eÆíÇѼ¼»ó¼¿ï´ëÀÔ±¸1´ÜÁö | 10 | 114.88 | 15,000 | 340 | 2019 | | 2025.04.08 | ¿ù¼¼ | º®»êºí·ç¹Ö | 11 | 59.99 | 7,000 | 100 | 2005 | | 2025.04.07 | ¿ù¼¼ | °ü¾Çµå¸²(µ¿¾Æ) | 2 | 60 | 5,000 | 150 | 2003 | | 2025.04.07 | ¿ù¼¼ | eÆíÇѼ¼»ó¼¿ï´ëÀÔ±¸3´ÜÁö(ÀÓ´ë) | 9 | 40.28 | 3,227 | 18 | 2019 | | 2025.04.07 | Àü¼¼ | µ¿¾ÆÅ¸¿î | 12 | 32.76 | 24,000 | 0 | 1999 | | 2025.04.07 | Àü¼¼ | Çö´ë(°ü¾Ç) | 9 | 84.74 | 42,000 | 0 | 1992 | | 2025.04.07 | Àü¼¼ | º®»êºí·ç¹Ö | 2 | 84.99 | 46,000 | 0 | 2005 | | 2025.04.07 | ¸Å¸Å | µµ¿ø¾ÆÆ®ºô(860-48) | 5 | 74.02 | 39,700 | | 2005 | | 2025.04.07 | ¸Å¸Å | ½ÅÁøÁÖÅà | 2 | 106.53 | 48,000 | | 1996 | | 2025.04.07 | Àü¼¼ | º®»êºí·ç¹Ö | 2 | 84.99 | 46,000 | 0 | 2005 | | 2025.04.06 | Àü¼¼ | º®»êºí·ç¹Ö | 25 | 59.99 | 43,000 | 0 | 2005 | | 2025.04.06 | Àü¼¼ | º®»êºí·ç¹Ö | 25 | 59.99 | 43,000 | 0 | 2005 | | 2025.04.05 | Àü¼¼ | °ü¾Çµ¿ºÎ¼¾Æ®·¹ºô | 3 | 84.7 | 55,000 | 0 | 2004 | | 2025.04.05 | Àü¼¼ | eÆíÇѼ¼»ó¼¿ï´ëÀÔ±¸1´ÜÁö | 11 | 84.93 | 73,000 | 0 | 2019 | | 2025.04.05 | Àü¼¼ | °ü¾Çµå¸²(»ï¼º) | 12 | 59.85 | 44,000 | 0 | 2003 | | 2025.04.05 | Àü¼¼ | ºÀõ¿ì¼º | 8 | 84.96 | 50,000 | 0 | 2000 | | 2025.04.05 | Àü¼¼ | ³«¼º´ëÇö´ë(296) | 14 | 59.78 | 44,000 | 0 | 1998 | | 2025.04.05 | Àü¼¼ | eÆíÇѼ¼»ó¼¿ï´ëÀÔ±¸2Â÷ | 1 | 84.31 | 58,000 | 0 | 2020 | | 2025.04.05 | Àü¼¼ | °ü¾ÇǪ¸£Áö¿À | 17 | 59.58 | 38,600 | 0 | 2004 | | 2025.04.05 | Àü¼¼ | ºÀõ¿ì¼º | 4 | 114.78 | 55,000 | 0 | 2000 | | 2025.04.05 | ¿ù¼¼ | eÆíÇѼ¼»ó¼¿ï´ëÀÔ±¸1´ÜÁö | 3 | 59.9 | 20,000 | 135 | 2019 | | 2025.04.05 | ¿ù¼¼ | eÆíÇѼ¼»ó¼¿ï´ëÀÔ±¸1´ÜÁö | 3 | 59.9 | 20,000 | 135 | 2019 | | 2025.04.05 | Àü¼¼ | °ü¾ÇÀ¯¾Ø¾ÆÀÌ | 8 | 84.866 | 54,500 | 0 | 2009 | | 2025.04.05 | Àü¼¼ | °ü¾ÇǪ¸£Áö¿À | 17 | 59.58 | 38,600 | 0 | 2004 | | 2025.04.05 | ¿ù¼¼ | QŸ¿ö | 18 | 18.29 | 1,000 | 55 | 2016 | | 2025.04.05 | ¿ù¼¼ | ¼Èñ½ºÅ¸Èú½º | 8 | 84.93 | 30,000 | 120 | 2015 | | 2025.04.05 | ¿ù¼¼ | °ü¾Çµå¸²(µ¿¾Æ) | 10 | 102 | 15,000 | 180 | 2003 | | 2025.04.05 | Àü¼¼ | Èú½ºÅ×ÀÌÆ®°ü¾Ç¼¾Æ®¾¾¿¤ | 8 | 59.98 | 58,000 | 0 | 2024 | | 2025.04.05 | Àü¼¼ | °ü¾Çµå¸²(»ï¼º) | 27 | 59.85 | 44,000 | 0 | 2003 | | 2025.04.04 | Àü¼¼ | ÀºÃµ2´ÜÁö¾ÆÆÄÆ® | 1 | 59.93 | 36,500 | 0 | 2000 | | 2025.04.04 | ¿ù¼¼ | ºÀõ¿ì¼º | 24 | 84.96 | 40,000 | 65 | 2000 | | 2025.04.04 | ¸Å¸Å | ±×¸°ºô(1692-15) | 2 | 27 | 21,500 | | 2014 | | 2025.04.04 | Àü¼¼ | ºÀõµ¿¾Æ | 9 | 59.76 | 41,500 | 0 | 2000 | | 2025.04.04 | Àü¼¼ | ºÀõµ¿¾Æ | 9 | 59.76 | 41,500 | 0 | 2000 | | 2025.04.04 | ¸Å¸Å | µ¿Áø¸Ç¼Ç | 2 | 78.76 | 31,000 | | 2006 | | 2025.04.04 | ¸Å¸Å | (480-109) | 2 | 57.35 | 55,000 | | 2002 | | 2025.04.04 | ¿ù¼¼ | µÎ»ê | 16 | 84.87 | 5,000 | 200 | 2000 | | 2025.04.04 | Àü¼¼ | °ü¾Çµå¸²(µ¿¾Æ) | 21 | 60 | 39,900 | 0 | 2003 | | 2025.04.03 | Àü¼¼ | Çö´ë(°ü¾Ç) | 5 | 84.74 | 42,000 | 0 | 1992 | | 2025.04.03 | ¿ù¼¼ | µÎ»ê | 13 | 114.99 | 10,000 | 220 | 2000 | | 2025.04.03 | Àü¼¼ | °ü¾Çµå¸²(µ¿¾Æ) | 13 | 60 | 45,000 | 0 | 2003 | | 2025.04.03 | ¿ù¼¼ | ´åÄÄÈúÁî | 8 | 57.77 | 10,000 | 180 | 2023 | | 2025.04.03 | ¿ù¼¼ | ÇÁ¶óºñ´ÙM | 3 | 30.01 | 25,000 | 20 | 2014 | | 2025.04.03 | ¿ù¼¼ | ¸¶¿¡½ºÆ®·ÎÄ·ÆÛ½ºÅ¸¿î | 11 | 13.15 | 1,000 | 60 | 2012 | | 2025.04.03 | ¿ù¼¼ | ÄÚ½º¸ðºí·ç | 5 | 14.47 | 1,000 | 67 | 2012 | | 2025.04.03 | Àü¼¼ | º®»êºí·ç¹Ö | 6 | 84.99 | 43,050 | 0 | 2005 | | 2025.04.03 | ¿ù¼¼ | º®»êºí·ç¹Ö | 5 | 59.99 | 5,000 | 140 | 2005 | | 2025.04.03 | ¸Å¸Å | ´ë¸²ÆÄÅ©ºô¶ó | -1 | 62.85 | 15,000 | | 1993 | | 2025.04.03 | ¸Å¸Å | (1633-14) | 3 | 67.41 | 40,500 | | 1991 | | 2025.04.03 | ¸Å¸Å | ÿ½ÃÇϿ콺Aµ¿Bµ¿ | 3 | 41.92 | 37,600 | | 2019 | | 2025.04.03 | Àü¼¼ | º®»êºí·ç¹Ö | 8 | 84.99 | 48,000 | 0 | 2005 | | 2025.04.03 | Àü¼¼ | eÆíÇѼ¼»ó¼¿ï´ëÀÔ±¸1´ÜÁö | 4 | 84.93 | 70,000 | 0 | 2019 | | 2025.04.02 | ¸Å¸Å | ¾çÁö·¡¹Ì¾Èºô | 3 | 53.01 | 29,900 | | 2002 | | 2025.04.02 | ¿ù¼¼ | °üÀüGŸ¿ö | 16 | 14.49 | 3,000 | 71 | 2019 | | 2025.04.02 | Àü¼¼ | eÆíÇѼ¼»ó¼¿ï´ëÀÔ±¸1´ÜÁö | 17 | 59.9 | 60,900 | 0 | 2019 | | 2025.04.02 | ¿ù¼¼ | ¼Èñ½ºÅ¸Èú½º | 4 | 84.93 | 44,100 | 21 | 2015 | | 2025.04.02 | ¿ù¼¼ | ºÀõµ¿¾Æ | 11 | 84.87 | 10,000 | 154 | 2000 | | 2025.04.02 | ¸Å¸Å | ¿¹¹ÎÇϿ콺 | 4 | 51.19 | 60,000 | | 2023 | | 2025.04.02 | ¸Å¸Å | ÃÖ»óÇÏÀ̺ô(1615-21) | 4 | 62.79 | 34,400 | | 2002 | | 2025.04.02 | ¸Å¸Å | ³ª¶óȨŸ¿î | 4 | 34.3 | 28,300 | | 2016 | | 2025.04.02 | Àü¼¼ | µÎ»ê | 9 | 114.99 | 65,000 | 0 | 2000 | | 2025.04.01 | ¸Å¸Å | ±¤¿ø¾ÆÆ®ºô | 5 | 39.8 | 23,000 | | 2003 | | 2025.04.01 | ¸Å¸Å | ¼ö¼ºµå¸²ºô | 3 | 70.6 | 36,000 | | 2003 | | 2025.04.01 | ¸Å¸Å | (458-71) | 3 | 34.29 | 31,000 | | 2014 | | 2025.04.01 | ¿ù¼¼ | µÎ»ê | 17 | 84.92 | 10,000 | 193 | 2000 | | 2025.04.01 | Àü¼¼ | eÆíÇѼ¼»ó¼¿ï´ëÀÔ±¸1´ÜÁö | 14 | 59.9 | 55,100 | 0 | 2019 | | 2025.04.01 | ¿ù¼¼ | µÎ»ê | 23 | 114.99 | 40,000 | 110 | 2000 | | 2025.04.01 | Àü¼¼ | ºÀõ¿ì¼º | 16 | 114.78 | 60,000 | 0 | 2000 | | 2025.04.01 | ¿ù¼¼ | °ü¾ÇǪ¸£Áö¿À | 11 | 59.58 | 5,000 | 125 | 2004 | | 2025.04.01 | Àü¼¼ | ºÀõ¿ì¼º | 24 | 59.76 | 35,000 | 0 | 2000 | | 2025.04.01 | ¿ù¼¼ | µÎ»ê | 15 | 84.87 | 35,000 | 80 | 2000 | | 2025.02.28 | ¿ù¼¼ | Ǫ¸£ºô | 5 | 18.23 | 4,000 | 27 | 2006 | | 2025.02.28 | ¸Å¸Å | ÅÂÁø·°½ººô | 5 | 26.44 | 24,500 | | 2016 | | 2025.02.28 | ¿ù¼¼ | µå¸²ÇϿ콺(41-231) | 3 | 12.23 | 8,000 | 13 | 2012 | | 2025.02.28 | ¿ù¼¼ | ºû°íÀ»ÇϿ콺 | 3 | 40.7 | 23,300 | 10 | 2013 | | 2025.02.28 | ¿ù¼¼ | º¸´´¸£Å¸¿î7Â÷ | 3 | 39.97 | 2,000 | 60 | 2015 | | 2025.02.28 | ¿ù¼¼ | E.H.Vill | 4 | 15.55 | 2,000 | 57 | 2016 | | 2025.02.28 | ¿ù¼¼ | (1594-3) | 2 | 48.79 | 8,000 | 100 | 2007 | | 2025.02.27 | ¿ù¼¼ | ¾Æ¸ð¸£ºôB | 4 | 23.89 | 12,000 | 40 | 2016 | | 2025.02.27 | ¿ù¼¼ | ·ÎÁ¦ÇϿ콺(180-534) | 4 | 34.92 | 20,700 | 20 | 2014 | | 2025.02.27 | ¸Å¸Å | ´ë»êÇÏÀÌÃ÷ºô¶ó | 4 | 75.13 | 32,100 | | 2003 | | 2025.02.27 | ¿ù¼¼ | (195-29) | 2 | 27.18 | 15,000 | 5 | 1990 | | 2025.02.26 | ¿ù¼¼ | 897-18 | 1 | 29.86 | 5,000 | 67 | 2014 | | 2025.02.26 | ¿ù¼¼ | ³×¿À¹ë¸® | 4 | 40.69 | 1,000 | 76 | 1996 | | 2025.02.26 | ¸Å¸Å | ±â¸°¾ÆÆ®ºô¶ó8 | 3 | 65.8 | 21,000 | | 1994 | | 2025.02.26 | ¿ù¼¼ | ÀºÃµ½¦¸£ºô | 1 | 43.35 | 15,000 | 19 | 2012 | | 2025.02.26 | ¸Å¸Å | ¿¹±¤ºô¶ó | 3 | 62.34 | 30,000 | | 2001 | | 2025.02.26 | ¿ù¼¼ | ¿¡ÀÌ¿øºô | 3 | 44.14 | 10,010 | 120 | 2016 | | 2025.02.26 | Àü¼¼ | ¿µ¼öºôµù | 7 | 30.01 | 27,000 | 0 | 2013 | | 2025.02.26 | ¸Å¸Å | ¼¼ÀºÆ®¸®¿òºô | 6 | 39.77 | 24,500 | | 2008 | | 2025.02.26 | ¿ù¼¼ | ÀºÃµ½¦¸£ºô | 1 | 43.35 | 15,000 | 18 | 2012 | | 2025.02.25 | ¿ù¼¼ | ·ÎÁ¦ÇϿ콺(180-76) | 4 | 29.35 | 14,000 | 72 | 2016 | | 2025.02.25 | ¸Å¸Å | ÇѾ罦¸£ºô | 4 | 81.98 | 59,900 | | 2003 | | 2025.02.25 | ¸Å¸Å | ºÀÀϺô¶ó | 3 | 76.95 | 32,600 | | 1991 | | 2025.02.25 | ¿ù¼¼ | Á¶Àººô | 2 | 12.6 | 5,000 | 26 | 2013 | | 2025.02.24 | ¸Å¸Å | °ü¾ÇÂüÁ¸ºô | 1 | 43.92 | 42,250 | | 2015 | | 2025.02.24 | ¸Å¸Å | ÿ½ÃÇϿ콺Aµ¿Bµ¿ | 5 | 29.91 | 25,000 | | 2019 | | 2025.02.24 | ¸Å¸Å | ¾ÆÀ̺ô(180-128) | 2 | 51.36 | 38,900 | | 2012 | | 2025.02.24 | ¸Å¸Å | °ü¾ÇÆÄÅ©ºô¶ó | 2 | 66.13 | 34,700 | | 2002 | | 2025.02.24 | ¿ù¼¼ | ·º¼½ººô | 2 | 80.03 | 14,000 | 51 | 2006 | | 2025.02.24 | Àü¼¼ | ¼Áø·°½ººô | 3 | 13.08 | 10,000 | 0 | 2013 | | 2025.02.24 | ¿ù¼¼ | ´õ¹Ù¿ò | 5 | 29.72 | 5,000 | 35 | 2019 | | 2025.02.24 | Àü¼¼ | À¯¿£¸Ç¼Ç | 4 | 54.91 | 30,100 | 0 | 2002 | | 2025.02.24 | ¿ù¼¼ | (895-14) | 8 | 23.52 | 16,800 | 40 | 2017 | | 2025.02.24 | ¿ù¼¼ | Ç÷¯½ºÅ¸¿ö | 10 | 12.83 | 3,000 | 58 | 2002 | | 2025.02.24 | Àü¼¼ | ´ö»êŸ¿ö | 10 | 15.52 | 18,000 | 0 | 2019 | | 2025.02.24 | ¿ù¼¼ | ÇѰ¡¶÷Ÿ¿î | 4 | 20.92 | 2,000 | 80 | 2019 | | 2025.02.24 | ¿ù¼¼ | ´õ¹Ù¿ò | 5 | 29.72 | 5,000 | 35 | 2019 | | 2025.02.24 | Àü¼¼ | (180-572) | 1 | 57.78 | 20,000 | 0 | 1988 | | 2025.02.24 | Àü¼¼ | ¼¼Èºô¶ó | 3 | 55.55 | 19,100 | 0 | 1993 | | 2025.02.24 | Àü¼¼ | ½ÂÈñ¸®Ä¡ºô | 4 | 72.55 | 35,000 | 0 | 2002 | | 2025.02.24 | ¿ù¼¼ | 1513-5 | 2 | 25.95 | 90 | 90 | 2015 | | 2025.02.24 | ¿ù¼¼ | ½ÂÈñ¸®Ä¡ºô | 1 | 17.48 | 300 | 42 | 2002 | | 2025.02.23 | ¸Å¸Å | ½ÅÈİ¡ | 1 | 45.35 | 31,500 | | 2017 | | 2025.02.23 | ¿ù¼¼ | Á¦ÀϺô¶ó(178-264) | 1 | 34.08 | 8,000 | 60 | 2002 | | 2025.02.23 | ¿ù¼¼ | CJ¿ÀÇǽºÅÚ | 3 | 12.31 | 13,500 | 12 | 2017 | | 2025.02.23 | ¿ù¼¼ | CJ¿ÀÇǽºÅÚ | 3 | 12.31 | 11,000 | 23 | 2017 | | 2025.02.22 | ¸Å¸Å | ¿ìÁøÇÏÀÌÃ÷(879-11) | 2 | 38.37 | 25,500 | | 1991 | | 2025.02.22 | ¸Å¸Å | ¼¼Á¾ÇÏÀÌÆ®ºô¶ó | 2 | 76.98 | 38,500 | | 2002 | | 2025.02.22 | ¸Å¸Å | ´ö¿ëºô¶ó | 4 | 51.19 | 22,000 | | 2002 | | 2025.02.22 | ¿ù¼¼ | ¿¥Á¦ÀÌÇϿ콺 | 3 | 25.85 | 15,000 | 65 | 2022 | | 2025.02.22 | ¸Å¸Å | (180-295) | 4 | 37.84 | 22,000 | | 2008 | | 2025.02.22 | ¸Å¸Å | ´ö¿ëºô¶ó | 4 | 51.19 | 22,000 | | 2002 | | 2025.02.22 | ¿ù¼¼ | (1650-7) | 2 | 24.3 | 8,000 | 65 | 2012 | | 2025.02.22 | ¿ù¼¼ | (1668-9) | 4 | 59.48 | 7,000 | 81 | 2005 | | 2025.02.22 | Àü¼¼ | ÀÏ¿ø¿ùµåºô¶ó | 4 | 75.1 | 30,000 | 0 | 2002 | | 2025.02.22 | ¿ù¼¼ | û¸²ºô¶ó | 4 | 39.49 | 1,000 | 75 | 1993 | | 2025.02.22 | ¿ù¼¼ | ¿¥Á¦ÀÌÇϿ콺 | 4 | 28.19 | 15,000 | 65 | 2022 | | 2025.02.22 | ¿ù¼¼ | (´õºô) | 4 | 23.9 | 5,500 | 100 | 2022 | | 2025.02.22 | ¿ù¼¼ | (898-3) | 7 | 21.12 | 3,000 | 95 | 2022 | | 2025.02.22 | ¿ù¼¼ | YKŸ¿ö | 5 | 14.81 | 17,850 | 7 | 2019 | | 2025.02.22 | Àü¼¼ | ¸®´ººô | 6 | 28.72 | 23,600 | 0 | 2016 | | 2025.02.22 | ¿ù¼¼ | ÇÏÀÓS | 10 | 11.97 | 1,000 | 65 | 2018 | | 2025.02.22 | ¿ù¼¼ | ¹Ì¸¤ºôµù | 9 | 24.53 | 3,000 | 75 | 2018 | | 2025.02.22 | ¿ù¼¼ | º£½ºÆ®ºô2 | 3 | 23.695 | 300 | 90 | 2018 | | 2025.02.22 | ¿ù¼¼ | ´õÆÛ½ºÆ®°¡ | 2 | 30.73 | 3,000 | 100 | 2018 | | 2025.02.22 | ¿ù¼¼ | ´ë°Ç(180-409) | 3 | 13.53 | 300 | 46 | 2016 | | 2025.02.22 | ¿ù¼¼ | ºÀõºô¶ó(1685-11) | 3 | 45.92 | 1,000 | 60 | 2006 | | 2025.02.22 | ¿ù¼¼ | (909-10) | 2 | 38.97 | 1,000 | 95 | 2009 | | 2025.02.22 | ¿ù¼¼ | º¸¶ó¸Åºô | 4 | 28.22 | 20,000 | 20 | 2021 | | 2025.02.22 | Àü¼¼ | ¸®´ººô | 6 | 28.72 | 26,000 | 0 | 2016 | | 2025.02.22 | ¿ù¼¼ | ÇÁ¸®¿ì½º | 3 | 28.74 | 16,000 | 30 | 2013 | | 2025.02.22 | ¿ù¼¼ | ¾Æ½¬·¹ºô | 4 | 41.85 | 16,000 | 20 | 2012 | | 2025.02.22 | ¿ù¼¼ | (909-10) | 2 | 38.97 | 1,000 | 95 | 2009 | | 2025.02.21 | ¿ù¼¼ | KSŸ¿ö | 10 | 24.3 | 5,000 | 126 | 2017 | | 2025.02.21 | ¿ù¼¼ | (100-324) | 5 | 52.09 | 26,250 | 26 | 2014 | | 2025.02.21 | ¿ù¼¼ | ·ÎÁ¦ÇϿ콺(180-534) | 4 | 34.92 | 20,700 | 20 | 2014 | | 2025.02.21 | ¿ù¼¼ | (180-402) | 4 | 27.45 | 2,000 | 69 | 2017 | | 2025.02.21 | ¿ù¼¼ | ·ÎÁ¦ÇϿ콺(180-534) | 4 | 34.92 | 20,700 | 20 | 2014 | | 2025.02.21 | ¿ù¼¼ | ¸®Ä¡Ä³½½ | 3 | 11.91 | 12,000 | 12 | 2015 | | 2025.02.21 | ¿ù¼¼ | ½º¸¶ÀÏŸ¿î | 9 | 12.95 | 3,000 | 63 | 2019 | | 2025.02.21 | ¿ù¼¼ | PeaceGood | 2 | 42.87 | 10,000 | 30 | 2012 | | 2025.02.21 | ¿ù¼¼ | ¸í¹®Å¸¿ö | 10 | 10.11 | 15,000 | 20 | 2022 | | 2025.02.21 | ¿ù¼¼ | ÀºÃµ½¦¸£ºô | 4 | 50.73 | 3,000 | 44 | 2012 | | 2025.02.21 | ¿ù¼¼ | KSŸ¿ö | 10 | 24.3 | 5,000 | 126 | 2017 | | 2025.02.21 | ¸Å¸Å | ºñÁꟿîC | 3 | 28.47 | 21,798 | | 2016 | | 2025.02.21 | ¿ù¼¼ | Çö´ëMŸ¿î | 7 | 29.01 | 22,932 | 35 | 2017 | | 2025.02.21 | ¿ù¼¼ | ´Ù¼¼´ëÁÖÅÃ(706-13) | 5 | 15.71 | 5,000 | 15 | 2019 | | 2025.02.21 | ¿ù¼¼ | YKŸ¿ö | 2 | 12.14 | 16,000 | 11 | 2019 | | 2025.02.21 | ¿ù¼¼ | YKŸ¿ö | 5 | 12.46 | 18,700 | 3 | 2019 | | 2025.02.21 | ¿ù¼¼ | µÎ¿µÇϿ콺 | 2 | 35.46 | 2,000 | 87 | 2002 | | 2025.02.21 | ¿ù¼¼ | YKŸ¿ö | 5 | 11.05 | 18,300 | 3 | 2019 | | 2025.02.21 | ¿ù¼¼ | ½º¸¶ÀÏŸ¿î | 9 | 12.95 | 3,000 | 63 | 2019 | | 2025.02.21 | Àü¼¼ | »ïÁ¤ÇÏÀÌÃ÷ºô¶ó(³ªµ¿) | 1 | 49.38 | 23,000 | 0 | 1990 | | 2025.02.21 | Àü¼¼ | Àξƺôµù | 3 | 29.56 | 24,000 | 0 | 2011 | | 2025.02.21 | ¿ù¼¼ | ¼º¿øºô¶ó(1532-1) | 2 | 46.98 | 16,000 | 20 | 1993 | | 2025.02.20 | ¸Å¸Å | ºê¶ó¿îÇϿ콺 | 4 | 28.34 | 27,000 | | 2013 | | 2025.02.20 | ¿ù¼¼ | ´Ù¼¼´ëÁÖÅÃ(887-7) | 2 | 18.62 | 1,000 | 60 | 2018 | | 2025.02.20 | ¿ù¼¼ | YKŸ¿ö | 3 | 11.05 | 18,500 | 3 | 2019 | | 2025.02.20 | ¿ù¼¼ | ±ÃÀü¸Ç¼ÇBµ¿ | -1 | 66.48 | 5,000 | 90 | 2003 | | 2025.02.20 | Àü¼¼ | ±â¸°¾ÆÆ®ºô¶ó4 | 4 | 42.8 | 14,700 | 0 | 1993 | | 2025.02.20 | ¿ù¼¼ | ÅÂ¾ç¾ÆÆ®ºô | 3 | 45.83 | 3,000 | 85 | 2003 | | 2025.02.20 | ¿ù¼¼ | ¿ì¼ºÆÄÅ©ºô¶ó7Â÷ | 1 | 42.49 | 13,700 | 10 | 1993 | | 2025.02.20 | ¿ù¼¼ | 635-198 | 4 | 21.57 | 2,000 | 95 | 2014 | | 2025.02.20 | ¿ù¼¼ | 914-2 | 6 | 26.97 | 5,000 | 108 | 2016 | | 2025.02.20 | Àü¼¼ | ÇѰ¡¶÷Ÿ¿î | 2 | 20.92 | 17,850 | 0 | 2019 | | 2025.02.20 | ¿ù¼¼ | YKŸ¿ö | 3 | 11.05 | 18,500 | 3 | 2019 | | 2025.02.19 | Àü¼¼ | ÀÌ¿¡½ºÇÏÀÓ11Â÷ | 4 | 25.99 | 26,300 | 0 | 2021 | | 2025.02.19 | Àü¼¼ | ¿¹ÁöÇϿ콺 | 2 | 29.99 | 27,000 | 0 | 2019 | | 2025.02.19 | ¿ù¼¼ | ´ë°Ç(180-409) | 4 | 22.22 | 3,000 | 70 | 2016 | | 2025.02.19 | ¿ù¼¼ | ÅÂÁø·°½ººô | 5 | 39.9 | 23,000 | 12 | 2016 | | 2025.02.19 | ¿ù¼¼ | ¾ÆÀ̺ô(1618-9) | 6 | 22.54 | 1,000 | 100 | 2014 | | 2025.02.19 | ¿ù¼¼ | ´ëÇдç | 2 | 12.9 | 1,000 | 52 | 2011 | | 2025.02.18 | Àü¼¼ | ¿ì³²ºô¶ó¹Ù | 2 | 34.98 | 15,000 | 0 | 1989 | | 2025.02.18 | ¿ù¼¼ | µå¸²ÇϿ콺(41-231) | 1 | 12.14 | 3,000 | 40 | 2012 | | 2025.02.18 | ¿ù¼¼ | ¿µ´öÇϿ콺 | 2 | 29.91 | 1,000 | 87 | 2011 | | 2025.02.18 | ¿ù¼¼ | ½ÅȰñµçŸ¿ö | 6 | 13.41 | 17,000 | 4 | 2019 | | 2025.02.18 | ¿ù¼¼ | ¹üâºô¶ó2Â÷ | 1 | 65.61 | 24,000 | 15 | 1991 | | 2025.02.18 | ¿ù¼¼ | (1688-97) | 2 | 35.64 | 12,500 | 45 | 2004 | | 2025.02.18 | ¿ù¼¼ | ¼º½Åºô¶ó | 3 | 41.325 | 13,300 | 30 | 2002 | | 2025.02.18 | ¿ù¼¼ | °æÀÏ | 4 | 30.6 | 4,000 | 74 | 1993 | | 2025.02.18 | ¸Å¸Å | ÇÏ¿ìÁ¨-ºô | 6 | 84.88 | 82,000 | | 2004 | | 2025.02.18 | ¸Å¸Å | ¼±¿ìºô¸®Áö(909-16) | 2 | 64.44 | 37,000 | | 2002 | | 2025.02.18 | ¿ù¼¼ | µµ´ãºô | 2 | 29.54 | 15,000 | 37 | 2011 | | 2025.02.17 | ¸Å¸Å | ÈïÀϺô¶óÆ® | -1 | 48.66 | 18,000 | | 1990 | | 2025.02.17 | ¸Å¸Å | ½ÅºÀ¾ÆÆ®ºô¶ó(466-24) | -1 | 61.85 | 20,300 | | 2002 | | 2025.02.17 | ¸Å¸Å | ¾çÁöºô(1536-18) | 5 | 58.045 | 36,000 | | 2005 | | 2025.02.17 | ¿ù¼¼ | ÀÏÁÖÇϿ콺Bµ¿ | 3 | 29.9 | 5,000 | 100 | 2015 | | 2025.02.17 | Àü¼¼ | Çѽººô | 4 | 64.56 | 27,000 | 0 | 2009 | | 2025.02.17 | Àü¼¼ | ¹Ð·¹´Ï¾ö14Â÷ | 4 | 66.79 | 32,000 | 0 | 2000 | | 2025.02.17 | ¿ù¼¼ | ÀºÇýºô¶ó(1528-23) | 2 | 43.32 | 2,000 | 90 | 1994 | | 2025.02.17 | ¿ù¼¼ | (41-537) | 2 | 36.75 | 1,000 | 90 | 2002 | | 2025.02.16 | ¿ù¼¼ | ±¤µ¿ºô¶ó(1597-33) | 3 | 41.94 | 1,000 | 55 | 1996 | | 2025.02.16 | ¿ù¼¼ | ¹é° | 2 | 61.775 | 500 | 30 | 2004 | | 2025.02.16 | ¿ù¼¼ | ±ÃÀüºô¸®Áö(´Ùµ¿) | -1 | 50.19 | 11,900 | 30 | 1990 | | 2025.02.16 | Àü¼¼ | YKŸ¿ö | 4 | 12.46 | 18,000 | 0 | 2019 | | 2025.02.16 | ¿ù¼¼ | ¿¹ÁÖºô | -1 | 48.6 | 3,000 | 65 | 2012 | | 2025.02.15 | ¿ù¼¼ | (1622-25) | 1 | 37.54 | 5,000 | 85 | 2002 | | 2025.02.15 | ¸Å¸Å | ³«¿øºô¶ó | 4 | 72.07 | 30,700 | | 2001 | | 2025.02.15 | ¸Å¸Å | ÿ½ÃÇϿ콺Aµ¿Bµ¿ | 5 | 41.92 | 37,700 | | 2019 | | 2025.02.15 | Àü¼¼ | ¿ì¿µARTEVILLNAKSUNG | 5 | 29.47 | 31,500 | 0 | 2022 | | 2025.02.15 | ¿ù¼¼ | ¿µÁøºô¶ó | 4 | 49.53 | 17,000 | 30 | 1997 | | 2025.02.15 | ¿ù¼¼ | (1711-11) | 3 | 52.59 | 18,500 | 60 | 1998 | | 2025.02.15 | ¿ù¼¼ | (1711-11) | 3 | 52.59 | 18,500 | 60 | 1998 | | 2025.02.15 | ¿ù¼¼ | °ü¼ººô¶ó | 3 | 59.88 | 3,000 | 87 | 2008 | | 2025.02.15 | Àü¼¼ | ¸í¹®Å¸¿ö | 10 | 8.73 | 19,000 | 0 | 2022 | | 2025.02.15 | ¿ù¼¼ | (¿ùµåºô) | 4 | 27.83 | 3,000 | 80 | 2012 | | 2025.02.15 | ¿ù¼¼ | ½ÅȰñµçŸ¿ö | 6 | 10.78 | 14,000 | 3 | 2019 | | 2025.02.15 | Àü¼¼ | ûÁøºô | 2 | 27.32 | 20,000 | 0 | 2012 | | 2025.02.15 | ¿ù¼¼ | µå¶ó¸¶ÇϿ콺 | 3 | 29.12 | 10,000 | 60 | 2013 | | 2025.02.15 | ¿ù¼¼ | °ñµçºô | 4 | 25.34 | 2,000 | 68 | 2013 | | 2025.02.15 | ¿ù¼¼ | 1614-2 | 4 | 28.41 | 3,000 | 48 | 2016 | | 2025.02.15 | ¿ù¼¼ | º¸¶ó¸Åµå¸²ÆÄÅ© | 5 | 23.3 | 18,000 | 15 | 2018 | | 2025.02.15 | ¿ù¼¼ | ¶ó¿Â3 | 8 | 11.834 | 3,000 | 61 | 2018 | | 2025.02.15 | Àü¼¼ | ÅÂÁøºô¶ó | 1 | 60.48 | 20,000 | 0 | 1991 | | 2025.02.15 | ¿ù¼¼ | (1622-25) | 4 | 22.85 | 1,000 | 65 | 2002 | | 2025.02.15 | ¿ù¼¼ | ¾Èµ¿ºô¶ó(1518-4) | -1 | 84.54 | 800 | 110 | 1991 | | 2025.02.15 | ¿ù¼¼ | ½ÅºÀ¸¶À»Gµ¿ | 1 | 59.97 | 22,600 | 30 | 2003 | | 2025.02.15 | ¿ù¼¼ | ¹«±ÃȸǼÇ(876-22) | 1 | 67.5 | 500 | 100 | 1994 | | 2025.02.15 | Àü¼¼ | (715-171) | 2 | 56.22 | 9,000 | 0 | 1991 | | 2025.02.14 | Àü¼¼ | ¿¡½ºÅ¬·¡½º | 6 | 29.44 | 26,800 | 0 | 2020 | | 2025.02.14 | ¿ù¼¼ | 1614-2 | 2 | 26.22 | 2,000 | 57 | 2016 | | 2025.02.14 | ¿ù¼¼ | Èѹ̸®ÇϿ콺 | 5 | 52.65 | 6,000 | 97 | 2015 | | 2025.02.14 | ¿ù¼¼ | ¾Æ¸£¶¼ºôB | 5 | 48.23 | 3,000 | 120 | 2016 | | 2025.02.14 | ¿ù¼¼ | ¾Æ½¬·¹ºô | 3 | 19.4 | 5,000 | 30 | 2012 | | 2025.02.14 | Àü¼¼ | 1526-13 | 4 | 70.2 | 25,200 | 0 | 2006 | | 2025.02.14 | ¿ù¼¼ | ·º¼½ººô | 2 | 79.22 | 15,000 | 31 | 2006 | | 2025.02.14 | ¿ù¼¼ | (886-46) | 2 | 69.98 | 2,000 | 110 | 2002 | | 2025.02.14 | ¿ù¼¼ | ±ÝÈ£¸Ç¼Ç(880-20) | 1 | 112.18 | 7,000 | 150 | 1994 | | 2025.02.14 | ¿ù¼¼ | ÇѼºÁÖÅà | 1 | 36.28 | 1,000 | 55 | 1994 | | 2025.02.14 | ¸Å¸Å | »ïÀÍij½½102µ¿ | 3 | 47.77 | 28,000 | | 2016 | | 2025.02.14 | ¸Å¸Å | °íÀººô¶ó | 3 | 59.79 | 31,000 | | 2001 | | 2025.02.13 | ¿ù¼¼ | YKŸ¿ö | 3 | 13.72 | 17,800 | 4 | 2019 | | 2025.02.13 | ¿ù¼¼ | ¿À·»ÁöÇÏÀÓ(1681-16) | 3 | 29.96 | 5,000 | 112 | 2019 | | 2025.02.13 | Àü¼¼ | ±î»ç¿¤¶ó | 2 | 29.98 | 23,050 | 0 | 2018 | | 2025.02.13 | Àü¼¼ | ±î»ç¿¤¶ó | 2 | 29.98 | 23,050 | 0 | 2018 | | 2025.02.13 | ¿ù¼¼ | µµ´ãºô | 3 | 31.22 | 15,750 | 40 | 2011 | | 2025.02.12 | Àü¼¼ | ´ö»êŸ¿ö | 13 | 15.52 | 20,800 | 0 | 2019 | | 2025.02.12 | Àü¼¼ | ¿ÍÀÌÁîÈú(635-343) | 5 | 29.33 | 27,300 | 0 | 2020 | | 2025.02.12 | ¿ù¼¼ | Űæ9Â÷ | 4 | 29.17 | 1,500 | 90 | 2020 | | 2025.02.12 | ¿ù¼¼ | ±Ýµ¿»ç¶û¹æ | 7 | 17.83 | 3,000 | 90 | 2022 | | 2025.02.12 | ¸Å¸Å | ÇÁ¸®¿£ÇϿ콺 | 3 | 53.49 | 33,500 | | 2010 | | 2025.02.12 | Àü¼¼ | (100-182) | 1 | 30.74 | 20,000 | 0 | 2013 | | 2025.02.12 | ¿ù¼¼ | ¿µ¿ìµµ½ÃÇü»ýȰÁÖÅà | 5 | 35.55 | 16,000 | 10 | 2012 | | 2025.02.12 | Àü¼¼ | ±×·£Á®ºô¶ó3Â÷ | 4 | 36.84 | 27,300 | 0 | 1993 | | 2025.02.12 | ¿ù¼¼ | ¿¹¼ºô¶óBµ¿ | 2 | 69.35 | 19,000 | 10 | 2007 | | 2025.02.12 | ¿ù¼¼ | (1688-36) | 1 | 45.68 | 15,000 | 65 | 2003 | | 2025.02.12 | ¿ù¼¼ | ±¤µ¿ºô¶ó(1597-33) | 4 | 38.16 | 1,000 | 60 | 1996 | | 2025.02.12 | ¿ù¼¼ | ³Ø½ºÆ®¿ùµåÇϿ콺 | -1 | 36.08 | 1,000 | 45 | 2001 | | 2025.02.12 | ¿ù¼¼ | (100-125) | 3 | 18.48 | 500 | 48 | 2001 | | 2025.02.12 | ¸Å¸Å | Çý¼ººô¶ó | 1 | 58.72 | 24,000 | | 1995 | | 2025.02.11 | ¸Å¸Å | ·ÎÁ¦ÇϿ콺(4Â÷) | 4 | 56.83 | 30,000 | | 2004 | | 2025.02.11 | ¸Å¸Å | µ¿¾Æºô¶óB | 3 | 61.36 | 26,500 | | 1994 | | 2025.02.11 | Àü¼¼ | »þÀÎij½½ | 5 | 45.26 | 25,000 | 0 | 2017 | | 2025.02.11 | ¿ù¼¼ | À¯Áø2-2ºô¶ó | -1 | 59.31 | 12,900 | 35 | 1996 | | 2025.02.11 | Àü¼¼ | üÀ̽ººôBµ¿ | -1 | 29.99 | 14,900 | 0 | 2016 | | 2025.02.10 | Àü¼¼ | ÇÑÀϰñµå¸Ç¼Ç | 2 | 66.79 | 28,870 | 0 | 2001 | | 2025.02.10 | ¿ù¼¼ | û¿îÇÏÀÌÃ÷ºô | 1 | 61.03 | 17,000 | 20 | 2001 | | 2025.02.10 | ¿ù¼¼ | ±×¸°ºô | 4 | 12.23 | 100 | 25 | 2002 | | 2025.02.10 | Àü¼¼ | ¼¾ÈÁÖÅà | 4 | 84.53 | 25,000 | 0 | 1994 | | 2025.02.10 | ¿ù¼¼ | YKŸ¿ö | 2 | 14.81 | 17,600 | 3 | 2019 | | 2025.02.10 | ¿ù¼¼ | Ǫ¸¥¼Öºô | 5 | 66.15 | 10,000 | 70 | 2004 | | 2025.02.10 | Àü¼¼ | ·ÎÁ¦ÇϿ콺7Â÷ | 2 | 63.78 | 29,750 | 0 | 2005 | | 2025.02.10 | Àü¼¼ | ºû°íÀ»ÇϿ콺 | 5 | 39.62 | 24,100 | 0 | 2013 | | 2025.02.10 | ¿ù¼¼ | YB1979 | 2 | 42.85 | 3,500 | 103 | 2020 | | 2025.02.10 | ¿ù¼¼ | ¿À·»ÁöÇÏÀÓ(1681-16) | 5 | 29.19 | 28,000 | 22 | 2019 | | 2025.02.10 | Àü¼¼ | (42-45) | 1 | 56.76 | 18,000 | 0 | 1992 | | 2025.02.10 | ¸Å¸Å | (1524-2) | 3 | 66.14 | 32,700 | | 2002 | | 2025.02.09 | ¿ù¼¼ | ±Ýµ¿»ç¶û¹æ | 10 | 12.96 | 2,000 | 90 | 2022 | | 2025.02.09 | ¸Å¸Å | ¸ð°Ç¾ÆÆ®ºô | 3 | 35.08 | 33,500 | | 2016 | | 2025.02.09 | ¸Å¸Å | °üÀü¼¾Æ®·¹ºô | 3 | 44.46 | 32,000 | | 2017 | | 2025.02.09 | ¿ù¼¼ | À𽺹Π| 4 | 14.26 | 500 | 47 | 2014 | | 2025.02.09 | Àü¼¼ | KWŸ¿ö | 8 | 27.14 | 31,000 | 0 | 2017 | | 2025.02.09 | ¿ù¼¼ | (1711-2) | 2 | 52.21 | 5,000 | 90 | 1996 | | 2025.02.09 | ¿ù¼¼ | ¾Æ½¬·¹ºô | 2 | 12.94 | 2,000 | 45 | 2012 | | 2025.02.08 | ¿ù¼¼ | ¼¾Æ®·²Æ÷ÀÎÆ® | 10 | 14.99 | 5,500 | 73 | 2019 | | 2025.02.08 | ¿ù¼¼ | ±î»ç¿¤¶ó | 3 | 29.77 | 10,870 | 33 | 2018 | | 2025.02.08 | Àü¼¼ | º¸¶ó¸Åµå¸²ÆÄÅ© | 6 | 22.47 | 17,800 | 0 | 2018 | | 2025.02.08 | ¿ù¼¼ | À𽺹Π| 3 | 12.21 | 2,000 | 44 | 2014 | | 2025.02.08 | ¿ù¼¼ | (151-13) | 1 | 69.62 | 3,000 | 90 | 2003 | | 2025.02.08 | ¸Å¸Å | ¼öÆÓ¸®½ºFT | 3 | 43.04 | 45,500 | | 2020 | | 2025.02.08 | ¿ù¼¼ | ±î»ç¿¤¶ó | 3 | 29.77 | 10,870 | 33 | 2018 | | 2025.02.08 | ¿ù¼¼ | °ñµåÇÏÀÓ2Â÷ | 4 | 26.82 | 8,000 | 86 | 2015 | | 2025.02.08 | ¿ù¼¼ | ´©º§Æ÷·¹ | 2 | 48.98 | 25,500 | 5 | 2015 | | 2025.02.08 | ¿ù¼¼ | µµ¿ø¸Ç¼Ç(B) | 3 | 64.63 | 2,000 | 135 | 2004 | | 2025.02.08 | ¿ù¼¼ | »ïȱ׸°ºô¶ó | 1 | 76.67 | 5,000 | 100 | 1991 | | 2025.02.08 | Àü¼¼ | °ü¾ÇÆÄÅ©ºô¶ó | 2 | 66.13 | 25,000 | 0 | 2002 | | 2025.02.07 | ¸Å¸Å | ¼öÆÓ¸®½ºFT | 1 | 29.85 | 26,000 | | 2018 | | 2025.02.07 | ¿ù¼¼ | ¾Æ½¬·¹ºô | 5 | 53.34 | 500 | 43 | 2012 | | 2025.02.07 | Àü¼¼ | ºñ±äÇϿ콺 | 3 | 46.2 | 25,350 | 0 | 2015 | | 2025.02.07 | ¿ù¼¼ | ¼¾Æ®·²Æ÷ÀÎÆ® | 11 | 11.93 | 1,000 | 67 | 2019 | | 2025.02.06 | ¿ù¼¼ | ¿µ¾ÆÆ®ºô | 4 | 52.08 | 6,000 | 95 | 2004 | | 2025.02.05 | Àü¼¼ | Çö´ëºô¶óÆ®(41-83) | 3 | 60 | 24,300 | 0 | 2009 | | 2025.02.05 | ¿ù¼¼ | ¾ÆÀÎÆÄÅ©ºô | 3 | 79.56 | 6,000 | 40 | 2006 | | 2025.02.05 | Àü¼¼ | (647-185) | 4 | 40.38 | 16,000 | 0 | 1994 | | 2025.02.05 | ¿ù¼¼ | ÂüÁÁÀºÁý | 1 | 59.04 | 300 | 41 | 2003 | | 2025.02.05 | Àü¼¼ | »ïâºô¶ó | 1 | 55.47 | 22,000 | 0 | 1994 | | 2025.02.05 | Àü¼¼ | »ïâºô¶ó | 1 | 55.47 | 22,000 | 0 | 1994 | | 2025.02.05 | ¿ù¼¼ | ´ë¼±ºô¶óA | 4 | 60.66 | 15,000 | 50 | 1994 | | 2025.02.05 | ¿ù¼¼ | ±¤¼ºÁÖÅà | 1 | 13.84 | 1,000 | 35 | 2012 | | 2025.02.05 | ¿ù¼¼ | ¿µ¿ìµµ½ÃÇü»ýȰÁÖÅà | 2 | 21.25 | 500 | 50 | 2012 | | 2025.02.05 | Àü¼¼ | ´Ù¼¼´ëÁÖÅÃ(887-7) | 3 | 29.69 | 23,000 | 0 | 2018 | | 2025.02.05 | Àü¼¼ | ¿ÍÀÌÁîÈú(635-343) | 2 | 24.36 | 24,200 | 0 | 2020 | | 2025.02.05 | Àü¼¼ | ´Ù¼¼´ëÁÖÅÃ(887-7) | 3 | 29.53 | 23,000 | 0 | 2018 | | 2025.02.04 | ¿ù¼¼ | ¸®Ä¡Ä³½½ | 6 | 14.98 | 13,000 | 10 | 2015 | | 2025.02.04 | ¸Å¸Å | ´Ù¼Øºô | 4 | 23.87 | 35,500 | | 2023 | | 2025.02.04 | ¿ù¼¼ | ¸á¶ó | 3 | 31.77 | 200 | 70 | 2021 | | 2025.02.04 | Àü¼¼ | ÿ½ÃÇϿ콺Aµ¿Bµ¿ | 3 | 39.7 | 28,800 | 0 | 2019 | | 2025.02.04 | ¿ù¼¼ | ½ÉÁö(457-115) | 5 | 28.75 | 24,300 | 10 | 2018 | | 2025.02.04 | ¿ù¼¼ | ½ÉÁö(457-115) | 5 | 28.75 | 24,300 | 10 | 2018 | | 2025.02.04 | ¿ù¼¼ | ÇÞºû(180-360) | 2 | 16.83 | 1,000 | 54 | 2017 | | 2025.02.04 | ¿ù¼¼ | ÇìºìŸ¿ö | 8 | 14.76 | 1,000 | 36 | 2013 | | 2025.02.04 | ¿ù¼¼ | ±îÄ¡ºô¶ó(°¡)µ¿ | -1 | 36.96 | 13,000 | 10 | 1989 | | 2025.02.04 | Àü¼¼ | ÇѰ¡Á·ºô¶ó | 4 | 83.43 | 26,500 | 0 | 1994 | | 2025.02.04 | Àü¼¼ | ¹éÇÕºô¶ó(928-11) | 1 | 39.66 | 22,000 | 0 | 1991 | | 2025.02.04 | ¿ù¼¼ | (100-182) | 3 | 32.04 | 16,700 | 17 | 2013 | | 2025.02.03 | ¿ù¼¼ | ±¤¼ºÁÖÅà | 3 | 13.12 | 1,000 | 45 | 2012 | | 2025.02.03 | ¿ù¼¼ | ÀÌ·¹Å¸¿ö | 6 | 28.16 | 5,000 | 110 | 2022 | | 2025.02.03 | Àü¼¼ | ¿ÍÀÌÁîÈú(635-343) | 5 | 29.33 | 27,300 | 0 | 2020 | | 2025.02.03 | ¿ù¼¼ | (1-1124) | 2 | 54.86 | 500 | 45 | 1996 | | 2025.02.03 | ¿ù¼¼ | ¾ÆÀÎÆÄÅ©ºô | 3 | 79.56 | 1,000 | 58 | 2006 | | 2025.02.03 | ¿ù¼¼ | (1710-5) | 2 | 59.27 | 25,200 | 10 | 1997 | | 2025.02.03 | ¿ù¼¼ | (1710-5) | 2 | 59.27 | 25,200 | 10 | 1997 | | 2025.02.03 | ¿ù¼¼ | ¼¼Á¤È¨Å¸¿î | 2 | 47.88 | 10,000 | 70 | 2003 | | 2025.02.03 | Àü¼¼ | ÆòÁÖºô¶ó | 1 | 58.99 | 19,000 | 0 | 2001 | | 2025.02.03 | Àü¼¼ | À¯¸Ç¼Ç | -1 | 41.84 | 11,000 | 0 | 1991 | | 2025.02.03 | ¿ù¼¼ | (207-34) | 2 | 36.7 | 10,535 | 34 | 1986 | | 2025.02.03 | ¸Å¸Å | ¼öÁ¤±×¸°ºô | 3 | 62.81 | 20,500 | | 2001 | | 2025.02.03 | ¿ù¼¼ | Àϱ¤ | 2 | 41.13 | 1,000 | 80 | 2001 | | 2025.02.03 | ¿ù¼¼ | ¼öÁ¤ºô¶ó | 2 | 35.77 | 8,000 | 30 | 1998 | | 2025.02.02 | ¿ù¼¼ | °æµ¿Å¸¿î | 7 | 12.06 | 2,000 | 66 | 2014 | | 2025.02.02 | ¿ù¼¼ | ÇÏÀ̺ô | 3 | 69.27 | 3,000 | 125 | 2003 | | 2025.02.02 | ¸Å¸Å | ´ë¾çȨ¸Ç¼Ç | 2 | 62.4 | 29,700 | | 2003 | | 2025.02.01 | ¸Å¸Å | ÇÏ¿ìÁ¨-ºô | 7 | 84.62 | 83,000 | | 2004 | | 2025.02.01 | Àü¼¼ | ¼ºÇö½¦¸£ºô | 1 | 50.68 | 25,000 | 0 | 2016 | | 2025.02.01 | ¿ù¼¼ | 914-2 | 7 | 26.97 | 12,000 | 72 | 2016 | | 2025.02.01 | Àü¼¼ | û¿îºô¶ó3Â÷ | 1 | 53.12 | 20,000 | 0 | 1996 | | 2025.02.01 | ¿ù¼¼ | 914-2 | 7 | 26.97 | 12,000 | 72 | 2016 | | 2025.01.31 | ¿ù¼¼ | (1688-97) | 4 | 77.98 | 30,000 | 20 | 2004 | | 2025.01.31 | ¿ù¼¼ | ¼¾Æ®·²Æ÷ÀÎÆ® | 9 | 11.56 | 3,700 | 68 | 2019 | | 2025.01.31 | ¿ù¼¼ | ¼¾Æ®·²Æ÷ÀÎÆ® | 11 | 11.56 | 3,700 | 64 | 2019 | | 2025.01.31 | ¿ù¼¼ | ½ÉÁö(457-115) | 5 | 28.75 | 24,300 | 10 | 2018 | | 2025.01.26 | ¿ù¼¼ | µ¿¾Æºô¶ó8Â÷ | 2 | 21.45 | 1,000 | 50 | 2000 | | 2025.01.26 | ¿ù¼¼ | SJÇÁ¸®¹Ì¾î¿ÀÇǽºÅÚ | 12 | 18.54 | 2,000 | 100 | 2021 | | 2025.01.26 | ¿ù¼¼ | »ïÀϺôµù | 5 | 12.92 | 3,000 | 77 | 2015 | | 2025.01.25 | ¸Å¸Å | À¯¸Ç¼Ç | -1 | 41.84 | 15,000 | | 1991 | | 2025.01.25 | Àü¼¼ | (635-80) | 2 | 34.4 | 8,700 | 0 | 1986 | | 2025.01.25 | ¿ù¼¼ | ¿ì¶÷ºô¶ó | 2 | 35.16 | 13,300 | 40 | 1991 | | 2025.01.25 | Àü¼¼ | °üÀü¾Æ¸£ºô | 1 | 54.12 | 20,000 | 0 | 2008 | | 2025.01.25 | ¿ù¼¼ | ¿ø¾Ó¸Ç¼Ç | 2 | 50.75 | 17,500 | 20 | 1993 | | 2025.01.25 | Àü¼¼ | ÆÛ½ºÆ®ÇÁ¸®¹Ì¾ö | 1 | 28.38 | 24,000 | 0 | 2017 | | 2025.01.25 | ¸Å¸Å | ÿ½ÃÇϿ콺Cµ¿ | 2 | 31.92 | 31,000 | | 2019 | | 2025.01.24 | ¸Å¸Å | ´Ù³²ºô¶ó(180-166) | 1 | 46.54 | 17,300 | | 1991 | | 2025.01.24 | ¿ù¼¼ | ¿¤¸² | 2 | 16.79 | 9,700 | 5 | 2012 | | 2025.01.24 | ¿ù¼¼ | °ñµåºô(41-110) | 2 | 82.46 | 6,000 | 100 | 2011 | | 2025.01.24 | ¿ù¼¼ | ¿µºô | 2 | 76.71 | 1,000 | 60 | 2008 | | 2025.01.24 | ¿ù¼¼ | ´õ½ºÆ©µð¿ÀÈÆ | 2 | 21.17 | 4,000 | 66 | 2010 | | 2025.01.24 | Àü¼¼ | (196-142) | 3 | 44.53 | 22,500 | 0 | 2006 | | 2025.01.24 | ¿ù¼¼ | Áö¸®»êÇϿ콺 | 4 | 29.77 | 18,700 | 40 | 2015 | | 2025.01.24 | ¸Å¸Å | ¸®Ä¡ÆÓ¸®½º | 2 | 29.91 | 23,500 | | 2013 | | 2025.01.23 | Àü¼¼ | »ïÁ¤ÇÏÀÌÃ÷ºô¶ó(¸¶µ¿) | 2 | 49.8 | 18,000 | 0 | 1990 | | 2025.01.23 | ¿ù¼¼ | Àϱ¤ | 1 | 41.13 | 1,000 | 80 | 2001 | | 2025.01.23 | ¿ù¼¼ | S&Ytown | 2 | 27.87 | 2,000 | 110 | 2016 | | 2025.01.23 | ¿ù¼¼ | Ç÷¯½ºÅ¸¿ö | 10 | 13.07 | 5,000 | 56 | 2002 | | 2025.01.23 | Àü¼¼ | °ü¾Çºô¸®Áö | 3 | 65.1 | 26,000 | 0 | 1996 | | 2025.01.23 | ¿ù¼¼ | º§À¯¾îºí | 1 | 37.51 | 22,500 | 5 | 2014 | | 2025.01.23 | Àü¼¼ | ºñ°ÇÇϿ콺2 | 6 | 29.19 | 15,750 | 0 | 2017 | | 2025.01.23 | Àü¼¼ | (100-293) | 1 | 46.3 | 15,750 | 0 | 1991 | | 2025.01.22 | ¿ù¼¼ | ¿µ¿ìµµ½ÃÇü»ýȰÁÖÅà | 2 | 15.75 | 10,000 | 10 | 2012 | | 2025.01.22 | ¿ù¼¼ | 41-817 | 2 | 22.5 | 5,000 | 50 | 2014 | | 2025.01.22 | ¿ù¼¼ | ÇãºêÇϿ콺(958-28) | 1 | 14.4 | 300 | 30 | 2012 | | 2025.01.22 | ¿ù¼¼ | ´õÇ츣¹Ì¿Â | 11 | 10.87 | 2,652 | 11 | 2021 | | 2025.01.22 | ¿ù¼¼ | º£³×½ºÆ® | 6 | 31.11 | 5,000 | 85 | 2020 | | 2025.01.22 | ¸Å¸Å | ¹üâºô¶ó2Â÷ | 2 | 65.61 | 31,000 | | 1991 | | 2025.01.21 | ¿ù¼¼ | (871-13) | 3 | 39.26 | 5,000 | 70 | 2002 | | 2025.01.21 | Àü¼¼ | ¸®Ä¡ÇÏÀÓ | -1 | 84.3 | 10,000 | 0 | 2012 | | 2025.01.21 | Àü¼¼ | (931-18) | 3 | 39.96 | 12,970 | 0 | 1993 | | 2025.01.21 | Àü¼¼ | (931-18) | 3 | 39.96 | 12,970 | 0 | 1993 | | 2025.01.21 | ¿ù¼¼ | 1612-53 | 4 | 23.2 | 2,000 | 88 | 2014 | | 2025.01.21 | ¸Å¸Å | üÀ̽ººôBµ¿ | -1 | 29.99 | 19,000 | | 2016 | | 2025.01.21 | Àü¼¼ | »ùÅÍÁÖÅà | 4 | 36.87 | 15,000 | 0 | 2008 | | 2025.01.21 | ¿ù¼¼ | Çö´ëºô¶ó³ª(1515-2) | 2 | 66.24 | 20,000 | 40 | 1994 | | 2025.01.21 | ¿ù¼¼ | (178-4) | 2 | 31.94 | 2,000 | 60 | 1991 | | 2025.01.20 | ¿ù¼¼ | ¿µÈ£ºô¶ó | 1 | 43.59 | 5,000 | 70 | 1991 | | 2025.01.20 | ¿ù¼¼ | YKŸ¿ö | 2 | 12.14 | 17,000 | 2 | 2019 | | 2025.01.20 | Àü¼¼ | Èú¹Ù¿ò | 3 | 37.92 | 25,000 | 0 | 2015 | | 2025.01.20 | ¿ù¼¼ | ±Ýµ¿»ç¶û¹æ | 9 | 13.97 | 16,000 | 25 | 2022 | | 2025.01.20 | ¿ù¼¼ | ÀÏÇüºô¶ó | -1 | 42.66 | 9,200 | 30 | 1998 | | 2025.01.20 | ¿ù¼¼ | Å丶½ººô | 2 | 21 | 2,000 | 49 | 2001 | | 2025.01.20 | ¿ù¼¼ | (886-49) | 3 | 28.82 | 2,000 | 60 | 1994 | | 2025.01.20 | ¿ù¼¼ | YKŸ¿ö | 4 | 12.14 | 18,100 | 2 | 2019 | | 2025.01.20 | Àü¼¼ | (964-5) | -1 | 30.99 | 8,000 | 0 | 1989 | | 2025.01.20 | ¸Å¸Å | ÿ½ÃÇϿ콺Aµ¿Bµ¿ | 4 | 39.7 | 34,900 | | 2019 | | 2025.01.20 | ¸Å¸Å | °ü¾Ç±×¸°ºô¶ó | 3 | 52.68 | 15,000 | | 1987 | | 2025.01.20 | Àü¼¼ | YKŸ¿ö | 3 | 14.81 | 18,000 | 0 | 2019 | | 2025.01.19 | ¿ù¼¼ | ±¤µ¿ºô¶ó(1597-33) | 2 | 41.94 | 10,000 | 2 | 1996 | | 2025.01.19 | ¿ù¼¼ | ÀÏÀ°»ï¾ÆÆ®ºô¶ó | 4 | 59.22 | 29,400 | 25 | 1995 | | 2025.01.19 | ¿ù¼¼ | ¿ì¸®ÇϿ콺 | 3 | 22.06 | 10,000 | 20 | 2012 | | 2025.01.19 | ¿ù¼¼ | ¿ùµåŸ¿î | 5 | 62.165 | 1,000 | 50 | 2002 | | 2025.01.19 | ¿ù¼¼ | ¿¹´Ù¿òºô | 2 | 29.01 | 1,000 | 88 | 2013 | | 2025.01.19 | ¿ù¼¼ | µå¸²ÇϿ콺 | 3 | 29.27 | 2,000 | 83 | 2011 | | 2025.01.18 | ¿ù¼¼ | ÇãºêÇϿ콺(958-28) | 2 | 13.32 | 500 | 37 | 2012 | | 2025.01.18 | Àü¼¼ | (635-80) | 1 | 34.4 | 8,700 | 0 | 1986 | | 2025.01.18 | ¿ù¼¼ | ÇѾçÆÄÅ©ºô¶ó | 3 | 33.8 | 10,000 | 10 | 1993 | | 2025.01.18 | ¿ù¼¼ | ¹Ì¼ººô¶ó(1536-13) | -1 | 62.46 | 13,000 | 25 | 1987 | | 2025.01.18 | ¿ù¼¼ | °æµ¿Å¸¿î | 5 | 12.06 | 2,000 | 61 | 2014 | | 2025.01.18 | ¿ù¼¼ | ¾ÆÄ«µ¥¹ÌÇϿ콺3Â÷ | 4 | 42.68 | 33,000 | 60 | 2023 | | 2025.01.18 | Àü¼¼ | ½ÅÈİ¡ | 2 | 45.35 | 28,000 | 0 | 2017 | | 2025.01.18 | ¿ù¼¼ | (1674-19) | 4 | 12.075 | 1,000 | 63 | 2019 | | 2025.01.18 | ¿ù¼¼ | ¾¦°í°³Çظ¼À½ | 7 | 29.2 | 30,000 | 23 | 2024 | | 2025.01.18 | ¿ù¼¼ | ¸ñȺô¶ó | 1 | 53.66 | 5,000 | 80 | 1991 | | 2025.01.18 | ¸Å¸Å | ¿µ¶ôºô¶ó | 1 | 57.13 | 30,000 | | 1990 | | 2025.01.18 | ¿ù¼¼ | ¾ÆÄ«µ¥¹ÌÇϿ콺3Â÷ | 3 | 42.1 | 33,000 | 60 | 2023 | | 2025.01.17 | ¿ù¼¼ | ¼¾Æ®·²Æ÷ÀÎÆ® | 9 | 14.99 | 10,000 | 50 | 2019 | | 2025.01.17 | Àü¼¼ | ¿ì¿ù¸Ç¼Ç | 1 | 55.89 | 20,000 | 0 | 1995 | | 2025.01.17 | ¿ù¼¼ | ¼¾Æ®·²Æ÷ÀÎÆ® | 9 | 14.99 | 15,000 | 33 | 2019 | | 2025.01.17 | ¿ù¼¼ | 1612-53 | 4 | 20 | 6,000 | 74 | 2014 | | 2025.01.17 | ¿ù¼¼ | ´ë½ÅÇÏÀÌÃ÷ºô¶ó | 1 | 58.98 | 13,000 | 20 | 1992 | | 2025.01.17 | ¿ù¼¼ | (715-44) | 2 | 51.11 | 9,000 | 48 | 2003 | | 2025.01.17 | ¿ù¼¼ | ¹Ì¸¤ºôµù | 8 | 26.33 | 5,000 | 60 | 2018 | | 2025.01.17 | ¿ù¼¼ | (1531-3) | 1 | 96.09 | 4,000 | 55 | 1977 | | 2025.01.17 | ¿ù¼¼ | ºñÀüÇϿ콺 | 2 | 16.05 | 1,000 | 57 | 2016 | | 2025.01.17 | ¸Å¸Å | ÈÀÌÆ®±×¸°ºô | 1 | 70.68 | 40,500 | | 2001 | | 2025.01.16 | ¿ù¼¼ | (1644-15) | 3 | 15.78 | 2,000 | 55 | 2005 | | 2025.01.16 | ¿ù¼¼ | ÇÏÀÓºô¶ó | 3 | 55.3 | 1,000 | 30 | 2008 | | 2025.01.16 | Àü¼¼ | ½Å¾È¿Â´©¸® | 4 | 29.56 | 15,000 | 0 | 2014 | | 2025.01.16 | ¿ù¼¼ | ¿ì¼ºÆÄÅ©ºô¶ó7Â÷ | 3 | 47.43 | 12,000 | 68 | 1993 | | 2025.01.16 | Àü¼¼ | (895-14) | 5 | 23.18 | 25,000 | 0 | 2017 | | 2025.01.16 | ¿ù¼¼ | (932-22) | 1 | 45.15 | 5,000 | 71 | 2002 | | 2025.01.16 | ¿ù¼¼ | Á¶ÀºÁý | 5 | 46.41 | 17,000 | 10 | 2013 | | 2025.01.16 | ¸Å¸Å | Æò»êAºô¶ó | -1 | 65.73 | 22,600 | | 1993 | | 2025.01.15 | ¿ù¼¼ | »ïÈÁÖÅÃ(1513-16) | -1 | 41.04 | 500 | 60 | 1988 | | 2025.01.15 | ¿ù¼¼ | ´Ù¿øºô | 5 | 29.99 | 4,000 | 90 | 2018 | | 2025.01.15 | Àü¼¼ | Àº¿µºô¶ó(635-401) | 2 | 36.69 | 9,000 | 0 | 1990 | | 2025.01.15 | Àü¼¼ | º¸¼ººô¸®Áö | 5 | 29.71 | 21,500 | 0 | 2018 | | 2025.01.15 | Àü¼¼ | µ¿Áø¸Ç¼Ç | 4 | 58.02 | 22,000 | 0 | 2002 | | 2025.01.15 | Àü¼¼ | ¹é³âºô¶ó(946-7) | 3 | 39.73 | 16,800 | 0 | 2003 | | 2025.01.15 | ¿ù¼¼ | ¾¦°í°³Çظ¼À½ | 8 | 29.2 | 27,000 | 30 | 2024 | | 2025.01.15 | ¿ù¼¼ | (1613-6) | 2 | 29.44 | 14,000 | 40 | 2011 | | 2025.01.15 | ¿ù¼¼ | (1688-40) | 2 | 31.62 | 3,000 | 75 | 2004 | | 2025.01.15 | ¿ù¼¼ | ºÀõµ¿´Ù¼¼´ëÁÖÅà | 2 | 15.62 | 500 | 32 | 2001 | | 2025.01.15 | Àü¼¼ | û¿îºô¶ó3Â÷ | 1 | 53.12 | 18,743 | 0 | 1996 | | 2025.01.15 | ¿ù¼¼ | ±¸¼ºÈ¨Å¸¿îºô¶ó | 2 | 50.35 | 2,000 | 85 | 2002 | | 2025.01.14 | ¸Å¸Å | ¶óÀθǼÇ4Â÷ | 1 | 66.85 | 35,300 | | 2002 | | 2025.01.14 | ¸Å¸Å | ÇÁ¸®¿£ÇϿ콺 | 2 | 59.64 | 33,500 | | 2010 | | 2025.01.14 | ¿ù¼¼ | ´õ½ºÆ©µð¿ÀÈÆ | 3 | 21.9 | 5,000 | 56 | 2010 | | 2025.01.14 | Àü¼¼ | ´ö»êŸ¿ö | 11 | 17.03 | 21,000 | 0 | 2019 | | 2025.01.14 | Àü¼¼ | W´Ù¼¼´ëÁÖÅÃ(1661-9) | 6 | 22.17 | 26,000 | 0 | 2017 | | 2025.01.14 | Àü¼¼ | ´õ°ÔÀÌÆ® | 5 | 29.05 | 26,000 | 0 | 2016 | | 2025.01.14 | ¿ù¼¼ | ½Å¼ºÇÏÀÌÃ÷ | 1 | 76.43 | 500 | 40 | 2004 | | 2025.01.14 | ¿ù¼¼ | ´åÄı׸°Èú | 4 | 35.46 | 20,000 | 40 | 2019 | | 2025.01.14 | ¿ù¼¼ | ¹Ð·¹´Ï¾ö¸Ç¼Ç17Â÷ | 2 | 59.65 | 3,000 | 120 | 2002 | | 2025.01.14 | ¿ù¼¼ | °Ç¿ìÁö¿ìºô | 5 | 48.71 | 6,000 | 110 | 2013 | | 2025.01.14 | ¿ù¼¼ | ¶ó¿ÂÇϿ콺 | 2 | 23.51 | 1,000 | 55 | 2015 | | 2025.01.13 | Àü¼¼ | (42-45) | 2 | 56.76 | 23,000 | 0 | 1992 | | 2025.01.13 | Àü¼¼ | ÃÊ¿øºô¶óB | 2 | 82.7 | 24,000 | 0 | 1992 | | 2025.01.13 | ¿ù¼¼ | À¯´Ï¿Âºô | 3 | 40.06 | 5,000 | 70 | 2005 | | 2025.01.13 | ¿ù¼¼ | ¼ÃÊÇϿ콺(914-17) | 5 | 28.5 | 21,000 | 30 | 2016 | | 2025.01.13 | ¿ù¼¼ | ¸ÞÀÌÇýºÅ×ÀÌ | 9 | 13.42 | 3,000 | 77 | 2017 | | 2025.01.13 | ¿ù¼¼ | ¿¹´Ù¿òºô | 3 | 34.93 | 2,000 | 72 | 2013 | | 2025.01.13 | ¿ù¼¼ | ¼ºÁöºô¶ó6Â÷ | 3 | 43.06 | 2,000 | 70 | 1993 | | 2025.01.13 | ¿ù¼¼ | ¸®Ä¡ºô | 4 | 19.9 | 3,000 | 42 | 2014 | | 2025.01.13 | ¿ù¼¼ | (886-49) | 1 | 28.83 | 1,000 | 55 | 1994 | | 2025.01.13 | ¿ù¼¼ | ÃÊ¿øºô¶ó | 1 | 55.26 | 2,000 | 75 | 1990 | | 2025.01.12 | Àü¼¼ | ¾ÆÀ̺ô(180-461) | 2 | 41.65 | 28,000 | 0 | 2014 | | 2025.01.12 | Àü¼¼ | (1562-10) | 6 | 23.93 | 25,300 | 0 | 2016 | | 2025.01.12 | ¿ù¼¼ | ¼º½Åºô¶ó | 2 | 95.4 | 12,000 | 50 | 1986 | | 2025.01.12 | ¿ù¼¼ | »þÀκô | 4 | 47.97 | 30,000 | 10 | 2020 | | 2025.01.12 | ¿ù¼¼ | ¾Æ¸§½Ç | 2 | 14.49 | 4,000 | 46 | 2013 | | 2025.01.12 | ¿ù¼¼ | 635-274 | 2 | 24.78 | 6,000 | 55 | 2014 | | 2025.01.11 | ¸Å¸Å | ´©¸®ÇϿ콺 | 4 | 29.63 | 30,700 | | 2019 | | 2025.01.11 | ¸Å¸Å | (495-48) | 3 | 54.96 | 61,000 | | 1991 | | 2025.01.11 | ¿ù¼¼ | ´Ùº£·Î | 3 | 28.11 | 25,000 | 15 | 2023 | | 2025.01.11 | ¿ù¼¼ | YK¼¿ï´ë | 6 | 13.14 | 19,500 | 4 | 2020 | | 2025.01.11 | ¿ù¼¼ | ¼ºÁöºô¶ó8Â÷ | 4 | 42.51 | 12,000 | 40 | 1996 | | 2025.01.11 | ¿ù¼¼ | (1674-19) | 5 | 12.075 | 1,000 | 63 | 2019 | | 2025.01.11 | ¿ù¼¼ | ÇìºìŸ¿ö | 7 | 14.93 | 1,000 | 56 | 2013 | | 2025.01.11 | ¿ù¼¼ | (196-243) | 4 | 29.56 | 1,000 | 70 | 2003 | | 2025.01.11 | ¿ù¼¼ | THELIME(´õ¶óÀÓ) | 11 | 29.92 | 26,700 | 30 | 2021 | | 2025.01.11 | Àü¼¼ | (100-182) | 2 | 39.72 | 20,400 | 0 | 2013 | | 2025.01.11 | Àü¼¼ | (1611-15) | 1 | 37.1 | 16,000 | 0 | 1987 | | 2025.01.11 | Àü¼¼ | û¸²ºô¶ó(4-38) | 3 | 28.25 | 9,000 | 0 | 2009 | | 2025.01.11 | ¿ù¼¼ | »ïÀϺôµù | 5 | 12.44 | 5,000 | 73 | 2015 | | 2025.01.10 | Àü¼¼ | ´ö»êŸ¿ö | 12 | 17.48 | 21,050 | 0 | 2019 | | 2025.01.10 | ¸Å¸Å | û¸²ºô¶ó | -1 | 39.74 | 16,000 | | 1993 | | 2025.01.10 | ¸Å¸Å | µ¿µµºô¶óÆ® | 1 | 59.1 | 24,000 | | 1994 | | 2025.01.10 | ¿ù¼¼ | ´ëȺô¶ó(1517-1) | 5 | 74.97 | 500 | 85 | 2006 | | 2025.01.10 | ¸Å¸Å | µ¿µµºô¶óÆ® | 1 | 59.1 | 24,000 | | 1994 | | 2025.01.10 | ¿ù¼¼ | ¼ºÁöºô¶ó7Â÷ | 4 | 53.45 | 17,000 | 35 | 1995 | | 2025.01.10 | Àü¼¼ | ¿ÍÀÌÁîÈú(635-343) | 5 | 28.52 | 21,500 | 0 | 2020 | | 2025.01.10 | Àü¼¼ | (1643-31) | 4 | 31.39 | 16,000 | 0 | 2004 | | 2025.01.10 | ¿ù¼¼ | µµ¿ø¸Ç¼Ç(C) | 2 | 66.66 | 28,000 | 15 | 2003 | | 2025.01.10 | Àü¼¼ | (100-324) | 4 | 51.28 | 27,000 | 0 | 2014 | | 2025.01.10 | Àü¼¼ | ´ö»êŸ¿ö | 12 | 17.48 | 21,000 | 0 | 2019 | | 2025.01.10 | ¿ù¼¼ | Ǫ¸¥¼Öºô | 3 | 75.69 | 15,000 | 76 | 2004 | | 2025.01.09 | Àü¼¼ | villaM | 7 | 19.1 | 25,000 | 0 | 2018 | | 2025.01.09 | ¸Å¸Å | °üÀü¾ÆÆ®ºô(41-199) | 2 | 62.86 | 41,000 | | 2002 | | 2025.01.09 | Àü¼¼ | º£³×½ºÆ® | 8 | 15.01 | 25,000 | 0 | 2020 | | 2025.01.09 | Àü¼¼ | (712-21) | 1 | 72.4 | 14,000 | 0 | 2002 | | 2025.01.09 | Àü¼¼ | ´õ°ÔÀÌÆ® | 5 | 29.87 | 26,000 | 0 | 2016 | | 2025.01.09 | ¿ù¼¼ | »ïÈÁÖÅÃ(1513-10) | 2 | 35.07 | 5,000 | 50 | 1988 | | 2025.01.09 | Àü¼¼ | ¼öÆÓ¸®½ºFT | 2 | 27.83 | 27,000 | 0 | 2020 | | 2025.01.09 | Àü¼¼ | (712-21) | 1 | 72.4 | 14,000 | 0 | 2002 | | 2025.01.08 | ¸Å¸Å | ¼ººÎºô¶ó | 3 | 46.44 | 20,800 | | 1991 | | 2025.01.08 | ¿ù¼¼ | 635-198 | 1 | 33.32 | 21,700 | 12 | 2014 | | 2025.01.08 | ¿ù¼¼ | ¶ó¿Â3 | 10 | 12.291 | 3,000 | 61 | 2018 | | 2025.01.08 | ¿ù¼¼ | YK¼¿ï´ë | 4 | 12.25 | 19,000 | 4 | 2020 | | 2025.01.08 | ¿ù¼¼ | Çö°æÇ÷¹ÀÎÁî | 3 | 14.8 | 1,000 | 38 | 2002 | | 2025.01.08 | ¿ù¼¼ | YKŸ¿ö | 4 | 12.14 | 18,000 | 4 | 2019 | | 2025.01.07 | ¸Å¸Å | ÿ½ÃÇϿ콺Cµ¿ | 4 | 42.68 | 35,000 | | 2019 | | 2025.01.07 | ¿ù¼¼ | (28-30) | 3 | 19.47 | 14,000 | 15 | 2016 | | 2025.01.07 | Àü¼¼ | KWŸ¿ö | 7 | 32.43 | 32,400 | 0 | 2017 | | 2025.01.07 | ¿ù¼¼ | (932-22) | 5 | 21.23 | 500 | 50 | 2002 | | 2025.01.07 | ¸Å¸Å | Æ®¶ó¿òºô | 5 | 42.98 | 23,000 | | 2010 | | 2025.01.07 | ¿ù¼¼ | Ǫ¸£ºô | 5 | 18.23 | 5,500 | 22 | 2006 | | 2025.01.07 | ¿ù¼¼ | ºÀõºô¶ó(1685-11) | 4 | 45.92 | 500 | 60 | 2006 | | 2025.01.07 | ¿ù¼¼ | ¹Ì¸¤ºôµù | 10 | 11.74 | 5,000 | 80 | 2018 | | 2025.01.07 | Àü¼¼ | ±Ý°ºô | 3 | 41.21 | 20,925 | 0 | 2012 | | 2025.01.07 | Àü¼¼ | ¼ö±¤ºô¶ó(877-17) | 3 | 47.12 | 22,500 | 0 | 1995 | | 2025.01.07 | ¿ù¼¼ | »ï¼ººô¶ó | 1 | 43.76 | 12,700 | 40 | 1990 | | 2025.01.07 | ¿ù¼¼ | (41-82) | 2 | 29.97 | 13,000 | 35 | 2011 | | 2025.01.07 | Àü¼¼ | ±¤µ¿ºô¶ó(1597-33) | 1 | 41.94 | 22,050 | 0 | 1996 | | 2025.01.07 | ¿ù¼¼ | ±¤µ¿ºô¶ó(1597-33) | 1 | 41.94 | 20,000 | 9 | 1996 | | 2025.01.07 | Àü¼¼ | ±¤µ¿ºô¶ó(1597-33) | 1 | 41.94 | 22,050 | 0 | 1996 | | 2025.01.07 | ¿ù¼¼ | ¶ó¿Â3 | 10 | 12.412 | 3,000 | 65 | 2018 | | 2025.01.06 | ¸Å¸Å | ÆÓ¸®½ºÅ¸¿î | 2 | 29.56 | 21,800 | | 2014 | | 2025.01.06 | ¿ù¼¼ | ½Å¿øºô¶ó(1517-3) | 3 | 64.26 | 7,000 | 90 | 1992 | | 2025.01.06 | ¿ù¼¼ | ´ë¼ººô¶ó | -1 | 36.81 | 1,000 | 40 | 1993 | | 2025.01.06 | ¿ù¼¼ | (1572-2) | 1 | 75.61 | 10,000 | 95 | 2009 | | 2025.01.06 | ¿ù¼¼ | (41-56) | 1 | 36 | 11,000 | 15 | 1990 | | 2025.01.06 | ¿ù¼¼ | »ïÀϺôµù | 3 | 12.44 | 10,000 | 55 | 2015 | | 2025.01.06 | ¿ù¼¼ | ¾Æ¸§½Ç | 4 | 12.9 | 4,000 | 39 | 2013 | | 2025.01.06 | Àü¼¼ | °æ¿øÇÏÀÌÃ÷ | 1 | 71.14 | 32,000 | 0 | 2002 | | 2025.01.05 | ¿ù¼¼ | µ¿¾Æºô¶ó8Â÷ | 1 | 21.45 | 1,000 | 50 | 2000 | | 2025.01.05 | ¿ù¼¼ | ¼¾Æ®·²Æ÷ÀÎÆ® | 10 | 11.93 | 3,000 | 75 | 2019 | | 2025.01.05 | ¿ù¼¼ | ÆÓ¸®½ºÅ¸¿î | 1 | 29.56 | 17,000 | 15 | 2014 | | 2025.01.05 | ¿ù¼¼ | û¼ÛÇÏÀÌÃ÷ºô¶ó | 2 | 58.39 | 19,000 | 35 | 1996 | | 2025.01.04 | Àü¼¼ | (635-419) | 5 | 23.65 | 17,000 | 0 | 2014 | | 2025.01.04 | Àü¼¼ | µ¿¾çºô¶óCµ¿ | -1 | 40.35 | 10,000 | 0 | 1986 | | 2025.01.04 | ¸Å¸Å | ´õÇ츣¹Ì¿Â | 12 | 11.61 | 24,500 | | 2021 | | 2025.01.04 | ¸Å¸Å | ´õÇ츣¹Ì¿Â | 13 | 11.69 | 24,800 | | 2021 | | 2025.01.04 | ¿ù¼¼ | Çϼ±Á¦ | 2 | 47.9 | 21,000 | 20 | 2014 | | 2025.01.04 | ¿ù¼¼ | ¼±¤±×¸°ºô¶ó | 1 | 43.56 | 3,000 | 70 | 1995 | | 2025.01.04 | ¿ù¼¼ | ¿¬¼ö·¡ | 3 | 40.84 | 12,000 | 89 | 2022 | | 2025.01.04 | Àü¼¼ | (685-73) | 4 | 68.6 | 28,000 | 0 | 2013 | | 2025.01.04 | ¿ù¼¼ | ÇÑÀÏÁÖÅà | 1 | 36.7 | 11,000 | 10 | 1993 | | 2025.01.04 | ¿ù¼¼ | ¸í¹®Å¸¿ö | 11 | 8.92 | 13,800 | 20 | 2022 | | 2025.01.04 | Àü¼¼ | (635-419) | 5 | 23.65 | 17,000 | 0 | 2014 | | 2025.01.04 | Àü¼¼ | °üÀü¼¾Æ®·¹ºô | 2 | 44.46 | 31,500 | 0 | 2017 | | 2025.01.03 | ¿ù¼¼ | ºÀõµ¿´Ù¼¼´ëÁÖÅà | 2 | 14.65 | 500 | 30 | 2001 | | 2025.01.03 | ¿ù¼¼ | µµ¿ø¾ÆÆ®ºô(860-51) | 2 | 63.87 | 2,000 | 120 | 2005 | | 2025.01.03 | ¿ù¼¼ | ¾ÆÆ®¸®¿ò | 3 | 13.7 | 1,500 | 47 | 2011 | | 2025.01.03 | Àü¼¼ | º¸¶ó¸Åµå¸²ÆÄÅ© | 5 | 26.39 | 22,000 | 0 | 2018 | | 2025.01.03 | ¸Å¸Å | µ¿¾Æºô¶ó9Â÷ | -1 | 23.57 | 9,250 | | 2001 | | 2025.01.03 | ¿ù¼¼ | »ïõ¸®ÁÖÅà | 1 | 69.12 | 24,000 | 15 | 1982 | | 2025.01.02 | ¿ù¼¼ | û¸²ºô¶ó(4-39) | 3 | 25.27 | 1,000 | 50 | 2009 | | 2025.01.02 | ¿ù¼¼ | ¸í¹®Å¸¿ö | 12 | 9.53 | 14,700 | 35 | 2022 | | 2025.01.02 | ¿ù¼¼ | º¸¶ó¸Åºô | 4 | 28.21 | 17,000 | 20 | 2021 | | 2025.01.02 | ¿ù¼¼ | (735-6) | 3 | 39.58 | 8,000 | 40 | 2002 | | 2025.01.02 | ¿ù¼¼ | Çö´ëÇÏÀÌÃ÷(1644-18) | 2 | 44.36 | 3,000 | 90 | 2004 | | 2025.01.01 | Àü¼¼ | ¿µÇ³¾ÆÆ®ºô¶ó | 2 | 72.43 | 29,800 | 0 | 2002 | | 2025.01.01 | Àü¼¼ | º¸¶ó¸Åµå¸²ÆÄÅ© | 3 | 29.38 | 22,000 | 0 | 2018 | | 2025.01.01 | Àü¼¼ | ´ö»êŸ¿ö | 12 | 15.52 | 18,900 | 0 | 2019 |
|
|
|
 |
ÀÓÂ÷³»¿ª |
[¹è´ç¿ä±¸Á¾±âÀÏ : 2025/08/07] |
|
|
| ÀÓÂ÷ÀÎ |
Á¡À¯°ü°è |
ÀüÀÔÀÏÀÚ |
È®Á¤ÀÏÀÚ |
¹è´ç¿ä±¸ÀÏ |
º¸Áõ±Ý/Â÷ÀÓ |
´ëÇ׿ä°Ç |
ºñ°í |
| ±èOO |
ÀüÀ¯ºÎºÐÀüºÎ |
2020.04.02. |
2022.03.03. |
|
140,000,000
|
O |
|
|
|
|
 |
Áö¿ªºÐ¼® |
|
|
|
|
| ÁöÇÏö |
|
Çб³ |
|
| °ü°ø¼ |
|
| ¹ý¿ø |
¼¿ïÁß¾ÓÁö¹æ¹ý¿ø (065-94)¼¿ïƯº°½Ã ¼Ãʱ¸ ¼ÃÊÁß¾Ó·Î 157 (¼Ãʵ¿) ´ëÇ¥ : 02)530-1114, ¾ß°£ : 02)530-1280/536-8003 Á¾·Î±¸, Áß±¸, °³²±¸, ¼Ãʱ¸, °ü¾Ç±¸, µ¿ÀÛ±¸ |
| µî±â¼Ò |
¼¿ïÁß¾ÓÁö¹æ¹ý¿ø º»¿ø µî±â±¹ (´ëÇ¥:1544-0773, ÆÑ½º:(02)590-1881, ¼¿ïƯº°½Ã ¼Ãʱ¸ ¹ý¿ø·Î3±æ 14 (¼Ãʵ¿ 1707-4)) |
| ¼¼¹«¼ |
°ü¾Ç¼¼¹«¼ (´ëÇ¥:02-2173-42, ÆÑ½º:02-2173-4269, ¼¿ïƯº°½Ã °ü¾Ç±¸ ¹®¼º·Î 187(½Å¸²µ¿)) |
|
|
|
 |
¹ý¿ø ¹°°ÇÀÚ·á ¿ä¾à |
|
|
|
|
| ¼Ò¸êµÇÁö ¾Ê´Â µî±âºÎ±Ç¸® |
À»±¸ 1¹ø ÁÖÅÃÀÓÂ÷±ÇÀº ¹è´ç¿¡¼ º¸Áõ±ÝÀü¾×À» ¹ÞÁö ¾ÊÀ¸¸é ¸Å¼öÀÎÀÌ Àμö |
| ¼³Á¤µÈ °ÍÀ¸·Î º¸´Â Áö»ó±Ç |
|
| ¹ý¿øÀÚ·á Æ¯ÀÌ»çÇ× |
|
| ¿©ÀÇÁÖ°æ¸Å Á¶¾ð ÇѸ¶µð |
ÀÌ ºÎµ¿»êÀÇ ÀÔÂû¹ý¿øÀº ¼¿ïÁß¾ÓÁö¹æ¹ý¿øÀÔ´Ï´Ù.
ÀÔÂû½Ã°£Àº ~11:00ÀÔ´Ï´Ù. ÀÌ ¹ý¿ø¿¡´Â ½ÅÇÑÀºÇàÀÌ ÀÔÁ¡Çϰí ÀÖ½À´Ï´Ù.
|
|
|
| Åë°è±â°£ |
³«Âû¹°°Ç¼ö |
Æò±Õ°¨Á¤°¡ |
Æò±Õ³«Âû°¡ |
³«Âû°¡À² |
À¯ÂûȽ¼ö |
|
|
|
|
|
|
 |
|