|
|
| ¼ÒÀçÁö |
ÀÎõ±¤¿ª½Ã ³²µ¿±¸ ´ã¹æ·Î48¹ø±æ 38, 2Ãþ 202È£ (¸¸¼öµ¿,ÇØÇÇÇϿ콺)
±¸)ÀÎõ±¤¿ª½Ã ³²µ¿±¸ ¸¸¼öµ¿ 1105-8
|
|
| »ç°Ç¹øÈ£ |
2024 Ÿ°æ 560053 |
¹°°Ç¹øÈ£ |
1
|
¹°°Ç¿ëµµ |
´Ù¼¼´ë,ºô¶ó |
| °¨Á¤Æò°¡¾× |
161,000,000¿ø |
°æ¸Å´ë»ó |
ÅäÁö ¹× °Ç¹°Àϰý ¸Å°¢ |
ÁøÇà»óÅ |
½Å°Ç |
| ÃÖÀúÀÔÂû°¡ |
(100%) 161,000,000¿ø
|
°Ç¹°¸éÀû |
49.99§³(15.12Æò) |
ÀÔÂû±âÀÏ |
2025.12.18(¸ñ) 10:00
(ÀÔÂû 13ÀÏÀü)
|
| ÀÔÂûº¸Áõ±Ý |
(10%) 16,100,000¿ø |
ÅäÁö¸éÀû |
28.17§³(8.52Æò)
|
À¯ÂûȽ¼ö |
0ȸ |
| ÀÔÂû¹ý¿ø |
ÀÎõÁö¹æ¹ý¿ø |
°æ¸Å¹æ¹ý |
|
¹°°ÇÁ¶È¸¼ö |
¿À´Ã: 13ȸ [´©Àû: 14ȸ]
|
| ¸»¼Ò±âÁØ | |
|
|
|
|
|
|
|
|
|
|
°æ¸Å´ë»ó ¸ñ·Ï
|
|
| ±¸ºÐ |
¸ñ·Ï |
ÁÖ¼Ò |
±¸Á¶/¿ëµµ/´ëÁö±Ç |
ºñ°í |
´ëÁö±Ç
|
1 |
¸¸¼öµ¿ 1105-8 |
227.6ºÐÀÇ 28.1731 |
28.1731§³ (8.52Æò)
|
°Ç¹°
|
1 |
¸¸¼öµ¿ 1105-8 |
2Ãþ 202È£ ö±ÙÄÜÅ©¸®Æ®Á¶ |
49.99§³ (15.12Æò)
|
|
|
|
2025-12-18
ÁøÇà
|
(100%)
161,000,000¿ø
|
|
|
|
|
|
°¨Á¤Æò°¡¼ ¿ä¾à |
|
[À§Ä¡/ÁÖÀ§È¯°æ]
´ë»ó¹°°ÇÀº ÀÎõ±¤¿ª½Ã ³²µ¿±¸ ¸¸¼öµ¿ ¼ÒÀç "¸¸¼öÇö´ë¾ÆÆÄÆ®" ºÏÃø Àαٿ¡ À§Ä¡Çϸç,
ºÎ±ÙÀº ´Ù¼¼´ëÁÖÅÃ¹× ¾ÆÆÄÆ®´ÜÁö¿Í ¼Ò±Ô¸ð ±Ù¸°»ýȰ½Ã¼³µîÀÌ È¥ÀçÇÏ´Â Áö´ë·Î¼
Á¦¹Ý ÁÖÀ§ ȯ°æÀº ´ëü·Î º¸ÅëÀÓ.
[±³Åë»óȲ]
´ë»ó¹°°Ç±îÁö´Â Â÷·®ÃâÀÔÀÌ °¡´ÉÇϸç, Àαٿ¡ ³ë¼± ¹ö½º Á¤·ùÀå°ú Àüö¿ªÀÌ ¼ÒÀçÇÏ´Â µî
Á¦¹Ý ±³Åë»óȲÀº ´ëü·Î ¹«³ÇÔ.
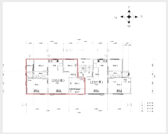
[°Ç¹°±¸Á¶]
´ë»ó¹°°ÇÀº ö±ÙÄÜÅ©¸®Æ®Á¶ ö±ÙÄÜÅ©¸®Æ®ÁöºØ 5Ãþ °Ç³» 2Ãþ 202È£·Î½á,
¿Üº® : µ¹ºÙÀÓ¸¶°¨ µî.
³»º® : º®Áöµµ¹è ¹× ÀϺΠŸÀϺÙÀÓ ¸¶°¨.
âȣ : ¼¦½ÃâȣÀÓ.
[ÀÌ¿ë»óÅÂ]
´Ù¼¼´ëÁÖÅÃÀ¸·Î ÀÌ¿ëÁßÀÓ.
[¼³ºñ³»¿ª]
À§»ý¼³ºñ ¹× ±Þ ¡¤¹è¼ö¼³ºñ, µµ½Ã°¡½º ³¹æ¼³ºñ µîÀ» °®Ãß¾úÀ½.
[ÅäÁöÇü»ó/ÀÌ¿ë»óÅÂ]
ÀÎÁ¢Áö ´ëºñ µî°íÆòźÇÑ »ç´Ù¸®Çü ÅäÁö·Î¼, "´Ù¼¼´ëÁÖÅÃ"°ÇºÎÁö·Î ÀÌ¿ëÁßÀÓ.
7)ÀÎÁ¢ µµ·Î»óŵî
´ë»ó¹°°Ç ºÏÃøÀ¸·Î ³ëÆø ¾à 8m ÀÇ µµ·Î¿¡ Á¢ÇÔ.
[ÅäÁöÀÌ¿ë°èȹ]
Á¦2Á¾ÀϹÝÁÖ°ÅÁö¿ª, Á¦1Á¾Áö±¸´ÜÀ§°èȹ±¸¿ª(¸¸¼ö3) °¡Ãà»çÀ°Á¦Çѱ¸¿ª(2013-03-08)((¹®ÀÇ:³²
µ¿±¸È¯°æº¸Àü°ú 032-453-2343))£¼°¡ÃàºÐ´¢ÀÇ °ü¸® ¹× À̿뿡 °üÇÑ ¹ý·ü£¾, °ú¹Ð¾ïÁ¦±Ç¿ª£¼¼öµµ
±ÇÁ¤ºñ°èȹ¹ý£¾
[°øºÎ¿ÍÀÇ Â÷ÀÌ]
¾øÀ½.
[Âü°í»çÇ×]
ÇöÀåÁ¶»ç½Ã Æó¹®ºÎÀç µîÀ¸·Î ÀÎÇÏ¿©, ÀÓ´ë°ü°è´Â ¹Ì»óÀÓ. |
|
|
|
|
|
|
|
¸éÀû(§³), ±Ý¾×(¸¸¿ø)
| °è¾àÀÏ | ±âÁØ | °Ç¹°¸íĪ | Ãþ | ¿¬¸éÀû | ´ëÁö¸éÀû | °Å·¡±Ý¾× | °ÇÃà³âµµ | | 2024.03.30 | ¸Å¸Å | Àײ¿È¨Å¸¿î(1087-13) | 3 | 31.05 | 15.69 | 6,500 | 2001 | | 2024.03.29 | ¸Å¸Å | ´õÀ£½ÃƼ | 8 | 70.66 | 34.04 | 19,500 | 2019 | | 2024.03.29 | ¸Å¸Å | ÇýÀÎ(893-2)Bµ¿ | 1 | 34.56 | 34.0624 | 9,200 | 1988 | | 2024.03.29 | ¸Å¸Å | ¸í¼º¸Ç¼Ç | 5 | 33.85 | 16.3 | 7,000 | 2002 | | 2024.03.28 | ¸Å¸Å | ¿ì¸²ºô¶ó(980-14)7µ¿ | 3 | 36 | 26.76 | 4,900 | 1990 | | 2024.03.28 | ¸Å¸Å | »ïº¸ | 3 | 44.28 | 26.39 | 6,000 | 1990 | | 2024.03.27 | ¸Å¸Å | ÇÑÀϺô¶ó(949-9)Bµ¿ | 3 | 37.59 | 23.52 | 6,876 | 1991 | | 2024.03.26 | ¸Å¸Å | ¼®¿ø¸Ç¼Ç(970-16)6µ¿ | 4 | 35.87 | 19 | 6,300 | 2001 | | 2024.03.23 | ¸Å¸Å | ½ÅÇÑB | 2 | 40.36 | 23.29 | 3,600 | 1988 | | 2024.03.23 | ¸Å¸Å | ÁÖ°ø3(46-0) | 3 | 61.53 | 55.81 | 29,000 | 1986 | | 2024.03.21 | ¸Å¸Å | ÀÎÇâºô¶ó4Â÷(4µ¿) | -1 | 38.54 | 29.2885 | 5,500 | 1988 | | 2024.03.21 | ¸Å¸Å | (868-39) | 1 | 90 | 75.3 | 14,500 | 1983 | | 2024.03.21 | ¸Å¸Å | ½Å¸¸¼öŸ¿î(109-381)102µ¿ | 2 | 41.49 | 12.8 | 9,100 | 1998 | | 2024.03.21 | ¸Å¸Å | ¸¶ÀÎÇϿ콺2µ¿ | 2 | 44.45 | 25.4 | 15,500 | 2008 | | 2024.03.20 | ¸Å¸Å | µ¿ÀϺô¶ó(876-5)2µ¿ | 1 | 38.98 | 22.75 | 8,700 | 1990 | | 2024.03.20 | ¸Å¸Å | »ï¹Ìºô¶ó(877-7)4µ¿ | 2 | 29.69 | 17.8 | 6,400 | 1989 | | 2024.03.19 | ¸Å¸Å | žçºô¶ó(111-129) | 1 | 37.66 | 10 | 5,000 | 1996 | | 2024.03.19 | ¸Å¸Å | ŰǺô¶ó | -1 | 43.75 | 19.25 | 4,500 | 2001 | | 2024.03.19 | ¸Å¸Å | ¼®Á¤ºô¶ó(947-18) | 2 | 36.71 | 25.5625 | 9,200 | 1991 | | 2024.03.18 | ¸Å¸Å | »ï¹Ìºô¶ó(879-3)9µ¿ | -1 | 35.25 | 19.65 | 4,400 | 1990 | | 2024.03.18 | ¸Å¸Å | Èѹ̸®ºô¶ó(886-38) | 2 | 35.71 | 20.61 | 8,000 | 1990 | | 2024.03.16 | ¸Å¸Å | ÇÏÀ̺ô¶ó(5µ¿) | 1 | 36.42 | 29.8339 | 6,800 | 1989 | | 2024.03.13 | ¸Å¸Å | ´ë½Åºô¶ó(890-34) | 2 | 36.51 | 22.14 | 6,400 | 1991 | | 2024.03.12 | ¸Å¸Å | »ïÈ(950-9) | 3 | 36.28 | 25.2033 | 8,500 | 1988 | | 2024.03.12 | ¸Å¸Å | ÆÄ¶õµéȨŸ¿î(³ªµ¿) | 2 | 46.12 | 20.77 | 10,800 | 2001 | | 2024.03.11 | ¸Å¸Å | ´ë¿µºô¶ó3µ¿(970-5) | 1 | 42.36 | 23.67 | 9,200 | 1993 | | 2024.03.08 | ¸Å¸Å | Èѹ̸®ºô¶ó(886-39) | 3 | 35.73 | 24.62 | 5,000 | 1990 | | 2024.03.07 | ¸Å¸Å | Å¿ìºô¶ó(857-32)Bµ¿ | 2 | 35.65 | 21.55 | 7,000 | 1991 | | 2024.03.05 | ¸Å¸Å | »ïº¸ºô¶ó(963-8)2µ¿ | -1 | 39.87 | 26.4 | 6,500 | 1989 | | 2024.03.05 | ¸Å¸Å | ±ÝÈ£ºô¶ó(857-1) | -1 | 38.37 | 23.28 | 3,550 | 1991 | | 2024.03.04 | ¸Å¸Å | ÇѳªÇÏÀÌÆ®ºô | 5 | 39.23 | 16.96 | 10,500 | 2002 | | 2024.03.02 | ¸Å¸Å | ´ë¸íºô¶ó(1-11)4µ¿ | 4 | 38.08 | 20.7 | 7,000 | 1994 | | 2024.03.01 | ¸Å¸Å | ´ë»êºô¶ó(111-328)1µ¿ | 3 | 36.63 | 20.36 | 6,300 | 1990 | | 2024.03.01 | ¸Å¸Å | ¼®¿ø¸Ç¼Ç(970-14) | 3 | 38.4 | 20.46 | 7,500 | 2001 | | 2024.02.27 | ¸Å¸Å | Á¤¿ø½ºÀ§Æ®ºô(1-44) | 3 | 64.96 | 32.6 | 14,500 | 2010 | | 2024.02.27 | ¸Å¸Å | ¿µÈºô¶ó(¸¶µ¿) | 3 | 40.44 | 27.4409 | 10,800 | 1988 | | 2024.02.26 | ¸Å¸Å | ¾Æ¸§ºô¶ó(Aµ¿) | 2 | 34.36 | 20.5 | 9,800 | 1991 | | 2024.02.25 | ¸Å¸Å | »ï¹ÌÇϿ콺(844-154) | 3 | 37.89 | 27.06 | 8,500 | 1990 | | 2024.02.24 | ¸Å¸Å | ½Å¸¸¼öŸ¿î(109-388)109µ¿ | -1 | 35.23 | 11.6 | 2,000 | 1997 | | 2024.02.24 | ¸Å¸Å | ÆÄÅ©ºô1µ¿,2µ¿ | 2 | 58.62 | 32.877 | 12,700 | 2001 | | 2024.02.22 | ¸Å¸Å | õ¿ì¸Ç¼Ç(111-6)Aµ¿ | 3 | 43.68 | 28.63 | 6,500 | 1991 | | 2024.02.21 | ¸Å¸Å | »ï¿ì¾ÆÆ®ºô¶ó | 1 | 51.85 | 17.2 | 7,800 | 1996 | | 2024.02.20 | ¸Å¸Å | ¼º±¤(853-18)°¡µ¿ | 1 | 28.55 | 12.6444 | 5,500 | 1987 | | 2024.02.20 | ¸Å¸Å | µ¿¾Æ4Â÷ | -1 | 47.79 | 14 | 4,800 | 1996 | | 2024.02.19 | ¸Å¸Å | ¼¼ÀϺô¶ó | 2 | 36.16 | 22.18 | 15,000 | 1992 | | 2024.02.19 | ¸Å¸Å | µ¿ÀϺô¶ó(876-5)2µ¿ | 1 | 38.98 | 22.75 | 6,000 | 1990 | | 2024.02.19 | ¸Å¸Å | »ïº¸ | 4 | 42.12 | 25.1 | 12,000 | 1990 | | 2024.02.15 | ¸Å¸Å | ¼º½Åºô¶ó(°¡µ¿) | 2 | 40.56 | 21.07 | 9,500 | 1993 | | 2024.02.14 | ¸Å¸Å | »ïÇü(895-1)´Ùµ¿ | 3 | 34.58 | 20.075 | 9,700 | 1990 | | 2024.02.14 | ¸Å¸Å | °æÀθǼÇŸ¿î(109-357) | 4 | 54.7 | 15.5 | 6,500 | 1996 | | 2024.02.13 | ¸Å¸Å | ÇѾçºô¶ó | 3 | 40.28 | 29.1466 | 10,700 | 1987 | | 2024.02.09 | ¸Å¸Å | ´ë¸íºô¶ó(841-22) | -1 | 35.91 | 21.493 | 3,500 | 1991 | | 2024.02.08 | ¸Å¸Å | ¹Ì·¡¾ÆÆ®ºô(844-62)Bµ¿ | 3 | 39.95 | 16.206 | 8,000 | 2001 | | 2024.02.08 | ¸Å¸Å | ÀÌȺô¶ó(986-1) | 2 | 36.57 | 22.1 | 12,600 | 1990 | | 2024.02.07 | ¸Å¸Å | ´ë¸í¾ÆÆ®ºô | 3 | 67.48 | 27.069 | 15,200 | 2011 | | 2024.02.06 | ¸Å¸Å | ´ë¿øºô¶ó | 3 | 42.66 | 21.08 | 7,400 | 1992 | | 2024.02.06 | ¸Å¸Å | ¼ºÁÖ(894-9)1µ¿ | 3 | 39.67 | 23.49 | 7,000 | 1991 | | 2024.02.06 | ¸Å¸Å | ¼º½Åºô¶ó(³ªµ¿) | 2 | 40.2 | 21.96 | 10,000 | 1993 | | 2024.02.06 | ¸Å¸Å | ¸¸¼öÁÖ°ø2´ÜÁö | 2 | 64.62 | 58.61 | 30,800 | 1987 | | 2024.02.06 | ¸Å¸Å | Áø±¤ºô¶ó(°¡µ¿) | -1 | 35.82 | 20.8 | 3,800 | 1989 | | 2024.02.06 | ¸Å¸Å | »ïº¸ | 4 | 42.12 | 25.1 | 7,200 | 1990 | | 2024.02.04 | ¸Å¸Å | ½Å¸¸¼öŸ¿î(109-385)106µ¿ | 4 | 39.64 | 11.4 | 7,540 | 1998 | | 2024.02.04 | ¸Å¸Å | ⿵±×¸°ºô¶ó(111-31)Aµ¿ | 1 | 50.39 | 15.9 | 9,200 | 1995 | | 2024.02.04 | ¸Å¸Å | ⿵±×¸°ºô¶ó(111-31)Aµ¿ | 1 | 50.39 | 15.9 | 8,500 | 1995 | | 2024.02.04 | ¸Å¸Å | ½Å¸¸¼öŸ¿î(109-385)106µ¿ | 4 | 39.64 | 11.4 | 7,540 | 1998 | | 2024.02.03 | ¸Å¸Å | û±¸ºô¶ó | 2 | 28.81 | 9.875 | 4,300 | 1996 | | 2024.02.02 | ¸Å¸Å | ´ë¸íºô¶ó(1-11)4µ¿ | 2 | 38.08 | 20.7 | 8,500 | 1994 | | 2024.02.02 | ¸Å¸Å | ¾ÆÆ®ºô¶ó(953-26)2µ¿ | -1 | 34.16 | 22.87 | 5,800 | 1990 | | 2024.02.02 | ¸Å¸Å | ¿ì¼º¿¡À̽ººô¶ó(3µ¿) | 1 | 40.5 | 23.78 | 9,800 | 1990 | | 2024.02.01 | ¸Å¸Å | µ¿³²ÇÏÀ̺ô¶ó(887-27)3µ¿ | -1 | 36.51 | 25.28 | 5,000 | 1990 | | 2024.02.01 | ¸Å¸Å | ¿À½Âºô¶ó | 4 | 53.7 | 28.6 | 10,000 | 1999 | | 2024.01.31 | ¸Å¸Å | ±Ý¼ººô¶ó(931-2) | 1 | 36.24 | 18.54 | 8,300 | 1994 | | 2024.01.30 | ¸Å¸Å | ³ª»êºô¶ó(852-23)Dµ¿ | 2 | 36.58 | 25.011 | 7,500 | 1992 | | 2024.01.29 | ¸Å¸Å | Èѹ̸®ºô¶ó(886-40) | 1 | 35.73 | 28.35 | 9,700 | 1990 | | 2024.01.28 | ¸Å¸Å | ¼®Á¤ºô¶ó(947-12) | 1 | 35.7 | 21.0875 | 8,400 | 1991 | | 2024.01.27 | ¸Å¸Å | »ïȺô¶ó(³ªµ¿) | 1 | 59.76 | 36.6 | 13,000 | 2007 | | 2024.01.27 | ¸Å¸Å | Çö´ë¸Ç¼Ç(855-17) | 1 | 36.32 | 23.57 | 6,700 | 1991 | | 2024.01.26 | ¸Å¸Å | ⿵±×¸°ºô¶ó(111-31)Aµ¿ | 1 | 50.39 | 15.9 | 9,200 | 1995 | | 2024.01.25 | ¸Å¸Å | ¿µÁ¾ºô¶ó(Dµ¿) | 2 | 36.6 | 26.088 | 8,700 | 1993 | | 2024.01.24 | ¸Å¸Å | ½Åµ¿¾Æºô¶ó(111-227) | 4 | 43.16 | 13.8 | 7,200 | 1997 | | 2024.01.24 | ¸Å¸Å | Çö´ë¸Ç¼Ç(855-11) | -1 | 35.66 | 23.12 | 4,000 | 1991 | | 2024.01.23 | ¸Å¸Å | ¹Ì¼Ò±×¸°ºô | 4 | 59.66 | 23.55 | 13,800 | 2011 | | 2024.01.23 | ¸Å¸Å | ¼Û¿ø(6-35)9µ¿ | 3 | 36.18 | 27.75 | 7,700 | 1991 | | 2024.01.23 | ¸Å¸Å | ±Ù¾ÖÁÖÅÃ2Â÷ | 3 | 31.5 | 19.93 | 7,200 | 1990 | | 2024.01.20 | ¸Å¸Å | ½£¿¹Âù | 2 | 58.6 | 31.61 | 15,000 | 2010 | | 2024.01.18 | ¸Å¸Å | ¿ì¼ººô¶ó(2µ¿) | 3 | 36.61 | 28.86 | 8,800 | 1990 | | 2024.01.18 | ¸Å¸Å | dz¸²(975-1)°¡µ¿ | 1 | 36.51 | 23.79 | 7,000 | 1990 | | 2024.01.15 | ¸Å¸Å | ½Å¸¸¼öŸ¿î(109-385)106µ¿ | 4 | 39.64 | 11.4 | 6,540 | 1998 | | 2024.01.15 | ¸Å¸Å | ⿵±×¸°ºô¶ó(111-20)Bµ¿ | 3 | 39.33 | 17.8425 | 6,500 | 1995 | | 2024.01.13 | ¸Å¸Å | ¾Æ³²ºô¶ó | 4 | 39.11 | 10.6 | 7,000 | 1996 | | 2024.01.12 | ¸Å¸Å | Çö´ëºô¶ó(891-1) | 2 | 44.16 | 28.6173 | 5,800 | 1987 | | 2024.01.11 | ¸Å¸Å | °Å¿µÇÏÀÌÃ÷Bµ¿ | 4 | 53.75 | 24.9 | 11,000 | 2002 | | 2024.01.11 | ¸Å¸Å | ÀÌ·¹¾ÆÆ®ºô | 5 | 55.77 | 25.625 | 13,300 | 2003 | | 2024.01.09 | ¸Å¸Å | ½ÅÈ3µ¿ | 2 | 47.84 | 20.97 | 10,500 | 2001 | | 2024.01.08 | ¸Å¸Å | ±¤´öÁÖÅà | 3 | 39.79 | 15.7143 | 8,000 | 1995 | | 2024.01.08 | ¸Å¸Å | ¿¡µ§ºô¶ó | 2 | 32.29 | 18.92 | 6,500 | 1991 | | 2024.01.08 | ¸Å¸Å | ÇѼººô¶ó(842-27)³ªµ¿ | -1 | 33.9 | 19.83 | 4,000 | 1991 | | 2024.01.06 | ¸Å¸Å | ÁøÁÖºô¶ó(2µ¿) | 2 | 35.695 | 24.0125 | 8,000 | 1988 | | 2024.01.06 | ¸Å¸Å | ¸¸¼ö¸¶À»(109-146)1µ¿ | 1 | 48.78 | 16.4444 | 8,900 | 1995 | | 2024.01.06 | ¸Å¸Å | ¿¹Ã̺ô¶ó | 1 | 37.42 | 11 | 6,750 | 1995 | | 2024.01.04 | ¸Å¸Å | Áø¾çºô¶ó(890-48)Bµ¿ | -1 | 39.75 | 25.67 | 6,900 | 1992 | | 2024.01.04 | ¸Å¸Å | ¼Û¿ø(6-35)9µ¿ | 3 | 36.18 | 27.75 | 7,500 | 1991 | | 2024.01.03 | ¸Å¸Å | Èѹ̸®ºô¶ó(886-38) | 3 | 35.71 | 20.61 | 9,500 | 1990 | | 2024.01.02 | ¸Å¸Å | »ç¶û(49-4)1µ¿ | 3 | 34.56 | 17.84 | 6,000 | 1993 |
| °è¾àÀÏ | ±âÁØ | °Ç¹°¸íĪ | Ãþ | ¿¬¸éÀû | º¸Áõ±Ý | ¿ù¼¼ | °ÇÃà³âµµ | | 2025.11.25 | Àü¼¼ | ´ë¿õºô¶ó¾ÆÆ® | 4 | 41.39 | 5,000 | 0 | 2001 | | 2025.11.25 | ¸Å¸Å | ¼ºÁÖ(894-29) | -1 | 39.68 | 3,700 | | 1991 | | 2025.11.25 | ¸Å¸Å | ½ÅÈÁÖÅà | 3 | 38.66 | 6,600 | | 2000 | | 2025.11.25 | Àü¼¼ | ±×¸°ºô¶ó(5µ¿) | 2 | 31.56 | 4,500 | 0 | 1989 | | 2025.11.25 | Àü¼¼ | ¶óÀÌÇÁºô¶ó(892-43)Bµ¿ | 3 | 36.105 | 6,000 | 0 | 1989 | | 2025.11.24 | Àü¼¼ | Àå¹Ìºô¶ó(977-9)³ªµ¿ | 1 | 53.28 | 8,400 | 0 | 1986 | | 2025.11.22 | ¿ù¼¼ | ÀºÇϼ¾½ººô | 1 | 34.76 | 300 | 45 | 2001 | | 2025.11.21 | Àü¼¼ | À¯Áø±×¸°ºô¶ó | 4 | 39.93 | 3,000 | 0 | 1996 | | 2025.11.19 | ¸Å¸Å | ¼ÖÁö¸Ç¼Ç | 4 | 59.4 | 9,000 | | 2001 | | 2025.11.19 | ¸Å¸Å | ¼ÖÁö¸Ç¼Ç | 4 | 59.4 | 9,000 | | 2001 | | 2025.11.19 | ¸Å¸Å | ¼ºÁÖ(894-28)3µ¿ | 1 | 40.62 | 8,300 | | 1991 | | 2025.11.18 | Àü¼¼ | ½ÅÈÁÖÅà | 4 | 53.9 | 8,000 | 0 | 2000 | | 2025.11.18 | Àü¼¼ | ȼº¾ÆÆ®ºô(899-9)1µ¿ | 4 | 59.7 | 9,400 | 0 | 2002 | | 2025.11.17 | ¸Å¸Å | »ïȺô¶ó(³ªµ¿) | 1 | 59.76 | 14,750 | | 2007 | | 2025.11.17 | ¸Å¸Å | ¼ºÁÖ(894-28)3µ¿ | 3 | 35.12 | 6,500 | | 1991 | | 2025.11.15 | ¿ù¼¼ | ¼®³ªÇÏÀÌÃ÷ | 1 | 39.71 | 500 | 40 | 2001 | | 2025.11.15 | Àü¼¼ | ½ÅȺô¶ó9Â÷ | -1 | 40.54 | 3,500 | 0 | 1998 | | 2025.11.14 | ¸Å¸Å | ±Ý¼ººô¶ó(931-2) | 2 | 33.45 | 8,000 | | 1994 | | 2025.11.14 | ¸Å¸Å | µ¿³²ÇÏÀ̺ô¶ó(887-15)6µ¿ | -1 | 36.51 | 3,500 | | 1990 | | 2025.11.14 | ¸Å¸Å | ±Ý¼ººô¶ó(931-2) | 2 | 33.45 | 8,000 | | 1994 | | 2025.11.14 | Àü¼¼ | ¸¸¼ö¸¶À»(109-146)1µ¿ | 2 | 49.56 | 7,200 | 0 | 1995 | | 2025.11.14 | Àü¼¼ | »ïȯ±î¹¿(967-2) | 3 | 54.66 | 7,920 | 0 | 1993 | | 2025.11.13 | ¸Å¸Å | ¼º¿ìºô¶ó(³ªµ¿) | -1 | 37.03 | 3,000 | | 1988 | | 2025.11.13 | ¿ù¼¼ | Àײ¿È¨Å¸¿î(1087-12) | 3 | 58.09 | 1,000 | 63 | 2001 | | 2025.11.12 | ¸Å¸Å | »ï¼º¾ÆÆ®ºô | 2 | 51.4 | 9,500 | | 2003 | | 2025.11.12 | ¸Å¸Å | Çϳª¸Ç¼Ç | 4 | 29.875 | 4,000 | | 1999 | | 2025.11.12 | ¸Å¸Å | ´ë¿µºô¶ó3µ¿(970-5) | 1 | 43.08 | 7,000 | | 1993 | | 2025.11.12 | ¸Å¸Å | ½ÅÈÁÖÅà | 3 | 38.66 | 6,900 | | 2000 | | 2025.11.12 | Àü¼¼ | °æÀθǼÇŸ¿î(109-357) | 4 | 54.7 | 7,500 | 0 | 1996 | | 2025.11.11 | ¿ù¼¼ | ³²ÃÌÇÏÀÌÆ®ºô | 4 | 42.24 | 1,500 | 40 | 2002 | | 2025.11.11 | ¿ù¼¼ | Çö´ëºô¶ó(883-44)Aµ¿ | 3 | 35.89 | 0 | 45 | 1991 | | 2025.11.11 | ¸Å¸Å | »ïº¸ºô¶ó(°¡µ¿) | -1 | 35.27 | 3,000 | | 1990 | | 2025.11.11 | Àü¼¼ | ´ë¼ºÇÏÀÌÃ÷°¡µ¿ | 5 | 59.65 | 9,900 | 0 | 2007 | | 2025.11.11 | Àü¼¼ | ¹ÏÀ½ºô¶ó(865)1µ¿ | 2 | 42.17 | 5,690 | 0 | 1989 | | 2025.11.11 | ¸Å¸Å | ÇÏÀ̺ô¶ó(2µ¿) | 3 | 36.42 | 10,000 | | 1989 | | 2025.11.10 | ¿ù¼¼ | ¿ì¸²ºô¶ó(980-15)8µ¿ | 2 | 36 | 500 | 48 | 1990 | | 2025.11.10 | ¸Å¸Å | ¿µÀÎij½½ | 2 | 68.31 | 16,700 | | 2011 | | 2025.11.10 | ¿ù¼¼ | Èѹ̸®ºô¶ó(886-47) | 2 | 35.71 | 500 | 50 | 1990 | | 2025.11.08 | ¸Å¸Å | ¼¿ïÁÖÅÃ(111-175)5µ¿ | 1 | 49.63 | 5,000 | | 1996 | | 2025.11.07 | ¸Å¸Å | ¼¼ÀϺô¶ó | 2 | 36.16 | 8,900 | | 1992 | | 2025.11.07 | ¿ù¼¼ | Çö´ëºô¶ó(891-1) | -1 | 52.19 | 400 | 40 | 1987 | | 2025.11.06 | Àü¼¼ | µ¿¿ì¾ÆÆ®ºô(2µ¿) | 1 | 59.92 | 9,000 | 0 | 2000 | | 2025.11.06 | Àü¼¼ | ½Å¼¿ïºô¶ó(111-461)2µ¿ | 3 | 47.89 | 7,000 | 0 | 1997 | | 2025.11.06 | ¿ù¼¼ | ¼º´öºô¶ó(Aµ¿) | 2 | 36.51 | 500 | 40 | 1991 | | 2025.11.06 | ¿ù¼¼ | ¿ìÁøºô¶ó(877-10)°¡µ¿ | 3 | 40.35 | 1,000 | 35 | 1992 | | 2025.11.05 | Àü¼¼ | ³²±¤´Ù¼¼´ëÁÖÅÃ(Bµ¿) | 3 | 32.82 | 4,000 | 0 | 1988 | | 2025.11.05 | ¿ù¼¼ | ¼º½Åºô¶ó(°¡µ¿) | 1 | 40.56 | 500 | 40 | 1993 | | 2025.11.05 | Àü¼¼ | À̸²ÈÞ¸Õºô¸®Áö(³ªµ¿) | 4 | 49.86 | 6,700 | 0 | 1994 | | 2025.11.05 | Àü¼¼ | À̸²ÈÞ¸Õºô¸®Áö(³ªµ¿) | 4 | 49.86 | 5,900 | 0 | 1994 | | 2025.11.04 | ¸Å¸Å | ºÎ¸²ºô¶ó | 1 | 41.88 | 5,900 | | 1989 | | 2025.11.04 | ¿ù¼¼ | ¿µÁø | 2 | 36.66 | 500 | 45 | 1991 | | 2025.11.03 | ¸Å¸Å | ¿µÈºô¶ó(´Ùµ¿) | 3 | 39.06 | 5,000 | | 1988 | | 2025.11.01 | Àü¼¼ | ÇÑ»ù´Ù¼¼´ëÁÖÅÃ(10µ¿) | 3 | 36.27 | 5,700 | 0 | 1988 | | 2025.11.01 | ¿ù¼¼ | ´ë¿øºô¶ó | 3 | 34.58 | 1,000 | 45 | 1992 | | 2025.11.01 | Àü¼¼ | ¼¿ïÁÖÅÃ(109-218)2µ¿ | 3 | 42.21 | 4,000 | 0 | 1996 | | 2025.11.01 | Àü¼¼ | ¿ì¸²ºô¶ó(980-9)1µ¿ | 1 | 36 | 5,300 | 0 | 1990 | | 2025.11.01 | ¸Å¸Å | ÇѼºô¸®Áö(2~3µ¿) | 2 | 44.15 | 8,500 | | 1995 | | 2025.10.31 | Àü¼¼ | žçºô¶ó(111-130)Dµ¿ | 4 | 46.32 | 6,100 | 0 | 1996 | | 2025.10.30 | ¿ù¼¼ | ¸¸¼öÁÖ°ø1´ÜÁö(¿¬¸³) | 2 | 46.86 | 1,000 | 50 | 1986 | | 2025.10.30 | Àü¼¼ | ÇѼºÆÒ´õ | 1 | 42.8 | 8,400 | 0 | 1993 | | 2025.10.29 | Àü¼¼ | žçºô¶ó(111-130)Dµ¿ | 4 | 46.32 | 6,100 | 0 | 1996 | | 2025.10.28 | Àü¼¼ | ÀÌÈ»ç¶ûä | 5 | 66.9339 | 14,130 | 0 | 2019 | | 2025.10.28 | ¿ù¼¼ | ´ë¼ººô¶ó2Â÷(³ªµ¿) | 2 | 37.87 | 500 | 40 | 1990 | | 2025.10.28 | ¿ù¼¼ | ÀÎÇâºô¶ó4Â÷(2µ¿) | 1 | 33.1 | 300 | 40 | 1988 | | 2025.10.28 | ¿ù¼¼ | ¼º¿ìºô¶ó(°¡µ¿) | 3 | 34.98 | 300 | 40 | 1988 | | 2025.10.28 | ¸Å¸Å | ¹ÌÁøºô¶ó(´Ùµ¿) | 1 | 37.44 | 9,130 | | 1993 | | 2025.10.27 | Àü¼¼ | ´ë½Åºô¶ó(890-34) | -1 | 37.45 | 2,800 | 0 | 1991 | | 2025.10.27 | ¿ù¼¼ | (918-10) | 2 | 55.66 | 1,000 | 50 | 1981 | | 2025.10.27 | ¿ù¼¼ | ±Ý¼ºÈѹ̸®Å¸¿î | 5 | 57.9 | 1,000 | 50 | 2001 | | 2025.10.27 | Àü¼¼ | ÇѼºÆÒ´õ | 3 | 42.55 | 8,895 | 0 | 1993 | | 2025.10.27 | ¸Å¸Å | ÇØ¿À¸§ÆÓ¸®½º | 3 | 65.27 | 14,800 | | 2008 | | 2025.10.25 | ¸Å¸Å | ¼ºÁÖ(894-29) | -1 | 39.68 | 3,300 | | 1991 | | 2025.10.25 | Àü¼¼ | ´ë¿øº£½ºÆ®ºô | 4 | 47.43 | 7,500 | 0 | 2001 | | 2025.10.24 | ¸Å¸Å | ´ë¸íºô¶ó(841-22) | 1 | 35.91 | 6,800 | | 1991 | | 2025.10.24 | Àü¼¼ | ±Â¸ð´×ºô | 9 | 24.75 | 3,000 | 0 | 2002 | | 2025.10.24 | ¿ù¼¼ | ¼®¿ø¸Ç¼Ç(970-16)6µ¿ | 3 | 41.96 | 1,500 | 45 | 2001 | | 2025.10.24 | Àü¼¼ | ¸¸¼öÁÖ°ø1´ÜÁö(¿¬¸³) | 1 | 46.79 | 12,500 | 0 | 1986 | | 2025.10.23 | ¿ù¼¼ | û½Ç(3-88)1µ¿ | 3 | 33.12 | 500 | 35 | 1989 | | 2025.10.22 | ¸Å¸Å | žçºô¶ó(111-130)Dµ¿ | 4 | 46.32 | 6,800 | | 1996 | | 2025.10.22 | ¸Å¸Å | ½á´ÏÇϿ콺 | 3 | 64.54 | 16,700 | | 2012 | | 2025.10.22 | ¿ù¼¼ | û½Ç(3-76)8µ¿ | 2 | 30.75 | 500 | 25 | 1989 | | 2025.10.22 | Àü¼¼ | »ó¿ìÁÖÅà | 3 | 42.78 | 6,700 | 0 | 1993 | | 2025.10.22 | Àü¼¼ | Áß¼º°ñµåºô¶ó(952-2)1µ¿ | 4 | 45.08 | 6,000 | 0 | 1993 | | 2025.10.22 | ¿ù¼¼ | µ¿È£ºô¶ó(¶óµ¿) | -1 | 47.32 | 1,000 | 25 | 1987 | | 2025.10.22 | ¸Å¸Å | °æÀθǼÇŸ¿î(109-357) | 4 | 54.7 | 8,030 | | 1996 | | 2025.10.21 | ¸Å¸Å | ±Ý¼º | 3 | 42.13 | 10,600 | | 2002 | | 2025.10.21 | Àü¼¼ | ±Ý¼ºÈѹ̸®Å¸¿î | 4 | 59.76 | 9,000 | 0 | 2001 | | 2025.10.21 | ¿ù¼¼ | °æÀÎ¾ÆÆ®ºô´Ùµ¿ | 5 | 51.54 | 1,000 | 50 | 2003 | | 2025.10.21 | ¿ù¼¼ | »ûº°ÁÖÅÃ(972-9) | 3 | 56.88 | 650 | 25 | 2019 | | 2025.10.21 | Àü¼¼ | ÇØ¿À¸§ÆÓ¸®½º(925-7) | 5 | 47.18 | 11,170 | 0 | 2011 | | 2025.10.20 | ¿ù¼¼ | ¿ì¼ººô¶ó(6µ¿) | 4 | 39.15 | 1,000 | 38 | 1992 | | 2025.10.20 | ¸Å¸Å | °øÀÛ1µ¿(1076-2) | -1 | 45.06 | 3,500 | | 1988 | | 2025.10.20 | ¸Å¸Å | ´ë¼ººô¶ó | 1 | 35.7 | 5,500 | | 1990 | | 2025.10.20 | ¸Å¸Å | ³²¾çºô¶ó(2µ¿) | 1 | 39.92 | 7,300 | | 1989 | | 2025.10.19 | Àü¼¼ | ³²±¤´Ù¼¼´ëÁÖÅÃ(Dµ¿) | 2 | 32.82 | 4,000 | 0 | 1988 | | 2025.10.18 | ¸Å¸Å | ÈÁ¤±×¸°ºô¶ó | -1 | 34.56 | 2,700 | | 1996 | | 2025.10.18 | ¿ù¼¼ | »ïº¸ºô¶ó(5µ¿) | 4 | 38.93 | 500 | 35 | 1991 | | 2025.10.18 | ¿ù¼¼ | ½Å¼¼°è(°¡µ¿) | 3 | 36.83 | 500 | 30 | 1990 | | 2025.10.18 | Àü¼¼ | »ïº¸ºô¶ó(963-8)2µ¿ | 3 | 39.87 | 6,200 | 0 | 1989 | | 2025.10.18 | Àü¼¼ | »ç¶û(49-4)1µ¿ | 3 | 34.56 | 4,000 | 0 | 1993 | | 2025.10.18 | ¿ù¼¼ | ȼººô¶ó | -1 | 37.15 | 300 | 35 | 1988 | | 2025.10.17 | Àü¼¼ | ¼º»êºô¶ó(855-22)2µ¿ | 2 | 39.93 | 5,000 | 0 | 1994 | | 2025.10.17 | Àü¼¼ | ¸¸¼ö¸¶À»(109-66)3µ¿ | 1 | 47.08 | 6,500 | 0 | 1995 | | 2025.10.17 | ¿ù¼¼ | »ó¿ì | 3 | 38.14 | 500 | 40 | 1992 | | 2025.10.17 | Àü¼¼ | °³²(5-471)108µ¿ | 4 | 38.73 | 6,170 | 0 | 2002 | | 2025.10.16 | ¸Å¸Å | »ç¶û(49-5)2µ¿ | 1 | 34.56 | 6,000 | | 1993 | | 2025.10.16 | Àü¼¼ | ¿µÁ¾ºô¶ó(Bµ¿) | 1 | 29.97 | 4,690 | 0 | 1993 | | 2025.10.16 | ¿ù¼¼ | ¿µÁø | 2 | 36.66 | 500 | 45 | 1991 | | 2025.10.16 | ¿ù¼¼ | Á¤ÀϺô¶ó(971-11)Bµ¿ | 2 | 37.92 | 500 | 40 | 1993 | | 2025.10.16 | Àü¼¼ | ¿¹ÁÖºô¶ó(Aµ¿) | 2 | 36.66 | 6,370 | 0 | 1989 | | 2025.10.16 | ¿ù¼¼ | Àײ¿È¨Å¸¿î(1087-12) | 3 | 58.09 | 1,000 | 63 | 2001 | | 2025.10.16 | ¸Å¸Å | Á¤¾Ïºô¶ó(618-4)2µ¿ | 2 | 38.31 | 7,200 | | 1988 | | 2025.10.15 | Àü¼¼ | ÁÖ°ø3(46-0) | 1 | 70.75 | 18,000 | 0 | 1986 | | 2025.10.15 | ¿ù¼¼ | ÇÏÀ̺ô¶ó(5µ¿) | 1 | 36.42 | 500 | 50 | 1989 | | 2025.10.15 | Àü¼¼ | »ï¿À(977-3)Aµ¿ | 1 | 39.4 | 5,900 | 0 | 1990 | | 2025.10.14 | ¿ù¼¼ | ¿ìÁøºô¶ó(865-22) | 3 | 31.35 | 500 | 35 | 1993 | | 2025.10.14 | Àü¼¼ | ¼ºÈºô¶ó(Aµ¿) | 1 | 38.76 | 6,000 | 0 | 1989 | | 2025.10.14 | ¿ù¼¼ | ´º¿ùµåºô¸®Áö2µ¿ | 3 | 39.98 | 500 | 30 | 1993 | | 2025.10.14 | ¸Å¸Å | ¹ÌÁøºô¶ó | 3 | 47.94 | 10,000 | | 1992 | | 2025.10.13 | ¿ù¼¼ | ´ë¸²ºô¶ó(892-38) | 4 | 39.78 | 500 | 40 | 1995 | | 2025.10.13 | ¿ù¼¼ | ¹ÌÁøºô¶ó(´Ùµ¿) | 3 | 37.44 | 500 | 40 | 1993 | | 2025.10.13 | ¿ù¼¼ | °³²(5-496)111µ¿ | 2 | 30.54 | 500 | 35 | 2002 | | 2025.10.13 | ¸Å¸Å | ³ª»êºô¶ó(852)Aµ¿ | 2 | 33.66 | 6,000 | | 1992 | | 2025.10.13 | ¸Å¸Å | Àå¹Ìºô¶ó(977-8)°¡µ¿ | -1 | 53.28 | 7,300 | | 1986 | | 2025.10.13 | ¸Å¸Å | ºÎ°æÈ¨Å¸¿î(5µ¿) | 5 | 39.78 | 6,700 | | 2002 | | 2025.10.13 | ¸Å¸Å | Ãʷϸ¶À»(1097-19)Bµ¿ | 5 | 31.96 | 3,700 | | 2001 | | 2025.10.12 | ¸Å¸Å | ½ÂÈñºô¶ó | 1 | 38.61 | 7,600 | | 1997 | | 2025.10.12 | ¸Å¸Å | °Ç³²(1083-7) | 2 | 46.5 | 9,300 | | 1994 | | 2025.10.12 | ¿ù¼¼ | µ¿¿ì¸ÞÆ®·Îºô3Â÷ | 5 | 57.45 | 1,000 | 60 | 2013 | | 2025.10.12 | ¸Å¸Å | ¼ºÁÖ(894-29) | 3 | 39.68 | 8,200 | | 1991 | | 2025.10.12 | ¸Å¸Å | Áø¾ç(857-6)5µ¿ | 3 | 36.15 | 7,200 | | 1990 | | 2025.10.10 | ¿ù¼¼ | ÀÌÈ»ç¶ûä | 4 | 66.9339 | 1,000 | 40 | 2019 | | 2025.10.08 | ¿ù¼¼ | ºÎÈïºô¶ó(1µ¿) | 2 | 36.96 | 1,000 | 30 | 1989 | | 2025.10.05 | Àü¼¼ | ¿ì¼º¿¡À̽ººô¶ó(3µ¿) | 1 | 40.54 | 7,440 | 0 | 1990 | | 2025.10.04 | ¿ù¼¼ | °³²(5-487)106µ¿ | 4 | 59.91 | 1,000 | 50 | 2002 | | 2025.10.03 | ¿ù¼¼ | ÀÌȺô¶ó | -1 | 36.78 | 200 | 35 | 1994 | | 2025.10.02 | ¿ù¼¼ | »ïÇü(895-55)¶óµ¿ | 3 | 35.43 | 300 | 45 | 1990 | | 2025.10.01 | ¸Å¸Å | ´ë¸íºô¶ó(841-24) | 1 | 35.91 | 5,500 | | 1991 | | 2025.10.01 | ¸Å¸Å | À¯Áø±×¸°ºô¶ó | 2 | 39.93 | 5,743 | | 1996 | | 2025.10.01 | Àü¼¼ | ÇѽŠ| 3 | 35.69 | 3,700 | 0 | 1989 | | 2025.10.01 | ¿ù¼¼ | »ïº¸(969-6) | 4 | 51.32 | 500 | 55 | 1991 | | 2025.10.01 | Àü¼¼ | ¼®¿ø(970-18) | 5 | 58.8 | 10,200 | 0 | 2001 | | 2025.09.30 | ¸Å¸Å | ·Ôµ¥¸Ç¼Ç | 3 | 47.07 | 6,800 | | 1997 | | 2025.09.30 | ¿ù¼¼ | ´ëÇϱ׷£µå(890-41)102µ¿ | 5 | 52.46 | 1,000 | 40 | 2002 | | 2025.09.29 | Àü¼¼ | ¼º±¤(977-1)1µ¿ | 1 | 55.27 | 7,000 | 0 | 2000 | | 2025.09.29 | Àü¼¼ | µ¿È£ºô¶ó(¶óµ¿) | 1 | 47.32 | 5,000 | 0 | 1987 | | 2025.09.29 | ¿ù¼¼ | ¿¢¼³·±Æ®Aµ¿ | 5 | 16.75 | 500 | 35 | 2011 | | 2025.09.29 | ¸Å¸Å | LG(5-284)°¡µ¿ | 4 | 36.53 | 10,000 | | 2001 | | 2025.09.28 | ¸Å¸Å | »ïȺô¸®Áö(902-7)°¡µ¿ | 4 | 45.29 | 6,400 | | 1995 | | 2025.09.27 | ¿ù¼¼ | °øÀͰñµåŸ¿ö(952-6) | 1 | 45.96 | 1,000 | 55 | 1993 | | 2025.09.27 | ¸Å¸Å | ¾öÁöºô¶ó(109-220)³ªµ¿ | -1 | 43.13 | 3,100 | | 1996 | | 2025.09.27 | ¿ù¼¼ | ¼¼ÀϺô¶ó | 3 | 36.16 | 500 | 40 | 1992 | | 2025.09.27 | ¸Å¸Å | ¸í¼º¸Ç¼Ç | 5 | 33.85 | 6,260 | | 2002 | | 2025.09.27 | ¸Å¸Å | Àº¸ð·¡ÆÓ¸®½º | 4 | 49.9575 | 12,800 | | 2015 | | 2025.09.27 | ¸Å¸Å | ·Î¾âÆÄÅ©ºô | 5 | 90.755 | 11,900 | | 2003 | | 2025.09.26 | ¿ù¼¼ | ¸¸¼ö(950-1)³ªµ¿ | 3 | 30.43 | 500 | 35 | 1991 | | 2025.09.26 | ¸Å¸Å | ±Ý¼ºÈѹ̸®Å¸¿î | 4 | 59.76 | 10,000 | | 2001 | | 2025.09.25 | ¸Å¸Å | µ¿È£ºô¶ó(´Ùµ¿) | -1 | 47.32 | 3,800 | | 1987 | | 2025.09.25 | ¿ù¼¼ | ±¹Á¦Å¾½ººô | 4 | 37.88 | 1,000 | 35 | 2002 | | 2025.09.25 | Àü¼¼ | ¾öÁöºô¶ó(109-220)³ªµ¿ | 2 | 43.13 | 6,800 | 0 | 1996 | | 2025.09.25 | ¸Å¸Å | ¿ìÁøºô¶ó(865-22) | 1 | 37.31 | 7,500 | | 1993 | | 2025.09.23 | ¿ù¼¼ | ´ëº¸ºô¶ó | 2 | 36.69 | 500 | 40 | 1990 | | 2025.09.23 | ¿ù¼¼ | µ¿ÀϺô¶ó | -1 | 56.4 | 200 | 25 | 1993 | | 2025.09.22 | ¸Å¸Å | Àμº(894-23)Cµ¿ | 1 | 42.17 | 8,100 | | 1989 | | 2025.09.22 | ¿ù¼¼ | Çö´ëºô¶ó(³ªµ¿)(938-23) | 3 | 37.58 | 500 | 40 | 1991 | | 2025.09.20 | ¿ù¼¼ | ´õºä¿ÀÇÇ´º | 6 | 34.96 | 500 | 55 | 2016 | | 2025.09.20 | ¿ù¼¼ | ¿ùµåºô¶ó(950-14)Bµ¿ | -1 | 44.94 | 300 | 35 | 1988 | | 2025.09.20 | Àü¼¼ | ±Ý¼ººô¶ó(931-2) | 2 | 37.29 | 6,400 | 0 | 1994 | | 2025.09.19 | ¸Å¸Å | ÇØ¿À¸§ÆÓ¸®½º(925-7) | 6 | 69.01 | 18,000 | | 2011 | | 2025.09.19 | ¸Å¸Å | ´Ù¼Ø¾ÆÆ®ºô | 2 | 50.19 | 10,000 | | 2011 | | 2025.09.18 | ¿ù¼¼ | ±¤¸íºô¶ó³ªµ¿(959) | 1 | 29.3 | 500 | 35 | 1994 | | 2025.09.18 | Àü¼¼ | ±Ý¼ººô¶ó(925-16) | 3 | 40.36 | 6,500 | 0 | 1993 | | 2025.09.17 | ¸Å¸Å | ½ÅÈ2µ¿ | 2 | 31.8 | 5,800 | | 2001 | | 2025.09.17 | Àü¼¼ | ¼ÛÁ¤(1097-12)4µ¿ | 2 | 34.92 | 4,700 | 0 | 1992 | | 2025.09.17 | Àü¼¼ | ¼ÛÁ¤(1097-12)4µ¿ | 2 | 34.92 | 6,000 | 0 | 1992 | | 2025.09.17 | ¿ù¼¼ | ÈïÀϺô¶ó(2µ¿)(949-4) | 3 | 35.38 | 500 | 40 | 1990 | | 2025.09.16 | ¿ù¼¼ | »êȣȨŸ¿î | 4 | 56.94 | 1,000 | 70 | 2002 | | 2025.09.15 | ¸Å¸Å | ¼öÁ¤ºô¶ó1Â÷ | 2 | 43.16 | 7,000 | | 1996 | | 2025.09.15 | ¸Å¸Å | ¾ÆÆ®ºô¶ó(953-26)2µ¿ | 2 | 34.16 | 6,900 | | 1990 | | 2025.09.15 | ¿ù¼¼ | ´ë¼ººô¶ó(883-9) | 2 | 44.76 | 500 | 45 | 1991 | | 2025.09.15 | ¸Å¸Å | ¿ìÁøºô¶ó(865-22) | 3 | 31.35 | 5,400 | | 1993 | | 2025.09.15 | ¿ù¼¼ | ´º¿ùµåºô¸®Áö2µ¿ | 4 | 39.99 | 2,000 | 30 | 1993 | | 2025.09.13 | ¸Å¸Å | °øÀͰñµåŸ¿ö(952-6) | 1 | 50.26 | 11,700 | | 1993 | | 2025.09.13 | ¸Å¸Å | ½ÅÈ3µ¿ | 4 | 44.08 | 7,600 | | 2001 | | 2025.09.13 | ¸Å¸Å | ½ÅÈ3µ¿ | 4 | 44.08 | 7,600 | | 2001 | | 2025.09.13 | Àü¼¼ | Çì·»ÇϿ콺 | 5 | 36.86 | 5,500 | 0 | 2012 | | 2025.09.13 | ¿ù¼¼ | ½Åžçºô¶ó(5µ¿) | 3 | 42.57 | 1,000 | 40 | 1989 | | 2025.09.12 | Àü¼¼ | ¼®¿ø¸Ç¼Ç(970-16)6µ¿ | -1 | 41.96 | 3,500 | 0 | 2001 | | 2025.09.12 | ¸Å¸Å | ¼¼Áøºô¶ó(864-16)Bµ¿ | 4 | 50.28 | 6,900 | | 1993 | | 2025.09.12 | ¿ù¼¼ | ÇöÈñ(951-7)7µ¿ | 3 | 29.88 | 500 | 55 | 1990 | | 2025.09.12 | ¸Å¸Å | ¾çÁöºô¶ó(965-9) | 4 | 38.99 | 7,600 | | 1993 | | 2025.09.11 | ¸Å¸Å | ´ë¸íºô¶ó(1-291)1µ¿ | 3 | 38.08 | 6,000 | | 1994 | | 2025.09.11 | Àü¼¼ | ¼º¿øºô¶ó | 2 | 28.53 | 4,300 | 0 | 1993 | | 2025.09.10 | ¿ù¼¼ | ¼®Á¤ºô¶ó(947-18) | 3 | 36.71 | 300 | 42 | 1991 | | 2025.09.10 | ¿ù¼¼ | ±Ý¼ººô¶ó(931-2) | -1 | 36.24 | 300 | 35 | 1994 | | 2025.09.09 | Àü¼¼ | ÇѼºÆÒ´õºô¶ó | 2 | 33.13 | 6,000 | 0 | 1992 | | 2025.09.09 | Àü¼¼ | »ï¸³(950-16)³ªµ¿ | 2 | 45.71 | 7,200 | 0 | 1991 | | 2025.09.09 | ¿ù¼¼ | ÇØµçºô | 2 | 56.49 | 1,000 | 60 | 2011 | | 2025.09.08 | ¸Å¸Å | ¿µÈºô¶ó(³ªµ¿) | 1 | 39.06 | 6,200 | | 1988 | | 2025.09.08 | ¿ù¼¼ | ±ÝÈ£ÁÖÅÃ7Â÷(965-16) | 3 | 37.36 | 1,000 | 45 | 2002 | | 2025.09.08 | Àü¼¼ | ½Å¼¿ïºô¶ó(111-246)3µ¿ | 4 | 44.02 | 6,190 | 0 | 1997 | | 2025.09.08 | ¸Å¸Å | ¿µÈºô¶ó(³ªµ¿) | 1 | 39.06 | 6,200 | | 1988 | | 2025.09.06 | ¿ù¼¼ | LG(5-284)°¡µ¿ | 3 | 36.53 | 500 | 50 | 2001 | | 2025.09.06 | Àü¼¼ | Çö´ëºô¶ó(°¡µ¿) | 3 | 39.63 | 6,300 | 0 | 1989 | | 2025.09.05 | ¿ù¼¼ | ¼º¿øºô¶ó | -1 | 38.01 | 300 | 40 | 1993 | | 2025.09.04 | ¸Å¸Å | ¼Û¿ø(6-35)9µ¿ | 3 | 36.18 | 7,350 | | 1991 | | 2025.09.04 | ¿ù¼¼ | Àº°î±×¸°ºô¶ó | 2 | 38.37 | 300 | 45 | 1993 | | 2025.09.04 | ¿ù¼¼ | ¹éÁ¶ºô¶ó(³ªµ¿) | -1 | 39.96 | 200 | 20 | 1989 | | 2025.09.04 | Àü¼¼ | ¼º¿øºô¶ó | 3 | 28.53 | 4,800 | 0 | 1993 | | 2025.09.04 | Àü¼¼ | °³²ºô¶ó(881-5)³ªµ¿ | 2 | 44.155 | 6,200 | 0 | 1988 | | 2025.09.04 | ¸Å¸Å | µ¿Àκô¶ó | -1 | 44.54 | 6,000 | | 1993 | | 2025.09.04 | ¸Å¸Å | ÁÖ°ø3(46-0) | 1 | 70.75 | 30,000 | | 1986 | | 2025.09.03 | ¸Å¸Å | ÇöÀϸǼÇŸ¿î(Aµ¿,Bµ¿) | 1 | 65.07 | 9,600 | | 1996 | | 2025.09.02 | ¸Å¸Å | ¸®Á¨½Ã12 | 7 | 48.11 | 15,300 | | 2017 | | 2025.09.02 | Àü¼¼ | ¸¸¼ö(950-5)¸¶µ¿ | 1 | 29.07 | 4,000 | 0 | 1991 | | 2025.09.02 | Àü¼¼ | û³²±×·£µåºô | 4 | 72.5 | 13,800 | 0 | 2009 | | 2025.09.02 | ¸Å¸Å | »ï¼ººô¶ó | 2 | 44.18 | 4,800 | | 1996 | | 2025.09.01 | ¸Å¸Å | °Ç¿ì¾ÆÆ®ºô | 4 | 39.06 | 8,800 | | 2001 | | 2025.09.01 | ¸Å¸Å | ¿ì¸²ºô¶ó(980-17)10µ¿ | 1 | 37.74 | 8,000 | | 1990 | | 2025.08.31 | ¿ù¼¼ | ´ë¿µºô¶ó1µ¿(970-13) | 4 | 37.92 | 500 | 40 | 1993 | | 2025.08.30 | ¸Å¸Å | ¿µÁ¾¾ÆÀ̺ô | 3 | 75.07 | 13,000 | | 2002 | | 2025.08.30 | ¸Å¸Å | ÀÌÈ»ç¶ûä | 2 | 66.9339 | 17,500 | | 2019 | | 2025.08.29 | Àü¼¼ | »ïÈ(950-9) | 3 | 36.28 | 4,500 | 0 | 1988 | | 2025.08.29 | Àü¼¼ | ÇØµçºô | 3 | 79.115 | 14,860 | 0 | 2009 | | 2025.08.29 | ¸Å¸Å | ¸ñ·Ãºô¶ó | 3 | 76.27 | 13,300 | | 1996 | | 2025.08.28 | ¿ù¼¼ | »ïº¸ | 2 | 44.28 | 300 | 45 | 1990 | | 2025.08.28 | ¸Å¸Å | LG(5-284)°¡µ¿ | 1 | 33.46 | 5,800 | | 2001 | | 2025.08.28 | ¿ù¼¼ | ÈÆòºô¶ó | 3 | 28.15 | 300 | 35 | 1996 | | 2025.08.26 | Àü¼¼ | µ¿µµºô¶ó(901-15)1µ¿ | 1 | 37.99 | 5,600 | 0 | 1989 | | 2025.08.26 | ¿ù¼¼ | »ç¶û(49-5)2µ¿ | 2 | 34.56 | 500 | 35 | 1993 | | 2025.08.26 | ¿ù¼¼ | ¿ì¼º¿¡À̽ººô¶ó(4µ¿) | 2 | 36.09 | 1,000 | 40 | 1990 | | 2025.08.26 | ¿ù¼¼ | ¿ì¼ººô¶ó(2µ¿) | 1 | 36.61 | 500 | 40 | 1990 | | 2025.08.26 | ¿ù¼¼ | ¿ì¼º¿¡À̽ººô¶ó(4µ¿) | 2 | 36.09 | 1,000 | 40 | 1990 | | 2025.08.25 | Àü¼¼ | Á¶ÀºÆÄÅ©ºô | 6 | 38.89 | 9,800 | 0 | 2015 | | 2025.08.25 | Àü¼¼ | ´ë¿µ±×¸°ºô¶ó | 2 | 54.79 | 8,400 | 0 | 1994 | | 2025.08.25 | ¿ù¼¼ | ´ë¸²¾ÆÆ®ºô | 3 | 36.3 | 2,000 | 50 | 2011 | | 2025.08.25 | ¿ù¼¼ | ½ÅÈ1µ¿ | 2 | 31.8 | 500 | 40 | 2001 | | 2025.08.25 | Àü¼¼ | ´ë¼º¾ÆÆ®ºô | -1 | 48.92 | 4,000 | 0 | 2002 | | 2025.08.25 | ¸Å¸Å | ±×¸°ºô¶ó(5µ¿) | 2 | 31.56 | 7,000 | | 1989 | | 2025.08.24 | Àü¼¼ | Å¿ìºô¶ó(Bµ¿) | 3 | 36.55 | 5,800 | 0 | 1991 | | 2025.08.23 | ¸Å¸Å | ÇÏÀ̺ô¶ó(1µ¿) | 2 | 27.985 | 6,000 | | 1989 | | 2025.08.23 | ¿ù¼¼ | ¿¹ÁÖºô¶ó(Bµ¿) | 3 | 36.66 | 300 | 45 | 1990 | | 2025.08.23 | ¿ù¼¼ | Àμº(894-23)Cµ¿ | 3 | 42.17 | 500 | 45 | 1989 | | 2025.08.23 | ¿ù¼¼ | ¿µºô¶ó(977-11)°¡µ¿ | 2 | 35.99 | 300 | 38 | 1989 | | 2025.08.23 | ¿ù¼¼ | Àº¼ººô¶ó(863-10)°¡µ¿ | 2 | 40.805 | 500 | 30 | 1986 | | 2025.08.23 | ¸Å¸Å | Á¤³²ºô¶ó(894-26) | -1 | 39.6 | 3,500 | | 1991 | | 2025.08.22 | Àü¼¼ | ÇØ¿À¸§ÆÓ¸®½º(971-3) | 4 | 31.09 | 7,400 | 0 | 2010 | | 2025.08.22 | Àü¼¼ | ÇØ¿À¸§ÆÓ¸®½º(971-3) | 4 | 31.09 | 7,400 | 0 | 2010 | | 2025.08.22 | ¿ù¼¼ | ¸í¼ººô¶ó(894-14) | -1 | 41.08 | 500 | 30 | 1995 | | 2025.08.21 | Àü¼¼ | Àå¹Ìºô¶ó(977-34)4µ¿ | 1 | 32.94 | 5,000 | 0 | 1989 | | 2025.08.21 | ¿ù¼¼ | ÈÆòºô¶ó | 2 | 28.15 | 350 | 35 | 1996 | | 2025.08.21 | ¿ù¼¼ | ´ë¸íºô¶ó(841-22) | 1 | 35.91 | 300 | 45 | 1991 | | 2025.08.21 | ¿ù¼¼ | °øÀÛ4µ¿(1076-17) | 1 | 35.88 | 500 | 40 | 1988 | | 2025.08.21 | ¸Å¸Å | »ïȺô¸®Áö(902-2) | 3 | 37.78 | 4,850 | | 1995 | | 2025.08.21 | ¸Å¸Å | ¿ìÁøÅ¸¿î(902-9) | 5 | 68.28 | 12,200 | | 2002 | | 2025.08.21 | ¸Å¸Å | ÇѼººô¶ó(842-28)°¡µ¿ | 1 | 35.99 | 4,500 | | 1991 | | 2025.08.20 | Àü¼¼ | ÇѳªÇÏÀÌÆ®ºô | 3 | 39.23 | 6,200 | 0 | 2002 | | 2025.08.20 | ¿ù¼¼ | Á¤³²ºô¶ó(894-26) | 2 | 39.6 | 500 | 45 | 1991 | | 2025.08.19 | ¸Å¸Å | °Ç³²(1083-7) | 1 | 46.5 | 7,150 | | 1994 | | 2025.08.19 | ¿ù¼¼ | ¹ÌÁøºô¶ó(´Ùµ¿) | 4 | 37.44 | 2,000 | 20 | 1993 | | 2025.08.18 | Àü¼¼ | ´ë¼ººô¶ó2Â÷(³ªµ¿) | 1 | 37.87 | 6,000 | 0 | 1990 | | 2025.08.18 | ¿ù¼¼ | ´ë¸íºô¶ó(1-291)1µ¿ | 3 | 38.08 | 500 | 50 | 1994 | | 2025.08.18 | ¿ù¼¼ | ¼®Á¤ºô¶ó(947-18) | -1 | 36.71 | 300 | 35 | 1991 | | 2025.08.18 | ¸Å¸Å | ¸¸¼öºÏºô¶ó(871-21)³ªµ¿ | -1 | 35.43 | 4,300 | | 1990 | | 2025.08.18 | ¸Å¸Å | °øÀÛºô¶ó(932-4) | 1 | 46.04 | 7,000 | | 1988 | | 2025.08.17 | ¿ù¼¼ | µ¿³²ÇÏÀ̺ô¶ó(887-13)1µ¿ | 1 | 36.46 | 1,000 | 40 | 1990 | | 2025.08.17 | ¿ù¼¼ | µ¿³²ÇÏÀ̺ô¶ó(887-13)1µ¿ | 1 | 36.46 | 1,000 | 40 | 1990 | | 2025.08.16 | Àü¼¼ | ¼¼Áøºô¶ó(864-16)Bµ¿ | 2 | 50.28 | 7,400 | 0 | 1993 | | 2025.08.15 | ¸Å¸Å | »ïº¸(981-12)´Ùµ¿ | 3 | 42.86 | 7,500 | | 1992 | | 2025.08.14 | ¸Å¸Å | ½ÅÅ¿ìºô¶ó | 1 | 25.11 | 4,500 | | 1993 | | 2025.08.14 | Àü¼¼ | »ï¹ÌÇϿ콺(844-149)3µ¿ | 1 | 37.89 | 5,300 | 0 | 1990 | | 2025.08.13 | Àü¼¼ | Áø¾ç(857-6)5µ¿ | 3 | 36.15 | 4,900 | 0 | 1990 | | 2025.08.13 | ¿ù¼¼ | ¿ì¼º(855-19) | 3 | 31.35 | 200 | 20 | 1990 | | 2025.08.12 | ¿ù¼¼ | »ïº¸ºô¶ó(³ªµ¿) | 2 | 35.27 | 500 | 40 | 1990 | | 2025.08.11 | Àü¼¼ | ´ëȺô¶ó2µ¿(973-30) | 2 | 34.92 | 6,500 | 0 | 1990 | | 2025.08.11 | Àü¼¼ | ű¤ºô¶ó(°¡µ¿) | 2 | 34.4025 | 4,450 | 0 | 1989 | | 2025.08.09 | Àü¼¼ | ¸¸¼öÁÖ°ø1´ÜÁö(¿¬¸³) | 3 | 46.79 | 12,000 | 0 | 1986 | | 2025.08.09 | ¿ù¼¼ | ¼º½Åºô¶ó(³ªµ¿) | 1 | 40.2 | 500 | 50 | 1993 | | 2025.08.08 | ¸Å¸Å | ¼º¿øºô¶ó(109-311) | 3 | 30.03 | 5,200 | | 1995 | | 2025.08.08 | Àü¼¼ | ¹Ì·¡¾ÆÆ®ºô | 5 | 48.4 | 10,800 | 0 | 2013 | | 2025.08.08 | Àü¼¼ | »ïȺô¶ó5Â÷ | 2 | 47.87 | 9,099 | 0 | 2002 | | 2025.08.08 | Àü¼¼ | ±ÝÈ£ºô¶ó | 2 | 30.865 | 3,500 | 0 | 1994 | | 2025.08.08 | Àü¼¼ | »ïÈ(950-8) | 1 | 36.28 | 6,000 | 0 | 1988 | | 2025.08.08 | ¸Å¸Å | »ïº¸ºô¶ó(°¡µ¿) | 1 | 32.95 | 7,500 | | 1990 | | 2025.08.07 | Àü¼¼ | ¿¹¿øºô¶ó(949-21)Aµ¿ | 3 | 31.68 | 5,200 | 0 | 1990 | | 2025.08.07 | Àü¼¼ | °ø¸íºô¶ó | 3 | 32.58 | 5,600 | 0 | 1993 | | 2025.08.07 | ¿ù¼¼ | ´ë¿ìºô¶ó(1µ¿) | 2 | 45.78 | 500 | 45 | 1989 | | 2025.08.07 | Àü¼¼ | »ïÀͺô¶ó | 2 | 37.18 | 6,400 | 0 | 1995 | | 2025.08.07 | Àü¼¼ | °ø¸íºô¶ó | 3 | 32.58 | 5,600 | 0 | 1993 | | 2025.08.07 | ¸Å¸Å | »ó¿ìºô¶ó | 2 | 40.82 | 9,600 | | 1993 | | 2025.08.05 | ¿ù¼¼ | ³ª»êºô¶ó(852)Aµ¿ | 3 | 33.66 | 300 | 35 | 1992 | | 2025.08.05 | ¸Å¸Å | â´ë¾ÆÆ®ºô(1078-10) | 4 | 48.78 | 9,900 | | 1997 | | 2025.08.04 | Àü¼¼ | ¹Ý¼®ÇÏÀÌÃ÷ºô | 4 | 48.14 | 9,400 | 0 | 2001 | | 2025.08.02 | Àü¼¼ | ³ª¶ûºô¶ó | 1 | 34.05 | 5,400 | 0 | 1994 | | 2025.08.02 | ¸Å¸Å | ÀÎÇâºô¶ó4Â÷(4µ¿) | 2 | 28.78 | 8,500 | | 1988 | | 2025.08.01 | ¸Å¸Å | ¼±°æ(851-4)°¡µ¿ | 1 | 31.61 | 4,800 | | 1987 | | 2025.08.01 | Àü¼¼ | ´ë¿µºô¶ó3µ¿(970-5) | 2 | 42.36 | 7,000 | 0 | 1993 | | 2025.08.01 | Àü¼¼ | ÇÑ¿ï¶ó¿Âä3 | 9 | 39.31 | 11,800 | 0 | 2017 | | 2025.07.31 | ¸Å¸Å | ¼ººóºô¶ó(970) | -1 | 35.8 | 3,800 | | 1990 | | 2025.07.31 | ¿ù¼¼ | »ïº¸ºô¶ó(4µ¿) | 1 | 41.81 | 1,000 | 42 | 1992 | | 2025.07.30 | ¿ù¼¼ | ÁÖ°ø3(46-0) | 3 | 61.53 | 4,000 | 50 | 1986 | | 2025.07.30 | ¸Å¸Å | ½Ã¿Â¿¡ | 3 | 64.3044 | 22,000 | | 2017 | | 2025.07.29 | ¸Å¸Å | ¿ì¼º¿¡À̽ººô¶ó(3µ¿) | -1 | 34.78 | 4,600 | | 1990 | | 2025.07.29 | ¿ù¼¼ | Å¿õºô¶ó(955-13)³ªµ¿ | 4 | 30.42 | 300 | 40 | 1993 | | 2025.07.28 | Àü¼¼ | »ïÁöºô¶ó(5µ¿) | 2 | 39.67 | 6,700 | 0 | 1990 | | 2025.07.28 | ¿ù¼¼ | ¾Æ¸§ºô¶ó | 2 | 18 | 200 | 20 | 2001 | | 2025.07.28 | ¸Å¸Å | Á¤¼®ÇÏÀ̺ô | 3 | 58.51 | 12,500 | | 2002 | | 2025.07.28 | ¸Å¸Å | Á¤¼®ÇÏÀ̺ô | 3 | 58.51 | 12,500 | | 2002 | | 2025.07.28 | ¸Å¸Å | ÇÑ»ùºô¶ó(6µ¿) | 1 | 36.27 | 5,000 | | 1988 | | 2025.07.28 | ¸Å¸Å | Çö´ë¸Ç¼Ç(855-18) | 2 | 37.64 | 7,170 | | 1991 | | 2025.07.26 | ¸Å¸Å | Àμ۴ټ¼´ë | -1 | 39.56 | 5,000 | | 1990 | | 2025.07.25 | ¸Å¸Å | »ïÈ(950-8) | -1 | 38.17 | 4,000 | | 1988 | | 2025.07.25 | ¸Å¸Å | ¶óÀÌÇÁºô¶ó(892-43)Bµ¿ | -1 | 36.105 | 3,800 | | 1989 | | 2025.07.25 | ¿ù¼¼ | ¼ººóºô¶ó(970) | 3 | 35.8 | 500 | 50 | 1990 | | 2025.07.25 | ¿ù¼¼ | µ¿µµºô¶ó(901-37)6µ¿ | 2 | 37.99 | 1,100 | 40 | 1990 | | 2025.07.24 | ¿ù¼¼ | ¼º±¤(853-18)°¡µ¿ | 2 | 28.55 | 500 | 45 | 1987 | | 2025.07.24 | ¸Å¸Å | ´ë¿µ¾ÆÆ®ºô(898-19)Aµ¿ | 1 | 39.57 | 8,900 | | 2002 | | 2025.07.24 | ¸Å¸Å | ´ë¿µ¾ÆÆ®ºô(898-19)Aµ¿ | 1 | 39.57 | 8,900 | | 2002 | | 2025.07.23 | ¿ù¼¼ | »ûº°ÁÖÅà | 3 | 51.47 | 1,081 | 16 | 2021 | | 2025.07.23 | ¿ù¼¼ | ¸¸¼öºô¶ó(895-61)Bµ¿ | 3 | 38.88 | 500 | 45 | 1996 | | 2025.07.22 | ¿ù¼¼ | ¿øÈïºô¶ó(2µ¿) | 2 | 37.12 | 500 | 37 | 1990 | | 2025.07.22 | Àü¼¼ | ¼º»êºô¶ó(855-23)3µ¿ | 2 | 39.93 | 5,900 | 0 | 1994 | | 2025.07.22 | Àü¼¼ | Àοìºô¶ó | 3 | 30.29 | 4,400 | 0 | 1990 | | 2025.07.22 | ¿ù¼¼ | »ïÁöºô¶ó(2µ¿) | 1 | 40.61 | 2,000 | 30 | 1990 | | 2025.07.22 | ¿ù¼¼ | µ¿ÀϺô¶ó | 1 | 28.2 | 300 | 32 | 1993 | | 2025.07.22 | ¸Å¸Å | ±ÝÈ£ºô¶ó | 3 | 27.41 | 6,000 | | 1994 | | 2025.07.21 | ¿ù¼¼ | ·Ôµ¥¸Ç¼Ç(1100-7) | 4 | 37.44 | 1,000 | 45 | 2000 | | 2025.07.21 | Àü¼¼ | LG(5-284)°¡µ¿ | 2 | 36.45 | 6,000 | 0 | 2001 | | 2025.07.21 | ¿ù¼¼ | ´ë¸²ºô¶ó(954-10) | 4 | 44.82 | 700 | 40 | 1993 | | 2025.07.21 | ¸Å¸Å | LG(5-284)°¡µ¿ | 4 | 36.53 | 10,000 | | 2001 | | 2025.07.21 | ¸Å¸Å | ¼Û¿ø(6-28)2µ¿ | 3 | 36.18 | 5,500 | | 1991 | | 2025.07.21 | ¸Å¸Å | À̾ȾÖ1µ¿ | 3 | 44.68 | 21,300 | | 2018 | | 2025.07.21 | ¸Å¸Å | ¼Ò¸Á¸Ç¼Ç(873-6) | 2 | 38.38 | 6,500 | | 2002 | | 2025.07.20 | ¿ù¼¼ | ¹ÌµµÁÖÅà | 2 | 52.94 | 1,000 | 50 | 2001 | | 2025.07.19 | ¿ù¼¼ | »ïÀͺô¶ó | 4 | 38.3 | 500 | 40 | 1995 | | 2025.07.19 | ¿ù¼¼ | (882-28) | 5 | 39.899 | 1,000 | 50 | 2017 | | 2025.07.19 | ¸Å¸Å | ¿¹ÁÖºô¶ó(Aµ¿) | 2 | 36.66 | 8,400 | | 1989 | | 2025.07.19 | ¸Å¸Å | ¿ì¼º(855-7)1µ¿ | 1 | 31.35 | 4,800 | | 1990 | | 2025.07.19 | Àü¼¼ | ¼®Á¤ºô¶ó(947-12) | 1 | 35.7 | 5,160 | 0 | 1991 | | 2025.07.19 | ¿ù¼¼ | ´ë¸²ºô¶ó2µ¿ | 1 | 35.39 | 500 | 40 | 1993 | | 2025.07.19 | Àü¼¼ | ÇöÀÏ(5-454)110µ¿ | 3 | 40.56 | 6,500 | 0 | 1996 | | 2025.07.18 | ¿ù¼¼ | ´º¿ùµåºô¸®Áö2µ¿ | -1 | 34.1 | 500 | 35 | 1993 | | 2025.07.18 | Àü¼¼ | ·º½ººô¸®Áö | 7 | 68 | 1,296 | 0 | 2015 | | 2025.07.17 | Àü¼¼ | ´ë¸²ºô¶ó2µ¿ | 3 | 37.23 | 6,750 | 0 | 1993 | | 2025.07.17 | ¸Å¸Å | ¸®´õ½ºÈú | 10 | 52.96 | 15,600 | | 2015 | | 2025.07.16 | Àü¼¼ | ÇѼºô¸®Áö(2~3µ¿) | 3 | 44.15 | 7,000 | 0 | 1995 | | 2025.07.15 | ¸Å¸Å | ¿ì¼º¾ÆÆ®ºô¶ó | 1 | 36.05 | 9,800 | | 1990 | | 2025.07.15 | ¿ù¼¼ | ÇØ¼º(51-0) | 2 | 33.24 | 500 | 40 | 1993 | | 2025.07.15 | Àü¼¼ | Á¤ÀϺô¶ó(971-11)Bµ¿ | 1 | 39.24 | 6,600 | 0 | 1993 | | 2025.07.15 | ¿ù¼¼ | ¸¸¼ö¸¶À»(109-348)4µ¿ | 1 | 42.3 | 500 | 35 | 1995 | | 2025.07.15 | Àü¼¼ | û½Ç(3-83)6µ¿ | 1 | 40.425 | 6,600 | 0 | 1989 | | 2025.07.15 | Àü¼¼ | û½Ç(3-83)6µ¿ | 1 | 40.425 | 5,900 | 0 | 1989 | | 2025.07.15 | Àü¼¼ | û½Ç(3-83)6µ¿ | 1 | 40.425 | 6,600 | 0 | 1989 | | 2025.07.14 | ¸Å¸Å | ¶óÀÌÇÁºô¶ó(892-43)Bµ¿ | -1 | 36.105 | 3,800 | | 1989 | | 2025.07.14 | ¸Å¸Å | ¿¹¿øºô¶ó(949-20)Bµ¿ | 2 | 39.18 | 8,900 | | 1990 | | 2025.07.14 | Àü¼¼ | ¸¸¼öÁÖ°ø1´ÜÁö(¿¬¸³) | 1 | 46.79 | 13,000 | 0 | 1986 | | 2025.07.14 | Àü¼¼ | ±¹Èºô¶ó(°¡~³ªµ¿) | 1 | 35.895 | 6,900 | 0 | 1991 | | 2025.07.14 | Àü¼¼ | ⿵±×¸°ºô¶ó(111-20)Bµ¿ | 3 | 39.33 | 7,700 | 0 | 1995 | | 2025.07.14 | ¿ù¼¼ | À¯·ÎŸ¿î | 4 | 40.13 | 500 | 50 | 1995 | | 2025.07.14 | Àü¼¼ | ⿵±×¸°ºô¶ó(111-20)Bµ¿ | 3 | 39.33 | 7,700 | 0 | 1995 | | 2025.07.13 | Àü¼¼ | ½Å¸¸¼öŸ¿î(109-381)102µ¿ | 2 | 47.2 | 6,500 | 0 | 1998 | | 2025.07.11 | Àü¼¼ | ±×¸°³ª·¡ | 3 | 48.74 | 13,590 | 0 | 2017 | | 2025.07.10 | ¿ù¼¼ | ij½½º£¸® | 8 | 37.498 | 1,000 | 55 | 2016 | | 2025.07.09 | ¸Å¸Å | ¿À¼ººô¶ó(868-18)Aµ¿ | 2 | 35.28 | 5,800 | | 1989 | | 2025.07.09 | ¸Å¸Å | »ïÁöºô¶ó(2µ¿) | 1 | 40.61 | 8,100 | | 1990 | | 2025.07.09 | Àü¼¼ | ½Å±¤ºô¶ó(1µ¿,2µ¿) | 2 | 43.2 | 5,500 | 0 | 1993 | | 2025.07.09 | ¿ù¼¼ | ¼º´öºô¶ó(Bµ¿) | 2 | 36.51 | 500 | 40 | 1991 | | 2025.07.09 | ¿ù¼¼ | ÇѼººô¶ó(842-26)´Ùµ¿ | 1 | 35.88 | 4,900 | 15 | 1991 | | 2025.07.08 | Àü¼¼ | ÁÖ°ø3(46-0) | 3 | 55.48 | 15,000 | 0 | 1986 | | 2025.07.08 | ¿ù¼¼ | ¹ü¿ìºô¶ó(°¡µ¿) | 1 | 40.62 | 5,000 | 5 | 1989 | | 2025.07.08 | Àü¼¼ | ÁÖ°ø3(46-0) | 3 | 55.48 | 15,000 | 0 | 1986 | | 2025.07.07 | ¿ù¼¼ | ¿ì¼ººô¶ó(7µ¿) | 1 | 38.64 | 800 | 35 | 1989 | | 2025.07.07 | ¸Å¸Å | ±ÝÈ£ºô¶ó | 2 | 30.865 | 7,500 | | 1994 | | 2025.07.07 | ¸Å¸Å | Èñ¼ººô¶ó1Â÷ | -1 | 42.88 | 3,000 | | 1995 | | 2025.07.07 | ¸Å¸Å | ·º½ººô¸®Áö | 8 | 64.24 | 13,700 | | 2015 | | 2025.07.07 | ¸Å¸Å | ÀÌȺô¶ó(963-16) | 2 | 41.28 | 7,500 | | 1990 | | 2025.07.07 | ¿ù¼¼ | ³²±¤ºô¶ó | 3 | 48.1 | 500 | 40 | 1988 | | 2025.07.06 | ¿ù¼¼ | ¿ìÀϺô¶ó | 2 | 39.48 | 500 | 55 | 1993 | | 2025.07.05 | ¸Å¸Å | ¿¢¼³·±Æ®Aµ¿ | 8 | 16.75 | 3,600 | | 2011 | | 2025.07.05 | Àü¼¼ | ÀÎÇâºô¶ó4Â÷(4µ¿) | 2 | 33.1 | 5,400 | 0 | 1988 | | 2025.07.05 | Àü¼¼ | ¿À¼ººô¶ó(Aµ¿) | -1 | 35.1 | 3,000 | 0 | 1991 | | 2025.07.04 | Àü¼¼ | °Å»êºô¶ó | 4 | 48.39 | 7,800 | 0 | 1996 | | 2025.07.03 | Àü¼¼ | »ï¼ºÈ¨Å¸¿î | 4 | 59.62 | 9,400 | 0 | 2002 | | 2025.07.03 | Àü¼¼ | ±ÝÈ£ÁÖÅÃ7Â÷(965-16) | 2 | 37.36 | 7,000 | 0 | 2002 | | 2025.07.02 | ¿ù¼¼ | µ¿¼¾ÆÆ®ºô¶ó(111-8)Bµ¿ | 3 | 45.06 | 300 | 35 | 1995 | | 2025.07.02 | ¸Å¸Å | ½Åžçºô¶ó(1µ¿) | 3 | 35.31 | 8,810 | | 1989 | | 2025.07.02 | ¿ù¼¼ | »ïº¸(981-12)´Ùµ¿ | -1 | 39.35 | 300 | 40 | 1992 | | 2025.07.02 | ¿ù¼¼ | ÀÌÈ»ç¶ûä | 4 | 66.9339 | 1,000 | 67 | 2019 | | 2025.07.01 | ¿ù¼¼ | ´ë¼ººô¶ó2Â÷(°¡µ¿) | 1 | 37.87 | 300 | 42 | 1990 | | 2025.07.01 | ¿ù¼¼ | µÎ¼º(977-18)´Ùµ¿ | 1 | 35.17 | 500 | 40 | 1991 | | 2025.07.01 | ¿ù¼¼ | ¸¸¼öÁÖ°ø1´ÜÁö(¿¬¸³) | 1 | 46.86 | 1,000 | 55 | 1986 | | 2025.07.01 | Àü¼¼ | ³²Àκô¶ó(892-42)Aµ¿ | 3 | 42.36 | 5,500 | 0 | 1992 | | 2025.07.01 | Àü¼¼ | ¿ùµåºô¶ó(950-15)Cµ¿ | 2 | 35.055 | 5,400 | 0 | 1988 | | 2025.06.30 | ¿ù¼¼ | ¼®Á¤ºô¶ó(947-12) | 3 | 35.7 | 1,000 | 30 | 1991 | | 2025.06.30 | ¿ù¼¼ | »ïº¸(981-13)¶óµ¿ | 1 | 41.27 | 5,000 | 40 | 1992 | | 2025.06.30 | Àü¼¼ | ÀÎÇâºô¶ó4Â÷(3µ¿) | 2 | 33.1 | 5,270 | 0 | 1988 | | 2025.06.28 | ¸Å¸Å | ½ÂÈñºô¶ó | 2 | 34.54 | 6,000 | | 1997 | | 2025.06.28 | Àü¼¼ | ÁÖ°ø3(46-0) | 3 | 55.48 | 12,000 | 0 | 1986 | | 2025.06.27 | ¿ù¼¼ | ¸®Ä¡ºô´Ùµ¿ | 3 | 56.415 | 2,000 | 50 | 2008 | | 2025.06.27 | ¿ù¼¼ | Á¤¼®ºô¶ó | 4 | 28.85 | 300 | 33 | 2002 | | 2025.06.26 | ¸Å¸Å | ÇöÀϸǼÇŸ¿î(Aµ¿,Bµ¿) | 3 | 65.07 | 12,500 | | 1996 | | 2025.06.26 | Àü¼¼ | ±Ý¼ººô¶ó(925-16) | 3 | 40.71 | 6,000 | 0 | 1993 | | 2025.06.26 | ¸Å¸Å | ¹ÌÁøºô¶ó(´Ùµ¿) | 1 | 37.44 | 8,000 | | 1993 | | 2025.06.26 | ¿ù¼¼ | ±¤¸íºô¶ó°¡µ¿(959-4) | 4 | 43.31 | 200 | 42 | 1994 | | 2025.06.26 | Àü¼¼ | ¹®ÀϽºÄ«À̺ô¶ó | 2 | 59.8 | 9,960 | 0 | 2001 | | 2025.06.26 | ¸Å¸Å | ´ë¸íºô¶ó(841-26) | 2 | 36.39 | 5,250 | | 1991 | | 2025.06.26 | ¸Å¸Å | Á¤³²ºô¶ó(894-26) | 3 | 39.6 | 8,000 | | 1991 | | 2025.06.26 | ¿ù¼¼ | ÁøÁÖºô¶ó(5µ¿) | 2 | 35.695 | 500 | 35 | 1988 | | 2025.06.25 | Àü¼¼ | Á¤¼®ÇÏÀ̺ô | 3 | 58.51 | 10,800 | 0 | 2002 | | 2025.06.25 | ¿ù¼¼ | ´º¿ùµåºô¸®Áö2µ¿ | 1 | 34.1 | 500 | 40 | 1993 | | 2025.06.25 | ¸Å¸Å | ´ë¸íºô¶ó(841-24) | 3 | 35.91 | 5,150 | | 1991 | | 2025.06.24 | ¿ù¼¼ | ÈÆòºô¶ó | 3 | 29.965 | 50 | 45 | 1996 | | 2025.06.24 | ¸Å¸Å | ¸¸¼ö¸¶À»(109-146)1µ¿ | 2 | 49.56 | 7,600 | | 1995 | | 2025.06.23 | ¸Å¸Å | ¿ì¸²ºô¶ó(980-17)10µ¿ | 1 | 37.74 | 4,800 | | 1990 | | 2025.06.21 | ¿ù¼¼ | ûÈÇÏÀ̺ô | 1 | 59.56 | 3,000 | 50 | 2002 | | 2025.06.21 | Àü¼¼ | ¿ì¹Ìºô¶ó(1µ¿) | 3 | 39.885 | 7,000 | 0 | 1993 | | 2025.06.20 | ¿ù¼¼ | ¿ùµåºô¶ó(950-14)Bµ¿ | 1 | 34.68 | 200 | 35 | 1988 | | 2025.06.20 | ¿ù¼¼ | ⿵±×¸°ºô¶ó(111-262)Cµ¿ | 3 | 20.24 | 100 | 20 | 1995 | | 2025.06.20 | Àü¼¼ | °³²(5-471)108µ¿ | 2 | 38.73 | 6,570 | 0 | 2002 | | 2025.06.20 | ¸Å¸Å | °Å»êºô¶ó | 4 | 48.39 | 8,500 | | 1996 | | 2025.06.20 | Àü¼¼ | Çö´ëºô¶ó(¸¶µ¿) | 3 | 39.63 | 6,300 | 0 | 1989 | | 2025.06.20 | ¸Å¸Å | ¿ùµåºô¶ó(950-14)Bµ¿ | -1 | 44.94 | 2,700 | | 1988 | | 2025.06.20 | ¸Å¸Å | ½Å¼¿ïºô¶ó(111-461)2µ¿ | 1 | 44.02 | 7,000 | | 1997 | | 2025.06.20 | ¿ù¼¼ | ¿ùµåºô¶ó(950-14)Bµ¿ | 1 | 34.68 | 200 | 35 | 1988 | | 2025.06.19 | ¸Å¸Å | û³²±×·£µåºôA | 4 | 53.88 | 13,550 | | 2012 | | 2025.06.19 | ¸Å¸Å | ¿ìÁÖÆÄÅ©ºô4Â÷ | 1 | 19.04 | 2,000 | | 2003 | | 2025.06.19 | ¿ù¼¼ | ´ë¿ìºô¶ó(4µ¿) | -1 | 39.61 | 300 | 30 | 1989 | | 2025.06.19 | Àü¼¼ | ´ë¿ìºô¶ó(3µ¿) | 3 | 35.07 | 5,400 | 0 | 1989 | | 2025.06.19 | ¸Å¸Å | ½ÂÈñºô¶ó | 1 | 38.61 | 7,980 | | 1997 | | 2025.06.18 | ¸Å¸Å | ´ÃǪ¸¥È¨Å¸¿î | 1 | 47.6 | 6,500 | | 2001 | | 2025.06.18 | ¿ù¼¼ | »ïº¸ºô¶ó(3µ¿) | 4 | 43.92 | 300 | 45 | 1991 | | 2025.06.17 | ¿ù¼¼ | °øÀÛ4µ¿(1076-17) | 1 | 35.88 | 500 | 35 | 1988 | | 2025.06.17 | ¿ù¼¼ | ⿵±×¸°ºô¶ó(111-32)Dµ¿ | 4 | 37.82 | 200 | 35 | 1996 | | 2025.06.17 | Àü¼¼ | ÁÖ°ø3(46-0) | 1 | 55.48 | 12,000 | 0 | 1986 | | 2025.06.17 | Àü¼¼ | ±æÁ¤ºô¶ó | 1 | 36.21 | 6,100 | 0 | 1990 | | 2025.06.17 | Àü¼¼ | ÀÌȺô¶ó(Aµ¿) | 1 | 34.72 | 5,000 | 0 | 1990 | | 2025.06.17 | ¸Å¸Å | ij½½º£¸® | 8 | 37.498 | 13,000 | | 2016 | | 2025.06.16 | Àü¼¼ | ¿µÁøºô¶ó(Bµ¿) | 1 | 34.8 | 1,500 | 0 | 1993 | | 2025.06.16 | ¸Å¸Å | Ç÷Îä1µ¿ | 2 | 62.24 | 13,000 | | 2011 | | 2025.06.16 | Àü¼¼ | ÇѼºô¸®Áö(2~3µ¿) | 3 | 48.74 | 7,000 | 0 | 1995 | | 2025.06.15 | ¸Å¸Å | ¿¢¼³·±Æ®Aµ¿ | 5 | 16.75 | 4,450 | | 2011 | | 2025.06.15 | Àü¼¼ | Àμº(894-23)Cµ¿ | 1 | 42.17 | 5,770 | 0 | 1989 | | 2025.06.15 | Àü¼¼ | ¿¹¿øºô¶ó(949-18)Dµ¿ | 1 | 38.28 | 5,000 | 0 | 1992 | | 2025.06.15 | Àü¼¼ | µ¿¾çºô¶ó | 3 | 54.6 | 5,000 | 0 | 1994 | | 2025.06.14 | Àü¼¼ | Áß¼º°ñµåºô¶ó(952-2)1µ¿ | 4 | 45.08 | 6,000 | 0 | 1993 | | 2025.06.13 | ¿ù¼¼ | ÆÄ¶õµéȨŸ¿î(³ªµ¿) | 2 | 43.34 | 3,000 | 40 | 2001 | | 2025.06.13 | ¸Å¸Å | ´ë¼º¾ÆÆ®ºô | -1 | 48.92 | 6,300 | | 2002 | | 2025.06.12 | ¿ù¼¼ | À¯°æÁÖÅÃ(977-16)°¡µ¿ | 2 | 36.6 | 500 | 50 | 1993 | | 2025.06.12 | ¸Å¸Å | ¿ì¼ººô¶ó(1µ¿) | 2 | 39.18 | 8,900 | | 1993 | | 2025.06.11 | ¿ù¼¼ | ÆÛ½ºÆ®ºô | 5 | 32.09 | 1,000 | 40 | 2013 | | 2025.06.11 | Àü¼¼ | »ï¼ººô¶ó(904-33) | 3 | 37.51 | 5,900 | 0 | 1993 | | 2025.06.11 | ¸Å¸Å | ½ÂÈñºô¶ó | 1 | 38.61 | 7,980 | | 1997 | | 2025.06.11 | ¿ù¼¼ | Èѹ̸®ºô¶ó(886-40) | 2 | 35.73 | 400 | 36 | 1990 | | 2025.06.11 | Àü¼¼ | ¿µÁøºô¶ó(Bµ¿) | 2 | 34.8 | 4,600 | 0 | 1993 | | 2025.06.11 | ¿ù¼¼ | ¼º±¤ºô¶ó(900-14) | -1 | 39.77 | 200 | 32 | 2002 | | 2025.06.10 | ¸Å¸Å | µÎ¼º(977-18)´Ùµ¿ | 1 | 35.17 | 6,000 | | 1991 | | 2025.06.10 | ¿ù¼¼ | ÁÖ°ø3(46-0) | 2 | 70.75 | 2,000 | 75 | 1986 | | 2025.06.10 | ¿ù¼¼ | ¿¬Èñºô¶ó(879-23)Bµ¿ | -1 | 37.05 | 100 | 50 | 1990 | | 2025.06.10 | ¿ù¼¼ | ¿ì¼ººô¶ó(1µ¿) | 1 | 35.88 | 500 | 45 | 1993 | | 2025.06.10 | Àü¼¼ | ¸¸¼ö¿¬Èñ(951-16)°¡µ¿ | 3 | 33.78 | 5,000 | 0 | 1989 | | 2025.06.10 | ¿ù¼¼ | À¯ÀϺô¶ó(Dµ¿) | 2 | 44.88 | 1,000 | 25 | 1988 | | 2025.06.09 | Àü¼¼ | ÇÏÀ̺ô¶ó(5µ¿) | 2 | 36.42 | 5,900 | 0 | 1989 | | 2025.06.09 | ¿ù¼¼ | õ¿ìºô¶ó(953-27)°¡µ¿ | 3 | 29.86 | 300 | 32 | 1990 | | 2025.06.09 | ¿ù¼¼ | ¸¸¼öºô¸®Áö | 2 | 38.34 | 500 | 40 | 2002 | | 2025.06.08 | ¿ù¼¼ | ¿ì¼º¿¡À̽ººô¶ó(4µ¿) | 3 | 36.09 | 300 | 30 | 1990 | | 2025.06.07 | Àü¼¼ | ÀÎÇâºô¶ó4Â÷(2µ¿) | 1 | 28.78 | 5,450 | 0 | 1988 | | 2025.06.07 | Àü¼¼ | »ïȺô¸®Áö(901-42)¹Ùµ¿ | 4 | 40.92 | 6,220 | 0 | 1995 | | 2025.06.07 | ¸Å¸Å | žçºô¶ó(111-342)Bµ¿ | 3 | 36.17 | 5,800 | | 1996 | | 2025.06.06 | Àü¼¼ | Á¤ÀϺô¶ó(971-12)Cµ¿ | 2 | 37.08 | 6,500 | 0 | 1993 | | 2025.06.06 | ¿ù¼¼ | ½ÅȺô¶óÆ® | 2 | 39.87 | 1,000 | 40 | 2001 | | 2025.06.06 | ¿ù¼¼ | ¼ººóºô¶ó(970-7) | 1 | 35.8 | 500 | 40 | 1990 | | 2025.06.05 | ¸Å¸Å | ±Ý¼º(1084-1) | 1 | 45.6 | 12,400 | | 2001 | | 2025.06.05 | ¿ù¼¼ | °Ç³²ºô¶ó | 1 | 39.24 | 1,000 | 40 | 2000 | | 2025.06.05 | ¿ù¼¼ | Ä¥¼ººô¶ó(Cµ¿) | 3 | 38.88 | 500 | 45 | 1992 | | 2025.06.04 | ¿ù¼¼ | °øÀÛ1µ¿(1076-2) | 1 | 41.78 | 500 | 30 | 1988 | | 2025.06.04 | Àü¼¼ | ºÎ¸²ºô¶ó | 3 | 41.88 | 5,000 | 0 | 1989 | | 2025.06.04 | ¸Å¸Å | ·Ôµ¥¸Ç¼Ç(1100-7) | 4 | 37.44 | 6,500 | | 2000 | | 2025.06.04 | ¸Å¸Å | ¹ÌÁøºô¶ó(³ªµ¿) | 1 | 36.36 | 8,500 | | 1992 | | 2025.06.04 | ¸Å¸Å | ·°Å°ºô¶ó | 4 | 37.24 | 4,400 | | 1993 | | 2025.06.04 | ¸Å¸Å | »ï¹Ìºô¶ó(879-22)11µ¿ | 2 | 35.93 | 10,800 | | 1990 | | 2025.06.04 | ¸Å¸Å | ¼º±¤ÁÖÅÃ(1078-18) | -1 | 49.98 | 4,950 | | 2001 | | 2025.06.03 | ¸Å¸Å | DH¾¾¹Ð·¹ | 10 | 46.118 | 14,500 | | 2016 | | 2025.06.02 | ¿ù¼¼ | ¼º½Åºô¶ó2Â÷ | 1 | 39.11 | 500 | 45 | 1996 | | 2025.06.02 | ¸Å¸Å | ¿¢¼³·±Æ®Bµ¿ | 7 | 16.75 | 4,300 | | 2011 | | 2025.06.02 | Àü¼¼ | »ï¹Ìºô¶ó(877-8)5µ¿ | 2 | 42.31 | 6,510 | 0 | 1989 | | 2025.06.02 | Àü¼¼ | µ¿ÀϺô¶ó(876-2)1µ¿ | 1 | 38.98 | 7,500 | 0 | 1990 | | 2025.06.01 | Àü¼¼ | ±Ý¼º | 4 | 33.38 | 5,000 | 0 | 2002 | | 2025.06.01 | ¸Å¸Å | ¼º¿øºô¶ó | -1 | 38.01 | 4,300 | | 1993 | | 2025.05.31 | ¸Å¸Å | µ¿Àκô¶ó | 2 | 43 | 9,300 | | 1993 | | 2025.05.30 | ¿ù¼¼ | ¼®³ªÇÏÀÌÃ÷ | 4 | 35.15 | 500 | 45 | 2001 | | 2025.05.30 | Àü¼¼ | ±ÝÈ£ºô¶ó | 2 | 30.865 | 3,500 | 0 | 1994 | | 2025.05.30 | Àü¼¼ | »ïȯ±î¹¿(967-2) | 5 | 59.52 | 7,800 | 0 | 1993 | | 2025.05.30 | ¿ù¼¼ | ¼ºÁÖ(894-30)4µ¿ | 2 | 39.67 | 1,200 | 30 | 1991 | | 2025.05.30 | ¸Å¸Å | »ï¹Ìºô¶ó(877-9)6µ¿ | 2 | 42.31 | 6,500 | | 1989 | | 2025.05.30 | ¸Å¸Å | Àμöºô¶ó | 1 | 38.75 | 8,400 | | 1990 | | 2025.05.30 | ¸Å¸Å | ¿ìÁøºô¶ó | 3 | 33.259 | 6,200 | | 1988 | | 2025.05.30 | ¸Å¸Å | ¿ìÁøºô¶ó(877-4)³ªµ¿ | 3 | 38.25 | 8,100 | | 1992 | | 2025.05.29 | ¿ù¼¼ | ÇöÀÏ(5-458) | 3 | 65.07 | 1,000 | 50 | 1996 | | 2025.05.29 | Àü¼¼ | ´ë¿µºô¶ó1µ¿(970-13) | 4 | 45.09 | 7,290 | 0 | 1993 | | 2025.05.29 | ¸Å¸Å | ´ö»êÇÏÀÌÃ÷ºô¶ó | 4 | 37.02 | 10,300 | | 2002 | | 2025.05.29 | ¸Å¸Å | ½ÅÅ¿ìºô¶ó | 3 | 27.05 | 4,550 | | 1993 | | 2025.05.28 | Àü¼¼ | ¿µ½ÅÇÏÀÌÃ÷(946-30) | 2 | 39.6 | 6,500 | 0 | 1990 | | 2025.05.28 | Àü¼¼ | Á¤Àºº£½ºÆ®ºô(855-2) | 2 | 39.91 | 6,100 | 0 | 2002 | | 2025.05.27 | ¸Å¸Å | »ç¶û(49-4)1µ¿ | 3 | 34.56 | 6,500 | | 1993 | | 2025.05.27 | Àü¼¼ | Àε¿¾¾Æ¼ | 3 | 48.54 | 10,760 | 0 | 2012 | | 2025.05.27 | ¿ù¼¼ | õ¿ìºô¶ó(863-9)³ªµ¿ | 2 | 40.805 | 200 | 30 | 1986 | | 2025.05.27 | ¿ù¼¼ | ½Åµ¿¾Æºô¶ó(19µ¿) | -1 | 39.95 | 80 | 35 | 1991 | | 2025.05.27 | ¿ù¼¼ | À¯ÀϽºÅ¸ºô201 | 6 | 52.4086 | 0 | 40 | 2013 | | 2025.05.26 | ¸Å¸Å | ¼Áøºô¶ó(¹Ùµ¿) | -1 | 35.64 | 6,300 | | 1990 | | 2025.05.26 | ¸Å¸Å | ÇùÁøºô¶ó | 1 | 46.42 | 8,000 | | 1995 | | 2025.05.26 | ¸Å¸Å | ¿¤Áö(5-280) | 5 | 34.74 | 10,000 | | 2002 | | 2025.05.26 | Àü¼¼ | ÇÏÀ̺ô¶ó(3µ¿) | 2 | 30.44 | 4,000 | 0 | 1989 | | 2025.05.26 | ¿ù¼¼ | ½Å¸¸¼öŸ¿î(109-379)101µ¿ | 1 | 51.54 | 700 | 44 | 1998 | | 2025.05.26 | ¿ù¼¼ | ½Å¸¸¼öŸ¿î(109-379)101µ¿ | 1 | 51.54 | 700 | 44 | 1998 | | 2025.05.26 | Àü¼¼ | »ïȺô¶ó5Â÷ | 2 | 47.87 | 9,900 | 0 | 2002 | | 2025.05.26 | ¸Å¸Å | ¼®Á¤ºô¶ó(947-12) | 1 | 35.7 | 8,000 | | 1991 | | 2025.05.25 | Àü¼¼ | ¹ÏÀ½ºô¶ó(865-14)5µ¿ | 3 | 39.68 | 6,000 | 0 | 1989 | | 2025.05.25 | Àü¼¼ | Çö´ëºô¶ó(³ªµ¿) | 1 | 39.63 | 6,400 | 0 | 1989 | | 2025.05.25 | ¿ù¼¼ | ûÈÇÏÀ̺ô | 3 | 59.56 | 1,000 | 60 | 2002 | | 2025.05.25 | ¿ù¼¼ | µÎ¼ººô¶ó(³ªµ¿) | -1 | 34.92 | 300 | 20 | 1990 | | 2025.05.25 | ¸Å¸Å | Èѹ̸®ºô¶ó(886-38) | 2 | 35.71 | 8,500 | | 1990 | | 2025.05.24 | Àü¼¼ | ¼º¿øºô¶ó(109-311) | 1 | 31.76 | 4,400 | 0 | 1995 | | 2025.05.23 | ¿ù¼¼ | ´ëµ¿ºô¶ó(Bµ¿) | 3 | 40.86 | 500 | 40 | 1993 | | 2025.05.23 | ¸Å¸Å | ¿¤Áö(5-280) | 5 | 34.74 | 10,000 | | 2002 | | 2025.05.23 | ¸Å¸Å | ¿¬Èñºô¶ó(879-24)Aµ¿ | 2 | 36.21 | 5,500 | | 1990 | | 2025.05.23 | ¿ù¼¼ | ¼ºµµ·Î¾âºô¶ó | 2 | 46.83 | 1,000 | 60 | 1996 | | 2025.05.23 | ¿ù¼¼ | ±×¸°ºô¶ó(°¡µ¿) | 1 | 24.75 | 1,000 | 20 | 1988 | | 2025.05.22 | ¿ù¼¼ | ºÎÈïºô¶ó(5µ¿) | 1 | 36.96 | 300 | 42 | 1989 | | 2025.05.22 | Àü¼¼ | ÇѼָ®Ä¡ºô305µ¿ | 4 | 69.24 | 12,500 | 0 | 2011 | | 2025.05.22 | Àü¼¼ | »ïÈ(950-8) | 2 | 36.28 | 5,700 | 0 | 1988 | | 2025.05.22 | ¿ù¼¼ | ½ÅȺô¶ó(111-437)³ªµ¿ | 1 | 44.52 | 500 | 38 | 1996 | | 2025.05.22 | ¸Å¸Å | ¿¤Áö(5-280) | 3 | 34.74 | 8,600 | | 2002 | | 2025.05.21 | ¿ù¼¼ | »ó¿ì | 1 | 37.84 | 500 | 40 | 1992 | | 2025.05.21 | ¸Å¸Å | µ¿ÀϺô¶ó(1071-6) | 2 | 24.48 | 5,080 | | 1997 | | 2025.05.21 | Àü¼¼ | ¿µÈºô¶ó(´Ùµ¿) | 3 | 39.06 | 3,500 | 0 | 1988 | | 2025.05.20 | ¸Å¸Å | »ïȺô¸®Áö(902-2) | 4 | 37.78 | 7,800 | | 1995 | | 2025.05.19 | Àü¼¼ | ÇѼºÆÒ´õºô¶ó | 3 | 33.13 | 4,200 | 0 | 1992 | | 2025.05.19 | ¸Å¸Å | ³ª¶ûºô¶ó | 3 | 37.77 | 10,500 | | 1994 | | 2025.05.18 | Àü¼¼ | ½Åžçºô¶ó(5µ¿) | 1 | 42.57 | 4,500 | 0 | 1989 | | 2025.05.17 | ¿ù¼¼ | ÇýÀÎ(893-1)Aµ¿ | 3 | 32.58 | 1,000 | 40 | 1988 | | 2025.05.17 | Àü¼¼ | Àº±¤ºô¶ó(974-22)1µ¿ | 1 | 35.67 | 5,500 | 0 | 1989 | | 2025.05.16 | ¸Å¸Å | žŬ·¡½º | 5 | 79.42 | 19,000 | | 2012 | | 2025.05.16 | ¸Å¸Å | °æÀθǼÇŸ¿î(109-363) | 2 | 52.935 | 8,200 | | 1996 | | 2025.05.16 | ¸Å¸Å | ½ºÀ§Æ®ºô | 5 | 38.4 | 12,400 | | 2015 | | 2025.05.16 | ¸Å¸Å | ±Ý¼º(1084-1) | 2 | 50.8 | 10,000 | | 2001 | | 2025.05.15 | ¿ù¼¼ | ¾Æ³²Å¸¿î | 5 | 56.76 | 1,000 | 50 | 2002 | | 2025.05.15 | Àü¼¼ | ±Ý¼ººô¶ó(925-16) | 2 | 40.36 | 5,500 | 0 | 1993 | | 2025.05.15 | Àü¼¼ | Á¤ÀϺô¶ó(971)Aµ¿ | 4 | 39.51 | 6,600 | 0 | 1993 | | 2025.05.15 | Àü¼¼ | ¸¸¼ö¿¬Èñ(951-16)°¡µ¿ | 3 | 33.78 | 3,000 | 0 | 1989 | | 2025.05.15 | ¸Å¸Å | »ï¿À(977-42)Cµ¿ | 3 | 37.91 | 6,500 | | 1990 | | 2025.05.15 | ¸Å¸Å | ³ª»êºô¶ó(852-18)Cµ¿ | 2 | 36.18 | 8,500 | | 1991 | | 2025.05.15 | ¸Å¸Å | ûÈÇÏÀ̺ô | 1 | 59.56 | 13,200 | | 2002 | | 2025.05.14 | ¿ù¼¼ | ¸¸¼ö(950-5)¸¶µ¿ | -1 | 28.47 | 300 | 50 | 1991 | | 2025.05.14 | ¸Å¸Å | °¡¶÷ºô¶ó(883-21) | 3 | 49.87 | 9,900 | | 1991 | | 2025.05.14 | ¿ù¼¼ | ¿À¸²ºô¶ó(°¡µ¿) | 1 | 31.38 | 200 | 38 | 1989 | | 2025.05.14 | Àü¼¼ | ȼº¾ÆÆ®ºô(899-6)2µ¿ | 4 | 59.58 | 9,300 | 0 | 2002 | | 2025.05.14 | Àü¼¼ | »ïÁöÁÖÅÃ(1~2µ¿) | 2 | 50.71 | 8,550 | 0 | 1999 | | 2025.05.14 | Àü¼¼ | »ïÁöºô¶ó(5µ¿) | 2 | 39.67 | 5,000 | 0 | 1990 | | 2025.05.14 | ¿ù¼¼ | û¼Öºô¶ó(³ªµ¿) | 2 | 33.378 | 500 | 40 | 1988 | | 2025.05.14 | ¸Å¸Å | ¿À¼ººô¶ó(868-18)Aµ¿ | 3 | 35.28 | 4,200 | | 1989 | | 2025.05.14 | ¸Å¸Å | »ïÁöºô¶ó(5µ¿) | 2 | 39.67 | 8,000 | | 1990 | | 2025.05.14 | ¸Å¸Å | ¼®Á¤ºô¶ó(947-12) | 2 | 35.7 | 10,000 | | 1991 | | 2025.05.14 | ¸Å¸Å | »ï¿ì¾ÆÆ®ºô¶ó | 1 | 51.85 | 7,800 | | 1996 | | 2025.05.14 | ¸Å¸Å | ÇÑ¿ï¶ó¿Âä3 | 9 | 41.24 | 16,750 | | 2017 | | 2025.05.14 | ¸Å¸Å | ½Åžçºô¶ó(1µ¿) | 3 | 35.31 | 10,000 | | 1989 | | 2025.05.13 | ¿ù¼¼ | ¿ì¼º¿¡À̽ººô¶ó(5µ¿) | 3 | 36.09 | 300 | 35 | 1990 | | 2025.05.13 | Àü¼¼ | ±Ý¼ººô¶ó(925-16) | 3 | 40.36 | 5,500 | 0 | 1993 | | 2025.05.13 | ¸Å¸Å | Å¿ì(857-7)Aµ¿ | 2 | 35.65 | 6,800 | | 1991 | | 2025.05.13 | ¸Å¸Å | »ïÁöºô¶ó(2µ¿) | -1 | 40.61 | 3,500 | | 1990 | | 2025.05.13 | ¸Å¸Å | žçºô¶ó(111-132)Aµ¿ | 3 | 41.86 | 6,700 | | 1996 | | 2025.05.13 | ¸Å¸Å | »ïÁöºô¶ó(2µ¿) | -1 | 40.61 | 3,500 | | 1990 | | 2025.05.12 | ¿ù¼¼ | ¶óÀÌÇÁºô¶ó(892-43)Bµ¿ | 1 | 36.105 | 400 | 42 | 1989 | | 2025.05.12 | Àü¼¼ | ÀÌȺô¶ó(963-16) | 2 | 41.28 | 6,955 | 0 | 1990 | | 2025.05.12 | Àü¼¼ | Àå¹Ìºô¶ó(977-19)¶óµ¿ | 2 | 52.92 | 8,000 | 0 | 1987 | | 2025.05.11 | ¿ù¼¼ | ½ÅȺô¶ó2Â÷(111-105)°¡µ¿ | -1 | 50.46 | 500 | 40 | 1996 | | 2025.05.10 | Àü¼¼ | ÇØÇÇÆ®¸®1,2µ¿ | 5 | 44.72 | 11,300 | 0 | 2011 | | 2025.05.10 | ¿ù¼¼ | ¼º±¤(977-1)1µ¿ | -1 | 42.45 | 500 | 30 | 2000 | | 2025.05.09 | ¿ù¼¼ | ¸¸¼öÁÖ°ø1´ÜÁö(¿¬¸³) | 2 | 46.86 | 1,000 | 50 | 1986 | | 2025.05.08 | ¿ù¼¼ | û³²±×·£µåºôA | 2 | 53.88 | 1,000 | 65 | 2012 | | 2025.05.08 | ¸Å¸Å | »ïº¸(981-12)´Ùµ¿ | -1 | 39.35 | 4,400 | | 1992 | | 2025.05.08 | ¸Å¸Å | »ïº¸(981-12)´Ùµ¿ | -1 | 39.35 | 4,700 | | 1992 | | 2025.05.07 | ¿ù¼¼ | ÇÏÀ̺ô¶ó(5µ¿) | 1 | 36.42 | 500 | 43 | 1989 | | 2025.05.07 | Àü¼¼ | ÁøÁÖºô¶ó(2µ¿) | 1 | 35.695 | 5,500 | 0 | 1988 | | 2025.05.07 | Àü¼¼ | ¹Ì·¡21¾ÆÆ®ºô | 2 | 47.86 | 11,600 | 0 | 2012 | | 2025.05.07 | ¿ù¼¼ | ´ëÈ£ºô¶ó | 3 | 38.97 | 500 | 40 | 1994 | | 2025.05.06 | Àü¼¼ | »ï¹ÌÇϿ콺(844-153)10µ¿ | 2 | 39.95 | 5,000 | 0 | 1990 | | 2025.05.06 | ¿ù¼¼ | Çö´ëºô¶ó(´Ùµ¿)(938-22) | 2 | 36.98 | 300 | 50 | 1993 | | 2025.05.06 | ¸Å¸Å | ÇÑ¿ï¶ó¿Âä3 | 10 | 41.24 | 15,800 | | 2017 | | 2025.05.06 | ¸Å¸Å | ¼ºÁÖ(894-29) | -1 | 39.68 | 2,900 | | 1991 | | 2025.05.04 | ¸Å¸Å | À¯°æÁÖÅÃ(977-16)°¡µ¿ | 2 | 39.82 | 8,400 | | 1993 | | 2025.05.03 | Àü¼¼ | ¸¸¼ö±Ý¼ººô¶ó | 3 | 40.45 | 6,000 | 0 | 1993 | | 2025.05.03 | Àü¼¼ | Çö´ëºô¶ó(³ªµ¿)(938-23) | 3 | 36.98 | 5,500 | 0 | 1991 | | 2025.05.03 | ¸Å¸Å | Á¦´Ï½ººô8Â÷ | 6 | 43.19 | 15,500 | | 2014 | | 2025.05.02 | Àü¼¼ | Á¤¿ìºô¶ó(Bµ¿) | 2 | 35.93 | 5,900 | 0 | 1989 | | 2025.05.02 | Àü¼¼ | ÇýÀÎ(893-2)Bµ¿ | 1 | 32.58 | 10,000 | 0 | 1988 | | 2025.05.02 | ¸Å¸Å | ¿ì¸²ºô¶ó(980-14)7µ¿ | 3 | 36 | 5,500 | | 1990 | | 2025.05.02 | ¸Å¸Å | ¹ÏÀ½ºô¶ó(865-14)5µ¿ | -1 | 32.95 | 4,800 | | 1989 | | 2025.05.02 | ¸Å¸Å | ´ë¸íºô¶ó(841-22) | 3 | 35.91 | 5,000 | | 1991 | | 2025.04.30 | ¸Å¸Å | žçºô¶ó(111-342)Bµ¿ | 3 | 36.17 | 5,700 | | 1996 | | 2025.04.30 | ¸Å¸Å | Áß¼º°ñµåºô¶ó(952-9)8µ¿ | 3 | 51.22 | 9,700 | | 1993 | | 2025.04.30 | ¸Å¸Å | ±ÝÈ£ºô¶ó | 4 | 29.095 | 8,400 | | 1994 | | 2025.04.30 | ¸Å¸Å | ½Å¼¿ïºô¶ó(111-461)2µ¿ | 1 | 44.02 | 6,700 | | 1997 | | 2025.04.30 | ¸Å¸Å | ¸¸¼öSclass1µ¿½ÅÃà°ø»ç | 10 | 43.52 | 19,500 | | 2018 | | 2025.04.30 | Àü¼¼ | º®»ê | 16 | 59.805 | 22,000 | 0 | 2000 | | 2025.04.30 | Àü¼¼ | º®»ê | 16 | 59.805 | 22,000 | 0 | 2000 | | 2025.04.30 | ¿ù¼¼ | ÁÖ°ø11´ÜÁö | 11 | 39.41 | 500 | 60 | 1997 | | 2025.04.30 | ¿ù¼¼ | ÁÖ°ø8´ÜÁö | 8 | 38.64 | 2,000 | 40 | 1990 | | 2025.04.30 | ¸Å¸Å | Àײ¿È¨Å¸¿î(1087-4) | 1 | 57.29 | 12,100 | | 2001 | | 2025.04.29 | ¿ù¼¼ | ¸¸¼ö9´ÜÁö°ø°øÀÓ´ë | 8 | 39.9 | 1,340 | 19 | 1994 | | 2025.04.29 | Àü¼¼ | ¸¸¼öÁÖ°ø2´ÜÁö | 14 | 66.56 | 14,500 | 0 | 1987 | | 2025.04.29 | Àü¼¼ | ¸¸¼öÁÖ°ø4´ÜÁö | 15 | 75.51 | 18,000 | 0 | 1987 | | 2025.04.29 | ¿ù¼¼ | Æ÷·¹½Ã¾È | 14 | 59.68 | 3,000 | 85 | 2011 | | 2025.04.29 | ¸Å¸Å | Á¤¼®ºô¶ó | 4 | 28.85 | 4,200 | | 2002 | | 2025.04.29 | ¸Å¸Å | ·Ôµ¥¸Ç¼Ç(1100-7) | 2 | 49.26 | 12,000 | | 2000 | | 2025.04.29 | ¿ù¼¼ | ÁÖ°ø8´ÜÁö | 1 | 38.64 | 1,000 | 45 | 1990 | | 2025.04.28 | Àü¼¼ | ¸¸¼öÁÖ°ø2´ÜÁö | 15 | 66.56 | 17,000 | 0 | 1987 | | 2025.04.28 | Àü¼¼ | ¸¸¼öÁÖ°ø1´ÜÁö | 4 | 39.72 | 9,000 | 0 | 1986 | | 2025.04.28 | ¸Å¸Å | ⿵±×¸°ºô¶ó(111-32)Dµ¿ | 1 | 36.63 | 5,700 | | 1996 | | 2025.04.28 | Àü¼¼ | ¸¸¼öÁÖ°ø4´ÜÁö | 11 | 64.62 | 17,000 | 0 | 1987 | | 2025.04.28 | Àü¼¼ | ¸¸¼öÁÖ°ø4´ÜÁö | 3 | 64.62 | 16,000 | 0 | 1987 | | 2025.04.28 | Àü¼¼ | »ïȯ2´ÜÁö | 12 | 43.55 | 13,000 | 0 | 1990 | | 2025.04.28 | ¿ù¼¼ | ¸¸¼öÁÖ°ø5´ÜÁö | 10 | 32.39 | 500 | 40 | 1987 | | 2025.04.28 | Àü¼¼ | ¸¸¼öÁÖ°ø5´ÜÁö | 5 | 41.3 | 10,000 | 0 | 1987 | | 2025.04.28 | Àü¼¼ | Çѱ¹ | 11 | 84.23 | 25,000 | 0 | 1992 | | 2025.04.26 | Àü¼¼ | ¸¸¼öÁÖ°ø5´ÜÁö | 14 | 41.3 | 9,000 | 0 | 1987 | | 2025.04.26 | Àü¼¼ | ¸¸¼öÁÖ°ø4´ÜÁö | 9 | 66.38 | 13,000 | 0 | 1987 | | 2025.04.26 | ¿ù¼¼ | ¸¸¼öÁÖ°ø6´ÜÁö | 5 | 47.25 | 1,000 | 37 | 1986 | | 2025.04.26 | Àü¼¼ | ÁÖ°ø11´ÜÁö | 5 | 49.65 | 12,800 | 0 | 1997 | | 2025.04.26 | Àü¼¼ | ¸¸¼öÁÖ°ø5´ÜÁö | 14 | 41.3 | 9,000 | 0 | 1987 | | 2025.04.26 | Àü¼¼ | ¸¸¼öÁÖ°ø5´ÜÁö | 14 | 41.3 | 9,000 | 0 | 1987 | | 2025.04.26 | Àü¼¼ | ¸¸¼öÁÖ°ø4´ÜÁö | 5 | 64.62 | 16,000 | 0 | 1987 | | 2025.04.25 | ¿ù¼¼ | ¸¸¼ö9´ÜÁö°ø°øÀÓ´ë | 6 | 39.9 | 1,340 | 19 | 1994 | | 2025.04.25 | Àü¼¼ | »ïȯ1´ÜÁö | 9 | 50.26 | 15,000 | 0 | 1989 | | 2025.04.25 | ¿ù¼¼ | ¸¸¼öÁÖ°ø3´ÜÁö | 5 | 53.85 | 2,000 | 45 | 1986 | | 2025.04.25 | ¸Å¸Å | û¼Öºô¶ó(³ªµ¿) | 2 | 33.378 | 8,350 | | 1988 | | 2025.04.25 | ¸Å¸Å | ¿À¸²ºô¶ó(°¡µ¿) | 1 | 31.38 | 4,400 | | 1989 | | 2025.04.25 | ¿ù¼¼ | »ï¿ë | 1 | 48 | 1,000 | 55 | 1988 | | 2025.04.25 | ¿ù¼¼ | »ïȯ2´ÜÁö | 4 | 50.26 | 2,000 | 55 | 1990 | | 2025.04.24 | ¿ù¼¼ | ÁøÈï(1036) | 4 | 57.69 | 1,000 | 55 | 1991 | | 2025.04.24 | ¿ù¼¼ | ¸¸¼öÁÖ°ø2´ÜÁö | 1 | 64.62 | 13,000 | 20 | 1987 | | 2025.04.24 | Àü¼¼ | ÁÖ°ø8´ÜÁö | 13 | 44.94 | 11,500 | 0 | 1990 | | 2025.04.24 | Àü¼¼ | ¸¸¼ö´º¼¿ï¾ÆÆÄÆ® | 1 | 34.65 | 8,510 | 0 | 1992 | | 2025.04.24 | Àü¼¼ | ¸¸¼öÁÖ°ø5´ÜÁö | 5 | 32.39 | 6,000 | 0 | 1987 | | 2025.04.23 | ¿ù¼¼ | ÁÖ°ø8´ÜÁö | 14 | 38.64 | 500 | 50 | 1990 | | 2025.04.23 | Àü¼¼ | º®»ê | 22 | 59.805 | 19,000 | 0 | 2000 | | 2025.04.23 | ¿ù¼¼ | ¸¸¼ö´º¼¿ï¾ÆÆÄÆ® | 11 | 34.65 | 1,000 | 45 | 1992 | | 2025.04.23 | ¿ù¼¼ | ¸¸¼ö´º¼¿ï¾ÆÆÄÆ® | 2 | 34.65 | 1,000 | 50 | 1992 | | 2025.04.23 | ¿ù¼¼ | ¸¸¼öÁÖ°ø4´ÜÁö | 4 | 66.38 | 1,000 | 70 | 1987 | | 2025.04.23 | ¿ù¼¼ | ¸¸¼öÁÖ°ø4´ÜÁö | 1 | 64.62 | 2,000 | 65 | 1987 | | 2025.04.23 | Àü¼¼ | ¸¸¼öÁÖ°ø4´ÜÁö | 12 | 54.9 | 14,000 | 0 | 1987 | | 2025.04.23 | Àü¼¼ | ¸¸¼öÁÖ°ø4´ÜÁö | 12 | 64.62 | 13,650 | 0 | 1987 | | 2025.04.23 | ¿ù¼¼ | ¸¸¼öÁÖ°ø2´ÜÁö | 1 | 54.9 | 1,500 | 75 | 1987 | | 2025.04.23 | ¿ù¼¼ | »ïȯ1´ÜÁö | 6 | 43.55 | 1,000 | 50 | 1989 | | 2025.04.23 | Àü¼¼ | ÁÖ°ø8´ÜÁö | 14 | 38.64 | 6,000 | 0 | 1990 | | 2025.04.23 | ¸Å¸Å | ¼¿ïÁÖÅÃ(109-218)2µ¿ | 1 | 42.21 | 6,000 | | 1996 | | 2025.04.23 | ¸Å¸Å | ½ÅȺô¶ó2Â÷(111-105)°¡µ¿ | -1 | 50.46 | 5,000 | | 1996 | | 2025.04.23 | ¸Å¸Å | ¼º±¤ÁÖÅÃ(1078-18) | -1 | 49.98 | 3,700 | | 2001 | | 2025.04.22 | Àü¼¼ | ÁÖ°ø11´ÜÁö | 17 | 84.8 | 20,000 | 0 | 1997 | | 2025.04.22 | ¿ù¼¼ | È¿¼º»ó¾Æ | 12 | 78.1 | 1,000 | 100 | 1990 | | 2025.04.22 | ¸Å¸Å | Èѹ̸®ºô¶ó(886-38) | -1 | 35.71 | 3,700 | | 1990 | | 2025.04.22 | ¸Å¸Å | »ïÁöÁÖÅÃ(1~2µ¿) | 2 | 50.71 | 11,000 | | 1999 | | 2025.04.22 | Àü¼¼ | ¸¸¼öÁÖ°ø6´ÜÁö | 5 | 47.25 | 10,000 | 0 | 1986 | | 2025.04.22 | ¸Å¸Å | »ó¿ìºô¶ó | -1 | 34.32 | 3,600 | | 1993 | | 2025.04.22 | Àü¼¼ | ¸¸¼öÁÖ°ø4´ÜÁö | 13 | 64.62 | 13,100 | 0 | 1987 | | 2025.04.22 | Àü¼¼ | Æ÷·¹½Ã¾È | 4 | 46.89 | 10,489 | 0 | 2011 | | 2025.04.21 | ¿ù¼¼ | ¸¸¼ö9´ÜÁö°ø°øÀÓ´ë | 7 | 39.9 | 1,340 | 19 | 1994 | | 2025.04.21 | ¿ù¼¼ | ´ëµ¿(5-397) | 4 | 56.56 | 1,500 | 40 | 1989 | | 2025.04.21 | ¿ù¼¼ | Æ÷·¹½Ã¾È | 22 | 46.89 | 2,000 | 70 | 2011 | | 2025.04.21 | ¿ù¼¼ | ¸¸¼ö´º¼¿ï¾ÆÆÄÆ® | 15 | 34.65 | 1,000 | 40 | 1992 | | 2025.04.21 | ¿ù¼¼ | ÁøÈï(1036) | 3 | 84.69 | 2,000 | 80 | 1991 | | 2025.04.21 | ¸Å¸Å | »ïº¸(981-12)´Ùµ¿ | -1 | 39.35 | 4,700 | | 1992 | | 2025.04.21 | ¸Å¸Å | °Ç³²ºô¶ó | 2 | 50.7 | 9,000 | | 2000 | | 2025.04.21 | ¸Å¸Å | ¿ùµåÀÌŬ·¡½º | 11 | 43.38 | 18,500 | | 2019 | | 2025.04.20 | ¿ù¼¼ | ¸¸¼öÁÖ°ø2´ÜÁö | 11 | 54.9 | 1,000 | 60 | 1987 | | 2025.04.20 | Àü¼¼ | »ïȯ2´ÜÁö | 14 | 43.55 | 12,000 | 0 | 1990 | | 2025.04.19 | ¿ù¼¼ | ¸¸¼öÁÖ°ø10´ÜÁö | 6 | 49.77 | 2,000 | 55 | 1994 | | 2025.04.19 | Àü¼¼ | ¸¸¼öÁÖ°ø5´ÜÁö | 2 | 49.94 | 12,000 | 0 | 1987 | | 2025.04.19 | Àü¼¼ | ¸¸¼öÁÖ°ø5´ÜÁö | 2 | 49.94 | 12,000 | 0 | 1987 | | 2025.04.19 | Àü¼¼ | ¸¸¼öÁÖ°ø5´ÜÁö | 2 | 49.94 | 12,000 | 0 | 1987 | | 2025.04.19 | Àü¼¼ | ¸¸¼öÁÖ°ø10´ÜÁö | 8 | 49.77 | 15,000 | 0 | 1994 | | 2025.04.19 | Àü¼¼ | ´ã¹æ¸¶À» | 18 | 45.76 | 13,000 | 0 | 1994 | | 2025.04.19 | Àü¼¼ | ¸¸¼öÁÖ°ø4´ÜÁö | 3 | 61.52 | 13,500 | 0 | 1987 | | 2025.04.19 | Àü¼¼ | ¸¸¼öÁÖ°ø2´ÜÁö | 13 | 61.52 | 13,000 | 0 | 1987 | | 2025.04.19 | ¿ù¼¼ | ÇâÃÌÈ޸սþÆ2´ÜÁö | 21 | 39.82 | 6,000 | 30 | 2012 | | 2025.04.19 | Àü¼¼ | ¸¸¼öÁÖ°ø2´ÜÁö | 11 | 64.62 | 16,000 | 0 | 1987 | | 2025.04.19 | Àü¼¼ | Æ÷·¹½Ã¾È | 13 | 46.89 | 16,000 | 0 | 2011 | | 2025.04.18 | ¸Å¸Å | ¿ì¸²ºô¶ó(980-11)3µ¿ | 2 | 42.705 | 7,800 | | 1990 | | 2025.04.18 | Àü¼¼ | ¸¸¼öÁÖ°ø4´ÜÁö | 13 | 66.56 | 15,500 | 0 | 1987 | | 2025.04.18 | Àü¼¼ | ´ã¹æ¸¶À» | 13 | 46.12 | 12,000 | 0 | 1994 | | 2025.04.18 | ¿ù¼¼ | ¸¸¼ö´º¼¿ï¾ÆÆÄÆ® | 9 | 34.65 | 1,000 | 50 | 1992 | | 2025.04.18 | Àü¼¼ | ´ã¹æ¸¶À» | 13 | 46.12 | 12,000 | 0 | 1994 | | 2025.04.17 | Àü¼¼ | ÁÖ°ø11´ÜÁö | 4 | 84.8 | 20,000 | 0 | 1997 | | 2025.04.17 | ¿ù¼¼ | ¸¸¼öÁÖ°ø5´ÜÁö | 1 | 41.3 | 1,000 | 40 | 1987 | | 2025.04.17 | ¸Å¸Å | ¼Û¿ø(2-52)7µ¿ | 4 | 39.325 | 7,000 | | 1991 | | 2025.04.17 | Àü¼¼ | Æ÷·¹½Ã¾È | 21 | 84.35 | 30,000 | 0 | 2011 | | 2025.04.17 | Àü¼¼ | ¸¸¼öÁÖ°ø2´ÜÁö | 9 | 61.52 | 14,000 | 0 | 1987 | | 2025.04.17 | Àü¼¼ | ¸¸¼öÁÖ°ø4´ÜÁö | 13 | 75.24 | 12,600 | 0 | 1987 | | 2025.04.17 | Àü¼¼ | ¾ÆÁÖ(5-3) | 3 | 50.52 | 8,000 | 0 | 1988 | | 2025.04.17 | Àü¼¼ | ¾ÆÁÖ(5-3) | 6 | 50.52 | 8,000 | 0 | 1988 | | 2025.04.17 | ¿ù¼¼ | ÁÖ°ø11´ÜÁö | 15 | 49.65 | 1,000 | 52 | 1997 | | 2025.04.17 | ¸Å¸Å | ±Ý¼ººô¶ó(931-2) | 2 | 37.29 | 6,900 | | 1994 | | 2025.04.17 | ¿ù¼¼ | ¸¸¼öÁÖ°ø6´ÜÁö | 2 | 38.52 | 1,000 | 45 | 1986 | | 2025.04.16 | ¸Å¸Å | Àμöºô¶ó | 1 | 38.75 | 5,300 | | 1990 | | 2025.04.16 | ¸Å¸Å | ´ë¿µºô¶ó1µ¿(970-13) | 4 | 45.09 | 7,200 | | 1993 | | 2025.04.16 | Àü¼¼ | »ïȯ1´ÜÁö | 10 | 50.26 | 15,000 | 0 | 1989 | | 2025.04.16 | Àü¼¼ | È¿¼º»ó¾Æ | 5 | 84.725 | 23,500 | 0 | 1985 | | 2025.04.16 | Àü¼¼ | ¾ÆÁÖ(5-3) | 4 | 50.52 | 10,500 | 0 | 1988 | | 2025.04.16 | ¿ù¼¼ | ¸¸¼ö´º¼¿ï¾ÆÆÄÆ® | 5 | 34.65 | 500 | 50 | 1992 | | 2025.04.16 | ¿ù¼¼ | ¸¸¼ö´º¼¿ï¾ÆÆÄÆ® | 12 | 34.65 | 1,000 | 50 | 1992 | | 2025.04.16 | Àü¼¼ | ¸¸¼öÁÖ°ø3´ÜÁö | 4 | 61.77 | 15,000 | 0 | 1986 | | 2025.04.15 | Àü¼¼ | ÁÖ°ø11´ÜÁö | 1 | 49.65 | 13,000 | 0 | 1997 | | 2025.04.15 | ¿ù¼¼ | ÁøÈï(1036) | 4 | 57.69 | 2,000 | 50 | 1991 | | 2025.04.15 | ¿ù¼¼ | ¸¸¼öÁÖ°ø4´ÜÁö | 6 | 54.9 | 2,000 | 50 | 1987 | | 2025.04.15 | ¿ù¼¼ | ¸¸¼ö´º¼¿ï¾ÆÆÄÆ® | 4 | 34.65 | 500 | 55 | 1992 | | 2025.04.15 | ¸Å¸Å | ´ëÀÎÇÏÀÌÃ÷ºô¶ó | 3 | 45.02 | 5,400 | | 1994 | | 2025.04.15 | ¿ù¼¼ | ¸¸¼öÁÖ°ø4´ÜÁö | 14 | 64.62 | 1,000 | 80 | 1987 | | 2025.04.15 | ¸Å¸Å | »ï¹ÌÇϿ콺(844-153)10µ¿ | 2 | 39.95 | 10,500 | | 1990 | | 2025.04.15 | ¸Å¸Å | ¿µÁ¾ºô¶ó(Bµ¿) | 1 | 29.97 | 6,300 | | 1993 | | 2025.04.14 | Àü¼¼ | ¸¸¼öÁÖ°ø2´ÜÁö | 7 | 54.9 | 14,700 | 0 | 1987 | | 2025.04.14 | Àü¼¼ | ±¤¸í¾ÆÆÄÆ® | 3 | 74.68 | 17,325 | 0 | 1991 | | 2025.04.14 | Àü¼¼ | ´ëµ¿(5-397) | 1 | 59.83 | 9,000 | 0 | 1989 | | 2025.04.14 | Àü¼¼ | ´ë¼ºÀ¯´Ïµåº°ºû¸¶À» | 13 | 84.3496 | 22,000 | 0 | 2006 | | 2025.04.14 | Àü¼¼ | ´ëµ¿(5-397) | 1 | 59.83 | 9,000 | 0 | 1989 | | 2025.04.14 | ¿ù¼¼ | ¸¸¼ö´º¼¿ï¾ÆÆÄÆ® | 14 | 34.65 | 2,000 | 37 | 1992 | | 2025.04.13 | ¿ù¼¼ | ½Åµ¿¾Æ | 1 | 74.92 | 2,000 | 65 | 1990 | | 2025.04.12 | Àü¼¼ | Æ÷·¹½Ã¾È | 5 | 84.93 | 27,250 | 0 | 2011 | | 2025.04.12 | ¿ù¼¼ | ´ëµ¿(5-328) | 4 | 39.33 | 500 | 40 | 1987 | | 2025.04.12 | Àü¼¼ | ¸¸¼öÁÖ°ø4´ÜÁö | 3 | 64.62 | 15,000 | 0 | 1987 | | 2025.04.12 | ¸Å¸Å | ±ÝÈ£ºô¶ó | 3 | 30.865 | 8,400 | | 1994 | | 2025.04.12 | ¿ù¼¼ | º®»ê | 1 | 59.805 | 3,000 | 70 | 2000 | | 2025.04.12 | Àü¼¼ | ¸¸¼öÁÖ°ø1´ÜÁö | 4 | 39.72 | 11,000 | 0 | 1986 | | 2025.04.11 | ¿ù¼¼ | ÁÖ°ø8´ÜÁö | 9 | 44.94 | 1,000 | 52 | 1989 | | 2025.04.11 | Àü¼¼ | ÁøÈï(1036) | 6 | 84.69 | 20,000 | 0 | 1991 | | 2025.04.11 | Àü¼¼ | »ïȯ2´ÜÁö | 14 | 43.55 | 11,000 | 0 | 1990 | | 2025.04.11 | Àü¼¼ | »ïȯ2´ÜÁö | 10 | 68.38 | 22,000 | 0 | 1990 | | 2025.04.11 | ¿ù¼¼ | ¹Ì¸² | 5 | 47.34 | 500 | 40 | 1988 | | 2025.04.11 | Àü¼¼ | Æ÷·¹½Ã¾È | 5 | 84.95 | 30,000 | 0 | 2011 | | 2025.04.11 | Àü¼¼ | ¸¸¼öÁÖ°ø4´ÜÁö | 7 | 75.24 | 17,000 | 0 | 1987 | | 2025.04.11 | Àü¼¼ | ¸¸¼öÁÖ°ø4´ÜÁö | 7 | 75.24 | 17,000 | 0 | 1987 | | 2025.04.11 | ¿ù¼¼ | ÁÖ°ø11´ÜÁö | 7 | 49.65 | 1,500 | 55 | 1997 | | 2025.04.11 | ¸Å¸Å | ´Ùä¿ò | 3 | 47.51 | 11,500 | | 2011 | | 2025.04.11 | ¸Å¸Å | ¿ì¹Ìºô¶ó(963-19)Bµ¿ | 2 | 39.96 | 7,850 | | 1993 | | 2025.04.10 | Àü¼¼ | ¸¸¼öÁÖ°ø2´ÜÁö | 3 | 61.52 | 15,000 | 0 | 1987 | | 2025.04.10 | ¿ù¼¼ | ¾ÆÁÖ(5-320) | 1 | 41.82 | 500 | 50 | 1986 | | 2025.04.10 | ¿ù¼¼ | ¿µÇ³(849) | 17 | 59.86 | 2,000 | 75 | 1998 | | 2025.04.10 | Àü¼¼ | »ïȯ1´ÜÁö | 2 | 59.05 | 12,000 | 0 | 1989 | | 2025.04.10 | ¿ù¼¼ | Æ÷·¹½Ã¾È | 9 | 59.76 | 3,000 | 90 | 2011 | | 2025.04.10 | ¿ù¼¼ | ¸¸¼öÁÖ°ø2´ÜÁö | 8 | 61.52 | 2,000 | 55 | 1987 | | 2025.04.09 | ¿ù¼¼ | È¿¼º»ó¾Æ | 12 | 60.33 | 2,000 | 60 | 1985 | | 2025.04.09 | ¿ù¼¼ | °øÀÛ¾ÆÆÄÆ® | 6 | 50.02 | 1,000 | 47 | 1988 | | 2025.04.09 | ¿ù¼¼ | ÁÖ°ø8´ÜÁö | 15 | 38.64 | 1,000 | 50 | 1990 | | 2025.04.09 | Àü¼¼ | ÁÖ°ø8´ÜÁö | 3 | 38.64 | 10,000 | 0 | 1990 | | 2025.04.09 | ¸Å¸Å | Àμöºô¶ó(855-24)³ªµ¿ | 4 | 39.92 | 6,000 | | 1995 | | 2025.04.09 | Àü¼¼ | ÁÖ°ø8´ÜÁö | 3 | 38.64 | 10,000 | 0 | 1990 | | 2025.04.08 | ¸Å¸Å | ¼ºÈºô¶ó(Aµ¿) | -1 | 54.87 | 8,800 | | 1989 | | 2025.04.08 | ¿ù¼¼ | ¸¸¼öÁÖ°ø4´ÜÁö | 11 | 61.52 | 1,500 | 60 | 1987 | | 2025.04.08 | ¿ù¼¼ | ¸¸¼öÁÖ°ø4´ÜÁö | 11 | 61.52 | 1,500 | 60 | 1987 | | 2025.04.08 | ¿ù¼¼ | »ïȯ1´ÜÁö | 4 | 50.26 | 2,000 | 60 | 1989 | | 2025.04.08 | ¿ù¼¼ | ¸¸¼ö´º¼¿ï¾ÆÆÄÆ® | 9 | 34.65 | 500 | 44 | 1992 | | 2025.04.08 | ¿ù¼¼ | ¾ÆÁÖ(5-318) | 3 | 43.83 | 1,000 | 45 | 1988 | | 2025.04.07 | Àü¼¼ | ½ÅÇÑ | 6 | 41.215 | 4,500 | 0 | 1988 | | 2025.04.07 | ¿ù¼¼ | »ïȯ2´ÜÁö | 8 | 50.26 | 2,000 | 60 | 1990 | | 2025.04.07 | ¸Å¸Å | ÈÆòÀü¿øºô¶ó(111-29)Cµ¿ | 4 | 35.75 | 7,000 | | 1995 | | 2025.04.07 | Àü¼¼ | »ïȯ2´ÜÁö | 3 | 59.05 | 15,000 | 0 | 1990 | | 2025.04.07 | ¿ù¼¼ | »ïȯ2´ÜÁö | 8 | 50.26 | 2,000 | 60 | 1990 | | 2025.04.06 | Àü¼¼ | ÁÖ°ø8´ÜÁö | 12 | 38.64 | 9,500 | 0 | 1990 | | 2025.04.05 | Àü¼¼ | °øÀÛ(3-73) | 3 | 56.67 | 9,000 | 0 | 1989 | | 2025.04.05 | ¿ù¼¼ | ¸¸¼ö´º¼¿ï¾ÆÆÄÆ® | 7 | 34.65 | 1,000 | 50 | 1992 | | 2025.04.05 | ¿ù¼¼ | ¸¸¼ö´º¼¿ï¾ÆÆÄÆ® | 7 | 34.65 | 1,000 | 50 | 1992 | | 2025.04.05 | ¿ù¼¼ | »ïȯ2´ÜÁö | 13 | 50.26 | 2,000 | 65 | 1990 | | 2025.04.05 | Àü¼¼ | ÁÖ°ø8´ÜÁö | 8 | 38.64 | 10,000 | 0 | 1990 | | 2025.04.05 | Àü¼¼ | °øÀÛ(3-73) | 3 | 56.67 | 9,000 | 0 | 1989 | | 2025.04.05 | ¿ù¼¼ | ¸¸¼öÁÖ°ø2´ÜÁö | 15 | 64.62 | 2,000 | 70 | 1987 | | 2025.04.05 | Àü¼¼ | °øÀÛ(3-73) | 3 | 56.67 | 9,000 | 0 | 1989 | | 2025.04.05 | Àü¼¼ | ¸¸¼ö´º¼¿ï¾ÆÆÄÆ® | 12 | 34.65 | 9,000 | 0 | 1992 | | 2025.04.05 | Àü¼¼ | ¸¸¼öÁÖ°ø4´ÜÁö | 2 | 75.24 | 20,000 | 0 | 1987 | | 2025.04.05 | Àü¼¼ | ¸¸¼öÁÖ°ø2´ÜÁö | 1 | 61.52 | 12,000 | 0 | 1987 | | 2025.04.05 | ¿ù¼¼ | ¸¸¼öÁÖ°ø4´ÜÁö | 3 | 66.56 | 2,000 | 65 | 1987 | | 2025.04.05 | ¿ù¼¼ | ¸¸¼öÁÖ°ø4´ÜÁö | 3 | 66.56 | 2,000 | 65 | 1987 | | 2025.04.04 | ¿ù¼¼ | ¸¸¼ö´º¼¿ï¾ÆÆÄÆ® | 6 | 34.65 | 500 | 50 | 1992 | | 2025.04.04 | Àü¼¼ | Æ÷·¹½Ã¾È | 2 | 59.71 | 27,000 | 0 | 2011 | | 2025.04.04 | Àü¼¼ | Æ÷·¹½Ã¾È | 8 | 59.76 | 24,000 | 0 | 2011 | | 2025.04.04 | Àü¼¼ | ´ëµ¿(5-328) | 6 | 39.33 | 5,500 | 0 | 1987 | | 2025.04.04 | ¸Å¸Å | Àå¹Ìºô¶ó(977-4)3µ¿ | 3 | 32.94 | 8,400 | | 1989 | | 2025.04.04 | ¿ù¼¼ | ¸¸¼ö´º¼¿ï¾ÆÆÄÆ® | 14 | 34.65 | 1,000 | 50 | 1992 | | 2025.04.04 | Àü¼¼ | ¸¸¼ö´º¼¿ï¾ÆÆÄÆ® | 12 | 34.65 | 9,000 | 0 | 1992 | | 2025.04.04 | ¿ù¼¼ | ´ã¹æ¸¶À» | 14 | 45.76 | 1,000 | 55 | 1994 | | 2025.04.03 | Àü¼¼ | ´ã¹æ¸¶À» | 13 | 49.92 | 13,000 | 0 | 1994 | | 2025.04.03 | ¸Å¸Å | ±×¸°³ª·¡ | 5 | 41.59 | 16,000 | | 2017 | | 2025.04.03 | ¸Å¸Å | »ïº¸ºô¶ó(³ªµ¿) | 2 | 35.27 | 7,700 | | 1990 | | 2025.04.03 | Àü¼¼ | »ïÀͼ¼¶ó¹Í | 16 | 132.81 | 27,000 | 0 | 1992 | | 2025.04.03 | ¿ù¼¼ | ³²µ¿¾ÆÆÄÆ® | 1 | 60 | 2,000 | 65 | 1992 | | 2025.04.03 | Àü¼¼ | ¸¸¼öÁÖ°ø2´ÜÁö | 13 | 54.9 | 14,000 | 0 | 1987 | | 2025.04.03 | Àü¼¼ | ¸¸¼ö´º¼¿ï¾ÆÆÄÆ® | 9 | 34.65 | 9,000 | 0 | 1992 | | 2025.04.02 | ¿ù¼¼ | ¸¸¼ö´º¼¿ï¾ÆÆÄÆ® | 10 | 34.65 | 1,000 | 42 | 1992 | | 2025.04.02 | ¿ù¼¼ | ÇϿ콺Å丮¸¸¼ö | 16 | 59.9769 | 2,000 | 100 | 2020 | | 2025.04.02 | ¿ù¼¼ | ÁÖ°ø8´ÜÁö | 4 | 38.64 | 2,000 | 40 | 1989 | | 2025.04.02 | ¸Å¸Å | ½Å±¤ºô¶ó(852-15) | 4 | 43.2 | 10,000 | | 1993 | | 2025.04.02 | ¸Å¸Å | »ï¹ÌÇϿ콺(844-150)4µ¿ | 3 | 37.89 | 9,000 | | 1990 | | 2025.04.02 | Àü¼¼ | ÁÖ°ø8´ÜÁö | 7 | 44.94 | 11,400 | 0 | 1990 | | 2025.04.02 | Àü¼¼ | ¾ÆÁÖ(5-318) | 4 | 43.83 | 9,900 | 0 | 1988 | | 2025.04.02 | Àü¼¼ | ¾ÆÁÖ(5-318) | 4 | 43.83 | 9,900 | 0 | 1988 | | 2025.04.02 | ¸Å¸Å | »ï¹ÌÇϿ콺(844-160)15µ¿ | -1 | 33.97 | 6,500 | | 1990 | | 2025.04.02 | ¸Å¸Å | »ó¿ìÁÖÅà | 3 | 42.78 | 8,500 | | 1993 | | 2025.04.02 | ¸Å¸Å | ½Å±¤ºô¶ó(1µ¿,2µ¿) | 2 | 43.2 | 10,000 | | 1993 | | 2025.04.01 | ¿ù¼¼ | ´ëµ¿(5-397) | 4 | 46.74 | 500 | 40 | 1989 | | 2025.04.01 | Àü¼¼ | ¸¸¼öÁÖ°ø4´ÜÁö | 13 | 54.9 | 14,000 | 0 | 1987 | | 2025.04.01 | ¿ù¼¼ | ¸¸¼ö´º¼¿ï¾ÆÆÄÆ® | 15 | 34.65 | 1,000 | 45 | 1992 | | 2025.04.01 | ¿ù¼¼ | ¸¸¼ö´º¼¿ï¾ÆÆÄÆ® | 12 | 34.65 | 500 | 45 | 1992 | | 2025.04.01 | ¿ù¼¼ | ¸¸¼ö´º¼¿ï¾ÆÆÄÆ® | 8 | 34.65 | 500 | 50 | 1992 | | 2025.04.01 | Àü¼¼ | ¼º½Å(5-373¿Ü) | 3 | 49.2 | 6,000 | 0 | 1987 | | 2025.04.01 | ¸Å¸Å | ȼººô¶ó | 1 | 42.54 | 8,000 | | 1988 | | 2025.04.01 | Àü¼¼ | ¸¸¼öÁÖ°ø4´ÜÁö | 13 | 54.9 | 14,000 | 0 | 1987 | | 2025.02.28 | Àü¼¼ | ¿µÈºô¶ó(¸¶µ¿) | 2 | 37.74 | 6,000 | 0 | 1988 | | 2025.02.28 | ¸Å¸Å | ³ª»êºô¶ó(852-23)Dµ¿ | 2 | 36.58 | 6,500 | | 1992 | | 2025.02.28 | ¿ù¼¼ | û¼Ûºô¶ó | 2 | 54.72 | 3,000 | 40 | 1995 | | 2025.02.28 | ¿ù¼¼ | À¯ÀϽºÅ¸ºô201 | 4 | 52.4086 | 2,000 | 60 | 2013 | | 2025.02.28 | ¸Å¸Å | ÈÀκô¸®Áö | 2 | 70.92 | 38,500 | | 2024 | | 2025.02.28 | ¸Å¸Å | ÇѾç(2-40)10µ¿ | 2 | 40.85 | 7,000 | | 1990 | | 2025.02.27 | ¿ù¼¼ | ¿µÁøºô¶ó(Aµ¿) | 2 | 34.8 | 300 | 40 | 1993 | | 2025.02.27 | Àü¼¼ | ¼¼Á¾ÄܼƮºô(103µ¿) | 3 | 58.17 | 10,000 | 0 | 2001 | | 2025.02.27 | ¸Å¸Å | žŬ·¡½º | 2 | 59.94 | 14,200 | | 2012 | | 2025.02.26 | ¸Å¸Å | »ïº¸ºô¶ó(5µ¿) | 1 | 38.93 | 9,000 | | 1991 | | 2025.02.26 | Àü¼¼ | »ï¹ÌÇϿ콺(844-151)5µ¿ | 2 | 36.88 | 5,000 | 0 | 1990 | | 2025.02.26 | ¸Å¸Å | ¿ì¼ººô¶ó(10µ¿) | -1 | 44.25 | 5,000 | | 1991 | | 2025.02.25 | ¸Å¸Å | Á¤¿ø(894-4)³ªµ¿ | -1 | 32.98 | 2,000 | | 1989 | | 2025.02.25 | Àü¼¼ | ¹Ì¸²(893-9)7µ¿ | 1 | 37.49 | 5,000 | 0 | 1986 | | 2025.02.25 | Àü¼¼ | ¸¸¼öÁÖ°ø1´ÜÁö(¿¬¸³) | 1 | 46.79 | 10,000 | 0 | 1986 | | 2025.02.24 | ¸Å¸Å | ´ë¸íºô¶ó(841-23) | -1 | 35.91 | 3,045 | | 1991 | | 2025.02.24 | Àü¼¼ | °øÀͰñµåŸ¿ö(952-6) | 2 | 51.49 | 7,600 | 0 | 1993 | | 2025.02.23 | ¸Å¸Å | ´ë¸²ºô¶ó(1µ¿) | -1 | 39.72 | 5,000 | | 1993 | | 2025.02.22 | Àü¼¼ | Áß¼º°ñµçŸ¿î(952-10)9µ¿ | 3 | 53.84 | 10,000 | 0 | 1993 | | 2025.02.22 | ¿ù¼¼ | µ¿³²ÇÏÀ̺ô¶ó(887-26)2µ¿ | 1 | 36.51 | 500 | 40 | 1990 | | 2025.02.21 | ¿ù¼¼ | È«¼öºô¶ó | 4 | 39.21 | 500 | 35 | 1993 | | 2025.02.21 | ¿ù¼¼ | ´ÃǪ¸¥È¨Å¸¿î | 3 | 40.76 | 1,000 | 43 | 2001 | | 2025.02.21 | ¿ù¼¼ | ´ÃǪ¸¥È¨Å¸¿î | 3 | 40.76 | 1,000 | 43 | 2001 | | 2025.02.21 | Àü¼¼ | »ïÁöºô¶ó(4µ¿) | 3 | 40.61 | 5,500 | 0 | 1989 | | 2025.02.21 | Àü¼¼ | ³²±¤´Ù¼¼´ëÁÖÅÃ(Cµ¿) | 2 | 32.82 | 5,300 | 0 | 1988 | | 2025.02.21 | Àü¼¼ | Á¤ÀϺô¶ó(971-13)Dµ¿ | 3 | 39.72 | 7,000 | 0 | 1993 | | 2025.02.21 | ¸Å¸Å | ⿵±×¸°ºô¶ó(111-32)Dµ¿ | 1 | 36.63 | 5,800 | | 1996 | | 2025.02.21 | Àü¼¼ | Á¤ÀϺô¶ó(971-13)Dµ¿ | 3 | 39.72 | 7,000 | 0 | 1993 | | 2025.02.21 | ¸Å¸Å | Ãʷϸ¶À»Aµ¿(1097-2) | 2 | 34.56 | 7,000 | | 2001 | | 2025.02.21 | Àü¼¼ | µ¿±¤ºô¶ó(977-13) | 2 | 37.63 | 6,300 | 0 | 1994 | | 2025.02.21 | ¿ù¼¼ | ÀÌÈ»ç¶ûä | 3 | 66.9339 | 1,000 | 80 | 2019 | | 2025.02.20 | Àü¼¼ | ¿ì¼ººô¶ó(6µ¿) | 3 | 39.15 | 6,100 | 0 | 1992 | | 2025.02.20 | Àü¼¼ | Áø¾çºô¶ó(890-48)Bµ¿ | 4 | 37.99 | 6,000 | 0 | 1992 | | 2025.02.20 | Àü¼¼ | ¿ì¼ººô¶ó(6µ¿) | 3 | 39.15 | 6,200 | 0 | 1992 | | 2025.02.20 | Àü¼¼ | ÁøÁÖºô¶ó(3µ¿) | 2 | 35.695 | 5,000 | 0 | 1988 | | 2025.02.19 | Àü¼¼ | Àå¹Ìºô¶ó(1µ¿) | 1 | 35 | 4,000 | 0 | 1988 | | 2025.02.19 | ¿ù¼¼ | ´ë¾çºô¶ó | 1 | 42.09 | 400 | 35 | 1986 | | 2025.02.19 | ¸Å¸Å | Á¤¿ø(894-6)¶óµ¿ | -1 | 36.12 | 2,800 | | 1989 | | 2025.02.19 | ¿ù¼¼ | ´ë±¤ºô¶ó(892-39) | 3 | 36.52 | 500 | 35 | 1991 | | 2025.02.19 | ¿ù¼¼ | ¿À¼ººô¶ó(868-18)Aµ¿ | 3 | 35.28 | 500 | 40 | 1989 | | 2025.02.18 | ¿ù¼¼ | »ï¿ì(977-36)³ªµ¿ | 1 | 34.2 | 300 | 33 | 1988 | | 2025.02.17 | ¸Å¸Å | â´ë¾ÆÆ®ºô(1078-10) | 5 | 59.75 | 13,000 | | 1997 | | 2025.02.17 | Àü¼¼ | ÀÌȺô¶ó(963-13) | -1 | 35.325 | 3,600 | 0 | 1990 | | 2025.02.17 | Àü¼¼ | °¡¿Âºô¸®Áö | 5 | 47.79 | 9,500 | 0 | 2011 | | 2025.02.17 | Àü¼¼ | ¿ìÁø¸Ç¼Ç | 4 | 44 | 6,900 | 0 | 2002 | | 2025.02.17 | ¸Å¸Å | û±¸ºô¶ó | 1 | 28.03 | 5,000 | | 1996 | | 2025.02.17 | ¸Å¸Å | ¼º»êºô¶ó(855-22)2µ¿ | 2 | 39.93 | 6,200 | | 1994 | | 2025.02.16 | ¿ù¼¼ | ¼º¿øºô¶ó(842-6)Cµ¿ | 3 | 43.36 | 1,000 | 40 | 2002 | | 2025.02.16 | ¿ù¼¼ | ´ë¸íºô¶ó(841-26) | 1 | 36.39 | 500 | 30 | 1991 | | 2025.02.15 | ¸Å¸Å | ½Åµ¿¾Æºô¶ó(12µ¿) | 2 | 37.5 | 10,000 | | 1990 | | 2025.02.15 | ¸Å¸Å | žŬ·¡½º | 3 | 68.46 | 17,200 | | 2012 | | 2025.02.15 | ¸Å¸Å | °ø¸íºô¶ó | 2 | 29.58 | 8,000 | | 1993 | | 2025.02.15 | ¸Å¸Å | ´ë¼ººô¶ó5Â÷(³ªµ¿) | 3 | 35.16 | 8,700 | | 1989 | | 2025.02.15 | ¸Å¸Å | ¼Û¿ø(6-27)1µ¿ | 2 | 35.67 | 7,800 | | 1991 | | 2025.02.15 | ¿ù¼¼ | ÁÖ°ø3(46-0) | 3 | 55.48 | 3,000 | 75 | 1986 | | 2025.02.15 | Àü¼¼ | °³²(5-491)103µ¿ | 4 | 37.15 | 6,100 | 0 | 2002 | | 2025.02.15 | ¿ù¼¼ | ÇÏ¿ì¡¾ÆÆ®ºô(889-16)2µ¿ | 4 | 58.68 | 1,000 | 65 | 2003 | | 2025.02.15 | ¿ù¼¼ | »ïÇü(895-58)³ªµ¿ | 1 | 35.43 | 1,000 | 30 | 1990 | | 2025.02.15 | Àü¼¼ | Á¤¿ìºô¶óAµ¿ | 2 | 35.93 | 5,500 | 0 | 1989 | | 2025.02.15 | ¿ù¼¼ | »ó¿ìºô¶ó | 3 | 40.3 | 500 | 40 | 1993 | | 2025.02.15 | ¿ù¼¼ | µ¿È£ºô¶ó(³ªµ¿) | 1 | 47.32 | 800 | 35 | 1987 | | 2025.02.14 | Àü¼¼ | À¯ÀϽºÅ¸ºô(936-3) | 2 | 37.69 | 9,400 | 0 | 2011 | | 2025.02.14 | ¸Å¸Å | À¯ÀϺô¶ó(Bµ¿) | 1 | 39.36 | 8,000 | | 1988 | | 2025.02.13 | Àü¼¼ | ÈÆòÀü¿øºô¶ó(111-29)Cµ¿ | 2 | 35.75 | 2,615 | 0 | 1995 | | 2025.02.13 | ¿ù¼¼ | »ïº¸(981-11)³ªµ¿ | -1 | 42.86 | 300 | 45 | 1991 | | 2025.02.13 | ¸Å¸Å | ÀÌÈ»ç¶ûä | 3 | 66.9339 | 18,700 | | 2019 | | 2025.02.13 | ¿ù¼¼ | »ïº¸(981-11)³ªµ¿ | -1 | 42.86 | 300 | 45 | 1991 | | 2025.02.12 | Àü¼¼ | Àå¹Ìºô¶ó(977-19)¶óµ¿ | -1 | 57.24 | 4,500 | 0 | 1987 | | 2025.02.12 | Àü¼¼ | ¼º±¤(977-1)1µ¿ | 2 | 17.82 | 3,500 | 0 | 2000 | | 2025.02.11 | ¸Å¸Å | Áø¼Öºô¶ó | 3 | 48.86 | 9,900 | | 2001 | | 2025.02.11 | ¸Å¸Å | »ï¹ÌÇϿ콺(844-151)5µ¿ | -1 | 36.63 | 7,000 | | 1990 | | 2025.02.11 | ¿ù¼¼ | ¹Ð·¹´Ï¿ò | 4 | 49.7593 | 2,000 | 70 | 2015 | | 2025.02.11 | ¿ù¼¼ | ¼®¿ø¸Ç¼Ç(970-15) | 1 | 45.67 | 500 | 57 | 2001 | | 2025.02.11 | Àü¼¼ | ÈïÀÏ(961-12)12µ¿ | 1 | 39.07 | 6,400 | 0 | 1990 | | 2025.02.11 | Àü¼¼ | ÈïÀÏ(961-12)12µ¿ | 1 | 39.07 | 6,400 | 0 | 1990 | | 2025.02.11 | Àü¼¼ | »ï¿ì¾ÆÆ®ºô¶ó | 4 | 51.85 | 7,520 | 0 | 1996 | | 2025.02.11 | Àü¼¼ | ¸¸¼öÁÖ°ø1´ÜÁö(¿¬¸³) | 3 | 46.79 | 11,000 | 0 | 1986 | | 2025.02.11 | ¸Å¸Å | ¼öÆÓ¸®½º | 4 | 43.03 | 16,200 | | 2016 | | 2025.02.10 | ¸Å¸Å | ûÈÇÏÀ̺ô | 1 | 59.56 | 11,000 | | 2002 | | 2025.02.10 | ¸Å¸Å | ´ë»êºô¶ó(111-318)3µ¿ | 1 | 36.63 | 4,500 | | 1990 | | 2025.02.10 | Àü¼¼ | »ïº¸¸Ç¼Ç(969-11)³ªµ¿ | 2 | 44.46 | 7,800 | 0 | 2001 | | 2025.02.10 | Àü¼¼ | Á¤±¤ºô¶ó | 4 | 41.215 | 5,690 | 0 | 1995 | | 2025.02.10 | ¿ù¼¼ | °Å»êºô¶ó | 3 | 48.39 | 200 | 20 | 1996 | | 2025.02.08 | ¸Å¸Å | ½Å±¤ºô¶ó(1µ¿,2µ¿) | 2 | 43.2 | 9,800 | | 1993 | | 2025.02.08 | ¸Å¸Å | ÁøÁÖºô¶ó(7µ¿) | 3 | 33.52 | 4,200 | | 1988 | | 2025.02.08 | Àü¼¼ | ¿¹ÁÖºô¶ó(Aµ¿) | 2 | 36.66 | 6,400 | 0 | 1989 | | 2025.02.08 | Àü¼¼ | ÇùÁøºô¶ó | 3 | 46.42 | 6,300 | 0 | 1995 | | 2025.02.07 | ¸Å¸Å | »ï¼º(969-7)³ªµ¿ | -1 | 37.89 | 3,800 | | 1991 | | 2025.02.07 | ¿ù¼¼ | Å¿õºô¶ó(955-13)³ªµ¿ | -1 | 33.12 | 300 | 35 | 1993 | | 2025.02.07 | ¸Å¸Å | ÇØÇÇÇϿ콺 | 5 | 56.36 | 15,000 | | 2010 | | 2025.02.06 | Àü¼¼ | ½ÅȺô¶ó(111-224)Bµ¿ | 1 | 48.6 | 6,900 | 0 | 1995 | | 2025.02.06 | ¿ù¼¼ | µ¿¿ì¾ÆÆ®ºô(3µ¿) | -1 | 55.15 | 500 | 40 | 2000 | | 2025.02.06 | Àü¼¼ | ¿ì¼ººô¶ó(2µ¿) | 4 | 38.38 | 5,600 | 0 | 1993 | | 2025.02.06 | ¸Å¸Å | Á¤ÀϺô¶ó(971-11)Bµ¿ | 1 | 39.24 | 6,700 | | 1993 | | 2025.02.06 | ¸Å¸Å | ³²±¤´Ù¼¼´ëÁÖÅÃ(Aµ¿) | -1 | 32.82 | 4,500 | | 1988 | | 2025.02.06 | ¸Å¸Å | »ï¹ÌÇϿ콺(844-158)13µ¿ | 3 | 37.89 | 9,000 | | 1990 | | 2025.02.06 | ¸Å¸Å | »ï¹ÌÇϿ콺(844-131)1µ¿ | 3 | 37.89 | 9,000 | | 1990 | | 2025.02.06 | ¸Å¸Å | ÈÀκô¸®Áö | 2 | 70.92 | 38,500 | | 2024 | | 2025.02.05 | ¿ù¼¼ | ÀÎÇâºô¶ó4Â÷(5µ¿) | 2 | 33.1 | 300 | 35 | 1988 | | 2025.02.05 | ¸Å¸Å | ·º½ººô¸®Áö | 8 | 64.99 | 16,500 | | 2015 | | 2025.02.04 | ¸Å¸Å | ´ë»êºô¶ó(111-328)1µ¿ | 3 | 36.63 | 6,000 | | 1990 | | 2025.02.04 | ¿ù¼¼ | ¼ººóºô¶ó(970) | 2 | 35.8 | 1,000 | 45 | 1990 | | 2025.02.04 | Àü¼¼ | ÁÖ°ø3(46-0) | 2 | 70.75 | 18,500 | 0 | 1986 | | 2025.02.04 | ¸Å¸Å | °æÀθǼÇŸ¿î(109-356) | 3 | 54.7 | 8,300 | | 1996 | | 2025.02.04 | ¸Å¸Å | ¼öÁ¤ºô¶ó2Â÷ | 1 | 38 | 7,200 | | 1996 | | 2025.02.03 | Àü¼¼ | »ïÀͺô¶ó | 2 | 38.3 | 6,600 | 0 | 1995 | | 2025.02.03 | Àü¼¼ | ȼº¾ÆÆ®ºô(899-9)1µ¿ | 4 | 59.7 | 9,600 | 0 | 2002 | | 2025.02.03 | ¸Å¸Å | ±Ýºû¸¶À»1Â÷(859-5)102µ¿ | 2 | 73.84 | 12,000 | | 2004 | | 2025.02.03 | ¸Å¸Å | ´ë¸²ºô¶ó(892-38) | 4 | 39.78 | 6,000 | | 1995 | | 2025.02.03 | ¸Å¸Å | ÇÏÀ̺ô¶ó(5µ¿) | -1 | 35.34 | 6,300 | | 1989 | | 2025.02.01 | ¿ù¼¼ | ¼öÆÓ¸®½º | 3 | 49.25 | 2,000 | 60 | 2016 | | 2025.02.01 | ¿ù¼¼ | µ¿µµºô¶ó(901-41)5µ¿ | 2 | 37.99 | 500 | 40 | 1989 | | 2025.02.01 | ¸Å¸Å | ÈÞ¸ÕÅ×Å©ºô(898-12)1µ¿ | 3 | 59.17 | 14,500 | | 2002 | | 2025.02.01 | ¸Å¸Å | ÇØ³ª·çÆÓ¸®½º | 8 | 57.1975 | 17,000 | | 2016 | | 2025.01.31 | ¸Å¸Å | ·Ôµ¥¸Ç¼Ç(111-471)Dµ¿ | 2 | 29.52 | 5,000 | | 1996 | | 2025.01.31 | Àü¼¼ | õ¿ìºô¶ó(963-18)Aµ¿ | 1 | 31.95 | 5,200 | 0 | 1990 | | 2025.01.31 | Àü¼¼ | õ¿ìºô¶ó(963-18)Aµ¿ | 1 | 31.95 | 5,200 | 0 | 1990 | | 2025.01.25 | ¿ù¼¼ | ¸¸¼ö±×¸°(5-443)2µ¿ | 3 | 44.07 | 500 | 45 | 1994 | | 2025.01.25 | ¿ù¼¼ | ºÎ¿µºô¶ó | 4 | 43.65 | 500 | 45 | 1991 | | 2025.01.25 | Àü¼¼ | °Ç¿ì¾ÆÆ®ºô | 3 | 39.75 | 6,870 | 0 | 2001 | | 2025.01.25 | Àü¼¼ | ÇѼºô¸®Áö(1µ¿) | 4 | 37.44 | 5,500 | 0 | 1994 | | 2025.01.25 | Àü¼¼ | °Ç¿ì¾ÆÆ®ºô | 3 | 39.75 | 7,930 | 0 | 2001 | | 2025.01.24 | Àü¼¼ | ¸¸¼ö¿¬Èñ(951-2)´Ùµ¿ | 3 | 32.22 | 4,800 | 0 | 1989 | | 2025.01.24 | Àü¼¼ | û¼Öºô¶ó(´Ùµ¿) | 2 | 33.376 | 5,450 | 0 | 1988 | | 2025.01.24 | Àü¼¼ | õ¿ìºô¶ó(963-3)Bµ¿ | -1 | 34.05 | 3,000 | 0 | 1990 | | 2025.01.24 | ¸Å¸Å | ¿À¼ººô¶ó(Bµ¿) | -1 | 35.74 | 4,500 | | 1991 | | 2025.01.24 | Àü¼¼ | û¼Öºô¶ó(´Ùµ¿) | 2 | 33.376 | 5,450 | 0 | 1988 | | 2025.01.23 | ¸Å¸Å | ¸¸¼ö¸¶À»(109-67)5µ¿ | 3 | 39.68 | 5,000 | | 1995 | | 2025.01.23 | ¸Å¸Å | °ø¸íºô¶ó | 3 | 32.58 | 6,800 | | 1993 | | 2025.01.23 | ¸Å¸Å | ±×¸°³ª·¡ | 2 | 49.3 | 18,000 | | 2017 | | 2025.01.23 | Àü¼¼ | »ï¼º(969-5)°¡µ¿ | 3 | 36.65 | 5,400 | 0 | 1991 | | 2025.01.23 | ¸Å¸Å | ¸¸¼ö¸¶À»(109-67)5µ¿ | 3 | 39.68 | 5,000 | | 1995 | | 2025.01.22 | ¿ù¼¼ | ½ÅȺô¶ó(111-225)Aµ¿ | 3 | 38.59 | 1,500 | 30 | 1995 | | 2025.01.22 | Àü¼¼ | Çö´ë¸Ç¼Ç(855-17) | 3 | 36.32 | 4,500 | 0 | 1991 | | 2025.01.22 | ¿ù¼¼ | ¿µÀÎij½½2 | 2 | 68.56 | 0 | 20 | 2011 | | 2025.01.21 | ¸Å¸Å | ¿µÈºô¶ó(°¡µ¿) | -1 | 39.06 | 8,000 | | 1988 | | 2025.01.21 | ¿ù¼¼ | ¼º¿ø¿¹°¡ | 8 | 48.525 | 1,000 | 80 | 2020 | | 2025.01.20 | ¿ù¼¼ | ±æÁ¤ºô¶ó | 3 | 36.21 | 1,000 | 30 | 1990 | | 2025.01.20 | Àü¼¼ | ÀÌȺô¶ó(Aµ¿) | 1 | 38.47 | 7,000 | 0 | 1990 | | 2025.01.20 | Àü¼¼ | ¿ì¼ººô¶ó3Â÷(3µ¿) | 3 | 43.44 | 5,700 | 0 | 1989 | | 2025.01.20 | ¿ù¼¼ | ÁøÈï¾ÆÆ®ºô | 3 | 49.885 | 1,000 | 65 | 2014 | | 2025.01.20 | ¿ù¼¼ | ´ë½Åºô¶ó(890-34) | 3 | 35.3 | 1,000 | 15 | 1991 | | 2025.01.19 | Àü¼¼ | À¯ÀϺô¶ó(Aµ¿) | 3 | 42.98 | 2,000 | 0 | 1988 | | 2025.01.18 | ¸Å¸Å | ÆÄÅ©ºô | 4 | 57.36 | 11,700 | | 2001 | | 2025.01.18 | ¿ù¼¼ | ű¤´Ù¼¼´ëÁÖÅÃ(°¡µ¿) | 1 | 34.72 | 500 | 40 | 1990 | | 2025.01.18 | ¿ù¼¼ | ¿ì¼ººô¶ó(1µ¿) | 1 | 36.02 | 500 | 35 | 1990 | | 2025.01.16 | ¿ù¼¼ | ´ë¼ººô¶ó6Â÷(³ªµ¿) | 1 | 44.94 | 500 | 40 | 1991 | | 2025.01.16 | ¿ù¼¼ | È«¼º | 2 | 47.2 | 500 | 55 | 1987 | | 2025.01.16 | ¿ù¼¼ | ½Å¸¸¼öŸ¿î(109-385)106µ¿ | 2 | 39.64 | 500 | 35 | 1998 | | 2025.01.16 | ¿ù¼¼ | »ó¿ìºô¶ó | 2 | 40.82 | 700 | 45 | 1993 | | 2025.01.16 | ¸Å¸Å | Å¿ìºô¶ó(Aµ¿) | 3 | 36.55 | 8,100 | | 1991 | | 2025.01.16 | ¸Å¸Å | ¿ì¼ººô¶ó(2µ¿) | 1 | 36.61 | 5,900 | | 1990 | | 2025.01.15 | ¸Å¸Å | ¼º½Åºô¶ó | -1 | 45.67 | 3,400 | | 1995 | | 2025.01.15 | ¸Å¸Å | ¹ÌÁøºô¶ó(³ªµ¿) | 3 | 36.36 | 5,300 | | 1992 | | 2025.01.15 | ¸Å¸Å | ¼¿ïÁÖÅÃ(109-305)3µ¿ | 3 | 47.61 | 7,600 | | 1996 | | 2025.01.15 | ¸Å¸Å | Á¤ÀϺô¶ó(971)Aµ¿ | 2 | 39.51 | 10,000 | | 1993 | | 2025.01.15 | Àü¼¼ | °Ç¿ì¾ÆÆ®ºô | 3 | 39.96 | 6,100 | 0 | 2001 | | 2025.01.15 | Àü¼¼ | ½Å¸¸¼öŸ¿î(109-386)107µ¿ | 2 | 39.64 | 6,100 | 0 | 1997 | | 2025.01.14 | ¸Å¸Å | ´ë¿øº£½ºÆ®ºô | -1 | 47.43 | 6,500 | | 2001 | | 2025.01.14 | Àü¼¼ | ¸¸¼ö(950-2)´Ùµ¿ | 3 | 30.88 | 4,500 | 0 | 1991 | | 2025.01.14 | Àü¼¼ | ÁÖ°ø3(46-0) | 2 | 70.75 | 17,000 | 0 | 1986 | | 2025.01.14 | ¿ù¼¼ | ¼º±¤(977-1)1µ¿ | -1 | 55.27 | 1,000 | 40 | 2000 | | 2025.01.14 | Àü¼¼ | ¿ìÁøÅ¾ºô¸®Áö(Aµ¿) | 2 | 59.76 | 9,500 | 0 | 2002 | | 2025.01.13 | ¸Å¸Å | ¼Áøºô¶ó(´Ùµ¿) | 2 | 35.64 | 10,000 | | 1990 | | 2025.01.13 | ¸Å¸Å | Àײ¿È¨Å¸¿î(1087-12) | 3 | 58.09 | 10,500 | | 2001 | | 2025.01.11 | ¸Å¸Å | ½Åžçºô¶ó(1µ¿) | 3 | 35.31 | 8,810 | | 1989 | | 2025.01.11 | ¿ù¼¼ | ¼º±¤(977-1)1µ¿ | 2 | 17.82 | 1,500 | 23 | 2000 | | 2025.01.11 | Àü¼¼ | Çö´ëºô¶ó(¶óµ¿) | 2 | 39.63 | 5,500 | 0 | 1989 | | 2025.01.11 | ¿ù¼¼ | ¿ì¼ººô¶ó3Â÷(1µ¿) | -1 | 38.04 | 300 | 30 | 1989 | | 2025.01.10 | ¿ù¼¼ | »ïº¸ºô¶ó(963-9)4µ¿ | 1 | 34.26 | 300 | 42 | 1989 | | 2025.01.10 | Àü¼¼ | ´ëÀÎÇÏÀÌÃ÷ºô¶ó | 4 | 45.02 | 6,100 | 0 | 1994 | | 2025.01.10 | Àü¼¼ | »ïº¸¸Ç¼Ç(969-2)°¡µ¿ | 2 | 52.44 | 9,000 | 0 | 2001 | | 2025.01.10 | ¿ù¼¼ | »ïº¸ºô¶ó(963-9)4µ¿ | 1 | 34.26 | 300 | 42 | 1989 | | 2025.01.10 | ¿ù¼¼ | ¸¸¼öÁÖ°ø1´ÜÁö(¿¬¸³) | 1 | 46.79 | 2,000 | 50 | 1986 | | 2025.01.10 | Àü¼¼ | ´ëÀÎÇÏÀÌÃ÷ºô¶ó | 4 | 45.02 | 6,100 | 0 | 1994 | | 2025.01.10 | ¸Å¸Å | ¸ð´øÇϿ콺 | 4 | 48.99 | 15,400 | | 2017 | | 2025.01.09 | Àü¼¼ | ÁÖ°ø3(46-0) | 1 | 70.75 | 18,000 | 0 | 1986 | | 2025.01.09 | Àü¼¼ | ºÎ¸²ºô¶ó | 2 | 41.88 | 6,500 | 0 | 1989 | | 2025.01.09 | Àü¼¼ | ¸¸¼öºô¶ó(895-61)Bµ¿ | 1 | 41.27 | 6,300 | 0 | 1996 | | 2025.01.09 | ¿ù¼¼ | òØýñÄÚ³Ê | 3 | 15.09 | 500 | 30 | 2015 | | 2025.01.09 | ¸Å¸Å | ´õÁ¶ÀºÆÄÅ©ºô(935-7) | 3 | 49.4 | 16,100 | | 2015 | | 2025.01.09 | ¸Å¸Å | »ïÀͺô¶ó | 1 | 37.02 | 5,300 | | 1995 | | 2025.01.08 | Àü¼¼ | ¼ÖÁö¸Ç¼Ç | 5 | 59.4 | 8,740 | 0 | 2001 | | 2025.01.06 | ¸Å¸Å | ¹ÏÀ½ºô¶ó(865-14)5µ¿ | 3 | 39.68 | 7,000 | | 1989 | | 2025.01.06 | ¿ù¼¼ | µ¿½Åºô¶ó(853-16) | 2 | 36.55 | 500 | 40 | 1991 | | 2025.01.06 | Àü¼¼ | ¿µÈºô¶ó(¸¶µ¿) | 3 | 40.44 | 6,500 | 0 | 1988 | | 2025.01.06 | ¿ù¼¼ | µ¿Àκô¶ó | 3 | 44.4 | 500 | 60 | 1993 | | 2025.01.06 | ¸Å¸Å | µ¿¿ì¸ÞÆ®·Îºô3Â÷ | 3 | 52.05 | 14,000 | | 2013 | | 2025.01.06 | ¿ù¼¼ | ´ëµ¿ºô¶ó(Aµ¿) | 2 | 38.3 | 1,000 | 45 | 1993 | | 2025.01.06 | ¸Å¸Å | ¼¿ïÁÖÅÃ(109-305)3µ¿ | 3 | 47.61 | 7,600 | | 1996 | | 2025.01.05 | ¸Å¸Å | ¾öÁöºô¶ó | -1 | 45.95 | 2,000 | | 1997 | | 2025.01.04 | ¿ù¼¼ | ´ë¿µºô¶ó3µ¿(970-5) | 4 | 37.14 | 1,000 | 35 | 1993 | | 2025.01.04 | ¸Å¸Å | ¼¿ïÁÖÅÃ(109-305)3µ¿ | 3 | 47.61 | 7,500 | | 1996 | | 2025.01.02 | ¸Å¸Å | °øÀÛ1µ¿(1076-2) | -1 | 45.06 | 3,300 | | 1988 | | 2025.01.02 | Àü¼¼ | ¿µÈºô¶ó | 2 | 42.54 | 6,450 | 0 | 1989 | | 2025.01.02 | Àü¼¼ | ¿µÈºô¶ó | 2 | 42.54 | 6,450 | 0 | 1989 | | 2025.01.02 | Àü¼¼ | °³²(5-495)112µ¿ | 5 | 59.79 | 9,000 | 0 | 2002 | | 2025.01.02 | ¸Å¸Å | û¾Ïºô¶ó | 4 | 38.76 | 6,000 | | 1997 | | 2024.12.31 | ¿ù¼¼ | ´º¿ùµåºô¸®Áö1µ¿ | 1 | 34.93 | 500 | 35 | 1993 | | 2024.12.31 | Àü¼¼ | ¿ì¼ººô¶ó(10µ¿) | 1 | 44.25 | 4,800 | 0 | 1991 | | 2024.12.31 | ¸Å¸Å | ±¤Çغô¶ó | 3 | 35.89 | 6,200 | | 1994 | | 2024.12.30 | ¸Å¸Å | ¼Ò¸Á¸Ç¼Ç(873-5) | 4 | 41.31 | 8,200 | | 2002 | | 2024.12.30 | Àü¼¼ | »ï¹Ìºô¶ó(877-6)3µ¿ | 1 | 42.43 | 6,200 | 0 | 1989 | | 2024.12.30 | ¿ù¼¼ | ½Å¸¸¼öŸ¿î(109-387)108µ¿ | -1 | 35.23 | 50 | 30 | 1997 | | 2024.12.28 | Àü¼¼ | ÁÖ°ø3(46-0) | 3 | 55.48 | 12,000 | 0 | 1986 | | 2024.12.28 | ¸Å¸Å | °øÀÛ5µ¿(1076-18) | -1 | 34.14 | 2,500 | | 1988 | | 2024.12.27 | ¸Å¸Å | ´ë¸íºô¶ó(841-26) | 2 | 29.58 | 4,500 | | 1991 | | 2024.12.26 | Àü¼¼ | ¿ì¹Ìºô¶ó(2µ¿) | 3 | 39.885 | 7,430 | 0 | 1994 | | 2024.12.26 | ¸Å¸Å | ÇÏÀ̺ô¶ó(4µ¿) | -1 | 36.16 | 5,000 | | 1989 | | 2024.12.26 | ¸Å¸Å | ±¤Çغô¶ó | 3 | 35.89 | 6,200 | | 1994 | | 2024.12.26 | Àü¼¼ | ¿¹¿øºô¶ó(949-20)Bµ¿ | 2 | 39.18 | 6,500 | 0 | 1990 | | 2024.12.26 | Àü¼¼ | ÇÑ»ùºô¶ó(13µ¿) | 3 | 31.14 | 3,800 | 0 | 1988 | | 2024.12.25 | ¿ù¼¼ | »ó¿ìÁÖÅà | 3 | 36.35 | 500 | 38 | 1993 | | 2024.12.24 | ¸Å¸Å | ¸¸¼öºô¶ó(895-61)Bµ¿ | 2 | 41.21 | 9,000 | | 1996 | | 2024.12.24 | ¿ù¼¼ | µ¿¾Æºô¶ó | 2 | 35.46 | 500 | 35 | 1994 | | 2024.12.24 | ¸Å¸Å | ¼®Á¤ºô¶ó(947-18) | -1 | 36.71 | 3,400 | | 1991 | | 2024.12.23 | ¸Å¸Å | »ïȺô¶ó2Â÷ | 2 | 44.28 | 9,500 | | 2001 | | 2024.12.23 | ¸Å¸Å | µ¿¼¾ÆÆ®ºô¶ó(111-8)Bµ¿ | 3 | 49.18 | 6,500 | | 1995 | | 2024.12.23 | ¸Å¸Å | Àå¹Ìºô¶ó(1µ¿) | 1 | 35 | 7,000 | | 1988 | | 2024.12.22 | Àü¼¼ | ¼ºÁÖºô¶ó | 1 | 43.8 | 6,200 | 0 | 1994 | | 2024.12.22 | ¸Å¸Å | ±Ý¼º(1084-1) | 3 | 45.22 | 6,400 | | 2001 | | 2024.12.22 | ¿ù¼¼ | ÇÑ»ùºô¶ó(2µ¿) | 1 | 26.85 | 500 | 35 | 1988 | | 2024.12.21 | ¸Å¸Å | À¯°æÁÖÅÃ(977-44)³ªµ¿ | 3 | 50.68 | 10,300 | | 1995 | | 2024.12.21 | ¸Å¸Å | À¯ÀϽºÅ¸ºô201 | 5 | 52.4086 | 14,300 | | 2013 | | 2024.12.20 | Àü¼¼ | ÇÏ¿ì¡¾ÆÆ®ºô(889-16)2µ¿ | 4 | 58.68 | 10,400 | 0 | 2003 | | 2024.12.20 | Àü¼¼ | ½Å¼¿ïºô¶ó(111-246)3µ¿ | 4 | 44.02 | 6,400 | 0 | 1997 | | 2024.12.20 | Àü¼¼ | ÇÏ¿ì¡¾ÆÆ®ºô(889-16)2µ¿ | 4 | 58.68 | 10,400 | 0 | 2003 | | 2024.12.19 | ¸Å¸Å | ¿ùµåºô¶ó(950-14)Bµ¿ | 2 | 34.68 | 7,000 | | 1988 | | 2024.12.19 | Àü¼¼ | ±ÝÈ£ÁÖÅÃ7Â÷(965-16) | 3 | 45.75 | 9,280 | 0 | 2002 | | 2024.12.18 | ¿ù¼¼ | »ïº¸ | 3 | 44.28 | 500 | 35 | 1990 | | 2024.12.18 | ¿ù¼¼ | µ¿³²ÇÏÀ̺ô¶ó(887-13)1µ¿ | 1 | 36.46 | 1,000 | 40 | 1990 | | 2024.12.18 | ¿ù¼¼ | µ¿³²ÇÏÀ̺ô¶ó(887-13)1µ¿ | 1 | 36.46 | 1,000 | 40 | 1990 | | 2024.12.17 | ¸Å¸Å | »ç¶û(49-4)1µ¿ | 4 | 34.56 | 6,200 | | 1993 | | 2024.12.16 | Àü¼¼ | ¹éÁ¶ºô¶ó(°¡µ¿) | 3 | 31.26 | 4,500 | 0 | 1989 | | 2024.12.16 | Àü¼¼ | Ç÷¯½ºÄ³½½ | 2 | 39.25 | 9,000 | 0 | 2008 | | 2024.12.14 | ¿ù¼¼ | Àײ¿È¨Å¸¿î(1087-12) | 4 | 58.09 | 1,500 | 50 | 2001 | | 2024.12.14 | Àü¼¼ | ±¹Á¦Å¾½ººô | -1 | 62.95 | 7,560 | 0 | 2002 | | 2024.12.14 | Àü¼¼ | Å¿ì(857-7)Aµ¿ | 2 | 35.65 | 5,400 | 0 | 1991 | | 2024.12.14 | ¸Å¸Å | ·Ôµ¥¸Ç¼Ç(1100-7) | 4 | 37.44 | 6,500 | | 2000 | | 2024.12.13 | ¸Å¸Å | ¸¸¼ö¸¶À»(109-146)1µ¿ | 1 | 49.56 | 9,500 | | 1995 | | 2024.12.13 | ¸Å¸Å | »ïÀͺô¶ó | 1 | 37.02 | 5,000 | | 1995 | | 2024.12.13 | ¸Å¸Å | ¼Û¿ø(6-30)5µ¿ | 1 | 36.18 | 7,100 | | 1991 | | 2024.12.13 | Àü¼¼ | È«¼º | 1 | 47.2 | 7,250 | 0 | 1987 | | 2024.12.12 | ¿ù¼¼ | ºÎ¿µºô¶ó | 4 | 43.65 | 300 | 35 | 1991 | | 2024.12.12 | Àü¼¼ | ¾öÁöºô¶ó(109-221)°¡µ¿ | 2 | 42.83 | 4,000 | 0 | 1996 | | 2024.12.12 | Àü¼¼ | ´ë¸²ºô¶ó(892-6) | 2 | 38.36 | 6,310 | 0 | 1994 | | 2024.12.12 | ¿ù¼¼ | ¿µÁ¾ºô¶ó(Cµ¿) | 4 | 33.57 | 300 | 35 | 1993 | | 2024.12.12 | Àü¼¼ | ´ë¸²ºô¶ó(892-6) | 2 | 38.36 | 6,310 | 0 | 1994 | | 2024.12.12 | ¿ù¼¼ | ¿¹¿øºô¶ó(949-11)Eµ¿ | 4 | 37.85 | 5,300 | 5 | 1994 | | 2024.12.11 | ¿ù¼¼ | ¿ì¸®ÁÖÅÃ(873-8) | 3 | 66.37 | 2,367 | 16 | 2020 | | 2024.12.11 | Àü¼¼ | ½ÅÈ1µ¿ | 2 | 32.1 | 5,740 | 0 | 2001 | | 2024.12.10 | ¸Å¸Å | ¶óÀÌÇÁºô¶ó(892-24)Cµ¿ | 3 | 36.105 | 5,700 | | 1989 | | 2024.12.10 | Àü¼¼ | ±¤¸íºô¶ó³ªµ¿(959) | 3 | 36.16 | 6,000 | 0 | 1994 | | 2024.12.10 | ¸Å¸Å | ¸¶ÀÎÇϿ콺1µ¿ | 3 | 44.45 | 11,800 | | 2008 | | 2024.12.09 | Àü¼¼ | (882-28) | 3 | 43.607 | 11,750 | 0 | 2017 | | 2024.12.09 | ¸Å¸Å | ÇØ¸¶·çºô¸®ÁöBµ¿ | 3 | 54.01 | 13,500 | | 2010 | | 2024.12.08 | ¿ù¼¼ | ¼ºµµ·Î¾âºô¶ó | 4 | 54.93 | 1,000 | 40 | 1996 | | 2024.12.08 | Àü¼¼ | ¿¤Áö(5-280) | 3 | 34.74 | 6,090 | 0 | 2002 | | 2024.12.07 | ¿ù¼¼ | ¿¹¿øºô¶ó(949-21)Aµ¿ | -1 | 38.28 | 500 | 40 | 1990 | | 2024.12.07 | Àü¼¼ | »ï¼ººô¶ó(904-33) | 1 | 37.51 | 5,600 | 0 | 1993 | | 2024.12.07 | ¸Å¸Å | ÀÎÇâºô¶ó4Â÷(2µ¿) | -1 | 38.54 | 5,800 | | 1988 | | 2024.12.06 | ¸Å¸Å | µ¿È£(962-5) | 4 | 59.63 | 13,250 | | 2000 | | 2024.12.06 | ¸Å¸Å | ´ëdzºô¶ó(987-3) | 1 | 42.22 | 6,200 | | 1994 | | 2024.12.06 | ¸Å¸Å | ¿ì¸²ºô¶ó(980-14)7µ¿ | -1 | 36 | 1,900 | | 1990 | | 2024.12.06 | ¿ù¼¼ | »ï¼ººô¶ó | 2 | 44.18 | 300 | 30 | 1996 | | 2024.12.06 | ¸Å¸Å | »ï¿ì¾ÆÆ®ºô¶ó | 4 | 51.85 | 8,400 | | 1996 | | 2024.12.06 | ¸Å¸Å | »ï¼º(969-7)³ªµ¿ | 1 | 37.89 | 7,000 | | 1991 | | 2024.12.05 | Àü¼¼ | Á¤ÀϺô¶ó(971-11)Bµ¿ | 1 | 39.24 | 6,700 | 0 | 1993 | | 2024.12.04 | Àü¼¼ | ¿ì¹Ìºô¶ó(963-19)Bµ¿ | -1 | 36.36 | 3,000 | 0 | 1993 | | 2024.12.04 | Àü¼¼ | û¼Öºô¶ó(´Ùµ¿) | 1 | 33.378 | 5,100 | 0 | 1988 | | 2024.12.03 | ¸Å¸Å | ÇÏÀ̺ô¶ó(5µ¿) | 2 | 36.42 | 10,900 | | 1989 | | 2024.12.03 | ¿ù¼¼ | ·Ôµ¥ÆÄÅ©¸Ç¼Ç | 3 | 67.38 | 2,000 | 65 | 2002 | | 2024.12.02 | ¿ù¼¼ | ¸¸¼öÁÖ°ø1´ÜÁö(¿¬¸³) | 2 | 46.86 | 1,000 | 45 | 1986 | | 2024.12.02 | Àü¼¼ | µ¿Àκô¶ó(865-3) | 2 | 35.18 | 5,200 | 0 | 1994 | | 2024.12.02 | ¿ù¼¼ | À¯ÀϺô¶ó(Bµ¿) | 2 | 39.36 | 1,000 | 25 | 1988 | | 2024.12.02 | ¿ù¼¼ | ¼º±¤(977-1)1µ¿ | -1 | 55.27 | 500 | 45 | 2000 | | 2024.12.02 | ¿ù¼¼ | ¼º±¤(977-1)1µ¿ | -1 | 55.27 | 1,000 | 40 | 2000 | | 2024.12.02 | Àü¼¼ | ºÎ¸²ºô¶ó | 2 | 41.88 | 5,800 | 0 | 1989 | | 2024.12.02 | ¸Å¸Å | ÇѼºô¸®Áö(2~3µ¿) | 1 | 45.76 | 7,200 | | 1995 | | 2024.12.02 | ¸Å¸Å | ⿵±×¸°ºô¶ó(111-32)Dµ¿ | 3 | 38.25 | 4,200 | | 1996 | | 2024.11.29 | ¸Å¸Å | ÇØ¿À¸§ÆÓ¸®½º(971-3) | 5 | 55.96 | 17,900 | | 2010 | | 2024.11.29 | Àü¼¼ | ÁÖ°ø3(46-0) | 1 | 55.48 | 13,000 | 0 | 1986 | | 2024.11.27 | ¿ù¼¼ | ¸¸¼öÁÖ°ø1´ÜÁö(¿¬¸³) | 1 | 46.86 | 1,000 | 50 | 1986 | | 2024.11.26 | Àü¼¼ | ºÎ°æÈ¨Å¸¿î(5µ¿) | 3 | 39.78 | 7,800 | 0 | 2002 | | 2024.11.26 | ¿ù¼¼ | ÇýÀÎ(893-1)Aµ¿ | 3 | 32.58 | 1,000 | 40 | 1988 | | 2024.11.25 | Àü¼¼ | À¯·ÎŸ¿î | 3 | 40.13 | 6,000 | 0 | 1995 | | 2024.11.25 | Àü¼¼ | ÁøÁÖºô¶ó(3µ¿) | 2 | 35.695 | 6,000 | 0 | 1988 | | 2024.11.25 | Àü¼¼ | »ó¿ì | 3 | 41.39 | 6,100 | 0 | 1992 | | 2024.11.25 | ¿ù¼¼ | û¼Öºô¶ó(°¡µ¿) | 1 | 33.376 | 300 | 40 | 1988 | | 2024.11.24 | ¿ù¼¼ | »ïº¸ºô¶ó(A~Bµ¿) | 1 | 46.38 | 500 | 50 | 1993 | | 2024.11.23 | ¿ù¼¼ | ½ÅȺô¶ó9Â÷ | -1 | 48.75 | 100 | 30 | 1998 | | 2024.11.23 | ¿ù¼¼ | ÁÖ°ø3(46-0) | 1 | 70.75 | 2,000 | 60 | 1986 | | 2024.11.23 | ¸Å¸Å | ºÎÈïºô¶ó(3µ¿) | 3 | 35.36 | 4,700 | | 1989 | | 2024.11.22 | ¿ù¼¼ | ºÎ°æÈ¨Å¸¿î(5µ¿) | 4 | 39.78 | 1,000 | 35 | 2002 | | 2024.11.22 | ¿ù¼¼ | ·Ôµ¥¸Ç¼Ç(111-445) | 2 | 39.25 | 500 | 30 | 1996 | | 2024.11.22 | ¸Å¸Å | ´ë¿ìºô¶ó(1µ¿) | 2 | 45.78 | 8,000 | | 1989 | | 2024.11.22 | ¸Å¸Å | »ïº¸(981-12)´Ùµ¿ | -1 | 39.35 | 4,000 | | 1992 | | 2024.11.21 | Àü¼¼ | ¼ºÁÖºô¶ó | 3 | 48.1 | 7,500 | 0 | 1994 | | 2024.11.21 | ¸Å¸Å | Èѹ̸®ºô¶ó(886-38) | 2 | 35.71 | 8,300 | | 1990 | | 2024.11.20 | Àü¼¼ | ¼ººóºô¶ó | 2 | 40.59 | 6,400 | 0 | 1991 | | 2024.11.20 | ¸Å¸Å | Çö´ëºô¶ó(³ªµ¿)(938-23) | 1 | 36.98 | 8,500 | | 1991 | | 2024.11.20 | ¸Å¸Å | ÁÖ°ø3(46-0) | 3 | 61.53 | 29,300 | | 1986 | | 2024.11.19 | Àü¼¼ | ´ë½Å¾ÆÆ®ºô | 3 | 50.43 | 9,400 | 0 | 2002 | | 2024.11.19 | Àü¼¼ | ´ë½Å¾ÆÆ®ºô | 3 | 50.43 | 9,400 | 0 | 2002 | | 2024.11.19 | Àü¼¼ | »ïÀͺô¶ó | 1 | 38.3 | 6,300 | 0 | 1995 | | 2024.11.19 | Àü¼¼ | ´ë½Å¾ÆÆ®ºô | 3 | 50.43 | 9,400 | 0 | 2002 | | 2024.11.19 | Àü¼¼ | Ç÷¯½ºÈ¨Bµ¿ | 2 | 49.89 | 10,900 | 0 | 2011 | | 2024.11.19 | ¿ù¼¼ | ÀÌȺô¶ó | 3 | 36.78 | 300 | 37 | 1994 | | 2024.11.19 | ¸Å¸Å | °æÀθǼÇŸ¿î(109-364) | 1 | 39.96 | 5,800 | | 1996 | | 2024.11.18 | ¸Å¸Å | ¼ººóºô¶ó(970-8) | 3 | 35.8 | 9,900 | | 1990 | | 2024.11.18 | Àü¼¼ | ±Ù¾ÖÁÖÅÃ2Â÷ | 3 | 31.5 | 4,500 | 0 | 1990 | | 2024.11.18 | ¿ù¼¼ | ¸¸¼ö¿¬Èñ(951-16)°¡µ¿ | 1 | 30.69 | 1,000 | 25 | 1989 | | 2024.11.18 | Àü¼¼ | »ïº¸ºô¶ó(4µ¿) | 2 | 41.81 | 7,330 | 0 | 1992 | | 2024.11.18 | Àü¼¼ | ÀϽźô¶ó | 3 | 36.03 | 5,000 | 0 | 1989 | | 2024.11.18 | ¿ù¼¼ | Ä¥¼ººô¶ó(Cµ¿) | 2 | 37.44 | 1,000 | 40 | 1992 | | 2024.11.18 | ¿ù¼¼ | ¿ì¹Ì(103µ¿) | 3 | 52.89 | 1,000 | 50 | 1994 | | 2024.11.18 | ¸Å¸Å | µÎ¼ººô¶ó(852-26)³ªµ¿ | 2 | 36.08 | 10,000 | | 1993 | | 2024.11.18 | ¸Å¸Å | ·Ôµ¥¸Ç¼Ç(111-117) | 1 | 46.69 | 8,000 | | 1996 | | 2024.11.17 | Àü¼¼ | ¿¤Áö(5-280) | 3 | 34.74 | 6,100 | 0 | 2002 | | 2024.11.16 | Àü¼¼ | »ï¼ººô¶ó(904-33) | 4 | 36.01 | 5,400 | 0 | 1993 | | 2024.11.16 | ¿ù¼¼ | »ïº¸ºô¶ó(963-9)4µ¿ | 3 | 34.26 | 1,000 | 40 | 1989 | | 2024.11.16 | ¿ù¼¼ | ÁÖ°ø3(46-0) | 2 | 55.48 | 2,000 | 60 | 1986 | | 2024.11.16 | Àü¼¼ | ¿µÁøºô¶ó(Aµ¿) | 1 | 34.8 | 5,400 | 0 | 1993 | | 2024.11.16 | ¸Å¸Å | ±¹Èºô¶ó(°¡~³ªµ¿) | -1 | 35.895 | 6,450 | | 1991 | | 2024.11.16 | ¸Å¸Å | ÆÄÅ©ºô°¡µ¿,³ªµ¿ | 3 | 58.62 | 13,500 | | 2001 | | 2024.11.15 | ¸Å¸Å | õ¿ìºô¶ó(111-348)Bµ¿ | 2 | 39.58 | 6,000 | | 1991 | | 2024.11.15 | ¸Å¸Å | ¸¸¼ö´ë¹®ÁÖÅà | 5 | 62.56 | 28,600 | | 2024 | | 2024.11.15 | ¸Å¸Å | ¸¸¼ö´ë¹®ÁÖÅà | 5 | 64.4 | 28,900 | | 2024 | | 2024.11.15 | ¸Å¸Å | ¸¸¼ö´ë¹®ÁÖÅà | 5 | 62.85 | 27,900 | | 2024 | | 2024.11.15 | ¸Å¸Å | ¼¿ïÁÖÅÃ(109-218)2µ¿ | 1 | 36.225 | 5,500 | | 1996 | | 2024.11.15 | ¿ù¼¼ | ½Åµ¿¾Æºô¶ó8Â÷ | 3 | 36.01 | 1,000 | 40 | 1989 | | 2024.11.15 | Àü¼¼ | »ïȺô¶ó2Â÷ | -1 | 44.28 | 3,000 | 0 | 2001 | | 2024.11.15 | ¸Å¸Å | ¸¸¼ö´ë¹®ÁÖÅà | 4 | 68.28 | 29,700 | | 2024 | | 2024.11.15 | ¸Å¸Å | ¸¸¼ö´ë¹®ÁÖÅà | 4 | 75.14 | 32,550 | | 2024 | | 2024.11.15 | ¸Å¸Å | ¸¸¼ö´ë¹®ÁÖÅà | 3 | 68.28 | 29,700 | | 2024 | | 2024.11.15 | ¸Å¸Å | ¸¸¼ö´ë¹®ÁÖÅà | 2 | 75.14 | 31,850 | | 2024 | | 2024.11.15 | ¸Å¸Å | ¸¸¼ö´ë¹®ÁÖÅà | 2 | 68.28 | 29,100 | | 2024 | | 2024.11.15 | ¸Å¸Å | ¸¸¼ö´ë¹®ÁÖÅà | 3 | 69.76 | 31,150 | | 2024 | | 2024.11.15 | ¸Å¸Å | ¸¸¼ö´ë¹®ÁÖÅà | 3 | 75.14 | 32,550 | | 2024 | | 2024.11.15 | ¸Å¸Å | ¸¸¼ö´ë¹®ÁÖÅà | 4 | 69.76 | 31,150 | | 2024 | | 2024.11.15 | ¸Å¸Å | ¸¸¼ö´ë¹®ÁÖÅà | 2 | 69.76 | 30,450 | | 2024 | | 2024.11.14 | Àü¼¼ | Á¤³²ºô¶ó(894-26) | 2 | 39.6 | 6,170 | 0 | 1991 | | 2024.11.14 | ¿ù¼¼ | »ó¿ìºô¶ó(Cµ¿) | 3 | 36.66 | 1,500 | 43 | 1992 | | 2024.11.13 | Àü¼¼ | ¿ìÁø¾ÆÆ®ºô | 1 | 46.24 | 8,000 | 0 | 2002 | | 2024.11.13 | Àü¼¼ | ¸¶ÀÎÇϿ콺2µ¿ | 2 | 44.45 | 9,400 | 0 | 2008 | | 2024.11.13 | ¸Å¸Å | ¼Û¿ø(6-36)10µ¿ | -1 | 35.78 | 4,000 | | 1991 | | 2024.11.13 | ¿ù¼¼ | ¼º±¤(977-1)1µ¿ | -1 | 42.45 | 500 | 37 | 2000 | | 2024.11.12 | ¸Å¸Å | ¼Û¿ø(2-52)7µ¿ | 4 | 39.325 | 6,700 | | 1991 | | 2024.11.12 | Àü¼¼ | ¿ìÁøº£½ºÆ®ºô | 3 | 39.9 | 11,900 | 0 | 2017 | | 2024.11.11 | Àü¼¼ | ¸¸¼ö¸¶À»(109-146)1µ¿ | 1 | 49.56 | 6,700 | 0 | 1995 | | 2024.11.11 | Àü¼¼ | ÇÑ»ùºô¶ó(6µ¿) | 3 | 36.27 | 6,290 | 0 | 1988 | | 2024.11.10 | Àü¼¼ | ¼Áøºô¶ó(´Ùµ¿) | 1 | 35.64 | 5,500 | 0 | 1990 | | 2024.11.10 | Àü¼¼ | Èѹ̸®ºô¶ó(886-40) | 1 | 35.73 | 5,000 | 0 | 1990 | | 2024.11.09 | ¿ù¼¼ | ±Ý°ºô¶ó | 4 | 40.5 | 500 | 30 | 1995 | | 2024.11.09 | ¸Å¸Å | ·Ôµ¥¸Ç¼Ç(111-117) | 1 | 46.69 | 8,000 | | 1996 | | 2024.11.09 | ¸Å¸Å | ±ÝÈ£ºô¶ó | 4 | 29.095 | 9,000 | | 1994 | | 2024.11.09 | Àü¼¼ | ¿ì¼ººô¶ó3Â÷(5µ¿) | 1 | 38.04 | 5,900 | 0 | 1989 | | 2024.11.08 | Àü¼¼ | ½ÅȺô¶ó(111-437)³ªµ¿ | 3 | 44.52 | 6,200 | 0 | 1996 | | 2024.11.08 | Àü¼¼ | û¾Ïºô¶ó | 4 | 38.76 | 5,600 | 0 | 1997 | | 2024.11.08 | ¿ù¼¼ | »ïÈ(950-7) | 1 | 29.12 | 500 | 30 | 1988 | | 2024.11.08 | Àü¼¼ | ´ë»êºô¶ó(111-322)5µ¿ | 1 | 32.485 | 4,880 | 0 | 1990 | | 2024.11.08 | ¸Å¸Å | ÀÌȺô¶ó | -1 | 35.7 | 3,500 | | 1994 | | 2024.11.07 | ¿ù¼¼ | ¿ìÁø¸Ç¼Ç(890-49)Bµ¿ | 1 | 50.69 | 2,000 | 50 | 2000 | | 2024.11.07 | Àü¼¼ | À¯°æÁÖÅÃ(977-44)³ªµ¿ | 3 | 50.68 | 7,870 | 0 | 1995 | | 2024.11.06 | Àü¼¼ | ¾çÁöºô¶ó(965-9) | 4 | 38.99 | 6,500 | 0 | 1993 | | 2024.11.06 | Àü¼¼ | ¹éÁ¶ºô¶ó(°¡µ¿) | 2 | 39.84 | 6,800 | 0 | 1989 | | 2024.11.06 | Àü¼¼ | ¾çÁöºô¶ó(965-9) | 4 | 38.99 | 6,600 | 0 | 1993 | | 2024.11.06 | Àü¼¼ | ¼¼ÀϺô¶ó | 2 | 36.16 | 6,200 | 0 | 1992 | | 2024.11.06 | Àü¼¼ | ¹éÁ¶ºô¶ó(°¡µ¿) | 2 | 39.84 | 6,800 | 0 | 1989 | | 2024.11.06 | Àü¼¼ | ¸ñ¹Îºô¶ó(867-19)Bµ¿ | 5 | 50.15 | 7,000 | 0 | 2003 | | 2024.11.05 | ¸Å¸Å | ÇѼººô¶ó(842-27)³ªµ¿ | 3 | 37.69 | 6,300 | | 1991 | | 2024.11.05 | ¸Å¸Å | Á¶ÀºÆÄÅ©ºô | 3 | 53.08 | 15,250 | | 2015 | | 2024.11.05 | ¸Å¸Å | ⿵±×¸°ºô¶ó(111-32)Dµ¿ | 4 | 36.63 | 6,500 | | 1996 | | 2024.11.05 | ¸Å¸Å | °Å¸íÇÏÀÌÃ÷ | 1 | 59.73 | 15,000 | | 2002 | | 2024.11.05 | ¿ù¼¼ | À¯°æÁÖÅÃ(977-16)°¡µ¿ | 1 | 36.6 | 2,000 | 25 | 1993 | | 2024.11.05 | Àü¼¼ | ÁøÁÖºô¶ó(5µ¿) | 1 | 35.695 | 5,100 | 0 | 1988 | | 2024.11.05 | ¿ù¼¼ | µÎ¼ººô¶ó(³ªµ¿) | 1 | 34.92 | 500 | 40 | 1990 | | 2024.11.05 | Àü¼¼ | »ï¿ì¾ÆÆ®ºô¶ó | 1 | 51.85 | 7,000 | 0 | 1996 | | 2024.11.04 | ¿ù¼¼ | ÆÄÅ©¿ø52 | 14 | 60.83 | 700 | 50 | 2018 | | 2024.11.04 | ¸Å¸Å | ÀÎÇâºô¶ó4Â÷(4µ¿) | 1 | 33.1 | 9,500 | | 1988 | | 2024.11.04 | ¸Å¸Å | ¼ÀϺô¶ó | 1 | 35.14 | 4,400 | | 1991 | | 2024.11.04 | ¸Å¸Å | ´ë¼ººô¶ó | 1 | 35.7 | 5,500 | | 1990 | | 2024.11.04 | Àü¼¼ | Ãʷϸ¶À»C,Dµ¿(1097-20) | 3 | 54.75 | 9,600 | 0 | 2001 | | 2024.11.03 | Àü¼¼ | žçºô¶ó(111-342)Bµ¿ | 4 | 36.17 | 5,200 | 0 | 1996 | | 2024.11.01 | ¿ù¼¼ | Èѹ̸®ºô¶ó(886-45) | 1 | 36.11 | 1,000 | 35 | 1990 | | 2024.11.01 | ¿ù¼¼ | »ïÈ(950-10) | -1 | 34.57 | 100 | 33 | 1988 | | 2024.11.01 | Àü¼¼ | µ¿Àκô¶ó | 2 | 43 | 7,600 | 0 | 1993 | | 2024.11.01 | Àü¼¼ | ´ë¿µºô¶ó2µ¿(970-12) | 1 | 28.11 | 4,000 | 0 | 1993 | | 2024.11.01 | Àü¼¼ | ÇѼººô¶ó(842-27)³ªµ¿ | 3 | 37.69 | 5,200 | 0 | 1991 | | 2024.11.01 | ¸Å¸Å | ¿¹¿øºô¶ó(949-20)Bµ¿ | 2 | 39.18 | 6,034 | | 1990 | | 2024.10.31 | ¸Å¸Å | ´Ùä¿ò | 5 | 34.35 | 7,500 | | 2011 | | 2024.10.31 | ¸Å¸Å | ¼º±¤ºô¶ó(900-14) | 2 | 44.9 | 9,200 | | 2002 | | 2024.10.31 | Àü¼¼ | °æÀÏÇÏÀÌÃ÷ºô | 1 | 47.63 | 7,000 | 0 | 2002 | | 2024.10.31 | Àü¼¼ | »ïȺô¸®Áö(902-2) | 1 | 38.71 | 5,800 | 0 | 1995 | | 2024.10.31 | ¿ù¼¼ | ¿µÁ¾½ºÀ§Æ®È¨(5µ¿) | 2 | 35.92 | 1,500 | 35 | 1994 | | 2024.10.30 | Àü¼¼ | »ïȺô¶ó(°¡µ¿) | 2 | 59.97 | 10,800 | 0 | 2007 | | 2024.10.30 | Àü¼¼ | û¿Íºô¶ó(2µ¿) | 1 | 34.13 | 3,500 | 0 | 1986 | | 2024.10.30 | Àü¼¼ | Çì·»ÇϿ콺 | 5 | 36.86 | 5,000 | 0 | 2012 | | 2024.10.29 | ¿ù¼¼ | ÆÄÅ©ºô1µ¿,2µ¿ | 3 | 58.62 | 2,000 | 65 | 2001 | | 2024.10.29 | ¿ù¼¼ | ±ÝÈ£ºô¶ó(857-1) | -1 | 33.9 | 300 | 35 | 1991 | | 2024.10.29 | ¿ù¼¼ | ¸®´õ½ºÈú | 11 | 52.96 | 3,000 | 50 | 2015 | | 2024.10.29 | ¿ù¼¼ | ¶óÀÌÇÁºô¶ó(892-43)Bµ¿ | 3 | 36.105 | 500 | 30 | 1989 | | 2024.10.29 | ¸Å¸Å | Áø¾ç(857-6)5µ¿ | 2 | 36.15 | 7,000 | | 1990 | | 2024.10.29 | ¸Å¸Å | ¿¹¿øºô¶ó(949-20)Bµ¿ | 2 | 39.18 | 6,034 | | 1990 | | 2024.10.29 | ¸Å¸Å | ´ë¿µ¾ÆÆ®ºô(898-19)Aµ¿ | 3 | 39.57 | 7,300 | | 2002 | | 2024.10.28 | Àü¼¼ | µÕÁö¸Ç¼Ç | 1 | 55.83 | 8,700 | 0 | 2001 | | 2024.10.28 | ¿ù¼¼ | ´ë¼ººô¶ó5Â÷(´Ùµ¿) | 2 | 35.16 | 500 | 45 | 1989 | | 2024.10.27 | Àü¼¼ | ű¤ºô¶ó(°¡µ¿) | 1 | 34.4025 | 5,000 | 0 | 1989 | | 2024.10.27 | Àü¼¼ | ÇѼָ®Ä¡ºô303µ¿ | 5 | 55.98 | 11,200 | 0 | 2011 | | 2024.10.26 | ¸Å¸Å | ¼Áøºô¶ó(¹Ùµ¿) | 1 | 35.64 | 9,150 | | 1990 | | 2024.10.25 | Àü¼¼ | »ïÈ(950-9) | 3 | 36.28 | 4,500 | 0 | 1988 | | 2024.10.25 | ¿ù¼¼ | µ¿±¤ºô¶ó(977-13) | 4 | 27.56 | 300 | 42 | 1994 | | 2024.10.25 | ¿ù¼¼ | Èñ¼º±×¸°ºô¶ó(111-133)2µ¿ | 3 | 28.55 | 300 | 20 | 1996 | | 2024.10.25 | ¿ù¼¼ | ´ë´öºô¶ó(1095-1) | 4 | 47.21 | 1,000 | 60 | 1994 | | 2024.10.25 | ¸Å¸Å | žçºô¶ó(111-342)Bµ¿ | -1 | 36.17 | 2,950 | | 1996 | | 2024.10.25 | Àü¼¼ | ¿ì¼ººô¶ó(2µ¿) | 3 | 36.61 | 5,000 | 0 | 1990 | | 2024.10.24 | ¸Å¸Å | ´ë¿µºô¶ó2µ¿(970-12) | 1 | 28.11 | 7,000 | | 1993 | | 2024.10.24 | Àü¼¼ | ¿ùµåºô¶ó(950-14)Bµ¿ | 3 | 34.68 | 5,000 | 0 | 1988 | | 2024.10.24 | Àü¼¼ | »ïº¸ºô¶ó(°¡µ¿) | 2 | 35.27 | 6,000 | 0 | 1990 | | 2024.10.24 | ¿ù¼¼ | ´ëÇÑÁÖÅà | 2 | 36.39 | 500 | 35 | 1991 | | 2024.10.23 | ¸Å¸Å | û¼Öºô¶ó(°¡µ¿) | 3 | 33.376 | 5,700 | | 1988 | | 2024.10.23 | Àü¼¼ | ÁÖ°ø3(46-0) | 1 | 70.75 | 18,000 | 0 | 1986 | | 2024.10.23 | Àü¼¼ | »ó¿ìºô¶ó(Cµ¿) | 2 | 36.66 | 5,000 | 0 | 1992 | | 2024.10.23 | Àü¼¼ | ⿵±×¸°ºô¶ó(111-31)Aµ¿ | 2 | 50.39 | 7,000 | 0 | 1995 | | 2024.10.23 | Àü¼¼ | ÀÌÁøºô¶ó(880-21)1µ¿ | -1 | 45.42 | 1,700 | 0 | 1988 | | 2024.10.23 | ¸Å¸Å | ¼ÀϺô¶ó | 1 | 35.14 | 4,000 | | 1991 | | 2024.10.23 | ¿ù¼¼ | ÇѾçºô¶ó | 3 | 40.28 | 500 | 40 | 1987 | | 2024.10.22 | ¸Å¸Å | µÎ¼ººô¶ó(³ªµ¿) | -1 | 34.92 | 5,800 | | 1990 | | 2024.10.22 | Àü¼¼ | û¼Öºô¶ó(°¡µ¿) | 3 | 33.376 | 5,500 | 0 | 1988 | | 2024.10.21 | Àü¼¼ | û³²±×·£µåºôA | 4 | 53.88 | 12,600 | 0 | 2012 | | 2024.10.21 | ¸Å¸Å | ÇÑ»ùºô¶ó(8µ¿) | 1 | 36.38 | 7,700 | | 1988 | | 2024.10.21 | ¸Å¸Å | ÇÑ»ùºô¶ó(8µ¿) | 1 | 36.38 | 7,700 | | 1988 | | 2024.10.21 | ¸Å¸Å | ÇѽŠ| 2 | 35.69 | 8,000 | | 1989 | | 2024.10.21 | Àü¼¼ | Èѹ̸®ºô¶ó(886-38) | 2 | 35.71 | 6,500 | 0 | 1990 | | 2024.10.21 | ¸Å¸Å | Èѹ̸®ºô¶ó(886-40) | 1 | 35.73 | 7,500 | | 1990 | | 2024.10.20 | ¸Å¸Å | ÇѼºô¸®Áö(2~3µ¿) | 1 | 45.76 | 7,200 | | 1995 | | 2024.10.19 | Àü¼¼ | ÇØÇÇÆ®¸®1,2µ¿ | 4 | 49.95 | 9,500 | 0 | 2011 | | 2024.10.19 | ¸Å¸Å | ¼º¿ìºô¶ó(³ªµ¿) | 1 | 34.98 | 6,800 | | 1988 | | 2024.10.19 | ¿ù¼¼ | ¿ì¹Ìºô¶ó(963) | 4 | 36.36 | 500 | 50 | 1993 | | 2024.10.19 | Àü¼¼ | ÇØ¼º(51-0) | -1 | 33.24 | 3,000 | 0 | 1993 | | 2024.10.18 | ¿ù¼¼ | ¿ìÁøºô¶ó(877-4)³ªµ¿ | 2 | 38.25 | 700 | 46 | 1992 | | 2024.10.18 | Àü¼¼ | ÁÖ°ø3(46-0) | 3 | 61.53 | 8,000 | 0 | 1986 | | 2024.10.17 | ¿ù¼¼ | °æÀθǼÇŸ¿î(109-4) | 4 | 36.57 | 500 | 30 | 1996 | | 2024.10.16 | ¸Å¸Å | û¿Íºô¶ó(2µ¿) | 1 | 34.13 | 7,000 | | 1986 | | 2024.10.16 | Àü¼¼ | ¿¹Ã̺ô¶ó | 1 | 37.42 | 5,697 | 0 | 1995 | | 2024.10.16 | ¸Å¸Å | ¿ì¼ººô¶ó(2µ¿) | 3 | 36.61 | 5,100 | | 1990 | | 2024.10.16 | ¿ù¼¼ | ³ª»êºô¶ó(852)Aµ¿ | 3 | 35.13 | 500 | 35 | 1992 | | 2024.10.16 | ¸Å¸Å | ´ë½Â¸®½´ºô1µ¿ | 5 | 53.155 | 16,500 | | 2012 | | 2024.10.15 | ¸Å¸Å | »ï¼ºÈ¨Å¸¿î(948-17) | 4 | 75.12 | 15,300 | | 2002 | | 2024.10.15 | ¸Å¸Å | ´ë¼ººô¶ó5Â÷(´Ùµ¿) | 2 | 35.16 | 7,500 | | 1989 | | 2024.10.15 | ¸Å¸Å | ±ÝÈ£ºô¶ó | 2 | 30.865 | 5,000 | | 1994 | | 2024.10.15 | ¸Å¸Å | ÈÀκô¸®Áö | 3 | 70.92 | 38,500 | | 2024 | | 2024.10.15 | ¿ù¼¼ | »ïº¸ºô¶ó(2µ¿) | -1 | 39.84 | 200 | 35 | 1991 | | 2024.10.14 | ¸Å¸Å | ¹ÏÀ½ºô¶ó(865-14)5µ¿ | -1 | 32.95 | 3,500 | | 1989 | | 2024.10.14 | Àü¼¼ | ¾Æ³²ºô¶ó | 3 | 39.11 | 3,500 | 0 | 1996 | | 2024.10.13 | Àü¼¼ | ´ë»êºô¶ó(111-267)10µ¿ | 2 | 35.395 | 5,290 | 0 | 1990 | | 2024.10.12 | Àü¼¼ | ¿µÈºô¶ó | 1 | 42.54 | 6,000 | 0 | 1989 | | 2024.10.12 | Àü¼¼ | °æÀθǼÇŸ¿î(109-356) | 3 | 54.7 | 8,300 | 0 | 1996 | | 2024.10.12 | Àü¼¼ | û½Ç(3-79)9µ¿ | 1 | 39.39 | 3,500 | 0 | 1989 | | 2024.10.12 | ¿ù¼¼ | ÇÏÀÌÅ×Å©ºô¸®Áö | -1 | 64.45 | 700 | 45 | 2002 | | 2024.10.12 | ¸Å¸Å | À¯ÀϽºÅ¸ºô201 | 5 | 59.4832 | 16,500 | | 2013 | | 2024.10.12 | ¸Å¸Å | ¿µÈºô¶ó(¸¶µ¿) | 1 | 40.44 | 10,850 | | 1988 | | 2024.10.12 | ¸Å¸Å | »ï¼ºÈ¨Å¸¿î(895-51)2µ¿ | 4 | 57.67 | 11,400 | | 2001 | | 2024.10.11 | ¿ù¼¼ | µ¿È£ºô¶ó(´Ùµ¿) | 2 | 47.32 | 500 | 45 | 1987 | | 2024.10.11 | ¿ù¼¼ | ½Åµ¿¾Æºô¶ó(12µ¿) | 3 | 37.5 | 500 | 50 | 1990 | | 2024.10.10 | ¸Å¸Å | (111-399) | 3 | 39.04 | 7,800 | | 1995 | | 2024.10.10 | ¸Å¸Å | À¯°æÁÖÅÃ(977-16)°¡µ¿ | 1 | 36.6 | 8,500 | | 1993 | | 2024.10.10 | ¸Å¸Å | ÆÄÅ©ºô | -1 | 57.36 | 5,200 | | 2001 | | 2024.10.09 | ¸Å¸Å | ºÎÈïºô¶ó(3µ¿) | -1 | 35.43 | 2,300 | | 1989 | | 2024.10.09 | ¿ù¼¼ | µ¿µµºô¶ó(901-38)2µ¿ | -1 | 32.01 | 300 | 35 | 1989 | | 2024.10.09 | ¸Å¸Å | (918-13) | 1 | 68.4 | 20,000 | | 1981 | | 2024.10.09 | Àü¼¼ | ³²µ¿ºô¶ó(Bµ¿) | 1 | 38.14 | 6,000 | 0 | 1991 | | 2024.10.09 | ¿ù¼¼ | µ¿µµºô¶ó(901-38)2µ¿ | -1 | 32.01 | 300 | 35 | 1989 | | 2024.10.09 | ¸Å¸Å | (918-20) | 2 | 62.64 | 18,500 | | 1981 | | 2024.10.09 | Àü¼¼ | Áß¼º°ñµçŸ¿î(952-10)9µ¿ | 1 | 49.67 | 7,400 | 0 | 1993 | | 2024.10.09 | Àü¼¼ | Áß¼º°ñµçŸ¿î(952-10)9µ¿ | 1 | 49.67 | 7,400 | 0 | 1993 | | 2024.10.09 | ¸Å¸Å | »ïȺô¶ó2Â÷ | 2 | 44.28 | 5,500 | | 2001 | | 2024.10.09 | ¸Å¸Å | (918-20) | 1 | 68.4 | 34,200 | | 1981 | | 2024.10.09 | ¸Å¸Å | (918-20) | 2 | 62.64 | 18,500 | | 1981 | | 2024.10.08 | ¸Å¸Å | ·Ôµ¥¸Ç¼Ç(111-115)°¡µ¿ | 4 | 52.89 | 8,200 | | 1996 | | 2024.10.08 | Àü¼¼ | ·°½ººô | 2 | 48.3 | 11,200 | 0 | 2011 | | 2024.10.08 | ¸Å¸Å | ¶óºñij½½ | 5 | 45.86 | 20,000 | | 2009 | | 2024.10.07 | ¸Å¸Å | »ó¿ìºô¶ó(Cµ¿) | -1 | 36.66 | 3,000 | | 1992 | | 2024.10.07 | ¸Å¸Å | (918-14) | 1 | 68.4 | 24,260 | | 1981 | | 2024.10.07 | ¸Å¸Å | (918-13) | 2 | 62.64 | 16,200 | | 1981 | | 2024.10.07 | ¿ù¼¼ | ½Åµ¿¾Æºô¶ó(13~14µ¿) | 2 | 37.72 | 100 | 10 | 1990 | | 2024.10.07 | Àü¼¼ | ÇѳªÇÏÀÌÆ®ºô | 4 | 45.38 | 6,000 | 0 | 2002 | | 2024.10.07 | Àü¼¼ | ¼¿ïÁÖÅÃ(111-175)5µ¿ | 4 | 45.19 | 5,500 | 0 | 1996 | | 2024.10.07 | ¿ù¼¼ | ¼ÛÁ¤(1097-15)1µ¿ | 1 | 34.92 | 500 | 40 | 1990 | | 2024.10.07 | Àü¼¼ | ´ëâ | 3 | 51.8725 | 7,200 | 0 | 1990 | | 2024.10.07 | ¿ù¼¼ | »ûº°ÁÖÅà | 3 | 54.5425 | 1,042 | 35 | 2021 | | 2024.10.06 | Àü¼¼ | ¹Ì·¡21¾ÆÆ®ºô | 5 | 59.86 | 10,000 | 0 | 2012 | | 2024.10.05 | ¸Å¸Å | ½Å¸¸¼öŸ¿î(109-388)109µ¿ | 1 | 39.64 | 7,500 | | 1997 | | 2024.10.05 | ¿ù¼¼ | °³²(5-496)111µ¿ | 4 | 30.54 | 500 | 35 | 2002 | | 2024.10.04 | Àü¼¼ | »ï¹ÌÇϿ콺(844-154) | 3 | 37.89 | 5,400 | 0 | 1990 | | 2024.10.04 | ¿ù¼¼ | ÁÖ°ø3(46-0) | 2 | 70.75 | 14,000 | 20 | 1986 | | 2024.10.04 | ¿ù¼¼ | À¯Áø·º½ººô | 2 | 62.48 | 2,500 | 65 | 2009 | | 2024.10.04 | ¸Å¸Å | ½ºÅ×ÀÌ(1088-2) | 3 | 40.96 | 16,100 | | 2020 | | 2024.10.04 | Àü¼¼ | ´ë¸²ºô¶ó(1µ¿) | 4 | 34.9 | 5,690 | 0 | 1993 | | 2024.10.03 | Àü¼¼ | »ï¿øºô¶ó(977-12) | 1 | 30.93 | 5,600 | 0 | 1989 | | 2024.10.03 | ¿ù¼¼ | ¾Æ³²ºô¶ó | 2 | 39.11 | 100 | 35 | 1996 | | 2024.10.03 | ¿ù¼¼ | »ïº¸ | 2 | 44.28 | 300 | 45 | 1990 | | 2024.10.02 | Àü¼¼ | Ä¥¼ººô¶ó(Aµ¿) | 2 | 37.44 | 6,300 | 0 | 1992 | | 2024.10.02 | Àü¼¼ | ÀÌÁøºô¶ó(880-23)3µ¿ | 1 | 43.62 | 6,200 | 0 | 1988 | | 2024.10.01 | ¿ù¼¼ | ¸¸¼ö¾ÆÆ®ºô¶ó | 1 | 36.51 | 500 | 40 | 1988 | | 2024.10.01 | ¸Å¸Å | û³²±×·£µåºôA | 4 | 53.88 | 11,600 | | 2012 | | 2024.09.30 | ¸Å¸Å | À¯°æÁÖÅÃ(977-16)°¡µ¿ | 2 | 39.82 | 8,500 | | 1993 | | 2024.09.30 | Àü¼¼ | °ø¸íºô¸®Áö | 2 | 33.85 | 4,800 | 0 | 1993 | | 2024.09.30 | Àü¼¼ | ¸¸¼ö¿¬Èñ(951-1)¶óµ¿ | 1 | 36.18 | 5,000 | 0 | 1989 | | 2024.09.30 | ¿ù¼¼ | ¸¸ºÎû³ââ¾÷Áö¿ø¼¾Å͹×ÇູÁÖÅà | 4 | 25.76 | 3,820 | 10 | 2021 | | 2024.09.29 | ¸Å¸Å | (111-399) | 3 | 39.04 | 9,500 | | 1995 | | 2024.09.29 | Àü¼¼ | Èñ¼º±×¸°ºô¶ó(111-440)1µ¿ | 4 | 44.47 | 8,100 | 0 | 1996 | | 2024.09.29 | ¿ù¼¼ | ¸¸ºÎû³ââ¾÷Áö¿ø¼¾Å͹×ÇູÁÖÅà | 6 | 25.76 | 620 | 18 | 2021 | | 2024.09.28 | ¿ù¼¼ | ¸¸ºÎû³ââ¾÷Áö¿ø¼¾Å͹×ÇູÁÖÅà | 6 | 23.67 | 659 | 17 | 2021 | | 2024.09.28 | ¿ù¼¼ | ¼º±¤ºô¶ó(873-3) | 2 | 39.7 | 1,000 | 50 | 2002 | | 2024.09.28 | ¸Å¸Å | ŰǺô¶ó | -1 | 43.75 | 4,300 | | 2001 | | 2024.09.27 | ¸Å¸Å | »ï¿À(977-43)Bµ¿ | 2 | 39.4 | 6,200 | | 1990 | | 2024.09.27 | ¿ù¼¼ | ´ë¸²ÇÏÀ̺ô(851-17) | 1 | 59.57 | 2,000 | 55 | 2001 | | 2024.09.27 | ¸Å¸Å | ¼º½Åºô¶ó(³ªµ¿) | 1 | 40.2 | 9,300 | | 1993 | | 2024.09.27 | ¿ù¼¼ | ¸¸ºÎû³ââ¾÷Áö¿ø¼¾Å͹×ÇູÁÖÅà | 5 | 25.76 | 620 | 18 | 2021 | | 2024.09.27 | ¸Å¸Å | ½Å¶óºô¶ó(°¡µ¿) | 1 | 32.02 | 4,900 | | 1989 | | 2024.09.27 | ¸Å¸Å | ´ëÀÎÇÏÀÌÃ÷ºô¶ó | 4 | 45.02 | 9,000 | | 1994 | | 2024.09.27 | ¿ù¼¼ | ±ÝÈ£ºô¶ó | 1 | 27.41 | 500 | 30 | 1994 | | 2024.09.26 | ¸Å¸Å | ¼Áøºô¶ó(´Ùµ¿) | 2 | 35.64 | 8,500 | | 1990 | | 2024.09.26 | ¿ù¼¼ | ³ª»êºô¶ó(852)Aµ¿ | 1 | 33.66 | 300 | 35 | 1992 | | 2024.09.26 | ¿ù¼¼ | Çì¼¼µå | 11 | 64.6 | 1,000 | 105 | 2023 | | 2024.09.25 | ¸Å¸Å | ¿ì¼ººô¶ó(2µ¿) | 2 | 36.61 | 6,300 | | 1990 | | 2024.09.25 | Àü¼¼ | ½Å¸¸¼öŸ¿î(109-381)102µ¿ | 2 | 47.2 | 6,500 | 0 | 1998 | | 2024.09.25 | Àü¼¼ | »ïº¸ºô¶ó(°¡µ¿) | 1 | 39.62 | 6,200 | 0 | 1990 | | 2024.09.25 | Àü¼¼ | ½Åµ¿¾Æºô¶ó9Â÷ | 2 | 38.34 | 6,500 | 0 | 1990 | | 2024.09.25 | ¿ù¼¼ | »ïÁöºô¶ó(2µ¿) | 1 | 40.61 | 2,000 | 30 | 1990 | | 2024.09.25 | ¿ù¼¼ | ¸¸ºÎû³ââ¾÷Áö¿ø¼¾Å͹×ÇູÁÖÅà | 5 | 23.67 | 3,659 | 9 | 2021 | | 2024.09.24 | ¿ù¼¼ | ¿µÁ¾ºô¶ó(Dµ¿) | 3 | 39.9 | 500 | 45 | 1993 | | 2024.09.24 | ¿ù¼¼ | À¯ÀϺô¶ó(Bµ¿) | 1 | 39.36 | 1,000 | 30 | 1988 | | 2024.09.24 | ¸Å¸Å | ´ë¸íºô¶ó(841-25) | 3 | 37.26 | 6,500 | | 1991 | | 2024.09.24 | Àü¼¼ | ÈÀκ£½ºÆ®ºô | 3 | 45.29 | 7,000 | 0 | 2001 | | 2024.09.24 | ¸Å¸Å | ½Åžçºô¶ó(6µ¿) | 3 | 46.55 | 8,000 | | 1989 | | 2024.09.23 | ¿ù¼¼ | ¿ì¼º(855-19) | 1 | 31.35 | 500 | 30 | 1990 | | 2024.09.23 | ¸Å¸Å | »ïº¸ºô¶ó(A~Bµ¿) | 1 | 46.38 | 6,000 | | 1993 | | 2024.09.22 | ¸Å¸Å | ±¤¸íºô¶ó³ªµ¿(959) | 4 | 36.16 | 7,500 | | 1994 | | 2024.09.22 | ¿ù¼¼ | µ¿¾Æºô¶ó | 4 | 35.46 | 500 | 33 | 1994 | | 2024.09.21 | ¿ù¼¼ | ¿µÈºô¶ó | 2 | 35.42 | 300 | 37 | 1989 | | 2024.09.21 | Àü¼¼ | ´õÀ£½ÃƼ | 2 | 62.33 | 18,000 | 0 | 2019 | | 2024.09.21 | ¿ù¼¼ | ½Å¼ºÇÏÀÌÃ÷ºô¶ó | 1 | 45.12 | 500 | 45 | 1996 | | 2024.09.20 | Àü¼¼ | ¸¶ÀÎÇϿ콺1µ¿ | 5 | 44.45 | 8,500 | 0 | 2008 | | 2024.09.20 | ¿ù¼¼ | ¸¸ºÎû³ââ¾÷Áö¿ø¼¾Å͹×ÇູÁÖÅà | 5 | 23.67 | 2,659 | 9 | 2021 | | 2024.09.20 | ¸Å¸Å | ´ë¸íºô¶ó6µ¿ | 2 | 39.99 | 6,000 | | 1994 | | 2024.09.20 | Àü¼¼ | Á¤ÀϺô¶ó(971-11)Bµ¿ | 3 | 37.92 | 6,100 | 0 | 1993 | | 2024.09.19 | Àü¼¼ | ¿µ½ÅÇÏÀÌÃ÷(946-30) | 2 | 38.97 | 6,500 | 0 | 1990 | | 2024.09.19 | ¸Å¸Å | ÇÑ»ùºô¶ó(6µ¿) | 1 | 36.27 | 5,000 | | 1988 | | 2024.09.19 | ¸Å¸Å | ¼º±¤ÁÖÅÃ(1078-18) | 3 | 59.79 | 12,400 | | 2001 | | 2024.09.19 | ¸Å¸Å | ´º¿ùµåŸ¿î(876-10) | 2 | 48.45 | 12,400 | | 2002 | | 2024.09.19 | ¿ù¼¼ | ¸¸ºÎû³ââ¾÷Áö¿ø¼¾Å͹×ÇູÁÖÅà | 6 | 23.67 | 2,659 | 17 | 2021 | | 2024.09.19 | ¿ù¼¼ | °øÀÛ4µ¿(1076-17) | 1 | 35.88 | 500 | 40 | 1988 | | 2024.09.19 | ¿ù¼¼ | ÇÑÀÏ(5-445)2µ¿ | 4 | 46.96 | 500 | 25 | 1995 | | 2024.09.19 | ¿ù¼¼ | ¿µÈºô¶ó(°¡µ¿) | 3 | 39.06 | 300 | 35 | 1988 | | 2024.09.19 | Àü¼¼ | õ¿ìºô¶ó(953-18)³ªµ¿ | 3 | 30.37 | 4,000 | 0 | 1990 | | 2024.09.19 | Àü¼¼ | ÀϽźô¶ó | 2 | 28.2 | 4,500 | 0 | 1989 | | 2024.09.19 | Àü¼¼ | ½Åµ¿¾Æºô¶ó(16µ¿) | -1 | 50.79 | 5,340 | 0 | 1990 | | 2024.09.18 | ¸Å¸Å | À¯Áø±×¸°ºô¶ó | 3 | 37.49 | 6,270 | | 1996 | | 2024.09.13 | Àü¼¼ | ¼ºÁÖ(894-28)3µ¿ | 2 | 40.62 | 6,700 | 0 | 1991 | | 2024.09.13 | Àü¼¼ | ½Å¾çÁÖÅà | 2 | 59.81 | 9,000 | 0 | 1995 | | 2024.09.13 | Àü¼¼ | º¸¶óºô¶ó(A~Bµ¿) | 3 | 39.64 | 6,100 | 0 | 1994 | | 2024.09.11 | ¿ù¼¼ | ¼Û¿ø(2-52)7µ¿ | 1 | 39.325 | 500 | 30 | 1991 | | 2024.09.10 | ¿ù¼¼ | ´ë¼ººô¶ó(883-9) | 2 | 44.76 | 500 | 45 | 1991 | | 2024.09.10 | Àü¼¼ | ÁÖ°ø3(46-0) | 1 | 55.48 | 13,000 | 0 | 1986 | | 2024.09.09 | ¸Å¸Å | ij½½º£¸® | 10 | 38.766 | 12,000 | | 2016 | | 2024.09.09 | ¸Å¸Å | »ó¿ìºô¶ó(Cµ¿) | 2 | 36.66 | 8,500 | | 1992 | | 2024.09.09 | Àü¼¼ | ¿¹¿øºô¶ó(949-11)Eµ¿ | 1 | 33.39 | 5,200 | 0 | 1994 | | 2024.09.09 | ¿ù¼¼ | Èñ¼º±×¸°ºô¶ó(111-440)1µ¿ | 4 | 44.47 | 300 | 40 | 1996 | | 2024.09.09 | Àü¼¼ | ½Å¸¸¼öŸ¿î(109-382)104µ¿ | 2 | 51.93 | 8,000 | 0 | 1998 | | 2024.09.09 | ¿ù¼¼ | °æÀÎ¾ÆÆ®ºô³ªµ¿ | 3 | 50.56 | 1,000 | 50 | 2003 | | 2024.09.08 | ¸Å¸Å | ½Å¸í½¦¸£ºô(1095-14) | 5 | 43.73 | 9,800 | | 2003 | | 2024.09.08 | Àü¼¼ | ½ÅȺô¶ó(111-465)2µ¿ | 4 | 41.11 | 5,500 | 0 | 1997 | | 2024.09.07 | ¿ù¼¼ | ¼®Á¤ºô¶ó(947-18) | 1 | 36.71 | 500 | 40 | 1991 | | 2024.09.07 | ¿ù¼¼ | ¾Æ¸§ºô¶ó(Eµ¿) | 3 | 36.19 | 300 | 35 | 1990 | | 2024.09.07 | ¿ù¼¼ | ¿¬Èñºô¶ó(879-23)Bµ¿ | 2 | 37.05 | 500 | 50 | 1990 | | 2024.09.06 | ¿ù¼¼ | ¿øÈïºô¶ó(3µ¿) | 3 | 27.85 | 200 | 20 | 1990 | | 2024.09.06 | ¿ù¼¼ | ¿ìÁøÁÖÅà | 3 | 71.83 | 6,834 | 20 | 2021 | | 2024.09.06 | ¿ù¼¼ | ¸¸ºÎû³ââ¾÷Áö¿ø¼¾Å͹×ÇູÁÖÅà | 4 | 25.76 | 2,820 | 10 | 2021 | | 2024.09.06 | ¿ù¼¼ | ±×¸°ºô¶ó(°¡µ¿) | 1 | 24.75 | 1,000 | 20 | 1988 | | 2024.09.06 | Àü¼¼ | »ï¼º¸Ç¼Ç(899-31) | 4 | 70.07 | 11,860 | 0 | 2003 | | 2024.09.05 | ¸Å¸Å | »ï¹Ìºô¶ó(879-1)8µ¿ | 2 | 40.97 | 8,500 | | 1990 | | 2024.09.05 | Àü¼¼ | °³²(5-496)111µ¿ | 3 | 53.91 | 9,000 | 0 | 2002 | | 2024.09.04 | ¿ù¼¼ | ¸¸ºÎû³ââ¾÷Áö¿ø¼¾Å͹×ÇູÁÖÅà | 5 | 25.76 | 2,820 | 18 | 2021 | | 2024.09.04 | Àü¼¼ | ¾çÁöºô¶ó(965-9) | 4 | 42.78 | 7,100 | 0 | 1993 | | 2024.09.04 | ¸Å¸Å | ±×¸°ºô¶ó(2µ¿) | 1 | 30.95 | 8,000 | | 1988 | | 2024.09.03 | ¿ù¼¼ | ¸¸ºÎû³ââ¾÷Áö¿ø¼¾Å͹×ÇູÁÖÅà | 6 | 25.76 | 2,820 | 18 | 2021 | | 2024.09.02 | ¿ù¼¼ | ¼º½Åºô¶ó | 1 | 45.67 | 300 | 50 | 1995 | | 2024.09.02 | ¸Å¸Å | ¼ÛÁ¤(1097-15)1µ¿ | 1 | 34.92 | 5,100 | | 1990 | | 2024.09.02 | ¿ù¼¼ | ¾Æ³²ºô¶ó | 4 | 39.11 | 500 | 50 | 1996 | | 2024.09.02 | Àü¼¼ | ´ë¿µ | 2 | 51.75 | 6,500 | 0 | 1994 | | 2024.09.02 | ¿ù¼¼ | Èѹ̸®ºô¶ó(886-47) | 2 | 35.71 | 500 | 50 | 1990 | | 2024.08.30 | Àü¼¼ | Á¶±¤ºô¶ó | 3 | 38.48 | 5,000 | 0 | 1995 | | 2024.08.30 | ¿ù¼¼ | Ç÷Îä2µ¿ | 5 | 59.64 | 11,660 | 5 | 2011 | | 2024.08.30 | Àü¼¼ | ´ë¸íºô¶ó(841-27) | 1 | 35.91 | 5,100 | 0 | 1991 | | 2024.08.30 | Àü¼¼ | µ¿»ê¸Ç¼Ç | 5 | 51.26 | 9,200 | 0 | 2003 | | 2024.08.30 | Àü¼¼ | »ïº¸¸Ç¼Ç(969-11)³ªµ¿ | 2 | 52.44 | 9,000 | 0 | 2001 | | 2024.08.30 | ¸Å¸Å | ´ë»êºô¶ó(111-322)5µ¿ | 1 | 32.485 | 6,000 | | 1990 | | 2024.08.29 | ¸Å¸Å | ÇѳªÇÏÀÌÆ®ºô | 4 | 39.23 | 8,500 | | 2002 | | 2024.08.29 | ¿ù¼¼ | ¼®Á¤ºô¶ó(947-12) | 2 | 36.18 | 300 | 48 | 1991 | | 2024.08.29 | ¸Å¸Å | ¾Æ³²Å¸¿î | 3 | 62.02 | 14,000 | | 2002 | | 2024.08.29 | ¿ù¼¼ | ¼®Á¤ºô¶ó(947-12) | 2 | 36.18 | 300 | 48 | 1991 | | 2024.08.28 | Àü¼¼ | ±Ý¼ººô¶ó(925-16) | 2 | 40.71 | 6,500 | 0 | 1993 | | 2024.08.28 | ¿ù¼¼ | ¸¸¼ö¸¶À»(109-66)3µ¿ | 3 | 47.08 | 500 | 30 | 1995 | | 2024.08.28 | Àü¼¼ | Á¤¿ø½ºÀ§Æ®ºô(1-44) | 3 | 64.96 | 12,000 | 0 | 2010 | | 2024.08.28 | ¸Å¸Å | »ïÀͺô¶ó | 1 | 37.02 | 5,000 | | 1995 | | 2024.08.28 | ¸Å¸Å | ÇѼººô¶ó(842-27)³ªµ¿ | 3 | 37.69 | 6,200 | | 1991 | | 2024.08.28 | ¸Å¸Å | ⿵±×¸°ºô¶ó(111-32)Dµ¿ | 4 | 36.63 | 6,500 | | 1996 | | 2024.08.28 | ¸Å¸Å | ½Åµ¿¾Æºô¶ó9Â÷ | 2 | 38.34 | 6,500 | | 1990 | | 2024.08.27 | Àü¼¼ | ¼¼ÇÑ´Ù¼¼´ë | 1 | 34.59 | 4,500 | 0 | 1988 | | 2024.08.27 | Àü¼¼ | »êȣȨŸ¿î | 3 | 56.94 | 9,000 | 0 | 2002 | | 2024.08.27 | Àü¼¼ | »êȣȨŸ¿î | 3 | 56.94 | 9,000 | 0 | 2002 | | 2024.08.27 | Àü¼¼ | »êȣȨŸ¿î | 3 | 56.94 | 9,000 | 0 | 2002 | | 2024.08.27 | ¸Å¸Å | ´ë¼ººô¶ó | 1 | 35.7 | 5,500 | | 1990 | | 2024.08.26 | ¿ù¼¼ | À̸²ÈÞ¸Õºô¸®Áö(³ªµ¿) | 3 | 54.33 | 1,000 | 45 | 1994 | | 2024.08.25 | ¸Å¸Å | µ¿µµºô¶ó(901-37)6µ¿ | -1 | 32.01 | 2,500 | | 1990 | | 2024.08.24 | ¸Å¸Å | ÇöÀÏ(5-454)110µ¿ | 2 | 40.56 | 8,500 | | 1996 | | 2024.08.24 | ¿ù¼¼ | ½ÅȺô¶ó3Â÷ | 4 | 41.93 | 500 | 35 | 1996 | | 2024.08.23 | ¿ù¼¼ | Å¿ìºô¶ó(Bµ¿) | 2 | 36.55 | 500 | 45 | 1991 | | 2024.08.23 | Àü¼¼ | ¿µ½ÅÇÏÀÌÃ÷(946-30) | 2 | 39.25 | 6,500 | 0 | 1990 | | 2024.08.23 | ¿ù¼¼ | ¼º¿øºô¶ó(842-2) | 1 | 39.18 | 300 | 33 | 2002 | | 2024.08.22 | ¿ù¼¼ | Áø±¤ºô¶ó(³ªµ¿) | 2 | 33.645 | 300 | 35 | 1989 | | 2024.08.22 | ¸Å¸Å | ´ë»êºô¶ó(111-322)5µ¿ | 2 | 32.485 | 6,200 | | 1990 | | 2024.08.21 | ¸Å¸Å | Çö´ë¸Ç¼Ç(855-11) | 3 | 36.32 | 6,000 | | 1991 | | 2024.08.21 | Àü¼¼ | ¼®¿ø(970-18) | 6 | 58.8 | 9,500 | 0 | 2001 | | 2024.08.21 | ¿ù¼¼ | Áß¼º°ñµåºô¶ó(952-9)8µ¿ | 2 | 51.22 | 1,000 | 50 | 1993 | | 2024.08.21 | ¸Å¸Å | ¿ìÁøº£½ºÆ®ºô | 5 | 30.55 | 9,800 | | 2017 | | 2024.08.20 | ¸Å¸Å | ºÎÈïºô¶ó(1µ¿) | 1 | 35.36 | 7,000 | | 1989 | | 2024.08.20 | ¸Å¸Å | »ï¼º¸Ç¼Ç(899-31) | 4 | 70.07 | 10,000 | | 2003 | | 2024.08.20 | ¸Å¸Å | ÀÌ»è¾ÆÆ®ºô | 3 | 47.66 | 9,500 | | 2002 | | 2024.08.20 | Àü¼¼ | ¼ºÁÖ(894-29) | 1 | 39.68 | 6,100 | 0 | 1991 | | 2024.08.20 | Àü¼¼ | »ïº¸ºô¶ó(6µ¿) | 3 | 41.81 | 6,800 | 0 | 1992 | | 2024.08.20 | Àü¼¼ | ¸®Ä¡Ä³½½ | 4 | 62.82 | 14,300 | 0 | 2012 | | 2024.08.20 | Àü¼¼ | »ïº¸ºô¶ó(6µ¿) | 3 | 41.81 | 6,800 | 0 | 1992 | | 2024.08.20 | ¿ù¼¼ | Çϳª¸Ç¼Ç | -1 | 34.125 | 300 | 30 | 1999 | | 2024.08.20 | ¸Å¸Å | Áø¾ç(857-25)2µ¿ | -1 | 36.15 | 2,500 | | 1990 | | 2024.08.19 | Àü¼¼ | Çö´ëºô¶ó(³ªµ¿) | 3 | 39.63 | 6,300 | 0 | 1989 | | 2024.08.19 | ¸Å¸Å | »êµé¾Ö´Ùµ¿ | 3 | 64.3575 | 17,300 | | 2016 | | 2024.08.17 | Àü¼¼ | ¼Û¿ø(2-52)7µ¿ | 3 | 39.325 | 4,000 | 0 | 1991 | | 2024.08.16 | Àü¼¼ | À¯ÀϽºÅ¸ºô201 | 3 | 59.4832 | 12,700 | 0 | 2013 | | 2024.08.16 | Àü¼¼ | ¿ìÁÖÆÄÅ©ºô(902-8) | 3 | 74.96 | 12,000 | 0 | 2002 | | 2024.08.16 | ¸Å¸Å | ¾ÆÆ®ºô¶ó(953-26)2µ¿ | 2 | 41.94 | 8,000 | | 1990 | | 2024.08.16 | ¸Å¸Å | »ï¼ººô¶ó(871-24)1µ¿ | -1 | 18.42 | 700 | | 1992 | | 2024.08.15 | ¸Å¸Å | ⿵±×¸°ºô¶ó(111-32)Dµ¿ | 3 | 38.25 | 5,000 | | 1996 | | 2024.08.15 | Àü¼¼ | Á¤±¤ºô¶ó | 3 | 20.29 | 2,300 | 0 | 1995 | | 2024.08.14 | ¿ù¼¼ | ¼º±¤(977-1)1µ¿ | 2 | 55.27 | 1,000 | 60 | 2000 | | 2024.08.14 | ¿ù¼¼ | ¿ì¼ººô¶ó(1µ¿) | 2 | 39.18 | 300 | 20 | 1993 | | 2024.08.14 | ¸Å¸Å | °³²(5-487)106µ¿ | 1 | 58.11 | 13,000 | | 2002 | | 2024.08.14 | Àü¼¼ | ½ÅȺô¶ó9Â÷ | 1 | 44.44 | 6,000 | 0 | 1998 | | 2024.08.14 | Àü¼¼ | ´º¿ùµåºô¸®Áö1µ¿ | 4 | 37.89 | 6,250 | 0 | 1993 | | 2024.08.13 | ¿ù¼¼ | û¿ìȨŸ¿î | 5 | 32.31 | 500 | 30 | 2002 | | 2024.08.13 | ¿ù¼¼ | Çö´ëºô¶ó(109-241)Bµ¿ | 1 | 38.54 | 500 | 40 | 1997 | | 2024.08.12 | Àü¼¼ | ½Åµ¿¾Æºô¶ó(19µ¿) | 1 | 39.95 | 6,340 | 0 | 1991 | | 2024.08.12 | Àü¼¼ | °æÀθǼÇŸ¿î(109-357) | 1 | 54.7 | 7,800 | 0 | 1996 | | 2024.08.12 | ¿ù¼¼ | ÈïÀÏ(961-11)11µ¿ | 1 | 32.35 | 500 | 34 | 1990 | | 2024.08.12 | Àü¼¼ | ¹ÏÀ½ºô¶ó(865-29)7µ¿ | 2 | 38.84 | 5,000 | 0 | 1989 | | 2024.08.11 | ¸Å¸Å | ´ëÈïºô¶ó(858-12)5µ¿ | 1 | 37.46 | 6,600 | | 1990 | | 2024.08.10 | ¸Å¸Å | ¼Û¿ø(6-38)12µ¿ | 2 | 36.18 | 6,000 | | 1991 | | 2024.08.10 | ¿ù¼¼ | Á¤¼®ÇÏÀ̺ô | 3 | 58.51 | 2,000 | 50 | 2002 | | 2024.08.10 | Àü¼¼ | À¯Ã¢ºô¶óAµ¿ | 2 | 36.67 | 7,200 | 0 | 1989 | | 2024.08.10 | Àü¼¼ | ¸¸¼ö±×¸°(5-447)6µ¿ | 1 | 39.96 | 5,600 | 0 | 1994 | | 2024.08.10 | ¸Å¸Å | ÇØ¹Ð¶ß¶ô | 2 | 46.23 | 16,000 | | 2014 | | 2024.08.09 | ¿ù¼¼ | ¸¸¼öÁÖ°ø1´ÜÁö(¿¬¸³) | 3 | 46.79 | 1,000 | 45 | 1986 | | 2024.08.09 | Àü¼¼ | ¼ººóºô¶ó(970-9) | 3 | 35.8 | 4,000 | 0 | 1990 | | 2024.08.09 | ¿ù¼¼ | ¿µÈºô¶ó(¸¶µ¿) | 1 | 40.44 | 50 | 43 | 1988 | | 2024.08.09 | ¸Å¸Å | ÇѾç(2-37)7µ¿ | 1 | 39.7 | 7,800 | | 1990 | | 2024.08.08 | ¸Å¸Å | ÀϽºô¶ó | 3 | 27.69 | 3,000 | | 1997 | | 2024.08.08 | ¸Å¸Å | ¼±°æ(851-4)°¡µ¿ | 4 | 31.61 | 4,500 | | 1987 | | 2024.08.08 | Àü¼¼ | ÁÖ°ø3(46-0) | 3 | 61.53 | 14,000 | 0 | 1986 | | 2024.08.07 | ¸Å¸Å | Èñ¸Á²ÞÅÍ | 2 | 69.62 | 22,027 | | 2023 | | 2024.08.07 | ¸Å¸Å | ºÎ¸²ºô¶ó | 2 | 41.88 | 8,000 | | 1989 | | 2024.08.07 | ¸Å¸Å | Èñ¸Á²ÞÅÍ | 2 | 68.93 | 21,808 | | 2023 | | 2024.08.07 | ¸Å¸Å | ÇöÀÏ(5-454)110µ¿ | 3 | 38.7 | 8,000 | | 1996 | | 2024.08.07 | ¸Å¸Å | ½ÅȺô¶ó9Â÷ | -1 | 48.75 | 3,600 | | 1998 | | 2024.08.07 | ¸Å¸Å | Èñ¸Á²ÞÅÍ | 3 | 68.93 | 21,930 | | 2023 | | 2024.08.07 | ¸Å¸Å | Èñ¸Á²ÞÅÍ | 4 | 69.62 | 22,150 | | 2023 | | 2024.08.07 | ¸Å¸Å | Èñ¸Á²ÞÅÍ | 4 | 50.69 | 16,401 | | 2023 | | 2024.08.07 | ¸Å¸Å | Èñ¸Á²ÞÅÍ | 3 | 69.62 | 22,150 | | 2023 | | 2024.08.07 | ¸Å¸Å | Èñ¸Á²ÞÅÍ | 3 | 50.69 | 16,401 | | 2023 | | 2024.08.07 | ¸Å¸Å | Èñ¸Á²ÞÅÍ | 4 | 68.93 | 21,930 | | 2023 | | 2024.08.07 | Àü¼¼ | Áß¼º°ñµåºô¶ó(952-2)1µ¿ | 4 | 45.08 | 6,500 | 0 | 1993 | | 2024.08.07 | ¸Å¸Å | Èñ¸Á²ÞÅÍ | 2 | 50.69 | 16,401 | | 2023 | | 2024.08.07 | ¿ù¼¼ | ·Ôµ¥¸Ç¼Ç(111-115)°¡µ¿ | -1 | 52.89 | 400 | 36 | 1996 | | 2024.08.07 | ¸Å¸Å | û³²±×·£µåºôB | 4 | 53.88 | 13,000 | | 2012 | | 2024.08.06 | Àü¼¼ | žŬ·¡½º | 2 | 59.94 | 13,000 | 0 | 2012 | | 2024.08.06 | ¸Å¸Å | Àμöºô¶ó(855-24)³ªµ¿ | 1 | 39.92 | 6,900 | | 1995 | | 2024.08.06 | ¸Å¸Å | Ãʷϸ¶À»(1097-19)Bµ¿ | 3 | 34.63 | 6,000 | | 2001 | | 2024.08.06 | Àü¼¼ | ºÎÈïºô¶ó(4µ¿) | 1 | 36.96 | 3,500 | 0 | 1989 | | 2024.08.06 | ¸Å¸Å | ÈÆòÀü¿øºô¶ó(111-103)Bµ¿ | 4 | 39.24 | 4,500 | | 1995 | | 2024.08.05 | ¸Å¸Å | ¼º±¤(977-1)1µ¿ | 2 | 55.27 | 8,000 | | 2000 | | 2024.08.05 | ¸Å¸Å | ¼º½Åºô¶ó(³ªµ¿) | 1 | 40.2 | 9,800 | | 1993 | | 2024.08.01 | Àü¼¼ | ¿¹¿øºô¶ó(949-19)Cµ¿ | 3 | 39.18 | 5,000 | 0 | 1992 | | 2024.08.01 | ¸Å¸Å | ·Î¾â±×¸°ºô | 2 | 56.37 | 10,500 | | 2002 | | 2024.07.31 | ¸Å¸Å | »ïº¸(981-6) | 2 | 42.86 | 7,700 | | 1992 | | 2024.07.31 | ¸Å¸Å | ÈÆòÀü¿øºô¶ó(111-103)Bµ¿ | 4 | 39.24 | 4,500 | | 1995 | | 2024.07.31 | ¸Å¸Å | ÀÌÈ»ç¶ûä | 5 | 48.5019 | 16,350 | | 2019 | | 2024.07.31 | ¸Å¸Å | ¼º±¤(853-18)°¡µ¿ | -1 | 28.35 | 4,900 | | 1987 | | 2024.07.31 | ¸Å¸Å | »ï¹ÌÇϿ콺(844-155) | 3 | 37.89 | 5,300 | | 1990 | | 2024.07.31 | ¸Å¸Å | ³ª»êºô¶ó(852-22)Bµ¿ | 3 | 36.33 | 9,800 | | 1991 | | 2024.07.31 | Àü¼¼ | ´ë¿ìºô¶ó(3µ¿) | 2 | 35.07 | 5,100 | 0 | 1989 | | 2024.07.31 | Àü¼¼ | ¼ºÁÖ(894-29) | 2 | 39.68 | 6,500 | 0 | 1991 | | 2024.07.30 | ¿ù¼¼ | ½ÅȺô¶ó(111-465)2µ¿ | 2 | 34.54 | 800 | 28 | 1997 | | 2024.07.30 | ¸Å¸Å | ¿µºô¶ó(977-11)°¡µ¿ | 2 | 35.99 | 7,700 | | 1989 | | 2024.07.29 | ¿ù¼¼ | ÁÖ°ø3(46-0) | 3 | 61.53 | 7,500 | 25 | 1986 | | 2024.07.29 | ¸Å¸Å | ¼®¿ø¸Ç¼Ç(970-14) | -1 | 38.4 | 4,200 | | 2001 | | 2024.07.29 | Àü¼¼ | ½Å¸¸¼öŸ¿î(109-383)105µ¿ | 4 | 44.32 | 6,800 | 0 | 1997 | | 2024.07.27 | ¿ù¼¼ | ´ëȺô¶ó3µ¿(973-32) | 1 | 36.09 | 500 | 40 | 1990 | | 2024.07.27 | Àü¼¼ | ÁÖ°ø3(46-0) | 2 | 70.75 | 18,000 | 0 | 1986 | | 2024.07.27 | ¸Å¸Å | ÇѾç(2-32)2µ¿ | 2 | 42.23 | 5,000 | | 1990 | | 2024.07.27 | ¸Å¸Å | ¼Áøºô¶ó(°¡µ¿) | 1 | 35.64 | 7,500 | | 1990 | | 2024.07.26 | Àü¼¼ | ´ë¼ººô¶ó2Â÷(°¡µ¿) | 2 | 37.87 | 6,500 | 0 | 1990 | | 2024.07.26 | Àü¼¼ | Àײ¿È¨Å¸¿î(1087-4) | 1 | 57.29 | 9,000 | 0 | 2001 | | 2024.07.26 | ¸Å¸Å | ¼®¿ø¸Ç¼Ç(970-14) | -1 | 38.4 | 4,400 | | 2001 | | 2024.07.25 | ¿ù¼¼ | ¼ö¸²±×¸°ºô¶ó | 4 | 36.27 | 500 | 45 | 1996 | | 2024.07.25 | ¿ù¼¼ | ±Ù¾ÖÁÖÅÃ2Â÷ | 2 | 37.62 | 300 | 40 | 1990 | | 2024.07.25 | ¿ù¼¼ | »ûº°ÁÖÅÃ(972-9) | 5 | 54.66 | 623 | 24 | 2019 | | 2024.07.24 | ¸Å¸Å | ´º¿ùµåºô¸®Áö1µ¿ | 4 | 37.89 | 9,750 | | 1993 | | 2024.07.24 | ¸Å¸Å | ±¤µ¿ÁÖÅà | 4 | 31.68 | 7,800 | | 1991 | | 2024.07.24 | ¿ù¼¼ | °Ç¾ç±×¸°Å¸¿î³ªµ¿(963-2) | 1 | 75.87 | 500 | 35 | 1996 | | 2024.07.24 | ¸Å¸Å | ±ÝÈ£ºô¶ó | 2 | 29.095 | 7,500 | | 1994 | | 2024.07.23 | Àü¼¼ | ű¤ºô¶ó(³ªµ¿) | 2 | 34.4025 | 4,000 | 0 | 1989 | | 2024.07.23 | Àü¼¼ | ÇÑÀÏ(5-445)2µ¿ | 1 | 46.96 | 6,900 | 0 | 1995 | | 2024.07.23 | Àü¼¼ | »ï¹Ìºô¶ó(879-22)11µ¿ | 2 | 35.93 | 5,000 | 0 | 1990 | | 2024.07.23 | ¸Å¸Å | °ø¸íºô¸®Áö | -1 | 29.16 | 3,000 | | 1993 | | 2024.07.23 | ¿ù¼¼ | Äýºô¸®Áö | 3 | 27.705 | 500 | 50 | 2014 | | 2024.07.23 | ¿ù¼¼ | ¿¹¿øºô¶ó(949-11)Eµ¿ | 1 | 31.48 | 3,000 | 15 | 1994 | | 2024.07.23 | Àü¼¼ | ¿¬Èñºô¶ó | 1 | 40.43 | 2,000 | 0 | 1992 | | 2024.07.23 | Àü¼¼ | ÇÑÀÏ(5-445)2µ¿ | 1 | 46.96 | 6,900 | 0 | 1995 | | 2024.07.22 | Àü¼¼ | ´ë½Â¸®½´ºô1µ¿ | 4 | 53.155 | 2,000 | 0 | 2012 | | 2024.07.22 | Àü¼¼ | ÁÖ°ø3(46-0) | 3 | 55.48 | 15,000 | 0 | 1986 | | 2024.07.22 | ¿ù¼¼ | ·Ôµ¥¸Ç¼Ç | -1 | 38.13 | 300 | 20 | 1997 | | 2024.07.22 | Àü¼¼ | »ïÁöºô¶ó(4µ¿) | 1 | 40.61 | 6,000 | 0 | 1989 | | 2024.07.22 | Àü¼¼ | °ÅÆòÇÏÀÌÃ÷ | 2 | 33.67 | 5,600 | 0 | 2002 | | 2024.07.21 | ¿ù¼¼ | ÁÖ°ø3(46-0) | 3 | 55.48 | 1,000 | 60 | 1986 | | 2024.07.21 | ¸Å¸Å | ±×¸°³ª·¡ | 3 | 49.3 | 17,000 | | 2017 | | 2024.07.20 | ¸Å¸Å | ÁøÈï¾ÆÆ®ºô(880-7) | 3 | 52.89 | 16,250 | | 2014 | | 2024.07.19 | ¸Å¸Å | ¿¤Áö(5-280) | 4 | 34.74 | 9,000 | | 2002 | | 2024.07.19 | ¿ù¼¼ | ½Åµ¿¾Æºô¶ó10Â÷ | 1 | 38.335 | 500 | 45 | 1990 | | 2024.07.18 | Àü¼¼ | Á¤¿ø½ºÀ§Æ®ºô(1-44) | 3 | 64.96 | 12,500 | 0 | 2010 | | 2024.07.18 | Àü¼¼ | Á¤¿ø½ºÀ§Æ®ºô(1-44) | 3 | 64.96 | 12,500 | 0 | 2010 | | 2024.07.18 | ¿ù¼¼ | »ïÀͺô¶ó | 4 | 38.3 | 1,000 | 40 | 1995 | | 2024.07.18 | Àü¼¼ | ¶óÀÌÇÁºô¶ó(892-24)Cµ¿ | 3 | 36.105 | 5,300 | 0 | 1989 | | 2024.07.18 | Àü¼¼ | ´ë¼ººô¶ó(883-9) | 1 | 34.62 | 5,500 | 0 | 1991 | | 2024.07.17 | ¿ù¼¼ | ±ÝÈ£ÁÖÅÃ7Â÷(965-16) | 3 | 37.36 | 500 | 50 | 2002 | | 2024.07.17 | ¸Å¸Å | »ï¹Ìºô¶ó(877-1)7µ¿ | 3 | 40.97 | 7,600 | | 1990 | | 2024.07.16 | ¸Å¸Å | ´ë¸íºô¶ó(1-289)7µ¿ | 2 | 39.99 | 7,250 | | 1994 | | 2024.07.16 | ¸Å¸Å | ¼º¿ìºô¶ó(´Ùµ¿) | -1 | 38.7 | 3,200 | | 1988 | | 2024.07.16 | ¸Å¸Å | ·Ôµ¥¸Ç¼Ç(1100-7) | 2 | 37.83 | 6,100 | | 2000 | | 2024.07.16 | ¿ù¼¼ | dz¸²(975-30) | 2 | 36.19 | 3,000 | 20 | 1990 | | 2024.07.16 | ¿ù¼¼ | ·Ôµ¥¸Ç¼Ç(111-445) | 4 | 39.25 | 6,100 | 12 | 1996 | | 2024.07.15 | Àü¼¼ | dz¸²(975-1)°¡µ¿ | 3 | 36.51 | 6,100 | 0 | 1990 | | 2024.07.15 | ¿ù¼¼ | µ¿ÀϺô¶ó | 3 | 28.2 | 300 | 29 | 1993 | | 2024.07.14 | ¸Å¸Å | ¿ì¹Ìºô¶ó(1µ¿) | 4 | 39.93 | 10,870 | | 1993 | | 2024.07.13 | ¸Å¸Å | ¸®Ä¡Ä³½½ | 4 | 62.82 | 12,300 | | 2012 | | 2024.07.13 | ¿ù¼¼ | ´ë¿µºô¶ó1µ¿(970-13) | 3 | 37.92 | 1,000 | 50 | 1993 | | 2024.07.12 | ¿ù¼¼ | °æÀθǼÇŸ¿î(109-360) | 4 | 53.82 | 1,000 | 40 | 1996 | | 2024.07.12 | ¿ù¼¼ | °æ¼öºô¶ó(852-20)Aµ¿ | 1 | 35.68 | 500 | 35 | 1990 | | 2024.07.12 | ¿ù¼¼ | ¹éÁ¶ºô¶ó(°¡µ¿) | 2 | 31.26 | 500 | 30 | 1989 | | 2024.07.12 | ¸Å¸Å | °øÀÛ6µ¿(1076-19) | -1 | 33.42 | 3,000 | | 1988 | | 2024.07.12 | ¿ù¼¼ | »ïÈ(950-11)10µ¿ | 2 | 25.11 | 300 | 38 | 1988 | | 2024.07.11 | ¿ù¼¼ | °³²ºô¶ó(881-5)³ªµ¿ | 2 | 44.155 | 500 | 45 | 1988 | | 2024.07.10 | ¸Å¸Å | ¸¸¼öÁÖ°ø2´ÜÁö | 11 | 64.62 | 30,000 | | 1987 | | 2024.07.10 | ¿ù¼¼ | »ï¹ÌÇϿ콺(844-156)11µ¿ | 3 | 37.56 | 200 | 20 | 1990 | | 2024.07.10 | ¸Å¸Å | ¹Ì¸²(893-9)7µ¿ | 2 | 37.49 | 7,200 | | 1986 | | 2024.07.10 | ¸Å¸Å | ¸¸¼öºô¶ó(895-61)Bµ¿ | 2 | 41.21 | 8,700 | | 1996 | | 2024.07.10 | ¸Å¸Å | ÈÆòÀü¿øºô¶ó(111-29)Cµ¿ | 1 | 35.75 | 6,500 | | 1995 | | 2024.07.10 | ¸Å¸Å | ¿ì¹Ìºô¶ó(101µ¿) | 1 | 52.89 | 10,000 | | 1994 | | 2024.07.10 | Àü¼¼ | ±¤¸íºô¶ó°¡µ¿(959-4) | 1 | 33.83 | 4,000 | 0 | 1994 | | 2024.07.09 | ¿ù¼¼ | ¿¢¼³·±Æ®Bµ¿ | 8 | 19.94 | 300 | 35 | 2011 | | 2024.07.09 | ¿ù¼¼ | ºÎÈï(977-33)Aµ¿ | 3 | 38.37 | 500 | 40 | 1988 | | 2024.07.09 | ¿ù¼¼ | Áø¾çºô¶ó(890-35)Aµ¿ | 1 | 39.24 | 1,000 | 40 | 1992 | | 2024.07.08 | Àü¼¼ | ű¤ºô¶ó(¶óµ¿) | 2 | 37.3875 | 5,900 | 0 | 1989 | | 2024.07.08 | ¿ù¼¼ | Çö´ëºô¶ó(109-241)Bµ¿ | 3 | 33.39 | 500 | 45 | 1997 | | 2024.07.08 | ¸Å¸Å | ÆÄÅ©¿ø52 | 14 | 63.95 | 19,300 | | 2018 | | 2024.07.08 | ¸Å¸Å | ¼ÛÁ¤(1097-12)4µ¿ | 1 | 34.92 | 5,900 | | 1992 | | 2024.07.07 | ¸Å¸Å | ´õÁ¶ÀºÆÄÅ©ºô | 3 | 46.25 | 14,300 | | 2015 | | 2024.07.06 | ¸Å¸Å | ¹Ý¼®ÇÏÀÌÃ÷ºô | 1 | 48.14 | 10,300 | | 2001 | | 2024.07.06 | Àü¼¼ | Áß¼º°ñµçŸ¿î(952-8)7µ¿ | 3 | 51.22 | 8,000 | 0 | 1993 | | 2024.07.06 | ¸Å¸Å | ÇÏÀ̺ô¶ó(5µ¿) | 1 | 36.42 | 10,000 | | 1989 | | 2024.07.05 | ¸Å¸Å | »ïÈ(950-8) | 2 | 36.28 | 10,400 | | 1988 | | 2024.07.05 | ¸Å¸Å | ÈÆòÀü¿øºô¶ó(111-103)Bµ¿ | 2 | 38.88 | 4,100 | | 1995 | | 2024.07.05 | ¸Å¸Å | ½Å½ÂÆç¸®½Ã¿ò | 6 | 50.58 | 16,300 | | 2011 | | 2024.07.05 | Àü¼¼ | ¸¸¼öÁÖ°ø1´ÜÁö(¿¬¸³) | 2 | 46.79 | 13,000 | 0 | 1986 | | 2024.07.04 | Àü¼¼ | ½Å¸¸¼öŸ¿î(109-388)109µ¿ | 2 | 39.64 | 3,000 | 0 | 1997 | | 2024.07.04 | Àü¼¼ | ÁÖ°ø3(46-0) | 2 | 55.48 | 14,500 | 0 | 1986 | | 2024.07.04 | ¸Å¸Å | ½ÅÈ2µ¿ | 2 | 32.52 | 8,000 | | 2001 | | 2024.07.04 | ¸Å¸Å | ¸¸¼öºÏºô¶ó(871-21)³ªµ¿ | -1 | 35.43 | 3,800 | | 1990 | | 2024.07.03 | Àü¼¼ | ¿ì¼ººô¶ó(1µ¿) | 2 | 36.02 | 7,000 | 0 | 1990 | | 2024.07.02 | ¿ù¼¼ | ¼®Á¤ºô¶ó(947-12) | 3 | 35.7 | 1,000 | 30 | 1991 | | 2024.07.02 | ¸Å¸Å | ¸¸¼ö¸¶À»(109-67)5µ¿ | 4 | 39.68 | 8,500 | | 1995 | | 2024.07.02 | ¿ù¼¼ | »ï¿ìºô¶ó | 4 | 49.83 | 500 | 44 | 1992 | | 2024.07.01 | ¿ù¼¼ | Áø¾ç(857-26)1µ¿ | 1 | 36.15 | 500 | 40 | 1990 | | 2024.07.01 | ¿ù¼¼ | ÁøÁÖºô¶ó(9µ¿) | 3 | 33.52 | 500 | 35 | 1988 | | 2024.07.01 | Àü¼¼ | °æÀθǼÇŸ¿î(109-363) | 4 | 52.935 | 7,530 | 0 | 1996 | | 2024.06.29 | ¸Å¸Å | À̸²ÈÞ¸Õºô¸®Áö(°¡µ¿) | 2 | 63.525 | 13,700 | | 1994 | | 2024.06.29 | ¿ù¼¼ | ÀÌȺô¶ó | 3 | 35.7 | 2,000 | 40 | 1994 | | 2024.06.29 | Àü¼¼ | û¼Öºô¶ó(³ªµ¿) | 1 | 33.376 | 7,000 | 0 | 1988 | | 2024.06.29 | ¿ù¼¼ | ¸®´õ½ºÈú | 9 | 52.96 | 2,000 | 65 | 2015 | | 2024.06.28 | Àü¼¼ | ¿¡µ§ºô¶ó | 1 | 32.29 | 5,000 | 0 | 1991 | | 2024.06.27 | Àü¼¼ | ÇÑ»ùºô¶ó(13µ¿) | 3 | 31.14 | 4,800 | 0 | 1988 | | 2024.06.27 | ¿ù¼¼ | »ûº°ÁÖÅà | 4 | 67.0875 | 1,044 | 43 | 2021 | | 2024.06.27 | Àü¼¼ | ±ÝÈ£ÁÖÅÃ6Â÷(962-7) | 3 | 44.04 | 7,800 | 0 | 2001 | | 2024.06.27 | ¸Å¸Å | ÀÌÈ»ç¶ûä | 5 | 48.5019 | 16,350 | | 2019 | | 2024.06.27 | ¸Å¸Å | ¿ì¹Ìºô¶ó(963-19)Bµ¿ | 4 | 36.36 | 5,200 | | 1993 | | 2024.06.27 | ¸Å¸Å | ¸ð´øÇϿ콺 | 6 | 52.55 | 22,100 | | 2017 | | 2024.06.27 | ¿ù¼¼ | Àμº(894-11)Aµ¿ | 2 | 36.24 | 1,000 | 30 | 1989 | | 2024.06.26 | ¸Å¸Å | Á¤¿ø(894-5)´Ùµ¿ | 1 | 31.78 | 3,800 | | 1989 | | 2024.06.26 | ¿ù¼¼ | »ï¼ººô¶ó(871)3µ¿ | 2 | 37.44 | 1,000 | 35 | 1994 | | 2024.06.25 | ¿ù¼¼ | Çö´ëºô¶ó(¶óµ¿) | 3 | 36.98 | 500 | 40 | 1993 | | 2024.06.24 | ¿ù¼¼ | ¿ì¸²ºô¶ó(980-15)8µ¿ | 2 | 36 | 300 | 55 | 1990 | | 2024.06.24 | ¿ù¼¼ | °æÀθǼÇŸ¿î(109-361) | 2 | 54.7 | 2,000 | 40 | 1996 | | 2024.06.24 | Àü¼¼ | ±¤¸í(959-2) | 3 | 140.19 | 20,000 | 0 | 1997 | | 2024.06.24 | ¸Å¸Å | À̾ȾÖ2~3µ¿ | 4 | 51.33 | 17,000 | | 2018 | | 2024.06.24 | ¿ù¼¼ | ½ºÅ¸¸Ç¼Ç(867-7) | 4 | 57.73 | 1,000 | 40 | 2002 | | 2024.06.24 | ¿ù¼¼ | °æÀθǼÇŸ¿î(109-361) | 2 | 54.7 | 2,000 | 40 | 1996 | | 2024.06.22 | Àü¼¼ | ½ÂÈñºô¶ó | 2 | 34.44 | 5,300 | 0 | 1997 | | 2024.06.22 | ¿ù¼¼ | ¼Áøºô¶ó(¶óµ¿) | 3 | 35.64 | 500 | 40 | 1990 | | 2024.06.22 | ¿ù¼¼ | Èѹ̸®ºô¶ó(886-46) | 1 | 35.71 | 500 | 40 | 1990 | | 2024.06.22 | Àü¼¼ | ¿µÈºô¶ó(°¡µ¿) | 3 | 35.79 | 5,500 | 0 | 1988 | | 2024.06.22 | Àü¼¼ | ½Ã¿Â¼ººô¶ó | 4 | 46.8 | 7,600 | 0 | 1999 | | 2024.06.22 | Àü¼¼ | ÇÑ»ùºô¶ó(13µ¿) | 3 | 31.14 | 5,100 | 0 | 1988 | | 2024.06.22 | Àü¼¼ | ½ÅÈÁÖÅà | 1 | 35.41 | 5,580 | 0 | 2000 | | 2024.06.22 | Àü¼¼ | ºÎ°æÈ¨Å¸¿î(3µ¿) | 2 | 39.78 | 7,870 | 0 | 2002 | | 2024.06.21 | Àü¼¼ | »ïÀϺô¶ó(855-12)³ªµ¿ | 3 | 40.59 | 3,000 | 0 | 1990 | | 2024.06.21 | ¸Å¸Å | ¸ñ¹Îºô¶ó(867-8)Aµ¿ | 2 | 50.15 | 13,000 | | 2003 | | 2024.06.21 | ¸Å¸Å | ÀÌ·¹¾ÆÆ®ºô | 2 | 55.77 | 13,500 | | 2003 | | 2024.06.21 | Àü¼¼ | ¼¿ïÁÖÅÃ(109-306)4µ¿ | 2 | 49.89 | 7,570 | 0 | 1996 | | 2024.06.20 | ¸Å¸Å | »ï¼ººô¶ó(871-24)1µ¿ | 1 | 34.89 | 4,400 | | 1992 | | 2024.06.20 | Àü¼¼ | »ïÈ(950-7) | 2 | 29.12 | 4,300 | 0 | 1988 | | 2024.06.20 | ¿ù¼¼ | õ¿ìºô¶ó(111-349)Cµ¿ | -1 | 40.41 | 100 | 30 | 1991 | | 2024.06.20 | Àü¼¼ | ·°Å°ºô¶ó | -1 | 37.24 | 3,000 | 0 | 1993 | | 2024.06.19 | ¸Å¸Å | ÇÑ»ùºô¶ó(13µ¿) | 3 | 31.14 | 8,500 | | 1988 | | 2024.06.19 | ¿ù¼¼ | ´ëÀÎÇÏÀÌÃ÷ºô¶ó | 3 | 45.02 | 500 | 30 | 1994 | | 2024.06.19 | ¸Å¸Å | ½Å¸¸¼öŸ¿î(109-388)109µ¿ | 3 | 39.64 | 6,000 | | 1997 | | 2024.06.19 | Àü¼¼ | ¸¸¼öÁÖ°ø1´ÜÁö(¿¬¸³) | 3 | 46.79 | 12,000 | 0 | 1986 | | 2024.06.18 | Àü¼¼ | ¸¸¼ö(950-1)³ªµ¿ | 2 | 30.43 | 6,000 | 0 | 1991 | | 2024.06.18 | ¸Å¸Å | ´ëÇÑÁÖÅà | 2 | 36.39 | 8,100 | | 1991 | | 2024.06.17 | ¿ù¼¼ | µ¿Àκô¶ó(865-3) | 2 | 41.48 | 500 | 37 | 1994 | | 2024.06.17 | ¿ù¼¼ | ±Ý¼ººô¶ó(925-16) | 4 | 40.71 | 500 | 40 | 1993 | | 2024.06.17 | ¿ù¼¼ | ¼º¿ìºô¶ó(°¡µ¿) | -1 | 37.03 | 200 | 35 | 1988 | | 2024.06.15 | Àü¼¼ | ¿ì¼º¾ÆÆ®ºô¶ó | 2 | 36.05 | 6,100 | 0 | 1990 | | 2024.06.15 | Àü¼¼ | ÇØÇÇÇϿ콺 | 4 | 47.72 | 10,000 | 0 | 2010 | | 2024.06.15 | ¿ù¼¼ | ¸¸¼öÁÖ°ø1´ÜÁö(¿¬¸³) | 2 | 46.86 | 1,000 | 50 | 1986 | | 2024.06.15 | ¸Å¸Å | ´ë¸íºô¶ó(1-291)1µ¿ | 4 | 38.08 | 5,500 | | 1994 | | 2024.06.15 | ¸Å¸Å | µ¿È£ºô¶ó(´Ùµ¿) | 2 | 47.32 | 6,300 | | 1987 | | 2024.06.13 | Àü¼¼ | ½Åµ¿¾Æºô¶ó(20µ¿) | 2 | 39.95 | 6,300 | 0 | 1991 | | 2024.06.13 | Àü¼¼ | Áø»êÁÖÅÃ(857-3)°¡µ¿ | 2 | 41.66 | 4,000 | 0 | 1990 | | 2024.06.13 | ¿ù¼¼ | °Å»êºô¶ó | 2 | 48.39 | 500 | 53 | 1996 | | 2024.06.13 | Àü¼¼ | Áø»êÁÖÅÃ(857-3)°¡µ¿ | 2 | 41.66 | 4,000 | 0 | 1990 | | 2024.06.12 | Àü¼¼ | »ïº¸ºô¶ó(4µ¿) | 3 | 41.81 | 6,800 | 0 | 1992 | | 2024.06.12 | Àü¼¼ | ¹ÌÁøºô¶ó(³ªµ¿) | 1 | 36.36 | 6,000 | 0 | 1992 | | 2024.06.12 | ¸Å¸Å | »ï»ï±×¸°ºô¶ó | 4 | 32.42 | 6,200 | | 1996 | | 2024.06.11 | ¿ù¼¼ | ±Ýºû¸¶À»1Â÷(859-1)102µ¿ | 5 | 73.84 | 2,000 | 50 | 2004 | | 2024.06.11 | Àü¼¼ | »ïȺô¸®Áö(902-6)³ªµ¿ | 4 | 38.87 | 4,900 | 0 | 1995 | | 2024.06.11 | Àü¼¼ | ¼º½Åºô¶ó | 3 | 43.11 | 9,000 | 0 | 1995 | | 2024.06.11 | ¸Å¸Å | µ¿¿ì¾ÆÆ®ºô(1µ¿) | 4 | 59.92 | 12,000 | | 2000 | | 2024.06.11 | Àü¼¼ | ÈïÀϺô¶ó(2µ¿)(930-3) | 1 | 48.34 | 7,400 | 0 | 1989 | | 2024.06.10 | ¸Å¸Å | ¿ì¼ººô¶ó3Â÷(3µ¿) | -1 | 43.44 | 7,300 | | 1989 | | 2024.06.10 | Àü¼¼ | »ï¹Ìºô¶ó(877-1)7µ¿ | 3 | 40.97 | 6,500 | 0 | 1990 | | 2024.06.10 | ¸Å¸Å | ½ÅÅ¿ìºô¶ó | 2 | 25.11 | 4,000 | | 1993 | | 2024.06.08 | Àü¼¼ | ¿¹µµ(³ªµ¿) | -1 | 36.08 | 3,360 | 0 | 1991 | | 2024.06.08 | ¿ù¼¼ | ¿¹¿øºô¶ó(949-19)Cµ¿ | 3 | 31.68 | 500 | 40 | 1992 | | 2024.06.08 | ¸Å¸Å | À¯°æÁÖÅÃ(977-16)°¡µ¿ | 1 | 36.6 | 8,800 | | 1993 | | 2024.06.08 | Àü¼¼ | ¿¡µ§ºô¶ó | 2 | 32.29 | 4,000 | 0 | 1991 | | 2024.06.08 | ¿ù¼¼ | ÇØ¸¶·çºô¸®ÁöBµ¿ | 5 | 39.98 | 2,000 | 55 | 2010 | | 2024.06.07 | ¸Å¸Å | ½ÅÈÁÖÅà | 1 | 35.35 | 3,000 | | 2000 | | 2024.06.07 | ¿ù¼¼ | ¸¸¼öÁÖ°ø1´ÜÁö(¿¬¸³) | 3 | 46.86 | 1,000 | 53 | 1986 | | 2024.06.07 | ¸Å¸Å | ¼º±¤(853-18)°¡µ¿ | -1 | 28.35 | 3,000 | | 1987 | | 2024.06.07 | Àü¼¼ | ´ë¿µ | 1 | 46.95 | 5,500 | 0 | 1994 | | 2024.06.07 | ¸Å¸Å | »ï¿øºô¶ó(977-12) | -1 | 30.93 | 3,700 | | 1989 | | 2024.06.06 | ¸Å¸Å | ÇØ¿À¸§ÆÓ¸®½º | 3 | 65.27 | 15,800 | | 2008 | | 2024.06.06 | Àü¼¼ | û½Ç(3-88)1µ¿ | 3 | 40.38 | 5,000 | 0 | 1989 | | 2024.06.06 | ¿ù¼¼ | ÇöÀÏ(5-457) | 3 | 57.9 | 1,000 | 40 | 1997 | | 2024.06.06 | ¿ù¼¼ | ÇöÀÏ(5-457) | 3 | 57.9 | 1,000 | 40 | 1997 | | 2024.06.05 | Àü¼¼ | Á¦ÀϺô¶ó(891-9) | 1 | 38.72 | 5,900 | 0 | 1993 | | 2024.06.05 | ¸Å¸Å | »ïÈ(950-10) | -1 | 34.57 | 5,500 | | 1988 | | 2024.06.05 | ¿ù¼¼ | »ó¿ìÁÖÅà | 1 | 36.35 | 500 | 40 | 1993 | | 2024.06.04 | ¸Å¸Å | Àμ۴ټ¼´ë | -1 | 39.56 | 5,300 | | 1990 | | 2024.06.04 | ¸Å¸Å | ÇÏÀÌÅ×Å©ºô¸®Áö | -1 | 80.11 | 11,300 | | 2002 | | 2024.06.04 | ¸Å¸Å | °ø¸íºô¸®Áö | 2 | 33.85 | 5,200 | | 1993 | | 2024.06.03 | ¸Å¸Å | ½Å½ÂÆç¸®½Ã¿ò | 5 | 50.58 | 15,800 | | 2011 | | 2024.06.03 | Àü¼¼ | ¼º½Åºô¶ó(³ªµ¿) | 2 | 40.2 | 6,500 | 0 | 1993 | | 2024.06.02 | ¿ù¼¼ | ¼Áøºô¶ó(¶óµ¿) | 1 | 35.64 | 500 | 45 | 1990 | | 2024.06.01 | ¿ù¼¼ | Çö´ëºô¶ó(¸¶µ¿) | 2 | 39.63 | 500 | 40 | 1989 | | 2024.06.01 | Àü¼¼ | ÁÖ°ø3(46-0) | 3 | 61.53 | 14,000 | 0 | 1986 | | 2024.06.01 | Àü¼¼ | ½Å¸¸¼öºô¶ó(109-152)103µ¿ | 1 | 51.93 | 6,708 | 0 | 1997 | | 2024.06.01 | ¸Å¸Å | û³²±×·£µåºôB | 3 | 53.88 | 13,000 | | 2012 | | 2024.05.31 | Àü¼¼ | LG(5-284)°¡µ¿ | 1 | 36.53 | 5,900 | 0 | 2001 | | 2024.05.31 | Àü¼¼ | Å¿õºô¶ó(955-13)³ªµ¿ | 4 | 30.42 | 3,000 | 0 | 1993 | | 2024.05.31 | Àü¼¼ | LG(5-284)°¡µ¿ | 1 | 36.53 | 6,000 | 0 | 2001 | | 2024.05.31 | ¿ù¼¼ | ¼ÛÁ¤(1097-15)1µ¿ | 3 | 34.92 | 500 | 40 | 1990 | | 2024.05.31 | ¸Å¸Å | »ïȺô¶ó4Â÷ | 2 | 42.85 | 10,000 | | 2002 | | 2024.05.31 | ¸Å¸Å | Èѹ̸®ºô¶ó(886-45) | 1 | 36.11 | 7,500 | | 1990 | | 2024.05.30 | Àü¼¼ | ¸¸¼öSclass2µ¿½ÅÃà°ø»ç | 10 | 42.03 | 12,900 | 0 | 2018 | | 2024.05.30 | Àü¼¼ | ·Î¾âÆÄÅ©ºô | 2 | 47.685 | 8,000 | 0 | 2003 | | 2024.05.30 | ¸Å¸Å | ½Å¸¸¼öŸ¿î(109-387)108µ¿ | 4 | 39.64 | 5,800 | | 1997 | | 2024.05.30 | ¸Å¸Å | »ï¹ÌÇϿ콺(844-151)5µ¿ | 2 | 36.88 | 9,000 | | 1990 | | 2024.05.30 | ¸Å¸Å | ÁÖ°ø3(46-0) | 1 | 55.48 | 26,000 | | 1986 | | 2024.05.30 | Àü¼¼ | °ø¸í½ÃƼºô¶ó(111-214) | 2 | 31.45 | 4,200 | 0 | 1995 | | 2024.05.29 | ¿ù¼¼ | °æÀθǼÇŸ¿î(109-361) | 2 | 54.7 | 2,000 | 40 | 1996 | | 2024.05.29 | ¿ù¼¼ | ¼º½Åºô¶ó(³ªµ¿) | 4 | 40.2 | 500 | 40 | 1993 | | 2024.05.29 | Àü¼¼ | °Å¿µÇÏÀÌÃ÷(2-77)Aµ¿ | 2 | 59.77 | 9,500 | 0 | 2002 | | 2024.05.29 | Àü¼¼ | »ïȺô¶ó2Â÷ | 2 | 44.28 | 7,500 | 0 | 2001 | | 2024.05.29 | ¸Å¸Å | ÇѼºô¸®Áö(1µ¿) | -1 | 37.44 | 5,500 | | 1994 | | 2024.05.29 | ¸Å¸Å | Çö´ëºô¶ó(³ªµ¿)(938-23) | 3 | 36.98 | 7,350 | | 1991 | | 2024.05.29 | ¸Å¸Å | Á¤Áøºô¶ó(957-16)°¡µ¿ | -1 | 39.78 | 4,500 | | 1991 | | 2024.05.29 | ¸Å¸Å | µ¿È£ºô¶ó(¸¶µ¿) | 1 | 47.32 | 10,500 | | 1987 | | 2024.05.29 | ¿ù¼¼ | ´ë¿µºô¶ó2µ¿(970-12) | 4 | 34.5 | 3,500 | 23 | 1993 | | 2024.05.28 | ¸Å¸Å | °æÀθǼÇŸ¿î(109-357) | 4 | 54.7 | 8,500 | | 1996 | | 2024.05.28 | ¸Å¸Å | »ïº¸ºô¶ó(A~Bµ¿) | 4 | 46.38 | 11,000 | | 1993 | | 2024.05.28 | ¸Å¸Å | ¼®Á¤ºô¶ó(947-12) | 1 | 36.18 | 10,000 | | 1991 | | 2024.05.28 | ¸Å¸Å | ÇâÃ̺ô¶ó | 2 | 40.8 | 7,500 | | 2002 | | 2024.05.28 | ¸Å¸Å | »ï¹Ìºô¶ó(877-1)7µ¿ | 3 | 40.97 | 8,100 | | 1990 | | 2024.05.28 | ¸Å¸Å | Å¿ìºô¶ó(857-32)Bµ¿ | 2 | 35.65 | 7,500 | | 1991 | | 2024.05.27 | ¸Å¸Å | ±¤¸íºô¶ó°¡µ¿(959-4) | 4 | 43.31 | 9,500 | | 1994 | | 2024.05.27 | ¸Å¸Å | ´ë¿øºô¶ó | 3 | 34.58 | 6,600 | | 1992 | | 2024.05.27 | ¸Å¸Å | À¯Áø±×¸°ºô¶ó | 3 | 37.49 | 7,000 | | 1996 | | 2024.05.27 | ¸Å¸Å | ½£¿¹Âù | 4 | 58.6 | 15,500 | | 2010 | | 2024.05.27 | ¸Å¸Å | °æÀθǼÇŸ¿î(109-357) | 4 | 54.7 | 8,500 | | 1996 | | 2024.05.27 | Àü¼¼ | ½Åµ¿¾Æºô¶ó(12µ¿) | 2 | 37.5 | 5,500 | 0 | 1990 | | 2024.05.27 | Àü¼¼ | ºÎÈïºô¶ó(4µ¿) | 3 | 35.36 | 5,500 | 0 | 1989 | | 2024.05.27 | Àü¼¼ | »ïÁöºô¶ó(5µ¿) | 1 | 39.67 | 6,200 | 0 | 1990 | | 2024.05.25 | ¸Å¸Å | ±ÝÈ£ºô¶ó(857-1) | -1 | 38.37 | 3,300 | | 1991 | | 2024.05.25 | Àü¼¼ | ¼¼Á¾ÄܼƮºô(103µ¿) | 1 | 58.17 | 9,000 | 0 | 2001 | | 2024.05.25 | Àü¼¼ | ¼º½Åºô¶ó | 2 | 43.11 | 7,000 | 0 | 1995 | | 2024.05.25 | ¿ù¼¼ | »ï¹ÌÇϿ콺(844-159)14µ¿ | 2 | 37.89 | 500 | 30 | 1990 | | 2024.05.24 | Àü¼¼ | ¼º½Åºô¶ó(°¡µ¿) | 2 | 40.56 | 6,700 | 0 | 1993 | | 2024.05.24 | Àü¼¼ | ¼ºÁÖ(894-28)3µ¿ | 3 | 35.12 | 5,300 | 0 | 1991 | | 2024.05.24 | ¸Å¸Å | ½ÅȺô¶ó(111-465)2µ¿ | 2 | 34.54 | 5,800 | | 1997 | | 2024.05.24 | ¸Å¸Å | õ¿ìºô¶ó(963-18)Aµ¿ | -1 | 31.95 | 3,700 | | 1990 | | 2024.05.24 | ¸Å¸Å | ¼º½Åºô¶ó2Â÷ | 3 | 39.11 | 9,100 | | 1996 | | 2024.05.24 | Àü¼¼ | ÇÑ¿ï¶ó¿Âä | 7 | 43.2075 | 10,000 | 0 | 2015 | | 2024.05.23 | Àü¼¼ | ÇöÀÏ(5-434)111µ¿ | 4 | 44.13 | 6,310 | 0 | 1996 | | 2024.05.23 | ¸Å¸Å | ¼ºÁÖ(894-9)1µ¿ | 3 | 39.67 | 7,000 | | 1991 | | 2024.05.23 | ¸Å¸Å | Áø¾çºô¶ó(890-48)Bµ¿ | -1 | 40.91 | 5,300 | | 1992 | | 2024.05.22 | ¸Å¸Å | ÇÏÀ̺ô¶ó(1µ¿) | 1 | 27.985 | 7,500 | | 1989 | | 2024.05.22 | ¿ù¼¼ | û¼Öºô¶ó(¶óµ¿) | 2 | 33.376 | 500 | 42 | 1988 | | 2024.05.22 | Àü¼¼ | ¿ì¼ººô¶ó(2µ¿) | 2 | 36.61 | 7,000 | 0 | 1990 | | 2024.05.21 | ¿ù¼¼ | Á¤Àºº£½ºÆ®ºô(855-2) | 4 | 39.91 | 500 | 35 | 2002 | | 2024.05.21 | ¿ù¼¼ | »ïº¸ºô¶ó(´Ùµ¿) | 2 | 35.27 | 500 | 40 | 1990 | | 2024.05.21 | Àü¼¼ | ½Å¼¼°èºô¶ó(³ªµ¿) | 2 | 39.66 | 7,200 | 0 | 1990 | | 2024.05.21 | ¸Å¸Å | ´ëâ | 2 | 31.305 | 3,100 | | 1990 | | 2024.05.21 | ¸Å¸Å | °æ¼öºô¶ó(855) | 2 | 22.69 | 4,200 | | 1990 | | 2024.05.21 | ¸Å¸Å | ÇÏÀ̺ô¶ó(5µ¿) | 1 | 36.42 | 10,000 | | 1989 | | 2024.05.20 | ¸Å¸Å | Áß¼º°ñµçŸ¿î(952-8)7µ¿ | 1 | 50.47 | 9,500 | | 1993 | | 2024.05.20 | ¸Å¸Å | ÀÌ·¹¾ÆÆ®ºô | 2 | 55.77 | 13,500 | | 2003 | | 2024.05.20 | ¸Å¸Å | ½Å¸í½¦¸£ºô(1095-14) | 4 | 55.87 | 11,900 | | 2003 | | 2024.05.20 | ¸Å¸Å | û¼Ûºô¶ó | 1 | 45.72 | 8,400 | | 1995 | | 2024.05.20 | ¸Å¸Å | »ï¸³(950-16)³ªµ¿ | 3 | 42.71 | 8,100 | | 1991 | | 2024.05.20 | ¸Å¸Å | ·Ôµ¥¸Ç¼Ç(111-117) | 2 | 46.69 | 9,000 | | 1996 | | 2024.05.20 | ¸Å¸Å | Á¤ÀϺô¶ó(971-11)Bµ¿ | -1 | 37.92 | 5,000 | | 1993 | | 2024.05.20 | ¸Å¸Å | ´ë¸íºô¶ó(1-11)4µ¿ | 1 | 38.08 | 6,500 | | 1994 | | 2024.05.20 | ¿ù¼¼ | ½ÅȺô¶ó9Â÷ | 4 | 48.75 | 1,000 | 30 | 1998 | | 2024.05.20 | Àü¼¼ | µ¿¿ì¾ÆÆ®ºô(2µ¿) | 1 | 59.92 | 9,700 | 0 | 2000 | | 2024.05.19 | ¿ù¼¼ | ¼Áøºô¶ó(°¡µ¿) | 2 | 35.64 | 500 | 33 | 1990 | | 2024.05.18 | ¿ù¼¼ | °æÀθǼÇŸ¿î(109-4) | -1 | 41.13 | 200 | 30 | 1996 | | 2024.05.18 | Àü¼¼ | ¸¸¼öÁÖ°ø1´ÜÁö(¿¬¸³) | 1 | 46.79 | 13,000 | 0 | 1986 | | 2024.05.18 | ¿ù¼¼ | ¿µºô¶ó(977-11)°¡µ¿ | 3 | 35.99 | 100 | 60 | 1989 | | 2024.05.18 | ¿ù¼¼ | ¼º±¤ºô¶ó(877-11)2µ¿ | -1 | 43.3 | 200 | 35 | 2000 | | 2024.05.18 | ¿ù¼¼ | ¸ñ¹Îºô¶ó(867-19)Bµ¿ | 4 | 50.15 | 1,000 | 40 | 2003 | | 2024.05.17 | Àü¼¼ | ¾çÁö½¦¸£ºô | 3 | 54.75 | 11,000 | 0 | 2009 | | 2024.05.17 | ¿ù¼¼ | Áß¼º°ñµçºô¶ó(952-4)2µ¿ | -1 | 45.96 | 300 | 25 | 1993 | | 2024.05.17 | ¿ù¼¼ | ½ÅÈïºô¶ó | 1 | 30.64 | 1,000 | 30 | 1990 | | 2024.05.17 | ¸Å¸Å | ¿ì¹Ìºô¶ó(963) | 1 | 36.36 | 8,000 | | 1993 | | 2024.05.16 | Àü¼¼ | »ï¼º¾ÆÆ®ºô | 4 | 51.4 | 8,400 | 0 | 2003 | | 2024.05.16 | ¿ù¼¼ | ½ÅÈ2µ¿ | 3 | 32.1 | 500 | 39 | 2001 | | 2024.05.16 | ¿ù¼¼ | ¿À¼ººô¶ó(Aµ¿) | 3 | 35.1 | 500 | 50 | 1991 | | 2024.05.16 | ¿ù¼¼ | Çà¿îºô¸®Áö | 5 | 64.08 | 3,000 | 65 | 2008 | | 2024.05.16 | ¿ù¼¼ | ¼ö¸²±×¸°ºô¶ó | 2 | 36.51 | 500 | 30 | 1996 | | 2024.05.16 | ¸Å¸Å | Á¤Àºº£½ºÆ®ºô | 4 | 75.14 | 15,000 | | 2002 | | 2024.05.16 | ¸Å¸Å | ¹Ý¼®ÇÏÀÌÃ÷ºô | 4 | 48.14 | 10,000 | | 2001 | | 2024.05.16 | ¸Å¸Å | ¹é¿µ(965-14)³ªµ¿ | 1 | 36.36 | 5,500 | | 1989 | | 2024.05.16 | ¸Å¸Å | ´ë¸íºô¶ó(841-27) | -1 | 35.91 | 4,500 | | 1991 | | 2024.05.15 | ¸Å¸Å | ÇÑ»ùºô¶ó(2µ¿) | -1 | 26.85 | 3,700 | | 1988 | | 2024.05.15 | Àü¼¼ | »ïº¸ºô¶ó(963-12)1µ¿ | -1 | 39.87 | 4,000 | 0 | 1989 | | 2024.05.15 | ¿ù¼¼ | ¸®Ä¡Ä³½½ | 4 | 62.82 | 2,000 | 50 | 2012 | | 2024.05.15 | ¿ù¼¼ | Èñ¼ººô¶ó1Â÷ | 2 | 42.88 | 300 | 37 | 1995 | | 2024.05.14 | Àü¼¼ | ³²ºÎÇÏÀÌÃ÷ºô¶ó | 4 | 41.6 | 6,300 | 0 | 1996 | | 2024.05.14 | Àü¼¼ | ´ë¼ººô¶ó6Â÷(³ªµ¿) | 3 | 48.16 | 7,600 | 0 | 1991 | | 2024.05.14 | Àü¼¼ | Á¤¿ø½ºÀ§Æ®ºô(1-44) | 3 | 64.96 | 12,200 | 0 | 2010 | | 2024.05.14 | ¿ù¼¼ | ¿ìÁø¸Ç¼Ç | 4 | 44 | 1,000 | 45 | 2002 | | 2024.05.13 | Àü¼¼ | ¾ÆÀÌÁ¨Ä³½½ | 2 | 74.43 | 14,000 | 0 | 2008 | | 2024.05.13 | ¿ù¼¼ | ÇÑ»ù´Ù¼¼´ëÁÖÅÃ(10µ¿) | -1 | 36.27 | 500 | 30 | 1988 | | 2024.05.13 | ¸Å¸Å | ½Å¸í½¦¸£ºô(1095-14) | 5 | 43.73 | 8,000 | | 2003 | | 2024.05.13 | ¸Å¸Å | ´ë»êºô¶ó(111-322)5µ¿ | 2 | 32.485 | 3,500 | | 1990 | | 2024.05.13 | ¸Å¸Å | ¼Û¿ø(2-52)7µ¿ | 3 | 39.325 | 8,500 | | 1991 | | 2024.05.13 | ¸Å¸Å | ·Ôµ¥¸Ç¼Ç(111-445) | 1 | 39.25 | 8,500 | | 1996 | | 2024.05.12 | ¸Å¸Å | ¾Æ¸¶ºô·¹ | 5 | 64.25 | 31,700 | | 2017 | | 2024.05.11 | Àü¼¼ | ÁøÈï¾ÆÆ®ºô | 4 | 47.41 | 9,500 | 0 | 2007 | | 2024.05.11 | Àü¼¼ | ·Ôµ¥¸Ç¼Ç | 4 | 47.07 | 6,700 | 0 | 1997 | | 2024.05.11 | Àü¼¼ | ÁøÈï¾ÆÆ®ºô | 4 | 47.41 | 9,500 | 0 | 2007 | | 2024.05.11 | ¿ù¼¼ | ±Ý°ºô¶ó | 3 | 40.5 | 2,000 | 20 | 1995 | | 2024.05.11 | ¸Å¸Å | À¯Ã¢ºô¶óAµ¿ | 2 | 36.67 | 8,000 | | 1989 | | 2024.05.10 | ¿ù¼¼ | Àμº(894-23)Cµ¿ | 1 | 42.17 | 1,000 | 40 | 1989 | | 2024.05.10 | ¸Å¸Å | ±¤¸íºô¶ó³ªµ¿(959) | 2 | 36.16 | 9,900 | | 1994 | | 2024.05.10 | ¸Å¸Å | ½ÅÈ2µ¿ | 2 | 32.52 | 6,200 | | 2001 | | 2024.05.10 | ¸Å¸Å | ½ÅÈ2µ¿ | 2 | 32.52 | 6,200 | | 2001 | | 2024.05.10 | ¸Å¸Å | ÇÏ¿ì¡¾ÆÆ®ºô(889-16)2µ¿ | 2 | 58.68 | 12,000 | | 2003 | | 2024.05.10 | Àü¼¼ | »ï¿ëºô¶ó(³ªµ¿) | 2 | 50.405 | 7,500 | 0 | 1986 | | 2024.05.09 | Àü¼¼ | ÇѾçȨŸ¿î(898-15) | 4 | 59.8 | 11,000 | 0 | 2002 | | 2024.05.09 | Àü¼¼ | ¿ìÁÖÆÄÅ©ºô4Â÷ | 1 | 57.61 | 9,800 | 0 | 2003 | | 2024.05.09 | Àü¼¼ | ÇöÀÏ(5-458) | 4 | 60.41 | 8,400 | 0 | 1996 | | 2024.05.09 | ¿ù¼¼ | Å¿µÄ³½½ | 3 | 59.9 | 1,000 | 55 | 2009 | | 2024.05.09 | ¿ù¼¼ | Çö´ë¸Ç¼Ç(855-18) | 2 | 35.46 | 500 | 30 | 1991 | | 2024.05.08 | ¸Å¸Å | ¾Æ¼ººô¶ó5Â÷ | -1 | 38.27 | 4,700 | | 1993 | | 2024.05.07 | ¿ù¼¼ | µ¿ÀϺô¶ó(1071-6) | 2 | 24.48 | 200 | 35 | 1997 | | 2024.05.07 | ¿ù¼¼ | ¿ì¹Ìºô¶ó(963) | 3 | 36.36 | 700 | 33 | 1993 | | 2024.05.07 | ¸Å¸Å | Ãʷϸ¶À»(1097-19)Bµ¿ | 5 | 31.96 | 5,080 | | 2001 | | 2024.05.06 | Àü¼¼ | Á¤ÀϺô¶ó(971)Aµ¿ | 2 | 39.51 | 7,300 | 0 | 1993 | | 2024.05.06 | ¿ù¼¼ | »ï¼ººô¶ó(871-23)2µ¿ | 3 | 38.67 | 500 | 40 | 1992 | | 2024.05.06 | ¿ù¼¼ | ¼º¿ìºô¶ó(³ªµ¿) | 1 | 34.98 | 500 | 40 | 1988 | | 2024.05.06 | Àü¼¼ | ¹ÌÁøºô¶ó(³ªµ¿) | 3 | 36.36 | 7,100 | 0 | 1992 | | 2024.05.04 | ¸Å¸Å | µ¿ÀϺô¶ó(876-6)3µ¿ | -1 | 38.98 | 4,500 | | 1990 | | 2024.05.04 | Àü¼¼ | ¿ì¼ººô¶ó(1µ¿) | 4 | 39.18 | 5,900 | 0 | 1993 | | 2024.05.04 | Àü¼¼ | ±ÝÈ£ÁÖÅÃ7Â÷(965-16) | 4 | 37.36 | 7,200 | 0 | 2002 | | 2024.05.03 | Àü¼¼ | °øÀͰñµåŸ¿ö(952-6) | 4 | 45.08 | 5,000 | 0 | 1993 | | 2024.05.03 | ¿ù¼¼ | »ïÀͺô¶ó | 2 | 37.18 | 1,000 | 48 | 1995 | | 2024.05.03 | Àü¼¼ | ±ÝÈ£ÁÖÅÃ7Â÷(965-16) | 2 | 45.75 | 8,660 | 0 | 2002 | | 2024.05.03 | Àü¼¼ | Á¤³²ºô¶ó(894-26) | 2 | 39.6 | 6,170 | 0 | 1991 | | 2024.05.03 | Àü¼¼ | ű¤´Ù¼¼´ëÁÖÅÃ(´Ùµ¿) | 3 | 34.72 | 5,200 | 0 | 1990 | | 2024.05.03 | Àü¼¼ | ±Ý¼ººô¶ó(931-2) | 2 | 33.45 | 6,280 | 0 | 1994 | | 2024.05.02 | Àü¼¼ | ¿øÈïºô¶ó(2µ¿) | 1 | 36.4 | 5,000 | 0 | 1990 | | 2024.05.02 | Àü¼¼ | ºÎ°æÈ¨Å¸¿î(5µ¿) | 2 | 39.78 | 7,900 | 0 | 2002 | | 2024.05.02 | ¿ù¼¼ | ÇÏÀ̺ô¶ó(2µ¿) | 3 | 36.42 | 500 | 40 | 1989 | | 2024.05.02 | ¸Å¸Å | À¯°æÁÖÅÃ(977-44)³ªµ¿ | 3 | 50.68 | 10,400 | | 1995 | | 2024.05.02 | ¸Å¸Å | ⿵±×¸°ºô¶ó(111-31)Aµ¿ | 2 | 59.51 | 6,700 | | 1995 | | 2024.05.01 | Àü¼¼ | žçÁ¡º¸ºô¶óÆ® | 1 | 36.94 | 5,300 | 0 | 1996 | | 2024.05.01 | Àü¼¼ | ÇѼָ®Ä¡ºô303µ¿ | 2 | 53.36 | 11,900 | 0 | 2011 | | 2024.05.01 | ¸Å¸Å | ¿¹Ã̺ô¶ó | 1 | 37.42 | 5,750 | | 1995 | | 2024.05.01 | ¸Å¸Å | ¼ÛÁ¤(1097-10)6µ¿ | 2 | 34.92 | 5,900 | | 1990 | | 2024.05.01 | ¸Å¸Å | µ¿ÀϺô¶ó(1071-6) | 2 | 24.48 | 5,000 | | 1997 | | 2024.04.30 | ¸Å¸Å | »ïȺô¶ó(°¡µ¿) | 3 | 59.97 | 5,000 | | 2007 | | 2024.04.30 | ¸Å¸Å | ÁøÈï¾ÆÆ®ºô(906-14) | 8 | 33.32 | 16,000 | | 2015 | | 2024.04.30 | ¿ù¼¼ | ¿ì¼ººô¶ó(6µ¿) | 4 | 39.15 | 300 | 40 | 1992 | | 2024.04.30 | ¿ù¼¼ | ÀÌȺô¶ó(962-2)°¡µ¿ | -1 | 39.48 | 300 | 21 | 1989 | | 2024.04.30 | ¿ù¼¼ | Àμöºô¶ó | 2 | 38.75 | 500 | 40 | 1990 | | 2024.04.30 | ¸Å¸Å | ¸¸¼ö¸¶À»(109-348)4µ¿ | 1 | 42.42 | 8,000 | | 1995 | | 2024.04.30 | ¸Å¸Å | ¼®¿ø¸Ç¼Ç(970-14) | 2 | 38.4 | 7,700 | | 2001 | | 2024.04.29 | ¸Å¸Å | ½Å¼¼°èºô¶ó(³ªµ¿) | 2 | 39.66 | 11,000 | | 1990 | | 2024.04.29 | ¸Å¸Å | °øÀÛ6µ¿(1076-19) | -1 | 33.42 | 3,000 | | 1988 | | 2024.04.29 | ¿ù¼¼ | ¿ì¸®ÁÖÅÃ(873-8) | 5 | 66.37 | 872 | 28 | 2020 | | 2024.04.29 | ¸Å¸Å | Çö´ë¸Ç¼Ç(855-11) | 3 | 36.32 | 4,800 | | 1991 | | 2024.04.29 | ¸Å¸Å | »ïº¸¸Ç¼Ç(969-2)°¡µ¿ | 5 | 46.74 | 10,500 | | 2001 | | 2024.04.29 | Àü¼¼ | ´ë¸íºô¶ó(841-24) | 3 | 35.91 | 5,200 | 0 | 1991 | | 2024.04.28 | Àü¼¼ | ±Ý¼ººô¶ó(925-16) | 1 | 39.69 | 6,000 | 0 | 1993 | | 2024.04.27 | ¸Å¸Å | ¼®¿ø(970-18) | 5 | 58.8 | 10,800 | | 2001 | | 2024.04.27 | ¸Å¸Å | ¼Áøºô¶ó(¹Ùµ¿) | 1 | 35.64 | 9,600 | | 1990 | | 2024.04.27 | ¸Å¸Å | ¼®¿ø(970-18) | 5 | 58.8 | 10,800 | | 2001 | | 2024.04.27 | ¸Å¸Å | ¼Û¿ø(6-40)15µ¿ | 3 | 36.18 | 8,500 | | 1991 | | 2024.04.27 | ¸Å¸Å | °Ç¾ç±×¸°Å¸¿î³ªµ¿(963-2) | 1 | 75.87 | 15,500 | | 1996 | | 2024.04.26 | ¿ù¼¼ | ½Å¸¸¼öŸ¿î(109-381)102µ¿ | 2 | 41.49 | 1,000 | 40 | 1998 | | 2024.04.25 | ¿ù¼¼ | ¼Û¿ø(6-39)14µ¿ | -1 | 36.18 | 300 | 20 | 1991 | | 2024.04.25 | ¿ù¼¼ | ÁÖ°ø3(46-0) | 2 | 70.75 | 1,000 | 75 | 1986 | | 2024.04.25 | ¿ù¼¼ | »ï¹Ìºô¶ó(877-8)5µ¿ | 3 | 42.31 | 1,000 | 35 | 1989 | | 2024.04.25 | Àü¼¼ | °³²(5-474)105µ¿ | 3 | 51.485 | 8,500 | 0 | 2002 | | 2024.04.24 | Àü¼¼ | ¿ìÁøºô¶ó | 2 | 33.77 | 4,300 | 0 | 1988 | | 2024.04.24 | ¿ù¼¼ | Áø¾çºô¶ó(890-48)Bµ¿ | 1 | 40.91 | 500 | 40 | 1992 | | 2024.04.24 | Àü¼¼ | ¼º½Åºô¶ó(´Ùµ¿) | 1 | 48.39 | 7,500 | 0 | 1993 | | 2024.04.23 | ¿ù¼¼ | ½Åµ¿¾Æºô¶ó(111-227) | 1 | 39.04 | 3,500 | 20 | 1997 | | 2024.04.23 | ¿ù¼¼ | À¯°æÁÖÅÃ(977-44)³ªµ¿ | -1 | 50.68 | 500 | 35 | 1995 | | 2024.04.23 | ¸Å¸Å | ±¤Çغô¶ó | 4 | 35.68 | 3,900 | | 1994 | | 2024.04.22 | ¿ù¼¼ | ´ë¸íºô¶ó5µ¿ | 4 | 71.14 | 1,000 | 50 | 1994 | | 2024.04.20 | ¸Å¸Å | ȼº¾ÆÆ®ºô(899-6)2µ¿ | 4 | 59.58 | 12,900 | | 2002 | | 2024.04.20 | ¸Å¸Å | ÇØ¸¶·çÇ÷¯½º(937-17) | 2 | 50.98 | 14,400 | | 2014 | | 2024.04.20 | ¿ù¼¼ | »ïº¸ºô¶ó(A~Bµ¿) | 4 | 46.38 | 1,000 | 30 | 1993 | | 2024.04.19 | Àü¼¼ | ¼ºÁÖ(894-29) | 2 | 39.68 | 6,500 | 0 | 1991 | | 2024.04.19 | Àü¼¼ | ¼ºÁÖ(894-29) | 2 | 39.68 | 6,500 | 0 | 1991 | | 2024.04.19 | Àü¼¼ | ¼º¿ìºô¶ó(¶óµ¿) | -1 | 38.7 | 3,000 | 0 | 1988 | | 2024.04.19 | ¸Å¸Å | ¼º±¤ºô¶ó(873-18) | 3 | 39.97 | 7,000 | | 2001 | | 2024.04.19 | Àü¼¼ | ¼ºÁÖ(894-29) | 2 | 39.68 | 6,700 | 0 | 1991 | | 2024.04.19 | ¸Å¸Å | ¸¸¼öÁÖ°ø1´ÜÁö(¿¬¸³) | 3 | 46.86 | 25,000 | | 1986 | | 2024.04.18 | ¿ù¼¼ | Áß¼º°ñµçŸ¿î(952-5)3µ¿ | 4 | 47.76 | 1,000 | 35 | 1993 | | 2024.04.17 | ¿ù¼¼ | ¼º¿ìºô¶ó(³ªµ¿) | 1 | 34.98 | 300 | 30 | 1988 | | 2024.04.17 | ¿ù¼¼ | ¼ººóºô¶ó(970-8) | 2 | 35.8 | 600 | 30 | 1990 | | 2024.04.17 | Àü¼¼ | Èѹ̸®ºô¶ó(886-38) | 3 | 35.71 | 5,600 | 0 | 1990 | | 2024.04.17 | ¿ù¼¼ | ¾Æ¸§ºô¶ó(Aµ¿) | 3 | 34.36 | 300 | 30 | 1991 | | 2024.04.17 | Àü¼¼ | °æÀθǼÇŸ¿î(109-356) | -1 | 54.7 | 3,000 | 0 | 1996 | | 2024.04.16 | ¸Å¸Å | »ïº¸ºô¶ó | 2 | 34.17 | 5,000 | | 1989 | | 2024.04.16 | Àü¼¼ | »ï¹Ìºô¶ó(877-1)7µ¿ | -1 | 34.24 | 2,000 | 0 | 1990 | | 2024.04.16 | ¸Å¸Å | »ïº¸ºô¶ó | 2 | 34.17 | 5,000 | | 1989 | | 2024.04.15 | ¿ù¼¼ | °Ç¿ì¾ÆÆ®ºô | 4 | 39.06 | 500 | 47 | 2001 | | 2024.04.13 | Àü¼¼ | ½Å½ÂÆç¸®½Ã¿ò | 5 | 44.79 | 11,000 | 0 | 2011 | | 2024.04.13 | Àü¼¼ | ¼Ò¸Á½ÃƼºô(901-21) | 1 | 53.46 | 8,500 | 0 | 2000 | | 2024.04.13 | ¿ù¼¼ | Çì·»ÇϿ콺 | 3 | 54.84 | 2,000 | 50 | 2012 | | 2024.04.13 | ¿ù¼¼ | ¹Ý¼®ÇÏÀÌÃ÷ºô | 2 | 48.14 | 500 | 55 | 2001 | | 2024.04.13 | Àü¼¼ | ½Å½ÂÆç¸®½Ã¿ò | 5 | 44.79 | 10,000 | 0 | 2011 | | 2024.04.13 | Àü¼¼ | ½Å½ÂÆç¸®½Ã¿ò | 5 | 44.79 | 11,000 | 0 | 2011 | | 2024.04.13 | ¸Å¸Å | DH¾¾¹Ð·¹ | 11 | 46.118 | 15,000 | | 2016 | | 2024.04.13 | ¸Å¸Å | Å¿ìºô¶ó(Bµ¿) | 2 | 36.55 | 7,500 | | 1991 | | 2024.04.12 | Àü¼¼ | ÁÖ°ø3(46-0) | 3 | 55.48 | 14,000 | 0 | 1986 | | 2024.04.12 | ¿ù¼¼ | ¸¶ÀÎÇϿ콺1µ¿ | 2 | 44.45 | 1,000 | 60 | 2008 | | 2024.04.12 | Àü¼¼ | »ïÈ(950-10) | -1 | 34.57 | 3,000 | 0 | 1988 | | 2024.04.12 | ¿ù¼¼ | ÀÌȺô¶ó(Bµ¿) | 3 | 34.05 | 500 | 30 | 1990 | | 2024.04.12 | ¸Å¸Å | ·Ôµ¥¸Ç¼Ç(111-115)°¡µ¿ | 1 | 52.89 | 8,650 | | 1996 | | 2024.04.11 | ¸Å¸Å | Á¤¿ø(894-3)°¡µ¿ | -1 | 38.41 | 6,500 | | 1989 | | 2024.04.11 | ¿ù¼¼ | »ï¹ÌÇϿ콺(844-154) | 1 | 37.89 | 500 | 30 | 1990 | | 2024.04.11 | ¿ù¼¼ | ÀÌȺô¶ó | 1 | 36.78 | 1,000 | 40 | 1994 | | 2024.04.10 | ¿ù¼¼ | µ¿È£ºô¶ó(¶óµ¿) | 2 | 47.32 | 2,000 | 35 | 1987 | | 2024.04.10 | Àü¼¼ | (918-20) | 2 | 62.64 | 9,000 | 0 | 1981 | | 2024.04.10 | ¿ù¼¼ | Á¦ÀϺô¶ó(891-16) | 3 | 34.29 | 500 | 40 | 1993 | | 2024.04.10 | ¸Å¸Å | ±æÁ¤ºô¶ó | 2 | 36.21 | 8,400 | | 1990 | | 2024.04.10 | ¸Å¸Å | ¼Û¿øÁÖÅà | 2 | 46.71 | 10,300 | | 2001 | | 2024.04.09 | ¿ù¼¼ | ¶óÀÌÇÁºô¶ó(892-44)Aµ¿ | 3 | 36.105 | 500 | 40 | 1990 | | 2024.04.09 | Àü¼¼ | ´ë¼ººô¶ó(883-46) | 2 | 35.7 | 6,000 | 0 | 1991 | | 2024.04.09 | ¸Å¸Å | ½Å½ÂÆç¸®½Ã¿ò | 8 | 60.84 | 18,500 | | 2011 | | 2024.04.09 | Àü¼¼ | »ïÀͺô¶ó | 1 | 37.18 | 4,000 | 0 | 1995 | | 2024.04.08 | ¸Å¸Å | ½Åµ¿¾Æºô¶ó7Â÷ | 2 | 36.01 | 6,700 | | 1989 | | 2024.04.08 | ¸Å¸Å | »ï¼ºÈ¨Å¸¿î(895-51)2µ¿ | -1 | 37.06 | 6,000 | | 2001 | | 2024.04.08 | ¸Å¸Å | ÇÏÀ̺ô¶ó(4µ¿) | -1 | 36.16 | 9,000 | | 1989 | | 2024.04.08 | ¸Å¸Å | ½Åµ¿¾Æºô¶ó7Â÷ | 2 | 36.01 | 9,900 | | 1989 | | 2024.04.08 | ¸Å¸Å | ¼º½Åºô¶ó | 3 | 43.11 | 7,200 | | 1995 | | 2024.04.08 | ¿ù¼¼ | ¼®Á¤ºô¶ó(947-12) | 3 | 35.7 | 500 | 40 | 1991 | | 2024.04.08 | Àü¼¼ | ´ë½Å¾ÆÆ®ºô | 2 | 50.43 | 9,400 | 0 | 2002 | | 2024.04.08 | Àü¼¼ | ³ª¶ûºô¶ó | 4 | 34.14 | 5,000 | 0 | 1994 | | 2024.04.07 | Àü¼¼ | Å¿ìºô¶ó(Aµ¿) | 3 | 36.55 | 5,000 | 0 | 1991 | | 2024.04.06 | Àü¼¼ | Ãʷϸ¶À»C,Dµ¿(1097-20) | 5 | 59.63 | 9,600 | 0 | 2001 | | 2024.04.06 | Àü¼¼ | ´ëÈïºô¶ó(858-15)1µ¿ | 1 | 39.99 | 5,000 | 0 | 1990 | | 2024.04.06 | Àü¼¼ | ´ëÈïºô¶ó(858-15)1µ¿ | 1 | 39.99 | 5,000 | 0 | 1990 | | 2024.04.06 | Àü¼¼ | ÇÑ»óºô¶ó | -1 | 36.13 | 3,400 | 0 | 1991 | | 2024.04.06 | Àü¼¼ | ÇÏÀ̺ô¶ó(5µ¿) | 1 | 36.42 | 5,590 | 0 | 1989 | | 2024.04.05 | ¿ù¼¼ | ÁøÁÖºô¶ó(2µ¿) | 2 | 35.695 | 500 | 40 | 1988 | | 2024.04.05 | ¸Å¸Å | Àײ¿È¨Å¸¿î(1087-4) | 1 | 57.29 | 12,600 | | 2001 | | 2024.04.05 | Àü¼¼ | ´ë¸íºô¶ó(841-22) | 2 | 35.91 | 5,000 | 0 | 1991 | | 2024.04.05 | Àü¼¼ | Àå¹Ìºô¶ó(977-35)5µ¿ | 3 | 39.12 | 6,000 | 0 | 1989 | | 2024.04.04 | ¸Å¸Å | ½ÅȺô¶ó9Â÷ | 4 | 48.75 | 9,200 | | 1998 | | 2024.04.04 | ¸Å¸Å | °æÀθǼÇŸ¿î(109-363) | 4 | 52.935 | 6,500 | | 1996 | | 2024.04.04 | Àü¼¼ | ´ö»êÇÏÀÌÃ÷ºô¶ó | -1 | 35.37 | 4,000 | 0 | 2002 | | 2024.04.04 | Àü¼¼ | ´ö»êÇÏÀÌÃ÷ºô¶ó | -1 | 35.37 | 3,960 | 0 | 2002 | | 2024.04.04 | Àü¼¼ | ´ö»êÇÏÀÌÃ÷ºô¶ó | -1 | 35.37 | 4,000 | 0 | 2002 | | 2024.04.03 | Àü¼¼ | È«¼öºô¶ó | 4 | 39.21 | 6,500 | 0 | 1993 | | 2024.04.03 | Àü¼¼ | °æÀθǼÇŸ¿î(109-357) | 4 | 54.7 | 8,030 | 0 | 1996 | | 2024.04.03 | ¸Å¸Å | Áø±¤ºô¶ó(°¡µ¿) | -1 | 35.82 | 6,100 | | 1989 | | 2024.04.03 | Àü¼¼ | »ïº¸(981-6) | -1 | 39.35 | 4,300 | 0 | 1992 | | 2024.04.03 | ¿ù¼¼ | ¿µ½ÅÇÏÀÌÃ÷(946-30) | 1 | 39.25 | 1,000 | 45 | 1990 | | 2024.04.03 | ¸Å¸Å | »ï¹ÌÇϿ콺(844-154) | 3 | 37.89 | 8,500 | | 1990 | | 2024.04.02 | ¸Å¸Å | ¼öÁ¤ºô¶ó2Â÷ | 1 | 38 | 7,000 | | 1996 | | 2024.04.02 | Àü¼¼ | ¼¿ïÁÖÅÃ(109-306)4µ¿ | 2 | 49.89 | 7,570 | 0 | 1996 | | 2024.04.02 | Àü¼¼ | ¼¿ïÁÖÅÃ(109-306)4µ¿ | 2 | 49.89 | 7,570 | 0 | 1996 | | 2024.04.02 | ¸Å¸Å | žçºô¶ó(111-130)Dµ¿ | -1 | 45.66 | 4,200 | | 1996 | | 2024.04.02 | Àü¼¼ | ¼¿ïÁÖÅÃ(109-306)4µ¿ | 2 | 49.89 | 7,570 | 0 | 1996 | | 2024.04.02 | Àü¼¼ | ¿ì¼º(5µ¿) | 4 | 39.15 | 4,500 | 0 | 1991 | | 2024.04.02 | ¸Å¸Å | Àå¹Ìºô¶ó | -1 | 26.64 | 3,000 | | 1992 | | 2024.04.02 | ¸Å¸Å | »ïȺô¶ó2Â÷ | 2 | 44.28 | 7,800 | | 2001 | | 2024.04.02 | Àü¼¼ | ÇÑÀÏ(5-444)1µ¿ | 3 | 63.175 | 9,000 | 0 | 1995 | | 2024.04.02 | ¿ù¼¼ | ¸¸¼öÁÖ°ø1´ÜÁö(¿¬¸³) | 2 | 46.79 | 1,000 | 50 | 1986 | | 2024.04.02 | ¿ù¼¼ | ¸¸¼ö(950-6)¶óµ¿ | 1 | 29.07 | 300 | 21 | 1991 | | 2024.04.01 | ¸Å¸Å | »ï¹Ìºô¶ó(877-6)3µ¿ | 2 | 42.43 | 7,700 | | 1989 | | 2024.04.01 | ¸Å¸Å | ÇÏÀÌÅ×Å©ºô¸®Áö | 1 | 54.77 | 10,800 | | 2002 | | 2024.04.01 | Àü¼¼ | ½ÅȺô¶ó2Â÷(111-105)°¡µ¿ | 4 | 50.46 | 7,800 | 0 | 1996 | | 2024.04.01 | ¿ù¼¼ | °æ¼öºô¶ó(855) | 3 | 22.69 | 300 | 28 | 1990 | | 2024.04.01 | ¿ù¼¼ | Á¤Áøºô¶ó(957-16)°¡µ¿ | 3 | 31.98 | 0 | 40 | 1991 | | 2024.04.01 | ¿ù¼¼ | Ãʷϸ¶À»Aµ¿(1097-2) | 5 | 34.56 | 500 | 55 | 2001 | | 2024.04.01 | ¿ù¼¼ | ³²±¤´Ù¼¼´ëÁÖÅÃ(Dµ¿) | 3 | 32.82 | 400 | 35 | 1988 | | 2024.04.01 | ¿ù¼¼ | ÀÌÁøºô¶ó(880-21)1µ¿ | 2 | 43.62 | 300 | 45 | 1988 | | 2024.04.01 | ¿ù¼¼ | ÁÖ°ø3(46-0) | 3 | 61.53 | 2,000 | 60 | 1986 | | 2024.04.01 | Àü¼¼ | µ¿¿ì¾ÆÆ®ºô(2µ¿) | 1 | 59.92 | 9,800 | 0 | 2000 | | 2024.04.01 | Àü¼¼ | ´ë¿µ¾ÆÆ®ºô(898-19)Aµ¿ | 2 | 39.94 | 6,000 | 0 | 2002 | | 2024.04.01 | ¿ù¼¼ | Àμº(894-11)Aµ¿ | 3 | 33.12 | 500 | 38 | 1989 | | 2024.03.31 | Àü¼¼ | µ¿È£(962-5) | 1 | 59.32 | 11,000 | 0 | 2000 | | 2024.03.30 | Àü¼¼ | ½Åµ¿¾Æºô¶ó8Â÷ | 2 | 36.01 | 6,000 | 0 | 1989 | | 2024.03.30 | ¿ù¼¼ | û½Ç(3-85)4µ¿ | 3 | 38.68 | 500 | 30 | 1989 | | 2024.03.29 | Àü¼¼ | ¼¼Á¾ÄܼƮºô(102µ¿) | 4 | 58.94 | 9,700 | 0 | 2001 | | 2024.03.28 | ¿ù¼¼ | ´Ù¿ÂÁÖÅà | 5 | 76.68 | 846 | 30 | 2019 | | 2024.03.28 | ¿ù¼¼ | ½Å¸¸¼öŸ¿î(109-387)108µ¿ | 2 | 39.64 | 300 | 32 | 1997 | | 2024.03.28 | Àü¼¼ | °³²(5-471)108µ¿ | 4 | 35.34 | 5,600 | 0 | 2002 | | 2024.03.28 | ¿ù¼¼ | ½Å¸¸¼öŸ¿î(109-387)108µ¿ | 2 | 39.64 | 500 | 30 | 1997 | | 2024.03.28 | ¿ù¼¼ | »ïº¸ | 3 | 44.28 | 500 | 35 | 1990 | | 2024.03.27 | ¿ù¼¼ | ¼ÛÁ¤(1097-7)9µ¿ | 3 | 34.92 | 500 | 45 | 1991 | | 2024.03.27 | ¿ù¼¼ | °³²(5-496)111µ¿ | 2 | 30.54 | 500 | 35 | 2002 | | 2024.03.27 | ¿ù¼¼ | ¼ÛÁ¤(1097-7)9µ¿ | 3 | 34.92 | 500 | 35 | 1991 | | 2024.03.26 | ¿ù¼¼ | ÈÁ¤±×¸°ºô¶ó | 3 | 38.33 | 500 | 35 | 1996 | | 2024.03.26 | Àü¼¼ | ¸¸¼öÁÖ°ø1´ÜÁö(¿¬¸³) | 3 | 46.86 | 12,000 | 0 | 1986 | | 2024.03.26 | Àü¼¼ | Á¤Àºº£½ºÆ®ºô(855-2) | -1 | 39.91 | 3,500 | 0 | 2002 | | 2024.03.24 | Àü¼¼ | ÈÀκ£½ºÆ®ºô | 1 | 48.1 | 8,000 | 0 | 2001 | | 2024.03.23 | ¿ù¼¼ | »ï¹Ìºô¶ó(879-3)9µ¿ | -1 | 35.25 | 300 | 35 | 1990 | | 2024.03.23 | ¿ù¼¼ | ÁÖ°ø3(46-0) | 1 | 55.48 | 3,000 | 35 | 1986 | | 2024.03.23 | ¿ù¼¼ | »ï¹Ìºô¶ó(879-3)9µ¿ | -1 | 35.25 | 300 | 35 | 1990 | | 2024.03.23 | ¿ù¼¼ | ÇÑ»óºô¶ó | 1 | 36.13 | 1,000 | 45 | 1991 | | 2024.03.22 | ¿ù¼¼ | ³²µµ | 3 | 48.86 | 1,000 | 50 | 1996 | | 2024.03.21 | Àü¼¼ | µ¿µµºô¶ó(901-15)1µ¿ | 1 | 37.99 | 5,700 | 0 | 1989 | | 2024.03.21 | Àü¼¼ | ½ÅȺô¶ó2Â÷(111-105)°¡µ¿ | 4 | 50.46 | 7,300 | 0 | 1996 | | 2024.03.21 | ¿ù¼¼ | °ø¿ø»ùÅÍÁÖÅà | 3 | 39.88 | 1,000 | 35 | 2002 | | 2024.03.20 | ¿ù¼¼ | ±¹Èºô¶ó(°¡~³ªµ¿) | 1 | 35.895 | 500 | 35 | 1991 | | 2024.03.20 | ¿ù¼¼ | ±¹Èºô¶ó(°¡~³ªµ¿) | 1 | 35.895 | 500 | 35 | 1991 | | 2024.03.19 | Àü¼¼ | ¼º±¤(977-1)1µ¿ | 3 | 55.27 | 9,400 | 0 | 2000 | | 2024.03.19 | ¿ù¼¼ | µ¿³²ÇÏÀ̺ô¶ó(887-27)3µ¿ | -1 | 36.51 | 300 | 30 | 1990 | | 2024.03.19 | ¿ù¼¼ | ¸í¼ººô¶ó(894-14) | -1 | 41.72 | 500 | 35 | 1995 | | 2024.03.19 | Àü¼¼ | ¼º±¤(977-1)1µ¿ | 3 | 55.27 | 9,200 | 0 | 2000 | | 2024.03.18 | ¿ù¼¼ | ÇѾç(2-34)4µ¿ | 3 | 39.7 | 2,000 | 40 | 1990 | | 2024.03.18 | ¿ù¼¼ | ¸¸¼öÁÖ°ø1´ÜÁö(¿¬¸³) | 2 | 46.79 | 1,000 | 55 | 1986 | | 2024.03.18 | ¿ù¼¼ | ¼º´öºô¶ó(Aµ¿) | 3 | 36.51 | 500 | 40 | 1991 | | 2024.03.18 | Àü¼¼ | ´º¿ùµåºô¸®Áö2µ¿ | 4 | 39.98 | 6,600 | 0 | 1993 | | 2024.03.18 | Àü¼¼ | žçºô¶ó(111-129) | 2 | 37.66 | 2,000 | 0 | 1996 | | 2024.03.17 | ¿ù¼¼ | µ¿¿ì¾ÆÆ®ºô(1µ¿) | 1 | 58.57 | 2,000 | 50 | 2000 | | 2024.03.16 | Àü¼¼ | ¼Áøºô¶ó(¹Ùµ¿) | 1 | 35.64 | 5,300 | 0 | 1990 | | 2024.03.16 | Àü¼¼ | ¼ÛÁ¤(1097-8)8µ¿ | 3 | 34.92 | 4,800 | 0 | 1990 | | 2024.03.16 | ¿ù¼¼ | Áø¾ç(857-24)3µ¿ | 1 | 36.15 | 500 | 35 | 1990 | | 2024.03.15 | Àü¼¼ | µ¿½Åºô¶ó(853-16) | 3 | 36.55 | 6,000 | 0 | 1991 | | 2024.03.15 | Àü¼¼ | ÇØÇÇÇϿ콺103µ¿ | 5 | 45.21 | 10,000 | 0 | 2012 | | 2024.03.15 | Àü¼¼ | ¿ì¼º¿¡À̽ººô¶ó(3µ¿) | 1 | 40.5 | 6,000 | 0 | 1990 | | 2024.03.14 | Àü¼¼ | ¼ººóºô¶ó(970-8) | 3 | 35.8 | 5,500 | 0 | 1990 | | 2024.03.14 | Àü¼¼ | ¼ººóºô¶ó(970-8) | 3 | 35.8 | 5,500 | 0 | 1990 | | 2024.03.14 | Àü¼¼ | ÈïÀÏ(961-13)13µ¿ | 2 | 32.35 | 4,000 | 0 | 1990 | | 2024.03.14 | ¿ù¼¼ | »ïº¸ºô¶ó(963-9)4µ¿ | 1 | 34.26 | 500 | 40 | 1989 | | 2024.03.14 | ¿ù¼¼ | »ïº¸ºô¶ó(963-9)4µ¿ | 1 | 34.26 | 500 | 40 | 1989 | | 2024.03.13 | ¿ù¼¼ | Ãʷϸ¶À»C,Dµ¿(1097-20) | 2 | 54.75 | 3,000 | 40 | 2001 | | 2024.03.13 | Àü¼¼ | ¸¸¼ö¾ÆÆ®ºô¶ó | 3 | 36.51 | 5,700 | 0 | 1988 | | 2024.03.12 | ¿ù¼¼ | ¸¸¼ö±×¸°(5-443)2µ¿ | 3 | 44.07 | 300 | 15 | 1994 | | 2024.03.12 | Àü¼¼ | ÁÖ°ø3(46-0) | 3 | 61.53 | 12,000 | 0 | 1986 | | 2024.03.12 | Àü¼¼ | ´ÃǪ¸¥ºô | 6 | 39.21 | 10,800 | 0 | 2015 | | 2024.03.12 | Àü¼¼ | ÇöÀϸǼÇŸ¿î(Aµ¿,Bµ¿) | 2 | 60.41 | 7,500 | 0 | 1996 | | 2024.03.12 | ¿ù¼¼ | µ¿µµºô¶ó(901-14)7µ¿ | 2 | 37.36 | 1,000 | 43 | 1989 | | 2024.03.12 | Àü¼¼ | ¿ìÁøÅ¸¿î(902-3) | 5 | 63.6 | 10,300 | 0 | 2002 | | 2024.03.12 | Àü¼¼ | ´ÃǪ¸¥ºô | 6 | 39.21 | 10,800 | 0 | 2015 | | 2024.03.11 | Àü¼¼ | ¼ºÁÖ(894-31)2µ¿ | 3 | 39.67 | 6,300 | 0 | 1991 | | 2024.03.11 | Àü¼¼ | ¼ºÁÖ(894-31)2µ¿ | 3 | 39.67 | 6,300 | 0 | 1991 | | 2024.03.11 | Àü¼¼ | ¿ìÁøºô¶ó(865-22) | 3 | 31.35 | 5,200 | 0 | 1993 | | 2024.03.09 | ¿ù¼¼ | ´ë¼ººô¶ó(883-46) | 1 | 37.86 | 500 | 40 | 1991 | | 2024.03.09 | ¿ù¼¼ | ¿ì¹Ìºô¶ó(3µ¿) | 1 | 39.885 | 500 | 45 | 1994 | | 2024.03.09 | ¿ù¼¼ | ¸®´õ½ºÈú | 9 | 52.96 | 2,000 | 65 | 2015 | | 2024.03.08 | Àü¼¼ | ÇØ¹Ð¶ß¶ô(109-3) | 10 | 54.905 | 14,800 | 0 | 2016 | | 2024.03.08 | ¿ù¼¼ | ÇѼºô¸®Áö(1µ¿) | 1 | 37.44 | 500 | 40 | 1994 | | 2024.03.07 | Àü¼¼ | Çö´ë¸Ç¼Ç(855-18) | 1 | 37.64 | 6,500 | 0 | 1991 | | 2024.03.06 | ¿ù¼¼ | ¸¸¼öºô¸®Áö | 2 | 38.34 | 1,000 | 35 | 2002 | | 2024.03.05 | Àü¼¼ | »ïº¸ºô¶ó(°¡µ¿) | 1 | 35.27 | 7,870 | 0 | 1990 | | 2024.03.04 | ¿ù¼¼ | ÇѺ°ÁÖÅà | 3 | 69.2694 | 5,620 | 17 | 2020 | | 2024.03.03 | ¿ù¼¼ | »ï¼ººô¶ó(871)3µ¿ | 1 | 37.44 | 500 | 40 | 1994 | | 2024.03.03 | ¿ù¼¼ | ¸¸¼ö(950)°¡µ¿ | 2 | 26.47 | 1,000 | 37 | 1991 | | 2024.03.02 | Àü¼¼ | ´º¿ùµåºô¸®Áö1µ¿ | 4 | 37.81 | 6,300 | 0 | 1993 | | 2024.03.02 | ¿ù¼¼ | ¿µºô¶ó(977-11)°¡µ¿ | 1 | 35.99 | 1,000 | 30 | 1989 | | 2024.03.02 | Àü¼¼ | »ïº¸ºô¶ó | 1 | 33.93 | 5,000 | 0 | 1989 | | 2024.03.02 | Àü¼¼ | ´º¿ùµåºô¸®Áö1µ¿ | 4 | 37.81 | 6,280 | 0 | 1993 | | 2024.02.29 | ¿ù¼¼ | ¼öÆÓ¸®½º | 5 | 49.25 | 2,000 | 63 | 2016 | | 2024.02.29 | ¿ù¼¼ | Çö´ëºô¶ó(891-1) | 2 | 44.16 | 1,000 | 40 | 1987 | | 2024.02.29 | ¿ù¼¼ | ÇöÀÏ(5-458) | 3 | 65.07 | 1,500 | 50 | 1996 | | 2024.02.28 | ¿ù¼¼ | ÇÑÀϺô¶ó(949-9)Bµ¿ | -1 | 37.59 | 500 | 30 | 1991 | | 2024.02.28 | Àü¼¼ | ±×¸°ºô¶ó(5µ¿) | 1 | 31.56 | 4,000 | 0 | 1989 | | 2024.02.28 | Àü¼¼ | ¿¹¿øºô¶ó(949-11)Eµ¿ | 3 | 27.84 | 5,750 | 0 | 1994 | | 2024.02.27 | ¿ù¼¼ | Ä¥¼ººô¶ó(Bµ¿) | 1 | 37.44 | 300 | 40 | 1992 | | 2024.02.26 | Àü¼¼ | ¿ì¹Ìºô¶ó(963) | 4 | 36.36 | 8,500 | 0 | 1993 | | 2024.02.26 | Àü¼¼ | »ïȺô¶ó(´Ùµ¿) | 4 | 52.26 | 9,500 | 0 | 2008 | | 2024.02.26 | Àü¼¼ | ¼¼ÇÑ´Ù¼¼´ë | 3 | 34.59 | 5,400 | 0 | 1988 | | 2024.02.26 | Àü¼¼ | »ïÁöºô¶ó(3µ¿) | 3 | 40.61 | 5,500 | 0 | 1989 | | 2024.02.26 | ¿ù¼¼ | °øÀÛ6µ¿(1076-19) | -1 | 33.42 | 100 | 30 | 1988 | | 2024.02.24 | ¿ù¼¼ | ´ë¸²ÇÏÀ̺ô(851-15) | 4 | 59.91 | 1,000 | 50 | 2001 | | 2024.02.24 | Àü¼¼ | ¿µ½ÅÇÏÀÌÃ÷(946-33)³ªµ¿ | 1 | 39.29 | 8,200 | 0 | 1990 | | 2024.02.24 | Àü¼¼ | ÁøÁÖºô¶ó(3µ¿) | 3 | 35.695 | 5,000 | 0 | 1988 | | 2024.02.23 | ¿ù¼¼ | ´ë»êºô¶ó(111-327)4µ¿ | 2 | 33.975 | 300 | 28 | 1990 | | 2024.02.23 | ¿ù¼¼ | ¼®Á¤ºô¶ó(947-18) | 3 | 36.71 | 500 | 40 | 1991 | | 2024.02.23 | ¿ù¼¼ | °øÀÛ5µ¿(1076-18) | 1 | 31.19 | 500 | 35 | 1988 | | 2024.02.23 | ¿ù¼¼ | ´ë¼ººô¶ó(883-9) | 3 | 34.62 | 400 | 41 | 1991 | | 2024.02.22 | ¿ù¼¼ | »ï¼º(969-5)°¡µ¿ | 2 | 36.65 | 300 | 37 | 1991 | | 2024.02.22 | Àü¼¼ | ¾Æ¼ººô¶ó5Â÷ | 2 | 39.59 | 6,000 | 0 | 1993 | | 2024.02.22 | ¿ù¼¼ | òØýñÄÚ³Ê | 2 | 17.19 | 300 | 35 | 2015 | | 2024.02.21 | ¿ù¼¼ | ¿ìÁøºô¶ó(877-10)°¡µ¿ | 3 | 40.35 | 500 | 45 | 1992 | | 2024.02.20 | Àü¼¼ | ¼±¤½ÃƼºô(Bµ¿) | 4 | 73.77 | 12,000 | 0 | 2002 | | 2024.02.20 | Àü¼¼ | ÆÄÅ©ºô1µ¿,2µ¿ | 5 | 58.62 | 9,000 | 0 | 2001 | | 2024.02.20 | Àü¼¼ | ½Åµ¿¾Æºô¶ó(12µ¿) | 2 | 37.5 | 5,900 | 0 | 1990 | | 2024.02.19 | Àü¼¼ | ¼Ò¸Á½ÃƼºô(901-21) | 3 | 53.46 | 8,500 | 0 | 2000 | | 2024.02.19 | ¿ù¼¼ | ÇØ¿À¸§ÆÓ¸®½º | 5 | 65.47 | 2,000 | 60 | 2008 | | 2024.02.18 | Àü¼¼ | ¼ÛÁ¤(1097-7)9µ¿ | 3 | 34.92 | 3,500 | 0 | 1991 | | 2024.02.17 | Àü¼¼ | ¿¹¿øºô¶ó(949-20)Bµ¿ | 1 | 38.28 | 6,100 | 0 | 1990 | | 2024.02.17 | Àü¼¼ | ¶óÀÌÇÁºô¶ó(892-43)Bµ¿ | 2 | 36.105 | 5,000 | 0 | 1989 | | 2024.02.17 | Àü¼¼ | ¶óÀÌÇÁºô¶ó(892-43)Bµ¿ | 2 | 36.105 | 5,000 | 0 | 1989 | | 2024.02.16 | Àü¼¼ | ´ë±¤ºô¶ó(892-39) | -1 | 38.5 | 3,800 | 0 | 1991 | | 2024.02.16 | Àü¼¼ | »ï¹ÌÇϿ콺(844-154) | 1 | 37.89 | 4,000 | 0 | 1990 | | 2024.02.15 | Àü¼¼ | ½Å¸í½¦¸£ºô(1095-9) | 2 | 57.59 | 10,100 | 0 | 2003 | | 2024.02.15 | Àü¼¼ | Àº°î±×¸°ºô¶ó | 4 | 35.82 | 5,600 | 0 | 1993 | | 2024.02.14 | Àü¼¼ | ½ÅÇÑ(2-27)Aµ¿ | 2 | 35.08 | 3,000 | 0 | 1988 | | 2024.02.13 | Àü¼¼ | ±×¸°³ª·¡ | 5 | 47.4 | 15,000 | 0 | 2017 | | 2024.02.12 | ¿ù¼¼ | ÈÀκ£½ºÆ®ºô | 2 | 48.1 | 500 | 60 | 2001 | | 2024.02.07 | Àü¼¼ | »ïº¸ºô¶ó(´Ùµ¿) | 3 | 35.27 | 5,700 | 0 | 1990 | | 2024.02.06 | ¿ù¼¼ | ûÈÇÏÀ̺ô | 3 | 59.56 | 1,000 | 60 | 2002 | | 2024.02.05 | ¿ù¼¼ | ÇѼººô¶ó(842-26)´Ùµ¿ | 1 | 35.88 | 300 | 55 | 1991 | | 2024.02.05 | ¿ù¼¼ | À¯ÀϺô¶ó(Dµ¿) | 1 | 44.88 | 500 | 40 | 1988 | | 2024.02.05 | Àü¼¼ | µ¿³²ÇÏÀ̺ô¶ó(887-15)6µ¿ | 3 | 36.51 | 6,200 | 0 | 1990 | | 2024.02.05 | Àü¼¼ | ¼¼Á¾ÄܼƮºô(101µ¿) | 2 | 59.94 | 10,700 | 0 | 2000 | | 2024.02.04 | ¿ù¼¼ | Á¤¿ø½ºÀ§Æ®ºô(1-44) | 5 | 48 | 500 | 50 | 2010 | | 2024.02.04 | Àü¼¼ | »ó¿ì | 4 | 41.09 | 6,500 | 0 | 1992 | | 2024.02.04 | ¿ù¼¼ | »ó¿ìÁÖÅà | 4 | 39.9 | 500 | 45 | 1993 | | 2024.02.03 | ¿ù¼¼ | ¿À¼ººô¶ó(868-18)Aµ¿ | 3 | 35.28 | 500 | 40 | 1989 | | 2024.02.03 | ¿ù¼¼ | °³²(5-491)103µ¿ | 1 | 37.27 | 500 | 40 | 2002 | | 2024.02.03 | Àü¼¼ | ´ë¸íºô¶ó(841-27) | 3 | 35.91 | 5,300 | 0 | 1991 | | 2024.02.03 | Àü¼¼ | ¼Û¿ø(6-37)11µ¿ | 2 | 35.78 | 4,500 | 0 | 1991 | | 2024.02.01 | ¿ù¼¼ | º½³¯ÁÖÅà | 2 | 63.79 | 2,028 | 35 | 2020 | | 2024.02.01 | ¿ù¼¼ | ´ë¼ººô¶ó(883-46) | 1 | 37.86 | 300 | 40 | 1991 | | 2024.02.01 | Àü¼¼ | Ç÷Îä2µ¿ | 4 | 47.82 | 10,500 | 0 | 2011 | | 2024.01.30 | Àü¼¼ | Å¿õºô¶ó(955-12)°¡µ¿ | 4 | 33.57 | 5,600 | 0 | 1993 | | 2024.01.29 | Àü¼¼ | Àμöºô¶ó(855-24)³ªµ¿ | 1 | 39.92 | 5,200 | 0 | 1995 | | 2024.01.29 | Àü¼¼ | ºÎ°æÈ¨Å¸¿î(5µ¿) | 2 | 39.78 | 7,900 | 0 | 2002 | | 2024.01.29 | Àü¼¼ | ºÎ¿µºô¶ó | 2 | 43.65 | 7,200 | 0 | 1991 | | 2024.01.29 | ¿ù¼¼ | ¿µ½ÅÇÏÀÌÃ÷(946-30) | 1 | 39.25 | 2,000 | 40 | 1990 | | 2024.01.28 | Àü¼¼ | žçºô¶ó(111-130)Dµ¿ | 4 | 46.32 | 6,800 | 0 | 1996 | | 2024.01.28 | Àü¼¼ | žçºô¶ó(111-130)Dµ¿ | 4 | 46.32 | 6,800 | 0 | 1996 | | 2024.01.27 | ¿ù¼¼ | û¼Öºô¶ó(³ªµ¿) | 1 | 33.38 | 100 | 55 | 1988 | | 2024.01.27 | Àü¼¼ | ½ÅȺô¶ó3Â÷ | 1 | 41.93 | 3,000 | 0 | 1996 | | 2024.01.26 | ¿ù¼¼ | ¿ùµåºô¶ó(950-15)Cµ¿ | -1 | 43.82 | 300 | 30 | 1988 | | 2024.01.26 | ¿ù¼¼ | ¿µÁ¾½ºÀ§Æ®È¨(3µ¿) | 2 | 35.87 | 500 | 42 | 1994 | | 2024.01.25 | ¿ù¼¼ | ¿ì¸²ºô¶ó(980-15)8µ¿ | 1 | 36 | 500 | 35 | 1990 | | 2024.01.25 | Àü¼¼ | ¼ººóºô¶ó(970-7) | 1 | 35.8 | 5,500 | 0 | 1990 | | 2024.01.25 | Àü¼¼ | ¼ººóºô¶ó(970-7) | 1 | 35.8 | 5,500 | 0 | 1990 | | 2024.01.25 | Àü¼¼ | ½ÅÅ¿ìºô¶ó | 3 | 27.05 | 4,000 | 0 | 1993 | | 2024.01.24 | Àü¼¼ | Èѹ̸®ºô¶ó(886-36) | 1 | 35.73 | 7,000 | 0 | 1990 | | 2024.01.23 | ¿ù¼¼ | µ¿µµºô¶ó(901-37)6µ¿ | 1 | 37.99 | 500 | 50 | 1990 | | 2024.01.22 | ¿ù¼¼ | ÇѼººô¶ó(842-26)´Ùµ¿ | 1 | 35.88 | 1,000 | 55 | 1991 | | 2024.01.20 | Àü¼¼ | ÁøÁÖºô¶ó(6µ¿) | 1 | 33.52 | 2,800 | 0 | 1988 | | 2024.01.19 | Àü¼¼ | ±Ý¼ººô¶ó(925-16) | 1 | 39.69 | 6,300 | 0 | 1993 | | 2024.01.19 | Àü¼¼ | ±Ý¼ººô¶ó(925-16) | 1 | 39.69 | 6,300 | 0 | 1993 | | 2024.01.19 | Àü¼¼ | µ¿³²ÇÏÀ̺ô¶ó(887-27)3µ¿ | 1 | 36.51 | 5,700 | 0 | 1990 | | 2024.01.18 | Àü¼¼ | ´ë¿µ¾ÆÆ®ºô(898-19)Aµ¿ | 1 | 39.57 | 7,600 | 0 | 2002 | | 2024.01.18 | Àü¼¼ | Çö´ë¸Ç¼Ç(855-18) | 1 | 35.46 | 5,000 | 0 | 1991 | | 2024.01.18 | ¿ù¼¼ | °Ç¿ì¾ÆÆ®ºô | 4 | 39.78 | 500 | 36 | 2001 | | 2024.01.18 | ¿ù¼¼ | ´ëµ¿ºô¶ó(Aµ¿) | 2 | 38.3 | 1,000 | 45 | 1993 | | 2024.01.18 | Àü¼¼ | ´ë¿µ¾ÆÆ®ºô(898-19)Aµ¿ | 1 | 39.57 | 7,600 | 0 | 2002 | | 2024.01.17 | Àü¼¼ | °øÀÛ4µ¿(1076-17) | 2 | 35.88 | 4,500 | 0 | 1988 | | 2024.01.17 | ¿ù¼¼ | žçºô¶ó(111-132)Aµ¿ | 1 | 43.73 | 1,500 | 30 | 1996 | | 2024.01.16 | ¿ù¼¼ | ¿ì¼ººô¶ó(1µ¿) | 1 | 39.18 | 700 | 40 | 1993 | | 2024.01.16 | Àü¼¼ | ÁÖ°ø3(46-0) | 2 | 70.75 | 16,000 | 0 | 1986 | | 2024.01.16 | Àü¼¼ | ÁÖ°ø3(46-0) | 3 | 55.48 | 12,000 | 0 | 1986 | | 2024.01.16 | Àü¼¼ | Áø¾ç(857-24)3µ¿ | 1 | 36.15 | 6,000 | 0 | 1990 | | 2024.01.16 | ¿ù¼¼ | »ïº¸ºô¶ó(A~Bµ¿) | 2 | 46.38 | 1,000 | 50 | 1993 | | 2024.01.15 | Àü¼¼ | ÁÖ°ø3(46-0) | 2 | 55.48 | 12,000 | 0 | 1986 | | 2024.01.15 | ¿ù¼¼ | ±ÝÈ£ºô¶ó | 2 | 27.41 | 200 | 45 | 1994 | | 2024.01.12 | Àü¼¼ | ¸¸¼ö±×¸°1µ¿ | 1 | 42.58 | 6,100 | 0 | 1994 | | 2024.01.11 | Àü¼¼ | ½Å¸í½¦¸£ºô(1095-14) | 3 | 55.87 | 9,700 | 0 | 2003 | | 2024.01.11 | ¿ù¼¼ | µ¿³²ÇÏÀ̺ô¶ó(887-15)6µ¿ | 3 | 36.51 | 500 | 40 | 1990 | | 2024.01.11 | ¿ù¼¼ | »ïȺô¸®Áö(902-6)³ªµ¿ | 3 | 39.02 | 500 | 35 | 1995 | | 2024.01.11 | ¿ù¼¼ | ¿Õ½Â(969-10) | -1 | 39.22 | 500 | 40 | 1997 | | 2024.01.11 | ¿ù¼¼ | ÇѼºÆÒ´õ | 2 | 32.24 | 1,000 | 30 | 1993 | | 2024.01.10 | Àü¼¼ | Á¶ÀºÆÄÅ©ºô | 5 | 52.04 | 12,800 | 0 | 2015 | | 2024.01.10 | ¿ù¼¼ | µ¿µµºô¶ó(901-38)2µ¿ | 2 | 37.99 | 500 | 40 | 1989 | | 2024.01.10 | Àü¼¼ | Ãʷϸ¶À»C,Dµ¿(1097-20) | 4 | 54.75 | 5,000 | 0 | 2001 | | 2024.01.09 | Àü¼¼ | ÀÎÇâºô¶ó4Â÷(5µ¿) | 2 | 33.1 | 5,400 | 0 | 1988 | | 2024.01.09 | ¿ù¼¼ | ¼Û¿ø(6-27)1µ¿ | 2 | 35.67 | 500 | 45 | 1991 | | 2024.01.08 | Àü¼¼ | ¿ì¹Ìºô¶ó(963) | 1 | 36.36 | 6,200 | 0 | 1993 | | 2024.01.08 | ¿ù¼¼ | ´ë¿ìºô¶ó(2µ¿) | 1 | 34.86 | 500 | 30 | 1989 | | 2024.01.06 | Àü¼¼ | Èѹ̸®ºô¶ó(886-39) | 3 | 35.73 | 1,500 | 0 | 1990 | | 2024.01.06 | ¿ù¼¼ | µ¿µµºô¶ó(901-37)6µ¿ | 3 | 37.99 | 1,000 | 40 | 1990 | | 2024.01.06 | ¿ù¼¼ | ¾öÁöºô¶ó(109-220)³ªµ¿ | 4 | 43.13 | 100 | 25 | 1996 | | 2024.01.05 | ¿ù¼¼ | ij½½º£¸® | 8 | 37.5 | 1,000 | 55 | 2016 | | 2024.01.05 | Àü¼¼ | ¿Õ½Â(969-10) | 1 | 39.22 | 7,500 | 0 | 1997 | | 2024.01.04 | Àü¼¼ | ¿Õ½Â(969-10) | 3 | 39.22 | 7,000 | 0 | 1997 | | 2024.01.04 | Àü¼¼ | ¿¹¿øºô¶ó(949-11)Eµ¿ | 2 | 31.48 | 5,300 | 0 | 1994 | | 2024.01.04 | Àü¼¼ | ¼Ò¸Á½ÃƼºô(901-21) | 1 | 53.46 | 8,500 | 0 | 2000 | | 2024.01.03 | ¿ù¼¼ | ¼ÛÁ¤(1097-8)8µ¿ | 2 | 34.92 | 500 | 25 | 1990 | | 2024.01.03 | ¿ù¼¼ | ¿µÁ¾½ºÀ§Æ®È¨(5µ¿) | 3 | 35.92 | 500 | 43 | 1994 | | 2024.01.03 | Àü¼¼ | ÁÖ°ø3(46-0) | 3 | 61.53 | 13,000 | 0 | 1986 | | 2024.01.03 | Àü¼¼ | ¿ì¼º¿¡À̽ººô¶ó(3µ¿) | 3 | 40.5 | 6,240 | 0 | 1990 | | 2024.01.02 | ¿ù¼¼ | »ïÇü(895-1)´Ùµ¿ | 3 | 34.58 | 1,000 | 40 | 1990 | | 2024.01.02 | ¿ù¼¼ | ¿ì¸²ºô¶ó(980-16)9µ¿ | 1 | 36 | 500 | 45 | 1990 | | 2024.01.02 | Àü¼¼ | µÎ¼ººô¶ó(852-26)³ªµ¿ | 2 | 36.08 | 5,500 | 0 | 1993 |
|
|
|
 |
ÀÓÂ÷³»¿ª |
[¹è´ç¿ä±¸Á¾±âÀÏ : 2024/12/16] |
|
|
| ÀÓÂ÷ÀÎ |
Á¡À¯°ü°è |
ÀüÀÔÀÏÀÚ |
È®Á¤ÀÏÀÚ |
¹è´ç¿ä±¸ÀÏ |
º¸Áõ±Ý/Â÷ÀÓ |
´ëÇ׿ä°Ç |
ºñ°í |
| ¸Å°¢±âÀÏ 7ÀÏÀü¿¡ °ø°íµÇ¿À´Ï È®ÀÎÇϽñ⠹ٶø´Ï´Ù. |
|
|
|
 |
Áö¿ªºÐ¼® |
|
|
|
|
| ÁöÇÏö |
|
Çб³ |
|
| °ü°ø¼ |
|
| ¹ý¿ø |
ÀÎõÁö¹æ¹ý¿ø (222-20)ÀÎõ±¤¿ª½Ã ¹ÌÃßȦ±¸ ¼Ò¼º·Î 163¹ø±æ 17(ÇÐÀ͵¿) ´ëÇ¥ : 032)860-1113~4 Áß±¸, µ¿±¸, ³²±¸, ¿¬¼ö±¸, ³²µ¿±¸, ºÎÆò±¸, °è¾ç±¸, ¼±¸, ¿ËÁø±º, °È±º |
| µî±â¼Ò |
ÀÎõÁö¹æ¹ý¿ø º»¿ø µî±â±¹ (´ëÇ¥:1544-0773, ÆÑ½º:(032)620-9099, ÀÎõ±¤¿ª½Ã ¹ÌÃßȦ±¸ °æ¿ø´ë·Î 881(Á־ȵ¿ 983)) |
| ¼¼¹«¼ |
³²ÀÎõ¼¼¹«¼ (´ëÇ¥:032-460-52, ÆÑ½º:032-463-5778, ÀÎõ±¤¿ª½Ã ³²µ¿±¸ ÀÎÇÏ·Î 548 (±¸¿ùµ¿)) |
|
|
|
 |
¹ý¿ø ¹°°ÇÀÚ·á ¿ä¾à |
|
|
|
|
| ¼Ò¸êµÇÁö ¾Ê´Â µî±âºÎ±Ç¸® |
|
| ¼³Á¤µÈ °ÍÀ¸·Î º¸´Â Áö»ó±Ç |
|
| ¹ý¿øÀÚ·á Æ¯ÀÌ»çÇ× |
|
| ¿©ÀÇÁÖ°æ¸Å Á¶¾ð ÇѸ¶µð |
ÀÌ ºÎµ¿»êÀÇ ÀÔÂû¹ý¿øÀº ÀÎõÁö¹æ¹ý¿øÀÔ´Ï´Ù.
ÀÔÂûÀÏÀº 2025-12-18ÀÔ´Ï´Ù.
ÀÔÂû½Ã°£Àº ~11:20ÀÔ´Ï´Ù. ÀÌ ¹ý¿ø¿¡´Â KB±¹¹ÎÀºÇàÀÌ ÀÔÁ¡Çϰí ÀÖ½À´Ï´Ù.
|
|
|
| Åë°è±â°£ |
³«Âû¹°°Ç¼ö |
Æò±Õ°¨Á¤°¡ |
Æò±Õ³«Âû°¡ |
³«Âû°¡À² |
À¯ÂûȽ¼ö |
| 3°³¿ù |
66°Ç |
118,753,030¿ø |
70,730,066¿ø |
57% |
2.5ȸ |
| 6°³¿ù |
142°Ç |
129,646,620¿ø |
80,251,352¿ø |
60% |
2.4ȸ |
| 12°³¿ù |
276°Ç |
128,970,122¿ø |
81,662,437¿ø |
61% |
2.2ȸ |
|
|
|
|
|
|
 |
|