|
|
| ¼ÒÀçÁö |
°¿øÆ¯º°ÀÚÄ¡µµ ¿øÁֽà Çмºµ¿ 1035-22
|
|
| »ç°Ç¹øÈ£ |
2025 Ÿ°æ 20508 |
¹°°Ç¹øÈ£ |
1
|
¹°°Ç¿ëµµ |
»ó°¡,»ç¹«½Ç |
| °¨Á¤Æò°¡¾× |
175,400,000¿ø |
°æ¸Å´ë»ó |
ÅäÁö ¹× °Ç¹°Àϰý¸Å°¢ |
ÁøÇà»óÅ |
½Å°Ç |
| ÃÖÀúÀÔÂû°¡ |
(100%) 175,400,000¿ø
|
°Ç¹°¸éÀû |
87.50§³(26.47Æò) |
ÀÔÂû±âÀÏ |
2025.12.22(¿ù) 10:00
(ÀÔÂû 10ÀÏÀü)
|
| ÀÔÂûº¸Áõ±Ý |
(10%) 17,540,000¿ø |
ÅäÁö¸éÀû |
149.00§³(45.07Æò)
|
À¯ÂûȽ¼ö |
0ȸ |
| ÀÔÂû¹ý¿ø |
ÃáõÁö¹æ¹ý¿ø ¿øÁÖÁö¿ø |
°æ¸Å¹æ¹ý |
|
¹°°ÇÁ¶È¸¼ö |
¿À´Ã: 1ȸ [´©Àû: 20ȸ]
|
| ¸»¼Ò±âÁØ | ÃÖ¼±¼øÀ§ ¼³Á¤ : 2010.10.21.±ÙÀú´ç±Ç ¼³Á¤
|
|
|
|
|
|
|
|
|
|
|
°æ¸Å´ë»ó ¸ñ·Ï
|
|
| ±¸ºÐ |
¸ñ·Ï |
ÁÖ¼Ò |
±¸Á¶/¿ëµµ/´ëÁö±Ç |
ºñ°í |
ÅäÁö
|
1 |
Çмºµ¿ 1035-22 |
´ë |
149§³ (45.07Æò) |
°Ç¹°
|
2 |
Çмºµ¿ 1035-22 |
´ÜÃþ »ç¹«¼Ò °æ·®Ã¶°ñÁ¶ |
87.5§³ (26.47Æò)
|
|
|
|
2025-12-22
ÁøÇà
|
(100%)
175,400,000¿ø
|
|
|
|
|
|
°¨Á¤Æò°¡¼ ¿ä¾à |
|
[À§Ä¡/ÁÖÀ§È¯°æ]
º»°ÇÀº °¿øÆ¯º°ÀÚÄ¡µµ ¿øÁֽà Çмºµ¿ ¼ÒÀç ""Áß¾ÓÃʵîÇб³"" ºÏµ¿Ãø Àαٿ¡ À§Ä¡Çϰí ÀÖÀ¸¸ç, ºÎ±ÙÀº ±Ù¸°»ó¾÷½Ã¼³ ¹× ´Üµ¶ÁÖÅà µîÀ¸·Î Çü¼ºµÇ¾î ÀÖ½À´Ï´Ù.
[±³Åë»óȲ]
º»°Ç±îÁö Â÷·®Á¢±ÙÀÌ °¡´ÉÇϸç, ¹ö½ºÁ¤·ùÀå°úÀÇ °Å¸®, ³ë¼±, ¿îÇàºóµµ µîÀ» °¨¾ÈÇÒ ¶§ ´ëÁß±³Åë »çÁ¤Àº ¹«³½ÃµË´Ï´Ù.
3)ÇüÅ ¹× ÀÌ¿ë»óÅÂ
´ëü·Î ÆòźÇÑ »ç´Ù¸®ÇüÀÇ ÅäÁö·Î¼, ÇöȲ ""»ó¾÷¿ë °ÇºÎÁö"" »óÅÂÀÔ´Ï´Ù.
4)ÀÎÁ¢ µµ·Î»óÅÂ
º»°ÇÀº ÁöÀûµµ»ó ¸ÍÁöÀ̳ª, »ç¿ë½Â³«À» µæÇÑ ÀÎÁ¢ÅäÁö(Çмºµ¿ 1035-98¹øÁö, ¿øÁֽà ¼ÒÀ¯)¸¦ ÅëÇÏ¿© ºÏ¼ÃøÀ¸·Î ³ëÆø ¾à12m ³»¿ÜÀÇ µµ·Î¿Í ¿¬°èµÇ¾î ÀÖ½À´Ï´Ù.
[ÅäÁöÀÌ¿ë°èȹ]
Á¦3Á¾ÀϹÝÁÖ°ÅÁö¿ª, °¡Ãà»çÀ°Á¦Çѱ¸¿ª(ÀüºÎÁ¦ÇÑ ¸ðµçÃàÁ¾Á¦ÇÑ)£¼°¡ÃàºÐ´¢ÀÇ °ü¸® ¹× À̿뿡 °üÇÑ ¹ý·ü£¾, »ó´ëº¸È£±¸¿ª£¼±³À°È¯°æ º¸È£¿¡ °üÇÑ ¹ý·ü£¾ÀÔ´Ï´Ù.
6)Á¦½Ã¸ñ·Ï ¿ÜÀÇ ¹°°Ç
¾ø½À´Ï´Ù.
[°øºÎ¿ÍÀÇ Â÷ÀÌ]
¾ø½À´Ï´Ù.
[Âü°í»çÇ×]
ÀÓ´ë°ü°è´Â ¹Ì»óÀÔ´Ï´Ù.
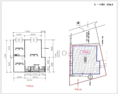
[°Ç¹°±¸Á¶]
°æ·®Ã¶°ñÁ¶ ±âŸÁöºØ ´ÜÃþ °Ç¹°·Î¼,
¤Ñ ¿Ü º® : ºñ´Ò»çÀ̵ù µî ¸¶°¨.
¤Ñ ³» º® : ÀÎÅ׸®¾î¸¶°¨ ¹× ÀϺΠŸÀϺÙÀÓ µî ¸¶°¨.
¤Ñ â È£ : ¼¦½Ã âȣ µî ¸¶°¨ ÀÔ´Ï´Ù.
[ÀÌ¿ë»óÅÂ]
ÇöȲ »ç¹«¼Ò·Î ÀÌ¿ëÁßÀÔ´Ï´Ù.
[¼³ºñ³»¿ª]
±âº»ÀûÀÎ À§»ý¼³ºñ ¹× ±Þ¹è¼ö¼³ºñ µîÀÌ µÇ¾î ÀÖ½À´Ï´Ù.
4)ºÎÇÕ¹° ¹× Á¾¹°
¾ø½À´Ï´Ù.
[°øºÎ¿ÍÀÇ Â÷ÀÌ]
¾ø½À´Ï´Ù.
[Âü°í»çÇ×]
ÀÓ´ë°ü°è´Â ¹Ì»óÀÔ´Ï´Ù.
|
|
|
°ÇÃ๰ÇöȲ |
|
|
|
| ¼ÒÀçÁö |
°¿øÆ¯º°ÀÚÄ¡µµ ¿øÁֽà Çмºµ¿ 1035-22¹øÁö |
| ´ëÁö¸éÀû |
149§³(45.15Æò) |
¿¬¸éÀû |
87.5§³(26.52Æò) |
ÁÖ¿ëµµ |
Á¦2Á¾±Ù¸°»ýȰ½Ã¼³ |
| °ÇÃà¸éÀû |
87.5§³(26.52Æò) |
¿ëÀû·ü»êÁ¤¿¬¸éÀû |
87.5§³(26.52Æò) |
Âø°øÀÏÀÚ |
2005.04.25 |
| °ÇÆóÀ² |
58.72% |
¿ëÀû·ü |
58.72% |
»ç¿ë½ÂÀÎÀÏÀÚ |
2005.06.23 |
| Áö»óÃþ¼ö |
1Ãþ |
ÁöÇÏÃþ¼ö |
|
±¸Á¶ |
°æ·®Ã¶°ñ±¸Á¶ |
°ÇÃ๰Ãþº°ÇöȲ [º¸±â]| Ãþº° | ±¸Á¶ | ¿ëµµ | ¸éÀû | | Áö»ó1Ãþ | °æ·®Ã¶°ñÁ¶ | »ç¹«¼Ò | 87.5§³ (26.52Æò) |
|
|
|
|
|
|
 |
ÀÓÂ÷³»¿ª |
[¹è´ç¿ä±¸Á¾±âÀÏ : 2025/06/02] |
|
|
| ÀÓÂ÷ÀÎ |
Á¡À¯°ü°è |
ÀüÀÔÀÏÀÚ |
È®Á¤ÀÏÀÚ |
¹è´ç¿ä±¸ÀÏ |
º¸Áõ±Ý/Â÷ÀÓ |
´ëÇ׿ä°Ç |
ºñ°í |
| ¸Å°¢±âÀÏ 7ÀÏÀü¿¡ ¸Å°¢¹°°Ç¸í¼¼¼°¡ °ø°íµÇ¿À´Ï È®ÀÎÇϽñ⠹ٶø´Ï´Ù. |
| ¸ÍOO |
ÀüºÎ |
2013.03.06 |
¹Ì»ó |
|
[¿ù]200,000 |
X |
2012.04.25~ |
|
|
|
 |
Áö¿ªºÐ¼® |
|
|
|
|
| ÁöÇÏö |
|
Çб³ |
|
| °ü°ø¼ |
|
| ¹ý¿ø |
ÃáõÁö¹æ¹ý¿ø ¿øÁÖÁö¿ø (264-78)°¿øµµ ¿øÁֽà ½Ãû·Î149 (¹«½Çµ¿) ´ëÇ¥ : 033)738-1000, ¾ß°£ : 033)738-1199 ¿øÁÖ½Ã, Ⱦ¼º±º |
| µî±â¼Ò |
ÃáõÁö¹æ¹ý¿ø ¿øÁÖÁö¿ø µî±â°ú (´ëÇ¥:1544-0773, ÆÑ½º:(033)743-5611, °¿øµµ ¿øÁֽà ½Ãû·Î 149 (¹«½Çµ¿ 1800)) |
| ¼¼¹«¼ |
¼¼¹«¼ (´ëÇ¥:, ÆÑ½º:, ) |
|
|
|
 |
¹ý¿ø ¹°°ÇÀÚ·á ¿ä¾à |
|
|
|
|
| ¼Ò¸êµÇÁö ¾Ê´Â µî±âºÎ±Ç¸® |
|
| ¼³Á¤µÈ °ÍÀ¸·Î º¸´Â Áö»ó±Ç |
|
| ¹ý¿øÀÚ·á Æ¯ÀÌ»çÇ× |
[ÁÖ¿ä ¹®°Ç Á¢¼ö ³»¿ª]
|
[¸Å°¢¹°°Ç¸í¼¼¼ ºñ°í¶õ]
- Àϰý¸Å°¢ |
|
| ¿©ÀÇÁÖ°æ¸Å Á¶¾ð ÇѸ¶µð |
ÀÌ ºÎµ¿»êÀÇ ÀÔÂû¹ý¿øÀº ÃáõÁö¹æ¹ý¿ø ¿øÁÖÁö¿øÀÔ´Ï´Ù.
ÀÔÂûÀÏÀº 2025-12-22ÀÔ´Ï´Ù.
ÀÔÂû½Ã°£Àº ~11:20ÀÔ´Ï´Ù. ÀÌ ¹ý¿ø¿¡´Â NH³óÇùÀºÇàÀÌ ÀÔÁ¡Çϰí ÀÖ½À´Ï´Ù.
|
|
|
| Åë°è±â°£ |
³«Âû¹°°Ç¼ö |
Æò±Õ°¨Á¤°¡ |
Æò±Õ³«Âû°¡ |
³«Âû°¡À² |
À¯ÂûȽ¼ö |
| 3°³¿ù |
13°Ç |
308,773,785¿ø |
149,560,169¿ø |
58% |
2.6ȸ |
| 6°³¿ù |
18°Ç |
491,552,643¿ø |
232,742,172¿ø |
56% |
2.6ȸ |
| 12°³¿ù |
18°Ç |
491,552,643¿ø |
232,742,172¿ø |
56% |
2.6ȸ |
|
|
|
|
|
|
 |
|