|
|
| ¼ÒÀçÁö |
¼¿ïƯº°½Ã °¼±¸ µîÃ̵¿ 637-16 ¾ÆÁÙ¸®¿ò Á¦2Ãþ Á¦203È£
|
|
| »ç°Ç¹øÈ£ |
2025 Ÿ°æ 10132 |
¹°°Ç¹øÈ£ |
1
|
¹°°Ç¿ëµµ |
¿ÀÇǽºÅÚ |
| °¨Á¤Æò°¡¾× |
298,000,000¿ø |
°æ¸Å´ë»ó |
ÅäÁö ¹× °Ç¹°Àϰý ¸Å°¢ |
ÁøÇà»óÅ |
À¯Âû |
| ÃÖÀúÀÔÂû°¡ |
(80%) 238,400,000¿ø
|
°Ç¹°¸éÀû |
33.00§³(9.98Æò) |
ÀÔÂû±âÀÏ |
2026.02.24(È) 10:00
(ÀÔÂû 43ÀÏÀü)
|
| ÀÔÂûº¸Áõ±Ý |
(10%) 23,840,000¿ø |
ÅäÁö¸éÀû |
14.03§³(4.24Æò)
|
À¯ÂûȽ¼ö |
1ȸ |
| ÀÔÂû¹ý¿ø |
¼¿ï³²ºÎÁö¹æ¹ý¿ø |
°æ¸Å¹æ¹ý |
|
¹°°ÇÁ¶È¸¼ö |
¿À´Ã: 3ȸ [´©Àû: 80ȸ]
|
| ¸»¼Ò±âÁØ | ÃÖ¼±¼øÀ§ ¼³Á¤ : 2023.6.2. °¡¾Ð·ù ¼³Á¤
|
|
|
|
|
|
|
|
|
|
|
°æ¸Å´ë»ó ¸ñ·Ï
|
|
| ±¸ºÐ |
¸ñ·Ï |
ÁÖ¼Ò |
±¸Á¶/¿ëµµ/´ëÁö±Ç |
ºñ°í |
´ëÁö±Ç
|
1 |
µîÃ̵¿ 637-16 |
508.6ºÐÀÇ 14.03 |
14.03§³ (4.24Æò)
|
°Ç¹°
|
1 |
µîÃ̵¿ 637-16 |
Á¦2Ãþ Á¦203È£ ö±ÙÄÜÅ©¸®Æ®±¸Á¶ |
33§³ (9.98Æò)
|
|
|
|
2026-01-07
À¯Âû
|
(100%)
298,000,000¿ø
|
|
|
|
2026-02-24
ÁøÇà
|
(80%)
238,400,000¿ø
|
|
|
|
|
|
°¨Á¤Æò°¡¼ ¿ä¾à |
|
[À§Ä¡/ÁÖÀ§È¯°æ]
´ë»ó¹°°ÇÀº ¼¿ïƯº°½Ã °¼±¸ µîÃ̵¿ ¼ÒÀç ÁöÇÏö 9È£¼± ""Áõ¹Ì¿ª"" ³²¼Ãø Àαٿ¡ ¼ÒÀçÇϸç, ÁÖÀ§´Â ´Ù¼¼´ëÁÖÅÃ,¾ÆÆÄÆ®,¿ÀÇǽºÅÚ,±Ù¸°»ýȰ½Ã¼³ µîÀÌ ¼ÒÀçÇÏ´Â °ø¾÷Áö´ë·Î¼ Á¦¹Ý ¿©°ÇÀº º¸Åë½ÃµÊ.
[±³Åë»óȲ]
´ë»ó¹°°Ç±îÁö Â÷·®ÃâÀÔÀÌ ¿ëÀÌÇϸç Àαٿ¡ ÁöÇÏö 9È£¼± ""Áõ¹Ì¿ª"" ¹× ³ë¼± ¹ö½ºÁ¤·ùÀåÀÌ ¼ÒÀçÇÏ´Â ¹Ù, Á¦¹Ý ±³Åë¿©°ÇÀº º¸ÅëÀÓ.
3)ÇüÅ ¹× ÀÌ¿ë»óÅÂ
-
4)ÀÎÁ¢ µµ·Î»óÅÂ
-
[ÅäÁöÀÌ¿ë°èȹ]
µµ½ÃÁö¿ª, Áذø¾÷Áö¿ª, Áß¿ä½Ã¼³¹°º¸È£Áö±¸(°øÇ×) °¡Ãà»çÀ°Á¦Çѱ¸¿ª(Áö¿ª°æÁ¦°ú È®ÀÎ ¿ä¸Á)£¼°¡ÃàºÐ´¢ÀÇ °ü¸® ¹× À̿뿡 °üÇÑ ¹ý·ü£¾, °¡·Î±¸¿ªº° ÃÖ°í³ôÀÌ Á¦ÇÑÁö¿ª(2015-08-27)£¼°ÇÃà¹ý£¾, ¿øÃßÇ¥¸é±¸¿ª(¿øÃßÇ¥¸é)£¼°øÇ׽ü³¹ý£¾, »ó´ëº¸È£±¸¿ª(°¼±³À°Áö¿øÃ»¿¡ ¹Ýµå½Ã È®ÀÎ ¿ä¸Á)£¼±³À°È¯°æ º¸È£¿¡ °üÇÑ ¹ý·ü£¾, ´ë°ø¹æ¾îÇùÁ¶±¸¿ª(À§Å¹°íµµ:77-257m)£¼±º»ç±âÁö ¹× ±º»ç½Ã¼³ º¸È£¹ý£¾, °ú¹Ð¾ïÁ¦±Ç¿ª£¼¼öµµ±ÇÁ¤ºñ°èȹ¹ý£¾, (ÇѰ)Æó±â¹°¸Å¸³½Ã¼³ ¼³Ä¡Á¦ÇÑÁö¿ª£¼ÇѰ¼ö°è »ó¼ö¿ø¼öÁú°³¼± ¹× ÁÖ¹ÎÁö¿ø µî¿¡ °üÇÑ ¹ý·ü£¾
6)Á¦½Ã¸ñ·Ï ¿ÜÀÇ ¹°°Ç
-
[°øºÎ¿ÍÀÇ Â÷ÀÌ]
-
[Âü°í»çÇ×]
-
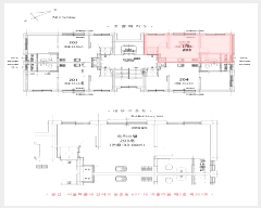
[°Ç¹°±¸Á¶]
ö±ÙÄÜÅ©¸®Æ®±¸Á¶ (ö±Ù)ÄÜÅ©¸®Æ®ÁöºØ ÁöÇÏ1Ãþ/Áö»ó10Ãþ ³» Á¦2Ãþ Á¦203È£·Î¼,
¿Üº®: ¼®ÀçºÙÀÓ ¸¶°¨ µî,
³»º®: ³»ºÎ ÀÎÅ׸®¾î ¸¶°¨ µî,
âȣ: ¼¦½Ãâȣ ¸¶°¨ µîÀÓ.
[ÀÌ¿ë»óÅÂ]
¿ÀÇǽºÅÚ·Î ÀÌ¿ëÁßÀÓ.
[¼³ºñ³»¿ª]
±âº»ÀûÀÎ À§»ý¡¤±Þ¹è¼ö ¼³ºñ, ³¹æ¼³ºñ, ÈÀç°æº¸¼³ºñ, ÈÀçŽÁö¼³ºñ, ½Â°±â µîÀÇ ¼³ºñ°¡ µÇ¾î
ÀÖÀ½.
4)ºÎÇÕ¹° ¹× Á¾¹°
-
[°øºÎ¿ÍÀÇ Â÷ÀÌ]
-
[Âü°í»çÇ×]
- |
|
|
°ÇÃ๰ÇöȲ |
|
|
|
| ¼ÒÀçÁö |
¼¿ïƯº°½Ã °¼±¸ µîÃ̵¿ 637-16¹øÁö |
| ´ëÁö¸éÀû |
508.6§³(154.12Æò) |
¿¬¸éÀû |
1825.66§³(553.23Æò) |
ÁÖ¿ëµµ |
¾÷¹«½Ã¼³ |
| °ÇÃà¸éÀû |
175.56§³(53.2Æò) |
¿ëÀû·ü»êÁ¤¿¬¸éÀû |
1524.44§³(461.95Æò) |
Âø°øÀÏÀÚ |
2018.08.10 |
| °ÇÆóÀ² |
34.52% |
¿ëÀû·ü |
299.73% |
»ç¿ë½ÂÀÎÀÏÀÚ |
2019.06.26 |
| Áö»óÃþ¼ö |
10Ãþ |
ÁöÇÏÃþ¼ö |
1Ãþ |
±¸Á¶ |
ö±ÙÄÜÅ©¸®Æ®±¸Á¶ |
°ÇÃ๰Ãþº°ÇöȲ [º¸±â]| Ãþº° | ±¸Á¶ | ¿ëµµ | ¸éÀû | | 1Ãþ | ö±ÙÄÜÅ©¸®Æ®±¸Á¶ | ±â°è½ÄÁÖÂ÷Àå | 28.12§³ (8.52Æò) | | 1Ãþ | ö±ÙÄÜÅ©¸®Æ®±¸Á¶ | ÇÇ·ÎÆ¼ÁÖÂ÷Àå(¿¬¸éÀû Á¦¿Ü) | 88.56§³ (26.84Æò) | | 1Ãþ | ö±ÙÄÜÅ©¸®Æ®±¸Á¶ | °è´Ü½Ç | 10.64§³ (3.22Æò) | | 1Ãþ | ö±ÙÄÜÅ©¸®Æ®±¸Á¶ | °æºñ½Ç/¹æÀç½Ç | 9§³ (2.73Æò) | | 1Ãþ | ö±ÙÄÜÅ©¸®Æ®±¸Á¶ | ÁÖÂ÷Àå | 22.72§³ (6.88Æò) | | 2Ãþ | ö±ÙÄÜÅ©¸®Æ®±¸Á¶ | ¾÷¹«½Ã¼³(¿ÀÇǽºÅÚ) | 167.2§³ (50.67Æò) | | 3Ãþ | ö±ÙÄÜÅ©¸®Æ®±¸Á¶ | ¾÷¹«½Ã¼³(¿ÀÇǽºÅÚ) | 167.2§³ (50.67Æò) | | 4Ãþ | ö±ÙÄÜÅ©¸®Æ®±¸Á¶ | ¾÷¹«½Ã¼³(¿ÀÇǽºÅÚ) | 167.2§³ (50.67Æò) | | 5Ãþ | ö±ÙÄÜÅ©¸®Æ®±¸Á¶ | ¾÷¹«½Ã¼³(¿ÀÇǽºÅÚ) | 167.2§³ (50.67Æò) | | 6Ãþ | ö±ÙÄÜÅ©¸®Æ®±¸Á¶ | ¾÷¹«½Ã¼³(¿ÀÇǽºÅÚ) | 167.2§³ (50.67Æò) | | 7Ãþ | ö±ÙÄÜÅ©¸®Æ®±¸Á¶ | ¾÷¹«½Ã¼³(¿ÀÇǽºÅÚ) | 167.2§³ (50.67Æò) | | 8Ãþ | ö±ÙÄÜÅ©¸®Æ®±¸Á¶ | ¾÷¹«½Ã¼³(¿ÀÇǽºÅÚ) | 167.2§³ (50.67Æò) | | 9Ãþ | ö±ÙÄÜÅ©¸®Æ®±¸Á¶ | ¾÷¹«½Ã¼³(¿ÀÇǽºÅÚ) | 167.2§³ (50.67Æò) | | 10Ãþ | ö±ÙÄÜÅ©¸®Æ®±¸Á¶ | ¾÷¹«½Ã¼³(¿ÀÇǽºÅÚ) | 167.2§³ (50.67Æò) | | ¿Áž1Ãþ | ö±ÙÄÜÅ©¸®Æ®±¸Á¶ | ELEV.oh(¿¬¸éÀû Á¦¿Ü) | 21§³ (6.36Æò) | | Áö1Ãþ | ö±ÙÄÜÅ©¸®Æ®±¸Á¶ | ±â°è½Ç | 28.01§³ (8.49Æò) | | Áö1Ãþ | ö±ÙÄÜÅ©¸®Æ®±¸Á¶ | °è´Ü½Ç | 12.75§³ (3.86Æò) | | Áö1Ãþ | ö±ÙÄÜÅ©¸®Æ®±¸Á¶ | Åë½Å½Ç | 14.62§³ (4.43Æò) | | Áö1Ãþ | ö±ÙÄÜÅ©¸®Æ®±¸Á¶ | ±â°è½ÄÁÖÂ÷Àå | 195§³ (59.09Æò) |
|
|
|
|
|
|
|
|
|
¸éÀû(§³), ±Ý¾×(¸¸¿ø)
| °è¾àÀÏ | ±âÁØ | °Ç¹°¸íĪ | Ãþ | Àü¿ë¸éÀû | °Å·¡±Ý¾× | °ÇÃà³âµµ | | °Å·¡³»¿ªÀÌ ¾ø½À´Ï´Ù. |
| °è¾àÀÏ | ±âÁØ | °Ç¹°¸íĪ | Ãþ | Àü¿ë¸éÀû | º¸Áõ±Ý | ¿ù¼¼ | °ÇÃà³âµµ | | 2025.10.02 | Àü¼¼ | ¾ÆÁÙ¸®¿ò | 2 | 33.43 | 23,130 | 0 | 2019 | | 2025.09.14 | ¿ù¼¼ | ¾ÆÁÙ¸®¿ò | 10 | 33.43 | 27,200 | 10 | 2019 | | 2025.08.04 | Àü¼¼ | ¾ÆÁÙ¸®¿ò | 4 | 33.43 | 23,850 | 0 | 2019 | | 2025.04.29 | Àü¼¼ | ¾ÆÁÙ¸®¿ò | 9 | 33 | 26,500 | 0 | 2019 | | 2025.02.24 | Àü¼¼ | ¾ÆÁÙ¸®¿ò | 8 | 33 | 5,500 | 0 | 2019 | | 2025.01.02 | ¿ù¼¼ | ¾ÆÁÙ¸®¿ò | 7 | 33.43 | 27,100 | 13 | 2019 |
|
|
|
 |
ÀÓÂ÷³»¿ª |
[¹è´ç¿ä±¸Á¾±âÀÏ : 2025/08/28] |
|
|
| ÀÓÂ÷ÀÎ |
Á¡À¯°ü°è |
ÀüÀÔÀÏÀÚ |
È®Á¤ÀÏÀÚ |
¹è´ç¿ä±¸ÀÏ |
º¸Áõ±Ý/Â÷ÀÓ |
´ëÇ׿ä°Ç |
ºñ°í |
| °ûOO |
ÀüºÎ |
2021.10.22 |
2021.09.17 |
|
301,000,000
|
O |
2021.10.22 |
| ÁÖOOOOOOO |
ÀüºÎ |
2021.10.22. |
2021.09.17. |
2025.8.28. |
301,000,000
|
O |
2021.10.22.~2024.03.25. |
| ¸Å°¢¹°°Ç¸í¼¼ ºñ°í |
°ûÁØÈ£:ÁÖÅÃÀÓÂ÷±Çµî±âÀÏÀÚ 2023. 11. 1.
ÁÖÅõµ½Ãº¸Áõ°ø»ç:ÀÌ »ç°Ç ½Åûä±ÇÀÚ·Î ÁÖÅÃÀÓÂ÷±ÇÀÚ °ûÁØÈ£ÀÇ ÁöÀ§¸¦ ½Â°èÇÏ¿© ±Ç¸®½Å°í ¹× ¹è´ç¿ä±¸ |
|
|
|
 |
Áö¿ªºÐ¼® |
|
|
|
|
| ÁöÇÏö |
|
Çб³ |
|
| °ü°ø¼ |
|
| ¹ý¿ø |
¼¿ï³²ºÎÁö¹æ¹ý¿ø (080-88)¼¿ïƯº°½Ã ¾çõ±¸ ½Å¿ù·Î 386(½ÅÁ¤µ¿) ´ëÇ¥ : 02)2192-1114 ¿µµîÆ÷±¸, °¼±¸, ¾çõ±¸, ±¸·Î±¸, ±Ýõ±¸ |
| µî±â¼Ò |
¼¿ï³²ºÎÁö¹æ¹ý¿ø º»¿ø µî±â±¹ (´ëÇ¥:1544-0773, ÆÑ½º:(02)2629-7307, ¼¿ïƯº°½Ã ¿µµîÆ÷±¸ °æÀηΠ772 (¹®·¡µ¿ 1°¡)) |
| ¼¼¹«¼ |
°¼¼¼¹«¼ (´ëÇ¥:02-2630-42, ÆÑ½º:02-2679-8777, ¼¿ïƯº°½Ã °¼±¸ ¸¶°î¼1·Î 60 (¸¶°îµ¿)) |
|
|
|
 |
¹ý¿ø ¹°°ÇÀÚ·á ¿ä¾à |
|
|
|
|
| ¼Ò¸êµÇÁö ¾Ê´Â µî±âºÎ±Ç¸® |
|
| ¼³Á¤µÈ °ÍÀ¸·Î º¸´Â Áö»ó±Ç |
|
| ¹ý¿øÀÚ·á Æ¯ÀÌ»çÇ× |
[ÁÖ¿ä ¹®°Ç Á¢¼ö ³»¿ª]
|
[¸Å°¢¹°°Ç¸í¼¼¼ ºñ°í¶õ]
Ưº°¸Å°¢Á¶°Ç : ä±ÇÀÚ´Â ¸Å¼öÀο¡ ´ëÇØ ¹è´ç¹ÞÁö ¸øÇÏ´Â Àܾ׿¡ ´ëÇÑ ÀÓ´ëÂ÷º¸Áõ±Ý ¹Ýȯû±¸±ÇÀ» Æ÷±âÇϰí, ÀÓÂ÷±Çµî±â¸¦ ¸»
¼ÒÇÏ´Â °ÍÀ» Á¶°ÇÀ¸·Î ¸Å°¢ |
|
| ¿©ÀÇÁÖ°æ¸Å Á¶¾ð ÇѸ¶µð |
ÀÌ ºÎµ¿»êÀÇ ÀÔÂû¹ý¿øÀº ¼¿ï³²ºÎÁö¹æ¹ý¿øÀÔ´Ï´Ù.
ÀÔÂûÀÏÀº 2026-02-24ÀÔ´Ï´Ù.
ÀÔÂû½Ã°£Àº ~11:20ÀÔ´Ï´Ù. ÀÌ ¹ý¿ø¿¡´Â ½ÅÇÑÀºÇàÀÌ ÀÔÁ¡Çϰí ÀÖ½À´Ï´Ù.
|
¼±¼øÀ§ ÀÓÂ÷±Çµî±â°¡ µÇ¾î ÀÖ½À´Ï´Ù ´ëÇ×·ÂÀÌ ÀÖ´Â ¼±¼øÀ§ ÀÓÂ÷±Çµî±â ±Ç¸®ÀÚ°¡ ¹è´çÀ» Àü¾× ¹ÞÁö ¸øÇÒ °æ¿ì ³«ÂûÀÚ°¡ ÀÜ¿© º¸Áõ±ÝÀ» ÀμöÇØ¾ßÇÏ´Â °æ¿ìµµ ÀÖ½À´Ï´Ù. |
|
|
| Åë°è±â°£ |
³«Âû¹°°Ç¼ö |
Æò±Õ°¨Á¤°¡ |
Æò±Õ³«Âû°¡ |
³«Âû°¡À² |
À¯ÂûȽ¼ö |
| 3°³¿ù |
196°Ç |
270,437,700¿ø |
224,595,096¿ø |
83% |
1.6ȸ |
| 6°³¿ù |
344°Ç |
266,365,666¿ø |
223,642,586¿ø |
84% |
1.5ȸ |
| 12°³¿ù |
459°Ç |
267,772,961¿ø |
222,958,021¿ø |
83% |
1.7ȸ |
|
|
|
|
|
|
 |
|