|
|
| ¼ÒÀçÁö |
¿ï»ê±¤¿ª½Ã Áß±¸ ¼º¾Èµ¿ 476-1 °øÁÖ¸¶À» 402µ¿ 3Ãþ 301È£
|
|
| »ç°Ç¹øÈ£ |
2025 Ÿ°æ 1006 |
¹°°Ç¹øÈ£ |
1
|
¹°°Ç¿ëµµ |
¾ÆÆÄÆ® |
| °¨Á¤Æò°¡¾× |
92,000,000¿ø |
°æ¸Å´ë»ó |
ÅäÁö ¹× °Ç¹°Àϰý ¸Å°¢ |
ÁøÇà»óÅ |
½Å°Ç |
| ÃÖÀúÀÔÂû°¡ |
(100%) 92,000,000¿ø
|
°Ç¹°¸éÀû |
41.41§³(12.53Æò) |
ÀÔÂû±âÀÏ |
2026.01.09(±Ý) 10:00
(ÀÔÂû 14ÀÏÀü)
|
| ÀÔÂûº¸Áõ±Ý |
(10%) 9,200,000¿ø |
ÅäÁö¸éÀû |
26.15§³(7.91Æò)
|
À¯ÂûȽ¼ö |
0ȸ |
| ÀÔÂû¹ý¿ø |
¿ï»êÁö¹æ¹ý¿ø |
°æ¸Å¹æ¹ý |
|
¹°°ÇÁ¶È¸¼ö |
¿À´Ã: 4ȸ [´©Àû: 6ȸ]
|
| ¸»¼Ò±âÁØ | |
|
|
|
|
|
|
|
|
|
|
°æ¸Å´ë»ó ¸ñ·Ï
|
|
| ±¸ºÐ |
¸ñ·Ï |
ÁÖ¼Ò |
±¸Á¶/¿ëµµ/´ëÁö±Ç |
ºñ°í |
´ëÁö±Ç
|
1 |
¼º¾Èµ¿ 476-1 |
829.3 ºÐÀÇ 26.15 |
26.15§³ (7.91Æò)
|
°Ç¹°
|
1 |
¼º¾Èµ¿ 476-1 |
402µ¿ 3Ãþ 301È£ ö±ÙÄÜÅ©¸®Æ®±¸Á¶ |
41.41§³ (12.53Æò)
|
|
|
|
2026-01-09
ÁøÇà
|
(100%)
92,000,000¿ø
|
|
|
|
|
|
°¨Á¤Æò°¡¼ ¿ä¾à |
|
[À§Ä¡/ÁÖÀ§È¯°æ]
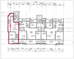
º»°ÇÀº ¿ï»ê±¤¿ª½Ã Áß±¸ ¼º¾Èµ¿ ¼ÒÀç ""¿ï»ê¿¡´Ï¿ø°íµîÇб³"" ºÏÃø Àαٿ¡ À§Ä¡ÇÏ´Â °øÁÖ¸¶À»Á¦402µ¿ Á¦3Ãþ301È£·Î¼ ÁÖÀ§´Â ¾ÆÆÄÆ®, ´Üµ¶ÁÖÅÃ, ±Ù¸°»ýȰ½Ã¼³ µîÀ¸·Î Çü¼ºµÇ¾î ÀÖ½À´Ï´Ù.
[±³Åë»óȲ]
º»°Ç±îÁö Â÷·®ÃâÀÔ°¡´ÉÇϸç, ¾Ë¹ÝÀûÀÎ ´ëÁß°íÅëÆíÀº º¸ÅëÀÎ ÆíÀÔ´Ï´Ù.
[°Ç¹°±¸Á¶]
ö±ÙÄÜÅ©¸®Æ®±¸Á¶(ö±Ù)ÄÜÅ©¸®Æ®ÁöºØ8Ãþ°ÇÀ¸·Î
¿Üº®Àº ¸ôÅ»À§ ÆäÀÎÆÃ
³»º®Àº º®Áöµî ¸¶°¨À̸ç
âȣ´Â ¼¦½ÃâÀÔ´Ï´Ù
[ÀÌ¿ë»óÅÂ]
°øµ¿ÁÖÅÃ(¾ÆÆÄÆ®)À¸·Î ÀÌ¿ëÇÕ´Ï´Ù.
[¼³ºñ³»¿ª]
À§»ý±Ý¹è¼ö¼³ºñ µµ½Ã°¡½º¼³ºñ µîÀÌ µÇ¾î ÀÖÀ¸¸ç 2,3È£Åë·Î´Â ½Â°±â¼³ºñµÇ¾î ÀÖÀ¸³ª º»°Ç 1È£¶óÀÎÀº °è´ÜÀ» ÀÌ¿ëÇÏ¿© ÃâÀÔÇÕ´Ï´Ù.
[ÅäÁöÇü»ó/ÀÌ¿ë»óÅÂ]
Á¤¹æÇüÀÇ ÅäÁö·Î ¾ÆÆÄÆ®ºÎÁö·Î ÀÌ¿ëÇÕ´Ï´Ù.
7)ÀÎÁ¢ µµ·Î»óŵî
ºÏÃø ¹× ¼ÃøÀ¸·Î ¾à8¹ÌÅÍ Á¤µµÀÇ Æ÷Àåµµ·Î¿Í Á¢ÇÕ´Ï´Ù.
[ÅäÁöÀÌ¿ë°èȹ]
µµ½ÃÁö¿ª , Á¦2Á¾ÀϹÝÁÖ°ÅÁö¿ª(2012-02-16) , °íµµÁö±¸(27mÀÌÇÏ) , ¼Ò·Î2·ù(Æø 8m~10m)(Á¢ÇÕ)
°¡Ãà»çÀ°Á¦Çѱ¸¿ª£¼°¡ÃàºÐ´¢ÀÇ °ü¸® ¹× À̿뿡 °üÇÑ ¹ý·ü£¾, Àå¾Ö¹°Á¦ÇÑÇ¥¸é±¸¿ª£¼°øÇ׽ü³¹ý£¾, »ó´ëº¸È£±¸¿ª(¿ï»ê¾Ö´Ï¿ø°íµîÇб³)£¼±³À°È¯°æ º¸È£¿¡ °üÇÑ ¹ý·ü£¾
[°øºÎ¿ÍÀÇ Â÷ÀÌ]
¾ø½À´Ï´Ù
[Âü°í»çÇ×]
ÀÓ´ë°ï°è´Â ¹Ì»óÀÌ¸ç ±âŸÂü°í»çÇ×¾ø½À´Ï´Ù. |
|
|
°ÇÃ๰ÇöȲ |
|
|
|
| ¼ÒÀçÁö |
¿ï»ê±¤¿ª½Ã Áß±¸ ¼º¾Èµ¿ 476-1¹øÁö |
| ´ëÁö¸éÀû |
829.3§³(251.3Æò) |
¿¬¸éÀû |
1653.22§³(500.98Æò) |
ÁÖ¿ëµµ |
°øµ¿ÁÖÅà |
| °ÇÃà¸éÀû |
316.76§³(95.99Æò) |
¿ëÀû·ü»êÁ¤¿¬¸éÀû |
1653.22§³(500.98Æò) |
Âø°øÀÏÀÚ |
2004.02.14 |
| °ÇÆóÀ² |
38.2% |
¿ëÀû·ü |
199.35% |
»ç¿ë½ÂÀÎÀÏÀÚ |
2004.09.24 |
| Áö»óÃþ¼ö |
8Ãþ |
ÁöÇÏÃþ¼ö |
|
±¸Á¶ |
ö±ÙÄÜÅ©¸®Æ®±¸Á¶ |
°ÇÃ๰Ãþº°ÇöȲ [º¸±â]| Ãþº° | ±¸Á¶ | ¿ëµµ | ¸éÀû | | 1Ãþ | ö±ÙÄÜÅ©¸®Æ®±¸Á¶ | °è´Ü½Ç | 23.39§³ (7.09Æò) | | 2Ãþ | ö±ÙÄÜÅ©¸®Æ®±¸Á¶ | °øµ¿ÁÖÅÃ(¾ÆÆÄÆ®) | 268.69§³ (81.42Æò) | | 3Ãþ | ö±ÙÄÜÅ©¸®Æ®±¸Á¶ | °øµ¿ÁÖÅÃ(¾ÆÆÄÆ®) | 268.69§³ (81.42Æò) | | 4Ãþ | ö±ÙÄÜÅ©¸®Æ®±¸Á¶ | °øµ¿ÁÖÅÃ(¾ÆÆÄÆ®) | 268.69§³ (81.42Æò) | | 5Ãþ | ö±ÙÄÜÅ©¸®Æ®±¸Á¶ | °øµ¿ÁÖÅÃ(¾ÆÆÄÆ®) | 206.07§³ (62.45Æò) | | 6Ãþ | ö±ÙÄÜÅ©¸®Æ®±¸Á¶ | °øµ¿ÁÖÅÃ(¾ÆÆÄÆ®) | 206.07§³ (62.45Æò) | | 7Ãþ | ö±ÙÄÜÅ©¸®Æ®±¸Á¶ | °øµ¿ÁÖÅÃ(¾ÆÆÄÆ®) | 206.07§³ (62.45Æò) | | 8Ãþ | ö±ÙÄÜÅ©¸®Æ®±¸Á¶ | °øµ¿ÁÖÅÃ(¾ÆÆÄÆ®) | 205.55§³ (62.29Æò) |
|
|
|
|
|
|
|
|
|
¸éÀû(§³), ±Ý¾×(¸¸¿ø)
| °è¾àÀÏ | ±âÁØ | ¾ÆÆÄÆ®¸í | Ãþ | Àü¿ë¸éÀû | °Å·¡±Ý¾× | °ÇÃà³âµµ | | 2024.01.23 | ¸Å¸Å | °øÁÖ¸¶À»402µ¿ | 2 | 84.96 | 13,100 | 2004 |
| °è¾àÀÏ | ±âÁØ | ¾ÆÆÄÆ®¸í | Ãþ | Àü¿ë¸éÀû | º¸Áõ±Ý | ¿ù¼¼ | °ÇÃà³âµµ | | 2024.11.06 | ¸Å¸Å | °øÁÖ¸¶À»402µ¿ | 6 | 84.96 | 18,000 | | 2004 | | 2024.06.04 | Àü¼¼ | °øÁÖ¸¶À»402µ¿ | 2 | 84.96 | 13,500 | 0 | 2004 |
|
|
|
 |
ÀÓÂ÷³»¿ª |
[¹è´ç¿ä±¸Á¾±âÀÏ : 2025/06/12] |
|
|
| ÀÓÂ÷ÀÎ |
Á¡À¯°ü°è |
ÀüÀÔÀÏÀÚ |
È®Á¤ÀÏÀÚ |
¹è´ç¿ä±¸ÀÏ |
º¸Áõ±Ý/Â÷ÀÓ |
´ëÇ׿ä°Ç |
ºñ°í |
| ¸Å°¢±âÀÏ 7ÀÏÀü¿¡ °ø°íµÇ¿À´Ï È®ÀÎÇϽñ⠹ٶø´Ï´Ù. |
|
|
|
 |
Áö¿ªºÐ¼® |
|
|
|
|
| ÁöÇÏö |
|
Çб³ |
|
| °ü°ø¼ |
|
| ¹ý¿ø |
¿ï»êÁö¹æ¹ý¿ø (446-43)¿ï»ê±¤¿ª½Ã ³²±¸ ¹ý´ë·Î 55(¿Áµ¿ 1415) ´ëÇ¥ : 052)216-8000, ¹Î¿ø : 052)216-8021~3 ¿ï»ê±¤¿ª½Ã, ¾ç»ê½Ã |
| µî±â¼Ò |
¿ï»êÁö¹æ¹ý¿ø º»¿ø µî±â°ú (´ëÇ¥:1544-0773, ÆÑ½º:(052)260-6293, ¿ï»ê±¤¿ª½Ã ³²±¸ ¹ý´ë·Î 55 (¿Áµ¿ 1415)) |
| ¼¼¹«¼ |
µ¿¿ï»ê¼¼¹«¼ (´ëÇ¥:052-219-92, ÆÑ½º:052-289-8365, ¿ï»ê±¤¿ª½Ã ºÏ±¸ »çû2±æ 7 (ȺÀµ¿)) |
|
|
|
 |
¹ý¿ø ¹°°ÇÀÚ·á ¿ä¾à |
|
|
|
|
| ¼Ò¸êµÇÁö ¾Ê´Â µî±âºÎ±Ç¸® |
|
| ¼³Á¤µÈ °ÍÀ¸·Î º¸´Â Áö»ó±Ç |
|
| ¹ý¿øÀÚ·á Æ¯ÀÌ»çÇ× |
[ÁÖ¿ä ¹®°Ç Á¢¼ö ³»¿ª]
|
[ºÎµ¿»ê ÇöȲÁ¶»ç¼ ºñ°í¶õ]
º»°ÇÀº ¿ï»ê±¤¿ª½Ã Áß |
|
| ¿©ÀÇÁÖ°æ¸Å Á¶¾ð ÇѸ¶µð |
ÀÌ ºÎµ¿»êÀÇ ÀÔÂû¹ý¿øÀº ¿ï»êÁö¹æ¹ý¿øÀÔ´Ï´Ù.
ÀÔÂûÀÏÀº 2026-01-09ÀÔ´Ï´Ù.
ÀÔÂû½Ã°£Àº ~11:30ÀÔ´Ï´Ù. ÀÌ ¹ý¿ø¿¡´Â ½ÅÇÑÀºÇà,°æ³²ÀºÇàÀÌ ÀÔÁ¡Çϰí ÀÖ½À´Ï´Ù.
|
|
|
| Åë°è±â°£ |
³«Âû¹°°Ç¼ö |
Æò±Õ°¨Á¤°¡ |
Æò±Õ³«Âû°¡ |
³«Âû°¡À² |
À¯ÂûȽ¼ö |
| 3°³¿ù |
7°Ç |
182,571,429¿ø |
161,948,156¿ø |
79% |
1.4ȸ |
| 6°³¿ù |
24°Ç |
219,541,667¿ø |
200,049,834¿ø |
85% |
1.1ȸ |
| 12°³¿ù |
49°Ç |
264,081,633¿ø |
220,239,554¿ø |
85% |
1.1ȸ |
|
|
|
|
|
|
 |
|