|
|
| ¼ÒÀçÁö |
°¿øÆ¯º°ÀÚÄ¡µµ ¿øÁֽà Èï¾÷¸é ¸ÅÁö¸® 1928 Çö´ë¾ÆÆÄÆ® 104µ¿ 2Ãþ205È£
|
|
| »ç°Ç¹øÈ£ |
2025 Ÿ°æ 20624 |
¹°°Ç¹øÈ£ |
1
|
¹°°Ç¿ëµµ |
¾ÆÆÄÆ® |
| °¨Á¤Æò°¡¾× |
71,000,000¿ø |
°æ¸Å´ë»ó |
ÅäÁö ¹× °Ç¹°Àϰý ¸Å°¢ |
ÁøÇà»óÅ |
½Å°Ç |
| ÃÖÀúÀÔÂû°¡ |
(100%) 71,000,000¿ø
|
°Ç¹°¸éÀû |
51.55§³(15.59Æò) |
ÀÔÂû±âÀÏ |
2026.01.12(¿ù) 10:00
(ÀÔÂû 11ÀÏÀü)
|
| ÀÔÂûº¸Áõ±Ý |
(10%) 7,100,000¿ø |
ÅäÁö¸éÀû |
37.51§³(11.35Æò)
|
À¯ÂûȽ¼ö |
0ȸ |
| ÀÔÂû¹ý¿ø |
ÃáõÁö¹æ¹ý¿ø ¿øÁÖÁö¿ø |
°æ¸Å¹æ¹ý |
|
¹°°ÇÁ¶È¸¼ö |
¿À´Ã: 3ȸ [´©Àû: 25ȸ]
|
| ¸»¼Ò±âÁØ | ÃÖ¼±¼øÀ§ ¼³Á¤ : 2019.01.07. ±ÙÀú´ç±Ç ¼³Á¤
|
|
|
|
|
|
|
|
|
|
|
°æ¸Å´ë»ó ¸ñ·Ï
|
|
| ±¸ºÐ |
¸ñ·Ï |
ÁÖ¼Ò |
±¸Á¶/¿ëµµ/´ëÁö±Ç |
ºñ°í |
´ëÁö±Ç
|
1 |
¸ÅÁö¸® 1928 |
17079.2ºÐÀÇ 37.505 |
37.505§³ (11.35Æò)
|
°Ç¹°
|
1 |
¸ÅÁö¸® 1928 |
104µ¿ 2Ãþ205È£ ö±ÙÄÜÅ©¸®Æ®Á¶ |
51.545§³ (15.59Æò)
|
|
|
|
2026-01-12
ÁøÇà
|
(100%)
71,000,000¿ø
|
|
|
|
|
|
°¨Á¤Æò°¡¼ ¿ä¾à |
|
[À§Ä¡/ÁÖÀ§È¯°æ]
°¿øÆ¯º°ÀÚÄ¡µµ ¿øÁֽà Èï¾÷¸é ¸ÅÁö¸® ¼ÒÀç ""Èï¾÷Àú¼öÁö"" µ¿Ãø Àαٿ¡ À§Ä¡Çϸç, ÁÖÀ§´Â
¾ÆÆÄÆ® ´ÜÁö, °øµ¿ÁÖÅÃ, »ó°¡ÁÖÅÃ, ±Ù¸°»ó°¡ µîÀ¸·Î Çü¼ºµÈ ¾ÆÆÄÆ® ÁÖ°ÅÁö´ëÀÓ.
[±³Åë»óȲ]
º»°Ç±îÁö Á¦¹Ý Â÷·®ÃâÀÔ °¡´ÉÇϸç Àαٿ¡ ¹ö½ºÁ¤·ùÀåÀÌ ¼ÒÀçÇÏ¿© ´ëÁß±³Åë»çÁ¤ º¸ÅëÀÓ.
[°Ç¹°±¸Á¶]
ö±ÙÄÜÅ©¸®Æ®Á¶ ½º¶óºêÁöºØ 12Ãþ °Ç ³» 2Ãþ 205È£·Î¼
¿Üº® : ¸ôÅ»À§ ÆäÀÎÆÃ ¸¶°¨.
³»º® : º®Áö µµ¹è ¹× ÀϺΠŸÀÏ ºÙÀÓ.
âȣ : ¾Ë·ç¹Ì´½¼¦½Ã/PVC¼¦½Ã ÀÌÁßâ.
[ÀÌ¿ë»óÅÂ]
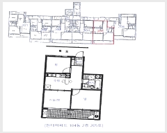
¾ÆÆÄÆ®(¹æ2, °Å½Ç/¹æ, ÁÖ¹æ, ¿å½Ç, ¹ßÄÚ´Ï µî)·Î ÀÌ¿ë ÁßÀÓ.
[¼³ºñ³»¿ª]
À§»ý½Ã¼³ ¹× ±Þ¹è¼ö ½Ã¼³ µÇ¾î ÀÖÀ¸¸ç, ¿Á³»¼ÒÈÀü µî ¼Ò¹æ¼³ºñ, ½Â°±â¼³ºñ, µµ½Ã°¡½º¿¡
ÀÇÇÑ °³º°³¹æ½Ã¼³, Áö»ó ÁÖÂ÷½Ã¼³ µî µÇ¾î ÀÖÀ½.
[ÅäÁöÇü»ó/ÀÌ¿ë»óÅÂ]
¼ÇÏÇ⠿ϰæ»çÀÇ ºÎÁ¤Çü ÅäÁö·Î¼, ¾ÆÆÄÆ® °ÇºÎÁö·Î ÀÌ¿ë ÁßÀÓ.
7)ÀÎÁ¢ µµ·Î»óŵî
´ÜÁö ³» µµ·Î½Ã¼³ µÇ¾î ÀÖÀ½.
[ÅäÁöÀÌ¿ë°èȹ]
Á¦2Á¾ ÀϹÝÁÖ°ÅÁö¿ª, ¼Ò·Î3·ù(Æø 8m ¹Ì¸¸)(Á¢ÇÔ), Áß·Î3·ù(Æø 12m-15m)(Á¢ÇÔ), ¹èÃâ½Ã¼³
¼³Ä¡ Á¦ÇÑÁö¿ª.
[°øºÎ¿ÍÀÇ Â÷ÀÌ]
¾øÀ½.
[Âü°í»çÇ×]
ÀÓ´ë°ü°è ¹Ì»óÀÓ. |
|
|
°ÇÃ๰ÇöȲ |
|
|
|
| ¼ÒÀçÁö |
°¿øÆ¯º°ÀÚÄ¡µµ ¿øÁֽà Èï¾÷¸é ¸ÅÁö¸® 1928¹øÁö |
| ´ëÁö¸éÀû |
17143.6§³(5195.03Æò) |
¿¬¸éÀû |
3640.8§³(1103.27Æò) |
ÁÖ¿ëµµ |
°øµ¿ÁÖÅà |
| °ÇÃà¸éÀû |
3377.97§³(1023.63Æò) |
¿ëÀû·ü»êÁ¤¿¬¸éÀû |
3640.8§³(1103.27Æò) |
Âø°øÀÏÀÚ |
1994.04.01 |
| °ÇÆóÀ² |
19.7% |
¿ëÀû·ü |
172.45% |
»ç¿ë½ÂÀÎÀÏÀÚ |
1995.08.16 |
| Áö»óÃþ¼ö |
9Ãþ |
ÁöÇÏÃþ¼ö |
|
±¸Á¶ |
ö±ÙÄÜÅ©¸®Æ®±¸Á¶ |
°ÇÃ๰Ãþº°ÇöȲ [º¸±â]| Ãþº° | ±¸Á¶ | ¿ëµµ | ¸éÀû | | 1Ãþ | ö±ÙÄÜÅ©¸®Æ®Á¶ | ¾ÆÆÄÆ® | 413.12§³ (125.19Æò) | | 1Ãþ | ö±ÙÄÜÅ©¸®Æ®Á¶ | »ýȰÆíÀͽü³ | 144§³ (43.64Æò) | | 1Ãþ | ö±ÙÄÜÅ©¸®Æ®Á¶ | ¾ÆÆÄÆ® | 584§³ (176.97Æò) | | 1Ãþ | ö±ÙÄÜÅ©¸®Æ®Á¶ | ¾ÆÆÄÆ® | 584§³ (176.97Æò) | | 2Ãþ | ö±ÙÄÜÅ©¸®Æ®Á¶ | ¾ÆÆÄÆ® | 557.12§³ (168.82Æò) | | 2Ãþ | ö±ÙÄÜÅ©¸®Æ®Á¶ | ¾ÆÆÄÆ® | 557.12§³ (168.82Æò) | | 2Ãþ | ö±ÙÄÜÅ©¸®Æ®Á¶ | ¾ÆÆÄÆ® | 403.46§³ (122.26Æò) | | 3Ãþ | ö±ÙÄÜÅ©¸®Æ®Á¶ | ¾ÆÆÄÆ® | 557.12§³ (168.82Æò) | | 3Ãþ | ö±ÙÄÜÅ©¸®Æ®Á¶ | ¾ÆÆÄÆ® | 403.46§³ (122.26Æò) | | 3Ãþ | ö±ÙÄÜÅ©¸®Æ®Á¶ | ¾ÆÆÄÆ® | 557.12§³ (168.82Æò) | | 4Ãþ | ö±ÙÄÜÅ©¸®Æ®Á¶ | ¾ÆÆÄÆ® | 557.12§³ (168.82Æò) | | 4Ãþ | ö±ÙÄÜÅ©¸®Æ®Á¶ | ¾ÆÆÄÆ® | 403.46§³ (122.26Æò) | | 4Ãþ | ö±ÙÄÜÅ©¸®Æ®Á¶ | ¾ÆÆÄÆ® | 557.12§³ (168.82Æò) | | 5Ãþ | ö±ÙÄÜÅ©¸®Æ®Á¶ | ¾ÆÆÄÆ® | 557.12§³ (168.82Æò) | | 5Ãþ | ö±ÙÄÜÅ©¸®Æ®Á¶ | ¾ÆÆÄÆ® | 557.12§³ (168.82Æò) | | 6Ãþ | ö±ÙÄÜÅ©¸®Æ®Á¶ | ¾ÆÆÄÆ® | 557.12§³ (168.82Æò) | | 6Ãþ | ö±ÙÄÜÅ©¸®Æ®Á¶ | ¾ÆÆÄÆ® | 557.12§³ (168.82Æò) | | 7Ãþ | ö±ÙÄÜÅ©¸®Æ®Á¶ | ¾ÆÆÄÆ® | 557.12§³ (168.82Æò) | | 7Ãþ | ö±ÙÄÜÅ©¸®Æ®Á¶ | ¾ÆÆÄÆ® | 557.12§³ (168.82Æò) | | 8Ãþ | ö±ÙÄÜÅ©¸®Æ®Á¶ | ¾ÆÆÄÆ® | 557.12§³ (168.82Æò) | | 8Ãþ | ö±ÙÄÜÅ©¸®Æ®Á¶ | ¾ÆÆÄÆ® | 557.12§³ (168.82Æò) | | 9Ãþ | ö±ÙÄÜÅ©¸®Æ®Á¶ | ¾ÆÆÄÆ® | 557.12§³ (168.82Æò) | | 9Ãþ | ö±ÙÄÜÅ©¸®Æ®Á¶ | ¾ÆÆÄÆ® | 557.12§³ (168.82Æò) | | 10Ãþ | ö±ÙÄÜÅ©¸®Æ®Á¶ | ¾ÆÆÄÆ® | 557.12§³ (168.82Æò) | | 10Ãþ | ö±ÙÄÜÅ©¸®Æ®Á¶ | ¾ÆÆÄÆ® | 557.12§³ (168.82Æò) | | 11Ãþ | ö±ÙÄÜÅ©¸®Æ®Á¶ | ¾ÆÆÄÆ® | 557.12§³ (168.82Æò) | | 11Ãþ | ö±ÙÄÜÅ©¸®Æ®Á¶ | ¾ÆÆÄÆ® | 557.12§³ (168.82Æò) | | 12Ãþ | ö±ÙÄÜÅ©¸®Æ®Á¶ | ¾ÆÆÄÆ® | 557.12§³ (168.82Æò) | | 12Ãþ | ö±ÙÄÜÅ©¸®Æ®Á¶ | ¾ÆÆÄÆ® | 557.12§³ (168.82Æò) | | Áö1 | ö±ÙÄÜÅ©¸®Æ®Á¶ | »ýȰÆíÀͽü³ | 144§³ (43.64Æò) |
|
|
|
|
|
|
 |
ÀÓÂ÷³»¿ª |
[¹è´ç¿ä±¸Á¾±âÀÏ : 2025/08/11] |
|
|
| ÀÓÂ÷ÀÎ |
Á¡À¯°ü°è |
ÀüÀÔÀÏÀÚ |
È®Á¤ÀÏÀÚ |
¹è´ç¿ä±¸ÀÏ |
º¸Áõ±Ý/Â÷ÀÓ |
´ëÇ׿ä°Ç |
ºñ°í |
| ¸Å°¢±âÀÏ 7ÀÏÀü¿¡ °ø°íµÇ¿À´Ï È®ÀÎÇϽñ⠹ٶø´Ï´Ù. |
|
|
|
Çö´ë ¾ÆÆÄÆ® °³¿ä |
|
|
|
| ¾ÆÆÄÆ®¸í |
°Ç¼³È¸»ç |
ÀÔÁֳ⵵ |
ÃѰ¡±¸¼ö |
ÃâÀÔ±¸Á¶ |
Àü¿ë¸éÀûºÐÆ÷ |
³¹æ¹æ½Ä |
°ü¸®»ç¹«¼Ò |
| Çö´ë¾ÆÆÄÆ® |
°í·Á»ê¾÷°³¹ß(ÁÖ) |
2004-03-01 |
478°¡±¸(6°³µ¿) |
Æíº¹µµ½Ä |
34~59§³ |
°³º°/µµ½Ã°¡½º |
¢Ï 033)763-9683 |
|
|
|
 |
Áö¿ªºÐ¼® |
|
|
|
|
| ÁöÇÏö |
|
Çб³ |
|
| °ü°ø¼ |
|
| ¹ý¿ø |
ÃáõÁö¹æ¹ý¿ø ¿øÁÖÁö¿ø (264-78)°¿øµµ ¿øÁֽà ½Ãû·Î149 (¹«½Çµ¿) ´ëÇ¥ : 033)738-1000, ¾ß°£ : 033)738-1199 ¿øÁÖ½Ã, Ⱦ¼º±º |
| µî±â¼Ò |
ÃáõÁö¹æ¹ý¿ø ¿øÁÖÁö¿ø µî±â°ú (´ëÇ¥:1544-0773, ÆÑ½º:(033)743-5611, °¿øµµ ¿øÁֽà ½Ãû·Î 149 (¹«½Çµ¿ 1800)) |
| ¼¼¹«¼ |
¼¼¹«¼ (´ëÇ¥:, ÆÑ½º:, ) |
|
|
|
 |
¹ý¿ø ¹°°ÇÀÚ·á ¿ä¾à |
|
|
|
|
| ¼Ò¸êµÇÁö ¾Ê´Â µî±âºÎ±Ç¸® |
|
| ¼³Á¤µÈ °ÍÀ¸·Î º¸´Â Áö»ó±Ç |
|
| ¹ý¿øÀÚ·á Æ¯ÀÌ»çÇ× |
|
| ¿©ÀÇÁÖ°æ¸Å Á¶¾ð ÇѸ¶µð |
ÀÌ ºÎµ¿»êÀÇ ÀÔÂû¹ý¿øÀº ÃáõÁö¹æ¹ý¿ø ¿øÁÖÁö¿øÀÔ´Ï´Ù.
ÀÔÂûÀÏÀº 2026-01-12ÀÔ´Ï´Ù.
ÀÔÂû½Ã°£Àº ~11:20ÀÔ´Ï´Ù. ÀÌ ¹ý¿ø¿¡´Â NH³óÇùÀºÇàÀÌ ÀÔÁ¡Çϰí ÀÖ½À´Ï´Ù.
|
|
|
| Åë°è±â°£ |
³«Âû¹°°Ç¼ö |
Æò±Õ°¨Á¤°¡ |
Æò±Õ³«Âû°¡ |
³«Âû°¡À² |
À¯ÂûȽ¼ö |
| 3°³¿ù |
42°Ç |
206,202,381¿ø |
179,335,509¿ø |
83% |
1.3ȸ |
| 6°³¿ù |
84°Ç |
192,421,429¿ø |
163,661,740¿ø |
81% |
1.3ȸ |
| 12°³¿ù |
117°Ç |
212,699,145¿ø |
169,974,877¿ø |
80% |
1.3ȸ |
|
|
|
|
|
|
 |
|