|
|
| ¼ÒÀçÁö |
°æ±âµµ ÆÄÁֽà ÇÏ¿ì3±æ 108-9, 4Ãþ401È£
±¸)°æ±âµµ ÆÄÁֽà ¾ß´çµ¿ 45-79
|
|
| »ç°Ç¹øÈ£ |
2024 Ÿ°æ 81752 |
¹°°Ç¹øÈ£ |
1
|
¹°°Ç¿ëµµ |
´Ù¼¼´ë,ºô¶ó |
| °¨Á¤Æò°¡¾× |
328,000,000¿ø |
°æ¸Å´ë»ó |
ÅäÁö ¹× °Ç¹°Àϰý ¸Å°¢ |
ÁøÇà»óÅ |
À¯Âû |
| ÃÖÀúÀÔÂû°¡ |
(49%) 160,720,000¿ø
|
°Ç¹°¸éÀû |
50.58§³(15.30Æò) |
ÀÔÂû±âÀÏ |
2026.04.07(È) 10:00
(ÀÔÂû 20ÀÏÀü)
|
| ÀÔÂûº¸Áõ±Ý |
(10%) 16,072,000¿ø |
ÅäÁö¸éÀû |
57.23§³(17.31Æò)
|
À¯ÂûȽ¼ö |
2ȸ |
| ÀÔÂû¹ý¿ø |
ÀÇÁ¤ºÎÁö¹æ¹ý¿ø °í¾çÁö¿ø |
°æ¸Å¹æ¹ý |
|
¹°°ÇÁ¶È¸¼ö |
¿À´Ã: 2ȸ [´©Àû: 1170ȸ]
|
| ¸»¼Ò±âÁØ | ÃÖ¼±¼øÀ§ ¼³Á¤ : 2022.10.5.°¡¾Ð·ù ¼³Á¤
|
|
|
|
|
|
|
|
|
|
|
°æ¸Å´ë»ó ¸ñ·Ï
|
|
| ±¸ºÐ |
¸ñ·Ï |
ÁÖ¼Ò |
±¸Á¶/¿ëµµ/´ëÁö±Ç |
ºñ°í |
´ëÁö±Ç
|
1 |
¾ß´çµ¿ 45-79 |
440ºÐÀÇ 57.23 |
57.23§³ (17.31Æò)
|
°Ç¹°
|
1 |
¾ß´çµ¿ 45-79 |
4Ãþ401È£ ö±ÙÄÜÅ©¸®Æ®±¸Á¶ |
50.58§³ (15.30Æò)
|
|
|
|
2026-01-20
À¯Âû
|
(100%)
328,000,000¿ø
|
|
|
|
2026-03-03
À¯Âû
|
(70%)
229,600,000¿ø
|
|
|
|
2026-04-07
ÁøÇà
|
(49%)
160,720,000¿ø
|
|
|
|
|
|
°¨Á¤Æò°¡¼ ¿ä¾à |
|
[À§Ä¡/ÁÖÀ§È¯°æ]
°æ±âµµ ÆÄÁֽà ¾ß´çµ¿ ¼ÒÀç ¿îÁ¤¿ª ³²Ãø Àαٿ¡ À§Ä¡Çϰí,
ÁÖÀ§´Â ´ëºÎºÐ ´Ù¼¼´ëÁÖÅÃÀ¸·Î ÀÌ·ç¾îÁø ÁÖ°ÅÁö´ëÀÓ.
[±³Åë»óȲ]
±Ù°Å¸®¿¡ °æÀǷΰ¡ ÀÖ°í, º»°Ç±îÁö Â÷·® Á¢±ÙÀÌ °¡´ÉÇÏ¿© Á¦¹Ý ±³Åë¿©°ÇÀº º¸ÅëÀÓ.
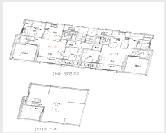
[°Ç¹°±¸Á¶]
ö±ÙÄÜÅ©¸®Æ®±¸Á¶ ö±ÙÄÜÅ©¸®Æ®ÁöºØ Áö»ó 4Ãþ °Ç¹°(2016. 9. 22. »ç¿ë½ÂÀÎ) Áß
4Ãþ 401È£·Î
¿Üº® ; µå¶óÀ̺ñÆ® ¸¶°¨
³»º® ; º®Áö ¹× ŸÀϸ¶°¨
âȣ ; ÇÏÀÌ»ñ½ÃâȣÀÓ.
[ÀÌ¿ë»óÅÂ]
ÁÖ°Å¿ë(¹æ2, °Å½Ç, ÁÖ¹æ, ¿å½Ç, ´Ù¶ô µî)À¸·Î ÀÌ¿ë ÁßÀÓ.
[¼³ºñ³»¿ª]
µµ½Ã°¡½ºº¸ÀÏ·¯¿¡ ÀÇÇÑ °³º°³¹æ¼³ºñ, À§»ý¼³ºñ µî ¼³Ä¡µÇ¾î ÀÖÀ½.
[ÅäÁöÇü»ó/ÀÌ¿ë»óÅÂ]
»ç´Ù¸®ÇüÀÇ ÅäÁö·Î ´Ù¼¼´ëÁÖÅÃÀÇ ºÎÁö·Î ÀÌ¿ë ÁßÀÓ.
7)ÀÎÁ¢ µµ·Î»óŵî
µ¿ÃøÀ¸·Î ¼¼·Î¿¡ Á¢ÇÔ.
[ÅäÁöÀÌ¿ë°èȹ]
°èȹ°ü¸®Áö¿ª, ¼ºÀå°ü¸®°èȹ±¸¿ª(Áְź¹ÇÕ Zone), °¡Ãà»çÀ°Á¦Çѱ¸¿ª(ÀüºÎÁ¦ÇÑ)ÀÓ.
[°øºÎ¿ÍÀÇ Â÷ÀÌ]
ÅäÁöÀÇ °øºÎ»ó Áö¸ñÀº °øÀå¿ëÁöÀ̳ª ÇöȲÀº ´ë(´Ù¼¼´ëÁÖÅà ºÎÁö)ÀÓ.
[Âü°í»çÇ×]
ÀÓ´ë°ü°è ¹Ì»óÀÓ. |
|
|
°ÇÃ๰ÇöȲ |
|
|
|
| ¼ÒÀçÁö |
°æ±âµµ ÆÄÁֽà ¾ß´çµ¿ 45-79¹øÁö |
| ´ëÁö¸éÀû |
440§³(133.33Æò) |
¿¬¸éÀû |
439.62§³(133.22Æò) |
ÁÖ¿ëµµ |
°øµ¿ÁÖÅà |
| °ÇÃà¸éÀû |
174.86§³(52.99Æò) |
¿ëÀû·ü»êÁ¤¿¬¸éÀû |
439.62§³(133.22Æò) |
Âø°øÀÏÀÚ |
2016.03.23 |
| °ÇÆóÀ² |
39.74% |
¿ëÀû·ü |
99.91% |
»ç¿ë½ÂÀÎÀÏÀÚ |
2016.09.22 |
| Áö»óÃþ¼ö |
4Ãþ |
ÁöÇÏÃþ¼ö |
|
±¸Á¶ |
ö±ÙÄÜÅ©¸®Æ®±¸Á¶ |
°ÇÃ๰Ãþº°ÇöȲ [º¸±â]| Ãþº° | ±¸Á¶ | ¿ëµµ | ¸éÀû | | 1Ãþ | ö±ÙÄÜÅ©¸®Æ®±¸Á¶ | °øµ¿ÁÖÅÃ(´Ù¼¼´ëÁÖÅÃ-1¼¼´ë) | 57.54§³ (17.44Æò) | | 1Ãþ | ö±ÙÄÜÅ©¸®Æ®±¸Á¶ | °øµ¿ÁÖÅÃ(°è´Ü½Ç) | 12.69§³ (3.85Æò) | | 2Ãþ | ö±ÙÄÜÅ©¸®Æ®±¸Á¶ | °øµ¿ÁÖÅÃ(°è´Ü½Ç) | 12.69§³ (3.85Æò) | | 2Ãþ | ö±ÙÄÜÅ©¸®Æ®±¸Á¶ | °øµ¿ÁÖÅÃ(´Ù¼¼´ëÁÖÅÃ-2¼¼´ë) | 115.08§³ (34.87Æò) | | 3Ãþ | ö±ÙÄÜÅ©¸®Æ®±¸Á¶ | °øµ¿ÁÖÅÃ(´Ù¼¼´ëÁÖÅÃ-2¼¼´ë) | 115.08§³ (34.87Æò) | | 3Ãþ | ö±ÙÄÜÅ©¸®Æ®±¸Á¶ | °øµ¿ÁÖÅÃ(°è´Ü½Ç) | 12.69§³ (3.85Æò) | | 4Ãþ | ö±ÙÄÜÅ©¸®Æ®±¸Á¶ | °øµ¿ÁÖÅÃ(´Ù¼¼´ëÁÖÅÃ-2¼¼´ë) | 101.16§³ (30.65Æò) | | 4Ãþ | ö±ÙÄÜÅ©¸®Æ®±¸Á¶ | °øµ¿ÁÖÅÃ(°è´Ü½Ç) | 12.69§³ (3.85Æò) |
|
|
|
|
|
|
|
|
|
¸éÀû(§³), ±Ý¾×(¸¸¿ø)
| °è¾àÀÏ | ±âÁØ | °Ç¹°¸íĪ | Ãþ | ¿¬¸éÀû | ´ëÁö¸éÀû | °Å·¡±Ý¾× | °ÇÃà³âµµ | | °Å·¡³»¿ªÀÌ ¾ø½À´Ï´Ù. |
| °è¾àÀÏ | ±âÁØ | °Ç¹°¸íĪ | Ãþ | ¿¬¸éÀû | º¸Áõ±Ý | ¿ù¼¼ | °ÇÃà³âµµ | | 2026.03.10 | Àü¼¼ | ÀÚ¿¬¿¡°¡3Â÷305µ¿306µ¿ | 3 | 47.03 | 10,600 | 0 | 2017 | | 2026.03.10 | Àü¼¼ | Æ®¶ó¿ò109µ¿ | 4 | 65.89 | 29,800 | 0 | 2021 | | 2026.03.09 | ¿ù¼¼ | ¿îÁ¤Å¬¶ó¿ìµåK(A,Bµ¿) | 2 | 84.96 | 75 | 75 | 2013 | | 2026.03.07 | ¿ù¼¼ | ¸ðÅüÀ̵¹1st.STORY102µ¿ | 4 | 45.81 | 2,000 | 90 | 2018 | | 2026.03.06 | ¿ù¼¼ | »õÇÑÆÄÅ©ºô³ªµ¿ | 3 | 46.914 | 12,000 | 15 | 2016 | | 2026.03.06 | Àü¼¼ | °¡¸²ºô¸®Áö109µ¿ | 3 | 62.4155 | 14,000 | 0 | 2015 | | 2026.03.05 | Àü¼¼ | ´Ù¿ïºí¸®½º101µ¿ | 3 | 60.21 | 14,200 | 0 | 2016 | | 2026.03.04 | Àü¼¼ | (255-6) | 1 | 50.195 | 12,000 | 0 | 2017 | | 2026.03.04 | Àü¼¼ | (255-6) | 1 | 50.195 | 12,000 | 0 | 2017 | | 2026.03.04 | ¸Å¸Å | °¡¸²ºô¶ó201µ¿202µ¿ | 1 | 70.236 | 20,800 | | 2016 | | 2026.03.01 | ¸Å¸Å | ½ºÅ¸°ñµçºô102µ¿ | 3 | 51.9 | 23,000 | | 2017 | | 2026.02.23 | ¸Å¸Å | ±Û·Î¸®¾Æ104µ¿ | 3 | 42.84 | 16,200 | | 2019 | | 2026.02.23 | Àü¼¼ | Á¤¿ìÆç¸®½º201µ¿ | 3 | 51.631 | 13,200 | 0 | 2017 | | 2026.02.22 | ¸Å¸Å | ºñ¾Æ·çü102µ¿103µ¿ | 3 | 57.91 | 22,800 | | 2020 | | 2026.02.21 | Àü¼¼ | µµ½Ã³óºÎ3´ÜÁö306µ¿(239-84) | 1 | 66.55 | 19,400 | 0 | 2012 | | 2026.02.19 | Àü¼¼ | ·¹º£Ä«ÇϿ콺Bµ¿ | 1 | 49.28 | 11,000 | 0 | 2014 | | 2026.02.19 | Àü¼¼ | ¹ÙÈå´õºô¸®Áö106µ¿ | 3 | 51.18 | 19,500 | 0 | 2019 | | 2026.02.18 | ¸Å¸Å | ¸ð¸®¾È104µ¿ | 3 | 52.7 | 17,900 | | 2015 | | 2026.02.15 | ¿ù¼¼ | Á¤¿ìÆç¸®½º302µ¿ | 1 | 57.37 | 2,000 | 84 | 2018 | | 2026.02.14 | Àü¼¼ | ÇѸ¶·çÄ«¿îƼ104µ¿ | 2 | 55.098 | 13,600 | 0 | 2015 | | 2026.02.13 | ¿ù¼¼ | ¸ÞÁ¾ÆÛ½ºÆ®101µ¿ | 3 | 64.91 | 1,000 | 145 | 2021 | | 2026.02.12 | ¿ù¼¼ | ´õ½ÃÅ©¸´·çþ103µ¿ | 3 | 53.515 | 3,000 | 100 | 2020 | | 2026.02.11 | ¸Å¸Å | ÀÚ¿¬¿¡°¡1Â÷6µ¿ | 3 | 72.21 | 26,000 | | 2014 | | 2026.02.11 | Àü¼¼ | û¸²101µ¿(178-38) | 3 | 38.465 | 7,840 | 0 | 2004 | | 2026.02.10 | ¿ù¼¼ | ¾ß´çÀ§´õ½º103µ¿ | 4 | 65.96 | 1,000 | 100 | 2020 | | 2026.02.09 | ¸Å¸Å | ÇÁ¶ó¿îµå108µ¿109µ¿ | 3 | 62.89 | 32,000 | | 2022 | | 2026.02.09 | ¸Å¸Å | ¿¹ÀÏ¾ÆÆ®ºô6µ¿ | 2 | 58.82 | 16,000 | | 2017 | | 2026.02.09 | ¿ù¼¼ | µµ½Ã³óºÎ2´ÜÁö221µ¿(243-19) | 2 | 67.79 | 5,000 | 85 | 2011 | | 2026.02.08 | Àü¼¼ | °¡¿ÂÇϿ콺Cµ¿ | 1 | 48.6 | 12,580 | 0 | 2018 | | 2026.02.07 | ¸Å¸Å | ÇѸ¶·çÄ«¿îƼ102µ¿103µ¿ | 3 | 56.105 | 19,000 | | 2015 | | 2026.02.07 | ¸Å¸Å | »ï¼ºÄ³½½105,106µ¿ | 3 | 61.86 | 31,000 | | 2021 | | 2026.02.07 | Àü¼¼ | ÇѸ¶·çÄ«¿îƼ102µ¿103µ¿ | 1 | 56.105 | 13,300 | 0 | 2015 | | 2026.02.05 | Àü¼¼ | ·¹º£Ä«ÇϿ콺1Â÷ | 1 | 45.01 | 9,800 | 0 | 2013 | | 2026.02.05 | Àü¼¼ | ¸ð¸®¾È101µ¿ | 1 | 53.97 | 12,000 | 0 | 2015 | | 2026.02.04 | ¿ù¼¼ | Æç¸®Ã¼Aµ¿ | 2 | 47.37 | 300 | 40 | 2016 | | 2026.02.04 | ¿ù¼¼ | ¿µÇ³ÁÖÅÃ1,2µ¿ | 1 | 51.29 | 3,000 | 50 | 2009 | | 2026.02.04 | Àü¼¼ | ÀÌ»êÀü¿ø¾ÆÆ®ºô102µ¿(178-26) | 3 | 73.2 | 14,300 | 0 | 2003 | | 2026.02.03 | ¸Å¸Å | °¡¸²±×·£µå101µ¿102µ¿ | 3 | 58.2 | 20,400 | | 2017 | | 2026.02.02 | ¿ù¼¼ | µµ½Ã³óºÎ2´ÜÁö225µ¿(243-23) | 2 | 69.21 | 300 | 65 | 2011 | | 2026.02.01 | ¿ù¼¼ | ´õÇÁ¶óÀÓ1µ¿ | 3 | 59.4 | 0 | 35 | 2019 | | 2026.02.01 | ¸Å¸Å | ±Û·Î¸®¾Æ101µ¿ | 2 | 40.9798 | 12,750 | | 2020 | | 2026.02.01 | ¸Å¸Å | °¡¸²ºô¶ó221µ¿222µ¿ | 3 | 57.57 | 21,500 | | 2017 | | 2026.02.01 | ¸Å¸Å | ´Ù½ÂÇÁ¶óÀÓ104µ¿ | 3 | 58.38 | 28,100 | | 2021 | | 2026.02.01 | ¸Å¸Å | ¸£¸ÞÁ¾101µ¿102µ¿ | 3 | 56.856 | 24,800 | | 2017 | | 2026.02.01 | ¸Å¸Å | ´ë¼º1µ¿ | 1 | 53.945 | 15,500 | | 2017 | | 2026.01.31 | ¸Å¸Å | ÇØµå¸²¾ÆÆ®102µ¿103µ¿ | 3 | 51.77 | 18,900 | | 2016 | | 2026.01.31 | Àü¼¼ | º§¶óŸ¿î104µ¿105µ¿ | 2 | 71.057 | 13,000 | 0 | 2017 | | 2026.01.31 | ¿ù¼¼ | Å×¶óµç101µ¿ | 1 | 63.7 | 3,000 | 125 | 2023 | | 2026.01.31 | ¿ù¼¼ | °¡¸²ºô¸®Áö305µ¿ | 2 | 53.21 | 2,000 | 85 | 2018 | | 2026.01.31 | ¸Å¸Å | ¶óºô·¹¶ß102µ¿103µ¿ | 4 | 60.482 | 20,350 | | 2018 | | 2026.01.31 | ¸Å¸Å | Á¶Àº½¦¸£ºô101µ¿ | 3 | 48.415 | 15,500 | | 2016 | | 2026.01.30 | Àü¼¼ | ±Ý¿µºô¶ó(21-1) | 3 | 69.56 | 9,600 | 0 | 1994 | | 2026.01.30 | ¸Å¸Å | ¶óÇÇ³× | 4 | 57.81 | 39,300 | | 2021 | | 2026.01.26 | ¿ù¼¼ | ¾Æµ¨¸®¾Æ1µ¿ | 2 | 53.85 | 2,000 | 80 | 2016 | | 2026.01.26 | ¸Å¸Å | ´Ù¿Â½¦¸£ºôCµ¿ | 4 | 49.08 | 17,700 | | 2015 | | 2026.01.24 | ¿ù¼¼ | ÈúÆÄÅ©101µ¿102µ¿ | 4 | 60.68 | 2,000 | 85 | 2019 | | 2026.01.23 | ¸Å¸Å | ¸®Ä¡Å¸¿îÇϿ콺104µ¿ | 2 | 54.9 | 24,300 | | 2016 | | 2026.01.22 | Àü¼¼ | ´ÃǪ¸¥¸¶À»104µ¿105µ¿ | 4 | 39.02 | 9,500 | 0 | 2015 | | 2026.01.22 | Àü¼¼ | ±Ý°Ä³½½101µ¿ | 4 | 55.41 | 18,000 | 0 | 2014 | | 2026.01.22 | Àü¼¼ | ±Û·Î¸®¾Æ104µ¿ | 1 | 42.84 | 9,450 | 0 | 2019 | | 2026.01.22 | ¸Å¸Å | ´õÆÛ½ºÆ®89 | 4 | 63.08 | 48,500 | | 2023 | | 2026.01.19 | ¿ù¼¼ | ÀÚ¿¬¿¡°¡10µ¿11µ¿ | 2 | 59.78 | 2,000 | 95 | 2015 | | 2026.01.19 | ¸Å¸Å | ·¹º£Ä«ÇϿ콺Cµ¿ | 1 | 59.82 | 15,800 | | 2014 | | 2026.01.17 | ¿ù¼¼ | û¸²102µ¿(178-8) | 2 | 38.465 | 1,000 | 60 | 2004 | | 2026.01.16 | ¸Å¸Å | µµ½Ã³óºÎ504µ¿ | 1 | 83.91 | 49,000 | | 2014 | | 2026.01.16 | ¿ù¼¼ | ·¹º£Ä«ÇϿ콺Cµ¿ | 4 | 59.82 | 1,000 | 63 | 2014 | | 2026.01.15 | Àü¼¼ | û¿ìÇÏÀÌÃ÷103µ¿104µ¿ | 3 | 62.05 | 14,130 | 0 | 2014 | | 2026.01.15 | Àü¼¼ | °¡¸²ºô¸®Áö103µ¿ | 3 | 62.4155 | 13,000 | 0 | 2015 | | 2026.01.14 | ¸Å¸Å | I-ÇϿ콺107µ¿108µ¿ | 3 | 59.2 | 14,000 | | 2015 | | 2026.01.13 | Àü¼¼ | LACASA | 4 | 74.23 | 22,000 | 0 | 2021 | | 2026.01.12 | ¸Å¸Å | ºí¶û104µ¿ | 3 | 52.9125 | 21,900 | | 2019 | | 2026.01.11 | ¿ù¼¼ | ´õ½ÃÅ©¸´·çþ106µ¿ | 1 | 53.417 | 3,000 | 170 | 2021 | | 2026.01.11 | ¸Å¸Å | ´õÇÁ¶óÀÓ1µ¿ | 3 | 59.4 | 25,500 | | 2019 | | 2026.01.11 | ¸Å¸Å | ´õÇÁ¶óÀÓ2µ¿ | 2 | 59.4 | 22,400 | | 2019 | | 2026.01.10 | ¿ù¼¼ | ´Ù½ÂÇÁ¶óÀÓ101µ¿ | 4 | 59.31 | 2,500 | 155 | 2021 | | 2026.01.10 | ¿ù¼¼ | ´Ù½ÂÇÁ¶óÀÓ101µ¿ | 4 | 59.31 | 2,500 | 155 | 2021 | | 2026.01.10 | ¸Å¸Å | »ï¼ºÄ³½½103,104µ¿ | 2 | 68.01 | 29,600 | | 2021 | | 2026.01.09 | ¿ù¼¼ | (žŬ¶ó¿ìµå)1µ¿,2µ¿,3µ¿,4µ¿ | 1 | 77.0986 | 3,000 | 152 | 2023 | | 2026.01.09 | ¿ù¼¼ | ÀÌ»êÀü¿ø¾ÆÆ®ºô102µ¿(178-26) | -1 | 35.58 | 500 | 45 | 2003 | | 2026.01.08 | Àü¼¼ | µµ½Ã³óºÎ601,602µ¿ | 2 | 60.73 | 20,600 | 0 | 2013 | | 2026.01.08 | Àü¼¼ | µµ½Ã³óºÎ601,602µ¿ | 2 | 60.73 | 20,200 | 0 | 2013 | | 2026.01.07 | ¿ù¼¼ | ¿îÁ¤ÈúÅ©¶ó¿î7µ¿ | 4 | 84.674 | 100 | 10 | 2021 | | 2026.01.05 | ¿ù¼¼ | °¡¿Âºô¶ó1,2µ¿ | 4 | 59.98 | 10,000 | 2 | 2010 | | 2026.01.05 | ¿ù¼¼ | ¾î¹ÝŸ¿îÇϿ콺1µ¿-5µ¿ | 1 | 78.23 | 2,300 | 110 | 2018 | | 2026.01.05 | Àü¼¼ | °¡¿Âºô¶ó1,2µ¿ | 2 | 59.98 | 11,000 | 0 | 2010 | | 2026.01.04 | ¿ù¼¼ | ¿ì¸²Å¸¿î2Â÷301µ¿302µ¿303µ¿ | 1 | 57.2863 | 3,000 | 90 | 2018 | | 2026.01.04 | ¸Å¸Å | ´ë½Å±×¸°ºô202µ¿ | 4 | 61.28 | 29,800 | | 2017 | | 2026.01.03 | ¿ù¼¼ | ÆÄ¹Ð¸®¾Æ102µ¿ | 3 | 63.82 | 2,000 | 100 | 2016 | | 2026.01.02 | Àü¼¼ | ¸®ºêÅõ°Ô´õ1µ¿ | 2 | 45.85 | 1,000 | 0 | 2022 | | 2026.01.02 | ¿ù¼¼ | Çö´ë³ª¾Ö¶ã1µ¿2µ¿3µ¿ | 2 | 67.8718 | 1,700 | 65 | 2019 | | 2025.12.31 | Àü¼¼ | µå¸²½ºÄÉÄ¡101µ¿102µ¿ | 1 | 56.31 | 12,500 | 0 | 2015 | | 2025.12.31 | Àü¼¼ | º§¶óŸ¿î104µ¿105µ¿ | 2 | 62.707 | 16,300 | 0 | 2017 | | 2025.12.31 | Àü¼¼ | º§¶óŸ¿î104µ¿105µ¿ | 2 | 62.707 | 16,300 | 0 | 2017 | | 2025.12.31 | ¸Å¸Å | ¸®Ä¡Å¸¿îÇϿ콺3Â÷302µ¿ | 3 | 63.74 | 21,500 | | 2017 | | 2025.12.31 | ¸Å¸Å | ¸®Ä¡Å¸¿îÇϿ콺3Â÷302µ¿ | 3 | 63.74 | 21,500 | | 2017 | | 2025.12.30 | ¿ù¼¼ | ¸£¸ÞÁ¾101µ¿102µ¿ | 1 | 56.856 | 16,750 | 15 | 2017 | | 2025.12.30 | Àü¼¼ | (255-3) | 3 | 50.265 | 14,700 | 0 | 2017 | | 2025.12.29 | ¿ù¼¼ | ¿ì¸²Å¸¿î2Â÷301µ¿302µ¿303µ¿ | 3 | 53.9719 | 2,000 | 95 | 2018 | | 2025.12.28 | ¿ù¼¼ | û¸²102µ¿(178-8) | 3 | 38.465 | 1,500 | 60 | 2004 | | 2025.12.28 | ¸Å¸Å | I-ÇϿ콺104µ¿105µ¿ | 4 | 58.74 | 14,900 | | 2015 | | 2025.12.28 | ¿ù¼¼ | ´õÇϿ콺¿£ | 2 | 47.54 | 2,000 | 90 | 2018 | | 2025.12.27 | ¸Å¸Å | Æ®¶ó¿ò109µ¿ | 2 | 65.89 | 32,000 | | 2021 | | 2025.12.25 | Àü¼¼ | Á¶Àº½¦¸£ºô101µ¿ | 4 | 48.415 | 12,000 | 0 | 2016 | | 2025.12.25 | ¿ù¼¼ | Å×¶óµç101µ¿ | 1 | 63.7 | 3,000 | 110 | 2023 | | 2025.12.24 | ¿ù¼¼ | µµ¹«½ºµ¥Ä«2 | 1 | 59.099 | 2,000 | 90 | 2015 | | 2025.12.23 | ¿ù¼¼ | ºñ¾ØºñÄýÁîºô105µ¿ | 1 | 52.18 | 1,000 | 90 | 2015 | | 2025.12.23 | ¸Å¸Å | µµ½Ã³óºÎ307µ¿308µ¿ | 2 | 67.25 | 28,000 | | 2012 | | 2025.12.22 | Àü¼¼ | ´ë¼ººô2µ¿ | 4 | 60 | 18,000 | 0 | 2016 | | 2025.12.21 | ¿ù¼¼ | ¸®Ä¡ÇϿ콺202µ¿ | 4 | 55.2185 | 5,000 | 85 | 2016 | | 2025.12.21 | ¿ù¼¼ | ½ºÆäÀ̽º104µ¿ | 1 | 55.695 | 2,500 | 85 | 2014 | | 2025.12.20 | ¸Å¸Å | ºí¸®½º56(102µ¿) | 3 | 66.48 | 30,500 | | 2021 | | 2025.12.20 | ¿ù¼¼ | ÈúÆÄÅ©103µ¿ | 4 | 52.49 | 2,000 | 95 | 2019 | | 2025.12.18 | ¸Å¸Å | ´ë¼ººô2µ¿ | 1 | 60 | 16,700 | | 2016 | | 2025.12.18 | ¸Å¸Å | û¿ìÇÏÀÌÃ÷110µ¿111µ¿ | 3 | 62.47 | 16,500 | | 2015 | | 2025.12.18 | ¿ù¼¼ | ¸¶ÀÌÇϿ콺 | 2 | 43.06 | 2,000 | 95 | 2023 | | 2025.12.18 | Àü¼¼ | ´ëÈï¾ÆÆ®¸®¿ò | 2 | 64.63 | 23,500 | 0 | 2020 | | 2025.12.16 | ¿ù¼¼ | ½ºÆäÀ̽º104µ¿ | 2 | 55.695 | 2,000 | 90 | 2014 | | 2025.12.16 | Àü¼¼ | ÀÚ¿¬¿¡°¡3Â÷309µ¿310µ¿311µ¿31 | 1 | 67.12 | 13,000 | 0 | 2016 | | 2025.12.15 | Àü¼¼ | °¡¸²ÇϿ콺101µ¿ | 1 | 61.003 | 14,800 | 0 | 2015 | | 2025.12.15 | Àü¼¼ | ½ºÅ¸°ñµçºô101µ¿ | 4 | 51.79 | 15,000 | 0 | 2017 | | 2025.12.15 | ¸Å¸Å | ÀÚ¿¬¿¡°¡3Â÷317µ¿318µ¿ | 4 | 70.5 | 25,000 | | 2016 | | 2025.12.15 | ¸Å¸Å | ·Îµ©Ä³½½¥± | 1 | 51.09 | 15,800 | | 2016 | | 2025.12.14 | ¸Å¸Å | ¿¡ÄÚ¸®¿ò(103µ¿104µ¿) | 1 | 50.16 | 20,000 | | 2017 | | 2025.12.14 | ¸Å¸Å | ½ºÄ«À̻Zij½½¾ß´ç102µ¿ | 4 | 60.799 | 38,000 | | 2020 | | 2025.12.13 | ¸Å¸Å | ¶óºñ¾Ó2µ¿ | 3 | 52.22 | 24,800 | | 2019 | | 2025.12.12 | ¸Å¸Å | ¼ÁøÈú(ºñµ¿) | 1 | 64.54 | 52,000 | | 2023 | | 2025.12.11 | ¸Å¸Å | ÇÁ¶ó¿îµå108µ¿109µ¿ | 2 | 69.73 | 34,000 | | 2022 | | 2025.12.11 | Àü¼¼ | Á¤¿ìÆç¸®½º302µ¿ | 2 | 57.37 | 16,500 | 0 | 2018 | | 2025.12.10 | Àü¼¼ | µ¿Àº¶ã¾È¿¡103µ¿ | 2 | 57.402 | 14,800 | 0 | 2015 | | 2025.12.10 | ¸Å¸Å | ·Îü1µ¿2µ¿ | 1 | 75.03 | 25,000 | | 2018 | | 2025.12.10 | ¿ù¼¼ | ¿¹ÇÏÀÓ102µ¿ | 1 | 55.7895 | 2,000 | 90 | 2015 | | 2025.12.09 | ¸Å¸Å | ¿ì¸²Å¸¿î2Â÷201µ¿202µ¿203µ¿ | 2 | 58.1 | 21,000 | | 2018 | | 2025.12.08 | ¸Å¸Å | ÇѸ¶·çÄ«¿îƼ105µ¿106µ¿ | 3 | 56.085 | 16,800 | | 2015 | | 2025.12.08 | ¿ù¼¼ | ´Ù¿Â½¦¸£ºôBµ¿ | 3 | 49.08 | 2,000 | 80 | 2015 | | 2025.12.06 | ¸Å¸Å | °¡¸²ºô¶ó221µ¿222µ¿ | 2 | 70.465 | 22,000 | | 2017 | | 2025.12.05 | Àü¼¼ | ´ë¼º1µ¿ | 4 | 53.945 | 17,260 | 0 | 2017 | | 2025.12.04 | ¸Å¸Å | ¼¿øÈúŸ¿î1µ¿2µ¿3µ¿4µ¿ | 3 | 76.71 | 16,620 | | 2019 | | 2025.12.03 | ¿ù¼¼ | °¡¸²ºô¶ó221µ¿222µ¿ | 4 | 74.355 | 2,000 | 130 | 2017 | | 2025.12.03 | ¿ù¼¼ | ¿¤±×¸°103µ¿ | 2 | 50.8 | 2,500 | 110 | 2022 | | 2025.12.03 | ¿ù¼¼ | ¾î¹ÝŸ¿îÇϿ콺1µ¿-5µ¿ | 1 | 78.23 | 3,000 | 120 | 2018 | | 2025.12.01 | ¸Å¸Å | ÆÄ¹Ð¸®¾Æ204µ¿ | 3 | 63.465 | 20,000 | | 2016 | | 2025.12.01 | ¸Å¸Å | ´Ù¿ïºí¸®½º103µ¿ | 2 | 59.92 | 16,400 | | 2016 | | 2025.12.01 | ¿ù¼¼ | ·¹º£Ä«ÇϿ콺1Â÷ | 3 | 44.37 | 7,800 | 11 | 2013 | | 2025.12.01 | ¿ù¼¼ | º¸´ãÈú | 2 | 34.032 | 2,000 | 95 | 2022 | | 2025.11.29 | ¸Å¸Å | °¡¸²ºô¶ó211µ¿ | 1 | 64.292 | 19,000 | | 2016 | | 2025.11.28 | Àü¼¼ | ÅÂÁ¾¿¡ºñ´º202µ¿203µ¿ | 2 | 65.414 | 22,300 | 0 | 2019 | | 2025.11.28 | ¿ù¼¼ | ÅÂÁ¾¿¡ºñ´º202µ¿203µ¿ | 2 | 65.414 | 22,300 | 29 | 2019 | | 2025.11.26 | ¿ù¼¼ | ÆÄ¹Ð¸®¾Æ204µ¿ | 4 | 65.895 | 10,000 | 70 | 2016 | | 2025.11.25 | ¿ù¼¼ | ¿¹ÀÏ¾ÆÆ®ºô2µ¿ | 3 | 68.3 | 2,000 | 80 | 2017 | | 2025.11.23 | ¸Å¸Å | ÆÄ¹Ð¸®¾Æ104µ¿ | 4 | 53.24 | 25,000 | | 2016 | | 2025.11.22 | ¿ù¼¼ | µ¿¼ººô¶ó°¡µ¿(45-61) | -1 | 56.15 | 500 | 58 | 2002 | | 2025.11.22 | Àü¼¼ | ¶óºñ¾Ó2µ¿ | 4 | 54 | 23,500 | 0 | 2019 | | 2025.11.22 | ¿ù¼¼ | ¸ð¸®¾È8Â÷ | 4 | 68.79 | 3,500 | 115 | 2021 | | 2025.11.22 | ¸Å¸Å | ºí¶û104µ¿ | 2 | 52.9125 | 22,200 | | 2019 | | 2025.11.21 | ¸Å¸Å | Pround(103µ¿104µ¿) | 2 | 69.955 | 34,800 | | 2021 | | 2025.11.18 | ¸Å¸Å | ¿îÁ¤ÈúÅ©¶ó¿î12µ¿ | 3 | 70.607 | 41,000 | | 2022 | | 2025.11.18 | ¸Å¸Å | ¿îÁ¤ÈúÅ©¶ó¿î12µ¿ | 2 | 70.332 | 40,800 | | 2022 | | 2025.11.18 | ¿ù¼¼ | I-ÇϿ콺104µ¿105µ¿ | 4 | 59.34 | 2,000 | 60 | 2015 | | 2025.11.18 | ¸Å¸Å | ÇѸ¶·çÄ«¿îƼ102µ¿103µ¿ | 3 | 56.105 | 18,000 | | 2015 | | 2025.11.18 | ¸Å¸Å | ¿îÁ¤ÈúÅ©¶ó¿î12µ¿ | 1 | 73.577 | 44,100 | | 2022 | | 2025.11.18 | ¸Å¸Å | ¿îÁ¤ÈúÅ©¶ó¿î12µ¿ | 3 | 70.607 | 41,000 | | 2022 | | 2025.11.18 | ¸Å¸Å | ¿îÁ¤ÈúÅ©¶ó¿î12µ¿ | 4 | 77.577 | 50,400 | | 2022 | | 2025.11.18 | Àü¼¼ | ½Å¼º¾ÆÆ®ºô(178-33) | 4 | 55.45 | 7,000 | 0 | 2005 | | 2025.11.17 | ¿ù¼¼ | ÈúÆÄÅ©101µ¿102µ¿ | 2 | 60.68 | 100 | 80 | 2019 | | 2025.11.16 | ¸Å¸Å | ¿¤Å¸¿îÇϿ콺107µ¿108µ¿ | 4 | 51.35 | 27,800 | | 2020 | | 2025.11.15 | ¸Å¸Å | (žŬ¶ó¿ìµå)1µ¿,2µ¿,3µ¿,4µ¿ | 4 | 77.0986 | 55,900 | | 2023 | | 2025.11.15 | ¸Å¸Å | ÇѸ¶·çÄ«¿îƼ102µ¿103µ¿ | 3 | 56.105 | 18,000 | | 2015 | | 2025.11.13 | ¸Å¸Å | ·Îµ©ÇϿ콺 | 2 | 41.6897 | 16,000 | | 2016 | | 2025.11.12 | ¿ù¼¼ | ¶óºô·¹¶ß102µ¿103µ¿ | 3 | 60.482 | 2,000 | 70 | 2018 | | 2025.11.12 | ¿ù¼¼ | û¸²101µ¿(178-38) | 3 | 38.465 | 1,000 | 80 | 2004 | | 2025.11.11 | ¸Å¸Å | ¹ÙÈå´õÅ×¶ó½º107µ¿ | 3 | 65.87 | 24,300 | | 2021 | | 2025.11.11 | ¸Å¸Å | ¹ÙÈå´õÅ×¶ó½º107µ¿ | 3 | 65.87 | 24,300 | | 2021 | | 2025.11.11 | ¸Å¸Å | ¼¿øÈúŸ¿î1µ¿2µ¿3µ¿4µ¿ | 2 | 71.22 | 17,550 | | 2019 | | 2025.11.10 | ¿ù¼¼ | ±Û·Î¸®¾Æ102µ¿ | 3 | 41.3062 | 0 | 10 | 2020 | | 2025.11.10 | ¸Å¸Å | žŬ¶ó¿ìµå(9µ¿) | 4 | 59.8318 | 54,000 | | 2023 | | 2025.11.10 | ¸Å¸Å | ¼ÁøÈú(ºñµ¿) | 1 | 64.54 | 52,000 | | 2023 | | 2025.11.08 | Àü¼¼ | ¿îÁ¤ÆÓ¸®½º501µ¿502µ¿503µ¿ | 2 | 56.12 | 15,200 | 0 | 2017 | | 2025.11.07 | ¸Å¸Å | ¶óºô·¹¶ß102µ¿103µ¿ | 4 | 56.605 | 18,000 | | 2018 | | 2025.11.05 | ¿ù¼¼ | µµ½Ã³óºÎ2´ÜÁö211µ¿(240-72) | 2 | 70.26 | 2,000 | 90 | 2011 | | 2025.11.04 | ¸Å¸Å | Á¤¿ìÆç¸®½º3Â÷303µ¿ | 3 | 62.73 | 20,500 | | 2017 | | 2025.11.02 | Àü¼¼ | ¿¤Å¸¿îÇϿ콺107µ¿108µ¿ | 3 | 44.24 | 14,300 | 0 | 2020 | | 2025.11.02 | ¸Å¸Å | žŬ¶ó¿ìµå | 2 | 69.439 | 52,900 | | 2025 | | 2025.11.01 | ¸Å¸Å | (žŬ¶ó¿ìµå)1µ¿,2µ¿,3µ¿,4µ¿ | 3 | 64.4026 | 49,000 | | 2023 | | 2025.11.01 | ¸Å¸Å | °¡¸²ºô¶ó219µ¿ | 2 | 65.895 | 21,000 | | 2018 | | 2025.10.31 | ¸Å¸Å | ¶óºô·¹¶ß106µ¿ | 4 | 47.932 | 19,000 | | 2019 | | 2025.10.31 | Àü¼¼ | À¯¼ºº£½ºÆ®ºô1µ¿2µ¿ | 1 | 57.015 | 13,800 | 0 | 2016 | | 2025.10.31 | ¿ù¼¼ | ºí¶û102µ¿ | 4 | 52.6725 | 0 | 80 | 2019 | | 2025.10.30 | ¸Å¸Å | žŬ¶ó¿ìµå | 1 | 70.992 | 56,000 | | 2025 | | 2025.10.30 | ¸Å¸Å | û¿ìÇÏÀÌÃ÷115µ¿116µ¿ | 3 | 49.69 | 14,000 | | 2014 | | 2025.10.29 | Àü¼¼ | µé¸ð½Ã¸¶À»6Â÷Á¤¿ì110µ¿ | 4 | 60.91 | 25,000 | 0 | 2019 | | 2025.10.29 | ¿ù¼¼ | I-ÇϿ콺107µ¿108µ¿ | 2 | 59.2 | 2,000 | 80 | 2015 | | 2025.10.29 | ¿ù¼¼ | TOPCLOUD1,2µ¿ | 2 | 63.775 | 2,000 | 110 | 2021 | | 2025.10.28 | ¿ù¼¼ | ¸£ºñ¿¨2µ¿ | 1 | 51.673 | 1,000 | 50 | 2022 | | 2025.10.28 | Àü¼¼ | °¡¸²ºô¸®Áö105µ¿ | 1 | 61.003 | 14,800 | 0 | 2015 | | 2025.10.28 | ¸Å¸Å | ÀÌ·¹ÇÏÀÌÃ÷103µ¿104µ¿ | 1 | 54.06 | 18,800 | | 2016 | | 2025.10.27 | ¿ù¼¼ | µ¿Àº¶ã¾È¿¡106µ¿ | 1 | 48.811 | 2,000 | 85 | 2015 | | 2025.10.27 | ¸Å¸Å | ¼ö¾Æºñ½º102µ¿ | 1 | 56.86 | 25,000 | | 2018 | | 2025.10.25 | ¿ù¼¼ | ¼ö¾Æºñ½º104µ¿ | 3 | 58.13 | 3,000 | 100 | 2018 | | 2025.10.25 | Àü¼¼ | ¿µÇ³ÁÖÅÃ1,2µ¿ | 4 | 51.29 | 10,000 | 0 | 2009 | | 2025.10.25 | ¸Å¸Å | ¾ÆÁøÆ÷·¹½ºÆ®(101µ¿) | 3 | 75 | 52,700 | | 2025 | | 2025.10.24 | Àü¼¼ | û¿ìÇÏÀÌÃ÷110µ¿111µ¿ | 2 | 62.47 | 15,000 | 0 | 2015 | | 2025.10.24 | ¸Å¸Å | pround105µ¿ | 3 | 62.79 | 31,900 | | 2022 | | 2025.10.23 | Àü¼¼ | ÀÚ¿¬¿¡°¡3Â÷301µ¿302µ¿303µ¿30 | 3 | 70.5 | 15,500 | 0 | 2016 | | 2025.10.23 | Àü¼¼ | ¸®Ä¡Å¸¿îÇϿ콺101µ¿ | 3 | 55.16 | 13,800 | 0 | 2015 | | 2025.10.22 | Àü¼¼ | µµ½Ã³óºÎ4´ÜÁö431µ¿432µ¿ | 1 | 72.42 | 41,500 | 0 | 2013 | | 2025.10.22 | ¿ù¼¼ | ½Å¼º±×¸°ºô102(178-30) | 2 | 54.61 | 11,000 | 20 | 2004 | | 2025.10.21 | Àü¼¼ | ´ë¼º1µ¿ | 1 | 65.42 | 16,300 | 0 | 2017 | | 2025.10.21 | ¸Å¸Å | ´õÆÛ½ºÆ®89 | 4 | 60.09 | 53,000 | | 2023 | | 2025.10.20 | ¸Å¸Å | TheÇ÷η»½º101µ¿ | 2 | 58.925 | 20,500 | | 2017 | | 2025.10.19 | Àü¼¼ | º§¶óŸ¿î103µ¿ | 4 | 64.95 | 21,600 | 0 | 2016 | | 2025.10.19 | Àü¼¼ | º§¶óŸ¿î103µ¿ | 4 | 64.95 | 21,600 | 0 | 2016 | | 2025.10.19 | Àü¼¼ | ÀÌ·¹ÇÁ¸®¹Ì¾ö109µ¿ | 3 | 60.13 | 17,300 | 0 | 2017 | | 2025.10.18 | ¸Å¸Å | µµ½Ã³óºÎ4´ÜÁö411µ¿412µ¿ | 1 | 70.29 | 50,000 | | 2012 | | 2025.10.18 | ¿ù¼¼ | Á¤¿ìÆç¸®½º302µ¿ | 3 | 57.37 | 2,000 | 90 | 2018 | | 2025.10.18 | ¿ù¼¼ | Á¤¿ìÆç¸®½º302µ¿ | 3 | 57.37 | 2,000 | 90 | 2018 | | 2025.10.17 | ¿ù¼¼ | ±Ý°Ä³½½101µ¿ | 1 | 55.41 | 2,000 | 80 | 2014 | | 2025.10.16 | ¸Å¸Å | ¼º¿ì¶ã¾È¿¡106µ¿ | 2 | 51.098 | 17,000 | | 2016 | | 2025.10.15 | ¸Å¸Å | ÈÀκô5µ¿6µ¿ | 4 | 54.24 | 14,900 | | 2013 | | 2025.10.15 | ¿ù¼¼ | Æ®¶ó¿ò102µ¿ | 1 | 69.01 | 3,000 | 125 | 2021 | | 2025.10.14 | ¿ù¼¼ | ºí¸®½º56(101µ¿107µ¿) | 2 | 57.87 | 3,000 | 80 | 2021 | | 2025.10.13 | ¿ù¼¼ | ÀÌ»êÀü¿ø¾ÆÆ®ºô102µ¿(178-26) | -1 | 35.58 | 1,700 | 20 | 2003 | | 2025.10.13 | ¸Å¸Å | ±Ý°Ä³½½103µ¿ | 1 | 53.98 | 16,000 | | 2014 | | 2025.10.13 | ¸Å¸Å | ÆÄ¹Ð¸®¾Æ201µ¿203µ¿ | 2 | 49.449 | 15,900 | | 2016 | | 2025.10.11 | ¿ù¼¼ | ´õ½ÃÅ©¸´·çþ104µ¿ | 2 | 53.474 | 2,500 | 100 | 2021 | | 2025.10.10 | ¸Å¸Å | ÀÚ¿¬¿¡°¡4µ¿5µ¿ | 2 | 69.42 | 19,300 | | 2015 | | 2025.10.10 | ¿ù¼¼ | ¸®ºêÅõ°Ô´õ1µ¿ | 1 | 42.47 | 500 | 50 | 2022 | | 2025.10.04 | ¿ù¼¼ | žŬ¶ó¿ìµå | 2 | 64.026 | 3,000 | 130 | 2022 | | 2025.10.03 | ¿ù¼¼ | ´ëÇöÁÖÅÃ6µ¿(296-61) | 2 | 92.66 | 1,000 | 70 | 2000 | | 2025.10.03 | Àü¼¼ | µ¿Àº¶ã¾È¿¡102µ¿ | 2 | 50.855 | 13,000 | 0 | 2015 | | 2025.10.02 | ¸Å¸Å | ±Û·Î¸®¾Æ101µ¿ | 1 | 43.9094 | 16,400 | | 2020 | | 2025.10.02 | ¸Å¸Å | žŬ¶ó¿ìµå(8µ¿) | 4 | 53.4458 | 54,000 | | 2023 | | 2025.10.01 | ¿ù¼¼ | ´õÈúŸ¿î205µ¿ | 4 | 61.107 | 1,500 | 150 | 2020 | | 2025.09.30 | ¸Å¸Å | žŬ¶ó¿ìµå(9µ¿) | 4 | 59.8318 | 54,000 | | 2023 | | 2025.09.29 | ¿ù¼¼ | µµ½Ã³óºÎ2´ÜÁö215µ¿(240-82) | 1 | 77.88 | 2,000 | 120 | 2011 | | 2025.09.29 | ¿ù¼¼ | ´õÈúŸ¿î201µ¿ | 2 | 62.862 | 4,000 | 60 | 2020 | | 2025.09.29 | Àü¼¼ | µµ½Ã³óºÎ3´ÜÁö302µ¿(239-12) | 1 | 66.66 | 21,000 | 0 | 2012 | | 2025.09.29 | ¸Å¸Å | ¾î¹ÝÇÏÀÓ2Â÷102µ¿ | 2 | 58.14 | 30,500 | | 2021 | | 2025.09.29 | ¸Å¸Å | ·¹º£Ä«ÇϿ콺Cµ¿ | 2 | 59.82 | 14,200 | | 2014 | | 2025.09.29 | ¸Å¸Å | ÈúÆÄÅ©103µ¿ | 2 | 55.96 | 17,000 | | 2019 | | 2025.09.28 | ¸Å¸Å | ºñ¾Æ·çü4Â÷102µ¿103µ¿ | 3 | 61.26 | 42,000 | | 2021 | | 2025.09.27 | ¸Å¸Å | ÈúÆÄÅ©103µ¿ | 2 | 55.96 | 17,000 | | 2019 | | 2025.09.27 | ¿ù¼¼ | ·¹º£Ä«ÇϿ콺Bµ¿ | 2 | 49.28 | 9,500 | 3 | 2014 | | 2025.09.27 | ¸Å¸Å | û¿ìÇÏÀÌÃ÷108µ¿109µ¿ | 3 | 59.57 | 14,000 | | 2014 | | 2025.09.27 | ¸Å¸Å | eÆíÇѾÆÄ§103µ¿104µ¿ | 2 | 61.395 | 20,000 | | 2017 | | 2025.09.26 | ¿ù¼¼ | pround105µ¿ | 1 | 64.93 | 3,000 | 155 | 2022 | | 2025.09.26 | ¿ù¼¼ | ½ºÆäÀ̽º104µ¿ | 3 | 55.695 | 1,000 | 82 | 2014 | | 2025.09.25 | ¸Å¸Å | TOPCLOUD1,2µ¿ | 1 | 66.0525 | 34,000 | | 2021 | | 2025.09.24 | ¸Å¸Å | »õÇÑÁÖÅÃ114µ¿ | 1 | 55.89 | 14,000 | | 2014 | | 2025.09.24 | Àü¼¼ | ÀÌ·¹ÇÏÀÌÃ÷101µ¿102µ¿ | 3 | 58.88 | 15,600 | 0 | 2016 | | 2025.09.24 | Àü¼¼ | ´ë¼ººô1µ¿ | 2 | 58.3 | 13,900 | 0 | 2016 | | 2025.09.24 | ¸Å¸Å | ±Ý°Ä³½½103µ¿ | 1 | 53.98 | 16,000 | | 2014 | | 2025.09.23 | ¿ù¼¼ | Æç¸®Ã¼Aµ¿ | 4 | 47.51 | 30 | 80 | 2016 | | 2025.09.21 | ¸Å¸Å | ¾ÆÁøÆ÷·¹½ºÆ®(101µ¿) | 4 | 75 | 52,700 | | 2025 | | 2025.09.20 | ¿ù¼¼ | ºí¸®½º56(105µ¿) | 2 | 66.52 | 3,000 | 120 | 2021 | | 2025.09.19 | ¸Å¸Å | ¸ðÅüÀ̵¹1st.STORY104µ¿ | 1 | 77.48 | 18,500 | | 2018 | | 2025.09.19 | Àü¼¼ | ÇØµå¸²¾ÆÆ®102µ¿103µ¿ | 1 | 51.77 | 11,500 | 0 | 2016 | | 2025.09.19 | Àü¼¼ | ÇØµå¸²¾ÆÆ®102µ¿103µ¿ | 1 | 51.77 | 11,500 | 0 | 2016 | | 2025.09.18 | ¿ù¼¼ | ¸ð¸®¾È102µ¿ | 4 | 54.62 | 3,000 | 80 | 2015 | | 2025.09.17 | Àü¼¼ | µµ¹«½ºµ¥Ä«1 | 3 | 58.431 | 20,600 | 0 | 2015 | | 2025.09.17 | ¸Å¸Å | »ï¼ºÄ³½½105,106µ¿ | 2 | 61.86 | 28,000 | | 2021 | | 2025.09.17 | Àü¼¼ | »ï¼ºÄ³½½105,106µ¿ | 2 | 61.86 | 25,000 | 0 | 2021 | | 2025.09.16 | ¸Å¸Å | °¡¸²ºô¶ó203µ¿204µ¿ | 3 | 54.183 | 24,000 | | 2016 | | 2025.09.15 | Àü¼¼ | °¡¿Âºô¶ó1,2µ¿ | 2 | 59.98 | 11,000 | 0 | 2010 | | 2025.09.12 | ¸Å¸Å | ±ÝȣŸ¿î103µ¿ | 2 | 59.7 | 17,000 | | 2015 | | 2025.09.12 | ¸Å¸Å | °¡¸²ºô¸®Áö301µ¿ | 4 | 54.592 | 23,000 | | 2017 | | 2025.09.12 | ¸Å¸Å | ¿îÁ¤ÆÓ¸®½º501µ¿502µ¿503µ¿ | 2 | 56.12 | 19,000 | | 2017 | | 2025.09.12 | ¿ù¼¼ | ¾ß´ç¸¶À»1µ¿2µ¿3µ¿4µ¿ | 2 | 75.44 | 3,000 | 90 | 2019 | | 2025.09.12 | ¿ù¼¼ | ´õ½ºÆäÀ̽ºÅ¸¿ö | 4 | 64.11 | 500 | 80 | 2018 | | 2025.09.12 | ¿ù¼¼ | ½ºÅ¸°ñµçºô103µ¿ | 3 | 52.54 | 4,000 | 80 | 2017 | | 2025.09.10 | ¸Å¸Å | ¿ì¸²Å¸¿î2Â÷301µ¿302µ¿303µ¿ | 3 | 58.505 | 20,000 | | 2018 | | 2025.09.10 | Àü¼¼ | ¿îÁ¤ÈúÅ©¶ó¿î4µ¿ | 1 | 81.561 | 27,000 | 0 | 2022 | | 2025.09.09 | Àü¼¼ | ½ºÆäÀ̽º102µ¿ | 3 | 56.595 | 13,000 | 0 | 2014 | | 2025.09.08 | ¸Å¸Å | ±ÝȣŸ¿î106µ¿ | 3 | 57.86 | 19,200 | | 2017 | | 2025.09.05 | ¿ù¼¼ | û¸²101µ¿(178-38) | 3 | 38.465 | 1,000 | 70 | 2004 | | 2025.09.05 | ¸Å¸Å | ¾Æµ¨¸®¾Æ3µ¿ | 4 | 43.8 | 20,700 | | 2016 | | 2025.09.05 | Àü¼¼ | (255-3) | 3 | 50.265 | 16,000 | 0 | 2017 | | 2025.09.05 | ¿ù¼¼ | ´ë¼ººô2µ¿ | 4 | 60 | 13,000 | 20 | 2016 | | 2025.09.04 | ¿ù¼¼ | ¾ß´çÀ§´õ½º103µ¿ | 4 | 65.96 | 3,000 | 100 | 2020 | | 2025.09.04 | Àü¼¼ | Æú¶ó¾¾¿¤·Î´õ·¹ÀÌÅ©°¡µç11µ¿ | 1 | 82.43 | 30,000 | 0 | 2022 | | 2025.09.04 | Àü¼¼ | ÆÄ¹Ð¸®¾Æ201µ¿203µ¿ | 3 | 49.402 | 14,850 | 0 | 2016 | | 2025.09.01 | ¸Å¸Å | ¸ðÅüÀ̵¹1st.STORY102µ¿ | 1 | 81.72 | 16,930 | | 2018 | | 2025.09.01 | ¸Å¸Å | µð¿ì½º76(103µ¿,104µ¿) | 1 | 58.96 | 46,000 | | 2022 | | 2025.09.01 | ¸Å¸Å | žŬ¶ó¿ìµå(9µ¿) | 3 | 59.8318 | 50,500 | | 2023 | | 2025.09.01 | ¿ù¼¼ | ÀÚ¿¬¿¡°¡1Â÷7µ¿ | 4 | 59.33 | 5,000 | 100 | 2014 | | 2025.08.30 | ¿ù¼¼ | ÇѸ¶·çÄ«¿îƼ105µ¿106µ¿ | 1 | 58.135 | 50 | 80 | 2015 | | 2025.08.29 | ¿ù¼¼ | ÈÀκô3µ¿4µ¿ | 3 | 52.74 | 1,000 | 60 | 2014 | | 2025.08.28 | ¿ù¼¼ | ÈúÆÄÅ©101µ¿102µ¿ | 2 | 60.68 | 100 | 70 | 2019 | | 2025.08.27 | Àü¼¼ | ·¹º£Ä«ÇϿ콺1Â÷ | 2 | 53.657 | 12,000 | 0 | 2013 | | 2025.08.26 | ¸Å¸Å | ·Îü1µ¿2µ¿ | 1 | 51.39 | 25,000 | | 2018 | | 2025.08.25 | ¿ù¼¼ | û¿ìÇÏÀÌÃ÷110µ¿111µ¿ | 1 | 62.47 | 2,000 | 70 | 2015 | | 2025.08.25 | Àü¼¼ | û¿ìÇÏÀÌÃ÷112µ¿113µ¿ | 4 | 57.82 | 13,000 | 0 | 2014 | | 2025.08.24 | Àü¼¼ | ¶óºô·¹¶ß102µ¿103µ¿ | 4 | 60.482 | 18,600 | 0 | 2018 | | 2025.08.23 | Àü¼¼ | ÇØµå¸²¾ÆÆ®101µ¿ | 2 | 34.52 | 10,700 | 0 | 2016 | | 2025.08.22 | ¸Å¸Å | žŬ¶ó¿ìµå(9µ¿) | 2 | 59.8318 | 50,500 | | 2023 | | 2025.08.22 | ¸Å¸Å | ·¹ÀÌÅ©¿ø | 4 | 73.35 | 63,000 | | 2025 | | 2025.08.21 | Àü¼¼ | ´õÇÁ¶óÀÓ1µ¿ | 2 | 59.4 | 17,100 | 0 | 2019 | | 2025.08.20 | ¸Å¸Å | ·¹ÀÌÅ©¿ø(102µ¿) | 4 | 70.95 | 60,400 | | 2025 | | 2025.08.19 | ¸Å¸Å | »ï¼ºÄ³½½103,104µ¿ | 2 | 70.88 | 40,000 | | 2021 | | 2025.08.18 | ¿ù¼¼ | ¿¹ÇÏÀÓ102µ¿ | 2 | 55.7895 | 3,000 | 60 | 2015 | | 2025.08.15 | Àü¼¼ | ¼ö¾Æºñ½º102µ¿ | 4 | 56.86 | 20,000 | 0 | 2018 | | 2025.08.14 | ¸Å¸Å | Æ®¶ó¿ò109µ¿ | 1 | 65.89 | 33,000 | | 2021 | | 2025.08.14 | ¿ù¼¼ | ¿¹Áö½½1µ¿2µ¿ | 3 | 56.2 | 4,000 | 60 | 2017 | | 2025.08.14 | ¿ù¼¼ | µ¿¼ººô¶ó³ªµ¿(45-62) | 1 | 42.35 | 1,000 | 65 | 2002 | | 2025.08.14 | ¿ù¼¼ | ÀÚ¿¬¿¡°¡1Â÷7µ¿ | 2 | 59.33 | 2,000 | 80 | 2014 | | 2025.08.12 | ¿ù¼¼ | û¸²102µ¿(178-8) | 2 | 38.465 | 1,000 | 60 | 2004 | | 2025.08.12 | ¸Å¸Å | ¼öÆÓ¸®½º1µ¿ | 4 | 61.4508 | 17,000 | | 2015 | | 2025.08.12 | Àü¼¼ | û¿ìÇÏÀÌÃ÷112µ¿113µ¿ | 1 | 57.82 | 12,500 | 0 | 2014 | | 2025.08.10 | ¿ù¼¼ | µ¿¿øÆç¸®½º | 4 | 38.79 | 1,000 | 60 | 2016 | | 2025.08.10 | Àü¼¼ | ·¹º£Ä«ÇϿ콺Bµ¿ | 1 | 49.28 | 12,000 | 0 | 2014 | | 2025.08.09 | ¸Å¸Å | û¿ìÇÏÀÌÃ÷108µ¿109µ¿ | 4 | 59.57 | 14,900 | | 2014 | | 2025.08.09 | Àü¼¼ | °¡¸²ºô¸®Áö302µ¿ | 3 | 54.592 | 16,000 | 0 | 2017 | | 2025.08.09 | ¿ù¼¼ | (½Å)¿ÀÆä¶óÇϿ콺 | 3 | 50.658 | 2,000 | 80 | 2018 | | 2025.08.09 | Àü¼¼ | °¡¸²ºô¸®Áö302µ¿ | 3 | 54.592 | 16,000 | 0 | 2017 | | 2025.08.09 | ¿ù¼¼ | ¸ð¸®¾È102µ¿ | 4 | 54.62 | 3,000 | 80 | 2015 | | 2025.08.07 | ¿ù¼¼ | ·Î¾â½ºÀ§Æ®È¨104µ¿ | 1 | 71.061 | 3,000 | 80 | 2016 | | 2025.08.07 | Àü¼¼ | µµ½Ã³óºÎ2´ÜÁö223µ¿(243-29) | 2 | 67.79 | 20,000 | 0 | 2011 | | 2025.08.07 | ¿ù¼¼ | º£¾ÆÅõ½º | 3 | 47.06 | 3,000 | 80 | 2019 | | 2025.08.07 | ¸Å¸Å | ÇÁ¸®¹Ì¾öºô°¡µ¿ | 3 | 54.24 | 27,000 | | 2018 | | 2025.08.06 | ¸Å¸Å | û¿ìÇÏÀÌÃ÷117µ¿118µ¿ | 4 | 49.63 | 15,500 | | 2014 | | 2025.08.03 | ¸Å¸Å | û¿ìÇÏÀÌÃ÷108µ¿109µ¿ | 2 | 59.57 | 15,100 | | 2014 | | 2025.08.03 | Àü¼¼ | û¿ìÇÏÀÌÃ÷112µ¿113µ¿ | 4 | 57.82 | 13,000 | 0 | 2014 | | 2025.08.02 | ¸Å¸Å | ·Î¾âŬ·¡½º103µ¿ | 2 | 67.76 | 22,000 | | 2019 | | 2025.07.31 | ¸Å¸Å | »ï¼ºÄ³½½103,104µ¿ | 3 | 63.43 | 31,000 | | 2021 | | 2025.07.31 | ¸Å¸Å | »ï¼ºÄ³½½103,104µ¿ | 3 | 63.43 | 31,000 | | 2021 | | 2025.07.30 | ¿ù¼¼ | (žŬ¶ó¿ìµå)1µ¿,2µ¿,3µ¿,4µ¿ | 1 | 77.0986 | 3,000 | 155 | 2023 | | 2025.07.29 | ¿ù¼¼ | û¿ìÇÏÀÌÃ÷115µ¿116µ¿ | 4 | 53.1 | 300 | 35 | 2014 | | 2025.07.29 | ¸Å¸Å | ¾ß´çÀ§´õ½º101µ¿ | 3 | 65.97 | 18,207 | | 2020 | | 2025.07.28 | ¸Å¸Å | µé¸ð½Ã¸¶À»Á¤¿ì114µ¿115µ¿ | 1 | 55.473 | 23,500 | | 2019 | | 2025.07.28 | ¸Å¸Å | ÈÀκô3µ¿4µ¿ | 3 | 52.74 | 15,500 | | 2014 | | 2025.07.28 | ¿ù¼¼ | (žŬ¶ó¿ìµå)1µ¿,2µ¿,3µ¿,4µ¿ | 3 | 68.9426 | 3,000 | 140 | 2023 | | 2025.07.27 | ¸Å¸Å | ±Â¸ð´×Ç÷¯½ºAµ¿Bµ¿ | 2 | 68.12 | 21,000 | | 2018 | | 2025.07.27 | ¿ù¼¼ | ¿îÁ¤ÆÓ¸®½º501µ¿502µ¿503µ¿ | 3 | 56.12 | 2,000 | 70 | 2017 | | 2025.07.26 | ¿ù¼¼ | ÈÀκô5µ¿6µ¿ | 2 | 54.24 | 2,000 | 60 | 2013 | | 2025.07.26 | ¿ù¼¼ | °¡¸²ºô¸®Áö106µ¿ | 3 | 62.4155 | 2,000 | 80 | 2015 | | 2025.07.25 | ¿ù¼¼ | °¡¿Âºô¶ó1,2µ¿ | 2 | 59.98 | 9,000 | 7 | 2010 | | 2025.07.25 | ¿ù¼¼ | °¡¿Âºô¶ó1,2µ¿ | 4 | 59.98 | 9,000 | 2 | 2010 | | 2025.07.25 | ¿ù¼¼ | °¡¿Âºô¶ó1,2µ¿ | 4 | 59.98 | 9,000 | 2 | 2010 | | 2025.07.25 | ¸Å¸Å | Æ®¶ó¿ò101µ¿ | 4 | 71.78 | 55,200 | | 2022 | | 2025.07.25 | ¸Å¸Å | »ï¼ºÄ³½½101,102µ¿ | 2 | 73.04 | 35,000 | | 2021 | | 2025.07.25 | ¸Å¸Å | µµ¹«½ºµ¥Ä«2 | 2 | 38.298 | 14,300 | | 2015 | | 2025.07.24 | Àü¼¼ | ·¹º£Ä«ÇϿ콺1Â÷ | 3 | 53.657 | 11,600 | 0 | 2013 | | 2025.07.24 | Àü¼¼ | ·¹º£Ä«ÇϿ콺1Â÷ | 3 | 53.657 | 11,600 | 0 | 2013 | | 2025.07.23 | ¿ù¼¼ | ±ÝȣŸ¿î103µ¿ | 4 | 59.57 | 3,000 | 100 | 2015 | | 2025.07.22 | ¿ù¼¼ | ÆÄ¹Ð¸®¾Æ104µ¿ | 1 | 53.24 | 2,000 | 50 | 2016 | | 2025.07.22 | ¿ù¼¼ | ½ºÅ¸°ñµçºô102µ¿ | 1 | 51.9 | 2,000 | 95 | 2017 | | 2025.07.21 | ¸Å¸Å | ´ë¼º½ºÄ«ÀÌ101µ¿102µ¿ | 2 | 66.31 | 5,500 | | 2017 | | 2025.07.19 | ¿ù¼¼ | »ï¼ºÄ³½½111,112µ¿ | 3 | 55.16 | 2,000 | 100 | 2021 | | 2025.07.19 | ¿ù¼¼ | »ï¼ºÄ³½½111,112µ¿ | 3 | 55.16 | 2,000 | 100 | 2021 | | 2025.07.16 | ¿ù¼¼ | û¿ìÇÏÀÌÃ÷105µ¿106µ¿ | 4 | 64.15 | 2,000 | 80 | 2015 | | 2025.07.16 | Àü¼¼ | ±ÝȣŸ¿î102µ¿ | 3 | 51.28 | 18,500 | 0 | 2017 | | 2025.07.14 | ¸Å¸Å | º£¾ÆÅõ½º | 3 | 47.06 | 19,500 | | 2019 | | 2025.07.14 | ¸Å¸Å | º£¾ÆÅõ½º | 3 | 47.06 | 19,500 | | 2019 | | 2025.07.14 | ¿ù¼¼ | Æç¸®Ã¼Aµ¿ | 2 | 47.51 | 2,000 | 70 | 2016 | | 2025.07.11 | ¿ù¼¼ | (31-0) | 3 | 40.52 | 1,000 | 50 | 2012 | | 2025.07.11 | ¿ù¼¼ | (31-0) | 3 | 40.52 | 1,000 | 50 | 2012 | | 2025.07.10 | ¸Å¸Å | ÈÀÎÇϿ콺101µ¿102µ¿ | 1 | 59.75 | 17,800 | | 2015 | | 2025.07.09 | ¸Å¸Å | ÈúÆÄÅ©103µ¿ | 4 | 52.49 | 15,719 | | 2019 | | 2025.07.09 | ¿ù¼¼ | ¼º¿ì¶ã¾È¿¡103µ¿ | 4 | 55.247 | 17,500 | 30 | 2016 | | 2025.07.09 | ¸Å¸Å | û¸²102µ¿(178-8) | 2 | 38.465 | 10,000 | | 2004 | | 2025.07.08 | Àü¼¼ | µµ½Ã³óºÎ2´ÜÁö211µ¿(240-72) | 2 | 68.71 | 21,500 | 0 | 2011 | | 2025.07.07 | ¸Å¸Å | ÈÀκô1µ¿2µ¿ | 3 | 52.74 | 14,000 | | 2010 | | 2025.07.06 | ¿ù¼¼ | µµ½Ã³óºÎ2´ÜÁö203µ¿(240-60) | 1 | 71.34 | 2,000 | 120 | 2011 | | 2025.07.05 | Àü¼¼ | ºñ¾Æ·çü102µ¿103µ¿ | 1 | 74.45 | 23,000 | 0 | 2020 | | 2025.07.05 | Àü¼¼ | ·¹º£Ä«ÇϿ콺Cµ¿ | 1 | 59.82 | 13,000 | 0 | 2014 | | 2025.07.05 | ¸Å¸Å | °¡¸²ºô¶ó205µ¿206µ¿ | 4 | 52.553 | 25,000 | | 2017 | | 2025.07.04 | Àü¼¼ | ¸®ºêÅõ°Ô´õ1µ¿ | 3 | 45.85 | 1,500 | 0 | 2022 | | 2025.07.04 | ¿ù¼¼ | °¡¸²ºô¶ó205µ¿206µ¿ | 3 | 52.916 | 30 | 90 | 2017 | | 2025.07.03 | ¸Å¸Å | Æ÷¿¥ºô1µ¿2µ¿3µ¿ | 2 | 69.9696 | 21,500 | | 2019 | | 2025.07.03 | ¿ù¼¼ | ¿øº£½ºÆ®ºô°¡µ¿ | 1 | 44.105 | 500 | 55 | 2002 | | 2025.07.03 | ¸Å¸Å | ÀÚ¿¬¿¡°¡3Â÷319µ¿ | 3 | 64.48 | 20,800 | | 2017 | | 2025.07.03 | ¿ù¼¼ | ´ëÇöÁÖÅÃ5µ¿(296-60) | 2 | 92.66 | 500 | 50 | 1997 | | 2025.07.03 | ¿ù¼¼ | ´ëÇöÁÖÅÃ5µ¿(296-60) | 2 | 92.66 | 500 | 50 | 1997 | | 2025.07.02 | ¸Å¸Å | ±×·£µåºô101µ¿102µ¿ | 2 | 63.035 | 21,500 | | 2017 | | 2025.07.02 | ¸Å¸Å | ¶óºô·¹¶ß101µ¿ | 2 | 53.08 | 22,900 | | 2018 | | 2025.07.02 | Àü¼¼ | ¸®ºêÅõ°Ô´õ(81-5) | 2 | 52.86 | 1,500 | 0 | 2024 | | 2025.07.01 | ¿ù¼¼ | TOPCLOUD1,2µ¿ | 1 | 63.775 | 3,000 | 140 | 2021 | | 2025.07.01 | ¸Å¸Å | ¶ó¿Âºí¸®Áî104µ¿ | 2 | 60.29 | 17,250 | | 2019 | | 2025.06.30 | Àü¼¼ | ·Î¾â½ºÀ§Æ®È¨104µ¿ | 3 | 61.5935 | 13,860 | 0 | 2016 | | 2025.06.30 | Àü¼¼ | Ç콺Ƽ¾Æ101µ¿ | 3 | 64.0248 | 26,000 | 0 | 2023 | | 2025.06.30 | Àü¼¼ | ·Î¾â½ºÀ§Æ®È¨104µ¿ | 3 | 61.5935 | 13,860 | 0 | 2016 | | 2025.06.30 | ¿ù¼¼ | ÀÚ¿¬¿¡°¡1µ¿ | 2 | 58.56 | 100 | 10 | 2015 | | 2025.06.29 | ¿ù¼¼ | ÆÄ¹Ð¸®¾Æ102µ¿ | 2 | 62.89 | 2,000 | 100 | 2016 | | 2025.06.28 | ¸Å¸Å | »õÇÑÁÖÅÃ114µ¿ | 3 | 55.89 | 15,700 | | 2014 | | 2025.06.28 | ¿ù¼¼ | ·Î¾âŬ·¡½º(101µ¿,102µ¿) | 2 | 71.33 | 2,500 | 100 | 2021 | | 2025.06.27 | ¸Å¸Å | ´ëÁÖÆÄÅ©ºäBµ¿ | 2 | 56.34 | 15,000 | | 2016 | | 2025.06.27 | ¸Å¸Å | ¿îÁ¤»ï¼ºÄ³½½1202 | 2 | 64.98 | 48,000 | | 2024 | | 2025.06.27 | ¸Å¸Å | ´õÇϿ콺¿£ | 3 | 47.25 | 15,600 | | 2018 | | 2025.06.27 | ¿ù¼¼ | ±ÝȣŸ¿î101µ¿102µ¿ | 4 | 43.93 | 2,000 | 70 | 2015 | | 2025.06.26 | ¿ù¼¼ | °¡¸²ºô¶ó207µ¿ | 2 | 50.625 | 2,000 | 90 | 2016 | | 2025.06.26 | ¿ù¼¼ | Æ÷·¹½ºÆ®°ø°¨(701µ¿) | 4 | 63.17 | 2,000 | 150 | 2024 | | 2025.06.26 | ¸Å¸Å | ÅÂÁ¾´õŬ·¡½º102µ¿103µ¿ | 3 | 59.425 | 25,700 | | 2018 | | 2025.06.26 | ¸Å¸Å | ¹ÙÈå´õÅ×¶ó½º103µ¿ | 4 | 59.69 | 32,000 | | 2021 | | 2025.06.26 | ¸Å¸Å | ÀÚ¿¬¿¡°¡3Â÷305µ¿306µ¿ | 4 | 45.52 | 20,400 | | 2017 | | 2025.06.26 | ¸Å¸Å | ¹ÙÈå´õÅ×¶ó½º103µ¿ | 4 | 59.69 | 32,000 | | 2021 | | 2025.06.25 | ¸Å¸Å | ½ºÀ§Æ®ºô | 4 | 52.95 | 28,700 | | 2018 | | 2025.06.24 | Àü¼¼ | µµ½Ã³óºÎ3´ÜÁö326µ¿(239-109) | 2 | 75.25 | 20,000 | 0 | 2012 | | 2025.06.24 | ¸Å¸Å | µµ½Ã³óºÎŸ¿îÇϿ콺(103µ¿)(240- | 2 | 70.57 | 24,000 | | 2010 | | 2025.06.24 | ¸Å¸Å | µµ½Ã³óºÎŸ¿îÇϿ콺(103µ¿)(240- | 2 | 70.57 | 25,000 | | 2010 | | 2025.06.23 | ¸Å¸Å | ¸®Ä¡Å¸¿îÇϿ콺3Â÷301µ¿ | 1 | 63.8025 | 21,200 | | 2017 | | 2025.06.23 | Àü¼¼ | °¡¸²ºô¸®Áö306µ¿ | 1 | 53.21 | 13,000 | 0 | 2018 | | 2025.06.22 | Àü¼¼ | ¿ì¸²Å¸¿î103µ¿104µ¿ | 2 | 60.04 | 17,000 | 0 | 2017 | | 2025.06.22 | Àü¼¼ | ´ë½Å±×¸°ºô101µ¿102µ¿ | 1 | 65.214 | 15,600 | 0 | 2016 | | 2025.06.22 | ¿ù¼¼ | ¹ÙÈå´õºô¸®Áö101µ¿ | 2 | 56.08 | 500 | 75 | 2020 | | 2025.06.22 | Àü¼¼ | ¿ì¸²Å¸¿î103µ¿104µ¿ | 2 | 60.04 | 17,000 | 0 | 2017 | | 2025.06.22 | Àü¼¼ | ¿ì¸²Å¸¿î103µ¿104µ¿ | 2 | 60.04 | 17,000 | 0 | 2017 | | 2025.06.21 | ¿ù¼¼ | ´ë¼º½ºÄ«ÀÌ101µ¿102µ¿ | 3 | 66.31 | 3,000 | 75 | 2017 | | 2025.06.21 | ¸Å¸Å | ÀÚ¿¬¿¡°¡8µ¿9µ¿ | 2 | 58.95 | 18,000 | | 2015 | | 2025.06.20 | ¸Å¸Å | žŬ¶ó¿ìµå(8µ¿) | 2 | 53.4458 | 42,000 | | 2023 | | 2025.06.20 | ¸Å¸Å | Á¤¿ìÆç¸®½º302µ¿ | 3 | 57.37 | 20,000 | | 2018 | | 2025.06.20 | ¸Å¸Å | À§µåµ¥Àϸ®ÆÄÅ©103µ¿ | 4 | 64.16 | 46,200 | | 2022 | | 2025.06.19 | ¸Å¸Å | ¿¤¸²Å¸¿î101µ¿102µ¿ | 4 | 53.66 | 35,000 | | 2021 | | 2025.06.17 | ¿ù¼¼ | ÈÀκô1µ¿2µ¿ | 2 | 52.74 | 1,000 | 70 | 2010 | | 2025.06.17 | Àü¼¼ | ¿¹ÇÏÀÓ102µ¿ | 2 | 55.6095 | 12,900 | 0 | 2015 | | 2025.06.16 | ¸Å¸Å | ÈÀκô5µ¿6µ¿ | 2 | 52.74 | 13,500 | | 2013 | | 2025.06.16 | ¿ù¼¼ | ÀÚ¿¬¿¡°¡2µ¿ | 2 | 60.93 | 100 | 70 | 2015 | | 2025.06.14 | ¸Å¸Å | Æ®¶ó¿ò103µ¿ | 3 | 69.02 | 44,000 | | 2021 | | 2025.06.13 | ¸Å¸Å | ±ÝȣŸ¿î103µ¿ | 3 | 64.14 | 22,500 | | 2017 | | 2025.06.12 | ¸Å¸Å | ¼ºµ¿WÇϿ콺´Ùµ¿¶óµ¿ | 3 | 54.69 | 17,800 | | 2015 | | 2025.06.10 | ¸Å¸Å | °¡¸²ºô¸®Áö110µ¿ | 4 | 67.753 | 25,700 | | 2015 | | 2025.06.10 | ¸Å¸Å | °¡¸²±×·£µå101µ¿102µ¿ | 1 | 53.16 | 20,000 | | 2017 | | 2025.06.09 | ¿ù¼¼ | ¿¡µ§ºô¸®Áö103µ¿104µ¿ | 2 | 54.5 | 2,000 | 90 | 2018 | | 2025.06.09 | ¿ù¼¼ | ÈúÆÄÅ©101µ¿102µ¿ | 4 | 60.68 | 2,000 | 85 | 2019 | | 2025.06.09 | ¿ù¼¼ | µ¿Àº¶ã¾È¿¡102µ¿ | 4 | 57.126 | 14,000 | 15 | 2015 | | 2025.06.09 | Àü¼¼ | µ¿Àº¶ã¾È¿¡102µ¿ | 4 | 57.126 | 16,000 | 0 | 2015 | | 2025.06.09 | ¸Å¸Å | ºñÅڷ罺101µ¿ | 1 | 49.442 | 33,000 | | 2021 | | 2025.06.08 | ¿ù¼¼ | ºñ¾Æ·çü101µ¿102µ¿ | 1 | 75.257 | 2,500 | 145 | 2022 | | 2025.06.08 | ¿ù¼¼ | ÇѸ¶·çÄ«¿îƼ102µ¿103µ¿ | 2 | 56.105 | 2,000 | 80 | 2015 | | 2025.06.07 | ¿ù¼¼ | ·Î¾âŬ·¡½º102µ¿ | 3 | 52.34 | 1,500 | 80 | 2019 | | 2025.06.07 | ¿ù¼¼ | ÇØµå¸²¾ÆÆ®102µ¿103µ¿ | 2 | 58.76 | 2,500 | 90 | 2016 | | 2025.06.04 | ¿ù¼¼ | ÈÀκô1µ¿2µ¿ | 2 | 52.74 | 1,000 | 70 | 2010 | | 2025.06.04 | ¸Å¸Å | Á¤¿ìÆç¸®½º202µ¿203µ¿ | 1 | 49.805 | 20,000 | | 2018 | | 2025.06.03 | ¸Å¸Å | ¸£¸ÞÁ¾101µ¿102µ¿ | 4 | 53.078 | 30,700 | | 2017 | | 2025.06.02 | ¸Å¸Å | ºí¶û105µ¿ | 3 | 52.6725 | 23,500 | | 2019 | | 2025.06.02 | Àü¼¼ | µµ½Ã³óºÎ2´ÜÁö219µ¿(241-5) | 1 | 67.58 | 21,290 | 0 | 2011 | | 2025.06.02 | ¿ù¼¼ | ¼º¿ì¶ã¾È¿¡106µ¿ | 3 | 51.098 | 1,500 | 85 | 2016 | | 2025.06.02 | Àü¼¼ | µµ½Ã³óºÎ2´ÜÁö219µ¿(241-5) | 1 | 67.58 | 21,290 | 0 | 2011 | | 2025.06.01 | ¸Å¸Å | ¸®ºêÅõ°Ô´õ(81-5) | 3 | 52.86 | 35,000 | | 2024 | | 2025.05.31 | Àü¼¼ | ¿¹ÀÏ¾ÆÆ®3µ¿ | 4 | 61.61 | 19,300 | 0 | 2015 | | 2025.05.31 | ¸Å¸Å | ´Ù½ÂÇÁ¶óÀÓ102µ¿ | 1 | 63.44 | 34,900 | | 2021 | | 2025.05.29 | ¸Å¸Å | ¿¤Å¸¿îÇϿ콺107µ¿108µ¿ | 1 | 54.87 | 34,000 | | 2020 | | 2025.05.29 | ¸Å¸Å | µð¿ì½º76(103µ¿,104µ¿) | 4 | 66.16 | 50,000 | | 2022 | | 2025.05.29 | ¸Å¸Å | ÀÚ¿¬¿¡°¡10µ¿11µ¿ | 3 | 59.33 | 17,200 | | 2015 | | 2025.05.29 | Àü¼¼ | ½ºÆäÀ̽º105µ¿106µ¿ | 2 | 55.27 | 15,800 | 0 | 2014 | | 2025.05.27 | ¸Å¸Å | ¼¼·»µðÇÇÆ¼Aµ¿Bµ¿ | 4 | 67.6955 | 36,000 | | 2021 | | 2025.05.26 | Àü¼¼ | °¡¸²ºô¸®Áö105µ¿ | 4 | 67.753 | 24,100 | 0 | 2015 | | 2025.05.26 | Àü¼¼ | ¾Æµ¨¸®¾Æ4µ¿ | 1 | 49.35 | 12,000 | 0 | 2016 | | 2025.05.26 | ¿ù¼¼ | ÆÄ¹Ð¸®¾Æ103µ¿ | 3 | 53.252 | 1,500 | 85 | 2016 | | 2025.05.25 | ¿ù¼¼ | ¸ð¸®¾È2Â÷101µ¿102µ¿ | 3 | 53.51 | 12,600 | 12 | 2016 | | 2025.05.25 | ¸Å¸Å | ÀÚ¿¬¿¡°¡8µ¿9µ¿ | 4 | 58.95 | 24,000 | | 2015 | | 2025.05.24 | ¿ù¼¼ | ¼º¿ì¶ã¾È¿¡104µ¿ | 2 | 52.387 | 2,000 | 85 | 2016 | | 2025.05.24 | Àü¼¼ | ÆÄ¹Ð¸®¾Æ103µ¿ | 1 | 55.522 | 16,000 | 0 | 2016 | | 2025.05.23 | Àü¼¼ | ·¹º£Ä«ÇϿ콺Bµ¿ | 2 | 49.28 | 12,200 | 0 | 2014 | | 2025.05.23 | ¿ù¼¼ | ³Ø¼½ººô202µ¿ | 1 | 23.32 | 500 | 45 | 2013 | | 2025.05.23 | Àü¼¼ | ºí¶û105µ¿ | 3 | 54.5186 | 20,400 | 0 | 2019 | | 2025.05.22 | ¸Å¸Å | À§µåÇϿ콺101µ¿ | 2 | 64.74 | 27,000 | | 2023 | | 2025.05.22 | Àü¼¼ | ÀÌ»êÀü¿ø¾ÆÆ®ºô102µ¿(178-26) | 1 | 35.52 | 7,350 | 0 | 2003 | | 2025.05.22 | ¿ù¼¼ | Æç¸®Ã¼Bµ¿ | 1 | 47.37 | 1,000 | 65 | 2016 | | 2025.05.22 | ¿ù¼¼ | ¶óºô·¹¶ß102µ¿103µ¿ | 3 | 63.418 | 200 | 75 | 2018 | | 2025.05.22 | ¿ù¼¼ | eÆíÇѾÆÄ§101µ¿102µ¿ | 3 | 70.345 | 700 | 60 | 2017 | | 2025.05.21 | ¸Å¸Å | ÆÄ¹Ð¸®¾Æ201µ¿203µ¿ | 4 | 49.449 | 22,000 | | 2016 | | 2025.05.21 | ¸Å¸Å | ¶ó¿Âºí¸®Áî103µ¿ | 1 | 55.42 | 24,500 | | 2018 | | 2025.05.21 | ¸Å¸Å | ¿ì¸®ÇÏÀÓ103µ¿104µ¿ | 4 | 57.67 | 27,000 | | 2016 | | 2025.05.20 | Àü¼¼ | ¸®ºêÅõ°Ô´õ(81-4) | 2 | 47.3 | 2,000 | 0 | 2022 | | 2025.05.20 | Àü¼¼ | ÀÌ·¹ÇÏÀÌÃ÷106µ¿ | 3 | 52.97 | 14,100 | 0 | 2016 | | 2025.05.20 | ¿ù¼¼ | ¸¶ÀÌÇϿ콺 | 2 | 38.31 | 2,500 | 100 | 2023 | | 2025.05.20 | ¸Å¸Å | ÇÁ¶ó¿îµå108µ¿109µ¿ | 2 | 69.73 | 26,300 | | 2022 | | 2025.05.20 | ¸Å¸Å | ÇÁ¶ó¿îµå108µ¿109µ¿ | 2 | 69.73 | 26,300 | | 2022 | | 2025.05.20 | Àü¼¼ | ´Ù¼Öºô¶ó(178-15) | 3 | 36.54 | 7,390 | 0 | 2004 | | 2025.05.19 | ¸Å¸Å | ¿ì¸²Å¸¿î103µ¿104µ¿ | 2 | 60.04 | 18,000 | | 2017 | | 2025.05.19 | Àü¼¼ | (255-3) | 4 | 50.265 | 12,400 | 0 | 2017 | | 2025.05.18 | Àü¼¼ | û¿ìÇÏÀÌÃ÷117µ¿118µ¿ | 2 | 49.63 | 8,000 | 0 | 2014 | | 2025.05.17 | ¿ù¼¼ | ·¹º£Ä«ÇϿ콺1Â÷ | 4 | 53.95 | 2,000 | 51 | 2013 | | 2025.05.17 | ¿ù¼¼ | ¸ð¸®¾È2Â÷103µ¿104µ¿ | 3 | 53.52 | 2,000 | 90 | 2016 | | 2025.05.16 | ¸Å¸Å | ÇѸ¶·çÄ«¿îƼ101µ¿ | 3 | 59.79 | 18,000 | | 2015 | | 2025.05.15 | ¿ù¼¼ | ´ë¼º½ºÄ«ÀÌ101µ¿102µ¿ | 4 | 66.31 | 3,000 | 100 | 2017 | | 2025.05.14 | ¸Å¸Å | ÀÚ¿¬¿¡°¡6µ¿7µ¿ | 3 | 59.1 | 17,500 | | 2015 | | 2025.05.13 | ¸Å¸Å | ÇѸ¶·çÄ«¿îƼ104µ¿ | 2 | 60.218 | 19,500 | | 2015 | | 2025.05.13 | ¸Å¸Å | ¶óÇî´À | 4 | 64.42 | 46,500 | | 2023 | | 2025.05.10 | Àü¼¼ | ¿¹ÀÏ¾ÆÆ®101µ¿102µ¿ | 1 | 62.51 | 14,400 | 0 | 2015 | | 2025.05.08 | ¿ù¼¼ | ´õ½ºÆäÀ̽º3 | 1 | 22.5 | 0 | 60 | 2020 | | 2025.05.08 | ¿ù¼¼ | º§¶óŸ¿î102µ¿ | 3 | 61.81 | 10,000 | 33 | 2016 | | 2025.05.07 | ¸Å¸Å | °¡¸²ºô¸®Áö108µ¿ | 1 | 61.003 | 19,500 | | 2015 | | 2025.05.07 | ¸Å¸Å | ÀÚ¿¬¿¡°¡3Â÷307µ¿308µ¿ | 3 | 66.12 | 17,500 | | 2016 | | 2025.05.07 | ¿ù¼¼ | ¿¹ÇÏÀÓ102µ¿ | 2 | 55.6095 | 13,500 | 10 | 2015 | | 2025.05.06 | ¸Å¸Å | ¿¤Å¸¿îÇϿ콺106µ¿ | 3 | 58.21 | 20,300 | | 2020 | | 2025.05.05 | ¸Å¸Å | ¼¼·»µðÇÇÆ¼3Â÷ | 4 | 64.84 | 43,900 | | 2023 | | 2025.05.02 | ¿ù¼¼ | °¡¸²ºô¶ó201µ¿202µ¿ | 4 | 69.678 | 100 | 90 | 2016 | | 2025.05.02 | ¿ù¼¼ | TOPCLOUD1,2µ¿ | 3 | 63.775 | 2,000 | 110 | 2021 | | 2025.05.01 | Àü¼¼ | ´Ù½ÂÇÁ¶óÀÓ103µ¿ | 4 | 60.01 | 31,370 | 0 | 2021 | | 2025.05.01 | ¿ù¼¼ | ¼öÆÓ¸®½º1µ¿ | 2 | 61.4508 | 1,000 | 90 | 2015 | | 2025.05.01 | ¸Å¸Å | ³»½´ºô | 3 | 41.6897 | 16,700 | | 2016 | | 2025.04.29 | ¿ù¼¼ | ÇѺû¸¶À»5´ÜÁöij½½¾ØÄŸºô | 8 | 84.045 | 3,000 | 155 | 2012 | | 2025.04.29 | ¸Å¸Å | ´Ù½ÂÇÁ¶óÀÓ102µ¿ | 1 | 63.44 | 25,300 | | 2021 | | 2025.04.28 | Àü¼¼ | ÇѺû¸¶À»7´ÜÁö(ÇѽÅÈÞÇ÷¯½º) | 11 | 84.88 | 32,000 | 0 | 2011 | | 2025.04.28 | Àü¼¼ | ÇѺû¸¶À»9´ÜÁö·Ôµ¥Ä³½½1Â÷ | 27 | 59.9292 | 31,500 | 0 | 2017 | | 2025.04.27 | Àü¼¼ | ¿îÁ¤¾Æ¸ð¸®¿ò | 6 | 84.98 | 31,000 | 0 | 2011 | | 2025.04.27 | ¸Å¸Å | ´ëÈï¾ÆÆ®¸®¿ò | 2 | 64.63 | 35,000 | | 2020 | | 2025.04.27 | ¸Å¸Å | ´ëÈï¾ÆÆ®¸®¿ò | 2 | 64.63 | 35,000 | | 2020 | | 2025.04.25 | Àü¼¼ | ÇѺû¸¶À»9´ÜÁö·Ôµ¥Ä³½½1Â÷ | 17 | 84.2577 | 42,000 | 0 | 2017 | | 2025.04.25 | ¸Å¸Å | À§µåµ¥Àϸ®ÆÄÅ©103µ¿ | 2 | 64.16 | 36,900 | | 2022 | | 2025.04.25 | ¸Å¸Å | µµ½Ã³óºÎ3´ÜÁö320µ¿(78-23) | 3 | 67 | 30,000 | | 2012 | | 2025.04.25 | ¿ù¼¼ | ÇѺû¸¶À»5´ÜÁöij½½¾ØÄŸºô | 7 | 84.1887 | 5,000 | 135 | 2012 | | 2025.04.25 | Àü¼¼ | ÇѺû¸¶À»2´ÜÁöÈÞ¸Õºô | 24 | 84.9666 | 29,400 | 0 | 2009 | | 2025.04.24 | Àü¼¼ | ÇѺû¸¶À»1´ÜÁöÇѶóºñ¹ßµð | 5 | 101.152 | 35,000 | 0 | 2009 | | 2025.04.24 | ¸Å¸Å | ´Ù¿øÄ³½½Bµ¿ | 3 | 61.64 | 24,200 | | 2018 | | 2025.04.24 | Àü¼¼ | ÇѺû¸¶À»1´ÜÁöÇѶóºñ¹ßµð | 5 | 120.236 | 40,000 | 0 | 2009 | | 2025.04.24 | ¿ù¼¼ | ÇѺû¸¶À»6´ÜÁö(±¹¹ÎÀÓ´ë) | 5 | 36.24 | 1,769 | 14 | 2011 | | 2025.04.24 | ¸Å¸Å | ¸®Ä¡Å¸¿îÇϿ콺3Â÷301µ¿ | 1 | 63.8025 | 16,260 | | 2017 | | 2025.04.24 | ¸Å¸Å | û¿ìÇÏÀÌÃ÷117µ¿118µ¿ | 4 | 49.63 | 16,000 | | 2014 | | 2025.04.24 | ¿ù¼¼ | ÇѺû¸¶À»5´ÜÁöij½½¾ØÄŸºô | 4 | 118.7267 | 4,000 | 140 | 2012 | | 2025.04.24 | ¸Å¸Å | ¸£¸ÞÁ¾108µ¿109µ¿ | 2 | 69.519 | 32,000 | | 2019 | | 2025.04.23 | ¿ù¼¼ | ÇѺû¸¶À»6´ÜÁö(±¹¹ÎÀÓ´ë) | 6 | 45.73 | 2,969 | 20 | 2011 | | 2025.04.23 | Àü¼¼ | ¿îÁ¤¾Æ¸ð¸®¿ò | 5 | 84.62 | 28,000 | 0 | 2011 | | 2025.04.23 | ¿ù¼¼ | ÇѺû¸¶À»6´ÜÁö(±¹¹ÎÀÓ´ë) | 19 | 45.98 | 2,969 | 20 | 2011 | | 2025.04.23 | ¿ù¼¼ | ÇѺû¸¶À»6´ÜÁö(±¹¹ÎÀÓ´ë) | 5 | 59.88 | 4,738 | 32 | 2011 | | 2025.04.23 | ¿ù¼¼ | ÇѺû¸¶À»6´ÜÁö(±¹¹ÎÀÓ´ë) | 11 | 36.24 | 1,769 | 14 | 2011 | | 2025.04.23 | ¿ù¼¼ | ÇѺû¸¶À»6´ÜÁö(±¹¹ÎÀÓ´ë) | 13 | 45.98 | 2,969 | 20 | 2011 | | 2025.04.23 | ¿ù¼¼ | ÇѺû¸¶À»6´ÜÁö(±¹¹ÎÀÓ´ë) | 3 | 36.24 | 1,769 | 14 | 2011 | | 2025.04.23 | ¸Å¸Å | ¿ì¸®ÇÏÀÓ103µ¿104µ¿ | 4 | 60.67 | 23,000 | | 2016 | | 2025.04.22 | ¸Å¸Å | ½ºÄ«À̻Zij½½¾ß´ç104µ¿105µ¿ | 3 | 63.334 | 26,000 | | 2020 | | 2025.04.22 | Àü¼¼ | ÇѺû¸¶À»1´ÜÁöÇѶóºñ¹ßµð | 5 | 101.152 | 18,000 | 0 | 2009 | | 2025.04.22 | Àü¼¼ | ¿îÁ¤¾Æ¸ð¸®¿ò | 22 | 84.98 | 27,000 | 0 | 2011 | | 2025.04.21 | ¸Å¸Å | Æ÷¿¥ºô1µ¿2µ¿3µ¿ | 2 | 69.9696 | 17,500 | | 2019 | | 2025.04.19 | ¿ù¼¼ | ¿îÁ¤¾Æ¸ð¸®¿ò | 17 | 84.98 | 5,000 | 110 | 2011 | | 2025.04.19 | Àü¼¼ | ¿îÁ¤¾Æ¸ð¸®¿ò | 9 | 84.93 | 25,000 | 0 | 2011 | | 2025.04.19 | Àü¼¼ | ÇѺû¸¶À»7´ÜÁö(ÇѽÅÈÞÇ÷¯½º) | 7 | 84.94 | 27,300 | 0 | 2011 | | 2025.04.19 | ¸Å¸Å | ¼öÆÓ¸®½º2µ¿ | 3 | 60.5245 | 19,400 | | 2015 | | 2025.04.18 | Àü¼¼ | ÇѺû¸¶À»3´ÜÁö¾ÆÀÌÆÄÅ© | 5 | 120.336 | 32,000 | 0 | 2004 | | 2025.04.18 | ¸Å¸Å | ±ÝȣŸ¿î103µ¿ | 2 | 59.57 | 18,000 | | 2015 | | 2025.04.18 | ¸Å¸Å | TOPCLOUD1,2µ¿ | 4 | 69.305 | 35,000 | | 2021 | | 2025.04.18 | Àü¼¼ | ÇѺû¸¶À»3´ÜÁö¾ÆÀÌÆÄÅ© | 15 | 84.992 | 29,000 | 0 | 2004 | | 2025.04.18 | Àü¼¼ | ÇѺû¸¶À»2´ÜÁöÈÞ¸Õºô | 6 | 84.9666 | 30,500 | 0 | 2009 | | 2025.04.18 | ¿ù¼¼ | ÇѺû¸¶À»4´ÜÁö·Ôµ¥Ä³½½¥± | 7 | 60.1761 | 3,000 | 106 | 2018 | | 2025.04.18 | Àü¼¼ | ÇѺû¸¶À»5´ÜÁöij½½¾ØÄŸºô | 21 | 84.1874 | 36,500 | 0 | 2012 | | 2025.04.18 | Àü¼¼ | ÇѺû¸¶À»7´ÜÁö(ÇѽÅÈÞÇ÷¯½º) | 5 | 84.88 | 20,000 | 0 | 2011 | | 2025.04.18 | Àü¼¼ | ÇѺû¸¶À»7´ÜÁö(ÇѽÅÈÞÇ÷¯½º) | 5 | 84.88 | 20,000 | 0 | 2011 | | 2025.04.18 | Àü¼¼ | ¿îÁ¤¾Æ¸ð¸®¿ò | 3 | 59.67 | 25,000 | 0 | 2011 | | 2025.04.17 | ¿ù¼¼ | ¿îÁ¤¾Æ¸ð¸®¿ò | 14 | 74.81 | 4,000 | 110 | 2011 | | 2025.04.17 | ¿ù¼¼ | ÇѺû¸¶À»1´ÜÁöÇѶóºñ¹ßµð | 12 | 120.236 | 4,000 | 170 | 2009 | | 2025.04.16 | ¿ù¼¼ | ÇѺû¸¶À»5´ÜÁöij½½¾ØÄŸºô | 13 | 84.1887 | 5,000 | 145 | 2012 | | 2025.04.16 | Àü¼¼ | ÇѺû¸¶À»4´ÜÁö·Ôµ¥Ä³½½¥± | 13 | 59.4702 | 35,000 | 0 | 2018 | | 2025.04.16 | Àü¼¼ | ÇѺû¸¶À»5´ÜÁöij½½¾ØÄŸºô | 20 | 118.7267 | 41,000 | 0 | 2012 | | 2025.04.15 | ¸Å¸Å | µµ½Ã³óºÎ2´ÜÁö224µ¿(243-24) | 2 | 69.21 | 26,000 | | 2011 | | 2025.04.15 | ¸Å¸Å | ¼ºµ¿WÇϿ콺¸¶µ¿ | 3 | 58.63 | 16,700 | | 2016 | | 2025.04.14 | Àü¼¼ | ÇѺû¸¶À»1´ÜÁöÇѶóºñ¹ßµð | 1 | 100.625 | 33,600 | 0 | 2009 | | 2025.04.14 | ¿ù¼¼ | ÇѺû¸¶À»6´ÜÁö(±¹¹ÎÀÓ´ë) | 16 | 51.69 | 6,264 | 13 | 2011 | | 2025.04.14 | Àü¼¼ | ÇѺû¸¶À»5´ÜÁöij½½¾ØÄŸºô | 1 | 84.0669 | 36,000 | 0 | 2012 | | 2025.04.14 | ¿ù¼¼ | ÇѺû¸¶À»2´ÜÁöÈÞ¸Õºô | 1 | 84.9666 | 5,000 | 110 | 2009 | | 2025.04.13 | ¸Å¸Å | ¿ì¸²Å¸¿î103µ¿104µ¿ | 3 | 60.04 | 18,000 | | 2017 | | 2025.04.13 | ¸Å¸Å | ´Ù¿ïºí¸®½º103µ¿ | 1 | 64.98 | 18,200 | | 2016 | | 2025.04.13 | ¸Å¸Å | ¾î¹ÝÇÏÀÓ2Â÷103µ¿ | 4 | 58.14 | 37,800 | | 2021 | | 2025.04.12 | ¿ù¼¼ | ÇѺû¸¶À»2´ÜÁöÈÞ¸Õºô | 1 | 84.9462 | 3,000 | 130 | 2009 | | 2025.04.11 | Àü¼¼ | ¿îÁ¤¾Æ¸ð¸®¿ò | 3 | 84.87 | 31,000 | 0 | 2011 | | 2025.04.11 | ¿ù¼¼ | ÇѺû¸¶À»6´ÜÁö(±¹¹ÎÀÓ´ë) | 11 | 36.24 | 3,069 | 8 | 2011 | | 2025.04.11 | Àü¼¼ | ÇѺû¸¶À»9´ÜÁö·Ôµ¥Ä³½½1Â÷ | 23 | 84.4002 | 38,000 | 0 | 2017 | | 2025.04.11 | Àü¼¼ | ÇѺû¸¶À»1´ÜÁöÇѶóºñ¹ßµð | 20 | 100.625 | 32,550 | 0 | 2009 | | 2025.04.11 | Àü¼¼ | ÇѺû¸¶À»9´ÜÁö·Ôµ¥Ä³½½1Â÷ | 18 | 84.4002 | 39,000 | 0 | 2017 | | 2025.04.10 | ¿ù¼¼ | ÇѺû¸¶À»6´ÜÁö(±¹¹ÎÀÓ´ë) | 7 | 45.98 | 2,969 | 20 | 2011 | | 2025.04.10 | Àü¼¼ | ÇѺû¸¶À»7´ÜÁö(ÇѽÅÈÞÇ÷¯½º) | 12 | 84.95 | 33,000 | 0 | 2011 | | 2025.04.10 | ¿ù¼¼ | ÇѺû¸¶À»3´ÜÁö¾ÆÀÌÆÄÅ© | 4 | 84.992 | 2,500 | 115 | 2004 | | 2025.04.10 | Àü¼¼ | ÇѺû¸¶À»7´ÜÁö(ÇѽÅÈÞÇ÷¯½º) | 12 | 84.95 | 33,000 | 0 | 2011 | | 2025.04.10 | Àü¼¼ | ÇѺû¸¶À»4´ÜÁö·Ôµ¥Ä³½½¥± | 27 | 59.4702 | 33,600 | 0 | 2018 | | 2025.04.10 | Àü¼¼ | ÇѺû¸¶À»3´ÜÁö¾ÆÀÌÆÄÅ© | 4 | 84.992 | 25,000 | 0 | 2004 | | 2025.04.09 | Àü¼¼ | ÇѺû¸¶À»2´ÜÁöÈÞ¸Õºô | 20 | 84.9666 | 27,000 | 0 | 2009 | | 2025.04.09 | ¸Å¸Å | ¾ß´ç¸¶À»1µ¿2µ¿3µ¿4µ¿ | 1 | 74.25 | 21,000 | | 2019 | | 2025.04.09 | Àü¼¼ | ÇѺû¸¶À»7´ÜÁö(ÇѽÅÈÞÇ÷¯½º) | 4 | 84.91 | 26,000 | 0 | 2011 | | 2025.04.08 | ¸Å¸Å | µµ½Ã³óºÎ2´ÜÁö219µ¿(241-5) | 1 | 66.33 | 29,000 | | 2011 | | 2025.04.08 | ¿ù¼¼ | ÇѺû¸¶À»5´ÜÁöij½½¾ØÄŸºô | 7 | 84.1887 | 4,000 | 140 | 2012 | | 2025.04.08 | Àü¼¼ | ÇѺû¸¶À»5´ÜÁöij½½¾ØÄŸºô | 1 | 84.1887 | 31,500 | 0 | 2012 | | 2025.04.07 | Àü¼¼ | ÇѺû¸¶À»1´ÜÁöÇѶóºñ¹ßµð | 5 | 100.625 | 36,000 | 0 | 2009 | | 2025.04.07 | Àü¼¼ | ÇѺû¸¶À»4´ÜÁö·Ôµ¥Ä³½½¥± | 23 | 59.4702 | 33,600 | 0 | 2018 | | 2025.04.07 | Àü¼¼ | ÇѺû¸¶À»2´ÜÁöÈÞ¸Õºô | 14 | 84.9666 | 30,000 | 0 | 2009 | | 2025.04.07 | ¸Å¸Å | STAY9104µ¿ | 1 | 61.58 | 35,000 | | 2021 | | 2025.04.05 | Àü¼¼ | ¿îÁ¤¾Æ¸ð¸®¿ò | 13 | 84.45 | 25,200 | 0 | 2011 | | 2025.04.05 | Àü¼¼ | ¿îÁ¤¾Æ¸ð¸®¿ò | 18 | 84.62 | 32,000 | 0 | 2011 | | 2025.04.05 | Àü¼¼ | ¿îÁ¤¾Æ¸ð¸®¿ò | 4 | 59.85 | 26,000 | 0 | 2011 | | 2025.04.05 | ¸Å¸Å | ·Îµ©ÇϿ콺 | 4 | 41.9697 | 15,700 | | 2016 | | 2025.04.05 | Àü¼¼ | ¿îÁ¤¾Æ¸ð¸®¿ò | 16 | 51.53 | 26,250 | 0 | 2011 | | 2025.04.04 | ¸Å¸Å | °¡¸²ºô¶ó220µ¿ | 3 | 68.85 | 24,800 | | 2017 | | 2025.04.04 | Àü¼¼ | ÇѺû¸¶À»5´ÜÁöij½½¾ØÄŸºô | 7 | 84.1874 | 35,700 | 0 | 2012 | | 2025.04.03 | ¸Å¸Å | ¿¤Å¸¿îÇϿ콺104µ¿ | 4 | 54.47 | 28,700 | | 2020 | | 2025.04.03 | ¸Å¸Å | ¿¤Å¸¿îÇϿ콺104µ¿ | 4 | 54.47 | 28,700 | | 2020 | | 2025.04.03 | Àü¼¼ | ÇѺû¸¶À»1´ÜÁöÇѶóºñ¹ßµð | 5 | 122.179 | 37,000 | 0 | 2009 | | 2025.04.03 | ¿ù¼¼ | ÇѺû¸¶À»6´ÜÁö(±¹¹ÎÀÓ´ë) | 10 | 45.98 | 2,798 | 20 | 2011 | | 2025.04.03 | Àü¼¼ | ÇѺû¸¶À»2´ÜÁöÈÞ¸Õºô | 5 | 84.9666 | 31,000 | 0 | 2009 | | 2025.04.02 | Àü¼¼ | ÇѺû¸¶À»5´ÜÁöij½½¾ØÄŸºô | 14 | 133.8871 | 42,000 | 0 | 2012 | | 2025.04.02 | ¿ù¼¼ | ÇѺû¸¶À»6´ÜÁö(±¹¹ÎÀÓ´ë) | 9 | 45.98 | 769 | 26 | 2011 | | 2025.04.02 | ¿ù¼¼ | ÇѺû¸¶À»6´ÜÁö(±¹¹ÎÀÓ´ë) | 7 | 59.88 | 7,838 | 14 | 2011 | | 2025.04.01 | ¸Å¸Å | ºí¶û106µ¿ | 2 | 54.4875 | 24,950 | | 2019 | | 2025.04.01 | ¿ù¼¼ | ÇѺû¸¶À»6´ÜÁö(±¹¹ÎÀÓ´ë) | 3 | 36.24 | 3,034 | 6 | 2011 | | 2025.02.28 | ¿ù¼¼ | ´ë¼º½ºÄ«ÀÌ101µ¿102µ¿ | 3 | 66.31 | 3,000 | 90 | 2017 | | 2025.02.28 | ¸Å¸Å | ·Î¾âÆÓ¸®½º1µ¿2µ¿ | 2 | 55.71 | 21,000 | | 2019 | | 2025.02.27 | ¿ù¼¼ | °¡¸²ºô¸®Áö111µ¿ | 4 | 67.753 | 20,000 | 15 | 2015 | | 2025.02.27 | ¿ù¼¼ | ³Ø¼½ººô201µ¿ | 2 | 35.71 | 1,000 | 68 | 2013 | | 2025.02.26 | Àü¼¼ | ¿ä»ê¾ÆÆ®ºô107µ¿ | 4 | 64.43 | 22,000 | 0 | 2017 | | 2025.02.26 | ¿ù¼¼ | °¡¸²ºô¸®Áö307µ¿ | 3 | 52.31 | 2,000 | 75 | 2018 | | 2025.02.25 | ¸Å¸Å | ¾î¹ÝÇÏÀÓ | 3 | 52.17 | 25,000 | | 2020 | | 2025.02.25 | ¸Å¸Å | ¾î¹ÝÇÏÀÓ2Â÷102µ¿ | 3 | 58.14 | 28,700 | | 2021 | | 2025.02.25 | ¸Å¸Å | ±ÝȣŸ¿î102µ¿ | 2 | 51.28 | 17,000 | | 2017 | | 2025.02.25 | ¸Å¸Å | ÆÄ¹Ð¸®¾Æ201µ¿203µ¿ | 4 | 49.402 | 25,000 | | 2016 | | 2025.02.24 | ¸Å¸Å | żºÈÞºô4Â÷ | 4 | 54.225 | 21,500 | | 2016 | | 2025.02.22 | ¸Å¸Å | ÇØ¹Ðä | 1 | 54.42 | 22,000 | | 2018 | | 2025.02.22 | ¿ù¼¼ | Æ÷·¹½ºÆ®°ø°¨(1001µ¿) | 4 | 53.649 | 2,000 | 120 | 2024 | | 2025.02.22 | ¿ù¼¼ | ¿ì¸®ÇÏÀÓ101µ¿102µ¿ | 1 | 56.62 | 2,000 | 100 | 2016 | | 2025.02.21 | ¸Å¸Å | ·Îü1µ¿2µ¿ | 3 | 50.57 | 21,000 | | 2018 | | 2025.02.21 | ¿ù¼¼ | ¿¹Áö½½1µ¿2µ¿ | 4 | 56.2 | 20,400 | 16 | 2017 | | 2025.02.21 | Àü¼¼ | ¿¹ÀÏ¾ÆÆ®ºô2µ¿ | 4 | 73.06 | 22,000 | 0 | 2017 | | 2025.02.20 | ¸Å¸Å | ÇѸ¶·çÄ«¿îƼ107µ¿108µ¿ | 1 | 57.54 | 18,300 | | 2015 | | 2025.02.19 | ¿ù¼¼ | µ¿¼ººô¶ó°¡µ¿(45-61) | 1 | 41.78 | 500 | 60 | 2002 | | 2025.02.19 | ¿ù¼¼ | ÈÀκô5µ¿6µ¿ | 4 | 52.74 | 2,000 | 60 | 2013 | | 2025.02.18 | ¸Å¸Å | ¿¤Å¸¿îÇϿ콺106µ¿ | 3 | 48.61 | 20,200 | | 2020 | | 2025.02.18 | ¸Å¸Å | ¾î¹ÝŸ¿îÇϿ콺1µ¿-5µ¿ | 1 | 76.69 | 39,500 | | 2018 | | 2025.02.18 | Àü¼¼ | ´õ½ºÆäÀ̽ºÅ¸¿ö | 2 | 22.38 | 10,800 | 0 | 2018 | | 2025.02.17 | Àü¼¼ | ½ºÆäÀ̽º101µ¿(421-144) | 1 | 51.945 | 6,000 | 0 | 2014 | | 2025.02.17 | Àü¼¼ | ÀÚ¿¬¿¡°¡8µ¿9µ¿ | 4 | 58.35 | 17,000 | 0 | 2015 | | 2025.02.17 | ¿ù¼¼ | Æ®¶ó¿ò107µ¿ | 3 | 68.86 | 2,000 | 120 | 2021 | | 2025.02.16 | Àü¼¼ | ³»½´ºô | 4 | 41.5548 | 16,500 | 0 | 2016 | | 2025.02.16 | Àü¼¼ | ³»½´ºô | 4 | 41.5548 | 16,500 | 0 | 2016 | | 2025.02.16 | ¸Å¸Å | ´õÈúŸ¿î202µ¿203µ¿ | 2 | 59.41 | 27,500 | | 2020 | | 2025.02.15 | ¸Å¸Å | °¡¸²ºô¸®Áö107µ¿ | 4 | 67.753 | 29,500 | | 2015 | | 2025.02.15 | ¸Å¸Å | ÇѸ¶·çÄ«¿îƼ102µ¿103µ¿ | 4 | 57.27 | 26,000 | | 2015 | | 2025.02.15 | ¸Å¸Å | ÈúÆÄÅ©101µ¿102µ¿ | 3 | 52.56 | 19,000 | | 2019 | | 2025.02.15 | ¸Å¸Å | ÅÂÁ¾´õŬ·¡½º102µ¿103µ¿ | 2 | 68.988 | 24,700 | | 2018 | | 2025.02.15 | ¸Å¸Å | ÇѸ¶·çÄ«¿îƼ102µ¿103µ¿ | 4 | 57.27 | 26,000 | | 2015 | | 2025.02.15 | ¿ù¼¼ | ¸ù»ß¿¡¶ß101µ¿ | 4 | 49.033 | 2,500 | 100 | 2016 | | 2025.02.15 | ¸Å¸Å | ºñ¾Æ·çü4Â÷102µ¿103µ¿ | 2 | 62.08 | 40,000 | | 2021 | | 2025.02.15 | Àü¼¼ | IÇϿ콺2µ¿ | 1 | 57.07 | 13,100 | 0 | 2017 | | 2025.02.14 | Àü¼¼ | µµ½Ã³óºÎ505µ¿ | 1 | 84.76 | 30,000 | 0 | 2015 | | 2025.02.14 | Àü¼¼ | ¾î¹ÝÇÏÀÓ | 4 | 60.65 | 27,000 | 0 | 2020 | | 2025.02.14 | ¸Å¸Å | ÀÚ¿¬¿¡°¡3Â÷305µ¿306µ¿ | 2 | 45.52 | 13,500 | | 2017 | | 2025.02.13 | ¸Å¸Å | ½ºÀ§Æ®ºô | 3 | 52.45 | 19,500 | | 2018 | | 2025.02.13 | Àü¼¼ | ¸ù»ß¿¡¶ß101µ¿ | 3 | 50.342 | 13,800 | 0 | 2016 | | 2025.02.12 | ¿ù¼¼ | ´õ½ºÆäÀ̽ºBµ¿ | 3 | 27.11 | 500 | 60 | 2020 | | 2025.02.12 | Àü¼¼ | ·Î¾âŬ·¡½º(103µ¿) | 2 | 63.4345 | 20,000 | 0 | 2022 | | 2025.02.11 | ¿ù¼¼ | ÈÀκô3µ¿4µ¿ | 4 | 52.74 | 1,000 | 60 | 2014 | | 2025.02.11 | ¿ù¼¼ | ´Ù¿ïºí¸®½º102µ¿ | 3 | 61.81 | 1,000 | 90 | 2016 | | 2025.02.11 | ¿ù¼¼ | ¿îÁ¤ÇÏ¿ìºôAµ¿ | 3 | 47.583 | 2,000 | 80 | 2016 | | 2025.02.10 | ¿ù¼¼ | Æ®¶ó¿ò110µ¿ | 4 | 55.52 | 2,800 | 165 | 2022 | | 2025.02.09 | ¸Å¸Å | °¡¸²ºô¶ó220µ¿ | 3 | 68.85 | 23,000 | | 2017 | | 2025.02.09 | ¸Å¸Å | ºñ¾Æ·çü101µ¿102µ¿ | 2 | 64.484 | 31,500 | | 2022 | | 2025.02.08 | Àü¼¼ | ÇѸ¶·çÄ«¿îƼ101µ¿ | 4 | 59.789 | 19,000 | 0 | 2015 | | 2025.02.06 | Àü¼¼ | ¶óºñ¾Ó1µ¿ | 4 | 54.51 | 24,000 | 0 | 2019 | | 2025.02.06 | ¿ù¼¼ | ÇѸ¶·çÄ«¿îƼ107µ¿108µ¿ | 4 | 61.565 | 2,000 | 130 | 2015 | | 2025.02.05 | ¿ù¼¼ | ÀÚ¿¬¿¡°¡8µ¿9µ¿ | 1 | 58.66 | 3,000 | 50 | 2015 | | 2025.02.05 | ¸Å¸Å | ´õÈúŸ¿î202µ¿203µ¿ | 1 | 60.468 | 30,000 | | 2020 | | 2025.02.04 | ¿ù¼¼ | žŬ¶ó¿ìµå | 3 | 64.026 | 2,000 | 130 | 2022 | | 2025.02.03 | ¿ù¼¼ | µ¿¼ººô¶ó³ªµ¿(45-62) | 2 | 42.36 | 1,000 | 60 | 2002 | | 2025.02.02 | ¸Å¸Å | ¿¹ÀÏ¾ÆÆ®101µ¿102µ¿ | 1 | 62.51 | 18,200 | | 2015 | | 2025.01.31 | Àü¼¼ | ¸®Ä¡Å¸¿îÇϿ콺3Â÷306µ¿ | 4 | 55.795 | 21,100 | 0 | 2017 | | 2025.01.30 | ¸Å¸Å | °¡¸²ºô¶ó205µ¿206µ¿ | 3 | 53.418 | 19,000 | | 2017 | | 2025.01.25 | Àü¼¼ | º§¶óŸ¿î102µ¿ | 2 | 62.93 | 16,750 | 0 | 2016 | | 2025.01.25 | ¸Å¸Å | ºí¶û103µ¿ | 4 | 54.2275 | 24,000 | | 2019 | | 2025.01.25 | ¿ù¼¼ | µµ½Ã³óºÎ1´ÜÁö101µ¿(240-49) | 1 | 47.59 | 2,000 | 90 | 2010 | | 2025.01.24 | Àü¼¼ | Æç¸®Ã¼Bµ¿ | 1 | 47.51 | 13,770 | 0 | 2016 | | 2025.01.24 | Àü¼¼ | ·¹º£Ä«ÇϿ콺Cµ¿ | 3 | 59.82 | 14,000 | 0 | 2014 | | 2025.01.24 | Àü¼¼ | ·¹º£Ä«ÇϿ콺Aµ¿ | 1 | 56.45 | 12,800 | 0 | 2014 | | 2025.01.23 | Àü¼¼ | ¿¹Áö½½1µ¿2µ¿ | 4 | 56.2 | 20,000 | 0 | 2017 | | 2025.01.22 | ¸Å¸Å | ¿îÁ¤ÈúÅ©¶ó¿î14µ¿ | 1 | 72.994 | 42,000 | | 2022 | | 2025.01.20 | ¸Å¸Å | ¸ðÅüÀ̵¹1st.STORY102µ¿ | 1 | 81.72 | 16,700 | | 2018 | | 2025.01.20 | ¿ù¼¼ | ¾î¹ÝÆ÷·¹½ºÆ®°¡µ¿ | 3 | 55.39 | 2,000 | 85 | 2018 | | 2025.01.18 | Àü¼¼ | °¡¸²ºô¶ó210µ¿ | 1 | 64.292 | 14,400 | 0 | 2016 | | 2025.01.17 | ¿ù¼¼ | û¸²102µ¿(178-8) | 2 | 38.465 | 1,000 | 55 | 2004 | | 2025.01.16 | ¿ù¼¼ | µµ½Ã³óºÎ2´ÜÁö208µ¿(253-2) | 3 | 67.18 | 2,000 | 100 | 2011 | | 2025.01.15 | Àü¼¼ | ¸®Ä¡Å¸¿îÇϿ콺3Â÷306µ¿ | 4 | 55.795 | 21,100 | 0 | 2017 | | 2025.01.15 | ¸Å¸Å | ¾î¹ÝŸ¿îÇϿ콺1µ¿-5µ¿ | 1 | 76.69 | 42,000 | | 2018 | | 2025.01.15 | ¸Å¸Å | Æ®¶ó¿ò107µ¿ | 3 | 68.86 | 34,000 | | 2021 | | 2025.01.15 | ¸Å¸Å | ÀÚ¿¬¿¡°¡3Â÷305µ¿306µ¿ | 2 | 47.03 | 14,200 | | 2017 | | 2025.01.15 | ¸Å¸Å | ¾î¹ÝŸ¿îÇϿ콺1µ¿-5µ¿ | 1 | 76.69 | 45,000 | | 2018 | | 2025.01.14 | ¸Å¸Å | ¸®Ä¡Å¸¿îÇϿ콺3Â÷303µ¿304µ¿ | 2 | 63.79 | 23,400 | | 2017 | | 2025.01.14 | ¸Å¸Å | ´õ½ºÆäÀ̽ºBµ¿ | 2 | 26.87 | 12,000 | | 2020 | | 2025.01.13 | Àü¼¼ | (255-3) | 2 | 50.265 | 13,500 | 0 | 2017 | | 2025.01.13 | ¿ù¼¼ | Æ÷·¹½ºÆ®°ø°¨(701µ¿) | 1 | 64.12 | 2,500 | 110 | 2024 | | 2025.01.11 | ¿ù¼¼ | ÀÚ¿¬¿¡°¡1Â÷1µ¿ | 1 | 57.44 | 2,500 | 80 | 2013 | | 2025.01.10 | Àü¼¼ | ÈÀκô5µ¿6µ¿ | 3 | 54.24 | 11,000 | 0 | 2013 | | 2025.01.10 | ¸Å¸Å | Æ®¶ó¿ò104µ¿ | 4 | 69.87 | 50,000 | | 2021 | | 2025.01.10 | ¸Å¸Å | ÀÚ¿¬¿¡°¡8µ¿9µ¿ | 4 | 58.35 | 22,000 | | 2015 | | 2025.01.09 | ¿ù¼¼ | ³Ø¼½ººô201µ¿ | 1 | 35.71 | 1,000 | 64 | 2013 | | 2025.01.07 | Àü¼¼ | ¸ð¸®¾È105µ¿ | 4 | 54.62 | 14,700 | 0 | 2015 | | 2025.01.05 | Àü¼¼ | ´ë¼ººô2µ¿ | 4 | 60 | 18,500 | 0 | 2016 | | 2025.01.04 | ¿ù¼¼ | µ¿¿øÆç¸®½º | 1 | 38.79 | 1,000 | 60 | 2016 | | 2025.01.03 | ¸Å¸Å | ÅÂÁ¾´õŬ·¡½º104µ¿ | 2 | 56.0331 | 26,300 | | 2018 | | 2025.01.03 | ¿ù¼¼ | ÈÀÎÇϿ콺101µ¿102µ¿ | 1 | 48.86 | 2,000 | 70 | 2015 | | 2025.01.03 | ¿ù¼¼ | ¿îÁ¤ÈúÅ©¶ó¿î13µ¿ | 1 | 71.971 | 300 | 90 | 2022 | | 2025.01.02 | ¸Å¸Å | ÀÚ¿¬¿¡°¡1Â÷1µ¿ | 3 | 57.44 | 13,000 | | 2013 | | 2025.01.02 | ¿ù¼¼ | ¾î¹ÝŸ¿îÇϿ콺1µ¿-5µ¿ | 1 | 76.69 | 5,000 | 100 | 2018 | | 2025.01.02 | ¿ù¼¼ | ¾î¹ÝŸ¿îÇϿ콺1µ¿-5µ¿ | 1 | 76.69 | 5,000 | 100 | 2018 | | 2025.01.01 | ¸Å¸Å | ¾Æ¸£Ä«¿ì³ë2µ¿ | 2 | 58.8 | 25,000 | | 2018 |
|
|
|
 |
ÀÓÂ÷³»¿ª |
[¹è´ç¿ä±¸Á¾±âÀÏ : 2025/01/06] |
|
|
| ÀÓÂ÷ÀÎ |
Á¡À¯°ü°è |
ÀüÀÔÀÏÀÚ |
È®Á¤ÀÏÀÚ |
¹è´ç¿ä±¸ÀÏ |
º¸Áõ±Ý/Â÷ÀÓ |
´ëÇ׿ä°Ç |
ºñ°í |
| Á¤OO |
ÀüºÎ |
2020.10.20. |
2020.10.12. |
2024.12.31. |
280,000,000
|
O |
2020.10.20.~ |
| ¸Å°¢¹°°Ç¸í¼¼ ºñ°í |
ÁÖÅõµ½Ãº¸Áõ°ø»ç´Â ÀÓÂ÷º¸Áõ±Ý Àü¾×¿¡ ´ëÇÏ¿© ÀÓÂ÷±ÇÀÚ Á¤¹®¿µÀÇ ±Ç¸®¸¦ ½Â°èÇÑ °æ¸Å½Åûä±ÇÀÚÀÓ. |
|
|
|
 |
Áö¿ªºÐ¼® |
|
|
|
|
| ÁöÇÏö |
|
Çб³ |
|
| °ü°ø¼ |
|
| ¹ý¿ø |
ÀÇÁ¤ºÎÁö¹æ¹ý¿ø °í¾çÁö¿ø (104-13)°æ±âµµ °í¾ç½Ã Àϻ굿±¸ Àå¹é·Î 209 ´ëÇ¥ : 031)920-6114, ¾ß°£ : 031)920-6550, ÆÑ½º : 031)920-6119 °í¾ç½Ã, ÆÄÁֽà |
| µî±â¼Ò |
ÀÇÁ¤ºÎÁö¹æ¹ý¿ø °í¾çÁö¿ø ÆÄÁÖµî±â¼Ò (´ëÇ¥:1544-0773, ÆÑ½º:(031)945-4764, 3628, °æ±âµµ ÆÄÁֽà ±ÝÁ¤·Î 45 (±ÝÃ̵¿ 947-28)) |
| ¼¼¹«¼ |
ÆÄÁÖ¼¼¹«¼ (´ëÇ¥:031-956-02, ÆÑ½º:031-957-0315, °æ±âµµ ÆÄÁֽà ±Ý¸ª¿ª·Î 62 (±ÝÃ̵¿)) |
|
|
|
 |
¹ý¿ø ¹°°ÇÀÚ·á ¿ä¾à |
|
|
|
|
| ¼Ò¸êµÇÁö ¾Ê´Â µî±âºÎ±Ç¸® |
|
| ¼³Á¤µÈ °ÍÀ¸·Î º¸´Â Áö»ó±Ç |
|
| ¹ý¿øÀÚ·á Æ¯ÀÌ»çÇ× |
[ÁÖ¿ä ¹®°Ç Á¢¼ö ³»¿ª]
|
[¸Å°¢¹°°Ç¸í¼¼¼ ºñ°í¶õ]
1. 2022³â11¿ù22ÀÏ Á¢¼öÁ¦85932È£ ÁÖÅÃÀÓÂ÷±Çµî±â¿¡ ´ëÇÏ¿© ÀÓÂ÷±ÇÀÚ Á¤¹®¿µÀÇ ½Â°èÀÎ ÁÖÅõµ½Ãº¸Áõ°ø»ç°¡ 2025.7.9.ÀÚ È®¾à¼
(ÀÓ´ëÂ÷º¸Áõ±Ý Àü¾×À» ¹è´ç¹ÞÁö ¸øÇÏ´õ¶óµµ ÀÜÁ¸ ÀÓ´ëÂ÷º¸Áõ±Ý ¹Ýȯû±¸±ÇÀ» Æ÷±âÇϰí ÀÓÂ÷±Çµî±â¸¦ ¸»¼ÒÇÏ´Â °Í¿¡ µ¿ÀÇÇÔ)
¸¦ Á¦ÃâÇÔ.
2. ´ëÁö±ÇÀÇ ¸ñÀûÀÎ ÅäÁöÀÇ °øºÎ»ó Áö¸ñÀº °øÀå¿ëÁöÀ̳ª ÇöȲÀº ´ëÁöÀÓ. |
[ºÎµ¿»ê ÇöȲÁ¶»ç¼ ºñ°í¶õ]
- ö±ÙÄÜÅ©¸®Æ®±¸ |
|
| ¿©ÀÇÁÖ°æ¸Å Á¶¾ð ÇѸ¶µð |
ÀÌ ºÎµ¿»êÀÇ ÀÔÂû¹ý¿øÀº ÀÇÁ¤ºÎÁö¹æ¹ý¿ø °í¾çÁö¿øÀÔ´Ï´Ù.
ÀÔÂûÀÏÀº 2026-04-07ÀÔ´Ï´Ù.
ÀÔÂû½Ã°£Àº ~11:20ÀÔ´Ï´Ù. ÀÌ ¹ý¿ø¿¡´Â ½ÅÇÑÀºÇàÀÌ ÀÔÁ¡Çϰí ÀÖ½À´Ï´Ù.
|
¼±¼øÀ§ ÀÓÂ÷±Çµî±â°¡ µÇ¾î ÀÖ½À´Ï´Ù ´ëÇ×·ÂÀÌ ÀÖ´Â ¼±¼øÀ§ ÀÓÂ÷±Çµî±â ±Ç¸®ÀÚ°¡ ¹è´çÀ» Àü¾× ¹ÞÁö ¸øÇÒ °æ¿ì ³«ÂûÀÚ°¡ ÀÜ¿© º¸Áõ±ÝÀ» ÀμöÇØ¾ßÇÏ´Â °æ¿ìµµ ÀÖ½À´Ï´Ù. |
|
|
| Åë°è±â°£ |
³«Âû¹°°Ç¼ö |
Æò±Õ°¨Á¤°¡ |
Æò±Õ³«Âû°¡ |
³«Âû°¡À² |
À¯ÂûȽ¼ö |
|
|
|
|
|
|
 |
|