|
|
| ¼ÒÀçÁö |
°æ±âµµ ½ÃÈï½Ã ÀºÇൿ 538-1 ½Å¸í¾ÆÆÄÆ® 101µ¿ 1Ãþ102È£
|
|
| »ç°Ç¹øÈ£ |
2025 Ÿ°æ 51744 |
¹°°Ç¹øÈ£ |
1
|
¹°°Ç¿ëµµ |
¾ÆÆÄÆ® |
| °¨Á¤Æò°¡¾× |
209,000,000¿ø |
°æ¸Å´ë»ó |
ÅäÁö ¹× °Ç¹°Àϰý ¸Å°¢ |
ÁøÇà»óÅ |
½Å°Ç |
| ÃÖÀúÀÔÂû°¡ |
(100%) 209,000,000¿ø
|
°Ç¹°¸éÀû |
48.84§³(14.77Æò) |
ÀÔÂû±âÀÏ |
2026.01.21(¼ö) 10:30
(ÀÔÂû 12ÀÏÀü)
|
| ÀÔÂûº¸Áõ±Ý |
(10%) 20,900,000¿ø |
ÅäÁö¸éÀû |
23.25§³(7.03Æò)
|
À¯ÂûȽ¼ö |
0ȸ |
| ÀÔÂû¹ý¿ø |
¼ö¿øÁö¹æ¹ý¿ø ¾È»êÁö¿ø |
°æ¸Å¹æ¹ý |
|
¹°°ÇÁ¶È¸¼ö |
¿À´Ã: 2ȸ [´©Àû: 24ȸ]
|
| ¸»¼Ò±âÁØ | ÃÖ¼±¼øÀ§ ¼³Á¤ : 2019.11.1. ±ÙÀú´ç±Ç ¼³Á¤
|
|
|
|
|
|
|
|
|
|
|
°æ¸Å´ë»ó ¸ñ·Ï
|
|
| ±¸ºÐ |
¸ñ·Ï |
ÁÖ¼Ò |
±¸Á¶/¿ëµµ/´ëÁö±Ç |
ºñ°í |
´ëÁö±Ç
|
1 |
ÀºÇൿ 538-1 |
12564.2ºÐÀÇ 23.252 |
23.252§³ (7.03Æò)
|
°Ç¹°
|
1 |
ÀºÇൿ 538-1 |
101µ¿ 1Ãþ102È£ ö±ÙÄÜÅ©¸®Æ®Á¶ |
48.84§³ (14.77Æò)
|
|
|
|
2026-01-21
ÁøÇà
|
(100%)
209,000,000¿ø
|
|
|
|
|
|
°¨Á¤Æò°¡¼ ¿ä¾à |
|
[À§Ä¡/ÁÖÀ§È¯°æ]
º»°ÇÀº °æ±âµµ ½ÃÈï½Ã ÀºÇൿ ¼ÒÀç""ÀºÇàÃʵîÇб³""ºÏ¼Ãø Àαٿ¡ À§Ä¡Çϸç, ÁÖÀ§´Â ¾ÆÆÄÆ®
´ÜÁö, ±Ù¸°»ýȰ½Ã¼³, °¢±ÞÇб³ µîÀÌ ¼ÒÀçÇÏ´Â Áö¿ªÀ¸·Î Á¦¹Ý ÁÖÀ§È¯°æÀº ¹«³ÇÔ.
[±³Åë»óȲ]
º»°Ç´ÜÁö±îÁö Â÷·®Á¢±ÙÀÌ °¡´ÉÇϸç, Àαٿ¡ ³ë¼±¹ö½ºÁ¤·ùÀåÀÌ ¼ÒÀçÇÏ´Â µî ÀÏ¹Ý ±³Åë»ç¼ºÀº
º¸Åë½ÃµÊ.
[°Ç¹°±¸Á¶]
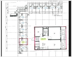
ö±ÙÄÜÅ©¸®Æ®Á¶ °æ»ç½º¶óºêÁöºØ 20Ãþ °Ç¹°³» 1Ãþ 102È£·Î¼
¿Üº® : ¸ôÅ»À§ ÆäÀÎÆÃ ¸¶°¨ µî.
³»º® : º®Áöµµ¹è ¹× ÀϺΠŸÀϺÙÀÓ ¸¶°¨ µî.
âȣ : ÇÏÀÌ»õ½Ã ÀÌÁßâȣÀÓ.
[ÀÌ¿ë»óÅÂ]
¾ÆÆÄÆ®(ÈÄ÷ ""³»ºÎ±¸Á¶µµ"" ÂüÁ¶)·Î ÀÌ¿ë ÁßÀÓ.
[¼³ºñ³»¿ª]
³¹æ¼³ºñ, ½Â°±â¼³ºñ, À§»ý¼³ºñ, ±Þ.¹è¼ö¼³ºñ, µµ½Ã°¡½º¼³ºñ µî µÇ¾î ÀÖÀ½.
[ÅäÁöÇü»ó/ÀÌ¿ë»óÅÂ]
ºÎÁ¤ÇüÀÇ ±¤Æò¼ö ÆòÁö·Î ¾ÆÆÄÆ® °ÇºÎÁö·Î ÀÌ¿ë ÁßÀÓ.
7)ÀÎÁ¢ µµ·Î»óŵî
´ÜÁö³» Æ÷Àåµµ·Î Á¤ºñµÇ¾î ÀÖ°í, ¿Ü°û °øµµ¿Í ¿¬°èµÇ¾î ÀÖÀ½.
[ÅäÁöÀÌ¿ë°èȹ]
µµ½ÃÁö¿ª, Á¦3Á¾ÀϹÝÁÖ°ÅÁö¿ª, Áö±¸´ÜÀ§°èȹ±¸¿ª, ¼Ò·Î1·ù(Æø10m~12m)(±¹Áöµµ·Î)(Á¢ÇÕ), ¼Ò
·Î1·ù(Æø10m~12m)(Ư¼öµµ·Î)(Á¢ÇÕ), Áß·Î1·ù(Æø20m~25m)(º¸Á¶°£¼µµ·Î)(Á¢ÇÕ), °¡Ãà»çÀ°Á¦
Çѱ¸¿ª, »ó´ëº¸È£±¸¿ª, »ó´ëº¸È£±¸¿ª(2013-07-18), Àý´ëº¸È£±¸¿ª(2013-07-18), °ú¹Ð¾ïÁ¦±Ç
¿ªÀÓ.
[°øºÎ¿ÍÀÇ Â÷ÀÌ]
¾øÀ½.
[Âü°í»çÇ×]
ÀÓ´ë°ü°è ¹Ì»óÀÓ. |
|
|
°ÇÃ๰ÇöȲ |
|
|
|
| ¼ÒÀçÁö |
°æ±âµµ ½ÃÈï½Ã ÀºÇൿ 538-1¹øÁö |
| ´ëÁö¸éÀû |
12584§³(3813.33Æò) |
¿¬¸éÀû |
1779.75§³(539.32Æò) |
ÁÖ¿ëµµ |
°øµ¿ÁÖÅà |
| °ÇÃà¸éÀû |
2340.52§³(709.25Æò) |
¿ëÀû·ü»êÁ¤¿¬¸éÀû |
946.8§³(286.91Æò) |
Âø°øÀÏÀÚ |
1993.09.02 |
| °ÇÆóÀ² |
18.599173% |
¿ëÀû·ü |
7.5238397% |
»ç¿ë½ÂÀÎÀÏÀÚ |
1995.10.06 |
| Áö»óÃþ¼ö |
2Ãþ |
ÁöÇÏÃþ¼ö |
1Ãþ |
±¸Á¶ |
ö±ÙÄÜÅ©¸®Æ®±¸Á¶ |
°ÇÃ๰Ãþº°ÇöȲ [º¸±â]| Ãþº° | ±¸Á¶ | ¿ëµµ | ¸éÀû | | 1Ãþ | ö±ÙÄÜÅ©¸®Æ®Á¶ | ¾ÆÆÄÆ® | 767.18§³ (232.48Æò) | | 1Ãþ | ö±ÙÄÜÅ©¸®Æ®Á¶ | ¾ÆÆÄÆ® | 748.82§³ (226.92Æò) | | 1Ãþ | Á¶ÀûÁ¶ | ¼öÀ§½Ç | 29.62§³ (8.98Æò) | | 1Ãþ | Á¶ÀûÁ¶ | °æºñ½Ç(2) | 5.4§³ (1.64Æò) | | 1Ãþ | Á¶ÀûÁ¶ | °æºñ½Ç(1) | 5.4§³ (1.64Æò) | | 2Ãþ | ö±ÙÄÜÅ©¸®Æ®Á¶ | ¾ÆÆÄÆ® | 767.18§³ (232.48Æò) | | 2Ãþ | ö±ÙÄÜÅ©¸®Æ®Á¶ | ¾ÆÆÄÆ® | 748.82§³ (226.92Æò) | | 3Ãþ | ö±ÙÄÜÅ©¸®Æ®Á¶ | ¾ÆÆÄÆ® | 767.18§³ (232.48Æò) | | 4Ãþ | ö±ÙÄÜÅ©¸®Æ®Á¶ | ¾ÆÆÄÆ® | 767.18§³ (232.48Æò) | | 5Ãþ | ö±ÙÄÜÅ©¸®Æ®Á¶ | ¾ÆÆÄÆ® | 767.18§³ (232.48Æò) | | 6Ãþ | ö±ÙÄÜÅ©¸®Æ®Á¶ | ¾ÆÆÄÆ® | 767.18§³ (232.48Æò) | | 7Ãþ | ö±ÙÄÜÅ©¸®Æ®Á¶ | ¾ÆÆÄÆ® | 767.18§³ (232.48Æò) | | 8Ãþ | ö±ÙÄÜÅ©¸®Æ®Á¶ | ¾ÆÆÄÆ® | 767.18§³ (232.48Æò) | | 9Ãþ | ö±ÙÄÜÅ©¸®Æ®Á¶ | ¾ÆÆÄÆ® | 767.18§³ (232.48Æò) | | 10Ãþ | ö±ÙÄÜÅ©¸®Æ®Á¶ | ¾ÆÆÄÆ® | 767.18§³ (232.48Æò) | | 11Ãþ | ö±ÙÄÜÅ©¸®Æ®Á¶ | ¾ÆÆÄÆ® | 767.18§³ (232.48Æò) | | 12Ãþ | ö±ÙÄÜÅ©¸®Æ®Á¶ | ¾ÆÆÄÆ® | 767.18§³ (232.48Æò) | | 13Ãþ | ö±ÙÄÜÅ©¸®Æ®Á¶ | ¾ÆÆÄÆ® | 767.18§³ (232.48Æò) | | 14Ãþ | ö±ÙÄÜÅ©¸®Æ®Á¶ | ¾ÆÆÄÆ® | 767.18§³ (232.48Æò) | | 15Ãþ | ö±ÙÄÜÅ©¸®Æ®Á¶ | ¾ÆÆÄÆ® | 767.18§³ (232.48Æò) | | 16Ãþ | ö±ÙÄÜÅ©¸®Æ®Á¶ | ¾ÆÆÄÆ® | 767.18§³ (232.48Æò) | | 17Ãþ | ö±ÙÄÜÅ©¸®Æ®Á¶ | ¾ÆÆÄÆ® | 767.18§³ (232.48Æò) | | 18Ãþ | ö±ÙÄÜÅ©¸®Æ®Á¶ | ¾ÆÆÄÆ® | 767.18§³ (232.48Æò) | | 19Ãþ | ö±ÙÄÜÅ©¸®Æ®Á¶ | ¾ÆÆÄÆ® | 767.18§³ (232.48Æò) | | 20Ãþ | ö±ÙÄÜÅ©¸®Æ®Á¶ | ¾ÆÆÄÆ® | 767.18§³ (232.48Æò) | | Áö1 | ö±ÙÄÜÅ©¸®Æ®Á¶ | ÁöÇÏÁÖÂ÷Àå | 1694.56§³ (513.5Æò) | | Áö1 | ö±ÙÄÜÅ©¸®Æ®Á¶ | ±â°è½Ç,Àü±â½Ç,ÁöÇÏÀú¼öÁ¶ | 1499.73§³ (454.46Æò) | | Áö1 | ö±ÙÄÜÅ©¸®Æ®Á¶ | ÁöÇÏ´ëÇÇ¼Ò | 635§³ (192.42Æò) | | Áö1 | ö±ÙÄÜÅ©¸®Æ®Á¶ | ÁöÇÏ´ëÇÇ¼Ò | 653.94§³ (198.16Æò) | | Áö1.Áö»ó1,2Ãþ | ö±ÙÄÜÅ©¸®Æ®Á¶ | ³ëÀÎÁ¤,°ü¸®½Ç,ÀÔÁÖÀÚȸÀÇ½Ç | 227.2§³ (68.85Æò) |
|
|
|
|
|
|
|
|
|
¸éÀû(§³), ±Ý¾×(¸¸¿ø)
| °è¾àÀÏ | ±âÁØ | ¾ÆÆÄÆ®¸í | Ãþ | Àü¿ë¸éÀû | °Å·¡±Ý¾× | °ÇÃà³âµµ | | °Å·¡³»¿ªÀÌ ¾ø½À´Ï´Ù. |
| °è¾àÀÏ | ±âÁØ | ¾ÆÆÄÆ®¸í | Ãþ | Àü¿ë¸éÀû | º¸Áõ±Ý | ¿ù¼¼ | °ÇÃà³âµµ | | 2025.12.15 | ¸Å¸Å | ½Å¸í | 18 | 59.88 | 23,000 | | 1995 | | 2025.12.03 | Àü¼¼ | ½Å¸í | 10 | 48.84 | 17,000 | 0 | 1995 | | 2025.11.28 | Àü¼¼ | ½Å¸í | 3 | 48.84 | 14,000 | 0 | 1995 | | 2025.11.24 | ¸Å¸Å | ½Å¸í | 18 | 48.84 | 20,000 | | 1995 | | 2025.11.08 | Àü¼¼ | ½Å¸í | 17 | 48.84 | 17,000 | 0 | 1995 | | 2025.11.06 | Àü¼¼ | ½Å¸í | 13 | 48.84 | 17,000 | 0 | 1995 | | 2025.10.20 | Àü¼¼ | ½Å¸í | 4 | 48.84 | 17,500 | 0 | 1995 | | 2025.10.20 | ¿ù¼¼ | ½Å¸í | 10 | 48.84 | 3,000 | 60 | 1995 | | 2025.10.19 | Àü¼¼ | ½Å¸í | 14 | 48.84 | 17,500 | 0 | 1995 | | 2025.09.28 | ¸Å¸Å | ½Å¸í | 9 | 48.84 | 20,000 | | 1995 | | 2025.09.27 | ¿ù¼¼ | ½Å¸í | 4 | 48.84 | 2,000 | 70 | 1995 | | 2025.09.25 | ¸Å¸Å | ½Å¸í | 4 | 48.84 | 21,400 | | 1995 | | 2025.09.24 | Àü¼¼ | ½Å¸í | 10 | 48.84 | 16,000 | 0 | 1995 | | 2025.09.24 | Àü¼¼ | ½Å¸í | 16 | 48.84 | 18,400 | 0 | 1995 | | 2025.09.20 | ¿ù¼¼ | ½Å¸í | 7 | 59.88 | 3,000 | 85 | 1995 | | 2025.09.05 | Àü¼¼ | ½Å¸í | 3 | 48.84 | 14,000 | 0 | 1995 | | 2025.08.30 | ¿ù¼¼ | ½Å¸í | 12 | 48.84 | 2,000 | 75 | 1995 | | 2025.08.07 | ¸Å¸Å | ½Å¸í | 3 | 48.84 | 21,700 | | 1995 | | 2025.07.18 | ¸Å¸Å | ½Å¸í | 5 | 48.84 | 22,000 | | 1995 | | 2025.07.03 | ¿ù¼¼ | ½Å¸í | 5 | 48.84 | 2,000 | 75 | 1995 | | 2025.06.24 | ¿ù¼¼ | ½Å¸í | 12 | 48.84 | 2,000 | 75 | 1995 | | 2025.06.23 | ¿ù¼¼ | ½Å¸í | 12 | 48.84 | 2,000 | 65 | 1995 | | 2025.06.16 | Àü¼¼ | ½Å¸í | 18 | 48.84 | 17,000 | 0 | 1995 | | 2025.06.14 | ¿ù¼¼ | ½Å¸í | 4 | 48.84 | 2,000 | 75 | 1995 | | 2025.06.10 | Àü¼¼ | ½Å¸í | 10 | 48.84 | 15,700 | 0 | 1995 | | 2025.06.10 | Àü¼¼ | ½Å¸í | 10 | 48.84 | 15,700 | 0 | 1995 | | 2025.05.31 | ¸Å¸Å | ½Å¸í | 20 | 48.84 | 19,900 | | 1995 | | 2025.05.01 | ¸Å¸Å | ½Å¸í | 6 | 48.84 | 20,500 | | 1995 | | 2025.04.26 | ¿ù¼¼ | ½Å¸í | 9 | 48.84 | 1,000 | 75 | 1995 | | 2025.04.25 | ¿ù¼¼ | ½Å¸í | 12 | 48.84 | 2,000 | 70 | 1995 | | 2025.04.21 | ¿ù¼¼ | ½Å¸í | 20 | 48.84 | 2,000 | 70 | 1995 | | 2025.04.01 | ¿ù¼¼ | ½Å¸í | 15 | 48.84 | 2,000 | 65 | 1995 | | 2025.03.22 | ¸Å¸Å | ½Å¸í | 4 | 48.84 | 23,700 | | 1995 | | 2025.03.22 | ¿ù¼¼ | ½Å¸í | 6 | 48.84 | 2,000 | 70 | 1995 | | 2025.03.18 | ¿ù¼¼ | ½Å¸í | 8 | 48.84 | 10,000 | 35 | 1995 | | 2025.03.13 | Àü¼¼ | ½Å¸í | 7 | 59.88 | 21,000 | 0 | 1995 | | 2025.03.10 | ¿ù¼¼ | ½Å¸í | 13 | 59.88 | 2,000 | 90 | 1995 | | 2025.03.10 | Àü¼¼ | ½Å¸í | 13 | 48.84 | 15,700 | 0 | 1995 | | 2025.03.08 | ¿ù¼¼ | ½Å¸í | 13 | 59.88 | 10,000 | 40 | 1995 | | 2025.03.07 | ¿ù¼¼ | ½Å¸í | 14 | 48.84 | 10,000 | 30 | 1995 | | 2025.03.03 | ¸Å¸Å | ½Å¸í | 16 | 48.84 | 23,000 | | 1995 | | 2025.02.25 | ¿ù¼¼ | ½Å¸í | 18 | 48.84 | 12,000 | 14 | 1995 | | 2025.02.21 | ¿ù¼¼ | ½Å¸í | 13 | 48.84 | 2,000 | 70 | 1995 | | 2025.02.20 | Àü¼¼ | ½Å¸í | 20 | 48.84 | 17,500 | 0 | 1995 | | 2025.02.20 | Àü¼¼ | ½Å¸í | 20 | 48.84 | 17,500 | 0 | 1995 | | 2025.02.19 | ¸Å¸Å | ½Å¸í | 8 | 48.84 | 21,000 | | 1995 | | 2025.02.19 | ¿ù¼¼ | ½Å¸í | 8 | 48.84 | 1,000 | 75 | 1995 | | 2025.02.17 | ¿ù¼¼ | ½Å¸í | 18 | 48.84 | 2,000 | 70 | 1995 | | 2025.02.10 | Àü¼¼ | ½Å¸í | 19 | 48.84 | 17,500 | 0 | 1995 | | 2025.01.21 | ¸Å¸Å | ½Å¸í | 16 | 48.84 | 22,800 | | 1995 | | 2025.01.18 | Àü¼¼ | ½Å¸í | 18 | 59.88 | 21,000 | 0 | 1995 | | 2025.01.16 | Àü¼¼ | ½Å¸í | 1 | 48.84 | 15,500 | 0 | 1995 | | 2025.01.10 | Àü¼¼ | ½Å¸í | 13 | 48.84 | 17,000 | 0 | 1995 |
|
|
|
 |
ÀÓÂ÷³»¿ª |
[¹è´ç¿ä±¸Á¾±âÀÏ : 2025/05/12] |
|
|
| ÀÓÂ÷ÀÎ |
Á¡À¯°ü°è |
ÀüÀÔÀÏÀÚ |
È®Á¤ÀÏÀÚ |
¹è´ç¿ä±¸ÀÏ |
º¸Áõ±Ý/Â÷ÀÓ |
´ëÇ׿ä°Ç |
ºñ°í |
| ¸Å°¢±âÀÏ 7ÀÏÀü¿¡ °ø°íµÇ¿À´Ï È®ÀÎÇϽñ⠹ٶø´Ï´Ù. |
|
|
|
½Å¸í ¾ÆÆÄÆ® °³¿ä |
|
|
|
| ¾ÆÆÄÆ®¸í |
°Ç¼³È¸»ç |
ÀÔÁֳ⵵ |
ÃѰ¡±¸¼ö |
ÃâÀÔ±¸Á¶ |
Àü¿ë¸éÀûºÐÆ÷ |
³¹æ¹æ½Ä |
°ü¸®»ç¹«¼Ò |
| ½Å¸í¾ÆÆÄÆ® |
½Å¸í°Ç¼³ |
1995-10-01 |
460°¡±¸(2°³µ¿) |
Æíº¹µµ½Ä |
48~59§³ |
°³º°/µµ½Ã°¡½º |
¢Ï 031)313-9985 |
|
|
|
 |
Áö¿ªºÐ¼® |
|
|
|
|
| ÁöÇÏö |
|
Çб³ |
|
| °ü°ø¼ |
|
| ¹ý¿ø |
¼ö¿øÁö¹æ¹ý¿ø ¾È»êÁö¿ø (140-54)°æ±âµµ ¾È»ê½Ã ´Ü¿ø±¸ ±¤´ö¼·Î 75 (°íÀܵ¿) ´ëÇ¥ : 031)481-1114, ¹Î¿ø : 031)481-1238, ¾ß°£ : 031)481-1112 ¾È»ê½Ã, ±¤¸í½Ã, ½ÃÈï½Ã |
| µî±â¼Ò |
¼ö¿øÁö¹æ¹ý¿ø ¾È»êÁö¿ø ½ÃÈïµî±â¼Ò (´ëÇ¥:1544-0773, ÆÑ½º:(031)317-8903, 8904, °æ±âµµ ½ÃÈï½Ã ¿¬¼º·Î 31 (ÇÏÁßµ¿ 872-1)) |
| ¼¼¹«¼ |
½ÃÈï¼¼¹«¼ (´ëÇ¥:031-310-72, ÆÑ½º:02-314-3973, °æ±âµµ ½ÃÈï½Ã ¸¶À¯·Î 368 (Á¤¿Õµ¿)) |
|
|
|
 |
¹ý¿ø ¹°°ÇÀÚ·á ¿ä¾à |
|
|
|
|
| ¼Ò¸êµÇÁö ¾Ê´Â µî±âºÎ±Ç¸® |
|
| ¼³Á¤µÈ °ÍÀ¸·Î º¸´Â Áö»ó±Ç |
|
| ¹ý¿øÀÚ·á Æ¯ÀÌ»çÇ× |
|
| ¿©ÀÇÁÖ°æ¸Å Á¶¾ð ÇѸ¶µð |
ÀÌ ºÎµ¿»êÀÇ ÀÔÂû¹ý¿øÀº ¼ö¿øÁö¹æ¹ý¿ø ¾È»êÁö¿øÀÔ´Ï´Ù.
ÀÔÂûÀÏÀº 2026-01-21ÀÔ´Ï´Ù.
ÀÔÂû½Ã°£Àº ~11:00ÀÔ´Ï´Ù. ÀÌ ¹ý¿ø¿¡´Â ½ÅÇÑÀºÇàÀÌ ÀÔÁ¡Çϰí ÀÖ½À´Ï´Ù.
|
ÃëÇÏ ¶Ç´Â Ãë¼ÒµÉ °¡´É¼º ÀÖ½À´Ï´Ù
ÀÌ ¹°°ÇÀÇ °¨Á¤°¡°ÝÀº 209,000,000¿øÀÔ´Ï´Ù. °æ¸Å¸¦ ½ÅûÇÑ Ã¤±ÇÀÚ°¡ ¹è´ç ¹Þ¾Æ¾ß ÇÒ ±Ý¾×Àº 48,257,877¿ø À¸·Î °¨Á¤°¡°Ý ´ëºñ »ó´çÈ÷ ÀûÀº ±Ý¾×ÀÔ´Ï´Ù.
ÀÌ·± °æ¿ì, 乫°¡°¡ º¯Á¦ÇÏ¿© °æ¸Å¸¦ ÃëÇϽÃŰ°Å³ª °æ¸Å½Åûä±ÇÀÚ°¡ ¹è´ç¹ÞÀ» ±Ý¿øÀÌ ¾ø°ÔµÇ¾î À̸¥ ¹Ù "¹«À׿©¿¡ ÀÇÇÑ Ãë¼Ò"°¡ µÉ °¡´É¼ºÀÌ ÀÖ½À´Ï´Ù.
|
|
|
| Åë°è±â°£ |
³«Âû¹°°Ç¼ö |
Æò±Õ°¨Á¤°¡ |
Æò±Õ³«Âû°¡ |
³«Âû°¡À² |
À¯ÂûȽ¼ö |
| 3°³¿ù |
34°Ç |
417,088,235¿ø |
360,325,821¿ø |
87% |
1.1ȸ |
| 6°³¿ù |
67°Ç |
426,417,910¿ø |
367,663,656¿ø |
87% |
1.1ȸ |
| 12°³¿ù |
194°Ç |
410,973,196¿ø |
357,303,199¿ø |
87% |
1ȸ |
|
|
|
|
|
|
 |
|