|
|
| ¼ÒÀçÁö |
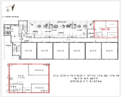
°æ»ó³²µµ â¿ø½Ã ¸¶»êȸ¿ø±¸ ¾ç´öµ¿ 174-48 µ¿¿ø¿¡ÄÚºô 8Ãþ807È£
|
|
| »ç°Ç¹øÈ£ |
2025 Ÿ°æ 20769 |
¹°°Ç¹øÈ£ |
1
|
¹°°Ç¿ëµµ |
¿ÀÇǽºÅÚ |
| °¨Á¤Æò°¡¾× |
143,000,000¿ø |
°æ¸Å´ë»ó |
ÅäÁö ¹× °Ç¹°Àϰý ¸Å°¢ |
ÁøÇà»óÅ |
½Å°Ç |
| ÃÖÀúÀÔÂû°¡ |
(100%) 143,000,000¿ø
|
°Ç¹°¸éÀû |
61.82§³(18.70Æò) |
ÀÔÂû±âÀÏ |
2026.01.22(¸ñ) 10:00
(ÀÔÂû 7ÀÏÀü)
|
| ÀÔÂûº¸Áõ±Ý |
(10%) 14,300,000¿ø |
ÅäÁö¸éÀû |
22.65§³(6.85Æò)
|
À¯ÂûȽ¼ö |
0ȸ |
| ÀÔÂû¹ý¿ø |
â¿øÁö¹æ¹ý¿ø ¸¶»êÁö¿ø |
°æ¸Å¹æ¹ý |
|
¹°°ÇÁ¶È¸¼ö |
¿À´Ã: 3ȸ [´©Àû: 20ȸ]
|
| ¸»¼Ò±âÁØ | ÃÖ¼±¼øÀ§ ¼³Á¤ : 2022. 7. 6. °¡¾Ð·ù ¼³Á¤
|
|
|
|
|
|
|
|
|
|
|
°æ¸Å´ë»ó ¸ñ·Ï
|
|
| ±¸ºÐ |
¸ñ·Ï |
ÁÖ¼Ò |
±¸Á¶/¿ëµµ/´ëÁö±Ç |
ºñ°í |
´ëÁö±Ç
|
1 |
¾ç´öµ¿ 174-48 |
1307.10ºÐÀÇ 22.65 |
22.65§³ (6.85Æò)
|
°Ç¹°
|
1 |
¾ç´öµ¿ 174-48 |
8Ãþ807È£ ÀϹÝö°ñ±¸Á¶ |
61.815§³ (18.70Æò)
|
|
|
|
2026-01-22
ÁøÇà
|
(100%)
143,000,000¿ø
|
|
|
|
|
|
°¨Á¤Æò°¡¼ ¿ä¾à |
|
[À§Ä¡/ÁÖÀ§È¯°æ]
´ë»ó¹°°ÇÀº °æ»ó³²µµ â¿ø½Ã ¸¶»êȸ¿ø±¸ ºÀ¾Ïµ¿ ¼ÒÀç ""ºÀ´öÃʵîÇб³"" ³²¼Ãø¿¡ À§Ä¡Çϸç,
ÁÖÀ§´Â °øµ¿ÁÖÅÃ, ±Ù¸°»ýȰ½Ã¼³ µîÀÌ È¥ÀçÇÏ´Â Áö¿ªÀÔ´Ï´Ù.
[±³Åë»óȲ]
´ë»ó¹°°Ç±îÁö Â÷·®ÁøÃâÀÔ °¡´ÉÇϸç, ´ëÁß±³Åë»çÁ¤Àº º¸ÅëÀÔ´Ï´Ù.
[°Ç¹°±¸Á¶]
ö±ÙÄÜÅ©¸®Æ®±¸Á¶ ö±ÙÄÜÅ©¸®Æ®½º¶óºêÁöºØ ÁöÇÏ2Ãþ, Áö»ó9Ãþ °Ç¹° ³» 8Ãþ 807È£·Î¼,
¿Ü º® : ´ë¸®¼® Ä¡Àå ¹× º¹ÇÕÆÇ³Ú¸¶°¨ µî.
³» º® : ÀÎÅ׸®¾î ¸¶°¨ µî.
â È£ : »õ½Ãâȣ ÀÔ´Ï´Ù.
[ÀÌ¿ë»óÅÂ]
¿ÀÇǽºÅÚ·Î ÀÌ¿ë ÁßÀÔ´Ï´Ù.
[¼³ºñ³»¿ª]
Á¦¹Ý À§»ý ¹× ±Þ¹è¼ö¼³ºñ µÇ¾î ÀÖÀ¸¸ç, ½Â°±â¼³ºñ, µµ½Ã°¡½º¿¡ ÀÇÇÑ ³¹æ¼³ºñ, ÀÚÁÖ½Ä ¹×
±â°è½Ä ÁÖÂ÷Àå¼³ºñ, ¼ÒÈÀü¼³ºñ µîÀÌ µÇ¾î ÀÖ½À´Ï´Ù.
[ÅäÁöÇü»ó/ÀÌ¿ë»óÅÂ]
2ÇÊ ÀÏ´ÜÀÇ »ç´Ù¸®Çü ÅäÁö·Î¼, ÁÖ»ó¿ë °ÇºÎÁö·Î ÀÌ¿ë ÁßÀÔ´Ï´Ù.
7)ÀÎÁ¢ µµ·Î»óŵî
ºÏµ¿ÃøÀ¸·Î ¿Õº¹ 6Â÷¼± Æ÷Àåµµ·Î¿Í Á¢ÇÕ´Ï´Ù.
[ÅäÁöÀÌ¿ë°èȹ]
1) ÀϷùøÈ£ 1(¾ç´öµ¿ 174-48)
ÁØÁÖ°ÅÁö¿ª, ´ë·Î2·ù(Æø 30m~35m)(Á¢ÇÕ), °¡Ãà»çÀ°Á¦Çѱ¸¿ª(ÀüºÎÁ¦ÇÑ)£¼°¡ÃàºÐ´¢ÀÇ °ü¸® ¹× À̿뿡 °üÇÑ ¹ý·ü£¾, »ó´ëº¸È£±¸¿ª(2025-03-10)£¼±³À°È¯°æ º¸È£¿¡ °üÇÑ ¹ý·ü£¾.
2) ÀϷùøÈ£ 2(¾ç´öµ¿ 174-39)
ÁØÁÖ°ÅÁö¿ª, °¡Ãà»çÀ°Á¦Çѱ¸¿ª(ÀüºÎÁ¦ÇÑ)£¼°¡ÃàºÐ´¢ÀÇ °ü¸® ¹× À̿뿡 °üÇÑ ¹ý·ü£¾, »ó´ëº¸È£±¸¿ª(2025-03-10)£¼±³À°È¯°æ º¸È£¿¡ °üÇÑ ¹ý·ü£¾.
[°øºÎ¿ÍÀÇ Â÷ÀÌ]
¾ø½À´Ï´Ù.
[Âü°í»çÇ×]
ÀÓ´ë°ü°è´Â ¹Ì»óÀ̸ç, ÀÌÇØ°ü°èÀÎÀÇ Æó¹®ºÎÀç·Î ³»ºÎÈ®ÀÎÀÌ °ï¶õÇÏ¿© Àα٠À¯»ç¹°°Ç ¹× ¿ÜºÎ
°üÂû¿¡ ÀÇÇÑ Åë»óÀûÀÎ »óŸ¦ »óÁ¤ÇÏ¿© °¨Á¤Æò°¡ÇÏ¿´À¸¹Ç·Î ¾÷¹«ÁøÇà½Ã ´ë»ó¹°°ÇÀÇ ³»ºÎÀÇ
ÀÌ¿ë»óȲ ¹× °ü¸®»óÅ µî¿¡ ´ëÇÑ ÀçÈ®ÀÎÀÌ ¿ä¸ÁµË´Ï´Ù. |
|
|
°ÇÃ๰ÇöȲ |
|
|
|
| ¼ÒÀçÁö |
°æ»ó³²µµ â¿ø½Ã ¸¶»êȸ¿ø±¸ ¾ç´öµ¿ 174-48¹øÁö |
| ´ëÁö¸éÀû |
1307.1§³(396.09Æò) |
¿¬¸éÀû |
6970.3§³(2112.21Æò) |
ÁÖ¿ëµµ |
¾÷¹«½Ã¼³ |
| °ÇÃà¸éÀû |
711.43§³(215.58Æò) |
¿ëÀû·ü»êÁ¤¿¬¸éÀû |
5211.88§³(1579.36Æò) |
Âø°øÀÏÀÚ |
2012.03.28 |
| °ÇÆóÀ² |
54.43% |
¿ëÀû·ü |
398.74% |
»ç¿ë½ÂÀÎÀÏÀÚ |
2013.03.28 |
| Áö»óÃþ¼ö |
9Ãþ |
ÁöÇÏÃþ¼ö |
2Ãþ |
±¸Á¶ |
ö±ÙÄÜÅ©¸®Æ®±¸Á¶ |
°ÇÃ๰Ãþº°ÇöȲ [º¸±â]| Ãþº° | ±¸Á¶ | ¿ëµµ | ¸éÀû | | 1Ãþ | ÀϹÝö°ñ±¸Á¶ | °è´Ü½Ç,E.V, ÈÀå½Çµî | 201.65§³ (61.11Æò) | | 1Ãþ | ÀϹÝö°ñ±¸Á¶ | ¼Ò¸ÅÁ¡ | 218.145§³ (66.1Æò) | | 2Ãþ | ÀϹÝö°ñ±¸Á¶ | Á¦2Á¾±Ù¸°»ýȰ½Ã¼³(Çпø) | 124.8§³ (37.82Æò) | | 2Ãþ | ÀϹÝö°ñ±¸Á¶ | °è´Ü½ÇE.V,ÈÀå½Ç,º¹µµµî | 185.46§³ (56.2Æò) | | 2Ãþ | ÀϹÝö°ñ±¸Á¶ | ü·Â´Ü·ÃÀå | 124.8§³ (37.82Æò) | | 2Ãþ | ÀϹÝö°ñ±¸Á¶ | °ñÇÁ¿¬½ÀÀå | 221§³ (66.97Æò) | | 3Ãþ | ÀϹÝö°ñ±¸Á¶ | °è´Ü½ÇE.V,ÈÀå½Ç,º¹µµµî | 185.46§³ (56.2Æò) | | 3Ãþ | ÀϹÝö°ñ±¸Á¶ | ÀÇ¿ø | 250.77§³ (75.99Æò) | | 3Ãþ | ÀϹÝö°ñ±¸Á¶ | Çпø | 219.83§³ (66.62Æò) | | 4Ãþ | ÀϹÝö°ñ±¸Á¶ | ¿ÀÇǽºÅÚ | 642.9275§³ (194.83Æò) | | 5Ãþ | ÀϹÝö°ñ±¸Á¶ | ¿ÀÇǽºÅÚ | 627.7275§³ (190.22Æò) | | 6Ãþ | ÀϹÝö°ñ±¸Á¶ | ¿ÀÇǽºÅÚ | 627.7275§³ (190.22Æò) | | 7Ãþ | ÀϹÝö°ñ±¸Á¶ | ¿ÀÇǽºÅÚ | 627.7275§³ (190.22Æò) | | 8Ãþ | ÀϹÝö°ñ±¸Á¶ | ¿ÀÇǽºÅÚ | 476.9275§³ (144.52Æò) | | 9Ãþ | ÀϹÝö°ñ±¸Á¶ | ¿ÀÇǽºÅÚ | 476.9275§³ (144.52Æò) | | Áö1Ãþ | ö±ÙÄÜÅ©¸®Æ®±¸Á¶ | ÁÖÂ÷Àå | 901.02§³ (273.04Æò) | | Áö2Ãþ | ö±ÙÄÜÅ©¸®Æ®±¸Á¶ | ÁÖÂ÷Àå | 857.4§³ (259.82Æò) |
|
|
|
|
|
|
 |
ÀÓÂ÷³»¿ª |
[¹è´ç¿ä±¸Á¾±âÀÏ : 2025/10/27] |
|
|
| ÀÓÂ÷ÀÎ |
Á¡À¯°ü°è |
ÀüÀÔÀÏÀÚ |
È®Á¤ÀÏÀÚ |
¹è´ç¿ä±¸ÀÏ |
º¸Áõ±Ý/Â÷ÀÓ |
´ëÇ׿ä°Ç |
ºñ°í |
| ¸Å°¢±âÀÏ 7ÀÏÀü¿¡ ¸Å°¢¹°°Ç¸í¼¼¼°¡ °ø°íµÇ¿À´Ï È®ÀÎÇϽñ⠹ٶø´Ï´Ù. |
| ±èOO |
º»°ÇÀüºÎ |
2020.01.31. |
2020.01.31. |
2025.8.18. |
1¾ï3õ¸¸¿ø [¿ù]¾øÀ½ |
O |
2020³â01¿ù28ÀϺÎÅÍ~ |
| ¸Å°¢¹°°Ç¸í¼¼ ºñ°í |
±èÇѺ°:º»°ÇÀÇ Ã¤±ÇÀÚÀÓ.
´ëÇ×·Â ÀÖ´Â ÀÓÂ÷ÀÎ ÀÏ ¼ö ÀÖÀ½ |
|
|
|
 |
Áö¿ªºÐ¼® |
|
|
|
|
| ÁöÇÏö |
|
Çб³ |
|
| °ü°ø¼ |
|
| ¹ý¿ø |
â¿øÁö¹æ¹ý¿ø ¸¶»êÁö¿ø (512-65)°æ»ó³²µµ â¿ø½Ã ¸¶»êÇÕÆ÷±¸ ¿Ï¿ùµ¿ 7±æ 16 ´ëÇ¥ : 055)240-9300 ¸¶»ê½Ã ÇÕÆ÷±¸, ¸¶»ê½Ã ȸ¿ø±¸, ÀǷɱº, ÇԾȱº |
| µî±â¼Ò |
â¿øÁö¹æ¹ý¿ø ¸¶»êÁö¿ø µî±â°è (´ëÇ¥:1544-0773, ÆÑ½º:(055)242-2744, °æ³² â¿ø½Ã ¸¶»êÇÕÆ÷±¸ ¿Ï¿ùµ¿ 7±æ 16 (À屺µ¿4°¡ 26-87)) |
| ¼¼¹«¼ |
¸¶»ê¼¼¹«¼ (´ëÇ¥:055-240-02, ÆÑ½º:055-223-6881, °æ»ó³²µµ â¿ø½Ã ¸¶»êÇÕÆ÷±¸ ÇØ¾È´ë·Î 51 À¯·Î½ºÄù¾î 3Ãþ) |
|
|
|
 |
¹ý¿ø ¹°°ÇÀÚ·á ¿ä¾à |
|
|
|
|
| ¼Ò¸êµÇÁö ¾Ê´Â µî±âºÎ±Ç¸® |
|
| ¼³Á¤µÈ °ÍÀ¸·Î º¸´Â Áö»ó±Ç |
|
| ¹ý¿øÀÚ·á Æ¯ÀÌ»çÇ× |
[ÁÖ¿ä ¹®°Ç Á¢¼ö ³»¿ª]
|
[¸Å°¢¹°°Ç¸í¼¼¼ ºñ°í¶õ]
¿ÀÇǽºÅÚ·Î ÀÌ¿ëÁßÀÓ.
´ëÇ×·ÂÀÖ´Â ÀÓÂ÷ÀÎ ÀÖÀ» ¼ö ÀÖÀ½. |
[ºÎµ¿»ê ÇöȲÁ¶»ç¼ ºñ°í¶õ]
º»°Ç1. ` |
|
| ¿©ÀÇÁÖ°æ¸Å Á¶¾ð ÇѸ¶µð |
ÀÌ ºÎµ¿»êÀÇ ÀÔÂû¹ý¿øÀº â¿øÁö¹æ¹ý¿ø ¸¶»êÁö¿øÀÔ´Ï´Ù.
ÀÔÂûÀÏÀº 2026-01-22ÀÔ´Ï´Ù.
ÀÔÂû½Ã°£Àº ~11:10ÀÔ´Ï´Ù. ÀÌ ¹ý¿ø¿¡´Â °æ³²ÀºÇàÀÌ ÀÔÁ¡Çϰí ÀÖ½À´Ï´Ù.
|
|
|
| Åë°è±â°£ |
³«Âû¹°°Ç¼ö |
Æò±Õ°¨Á¤°¡ |
Æò±Õ³«Âû°¡ |
³«Âû°¡À² |
À¯ÂûȽ¼ö |
| 3°³¿ù |
0°Ç |
0¿ø |
0¿ø |
0% |
0ȸ |
| 6°³¿ù |
3°Ç |
105,000,000¿ø |
29,160,000¿ø |
29% |
9ȸ |
| 12°³¿ù |
7°Ç |
92,285,714¿ø |
44,798,730¿ø |
51% |
5ȸ |
|
|
|
|
|
|
 |
|