|
|
| ¼ÒÀçÁö |
°æ±âµµ ¿ëÀνà ±âÈﱸ ¼Ãµ·Î127¹ø±æ 11-5, 1Ãþ116È£ (¼Ãµµ¿,°æÈñ¸¶Å©329)
±¸)°æ±âµµ ¿ëÀνà ±âÈﱸ ¼Ãµµ¿ 812
|
|
| »ç°Ç¹øÈ£ |
2025 Ÿ°æ 50864 Áߺ¹ 2025Ÿ°æ57587, |
¹°°Ç¹øÈ£ |
1
|
¹°°Ç¿ëµµ |
»ó°¡,»ç¹«½Ç |
| °¨Á¤Æò°¡¾× |
413,000,000¿ø |
°æ¸Å´ë»ó |
ÅäÁö ¹× °Ç¹°Àϰý ¸Å°¢ |
ÁøÇà»óÅ |
½Å°Ç |
| ÃÖÀúÀÔÂû°¡ |
(100%) 413,000,000¿ø
|
°Ç¹°¸éÀû |
31.92§³(9.66Æò) |
ÀÔÂû±âÀÏ |
2026.01.27(È) 10:00
(ÀÔÂû 5ÀÏÀü)
|
| ÀÔÂûº¸Áõ±Ý |
(10%) 41,300,000¿ø |
ÅäÁö¸éÀû |
12.40§³(3.75Æò)
|
À¯ÂûȽ¼ö |
0ȸ |
| ÀÔÂû¹ý¿ø |
¼ö¿øÁö¹æ¹ý¿ø |
°æ¸Å¹æ¹ý |
|
¹°°ÇÁ¶È¸¼ö |
¿À´Ã: 2ȸ [´©Àû: 38ȸ]
|
| ¸»¼Ò±âÁØ | ÃÖ¼±¼øÀ§ ¼³Á¤ : 2021.06.21. ±ÙÀú´ç±Ç ¼³Á¤
|
|
|
|
|
|
|
|
|
|
|
°æ¸Å´ë»ó ¸ñ·Ï
|
|
| ±¸ºÐ |
¸ñ·Ï |
ÁÖ¼Ò |
±¸Á¶/¿ëµµ/´ëÁö±Ç |
ºñ°í |
´ëÁö±Ç
|
1 |
¼Ãµµ¿ 812 |
2672.8ºÐÀÇ 12.402 |
12.402§³ (3.75Æò)
|
°Ç¹°
|
1 |
¼Ãµµ¿ 812 |
1Ãþ116È£ ö±ÙÄÜÅ©¸®Æ®±¸Á¶ |
31.92§³ (9.66Æò)
|
|
|
|
2026-01-27
ÁøÇà
|
(100%)
413,000,000¿ø
|
|
|
|
|
|
°¨Á¤Æò°¡¼ ¿ä¾à |
|
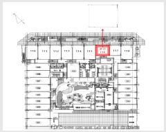
[À§Ä¡/ÁÖÀ§È¯°æ]
°æ±âµµ ¿ëÀνà ±âÈﱸ ¼Ãµµ¿¿¡ ¼ÒÀçÇÏ´Â "¼ÃµÆÄÃâ¼Ò" ³²Ãø Àαٿ¡ À§Ä¡Çϸç, ÁÖÀ§¿¡´Â ´ë±Ô¸ð ¾ÆÆÄÆ®´ÜÁö, ±Ù¸°»ýȰ½Ã¼³, ¼÷¹Ú½Ã¼³ µîÀÌ ¼ÒÀçÇÔ.
[±³Åë»óȲ]
º»°Ç±îÁö Â÷·®Á¢±Ù °¡´ÉÇϸç, Àαٿ¡ ³ë¼±¹ö½º Á¤·ùÀåÀÌ ¼ÒÀçÇÏ¿© Á¦¹Ý ´ëÁß±³Åë¿©°ÇÀº º¸Åë½Ã µÊ.
[°Ç¹°±¸Á¶]
öÄÜÅ©¸®Æ®±¸Á¶ (ö±Ù)ÄÜÅ©¸®Æ®ÁöºØ 8Ãþ ¼÷¹Ú½Ã¼³(»ýȰ¼÷¹Ú½Ã¼³) ¹× ±Ù¸°»ýȰ½Ã¼³ Áß 1Ãþ116È£·Î¼,
¿Üº® : ¿ÜÀå¼®Àç, º¹ÇÕÆÇ³Ú µî
³»º® : ¸ôÅ» À§ ÆäÀÎÆ®, ÀÎÅ׸®¾î µî
âȣ : °ÈÀ¯¸®
[ÀÌ¿ë»óÅÂ]
±Ù¸°»ýȰ½Ã¼³·Î ÀÌ¿ë ÁßÀÓ.
[¼³ºñ³»¿ª]
°øµ¿ À§»ý ¹× ±Þ¹è¼ö ¼³ºñ, ¼Òȼ³ºñ, ½Â°±â¼³ºñ, ÁöÇÏÁÖÂ÷Àå µîÀÓ.
[ÅäÁöÇü»ó/ÀÌ¿ë»óÅÂ]
Á¤¹æÇü ÅäÁö·Î¼ ¼÷¹Ú½Ã¼³ ¹× ±Ù¸°»ýȰ½Ã¼³ÀÇ °ÇºÎÁö·Î ÀÌ¿ë ÁßÀÓ.
7)ÀÎÁ¢ µµ·Î»óŵî
ºÏ¼Ãø ¹× ºÏµ¿ÃøÀ¸·Î ¾à 15¹ÌÅÍ, ³²µ¿ÃøÀ¸·Î ¾à 12¹ÌÅÍ ÆøÀÇ Æ÷Àåµµ·Î¿¡ Á¢ÇÔ.
[ÅäÁöÀÌ¿ë°èȹ]
±Ù¸°»ó¾÷Áö¿ª, µµ½ÃÁö¿ª, Áö±¸´ÜÀ§°èȹ±¸¿ª, Áß·Î2·ù(Æø 15m-20m)(Á¢ÇÕ), Áß·Î3·ù(Æø 12m-15m)(Á¢ÇÕ) °¡Ãà»çÀ°Á¦Çѱ¸¿ª£¼°¡ÃàºÐ´¢ÀÇ °ü¸® ¹× À̿뿡 °üÇÑ ¹ý·ü£¾, ¼ºÀå°ü¸®±Ç¿ª£¼¼öµµ±ÇÁ¤ºñ°èȹ¹ý£¾, ÅÃÁö°³¹ßÁö±¸£¼ÅÃÁö°³¹ßÃËÁø¹ý£¾ÀÓ.
[°øºÎ¿ÍÀÇ Â÷ÀÌ]
ÇØ´ç»çÇ× ¾øÀ½.
[Âü°í»çÇ×]
ÀÓ´ë°ü°è´Â ¹Ì»óÀÓ. |
|
|
°ÇÃ๰ÇöȲ |
|
|
|
| ¼ÒÀçÁö |
°æ±âµµ ¿ëÀνà ±âÈﱸ ¼Ãµµ¿ 812¹øÁö |
| ´ëÁö¸éÀû |
2672.8§³(809.94Æò) |
¿¬¸éÀû |
14740.04§³(4466.68Æò) |
ÁÖ¿ëµµ |
¼÷¹Ú½Ã¼³ |
| °ÇÃà¸éÀû |
1539.465§³(466.5Æò) |
¿ëÀû·ü»êÁ¤¿¬¸éÀû |
9743.36§³(2952.53Æò) |
Âø°øÀÏÀÚ |
2019.01.08 |
| °ÇÆóÀ² |
57.6% |
¿ëÀû·ü |
364.54% |
»ç¿ë½ÂÀÎÀÏÀÚ |
2020.08.07 |
| Áö»óÃþ¼ö |
8Ãþ |
ÁöÇÏÃþ¼ö |
3Ãþ |
±¸Á¶ |
ö±ÙÄÜÅ©¸®Æ®±¸Á¶ |
°ÇÃ๰Ãþº°ÇöȲ [º¸±â]| Ãþº° | ±¸Á¶ | ¿ëµµ | ¸éÀû | | 1Ãþ | ö±ÙÄÜÅ©¸®Æ®±¸Á¶ | Á¦1,2Á¾±Ù¸°»ýȰ½Ã¼³ | 1233.495§³ (373.79Æò) | | 2Ãþ | ö±ÙÄÜÅ©¸®Æ®±¸Á¶ | ¼÷¹Ú½Ã¼³(»ýȰ¼÷¹Ú½Ã¼³) | 1215.695§³ (368.39Æò) | | 3Ãþ | ö±ÙÄÜÅ©¸®Æ®±¸Á¶ | ¼÷¹Ú½Ã¼³(»ýȰ¼÷¹Ú½Ã¼³) | 1215.695§³ (368.39Æò) | | 4Ãþ | ö±ÙÄÜÅ©¸®Æ®±¸Á¶ | ¼÷¹Ú½Ã¼³(»ýȰ¼÷¹Ú½Ã¼³) | 1215.695§³ (368.39Æò) | | 5Ãþ | ö±ÙÄÜÅ©¸®Æ®±¸Á¶ | ¼÷¹Ú½Ã¼³(»ýȰ¼÷¹Ú½Ã¼³) | 1215.695§³ (368.39Æò) | | 6Ãþ | ö±ÙÄÜÅ©¸®Æ®±¸Á¶ | ¼÷¹Ú½Ã¼³(»ýȰ¼÷¹Ú½Ã¼³) | 1215.695§³ (368.39Æò) | | 7Ãþ | ö±ÙÄÜÅ©¸®Æ®±¸Á¶ | ¼÷¹Ú½Ã¼³(»ýȰ¼÷¹Ú½Ã¼³) | 1215.695§³ (368.39Æò) | | 8Ãþ | ö±ÙÄÜÅ©¸®Æ®±¸Á¶ | ¼÷¹Ú½Ã¼³(»ýȰ¼÷¹Ú½Ã¼³) | 1215.695§³ (368.39Æò) | | Áö1Ãþ | ö±ÙÄÜÅ©¸®Æ®±¸Á¶ | ÁöÇÏÁÖÂ÷Àå | 2281.6§³ (691.39Æò) | | Áö2Ãþ | ö±ÙÄÜÅ©¸®Æ®±¸Á¶ | ÁöÇÏÁÖÂ÷Àå,±â°è½Ç,Àü±â½Ç,¹ßÀü±â½Ç,¹° | 2102.36§³ (637.08Æò) | | Áö3Ãþ | ö±ÙÄÜÅ©¸®Æ®±¸Á¶ | ±â°è½ÄÁÖÂ÷Àå | 612.72§³ (185.67Æò) |
|
|
|
|
|
|
 |
ÀÓÂ÷³»¿ª |
[¹è´ç¿ä±¸Á¾±âÀÏ : 2025/03/24] |
|
|
| ÀÓÂ÷ÀÎ |
Á¡À¯°ü°è |
ÀüÀÔÀÏÀÚ |
È®Á¤ÀÏÀÚ |
¹è´ç¿ä±¸ÀÏ |
º¸Áõ±Ý/Â÷ÀÓ |
´ëÇ׿ä°Ç |
ºñ°í |
| ³ëOO |
°æÈñ¸¶Å©3291Ãþ116È£31.9200§³ |
2021.01.27 |
|
|
20,000,000 [¿ù]1,150,000 |
O |
2021.01.18-2023.01.17 |
|
|
|
 |
Áö¿ªºÐ¼® |
|
|
|
|
| ÁöÇÏö |
|
Çб³ |
|
| °ü°ø¼ |
|
| ¹ý¿ø |
¼ö¿øÁö¹æ¹ý¿ø (165-12)°æ±âµµ ¼ö¿ø½Ã ¿µÅ뱸 ¹ýÁ¶·Î 105, Çϵ¿, ¼ö¿ø¹ý¿øÁ¾ÇÕû»ç ´ëÇ¥ : 031)210-1114, ¾ß°£ : 031)210-1111 ¼ö¿ø½Ã, ¿À»ê½Ã, ȼº½Ã, ¿ëÀνà |
| µî±â¼Ò |
¼ö¿øÁö¹æ¹ý¿ø º»¿ø ¿ëÀεî±â¼Ò (´ëÇ¥:1544-0773, ÆÑ½º:(031)321-3919, °æ±âµµ ¿ëÀνà óÀα¸ ¼º»ê·Î 7 (¿ªºÏµ¿ 391-28)) |
| ¼¼¹«¼ |
±âÈï¼¼¹«¼ (´ëÇ¥:031-8007-1, ÆÑ½º:031-895-4902, °æ±âµµ ¿ëÀνà ±âÈﱸ Èï´ö2·Î117¹ø±æ 15(¿µ´öµ¿)) |
|
|
|
 |
¹ý¿ø ¹°°ÇÀÚ·á ¿ä¾à |
|
|
|
|
| ¼Ò¸êµÇÁö ¾Ê´Â µî±âºÎ±Ç¸® |
ÇØ´ç»çÇ×¾øÀ½ |
| ¼³Á¤µÈ °ÍÀ¸·Î º¸´Â Áö»ó±Ç |
ÇØ´ç»çÇ×¾øÀ½ |
| ¹ý¿øÀÚ·á Æ¯ÀÌ»çÇ× |
[ÁÖ¿ä ¹®°Ç Á¢¼ö ³»¿ª]
|
[ºÎµ¿»ê ÇöȲÁ¶»ç¼ ºñ°í¶õ]
º»°Ç ºÎµ¿»êÀÇ ÇöȲÀº ¿Ü |
|
| ¿©ÀÇÁÖ°æ¸Å Á¶¾ð ÇѸ¶µð |
ÀÌ ºÎµ¿»êÀÇ ÀÔÂû¹ý¿øÀº ¼ö¿øÁö¹æ¹ý¿øÀÔ´Ï´Ù.
ÀÔÂûÀÏÀº 2026-01-27ÀÔ´Ï´Ù.
ÀÔÂû½Ã°£Àº ~11:10ÀÔ´Ï´Ù. ÀÌ ¹ý¿ø¿¡´Â KB±¹¹ÎÀºÇàÀÌ ÀÔÁ¡Çϰí ÀÖ½À´Ï´Ù.
|
|
|
| Åë°è±â°£ |
³«Âû¹°°Ç¼ö |
Æò±Õ°¨Á¤°¡ |
Æò±Õ³«Âû°¡ |
³«Âû°¡À² |
À¯ÂûȽ¼ö |
| 3°³¿ù |
23°Ç |
531,043,478¿ø |
149,449,426¿ø |
48% |
2.9ȸ |
| 6°³¿ù |
25°Ç |
497,720,000¿ø |
142,739,500¿ø |
48% |
2.8ȸ |
| 12°³¿ù |
27°Ç |
1,491,761,419¿ø |
1,083,903,241¿ø |
51% |
2.6ȸ |
|
|
|
|
|
|
 |
|