|
|
| ¼ÒÀçÁö |
ÀÎõ±¤¿ª½Ã ³²µ¿±¸ ¿ëõ·Î153¹ø±æ 59, 4Ãþ404È£ (°£¼®µ¿,´õ·¹Áö´øÆ®¾ÆÆÄÆ®)
±¸)ÀÎõ±¤¿ª½Ã ³²µ¿±¸ °£¼®µ¿ 169-5
|
|
| »ç°Ç¹øÈ£ |
2025 Ÿ°æ 505145 |
¹°°Ç¹øÈ£ |
1
|
¹°°Ç¿ëµµ |
¿ÀÇǽºÅÚ |
| °¨Á¤Æò°¡¾× |
221,000,000¿ø |
°æ¸Å´ë»ó |
ÅäÁö ¹× °Ç¹°Àϰý ¸Å°¢ |
ÁøÇà»óÅ |
½Å°Ç |
| ÃÖÀúÀÔÂû°¡ |
(100%) 221,000,000¿ø
|
°Ç¹°¸éÀû |
78.59§³(23.77Æò) |
ÀÔÂû±âÀÏ |
2026.01.30(±Ý) 10:00
(ÀÔÂû 14ÀÏÀü)
|
| ÀÔÂûº¸Áõ±Ý |
(10%) 22,100,000¿ø |
ÅäÁö¸éÀû |
12.85§³(3.89Æò)
|
À¯ÂûȽ¼ö |
0ȸ |
| ÀÔÂû¹ý¿ø |
ÀÎõÁö¹æ¹ý¿ø |
°æ¸Å¹æ¹ý |
|
¹°°ÇÁ¶È¸¼ö |
¿À´Ã: 7ȸ [´©Àû: 7ȸ]
|
| ¸»¼Ò±âÁØ | |
|
|
|
|
|
|
|
|
|
|
°æ¸Å´ë»ó ¸ñ·Ï
|
|
| ±¸ºÐ |
¸ñ·Ï |
ÁÖ¼Ò |
±¸Á¶/¿ëµµ/´ëÁö±Ç |
ºñ°í |
´ëÁö±Ç
|
1 |
°£¼®µ¿ 169-5 |
703ºÐÀÇ 12.85 |
12.85§³ (3.89Æò)
|
°Ç¹°
|
1 |
°£¼®µ¿ 169-5 |
4Ãþ404È£ ö±ÙÄÜÅ©¸®Æ®±¸Á¶ |
78.59§³ (23.77Æò)
|
|
|
|
2026-01-30
ÁøÇà
|
(100%)
221,000,000¿ø
|
|
|
|
|
|
°¨Á¤Æò°¡¼ ¿ä¾à |
|
[À§Ä¡/ÁÖÀ§È¯°æ]
´ë»ó¹°°ÇÀº ÀÎõ±¤¿ª½Ã ³²µ¿±¸ °£¼®µ¿ ¼ÒÀç 'ÁöÇÏö 1È£¼± °£¼®¿À°Å¸®¿ª' ³²µ¿Ãø Àαٿ¡ À§Ä¡Çϸç, ÁÖÀ§´Â ¿ÀÇǽºÅÚ, ´Ù¼¼´ëÁÖÅÃ, ¼÷¹Ú½Ã¼³, ±Ù¸°»ýȰ½Ã¼³ µîÀÌ ¼ÒÀçÇϸç, Á¦¹Ý ÁÖÀ§È¯°æÀº º¸ÅëÀÓ.
[±³Åë»óȲ]
´ë»ó¹°°Ç±îÁö Â÷·®Á¢±ÙÀÌ °¡´ÉÇϰí, Àαٿ¡ ÁöÇÏö '°£¼®¿À°Å¸®¿ª' ¹× ³ë¼±¹ö½ºÁ¤·ùÀåÀÌ ¼ÒÀçÇÏ´Â µî Á¦¹Ý ±³Åë»çÁ¤Àº º¸Åë½ÃµÊ.
[°Ç¹°±¸Á¶]
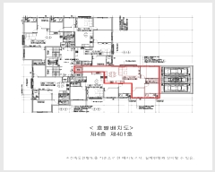
ö±ÙÄÜÅ©¸®Æ®±¸Á¶ Æò½º¶óºêÁöºØ 14Ãþ°Ç ³» Á¦4Ãþ Á¦404È£·Î¼,
- ¿Üº® : ÀϺΠ¼®ÀçºÙÀÓ ¹× ¸ôÅ» À§ ÆäÀÎÆÃ ¸¶°¨ µî.
- âȣ : »õ½Ã âȣÀÓ.
[ÀÌ¿ë»óÅÂ]
º»°ÇÀº °øºÎ»ó ¿ÀÇǽºÅÚÀÓ.
[¼³ºñ³»¿ª]
±Þ¹è¼ö½Ã¼³ ¹× À§»ý¼³ºñ, ³¹æ¼³ºñ, ½Â°±â¼³ºñ µîÀ» °®Ãß¾úÀ½.
[ÅäÁöÇü»ó/ÀÌ¿ë»óÅÂ]
ºÎÁ¤Çü ÅäÁö·Î¼, ÇöȲ '¿ÀÇǽºÅÚ' °ÇºÎÁö·Î ÀÌ¿ëÁßÀÓ.
7)ÀÎÁ¢ µµ·Î»óŵî
º»°Ç ÅäÁö ºÏµ¿ÃøÀ¸·Î ³ëÆø ¾à8¹ÌÅÍÀÇ Æ÷Àåµµ·Î¿¡ Á¢Çϰí ÀÖÀ½.
[ÅäÁöÀÌ¿ë°èȹ]
ÀϹݻó¾÷Áö¿ª , ¹æÈÁö±¸, °¡Ãà»çÀ°Á¦Çѱ¸¿ª(2013-03-08)((¹®ÀÇ:³²µ¿±¸È¯°æº¸Àü°ú 032-453-2343))£¼°¡ÃàºÐ´¢ÀÇ °ü¸® ¹× À̿뿡 °üÇÑ ¹ý·ü£¾, °ú¹Ð¾ïÁ¦±Ç¿ª£¼¼öµµ±ÇÁ¤ºñ°èȹ¹ý£¾
[°øºÎ¿ÍÀÇ Â÷ÀÌ]
¾ø À½.
[Âü°í»çÇ×]
ÀÓ´ë°ü°è : µî±â»çÇ×ÀüºÎÁõ¸í¼ À»±¸ ¼øÀ§¹øÈ£3¿¡ 'ÁÖÅÃÀÓÂ÷±Ç' µî±â ¼³Á¤µÊ
-ÀÓÂ÷º¸Áõ±Ý : 230,000,000¿ø
-Á¡À¯°³½ÃÀÏ : 2022³â 5¿ù 11ÀÏ.
|
|
|
°ÇÃ๰ÇöȲ |
|
|
|
| ¼ÒÀçÁö |
ÀÎõ±¤¿ª½Ã ³²µ¿±¸ °£¼®µ¿ 169-5¹øÁö |
| ´ëÁö¸éÀû |
703§³(213.03Æò) |
¿¬¸éÀû |
5421.818§³(1642.98Æò) |
ÁÖ¿ëµµ |
¾÷¹«½Ã¼³ |
| °ÇÃà¸éÀû |
536.92§³(162.7Æò) |
¿ëÀû·ü»êÁ¤¿¬¸éÀû |
5228.288§³(1584.33Æò) |
Âø°øÀÏÀÚ |
2016.01.11 |
| °ÇÆóÀ² |
76.38% |
¿ëÀû·ü |
743.71% |
»ç¿ë½ÂÀÎÀÏÀÚ |
2017.02.28 |
| Áö»óÃþ¼ö |
14Ãþ |
ÁöÇÏÃþ¼ö |
1Ãþ |
±¸Á¶ |
ö±ÙÄÜÅ©¸®Æ®±¸Á¶ |
°ÇÃ๰Ãþº°ÇöȲ [º¸±â]| Ãþº° | ±¸Á¶ | ¿ëµµ | ¸éÀû | | 1Ãþ | ö±ÙÄÜÅ©¸®Æ®±¸Á¶ | °è´Ü½Ç/elev | 38.07§³ (11.54Æò) | | 1Ãþ | ö±ÙÄÜÅ©¸®Æ®±¸Á¶ | ÁÖÂ÷°ü¸®½Ç | 6.3§³ (1.91Æò) | | 1Ãþ | ö±ÙÄÜÅ©¸®Æ®±¸Á¶ | ±â°è½ÄÁÖÂ÷ | 50.32§³ (15.25Æò) | | 2Ãþ | ö±ÙÄÜÅ©¸®Æ®±¸Á¶ | ¾÷¹«½Ã¼³(¿ÀÇǽºÅÚ, 6È£) | 482.666§³ (146.26Æò) | | 3Ãþ | ö±ÙÄÜÅ©¸®Æ®±¸Á¶ | ¾÷¹«½Ã¼³(¿ÀÇǽºÅÚ, 6È£) | 482.666§³ (146.26Æò) | | 4Ãþ | ö±ÙÄÜÅ©¸®Æ®±¸Á¶ | ¾÷¹«½Ã¼³(¿ÀÇǽºÅÚ, 6È£) | 482.666§³ (146.26Æò) | | 5Ãþ | ö±ÙÄÜÅ©¸®Æ®±¸Á¶ | ¾÷¹«½Ã¼³(¿ÀÇǽºÅÚ, 6È£) | 482.666§³ (146.26Æò) | | 6Ãþ | ö±ÙÄÜÅ©¸®Æ®±¸Á¶ | ¾÷¹«½Ã¼³(¿ÀÇǽºÅÚ, 6È£) | 482.666§³ (146.26Æò) | | 7Ãþ | ö±ÙÄÜÅ©¸®Æ®±¸Á¶ | ¾÷¹«½Ã¼³(¿ÀÇǽºÅÚ, 6È£) | 482.666§³ (146.26Æò) | | 8Ãþ | ö±ÙÄÜÅ©¸®Æ®±¸Á¶ | ¾÷¹«½Ã¼³(¿ÀÇǽºÅÚ, 6È£) | 482.666§³ (146.26Æò) | | 9Ãþ | ö±ÙÄÜÅ©¸®Æ®±¸Á¶ | ¾ÆÆÄÆ®(4¼¼´ë) | 300.876§³ (91.17Æò) | | 10Ãþ | ö±ÙÄÜÅ©¸®Æ®±¸Á¶ | ¾ÆÆÄÆ®(4¼¼´ë) | 300.876§³ (91.17Æò) | | 11Ãþ | ö±ÙÄÜÅ©¸®Æ®±¸Á¶ | ¾ÆÆÄÆ®(4¼¼´ë) | 300.876§³ (91.17Æò) | | 12Ãþ | ö±ÙÄÜÅ©¸®Æ®±¸Á¶ | ¾ÆÆÄÆ®(4¼¼´ë) | 300.876§³ (91.17Æò) | | 13Ãþ | ö±ÙÄÜÅ©¸®Æ®±¸Á¶ | ¾ÆÆÄÆ®(4¼¼´ë) | 300.876§³ (91.17Æò) | | 14Ãþ | ö±ÙÄÜÅ©¸®Æ®±¸Á¶ | ¾ÆÆÄÆ®(4¼¼´ë) | 300.876§³ (91.17Æò) | | ¿Áž1Ãþ | ö±ÙÄÜÅ©¸®Æ®±¸Á¶ | °è´Ü½Ç | 25.38§³ (7.69Æò) | | Áö1Ãþ | ö±ÙÄÜÅ©¸®Æ®±¸Á¶ | °è´Ü½Ç/elev/°ü¸®½Ç/Àü±â½Ç/¹ßÀü±â | 143.21§³ (43.4Æò) |
|
|
|
|
|
|
|
|
|
¸éÀû(§³), ±Ý¾×(¸¸¿ø)
| °è¾àÀÏ | ±âÁØ | °Ç¹°¸íĪ | Ãþ | Àü¿ë¸éÀû | °Å·¡±Ý¾× | °ÇÃà³âµµ | | °Å·¡³»¿ªÀÌ ¾ø½À´Ï´Ù. |
| °è¾àÀÏ | ±âÁØ | °Ç¹°¸íĪ | Ãþ | Àü¿ë¸éÀû | º¸Áõ±Ý | ¿ù¼¼ | °ÇÃà³âµµ | | 2025.12.16 | Àü¼¼ | ´õ·¹Áö´øÆ®¾ÆÆÄÆ® | 3 | 66.5 | 15,800 | 0 | 2017 | | 2025.07.30 | ¿ù¼¼ | ´õ·¹Áö´øÆ®¾ÆÆÄÆ® | 5 | 53.6 | 1,000 | 70 | 2017 |
|
|
|
 |
ÀÓÂ÷³»¿ª |
[¹è´ç¿ä±¸Á¾±âÀÏ : 2025/05/15] |
|
|
| ÀÓÂ÷ÀÎ |
Á¡À¯°ü°è |
ÀüÀÔÀÏÀÚ |
È®Á¤ÀÏÀÚ |
¹è´ç¿ä±¸ÀÏ |
º¸Áõ±Ý/Â÷ÀÓ |
´ëÇ׿ä°Ç |
ºñ°í |
| ¸Å°¢±âÀÏ 7ÀÏÀü¿¡ °ø°íµÇ¿À´Ï È®ÀÎÇϽñ⠹ٶø´Ï´Ù. |
|
|
|
 |
Áö¿ªºÐ¼® |
|
|
|
|
| ÁöÇÏö |
|
Çб³ |
|
| °ü°ø¼ |
|
| ¹ý¿ø |
ÀÎõÁö¹æ¹ý¿ø (222-20)ÀÎõ±¤¿ª½Ã ¹ÌÃßȦ±¸ ¼Ò¼º·Î 163¹ø±æ 17(ÇÐÀ͵¿) ´ëÇ¥ : 032)860-1113~4 Áß±¸, µ¿±¸, ³²±¸, ¿¬¼ö±¸, ³²µ¿±¸, ºÎÆò±¸, °è¾ç±¸, ¼±¸, ¿ËÁø±º, °È±º |
| µî±â¼Ò |
ÀÎõÁö¹æ¹ý¿ø º»¿ø µî±â±¹ (´ëÇ¥:1544-0773, ÆÑ½º:(032)620-9099, ÀÎõ±¤¿ª½Ã ¹ÌÃßȦ±¸ °æ¿ø´ë·Î 881(Á־ȵ¿ 983)) |
| ¼¼¹«¼ |
³²ÀÎõ¼¼¹«¼ (´ëÇ¥:032-460-52, ÆÑ½º:032-463-5778, ÀÎõ±¤¿ª½Ã ³²µ¿±¸ ÀÎÇÏ·Î 548 (±¸¿ùµ¿)) |
|
|
|
 |
¹ý¿ø ¹°°ÇÀÚ·á ¿ä¾à |
|
|
|
|
| ¼Ò¸êµÇÁö ¾Ê´Â µî±âºÎ±Ç¸® |
|
| ¼³Á¤µÈ °ÍÀ¸·Î º¸´Â Áö»ó±Ç |
|
| ¹ý¿øÀÚ·á Æ¯ÀÌ»çÇ× |
|
| ¿©ÀÇÁÖ°æ¸Å Á¶¾ð ÇѸ¶µð |
ÀÌ ºÎµ¿»êÀÇ ÀÔÂû¹ý¿øÀº ÀÎõÁö¹æ¹ý¿øÀÔ´Ï´Ù.
ÀÔÂûÀÏÀº 2026-01-30ÀÔ´Ï´Ù.
ÀÔÂû½Ã°£Àº ~11:20ÀÔ´Ï´Ù. ÀÌ ¹ý¿ø¿¡´Â KB±¹¹ÎÀºÇàÀÌ ÀÔÁ¡Çϰí ÀÖ½À´Ï´Ù.
|
|
|
| Åë°è±â°£ |
³«Âû¹°°Ç¼ö |
Æò±Õ°¨Á¤°¡ |
Æò±Õ³«Âû°¡ |
³«Âû°¡À² |
À¯ÂûȽ¼ö |
| 3°³¿ù |
129°Ç |
188,205,426¿ø |
136,760,595¿ø |
74% |
1.5ȸ |
| 6°³¿ù |
221°Ç |
192,789,593¿ø |
139,359,405¿ø |
73% |
1.5ȸ |
| 12°³¿ù |
348°Ç |
199,952,586¿ø |
144,861,048¿ø |
73% |
1.6ȸ |
|
|
|
|
|
|
 |
|