|
|
| ¼ÒÀçÁö |
°æ±âµµ °í¾ç½Ã ´ö¾ç±¸ ¼º»çµ¿ 731 ½Å¿ø´ç¸¶À»¾ÆÆÄÆ® 606µ¿ 1Ãþ106È£
|
|
| »ç°Ç¹øÈ£ |
2025 Ÿ°æ 63091 |
¹°°Ç¹øÈ£ |
1
|
¹°°Ç¿ëµµ |
¾ÆÆÄÆ® |
| °¨Á¤Æò°¡¾× |
258,000,000¿ø |
°æ¸Å´ë»ó |
ÅäÁö ¹× °Ç¹°Àϰý ¸Å°¢ |
ÁøÇà»óÅ |
º¯°æ |
| ÃÖÀúÀÔÂû°¡ |
(70%) 180,600,000¿ø
|
°Ç¹°¸éÀû |
54.91§³(16.61Æò) |
ÀÔÂû±âÀÏ |
2026.03.17(È) 10:00
|
| ÀÔÂûº¸Áõ±Ý |
(10%) 18,060,000¿ø |
ÅäÁö¸éÀû |
29.24§³(8.85Æò)
|
À¯ÂûȽ¼ö |
1ȸ |
| ÀÔÂû¹ý¿ø |
ÀÇÁ¤ºÎÁö¹æ¹ý¿ø °í¾çÁö¿ø |
°æ¸Å¹æ¹ý |
|
¹°°ÇÁ¶È¸¼ö |
¿À´Ã: 3ȸ [´©Àû: 1193ȸ]
|
| ¸»¼Ò±âÁØ | ÃÖ¼±¼øÀ§ ¼³Á¤ : 2021.3.30.±ÙÀú´ç±Ç ¼³Á¤
|
|
|
|
|
|
|
|
|
|
|
°æ¸Å´ë»ó ¸ñ·Ï
|
|
| ±¸ºÐ |
¸ñ·Ï |
ÁÖ¼Ò |
±¸Á¶/¿ëµµ/´ëÁö±Ç |
ºñ°í |
´ëÁö±Ç
|
1 |
¼º»çµ¿ 731 |
22180.1ºÐÀÇ 29.2444 |
29.2444§³ (8.85Æò)
|
°Ç¹°
|
1 |
¼º»çµ¿ 731 |
606µ¿ 1Ãþ106È£ ö±ÙÄÜÅ©¸®Æ® º®½Ä±¸Á¶ |
54.91§³ (16.61Æò)
|
|
|
|
2026-02-03
À¯Âû
|
(100%)
258,000,000¿ø
|
|
|
|
2026-03-17
º¯°æ
|
(70%)
180,600,000¿ø
|
|
|
|
|
|
°¨Á¤Æò°¡¼ ¿ä¾à |
|
[À§Ä¡/ÁÖÀ§È¯°æ]
°æ±âµµ °í¾ç½Ã ´ö¾ç±¸ ¼º»çµ¿ ¼ÒÀç °í¾ç¾î¿ï¸²´©¸® ºÏÃø Àαٿ¡ À§Ä¡Çϰí,
ÁÖÀ§´Â ½Å¿ø´ç¸¶À» ¾ÆÆÄÆ®´ÜÁöÀÓ.
[±³Åë»óȲ]
±Ù°Å¸®¿¡ È£±¹·Î°¡ ÀÖ°í, º»°Ç±îÁö Â÷·® Á¢±ÙÀÌ °¡´ÉÇÏ¿© Á¦¹Ý ±³Åë¿©°ÇÀº º¸ÅëÀÓ.
[°Ç¹°±¸Á¶]
ö±ÙÄÜÅ©¸®Æ®º®½ÄÁ¶ Æò½½·¡ºêÁöºØ ÁöÇÏ 1Ãþ, Áö»ó 16Ãþ °Ç¹°(1993. 10. 20. »ç¿ë½ÂÀÎ) Áß
1Ãþ 106È£·Î
¿Üº® ; ÄÜÅ©¸®Æ®À§ÆäÀÎÆ®¸¶°¨
³»º® ; º®Áö ¹× ŸÀϸ¶°¨ÀÓ.
[ÀÌ¿ë»óÅÂ]
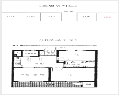
ÁÖ°Å¿ë(¹æ2, °Å½Ç °â ¹æ, ÁÖ¹æ, ¿å½Ç µî)À¸·Î ÀÌ¿ë ÁßÀÓ.
[¼³ºñ³»¿ª]
Áö¿ª³¹æ¼³ºñ, ½Â°±â ¹× À§»ý¼³ºñ µî ¼³Ä¡µÇ¾î ÀÖÀ½.
[ÅäÁöÇü»ó/ÀÌ¿ë»óÅÂ]
ºÎÁ¤ÇüÀÇ ÅäÁöÀ̰í, ¾ÆÆÄÆ® ºÎÁö·Î ÀÌ¿ë ÁßÀÓ.
7)ÀÎÁ¢ µµ·Î»óŵî
ºÏÃøÀ¸·Î Á߷ο¡ Á¢ÇÔ.
[ÅäÁöÀÌ¿ë°èȹ]
Á¦3Á¾ÀϹÝÁÖ°ÅÁö¿ª, Áö±¸´ÜÀ§°èȹ±¸¿ª(¼º»çÁö±¸), °¡Ãà»çÀ° Á¦Çѱ¸¿ª, °ú¹Ð¾ïÁ¦±Ç¿ª,
±³À°È¯°æº¸È£¿¡ °üÇÑ ¹ý·ü¿¡ ÀÇÇÑ Àý´ëº¸È£±¸¿ª ¹× »ó´ëº¸È£±¸¿ª
ÇѰ Æó±â¹° ¸Å¸³½Ã¼³ ¼³Ä¡ Á¦Çѱ¸¿ªÀÓ.
[°øºÎ¿ÍÀÇ Â÷ÀÌ]
¾øÀ½.
[Âü°í»çÇ×]
ÀÓ´ë°ü°è ¹Ì»óÀÓ.
|
|
|
°ÇÃ๰ÇöȲ |
|
|
|
| ¼ÒÀçÁö |
°æ±âµµ °í¾ç½Ã ´ö¾ç±¸ ¼º»çµ¿ 731¹øÁö |
| ´ëÁö¸éÀû |
22180.1§³(6721.24Æò) |
¿¬¸éÀû |
5917.665§³(1793.23Æò) |
ÁÖ¿ëµµ |
°øµ¿ÁÖÅà |
| °ÇÃà¸éÀû |
4298.363§³(1302.53Æò) |
¿ëÀû·ü»êÁ¤¿¬¸éÀû |
5619.72§³(1702.95Æò) |
Âø°øÀÏÀÚ |
1991.11.21 |
| °ÇÆóÀ² |
19.38% |
¿ëÀû·ü |
228.74% |
»ç¿ë½ÂÀÎÀÏÀÚ |
1993.10.20 |
| Áö»óÃþ¼ö |
16Ãþ |
ÁöÇÏÃþ¼ö |
1Ãþ |
±¸Á¶ |
ö±ÙÄÜÅ©¸®Æ®±¸Á¶ |
°ÇÃ๰Ãþº°ÇöȲ [º¸±â]| Ãþº° | ±¸Á¶ | ¿ëµµ | ¸éÀû | | 1Ãþ | ö±ÙÄÜÅ©¸®Æ® ¶ó¸àÁ¶ | ±Ù¸°»ýȰ½Ã¼³(±¸¸Å,»ýȰ,ÀÇ·á½Ã¼³) | 370.505§³ (112.27Æò) | | 1Ãþ | ö±ÙÄÜÅ©¸®Æ® º®½Ä±¸Á¶ | ¾ÆÆÄÆ® | 356.22§³ (107.95Æò) | | 1Ãþ | ö±ÙÄÜÅ©¸®Æ® ¶ó¸àÁ¶ | ÁöÇÏÁÖÂ÷Àå(1) | 15.335§³ (4.65Æò) | | 1Ãþ | ö±ÙÄÜÅ©¸®Æ® ¶ó¸àÁ¶ | À¯Ä¡¿ø | 151.07§³ (45.78Æò) | | 1Ãþ | ö±ÙÄÜÅ©¸®Æ® ¶ó¸àÁ¶ | ³ëÀÎÁ¤ | 105.85§³ (32.08Æò) | | 2Ãþ | ö±ÙÄÜÅ©¸®Æ® ¶ó¸àÁ¶ | ±Ù¸°»ýȰ½Ã¼³(»ýȰ,ÀÇ·á½Ã¼³,Çпø,±³½À | 374.735§³ (113.56Æò) | | 2Ãþ | ö±ÙÄÜÅ©¸®Æ® º®½Ä±¸Á¶ | ¾ÆÆÄÆ® | 350.9§³ (106.33Æò) | | 2Ãþ | ö±ÙÄÜÅ©¸®Æ® ¶ó¸àÁ¶ | °ü¸®½Ç | 111.93§³ (33.92Æò) | | 2Ãþ | ö±ÙÄÜÅ©¸®Æ® ¶ó¸àÁ¶ | À¯Ä¡¿ø | 151.07§³ (45.78Æò) | | 3Ãþ | ö±ÙÄÜÅ©¸®Æ® ¶ó¸àÁ¶ | ±Ù¸°»ýȰ½Ã¼³(»ýȰ½Ã¼³) | 374.735§³ (113.56Æò) | | 3Ãþ | ö±ÙÄÜÅ©¸®Æ® º®½Ä±¸Á¶ | ¾ÆÆÄÆ® | 350.9§³ (106.33Æò) | | 4Ãþ | ö±ÙÄÜÅ©¸®Æ® º®½Ä±¸Á¶ | ¾ÆÆÄÆ® | 350.9§³ (106.33Æò) | | 5Ãþ | ö±ÙÄÜÅ©¸®Æ® º®½Ä±¸Á¶ | ¾ÆÆÄÆ® | 350.9§³ (106.33Æò) | | 6Ãþ | ö±ÙÄÜÅ©¸®Æ® º®½Ä±¸Á¶ | ¾ÆÆÄÆ® | 350.9§³ (106.33Æò) | | 7Ãþ | ö±ÙÄÜÅ©¸®Æ® º®½Ä±¸Á¶ | ¾ÆÆÄÆ® | 350.9§³ (106.33Æò) | | 8Ãþ | ö±ÙÄÜÅ©¸®Æ® º®½Ä±¸Á¶ | ¾ÆÆÄÆ® | 350.9§³ (106.33Æò) | | 9Ãþ | ö±ÙÄÜÅ©¸®Æ® º®½Ä±¸Á¶ | ¾ÆÆÄÆ® | 350.9§³ (106.33Æò) | | 10Ãþ | ö±ÙÄÜÅ©¸®Æ® º®½Ä±¸Á¶ | ¾ÆÆÄÆ® | 350.9§³ (106.33Æò) | | 11Ãþ | ö±ÙÄÜÅ©¸®Æ® º®½Ä±¸Á¶ | ¾ÆÆÄÆ® | 350.9§³ (106.33Æò) | | 12Ãþ | ö±ÙÄÜÅ©¸®Æ® º®½Ä±¸Á¶ | ¾ÆÆÄÆ® | 350.9§³ (106.33Æò) | | 13Ãþ | ö±ÙÄÜÅ©¸®Æ® º®½Ä±¸Á¶ | ¾ÆÆÄÆ® | 350.9§³ (106.33Æò) | | 14Ãþ | ö±ÙÄÜÅ©¸®Æ® º®½Ä±¸Á¶ | ¾ÆÆÄÆ® | 350.9§³ (106.33Æò) | | 15Ãþ | ö±ÙÄÜÅ©¸®Æ® º®½Ä±¸Á¶ | ¾ÆÆÄÆ® | 350.9§³ (106.33Æò) | | 16Ãþ | ö±ÙÄÜÅ©¸®Æ® º®½Ä±¸Á¶ | ¾ÆÆÄÆ® | 350.9§³ (106.33Æò) | | Áö1Ãþ | ö±ÙÄÜÅ©¸®Æ® ¶ó¸àÁ¶ | ±Ù¸°»ýȰ½Ã¼³(±¸¸Å½Ã¼³) | 675.54§³ (204.71Æò) | | Áö1 | ö±ÙÄÜÅ©¸®Æ® º®½Ä±¸Á¶ | ´ëÇÇ¼Ò | 297.945§³ (90.29Æò) | | Áö1 | ö±ÙÄÜÅ©¸®Æ® ¶ó¸àÁ¶ | À¯Ä¡¿ø | 143.19§³ (43.39Æò) | | Áö1 | ö±ÙÄÜÅ©¸®Æ® ¶ó¸àÁ¶ | ÁöÇÏÁÖÂ÷Àå(1) | 1283.76§³ (389.02Æò) | | Áö1 | ö±ÙÄÜÅ©¸®Æ® ¶ó¸àÁ¶ | ÀÔÁÖÀÚȸÀÇ½Ç | 349.17§³ (105.81Æò) | | Áö2 | ö±ÙÄÜÅ©¸®Æ® ¶ó¸àÁ¶ | ÁöÇÏÁÖÂ÷Àå(1) | 1388.72§³ (420.82Æò) |
|
|
|
|
|
|
 |
ÀÓÂ÷³»¿ª |
[¹è´ç¿ä±¸Á¾±âÀÏ : 2025/08/07] |
|
|
| ÀÓÂ÷ÀÎ |
Á¡À¯°ü°è |
ÀüÀÔÀÏÀÚ |
È®Á¤ÀÏÀÚ |
¹è´ç¿ä±¸ÀÏ |
º¸Áõ±Ý/Â÷ÀÓ |
´ëÇ׿ä°Ç |
ºñ°í |
| Á¶»çµÈ ÀÓÂ÷³»¿ªÀÌ ¾ø½À´Ï´Ù. |
|
|
|
¾ÆÆÄÆ® °³¿ä |
|
|
|
| ¾ÆÆÄÆ®¸í |
°Ç¼³È¸»ç |
ÀÔÁֳ⵵ |
ÃѰ¡±¸¼ö |
ÃâÀÔ±¸Á¶ |
Àü¿ë¸éÀûºÐÆ÷ |
³¹æ¹æ½Ä |
°ü¸®»ç¹«¼Ò |
| ¾ÆÆÄÆ® |
|
-01 |
|
½Ä |
§³ |
|
¢Ï |
|
|
|
 |
Áö¿ªºÐ¼® |
|
|
|
|
| ÁöÇÏö |
|
Çб³ |
|
| °ü°ø¼ |
|
| ¹ý¿ø |
ÀÇÁ¤ºÎÁö¹æ¹ý¿ø °í¾çÁö¿ø (104-13)°æ±âµµ °í¾ç½Ã Àϻ굿±¸ Àå¹é·Î 209 ´ëÇ¥ : 031)920-6114, ¾ß°£ : 031)920-6550, ÆÑ½º : 031)920-6119 °í¾ç½Ã, ÆÄÁֽà |
| µî±â¼Ò |
ÀÇÁ¤ºÎÁö¹æ¹ý¿ø °í¾çÁö¿ø °í¾çµî±â¼Ò (´ëÇ¥:1544-0773, ÆÑ½º:(031)920-5959, °æ±âµµ °í¾ç½Ã Àϻ굿±¸ Áß¾Ó·Î1275¹ø±æ 38-30 (ÀåÇ×µ¿ 773)) |
| ¼¼¹«¼ |
µ¿°í¾ç¼¼¹«¼ (´ëÇ¥:031-900-62, ÆÑ½º:031-963-2979, °æ±âµµ °í¾ç½Ã ´ö¾ç±¸ ÈÁß·Î 104¹ø±æ 16(ÈÁ¤µ¿)) |
|
|
|
 |
¹ý¿ø ¹°°ÇÀÚ·á ¿ä¾à |
|
|
|
|
| ¼Ò¸êµÇÁö ¾Ê´Â µî±âºÎ±Ç¸® |
|
| ¼³Á¤µÈ °ÍÀ¸·Î º¸´Â Áö»ó±Ç |
|
| ¹ý¿øÀÚ·á Æ¯ÀÌ»çÇ× |
[ÁÖ¿ä ¹®°Ç Á¢¼ö ³»¿ª]
|
[ºÎµ¿»ê ÇöȲÁ¶»ç¼ ºñ°í¶õ]
ö±ÙÄÜÅ©¸®Æ®º® |
|
| ¿©ÀÇÁÖ°æ¸Å Á¶¾ð ÇѸ¶µð |
ÀÌ ºÎµ¿»êÀÇ ÀÔÂû¹ý¿øÀº ÀÇÁ¤ºÎÁö¹æ¹ý¿ø °í¾çÁö¿øÀÔ´Ï´Ù.
ÀÔÂûÀÏÀº 2026-03-17ÀÔ´Ï´Ù.
ÀÔÂû½Ã°£Àº ~11:20ÀÔ´Ï´Ù. ÀÌ ¹ý¿ø¿¡´Â ½ÅÇÑÀºÇàÀÌ ÀÔÁ¡Çϰí ÀÖ½À´Ï´Ù.
|
|
|
| Åë°è±â°£ |
³«Âû¹°°Ç¼ö |
Æò±Õ°¨Á¤°¡ |
Æò±Õ³«Âû°¡ |
³«Âû°¡À² |
À¯ÂûȽ¼ö |
| 3°³¿ù |
24°Ç |
493,166,667¿ø |
428,499,727¿ø |
86% |
1.5ȸ |
| 6°³¿ù |
41°Ç |
554,195,122¿ø |
463,847,271¿ø |
83% |
1.5ȸ |
| 12°³¿ù |
101°Ç |
533,055,446¿ø |
454,358,729¿ø |
84% |
1.3ȸ |
|
|
|
|
|
|
 |
|