Warning: mysql_result() [function.mysql-result]: Unable to jump to row 0 on MySQL result index 20 in /home/auction/www/auction/detail_view_detail_pop_h.php on line 147
°­¼­±¸ ¸íÁöµ¿ 3593-1 »ó°¡ °æ¸Å | 2025Ÿ°æ101315

[¸íÁöµ¿ ±Ù¸°»ó°¡ ºÎµ¿»ê°æ¸Å] °­¼­±¸ 3593-1 2025Ÿ°æ101315

¢Ï ¹®ÀÇ : 1566-3370
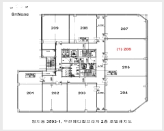
¼ÒÀçÁö ºÎ»ê±¤¿ª½Ã °­¼­±¸ ¸íÁöµ¿ 3593-1 ¿ìÁø¸ÞµðÄÃÇÁ¶óÀÚ 2Ãþ206È£
ºÎµ¿»ê°æ¸Å ÀμâÇϱâ
¹ý¿ø°æ¸ÅÁ¤º¸ °ü½É¹°°Çµî·Ï
´ë¹ý¿ø°æ¸ÅÁ¤º¸ ¹Ù·Î°¡±â
¹ý¿ø°æ¸Å °üÇÒ¹ý¿ø
»ç°Ç¹øÈ£ 2025 Ÿ°æ 101315

¹°°Ç¹øÈ£

1 ¹°°Ç¿ëµµ »ó°¡,»ç¹«½Ç
°¨Á¤Æò°¡¾× 661,000,000¿ø  °æ¸Å´ë»ó ÅäÁö ¹× °Ç¹°Àϰý ¸Å°¢ ÁøÇà»óÅ À¯Âû
ÃÖÀúÀÔÂû°¡ (34%) 226,723,000¿ø 

°Ç¹°¸éÀû

120.56§³(36.47Æò) ÀÔÂû±âÀÏ 2026.05.19(È­) 10:00
ÀÔÂûº¸Áõ±Ý (10%) 22,672,300¿ø  ÅäÁö¸éÀû 29.93§³(9.05Æò) À¯ÂûȽ¼ö 4ȸ
ÀÔÂû¹ý¿ø ºÎ»êÁö¹æ¹ý¿ø ºÎ»ê¼­ºÎÁö¿ø  °æ¸Å¹æ¹ý ¹°°ÇÁ¶È¸¼ö ¿À´Ã: 1ȸ [´©Àû: 1391ȸ]
¸»¼Ò±âÁØ ÃÖ¼±¼øÀ§ ¼³Á¤ : 2020. 3. 3. ±ÙÀú´ç±Ç ¼³Á¤
  °æ¸Å´ë»ó ¸ñ·Ï
±¸ºÐ ¸ñ·Ï ÁÖ¼Ò ±¸Á¶/¿ëµµ/´ëÁö±Ç ºñ°í
´ëÁö±Ç
1 ¸íÁöµ¿ 3593-1 2539ºÐÀÇ 29.93 29.93§³ (9.05Æò)  
°Ç¹°
1 ¸íÁöµ¿ 3593-1 2Ãþ206È£ ö±ÙÄÜÅ©¸®Æ®±¸Á¶ 120.56§³ (36.47Æò)  
ÁøÇà    
 2026-02-03 À¯Âû (100%) 661,000,000¿ø 
 2026-03-10 À¯Âû (70%) 462,700,000¿ø 
 2026-04-14 À¯Âû (49%) 323,890,000¿ø 
 2026-05-19 À¯Âû (34%) 226,723,000¿ø 

  °¨Á¤Æò°¡¼­ ¿ä¾à
[À§Ä¡/ÁÖÀ§È¯°æ] º»°ÇÀº ºÎ»ê±¤¿ª½Ã °­¼­±¸ ¸íÁöµ¿ ¼ÒÀç ¡®ºÎ»êÁö¹æ¹ý¿ø ¼­ºÎÁö¿ø¡¯ ³²¼­Ãø Àαٿ¡ À§Ä¡ÇÏ¸ç ºÎ±ÙÀº ±Ù¸°»ýȰ½Ã¼³ µîÀ¸·Î Çü¼ºµÇ¾î ÀÖÀ½.
[±³Åë»óȲ] º»°Ç±îÁö Â÷·®Á¢±Ù °¡´ÉÇϸç, Àαٿ¡ ½Ã³»¹ö½ºÁ¤·ùÀå ¼ÒÀçÇÏ´Â µî Á¦¹Ý ±³Åë»óȲ º¸ÅëÀÓ.
[°Ç¹°±¸Á¶] 2019.10.15 »ç¿ë½ÂÀÎµÈ Ã¶±ÙÄÜÅ©¸®Æ®±¸Á¶ ö±ÙÄÜÅ©¸®Æ®ÁöºØ ÁöÇÏ2Ãþ Áö»ó10Ãþ °Ç ³» 2Ãþ 206È£·Î¼­, ¿Üº® : ¸ôÅ» À§ ÆäÀÎÆÃ ¸¶°¨ µî, âȣ : ¼¦½ÃâȣÀÓ.
[ÀÌ¿ë»óÅÂ] °øºÎ ¹× ÇöȲ ±Ù¸°»ýȰ½Ã¼³ÀÓ.
[¼³ºñ³»¿ª] °ø¿ë À§»ý ¹× ±Þ¹è¼ö¼³ºñ, ½Â°­±â¼³ºñ, ¼Ò¹æ¼³ºñ µî µÇ¾î ÀÖÀ½.
[ÅäÁöÇü»ó/ÀÌ¿ë»óÅÂ] ÀÎÁ¢Áö ´ëºñ ´ëü·Î ÆòźÇÑ °¡°¢ÀüÁ¦µÈ °¡ÀåÇüÀÇ ÅäÁö·Î¼­, »ó¾÷¿ë °ÇºÎÁö·Î ÀÌ¿ëÁßÀÓ.
7)ÀÎÁ¢ µµ·Î»óÅÂµî °ø·Î¿¡ Á¢ÇÏ¿© Â÷·® µî ÁøÃâÀÔ °¡´ÉÇϸç, °Ç¹° ³» ÁÖÂ÷½Ã¼³ µÇ¾î ÀÖÀ½.
[ÅäÁöÀÌ¿ë°èȹ] µµ½ÃÁö¿ª, ÀϹݻó¾÷Áö¿ª(2024-01-10), Áö±¸´ÜÀ§°èȹ±¸¿ª, ´ë·Î2·ù(Æø 30m~35m)(2024-01-10)(´ë·Î 2-107È£)(Á¢ÇÕ), Áß·Î1·ù(Æø 20m~25m)(Á¢ÇÕ), Áß·Î2·ù(Æø 15m~20m)(Á¢ÇÕ) °æÁ¦ÀÚÀ¯±¸¿ª(ºÎ»êÁøÇذæÁ¦ÀÚÀ¯±¸¿ª)£¼°æÁ¦ÀÚÀ¯±¸¿ªÀÇ ÁöÁ¤ ¹× ¿î¿µ¿¡ °üÇÑ Æ¯º°¹ý£¾, ¿ª»ç¹®È­È¯°æº¸Á¸Áö¿ª£¼ºÎ»ê±¤¿ª½ÃÁöÁ¤¹®È­À纸ȣÁ¶·Ê£¾ ÁßÁ¡°æ°ü°ü¸®±¸¿ª(¸íÁö½Åµµ½Ã ÀÏ¿ø ÁßÁ¡°æ°ü°ü¸®±¸¿ª).
[°øºÎ¿ÍÀÇ Â÷ÀÌ] ¾øÀ½. [Âü°í»çÇ×] ÀÓ´ë°ü°è ¹Ì»óÀÌ¸ç ±âŸ Àǰ߶õ ÂüÁ¶.
  °ÇÃ๰ÇöȲ
¼ÒÀçÁö  ºÎ»ê±¤¿ª½Ã °­¼­±¸ ¸íÁöµ¿ 3593-1¹øÁö
´ëÁö¸éÀû  2539§³(769.39Æò) ¿¬¸éÀû  18344.1491§³(5558.83Æò) ÁÖ¿ëµµ  ÀÇ·á½Ã¼³
°ÇÃà¸éÀû  1515.0088§³(459.09Æò) ¿ëÀû·ü»êÁ¤¿¬¸éÀû  13724.3641§³(4158.9Æò) Âø°øÀÏÀÚ  2018.04.10
°ÇÆóÀ²  59.67% ¿ëÀû·ü  540.54% »ç¿ë½ÂÀÎÀÏÀÚ  2019.10.15
Áö»óÃþ¼ö  10Ãþ ÁöÇÏÃþ¼ö  2Ãþ ±¸Á¶  Ã¶±ÙÄÜÅ©¸®Æ®±¸Á¶
°ÇÃ๰Ãþº°ÇöȲ [º¸±â]
ÀÓÂ÷³»¿ª [¹è´ç¿ä±¸Á¾±âÀÏ : 2025/07/07]
ÀÓÂ÷ÀÎ Á¡À¯°ü°è ÀüÀÔÀÏÀÚ È®Á¤ÀÏÀÚ ¹è´ç¿ä±¸ÀÏ º¸Áõ±Ý/Â÷ÀÓ ´ëÇ׿ä°Ç ºñ°í
Á¶»çµÈ ÀÓÂ÷³»¿ªÀÌ ¾ø½À´Ï´Ù.
Áö¿ªºÐ¼®    
ÁöÇÏö Çб³
°ü°ø¼­
¹ý¿ø ºÎ»êÁö¹æ¹ý¿ø ¼­ºÎÁö¿ø (467-26)ºÎ»ê±¤¿ª½Ã °­¼­±¸ ¸íÁö±¹Á¦7·Î 77 (¸íÁöµ¿)
´ëÇ¥ : 051)812-1114~5
¼­±¸, ºÏ±¸, »ç»ó±¸, »çÇϱ¸, °­¼­±¸
µî±â¼Ò ºÎ»êÁö¹æ¹ý¿ø ¼­ºÎÁö¿ø µî±â°ú (´ëÇ¥:1544-0773, ÆÑ½º:(051)812-1350, ºÎ»ê °­¼­±¸ ¸íÁö±¹Á¦ 7·Î 77 (¸íÁöµ¿ 2261))
¼¼¹«¼­ ºÏºÎ»ê¼¼¹«¼­ (´ëÇ¥:051-310-62, ÆÑ½º:051-310-6549, ºÎ»ê±¤¿ª½Ã »ç»ó±¸ Çа¨´ë·Î 263(°¨Àüµ¿))
¹ý¿ø ¹°°ÇÀÚ·á ¿ä¾à    
¼Ò¸êµÇÁö ¾Ê´Â µî±âºÎ±Ç¸®
¼³Á¤µÈ °ÍÀ¸·Î º¸´Â Áö»ó±Ç
¹ý¿øÀÚ·á Æ¯ÀÌ»çÇ×
[ÁÖ¿ä ¹®°Ç Á¢¼ö ³»¿ª]
[¸Å°¢¹°°Ç¸í¼¼¼­ ºñ°í¶õ]
°øºÎ ¹× ÇöȲ ±Ù¸°»ýȰ½Ã¼³ÀÓ.
[ºÎµ¿»ê ÇöȲÁ¶»ç¼­ ºñ°í¶õ]
ÇöÀç °ø½ÇÀÓ
¿©ÀÇÁÖ°æ¸Å Á¶¾ð ÇѸ¶µð
ÀÌ ºÎµ¿»êÀÇ ÀÔÂû¹ý¿øÀº ºÎ»êÁö¹æ¹ý¿ø ºÎ»ê¼­ºÎÁö¿øÀÔ´Ï´Ù.
ÀÔÂûÀÏÀº 2026-05-19ÀÔ´Ï´Ù. ÀÔÂû½Ã°£Àº ~11:20ÀÔ´Ï´Ù. ÀÌ ¹ý¿ø¿¡´Â ºÎ»êÀºÇàÀÌ ÀÔÁ¡Çϰí ÀÖ½À´Ï´Ù.
Àα٠ºÎµ¿»ê°æ¸Å ³«ÂûÅë°è
Åë°è±â°£ ³«Âû¹°°Ç¼ö Æò±Õ°¨Á¤°¡ Æò±Õ³«Âû°¡ ³«Âû°¡À² À¯ÂûȽ¼ö
3°³¿ù 0°Ç 0¿ø 0¿ø 0% 0ȸ
6°³¿ù 13°Ç 805,336,385¿ø 368,642,354¿ø 47% 3.7ȸ
12°³¿ù 20°Ç 826,126,020¿ø 394,840,430¿ø 46% 3.7ȸ
¹«·á »ó´ãÀüÈ­ 1566-3370 ===> »ç°Ç¹øÈ£ : 2025 Ÿ°æ 101315 (ºÎ»êÁö¹æ¹ý¿ø ºÎ»ê¼­ºÎÁö¿ø)¸¦ ¸»¾¸ÇØ ÁÖ¼¼¿ä.
[¾È³»] Ȥ½Ã ÀÌ¿ëÀÌ ºÒÆíÇϽðųª »èÁ¦ÇÒ ³»¿ëÀÌ ÀÖ´Ù¸é ÃÖ´ëÇÑ ³ë·ÂÇØ¼­ °³¼±ÇØ ³ª°¡µµ·Ï ÇϰڽÀ´Ï´Ù.

ÀÌ »çÀÌÆ®¿¡¼­ Á¦°øµÇ´Â ºÎµ¿»ê°æ¸Å ÀÚ·á´Â ¹ý¿ø °æ¸Å°è¿¡¼­ ó¸®Çϰí ÀÖ´Â ½ÇÁ¦ ¹°°ÇÀÇ Á¤º¸¿Í ÀÏÄ¡ÇÏÁö ¾ÊÀ» ¼öµµ ÀÖ½À´Ï´Ù.
´ç»ç´Â º» ÀÚ·á¿¡ °üÇÏ¿© Á¤½Ä ÄÁ¼³ÆÃ ÀÇ·Ú°¡ ¾Æ´Ñ ÀÌ»ó ¾î¶°ÇÑ º¸Áõµµ ÇÏÁö ¾ÊÀ¸¸ç ¹ýÀû Ã¥ÀÓÀ» ÁöÁö ¾Ê½À´Ï´Ù.
ÀÔÂûÇϱâ Àü¿¡ ²Ä²ÄÈ÷ ¹ý¿ø¿¡ ºñÄ¡µÈ ¸Å°¢¹°°Ç¸í¼¼¼­ ¹× ±âŸ °øºÎ¸¦ ÀçÈ®ÀÎÇϽðí ÀÔÂû¿¡ Âü°¡ÇÏ½Ã±æ ¹Ù¶ø´Ï´Ù.